Двухэтажный дом 14x11 - 158.8 м2 за руб.

ID-112602

Стоимость дома 6020000 руб.
154 м2 Полезная
площадь
14 x 11 м Размеры
2 этажа Этажей
26 м2 Террасы
и балконы
1Без
гаража
4 Количество
спален
3 Количество
санузлов

Планировки

План первого этажа

floor image
  • 1. Прихожая 3,60 m²
  • 2. Гардероб 3,40 m²
  • 3. Туалет 1,70 m²
  • 4. Холл 8,50 m²
  • 5. Лестница 4,10 m²
  • 6. Комната 11,70 m²
  • 7. Ванная комната 3,30 m²
  • 8. Гостиная 28,90 m²
  • 9. Кухня + кладовая 12,70 m²
  • 10. Котельная 6,10 m²
  • 11. Гараж на 1 машину 20 m²
  • План первого этажа 104 m²

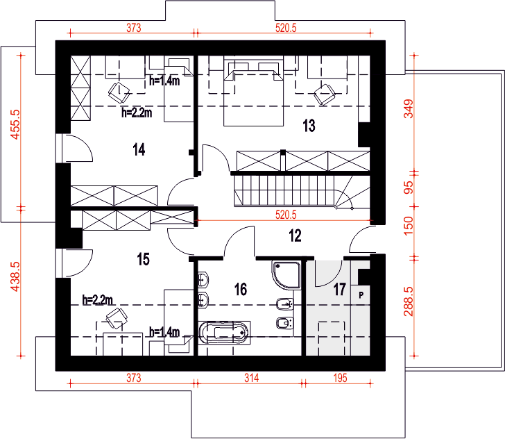
План мансарды

floor image
  • 1. Холл 8,70 m²
  • 2. Комната 12,20 m² (17,60 m²)
  • 3. Комната 12,90 m² (16,70 m²)
  • 4. Комната 12 m² (15,90 m²)
  • 5. Ванная комната 5,70 m² (8,90 m²)
  • 6. Кладовая 3,30 m² (5,30 m²)
  • План мансарды 54,80 m²

Разрезы

Вертикальный разрез
Вертикальный разрез

Фасады

Передний
Задний
Левый
Правый
Передний
Задний
Левый
Правый

Подробная информация

Жилая площадь
129,40 m²
icon

Сумма площади всех жилых помещений, за вычетом пов. гараж, котельная, чердак, подвал. Учитывается в 100%, для помещений высотой более 2,2 м, в 50% для помещений с высотой 2,2-1,4 м и не включается для более низких помещений (меньше 1,4 м).

Площадь застройки
132,40 m²
icon

Площадь застройки здания определяется как площадь горизонтального сечения по внешнему обводу здания на уровне цоколя, включая выступающие части.

Площадь нетто
177,10 m²
icon

Площадь всех помещений в здании, измеренная на высоте пола.

Площадь крыши
185,50 m²
icon

Угол наклона крыши
40°
icon

Наклон ската крыши в градусах. Внимание! В некоторых проектах возникает более чем один наклон крыши.

Высота здания
8,80 m
icon

Высота измеряется от поверхности земли до самой высокой точки кровли (конька), за исключением дымоходов.

Мин. ширина участка
21,60 m
icon

Наименьшая возможная ширина участка, необходимая для строительства выбранного дома. Состоит из длины фасада дома плюс с обеих сторон три метра отступ.

Мин. длина участка
19 m
icon

Наименьшая возможная длина участка, необходимая для строительства выбранного дома. Состоит из длины фасада дома плюс с обеих сторон три метра отступ.

Материалы и опции
Общие
Количество спален
4
Ежемесячный платёж, руб
Гараж
1
Количество санузлов
3
Ширина
14
Глубина
11
Тип крыши

Площади дома

№ п/п Наименование Ед. из. Строительная площадь Полезная площадь
1 1 этаж м2 128.16 104
2 2 этаж м2 67.53 54.8
3 Итого м2 195.69 158.8

Калькулятор опций

0

В ипотеку от 19 890 ₽/мес.

Фундамент
stdClass Object ( [id] => 1 [attribute_id] => 1 [name] => Ленточный монолитный ж/б [material_modifier] => 1 [work_modifier] => 1 [options] => Array ( [0] => размер 200 х 700 мм [1] => размер 300 х 900 мм [2] => размер 400 х 1 000 мм [3] => размер 500 х 1 100 мм [4] => размер 600 х 1 200 мм ) [days] => [20,21,22,25,30] [material_price] => [2823,3630,4475,5210,12047] [work_price] => [2154,2826,3731,4577,5293] [image] => https://akademik-stroy.ru/wp-content/uploads/materials/lentochnyj-monolitnyj-zh-b.jpg [area_modifier] => 128.16 [parent_name] => Фундамент [parent_id] => 1 [material_sum] => 477570 [work_sum] => 303662 [total_sum] => 781232 [total_days] => 20 [display_material_sum] => 477 570 [display_work_sum] => 303 662 [display_total_sum] => 781 232 ) 1
781 232
Работа:303 662
Материалы:477 570
Дни:20
stdClass Object ( [id] => 2 [attribute_id] => 1 [name] => Забивные Ж/Б сваи [material_modifier] => 1 [work_modifier] => 1 [options] => Array ( [0] => 150х150х3000мм [1] => 150х150х4000мм [2] => 200х200х3000мм [3] => 200х200х4000мм [4] => 200х200х5000мм [5] => 200х200х6000мм ) [days] => [2,2,2,2,2,2] [material_price] => [1990,2850,3255,4360,5120,6837] [work_price] => [1002,1185,1336,1438,1574,1839] [image] => https://akademik-stroy.ru/wp-content/uploads/materials/zabivnye-zh-b-svai.png [area_modifier] => 128.16 [parent_name] => Фундамент [parent_id] => 1 [material_sum] => 336651 [work_sum] => 141258 [total_sum] => 477909 [total_days] => 2 [display_material_sum] => 336 651 [display_work_sum] => 141 258 [display_total_sum] => 477 909 ) 1
477 909
Работа:141 258
Материалы:336 651
Дни:2
stdClass Object ( [id] => 71 [attribute_id] => 1 [name] => Свайно-ростверковый ж/б [material_modifier] => 1 [work_modifier] => 1 [options] => Array ( [0] => ростверк 200х300 мм [1] => ростверк 300х600 мм [2] => ростверк 400х900 мм [3] => ростверк 500х1200 мм ) [days] => [20,23,25,27] [material_price] => [3018,3474,7109,9792] [work_price] => [2024,3012,5635,7022] [image] => https://akademik-stroy.ru/wp-content/uploads/materials/svajno-rostverkovyj-monolitnyj-zh-b-3.png [area_modifier] => 128.16 [parent_name] => Фундамент [parent_id] => 1 [material_sum] => 510559 [work_sum] => 285335 [total_sum] => 795894 [total_days] => 20 [display_material_sum] => 510 559 [display_work_sum] => 285 335 [display_total_sum] => 795 894 ) 1
795 894
Работа:285 335
Материалы:510 559
Дни:20
stdClass Object ( [id] => 72 [attribute_id] => 1 [name] => Монолитная ж/б плита [material_modifier] => 1 [work_modifier] => 1 [options] => Array ( [0] => 200 мм [1] => 300 мм [2] => 400 мм [3] => 500 мм [4] => 600 мм ) [days] => [30,33,35,37,40] [material_price] => [5348,8555,12788,14388,15189] [work_price] => [4314,4881,7037,8061,10230] [image] => https://akademik-stroy.ru/wp-content/uploads/materials/monolitnaya-zhb-plita.png [area_modifier] => 128.16 [parent_name] => Фундамент [parent_id] => 1 [material_sum] => 904728 [work_sum] => 608170 [total_sum] => 1512898 [total_days] => 30 [display_material_sum] => 904 728 [display_work_sum] => 608 170 [display_total_sum] => 1 512 898 ) 1
1 512 898
Работа:608 170
Материалы:904 728
Дни:30
stdClass Object ( [id] => 73 [attribute_id] => 1 [name] => Утепленная шведская плита [material_modifier] => 1 [work_modifier] => 1 [options] => Array ( [0] => 200 мм [1] => 300 мм [2] => 400 мм [3] => 500 мм [4] => 600 мм ) [days] => [32,37,39,42,45] [material_price] => [10249,12692,13760,14936,16230] [work_price] => [5960,7337,8072,8878,9765] [image] => https://akademik-stroy.ru/wp-content/uploads/materials/uteplennaya-shvedskaya-plita.jpg [area_modifier] => 128.16 [parent_name] => Фундамент [parent_id] => 1 [material_sum] => 1733836 [work_sum] => 840217 [total_sum] => 2574053 [total_days] => 32 [display_material_sum] => 1 733 836 [display_work_sum] => 840 217 [display_total_sum] => 2 574 053 ) 1
2 574 053
Работа:840 217
Материалы:1 733 836
Дни:32
stdClass Object ( [id] => 75 [attribute_id] => 1 [name] => Ленточный из ФБС [material_modifier] => 1 [work_modifier] => 1 [options] => Array ( [0] => толщ. 300 мм [1] => толщ. 400 мм [2] => толщ. 500 мм [3] => толщ. 600 мм ) [days] => [20,20,20,20] [material_price] => [3675,4902,6126,7350] [work_price] => [2451,3264,4083,4902] [image] => https://akademik-stroy.ru/wp-content/uploads/materials/lentochnyj-iz-fbs.png [area_modifier] => 128.16 [parent_name] => Фундамент [parent_id] => 1 [material_sum] => 621704 [work_sum] => 345532 [total_sum] => 967236 [total_days] => 20 [display_material_sum] => 621 704 [display_work_sum] => 345 532 [display_total_sum] => 967 236 ) 1
967 236
Работа:345 532
Материалы:621 704
Дни:20
stdClass Object ( [id] => 76 [attribute_id] => 1 [name] => Цокольный этаж из ФБС [material_modifier] => 1 [work_modifier] => 1 [options] => Array ( [0] => толщ. 300 мм [1] => толщ. 400 мм [2] => толщ. 500 мм [3] => толщ. 600 мм ) [days] => [30,32,34,36] [material_price] => [20916,23299,26680,29060] [work_price] => [17524,18700,19873,21046] [image] => https://akademik-stroy.ru/wp-content/uploads/materials/cokolnyj-ehtazh-iz-fbs.jpg [area_modifier] => 128.16 [parent_name] => Фундамент [parent_id] => 1 [material_sum] => 3538385 [work_sum] => 2470463 [total_sum] => 6008848 [total_days] => 30 [display_material_sum] => 3 538 385 [display_work_sum] => 2 470 463 [display_total_sum] => 6 008 848 ) 1
6 008 848
Работа:2 470 463
Материалы:3 538 385
Дни:30
stdClass Object ( [id] => 77 [attribute_id] => 1 [name] => Цокольный этаж монолитный ж/б [material_modifier] => 1 [work_modifier] => 1 [options] => Array ( [0] => толщ. 200 мм [1] => толщ. 300 мм [2] => толщ. 400 мм [3] => толщ. 500 мм [4] => толщ. 600 мм ) [days] => [40,42,44,46,48] [material_price] => [25421,29148,32275,35602,37326] [work_price] => [20441,21907,23375,24841,26306] [image] => https://akademik-stroy.ru/wp-content/uploads/materials/cokolnyj-etazh-zh-b.jpg [area_modifier] => 128.16 [parent_name] => Фундамент [parent_id] => 1 [material_sum] => 4300501 [work_sum] => 2881690 [total_sum] => 7182191 [total_days] => 40 [display_material_sum] => 4 300 501 [display_work_sum] => 2 881 690 [display_total_sum] => 7 182 191 ) 1
7 182 191
Работа:2 881 690
Материалы:4 300 501
Дни:40
stdClass Object ( [id] => 191 [attribute_id] => 1 [name] => Винтовые сваи [material_modifier] => 1 [work_modifier] => 1 [options] => Array ( [0] => 57х200мм [1] => 76х250мм [2] => 108х300мм [3] => 133х350мм ) [days] => [1,1,2,2] [material_price] => [1200,1300,1450,1600] [work_price] => [400,600,900,1100] [image] => https://akademik-stroy.ru/wp-content/uploads/materials/vintovye-svai.png [area_modifier] => 128.16 [parent_name] => Фундамент [parent_id] => 1 [material_sum] => 203005 [work_sum] => 56390 [total_sum] => 259395 [total_days] => 1 [display_material_sum] => 203 005 [display_work_sum] => 56 390 [display_total_sum] => 259 395 ) 1
259 395
Работа:56 390
Материалы:203 005
Дни:1
Перекрытие цоколя
stdClass Object ( [id] => 3 [attribute_id] => 2 [name] => Деревянные балки [material_modifier] => 1 [work_modifier] => 1 [options] => Array ( [0] => без утепления [1] => утепление 200 мм [2] => утепление 250 мм [3] => утепление 300 мм [4] => утепление 350 мм [5] => утепление 400 мм [6] => утепление 450 мм [7] => утепление 500 мм ) [days] => [8,9,9,9,11,12,13,14] [material_price] => [1634,2042,2344,2947,3149,3652,3354,3557] [work_price] => [1230,1339,1393,1426,1460,1513,1587,1620] [image] => https://akademik-stroy.ru/wp-content/uploads/materials/derevyannye-balki.png [area_modifier] => 128.16 [parent_name] => Перекрытие цоколя [parent_id] => 2 [material_sum] => 276426 [work_sum] => 173400 [total_sum] => 449826 [total_days] => 8 [display_material_sum] => 276 426 [display_work_sum] => 173 400 [display_total_sum] => 449 826 ) 1
449 826
Работа:173 400
Материалы:276 426
Дни:8
stdClass Object ( [id] => 4 [attribute_id] => 2 [name] => Сборные ж/б плиты [material_modifier] => 1 [work_modifier] => 1 [options] => Array ( [0] => без утепления [1] => утепление 150мм [2] => утепление 200мм [3] => утепление 250мм [4] => утепление 300мм [5] => утепление 350мм [6] => утепление 400мм [7] => утепление 450мм [8] => утепление 500мм ) [days] => [13,15,15,15,15,15,15,15,15] [material_price] => [3067,5577,5928,6679,7730,8782,9833,10884,11935] [work_price] => [1520,1956,2102,2247,2392,2537,2684,2829,2974] [image] => https://akademik-stroy.ru/wp-content/uploads/materials/sbornye-zh-b-plity-2.jpg [area_modifier] => 128.16 [parent_name] => Перекрытие цоколя [parent_id] => 2 [material_sum] => 518848 [work_sum] => 214284 [total_sum] => 733132 [total_days] => 13 [display_material_sum] => 518 848 [display_work_sum] => 214 284 [display_total_sum] => 733 132 ) 1
733 132
Работа:214 284
Материалы:518 848
Дни:13
stdClass Object ( [id] => 78 [attribute_id] => 2 [name] => Монолитная ж/б плита [material_modifier] => 1 [work_modifier] => 1 [options] => Array ( [0] => без утепления [1] => утепление 150 мм [2] => утепление 200 мм [3] => утепление 250 мм [4] => утепление 300 мм [5] => утепление 350 мм [6] => утепление 400 мм [7] => утепление 450 мм [8] => утепление 500 мм ) [days] => [18,20,20,20,20,20,20,20,20] [material_price] => [4837,6572,7224,7375,79426,8177,8728,9180,10031] [work_price] => [3348,3921,4112,4302,4493,4684,4875,5066,5256] [image] => https://akademik-stroy.ru/wp-content/uploads/materials/monolitnaya-zh-b-plita-2.jpg [area_modifier] => 128.16 [parent_name] => Перекрытие цоколя [parent_id] => 2 [material_sum] => 818281 [work_sum] => 471988 [total_sum] => 1290269 [total_days] => 18 [display_material_sum] => 818 281 [display_work_sum] => 471 988 [display_total_sum] => 1 290 269 ) 1
1 290 269
Работа:471 988
Материалы:818 281
Дни:18
Стены 1 этаж (несущие)
stdClass Object ( [id] => 6 [attribute_id] => 3 [name] => Пеноблок [material_modifier] => 1 [work_modifier] => 1 [options] => Array ( [0] => 300 мм [1] => 400 мм [2] => 500 мм [3] => 600 мм ) [days] => [29,31,34,39] [material_price] => [3000,4000,4500,4937] [work_price] => [5033,5805,6400,8710] [image] => https://akademik-stroy.ru/wp-content/uploads/materials/penoblok.jpg [area_modifier] => 128.16 [parent_name] => Стены 1 этаж (несущие) [parent_id] => 3 [material_sum] => 507514 [work_sum] => 709532 [total_sum] => 1217046 [total_days] => 29 [display_material_sum] => 507 514 [display_work_sum] => 709 532 [display_total_sum] => 1 217 046 ) 1
1 217 046
Работа:709 532
Материалы:507 514
Дни:29
stdClass Object ( [id] => 79 [attribute_id] => 3 [name] => Керамический блок [material_modifier] => 1 [work_modifier] => 1 [options] => Array ( [0] => 380 мм [1] => 380 мм Thermo [2] => 440 мм [3] => 510 мм ) [days] => [23,23,24,25] [material_price] => [4510,5098,6093,8013] [work_price] => [4737,4937,5903,6958] [image] => https://akademik-stroy.ru/wp-content/uploads/materials/keramicheskij-blok.jpg [area_modifier] => 128.16 [parent_name] => Стены 1 этаж (несущие) [parent_id] => 3 [material_sum] => 762962 [work_sum] => 667803 [total_sum] => 1430765 [total_days] => 23 [display_material_sum] => 762 962 [display_work_sum] => 667 803 [display_total_sum] => 1 430 765 ) 1
1 430 765
Работа:667 803
Материалы:762 962
Дни:23
stdClass Object ( [id] => 80 [attribute_id] => 3 [name] => Кирпич [material_modifier] => 1 [work_modifier] => 1 [options] => Array ( [0] => Кирпич 250 мм [1] => Кирпич 380 мм [2] => Кирпич 510 мм [3] => Кирпич 640 мм [4] => Кирпич 770 мм ) [days] => [30,30,31,33,36] [material_price] => [5500,7142,9206,10171,12235] [work_price] => [8736,10041,12018,15240,18462] [image] => https://akademik-stroy.ru/wp-content/uploads/materials/kirpich.jpg [area_modifier] => 128.16 [parent_name] => Стены 1 этаж (несущие) [parent_id] => 3 [material_sum] => 930442 [work_sum] => 1231566 [total_sum] => 2162008 [total_days] => 30 [display_material_sum] => 930 442 [display_work_sum] => 1 231 566 [display_total_sum] => 2 162 008 ) 1
2 162 008
Работа:1 231 566
Материалы:930 442
Дни:30
stdClass Object ( [id] => 81 [attribute_id] => 3 [name] => Монолитные [material_modifier] => 1 [work_modifier] => 1 [options] => Array ( [0] => 150 мм [1] => 200 мм [2] => 250 мм [3] => 300 мм [4] => 350 мм [5] => 400 мм ) [days] => [45,46,47,49,50,53] [material_price] => [6545,7876,10175,12011,13908,15204] [work_price] => [5106,6444,7698,8552,9807,11461] [image] => https://akademik-stroy.ru/wp-content/uploads/materials/monolitnye.jpg [area_modifier] => 128.16 [parent_name] => Стены 1 этаж (несущие) [parent_id] => 3 [material_sum] => 1107226 [work_sum] => 719823 [total_sum] => 1827049 [total_days] => 45 [display_material_sum] => 1 107 226 [display_work_sum] => 719 823 [display_total_sum] => 1 827 049 ) 1
1 827 049
Работа:719 823
Материалы:1 107 226
Дни:45
stdClass Object ( [id] => 82 [attribute_id] => 3 [name] => Клееный брус [material_modifier] => 1 [work_modifier] => 1 [options] => Array ( [0] => 160 мм [1] => 175 мм [2] => 200 мм [3] => 215 мм [4] => 240 мм [5] => 270 мм [6] => 282 мм ) [days] => [24,28,32,37,40,42,48] [material_price] => [16975,18773,19950,20545,21599,22159,23275] [work_price] => [4806,5287,5815,6397,7036,7740,8514] [image] => https://akademik-stroy.ru/wp-content/uploads/materials/kleenyj-brus.jpg [area_modifier] => 128.16 [parent_name] => Стены 1 этаж (несущие) [parent_id] => 3 [material_sum] => 2871681 [work_sum] => 677531 [total_sum] => 3549212 [total_days] => 24 [display_material_sum] => 2 871 681 [display_work_sum] => 677 531 [display_total_sum] => 3 549 212 ) 1
3 549 212
Работа:677 531
Материалы:2 871 681
Дни:24
stdClass Object ( [id] => 83 [attribute_id] => 3 [name] => Каркасные [material_modifier] => 1 [work_modifier] => 1 [options] => Array ( [0] => 150 мм [1] => 200 мм [2] => 250 мм [3] => 300 мм ) [days] => [15,16,17,18] [material_price] => [2379,2639,2898,3258] [work_price] => [2418,2686,2985,3716] [image] => https://akademik-stroy.ru/wp-content/uploads/materials/karkasnye.jpg [area_modifier] => 128.16 [parent_name] => Стены 1 этаж (несущие) [parent_id] => 3 [material_sum] => 402458 [work_sum] => 340880 [total_sum] => 743338 [total_days] => 15 [display_material_sum] => 402 458 [display_work_sum] => 340 880 [display_total_sum] => 743 338 ) 1
743 338
Работа:340 880
Материалы:402 458
Дни:15
stdClass Object ( [id] => 84 [attribute_id] => 3 [name] => СИП-панели [material_modifier] => 1 [work_modifier] => 1 [options] => Array ( [0] => 120 мм [1] => 170 мм [2] => 220 мм ) [days] => [7,7,7] [material_price] => [1210,1856,2292] [work_price] => [1410,1551,1706] [image] => https://akademik-stroy.ru/wp-content/uploads/materials/sip-paneli.jpg [area_modifier] => 128.16 [parent_name] => Стены 1 этаж (несущие) [parent_id] => 3 [material_sum] => 204697 [work_sum] => 198776 [total_sum] => 403473 [total_days] => 7 [display_material_sum] => 204 697 [display_work_sum] => 198 776 [display_total_sum] => 403 473 ) 1
403 473
Работа:198 776
Материалы:204 697
Дни:7
stdClass Object ( [id] => 85 [attribute_id] => 3 [name] => Сухой брус [material_modifier] => 1 [work_modifier] => 1 [options] => Array ( [0] => 150 мм [1] => 180 мм [2] => 200 мм ) [days] => [7,8,9] [material_price] => [6010,7190,8709] [work_price] => [3204,3845,4229] [image] => https://akademik-stroy.ru/wp-content/uploads/materials/suhoj-brus.jpg [area_modifier] => 128.16 [parent_name] => Стены 1 этаж (несущие) [parent_id] => 3 [material_sum] => 1016719 [work_sum] => 451687 [total_sum] => 1468406 [total_days] => 7 [display_material_sum] => 1 016 719 [display_work_sum] => 451 687 [display_total_sum] => 1 468 406 ) 1
1 468 406
Работа:451 687
Материалы:1 016 719
Дни:7
stdClass Object ( [id] => 86 [attribute_id] => 3 [name] => Профилированный брус [material_modifier] => 1 [work_modifier] => 1 [options] => Array ( [0] => 150 мм [1] => 180 мм [2] => 200 мм ) [days] => [7,8,9] [material_price] => [8190,9228,10051] [work_price] => [3845,4614,5075] [image] => https://akademik-stroy.ru/wp-content/uploads/materials/profilirovannyj-brus.jpg [area_modifier] => 128.16 [parent_name] => Стены 1 этаж (несущие) [parent_id] => 3 [material_sum] => 1385512 [work_sum] => 542053 [total_sum] => 1927565 [total_days] => 7 [display_material_sum] => 1 385 512 [display_work_sum] => 542 053 [display_total_sum] => 1 927 565 ) 1
1 927 565
Работа:542 053
Материалы:1 385 512
Дни:7
stdClass Object ( [id] => 87 [attribute_id] => 3 [name] => Оцилиндрованное бревно [material_modifier] => 1 [work_modifier] => 1 [options] => Array ( [0] => 180 мм [1] => 220 мм [2] => 260 мм [3] => 320 мм ) [days] => [7,8,9,10] [material_price] => [75190,9532,10868,13116] [work_price] => [3845,4691,5535,6863] [image] => https://akademik-stroy.ru/wp-content/uploads/materials/ocilindrovannoe-brevno-1.jpg [area_modifier] => 128.16 [parent_name] => Стены 1 этаж (несущие) [parent_id] => 3 [material_sum] => 12719983 [work_sum] => 542053 [total_sum] => 13262036 [total_days] => 7 [display_material_sum] => 12 719 983 [display_work_sum] => 542 053 [display_total_sum] => 13 262 036 ) 1
13 262 036
Работа:542 053
Материалы:12 719 983
Дни:7
stdClass Object ( [id] => 88 [attribute_id] => 3 [name] => Срубы [material_modifier] => 1 [work_modifier] => 1 [options] => Array ( [0] => 260 мм [1] => 320 мм [2] => 360 мм [3] => 400 мм [4] => 500 мм ) [days] => [7,8,9,10,11] [material_price] => [37975,46709,52314,58069,73167] [work_price] => [4806,5911,6621,7349,9260] [image] => https://akademik-stroy.ru/wp-content/uploads/materials/sruby.jpg [area_modifier] => 128.16 [parent_name] => Стены 1 этаж (несущие) [parent_id] => 3 [material_sum] => 6424276 [work_sum] => 677531 [total_sum] => 7101807 [total_days] => 7 [display_material_sum] => 6 424 276 [display_work_sum] => 677 531 [display_total_sum] => 7 101 807 ) 1
7 101 807
Работа:677 531
Материалы:6 424 276
Дни:7
stdClass Object ( [id] => 174 [attribute_id] => 3 [name] => Брус [material_modifier] => 1 [work_modifier] => 1 [options] => Array ( [0] => 150 мм [1] => 180 мм [2] => 200 мм ) [days] => [7,8,9] [material_price] => [5127,6152,7367] [work_price] => [1602,1922,2115] [image] => https://akademik-stroy.ru/wp-content/uploads/materials/brus.jpg [area_modifier] => 128.16 [parent_name] => Стены 1 этаж (несущие) [parent_id] => 3 [material_sum] => 867341 [work_sum] => 225844 [total_sum] => 1093185 [total_days] => 7 [display_material_sum] => 867 341 [display_work_sum] => 225 844 [display_total_sum] => 1 093 185 ) 1
1 093 185
Работа:225 844
Материалы:867 341
Дни:7
stdClass Object ( [id] => 175 [attribute_id] => 3 [name] => Газобетон [material_modifier] => 1 [work_modifier] => 1 [options] => Array ( [0] => 300 мм [1] => 375 мм [2] => 400 мм [3] => 500 мм [4] => 600 мм ) [days] => [29,31,35,37,44] [material_price] => [4298,5573,6356,7288,9119] [work_price] => [4538,5251,5926,6733,7195] [image] => https://akademik-stroy.ru/wp-content/uploads/materials/gazobeton.jpg [area_modifier] => 128.16 [parent_name] => Стены 1 этаж (несущие) [parent_id] => 3 [material_sum] => 727098 [work_sum] => 639749 [total_sum] => 1366847 [total_days] => 29 [display_material_sum] => 727 098 [display_work_sum] => 639 749 [display_total_sum] => 1 366 847 ) 1
1 366 847
Работа:639 749
Материалы:727 098
Дни:29
stdClass Object ( [id] => 176 [attribute_id] => 3 [name] => Блок [material_modifier] => 1 [work_modifier] => 1 [options] => Array ( [0] => 300 мм [1] => 375 мм [2] => 400 мм [3] => 500 мм [4] => 600 мм ) [days] => [29,31,35,37,44] [material_price] => [2698,3973,4356,6588,7119] [work_price] => [5038,5851,6426,8733,9195] [image] => https://akademik-stroy.ru/wp-content/uploads/materials/blok.jpg [area_modifier] => 128.16 [parent_name] => Стены 1 этаж (несущие) [parent_id] => 3 [material_sum] => 456424 [work_sum] => 710237 [total_sum] => 1166661 [total_days] => 29 [display_material_sum] => 456 424 [display_work_sum] => 710 237 [display_total_sum] => 1 166 661 ) 1
1 166 661
Работа:710 237
Материалы:456 424
Дни:29
stdClass Object ( [id] => 177 [attribute_id] => 3 [name] => Газосиликатный блок [material_modifier] => 1 [work_modifier] => 1 [options] => Array ( [0] => 300 мм [1] => 375 мм [2] => 400 мм [3] => 500 мм [4] => 600 мм ) [days] => [29,31,35,37,44] [material_price] => [4298,5573,6356,7288,9119] [work_price] => [4538,5251,5926,6733,7195] [image] => https://akademik-stroy.ru/wp-content/uploads/materials/gazosilikatnyj-blok.jpg [area_modifier] => 128.16 [parent_name] => Стены 1 этаж (несущие) [parent_id] => 3 [material_sum] => 727098 [work_sum] => 639749 [total_sum] => 1366847 [total_days] => 29 [display_material_sum] => 727 098 [display_work_sum] => 639 749 [display_total_sum] => 1 366 847 ) 1
1 366 847
Работа:639 749
Материалы:727 098
Дни:29
stdClass Object ( [id] => 178 [attribute_id] => 3 [name] => Керамзитобетонный блок [material_modifier] => 1 [work_modifier] => 1 [options] => Array ( [0] => 300 мм [1] => 375 мм [2] => 400 мм [3] => 500 мм [4] => 600 мм ) [days] => [23,23,24,25,28] [material_price] => [3641,4298,5693,7613,9612] [work_price] => [5737,5737,6903,7958,8901] [image] => https://akademik-stroy.ru/wp-content/uploads/materials/keramzitobetonnyj-blok.jpg [area_modifier] => 128.16 [parent_name] => Стены 1 этаж (несущие) [parent_id] => 3 [material_sum] => 615952 [work_sum] => 808779 [total_sum] => 1424731 [total_days] => 23 [display_material_sum] => 615 952 [display_work_sum] => 808 779 [display_total_sum] => 1 424 731 ) 1
1 424 731
Работа:808 779
Материалы:615 952
Дни:23
stdClass Object ( [id] => 179 [attribute_id] => 3 [name] => Деревянные [material_modifier] => 1 [work_modifier] => 1 [options] => Array ( [0] => 180 мм [1] => 220 мм [2] => 260 мм [3] => 320 мм ) [days] => [7,8,9,10] [material_price] => [7950,9458,11961,14472] [work_price] => [4037,4925,5812,7207] [image] => https://akademik-stroy.ru/wp-content/uploads/materials/derevyannye.jpg [area_modifier] => 128.16 [parent_name] => Стены 1 этаж (несущие) [parent_id] => 3 [material_sum] => 1344911 [work_sum] => 569120 [total_sum] => 1914031 [total_days] => 7 [display_material_sum] => 1 344 911 [display_work_sum] => 569 120 [display_total_sum] => 1 914 031 ) 1
1 914 031
Работа:569 120
Материалы:1 344 911
Дни:7
stdClass Object ( [id] => 181 [attribute_id] => 3 [name] => Камень [material_modifier] => 1 [work_modifier] => 1 [options] => Array ( [0] => 300 мм [1] => 400 мм [2] => 500 мм [3] => 600 мм ) [days] => [25,27,31,34] [material_price] => [5262,6844,8330,9815] [work_price] => [8331,9135,10427,11069] [image] => https://akademik-stroy.ru/wp-content/uploads/materials/kamen.jpg [area_modifier] => 128.16 [parent_name] => Стены 1 этаж (несущие) [parent_id] => 3 [material_sum] => 890179 [work_sum] => 1174471 [total_sum] => 2064650 [total_days] => 25 [display_material_sum] => 890 179 [display_work_sum] => 1 174 471 [display_total_sum] => 2 064 650 ) 1
2 064 650
Работа:1 174 471
Материалы:890 179
Дни:25
stdClass Object ( [id] => 182 [attribute_id] => 3 [name] => Каркасно-щитовые [material_modifier] => 1 [work_modifier] => 1 [options] => Array ( [0] => 150 мм [1] => 200 мм [2] => 250 мм [3] => 300 мм [4] => 350 мм [5] => 400 мм ) [days] => [15,16,17,18,19,20] [material_price] => [2379,2639,2898,3458,3601,4175] [work_price] => [2538,2820,3134,3483,4062,5642] [image] => https://akademik-stroy.ru/wp-content/uploads/materials/karkasno-shchitovye.jpg [area_modifier] => 128.16 [parent_name] => Стены 1 этаж (несущие) [parent_id] => 3 [material_sum] => 402458 [work_sum] => 357797 [total_sum] => 760255 [total_days] => 15 [display_material_sum] => 402 458 [display_work_sum] => 357 797 [display_total_sum] => 760 255 ) 1
760 255
Работа:357 797
Материалы:402 458
Дни:15
stdClass Object ( [id] => 183 [attribute_id] => 3 [name] => Рубленные [material_modifier] => 1 [work_modifier] => 1 [options] => Array ( [0] => 150 мм [1] => 200 мм [2] => 250 мм [3] => 300 мм [4] => 350 мм [5] => 400 мм ) [days] => [15,16,17,18,17,18] [material_price] => [35950,50267,60583,75900,80217,100533] [work_price] => [9612,12816,16020,19224,22428,25632] [image] => https://akademik-stroy.ru/wp-content/uploads/materials/rublennye.jpg [area_modifier] => 128.16 [parent_name] => Стены 1 этаж (несущие) [parent_id] => 3 [material_sum] => 6081705 [work_sum] => 1355061 [total_sum] => 7436766 [total_days] => 15 [display_material_sum] => 6 081 705 [display_work_sum] => 1 355 061 [display_total_sum] => 7 436 766 ) 1
7 436 766
Работа:1 355 061
Материалы:6 081 705
Дни:15
stdClass Object ( [id] => 185 [attribute_id] => 3 [name] => Теплоблок [material_modifier] => 1 [work_modifier] => 1 [options] => Array ( [0] => 300 мм (с облицовкой, не покрашенный) [1] => 400 мм (с облицовкой, не покрашенный) [2] => 300 мм (с облицовкой, покрашенный) [3] => 400 мм (с облицовкой, покрашенный) ) [days] => [15,16,15,16] [material_price] => [2888,3729,3957,4258] [work_price] => [2564,3229,2949,3713] [image] => https://akademik-stroy.ru/wp-content/uploads/materials/teploblok.jpg [area_modifier] => 128.16 [parent_name] => Стены 1 этаж (несущие) [parent_id] => 3 [material_sum] => 488566 [work_sum] => 361462 [total_sum] => 850028 [total_days] => 15 [display_material_sum] => 488 566 [display_work_sum] => 361 462 [display_total_sum] => 850 028 ) 1
850 028
Работа:361 462
Материалы:488 566
Дни:15
stdClass Object ( [id] => 186 [attribute_id] => 3 [name] => Арболитовые блоки [material_modifier] => 1 [work_modifier] => 1 [options] => Array ( [0] => 300 мм [1] => 400 мм [2] => 600 мм ) [days] => [19,22,27] [material_price] => [3210,4475,5852] [work_price] => [4214,4788,5866] [image] => https://akademik-stroy.ru/wp-content/uploads/materials/arbolitovye-bloki.png [area_modifier] => 128.16 [parent_name] => Стены 1 этаж (несущие) [parent_id] => 3 [material_sum] => 543040 [work_sum] => 594073 [total_sum] => 1137113 [total_days] => 19 [display_material_sum] => 543 040 [display_work_sum] => 594 073 [display_total_sum] => 1 137 113 ) 1
1 137 113
Работа:594 073
Материалы:543 040
Дни:19
stdClass Object ( [id] => 187 [attribute_id] => 3 [name] => Полистиролбетон [material_modifier] => 1 [work_modifier] => 1 [options] => Array ( [0] => 300 мм [1] => 400 мм [2] => 600 мм ) [days] => [29,31,35] [material_price] => [2798,4573,5256] [work_price] => [5038,5851,6426] [image] => https://akademik-stroy.ru/wp-content/uploads/materials/polistirolbeton.jpg [area_modifier] => 128.16 [parent_name] => Стены 1 этаж (несущие) [parent_id] => 3 [material_sum] => 473341 [work_sum] => 710237 [total_sum] => 1183578 [total_days] => 29 [display_material_sum] => 473 341 [display_work_sum] => 710 237 [display_total_sum] => 1 183 578 ) 1
1 183 578
Работа:710 237
Материалы:473 341
Дни:29
stdClass Object ( [id] => 188 [attribute_id] => 3 [name] => Шлакоблок [material_modifier] => 1 [work_modifier] => 1 [options] => Array ( [0] => 400 мм [1] => 600 мм ) [days] => [15,16] [material_price] => [2391,3471] [work_price] => [2642,3662] [image] => https://akademik-stroy.ru/wp-content/uploads/materials/shlakoblok.jpg [area_modifier] => 128.16 [parent_name] => Стены 1 этаж (несущие) [parent_id] => 3 [material_sum] => 404488 [work_sum] => 372459 [total_sum] => 776947 [total_days] => 15 [display_material_sum] => 404 488 [display_work_sum] => 372 459 [display_total_sum] => 776 947 ) 1
776 947
Работа:372 459
Материалы:404 488
Дни:15
stdClass Object ( [id] => 189 [attribute_id] => 3 [name] => Теплая керамика [material_modifier] => 1 [work_modifier] => 1 [options] => Array ( [0] => 380 мм [1] => 380 мм Thermo [2] => 440 мм [3] => 510 мм ) [days] => [23,23,24,25] [material_price] => [4510,5098,6093,8013] [work_price] => [4737,4937,5903,6958] [image] => https://akademik-stroy.ru/wp-content/uploads/materials/teplaya-keramika.jpg [area_modifier] => 128.16 [parent_name] => Стены 1 этаж (несущие) [parent_id] => 3 [material_sum] => 762962 [work_sum] => 667803 [total_sum] => 1430765 [total_days] => 23 [display_material_sum] => 762 962 [display_work_sum] => 667 803 [display_total_sum] => 1 430 765 ) 1
1 430 765
Работа:667 803
Материалы:762 962
Дни:23
stdClass Object ( [id] => 190 [attribute_id] => 3 [name] => Несъемная опалубка [material_modifier] => 1 [work_modifier] => 1 [options] => Array ( [0] => 200 мм [1] => 250 мм [2] => 300 мм [3] => 350 мм ) [days] => [15,17,19,21] [material_price] => [3302,3902,4108,5008] [work_price] => [2100,2100,2300,2534] [image] => https://akademik-stroy.ru/wp-content/uploads/materials/nesemnaya-opalubka.jpg [area_modifier] => 128.16 [parent_name] => Стены 1 этаж (несущие) [parent_id] => 3 [material_sum] => 558603 [work_sum] => 296050 [total_sum] => 854653 [total_days] => 15 [display_material_sum] => 558 603 [display_work_sum] => 296 050 [display_total_sum] => 854 653 ) 1
854 653
Работа:296 050
Материалы:558 603
Дни:15
stdClass Object ( [id] => 251 [attribute_id] => 3 [name] => Бревно [material_modifier] => 1 [work_modifier] => 1 [options] => Array ( [0] => 260 мм [1] => 320 мм [2] => 360 мм [3] => 400 мм [4] => 500 мм ) [days] => [7,8,9,10,11] [material_price] => [1874,24045,26930,30972,38825] [work_price] => [5046,6207,6952,7716,9723] [image] => https://akademik-stroy.ru/wp-content/uploads/materials/sruby.jpg [area_modifier] => 128.16 [parent_name] => Стены 1 этаж (несущие) [parent_id] => 3 [material_sum] => 317027 [work_sum] => 711365 [total_sum] => 1028392 [total_days] => 7 [display_material_sum] => 317 027 [display_work_sum] => 711 365 [display_total_sum] => 1 028 392 ) 1
1 028 392
Работа:711 365
Материалы:317 027
Дни:7
Перекрытие первого этажа
stdClass Object ( [id] => 7 [attribute_id] => 4 [name] => Деревянные балки [material_modifier] => 1 [work_modifier] => 1 [options] => Array ( [0] => без утепления [1] => утепление 200 мм [2] => утепление 250 мм [3] => утепление 300 мм [4] => утепление 350 мм [5] => утепление 400 мм [6] => утепление 450 мм [7] => утепление 500 мм ) [days] => [8,9,9,9,11,12,13,14] [material_price] => [1634,2042,2344,2947,3149,3652,3354,3557] [work_price] => [1230,1339,1393,1426,1460,1513,1587,1620] [image] => https://akademik-stroy.ru/wp-content/uploads/materials/derevyannye-balki.png [area_modifier] => 128.16 [parent_name] => Перекрытие первого этажа [parent_id] => 4 [material_sum] => 276426 [work_sum] => 173400 [total_sum] => 449826 [total_days] => 8 [display_material_sum] => 276 426 [display_work_sum] => 173 400 [display_total_sum] => 449 826 ) 1
449 826
Работа:173 400
Материалы:276 426
Дни:8
stdClass Object ( [id] => 8 [attribute_id] => 4 [name] => Сборные ж/б плиты [material_modifier] => 1 [work_modifier] => 1 [options] => Array ( [0] => без утепления [1] => утепление 150 мм [2] => утепление 200 мм [3] => утепление 250 мм [4] => утепление 300 мм [5] => утепление 350 мм [6] => утепление 400 мм [7] => утепление 450 мм [8] => утепление 500 мм ) [days] => [13,15,15,15,15,15,15,15,15] [material_price] => [3067,5577,5928,6679,7730,8782,9833,10884,11935] [work_price] => [1520,1956,2102,2247,2392,2537,2684,2829,2974] [image] => https://akademik-stroy.ru/wp-content/uploads/materials/sbornye-zh-b-plity-2.jpg [area_modifier] => 128.16 [parent_name] => Перекрытие первого этажа [parent_id] => 4 [material_sum] => 518848 [work_sum] => 214284 [total_sum] => 733132 [total_days] => 13 [display_material_sum] => 518 848 [display_work_sum] => 214 284 [display_total_sum] => 733 132 ) 1
733 132
Работа:214 284
Материалы:518 848
Дни:13
stdClass Object ( [id] => 89 [attribute_id] => 4 [name] => Монолитная ж/б плита [material_modifier] => 1 [work_modifier] => 1 [options] => Array ( [0] => без утепления [1] => утепление 150 мм [2] => утепление 200 мм [3] => утепление 250 мм [4] => утепление 300 мм [5] => утепление 350 мм [6] => утепление 400 мм [7] => утепление 450 мм [8] => утепление 500 мм ) [days] => [18,20,20,20,20,20,20,20,20] [material_price] => [4837,6572,7224,7375,79426,8177,8728,9180,10031] [work_price] => [3348,3921,4112,4302,4493,4684,4875,5066,5256] [image] => https://akademik-stroy.ru/wp-content/uploads/materials/monolitnaya-zh-b-plita-2.jpg [area_modifier] => 128.16 [parent_name] => Перекрытие первого этажа [parent_id] => 4 [material_sum] => 818281 [work_sum] => 471988 [total_sum] => 1290269 [total_days] => 18 [display_material_sum] => 818 281 [display_work_sum] => 471 988 [display_total_sum] => 1 290 269 ) 1
1 290 269
Работа:471 988
Материалы:818 281
Дни:18
Стены 2 этаж (несущие)
stdClass Object ( [id] => 10 [attribute_id] => 5 [name] => Пеноблок [material_modifier] => 1 [work_modifier] => 1 [options] => Array ( [0] => 300 мм [1] => 400 мм [2] => 500 мм [3] => 600 мм ) [days] => [29,31,34,39] [material_price] => [3000,4000,4500,4937] [work_price] => [5033,5805,6400,8710] [image] => https://akademik-stroy.ru/wp-content/uploads/materials/penoblok.jpg [area_modifier] => 67.53 [parent_name] => Стены 2 этаж (несущие) [parent_id] => 5 [material_sum] => 267419 [work_sum] => 373866 [total_sum] => 641285 [total_days] => 29 [display_material_sum] => 267 419 [display_work_sum] => 373 866 [display_total_sum] => 641 285 ) 1
641 285
Работа:373 866
Материалы:267 419
Дни:29
stdClass Object ( [id] => 90 [attribute_id] => 5 [name] => Керамический блок [material_modifier] => 1 [work_modifier] => 1 [options] => Array ( [0] => 380 мм [1] => 380 мм Thermo [2] => 440 мм [3] => 510 мм ) [days] => [23,23,24,25] [material_price] => [4510,5098,6093,8013] [work_price] => [4737,4937,5903,6958] [image] => https://akademik-stroy.ru/wp-content/uploads/materials/keramicheskij-blok.jpg [area_modifier] => 67.53 [parent_name] => Стены 2 этаж (несущие) [parent_id] => 5 [material_sum] => 402020 [work_sum] => 351879 [total_sum] => 753899 [total_days] => 23 [display_material_sum] => 402 020 [display_work_sum] => 351 879 [display_total_sum] => 753 899 ) 1
753 899
Работа:351 879
Материалы:402 020
Дни:23
stdClass Object ( [id] => 91 [attribute_id] => 5 [name] => Кирпич [material_modifier] => 1 [work_modifier] => 1 [options] => Array ( [0] => Кирпич 250 мм [1] => Кирпич 380 мм [2] => Кирпич 510 мм [3] => Кирпич 640 мм [4] => Кирпич 770 мм ) [days] => [30,30,31,33,36] [material_price] => [5500,7142,9206,10171,12235] [work_price] => [8736,10041,12018,15240,18462] [image] => https://akademik-stroy.ru/wp-content/uploads/materials/kirpich.jpg [area_modifier] => 67.53 [parent_name] => Стены 2 этаж (несущие) [parent_id] => 5 [material_sum] => 490268 [work_sum] => 648936 [total_sum] => 1139204 [total_days] => 30 [display_material_sum] => 490 268 [display_work_sum] => 648 936 [display_total_sum] => 1 139 204 ) 1
1 139 204
Работа:648 936
Материалы:490 268
Дни:30
stdClass Object ( [id] => 92 [attribute_id] => 5 [name] => Монолитные [material_modifier] => 1 [work_modifier] => 1 [options] => Array ( [0] => 150 мм [1] => 200 мм [2] => 250 мм [3] => 300 мм [4] => 350 мм [5] => 400 мм ) [days] => [45,46,47,49,50,53] [material_price] => [6545,7876,10175,12011,13908,15204] [work_price] => [5106,6444,7698,8552,9807,11461] [image] => https://akademik-stroy.ru/wp-content/uploads/materials/monolitnye.jpg [area_modifier] => 67.53 [parent_name] => Стены 2 этаж (несущие) [parent_id] => 5 [material_sum] => 583419 [work_sum] => 379289 [total_sum] => 962708 [total_days] => 45 [display_material_sum] => 583 419 [display_work_sum] => 379 289 [display_total_sum] => 962 708 ) 1
962 708
Работа:379 289
Материалы:583 419
Дни:45
stdClass Object ( [id] => 93 [attribute_id] => 5 [name] => Клееный брус [material_modifier] => 1 [work_modifier] => 1 [options] => Array ( [0] => 160 мм [1] => 175 мм [2] => 200 мм [3] => 215 мм [4] => 240 мм [5] => 270 мм [6] => 282 мм ) [days] => [24,28,32,37,40,42,48] [material_price] => [16975,18773,19950,20545,21599,22159,23275] [work_price] => [4806,5287,5815,6397,7036,7740,8514] [image] => https://akademik-stroy.ru/wp-content/uploads/materials/kleenyj-brus.jpg [area_modifier] => 67.53 [parent_name] => Стены 2 этаж (несущие) [parent_id] => 5 [material_sum] => 1513145 [work_sum] => 357004 [total_sum] => 1870149 [total_days] => 24 [display_material_sum] => 1 513 145 [display_work_sum] => 357 004 [display_total_sum] => 1 870 149 ) 1
1 870 149
Работа:357 004
Материалы:1 513 145
Дни:24
stdClass Object ( [id] => 94 [attribute_id] => 5 [name] => Каркасные [material_modifier] => 1 [work_modifier] => 1 [options] => Array ( [0] => 150 мм [1] => 200 мм [2] => 250 мм [3] => 300 мм ) [days] => [15,16,17,18] [material_price] => [2379,2639,2898,3258] [work_price] => [2418,2686,2985,3716] [image] => https://akademik-stroy.ru/wp-content/uploads/materials/karkasnye.jpg [area_modifier] => 67.53 [parent_name] => Стены 2 этаж (несущие) [parent_id] => 5 [material_sum] => 212063 [work_sum] => 179616 [total_sum] => 391679 [total_days] => 15 [display_material_sum] => 212 063 [display_work_sum] => 179 616 [display_total_sum] => 391 679 ) 1
391 679
Работа:179 616
Материалы:212 063
Дни:15
stdClass Object ( [id] => 95 [attribute_id] => 5 [name] => СИП-панели [material_modifier] => 1 [work_modifier] => 1 [options] => Array ( [0] => 120 мм [1] => 170 мм [2] => 220 мм ) [days] => [7,7,7] [material_price] => [1210,1856,2292] [work_price] => [1410,1551,1706] [image] => https://akademik-stroy.ru/wp-content/uploads/materials/sip-paneli.jpg [area_modifier] => 67.53 [parent_name] => Стены 2 этаж (несущие) [parent_id] => 5 [material_sum] => 107859 [work_sum] => 104739 [total_sum] => 212598 [total_days] => 7 [display_material_sum] => 107 859 [display_work_sum] => 104 739 [display_total_sum] => 212 598 ) 1
212 598
Работа:104 739
Материалы:107 859
Дни:7
stdClass Object ( [id] => 96 [attribute_id] => 5 [name] => Сухой брус [material_modifier] => 1 [work_modifier] => 1 [options] => Array ( [0] => 150 мм [1] => 180 мм [2] => 200 мм ) [days] => [7,8,9] [material_price] => [6010,7190,8709] [work_price] => [3204,3845,4229] [image] => https://akademik-stroy.ru/wp-content/uploads/materials/suhoj-brus.jpg [area_modifier] => 67.53 [parent_name] => Стены 2 этаж (несущие) [parent_id] => 5 [material_sum] => 535729 [work_sum] => 238003 [total_sum] => 773732 [total_days] => 7 [display_material_sum] => 535 729 [display_work_sum] => 238 003 [display_total_sum] => 773 732 ) 1
773 732
Работа:238 003
Материалы:535 729
Дни:7
stdClass Object ( [id] => 97 [attribute_id] => 5 [name] => Профилированный брус [material_modifier] => 1 [work_modifier] => 1 [options] => Array ( [0] => 150 мм [1] => 180 мм [2] => 200 мм ) [days] => [7,8,9] [material_price] => [8190,9228,10051] [work_price] => [3845,4614,5075] [image] => https://akademik-stroy.ru/wp-content/uploads/materials/profilirovannyj-brus.jpg [area_modifier] => 67.53 [parent_name] => Стены 2 этаж (несущие) [parent_id] => 5 [material_sum] => 730053 [work_sum] => 285618 [total_sum] => 1015671 [total_days] => 7 [display_material_sum] => 730 053 [display_work_sum] => 285 618 [display_total_sum] => 1 015 671 ) 1
1 015 671
Работа:285 618
Материалы:730 053
Дни:7
stdClass Object ( [id] => 98 [attribute_id] => 5 [name] => Оцилиндрованное бревно [material_modifier] => 1 [work_modifier] => 1 [options] => Array ( [0] => 180 мм [1] => 220 мм [2] => 260 мм [3] => 320 мм ) [days] => [7,8,9,10] [material_price] => [75190,9532,10868,13116] [work_price] => [3845,4691,5535,6863] [image] => https://akademik-stroy.ru/wp-content/uploads/materials/ocilindrovannoe-brevno-1.jpg [area_modifier] => 67.53 [parent_name] => Стены 2 этаж (несущие) [parent_id] => 5 [material_sum] => 6702407 [work_sum] => 285618 [total_sum] => 6988025 [total_days] => 7 [display_material_sum] => 6 702 407 [display_work_sum] => 285 618 [display_total_sum] => 6 988 025 ) 1
6 988 025
Работа:285 618
Материалы:6 702 407
Дни:7
stdClass Object ( [id] => 99 [attribute_id] => 5 [name] => Срубы [material_modifier] => 1 [work_modifier] => 1 [options] => Array ( [0] => 260 мм [1] => 320 мм [2] => 360 мм [3] => 400 мм [4] => 500 мм ) [days] => [7,8,9,10,11] [material_price] => [16175,23709,26314,29069,32167] [work_price] => [4806,5911,6621,7349,9260] [image] => https://akademik-stroy.ru/wp-content/uploads/materials/suhoj-brus.jpg [area_modifier] => 67.53 [parent_name] => Стены 2 этаж (несущие) [parent_id] => 5 [material_sum] => 1441833 [work_sum] => 357004 [total_sum] => 1798837 [total_days] => 7 [display_material_sum] => 1 441 833 [display_work_sum] => 357 004 [display_total_sum] => 1 798 837 ) 1
1 798 837
Работа:357 004
Материалы:1 441 833
Дни:7
stdClass Object ( [id] => 194 [attribute_id] => 5 [name] => Брус [material_modifier] => 1 [work_modifier] => 1 [options] => Array ( [0] => 150 мм [1] => 180 мм [2] => 200 мм ) [days] => [10,13,15] [material_price] => [5127,6152,7367] [work_price] => [1602,1922,2115] [image] => https://akademik-stroy.ru/wp-content/uploads/materials/brus.jpg [area_modifier] => 67.53 [parent_name] => Стены 2 этаж (несущие) [parent_id] => 5 [material_sum] => 457019 [work_sum] => 119001 [total_sum] => 576020 [total_days] => 10 [display_material_sum] => 457 019 [display_work_sum] => 119 001 [display_total_sum] => 576 020 ) 1
576 020
Работа:119 001
Материалы:457 019
Дни:10
stdClass Object ( [id] => 195 [attribute_id] => 5 [name] => Газобетон [material_modifier] => 1 [work_modifier] => 1 [options] => Array ( [0] => 300 мм [1] => 375 мм [2] => 400 мм [3] => 500 мм [4] => 600 мм ) [days] => [29,31,35,37,44] [material_price] => [4298,5573,6356,7288,9119] [work_price] => [4538,5251,5926,6733,7195] [image] => https://akademik-stroy.ru/wp-content/uploads/materials/gazobeton.jpg [area_modifier] => 67.53 [parent_name] => Стены 2 этаж (несущие) [parent_id] => 5 [material_sum] => 383122 [work_sum] => 337096 [total_sum] => 720218 [total_days] => 29 [display_material_sum] => 383 122 [display_work_sum] => 337 096 [display_total_sum] => 720 218 ) 1
720 218
Работа:337 096
Материалы:383 122
Дни:29
stdClass Object ( [id] => 196 [attribute_id] => 5 [name] => Блок [material_modifier] => 1 [work_modifier] => 1 [options] => Array ( [0] => 300 мм [1] => 375 мм [2] => 400 мм [3] => 500 мм [4] => 600 мм ) [days] => [29,31,35,37,44] [material_price] => [2698,3973,4356,6588,7119] [work_price] => [5038,5851,6426,8733,9195] [image] => https://akademik-stroy.ru/wp-content/uploads/materials/blok.jpg [area_modifier] => 67.53 [parent_name] => Стены 2 этаж (несущие) [parent_id] => 5 [material_sum] => 240499 [work_sum] => 374238 [total_sum] => 614737 [total_days] => 29 [display_material_sum] => 240 499 [display_work_sum] => 374 238 [display_total_sum] => 614 737 ) 1
614 737
Работа:374 238
Материалы:240 499
Дни:29
stdClass Object ( [id] => 197 [attribute_id] => 5 [name] => Газосиликатный блок [material_modifier] => 1 [work_modifier] => 1 [options] => Array ( [0] => 300 мм [1] => 375 мм [2] => 400 мм [3] => 500 мм [4] => 600 мм ) [days] => [29,31,35,37,44] [material_price] => [4298,5573,6356,7288,9119] [work_price] => [4538,5251,5926,6733,7195] [image] => https://akademik-stroy.ru/wp-content/uploads/materials/gazosilikatnyj-blok.jpg [area_modifier] => 67.53 [parent_name] => Стены 2 этаж (несущие) [parent_id] => 5 [material_sum] => 383122 [work_sum] => 337096 [total_sum] => 720218 [total_days] => 29 [display_material_sum] => 383 122 [display_work_sum] => 337 096 [display_total_sum] => 720 218 ) 1
720 218
Работа:337 096
Материалы:383 122
Дни:29
stdClass Object ( [id] => 198 [attribute_id] => 5 [name] => Керамзитобетонный блок [material_modifier] => 1 [work_modifier] => 1 [options] => Array ( [0] => 300 мм [1] => 375 мм [2] => 400 мм [3] => 500 мм [4] => 600 мм ) [days] => [23,23,24,25,28] [material_price] => [3641,4298,5693,7613,9612] [work_price] => [5737,5737,6903,7958,8901] [image] => https://akademik-stroy.ru/wp-content/uploads/materials/keramzitobetonnyj-blok.jpg [area_modifier] => 67.53 [parent_name] => Стены 2 этаж (несущие) [parent_id] => 5 [material_sum] => 324557 [work_sum] => 426162 [total_sum] => 750719 [total_days] => 23 [display_material_sum] => 324 557 [display_work_sum] => 426 162 [display_total_sum] => 750 719 ) 1
750 719
Работа:426 162
Материалы:324 557
Дни:23
stdClass Object ( [id] => 199 [attribute_id] => 5 [name] => Деревянные [material_modifier] => 1 [work_modifier] => 1 [options] => Array ( [0] => 180 мм [1] => 220 мм [2] => 260 мм [3] => 320 мм ) [days] => [7,8,9,10] [material_price] => [7950,9458,11961,14472] [work_price] => [4037,4925,5812,7207] [image] => https://akademik-stroy.ru/wp-content/uploads/materials/derevyannye.jpg [area_modifier] => 67.53 [parent_name] => Стены 2 этаж (несущие) [parent_id] => 5 [material_sum] => 708660 [work_sum] => 299880 [total_sum] => 1008540 [total_days] => 7 [display_material_sum] => 708 660 [display_work_sum] => 299 880 [display_total_sum] => 1 008 540 ) 1
1 008 540
Работа:299 880
Материалы:708 660
Дни:7
stdClass Object ( [id] => 200 [attribute_id] => 5 [name] => Камень [material_modifier] => 1 [work_modifier] => 1 [options] => Array ( [0] => 300 мм [1] => 400 мм [2] => 500 мм [3] => 600 мм ) [days] => [25,27,31,34] [material_price] => [5262,6844,8330,9815] [work_price] => [8331,9135,10427,11069] [image] => https://akademik-stroy.ru/wp-content/uploads/materials/kamen.jpg [area_modifier] => 67.53 [parent_name] => Стены 2 этаж (несущие) [parent_id] => 5 [material_sum] => 469053 [work_sum] => 618852 [total_sum] => 1087905 [total_days] => 25 [display_material_sum] => 469 053 [display_work_sum] => 618 852 [display_total_sum] => 1 087 905 ) 1
1 087 905
Работа:618 852
Материалы:469 053
Дни:25
stdClass Object ( [id] => 201 [attribute_id] => 5 [name] => Каркасно-щитовые [material_modifier] => 1 [work_modifier] => 1 [options] => Array ( [0] => 150 мм [1] => 200 мм [2] => 250 мм [3] => 300 мм [4] => 350 мм [5] => 400 мм ) [days] => [15,16,17,18,19,20] [material_price] => [2379,2639,2898,3458,3601,4175] [work_price] => [2538,2820,3134,3483,4062,5642] [image] => https://akademik-stroy.ru/wp-content/uploads/materials/karkasno-shchitovye.jpg [area_modifier] => 67.53 [parent_name] => Стены 2 этаж (несущие) [parent_id] => 5 [material_sum] => 212063 [work_sum] => 188530 [total_sum] => 400593 [total_days] => 15 [display_material_sum] => 212 063 [display_work_sum] => 188 530 [display_total_sum] => 400 593 ) 1
400 593
Работа:188 530
Материалы:212 063
Дни:15
stdClass Object ( [id] => 202 [attribute_id] => 5 [name] => Рубленные [material_modifier] => 1 [work_modifier] => 1 [options] => Array ( [0] => 150 мм [1] => 200 мм [2] => 250 мм [3] => 300 мм [4] => 350 мм [5] => 400 мм ) [days] => [15,16,17,18,17,18] [material_price] => [35950,50267,60583,75900,80217,100533] [work_price] => [9612,12816,16020,19224,22428,25632] [image] => https://akademik-stroy.ru/wp-content/uploads/materials/rublennye.jpg [area_modifier] => 67.53 [parent_name] => Стены 2 этаж (несущие) [parent_id] => 5 [material_sum] => 3204569 [work_sum] => 714008 [total_sum] => 3918577 [total_days] => 15 [display_material_sum] => 3 204 569 [display_work_sum] => 714 008 [display_total_sum] => 3 918 577 ) 1
3 918 577
Работа:714 008
Материалы:3 204 569
Дни:15
stdClass Object ( [id] => 203 [attribute_id] => 5 [name] => Теплоблок [material_modifier] => 1 [work_modifier] => 1 [options] => Array ( [0] => 300 мм (с облицовкой, не покрашенный) [1] => 400 мм (с облицовкой, не покрашенный) [2] => 300 мм (с облицовкой, покрашенный) [3] => 400 мм (с облицовкой, покрашенный) ) [days] => [15,16,15,16] [material_price] => [2888,3729,3957,4258] [work_price] => [2564,3229,2949,3713] [image] => https://akademik-stroy.ru/wp-content/uploads/materials/teploblok.jpg [area_modifier] => 67.53 [parent_name] => Стены 2 этаж (несущие) [parent_id] => 5 [material_sum] => 257435 [work_sum] => 190462 [total_sum] => 447897 [total_days] => 15 [display_material_sum] => 257 435 [display_work_sum] => 190 462 [display_total_sum] => 447 897 ) 1
447 897
Работа:190 462
Материалы:257 435
Дни:15
stdClass Object ( [id] => 204 [attribute_id] => 5 [name] => Арболитовые блоки [material_modifier] => 1 [work_modifier] => 1 [options] => Array ( [0] => 300 мм [1] => 400 мм [2] => 600 мм ) [days] => [19,22,27] [material_price] => [3210,4475,5852] [work_price] => [4214,4788,5866] [image] => https://akademik-stroy.ru/wp-content/uploads/materials/arbolitovye-bloki.png [area_modifier] => 67.53 [parent_name] => Стены 2 этаж (несущие) [parent_id] => 5 [material_sum] => 286138 [work_sum] => 313029 [total_sum] => 599167 [total_days] => 19 [display_material_sum] => 286 138 [display_work_sum] => 313 029 [display_total_sum] => 599 167 ) 1
599 167
Работа:313 029
Материалы:286 138
Дни:19
stdClass Object ( [id] => 205 [attribute_id] => 5 [name] => Полистиролбетон [material_modifier] => 1 [work_modifier] => 1 [options] => Array ( [0] => 300 мм [1] => 400 мм [2] => 600 мм ) [days] => [29,31,35] [material_price] => [2798,4573,5256] [work_price] => [5038,5851,6426] [image] => https://akademik-stroy.ru/wp-content/uploads/materials/polistirolbeton.jpg [area_modifier] => 67.53 [parent_name] => Стены 2 этаж (несущие) [parent_id] => 5 [material_sum] => 249413 [work_sum] => 374238 [total_sum] => 623651 [total_days] => 29 [display_material_sum] => 249 413 [display_work_sum] => 374 238 [display_total_sum] => 623 651 ) 1
623 651
Работа:374 238
Материалы:249 413
Дни:29
stdClass Object ( [id] => 206 [attribute_id] => 5 [name] => Шлакоблок [material_modifier] => 1 [work_modifier] => 1 [options] => Array ( [0] => 400 мм [1] => 600 мм ) [days] => [15,16] [material_price] => [2391,3471] [work_price] => [2642,3662] [image] => https://akademik-stroy.ru/wp-content/uploads/materials/shlakoblok.jpg [area_modifier] => 67.53 [parent_name] => Стены 2 этаж (несущие) [parent_id] => 5 [material_sum] => 213133 [work_sum] => 196256 [total_sum] => 409389 [total_days] => 15 [display_material_sum] => 213 133 [display_work_sum] => 196 256 [display_total_sum] => 409 389 ) 1
409 389
Работа:196 256
Материалы:213 133
Дни:15
stdClass Object ( [id] => 245 [attribute_id] => 5 [name] => Теплая керамика [material_modifier] => 1 [work_modifier] => 1 [options] => Array ( [0] => 380 мм [1] => 380 мм Thermo [2] => 440 мм [3] => 510 мм ) [days] => [10,10,11,12] [material_price] => [4510,5098,6093,8013] [work_price] => [4737,4937,5903,6958] [image] => https://akademik-stroy.ru/wp-content/uploads/materials/teplaya-keramika.jpg [area_modifier] => 67.53 [parent_name] => Стены 2 этаж (несущие) [parent_id] => 5 [material_sum] => 402020 [work_sum] => 351879 [total_sum] => 753899 [total_days] => 10 [display_material_sum] => 402 020 [display_work_sum] => 351 879 [display_total_sum] => 753 899 ) 1
753 899
Работа:351 879
Материалы:402 020
Дни:10
stdClass Object ( [id] => 246 [attribute_id] => 5 [name] => Несъемная опалубка [material_modifier] => 1 [work_modifier] => 1 [options] => Array ( [0] => 380 мм [1] => 380 мм Thermo [2] => 440 мм [3] => 510 мм ) [days] => [10,10,11,12] [material_price] => [3302,3902,4108,5008] [work_price] => [2100,2100,2300,2534] [image] => https://akademik-stroy.ru/wp-content/uploads/materials/nesemnaya-opalubka.jpg [area_modifier] => 67.53 [parent_name] => Стены 2 этаж (несущие) [parent_id] => 5 [material_sum] => 294339 [work_sum] => 155994 [total_sum] => 450333 [total_days] => 10 [display_material_sum] => 294 339 [display_work_sum] => 155 994 [display_total_sum] => 450 333 ) 1
450 333
Работа:155 994
Материалы:294 339
Дни:10
stdClass Object ( [id] => 254 [attribute_id] => 5 [name] => Бревно [material_modifier] => 1 [work_modifier] => 1 [options] => Array ( [0] => 260 мм [1] => 320 мм [2] => 360 мм [3] => 400 мм [4] => 500 мм ) [days] => [7,8,9,10,11] [material_price] => [1874,24045,26930,30972,38825] [work_price] => [5046,6207,6952,7716,9723] [image] => https://akademik-stroy.ru/wp-content/uploads/materials/sruby.jpg [area_modifier] => 67.53 [parent_name] => Стены 2 этаж (несущие) [parent_id] => 5 [material_sum] => 167048 [work_sum] => 374832 [total_sum] => 541880 [total_days] => 7 [display_material_sum] => 167 048 [display_work_sum] => 374 832 [display_total_sum] => 541 880 ) 1
541 880
Работа:374 832
Материалы:167 048
Дни:7
Крыша (Скатная)
stdClass Object ( [id] => 164 [attribute_id] => 37 [name] => Металлочерепица [material_modifier] => 1 [work_modifier] => 1 [options] => Array ( ) [days] => [20] [material_price] => [6112] [work_price] => [5726] [image] => https://akademik-stroy.ru/wp-content/uploads/materials/metallocherepica.jpg [area_modifier] => 128.16 [parent_name] => Крыша (Скатная) [parent_id] => 37 [material_sum] => 1033974 [work_sum] => 807229 [total_sum] => 1841203 [total_days] => 20 [display_material_sum] => 1 033 974 [display_work_sum] => 807 229 [display_total_sum] => 1 841 203 ) 1
1 841 203
Работа:807 229
Материалы:1 033 974
Дни:20
stdClass Object ( [id] => 165 [attribute_id] => 37 [name] => Гибкая черепица [material_modifier] => 1 [work_modifier] => 1 [options] => Array ( ) [days] => [20] [material_price] => [6980] [work_price] => [5950] [image] => https://akademik-stroy.ru/wp-content/uploads/materials/gibkaya-cherepica.jpg [area_modifier] => 128.16 [parent_name] => Крыша (Скатная) [parent_id] => 37 [material_sum] => 1180815 [work_sum] => 838807 [total_sum] => 2019622 [total_days] => 20 [display_material_sum] => 1 180 815 [display_work_sum] => 838 807 [display_total_sum] => 2 019 622 ) 1
2 019 622
Работа:838 807
Материалы:1 180 815
Дни:20
stdClass Object ( [id] => 166 [attribute_id] => 37 [name] => Цементно-песчаная черепица [material_modifier] => 1 [work_modifier] => 1 [options] => Array ( ) [days] => [20] [material_price] => [10560] [work_price] => [9456] [image] => https://akademik-stroy.ru/wp-content/uploads/materials/cementno-peschanaya-cherepica.jpg [area_modifier] => 128.16 [parent_name] => Крыша (Скатная) [parent_id] => 37 [material_sum] => 1786448 [work_sum] => 1333069 [total_sum] => 3119517 [total_days] => 20 [display_material_sum] => 1 786 448 [display_work_sum] => 1 333 069 [display_total_sum] => 3 119 517 ) 1
3 119 517
Работа:1 333 069
Материалы:1 786 448
Дни:20
stdClass Object ( [id] => 167 [attribute_id] => 37 [name] => Композитная черепица [material_modifier] => 1 [work_modifier] => 1 [options] => Array ( ) [days] => [20] [material_price] => [9506] [work_price] => [8905] [image] => https://akademik-stroy.ru/wp-content/uploads/materials/kompozitnaya-cherepica.jpg [area_modifier] => 128.16 [parent_name] => Крыша (Скатная) [parent_id] => 37 [material_sum] => 1608141 [work_sum] => 1255391 [total_sum] => 2863532 [total_days] => 20 [display_material_sum] => 1 608 141 [display_work_sum] => 1 255 391 [display_total_sum] => 2 863 532 ) 1
2 863 532
Работа:1 255 391
Материалы:1 608 141
Дни:20
stdClass Object ( [id] => 168 [attribute_id] => 37 [name] => Керамическая черепица [material_modifier] => 1 [work_modifier] => 1 [options] => Array ( ) [days] => [20] [material_price] => [12750] [work_price] => [9456] [image] => https://akademik-stroy.ru/wp-content/uploads/materials/keramicheskaya-cherepica.jpg [area_modifier] => 128.16 [parent_name] => Крыша (Скатная) [parent_id] => 37 [material_sum] => 2156933 [work_sum] => 1333069 [total_sum] => 3490002 [total_days] => 20 [display_material_sum] => 2 156 933 [display_work_sum] => 1 333 069 [display_total_sum] => 3 490 002 ) 1
3 490 002
Работа:1 333 069
Материалы:2 156 933
Дни:20
stdClass Object ( [id] => 169 [attribute_id] => 37 [name] => Металлическая фальцевая [material_modifier] => 1 [work_modifier] => 1 [options] => Array ( ) [days] => [20] [material_price] => [8550] [work_price] => [8190] [image] => https://akademik-stroy.ru/wp-content/uploads/materials/metallicheskaya-falcevaya.jpg [area_modifier] => 128.16 [parent_name] => Крыша (Скатная) [parent_id] => 37 [material_sum] => 1446414 [work_sum] => 1154593 [total_sum] => 2601007 [total_days] => 20 [display_material_sum] => 1 446 414 [display_work_sum] => 1 154 593 [display_total_sum] => 2 601 007 ) 1
2 601 007
Работа:1 154 593
Материалы:1 446 414
Дни:20
stdClass Object ( [id] => 170 [attribute_id] => 37 [name] => Медная фальцевая [material_modifier] => 1 [work_modifier] => 1 [options] => Array ( ) [days] => [20] [material_price] => [20450] [work_price] => [16750] [image] => https://akademik-stroy.ru/wp-content/uploads/materials/mednaya-falcevaya.jpg [area_modifier] => 128.16 [parent_name] => Крыша (Скатная) [parent_id] => 37 [material_sum] => 3459551 [work_sum] => 2361348 [total_sum] => 5820899 [total_days] => 20 [display_material_sum] => 3 459 551 [display_work_sum] => 2 361 348 [display_total_sum] => 5 820 899 ) 1
5 820 899
Работа:2 361 348
Материалы:3 459 551
Дни:20
stdClass Object ( [id] => 171 [attribute_id] => 37 [name] => Зеленая кровля [material_modifier] => 1 [work_modifier] => 1 [options] => Array ( ) [days] => [20] [material_price] => [19850] [work_price] => [16780] [image] => https://akademik-stroy.ru/wp-content/uploads/materials/zelenaya-krovlya.jpg [area_modifier] => 128.16 [parent_name] => Крыша (Скатная) [parent_id] => 37 [material_sum] => 3358048 [work_sum] => 2365577 [total_sum] => 5723625 [total_days] => 20 [display_material_sum] => 3 358 048 [display_work_sum] => 2 365 577 [display_total_sum] => 5 723 625 ) 1
5 723 625
Работа:2 365 577
Материалы:3 358 048
Дни:20
stdClass Object ( [id] => 172 [attribute_id] => 37 [name] => Профлист [material_modifier] => 1 [work_modifier] => 1 [options] => Array ( ) [days] => [20] [material_price] => [3450] [work_price] => [3750] [image] => https://akademik-stroy.ru/wp-content/uploads/materials/proflist.jpg [area_modifier] => 128.16 [parent_name] => Крыша (Скатная) [parent_id] => 37 [material_sum] => 583641 [work_sum] => 528660 [total_sum] => 1112301 [total_days] => 20 [display_material_sum] => 583 641 [display_work_sum] => 528 660 [display_total_sum] => 1 112 301 ) 1
1 112 301
Работа:528 660
Материалы:583 641
Дни:20
Окна
stdClass Object ( [id] => 51 [attribute_id] => 26 [name] => Есть [material_modifier] => 1 [work_modifier] => 1 [options] => Array ( [0] => Профиль 58 мм, 3-камерный, стеклопакет 2-камерный до 32 мм [1] => Профиль 60 мм, 4-камерный, стеклопакет 2-камерный до 32 мм [2] => Профиль 70 мм, 5-камерный, стеклопакет 2-камерный до 40 мм [3] => Профиль 72 мм, 5-камерный, стеклопакет 2-камерный до 40 мм [4] => Алюминиевые окна Alutech профиль 72 мм, стеклопакет 2-камерный ) [days] => [3,3,3,3,3] [material_price] => [1339,2124,2867,3023,29596] [work_price] => [635,647,659,668,2579] [image] => https://akademik-stroy.ru/wp-content/uploads/materials/okna.jpg [area_modifier] => 158.8 [parent_name] => Окна [parent_id] => 26 [material_sum] => 280676 [work_sum] => 110922 [total_sum] => 391598 [total_days] => 3 [display_material_sum] => 280 676 [display_work_sum] => 110 922 [display_total_sum] => 391 598 ) 1
391 598
Работа:110 922
Материалы:280 676
Дни:3
stdClass Object ( [id] => 52 [attribute_id] => 26 [name] => Нет [material_modifier] => 2 [work_modifier] => 1 [options] => [days] => null [material_price] => null [work_price] => null [image] => https://akademik-stroy.ru/wp-content/uploads/materials/okna.jpg [area_modifier] => 158.8 [parent_name] => Окна [parent_id] => 26 [material_sum] => 0 [work_sum] => 0 [total_sum] => 0 [total_days] => 0 [display_material_sum] => 0 [display_work_sum] => 0 [display_total_sum] => 0 ) 1
0
Работа:0
Материалы:0
Дни:0
Двери входные
stdClass Object ( [id] => 53 [attribute_id] => 27 [name] => Есть [material_modifier] => 1 [work_modifier] => 1 [options] => Array ( ) [days] => [1] [material_price] => [10000] [work_price] => [5500] [image] => https://akademik-stroy.ru/wp-content/uploads/materials/dveri.jpg [area_modifier] => 1 [parent_name] => Двери входные [parent_id] => 27 [material_sum] => 13200 [work_sum] => 6050 [total_sum] => 19250 [total_days] => 1 [display_material_sum] => 13 200 [display_work_sum] => 6 050 [display_total_sum] => 19 250 ) 1
19 250
Работа:6 050
Материалы:13 200
Дни:1
stdClass Object ( [id] => 54 [attribute_id] => 27 [name] => Нет [material_modifier] => 1 [work_modifier] => 1 [options] => Array ( ) [days] => [0] [material_price] => [0] [work_price] => [0] [image] => https://akademik-stroy.ru/wp-content/uploads/materials/dveri.jpg [area_modifier] => 1 [parent_name] => Двери входные [parent_id] => 27 [material_sum] => 0 [work_sum] => 0 [total_sum] => 0 [total_days] => 0 [display_material_sum] => 0 [display_work_sum] => 0 [display_total_sum] => 0 ) 1
0
Работа:0
Материалы:0
Дни:0
Утепление кровли (Мансарда)
stdClass Object ( [id] => 25 [attribute_id] => 13 [name] => Нет [material_modifier] => 1 [work_modifier] => 1 [options] => Array ( ) [days] => [0] [material_price] => [0] [work_price] => [0] [image] => https://akademik-stroy.ru/wp-content/uploads/materials/mineralovata-krov.jpg [area_modifier] => 128.16 [parent_name] => Утепление кровли (Мансарда) [parent_id] => 13 [material_sum] => 0 [work_sum] => 0 [total_sum] => 0 [total_days] => 0 [display_material_sum] => 0 [display_work_sum] => 0 [display_total_sum] => 0 ) 1
0
Работа:0
Материалы:0
Дни:0
stdClass Object ( [id] => 26 [attribute_id] => 13 [name] => Минераловатный [material_modifier] => 1 [work_modifier] => 1 [options] => Array ( [0] => 50 мм [1] => 100 мм [2] => 150 мм [3] => 200 мм [4] => 250 мм [5] => 300 мм [6] => 350 мм [7] => 400 мм [8] => 450 мм [9] => 500 мм ) [days] => [5,5,6,6,6,7,7,7,8,8] [material_price] => [1158,1414,1772,2230,3602,4060,4974,5890,6408,7718] [work_price] => [650,846,846,1098,1318,1450,1596,1754,1930,2122] [image] => https://akademik-stroy.ru/wp-content/uploads/materials/mineralovata-krov.jpg [area_modifier] => 128.16 [parent_name] => Утепление кровли (Мансарда) [parent_id] => 13 [material_sum] => 195900 [work_sum] => 91634 [total_sum] => 287534 [total_days] => 5 [display_material_sum] => 195 900 [display_work_sum] => 91 634 [display_total_sum] => 287 534 ) 1
287 534
Работа:91 634
Материалы:195 900
Дни:5
stdClass Object ( [id] => 123 [attribute_id] => 13 [name] => Эковата (целлюлозная вата) [material_modifier] => 1 [work_modifier] => 1 [options] => Array ( [0] => 50 мм [1] => 100 мм [2] => 150 мм [3] => 200 мм [4] => 250 мм [5] => 300 мм [6] => 350 мм [7] => 400 мм [8] => 450 мм [9] => 500 мм ) [days] => [3,3,4,4,4,5,5,5,5,5] [material_price] => [820,1638,2458,3276,5734,6552,8190,9828,11466,13104] [work_price] => [234,304,304,396,474,522,574,632,694,764] [image] => https://akademik-stroy.ru/wp-content/uploads/materials/ehkovata-krov.jpg [area_modifier] => 128.16 [parent_name] => Утепление кровли (Мансарда) [parent_id] => 13 [material_sum] => 138720 [work_sum] => 32988 [total_sum] => 171708 [total_days] => 3 [display_material_sum] => 138 720 [display_work_sum] => 32 988 [display_total_sum] => 171 708 ) 1
171 708
Работа:32 988
Материалы:138 720
Дни:3
stdClass Object ( [id] => 124 [attribute_id] => 13 [name] => Экструдированный пенополистирол [material_modifier] => 1 [work_modifier] => 1 [options] => Array ( [0] => 50 мм [1] => 100 мм [2] => 150 мм [3] => 200 мм [4] => 250 мм [5] => 300 мм [6] => 350 мм [7] => 400 мм [8] => 450 мм [9] => 500 мм ) [days] => [3,3,4,4,4,5,5,5,5,6] [material_price] => [1146,2292,3438,4584,8020,9166,11458,13750,16040,18332] [work_price] => [390,508,508,660,790,870,958,1052,1158,1274] [image] => https://akademik-stroy.ru/wp-content/uploads/materials/epps-krov.jpg [area_modifier] => 128.16 [parent_name] => Утепление кровли (Мансарда) [parent_id] => 13 [material_sum] => 193870 [work_sum] => 54981 [total_sum] => 248851 [total_days] => 3 [display_material_sum] => 193 870 [display_work_sum] => 54 981 [display_total_sum] => 248 851 ) 1
248 851
Работа:54 981
Материалы:193 870
Дни:3
stdClass Object ( [id] => 125 [attribute_id] => 13 [name] => ПСБ (ППС-пенополистирол) [material_modifier] => 1 [work_modifier] => 1 [options] => Array ( [0] => 50 мм [1] => 100 мм [2] => 150 мм [3] => 200 мм [4] => 250 мм [5] => 300 мм [6] => 350 мм [7] => 400 мм [8] => 450 мм [9] => 500 мм ) [days] => [3,3,4,4,4,5,5,5,5,6] [material_price] => [476,954,1430,1906,3336,3814,4766,5720,6674,7626] [work_price] => [390,508,508,660,790,870,958,1052,1158,1274] [image] => https://akademik-stroy.ru/wp-content/uploads/materials/psb-krov.jpg [area_modifier] => 128.16 [parent_name] => Утепление кровли (Мансарда) [parent_id] => 13 [material_sum] => 80525 [work_sum] => 54981 [total_sum] => 135506 [total_days] => 3 [display_material_sum] => 80 525 [display_work_sum] => 54 981 [display_total_sum] => 135 506 ) 1
135 506
Работа:54 981
Материалы:80 525
Дни:3
stdClass Object ( [id] => 126 [attribute_id] => 13 [name] => ППУ (Пенополиуретан) [material_modifier] => 1 [work_modifier] => 1 [options] => Array ( [0] => 50 мм [1] => 100 мм [2] => 150 мм [3] => 200 мм [4] => 250 мм [5] => 300 мм [6] => 350 мм [7] => 400 мм [8] => 450 мм [9] => 500 мм ) [days] => [2,2,3,3,3,3,4,4,4,4] [material_price] => [2080,4160,6240,8320,14560,16640,20800,24960,29120,33280] [work_price] => [234,304,304,396,474,522,574,632,694,764] [image] => https://akademik-stroy.ru/wp-content/uploads/materials/ppu-krov.jpg [area_modifier] => 128.16 [parent_name] => Утепление кровли (Мансарда) [parent_id] => 13 [material_sum] => 351876 [work_sum] => 32988 [total_sum] => 384864 [total_days] => 2 [display_material_sum] => 351 876 [display_work_sum] => 32 988 [display_total_sum] => 384 864 ) 1
384 864
Работа:32 988
Материалы:351 876
Дни:2
stdClass Object ( [id] => 127 [attribute_id] => 13 [name] => PIR-плиты (пенополиизоцианурат) [material_modifier] => 1 [work_modifier] => 1 [options] => Array ( [0] => 50 мм [1] => 100 мм [2] => 150 мм [3] => 200 мм [4] => 250 мм [5] => 300 мм [6] => 350 мм [7] => 400 мм [8] => 450 мм [9] => 500 мм ) [days] => [3,3,4,4,4,5,5,5,5,6] [material_price] => [2646,5290,7936,10580,18516,21162,26452,31742,37032,42324] [work_price] => [390,508,508,660,790,870,958,1052,1158,1274] [image] => https://akademik-stroy.ru/wp-content/uploads/materials/pir-krov.jpg [area_modifier] => 128.16 [parent_name] => Утепление кровли (Мансарда) [parent_id] => 13 [material_sum] => 447627 [work_sum] => 54981 [total_sum] => 502608 [total_days] => 3 [display_material_sum] => 447 627 [display_work_sum] => 54 981 [display_total_sum] => 502 608 ) 1
502 608
Работа:54 981
Материалы:447 627
Дни:3
Мансардные окна
stdClass Object ( [id] => 27 [attribute_id] => 14 [name] => Нет [material_modifier] => 1 [work_modifier] => 1 [options] => Array ( ) [days] => [0] [material_price] => [0] [work_price] => [0] [image] => https://akademik-stroy.ru/wp-content/uploads/materials/mansardnye-okna-2.jpg [area_modifier] => 1 [parent_name] => Мансардные окна [parent_id] => 14 [material_sum] => 0 [work_sum] => 0 [total_sum] => 0 [total_days] => 0 [display_material_sum] => 0 [display_work_sum] => 0 [display_total_sum] => 0 ) 1
0
Работа:0
Материалы:0
Дни:0
stdClass Object ( [id] => 28 [attribute_id] => 14 [name] => Есть [material_modifier] => 1 [work_modifier] => 1 [options] => Array ( [0] => 55x78 [1] => 55x98 ) [days] => [6,7] [material_price] => [47480,68700] [work_price] => [17900,19500] [image] => https://akademik-stroy.ru/wp-content/uploads/materials/mansardnye-okna-2.jpg [area_modifier] => 1 [parent_name] => Мансардные окна [parent_id] => 14 [material_sum] => 62674 [work_sum] => 19690 [total_sum] => 82364 [total_days] => 6 [display_material_sum] => 62 674 [display_work_sum] => 19 690 [display_total_sum] => 82 364 ) 1
82 364
Работа:19 690
Материалы:62 674
Дни:6
Подшивка кровли
stdClass Object ( [id] => 29 [attribute_id] => 15 [name] => Нет [material_modifier] => 1 [work_modifier] => 1 [options] => Array ( ) [days] => [0] [material_price] => [0] [work_price] => [0] [image] => https://akademik-stroy.ru/wp-content/uploads/materials/sofit.jpg [area_modifier] => 128.16 [parent_name] => Подшивка кровли [parent_id] => 15 [material_sum] => 0 [work_sum] => 0 [total_sum] => 0 [total_days] => 0 [display_material_sum] => 0 [display_work_sum] => 0 [display_total_sum] => 0 ) 1
0
Работа:0
Материалы:0
Дни:0
stdClass Object ( [id] => 30 [attribute_id] => 15 [name] => Есть [material_modifier] => 1 [work_modifier] => 1 [options] => Array ( [0] => Софиты (ПВХ) [1] => Cedral [2] => ДПК [3] => Планкен ) [days] => [7,10,9,8] [material_price] => [1803,3213,3025,3150] [work_price] => [1529,2188,2075,1923] [image] => https://akademik-stroy.ru/wp-content/uploads/materials/sofit.jpg [area_modifier] => 128.16 [parent_name] => Подшивка кровли [parent_id] => 15 [material_sum] => 305016 [work_sum] => 215552 [total_sum] => 520568 [total_days] => 7 [display_material_sum] => 305 016 [display_work_sum] => 215 552 [display_total_sum] => 520 568 ) 1
520 568
Работа:215 552
Материалы:305 016
Дни:7
Водосточная система
stdClass Object ( [id] => 31 [attribute_id] => 16 [name] => Нет [material_modifier] => 1 [work_modifier] => 1 [options] => Array ( ) [days] => [0] [material_price] => [0] [work_price] => [0] [image] => https://akademik-stroy.ru/wp-content/uploads/materials/docke-standard-pvh.jpg [area_modifier] => 128.16 [parent_name] => Водосточная система [parent_id] => 16 [material_sum] => 0 [work_sum] => 0 [total_sum] => 0 [total_days] => 0 [display_material_sum] => 0 [display_work_sum] => 0 [display_total_sum] => 0 ) 1
0
Работа:0
Материалы:0
Дни:0
stdClass Object ( [id] => 32 [attribute_id] => 16 [name] => Есть [material_modifier] => 1 [work_modifier] => 1 [options] => Array ( [0] => Döcke Standard (ПВХ) [1] => Металлические Grand Line ) [days] => [7,7] [material_price] => [1842,2703] [work_price] => [1491,1529] [image] => https://akademik-stroy.ru/wp-content/uploads/materials/docke-standard-pvh.jpg [area_modifier] => 128.16 [parent_name] => Водосточная система [parent_id] => 16 [material_sum] => 311613 [work_sum] => 210195 [total_sum] => 521808 [total_days] => 7 [display_material_sum] => 311 613 [display_work_sum] => 210 195 [display_total_sum] => 521 808 ) 1
521 808
Работа:210 195
Материалы:311 613
Дни:7
Дополнительное утепление наружных стен
stdClass Object ( [id] => 33 [attribute_id] => 17 [name] => Нет [material_modifier] => 1 [work_modifier] => 1 [options] => Array ( ) [days] => [0] [material_price] => [0] [work_price] => [0] [image] => https://akademik-stroy.ru/wp-content/uploads/materials/mineralovata.jpg [area_modifier] => 195.69 [parent_name] => Дополнительное утепление наружных стен [parent_id] => 17 [material_sum] => 0 [work_sum] => 0 [total_sum] => 0 [total_days] => 0 [display_material_sum] => 0 [display_work_sum] => 0 [display_total_sum] => 0 ) 1
0
Работа:0
Материалы:0
Дни:0
stdClass Object ( [id] => 34 [attribute_id] => 17 [name] => Минераловатный [material_modifier] => 1 [work_modifier] => 1 [options] => Array ( [0] => 50 мм [1] => 100 мм [2] => 150 мм [3] => 200 мм [4] => 250 мм [5] => 300 мм ) [days] => [7,8,10,12,14,15] [material_price] => [3437,3613,3803,3915,4601,4830] [work_price] => [2325,2423,2523,2749,2859,3025] [image] => https://akademik-stroy.ru/wp-content/uploads/materials/mineralovata.jpg [area_modifier] => 195.69 [parent_name] => Дополнительное утепление наружных стен [parent_id] => 17 [material_sum] => 887814 [work_sum] => 500477 [total_sum] => 1388291 [total_days] => 7 [display_material_sum] => 887 814 [display_work_sum] => 500 477 [display_total_sum] => 1 388 291 ) 1
1 388 291
Работа:500 477
Материалы:887 814
Дни:7
stdClass Object ( [id] => 128 [attribute_id] => 17 [name] => Эковата (целлюлозная вата) [material_modifier] => 1 [work_modifier] => 1 [options] => Array ( [0] => 50 мм [1] => 100 мм [2] => 150 мм [3] => 200 мм [4] => 250 мм [5] => 300 мм ) [days] => [3,4,5,6,7,8] [material_price] => [810,1319,1629,1838,2267,2676] [work_price] => [1225,1323,1423,1549,1659,1725] [image] => https://akademik-stroy.ru/wp-content/uploads/materials/ehkovata.jpg [area_modifier] => 195.69 [parent_name] => Дополнительное утепление наружных стен [parent_id] => 17 [material_sum] => 209232 [work_sum] => 263692 [total_sum] => 472924 [total_days] => 3 [display_material_sum] => 209 232 [display_work_sum] => 263 692 [display_total_sum] => 472 924 ) 1
472 924
Работа:263 692
Материалы:209 232
Дни:3
stdClass Object ( [id] => 129 [attribute_id] => 17 [name] => Экструдированный пенополистирол [material_modifier] => 1 [work_modifier] => 1 [options] => Array ( [0] => 50 мм [1] => 100 мм [2] => 150 мм [3] => 200 мм [4] => 250 мм [5] => 300 мм ) [days] => [5,6,7,8,9,10] [material_price] => [4560,4300,5119,6292,7010,8583] [work_price] => [1795,1954,2254,2330,2595,2735] [image] => https://akademik-stroy.ru/wp-content/uploads/materials/epps.jpg [area_modifier] => 195.69 [parent_name] => Дополнительное утепление наружных стен [parent_id] => 17 [material_sum] => 1177897 [work_sum] => 386390 [total_sum] => 1564287 [total_days] => 5 [display_material_sum] => 1 177 897 [display_work_sum] => 386 390 [display_total_sum] => 1 564 287 ) 1
1 564 287
Работа:386 390
Материалы:1 177 897
Дни:5
stdClass Object ( [id] => 130 [attribute_id] => 17 [name] => ПСБ (ППС-пенополистирол) [material_modifier] => 1 [work_modifier] => 1 [options] => Array ( [0] => 50 мм [1] => 100 мм [2] => 150 мм [3] => 200 мм [4] => 250 мм [5] => 300 мм ) [days] => [5,6,7,8,9,10] [material_price] => [4822,5200,5819,6292,7010,7583] [work_price] => [1795,1954,2254,2330,2595,2735] [image] => https://akademik-stroy.ru/wp-content/uploads/materials/psb.jpg [area_modifier] => 195.69 [parent_name] => Дополнительное утепление наружных стен [parent_id] => 17 [material_sum] => 1245575 [work_sum] => 386390 [total_sum] => 1631965 [total_days] => 5 [display_material_sum] => 1 245 575 [display_work_sum] => 386 390 [display_total_sum] => 1 631 965 ) 1
1 631 965
Работа:386 390
Материалы:1 245 575
Дни:5
stdClass Object ( [id] => 131 [attribute_id] => 17 [name] => ППУ (Пенополиуретан) [material_modifier] => 1 [work_modifier] => 1 [options] => Array ( [0] => 50 мм [1] => 100 мм [2] => 150 мм [3] => 200 мм [4] => 250 мм [5] => 300 мм ) [days] => [3,4,5,6,7,8] [material_price] => [2860,3400,4219,4592,5010,5583] [work_price] => [729,900,980,1120,1280,1530] [image] => https://akademik-stroy.ru/wp-content/uploads/materials/ppu.jpg [area_modifier] => 195.69 [parent_name] => Дополнительное утепление наружных стен [parent_id] => 17 [material_sum] => 738769 [work_sum] => 156924 [total_sum] => 895693 [total_days] => 3 [display_material_sum] => 738 769 [display_work_sum] => 156 924 [display_total_sum] => 895 693 ) 1
895 693
Работа:156 924
Материалы:738 769
Дни:3
stdClass Object ( [id] => 132 [attribute_id] => 17 [name] => PIR-плиты (пенополиизоцианурат) [material_modifier] => 1 [work_modifier] => 1 [options] => Array ( [0] => 50 мм [1] => 100 мм [2] => 150 мм [3] => 200 мм [4] => 250 мм [5] => 300 мм ) [days] => [5,6,7,8,9,10] [material_price] => [8323,15645,20968,25900,29258,30581] [work_price] => [800,900,970,1150,1280,1330] [image] => https://akademik-stroy.ru/wp-content/uploads/materials/pir.jpg [area_modifier] => 195.69 [parent_name] => Дополнительное утепление наружных стен [parent_id] => 17 [material_sum] => 2149921 [work_sum] => 172207 [total_sum] => 2322128 [total_days] => 5 [display_material_sum] => 2 149 921 [display_work_sum] => 172 207 [display_total_sum] => 2 322 128 ) 1
2 322 128
Работа:172 207
Материалы:2 149 921
Дни:5
Наружная отделка фасада
stdClass Object ( [id] => 37 [attribute_id] => 19 [name] => Нет [material_modifier] => 1 [work_modifier] => 1 [options] => Array ( ) [days] => [0] [material_price] => [0] [work_price] => [0] [image] => https://akademik-stroy.ru/wp-content/uploads/materials/imitaciya-brusa.jpg [area_modifier] => 195.69 [parent_name] => Наружная отделка фасада [parent_id] => 19 [material_sum] => 0 [work_sum] => 0 [total_sum] => 0 [total_days] => 0 [display_material_sum] => 0 [display_work_sum] => 0 [display_total_sum] => 0 ) 1
0
Работа:0
Материалы:0
Дни:0
stdClass Object ( [id] => 38 [attribute_id] => 19 [name] => Имитация бруса [material_modifier] => 1 [work_modifier] => 1 [options] => Array ( [0] => Сосна [1] => Ель [2] => Лиственница ) [days] => [20,20,20] [material_price] => [2994,2762,4954] [work_price] => [1397,1231,1577] [image] => https://akademik-stroy.ru/wp-content/uploads/materials/imitaciya-brusa.jpg [area_modifier] => 195.69 [parent_name] => Наружная отделка фасада [parent_id] => 19 [material_sum] => 773383 [work_sum] => 300717 [total_sum] => 1074100 [total_days] => 20 [display_material_sum] => 773 383 [display_work_sum] => 300 717 [display_total_sum] => 1 074 100 ) 1
1 074 100
Работа:300 717
Материалы:773 383
Дни:20
stdClass Object ( [id] => 136 [attribute_id] => 19 [name] => Планкен [material_modifier] => 1 [work_modifier] => 1 [options] => Array ( [0] => Сосна [1] => Ель [2] => Лиственница ) [days] => [20,20,20] [material_price] => [3194,2862,5154] [work_price] => [1537,1354,1735] [image] => https://akademik-stroy.ru/wp-content/uploads/materials/planken.jpg [area_modifier] => 195.69 [parent_name] => Наружная отделка фасада [parent_id] => 19 [material_sum] => 825045 [work_sum] => 330853 [total_sum] => 1155898 [total_days] => 20 [display_material_sum] => 825 045 [display_work_sum] => 330 853 [display_total_sum] => 1 155 898 ) 1
1 155 898
Работа:330 853
Материалы:825 045
Дни:20
stdClass Object ( [id] => 137 [attribute_id] => 19 [name] => Штукатурка [material_modifier] => 1 [work_modifier] => 1 [options] => Array ( [0] => Цементно-песчаная (минеральная) [1] => Мокрый фасад ) [days] => [35,35] [material_price] => [2231,3938] [work_price] => [1202,2422] [image] => https://akademik-stroy.ru/wp-content/uploads/materials/shtukaturka.jpg [area_modifier] => 195.69 [parent_name] => Наружная отделка фасада [parent_id] => 19 [material_sum] => 576291 [work_sum] => 258741 [total_sum] => 835032 [total_days] => 35 [display_material_sum] => 576 291 [display_work_sum] => 258 741 [display_total_sum] => 835 032 ) 1
835 032
Работа:258 741
Материалы:576 291
Дни:35
stdClass Object ( [id] => 138 [attribute_id] => 19 [name] => Облицовочный кирпич [material_modifier] => 1 [work_modifier] => 1 [options] => Array ( [0] => Керамический [1] => Клинкерный [2] => Ручной формовки [3] => Гиперпрессованный [4] => Силикатный кирпич ) [days] => [45,45,45,45,45] [material_price] => [8174,9148,1040,1257,5876] [work_price] => [3240,3758,4536,4017,3369] [image] => https://akademik-stroy.ru/wp-content/uploads/materials/oblicovochnyj-kirpich.jpg [area_modifier] => 195.69 [parent_name] => Наружная отделка фасада [parent_id] => 19 [material_sum] => 2111432 [work_sum] => 697439 [total_sum] => 2808871 [total_days] => 45 [display_material_sum] => 2 111 432 [display_work_sum] => 697 439 [display_total_sum] => 2 808 871 ) 1
2 808 871
Работа:697 439
Материалы:2 111 432
Дни:45
stdClass Object ( [id] => 139 [attribute_id] => 19 [name] => Фасадная плитка [material_modifier] => 1 [work_modifier] => 1 [options] => Array ( [0] => Клинкерная [1] => Керамическая [2] => Плитка ручной формовки ) [days] => [40,40,40] [material_price] => [2974,1487,3470] [work_price] => [3007,2592,3629] [image] => https://akademik-stroy.ru/wp-content/uploads/materials/fasadnaya-plitka.jpg [area_modifier] => 195.69 [parent_name] => Наружная отделка фасада [parent_id] => 19 [material_sum] => 768216 [work_sum] => 647284 [total_sum] => 1415500 [total_days] => 40 [display_material_sum] => 768 216 [display_work_sum] => 647 284 [display_total_sum] => 1 415 500 ) 1
1 415 500
Работа:647 284
Материалы:768 216
Дни:40
stdClass Object ( [id] => 140 [attribute_id] => 19 [name] => Сайдинг [material_modifier] => 1 [work_modifier] => 1 [options] => Array ( [0] => Виниловый [1] => Металлический [2] => Фиброцементный ) [days] => [20,20,20] [material_price] => [1263,1944,4147] [work_price] => [1263,1944,2074] [image] => https://akademik-stroy.ru/wp-content/uploads/materials/sajding.jpg [area_modifier] => 195.69 [parent_name] => Наружная отделка фасада [parent_id] => 19 [material_sum] => 326247 [work_sum] => 271872 [total_sum] => 598119 [total_days] => 20 [display_material_sum] => 326 247 [display_work_sum] => 271 872 [display_total_sum] => 598 119 ) 1
598 119
Работа:271 872
Материалы:326 247
Дни:20
stdClass Object ( [id] => 141 [attribute_id] => 19 [name] => Камень [material_modifier] => 1 [work_modifier] => 1 [options] => Array ( [0] => Травертин [1] => Дагестанский [2] => Искусственный [3] => Натуральный [4] => Керамогранит ) [days] => [45,45,45,45,45] [material_price] => [4536,3888,2592,3240,2462] [work_price] => [3240,3240,2462,3110,1944] [image] => https://akademik-stroy.ru/wp-content/uploads/materials/kamen-1.jpg [area_modifier] => 195.69 [parent_name] => Наружная отделка фасада [parent_id] => 19 [material_sum] => 1171698 [work_sum] => 697439 [total_sum] => 1869137 [total_days] => 45 [display_material_sum] => 1 171 698 [display_work_sum] => 697 439 [display_total_sum] => 1 869 137 ) 1
1 869 137
Работа:697 439
Материалы:1 171 698
Дни:45
stdClass Object ( [id] => 142 [attribute_id] => 19 [name] => Термопанели [material_modifier] => 1 [work_modifier] => 1 [options] => Array ( ) [days] => [20] [material_price] => [6221] [work_price] => [2333] [image] => https://akademik-stroy.ru/wp-content/uploads/materials/termo.png [area_modifier] => 195.69 [parent_name] => Наружная отделка фасада [parent_id] => 19 [material_sum] => 1606951 [work_sum] => 502199 [total_sum] => 2109150 [total_days] => 20 [display_material_sum] => 1 606 951 [display_work_sum] => 502 199 [display_total_sum] => 2 109 150 ) 1
2 109 150
Работа:502 199
Материалы:1 606 951
Дни:20
stdClass Object ( [id] => 143 [attribute_id] => 19 [name] => Плитка HAUBERK [material_modifier] => 1 [work_modifier] => 1 [options] => Array ( ) [days] => [20] [material_price] => [2786] [work_price] => [1944] [image] => https://akademik-stroy.ru/wp-content/uploads/materials/hauberk.jpg [area_modifier] => 195.69 [parent_name] => Наружная отделка фасада [parent_id] => 19 [material_sum] => 719654 [work_sum] => 418463 [total_sum] => 1138117 [total_days] => 20 [display_material_sum] => 719 654 [display_work_sum] => 418 463 [display_total_sum] => 1 138 117 ) 1
1 138 117
Работа:418 463
Материалы:719 654
Дни:20
stdClass Object ( [id] => 144 [attribute_id] => 19 [name] => Фальцевый фасад [material_modifier] => 1 [work_modifier] => 1 [options] => Array ( ) [days] => [20] [material_price] => [3240] [work_price] => [2592] [image] => https://akademik-stroy.ru/wp-content/uploads/materials/falcevyj-fasad.jpg [area_modifier] => 195.69 [parent_name] => Наружная отделка фасада [parent_id] => 19 [material_sum] => 836927 [work_sum] => 557951 [total_sum] => 1394878 [total_days] => 20 [display_material_sum] => 836 927 [display_work_sum] => 557 951 [display_total_sum] => 1 394 878 ) 1
1 394 878
Работа:557 951
Материалы:836 927
Дни:20
stdClass Object ( [id] => 145 [attribute_id] => 19 [name] => Комбинированный [material_modifier] => 1 [work_modifier] => 1 [options] => Array ( ) [days] => [20] [material_price] => [4629] [work_price] => [3499] [image] => https://akademik-stroy.ru/wp-content/uploads/materials/Kombinirovannyj.jpg [area_modifier] => 195.69 [parent_name] => Наружная отделка фасада [parent_id] => 19 [material_sum] => 1195721 [work_sum] => 753191 [total_sum] => 1948912 [total_days] => 20 [display_material_sum] => 1 195 721 [display_work_sum] => 753 191 [display_total_sum] => 1 948 912 ) 1
1 948 912
Работа:753 191
Материалы:1 195 721
Дни:20
stdClass Object ( [id] => 257 [attribute_id] => 19 [name] => Японские фиброцементные [material_modifier] => 1 [work_modifier] => 1 [options] => Array ( ) [days] => [20] [material_price] => [7043] [work_price] => [2993] [image] => https://akademik-stroy.ru/wp-content/uploads/materials/paneli.jpg [area_modifier] => 195.69 [parent_name] => Наружная отделка фасада [parent_id] => 19 [material_sum] => 1819283 [work_sum] => 644270 [total_sum] => 2463553 [total_days] => 20 [display_material_sum] => 1 819 283 [display_work_sum] => 644 270 [display_total_sum] => 2 463 553 ) 1
2 463 553
Работа:644 270
Материалы:1 819 283
Дни:20
stdClass Object ( [id] => 258 [attribute_id] => 19 [name] => Панели Каньон [material_modifier] => 1 [work_modifier] => 1 [options] => Array ( ) [days] => [20] [material_price] => [4543] [work_price] => [2592] [image] => https://akademik-stroy.ru/wp-content/uploads/materials/kanon.png [area_modifier] => 195.69 [parent_name] => Наружная отделка фасада [parent_id] => 19 [material_sum] => 1173506 [work_sum] => 557951 [total_sum] => 1731457 [total_days] => 20 [display_material_sum] => 1 173 506 [display_work_sum] => 557 951 [display_total_sum] => 1 731 457 ) 1
1 731 457
Работа:557 951
Материалы:1 173 506
Дни:20
Террасы, крыльца, навесы
stdClass Object ( [id] => 39 [attribute_id] => 20 [name] => Нет [material_modifier] => 1 [work_modifier] => 1 [options] => Array ( ) [days] => [0] [material_price] => [0] [work_price] => [0] [image] => https://akademik-stroy.ru/wp-content/uploads/materials/terrasy.jpg [area_modifier] => 30 [parent_name] => Террасы, крыльца, навесы [parent_id] => 20 [material_sum] => 0 [work_sum] => 0 [total_sum] => 0 [total_days] => 0 [display_material_sum] => 0 [display_work_sum] => 0 [display_total_sum] => 0 ) 1
0
Работа:0
Материалы:0
Дни:0
stdClass Object ( [id] => 40 [attribute_id] => 20 [name] => Есть [material_modifier] => 1 [work_modifier] => 1 [options] => Array ( ) [days] => [5] [material_price] => [10450] [work_price] => [1950] [image] => https://akademik-stroy.ru/wp-content/uploads/materials/terrasy.jpg [area_modifier] => 30 [parent_name] => Террасы, крыльца, навесы [parent_id] => 20 [material_sum] => 413820 [work_sum] => 64350 [total_sum] => 478170 [total_days] => 5 [display_material_sum] => 413 820 [display_work_sum] => 64 350 [display_total_sum] => 478 170 ) 1
478 170
Работа:64 350
Материалы:413 820
Дни:5
Балконы
stdClass Object ( [id] => 41 [attribute_id] => 21 [name] => Нет [material_modifier] => 1 [work_modifier] => 1 [options] => Array ( ) [days] => [0] [material_price] => [0] [work_price] => [0] [image] => https://akademik-stroy.ru/wp-content/uploads/materials/balkony.jpg [area_modifier] => 30 [parent_name] => Балконы [parent_id] => 21 [material_sum] => 0 [work_sum] => 0 [total_sum] => 0 [total_days] => 0 [display_material_sum] => 0 [display_work_sum] => 0 [display_total_sum] => 0 ) 1
0
Работа:0
Материалы:0
Дни:0
stdClass Object ( [id] => 42 [attribute_id] => 21 [name] => Есть [material_modifier] => 1 [work_modifier] => 1 [options] => Array ( ) [days] => [12] [material_price] => [3600] [work_price] => [1950] [image] => https://akademik-stroy.ru/wp-content/uploads/materials/balkony.jpg [area_modifier] => 30 [parent_name] => Балконы [parent_id] => 21 [material_sum] => 142560 [work_sum] => 64350 [total_sum] => 206910 [total_days] => 12 [display_material_sum] => 142 560 [display_work_sum] => 64 350 [display_total_sum] => 206 910 ) 1
206 910
Работа:64 350
Материалы:142 560
Дни:12
Отмостка
stdClass Object ( [id] => 43 [attribute_id] => 22 [name] => Нет [material_modifier] => 1 [work_modifier] => 1 [options] => Array ( ) [days] => [0] [material_price] => [0] [work_price] => [0] [image] => https://akademik-stroy.ru/wp-content/uploads/materials/uteplennaya.jpg [area_modifier] => 128.16 [parent_name] => Отмостка [parent_id] => 22 [material_sum] => 0 [work_sum] => 0 [total_sum] => 0 [total_days] => 0 [display_material_sum] => 0 [display_work_sum] => 0 [display_total_sum] => 0 ) 1
0
Работа:0
Материалы:0
Дни:0
stdClass Object ( [id] => 44 [attribute_id] => 22 [name] => Утепленная отмостка [material_modifier] => 1 [work_modifier] => 1 [options] => Array ( ) [days] => [15] [material_price] => [2550] [work_price] => [1750] [image] => https://akademik-stroy.ru/wp-content/uploads/materials/uteplennaya.jpg [area_modifier] => 128.16 [parent_name] => Отмостка [parent_id] => 22 [material_sum] => 431387 [work_sum] => 246708 [total_sum] => 678095 [total_days] => 15 [display_material_sum] => 431 387 [display_work_sum] => 246 708 [display_total_sum] => 678 095 ) 1
678 095
Работа:246 708
Материалы:431 387
Дни:15
stdClass Object ( [id] => 146 [attribute_id] => 22 [name] => Не утепленная отмостка [material_modifier] => 1 [work_modifier] => 1 [options] => Array ( ) [days] => [10] [material_price] => [1650] [work_price] => [1450] [image] => https://akademik-stroy.ru/wp-content/uploads/materials/ne-uteplennaya.jpg [area_modifier] => 128.16 [parent_name] => Отмостка [parent_id] => 22 [material_sum] => 279132 [work_sum] => 204415 [total_sum] => 483547 [total_days] => 10 [display_material_sum] => 279 132 [display_work_sum] => 204 415 [display_total_sum] => 483 547 ) 1
483 547
Работа:204 415
Материалы:279 132
Дни:10
Дренаж вокруг дома
stdClass Object ( [id] => 45 [attribute_id] => 23 [name] => Нет [material_modifier] => 1 [work_modifier] => 1 [options] => Array ( ) [days] => [0] [material_price] => [0] [work_price] => [0] [image] => https://akademik-stroy.ru/wp-content/uploads/materials/drenazh-2.jpg [area_modifier] => 128.16 [parent_name] => Дренаж вокруг дома [parent_id] => 23 [material_sum] => 0 [work_sum] => 0 [total_sum] => 0 [total_days] => 0 [display_material_sum] => 0 [display_work_sum] => 0 [display_total_sum] => 0 ) 1
0
Работа:0
Материалы:0
Дни:0
stdClass Object ( [id] => 46 [attribute_id] => 23 [name] => Есть [material_modifier] => 1 [work_modifier] => 1 [options] => Array ( ) [days] => [5] [material_price] => [2366] [work_price] => [1911] [image] => https://akademik-stroy.ru/wp-content/uploads/materials/drenazh-2.jpg [area_modifier] => 128.16 [parent_name] => Дренаж вокруг дома [parent_id] => 23 [material_sum] => 400259 [work_sum] => 269405 [total_sum] => 669664 [total_days] => 5 [display_material_sum] => 400 259 [display_work_sum] => 269 405 [display_total_sum] => 669 664 ) 1
669 664
Работа:269 405
Материалы:400 259
Дни:5
Автономная канализация (септики)
stdClass Object ( [id] => 47 [attribute_id] => 24 [name] => Нет [material_modifier] => 1 [work_modifier] => 1 [options] => Array ( ) [days] => [0] [material_price] => [0] [work_price] => [0] [image] => https://akademik-stroy.ru/wp-content/uploads/materials/septik.jpg [area_modifier] => 1 [parent_name] => Автономная канализация (септики) [parent_id] => 24 [material_sum] => 0 [work_sum] => 0 [total_sum] => 0 [total_days] => 0 [display_material_sum] => 0 [display_work_sum] => 0 [display_total_sum] => 0 ) 1
0
Работа:0
Материалы:0
Дни:0
stdClass Object ( [id] => 48 [attribute_id] => 24 [name] => Есть [material_modifier] => 1 [work_modifier] => 1 [options] => Array ( [0] => Для дачи на 4 человека [1] => Для дома на 5 человек [2] => Для дома на 6 человек [3] => Для дома на 7 человек [4] => Для дома на 10 человек ) [days] => [7,7,7,8,8] [material_price] => [196340,220500,240940,264200,293340] [work_price] => [50000,55000,60500,66550,73206] [image] => https://akademik-stroy.ru/wp-content/uploads/materials/septik.jpg [area_modifier] => 1 [parent_name] => Автономная канализация (септики) [parent_id] => 24 [material_sum] => 259169 [work_sum] => 55000 [total_sum] => 314169 [total_days] => 7 [display_material_sum] => 259 169 [display_work_sum] => 55 000 [display_total_sum] => 314 169 ) 1
314 169
Работа:55 000
Материалы:259 169
Дни:7
Внутренние (не несущие) перегородки
stdClass Object ( [id] => 49 [attribute_id] => 25 [name] => Нет [material_modifier] => 1 [work_modifier] => 1 [options] => Array ( ) [days] => [0] [material_price] => [0] [work_price] => [0] [image] => https://akademik-stroy.ru/wp-content/uploads/materials/gkl.jpg [area_modifier] => 195.69 [parent_name] => Внутренние (не несущие) перегородки [parent_id] => 25 [material_sum] => 0 [work_sum] => 0 [total_sum] => 0 [total_days] => 0 [display_material_sum] => 0 [display_work_sum] => 0 [display_total_sum] => 0 ) 1
0
Работа:0
Материалы:0
Дни:0
stdClass Object ( [id] => 147 [attribute_id] => 25 [name] => Каркасно-обшивные [material_modifier] => 1 [work_modifier] => 1 [options] => Array ( [0] => 75 мм (без шумоизоляции) [1] => 75 мм (с шумоизоляцией) ) [days] => [11,11] [material_price] => [580,970] [work_price] => [380,570] [image] => https://akademik-stroy.ru/wp-content/uploads/materials/gkl.jpg [area_modifier] => 195.69 [parent_name] => Внутренние (не несущие) перегородки [parent_id] => 25 [material_sum] => 149820 [work_sum] => 81798 [total_sum] => 231618 [total_days] => 11 [display_material_sum] => 149 820 [display_work_sum] => 81 798 [display_total_sum] => 231 618 ) 1
231 618
Работа:81 798
Материалы:149 820
Дни:11
stdClass Object ( [id] => 148 [attribute_id] => 25 [name] => Пазогребневые [material_modifier] => 1 [work_modifier] => 1 [options] => Array ( [0] => 80 мм [1] => 100 мм ) [days] => [5,5] [material_price] => [1022,1313] [work_price] => [600,700] [image] => https://akademik-stroy.ru/wp-content/uploads/materials/pazogrebnevye-bloki.jpg [area_modifier] => 195.69 [parent_name] => Внутренние (не несущие) перегородки [parent_id] => 25 [material_sum] => 263994 [work_sum] => 129155 [total_sum] => 393149 [total_days] => 5 [display_material_sum] => 263 994 [display_work_sum] => 129 155 [display_total_sum] => 393 149 ) 1
393 149
Работа:129 155
Материалы:263 994
Дни:5
stdClass Object ( [id] => 149 [attribute_id] => 25 [name] => Газобетонные [material_modifier] => 1 [work_modifier] => 1 [options] => Array ( [0] => 100 мм [1] => 200 мм ) [days] => [11,11] [material_price] => [1160,1920] [work_price] => [700,900] [image] => https://akademik-stroy.ru/wp-content/uploads/materials/gazobeton-2.jpg [area_modifier] => 195.69 [parent_name] => Внутренние (не несущие) перегородки [parent_id] => 25 [material_sum] => 299641 [work_sum] => 150681 [total_sum] => 450322 [total_days] => 11 [display_material_sum] => 299 641 [display_work_sum] => 150 681 [display_total_sum] => 450 322 ) 1
450 322
Работа:150 681
Материалы:299 641
Дни:11
stdClass Object ( [id] => 150 [attribute_id] => 25 [name] => Кирпичные [material_modifier] => 1 [work_modifier] => 1 [options] => Array ( [0] => 120 мм [1] => 250 мм [2] => 360 мм ) [days] => [7,7,7] [material_price] => [1785,3570,5355] [work_price] => [900,1600,1800] [image] => https://akademik-stroy.ru/wp-content/uploads/materials/kirpich-1.jpg [area_modifier] => 195.69 [parent_name] => Внутренние (не несущие) перегородки [parent_id] => 25 [material_sum] => 461085 [work_sum] => 193733 [total_sum] => 654818 [total_days] => 7 [display_material_sum] => 461 085 [display_work_sum] => 193 733 [display_total_sum] => 654 818 ) 1
654 818
Работа:193 733
Материалы:461 085
Дни:7
Электрика
stdClass Object ( [id] => 55 [attribute_id] => 28 [name] => Нет [material_modifier] => 1 [work_modifier] => 1 [options] => Array ( ) [days] => [0] [material_price] => [0] [work_price] => [0] [image] => https://akademik-stroy.ru/wp-content/uploads/materials/ehlektrika.jpg [area_modifier] => 158.8 [parent_name] => Электрика [parent_id] => 28 [material_sum] => 0 [work_sum] => 0 [total_sum] => 0 [total_days] => 0 [display_material_sum] => 0 [display_work_sum] => 0 [display_total_sum] => 0 ) 1
0
Работа:0
Материалы:0
Дни:0
stdClass Object ( [id] => 56 [attribute_id] => 28 [name] => Есть [material_modifier] => 1 [work_modifier] => 1 [options] => Array ( ) [days] => [10] [material_price] => [650] [work_price] => [950] [image] => https://akademik-stroy.ru/wp-content/uploads/materials/ehlektrika.jpg [area_modifier] => 158.8 [parent_name] => Электрика [parent_id] => 28 [material_sum] => 136250 [work_sum] => 165946 [total_sum] => 302196 [total_days] => 10 [display_material_sum] => 136 250 [display_work_sum] => 165 946 [display_total_sum] => 302 196 ) 1
302 196
Работа:165 946
Материалы:136 250
Дни:10
Сантехника, канализация в доме
stdClass Object ( [id] => 57 [attribute_id] => 29 [name] => Нет [material_modifier] => 1 [work_modifier] => 1 [options] => Array ( ) [days] => [0] [material_price] => [0] [work_price] => [0] [image] => https://akademik-stroy.ru/wp-content/uploads/materials/santekhnika-kanalizaciya-1.jpg [area_modifier] => 158.8 [parent_name] => Сантехника, канализация в доме [parent_id] => 29 [material_sum] => 0 [work_sum] => 0 [total_sum] => 0 [total_days] => 0 [display_material_sum] => 0 [display_work_sum] => 0 [display_total_sum] => 0 ) 1
0
Работа:0
Материалы:0
Дни:0
stdClass Object ( [id] => 58 [attribute_id] => 29 [name] => Есть [material_modifier] => 1 [work_modifier] => 1 [options] => Array ( ) [days] => [10] [material_price] => [600] [work_price] => [730] [image] => https://akademik-stroy.ru/wp-content/uploads/materials/santekhnika-kanalizaciya-1.jpg [area_modifier] => 158.8 [parent_name] => Сантехника, канализация в доме [parent_id] => 29 [material_sum] => 125770 [work_sum] => 127516 [total_sum] => 253286 [total_days] => 10 [display_material_sum] => 125 770 [display_work_sum] => 127 516 [display_total_sum] => 253 286 ) 1
253 286
Работа:127 516
Материалы:125 770
Дни:10
Отопление
stdClass Object ( [id] => 59 [attribute_id] => 30 [name] => Нет [material_modifier] => 1 [work_modifier] => 1 [options] => Array ( ) [days] => [0] [material_price] => [0] [work_price] => [0] [image] => https://akademik-stroy.ru/wp-content/uploads/materials/otoplenie-1.jpg [area_modifier] => 158.8 [parent_name] => Отопление [parent_id] => 30 [material_sum] => 0 [work_sum] => 0 [total_sum] => 0 [total_days] => 0 [display_material_sum] => 0 [display_work_sum] => 0 [display_total_sum] => 0 ) 1
0
Работа:0
Материалы:0
Дни:0
stdClass Object ( [id] => 60 [attribute_id] => 30 [name] => Есть [material_modifier] => 1 [work_modifier] => 1 [options] => Array ( ) [days] => [5] [material_price] => [610] [work_price] => [560] [image] => https://akademik-stroy.ru/wp-content/uploads/materials/otoplenie-1.jpg [area_modifier] => 158.8 [parent_name] => Отопление [parent_id] => 30 [material_sum] => 127866 [work_sum] => 97821 [total_sum] => 225687 [total_days] => 5 [display_material_sum] => 127 866 [display_work_sum] => 97 821 [display_total_sum] => 225 687 ) 1
225 687
Работа:97 821
Материалы:127 866
Дни:5
Теплые полы
stdClass Object ( [id] => 61 [attribute_id] => 31 [name] => Нет [material_modifier] => 1 [work_modifier] => 1 [options] => Array ( ) [days] => [0] [material_price] => [0] [work_price] => [0] [image] => https://akademik-stroy.ru/wp-content/uploads/materials/vodyanye.jpg [area_modifier] => 30 [parent_name] => Теплые полы [parent_id] => 31 [material_sum] => 0 [work_sum] => 0 [total_sum] => 0 [total_days] => 0 [display_material_sum] => 0 [display_work_sum] => 0 [display_total_sum] => 0 ) 1
0
Работа:0
Материалы:0
Дни:0
stdClass Object ( [id] => 151 [attribute_id] => 31 [name] => Водяные [material_modifier] => 1 [work_modifier] => 1 [options] => Array ( ) [days] => [9] [material_price] => [10200] [work_price] => [2500] [image] => https://akademik-stroy.ru/wp-content/uploads/materials/vodyanye.jpg [area_modifier] => 30 [parent_name] => Теплые полы [parent_id] => 31 [material_sum] => 403920 [work_sum] => 82500 [total_sum] => 486420 [total_days] => 9 [display_material_sum] => 403 920 [display_work_sum] => 82 500 [display_total_sum] => 486 420 ) 1
486 420
Работа:82 500
Материалы:403 920
Дни:9
stdClass Object ( [id] => 152 [attribute_id] => 31 [name] => Электро [material_modifier] => 1 [work_modifier] => 1 [options] => Array ( ) [days] => [5] [material_price] => [6300] [work_price] => [1500] [image] => https://akademik-stroy.ru/wp-content/uploads/materials/ehlektricheskij.jpg [area_modifier] => 30 [parent_name] => Теплые полы [parent_id] => 31 [material_sum] => 249480 [work_sum] => 49500 [total_sum] => 298980 [total_days] => 5 [display_material_sum] => 249 480 [display_work_sum] => 49 500 [display_total_sum] => 298 980 ) 1
298 980
Работа:49 500
Материалы:249 480
Дни:5
Черновая отделка стен
stdClass Object ( [id] => 63 [attribute_id] => 32 [name] => Нет [material_modifier] => 1 [work_modifier] => 1 [options] => Array ( ) [days] => [0] [material_price] => [0] [work_price] => [0] [image] => https://akademik-stroy.ru/wp-content/uploads/materials/shtukaturka-shpatlevka-1.jpg [area_modifier] => 158.8 [parent_name] => Черновая отделка стен [parent_id] => 32 [material_sum] => 0 [work_sum] => 0 [total_sum] => 0 [total_days] => 0 [display_material_sum] => 0 [display_work_sum] => 0 [display_total_sum] => 0 ) 1
0
Работа:0
Материалы:0
Дни:0
stdClass Object ( [id] => 153 [attribute_id] => 32 [name] => Штукатурка и шпатлевка [material_modifier] => 1 [work_modifier] => 1 [options] => Array ( ) [days] => [20] [material_price] => [1850] [work_price] => [2600] [image] => https://akademik-stroy.ru/wp-content/uploads/materials/shtukaturka-shpatlevka-1.jpg [area_modifier] => 158.8 [parent_name] => Черновая отделка стен [parent_id] => 32 [material_sum] => 387790 [work_sum] => 454168 [total_sum] => 841958 [total_days] => 20 [display_material_sum] => 387 790 [display_work_sum] => 454 168 [display_total_sum] => 841 958 ) 1
841 958
Работа:454 168
Материалы:387 790
Дни:20
stdClass Object ( [id] => 154 [attribute_id] => 32 [name] => Гипсокортон на стены [material_modifier] => 1 [work_modifier] => 1 [options] => Array ( ) [days] => [15] [material_price] => [950] [work_price] => [2100] [image] => https://akademik-stroy.ru/wp-content/uploads/materials/gkl-1.jpg [area_modifier] => 158.8 [parent_name] => Черновая отделка стен [parent_id] => 32 [material_sum] => 199135 [work_sum] => 366828 [total_sum] => 565963 [total_days] => 15 [display_material_sum] => 199 135 [display_work_sum] => 366 828 [display_total_sum] => 565 963 ) 1
565 963
Работа:366 828
Материалы:199 135
Дни:15
stdClass Object ( [id] => 155 [attribute_id] => 32 [name] => Вагонка [material_modifier] => 1 [work_modifier] => 1 [options] => Array ( ) [days] => [15] [material_price] => [1250] [work_price] => [950] [image] => https://akademik-stroy.ru/wp-content/uploads/materials/vagonka.jpg [area_modifier] => 158.8 [parent_name] => Черновая отделка стен [parent_id] => 32 [material_sum] => 262020 [work_sum] => 165946 [total_sum] => 427966 [total_days] => 15 [display_material_sum] => 262 020 [display_work_sum] => 165 946 [display_total_sum] => 427 966 ) 1
427 966
Работа:165 946
Материалы:262 020
Дни:15
Черновая отделка полов
stdClass Object ( [id] => 65 [attribute_id] => 33 [name] => Нет [material_modifier] => 1 [work_modifier] => 1 [options] => Array ( ) [days] => [0] [material_price] => [0] [work_price] => [0] [image] => https://akademik-stroy.ru/wp-content/uploads/materials/styazhka.jpg [area_modifier] => 158.8 [parent_name] => Черновая отделка полов [parent_id] => 33 [material_sum] => 0 [work_sum] => 0 [total_sum] => 0 [total_days] => 0 [display_material_sum] => 0 [display_work_sum] => 0 [display_total_sum] => 0 ) 1
0
Работа:0
Материалы:0
Дни:0
stdClass Object ( [id] => 156 [attribute_id] => 33 [name] => Стяжка + наливные полы [material_modifier] => 1 [work_modifier] => 1 [options] => Array ( ) [days] => [10] [material_price] => [1000] [work_price] => [900] [image] => https://akademik-stroy.ru/wp-content/uploads/materials/styazhka.jpg [area_modifier] => 158.8 [parent_name] => Черновая отделка полов [parent_id] => 33 [material_sum] => 209616 [work_sum] => 157212 [total_sum] => 366828 [total_days] => 10 [display_material_sum] => 209 616 [display_work_sum] => 157 212 [display_total_sum] => 366 828 ) 1
366 828
Работа:157 212
Материалы:209 616
Дни:10
stdClass Object ( [id] => 157 [attribute_id] => 33 [name] => ОСБ на пол [material_modifier] => 1 [work_modifier] => 1 [options] => Array ( ) [days] => [7] [material_price] => [580] [work_price] => [350] [image] => https://akademik-stroy.ru/wp-content/uploads/materials/osb-1.jpg [area_modifier] => 158.8 [parent_name] => Черновая отделка полов [parent_id] => 33 [material_sum] => 121577 [work_sum] => 61138 [total_sum] => 182715 [total_days] => 7 [display_material_sum] => 121 577 [display_work_sum] => 61 138 [display_total_sum] => 182 715 ) 1
182 715
Работа:61 138
Материалы:121 577
Дни:7
Чистовая отделка стен и полов
stdClass Object ( [id] => 67 [attribute_id] => 34 [name] => Нет [material_modifier] => 1 [work_modifier] => 1 [options] => Array ( ) [days] => [0] [material_price] => [0] [work_price] => [0] [image] => https://akademik-stroy.ru/wp-content/uploads/materials/chistovaya-otdelka.jpg [area_modifier] => 158.8 [parent_name] => Чистовая отделка стен и полов [parent_id] => 34 [material_sum] => 0 [work_sum] => 0 [total_sum] => 0 [total_days] => 0 [display_material_sum] => 0 [display_work_sum] => 0 [display_total_sum] => 0 ) 1
0
Работа:0
Материалы:0
Дни:0
stdClass Object ( [id] => 68 [attribute_id] => 34 [name] => Есть [material_modifier] => 1 [work_modifier] => 1 [options] => Array ( ) [days] => [50] [material_price] => [6000] [work_price] => [3500] [image] => https://akademik-stroy.ru/wp-content/uploads/materials/chistovaya-otdelka.jpg [area_modifier] => 158.8 [parent_name] => Чистовая отделка стен и полов [parent_id] => 34 [material_sum] => 1257696 [work_sum] => 611380 [total_sum] => 1869076 [total_days] => 50 [display_material_sum] => 1 257 696 [display_work_sum] => 611 380 [display_total_sum] => 1 869 076 ) 1
1 869 076
Работа:611 380
Материалы:1 257 696
Дни:50
Отделка потолка
stdClass Object ( [id] => 69 [attribute_id] => 35 [name] => Нет [material_modifier] => 1 [work_modifier] => 1 [options] => Array ( ) [days] => [0] [material_price] => [0] [work_price] => [0] [image] => https://akademik-stroy.ru/wp-content/uploads/materials/mnogourovnevyj-gkl.jpg [area_modifier] => 158.8 [parent_name] => Отделка потолка [parent_id] => 35 [material_sum] => 0 [work_sum] => 0 [total_sum] => 0 [total_days] => 0 [display_material_sum] => 0 [display_work_sum] => 0 [display_total_sum] => 0 ) 1
0
Работа:0
Материалы:0
Дни:0
stdClass Object ( [id] => 70 [attribute_id] => 35 [name] => Есть [material_modifier] => 1 [work_modifier] => 1 [options] => Array ( [0] => Многоуровневый потолок из гипсокартона [1] => Многоуровневый потолок из гипсокартона и натяжного потолка [2] => Одноуровневый потолок из гипсокартона [3] => Одноуровневый натяжной потолок ) [days] => [10,10,1,1] [material_price] => [900,700,700,600] [work_price] => [1000,800,500,300] [image] => https://akademik-stroy.ru/wp-content/uploads/materials/mnogourovnevyj-gkl.jpg [area_modifier] => 158.8 [parent_name] => Отделка потолка [parent_id] => 35 [material_sum] => 188654 [work_sum] => 174680 [total_sum] => 363334 [total_days] => 10 [display_material_sum] => 188 654 [display_work_sum] => 174 680 [display_total_sum] => 363 334 ) 1
363 334
Работа:174 680
Материалы:188 654
Дни:10

Преимущества работы с нами

icon

7 этапов оплаты

icon

Независимый строительный надзор

icon

Экологически чистые материалы

icon

16 лет гарантии

icon

Онлайн-кабинет с веб-камерой

icon

Строители с опытом более 15 лет

icon

Собственное производство

Двухэтажный дом 14х11 - 158.8 м²: почему это отличный выбор для семьи в Москве

Если вы размышляете о своем собственном доме под Москвой, то наверняка сталкиваетесь с множеством вариантов проектов и планировок. Сегодня поговорим о двухэтажном доме размером 14 на 11 метров с полезной площадью 158.8 квадратных метров. Это не просто цифры — такой дом объединяет в себе комфорт, пространство и продуманную архитектуру, которые крайне важны для полноценной жизни семьи. Этот проект идеально подойдет для тех, кто хочет получить достойное жильё, не переплачивая за лишние квадратные метры или неудобную планировку. По сути, это золотая середина между компактностью и просторностью, сочетание традиционного дизайна с современными требованиями к качеству и функциональности. Для жителей и гостей Москвы такой дом станет оазисом уюта, где одновременно удобно жить, принимать гостей и работать из дома.

Особенности проекта от компании "Академик Строй"

Партнерство с надежным застройщиком

Когда речь заходить о строительстве частного дома в столичном регионе, важно обращаться к компаниям с хорошей репутацией и реальным опытом. "Академик Строй" — один из лидеров в сфере коттеджного строительства, предлагающий готовые проекты домов с высоким качеством исполнения и современными инженерными решениями. Заказывая проект у них, вы получаете не просто чертежи, а комплексное решение, адаптированное под климатические условия Москвы и Подмосковья.

Оптимальное соотношение цены и качества

Одним из главных преимуществ проекта «Двухэтажный дом 14х11» является привлекательная цена. Компания известна своей политикой прозрачного ценообразования, что позволяет клиентам точно понимать, за что они платят. Вы можете получить полный комплект рабочей документации и техническую поддержку на всех этапах строительства, а также воспользоваться консультациями специалистов по оптимизации планировки и инженерных систем. Это значительно экономит ваши время и средства.

Технические характеристики дома 14х11 от "Академик Строй"

Давайте разберем основные параметры, которые делают этот проект таким удобным и функциональным для проживания.
Параметр Значение
Размеры дома 14 x 11 м
Полезная площадь 158.8 м²
Количество этажей 2 этажа
Количество спален 4
Количество санузлов 3
Жилая площадь 129.4 м²
Площадь застройки 132.4 м²
Площадь крыши 185.5 м²
Угол наклона крыши 40°
Высота здания 8.8 м
Минимальные размеры участка 21.6 м ширина, 19 м длина
Тип крыши Двускатная

Что значат эти параметры для будущих хозяев?

Начнем с площади — полезная площадь в 158.8 м² достаточно велика, чтобы комфортно разместить семью из четырех и более человек. В доме предусмотрено 4 спальни, что важно для семей с детьми, где каждый имеет свой личный уголок. Три санузла избавляют от очередей утром и вечером, повышая удобство. Двухэтажная конструкция при размере 14х11 метров оптимальна для большинства типовых участков в Подмосковье — дом достаточно просторный, но при этом занимает разумное пространство на участке с минимальными требованиями к его размерам. Высота здания 8.8 метров и двускатная крыша с углом 40° создают классический архитектурный образ, устойчивый к снеговым нагрузкам и дождю, что особенно важно в московском климате.

Планировка и функциональность: как устроен дом внутри

Простор и удобство для всей семьи

Один из ключевых моментов — грамотная планировка. 4 спальни позволяют удобно распределить комнаты между членами семьи. Как правило, две спальни располагаются на втором этаже, что дает возможность выделить родительскую зону и детскую. Еще одна или две спальни могут использоваться как гостевые или кабинет. На первом этаже, помимо общей зоны — гостиной и кухни-столовой, стоит обратить внимание на дополнительное пространство для хозяйственных нужд. Благодаря трем санузлам, вы можете оборудовать отдельный санузел на каждом этаже, а также гостевой или рабочий санузел у входа — это очень удобно и практично.

Преимущества двух этажей

Разделение на два этажа позволяет отделить «дневную» часть дома от «ночной». Зона отдыха — спальни — будет находиться на верхнем этаже, где больше уединения и тишины, а первая часть дома отдана под общие зоны. Это важно не только с практической точки зрения, но и с психологической, так как каждый член семьи получает свою личную территорию.

Типичная планировка первого этажа:

  • Гостиная зона с камином или большой зоной для отдыха
  • Открытая кухня с обеденной зоной
  • Гостевой санузел и хозяйственное помещение
  • Возможно размещение кабинета или гостевой спальни

Планировка второго этажа:

  • 4 спальни, частично с выходом на балкон (если предусмотрен)
  • 2 санузла — один из них может быть “мастер-санузлом” при родительской спальне
  • Кладовые или гардеробные комнаты

Проект дома под заказ – что важно учитывать при выборе

Почему заказывать проект — выгодно?

Очень часто новички думают, что проще заказать типовое решение, или же пробовать самостоятельно проектировать дом. На деле опыт приходит вместе с профессионалами — компания "Академик Строй" предлагает адаптированные проекты, которые уже прошли испытание временем и идеально соответствуют нормативам строительства в московском регионе. Заказ проекта позволяет учесть индивидуальные особенности вашего участка, архитектурные нюансы и пожелания по дизайну. Вы избегаете ошибок — тех, которые могут привести к перерасходу бюджета, затягиванию сроков и неудобствам в эксплуатации.

Что входит в проект от "Академик Строй"?

Этап Описание
Архитектурный раздел Чертежи фасадов, планы этажей, планировочные решения
Строительный раздел Конструктивные решения, фундаменты, стены, перекрытия
Инженерные системы Водоснабжение, канализация, отопление, электрика
Визуализация 3D-модели, цветовые решения фасадов, варианты отделки
Наличие полного комплекта документации позволяет не просто получить разрешение на строительство, но и значительно упростить последующий ремонт и техническое обслуживание дома.

Стоимость проекта и как заказать

Доступная цена и дополнительные преимущества

Цена проекта "Двухэтажный дом 14х11" и последующего строительства находится в категории, которая удовлетворит большинство среднестатистических семей Москвы и области. Это не экономия на всем подряд — это баланс между стоимостью и качеством. Подробности и точную стоимость вы можете уточнить по телефону +7 (980) 800-47-93, где специалисты "Академик Строй" ответят на все вопросы, помогут подобрать оптимальный вариант по бюджету и дадут рекомендации по материалам и технологии строительства.

Как оформить заказ?

Процесс оформления проекта максимально прост и удобен:
  1. Связаться с менеджером компании по телефону.
  2. Обсудить индивидуальные параметры участка, пожелания по планировке и материалам.
  3. Получить предварительную смету и сроки реализации.
  4. Подписать договор и получить полный пакет проектной документации.
  5. При необходимости заказать дополнительные услуги — консультации, сопровождение строительства.

Аргументы в пользу двухэтажного дома 14x11 с проектом от "Академик Строй"

Плюсы такого строительства

  • Экономия на участке: Требуются участки всего от 21.6 м в ширину и 19 м в длину.
  • Простор внутри: 4 спальни и 3 санузла позволят избежать бытовой суеты и скованности.
  • Классическая крыша: Двускатная крыша с углом 40° эффективно отводит влагу и снег, при этом эстетично выглядит.
  • Высота и объем: Высота 8.8 м позволяет реализовать хорошее освещение и вентиляцию.
  • Полный пакет документации: Гарантирует точное соблюдение норм, ускоряет согласование с органами.
  • Профессиональная поддержка: От выбора и заказа квартиры до сдачи объекта — под вашим контролем специалисты.

Кому подойдет этот дом?

Такой двухэтажный дом будет идеально подходить:
  • Большим семьям с детьми — пространства хватит всем.
  • Тем, кто любит принимать гостей и желает выделить гостевую зону.
  • Работающим на удаленке или предпринимателям — в доме легко обустроить кабинет.
  • Любителям традиционной архитектуры с надежной и теплой конструкцией.
  • Всем, кто хочет строить качественно и быстро, не тратя время на проектирование с нуля.

Заключение

На самом деле, проект двухэтажного дома 14х11 с площадью 158.8 м² — это отличный выбор для тех, кто ищет правильный баланс между комфортом и функциональностью под Москвой. Благодаря своему продуманному плану, оптимальным размерам и качественной разработке от компании "Академик Строй", этот дом становится надежной основой вашего семейного гнездышка. Если вам близки достоинства традиционной классики и вы хотите получить современный, удобный и экономичный дом, звоните по телефону +7 (980) 800-47-93, чтобы заказать проект и получить профессиональные консультации по строительству. Приглашаем вас сделать первый шаг к дому мечты уже сегодня!