Двухэтажный дом 14x10 - 167.08 м2 за руб.

ID-113334

Стоимость дома 5738007 руб.
154 м2 Полезная
площадь
14 x 10 м Размеры
2 этажа Этажей
26 м2 Террасы
и балконы
1Без
гаража
4 Количество
спален
2 Количество
санузлов

Планировки

План первого этажа

floor image
  • 1. Прихожая 4,67 m²
  • 2. Холл 5,93 m²
  • 3. Комната 8,74 m²
  • 4. Гостиная 27,23 m²
  • 5. Кухня 6,48 m²
  • 6. Кладовая 1,70 m²
  • 7. Ванная комната 2,15 m²
  • 8. Кладовая 4,97 m²
  • 9. Котельная 4,97 m²
  • 10. Гараж на 1 машину 33,09 m²
  • План первого этажа 99,93 m²

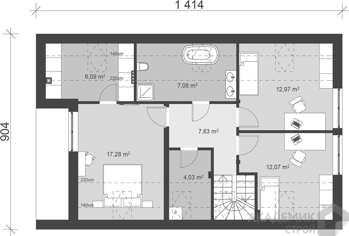
План мансарды

floor image
  • 1. Коридор 7,63 m²
  • 2. Комната 12,07 m²
  • 3. Комната 12,97 m²
  • 4. Ванная комната 7,08 m²
  • 5. Гардероб 6,09 m²
  • 6. Комната 17,28 m²
  • 7. Кладовая 4,03 m²
  • План мансарды 67,15 m²

Фасады

Передний
Задний
Левый
Правый
Передний
Задний
Левый
Правый

Подробная информация

Жилая площадь
124,05 m²
icon

Сумма площади всех жилых помещений, за вычетом пов. гараж, котельная, чердак, подвал. Учитывается в 100%, для помещений высотой более 2,2 м, в 50% для помещений с высотой 2,2-1,4 м и не включается для более низких помещений (меньше 1,4 м).

Площадь застройки
127,85 m²
icon

Площадь застройки здания определяется как площадь горизонтального сечения по внешнему обводу здания на уровне цоколя, включая выступающие части.

Площадь нетто
192,70 m²
icon

Площадь всех помещений в здании, измеренная на высоте пола.

Объем брутто
680 m³
icon

Как правило, это сумма объема всех помещений в здании, подсчитанных по внешнему контуру стены (с утеплением).

Площадь крыши
192,40 m²
icon

Угол наклона крыши
35°
icon

Наклон ската крыши в градусах. Внимание! В некоторых проектах возникает более чем один наклон крыши.

Высота здания
7,57 m
icon

Высота измеряется от поверхности земли до самой высокой точки кровли (конька), за исключением дымоходов.

Ширина фасада
14,14 m
icon

Мин. ширина участка
22,99 m
icon

Наименьшая возможная ширина участка, необходимая для строительства выбранного дома. Состоит из длины фасада дома плюс с обеих сторон три метра отступ.

Мин. длина участка
17,89 m
icon

Наименьшая возможная длина участка, необходимая для строительства выбранного дома. Состоит из длины фасада дома плюс с обеих сторон три метра отступ.

Материалы и опции
Общие
Количество спален
4
Ежемесячный платёж, руб
Гараж
1
Количество санузлов
2
Ширина
14
Глубина
10
Тип крыши

Площади дома

№ п/п Наименование Ед. из. Строительная площадь Полезная площадь
1 1 этаж м2 123.14 99.93
2 2 этаж м2 82.75 67.15
3 Итого м2 205.89 167.08

Калькулятор опций

0

В ипотеку от 19 057 ₽/мес.

Фундамент
stdClass Object ( [id] => 1 [attribute_id] => 1 [name] => Ленточный монолитный ж/б [material_modifier] => 1 [work_modifier] => 1 [options] => Array ( [0] => размер 200 х 700 мм [1] => размер 300 х 900 мм [2] => размер 400 х 1 000 мм [3] => размер 500 х 1 100 мм [4] => размер 600 х 1 200 мм ) [days] => [20,21,22,25,30] [material_price] => [2823,3630,4475,5210,12047] [work_price] => [2154,2826,3731,4577,5293] [image] => https://akademik-stroy.ru/wp-content/uploads/materials/lentochnyj-monolitnyj-zh-b.jpg [area_modifier] => 123.14 [parent_name] => Фундамент [parent_id] => 1 [material_sum] => 438007 [work_sum] => 278506 [total_sum] => 716513 [total_days] => 20 [display_material_sum] => 438 007 [display_work_sum] => 278 506 [display_total_sum] => 716 513 ) 1
716 513
Работа:278 506
Материалы:438 007
Дни:20
stdClass Object ( [id] => 2 [attribute_id] => 1 [name] => Забивные Ж/Б сваи [material_modifier] => 1 [work_modifier] => 1 [options] => Array ( [0] => 150х150х3000мм [1] => 150х150х4000мм [2] => 200х200х3000мм [3] => 200х200х4000мм [4] => 200х200х5000мм [5] => 200х200х6000мм ) [days] => [2,2,2,2,2,2] [material_price] => [1990,2850,3255,4360,5120,6837] [work_price] => [1002,1185,1336,1438,1574,1839] [image] => https://akademik-stroy.ru/wp-content/uploads/materials/zabivnye-zh-b-svai.png [area_modifier] => 123.14 [parent_name] => Фундамент [parent_id] => 1 [material_sum] => 308761 [work_sum] => 129556 [total_sum] => 438317 [total_days] => 2 [display_material_sum] => 308 761 [display_work_sum] => 129 556 [display_total_sum] => 438 317 ) 1
438 317
Работа:129 556
Материалы:308 761
Дни:2
stdClass Object ( [id] => 71 [attribute_id] => 1 [name] => Свайно-ростверковый ж/б [material_modifier] => 1 [work_modifier] => 1 [options] => Array ( [0] => ростверк 200х300 мм [1] => ростверк 300х600 мм [2] => ростверк 400х900 мм [3] => ростверк 500х1200 мм ) [days] => [20,23,25,27] [material_price] => [3018,3474,7109,9792] [work_price] => [2024,3012,5635,7022] [image] => https://akademik-stroy.ru/wp-content/uploads/materials/svajno-rostverkovyj-monolitnyj-zh-b-3.png [area_modifier] => 123.14 [parent_name] => Фундамент [parent_id] => 1 [material_sum] => 468262 [work_sum] => 261697 [total_sum] => 729959 [total_days] => 20 [display_material_sum] => 468 262 [display_work_sum] => 261 697 [display_total_sum] => 729 959 ) 1
729 959
Работа:261 697
Материалы:468 262
Дни:20
stdClass Object ( [id] => 72 [attribute_id] => 1 [name] => Монолитная ж/б плита [material_modifier] => 1 [work_modifier] => 1 [options] => Array ( [0] => 200 мм [1] => 300 мм [2] => 400 мм [3] => 500 мм [4] => 600 мм ) [days] => [30,33,35,37,40] [material_price] => [5348,8555,12788,14388,15189] [work_price] => [4314,4881,7037,8061,10230] [image] => https://akademik-stroy.ru/wp-content/uploads/materials/monolitnaya-zhb-plita.png [area_modifier] => 123.14 [parent_name] => Фундамент [parent_id] => 1 [material_sum] => 829776 [work_sum] => 557787 [total_sum] => 1387563 [total_days] => 30 [display_material_sum] => 829 776 [display_work_sum] => 557 787 [display_total_sum] => 1 387 563 ) 1
1 387 563
Работа:557 787
Материалы:829 776
Дни:30
stdClass Object ( [id] => 73 [attribute_id] => 1 [name] => Утепленная шведская плита [material_modifier] => 1 [work_modifier] => 1 [options] => Array ( [0] => 200 мм [1] => 300 мм [2] => 400 мм [3] => 500 мм [4] => 600 мм ) [days] => [32,37,39,42,45] [material_price] => [10249,12692,13760,14936,16230] [work_price] => [5960,7337,8072,8878,9765] [image] => https://akademik-stroy.ru/wp-content/uploads/materials/uteplennaya-shvedskaya-plita.jpg [area_modifier] => 123.14 [parent_name] => Фундамент [parent_id] => 1 [material_sum] => 1590198 [work_sum] => 770610 [total_sum] => 2360808 [total_days] => 32 [display_material_sum] => 1 590 198 [display_work_sum] => 770 610 [display_total_sum] => 2 360 808 ) 1
2 360 808
Работа:770 610
Материалы:1 590 198
Дни:32
stdClass Object ( [id] => 75 [attribute_id] => 1 [name] => Ленточный из ФБС [material_modifier] => 1 [work_modifier] => 1 [options] => Array ( [0] => толщ. 300 мм [1] => толщ. 400 мм [2] => толщ. 500 мм [3] => толщ. 600 мм ) [days] => [20,20,20,20] [material_price] => [3675,4902,6126,7350] [work_price] => [2451,3264,4083,4902] [image] => https://akademik-stroy.ru/wp-content/uploads/materials/lentochnyj-iz-fbs.png [area_modifier] => 123.14 [parent_name] => Фундамент [parent_id] => 1 [material_sum] => 570200 [work_sum] => 316907 [total_sum] => 887107 [total_days] => 20 [display_material_sum] => 570 200 [display_work_sum] => 316 907 [display_total_sum] => 887 107 ) 1
887 107
Работа:316 907
Материалы:570 200
Дни:20
stdClass Object ( [id] => 76 [attribute_id] => 1 [name] => Цокольный этаж из ФБС [material_modifier] => 1 [work_modifier] => 1 [options] => Array ( [0] => толщ. 300 мм [1] => толщ. 400 мм [2] => толщ. 500 мм [3] => толщ. 600 мм ) [days] => [30,32,34,36] [material_price] => [20916,23299,26680,29060] [work_price] => [17524,18700,19873,21046] [image] => https://akademik-stroy.ru/wp-content/uploads/materials/cokolnyj-ehtazh-iz-fbs.jpg [area_modifier] => 123.14 [parent_name] => Фундамент [parent_id] => 1 [material_sum] => 3245251 [work_sum] => 2265801 [total_sum] => 5511052 [total_days] => 30 [display_material_sum] => 3 245 251 [display_work_sum] => 2 265 801 [display_total_sum] => 5 511 052 ) 1
5 511 052
Работа:2 265 801
Материалы:3 245 251
Дни:30
stdClass Object ( [id] => 77 [attribute_id] => 1 [name] => Цокольный этаж монолитный ж/б [material_modifier] => 1 [work_modifier] => 1 [options] => Array ( [0] => толщ. 200 мм [1] => толщ. 300 мм [2] => толщ. 400 мм [3] => толщ. 500 мм [4] => толщ. 600 мм ) [days] => [40,42,44,46,48] [material_price] => [25421,29148,32275,35602,37326] [work_price] => [20441,21907,23375,24841,26306] [image] => https://akademik-stroy.ru/wp-content/uploads/materials/cokolnyj-etazh-zh-b.jpg [area_modifier] => 123.14 [parent_name] => Фундамент [parent_id] => 1 [material_sum] => 3944231 [work_sum] => 2642960 [total_sum] => 6587191 [total_days] => 40 [display_material_sum] => 3 944 231 [display_work_sum] => 2 642 960 [display_total_sum] => 6 587 191 ) 1
6 587 191
Работа:2 642 960
Материалы:3 944 231
Дни:40
stdClass Object ( [id] => 191 [attribute_id] => 1 [name] => Винтовые сваи [material_modifier] => 1 [work_modifier] => 1 [options] => Array ( [0] => 57х200мм [1] => 76х250мм [2] => 108х300мм [3] => 133х350мм ) [days] => [1,1,2,2] [material_price] => [1200,1300,1450,1600] [work_price] => [400,600,900,1100] [image] => https://akademik-stroy.ru/wp-content/uploads/materials/vintovye-svai.png [area_modifier] => 123.14 [parent_name] => Фундамент [parent_id] => 1 [material_sum] => 186188 [work_sum] => 51719 [total_sum] => 237907 [total_days] => 1 [display_material_sum] => 186 188 [display_work_sum] => 51 719 [display_total_sum] => 237 907 ) 1
237 907
Работа:51 719
Материалы:186 188
Дни:1
Перекрытие цоколя
stdClass Object ( [id] => 3 [attribute_id] => 2 [name] => Деревянные балки [material_modifier] => 1 [work_modifier] => 1 [options] => Array ( [0] => без утепления [1] => утепление 200 мм [2] => утепление 250 мм [3] => утепление 300 мм [4] => утепление 350 мм [5] => утепление 400 мм [6] => утепление 450 мм [7] => утепление 500 мм ) [days] => [8,9,9,9,11,12,13,14] [material_price] => [1634,2042,2344,2947,3149,3652,3354,3557] [work_price] => [1230,1339,1393,1426,1460,1513,1587,1620] [image] => https://akademik-stroy.ru/wp-content/uploads/materials/derevyannye-balki.png [area_modifier] => 123.14 [parent_name] => Перекрытие цоколя [parent_id] => 2 [material_sum] => 253526 [work_sum] => 159035 [total_sum] => 412561 [total_days] => 8 [display_material_sum] => 253 526 [display_work_sum] => 159 035 [display_total_sum] => 412 561 ) 1
412 561
Работа:159 035
Материалы:253 526
Дни:8
stdClass Object ( [id] => 4 [attribute_id] => 2 [name] => Сборные ж/б плиты [material_modifier] => 1 [work_modifier] => 1 [options] => Array ( [0] => без утепления [1] => утепление 150мм [2] => утепление 200мм [3] => утепление 250мм [4] => утепление 300мм [5] => утепление 350мм [6] => утепление 400мм [7] => утепление 450мм [8] => утепление 500мм ) [days] => [13,15,15,15,15,15,15,15,15] [material_price] => [3067,5577,5928,6679,7730,8782,9833,10884,11935] [work_price] => [1520,1956,2102,2247,2392,2537,2684,2829,2974] [image] => https://akademik-stroy.ru/wp-content/uploads/materials/sbornye-zh-b-plity-2.jpg [area_modifier] => 123.14 [parent_name] => Перекрытие цоколя [parent_id] => 2 [material_sum] => 475865 [work_sum] => 196531 [total_sum] => 672396 [total_days] => 13 [display_material_sum] => 475 865 [display_work_sum] => 196 531 [display_total_sum] => 672 396 ) 1
672 396
Работа:196 531
Материалы:475 865
Дни:13
stdClass Object ( [id] => 78 [attribute_id] => 2 [name] => Монолитная ж/б плита [material_modifier] => 1 [work_modifier] => 1 [options] => Array ( [0] => без утепления [1] => утепление 150 мм [2] => утепление 200 мм [3] => утепление 250 мм [4] => утепление 300 мм [5] => утепление 350 мм [6] => утепление 400 мм [7] => утепление 450 мм [8] => утепление 500 мм ) [days] => [18,20,20,20,20,20,20,20,20] [material_price] => [4837,6572,7224,7375,79426,8177,8728,9180,10031] [work_price] => [3348,3921,4112,4302,4493,4684,4875,5066,5256] [image] => https://akademik-stroy.ru/wp-content/uploads/materials/monolitnaya-zh-b-plita-2.jpg [area_modifier] => 123.14 [parent_name] => Перекрытие цоколя [parent_id] => 2 [material_sum] => 750492 [work_sum] => 432886 [total_sum] => 1183378 [total_days] => 18 [display_material_sum] => 750 492 [display_work_sum] => 432 886 [display_total_sum] => 1 183 378 ) 1
1 183 378
Работа:432 886
Материалы:750 492
Дни:18
Стены 1 этаж (несущие)
stdClass Object ( [id] => 6 [attribute_id] => 3 [name] => Пеноблок [material_modifier] => 1 [work_modifier] => 1 [options] => Array ( [0] => 300 мм [1] => 400 мм [2] => 500 мм [3] => 600 мм ) [days] => [29,31,34,39] [material_price] => [3000,4000,4500,4937] [work_price] => [5033,5805,6400,8710] [image] => https://akademik-stroy.ru/wp-content/uploads/materials/penoblok.jpg [area_modifier] => 123.14 [parent_name] => Стены 1 этаж (несущие) [parent_id] => 3 [material_sum] => 465469 [work_sum] => 650752 [total_sum] => 1116221 [total_days] => 29 [display_material_sum] => 465 469 [display_work_sum] => 650 752 [display_total_sum] => 1 116 221 ) 1
1 116 221
Работа:650 752
Материалы:465 469
Дни:29
stdClass Object ( [id] => 79 [attribute_id] => 3 [name] => Керамический блок [material_modifier] => 1 [work_modifier] => 1 [options] => Array ( [0] => 380 мм [1] => 380 мм Thermo [2] => 440 мм [3] => 510 мм ) [days] => [23,23,24,25] [material_price] => [4510,5098,6093,8013] [work_price] => [4737,4937,5903,6958] [image] => https://akademik-stroy.ru/wp-content/uploads/materials/keramicheskij-blok.jpg [area_modifier] => 123.14 [parent_name] => Стены 1 этаж (несущие) [parent_id] => 3 [material_sum] => 699755 [work_sum] => 612480 [total_sum] => 1312235 [total_days] => 23 [display_material_sum] => 699 755 [display_work_sum] => 612 480 [display_total_sum] => 1 312 235 ) 1
1 312 235
Работа:612 480
Материалы:699 755
Дни:23
stdClass Object ( [id] => 80 [attribute_id] => 3 [name] => Кирпич [material_modifier] => 1 [work_modifier] => 1 [options] => Array ( [0] => Кирпич 250 мм [1] => Кирпич 380 мм [2] => Кирпич 510 мм [3] => Кирпич 640 мм [4] => Кирпич 770 мм ) [days] => [30,30,31,33,36] [material_price] => [5500,7142,9206,10171,12235] [work_price] => [8736,10041,12018,15240,18462] [image] => https://akademik-stroy.ru/wp-content/uploads/materials/kirpich.jpg [area_modifier] => 123.14 [parent_name] => Стены 1 этаж (несущие) [parent_id] => 3 [material_sum] => 853360 [work_sum] => 1129539 [total_sum] => 1982899 [total_days] => 30 [display_material_sum] => 853 360 [display_work_sum] => 1 129 539 [display_total_sum] => 1 982 899 ) 1
1 982 899
Работа:1 129 539
Материалы:853 360
Дни:30
stdClass Object ( [id] => 81 [attribute_id] => 3 [name] => Монолитные [material_modifier] => 1 [work_modifier] => 1 [options] => Array ( [0] => 150 мм [1] => 200 мм [2] => 250 мм [3] => 300 мм [4] => 350 мм [5] => 400 мм ) [days] => [45,46,47,49,50,53] [material_price] => [6545,7876,10175,12011,13908,15204] [work_price] => [5106,6444,7698,8552,9807,11461] [image] => https://akademik-stroy.ru/wp-content/uploads/materials/monolitnye.jpg [area_modifier] => 123.14 [parent_name] => Стены 1 этаж (несущие) [parent_id] => 3 [material_sum] => 1015499 [work_sum] => 660190 [total_sum] => 1675689 [total_days] => 45 [display_material_sum] => 1 015 499 [display_work_sum] => 660 190 [display_total_sum] => 1 675 689 ) 1
1 675 689
Работа:660 190
Материалы:1 015 499
Дни:45
stdClass Object ( [id] => 82 [attribute_id] => 3 [name] => Клееный брус [material_modifier] => 1 [work_modifier] => 1 [options] => Array ( [0] => 160 мм [1] => 175 мм [2] => 200 мм [3] => 215 мм [4] => 240 мм [5] => 270 мм [6] => 282 мм ) [days] => [24,28,32,37,40,42,48] [material_price] => [16975,18773,19950,20545,21599,22159,23275] [work_price] => [4806,5287,5815,6397,7036,7740,8514] [image] => https://akademik-stroy.ru/wp-content/uploads/materials/kleenyj-brus.jpg [area_modifier] => 123.14 [parent_name] => Стены 1 этаж (несущие) [parent_id] => 3 [material_sum] => 2633780 [work_sum] => 621401 [total_sum] => 3255181 [total_days] => 24 [display_material_sum] => 2 633 780 [display_work_sum] => 621 401 [display_total_sum] => 3 255 181 ) 1
3 255 181
Работа:621 401
Материалы:2 633 780
Дни:24
stdClass Object ( [id] => 83 [attribute_id] => 3 [name] => Каркасные [material_modifier] => 1 [work_modifier] => 1 [options] => Array ( [0] => 150 мм [1] => 200 мм [2] => 250 мм [3] => 300 мм ) [days] => [15,16,17,18] [material_price] => [2379,2639,2898,3258] [work_price] => [2418,2686,2985,3716] [image] => https://akademik-stroy.ru/wp-content/uploads/materials/karkasnye.jpg [area_modifier] => 123.14 [parent_name] => Стены 1 этаж (несущие) [parent_id] => 3 [material_sum] => 369117 [work_sum] => 312640 [total_sum] => 681757 [total_days] => 15 [display_material_sum] => 369 117 [display_work_sum] => 312 640 [display_total_sum] => 681 757 ) 1
681 757
Работа:312 640
Материалы:369 117
Дни:15
stdClass Object ( [id] => 84 [attribute_id] => 3 [name] => СИП-панели [material_modifier] => 1 [work_modifier] => 1 [options] => Array ( [0] => 120 мм [1] => 170 мм [2] => 220 мм ) [days] => [7,7,7] [material_price] => [1210,1856,2292] [work_price] => [1410,1551,1706] [image] => https://akademik-stroy.ru/wp-content/uploads/materials/sip-paneli.jpg [area_modifier] => 123.14 [parent_name] => Стены 1 этаж (несущие) [parent_id] => 3 [material_sum] => 187739 [work_sum] => 182309 [total_sum] => 370048 [total_days] => 7 [display_material_sum] => 187 739 [display_work_sum] => 182 309 [display_total_sum] => 370 048 ) 1
370 048
Работа:182 309
Материалы:187 739
Дни:7
stdClass Object ( [id] => 85 [attribute_id] => 3 [name] => Сухой брус [material_modifier] => 1 [work_modifier] => 1 [options] => Array ( [0] => 150 мм [1] => 180 мм [2] => 200 мм ) [days] => [7,8,9] [material_price] => [6010,7190,8709] [work_price] => [3204,3845,4229] [image] => https://akademik-stroy.ru/wp-content/uploads/materials/suhoj-brus.jpg [area_modifier] => 123.14 [parent_name] => Стены 1 этаж (несущие) [parent_id] => 3 [material_sum] => 932490 [work_sum] => 414268 [total_sum] => 1346758 [total_days] => 7 [display_material_sum] => 932 490 [display_work_sum] => 414 268 [display_total_sum] => 1 346 758 ) 1
1 346 758
Работа:414 268
Материалы:932 490
Дни:7
stdClass Object ( [id] => 86 [attribute_id] => 3 [name] => Профилированный брус [material_modifier] => 1 [work_modifier] => 1 [options] => Array ( [0] => 150 мм [1] => 180 мм [2] => 200 мм ) [days] => [7,8,9] [material_price] => [8190,9228,10051] [work_price] => [3845,4614,5075] [image] => https://akademik-stroy.ru/wp-content/uploads/materials/profilirovannyj-brus.jpg [area_modifier] => 123.14 [parent_name] => Стены 1 этаж (несущие) [parent_id] => 3 [material_sum] => 1270731 [work_sum] => 497147 [total_sum] => 1767878 [total_days] => 7 [display_material_sum] => 1 270 731 [display_work_sum] => 497 147 [display_total_sum] => 1 767 878 ) 1
1 767 878
Работа:497 147
Материалы:1 270 731
Дни:7
stdClass Object ( [id] => 87 [attribute_id] => 3 [name] => Оцилиндрованное бревно [material_modifier] => 1 [work_modifier] => 1 [options] => Array ( [0] => 180 мм [1] => 220 мм [2] => 260 мм [3] => 320 мм ) [days] => [7,8,9,10] [material_price] => [75190,9532,10868,13116] [work_price] => [3845,4691,5535,6863] [image] => https://akademik-stroy.ru/wp-content/uploads/materials/ocilindrovannoe-brevno-1.jpg [area_modifier] => 123.14 [parent_name] => Стены 1 этаж (несущие) [parent_id] => 3 [material_sum] => 11666210 [work_sum] => 497147 [total_sum] => 12163357 [total_days] => 7 [display_material_sum] => 11 666 210 [display_work_sum] => 497 147 [display_total_sum] => 12 163 357 ) 1
12 163 357
Работа:497 147
Материалы:11 666 210
Дни:7
stdClass Object ( [id] => 88 [attribute_id] => 3 [name] => Срубы [material_modifier] => 1 [work_modifier] => 1 [options] => Array ( [0] => 260 мм [1] => 320 мм [2] => 360 мм [3] => 400 мм [4] => 500 мм ) [days] => [7,8,9,10,11] [material_price] => [37975,46709,52314,58069,73167] [work_price] => [4806,5911,6621,7349,9260] [image] => https://akademik-stroy.ru/wp-content/uploads/materials/sruby.jpg [area_modifier] => 123.14 [parent_name] => Стены 1 этаж (несущие) [parent_id] => 3 [material_sum] => 5892064 [work_sum] => 621401 [total_sum] => 6513465 [total_days] => 7 [display_material_sum] => 5 892 064 [display_work_sum] => 621 401 [display_total_sum] => 6 513 465 ) 1
6 513 465
Работа:621 401
Материалы:5 892 064
Дни:7
stdClass Object ( [id] => 174 [attribute_id] => 3 [name] => Брус [material_modifier] => 1 [work_modifier] => 1 [options] => Array ( [0] => 150 мм [1] => 180 мм [2] => 200 мм ) [days] => [7,8,9] [material_price] => [5127,6152,7367] [work_price] => [1602,1922,2115] [image] => https://akademik-stroy.ru/wp-content/uploads/materials/brus.jpg [area_modifier] => 123.14 [parent_name] => Стены 1 этаж (несущие) [parent_id] => 3 [material_sum] => 795487 [work_sum] => 207134 [total_sum] => 1002621 [total_days] => 7 [display_material_sum] => 795 487 [display_work_sum] => 207 134 [display_total_sum] => 1 002 621 ) 1
1 002 621
Работа:207 134
Материалы:795 487
Дни:7
stdClass Object ( [id] => 175 [attribute_id] => 3 [name] => Газобетон [material_modifier] => 1 [work_modifier] => 1 [options] => Array ( [0] => 300 мм [1] => 375 мм [2] => 400 мм [3] => 500 мм [4] => 600 мм ) [days] => [29,31,35,37,44] [material_price] => [4298,5573,6356,7288,9119] [work_price] => [4538,5251,5926,6733,7195] [image] => https://akademik-stroy.ru/wp-content/uploads/materials/gazobeton.jpg [area_modifier] => 123.14 [parent_name] => Стены 1 этаж (несущие) [parent_id] => 3 [material_sum] => 666862 [work_sum] => 586750 [total_sum] => 1253612 [total_days] => 29 [display_material_sum] => 666 862 [display_work_sum] => 586 750 [display_total_sum] => 1 253 612 ) 1
1 253 612
Работа:586 750
Материалы:666 862
Дни:29
stdClass Object ( [id] => 176 [attribute_id] => 3 [name] => Блок [material_modifier] => 1 [work_modifier] => 1 [options] => Array ( [0] => 300 мм [1] => 375 мм [2] => 400 мм [3] => 500 мм [4] => 600 мм ) [days] => [29,31,35,37,44] [material_price] => [2698,3973,4356,6588,7119] [work_price] => [5038,5851,6426,8733,9195] [image] => https://akademik-stroy.ru/wp-content/uploads/materials/blok.jpg [area_modifier] => 123.14 [parent_name] => Стены 1 этаж (несущие) [parent_id] => 3 [material_sum] => 418612 [work_sum] => 651398 [total_sum] => 1070010 [total_days] => 29 [display_material_sum] => 418 612 [display_work_sum] => 651 398 [display_total_sum] => 1 070 010 ) 1
1 070 010
Работа:651 398
Материалы:418 612
Дни:29
stdClass Object ( [id] => 177 [attribute_id] => 3 [name] => Газосиликатный блок [material_modifier] => 1 [work_modifier] => 1 [options] => Array ( [0] => 300 мм [1] => 375 мм [2] => 400 мм [3] => 500 мм [4] => 600 мм ) [days] => [29,31,35,37,44] [material_price] => [4298,5573,6356,7288,9119] [work_price] => [4538,5251,5926,6733,7195] [image] => https://akademik-stroy.ru/wp-content/uploads/materials/gazosilikatnyj-blok.jpg [area_modifier] => 123.14 [parent_name] => Стены 1 этаж (несущие) [parent_id] => 3 [material_sum] => 666862 [work_sum] => 586750 [total_sum] => 1253612 [total_days] => 29 [display_material_sum] => 666 862 [display_work_sum] => 586 750 [display_total_sum] => 1 253 612 ) 1
1 253 612
Работа:586 750
Материалы:666 862
Дни:29
stdClass Object ( [id] => 178 [attribute_id] => 3 [name] => Керамзитобетонный блок [material_modifier] => 1 [work_modifier] => 1 [options] => Array ( [0] => 300 мм [1] => 375 мм [2] => 400 мм [3] => 500 мм [4] => 600 мм ) [days] => [23,23,24,25,28] [material_price] => [3641,4298,5693,7613,9612] [work_price] => [5737,5737,6903,7958,8901] [image] => https://akademik-stroy.ru/wp-content/uploads/materials/keramzitobetonnyj-blok.jpg [area_modifier] => 123.14 [parent_name] => Стены 1 этаж (несущие) [parent_id] => 3 [material_sum] => 564924 [work_sum] => 741777 [total_sum] => 1306701 [total_days] => 23 [display_material_sum] => 564 924 [display_work_sum] => 741 777 [display_total_sum] => 1 306 701 ) 1
1 306 701
Работа:741 777
Материалы:564 924
Дни:23
stdClass Object ( [id] => 179 [attribute_id] => 3 [name] => Деревянные [material_modifier] => 1 [work_modifier] => 1 [options] => Array ( [0] => 180 мм [1] => 220 мм [2] => 260 мм [3] => 320 мм ) [days] => [7,8,9,10] [material_price] => [7950,9458,11961,14472] [work_price] => [4037,4925,5812,7207] [image] => https://akademik-stroy.ru/wp-content/uploads/materials/derevyannye.jpg [area_modifier] => 123.14 [parent_name] => Стены 1 этаж (несущие) [parent_id] => 3 [material_sum] => 1233493 [work_sum] => 521972 [total_sum] => 1755465 [total_days] => 7 [display_material_sum] => 1 233 493 [display_work_sum] => 521 972 [display_total_sum] => 1 755 465 ) 1
1 755 465
Работа:521 972
Материалы:1 233 493
Дни:7
stdClass Object ( [id] => 181 [attribute_id] => 3 [name] => Камень [material_modifier] => 1 [work_modifier] => 1 [options] => Array ( [0] => 300 мм [1] => 400 мм [2] => 500 мм [3] => 600 мм ) [days] => [25,27,31,34] [material_price] => [5262,6844,8330,9815] [work_price] => [8331,9135,10427,11069] [image] => https://akademik-stroy.ru/wp-content/uploads/materials/kamen.jpg [area_modifier] => 123.14 [parent_name] => Стены 1 этаж (несущие) [parent_id] => 3 [material_sum] => 816433 [work_sum] => 1077173 [total_sum] => 1893606 [total_days] => 25 [display_material_sum] => 816 433 [display_work_sum] => 1 077 173 [display_total_sum] => 1 893 606 ) 1
1 893 606
Работа:1 077 173
Материалы:816 433
Дни:25
stdClass Object ( [id] => 182 [attribute_id] => 3 [name] => Каркасно-щитовые [material_modifier] => 1 [work_modifier] => 1 [options] => Array ( [0] => 150 мм [1] => 200 мм [2] => 250 мм [3] => 300 мм [4] => 350 мм [5] => 400 мм ) [days] => [15,16,17,18,19,20] [material_price] => [2379,2639,2898,3458,3601,4175] [work_price] => [2538,2820,3134,3483,4062,5642] [image] => https://akademik-stroy.ru/wp-content/uploads/materials/karkasno-shchitovye.jpg [area_modifier] => 123.14 [parent_name] => Стены 1 этаж (несущие) [parent_id] => 3 [material_sum] => 369117 [work_sum] => 328156 [total_sum] => 697273 [total_days] => 15 [display_material_sum] => 369 117 [display_work_sum] => 328 156 [display_total_sum] => 697 273 ) 1
697 273
Работа:328 156
Материалы:369 117
Дни:15
stdClass Object ( [id] => 183 [attribute_id] => 3 [name] => Рубленные [material_modifier] => 1 [work_modifier] => 1 [options] => Array ( [0] => 150 мм [1] => 200 мм [2] => 250 мм [3] => 300 мм [4] => 350 мм [5] => 400 мм ) [days] => [15,16,17,18,17,18] [material_price] => [35950,50267,60583,75900,80217,100533] [work_price] => [9612,12816,16020,19224,22428,25632] [image] => https://akademik-stroy.ru/wp-content/uploads/materials/rublennye.jpg [area_modifier] => 123.14 [parent_name] => Стены 1 этаж (несущие) [parent_id] => 3 [material_sum] => 5577873 [work_sum] => 1242803 [total_sum] => 6820676 [total_days] => 15 [display_material_sum] => 5 577 873 [display_work_sum] => 1 242 803 [display_total_sum] => 6 820 676 ) 1
6 820 676
Работа:1 242 803
Материалы:5 577 873
Дни:15
stdClass Object ( [id] => 185 [attribute_id] => 3 [name] => Теплоблок [material_modifier] => 1 [work_modifier] => 1 [options] => Array ( [0] => 300 мм (с облицовкой, не покрашенный) [1] => 400 мм (с облицовкой, не покрашенный) [2] => 300 мм (с облицовкой, покрашенный) [3] => 400 мм (с облицовкой, покрашенный) ) [days] => [15,16,15,16] [material_price] => [2888,3729,3957,4258] [work_price] => [2564,3229,2949,3713] [image] => https://akademik-stroy.ru/wp-content/uploads/materials/teploblok.jpg [area_modifier] => 123.14 [parent_name] => Стены 1 этаж (несущие) [parent_id] => 3 [material_sum] => 448092 [work_sum] => 331518 [total_sum] => 779610 [total_days] => 15 [display_material_sum] => 448 092 [display_work_sum] => 331 518 [display_total_sum] => 779 610 ) 1
779 610
Работа:331 518
Материалы:448 092
Дни:15
stdClass Object ( [id] => 186 [attribute_id] => 3 [name] => Арболитовые блоки [material_modifier] => 1 [work_modifier] => 1 [options] => Array ( [0] => 300 мм [1] => 400 мм [2] => 600 мм ) [days] => [19,22,27] [material_price] => [3210,4475,5852] [work_price] => [4214,4788,5866] [image] => https://akademik-stroy.ru/wp-content/uploads/materials/arbolitovye-bloki.png [area_modifier] => 123.14 [parent_name] => Стены 1 этаж (несущие) [parent_id] => 3 [material_sum] => 498052 [work_sum] => 544858 [total_sum] => 1042910 [total_days] => 19 [display_material_sum] => 498 052 [display_work_sum] => 544 858 [display_total_sum] => 1 042 910 ) 1
1 042 910
Работа:544 858
Материалы:498 052
Дни:19
stdClass Object ( [id] => 187 [attribute_id] => 3 [name] => Полистиролбетон [material_modifier] => 1 [work_modifier] => 1 [options] => Array ( [0] => 300 мм [1] => 400 мм [2] => 600 мм ) [days] => [29,31,35] [material_price] => [2798,4573,5256] [work_price] => [5038,5851,6426] [image] => https://akademik-stroy.ru/wp-content/uploads/materials/polistirolbeton.jpg [area_modifier] => 123.14 [parent_name] => Стены 1 этаж (несущие) [parent_id] => 3 [material_sum] => 434128 [work_sum] => 651398 [total_sum] => 1085526 [total_days] => 29 [display_material_sum] => 434 128 [display_work_sum] => 651 398 [display_total_sum] => 1 085 526 ) 1
1 085 526
Работа:651 398
Материалы:434 128
Дни:29
stdClass Object ( [id] => 188 [attribute_id] => 3 [name] => Шлакоблок [material_modifier] => 1 [work_modifier] => 1 [options] => Array ( [0] => 400 мм [1] => 600 мм ) [days] => [15,16] [material_price] => [2391,3471] [work_price] => [2642,3662] [image] => https://akademik-stroy.ru/wp-content/uploads/materials/shlakoblok.jpg [area_modifier] => 123.14 [parent_name] => Стены 1 этаж (несущие) [parent_id] => 3 [material_sum] => 370979 [work_sum] => 341603 [total_sum] => 712582 [total_days] => 15 [display_material_sum] => 370 979 [display_work_sum] => 341 603 [display_total_sum] => 712 582 ) 1
712 582
Работа:341 603
Материалы:370 979
Дни:15
stdClass Object ( [id] => 189 [attribute_id] => 3 [name] => Теплая керамика [material_modifier] => 1 [work_modifier] => 1 [options] => Array ( [0] => 380 мм [1] => 380 мм Thermo [2] => 440 мм [3] => 510 мм ) [days] => [23,23,24,25] [material_price] => [4510,5098,6093,8013] [work_price] => [4737,4937,5903,6958] [image] => https://akademik-stroy.ru/wp-content/uploads/materials/teplaya-keramika.jpg [area_modifier] => 123.14 [parent_name] => Стены 1 этаж (несущие) [parent_id] => 3 [material_sum] => 699755 [work_sum] => 612480 [total_sum] => 1312235 [total_days] => 23 [display_material_sum] => 699 755 [display_work_sum] => 612 480 [display_total_sum] => 1 312 235 ) 1
1 312 235
Работа:612 480
Материалы:699 755
Дни:23
stdClass Object ( [id] => 190 [attribute_id] => 3 [name] => Несъемная опалубка [material_modifier] => 1 [work_modifier] => 1 [options] => Array ( [0] => 200 мм [1] => 250 мм [2] => 300 мм [3] => 350 мм ) [days] => [15,17,19,21] [material_price] => [3302,3902,4108,5008] [work_price] => [2100,2100,2300,2534] [image] => https://akademik-stroy.ru/wp-content/uploads/materials/nesemnaya-opalubka.jpg [area_modifier] => 123.14 [parent_name] => Стены 1 этаж (несущие) [parent_id] => 3 [material_sum] => 512326 [work_sum] => 271524 [total_sum] => 783850 [total_days] => 15 [display_material_sum] => 512 326 [display_work_sum] => 271 524 [display_total_sum] => 783 850 ) 1
783 850
Работа:271 524
Материалы:512 326
Дни:15
stdClass Object ( [id] => 251 [attribute_id] => 3 [name] => Бревно [material_modifier] => 1 [work_modifier] => 1 [options] => Array ( [0] => 260 мм [1] => 320 мм [2] => 360 мм [3] => 400 мм [4] => 500 мм ) [days] => [7,8,9,10,11] [material_price] => [1874,24045,26930,30972,38825] [work_price] => [5046,6207,6952,7716,9723] [image] => https://akademik-stroy.ru/wp-content/uploads/materials/sruby.jpg [area_modifier] => 123.14 [parent_name] => Стены 1 этаж (несущие) [parent_id] => 3 [material_sum] => 290763 [work_sum] => 652433 [total_sum] => 943196 [total_days] => 7 [display_material_sum] => 290 763 [display_work_sum] => 652 433 [display_total_sum] => 943 196 ) 1
943 196
Работа:652 433
Материалы:290 763
Дни:7
Перекрытие первого этажа
stdClass Object ( [id] => 7 [attribute_id] => 4 [name] => Деревянные балки [material_modifier] => 1 [work_modifier] => 1 [options] => Array ( [0] => без утепления [1] => утепление 200 мм [2] => утепление 250 мм [3] => утепление 300 мм [4] => утепление 350 мм [5] => утепление 400 мм [6] => утепление 450 мм [7] => утепление 500 мм ) [days] => [8,9,9,9,11,12,13,14] [material_price] => [1634,2042,2344,2947,3149,3652,3354,3557] [work_price] => [1230,1339,1393,1426,1460,1513,1587,1620] [image] => https://akademik-stroy.ru/wp-content/uploads/materials/derevyannye-balki.png [area_modifier] => 123.14 [parent_name] => Перекрытие первого этажа [parent_id] => 4 [material_sum] => 253526 [work_sum] => 159035 [total_sum] => 412561 [total_days] => 8 [display_material_sum] => 253 526 [display_work_sum] => 159 035 [display_total_sum] => 412 561 ) 1
412 561
Работа:159 035
Материалы:253 526
Дни:8
stdClass Object ( [id] => 8 [attribute_id] => 4 [name] => Сборные ж/б плиты [material_modifier] => 1 [work_modifier] => 1 [options] => Array ( [0] => без утепления [1] => утепление 150 мм [2] => утепление 200 мм [3] => утепление 250 мм [4] => утепление 300 мм [5] => утепление 350 мм [6] => утепление 400 мм [7] => утепление 450 мм [8] => утепление 500 мм ) [days] => [13,15,15,15,15,15,15,15,15] [material_price] => [3067,5577,5928,6679,7730,8782,9833,10884,11935] [work_price] => [1520,1956,2102,2247,2392,2537,2684,2829,2974] [image] => https://akademik-stroy.ru/wp-content/uploads/materials/sbornye-zh-b-plity-2.jpg [area_modifier] => 123.14 [parent_name] => Перекрытие первого этажа [parent_id] => 4 [material_sum] => 475865 [work_sum] => 196531 [total_sum] => 672396 [total_days] => 13 [display_material_sum] => 475 865 [display_work_sum] => 196 531 [display_total_sum] => 672 396 ) 1
672 396
Работа:196 531
Материалы:475 865
Дни:13
stdClass Object ( [id] => 89 [attribute_id] => 4 [name] => Монолитная ж/б плита [material_modifier] => 1 [work_modifier] => 1 [options] => Array ( [0] => без утепления [1] => утепление 150 мм [2] => утепление 200 мм [3] => утепление 250 мм [4] => утепление 300 мм [5] => утепление 350 мм [6] => утепление 400 мм [7] => утепление 450 мм [8] => утепление 500 мм ) [days] => [18,20,20,20,20,20,20,20,20] [material_price] => [4837,6572,7224,7375,79426,8177,8728,9180,10031] [work_price] => [3348,3921,4112,4302,4493,4684,4875,5066,5256] [image] => https://akademik-stroy.ru/wp-content/uploads/materials/monolitnaya-zh-b-plita-2.jpg [area_modifier] => 123.14 [parent_name] => Перекрытие первого этажа [parent_id] => 4 [material_sum] => 750492 [work_sum] => 432886 [total_sum] => 1183378 [total_days] => 18 [display_material_sum] => 750 492 [display_work_sum] => 432 886 [display_total_sum] => 1 183 378 ) 1
1 183 378
Работа:432 886
Материалы:750 492
Дни:18
Стены 2 этаж (несущие)
stdClass Object ( [id] => 10 [attribute_id] => 5 [name] => Пеноблок [material_modifier] => 1 [work_modifier] => 1 [options] => Array ( [0] => 300 мм [1] => 400 мм [2] => 500 мм [3] => 600 мм ) [days] => [29,31,34,39] [material_price] => [3000,4000,4500,4937] [work_price] => [5033,5805,6400,8710] [image] => https://akademik-stroy.ru/wp-content/uploads/materials/penoblok.jpg [area_modifier] => 82.75 [parent_name] => Стены 2 этаж (несущие) [parent_id] => 5 [material_sum] => 312795 [work_sum] => 437305 [total_sum] => 750100 [total_days] => 29 [display_material_sum] => 312 795 [display_work_sum] => 437 305 [display_total_sum] => 750 100 ) 1
750 100
Работа:437 305
Материалы:312 795
Дни:29
stdClass Object ( [id] => 90 [attribute_id] => 5 [name] => Керамический блок [material_modifier] => 1 [work_modifier] => 1 [options] => Array ( [0] => 380 мм [1] => 380 мм Thermo [2] => 440 мм [3] => 510 мм ) [days] => [23,23,24,25] [material_price] => [4510,5098,6093,8013] [work_price] => [4737,4937,5903,6958] [image] => https://akademik-stroy.ru/wp-content/uploads/materials/keramicheskij-blok.jpg [area_modifier] => 82.75 [parent_name] => Стены 2 этаж (несущие) [parent_id] => 5 [material_sum] => 470235 [work_sum] => 411586 [total_sum] => 881821 [total_days] => 23 [display_material_sum] => 470 235 [display_work_sum] => 411 586 [display_total_sum] => 881 821 ) 1
881 821
Работа:411 586
Материалы:470 235
Дни:23
stdClass Object ( [id] => 91 [attribute_id] => 5 [name] => Кирпич [material_modifier] => 1 [work_modifier] => 1 [options] => Array ( [0] => Кирпич 250 мм [1] => Кирпич 380 мм [2] => Кирпич 510 мм [3] => Кирпич 640 мм [4] => Кирпич 770 мм ) [days] => [30,30,31,33,36] [material_price] => [5500,7142,9206,10171,12235] [work_price] => [8736,10041,12018,15240,18462] [image] => https://akademik-stroy.ru/wp-content/uploads/materials/kirpich.jpg [area_modifier] => 82.75 [parent_name] => Стены 2 этаж (несущие) [parent_id] => 5 [material_sum] => 573458 [work_sum] => 759049 [total_sum] => 1332507 [total_days] => 30 [display_material_sum] => 573 458 [display_work_sum] => 759 049 [display_total_sum] => 1 332 507 ) 1
1 332 507
Работа:759 049
Материалы:573 458
Дни:30
stdClass Object ( [id] => 92 [attribute_id] => 5 [name] => Монолитные [material_modifier] => 1 [work_modifier] => 1 [options] => Array ( [0] => 150 мм [1] => 200 мм [2] => 250 мм [3] => 300 мм [4] => 350 мм [5] => 400 мм ) [days] => [45,46,47,49,50,53] [material_price] => [6545,7876,10175,12011,13908,15204] [work_price] => [5106,6444,7698,8552,9807,11461] [image] => https://akademik-stroy.ru/wp-content/uploads/materials/monolitnye.jpg [area_modifier] => 82.75 [parent_name] => Стены 2 этаж (несущие) [parent_id] => 5 [material_sum] => 682414 [work_sum] => 443648 [total_sum] => 1126062 [total_days] => 45 [display_material_sum] => 682 414 [display_work_sum] => 443 648 [display_total_sum] => 1 126 062 ) 1
1 126 062
Работа:443 648
Материалы:682 414
Дни:45
stdClass Object ( [id] => 93 [attribute_id] => 5 [name] => Клееный брус [material_modifier] => 1 [work_modifier] => 1 [options] => Array ( [0] => 160 мм [1] => 175 мм [2] => 200 мм [3] => 215 мм [4] => 240 мм [5] => 270 мм [6] => 282 мм ) [days] => [24,28,32,37,40,42,48] [material_price] => [16975,18773,19950,20545,21599,22159,23275] [work_price] => [4806,5287,5815,6397,7036,7740,8514] [image] => https://akademik-stroy.ru/wp-content/uploads/materials/kleenyj-brus.jpg [area_modifier] => 82.75 [parent_name] => Стены 2 этаж (несущие) [parent_id] => 5 [material_sum] => 1769898 [work_sum] => 417581 [total_sum] => 2187479 [total_days] => 24 [display_material_sum] => 1 769 898 [display_work_sum] => 417 581 [display_total_sum] => 2 187 479 ) 1
2 187 479
Работа:417 581
Материалы:1 769 898
Дни:24
stdClass Object ( [id] => 94 [attribute_id] => 5 [name] => Каркасные [material_modifier] => 1 [work_modifier] => 1 [options] => Array ( [0] => 150 мм [1] => 200 мм [2] => 250 мм [3] => 300 мм ) [days] => [15,16,17,18] [material_price] => [2379,2639,2898,3258] [work_price] => [2418,2686,2985,3716] [image] => https://akademik-stroy.ru/wp-content/uploads/materials/karkasnye.jpg [area_modifier] => 82.75 [parent_name] => Стены 2 этаж (несущие) [parent_id] => 5 [material_sum] => 248046 [work_sum] => 210094 [total_sum] => 458140 [total_days] => 15 [display_material_sum] => 248 046 [display_work_sum] => 210 094 [display_total_sum] => 458 140 ) 1
458 140
Работа:210 094
Материалы:248 046
Дни:15
stdClass Object ( [id] => 95 [attribute_id] => 5 [name] => СИП-панели [material_modifier] => 1 [work_modifier] => 1 [options] => Array ( [0] => 120 мм [1] => 170 мм [2] => 220 мм ) [days] => [7,7,7] [material_price] => [1210,1856,2292] [work_price] => [1410,1551,1706] [image] => https://akademik-stroy.ru/wp-content/uploads/materials/sip-paneli.jpg [area_modifier] => 82.75 [parent_name] => Стены 2 этаж (несущие) [parent_id] => 5 [material_sum] => 126161 [work_sum] => 122511 [total_sum] => 248672 [total_days] => 7 [display_material_sum] => 126 161 [display_work_sum] => 122 511 [display_total_sum] => 248 672 ) 1
248 672
Работа:122 511
Материалы:126 161
Дни:7
stdClass Object ( [id] => 96 [attribute_id] => 5 [name] => Сухой брус [material_modifier] => 1 [work_modifier] => 1 [options] => Array ( [0] => 150 мм [1] => 180 мм [2] => 200 мм ) [days] => [7,8,9] [material_price] => [6010,7190,8709] [work_price] => [3204,3845,4229] [image] => https://akademik-stroy.ru/wp-content/uploads/materials/suhoj-brus.jpg [area_modifier] => 82.75 [parent_name] => Стены 2 этаж (несущие) [parent_id] => 5 [material_sum] => 626633 [work_sum] => 278388 [total_sum] => 905021 [total_days] => 7 [display_material_sum] => 626 633 [display_work_sum] => 278 388 [display_total_sum] => 905 021 ) 1
905 021
Работа:278 388
Материалы:626 633
Дни:7
stdClass Object ( [id] => 97 [attribute_id] => 5 [name] => Профилированный брус [material_modifier] => 1 [work_modifier] => 1 [options] => Array ( [0] => 150 мм [1] => 180 мм [2] => 200 мм ) [days] => [7,8,9] [material_price] => [8190,9228,10051] [work_price] => [3845,4614,5075] [image] => https://akademik-stroy.ru/wp-content/uploads/materials/profilirovannyj-brus.jpg [area_modifier] => 82.75 [parent_name] => Стены 2 этаж (несущие) [parent_id] => 5 [material_sum] => 853930 [work_sum] => 334082 [total_sum] => 1188012 [total_days] => 7 [display_material_sum] => 853 930 [display_work_sum] => 334 082 [display_total_sum] => 1 188 012 ) 1
1 188 012
Работа:334 082
Материалы:853 930
Дни:7
stdClass Object ( [id] => 98 [attribute_id] => 5 [name] => Оцилиндрованное бревно [material_modifier] => 1 [work_modifier] => 1 [options] => Array ( [0] => 180 мм [1] => 220 мм [2] => 260 мм [3] => 320 мм ) [days] => [7,8,9,10] [material_price] => [75190,9532,10868,13116] [work_price] => [3845,4691,5535,6863] [image] => https://akademik-stroy.ru/wp-content/uploads/materials/ocilindrovannoe-brevno-1.jpg [area_modifier] => 82.75 [parent_name] => Стены 2 этаж (несущие) [parent_id] => 5 [material_sum] => 7839685 [work_sum] => 334082 [total_sum] => 8173767 [total_days] => 7 [display_material_sum] => 7 839 685 [display_work_sum] => 334 082 [display_total_sum] => 8 173 767 ) 1
8 173 767
Работа:334 082
Материалы:7 839 685
Дни:7
stdClass Object ( [id] => 99 [attribute_id] => 5 [name] => Срубы [material_modifier] => 1 [work_modifier] => 1 [options] => Array ( [0] => 260 мм [1] => 320 мм [2] => 360 мм [3] => 400 мм [4] => 500 мм ) [days] => [7,8,9,10,11] [material_price] => [16175,23709,26314,29069,32167] [work_price] => [4806,5911,6621,7349,9260] [image] => https://akademik-stroy.ru/wp-content/uploads/materials/suhoj-brus.jpg [area_modifier] => 82.75 [parent_name] => Стены 2 этаж (несущие) [parent_id] => 5 [material_sum] => 1686486 [work_sum] => 417581 [total_sum] => 2104067 [total_days] => 7 [display_material_sum] => 1 686 486 [display_work_sum] => 417 581 [display_total_sum] => 2 104 067 ) 1
2 104 067
Работа:417 581
Материалы:1 686 486
Дни:7
stdClass Object ( [id] => 194 [attribute_id] => 5 [name] => Брус [material_modifier] => 1 [work_modifier] => 1 [options] => Array ( [0] => 150 мм [1] => 180 мм [2] => 200 мм ) [days] => [10,13,15] [material_price] => [5127,6152,7367] [work_price] => [1602,1922,2115] [image] => https://akademik-stroy.ru/wp-content/uploads/materials/brus.jpg [area_modifier] => 82.75 [parent_name] => Стены 2 этаж (несущие) [parent_id] => 5 [material_sum] => 534567 [work_sum] => 139194 [total_sum] => 673761 [total_days] => 10 [display_material_sum] => 534 567 [display_work_sum] => 139 194 [display_total_sum] => 673 761 ) 1
673 761
Работа:139 194
Материалы:534 567
Дни:10
stdClass Object ( [id] => 195 [attribute_id] => 5 [name] => Газобетон [material_modifier] => 1 [work_modifier] => 1 [options] => Array ( [0] => 300 мм [1] => 375 мм [2] => 400 мм [3] => 500 мм [4] => 600 мм ) [days] => [29,31,35,37,44] [material_price] => [4298,5573,6356,7288,9119] [work_price] => [4538,5251,5926,6733,7195] [image] => https://akademik-stroy.ru/wp-content/uploads/materials/gazobeton.jpg [area_modifier] => 82.75 [parent_name] => Стены 2 этаж (несущие) [parent_id] => 5 [material_sum] => 448131 [work_sum] => 394295 [total_sum] => 842426 [total_days] => 29 [display_material_sum] => 448 131 [display_work_sum] => 394 295 [display_total_sum] => 842 426 ) 1
842 426
Работа:394 295
Материалы:448 131
Дни:29
stdClass Object ( [id] => 196 [attribute_id] => 5 [name] => Блок [material_modifier] => 1 [work_modifier] => 1 [options] => Array ( [0] => 300 мм [1] => 375 мм [2] => 400 мм [3] => 500 мм [4] => 600 мм ) [days] => [29,31,35,37,44] [material_price] => [2698,3973,4356,6588,7119] [work_price] => [5038,5851,6426,8733,9195] [image] => https://akademik-stroy.ru/wp-content/uploads/materials/blok.jpg [area_modifier] => 82.75 [parent_name] => Стены 2 этаж (несущие) [parent_id] => 5 [material_sum] => 281307 [work_sum] => 437739 [total_sum] => 719046 [total_days] => 29 [display_material_sum] => 281 307 [display_work_sum] => 437 739 [display_total_sum] => 719 046 ) 1
719 046
Работа:437 739
Материалы:281 307
Дни:29
stdClass Object ( [id] => 197 [attribute_id] => 5 [name] => Газосиликатный блок [material_modifier] => 1 [work_modifier] => 1 [options] => Array ( [0] => 300 мм [1] => 375 мм [2] => 400 мм [3] => 500 мм [4] => 600 мм ) [days] => [29,31,35,37,44] [material_price] => [4298,5573,6356,7288,9119] [work_price] => [4538,5251,5926,6733,7195] [image] => https://akademik-stroy.ru/wp-content/uploads/materials/gazosilikatnyj-blok.jpg [area_modifier] => 82.75 [parent_name] => Стены 2 этаж (несущие) [parent_id] => 5 [material_sum] => 448131 [work_sum] => 394295 [total_sum] => 842426 [total_days] => 29 [display_material_sum] => 448 131 [display_work_sum] => 394 295 [display_total_sum] => 842 426 ) 1
842 426
Работа:394 295
Материалы:448 131
Дни:29
stdClass Object ( [id] => 198 [attribute_id] => 5 [name] => Керамзитобетонный блок [material_modifier] => 1 [work_modifier] => 1 [options] => Array ( [0] => 300 мм [1] => 375 мм [2] => 400 мм [3] => 500 мм [4] => 600 мм ) [days] => [23,23,24,25,28] [material_price] => [3641,4298,5693,7613,9612] [work_price] => [5737,5737,6903,7958,8901] [image] => https://akademik-stroy.ru/wp-content/uploads/materials/keramzitobetonnyj-blok.jpg [area_modifier] => 82.75 [parent_name] => Стены 2 этаж (несущие) [parent_id] => 5 [material_sum] => 379629 [work_sum] => 498474 [total_sum] => 878103 [total_days] => 23 [display_material_sum] => 379 629 [display_work_sum] => 498 474 [display_total_sum] => 878 103 ) 1
878 103
Работа:498 474
Материалы:379 629
Дни:23
stdClass Object ( [id] => 199 [attribute_id] => 5 [name] => Деревянные [material_modifier] => 1 [work_modifier] => 1 [options] => Array ( [0] => 180 мм [1] => 220 мм [2] => 260 мм [3] => 320 мм ) [days] => [7,8,9,10] [material_price] => [7950,9458,11961,14472] [work_price] => [4037,4925,5812,7207] [image] => https://akademik-stroy.ru/wp-content/uploads/materials/derevyannye.jpg [area_modifier] => 82.75 [parent_name] => Стены 2 этаж (несущие) [parent_id] => 5 [material_sum] => 828907 [work_sum] => 350765 [total_sum] => 1179672 [total_days] => 7 [display_material_sum] => 828 907 [display_work_sum] => 350 765 [display_total_sum] => 1 179 672 ) 1
1 179 672
Работа:350 765
Материалы:828 907
Дни:7
stdClass Object ( [id] => 200 [attribute_id] => 5 [name] => Камень [material_modifier] => 1 [work_modifier] => 1 [options] => Array ( [0] => 300 мм [1] => 400 мм [2] => 500 мм [3] => 600 мм ) [days] => [25,27,31,34] [material_price] => [5262,6844,8330,9815] [work_price] => [8331,9135,10427,11069] [image] => https://akademik-stroy.ru/wp-content/uploads/materials/kamen.jpg [area_modifier] => 82.75 [parent_name] => Стены 2 этаж (несущие) [parent_id] => 5 [material_sum] => 548642 [work_sum] => 723860 [total_sum] => 1272502 [total_days] => 25 [display_material_sum] => 548 642 [display_work_sum] => 723 860 [display_total_sum] => 1 272 502 ) 1
1 272 502
Работа:723 860
Материалы:548 642
Дни:25
stdClass Object ( [id] => 201 [attribute_id] => 5 [name] => Каркасно-щитовые [material_modifier] => 1 [work_modifier] => 1 [options] => Array ( [0] => 150 мм [1] => 200 мм [2] => 250 мм [3] => 300 мм [4] => 350 мм [5] => 400 мм ) [days] => [15,16,17,18,19,20] [material_price] => [2379,2639,2898,3458,3601,4175] [work_price] => [2538,2820,3134,3483,4062,5642] [image] => https://akademik-stroy.ru/wp-content/uploads/materials/karkasno-shchitovye.jpg [area_modifier] => 82.75 [parent_name] => Стены 2 этаж (несущие) [parent_id] => 5 [material_sum] => 248046 [work_sum] => 220520 [total_sum] => 468566 [total_days] => 15 [display_material_sum] => 248 046 [display_work_sum] => 220 520 [display_total_sum] => 468 566 ) 1
468 566
Работа:220 520
Материалы:248 046
Дни:15
stdClass Object ( [id] => 202 [attribute_id] => 5 [name] => Рубленные [material_modifier] => 1 [work_modifier] => 1 [options] => Array ( [0] => 150 мм [1] => 200 мм [2] => 250 мм [3] => 300 мм [4] => 350 мм [5] => 400 мм ) [days] => [15,16,17,18,17,18] [material_price] => [35950,50267,60583,75900,80217,100533] [work_price] => [9612,12816,16020,19224,22428,25632] [image] => https://akademik-stroy.ru/wp-content/uploads/materials/rublennye.jpg [area_modifier] => 82.75 [parent_name] => Стены 2 этаж (несущие) [parent_id] => 5 [material_sum] => 3748327 [work_sum] => 835163 [total_sum] => 4583490 [total_days] => 15 [display_material_sum] => 3 748 327 [display_work_sum] => 835 163 [display_total_sum] => 4 583 490 ) 1
4 583 490
Работа:835 163
Материалы:3 748 327
Дни:15
stdClass Object ( [id] => 203 [attribute_id] => 5 [name] => Теплоблок [material_modifier] => 1 [work_modifier] => 1 [options] => Array ( [0] => 300 мм (с облицовкой, не покрашенный) [1] => 400 мм (с облицовкой, не покрашенный) [2] => 300 мм (с облицовкой, покрашенный) [3] => 400 мм (с облицовкой, покрашенный) ) [days] => [15,16,15,16] [material_price] => [2888,3729,3957,4258] [work_price] => [2564,3229,2949,3713] [image] => https://akademik-stroy.ru/wp-content/uploads/materials/teploblok.jpg [area_modifier] => 82.75 [parent_name] => Стены 2 этаж (несущие) [parent_id] => 5 [material_sum] => 301117 [work_sum] => 222780 [total_sum] => 523897 [total_days] => 15 [display_material_sum] => 301 117 [display_work_sum] => 222 780 [display_total_sum] => 523 897 ) 1
523 897
Работа:222 780
Материалы:301 117
Дни:15
stdClass Object ( [id] => 204 [attribute_id] => 5 [name] => Арболитовые блоки [material_modifier] => 1 [work_modifier] => 1 [options] => Array ( [0] => 300 мм [1] => 400 мм [2] => 600 мм ) [days] => [19,22,27] [material_price] => [3210,4475,5852] [work_price] => [4214,4788,5866] [image] => https://akademik-stroy.ru/wp-content/uploads/materials/arbolitovye-bloki.png [area_modifier] => 82.75 [parent_name] => Стены 2 этаж (несущие) [parent_id] => 5 [material_sum] => 334691 [work_sum] => 366144 [total_sum] => 700835 [total_days] => 19 [display_material_sum] => 334 691 [display_work_sum] => 366 144 [display_total_sum] => 700 835 ) 1
700 835
Работа:366 144
Материалы:334 691
Дни:19
stdClass Object ( [id] => 205 [attribute_id] => 5 [name] => Полистиролбетон [material_modifier] => 1 [work_modifier] => 1 [options] => Array ( [0] => 300 мм [1] => 400 мм [2] => 600 мм ) [days] => [29,31,35] [material_price] => [2798,4573,5256] [work_price] => [5038,5851,6426] [image] => https://akademik-stroy.ru/wp-content/uploads/materials/polistirolbeton.jpg [area_modifier] => 82.75 [parent_name] => Стены 2 этаж (несущие) [parent_id] => 5 [material_sum] => 291733 [work_sum] => 437739 [total_sum] => 729472 [total_days] => 29 [display_material_sum] => 291 733 [display_work_sum] => 437 739 [display_total_sum] => 729 472 ) 1
729 472
Работа:437 739
Материалы:291 733
Дни:29
stdClass Object ( [id] => 206 [attribute_id] => 5 [name] => Шлакоблок [material_modifier] => 1 [work_modifier] => 1 [options] => Array ( [0] => 400 мм [1] => 600 мм ) [days] => [15,16] [material_price] => [2391,3471] [work_price] => [2642,3662] [image] => https://akademik-stroy.ru/wp-content/uploads/materials/shlakoblok.jpg [area_modifier] => 82.75 [parent_name] => Стены 2 этаж (несущие) [parent_id] => 5 [material_sum] => 249298 [work_sum] => 229557 [total_sum] => 478855 [total_days] => 15 [display_material_sum] => 249 298 [display_work_sum] => 229 557 [display_total_sum] => 478 855 ) 1
478 855
Работа:229 557
Материалы:249 298
Дни:15
stdClass Object ( [id] => 245 [attribute_id] => 5 [name] => Теплая керамика [material_modifier] => 1 [work_modifier] => 1 [options] => Array ( [0] => 380 мм [1] => 380 мм Thermo [2] => 440 мм [3] => 510 мм ) [days] => [10,10,11,12] [material_price] => [4510,5098,6093,8013] [work_price] => [4737,4937,5903,6958] [image] => https://akademik-stroy.ru/wp-content/uploads/materials/teplaya-keramika.jpg [area_modifier] => 82.75 [parent_name] => Стены 2 этаж (несущие) [parent_id] => 5 [material_sum] => 470235 [work_sum] => 411586 [total_sum] => 881821 [total_days] => 10 [display_material_sum] => 470 235 [display_work_sum] => 411 586 [display_total_sum] => 881 821 ) 1
881 821
Работа:411 586
Материалы:470 235
Дни:10
stdClass Object ( [id] => 246 [attribute_id] => 5 [name] => Несъемная опалубка [material_modifier] => 1 [work_modifier] => 1 [options] => Array ( [0] => 380 мм [1] => 380 мм Thermo [2] => 440 мм [3] => 510 мм ) [days] => [10,10,11,12] [material_price] => [3302,3902,4108,5008] [work_price] => [2100,2100,2300,2534] [image] => https://akademik-stroy.ru/wp-content/uploads/materials/nesemnaya-opalubka.jpg [area_modifier] => 82.75 [parent_name] => Стены 2 этаж (несущие) [parent_id] => 5 [material_sum] => 344283 [work_sum] => 182464 [total_sum] => 526747 [total_days] => 10 [display_material_sum] => 344 283 [display_work_sum] => 182 464 [display_total_sum] => 526 747 ) 1
526 747
Работа:182 464
Материалы:344 283
Дни:10
stdClass Object ( [id] => 254 [attribute_id] => 5 [name] => Бревно [material_modifier] => 1 [work_modifier] => 1 [options] => Array ( [0] => 260 мм [1] => 320 мм [2] => 360 мм [3] => 400 мм [4] => 500 мм ) [days] => [7,8,9,10,11] [material_price] => [1874,24045,26930,30972,38825] [work_price] => [5046,6207,6952,7716,9723] [image] => https://akademik-stroy.ru/wp-content/uploads/materials/sruby.jpg [area_modifier] => 82.75 [parent_name] => Стены 2 этаж (несущие) [parent_id] => 5 [material_sum] => 195393 [work_sum] => 438434 [total_sum] => 633827 [total_days] => 7 [display_material_sum] => 195 393 [display_work_sum] => 438 434 [display_total_sum] => 633 827 ) 1
633 827
Работа:438 434
Материалы:195 393
Дни:7
Крыша (Скатная)
stdClass Object ( [id] => 164 [attribute_id] => 37 [name] => Металлочерепица [material_modifier] => 1 [work_modifier] => 1 [options] => Array ( ) [days] => [20] [material_price] => [6112] [work_price] => [5726] [image] => https://akademik-stroy.ru/wp-content/uploads/materials/metallocherepica.jpg [area_modifier] => 123.14 [parent_name] => Крыша (Скатная) [parent_id] => 37 [material_sum] => 948316 [work_sum] => 740355 [total_sum] => 1688671 [total_days] => 20 [display_material_sum] => 948 316 [display_work_sum] => 740 355 [display_total_sum] => 1 688 671 ) 1
1 688 671
Работа:740 355
Материалы:948 316
Дни:20
stdClass Object ( [id] => 165 [attribute_id] => 37 [name] => Гибкая черепица [material_modifier] => 1 [work_modifier] => 1 [options] => Array ( ) [days] => [20] [material_price] => [6980] [work_price] => [5950] [image] => https://akademik-stroy.ru/wp-content/uploads/materials/gibkaya-cherepica.jpg [area_modifier] => 123.14 [parent_name] => Крыша (Скатная) [parent_id] => 37 [material_sum] => 1082992 [work_sum] => 769317 [total_sum] => 1852309 [total_days] => 20 [display_material_sum] => 1 082 992 [display_work_sum] => 769 317 [display_total_sum] => 1 852 309 ) 1
1 852 309
Работа:769 317
Материалы:1 082 992
Дни:20
stdClass Object ( [id] => 166 [attribute_id] => 37 [name] => Цементно-песчаная черепица [material_modifier] => 1 [work_modifier] => 1 [options] => Array ( ) [days] => [20] [material_price] => [10560] [work_price] => [9456] [image] => https://akademik-stroy.ru/wp-content/uploads/materials/cementno-peschanaya-cherepica.jpg [area_modifier] => 123.14 [parent_name] => Крыша (Скатная) [parent_id] => 37 [material_sum] => 1638452 [work_sum] => 1222632 [total_sum] => 2861084 [total_days] => 20 [display_material_sum] => 1 638 452 [display_work_sum] => 1 222 632 [display_total_sum] => 2 861 084 ) 1
2 861 084
Работа:1 222 632
Материалы:1 638 452
Дни:20
stdClass Object ( [id] => 167 [attribute_id] => 37 [name] => Композитная черепица [material_modifier] => 1 [work_modifier] => 1 [options] => Array ( ) [days] => [20] [material_price] => [9506] [work_price] => [8905] [image] => https://akademik-stroy.ru/wp-content/uploads/materials/kompozitnaya-cherepica.jpg [area_modifier] => 123.14 [parent_name] => Крыша (Скатная) [parent_id] => 37 [material_sum] => 1474917 [work_sum] => 1151390 [total_sum] => 2626307 [total_days] => 20 [display_material_sum] => 1 474 917 [display_work_sum] => 1 151 390 [display_total_sum] => 2 626 307 ) 1
2 626 307
Работа:1 151 390
Материалы:1 474 917
Дни:20
stdClass Object ( [id] => 168 [attribute_id] => 37 [name] => Керамическая черепица [material_modifier] => 1 [work_modifier] => 1 [options] => Array ( ) [days] => [20] [material_price] => [12750] [work_price] => [9456] [image] => https://akademik-stroy.ru/wp-content/uploads/materials/keramicheskaya-cherepica.jpg [area_modifier] => 123.14 [parent_name] => Крыша (Скатная) [parent_id] => 37 [material_sum] => 1978244 [work_sum] => 1222632 [total_sum] => 3200876 [total_days] => 20 [display_material_sum] => 1 978 244 [display_work_sum] => 1 222 632 [display_total_sum] => 3 200 876 ) 1
3 200 876
Работа:1 222 632
Материалы:1 978 244
Дни:20
stdClass Object ( [id] => 169 [attribute_id] => 37 [name] => Металлическая фальцевая [material_modifier] => 1 [work_modifier] => 1 [options] => Array ( ) [days] => [20] [material_price] => [8550] [work_price] => [8190] [image] => https://akademik-stroy.ru/wp-content/uploads/materials/metallicheskaya-falcevaya.jpg [area_modifier] => 123.14 [parent_name] => Крыша (Скатная) [parent_id] => 37 [material_sum] => 1326587 [work_sum] => 1058942 [total_sum] => 2385529 [total_days] => 20 [display_material_sum] => 1 326 587 [display_work_sum] => 1 058 942 [display_total_sum] => 2 385 529 ) 1
2 385 529
Работа:1 058 942
Материалы:1 326 587
Дни:20
stdClass Object ( [id] => 170 [attribute_id] => 37 [name] => Медная фальцевая [material_modifier] => 1 [work_modifier] => 1 [options] => Array ( ) [days] => [20] [material_price] => [20450] [work_price] => [16750] [image] => https://akademik-stroy.ru/wp-content/uploads/materials/mednaya-falcevaya.jpg [area_modifier] => 123.14 [parent_name] => Крыша (Скатная) [parent_id] => 37 [material_sum] => 3172948 [work_sum] => 2165725 [total_sum] => 5338673 [total_days] => 20 [display_material_sum] => 3 172 948 [display_work_sum] => 2 165 725 [display_total_sum] => 5 338 673 ) 1
5 338 673
Работа:2 165 725
Материалы:3 172 948
Дни:20
stdClass Object ( [id] => 171 [attribute_id] => 37 [name] => Зеленая кровля [material_modifier] => 1 [work_modifier] => 1 [options] => Array ( ) [days] => [20] [material_price] => [19850] [work_price] => [16780] [image] => https://akademik-stroy.ru/wp-content/uploads/materials/zelenaya-krovlya.jpg [area_modifier] => 123.14 [parent_name] => Крыша (Скатная) [parent_id] => 37 [material_sum] => 3079855 [work_sum] => 2169604 [total_sum] => 5249459 [total_days] => 20 [display_material_sum] => 3 079 855 [display_work_sum] => 2 169 604 [display_total_sum] => 5 249 459 ) 1
5 249 459
Работа:2 169 604
Материалы:3 079 855
Дни:20
stdClass Object ( [id] => 172 [attribute_id] => 37 [name] => Профлист [material_modifier] => 1 [work_modifier] => 1 [options] => Array ( ) [days] => [20] [material_price] => [3450] [work_price] => [3750] [image] => https://akademik-stroy.ru/wp-content/uploads/materials/proflist.jpg [area_modifier] => 123.14 [parent_name] => Крыша (Скатная) [parent_id] => 37 [material_sum] => 535290 [work_sum] => 484864 [total_sum] => 1020154 [total_days] => 20 [display_material_sum] => 535 290 [display_work_sum] => 484 864 [display_total_sum] => 1 020 154 ) 1
1 020 154
Работа:484 864
Материалы:535 290
Дни:20
Окна
stdClass Object ( [id] => 51 [attribute_id] => 26 [name] => Есть [material_modifier] => 1 [work_modifier] => 1 [options] => Array ( [0] => Профиль 58 мм, 3-камерный, стеклопакет 2-камерный до 32 мм [1] => Профиль 60 мм, 4-камерный, стеклопакет 2-камерный до 32 мм [2] => Профиль 70 мм, 5-камерный, стеклопакет 2-камерный до 40 мм [3] => Профиль 72 мм, 5-камерный, стеклопакет 2-камерный до 40 мм [4] => Алюминиевые окна Alutech профиль 72 мм, стеклопакет 2-камерный ) [days] => [3,3,3,3,3] [material_price] => [1339,2124,2867,3023,29596] [work_price] => [635,647,659,668,2579] [image] => https://akademik-stroy.ru/wp-content/uploads/materials/okna.jpg [area_modifier] => 167.08 [parent_name] => Окна [parent_id] => 26 [material_sum] => 281887 [work_sum] => 111401 [total_sum] => 393288 [total_days] => 3 [display_material_sum] => 281 887 [display_work_sum] => 111 401 [display_total_sum] => 393 288 ) 1
393 288
Работа:111 401
Материалы:281 887
Дни:3
stdClass Object ( [id] => 52 [attribute_id] => 26 [name] => Нет [material_modifier] => 2 [work_modifier] => 1 [options] => [days] => null [material_price] => null [work_price] => null [image] => https://akademik-stroy.ru/wp-content/uploads/materials/okna.jpg [area_modifier] => 167.08 [parent_name] => Окна [parent_id] => 26 [material_sum] => 0 [work_sum] => 0 [total_sum] => 0 [total_days] => 0 [display_material_sum] => 0 [display_work_sum] => 0 [display_total_sum] => 0 ) 1
0
Работа:0
Материалы:0
Дни:0
Двери входные
stdClass Object ( [id] => 53 [attribute_id] => 27 [name] => Есть [material_modifier] => 1 [work_modifier] => 1 [options] => Array ( ) [days] => [1] [material_price] => [10000] [work_price] => [5500] [image] => https://akademik-stroy.ru/wp-content/uploads/materials/dveri.jpg [area_modifier] => 1 [parent_name] => Двери входные [parent_id] => 27 [material_sum] => 12600 [work_sum] => 5775 [total_sum] => 18375 [total_days] => 1 [display_material_sum] => 12 600 [display_work_sum] => 5 775 [display_total_sum] => 18 375 ) 1
18 375
Работа:5 775
Материалы:12 600
Дни:1
stdClass Object ( [id] => 54 [attribute_id] => 27 [name] => Нет [material_modifier] => 1 [work_modifier] => 1 [options] => Array ( ) [days] => [0] [material_price] => [0] [work_price] => [0] [image] => https://akademik-stroy.ru/wp-content/uploads/materials/dveri.jpg [area_modifier] => 1 [parent_name] => Двери входные [parent_id] => 27 [material_sum] => 0 [work_sum] => 0 [total_sum] => 0 [total_days] => 0 [display_material_sum] => 0 [display_work_sum] => 0 [display_total_sum] => 0 ) 1
0
Работа:0
Материалы:0
Дни:0
Утепление кровли (Мансарда)
stdClass Object ( [id] => 25 [attribute_id] => 13 [name] => Нет [material_modifier] => 1 [work_modifier] => 1 [options] => Array ( ) [days] => [0] [material_price] => [0] [work_price] => [0] [image] => https://akademik-stroy.ru/wp-content/uploads/materials/mineralovata-krov.jpg [area_modifier] => 123.14 [parent_name] => Утепление кровли (Мансарда) [parent_id] => 13 [material_sum] => 0 [work_sum] => 0 [total_sum] => 0 [total_days] => 0 [display_material_sum] => 0 [display_work_sum] => 0 [display_total_sum] => 0 ) 1
0
Работа:0
Материалы:0
Дни:0
stdClass Object ( [id] => 26 [attribute_id] => 13 [name] => Минераловатный [material_modifier] => 1 [work_modifier] => 1 [options] => Array ( [0] => 50 мм [1] => 100 мм [2] => 150 мм [3] => 200 мм [4] => 250 мм [5] => 300 мм [6] => 350 мм [7] => 400 мм [8] => 450 мм [9] => 500 мм ) [days] => [5,5,6,6,6,7,7,7,8,8] [material_price] => [1158,1414,1772,2230,3602,4060,4974,5890,6408,7718] [work_price] => [650,846,846,1098,1318,1450,1596,1754,1930,2122] [image] => https://akademik-stroy.ru/wp-content/uploads/materials/mineralovata-krov.jpg [area_modifier] => 123.14 [parent_name] => Утепление кровли (Мансарда) [parent_id] => 13 [material_sum] => 179671 [work_sum] => 84043 [total_sum] => 263714 [total_days] => 5 [display_material_sum] => 179 671 [display_work_sum] => 84 043 [display_total_sum] => 263 714 ) 1
263 714
Работа:84 043
Материалы:179 671
Дни:5
stdClass Object ( [id] => 123 [attribute_id] => 13 [name] => Эковата (целлюлозная вата) [material_modifier] => 1 [work_modifier] => 1 [options] => Array ( [0] => 50 мм [1] => 100 мм [2] => 150 мм [3] => 200 мм [4] => 250 мм [5] => 300 мм [6] => 350 мм [7] => 400 мм [8] => 450 мм [9] => 500 мм ) [days] => [3,3,4,4,4,5,5,5,5,5] [material_price] => [820,1638,2458,3276,5734,6552,8190,9828,11466,13104] [work_price] => [234,304,304,396,474,522,574,632,694,764] [image] => https://akademik-stroy.ru/wp-content/uploads/materials/ehkovata-krov.jpg [area_modifier] => 123.14 [parent_name] => Утепление кровли (Мансарда) [parent_id] => 13 [material_sum] => 127228 [work_sum] => 30255 [total_sum] => 157483 [total_days] => 3 [display_material_sum] => 127 228 [display_work_sum] => 30 255 [display_total_sum] => 157 483 ) 1
157 483
Работа:30 255
Материалы:127 228
Дни:3
stdClass Object ( [id] => 124 [attribute_id] => 13 [name] => Экструдированный пенополистирол [material_modifier] => 1 [work_modifier] => 1 [options] => Array ( [0] => 50 мм [1] => 100 мм [2] => 150 мм [3] => 200 мм [4] => 250 мм [5] => 300 мм [6] => 350 мм [7] => 400 мм [8] => 450 мм [9] => 500 мм ) [days] => [3,3,4,4,4,5,5,5,5,6] [material_price] => [1146,2292,3438,4584,8020,9166,11458,13750,16040,18332] [work_price] => [390,508,508,660,790,870,958,1052,1158,1274] [image] => https://akademik-stroy.ru/wp-content/uploads/materials/epps-krov.jpg [area_modifier] => 123.14 [parent_name] => Утепление кровли (Мансарда) [parent_id] => 13 [material_sum] => 177809 [work_sum] => 50426 [total_sum] => 228235 [total_days] => 3 [display_material_sum] => 177 809 [display_work_sum] => 50 426 [display_total_sum] => 228 235 ) 1
228 235
Работа:50 426
Материалы:177 809
Дни:3
stdClass Object ( [id] => 125 [attribute_id] => 13 [name] => ПСБ (ППС-пенополистирол) [material_modifier] => 1 [work_modifier] => 1 [options] => Array ( [0] => 50 мм [1] => 100 мм [2] => 150 мм [3] => 200 мм [4] => 250 мм [5] => 300 мм [6] => 350 мм [7] => 400 мм [8] => 450 мм [9] => 500 мм ) [days] => [3,3,4,4,4,5,5,5,5,6] [material_price] => [476,954,1430,1906,3336,3814,4766,5720,6674,7626] [work_price] => [390,508,508,660,790,870,958,1052,1158,1274] [image] => https://akademik-stroy.ru/wp-content/uploads/materials/psb-krov.jpg [area_modifier] => 123.14 [parent_name] => Утепление кровли (Мансарда) [parent_id] => 13 [material_sum] => 73854 [work_sum] => 50426 [total_sum] => 124280 [total_days] => 3 [display_material_sum] => 73 854 [display_work_sum] => 50 426 [display_total_sum] => 124 280 ) 1
124 280
Работа:50 426
Материалы:73 854
Дни:3
stdClass Object ( [id] => 126 [attribute_id] => 13 [name] => ППУ (Пенополиуретан) [material_modifier] => 1 [work_modifier] => 1 [options] => Array ( [0] => 50 мм [1] => 100 мм [2] => 150 мм [3] => 200 мм [4] => 250 мм [5] => 300 мм [6] => 350 мм [7] => 400 мм [8] => 450 мм [9] => 500 мм ) [days] => [2,2,3,3,3,3,4,4,4,4] [material_price] => [2080,4160,6240,8320,14560,16640,20800,24960,29120,33280] [work_price] => [234,304,304,396,474,522,574,632,694,764] [image] => https://akademik-stroy.ru/wp-content/uploads/materials/ppu-krov.jpg [area_modifier] => 123.14 [parent_name] => Утепление кровли (Мансарда) [parent_id] => 13 [material_sum] => 322725 [work_sum] => 30255 [total_sum] => 352980 [total_days] => 2 [display_material_sum] => 322 725 [display_work_sum] => 30 255 [display_total_sum] => 352 980 ) 1
352 980
Работа:30 255
Материалы:322 725
Дни:2
stdClass Object ( [id] => 127 [attribute_id] => 13 [name] => PIR-плиты (пенополиизоцианурат) [material_modifier] => 1 [work_modifier] => 1 [options] => Array ( [0] => 50 мм [1] => 100 мм [2] => 150 мм [3] => 200 мм [4] => 250 мм [5] => 300 мм [6] => 350 мм [7] => 400 мм [8] => 450 мм [9] => 500 мм ) [days] => [3,3,4,4,4,5,5,5,5,6] [material_price] => [2646,5290,7936,10580,18516,21162,26452,31742,37032,42324] [work_price] => [390,508,508,660,790,870,958,1052,1158,1274] [image] => https://akademik-stroy.ru/wp-content/uploads/materials/pir-krov.jpg [area_modifier] => 123.14 [parent_name] => Утепление кровли (Мансарда) [parent_id] => 13 [material_sum] => 410544 [work_sum] => 50426 [total_sum] => 460970 [total_days] => 3 [display_material_sum] => 410 544 [display_work_sum] => 50 426 [display_total_sum] => 460 970 ) 1
460 970
Работа:50 426
Материалы:410 544
Дни:3
Мансардные окна
stdClass Object ( [id] => 27 [attribute_id] => 14 [name] => Нет [material_modifier] => 1 [work_modifier] => 1 [options] => Array ( ) [days] => [0] [material_price] => [0] [work_price] => [0] [image] => https://akademik-stroy.ru/wp-content/uploads/materials/mansardnye-okna-2.jpg [area_modifier] => 1 [parent_name] => Мансардные окна [parent_id] => 14 [material_sum] => 0 [work_sum] => 0 [total_sum] => 0 [total_days] => 0 [display_material_sum] => 0 [display_work_sum] => 0 [display_total_sum] => 0 ) 1
0
Работа:0
Материалы:0
Дни:0
stdClass Object ( [id] => 28 [attribute_id] => 14 [name] => Есть [material_modifier] => 1 [work_modifier] => 1 [options] => Array ( [0] => 55x78 [1] => 55x98 ) [days] => [6,7] [material_price] => [47480,68700] [work_price] => [17900,19500] [image] => https://akademik-stroy.ru/wp-content/uploads/materials/mansardnye-okna-2.jpg [area_modifier] => 1 [parent_name] => Мансардные окна [parent_id] => 14 [material_sum] => 59825 [work_sum] => 18795 [total_sum] => 78620 [total_days] => 6 [display_material_sum] => 59 825 [display_work_sum] => 18 795 [display_total_sum] => 78 620 ) 1
78 620
Работа:18 795
Материалы:59 825
Дни:6
Подшивка кровли
stdClass Object ( [id] => 29 [attribute_id] => 15 [name] => Нет [material_modifier] => 1 [work_modifier] => 1 [options] => Array ( ) [days] => [0] [material_price] => [0] [work_price] => [0] [image] => https://akademik-stroy.ru/wp-content/uploads/materials/sofit.jpg [area_modifier] => 123.14 [parent_name] => Подшивка кровли [parent_id] => 15 [material_sum] => 0 [work_sum] => 0 [total_sum] => 0 [total_days] => 0 [display_material_sum] => 0 [display_work_sum] => 0 [display_total_sum] => 0 ) 1
0
Работа:0
Материалы:0
Дни:0
stdClass Object ( [id] => 30 [attribute_id] => 15 [name] => Есть [material_modifier] => 1 [work_modifier] => 1 [options] => Array ( [0] => Софиты (ПВХ) [1] => Cedral [2] => ДПК [3] => Планкен ) [days] => [7,10,9,8] [material_price] => [1803,3213,3025,3150] [work_price] => [1529,2188,2075,1923] [image] => https://akademik-stroy.ru/wp-content/uploads/materials/sofit.jpg [area_modifier] => 123.14 [parent_name] => Подшивка кровли [parent_id] => 15 [material_sum] => 279747 [work_sum] => 197695 [total_sum] => 477442 [total_days] => 7 [display_material_sum] => 279 747 [display_work_sum] => 197 695 [display_total_sum] => 477 442 ) 1
477 442
Работа:197 695
Материалы:279 747
Дни:7
Водосточная система
stdClass Object ( [id] => 31 [attribute_id] => 16 [name] => Нет [material_modifier] => 1 [work_modifier] => 1 [options] => Array ( ) [days] => [0] [material_price] => [0] [work_price] => [0] [image] => https://akademik-stroy.ru/wp-content/uploads/materials/docke-standard-pvh.jpg [area_modifier] => 123.14 [parent_name] => Водосточная система [parent_id] => 16 [material_sum] => 0 [work_sum] => 0 [total_sum] => 0 [total_days] => 0 [display_material_sum] => 0 [display_work_sum] => 0 [display_total_sum] => 0 ) 1
0
Работа:0
Материалы:0
Дни:0
stdClass Object ( [id] => 32 [attribute_id] => 16 [name] => Есть [material_modifier] => 1 [work_modifier] => 1 [options] => Array ( [0] => Döcke Standard (ПВХ) [1] => Металлические Grand Line ) [days] => [7,7] [material_price] => [1842,2703] [work_price] => [1491,1529] [image] => https://akademik-stroy.ru/wp-content/uploads/materials/docke-standard-pvh.jpg [area_modifier] => 123.14 [parent_name] => Водосточная система [parent_id] => 16 [material_sum] => 285798 [work_sum] => 192782 [total_sum] => 478580 [total_days] => 7 [display_material_sum] => 285 798 [display_work_sum] => 192 782 [display_total_sum] => 478 580 ) 1
478 580
Работа:192 782
Материалы:285 798
Дни:7
Дополнительное утепление наружных стен
stdClass Object ( [id] => 33 [attribute_id] => 17 [name] => Нет [material_modifier] => 1 [work_modifier] => 1 [options] => Array ( ) [days] => [0] [material_price] => [0] [work_price] => [0] [image] => https://akademik-stroy.ru/wp-content/uploads/materials/mineralovata.jpg [area_modifier] => 205.89 [parent_name] => Дополнительное утепление наружных стен [parent_id] => 17 [material_sum] => 0 [work_sum] => 0 [total_sum] => 0 [total_days] => 0 [display_material_sum] => 0 [display_work_sum] => 0 [display_total_sum] => 0 ) 1
0
Работа:0
Материалы:0
Дни:0
stdClass Object ( [id] => 34 [attribute_id] => 17 [name] => Минераловатный [material_modifier] => 1 [work_modifier] => 1 [options] => Array ( [0] => 50 мм [1] => 100 мм [2] => 150 мм [3] => 200 мм [4] => 250 мм [5] => 300 мм ) [days] => [7,8,10,12,14,15] [material_price] => [3437,3613,3803,3915,4601,4830] [work_price] => [2325,2423,2523,2749,2859,3025] [image] => https://akademik-stroy.ru/wp-content/uploads/materials/mineralovata.jpg [area_modifier] => 205.89 [parent_name] => Дополнительное утепление наружных стен [parent_id] => 17 [material_sum] => 891631 [work_sum] => 502629 [total_sum] => 1394260 [total_days] => 7 [display_material_sum] => 891 631 [display_work_sum] => 502 629 [display_total_sum] => 1 394 260 ) 1
1 394 260
Работа:502 629
Материалы:891 631
Дни:7
stdClass Object ( [id] => 128 [attribute_id] => 17 [name] => Эковата (целлюлозная вата) [material_modifier] => 1 [work_modifier] => 1 [options] => Array ( [0] => 50 мм [1] => 100 мм [2] => 150 мм [3] => 200 мм [4] => 250 мм [5] => 300 мм ) [days] => [3,4,5,6,7,8] [material_price] => [810,1319,1629,1838,2267,2676] [work_price] => [1225,1323,1423,1549,1659,1725] [image] => https://akademik-stroy.ru/wp-content/uploads/materials/ehkovata.jpg [area_modifier] => 205.89 [parent_name] => Дополнительное утепление наружных стен [parent_id] => 17 [material_sum] => 210131 [work_sum] => 264826 [total_sum] => 474957 [total_days] => 3 [display_material_sum] => 210 131 [display_work_sum] => 264 826 [display_total_sum] => 474 957 ) 1
474 957
Работа:264 826
Материалы:210 131
Дни:3
stdClass Object ( [id] => 129 [attribute_id] => 17 [name] => Экструдированный пенополистирол [material_modifier] => 1 [work_modifier] => 1 [options] => Array ( [0] => 50 мм [1] => 100 мм [2] => 150 мм [3] => 200 мм [4] => 250 мм [5] => 300 мм ) [days] => [5,6,7,8,9,10] [material_price] => [4560,4300,5119,6292,7010,8583] [work_price] => [1795,1954,2254,2330,2595,2735] [image] => https://akademik-stroy.ru/wp-content/uploads/materials/epps.jpg [area_modifier] => 205.89 [parent_name] => Дополнительное утепление наружных стен [parent_id] => 17 [material_sum] => 1182962 [work_sum] => 388051 [total_sum] => 1571013 [total_days] => 5 [display_material_sum] => 1 182 962 [display_work_sum] => 388 051 [display_total_sum] => 1 571 013 ) 1
1 571 013
Работа:388 051
Материалы:1 182 962
Дни:5
stdClass Object ( [id] => 130 [attribute_id] => 17 [name] => ПСБ (ППС-пенополистирол) [material_modifier] => 1 [work_modifier] => 1 [options] => Array ( [0] => 50 мм [1] => 100 мм [2] => 150 мм [3] => 200 мм [4] => 250 мм [5] => 300 мм ) [days] => [5,6,7,8,9,10] [material_price] => [4822,5200,5819,6292,7010,7583] [work_price] => [1795,1954,2254,2330,2595,2735] [image] => https://akademik-stroy.ru/wp-content/uploads/materials/psb.jpg [area_modifier] => 205.89 [parent_name] => Дополнительное утепление наружных стен [parent_id] => 17 [material_sum] => 1250930 [work_sum] => 388051 [total_sum] => 1638981 [total_days] => 5 [display_material_sum] => 1 250 930 [display_work_sum] => 388 051 [display_total_sum] => 1 638 981 ) 1
1 638 981
Работа:388 051
Материалы:1 250 930
Дни:5
stdClass Object ( [id] => 131 [attribute_id] => 17 [name] => ППУ (Пенополиуретан) [material_modifier] => 1 [work_modifier] => 1 [options] => Array ( [0] => 50 мм [1] => 100 мм [2] => 150 мм [3] => 200 мм [4] => 250 мм [5] => 300 мм ) [days] => [3,4,5,6,7,8] [material_price] => [2860,3400,4219,4592,5010,5583] [work_price] => [729,900,980,1120,1280,1530] [image] => https://akademik-stroy.ru/wp-content/uploads/materials/ppu.jpg [area_modifier] => 205.89 [parent_name] => Дополнительное утепление наружных стен [parent_id] => 17 [material_sum] => 741945 [work_sum] => 157599 [total_sum] => 899544 [total_days] => 3 [display_material_sum] => 741 945 [display_work_sum] => 157 599 [display_total_sum] => 899 544 ) 1
899 544
Работа:157 599
Материалы:741 945
Дни:3
stdClass Object ( [id] => 132 [attribute_id] => 17 [name] => PIR-плиты (пенополиизоцианурат) [material_modifier] => 1 [work_modifier] => 1 [options] => Array ( [0] => 50 мм [1] => 100 мм [2] => 150 мм [3] => 200 мм [4] => 250 мм [5] => 300 мм ) [days] => [5,6,7,8,9,10] [material_price] => [8323,15645,20968,25900,29258,30581] [work_price] => [800,900,970,1150,1280,1330] [image] => https://akademik-stroy.ru/wp-content/uploads/materials/pir.jpg [area_modifier] => 205.89 [parent_name] => Дополнительное утепление наружных стен [parent_id] => 17 [material_sum] => 2159164 [work_sum] => 172948 [total_sum] => 2332112 [total_days] => 5 [display_material_sum] => 2 159 164 [display_work_sum] => 172 948 [display_total_sum] => 2 332 112 ) 1
2 332 112
Работа:172 948
Материалы:2 159 164
Дни:5
Наружная отделка фасада
stdClass Object ( [id] => 37 [attribute_id] => 19 [name] => Нет [material_modifier] => 1 [work_modifier] => 1 [options] => Array ( ) [days] => [0] [material_price] => [0] [work_price] => [0] [image] => https://akademik-stroy.ru/wp-content/uploads/materials/imitaciya-brusa.jpg [area_modifier] => 205.89 [parent_name] => Наружная отделка фасада [parent_id] => 19 [material_sum] => 0 [work_sum] => 0 [total_sum] => 0 [total_days] => 0 [display_material_sum] => 0 [display_work_sum] => 0 [display_total_sum] => 0 ) 1
0
Работа:0
Материалы:0
Дни:0
stdClass Object ( [id] => 38 [attribute_id] => 19 [name] => Имитация бруса [material_modifier] => 1 [work_modifier] => 1 [options] => Array ( [0] => Сосна [1] => Ель [2] => Лиственница ) [days] => [20,20,20] [material_price] => [2994,2762,4954] [work_price] => [1397,1231,1577] [image] => https://akademik-stroy.ru/wp-content/uploads/materials/imitaciya-brusa.jpg [area_modifier] => 205.89 [parent_name] => Наружная отделка фасада [parent_id] => 19 [material_sum] => 776708 [work_sum] => 302010 [total_sum] => 1078718 [total_days] => 20 [display_material_sum] => 776 708 [display_work_sum] => 302 010 [display_total_sum] => 1 078 718 ) 1
1 078 718
Работа:302 010
Материалы:776 708
Дни:20
stdClass Object ( [id] => 136 [attribute_id] => 19 [name] => Планкен [material_modifier] => 1 [work_modifier] => 1 [options] => Array ( [0] => Сосна [1] => Ель [2] => Лиственница ) [days] => [20,20,20] [material_price] => [3194,2862,5154] [work_price] => [1537,1354,1735] [image] => https://akademik-stroy.ru/wp-content/uploads/materials/planken.jpg [area_modifier] => 205.89 [parent_name] => Наружная отделка фасада [parent_id] => 19 [material_sum] => 828592 [work_sum] => 332276 [total_sum] => 1160868 [total_days] => 20 [display_material_sum] => 828 592 [display_work_sum] => 332 276 [display_total_sum] => 1 160 868 ) 1
1 160 868
Работа:332 276
Материалы:828 592
Дни:20
stdClass Object ( [id] => 137 [attribute_id] => 19 [name] => Штукатурка [material_modifier] => 1 [work_modifier] => 1 [options] => Array ( [0] => Цементно-песчаная (минеральная) [1] => Мокрый фасад ) [days] => [35,35] [material_price] => [2231,3938] [work_price] => [1202,2422] [image] => https://akademik-stroy.ru/wp-content/uploads/materials/shtukaturka.jpg [area_modifier] => 205.89 [parent_name] => Наружная отделка фасада [parent_id] => 19 [material_sum] => 578769 [work_sum] => 259854 [total_sum] => 838623 [total_days] => 35 [display_material_sum] => 578 769 [display_work_sum] => 259 854 [display_total_sum] => 838 623 ) 1
838 623
Работа:259 854
Материалы:578 769
Дни:35
stdClass Object ( [id] => 138 [attribute_id] => 19 [name] => Облицовочный кирпич [material_modifier] => 1 [work_modifier] => 1 [options] => Array ( [0] => Керамический [1] => Клинкерный [2] => Ручной формовки [3] => Гиперпрессованный [4] => Силикатный кирпич ) [days] => [45,45,45,45,45] [material_price] => [8174,9148,1040,1257,5876] [work_price] => [3240,3758,4536,4017,3369] [image] => https://akademik-stroy.ru/wp-content/uploads/materials/oblicovochnyj-kirpich.jpg [area_modifier] => 205.89 [parent_name] => Наружная отделка фасада [parent_id] => 19 [material_sum] => 2120511 [work_sum] => 700438 [total_sum] => 2820949 [total_days] => 45 [display_material_sum] => 2 120 511 [display_work_sum] => 700 438 [display_total_sum] => 2 820 949 ) 1
2 820 949
Работа:700 438
Материалы:2 120 511
Дни:45
stdClass Object ( [id] => 139 [attribute_id] => 19 [name] => Фасадная плитка [material_modifier] => 1 [work_modifier] => 1 [options] => Array ( [0] => Клинкерная [1] => Керамическая [2] => Плитка ручной формовки ) [days] => [40,40,40] [material_price] => [2974,1487,3470] [work_price] => [3007,2592,3629] [image] => https://akademik-stroy.ru/wp-content/uploads/materials/fasadnaya-plitka.jpg [area_modifier] => 205.89 [parent_name] => Наружная отделка фасада [parent_id] => 19 [material_sum] => 771519 [work_sum] => 650067 [total_sum] => 1421586 [total_days] => 40 [display_material_sum] => 771 519 [display_work_sum] => 650 067 [display_total_sum] => 1 421 586 ) 1
1 421 586
Работа:650 067
Материалы:771 519
Дни:40
stdClass Object ( [id] => 140 [attribute_id] => 19 [name] => Сайдинг [material_modifier] => 1 [work_modifier] => 1 [options] => Array ( [0] => Виниловый [1] => Металлический [2] => Фиброцементный ) [days] => [20,20,20] [material_price] => [1263,1944,4147] [work_price] => [1263,1944,2074] [image] => https://akademik-stroy.ru/wp-content/uploads/materials/sajding.jpg [area_modifier] => 205.89 [parent_name] => Наружная отделка фасада [parent_id] => 19 [material_sum] => 327649 [work_sum] => 273041 [total_sum] => 600690 [total_days] => 20 [display_material_sum] => 327 649 [display_work_sum] => 273 041 [display_total_sum] => 600 690 ) 1
600 690
Работа:273 041
Материалы:327 649
Дни:20
stdClass Object ( [id] => 141 [attribute_id] => 19 [name] => Камень [material_modifier] => 1 [work_modifier] => 1 [options] => Array ( [0] => Травертин [1] => Дагестанский [2] => Искусственный [3] => Натуральный [4] => Керамогранит ) [days] => [45,45,45,45,45] [material_price] => [4536,3888,2592,3240,2462] [work_price] => [3240,3240,2462,3110,1944] [image] => https://akademik-stroy.ru/wp-content/uploads/materials/kamen-1.jpg [area_modifier] => 205.89 [parent_name] => Наружная отделка фасада [parent_id] => 19 [material_sum] => 1176735 [work_sum] => 700438 [total_sum] => 1877173 [total_days] => 45 [display_material_sum] => 1 176 735 [display_work_sum] => 700 438 [display_total_sum] => 1 877 173 ) 1
1 877 173
Работа:700 438
Материалы:1 176 735
Дни:45
stdClass Object ( [id] => 142 [attribute_id] => 19 [name] => Термопанели [material_modifier] => 1 [work_modifier] => 1 [options] => Array ( ) [days] => [20] [material_price] => [6221] [work_price] => [2333] [image] => https://akademik-stroy.ru/wp-content/uploads/materials/termo.png [area_modifier] => 205.89 [parent_name] => Наружная отделка фасада [parent_id] => 19 [material_sum] => 1613861 [work_sum] => 504358 [total_sum] => 2118219 [total_days] => 20 [display_material_sum] => 1 613 861 [display_work_sum] => 504 358 [display_total_sum] => 2 118 219 ) 1
2 118 219
Работа:504 358
Материалы:1 613 861
Дни:20
stdClass Object ( [id] => 143 [attribute_id] => 19 [name] => Плитка HAUBERK [material_modifier] => 1 [work_modifier] => 1 [options] => Array ( ) [days] => [20] [material_price] => [2786] [work_price] => [1944] [image] => https://akademik-stroy.ru/wp-content/uploads/materials/hauberk.jpg [area_modifier] => 205.89 [parent_name] => Наружная отделка фасада [parent_id] => 19 [material_sum] => 722748 [work_sum] => 420263 [total_sum] => 1143011 [total_days] => 20 [display_material_sum] => 722 748 [display_work_sum] => 420 263 [display_total_sum] => 1 143 011 ) 1
1 143 011
Работа:420 263
Материалы:722 748
Дни:20
stdClass Object ( [id] => 144 [attribute_id] => 19 [name] => Фальцевый фасад [material_modifier] => 1 [work_modifier] => 1 [options] => Array ( ) [days] => [20] [material_price] => [3240] [work_price] => [2592] [image] => https://akademik-stroy.ru/wp-content/uploads/materials/falcevyj-fasad.jpg [area_modifier] => 205.89 [parent_name] => Наружная отделка фасада [parent_id] => 19 [material_sum] => 840525 [work_sum] => 560350 [total_sum] => 1400875 [total_days] => 20 [display_material_sum] => 840 525 [display_work_sum] => 560 350 [display_total_sum] => 1 400 875 ) 1
1 400 875
Работа:560 350
Материалы:840 525
Дни:20
stdClass Object ( [id] => 145 [attribute_id] => 19 [name] => Комбинированный [material_modifier] => 1 [work_modifier] => 1 [options] => Array ( ) [days] => [20] [material_price] => [4629] [work_price] => [3499] [image] => https://akademik-stroy.ru/wp-content/uploads/materials/Kombinirovannyj.jpg [area_modifier] => 205.89 [parent_name] => Наружная отделка фасада [parent_id] => 19 [material_sum] => 1200862 [work_sum] => 756430 [total_sum] => 1957292 [total_days] => 20 [display_material_sum] => 1 200 862 [display_work_sum] => 756 430 [display_total_sum] => 1 957 292 ) 1
1 957 292
Работа:756 430
Материалы:1 200 862
Дни:20
stdClass Object ( [id] => 257 [attribute_id] => 19 [name] => Японские фиброцементные [material_modifier] => 1 [work_modifier] => 1 [options] => Array ( ) [days] => [20] [material_price] => [7043] [work_price] => [2993] [image] => https://akademik-stroy.ru/wp-content/uploads/materials/paneli.jpg [area_modifier] => 205.89 [parent_name] => Наружная отделка фасада [parent_id] => 19 [material_sum] => 1827105 [work_sum] => 647040 [total_sum] => 2474145 [total_days] => 20 [display_material_sum] => 1 827 105 [display_work_sum] => 647 040 [display_total_sum] => 2 474 145 ) 1
2 474 145
Работа:647 040
Материалы:1 827 105
Дни:20
stdClass Object ( [id] => 258 [attribute_id] => 19 [name] => Панели Каньон [material_modifier] => 1 [work_modifier] => 1 [options] => Array ( ) [days] => [20] [material_price] => [4543] [work_price] => [2592] [image] => https://akademik-stroy.ru/wp-content/uploads/materials/kanon.png [area_modifier] => 205.89 [parent_name] => Наружная отделка фасада [parent_id] => 19 [material_sum] => 1178551 [work_sum] => 560350 [total_sum] => 1738901 [total_days] => 20 [display_material_sum] => 1 178 551 [display_work_sum] => 560 350 [display_total_sum] => 1 738 901 ) 1
1 738 901
Работа:560 350
Материалы:1 178 551
Дни:20
Террасы, крыльца, навесы
stdClass Object ( [id] => 39 [attribute_id] => 20 [name] => Нет [material_modifier] => 1 [work_modifier] => 1 [options] => Array ( ) [days] => [0] [material_price] => [0] [work_price] => [0] [image] => https://akademik-stroy.ru/wp-content/uploads/materials/terrasy.jpg [area_modifier] => 30 [parent_name] => Террасы, крыльца, навесы [parent_id] => 20 [material_sum] => 0 [work_sum] => 0 [total_sum] => 0 [total_days] => 0 [display_material_sum] => 0 [display_work_sum] => 0 [display_total_sum] => 0 ) 1
0
Работа:0
Материалы:0
Дни:0
stdClass Object ( [id] => 40 [attribute_id] => 20 [name] => Есть [material_modifier] => 1 [work_modifier] => 1 [options] => Array ( ) [days] => [5] [material_price] => [10450] [work_price] => [1950] [image] => https://akademik-stroy.ru/wp-content/uploads/materials/terrasy.jpg [area_modifier] => 30 [parent_name] => Террасы, крыльца, навесы [parent_id] => 20 [material_sum] => 395010 [work_sum] => 61425 [total_sum] => 456435 [total_days] => 5 [display_material_sum] => 395 010 [display_work_sum] => 61 425 [display_total_sum] => 456 435 ) 1
456 435
Работа:61 425
Материалы:395 010
Дни:5
Балконы
stdClass Object ( [id] => 41 [attribute_id] => 21 [name] => Нет [material_modifier] => 1 [work_modifier] => 1 [options] => Array ( ) [days] => [0] [material_price] => [0] [work_price] => [0] [image] => https://akademik-stroy.ru/wp-content/uploads/materials/balkony.jpg [area_modifier] => 30 [parent_name] => Балконы [parent_id] => 21 [material_sum] => 0 [work_sum] => 0 [total_sum] => 0 [total_days] => 0 [display_material_sum] => 0 [display_work_sum] => 0 [display_total_sum] => 0 ) 1
0
Работа:0
Материалы:0
Дни:0
stdClass Object ( [id] => 42 [attribute_id] => 21 [name] => Есть [material_modifier] => 1 [work_modifier] => 1 [options] => Array ( ) [days] => [12] [material_price] => [3600] [work_price] => [1950] [image] => https://akademik-stroy.ru/wp-content/uploads/materials/balkony.jpg [area_modifier] => 30 [parent_name] => Балконы [parent_id] => 21 [material_sum] => 136080 [work_sum] => 61425 [total_sum] => 197505 [total_days] => 12 [display_material_sum] => 136 080 [display_work_sum] => 61 425 [display_total_sum] => 197 505 ) 1
197 505
Работа:61 425
Материалы:136 080
Дни:12
Отмостка
stdClass Object ( [id] => 43 [attribute_id] => 22 [name] => Нет [material_modifier] => 1 [work_modifier] => 1 [options] => Array ( ) [days] => [0] [material_price] => [0] [work_price] => [0] [image] => https://akademik-stroy.ru/wp-content/uploads/materials/uteplennaya.jpg [area_modifier] => 123.14 [parent_name] => Отмостка [parent_id] => 22 [material_sum] => 0 [work_sum] => 0 [total_sum] => 0 [total_days] => 0 [display_material_sum] => 0 [display_work_sum] => 0 [display_total_sum] => 0 ) 1
0
Работа:0
Материалы:0
Дни:0
stdClass Object ( [id] => 44 [attribute_id] => 22 [name] => Утепленная отмостка [material_modifier] => 1 [work_modifier] => 1 [options] => Array ( ) [days] => [15] [material_price] => [2550] [work_price] => [1750] [image] => https://akademik-stroy.ru/wp-content/uploads/materials/uteplennaya.jpg [area_modifier] => 123.14 [parent_name] => Отмостка [parent_id] => 22 [material_sum] => 395649 [work_sum] => 226270 [total_sum] => 621919 [total_days] => 15 [display_material_sum] => 395 649 [display_work_sum] => 226 270 [display_total_sum] => 621 919 ) 1
621 919
Работа:226 270
Материалы:395 649
Дни:15
stdClass Object ( [id] => 146 [attribute_id] => 22 [name] => Не утепленная отмостка [material_modifier] => 1 [work_modifier] => 1 [options] => Array ( ) [days] => [10] [material_price] => [1650] [work_price] => [1450] [image] => https://akademik-stroy.ru/wp-content/uploads/materials/ne-uteplennaya.jpg [area_modifier] => 123.14 [parent_name] => Отмостка [parent_id] => 22 [material_sum] => 256008 [work_sum] => 187481 [total_sum] => 443489 [total_days] => 10 [display_material_sum] => 256 008 [display_work_sum] => 187 481 [display_total_sum] => 443 489 ) 1
443 489
Работа:187 481
Материалы:256 008
Дни:10
Дренаж вокруг дома
stdClass Object ( [id] => 45 [attribute_id] => 23 [name] => Нет [material_modifier] => 1 [work_modifier] => 1 [options] => Array ( ) [days] => [0] [material_price] => [0] [work_price] => [0] [image] => https://akademik-stroy.ru/wp-content/uploads/materials/drenazh-2.jpg [area_modifier] => 123.14 [parent_name] => Дренаж вокруг дома [parent_id] => 23 [material_sum] => 0 [work_sum] => 0 [total_sum] => 0 [total_days] => 0 [display_material_sum] => 0 [display_work_sum] => 0 [display_total_sum] => 0 ) 1
0
Работа:0
Материалы:0
Дни:0
stdClass Object ( [id] => 46 [attribute_id] => 23 [name] => Есть [material_modifier] => 1 [work_modifier] => 1 [options] => Array ( ) [days] => [5] [material_price] => [2366] [work_price] => [1911] [image] => https://akademik-stroy.ru/wp-content/uploads/materials/drenazh-2.jpg [area_modifier] => 123.14 [parent_name] => Дренаж вокруг дома [parent_id] => 23 [material_sum] => 367100 [work_sum] => 247087 [total_sum] => 614187 [total_days] => 5 [display_material_sum] => 367 100 [display_work_sum] => 247 087 [display_total_sum] => 614 187 ) 1
614 187
Работа:247 087
Материалы:367 100
Дни:5
Автономная канализация (септики)
stdClass Object ( [id] => 47 [attribute_id] => 24 [name] => Нет [material_modifier] => 1 [work_modifier] => 1 [options] => Array ( ) [days] => [0] [material_price] => [0] [work_price] => [0] [image] => https://akademik-stroy.ru/wp-content/uploads/materials/septik.jpg [area_modifier] => 1 [parent_name] => Автономная канализация (септики) [parent_id] => 24 [material_sum] => 0 [work_sum] => 0 [total_sum] => 0 [total_days] => 0 [display_material_sum] => 0 [display_work_sum] => 0 [display_total_sum] => 0 ) 1
0
Работа:0
Материалы:0
Дни:0
stdClass Object ( [id] => 48 [attribute_id] => 24 [name] => Есть [material_modifier] => 1 [work_modifier] => 1 [options] => Array ( [0] => Для дачи на 4 человека [1] => Для дома на 5 человек [2] => Для дома на 6 человек [3] => Для дома на 7 человек [4] => Для дома на 10 человек ) [days] => [7,7,7,8,8] [material_price] => [196340,220500,240940,264200,293340] [work_price] => [50000,55000,60500,66550,73206] [image] => https://akademik-stroy.ru/wp-content/uploads/materials/septik.jpg [area_modifier] => 1 [parent_name] => Автономная канализация (септики) [parent_id] => 24 [material_sum] => 247388 [work_sum] => 52500 [total_sum] => 299888 [total_days] => 7 [display_material_sum] => 247 388 [display_work_sum] => 52 500 [display_total_sum] => 299 888 ) 1
299 888
Работа:52 500
Материалы:247 388
Дни:7
Внутренние (не несущие) перегородки
stdClass Object ( [id] => 49 [attribute_id] => 25 [name] => Нет [material_modifier] => 1 [work_modifier] => 1 [options] => Array ( ) [days] => [0] [material_price] => [0] [work_price] => [0] [image] => https://akademik-stroy.ru/wp-content/uploads/materials/gkl.jpg [area_modifier] => 205.89 [parent_name] => Внутренние (не несущие) перегородки [parent_id] => 25 [material_sum] => 0 [work_sum] => 0 [total_sum] => 0 [total_days] => 0 [display_material_sum] => 0 [display_work_sum] => 0 [display_total_sum] => 0 ) 1
0
Работа:0
Материалы:0
Дни:0
stdClass Object ( [id] => 147 [attribute_id] => 25 [name] => Каркасно-обшивные [material_modifier] => 1 [work_modifier] => 1 [options] => Array ( [0] => 75 мм (без шумоизоляции) [1] => 75 мм (с шумоизоляцией) ) [days] => [11,11] [material_price] => [580,970] [work_price] => [380,570] [image] => https://akademik-stroy.ru/wp-content/uploads/materials/gkl.jpg [area_modifier] => 205.89 [parent_name] => Внутренние (не несущие) перегородки [parent_id] => 25 [material_sum] => 150464 [work_sum] => 82150 [total_sum] => 232614 [total_days] => 11 [display_material_sum] => 150 464 [display_work_sum] => 82 150 [display_total_sum] => 232 614 ) 1
232 614
Работа:82 150
Материалы:150 464
Дни:11
stdClass Object ( [id] => 148 [attribute_id] => 25 [name] => Пазогребневые [material_modifier] => 1 [work_modifier] => 1 [options] => Array ( [0] => 80 мм [1] => 100 мм ) [days] => [5,5] [material_price] => [1022,1313] [work_price] => [600,700] [image] => https://akademik-stroy.ru/wp-content/uploads/materials/pazogrebnevye-bloki.jpg [area_modifier] => 205.89 [parent_name] => Внутренние (не несущие) перегородки [parent_id] => 25 [material_sum] => 265129 [work_sum] => 129711 [total_sum] => 394840 [total_days] => 5 [display_material_sum] => 265 129 [display_work_sum] => 129 711 [display_total_sum] => 394 840 ) 1
394 840
Работа:129 711
Материалы:265 129
Дни:5
stdClass Object ( [id] => 149 [attribute_id] => 25 [name] => Газобетонные [material_modifier] => 1 [work_modifier] => 1 [options] => Array ( [0] => 100 мм [1] => 200 мм ) [days] => [11,11] [material_price] => [1160,1920] [work_price] => [700,900] [image] => https://akademik-stroy.ru/wp-content/uploads/materials/gazobeton-2.jpg [area_modifier] => 205.89 [parent_name] => Внутренние (не несущие) перегородки [parent_id] => 25 [material_sum] => 300929 [work_sum] => 151329 [total_sum] => 452258 [total_days] => 11 [display_material_sum] => 300 929 [display_work_sum] => 151 329 [display_total_sum] => 452 258 ) 1
452 258
Работа:151 329
Материалы:300 929
Дни:11
stdClass Object ( [id] => 150 [attribute_id] => 25 [name] => Кирпичные [material_modifier] => 1 [work_modifier] => 1 [options] => Array ( [0] => 120 мм [1] => 250 мм [2] => 360 мм ) [days] => [7,7,7] [material_price] => [1785,3570,5355] [work_price] => [900,1600,1800] [image] => https://akademik-stroy.ru/wp-content/uploads/materials/kirpich-1.jpg [area_modifier] => 205.89 [parent_name] => Внутренние (не несущие) перегородки [parent_id] => 25 [material_sum] => 463067 [work_sum] => 194566 [total_sum] => 657633 [total_days] => 7 [display_material_sum] => 463 067 [display_work_sum] => 194 566 [display_total_sum] => 657 633 ) 1
657 633
Работа:194 566
Материалы:463 067
Дни:7
Электрика
stdClass Object ( [id] => 55 [attribute_id] => 28 [name] => Нет [material_modifier] => 1 [work_modifier] => 1 [options] => Array ( ) [days] => [0] [material_price] => [0] [work_price] => [0] [image] => https://akademik-stroy.ru/wp-content/uploads/materials/ehlektrika.jpg [area_modifier] => 167.08 [parent_name] => Электрика [parent_id] => 28 [material_sum] => 0 [work_sum] => 0 [total_sum] => 0 [total_days] => 0 [display_material_sum] => 0 [display_work_sum] => 0 [display_total_sum] => 0 ) 1
0
Работа:0
Материалы:0
Дни:0
stdClass Object ( [id] => 56 [attribute_id] => 28 [name] => Есть [material_modifier] => 1 [work_modifier] => 1 [options] => Array ( ) [days] => [10] [material_price] => [650] [work_price] => [950] [image] => https://akademik-stroy.ru/wp-content/uploads/materials/ehlektrika.jpg [area_modifier] => 167.08 [parent_name] => Электрика [parent_id] => 28 [material_sum] => 136839 [work_sum] => 166662 [total_sum] => 303501 [total_days] => 10 [display_material_sum] => 136 839 [display_work_sum] => 166 662 [display_total_sum] => 303 501 ) 1
303 501
Работа:166 662
Материалы:136 839
Дни:10
Сантехника, канализация в доме
stdClass Object ( [id] => 57 [attribute_id] => 29 [name] => Нет [material_modifier] => 1 [work_modifier] => 1 [options] => Array ( ) [days] => [0] [material_price] => [0] [work_price] => [0] [image] => https://akademik-stroy.ru/wp-content/uploads/materials/santekhnika-kanalizaciya-1.jpg [area_modifier] => 167.08 [parent_name] => Сантехника, канализация в доме [parent_id] => 29 [material_sum] => 0 [work_sum] => 0 [total_sum] => 0 [total_days] => 0 [display_material_sum] => 0 [display_work_sum] => 0 [display_total_sum] => 0 ) 1
0
Работа:0
Материалы:0
Дни:0
stdClass Object ( [id] => 58 [attribute_id] => 29 [name] => Есть [material_modifier] => 1 [work_modifier] => 1 [options] => Array ( ) [days] => [10] [material_price] => [600] [work_price] => [730] [image] => https://akademik-stroy.ru/wp-content/uploads/materials/santekhnika-kanalizaciya-1.jpg [area_modifier] => 167.08 [parent_name] => Сантехника, канализация в доме [parent_id] => 29 [material_sum] => 126312 [work_sum] => 128067 [total_sum] => 254379 [total_days] => 10 [display_material_sum] => 126 312 [display_work_sum] => 128 067 [display_total_sum] => 254 379 ) 1
254 379
Работа:128 067
Материалы:126 312
Дни:10
Отопление
stdClass Object ( [id] => 59 [attribute_id] => 30 [name] => Нет [material_modifier] => 1 [work_modifier] => 1 [options] => Array ( ) [days] => [0] [material_price] => [0] [work_price] => [0] [image] => https://akademik-stroy.ru/wp-content/uploads/materials/otoplenie-1.jpg [area_modifier] => 167.08 [parent_name] => Отопление [parent_id] => 30 [material_sum] => 0 [work_sum] => 0 [total_sum] => 0 [total_days] => 0 [display_material_sum] => 0 [display_work_sum] => 0 [display_total_sum] => 0 ) 1
0
Работа:0
Материалы:0
Дни:0
stdClass Object ( [id] => 60 [attribute_id] => 30 [name] => Есть [material_modifier] => 1 [work_modifier] => 1 [options] => Array ( ) [days] => [5] [material_price] => [610] [work_price] => [560] [image] => https://akademik-stroy.ru/wp-content/uploads/materials/otoplenie-1.jpg [area_modifier] => 167.08 [parent_name] => Отопление [parent_id] => 30 [material_sum] => 128418 [work_sum] => 98243 [total_sum] => 226661 [total_days] => 5 [display_material_sum] => 128 418 [display_work_sum] => 98 243 [display_total_sum] => 226 661 ) 1
226 661
Работа:98 243
Материалы:128 418
Дни:5
Теплые полы
stdClass Object ( [id] => 61 [attribute_id] => 31 [name] => Нет [material_modifier] => 1 [work_modifier] => 1 [options] => Array ( ) [days] => [0] [material_price] => [0] [work_price] => [0] [image] => https://akademik-stroy.ru/wp-content/uploads/materials/vodyanye.jpg [area_modifier] => 30 [parent_name] => Теплые полы [parent_id] => 31 [material_sum] => 0 [work_sum] => 0 [total_sum] => 0 [total_days] => 0 [display_material_sum] => 0 [display_work_sum] => 0 [display_total_sum] => 0 ) 1
0
Работа:0
Материалы:0
Дни:0
stdClass Object ( [id] => 151 [attribute_id] => 31 [name] => Водяные [material_modifier] => 1 [work_modifier] => 1 [options] => Array ( ) [days] => [9] [material_price] => [10200] [work_price] => [2500] [image] => https://akademik-stroy.ru/wp-content/uploads/materials/vodyanye.jpg [area_modifier] => 30 [parent_name] => Теплые полы [parent_id] => 31 [material_sum] => 385560 [work_sum] => 78750 [total_sum] => 464310 [total_days] => 9 [display_material_sum] => 385 560 [display_work_sum] => 78 750 [display_total_sum] => 464 310 ) 1
464 310
Работа:78 750
Материалы:385 560
Дни:9
stdClass Object ( [id] => 152 [attribute_id] => 31 [name] => Электро [material_modifier] => 1 [work_modifier] => 1 [options] => Array ( ) [days] => [5] [material_price] => [6300] [work_price] => [1500] [image] => https://akademik-stroy.ru/wp-content/uploads/materials/ehlektricheskij.jpg [area_modifier] => 30 [parent_name] => Теплые полы [parent_id] => 31 [material_sum] => 238140 [work_sum] => 47250 [total_sum] => 285390 [total_days] => 5 [display_material_sum] => 238 140 [display_work_sum] => 47 250 [display_total_sum] => 285 390 ) 1
285 390
Работа:47 250
Материалы:238 140
Дни:5
Черновая отделка стен
stdClass Object ( [id] => 63 [attribute_id] => 32 [name] => Нет [material_modifier] => 1 [work_modifier] => 1 [options] => Array ( ) [days] => [0] [material_price] => [0] [work_price] => [0] [image] => https://akademik-stroy.ru/wp-content/uploads/materials/shtukaturka-shpatlevka-1.jpg [area_modifier] => 167.08 [parent_name] => Черновая отделка стен [parent_id] => 32 [material_sum] => 0 [work_sum] => 0 [total_sum] => 0 [total_days] => 0 [display_material_sum] => 0 [display_work_sum] => 0 [display_total_sum] => 0 ) 1
0
Работа:0
Материалы:0
Дни:0
stdClass Object ( [id] => 153 [attribute_id] => 32 [name] => Штукатурка и шпатлевка [material_modifier] => 1 [work_modifier] => 1 [options] => Array ( ) [days] => [20] [material_price] => [1850] [work_price] => [2600] [image] => https://akademik-stroy.ru/wp-content/uploads/materials/shtukaturka-shpatlevka-1.jpg [area_modifier] => 167.08 [parent_name] => Черновая отделка стен [parent_id] => 32 [material_sum] => 389463 [work_sum] => 456128 [total_sum] => 845591 [total_days] => 20 [display_material_sum] => 389 463 [display_work_sum] => 456 128 [display_total_sum] => 845 591 ) 1
845 591
Работа:456 128
Материалы:389 463
Дни:20
stdClass Object ( [id] => 154 [attribute_id] => 32 [name] => Гипсокортон на стены [material_modifier] => 1 [work_modifier] => 1 [options] => Array ( ) [days] => [15] [material_price] => [950] [work_price] => [2100] [image] => https://akademik-stroy.ru/wp-content/uploads/materials/gkl-1.jpg [area_modifier] => 167.08 [parent_name] => Черновая отделка стен [parent_id] => 32 [material_sum] => 199995 [work_sum] => 368411 [total_sum] => 568406 [total_days] => 15 [display_material_sum] => 199 995 [display_work_sum] => 368 411 [display_total_sum] => 568 406 ) 1
568 406
Работа:368 411
Материалы:199 995
Дни:15
stdClass Object ( [id] => 155 [attribute_id] => 32 [name] => Вагонка [material_modifier] => 1 [work_modifier] => 1 [options] => Array ( ) [days] => [15] [material_price] => [1250] [work_price] => [950] [image] => https://akademik-stroy.ru/wp-content/uploads/materials/vagonka.jpg [area_modifier] => 167.08 [parent_name] => Черновая отделка стен [parent_id] => 32 [material_sum] => 263151 [work_sum] => 166662 [total_sum] => 429813 [total_days] => 15 [display_material_sum] => 263 151 [display_work_sum] => 166 662 [display_total_sum] => 429 813 ) 1
429 813
Работа:166 662
Материалы:263 151
Дни:15
Черновая отделка полов
stdClass Object ( [id] => 65 [attribute_id] => 33 [name] => Нет [material_modifier] => 1 [work_modifier] => 1 [options] => Array ( ) [days] => [0] [material_price] => [0] [work_price] => [0] [image] => https://akademik-stroy.ru/wp-content/uploads/materials/styazhka.jpg [area_modifier] => 167.08 [parent_name] => Черновая отделка полов [parent_id] => 33 [material_sum] => 0 [work_sum] => 0 [total_sum] => 0 [total_days] => 0 [display_material_sum] => 0 [display_work_sum] => 0 [display_total_sum] => 0 ) 1
0
Работа:0
Материалы:0
Дни:0
stdClass Object ( [id] => 156 [attribute_id] => 33 [name] => Стяжка + наливные полы [material_modifier] => 1 [work_modifier] => 1 [options] => Array ( ) [days] => [10] [material_price] => [1000] [work_price] => [900] [image] => https://akademik-stroy.ru/wp-content/uploads/materials/styazhka.jpg [area_modifier] => 167.08 [parent_name] => Черновая отделка полов [parent_id] => 33 [material_sum] => 210521 [work_sum] => 157891 [total_sum] => 368412 [total_days] => 10 [display_material_sum] => 210 521 [display_work_sum] => 157 891 [display_total_sum] => 368 412 ) 1
368 412
Работа:157 891
Материалы:210 521
Дни:10
stdClass Object ( [id] => 157 [attribute_id] => 33 [name] => ОСБ на пол [material_modifier] => 1 [work_modifier] => 1 [options] => Array ( ) [days] => [7] [material_price] => [580] [work_price] => [350] [image] => https://akademik-stroy.ru/wp-content/uploads/materials/osb-1.jpg [area_modifier] => 167.08 [parent_name] => Черновая отделка полов [parent_id] => 33 [material_sum] => 122102 [work_sum] => 61402 [total_sum] => 183504 [total_days] => 7 [display_material_sum] => 122 102 [display_work_sum] => 61 402 [display_total_sum] => 183 504 ) 1
183 504
Работа:61 402
Материалы:122 102
Дни:7
Чистовая отделка стен и полов
stdClass Object ( [id] => 67 [attribute_id] => 34 [name] => Нет [material_modifier] => 1 [work_modifier] => 1 [options] => Array ( ) [days] => [0] [material_price] => [0] [work_price] => [0] [image] => https://akademik-stroy.ru/wp-content/uploads/materials/chistovaya-otdelka.jpg [area_modifier] => 167.08 [parent_name] => Чистовая отделка стен и полов [parent_id] => 34 [material_sum] => 0 [work_sum] => 0 [total_sum] => 0 [total_days] => 0 [display_material_sum] => 0 [display_work_sum] => 0 [display_total_sum] => 0 ) 1
0
Работа:0
Материалы:0
Дни:0
stdClass Object ( [id] => 68 [attribute_id] => 34 [name] => Есть [material_modifier] => 1 [work_modifier] => 1 [options] => Array ( ) [days] => [50] [material_price] => [6000] [work_price] => [3500] [image] => https://akademik-stroy.ru/wp-content/uploads/materials/chistovaya-otdelka.jpg [area_modifier] => 167.08 [parent_name] => Чистовая отделка стен и полов [parent_id] => 34 [material_sum] => 1263125 [work_sum] => 614019 [total_sum] => 1877144 [total_days] => 50 [display_material_sum] => 1 263 125 [display_work_sum] => 614 019 [display_total_sum] => 1 877 144 ) 1
1 877 144
Работа:614 019
Материалы:1 263 125
Дни:50
Отделка потолка
stdClass Object ( [id] => 69 [attribute_id] => 35 [name] => Нет [material_modifier] => 1 [work_modifier] => 1 [options] => Array ( ) [days] => [0] [material_price] => [0] [work_price] => [0] [image] => https://akademik-stroy.ru/wp-content/uploads/materials/mnogourovnevyj-gkl.jpg [area_modifier] => 167.08 [parent_name] => Отделка потолка [parent_id] => 35 [material_sum] => 0 [work_sum] => 0 [total_sum] => 0 [total_days] => 0 [display_material_sum] => 0 [display_work_sum] => 0 [display_total_sum] => 0 ) 1
0
Работа:0
Материалы:0
Дни:0
stdClass Object ( [id] => 70 [attribute_id] => 35 [name] => Есть [material_modifier] => 1 [work_modifier] => 1 [options] => Array ( [0] => Многоуровневый потолок из гипсокартона [1] => Многоуровневый потолок из гипсокартона и натяжного потолка [2] => Одноуровневый потолок из гипсокартона [3] => Одноуровневый натяжной потолок ) [days] => [10,10,1,1] [material_price] => [900,700,700,600] [work_price] => [1000,800,500,300] [image] => https://akademik-stroy.ru/wp-content/uploads/materials/mnogourovnevyj-gkl.jpg [area_modifier] => 167.08 [parent_name] => Отделка потолка [parent_id] => 35 [material_sum] => 189469 [work_sum] => 175434 [total_sum] => 364903 [total_days] => 10 [display_material_sum] => 189 469 [display_work_sum] => 175 434 [display_total_sum] => 364 903 ) 1
364 903
Работа:175 434
Материалы:189 469
Дни:10

Преимущества работы с нами

icon

7 этапов оплаты

icon

Независимый строительный надзор

icon

Экологически чистые материалы

icon

16 лет гарантии

icon

Онлайн-кабинет с веб-камерой

icon

Строители с опытом более 15 лет

icon

Собственное производство

Введение в проект двухэтажного дома 14х10 метров

Планирование собственного дома — это всегда важный и ответственный этап для будущего домовладельца. Каждый хочет создать комфортное, функциональное и эстетически приятное пространство для жизни своей семьи. В этом контексте проект двухэтажного дома размером 14 на 10 метров представляет собой идеальное сочетание компактности и достаточного жилого пространства. Дом площадью 167,08 м², реализуемый по цене 6 225 034 рублей, — это сбалансированное решение для тех, кто ценит качество и практичность.

Двухэтажный дом – это классика, достойная внимания, поскольку позволяет чётко разделить зоны отдыха и общественного пользования. В нем легко разместить всю семью, оставаясь при этом в пределах разумного бюджета. Рассмотрим подробнее, какие преимущества, особенности и технические данные предлагает этот проект, а также почему он может стать идеальным вариантом для приватного жилищного строительства.

Основные характеристики проекта

Двухэтажный дом размером 14х10 метров имеет несколько ключевых параметров, которые обязательно следует учесть при выборе или проектировании дома под свои нужды. Первый важнейший показатель — полезная площадь, которая составляет 167,08 м². Это достаточно внушительная площадь для комфортной и просторной жизни семьи из нескольких человек. Второй этаж увеличивает количество полезного пространства без дополнительного расширения фундамента и площади застройки, что особенно важно при ограниченной площади земельного участка.

Размеры дома (14х10 метров) позволяют грамотно зонировать внутреннее пространство, сохраняя пропорции и не загромождая территорию под домом. В таблице ниже представлен краткий обзор основных пространственных характеристик:

Параметр Значение
Полезная площадь 167,08 м²
Размеры дома 14 x 10 м
Количество этажей 2
Жилая площадь 124,05 м²
Площадь застройки 127,85 м²
Площадь нетто 192,70 м²
Объем брутто 680 м³
Площадь крыши 192,40 м²
Высота здания 7,57 м
Минимальные размеры участка Ширина 22,99 м; длина 17,89 м
Угол наклона крыши 35°
Тип крыши Двускатная

Функциональное зонирование и планировка

Один из самых важных аспектов любого жилого дома — грамотное распределение внутреннего пространства. В этом проекте предусмотрено четыре спальни, что идеально для семьи с детьми или для тех, кто хочет иметь гостевые комнаты и рабочий кабинет. Жилая площадь составляет 124,05 м², что говорит о продуманной планировке с четким выделением жилых зон.

Два санузла обеспечивают удобство для всех членов семьи и гостей, особенно в часы пик. Благодаря двум этажам, большая часть спален располагается на втором этаже, где царит тишина и спокойствие, в то время как на первом этаже обычно располагается кухня, гостиная и зона отдыха, что создает комфортную дневную атмосферу.

Описание планировки этажей

Первый этаж, как правило, объединяет зоны для приема гостей и семейного времяпрепровождения. Большая кухня совмещена с просторной столовой, что облегчает совместное приготовление пищи и общение во время еды. Именно здесь часто располагаются гостиная и прихожая, создавая единое пространство, в котором каждый чувствует себя комфортно.

Второй этаж — это приватная зона, где размещены спальни и санузлы. Расположение четырех спален предусматривает возможность разграничить пространство между детьми и взрослыми, а также обеспечить гостям отдельные комнаты для проживания. Наличие двух санузлов гарантирует, что утренние очереди у ванной комнаты не помешают вашему ритму жизни.

Преимущества двухэтажного дома

  • Рациональное использование участка — меньшая площадь застройки на земле, больше жилой площади.
  • Приватность — разграничение общественных и личных зон.
  • Эстетически привлекательный внешний вид за счет разнообразных архитектурных решений.
  • Возможность создания просторной мансарды или чердачного помещения.
  • Ультрасовременная планировка с возможностью адаптации под индивидуальные нужды.

Крыша и высота здания: особенности архитектуры

Одной из ключевых архитектурных деталей является кровля дома. В данном проекте используется двускатная крыша с углом наклона 35°. Это классическое решение, которое широко применяется в частном домостроении благодаря своей простоте и устойчивости к осадкам и ветровым нагрузкам.

Двускатная кровля позволяет легко организовать чердачное пространство, обеспечивает надёжный отвод воды и снега, а также способствует лучшей теплоизоляции. Площадь крыши составляет 192,40 м², что обеспечит достаточное покрытие дома и позволит применить различные материалы кровельного покрытия — от металлочерепицы до натуральной гибкой черепицы.

Высота здания — 7,57 метров — позволяет сохранить человеческие пропорции и не нарушать гармонию застройки участка, а также вписать дом в большинство жилых кварталов по градостроительным нормам.

Требования к участку для строительства

Проект дома 14х10 м с двумя этажами занимает площадь застройки в 127,85 м², что накладывает определённые требования к минимальным размерам участка для строительства. Минимальная ширина участка должна составлять 22,99 м, а длина — не менее 17,89 м. Это связано с необходимостью обеспечить отступы от соседних границ, удобный подъезд к дому, место для организации бытовых построек и зону отдыха на участке.

Таким образом, проект подходит для участков среднего размера, которые встречаются в пригородных и сельских зонах. Небольшое превышение минимальных размеров участка позволит добавить элементы озеленения и даже детскую площадку, сделав проживание еще более комфортным.

Преимущества постоянного участка оптимального размера

  1. Свободное пространство для обустройства садовых и парковочных зон.
  2. Возможность создания декоративных насаждений и ландшафтного дизайна.
  3. Соблюдение требований по противопожарным расстояниям и нормам СНиП.
  4. Удобный подъезд для строительной и бытовой техники.

Объем дома и внутренняя атмосфера

Объем брутто дома составляет 680 м³, что является показателем жилого пространства с учетом всех конструктивных элементов и отделок. Большой объем внутреннего пространства способствует созданию ощущения простора и свободы внутри дома, предотвращая эффект тесноты, который порой возникает в компактных проектах.

За счет продуманной организации пространства, правильного освещения и использования качественных материалов можно создать теплую и уютную атмосферу, которая обеспечит психологический комфорт жильцам. При строительстве стоит обратить внимание на утепление и вентиляцию дома, что особенно важно в условиях российского климата.

Экономика проекта: стоимость и инвестиции

Цена проекта двухэтажного дома 14х10 метров составляет 6 225 034 рубля. Эта сумма включает проектные решения, конструктивные материалы, а также стандартные отделочные работы, что делает проект максимально прозрачным и удобным для планирования бюджета.

Инвестиции в строительство частного дома всегда стоят того, если проект подобран правильно и соответствует потребностям семьи. В данном случае — оптимальное соотношение цены и качества, что делает данный проект привлекательным и с точки зрения жилищного комфорта, и с позиции разумных финансовых затрат.

Факторы, влияющие на стоимость строительства

  • Качество используемых строительных и отделочных материалов.
  • Уровень инженерных коммуникаций.
  • Сложность архитектурных решений.
  • Уровень квалификации строительной бригады.
  • Региональные особенности и цены на работы.

Резюме: почему стоит выбрать данный проект

Двухэтажный дом 14 x 10 м площадью 167,08 м² — это оптимальный вариант для семьи, которая хочет иметь достаточное пространство для жизни, отдыха и работы, сохраняя комфорт даже при ограниченной площади земельного участка. Проект способен удовлетворить запросы на наличие четырех спален и двух санузлов, что отличает его как семейное и функциональное жилище.

Угловая двускатная крыша с углом наклона 35° и высотой здания 7,57 м не только украсит загородный участок, но и обеспечит надежную защиту от погодных условий. Общая продуманность планировки и расчет архитектурных параметров позволяют реализовать проект в умеренной ценовой категории, что делает его доступным и экономически выгодным выбором для многих домовладельцев.