Одноэтажный дом 14х12: оптимальное решение для комфортной жизни
Когда речь заходит о строительстве частного дома, многие будущие владельцы сталкиваются с вопросом выбора оптимального проекта. Одноэтажный дом размером 14 на 12 метров с полезной площадью 104,39 м² — это именно тот вариант, который удачно сочетает в себе удобство, функциональность и эргономику. Такой дом способен удовлетворить потребности семей разного состава, обеспечивая комфортное проживание и рациональное использование пространства.
Площадь в 104,39 м² — это оптимальный масштаб для семьи из 3-4 человек. Одноэтажное размещение помещений обеспечивает удобство перемещения, что особенно важно для семей с пожилыми членами или маленькими детьми. Такой формат исключает необходимость использования лестниц, что упрощает дизайн интерьера и снижает эксплуатационные затраты.
Основные характеристики дома 14x12
Технические параметры дома напрямую влияют на его эксплуатационные свойства и комфорт проживания. Рассмотрим основные характеристики одноэтажного дома, которые выделяют его среди множества типовых решений.
| Параметр | Значение |
|---|---|
| Размеры дома | 14 x 12 м |
| Полезная площадь | 104,39 м² |
| Жилая площадь | 98,82 м² |
| Количество этажей | 1 этаж |
| Количество спален | 3 |
| Количество санузлов | 2 |
| Площадь застройки | 124 м² |
| Высота здания | 6,76 м |
| Минимальная ширина участка | 22,45 м |
| Минимальная длина участка | 19,96 м |
| Угол наклона крыши | 30° |
| Тип крыши | двускатная |
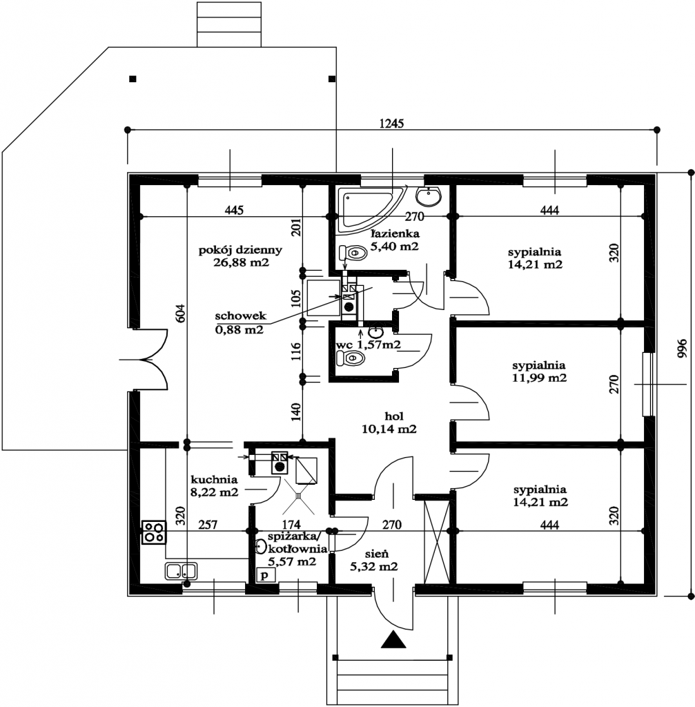
Планировка: гармония пространства и функциональности
Одним из ключевых элементов любого жилого дома является грамотное зонирование пространства. В проекте дома 14x12 м с общей полезной площадью 104,39 м² уделено особое внимание сбалансированности жилой и технической зон. Три спальни позволяют комфортно разместить членов семьи, предоставляя каждому достаточно личного пространства.
Две ванные комнаты — это важный аспект, который особенно ценится в многокомнатных домах. Такой подход позволяет избежать очередей и дискомфорта в утренние часы, когда вся семья собирается на работу и учебу. Наличие двух санузлов улучшает функциональность дома и увеличивает уровень комфорта.
Жилая площадь в 98,82 м² говорит о том, что почти все пространство в доме отведено под комфортное пребывание, что крайне важно для современной жизни. Зона гостиной со столовой может быть выполнена в формате открытого плана, что визуально увеличит пространство и позволит создать более светлую и дружелюбную атмосферу.
Список преимуществ планировки
- Три изолированные спальни для уединения и отдыха.
- Два санузла для удобства всех членов семьи.
- Просторная гостинаЯ с возможностью объединения с кухней.
- Выделенные места для хранения и организации домашнего пространства.
- Продуманное расположение окон для естественного освещения всех комнат.
Архитектурные особенности и конструктивные решения
Высота здания составляет 6,76 метра, что создает ощущение простора и объема внутри помещений. Это достигается за счет тщательно рассчитанных параметров конструкций и удачного решения с двускатной крышей. Крыша с углом наклона 30° обеспечивает надежное отведение снега и дождевой воды, что особенно актуально для регионов с умеренным и холодным климатом.
Использование двускатной крыши — классическое решение, которое прекрасно сочетается с эстетикой одноэтажного загородного дома. Такая крыша проста в устройстве и одновременно позволяет эффективно эксплуатировать чердачное пространство, например, для хранения вещей или установки инженерных систем.
Площадь застройки составляет 124 м², что чуть больше полезной площади и отражает площадь, которую занимает здание прямо на участке. Это важный параметр для планирования участка и оценки потребности в свободных площадях вокруг дома.
Технические преимущества конструкции
- Прочность и надежность конструкции благодаря хорошо зарекомендовавшей себя двускатной крыше.
- Оптимальная высота здания для создания комфортного микроклимата.
- Возможность адаптации проекта под различные типы утеплителей и современных теплоизоляционных материалов.
Требования к участку и ориентиры для планирования
Для строительства данного дома потребуется участок минимальной шириной 22,45 метра и длиной 19,96 метра. Это позволяет обеспечить достаточное пространство для возведения дома с соблюдением правил отступа от границ участка и организации благоустройства прилегающей территории.
При выборе участка важно учитывать не только габариты, но и его рельеф, наличие коммуникаций и особенности планировки вокруг. Оптимальное размещение дома на участке способствует максимальному комфорту проживающих, позволяет организовать зону отдыха на свежем воздухе, посадить сад или оборудовать детскую площадку.
Экономическая составляющая и стоимость строительства
Стоимость одноэтажного дома площадью 104,39 м² по данному проекту составляет 5 876 260 рублей. Эта сумма включает материалы, работы и основные инженерные коммуникации, необходимые для комфортного проживания. Такая стоимость является конкурентоспособной на рынке строительных услуг и подчёркивает высокую эффективность проекта в соотношении цены и качества.
Вложение в строительство одноэтажного дома такого размера — это разумная инвестиция благодаря ряду факторов:
- Снижение затрат на фундамент и кровлю в сравнении с многоэтажными домами.
- Оптимизированные инженерные системы, не требующие сложного и дорогостоящего оборудования.
- Минимизация расходов на отделку и внутреннюю отделку за счет продуманного плана помещений.
- Пониженные эксплуатационные расходы благодаря энергоэффективным материалам и современным технологиям строительства.
Практические советы по выбору и строительству одноэтажного дома 14х12
Если вы решились строить собственный дом по проекту 14х12, стоит учесть некоторые ключевые моменты для успешного воплощения идеи в реальность. Во-первых, следует тщательно подобрать строительные материалы, ориентируясь не только на цену, но и на их долговечность, экологичность и способность сохранять тепло. Особенно важно позаботиться об утеплении стен и кровли, что напрямую повлияет на комфорт проживания и расходы на отопление.
Во-вторых, не стоит упускать из виду грамотное распределение инженерных коммуникаций. В доме с тремя спальнями и двумя санузлами важно обеспечить бесперебойное водоснабжение, качественную вентиляцию и надежную электросеть. Продуманное расположение коммуникаций упрощает их обслуживание и предотвращает возможные аварийные ситуации.
В-третьих, рекомендуется работать с опытными архитекторами и строителями, которые смогут адаптировать проект под индивидуальные пожелания и особенности участка. Например, небольшая корректировка внешних размеров или внутренней планировки может значительно улучшить функциональность дома и повысить его энергоэффективность.
Основные рекомендации при строительстве
- Выбирайте проверенных поставщиков материалов и подрядчиков.
- Обязательно проводите геодезические и инженерные изыскания перед началом строительства.
- Применяйте современные тепло- и звукоизоляционные материалы.
- Планируйте освещение с учетом естественного дневного света.
- Регулярно контролируйте соответствие выполненных работ проектной документации.
Почему одноэтажный дом 14х12 — это выгодный выбор
Одноэтажный дом с размерами 14 на 12 метров и полезной площадью чуть больше 100 м² идеально вписывается в современные тенденции частного домостроения. Он сочетает в себе доступную стоимость и функциональность, при этом сохраняя простор для реализации дизайнерских идей и комфортной организации жилья.
Семьям, которые ценят удобство, отсутствие лишних этажей и возможность быстро перемещаться по дому, такой проект станет настоящей находкой. Простой и понятный план с тремя спальнями и двумя санузлами соответствует самым распространенным запросам сегодняшних покупателей и обеспечивает гибкость при планировке на усмотрение владельцев.
Низкие затраты на обслуживание дома, рациональное использование участка и современный архитектурный облик — эти и другие преимущества делают дом 14x12 м одним из самых востребованных решений на рынке индивидуального строительства.




