Двухэтажный дом 15x14 - 189.91 м2 за руб.

ID-115390

Стоимость дома 6942261 руб.
154 м2 Полезная
площадь
15 x 14 м Размеры
2 этажа Этажей
26 м2 Террасы
и балконы
2Без
гаража
4 Количество
спален
3 Количество
санузлов

Планировки

План первого этажа

floor image
  • 1. Прихожая 5,30 m²
  • 2. Холл 10,81 m²
  • 3. Комната 11,73 m²
  • 4. Гостиная + столовая 35,61 m²
  • 5. Кухня 9,99 m²
  • 6. Ванная комната 3,77 m²
  • 7. Котельная 7,90 m²
  • 8. Гараж на 2 машины 32,29 m²
  • План первого этажа 117,40 m²

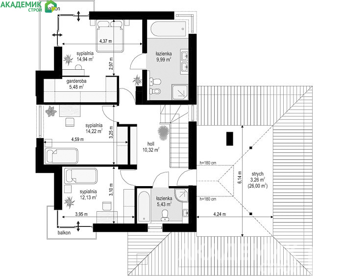
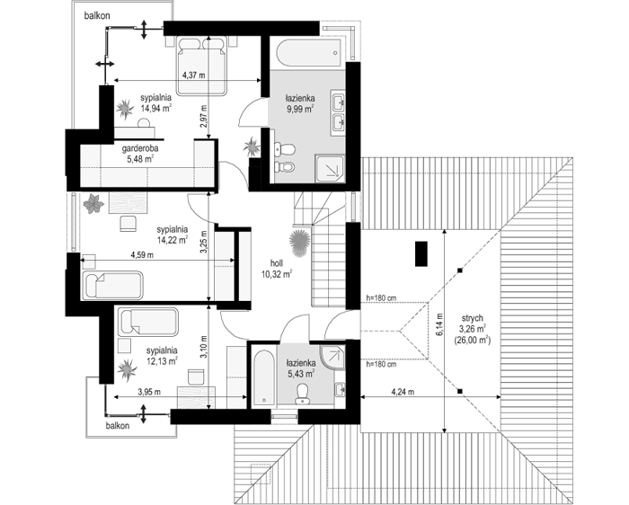
План второго этажа

floor image
  • 1. Комната 14,94 m²
  • 2. Гардероб 5,48 m²
  • 3. Комната 14,22 m²
  • 4. Комната 12,13 m²
  • 5. Ванная комната 5,43 m²
  • 6. Холл 10,32 m²
  • 7. Ванная комната 9,99 m²
  • План первого этажа 72,51 m²

Фасады

Передний
Задний
Левый
Правый
Передний
Задний
Левый
Правый

Подробная информация

Жилая площадь
149,71 m²
icon

Сумма площади всех жилых помещений, за вычетом пов. гараж, котельная, чердак, подвал. Учитывается в 100%, для помещений высотой более 2,2 м, в 50% для помещений с высотой 2,2-1,4 м и не включается для более низких помещений (меньше 1,4 м).

Площадь застройки
150,35 m²
icon

Площадь застройки здания определяется как площадь горизонтального сечения по внешнему обводу здания на уровне цоколя, включая выступающие части.

Общая площадь
249,51 m²
icon

Общая площадь всех этажей здания, в том числе с несущими конструкциями, такими как наружные стены (с утеплением), столбы, террасы, и т. д.

Площадь нетто
157,61 m²
icon

Площадь всех помещений в здании, измеренная на высоте пола.

Объем брутто
798 m³
icon

Как правило, это сумма объема всех помещений в здании, подсчитанных по внешнему контуру стены (с утеплением).

Площадь крыши
245,02 m²
icon

Угол наклона крыши
30°
icon

Наклон ската крыши в градусах. Внимание! В некоторых проектах возникает более чем один наклон крыши.

Высота здания
9,26 m
icon

Высота измеряется от поверхности земли до самой высокой точки кровли (конька), за исключением дымоходов.

Ширина фасада
14,62 m
icon

Длина фасада
13,87 m
icon

Мин. ширина участка
21,62 m
icon

Наименьшая возможная ширина участка, необходимая для строительства выбранного дома. Состоит из длины фасада дома плюс с обеих сторон три метра отступ.

Мин. длина участка
21,87 m
icon

Наименьшая возможная длина участка, необходимая для строительства выбранного дома. Состоит из длины фасада дома плюс с обеих сторон три метра отступ.

Материалы и опции
Общие
Количество спален
4
Ежемесячный платёж, руб
Гараж
2
Количество санузлов
3
Ширина
15
Глубина
14
Тип крыши

Площади дома

№ п/п Наименование Ед. из. Строительная площадь Полезная площадь
1 1 этаж м2 144.67 117.4
2 2 этаж м2 89.35 72.51
3 Итого м2 234.02 189.91

Калькулятор опций

0

В ипотеку от 22 614 ₽/мес.

Фундамент
stdClass Object ( [id] => 1 [attribute_id] => 1 [name] => Ленточный монолитный ж/б [material_modifier] => 1 [work_modifier] => 1 [options] => Array ( [0] => размер 200 х 700 мм [1] => размер 300 х 900 мм [2] => размер 400 х 1 000 мм [3] => размер 500 х 1 100 мм [4] => размер 600 х 1 200 мм ) [days] => [20,21,22,25,30] [material_price] => [2823,3630,4475,5210,12047] [work_price] => [2154,2826,3731,4577,5293] [image] => https://akademik-stroy.ru/wp-content/uploads/materials/lentochnyj-monolitnyj-zh-b.jpg [area_modifier] => 144.67 [parent_name] => Фундамент [parent_id] => 1 [material_sum] => 514588 [work_sum] => 327200 [total_sum] => 841788 [total_days] => 20 [display_material_sum] => 514 588 [display_work_sum] => 327 200 [display_total_sum] => 841 788 ) 1
841 788
Работа:327 200
Материалы:514 588
Дни:20
stdClass Object ( [id] => 2 [attribute_id] => 1 [name] => Забивные Ж/Б сваи [material_modifier] => 1 [work_modifier] => 1 [options] => Array ( [0] => 150х150х3000мм [1] => 150х150х4000мм [2] => 200х200х3000мм [3] => 200х200х4000мм [4] => 200х200х5000мм [5] => 200х200х6000мм ) [days] => [2,2,2,2,2,2] [material_price] => [1990,2850,3255,4360,5120,6837] [work_price] => [1002,1185,1336,1438,1574,1839] [image] => https://akademik-stroy.ru/wp-content/uploads/materials/zabivnye-zh-b-svai.png [area_modifier] => 144.67 [parent_name] => Фундамент [parent_id] => 1 [material_sum] => 362746 [work_sum] => 152207 [total_sum] => 514953 [total_days] => 2 [display_material_sum] => 362 746 [display_work_sum] => 152 207 [display_total_sum] => 514 953 ) 1
514 953
Работа:152 207
Материалы:362 746
Дни:2
stdClass Object ( [id] => 71 [attribute_id] => 1 [name] => Свайно-ростверковый ж/б [material_modifier] => 1 [work_modifier] => 1 [options] => Array ( [0] => ростверк 200х300 мм [1] => ростверк 300х600 мм [2] => ростверк 400х900 мм [3] => ростверк 500х1200 мм ) [days] => [20,23,25,27] [material_price] => [3018,3474,7109,9792] [work_price] => [2024,3012,5635,7022] [image] => https://akademik-stroy.ru/wp-content/uploads/materials/svajno-rostverkovyj-monolitnyj-zh-b-3.png [area_modifier] => 144.67 [parent_name] => Фундамент [parent_id] => 1 [material_sum] => 550134 [work_sum] => 307453 [total_sum] => 857587 [total_days] => 20 [display_material_sum] => 550 134 [display_work_sum] => 307 453 [display_total_sum] => 857 587 ) 1
857 587
Работа:307 453
Материалы:550 134
Дни:20
stdClass Object ( [id] => 72 [attribute_id] => 1 [name] => Монолитная ж/б плита [material_modifier] => 1 [work_modifier] => 1 [options] => Array ( [0] => 200 мм [1] => 300 мм [2] => 400 мм [3] => 500 мм [4] => 600 мм ) [days] => [30,33,35,37,40] [material_price] => [5348,8555,12788,14388,15189] [work_price] => [4314,4881,7037,8061,10230] [image] => https://akademik-stroy.ru/wp-content/uploads/materials/monolitnaya-zhb-plita.png [area_modifier] => 144.67 [parent_name] => Фундамент [parent_id] => 1 [material_sum] => 974856 [work_sum] => 655312 [total_sum] => 1630168 [total_days] => 30 [display_material_sum] => 974 856 [display_work_sum] => 655 312 [display_total_sum] => 1 630 168 ) 1
1 630 168
Работа:655 312
Материалы:974 856
Дни:30
stdClass Object ( [id] => 73 [attribute_id] => 1 [name] => Утепленная шведская плита [material_modifier] => 1 [work_modifier] => 1 [options] => Array ( [0] => 200 мм [1] => 300 мм [2] => 400 мм [3] => 500 мм [4] => 600 мм ) [days] => [32,37,39,42,45] [material_price] => [10249,12692,13760,14936,16230] [work_price] => [5960,7337,8072,8878,9765] [image] => https://akademik-stroy.ru/wp-content/uploads/materials/uteplennaya-shvedskaya-plita.jpg [area_modifier] => 144.67 [parent_name] => Фундамент [parent_id] => 1 [material_sum] => 1868231 [work_sum] => 905345 [total_sum] => 2773576 [total_days] => 32 [display_material_sum] => 1 868 231 [display_work_sum] => 905 345 [display_total_sum] => 2 773 576 ) 1
2 773 576
Работа:905 345
Материалы:1 868 231
Дни:32
stdClass Object ( [id] => 75 [attribute_id] => 1 [name] => Ленточный из ФБС [material_modifier] => 1 [work_modifier] => 1 [options] => Array ( [0] => толщ. 300 мм [1] => толщ. 400 мм [2] => толщ. 500 мм [3] => толщ. 600 мм ) [days] => [20,20,20,20] [material_price] => [3675,4902,6126,7350] [work_price] => [2451,3264,4083,4902] [image] => https://akademik-stroy.ru/wp-content/uploads/materials/lentochnyj-iz-fbs.png [area_modifier] => 144.67 [parent_name] => Фундамент [parent_id] => 1 [material_sum] => 669894 [work_sum] => 372315 [total_sum] => 1042209 [total_days] => 20 [display_material_sum] => 669 894 [display_work_sum] => 372 315 [display_total_sum] => 1 042 209 ) 1
1 042 209
Работа:372 315
Материалы:669 894
Дни:20
stdClass Object ( [id] => 76 [attribute_id] => 1 [name] => Цокольный этаж из ФБС [material_modifier] => 1 [work_modifier] => 1 [options] => Array ( [0] => толщ. 300 мм [1] => толщ. 400 мм [2] => толщ. 500 мм [3] => толщ. 600 мм ) [days] => [30,32,34,36] [material_price] => [20916,23299,26680,29060] [work_price] => [17524,18700,19873,21046] [image] => https://akademik-stroy.ru/wp-content/uploads/materials/cokolnyj-ehtazh-iz-fbs.jpg [area_modifier] => 144.67 [parent_name] => Фундамент [parent_id] => 1 [material_sum] => 3812656 [work_sum] => 2661957 [total_sum] => 6474613 [total_days] => 30 [display_material_sum] => 3 812 656 [display_work_sum] => 2 661 957 [display_total_sum] => 6 474 613 ) 1
6 474 613
Работа:2 661 957
Материалы:3 812 656
Дни:30
stdClass Object ( [id] => 77 [attribute_id] => 1 [name] => Цокольный этаж монолитный ж/б [material_modifier] => 1 [work_modifier] => 1 [options] => Array ( [0] => толщ. 200 мм [1] => толщ. 300 мм [2] => толщ. 400 мм [3] => толщ. 500 мм [4] => толщ. 600 мм ) [days] => [40,42,44,46,48] [material_price] => [25421,29148,32275,35602,37326] [work_price] => [20441,21907,23375,24841,26306] [image] => https://akademik-stroy.ru/wp-content/uploads/materials/cokolnyj-etazh-zh-b.jpg [area_modifier] => 144.67 [parent_name] => Фундамент [parent_id] => 1 [material_sum] => 4633847 [work_sum] => 3105059 [total_sum] => 7738906 [total_days] => 40 [display_material_sum] => 4 633 847 [display_work_sum] => 3 105 059 [display_total_sum] => 7 738 906 ) 1
7 738 906
Работа:3 105 059
Материалы:4 633 847
Дни:40
stdClass Object ( [id] => 191 [attribute_id] => 1 [name] => Винтовые сваи [material_modifier] => 1 [work_modifier] => 1 [options] => Array ( [0] => 57х200мм [1] => 76х250мм [2] => 108х300мм [3] => 133х350мм ) [days] => [1,1,2,2] [material_price] => [1200,1300,1450,1600] [work_price] => [400,600,900,1100] [image] => https://akademik-stroy.ru/wp-content/uploads/materials/vintovye-svai.png [area_modifier] => 144.67 [parent_name] => Фундамент [parent_id] => 1 [material_sum] => 218741 [work_sum] => 60761 [total_sum] => 279502 [total_days] => 1 [display_material_sum] => 218 741 [display_work_sum] => 60 761 [display_total_sum] => 279 502 ) 1
279 502
Работа:60 761
Материалы:218 741
Дни:1
Перекрытие цоколя
stdClass Object ( [id] => 3 [attribute_id] => 2 [name] => Деревянные балки [material_modifier] => 1 [work_modifier] => 1 [options] => Array ( [0] => без утепления [1] => утепление 200 мм [2] => утепление 250 мм [3] => утепление 300 мм [4] => утепление 350 мм [5] => утепление 400 мм [6] => утепление 450 мм [7] => утепление 500 мм ) [days] => [8,9,9,9,11,12,13,14] [material_price] => [1634,2042,2344,2947,3149,3652,3354,3557] [work_price] => [1230,1339,1393,1426,1460,1513,1587,1620] [image] => https://akademik-stroy.ru/wp-content/uploads/materials/derevyannye-balki.png [area_modifier] => 144.67 [parent_name] => Перекрытие цоколя [parent_id] => 2 [material_sum] => 297852 [work_sum] => 186841 [total_sum] => 484693 [total_days] => 8 [display_material_sum] => 297 852 [display_work_sum] => 186 841 [display_total_sum] => 484 693 ) 1
484 693
Работа:186 841
Материалы:297 852
Дни:8
stdClass Object ( [id] => 4 [attribute_id] => 2 [name] => Сборные ж/б плиты [material_modifier] => 1 [work_modifier] => 1 [options] => Array ( [0] => без утепления [1] => утепление 150мм [2] => утепление 200мм [3] => утепление 250мм [4] => утепление 300мм [5] => утепление 350мм [6] => утепление 400мм [7] => утепление 450мм [8] => утепление 500мм ) [days] => [13,15,15,15,15,15,15,15,15] [material_price] => [3067,5577,5928,6679,7730,8782,9833,10884,11935] [work_price] => [1520,1956,2102,2247,2392,2537,2684,2829,2974] [image] => https://akademik-stroy.ru/wp-content/uploads/materials/sbornye-zh-b-plity-2.jpg [area_modifier] => 144.67 [parent_name] => Перекрытие цоколя [parent_id] => 2 [material_sum] => 559066 [work_sum] => 230893 [total_sum] => 789959 [total_days] => 13 [display_material_sum] => 559 066 [display_work_sum] => 230 893 [display_total_sum] => 789 959 ) 1
789 959
Работа:230 893
Материалы:559 066
Дни:13
stdClass Object ( [id] => 78 [attribute_id] => 2 [name] => Монолитная ж/б плита [material_modifier] => 1 [work_modifier] => 1 [options] => Array ( [0] => без утепления [1] => утепление 150 мм [2] => утепление 200 мм [3] => утепление 250 мм [4] => утепление 300 мм [5] => утепление 350 мм [6] => утепление 400 мм [7] => утепление 450 мм [8] => утепление 500 мм ) [days] => [18,20,20,20,20,20,20,20,20] [material_price] => [4837,6572,7224,7375,79426,8177,8728,9180,10031] [work_price] => [3348,3921,4112,4302,4493,4684,4875,5066,5256] [image] => https://akademik-stroy.ru/wp-content/uploads/materials/monolitnaya-zh-b-plita-2.jpg [area_modifier] => 144.67 [parent_name] => Перекрытие цоколя [parent_id] => 2 [material_sum] => 881709 [work_sum] => 508573 [total_sum] => 1390282 [total_days] => 18 [display_material_sum] => 881 709 [display_work_sum] => 508 573 [display_total_sum] => 1 390 282 ) 1
1 390 282
Работа:508 573
Материалы:881 709
Дни:18
Стены 1 этаж (несущие)
stdClass Object ( [id] => 6 [attribute_id] => 3 [name] => Пеноблок [material_modifier] => 1 [work_modifier] => 1 [options] => Array ( [0] => 300 мм [1] => 400 мм [2] => 500 мм [3] => 600 мм ) [days] => [29,31,34,39] [material_price] => [3000,4000,4500,4937] [work_price] => [5033,5805,6400,8710] [image] => https://akademik-stroy.ru/wp-content/uploads/materials/penoblok.jpg [area_modifier] => 144.67 [parent_name] => Стены 1 этаж (несущие) [parent_id] => 3 [material_sum] => 546853 [work_sum] => 764530 [total_sum] => 1311383 [total_days] => 29 [display_material_sum] => 546 853 [display_work_sum] => 764 530 [display_total_sum] => 1 311 383 ) 1
1 311 383
Работа:764 530
Материалы:546 853
Дни:29
stdClass Object ( [id] => 79 [attribute_id] => 3 [name] => Керамический блок [material_modifier] => 1 [work_modifier] => 1 [options] => Array ( [0] => 380 мм [1] => 380 мм Thermo [2] => 440 мм [3] => 510 мм ) [days] => [23,23,24,25] [material_price] => [4510,5098,6093,8013] [work_price] => [4737,4937,5903,6958] [image] => https://akademik-stroy.ru/wp-content/uploads/materials/keramicheskij-blok.jpg [area_modifier] => 144.67 [parent_name] => Стены 1 этаж (несущие) [parent_id] => 3 [material_sum] => 822102 [work_sum] => 719567 [total_sum] => 1541669 [total_days] => 23 [display_material_sum] => 822 102 [display_work_sum] => 719 567 [display_total_sum] => 1 541 669 ) 1
1 541 669
Работа:719 567
Материалы:822 102
Дни:23
stdClass Object ( [id] => 80 [attribute_id] => 3 [name] => Кирпич [material_modifier] => 1 [work_modifier] => 1 [options] => Array ( [0] => Кирпич 250 мм [1] => Кирпич 380 мм [2] => Кирпич 510 мм [3] => Кирпич 640 мм [4] => Кирпич 770 мм ) [days] => [30,30,31,33,36] [material_price] => [5500,7142,9206,10171,12235] [work_price] => [8736,10041,12018,15240,18462] [image] => https://akademik-stroy.ru/wp-content/uploads/materials/kirpich.jpg [area_modifier] => 144.67 [parent_name] => Стены 1 этаж (несущие) [parent_id] => 3 [material_sum] => 1002563 [work_sum] => 1327029 [total_sum] => 2329592 [total_days] => 30 [display_material_sum] => 1 002 563 [display_work_sum] => 1 327 029 [display_total_sum] => 2 329 592 ) 1
2 329 592
Работа:1 327 029
Материалы:1 002 563
Дни:30
stdClass Object ( [id] => 81 [attribute_id] => 3 [name] => Монолитные [material_modifier] => 1 [work_modifier] => 1 [options] => Array ( [0] => 150 мм [1] => 200 мм [2] => 250 мм [3] => 300 мм [4] => 350 мм [5] => 400 мм ) [days] => [45,46,47,49,50,53] [material_price] => [6545,7876,10175,12011,13908,15204] [work_price] => [5106,6444,7698,8552,9807,11461] [image] => https://akademik-stroy.ru/wp-content/uploads/materials/monolitnye.jpg [area_modifier] => 144.67 [parent_name] => Стены 1 этаж (несущие) [parent_id] => 3 [material_sum] => 1193050 [work_sum] => 775619 [total_sum] => 1968669 [total_days] => 45 [display_material_sum] => 1 193 050 [display_work_sum] => 775 619 [display_total_sum] => 1 968 669 ) 1
1 968 669
Работа:775 619
Материалы:1 193 050
Дни:45
stdClass Object ( [id] => 82 [attribute_id] => 3 [name] => Клееный брус [material_modifier] => 1 [work_modifier] => 1 [options] => Array ( [0] => 160 мм [1] => 175 мм [2] => 200 мм [3] => 215 мм [4] => 240 мм [5] => 270 мм [6] => 282 мм ) [days] => [24,28,32,37,40,42,48] [material_price] => [16975,18773,19950,20545,21599,22159,23275] [work_price] => [4806,5287,5815,6397,7036,7740,8514] [image] => https://akademik-stroy.ru/wp-content/uploads/materials/kleenyj-brus.jpg [area_modifier] => 144.67 [parent_name] => Стены 1 этаж (несущие) [parent_id] => 3 [material_sum] => 3094274 [work_sum] => 730048 [total_sum] => 3824322 [total_days] => 24 [display_material_sum] => 3 094 274 [display_work_sum] => 730 048 [display_total_sum] => 3 824 322 ) 1
3 824 322
Работа:730 048
Материалы:3 094 274
Дни:24
stdClass Object ( [id] => 83 [attribute_id] => 3 [name] => Каркасные [material_modifier] => 1 [work_modifier] => 1 [options] => Array ( [0] => 150 мм [1] => 200 мм [2] => 250 мм [3] => 300 мм ) [days] => [15,16,17,18] [material_price] => [2379,2639,2898,3258] [work_price] => [2418,2686,2985,3716] [image] => https://akademik-stroy.ru/wp-content/uploads/materials/karkasnye.jpg [area_modifier] => 144.67 [parent_name] => Стены 1 этаж (несущие) [parent_id] => 3 [material_sum] => 433654 [work_sum] => 367303 [total_sum] => 800957 [total_days] => 15 [display_material_sum] => 433 654 [display_work_sum] => 367 303 [display_total_sum] => 800 957 ) 1
800 957
Работа:367 303
Материалы:433 654
Дни:15
stdClass Object ( [id] => 84 [attribute_id] => 3 [name] => СИП-панели [material_modifier] => 1 [work_modifier] => 1 [options] => Array ( [0] => 120 мм [1] => 170 мм [2] => 220 мм ) [days] => [7,7,7] [material_price] => [1210,1856,2292] [work_price] => [1410,1551,1706] [image] => https://akademik-stroy.ru/wp-content/uploads/materials/sip-paneli.jpg [area_modifier] => 144.67 [parent_name] => Стены 1 этаж (несущие) [parent_id] => 3 [material_sum] => 220564 [work_sum] => 214184 [total_sum] => 434748 [total_days] => 7 [display_material_sum] => 220 564 [display_work_sum] => 214 184 [display_total_sum] => 434 748 ) 1
434 748
Работа:214 184
Материалы:220 564
Дни:7
stdClass Object ( [id] => 85 [attribute_id] => 3 [name] => Сухой брус [material_modifier] => 1 [work_modifier] => 1 [options] => Array ( [0] => 150 мм [1] => 180 мм [2] => 200 мм ) [days] => [7,8,9] [material_price] => [6010,7190,8709] [work_price] => [3204,3845,4229] [image] => https://akademik-stroy.ru/wp-content/uploads/materials/suhoj-brus.jpg [area_modifier] => 144.67 [parent_name] => Стены 1 этаж (несущие) [parent_id] => 3 [material_sum] => 1095528 [work_sum] => 486699 [total_sum] => 1582227 [total_days] => 7 [display_material_sum] => 1 095 528 [display_work_sum] => 486 699 [display_total_sum] => 1 582 227 ) 1
1 582 227
Работа:486 699
Материалы:1 095 528
Дни:7
stdClass Object ( [id] => 86 [attribute_id] => 3 [name] => Профилированный брус [material_modifier] => 1 [work_modifier] => 1 [options] => Array ( [0] => 150 мм [1] => 180 мм [2] => 200 мм ) [days] => [7,8,9] [material_price] => [8190,9228,10051] [work_price] => [3845,4614,5075] [image] => https://akademik-stroy.ru/wp-content/uploads/materials/profilirovannyj-brus.jpg [area_modifier] => 144.67 [parent_name] => Стены 1 этаж (несущие) [parent_id] => 3 [material_sum] => 1492908 [work_sum] => 584069 [total_sum] => 2076977 [total_days] => 7 [display_material_sum] => 1 492 908 [display_work_sum] => 584 069 [display_total_sum] => 2 076 977 ) 1
2 076 977
Работа:584 069
Материалы:1 492 908
Дни:7
stdClass Object ( [id] => 87 [attribute_id] => 3 [name] => Оцилиндрованное бревно [material_modifier] => 1 [work_modifier] => 1 [options] => Array ( [0] => 180 мм [1] => 220 мм [2] => 260 мм [3] => 320 мм ) [days] => [7,8,9,10] [material_price] => [75190,9532,10868,13116] [work_price] => [3845,4691,5535,6863] [image] => https://akademik-stroy.ru/wp-content/uploads/materials/ocilindrovannoe-brevno-1.jpg [area_modifier] => 144.67 [parent_name] => Стены 1 этаж (несущие) [parent_id] => 3 [material_sum] => 13705949 [work_sum] => 584069 [total_sum] => 14290018 [total_days] => 7 [display_material_sum] => 13 705 949 [display_work_sum] => 584 069 [display_total_sum] => 14 290 018 ) 1
14 290 018
Работа:584 069
Материалы:13 705 949
Дни:7
stdClass Object ( [id] => 88 [attribute_id] => 3 [name] => Срубы [material_modifier] => 1 [work_modifier] => 1 [options] => Array ( [0] => 260 мм [1] => 320 мм [2] => 360 мм [3] => 400 мм [4] => 500 мм ) [days] => [7,8,9,10,11] [material_price] => [37975,46709,52314,58069,73167] [work_price] => [4806,5911,6621,7349,9260] [image] => https://akademik-stroy.ru/wp-content/uploads/materials/sruby.jpg [area_modifier] => 144.67 [parent_name] => Стены 1 этаж (несущие) [parent_id] => 3 [material_sum] => 6922242 [work_sum] => 730048 [total_sum] => 7652290 [total_days] => 7 [display_material_sum] => 6 922 242 [display_work_sum] => 730 048 [display_total_sum] => 7 652 290 ) 1
7 652 290
Работа:730 048
Материалы:6 922 242
Дни:7
stdClass Object ( [id] => 174 [attribute_id] => 3 [name] => Брус [material_modifier] => 1 [work_modifier] => 1 [options] => Array ( [0] => 150 мм [1] => 180 мм [2] => 200 мм ) [days] => [7,8,9] [material_price] => [5127,6152,7367] [work_price] => [1602,1922,2115] [image] => https://akademik-stroy.ru/wp-content/uploads/materials/brus.jpg [area_modifier] => 144.67 [parent_name] => Стены 1 этаж (несущие) [parent_id] => 3 [material_sum] => 934571 [work_sum] => 243349 [total_sum] => 1177920 [total_days] => 7 [display_material_sum] => 934 571 [display_work_sum] => 243 349 [display_total_sum] => 1 177 920 ) 1
1 177 920
Работа:243 349
Материалы:934 571
Дни:7
stdClass Object ( [id] => 175 [attribute_id] => 3 [name] => Газобетон [material_modifier] => 1 [work_modifier] => 1 [options] => Array ( [0] => 300 мм [1] => 375 мм [2] => 400 мм [3] => 500 мм [4] => 600 мм ) [days] => [29,31,35,37,44] [material_price] => [4298,5573,6356,7288,9119] [work_price] => [4538,5251,5926,6733,7195] [image] => https://akademik-stroy.ru/wp-content/uploads/materials/gazobeton.jpg [area_modifier] => 144.67 [parent_name] => Стены 1 этаж (несущие) [parent_id] => 3 [material_sum] => 783457 [work_sum] => 689338 [total_sum] => 1472795 [total_days] => 29 [display_material_sum] => 783 457 [display_work_sum] => 689 338 [display_total_sum] => 1 472 795 ) 1
1 472 795
Работа:689 338
Материалы:783 457
Дни:29
stdClass Object ( [id] => 176 [attribute_id] => 3 [name] => Блок [material_modifier] => 1 [work_modifier] => 1 [options] => Array ( [0] => 300 мм [1] => 375 мм [2] => 400 мм [3] => 500 мм [4] => 600 мм ) [days] => [29,31,35,37,44] [material_price] => [2698,3973,4356,6588,7119] [work_price] => [5038,5851,6426,8733,9195] [image] => https://akademik-stroy.ru/wp-content/uploads/materials/blok.jpg [area_modifier] => 144.67 [parent_name] => Стены 1 этаж (несущие) [parent_id] => 3 [material_sum] => 491803 [work_sum] => 765290 [total_sum] => 1257093 [total_days] => 29 [display_material_sum] => 491 803 [display_work_sum] => 765 290 [display_total_sum] => 1 257 093 ) 1
1 257 093
Работа:765 290
Материалы:491 803
Дни:29
stdClass Object ( [id] => 177 [attribute_id] => 3 [name] => Газосиликатный блок [material_modifier] => 1 [work_modifier] => 1 [options] => Array ( [0] => 300 мм [1] => 375 мм [2] => 400 мм [3] => 500 мм [4] => 600 мм ) [days] => [29,31,35,37,44] [material_price] => [4298,5573,6356,7288,9119] [work_price] => [4538,5251,5926,6733,7195] [image] => https://akademik-stroy.ru/wp-content/uploads/materials/gazosilikatnyj-blok.jpg [area_modifier] => 144.67 [parent_name] => Стены 1 этаж (несущие) [parent_id] => 3 [material_sum] => 783457 [work_sum] => 689338 [total_sum] => 1472795 [total_days] => 29 [display_material_sum] => 783 457 [display_work_sum] => 689 338 [display_total_sum] => 1 472 795 ) 1
1 472 795
Работа:689 338
Материалы:783 457
Дни:29
stdClass Object ( [id] => 178 [attribute_id] => 3 [name] => Керамзитобетонный блок [material_modifier] => 1 [work_modifier] => 1 [options] => Array ( [0] => 300 мм [1] => 375 мм [2] => 400 мм [3] => 500 мм [4] => 600 мм ) [days] => [23,23,24,25,28] [material_price] => [3641,4298,5693,7613,9612] [work_price] => [5737,5737,6903,7958,8901] [image] => https://akademik-stroy.ru/wp-content/uploads/materials/keramzitobetonnyj-blok.jpg [area_modifier] => 144.67 [parent_name] => Стены 1 этаж (несущие) [parent_id] => 3 [material_sum] => 663697 [work_sum] => 871470 [total_sum] => 1535167 [total_days] => 23 [display_material_sum] => 663 697 [display_work_sum] => 871 470 [display_total_sum] => 1 535 167 ) 1
1 535 167
Работа:871 470
Материалы:663 697
Дни:23
stdClass Object ( [id] => 179 [attribute_id] => 3 [name] => Деревянные [material_modifier] => 1 [work_modifier] => 1 [options] => Array ( [0] => 180 мм [1] => 220 мм [2] => 260 мм [3] => 320 мм ) [days] => [7,8,9,10] [material_price] => [7950,9458,11961,14472] [work_price] => [4037,4925,5812,7207] [image] => https://akademik-stroy.ru/wp-content/uploads/materials/derevyannye.jpg [area_modifier] => 144.67 [parent_name] => Стены 1 этаж (несущие) [parent_id] => 3 [material_sum] => 1449159 [work_sum] => 613234 [total_sum] => 2062393 [total_days] => 7 [display_material_sum] => 1 449 159 [display_work_sum] => 613 234 [display_total_sum] => 2 062 393 ) 1
2 062 393
Работа:613 234
Материалы:1 449 159
Дни:7
stdClass Object ( [id] => 181 [attribute_id] => 3 [name] => Камень [material_modifier] => 1 [work_modifier] => 1 [options] => Array ( [0] => 300 мм [1] => 400 мм [2] => 500 мм [3] => 600 мм ) [days] => [25,27,31,34] [material_price] => [5262,6844,8330,9815] [work_price] => [8331,9135,10427,11069] [image] => https://akademik-stroy.ru/wp-content/uploads/materials/kamen.jpg [area_modifier] => 144.67 [parent_name] => Стены 1 этаж (несущие) [parent_id] => 3 [material_sum] => 959179 [work_sum] => 1265508 [total_sum] => 2224687 [total_days] => 25 [display_material_sum] => 959 179 [display_work_sum] => 1 265 508 [display_total_sum] => 2 224 687 ) 1
2 224 687
Работа:1 265 508
Материалы:959 179
Дни:25
stdClass Object ( [id] => 182 [attribute_id] => 3 [name] => Каркасно-щитовые [material_modifier] => 1 [work_modifier] => 1 [options] => Array ( [0] => 150 мм [1] => 200 мм [2] => 250 мм [3] => 300 мм [4] => 350 мм [5] => 400 мм ) [days] => [15,16,17,18,19,20] [material_price] => [2379,2639,2898,3458,3601,4175] [work_price] => [2538,2820,3134,3483,4062,5642] [image] => https://akademik-stroy.ru/wp-content/uploads/materials/karkasno-shchitovye.jpg [area_modifier] => 144.67 [parent_name] => Стены 1 этаж (несущие) [parent_id] => 3 [material_sum] => 433654 [work_sum] => 385531 [total_sum] => 819185 [total_days] => 15 [display_material_sum] => 433 654 [display_work_sum] => 385 531 [display_total_sum] => 819 185 ) 1
819 185
Работа:385 531
Материалы:433 654
Дни:15
stdClass Object ( [id] => 183 [attribute_id] => 3 [name] => Рубленные [material_modifier] => 1 [work_modifier] => 1 [options] => Array ( [0] => 150 мм [1] => 200 мм [2] => 250 мм [3] => 300 мм [4] => 350 мм [5] => 400 мм ) [days] => [15,16,17,18,17,18] [material_price] => [35950,50267,60583,75900,80217,100533] [work_price] => [9612,12816,16020,19224,22428,25632] [image] => https://akademik-stroy.ru/wp-content/uploads/materials/rublennye.jpg [area_modifier] => 144.67 [parent_name] => Стены 1 этаж (несущие) [parent_id] => 3 [material_sum] => 6553117 [work_sum] => 1460096 [total_sum] => 8013213 [total_days] => 15 [display_material_sum] => 6 553 117 [display_work_sum] => 1 460 096 [display_total_sum] => 8 013 213 ) 1
8 013 213
Работа:1 460 096
Материалы:6 553 117
Дни:15
stdClass Object ( [id] => 185 [attribute_id] => 3 [name] => Теплоблок [material_modifier] => 1 [work_modifier] => 1 [options] => Array ( [0] => 300 мм (с облицовкой, не покрашенный) [1] => 400 мм (с облицовкой, не покрашенный) [2] => 300 мм (с облицовкой, покрашенный) [3] => 400 мм (с облицовкой, покрашенный) ) [days] => [15,16,15,16] [material_price] => [2888,3729,3957,4258] [work_price] => [2564,3229,2949,3713] [image] => https://akademik-stroy.ru/wp-content/uploads/materials/teploblok.jpg [area_modifier] => 144.67 [parent_name] => Стены 1 этаж (несущие) [parent_id] => 3 [material_sum] => 526437 [work_sum] => 389481 [total_sum] => 915918 [total_days] => 15 [display_material_sum] => 526 437 [display_work_sum] => 389 481 [display_total_sum] => 915 918 ) 1
915 918
Работа:389 481
Материалы:526 437
Дни:15
stdClass Object ( [id] => 186 [attribute_id] => 3 [name] => Арболитовые блоки [material_modifier] => 1 [work_modifier] => 1 [options] => Array ( [0] => 300 мм [1] => 400 мм [2] => 600 мм ) [days] => [19,22,27] [material_price] => [3210,4475,5852] [work_price] => [4214,4788,5866] [image] => https://akademik-stroy.ru/wp-content/uploads/materials/arbolitovye-bloki.png [area_modifier] => 144.67 [parent_name] => Стены 1 этаж (несущие) [parent_id] => 3 [material_sum] => 585132 [work_sum] => 640121 [total_sum] => 1225253 [total_days] => 19 [display_material_sum] => 585 132 [display_work_sum] => 640 121 [display_total_sum] => 1 225 253 ) 1
1 225 253
Работа:640 121
Материалы:585 132
Дни:19
stdClass Object ( [id] => 187 [attribute_id] => 3 [name] => Полистиролбетон [material_modifier] => 1 [work_modifier] => 1 [options] => Array ( [0] => 300 мм [1] => 400 мм [2] => 600 мм ) [days] => [29,31,35] [material_price] => [2798,4573,5256] [work_price] => [5038,5851,6426] [image] => https://akademik-stroy.ru/wp-content/uploads/materials/polistirolbeton.jpg [area_modifier] => 144.67 [parent_name] => Стены 1 этаж (несущие) [parent_id] => 3 [material_sum] => 510031 [work_sum] => 765290 [total_sum] => 1275321 [total_days] => 29 [display_material_sum] => 510 031 [display_work_sum] => 765 290 [display_total_sum] => 1 275 321 ) 1
1 275 321
Работа:765 290
Материалы:510 031
Дни:29
stdClass Object ( [id] => 188 [attribute_id] => 3 [name] => Шлакоблок [material_modifier] => 1 [work_modifier] => 1 [options] => Array ( [0] => 400 мм [1] => 600 мм ) [days] => [15,16] [material_price] => [2391,3471] [work_price] => [2642,3662] [image] => https://akademik-stroy.ru/wp-content/uploads/materials/shlakoblok.jpg [area_modifier] => 144.67 [parent_name] => Стены 1 этаж (несущие) [parent_id] => 3 [material_sum] => 435842 [work_sum] => 401329 [total_sum] => 837171 [total_days] => 15 [display_material_sum] => 435 842 [display_work_sum] => 401 329 [display_total_sum] => 837 171 ) 1
837 171
Работа:401 329
Материалы:435 842
Дни:15
stdClass Object ( [id] => 189 [attribute_id] => 3 [name] => Теплая керамика [material_modifier] => 1 [work_modifier] => 1 [options] => Array ( [0] => 380 мм [1] => 380 мм Thermo [2] => 440 мм [3] => 510 мм ) [days] => [23,23,24,25] [material_price] => [4510,5098,6093,8013] [work_price] => [4737,4937,5903,6958] [image] => https://akademik-stroy.ru/wp-content/uploads/materials/teplaya-keramika.jpg [area_modifier] => 144.67 [parent_name] => Стены 1 этаж (несущие) [parent_id] => 3 [material_sum] => 822102 [work_sum] => 719567 [total_sum] => 1541669 [total_days] => 23 [display_material_sum] => 822 102 [display_work_sum] => 719 567 [display_total_sum] => 1 541 669 ) 1
1 541 669
Работа:719 567
Материалы:822 102
Дни:23
stdClass Object ( [id] => 190 [attribute_id] => 3 [name] => Несъемная опалубка [material_modifier] => 1 [work_modifier] => 1 [options] => Array ( [0] => 200 мм [1] => 250 мм [2] => 300 мм [3] => 350 мм ) [days] => [15,17,19,21] [material_price] => [3302,3902,4108,5008] [work_price] => [2100,2100,2300,2534] [image] => https://akademik-stroy.ru/wp-content/uploads/materials/nesemnaya-opalubka.jpg [area_modifier] => 144.67 [parent_name] => Стены 1 этаж (несущие) [parent_id] => 3 [material_sum] => 601902 [work_sum] => 318997 [total_sum] => 920899 [total_days] => 15 [display_material_sum] => 601 902 [display_work_sum] => 318 997 [display_total_sum] => 920 899 ) 1
920 899
Работа:318 997
Материалы:601 902
Дни:15
stdClass Object ( [id] => 251 [attribute_id] => 3 [name] => Бревно [material_modifier] => 1 [work_modifier] => 1 [options] => Array ( [0] => 260 мм [1] => 320 мм [2] => 360 мм [3] => 400 мм [4] => 500 мм ) [days] => [7,8,9,10,11] [material_price] => [1874,24045,26930,30972,38825] [work_price] => [5046,6207,6952,7716,9723] [image] => https://akademik-stroy.ru/wp-content/uploads/materials/sruby.jpg [area_modifier] => 144.67 [parent_name] => Стены 1 этаж (несущие) [parent_id] => 3 [material_sum] => 341601 [work_sum] => 766505 [total_sum] => 1108106 [total_days] => 7 [display_material_sum] => 341 601 [display_work_sum] => 766 505 [display_total_sum] => 1 108 106 ) 1
1 108 106
Работа:766 505
Материалы:341 601
Дни:7
Перекрытие первого этажа
stdClass Object ( [id] => 7 [attribute_id] => 4 [name] => Деревянные балки [material_modifier] => 1 [work_modifier] => 1 [options] => Array ( [0] => без утепления [1] => утепление 200 мм [2] => утепление 250 мм [3] => утепление 300 мм [4] => утепление 350 мм [5] => утепление 400 мм [6] => утепление 450 мм [7] => утепление 500 мм ) [days] => [8,9,9,9,11,12,13,14] [material_price] => [1634,2042,2344,2947,3149,3652,3354,3557] [work_price] => [1230,1339,1393,1426,1460,1513,1587,1620] [image] => https://akademik-stroy.ru/wp-content/uploads/materials/derevyannye-balki.png [area_modifier] => 144.67 [parent_name] => Перекрытие первого этажа [parent_id] => 4 [material_sum] => 297852 [work_sum] => 186841 [total_sum] => 484693 [total_days] => 8 [display_material_sum] => 297 852 [display_work_sum] => 186 841 [display_total_sum] => 484 693 ) 1
484 693
Работа:186 841
Материалы:297 852
Дни:8
stdClass Object ( [id] => 8 [attribute_id] => 4 [name] => Сборные ж/б плиты [material_modifier] => 1 [work_modifier] => 1 [options] => Array ( [0] => без утепления [1] => утепление 150 мм [2] => утепление 200 мм [3] => утепление 250 мм [4] => утепление 300 мм [5] => утепление 350 мм [6] => утепление 400 мм [7] => утепление 450 мм [8] => утепление 500 мм ) [days] => [13,15,15,15,15,15,15,15,15] [material_price] => [3067,5577,5928,6679,7730,8782,9833,10884,11935] [work_price] => [1520,1956,2102,2247,2392,2537,2684,2829,2974] [image] => https://akademik-stroy.ru/wp-content/uploads/materials/sbornye-zh-b-plity-2.jpg [area_modifier] => 144.67 [parent_name] => Перекрытие первого этажа [parent_id] => 4 [material_sum] => 559066 [work_sum] => 230893 [total_sum] => 789959 [total_days] => 13 [display_material_sum] => 559 066 [display_work_sum] => 230 893 [display_total_sum] => 789 959 ) 1
789 959
Работа:230 893
Материалы:559 066
Дни:13
stdClass Object ( [id] => 89 [attribute_id] => 4 [name] => Монолитная ж/б плита [material_modifier] => 1 [work_modifier] => 1 [options] => Array ( [0] => без утепления [1] => утепление 150 мм [2] => утепление 200 мм [3] => утепление 250 мм [4] => утепление 300 мм [5] => утепление 350 мм [6] => утепление 400 мм [7] => утепление 450 мм [8] => утепление 500 мм ) [days] => [18,20,20,20,20,20,20,20,20] [material_price] => [4837,6572,7224,7375,79426,8177,8728,9180,10031] [work_price] => [3348,3921,4112,4302,4493,4684,4875,5066,5256] [image] => https://akademik-stroy.ru/wp-content/uploads/materials/monolitnaya-zh-b-plita-2.jpg [area_modifier] => 144.67 [parent_name] => Перекрытие первого этажа [parent_id] => 4 [material_sum] => 881709 [work_sum] => 508573 [total_sum] => 1390282 [total_days] => 18 [display_material_sum] => 881 709 [display_work_sum] => 508 573 [display_total_sum] => 1 390 282 ) 1
1 390 282
Работа:508 573
Материалы:881 709
Дни:18
Стены 2 этаж (несущие)
stdClass Object ( [id] => 10 [attribute_id] => 5 [name] => Пеноблок [material_modifier] => 1 [work_modifier] => 1 [options] => Array ( [0] => 300 мм [1] => 400 мм [2] => 500 мм [3] => 600 мм ) [days] => [29,31,34,39] [material_price] => [3000,4000,4500,4937] [work_price] => [5033,5805,6400,8710] [image] => https://akademik-stroy.ru/wp-content/uploads/materials/penoblok.jpg [area_modifier] => 89.35 [parent_name] => Стены 2 этаж (несущие) [parent_id] => 5 [material_sum] => 337743 [work_sum] => 472183 [total_sum] => 809926 [total_days] => 29 [display_material_sum] => 337 743 [display_work_sum] => 472 183 [display_total_sum] => 809 926 ) 1
809 926
Работа:472 183
Материалы:337 743
Дни:29
stdClass Object ( [id] => 90 [attribute_id] => 5 [name] => Керамический блок [material_modifier] => 1 [work_modifier] => 1 [options] => Array ( [0] => 380 мм [1] => 380 мм Thermo [2] => 440 мм [3] => 510 мм ) [days] => [23,23,24,25] [material_price] => [4510,5098,6093,8013] [work_price] => [4737,4937,5903,6958] [image] => https://akademik-stroy.ru/wp-content/uploads/materials/keramicheskij-blok.jpg [area_modifier] => 89.35 [parent_name] => Стены 2 этаж (несущие) [parent_id] => 5 [material_sum] => 507740 [work_sum] => 444413 [total_sum] => 952153 [total_days] => 23 [display_material_sum] => 507 740 [display_work_sum] => 444 413 [display_total_sum] => 952 153 ) 1
952 153
Работа:444 413
Материалы:507 740
Дни:23
stdClass Object ( [id] => 91 [attribute_id] => 5 [name] => Кирпич [material_modifier] => 1 [work_modifier] => 1 [options] => Array ( [0] => Кирпич 250 мм [1] => Кирпич 380 мм [2] => Кирпич 510 мм [3] => Кирпич 640 мм [4] => Кирпич 770 мм ) [days] => [30,30,31,33,36] [material_price] => [5500,7142,9206,10171,12235] [work_price] => [8736,10041,12018,15240,18462] [image] => https://akademik-stroy.ru/wp-content/uploads/materials/kirpich.jpg [area_modifier] => 89.35 [parent_name] => Стены 2 этаж (несущие) [parent_id] => 5 [material_sum] => 619196 [work_sum] => 819590 [total_sum] => 1438786 [total_days] => 30 [display_material_sum] => 619 196 [display_work_sum] => 819 590 [display_total_sum] => 1 438 786 ) 1
1 438 786
Работа:819 590
Материалы:619 196
Дни:30
stdClass Object ( [id] => 92 [attribute_id] => 5 [name] => Монолитные [material_modifier] => 1 [work_modifier] => 1 [options] => Array ( [0] => 150 мм [1] => 200 мм [2] => 250 мм [3] => 300 мм [4] => 350 мм [5] => 400 мм ) [days] => [45,46,47,49,50,53] [material_price] => [6545,7876,10175,12011,13908,15204] [work_price] => [5106,6444,7698,8552,9807,11461] [image] => https://akademik-stroy.ru/wp-content/uploads/materials/monolitnye.jpg [area_modifier] => 89.35 [parent_name] => Стены 2 этаж (несущие) [parent_id] => 5 [material_sum] => 736843 [work_sum] => 479032 [total_sum] => 1215875 [total_days] => 45 [display_material_sum] => 736 843 [display_work_sum] => 479 032 [display_total_sum] => 1 215 875 ) 1
1 215 875
Работа:479 032
Материалы:736 843
Дни:45
stdClass Object ( [id] => 93 [attribute_id] => 5 [name] => Клееный брус [material_modifier] => 1 [work_modifier] => 1 [options] => Array ( [0] => 160 мм [1] => 175 мм [2] => 200 мм [3] => 215 мм [4] => 240 мм [5] => 270 мм [6] => 282 мм ) [days] => [24,28,32,37,40,42,48] [material_price] => [16975,18773,19950,20545,21599,22159,23275] [work_price] => [4806,5287,5815,6397,7036,7740,8514] [image] => https://akademik-stroy.ru/wp-content/uploads/materials/kleenyj-brus.jpg [area_modifier] => 89.35 [parent_name] => Стены 2 этаж (несущие) [parent_id] => 5 [material_sum] => 1911062 [work_sum] => 450887 [total_sum] => 2361949 [total_days] => 24 [display_material_sum] => 1 911 062 [display_work_sum] => 450 887 [display_total_sum] => 2 361 949 ) 1
2 361 949
Работа:450 887
Материалы:1 911 062
Дни:24
stdClass Object ( [id] => 94 [attribute_id] => 5 [name] => Каркасные [material_modifier] => 1 [work_modifier] => 1 [options] => Array ( [0] => 150 мм [1] => 200 мм [2] => 250 мм [3] => 300 мм ) [days] => [15,16,17,18] [material_price] => [2379,2639,2898,3258] [work_price] => [2418,2686,2985,3716] [image] => https://akademik-stroy.ru/wp-content/uploads/materials/karkasnye.jpg [area_modifier] => 89.35 [parent_name] => Стены 2 этаж (несущие) [parent_id] => 5 [material_sum] => 267830 [work_sum] => 226851 [total_sum] => 494681 [total_days] => 15 [display_material_sum] => 267 830 [display_work_sum] => 226 851 [display_total_sum] => 494 681 ) 1
494 681
Работа:226 851
Материалы:267 830
Дни:15
stdClass Object ( [id] => 95 [attribute_id] => 5 [name] => СИП-панели [material_modifier] => 1 [work_modifier] => 1 [options] => Array ( [0] => 120 мм [1] => 170 мм [2] => 220 мм ) [days] => [7,7,7] [material_price] => [1210,1856,2292] [work_price] => [1410,1551,1706] [image] => https://akademik-stroy.ru/wp-content/uploads/materials/sip-paneli.jpg [area_modifier] => 89.35 [parent_name] => Стены 2 этаж (несущие) [parent_id] => 5 [material_sum] => 136223 [work_sum] => 132283 [total_sum] => 268506 [total_days] => 7 [display_material_sum] => 136 223 [display_work_sum] => 132 283 [display_total_sum] => 268 506 ) 1
268 506
Работа:132 283
Материалы:136 223
Дни:7
stdClass Object ( [id] => 96 [attribute_id] => 5 [name] => Сухой брус [material_modifier] => 1 [work_modifier] => 1 [options] => Array ( [0] => 150 мм [1] => 180 мм [2] => 200 мм ) [days] => [7,8,9] [material_price] => [6010,7190,8709] [work_price] => [3204,3845,4229] [image] => https://akademik-stroy.ru/wp-content/uploads/materials/suhoj-brus.jpg [area_modifier] => 89.35 [parent_name] => Стены 2 этаж (несущие) [parent_id] => 5 [material_sum] => 676612 [work_sum] => 300591 [total_sum] => 977203 [total_days] => 7 [display_material_sum] => 676 612 [display_work_sum] => 300 591 [display_total_sum] => 977 203 ) 1
977 203
Работа:300 591
Материалы:676 612
Дни:7
stdClass Object ( [id] => 97 [attribute_id] => 5 [name] => Профилированный брус [material_modifier] => 1 [work_modifier] => 1 [options] => Array ( [0] => 150 мм [1] => 180 мм [2] => 200 мм ) [days] => [7,8,9] [material_price] => [8190,9228,10051] [work_price] => [3845,4614,5075] [image] => https://akademik-stroy.ru/wp-content/uploads/materials/profilirovannyj-brus.jpg [area_modifier] => 89.35 [parent_name] => Стены 2 этаж (несущие) [parent_id] => 5 [material_sum] => 922038 [work_sum] => 360728 [total_sum] => 1282766 [total_days] => 7 [display_material_sum] => 922 038 [display_work_sum] => 360 728 [display_total_sum] => 1 282 766 ) 1
1 282 766
Работа:360 728
Материалы:922 038
Дни:7
stdClass Object ( [id] => 98 [attribute_id] => 5 [name] => Оцилиндрованное бревно [material_modifier] => 1 [work_modifier] => 1 [options] => Array ( [0] => 180 мм [1] => 220 мм [2] => 260 мм [3] => 320 мм ) [days] => [7,8,9,10] [material_price] => [75190,9532,10868,13116] [work_price] => [3845,4691,5535,6863] [image] => https://akademik-stroy.ru/wp-content/uploads/materials/ocilindrovannoe-brevno-1.jpg [area_modifier] => 89.35 [parent_name] => Стены 2 этаж (несущие) [parent_id] => 5 [material_sum] => 8464965 [work_sum] => 360728 [total_sum] => 8825693 [total_days] => 7 [display_material_sum] => 8 464 965 [display_work_sum] => 360 728 [display_total_sum] => 8 825 693 ) 1
8 825 693
Работа:360 728
Материалы:8 464 965
Дни:7
stdClass Object ( [id] => 99 [attribute_id] => 5 [name] => Срубы [material_modifier] => 1 [work_modifier] => 1 [options] => Array ( [0] => 260 мм [1] => 320 мм [2] => 360 мм [3] => 400 мм [4] => 500 мм ) [days] => [7,8,9,10,11] [material_price] => [16175,23709,26314,29069,32167] [work_price] => [4806,5911,6621,7349,9260] [image] => https://akademik-stroy.ru/wp-content/uploads/materials/suhoj-brus.jpg [area_modifier] => 89.35 [parent_name] => Стены 2 этаж (несущие) [parent_id] => 5 [material_sum] => 1820998 [work_sum] => 450887 [total_sum] => 2271885 [total_days] => 7 [display_material_sum] => 1 820 998 [display_work_sum] => 450 887 [display_total_sum] => 2 271 885 ) 1
2 271 885
Работа:450 887
Материалы:1 820 998
Дни:7
stdClass Object ( [id] => 194 [attribute_id] => 5 [name] => Брус [material_modifier] => 1 [work_modifier] => 1 [options] => Array ( [0] => 150 мм [1] => 180 мм [2] => 200 мм ) [days] => [10,13,15] [material_price] => [5127,6152,7367] [work_price] => [1602,1922,2115] [image] => https://akademik-stroy.ru/wp-content/uploads/materials/brus.jpg [area_modifier] => 89.35 [parent_name] => Стены 2 этаж (несущие) [parent_id] => 5 [material_sum] => 577203 [work_sum] => 150296 [total_sum] => 727499 [total_days] => 10 [display_material_sum] => 577 203 [display_work_sum] => 150 296 [display_total_sum] => 727 499 ) 1
727 499
Работа:150 296
Материалы:577 203
Дни:10
stdClass Object ( [id] => 195 [attribute_id] => 5 [name] => Газобетон [material_modifier] => 1 [work_modifier] => 1 [options] => Array ( [0] => 300 мм [1] => 375 мм [2] => 400 мм [3] => 500 мм [4] => 600 мм ) [days] => [29,31,35,37,44] [material_price] => [4298,5573,6356,7288,9119] [work_price] => [4538,5251,5926,6733,7195] [image] => https://akademik-stroy.ru/wp-content/uploads/materials/gazobeton.jpg [area_modifier] => 89.35 [parent_name] => Стены 2 этаж (несущие) [parent_id] => 5 [material_sum] => 483873 [work_sum] => 425744 [total_sum] => 909617 [total_days] => 29 [display_material_sum] => 483 873 [display_work_sum] => 425 744 [display_total_sum] => 909 617 ) 1
909 617
Работа:425 744
Материалы:483 873
Дни:29
stdClass Object ( [id] => 196 [attribute_id] => 5 [name] => Блок [material_modifier] => 1 [work_modifier] => 1 [options] => Array ( [0] => 300 мм [1] => 375 мм [2] => 400 мм [3] => 500 мм [4] => 600 мм ) [days] => [29,31,35,37,44] [material_price] => [2698,3973,4356,6588,7119] [work_price] => [5038,5851,6426,8733,9195] [image] => https://akademik-stroy.ru/wp-content/uploads/materials/blok.jpg [area_modifier] => 89.35 [parent_name] => Стены 2 этаж (несущие) [parent_id] => 5 [material_sum] => 303744 [work_sum] => 472653 [total_sum] => 776397 [total_days] => 29 [display_material_sum] => 303 744 [display_work_sum] => 472 653 [display_total_sum] => 776 397 ) 1
776 397
Работа:472 653
Материалы:303 744
Дни:29
stdClass Object ( [id] => 197 [attribute_id] => 5 [name] => Газосиликатный блок [material_modifier] => 1 [work_modifier] => 1 [options] => Array ( [0] => 300 мм [1] => 375 мм [2] => 400 мм [3] => 500 мм [4] => 600 мм ) [days] => [29,31,35,37,44] [material_price] => [4298,5573,6356,7288,9119] [work_price] => [4538,5251,5926,6733,7195] [image] => https://akademik-stroy.ru/wp-content/uploads/materials/gazosilikatnyj-blok.jpg [area_modifier] => 89.35 [parent_name] => Стены 2 этаж (несущие) [parent_id] => 5 [material_sum] => 483873 [work_sum] => 425744 [total_sum] => 909617 [total_days] => 29 [display_material_sum] => 483 873 [display_work_sum] => 425 744 [display_total_sum] => 909 617 ) 1
909 617
Работа:425 744
Материалы:483 873
Дни:29
stdClass Object ( [id] => 198 [attribute_id] => 5 [name] => Керамзитобетонный блок [material_modifier] => 1 [work_modifier] => 1 [options] => Array ( [0] => 300 мм [1] => 375 мм [2] => 400 мм [3] => 500 мм [4] => 600 мм ) [days] => [23,23,24,25,28] [material_price] => [3641,4298,5693,7613,9612] [work_price] => [5737,5737,6903,7958,8901] [image] => https://akademik-stroy.ru/wp-content/uploads/materials/keramzitobetonnyj-blok.jpg [area_modifier] => 89.35 [parent_name] => Стены 2 этаж (несущие) [parent_id] => 5 [material_sum] => 409907 [work_sum] => 538231 [total_sum] => 948138 [total_days] => 23 [display_material_sum] => 409 907 [display_work_sum] => 538 231 [display_total_sum] => 948 138 ) 1
948 138
Работа:538 231
Материалы:409 907
Дни:23
stdClass Object ( [id] => 199 [attribute_id] => 5 [name] => Деревянные [material_modifier] => 1 [work_modifier] => 1 [options] => Array ( [0] => 180 мм [1] => 220 мм [2] => 260 мм [3] => 320 мм ) [days] => [7,8,9,10] [material_price] => [7950,9458,11961,14472] [work_price] => [4037,4925,5812,7207] [image] => https://akademik-stroy.ru/wp-content/uploads/materials/derevyannye.jpg [area_modifier] => 89.35 [parent_name] => Стены 2 этаж (несущие) [parent_id] => 5 [material_sum] => 895019 [work_sum] => 378741 [total_sum] => 1273760 [total_days] => 7 [display_material_sum] => 895 019 [display_work_sum] => 378 741 [display_total_sum] => 1 273 760 ) 1
1 273 760
Работа:378 741
Материалы:895 019
Дни:7
stdClass Object ( [id] => 200 [attribute_id] => 5 [name] => Камень [material_modifier] => 1 [work_modifier] => 1 [options] => Array ( [0] => 300 мм [1] => 400 мм [2] => 500 мм [3] => 600 мм ) [days] => [25,27,31,34] [material_price] => [5262,6844,8330,9815] [work_price] => [8331,9135,10427,11069] [image] => https://akademik-stroy.ru/wp-content/uploads/materials/kamen.jpg [area_modifier] => 89.35 [parent_name] => Стены 2 этаж (несущие) [parent_id] => 5 [material_sum] => 592401 [work_sum] => 781594 [total_sum] => 1373995 [total_days] => 25 [display_material_sum] => 592 401 [display_work_sum] => 781 594 [display_total_sum] => 1 373 995 ) 1
1 373 995
Работа:781 594
Материалы:592 401
Дни:25
stdClass Object ( [id] => 201 [attribute_id] => 5 [name] => Каркасно-щитовые [material_modifier] => 1 [work_modifier] => 1 [options] => Array ( [0] => 150 мм [1] => 200 мм [2] => 250 мм [3] => 300 мм [4] => 350 мм [5] => 400 мм ) [days] => [15,16,17,18,19,20] [material_price] => [2379,2639,2898,3458,3601,4175] [work_price] => [2538,2820,3134,3483,4062,5642] [image] => https://akademik-stroy.ru/wp-content/uploads/materials/karkasno-shchitovye.jpg [area_modifier] => 89.35 [parent_name] => Стены 2 этаж (несущие) [parent_id] => 5 [material_sum] => 267830 [work_sum] => 238109 [total_sum] => 505939 [total_days] => 15 [display_material_sum] => 267 830 [display_work_sum] => 238 109 [display_total_sum] => 505 939 ) 1
505 939
Работа:238 109
Материалы:267 830
Дни:15
stdClass Object ( [id] => 202 [attribute_id] => 5 [name] => Рубленные [material_modifier] => 1 [work_modifier] => 1 [options] => Array ( [0] => 150 мм [1] => 200 мм [2] => 250 мм [3] => 300 мм [4] => 350 мм [5] => 400 мм ) [days] => [15,16,17,18,17,18] [material_price] => [35950,50267,60583,75900,80217,100533] [work_price] => [9612,12816,16020,19224,22428,25632] [image] => https://akademik-stroy.ru/wp-content/uploads/materials/rublennye.jpg [area_modifier] => 89.35 [parent_name] => Стены 2 этаж (несущие) [parent_id] => 5 [material_sum] => 4047287 [work_sum] => 901774 [total_sum] => 4949061 [total_days] => 15 [display_material_sum] => 4 047 287 [display_work_sum] => 901 774 [display_total_sum] => 4 949 061 ) 1
4 949 061
Работа:901 774
Материалы:4 047 287
Дни:15
stdClass Object ( [id] => 203 [attribute_id] => 5 [name] => Теплоблок [material_modifier] => 1 [work_modifier] => 1 [options] => Array ( [0] => 300 мм (с облицовкой, не покрашенный) [1] => 400 мм (с облицовкой, не покрашенный) [2] => 300 мм (с облицовкой, покрашенный) [3] => 400 мм (с облицовкой, покрашенный) ) [days] => [15,16,15,16] [material_price] => [2888,3729,3957,4258] [work_price] => [2564,3229,2949,3713] [image] => https://akademik-stroy.ru/wp-content/uploads/materials/teploblok.jpg [area_modifier] => 89.35 [parent_name] => Стены 2 этаж (несущие) [parent_id] => 5 [material_sum] => 325134 [work_sum] => 240548 [total_sum] => 565682 [total_days] => 15 [display_material_sum] => 325 134 [display_work_sum] => 240 548 [display_total_sum] => 565 682 ) 1
565 682
Работа:240 548
Материалы:325 134
Дни:15
stdClass Object ( [id] => 204 [attribute_id] => 5 [name] => Арболитовые блоки [material_modifier] => 1 [work_modifier] => 1 [options] => Array ( [0] => 300 мм [1] => 400 мм [2] => 600 мм ) [days] => [19,22,27] [material_price] => [3210,4475,5852] [work_price] => [4214,4788,5866] [image] => https://akademik-stroy.ru/wp-content/uploads/materials/arbolitovye-bloki.png [area_modifier] => 89.35 [parent_name] => Стены 2 этаж (несущие) [parent_id] => 5 [material_sum] => 361385 [work_sum] => 395347 [total_sum] => 756732 [total_days] => 19 [display_material_sum] => 361 385 [display_work_sum] => 395 347 [display_total_sum] => 756 732 ) 1
756 732
Работа:395 347
Материалы:361 385
Дни:19
stdClass Object ( [id] => 205 [attribute_id] => 5 [name] => Полистиролбетон [material_modifier] => 1 [work_modifier] => 1 [options] => Array ( [0] => 300 мм [1] => 400 мм [2] => 600 мм ) [days] => [29,31,35] [material_price] => [2798,4573,5256] [work_price] => [5038,5851,6426] [image] => https://akademik-stroy.ru/wp-content/uploads/materials/polistirolbeton.jpg [area_modifier] => 89.35 [parent_name] => Стены 2 этаж (несущие) [parent_id] => 5 [material_sum] => 315002 [work_sum] => 472653 [total_sum] => 787655 [total_days] => 29 [display_material_sum] => 315 002 [display_work_sum] => 472 653 [display_total_sum] => 787 655 ) 1
787 655
Работа:472 653
Материалы:315 002
Дни:29
stdClass Object ( [id] => 206 [attribute_id] => 5 [name] => Шлакоблок [material_modifier] => 1 [work_modifier] => 1 [options] => Array ( [0] => 400 мм [1] => 600 мм ) [days] => [15,16] [material_price] => [2391,3471] [work_price] => [2642,3662] [image] => https://akademik-stroy.ru/wp-content/uploads/materials/shlakoblok.jpg [area_modifier] => 89.35 [parent_name] => Стены 2 этаж (несущие) [parent_id] => 5 [material_sum] => 269181 [work_sum] => 247866 [total_sum] => 517047 [total_days] => 15 [display_material_sum] => 269 181 [display_work_sum] => 247 866 [display_total_sum] => 517 047 ) 1
517 047
Работа:247 866
Материалы:269 181
Дни:15
stdClass Object ( [id] => 245 [attribute_id] => 5 [name] => Теплая керамика [material_modifier] => 1 [work_modifier] => 1 [options] => Array ( [0] => 380 мм [1] => 380 мм Thermo [2] => 440 мм [3] => 510 мм ) [days] => [10,10,11,12] [material_price] => [4510,5098,6093,8013] [work_price] => [4737,4937,5903,6958] [image] => https://akademik-stroy.ru/wp-content/uploads/materials/teplaya-keramika.jpg [area_modifier] => 89.35 [parent_name] => Стены 2 этаж (несущие) [parent_id] => 5 [material_sum] => 507740 [work_sum] => 444413 [total_sum] => 952153 [total_days] => 10 [display_material_sum] => 507 740 [display_work_sum] => 444 413 [display_total_sum] => 952 153 ) 1
952 153
Работа:444 413
Материалы:507 740
Дни:10
stdClass Object ( [id] => 246 [attribute_id] => 5 [name] => Несъемная опалубка [material_modifier] => 1 [work_modifier] => 1 [options] => Array ( [0] => 380 мм [1] => 380 мм Thermo [2] => 440 мм [3] => 510 мм ) [days] => [10,10,11,12] [material_price] => [3302,3902,4108,5008] [work_price] => [2100,2100,2300,2534] [image] => https://akademik-stroy.ru/wp-content/uploads/materials/nesemnaya-opalubka.jpg [area_modifier] => 89.35 [parent_name] => Стены 2 этаж (несущие) [parent_id] => 5 [material_sum] => 371742 [work_sum] => 197017 [total_sum] => 568759 [total_days] => 10 [display_material_sum] => 371 742 [display_work_sum] => 197 017 [display_total_sum] => 568 759 ) 1
568 759
Работа:197 017
Материалы:371 742
Дни:10
stdClass Object ( [id] => 254 [attribute_id] => 5 [name] => Бревно [material_modifier] => 1 [work_modifier] => 1 [options] => Array ( [0] => 260 мм [1] => 320 мм [2] => 360 мм [3] => 400 мм [4] => 500 мм ) [days] => [7,8,9,10,11] [material_price] => [1874,24045,26930,30972,38825] [work_price] => [5046,6207,6952,7716,9723] [image] => https://akademik-stroy.ru/wp-content/uploads/materials/sruby.jpg [area_modifier] => 89.35 [parent_name] => Стены 2 этаж (несущие) [parent_id] => 5 [material_sum] => 210977 [work_sum] => 473403 [total_sum] => 684380 [total_days] => 7 [display_material_sum] => 210 977 [display_work_sum] => 473 403 [display_total_sum] => 684 380 ) 1
684 380
Работа:473 403
Материалы:210 977
Дни:7
Перекрытие второго этажа
stdClass Object ( [id] => 11 [attribute_id] => 6 [name] => Деревянные балки [material_modifier] => 1 [work_modifier] => 1 [options] => Array ( [0] => без утепления [1] => утепление 200 мм [2] => утепление 250 мм [3] => утепление 300 мм [4] => утепление 350 мм [5] => утепление 400 мм [6] => утепление 450 мм [7] => утепление 500 мм ) [days] => [8,9,9,9,11,12,13,14] [material_price] => [1634,2042,2344,2947,3149,3652,3354,3557] [work_price] => [1230,1339,1393,1426,1460,1513,1587,1620] [image] => https://akademik-stroy.ru/wp-content/uploads/materials/derevyannye-balki.png [area_modifier] => 89.35 [parent_name] => Перекрытие второго этажа [parent_id] => 6 [material_sum] => 183957 [work_sum] => 115396 [total_sum] => 299353 [total_days] => 8 [display_material_sum] => 183 957 [display_work_sum] => 115 396 [display_total_sum] => 299 353 ) 1
299 353
Работа:115 396
Материалы:183 957
Дни:8
stdClass Object ( [id] => 12 [attribute_id] => 6 [name] => Сборные ж/б плиты [material_modifier] => 1 [work_modifier] => 1 [options] => Array ( [0] => без утепления [1] => утепление 150 мм [2] => утепление 200 мм [3] => утепление 250 мм [4] => утепление 300 мм [5] => утепление 350 мм [6] => утепление 400 мм [7] => утепление 450 мм [8] => утепление 500 мм ) [days] => [13,15,15,15,15,15,15,15,15] [material_price] => [3067,5577,5928,6679,7730,8782,9833,10884,11935] [work_price] => [1520,1956,2102,2247,2392,2537,2684,2829,2974] [image] => https://akademik-stroy.ru/wp-content/uploads/materials/sbornye-zh-b-plity-2.jpg [area_modifier] => 89.35 [parent_name] => Перекрытие второго этажа [parent_id] => 6 [material_sum] => 345286 [work_sum] => 142603 [total_sum] => 487889 [total_days] => 13 [display_material_sum] => 345 286 [display_work_sum] => 142 603 [display_total_sum] => 487 889 ) 1
487 889
Работа:142 603
Материалы:345 286
Дни:13
stdClass Object ( [id] => 100 [attribute_id] => 6 [name] => Монолитная ж/б плита [material_modifier] => 1 [work_modifier] => 1 [options] => Array ( [0] => без утепления [1] => утепление 150 мм [2] => утепление 200 мм [3] => утепление 250 мм [4] => утепление 300 мм [5] => утепление 350 мм [6] => утепление 400 мм [7] => утепление 450 мм [8] => утепление 500 мм ) [days] => [18,20,20,20,20,20,20,20,20] [material_price] => [4837,6572,7224,7375,79426,8177,8728,9180,10031] [work_price] => [3348,3921,4112,4302,4493,4684,4875,5066,5256] [image] => https://akademik-stroy.ru/wp-content/uploads/materials/monolitnaya-zh-b-plita-2.jpg [area_modifier] => 89.35 [parent_name] => Перекрытие второго этажа [parent_id] => 6 [material_sum] => 544554 [work_sum] => 314101 [total_sum] => 858655 [total_days] => 18 [display_material_sum] => 544 554 [display_work_sum] => 314 101 [display_total_sum] => 858 655 ) 1
858 655
Работа:314 101
Материалы:544 554
Дни:18
Крыша (Скатная)
stdClass Object ( [id] => 164 [attribute_id] => 37 [name] => Металлочерепица [material_modifier] => 1 [work_modifier] => 1 [options] => Array ( ) [days] => [20] [material_price] => [6112] [work_price] => [5726] [image] => https://akademik-stroy.ru/wp-content/uploads/materials/metallocherepica.jpg [area_modifier] => 144.67 [parent_name] => Крыша (Скатная) [parent_id] => 37 [material_sum] => 1114121 [work_sum] => 869799 [total_sum] => 1983920 [total_days] => 20 [display_material_sum] => 1 114 121 [display_work_sum] => 869 799 [display_total_sum] => 1 983 920 ) 1
1 983 920
Работа:869 799
Материалы:1 114 121
Дни:20
stdClass Object ( [id] => 165 [attribute_id] => 37 [name] => Гибкая черепица [material_modifier] => 1 [work_modifier] => 1 [options] => Array ( ) [days] => [20] [material_price] => [6980] [work_price] => [5950] [image] => https://akademik-stroy.ru/wp-content/uploads/materials/gibkaya-cherepica.jpg [area_modifier] => 144.67 [parent_name] => Крыша (Скатная) [parent_id] => 37 [material_sum] => 1272344 [work_sum] => 903826 [total_sum] => 2176170 [total_days] => 20 [display_material_sum] => 1 272 344 [display_work_sum] => 903 826 [display_total_sum] => 2 176 170 ) 1
2 176 170
Работа:903 826
Материалы:1 272 344
Дни:20
stdClass Object ( [id] => 166 [attribute_id] => 37 [name] => Цементно-песчаная черепица [material_modifier] => 1 [work_modifier] => 1 [options] => Array ( ) [days] => [20] [material_price] => [10560] [work_price] => [9456] [image] => https://akademik-stroy.ru/wp-content/uploads/materials/cementno-peschanaya-cherepica.jpg [area_modifier] => 144.67 [parent_name] => Крыша (Скатная) [parent_id] => 37 [material_sum] => 1924921 [work_sum] => 1436399 [total_sum] => 3361320 [total_days] => 20 [display_material_sum] => 1 924 921 [display_work_sum] => 1 436 399 [display_total_sum] => 3 361 320 ) 1
3 361 320
Работа:1 436 399
Материалы:1 924 921
Дни:20
stdClass Object ( [id] => 167 [attribute_id] => 37 [name] => Композитная черепица [material_modifier] => 1 [work_modifier] => 1 [options] => Array ( ) [days] => [20] [material_price] => [9506] [work_price] => [8905] [image] => https://akademik-stroy.ru/wp-content/uploads/materials/kompozitnaya-cherepica.jpg [area_modifier] => 144.67 [parent_name] => Крыша (Скатная) [parent_id] => 37 [material_sum] => 1732794 [work_sum] => 1352701 [total_sum] => 3085495 [total_days] => 20 [display_material_sum] => 1 732 794 [display_work_sum] => 1 352 701 [display_total_sum] => 3 085 495 ) 1
3 085 495
Работа:1 352 701
Материалы:1 732 794
Дни:20
stdClass Object ( [id] => 168 [attribute_id] => 37 [name] => Керамическая черепица [material_modifier] => 1 [work_modifier] => 1 [options] => Array ( ) [days] => [20] [material_price] => [12750] [work_price] => [9456] [image] => https://akademik-stroy.ru/wp-content/uploads/materials/keramicheskaya-cherepica.jpg [area_modifier] => 144.67 [parent_name] => Крыша (Скатная) [parent_id] => 37 [material_sum] => 2324124 [work_sum] => 1436399 [total_sum] => 3760523 [total_days] => 20 [display_material_sum] => 2 324 124 [display_work_sum] => 1 436 399 [display_total_sum] => 3 760 523 ) 1
3 760 523
Работа:1 436 399
Материалы:2 324 124
Дни:20
stdClass Object ( [id] => 169 [attribute_id] => 37 [name] => Металлическая фальцевая [material_modifier] => 1 [work_modifier] => 1 [options] => Array ( ) [days] => [20] [material_price] => [8550] [work_price] => [8190] [image] => https://akademik-stroy.ru/wp-content/uploads/materials/metallicheskaya-falcevaya.jpg [area_modifier] => 144.67 [parent_name] => Крыша (Скатная) [parent_id] => 37 [material_sum] => 1558530 [work_sum] => 1244090 [total_sum] => 2802620 [total_days] => 20 [display_material_sum] => 1 558 530 [display_work_sum] => 1 244 090 [display_total_sum] => 2 802 620 ) 1
2 802 620
Работа:1 244 090
Материалы:1 558 530
Дни:20
stdClass Object ( [id] => 170 [attribute_id] => 37 [name] => Медная фальцевая [material_modifier] => 1 [work_modifier] => 1 [options] => Array ( ) [days] => [20] [material_price] => [20450] [work_price] => [16750] [image] => https://akademik-stroy.ru/wp-content/uploads/materials/mednaya-falcevaya.jpg [area_modifier] => 144.67 [parent_name] => Крыша (Скатная) [parent_id] => 37 [material_sum] => 3727712 [work_sum] => 2544384 [total_sum] => 6272096 [total_days] => 20 [display_material_sum] => 3 727 712 [display_work_sum] => 2 544 384 [display_total_sum] => 6 272 096 ) 1
6 272 096
Работа:2 544 384
Материалы:3 727 712
Дни:20
stdClass Object ( [id] => 171 [attribute_id] => 37 [name] => Зеленая кровля [material_modifier] => 1 [work_modifier] => 1 [options] => Array ( ) [days] => [20] [material_price] => [19850] [work_price] => [16780] [image] => https://akademik-stroy.ru/wp-content/uploads/materials/zelenaya-krovlya.jpg [area_modifier] => 144.67 [parent_name] => Крыша (Скатная) [parent_id] => 37 [material_sum] => 3618341 [work_sum] => 2548941 [total_sum] => 6167282 [total_days] => 20 [display_material_sum] => 3 618 341 [display_work_sum] => 2 548 941 [display_total_sum] => 6 167 282 ) 1
6 167 282
Работа:2 548 941
Материалы:3 618 341
Дни:20
stdClass Object ( [id] => 172 [attribute_id] => 37 [name] => Профлист [material_modifier] => 1 [work_modifier] => 1 [options] => Array ( ) [days] => [20] [material_price] => [3450] [work_price] => [3750] [image] => https://akademik-stroy.ru/wp-content/uploads/materials/proflist.jpg [area_modifier] => 144.67 [parent_name] => Крыша (Скатная) [parent_id] => 37 [material_sum] => 628880 [work_sum] => 569638 [total_sum] => 1198518 [total_days] => 20 [display_material_sum] => 628 880 [display_work_sum] => 569 638 [display_total_sum] => 1 198 518 ) 1
1 198 518
Работа:569 638
Материалы:628 880
Дни:20
Окна
stdClass Object ( [id] => 51 [attribute_id] => 26 [name] => Есть [material_modifier] => 1 [work_modifier] => 1 [options] => Array ( [0] => Профиль 58 мм, 3-камерный, стеклопакет 2-камерный до 32 мм [1] => Профиль 60 мм, 4-камерный, стеклопакет 2-камерный до 32 мм [2] => Профиль 70 мм, 5-камерный, стеклопакет 2-камерный до 40 мм [3] => Профиль 72 мм, 5-камерный, стеклопакет 2-камерный до 40 мм [4] => Алюминиевые окна Alutech профиль 72 мм, стеклопакет 2-камерный ) [days] => [3,3,3,3,3] [material_price] => [1339,2124,2867,3023,29596] [work_price] => [635,647,659,668,2579] [image] => https://akademik-stroy.ru/wp-content/uploads/materials/okna.jpg [area_modifier] => 189.91 [parent_name] => Окна [parent_id] => 26 [material_sum] => 320405 [work_sum] => 126622 [total_sum] => 447027 [total_days] => 3 [display_material_sum] => 320 405 [display_work_sum] => 126 622 [display_total_sum] => 447 027 ) 1
447 027
Работа:126 622
Материалы:320 405
Дни:3
stdClass Object ( [id] => 52 [attribute_id] => 26 [name] => Нет [material_modifier] => 2 [work_modifier] => 1 [options] => [days] => null [material_price] => null [work_price] => null [image] => https://akademik-stroy.ru/wp-content/uploads/materials/okna.jpg [area_modifier] => 189.91 [parent_name] => Окна [parent_id] => 26 [material_sum] => 0 [work_sum] => 0 [total_sum] => 0 [total_days] => 0 [display_material_sum] => 0 [display_work_sum] => 0 [display_total_sum] => 0 ) 1
0
Работа:0
Материалы:0
Дни:0
Двери входные
stdClass Object ( [id] => 53 [attribute_id] => 27 [name] => Есть [material_modifier] => 1 [work_modifier] => 1 [options] => Array ( ) [days] => [1] [material_price] => [10000] [work_price] => [5500] [image] => https://akademik-stroy.ru/wp-content/uploads/materials/dveri.jpg [area_modifier] => 1 [parent_name] => Двери входные [parent_id] => 27 [material_sum] => 12600 [work_sum] => 5775 [total_sum] => 18375 [total_days] => 1 [display_material_sum] => 12 600 [display_work_sum] => 5 775 [display_total_sum] => 18 375 ) 1
18 375
Работа:5 775
Материалы:12 600
Дни:1
stdClass Object ( [id] => 54 [attribute_id] => 27 [name] => Нет [material_modifier] => 1 [work_modifier] => 1 [options] => Array ( ) [days] => [0] [material_price] => [0] [work_price] => [0] [image] => https://akademik-stroy.ru/wp-content/uploads/materials/dveri.jpg [area_modifier] => 1 [parent_name] => Двери входные [parent_id] => 27 [material_sum] => 0 [work_sum] => 0 [total_sum] => 0 [total_days] => 0 [display_material_sum] => 0 [display_work_sum] => 0 [display_total_sum] => 0 ) 1
0
Работа:0
Материалы:0
Дни:0
Утепление кровли (Мансарда)
stdClass Object ( [id] => 25 [attribute_id] => 13 [name] => Нет [material_modifier] => 1 [work_modifier] => 1 [options] => Array ( ) [days] => [0] [material_price] => [0] [work_price] => [0] [image] => https://akademik-stroy.ru/wp-content/uploads/materials/mineralovata-krov.jpg [area_modifier] => 144.67 [parent_name] => Утепление кровли (Мансарда) [parent_id] => 13 [material_sum] => 0 [work_sum] => 0 [total_sum] => 0 [total_days] => 0 [display_material_sum] => 0 [display_work_sum] => 0 [display_total_sum] => 0 ) 1
0
Работа:0
Материалы:0
Дни:0
stdClass Object ( [id] => 26 [attribute_id] => 13 [name] => Минераловатный [material_modifier] => 1 [work_modifier] => 1 [options] => Array ( [0] => 50 мм [1] => 100 мм [2] => 150 мм [3] => 200 мм [4] => 250 мм [5] => 300 мм [6] => 350 мм [7] => 400 мм [8] => 450 мм [9] => 500 мм ) [days] => [5,5,6,6,6,7,7,7,8,8] [material_price] => [1158,1414,1772,2230,3602,4060,4974,5890,6408,7718] [work_price] => [650,846,846,1098,1318,1450,1596,1754,1930,2122] [image] => https://akademik-stroy.ru/wp-content/uploads/materials/mineralovata-krov.jpg [area_modifier] => 144.67 [parent_name] => Утепление кровли (Мансарда) [parent_id] => 13 [material_sum] => 211085 [work_sum] => 98737 [total_sum] => 309822 [total_days] => 5 [display_material_sum] => 211 085 [display_work_sum] => 98 737 [display_total_sum] => 309 822 ) 1
309 822
Работа:98 737
Материалы:211 085
Дни:5
stdClass Object ( [id] => 123 [attribute_id] => 13 [name] => Эковата (целлюлозная вата) [material_modifier] => 1 [work_modifier] => 1 [options] => Array ( [0] => 50 мм [1] => 100 мм [2] => 150 мм [3] => 200 мм [4] => 250 мм [5] => 300 мм [6] => 350 мм [7] => 400 мм [8] => 450 мм [9] => 500 мм ) [days] => [3,3,4,4,4,5,5,5,5,5] [material_price] => [820,1638,2458,3276,5734,6552,8190,9828,11466,13104] [work_price] => [234,304,304,396,474,522,574,632,694,764] [image] => https://akademik-stroy.ru/wp-content/uploads/materials/ehkovata-krov.jpg [area_modifier] => 144.67 [parent_name] => Утепление кровли (Мансарда) [parent_id] => 13 [material_sum] => 149473 [work_sum] => 35545 [total_sum] => 185018 [total_days] => 3 [display_material_sum] => 149 473 [display_work_sum] => 35 545 [display_total_sum] => 185 018 ) 1
185 018
Работа:35 545
Материалы:149 473
Дни:3
stdClass Object ( [id] => 124 [attribute_id] => 13 [name] => Экструдированный пенополистирол [material_modifier] => 1 [work_modifier] => 1 [options] => Array ( [0] => 50 мм [1] => 100 мм [2] => 150 мм [3] => 200 мм [4] => 250 мм [5] => 300 мм [6] => 350 мм [7] => 400 мм [8] => 450 мм [9] => 500 мм ) [days] => [3,3,4,4,4,5,5,5,5,6] [material_price] => [1146,2292,3438,4584,8020,9166,11458,13750,16040,18332] [work_price] => [390,508,508,660,790,870,958,1052,1158,1274] [image] => https://akademik-stroy.ru/wp-content/uploads/materials/epps-krov.jpg [area_modifier] => 144.67 [parent_name] => Утепление кровли (Мансарда) [parent_id] => 13 [material_sum] => 208898 [work_sum] => 59242 [total_sum] => 268140 [total_days] => 3 [display_material_sum] => 208 898 [display_work_sum] => 59 242 [display_total_sum] => 268 140 ) 1
268 140
Работа:59 242
Материалы:208 898
Дни:3
stdClass Object ( [id] => 125 [attribute_id] => 13 [name] => ПСБ (ППС-пенополистирол) [material_modifier] => 1 [work_modifier] => 1 [options] => Array ( [0] => 50 мм [1] => 100 мм [2] => 150 мм [3] => 200 мм [4] => 250 мм [5] => 300 мм [6] => 350 мм [7] => 400 мм [8] => 450 мм [9] => 500 мм ) [days] => [3,3,4,4,4,5,5,5,5,6] [material_price] => [476,954,1430,1906,3336,3814,4766,5720,6674,7626] [work_price] => [390,508,508,660,790,870,958,1052,1158,1274] [image] => https://akademik-stroy.ru/wp-content/uploads/materials/psb-krov.jpg [area_modifier] => 144.67 [parent_name] => Утепление кровли (Мансарда) [parent_id] => 13 [material_sum] => 86767 [work_sum] => 59242 [total_sum] => 146009 [total_days] => 3 [display_material_sum] => 86 767 [display_work_sum] => 59 242 [display_total_sum] => 146 009 ) 1
146 009
Работа:59 242
Материалы:86 767
Дни:3
stdClass Object ( [id] => 126 [attribute_id] => 13 [name] => ППУ (Пенополиуретан) [material_modifier] => 1 [work_modifier] => 1 [options] => Array ( [0] => 50 мм [1] => 100 мм [2] => 150 мм [3] => 200 мм [4] => 250 мм [5] => 300 мм [6] => 350 мм [7] => 400 мм [8] => 450 мм [9] => 500 мм ) [days] => [2,2,3,3,3,3,4,4,4,4] [material_price] => [2080,4160,6240,8320,14560,16640,20800,24960,29120,33280] [work_price] => [234,304,304,396,474,522,574,632,694,764] [image] => https://akademik-stroy.ru/wp-content/uploads/materials/ppu-krov.jpg [area_modifier] => 144.67 [parent_name] => Утепление кровли (Мансарда) [parent_id] => 13 [material_sum] => 379151 [work_sum] => 35545 [total_sum] => 414696 [total_days] => 2 [display_material_sum] => 379 151 [display_work_sum] => 35 545 [display_total_sum] => 414 696 ) 1
414 696
Работа:35 545
Материалы:379 151
Дни:2
stdClass Object ( [id] => 127 [attribute_id] => 13 [name] => PIR-плиты (пенополиизоцианурат) [material_modifier] => 1 [work_modifier] => 1 [options] => Array ( [0] => 50 мм [1] => 100 мм [2] => 150 мм [3] => 200 мм [4] => 250 мм [5] => 300 мм [6] => 350 мм [7] => 400 мм [8] => 450 мм [9] => 500 мм ) [days] => [3,3,4,4,4,5,5,5,5,6] [material_price] => [2646,5290,7936,10580,18516,21162,26452,31742,37032,42324] [work_price] => [390,508,508,660,790,870,958,1052,1158,1274] [image] => https://akademik-stroy.ru/wp-content/uploads/materials/pir-krov.jpg [area_modifier] => 144.67 [parent_name] => Утепление кровли (Мансарда) [parent_id] => 13 [material_sum] => 482324 [work_sum] => 59242 [total_sum] => 541566 [total_days] => 3 [display_material_sum] => 482 324 [display_work_sum] => 59 242 [display_total_sum] => 541 566 ) 1
541 566
Работа:59 242
Материалы:482 324
Дни:3
Мансардные окна
stdClass Object ( [id] => 27 [attribute_id] => 14 [name] => Нет [material_modifier] => 1 [work_modifier] => 1 [options] => Array ( ) [days] => [0] [material_price] => [0] [work_price] => [0] [image] => https://akademik-stroy.ru/wp-content/uploads/materials/mansardnye-okna-2.jpg [area_modifier] => 1 [parent_name] => Мансардные окна [parent_id] => 14 [material_sum] => 0 [work_sum] => 0 [total_sum] => 0 [total_days] => 0 [display_material_sum] => 0 [display_work_sum] => 0 [display_total_sum] => 0 ) 1
0
Работа:0
Материалы:0
Дни:0
stdClass Object ( [id] => 28 [attribute_id] => 14 [name] => Есть [material_modifier] => 1 [work_modifier] => 1 [options] => Array ( [0] => 55x78 [1] => 55x98 ) [days] => [6,7] [material_price] => [47480,68700] [work_price] => [17900,19500] [image] => https://akademik-stroy.ru/wp-content/uploads/materials/mansardnye-okna-2.jpg [area_modifier] => 1 [parent_name] => Мансардные окна [parent_id] => 14 [material_sum] => 59825 [work_sum] => 18795 [total_sum] => 78620 [total_days] => 6 [display_material_sum] => 59 825 [display_work_sum] => 18 795 [display_total_sum] => 78 620 ) 1
78 620
Работа:18 795
Материалы:59 825
Дни:6
Подшивка кровли
stdClass Object ( [id] => 29 [attribute_id] => 15 [name] => Нет [material_modifier] => 1 [work_modifier] => 1 [options] => Array ( ) [days] => [0] [material_price] => [0] [work_price] => [0] [image] => https://akademik-stroy.ru/wp-content/uploads/materials/sofit.jpg [area_modifier] => 144.67 [parent_name] => Подшивка кровли [parent_id] => 15 [material_sum] => 0 [work_sum] => 0 [total_sum] => 0 [total_days] => 0 [display_material_sum] => 0 [display_work_sum] => 0 [display_total_sum] => 0 ) 1
0
Работа:0
Материалы:0
Дни:0
stdClass Object ( [id] => 30 [attribute_id] => 15 [name] => Есть [material_modifier] => 1 [work_modifier] => 1 [options] => Array ( [0] => Софиты (ПВХ) [1] => Cedral [2] => ДПК [3] => Планкен ) [days] => [7,10,9,8] [material_price] => [1803,3213,3025,3150] [work_price] => [1529,2188,2075,1923] [image] => https://akademik-stroy.ru/wp-content/uploads/materials/sofit.jpg [area_modifier] => 144.67 [parent_name] => Подшивка кровли [parent_id] => 15 [material_sum] => 328658 [work_sum] => 232260 [total_sum] => 560918 [total_days] => 7 [display_material_sum] => 328 658 [display_work_sum] => 232 260 [display_total_sum] => 560 918 ) 1
560 918
Работа:232 260
Материалы:328 658
Дни:7
Водосточная система
stdClass Object ( [id] => 31 [attribute_id] => 16 [name] => Нет [material_modifier] => 1 [work_modifier] => 1 [options] => Array ( ) [days] => [0] [material_price] => [0] [work_price] => [0] [image] => https://akademik-stroy.ru/wp-content/uploads/materials/docke-standard-pvh.jpg [area_modifier] => 144.67 [parent_name] => Водосточная система [parent_id] => 16 [material_sum] => 0 [work_sum] => 0 [total_sum] => 0 [total_days] => 0 [display_material_sum] => 0 [display_work_sum] => 0 [display_total_sum] => 0 ) 1
0
Работа:0
Материалы:0
Дни:0
stdClass Object ( [id] => 32 [attribute_id] => 16 [name] => Есть [material_modifier] => 1 [work_modifier] => 1 [options] => Array ( [0] => Döcke Standard (ПВХ) [1] => Металлические Grand Line ) [days] => [7,7] [material_price] => [1842,2703] [work_price] => [1491,1529] [image] => https://akademik-stroy.ru/wp-content/uploads/materials/docke-standard-pvh.jpg [area_modifier] => 144.67 [parent_name] => Водосточная система [parent_id] => 16 [material_sum] => 335767 [work_sum] => 226488 [total_sum] => 562255 [total_days] => 7 [display_material_sum] => 335 767 [display_work_sum] => 226 488 [display_total_sum] => 562 255 ) 1
562 255
Работа:226 488
Материалы:335 767
Дни:7
Дополнительное утепление наружных стен
stdClass Object ( [id] => 33 [attribute_id] => 17 [name] => Нет [material_modifier] => 1 [work_modifier] => 1 [options] => Array ( ) [days] => [0] [material_price] => [0] [work_price] => [0] [image] => https://akademik-stroy.ru/wp-content/uploads/materials/mineralovata.jpg [area_modifier] => 234.03 [parent_name] => Дополнительное утепление наружных стен [parent_id] => 17 [material_sum] => 0 [work_sum] => 0 [total_sum] => 0 [total_days] => 0 [display_material_sum] => 0 [display_work_sum] => 0 [display_total_sum] => 0 ) 1
0
Работа:0
Материалы:0
Дни:0
stdClass Object ( [id] => 34 [attribute_id] => 17 [name] => Минераловатный [material_modifier] => 1 [work_modifier] => 1 [options] => Array ( [0] => 50 мм [1] => 100 мм [2] => 150 мм [3] => 200 мм [4] => 250 мм [5] => 300 мм ) [days] => [7,8,10,12,14,15] [material_price] => [3437,3613,3803,3915,4601,4830] [work_price] => [2325,2423,2523,2749,2859,3025] [image] => https://akademik-stroy.ru/wp-content/uploads/materials/mineralovata.jpg [area_modifier] => 234.03 [parent_name] => Дополнительное утепление наружных стен [parent_id] => 17 [material_sum] => 1013495 [work_sum] => 571326 [total_sum] => 1584821 [total_days] => 7 [display_material_sum] => 1 013 495 [display_work_sum] => 571 326 [display_total_sum] => 1 584 821 ) 1
1 584 821
Работа:571 326
Материалы:1 013 495
Дни:7
stdClass Object ( [id] => 128 [attribute_id] => 17 [name] => Эковата (целлюлозная вата) [material_modifier] => 1 [work_modifier] => 1 [options] => Array ( [0] => 50 мм [1] => 100 мм [2] => 150 мм [3] => 200 мм [4] => 250 мм [5] => 300 мм ) [days] => [3,4,5,6,7,8] [material_price] => [810,1319,1629,1838,2267,2676] [work_price] => [1225,1323,1423,1549,1659,1725] [image] => https://akademik-stroy.ru/wp-content/uploads/materials/ehkovata.jpg [area_modifier] => 234.03 [parent_name] => Дополнительное утепление наружных стен [parent_id] => 17 [material_sum] => 238851 [work_sum] => 301021 [total_sum] => 539872 [total_days] => 3 [display_material_sum] => 238 851 [display_work_sum] => 301 021 [display_total_sum] => 539 872 ) 1
539 872
Работа:301 021
Материалы:238 851
Дни:3
stdClass Object ( [id] => 129 [attribute_id] => 17 [name] => Экструдированный пенополистирол [material_modifier] => 1 [work_modifier] => 1 [options] => Array ( [0] => 50 мм [1] => 100 мм [2] => 150 мм [3] => 200 мм [4] => 250 мм [5] => 300 мм ) [days] => [5,6,7,8,9,10] [material_price] => [4560,4300,5119,6292,7010,8583] [work_price] => [1795,1954,2254,2330,2595,2735] [image] => https://akademik-stroy.ru/wp-content/uploads/materials/epps.jpg [area_modifier] => 234.03 [parent_name] => Дополнительное утепление наружных стен [parent_id] => 17 [material_sum] => 1344643 [work_sum] => 441088 [total_sum] => 1785731 [total_days] => 5 [display_material_sum] => 1 344 643 [display_work_sum] => 441 088 [display_total_sum] => 1 785 731 ) 1
1 785 731
Работа:441 088
Материалы:1 344 643
Дни:5
stdClass Object ( [id] => 130 [attribute_id] => 17 [name] => ПСБ (ППС-пенополистирол) [material_modifier] => 1 [work_modifier] => 1 [options] => Array ( [0] => 50 мм [1] => 100 мм [2] => 150 мм [3] => 200 мм [4] => 250 мм [5] => 300 мм ) [days] => [5,6,7,8,9,10] [material_price] => [4822,5200,5819,6292,7010,7583] [work_price] => [1795,1954,2254,2330,2595,2735] [image] => https://akademik-stroy.ru/wp-content/uploads/materials/psb.jpg [area_modifier] => 234.03 [parent_name] => Дополнительное утепление наружных стен [parent_id] => 17 [material_sum] => 1421901 [work_sum] => 441088 [total_sum] => 1862989 [total_days] => 5 [display_material_sum] => 1 421 901 [display_work_sum] => 441 088 [display_total_sum] => 1 862 989 ) 1
1 862 989
Работа:441 088
Материалы:1 421 901
Дни:5
stdClass Object ( [id] => 131 [attribute_id] => 17 [name] => ППУ (Пенополиуретан) [material_modifier] => 1 [work_modifier] => 1 [options] => Array ( [0] => 50 мм [1] => 100 мм [2] => 150 мм [3] => 200 мм [4] => 250 мм [5] => 300 мм ) [days] => [3,4,5,6,7,8] [material_price] => [2860,3400,4219,4592,5010,5583] [work_price] => [729,900,980,1120,1280,1530] [image] => https://akademik-stroy.ru/wp-content/uploads/materials/ppu.jpg [area_modifier] => 234.03 [parent_name] => Дополнительное утепление наружных стен [parent_id] => 17 [material_sum] => 843351 [work_sum] => 179138 [total_sum] => 1022489 [total_days] => 3 [display_material_sum] => 843 351 [display_work_sum] => 179 138 [display_total_sum] => 1 022 489 ) 1
1 022 489
Работа:179 138
Материалы:843 351
Дни:3
stdClass Object ( [id] => 132 [attribute_id] => 17 [name] => PIR-плиты (пенополиизоцианурат) [material_modifier] => 1 [work_modifier] => 1 [options] => Array ( [0] => 50 мм [1] => 100 мм [2] => 150 мм [3] => 200 мм [4] => 250 мм [5] => 300 мм ) [days] => [5,6,7,8,9,10] [material_price] => [8323,15645,20968,25900,29258,30581] [work_price] => [800,900,970,1150,1280,1330] [image] => https://akademik-stroy.ru/wp-content/uploads/materials/pir.jpg [area_modifier] => 234.03 [parent_name] => Дополнительное утепление наружных стен [parent_id] => 17 [material_sum] => 2454268 [work_sum] => 196585 [total_sum] => 2650853 [total_days] => 5 [display_material_sum] => 2 454 268 [display_work_sum] => 196 585 [display_total_sum] => 2 650 853 ) 1
2 650 853
Работа:196 585
Материалы:2 454 268
Дни:5
Наружная отделка фасада
stdClass Object ( [id] => 37 [attribute_id] => 19 [name] => Нет [material_modifier] => 1 [work_modifier] => 1 [options] => Array ( ) [days] => [0] [material_price] => [0] [work_price] => [0] [image] => https://akademik-stroy.ru/wp-content/uploads/materials/imitaciya-brusa.jpg [area_modifier] => 234.03 [parent_name] => Наружная отделка фасада [parent_id] => 19 [material_sum] => 0 [work_sum] => 0 [total_sum] => 0 [total_days] => 0 [display_material_sum] => 0 [display_work_sum] => 0 [display_total_sum] => 0 ) 1
0
Работа:0
Материалы:0
Дни:0
stdClass Object ( [id] => 38 [attribute_id] => 19 [name] => Имитация бруса [material_modifier] => 1 [work_modifier] => 1 [options] => Array ( [0] => Сосна [1] => Ель [2] => Лиственница ) [days] => [20,20,20] [material_price] => [2994,2762,4954] [work_price] => [1397,1231,1577] [image] => https://akademik-stroy.ru/wp-content/uploads/materials/imitaciya-brusa.jpg [area_modifier] => 234.03 [parent_name] => Наружная отделка фасада [parent_id] => 19 [material_sum] => 882864 [work_sum] => 343287 [total_sum] => 1226151 [total_days] => 20 [display_material_sum] => 882 864 [display_work_sum] => 343 287 [display_total_sum] => 1 226 151 ) 1
1 226 151
Работа:343 287
Материалы:882 864
Дни:20
stdClass Object ( [id] => 136 [attribute_id] => 19 [name] => Планкен [material_modifier] => 1 [work_modifier] => 1 [options] => Array ( [0] => Сосна [1] => Ель [2] => Лиственница ) [days] => [20,20,20] [material_price] => [3194,2862,5154] [work_price] => [1537,1354,1735] [image] => https://akademik-stroy.ru/wp-content/uploads/materials/planken.jpg [area_modifier] => 234.03 [parent_name] => Наружная отделка фасада [parent_id] => 19 [material_sum] => 941840 [work_sum] => 377689 [total_sum] => 1319529 [total_days] => 20 [display_material_sum] => 941 840 [display_work_sum] => 377 689 [display_total_sum] => 1 319 529 ) 1
1 319 529
Работа:377 689
Материалы:941 840
Дни:20
stdClass Object ( [id] => 137 [attribute_id] => 19 [name] => Штукатурка [material_modifier] => 1 [work_modifier] => 1 [options] => Array ( [0] => Цементно-песчаная (минеральная) [1] => Мокрый фасад ) [days] => [35,35] [material_price] => [2231,3938] [work_price] => [1202,2422] [image] => https://akademik-stroy.ru/wp-content/uploads/materials/shtukaturka.jpg [area_modifier] => 234.03 [parent_name] => Наружная отделка фасада [parent_id] => 19 [material_sum] => 657872 [work_sum] => 295369 [total_sum] => 953241 [total_days] => 35 [display_material_sum] => 657 872 [display_work_sum] => 295 369 [display_total_sum] => 953 241 ) 1
953 241
Работа:295 369
Материалы:657 872
Дни:35
stdClass Object ( [id] => 138 [attribute_id] => 19 [name] => Облицовочный кирпич [material_modifier] => 1 [work_modifier] => 1 [options] => Array ( [0] => Керамический [1] => Клинкерный [2] => Ручной формовки [3] => Гиперпрессованный [4] => Силикатный кирпич ) [days] => [45,45,45,45,45] [material_price] => [8174,9148,1040,1257,5876] [work_price] => [3240,3758,4536,4017,3369] [image] => https://akademik-stroy.ru/wp-content/uploads/materials/oblicovochnyj-kirpich.jpg [area_modifier] => 234.03 [parent_name] => Наружная отделка фасада [parent_id] => 19 [material_sum] => 2410331 [work_sum] => 796170 [total_sum] => 3206501 [total_days] => 45 [display_material_sum] => 2 410 331 [display_work_sum] => 796 170 [display_total_sum] => 3 206 501 ) 1
3 206 501
Работа:796 170
Материалы:2 410 331
Дни:45
stdClass Object ( [id] => 139 [attribute_id] => 19 [name] => Фасадная плитка [material_modifier] => 1 [work_modifier] => 1 [options] => Array ( [0] => Клинкерная [1] => Керамическая [2] => Плитка ручной формовки ) [days] => [40,40,40] [material_price] => [2974,1487,3470] [work_price] => [3007,2592,3629] [image] => https://akademik-stroy.ru/wp-content/uploads/materials/fasadnaya-plitka.jpg [area_modifier] => 234.03 [parent_name] => Наружная отделка фасада [parent_id] => 19 [material_sum] => 876967 [work_sum] => 738915 [total_sum] => 1615882 [total_days] => 40 [display_material_sum] => 876 967 [display_work_sum] => 738 915 [display_total_sum] => 1 615 882 ) 1
1 615 882
Работа:738 915
Материалы:876 967
Дни:40
stdClass Object ( [id] => 140 [attribute_id] => 19 [name] => Сайдинг [material_modifier] => 1 [work_modifier] => 1 [options] => Array ( [0] => Виниловый [1] => Металлический [2] => Фиброцементный ) [days] => [20,20,20] [material_price] => [1263,1944,4147] [work_price] => [1263,1944,2074] [image] => https://akademik-stroy.ru/wp-content/uploads/materials/sajding.jpg [area_modifier] => 234.03 [parent_name] => Наружная отделка фасада [parent_id] => 19 [material_sum] => 372431 [work_sum] => 310359 [total_sum] => 682790 [total_days] => 20 [display_material_sum] => 372 431 [display_work_sum] => 310 359 [display_total_sum] => 682 790 ) 1
682 790
Работа:310 359
Материалы:372 431
Дни:20
stdClass Object ( [id] => 141 [attribute_id] => 19 [name] => Камень [material_modifier] => 1 [work_modifier] => 1 [options] => Array ( [0] => Травертин [1] => Дагестанский [2] => Искусственный [3] => Натуральный [4] => Керамогранит ) [days] => [45,45,45,45,45] [material_price] => [4536,3888,2592,3240,2462] [work_price] => [3240,3240,2462,3110,1944] [image] => https://akademik-stroy.ru/wp-content/uploads/materials/kamen-1.jpg [area_modifier] => 234.03 [parent_name] => Наружная отделка фасада [parent_id] => 19 [material_sum] => 1337566 [work_sum] => 796170 [total_sum] => 2133736 [total_days] => 45 [display_material_sum] => 1 337 566 [display_work_sum] => 796 170 [display_total_sum] => 2 133 736 ) 1
2 133 736
Работа:796 170
Материалы:1 337 566
Дни:45
stdClass Object ( [id] => 142 [attribute_id] => 19 [name] => Термопанели [material_modifier] => 1 [work_modifier] => 1 [options] => Array ( ) [days] => [20] [material_price] => [6221] [work_price] => [2333] [image] => https://akademik-stroy.ru/wp-content/uploads/materials/termo.png [area_modifier] => 234.03 [parent_name] => Наружная отделка фасада [parent_id] => 19 [material_sum] => 1834435 [work_sum] => 573292 [total_sum] => 2407727 [total_days] => 20 [display_material_sum] => 1 834 435 [display_work_sum] => 573 292 [display_total_sum] => 2 407 727 ) 1
2 407 727
Работа:573 292
Материалы:1 834 435
Дни:20
stdClass Object ( [id] => 143 [attribute_id] => 19 [name] => Плитка HAUBERK [material_modifier] => 1 [work_modifier] => 1 [options] => Array ( ) [days] => [20] [material_price] => [2786] [work_price] => [1944] [image] => https://akademik-stroy.ru/wp-content/uploads/materials/hauberk.jpg [area_modifier] => 234.03 [parent_name] => Наружная отделка фасада [parent_id] => 19 [material_sum] => 821530 [work_sum] => 477702 [total_sum] => 1299232 [total_days] => 20 [display_material_sum] => 821 530 [display_work_sum] => 477 702 [display_total_sum] => 1 299 232 ) 1
1 299 232
Работа:477 702
Материалы:821 530
Дни:20
stdClass Object ( [id] => 144 [attribute_id] => 19 [name] => Фальцевый фасад [material_modifier] => 1 [work_modifier] => 1 [options] => Array ( ) [days] => [20] [material_price] => [3240] [work_price] => [2592] [image] => https://akademik-stroy.ru/wp-content/uploads/materials/falcevyj-fasad.jpg [area_modifier] => 234.03 [parent_name] => Наружная отделка фасада [parent_id] => 19 [material_sum] => 955404 [work_sum] => 636936 [total_sum] => 1592340 [total_days] => 20 [display_material_sum] => 955 404 [display_work_sum] => 636 936 [display_total_sum] => 1 592 340 ) 1
1 592 340
Работа:636 936
Материалы:955 404
Дни:20
stdClass Object ( [id] => 145 [attribute_id] => 19 [name] => Комбинированный [material_modifier] => 1 [work_modifier] => 1 [options] => Array ( ) [days] => [20] [material_price] => [4629] [work_price] => [3499] [image] => https://akademik-stroy.ru/wp-content/uploads/materials/Kombinirovannyj.jpg [area_modifier] => 234.03 [parent_name] => Наружная отделка фасада [parent_id] => 19 [material_sum] => 1364989 [work_sum] => 859815 [total_sum] => 2224804 [total_days] => 20 [display_material_sum] => 1 364 989 [display_work_sum] => 859 815 [display_total_sum] => 2 224 804 ) 1
2 224 804
Работа:859 815
Материалы:1 364 989
Дни:20
stdClass Object ( [id] => 257 [attribute_id] => 19 [name] => Японские фиброцементные [material_modifier] => 1 [work_modifier] => 1 [options] => Array ( ) [days] => [20] [material_price] => [7043] [work_price] => [2993] [image] => https://akademik-stroy.ru/wp-content/uploads/materials/paneli.jpg [area_modifier] => 234.03 [parent_name] => Наружная отделка фасада [parent_id] => 19 [material_sum] => 2076824 [work_sum] => 735474 [total_sum] => 2812298 [total_days] => 20 [display_material_sum] => 2 076 824 [display_work_sum] => 735 474 [display_total_sum] => 2 812 298 ) 1
2 812 298
Работа:735 474
Материалы:2 076 824
Дни:20
stdClass Object ( [id] => 258 [attribute_id] => 19 [name] => Панели Каньон [material_modifier] => 1 [work_modifier] => 1 [options] => Array ( ) [days] => [20] [material_price] => [4543] [work_price] => [2592] [image] => https://akademik-stroy.ru/wp-content/uploads/materials/kanon.png [area_modifier] => 234.03 [parent_name] => Наружная отделка фасада [parent_id] => 19 [material_sum] => 1339630 [work_sum] => 636936 [total_sum] => 1976566 [total_days] => 20 [display_material_sum] => 1 339 630 [display_work_sum] => 636 936 [display_total_sum] => 1 976 566 ) 1
1 976 566
Работа:636 936
Материалы:1 339 630
Дни:20
Террасы, крыльца, навесы
stdClass Object ( [id] => 39 [attribute_id] => 20 [name] => Нет [material_modifier] => 1 [work_modifier] => 1 [options] => Array ( ) [days] => [0] [material_price] => [0] [work_price] => [0] [image] => https://akademik-stroy.ru/wp-content/uploads/materials/terrasy.jpg [area_modifier] => 30 [parent_name] => Террасы, крыльца, навесы [parent_id] => 20 [material_sum] => 0 [work_sum] => 0 [total_sum] => 0 [total_days] => 0 [display_material_sum] => 0 [display_work_sum] => 0 [display_total_sum] => 0 ) 1
0
Работа:0
Материалы:0
Дни:0
stdClass Object ( [id] => 40 [attribute_id] => 20 [name] => Есть [material_modifier] => 1 [work_modifier] => 1 [options] => Array ( ) [days] => [5] [material_price] => [10450] [work_price] => [1950] [image] => https://akademik-stroy.ru/wp-content/uploads/materials/terrasy.jpg [area_modifier] => 30 [parent_name] => Террасы, крыльца, навесы [parent_id] => 20 [material_sum] => 395010 [work_sum] => 61425 [total_sum] => 456435 [total_days] => 5 [display_material_sum] => 395 010 [display_work_sum] => 61 425 [display_total_sum] => 456 435 ) 1
456 435
Работа:61 425
Материалы:395 010
Дни:5
Балконы
stdClass Object ( [id] => 41 [attribute_id] => 21 [name] => Нет [material_modifier] => 1 [work_modifier] => 1 [options] => Array ( ) [days] => [0] [material_price] => [0] [work_price] => [0] [image] => https://akademik-stroy.ru/wp-content/uploads/materials/balkony.jpg [area_modifier] => 30 [parent_name] => Балконы [parent_id] => 21 [material_sum] => 0 [work_sum] => 0 [total_sum] => 0 [total_days] => 0 [display_material_sum] => 0 [display_work_sum] => 0 [display_total_sum] => 0 ) 1
0
Работа:0
Материалы:0
Дни:0
stdClass Object ( [id] => 42 [attribute_id] => 21 [name] => Есть [material_modifier] => 1 [work_modifier] => 1 [options] => Array ( ) [days] => [12] [material_price] => [3600] [work_price] => [1950] [image] => https://akademik-stroy.ru/wp-content/uploads/materials/balkony.jpg [area_modifier] => 30 [parent_name] => Балконы [parent_id] => 21 [material_sum] => 136080 [work_sum] => 61425 [total_sum] => 197505 [total_days] => 12 [display_material_sum] => 136 080 [display_work_sum] => 61 425 [display_total_sum] => 197 505 ) 1
197 505
Работа:61 425
Материалы:136 080
Дни:12
Отмостка
stdClass Object ( [id] => 43 [attribute_id] => 22 [name] => Нет [material_modifier] => 1 [work_modifier] => 1 [options] => Array ( ) [days] => [0] [material_price] => [0] [work_price] => [0] [image] => https://akademik-stroy.ru/wp-content/uploads/materials/uteplennaya.jpg [area_modifier] => 144.67 [parent_name] => Отмостка [parent_id] => 22 [material_sum] => 0 [work_sum] => 0 [total_sum] => 0 [total_days] => 0 [display_material_sum] => 0 [display_work_sum] => 0 [display_total_sum] => 0 ) 1
0
Работа:0
Материалы:0
Дни:0
stdClass Object ( [id] => 44 [attribute_id] => 22 [name] => Утепленная отмостка [material_modifier] => 1 [work_modifier] => 1 [options] => Array ( ) [days] => [15] [material_price] => [2550] [work_price] => [1750] [image] => https://akademik-stroy.ru/wp-content/uploads/materials/uteplennaya.jpg [area_modifier] => 144.67 [parent_name] => Отмостка [parent_id] => 22 [material_sum] => 464825 [work_sum] => 265831 [total_sum] => 730656 [total_days] => 15 [display_material_sum] => 464 825 [display_work_sum] => 265 831 [display_total_sum] => 730 656 ) 1
730 656
Работа:265 831
Материалы:464 825
Дни:15
stdClass Object ( [id] => 146 [attribute_id] => 22 [name] => Не утепленная отмостка [material_modifier] => 1 [work_modifier] => 1 [options] => Array ( ) [days] => [10] [material_price] => [1650] [work_price] => [1450] [image] => https://akademik-stroy.ru/wp-content/uploads/materials/ne-uteplennaya.jpg [area_modifier] => 144.67 [parent_name] => Отмостка [parent_id] => 22 [material_sum] => 300769 [work_sum] => 220260 [total_sum] => 521029 [total_days] => 10 [display_material_sum] => 300 769 [display_work_sum] => 220 260 [display_total_sum] => 521 029 ) 1
521 029
Работа:220 260
Материалы:300 769
Дни:10
Дренаж вокруг дома
stdClass Object ( [id] => 45 [attribute_id] => 23 [name] => Нет [material_modifier] => 1 [work_modifier] => 1 [options] => Array ( ) [days] => [0] [material_price] => [0] [work_price] => [0] [image] => https://akademik-stroy.ru/wp-content/uploads/materials/drenazh-2.jpg [area_modifier] => 144.67 [parent_name] => Дренаж вокруг дома [parent_id] => 23 [material_sum] => 0 [work_sum] => 0 [total_sum] => 0 [total_days] => 0 [display_material_sum] => 0 [display_work_sum] => 0 [display_total_sum] => 0 ) 1
0
Работа:0
Материалы:0
Дни:0
stdClass Object ( [id] => 46 [attribute_id] => 23 [name] => Есть [material_modifier] => 1 [work_modifier] => 1 [options] => Array ( ) [days] => [5] [material_price] => [2366] [work_price] => [1911] [image] => https://akademik-stroy.ru/wp-content/uploads/materials/drenazh-2.jpg [area_modifier] => 144.67 [parent_name] => Дренаж вокруг дома [parent_id] => 23 [material_sum] => 431284 [work_sum] => 290288 [total_sum] => 721572 [total_days] => 5 [display_material_sum] => 431 284 [display_work_sum] => 290 288 [display_total_sum] => 721 572 ) 1
721 572
Работа:290 288
Материалы:431 284
Дни:5
Автономная канализация (септики)
stdClass Object ( [id] => 47 [attribute_id] => 24 [name] => Нет [material_modifier] => 1 [work_modifier] => 1 [options] => Array ( ) [days] => [0] [material_price] => [0] [work_price] => [0] [image] => https://akademik-stroy.ru/wp-content/uploads/materials/septik.jpg [area_modifier] => 1 [parent_name] => Автономная канализация (септики) [parent_id] => 24 [material_sum] => 0 [work_sum] => 0 [total_sum] => 0 [total_days] => 0 [display_material_sum] => 0 [display_work_sum] => 0 [display_total_sum] => 0 ) 1
0
Работа:0
Материалы:0
Дни:0
stdClass Object ( [id] => 48 [attribute_id] => 24 [name] => Есть [material_modifier] => 1 [work_modifier] => 1 [options] => Array ( [0] => Для дачи на 4 человека [1] => Для дома на 5 человек [2] => Для дома на 6 человек [3] => Для дома на 7 человек [4] => Для дома на 10 человек ) [days] => [7,7,7,8,8] [material_price] => [196340,220500,240940,264200,293340] [work_price] => [50000,55000,60500,66550,73206] [image] => https://akademik-stroy.ru/wp-content/uploads/materials/septik.jpg [area_modifier] => 1 [parent_name] => Автономная канализация (септики) [parent_id] => 24 [material_sum] => 247388 [work_sum] => 52500 [total_sum] => 299888 [total_days] => 7 [display_material_sum] => 247 388 [display_work_sum] => 52 500 [display_total_sum] => 299 888 ) 1
299 888
Работа:52 500
Материалы:247 388
Дни:7
Внутренние (не несущие) перегородки
stdClass Object ( [id] => 49 [attribute_id] => 25 [name] => Нет [material_modifier] => 1 [work_modifier] => 1 [options] => Array ( ) [days] => [0] [material_price] => [0] [work_price] => [0] [image] => https://akademik-stroy.ru/wp-content/uploads/materials/gkl.jpg [area_modifier] => 234.03 [parent_name] => Внутренние (не несущие) перегородки [parent_id] => 25 [material_sum] => 0 [work_sum] => 0 [total_sum] => 0 [total_days] => 0 [display_material_sum] => 0 [display_work_sum] => 0 [display_total_sum] => 0 ) 1
0
Работа:0
Материалы:0
Дни:0
stdClass Object ( [id] => 147 [attribute_id] => 25 [name] => Каркасно-обшивные [material_modifier] => 1 [work_modifier] => 1 [options] => Array ( [0] => 75 мм (без шумоизоляции) [1] => 75 мм (с шумоизоляцией) ) [days] => [11,11] [material_price] => [580,970] [work_price] => [380,570] [image] => https://akademik-stroy.ru/wp-content/uploads/materials/gkl.jpg [area_modifier] => 234.03 [parent_name] => Внутренние (не несущие) перегородки [parent_id] => 25 [material_sum] => 171029 [work_sum] => 93378 [total_sum] => 264407 [total_days] => 11 [display_material_sum] => 171 029 [display_work_sum] => 93 378 [display_total_sum] => 264 407 ) 1
264 407
Работа:93 378
Материалы:171 029
Дни:11
stdClass Object ( [id] => 148 [attribute_id] => 25 [name] => Пазогребневые [material_modifier] => 1 [work_modifier] => 1 [options] => Array ( [0] => 80 мм [1] => 100 мм ) [days] => [5,5] [material_price] => [1022,1313] [work_price] => [600,700] [image] => https://akademik-stroy.ru/wp-content/uploads/materials/pazogrebnevye-bloki.jpg [area_modifier] => 234.03 [parent_name] => Внутренние (не несущие) перегородки [parent_id] => 25 [material_sum] => 301365 [work_sum] => 147439 [total_sum] => 448804 [total_days] => 5 [display_material_sum] => 301 365 [display_work_sum] => 147 439 [display_total_sum] => 448 804 ) 1
448 804
Работа:147 439
Материалы:301 365
Дни:5
stdClass Object ( [id] => 149 [attribute_id] => 25 [name] => Газобетонные [material_modifier] => 1 [work_modifier] => 1 [options] => Array ( [0] => 100 мм [1] => 200 мм ) [days] => [11,11] [material_price] => [1160,1920] [work_price] => [700,900] [image] => https://akademik-stroy.ru/wp-content/uploads/materials/gazobeton-2.jpg [area_modifier] => 234.03 [parent_name] => Внутренние (не несущие) перегородки [parent_id] => 25 [material_sum] => 342058 [work_sum] => 172012 [total_sum] => 514070 [total_days] => 11 [display_material_sum] => 342 058 [display_work_sum] => 172 012 [display_total_sum] => 514 070 ) 1
514 070
Работа:172 012
Материалы:342 058
Дни:11
stdClass Object ( [id] => 150 [attribute_id] => 25 [name] => Кирпичные [material_modifier] => 1 [work_modifier] => 1 [options] => Array ( [0] => 120 мм [1] => 250 мм [2] => 360 мм ) [days] => [7,7,7] [material_price] => [1785,3570,5355] [work_price] => [900,1600,1800] [image] => https://akademik-stroy.ru/wp-content/uploads/materials/kirpich-1.jpg [area_modifier] => 234.03 [parent_name] => Внутренние (не несущие) перегородки [parent_id] => 25 [material_sum] => 526357 [work_sum] => 221158 [total_sum] => 747515 [total_days] => 7 [display_material_sum] => 526 357 [display_work_sum] => 221 158 [display_total_sum] => 747 515 ) 1
747 515
Работа:221 158
Материалы:526 357
Дни:7
Электрика
stdClass Object ( [id] => 55 [attribute_id] => 28 [name] => Нет [material_modifier] => 1 [work_modifier] => 1 [options] => Array ( ) [days] => [0] [material_price] => [0] [work_price] => [0] [image] => https://akademik-stroy.ru/wp-content/uploads/materials/ehlektrika.jpg [area_modifier] => 189.91 [parent_name] => Электрика [parent_id] => 28 [material_sum] => 0 [work_sum] => 0 [total_sum] => 0 [total_days] => 0 [display_material_sum] => 0 [display_work_sum] => 0 [display_total_sum] => 0 ) 1
0
Работа:0
Материалы:0
Дни:0
stdClass Object ( [id] => 56 [attribute_id] => 28 [name] => Есть [material_modifier] => 1 [work_modifier] => 1 [options] => Array ( ) [days] => [10] [material_price] => [650] [work_price] => [950] [image] => https://akademik-stroy.ru/wp-content/uploads/materials/ehlektrika.jpg [area_modifier] => 189.91 [parent_name] => Электрика [parent_id] => 28 [material_sum] => 155536 [work_sum] => 189435 [total_sum] => 344971 [total_days] => 10 [display_material_sum] => 155 536 [display_work_sum] => 189 435 [display_total_sum] => 344 971 ) 1
344 971
Работа:189 435
Материалы:155 536
Дни:10
Сантехника, канализация в доме
stdClass Object ( [id] => 57 [attribute_id] => 29 [name] => Нет [material_modifier] => 1 [work_modifier] => 1 [options] => Array ( ) [days] => [0] [material_price] => [0] [work_price] => [0] [image] => https://akademik-stroy.ru/wp-content/uploads/materials/santekhnika-kanalizaciya-1.jpg [area_modifier] => 189.91 [parent_name] => Сантехника, канализация в доме [parent_id] => 29 [material_sum] => 0 [work_sum] => 0 [total_sum] => 0 [total_days] => 0 [display_material_sum] => 0 [display_work_sum] => 0 [display_total_sum] => 0 ) 1
0
Работа:0
Материалы:0
Дни:0
stdClass Object ( [id] => 58 [attribute_id] => 29 [name] => Есть [material_modifier] => 1 [work_modifier] => 1 [options] => Array ( ) [days] => [10] [material_price] => [600] [work_price] => [730] [image] => https://akademik-stroy.ru/wp-content/uploads/materials/santekhnika-kanalizaciya-1.jpg [area_modifier] => 189.91 [parent_name] => Сантехника, канализация в доме [parent_id] => 29 [material_sum] => 143572 [work_sum] => 145566 [total_sum] => 289138 [total_days] => 10 [display_material_sum] => 143 572 [display_work_sum] => 145 566 [display_total_sum] => 289 138 ) 1
289 138
Работа:145 566
Материалы:143 572
Дни:10
Отопление
stdClass Object ( [id] => 59 [attribute_id] => 30 [name] => Нет [material_modifier] => 1 [work_modifier] => 1 [options] => Array ( ) [days] => [0] [material_price] => [0] [work_price] => [0] [image] => https://akademik-stroy.ru/wp-content/uploads/materials/otoplenie-1.jpg [area_modifier] => 189.91 [parent_name] => Отопление [parent_id] => 30 [material_sum] => 0 [work_sum] => 0 [total_sum] => 0 [total_days] => 0 [display_material_sum] => 0 [display_work_sum] => 0 [display_total_sum] => 0 ) 1
0
Работа:0
Материалы:0
Дни:0
stdClass Object ( [id] => 60 [attribute_id] => 30 [name] => Есть [material_modifier] => 1 [work_modifier] => 1 [options] => Array ( ) [days] => [5] [material_price] => [610] [work_price] => [560] [image] => https://akademik-stroy.ru/wp-content/uploads/materials/otoplenie-1.jpg [area_modifier] => 189.91 [parent_name] => Отопление [parent_id] => 30 [material_sum] => 145965 [work_sum] => 111667 [total_sum] => 257632 [total_days] => 5 [display_material_sum] => 145 965 [display_work_sum] => 111 667 [display_total_sum] => 257 632 ) 1
257 632
Работа:111 667
Материалы:145 965
Дни:5
Теплые полы
stdClass Object ( [id] => 61 [attribute_id] => 31 [name] => Нет [material_modifier] => 1 [work_modifier] => 1 [options] => Array ( ) [days] => [0] [material_price] => [0] [work_price] => [0] [image] => https://akademik-stroy.ru/wp-content/uploads/materials/vodyanye.jpg [area_modifier] => 30 [parent_name] => Теплые полы [parent_id] => 31 [material_sum] => 0 [work_sum] => 0 [total_sum] => 0 [total_days] => 0 [display_material_sum] => 0 [display_work_sum] => 0 [display_total_sum] => 0 ) 1
0
Работа:0
Материалы:0
Дни:0
stdClass Object ( [id] => 151 [attribute_id] => 31 [name] => Водяные [material_modifier] => 1 [work_modifier] => 1 [options] => Array ( ) [days] => [9] [material_price] => [10200] [work_price] => [2500] [image] => https://akademik-stroy.ru/wp-content/uploads/materials/vodyanye.jpg [area_modifier] => 30 [parent_name] => Теплые полы [parent_id] => 31 [material_sum] => 385560 [work_sum] => 78750 [total_sum] => 464310 [total_days] => 9 [display_material_sum] => 385 560 [display_work_sum] => 78 750 [display_total_sum] => 464 310 ) 1
464 310
Работа:78 750
Материалы:385 560
Дни:9
stdClass Object ( [id] => 152 [attribute_id] => 31 [name] => Электро [material_modifier] => 1 [work_modifier] => 1 [options] => Array ( ) [days] => [5] [material_price] => [6300] [work_price] => [1500] [image] => https://akademik-stroy.ru/wp-content/uploads/materials/ehlektricheskij.jpg [area_modifier] => 30 [parent_name] => Теплые полы [parent_id] => 31 [material_sum] => 238140 [work_sum] => 47250 [total_sum] => 285390 [total_days] => 5 [display_material_sum] => 238 140 [display_work_sum] => 47 250 [display_total_sum] => 285 390 ) 1
285 390
Работа:47 250
Материалы:238 140
Дни:5
Черновая отделка стен
stdClass Object ( [id] => 63 [attribute_id] => 32 [name] => Нет [material_modifier] => 1 [work_modifier] => 1 [options] => Array ( ) [days] => [0] [material_price] => [0] [work_price] => [0] [image] => https://akademik-stroy.ru/wp-content/uploads/materials/shtukaturka-shpatlevka-1.jpg [area_modifier] => 189.91 [parent_name] => Черновая отделка стен [parent_id] => 32 [material_sum] => 0 [work_sum] => 0 [total_sum] => 0 [total_days] => 0 [display_material_sum] => 0 [display_work_sum] => 0 [display_total_sum] => 0 ) 1
0
Работа:0
Материалы:0
Дни:0
stdClass Object ( [id] => 153 [attribute_id] => 32 [name] => Штукатурка и шпатлевка [material_modifier] => 1 [work_modifier] => 1 [options] => Array ( ) [days] => [20] [material_price] => [1850] [work_price] => [2600] [image] => https://akademik-stroy.ru/wp-content/uploads/materials/shtukaturka-shpatlevka-1.jpg [area_modifier] => 189.91 [parent_name] => Черновая отделка стен [parent_id] => 32 [material_sum] => 442680 [work_sum] => 518454 [total_sum] => 961134 [total_days] => 20 [display_material_sum] => 442 680 [display_work_sum] => 518 454 [display_total_sum] => 961 134 ) 1
961 134
Работа:518 454
Материалы:442 680
Дни:20
stdClass Object ( [id] => 154 [attribute_id] => 32 [name] => Гипсокортон на стены [material_modifier] => 1 [work_modifier] => 1 [options] => Array ( ) [days] => [15] [material_price] => [950] [work_price] => [2100] [image] => https://akademik-stroy.ru/wp-content/uploads/materials/gkl-1.jpg [area_modifier] => 189.91 [parent_name] => Черновая отделка стен [parent_id] => 32 [material_sum] => 227322 [work_sum] => 418752 [total_sum] => 646074 [total_days] => 15 [display_material_sum] => 227 322 [display_work_sum] => 418 752 [display_total_sum] => 646 074 ) 1
646 074
Работа:418 752
Материалы:227 322
Дни:15
stdClass Object ( [id] => 155 [attribute_id] => 32 [name] => Вагонка [material_modifier] => 1 [work_modifier] => 1 [options] => Array ( ) [days] => [15] [material_price] => [1250] [work_price] => [950] [image] => https://akademik-stroy.ru/wp-content/uploads/materials/vagonka.jpg [area_modifier] => 189.91 [parent_name] => Черновая отделка стен [parent_id] => 32 [material_sum] => 299108 [work_sum] => 189435 [total_sum] => 488543 [total_days] => 15 [display_material_sum] => 299 108 [display_work_sum] => 189 435 [display_total_sum] => 488 543 ) 1
488 543
Работа:189 435
Материалы:299 108
Дни:15
Черновая отделка полов
stdClass Object ( [id] => 65 [attribute_id] => 33 [name] => Нет [material_modifier] => 1 [work_modifier] => 1 [options] => Array ( ) [days] => [0] [material_price] => [0] [work_price] => [0] [image] => https://akademik-stroy.ru/wp-content/uploads/materials/styazhka.jpg [area_modifier] => 189.91 [parent_name] => Черновая отделка полов [parent_id] => 33 [material_sum] => 0 [work_sum] => 0 [total_sum] => 0 [total_days] => 0 [display_material_sum] => 0 [display_work_sum] => 0 [display_total_sum] => 0 ) 1
0
Работа:0
Материалы:0
Дни:0
stdClass Object ( [id] => 156 [attribute_id] => 33 [name] => Стяжка + наливные полы [material_modifier] => 1 [work_modifier] => 1 [options] => Array ( ) [days] => [10] [material_price] => [1000] [work_price] => [900] [image] => https://akademik-stroy.ru/wp-content/uploads/materials/styazhka.jpg [area_modifier] => 189.91 [parent_name] => Черновая отделка полов [parent_id] => 33 [material_sum] => 239287 [work_sum] => 179465 [total_sum] => 418752 [total_days] => 10 [display_material_sum] => 239 287 [display_work_sum] => 179 465 [display_total_sum] => 418 752 ) 1
418 752
Работа:179 465
Материалы:239 287
Дни:10
stdClass Object ( [id] => 157 [attribute_id] => 33 [name] => ОСБ на пол [material_modifier] => 1 [work_modifier] => 1 [options] => Array ( ) [days] => [7] [material_price] => [580] [work_price] => [350] [image] => https://akademik-stroy.ru/wp-content/uploads/materials/osb-1.jpg [area_modifier] => 189.91 [parent_name] => Черновая отделка полов [parent_id] => 33 [material_sum] => 138786 [work_sum] => 69792 [total_sum] => 208578 [total_days] => 7 [display_material_sum] => 138 786 [display_work_sum] => 69 792 [display_total_sum] => 208 578 ) 1
208 578
Работа:69 792
Материалы:138 786
Дни:7
Чистовая отделка стен и полов
stdClass Object ( [id] => 67 [attribute_id] => 34 [name] => Нет [material_modifier] => 1 [work_modifier] => 1 [options] => Array ( ) [days] => [0] [material_price] => [0] [work_price] => [0] [image] => https://akademik-stroy.ru/wp-content/uploads/materials/chistovaya-otdelka.jpg [area_modifier] => 189.91 [parent_name] => Чистовая отделка стен и полов [parent_id] => 34 [material_sum] => 0 [work_sum] => 0 [total_sum] => 0 [total_days] => 0 [display_material_sum] => 0 [display_work_sum] => 0 [display_total_sum] => 0 ) 1
0
Работа:0
Материалы:0
Дни:0
stdClass Object ( [id] => 68 [attribute_id] => 34 [name] => Есть [material_modifier] => 1 [work_modifier] => 1 [options] => Array ( ) [days] => [50] [material_price] => [6000] [work_price] => [3500] [image] => https://akademik-stroy.ru/wp-content/uploads/materials/chistovaya-otdelka.jpg [area_modifier] => 189.91 [parent_name] => Чистовая отделка стен и полов [parent_id] => 34 [material_sum] => 1435720 [work_sum] => 697919 [total_sum] => 2133639 [total_days] => 50 [display_material_sum] => 1 435 720 [display_work_sum] => 697 919 [display_total_sum] => 2 133 639 ) 1
2 133 639
Работа:697 919
Материалы:1 435 720
Дни:50
Отделка потолка
stdClass Object ( [id] => 69 [attribute_id] => 35 [name] => Нет [material_modifier] => 1 [work_modifier] => 1 [options] => Array ( ) [days] => [0] [material_price] => [0] [work_price] => [0] [image] => https://akademik-stroy.ru/wp-content/uploads/materials/mnogourovnevyj-gkl.jpg [area_modifier] => 189.91 [parent_name] => Отделка потолка [parent_id] => 35 [material_sum] => 0 [work_sum] => 0 [total_sum] => 0 [total_days] => 0 [display_material_sum] => 0 [display_work_sum] => 0 [display_total_sum] => 0 ) 1
0
Работа:0
Материалы:0
Дни:0
stdClass Object ( [id] => 70 [attribute_id] => 35 [name] => Есть [material_modifier] => 1 [work_modifier] => 1 [options] => Array ( [0] => Многоуровневый потолок из гипсокартона [1] => Многоуровневый потолок из гипсокартона и натяжного потолка [2] => Одноуровневый потолок из гипсокартона [3] => Одноуровневый натяжной потолок ) [days] => [10,10,1,1] [material_price] => [900,700,700,600] [work_price] => [1000,800,500,300] [image] => https://akademik-stroy.ru/wp-content/uploads/materials/mnogourovnevyj-gkl.jpg [area_modifier] => 189.91 [parent_name] => Отделка потолка [parent_id] => 35 [material_sum] => 215358 [work_sum] => 199406 [total_sum] => 414764 [total_days] => 10 [display_material_sum] => 215 358 [display_work_sum] => 199 406 [display_total_sum] => 414 764 ) 1
414 764
Работа:199 406
Материалы:215 358
Дни:10

Преимущества работы с нами

icon

7 этапов оплаты

icon

Независимый строительный надзор

icon

Экологически чистые материалы

icon

16 лет гарантии

icon

Онлайн-кабинет с веб-камерой

icon

Строители с опытом более 15 лет

icon

Собственное производство

Двухэтажный дом 15х14 - оптимальное решение для современной семьи

Если вы стоите на пороге строительства собственного дома и размышляете, какой проект выбрать, то двухэтажный дом размером 15 на 14 метров — это вполне разумный и продуманный вариант. Такие параметры позволяют комфортно разместить семью из нескольких человек, обеспечивая при этом достаточно пространства для жизни и отдыха. Компания «Академик Строй» предлагает готовый проект дома с полезной площадью почти 190 квадратных метров, что позволяет создать уютное и функциональное жилье в Москве и области. Проект, который вы видите, включает не только продуманную планировку, но и грамотный подход к использованию каждого квадрата. Это особенно важно, когда речь идёт о частных домах — ведь хочется, чтобы в каждом углу чувствовался комфорт и практичность. Возможно, вы уже задумывались о доме, где можно будет не просто проживать, а где каждая комната станет любимым местом каждого члена семьи. Давайте вместе разберёмся, почему этот проект именно такой.

Основные параметры дома 15x14 от "Академик Строй"

Проект включает две полноценные жилые этажа, что позволяет четко разделить зоны отдыха и общественные пространства. Это удобно и для большой семьи, и для приема гостей. Давайте посмотрим, какие основные характеристики делают этот дом достойным внимания.
Параметр Значение
Полезная площадь 189,91 м²
Размеры дома 15 x 14 м
Количество этажей 2 этажа
Количество спален 4
Количество санузлов 3
Жилая площадь 149,71 м²
Площадь застройки 150,35 м²
Общая площадь 249,51 м²
Площадь крыши 245,02 м²
Угол наклона крыши 30°
Тип крыши двускатная
Высота здания 9,26 м
Минимальный размер участка 21,62 x 21,87 м
Эти цифры говорят сами за себя. У вас будет достаточно квадратных метров для того, чтобы реализовать все идеи по дизайну интерьера, расположить нужное количество комнат, а также не забыть про технические и хозяйственные помещения.

Планировка: волшебство рационального пространства

Одним из главных преимуществ двухэтажного дома размером 15х14 является грамотное разделение функциональных зон. На первом этаже обычно располагают общественную часть — просторную гостиную, кухню с обеденной зоной, гостевой санузел и, возможно, кабинет или гардеробную. Второй этаж преимущественно выдержан под спальни и зоны личного комфорта. В этом проекте предусмотрено сразу четыре спальни, что отлично подходит для большой семьи или тех, кто любит принимать гостей.

Важность количества спален

Современная семья часто нуждается как минимум в трех спальнях, чтобы каждый член семьи имел личное пространство. Четыре спальни — это шикарный бонус, особенно если вы планируете вырастить детей или часто принимаете гостей. Такие дома позволяют избежать бытовых конфликтов, связанных с недостатком личной территории, а также создают условия для полноценного отдыха.

Три санузла — комфорт и удобство для всех

Три санузла в доме с четырьмя спальнями — очень разумное решение. Представьте себе сцену: утро, и вся семья собирается уходить на работу или в школу. Три санузла позволят избежать лишних очередей и спешки, обеспечивая при этом комфорт каждому члену семьи. Это также удобно, если в доме проживают пожилые родственники или несколько поколений.

Преимущества двускатной крыши с углом наклона 30°

Двускатная крыша — классика, и на то есть веские причины. Во-первых, такая крыша отлично справляется с осадками, что очень важно в климате Москвы и Московской области. Угол наклона в 30° оптимален с точки зрения стока воды и снега, исключая риск накопления тяжелого снега, который может повредить конструкцию.

Площадь и объем крыши

Площадь крыши в проекте составляет 245 квадратных метров, что как раз подходит для того, чтобы обеспечить надежную защиту от погодных условий. При этом за счет грамотно рассчитанного объема брутто (798 м³) и высоты здания — 9,26 метра, дом приобретает гармоничные пропорции и устойчивый внешний вид.

Минимальные размеры участка для строительства*

Если вы только выбираете участок для строительства, то важно знать, что проект требует минимальной ширины ландшафтного участка 21,62 метра и минимальной длины 21,87 метра. Эти цифры могут показаться довольно большими по сравнению с городской квартирой, но для частного дома с таким размером площади — это логично и оправдано. Здесь вы получаете не просто жилую постройку, а полноценный частный дом с личным участком, где можно оборудовать зону для барбекю, посадить сад или обустроить детскую площадку. Всё зависит от ваших пожеланий и предпочтений.

Почему стоит заказать проект именно у "Академик Строй"?

Вы можете спросить: “Почему именно «Академик Строй»?” Ответ прост — компания обладает огромным опытом и репутацией в строительстве частных домов в Москве и области. Специалисты компании тщательно прорабатывают каждый проект, учитывая современные тенденции в архитектуре и строительстве, требования к энергоэффективности и комфорту. На этом стоит остановиться подробнее:
  • Высокое качество архитектурных решений и инженерных систем.
  • Оптимизация площади и стоимости строительства для обеспечения лучшего соотношения цена-качество.
  • Полный пакет проектной документации, готовый к реализации и согласованию в органах.
  • Поддержка клиентов — консультации по всем этапам строительства и советы по выбору материалов.
  • Доступная цена — купить проект можно всего за несколько тысяч рублей, что значительно меньше расходов на индивидуальную разработку.
Если вы хотите начать строительство в ближайшее время, просто позвоните по телефону +7 (980) 800-47-93 и получите подробную консультацию.

Преимущества покупки готового проекта дома

Многим кажется, что строительство дома — это долгий и дорогой процесс, однако покупка готового проекта значительно упрощает задачу. Особенно если проект разработан профессиональной компанией с большим опытом. Давайте рассмотрим, какие преимущества даёт готовый проект.

Экономия времени и нервов

Разработка уникального проекта с нуля может занять месяцы. Выбирая готовый проект, вы получаете практически сразу все необходимые чертежи, технические условия, сметы и рабочие планы. Это помогает быстрее приступить к строительству и сэкономить нервы.

Оптимизация бюджета

Готовые проекты уже протестированы на экономичность: материалы подобраны рационально, помещения расположены эффективно, а технические решения позволяют снизить расходы на отопление и отделку.

Точность и соответствие нормативам

Компания «Академик Строй» учитывает все требования московских и федеральных строительных норм, что минимизирует риск ошибок при строительстве и позволяет в будущем без проблем получить разрешение на ввод объекта в эксплуатацию.

Как заказать проект дома 15х14 в Москве?

Процесс заказа проекта — это просто и удобно. Все, что нужно — это связаться с компанией, обсудить ваши вопросы и получить подробный пакет материалов. Компания предлагает:
  1. Консультацию по телефону: вы узнаете все подробности, включая цену, сроки и особенности проекта.
  2. Подпись договора и получение проекта в электронном или бумажном виде.
  3. Поддержку на всех этапах строительства — от заливки фундамента до отделки.
Вся информация, включая цены и контакты, доступна по телефону +7 (980) 800-47-93. Это ваш первый шаг на пути к дому мечты.

Как выглядит идеальный двухэтажный дом площадью около 190 м²?

В проекте «Академик Строй» сразу видно, что разработчики позаботились о том, чтобы каждая деталь была на своем месте. Четыре спальни — это разделение пространства для всей семьи: родительская спальня с удобной планировкой, комнаты для детей, а также гостевая.

Общая площадь и жилое пространство

Общая площадь дома — почти 250 м², что означает не только жилую зону, но и технические, хозяйственные помещения, просторные коридоры и лестницу — все сделано так, чтобы жить в доме было удобно и комфортно. Жилая площадь — 149,71 м² — это пространства, в которых проводится основное время: комнаты, гостиная и другие жилые помещения.

Зонирование и комфорт

Двухэтажная постройка с такой площадью позволяет обустроить пространство таким образом, что каждая зона функциональна и удобна. Например, на первом этаже можно выделить большую гостиную, объединённую с кухней-столовой, а на втором — спальни и санузлы. Такой подход обеспечивает комфорт всем жильцам и освобождает пространство для активного отдыха и личных хобби.

Резюме: почему выбор дома 15х14 – это разумно

Покупка готового проекта дома — это надежный путь к собственному жилью без лишних заморочек. Дом размером 15 на 14 метров, который предлагает компания «Академик Строй», полностью отвечает ожиданиям современных семей. Просторный, функциональный, с грамотным расположением спален и санузлов, он сочетает в себе разумное использование площади и высокий уровень комфорта. Этот проект станет отличным вариантом для тех, кто ищет качественное, стильное и удобное жилье в Московской области по привлекательной цене. Позвоните — и ваш путь к дому мечты начнется уже сегодня!