Введение в проект двухэтажного дома 17х20 м
Проект двухэтажного дома размером 17 на 20 метров – это настоящее воплощение комфорта, функциональности и современного стиля жизни. С общей полезной площадью в 341,11 квадратных метров, этот дом отлично подойдет для большой семьи, которая ценит пространство и удобство. В современном строительстве подобные проекты становятся всё более популярными, ведь они объединяют в себе простор внутри, рациональную планировку и привлекательный внешний вид.
Цена такого дома – 11 603 740 рублей – отражает высокое качество материалов, профессиональное исполнение и учитывает все особенности строительства, начиная от фундамента и заканчивая кровлей. В этой статье мы подробно рассмотрим все параметры дома, познакомимся с его разделением по этажам, анализируем планировку, а также обсудим, для кого предназначен этот вариант и какие преимущества он предлагает.
Основные характеристики дома 17x20 метров
При выборе проекта дома важна каждая деталь — от размеров до распределения комнат и технических параметров. Наш двухэтажный дом обладает следующими ключевыми характеристиками:
| Параметр | Значение |
|---|---|
| Размеры дома | 17 x 20 м |
| Полезная площадь | 341,11 м² |
| Количество этажей | 2 |
| Количество спален | 5+ |
| Количество санузлов | 3 |
| Жилая площадь | 261,40 м² |
| Площадь застройки | 235,52 м² |
| Площадь нетто | 408,90 м² |
| Объем брутто | 990 м³ |
| Площадь крыши | 370 м² |
| Угол наклона крыши | 30° |
| Высота здания | 7,71 м |
| Минимальная ширина участка | 25,44 м |
| Минимальная длина участка | 27,69 м |
| Тип крыши | Двускатная |
Из данной таблицы становится понятно, что дом обладает внушительными габаритами, достаточными для проживания большой семьи с высокими требованиями к комфорту и функциональности.
Особенности планировки и распределение пространства
Общее пространство двух этажей
Главная особенность дома – продуманное зонирование. Несмотря на большую площадь и простор, организаторы проекта уделили особое внимание созданию уютных и функциональных зон. Два этажа дают возможность разделить жилую и приватную части дома, что особенно актуально для больших семей.
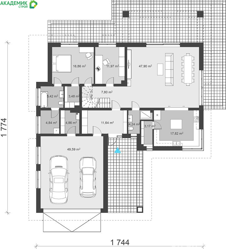
Первый этаж традиционно занимает общая зона: кухня, гостиная, столовая и хозяйственные помещения. Такое расположение способствует удобству и социальной активности – здесь домочадцы и гости ежедневно могут комфортно проводить время вместе.
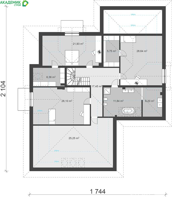
Второй этаж полностью отдан под приватные спальни и санитарные помещения. Размещение пяти и более спален обеспечивает комфортное проживание для родителей, детей и даже гостей, позволяя каждому иметь свое личное пространство.
Жилая площадь и удобства
Жилая площадь дома достигает 261,40 м², что является отличным показателем для частного дома. В этом пространстве предусмотрено достаточно комнаты для каждого члена семьи, включая даже персональные кабинеты или зоны отдыха.
Наличие трёх полноценных санузлов устраняет возможные неудобства, особенно в часы пик, и способствует поддержке гигиенического комфорта. Это важно для больших семей и тех, кто часто принимает гостей.
Технические детали и конструктивные особенности
Крышная конструкция и особенности кровли
Дом оборудован двускатной крышей с углом наклона 30°. Такой тип крыши считается одним из самых рациональных для средних широт, потому что он обеспечивает отличное водоотведение и минимизирует вероятность накопления снега зимой. Двускатная крыша также предоставляет возможность создания чердачного пространства, которое можно использовать для хранения или даже оборудовать под дополнительное жилое помещение.
Площадь крыши в 370 м² свидетельствует о большом размере дома и необходимости тщательного выбора материалов для ее покрытия. Кровля высокого качества не только обеспечивает надежную защиту от осадков и ветра, но и влияет на эффективность теплоизоляции всего дома.
Объем и высота здания
Высота дома составляет 7,71 метра – это типичный показатель для двухэтажного дома с большим внутренним пространством. За счет такой высоты создается ощущение простора внутри помещений, что способствует комфортному проживанию.
Объем здания — 990 м³ — дает представление о масштабах конструкции и является важным параметром при расчетах по отоплению, вентиляции и кондиционированию. Знание объема помогает оптимизировать энергопотребление и выбрать эффективные системы отопления и охлаждения.
Требования к участку для строительства
Минимальные размеры участка играют решающую роль в планировке и удобстве строительства. В случае дома размером 17 на 20 метров минимальная ширина участка должна быть не менее 25,44 метра, а минимальная длина – 27,69 метра. Эти параметры позволяют разместить дом с необходимым отступом от границ участка, соблюдая строительные нормы и обеспечивая комфортную зону вокруг дома для отдыха, ландшафтного дизайна и дополнительной инфраструктуры.
Подобный земельный массив лучше всего выбирать в пригородных и загородных зонах, где отсутствуют жесткие ограничения на площадь участка и можно реализовать все задумки по благоустройству и озеленению.
Преимущества проекта
Данный проект обладает рядом преимуществ, которые обеспечивают ему особую привлекательность в своем ценовом сегменте и среди аналогичных по площади вариантов:
- Большое количество спален: 5 и больше комнат – это огромный плюс для большой семьи или для тех, кто хочет иметь гостевые и рабочие комнаты.
- Три санузла: максимальный комфорт для всех жильцов, позволяющий избежать очередей и неудобств.
- Простор и комфорт: площадь основного жилого пространства более 260 м² – отличные параметры для организации зоны отдыха и рабочих площадей.
- Рациональная двускатная крыша: сочетание надежности, эстетики и простоты обслуживания кровли.
- Оптимальные габариты участка: минимальные размеры участка позволяют построить дом без слишком большого расхода земельных ресурсов, что важно для многих владельцев.
Экономическая часть: соотношение цены и качества
Стоимость дома в 11 603 740 рублей включает все необходимые строительные работы и материалы высокого класса, что оправдывает заявленную цену и соответствует качеству. При этом, учитывая площадь и технические характеристики, цена является достаточно конкурентной для таких масштабных проектов.
Важно помнить, что экономия на строительстве большого дома нередко приводит к проблемам с тепловой изоляцией, качеством коммуникаций и долговечностью конструкции. При выборе данного проекта заказчик получает гарантированное качество, что особенно важно при возведении загородного дома с большим количеством жилых помещений.
Кому подходит этот проект?
Двухэтажный дом с площадью более 340 м² станет идеальным решением для нескольких групп потенциальных владельцев:
- Семьи с тремя и более детьми, которые нуждаются в отдельной спальне для каждого члена семьи, а также рабочем кабинете и гостевых зонах.
- Пары, которые планируют расширение семьи и нуждаются в просторном доме с возможностью предоставления личного пространства каждому члену.
- Люди, работающие из дома, которые хотят иметь отдельный кабинет и зоны отдыха одновременно.
- Любители принимать гостей или часто собирающиеся семьёй для совместного отдыха, благодаря большим гостиным и столовым площадям.
Проект хорошо подходит и для тех, кто ценит современный дизайн, рациональное зонирование и высокую энергоэффективность.
Перспективы и возможности для доработки
Несмотря на полноту и продуманность базового проекта, у владельцев есть возможность внести собственные изменения, чтобы сделать дом максимально индивидуальным. Рассматривая параметры, здесь можно добавить террасу или балконы, если это необходимо, которые создадут дополнительные зоны отдыха на открытом воздухе, учитывая площадь крыши и конструктивные особенности.
Кроме того, всегда есть возможность оборудовать подвальное помещение или чердак, превращая их в дополнительные функциональные зоны. Внедрение современных технологий умного дома, установка энергоэффективных систем отопления и вентиляции поможет повысить уровень комфорта и снизить эксплуатационные расходы.
Заключение
Двухэтажный дом 17х20 метров с полезной площадью 341,11 м² – это отличный выбор для тех, кто хочет получить просторное, комфортное и функциональное жилье для большой семьи. Сбалансированное сочетание большой жилой площади, продуманной планировки и современных технологических решений делает этот проект привлекательным и современным. Стоимость дома соответствует качеству и техническим характеристикам, создавая оптимальное соотношение цены и качества на рынке загородного жилья.









