Двухэтажный дом 203.09 м2 за руб.

ID-117655

Стоимость дома 6526148 руб.
154 м2 Полезная
площадь
2 этажа Этажей
26 м2 Террасы
и балконы
2Без
гаража
5+ Количество
спален
2 Количество
санузлов

Планировки

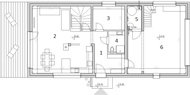
План первого этажа

floor image
  • 1. Прихожая 10,62 m²
  • 2. Гостиная + кухня 40,88 m²
  • 3. Комната 8,90 m²
  • 4. Ванная комната 4,12 m²
  • 5. Котельная 3,92 m²
  • 6. Гараж на 2 машины 39,27 m²
  • План первого этажа 107,71 m²

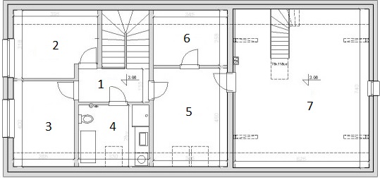
План мансарды

floor image
  • 1. Коридор 5,24 m²
  • 2. Комната 10,81 m²
  • 3. Комната 10,73 m²
  • 4. Ванная комната 8,33 m²
  • 5. Комната 15,08 m²
  • 6. Комната 7,94 m²
  • 7. Комната 37,25 m²
  • План мансарды 95,38 m²

Подробная информация

Жилая площадь
164,02 m²
icon

Сумма площади всех жилых помещений, за вычетом пов. гараж, котельная, чердак, подвал. Учитывается в 100%, для помещений высотой более 2,2 м, в 50% для помещений с высотой 2,2-1,4 м и не включается для более низких помещений (меньше 1,4 м).

Площадь застройки
143 m²
icon

Площадь застройки здания определяется как площадь горизонтального сечения по внешнему обводу здания на уровне цоколя, включая выступающие части.

Угол наклона крыши
43°
icon

Наклон ската крыши в градусах. Внимание! В некоторых проектах возникает более чем один наклон крыши.

Высота здания
8,78 m
icon

Высота измеряется от поверхности земли до самой высокой точки кровли (конька), за исключением дымоходов.

Мин. ширина участка
16,20 m
icon

Наименьшая возможная ширина участка, необходимая для строительства выбранного дома. Состоит из длины фасада дома плюс с обеих сторон три метра отступ.

Материалы и опции
Общие
Количество спален
5+
Ежемесячный платёж, руб
Гараж
2
Количество санузлов
2
Тип крыши

Площади дома

№ п/п Наименование Ед. из. Строительная площадь Полезная площадь
1 1 этаж м2 132.73 107.71
2 2 этаж м2 117.54 95.38
3 Итого м2 250.27 203.09

Калькулятор опций

0

В ипотеку от 21 385 ₽/мес.

Фундамент
stdClass Object ( [id] => 1 [attribute_id] => 1 [name] => Ленточный монолитный ж/б [material_modifier] => 1 [work_modifier] => 1 [options] => Array ( [0] => размер 200 х 700 мм [1] => размер 300 х 900 мм [2] => размер 400 х 1 000 мм [3] => размер 500 х 1 100 мм [4] => размер 600 х 1 200 мм ) [days] => [20,21,22,25,30] [material_price] => [2823,3630,4475,5210,12047] [work_price] => [2154,2826,3731,4577,5293] [image] => https://akademik-stroy.ru/wp-content/uploads/materials/lentochnyj-monolitnyj-zh-b.jpg [area_modifier] => 132.73 [parent_name] => Фундамент [parent_id] => 1 [material_sum] => 472118 [work_sum] => 300195 [total_sum] => 772313 [total_days] => 20 [display_material_sum] => 472 118 [display_work_sum] => 300 195 [display_total_sum] => 772 313 ) 1
772 313
Работа:300 195
Материалы:472 118
Дни:20
stdClass Object ( [id] => 2 [attribute_id] => 1 [name] => Забивные Ж/Б сваи [material_modifier] => 1 [work_modifier] => 1 [options] => Array ( [0] => 150х150х3000мм [1] => 150х150х4000мм [2] => 200х200х3000мм [3] => 200х200х4000мм [4] => 200х200х5000мм [5] => 200х200х6000мм ) [days] => [2,2,2,2,2,2] [material_price] => [1990,2850,3255,4360,5120,6837] [work_price] => [1002,1185,1336,1438,1574,1839] [image] => https://akademik-stroy.ru/wp-content/uploads/materials/zabivnye-zh-b-svai.png [area_modifier] => 132.73 [parent_name] => Фундамент [parent_id] => 1 [material_sum] => 332807 [work_sum] => 139645 [total_sum] => 472452 [total_days] => 2 [display_material_sum] => 332 807 [display_work_sum] => 139 645 [display_total_sum] => 472 452 ) 1
472 452
Работа:139 645
Материалы:332 807
Дни:2
stdClass Object ( [id] => 71 [attribute_id] => 1 [name] => Свайно-ростверковый ж/б [material_modifier] => 1 [work_modifier] => 1 [options] => Array ( [0] => ростверк 200х300 мм [1] => ростверк 300х600 мм [2] => ростверк 400х900 мм [3] => ростверк 500х1200 мм ) [days] => [20,23,25,27] [material_price] => [3018,3474,7109,9792] [work_price] => [2024,3012,5635,7022] [image] => https://akademik-stroy.ru/wp-content/uploads/materials/svajno-rostverkovyj-monolitnyj-zh-b-3.png [area_modifier] => 132.73 [parent_name] => Фундамент [parent_id] => 1 [material_sum] => 504730 [work_sum] => 282078 [total_sum] => 786808 [total_days] => 20 [display_material_sum] => 504 730 [display_work_sum] => 282 078 [display_total_sum] => 786 808 ) 1
786 808
Работа:282 078
Материалы:504 730
Дни:20
stdClass Object ( [id] => 72 [attribute_id] => 1 [name] => Монолитная ж/б плита [material_modifier] => 1 [work_modifier] => 1 [options] => Array ( [0] => 200 мм [1] => 300 мм [2] => 400 мм [3] => 500 мм [4] => 600 мм ) [days] => [30,33,35,37,40] [material_price] => [5348,8555,12788,14388,15189] [work_price] => [4314,4881,7037,8061,10230] [image] => https://akademik-stroy.ru/wp-content/uploads/materials/monolitnaya-zhb-plita.png [area_modifier] => 132.73 [parent_name] => Фундамент [parent_id] => 1 [material_sum] => 894398 [work_sum] => 601227 [total_sum] => 1495625 [total_days] => 30 [display_material_sum] => 894 398 [display_work_sum] => 601 227 [display_total_sum] => 1 495 625 ) 1
1 495 625
Работа:601 227
Материалы:894 398
Дни:30
stdClass Object ( [id] => 73 [attribute_id] => 1 [name] => Утепленная шведская плита [material_modifier] => 1 [work_modifier] => 1 [options] => Array ( [0] => 200 мм [1] => 300 мм [2] => 400 мм [3] => 500 мм [4] => 600 мм ) [days] => [32,37,39,42,45] [material_price] => [10249,12692,13760,14936,16230] [work_price] => [5960,7337,8072,8878,9765] [image] => https://akademik-stroy.ru/wp-content/uploads/materials/uteplennaya-shvedskaya-plita.jpg [area_modifier] => 132.73 [parent_name] => Фундамент [parent_id] => 1 [material_sum] => 1714041 [work_sum] => 830624 [total_sum] => 2544665 [total_days] => 32 [display_material_sum] => 1 714 041 [display_work_sum] => 830 624 [display_total_sum] => 2 544 665 ) 1
2 544 665
Работа:830 624
Материалы:1 714 041
Дни:32
stdClass Object ( [id] => 75 [attribute_id] => 1 [name] => Ленточный из ФБС [material_modifier] => 1 [work_modifier] => 1 [options] => Array ( [0] => толщ. 300 мм [1] => толщ. 400 мм [2] => толщ. 500 мм [3] => толщ. 600 мм ) [days] => [20,20,20,20] [material_price] => [3675,4902,6126,7350] [work_price] => [2451,3264,4083,4902] [image] => https://akademik-stroy.ru/wp-content/uploads/materials/lentochnyj-iz-fbs.png [area_modifier] => 132.73 [parent_name] => Фундамент [parent_id] => 1 [material_sum] => 614606 [work_sum] => 341587 [total_sum] => 956193 [total_days] => 20 [display_material_sum] => 614 606 [display_work_sum] => 341 587 [display_total_sum] => 956 193 ) 1
956 193
Работа:341 587
Материалы:614 606
Дни:20
stdClass Object ( [id] => 76 [attribute_id] => 1 [name] => Цокольный этаж из ФБС [material_modifier] => 1 [work_modifier] => 1 [options] => Array ( [0] => толщ. 300 мм [1] => толщ. 400 мм [2] => толщ. 500 мм [3] => толщ. 600 мм ) [days] => [30,32,34,36] [material_price] => [20916,23299,26680,29060] [work_price] => [17524,18700,19873,21046] [image] => https://akademik-stroy.ru/wp-content/uploads/materials/cokolnyj-ehtazh-iz-fbs.jpg [area_modifier] => 132.73 [parent_name] => Фундамент [parent_id] => 1 [material_sum] => 3497988 [work_sum] => 2442259 [total_sum] => 5940247 [total_days] => 30 [display_material_sum] => 3 497 988 [display_work_sum] => 2 442 259 [display_total_sum] => 5 940 247 ) 1
5 940 247
Работа:2 442 259
Материалы:3 497 988
Дни:30
stdClass Object ( [id] => 77 [attribute_id] => 1 [name] => Цокольный этаж монолитный ж/б [material_modifier] => 1 [work_modifier] => 1 [options] => Array ( [0] => толщ. 200 мм [1] => толщ. 300 мм [2] => толщ. 400 мм [3] => толщ. 500 мм [4] => толщ. 600 мм ) [days] => [40,42,44,46,48] [material_price] => [25421,29148,32275,35602,37326] [work_price] => [20441,21907,23375,24841,26306] [image] => https://akademik-stroy.ru/wp-content/uploads/materials/cokolnyj-etazh-zh-b.jpg [area_modifier] => 132.73 [parent_name] => Фундамент [parent_id] => 1 [material_sum] => 4251403 [work_sum] => 2848791 [total_sum] => 7100194 [total_days] => 40 [display_material_sum] => 4 251 403 [display_work_sum] => 2 848 791 [display_total_sum] => 7 100 194 ) 1
7 100 194
Работа:2 848 791
Материалы:4 251 403
Дни:40
stdClass Object ( [id] => 191 [attribute_id] => 1 [name] => Винтовые сваи [material_modifier] => 1 [work_modifier] => 1 [options] => Array ( [0] => 57х200мм [1] => 76х250мм [2] => 108х300мм [3] => 133х350мм ) [days] => [1,1,2,2] [material_price] => [1200,1300,1450,1600] [work_price] => [400,600,900,1100] [image] => https://akademik-stroy.ru/wp-content/uploads/materials/vintovye-svai.png [area_modifier] => 132.73 [parent_name] => Фундамент [parent_id] => 1 [material_sum] => 200688 [work_sum] => 55747 [total_sum] => 256435 [total_days] => 1 [display_material_sum] => 200 688 [display_work_sum] => 55 747 [display_total_sum] => 256 435 ) 1
256 435
Работа:55 747
Материалы:200 688
Дни:1
Перекрытие цоколя
stdClass Object ( [id] => 3 [attribute_id] => 2 [name] => Деревянные балки [material_modifier] => 1 [work_modifier] => 1 [options] => Array ( [0] => без утепления [1] => утепление 200 мм [2] => утепление 250 мм [3] => утепление 300 мм [4] => утепление 350 мм [5] => утепление 400 мм [6] => утепление 450 мм [7] => утепление 500 мм ) [days] => [8,9,9,9,11,12,13,14] [material_price] => [1634,2042,2344,2947,3149,3652,3354,3557] [work_price] => [1230,1339,1393,1426,1460,1513,1587,1620] [image] => https://akademik-stroy.ru/wp-content/uploads/materials/derevyannye-balki.png [area_modifier] => 132.73 [parent_name] => Перекрытие цоколя [parent_id] => 2 [material_sum] => 273270 [work_sum] => 171421 [total_sum] => 444691 [total_days] => 8 [display_material_sum] => 273 270 [display_work_sum] => 171 421 [display_total_sum] => 444 691 ) 1
444 691
Работа:171 421
Материалы:273 270
Дни:8
stdClass Object ( [id] => 4 [attribute_id] => 2 [name] => Сборные ж/б плиты [material_modifier] => 1 [work_modifier] => 1 [options] => Array ( [0] => без утепления [1] => утепление 150мм [2] => утепление 200мм [3] => утепление 250мм [4] => утепление 300мм [5] => утепление 350мм [6] => утепление 400мм [7] => утепление 450мм [8] => утепление 500мм ) [days] => [13,15,15,15,15,15,15,15,15] [material_price] => [3067,5577,5928,6679,7730,8782,9833,10884,11935] [work_price] => [1520,1956,2102,2247,2392,2537,2684,2829,2974] [image] => https://akademik-stroy.ru/wp-content/uploads/materials/sbornye-zh-b-plity-2.jpg [area_modifier] => 132.73 [parent_name] => Перекрытие цоколя [parent_id] => 2 [material_sum] => 512924 [work_sum] => 211837 [total_sum] => 724761 [total_days] => 13 [display_material_sum] => 512 924 [display_work_sum] => 211 837 [display_total_sum] => 724 761 ) 1
724 761
Работа:211 837
Материалы:512 924
Дни:13
stdClass Object ( [id] => 78 [attribute_id] => 2 [name] => Монолитная ж/б плита [material_modifier] => 1 [work_modifier] => 1 [options] => Array ( [0] => без утепления [1] => утепление 150 мм [2] => утепление 200 мм [3] => утепление 250 мм [4] => утепление 300 мм [5] => утепление 350 мм [6] => утепление 400 мм [7] => утепление 450 мм [8] => утепление 500 мм ) [days] => [18,20,20,20,20,20,20,20,20] [material_price] => [4837,6572,7224,7375,79426,8177,8728,9180,10031] [work_price] => [3348,3921,4112,4302,4493,4684,4875,5066,5256] [image] => https://akademik-stroy.ru/wp-content/uploads/materials/monolitnaya-zh-b-plita-2.jpg [area_modifier] => 132.73 [parent_name] => Перекрытие цоколя [parent_id] => 2 [material_sum] => 808939 [work_sum] => 466599 [total_sum] => 1275538 [total_days] => 18 [display_material_sum] => 808 939 [display_work_sum] => 466 599 [display_total_sum] => 1 275 538 ) 1
1 275 538
Работа:466 599
Материалы:808 939
Дни:18
Стены 1 этаж (несущие)
stdClass Object ( [id] => 6 [attribute_id] => 3 [name] => Пеноблок [material_modifier] => 1 [work_modifier] => 1 [options] => Array ( [0] => 300 мм [1] => 400 мм [2] => 500 мм [3] => 600 мм ) [days] => [29,31,34,39] [material_price] => [3000,4000,4500,4937] [work_price] => [5033,5805,6400,8710] [image] => https://akademik-stroy.ru/wp-content/uploads/materials/penoblok.jpg [area_modifier] => 132.73 [parent_name] => Стены 1 этаж (несущие) [parent_id] => 3 [material_sum] => 501719 [work_sum] => 701432 [total_sum] => 1203151 [total_days] => 29 [display_material_sum] => 501 719 [display_work_sum] => 701 432 [display_total_sum] => 1 203 151 ) 1
1 203 151
Работа:701 432
Материалы:501 719
Дни:29
stdClass Object ( [id] => 79 [attribute_id] => 3 [name] => Керамический блок [material_modifier] => 1 [work_modifier] => 1 [options] => Array ( [0] => 380 мм [1] => 380 мм Thermo [2] => 440 мм [3] => 510 мм ) [days] => [23,23,24,25] [material_price] => [4510,5098,6093,8013] [work_price] => [4737,4937,5903,6958] [image] => https://akademik-stroy.ru/wp-content/uploads/materials/keramicheskij-blok.jpg [area_modifier] => 132.73 [parent_name] => Стены 1 этаж (несущие) [parent_id] => 3 [material_sum] => 754251 [work_sum] => 660179 [total_sum] => 1414430 [total_days] => 23 [display_material_sum] => 754 251 [display_work_sum] => 660 179 [display_total_sum] => 1 414 430 ) 1
1 414 430
Работа:660 179
Материалы:754 251
Дни:23
stdClass Object ( [id] => 80 [attribute_id] => 3 [name] => Кирпич [material_modifier] => 1 [work_modifier] => 1 [options] => Array ( [0] => Кирпич 250 мм [1] => Кирпич 380 мм [2] => Кирпич 510 мм [3] => Кирпич 640 мм [4] => Кирпич 770 мм ) [days] => [30,30,31,33,36] [material_price] => [5500,7142,9206,10171,12235] [work_price] => [8736,10041,12018,15240,18462] [image] => https://akademik-stroy.ru/wp-content/uploads/materials/kirpich.jpg [area_modifier] => 132.73 [parent_name] => Стены 1 этаж (несущие) [parent_id] => 3 [material_sum] => 919819 [work_sum] => 1217506 [total_sum] => 2137325 [total_days] => 30 [display_material_sum] => 919 819 [display_work_sum] => 1 217 506 [display_total_sum] => 2 137 325 ) 1
2 137 325
Работа:1 217 506
Материалы:919 819
Дни:30
stdClass Object ( [id] => 81 [attribute_id] => 3 [name] => Монолитные [material_modifier] => 1 [work_modifier] => 1 [options] => Array ( [0] => 150 мм [1] => 200 мм [2] => 250 мм [3] => 300 мм [4] => 350 мм [5] => 400 мм ) [days] => [45,46,47,49,50,53] [material_price] => [6545,7876,10175,12011,13908,15204] [work_price] => [5106,6444,7698,8552,9807,11461] [image] => https://akademik-stroy.ru/wp-content/uploads/materials/monolitnye.jpg [area_modifier] => 132.73 [parent_name] => Стены 1 этаж (несущие) [parent_id] => 3 [material_sum] => 1094584 [work_sum] => 711605 [total_sum] => 1806189 [total_days] => 45 [display_material_sum] => 1 094 584 [display_work_sum] => 711 605 [display_total_sum] => 1 806 189 ) 1
1 806 189
Работа:711 605
Материалы:1 094 584
Дни:45
stdClass Object ( [id] => 82 [attribute_id] => 3 [name] => Клееный брус [material_modifier] => 1 [work_modifier] => 1 [options] => Array ( [0] => 160 мм [1] => 175 мм [2] => 200 мм [3] => 215 мм [4] => 240 мм [5] => 270 мм [6] => 282 мм ) [days] => [24,28,32,37,40,42,48] [material_price] => [16975,18773,19950,20545,21599,22159,23275] [work_price] => [4806,5287,5815,6397,7036,7740,8514] [image] => https://akademik-stroy.ru/wp-content/uploads/materials/kleenyj-brus.jpg [area_modifier] => 132.73 [parent_name] => Стены 1 этаж (несущие) [parent_id] => 3 [material_sum] => 2838896 [work_sum] => 669795 [total_sum] => 3508691 [total_days] => 24 [display_material_sum] => 2 838 896 [display_work_sum] => 669 795 [display_total_sum] => 3 508 691 ) 1
3 508 691
Работа:669 795
Материалы:2 838 896
Дни:24
stdClass Object ( [id] => 83 [attribute_id] => 3 [name] => Каркасные [material_modifier] => 1 [work_modifier] => 1 [options] => Array ( [0] => 150 мм [1] => 200 мм [2] => 250 мм [3] => 300 мм ) [days] => [15,16,17,18] [material_price] => [2379,2639,2898,3258] [work_price] => [2418,2686,2985,3716] [image] => https://akademik-stroy.ru/wp-content/uploads/materials/karkasnye.jpg [area_modifier] => 132.73 [parent_name] => Стены 1 этаж (несущие) [parent_id] => 3 [material_sum] => 397863 [work_sum] => 336988 [total_sum] => 734851 [total_days] => 15 [display_material_sum] => 397 863 [display_work_sum] => 336 988 [display_total_sum] => 734 851 ) 1
734 851
Работа:336 988
Материалы:397 863
Дни:15
stdClass Object ( [id] => 84 [attribute_id] => 3 [name] => СИП-панели [material_modifier] => 1 [work_modifier] => 1 [options] => Array ( [0] => 120 мм [1] => 170 мм [2] => 220 мм ) [days] => [7,7,7] [material_price] => [1210,1856,2292] [work_price] => [1410,1551,1706] [image] => https://akademik-stroy.ru/wp-content/uploads/materials/sip-paneli.jpg [area_modifier] => 132.73 [parent_name] => Стены 1 этаж (несущие) [parent_id] => 3 [material_sum] => 202360 [work_sum] => 196507 [total_sum] => 398867 [total_days] => 7 [display_material_sum] => 202 360 [display_work_sum] => 196 507 [display_total_sum] => 398 867 ) 1
398 867
Работа:196 507
Материалы:202 360
Дни:7
stdClass Object ( [id] => 85 [attribute_id] => 3 [name] => Сухой брус [material_modifier] => 1 [work_modifier] => 1 [options] => Array ( [0] => 150 мм [1] => 180 мм [2] => 200 мм ) [days] => [7,8,9] [material_price] => [6010,7190,8709] [work_price] => [3204,3845,4229] [image] => https://akademik-stroy.ru/wp-content/uploads/materials/suhoj-brus.jpg [area_modifier] => 132.73 [parent_name] => Стены 1 этаж (несущие) [parent_id] => 3 [material_sum] => 1005111 [work_sum] => 446530 [total_sum] => 1451641 [total_days] => 7 [display_material_sum] => 1 005 111 [display_work_sum] => 446 530 [display_total_sum] => 1 451 641 ) 1
1 451 641
Работа:446 530
Материалы:1 005 111
Дни:7
stdClass Object ( [id] => 86 [attribute_id] => 3 [name] => Профилированный брус [material_modifier] => 1 [work_modifier] => 1 [options] => Array ( [0] => 150 мм [1] => 180 мм [2] => 200 мм ) [days] => [7,8,9] [material_price] => [8190,9228,10051] [work_price] => [3845,4614,5075] [image] => https://akademik-stroy.ru/wp-content/uploads/materials/profilirovannyj-brus.jpg [area_modifier] => 132.73 [parent_name] => Стены 1 этаж (несущие) [parent_id] => 3 [material_sum] => 1369694 [work_sum] => 535864 [total_sum] => 1905558 [total_days] => 7 [display_material_sum] => 1 369 694 [display_work_sum] => 535 864 [display_total_sum] => 1 905 558 ) 1
1 905 558
Работа:535 864
Материалы:1 369 694
Дни:7
stdClass Object ( [id] => 87 [attribute_id] => 3 [name] => Оцилиндрованное бревно [material_modifier] => 1 [work_modifier] => 1 [options] => Array ( [0] => 180 мм [1] => 220 мм [2] => 260 мм [3] => 320 мм ) [days] => [7,8,9,10] [material_price] => [75190,9532,10868,13116] [work_price] => [3845,4691,5535,6863] [image] => https://akademik-stroy.ru/wp-content/uploads/materials/ocilindrovannoe-brevno-1.jpg [area_modifier] => 132.73 [parent_name] => Стены 1 этаж (несущие) [parent_id] => 3 [material_sum] => 12574761 [work_sum] => 535864 [total_sum] => 13110625 [total_days] => 7 [display_material_sum] => 12 574 761 [display_work_sum] => 535 864 [display_total_sum] => 13 110 625 ) 1
13 110 625
Работа:535 864
Материалы:12 574 761
Дни:7
stdClass Object ( [id] => 88 [attribute_id] => 3 [name] => Срубы [material_modifier] => 1 [work_modifier] => 1 [options] => Array ( [0] => 260 мм [1] => 320 мм [2] => 360 мм [3] => 400 мм [4] => 500 мм ) [days] => [7,8,9,10,11] [material_price] => [37975,46709,52314,58069,73167] [work_price] => [4806,5911,6621,7349,9260] [image] => https://akademik-stroy.ru/wp-content/uploads/materials/sruby.jpg [area_modifier] => 132.73 [parent_name] => Стены 1 этаж (несущие) [parent_id] => 3 [material_sum] => 6350931 [work_sum] => 669795 [total_sum] => 7020726 [total_days] => 7 [display_material_sum] => 6 350 931 [display_work_sum] => 669 795 [display_total_sum] => 7 020 726 ) 1
7 020 726
Работа:669 795
Материалы:6 350 931
Дни:7
stdClass Object ( [id] => 174 [attribute_id] => 3 [name] => Брус [material_modifier] => 1 [work_modifier] => 1 [options] => Array ( [0] => 150 мм [1] => 180 мм [2] => 200 мм ) [days] => [7,8,9] [material_price] => [5127,6152,7367] [work_price] => [1602,1922,2115] [image] => https://akademik-stroy.ru/wp-content/uploads/materials/brus.jpg [area_modifier] => 132.73 [parent_name] => Стены 1 этаж (несущие) [parent_id] => 3 [material_sum] => 857438 [work_sum] => 223265 [total_sum] => 1080703 [total_days] => 7 [display_material_sum] => 857 438 [display_work_sum] => 223 265 [display_total_sum] => 1 080 703 ) 1
1 080 703
Работа:223 265
Материалы:857 438
Дни:7
stdClass Object ( [id] => 175 [attribute_id] => 3 [name] => Газобетон [material_modifier] => 1 [work_modifier] => 1 [options] => Array ( [0] => 300 мм [1] => 375 мм [2] => 400 мм [3] => 500 мм [4] => 600 мм ) [days] => [29,31,35,37,44] [material_price] => [4298,5573,6356,7288,9119] [work_price] => [4538,5251,5926,6733,7195] [image] => https://akademik-stroy.ru/wp-content/uploads/materials/gazobeton.jpg [area_modifier] => 132.73 [parent_name] => Стены 1 этаж (несущие) [parent_id] => 3 [material_sum] => 718797 [work_sum] => 632445 [total_sum] => 1351242 [total_days] => 29 [display_material_sum] => 718 797 [display_work_sum] => 632 445 [display_total_sum] => 1 351 242 ) 1
1 351 242
Работа:632 445
Материалы:718 797
Дни:29
stdClass Object ( [id] => 176 [attribute_id] => 3 [name] => Блок [material_modifier] => 1 [work_modifier] => 1 [options] => Array ( [0] => 300 мм [1] => 375 мм [2] => 400 мм [3] => 500 мм [4] => 600 мм ) [days] => [29,31,35,37,44] [material_price] => [2698,3973,4356,6588,7119] [work_price] => [5038,5851,6426,8733,9195] [image] => https://akademik-stroy.ru/wp-content/uploads/materials/blok.jpg [area_modifier] => 132.73 [parent_name] => Стены 1 этаж (несущие) [parent_id] => 3 [material_sum] => 451213 [work_sum] => 702128 [total_sum] => 1153341 [total_days] => 29 [display_material_sum] => 451 213 [display_work_sum] => 702 128 [display_total_sum] => 1 153 341 ) 1
1 153 341
Работа:702 128
Материалы:451 213
Дни:29
stdClass Object ( [id] => 177 [attribute_id] => 3 [name] => Газосиликатный блок [material_modifier] => 1 [work_modifier] => 1 [options] => Array ( [0] => 300 мм [1] => 375 мм [2] => 400 мм [3] => 500 мм [4] => 600 мм ) [days] => [29,31,35,37,44] [material_price] => [4298,5573,6356,7288,9119] [work_price] => [4538,5251,5926,6733,7195] [image] => https://akademik-stroy.ru/wp-content/uploads/materials/gazosilikatnyj-blok.jpg [area_modifier] => 132.73 [parent_name] => Стены 1 этаж (несущие) [parent_id] => 3 [material_sum] => 718797 [work_sum] => 632445 [total_sum] => 1351242 [total_days] => 29 [display_material_sum] => 718 797 [display_work_sum] => 632 445 [display_total_sum] => 1 351 242 ) 1
1 351 242
Работа:632 445
Материалы:718 797
Дни:29
stdClass Object ( [id] => 178 [attribute_id] => 3 [name] => Керамзитобетонный блок [material_modifier] => 1 [work_modifier] => 1 [options] => Array ( [0] => 300 мм [1] => 375 мм [2] => 400 мм [3] => 500 мм [4] => 600 мм ) [days] => [23,23,24,25,28] [material_price] => [3641,4298,5693,7613,9612] [work_price] => [5737,5737,6903,7958,8901] [image] => https://akademik-stroy.ru/wp-content/uploads/materials/keramzitobetonnyj-blok.jpg [area_modifier] => 132.73 [parent_name] => Стены 1 этаж (несущие) [parent_id] => 3 [material_sum] => 608920 [work_sum] => 799546 [total_sum] => 1408466 [total_days] => 23 [display_material_sum] => 608 920 [display_work_sum] => 799 546 [display_total_sum] => 1 408 466 ) 1
1 408 466
Работа:799 546
Материалы:608 920
Дни:23
stdClass Object ( [id] => 179 [attribute_id] => 3 [name] => Деревянные [material_modifier] => 1 [work_modifier] => 1 [options] => Array ( [0] => 180 мм [1] => 220 мм [2] => 260 мм [3] => 320 мм ) [days] => [7,8,9,10] [material_price] => [7950,9458,11961,14472] [work_price] => [4037,4925,5812,7207] [image] => https://akademik-stroy.ru/wp-content/uploads/materials/derevyannye.jpg [area_modifier] => 132.73 [parent_name] => Стены 1 этаж (несущие) [parent_id] => 3 [material_sum] => 1329556 [work_sum] => 562623 [total_sum] => 1892179 [total_days] => 7 [display_material_sum] => 1 329 556 [display_work_sum] => 562 623 [display_total_sum] => 1 892 179 ) 1
1 892 179
Работа:562 623
Материалы:1 329 556
Дни:7
stdClass Object ( [id] => 181 [attribute_id] => 3 [name] => Камень [material_modifier] => 1 [work_modifier] => 1 [options] => Array ( [0] => 300 мм [1] => 400 мм [2] => 500 мм [3] => 600 мм ) [days] => [25,27,31,34] [material_price] => [5262,6844,8330,9815] [work_price] => [8331,9135,10427,11069] [image] => https://akademik-stroy.ru/wp-content/uploads/materials/kamen.jpg [area_modifier] => 132.73 [parent_name] => Стены 1 этаж (несущие) [parent_id] => 3 [material_sum] => 880016 [work_sum] => 1161062 [total_sum] => 2041078 [total_days] => 25 [display_material_sum] => 880 016 [display_work_sum] => 1 161 062 [display_total_sum] => 2 041 078 ) 1
2 041 078
Работа:1 161 062
Материалы:880 016
Дни:25
stdClass Object ( [id] => 182 [attribute_id] => 3 [name] => Каркасно-щитовые [material_modifier] => 1 [work_modifier] => 1 [options] => Array ( [0] => 150 мм [1] => 200 мм [2] => 250 мм [3] => 300 мм [4] => 350 мм [5] => 400 мм ) [days] => [15,16,17,18,19,20] [material_price] => [2379,2639,2898,3458,3601,4175] [work_price] => [2538,2820,3134,3483,4062,5642] [image] => https://akademik-stroy.ru/wp-content/uploads/materials/karkasno-shchitovye.jpg [area_modifier] => 132.73 [parent_name] => Стены 1 этаж (несущие) [parent_id] => 3 [material_sum] => 397863 [work_sum] => 353712 [total_sum] => 751575 [total_days] => 15 [display_material_sum] => 397 863 [display_work_sum] => 353 712 [display_total_sum] => 751 575 ) 1
751 575
Работа:353 712
Материалы:397 863
Дни:15
stdClass Object ( [id] => 183 [attribute_id] => 3 [name] => Рубленные [material_modifier] => 1 [work_modifier] => 1 [options] => Array ( [0] => 150 мм [1] => 200 мм [2] => 250 мм [3] => 300 мм [4] => 350 мм [5] => 400 мм ) [days] => [15,16,17,18,17,18] [material_price] => [35950,50267,60583,75900,80217,100533] [work_price] => [9612,12816,16020,19224,22428,25632] [image] => https://akademik-stroy.ru/wp-content/uploads/materials/rublennye.jpg [area_modifier] => 132.73 [parent_name] => Стены 1 этаж (несущие) [parent_id] => 3 [material_sum] => 6012271 [work_sum] => 1339591 [total_sum] => 7351862 [total_days] => 15 [display_material_sum] => 6 012 271 [display_work_sum] => 1 339 591 [display_total_sum] => 7 351 862 ) 1
7 351 862
Работа:1 339 591
Материалы:6 012 271
Дни:15
stdClass Object ( [id] => 185 [attribute_id] => 3 [name] => Теплоблок [material_modifier] => 1 [work_modifier] => 1 [options] => Array ( [0] => 300 мм (с облицовкой, не покрашенный) [1] => 400 мм (с облицовкой, не покрашенный) [2] => 300 мм (с облицовкой, покрашенный) [3] => 400 мм (с облицовкой, покрашенный) ) [days] => [15,16,15,16] [material_price] => [2888,3729,3957,4258] [work_price] => [2564,3229,2949,3713] [image] => https://akademik-stroy.ru/wp-content/uploads/materials/teploblok.jpg [area_modifier] => 132.73 [parent_name] => Стены 1 этаж (несущие) [parent_id] => 3 [material_sum] => 482989 [work_sum] => 357336 [total_sum] => 840325 [total_days] => 15 [display_material_sum] => 482 989 [display_work_sum] => 357 336 [display_total_sum] => 840 325 ) 1
840 325
Работа:357 336
Материалы:482 989
Дни:15
stdClass Object ( [id] => 186 [attribute_id] => 3 [name] => Арболитовые блоки [material_modifier] => 1 [work_modifier] => 1 [options] => Array ( [0] => 300 мм [1] => 400 мм [2] => 600 мм ) [days] => [19,22,27] [material_price] => [3210,4475,5852] [work_price] => [4214,4788,5866] [image] => https://akademik-stroy.ru/wp-content/uploads/materials/arbolitovye-bloki.png [area_modifier] => 132.73 [parent_name] => Стены 1 этаж (несущие) [parent_id] => 3 [material_sum] => 536840 [work_sum] => 587290 [total_sum] => 1124130 [total_days] => 19 [display_material_sum] => 536 840 [display_work_sum] => 587 290 [display_total_sum] => 1 124 130 ) 1
1 124 130
Работа:587 290
Материалы:536 840
Дни:19
stdClass Object ( [id] => 187 [attribute_id] => 3 [name] => Полистиролбетон [material_modifier] => 1 [work_modifier] => 1 [options] => Array ( [0] => 300 мм [1] => 400 мм [2] => 600 мм ) [days] => [29,31,35] [material_price] => [2798,4573,5256] [work_price] => [5038,5851,6426] [image] => https://akademik-stroy.ru/wp-content/uploads/materials/polistirolbeton.jpg [area_modifier] => 132.73 [parent_name] => Стены 1 этаж (несущие) [parent_id] => 3 [material_sum] => 467937 [work_sum] => 702128 [total_sum] => 1170065 [total_days] => 29 [display_material_sum] => 467 937 [display_work_sum] => 702 128 [display_total_sum] => 1 170 065 ) 1
1 170 065
Работа:702 128
Материалы:467 937
Дни:29
stdClass Object ( [id] => 188 [attribute_id] => 3 [name] => Шлакоблок [material_modifier] => 1 [work_modifier] => 1 [options] => Array ( [0] => 400 мм [1] => 600 мм ) [days] => [15,16] [material_price] => [2391,3471] [work_price] => [2642,3662] [image] => https://akademik-stroy.ru/wp-content/uploads/materials/shlakoblok.jpg [area_modifier] => 132.73 [parent_name] => Стены 1 этаж (несущие) [parent_id] => 3 [material_sum] => 399870 [work_sum] => 368206 [total_sum] => 768076 [total_days] => 15 [display_material_sum] => 399 870 [display_work_sum] => 368 206 [display_total_sum] => 768 076 ) 1
768 076
Работа:368 206
Материалы:399 870
Дни:15
stdClass Object ( [id] => 189 [attribute_id] => 3 [name] => Теплая керамика [material_modifier] => 1 [work_modifier] => 1 [options] => Array ( [0] => 380 мм [1] => 380 мм Thermo [2] => 440 мм [3] => 510 мм ) [days] => [23,23,24,25] [material_price] => [4510,5098,6093,8013] [work_price] => [4737,4937,5903,6958] [image] => https://akademik-stroy.ru/wp-content/uploads/materials/teplaya-keramika.jpg [area_modifier] => 132.73 [parent_name] => Стены 1 этаж (несущие) [parent_id] => 3 [material_sum] => 754251 [work_sum] => 660179 [total_sum] => 1414430 [total_days] => 23 [display_material_sum] => 754 251 [display_work_sum] => 660 179 [display_total_sum] => 1 414 430 ) 1
1 414 430
Работа:660 179
Материалы:754 251
Дни:23
stdClass Object ( [id] => 190 [attribute_id] => 3 [name] => Несъемная опалубка [material_modifier] => 1 [work_modifier] => 1 [options] => Array ( [0] => 200 мм [1] => 250 мм [2] => 300 мм [3] => 350 мм ) [days] => [15,17,19,21] [material_price] => [3302,3902,4108,5008] [work_price] => [2100,2100,2300,2534] [image] => https://akademik-stroy.ru/wp-content/uploads/materials/nesemnaya-opalubka.jpg [area_modifier] => 132.73 [parent_name] => Стены 1 этаж (несущие) [parent_id] => 3 [material_sum] => 552226 [work_sum] => 292670 [total_sum] => 844896 [total_days] => 15 [display_material_sum] => 552 226 [display_work_sum] => 292 670 [display_total_sum] => 844 896 ) 1
844 896
Работа:292 670
Материалы:552 226
Дни:15
stdClass Object ( [id] => 251 [attribute_id] => 3 [name] => Бревно [material_modifier] => 1 [work_modifier] => 1 [options] => Array ( [0] => 260 мм [1] => 320 мм [2] => 360 мм [3] => 400 мм [4] => 500 мм ) [days] => [7,8,9,10,11] [material_price] => [1874,24045,26930,30972,38825] [work_price] => [5046,6207,6952,7716,9723] [image] => https://akademik-stroy.ru/wp-content/uploads/materials/sruby.jpg [area_modifier] => 132.73 [parent_name] => Стены 1 этаж (несущие) [parent_id] => 3 [material_sum] => 313407 [work_sum] => 703243 [total_sum] => 1016650 [total_days] => 7 [display_material_sum] => 313 407 [display_work_sum] => 703 243 [display_total_sum] => 1 016 650 ) 1
1 016 650
Работа:703 243
Материалы:313 407
Дни:7
Перекрытие первого этажа
stdClass Object ( [id] => 7 [attribute_id] => 4 [name] => Деревянные балки [material_modifier] => 1 [work_modifier] => 1 [options] => Array ( [0] => без утепления [1] => утепление 200 мм [2] => утепление 250 мм [3] => утепление 300 мм [4] => утепление 350 мм [5] => утепление 400 мм [6] => утепление 450 мм [7] => утепление 500 мм ) [days] => [8,9,9,9,11,12,13,14] [material_price] => [1634,2042,2344,2947,3149,3652,3354,3557] [work_price] => [1230,1339,1393,1426,1460,1513,1587,1620] [image] => https://akademik-stroy.ru/wp-content/uploads/materials/derevyannye-balki.png [area_modifier] => 132.73 [parent_name] => Перекрытие первого этажа [parent_id] => 4 [material_sum] => 273270 [work_sum] => 171421 [total_sum] => 444691 [total_days] => 8 [display_material_sum] => 273 270 [display_work_sum] => 171 421 [display_total_sum] => 444 691 ) 1
444 691
Работа:171 421
Материалы:273 270
Дни:8
stdClass Object ( [id] => 8 [attribute_id] => 4 [name] => Сборные ж/б плиты [material_modifier] => 1 [work_modifier] => 1 [options] => Array ( [0] => без утепления [1] => утепление 150 мм [2] => утепление 200 мм [3] => утепление 250 мм [4] => утепление 300 мм [5] => утепление 350 мм [6] => утепление 400 мм [7] => утепление 450 мм [8] => утепление 500 мм ) [days] => [13,15,15,15,15,15,15,15,15] [material_price] => [3067,5577,5928,6679,7730,8782,9833,10884,11935] [work_price] => [1520,1956,2102,2247,2392,2537,2684,2829,2974] [image] => https://akademik-stroy.ru/wp-content/uploads/materials/sbornye-zh-b-plity-2.jpg [area_modifier] => 132.73 [parent_name] => Перекрытие первого этажа [parent_id] => 4 [material_sum] => 512924 [work_sum] => 211837 [total_sum] => 724761 [total_days] => 13 [display_material_sum] => 512 924 [display_work_sum] => 211 837 [display_total_sum] => 724 761 ) 1
724 761
Работа:211 837
Материалы:512 924
Дни:13
stdClass Object ( [id] => 89 [attribute_id] => 4 [name] => Монолитная ж/б плита [material_modifier] => 1 [work_modifier] => 1 [options] => Array ( [0] => без утепления [1] => утепление 150 мм [2] => утепление 200 мм [3] => утепление 250 мм [4] => утепление 300 мм [5] => утепление 350 мм [6] => утепление 400 мм [7] => утепление 450 мм [8] => утепление 500 мм ) [days] => [18,20,20,20,20,20,20,20,20] [material_price] => [4837,6572,7224,7375,79426,8177,8728,9180,10031] [work_price] => [3348,3921,4112,4302,4493,4684,4875,5066,5256] [image] => https://akademik-stroy.ru/wp-content/uploads/materials/monolitnaya-zh-b-plita-2.jpg [area_modifier] => 132.73 [parent_name] => Перекрытие первого этажа [parent_id] => 4 [material_sum] => 808939 [work_sum] => 466599 [total_sum] => 1275538 [total_days] => 18 [display_material_sum] => 808 939 [display_work_sum] => 466 599 [display_total_sum] => 1 275 538 ) 1
1 275 538
Работа:466 599
Материалы:808 939
Дни:18
Стены 2 этаж (несущие)
stdClass Object ( [id] => 10 [attribute_id] => 5 [name] => Пеноблок [material_modifier] => 1 [work_modifier] => 1 [options] => Array ( [0] => 300 мм [1] => 400 мм [2] => 500 мм [3] => 600 мм ) [days] => [29,31,34,39] [material_price] => [3000,4000,4500,4937] [work_price] => [5033,5805,6400,8710] [image] => https://akademik-stroy.ru/wp-content/uploads/materials/penoblok.jpg [area_modifier] => 117.54 [parent_name] => Стены 2 этаж (несущие) [parent_id] => 5 [material_sum] => 444301 [work_sum] => 621158 [total_sum] => 1065459 [total_days] => 29 [display_material_sum] => 444 301 [display_work_sum] => 621 158 [display_total_sum] => 1 065 459 ) 1
1 065 459
Работа:621 158
Материалы:444 301
Дни:29
stdClass Object ( [id] => 90 [attribute_id] => 5 [name] => Керамический блок [material_modifier] => 1 [work_modifier] => 1 [options] => Array ( [0] => 380 мм [1] => 380 мм Thermo [2] => 440 мм [3] => 510 мм ) [days] => [23,23,24,25] [material_price] => [4510,5098,6093,8013] [work_price] => [4737,4937,5903,6958] [image] => https://akademik-stroy.ru/wp-content/uploads/materials/keramicheskij-blok.jpg [area_modifier] => 117.54 [parent_name] => Стены 2 этаж (несущие) [parent_id] => 5 [material_sum] => 667933 [work_sum] => 584626 [total_sum] => 1252559 [total_days] => 23 [display_material_sum] => 667 933 [display_work_sum] => 584 626 [display_total_sum] => 1 252 559 ) 1
1 252 559
Работа:584 626
Материалы:667 933
Дни:23
stdClass Object ( [id] => 91 [attribute_id] => 5 [name] => Кирпич [material_modifier] => 1 [work_modifier] => 1 [options] => Array ( [0] => Кирпич 250 мм [1] => Кирпич 380 мм [2] => Кирпич 510 мм [3] => Кирпич 640 мм [4] => Кирпич 770 мм ) [days] => [30,30,31,33,36] [material_price] => [5500,7142,9206,10171,12235] [work_price] => [8736,10041,12018,15240,18462] [image] => https://akademik-stroy.ru/wp-content/uploads/materials/kirpich.jpg [area_modifier] => 117.54 [parent_name] => Стены 2 этаж (несущие) [parent_id] => 5 [material_sum] => 814552 [work_sum] => 1078171 [total_sum] => 1892723 [total_days] => 30 [display_material_sum] => 814 552 [display_work_sum] => 1 078 171 [display_total_sum] => 1 892 723 ) 1
1 892 723
Работа:1 078 171
Материалы:814 552
Дни:30
stdClass Object ( [id] => 92 [attribute_id] => 5 [name] => Монолитные [material_modifier] => 1 [work_modifier] => 1 [options] => Array ( [0] => 150 мм [1] => 200 мм [2] => 250 мм [3] => 300 мм [4] => 350 мм [5] => 400 мм ) [days] => [45,46,47,49,50,53] [material_price] => [6545,7876,10175,12011,13908,15204] [work_price] => [5106,6444,7698,8552,9807,11461] [image] => https://akademik-stroy.ru/wp-content/uploads/materials/monolitnye.jpg [area_modifier] => 117.54 [parent_name] => Стены 2 этаж (несущие) [parent_id] => 5 [material_sum] => 969317 [work_sum] => 630167 [total_sum] => 1599484 [total_days] => 45 [display_material_sum] => 969 317 [display_work_sum] => 630 167 [display_total_sum] => 1 599 484 ) 1
1 599 484
Работа:630 167
Материалы:969 317
Дни:45
stdClass Object ( [id] => 93 [attribute_id] => 5 [name] => Клееный брус [material_modifier] => 1 [work_modifier] => 1 [options] => Array ( [0] => 160 мм [1] => 175 мм [2] => 200 мм [3] => 215 мм [4] => 240 мм [5] => 270 мм [6] => 282 мм ) [days] => [24,28,32,37,40,42,48] [material_price] => [16975,18773,19950,20545,21599,22159,23275] [work_price] => [4806,5287,5815,6397,7036,7740,8514] [image] => https://akademik-stroy.ru/wp-content/uploads/materials/kleenyj-brus.jpg [area_modifier] => 117.54 [parent_name] => Стены 2 этаж (несущие) [parent_id] => 5 [material_sum] => 2514004 [work_sum] => 593142 [total_sum] => 3107146 [total_days] => 24 [display_material_sum] => 2 514 004 [display_work_sum] => 593 142 [display_total_sum] => 3 107 146 ) 1
3 107 146
Работа:593 142
Материалы:2 514 004
Дни:24
stdClass Object ( [id] => 94 [attribute_id] => 5 [name] => Каркасные [material_modifier] => 1 [work_modifier] => 1 [options] => Array ( [0] => 150 мм [1] => 200 мм [2] => 250 мм [3] => 300 мм ) [days] => [15,16,17,18] [material_price] => [2379,2639,2898,3258] [work_price] => [2418,2686,2985,3716] [image] => https://akademik-stroy.ru/wp-content/uploads/materials/karkasnye.jpg [area_modifier] => 117.54 [parent_name] => Стены 2 этаж (несущие) [parent_id] => 5 [material_sum] => 352331 [work_sum] => 298422 [total_sum] => 650753 [total_days] => 15 [display_material_sum] => 352 331 [display_work_sum] => 298 422 [display_total_sum] => 650 753 ) 1
650 753
Работа:298 422
Материалы:352 331
Дни:15
stdClass Object ( [id] => 95 [attribute_id] => 5 [name] => СИП-панели [material_modifier] => 1 [work_modifier] => 1 [options] => Array ( [0] => 120 мм [1] => 170 мм [2] => 220 мм ) [days] => [7,7,7] [material_price] => [1210,1856,2292] [work_price] => [1410,1551,1706] [image] => https://akademik-stroy.ru/wp-content/uploads/materials/sip-paneli.jpg [area_modifier] => 117.54 [parent_name] => Стены 2 этаж (несущие) [parent_id] => 5 [material_sum] => 179201 [work_sum] => 174018 [total_sum] => 353219 [total_days] => 7 [display_material_sum] => 179 201 [display_work_sum] => 174 018 [display_total_sum] => 353 219 ) 1
353 219
Работа:174 018
Материалы:179 201
Дни:7
stdClass Object ( [id] => 96 [attribute_id] => 5 [name] => Сухой брус [material_modifier] => 1 [work_modifier] => 1 [options] => Array ( [0] => 150 мм [1] => 180 мм [2] => 200 мм ) [days] => [7,8,9] [material_price] => [6010,7190,8709] [work_price] => [3204,3845,4229] [image] => https://akademik-stroy.ru/wp-content/uploads/materials/suhoj-brus.jpg [area_modifier] => 117.54 [parent_name] => Стены 2 этаж (несущие) [parent_id] => 5 [material_sum] => 890083 [work_sum] => 395428 [total_sum] => 1285511 [total_days] => 7 [display_material_sum] => 890 083 [display_work_sum] => 395 428 [display_total_sum] => 1 285 511 ) 1
1 285 511
Работа:395 428
Материалы:890 083
Дни:7
stdClass Object ( [id] => 97 [attribute_id] => 5 [name] => Профилированный брус [material_modifier] => 1 [work_modifier] => 1 [options] => Array ( [0] => 150 мм [1] => 180 мм [2] => 200 мм ) [days] => [7,8,9] [material_price] => [8190,9228,10051] [work_price] => [3845,4614,5075] [image] => https://akademik-stroy.ru/wp-content/uploads/materials/profilirovannyj-brus.jpg [area_modifier] => 117.54 [parent_name] => Стены 2 этаж (несущие) [parent_id] => 5 [material_sum] => 1212942 [work_sum] => 474538 [total_sum] => 1687480 [total_days] => 7 [display_material_sum] => 1 212 942 [display_work_sum] => 474 538 [display_total_sum] => 1 687 480 ) 1
1 687 480
Работа:474 538
Материалы:1 212 942
Дни:7
stdClass Object ( [id] => 98 [attribute_id] => 5 [name] => Оцилиндрованное бревно [material_modifier] => 1 [work_modifier] => 1 [options] => Array ( [0] => 180 мм [1] => 220 мм [2] => 260 мм [3] => 320 мм ) [days] => [7,8,9,10] [material_price] => [75190,9532,10868,13116] [work_price] => [3845,4691,5535,6863] [image] => https://akademik-stroy.ru/wp-content/uploads/materials/ocilindrovannoe-brevno-1.jpg [area_modifier] => 117.54 [parent_name] => Стены 2 этаж (несущие) [parent_id] => 5 [material_sum] => 11135669 [work_sum] => 474538 [total_sum] => 11610207 [total_days] => 7 [display_material_sum] => 11 135 669 [display_work_sum] => 474 538 [display_total_sum] => 11 610 207 ) 1
11 610 207
Работа:474 538
Материалы:11 135 669
Дни:7
stdClass Object ( [id] => 99 [attribute_id] => 5 [name] => Срубы [material_modifier] => 1 [work_modifier] => 1 [options] => Array ( [0] => 260 мм [1] => 320 мм [2] => 360 мм [3] => 400 мм [4] => 500 мм ) [days] => [7,8,9,10,11] [material_price] => [16175,23709,26314,29069,32167] [work_price] => [4806,5911,6621,7349,9260] [image] => https://akademik-stroy.ru/wp-content/uploads/materials/suhoj-brus.jpg [area_modifier] => 117.54 [parent_name] => Стены 2 этаж (несущие) [parent_id] => 5 [material_sum] => 2395524 [work_sum] => 593142 [total_sum] => 2988666 [total_days] => 7 [display_material_sum] => 2 395 524 [display_work_sum] => 593 142 [display_total_sum] => 2 988 666 ) 1
2 988 666
Работа:593 142
Материалы:2 395 524
Дни:7
stdClass Object ( [id] => 194 [attribute_id] => 5 [name] => Брус [material_modifier] => 1 [work_modifier] => 1 [options] => Array ( [0] => 150 мм [1] => 180 мм [2] => 200 мм ) [days] => [10,13,15] [material_price] => [5127,6152,7367] [work_price] => [1602,1922,2115] [image] => https://akademik-stroy.ru/wp-content/uploads/materials/brus.jpg [area_modifier] => 117.54 [parent_name] => Стены 2 этаж (несущие) [parent_id] => 5 [material_sum] => 759311 [work_sum] => 197714 [total_sum] => 957025 [total_days] => 10 [display_material_sum] => 759 311 [display_work_sum] => 197 714 [display_total_sum] => 957 025 ) 1
957 025
Работа:197 714
Материалы:759 311
Дни:10
stdClass Object ( [id] => 195 [attribute_id] => 5 [name] => Газобетон [material_modifier] => 1 [work_modifier] => 1 [options] => Array ( [0] => 300 мм [1] => 375 мм [2] => 400 мм [3] => 500 мм [4] => 600 мм ) [days] => [29,31,35,37,44] [material_price] => [4298,5573,6356,7288,9119] [work_price] => [4538,5251,5926,6733,7195] [image] => https://akademik-stroy.ru/wp-content/uploads/materials/gazobeton.jpg [area_modifier] => 117.54 [parent_name] => Стены 2 этаж (несущие) [parent_id] => 5 [material_sum] => 636536 [work_sum] => 560066 [total_sum] => 1196602 [total_days] => 29 [display_material_sum] => 636 536 [display_work_sum] => 560 066 [display_total_sum] => 1 196 602 ) 1
1 196 602
Работа:560 066
Материалы:636 536
Дни:29
stdClass Object ( [id] => 196 [attribute_id] => 5 [name] => Блок [material_modifier] => 1 [work_modifier] => 1 [options] => Array ( [0] => 300 мм [1] => 375 мм [2] => 400 мм [3] => 500 мм [4] => 600 мм ) [days] => [29,31,35,37,44] [material_price] => [2698,3973,4356,6588,7119] [work_price] => [5038,5851,6426,8733,9195] [image] => https://akademik-stroy.ru/wp-content/uploads/materials/blok.jpg [area_modifier] => 117.54 [parent_name] => Стены 2 этаж (несущие) [parent_id] => 5 [material_sum] => 399575 [work_sum] => 621775 [total_sum] => 1021350 [total_days] => 29 [display_material_sum] => 399 575 [display_work_sum] => 621 775 [display_total_sum] => 1 021 350 ) 1
1 021 350
Работа:621 775
Материалы:399 575
Дни:29
stdClass Object ( [id] => 197 [attribute_id] => 5 [name] => Газосиликатный блок [material_modifier] => 1 [work_modifier] => 1 [options] => Array ( [0] => 300 мм [1] => 375 мм [2] => 400 мм [3] => 500 мм [4] => 600 мм ) [days] => [29,31,35,37,44] [material_price] => [4298,5573,6356,7288,9119] [work_price] => [4538,5251,5926,6733,7195] [image] => https://akademik-stroy.ru/wp-content/uploads/materials/gazosilikatnyj-blok.jpg [area_modifier] => 117.54 [parent_name] => Стены 2 этаж (несущие) [parent_id] => 5 [material_sum] => 636536 [work_sum] => 560066 [total_sum] => 1196602 [total_days] => 29 [display_material_sum] => 636 536 [display_work_sum] => 560 066 [display_total_sum] => 1 196 602 ) 1
1 196 602
Работа:560 066
Материалы:636 536
Дни:29
stdClass Object ( [id] => 198 [attribute_id] => 5 [name] => Керамзитобетонный блок [material_modifier] => 1 [work_modifier] => 1 [options] => Array ( [0] => 300 мм [1] => 375 мм [2] => 400 мм [3] => 500 мм [4] => 600 мм ) [days] => [23,23,24,25,28] [material_price] => [3641,4298,5693,7613,9612] [work_price] => [5737,5737,6903,7958,8901] [image] => https://akademik-stroy.ru/wp-content/uploads/materials/keramzitobetonnyj-blok.jpg [area_modifier] => 117.54 [parent_name] => Стены 2 этаж (несущие) [parent_id] => 5 [material_sum] => 539234 [work_sum] => 708043 [total_sum] => 1247277 [total_days] => 23 [display_material_sum] => 539 234 [display_work_sum] => 708 043 [display_total_sum] => 1 247 277 ) 1
1 247 277
Работа:708 043
Материалы:539 234
Дни:23
stdClass Object ( [id] => 199 [attribute_id] => 5 [name] => Деревянные [material_modifier] => 1 [work_modifier] => 1 [options] => Array ( [0] => 180 мм [1] => 220 мм [2] => 260 мм [3] => 320 мм ) [days] => [7,8,9,10] [material_price] => [7950,9458,11961,14472] [work_price] => [4037,4925,5812,7207] [image] => https://akademik-stroy.ru/wp-content/uploads/materials/derevyannye.jpg [area_modifier] => 117.54 [parent_name] => Стены 2 этаж (несущие) [parent_id] => 5 [material_sum] => 1177398 [work_sum] => 498234 [total_sum] => 1675632 [total_days] => 7 [display_material_sum] => 1 177 398 [display_work_sum] => 498 234 [display_total_sum] => 1 675 632 ) 1
1 675 632
Работа:498 234
Материалы:1 177 398
Дни:7
stdClass Object ( [id] => 200 [attribute_id] => 5 [name] => Камень [material_modifier] => 1 [work_modifier] => 1 [options] => Array ( [0] => 300 мм [1] => 400 мм [2] => 500 мм [3] => 600 мм ) [days] => [25,27,31,34] [material_price] => [5262,6844,8330,9815] [work_price] => [8331,9135,10427,11069] [image] => https://akademik-stroy.ru/wp-content/uploads/materials/kamen.jpg [area_modifier] => 117.54 [parent_name] => Стены 2 этаж (несущие) [parent_id] => 5 [material_sum] => 779304 [work_sum] => 1028187 [total_sum] => 1807491 [total_days] => 25 [display_material_sum] => 779 304 [display_work_sum] => 1 028 187 [display_total_sum] => 1 807 491 ) 1
1 807 491
Работа:1 028 187
Материалы:779 304
Дни:25
stdClass Object ( [id] => 201 [attribute_id] => 5 [name] => Каркасно-щитовые [material_modifier] => 1 [work_modifier] => 1 [options] => Array ( [0] => 150 мм [1] => 200 мм [2] => 250 мм [3] => 300 мм [4] => 350 мм [5] => 400 мм ) [days] => [15,16,17,18,19,20] [material_price] => [2379,2639,2898,3458,3601,4175] [work_price] => [2538,2820,3134,3483,4062,5642] [image] => https://akademik-stroy.ru/wp-content/uploads/materials/karkasno-shchitovye.jpg [area_modifier] => 117.54 [parent_name] => Стены 2 этаж (несущие) [parent_id] => 5 [material_sum] => 352331 [work_sum] => 313232 [total_sum] => 665563 [total_days] => 15 [display_material_sum] => 352 331 [display_work_sum] => 313 232 [display_total_sum] => 665 563 ) 1
665 563
Работа:313 232
Материалы:352 331
Дни:15
stdClass Object ( [id] => 202 [attribute_id] => 5 [name] => Рубленные [material_modifier] => 1 [work_modifier] => 1 [options] => Array ( [0] => 150 мм [1] => 200 мм [2] => 250 мм [3] => 300 мм [4] => 350 мм [5] => 400 мм ) [days] => [15,16,17,18,17,18] [material_price] => [35950,50267,60583,75900,80217,100533] [work_price] => [9612,12816,16020,19224,22428,25632] [image] => https://akademik-stroy.ru/wp-content/uploads/materials/rublennye.jpg [area_modifier] => 117.54 [parent_name] => Стены 2 этаж (несущие) [parent_id] => 5 [material_sum] => 5324209 [work_sum] => 1186284 [total_sum] => 6510493 [total_days] => 15 [display_material_sum] => 5 324 209 [display_work_sum] => 1 186 284 [display_total_sum] => 6 510 493 ) 1
6 510 493
Работа:1 186 284
Материалы:5 324 209
Дни:15
stdClass Object ( [id] => 203 [attribute_id] => 5 [name] => Теплоблок [material_modifier] => 1 [work_modifier] => 1 [options] => Array ( [0] => 300 мм (с облицовкой, не покрашенный) [1] => 400 мм (с облицовкой, не покрашенный) [2] => 300 мм (с облицовкой, покрашенный) [3] => 400 мм (с облицовкой, покрашенный) ) [days] => [15,16,15,16] [material_price] => [2888,3729,3957,4258] [work_price] => [2564,3229,2949,3713] [image] => https://akademik-stroy.ru/wp-content/uploads/materials/teploblok.jpg [area_modifier] => 117.54 [parent_name] => Стены 2 этаж (несущие) [parent_id] => 5 [material_sum] => 427714 [work_sum] => 316441 [total_sum] => 744155 [total_days] => 15 [display_material_sum] => 427 714 [display_work_sum] => 316 441 [display_total_sum] => 744 155 ) 1
744 155
Работа:316 441
Материалы:427 714
Дни:15
stdClass Object ( [id] => 204 [attribute_id] => 5 [name] => Арболитовые блоки [material_modifier] => 1 [work_modifier] => 1 [options] => Array ( [0] => 300 мм [1] => 400 мм [2] => 600 мм ) [days] => [19,22,27] [material_price] => [3210,4475,5852] [work_price] => [4214,4788,5866] [image] => https://akademik-stroy.ru/wp-content/uploads/materials/arbolitovye-bloki.png [area_modifier] => 117.54 [parent_name] => Стены 2 этаж (несущие) [parent_id] => 5 [material_sum] => 475402 [work_sum] => 520079 [total_sum] => 995481 [total_days] => 19 [display_material_sum] => 475 402 [display_work_sum] => 520 079 [display_total_sum] => 995 481 ) 1
995 481
Работа:520 079
Материалы:475 402
Дни:19
stdClass Object ( [id] => 205 [attribute_id] => 5 [name] => Полистиролбетон [material_modifier] => 1 [work_modifier] => 1 [options] => Array ( [0] => 300 мм [1] => 400 мм [2] => 600 мм ) [days] => [29,31,35] [material_price] => [2798,4573,5256] [work_price] => [5038,5851,6426] [image] => https://akademik-stroy.ru/wp-content/uploads/materials/polistirolbeton.jpg [area_modifier] => 117.54 [parent_name] => Стены 2 этаж (несущие) [parent_id] => 5 [material_sum] => 414385 [work_sum] => 621775 [total_sum] => 1036160 [total_days] => 29 [display_material_sum] => 414 385 [display_work_sum] => 621 775 [display_total_sum] => 1 036 160 ) 1
1 036 160
Работа:621 775
Материалы:414 385
Дни:29
stdClass Object ( [id] => 206 [attribute_id] => 5 [name] => Шлакоблок [material_modifier] => 1 [work_modifier] => 1 [options] => Array ( [0] => 400 мм [1] => 600 мм ) [days] => [15,16] [material_price] => [2391,3471] [work_price] => [2642,3662] [image] => https://akademik-stroy.ru/wp-content/uploads/materials/shlakoblok.jpg [area_modifier] => 117.54 [parent_name] => Стены 2 этаж (несущие) [parent_id] => 5 [material_sum] => 354108 [work_sum] => 326068 [total_sum] => 680176 [total_days] => 15 [display_material_sum] => 354 108 [display_work_sum] => 326 068 [display_total_sum] => 680 176 ) 1
680 176
Работа:326 068
Материалы:354 108
Дни:15
stdClass Object ( [id] => 245 [attribute_id] => 5 [name] => Теплая керамика [material_modifier] => 1 [work_modifier] => 1 [options] => Array ( [0] => 380 мм [1] => 380 мм Thermo [2] => 440 мм [3] => 510 мм ) [days] => [10,10,11,12] [material_price] => [4510,5098,6093,8013] [work_price] => [4737,4937,5903,6958] [image] => https://akademik-stroy.ru/wp-content/uploads/materials/teplaya-keramika.jpg [area_modifier] => 117.54 [parent_name] => Стены 2 этаж (несущие) [parent_id] => 5 [material_sum] => 667933 [work_sum] => 584626 [total_sum] => 1252559 [total_days] => 10 [display_material_sum] => 667 933 [display_work_sum] => 584 626 [display_total_sum] => 1 252 559 ) 1
1 252 559
Работа:584 626
Материалы:667 933
Дни:10
stdClass Object ( [id] => 246 [attribute_id] => 5 [name] => Несъемная опалубка [material_modifier] => 1 [work_modifier] => 1 [options] => Array ( [0] => 380 мм [1] => 380 мм Thermo [2] => 440 мм [3] => 510 мм ) [days] => [10,10,11,12] [material_price] => [3302,3902,4108,5008] [work_price] => [2100,2100,2300,2534] [image] => https://akademik-stroy.ru/wp-content/uploads/materials/nesemnaya-opalubka.jpg [area_modifier] => 117.54 [parent_name] => Стены 2 этаж (несущие) [parent_id] => 5 [material_sum] => 489028 [work_sum] => 259176 [total_sum] => 748204 [total_days] => 10 [display_material_sum] => 489 028 [display_work_sum] => 259 176 [display_total_sum] => 748 204 ) 1
748 204
Работа:259 176
Материалы:489 028
Дни:10
stdClass Object ( [id] => 254 [attribute_id] => 5 [name] => Бревно [material_modifier] => 1 [work_modifier] => 1 [options] => Array ( [0] => 260 мм [1] => 320 мм [2] => 360 мм [3] => 400 мм [4] => 500 мм ) [days] => [7,8,9,10,11] [material_price] => [1874,24045,26930,30972,38825] [work_price] => [5046,6207,6952,7716,9723] [image] => https://akademik-stroy.ru/wp-content/uploads/materials/sruby.jpg [area_modifier] => 117.54 [parent_name] => Стены 2 этаж (несущие) [parent_id] => 5 [material_sum] => 277540 [work_sum] => 622762 [total_sum] => 900302 [total_days] => 7 [display_material_sum] => 277 540 [display_work_sum] => 622 762 [display_total_sum] => 900 302 ) 1
900 302
Работа:622 762
Материалы:277 540
Дни:7
Крыша (Скатная)
stdClass Object ( [id] => 164 [attribute_id] => 37 [name] => Металлочерепица [material_modifier] => 1 [work_modifier] => 1 [options] => Array ( ) [days] => [20] [material_price] => [6112] [work_price] => [5726] [image] => https://akademik-stroy.ru/wp-content/uploads/materials/metallocherepica.jpg [area_modifier] => 132.73 [parent_name] => Крыша (Скатная) [parent_id] => 37 [material_sum] => 1022170 [work_sum] => 798013 [total_sum] => 1820183 [total_days] => 20 [display_material_sum] => 1 022 170 [display_work_sum] => 798 013 [display_total_sum] => 1 820 183 ) 1
1 820 183
Работа:798 013
Материалы:1 022 170
Дни:20
stdClass Object ( [id] => 165 [attribute_id] => 37 [name] => Гибкая черепица [material_modifier] => 1 [work_modifier] => 1 [options] => Array ( ) [days] => [20] [material_price] => [6980] [work_price] => [5950] [image] => https://akademik-stroy.ru/wp-content/uploads/materials/gibkaya-cherepica.jpg [area_modifier] => 132.73 [parent_name] => Крыша (Скатная) [parent_id] => 37 [material_sum] => 1167334 [work_sum] => 829231 [total_sum] => 1996565 [total_days] => 20 [display_material_sum] => 1 167 334 [display_work_sum] => 829 231 [display_total_sum] => 1 996 565 ) 1
1 996 565
Работа:829 231
Материалы:1 167 334
Дни:20
stdClass Object ( [id] => 166 [attribute_id] => 37 [name] => Цементно-песчаная черепица [material_modifier] => 1 [work_modifier] => 1 [options] => Array ( ) [days] => [20] [material_price] => [10560] [work_price] => [9456] [image] => https://akademik-stroy.ru/wp-content/uploads/materials/cementno-peschanaya-cherepica.jpg [area_modifier] => 132.73 [parent_name] => Крыша (Скатная) [parent_id] => 37 [material_sum] => 1766052 [work_sum] => 1317850 [total_sum] => 3083902 [total_days] => 20 [display_material_sum] => 1 766 052 [display_work_sum] => 1 317 850 [display_total_sum] => 3 083 902 ) 1
3 083 902
Работа:1 317 850
Материалы:1 766 052
Дни:20
stdClass Object ( [id] => 167 [attribute_id] => 37 [name] => Композитная черепица [material_modifier] => 1 [work_modifier] => 1 [options] => Array ( ) [days] => [20] [material_price] => [9506] [work_price] => [8905] [image] => https://akademik-stroy.ru/wp-content/uploads/materials/kompozitnaya-cherepica.jpg [area_modifier] => 132.73 [parent_name] => Крыша (Скатная) [parent_id] => 37 [material_sum] => 1589782 [work_sum] => 1241059 [total_sum] => 2830841 [total_days] => 20 [display_material_sum] => 1 589 782 [display_work_sum] => 1 241 059 [display_total_sum] => 2 830 841 ) 1
2 830 841
Работа:1 241 059
Материалы:1 589 782
Дни:20
stdClass Object ( [id] => 168 [attribute_id] => 37 [name] => Керамическая черепица [material_modifier] => 1 [work_modifier] => 1 [options] => Array ( ) [days] => [20] [material_price] => [12750] [work_price] => [9456] [image] => https://akademik-stroy.ru/wp-content/uploads/materials/keramicheskaya-cherepica.jpg [area_modifier] => 132.73 [parent_name] => Крыша (Скатная) [parent_id] => 37 [material_sum] => 2132307 [work_sum] => 1317850 [total_sum] => 3450157 [total_days] => 20 [display_material_sum] => 2 132 307 [display_work_sum] => 1 317 850 [display_total_sum] => 3 450 157 ) 1
3 450 157
Работа:1 317 850
Материалы:2 132 307
Дни:20
stdClass Object ( [id] => 169 [attribute_id] => 37 [name] => Металлическая фальцевая [material_modifier] => 1 [work_modifier] => 1 [options] => Array ( ) [days] => [20] [material_price] => [8550] [work_price] => [8190] [image] => https://akademik-stroy.ru/wp-content/uploads/materials/metallicheskaya-falcevaya.jpg [area_modifier] => 132.73 [parent_name] => Крыша (Скатная) [parent_id] => 37 [material_sum] => 1429900 [work_sum] => 1141412 [total_sum] => 2571312 [total_days] => 20 [display_material_sum] => 1 429 900 [display_work_sum] => 1 141 412 [display_total_sum] => 2 571 312 ) 1
2 571 312
Работа:1 141 412
Материалы:1 429 900
Дни:20
stdClass Object ( [id] => 170 [attribute_id] => 37 [name] => Медная фальцевая [material_modifier] => 1 [work_modifier] => 1 [options] => Array ( ) [days] => [20] [material_price] => [20450] [work_price] => [16750] [image] => https://akademik-stroy.ru/wp-content/uploads/materials/mednaya-falcevaya.jpg [area_modifier] => 132.73 [parent_name] => Крыша (Скатная) [parent_id] => 37 [material_sum] => 3420054 [work_sum] => 2334389 [total_sum] => 5754443 [total_days] => 20 [display_material_sum] => 3 420 054 [display_work_sum] => 2 334 389 [display_total_sum] => 5 754 443 ) 1
5 754 443
Работа:2 334 389
Материалы:3 420 054
Дни:20
stdClass Object ( [id] => 171 [attribute_id] => 37 [name] => Зеленая кровля [material_modifier] => 1 [work_modifier] => 1 [options] => Array ( ) [days] => [20] [material_price] => [19850] [work_price] => [16780] [image] => https://akademik-stroy.ru/wp-content/uploads/materials/zelenaya-krovlya.jpg [area_modifier] => 132.73 [parent_name] => Крыша (Скатная) [parent_id] => 37 [material_sum] => 3319710 [work_sum] => 2338570 [total_sum] => 5658280 [total_days] => 20 [display_material_sum] => 3 319 710 [display_work_sum] => 2 338 570 [display_total_sum] => 5 658 280 ) 1
5 658 280
Работа:2 338 570
Материалы:3 319 710
Дни:20
stdClass Object ( [id] => 172 [attribute_id] => 37 [name] => Профлист [material_modifier] => 1 [work_modifier] => 1 [options] => Array ( ) [days] => [20] [material_price] => [3450] [work_price] => [3750] [image] => https://akademik-stroy.ru/wp-content/uploads/materials/proflist.jpg [area_modifier] => 132.73 [parent_name] => Крыша (Скатная) [parent_id] => 37 [material_sum] => 576977 [work_sum] => 522624 [total_sum] => 1099601 [total_days] => 20 [display_material_sum] => 576 977 [display_work_sum] => 522 624 [display_total_sum] => 1 099 601 ) 1
1 099 601
Работа:522 624
Материалы:576 977
Дни:20
Окна
stdClass Object ( [id] => 51 [attribute_id] => 26 [name] => Есть [material_modifier] => 1 [work_modifier] => 1 [options] => Array ( [0] => Профиль 58 мм, 3-камерный, стеклопакет 2-камерный до 32 мм [1] => Профиль 60 мм, 4-камерный, стеклопакет 2-камерный до 32 мм [2] => Профиль 70 мм, 5-камерный, стеклопакет 2-камерный до 40 мм [3] => Профиль 72 мм, 5-камерный, стеклопакет 2-камерный до 40 мм [4] => Алюминиевые окна Alutech профиль 72 мм, стеклопакет 2-камерный ) [days] => [3,3,3,3,3] [material_price] => [1339,2124,2867,3023,29596] [work_price] => [635,647,659,668,2579] [image] => https://akademik-stroy.ru/wp-content/uploads/materials/okna.jpg [area_modifier] => 203.09 [parent_name] => Окна [parent_id] => 26 [material_sum] => 342641 [work_sum] => 135410 [total_sum] => 478051 [total_days] => 3 [display_material_sum] => 342 641 [display_work_sum] => 135 410 [display_total_sum] => 478 051 ) 1
478 051
Работа:135 410
Материалы:342 641
Дни:3
stdClass Object ( [id] => 52 [attribute_id] => 26 [name] => Нет [material_modifier] => 2 [work_modifier] => 1 [options] => [days] => null [material_price] => null [work_price] => null [image] => https://akademik-stroy.ru/wp-content/uploads/materials/okna.jpg [area_modifier] => 203.09 [parent_name] => Окна [parent_id] => 26 [material_sum] => 0 [work_sum] => 0 [total_sum] => 0 [total_days] => 0 [display_material_sum] => 0 [display_work_sum] => 0 [display_total_sum] => 0 ) 1
0
Работа:0
Материалы:0
Дни:0
Двери входные
stdClass Object ( [id] => 53 [attribute_id] => 27 [name] => Есть [material_modifier] => 1 [work_modifier] => 1 [options] => Array ( ) [days] => [1] [material_price] => [10000] [work_price] => [5500] [image] => https://akademik-stroy.ru/wp-content/uploads/materials/dveri.jpg [area_modifier] => 1 [parent_name] => Двери входные [parent_id] => 27 [material_sum] => 12600 [work_sum] => 5775 [total_sum] => 18375 [total_days] => 1 [display_material_sum] => 12 600 [display_work_sum] => 5 775 [display_total_sum] => 18 375 ) 1
18 375
Работа:5 775
Материалы:12 600
Дни:1
stdClass Object ( [id] => 54 [attribute_id] => 27 [name] => Нет [material_modifier] => 1 [work_modifier] => 1 [options] => Array ( ) [days] => [0] [material_price] => [0] [work_price] => [0] [image] => https://akademik-stroy.ru/wp-content/uploads/materials/dveri.jpg [area_modifier] => 1 [parent_name] => Двери входные [parent_id] => 27 [material_sum] => 0 [work_sum] => 0 [total_sum] => 0 [total_days] => 0 [display_material_sum] => 0 [display_work_sum] => 0 [display_total_sum] => 0 ) 1
0
Работа:0
Материалы:0
Дни:0
Утепление кровли (Мансарда)
stdClass Object ( [id] => 25 [attribute_id] => 13 [name] => Нет [material_modifier] => 1 [work_modifier] => 1 [options] => Array ( ) [days] => [0] [material_price] => [0] [work_price] => [0] [image] => https://akademik-stroy.ru/wp-content/uploads/materials/mineralovata-krov.jpg [area_modifier] => 132.73 [parent_name] => Утепление кровли (Мансарда) [parent_id] => 13 [material_sum] => 0 [work_sum] => 0 [total_sum] => 0 [total_days] => 0 [display_material_sum] => 0 [display_work_sum] => 0 [display_total_sum] => 0 ) 1
0
Работа:0
Материалы:0
Дни:0
stdClass Object ( [id] => 26 [attribute_id] => 13 [name] => Минераловатный [material_modifier] => 1 [work_modifier] => 1 [options] => Array ( [0] => 50 мм [1] => 100 мм [2] => 150 мм [3] => 200 мм [4] => 250 мм [5] => 300 мм [6] => 350 мм [7] => 400 мм [8] => 450 мм [9] => 500 мм ) [days] => [5,5,6,6,6,7,7,7,8,8] [material_price] => [1158,1414,1772,2230,3602,4060,4974,5890,6408,7718] [work_price] => [650,846,846,1098,1318,1450,1596,1754,1930,2122] [image] => https://akademik-stroy.ru/wp-content/uploads/materials/mineralovata-krov.jpg [area_modifier] => 132.73 [parent_name] => Утепление кровли (Мансарда) [parent_id] => 13 [material_sum] => 193664 [work_sum] => 90588 [total_sum] => 284252 [total_days] => 5 [display_material_sum] => 193 664 [display_work_sum] => 90 588 [display_total_sum] => 284 252 ) 1
284 252
Работа:90 588
Материалы:193 664
Дни:5
stdClass Object ( [id] => 123 [attribute_id] => 13 [name] => Эковата (целлюлозная вата) [material_modifier] => 1 [work_modifier] => 1 [options] => Array ( [0] => 50 мм [1] => 100 мм [2] => 150 мм [3] => 200 мм [4] => 250 мм [5] => 300 мм [6] => 350 мм [7] => 400 мм [8] => 450 мм [9] => 500 мм ) [days] => [3,3,4,4,4,5,5,5,5,5] [material_price] => [820,1638,2458,3276,5734,6552,8190,9828,11466,13104] [work_price] => [234,304,304,396,474,522,574,632,694,764] [image] => https://akademik-stroy.ru/wp-content/uploads/materials/ehkovata-krov.jpg [area_modifier] => 132.73 [parent_name] => Утепление кровли (Мансарда) [parent_id] => 13 [material_sum] => 137137 [work_sum] => 32612 [total_sum] => 169749 [total_days] => 3 [display_material_sum] => 137 137 [display_work_sum] => 32 612 [display_total_sum] => 169 749 ) 1
169 749
Работа:32 612
Материалы:137 137
Дни:3
stdClass Object ( [id] => 124 [attribute_id] => 13 [name] => Экструдированный пенополистирол [material_modifier] => 1 [work_modifier] => 1 [options] => Array ( [0] => 50 мм [1] => 100 мм [2] => 150 мм [3] => 200 мм [4] => 250 мм [5] => 300 мм [6] => 350 мм [7] => 400 мм [8] => 450 мм [9] => 500 мм ) [days] => [3,3,4,4,4,5,5,5,5,6] [material_price] => [1146,2292,3438,4584,8020,9166,11458,13750,16040,18332] [work_price] => [390,508,508,660,790,870,958,1052,1158,1274] [image] => https://akademik-stroy.ru/wp-content/uploads/materials/epps-krov.jpg [area_modifier] => 132.73 [parent_name] => Утепление кровли (Мансарда) [parent_id] => 13 [material_sum] => 191657 [work_sum] => 54353 [total_sum] => 246010 [total_days] => 3 [display_material_sum] => 191 657 [display_work_sum] => 54 353 [display_total_sum] => 246 010 ) 1
246 010
Работа:54 353
Материалы:191 657
Дни:3
stdClass Object ( [id] => 125 [attribute_id] => 13 [name] => ПСБ (ППС-пенополистирол) [material_modifier] => 1 [work_modifier] => 1 [options] => Array ( [0] => 50 мм [1] => 100 мм [2] => 150 мм [3] => 200 мм [4] => 250 мм [5] => 300 мм [6] => 350 мм [7] => 400 мм [8] => 450 мм [9] => 500 мм ) [days] => [3,3,4,4,4,5,5,5,5,6] [material_price] => [476,954,1430,1906,3336,3814,4766,5720,6674,7626] [work_price] => [390,508,508,660,790,870,958,1052,1158,1274] [image] => https://akademik-stroy.ru/wp-content/uploads/materials/psb-krov.jpg [area_modifier] => 132.73 [parent_name] => Утепление кровли (Мансарда) [parent_id] => 13 [material_sum] => 79606 [work_sum] => 54353 [total_sum] => 133959 [total_days] => 3 [display_material_sum] => 79 606 [display_work_sum] => 54 353 [display_total_sum] => 133 959 ) 1
133 959
Работа:54 353
Материалы:79 606
Дни:3
stdClass Object ( [id] => 126 [attribute_id] => 13 [name] => ППУ (Пенополиуретан) [material_modifier] => 1 [work_modifier] => 1 [options] => Array ( [0] => 50 мм [1] => 100 мм [2] => 150 мм [3] => 200 мм [4] => 250 мм [5] => 300 мм [6] => 350 мм [7] => 400 мм [8] => 450 мм [9] => 500 мм ) [days] => [2,2,3,3,3,3,4,4,4,4] [material_price] => [2080,4160,6240,8320,14560,16640,20800,24960,29120,33280] [work_price] => [234,304,304,396,474,522,574,632,694,764] [image] => https://akademik-stroy.ru/wp-content/uploads/materials/ppu-krov.jpg [area_modifier] => 132.73 [parent_name] => Утепление кровли (Мансарда) [parent_id] => 13 [material_sum] => 347859 [work_sum] => 32612 [total_sum] => 380471 [total_days] => 2 [display_material_sum] => 347 859 [display_work_sum] => 32 612 [display_total_sum] => 380 471 ) 1
380 471
Работа:32 612
Материалы:347 859
Дни:2
stdClass Object ( [id] => 127 [attribute_id] => 13 [name] => PIR-плиты (пенополиизоцианурат) [material_modifier] => 1 [work_modifier] => 1 [options] => Array ( [0] => 50 мм [1] => 100 мм [2] => 150 мм [3] => 200 мм [4] => 250 мм [5] => 300 мм [6] => 350 мм [7] => 400 мм [8] => 450 мм [9] => 500 мм ) [days] => [3,3,4,4,4,5,5,5,5,6] [material_price] => [2646,5290,7936,10580,18516,21162,26452,31742,37032,42324] [work_price] => [390,508,508,660,790,870,958,1052,1158,1274] [image] => https://akademik-stroy.ru/wp-content/uploads/materials/pir-krov.jpg [area_modifier] => 132.73 [parent_name] => Утепление кровли (Мансарда) [parent_id] => 13 [material_sum] => 442517 [work_sum] => 54353 [total_sum] => 496870 [total_days] => 3 [display_material_sum] => 442 517 [display_work_sum] => 54 353 [display_total_sum] => 496 870 ) 1
496 870
Работа:54 353
Материалы:442 517
Дни:3
Мансардные окна
stdClass Object ( [id] => 27 [attribute_id] => 14 [name] => Нет [material_modifier] => 1 [work_modifier] => 1 [options] => Array ( ) [days] => [0] [material_price] => [0] [work_price] => [0] [image] => https://akademik-stroy.ru/wp-content/uploads/materials/mansardnye-okna-2.jpg [area_modifier] => 1 [parent_name] => Мансардные окна [parent_id] => 14 [material_sum] => 0 [work_sum] => 0 [total_sum] => 0 [total_days] => 0 [display_material_sum] => 0 [display_work_sum] => 0 [display_total_sum] => 0 ) 1
0
Работа:0
Материалы:0
Дни:0
stdClass Object ( [id] => 28 [attribute_id] => 14 [name] => Есть [material_modifier] => 1 [work_modifier] => 1 [options] => Array ( [0] => 55x78 [1] => 55x98 ) [days] => [6,7] [material_price] => [47480,68700] [work_price] => [17900,19500] [image] => https://akademik-stroy.ru/wp-content/uploads/materials/mansardnye-okna-2.jpg [area_modifier] => 1 [parent_name] => Мансардные окна [parent_id] => 14 [material_sum] => 59825 [work_sum] => 18795 [total_sum] => 78620 [total_days] => 6 [display_material_sum] => 59 825 [display_work_sum] => 18 795 [display_total_sum] => 78 620 ) 1
78 620
Работа:18 795
Материалы:59 825
Дни:6
Подшивка кровли
stdClass Object ( [id] => 29 [attribute_id] => 15 [name] => Нет [material_modifier] => 1 [work_modifier] => 1 [options] => Array ( ) [days] => [0] [material_price] => [0] [work_price] => [0] [image] => https://akademik-stroy.ru/wp-content/uploads/materials/sofit.jpg [area_modifier] => 132.73 [parent_name] => Подшивка кровли [parent_id] => 15 [material_sum] => 0 [work_sum] => 0 [total_sum] => 0 [total_days] => 0 [display_material_sum] => 0 [display_work_sum] => 0 [display_total_sum] => 0 ) 1
0
Работа:0
Материалы:0
Дни:0
stdClass Object ( [id] => 30 [attribute_id] => 15 [name] => Есть [material_modifier] => 1 [work_modifier] => 1 [options] => Array ( [0] => Софиты (ПВХ) [1] => Cedral [2] => ДПК [3] => Планкен ) [days] => [7,10,9,8] [material_price] => [1803,3213,3025,3150] [work_price] => [1529,2188,2075,1923] [image] => https://akademik-stroy.ru/wp-content/uploads/materials/sofit.jpg [area_modifier] => 132.73 [parent_name] => Подшивка кровли [parent_id] => 15 [material_sum] => 301533 [work_sum] => 213091 [total_sum] => 514624 [total_days] => 7 [display_material_sum] => 301 533 [display_work_sum] => 213 091 [display_total_sum] => 514 624 ) 1
514 624
Работа:213 091
Материалы:301 533
Дни:7
Водосточная система
stdClass Object ( [id] => 31 [attribute_id] => 16 [name] => Нет [material_modifier] => 1 [work_modifier] => 1 [options] => Array ( ) [days] => [0] [material_price] => [0] [work_price] => [0] [image] => https://akademik-stroy.ru/wp-content/uploads/materials/docke-standard-pvh.jpg [area_modifier] => 132.73 [parent_name] => Водосточная система [parent_id] => 16 [material_sum] => 0 [work_sum] => 0 [total_sum] => 0 [total_days] => 0 [display_material_sum] => 0 [display_work_sum] => 0 [display_total_sum] => 0 ) 1
0
Работа:0
Материалы:0
Дни:0
stdClass Object ( [id] => 32 [attribute_id] => 16 [name] => Есть [material_modifier] => 1 [work_modifier] => 1 [options] => Array ( [0] => Döcke Standard (ПВХ) [1] => Металлические Grand Line ) [days] => [7,7] [material_price] => [1842,2703] [work_price] => [1491,1529] [image] => https://akademik-stroy.ru/wp-content/uploads/materials/docke-standard-pvh.jpg [area_modifier] => 132.73 [parent_name] => Водосточная система [parent_id] => 16 [material_sum] => 308056 [work_sum] => 207795 [total_sum] => 515851 [total_days] => 7 [display_material_sum] => 308 056 [display_work_sum] => 207 795 [display_total_sum] => 515 851 ) 1
515 851
Работа:207 795
Материалы:308 056
Дни:7
Дополнительное утепление наружных стен
stdClass Object ( [id] => 33 [attribute_id] => 17 [name] => Нет [material_modifier] => 1 [work_modifier] => 1 [options] => Array ( ) [days] => [0] [material_price] => [0] [work_price] => [0] [image] => https://akademik-stroy.ru/wp-content/uploads/materials/mineralovata.jpg [area_modifier] => 250.27 [parent_name] => Дополнительное утепление наружных стен [parent_id] => 17 [material_sum] => 0 [work_sum] => 0 [total_sum] => 0 [total_days] => 0 [display_material_sum] => 0 [display_work_sum] => 0 [display_total_sum] => 0 ) 1
0
Работа:0
Материалы:0
Дни:0
stdClass Object ( [id] => 34 [attribute_id] => 17 [name] => Минераловатный [material_modifier] => 1 [work_modifier] => 1 [options] => Array ( [0] => 50 мм [1] => 100 мм [2] => 150 мм [3] => 200 мм [4] => 250 мм [5] => 300 мм ) [days] => [7,8,10,12,14,15] [material_price] => [3437,3613,3803,3915,4601,4830] [work_price] => [2325,2423,2523,2749,2859,3025] [image] => https://akademik-stroy.ru/wp-content/uploads/materials/mineralovata.jpg [area_modifier] => 250.27 [parent_name] => Дополнительное утепление наружных стен [parent_id] => 17 [material_sum] => 1083824 [work_sum] => 610972 [total_sum] => 1694796 [total_days] => 7 [display_material_sum] => 1 083 824 [display_work_sum] => 610 972 [display_total_sum] => 1 694 796 ) 1
1 694 796
Работа:610 972
Материалы:1 083 824
Дни:7
stdClass Object ( [id] => 128 [attribute_id] => 17 [name] => Эковата (целлюлозная вата) [material_modifier] => 1 [work_modifier] => 1 [options] => Array ( [0] => 50 мм [1] => 100 мм [2] => 150 мм [3] => 200 мм [4] => 250 мм [5] => 300 мм ) [days] => [3,4,5,6,7,8] [material_price] => [810,1319,1629,1838,2267,2676] [work_price] => [1225,1323,1423,1549,1659,1725] [image] => https://akademik-stroy.ru/wp-content/uploads/materials/ehkovata.jpg [area_modifier] => 250.27 [parent_name] => Дополнительное утепление наружных стен [parent_id] => 17 [material_sum] => 255426 [work_sum] => 321910 [total_sum] => 577336 [total_days] => 3 [display_material_sum] => 255 426 [display_work_sum] => 321 910 [display_total_sum] => 577 336 ) 1
577 336
Работа:321 910
Материалы:255 426
Дни:3
stdClass Object ( [id] => 129 [attribute_id] => 17 [name] => Экструдированный пенополистирол [material_modifier] => 1 [work_modifier] => 1 [options] => Array ( [0] => 50 мм [1] => 100 мм [2] => 150 мм [3] => 200 мм [4] => 250 мм [5] => 300 мм ) [days] => [5,6,7,8,9,10] [material_price] => [4560,4300,5119,6292,7010,8583] [work_price] => [1795,1954,2254,2330,2595,2735] [image] => https://akademik-stroy.ru/wp-content/uploads/materials/epps.jpg [area_modifier] => 250.27 [parent_name] => Дополнительное утепление наружных стен [parent_id] => 17 [material_sum] => 1437951 [work_sum] => 471696 [total_sum] => 1909647 [total_days] => 5 [display_material_sum] => 1 437 951 [display_work_sum] => 471 696 [display_total_sum] => 1 909 647 ) 1
1 909 647
Работа:471 696
Материалы:1 437 951
Дни:5
stdClass Object ( [id] => 130 [attribute_id] => 17 [name] => ПСБ (ППС-пенополистирол) [material_modifier] => 1 [work_modifier] => 1 [options] => Array ( [0] => 50 мм [1] => 100 мм [2] => 150 мм [3] => 200 мм [4] => 250 мм [5] => 300 мм ) [days] => [5,6,7,8,9,10] [material_price] => [4822,5200,5819,6292,7010,7583] [work_price] => [1795,1954,2254,2330,2595,2735] [image] => https://akademik-stroy.ru/wp-content/uploads/materials/psb.jpg [area_modifier] => 250.27 [parent_name] => Дополнительное утепление наружных стен [parent_id] => 17 [material_sum] => 1520570 [work_sum] => 471696 [total_sum] => 1992266 [total_days] => 5 [display_material_sum] => 1 520 570 [display_work_sum] => 471 696 [display_total_sum] => 1 992 266 ) 1
1 992 266
Работа:471 696
Материалы:1 520 570
Дни:5
stdClass Object ( [id] => 131 [attribute_id] => 17 [name] => ППУ (Пенополиуретан) [material_modifier] => 1 [work_modifier] => 1 [options] => Array ( [0] => 50 мм [1] => 100 мм [2] => 150 мм [3] => 200 мм [4] => 250 мм [5] => 300 мм ) [days] => [3,4,5,6,7,8] [material_price] => [2860,3400,4219,4592,5010,5583] [work_price] => [729,900,980,1120,1280,1530] [image] => https://akademik-stroy.ru/wp-content/uploads/materials/ppu.jpg [area_modifier] => 250.27 [parent_name] => Дополнительное утепление наружных стен [parent_id] => 17 [material_sum] => 901873 [work_sum] => 191569 [total_sum] => 1093442 [total_days] => 3 [display_material_sum] => 901 873 [display_work_sum] => 191 569 [display_total_sum] => 1 093 442 ) 1
1 093 442
Работа:191 569
Материалы:901 873
Дни:3
stdClass Object ( [id] => 132 [attribute_id] => 17 [name] => PIR-плиты (пенополиизоцианурат) [material_modifier] => 1 [work_modifier] => 1 [options] => Array ( [0] => 50 мм [1] => 100 мм [2] => 150 мм [3] => 200 мм [4] => 250 мм [5] => 300 мм ) [days] => [5,6,7,8,9,10] [material_price] => [8323,15645,20968,25900,29258,30581] [work_price] => [800,900,970,1150,1280,1330] [image] => https://akademik-stroy.ru/wp-content/uploads/materials/pir.jpg [area_modifier] => 250.27 [parent_name] => Дополнительное утепление наружных стен [parent_id] => 17 [material_sum] => 2624576 [work_sum] => 210227 [total_sum] => 2834803 [total_days] => 5 [display_material_sum] => 2 624 576 [display_work_sum] => 210 227 [display_total_sum] => 2 834 803 ) 1
2 834 803
Работа:210 227
Материалы:2 624 576
Дни:5
Наружная отделка фасада
stdClass Object ( [id] => 37 [attribute_id] => 19 [name] => Нет [material_modifier] => 1 [work_modifier] => 1 [options] => Array ( ) [days] => [0] [material_price] => [0] [work_price] => [0] [image] => https://akademik-stroy.ru/wp-content/uploads/materials/imitaciya-brusa.jpg [area_modifier] => 250.27 [parent_name] => Наружная отделка фасада [parent_id] => 19 [material_sum] => 0 [work_sum] => 0 [total_sum] => 0 [total_days] => 0 [display_material_sum] => 0 [display_work_sum] => 0 [display_total_sum] => 0 ) 1
0
Работа:0
Материалы:0
Дни:0
stdClass Object ( [id] => 38 [attribute_id] => 19 [name] => Имитация бруса [material_modifier] => 1 [work_modifier] => 1 [options] => Array ( [0] => Сосна [1] => Ель [2] => Лиственница ) [days] => [20,20,20] [material_price] => [2994,2762,4954] [work_price] => [1397,1231,1577] [image] => https://akademik-stroy.ru/wp-content/uploads/materials/imitaciya-brusa.jpg [area_modifier] => 250.27 [parent_name] => Наружная отделка фасада [parent_id] => 19 [material_sum] => 944129 [work_sum] => 367109 [total_sum] => 1311238 [total_days] => 20 [display_material_sum] => 944 129 [display_work_sum] => 367 109 [display_total_sum] => 1 311 238 ) 1
1 311 238
Работа:367 109
Материалы:944 129
Дни:20
stdClass Object ( [id] => 136 [attribute_id] => 19 [name] => Планкен [material_modifier] => 1 [work_modifier] => 1 [options] => Array ( [0] => Сосна [1] => Ель [2] => Лиственница ) [days] => [20,20,20] [material_price] => [3194,2862,5154] [work_price] => [1537,1354,1735] [image] => https://akademik-stroy.ru/wp-content/uploads/materials/planken.jpg [area_modifier] => 250.27 [parent_name] => Наружная отделка фасада [parent_id] => 19 [material_sum] => 1007197 [work_sum] => 403898 [total_sum] => 1411095 [total_days] => 20 [display_material_sum] => 1 007 197 [display_work_sum] => 403 898 [display_total_sum] => 1 411 095 ) 1
1 411 095
Работа:403 898
Материалы:1 007 197
Дни:20
stdClass Object ( [id] => 137 [attribute_id] => 19 [name] => Штукатурка [material_modifier] => 1 [work_modifier] => 1 [options] => Array ( [0] => Цементно-песчаная (минеральная) [1] => Мокрый фасад ) [days] => [35,35] [material_price] => [2231,3938] [work_price] => [1202,2422] [image] => https://akademik-stroy.ru/wp-content/uploads/materials/shtukaturka.jpg [area_modifier] => 250.27 [parent_name] => Наружная отделка фасада [parent_id] => 19 [material_sum] => 703524 [work_sum] => 315866 [total_sum] => 1019390 [total_days] => 35 [display_material_sum] => 703 524 [display_work_sum] => 315 866 [display_total_sum] => 1 019 390 ) 1
1 019 390
Работа:315 866
Материалы:703 524
Дни:35
stdClass Object ( [id] => 138 [attribute_id] => 19 [name] => Облицовочный кирпич [material_modifier] => 1 [work_modifier] => 1 [options] => Array ( [0] => Керамический [1] => Клинкерный [2] => Ручной формовки [3] => Гиперпрессованный [4] => Силикатный кирпич ) [days] => [45,45,45,45,45] [material_price] => [8174,9148,1040,1257,5876] [work_price] => [3240,3758,4536,4017,3369] [image] => https://akademik-stroy.ru/wp-content/uploads/materials/oblicovochnyj-kirpich.jpg [area_modifier] => 250.27 [parent_name] => Наружная отделка фасада [parent_id] => 19 [material_sum] => 2577591 [work_sum] => 851419 [total_sum] => 3429010 [total_days] => 45 [display_material_sum] => 2 577 591 [display_work_sum] => 851 419 [display_total_sum] => 3 429 010 ) 1
3 429 010
Работа:851 419
Материалы:2 577 591
Дни:45
stdClass Object ( [id] => 139 [attribute_id] => 19 [name] => Фасадная плитка [material_modifier] => 1 [work_modifier] => 1 [options] => Array ( [0] => Клинкерная [1] => Керамическая [2] => Плитка ручной формовки ) [days] => [40,40,40] [material_price] => [2974,1487,3470] [work_price] => [3007,2592,3629] [image] => https://akademik-stroy.ru/wp-content/uploads/materials/fasadnaya-plitka.jpg [area_modifier] => 250.27 [parent_name] => Наружная отделка фасада [parent_id] => 19 [material_sum] => 937822 [work_sum] => 790190 [total_sum] => 1728012 [total_days] => 40 [display_material_sum] => 937 822 [display_work_sum] => 790 190 [display_total_sum] => 1 728 012 ) 1
1 728 012
Работа:790 190
Материалы:937 822
Дни:40
stdClass Object ( [id] => 140 [attribute_id] => 19 [name] => Сайдинг [material_modifier] => 1 [work_modifier] => 1 [options] => Array ( [0] => Виниловый [1] => Металлический [2] => Фиброцементный ) [days] => [20,20,20] [material_price] => [1263,1944,4147] [work_price] => [1263,1944,2074] [image] => https://akademik-stroy.ru/wp-content/uploads/materials/sajding.jpg [area_modifier] => 250.27 [parent_name] => Наружная отделка фасада [parent_id] => 19 [material_sum] => 398275 [work_sum] => 331896 [total_sum] => 730171 [total_days] => 20 [display_material_sum] => 398 275 [display_work_sum] => 331 896 [display_total_sum] => 730 171 ) 1
730 171
Работа:331 896
Материалы:398 275
Дни:20
stdClass Object ( [id] => 141 [attribute_id] => 19 [name] => Камень [material_modifier] => 1 [work_modifier] => 1 [options] => Array ( [0] => Травертин [1] => Дагестанский [2] => Искусственный [3] => Натуральный [4] => Керамогранит ) [days] => [45,45,45,45,45] [material_price] => [4536,3888,2592,3240,2462] [work_price] => [3240,3240,2462,3110,1944] [image] => https://akademik-stroy.ru/wp-content/uploads/materials/kamen-1.jpg [area_modifier] => 250.27 [parent_name] => Наружная отделка фасада [parent_id] => 19 [material_sum] => 1430383 [work_sum] => 851419 [total_sum] => 2281802 [total_days] => 45 [display_material_sum] => 1 430 383 [display_work_sum] => 851 419 [display_total_sum] => 2 281 802 ) 1
2 281 802
Работа:851 419
Материалы:1 430 383
Дни:45
stdClass Object ( [id] => 142 [attribute_id] => 19 [name] => Термопанели [material_modifier] => 1 [work_modifier] => 1 [options] => Array ( ) [days] => [20] [material_price] => [6221] [work_price] => [2333] [image] => https://akademik-stroy.ru/wp-content/uploads/materials/termo.png [area_modifier] => 250.27 [parent_name] => Наружная отделка фасада [parent_id] => 19 [material_sum] => 1961731 [work_sum] => 613074 [total_sum] => 2574805 [total_days] => 20 [display_material_sum] => 1 961 731 [display_work_sum] => 613 074 [display_total_sum] => 2 574 805 ) 1
2 574 805
Работа:613 074
Материалы:1 961 731
Дни:20
stdClass Object ( [id] => 143 [attribute_id] => 19 [name] => Плитка HAUBERK [material_modifier] => 1 [work_modifier] => 1 [options] => Array ( ) [days] => [20] [material_price] => [2786] [work_price] => [1944] [image] => https://akademik-stroy.ru/wp-content/uploads/materials/hauberk.jpg [area_modifier] => 250.27 [parent_name] => Наружная отделка фасада [parent_id] => 19 [material_sum] => 878538 [work_sum] => 510851 [total_sum] => 1389389 [total_days] => 20 [display_material_sum] => 878 538 [display_work_sum] => 510 851 [display_total_sum] => 1 389 389 ) 1
1 389 389
Работа:510 851
Материалы:878 538
Дни:20
stdClass Object ( [id] => 144 [attribute_id] => 19 [name] => Фальцевый фасад [material_modifier] => 1 [work_modifier] => 1 [options] => Array ( ) [days] => [20] [material_price] => [3240] [work_price] => [2592] [image] => https://akademik-stroy.ru/wp-content/uploads/materials/falcevyj-fasad.jpg [area_modifier] => 250.27 [parent_name] => Наружная отделка фасада [parent_id] => 19 [material_sum] => 1021702 [work_sum] => 681135 [total_sum] => 1702837 [total_days] => 20 [display_material_sum] => 1 021 702 [display_work_sum] => 681 135 [display_total_sum] => 1 702 837 ) 1
1 702 837
Работа:681 135
Материалы:1 021 702
Дни:20
stdClass Object ( [id] => 145 [attribute_id] => 19 [name] => Комбинированный [material_modifier] => 1 [work_modifier] => 1 [options] => Array ( ) [days] => [20] [material_price] => [4629] [work_price] => [3499] [image] => https://akademik-stroy.ru/wp-content/uploads/materials/Kombinirovannyj.jpg [area_modifier] => 250.27 [parent_name] => Наружная отделка фасада [parent_id] => 19 [material_sum] => 1459710 [work_sum] => 919479 [total_sum] => 2379189 [total_days] => 20 [display_material_sum] => 1 459 710 [display_work_sum] => 919 479 [display_total_sum] => 2 379 189 ) 1
2 379 189
Работа:919 479
Материалы:1 459 710
Дни:20
stdClass Object ( [id] => 257 [attribute_id] => 19 [name] => Японские фиброцементные [material_modifier] => 1 [work_modifier] => 1 [options] => Array ( ) [days] => [20] [material_price] => [7043] [work_price] => [2993] [image] => https://akademik-stroy.ru/wp-content/uploads/materials/paneli.jpg [area_modifier] => 250.27 [parent_name] => Наружная отделка фасада [parent_id] => 19 [material_sum] => 2220941 [work_sum] => 786511 [total_sum] => 3007452 [total_days] => 20 [display_material_sum] => 2 220 941 [display_work_sum] => 786 511 [display_total_sum] => 3 007 452 ) 1
3 007 452
Работа:786 511
Материалы:2 220 941
Дни:20
stdClass Object ( [id] => 258 [attribute_id] => 19 [name] => Панели Каньон [material_modifier] => 1 [work_modifier] => 1 [options] => Array ( ) [days] => [20] [material_price] => [4543] [work_price] => [2592] [image] => https://akademik-stroy.ru/wp-content/uploads/materials/kanon.png [area_modifier] => 250.27 [parent_name] => Наружная отделка фасада [parent_id] => 19 [material_sum] => 1432591 [work_sum] => 681135 [total_sum] => 2113726 [total_days] => 20 [display_material_sum] => 1 432 591 [display_work_sum] => 681 135 [display_total_sum] => 2 113 726 ) 1
2 113 726
Работа:681 135
Материалы:1 432 591
Дни:20
Террасы, крыльца, навесы
stdClass Object ( [id] => 39 [attribute_id] => 20 [name] => Нет [material_modifier] => 1 [work_modifier] => 1 [options] => Array ( ) [days] => [0] [material_price] => [0] [work_price] => [0] [image] => https://akademik-stroy.ru/wp-content/uploads/materials/terrasy.jpg [area_modifier] => 30 [parent_name] => Террасы, крыльца, навесы [parent_id] => 20 [material_sum] => 0 [work_sum] => 0 [total_sum] => 0 [total_days] => 0 [display_material_sum] => 0 [display_work_sum] => 0 [display_total_sum] => 0 ) 1
0
Работа:0
Материалы:0
Дни:0
stdClass Object ( [id] => 40 [attribute_id] => 20 [name] => Есть [material_modifier] => 1 [work_modifier] => 1 [options] => Array ( ) [days] => [5] [material_price] => [10450] [work_price] => [1950] [image] => https://akademik-stroy.ru/wp-content/uploads/materials/terrasy.jpg [area_modifier] => 30 [parent_name] => Террасы, крыльца, навесы [parent_id] => 20 [material_sum] => 395010 [work_sum] => 61425 [total_sum] => 456435 [total_days] => 5 [display_material_sum] => 395 010 [display_work_sum] => 61 425 [display_total_sum] => 456 435 ) 1
456 435
Работа:61 425
Материалы:395 010
Дни:5
Балконы
stdClass Object ( [id] => 41 [attribute_id] => 21 [name] => Нет [material_modifier] => 1 [work_modifier] => 1 [options] => Array ( ) [days] => [0] [material_price] => [0] [work_price] => [0] [image] => https://akademik-stroy.ru/wp-content/uploads/materials/balkony.jpg [area_modifier] => 30 [parent_name] => Балконы [parent_id] => 21 [material_sum] => 0 [work_sum] => 0 [total_sum] => 0 [total_days] => 0 [display_material_sum] => 0 [display_work_sum] => 0 [display_total_sum] => 0 ) 1
0
Работа:0
Материалы:0
Дни:0
stdClass Object ( [id] => 42 [attribute_id] => 21 [name] => Есть [material_modifier] => 1 [work_modifier] => 1 [options] => Array ( ) [days] => [12] [material_price] => [3600] [work_price] => [1950] [image] => https://akademik-stroy.ru/wp-content/uploads/materials/balkony.jpg [area_modifier] => 30 [parent_name] => Балконы [parent_id] => 21 [material_sum] => 136080 [work_sum] => 61425 [total_sum] => 197505 [total_days] => 12 [display_material_sum] => 136 080 [display_work_sum] => 61 425 [display_total_sum] => 197 505 ) 1
197 505
Работа:61 425
Материалы:136 080
Дни:12
Отмостка
stdClass Object ( [id] => 43 [attribute_id] => 22 [name] => Нет [material_modifier] => 1 [work_modifier] => 1 [options] => Array ( ) [days] => [0] [material_price] => [0] [work_price] => [0] [image] => https://akademik-stroy.ru/wp-content/uploads/materials/uteplennaya.jpg [area_modifier] => 132.73 [parent_name] => Отмостка [parent_id] => 22 [material_sum] => 0 [work_sum] => 0 [total_sum] => 0 [total_days] => 0 [display_material_sum] => 0 [display_work_sum] => 0 [display_total_sum] => 0 ) 1
0
Работа:0
Материалы:0
Дни:0
stdClass Object ( [id] => 44 [attribute_id] => 22 [name] => Утепленная отмостка [material_modifier] => 1 [work_modifier] => 1 [options] => Array ( ) [days] => [15] [material_price] => [2550] [work_price] => [1750] [image] => https://akademik-stroy.ru/wp-content/uploads/materials/uteplennaya.jpg [area_modifier] => 132.73 [parent_name] => Отмостка [parent_id] => 22 [material_sum] => 426461 [work_sum] => 243891 [total_sum] => 670352 [total_days] => 15 [display_material_sum] => 426 461 [display_work_sum] => 243 891 [display_total_sum] => 670 352 ) 1
670 352
Работа:243 891
Материалы:426 461
Дни:15
stdClass Object ( [id] => 146 [attribute_id] => 22 [name] => Не утепленная отмостка [material_modifier] => 1 [work_modifier] => 1 [options] => Array ( ) [days] => [10] [material_price] => [1650] [work_price] => [1450] [image] => https://akademik-stroy.ru/wp-content/uploads/materials/ne-uteplennaya.jpg [area_modifier] => 132.73 [parent_name] => Отмостка [parent_id] => 22 [material_sum] => 275946 [work_sum] => 202081 [total_sum] => 478027 [total_days] => 10 [display_material_sum] => 275 946 [display_work_sum] => 202 081 [display_total_sum] => 478 027 ) 1
478 027
Работа:202 081
Материалы:275 946
Дни:10
Дренаж вокруг дома
stdClass Object ( [id] => 45 [attribute_id] => 23 [name] => Нет [material_modifier] => 1 [work_modifier] => 1 [options] => Array ( ) [days] => [0] [material_price] => [0] [work_price] => [0] [image] => https://akademik-stroy.ru/wp-content/uploads/materials/drenazh-2.jpg [area_modifier] => 132.73 [parent_name] => Дренаж вокруг дома [parent_id] => 23 [material_sum] => 0 [work_sum] => 0 [total_sum] => 0 [total_days] => 0 [display_material_sum] => 0 [display_work_sum] => 0 [display_total_sum] => 0 ) 1
0
Работа:0
Материалы:0
Дни:0
stdClass Object ( [id] => 46 [attribute_id] => 23 [name] => Есть [material_modifier] => 1 [work_modifier] => 1 [options] => Array ( ) [days] => [5] [material_price] => [2366] [work_price] => [1911] [image] => https://akademik-stroy.ru/wp-content/uploads/materials/drenazh-2.jpg [area_modifier] => 132.73 [parent_name] => Дренаж вокруг дома [parent_id] => 23 [material_sum] => 395689 [work_sum] => 266329 [total_sum] => 662018 [total_days] => 5 [display_material_sum] => 395 689 [display_work_sum] => 266 329 [display_total_sum] => 662 018 ) 1
662 018
Работа:266 329
Материалы:395 689
Дни:5
Автономная канализация (септики)
stdClass Object ( [id] => 47 [attribute_id] => 24 [name] => Нет [material_modifier] => 1 [work_modifier] => 1 [options] => Array ( ) [days] => [0] [material_price] => [0] [work_price] => [0] [image] => https://akademik-stroy.ru/wp-content/uploads/materials/septik.jpg [area_modifier] => 1 [parent_name] => Автономная канализация (септики) [parent_id] => 24 [material_sum] => 0 [work_sum] => 0 [total_sum] => 0 [total_days] => 0 [display_material_sum] => 0 [display_work_sum] => 0 [display_total_sum] => 0 ) 1
0
Работа:0
Материалы:0
Дни:0
stdClass Object ( [id] => 48 [attribute_id] => 24 [name] => Есть [material_modifier] => 1 [work_modifier] => 1 [options] => Array ( [0] => Для дачи на 4 человека [1] => Для дома на 5 человек [2] => Для дома на 6 человек [3] => Для дома на 7 человек [4] => Для дома на 10 человек ) [days] => [7,7,7,8,8] [material_price] => [196340,220500,240940,264200,293340] [work_price] => [50000,55000,60500,66550,73206] [image] => https://akademik-stroy.ru/wp-content/uploads/materials/septik.jpg [area_modifier] => 1 [parent_name] => Автономная канализация (септики) [parent_id] => 24 [material_sum] => 247388 [work_sum] => 52500 [total_sum] => 299888 [total_days] => 7 [display_material_sum] => 247 388 [display_work_sum] => 52 500 [display_total_sum] => 299 888 ) 1
299 888
Работа:52 500
Материалы:247 388
Дни:7
Внутренние (не несущие) перегородки
stdClass Object ( [id] => 49 [attribute_id] => 25 [name] => Нет [material_modifier] => 1 [work_modifier] => 1 [options] => Array ( ) [days] => [0] [material_price] => [0] [work_price] => [0] [image] => https://akademik-stroy.ru/wp-content/uploads/materials/gkl.jpg [area_modifier] => 250.27 [parent_name] => Внутренние (не несущие) перегородки [parent_id] => 25 [material_sum] => 0 [work_sum] => 0 [total_sum] => 0 [total_days] => 0 [display_material_sum] => 0 [display_work_sum] => 0 [display_total_sum] => 0 ) 1
0
Работа:0
Материалы:0
Дни:0
stdClass Object ( [id] => 147 [attribute_id] => 25 [name] => Каркасно-обшивные [material_modifier] => 1 [work_modifier] => 1 [options] => Array ( [0] => 75 мм (без шумоизоляции) [1] => 75 мм (с шумоизоляцией) ) [days] => [11,11] [material_price] => [580,970] [work_price] => [380,570] [image] => https://akademik-stroy.ru/wp-content/uploads/materials/gkl.jpg [area_modifier] => 250.27 [parent_name] => Внутренние (не несущие) перегородки [parent_id] => 25 [material_sum] => 182897 [work_sum] => 99858 [total_sum] => 282755 [total_days] => 11 [display_material_sum] => 182 897 [display_work_sum] => 99 858 [display_total_sum] => 282 755 ) 1
282 755
Работа:99 858
Материалы:182 897
Дни:11
stdClass Object ( [id] => 148 [attribute_id] => 25 [name] => Пазогребневые [material_modifier] => 1 [work_modifier] => 1 [options] => Array ( [0] => 80 мм [1] => 100 мм ) [days] => [5,5] [material_price] => [1022,1313] [work_price] => [600,700] [image] => https://akademik-stroy.ru/wp-content/uploads/materials/pazogrebnevye-bloki.jpg [area_modifier] => 250.27 [parent_name] => Внутренние (не несущие) перегородки [parent_id] => 25 [material_sum] => 322278 [work_sum] => 157670 [total_sum] => 479948 [total_days] => 5 [display_material_sum] => 322 278 [display_work_sum] => 157 670 [display_total_sum] => 479 948 ) 1
479 948
Работа:157 670
Материалы:322 278
Дни:5
stdClass Object ( [id] => 149 [attribute_id] => 25 [name] => Газобетонные [material_modifier] => 1 [work_modifier] => 1 [options] => Array ( [0] => 100 мм [1] => 200 мм ) [days] => [11,11] [material_price] => [1160,1920] [work_price] => [700,900] [image] => https://akademik-stroy.ru/wp-content/uploads/materials/gazobeton-2.jpg [area_modifier] => 250.27 [parent_name] => Внутренние (не несущие) перегородки [parent_id] => 25 [material_sum] => 365795 [work_sum] => 183948 [total_sum] => 549743 [total_days] => 11 [display_material_sum] => 365 795 [display_work_sum] => 183 948 [display_total_sum] => 549 743 ) 1
549 743
Работа:183 948
Материалы:365 795
Дни:11
stdClass Object ( [id] => 150 [attribute_id] => 25 [name] => Кирпичные [material_modifier] => 1 [work_modifier] => 1 [options] => Array ( [0] => 120 мм [1] => 250 мм [2] => 360 мм ) [days] => [7,7,7] [material_price] => [1785,3570,5355] [work_price] => [900,1600,1800] [image] => https://akademik-stroy.ru/wp-content/uploads/materials/kirpich-1.jpg [area_modifier] => 250.27 [parent_name] => Внутренние (не несущие) перегородки [parent_id] => 25 [material_sum] => 562882 [work_sum] => 236505 [total_sum] => 799387 [total_days] => 7 [display_material_sum] => 562 882 [display_work_sum] => 236 505 [display_total_sum] => 799 387 ) 1
799 387
Работа:236 505
Материалы:562 882
Дни:7
Электрика
stdClass Object ( [id] => 55 [attribute_id] => 28 [name] => Нет [material_modifier] => 1 [work_modifier] => 1 [options] => Array ( ) [days] => [0] [material_price] => [0] [work_price] => [0] [image] => https://akademik-stroy.ru/wp-content/uploads/materials/ehlektrika.jpg [area_modifier] => 203.09 [parent_name] => Электрика [parent_id] => 28 [material_sum] => 0 [work_sum] => 0 [total_sum] => 0 [total_days] => 0 [display_material_sum] => 0 [display_work_sum] => 0 [display_total_sum] => 0 ) 1
0
Работа:0
Материалы:0
Дни:0
stdClass Object ( [id] => 56 [attribute_id] => 28 [name] => Есть [material_modifier] => 1 [work_modifier] => 1 [options] => Array ( ) [days] => [10] [material_price] => [650] [work_price] => [950] [image] => https://akademik-stroy.ru/wp-content/uploads/materials/ehlektrika.jpg [area_modifier] => 203.09 [parent_name] => Электрика [parent_id] => 28 [material_sum] => 166331 [work_sum] => 202582 [total_sum] => 368913 [total_days] => 10 [display_material_sum] => 166 331 [display_work_sum] => 202 582 [display_total_sum] => 368 913 ) 1
368 913
Работа:202 582
Материалы:166 331
Дни:10
Сантехника, канализация в доме
stdClass Object ( [id] => 57 [attribute_id] => 29 [name] => Нет [material_modifier] => 1 [work_modifier] => 1 [options] => Array ( ) [days] => [0] [material_price] => [0] [work_price] => [0] [image] => https://akademik-stroy.ru/wp-content/uploads/materials/santekhnika-kanalizaciya-1.jpg [area_modifier] => 203.09 [parent_name] => Сантехника, канализация в доме [parent_id] => 29 [material_sum] => 0 [work_sum] => 0 [total_sum] => 0 [total_days] => 0 [display_material_sum] => 0 [display_work_sum] => 0 [display_total_sum] => 0 ) 1
0
Работа:0
Материалы:0
Дни:0
stdClass Object ( [id] => 58 [attribute_id] => 29 [name] => Есть [material_modifier] => 1 [work_modifier] => 1 [options] => Array ( ) [days] => [10] [material_price] => [600] [work_price] => [730] [image] => https://akademik-stroy.ru/wp-content/uploads/materials/santekhnika-kanalizaciya-1.jpg [area_modifier] => 203.09 [parent_name] => Сантехника, канализация в доме [parent_id] => 29 [material_sum] => 153536 [work_sum] => 155668 [total_sum] => 309204 [total_days] => 10 [display_material_sum] => 153 536 [display_work_sum] => 155 668 [display_total_sum] => 309 204 ) 1
309 204
Работа:155 668
Материалы:153 536
Дни:10
Отопление
stdClass Object ( [id] => 59 [attribute_id] => 30 [name] => Нет [material_modifier] => 1 [work_modifier] => 1 [options] => Array ( ) [days] => [0] [material_price] => [0] [work_price] => [0] [image] => https://akademik-stroy.ru/wp-content/uploads/materials/otoplenie-1.jpg [area_modifier] => 203.09 [parent_name] => Отопление [parent_id] => 30 [material_sum] => 0 [work_sum] => 0 [total_sum] => 0 [total_days] => 0 [display_material_sum] => 0 [display_work_sum] => 0 [display_total_sum] => 0 ) 1
0
Работа:0
Материалы:0
Дни:0
stdClass Object ( [id] => 60 [attribute_id] => 30 [name] => Есть [material_modifier] => 1 [work_modifier] => 1 [options] => Array ( ) [days] => [5] [material_price] => [610] [work_price] => [560] [image] => https://akademik-stroy.ru/wp-content/uploads/materials/otoplenie-1.jpg [area_modifier] => 203.09 [parent_name] => Отопление [parent_id] => 30 [material_sum] => 156095 [work_sum] => 119417 [total_sum] => 275512 [total_days] => 5 [display_material_sum] => 156 095 [display_work_sum] => 119 417 [display_total_sum] => 275 512 ) 1
275 512
Работа:119 417
Материалы:156 095
Дни:5
Теплые полы
stdClass Object ( [id] => 61 [attribute_id] => 31 [name] => Нет [material_modifier] => 1 [work_modifier] => 1 [options] => Array ( ) [days] => [0] [material_price] => [0] [work_price] => [0] [image] => https://akademik-stroy.ru/wp-content/uploads/materials/vodyanye.jpg [area_modifier] => 30 [parent_name] => Теплые полы [parent_id] => 31 [material_sum] => 0 [work_sum] => 0 [total_sum] => 0 [total_days] => 0 [display_material_sum] => 0 [display_work_sum] => 0 [display_total_sum] => 0 ) 1
0
Работа:0
Материалы:0
Дни:0
stdClass Object ( [id] => 151 [attribute_id] => 31 [name] => Водяные [material_modifier] => 1 [work_modifier] => 1 [options] => Array ( ) [days] => [9] [material_price] => [10200] [work_price] => [2500] [image] => https://akademik-stroy.ru/wp-content/uploads/materials/vodyanye.jpg [area_modifier] => 30 [parent_name] => Теплые полы [parent_id] => 31 [material_sum] => 385560 [work_sum] => 78750 [total_sum] => 464310 [total_days] => 9 [display_material_sum] => 385 560 [display_work_sum] => 78 750 [display_total_sum] => 464 310 ) 1
464 310
Работа:78 750
Материалы:385 560
Дни:9
stdClass Object ( [id] => 152 [attribute_id] => 31 [name] => Электро [material_modifier] => 1 [work_modifier] => 1 [options] => Array ( ) [days] => [5] [material_price] => [6300] [work_price] => [1500] [image] => https://akademik-stroy.ru/wp-content/uploads/materials/ehlektricheskij.jpg [area_modifier] => 30 [parent_name] => Теплые полы [parent_id] => 31 [material_sum] => 238140 [work_sum] => 47250 [total_sum] => 285390 [total_days] => 5 [display_material_sum] => 238 140 [display_work_sum] => 47 250 [display_total_sum] => 285 390 ) 1
285 390
Работа:47 250
Материалы:238 140
Дни:5
Черновая отделка стен
stdClass Object ( [id] => 63 [attribute_id] => 32 [name] => Нет [material_modifier] => 1 [work_modifier] => 1 [options] => Array ( ) [days] => [0] [material_price] => [0] [work_price] => [0] [image] => https://akademik-stroy.ru/wp-content/uploads/materials/shtukaturka-shpatlevka-1.jpg [area_modifier] => 203.09 [parent_name] => Черновая отделка стен [parent_id] => 32 [material_sum] => 0 [work_sum] => 0 [total_sum] => 0 [total_days] => 0 [display_material_sum] => 0 [display_work_sum] => 0 [display_total_sum] => 0 ) 1
0
Работа:0
Материалы:0
Дни:0
stdClass Object ( [id] => 153 [attribute_id] => 32 [name] => Штукатурка и шпатлевка [material_modifier] => 1 [work_modifier] => 1 [options] => Array ( ) [days] => [20] [material_price] => [1850] [work_price] => [2600] [image] => https://akademik-stroy.ru/wp-content/uploads/materials/shtukaturka-shpatlevka-1.jpg [area_modifier] => 203.09 [parent_name] => Черновая отделка стен [parent_id] => 32 [material_sum] => 473403 [work_sum] => 554436 [total_sum] => 1027839 [total_days] => 20 [display_material_sum] => 473 403 [display_work_sum] => 554 436 [display_total_sum] => 1 027 839 ) 1
1 027 839
Работа:554 436
Материалы:473 403
Дни:20
stdClass Object ( [id] => 154 [attribute_id] => 32 [name] => Гипсокортон на стены [material_modifier] => 1 [work_modifier] => 1 [options] => Array ( ) [days] => [15] [material_price] => [950] [work_price] => [2100] [image] => https://akademik-stroy.ru/wp-content/uploads/materials/gkl-1.jpg [area_modifier] => 203.09 [parent_name] => Черновая отделка стен [parent_id] => 32 [material_sum] => 243099 [work_sum] => 447813 [total_sum] => 690912 [total_days] => 15 [display_material_sum] => 243 099 [display_work_sum] => 447 813 [display_total_sum] => 690 912 ) 1
690 912
Работа:447 813
Материалы:243 099
Дни:15
stdClass Object ( [id] => 155 [attribute_id] => 32 [name] => Вагонка [material_modifier] => 1 [work_modifier] => 1 [options] => Array ( ) [days] => [15] [material_price] => [1250] [work_price] => [950] [image] => https://akademik-stroy.ru/wp-content/uploads/materials/vagonka.jpg [area_modifier] => 203.09 [parent_name] => Черновая отделка стен [parent_id] => 32 [material_sum] => 319867 [work_sum] => 202582 [total_sum] => 522449 [total_days] => 15 [display_material_sum] => 319 867 [display_work_sum] => 202 582 [display_total_sum] => 522 449 ) 1
522 449
Работа:202 582
Материалы:319 867
Дни:15
Черновая отделка полов
stdClass Object ( [id] => 65 [attribute_id] => 33 [name] => Нет [material_modifier] => 1 [work_modifier] => 1 [options] => Array ( ) [days] => [0] [material_price] => [0] [work_price] => [0] [image] => https://akademik-stroy.ru/wp-content/uploads/materials/styazhka.jpg [area_modifier] => 203.09 [parent_name] => Черновая отделка полов [parent_id] => 33 [material_sum] => 0 [work_sum] => 0 [total_sum] => 0 [total_days] => 0 [display_material_sum] => 0 [display_work_sum] => 0 [display_total_sum] => 0 ) 1
0
Работа:0
Материалы:0
Дни:0
stdClass Object ( [id] => 156 [attribute_id] => 33 [name] => Стяжка + наливные полы [material_modifier] => 1 [work_modifier] => 1 [options] => Array ( ) [days] => [10] [material_price] => [1000] [work_price] => [900] [image] => https://akademik-stroy.ru/wp-content/uploads/materials/styazhka.jpg [area_modifier] => 203.09 [parent_name] => Черновая отделка полов [parent_id] => 33 [material_sum] => 255893 [work_sum] => 191920 [total_sum] => 447813 [total_days] => 10 [display_material_sum] => 255 893 [display_work_sum] => 191 920 [display_total_sum] => 447 813 ) 1
447 813
Работа:191 920
Материалы:255 893
Дни:10
stdClass Object ( [id] => 157 [attribute_id] => 33 [name] => ОСБ на пол [material_modifier] => 1 [work_modifier] => 1 [options] => Array ( ) [days] => [7] [material_price] => [580] [work_price] => [350] [image] => https://akademik-stroy.ru/wp-content/uploads/materials/osb-1.jpg [area_modifier] => 203.09 [parent_name] => Черновая отделка полов [parent_id] => 33 [material_sum] => 148418 [work_sum] => 74636 [total_sum] => 223054 [total_days] => 7 [display_material_sum] => 148 418 [display_work_sum] => 74 636 [display_total_sum] => 223 054 ) 1
223 054
Работа:74 636
Материалы:148 418
Дни:7
Чистовая отделка стен и полов
stdClass Object ( [id] => 67 [attribute_id] => 34 [name] => Нет [material_modifier] => 1 [work_modifier] => 1 [options] => Array ( ) [days] => [0] [material_price] => [0] [work_price] => [0] [image] => https://akademik-stroy.ru/wp-content/uploads/materials/chistovaya-otdelka.jpg [area_modifier] => 203.09 [parent_name] => Чистовая отделка стен и полов [parent_id] => 34 [material_sum] => 0 [work_sum] => 0 [total_sum] => 0 [total_days] => 0 [display_material_sum] => 0 [display_work_sum] => 0 [display_total_sum] => 0 ) 1
0
Работа:0
Материалы:0
Дни:0
stdClass Object ( [id] => 68 [attribute_id] => 34 [name] => Есть [material_modifier] => 1 [work_modifier] => 1 [options] => Array ( ) [days] => [50] [material_price] => [6000] [work_price] => [3500] [image] => https://akademik-stroy.ru/wp-content/uploads/materials/chistovaya-otdelka.jpg [area_modifier] => 203.09 [parent_name] => Чистовая отделка стен и полов [parent_id] => 34 [material_sum] => 1535360 [work_sum] => 746356 [total_sum] => 2281716 [total_days] => 50 [display_material_sum] => 1 535 360 [display_work_sum] => 746 356 [display_total_sum] => 2 281 716 ) 1
2 281 716
Работа:746 356
Материалы:1 535 360
Дни:50
Отделка потолка
stdClass Object ( [id] => 69 [attribute_id] => 35 [name] => Нет [material_modifier] => 1 [work_modifier] => 1 [options] => Array ( ) [days] => [0] [material_price] => [0] [work_price] => [0] [image] => https://akademik-stroy.ru/wp-content/uploads/materials/mnogourovnevyj-gkl.jpg [area_modifier] => 203.09 [parent_name] => Отделка потолка [parent_id] => 35 [material_sum] => 0 [work_sum] => 0 [total_sum] => 0 [total_days] => 0 [display_material_sum] => 0 [display_work_sum] => 0 [display_total_sum] => 0 ) 1
0
Работа:0
Материалы:0
Дни:0
stdClass Object ( [id] => 70 [attribute_id] => 35 [name] => Есть [material_modifier] => 1 [work_modifier] => 1 [options] => Array ( [0] => Многоуровневый потолок из гипсокартона [1] => Многоуровневый потолок из гипсокартона и натяжного потолка [2] => Одноуровневый потолок из гипсокартона [3] => Одноуровневый натяжной потолок ) [days] => [10,10,1,1] [material_price] => [900,700,700,600] [work_price] => [1000,800,500,300] [image] => https://akademik-stroy.ru/wp-content/uploads/materials/mnogourovnevyj-gkl.jpg [area_modifier] => 203.09 [parent_name] => Отделка потолка [parent_id] => 35 [material_sum] => 230304 [work_sum] => 213245 [total_sum] => 443549 [total_days] => 10 [display_material_sum] => 230 304 [display_work_sum] => 213 245 [display_total_sum] => 443 549 ) 1
443 549
Работа:213 245
Материалы:230 304
Дни:10

Преимущества работы с нами

icon

7 этапов оплаты

icon

Независимый строительный надзор

icon

Экологически чистые материалы

icon

16 лет гарантии

icon

Онлайн-кабинет с веб-камерой

icon

Строители с опытом более 15 лет

icon

Собственное производство

Двухэтажный дом 203.09 м²: современное пространство для большой семьи

Проект двухэтажного дома площадью 203.09 м² представляет собой отличный пример рационального использования жилого пространства, объединяющего комфорт, функциональность и современный дизайн. Такой дом отвечает всем современным требованиям жизни, предлагая немало удобств для семьи из пяти и более человек. При этом стоимость строительства в 7 081 095 рублей делает этот вариант привлекательным для широкого круга заказчиков, которые хотят получить качественное жильё с хорошей планировкой.

Двухэтажная конструкция – удачное решение для тех, кто не хочет бесконечно увеличивать площадь за счёт расширения в горизонтальной плоскости, но при этом нуждается в большом количестве отдельных зон для жилья, отдыха и работы. Это позволяет не только грамотно зонировать пространство, но и минимизировать теплопотери, что важно для климата России.

Полезная и жилая площади: почему важен баланс

Полезная площадь дома составляет 203.09 м², из которых жилая занимает 164,02 м². Этот параметр подчёркивает оптимальное распределение пространства между жилыми комнатами и остальными техническими и вспомогательными помещениями. Данный баланс обеспечивает комфортную обстановку в доме, когда семья из 5+ человек может не только проживать, но и организовывать личное пространство для каждого.

Жилая площадь включает в себя просторные спальни, гостиные зоны и возможные кабинеты, которые можно адаптировать под нужды современных домашних офисов. Это делает дом универсальным с учётом современных трендов в организации домашнего быта и работы.

Количество этажей и планировка: два этажа для большего комфорта

Два этажа здания обеспечивают удобное разделение функциональных зон. Например, на первом этаже обычно располагается гостиная, кухня, столовая, прихожая и один из санузлов. Второй этаж предназначается для приватных зон – спален и второго санузла. Такой подход не только увеличивает комфорт проживания, но и обеспечивает культуру частной жизни в многокомнатном доме.

  • Первый этаж: общие зоны, гостиная, кухня, санузел
  • Второй этаж: спальни, личные кабинеты, второй санузел

Наличие двух этажей также позволяет более эффективно использовать участок, не занимая излишне большую площадь застройки.

Площадь застройки и минимальные требования к участку

Площадь застройки дома составляет 143 м², что уже даёт представление о размере основания и занимаемой площади дома на участке. Минимальная ширина участка, необходимая для строительства, равна 16,20 м. Эти данные важны для планирования земельного участка, особенно если речь идёт о городской или пригородной застройке с ограниченными размерами.

Отметим, что данный дом – отличный вариант для тех, кто располагает узким, но достаточно длинным участком. При этом диагональ и общие пропорции дома с углом крыши 43° создают впечатляющий внешний вид, выгодно вписывающийся в архитектуру жилого квартала.

Особенности конструкции и архитектуры

Двускатная крыша с углом наклона 43° — традиции и практичность

В конструкции данного дома использована двускатная крыша с углом наклона 43°, что является классическим решением для российского климата. Такой наклон обеспечивает эффективный сход снега весной и осенью, предупреждая образование наледи и сохраняя целостность конструкции.

Двускатная крыша — это не только практичное, но и эстетически удачное решение, придающее дому аккуратный и гармоничный облик. Высота здания при этом составляет 8,78 м, что соответствует двум полноценно комфортным жилым этажам и достаточному внутреннему объёму для технических коммуникаций и утепления.

Отсутствие гаража: стоит ли это учитывать?

В представленной модели дома отсутствует встроенный или пристроенный гараж, что позволяет рассматривать его как преимущество для тех, кто предпочитает отдельное размещение гаража или использует открытые парковочные места. Отсутствие гаража освобождает лёгкий доступ к основному жилому корпусу, способствует более интересной планировке и уменьшает итоговую стоимость строительства.

Для некоторых семей это может стать весомым аргументом, позволяя гибко распланировать использование земельного участка и расположение дополнительных построек.

Жилые комнаты и санузлы: комфорт для большой семьи

Пять и более спален — простор для каждого члена семьи

Наличие 5 и более спален в доме площадью 203.09 м² делает этот проект особенно привлекательным для больших семей или тех, кто хочет выделить отдельные помещения для гостей и рабочих кабинетов. Каждая спальня может стать уютной зоной отдыха, способствующей восстановлению сил и личному пространству.

Особенностью такого количества спален является возможность адаптации комнат под различные задачи: детские, мастерские, гимнастические комнаты, или, например, студии для творческих хобби. Это повышает гибкость использования дома в будущем.

Два санузла — удобство и функциональность

В доме предусмотрено два санузла, что очень важно для семейного комфорта. Наличие двух полноценных санузлов минимизирует очереди утром и вечером, а также повышает уровень гигиены и удобства.

Параметр Значение Комментарий
Полезная площадь 203.09 м² Общая жилая площадь и вспомогательные помещения
Жилая площадь 164,02 м² Спальни и гостиные зоны
Этажность 2 Оптимальное разделение зон
Количество спален 5+ Подходит для большой семьи
Количество санузлов 2 Удобство для жильцов
Площадь застройки 143 м² Размер основания дома
Угол наклона крыши 43° Практическое решение для климата
Высота здания 8,78 м Два полноценных этажа
Минимальная ширина участка 16,20 м Учитывается при выборе участка
Стоимость 7 081 095 руб. Привлекательная цена для такого проекта

Стоимость строительства: экономическая целесообразность проекта

Строительство дома площадью 203.09 м² — это серьёзное вложение, но при бюджете 7 081 095 рублей такой проект становится доступен среднестатистической семье, которая стремится к жилью с высокими стандартами качества. Одной из сильных сторон конкретного проекта является оптимальное соотношение цена-качество.

При организации бюджета важно учитывать не только первоначальную стоимость строительства, но и последующие расходы на эксплуатацию. Благодаря рациональной планировке и добротной конструкции, расходы на отопление и техническое обслуживание дома будут минимальными.

Что входит в стоимость?

  • Фундамент
  • Возведение стен (при выборе материалов)
  • Кровельные работы с двускатной крышей
  • Установка окон и дверей
  • Внутренняя отделка (в зависимости от комплектации)
  • Инженерные коммуникации (освещение, сантехника)

Чёткое планирование со всеми этапами строительства позволяет контролировать расходы и избежать непредвиденных затрат. Кроме того, архитектура дома способствует быстрому и эффективному строительству.

Почему этот проект заслуживает внимания?

Двухэтажный дом с полезной площадью 203.09 м² и пятью спальнями – это современный, продуманный проект, подходящий для самых различных сценариев жизни. Наличие двух санузлов обеспечивает комфорт, двускатная крыша с углом наклона 43° подчёркивает практичность и эстетическую привлекательность. Площадь застройки 143 м² и высота 8,78 метра позволяют рационально использовать участок земли с минимальной шириной 16,20 м.

Отсутствие встроенного гаража предлагает гибкость планирования территории участка, что особенно важно при индивидуальном подходе к организации пространства. Кроме того, разумная стоимость строительства делает проект доступным для семей, мечтающих о просторном и удобном доме.

В целом, этот дом объединяет в себе практичность, комфорт и современный архитектурный стиль, способствуя созданию идеального места для жизни и отдыха в любое время года.