Двухэтажный дом 10x12 - 127.47 м2 за руб.

ID-117893

Стоимость дома 4285586 руб.
154 м2 Полезная
площадь
10 x 12 м Размеры
2 этажа Этажей
26 м2 Террасы
и балконы
0Без
гаража
5+ Количество
спален
1 Количество
санузлов

Планировки

План первого этажа

floor image
  • 1. Прихожая 7,57 m²
  • 2. Комната 13,87 m²
  • 3. Гостиная 23,29 m²
  • 4. Кухня + столовая 11,48 m²
  • 5. Лестница 0,84 m²
  • 6. Туалет 1,81 m²
  • 7. Комната 8,36 m²
  • План первого этажа 67,22 m²

План мансарды

floor image
  • 1. Коридор 5,17 m²
  • 2. Комната 20,62 m²
  • 3. Комната 9,45 m²
  • 4. Комната 12,50 m²
  • 5. Комната 12,51 m²
  • План мансарды 60,25 m²

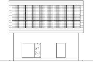
Фасады

Передний
Задний
Левый
Правый
Передний
Задний
Левый
Правый

Подробная информация

Жилая площадь
127,47 m²
icon

Сумма площади всех жилых помещений, за вычетом пов. гараж, котельная, чердак, подвал. Учитывается в 100%, для помещений высотой более 2,2 м, в 50% для помещений с высотой 2,2-1,4 м и не включается для более низких помещений (меньше 1,4 м).

Площадь застройки
94,09 m²
icon

Площадь застройки здания определяется как площадь горизонтального сечения по внешнему обводу здания на уровне цоколя, включая выступающие части.

Угол наклона крыши
40°
icon

Наклон ската крыши в градусах. Внимание! В некоторых проектах возникает более чем один наклон крыши.

Высота здания
8,94 m
icon

Высота измеряется от поверхности земли до самой высокой точки кровли (конька), за исключением дымоходов.

Мин. ширина участка
17,70 m
icon

Наименьшая возможная ширина участка, необходимая для строительства выбранного дома. Состоит из длины фасада дома плюс с обеих сторон три метра отступ.

Мин. длина участка
19,70 m
icon

Наименьшая возможная длина участка, необходимая для строительства выбранного дома. Состоит из длины фасада дома плюс с обеих сторон три метра отступ.

Материалы и опции
Общие
Количество спален
5+
Ежемесячный платёж, руб
Гараж
0
Количество санузлов
1
Ширина
10
Глубина
12
Тип крыши

Площади дома

№ п/п Наименование Ед. из. Строительная площадь Полезная площадь
1 1 этаж м2 82.84 67.22
2 2 этаж м2 74.25 60.25
3 Итого м2 157.09 127.47

Калькулятор опций

0

В ипотеку от 14 767 ₽/мес.

Фундамент
stdClass Object ( [id] => 1 [attribute_id] => 1 [name] => Ленточный монолитный ж/б [material_modifier] => 1 [work_modifier] => 1 [options] => Array ( [0] => размер 200 х 700 мм [1] => размер 300 х 900 мм [2] => размер 400 х 1 000 мм [3] => размер 500 х 1 100 мм [4] => размер 600 х 1 200 мм ) [days] => [20,21,22,25,30] [material_price] => [2823,3630,4475,5210,12047] [work_price] => [2154,2826,3731,4577,5293] [image] => https://akademik-stroy.ru/wp-content/uploads/materials/lentochnyj-monolitnyj-zh-b.jpg [area_modifier] => 82.84 [parent_name] => Фундамент [parent_id] => 1 [material_sum] => 308692 [work_sum] => 196281 [total_sum] => 504973 [total_days] => 20 [display_material_sum] => 308 692 [display_work_sum] => 196 281 [display_total_sum] => 504 973 ) 1
504 973
Работа:196 281
Материалы:308 692
Дни:20
stdClass Object ( [id] => 2 [attribute_id] => 1 [name] => Забивные Ж/Б сваи [material_modifier] => 1 [work_modifier] => 1 [options] => Array ( [0] => 150х150х3000мм [1] => 150х150х4000мм [2] => 200х200х3000мм [3] => 200х200х4000мм [4] => 200х200х5000мм [5] => 200х200х6000мм ) [days] => [2,2,2,2,2,2] [material_price] => [1990,2850,3255,4360,5120,6837] [work_price] => [1002,1185,1336,1438,1574,1839] [image] => https://akademik-stroy.ru/wp-content/uploads/materials/zabivnye-zh-b-svai.png [area_modifier] => 82.84 [parent_name] => Фундамент [parent_id] => 1 [material_sum] => 217604 [work_sum] => 91306 [total_sum] => 308910 [total_days] => 2 [display_material_sum] => 217 604 [display_work_sum] => 91 306 [display_total_sum] => 308 910 ) 1
308 910
Работа:91 306
Материалы:217 604
Дни:2
stdClass Object ( [id] => 71 [attribute_id] => 1 [name] => Свайно-ростверковый ж/б [material_modifier] => 1 [work_modifier] => 1 [options] => Array ( [0] => ростверк 200х300 мм [1] => ростверк 300х600 мм [2] => ростверк 400х900 мм [3] => ростверк 500х1200 мм ) [days] => [20,23,25,27] [material_price] => [3018,3474,7109,9792] [work_price] => [2024,3012,5635,7022] [image] => https://akademik-stroy.ru/wp-content/uploads/materials/svajno-rostverkovyj-monolitnyj-zh-b-3.png [area_modifier] => 82.84 [parent_name] => Фундамент [parent_id] => 1 [material_sum] => 330015 [work_sum] => 184435 [total_sum] => 514450 [total_days] => 20 [display_material_sum] => 330 015 [display_work_sum] => 184 435 [display_total_sum] => 514 450 ) 1
514 450
Работа:184 435
Материалы:330 015
Дни:20
stdClass Object ( [id] => 72 [attribute_id] => 1 [name] => Монолитная ж/б плита [material_modifier] => 1 [work_modifier] => 1 [options] => Array ( [0] => 200 мм [1] => 300 мм [2] => 400 мм [3] => 500 мм [4] => 600 мм ) [days] => [30,33,35,37,40] [material_price] => [5348,8555,12788,14388,15189] [work_price] => [4314,4881,7037,8061,10230] [image] => https://akademik-stroy.ru/wp-content/uploads/materials/monolitnaya-zhb-plita.png [area_modifier] => 82.84 [parent_name] => Фундамент [parent_id] => 1 [material_sum] => 584797 [work_sum] => 393109 [total_sum] => 977906 [total_days] => 30 [display_material_sum] => 584 797 [display_work_sum] => 393 109 [display_total_sum] => 977 906 ) 1
977 906
Работа:393 109
Материалы:584 797
Дни:30
stdClass Object ( [id] => 73 [attribute_id] => 1 [name] => Утепленная шведская плита [material_modifier] => 1 [work_modifier] => 1 [options] => Array ( [0] => 200 мм [1] => 300 мм [2] => 400 мм [3] => 500 мм [4] => 600 мм ) [days] => [32,37,39,42,45] [material_price] => [10249,12692,13760,14936,16230] [work_price] => [5960,7337,8072,8878,9765] [image] => https://akademik-stroy.ru/wp-content/uploads/materials/uteplennaya-shvedskaya-plita.jpg [area_modifier] => 82.84 [parent_name] => Фундамент [parent_id] => 1 [material_sum] => 1120716 [work_sum] => 543099 [total_sum] => 1663815 [total_days] => 32 [display_material_sum] => 1 120 716 [display_work_sum] => 543 099 [display_total_sum] => 1 663 815 ) 1
1 663 815
Работа:543 099
Материалы:1 120 716
Дни:32
stdClass Object ( [id] => 75 [attribute_id] => 1 [name] => Ленточный из ФБС [material_modifier] => 1 [work_modifier] => 1 [options] => Array ( [0] => толщ. 300 мм [1] => толщ. 400 мм [2] => толщ. 500 мм [3] => толщ. 600 мм ) [days] => [20,20,20,20] [material_price] => [3675,4902,6126,7350] [work_price] => [2451,3264,4083,4902] [image] => https://akademik-stroy.ru/wp-content/uploads/materials/lentochnyj-iz-fbs.png [area_modifier] => 82.84 [parent_name] => Фундамент [parent_id] => 1 [material_sum] => 401857 [work_sum] => 223345 [total_sum] => 625202 [total_days] => 20 [display_material_sum] => 401 857 [display_work_sum] => 223 345 [display_total_sum] => 625 202 ) 1
625 202
Работа:223 345
Материалы:401 857
Дни:20
stdClass Object ( [id] => 76 [attribute_id] => 1 [name] => Цокольный этаж из ФБС [material_modifier] => 1 [work_modifier] => 1 [options] => Array ( [0] => толщ. 300 мм [1] => толщ. 400 мм [2] => толщ. 500 мм [3] => толщ. 600 мм ) [days] => [30,32,34,36] [material_price] => [20916,23299,26680,29060] [work_price] => [17524,18700,19873,21046] [image] => https://akademik-stroy.ru/wp-content/uploads/materials/cokolnyj-ehtazh-iz-fbs.jpg [area_modifier] => 82.84 [parent_name] => Фундамент [parent_id] => 1 [material_sum] => 2287140 [work_sum] => 1596857 [total_sum] => 3883997 [total_days] => 30 [display_material_sum] => 2 287 140 [display_work_sum] => 1 596 857 [display_total_sum] => 3 883 997 ) 1
3 883 997
Работа:1 596 857
Материалы:2 287 140
Дни:30
stdClass Object ( [id] => 77 [attribute_id] => 1 [name] => Цокольный этаж монолитный ж/б [material_modifier] => 1 [work_modifier] => 1 [options] => Array ( [0] => толщ. 200 мм [1] => толщ. 300 мм [2] => толщ. 400 мм [3] => толщ. 500 мм [4] => толщ. 600 мм ) [days] => [40,42,44,46,48] [material_price] => [25421,29148,32275,35602,37326] [work_price] => [20441,21907,23375,24841,26306] [image] => https://akademik-stroy.ru/wp-content/uploads/materials/cokolnyj-etazh-zh-b.jpg [area_modifier] => 82.84 [parent_name] => Фундамент [parent_id] => 1 [material_sum] => 2779756 [work_sum] => 1862666 [total_sum] => 4642422 [total_days] => 40 [display_material_sum] => 2 779 756 [display_work_sum] => 1 862 666 [display_total_sum] => 4 642 422 ) 1
4 642 422
Работа:1 862 666
Материалы:2 779 756
Дни:40
stdClass Object ( [id] => 191 [attribute_id] => 1 [name] => Винтовые сваи [material_modifier] => 1 [work_modifier] => 1 [options] => Array ( [0] => 57х200мм [1] => 76х250мм [2] => 108х300мм [3] => 133х350мм ) [days] => [1,1,2,2] [material_price] => [1200,1300,1450,1600] [work_price] => [400,600,900,1100] [image] => https://akademik-stroy.ru/wp-content/uploads/materials/vintovye-svai.png [area_modifier] => 82.84 [parent_name] => Фундамент [parent_id] => 1 [material_sum] => 131219 [work_sum] => 36450 [total_sum] => 167669 [total_days] => 1 [display_material_sum] => 131 219 [display_work_sum] => 36 450 [display_total_sum] => 167 669 ) 1
167 669
Работа:36 450
Материалы:131 219
Дни:1
Перекрытие цоколя
stdClass Object ( [id] => 3 [attribute_id] => 2 [name] => Деревянные балки [material_modifier] => 1 [work_modifier] => 1 [options] => Array ( [0] => без утепления [1] => утепление 200 мм [2] => утепление 250 мм [3] => утепление 300 мм [4] => утепление 350 мм [5] => утепление 400 мм [6] => утепление 450 мм [7] => утепление 500 мм ) [days] => [8,9,9,9,11,12,13,14] [material_price] => [1634,2042,2344,2947,3149,3652,3354,3557] [work_price] => [1230,1339,1393,1426,1460,1513,1587,1620] [image] => https://akademik-stroy.ru/wp-content/uploads/materials/derevyannye-balki.png [area_modifier] => 82.84 [parent_name] => Перекрытие цоколя [parent_id] => 2 [material_sum] => 178676 [work_sum] => 112083 [total_sum] => 290759 [total_days] => 8 [display_material_sum] => 178 676 [display_work_sum] => 112 083 [display_total_sum] => 290 759 ) 1
290 759
Работа:112 083
Материалы:178 676
Дни:8
stdClass Object ( [id] => 4 [attribute_id] => 2 [name] => Сборные ж/б плиты [material_modifier] => 1 [work_modifier] => 1 [options] => Array ( [0] => без утепления [1] => утепление 150мм [2] => утепление 200мм [3] => утепление 250мм [4] => утепление 300мм [5] => утепление 350мм [6] => утепление 400мм [7] => утепление 450мм [8] => утепление 500мм ) [days] => [13,15,15,15,15,15,15,15,15] [material_price] => [3067,5577,5928,6679,7730,8782,9833,10884,11935] [work_price] => [1520,1956,2102,2247,2392,2537,2684,2829,2974] [image] => https://akademik-stroy.ru/wp-content/uploads/materials/sbornye-zh-b-plity-2.jpg [area_modifier] => 82.84 [parent_name] => Перекрытие цоколя [parent_id] => 2 [material_sum] => 335373 [work_sum] => 138508 [total_sum] => 473881 [total_days] => 13 [display_material_sum] => 335 373 [display_work_sum] => 138 508 [display_total_sum] => 473 881 ) 1
473 881
Работа:138 508
Материалы:335 373
Дни:13
stdClass Object ( [id] => 78 [attribute_id] => 2 [name] => Монолитная ж/б плита [material_modifier] => 1 [work_modifier] => 1 [options] => Array ( [0] => без утепления [1] => утепление 150 мм [2] => утепление 200 мм [3] => утепление 250 мм [4] => утепление 300 мм [5] => утепление 350 мм [6] => утепление 400 мм [7] => утепление 450 мм [8] => утепление 500 мм ) [days] => [18,20,20,20,20,20,20,20,20] [material_price] => [4837,6572,7224,7375,79426,8177,8728,9180,10031] [work_price] => [3348,3921,4112,4302,4493,4684,4875,5066,5256] [image] => https://akademik-stroy.ru/wp-content/uploads/materials/monolitnaya-zh-b-plita-2.jpg [area_modifier] => 82.84 [parent_name] => Перекрытие цоколя [parent_id] => 2 [material_sum] => 528920 [work_sum] => 305083 [total_sum] => 834003 [total_days] => 18 [display_material_sum] => 528 920 [display_work_sum] => 305 083 [display_total_sum] => 834 003 ) 1
834 003
Работа:305 083
Материалы:528 920
Дни:18
Стены 1 этаж (несущие)
stdClass Object ( [id] => 6 [attribute_id] => 3 [name] => Пеноблок [material_modifier] => 1 [work_modifier] => 1 [options] => Array ( [0] => 300 мм [1] => 400 мм [2] => 500 мм [3] => 600 мм ) [days] => [29,31,34,39] [material_price] => [3000,4000,4500,4937] [work_price] => [5033,5805,6400,8710] [image] => https://akademik-stroy.ru/wp-content/uploads/materials/penoblok.jpg [area_modifier] => 82.84 [parent_name] => Стены 1 этаж (несущие) [parent_id] => 3 [material_sum] => 328046 [work_sum] => 458627 [total_sum] => 786673 [total_days] => 29 [display_material_sum] => 328 046 [display_work_sum] => 458 627 [display_total_sum] => 786 673 ) 1
786 673
Работа:458 627
Материалы:328 046
Дни:29
stdClass Object ( [id] => 79 [attribute_id] => 3 [name] => Керамический блок [material_modifier] => 1 [work_modifier] => 1 [options] => Array ( [0] => 380 мм [1] => 380 мм Thermo [2] => 440 мм [3] => 510 мм ) [days] => [23,23,24,25] [material_price] => [4510,5098,6093,8013] [work_price] => [4737,4937,5903,6958] [image] => https://akademik-stroy.ru/wp-content/uploads/materials/keramicheskij-blok.jpg [area_modifier] => 82.84 [parent_name] => Стены 1 этаж (несущие) [parent_id] => 3 [material_sum] => 493163 [work_sum] => 431654 [total_sum] => 924817 [total_days] => 23 [display_material_sum] => 493 163 [display_work_sum] => 431 654 [display_total_sum] => 924 817 ) 1
924 817
Работа:431 654
Материалы:493 163
Дни:23
stdClass Object ( [id] => 80 [attribute_id] => 3 [name] => Кирпич [material_modifier] => 1 [work_modifier] => 1 [options] => Array ( [0] => Кирпич 250 мм [1] => Кирпич 380 мм [2] => Кирпич 510 мм [3] => Кирпич 640 мм [4] => Кирпич 770 мм ) [days] => [30,30,31,33,36] [material_price] => [5500,7142,9206,10171,12235] [work_price] => [8736,10041,12018,15240,18462] [image] => https://akademik-stroy.ru/wp-content/uploads/materials/kirpich.jpg [area_modifier] => 82.84 [parent_name] => Стены 1 этаж (несущие) [parent_id] => 3 [material_sum] => 601418 [work_sum] => 796059 [total_sum] => 1397477 [total_days] => 30 [display_material_sum] => 601 418 [display_work_sum] => 796 059 [display_total_sum] => 1 397 477 ) 1
1 397 477
Работа:796 059
Материалы:601 418
Дни:30
stdClass Object ( [id] => 81 [attribute_id] => 3 [name] => Монолитные [material_modifier] => 1 [work_modifier] => 1 [options] => Array ( [0] => 150 мм [1] => 200 мм [2] => 250 мм [3] => 300 мм [4] => 350 мм [5] => 400 мм ) [days] => [45,46,47,49,50,53] [material_price] => [6545,7876,10175,12011,13908,15204] [work_price] => [5106,6444,7698,8552,9807,11461] [image] => https://akademik-stroy.ru/wp-content/uploads/materials/monolitnye.jpg [area_modifier] => 82.84 [parent_name] => Стены 1 этаж (несущие) [parent_id] => 3 [material_sum] => 715688 [work_sum] => 465279 [total_sum] => 1180967 [total_days] => 45 [display_material_sum] => 715 688 [display_work_sum] => 465 279 [display_total_sum] => 1 180 967 ) 1
1 180 967
Работа:465 279
Материалы:715 688
Дни:45
stdClass Object ( [id] => 82 [attribute_id] => 3 [name] => Клееный брус [material_modifier] => 1 [work_modifier] => 1 [options] => Array ( [0] => 160 мм [1] => 175 мм [2] => 200 мм [3] => 215 мм [4] => 240 мм [5] => 270 мм [6] => 282 мм ) [days] => [24,28,32,37,40,42,48] [material_price] => [16975,18773,19950,20545,21599,22159,23275] [work_price] => [4806,5287,5815,6397,7036,7740,8514] [image] => https://akademik-stroy.ru/wp-content/uploads/materials/kleenyj-brus.jpg [area_modifier] => 82.84 [parent_name] => Стены 1 этаж (несущие) [parent_id] => 3 [material_sum] => 1856196 [work_sum] => 437942 [total_sum] => 2294138 [total_days] => 24 [display_material_sum] => 1 856 196 [display_work_sum] => 437 942 [display_total_sum] => 2 294 138 ) 1
2 294 138
Работа:437 942
Материалы:1 856 196
Дни:24
stdClass Object ( [id] => 83 [attribute_id] => 3 [name] => Каркасные [material_modifier] => 1 [work_modifier] => 1 [options] => Array ( [0] => 150 мм [1] => 200 мм [2] => 250 мм [3] => 300 мм ) [days] => [15,16,17,18] [material_price] => [2379,2639,2898,3258] [work_price] => [2418,2686,2985,3716] [image] => https://akademik-stroy.ru/wp-content/uploads/materials/karkasnye.jpg [area_modifier] => 82.84 [parent_name] => Стены 1 этаж (несущие) [parent_id] => 3 [material_sum] => 260141 [work_sum] => 220338 [total_sum] => 480479 [total_days] => 15 [display_material_sum] => 260 141 [display_work_sum] => 220 338 [display_total_sum] => 480 479 ) 1
480 479
Работа:220 338
Материалы:260 141
Дни:15
stdClass Object ( [id] => 84 [attribute_id] => 3 [name] => СИП-панели [material_modifier] => 1 [work_modifier] => 1 [options] => Array ( [0] => 120 мм [1] => 170 мм [2] => 220 мм ) [days] => [7,7,7] [material_price] => [1210,1856,2292] [work_price] => [1410,1551,1706] [image] => https://akademik-stroy.ru/wp-content/uploads/materials/sip-paneli.jpg [area_modifier] => 82.84 [parent_name] => Стены 1 этаж (несущие) [parent_id] => 3 [material_sum] => 132312 [work_sum] => 128485 [total_sum] => 260797 [total_days] => 7 [display_material_sum] => 132 312 [display_work_sum] => 128 485 [display_total_sum] => 260 797 ) 1
260 797
Работа:128 485
Материалы:132 312
Дни:7
stdClass Object ( [id] => 85 [attribute_id] => 3 [name] => Сухой брус [material_modifier] => 1 [work_modifier] => 1 [options] => Array ( [0] => 150 мм [1] => 180 мм [2] => 200 мм ) [days] => [7,8,9] [material_price] => [6010,7190,8709] [work_price] => [3204,3845,4229] [image] => https://akademik-stroy.ru/wp-content/uploads/materials/suhoj-brus.jpg [area_modifier] => 82.84 [parent_name] => Стены 1 этаж (несущие) [parent_id] => 3 [material_sum] => 657186 [work_sum] => 291961 [total_sum] => 949147 [total_days] => 7 [display_material_sum] => 657 186 [display_work_sum] => 291 961 [display_total_sum] => 949 147 ) 1
949 147
Работа:291 961
Материалы:657 186
Дни:7
stdClass Object ( [id] => 86 [attribute_id] => 3 [name] => Профилированный брус [material_modifier] => 1 [work_modifier] => 1 [options] => Array ( [0] => 150 мм [1] => 180 мм [2] => 200 мм ) [days] => [7,8,9] [material_price] => [8190,9228,10051] [work_price] => [3845,4614,5075] [image] => https://akademik-stroy.ru/wp-content/uploads/materials/profilirovannyj-brus.jpg [area_modifier] => 82.84 [parent_name] => Стены 1 этаж (несущие) [parent_id] => 3 [material_sum] => 895567 [work_sum] => 350372 [total_sum] => 1245939 [total_days] => 7 [display_material_sum] => 895 567 [display_work_sum] => 350 372 [display_total_sum] => 1 245 939 ) 1
1 245 939
Работа:350 372
Материалы:895 567
Дни:7
stdClass Object ( [id] => 87 [attribute_id] => 3 [name] => Оцилиндрованное бревно [material_modifier] => 1 [work_modifier] => 1 [options] => Array ( [0] => 180 мм [1] => 220 мм [2] => 260 мм [3] => 320 мм ) [days] => [7,8,9,10] [material_price] => [75190,9532,10868,13116] [work_price] => [3845,4691,5535,6863] [image] => https://akademik-stroy.ru/wp-content/uploads/materials/ocilindrovannoe-brevno-1.jpg [area_modifier] => 82.84 [parent_name] => Стены 1 этаж (несущие) [parent_id] => 3 [material_sum] => 8221936 [work_sum] => 350372 [total_sum] => 8572308 [total_days] => 7 [display_material_sum] => 8 221 936 [display_work_sum] => 350 372 [display_total_sum] => 8 572 308 ) 1
8 572 308
Работа:350 372
Материалы:8 221 936
Дни:7
stdClass Object ( [id] => 88 [attribute_id] => 3 [name] => Срубы [material_modifier] => 1 [work_modifier] => 1 [options] => Array ( [0] => 260 мм [1] => 320 мм [2] => 360 мм [3] => 400 мм [4] => 500 мм ) [days] => [7,8,9,10,11] [material_price] => [37975,46709,52314,58069,73167] [work_price] => [4806,5911,6621,7349,9260] [image] => https://akademik-stroy.ru/wp-content/uploads/materials/sruby.jpg [area_modifier] => 82.84 [parent_name] => Стены 1 этаж (несущие) [parent_id] => 3 [material_sum] => 4152521 [work_sum] => 437942 [total_sum] => 4590463 [total_days] => 7 [display_material_sum] => 4 152 521 [display_work_sum] => 437 942 [display_total_sum] => 4 590 463 ) 1
4 590 463
Работа:437 942
Материалы:4 152 521
Дни:7
stdClass Object ( [id] => 174 [attribute_id] => 3 [name] => Брус [material_modifier] => 1 [work_modifier] => 1 [options] => Array ( [0] => 150 мм [1] => 180 мм [2] => 200 мм ) [days] => [7,8,9] [material_price] => [5127,6152,7367] [work_price] => [1602,1922,2115] [image] => https://akademik-stroy.ru/wp-content/uploads/materials/brus.jpg [area_modifier] => 82.84 [parent_name] => Стены 1 этаж (несущие) [parent_id] => 3 [material_sum] => 560631 [work_sum] => 145981 [total_sum] => 706612 [total_days] => 7 [display_material_sum] => 560 631 [display_work_sum] => 145 981 [display_total_sum] => 706 612 ) 1
706 612
Работа:145 981
Материалы:560 631
Дни:7
stdClass Object ( [id] => 175 [attribute_id] => 3 [name] => Газобетон [material_modifier] => 1 [work_modifier] => 1 [options] => Array ( [0] => 300 мм [1] => 375 мм [2] => 400 мм [3] => 500 мм [4] => 600 мм ) [days] => [29,31,35,37,44] [material_price] => [4298,5573,6356,7288,9119] [work_price] => [4538,5251,5926,6733,7195] [image] => https://akademik-stroy.ru/wp-content/uploads/materials/gazobeton.jpg [area_modifier] => 82.84 [parent_name] => Стены 1 этаж (несущие) [parent_id] => 3 [material_sum] => 469981 [work_sum] => 413521 [total_sum] => 883502 [total_days] => 29 [display_material_sum] => 469 981 [display_work_sum] => 413 521 [display_total_sum] => 883 502 ) 1
883 502
Работа:413 521
Материалы:469 981
Дни:29
stdClass Object ( [id] => 176 [attribute_id] => 3 [name] => Блок [material_modifier] => 1 [work_modifier] => 1 [options] => Array ( [0] => 300 мм [1] => 375 мм [2] => 400 мм [3] => 500 мм [4] => 600 мм ) [days] => [29,31,35,37,44] [material_price] => [2698,3973,4356,6588,7119] [work_price] => [5038,5851,6426,8733,9195] [image] => https://akademik-stroy.ru/wp-content/uploads/materials/blok.jpg [area_modifier] => 82.84 [parent_name] => Стены 1 этаж (несущие) [parent_id] => 3 [material_sum] => 295023 [work_sum] => 459083 [total_sum] => 754106 [total_days] => 29 [display_material_sum] => 295 023 [display_work_sum] => 459 083 [display_total_sum] => 754 106 ) 1
754 106
Работа:459 083
Материалы:295 023
Дни:29
stdClass Object ( [id] => 177 [attribute_id] => 3 [name] => Газосиликатный блок [material_modifier] => 1 [work_modifier] => 1 [options] => Array ( [0] => 300 мм [1] => 375 мм [2] => 400 мм [3] => 500 мм [4] => 600 мм ) [days] => [29,31,35,37,44] [material_price] => [4298,5573,6356,7288,9119] [work_price] => [4538,5251,5926,6733,7195] [image] => https://akademik-stroy.ru/wp-content/uploads/materials/gazosilikatnyj-blok.jpg [area_modifier] => 82.84 [parent_name] => Стены 1 этаж (несущие) [parent_id] => 3 [material_sum] => 469981 [work_sum] => 413521 [total_sum] => 883502 [total_days] => 29 [display_material_sum] => 469 981 [display_work_sum] => 413 521 [display_total_sum] => 883 502 ) 1
883 502
Работа:413 521
Материалы:469 981
Дни:29
stdClass Object ( [id] => 178 [attribute_id] => 3 [name] => Керамзитобетонный блок [material_modifier] => 1 [work_modifier] => 1 [options] => Array ( [0] => 300 мм [1] => 375 мм [2] => 400 мм [3] => 500 мм [4] => 600 мм ) [days] => [23,23,24,25,28] [material_price] => [3641,4298,5693,7613,9612] [work_price] => [5737,5737,6903,7958,8901] [image] => https://akademik-stroy.ru/wp-content/uploads/materials/keramzitobetonnyj-blok.jpg [area_modifier] => 82.84 [parent_name] => Стены 1 этаж (несущие) [parent_id] => 3 [material_sum] => 398139 [work_sum] => 522778 [total_sum] => 920917 [total_days] => 23 [display_material_sum] => 398 139 [display_work_sum] => 522 778 [display_total_sum] => 920 917 ) 1
920 917
Работа:522 778
Материалы:398 139
Дни:23
stdClass Object ( [id] => 179 [attribute_id] => 3 [name] => Деревянные [material_modifier] => 1 [work_modifier] => 1 [options] => Array ( [0] => 180 мм [1] => 220 мм [2] => 260 мм [3] => 320 мм ) [days] => [7,8,9,10] [material_price] => [7950,9458,11961,14472] [work_price] => [4037,4925,5812,7207] [image] => https://akademik-stroy.ru/wp-content/uploads/materials/derevyannye.jpg [area_modifier] => 82.84 [parent_name] => Стены 1 этаж (несущие) [parent_id] => 3 [material_sum] => 869323 [work_sum] => 367868 [total_sum] => 1237191 [total_days] => 7 [display_material_sum] => 869 323 [display_work_sum] => 367 868 [display_total_sum] => 1 237 191 ) 1
1 237 191
Работа:367 868
Материалы:869 323
Дни:7
stdClass Object ( [id] => 181 [attribute_id] => 3 [name] => Камень [material_modifier] => 1 [work_modifier] => 1 [options] => Array ( [0] => 300 мм [1] => 400 мм [2] => 500 мм [3] => 600 мм ) [days] => [25,27,31,34] [material_price] => [5262,6844,8330,9815] [work_price] => [8331,9135,10427,11069] [image] => https://akademik-stroy.ru/wp-content/uploads/materials/kamen.jpg [area_modifier] => 82.84 [parent_name] => Стены 1 этаж (несущие) [parent_id] => 3 [material_sum] => 575393 [work_sum] => 759154 [total_sum] => 1334547 [total_days] => 25 [display_material_sum] => 575 393 [display_work_sum] => 759 154 [display_total_sum] => 1 334 547 ) 1
1 334 547
Работа:759 154
Материалы:575 393
Дни:25
stdClass Object ( [id] => 182 [attribute_id] => 3 [name] => Каркасно-щитовые [material_modifier] => 1 [work_modifier] => 1 [options] => Array ( [0] => 150 мм [1] => 200 мм [2] => 250 мм [3] => 300 мм [4] => 350 мм [5] => 400 мм ) [days] => [15,16,17,18,19,20] [material_price] => [2379,2639,2898,3458,3601,4175] [work_price] => [2538,2820,3134,3483,4062,5642] [image] => https://akademik-stroy.ru/wp-content/uploads/materials/karkasno-shchitovye.jpg [area_modifier] => 82.84 [parent_name] => Стены 1 этаж (несущие) [parent_id] => 3 [material_sum] => 260141 [work_sum] => 231273 [total_sum] => 491414 [total_days] => 15 [display_material_sum] => 260 141 [display_work_sum] => 231 273 [display_total_sum] => 491 414 ) 1
491 414
Работа:231 273
Материалы:260 141
Дни:15
stdClass Object ( [id] => 183 [attribute_id] => 3 [name] => Рубленные [material_modifier] => 1 [work_modifier] => 1 [options] => Array ( [0] => 150 мм [1] => 200 мм [2] => 250 мм [3] => 300 мм [4] => 350 мм [5] => 400 мм ) [days] => [15,16,17,18,17,18] [material_price] => [35950,50267,60583,75900,80217,100533] [work_price] => [9612,12816,16020,19224,22428,25632] [image] => https://akademik-stroy.ru/wp-content/uploads/materials/rublennye.jpg [area_modifier] => 82.84 [parent_name] => Стены 1 этаж (несущие) [parent_id] => 3 [material_sum] => 3931089 [work_sum] => 875884 [total_sum] => 4806973 [total_days] => 15 [display_material_sum] => 3 931 089 [display_work_sum] => 875 884 [display_total_sum] => 4 806 973 ) 1
4 806 973
Работа:875 884
Материалы:3 931 089
Дни:15
stdClass Object ( [id] => 185 [attribute_id] => 3 [name] => Теплоблок [material_modifier] => 1 [work_modifier] => 1 [options] => Array ( [0] => 300 мм (с облицовкой, не покрашенный) [1] => 400 мм (с облицовкой, не покрашенный) [2] => 300 мм (с облицовкой, покрашенный) [3] => 400 мм (с облицовкой, покрашенный) ) [days] => [15,16,15,16] [material_price] => [2888,3729,3957,4258] [work_price] => [2564,3229,2949,3713] [image] => https://akademik-stroy.ru/wp-content/uploads/materials/teploblok.jpg [area_modifier] => 82.84 [parent_name] => Стены 1 этаж (несущие) [parent_id] => 3 [material_sum] => 315799 [work_sum] => 233642 [total_sum] => 549441 [total_days] => 15 [display_material_sum] => 315 799 [display_work_sum] => 233 642 [display_total_sum] => 549 441 ) 1
549 441
Работа:233 642
Материалы:315 799
Дни:15
stdClass Object ( [id] => 186 [attribute_id] => 3 [name] => Арболитовые блоки [material_modifier] => 1 [work_modifier] => 1 [options] => Array ( [0] => 300 мм [1] => 400 мм [2] => 600 мм ) [days] => [19,22,27] [material_price] => [3210,4475,5852] [work_price] => [4214,4788,5866] [image] => https://akademik-stroy.ru/wp-content/uploads/materials/arbolitovye-bloki.png [area_modifier] => 82.84 [parent_name] => Стены 1 этаж (несущие) [parent_id] => 3 [material_sum] => 351010 [work_sum] => 383997 [total_sum] => 735007 [total_days] => 19 [display_material_sum] => 351 010 [display_work_sum] => 383 997 [display_total_sum] => 735 007 ) 1
735 007
Работа:383 997
Материалы:351 010
Дни:19
stdClass Object ( [id] => 187 [attribute_id] => 3 [name] => Полистиролбетон [material_modifier] => 1 [work_modifier] => 1 [options] => Array ( [0] => 300 мм [1] => 400 мм [2] => 600 мм ) [days] => [29,31,35] [material_price] => [2798,4573,5256] [work_price] => [5038,5851,6426] [image] => https://akademik-stroy.ru/wp-content/uploads/materials/polistirolbeton.jpg [area_modifier] => 82.84 [parent_name] => Стены 1 этаж (несущие) [parent_id] => 3 [material_sum] => 305958 [work_sum] => 459083 [total_sum] => 765041 [total_days] => 29 [display_material_sum] => 305 958 [display_work_sum] => 459 083 [display_total_sum] => 765 041 ) 1
765 041
Работа:459 083
Материалы:305 958
Дни:29
stdClass Object ( [id] => 188 [attribute_id] => 3 [name] => Шлакоблок [material_modifier] => 1 [work_modifier] => 1 [options] => Array ( [0] => 400 мм [1] => 600 мм ) [days] => [15,16] [material_price] => [2391,3471] [work_price] => [2642,3662] [image] => https://akademik-stroy.ru/wp-content/uploads/materials/shlakoblok.jpg [area_modifier] => 82.84 [parent_name] => Стены 1 этаж (несущие) [parent_id] => 3 [material_sum] => 261453 [work_sum] => 240750 [total_sum] => 502203 [total_days] => 15 [display_material_sum] => 261 453 [display_work_sum] => 240 750 [display_total_sum] => 502 203 ) 1
502 203
Работа:240 750
Материалы:261 453
Дни:15
stdClass Object ( [id] => 189 [attribute_id] => 3 [name] => Теплая керамика [material_modifier] => 1 [work_modifier] => 1 [options] => Array ( [0] => 380 мм [1] => 380 мм Thermo [2] => 440 мм [3] => 510 мм ) [days] => [23,23,24,25] [material_price] => [4510,5098,6093,8013] [work_price] => [4737,4937,5903,6958] [image] => https://akademik-stroy.ru/wp-content/uploads/materials/teplaya-keramika.jpg [area_modifier] => 82.84 [parent_name] => Стены 1 этаж (несущие) [parent_id] => 3 [material_sum] => 493163 [work_sum] => 431654 [total_sum] => 924817 [total_days] => 23 [display_material_sum] => 493 163 [display_work_sum] => 431 654 [display_total_sum] => 924 817 ) 1
924 817
Работа:431 654
Материалы:493 163
Дни:23
stdClass Object ( [id] => 190 [attribute_id] => 3 [name] => Несъемная опалубка [material_modifier] => 1 [work_modifier] => 1 [options] => Array ( [0] => 200 мм [1] => 250 мм [2] => 300 мм [3] => 350 мм ) [days] => [15,17,19,21] [material_price] => [3302,3902,4108,5008] [work_price] => [2100,2100,2300,2534] [image] => https://akademik-stroy.ru/wp-content/uploads/materials/nesemnaya-opalubka.jpg [area_modifier] => 82.84 [parent_name] => Стены 1 этаж (несущие) [parent_id] => 3 [material_sum] => 361070 [work_sum] => 191360 [total_sum] => 552430 [total_days] => 15 [display_material_sum] => 361 070 [display_work_sum] => 191 360 [display_total_sum] => 552 430 ) 1
552 430
Работа:191 360
Материалы:361 070
Дни:15
stdClass Object ( [id] => 251 [attribute_id] => 3 [name] => Бревно [material_modifier] => 1 [work_modifier] => 1 [options] => Array ( [0] => 260 мм [1] => 320 мм [2] => 360 мм [3] => 400 мм [4] => 500 мм ) [days] => [7,8,9,10,11] [material_price] => [1874,24045,26930,30972,38825] [work_price] => [5046,6207,6952,7716,9723] [image] => https://akademik-stroy.ru/wp-content/uploads/materials/sruby.jpg [area_modifier] => 82.84 [parent_name] => Стены 1 этаж (несущие) [parent_id] => 3 [material_sum] => 204920 [work_sum] => 459812 [total_sum] => 664732 [total_days] => 7 [display_material_sum] => 204 920 [display_work_sum] => 459 812 [display_total_sum] => 664 732 ) 1
664 732
Работа:459 812
Материалы:204 920
Дни:7
Перекрытие первого этажа
stdClass Object ( [id] => 7 [attribute_id] => 4 [name] => Деревянные балки [material_modifier] => 1 [work_modifier] => 1 [options] => Array ( [0] => без утепления [1] => утепление 200 мм [2] => утепление 250 мм [3] => утепление 300 мм [4] => утепление 350 мм [5] => утепление 400 мм [6] => утепление 450 мм [7] => утепление 500 мм ) [days] => [8,9,9,9,11,12,13,14] [material_price] => [1634,2042,2344,2947,3149,3652,3354,3557] [work_price] => [1230,1339,1393,1426,1460,1513,1587,1620] [image] => https://akademik-stroy.ru/wp-content/uploads/materials/derevyannye-balki.png [area_modifier] => 82.84 [parent_name] => Перекрытие первого этажа [parent_id] => 4 [material_sum] => 178676 [work_sum] => 112083 [total_sum] => 290759 [total_days] => 8 [display_material_sum] => 178 676 [display_work_sum] => 112 083 [display_total_sum] => 290 759 ) 1
290 759
Работа:112 083
Материалы:178 676
Дни:8
stdClass Object ( [id] => 8 [attribute_id] => 4 [name] => Сборные ж/б плиты [material_modifier] => 1 [work_modifier] => 1 [options] => Array ( [0] => без утепления [1] => утепление 150 мм [2] => утепление 200 мм [3] => утепление 250 мм [4] => утепление 300 мм [5] => утепление 350 мм [6] => утепление 400 мм [7] => утепление 450 мм [8] => утепление 500 мм ) [days] => [13,15,15,15,15,15,15,15,15] [material_price] => [3067,5577,5928,6679,7730,8782,9833,10884,11935] [work_price] => [1520,1956,2102,2247,2392,2537,2684,2829,2974] [image] => https://akademik-stroy.ru/wp-content/uploads/materials/sbornye-zh-b-plity-2.jpg [area_modifier] => 82.84 [parent_name] => Перекрытие первого этажа [parent_id] => 4 [material_sum] => 335373 [work_sum] => 138508 [total_sum] => 473881 [total_days] => 13 [display_material_sum] => 335 373 [display_work_sum] => 138 508 [display_total_sum] => 473 881 ) 1
473 881
Работа:138 508
Материалы:335 373
Дни:13
stdClass Object ( [id] => 89 [attribute_id] => 4 [name] => Монолитная ж/б плита [material_modifier] => 1 [work_modifier] => 1 [options] => Array ( [0] => без утепления [1] => утепление 150 мм [2] => утепление 200 мм [3] => утепление 250 мм [4] => утепление 300 мм [5] => утепление 350 мм [6] => утепление 400 мм [7] => утепление 450 мм [8] => утепление 500 мм ) [days] => [18,20,20,20,20,20,20,20,20] [material_price] => [4837,6572,7224,7375,79426,8177,8728,9180,10031] [work_price] => [3348,3921,4112,4302,4493,4684,4875,5066,5256] [image] => https://akademik-stroy.ru/wp-content/uploads/materials/monolitnaya-zh-b-plita-2.jpg [area_modifier] => 82.84 [parent_name] => Перекрытие первого этажа [parent_id] => 4 [material_sum] => 528920 [work_sum] => 305083 [total_sum] => 834003 [total_days] => 18 [display_material_sum] => 528 920 [display_work_sum] => 305 083 [display_total_sum] => 834 003 ) 1
834 003
Работа:305 083
Материалы:528 920
Дни:18
Стены 2 этаж (несущие)
stdClass Object ( [id] => 10 [attribute_id] => 5 [name] => Пеноблок [material_modifier] => 1 [work_modifier] => 1 [options] => Array ( [0] => 300 мм [1] => 400 мм [2] => 500 мм [3] => 600 мм ) [days] => [29,31,34,39] [material_price] => [3000,4000,4500,4937] [work_price] => [5033,5805,6400,8710] [image] => https://akademik-stroy.ru/wp-content/uploads/materials/penoblok.jpg [area_modifier] => 74.25 [parent_name] => Стены 2 этаж (несущие) [parent_id] => 5 [material_sum] => 294030 [work_sum] => 411070 [total_sum] => 705100 [total_days] => 29 [display_material_sum] => 294 030 [display_work_sum] => 411 070 [display_total_sum] => 705 100 ) 1
705 100
Работа:411 070
Материалы:294 030
Дни:29
stdClass Object ( [id] => 90 [attribute_id] => 5 [name] => Керамический блок [material_modifier] => 1 [work_modifier] => 1 [options] => Array ( [0] => 380 мм [1] => 380 мм Thermo [2] => 440 мм [3] => 510 мм ) [days] => [23,23,24,25] [material_price] => [4510,5098,6093,8013] [work_price] => [4737,4937,5903,6958] [image] => https://akademik-stroy.ru/wp-content/uploads/materials/keramicheskij-blok.jpg [area_modifier] => 74.25 [parent_name] => Стены 2 этаж (несущие) [parent_id] => 5 [material_sum] => 442025 [work_sum] => 386894 [total_sum] => 828919 [total_days] => 23 [display_material_sum] => 442 025 [display_work_sum] => 386 894 [display_total_sum] => 828 919 ) 1
828 919
Работа:386 894
Материалы:442 025
Дни:23
stdClass Object ( [id] => 91 [attribute_id] => 5 [name] => Кирпич [material_modifier] => 1 [work_modifier] => 1 [options] => Array ( [0] => Кирпич 250 мм [1] => Кирпич 380 мм [2] => Кирпич 510 мм [3] => Кирпич 640 мм [4] => Кирпич 770 мм ) [days] => [30,30,31,33,36] [material_price] => [5500,7142,9206,10171,12235] [work_price] => [8736,10041,12018,15240,18462] [image] => https://akademik-stroy.ru/wp-content/uploads/materials/kirpich.jpg [area_modifier] => 74.25 [parent_name] => Стены 2 этаж (несущие) [parent_id] => 5 [material_sum] => 539055 [work_sum] => 713513 [total_sum] => 1252568 [total_days] => 30 [display_material_sum] => 539 055 [display_work_sum] => 713 513 [display_total_sum] => 1 252 568 ) 1
1 252 568
Работа:713 513
Материалы:539 055
Дни:30
stdClass Object ( [id] => 92 [attribute_id] => 5 [name] => Монолитные [material_modifier] => 1 [work_modifier] => 1 [options] => Array ( [0] => 150 мм [1] => 200 мм [2] => 250 мм [3] => 300 мм [4] => 350 мм [5] => 400 мм ) [days] => [45,46,47,49,50,53] [material_price] => [6545,7876,10175,12011,13908,15204] [work_price] => [5106,6444,7698,8552,9807,11461] [image] => https://akademik-stroy.ru/wp-content/uploads/materials/monolitnye.jpg [area_modifier] => 74.25 [parent_name] => Стены 2 этаж (несущие) [parent_id] => 5 [material_sum] => 641475 [work_sum] => 417033 [total_sum] => 1058508 [total_days] => 45 [display_material_sum] => 641 475 [display_work_sum] => 417 033 [display_total_sum] => 1 058 508 ) 1
1 058 508
Работа:417 033
Материалы:641 475
Дни:45
stdClass Object ( [id] => 93 [attribute_id] => 5 [name] => Клееный брус [material_modifier] => 1 [work_modifier] => 1 [options] => Array ( [0] => 160 мм [1] => 175 мм [2] => 200 мм [3] => 215 мм [4] => 240 мм [5] => 270 мм [6] => 282 мм ) [days] => [24,28,32,37,40,42,48] [material_price] => [16975,18773,19950,20545,21599,22159,23275] [work_price] => [4806,5287,5815,6397,7036,7740,8514] [image] => https://akademik-stroy.ru/wp-content/uploads/materials/kleenyj-brus.jpg [area_modifier] => 74.25 [parent_name] => Стены 2 этаж (несущие) [parent_id] => 5 [material_sum] => 1663720 [work_sum] => 392530 [total_sum] => 2056250 [total_days] => 24 [display_material_sum] => 1 663 720 [display_work_sum] => 392 530 [display_total_sum] => 2 056 250 ) 1
2 056 250
Работа:392 530
Материалы:1 663 720
Дни:24
stdClass Object ( [id] => 94 [attribute_id] => 5 [name] => Каркасные [material_modifier] => 1 [work_modifier] => 1 [options] => Array ( [0] => 150 мм [1] => 200 мм [2] => 250 мм [3] => 300 мм ) [days] => [15,16,17,18] [material_price] => [2379,2639,2898,3258] [work_price] => [2418,2686,2985,3716] [image] => https://akademik-stroy.ru/wp-content/uploads/materials/karkasnye.jpg [area_modifier] => 74.25 [parent_name] => Стены 2 этаж (несущие) [parent_id] => 5 [material_sum] => 233166 [work_sum] => 197490 [total_sum] => 430656 [total_days] => 15 [display_material_sum] => 233 166 [display_work_sum] => 197 490 [display_total_sum] => 430 656 ) 1
430 656
Работа:197 490
Материалы:233 166
Дни:15
stdClass Object ( [id] => 95 [attribute_id] => 5 [name] => СИП-панели [material_modifier] => 1 [work_modifier] => 1 [options] => Array ( [0] => 120 мм [1] => 170 мм [2] => 220 мм ) [days] => [7,7,7] [material_price] => [1210,1856,2292] [work_price] => [1410,1551,1706] [image] => https://akademik-stroy.ru/wp-content/uploads/materials/sip-paneli.jpg [area_modifier] => 74.25 [parent_name] => Стены 2 этаж (несущие) [parent_id] => 5 [material_sum] => 118592 [work_sum] => 115162 [total_sum] => 233754 [total_days] => 7 [display_material_sum] => 118 592 [display_work_sum] => 115 162 [display_total_sum] => 233 754 ) 1
233 754
Работа:115 162
Материалы:118 592
Дни:7
stdClass Object ( [id] => 96 [attribute_id] => 5 [name] => Сухой брус [material_modifier] => 1 [work_modifier] => 1 [options] => Array ( [0] => 150 мм [1] => 180 мм [2] => 200 мм ) [days] => [7,8,9] [material_price] => [6010,7190,8709] [work_price] => [3204,3845,4229] [image] => https://akademik-stroy.ru/wp-content/uploads/materials/suhoj-brus.jpg [area_modifier] => 74.25 [parent_name] => Стены 2 этаж (несущие) [parent_id] => 5 [material_sum] => 589040 [work_sum] => 261687 [total_sum] => 850727 [total_days] => 7 [display_material_sum] => 589 040 [display_work_sum] => 261 687 [display_total_sum] => 850 727 ) 1
850 727
Работа:261 687
Материалы:589 040
Дни:7
stdClass Object ( [id] => 97 [attribute_id] => 5 [name] => Профилированный брус [material_modifier] => 1 [work_modifier] => 1 [options] => Array ( [0] => 150 мм [1] => 180 мм [2] => 200 мм ) [days] => [7,8,9] [material_price] => [8190,9228,10051] [work_price] => [3845,4614,5075] [image] => https://akademik-stroy.ru/wp-content/uploads/materials/profilirovannyj-brus.jpg [area_modifier] => 74.25 [parent_name] => Стены 2 этаж (несущие) [parent_id] => 5 [material_sum] => 802702 [work_sum] => 314040 [total_sum] => 1116742 [total_days] => 7 [display_material_sum] => 802 702 [display_work_sum] => 314 040 [display_total_sum] => 1 116 742 ) 1
1 116 742
Работа:314 040
Материалы:802 702
Дни:7
stdClass Object ( [id] => 98 [attribute_id] => 5 [name] => Оцилиндрованное бревно [material_modifier] => 1 [work_modifier] => 1 [options] => Array ( [0] => 180 мм [1] => 220 мм [2] => 260 мм [3] => 320 мм ) [days] => [7,8,9,10] [material_price] => [75190,9532,10868,13116] [work_price] => [3845,4691,5535,6863] [image] => https://akademik-stroy.ru/wp-content/uploads/materials/ocilindrovannoe-brevno-1.jpg [area_modifier] => 74.25 [parent_name] => Стены 2 этаж (несущие) [parent_id] => 5 [material_sum] => 7369372 [work_sum] => 314040 [total_sum] => 7683412 [total_days] => 7 [display_material_sum] => 7 369 372 [display_work_sum] => 314 040 [display_total_sum] => 7 683 412 ) 1
7 683 412
Работа:314 040
Материалы:7 369 372
Дни:7
stdClass Object ( [id] => 99 [attribute_id] => 5 [name] => Срубы [material_modifier] => 1 [work_modifier] => 1 [options] => Array ( [0] => 260 мм [1] => 320 мм [2] => 360 мм [3] => 400 мм [4] => 500 мм ) [days] => [7,8,9,10,11] [material_price] => [16175,23709,26314,29069,32167] [work_price] => [4806,5911,6621,7349,9260] [image] => https://akademik-stroy.ru/wp-content/uploads/materials/suhoj-brus.jpg [area_modifier] => 74.25 [parent_name] => Стены 2 этаж (несущие) [parent_id] => 5 [material_sum] => 1585312 [work_sum] => 392530 [total_sum] => 1977842 [total_days] => 7 [display_material_sum] => 1 585 312 [display_work_sum] => 392 530 [display_total_sum] => 1 977 842 ) 1
1 977 842
Работа:392 530
Материалы:1 585 312
Дни:7
stdClass Object ( [id] => 194 [attribute_id] => 5 [name] => Брус [material_modifier] => 1 [work_modifier] => 1 [options] => Array ( [0] => 150 мм [1] => 180 мм [2] => 200 мм ) [days] => [10,13,15] [material_price] => [5127,6152,7367] [work_price] => [1602,1922,2115] [image] => https://akademik-stroy.ru/wp-content/uploads/materials/brus.jpg [area_modifier] => 74.25 [parent_name] => Стены 2 этаж (несущие) [parent_id] => 5 [material_sum] => 502497 [work_sum] => 130843 [total_sum] => 633340 [total_days] => 10 [display_material_sum] => 502 497 [display_work_sum] => 130 843 [display_total_sum] => 633 340 ) 1
633 340
Работа:130 843
Материалы:502 497
Дни:10
stdClass Object ( [id] => 195 [attribute_id] => 5 [name] => Газобетон [material_modifier] => 1 [work_modifier] => 1 [options] => Array ( [0] => 300 мм [1] => 375 мм [2] => 400 мм [3] => 500 мм [4] => 600 мм ) [days] => [29,31,35,37,44] [material_price] => [4298,5573,6356,7288,9119] [work_price] => [4538,5251,5926,6733,7195] [image] => https://akademik-stroy.ru/wp-content/uploads/materials/gazobeton.jpg [area_modifier] => 74.25 [parent_name] => Стены 2 этаж (несущие) [parent_id] => 5 [material_sum] => 421247 [work_sum] => 370641 [total_sum] => 791888 [total_days] => 29 [display_material_sum] => 421 247 [display_work_sum] => 370 641 [display_total_sum] => 791 888 ) 1
791 888
Работа:370 641
Материалы:421 247
Дни:29
stdClass Object ( [id] => 196 [attribute_id] => 5 [name] => Блок [material_modifier] => 1 [work_modifier] => 1 [options] => Array ( [0] => 300 мм [1] => 375 мм [2] => 400 мм [3] => 500 мм [4] => 600 мм ) [days] => [29,31,35,37,44] [material_price] => [2698,3973,4356,6588,7119] [work_price] => [5038,5851,6426,8733,9195] [image] => https://akademik-stroy.ru/wp-content/uploads/materials/blok.jpg [area_modifier] => 74.25 [parent_name] => Стены 2 этаж (несущие) [parent_id] => 5 [material_sum] => 264431 [work_sum] => 411479 [total_sum] => 675910 [total_days] => 29 [display_material_sum] => 264 431 [display_work_sum] => 411 479 [display_total_sum] => 675 910 ) 1
675 910
Работа:411 479
Материалы:264 431
Дни:29
stdClass Object ( [id] => 197 [attribute_id] => 5 [name] => Газосиликатный блок [material_modifier] => 1 [work_modifier] => 1 [options] => Array ( [0] => 300 мм [1] => 375 мм [2] => 400 мм [3] => 500 мм [4] => 600 мм ) [days] => [29,31,35,37,44] [material_price] => [4298,5573,6356,7288,9119] [work_price] => [4538,5251,5926,6733,7195] [image] => https://akademik-stroy.ru/wp-content/uploads/materials/gazosilikatnyj-blok.jpg [area_modifier] => 74.25 [parent_name] => Стены 2 этаж (несущие) [parent_id] => 5 [material_sum] => 421247 [work_sum] => 370641 [total_sum] => 791888 [total_days] => 29 [display_material_sum] => 421 247 [display_work_sum] => 370 641 [display_total_sum] => 791 888 ) 1
791 888
Работа:370 641
Материалы:421 247
Дни:29
stdClass Object ( [id] => 198 [attribute_id] => 5 [name] => Керамзитобетонный блок [material_modifier] => 1 [work_modifier] => 1 [options] => Array ( [0] => 300 мм [1] => 375 мм [2] => 400 мм [3] => 500 мм [4] => 600 мм ) [days] => [23,23,24,25,28] [material_price] => [3641,4298,5693,7613,9612] [work_price] => [5737,5737,6903,7958,8901] [image] => https://akademik-stroy.ru/wp-content/uploads/materials/keramzitobetonnyj-blok.jpg [area_modifier] => 74.25 [parent_name] => Стены 2 этаж (несущие) [parent_id] => 5 [material_sum] => 356854 [work_sum] => 468569 [total_sum] => 825423 [total_days] => 23 [display_material_sum] => 356 854 [display_work_sum] => 468 569 [display_total_sum] => 825 423 ) 1
825 423
Работа:468 569
Материалы:356 854
Дни:23
stdClass Object ( [id] => 199 [attribute_id] => 5 [name] => Деревянные [material_modifier] => 1 [work_modifier] => 1 [options] => Array ( [0] => 180 мм [1] => 220 мм [2] => 260 мм [3] => 320 мм ) [days] => [7,8,9,10] [material_price] => [7950,9458,11961,14472] [work_price] => [4037,4925,5812,7207] [image] => https://akademik-stroy.ru/wp-content/uploads/materials/derevyannye.jpg [area_modifier] => 74.25 [parent_name] => Стены 2 этаж (несущие) [parent_id] => 5 [material_sum] => 779180 [work_sum] => 329722 [total_sum] => 1108902 [total_days] => 7 [display_material_sum] => 779 180 [display_work_sum] => 329 722 [display_total_sum] => 1 108 902 ) 1
1 108 902
Работа:329 722
Материалы:779 180
Дни:7
stdClass Object ( [id] => 200 [attribute_id] => 5 [name] => Камень [material_modifier] => 1 [work_modifier] => 1 [options] => Array ( [0] => 300 мм [1] => 400 мм [2] => 500 мм [3] => 600 мм ) [days] => [25,27,31,34] [material_price] => [5262,6844,8330,9815] [work_price] => [8331,9135,10427,11069] [image] => https://akademik-stroy.ru/wp-content/uploads/materials/kamen.jpg [area_modifier] => 74.25 [parent_name] => Стены 2 этаж (несущие) [parent_id] => 5 [material_sum] => 515729 [work_sum] => 680434 [total_sum] => 1196163 [total_days] => 25 [display_material_sum] => 515 729 [display_work_sum] => 680 434 [display_total_sum] => 1 196 163 ) 1
1 196 163
Работа:680 434
Материалы:515 729
Дни:25
stdClass Object ( [id] => 201 [attribute_id] => 5 [name] => Каркасно-щитовые [material_modifier] => 1 [work_modifier] => 1 [options] => Array ( [0] => 150 мм [1] => 200 мм [2] => 250 мм [3] => 300 мм [4] => 350 мм [5] => 400 мм ) [days] => [15,16,17,18,19,20] [material_price] => [2379,2639,2898,3458,3601,4175] [work_price] => [2538,2820,3134,3483,4062,5642] [image] => https://akademik-stroy.ru/wp-content/uploads/materials/karkasno-shchitovye.jpg [area_modifier] => 74.25 [parent_name] => Стены 2 этаж (несущие) [parent_id] => 5 [material_sum] => 233166 [work_sum] => 207291 [total_sum] => 440457 [total_days] => 15 [display_material_sum] => 233 166 [display_work_sum] => 207 291 [display_total_sum] => 440 457 ) 1
440 457
Работа:207 291
Материалы:233 166
Дни:15
stdClass Object ( [id] => 202 [attribute_id] => 5 [name] => Рубленные [material_modifier] => 1 [work_modifier] => 1 [options] => Array ( [0] => 150 мм [1] => 200 мм [2] => 250 мм [3] => 300 мм [4] => 350 мм [5] => 400 мм ) [days] => [15,16,17,18,17,18] [material_price] => [35950,50267,60583,75900,80217,100533] [work_price] => [9612,12816,16020,19224,22428,25632] [image] => https://akademik-stroy.ru/wp-content/uploads/materials/rublennye.jpg [area_modifier] => 74.25 [parent_name] => Стены 2 этаж (несущие) [parent_id] => 5 [material_sum] => 3523460 [work_sum] => 785060 [total_sum] => 4308520 [total_days] => 15 [display_material_sum] => 3 523 460 [display_work_sum] => 785 060 [display_total_sum] => 4 308 520 ) 1
4 308 520
Работа:785 060
Материалы:3 523 460
Дни:15
stdClass Object ( [id] => 203 [attribute_id] => 5 [name] => Теплоблок [material_modifier] => 1 [work_modifier] => 1 [options] => Array ( [0] => 300 мм (с облицовкой, не покрашенный) [1] => 400 мм (с облицовкой, не покрашенный) [2] => 300 мм (с облицовкой, покрашенный) [3] => 400 мм (с облицовкой, покрашенный) ) [days] => [15,16,15,16] [material_price] => [2888,3729,3957,4258] [work_price] => [2564,3229,2949,3713] [image] => https://akademik-stroy.ru/wp-content/uploads/materials/teploblok.jpg [area_modifier] => 74.25 [parent_name] => Стены 2 этаж (несущие) [parent_id] => 5 [material_sum] => 283053 [work_sum] => 209415 [total_sum] => 492468 [total_days] => 15 [display_material_sum] => 283 053 [display_work_sum] => 209 415 [display_total_sum] => 492 468 ) 1
492 468
Работа:209 415
Материалы:283 053
Дни:15
stdClass Object ( [id] => 204 [attribute_id] => 5 [name] => Арболитовые блоки [material_modifier] => 1 [work_modifier] => 1 [options] => Array ( [0] => 300 мм [1] => 400 мм [2] => 600 мм ) [days] => [19,22,27] [material_price] => [3210,4475,5852] [work_price] => [4214,4788,5866] [image] => https://akademik-stroy.ru/wp-content/uploads/materials/arbolitovye-bloki.png [area_modifier] => 74.25 [parent_name] => Стены 2 этаж (несущие) [parent_id] => 5 [material_sum] => 314612 [work_sum] => 344178 [total_sum] => 658790 [total_days] => 19 [display_material_sum] => 314 612 [display_work_sum] => 344 178 [display_total_sum] => 658 790 ) 1
658 790
Работа:344 178
Материалы:314 612
Дни:19
stdClass Object ( [id] => 205 [attribute_id] => 5 [name] => Полистиролбетон [material_modifier] => 1 [work_modifier] => 1 [options] => Array ( [0] => 300 мм [1] => 400 мм [2] => 600 мм ) [days] => [29,31,35] [material_price] => [2798,4573,5256] [work_price] => [5038,5851,6426] [image] => https://akademik-stroy.ru/wp-content/uploads/materials/polistirolbeton.jpg [area_modifier] => 74.25 [parent_name] => Стены 2 этаж (несущие) [parent_id] => 5 [material_sum] => 274232 [work_sum] => 411479 [total_sum] => 685711 [total_days] => 29 [display_material_sum] => 274 232 [display_work_sum] => 411 479 [display_total_sum] => 685 711 ) 1
685 711
Работа:411 479
Материалы:274 232
Дни:29
stdClass Object ( [id] => 206 [attribute_id] => 5 [name] => Шлакоблок [material_modifier] => 1 [work_modifier] => 1 [options] => Array ( [0] => 400 мм [1] => 600 мм ) [days] => [15,16] [material_price] => [2391,3471] [work_price] => [2642,3662] [image] => https://akademik-stroy.ru/wp-content/uploads/materials/shlakoblok.jpg [area_modifier] => 74.25 [parent_name] => Стены 2 этаж (несущие) [parent_id] => 5 [material_sum] => 234342 [work_sum] => 215785 [total_sum] => 450127 [total_days] => 15 [display_material_sum] => 234 342 [display_work_sum] => 215 785 [display_total_sum] => 450 127 ) 1
450 127
Работа:215 785
Материалы:234 342
Дни:15
stdClass Object ( [id] => 245 [attribute_id] => 5 [name] => Теплая керамика [material_modifier] => 1 [work_modifier] => 1 [options] => Array ( [0] => 380 мм [1] => 380 мм Thermo [2] => 440 мм [3] => 510 мм ) [days] => [10,10,11,12] [material_price] => [4510,5098,6093,8013] [work_price] => [4737,4937,5903,6958] [image] => https://akademik-stroy.ru/wp-content/uploads/materials/teplaya-keramika.jpg [area_modifier] => 74.25 [parent_name] => Стены 2 этаж (несущие) [parent_id] => 5 [material_sum] => 442025 [work_sum] => 386894 [total_sum] => 828919 [total_days] => 10 [display_material_sum] => 442 025 [display_work_sum] => 386 894 [display_total_sum] => 828 919 ) 1
828 919
Работа:386 894
Материалы:442 025
Дни:10
stdClass Object ( [id] => 246 [attribute_id] => 5 [name] => Несъемная опалубка [material_modifier] => 1 [work_modifier] => 1 [options] => Array ( [0] => 380 мм [1] => 380 мм Thermo [2] => 440 мм [3] => 510 мм ) [days] => [10,10,11,12] [material_price] => [3302,3902,4108,5008] [work_price] => [2100,2100,2300,2534] [image] => https://akademik-stroy.ru/wp-content/uploads/materials/nesemnaya-opalubka.jpg [area_modifier] => 74.25 [parent_name] => Стены 2 этаж (несущие) [parent_id] => 5 [material_sum] => 323629 [work_sum] => 171518 [total_sum] => 495147 [total_days] => 10 [display_material_sum] => 323 629 [display_work_sum] => 171 518 [display_total_sum] => 495 147 ) 1
495 147
Работа:171 518
Материалы:323 629
Дни:10
stdClass Object ( [id] => 254 [attribute_id] => 5 [name] => Бревно [material_modifier] => 1 [work_modifier] => 1 [options] => Array ( [0] => 260 мм [1] => 320 мм [2] => 360 мм [3] => 400 мм [4] => 500 мм ) [days] => [7,8,9,10,11] [material_price] => [1874,24045,26930,30972,38825] [work_price] => [5046,6207,6952,7716,9723] [image] => https://akademik-stroy.ru/wp-content/uploads/materials/sruby.jpg [area_modifier] => 74.25 [parent_name] => Стены 2 этаж (несущие) [parent_id] => 5 [material_sum] => 183671 [work_sum] => 412132 [total_sum] => 595803 [total_days] => 7 [display_material_sum] => 183 671 [display_work_sum] => 412 132 [display_total_sum] => 595 803 ) 1
595 803
Работа:412 132
Материалы:183 671
Дни:7
Крыша (Скатная)
stdClass Object ( [id] => 164 [attribute_id] => 37 [name] => Металлочерепица [material_modifier] => 1 [work_modifier] => 1 [options] => Array ( ) [days] => [20] [material_price] => [6112] [work_price] => [5726] [image] => https://akademik-stroy.ru/wp-content/uploads/materials/metallocherepica.jpg [area_modifier] => 82.84 [parent_name] => Крыша (Скатная) [parent_id] => 37 [material_sum] => 668340 [work_sum] => 521776 [total_sum] => 1190116 [total_days] => 20 [display_material_sum] => 668 340 [display_work_sum] => 521 776 [display_total_sum] => 1 190 116 ) 1
1 190 116
Работа:521 776
Материалы:668 340
Дни:20
stdClass Object ( [id] => 165 [attribute_id] => 37 [name] => Гибкая черепица [material_modifier] => 1 [work_modifier] => 1 [options] => Array ( ) [days] => [20] [material_price] => [6980] [work_price] => [5950] [image] => https://akademik-stroy.ru/wp-content/uploads/materials/gibkaya-cherepica.jpg [area_modifier] => 82.84 [parent_name] => Крыша (Скатная) [parent_id] => 37 [material_sum] => 763255 [work_sum] => 542188 [total_sum] => 1305443 [total_days] => 20 [display_material_sum] => 763 255 [display_work_sum] => 542 188 [display_total_sum] => 1 305 443 ) 1
1 305 443
Работа:542 188
Материалы:763 255
Дни:20
stdClass Object ( [id] => 166 [attribute_id] => 37 [name] => Цементно-песчаная черепица [material_modifier] => 1 [work_modifier] => 1 [options] => Array ( ) [days] => [20] [material_price] => [10560] [work_price] => [9456] [image] => https://akademik-stroy.ru/wp-content/uploads/materials/cementno-peschanaya-cherepica.jpg [area_modifier] => 82.84 [parent_name] => Крыша (Скатная) [parent_id] => 37 [material_sum] => 1154723 [work_sum] => 861669 [total_sum] => 2016392 [total_days] => 20 [display_material_sum] => 1 154 723 [display_work_sum] => 861 669 [display_total_sum] => 2 016 392 ) 1
2 016 392
Работа:861 669
Материалы:1 154 723
Дни:20
stdClass Object ( [id] => 167 [attribute_id] => 37 [name] => Композитная черепица [material_modifier] => 1 [work_modifier] => 1 [options] => Array ( ) [days] => [20] [material_price] => [9506] [work_price] => [8905] [image] => https://akademik-stroy.ru/wp-content/uploads/materials/kompozitnaya-cherepica.jpg [area_modifier] => 82.84 [parent_name] => Крыша (Скатная) [parent_id] => 37 [material_sum] => 1039470 [work_sum] => 811459 [total_sum] => 1850929 [total_days] => 20 [display_material_sum] => 1 039 470 [display_work_sum] => 811 459 [display_total_sum] => 1 850 929 ) 1
1 850 929
Работа:811 459
Материалы:1 039 470
Дни:20
stdClass Object ( [id] => 168 [attribute_id] => 37 [name] => Керамическая черепица [material_modifier] => 1 [work_modifier] => 1 [options] => Array ( ) [days] => [20] [material_price] => [12750] [work_price] => [9456] [image] => https://akademik-stroy.ru/wp-content/uploads/materials/keramicheskaya-cherepica.jpg [area_modifier] => 82.84 [parent_name] => Крыша (Скатная) [parent_id] => 37 [material_sum] => 1394197 [work_sum] => 861669 [total_sum] => 2255866 [total_days] => 20 [display_material_sum] => 1 394 197 [display_work_sum] => 861 669 [display_total_sum] => 2 255 866 ) 1
2 255 866
Работа:861 669
Материалы:1 394 197
Дни:20
stdClass Object ( [id] => 169 [attribute_id] => 37 [name] => Металлическая фальцевая [material_modifier] => 1 [work_modifier] => 1 [options] => Array ( ) [days] => [20] [material_price] => [8550] [work_price] => [8190] [image] => https://akademik-stroy.ru/wp-content/uploads/materials/metallicheskaya-falcevaya.jpg [area_modifier] => 82.84 [parent_name] => Крыша (Скатная) [parent_id] => 37 [material_sum] => 934932 [work_sum] => 746306 [total_sum] => 1681238 [total_days] => 20 [display_material_sum] => 934 932 [display_work_sum] => 746 306 [display_total_sum] => 1 681 238 ) 1
1 681 238
Работа:746 306
Материалы:934 932
Дни:20
stdClass Object ( [id] => 170 [attribute_id] => 37 [name] => Медная фальцевая [material_modifier] => 1 [work_modifier] => 1 [options] => Array ( ) [days] => [20] [material_price] => [20450] [work_price] => [16750] [image] => https://akademik-stroy.ru/wp-content/uploads/materials/mednaya-falcevaya.jpg [area_modifier] => 82.84 [parent_name] => Крыша (Скатная) [parent_id] => 37 [material_sum] => 2236183 [work_sum] => 1526327 [total_sum] => 3762510 [total_days] => 20 [display_material_sum] => 2 236 183 [display_work_sum] => 1 526 327 [display_total_sum] => 3 762 510 ) 1
3 762 510
Работа:1 526 327
Материалы:2 236 183
Дни:20
stdClass Object ( [id] => 171 [attribute_id] => 37 [name] => Зеленая кровля [material_modifier] => 1 [work_modifier] => 1 [options] => Array ( ) [days] => [20] [material_price] => [19850] [work_price] => [16780] [image] => https://akademik-stroy.ru/wp-content/uploads/materials/zelenaya-krovlya.jpg [area_modifier] => 82.84 [parent_name] => Крыша (Скатная) [parent_id] => 37 [material_sum] => 2170574 [work_sum] => 1529061 [total_sum] => 3699635 [total_days] => 20 [display_material_sum] => 2 170 574 [display_work_sum] => 1 529 061 [display_total_sum] => 3 699 635 ) 1
3 699 635
Работа:1 529 061
Материалы:2 170 574
Дни:20
stdClass Object ( [id] => 172 [attribute_id] => 37 [name] => Профлист [material_modifier] => 1 [work_modifier] => 1 [options] => Array ( ) [days] => [20] [material_price] => [3450] [work_price] => [3750] [image] => https://akademik-stroy.ru/wp-content/uploads/materials/proflist.jpg [area_modifier] => 82.84 [parent_name] => Крыша (Скатная) [parent_id] => 37 [material_sum] => 377253 [work_sum] => 341715 [total_sum] => 718968 [total_days] => 20 [display_material_sum] => 377 253 [display_work_sum] => 341 715 [display_total_sum] => 718 968 ) 1
718 968
Работа:341 715
Материалы:377 253
Дни:20
Окна
stdClass Object ( [id] => 51 [attribute_id] => 26 [name] => Есть [material_modifier] => 1 [work_modifier] => 1 [options] => Array ( [0] => Профиль 58 мм, 3-камерный, стеклопакет 2-камерный до 32 мм [1] => Профиль 60 мм, 4-камерный, стеклопакет 2-камерный до 32 мм [2] => Профиль 70 мм, 5-камерный, стеклопакет 2-камерный до 40 мм [3] => Профиль 72 мм, 5-камерный, стеклопакет 2-камерный до 40 мм [4] => Алюминиевые окна Alutech профиль 72 мм, стеклопакет 2-камерный ) [days] => [3,3,3,3,3] [material_price] => [1339,2124,2867,3023,29596] [work_price] => [635,647,659,668,2579] [image] => https://akademik-stroy.ru/wp-content/uploads/materials/okna.jpg [area_modifier] => 127.47 [parent_name] => Окна [parent_id] => 26 [material_sum] => 225301 [work_sum] => 89038 [total_sum] => 314339 [total_days] => 3 [display_material_sum] => 225 301 [display_work_sum] => 89 038 [display_total_sum] => 314 339 ) 1
314 339
Работа:89 038
Материалы:225 301
Дни:3
stdClass Object ( [id] => 52 [attribute_id] => 26 [name] => Нет [material_modifier] => 2 [work_modifier] => 1 [options] => [days] => null [material_price] => null [work_price] => null [image] => https://akademik-stroy.ru/wp-content/uploads/materials/okna.jpg [area_modifier] => 127.47 [parent_name] => Окна [parent_id] => 26 [material_sum] => 0 [work_sum] => 0 [total_sum] => 0 [total_days] => 0 [display_material_sum] => 0 [display_work_sum] => 0 [display_total_sum] => 0 ) 1
0
Работа:0
Материалы:0
Дни:0
Двери входные
stdClass Object ( [id] => 53 [attribute_id] => 27 [name] => Есть [material_modifier] => 1 [work_modifier] => 1 [options] => Array ( ) [days] => [1] [material_price] => [10000] [work_price] => [5500] [image] => https://akademik-stroy.ru/wp-content/uploads/materials/dveri.jpg [area_modifier] => 1 [parent_name] => Двери входные [parent_id] => 27 [material_sum] => 13200 [work_sum] => 6050 [total_sum] => 19250 [total_days] => 1 [display_material_sum] => 13 200 [display_work_sum] => 6 050 [display_total_sum] => 19 250 ) 1
19 250
Работа:6 050
Материалы:13 200
Дни:1
stdClass Object ( [id] => 54 [attribute_id] => 27 [name] => Нет [material_modifier] => 1 [work_modifier] => 1 [options] => Array ( ) [days] => [0] [material_price] => [0] [work_price] => [0] [image] => https://akademik-stroy.ru/wp-content/uploads/materials/dveri.jpg [area_modifier] => 1 [parent_name] => Двери входные [parent_id] => 27 [material_sum] => 0 [work_sum] => 0 [total_sum] => 0 [total_days] => 0 [display_material_sum] => 0 [display_work_sum] => 0 [display_total_sum] => 0 ) 1
0
Работа:0
Материалы:0
Дни:0
Утепление кровли (Мансарда)
stdClass Object ( [id] => 25 [attribute_id] => 13 [name] => Нет [material_modifier] => 1 [work_modifier] => 1 [options] => Array ( ) [days] => [0] [material_price] => [0] [work_price] => [0] [image] => https://akademik-stroy.ru/wp-content/uploads/materials/mineralovata-krov.jpg [area_modifier] => 82.84 [parent_name] => Утепление кровли (Мансарда) [parent_id] => 13 [material_sum] => 0 [work_sum] => 0 [total_sum] => 0 [total_days] => 0 [display_material_sum] => 0 [display_work_sum] => 0 [display_total_sum] => 0 ) 1
0
Работа:0
Материалы:0
Дни:0
stdClass Object ( [id] => 26 [attribute_id] => 13 [name] => Минераловатный [material_modifier] => 1 [work_modifier] => 1 [options] => Array ( [0] => 50 мм [1] => 100 мм [2] => 150 мм [3] => 200 мм [4] => 250 мм [5] => 300 мм [6] => 350 мм [7] => 400 мм [8] => 450 мм [9] => 500 мм ) [days] => [5,5,6,6,6,7,7,7,8,8] [material_price] => [1158,1414,1772,2230,3602,4060,4974,5890,6408,7718] [work_price] => [650,846,846,1098,1318,1450,1596,1754,1930,2122] [image] => https://akademik-stroy.ru/wp-content/uploads/materials/mineralovata-krov.jpg [area_modifier] => 82.84 [parent_name] => Утепление кровли (Мансарда) [parent_id] => 13 [material_sum] => 126626 [work_sum] => 59231 [total_sum] => 185857 [total_days] => 5 [display_material_sum] => 126 626 [display_work_sum] => 59 231 [display_total_sum] => 185 857 ) 1
185 857
Работа:59 231
Материалы:126 626
Дни:5
stdClass Object ( [id] => 123 [attribute_id] => 13 [name] => Эковата (целлюлозная вата) [material_modifier] => 1 [work_modifier] => 1 [options] => Array ( [0] => 50 мм [1] => 100 мм [2] => 150 мм [3] => 200 мм [4] => 250 мм [5] => 300 мм [6] => 350 мм [7] => 400 мм [8] => 450 мм [9] => 500 мм ) [days] => [3,3,4,4,4,5,5,5,5,5] [material_price] => [820,1638,2458,3276,5734,6552,8190,9828,11466,13104] [work_price] => [234,304,304,396,474,522,574,632,694,764] [image] => https://akademik-stroy.ru/wp-content/uploads/materials/ehkovata-krov.jpg [area_modifier] => 82.84 [parent_name] => Утепление кровли (Мансарда) [parent_id] => 13 [material_sum] => 89666 [work_sum] => 21323 [total_sum] => 110989 [total_days] => 3 [display_material_sum] => 89 666 [display_work_sum] => 21 323 [display_total_sum] => 110 989 ) 1
110 989
Работа:21 323
Материалы:89 666
Дни:3
stdClass Object ( [id] => 124 [attribute_id] => 13 [name] => Экструдированный пенополистирол [material_modifier] => 1 [work_modifier] => 1 [options] => Array ( [0] => 50 мм [1] => 100 мм [2] => 150 мм [3] => 200 мм [4] => 250 мм [5] => 300 мм [6] => 350 мм [7] => 400 мм [8] => 450 мм [9] => 500 мм ) [days] => [3,3,4,4,4,5,5,5,5,6] [material_price] => [1146,2292,3438,4584,8020,9166,11458,13750,16040,18332] [work_price] => [390,508,508,660,790,870,958,1052,1158,1274] [image] => https://akademik-stroy.ru/wp-content/uploads/materials/epps-krov.jpg [area_modifier] => 82.84 [parent_name] => Утепление кровли (Мансарда) [parent_id] => 13 [material_sum] => 125314 [work_sum] => 35538 [total_sum] => 160852 [total_days] => 3 [display_material_sum] => 125 314 [display_work_sum] => 35 538 [display_total_sum] => 160 852 ) 1
160 852
Работа:35 538
Материалы:125 314
Дни:3
stdClass Object ( [id] => 125 [attribute_id] => 13 [name] => ПСБ (ППС-пенополистирол) [material_modifier] => 1 [work_modifier] => 1 [options] => Array ( [0] => 50 мм [1] => 100 мм [2] => 150 мм [3] => 200 мм [4] => 250 мм [5] => 300 мм [6] => 350 мм [7] => 400 мм [8] => 450 мм [9] => 500 мм ) [days] => [3,3,4,4,4,5,5,5,5,6] [material_price] => [476,954,1430,1906,3336,3814,4766,5720,6674,7626] [work_price] => [390,508,508,660,790,870,958,1052,1158,1274] [image] => https://akademik-stroy.ru/wp-content/uploads/materials/psb-krov.jpg [area_modifier] => 82.84 [parent_name] => Утепление кровли (Мансарда) [parent_id] => 13 [material_sum] => 52050 [work_sum] => 35538 [total_sum] => 87588 [total_days] => 3 [display_material_sum] => 52 050 [display_work_sum] => 35 538 [display_total_sum] => 87 588 ) 1
87 588
Работа:35 538
Материалы:52 050
Дни:3
stdClass Object ( [id] => 126 [attribute_id] => 13 [name] => ППУ (Пенополиуретан) [material_modifier] => 1 [work_modifier] => 1 [options] => Array ( [0] => 50 мм [1] => 100 мм [2] => 150 мм [3] => 200 мм [4] => 250 мм [5] => 300 мм [6] => 350 мм [7] => 400 мм [8] => 450 мм [9] => 500 мм ) [days] => [2,2,3,3,3,3,4,4,4,4] [material_price] => [2080,4160,6240,8320,14560,16640,20800,24960,29120,33280] [work_price] => [234,304,304,396,474,522,574,632,694,764] [image] => https://akademik-stroy.ru/wp-content/uploads/materials/ppu-krov.jpg [area_modifier] => 82.84 [parent_name] => Утепление кровли (Мансарда) [parent_id] => 13 [material_sum] => 227446 [work_sum] => 21323 [total_sum] => 248769 [total_days] => 2 [display_material_sum] => 227 446 [display_work_sum] => 21 323 [display_total_sum] => 248 769 ) 1
248 769
Работа:21 323
Материалы:227 446
Дни:2
stdClass Object ( [id] => 127 [attribute_id] => 13 [name] => PIR-плиты (пенополиизоцианурат) [material_modifier] => 1 [work_modifier] => 1 [options] => Array ( [0] => 50 мм [1] => 100 мм [2] => 150 мм [3] => 200 мм [4] => 250 мм [5] => 300 мм [6] => 350 мм [7] => 400 мм [8] => 450 мм [9] => 500 мм ) [days] => [3,3,4,4,4,5,5,5,5,6] [material_price] => [2646,5290,7936,10580,18516,21162,26452,31742,37032,42324] [work_price] => [390,508,508,660,790,870,958,1052,1158,1274] [image] => https://akademik-stroy.ru/wp-content/uploads/materials/pir-krov.jpg [area_modifier] => 82.84 [parent_name] => Утепление кровли (Мансарда) [parent_id] => 13 [material_sum] => 289337 [work_sum] => 35538 [total_sum] => 324875 [total_days] => 3 [display_material_sum] => 289 337 [display_work_sum] => 35 538 [display_total_sum] => 324 875 ) 1
324 875
Работа:35 538
Материалы:289 337
Дни:3
Мансардные окна
stdClass Object ( [id] => 27 [attribute_id] => 14 [name] => Нет [material_modifier] => 1 [work_modifier] => 1 [options] => Array ( ) [days] => [0] [material_price] => [0] [work_price] => [0] [image] => https://akademik-stroy.ru/wp-content/uploads/materials/mansardnye-okna-2.jpg [area_modifier] => 1 [parent_name] => Мансардные окна [parent_id] => 14 [material_sum] => 0 [work_sum] => 0 [total_sum] => 0 [total_days] => 0 [display_material_sum] => 0 [display_work_sum] => 0 [display_total_sum] => 0 ) 1
0
Работа:0
Материалы:0
Дни:0
stdClass Object ( [id] => 28 [attribute_id] => 14 [name] => Есть [material_modifier] => 1 [work_modifier] => 1 [options] => Array ( [0] => 55x78 [1] => 55x98 ) [days] => [6,7] [material_price] => [47480,68700] [work_price] => [17900,19500] [image] => https://akademik-stroy.ru/wp-content/uploads/materials/mansardnye-okna-2.jpg [area_modifier] => 1 [parent_name] => Мансардные окна [parent_id] => 14 [material_sum] => 62674 [work_sum] => 19690 [total_sum] => 82364 [total_days] => 6 [display_material_sum] => 62 674 [display_work_sum] => 19 690 [display_total_sum] => 82 364 ) 1
82 364
Работа:19 690
Материалы:62 674
Дни:6
Подшивка кровли
stdClass Object ( [id] => 29 [attribute_id] => 15 [name] => Нет [material_modifier] => 1 [work_modifier] => 1 [options] => Array ( ) [days] => [0] [material_price] => [0] [work_price] => [0] [image] => https://akademik-stroy.ru/wp-content/uploads/materials/sofit.jpg [area_modifier] => 82.84 [parent_name] => Подшивка кровли [parent_id] => 15 [material_sum] => 0 [work_sum] => 0 [total_sum] => 0 [total_days] => 0 [display_material_sum] => 0 [display_work_sum] => 0 [display_total_sum] => 0 ) 1
0
Работа:0
Материалы:0
Дни:0
stdClass Object ( [id] => 30 [attribute_id] => 15 [name] => Есть [material_modifier] => 1 [work_modifier] => 1 [options] => Array ( [0] => Софиты (ПВХ) [1] => Cedral [2] => ДПК [3] => Планкен ) [days] => [7,10,9,8] [material_price] => [1803,3213,3025,3150] [work_price] => [1529,2188,2075,1923] [image] => https://akademik-stroy.ru/wp-content/uploads/materials/sofit.jpg [area_modifier] => 82.84 [parent_name] => Подшивка кровли [parent_id] => 15 [material_sum] => 197156 [work_sum] => 139329 [total_sum] => 336485 [total_days] => 7 [display_material_sum] => 197 156 [display_work_sum] => 139 329 [display_total_sum] => 336 485 ) 1
336 485
Работа:139 329
Материалы:197 156
Дни:7
Водосточная система
stdClass Object ( [id] => 31 [attribute_id] => 16 [name] => Нет [material_modifier] => 1 [work_modifier] => 1 [options] => Array ( ) [days] => [0] [material_price] => [0] [work_price] => [0] [image] => https://akademik-stroy.ru/wp-content/uploads/materials/docke-standard-pvh.jpg [area_modifier] => 82.84 [parent_name] => Водосточная система [parent_id] => 16 [material_sum] => 0 [work_sum] => 0 [total_sum] => 0 [total_days] => 0 [display_material_sum] => 0 [display_work_sum] => 0 [display_total_sum] => 0 ) 1
0
Работа:0
Материалы:0
Дни:0
stdClass Object ( [id] => 32 [attribute_id] => 16 [name] => Есть [material_modifier] => 1 [work_modifier] => 1 [options] => Array ( [0] => Döcke Standard (ПВХ) [1] => Металлические Grand Line ) [days] => [7,7] [material_price] => [1842,2703] [work_price] => [1491,1529] [image] => https://akademik-stroy.ru/wp-content/uploads/materials/docke-standard-pvh.jpg [area_modifier] => 82.84 [parent_name] => Водосточная система [parent_id] => 16 [material_sum] => 201420 [work_sum] => 135866 [total_sum] => 337286 [total_days] => 7 [display_material_sum] => 201 420 [display_work_sum] => 135 866 [display_total_sum] => 337 286 ) 1
337 286
Работа:135 866
Материалы:201 420
Дни:7
Дополнительное утепление наружных стен
stdClass Object ( [id] => 33 [attribute_id] => 17 [name] => Нет [material_modifier] => 1 [work_modifier] => 1 [options] => Array ( ) [days] => [0] [material_price] => [0] [work_price] => [0] [image] => https://akademik-stroy.ru/wp-content/uploads/materials/mineralovata.jpg [area_modifier] => 157.08 [parent_name] => Дополнительное утепление наружных стен [parent_id] => 17 [material_sum] => 0 [work_sum] => 0 [total_sum] => 0 [total_days] => 0 [display_material_sum] => 0 [display_work_sum] => 0 [display_total_sum] => 0 ) 1
0
Работа:0
Материалы:0
Дни:0
stdClass Object ( [id] => 34 [attribute_id] => 17 [name] => Минераловатный [material_modifier] => 1 [work_modifier] => 1 [options] => Array ( [0] => 50 мм [1] => 100 мм [2] => 150 мм [3] => 200 мм [4] => 250 мм [5] => 300 мм ) [days] => [7,8,10,12,14,15] [material_price] => [3437,3613,3803,3915,4601,4830] [work_price] => [2325,2423,2523,2749,2859,3025] [image] => https://akademik-stroy.ru/wp-content/uploads/materials/mineralovata.jpg [area_modifier] => 157.08 [parent_name] => Дополнительное утепление наружных стен [parent_id] => 17 [material_sum] => 712647 [work_sum] => 401732 [total_sum] => 1114379 [total_days] => 7 [display_material_sum] => 712 647 [display_work_sum] => 401 732 [display_total_sum] => 1 114 379 ) 1
1 114 379
Работа:401 732
Материалы:712 647
Дни:7
stdClass Object ( [id] => 128 [attribute_id] => 17 [name] => Эковата (целлюлозная вата) [material_modifier] => 1 [work_modifier] => 1 [options] => Array ( [0] => 50 мм [1] => 100 мм [2] => 150 мм [3] => 200 мм [4] => 250 мм [5] => 300 мм ) [days] => [3,4,5,6,7,8] [material_price] => [810,1319,1629,1838,2267,2676] [work_price] => [1225,1323,1423,1549,1659,1725] [image] => https://akademik-stroy.ru/wp-content/uploads/materials/ehkovata.jpg [area_modifier] => 157.08 [parent_name] => Дополнительное утепление наружных стен [parent_id] => 17 [material_sum] => 167950 [work_sum] => 211665 [total_sum] => 379615 [total_days] => 3 [display_material_sum] => 167 950 [display_work_sum] => 211 665 [display_total_sum] => 379 615 ) 1
379 615
Работа:211 665
Материалы:167 950
Дни:3
stdClass Object ( [id] => 129 [attribute_id] => 17 [name] => Экструдированный пенополистирол [material_modifier] => 1 [work_modifier] => 1 [options] => Array ( [0] => 50 мм [1] => 100 мм [2] => 150 мм [3] => 200 мм [4] => 250 мм [5] => 300 мм ) [days] => [5,6,7,8,9,10] [material_price] => [4560,4300,5119,6292,7010,8583] [work_price] => [1795,1954,2254,2330,2595,2735] [image] => https://akademik-stroy.ru/wp-content/uploads/materials/epps.jpg [area_modifier] => 157.08 [parent_name] => Дополнительное утепление наружных стен [parent_id] => 17 [material_sum] => 945496 [work_sum] => 310154 [total_sum] => 1255650 [total_days] => 5 [display_material_sum] => 945 496 [display_work_sum] => 310 154 [display_total_sum] => 1 255 650 ) 1
1 255 650
Работа:310 154
Материалы:945 496
Дни:5
stdClass Object ( [id] => 130 [attribute_id] => 17 [name] => ПСБ (ППС-пенополистирол) [material_modifier] => 1 [work_modifier] => 1 [options] => Array ( [0] => 50 мм [1] => 100 мм [2] => 150 мм [3] => 200 мм [4] => 250 мм [5] => 300 мм ) [days] => [5,6,7,8,9,10] [material_price] => [4822,5200,5819,6292,7010,7583] [work_price] => [1795,1954,2254,2330,2595,2735] [image] => https://akademik-stroy.ru/wp-content/uploads/materials/psb.jpg [area_modifier] => 157.08 [parent_name] => Дополнительное утепление наружных стен [parent_id] => 17 [material_sum] => 999820 [work_sum] => 310154 [total_sum] => 1309974 [total_days] => 5 [display_material_sum] => 999 820 [display_work_sum] => 310 154 [display_total_sum] => 1 309 974 ) 1
1 309 974
Работа:310 154
Материалы:999 820
Дни:5
stdClass Object ( [id] => 131 [attribute_id] => 17 [name] => ППУ (Пенополиуретан) [material_modifier] => 1 [work_modifier] => 1 [options] => Array ( [0] => 50 мм [1] => 100 мм [2] => 150 мм [3] => 200 мм [4] => 250 мм [5] => 300 мм ) [days] => [3,4,5,6,7,8] [material_price] => [2860,3400,4219,4592,5010,5583] [work_price] => [729,900,980,1120,1280,1530] [image] => https://akademik-stroy.ru/wp-content/uploads/materials/ppu.jpg [area_modifier] => 157.08 [parent_name] => Дополнительное утепление наружных стен [parent_id] => 17 [material_sum] => 593008 [work_sum] => 125962 [total_sum] => 718970 [total_days] => 3 [display_material_sum] => 593 008 [display_work_sum] => 125 962 [display_total_sum] => 718 970 ) 1
718 970
Работа:125 962
Материалы:593 008
Дни:3
stdClass Object ( [id] => 132 [attribute_id] => 17 [name] => PIR-плиты (пенополиизоцианурат) [material_modifier] => 1 [work_modifier] => 1 [options] => Array ( [0] => 50 мм [1] => 100 мм [2] => 150 мм [3] => 200 мм [4] => 250 мм [5] => 300 мм ) [days] => [5,6,7,8,9,10] [material_price] => [8323,15645,20968,25900,29258,30581] [work_price] => [800,900,970,1150,1280,1330] [image] => https://akademik-stroy.ru/wp-content/uploads/materials/pir.jpg [area_modifier] => 157.08 [parent_name] => Дополнительное утепление наружных стен [parent_id] => 17 [material_sum] => 1725737 [work_sum] => 138230 [total_sum] => 1863967 [total_days] => 5 [display_material_sum] => 1 725 737 [display_work_sum] => 138 230 [display_total_sum] => 1 863 967 ) 1
1 863 967
Работа:138 230
Материалы:1 725 737
Дни:5
Наружная отделка фасада
stdClass Object ( [id] => 37 [attribute_id] => 19 [name] => Нет [material_modifier] => 1 [work_modifier] => 1 [options] => Array ( ) [days] => [0] [material_price] => [0] [work_price] => [0] [image] => https://akademik-stroy.ru/wp-content/uploads/materials/imitaciya-brusa.jpg [area_modifier] => 157.08 [parent_name] => Наружная отделка фасада [parent_id] => 19 [material_sum] => 0 [work_sum] => 0 [total_sum] => 0 [total_days] => 0 [display_material_sum] => 0 [display_work_sum] => 0 [display_total_sum] => 0 ) 1
0
Работа:0
Материалы:0
Дни:0
stdClass Object ( [id] => 38 [attribute_id] => 19 [name] => Имитация бруса [material_modifier] => 1 [work_modifier] => 1 [options] => Array ( [0] => Сосна [1] => Ель [2] => Лиственница ) [days] => [20,20,20] [material_price] => [2994,2762,4954] [work_price] => [1397,1231,1577] [image] => https://akademik-stroy.ru/wp-content/uploads/materials/imitaciya-brusa.jpg [area_modifier] => 157.08 [parent_name] => Наружная отделка фасада [parent_id] => 19 [material_sum] => 620793 [work_sum] => 241385 [total_sum] => 862178 [total_days] => 20 [display_material_sum] => 620 793 [display_work_sum] => 241 385 [display_total_sum] => 862 178 ) 1
862 178
Работа:241 385
Материалы:620 793
Дни:20
stdClass Object ( [id] => 136 [attribute_id] => 19 [name] => Планкен [material_modifier] => 1 [work_modifier] => 1 [options] => Array ( [0] => Сосна [1] => Ель [2] => Лиственница ) [days] => [20,20,20] [material_price] => [3194,2862,5154] [work_price] => [1537,1354,1735] [image] => https://akademik-stroy.ru/wp-content/uploads/materials/planken.jpg [area_modifier] => 157.08 [parent_name] => Наружная отделка фасада [parent_id] => 19 [material_sum] => 662262 [work_sum] => 265575 [total_sum] => 927837 [total_days] => 20 [display_material_sum] => 662 262 [display_work_sum] => 265 575 [display_total_sum] => 927 837 ) 1
927 837
Работа:265 575
Материалы:662 262
Дни:20
stdClass Object ( [id] => 137 [attribute_id] => 19 [name] => Штукатурка [material_modifier] => 1 [work_modifier] => 1 [options] => Array ( [0] => Цементно-песчаная (минеральная) [1] => Мокрый фасад ) [days] => [35,35] [material_price] => [2231,3938] [work_price] => [1202,2422] [image] => https://akademik-stroy.ru/wp-content/uploads/materials/shtukaturka.jpg [area_modifier] => 157.08 [parent_name] => Наружная отделка фасада [parent_id] => 19 [material_sum] => 462588 [work_sum] => 207691 [total_sum] => 670279 [total_days] => 35 [display_material_sum] => 462 588 [display_work_sum] => 207 691 [display_total_sum] => 670 279 ) 1
670 279
Работа:207 691
Материалы:462 588
Дни:35
stdClass Object ( [id] => 138 [attribute_id] => 19 [name] => Облицовочный кирпич [material_modifier] => 1 [work_modifier] => 1 [options] => Array ( [0] => Керамический [1] => Клинкерный [2] => Ручной формовки [3] => Гиперпрессованный [4] => Силикатный кирпич ) [days] => [45,45,45,45,45] [material_price] => [8174,9148,1040,1257,5876] [work_price] => [3240,3758,4536,4017,3369] [image] => https://akademik-stroy.ru/wp-content/uploads/materials/oblicovochnyj-kirpich.jpg [area_modifier] => 157.08 [parent_name] => Наружная отделка фасада [parent_id] => 19 [material_sum] => 1694843 [work_sum] => 559833 [total_sum] => 2254676 [total_days] => 45 [display_material_sum] => 1 694 843 [display_work_sum] => 559 833 [display_total_sum] => 2 254 676 ) 1
2 254 676
Работа:559 833
Материалы:1 694 843
Дни:45
stdClass Object ( [id] => 139 [attribute_id] => 19 [name] => Фасадная плитка [material_modifier] => 1 [work_modifier] => 1 [options] => Array ( [0] => Клинкерная [1] => Керамическая [2] => Плитка ручной формовки ) [days] => [40,40,40] [material_price] => [2974,1487,3470] [work_price] => [3007,2592,3629] [image] => https://akademik-stroy.ru/wp-content/uploads/materials/fasadnaya-plitka.jpg [area_modifier] => 157.08 [parent_name] => Наружная отделка фасада [parent_id] => 19 [material_sum] => 616646 [work_sum] => 519574 [total_sum] => 1136220 [total_days] => 40 [display_material_sum] => 616 646 [display_work_sum] => 519 574 [display_total_sum] => 1 136 220 ) 1
1 136 220
Работа:519 574
Материалы:616 646
Дни:40
stdClass Object ( [id] => 140 [attribute_id] => 19 [name] => Сайдинг [material_modifier] => 1 [work_modifier] => 1 [options] => Array ( [0] => Виниловый [1] => Металлический [2] => Фиброцементный ) [days] => [20,20,20] [material_price] => [1263,1944,4147] [work_price] => [1263,1944,2074] [image] => https://akademik-stroy.ru/wp-content/uploads/materials/sajding.jpg [area_modifier] => 157.08 [parent_name] => Наружная отделка фасада [parent_id] => 19 [material_sum] => 261877 [work_sum] => 218231 [total_sum] => 480108 [total_days] => 20 [display_material_sum] => 261 877 [display_work_sum] => 218 231 [display_total_sum] => 480 108 ) 1
480 108
Работа:218 231
Материалы:261 877
Дни:20
stdClass Object ( [id] => 141 [attribute_id] => 19 [name] => Камень [material_modifier] => 1 [work_modifier] => 1 [options] => Array ( [0] => Травертин [1] => Дагестанский [2] => Искусственный [3] => Натуральный [4] => Керамогранит ) [days] => [45,45,45,45,45] [material_price] => [4536,3888,2592,3240,2462] [work_price] => [3240,3240,2462,3110,1944] [image] => https://akademik-stroy.ru/wp-content/uploads/materials/kamen-1.jpg [area_modifier] => 157.08 [parent_name] => Наружная отделка фасада [parent_id] => 19 [material_sum] => 940520 [work_sum] => 559833 [total_sum] => 1500353 [total_days] => 45 [display_material_sum] => 940 520 [display_work_sum] => 559 833 [display_total_sum] => 1 500 353 ) 1
1 500 353
Работа:559 833
Материалы:940 520
Дни:45
stdClass Object ( [id] => 142 [attribute_id] => 19 [name] => Термопанели [material_modifier] => 1 [work_modifier] => 1 [options] => Array ( ) [days] => [20] [material_price] => [6221] [work_price] => [2333] [image] => https://akademik-stroy.ru/wp-content/uploads/materials/termo.png [area_modifier] => 157.08 [parent_name] => Наружная отделка фасада [parent_id] => 19 [material_sum] => 1289897 [work_sum] => 403114 [total_sum] => 1693011 [total_days] => 20 [display_material_sum] => 1 289 897 [display_work_sum] => 403 114 [display_total_sum] => 1 693 011 ) 1
1 693 011
Работа:403 114
Материалы:1 289 897
Дни:20
stdClass Object ( [id] => 143 [attribute_id] => 19 [name] => Плитка HAUBERK [material_modifier] => 1 [work_modifier] => 1 [options] => Array ( ) [days] => [20] [material_price] => [2786] [work_price] => [1944] [image] => https://akademik-stroy.ru/wp-content/uploads/materials/hauberk.jpg [area_modifier] => 157.08 [parent_name] => Наружная отделка фасада [parent_id] => 19 [material_sum] => 577665 [work_sum] => 335900 [total_sum] => 913565 [total_days] => 20 [display_material_sum] => 577 665 [display_work_sum] => 335 900 [display_total_sum] => 913 565 ) 1
913 565
Работа:335 900
Материалы:577 665
Дни:20
stdClass Object ( [id] => 144 [attribute_id] => 19 [name] => Фальцевый фасад [material_modifier] => 1 [work_modifier] => 1 [options] => Array ( ) [days] => [20] [material_price] => [3240] [work_price] => [2592] [image] => https://akademik-stroy.ru/wp-content/uploads/materials/falcevyj-fasad.jpg [area_modifier] => 157.08 [parent_name] => Наружная отделка фасада [parent_id] => 19 [material_sum] => 671800 [work_sum] => 447866 [total_sum] => 1119666 [total_days] => 20 [display_material_sum] => 671 800 [display_work_sum] => 447 866 [display_total_sum] => 1 119 666 ) 1
1 119 666
Работа:447 866
Материалы:671 800
Дни:20
stdClass Object ( [id] => 145 [attribute_id] => 19 [name] => Комбинированный [material_modifier] => 1 [work_modifier] => 1 [options] => Array ( ) [days] => [20] [material_price] => [4629] [work_price] => [3499] [image] => https://akademik-stroy.ru/wp-content/uploads/materials/Kombinirovannyj.jpg [area_modifier] => 157.08 [parent_name] => Наружная отделка фасада [parent_id] => 19 [material_sum] => 959803 [work_sum] => 604585 [total_sum] => 1564388 [total_days] => 20 [display_material_sum] => 959 803 [display_work_sum] => 604 585 [display_total_sum] => 1 564 388 ) 1
1 564 388
Работа:604 585
Материалы:959 803
Дни:20
stdClass Object ( [id] => 257 [attribute_id] => 19 [name] => Японские фиброцементные [material_modifier] => 1 [work_modifier] => 1 [options] => Array ( ) [days] => [20] [material_price] => [7043] [work_price] => [2993] [image] => https://akademik-stroy.ru/wp-content/uploads/materials/paneli.jpg [area_modifier] => 157.08 [parent_name] => Наружная отделка фасада [parent_id] => 19 [material_sum] => 1460335 [work_sum] => 517154 [total_sum] => 1977489 [total_days] => 20 [display_material_sum] => 1 460 335 [display_work_sum] => 517 154 [display_total_sum] => 1 977 489 ) 1
1 977 489
Работа:517 154
Материалы:1 460 335
Дни:20
stdClass Object ( [id] => 258 [attribute_id] => 19 [name] => Панели Каньон [material_modifier] => 1 [work_modifier] => 1 [options] => Array ( ) [days] => [20] [material_price] => [4543] [work_price] => [2592] [image] => https://akademik-stroy.ru/wp-content/uploads/materials/kanon.png [area_modifier] => 157.08 [parent_name] => Наружная отделка фасада [parent_id] => 19 [material_sum] => 941971 [work_sum] => 447866 [total_sum] => 1389837 [total_days] => 20 [display_material_sum] => 941 971 [display_work_sum] => 447 866 [display_total_sum] => 1 389 837 ) 1
1 389 837
Работа:447 866
Материалы:941 971
Дни:20
Террасы, крыльца, навесы
stdClass Object ( [id] => 39 [attribute_id] => 20 [name] => Нет [material_modifier] => 1 [work_modifier] => 1 [options] => Array ( ) [days] => [0] [material_price] => [0] [work_price] => [0] [image] => https://akademik-stroy.ru/wp-content/uploads/materials/terrasy.jpg [area_modifier] => 30 [parent_name] => Террасы, крыльца, навесы [parent_id] => 20 [material_sum] => 0 [work_sum] => 0 [total_sum] => 0 [total_days] => 0 [display_material_sum] => 0 [display_work_sum] => 0 [display_total_sum] => 0 ) 1
0
Работа:0
Материалы:0
Дни:0
stdClass Object ( [id] => 40 [attribute_id] => 20 [name] => Есть [material_modifier] => 1 [work_modifier] => 1 [options] => Array ( ) [days] => [5] [material_price] => [10450] [work_price] => [1950] [image] => https://akademik-stroy.ru/wp-content/uploads/materials/terrasy.jpg [area_modifier] => 30 [parent_name] => Террасы, крыльца, навесы [parent_id] => 20 [material_sum] => 413820 [work_sum] => 64350 [total_sum] => 478170 [total_days] => 5 [display_material_sum] => 413 820 [display_work_sum] => 64 350 [display_total_sum] => 478 170 ) 1
478 170
Работа:64 350
Материалы:413 820
Дни:5
Балконы
stdClass Object ( [id] => 41 [attribute_id] => 21 [name] => Нет [material_modifier] => 1 [work_modifier] => 1 [options] => Array ( ) [days] => [0] [material_price] => [0] [work_price] => [0] [image] => https://akademik-stroy.ru/wp-content/uploads/materials/balkony.jpg [area_modifier] => 30 [parent_name] => Балконы [parent_id] => 21 [material_sum] => 0 [work_sum] => 0 [total_sum] => 0 [total_days] => 0 [display_material_sum] => 0 [display_work_sum] => 0 [display_total_sum] => 0 ) 1
0
Работа:0
Материалы:0
Дни:0
stdClass Object ( [id] => 42 [attribute_id] => 21 [name] => Есть [material_modifier] => 1 [work_modifier] => 1 [options] => Array ( ) [days] => [12] [material_price] => [3600] [work_price] => [1950] [image] => https://akademik-stroy.ru/wp-content/uploads/materials/balkony.jpg [area_modifier] => 30 [parent_name] => Балконы [parent_id] => 21 [material_sum] => 142560 [work_sum] => 64350 [total_sum] => 206910 [total_days] => 12 [display_material_sum] => 142 560 [display_work_sum] => 64 350 [display_total_sum] => 206 910 ) 1
206 910
Работа:64 350
Материалы:142 560
Дни:12
Отмостка
stdClass Object ( [id] => 43 [attribute_id] => 22 [name] => Нет [material_modifier] => 1 [work_modifier] => 1 [options] => Array ( ) [days] => [0] [material_price] => [0] [work_price] => [0] [image] => https://akademik-stroy.ru/wp-content/uploads/materials/uteplennaya.jpg [area_modifier] => 82.84 [parent_name] => Отмостка [parent_id] => 22 [material_sum] => 0 [work_sum] => 0 [total_sum] => 0 [total_days] => 0 [display_material_sum] => 0 [display_work_sum] => 0 [display_total_sum] => 0 ) 1
0
Работа:0
Материалы:0
Дни:0
stdClass Object ( [id] => 44 [attribute_id] => 22 [name] => Утепленная отмостка [material_modifier] => 1 [work_modifier] => 1 [options] => Array ( ) [days] => [15] [material_price] => [2550] [work_price] => [1750] [image] => https://akademik-stroy.ru/wp-content/uploads/materials/uteplennaya.jpg [area_modifier] => 82.84 [parent_name] => Отмостка [parent_id] => 22 [material_sum] => 278839 [work_sum] => 159467 [total_sum] => 438306 [total_days] => 15 [display_material_sum] => 278 839 [display_work_sum] => 159 467 [display_total_sum] => 438 306 ) 1
438 306
Работа:159 467
Материалы:278 839
Дни:15
stdClass Object ( [id] => 146 [attribute_id] => 22 [name] => Не утепленная отмостка [material_modifier] => 1 [work_modifier] => 1 [options] => Array ( ) [days] => [10] [material_price] => [1650] [work_price] => [1450] [image] => https://akademik-stroy.ru/wp-content/uploads/materials/ne-uteplennaya.jpg [area_modifier] => 82.84 [parent_name] => Отмостка [parent_id] => 22 [material_sum] => 180426 [work_sum] => 132130 [total_sum] => 312556 [total_days] => 10 [display_material_sum] => 180 426 [display_work_sum] => 132 130 [display_total_sum] => 312 556 ) 1
312 556
Работа:132 130
Материалы:180 426
Дни:10
Дренаж вокруг дома
stdClass Object ( [id] => 45 [attribute_id] => 23 [name] => Нет [material_modifier] => 1 [work_modifier] => 1 [options] => Array ( ) [days] => [0] [material_price] => [0] [work_price] => [0] [image] => https://akademik-stroy.ru/wp-content/uploads/materials/drenazh-2.jpg [area_modifier] => 82.84 [parent_name] => Дренаж вокруг дома [parent_id] => 23 [material_sum] => 0 [work_sum] => 0 [total_sum] => 0 [total_days] => 0 [display_material_sum] => 0 [display_work_sum] => 0 [display_total_sum] => 0 ) 1
0
Работа:0
Материалы:0
Дни:0
stdClass Object ( [id] => 46 [attribute_id] => 23 [name] => Есть [material_modifier] => 1 [work_modifier] => 1 [options] => Array ( ) [days] => [5] [material_price] => [2366] [work_price] => [1911] [image] => https://akademik-stroy.ru/wp-content/uploads/materials/drenazh-2.jpg [area_modifier] => 82.84 [parent_name] => Дренаж вокруг дома [parent_id] => 23 [material_sum] => 258719 [work_sum] => 174138 [total_sum] => 432857 [total_days] => 5 [display_material_sum] => 258 719 [display_work_sum] => 174 138 [display_total_sum] => 432 857 ) 1
432 857
Работа:174 138
Материалы:258 719
Дни:5
Автономная канализация (септики)
stdClass Object ( [id] => 47 [attribute_id] => 24 [name] => Нет [material_modifier] => 1 [work_modifier] => 1 [options] => Array ( ) [days] => [0] [material_price] => [0] [work_price] => [0] [image] => https://akademik-stroy.ru/wp-content/uploads/materials/septik.jpg [area_modifier] => 1 [parent_name] => Автономная канализация (септики) [parent_id] => 24 [material_sum] => 0 [work_sum] => 0 [total_sum] => 0 [total_days] => 0 [display_material_sum] => 0 [display_work_sum] => 0 [display_total_sum] => 0 ) 1
0
Работа:0
Материалы:0
Дни:0
stdClass Object ( [id] => 48 [attribute_id] => 24 [name] => Есть [material_modifier] => 1 [work_modifier] => 1 [options] => Array ( [0] => Для дачи на 4 человека [1] => Для дома на 5 человек [2] => Для дома на 6 человек [3] => Для дома на 7 человек [4] => Для дома на 10 человек ) [days] => [7,7,7,8,8] [material_price] => [196340,220500,240940,264200,293340] [work_price] => [50000,55000,60500,66550,73206] [image] => https://akademik-stroy.ru/wp-content/uploads/materials/septik.jpg [area_modifier] => 1 [parent_name] => Автономная канализация (септики) [parent_id] => 24 [material_sum] => 259169 [work_sum] => 55000 [total_sum] => 314169 [total_days] => 7 [display_material_sum] => 259 169 [display_work_sum] => 55 000 [display_total_sum] => 314 169 ) 1
314 169
Работа:55 000
Материалы:259 169
Дни:7
Внутренние (не несущие) перегородки
stdClass Object ( [id] => 49 [attribute_id] => 25 [name] => Нет [material_modifier] => 1 [work_modifier] => 1 [options] => Array ( ) [days] => [0] [material_price] => [0] [work_price] => [0] [image] => https://akademik-stroy.ru/wp-content/uploads/materials/gkl.jpg [area_modifier] => 157.08 [parent_name] => Внутренние (не несущие) перегородки [parent_id] => 25 [material_sum] => 0 [work_sum] => 0 [total_sum] => 0 [total_days] => 0 [display_material_sum] => 0 [display_work_sum] => 0 [display_total_sum] => 0 ) 1
0
Работа:0
Материалы:0
Дни:0
stdClass Object ( [id] => 147 [attribute_id] => 25 [name] => Каркасно-обшивные [material_modifier] => 1 [work_modifier] => 1 [options] => Array ( [0] => 75 мм (без шумоизоляции) [1] => 75 мм (с шумоизоляцией) ) [days] => [11,11] [material_price] => [580,970] [work_price] => [380,570] [image] => https://akademik-stroy.ru/wp-content/uploads/materials/gkl.jpg [area_modifier] => 157.08 [parent_name] => Внутренние (не несущие) перегородки [parent_id] => 25 [material_sum] => 120260 [work_sum] => 65659 [total_sum] => 185919 [total_days] => 11 [display_material_sum] => 120 260 [display_work_sum] => 65 659 [display_total_sum] => 185 919 ) 1
185 919
Работа:65 659
Материалы:120 260
Дни:11
stdClass Object ( [id] => 148 [attribute_id] => 25 [name] => Пазогребневые [material_modifier] => 1 [work_modifier] => 1 [options] => Array ( [0] => 80 мм [1] => 100 мм ) [days] => [5,5] [material_price] => [1022,1313] [work_price] => [600,700] [image] => https://akademik-stroy.ru/wp-content/uploads/materials/pazogrebnevye-bloki.jpg [area_modifier] => 157.08 [parent_name] => Внутренние (не несущие) перегородки [parent_id] => 25 [material_sum] => 211907 [work_sum] => 103673 [total_sum] => 315580 [total_days] => 5 [display_material_sum] => 211 907 [display_work_sum] => 103 673 [display_total_sum] => 315 580 ) 1
315 580
Работа:103 673
Материалы:211 907
Дни:5
stdClass Object ( [id] => 149 [attribute_id] => 25 [name] => Газобетонные [material_modifier] => 1 [work_modifier] => 1 [options] => Array ( [0] => 100 мм [1] => 200 мм ) [days] => [11,11] [material_price] => [1160,1920] [work_price] => [700,900] [image] => https://akademik-stroy.ru/wp-content/uploads/materials/gazobeton-2.jpg [area_modifier] => 157.08 [parent_name] => Внутренние (не несущие) перегородки [parent_id] => 25 [material_sum] => 240521 [work_sum] => 120952 [total_sum] => 361473 [total_days] => 11 [display_material_sum] => 240 521 [display_work_sum] => 120 952 [display_total_sum] => 361 473 ) 1
361 473
Работа:120 952
Материалы:240 521
Дни:11
stdClass Object ( [id] => 150 [attribute_id] => 25 [name] => Кирпичные [material_modifier] => 1 [work_modifier] => 1 [options] => Array ( [0] => 120 мм [1] => 250 мм [2] => 360 мм ) [days] => [7,7,7] [material_price] => [1785,3570,5355] [work_price] => [900,1600,1800] [image] => https://akademik-stroy.ru/wp-content/uploads/materials/kirpich-1.jpg [area_modifier] => 157.08 [parent_name] => Внутренние (не несущие) перегородки [parent_id] => 25 [material_sum] => 370112 [work_sum] => 155509 [total_sum] => 525621 [total_days] => 7 [display_material_sum] => 370 112 [display_work_sum] => 155 509 [display_total_sum] => 525 621 ) 1
525 621
Работа:155 509
Материалы:370 112
Дни:7
Электрика
stdClass Object ( [id] => 55 [attribute_id] => 28 [name] => Нет [material_modifier] => 1 [work_modifier] => 1 [options] => Array ( ) [days] => [0] [material_price] => [0] [work_price] => [0] [image] => https://akademik-stroy.ru/wp-content/uploads/materials/ehlektrika.jpg [area_modifier] => 127.47 [parent_name] => Электрика [parent_id] => 28 [material_sum] => 0 [work_sum] => 0 [total_sum] => 0 [total_days] => 0 [display_material_sum] => 0 [display_work_sum] => 0 [display_total_sum] => 0 ) 1
0
Работа:0
Материалы:0
Дни:0
stdClass Object ( [id] => 56 [attribute_id] => 28 [name] => Есть [material_modifier] => 1 [work_modifier] => 1 [options] => Array ( ) [days] => [10] [material_price] => [650] [work_price] => [950] [image] => https://akademik-stroy.ru/wp-content/uploads/materials/ehlektrika.jpg [area_modifier] => 127.47 [parent_name] => Электрика [parent_id] => 28 [material_sum] => 109369 [work_sum] => 133206 [total_sum] => 242575 [total_days] => 10 [display_material_sum] => 109 369 [display_work_sum] => 133 206 [display_total_sum] => 242 575 ) 1
242 575
Работа:133 206
Материалы:109 369
Дни:10
Сантехника, канализация в доме
stdClass Object ( [id] => 57 [attribute_id] => 29 [name] => Нет [material_modifier] => 1 [work_modifier] => 1 [options] => Array ( ) [days] => [0] [material_price] => [0] [work_price] => [0] [image] => https://akademik-stroy.ru/wp-content/uploads/materials/santekhnika-kanalizaciya-1.jpg [area_modifier] => 127.47 [parent_name] => Сантехника, канализация в доме [parent_id] => 29 [material_sum] => 0 [work_sum] => 0 [total_sum] => 0 [total_days] => 0 [display_material_sum] => 0 [display_work_sum] => 0 [display_total_sum] => 0 ) 1
0
Работа:0
Материалы:0
Дни:0
stdClass Object ( [id] => 58 [attribute_id] => 29 [name] => Есть [material_modifier] => 1 [work_modifier] => 1 [options] => Array ( ) [days] => [10] [material_price] => [600] [work_price] => [730] [image] => https://akademik-stroy.ru/wp-content/uploads/materials/santekhnika-kanalizaciya-1.jpg [area_modifier] => 127.47 [parent_name] => Сантехника, канализация в доме [parent_id] => 29 [material_sum] => 100956 [work_sum] => 102358 [total_sum] => 203314 [total_days] => 10 [display_material_sum] => 100 956 [display_work_sum] => 102 358 [display_total_sum] => 203 314 ) 1
203 314
Работа:102 358
Материалы:100 956
Дни:10
Отопление
stdClass Object ( [id] => 59 [attribute_id] => 30 [name] => Нет [material_modifier] => 1 [work_modifier] => 1 [options] => Array ( ) [days] => [0] [material_price] => [0] [work_price] => [0] [image] => https://akademik-stroy.ru/wp-content/uploads/materials/otoplenie-1.jpg [area_modifier] => 127.47 [parent_name] => Отопление [parent_id] => 30 [material_sum] => 0 [work_sum] => 0 [total_sum] => 0 [total_days] => 0 [display_material_sum] => 0 [display_work_sum] => 0 [display_total_sum] => 0 ) 1
0
Работа:0
Материалы:0
Дни:0
stdClass Object ( [id] => 60 [attribute_id] => 30 [name] => Есть [material_modifier] => 1 [work_modifier] => 1 [options] => Array ( ) [days] => [5] [material_price] => [610] [work_price] => [560] [image] => https://akademik-stroy.ru/wp-content/uploads/materials/otoplenie-1.jpg [area_modifier] => 127.47 [parent_name] => Отопление [parent_id] => 30 [material_sum] => 102639 [work_sum] => 78522 [total_sum] => 181161 [total_days] => 5 [display_material_sum] => 102 639 [display_work_sum] => 78 522 [display_total_sum] => 181 161 ) 1
181 161
Работа:78 522
Материалы:102 639
Дни:5
Теплые полы
stdClass Object ( [id] => 61 [attribute_id] => 31 [name] => Нет [material_modifier] => 1 [work_modifier] => 1 [options] => Array ( ) [days] => [0] [material_price] => [0] [work_price] => [0] [image] => https://akademik-stroy.ru/wp-content/uploads/materials/vodyanye.jpg [area_modifier] => 30 [parent_name] => Теплые полы [parent_id] => 31 [material_sum] => 0 [work_sum] => 0 [total_sum] => 0 [total_days] => 0 [display_material_sum] => 0 [display_work_sum] => 0 [display_total_sum] => 0 ) 1
0
Работа:0
Материалы:0
Дни:0
stdClass Object ( [id] => 151 [attribute_id] => 31 [name] => Водяные [material_modifier] => 1 [work_modifier] => 1 [options] => Array ( ) [days] => [9] [material_price] => [10200] [work_price] => [2500] [image] => https://akademik-stroy.ru/wp-content/uploads/materials/vodyanye.jpg [area_modifier] => 30 [parent_name] => Теплые полы [parent_id] => 31 [material_sum] => 403920 [work_sum] => 82500 [total_sum] => 486420 [total_days] => 9 [display_material_sum] => 403 920 [display_work_sum] => 82 500 [display_total_sum] => 486 420 ) 1
486 420
Работа:82 500
Материалы:403 920
Дни:9
stdClass Object ( [id] => 152 [attribute_id] => 31 [name] => Электро [material_modifier] => 1 [work_modifier] => 1 [options] => Array ( ) [days] => [5] [material_price] => [6300] [work_price] => [1500] [image] => https://akademik-stroy.ru/wp-content/uploads/materials/ehlektricheskij.jpg [area_modifier] => 30 [parent_name] => Теплые полы [parent_id] => 31 [material_sum] => 249480 [work_sum] => 49500 [total_sum] => 298980 [total_days] => 5 [display_material_sum] => 249 480 [display_work_sum] => 49 500 [display_total_sum] => 298 980 ) 1
298 980
Работа:49 500
Материалы:249 480
Дни:5
Черновая отделка стен
stdClass Object ( [id] => 63 [attribute_id] => 32 [name] => Нет [material_modifier] => 1 [work_modifier] => 1 [options] => Array ( ) [days] => [0] [material_price] => [0] [work_price] => [0] [image] => https://akademik-stroy.ru/wp-content/uploads/materials/shtukaturka-shpatlevka-1.jpg [area_modifier] => 127.47 [parent_name] => Черновая отделка стен [parent_id] => 32 [material_sum] => 0 [work_sum] => 0 [total_sum] => 0 [total_days] => 0 [display_material_sum] => 0 [display_work_sum] => 0 [display_total_sum] => 0 ) 1
0
Работа:0
Материалы:0
Дни:0
stdClass Object ( [id] => 153 [attribute_id] => 32 [name] => Штукатурка и шпатлевка [material_modifier] => 1 [work_modifier] => 1 [options] => Array ( ) [days] => [20] [material_price] => [1850] [work_price] => [2600] [image] => https://akademik-stroy.ru/wp-content/uploads/materials/shtukaturka-shpatlevka-1.jpg [area_modifier] => 127.47 [parent_name] => Черновая отделка стен [parent_id] => 32 [material_sum] => 311282 [work_sum] => 364564 [total_sum] => 675846 [total_days] => 20 [display_material_sum] => 311 282 [display_work_sum] => 364 564 [display_total_sum] => 675 846 ) 1
675 846
Работа:364 564
Материалы:311 282
Дни:20
stdClass Object ( [id] => 154 [attribute_id] => 32 [name] => Гипсокортон на стены [material_modifier] => 1 [work_modifier] => 1 [options] => Array ( ) [days] => [15] [material_price] => [950] [work_price] => [2100] [image] => https://akademik-stroy.ru/wp-content/uploads/materials/gkl-1.jpg [area_modifier] => 127.47 [parent_name] => Черновая отделка стен [parent_id] => 32 [material_sum] => 159847 [work_sum] => 294456 [total_sum] => 454303 [total_days] => 15 [display_material_sum] => 159 847 [display_work_sum] => 294 456 [display_total_sum] => 454 303 ) 1
454 303
Работа:294 456
Материалы:159 847
Дни:15
stdClass Object ( [id] => 155 [attribute_id] => 32 [name] => Вагонка [material_modifier] => 1 [work_modifier] => 1 [options] => Array ( ) [days] => [15] [material_price] => [1250] [work_price] => [950] [image] => https://akademik-stroy.ru/wp-content/uploads/materials/vagonka.jpg [area_modifier] => 127.47 [parent_name] => Черновая отделка стен [parent_id] => 32 [material_sum] => 210326 [work_sum] => 133206 [total_sum] => 343532 [total_days] => 15 [display_material_sum] => 210 326 [display_work_sum] => 133 206 [display_total_sum] => 343 532 ) 1
343 532
Работа:133 206
Материалы:210 326
Дни:15
Черновая отделка полов
stdClass Object ( [id] => 65 [attribute_id] => 33 [name] => Нет [material_modifier] => 1 [work_modifier] => 1 [options] => Array ( ) [days] => [0] [material_price] => [0] [work_price] => [0] [image] => https://akademik-stroy.ru/wp-content/uploads/materials/styazhka.jpg [area_modifier] => 127.47 [parent_name] => Черновая отделка полов [parent_id] => 33 [material_sum] => 0 [work_sum] => 0 [total_sum] => 0 [total_days] => 0 [display_material_sum] => 0 [display_work_sum] => 0 [display_total_sum] => 0 ) 1
0
Работа:0
Материалы:0
Дни:0
stdClass Object ( [id] => 156 [attribute_id] => 33 [name] => Стяжка + наливные полы [material_modifier] => 1 [work_modifier] => 1 [options] => Array ( ) [days] => [10] [material_price] => [1000] [work_price] => [900] [image] => https://akademik-stroy.ru/wp-content/uploads/materials/styazhka.jpg [area_modifier] => 127.47 [parent_name] => Черновая отделка полов [parent_id] => 33 [material_sum] => 168260 [work_sum] => 126195 [total_sum] => 294455 [total_days] => 10 [display_material_sum] => 168 260 [display_work_sum] => 126 195 [display_total_sum] => 294 455 ) 1
294 455
Работа:126 195
Материалы:168 260
Дни:10
stdClass Object ( [id] => 157 [attribute_id] => 33 [name] => ОСБ на пол [material_modifier] => 1 [work_modifier] => 1 [options] => Array ( ) [days] => [7] [material_price] => [580] [work_price] => [350] [image] => https://akademik-stroy.ru/wp-content/uploads/materials/osb-1.jpg [area_modifier] => 127.47 [parent_name] => Черновая отделка полов [parent_id] => 33 [material_sum] => 97591 [work_sum] => 49076 [total_sum] => 146667 [total_days] => 7 [display_material_sum] => 97 591 [display_work_sum] => 49 076 [display_total_sum] => 146 667 ) 1
146 667
Работа:49 076
Материалы:97 591
Дни:7
Чистовая отделка стен и полов
stdClass Object ( [id] => 67 [attribute_id] => 34 [name] => Нет [material_modifier] => 1 [work_modifier] => 1 [options] => Array ( ) [days] => [0] [material_price] => [0] [work_price] => [0] [image] => https://akademik-stroy.ru/wp-content/uploads/materials/chistovaya-otdelka.jpg [area_modifier] => 127.47 [parent_name] => Чистовая отделка стен и полов [parent_id] => 34 [material_sum] => 0 [work_sum] => 0 [total_sum] => 0 [total_days] => 0 [display_material_sum] => 0 [display_work_sum] => 0 [display_total_sum] => 0 ) 1
0
Работа:0
Материалы:0
Дни:0
stdClass Object ( [id] => 68 [attribute_id] => 34 [name] => Есть [material_modifier] => 1 [work_modifier] => 1 [options] => Array ( ) [days] => [50] [material_price] => [6000] [work_price] => [3500] [image] => https://akademik-stroy.ru/wp-content/uploads/materials/chistovaya-otdelka.jpg [area_modifier] => 127.47 [parent_name] => Чистовая отделка стен и полов [parent_id] => 34 [material_sum] => 1009562 [work_sum] => 490760 [total_sum] => 1500322 [total_days] => 50 [display_material_sum] => 1 009 562 [display_work_sum] => 490 760 [display_total_sum] => 1 500 322 ) 1
1 500 322
Работа:490 760
Материалы:1 009 562
Дни:50
Отделка потолка
stdClass Object ( [id] => 69 [attribute_id] => 35 [name] => Нет [material_modifier] => 1 [work_modifier] => 1 [options] => Array ( ) [days] => [0] [material_price] => [0] [work_price] => [0] [image] => https://akademik-stroy.ru/wp-content/uploads/materials/mnogourovnevyj-gkl.jpg [area_modifier] => 127.47 [parent_name] => Отделка потолка [parent_id] => 35 [material_sum] => 0 [work_sum] => 0 [total_sum] => 0 [total_days] => 0 [display_material_sum] => 0 [display_work_sum] => 0 [display_total_sum] => 0 ) 1
0
Работа:0
Материалы:0
Дни:0
stdClass Object ( [id] => 70 [attribute_id] => 35 [name] => Есть [material_modifier] => 1 [work_modifier] => 1 [options] => Array ( [0] => Многоуровневый потолок из гипсокартона [1] => Многоуровневый потолок из гипсокартона и натяжного потолка [2] => Одноуровневый потолок из гипсокартона [3] => Одноуровневый натяжной потолок ) [days] => [10,10,1,1] [material_price] => [900,700,700,600] [work_price] => [1000,800,500,300] [image] => https://akademik-stroy.ru/wp-content/uploads/materials/mnogourovnevyj-gkl.jpg [area_modifier] => 127.47 [parent_name] => Отделка потолка [parent_id] => 35 [material_sum] => 151434 [work_sum] => 140217 [total_sum] => 291651 [total_days] => 10 [display_material_sum] => 151 434 [display_work_sum] => 140 217 [display_total_sum] => 291 651 ) 1
291 651
Работа:140 217
Материалы:151 434
Дни:10

Преимущества работы с нами

icon

7 этапов оплаты

icon

Независимый строительный надзор

icon

Экологически чистые материалы

icon

16 лет гарантии

icon

Онлайн-кабинет с веб-камерой

icon

Строители с опытом более 15 лет

icon

Собственное производство

Обзор двухэтажного дома размером 10x12 метров с площадью 127,47 м²

В современном строительстве частных домов все большую популярность набирают проекты, где сочетается рациональное использование пространства и функциональность. Одним из ярких примеров таких решений является двухэтажный дом размером 10 на 12 метров с полезной площадью 127,47 м². Этот тип проекта идеально подходит для семей, которым нужен комфорт и уют без лишних затрат на содержание большого здания. В статье подробно рассмотрим ключевые характеристики этого дома, его преимущества и особенности, а также ориентировочную стоимость строительства – 4 649 881 рубль.

Размеры дома 10 х 12 метров создают оптимальную основу для реализации просторного жилого пространства. Благодаря двум этажам, площадь увеличивается за счет вертикального размещения комнат, что не требует большого участка земли. Такой дом подходит для владельцев, желающих сочетать компактность застройки с удобством проживания.

Параметры и основные характеристики дома

Размеры и площадь дома

Ключевым параметром, который влияет на комфорт проживания, является полезная площадь дома – 127,47 м². Именно этот показатель описывает жилую зону, доступную для семьи. При площади застройки в 94,09 м² можно убедиться в том, что дом достаточно просторный, при этом оставляя место для организации наружного пространства на участке.

Размещение комнат и вспомогательных помещений на двух этажах позволяет рационально использовать каждый квадратный метр. Это особенно важно при проектировании домов, где планировка учитывает предпочтения будущих жильцов. Отличительной чертой данного дома является возможность комфортного размещения более пяти спален, что редкость для столь компактного параметра строения.

Высота и архитектурные особенности

Высота здания составляет 8,94 метра, что при условии двух этажей обеспечивает высокие потолки и визуальное ощущение простора внутри помещений. Такой параметр также влияет на внешнее восприятие дома – он выглядит строгим и гармоничным, соответствует стандартам загородной застройки.

Особое внимание заслуживает двускатная крыша с углом наклона 40°. Этот элемент служит нескольким важным целям: он способствует эффективному отводу осадков, минимизирует нагрузки на конструкцию и создает уютный мансардный объем для дополнительного использования. Кроме того, правильный угол наклона крыши отвечает требованиям климатических условий в регионе эксплуатации, что значительно продлевает срок безремонтной эксплуатации крыши.

Планировка и функциональное зонирование

Количество спален и жилых помещений

Дом рассчитан на пять и более спален, что делает его привлекательным для больших семей или для тех, кто использует часть пространства под кабинет, гостевую комнату или детские спальни. Многочисленность комнат обеспечивает максимальное удобство для каждого члена семьи, поддерживает индивидуальное пространство при одновременной близости к остальным зонам дома.

Обратите внимание, что в больших квартирах и домах с пятью и более спальнями часто возникает необходимость оптимальной организации пространства так, чтобы избежать эффекта загромождения. В этом плане проект учитывает возможность зонирования: на первом этаже располагаются общественные и гостевые зоны, а на втором — приватные комнаты с более интимной атмосферой.

Санузлы и комфорт проживания

В доме предусмотрен один санузел. Для дома с пятью и более спальнями это может быть небольшой компромисс, однако грамотное расположение сантехнических узлов может существенно повысить комфорт использования. Санузел обычно располагается в центральной части дома, что упрощает доступ к нему для всех жильцов. При желании владельцы всегда могут самостоятельно спроектировать дополнительный санузел в процессе реконструкции.

Требования к участку и возможности размещения

Минимальная ширина участка, необходимого для строительства этого дома, составляет 17,70 м, а минимальная длина – 19,70 м. Такие параметры участка позволяют обеспечить свободное пространство вокруг дома, что особенно ценно для организации зон отдыха, садовых насаждений и других элементов ландшафтного дизайна.

При планировании застройки стоит учитывать не только размеры дома, но и требования местных строительных норм и правил, которые могут предъявлять ограничения по расстоянию до границ участка, а также по уровню застройки территории.

Тип крыши и ее особенности

Двускатная крыша: преимущества и особенности

Двускатная крыша с углом наклона в 40° характеризуется классическим дизайном, который давно зарекомендовал себя как надежный и практичный. Благодаря двускатной конструкции создается равномерное распределение нагрузки на стены здания, что положительно сказывается на долговечности всего дома.

Кроме того, такой тип крыши отлично подходит для регионов с существенными снеговыми нагрузками, так как крутой угол способствует быстрому сходу снега. Это снижает риски протечек и обрушений. Наклон крыши также открывает возможности для создания дополнительных жилых или хозяйственных помещений в зоне чердака.

Материалы и утепление

Хотя в представленном проекте тип материала крыши не указан, для подобных домов часто выбирают металлочерепицу, керамическую черепицу или композитные материалы. Во всех случаях важную роль играет качественное утепление, которое обеспечивает комфортный микроклимат в помещениях и снижает затраты на отопление в зимний период.

Стоимость строительства: 4 649 881 рубль

Проект дома размером 10 на 12 метров общей полезной площадью 127,47 м² имеет ориентировочную стоимость строительства в размере 4 649 881 рубль. Эта сумма включает основные статьи затрат, такие как фундамент, стены, кровля, инженерные системы и базовый уровень отделочных работ.

Цена вполне соответствует уровню современных частных домов среднего класса с хорошим качеством исполнения. В зависимости от выбора материалов, сложности архитектурных решений и региона строительства итоговая стоимость может варьироваться.

Расходы по статьям

Статья расхода Описание Примерная доля стоимости
Фундамент Заливка основания, армирование 15–20%
Стены и каркас Возведение наружных и внутренних стен, несущие конструкции 30–35%
Крыша Устройство стропильной системы, кровельное покрытие 15–20%
Инженерные сети Электрика, водоснабжение, отопление 10–15%
Отделочные работы Внутреннюю и внешняя отделка 15–20%

Преимущества и особенности проекта

  • Оптимальный размер для участка. Дом занимает площадь застройки в 94,09 м² и при этом оставляет достаточно места для хозяйственных нужд участка.
  • Простор для большой семьи. Наличие пяти и более спален позволяет обеспечить комфорт каждому члену семьи.
  • Двухэтажная планировка эффективно организует жилую площадь, позволяя разделить общественные и приватные зоны.
  • Современный архитектурный стиль с двускатной кровлей и высотой здания 8,94 м делает дом презентабельным и долговечным.
  • Относительно доступная стоимость строительства при отличных характеристиках дома.

Рекомендации по выбору и дальнейшему обустройству дома

При выборе проекта дома размером 10х12 м с полезной площадью 127,47 м² важно учитывать не только его базовые параметры, но и особенности участка, климатические условия, а также желания и потребности семьи. Если требуется дополнительный санузел или гараж, их можно спроектировать отдельно, учитывая возможности расширения или реконструкции.

Для создания максимально уюта и энергоэффективности рекомендуется обращать внимание на утепление внешних стен и крыши, а также на современные инженерные системы. При необходимости наружную отделку можно выполнить в стилях, сочетающихся с городской или природной средой, будь то классический кирпич, декоративная штукатурка или современный фасадный сайдинг.

Планируя благоустройство участка, учитывайте требования минимальных размеров – не менее 17,7 м в ширину и 19,7 м в длину, что позволит организовать комфортные зоны для отдыха, сада, детской площадки или хозяйственных построек.

Заключительные мысли о проекте

Двухэтажный дом размером 10 на 12 метров с полезной площадью 127,47 квадратных метров – это отличное решение для тех, кто ценит комфорт, функциональность и разумное вложение средств. Его рациональный дизайн и продуманная планировка отвечают современным требованиям, а стоимость в районе 4,65 млн рублей делает этот проект доступным для широкого круга заказчиков.

Реализация подобного проекта станет прекрасным стартом для создания собственного уютного уголка, где каждый член семьи сможет почувствовать себя дома. Продуманное сочетание размеров, архитектуры и функционала придаст жизни в таком доме удобство и радость.