Двухэтажный дом 17x12 - 174.6 м2 за руб.

ID-117937

Стоимость дома 6573319 руб.
154 м2 Полезная
площадь
17 x 12 м Размеры
2 этажа Этажей
26 м2 Террасы
и балконы
1Без
гаража
3 Количество
спален
1 Количество
санузлов

Планировки

План первого этажа

floor image
  • 1. Прихожая 3,60 m²
  • 2. Холл 10,60 m²
  • 3. Кладовая 4,40 m²
  • 4. Кладовая 1,70 m²
  • 5. Кухня 11,40 m²
  • 6. Гостиная + столовая 26,80 m²
  • 7. Комната 12,40 m²
  • 8. Комната 11,80 m²
  • 9. Ванная комната 5,30 m²
  • 10. Комната 10,50 m²
  • 11. Гараж на 1 машину 23,80 m²
  • План первого этажа 122,30 m²

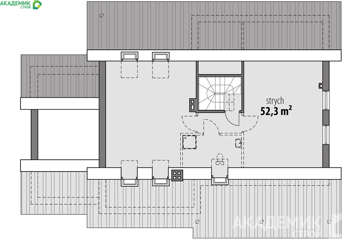
План мансарды

floor image
  • 1. Чердак 52,30 m²
  • План мансарды 52,30 m²

Разрезы

Вертикальный разрез
Вертикальный разрез

Фасады

Передний
Задний
Левый
Правый
Передний
Задний
Левый
Правый

Подробная информация

Жилая площадь
98,50 m²
icon

Сумма площади всех жилых помещений, за вычетом пов. гараж, котельная, чердак, подвал. Учитывается в 100%, для помещений высотой более 2,2 м, в 50% для помещений с высотой 2,2-1,4 м и не включается для более низких помещений (меньше 1,4 м).

Площадь застройки
186,80 m²
icon

Площадь застройки здания определяется как площадь горизонтального сечения по внешнему обводу здания на уровне цоколя, включая выступающие части.

Нетто кубатура
606 m³
icon

Площадь крыши
278,40 m²
icon

Угол наклона крыши
30°
icon

Наклон ската крыши в градусах. Внимание! В некоторых проектах возникает более чем один наклон крыши.

Высота здания
7,10 m
icon

Высота измеряется от поверхности земли до самой высокой точки кровли (конька), за исключением дымоходов.

Мин. ширина участка
25,32 m
icon

Наименьшая возможная ширина участка, необходимая для строительства выбранного дома. Состоит из длины фасада дома плюс с обеих сторон три метра отступ.

Мин. длина участка
19,57 m
icon

Наименьшая возможная длина участка, необходимая для строительства выбранного дома. Состоит из длины фасада дома плюс с обеих сторон три метра отступ.

Материалы и опции
Общие
Количество спален
3
Ежемесячный платёж, руб
Гараж
1
Количество санузлов
1
Ширина
17
Глубина
12
Тип крыши

Площади дома

№ п/п Наименование Ед. из. Строительная площадь Полезная площадь
1 1 этаж м2 150.71 122.3
2 2 этаж м2 64.45 52.3
3 Итого м2 215.16 174.6

Калькулятор опций

0

В ипотеку от 21 524 ₽/мес.

Фундамент
stdClass Object ( [id] => 1 [attribute_id] => 1 [name] => Ленточный монолитный ж/б [material_modifier] => 1 [work_modifier] => 1 [options] => Array ( [0] => размер 200 х 700 мм [1] => размер 300 х 900 мм [2] => размер 400 х 1 000 мм [3] => размер 500 х 1 100 мм [4] => размер 600 х 1 200 мм ) [days] => [20,21,22,25,30] [material_price] => [2823,3630,4475,5210,12047] [work_price] => [2154,2826,3731,4577,5293] [image] => https://akademik-stroy.ru/wp-content/uploads/materials/lentochnyj-monolitnyj-zh-b.jpg [area_modifier] => 150.71 [parent_name] => Фундамент [parent_id] => 1 [material_sum] => 536072 [work_sum] => 340861 [total_sum] => 876933 [total_days] => 20 [display_material_sum] => 536 072 [display_work_sum] => 340 861 [display_total_sum] => 876 933 ) 1
876 933
Работа:340 861
Материалы:536 072
Дни:20
stdClass Object ( [id] => 2 [attribute_id] => 1 [name] => Забивные Ж/Б сваи [material_modifier] => 1 [work_modifier] => 1 [options] => Array ( [0] => 150х150х3000мм [1] => 150х150х4000мм [2] => 200х200х3000мм [3] => 200х200х4000мм [4] => 200х200х5000мм [5] => 200х200х6000мм ) [days] => [2,2,2,2,2,2] [material_price] => [1990,2850,3255,4360,5120,6837] [work_price] => [1002,1185,1336,1438,1574,1839] [image] => https://akademik-stroy.ru/wp-content/uploads/materials/zabivnye-zh-b-svai.png [area_modifier] => 150.71 [parent_name] => Фундамент [parent_id] => 1 [material_sum] => 377890 [work_sum] => 158562 [total_sum] => 536452 [total_days] => 2 [display_material_sum] => 377 890 [display_work_sum] => 158 562 [display_total_sum] => 536 452 ) 1
536 452
Работа:158 562
Материалы:377 890
Дни:2
stdClass Object ( [id] => 71 [attribute_id] => 1 [name] => Свайно-ростверковый ж/б [material_modifier] => 1 [work_modifier] => 1 [options] => Array ( [0] => ростверк 200х300 мм [1] => ростверк 300х600 мм [2] => ростверк 400х900 мм [3] => ростверк 500х1200 мм ) [days] => [20,23,25,27] [material_price] => [3018,3474,7109,9792] [work_price] => [2024,3012,5635,7022] [image] => https://akademik-stroy.ru/wp-content/uploads/materials/svajno-rostverkovyj-monolitnyj-zh-b-3.png [area_modifier] => 150.71 [parent_name] => Фундамент [parent_id] => 1 [material_sum] => 573102 [work_sum] => 320289 [total_sum] => 893391 [total_days] => 20 [display_material_sum] => 573 102 [display_work_sum] => 320 289 [display_total_sum] => 893 391 ) 1
893 391
Работа:320 289
Материалы:573 102
Дни:20
stdClass Object ( [id] => 72 [attribute_id] => 1 [name] => Монолитная ж/б плита [material_modifier] => 1 [work_modifier] => 1 [options] => Array ( [0] => 200 мм [1] => 300 мм [2] => 400 мм [3] => 500 мм [4] => 600 мм ) [days] => [30,33,35,37,40] [material_price] => [5348,8555,12788,14388,15189] [work_price] => [4314,4881,7037,8061,10230] [image] => https://akademik-stroy.ru/wp-content/uploads/materials/monolitnaya-zhb-plita.png [area_modifier] => 150.71 [parent_name] => Фундамент [parent_id] => 1 [material_sum] => 1015556 [work_sum] => 682671 [total_sum] => 1698227 [total_days] => 30 [display_material_sum] => 1 015 556 [display_work_sum] => 682 671 [display_total_sum] => 1 698 227 ) 1
1 698 227
Работа:682 671
Материалы:1 015 556
Дни:30
stdClass Object ( [id] => 73 [attribute_id] => 1 [name] => Утепленная шведская плита [material_modifier] => 1 [work_modifier] => 1 [options] => Array ( [0] => 200 мм [1] => 300 мм [2] => 400 мм [3] => 500 мм [4] => 600 мм ) [days] => [32,37,39,42,45] [material_price] => [10249,12692,13760,14936,16230] [work_price] => [5960,7337,8072,8878,9765] [image] => https://akademik-stroy.ru/wp-content/uploads/materials/uteplennaya-shvedskaya-plita.jpg [area_modifier] => 150.71 [parent_name] => Фундамент [parent_id] => 1 [material_sum] => 1946230 [work_sum] => 943143 [total_sum] => 2889373 [total_days] => 32 [display_material_sum] => 1 946 230 [display_work_sum] => 943 143 [display_total_sum] => 2 889 373 ) 1
2 889 373
Работа:943 143
Материалы:1 946 230
Дни:32
stdClass Object ( [id] => 75 [attribute_id] => 1 [name] => Ленточный из ФБС [material_modifier] => 1 [work_modifier] => 1 [options] => Array ( [0] => толщ. 300 мм [1] => толщ. 400 мм [2] => толщ. 500 мм [3] => толщ. 600 мм ) [days] => [20,20,20,20] [material_price] => [3675,4902,6126,7350] [work_price] => [2451,3264,4083,4902] [image] => https://akademik-stroy.ru/wp-content/uploads/materials/lentochnyj-iz-fbs.png [area_modifier] => 150.71 [parent_name] => Фундамент [parent_id] => 1 [material_sum] => 697863 [work_sum] => 387860 [total_sum] => 1085723 [total_days] => 20 [display_material_sum] => 697 863 [display_work_sum] => 387 860 [display_total_sum] => 1 085 723 ) 1
1 085 723
Работа:387 860
Материалы:697 863
Дни:20
stdClass Object ( [id] => 76 [attribute_id] => 1 [name] => Цокольный этаж из ФБС [material_modifier] => 1 [work_modifier] => 1 [options] => Array ( [0] => толщ. 300 мм [1] => толщ. 400 мм [2] => толщ. 500 мм [3] => толщ. 600 мм ) [days] => [30,32,34,36] [material_price] => [20916,23299,26680,29060] [work_price] => [17524,18700,19873,21046] [image] => https://akademik-stroy.ru/wp-content/uploads/materials/cokolnyj-ehtazh-iz-fbs.jpg [area_modifier] => 150.71 [parent_name] => Фундамент [parent_id] => 1 [material_sum] => 3971835 [work_sum] => 2773094 [total_sum] => 6744929 [total_days] => 30 [display_material_sum] => 3 971 835 [display_work_sum] => 2 773 094 [display_total_sum] => 6 744 929 ) 1
6 744 929
Работа:2 773 094
Материалы:3 971 835
Дни:30
stdClass Object ( [id] => 77 [attribute_id] => 1 [name] => Цокольный этаж монолитный ж/б [material_modifier] => 1 [work_modifier] => 1 [options] => Array ( [0] => толщ. 200 мм [1] => толщ. 300 мм [2] => толщ. 400 мм [3] => толщ. 500 мм [4] => толщ. 600 мм ) [days] => [40,42,44,46,48] [material_price] => [25421,29148,32275,35602,37326] [work_price] => [20441,21907,23375,24841,26306] [image] => https://akademik-stroy.ru/wp-content/uploads/materials/cokolnyj-etazh-zh-b.jpg [area_modifier] => 150.71 [parent_name] => Фундамент [parent_id] => 1 [material_sum] => 4827311 [work_sum] => 3234696 [total_sum] => 8062007 [total_days] => 40 [display_material_sum] => 4 827 311 [display_work_sum] => 3 234 696 [display_total_sum] => 8 062 007 ) 1
8 062 007
Работа:3 234 696
Материалы:4 827 311
Дни:40
stdClass Object ( [id] => 191 [attribute_id] => 1 [name] => Винтовые сваи [material_modifier] => 1 [work_modifier] => 1 [options] => Array ( [0] => 57х200мм [1] => 76х250мм [2] => 108х300мм [3] => 133х350мм ) [days] => [1,1,2,2] [material_price] => [1200,1300,1450,1600] [work_price] => [400,600,900,1100] [image] => https://akademik-stroy.ru/wp-content/uploads/materials/vintovye-svai.png [area_modifier] => 150.71 [parent_name] => Фундамент [parent_id] => 1 [material_sum] => 227874 [work_sum] => 63298 [total_sum] => 291172 [total_days] => 1 [display_material_sum] => 227 874 [display_work_sum] => 63 298 [display_total_sum] => 291 172 ) 1
291 172
Работа:63 298
Материалы:227 874
Дни:1
Перекрытие цоколя
stdClass Object ( [id] => 3 [attribute_id] => 2 [name] => Деревянные балки [material_modifier] => 1 [work_modifier] => 1 [options] => Array ( [0] => без утепления [1] => утепление 200 мм [2] => утепление 250 мм [3] => утепление 300 мм [4] => утепление 350 мм [5] => утепление 400 мм [6] => утепление 450 мм [7] => утепление 500 мм ) [days] => [8,9,9,9,11,12,13,14] [material_price] => [1634,2042,2344,2947,3149,3652,3354,3557] [work_price] => [1230,1339,1393,1426,1460,1513,1587,1620] [image] => https://akademik-stroy.ru/wp-content/uploads/materials/derevyannye-balki.png [area_modifier] => 150.71 [parent_name] => Перекрытие цоколя [parent_id] => 2 [material_sum] => 310288 [work_sum] => 194642 [total_sum] => 504930 [total_days] => 8 [display_material_sum] => 310 288 [display_work_sum] => 194 642 [display_total_sum] => 504 930 ) 1
504 930
Работа:194 642
Материалы:310 288
Дни:8
stdClass Object ( [id] => 4 [attribute_id] => 2 [name] => Сборные ж/б плиты [material_modifier] => 1 [work_modifier] => 1 [options] => Array ( [0] => без утепления [1] => утепление 150мм [2] => утепление 200мм [3] => утепление 250мм [4] => утепление 300мм [5] => утепление 350мм [6] => утепление 400мм [7] => утепление 450мм [8] => утепление 500мм ) [days] => [13,15,15,15,15,15,15,15,15] [material_price] => [3067,5577,5928,6679,7730,8782,9833,10884,11935] [work_price] => [1520,1956,2102,2247,2392,2537,2684,2829,2974] [image] => https://akademik-stroy.ru/wp-content/uploads/materials/sbornye-zh-b-plity-2.jpg [area_modifier] => 150.71 [parent_name] => Перекрытие цоколя [parent_id] => 2 [material_sum] => 582407 [work_sum] => 240533 [total_sum] => 822940 [total_days] => 13 [display_material_sum] => 582 407 [display_work_sum] => 240 533 [display_total_sum] => 822 940 ) 1
822 940
Работа:240 533
Материалы:582 407
Дни:13
stdClass Object ( [id] => 78 [attribute_id] => 2 [name] => Монолитная ж/б плита [material_modifier] => 1 [work_modifier] => 1 [options] => Array ( [0] => без утепления [1] => утепление 150 мм [2] => утепление 200 мм [3] => утепление 250 мм [4] => утепление 300 мм [5] => утепление 350 мм [6] => утепление 400 мм [7] => утепление 450 мм [8] => утепление 500 мм ) [days] => [18,20,20,20,20,20,20,20,20] [material_price] => [4837,6572,7224,7375,79426,8177,8728,9180,10031] [work_price] => [3348,3921,4112,4302,4493,4684,4875,5066,5256] [image] => https://akademik-stroy.ru/wp-content/uploads/materials/monolitnaya-zh-b-plita-2.jpg [area_modifier] => 150.71 [parent_name] => Перекрытие цоколя [parent_id] => 2 [material_sum] => 918520 [work_sum] => 529806 [total_sum] => 1448326 [total_days] => 18 [display_material_sum] => 918 520 [display_work_sum] => 529 806 [display_total_sum] => 1 448 326 ) 1
1 448 326
Работа:529 806
Материалы:918 520
Дни:18
Стены 1 этаж (несущие)
stdClass Object ( [id] => 6 [attribute_id] => 3 [name] => Пеноблок [material_modifier] => 1 [work_modifier] => 1 [options] => Array ( [0] => 300 мм [1] => 400 мм [2] => 500 мм [3] => 600 мм ) [days] => [29,31,34,39] [material_price] => [3000,4000,4500,4937] [work_price] => [5033,5805,6400,8710] [image] => https://akademik-stroy.ru/wp-content/uploads/materials/penoblok.jpg [area_modifier] => 150.71 [parent_name] => Стены 1 этаж (несущие) [parent_id] => 3 [material_sum] => 569684 [work_sum] => 796450 [total_sum] => 1366134 [total_days] => 29 [display_material_sum] => 569 684 [display_work_sum] => 796 450 [display_total_sum] => 1 366 134 ) 1
1 366 134
Работа:796 450
Материалы:569 684
Дни:29
stdClass Object ( [id] => 79 [attribute_id] => 3 [name] => Керамический блок [material_modifier] => 1 [work_modifier] => 1 [options] => Array ( [0] => 380 мм [1] => 380 мм Thermo [2] => 440 мм [3] => 510 мм ) [days] => [23,23,24,25] [material_price] => [4510,5098,6093,8013] [work_price] => [4737,4937,5903,6958] [image] => https://akademik-stroy.ru/wp-content/uploads/materials/keramicheskij-blok.jpg [area_modifier] => 150.71 [parent_name] => Стены 1 этаж (несущие) [parent_id] => 3 [material_sum] => 856425 [work_sum] => 749609 [total_sum] => 1606034 [total_days] => 23 [display_material_sum] => 856 425 [display_work_sum] => 749 609 [display_total_sum] => 1 606 034 ) 1
1 606 034
Работа:749 609
Материалы:856 425
Дни:23
stdClass Object ( [id] => 80 [attribute_id] => 3 [name] => Кирпич [material_modifier] => 1 [work_modifier] => 1 [options] => Array ( [0] => Кирпич 250 мм [1] => Кирпич 380 мм [2] => Кирпич 510 мм [3] => Кирпич 640 мм [4] => Кирпич 770 мм ) [days] => [30,30,31,33,36] [material_price] => [5500,7142,9206,10171,12235] [work_price] => [8736,10041,12018,15240,18462] [image] => https://akademik-stroy.ru/wp-content/uploads/materials/kirpich.jpg [area_modifier] => 150.71 [parent_name] => Стены 1 этаж (несущие) [parent_id] => 3 [material_sum] => 1044420 [work_sum] => 1382433 [total_sum] => 2426853 [total_days] => 30 [display_material_sum] => 1 044 420 [display_work_sum] => 1 382 433 [display_total_sum] => 2 426 853 ) 1
2 426 853
Работа:1 382 433
Материалы:1 044 420
Дни:30
stdClass Object ( [id] => 81 [attribute_id] => 3 [name] => Монолитные [material_modifier] => 1 [work_modifier] => 1 [options] => Array ( [0] => 150 мм [1] => 200 мм [2] => 250 мм [3] => 300 мм [4] => 350 мм [5] => 400 мм ) [days] => [45,46,47,49,50,53] [material_price] => [6545,7876,10175,12011,13908,15204] [work_price] => [5106,6444,7698,8552,9807,11461] [image] => https://akademik-stroy.ru/wp-content/uploads/materials/monolitnye.jpg [area_modifier] => 150.71 [parent_name] => Стены 1 этаж (несущие) [parent_id] => 3 [material_sum] => 1242860 [work_sum] => 808002 [total_sum] => 2050862 [total_days] => 45 [display_material_sum] => 1 242 860 [display_work_sum] => 808 002 [display_total_sum] => 2 050 862 ) 1
2 050 862
Работа:808 002
Материалы:1 242 860
Дни:45
stdClass Object ( [id] => 82 [attribute_id] => 3 [name] => Клееный брус [material_modifier] => 1 [work_modifier] => 1 [options] => Array ( [0] => 160 мм [1] => 175 мм [2] => 200 мм [3] => 215 мм [4] => 240 мм [5] => 270 мм [6] => 282 мм ) [days] => [24,28,32,37,40,42,48] [material_price] => [16975,18773,19950,20545,21599,22159,23275] [work_price] => [4806,5287,5815,6397,7036,7740,8514] [image] => https://akademik-stroy.ru/wp-content/uploads/materials/kleenyj-brus.jpg [area_modifier] => 150.71 [parent_name] => Стены 1 этаж (несущие) [parent_id] => 3 [material_sum] => 3223461 [work_sum] => 760528 [total_sum] => 3983989 [total_days] => 24 [display_material_sum] => 3 223 461 [display_work_sum] => 760 528 [display_total_sum] => 3 983 989 ) 1
3 983 989
Работа:760 528
Материалы:3 223 461
Дни:24
stdClass Object ( [id] => 83 [attribute_id] => 3 [name] => Каркасные [material_modifier] => 1 [work_modifier] => 1 [options] => Array ( [0] => 150 мм [1] => 200 мм [2] => 250 мм [3] => 300 мм ) [days] => [15,16,17,18] [material_price] => [2379,2639,2898,3258] [work_price] => [2418,2686,2985,3716] [image] => https://akademik-stroy.ru/wp-content/uploads/materials/karkasnye.jpg [area_modifier] => 150.71 [parent_name] => Стены 1 этаж (несущие) [parent_id] => 3 [material_sum] => 451759 [work_sum] => 382638 [total_sum] => 834397 [total_days] => 15 [display_material_sum] => 451 759 [display_work_sum] => 382 638 [display_total_sum] => 834 397 ) 1
834 397
Работа:382 638
Материалы:451 759
Дни:15
stdClass Object ( [id] => 84 [attribute_id] => 3 [name] => СИП-панели [material_modifier] => 1 [work_modifier] => 1 [options] => Array ( [0] => 120 мм [1] => 170 мм [2] => 220 мм ) [days] => [7,7,7] [material_price] => [1210,1856,2292] [work_price] => [1410,1551,1706] [image] => https://akademik-stroy.ru/wp-content/uploads/materials/sip-paneli.jpg [area_modifier] => 150.71 [parent_name] => Стены 1 этаж (несущие) [parent_id] => 3 [material_sum] => 229772 [work_sum] => 223126 [total_sum] => 452898 [total_days] => 7 [display_material_sum] => 229 772 [display_work_sum] => 223 126 [display_total_sum] => 452 898 ) 1
452 898
Работа:223 126
Материалы:229 772
Дни:7
stdClass Object ( [id] => 85 [attribute_id] => 3 [name] => Сухой брус [material_modifier] => 1 [work_modifier] => 1 [options] => Array ( [0] => 150 мм [1] => 180 мм [2] => 200 мм ) [days] => [7,8,9] [material_price] => [6010,7190,8709] [work_price] => [3204,3845,4229] [image] => https://akademik-stroy.ru/wp-content/uploads/materials/suhoj-brus.jpg [area_modifier] => 150.71 [parent_name] => Стены 1 этаж (несущие) [parent_id] => 3 [material_sum] => 1141267 [work_sum] => 507019 [total_sum] => 1648286 [total_days] => 7 [display_material_sum] => 1 141 267 [display_work_sum] => 507 019 [display_total_sum] => 1 648 286 ) 1
1 648 286
Работа:507 019
Материалы:1 141 267
Дни:7
stdClass Object ( [id] => 86 [attribute_id] => 3 [name] => Профилированный брус [material_modifier] => 1 [work_modifier] => 1 [options] => Array ( [0] => 150 мм [1] => 180 мм [2] => 200 мм ) [days] => [7,8,9] [material_price] => [8190,9228,10051] [work_price] => [3845,4614,5075] [image] => https://akademik-stroy.ru/wp-content/uploads/materials/profilirovannyj-brus.jpg [area_modifier] => 150.71 [parent_name] => Стены 1 этаж (несущие) [parent_id] => 3 [material_sum] => 1555237 [work_sum] => 608454 [total_sum] => 2163691 [total_days] => 7 [display_material_sum] => 1 555 237 [display_work_sum] => 608 454 [display_total_sum] => 2 163 691 ) 1
2 163 691
Работа:608 454
Материалы:1 555 237
Дни:7
stdClass Object ( [id] => 87 [attribute_id] => 3 [name] => Оцилиндрованное бревно [material_modifier] => 1 [work_modifier] => 1 [options] => Array ( [0] => 180 мм [1] => 220 мм [2] => 260 мм [3] => 320 мм ) [days] => [7,8,9,10] [material_price] => [75190,9532,10868,13116] [work_price] => [3845,4691,5535,6863] [image] => https://akademik-stroy.ru/wp-content/uploads/materials/ocilindrovannoe-brevno-1.jpg [area_modifier] => 150.71 [parent_name] => Стены 1 этаж (несущие) [parent_id] => 3 [material_sum] => 14278175 [work_sum] => 608454 [total_sum] => 14886629 [total_days] => 7 [display_material_sum] => 14 278 175 [display_work_sum] => 608 454 [display_total_sum] => 14 886 629 ) 1
14 886 629
Работа:608 454
Материалы:14 278 175
Дни:7
stdClass Object ( [id] => 88 [attribute_id] => 3 [name] => Срубы [material_modifier] => 1 [work_modifier] => 1 [options] => Array ( [0] => 260 мм [1] => 320 мм [2] => 360 мм [3] => 400 мм [4] => 500 мм ) [days] => [7,8,9,10,11] [material_price] => [37975,46709,52314,58069,73167] [work_price] => [4806,5911,6621,7349,9260] [image] => https://akademik-stroy.ru/wp-content/uploads/materials/sruby.jpg [area_modifier] => 150.71 [parent_name] => Стены 1 этаж (несущие) [parent_id] => 3 [material_sum] => 7211247 [work_sum] => 760528 [total_sum] => 7971775 [total_days] => 7 [display_material_sum] => 7 211 247 [display_work_sum] => 760 528 [display_total_sum] => 7 971 775 ) 1
7 971 775
Работа:760 528
Материалы:7 211 247
Дни:7
stdClass Object ( [id] => 174 [attribute_id] => 3 [name] => Брус [material_modifier] => 1 [work_modifier] => 1 [options] => Array ( [0] => 150 мм [1] => 180 мм [2] => 200 мм ) [days] => [7,8,9] [material_price] => [5127,6152,7367] [work_price] => [1602,1922,2115] [image] => https://akademik-stroy.ru/wp-content/uploads/materials/brus.jpg [area_modifier] => 150.71 [parent_name] => Стены 1 этаж (несущие) [parent_id] => 3 [material_sum] => 973590 [work_sum] => 253509 [total_sum] => 1227099 [total_days] => 7 [display_material_sum] => 973 590 [display_work_sum] => 253 509 [display_total_sum] => 1 227 099 ) 1
1 227 099
Работа:253 509
Материалы:973 590
Дни:7
stdClass Object ( [id] => 175 [attribute_id] => 3 [name] => Газобетон [material_modifier] => 1 [work_modifier] => 1 [options] => Array ( [0] => 300 мм [1] => 375 мм [2] => 400 мм [3] => 500 мм [4] => 600 мм ) [days] => [29,31,35,37,44] [material_price] => [4298,5573,6356,7288,9119] [work_price] => [4538,5251,5926,6733,7195] [image] => https://akademik-stroy.ru/wp-content/uploads/materials/gazobeton.jpg [area_modifier] => 150.71 [parent_name] => Стены 1 этаж (несущие) [parent_id] => 3 [material_sum] => 816167 [work_sum] => 718118 [total_sum] => 1534285 [total_days] => 29 [display_material_sum] => 816 167 [display_work_sum] => 718 118 [display_total_sum] => 1 534 285 ) 1
1 534 285
Работа:718 118
Материалы:816 167
Дни:29
stdClass Object ( [id] => 176 [attribute_id] => 3 [name] => Блок [material_modifier] => 1 [work_modifier] => 1 [options] => Array ( [0] => 300 мм [1] => 375 мм [2] => 400 мм [3] => 500 мм [4] => 600 мм ) [days] => [29,31,35,37,44] [material_price] => [2698,3973,4356,6588,7119] [work_price] => [5038,5851,6426,8733,9195] [image] => https://akademik-stroy.ru/wp-content/uploads/materials/blok.jpg [area_modifier] => 150.71 [parent_name] => Стены 1 этаж (несущие) [parent_id] => 3 [material_sum] => 512336 [work_sum] => 797241 [total_sum] => 1309577 [total_days] => 29 [display_material_sum] => 512 336 [display_work_sum] => 797 241 [display_total_sum] => 1 309 577 ) 1
1 309 577
Работа:797 241
Материалы:512 336
Дни:29
stdClass Object ( [id] => 177 [attribute_id] => 3 [name] => Газосиликатный блок [material_modifier] => 1 [work_modifier] => 1 [options] => Array ( [0] => 300 мм [1] => 375 мм [2] => 400 мм [3] => 500 мм [4] => 600 мм ) [days] => [29,31,35,37,44] [material_price] => [4298,5573,6356,7288,9119] [work_price] => [4538,5251,5926,6733,7195] [image] => https://akademik-stroy.ru/wp-content/uploads/materials/gazosilikatnyj-blok.jpg [area_modifier] => 150.71 [parent_name] => Стены 1 этаж (несущие) [parent_id] => 3 [material_sum] => 816167 [work_sum] => 718118 [total_sum] => 1534285 [total_days] => 29 [display_material_sum] => 816 167 [display_work_sum] => 718 118 [display_total_sum] => 1 534 285 ) 1
1 534 285
Работа:718 118
Материалы:816 167
Дни:29
stdClass Object ( [id] => 178 [attribute_id] => 3 [name] => Керамзитобетонный блок [material_modifier] => 1 [work_modifier] => 1 [options] => Array ( [0] => 300 мм [1] => 375 мм [2] => 400 мм [3] => 500 мм [4] => 600 мм ) [days] => [23,23,24,25,28] [material_price] => [3641,4298,5693,7613,9612] [work_price] => [5737,5737,6903,7958,8901] [image] => https://akademik-stroy.ru/wp-content/uploads/materials/keramzitobetonnyj-blok.jpg [area_modifier] => 150.71 [parent_name] => Стены 1 этаж (несущие) [parent_id] => 3 [material_sum] => 691406 [work_sum] => 907854 [total_sum] => 1599260 [total_days] => 23 [display_material_sum] => 691 406 [display_work_sum] => 907 854 [display_total_sum] => 1 599 260 ) 1
1 599 260
Работа:907 854
Материалы:691 406
Дни:23
stdClass Object ( [id] => 179 [attribute_id] => 3 [name] => Деревянные [material_modifier] => 1 [work_modifier] => 1 [options] => Array ( [0] => 180 мм [1] => 220 мм [2] => 260 мм [3] => 320 мм ) [days] => [7,8,9,10] [material_price] => [7950,9458,11961,14472] [work_price] => [4037,4925,5812,7207] [image] => https://akademik-stroy.ru/wp-content/uploads/materials/derevyannye.jpg [area_modifier] => 150.71 [parent_name] => Стены 1 этаж (несущие) [parent_id] => 3 [material_sum] => 1509662 [work_sum] => 638837 [total_sum] => 2148499 [total_days] => 7 [display_material_sum] => 1 509 662 [display_work_sum] => 638 837 [display_total_sum] => 2 148 499 ) 1
2 148 499
Работа:638 837
Материалы:1 509 662
Дни:7
stdClass Object ( [id] => 181 [attribute_id] => 3 [name] => Камень [material_modifier] => 1 [work_modifier] => 1 [options] => Array ( [0] => 300 мм [1] => 400 мм [2] => 500 мм [3] => 600 мм ) [days] => [25,27,31,34] [material_price] => [5262,6844,8330,9815] [work_price] => [8331,9135,10427,11069] [image] => https://akademik-stroy.ru/wp-content/uploads/materials/kamen.jpg [area_modifier] => 150.71 [parent_name] => Стены 1 этаж (несущие) [parent_id] => 3 [material_sum] => 999225 [work_sum] => 1318343 [total_sum] => 2317568 [total_days] => 25 [display_material_sum] => 999 225 [display_work_sum] => 1 318 343 [display_total_sum] => 2 317 568 ) 1
2 317 568
Работа:1 318 343
Материалы:999 225
Дни:25
stdClass Object ( [id] => 182 [attribute_id] => 3 [name] => Каркасно-щитовые [material_modifier] => 1 [work_modifier] => 1 [options] => Array ( [0] => 150 мм [1] => 200 мм [2] => 250 мм [3] => 300 мм [4] => 350 мм [5] => 400 мм ) [days] => [15,16,17,18,19,20] [material_price] => [2379,2639,2898,3458,3601,4175] [work_price] => [2538,2820,3134,3483,4062,5642] [image] => https://akademik-stroy.ru/wp-content/uploads/materials/karkasno-shchitovye.jpg [area_modifier] => 150.71 [parent_name] => Стены 1 этаж (несущие) [parent_id] => 3 [material_sum] => 451759 [work_sum] => 401627 [total_sum] => 853386 [total_days] => 15 [display_material_sum] => 451 759 [display_work_sum] => 401 627 [display_total_sum] => 853 386 ) 1
853 386
Работа:401 627
Материалы:451 759
Дни:15
stdClass Object ( [id] => 183 [attribute_id] => 3 [name] => Рубленные [material_modifier] => 1 [work_modifier] => 1 [options] => Array ( [0] => 150 мм [1] => 200 мм [2] => 250 мм [3] => 300 мм [4] => 350 мм [5] => 400 мм ) [days] => [15,16,17,18,17,18] [material_price] => [35950,50267,60583,75900,80217,100533] [work_price] => [9612,12816,16020,19224,22428,25632] [image] => https://akademik-stroy.ru/wp-content/uploads/materials/rublennye.jpg [area_modifier] => 150.71 [parent_name] => Стены 1 этаж (несущие) [parent_id] => 3 [material_sum] => 6826711 [work_sum] => 1521056 [total_sum] => 8347767 [total_days] => 15 [display_material_sum] => 6 826 711 [display_work_sum] => 1 521 056 [display_total_sum] => 8 347 767 ) 1
8 347 767
Работа:1 521 056
Материалы:6 826 711
Дни:15
stdClass Object ( [id] => 185 [attribute_id] => 3 [name] => Теплоблок [material_modifier] => 1 [work_modifier] => 1 [options] => Array ( [0] => 300 мм (с облицовкой, не покрашенный) [1] => 400 мм (с облицовкой, не покрашенный) [2] => 300 мм (с облицовкой, покрашенный) [3] => 400 мм (с облицовкой, покрашенный) ) [days] => [15,16,15,16] [material_price] => [2888,3729,3957,4258] [work_price] => [2564,3229,2949,3713] [image] => https://akademik-stroy.ru/wp-content/uploads/materials/teploblok.jpg [area_modifier] => 150.71 [parent_name] => Стены 1 этаж (несущие) [parent_id] => 3 [material_sum] => 548416 [work_sum] => 405741 [total_sum] => 954157 [total_days] => 15 [display_material_sum] => 548 416 [display_work_sum] => 405 741 [display_total_sum] => 954 157 ) 1
954 157
Работа:405 741
Материалы:548 416
Дни:15
stdClass Object ( [id] => 186 [attribute_id] => 3 [name] => Арболитовые блоки [material_modifier] => 1 [work_modifier] => 1 [options] => Array ( [0] => 300 мм [1] => 400 мм [2] => 600 мм ) [days] => [19,22,27] [material_price] => [3210,4475,5852] [work_price] => [4214,4788,5866] [image] => https://akademik-stroy.ru/wp-content/uploads/materials/arbolitovye-bloki.png [area_modifier] => 150.71 [parent_name] => Стены 1 этаж (несущие) [parent_id] => 3 [material_sum] => 609562 [work_sum] => 666847 [total_sum] => 1276409 [total_days] => 19 [display_material_sum] => 609 562 [display_work_sum] => 666 847 [display_total_sum] => 1 276 409 ) 1
1 276 409
Работа:666 847
Материалы:609 562
Дни:19
stdClass Object ( [id] => 187 [attribute_id] => 3 [name] => Полистиролбетон [material_modifier] => 1 [work_modifier] => 1 [options] => Array ( [0] => 300 мм [1] => 400 мм [2] => 600 мм ) [days] => [29,31,35] [material_price] => [2798,4573,5256] [work_price] => [5038,5851,6426] [image] => https://akademik-stroy.ru/wp-content/uploads/materials/polistirolbeton.jpg [area_modifier] => 150.71 [parent_name] => Стены 1 этаж (несущие) [parent_id] => 3 [material_sum] => 531325 [work_sum] => 797241 [total_sum] => 1328566 [total_days] => 29 [display_material_sum] => 531 325 [display_work_sum] => 797 241 [display_total_sum] => 1 328 566 ) 1
1 328 566
Работа:797 241
Материалы:531 325
Дни:29
stdClass Object ( [id] => 188 [attribute_id] => 3 [name] => Шлакоблок [material_modifier] => 1 [work_modifier] => 1 [options] => Array ( [0] => 400 мм [1] => 600 мм ) [days] => [15,16] [material_price] => [2391,3471] [work_price] => [2642,3662] [image] => https://akademik-stroy.ru/wp-content/uploads/materials/shlakoblok.jpg [area_modifier] => 150.71 [parent_name] => Стены 1 этаж (несущие) [parent_id] => 3 [material_sum] => 454038 [work_sum] => 418085 [total_sum] => 872123 [total_days] => 15 [display_material_sum] => 454 038 [display_work_sum] => 418 085 [display_total_sum] => 872 123 ) 1
872 123
Работа:418 085
Материалы:454 038
Дни:15
stdClass Object ( [id] => 189 [attribute_id] => 3 [name] => Теплая керамика [material_modifier] => 1 [work_modifier] => 1 [options] => Array ( [0] => 380 мм [1] => 380 мм Thermo [2] => 440 мм [3] => 510 мм ) [days] => [23,23,24,25] [material_price] => [4510,5098,6093,8013] [work_price] => [4737,4937,5903,6958] [image] => https://akademik-stroy.ru/wp-content/uploads/materials/teplaya-keramika.jpg [area_modifier] => 150.71 [parent_name] => Стены 1 этаж (несущие) [parent_id] => 3 [material_sum] => 856425 [work_sum] => 749609 [total_sum] => 1606034 [total_days] => 23 [display_material_sum] => 856 425 [display_work_sum] => 749 609 [display_total_sum] => 1 606 034 ) 1
1 606 034
Работа:749 609
Материалы:856 425
Дни:23
stdClass Object ( [id] => 190 [attribute_id] => 3 [name] => Несъемная опалубка [material_modifier] => 1 [work_modifier] => 1 [options] => Array ( [0] => 200 мм [1] => 250 мм [2] => 300 мм [3] => 350 мм ) [days] => [15,17,19,21] [material_price] => [3302,3902,4108,5008] [work_price] => [2100,2100,2300,2534] [image] => https://akademik-stroy.ru/wp-content/uploads/materials/nesemnaya-opalubka.jpg [area_modifier] => 150.71 [parent_name] => Стены 1 этаж (несущие) [parent_id] => 3 [material_sum] => 627032 [work_sum] => 332316 [total_sum] => 959348 [total_days] => 15 [display_material_sum] => 627 032 [display_work_sum] => 332 316 [display_total_sum] => 959 348 ) 1
959 348
Работа:332 316
Материалы:627 032
Дни:15
stdClass Object ( [id] => 251 [attribute_id] => 3 [name] => Бревно [material_modifier] => 1 [work_modifier] => 1 [options] => Array ( [0] => 260 мм [1] => 320 мм [2] => 360 мм [3] => 400 мм [4] => 500 мм ) [days] => [7,8,9,10,11] [material_price] => [1874,24045,26930,30972,38825] [work_price] => [5046,6207,6952,7716,9723] [image] => https://akademik-stroy.ru/wp-content/uploads/materials/sruby.jpg [area_modifier] => 150.71 [parent_name] => Стены 1 этаж (несущие) [parent_id] => 3 [material_sum] => 355862 [work_sum] => 798507 [total_sum] => 1154369 [total_days] => 7 [display_material_sum] => 355 862 [display_work_sum] => 798 507 [display_total_sum] => 1 154 369 ) 1
1 154 369
Работа:798 507
Материалы:355 862
Дни:7
Перекрытие первого этажа
stdClass Object ( [id] => 7 [attribute_id] => 4 [name] => Деревянные балки [material_modifier] => 1 [work_modifier] => 1 [options] => Array ( [0] => без утепления [1] => утепление 200 мм [2] => утепление 250 мм [3] => утепление 300 мм [4] => утепление 350 мм [5] => утепление 400 мм [6] => утепление 450 мм [7] => утепление 500 мм ) [days] => [8,9,9,9,11,12,13,14] [material_price] => [1634,2042,2344,2947,3149,3652,3354,3557] [work_price] => [1230,1339,1393,1426,1460,1513,1587,1620] [image] => https://akademik-stroy.ru/wp-content/uploads/materials/derevyannye-balki.png [area_modifier] => 150.71 [parent_name] => Перекрытие первого этажа [parent_id] => 4 [material_sum] => 310288 [work_sum] => 194642 [total_sum] => 504930 [total_days] => 8 [display_material_sum] => 310 288 [display_work_sum] => 194 642 [display_total_sum] => 504 930 ) 1
504 930
Работа:194 642
Материалы:310 288
Дни:8
stdClass Object ( [id] => 8 [attribute_id] => 4 [name] => Сборные ж/б плиты [material_modifier] => 1 [work_modifier] => 1 [options] => Array ( [0] => без утепления [1] => утепление 150 мм [2] => утепление 200 мм [3] => утепление 250 мм [4] => утепление 300 мм [5] => утепление 350 мм [6] => утепление 400 мм [7] => утепление 450 мм [8] => утепление 500 мм ) [days] => [13,15,15,15,15,15,15,15,15] [material_price] => [3067,5577,5928,6679,7730,8782,9833,10884,11935] [work_price] => [1520,1956,2102,2247,2392,2537,2684,2829,2974] [image] => https://akademik-stroy.ru/wp-content/uploads/materials/sbornye-zh-b-plity-2.jpg [area_modifier] => 150.71 [parent_name] => Перекрытие первого этажа [parent_id] => 4 [material_sum] => 582407 [work_sum] => 240533 [total_sum] => 822940 [total_days] => 13 [display_material_sum] => 582 407 [display_work_sum] => 240 533 [display_total_sum] => 822 940 ) 1
822 940
Работа:240 533
Материалы:582 407
Дни:13
stdClass Object ( [id] => 89 [attribute_id] => 4 [name] => Монолитная ж/б плита [material_modifier] => 1 [work_modifier] => 1 [options] => Array ( [0] => без утепления [1] => утепление 150 мм [2] => утепление 200 мм [3] => утепление 250 мм [4] => утепление 300 мм [5] => утепление 350 мм [6] => утепление 400 мм [7] => утепление 450 мм [8] => утепление 500 мм ) [days] => [18,20,20,20,20,20,20,20,20] [material_price] => [4837,6572,7224,7375,79426,8177,8728,9180,10031] [work_price] => [3348,3921,4112,4302,4493,4684,4875,5066,5256] [image] => https://akademik-stroy.ru/wp-content/uploads/materials/monolitnaya-zh-b-plita-2.jpg [area_modifier] => 150.71 [parent_name] => Перекрытие первого этажа [parent_id] => 4 [material_sum] => 918520 [work_sum] => 529806 [total_sum] => 1448326 [total_days] => 18 [display_material_sum] => 918 520 [display_work_sum] => 529 806 [display_total_sum] => 1 448 326 ) 1
1 448 326
Работа:529 806
Материалы:918 520
Дни:18
Стены 2 этаж (несущие)
stdClass Object ( [id] => 10 [attribute_id] => 5 [name] => Пеноблок [material_modifier] => 1 [work_modifier] => 1 [options] => Array ( [0] => 300 мм [1] => 400 мм [2] => 500 мм [3] => 600 мм ) [days] => [29,31,34,39] [material_price] => [3000,4000,4500,4937] [work_price] => [5033,5805,6400,8710] [image] => https://akademik-stroy.ru/wp-content/uploads/materials/penoblok.jpg [area_modifier] => 64.45 [parent_name] => Стены 2 этаж (несущие) [parent_id] => 5 [material_sum] => 243621 [work_sum] => 340596 [total_sum] => 584217 [total_days] => 29 [display_material_sum] => 243 621 [display_work_sum] => 340 596 [display_total_sum] => 584 217 ) 1
584 217
Работа:340 596
Материалы:243 621
Дни:29
stdClass Object ( [id] => 90 [attribute_id] => 5 [name] => Керамический блок [material_modifier] => 1 [work_modifier] => 1 [options] => Array ( [0] => 380 мм [1] => 380 мм Thermo [2] => 440 мм [3] => 510 мм ) [days] => [23,23,24,25] [material_price] => [4510,5098,6093,8013] [work_price] => [4737,4937,5903,6958] [image] => https://akademik-stroy.ru/wp-content/uploads/materials/keramicheskij-blok.jpg [area_modifier] => 64.45 [parent_name] => Стены 2 этаж (несущие) [parent_id] => 5 [material_sum] => 366244 [work_sum] => 320565 [total_sum] => 686809 [total_days] => 23 [display_material_sum] => 366 244 [display_work_sum] => 320 565 [display_total_sum] => 686 809 ) 1
686 809
Работа:320 565
Материалы:366 244
Дни:23
stdClass Object ( [id] => 91 [attribute_id] => 5 [name] => Кирпич [material_modifier] => 1 [work_modifier] => 1 [options] => Array ( [0] => Кирпич 250 мм [1] => Кирпич 380 мм [2] => Кирпич 510 мм [3] => Кирпич 640 мм [4] => Кирпич 770 мм ) [days] => [30,30,31,33,36] [material_price] => [5500,7142,9206,10171,12235] [work_price] => [8736,10041,12018,15240,18462] [image] => https://akademik-stroy.ru/wp-content/uploads/materials/kirpich.jpg [area_modifier] => 64.45 [parent_name] => Стены 2 этаж (несущие) [parent_id] => 5 [material_sum] => 446639 [work_sum] => 591187 [total_sum] => 1037826 [total_days] => 30 [display_material_sum] => 446 639 [display_work_sum] => 591 187 [display_total_sum] => 1 037 826 ) 1
1 037 826
Работа:591 187
Материалы:446 639
Дни:30
stdClass Object ( [id] => 92 [attribute_id] => 5 [name] => Монолитные [material_modifier] => 1 [work_modifier] => 1 [options] => Array ( [0] => 150 мм [1] => 200 мм [2] => 250 мм [3] => 300 мм [4] => 350 мм [5] => 400 мм ) [days] => [45,46,47,49,50,53] [material_price] => [6545,7876,10175,12011,13908,15204] [work_price] => [5106,6444,7698,8552,9807,11461] [image] => https://akademik-stroy.ru/wp-content/uploads/materials/monolitnye.jpg [area_modifier] => 64.45 [parent_name] => Стены 2 этаж (несущие) [parent_id] => 5 [material_sum] => 531500 [work_sum] => 345536 [total_sum] => 877036 [total_days] => 45 [display_material_sum] => 531 500 [display_work_sum] => 345 536 [display_total_sum] => 877 036 ) 1
877 036
Работа:345 536
Материалы:531 500
Дни:45
stdClass Object ( [id] => 93 [attribute_id] => 5 [name] => Клееный брус [material_modifier] => 1 [work_modifier] => 1 [options] => Array ( [0] => 160 мм [1] => 175 мм [2] => 200 мм [3] => 215 мм [4] => 240 мм [5] => 270 мм [6] => 282 мм ) [days] => [24,28,32,37,40,42,48] [material_price] => [16975,18773,19950,20545,21599,22159,23275] [work_price] => [4806,5287,5815,6397,7036,7740,8514] [image] => https://akademik-stroy.ru/wp-content/uploads/materials/kleenyj-brus.jpg [area_modifier] => 64.45 [parent_name] => Стены 2 этаж (несущие) [parent_id] => 5 [material_sum] => 1378489 [work_sum] => 325234 [total_sum] => 1703723 [total_days] => 24 [display_material_sum] => 1 378 489 [display_work_sum] => 325 234 [display_total_sum] => 1 703 723 ) 1
1 703 723
Работа:325 234
Материалы:1 378 489
Дни:24
stdClass Object ( [id] => 94 [attribute_id] => 5 [name] => Каркасные [material_modifier] => 1 [work_modifier] => 1 [options] => Array ( [0] => 150 мм [1] => 200 мм [2] => 250 мм [3] => 300 мм ) [days] => [15,16,17,18] [material_price] => [2379,2639,2898,3258] [work_price] => [2418,2686,2985,3716] [image] => https://akademik-stroy.ru/wp-content/uploads/materials/karkasnye.jpg [area_modifier] => 64.45 [parent_name] => Стены 2 этаж (несущие) [parent_id] => 5 [material_sum] => 193191 [work_sum] => 163632 [total_sum] => 356823 [total_days] => 15 [display_material_sum] => 193 191 [display_work_sum] => 163 632 [display_total_sum] => 356 823 ) 1
356 823
Работа:163 632
Материалы:193 191
Дни:15
stdClass Object ( [id] => 95 [attribute_id] => 5 [name] => СИП-панели [material_modifier] => 1 [work_modifier] => 1 [options] => Array ( [0] => 120 мм [1] => 170 мм [2] => 220 мм ) [days] => [7,7,7] [material_price] => [1210,1856,2292] [work_price] => [1410,1551,1706] [image] => https://akademik-stroy.ru/wp-content/uploads/materials/sip-paneli.jpg [area_modifier] => 64.45 [parent_name] => Стены 2 этаж (несущие) [parent_id] => 5 [material_sum] => 98260 [work_sum] => 95418 [total_sum] => 193678 [total_days] => 7 [display_material_sum] => 98 260 [display_work_sum] => 95 418 [display_total_sum] => 193 678 ) 1
193 678
Работа:95 418
Материалы:98 260
Дни:7
stdClass Object ( [id] => 96 [attribute_id] => 5 [name] => Сухой брус [material_modifier] => 1 [work_modifier] => 1 [options] => Array ( [0] => 150 мм [1] => 180 мм [2] => 200 мм ) [days] => [7,8,9] [material_price] => [6010,7190,8709] [work_price] => [3204,3845,4229] [image] => https://akademik-stroy.ru/wp-content/uploads/materials/suhoj-brus.jpg [area_modifier] => 64.45 [parent_name] => Стены 2 этаж (несущие) [parent_id] => 5 [material_sum] => 488054 [work_sum] => 216823 [total_sum] => 704877 [total_days] => 7 [display_material_sum] => 488 054 [display_work_sum] => 216 823 [display_total_sum] => 704 877 ) 1
704 877
Работа:216 823
Материалы:488 054
Дни:7
stdClass Object ( [id] => 97 [attribute_id] => 5 [name] => Профилированный брус [material_modifier] => 1 [work_modifier] => 1 [options] => Array ( [0] => 150 мм [1] => 180 мм [2] => 200 мм ) [days] => [7,8,9] [material_price] => [8190,9228,10051] [work_price] => [3845,4614,5075] [image] => https://akademik-stroy.ru/wp-content/uploads/materials/profilirovannyj-brus.jpg [area_modifier] => 64.45 [parent_name] => Стены 2 этаж (несущие) [parent_id] => 5 [material_sum] => 665085 [work_sum] => 260201 [total_sum] => 925286 [total_days] => 7 [display_material_sum] => 665 085 [display_work_sum] => 260 201 [display_total_sum] => 925 286 ) 1
925 286
Работа:260 201
Материалы:665 085
Дни:7
stdClass Object ( [id] => 98 [attribute_id] => 5 [name] => Оцилиндрованное бревно [material_modifier] => 1 [work_modifier] => 1 [options] => Array ( [0] => 180 мм [1] => 220 мм [2] => 260 мм [3] => 320 мм ) [days] => [7,8,9,10] [material_price] => [75190,9532,10868,13116] [work_price] => [3845,4691,5535,6863] [image] => https://akademik-stroy.ru/wp-content/uploads/materials/ocilindrovannoe-brevno-1.jpg [area_modifier] => 64.45 [parent_name] => Стены 2 этаж (несущие) [parent_id] => 5 [material_sum] => 6105954 [work_sum] => 260201 [total_sum] => 6366155 [total_days] => 7 [display_material_sum] => 6 105 954 [display_work_sum] => 260 201 [display_total_sum] => 6 366 155 ) 1
6 366 155
Работа:260 201
Материалы:6 105 954
Дни:7
stdClass Object ( [id] => 99 [attribute_id] => 5 [name] => Срубы [material_modifier] => 1 [work_modifier] => 1 [options] => Array ( [0] => 260 мм [1] => 320 мм [2] => 360 мм [3] => 400 мм [4] => 500 мм ) [days] => [7,8,9,10,11] [material_price] => [16175,23709,26314,29069,32167] [work_price] => [4806,5911,6621,7349,9260] [image] => https://akademik-stroy.ru/wp-content/uploads/materials/suhoj-brus.jpg [area_modifier] => 64.45 [parent_name] => Стены 2 этаж (несущие) [parent_id] => 5 [material_sum] => 1313523 [work_sum] => 325234 [total_sum] => 1638757 [total_days] => 7 [display_material_sum] => 1 313 523 [display_work_sum] => 325 234 [display_total_sum] => 1 638 757 ) 1
1 638 757
Работа:325 234
Материалы:1 313 523
Дни:7
stdClass Object ( [id] => 194 [attribute_id] => 5 [name] => Брус [material_modifier] => 1 [work_modifier] => 1 [options] => Array ( [0] => 150 мм [1] => 180 мм [2] => 200 мм ) [days] => [10,13,15] [material_price] => [5127,6152,7367] [work_price] => [1602,1922,2115] [image] => https://akademik-stroy.ru/wp-content/uploads/materials/brus.jpg [area_modifier] => 64.45 [parent_name] => Стены 2 этаж (несущие) [parent_id] => 5 [material_sum] => 416348 [work_sum] => 108411 [total_sum] => 524759 [total_days] => 10 [display_material_sum] => 416 348 [display_work_sum] => 108 411 [display_total_sum] => 524 759 ) 1
524 759
Работа:108 411
Материалы:416 348
Дни:10
stdClass Object ( [id] => 195 [attribute_id] => 5 [name] => Газобетон [material_modifier] => 1 [work_modifier] => 1 [options] => Array ( [0] => 300 мм [1] => 375 мм [2] => 400 мм [3] => 500 мм [4] => 600 мм ) [days] => [29,31,35,37,44] [material_price] => [4298,5573,6356,7288,9119] [work_price] => [4538,5251,5926,6733,7195] [image] => https://akademik-stroy.ru/wp-content/uploads/materials/gazobeton.jpg [area_modifier] => 64.45 [parent_name] => Стены 2 этаж (несущие) [parent_id] => 5 [material_sum] => 349028 [work_sum] => 307098 [total_sum] => 656126 [total_days] => 29 [display_material_sum] => 349 028 [display_work_sum] => 307 098 [display_total_sum] => 656 126 ) 1
656 126
Работа:307 098
Материалы:349 028
Дни:29
stdClass Object ( [id] => 196 [attribute_id] => 5 [name] => Блок [material_modifier] => 1 [work_modifier] => 1 [options] => Array ( [0] => 300 мм [1] => 375 мм [2] => 400 мм [3] => 500 мм [4] => 600 мм ) [days] => [29,31,35,37,44] [material_price] => [2698,3973,4356,6588,7119] [work_price] => [5038,5851,6426,8733,9195] [image] => https://akademik-stroy.ru/wp-content/uploads/materials/blok.jpg [area_modifier] => 64.45 [parent_name] => Стены 2 этаж (несущие) [parent_id] => 5 [material_sum] => 219096 [work_sum] => 340934 [total_sum] => 560030 [total_days] => 29 [display_material_sum] => 219 096 [display_work_sum] => 340 934 [display_total_sum] => 560 030 ) 1
560 030
Работа:340 934
Материалы:219 096
Дни:29
stdClass Object ( [id] => 197 [attribute_id] => 5 [name] => Газосиликатный блок [material_modifier] => 1 [work_modifier] => 1 [options] => Array ( [0] => 300 мм [1] => 375 мм [2] => 400 мм [3] => 500 мм [4] => 600 мм ) [days] => [29,31,35,37,44] [material_price] => [4298,5573,6356,7288,9119] [work_price] => [4538,5251,5926,6733,7195] [image] => https://akademik-stroy.ru/wp-content/uploads/materials/gazosilikatnyj-blok.jpg [area_modifier] => 64.45 [parent_name] => Стены 2 этаж (несущие) [parent_id] => 5 [material_sum] => 349028 [work_sum] => 307098 [total_sum] => 656126 [total_days] => 29 [display_material_sum] => 349 028 [display_work_sum] => 307 098 [display_total_sum] => 656 126 ) 1
656 126
Работа:307 098
Материалы:349 028
Дни:29
stdClass Object ( [id] => 198 [attribute_id] => 5 [name] => Керамзитобетонный блок [material_modifier] => 1 [work_modifier] => 1 [options] => Array ( [0] => 300 мм [1] => 375 мм [2] => 400 мм [3] => 500 мм [4] => 600 мм ) [days] => [23,23,24,25,28] [material_price] => [3641,4298,5693,7613,9612] [work_price] => [5737,5737,6903,7958,8901] [image] => https://akademik-stroy.ru/wp-content/uploads/materials/keramzitobetonnyj-blok.jpg [area_modifier] => 64.45 [parent_name] => Стены 2 этаж (несущие) [parent_id] => 5 [material_sum] => 295675 [work_sum] => 388237 [total_sum] => 683912 [total_days] => 23 [display_material_sum] => 295 675 [display_work_sum] => 388 237 [display_total_sum] => 683 912 ) 1
683 912
Работа:388 237
Материалы:295 675
Дни:23
stdClass Object ( [id] => 199 [attribute_id] => 5 [name] => Деревянные [material_modifier] => 1 [work_modifier] => 1 [options] => Array ( [0] => 180 мм [1] => 220 мм [2] => 260 мм [3] => 320 мм ) [days] => [7,8,9,10] [material_price] => [7950,9458,11961,14472] [work_price] => [4037,4925,5812,7207] [image] => https://akademik-stroy.ru/wp-content/uploads/materials/derevyannye.jpg [area_modifier] => 64.45 [parent_name] => Стены 2 этаж (несущие) [parent_id] => 5 [material_sum] => 645596 [work_sum] => 273194 [total_sum] => 918790 [total_days] => 7 [display_material_sum] => 645 596 [display_work_sum] => 273 194 [display_total_sum] => 918 790 ) 1
918 790
Работа:273 194
Материалы:645 596
Дни:7
stdClass Object ( [id] => 200 [attribute_id] => 5 [name] => Камень [material_modifier] => 1 [work_modifier] => 1 [options] => Array ( [0] => 300 мм [1] => 400 мм [2] => 500 мм [3] => 600 мм ) [days] => [25,27,31,34] [material_price] => [5262,6844,8330,9815] [work_price] => [8331,9135,10427,11069] [image] => https://akademik-stroy.ru/wp-content/uploads/materials/kamen.jpg [area_modifier] => 64.45 [parent_name] => Стены 2 этаж (несущие) [parent_id] => 5 [material_sum] => 427311 [work_sum] => 563780 [total_sum] => 991091 [total_days] => 25 [display_material_sum] => 427 311 [display_work_sum] => 563 780 [display_total_sum] => 991 091 ) 1
991 091
Работа:563 780
Материалы:427 311
Дни:25
stdClass Object ( [id] => 201 [attribute_id] => 5 [name] => Каркасно-щитовые [material_modifier] => 1 [work_modifier] => 1 [options] => Array ( [0] => 150 мм [1] => 200 мм [2] => 250 мм [3] => 300 мм [4] => 350 мм [5] => 400 мм ) [days] => [15,16,17,18,19,20] [material_price] => [2379,2639,2898,3458,3601,4175] [work_price] => [2538,2820,3134,3483,4062,5642] [image] => https://akademik-stroy.ru/wp-content/uploads/materials/karkasno-shchitovye.jpg [area_modifier] => 64.45 [parent_name] => Стены 2 этаж (несущие) [parent_id] => 5 [material_sum] => 193191 [work_sum] => 171753 [total_sum] => 364944 [total_days] => 15 [display_material_sum] => 193 191 [display_work_sum] => 171 753 [display_total_sum] => 364 944 ) 1
364 944
Работа:171 753
Материалы:193 191
Дни:15
stdClass Object ( [id] => 202 [attribute_id] => 5 [name] => Рубленные [material_modifier] => 1 [work_modifier] => 1 [options] => Array ( [0] => 150 мм [1] => 200 мм [2] => 250 мм [3] => 300 мм [4] => 350 мм [5] => 400 мм ) [days] => [15,16,17,18,17,18] [material_price] => [35950,50267,60583,75900,80217,100533] [work_price] => [9612,12816,16020,19224,22428,25632] [image] => https://akademik-stroy.ru/wp-content/uploads/materials/rublennye.jpg [area_modifier] => 64.45 [parent_name] => Стены 2 этаж (несущие) [parent_id] => 5 [material_sum] => 2919392 [work_sum] => 650468 [total_sum] => 3569860 [total_days] => 15 [display_material_sum] => 2 919 392 [display_work_sum] => 650 468 [display_total_sum] => 3 569 860 ) 1
3 569 860
Работа:650 468
Материалы:2 919 392
Дни:15
stdClass Object ( [id] => 203 [attribute_id] => 5 [name] => Теплоблок [material_modifier] => 1 [work_modifier] => 1 [options] => Array ( [0] => 300 мм (с облицовкой, не покрашенный) [1] => 400 мм (с облицовкой, не покрашенный) [2] => 300 мм (с облицовкой, покрашенный) [3] => 400 мм (с облицовкой, покрашенный) ) [days] => [15,16,15,16] [material_price] => [2888,3729,3957,4258] [work_price] => [2564,3229,2949,3713] [image] => https://akademik-stroy.ru/wp-content/uploads/materials/teploblok.jpg [area_modifier] => 64.45 [parent_name] => Стены 2 этаж (несущие) [parent_id] => 5 [material_sum] => 234526 [work_sum] => 173512 [total_sum] => 408038 [total_days] => 15 [display_material_sum] => 234 526 [display_work_sum] => 173 512 [display_total_sum] => 408 038 ) 1
408 038
Работа:173 512
Материалы:234 526
Дни:15
stdClass Object ( [id] => 204 [attribute_id] => 5 [name] => Арболитовые блоки [material_modifier] => 1 [work_modifier] => 1 [options] => Array ( [0] => 300 мм [1] => 400 мм [2] => 600 мм ) [days] => [19,22,27] [material_price] => [3210,4475,5852] [work_price] => [4214,4788,5866] [image] => https://akademik-stroy.ru/wp-content/uploads/materials/arbolitovye-bloki.png [area_modifier] => 64.45 [parent_name] => Стены 2 этаж (несущие) [parent_id] => 5 [material_sum] => 260674 [work_sum] => 285172 [total_sum] => 545846 [total_days] => 19 [display_material_sum] => 260 674 [display_work_sum] => 285 172 [display_total_sum] => 545 846 ) 1
545 846
Работа:285 172
Материалы:260 674
Дни:19
stdClass Object ( [id] => 205 [attribute_id] => 5 [name] => Полистиролбетон [material_modifier] => 1 [work_modifier] => 1 [options] => Array ( [0] => 300 мм [1] => 400 мм [2] => 600 мм ) [days] => [29,31,35] [material_price] => [2798,4573,5256] [work_price] => [5038,5851,6426] [image] => https://akademik-stroy.ru/wp-content/uploads/materials/polistirolbeton.jpg [area_modifier] => 64.45 [parent_name] => Стены 2 этаж (несущие) [parent_id] => 5 [material_sum] => 227217 [work_sum] => 340934 [total_sum] => 568151 [total_days] => 29 [display_material_sum] => 227 217 [display_work_sum] => 340 934 [display_total_sum] => 568 151 ) 1
568 151
Работа:340 934
Материалы:227 217
Дни:29
stdClass Object ( [id] => 206 [attribute_id] => 5 [name] => Шлакоблок [material_modifier] => 1 [work_modifier] => 1 [options] => Array ( [0] => 400 мм [1] => 600 мм ) [days] => [15,16] [material_price] => [2391,3471] [work_price] => [2642,3662] [image] => https://akademik-stroy.ru/wp-content/uploads/materials/shlakoblok.jpg [area_modifier] => 64.45 [parent_name] => Стены 2 этаж (несущие) [parent_id] => 5 [material_sum] => 194166 [work_sum] => 178791 [total_sum] => 372957 [total_days] => 15 [display_material_sum] => 194 166 [display_work_sum] => 178 791 [display_total_sum] => 372 957 ) 1
372 957
Работа:178 791
Материалы:194 166
Дни:15
stdClass Object ( [id] => 245 [attribute_id] => 5 [name] => Теплая керамика [material_modifier] => 1 [work_modifier] => 1 [options] => Array ( [0] => 380 мм [1] => 380 мм Thermo [2] => 440 мм [3] => 510 мм ) [days] => [10,10,11,12] [material_price] => [4510,5098,6093,8013] [work_price] => [4737,4937,5903,6958] [image] => https://akademik-stroy.ru/wp-content/uploads/materials/teplaya-keramika.jpg [area_modifier] => 64.45 [parent_name] => Стены 2 этаж (несущие) [parent_id] => 5 [material_sum] => 366244 [work_sum] => 320565 [total_sum] => 686809 [total_days] => 10 [display_material_sum] => 366 244 [display_work_sum] => 320 565 [display_total_sum] => 686 809 ) 1
686 809
Работа:320 565
Материалы:366 244
Дни:10
stdClass Object ( [id] => 246 [attribute_id] => 5 [name] => Несъемная опалубка [material_modifier] => 1 [work_modifier] => 1 [options] => Array ( [0] => 380 мм [1] => 380 мм Thermo [2] => 440 мм [3] => 510 мм ) [days] => [10,10,11,12] [material_price] => [3302,3902,4108,5008] [work_price] => [2100,2100,2300,2534] [image] => https://akademik-stroy.ru/wp-content/uploads/materials/nesemnaya-opalubka.jpg [area_modifier] => 64.45 [parent_name] => Стены 2 этаж (несущие) [parent_id] => 5 [material_sum] => 268146 [work_sum] => 142112 [total_sum] => 410258 [total_days] => 10 [display_material_sum] => 268 146 [display_work_sum] => 142 112 [display_total_sum] => 410 258 ) 1
410 258
Работа:142 112
Материалы:268 146
Дни:10
stdClass Object ( [id] => 254 [attribute_id] => 5 [name] => Бревно [material_modifier] => 1 [work_modifier] => 1 [options] => Array ( [0] => 260 мм [1] => 320 мм [2] => 360 мм [3] => 400 мм [4] => 500 мм ) [days] => [7,8,9,10,11] [material_price] => [1874,24045,26930,30972,38825] [work_price] => [5046,6207,6952,7716,9723] [image] => https://akademik-stroy.ru/wp-content/uploads/materials/sruby.jpg [area_modifier] => 64.45 [parent_name] => Стены 2 этаж (несущие) [parent_id] => 5 [material_sum] => 152182 [work_sum] => 341475 [total_sum] => 493657 [total_days] => 7 [display_material_sum] => 152 182 [display_work_sum] => 341 475 [display_total_sum] => 493 657 ) 1
493 657
Работа:341 475
Материалы:152 182
Дни:7
Крыша (Скатная)
stdClass Object ( [id] => 164 [attribute_id] => 37 [name] => Металлочерепица [material_modifier] => 1 [work_modifier] => 1 [options] => Array ( ) [days] => [20] [material_price] => [6112] [work_price] => [5726] [image] => https://akademik-stroy.ru/wp-content/uploads/materials/metallocherepica.jpg [area_modifier] => 150.71 [parent_name] => Крыша (Скатная) [parent_id] => 37 [material_sum] => 1160636 [work_sum] => 906114 [total_sum] => 2066750 [total_days] => 20 [display_material_sum] => 1 160 636 [display_work_sum] => 906 114 [display_total_sum] => 2 066 750 ) 1
2 066 750
Работа:906 114
Материалы:1 160 636
Дни:20
stdClass Object ( [id] => 165 [attribute_id] => 37 [name] => Гибкая черепица [material_modifier] => 1 [work_modifier] => 1 [options] => Array ( ) [days] => [20] [material_price] => [6980] [work_price] => [5950] [image] => https://akademik-stroy.ru/wp-content/uploads/materials/gibkaya-cherepica.jpg [area_modifier] => 150.71 [parent_name] => Крыша (Скатная) [parent_id] => 37 [material_sum] => 1325464 [work_sum] => 941561 [total_sum] => 2267025 [total_days] => 20 [display_material_sum] => 1 325 464 [display_work_sum] => 941 561 [display_total_sum] => 2 267 025 ) 1
2 267 025
Работа:941 561
Материалы:1 325 464
Дни:20
stdClass Object ( [id] => 166 [attribute_id] => 37 [name] => Цементно-песчаная черепица [material_modifier] => 1 [work_modifier] => 1 [options] => Array ( ) [days] => [20] [material_price] => [10560] [work_price] => [9456] [image] => https://akademik-stroy.ru/wp-content/uploads/materials/cementno-peschanaya-cherepica.jpg [area_modifier] => 150.71 [parent_name] => Крыша (Скатная) [parent_id] => 37 [material_sum] => 2005287 [work_sum] => 1496369 [total_sum] => 3501656 [total_days] => 20 [display_material_sum] => 2 005 287 [display_work_sum] => 1 496 369 [display_total_sum] => 3 501 656 ) 1
3 501 656
Работа:1 496 369
Материалы:2 005 287
Дни:20
stdClass Object ( [id] => 167 [attribute_id] => 37 [name] => Композитная черепица [material_modifier] => 1 [work_modifier] => 1 [options] => Array ( ) [days] => [20] [material_price] => [9506] [work_price] => [8905] [image] => https://akademik-stroy.ru/wp-content/uploads/materials/kompozitnaya-cherepica.jpg [area_modifier] => 150.71 [parent_name] => Крыша (Скатная) [parent_id] => 37 [material_sum] => 1805138 [work_sum] => 1409176 [total_sum] => 3214314 [total_days] => 20 [display_material_sum] => 1 805 138 [display_work_sum] => 1 409 176 [display_total_sum] => 3 214 314 ) 1
3 214 314
Работа:1 409 176
Материалы:1 805 138
Дни:20
stdClass Object ( [id] => 168 [attribute_id] => 37 [name] => Керамическая черепица [material_modifier] => 1 [work_modifier] => 1 [options] => Array ( ) [days] => [20] [material_price] => [12750] [work_price] => [9456] [image] => https://akademik-stroy.ru/wp-content/uploads/materials/keramicheskaya-cherepica.jpg [area_modifier] => 150.71 [parent_name] => Крыша (Скатная) [parent_id] => 37 [material_sum] => 2421156 [work_sum] => 1496369 [total_sum] => 3917525 [total_days] => 20 [display_material_sum] => 2 421 156 [display_work_sum] => 1 496 369 [display_total_sum] => 3 917 525 ) 1
3 917 525
Работа:1 496 369
Материалы:2 421 156
Дни:20
stdClass Object ( [id] => 169 [attribute_id] => 37 [name] => Металлическая фальцевая [material_modifier] => 1 [work_modifier] => 1 [options] => Array ( ) [days] => [20] [material_price] => [8550] [work_price] => [8190] [image] => https://akademik-stroy.ru/wp-content/uploads/materials/metallicheskaya-falcevaya.jpg [area_modifier] => 150.71 [parent_name] => Крыша (Скатная) [parent_id] => 37 [material_sum] => 1623599 [work_sum] => 1296031 [total_sum] => 2919630 [total_days] => 20 [display_material_sum] => 1 623 599 [display_work_sum] => 1 296 031 [display_total_sum] => 2 919 630 ) 1
2 919 630
Работа:1 296 031
Материалы:1 623 599
Дни:20
stdClass Object ( [id] => 170 [attribute_id] => 37 [name] => Медная фальцевая [material_modifier] => 1 [work_modifier] => 1 [options] => Array ( ) [days] => [20] [material_price] => [20450] [work_price] => [16750] [image] => https://akademik-stroy.ru/wp-content/uploads/materials/mednaya-falcevaya.jpg [area_modifier] => 150.71 [parent_name] => Крыша (Скатная) [parent_id] => 37 [material_sum] => 3883345 [work_sum] => 2650612 [total_sum] => 6533957 [total_days] => 20 [display_material_sum] => 3 883 345 [display_work_sum] => 2 650 612 [display_total_sum] => 6 533 957 ) 1
6 533 957
Работа:2 650 612
Материалы:3 883 345
Дни:20
stdClass Object ( [id] => 171 [attribute_id] => 37 [name] => Зеленая кровля [material_modifier] => 1 [work_modifier] => 1 [options] => Array ( ) [days] => [20] [material_price] => [19850] [work_price] => [16780] [image] => https://akademik-stroy.ru/wp-content/uploads/materials/zelenaya-krovlya.jpg [area_modifier] => 150.71 [parent_name] => Крыша (Скатная) [parent_id] => 37 [material_sum] => 3769408 [work_sum] => 2655359 [total_sum] => 6424767 [total_days] => 20 [display_material_sum] => 3 769 408 [display_work_sum] => 2 655 359 [display_total_sum] => 6 424 767 ) 1
6 424 767
Работа:2 655 359
Материалы:3 769 408
Дни:20
stdClass Object ( [id] => 172 [attribute_id] => 37 [name] => Профлист [material_modifier] => 1 [work_modifier] => 1 [options] => Array ( ) [days] => [20] [material_price] => [3450] [work_price] => [3750] [image] => https://akademik-stroy.ru/wp-content/uploads/materials/proflist.jpg [area_modifier] => 150.71 [parent_name] => Крыша (Скатная) [parent_id] => 37 [material_sum] => 655136 [work_sum] => 593421 [total_sum] => 1248557 [total_days] => 20 [display_material_sum] => 655 136 [display_work_sum] => 593 421 [display_total_sum] => 1 248 557 ) 1
1 248 557
Работа:593 421
Материалы:655 136
Дни:20
Окна
stdClass Object ( [id] => 51 [attribute_id] => 26 [name] => Есть [material_modifier] => 1 [work_modifier] => 1 [options] => Array ( [0] => Профиль 58 мм, 3-камерный, стеклопакет 2-камерный до 32 мм [1] => Профиль 60 мм, 4-камерный, стеклопакет 2-камерный до 32 мм [2] => Профиль 70 мм, 5-камерный, стеклопакет 2-камерный до 40 мм [3] => Профиль 72 мм, 5-камерный, стеклопакет 2-камерный до 40 мм [4] => Алюминиевые окна Alutech профиль 72 мм, стеклопакет 2-камерный ) [days] => [3,3,3,3,3] [material_price] => [1339,2124,2867,3023,29596] [work_price] => [635,647,659,668,2579] [image] => https://akademik-stroy.ru/wp-content/uploads/materials/okna.jpg [area_modifier] => 174.6 [parent_name] => Окна [parent_id] => 26 [material_sum] => 294575 [work_sum] => 116415 [total_sum] => 410990 [total_days] => 3 [display_material_sum] => 294 575 [display_work_sum] => 116 415 [display_total_sum] => 410 990 ) 1
410 990
Работа:116 415
Материалы:294 575
Дни:3
stdClass Object ( [id] => 52 [attribute_id] => 26 [name] => Нет [material_modifier] => 2 [work_modifier] => 1 [options] => [days] => null [material_price] => null [work_price] => null [image] => https://akademik-stroy.ru/wp-content/uploads/materials/okna.jpg [area_modifier] => 174.6 [parent_name] => Окна [parent_id] => 26 [material_sum] => 0 [work_sum] => 0 [total_sum] => 0 [total_days] => 0 [display_material_sum] => 0 [display_work_sum] => 0 [display_total_sum] => 0 ) 1
0
Работа:0
Материалы:0
Дни:0
Двери входные
stdClass Object ( [id] => 53 [attribute_id] => 27 [name] => Есть [material_modifier] => 1 [work_modifier] => 1 [options] => Array ( ) [days] => [1] [material_price] => [10000] [work_price] => [5500] [image] => https://akademik-stroy.ru/wp-content/uploads/materials/dveri.jpg [area_modifier] => 1 [parent_name] => Двери входные [parent_id] => 27 [material_sum] => 12600 [work_sum] => 5775 [total_sum] => 18375 [total_days] => 1 [display_material_sum] => 12 600 [display_work_sum] => 5 775 [display_total_sum] => 18 375 ) 1
18 375
Работа:5 775
Материалы:12 600
Дни:1
stdClass Object ( [id] => 54 [attribute_id] => 27 [name] => Нет [material_modifier] => 1 [work_modifier] => 1 [options] => Array ( ) [days] => [0] [material_price] => [0] [work_price] => [0] [image] => https://akademik-stroy.ru/wp-content/uploads/materials/dveri.jpg [area_modifier] => 1 [parent_name] => Двери входные [parent_id] => 27 [material_sum] => 0 [work_sum] => 0 [total_sum] => 0 [total_days] => 0 [display_material_sum] => 0 [display_work_sum] => 0 [display_total_sum] => 0 ) 1
0
Работа:0
Материалы:0
Дни:0
Утепление кровли (Мансарда)
stdClass Object ( [id] => 25 [attribute_id] => 13 [name] => Нет [material_modifier] => 1 [work_modifier] => 1 [options] => Array ( ) [days] => [0] [material_price] => [0] [work_price] => [0] [image] => https://akademik-stroy.ru/wp-content/uploads/materials/mineralovata-krov.jpg [area_modifier] => 150.71 [parent_name] => Утепление кровли (Мансарда) [parent_id] => 13 [material_sum] => 0 [work_sum] => 0 [total_sum] => 0 [total_days] => 0 [display_material_sum] => 0 [display_work_sum] => 0 [display_total_sum] => 0 ) 1
0
Работа:0
Материалы:0
Дни:0
stdClass Object ( [id] => 26 [attribute_id] => 13 [name] => Минераловатный [material_modifier] => 1 [work_modifier] => 1 [options] => Array ( [0] => 50 мм [1] => 100 мм [2] => 150 мм [3] => 200 мм [4] => 250 мм [5] => 300 мм [6] => 350 мм [7] => 400 мм [8] => 450 мм [9] => 500 мм ) [days] => [5,5,6,6,6,7,7,7,8,8] [material_price] => [1158,1414,1772,2230,3602,4060,4974,5890,6408,7718] [work_price] => [650,846,846,1098,1318,1450,1596,1754,1930,2122] [image] => https://akademik-stroy.ru/wp-content/uploads/materials/mineralovata-krov.jpg [area_modifier] => 150.71 [parent_name] => Утепление кровли (Мансарда) [parent_id] => 13 [material_sum] => 219898 [work_sum] => 102860 [total_sum] => 322758 [total_days] => 5 [display_material_sum] => 219 898 [display_work_sum] => 102 860 [display_total_sum] => 322 758 ) 1
322 758
Работа:102 860
Материалы:219 898
Дни:5
stdClass Object ( [id] => 123 [attribute_id] => 13 [name] => Эковата (целлюлозная вата) [material_modifier] => 1 [work_modifier] => 1 [options] => Array ( [0] => 50 мм [1] => 100 мм [2] => 150 мм [3] => 200 мм [4] => 250 мм [5] => 300 мм [6] => 350 мм [7] => 400 мм [8] => 450 мм [9] => 500 мм ) [days] => [3,3,4,4,4,5,5,5,5,5] [material_price] => [820,1638,2458,3276,5734,6552,8190,9828,11466,13104] [work_price] => [234,304,304,396,474,522,574,632,694,764] [image] => https://akademik-stroy.ru/wp-content/uploads/materials/ehkovata-krov.jpg [area_modifier] => 150.71 [parent_name] => Утепление кровли (Мансарда) [parent_id] => 13 [material_sum] => 155714 [work_sum] => 37029 [total_sum] => 192743 [total_days] => 3 [display_material_sum] => 155 714 [display_work_sum] => 37 029 [display_total_sum] => 192 743 ) 1
192 743
Работа:37 029
Материалы:155 714
Дни:3
stdClass Object ( [id] => 124 [attribute_id] => 13 [name] => Экструдированный пенополистирол [material_modifier] => 1 [work_modifier] => 1 [options] => Array ( [0] => 50 мм [1] => 100 мм [2] => 150 мм [3] => 200 мм [4] => 250 мм [5] => 300 мм [6] => 350 мм [7] => 400 мм [8] => 450 мм [9] => 500 мм ) [days] => [3,3,4,4,4,5,5,5,5,6] [material_price] => [1146,2292,3438,4584,8020,9166,11458,13750,16040,18332] [work_price] => [390,508,508,660,790,870,958,1052,1158,1274] [image] => https://akademik-stroy.ru/wp-content/uploads/materials/epps-krov.jpg [area_modifier] => 150.71 [parent_name] => Утепление кровли (Мансарда) [parent_id] => 13 [material_sum] => 217619 [work_sum] => 61716 [total_sum] => 279335 [total_days] => 3 [display_material_sum] => 217 619 [display_work_sum] => 61 716 [display_total_sum] => 279 335 ) 1
279 335
Работа:61 716
Материалы:217 619
Дни:3
stdClass Object ( [id] => 125 [attribute_id] => 13 [name] => ПСБ (ППС-пенополистирол) [material_modifier] => 1 [work_modifier] => 1 [options] => Array ( [0] => 50 мм [1] => 100 мм [2] => 150 мм [3] => 200 мм [4] => 250 мм [5] => 300 мм [6] => 350 мм [7] => 400 мм [8] => 450 мм [9] => 500 мм ) [days] => [3,3,4,4,4,5,5,5,5,6] [material_price] => [476,954,1430,1906,3336,3814,4766,5720,6674,7626] [work_price] => [390,508,508,660,790,870,958,1052,1158,1274] [image] => https://akademik-stroy.ru/wp-content/uploads/materials/psb-krov.jpg [area_modifier] => 150.71 [parent_name] => Утепление кровли (Мансарда) [parent_id] => 13 [material_sum] => 90390 [work_sum] => 61716 [total_sum] => 152106 [total_days] => 3 [display_material_sum] => 90 390 [display_work_sum] => 61 716 [display_total_sum] => 152 106 ) 1
152 106
Работа:61 716
Материалы:90 390
Дни:3
stdClass Object ( [id] => 126 [attribute_id] => 13 [name] => ППУ (Пенополиуретан) [material_modifier] => 1 [work_modifier] => 1 [options] => Array ( [0] => 50 мм [1] => 100 мм [2] => 150 мм [3] => 200 мм [4] => 250 мм [5] => 300 мм [6] => 350 мм [7] => 400 мм [8] => 450 мм [9] => 500 мм ) [days] => [2,2,3,3,3,3,4,4,4,4] [material_price] => [2080,4160,6240,8320,14560,16640,20800,24960,29120,33280] [work_price] => [234,304,304,396,474,522,574,632,694,764] [image] => https://akademik-stroy.ru/wp-content/uploads/materials/ppu-krov.jpg [area_modifier] => 150.71 [parent_name] => Утепление кровли (Мансарда) [parent_id] => 13 [material_sum] => 394981 [work_sum] => 37029 [total_sum] => 432010 [total_days] => 2 [display_material_sum] => 394 981 [display_work_sum] => 37 029 [display_total_sum] => 432 010 ) 1
432 010
Работа:37 029
Материалы:394 981
Дни:2
stdClass Object ( [id] => 127 [attribute_id] => 13 [name] => PIR-плиты (пенополиизоцианурат) [material_modifier] => 1 [work_modifier] => 1 [options] => Array ( [0] => 50 мм [1] => 100 мм [2] => 150 мм [3] => 200 мм [4] => 250 мм [5] => 300 мм [6] => 350 мм [7] => 400 мм [8] => 450 мм [9] => 500 мм ) [days] => [3,3,4,4,4,5,5,5,5,6] [material_price] => [2646,5290,7936,10580,18516,21162,26452,31742,37032,42324] [work_price] => [390,508,508,660,790,870,958,1052,1158,1274] [image] => https://akademik-stroy.ru/wp-content/uploads/materials/pir-krov.jpg [area_modifier] => 150.71 [parent_name] => Утепление кровли (Мансарда) [parent_id] => 13 [material_sum] => 502461 [work_sum] => 61716 [total_sum] => 564177 [total_days] => 3 [display_material_sum] => 502 461 [display_work_sum] => 61 716 [display_total_sum] => 564 177 ) 1
564 177
Работа:61 716
Материалы:502 461
Дни:3
Мансардные окна
stdClass Object ( [id] => 27 [attribute_id] => 14 [name] => Нет [material_modifier] => 1 [work_modifier] => 1 [options] => Array ( ) [days] => [0] [material_price] => [0] [work_price] => [0] [image] => https://akademik-stroy.ru/wp-content/uploads/materials/mansardnye-okna-2.jpg [area_modifier] => 1 [parent_name] => Мансардные окна [parent_id] => 14 [material_sum] => 0 [work_sum] => 0 [total_sum] => 0 [total_days] => 0 [display_material_sum] => 0 [display_work_sum] => 0 [display_total_sum] => 0 ) 1
0
Работа:0
Материалы:0
Дни:0
stdClass Object ( [id] => 28 [attribute_id] => 14 [name] => Есть [material_modifier] => 1 [work_modifier] => 1 [options] => Array ( [0] => 55x78 [1] => 55x98 ) [days] => [6,7] [material_price] => [47480,68700] [work_price] => [17900,19500] [image] => https://akademik-stroy.ru/wp-content/uploads/materials/mansardnye-okna-2.jpg [area_modifier] => 1 [parent_name] => Мансардные окна [parent_id] => 14 [material_sum] => 59825 [work_sum] => 18795 [total_sum] => 78620 [total_days] => 6 [display_material_sum] => 59 825 [display_work_sum] => 18 795 [display_total_sum] => 78 620 ) 1
78 620
Работа:18 795
Материалы:59 825
Дни:6
Подшивка кровли
stdClass Object ( [id] => 29 [attribute_id] => 15 [name] => Нет [material_modifier] => 1 [work_modifier] => 1 [options] => Array ( ) [days] => [0] [material_price] => [0] [work_price] => [0] [image] => https://akademik-stroy.ru/wp-content/uploads/materials/sofit.jpg [area_modifier] => 150.71 [parent_name] => Подшивка кровли [parent_id] => 15 [material_sum] => 0 [work_sum] => 0 [total_sum] => 0 [total_days] => 0 [display_material_sum] => 0 [display_work_sum] => 0 [display_total_sum] => 0 ) 1
0
Работа:0
Материалы:0
Дни:0
stdClass Object ( [id] => 30 [attribute_id] => 15 [name] => Есть [material_modifier] => 1 [work_modifier] => 1 [options] => Array ( [0] => Софиты (ПВХ) [1] => Cedral [2] => ДПК [3] => Планкен ) [days] => [7,10,9,8] [material_price] => [1803,3213,3025,3150] [work_price] => [1529,2188,2075,1923] [image] => https://akademik-stroy.ru/wp-content/uploads/materials/sofit.jpg [area_modifier] => 150.71 [parent_name] => Подшивка кровли [parent_id] => 15 [material_sum] => 342380 [work_sum] => 241957 [total_sum] => 584337 [total_days] => 7 [display_material_sum] => 342 380 [display_work_sum] => 241 957 [display_total_sum] => 584 337 ) 1
584 337
Работа:241 957
Материалы:342 380
Дни:7
Водосточная система
stdClass Object ( [id] => 31 [attribute_id] => 16 [name] => Нет [material_modifier] => 1 [work_modifier] => 1 [options] => Array ( ) [days] => [0] [material_price] => [0] [work_price] => [0] [image] => https://akademik-stroy.ru/wp-content/uploads/materials/docke-standard-pvh.jpg [area_modifier] => 150.71 [parent_name] => Водосточная система [parent_id] => 16 [material_sum] => 0 [work_sum] => 0 [total_sum] => 0 [total_days] => 0 [display_material_sum] => 0 [display_work_sum] => 0 [display_total_sum] => 0 ) 1
0
Работа:0
Материалы:0
Дни:0
stdClass Object ( [id] => 32 [attribute_id] => 16 [name] => Есть [material_modifier] => 1 [work_modifier] => 1 [options] => Array ( [0] => Döcke Standard (ПВХ) [1] => Металлические Grand Line ) [days] => [7,7] [material_price] => [1842,2703] [work_price] => [1491,1529] [image] => https://akademik-stroy.ru/wp-content/uploads/materials/docke-standard-pvh.jpg [area_modifier] => 150.71 [parent_name] => Водосточная система [parent_id] => 16 [material_sum] => 349786 [work_sum] => 235944 [total_sum] => 585730 [total_days] => 7 [display_material_sum] => 349 786 [display_work_sum] => 235 944 [display_total_sum] => 585 730 ) 1
585 730
Работа:235 944
Материалы:349 786
Дни:7
Дополнительное утепление наружных стен
stdClass Object ( [id] => 33 [attribute_id] => 17 [name] => Нет [material_modifier] => 1 [work_modifier] => 1 [options] => Array ( ) [days] => [0] [material_price] => [0] [work_price] => [0] [image] => https://akademik-stroy.ru/wp-content/uploads/materials/mineralovata.jpg [area_modifier] => 215.16 [parent_name] => Дополнительное утепление наружных стен [parent_id] => 17 [material_sum] => 0 [work_sum] => 0 [total_sum] => 0 [total_days] => 0 [display_material_sum] => 0 [display_work_sum] => 0 [display_total_sum] => 0 ) 1
0
Работа:0
Материалы:0
Дни:0
stdClass Object ( [id] => 34 [attribute_id] => 17 [name] => Минераловатный [material_modifier] => 1 [work_modifier] => 1 [options] => Array ( [0] => 50 мм [1] => 100 мм [2] => 150 мм [3] => 200 мм [4] => 250 мм [5] => 300 мм ) [days] => [7,8,10,12,14,15] [material_price] => [3437,3613,3803,3915,4601,4830] [work_price] => [2325,2423,2523,2749,2859,3025] [image] => https://akademik-stroy.ru/wp-content/uploads/materials/mineralovata.jpg [area_modifier] => 215.16 [parent_name] => Дополнительное утепление наружных стен [parent_id] => 17 [material_sum] => 931776 [work_sum] => 525259 [total_sum] => 1457035 [total_days] => 7 [display_material_sum] => 931 776 [display_work_sum] => 525 259 [display_total_sum] => 1 457 035 ) 1
1 457 035
Работа:525 259
Материалы:931 776
Дни:7
stdClass Object ( [id] => 128 [attribute_id] => 17 [name] => Эковата (целлюлозная вата) [material_modifier] => 1 [work_modifier] => 1 [options] => Array ( [0] => 50 мм [1] => 100 мм [2] => 150 мм [3] => 200 мм [4] => 250 мм [5] => 300 мм ) [days] => [3,4,5,6,7,8] [material_price] => [810,1319,1629,1838,2267,2676] [work_price] => [1225,1323,1423,1549,1659,1725] [image] => https://akademik-stroy.ru/wp-content/uploads/materials/ehkovata.jpg [area_modifier] => 215.16 [parent_name] => Дополнительное утепление наружных стен [parent_id] => 17 [material_sum] => 219592 [work_sum] => 276750 [total_sum] => 496342 [total_days] => 3 [display_material_sum] => 219 592 [display_work_sum] => 276 750 [display_total_sum] => 496 342 ) 1
496 342
Работа:276 750
Материалы:219 592
Дни:3
stdClass Object ( [id] => 129 [attribute_id] => 17 [name] => Экструдированный пенополистирол [material_modifier] => 1 [work_modifier] => 1 [options] => Array ( [0] => 50 мм [1] => 100 мм [2] => 150 мм [3] => 200 мм [4] => 250 мм [5] => 300 мм ) [days] => [5,6,7,8,9,10] [material_price] => [4560,4300,5119,6292,7010,8583] [work_price] => [1795,1954,2254,2330,2595,2735] [image] => https://akademik-stroy.ru/wp-content/uploads/materials/epps.jpg [area_modifier] => 215.16 [parent_name] => Дополнительное утепление наружных стен [parent_id] => 17 [material_sum] => 1236223 [work_sum] => 405523 [total_sum] => 1641746 [total_days] => 5 [display_material_sum] => 1 236 223 [display_work_sum] => 405 523 [display_total_sum] => 1 641 746 ) 1
1 641 746
Работа:405 523
Материалы:1 236 223
Дни:5
stdClass Object ( [id] => 130 [attribute_id] => 17 [name] => ПСБ (ППС-пенополистирол) [material_modifier] => 1 [work_modifier] => 1 [options] => Array ( [0] => 50 мм [1] => 100 мм [2] => 150 мм [3] => 200 мм [4] => 250 мм [5] => 300 мм ) [days] => [5,6,7,8,9,10] [material_price] => [4822,5200,5819,6292,7010,7583] [work_price] => [1795,1954,2254,2330,2595,2735] [image] => https://akademik-stroy.ru/wp-content/uploads/materials/psb.jpg [area_modifier] => 215.16 [parent_name] => Дополнительное утепление наружных стен [parent_id] => 17 [material_sum] => 1307252 [work_sum] => 405523 [total_sum] => 1712775 [total_days] => 5 [display_material_sum] => 1 307 252 [display_work_sum] => 405 523 [display_total_sum] => 1 712 775 ) 1
1 712 775
Работа:405 523
Материалы:1 307 252
Дни:5
stdClass Object ( [id] => 131 [attribute_id] => 17 [name] => ППУ (Пенополиуретан) [material_modifier] => 1 [work_modifier] => 1 [options] => Array ( [0] => 50 мм [1] => 100 мм [2] => 150 мм [3] => 200 мм [4] => 250 мм [5] => 300 мм ) [days] => [3,4,5,6,7,8] [material_price] => [2860,3400,4219,4592,5010,5583] [work_price] => [729,900,980,1120,1280,1530] [image] => https://akademik-stroy.ru/wp-content/uploads/materials/ppu.jpg [area_modifier] => 215.16 [parent_name] => Дополнительное утепление наружных стен [parent_id] => 17 [material_sum] => 775351 [work_sum] => 164694 [total_sum] => 940045 [total_days] => 3 [display_material_sum] => 775 351 [display_work_sum] => 164 694 [display_total_sum] => 940 045 ) 1
940 045
Работа:164 694
Материалы:775 351
Дни:3
stdClass Object ( [id] => 132 [attribute_id] => 17 [name] => PIR-плиты (пенополиизоцианурат) [material_modifier] => 1 [work_modifier] => 1 [options] => Array ( [0] => 50 мм [1] => 100 мм [2] => 150 мм [3] => 200 мм [4] => 250 мм [5] => 300 мм ) [days] => [5,6,7,8,9,10] [material_price] => [8323,15645,20968,25900,29258,30581] [work_price] => [800,900,970,1150,1280,1330] [image] => https://akademik-stroy.ru/wp-content/uploads/materials/pir.jpg [area_modifier] => 215.16 [parent_name] => Дополнительное утепление наружных стен [parent_id] => 17 [material_sum] => 2256379 [work_sum] => 180734 [total_sum] => 2437113 [total_days] => 5 [display_material_sum] => 2 256 379 [display_work_sum] => 180 734 [display_total_sum] => 2 437 113 ) 1
2 437 113
Работа:180 734
Материалы:2 256 379
Дни:5
Наружная отделка фасада
stdClass Object ( [id] => 37 [attribute_id] => 19 [name] => Нет [material_modifier] => 1 [work_modifier] => 1 [options] => Array ( ) [days] => [0] [material_price] => [0] [work_price] => [0] [image] => https://akademik-stroy.ru/wp-content/uploads/materials/imitaciya-brusa.jpg [area_modifier] => 215.16 [parent_name] => Наружная отделка фасада [parent_id] => 19 [material_sum] => 0 [work_sum] => 0 [total_sum] => 0 [total_days] => 0 [display_material_sum] => 0 [display_work_sum] => 0 [display_total_sum] => 0 ) 1
0
Работа:0
Материалы:0
Дни:0
stdClass Object ( [id] => 38 [attribute_id] => 19 [name] => Имитация бруса [material_modifier] => 1 [work_modifier] => 1 [options] => Array ( [0] => Сосна [1] => Ель [2] => Лиственница ) [days] => [20,20,20] [material_price] => [2994,2762,4954] [work_price] => [1397,1231,1577] [image] => https://akademik-stroy.ru/wp-content/uploads/materials/imitaciya-brusa.jpg [area_modifier] => 215.16 [parent_name] => Наружная отделка фасада [parent_id] => 19 [material_sum] => 811678 [work_sum] => 315607 [total_sum] => 1127285 [total_days] => 20 [display_material_sum] => 811 678 [display_work_sum] => 315 607 [display_total_sum] => 1 127 285 ) 1
1 127 285
Работа:315 607
Материалы:811 678
Дни:20
stdClass Object ( [id] => 136 [attribute_id] => 19 [name] => Планкен [material_modifier] => 1 [work_modifier] => 1 [options] => Array ( [0] => Сосна [1] => Ель [2] => Лиственница ) [days] => [20,20,20] [material_price] => [3194,2862,5154] [work_price] => [1537,1354,1735] [image] => https://akademik-stroy.ru/wp-content/uploads/materials/planken.jpg [area_modifier] => 215.16 [parent_name] => Наружная отделка фасада [parent_id] => 19 [material_sum] => 865899 [work_sum] => 347236 [total_sum] => 1213135 [total_days] => 20 [display_material_sum] => 865 899 [display_work_sum] => 347 236 [display_total_sum] => 1 213 135 ) 1
1 213 135
Работа:347 236
Материалы:865 899
Дни:20
stdClass Object ( [id] => 137 [attribute_id] => 19 [name] => Штукатурка [material_modifier] => 1 [work_modifier] => 1 [options] => Array ( [0] => Цементно-песчаная (минеральная) [1] => Мокрый фасад ) [days] => [35,35] [material_price] => [2231,3938] [work_price] => [1202,2422] [image] => https://akademik-stroy.ru/wp-content/uploads/materials/shtukaturka.jpg [area_modifier] => 215.16 [parent_name] => Наружная отделка фасада [parent_id] => 19 [material_sum] => 604828 [work_sum] => 271553 [total_sum] => 876381 [total_days] => 35 [display_material_sum] => 604 828 [display_work_sum] => 271 553 [display_total_sum] => 876 381 ) 1
876 381
Работа:271 553
Материалы:604 828
Дни:35
stdClass Object ( [id] => 138 [attribute_id] => 19 [name] => Облицовочный кирпич [material_modifier] => 1 [work_modifier] => 1 [options] => Array ( [0] => Керамический [1] => Клинкерный [2] => Ручной формовки [3] => Гиперпрессованный [4] => Силикатный кирпич ) [days] => [45,45,45,45,45] [material_price] => [8174,9148,1040,1257,5876] [work_price] => [3240,3758,4536,4017,3369] [image] => https://akademik-stroy.ru/wp-content/uploads/materials/oblicovochnyj-kirpich.jpg [area_modifier] => 215.16 [parent_name] => Наружная отделка фасада [parent_id] => 19 [material_sum] => 2215984 [work_sum] => 731974 [total_sum] => 2947958 [total_days] => 45 [display_material_sum] => 2 215 984 [display_work_sum] => 731 974 [display_total_sum] => 2 947 958 ) 1
2 947 958
Работа:731 974
Материалы:2 215 984
Дни:45
stdClass Object ( [id] => 139 [attribute_id] => 19 [name] => Фасадная плитка [material_modifier] => 1 [work_modifier] => 1 [options] => Array ( [0] => Клинкерная [1] => Керамическая [2] => Плитка ручной формовки ) [days] => [40,40,40] [material_price] => [2974,1487,3470] [work_price] => [3007,2592,3629] [image] => https://akademik-stroy.ru/wp-content/uploads/materials/fasadnaya-plitka.jpg [area_modifier] => 215.16 [parent_name] => Наружная отделка фасада [parent_id] => 19 [material_sum] => 806256 [work_sum] => 679335 [total_sum] => 1485591 [total_days] => 40 [display_material_sum] => 806 256 [display_work_sum] => 679 335 [display_total_sum] => 1 485 591 ) 1
1 485 591
Работа:679 335
Материалы:806 256
Дни:40
stdClass Object ( [id] => 140 [attribute_id] => 19 [name] => Сайдинг [material_modifier] => 1 [work_modifier] => 1 [options] => Array ( [0] => Виниловый [1] => Металлический [2] => Фиброцементный ) [days] => [20,20,20] [material_price] => [1263,1944,4147] [work_price] => [1263,1944,2074] [image] => https://akademik-stroy.ru/wp-content/uploads/materials/sajding.jpg [area_modifier] => 215.16 [parent_name] => Наружная отделка фасада [parent_id] => 19 [material_sum] => 342401 [work_sum] => 285334 [total_sum] => 627735 [total_days] => 20 [display_material_sum] => 342 401 [display_work_sum] => 285 334 [display_total_sum] => 627 735 ) 1
627 735
Работа:285 334
Материалы:342 401
Дни:20
stdClass Object ( [id] => 141 [attribute_id] => 19 [name] => Камень [material_modifier] => 1 [work_modifier] => 1 [options] => Array ( [0] => Травертин [1] => Дагестанский [2] => Искусственный [3] => Натуральный [4] => Керамогранит ) [days] => [45,45,45,45,45] [material_price] => [4536,3888,2592,3240,2462] [work_price] => [3240,3240,2462,3110,1944] [image] => https://akademik-stroy.ru/wp-content/uploads/materials/kamen-1.jpg [area_modifier] => 215.16 [parent_name] => Наружная отделка фасада [parent_id] => 19 [material_sum] => 1229717 [work_sum] => 731974 [total_sum] => 1961691 [total_days] => 45 [display_material_sum] => 1 229 717 [display_work_sum] => 731 974 [display_total_sum] => 1 961 691 ) 1
1 961 691
Работа:731 974
Материалы:1 229 717
Дни:45
stdClass Object ( [id] => 142 [attribute_id] => 19 [name] => Термопанели [material_modifier] => 1 [work_modifier] => 1 [options] => Array ( ) [days] => [20] [material_price] => [6221] [work_price] => [2333] [image] => https://akademik-stroy.ru/wp-content/uploads/materials/termo.png [area_modifier] => 215.16 [parent_name] => Наружная отделка фасада [parent_id] => 19 [material_sum] => 1686523 [work_sum] => 527067 [total_sum] => 2213590 [total_days] => 20 [display_material_sum] => 1 686 523 [display_work_sum] => 527 067 [display_total_sum] => 2 213 590 ) 1
2 213 590
Работа:527 067
Материалы:1 686 523
Дни:20
stdClass Object ( [id] => 143 [attribute_id] => 19 [name] => Плитка HAUBERK [material_modifier] => 1 [work_modifier] => 1 [options] => Array ( ) [days] => [20] [material_price] => [2786] [work_price] => [1944] [image] => https://akademik-stroy.ru/wp-content/uploads/materials/hauberk.jpg [area_modifier] => 215.16 [parent_name] => Наружная отделка фасада [parent_id] => 19 [material_sum] => 755289 [work_sum] => 439185 [total_sum] => 1194474 [total_days] => 20 [display_material_sum] => 755 289 [display_work_sum] => 439 185 [display_total_sum] => 1 194 474 ) 1
1 194 474
Работа:439 185
Материалы:755 289
Дни:20
stdClass Object ( [id] => 144 [attribute_id] => 19 [name] => Фальцевый фасад [material_modifier] => 1 [work_modifier] => 1 [options] => Array ( ) [days] => [20] [material_price] => [3240] [work_price] => [2592] [image] => https://akademik-stroy.ru/wp-content/uploads/materials/falcevyj-fasad.jpg [area_modifier] => 215.16 [parent_name] => Наружная отделка фасада [parent_id] => 19 [material_sum] => 878369 [work_sum] => 585579 [total_sum] => 1463948 [total_days] => 20 [display_material_sum] => 878 369 [display_work_sum] => 585 579 [display_total_sum] => 1 463 948 ) 1
1 463 948
Работа:585 579
Материалы:878 369
Дни:20
stdClass Object ( [id] => 145 [attribute_id] => 19 [name] => Комбинированный [material_modifier] => 1 [work_modifier] => 1 [options] => Array ( ) [days] => [20] [material_price] => [4629] [work_price] => [3499] [image] => https://akademik-stroy.ru/wp-content/uploads/materials/Kombinirovannyj.jpg [area_modifier] => 215.16 [parent_name] => Наружная отделка фасада [parent_id] => 19 [material_sum] => 1254929 [work_sum] => 790487 [total_sum] => 2045416 [total_days] => 20 [display_material_sum] => 1 254 929 [display_work_sum] => 790 487 [display_total_sum] => 2 045 416 ) 1
2 045 416
Работа:790 487
Материалы:1 254 929
Дни:20
stdClass Object ( [id] => 257 [attribute_id] => 19 [name] => Японские фиброцементные [material_modifier] => 1 [work_modifier] => 1 [options] => Array ( ) [days] => [20] [material_price] => [7043] [work_price] => [2993] [image] => https://akademik-stroy.ru/wp-content/uploads/materials/paneli.jpg [area_modifier] => 215.16 [parent_name] => Наружная отделка фасада [parent_id] => 19 [material_sum] => 1909369 [work_sum] => 676173 [total_sum] => 2585542 [total_days] => 20 [display_material_sum] => 1 909 369 [display_work_sum] => 676 173 [display_total_sum] => 2 585 542 ) 1
2 585 542
Работа:676 173
Материалы:1 909 369
Дни:20
stdClass Object ( [id] => 258 [attribute_id] => 19 [name] => Панели Каньон [material_modifier] => 1 [work_modifier] => 1 [options] => Array ( ) [days] => [20] [material_price] => [4543] [work_price] => [2592] [image] => https://akademik-stroy.ru/wp-content/uploads/materials/kanon.png [area_modifier] => 215.16 [parent_name] => Наружная отделка фасада [parent_id] => 19 [material_sum] => 1231615 [work_sum] => 585579 [total_sum] => 1817194 [total_days] => 20 [display_material_sum] => 1 231 615 [display_work_sum] => 585 579 [display_total_sum] => 1 817 194 ) 1
1 817 194
Работа:585 579
Материалы:1 231 615
Дни:20
Террасы, крыльца, навесы
stdClass Object ( [id] => 39 [attribute_id] => 20 [name] => Нет [material_modifier] => 1 [work_modifier] => 1 [options] => Array ( ) [days] => [0] [material_price] => [0] [work_price] => [0] [image] => https://akademik-stroy.ru/wp-content/uploads/materials/terrasy.jpg [area_modifier] => 30 [parent_name] => Террасы, крыльца, навесы [parent_id] => 20 [material_sum] => 0 [work_sum] => 0 [total_sum] => 0 [total_days] => 0 [display_material_sum] => 0 [display_work_sum] => 0 [display_total_sum] => 0 ) 1
0
Работа:0
Материалы:0
Дни:0
stdClass Object ( [id] => 40 [attribute_id] => 20 [name] => Есть [material_modifier] => 1 [work_modifier] => 1 [options] => Array ( ) [days] => [5] [material_price] => [10450] [work_price] => [1950] [image] => https://akademik-stroy.ru/wp-content/uploads/materials/terrasy.jpg [area_modifier] => 30 [parent_name] => Террасы, крыльца, навесы [parent_id] => 20 [material_sum] => 395010 [work_sum] => 61425 [total_sum] => 456435 [total_days] => 5 [display_material_sum] => 395 010 [display_work_sum] => 61 425 [display_total_sum] => 456 435 ) 1
456 435
Работа:61 425
Материалы:395 010
Дни:5
Балконы
stdClass Object ( [id] => 41 [attribute_id] => 21 [name] => Нет [material_modifier] => 1 [work_modifier] => 1 [options] => Array ( ) [days] => [0] [material_price] => [0] [work_price] => [0] [image] => https://akademik-stroy.ru/wp-content/uploads/materials/balkony.jpg [area_modifier] => 30 [parent_name] => Балконы [parent_id] => 21 [material_sum] => 0 [work_sum] => 0 [total_sum] => 0 [total_days] => 0 [display_material_sum] => 0 [display_work_sum] => 0 [display_total_sum] => 0 ) 1
0
Работа:0
Материалы:0
Дни:0
stdClass Object ( [id] => 42 [attribute_id] => 21 [name] => Есть [material_modifier] => 1 [work_modifier] => 1 [options] => Array ( ) [days] => [12] [material_price] => [3600] [work_price] => [1950] [image] => https://akademik-stroy.ru/wp-content/uploads/materials/balkony.jpg [area_modifier] => 30 [parent_name] => Балконы [parent_id] => 21 [material_sum] => 136080 [work_sum] => 61425 [total_sum] => 197505 [total_days] => 12 [display_material_sum] => 136 080 [display_work_sum] => 61 425 [display_total_sum] => 197 505 ) 1
197 505
Работа:61 425
Материалы:136 080
Дни:12
Отмостка
stdClass Object ( [id] => 43 [attribute_id] => 22 [name] => Нет [material_modifier] => 1 [work_modifier] => 1 [options] => Array ( ) [days] => [0] [material_price] => [0] [work_price] => [0] [image] => https://akademik-stroy.ru/wp-content/uploads/materials/uteplennaya.jpg [area_modifier] => 150.71 [parent_name] => Отмостка [parent_id] => 22 [material_sum] => 0 [work_sum] => 0 [total_sum] => 0 [total_days] => 0 [display_material_sum] => 0 [display_work_sum] => 0 [display_total_sum] => 0 ) 1
0
Работа:0
Материалы:0
Дни:0
stdClass Object ( [id] => 44 [attribute_id] => 22 [name] => Утепленная отмостка [material_modifier] => 1 [work_modifier] => 1 [options] => Array ( ) [days] => [15] [material_price] => [2550] [work_price] => [1750] [image] => https://akademik-stroy.ru/wp-content/uploads/materials/uteplennaya.jpg [area_modifier] => 150.71 [parent_name] => Отмостка [parent_id] => 22 [material_sum] => 484231 [work_sum] => 276930 [total_sum] => 761161 [total_days] => 15 [display_material_sum] => 484 231 [display_work_sum] => 276 930 [display_total_sum] => 761 161 ) 1
761 161
Работа:276 930
Материалы:484 231
Дни:15
stdClass Object ( [id] => 146 [attribute_id] => 22 [name] => Не утепленная отмостка [material_modifier] => 1 [work_modifier] => 1 [options] => Array ( ) [days] => [10] [material_price] => [1650] [work_price] => [1450] [image] => https://akademik-stroy.ru/wp-content/uploads/materials/ne-uteplennaya.jpg [area_modifier] => 150.71 [parent_name] => Отмостка [parent_id] => 22 [material_sum] => 313326 [work_sum] => 229456 [total_sum] => 542782 [total_days] => 10 [display_material_sum] => 313 326 [display_work_sum] => 229 456 [display_total_sum] => 542 782 ) 1
542 782
Работа:229 456
Материалы:313 326
Дни:10
Дренаж вокруг дома
stdClass Object ( [id] => 45 [attribute_id] => 23 [name] => Нет [material_modifier] => 1 [work_modifier] => 1 [options] => Array ( ) [days] => [0] [material_price] => [0] [work_price] => [0] [image] => https://akademik-stroy.ru/wp-content/uploads/materials/drenazh-2.jpg [area_modifier] => 150.71 [parent_name] => Дренаж вокруг дома [parent_id] => 23 [material_sum] => 0 [work_sum] => 0 [total_sum] => 0 [total_days] => 0 [display_material_sum] => 0 [display_work_sum] => 0 [display_total_sum] => 0 ) 1
0
Работа:0
Материалы:0
Дни:0
stdClass Object ( [id] => 46 [attribute_id] => 23 [name] => Есть [material_modifier] => 1 [work_modifier] => 1 [options] => Array ( ) [days] => [5] [material_price] => [2366] [work_price] => [1911] [image] => https://akademik-stroy.ru/wp-content/uploads/materials/drenazh-2.jpg [area_modifier] => 150.71 [parent_name] => Дренаж вокруг дома [parent_id] => 23 [material_sum] => 449291 [work_sum] => 302407 [total_sum] => 751698 [total_days] => 5 [display_material_sum] => 449 291 [display_work_sum] => 302 407 [display_total_sum] => 751 698 ) 1
751 698
Работа:302 407
Материалы:449 291
Дни:5
Автономная канализация (септики)
stdClass Object ( [id] => 47 [attribute_id] => 24 [name] => Нет [material_modifier] => 1 [work_modifier] => 1 [options] => Array ( ) [days] => [0] [material_price] => [0] [work_price] => [0] [image] => https://akademik-stroy.ru/wp-content/uploads/materials/septik.jpg [area_modifier] => 1 [parent_name] => Автономная канализация (септики) [parent_id] => 24 [material_sum] => 0 [work_sum] => 0 [total_sum] => 0 [total_days] => 0 [display_material_sum] => 0 [display_work_sum] => 0 [display_total_sum] => 0 ) 1
0
Работа:0
Материалы:0
Дни:0
stdClass Object ( [id] => 48 [attribute_id] => 24 [name] => Есть [material_modifier] => 1 [work_modifier] => 1 [options] => Array ( [0] => Для дачи на 4 человека [1] => Для дома на 5 человек [2] => Для дома на 6 человек [3] => Для дома на 7 человек [4] => Для дома на 10 человек ) [days] => [7,7,7,8,8] [material_price] => [196340,220500,240940,264200,293340] [work_price] => [50000,55000,60500,66550,73206] [image] => https://akademik-stroy.ru/wp-content/uploads/materials/septik.jpg [area_modifier] => 1 [parent_name] => Автономная канализация (септики) [parent_id] => 24 [material_sum] => 247388 [work_sum] => 52500 [total_sum] => 299888 [total_days] => 7 [display_material_sum] => 247 388 [display_work_sum] => 52 500 [display_total_sum] => 299 888 ) 1
299 888
Работа:52 500
Материалы:247 388
Дни:7
Внутренние (не несущие) перегородки
stdClass Object ( [id] => 49 [attribute_id] => 25 [name] => Нет [material_modifier] => 1 [work_modifier] => 1 [options] => Array ( ) [days] => [0] [material_price] => [0] [work_price] => [0] [image] => https://akademik-stroy.ru/wp-content/uploads/materials/gkl.jpg [area_modifier] => 215.16 [parent_name] => Внутренние (не несущие) перегородки [parent_id] => 25 [material_sum] => 0 [work_sum] => 0 [total_sum] => 0 [total_days] => 0 [display_material_sum] => 0 [display_work_sum] => 0 [display_total_sum] => 0 ) 1
0
Работа:0
Материалы:0
Дни:0
stdClass Object ( [id] => 147 [attribute_id] => 25 [name] => Каркасно-обшивные [material_modifier] => 1 [work_modifier] => 1 [options] => Array ( [0] => 75 мм (без шумоизоляции) [1] => 75 мм (с шумоизоляцией) ) [days] => [11,11] [material_price] => [580,970] [work_price] => [380,570] [image] => https://akademik-stroy.ru/wp-content/uploads/materials/gkl.jpg [area_modifier] => 215.16 [parent_name] => Внутренние (не несущие) перегородки [parent_id] => 25 [material_sum] => 157239 [work_sum] => 85849 [total_sum] => 243088 [total_days] => 11 [display_material_sum] => 157 239 [display_work_sum] => 85 849 [display_total_sum] => 243 088 ) 1
243 088
Работа:85 849
Материалы:157 239
Дни:11
stdClass Object ( [id] => 148 [attribute_id] => 25 [name] => Пазогребневые [material_modifier] => 1 [work_modifier] => 1 [options] => Array ( [0] => 80 мм [1] => 100 мм ) [days] => [5,5] [material_price] => [1022,1313] [work_price] => [600,700] [image] => https://akademik-stroy.ru/wp-content/uploads/materials/pazogrebnevye-bloki.jpg [area_modifier] => 215.16 [parent_name] => Внутренние (не несущие) перегородки [parent_id] => 25 [material_sum] => 277066 [work_sum] => 135551 [total_sum] => 412617 [total_days] => 5 [display_material_sum] => 277 066 [display_work_sum] => 135 551 [display_total_sum] => 412 617 ) 1
412 617
Работа:135 551
Материалы:277 066
Дни:5
stdClass Object ( [id] => 149 [attribute_id] => 25 [name] => Газобетонные [material_modifier] => 1 [work_modifier] => 1 [options] => Array ( [0] => 100 мм [1] => 200 мм ) [days] => [11,11] [material_price] => [1160,1920] [work_price] => [700,900] [image] => https://akademik-stroy.ru/wp-content/uploads/materials/gazobeton-2.jpg [area_modifier] => 215.16 [parent_name] => Внутренние (не несущие) перегородки [parent_id] => 25 [material_sum] => 314478 [work_sum] => 158143 [total_sum] => 472621 [total_days] => 11 [display_material_sum] => 314 478 [display_work_sum] => 158 143 [display_total_sum] => 472 621 ) 1
472 621
Работа:158 143
Материалы:314 478
Дни:11
stdClass Object ( [id] => 150 [attribute_id] => 25 [name] => Кирпичные [material_modifier] => 1 [work_modifier] => 1 [options] => Array ( [0] => 120 мм [1] => 250 мм [2] => 360 мм ) [days] => [7,7,7] [material_price] => [1785,3570,5355] [work_price] => [900,1600,1800] [image] => https://akademik-stroy.ru/wp-content/uploads/materials/kirpich-1.jpg [area_modifier] => 215.16 [parent_name] => Внутренние (не несущие) перегородки [parent_id] => 25 [material_sum] => 483916 [work_sum] => 203326 [total_sum] => 687242 [total_days] => 7 [display_material_sum] => 483 916 [display_work_sum] => 203 326 [display_total_sum] => 687 242 ) 1
687 242
Работа:203 326
Материалы:483 916
Дни:7
Электрика
stdClass Object ( [id] => 55 [attribute_id] => 28 [name] => Нет [material_modifier] => 1 [work_modifier] => 1 [options] => Array ( ) [days] => [0] [material_price] => [0] [work_price] => [0] [image] => https://akademik-stroy.ru/wp-content/uploads/materials/ehlektrika.jpg [area_modifier] => 174.6 [parent_name] => Электрика [parent_id] => 28 [material_sum] => 0 [work_sum] => 0 [total_sum] => 0 [total_days] => 0 [display_material_sum] => 0 [display_work_sum] => 0 [display_total_sum] => 0 ) 1
0
Работа:0
Материалы:0
Дни:0
stdClass Object ( [id] => 56 [attribute_id] => 28 [name] => Есть [material_modifier] => 1 [work_modifier] => 1 [options] => Array ( ) [days] => [10] [material_price] => [650] [work_price] => [950] [image] => https://akademik-stroy.ru/wp-content/uploads/materials/ehlektrika.jpg [area_modifier] => 174.6 [parent_name] => Электрика [parent_id] => 28 [material_sum] => 142997 [work_sum] => 174164 [total_sum] => 317161 [total_days] => 10 [display_material_sum] => 142 997 [display_work_sum] => 174 164 [display_total_sum] => 317 161 ) 1
317 161
Работа:174 164
Материалы:142 997
Дни:10
Сантехника, канализация в доме
stdClass Object ( [id] => 57 [attribute_id] => 29 [name] => Нет [material_modifier] => 1 [work_modifier] => 1 [options] => Array ( ) [days] => [0] [material_price] => [0] [work_price] => [0] [image] => https://akademik-stroy.ru/wp-content/uploads/materials/santekhnika-kanalizaciya-1.jpg [area_modifier] => 174.6 [parent_name] => Сантехника, канализация в доме [parent_id] => 29 [material_sum] => 0 [work_sum] => 0 [total_sum] => 0 [total_days] => 0 [display_material_sum] => 0 [display_work_sum] => 0 [display_total_sum] => 0 ) 1
0
Работа:0
Материалы:0
Дни:0
stdClass Object ( [id] => 58 [attribute_id] => 29 [name] => Есть [material_modifier] => 1 [work_modifier] => 1 [options] => Array ( ) [days] => [10] [material_price] => [600] [work_price] => [730] [image] => https://akademik-stroy.ru/wp-content/uploads/materials/santekhnika-kanalizaciya-1.jpg [area_modifier] => 174.6 [parent_name] => Сантехника, канализация в доме [parent_id] => 29 [material_sum] => 131998 [work_sum] => 133831 [total_sum] => 265829 [total_days] => 10 [display_material_sum] => 131 998 [display_work_sum] => 133 831 [display_total_sum] => 265 829 ) 1
265 829
Работа:133 831
Материалы:131 998
Дни:10
Отопление
stdClass Object ( [id] => 59 [attribute_id] => 30 [name] => Нет [material_modifier] => 1 [work_modifier] => 1 [options] => Array ( ) [days] => [0] [material_price] => [0] [work_price] => [0] [image] => https://akademik-stroy.ru/wp-content/uploads/materials/otoplenie-1.jpg [area_modifier] => 174.6 [parent_name] => Отопление [parent_id] => 30 [material_sum] => 0 [work_sum] => 0 [total_sum] => 0 [total_days] => 0 [display_material_sum] => 0 [display_work_sum] => 0 [display_total_sum] => 0 ) 1
0
Работа:0
Материалы:0
Дни:0
stdClass Object ( [id] => 60 [attribute_id] => 30 [name] => Есть [material_modifier] => 1 [work_modifier] => 1 [options] => Array ( ) [days] => [5] [material_price] => [610] [work_price] => [560] [image] => https://akademik-stroy.ru/wp-content/uploads/materials/otoplenie-1.jpg [area_modifier] => 174.6 [parent_name] => Отопление [parent_id] => 30 [material_sum] => 134198 [work_sum] => 102665 [total_sum] => 236863 [total_days] => 5 [display_material_sum] => 134 198 [display_work_sum] => 102 665 [display_total_sum] => 236 863 ) 1
236 863
Работа:102 665
Материалы:134 198
Дни:5
Теплые полы
stdClass Object ( [id] => 61 [attribute_id] => 31 [name] => Нет [material_modifier] => 1 [work_modifier] => 1 [options] => Array ( ) [days] => [0] [material_price] => [0] [work_price] => [0] [image] => https://akademik-stroy.ru/wp-content/uploads/materials/vodyanye.jpg [area_modifier] => 30 [parent_name] => Теплые полы [parent_id] => 31 [material_sum] => 0 [work_sum] => 0 [total_sum] => 0 [total_days] => 0 [display_material_sum] => 0 [display_work_sum] => 0 [display_total_sum] => 0 ) 1
0
Работа:0
Материалы:0
Дни:0
stdClass Object ( [id] => 151 [attribute_id] => 31 [name] => Водяные [material_modifier] => 1 [work_modifier] => 1 [options] => Array ( ) [days] => [9] [material_price] => [10200] [work_price] => [2500] [image] => https://akademik-stroy.ru/wp-content/uploads/materials/vodyanye.jpg [area_modifier] => 30 [parent_name] => Теплые полы [parent_id] => 31 [material_sum] => 385560 [work_sum] => 78750 [total_sum] => 464310 [total_days] => 9 [display_material_sum] => 385 560 [display_work_sum] => 78 750 [display_total_sum] => 464 310 ) 1
464 310
Работа:78 750
Материалы:385 560
Дни:9
stdClass Object ( [id] => 152 [attribute_id] => 31 [name] => Электро [material_modifier] => 1 [work_modifier] => 1 [options] => Array ( ) [days] => [5] [material_price] => [6300] [work_price] => [1500] [image] => https://akademik-stroy.ru/wp-content/uploads/materials/ehlektricheskij.jpg [area_modifier] => 30 [parent_name] => Теплые полы [parent_id] => 31 [material_sum] => 238140 [work_sum] => 47250 [total_sum] => 285390 [total_days] => 5 [display_material_sum] => 238 140 [display_work_sum] => 47 250 [display_total_sum] => 285 390 ) 1
285 390
Работа:47 250
Материалы:238 140
Дни:5
Черновая отделка стен
stdClass Object ( [id] => 63 [attribute_id] => 32 [name] => Нет [material_modifier] => 1 [work_modifier] => 1 [options] => Array ( ) [days] => [0] [material_price] => [0] [work_price] => [0] [image] => https://akademik-stroy.ru/wp-content/uploads/materials/shtukaturka-shpatlevka-1.jpg [area_modifier] => 174.6 [parent_name] => Черновая отделка стен [parent_id] => 32 [material_sum] => 0 [work_sum] => 0 [total_sum] => 0 [total_days] => 0 [display_material_sum] => 0 [display_work_sum] => 0 [display_total_sum] => 0 ) 1
0
Работа:0
Материалы:0
Дни:0
stdClass Object ( [id] => 153 [attribute_id] => 32 [name] => Штукатурка и шпатлевка [material_modifier] => 1 [work_modifier] => 1 [options] => Array ( ) [days] => [20] [material_price] => [1850] [work_price] => [2600] [image] => https://akademik-stroy.ru/wp-content/uploads/materials/shtukaturka-shpatlevka-1.jpg [area_modifier] => 174.6 [parent_name] => Черновая отделка стен [parent_id] => 32 [material_sum] => 406993 [work_sum] => 476658 [total_sum] => 883651 [total_days] => 20 [display_material_sum] => 406 993 [display_work_sum] => 476 658 [display_total_sum] => 883 651 ) 1
883 651
Работа:476 658
Материалы:406 993
Дни:20
stdClass Object ( [id] => 154 [attribute_id] => 32 [name] => Гипсокортон на стены [material_modifier] => 1 [work_modifier] => 1 [options] => Array ( ) [days] => [15] [material_price] => [950] [work_price] => [2100] [image] => https://akademik-stroy.ru/wp-content/uploads/materials/gkl-1.jpg [area_modifier] => 174.6 [parent_name] => Черновая отделка стен [parent_id] => 32 [material_sum] => 208996 [work_sum] => 384993 [total_sum] => 593989 [total_days] => 15 [display_material_sum] => 208 996 [display_work_sum] => 384 993 [display_total_sum] => 593 989 ) 1
593 989
Работа:384 993
Материалы:208 996
Дни:15
stdClass Object ( [id] => 155 [attribute_id] => 32 [name] => Вагонка [material_modifier] => 1 [work_modifier] => 1 [options] => Array ( ) [days] => [15] [material_price] => [1250] [work_price] => [950] [image] => https://akademik-stroy.ru/wp-content/uploads/materials/vagonka.jpg [area_modifier] => 174.6 [parent_name] => Черновая отделка стен [parent_id] => 32 [material_sum] => 274995 [work_sum] => 174164 [total_sum] => 449159 [total_days] => 15 [display_material_sum] => 274 995 [display_work_sum] => 174 164 [display_total_sum] => 449 159 ) 1
449 159
Работа:174 164
Материалы:274 995
Дни:15
Черновая отделка полов
stdClass Object ( [id] => 65 [attribute_id] => 33 [name] => Нет [material_modifier] => 1 [work_modifier] => 1 [options] => Array ( ) [days] => [0] [material_price] => [0] [work_price] => [0] [image] => https://akademik-stroy.ru/wp-content/uploads/materials/styazhka.jpg [area_modifier] => 174.6 [parent_name] => Черновая отделка полов [parent_id] => 33 [material_sum] => 0 [work_sum] => 0 [total_sum] => 0 [total_days] => 0 [display_material_sum] => 0 [display_work_sum] => 0 [display_total_sum] => 0 ) 1
0
Работа:0
Материалы:0
Дни:0
stdClass Object ( [id] => 156 [attribute_id] => 33 [name] => Стяжка + наливные полы [material_modifier] => 1 [work_modifier] => 1 [options] => Array ( ) [days] => [10] [material_price] => [1000] [work_price] => [900] [image] => https://akademik-stroy.ru/wp-content/uploads/materials/styazhka.jpg [area_modifier] => 174.6 [parent_name] => Черновая отделка полов [parent_id] => 33 [material_sum] => 219996 [work_sum] => 164997 [total_sum] => 384993 [total_days] => 10 [display_material_sum] => 219 996 [display_work_sum] => 164 997 [display_total_sum] => 384 993 ) 1
384 993
Работа:164 997
Материалы:219 996
Дни:10
stdClass Object ( [id] => 157 [attribute_id] => 33 [name] => ОСБ на пол [material_modifier] => 1 [work_modifier] => 1 [options] => Array ( ) [days] => [7] [material_price] => [580] [work_price] => [350] [image] => https://akademik-stroy.ru/wp-content/uploads/materials/osb-1.jpg [area_modifier] => 174.6 [parent_name] => Черновая отделка полов [parent_id] => 33 [material_sum] => 127598 [work_sum] => 64166 [total_sum] => 191764 [total_days] => 7 [display_material_sum] => 127 598 [display_work_sum] => 64 166 [display_total_sum] => 191 764 ) 1
191 764
Работа:64 166
Материалы:127 598
Дни:7
Чистовая отделка стен и полов
stdClass Object ( [id] => 67 [attribute_id] => 34 [name] => Нет [material_modifier] => 1 [work_modifier] => 1 [options] => Array ( ) [days] => [0] [material_price] => [0] [work_price] => [0] [image] => https://akademik-stroy.ru/wp-content/uploads/materials/chistovaya-otdelka.jpg [area_modifier] => 174.6 [parent_name] => Чистовая отделка стен и полов [parent_id] => 34 [material_sum] => 0 [work_sum] => 0 [total_sum] => 0 [total_days] => 0 [display_material_sum] => 0 [display_work_sum] => 0 [display_total_sum] => 0 ) 1
0
Работа:0
Материалы:0
Дни:0
stdClass Object ( [id] => 68 [attribute_id] => 34 [name] => Есть [material_modifier] => 1 [work_modifier] => 1 [options] => Array ( ) [days] => [50] [material_price] => [6000] [work_price] => [3500] [image] => https://akademik-stroy.ru/wp-content/uploads/materials/chistovaya-otdelka.jpg [area_modifier] => 174.6 [parent_name] => Чистовая отделка стен и полов [parent_id] => 34 [material_sum] => 1319976 [work_sum] => 641655 [total_sum] => 1961631 [total_days] => 50 [display_material_sum] => 1 319 976 [display_work_sum] => 641 655 [display_total_sum] => 1 961 631 ) 1
1 961 631
Работа:641 655
Материалы:1 319 976
Дни:50
Отделка потолка
stdClass Object ( [id] => 69 [attribute_id] => 35 [name] => Нет [material_modifier] => 1 [work_modifier] => 1 [options] => Array ( ) [days] => [0] [material_price] => [0] [work_price] => [0] [image] => https://akademik-stroy.ru/wp-content/uploads/materials/mnogourovnevyj-gkl.jpg [area_modifier] => 174.6 [parent_name] => Отделка потолка [parent_id] => 35 [material_sum] => 0 [work_sum] => 0 [total_sum] => 0 [total_days] => 0 [display_material_sum] => 0 [display_work_sum] => 0 [display_total_sum] => 0 ) 1
0
Работа:0
Материалы:0
Дни:0
stdClass Object ( [id] => 70 [attribute_id] => 35 [name] => Есть [material_modifier] => 1 [work_modifier] => 1 [options] => Array ( [0] => Многоуровневый потолок из гипсокартона [1] => Многоуровневый потолок из гипсокартона и натяжного потолка [2] => Одноуровневый потолок из гипсокартона [3] => Одноуровневый натяжной потолок ) [days] => [10,10,1,1] [material_price] => [900,700,700,600] [work_price] => [1000,800,500,300] [image] => https://akademik-stroy.ru/wp-content/uploads/materials/mnogourovnevyj-gkl.jpg [area_modifier] => 174.6 [parent_name] => Отделка потолка [parent_id] => 35 [material_sum] => 197996 [work_sum] => 183330 [total_sum] => 381326 [total_days] => 10 [display_material_sum] => 197 996 [display_work_sum] => 183 330 [display_total_sum] => 381 326 ) 1
381 326
Работа:183 330
Материалы:197 996
Дни:10

Преимущества работы с нами

icon

7 этапов оплаты

icon

Независимый строительный надзор

icon

Экологически чистые материалы

icon

16 лет гарантии

icon

Онлайн-кабинет с веб-камерой

icon

Строители с опытом более 15 лет

icon

Собственное производство

Почему стоит выбрать проект двухэтажного дома 17х12 - 174.6 м2?

Если вы давно мечтаете о собственном доме, который будет сочетать комфорт, стиль и практичность, то проект двухэтажного дома с размерами 17 на 12 метров — это именно то, что нужно. Такой дом идеален для семьи из 3-5 человек и отлично впишется в городской или пригороный ландшафт Москвы. Его площадь в 174,6 квадратных метров обеспечивает достаточно места для всех важных зон — от просторной гостиной до уютных спален. Проекты от компании «Академик Строй» зарекомендовали себя как качественные, продуманные и доступные. Ведь, вы знаете, даже при выборе готового проекта важно, чтобы дом был рационально спланирован, а материалы подобраны с умом. Этот проект — отличный пример как раз такого решения. Трёхспальная планировка с одним санузлом позволяет создать комфортную атмосферу для всей семьи.

Размеры и планировка дома: комфорт и рациональность

Размеры дома – 17 на 12 метров – уже говорят сами за себя. Это довольно внушительный размер, который при правильной планировке позволяет значительно экономить пространство внутри, не загромождая комнату. При такой площади можно расположить комнаты таким образом, чтобы никакой уголок не оставался пустым и неиспользованным.

Полезная площадь и жилая зона

Самое важное для любого домовладельца — насколько эффективно используется пространство. В нашем проекте полезная площадь составляет 174.6 м2, а жилой — 98,5 м2. Это значит, что большая часть дома действительно используется как жилая зона, что крайне важно для полноценного отдыха и жизни.

Какие комнаты вы получите?

  • Три спальни — удобное число для семьи с детьми, гостями или для организации домашнего офиса;
  • Один санузел — немного, но оптимально с точки зрения организации пространства и бюджета;
  • Гостиная и кухня — центральные зоны дома с возможностью создания единого просторного пространства.
Если вы планируете использовать террасу или балкон, то дополнительно сможете расширить зону отдыха и наслаждаться свежим воздухом прямо у себя дома.

Двухэтажный дом: преимущества и удобства

Когда речь заходит о двух этажах, многие представляют себе большие лестницы и много непрактичного пространства. Но на самом деле это не так, если проект выполнен грамотно. Вы получите не только увеличение полезной площади, но и разделение домашних зон — зона для отдыха и работы. В нашем проекте двухэтажного дома с размерами 17х12 м высота здания составляет 7,1 метра — это стандартная и удобная высота, которая не создаёт ощущения чрезмерной громоздкости, но при этом позволяет организовать полноценный комфортный интерьер.

Преимущества двух этажей

  1. Оптимизация пространства. Вы не растягиваетесь по площади, а получаете разумное разделение на этажи;
  2. Уют и приватность. Спальни располагаются на втором этаже, что гарантирует спокойствие и тишину в ночное время;
  3. Экономия участка. Проект рассчитан на минимальный участок, с размерами 25,32 метра в ширину и 19,57 метра в длину, что очень удобно для московских условий.

Крыша — защита и стиль

Нельзя недооценивать роль крыши в любом доме. В нашем проекте используется классическая двускатная крыша с углом наклона 30°, которая уже много лет является эталоном надежности и эстетики.

Основные характеристики крыши

Параметр Значение
Тип крыши Двускатная
Площадь крыши 278,4 м²
Угол наклона 30°

Почему двускатная крыша — это хороший выбор

Такой тип крыши отлично справляется с дождём и снегом, делая дом долговечным и безопасным для жителей. Кроме того, угол наклона 30° — оптимален для утепления и обеспечивает хорошую вентиляцию подкровельного пространства.

Особенности заказа проекта в Москве у компании «Академик Строй»

Компания «Академик Строй» — это не просто подрядчик, это эксперт, который сопровождает вас на каждом этапе строительства. Заказать проект именно у них — означает получить:
  • Персональный подход. Каждое решение вырабатывается с учётом ваших пожеланий и особенностей участка;
  • Гарантии качества. Компания давно работает на рынке и имеет положительные отзывы многих клиентов;
  • Выгодные цены. Стоимость проекта доступна, она не превысит бюджет, особенно если заказать по телефону +7 (980) 800-47-93;
  • Сопровождение и консультации. От выбора проекта до сдачи дома в эксплуатацию.

Как заказать проект?

Процесс заказа легко описать в нескольких шагах:
  1. Свяжитесь с менеджерами по телефону +7 (980) 800-47-93;
  2. Обсудите детали и уточните особенности участка в Москве или ближайших районах;
  3. Получите индивидуальный расчет стоимости строительства и договора;
  4. Начинайте подготовку участка и выбирайте материалы вместе с экспертами «Академик Строй»;
  5. Следите за строительством — проект создаст именно тот дом, о котором вы мечтали.

Почему этот проект — отличное соотношение цена-качество

Часто переплата происходит из-за ненужных опций, сложных архитектурных решений или внешнего антуража. В проекте дома 17х12 м компания «Академик Строй» предлагает именно тот минимум и максимум одновременно — рациональное распределение комнат, комфортная площадь и отсутствие лишних элементов, как, например, громоздких террас или гаражей, что существенно снижает стоимость.

Сравнение с похожими проектами

Параметр Проект Академик Строй 17х12 Похожий готовый проект
Общая площадь 174,6 м² 180 м²
Количество этажей 2 1 с мансардой
Спален 3 4
Санузлов 1 2
Цена (оценочно) Доступная Выше (~на 15%)
Преимуществом нашего варианта является оптимальная площадь и удобство, а также скидка на проект при заказе по телефону.

Требования к участку и подготовительные работы

Перед началом строительства важно удостовериться, что ваш участок подходит под проект. Минимальные размеры, необходимые для комфортного размещения дома — 25,32 м по ширине и 19,57 м по длине. Это вполне обычный размер городского или пригородного земельного участка в Москве.

Какие моменты стоит учесть?

  • Рельеф и уровень грунтовых вод — важны для выбора типа фундамента;
  • Ориентация дома на солнце — лучше всего, чтобы главные жилые комнаты выходили на юг или юго-восток;
  • Доступность коммуникаций — обеспечьте подведение электроэнергии, воды и канализации;
  • Пожарная безопасность и нормирование — необходимо согласовать проект с местными службами.
Обратившись к «Академик Строй», вы получите консультацию и помощь по всем вышеуказанным вопросам.

Материалы и стиль строительства

Важным аспектом при строительстве дома в Москве является выбор материалов. Они должны учитывать особенности климата, включая холодные зимы и влажность.

Оптимальные материалы для дома 17х12

Материал Преимущества Особенности
Керамические блоки Хорошая теплоизоляция, долговечность Требуют дополнительной отделки
Газобетон Лёгкий, удобный в работе, дешевле Нужно защитить от влаги
Дерево Экологично, быстро возводится, эстетично Требует обработки от насекомых и огня
Компания «Академик Строй» поможет подобрать оптимальный вариант исходя из ваших пожеланий и бюджета.

Поддержка и сервис от компании «Академик Строй»

Отличие хорошей строительной компании — это не только качественные проекты, но и профессиональная поддержка каждого клиента. «Академик Строй» предлагает консультации по всем этапам строительства, возможность адаптации проекта под индивидуальные требования и комплектацию.

Какие бонусы вы получите?

  • Гарантированная техническая поддержка в процессе строительства;
  • Помощь в подборе подрядчиков и материалов;
  • Рекомендации по оптимизации бюджета без потери качества;
  • Возможность заказать смету и визуализацию проекта;
  • Прямой контакт с архитекторами для проработки деталей.

Как связаться и оформить заказ?

Чтобы получить подробную консультацию и оформить заказ проекта двухэтажного дома 17х12 с полезной площадью 174.6 м2, просто наберите по телефону +7 (980) 800-47-93. Это быстрый и удобный способ получить все ответы и подготовительные материалы для старта строительства.

Что важно подготовить для звонка?

  1. Информацию о вашем участке — размеры, расположение;
  2. Ваши пожелания по внутренней планировке и предпочтения по материалам;
  3. Вопросы по бюджету и срокам;
  4. Любые дополнительные требования к будущему дому.
Специалисты компании сразу же предложат оптимальное решение и помогут выбрать необходимые услуги.

Итоги: почему именно этот проект стоит выбирать

Двухэтажный дом размером 17x12 метров с полезной площадью 174.6 м2 — это прекрасно сбалансированное предложение для московской семьи, которая хочет получить комфорт и современный стиль в своем загородном доме. Проект от «Академик Строй» отличается качественной планировкой, удобным разделением зон и продуманностью под московские условия строительства. А доступная цена при заказе по телефону делает этот вариант особенно привлекательным. С таким домом вы точно будете чувствовать себя уютно, уверенно и с удовольствием приглашать гостей. Главное — начать с правильного проекта, и этот вариант как раз для вас!