Двухэтажный дом 16х13 - 206.88 м² в Москве: идеальный проект от компании "Академик Строй"
Планируете построить собственный дом мечты, но не знаете, с чего начать? Если ваш выбор пал на двухэтажный дом с размерами 16 на 13 метров, то вы уже сделали отличный шаг в сторону комфортного и просторного жилья. Сегодня я расскажу подробно о проекте дома площадью 206.88 м², который предлагает компания "Академик Строй" в Москве. Этот проект — оптимальное решение для семей, которые ищут баланс между удобством, красотой и разумной ценой.
Давайте вместе разберемся, почему именно этот дом заслуживает вашего внимания, какие особенности и преимущества он имеет, и как его заказ может стать первым шагом к созданию вашего уютного гнездышка.
Основные параметры и размеры проекта
Каждый дом строится на базе тщательных расчетов и планирования. В нашем случае размеры дома — 16 метров в длину и 13 метров в ширину. Благодаря такой квадратуре полезная площадь составляет внушительные 206.88 м², что даёт простор для реализации современных стандартов комфорта и функциональности.
Ниже приведена таблица с ключевыми параметрами дома, которые помогут вам лучше понять масштабы и возможности этого проекта:
| Параметр | Значение |
|---|---|
| Полезная площадь | 206.88 м² |
| Размеры дома | 16 x 13 м |
| Этажность | 2 этажа |
| Количество спален | 4 |
| Количество санузлов | 2 |
| Жилая площадь | 176,51 м² |
| Площадь застройки | 195,02 м² |
| Площадь крыши | 138 м² |
| Угол наклона крыши | 45° |
| Высота здания | 8,54 м |
| Минимальная ширина участка | 22,70 м |
| Минимальная длина участка | 21 м |
| Тип крыши | Двускатная |
Этот набор параметров — это уже не просто дом, а полноценное жилое пространство, где каждый элемент продуман до мелочей.
Что дает двухэтажность в плане планировки и комфорта?
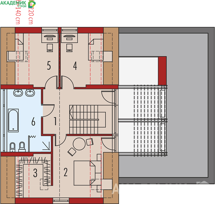
Два этажа — это идеальное решение для тех, кто хочет отделить приватную зону спален от общественных помещений. На первом этаже обычно размещается гостиная, кухня и столовая, а также кабинет или гостевая комната. Второй этаж занимает зона отдыха — спальни и ванные комнаты, что обеспечивает максимальный комфорт и спокойствие для всех членов семьи.
Почему размеры 16 на 13 метров — это оптимально?
Обычно комфортный дом начинается с площади не менее 150-180 м². В нашем случае полезная площадь 206.88 м² — это уже простор, позволяющий не чувствовать стеснения в жилом пространстве. Такие размеры отлично вписываются в подмосковные участки с шириной от 22.7 метров и длиной не менее 21 метра, что вполне реально найти в Москве или пригородах.
Кроме того, габариты дома способствуют удобной организации зон и достаточному проникновению дневного света, что делает жилое пространство уютным и функциональным.
Что входит в планировку двухэтажного дома 16х13
Теперь давайте подробно рассмотрим, что именно вы можете получить, заказывая этот проект у компании "Академик Строй".
Количество и расположение комнат
В доме запланировано четыре спальни — отличный вариант для семьи с несколькими детьми или для тех, кто любит иметь отдельные кабинеты, гостевые комнаты или дополнительное пространство для хобби. Больше не придется гадать, куда поставить рабочий стол или как разместить гостей — в этом доме хватает места всем.
Количество санузлов — два. Сколько раз хотелось утром не стоять в очереди в ванную? Тут вы забудете о таких неудобствах. Обычно один санузел располагается на первом этаже, что удобно для гостей и хозяйственных нужд, а второй — на втором, рядом со спальнями.
Как распределяются жилые и вспомогательные зоны
Жилая площадь составляет 176,51 квадратных метров из общей полезной, что говорит о том, что в планировке сделан акцент на именно жилые пространства — спальни, гостиные, возможно, кабинеты и детские игровые комнаты. Это важно для комфортной жизни — здесь не будет "мертвого" пространства, которое сложно использовать.
Остальные метры заняты вспомогательными помещениями — коридорами, гардеробными, техниками и так далее, которые делают дом функциональным и продуманным до деталей.
Проектирование крыши: стиль и функционал
У дома двускатная крыша с углом наклона 45°. Это классический вариант, который выгодно смотрится в любом архитектурном стиле — от традиционного до современных решений. Угол наклона помогает эффективно отводить воду и снег в зимний период, что крайне важно для климата Москвы и Московской области.
Площадь крыши составляет 138 м², что говорит о достаточном запасе материала для надежной защиты дома от погодных условий и отличной теплоизоляции. Кроме того, такая крыша позволяет при желании оборудовать чердачное помещение, если в проекте появится такая опция.
Технические характеристики и требования к участку
Когда вы выбираете проект дома, важно учитывать не только площадь и планировку, но и технические параметры, а также требования к участку, чтобы строительство прошло гладко и в срок.
Общая высота и соответствие нормам
Высота здания — 8,54 метра. Это позволяет получить комфортные помещения с высоким потолком, что визуально расширяет пространство и добавляет уюта. В Москве и области для частных жилых домов такой этажности и высоты обычно достаточно, чтобы соблюдать градостроительные нормы и стандарты.
Минимальные размеры участка
Для возведения двухэтажного дома по этому проекту потребуется участок минимум 22,7 метра в ширину и 21 метр в длину. Это стоит учитывать при выборе участка, поскольку неправильный подбор может повлечь сложности с размещением дома и санитарными зонами. Если у вас уже есть свой земельный участок, стоит сразу проконсультироваться с проектировщиками компании, чтобы точнее понять, как вписать дом в территорию.
Площадь застройки и площадь нетто
| Показатель | Площадь (м²) |
|---|---|
| Площадь застройки | 195,02 |
| Площадь нетто | 270,85 |
Площадь застройки — это фактичесшая площадь территории, которую занимает дом на участке. Показатель в 195,02 м² вполне соответствует размерам дома и оставляет место для организации прилегающей части — дорожек, зон отдыха и т.д.
Площадь нетто — это вся площадь всех помещений без учета конструктивных элементов (стен, колонн). Значение в 270,85 м² демонстрирует, что внутри дома достаточно места и для жилых комнат, и для технических помещений, прихожих и коридоров. Это говорит о продуманности планировки.
Заказать проект в Москве у компании "Академик Строй": преимущества и особенности
Выбор подрядчика для строительства дома — не менее важный этап, чем выбор проекта. Компания "Академик Строй" уже давно работает на рынке Москвы и области и заслужила репутацию надежного и профессионального партнера.
Преимущества сотрудничества с "Академик Строй"
- Комплексный подход: проектирование, строительство и сопровождение.
- Опытные специалисты на всех этапах — от инженеров до дизайнеров.
- Индивидуальный подход с учетом особенностей вашего участка и пожеланий.
- Высокое качество материалов и проверенные технологии строительства.
- Прозрачное ценообразование и отличная цена на проекты домов.
Если хотите заказать проект двухэтажного дома 16x13 с площадью 206.88 м², вы можете сразу обратиться по телефону +7 (980) 800-47-93. Здесь вам подробно расскажут о стоимости, этапах работы и возможных дополнительных опциях.
Как проходит процесс заказа проекта?
Обычно все происходит довольно просто и удобно. Сначала вы связываетесь с менеджерами компании, рассказываете о своих предпочтениях и требованиях. Далее специалисты предлагают наиболее подходящие варианты и детали проекта.
После согласования всех аспектов — размеров, планировки и технических решений — подписывается договор, и начинается этап разработки детальной проектной документации. Уже на этом этапе вы сможете увидеть визуализацию дома и внести коррективы.
После утверждения проекта компания может помочь вам с выбором подрядчиков на строительство или же самостоятельно выполнить весь комплекс работ.
Почему именно сейчас — лучшее время для строительства дома в Москве?
Многие задумываются о жилье в комфортных условиях, учитывая качество городской среды, транспорт и инфраструктуру. Но частный дом сейчас является настоящей роскошью — возможность иметь свою небольшую крепость, зелёный участок и пространство, где вы сможете полноценно отдыхать и работать.
Рост рынка строительства, привлекательные условия кредитования и развитие пригородных территорий делают этот проект особенно актуальным для москвичей, которые устали от тесных квартир и хотят вложить средства в надежное, долгосрочное жилье.
Преимущества частного дома в новом районе
- Свобода от соседей и шумов.
- Свой земельный участок — место для сада, детских площадок, барбекю.
- Персональное пространство для жизни и творчества.
- Экономия на коммунальных платежах за счет современных технологий.
- Возможность постепенно расширять дом и адаптировать его под ваши нужды.
Финансовая сторона: стоимость проекта и выгодные предложения
Стоимость проекта — один из ключевых факторов, который волнует практически каждого. Компания "Академик Строй" предлагает конкурентные цены на готовые проекты домов, включая двухэтажный дом 16х13 с площадью 206.88 м², что позволяет получить отличный результат без переплат.
Если сравнивать с похожими предложениями на рынке, цена здесь вполне адекватна и даже выгодна, учитывая качество проектной и строительной работы, а также последующее сопровождение.
Вы можете заказать проект по телефону +7 (980) 800-47-93 и получить подробный расчет стоимости с учетом всех ваших пожеланий и условий.
Советы по выбору и адаптации проекта под ваши нужды
Хотя этот проект — универсальный и хорошо продуманный, всегда важно помнить: дом строится для вас и вашей семьи. Поэтому не стесняйтесь вносить правки!
На что стоит обратить внимание при заказе
- Расположение комнат — брать в расчет направление света и удобство проходов.
- Расширение зон — возможно, вам понадобится объединить кухню и гостиную, или добавить дополнительную ванную.
- Материалы — выбрать оптимальные по цене и качеству, соответствующие климату Москвы.
- Энергоэффективность — включать современные технологии утепления и автономные системы отопления.
- Внешний вид — фасады и крыша должны вписываться в архитектуру района и ваши личные предпочтения.
Специалисты "Академик Строй" всегда готовы помочь при внесении изменений, чтобы ваш будущий дом стал не просто проектом, а уютным, функциональным и долговечным жильем.
Итоги: почему стоит выбрать проект двухэтажного дома 16x13 - 206.88 м²
Подводя итог, можно сказать, что двухэтажный дом с размерами 16х13 и полезной площадью 206.88 м² — это оптимальное сочетание пространства, комфорта и возможностей для большой семьи или тех, кто ценит простор. Продуманная планировка с четырьмя спальнями, двумя санузлами и удобными зонами создаёт идеальные условия для жизни.
Проект компании "Академик Строй" — это не просто бумага с чертежами, а комплексное решение, которое позволит вам быстро и эффективно перейти к реализации своей мечты о собственном доме в Москве.
Звоните, узнавайте подробности и оформляйте заказ проекта по телефону +7 (980) 800-47-93. С таким партнером строительство пройдет гладко, качественно и в срок!







