Двухэтажный дом 9x19 - 181.8 м2 за руб.

ID-118910

Стоимость дома 6363672 руб.
154 м2 Полезная
площадь
9 x 19 м Размеры
2 этажа Этажей
26 м2 Террасы
и балконы
2Без
гаража
4 Количество
спален
2 Количество
санузлов

Планировки

План первого этажа

floor image
  • 1. Прихожая 4 m²
  • 2. Холл 3,90 m²
  • 3. Столовая 12,50 m²
  • 4. Кухня 10,50 m²
  • 5. Гостиная 27,80 m²
  • 6. Комната 10,60 m²
  • 7. Ванная комната 2,50 m²
  • 8. Котельная 6,70 m²
  • 9. Гараж на 2 машины 34 m²
  • План первого этажа 112,50 m²

План мансарды

floor image
  • 1. Коридор 6,70 m²
  • 2. Комната 15,40 m² (20,20 m²)
  • 3. Комната 14,60 m² (19 m²)
  • 4. Кладовая 3,30 m² (5,30 m²)
  • 5. Комната 14,80 m² (19,10 m²)
  • 6. Гардероб 6,40 m² (8,20 m²)
  • 7. Ванная комната 8,10 m² (10,40 m²)
  • План мансарды 69,30 m²

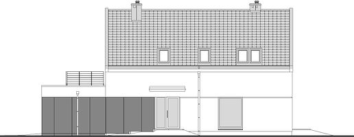
Фасады

Передний
Задний
Левый
Правый
Передний
Задний
Левый
Правый

Подробная информация

Жилая площадь
141,10 m²
icon

Сумма площади всех жилых помещений, за вычетом пов. гараж, котельная, чердак, подвал. Учитывается в 100%, для помещений высотой более 2,2 м, в 50% для помещений с высотой 2,2-1,4 м и не включается для более низких помещений (меньше 1,4 м).

Площадь застройки
156,90 m²
icon

Площадь застройки здания определяется как площадь горизонтального сечения по внешнему обводу здания на уровне цоколя, включая выступающие части.

Объем брутто
758 m³
icon

Как правило, это сумма объема всех помещений в здании, подсчитанных по внешнему контуру стены (с утеплением).

Площадь крыши
155 m²
icon

Угол наклона крыши
42°
icon

Наклон ската крыши в градусах. Внимание! В некоторых проектах возникает более чем один наклон крыши.

Высота здания
8,94 m
icon

Высота измеряется от поверхности земли до самой высокой точки кровли (конька), за исключением дымоходов.

Мин. ширина участка
17,21 m
icon

Наименьшая возможная ширина участка, необходимая для строительства выбранного дома. Состоит из длины фасада дома плюс с обеих сторон три метра отступ.

Мин. длина участка
26,71 m
icon

Наименьшая возможная длина участка, необходимая для строительства выбранного дома. Состоит из длины фасада дома плюс с обеих сторон три метра отступ.

Материалы и опции
Общие
Количество спален
4
Ежемесячный платёж, руб
Гараж
2
Количество санузлов
2
Ширина
9
Глубина
19
Тип крыши

Площади дома

№ п/п Наименование Ед. из. Строительная площадь Полезная площадь
1 1 этаж м2 138.63 112.5
2 2 этаж м2 85.4 69.3
3 Итого м2 224.03 181.8

Калькулятор опций

0

В ипотеку от 20 905 ₽/мес.

Фундамент
stdClass Object ( [id] => 1 [attribute_id] => 1 [name] => Ленточный монолитный ж/б [material_modifier] => 1 [work_modifier] => 1 [options] => Array ( [0] => размер 200 х 700 мм [1] => размер 300 х 900 мм [2] => размер 400 х 1 000 мм [3] => размер 500 х 1 100 мм [4] => размер 600 х 1 200 мм ) [days] => [20,21,22,25,30] [material_price] => [2823,3630,4475,5210,12047] [work_price] => [2154,2826,3731,4577,5293] [image] => https://akademik-stroy.ru/wp-content/uploads/materials/lentochnyj-monolitnyj-zh-b.jpg [area_modifier] => 138.63 [parent_name] => Фундамент [parent_id] => 1 [material_sum] => 493104 [work_sum] => 313539 [total_sum] => 806643 [total_days] => 20 [display_material_sum] => 493 104 [display_work_sum] => 313 539 [display_total_sum] => 806 643 ) 1
806 643
Работа:313 539
Материалы:493 104
Дни:20
stdClass Object ( [id] => 2 [attribute_id] => 1 [name] => Забивные Ж/Б сваи [material_modifier] => 1 [work_modifier] => 1 [options] => Array ( [0] => 150х150х3000мм [1] => 150х150х4000мм [2] => 200х200х3000мм [3] => 200х200х4000мм [4] => 200х200х5000мм [5] => 200х200х6000мм ) [days] => [2,2,2,2,2,2] [material_price] => [1990,2850,3255,4360,5120,6837] [work_price] => [1002,1185,1336,1438,1574,1839] [image] => https://akademik-stroy.ru/wp-content/uploads/materials/zabivnye-zh-b-svai.png [area_modifier] => 138.63 [parent_name] => Фундамент [parent_id] => 1 [material_sum] => 347601 [work_sum] => 145853 [total_sum] => 493454 [total_days] => 2 [display_material_sum] => 347 601 [display_work_sum] => 145 853 [display_total_sum] => 493 454 ) 1
493 454
Работа:145 853
Материалы:347 601
Дни:2
stdClass Object ( [id] => 71 [attribute_id] => 1 [name] => Свайно-ростверковый ж/б [material_modifier] => 1 [work_modifier] => 1 [options] => Array ( [0] => ростверк 200х300 мм [1] => ростверк 300х600 мм [2] => ростверк 400х900 мм [3] => ростверк 500х1200 мм ) [days] => [20,23,25,27] [material_price] => [3018,3474,7109,9792] [work_price] => [2024,3012,5635,7022] [image] => https://akademik-stroy.ru/wp-content/uploads/materials/svajno-rostverkovyj-monolitnyj-zh-b-3.png [area_modifier] => 138.63 [parent_name] => Фундамент [parent_id] => 1 [material_sum] => 527166 [work_sum] => 294616 [total_sum] => 821782 [total_days] => 20 [display_material_sum] => 527 166 [display_work_sum] => 294 616 [display_total_sum] => 821 782 ) 1
821 782
Работа:294 616
Материалы:527 166
Дни:20
stdClass Object ( [id] => 72 [attribute_id] => 1 [name] => Монолитная ж/б плита [material_modifier] => 1 [work_modifier] => 1 [options] => Array ( [0] => 200 мм [1] => 300 мм [2] => 400 мм [3] => 500 мм [4] => 600 мм ) [days] => [30,33,35,37,40] [material_price] => [5348,8555,12788,14388,15189] [work_price] => [4314,4881,7037,8061,10230] [image] => https://akademik-stroy.ru/wp-content/uploads/materials/monolitnaya-zhb-plita.png [area_modifier] => 138.63 [parent_name] => Фундамент [parent_id] => 1 [material_sum] => 934155 [work_sum] => 627952 [total_sum] => 1562107 [total_days] => 30 [display_material_sum] => 934 155 [display_work_sum] => 627 952 [display_total_sum] => 1 562 107 ) 1
1 562 107
Работа:627 952
Материалы:934 155
Дни:30
stdClass Object ( [id] => 73 [attribute_id] => 1 [name] => Утепленная шведская плита [material_modifier] => 1 [work_modifier] => 1 [options] => Array ( [0] => 200 мм [1] => 300 мм [2] => 400 мм [3] => 500 мм [4] => 600 мм ) [days] => [32,37,39,42,45] [material_price] => [10249,12692,13760,14936,16230] [work_price] => [5960,7337,8072,8878,9765] [image] => https://akademik-stroy.ru/wp-content/uploads/materials/uteplennaya-shvedskaya-plita.jpg [area_modifier] => 138.63 [parent_name] => Фундамент [parent_id] => 1 [material_sum] => 1790232 [work_sum] => 867547 [total_sum] => 2657779 [total_days] => 32 [display_material_sum] => 1 790 232 [display_work_sum] => 867 547 [display_total_sum] => 2 657 779 ) 1
2 657 779
Работа:867 547
Материалы:1 790 232
Дни:32
stdClass Object ( [id] => 75 [attribute_id] => 1 [name] => Ленточный из ФБС [material_modifier] => 1 [work_modifier] => 1 [options] => Array ( [0] => толщ. 300 мм [1] => толщ. 400 мм [2] => толщ. 500 мм [3] => толщ. 600 мм ) [days] => [20,20,20,20] [material_price] => [3675,4902,6126,7350] [work_price] => [2451,3264,4083,4902] [image] => https://akademik-stroy.ru/wp-content/uploads/materials/lentochnyj-iz-fbs.png [area_modifier] => 138.63 [parent_name] => Фундамент [parent_id] => 1 [material_sum] => 641926 [work_sum] => 356771 [total_sum] => 998697 [total_days] => 20 [display_material_sum] => 641 926 [display_work_sum] => 356 771 [display_total_sum] => 998 697 ) 1
998 697
Работа:356 771
Материалы:641 926
Дни:20
stdClass Object ( [id] => 76 [attribute_id] => 1 [name] => Цокольный этаж из ФБС [material_modifier] => 1 [work_modifier] => 1 [options] => Array ( [0] => толщ. 300 мм [1] => толщ. 400 мм [2] => толщ. 500 мм [3] => толщ. 600 мм ) [days] => [30,32,34,36] [material_price] => [20916,23299,26680,29060] [work_price] => [17524,18700,19873,21046] [image] => https://akademik-stroy.ru/wp-content/uploads/materials/cokolnyj-ehtazh-iz-fbs.jpg [area_modifier] => 138.63 [parent_name] => Фундамент [parent_id] => 1 [material_sum] => 3653477 [work_sum] => 2550820 [total_sum] => 6204297 [total_days] => 30 [display_material_sum] => 3 653 477 [display_work_sum] => 2 550 820 [display_total_sum] => 6 204 297 ) 1
6 204 297
Работа:2 550 820
Материалы:3 653 477
Дни:30
stdClass Object ( [id] => 77 [attribute_id] => 1 [name] => Цокольный этаж монолитный ж/б [material_modifier] => 1 [work_modifier] => 1 [options] => Array ( [0] => толщ. 200 мм [1] => толщ. 300 мм [2] => толщ. 400 мм [3] => толщ. 500 мм [4] => толщ. 600 мм ) [days] => [40,42,44,46,48] [material_price] => [25421,29148,32275,35602,37326] [work_price] => [20441,21907,23375,24841,26306] [image] => https://akademik-stroy.ru/wp-content/uploads/materials/cokolnyj-etazh-zh-b.jpg [area_modifier] => 138.63 [parent_name] => Фундамент [parent_id] => 1 [material_sum] => 4440383 [work_sum] => 2975423 [total_sum] => 7415806 [total_days] => 40 [display_material_sum] => 4 440 383 [display_work_sum] => 2 975 423 [display_total_sum] => 7 415 806 ) 1
7 415 806
Работа:2 975 423
Материалы:4 440 383
Дни:40
stdClass Object ( [id] => 191 [attribute_id] => 1 [name] => Винтовые сваи [material_modifier] => 1 [work_modifier] => 1 [options] => Array ( [0] => 57х200мм [1] => 76х250мм [2] => 108х300мм [3] => 133х350мм ) [days] => [1,1,2,2] [material_price] => [1200,1300,1450,1600] [work_price] => [400,600,900,1100] [image] => https://akademik-stroy.ru/wp-content/uploads/materials/vintovye-svai.png [area_modifier] => 138.63 [parent_name] => Фундамент [parent_id] => 1 [material_sum] => 209609 [work_sum] => 58225 [total_sum] => 267834 [total_days] => 1 [display_material_sum] => 209 609 [display_work_sum] => 58 225 [display_total_sum] => 267 834 ) 1
267 834
Работа:58 225
Материалы:209 609
Дни:1
Перекрытие цоколя
stdClass Object ( [id] => 3 [attribute_id] => 2 [name] => Деревянные балки [material_modifier] => 1 [work_modifier] => 1 [options] => Array ( [0] => без утепления [1] => утепление 200 мм [2] => утепление 250 мм [3] => утепление 300 мм [4] => утепление 350 мм [5] => утепление 400 мм [6] => утепление 450 мм [7] => утепление 500 мм ) [days] => [8,9,9,9,11,12,13,14] [material_price] => [1634,2042,2344,2947,3149,3652,3354,3557] [work_price] => [1230,1339,1393,1426,1460,1513,1587,1620] [image] => https://akademik-stroy.ru/wp-content/uploads/materials/derevyannye-balki.png [area_modifier] => 138.63 [parent_name] => Перекрытие цоколя [parent_id] => 2 [material_sum] => 285417 [work_sum] => 179041 [total_sum] => 464458 [total_days] => 8 [display_material_sum] => 285 417 [display_work_sum] => 179 041 [display_total_sum] => 464 458 ) 1
464 458
Работа:179 041
Материалы:285 417
Дни:8
stdClass Object ( [id] => 4 [attribute_id] => 2 [name] => Сборные ж/б плиты [material_modifier] => 1 [work_modifier] => 1 [options] => Array ( [0] => без утепления [1] => утепление 150мм [2] => утепление 200мм [3] => утепление 250мм [4] => утепление 300мм [5] => утепление 350мм [6] => утепление 400мм [7] => утепление 450мм [8] => утепление 500мм ) [days] => [13,15,15,15,15,15,15,15,15] [material_price] => [3067,5577,5928,6679,7730,8782,9833,10884,11935] [work_price] => [1520,1956,2102,2247,2392,2537,2684,2829,2974] [image] => https://akademik-stroy.ru/wp-content/uploads/materials/sbornye-zh-b-plity-2.jpg [area_modifier] => 138.63 [parent_name] => Перекрытие цоколя [parent_id] => 2 [material_sum] => 535725 [work_sum] => 221253 [total_sum] => 756978 [total_days] => 13 [display_material_sum] => 535 725 [display_work_sum] => 221 253 [display_total_sum] => 756 978 ) 1
756 978
Работа:221 253
Материалы:535 725
Дни:13
stdClass Object ( [id] => 78 [attribute_id] => 2 [name] => Монолитная ж/б плита [material_modifier] => 1 [work_modifier] => 1 [options] => Array ( [0] => без утепления [1] => утепление 150 мм [2] => утепление 200 мм [3] => утепление 250 мм [4] => утепление 300 мм [5] => утепление 350 мм [6] => утепление 400 мм [7] => утепление 450 мм [8] => утепление 500 мм ) [days] => [18,20,20,20,20,20,20,20,20] [material_price] => [4837,6572,7224,7375,79426,8177,8728,9180,10031] [work_price] => [3348,3921,4112,4302,4493,4684,4875,5066,5256] [image] => https://akademik-stroy.ru/wp-content/uploads/materials/monolitnaya-zh-b-plita-2.jpg [area_modifier] => 138.63 [parent_name] => Перекрытие цоколя [parent_id] => 2 [material_sum] => 844897 [work_sum] => 487340 [total_sum] => 1332237 [total_days] => 18 [display_material_sum] => 844 897 [display_work_sum] => 487 340 [display_total_sum] => 1 332 237 ) 1
1 332 237
Работа:487 340
Материалы:844 897
Дни:18
Стены 1 этаж (несущие)
stdClass Object ( [id] => 6 [attribute_id] => 3 [name] => Пеноблок [material_modifier] => 1 [work_modifier] => 1 [options] => Array ( [0] => 300 мм [1] => 400 мм [2] => 500 мм [3] => 600 мм ) [days] => [29,31,34,39] [material_price] => [3000,4000,4500,4937] [work_price] => [5033,5805,6400,8710] [image] => https://akademik-stroy.ru/wp-content/uploads/materials/penoblok.jpg [area_modifier] => 138.63 [parent_name] => Стены 1 этаж (несущие) [parent_id] => 3 [material_sum] => 524021 [work_sum] => 732611 [total_sum] => 1256632 [total_days] => 29 [display_material_sum] => 524 021 [display_work_sum] => 732 611 [display_total_sum] => 1 256 632 ) 1
1 256 632
Работа:732 611
Материалы:524 021
Дни:29
stdClass Object ( [id] => 79 [attribute_id] => 3 [name] => Керамический блок [material_modifier] => 1 [work_modifier] => 1 [options] => Array ( [0] => 380 мм [1] => 380 мм Thermo [2] => 440 мм [3] => 510 мм ) [days] => [23,23,24,25] [material_price] => [4510,5098,6093,8013] [work_price] => [4737,4937,5903,6958] [image] => https://akademik-stroy.ru/wp-content/uploads/materials/keramicheskij-blok.jpg [area_modifier] => 138.63 [parent_name] => Стены 1 этаж (несущие) [parent_id] => 3 [material_sum] => 787779 [work_sum] => 689525 [total_sum] => 1477304 [total_days] => 23 [display_material_sum] => 787 779 [display_work_sum] => 689 525 [display_total_sum] => 1 477 304 ) 1
1 477 304
Работа:689 525
Материалы:787 779
Дни:23
stdClass Object ( [id] => 80 [attribute_id] => 3 [name] => Кирпич [material_modifier] => 1 [work_modifier] => 1 [options] => Array ( [0] => Кирпич 250 мм [1] => Кирпич 380 мм [2] => Кирпич 510 мм [3] => Кирпич 640 мм [4] => Кирпич 770 мм ) [days] => [30,30,31,33,36] [material_price] => [5500,7142,9206,10171,12235] [work_price] => [8736,10041,12018,15240,18462] [image] => https://akademik-stroy.ru/wp-content/uploads/materials/kirpich.jpg [area_modifier] => 138.63 [parent_name] => Стены 1 этаж (несущие) [parent_id] => 3 [material_sum] => 960706 [work_sum] => 1271625 [total_sum] => 2232331 [total_days] => 30 [display_material_sum] => 960 706 [display_work_sum] => 1 271 625 [display_total_sum] => 2 232 331 ) 1
2 232 331
Работа:1 271 625
Материалы:960 706
Дни:30
stdClass Object ( [id] => 81 [attribute_id] => 3 [name] => Монолитные [material_modifier] => 1 [work_modifier] => 1 [options] => Array ( [0] => 150 мм [1] => 200 мм [2] => 250 мм [3] => 300 мм [4] => 350 мм [5] => 400 мм ) [days] => [45,46,47,49,50,53] [material_price] => [6545,7876,10175,12011,13908,15204] [work_price] => [5106,6444,7698,8552,9807,11461] [image] => https://akademik-stroy.ru/wp-content/uploads/materials/monolitnye.jpg [area_modifier] => 138.63 [parent_name] => Стены 1 этаж (несущие) [parent_id] => 3 [material_sum] => 1143240 [work_sum] => 743237 [total_sum] => 1886477 [total_days] => 45 [display_material_sum] => 1 143 240 [display_work_sum] => 743 237 [display_total_sum] => 1 886 477 ) 1
1 886 477
Работа:743 237
Материалы:1 143 240
Дни:45
stdClass Object ( [id] => 82 [attribute_id] => 3 [name] => Клееный брус [material_modifier] => 1 [work_modifier] => 1 [options] => Array ( [0] => 160 мм [1] => 175 мм [2] => 200 мм [3] => 215 мм [4] => 240 мм [5] => 270 мм [6] => 282 мм ) [days] => [24,28,32,37,40,42,48] [material_price] => [16975,18773,19950,20545,21599,22159,23275] [work_price] => [4806,5287,5815,6397,7036,7740,8514] [image] => https://akademik-stroy.ru/wp-content/uploads/materials/kleenyj-brus.jpg [area_modifier] => 138.63 [parent_name] => Стены 1 этаж (несущие) [parent_id] => 3 [material_sum] => 2965088 [work_sum] => 699569 [total_sum] => 3664657 [total_days] => 24 [display_material_sum] => 2 965 088 [display_work_sum] => 699 569 [display_total_sum] => 3 664 657 ) 1
3 664 657
Работа:699 569
Материалы:2 965 088
Дни:24
stdClass Object ( [id] => 83 [attribute_id] => 3 [name] => Каркасные [material_modifier] => 1 [work_modifier] => 1 [options] => Array ( [0] => 150 мм [1] => 200 мм [2] => 250 мм [3] => 300 мм ) [days] => [15,16,17,18] [material_price] => [2379,2639,2898,3258] [work_price] => [2418,2686,2985,3716] [image] => https://akademik-stroy.ru/wp-content/uploads/materials/karkasnye.jpg [area_modifier] => 138.63 [parent_name] => Стены 1 этаж (несущие) [parent_id] => 3 [material_sum] => 415549 [work_sum] => 351968 [total_sum] => 767517 [total_days] => 15 [display_material_sum] => 415 549 [display_work_sum] => 351 968 [display_total_sum] => 767 517 ) 1
767 517
Работа:351 968
Материалы:415 549
Дни:15
stdClass Object ( [id] => 84 [attribute_id] => 3 [name] => СИП-панели [material_modifier] => 1 [work_modifier] => 1 [options] => Array ( [0] => 120 мм [1] => 170 мм [2] => 220 мм ) [days] => [7,7,7] [material_price] => [1210,1856,2292] [work_price] => [1410,1551,1706] [image] => https://akademik-stroy.ru/wp-content/uploads/materials/sip-paneli.jpg [area_modifier] => 138.63 [parent_name] => Стены 1 этаж (несущие) [parent_id] => 3 [material_sum] => 211355 [work_sum] => 205242 [total_sum] => 416597 [total_days] => 7 [display_material_sum] => 211 355 [display_work_sum] => 205 242 [display_total_sum] => 416 597 ) 1
416 597
Работа:205 242
Материалы:211 355
Дни:7
stdClass Object ( [id] => 85 [attribute_id] => 3 [name] => Сухой брус [material_modifier] => 1 [work_modifier] => 1 [options] => Array ( [0] => 150 мм [1] => 180 мм [2] => 200 мм ) [days] => [7,8,9] [material_price] => [6010,7190,8709] [work_price] => [3204,3845,4229] [image] => https://akademik-stroy.ru/wp-content/uploads/materials/suhoj-brus.jpg [area_modifier] => 138.63 [parent_name] => Стены 1 этаж (несущие) [parent_id] => 3 [material_sum] => 1049790 [work_sum] => 466379 [total_sum] => 1516169 [total_days] => 7 [display_material_sum] => 1 049 790 [display_work_sum] => 466 379 [display_total_sum] => 1 516 169 ) 1
1 516 169
Работа:466 379
Материалы:1 049 790
Дни:7
stdClass Object ( [id] => 86 [attribute_id] => 3 [name] => Профилированный брус [material_modifier] => 1 [work_modifier] => 1 [options] => Array ( [0] => 150 мм [1] => 180 мм [2] => 200 мм ) [days] => [7,8,9] [material_price] => [8190,9228,10051] [work_price] => [3845,4614,5075] [image] => https://akademik-stroy.ru/wp-content/uploads/materials/profilirovannyj-brus.jpg [area_modifier] => 138.63 [parent_name] => Стены 1 этаж (несущие) [parent_id] => 3 [material_sum] => 1430578 [work_sum] => 559684 [total_sum] => 1990262 [total_days] => 7 [display_material_sum] => 1 430 578 [display_work_sum] => 559 684 [display_total_sum] => 1 990 262 ) 1
1 990 262
Работа:559 684
Материалы:1 430 578
Дни:7
stdClass Object ( [id] => 87 [attribute_id] => 3 [name] => Оцилиндрованное бревно [material_modifier] => 1 [work_modifier] => 1 [options] => Array ( [0] => 180 мм [1] => 220 мм [2] => 260 мм [3] => 320 мм ) [days] => [7,8,9,10] [material_price] => [75190,9532,10868,13116] [work_price] => [3845,4691,5535,6863] [image] => https://akademik-stroy.ru/wp-content/uploads/materials/ocilindrovannoe-brevno-1.jpg [area_modifier] => 138.63 [parent_name] => Стены 1 этаж (несущие) [parent_id] => 3 [material_sum] => 13133723 [work_sum] => 559684 [total_sum] => 13693407 [total_days] => 7 [display_material_sum] => 13 133 723 [display_work_sum] => 559 684 [display_total_sum] => 13 693 407 ) 1
13 693 407
Работа:559 684
Материалы:13 133 723
Дни:7
stdClass Object ( [id] => 88 [attribute_id] => 3 [name] => Срубы [material_modifier] => 1 [work_modifier] => 1 [options] => Array ( [0] => 260 мм [1] => 320 мм [2] => 360 мм [3] => 400 мм [4] => 500 мм ) [days] => [7,8,9,10,11] [material_price] => [37975,46709,52314,58069,73167] [work_price] => [4806,5911,6621,7349,9260] [image] => https://akademik-stroy.ru/wp-content/uploads/materials/sruby.jpg [area_modifier] => 138.63 [parent_name] => Стены 1 этаж (несущие) [parent_id] => 3 [material_sum] => 6633238 [work_sum] => 699569 [total_sum] => 7332807 [total_days] => 7 [display_material_sum] => 6 633 238 [display_work_sum] => 699 569 [display_total_sum] => 7 332 807 ) 1
7 332 807
Работа:699 569
Материалы:6 633 238
Дни:7
stdClass Object ( [id] => 174 [attribute_id] => 3 [name] => Брус [material_modifier] => 1 [work_modifier] => 1 [options] => Array ( [0] => 150 мм [1] => 180 мм [2] => 200 мм ) [days] => [7,8,9] [material_price] => [5127,6152,7367] [work_price] => [1602,1922,2115] [image] => https://akademik-stroy.ru/wp-content/uploads/materials/brus.jpg [area_modifier] => 138.63 [parent_name] => Стены 1 этаж (несущие) [parent_id] => 3 [material_sum] => 895553 [work_sum] => 233190 [total_sum] => 1128743 [total_days] => 7 [display_material_sum] => 895 553 [display_work_sum] => 233 190 [display_total_sum] => 1 128 743 ) 1
1 128 743
Работа:233 190
Материалы:895 553
Дни:7
stdClass Object ( [id] => 175 [attribute_id] => 3 [name] => Газобетон [material_modifier] => 1 [work_modifier] => 1 [options] => Array ( [0] => 300 мм [1] => 375 мм [2] => 400 мм [3] => 500 мм [4] => 600 мм ) [days] => [29,31,35,37,44] [material_price] => [4298,5573,6356,7288,9119] [work_price] => [4538,5251,5926,6733,7195] [image] => https://akademik-stroy.ru/wp-content/uploads/materials/gazobeton.jpg [area_modifier] => 138.63 [parent_name] => Стены 1 этаж (несущие) [parent_id] => 3 [material_sum] => 750748 [work_sum] => 660558 [total_sum] => 1411306 [total_days] => 29 [display_material_sum] => 750 748 [display_work_sum] => 660 558 [display_total_sum] => 1 411 306 ) 1
1 411 306
Работа:660 558
Материалы:750 748
Дни:29
stdClass Object ( [id] => 176 [attribute_id] => 3 [name] => Блок [material_modifier] => 1 [work_modifier] => 1 [options] => Array ( [0] => 300 мм [1] => 375 мм [2] => 400 мм [3] => 500 мм [4] => 600 мм ) [days] => [29,31,35,37,44] [material_price] => [2698,3973,4356,6588,7119] [work_price] => [5038,5851,6426,8733,9195] [image] => https://akademik-stroy.ru/wp-content/uploads/materials/blok.jpg [area_modifier] => 138.63 [parent_name] => Стены 1 этаж (несущие) [parent_id] => 3 [material_sum] => 471270 [work_sum] => 733339 [total_sum] => 1204609 [total_days] => 29 [display_material_sum] => 471 270 [display_work_sum] => 733 339 [display_total_sum] => 1 204 609 ) 1
1 204 609
Работа:733 339
Материалы:471 270
Дни:29
stdClass Object ( [id] => 177 [attribute_id] => 3 [name] => Газосиликатный блок [material_modifier] => 1 [work_modifier] => 1 [options] => Array ( [0] => 300 мм [1] => 375 мм [2] => 400 мм [3] => 500 мм [4] => 600 мм ) [days] => [29,31,35,37,44] [material_price] => [4298,5573,6356,7288,9119] [work_price] => [4538,5251,5926,6733,7195] [image] => https://akademik-stroy.ru/wp-content/uploads/materials/gazosilikatnyj-blok.jpg [area_modifier] => 138.63 [parent_name] => Стены 1 этаж (несущие) [parent_id] => 3 [material_sum] => 750748 [work_sum] => 660558 [total_sum] => 1411306 [total_days] => 29 [display_material_sum] => 750 748 [display_work_sum] => 660 558 [display_total_sum] => 1 411 306 ) 1
1 411 306
Работа:660 558
Материалы:750 748
Дни:29
stdClass Object ( [id] => 178 [attribute_id] => 3 [name] => Керамзитобетонный блок [material_modifier] => 1 [work_modifier] => 1 [options] => Array ( [0] => 300 мм [1] => 375 мм [2] => 400 мм [3] => 500 мм [4] => 600 мм ) [days] => [23,23,24,25,28] [material_price] => [3641,4298,5693,7613,9612] [work_price] => [5737,5737,6903,7958,8901] [image] => https://akademik-stroy.ru/wp-content/uploads/materials/keramzitobetonnyj-blok.jpg [area_modifier] => 138.63 [parent_name] => Стены 1 этаж (несущие) [parent_id] => 3 [material_sum] => 635987 [work_sum] => 835086 [total_sum] => 1471073 [total_days] => 23 [display_material_sum] => 635 987 [display_work_sum] => 835 086 [display_total_sum] => 1 471 073 ) 1
1 471 073
Работа:835 086
Материалы:635 987
Дни:23
stdClass Object ( [id] => 179 [attribute_id] => 3 [name] => Деревянные [material_modifier] => 1 [work_modifier] => 1 [options] => Array ( [0] => 180 мм [1] => 220 мм [2] => 260 мм [3] => 320 мм ) [days] => [7,8,9,10] [material_price] => [7950,9458,11961,14472] [work_price] => [4037,4925,5812,7207] [image] => https://akademik-stroy.ru/wp-content/uploads/materials/derevyannye.jpg [area_modifier] => 138.63 [parent_name] => Стены 1 этаж (несущие) [parent_id] => 3 [material_sum] => 1388657 [work_sum] => 587632 [total_sum] => 1976289 [total_days] => 7 [display_material_sum] => 1 388 657 [display_work_sum] => 587 632 [display_total_sum] => 1 976 289 ) 1
1 976 289
Работа:587 632
Материалы:1 388 657
Дни:7
stdClass Object ( [id] => 181 [attribute_id] => 3 [name] => Камень [material_modifier] => 1 [work_modifier] => 1 [options] => Array ( [0] => 300 мм [1] => 400 мм [2] => 500 мм [3] => 600 мм ) [days] => [25,27,31,34] [material_price] => [5262,6844,8330,9815] [work_price] => [8331,9135,10427,11069] [image] => https://akademik-stroy.ru/wp-content/uploads/materials/kamen.jpg [area_modifier] => 138.63 [parent_name] => Стены 1 этаж (несущие) [parent_id] => 3 [material_sum] => 919134 [work_sum] => 1212673 [total_sum] => 2131807 [total_days] => 25 [display_material_sum] => 919 134 [display_work_sum] => 1 212 673 [display_total_sum] => 2 131 807 ) 1
2 131 807
Работа:1 212 673
Материалы:919 134
Дни:25
stdClass Object ( [id] => 182 [attribute_id] => 3 [name] => Каркасно-щитовые [material_modifier] => 1 [work_modifier] => 1 [options] => Array ( [0] => 150 мм [1] => 200 мм [2] => 250 мм [3] => 300 мм [4] => 350 мм [5] => 400 мм ) [days] => [15,16,17,18,19,20] [material_price] => [2379,2639,2898,3458,3601,4175] [work_price] => [2538,2820,3134,3483,4062,5642] [image] => https://akademik-stroy.ru/wp-content/uploads/materials/karkasno-shchitovye.jpg [area_modifier] => 138.63 [parent_name] => Стены 1 этаж (несущие) [parent_id] => 3 [material_sum] => 415549 [work_sum] => 369435 [total_sum] => 784984 [total_days] => 15 [display_material_sum] => 415 549 [display_work_sum] => 369 435 [display_total_sum] => 784 984 ) 1
784 984
Работа:369 435
Материалы:415 549
Дни:15
stdClass Object ( [id] => 183 [attribute_id] => 3 [name] => Рубленные [material_modifier] => 1 [work_modifier] => 1 [options] => Array ( [0] => 150 мм [1] => 200 мм [2] => 250 мм [3] => 300 мм [4] => 350 мм [5] => 400 мм ) [days] => [15,16,17,18,17,18] [material_price] => [35950,50267,60583,75900,80217,100533] [work_price] => [9612,12816,16020,19224,22428,25632] [image] => https://akademik-stroy.ru/wp-content/uploads/materials/rublennye.jpg [area_modifier] => 138.63 [parent_name] => Стены 1 этаж (несущие) [parent_id] => 3 [material_sum] => 6279523 [work_sum] => 1399137 [total_sum] => 7678660 [total_days] => 15 [display_material_sum] => 6 279 523 [display_work_sum] => 1 399 137 [display_total_sum] => 7 678 660 ) 1
7 678 660
Работа:1 399 137
Материалы:6 279 523
Дни:15
stdClass Object ( [id] => 185 [attribute_id] => 3 [name] => Теплоблок [material_modifier] => 1 [work_modifier] => 1 [options] => Array ( [0] => 300 мм (с облицовкой, не покрашенный) [1] => 400 мм (с облицовкой, не покрашенный) [2] => 300 мм (с облицовкой, покрашенный) [3] => 400 мм (с облицовкой, покрашенный) ) [days] => [15,16,15,16] [material_price] => [2888,3729,3957,4258] [work_price] => [2564,3229,2949,3713] [image] => https://akademik-stroy.ru/wp-content/uploads/materials/teploblok.jpg [area_modifier] => 138.63 [parent_name] => Стены 1 этаж (несущие) [parent_id] => 3 [material_sum] => 504458 [work_sum] => 373220 [total_sum] => 877678 [total_days] => 15 [display_material_sum] => 504 458 [display_work_sum] => 373 220 [display_total_sum] => 877 678 ) 1
877 678
Работа:373 220
Материалы:504 458
Дни:15
stdClass Object ( [id] => 186 [attribute_id] => 3 [name] => Арболитовые блоки [material_modifier] => 1 [work_modifier] => 1 [options] => Array ( [0] => 300 мм [1] => 400 мм [2] => 600 мм ) [days] => [19,22,27] [material_price] => [3210,4475,5852] [work_price] => [4214,4788,5866] [image] => https://akademik-stroy.ru/wp-content/uploads/materials/arbolitovye-bloki.png [area_modifier] => 138.63 [parent_name] => Стены 1 этаж (несущие) [parent_id] => 3 [material_sum] => 560703 [work_sum] => 613396 [total_sum] => 1174099 [total_days] => 19 [display_material_sum] => 560 703 [display_work_sum] => 613 396 [display_total_sum] => 1 174 099 ) 1
1 174 099
Работа:613 396
Материалы:560 703
Дни:19
stdClass Object ( [id] => 187 [attribute_id] => 3 [name] => Полистиролбетон [material_modifier] => 1 [work_modifier] => 1 [options] => Array ( [0] => 300 мм [1] => 400 мм [2] => 600 мм ) [days] => [29,31,35] [material_price] => [2798,4573,5256] [work_price] => [5038,5851,6426] [image] => https://akademik-stroy.ru/wp-content/uploads/materials/polistirolbeton.jpg [area_modifier] => 138.63 [parent_name] => Стены 1 этаж (несущие) [parent_id] => 3 [material_sum] => 488737 [work_sum] => 733339 [total_sum] => 1222076 [total_days] => 29 [display_material_sum] => 488 737 [display_work_sum] => 733 339 [display_total_sum] => 1 222 076 ) 1
1 222 076
Работа:733 339
Материалы:488 737
Дни:29
stdClass Object ( [id] => 188 [attribute_id] => 3 [name] => Шлакоблок [material_modifier] => 1 [work_modifier] => 1 [options] => Array ( [0] => 400 мм [1] => 600 мм ) [days] => [15,16] [material_price] => [2391,3471] [work_price] => [2642,3662] [image] => https://akademik-stroy.ru/wp-content/uploads/materials/shlakoblok.jpg [area_modifier] => 138.63 [parent_name] => Стены 1 этаж (несущие) [parent_id] => 3 [material_sum] => 417645 [work_sum] => 384573 [total_sum] => 802218 [total_days] => 15 [display_material_sum] => 417 645 [display_work_sum] => 384 573 [display_total_sum] => 802 218 ) 1
802 218
Работа:384 573
Материалы:417 645
Дни:15
stdClass Object ( [id] => 189 [attribute_id] => 3 [name] => Теплая керамика [material_modifier] => 1 [work_modifier] => 1 [options] => Array ( [0] => 380 мм [1] => 380 мм Thermo [2] => 440 мм [3] => 510 мм ) [days] => [23,23,24,25] [material_price] => [4510,5098,6093,8013] [work_price] => [4737,4937,5903,6958] [image] => https://akademik-stroy.ru/wp-content/uploads/materials/teplaya-keramika.jpg [area_modifier] => 138.63 [parent_name] => Стены 1 этаж (несущие) [parent_id] => 3 [material_sum] => 787779 [work_sum] => 689525 [total_sum] => 1477304 [total_days] => 23 [display_material_sum] => 787 779 [display_work_sum] => 689 525 [display_total_sum] => 1 477 304 ) 1
1 477 304
Работа:689 525
Материалы:787 779
Дни:23
stdClass Object ( [id] => 190 [attribute_id] => 3 [name] => Несъемная опалубка [material_modifier] => 1 [work_modifier] => 1 [options] => Array ( [0] => 200 мм [1] => 250 мм [2] => 300 мм [3] => 350 мм ) [days] => [15,17,19,21] [material_price] => [3302,3902,4108,5008] [work_price] => [2100,2100,2300,2534] [image] => https://akademik-stroy.ru/wp-content/uploads/materials/nesemnaya-opalubka.jpg [area_modifier] => 138.63 [parent_name] => Стены 1 этаж (несущие) [parent_id] => 3 [material_sum] => 576773 [work_sum] => 305679 [total_sum] => 882452 [total_days] => 15 [display_material_sum] => 576 773 [display_work_sum] => 305 679 [display_total_sum] => 882 452 ) 1
882 452
Работа:305 679
Материалы:576 773
Дни:15
stdClass Object ( [id] => 251 [attribute_id] => 3 [name] => Бревно [material_modifier] => 1 [work_modifier] => 1 [options] => Array ( [0] => 260 мм [1] => 320 мм [2] => 360 мм [3] => 400 мм [4] => 500 мм ) [days] => [7,8,9,10,11] [material_price] => [1874,24045,26930,30972,38825] [work_price] => [5046,6207,6952,7716,9723] [image] => https://akademik-stroy.ru/wp-content/uploads/materials/sruby.jpg [area_modifier] => 138.63 [parent_name] => Стены 1 этаж (несущие) [parent_id] => 3 [material_sum] => 327339 [work_sum] => 734503 [total_sum] => 1061842 [total_days] => 7 [display_material_sum] => 327 339 [display_work_sum] => 734 503 [display_total_sum] => 1 061 842 ) 1
1 061 842
Работа:734 503
Материалы:327 339
Дни:7
Перекрытие первого этажа
stdClass Object ( [id] => 7 [attribute_id] => 4 [name] => Деревянные балки [material_modifier] => 1 [work_modifier] => 1 [options] => Array ( [0] => без утепления [1] => утепление 200 мм [2] => утепление 250 мм [3] => утепление 300 мм [4] => утепление 350 мм [5] => утепление 400 мм [6] => утепление 450 мм [7] => утепление 500 мм ) [days] => [8,9,9,9,11,12,13,14] [material_price] => [1634,2042,2344,2947,3149,3652,3354,3557] [work_price] => [1230,1339,1393,1426,1460,1513,1587,1620] [image] => https://akademik-stroy.ru/wp-content/uploads/materials/derevyannye-balki.png [area_modifier] => 138.63 [parent_name] => Перекрытие первого этажа [parent_id] => 4 [material_sum] => 285417 [work_sum] => 179041 [total_sum] => 464458 [total_days] => 8 [display_material_sum] => 285 417 [display_work_sum] => 179 041 [display_total_sum] => 464 458 ) 1
464 458
Работа:179 041
Материалы:285 417
Дни:8
stdClass Object ( [id] => 8 [attribute_id] => 4 [name] => Сборные ж/б плиты [material_modifier] => 1 [work_modifier] => 1 [options] => Array ( [0] => без утепления [1] => утепление 150 мм [2] => утепление 200 мм [3] => утепление 250 мм [4] => утепление 300 мм [5] => утепление 350 мм [6] => утепление 400 мм [7] => утепление 450 мм [8] => утепление 500 мм ) [days] => [13,15,15,15,15,15,15,15,15] [material_price] => [3067,5577,5928,6679,7730,8782,9833,10884,11935] [work_price] => [1520,1956,2102,2247,2392,2537,2684,2829,2974] [image] => https://akademik-stroy.ru/wp-content/uploads/materials/sbornye-zh-b-plity-2.jpg [area_modifier] => 138.63 [parent_name] => Перекрытие первого этажа [parent_id] => 4 [material_sum] => 535725 [work_sum] => 221253 [total_sum] => 756978 [total_days] => 13 [display_material_sum] => 535 725 [display_work_sum] => 221 253 [display_total_sum] => 756 978 ) 1
756 978
Работа:221 253
Материалы:535 725
Дни:13
stdClass Object ( [id] => 89 [attribute_id] => 4 [name] => Монолитная ж/б плита [material_modifier] => 1 [work_modifier] => 1 [options] => Array ( [0] => без утепления [1] => утепление 150 мм [2] => утепление 200 мм [3] => утепление 250 мм [4] => утепление 300 мм [5] => утепление 350 мм [6] => утепление 400 мм [7] => утепление 450 мм [8] => утепление 500 мм ) [days] => [18,20,20,20,20,20,20,20,20] [material_price] => [4837,6572,7224,7375,79426,8177,8728,9180,10031] [work_price] => [3348,3921,4112,4302,4493,4684,4875,5066,5256] [image] => https://akademik-stroy.ru/wp-content/uploads/materials/monolitnaya-zh-b-plita-2.jpg [area_modifier] => 138.63 [parent_name] => Перекрытие первого этажа [parent_id] => 4 [material_sum] => 844897 [work_sum] => 487340 [total_sum] => 1332237 [total_days] => 18 [display_material_sum] => 844 897 [display_work_sum] => 487 340 [display_total_sum] => 1 332 237 ) 1
1 332 237
Работа:487 340
Материалы:844 897
Дни:18
Стены 2 этаж (несущие)
stdClass Object ( [id] => 10 [attribute_id] => 5 [name] => Пеноблок [material_modifier] => 1 [work_modifier] => 1 [options] => Array ( [0] => 300 мм [1] => 400 мм [2] => 500 мм [3] => 600 мм ) [days] => [29,31,34,39] [material_price] => [3000,4000,4500,4937] [work_price] => [5033,5805,6400,8710] [image] => https://akademik-stroy.ru/wp-content/uploads/materials/penoblok.jpg [area_modifier] => 85.4 [parent_name] => Стены 2 этаж (несущие) [parent_id] => 5 [material_sum] => 322812 [work_sum] => 451309 [total_sum] => 774121 [total_days] => 29 [display_material_sum] => 322 812 [display_work_sum] => 451 309 [display_total_sum] => 774 121 ) 1
774 121
Работа:451 309
Материалы:322 812
Дни:29
stdClass Object ( [id] => 90 [attribute_id] => 5 [name] => Керамический блок [material_modifier] => 1 [work_modifier] => 1 [options] => Array ( [0] => 380 мм [1] => 380 мм Thermo [2] => 440 мм [3] => 510 мм ) [days] => [23,23,24,25] [material_price] => [4510,5098,6093,8013] [work_price] => [4737,4937,5903,6958] [image] => https://akademik-stroy.ru/wp-content/uploads/materials/keramicheskij-blok.jpg [area_modifier] => 85.4 [parent_name] => Стены 2 этаж (несущие) [parent_id] => 5 [material_sum] => 485294 [work_sum] => 424767 [total_sum] => 910061 [total_days] => 23 [display_material_sum] => 485 294 [display_work_sum] => 424 767 [display_total_sum] => 910 061 ) 1
910 061
Работа:424 767
Материалы:485 294
Дни:23
stdClass Object ( [id] => 91 [attribute_id] => 5 [name] => Кирпич [material_modifier] => 1 [work_modifier] => 1 [options] => Array ( [0] => Кирпич 250 мм [1] => Кирпич 380 мм [2] => Кирпич 510 мм [3] => Кирпич 640 мм [4] => Кирпич 770 мм ) [days] => [30,30,31,33,36] [material_price] => [5500,7142,9206,10171,12235] [work_price] => [8736,10041,12018,15240,18462] [image] => https://akademik-stroy.ru/wp-content/uploads/materials/kirpich.jpg [area_modifier] => 85.4 [parent_name] => Стены 2 этаж (несущие) [parent_id] => 5 [material_sum] => 591822 [work_sum] => 783357 [total_sum] => 1375179 [total_days] => 30 [display_material_sum] => 591 822 [display_work_sum] => 783 357 [display_total_sum] => 1 375 179 ) 1
1 375 179
Работа:783 357
Материалы:591 822
Дни:30
stdClass Object ( [id] => 92 [attribute_id] => 5 [name] => Монолитные [material_modifier] => 1 [work_modifier] => 1 [options] => Array ( [0] => 150 мм [1] => 200 мм [2] => 250 мм [3] => 300 мм [4] => 350 мм [5] => 400 мм ) [days] => [45,46,47,49,50,53] [material_price] => [6545,7876,10175,12011,13908,15204] [work_price] => [5106,6444,7698,8552,9807,11461] [image] => https://akademik-stroy.ru/wp-content/uploads/materials/monolitnye.jpg [area_modifier] => 85.4 [parent_name] => Стены 2 этаж (несущие) [parent_id] => 5 [material_sum] => 704268 [work_sum] => 457855 [total_sum] => 1162123 [total_days] => 45 [display_material_sum] => 704 268 [display_work_sum] => 457 855 [display_total_sum] => 1 162 123 ) 1
1 162 123
Работа:457 855
Материалы:704 268
Дни:45
stdClass Object ( [id] => 93 [attribute_id] => 5 [name] => Клееный брус [material_modifier] => 1 [work_modifier] => 1 [options] => Array ( [0] => 160 мм [1] => 175 мм [2] => 200 мм [3] => 215 мм [4] => 240 мм [5] => 270 мм [6] => 282 мм ) [days] => [24,28,32,37,40,42,48] [material_price] => [16975,18773,19950,20545,21599,22159,23275] [work_price] => [4806,5287,5815,6397,7036,7740,8514] [image] => https://akademik-stroy.ru/wp-content/uploads/materials/kleenyj-brus.jpg [area_modifier] => 85.4 [parent_name] => Стены 2 этаж (несущие) [parent_id] => 5 [material_sum] => 1826578 [work_sum] => 430954 [total_sum] => 2257532 [total_days] => 24 [display_material_sum] => 1 826 578 [display_work_sum] => 430 954 [display_total_sum] => 2 257 532 ) 1
2 257 532
Работа:430 954
Материалы:1 826 578
Дни:24
stdClass Object ( [id] => 94 [attribute_id] => 5 [name] => Каркасные [material_modifier] => 1 [work_modifier] => 1 [options] => Array ( [0] => 150 мм [1] => 200 мм [2] => 250 мм [3] => 300 мм ) [days] => [15,16,17,18] [material_price] => [2379,2639,2898,3258] [work_price] => [2418,2686,2985,3716] [image] => https://akademik-stroy.ru/wp-content/uploads/materials/karkasnye.jpg [area_modifier] => 85.4 [parent_name] => Стены 2 этаж (несущие) [parent_id] => 5 [material_sum] => 255990 [work_sum] => 216822 [total_sum] => 472812 [total_days] => 15 [display_material_sum] => 255 990 [display_work_sum] => 216 822 [display_total_sum] => 472 812 ) 1
472 812
Работа:216 822
Материалы:255 990
Дни:15
stdClass Object ( [id] => 95 [attribute_id] => 5 [name] => СИП-панели [material_modifier] => 1 [work_modifier] => 1 [options] => Array ( [0] => 120 мм [1] => 170 мм [2] => 220 мм ) [days] => [7,7,7] [material_price] => [1210,1856,2292] [work_price] => [1410,1551,1706] [image] => https://akademik-stroy.ru/wp-content/uploads/materials/sip-paneli.jpg [area_modifier] => 85.4 [parent_name] => Стены 2 этаж (несущие) [parent_id] => 5 [material_sum] => 130201 [work_sum] => 126435 [total_sum] => 256636 [total_days] => 7 [display_material_sum] => 130 201 [display_work_sum] => 126 435 [display_total_sum] => 256 636 ) 1
256 636
Работа:126 435
Материалы:130 201
Дни:7
stdClass Object ( [id] => 96 [attribute_id] => 5 [name] => Сухой брус [material_modifier] => 1 [work_modifier] => 1 [options] => Array ( [0] => 150 мм [1] => 180 мм [2] => 200 мм ) [days] => [7,8,9] [material_price] => [6010,7190,8709] [work_price] => [3204,3845,4229] [image] => https://akademik-stroy.ru/wp-content/uploads/materials/suhoj-brus.jpg [area_modifier] => 85.4 [parent_name] => Стены 2 этаж (несущие) [parent_id] => 5 [material_sum] => 646700 [work_sum] => 287303 [total_sum] => 934003 [total_days] => 7 [display_material_sum] => 646 700 [display_work_sum] => 287 303 [display_total_sum] => 934 003 ) 1
934 003
Работа:287 303
Материалы:646 700
Дни:7
stdClass Object ( [id] => 97 [attribute_id] => 5 [name] => Профилированный брус [material_modifier] => 1 [work_modifier] => 1 [options] => Array ( [0] => 150 мм [1] => 180 мм [2] => 200 мм ) [days] => [7,8,9] [material_price] => [8190,9228,10051] [work_price] => [3845,4614,5075] [image] => https://akademik-stroy.ru/wp-content/uploads/materials/profilirovannyj-brus.jpg [area_modifier] => 85.4 [parent_name] => Стены 2 этаж (несущие) [parent_id] => 5 [material_sum] => 881277 [work_sum] => 344781 [total_sum] => 1226058 [total_days] => 7 [display_material_sum] => 881 277 [display_work_sum] => 344 781 [display_total_sum] => 1 226 058 ) 1
1 226 058
Работа:344 781
Материалы:881 277
Дни:7
stdClass Object ( [id] => 98 [attribute_id] => 5 [name] => Оцилиндрованное бревно [material_modifier] => 1 [work_modifier] => 1 [options] => Array ( [0] => 180 мм [1] => 220 мм [2] => 260 мм [3] => 320 мм ) [days] => [7,8,9,10] [material_price] => [75190,9532,10868,13116] [work_price] => [3845,4691,5535,6863] [image] => https://akademik-stroy.ru/wp-content/uploads/materials/ocilindrovannoe-brevno-1.jpg [area_modifier] => 85.4 [parent_name] => Стены 2 этаж (несущие) [parent_id] => 5 [material_sum] => 8090745 [work_sum] => 344781 [total_sum] => 8435526 [total_days] => 7 [display_material_sum] => 8 090 745 [display_work_sum] => 344 781 [display_total_sum] => 8 435 526 ) 1
8 435 526
Работа:344 781
Материалы:8 090 745
Дни:7
stdClass Object ( [id] => 99 [attribute_id] => 5 [name] => Срубы [material_modifier] => 1 [work_modifier] => 1 [options] => Array ( [0] => 260 мм [1] => 320 мм [2] => 360 мм [3] => 400 мм [4] => 500 мм ) [days] => [7,8,9,10,11] [material_price] => [16175,23709,26314,29069,32167] [work_price] => [4806,5911,6621,7349,9260] [image] => https://akademik-stroy.ru/wp-content/uploads/materials/suhoj-brus.jpg [area_modifier] => 85.4 [parent_name] => Стены 2 этаж (несущие) [parent_id] => 5 [material_sum] => 1740495 [work_sum] => 430954 [total_sum] => 2171449 [total_days] => 7 [display_material_sum] => 1 740 495 [display_work_sum] => 430 954 [display_total_sum] => 2 171 449 ) 1
2 171 449
Работа:430 954
Материалы:1 740 495
Дни:7
stdClass Object ( [id] => 194 [attribute_id] => 5 [name] => Брус [material_modifier] => 1 [work_modifier] => 1 [options] => Array ( [0] => 150 мм [1] => 180 мм [2] => 200 мм ) [days] => [10,13,15] [material_price] => [5127,6152,7367] [work_price] => [1602,1922,2115] [image] => https://akademik-stroy.ru/wp-content/uploads/materials/brus.jpg [area_modifier] => 85.4 [parent_name] => Стены 2 этаж (несущие) [parent_id] => 5 [material_sum] => 551686 [work_sum] => 143651 [total_sum] => 695337 [total_days] => 10 [display_material_sum] => 551 686 [display_work_sum] => 143 651 [display_total_sum] => 695 337 ) 1
695 337
Работа:143 651
Материалы:551 686
Дни:10
stdClass Object ( [id] => 195 [attribute_id] => 5 [name] => Газобетон [material_modifier] => 1 [work_modifier] => 1 [options] => Array ( [0] => 300 мм [1] => 375 мм [2] => 400 мм [3] => 500 мм [4] => 600 мм ) [days] => [29,31,35,37,44] [material_price] => [4298,5573,6356,7288,9119] [work_price] => [4538,5251,5926,6733,7195] [image] => https://akademik-stroy.ru/wp-content/uploads/materials/gazobeton.jpg [area_modifier] => 85.4 [parent_name] => Стены 2 этаж (несущие) [parent_id] => 5 [material_sum] => 462482 [work_sum] => 406922 [total_sum] => 869404 [total_days] => 29 [display_material_sum] => 462 482 [display_work_sum] => 406 922 [display_total_sum] => 869 404 ) 1
869 404
Работа:406 922
Материалы:462 482
Дни:29
stdClass Object ( [id] => 196 [attribute_id] => 5 [name] => Блок [material_modifier] => 1 [work_modifier] => 1 [options] => Array ( [0] => 300 мм [1] => 375 мм [2] => 400 мм [3] => 500 мм [4] => 600 мм ) [days] => [29,31,35,37,44] [material_price] => [2698,3973,4356,6588,7119] [work_price] => [5038,5851,6426,8733,9195] [image] => https://akademik-stroy.ru/wp-content/uploads/materials/blok.jpg [area_modifier] => 85.4 [parent_name] => Стены 2 этаж (несущие) [parent_id] => 5 [material_sum] => 290316 [work_sum] => 451757 [total_sum] => 742073 [total_days] => 29 [display_material_sum] => 290 316 [display_work_sum] => 451 757 [display_total_sum] => 742 073 ) 1
742 073
Работа:451 757
Материалы:290 316
Дни:29
stdClass Object ( [id] => 197 [attribute_id] => 5 [name] => Газосиликатный блок [material_modifier] => 1 [work_modifier] => 1 [options] => Array ( [0] => 300 мм [1] => 375 мм [2] => 400 мм [3] => 500 мм [4] => 600 мм ) [days] => [29,31,35,37,44] [material_price] => [4298,5573,6356,7288,9119] [work_price] => [4538,5251,5926,6733,7195] [image] => https://akademik-stroy.ru/wp-content/uploads/materials/gazosilikatnyj-blok.jpg [area_modifier] => 85.4 [parent_name] => Стены 2 этаж (несущие) [parent_id] => 5 [material_sum] => 462482 [work_sum] => 406922 [total_sum] => 869404 [total_days] => 29 [display_material_sum] => 462 482 [display_work_sum] => 406 922 [display_total_sum] => 869 404 ) 1
869 404
Работа:406 922
Материалы:462 482
Дни:29
stdClass Object ( [id] => 198 [attribute_id] => 5 [name] => Керамзитобетонный блок [material_modifier] => 1 [work_modifier] => 1 [options] => Array ( [0] => 300 мм [1] => 375 мм [2] => 400 мм [3] => 500 мм [4] => 600 мм ) [days] => [23,23,24,25,28] [material_price] => [3641,4298,5693,7613,9612] [work_price] => [5737,5737,6903,7958,8901] [image] => https://akademik-stroy.ru/wp-content/uploads/materials/keramzitobetonnyj-blok.jpg [area_modifier] => 85.4 [parent_name] => Стены 2 этаж (несущие) [parent_id] => 5 [material_sum] => 391786 [work_sum] => 514437 [total_sum] => 906223 [total_days] => 23 [display_material_sum] => 391 786 [display_work_sum] => 514 437 [display_total_sum] => 906 223 ) 1
906 223
Работа:514 437
Материалы:391 786
Дни:23
stdClass Object ( [id] => 199 [attribute_id] => 5 [name] => Деревянные [material_modifier] => 1 [work_modifier] => 1 [options] => Array ( [0] => 180 мм [1] => 220 мм [2] => 260 мм [3] => 320 мм ) [days] => [7,8,9,10] [material_price] => [7950,9458,11961,14472] [work_price] => [4037,4925,5812,7207] [image] => https://akademik-stroy.ru/wp-content/uploads/materials/derevyannye.jpg [area_modifier] => 85.4 [parent_name] => Стены 2 этаж (несущие) [parent_id] => 5 [material_sum] => 855452 [work_sum] => 361998 [total_sum] => 1217450 [total_days] => 7 [display_material_sum] => 855 452 [display_work_sum] => 361 998 [display_total_sum] => 1 217 450 ) 1
1 217 450
Работа:361 998
Материалы:855 452
Дни:7
stdClass Object ( [id] => 200 [attribute_id] => 5 [name] => Камень [material_modifier] => 1 [work_modifier] => 1 [options] => Array ( [0] => 300 мм [1] => 400 мм [2] => 500 мм [3] => 600 мм ) [days] => [25,27,31,34] [material_price] => [5262,6844,8330,9815] [work_price] => [8331,9135,10427,11069] [image] => https://akademik-stroy.ru/wp-content/uploads/materials/kamen.jpg [area_modifier] => 85.4 [parent_name] => Стены 2 этаж (несущие) [parent_id] => 5 [material_sum] => 566212 [work_sum] => 747041 [total_sum] => 1313253 [total_days] => 25 [display_material_sum] => 566 212 [display_work_sum] => 747 041 [display_total_sum] => 1 313 253 ) 1
1 313 253
Работа:747 041
Материалы:566 212
Дни:25
stdClass Object ( [id] => 201 [attribute_id] => 5 [name] => Каркасно-щитовые [material_modifier] => 1 [work_modifier] => 1 [options] => Array ( [0] => 150 мм [1] => 200 мм [2] => 250 мм [3] => 300 мм [4] => 350 мм [5] => 400 мм ) [days] => [15,16,17,18,19,20] [material_price] => [2379,2639,2898,3458,3601,4175] [work_price] => [2538,2820,3134,3483,4062,5642] [image] => https://akademik-stroy.ru/wp-content/uploads/materials/karkasno-shchitovye.jpg [area_modifier] => 85.4 [parent_name] => Стены 2 этаж (несущие) [parent_id] => 5 [material_sum] => 255990 [work_sum] => 227582 [total_sum] => 483572 [total_days] => 15 [display_material_sum] => 255 990 [display_work_sum] => 227 582 [display_total_sum] => 483 572 ) 1
483 572
Работа:227 582
Материалы:255 990
Дни:15
stdClass Object ( [id] => 202 [attribute_id] => 5 [name] => Рубленные [material_modifier] => 1 [work_modifier] => 1 [options] => Array ( [0] => 150 мм [1] => 200 мм [2] => 250 мм [3] => 300 мм [4] => 350 мм [5] => 400 мм ) [days] => [15,16,17,18,17,18] [material_price] => [35950,50267,60583,75900,80217,100533] [work_price] => [9612,12816,16020,19224,22428,25632] [image] => https://akademik-stroy.ru/wp-content/uploads/materials/rublennye.jpg [area_modifier] => 85.4 [parent_name] => Стены 2 этаж (несущие) [parent_id] => 5 [material_sum] => 3868364 [work_sum] => 861908 [total_sum] => 4730272 [total_days] => 15 [display_material_sum] => 3 868 364 [display_work_sum] => 861 908 [display_total_sum] => 4 730 272 ) 1
4 730 272
Работа:861 908
Материалы:3 868 364
Дни:15
stdClass Object ( [id] => 203 [attribute_id] => 5 [name] => Теплоблок [material_modifier] => 1 [work_modifier] => 1 [options] => Array ( [0] => 300 мм (с облицовкой, не покрашенный) [1] => 400 мм (с облицовкой, не покрашенный) [2] => 300 мм (с облицовкой, покрашенный) [3] => 400 мм (с облицовкой, покрашенный) ) [days] => [15,16,15,16] [material_price] => [2888,3729,3957,4258] [work_price] => [2564,3229,2949,3713] [image] => https://akademik-stroy.ru/wp-content/uploads/materials/teploblok.jpg [area_modifier] => 85.4 [parent_name] => Стены 2 этаж (несущие) [parent_id] => 5 [material_sum] => 310760 [work_sum] => 229914 [total_sum] => 540674 [total_days] => 15 [display_material_sum] => 310 760 [display_work_sum] => 229 914 [display_total_sum] => 540 674 ) 1
540 674
Работа:229 914
Материалы:310 760
Дни:15
stdClass Object ( [id] => 204 [attribute_id] => 5 [name] => Арболитовые блоки [material_modifier] => 1 [work_modifier] => 1 [options] => Array ( [0] => 300 мм [1] => 400 мм [2] => 600 мм ) [days] => [19,22,27] [material_price] => [3210,4475,5852] [work_price] => [4214,4788,5866] [image] => https://akademik-stroy.ru/wp-content/uploads/materials/arbolitovye-bloki.png [area_modifier] => 85.4 [parent_name] => Стены 2 этаж (несущие) [parent_id] => 5 [material_sum] => 345409 [work_sum] => 377869 [total_sum] => 723278 [total_days] => 19 [display_material_sum] => 345 409 [display_work_sum] => 377 869 [display_total_sum] => 723 278 ) 1
723 278
Работа:377 869
Материалы:345 409
Дни:19
stdClass Object ( [id] => 205 [attribute_id] => 5 [name] => Полистиролбетон [material_modifier] => 1 [work_modifier] => 1 [options] => Array ( [0] => 300 мм [1] => 400 мм [2] => 600 мм ) [days] => [29,31,35] [material_price] => [2798,4573,5256] [work_price] => [5038,5851,6426] [image] => https://akademik-stroy.ru/wp-content/uploads/materials/polistirolbeton.jpg [area_modifier] => 85.4 [parent_name] => Стены 2 этаж (несущие) [parent_id] => 5 [material_sum] => 301076 [work_sum] => 451757 [total_sum] => 752833 [total_days] => 29 [display_material_sum] => 301 076 [display_work_sum] => 451 757 [display_total_sum] => 752 833 ) 1
752 833
Работа:451 757
Материалы:301 076
Дни:29
stdClass Object ( [id] => 206 [attribute_id] => 5 [name] => Шлакоблок [material_modifier] => 1 [work_modifier] => 1 [options] => Array ( [0] => 400 мм [1] => 600 мм ) [days] => [15,16] [material_price] => [2391,3471] [work_price] => [2642,3662] [image] => https://akademik-stroy.ru/wp-content/uploads/materials/shlakoblok.jpg [area_modifier] => 85.4 [parent_name] => Стены 2 этаж (несущие) [parent_id] => 5 [material_sum] => 257281 [work_sum] => 236908 [total_sum] => 494189 [total_days] => 15 [display_material_sum] => 257 281 [display_work_sum] => 236 908 [display_total_sum] => 494 189 ) 1
494 189
Работа:236 908
Материалы:257 281
Дни:15
stdClass Object ( [id] => 245 [attribute_id] => 5 [name] => Теплая керамика [material_modifier] => 1 [work_modifier] => 1 [options] => Array ( [0] => 380 мм [1] => 380 мм Thermo [2] => 440 мм [3] => 510 мм ) [days] => [10,10,11,12] [material_price] => [4510,5098,6093,8013] [work_price] => [4737,4937,5903,6958] [image] => https://akademik-stroy.ru/wp-content/uploads/materials/teplaya-keramika.jpg [area_modifier] => 85.4 [parent_name] => Стены 2 этаж (несущие) [parent_id] => 5 [material_sum] => 485294 [work_sum] => 424767 [total_sum] => 910061 [total_days] => 10 [display_material_sum] => 485 294 [display_work_sum] => 424 767 [display_total_sum] => 910 061 ) 1
910 061
Работа:424 767
Материалы:485 294
Дни:10
stdClass Object ( [id] => 246 [attribute_id] => 5 [name] => Несъемная опалубка [material_modifier] => 1 [work_modifier] => 1 [options] => Array ( [0] => 380 мм [1] => 380 мм Thermo [2] => 440 мм [3] => 510 мм ) [days] => [10,10,11,12] [material_price] => [3302,3902,4108,5008] [work_price] => [2100,2100,2300,2534] [image] => https://akademik-stroy.ru/wp-content/uploads/materials/nesemnaya-opalubka.jpg [area_modifier] => 85.4 [parent_name] => Стены 2 этаж (несущие) [parent_id] => 5 [material_sum] => 355308 [work_sum] => 188307 [total_sum] => 543615 [total_days] => 10 [display_material_sum] => 355 308 [display_work_sum] => 188 307 [display_total_sum] => 543 615 ) 1
543 615
Работа:188 307
Материалы:355 308
Дни:10
stdClass Object ( [id] => 254 [attribute_id] => 5 [name] => Бревно [material_modifier] => 1 [work_modifier] => 1 [options] => Array ( [0] => 260 мм [1] => 320 мм [2] => 360 мм [3] => 400 мм [4] => 500 мм ) [days] => [7,8,9,10,11] [material_price] => [1874,24045,26930,30972,38825] [work_price] => [5046,6207,6952,7716,9723] [image] => https://akademik-stroy.ru/wp-content/uploads/materials/sruby.jpg [area_modifier] => 85.4 [parent_name] => Стены 2 этаж (несущие) [parent_id] => 5 [material_sum] => 201650 [work_sum] => 452475 [total_sum] => 654125 [total_days] => 7 [display_material_sum] => 201 650 [display_work_sum] => 452 475 [display_total_sum] => 654 125 ) 1
654 125
Работа:452 475
Материалы:201 650
Дни:7
Крыша (Скатная)
stdClass Object ( [id] => 164 [attribute_id] => 37 [name] => Металлочерепица [material_modifier] => 1 [work_modifier] => 1 [options] => Array ( ) [days] => [20] [material_price] => [6112] [work_price] => [5726] [image] => https://akademik-stroy.ru/wp-content/uploads/materials/metallocherepica.jpg [area_modifier] => 138.63 [parent_name] => Крыша (Скатная) [parent_id] => 37 [material_sum] => 1067606 [work_sum] => 833485 [total_sum] => 1901091 [total_days] => 20 [display_material_sum] => 1 067 606 [display_work_sum] => 833 485 [display_total_sum] => 1 901 091 ) 1
1 901 091
Работа:833 485
Материалы:1 067 606
Дни:20
stdClass Object ( [id] => 165 [attribute_id] => 37 [name] => Гибкая черепица [material_modifier] => 1 [work_modifier] => 1 [options] => Array ( ) [days] => [20] [material_price] => [6980] [work_price] => [5950] [image] => https://akademik-stroy.ru/wp-content/uploads/materials/gibkaya-cherepica.jpg [area_modifier] => 138.63 [parent_name] => Крыша (Скатная) [parent_id] => 37 [material_sum] => 1219223 [work_sum] => 866091 [total_sum] => 2085314 [total_days] => 20 [display_material_sum] => 1 219 223 [display_work_sum] => 866 091 [display_total_sum] => 2 085 314 ) 1
2 085 314
Работа:866 091
Материалы:1 219 223
Дни:20
stdClass Object ( [id] => 166 [attribute_id] => 37 [name] => Цементно-песчаная черепица [material_modifier] => 1 [work_modifier] => 1 [options] => Array ( ) [days] => [20] [material_price] => [10560] [work_price] => [9456] [image] => https://akademik-stroy.ru/wp-content/uploads/materials/cementno-peschanaya-cherepica.jpg [area_modifier] => 138.63 [parent_name] => Крыша (Скатная) [parent_id] => 37 [material_sum] => 1844555 [work_sum] => 1376430 [total_sum] => 3220985 [total_days] => 20 [display_material_sum] => 1 844 555 [display_work_sum] => 1 376 430 [display_total_sum] => 3 220 985 ) 1
3 220 985
Работа:1 376 430
Материалы:1 844 555
Дни:20
stdClass Object ( [id] => 167 [attribute_id] => 37 [name] => Композитная черепица [material_modifier] => 1 [work_modifier] => 1 [options] => Array ( ) [days] => [20] [material_price] => [9506] [work_price] => [8905] [image] => https://akademik-stroy.ru/wp-content/uploads/materials/kompozitnaya-cherepica.jpg [area_modifier] => 138.63 [parent_name] => Крыша (Скатная) [parent_id] => 37 [material_sum] => 1660449 [work_sum] => 1296225 [total_sum] => 2956674 [total_days] => 20 [display_material_sum] => 1 660 449 [display_work_sum] => 1 296 225 [display_total_sum] => 2 956 674 ) 1
2 956 674
Работа:1 296 225
Материалы:1 660 449
Дни:20
stdClass Object ( [id] => 168 [attribute_id] => 37 [name] => Керамическая черепица [material_modifier] => 1 [work_modifier] => 1 [options] => Array ( ) [days] => [20] [material_price] => [12750] [work_price] => [9456] [image] => https://akademik-stroy.ru/wp-content/uploads/materials/keramicheskaya-cherepica.jpg [area_modifier] => 138.63 [parent_name] => Крыша (Скатная) [parent_id] => 37 [material_sum] => 2227091 [work_sum] => 1376430 [total_sum] => 3603521 [total_days] => 20 [display_material_sum] => 2 227 091 [display_work_sum] => 1 376 430 [display_total_sum] => 3 603 521 ) 1
3 603 521
Работа:1 376 430
Материалы:2 227 091
Дни:20
stdClass Object ( [id] => 169 [attribute_id] => 37 [name] => Металлическая фальцевая [material_modifier] => 1 [work_modifier] => 1 [options] => Array ( ) [days] => [20] [material_price] => [8550] [work_price] => [8190] [image] => https://akademik-stroy.ru/wp-content/uploads/materials/metallicheskaya-falcevaya.jpg [area_modifier] => 138.63 [parent_name] => Крыша (Скатная) [parent_id] => 37 [material_sum] => 1493461 [work_sum] => 1192149 [total_sum] => 2685610 [total_days] => 20 [display_material_sum] => 1 493 461 [display_work_sum] => 1 192 149 [display_total_sum] => 2 685 610 ) 1
2 685 610
Работа:1 192 149
Материалы:1 493 461
Дни:20
stdClass Object ( [id] => 170 [attribute_id] => 37 [name] => Медная фальцевая [material_modifier] => 1 [work_modifier] => 1 [options] => Array ( ) [days] => [20] [material_price] => [20450] [work_price] => [16750] [image] => https://akademik-stroy.ru/wp-content/uploads/materials/mednaya-falcevaya.jpg [area_modifier] => 138.63 [parent_name] => Крыша (Скатная) [parent_id] => 37 [material_sum] => 3572079 [work_sum] => 2438155 [total_sum] => 6010234 [total_days] => 20 [display_material_sum] => 3 572 079 [display_work_sum] => 2 438 155 [display_total_sum] => 6 010 234 ) 1
6 010 234
Работа:2 438 155
Материалы:3 572 079
Дни:20
stdClass Object ( [id] => 171 [attribute_id] => 37 [name] => Зеленая кровля [material_modifier] => 1 [work_modifier] => 1 [options] => Array ( ) [days] => [20] [material_price] => [19850] [work_price] => [16780] [image] => https://akademik-stroy.ru/wp-content/uploads/materials/zelenaya-krovlya.jpg [area_modifier] => 138.63 [parent_name] => Крыша (Скатная) [parent_id] => 37 [material_sum] => 3467275 [work_sum] => 2442522 [total_sum] => 5909797 [total_days] => 20 [display_material_sum] => 3 467 275 [display_work_sum] => 2 442 522 [display_total_sum] => 5 909 797 ) 1
5 909 797
Работа:2 442 522
Материалы:3 467 275
Дни:20
stdClass Object ( [id] => 172 [attribute_id] => 37 [name] => Профлист [material_modifier] => 1 [work_modifier] => 1 [options] => Array ( ) [days] => [20] [material_price] => [3450] [work_price] => [3750] [image] => https://akademik-stroy.ru/wp-content/uploads/materials/proflist.jpg [area_modifier] => 138.63 [parent_name] => Крыша (Скатная) [parent_id] => 37 [material_sum] => 602625 [work_sum] => 545856 [total_sum] => 1148481 [total_days] => 20 [display_material_sum] => 602 625 [display_work_sum] => 545 856 [display_total_sum] => 1 148 481 ) 1
1 148 481
Работа:545 856
Материалы:602 625
Дни:20
Окна
stdClass Object ( [id] => 51 [attribute_id] => 26 [name] => Есть [material_modifier] => 1 [work_modifier] => 1 [options] => Array ( [0] => Профиль 58 мм, 3-камерный, стеклопакет 2-камерный до 32 мм [1] => Профиль 60 мм, 4-камерный, стеклопакет 2-камерный до 32 мм [2] => Профиль 70 мм, 5-камерный, стеклопакет 2-камерный до 40 мм [3] => Профиль 72 мм, 5-камерный, стеклопакет 2-камерный до 40 мм [4] => Алюминиевые окна Alutech профиль 72 мм, стеклопакет 2-камерный ) [days] => [3,3,3,3,3] [material_price] => [1339,2124,2867,3023,29596] [work_price] => [635,647,659,668,2579] [image] => https://akademik-stroy.ru/wp-content/uploads/materials/okna.jpg [area_modifier] => 181.8 [parent_name] => Окна [parent_id] => 26 [material_sum] => 306722 [work_sum] => 121215 [total_sum] => 427937 [total_days] => 3 [display_material_sum] => 306 722 [display_work_sum] => 121 215 [display_total_sum] => 427 937 ) 1
427 937
Работа:121 215
Материалы:306 722
Дни:3
stdClass Object ( [id] => 52 [attribute_id] => 26 [name] => Нет [material_modifier] => 2 [work_modifier] => 1 [options] => [days] => null [material_price] => null [work_price] => null [image] => https://akademik-stroy.ru/wp-content/uploads/materials/okna.jpg [area_modifier] => 181.8 [parent_name] => Окна [parent_id] => 26 [material_sum] => 0 [work_sum] => 0 [total_sum] => 0 [total_days] => 0 [display_material_sum] => 0 [display_work_sum] => 0 [display_total_sum] => 0 ) 1
0
Работа:0
Материалы:0
Дни:0
Двери входные
stdClass Object ( [id] => 53 [attribute_id] => 27 [name] => Есть [material_modifier] => 1 [work_modifier] => 1 [options] => Array ( ) [days] => [1] [material_price] => [10000] [work_price] => [5500] [image] => https://akademik-stroy.ru/wp-content/uploads/materials/dveri.jpg [area_modifier] => 1 [parent_name] => Двери входные [parent_id] => 27 [material_sum] => 12600 [work_sum] => 5775 [total_sum] => 18375 [total_days] => 1 [display_material_sum] => 12 600 [display_work_sum] => 5 775 [display_total_sum] => 18 375 ) 1
18 375
Работа:5 775
Материалы:12 600
Дни:1
stdClass Object ( [id] => 54 [attribute_id] => 27 [name] => Нет [material_modifier] => 1 [work_modifier] => 1 [options] => Array ( ) [days] => [0] [material_price] => [0] [work_price] => [0] [image] => https://akademik-stroy.ru/wp-content/uploads/materials/dveri.jpg [area_modifier] => 1 [parent_name] => Двери входные [parent_id] => 27 [material_sum] => 0 [work_sum] => 0 [total_sum] => 0 [total_days] => 0 [display_material_sum] => 0 [display_work_sum] => 0 [display_total_sum] => 0 ) 1
0
Работа:0
Материалы:0
Дни:0
Утепление кровли (Мансарда)
stdClass Object ( [id] => 25 [attribute_id] => 13 [name] => Нет [material_modifier] => 1 [work_modifier] => 1 [options] => Array ( ) [days] => [0] [material_price] => [0] [work_price] => [0] [image] => https://akademik-stroy.ru/wp-content/uploads/materials/mineralovata-krov.jpg [area_modifier] => 138.63 [parent_name] => Утепление кровли (Мансарда) [parent_id] => 13 [material_sum] => 0 [work_sum] => 0 [total_sum] => 0 [total_days] => 0 [display_material_sum] => 0 [display_work_sum] => 0 [display_total_sum] => 0 ) 1
0
Работа:0
Материалы:0
Дни:0
stdClass Object ( [id] => 26 [attribute_id] => 13 [name] => Минераловатный [material_modifier] => 1 [work_modifier] => 1 [options] => Array ( [0] => 50 мм [1] => 100 мм [2] => 150 мм [3] => 200 мм [4] => 250 мм [5] => 300 мм [6] => 350 мм [7] => 400 мм [8] => 450 мм [9] => 500 мм ) [days] => [5,5,6,6,6,7,7,7,8,8] [material_price] => [1158,1414,1772,2230,3602,4060,4974,5890,6408,7718] [work_price] => [650,846,846,1098,1318,1450,1596,1754,1930,2122] [image] => https://akademik-stroy.ru/wp-content/uploads/materials/mineralovata-krov.jpg [area_modifier] => 138.63 [parent_name] => Утепление кровли (Мансарда) [parent_id] => 13 [material_sum] => 202272 [work_sum] => 94615 [total_sum] => 296887 [total_days] => 5 [display_material_sum] => 202 272 [display_work_sum] => 94 615 [display_total_sum] => 296 887 ) 1
296 887
Работа:94 615
Материалы:202 272
Дни:5
stdClass Object ( [id] => 123 [attribute_id] => 13 [name] => Эковата (целлюлозная вата) [material_modifier] => 1 [work_modifier] => 1 [options] => Array ( [0] => 50 мм [1] => 100 мм [2] => 150 мм [3] => 200 мм [4] => 250 мм [5] => 300 мм [6] => 350 мм [7] => 400 мм [8] => 450 мм [9] => 500 мм ) [days] => [3,3,4,4,4,5,5,5,5,5] [material_price] => [820,1638,2458,3276,5734,6552,8190,9828,11466,13104] [work_price] => [234,304,304,396,474,522,574,632,694,764] [image] => https://akademik-stroy.ru/wp-content/uploads/materials/ehkovata-krov.jpg [area_modifier] => 138.63 [parent_name] => Утепление кровли (Мансарда) [parent_id] => 13 [material_sum] => 143233 [work_sum] => 34061 [total_sum] => 177294 [total_days] => 3 [display_material_sum] => 143 233 [display_work_sum] => 34 061 [display_total_sum] => 177 294 ) 1
177 294
Работа:34 061
Материалы:143 233
Дни:3
stdClass Object ( [id] => 124 [attribute_id] => 13 [name] => Экструдированный пенополистирол [material_modifier] => 1 [work_modifier] => 1 [options] => Array ( [0] => 50 мм [1] => 100 мм [2] => 150 мм [3] => 200 мм [4] => 250 мм [5] => 300 мм [6] => 350 мм [7] => 400 мм [8] => 450 мм [9] => 500 мм ) [days] => [3,3,4,4,4,5,5,5,5,6] [material_price] => [1146,2292,3438,4584,8020,9166,11458,13750,16040,18332] [work_price] => [390,508,508,660,790,870,958,1052,1158,1274] [image] => https://akademik-stroy.ru/wp-content/uploads/materials/epps-krov.jpg [area_modifier] => 138.63 [parent_name] => Утепление кровли (Мансарда) [parent_id] => 13 [material_sum] => 200176 [work_sum] => 56769 [total_sum] => 256945 [total_days] => 3 [display_material_sum] => 200 176 [display_work_sum] => 56 769 [display_total_sum] => 256 945 ) 1
256 945
Работа:56 769
Материалы:200 176
Дни:3
stdClass Object ( [id] => 125 [attribute_id] => 13 [name] => ПСБ (ППС-пенополистирол) [material_modifier] => 1 [work_modifier] => 1 [options] => Array ( [0] => 50 мм [1] => 100 мм [2] => 150 мм [3] => 200 мм [4] => 250 мм [5] => 300 мм [6] => 350 мм [7] => 400 мм [8] => 450 мм [9] => 500 мм ) [days] => [3,3,4,4,4,5,5,5,5,6] [material_price] => [476,954,1430,1906,3336,3814,4766,5720,6674,7626] [work_price] => [390,508,508,660,790,870,958,1052,1158,1274] [image] => https://akademik-stroy.ru/wp-content/uploads/materials/psb-krov.jpg [area_modifier] => 138.63 [parent_name] => Утепление кровли (Мансарда) [parent_id] => 13 [material_sum] => 83145 [work_sum] => 56769 [total_sum] => 139914 [total_days] => 3 [display_material_sum] => 83 145 [display_work_sum] => 56 769 [display_total_sum] => 139 914 ) 1
139 914
Работа:56 769
Материалы:83 145
Дни:3
stdClass Object ( [id] => 126 [attribute_id] => 13 [name] => ППУ (Пенополиуретан) [material_modifier] => 1 [work_modifier] => 1 [options] => Array ( [0] => 50 мм [1] => 100 мм [2] => 150 мм [3] => 200 мм [4] => 250 мм [5] => 300 мм [6] => 350 мм [7] => 400 мм [8] => 450 мм [9] => 500 мм ) [days] => [2,2,3,3,3,3,4,4,4,4] [material_price] => [2080,4160,6240,8320,14560,16640,20800,24960,29120,33280] [work_price] => [234,304,304,396,474,522,574,632,694,764] [image] => https://akademik-stroy.ru/wp-content/uploads/materials/ppu-krov.jpg [area_modifier] => 138.63 [parent_name] => Утепление кровли (Мансарда) [parent_id] => 13 [material_sum] => 363322 [work_sum] => 34061 [total_sum] => 397383 [total_days] => 2 [display_material_sum] => 363 322 [display_work_sum] => 34 061 [display_total_sum] => 397 383 ) 1
397 383
Работа:34 061
Материалы:363 322
Дни:2
stdClass Object ( [id] => 127 [attribute_id] => 13 [name] => PIR-плиты (пенополиизоцианурат) [material_modifier] => 1 [work_modifier] => 1 [options] => Array ( [0] => 50 мм [1] => 100 мм [2] => 150 мм [3] => 200 мм [4] => 250 мм [5] => 300 мм [6] => 350 мм [7] => 400 мм [8] => 450 мм [9] => 500 мм ) [days] => [3,3,4,4,4,5,5,5,5,6] [material_price] => [2646,5290,7936,10580,18516,21162,26452,31742,37032,42324] [work_price] => [390,508,508,660,790,870,958,1052,1158,1274] [image] => https://akademik-stroy.ru/wp-content/uploads/materials/pir-krov.jpg [area_modifier] => 138.63 [parent_name] => Утепление кровли (Мансарда) [parent_id] => 13 [material_sum] => 462187 [work_sum] => 56769 [total_sum] => 518956 [total_days] => 3 [display_material_sum] => 462 187 [display_work_sum] => 56 769 [display_total_sum] => 518 956 ) 1
518 956
Работа:56 769
Материалы:462 187
Дни:3
Мансардные окна
stdClass Object ( [id] => 27 [attribute_id] => 14 [name] => Нет [material_modifier] => 1 [work_modifier] => 1 [options] => Array ( ) [days] => [0] [material_price] => [0] [work_price] => [0] [image] => https://akademik-stroy.ru/wp-content/uploads/materials/mansardnye-okna-2.jpg [area_modifier] => 1 [parent_name] => Мансардные окна [parent_id] => 14 [material_sum] => 0 [work_sum] => 0 [total_sum] => 0 [total_days] => 0 [display_material_sum] => 0 [display_work_sum] => 0 [display_total_sum] => 0 ) 1
0
Работа:0
Материалы:0
Дни:0
stdClass Object ( [id] => 28 [attribute_id] => 14 [name] => Есть [material_modifier] => 1 [work_modifier] => 1 [options] => Array ( [0] => 55x78 [1] => 55x98 ) [days] => [6,7] [material_price] => [47480,68700] [work_price] => [17900,19500] [image] => https://akademik-stroy.ru/wp-content/uploads/materials/mansardnye-okna-2.jpg [area_modifier] => 1 [parent_name] => Мансардные окна [parent_id] => 14 [material_sum] => 59825 [work_sum] => 18795 [total_sum] => 78620 [total_days] => 6 [display_material_sum] => 59 825 [display_work_sum] => 18 795 [display_total_sum] => 78 620 ) 1
78 620
Работа:18 795
Материалы:59 825
Дни:6
Подшивка кровли
stdClass Object ( [id] => 29 [attribute_id] => 15 [name] => Нет [material_modifier] => 1 [work_modifier] => 1 [options] => Array ( ) [days] => [0] [material_price] => [0] [work_price] => [0] [image] => https://akademik-stroy.ru/wp-content/uploads/materials/sofit.jpg [area_modifier] => 138.63 [parent_name] => Подшивка кровли [parent_id] => 15 [material_sum] => 0 [work_sum] => 0 [total_sum] => 0 [total_days] => 0 [display_material_sum] => 0 [display_work_sum] => 0 [display_total_sum] => 0 ) 1
0
Работа:0
Материалы:0
Дни:0
stdClass Object ( [id] => 30 [attribute_id] => 15 [name] => Есть [material_modifier] => 1 [work_modifier] => 1 [options] => Array ( [0] => Софиты (ПВХ) [1] => Cedral [2] => ДПК [3] => Планкен ) [days] => [7,10,9,8] [material_price] => [1803,3213,3025,3150] [work_price] => [1529,2188,2075,1923] [image] => https://akademik-stroy.ru/wp-content/uploads/materials/sofit.jpg [area_modifier] => 138.63 [parent_name] => Подшивка кровли [parent_id] => 15 [material_sum] => 314937 [work_sum] => 222564 [total_sum] => 537501 [total_days] => 7 [display_material_sum] => 314 937 [display_work_sum] => 222 564 [display_total_sum] => 537 501 ) 1
537 501
Работа:222 564
Материалы:314 937
Дни:7
Водосточная система
stdClass Object ( [id] => 31 [attribute_id] => 16 [name] => Нет [material_modifier] => 1 [work_modifier] => 1 [options] => Array ( ) [days] => [0] [material_price] => [0] [work_price] => [0] [image] => https://akademik-stroy.ru/wp-content/uploads/materials/docke-standard-pvh.jpg [area_modifier] => 138.63 [parent_name] => Водосточная система [parent_id] => 16 [material_sum] => 0 [work_sum] => 0 [total_sum] => 0 [total_days] => 0 [display_material_sum] => 0 [display_work_sum] => 0 [display_total_sum] => 0 ) 1
0
Работа:0
Материалы:0
Дни:0
stdClass Object ( [id] => 32 [attribute_id] => 16 [name] => Есть [material_modifier] => 1 [work_modifier] => 1 [options] => Array ( [0] => Döcke Standard (ПВХ) [1] => Металлические Grand Line ) [days] => [7,7] [material_price] => [1842,2703] [work_price] => [1491,1529] [image] => https://akademik-stroy.ru/wp-content/uploads/materials/docke-standard-pvh.jpg [area_modifier] => 138.63 [parent_name] => Водосточная система [parent_id] => 16 [material_sum] => 321749 [work_sum] => 217032 [total_sum] => 538781 [total_days] => 7 [display_material_sum] => 321 749 [display_work_sum] => 217 032 [display_total_sum] => 538 781 ) 1
538 781
Работа:217 032
Материалы:321 749
Дни:7
Дополнительное утепление наружных стен
stdClass Object ( [id] => 33 [attribute_id] => 17 [name] => Нет [material_modifier] => 1 [work_modifier] => 1 [options] => Array ( ) [days] => [0] [material_price] => [0] [work_price] => [0] [image] => https://akademik-stroy.ru/wp-content/uploads/materials/mineralovata.jpg [area_modifier] => 224.03 [parent_name] => Дополнительное утепление наружных стен [parent_id] => 17 [material_sum] => 0 [work_sum] => 0 [total_sum] => 0 [total_days] => 0 [display_material_sum] => 0 [display_work_sum] => 0 [display_total_sum] => 0 ) 1
0
Работа:0
Материалы:0
Дни:0
stdClass Object ( [id] => 34 [attribute_id] => 17 [name] => Минераловатный [material_modifier] => 1 [work_modifier] => 1 [options] => Array ( [0] => 50 мм [1] => 100 мм [2] => 150 мм [3] => 200 мм [4] => 250 мм [5] => 300 мм ) [days] => [7,8,10,12,14,15] [material_price] => [3437,3613,3803,3915,4601,4830] [work_price] => [2325,2423,2523,2749,2859,3025] [image] => https://akademik-stroy.ru/wp-content/uploads/materials/mineralovata.jpg [area_modifier] => 224.03 [parent_name] => Дополнительное утепление наружных стен [parent_id] => 17 [material_sum] => 970189 [work_sum] => 546913 [total_sum] => 1517102 [total_days] => 7 [display_material_sum] => 970 189 [display_work_sum] => 546 913 [display_total_sum] => 1 517 102 ) 1
1 517 102
Работа:546 913
Материалы:970 189
Дни:7
stdClass Object ( [id] => 128 [attribute_id] => 17 [name] => Эковата (целлюлозная вата) [material_modifier] => 1 [work_modifier] => 1 [options] => Array ( [0] => 50 мм [1] => 100 мм [2] => 150 мм [3] => 200 мм [4] => 250 мм [5] => 300 мм ) [days] => [3,4,5,6,7,8] [material_price] => [810,1319,1629,1838,2267,2676] [work_price] => [1225,1323,1423,1549,1659,1725] [image] => https://akademik-stroy.ru/wp-content/uploads/materials/ehkovata.jpg [area_modifier] => 224.03 [parent_name] => Дополнительное утепление наружных стен [parent_id] => 17 [material_sum] => 228645 [work_sum] => 288159 [total_sum] => 516804 [total_days] => 3 [display_material_sum] => 228 645 [display_work_sum] => 288 159 [display_total_sum] => 516 804 ) 1
516 804
Работа:288 159
Материалы:228 645
Дни:3
stdClass Object ( [id] => 129 [attribute_id] => 17 [name] => Экструдированный пенополистирол [material_modifier] => 1 [work_modifier] => 1 [options] => Array ( [0] => 50 мм [1] => 100 мм [2] => 150 мм [3] => 200 мм [4] => 250 мм [5] => 300 мм ) [days] => [5,6,7,8,9,10] [material_price] => [4560,4300,5119,6292,7010,8583] [work_price] => [1795,1954,2254,2330,2595,2735] [image] => https://akademik-stroy.ru/wp-content/uploads/materials/epps.jpg [area_modifier] => 224.03 [parent_name] => Дополнительное утепление наружных стен [parent_id] => 17 [material_sum] => 1287187 [work_sum] => 422241 [total_sum] => 1709428 [total_days] => 5 [display_material_sum] => 1 287 187 [display_work_sum] => 422 241 [display_total_sum] => 1 709 428 ) 1
1 709 428
Работа:422 241
Материалы:1 287 187
Дни:5
stdClass Object ( [id] => 130 [attribute_id] => 17 [name] => ПСБ (ППС-пенополистирол) [material_modifier] => 1 [work_modifier] => 1 [options] => Array ( [0] => 50 мм [1] => 100 мм [2] => 150 мм [3] => 200 мм [4] => 250 мм [5] => 300 мм ) [days] => [5,6,7,8,9,10] [material_price] => [4822,5200,5819,6292,7010,7583] [work_price] => [1795,1954,2254,2330,2595,2735] [image] => https://akademik-stroy.ru/wp-content/uploads/materials/psb.jpg [area_modifier] => 224.03 [parent_name] => Дополнительное утепление наружных стен [parent_id] => 17 [material_sum] => 1361144 [work_sum] => 422241 [total_sum] => 1783385 [total_days] => 5 [display_material_sum] => 1 361 144 [display_work_sum] => 422 241 [display_total_sum] => 1 783 385 ) 1
1 783 385
Работа:422 241
Материалы:1 361 144
Дни:5
stdClass Object ( [id] => 131 [attribute_id] => 17 [name] => ППУ (Пенополиуретан) [material_modifier] => 1 [work_modifier] => 1 [options] => Array ( [0] => 50 мм [1] => 100 мм [2] => 150 мм [3] => 200 мм [4] => 250 мм [5] => 300 мм ) [days] => [3,4,5,6,7,8] [material_price] => [2860,3400,4219,4592,5010,5583] [work_price] => [729,900,980,1120,1280,1530] [image] => https://akademik-stroy.ru/wp-content/uploads/materials/ppu.jpg [area_modifier] => 224.03 [parent_name] => Дополнительное утепление наружных стен [parent_id] => 17 [material_sum] => 807315 [work_sum] => 171484 [total_sum] => 978799 [total_days] => 3 [display_material_sum] => 807 315 [display_work_sum] => 171 484 [display_total_sum] => 978 799 ) 1
978 799
Работа:171 484
Материалы:807 315
Дни:3
stdClass Object ( [id] => 132 [attribute_id] => 17 [name] => PIR-плиты (пенополиизоцианурат) [material_modifier] => 1 [work_modifier] => 1 [options] => Array ( [0] => 50 мм [1] => 100 мм [2] => 150 мм [3] => 200 мм [4] => 250 мм [5] => 300 мм ) [days] => [5,6,7,8,9,10] [material_price] => [8323,15645,20968,25900,29258,30581] [work_price] => [800,900,970,1150,1280,1330] [image] => https://akademik-stroy.ru/wp-content/uploads/materials/pir.jpg [area_modifier] => 224.03 [parent_name] => Дополнительное утепление наружных стен [parent_id] => 17 [material_sum] => 2349398 [work_sum] => 188185 [total_sum] => 2537583 [total_days] => 5 [display_material_sum] => 2 349 398 [display_work_sum] => 188 185 [display_total_sum] => 2 537 583 ) 1
2 537 583
Работа:188 185
Материалы:2 349 398
Дни:5
Наружная отделка фасада
stdClass Object ( [id] => 37 [attribute_id] => 19 [name] => Нет [material_modifier] => 1 [work_modifier] => 1 [options] => Array ( ) [days] => [0] [material_price] => [0] [work_price] => [0] [image] => https://akademik-stroy.ru/wp-content/uploads/materials/imitaciya-brusa.jpg [area_modifier] => 224.03 [parent_name] => Наружная отделка фасада [parent_id] => 19 [material_sum] => 0 [work_sum] => 0 [total_sum] => 0 [total_days] => 0 [display_material_sum] => 0 [display_work_sum] => 0 [display_total_sum] => 0 ) 1
0
Работа:0
Материалы:0
Дни:0
stdClass Object ( [id] => 38 [attribute_id] => 19 [name] => Имитация бруса [material_modifier] => 1 [work_modifier] => 1 [options] => Array ( [0] => Сосна [1] => Ель [2] => Лиственница ) [days] => [20,20,20] [material_price] => [2994,2762,4954] [work_price] => [1397,1231,1577] [image] => https://akademik-stroy.ru/wp-content/uploads/materials/imitaciya-brusa.jpg [area_modifier] => 224.03 [parent_name] => Наружная отделка фасада [parent_id] => 19 [material_sum] => 845140 [work_sum] => 328618 [total_sum] => 1173758 [total_days] => 20 [display_material_sum] => 845 140 [display_work_sum] => 328 618 [display_total_sum] => 1 173 758 ) 1
1 173 758
Работа:328 618
Материалы:845 140
Дни:20
stdClass Object ( [id] => 136 [attribute_id] => 19 [name] => Планкен [material_modifier] => 1 [work_modifier] => 1 [options] => Array ( [0] => Сосна [1] => Ель [2] => Лиственница ) [days] => [20,20,20] [material_price] => [3194,2862,5154] [work_price] => [1537,1354,1735] [image] => https://akademik-stroy.ru/wp-content/uploads/materials/planken.jpg [area_modifier] => 224.03 [parent_name] => Наружная отделка фасада [parent_id] => 19 [material_sum] => 901595 [work_sum] => 361551 [total_sum] => 1263146 [total_days] => 20 [display_material_sum] => 901 595 [display_work_sum] => 361 551 [display_total_sum] => 1 263 146 ) 1
1 263 146
Работа:361 551
Материалы:901 595
Дни:20
stdClass Object ( [id] => 137 [attribute_id] => 19 [name] => Штукатурка [material_modifier] => 1 [work_modifier] => 1 [options] => Array ( [0] => Цементно-песчаная (минеральная) [1] => Мокрый фасад ) [days] => [35,35] [material_price] => [2231,3938] [work_price] => [1202,2422] [image] => https://akademik-stroy.ru/wp-content/uploads/materials/shtukaturka.jpg [area_modifier] => 224.03 [parent_name] => Наружная отделка фасада [parent_id] => 19 [material_sum] => 629762 [work_sum] => 282748 [total_sum] => 912510 [total_days] => 35 [display_material_sum] => 629 762 [display_work_sum] => 282 748 [display_total_sum] => 912 510 ) 1
912 510
Работа:282 748
Материалы:629 762
Дни:35
stdClass Object ( [id] => 138 [attribute_id] => 19 [name] => Облицовочный кирпич [material_modifier] => 1 [work_modifier] => 1 [options] => Array ( [0] => Керамический [1] => Клинкерный [2] => Ручной формовки [3] => Гиперпрессованный [4] => Силикатный кирпич ) [days] => [45,45,45,45,45] [material_price] => [8174,9148,1040,1257,5876] [work_price] => [3240,3758,4536,4017,3369] [image] => https://akademik-stroy.ru/wp-content/uploads/materials/oblicovochnyj-kirpich.jpg [area_modifier] => 224.03 [parent_name] => Наружная отделка фасада [parent_id] => 19 [material_sum] => 2307339 [work_sum] => 762150 [total_sum] => 3069489 [total_days] => 45 [display_material_sum] => 2 307 339 [display_work_sum] => 762 150 [display_total_sum] => 3 069 489 ) 1
3 069 489
Работа:762 150
Материалы:2 307 339
Дни:45
stdClass Object ( [id] => 139 [attribute_id] => 19 [name] => Фасадная плитка [material_modifier] => 1 [work_modifier] => 1 [options] => Array ( [0] => Клинкерная [1] => Керамическая [2] => Плитка ручной формовки ) [days] => [40,40,40] [material_price] => [2974,1487,3470] [work_price] => [3007,2592,3629] [image] => https://akademik-stroy.ru/wp-content/uploads/materials/fasadnaya-plitka.jpg [area_modifier] => 224.03 [parent_name] => Наружная отделка фасада [parent_id] => 19 [material_sum] => 839494 [work_sum] => 707341 [total_sum] => 1546835 [total_days] => 40 [display_material_sum] => 839 494 [display_work_sum] => 707 341 [display_total_sum] => 1 546 835 ) 1
1 546 835
Работа:707 341
Материалы:839 494
Дни:40
stdClass Object ( [id] => 140 [attribute_id] => 19 [name] => Сайдинг [material_modifier] => 1 [work_modifier] => 1 [options] => Array ( [0] => Виниловый [1] => Металлический [2] => Фиброцементный ) [days] => [20,20,20] [material_price] => [1263,1944,4147] [work_price] => [1263,1944,2074] [image] => https://akademik-stroy.ru/wp-content/uploads/materials/sajding.jpg [area_modifier] => 224.03 [parent_name] => Наружная отделка фасада [parent_id] => 19 [material_sum] => 356517 [work_sum] => 297097 [total_sum] => 653614 [total_days] => 20 [display_material_sum] => 356 517 [display_work_sum] => 297 097 [display_total_sum] => 653 614 ) 1
653 614
Работа:297 097
Материалы:356 517
Дни:20
stdClass Object ( [id] => 141 [attribute_id] => 19 [name] => Камень [material_modifier] => 1 [work_modifier] => 1 [options] => Array ( [0] => Травертин [1] => Дагестанский [2] => Искусственный [3] => Натуральный [4] => Керамогранит ) [days] => [45,45,45,45,45] [material_price] => [4536,3888,2592,3240,2462] [work_price] => [3240,3240,2462,3110,1944] [image] => https://akademik-stroy.ru/wp-content/uploads/materials/kamen-1.jpg [area_modifier] => 224.03 [parent_name] => Наружная отделка фасада [parent_id] => 19 [material_sum] => 1280412 [work_sum] => 762150 [total_sum] => 2042562 [total_days] => 45 [display_material_sum] => 1 280 412 [display_work_sum] => 762 150 [display_total_sum] => 2 042 562 ) 1
2 042 562
Работа:762 150
Материалы:1 280 412
Дни:45
stdClass Object ( [id] => 142 [attribute_id] => 19 [name] => Термопанели [material_modifier] => 1 [work_modifier] => 1 [options] => Array ( ) [days] => [20] [material_price] => [6221] [work_price] => [2333] [image] => https://akademik-stroy.ru/wp-content/uploads/materials/termo.png [area_modifier] => 224.03 [parent_name] => Наружная отделка фасада [parent_id] => 19 [material_sum] => 1756050 [work_sum] => 548795 [total_sum] => 2304845 [total_days] => 20 [display_material_sum] => 1 756 050 [display_work_sum] => 548 795 [display_total_sum] => 2 304 845 ) 1
2 304 845
Работа:548 795
Материалы:1 756 050
Дни:20
stdClass Object ( [id] => 143 [attribute_id] => 19 [name] => Плитка HAUBERK [material_modifier] => 1 [work_modifier] => 1 [options] => Array ( ) [days] => [20] [material_price] => [2786] [work_price] => [1944] [image] => https://akademik-stroy.ru/wp-content/uploads/materials/hauberk.jpg [area_modifier] => 224.03 [parent_name] => Наружная отделка фасада [parent_id] => 19 [material_sum] => 786426 [work_sum] => 457290 [total_sum] => 1243716 [total_days] => 20 [display_material_sum] => 786 426 [display_work_sum] => 457 290 [display_total_sum] => 1 243 716 ) 1
1 243 716
Работа:457 290
Материалы:786 426
Дни:20
stdClass Object ( [id] => 144 [attribute_id] => 19 [name] => Фальцевый фасад [material_modifier] => 1 [work_modifier] => 1 [options] => Array ( ) [days] => [20] [material_price] => [3240] [work_price] => [2592] [image] => https://akademik-stroy.ru/wp-content/uploads/materials/falcevyj-fasad.jpg [area_modifier] => 224.03 [parent_name] => Наружная отделка фасада [parent_id] => 19 [material_sum] => 914580 [work_sum] => 609720 [total_sum] => 1524300 [total_days] => 20 [display_material_sum] => 914 580 [display_work_sum] => 609 720 [display_total_sum] => 1 524 300 ) 1
1 524 300
Работа:609 720
Материалы:914 580
Дни:20
stdClass Object ( [id] => 145 [attribute_id] => 19 [name] => Комбинированный [material_modifier] => 1 [work_modifier] => 1 [options] => Array ( ) [days] => [20] [material_price] => [4629] [work_price] => [3499] [image] => https://akademik-stroy.ru/wp-content/uploads/materials/Kombinirovannyj.jpg [area_modifier] => 224.03 [parent_name] => Наружная отделка фасада [parent_id] => 19 [material_sum] => 1306664 [work_sum] => 823075 [total_sum] => 2129739 [total_days] => 20 [display_material_sum] => 1 306 664 [display_work_sum] => 823 075 [display_total_sum] => 2 129 739 ) 1
2 129 739
Работа:823 075
Материалы:1 306 664
Дни:20
stdClass Object ( [id] => 257 [attribute_id] => 19 [name] => Японские фиброцементные [material_modifier] => 1 [work_modifier] => 1 [options] => Array ( ) [days] => [20] [material_price] => [7043] [work_price] => [2993] [image] => https://akademik-stroy.ru/wp-content/uploads/materials/paneli.jpg [area_modifier] => 224.03 [parent_name] => Наружная отделка фасада [parent_id] => 19 [material_sum] => 1988083 [work_sum] => 704048 [total_sum] => 2692131 [total_days] => 20 [display_material_sum] => 1 988 083 [display_work_sum] => 704 048 [display_total_sum] => 2 692 131 ) 1
2 692 131
Работа:704 048
Материалы:1 988 083
Дни:20
stdClass Object ( [id] => 258 [attribute_id] => 19 [name] => Панели Каньон [material_modifier] => 1 [work_modifier] => 1 [options] => Array ( ) [days] => [20] [material_price] => [4543] [work_price] => [2592] [image] => https://akademik-stroy.ru/wp-content/uploads/materials/kanon.png [area_modifier] => 224.03 [parent_name] => Наружная отделка фасада [parent_id] => 19 [material_sum] => 1282388 [work_sum] => 609720 [total_sum] => 1892108 [total_days] => 20 [display_material_sum] => 1 282 388 [display_work_sum] => 609 720 [display_total_sum] => 1 892 108 ) 1
1 892 108
Работа:609 720
Материалы:1 282 388
Дни:20
Террасы, крыльца, навесы
stdClass Object ( [id] => 39 [attribute_id] => 20 [name] => Нет [material_modifier] => 1 [work_modifier] => 1 [options] => Array ( ) [days] => [0] [material_price] => [0] [work_price] => [0] [image] => https://akademik-stroy.ru/wp-content/uploads/materials/terrasy.jpg [area_modifier] => 30 [parent_name] => Террасы, крыльца, навесы [parent_id] => 20 [material_sum] => 0 [work_sum] => 0 [total_sum] => 0 [total_days] => 0 [display_material_sum] => 0 [display_work_sum] => 0 [display_total_sum] => 0 ) 1
0
Работа:0
Материалы:0
Дни:0
stdClass Object ( [id] => 40 [attribute_id] => 20 [name] => Есть [material_modifier] => 1 [work_modifier] => 1 [options] => Array ( ) [days] => [5] [material_price] => [10450] [work_price] => [1950] [image] => https://akademik-stroy.ru/wp-content/uploads/materials/terrasy.jpg [area_modifier] => 30 [parent_name] => Террасы, крыльца, навесы [parent_id] => 20 [material_sum] => 395010 [work_sum] => 61425 [total_sum] => 456435 [total_days] => 5 [display_material_sum] => 395 010 [display_work_sum] => 61 425 [display_total_sum] => 456 435 ) 1
456 435
Работа:61 425
Материалы:395 010
Дни:5
Балконы
stdClass Object ( [id] => 41 [attribute_id] => 21 [name] => Нет [material_modifier] => 1 [work_modifier] => 1 [options] => Array ( ) [days] => [0] [material_price] => [0] [work_price] => [0] [image] => https://akademik-stroy.ru/wp-content/uploads/materials/balkony.jpg [area_modifier] => 30 [parent_name] => Балконы [parent_id] => 21 [material_sum] => 0 [work_sum] => 0 [total_sum] => 0 [total_days] => 0 [display_material_sum] => 0 [display_work_sum] => 0 [display_total_sum] => 0 ) 1
0
Работа:0
Материалы:0
Дни:0
stdClass Object ( [id] => 42 [attribute_id] => 21 [name] => Есть [material_modifier] => 1 [work_modifier] => 1 [options] => Array ( ) [days] => [12] [material_price] => [3600] [work_price] => [1950] [image] => https://akademik-stroy.ru/wp-content/uploads/materials/balkony.jpg [area_modifier] => 30 [parent_name] => Балконы [parent_id] => 21 [material_sum] => 136080 [work_sum] => 61425 [total_sum] => 197505 [total_days] => 12 [display_material_sum] => 136 080 [display_work_sum] => 61 425 [display_total_sum] => 197 505 ) 1
197 505
Работа:61 425
Материалы:136 080
Дни:12
Отмостка
stdClass Object ( [id] => 43 [attribute_id] => 22 [name] => Нет [material_modifier] => 1 [work_modifier] => 1 [options] => Array ( ) [days] => [0] [material_price] => [0] [work_price] => [0] [image] => https://akademik-stroy.ru/wp-content/uploads/materials/uteplennaya.jpg [area_modifier] => 138.63 [parent_name] => Отмостка [parent_id] => 22 [material_sum] => 0 [work_sum] => 0 [total_sum] => 0 [total_days] => 0 [display_material_sum] => 0 [display_work_sum] => 0 [display_total_sum] => 0 ) 1
0
Работа:0
Материалы:0
Дни:0
stdClass Object ( [id] => 44 [attribute_id] => 22 [name] => Утепленная отмостка [material_modifier] => 1 [work_modifier] => 1 [options] => Array ( ) [days] => [15] [material_price] => [2550] [work_price] => [1750] [image] => https://akademik-stroy.ru/wp-content/uploads/materials/uteplennaya.jpg [area_modifier] => 138.63 [parent_name] => Отмостка [parent_id] => 22 [material_sum] => 445418 [work_sum] => 254733 [total_sum] => 700151 [total_days] => 15 [display_material_sum] => 445 418 [display_work_sum] => 254 733 [display_total_sum] => 700 151 ) 1
700 151
Работа:254 733
Материалы:445 418
Дни:15
stdClass Object ( [id] => 146 [attribute_id] => 22 [name] => Не утепленная отмостка [material_modifier] => 1 [work_modifier] => 1 [options] => Array ( ) [days] => [10] [material_price] => [1650] [work_price] => [1450] [image] => https://akademik-stroy.ru/wp-content/uploads/materials/ne-uteplennaya.jpg [area_modifier] => 138.63 [parent_name] => Отмостка [parent_id] => 22 [material_sum] => 288212 [work_sum] => 211064 [total_sum] => 499276 [total_days] => 10 [display_material_sum] => 288 212 [display_work_sum] => 211 064 [display_total_sum] => 499 276 ) 1
499 276
Работа:211 064
Материалы:288 212
Дни:10
Дренаж вокруг дома
stdClass Object ( [id] => 45 [attribute_id] => 23 [name] => Нет [material_modifier] => 1 [work_modifier] => 1 [options] => Array ( ) [days] => [0] [material_price] => [0] [work_price] => [0] [image] => https://akademik-stroy.ru/wp-content/uploads/materials/drenazh-2.jpg [area_modifier] => 138.63 [parent_name] => Дренаж вокруг дома [parent_id] => 23 [material_sum] => 0 [work_sum] => 0 [total_sum] => 0 [total_days] => 0 [display_material_sum] => 0 [display_work_sum] => 0 [display_total_sum] => 0 ) 1
0
Работа:0
Материалы:0
Дни:0
stdClass Object ( [id] => 46 [attribute_id] => 23 [name] => Есть [material_modifier] => 1 [work_modifier] => 1 [options] => Array ( ) [days] => [5] [material_price] => [2366] [work_price] => [1911] [image] => https://akademik-stroy.ru/wp-content/uploads/materials/drenazh-2.jpg [area_modifier] => 138.63 [parent_name] => Дренаж вокруг дома [parent_id] => 23 [material_sum] => 413278 [work_sum] => 278168 [total_sum] => 691446 [total_days] => 5 [display_material_sum] => 413 278 [display_work_sum] => 278 168 [display_total_sum] => 691 446 ) 1
691 446
Работа:278 168
Материалы:413 278
Дни:5
Автономная канализация (септики)
stdClass Object ( [id] => 47 [attribute_id] => 24 [name] => Нет [material_modifier] => 1 [work_modifier] => 1 [options] => Array ( ) [days] => [0] [material_price] => [0] [work_price] => [0] [image] => https://akademik-stroy.ru/wp-content/uploads/materials/septik.jpg [area_modifier] => 1 [parent_name] => Автономная канализация (септики) [parent_id] => 24 [material_sum] => 0 [work_sum] => 0 [total_sum] => 0 [total_days] => 0 [display_material_sum] => 0 [display_work_sum] => 0 [display_total_sum] => 0 ) 1
0
Работа:0
Материалы:0
Дни:0
stdClass Object ( [id] => 48 [attribute_id] => 24 [name] => Есть [material_modifier] => 1 [work_modifier] => 1 [options] => Array ( [0] => Для дачи на 4 человека [1] => Для дома на 5 человек [2] => Для дома на 6 человек [3] => Для дома на 7 человек [4] => Для дома на 10 человек ) [days] => [7,7,7,8,8] [material_price] => [196340,220500,240940,264200,293340] [work_price] => [50000,55000,60500,66550,73206] [image] => https://akademik-stroy.ru/wp-content/uploads/materials/septik.jpg [area_modifier] => 1 [parent_name] => Автономная канализация (септики) [parent_id] => 24 [material_sum] => 247388 [work_sum] => 52500 [total_sum] => 299888 [total_days] => 7 [display_material_sum] => 247 388 [display_work_sum] => 52 500 [display_total_sum] => 299 888 ) 1
299 888
Работа:52 500
Материалы:247 388
Дни:7
Внутренние (не несущие) перегородки
stdClass Object ( [id] => 49 [attribute_id] => 25 [name] => Нет [material_modifier] => 1 [work_modifier] => 1 [options] => Array ( ) [days] => [0] [material_price] => [0] [work_price] => [0] [image] => https://akademik-stroy.ru/wp-content/uploads/materials/gkl.jpg [area_modifier] => 224.03 [parent_name] => Внутренние (не несущие) перегородки [parent_id] => 25 [material_sum] => 0 [work_sum] => 0 [total_sum] => 0 [total_days] => 0 [display_material_sum] => 0 [display_work_sum] => 0 [display_total_sum] => 0 ) 1
0
Работа:0
Материалы:0
Дни:0
stdClass Object ( [id] => 147 [attribute_id] => 25 [name] => Каркасно-обшивные [material_modifier] => 1 [work_modifier] => 1 [options] => Array ( [0] => 75 мм (без шумоизоляции) [1] => 75 мм (с шумоизоляцией) ) [days] => [11,11] [material_price] => [580,970] [work_price] => [380,570] [image] => https://akademik-stroy.ru/wp-content/uploads/materials/gkl.jpg [area_modifier] => 224.03 [parent_name] => Внутренние (не несущие) перегородки [parent_id] => 25 [material_sum] => 163721 [work_sum] => 89388 [total_sum] => 253109 [total_days] => 11 [display_material_sum] => 163 721 [display_work_sum] => 89 388 [display_total_sum] => 253 109 ) 1
253 109
Работа:89 388
Материалы:163 721
Дни:11
stdClass Object ( [id] => 148 [attribute_id] => 25 [name] => Пазогребневые [material_modifier] => 1 [work_modifier] => 1 [options] => Array ( [0] => 80 мм [1] => 100 мм ) [days] => [5,5] [material_price] => [1022,1313] [work_price] => [600,700] [image] => https://akademik-stroy.ru/wp-content/uploads/materials/pazogrebnevye-bloki.jpg [area_modifier] => 224.03 [parent_name] => Внутренние (не несущие) перегородки [parent_id] => 25 [material_sum] => 288488 [work_sum] => 141139 [total_sum] => 429627 [total_days] => 5 [display_material_sum] => 288 488 [display_work_sum] => 141 139 [display_total_sum] => 429 627 ) 1
429 627
Работа:141 139
Материалы:288 488
Дни:5
stdClass Object ( [id] => 149 [attribute_id] => 25 [name] => Газобетонные [material_modifier] => 1 [work_modifier] => 1 [options] => Array ( [0] => 100 мм [1] => 200 мм ) [days] => [11,11] [material_price] => [1160,1920] [work_price] => [700,900] [image] => https://akademik-stroy.ru/wp-content/uploads/materials/gazobeton-2.jpg [area_modifier] => 224.03 [parent_name] => Внутренние (не несущие) перегородки [parent_id] => 25 [material_sum] => 327442 [work_sum] => 164662 [total_sum] => 492104 [total_days] => 11 [display_material_sum] => 327 442 [display_work_sum] => 164 662 [display_total_sum] => 492 104 ) 1
492 104
Работа:164 662
Материалы:327 442
Дни:11
stdClass Object ( [id] => 150 [attribute_id] => 25 [name] => Кирпичные [material_modifier] => 1 [work_modifier] => 1 [options] => Array ( [0] => 120 мм [1] => 250 мм [2] => 360 мм ) [days] => [7,7,7] [material_price] => [1785,3570,5355] [work_price] => [900,1600,1800] [image] => https://akademik-stroy.ru/wp-content/uploads/materials/kirpich-1.jpg [area_modifier] => 224.03 [parent_name] => Внутренние (не несущие) перегородки [parent_id] => 25 [material_sum] => 503866 [work_sum] => 211708 [total_sum] => 715574 [total_days] => 7 [display_material_sum] => 503 866 [display_work_sum] => 211 708 [display_total_sum] => 715 574 ) 1
715 574
Работа:211 708
Материалы:503 866
Дни:7
Электрика
stdClass Object ( [id] => 55 [attribute_id] => 28 [name] => Нет [material_modifier] => 1 [work_modifier] => 1 [options] => Array ( ) [days] => [0] [material_price] => [0] [work_price] => [0] [image] => https://akademik-stroy.ru/wp-content/uploads/materials/ehlektrika.jpg [area_modifier] => 181.8 [parent_name] => Электрика [parent_id] => 28 [material_sum] => 0 [work_sum] => 0 [total_sum] => 0 [total_days] => 0 [display_material_sum] => 0 [display_work_sum] => 0 [display_total_sum] => 0 ) 1
0
Работа:0
Материалы:0
Дни:0
stdClass Object ( [id] => 56 [attribute_id] => 28 [name] => Есть [material_modifier] => 1 [work_modifier] => 1 [options] => Array ( ) [days] => [10] [material_price] => [650] [work_price] => [950] [image] => https://akademik-stroy.ru/wp-content/uploads/materials/ehlektrika.jpg [area_modifier] => 181.8 [parent_name] => Электрика [parent_id] => 28 [material_sum] => 148894 [work_sum] => 181346 [total_sum] => 330240 [total_days] => 10 [display_material_sum] => 148 894 [display_work_sum] => 181 346 [display_total_sum] => 330 240 ) 1
330 240
Работа:181 346
Материалы:148 894
Дни:10
Сантехника, канализация в доме
stdClass Object ( [id] => 57 [attribute_id] => 29 [name] => Нет [material_modifier] => 1 [work_modifier] => 1 [options] => Array ( ) [days] => [0] [material_price] => [0] [work_price] => [0] [image] => https://akademik-stroy.ru/wp-content/uploads/materials/santekhnika-kanalizaciya-1.jpg [area_modifier] => 181.8 [parent_name] => Сантехника, канализация в доме [parent_id] => 29 [material_sum] => 0 [work_sum] => 0 [total_sum] => 0 [total_days] => 0 [display_material_sum] => 0 [display_work_sum] => 0 [display_total_sum] => 0 ) 1
0
Работа:0
Материалы:0
Дни:0
stdClass Object ( [id] => 58 [attribute_id] => 29 [name] => Есть [material_modifier] => 1 [work_modifier] => 1 [options] => Array ( ) [days] => [10] [material_price] => [600] [work_price] => [730] [image] => https://akademik-stroy.ru/wp-content/uploads/materials/santekhnika-kanalizaciya-1.jpg [area_modifier] => 181.8 [parent_name] => Сантехника, канализация в доме [parent_id] => 29 [material_sum] => 137441 [work_sum] => 139350 [total_sum] => 276791 [total_days] => 10 [display_material_sum] => 137 441 [display_work_sum] => 139 350 [display_total_sum] => 276 791 ) 1
276 791
Работа:139 350
Материалы:137 441
Дни:10
Отопление
stdClass Object ( [id] => 59 [attribute_id] => 30 [name] => Нет [material_modifier] => 1 [work_modifier] => 1 [options] => Array ( ) [days] => [0] [material_price] => [0] [work_price] => [0] [image] => https://akademik-stroy.ru/wp-content/uploads/materials/otoplenie-1.jpg [area_modifier] => 181.8 [parent_name] => Отопление [parent_id] => 30 [material_sum] => 0 [work_sum] => 0 [total_sum] => 0 [total_days] => 0 [display_material_sum] => 0 [display_work_sum] => 0 [display_total_sum] => 0 ) 1
0
Работа:0
Материалы:0
Дни:0
stdClass Object ( [id] => 60 [attribute_id] => 30 [name] => Есть [material_modifier] => 1 [work_modifier] => 1 [options] => Array ( ) [days] => [5] [material_price] => [610] [work_price] => [560] [image] => https://akademik-stroy.ru/wp-content/uploads/materials/otoplenie-1.jpg [area_modifier] => 181.8 [parent_name] => Отопление [parent_id] => 30 [material_sum] => 139731 [work_sum] => 106898 [total_sum] => 246629 [total_days] => 5 [display_material_sum] => 139 731 [display_work_sum] => 106 898 [display_total_sum] => 246 629 ) 1
246 629
Работа:106 898
Материалы:139 731
Дни:5
Теплые полы
stdClass Object ( [id] => 61 [attribute_id] => 31 [name] => Нет [material_modifier] => 1 [work_modifier] => 1 [options] => Array ( ) [days] => [0] [material_price] => [0] [work_price] => [0] [image] => https://akademik-stroy.ru/wp-content/uploads/materials/vodyanye.jpg [area_modifier] => 30 [parent_name] => Теплые полы [parent_id] => 31 [material_sum] => 0 [work_sum] => 0 [total_sum] => 0 [total_days] => 0 [display_material_sum] => 0 [display_work_sum] => 0 [display_total_sum] => 0 ) 1
0
Работа:0
Материалы:0
Дни:0
stdClass Object ( [id] => 151 [attribute_id] => 31 [name] => Водяные [material_modifier] => 1 [work_modifier] => 1 [options] => Array ( ) [days] => [9] [material_price] => [10200] [work_price] => [2500] [image] => https://akademik-stroy.ru/wp-content/uploads/materials/vodyanye.jpg [area_modifier] => 30 [parent_name] => Теплые полы [parent_id] => 31 [material_sum] => 385560 [work_sum] => 78750 [total_sum] => 464310 [total_days] => 9 [display_material_sum] => 385 560 [display_work_sum] => 78 750 [display_total_sum] => 464 310 ) 1
464 310
Работа:78 750
Материалы:385 560
Дни:9
stdClass Object ( [id] => 152 [attribute_id] => 31 [name] => Электро [material_modifier] => 1 [work_modifier] => 1 [options] => Array ( ) [days] => [5] [material_price] => [6300] [work_price] => [1500] [image] => https://akademik-stroy.ru/wp-content/uploads/materials/ehlektricheskij.jpg [area_modifier] => 30 [parent_name] => Теплые полы [parent_id] => 31 [material_sum] => 238140 [work_sum] => 47250 [total_sum] => 285390 [total_days] => 5 [display_material_sum] => 238 140 [display_work_sum] => 47 250 [display_total_sum] => 285 390 ) 1
285 390
Работа:47 250
Материалы:238 140
Дни:5
Черновая отделка стен
stdClass Object ( [id] => 63 [attribute_id] => 32 [name] => Нет [material_modifier] => 1 [work_modifier] => 1 [options] => Array ( ) [days] => [0] [material_price] => [0] [work_price] => [0] [image] => https://akademik-stroy.ru/wp-content/uploads/materials/shtukaturka-shpatlevka-1.jpg [area_modifier] => 181.8 [parent_name] => Черновая отделка стен [parent_id] => 32 [material_sum] => 0 [work_sum] => 0 [total_sum] => 0 [total_days] => 0 [display_material_sum] => 0 [display_work_sum] => 0 [display_total_sum] => 0 ) 1
0
Работа:0
Материалы:0
Дни:0
stdClass Object ( [id] => 153 [attribute_id] => 32 [name] => Штукатурка и шпатлевка [material_modifier] => 1 [work_modifier] => 1 [options] => Array ( ) [days] => [20] [material_price] => [1850] [work_price] => [2600] [image] => https://akademik-stroy.ru/wp-content/uploads/materials/shtukaturka-shpatlevka-1.jpg [area_modifier] => 181.8 [parent_name] => Черновая отделка стен [parent_id] => 32 [material_sum] => 423776 [work_sum] => 496314 [total_sum] => 920090 [total_days] => 20 [display_material_sum] => 423 776 [display_work_sum] => 496 314 [display_total_sum] => 920 090 ) 1
920 090
Работа:496 314
Материалы:423 776
Дни:20
stdClass Object ( [id] => 154 [attribute_id] => 32 [name] => Гипсокортон на стены [material_modifier] => 1 [work_modifier] => 1 [options] => Array ( ) [days] => [15] [material_price] => [950] [work_price] => [2100] [image] => https://akademik-stroy.ru/wp-content/uploads/materials/gkl-1.jpg [area_modifier] => 181.8 [parent_name] => Черновая отделка стен [parent_id] => 32 [material_sum] => 217615 [work_sum] => 400869 [total_sum] => 618484 [total_days] => 15 [display_material_sum] => 217 615 [display_work_sum] => 400 869 [display_total_sum] => 618 484 ) 1
618 484
Работа:400 869
Материалы:217 615
Дни:15
stdClass Object ( [id] => 155 [attribute_id] => 32 [name] => Вагонка [material_modifier] => 1 [work_modifier] => 1 [options] => Array ( ) [days] => [15] [material_price] => [1250] [work_price] => [950] [image] => https://akademik-stroy.ru/wp-content/uploads/materials/vagonka.jpg [area_modifier] => 181.8 [parent_name] => Черновая отделка стен [parent_id] => 32 [material_sum] => 286335 [work_sum] => 181346 [total_sum] => 467681 [total_days] => 15 [display_material_sum] => 286 335 [display_work_sum] => 181 346 [display_total_sum] => 467 681 ) 1
467 681
Работа:181 346
Материалы:286 335
Дни:15
Черновая отделка полов
stdClass Object ( [id] => 65 [attribute_id] => 33 [name] => Нет [material_modifier] => 1 [work_modifier] => 1 [options] => Array ( ) [days] => [0] [material_price] => [0] [work_price] => [0] [image] => https://akademik-stroy.ru/wp-content/uploads/materials/styazhka.jpg [area_modifier] => 181.8 [parent_name] => Черновая отделка полов [parent_id] => 33 [material_sum] => 0 [work_sum] => 0 [total_sum] => 0 [total_days] => 0 [display_material_sum] => 0 [display_work_sum] => 0 [display_total_sum] => 0 ) 1
0
Работа:0
Материалы:0
Дни:0
stdClass Object ( [id] => 156 [attribute_id] => 33 [name] => Стяжка + наливные полы [material_modifier] => 1 [work_modifier] => 1 [options] => Array ( ) [days] => [10] [material_price] => [1000] [work_price] => [900] [image] => https://akademik-stroy.ru/wp-content/uploads/materials/styazhka.jpg [area_modifier] => 181.8 [parent_name] => Черновая отделка полов [parent_id] => 33 [material_sum] => 229068 [work_sum] => 171801 [total_sum] => 400869 [total_days] => 10 [display_material_sum] => 229 068 [display_work_sum] => 171 801 [display_total_sum] => 400 869 ) 1
400 869
Работа:171 801
Материалы:229 068
Дни:10
stdClass Object ( [id] => 157 [attribute_id] => 33 [name] => ОСБ на пол [material_modifier] => 1 [work_modifier] => 1 [options] => Array ( ) [days] => [7] [material_price] => [580] [work_price] => [350] [image] => https://akademik-stroy.ru/wp-content/uploads/materials/osb-1.jpg [area_modifier] => 181.8 [parent_name] => Черновая отделка полов [parent_id] => 33 [material_sum] => 132859 [work_sum] => 66812 [total_sum] => 199671 [total_days] => 7 [display_material_sum] => 132 859 [display_work_sum] => 66 812 [display_total_sum] => 199 671 ) 1
199 671
Работа:66 812
Материалы:132 859
Дни:7
Чистовая отделка стен и полов
stdClass Object ( [id] => 67 [attribute_id] => 34 [name] => Нет [material_modifier] => 1 [work_modifier] => 1 [options] => Array ( ) [days] => [0] [material_price] => [0] [work_price] => [0] [image] => https://akademik-stroy.ru/wp-content/uploads/materials/chistovaya-otdelka.jpg [area_modifier] => 181.8 [parent_name] => Чистовая отделка стен и полов [parent_id] => 34 [material_sum] => 0 [work_sum] => 0 [total_sum] => 0 [total_days] => 0 [display_material_sum] => 0 [display_work_sum] => 0 [display_total_sum] => 0 ) 1
0
Работа:0
Материалы:0
Дни:0
stdClass Object ( [id] => 68 [attribute_id] => 34 [name] => Есть [material_modifier] => 1 [work_modifier] => 1 [options] => Array ( ) [days] => [50] [material_price] => [6000] [work_price] => [3500] [image] => https://akademik-stroy.ru/wp-content/uploads/materials/chistovaya-otdelka.jpg [area_modifier] => 181.8 [parent_name] => Чистовая отделка стен и полов [parent_id] => 34 [material_sum] => 1374408 [work_sum] => 668115 [total_sum] => 2042523 [total_days] => 50 [display_material_sum] => 1 374 408 [display_work_sum] => 668 115 [display_total_sum] => 2 042 523 ) 1
2 042 523
Работа:668 115
Материалы:1 374 408
Дни:50
Отделка потолка
stdClass Object ( [id] => 69 [attribute_id] => 35 [name] => Нет [material_modifier] => 1 [work_modifier] => 1 [options] => Array ( ) [days] => [0] [material_price] => [0] [work_price] => [0] [image] => https://akademik-stroy.ru/wp-content/uploads/materials/mnogourovnevyj-gkl.jpg [area_modifier] => 181.8 [parent_name] => Отделка потолка [parent_id] => 35 [material_sum] => 0 [work_sum] => 0 [total_sum] => 0 [total_days] => 0 [display_material_sum] => 0 [display_work_sum] => 0 [display_total_sum] => 0 ) 1
0
Работа:0
Материалы:0
Дни:0
stdClass Object ( [id] => 70 [attribute_id] => 35 [name] => Есть [material_modifier] => 1 [work_modifier] => 1 [options] => Array ( [0] => Многоуровневый потолок из гипсокартона [1] => Многоуровневый потолок из гипсокартона и натяжного потолка [2] => Одноуровневый потолок из гипсокартона [3] => Одноуровневый натяжной потолок ) [days] => [10,10,1,1] [material_price] => [900,700,700,600] [work_price] => [1000,800,500,300] [image] => https://akademik-stroy.ru/wp-content/uploads/materials/mnogourovnevyj-gkl.jpg [area_modifier] => 181.8 [parent_name] => Отделка потолка [parent_id] => 35 [material_sum] => 206161 [work_sum] => 190890 [total_sum] => 397051 [total_days] => 10 [display_material_sum] => 206 161 [display_work_sum] => 190 890 [display_total_sum] => 397 051 ) 1
397 051
Работа:190 890
Материалы:206 161
Дни:10

Преимущества работы с нами

icon

7 этапов оплаты

icon

Независимый строительный надзор

icon

Экологически чистые материалы

icon

16 лет гарантии

icon

Онлайн-кабинет с веб-камерой

icon

Строители с опытом более 15 лет

icon

Собственное производство

Двухэтажный дом 9х19 — почему это отличный выбор для семьи в Москве

Когда речь заходит о частном доме, первое, что интересует большинство семей — это комфорт, простор и рациональное использование площади. Двухэтажный дом размером 9х19 метров с полезной площадью 181,8 м² — именно тот вариант, который сочетает в себе все эти качества. Особенно если ты живёшь в Москве и ищешь оптимальное жильё для семьи от надежного застройщика, например, компании "Академик Строй". Почему именно 9 на 19? Этот формат дома позволяет создать гармоничный дом с удобным планированием, где есть место для всех необходимых помещений и при этом фасад смотрится аккуратно и современно. На двух этажах можно максимально удобно расположить спальни, гостиную, кухню-столовую и функциональные зоны.

Площадь и размеры: оптимальное решение для вашей семьи

Полезная площадь дома составляет внушительные 181,8 м², из которых жилая занимает 141,10 м². Эти числа говорят сами за себя — здесь действительно комфортно. 4 спальни обеспечивают уединение каждому члену семьи, будь то родители или дети, гости или даже отдельный кабинет для работы.
Параметр Значение
Полезная площадь 181,8 м²
Размеры здания 9 x 19 м
Количество этажей 2
Жилая площадь 141,10 м²
Площадь застройки 156,90 м²
Объем брутто 758 м³
Площадь крыши 155 м²
Угол наклона крыши 42°
Высота здания 8,94 м
Минимальная ширина участка 17,21 м
Минимальная длина участка 26,71 м

Как построить дом 9х19 под ключ в Москве: почему стоит обратиться в "Академик Строй"

"Компания Академик Строй" — надежный партнер при строительстве частных домов. Заказать проект двухэтажного дома 9х19 у профессионалов — это значит получить грамотный подход, детальную проработку всех нюансов и оптимальный дизайн, который точно подойдёт под размер вашего участка. Причем, здесь вам предложат не просто типовой проект, а готовое техзадание с высокими стандартами качествa и современных инженерных решений. В итоге дом прослужит вам не одно десятилетие, при этом будет удобен и экономичен в эксплуатации. Звоните по номеру +7 (980) 800-47-93, чтобы узнать все детали — будь то цена, сроки строительства или особенности планировки.

Планировка дома: комфорт и функциональность на двух этажах

Когда есть двухэтажный дом площадью 181,8 м², нужно правильно всё распланировать, чтобы не потерять ни сантиметра. 4 спальни — это уже отличный показатель, который говорит о том, что каждый член семьи будет чувствовать себя комфортно.

Первый этаж — общественная и рабочая зона

В типичной планировке первых этажей домов такого формата обычно выделяют просторную гостиную объединённую с кухней и столовой. Такое решение актуально для больших семей, потому что позволяет проводить вместе время, при этом не ощущая тесноты. Помимо гостиной, на первом этаже обычно располагается санузел — в данном проекте их два, что экономит время утром и вечером. Также возможно выделить небольшую кладовую или техническое помещение, что очень удобно и вписывается в современный стиль жизни.
  • Гостиная площадью около 30-40 м²
  • Кухня-столовая с удобной зоной приготовления
  • Санузел на первом этаже для гостей и членов семьи
  • Технические помещения или кладовая

Второй этаж — зона отдыха и личного пространства

Второй этаж отведён под 4 спальни. Такое количество комнат позволяет создать разные функциональные зоны: детские, спальню родителей, гостевую комнату, либо кабинет для дистанционной работы. Наличие второго санузла повышает комфорт особенно в часы пик, когда все стремятся умыться и подготовиться к выходу или отдыху. Размещение комнат позволяет оптимально использовать площадь в 181.8 м² с максимальным удобством.

Особенности крыши и внешний облик дома

Одним из важных элементов является крыша. В этом проекте применена двускатная крыша с углом наклона 42°. Такое решение имеет не только эстетическое значение, но и практическое.

Двускатная крыша — классика с современным подходом

Двускатная крыша — это оптимальный выбор для российского климата. Благодаря углу наклона 42° снег и дождевая вода легко сходят с кровли, что значительно снижает риск протечек и повреждений конструкции. Общая площадь крыши в проекте — 155 м², что соответствует значительной площади дома и позволяет создать качественную защиту от непогоды, а также позволяет внедрить дополнительные элементы, например, мансардные окна для естественного света.

Высота здания и минимальный размер участка

Высота дома составляет 8,94 метра — это приятный визуальный баланс между масштабом и уютом. Для строительства по этому проекту необходимо минимум:
  • Минимальная ширина участка: 17,21 м
  • Минимальная длина участка: 26,71 м
Такие параметры подойдут для большинства московских участков, позволяя возвести комфортный дом без обременительной занятости земли.

Стоимость проекта и как сделать выгодный заказ

Во время поиска подходящего проекта ключевым фактором часто становится цена. "Академик Строй" предлагает отличную цену на проект двухэтажного дома 9х19 — 181.8 м², которая сочетается с высоким качеством и профессионализмом исполнения.

Почему именно "Академик Строй"?

  • Гарантия качества и соблюдение сроков
  • Полный спектр услуг от проектирования до сдачи объекта
  • Персональный подход и учёт всех пожеланий заказчика
  • Экономия времени и средств благодаря оптимизированным решениям
Самое приятное — заказать проект можно по телефону +7 (980) 800-47-93. Это позволяет получить консультацию, ознакомиться с примерами проектов и выбрать наиболее подходящий вариант под ваши нужды без лишних хлопот.

Структура стоимости проекта

В стоимость входит:
Что входит Описание
Архитектурное проектирование Полный набор чертежей, схем и планов
Инженерные решения Отопление, электрика, водоснабжение
Поддержка на всех этапах Консультации и корректировки проекта
Таким образом, вне зависимости от ваших целей — постоянное жильё или дачный дом для отдыха — проект дома 9х19 от "Академик Строй" удобно впишется в ваши планы и бюджет.

Вывод: стоит ли заказывать проект дома 9x19 в Москве?

Если вы хотите построить просторный, современный и комфортный дом для своей семьи, площадь которого позволяет реализовать гибкие планировочные решения, двухэтажный дом 9х19 — это именно то, что нужно. При этом наличие 4 спален, двух с/у, классическая двускатная крыша, высокий качественный проект от проверенного застройщика — все эти причины делают предложение от компании "Академик Строй" привлекательным и удобным для жителей Москвы и области. Плюс, возможность получить проект за хорошую цену и консультацию по телефону делает выбор предельно простым. Просто позвоните по номеру +7 (980) 800-47-93, чтобы обсудить все детали и сделать первый шаг к дому своей мечты уже сегодня.