Двухэтажный дом 15х17 – современное решение для комфортной жизни в Москве
Если вы задумались о строительстве собственного загородного дома в Москве или ее окрестностях, то наверняка уже сталкивались с выбором архитектурного проекта, который максимально точно соответствует вашим запросам и стилю жизни. Сегодня я хочу рассказать вам о великолепном варианте – двухэтажном доме размером 15 на 17 метров с полезной площадью 222,7 м², который предлагает компания «Академик Строй». Этот проект идеально подходит для семьи, которая ценит простор, функциональность и современный дизайн.
Разберёмся подробнее, почему именно этот дом заслуживает вашего внимания, какие у него преимущества и как заказать проект по выгодной цене по телефону +7 (980) 800-47-93.
Основные характеристики дома 15x17 – оптимальный размер и удобное планирование
Когда дело доходит до строительства загородного дома, важным аспектом является не только внешний вид, но и размеры здания, которые определяют его функциональность и комфорт. Двухэтажный дом 15 на 17 метров – это классический вариант крупного семейного жилья с просторной жилой зоной и большим количеством комнат.
Полезная площадь дома составляет 222,7 м², что предоставляет достаточно пространства для комфортного размещения семьи из 4 человек и гостей. Высокий уровень комфорта достигается благодаря оптимальному распределению площадей и продуманному архитектурному решению.
Таблица характеристик дома 15x17
| Параметр | Значение |
|---|---|
| Размеры дома | 15 x 17 м |
| Полезная площадь | 222,7 м² |
| Жилая площадь | 178,82 м² |
| Этажность | 2 этажа |
| Количество спален | 4 |
| Количество санузлов | 3 |
| Площадь застройки | 207,65 м² |
| Минимальная ширина участка | 23,30 м |
| Минимальная длина участка | 24,60 м |
| Угол наклона крыши | 25° |
| Тип крыши | Двускатная |
Как видите, проект обладает всеми параметрами, необходимыми для создания удобного и стильного загородного дома, который обеспечит вашим близким уют и безопасность на долгие годы.
Почему стоит выбрать именно двухэтажный проект?
Планировка с двумя этажами – прекрасное решение для тех, кто хочет максимально использовать площадь участка, сохранив при этом простор жилища. Двухэтажный дом 15x17 позволяет четко разделить зоны гостевой активности и личного отдыха, а также удобно разместить все необходимые комнаты.
Преимущества такого дома очевидны:
- Экономия территории: при достаточно большой жилой площади дом занимает меньше места на участке, оставляя свободное пространство для сада, зоны барбекю или детской площадки.
- Комфортное разделение зон: гостиная, кухня и столовая обычно размещены на первом этаже, а спальни и личные кабинеты – на втором, что обеспечивает тишину и приватность.
- Энергоэффективность: компактная площадь крыши и продуманная компоновка снижают теплопотери, что является важным фактором для московского климата.
Все эти достоинства делает данный проект привлекательным для многодетных семей или тех, кто часто принимает гостей, а также тех, кто планирует жить с комфортом, не страдая от тесноты.
Плюсы двухэтажного дома в сравнении с одноэтажным
| Параметр | Двухэтажный дом | Одноэтажный дом |
|---|---|---|
| Площадь застройки | Меньше | Больше |
| Разделение зон | Более четкое | Менее выражено |
| Стоимость кровли | Ниже | Выше |
| Коммуникации | Необходима вертикальная разводка | Проще |
| Вид из окон | Лучше со 2 этажа | Стандартный |
Что предлагает проект компании «Академик Строй»?
Компания «Академик Строй» специализируется на качественном строительстве частных домов на заказ и разработке продуманных проектов в различных стилях и форматах. Выбирая проект двухэтажного дома 15x17, вы получаете:
- Проектировку, разработанную с учётом местных климата и грунтов, что особенно важно для подмосковного региона.
- Использование современных материалов и технологий строительства, которые позволят вам сократить расходы на отопление и улучшить микроклимат в доме.
- Готовые рабочие чертежи, которые можно передавать строителям, не тратя время на согласования и доработки.
- Гарантию соблюдения сроков и качества своих услуг.
Заказать проект можно прямо по телефону +7 (980) 800-47-93, что делает процесс максимально удобным и быстрым для клиентов.
Особенности проекта двухэтажного дома 15x17 от «Академик Строй»
Хотя дизайн у каждого индивидуален, проект данной модели дома выделяется типичными архитектурными признаками, которые сочетают классические черты с современными тенденциями:
- Двускатная крыша с углом наклона 25° – это оптимальный выбор для зоны с большим количеством осадков, обеспечивает хорошее отведение воды и снежных масс.
- Площадь застройки 207,65 м² – идеально подходит для участка минимальных размеров около 23,3 на 24,6 метров, что весьма типично для подмосковных участков.
- Четыре спальни – оптимальное количество комнат для семьи из 4-5 человек, с возможностью организации кабинета или гостевой зоны.
- Три санузла – очень удобно для большой семьи или для тех, кто часто принимает гостей.
Проект полностью лишён гаража, что может стать плюсом для тех, кто предпочитает отдельные гаражные постройки, либо не планирует использовать личный автомобиль ежедневно.
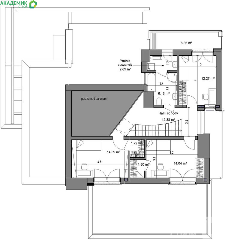
Планировка и внутреннее пространство: как живется в доме 222,7 м²?
Не секрет, что комфорт и уют в доме во многом зависят от грамотно продуманной планировки. Дом площадью 222,7 квадратных метров предоставляет множество возможностей для организации пространства так, чтобы каждый член семьи чувствовал себя комфортно.
Главный этаж – сердце дома
Первый этаж обычно зарезервирован под общие зоны – просторная гостиная, кухня и столовая, а также гостевой санузел и технические помещения. В этом доме гостиную можно представить как светлое и просторное пространство, которое удобно зонировано для приема гостей и семейного отдыха. Кухня спланирована так, чтобы быть функциональной и вместительной, с возможностью размещения современной бытовой техники и обеденной зоны.
Особенно радует наличие гостевого санузла – он крайне удобен для посетителей и избавляет от необходимости подниматься на второй этаж.
Второй этаж – зона уединения и отдыха
На втором этаже располагаются четыре спальни, каждая из которых достаточно просторна для комфортного проживания и имеет окна, обеспечивающие естественное освещение. Три санузла позволяют избежать очередей и утренних задержек, что особенно актуально для больших семей.
Второй этаж также отлично подходит для организации кабинета, детской игровой или места для хобби – все зависит от ваших личных предпочтений и образа жизни.
Пример планировки второго этажа
- Главная спальня с собственной ванной комнатой.
- Две спальни для детей с общим санузлом.
- Спальня для гостей или родственников.
- Второй санузел для общего пользования.
Технические особенности – что важно знать о строительстве дома
Выбирая проект, важно понимать не только площадь и количество комнат, но и технические параметры, которые влияют на долговечность и качество дома. «Академик Строй» при разработке данного проекта учла все нюансы:
- Двускатная крыша с углом наклона 25° обеспечивает хорошую защиту от осадков, а также подходит для установки стандартных кровельных материалов. Это классический вариант, который идеально подходит для поиска баланса между эстетикой и функциональностью.
- Минимальные размеры участка: проект рассчитан на участок не меньше 23,3 метра по ширине и 24,6 метра по длине, что характерно для большинства пригородных территорий в Москве.
- Оптимальное соотношение площади застройки к полезной площади позволяет вам использовать максимум пространства эффективно, не захламляя участок лишними постройками.
Учитывая суровые московские климатические условия, проект предусматривает технологические решения надежной теплоизоляции и вентиляции, что поможет вам сэкономить на отоплении и обеспечить комфортный микроклимат в любое время года.
Стоимость проекта и как сделать заказ
Одним из главных плюсов обращения именно в компанию «Академик Строй» является оптимальное соотношение цены и качества. Стоимость проекта двухэтажного дома 15х17 с площадью 222,7 м2 приятно удивит тех, кто привык тщательно планировать бюджет строительства без ущерба качеству.
Компания предлагает полный пакет проектной документации, который включает архитектурные чертежи, конструктивные решения и инженерные системы. Это избавляет вас от дополнительных затрат на доработки и позволяет ускорить процесс получения разрешений на строительство.
Как заказать проект?
Заказать проект просто – достаточно позвонить по номеру +7 (980) 800-47-93 и получить консультацию от специалистов компании «Академик Строй». Они ответят на все вопросы, помогут подобрать дополнительные опции и особенности, которые могут быть важны именно для вашего участка или образа жизни.
Кроме того, в компании предусмотрена поддержка на всех этапах – от выбора проекта до его реализации, что позволяет вам не пересекаться с бюрократическими сложностями и экономить время.
Как подготовить участок под строительство дома 15х17?
Перед тем как начать строить, важно подготовить участок, чтобы избежать проблем и задержек в процессе строительства. Для двухэтажного дома 15 на 17 метров необходимо учитывать ряд моментов:
- Минимальные размеры участка: ухаживайте за тем, чтобы участок был не меньше 23,3 м в ширину и 24,6 м в длину. Это позволит разместить дом с комфортным отступом от границ, соблюдая все строительные и санитарные нормы.
- Оценка состояния грунта: рекомендуется провести геологические изыскания, чтобы определить тип грунта и выбрать оптимальный фундамент. Санкт-Петербург и его области порой отличает неоднородность конструкции почвы, и правильный выбор фундамента гарантирует устойчивость дома.
- Инженерные коммуникации: проект предусматривает подключение к водоснабжению, канализации, электричеству – удостоверьтесь, что на вашем участке эти системы доступны.
- Учет ландшафта: ровный участок значительно упрощает строительство и снижает затраты, а также позволяет реализовать дополнительные идеи по благоустройству территории вокруг дома.
Почему именно «Академик Строй» – ваш надежный партнер в мире частного домостроения
Выбор компании для реализации вашего проекта – это один из самых важных этапов на пути к дому мечты. Компания «Академик Строй» занимает лидирующие позиции на московском рынке частного домостроения благодаря:
- Длительному опыту работы и большому портфолио выполненных проектов.
- Индивидуальному подходу к каждому клиенту – здесь всегда учитывают ваши пожелания.
- Использованию современных строительных технологий и качественных материалов.
- Комплексной поддержке на всех этапах — от выбора проекта до его успешной реализации.
Кроме того, компания всегда готова предложить разумные цены и выгодные условия сотрудничества, что делает заказ проекта двухэтажного дома 15х17 максимально выгодным и комфортным для покупателя.
Как сделать первый шаг к своему дому мечты?
Понимаю, что решение о строительстве – это большой шаг, который вызывает множество вопросов. Чтобы помочь вам в этом, компания «Академик Строй» предлагает начать с простого шага – консультации по телефону +7 (980) 800-47-93. Здесь вы получите ответы на любые вопросы, сможете уточнить детали проекта, варианты материалов и сроки реализации.
Вместе с профессионалами вы продумайте все нюансы, чтобы сделать дом вашим настоящим убежищем, где каждая комната наполнена теплом и уютом.
Итоги: почему стоит выбрать двухэтажный дом 15х17 от «Академик Строй»
Подводя итог, хочется выделить главные преимущества данного проекта:
- Просторный и удобный дом площадью свыше 220 м², который отвечает требованиям современной семьи.
- Рациональная планировка с четырьмя спальнями и тремя санузлами, создающая гармонию между личным пространством и общими зонами.
- Двускатная крыша с углом 25°, гарантирующая надежность и долговечность строения.
- Подходит под участки средних размеров, что особенно актуально для пригородов Москвы.
- Выгодная цена проекта и комплексная поддержка от специалиста компании «Академик Строй».
Если вы готовы сделать правильный шаг к своему уютному дому, звоните +7 (980) 800-47-93 и заказывайте проект двухэтажного дома 15x17 площадью 222,7 м² – это решение, которое принесет вам радость и комфорт на долгие годы!








