Одноэтажный гараж 23.54 м2 за руб.
154 м2
Полезная
площадь
площадь
1 этаж
Этажей
26 м2
Террасы
и балконы
и балконы
0Без
гаража
гаража
0
Количество
спален
спален
0
Количество
санузлов
санузлов
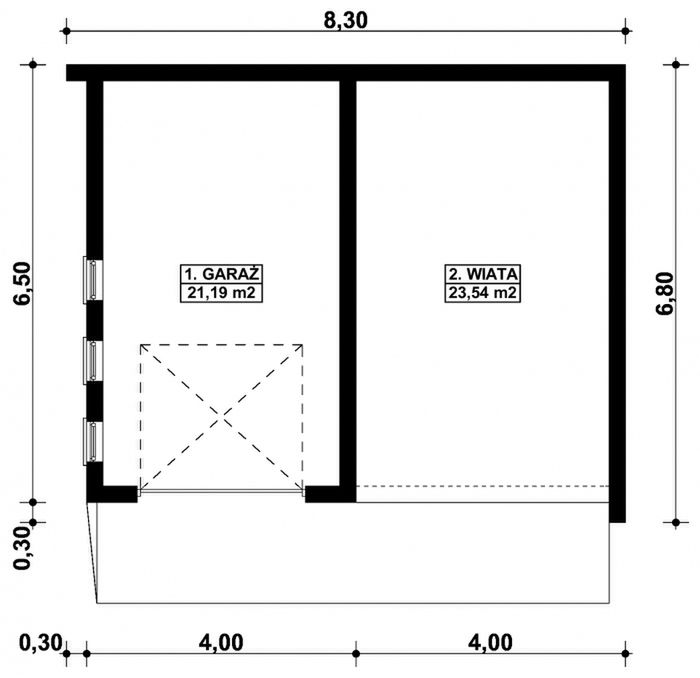
Планировки
Первый этаж
- 1. (m²) 44,73
- 2. Гараж на 1 машину 21,19
- Навес на одну машину 23,54
Фасады
Передний
Задний
Левый
Правый
Подробная информация
Полезная площадь
21,19 m²
Количество спален
0
Количество санузлов
0
Гараж
2
Угол наклона крыши
3°
Наклон ската крыши в градусах. Внимание! В некоторых проектах возникает более чем один наклон крыши.
Вид материалов
Murowana
Материалы и опции
Общие
Площади дома
| № п/п | Наименование | Ед. из. | Строительная площадь | Полезная площадь |
| 1 | 1 этаж | м2 | 29.01 | 23.54 |
| 2 | Итого | м2 | 29.01 | 23.54 |
Калькулятор опций
0₽
В ипотеку от 8 602 ₽/мес.
0₽
0 дней
stdClass Object
(
[id] => 1
[attribute_id] => 1
[name] => Ленточный монолитный ж/б
[material_modifier] => 1
[work_modifier] => 1
[options] => Array
(
[0] => размер 200 х 700 мм
[1] => размер 300 х 900 мм
[2] => размер 400 х 1 000 мм
[3] => размер 500 х 1 100 мм
[4] => размер 600 х 1 200 мм
)
[days] => [20,21,22,25,30]
[material_price] => [2823,3630,4475,5210,12047]
[work_price] => [2154,2826,3731,4577,5293]
[image] => https://akademik-stroy.ru/wp-content/uploads/materials/lentochnyj-monolitnyj-zh-b.jpg
[area_modifier] => 29.01
[parent_name] => Фундамент
[parent_id] => 1
[material_sum] => 196549
[work_sum] => 124975
[total_sum] => 321524
[total_days] => 20
[display_material_sum] => 196 549
[display_work_sum] => 124 975
[display_total_sum] => 321 524
)
1
321 524₽
Работа:124 975 ₽
Материалы:196 549 ₽
Дни:20
stdClass Object
(
[id] => 2
[attribute_id] => 1
[name] => Забивные Ж/Б сваи
[material_modifier] => 1
[work_modifier] => 1
[options] => Array
(
[0] => 150х150х3000мм
[1] => 150х150х4000мм
[2] => 200х200х3000мм
[3] => 200х200х4000мм
[4] => 200х200х5000мм
[5] => 200х200х6000мм
)
[days] => [2,2,2,2,2,2]
[material_price] => [1990,2850,3255,4360,5120,6837]
[work_price] => [1002,1185,1336,1438,1574,1839]
[image] => https://akademik-stroy.ru/wp-content/uploads/materials/zabivnye-zh-b-svai.png
[area_modifier] => 29.01
[parent_name] => Фундамент
[parent_id] => 1
[material_sum] => 138552
[work_sum] => 58136
[total_sum] => 196688
[total_days] => 2
[display_material_sum] => 138 552
[display_work_sum] => 58 136
[display_total_sum] => 196 688
)
1
196 688₽
Работа:58 136 ₽
Материалы:138 552 ₽
Дни:2
stdClass Object
(
[id] => 71
[attribute_id] => 1
[name] => Свайно-ростверковый ж/б
[material_modifier] => 1
[work_modifier] => 1
[options] => Array
(
[0] => ростверк 200х300 мм
[1] => ростверк 300х600 мм
[2] => ростверк 400х900 мм
[3] => ростверк 500х1200 мм
)
[days] => [20,23,25,27]
[material_price] => [3018,3474,7109,9792]
[work_price] => [2024,3012,5635,7022]
[image] => https://akademik-stroy.ru/wp-content/uploads/materials/svajno-rostverkovyj-monolitnyj-zh-b-3.png
[area_modifier] => 29.01
[parent_name] => Фундамент
[parent_id] => 1
[material_sum] => 210125
[work_sum] => 117432
[total_sum] => 327557
[total_days] => 20
[display_material_sum] => 210 125
[display_work_sum] => 117 432
[display_total_sum] => 327 557
)
1
327 557₽
Работа:117 432 ₽
Материалы:210 125 ₽
Дни:20
stdClass Object
(
[id] => 72
[attribute_id] => 1
[name] => Монолитная ж/б плита
[material_modifier] => 1
[work_modifier] => 1
[options] => Array
(
[0] => 200 мм
[1] => 300 мм
[2] => 400 мм
[3] => 500 мм
[4] => 600 мм
)
[days] => [30,33,35,37,40]
[material_price] => [5348,8555,12788,14388,15189]
[work_price] => [4314,4881,7037,8061,10230]
[image] => https://akademik-stroy.ru/wp-content/uploads/materials/monolitnaya-zhb-plita.png
[area_modifier] => 29.01
[parent_name] => Фундамент
[parent_id] => 1
[material_sum] => 372349
[work_sum] => 250298
[total_sum] => 622647
[total_days] => 30
[display_material_sum] => 372 349
[display_work_sum] => 250 298
[display_total_sum] => 622 647
)
1
622 647₽
Работа:250 298 ₽
Материалы:372 349 ₽
Дни:30
stdClass Object
(
[id] => 73
[attribute_id] => 1
[name] => Утепленная шведская плита
[material_modifier] => 1
[work_modifier] => 1
[options] => Array
(
[0] => 200 мм
[1] => 300 мм
[2] => 400 мм
[3] => 500 мм
[4] => 600 мм
)
[days] => [32,37,39,42,45]
[material_price] => [10249,12692,13760,14936,16230]
[work_price] => [5960,7337,8072,8878,9765]
[image] => https://akademik-stroy.ru/wp-content/uploads/materials/uteplennaya-shvedskaya-plita.jpg
[area_modifier] => 29.01
[parent_name] => Фундамент
[parent_id] => 1
[material_sum] => 713576
[work_sum] => 345799
[total_sum] => 1059375
[total_days] => 32
[display_material_sum] => 713 576
[display_work_sum] => 345 799
[display_total_sum] => 1 059 375
)
1
1 059 375₽
Работа:345 799 ₽
Материалы:713 576 ₽
Дни:32
stdClass Object
(
[id] => 75
[attribute_id] => 1
[name] => Ленточный из ФБС
[material_modifier] => 1
[work_modifier] => 1
[options] => Array
(
[0] => толщ. 300 мм
[1] => толщ. 400 мм
[2] => толщ. 500 мм
[3] => толщ. 600 мм
)
[days] => [20,20,20,20]
[material_price] => [3675,4902,6126,7350]
[work_price] => [2451,3264,4083,4902]
[image] => https://akademik-stroy.ru/wp-content/uploads/materials/lentochnyj-iz-fbs.png
[area_modifier] => 29.01
[parent_name] => Фундамент
[parent_id] => 1
[material_sum] => 255868
[work_sum] => 142207
[total_sum] => 398075
[total_days] => 20
[display_material_sum] => 255 868
[display_work_sum] => 142 207
[display_total_sum] => 398 075
)
1
398 075₽
Работа:142 207 ₽
Материалы:255 868 ₽
Дни:20
stdClass Object
(
[id] => 76
[attribute_id] => 1
[name] => Цокольный этаж из ФБС
[material_modifier] => 1
[work_modifier] => 1
[options] => Array
(
[0] => толщ. 300 мм
[1] => толщ. 400 мм
[2] => толщ. 500 мм
[3] => толщ. 600 мм
)
[days] => [30,32,34,36]
[material_price] => [20916,23299,26680,29060]
[work_price] => [17524,18700,19873,21046]
[image] => https://akademik-stroy.ru/wp-content/uploads/materials/cokolnyj-ehtazh-iz-fbs.jpg
[area_modifier] => 29.01
[parent_name] => Фундамент
[parent_id] => 1
[material_sum] => 1456256
[work_sum] => 1016742
[total_sum] => 2472998
[total_days] => 30
[display_material_sum] => 1 456 256
[display_work_sum] => 1 016 742
[display_total_sum] => 2 472 998
)
1
2 472 998₽
Работа:1 016 742 ₽
Материалы:1 456 256 ₽
Дни:30
stdClass Object
(
[id] => 77
[attribute_id] => 1
[name] => Цокольный этаж монолитный ж/б
[material_modifier] => 1
[work_modifier] => 1
[options] => Array
(
[0] => толщ. 200 мм
[1] => толщ. 300 мм
[2] => толщ. 400 мм
[3] => толщ. 500 мм
[4] => толщ. 600 мм
)
[days] => [40,42,44,46,48]
[material_price] => [25421,29148,32275,35602,37326]
[work_price] => [20441,21907,23375,24841,26306]
[image] => https://akademik-stroy.ru/wp-content/uploads/materials/cokolnyj-etazh-zh-b.jpg
[area_modifier] => 29.01
[parent_name] => Фундамент
[parent_id] => 1
[material_sum] => 1769912
[work_sum] => 1185987
[total_sum] => 2955899
[total_days] => 40
[display_material_sum] => 1 769 912
[display_work_sum] => 1 185 987
[display_total_sum] => 2 955 899
)
1
2 955 899₽
Работа:1 185 987 ₽
Материалы:1 769 912 ₽
Дни:40
stdClass Object
(
[id] => 191
[attribute_id] => 1
[name] => Винтовые сваи
[material_modifier] => 1
[work_modifier] => 1
[options] => Array
(
[0] => 57х200мм
[1] => 76х250мм
[2] => 108х300мм
[3] => 133х350мм
)
[days] => [1,1,2,2]
[material_price] => [1200,1300,1450,1600]
[work_price] => [400,600,900,1100]
[image] => https://akademik-stroy.ru/wp-content/uploads/materials/vintovye-svai.png
[area_modifier] => 29.01
[parent_name] => Фундамент
[parent_id] => 1
[material_sum] => 83549
[work_sum] => 23208
[total_sum] => 106757
[total_days] => 1
[display_material_sum] => 83 549
[display_work_sum] => 23 208
[display_total_sum] => 106 757
)
1
106 757₽
Работа:23 208 ₽
Материалы:83 549 ₽
Дни:1
stdClass Object
(
[id] => 3
[attribute_id] => 2
[name] => Деревянные балки
[material_modifier] => 1
[work_modifier] => 1
[options] => Array
(
[0] => без утепления
[1] => утепление 200 мм
[2] => утепление 250 мм
[3] => утепление 300 мм
[4] => утепление 350 мм
[5] => утепление 400 мм
[6] => утепление 450 мм
[7] => утепление 500 мм
)
[days] => [8,9,9,9,11,12,13,14]
[material_price] => [1634,2042,2344,2947,3149,3652,3354,3557]
[work_price] => [1230,1339,1393,1426,1460,1513,1587,1620]
[image] => https://akademik-stroy.ru/wp-content/uploads/materials/derevyannye-balki.png
[area_modifier] => 29.01
[parent_name] => Перекрытие цоколя
[parent_id] => 2
[material_sum] => 113766
[work_sum] => 71365
[total_sum] => 185131
[total_days] => 8
[display_material_sum] => 113 766
[display_work_sum] => 71 365
[display_total_sum] => 185 131
)
1
185 131₽
Работа:71 365 ₽
Материалы:113 766 ₽
Дни:8
stdClass Object
(
[id] => 4
[attribute_id] => 2
[name] => Сборные ж/б плиты
[material_modifier] => 1
[work_modifier] => 1
[options] => Array
(
[0] => без утепления
[1] => утепление 150мм
[2] => утепление 200мм
[3] => утепление 250мм
[4] => утепление 300мм
[5] => утепление 350мм
[6] => утепление 400мм
[7] => утепление 450мм
[8] => утепление 500мм
)
[days] => [13,15,15,15,15,15,15,15,15]
[material_price] => [3067,5577,5928,6679,7730,8782,9833,10884,11935]
[work_price] => [1520,1956,2102,2247,2392,2537,2684,2829,2974]
[image] => https://akademik-stroy.ru/wp-content/uploads/materials/sbornye-zh-b-plity-2.jpg
[area_modifier] => 29.01
[parent_name] => Перекрытие цоколя
[parent_id] => 2
[material_sum] => 213537
[work_sum] => 88190
[total_sum] => 301727
[total_days] => 13
[display_material_sum] => 213 537
[display_work_sum] => 88 190
[display_total_sum] => 301 727
)
1
301 727₽
Работа:88 190 ₽
Материалы:213 537 ₽
Дни:13
stdClass Object
(
[id] => 78
[attribute_id] => 2
[name] => Монолитная ж/б плита
[material_modifier] => 1
[work_modifier] => 1
[options] => Array
(
[0] => без утепления
[1] => утепление 150 мм
[2] => утепление 200 мм
[3] => утепление 250 мм
[4] => утепление 300 мм
[5] => утепление 350 мм
[6] => утепление 400 мм
[7] => утепление 450 мм
[8] => утепление 500 мм
)
[days] => [18,20,20,20,20,20,20,20,20]
[material_price] => [4837,6572,7224,7375,79426,8177,8728,9180,10031]
[work_price] => [3348,3921,4112,4302,4493,4684,4875,5066,5256]
[image] => https://akademik-stroy.ru/wp-content/uploads/materials/monolitnaya-zh-b-plita-2.jpg
[area_modifier] => 29.01
[parent_name] => Перекрытие цоколя
[parent_id] => 2
[material_sum] => 336771
[work_sum] => 194251
[total_sum] => 531022
[total_days] => 18
[display_material_sum] => 336 771
[display_work_sum] => 194 251
[display_total_sum] => 531 022
)
1
531 022₽
Работа:194 251 ₽
Материалы:336 771 ₽
Дни:18
stdClass Object
(
[id] => 6
[attribute_id] => 3
[name] => Пеноблок
[material_modifier] => 1
[work_modifier] => 1
[options] => Array
(
[0] => 300 мм
[1] => 400 мм
[2] => 500 мм
[3] => 600 мм
)
[days] => [29,31,34,39]
[material_price] => [3000,4000,4500,4937]
[work_price] => [5033,5805,6400,8710]
[image] => https://akademik-stroy.ru/wp-content/uploads/materials/penoblok.jpg
[area_modifier] => 29.01
[parent_name] => Стены 1 этаж (несущие)
[parent_id] => 3
[material_sum] => 208872
[work_sum] => 292015
[total_sum] => 500887
[total_days] => 29
[display_material_sum] => 208 872
[display_work_sum] => 292 015
[display_total_sum] => 500 887
)
1
500 887₽
Работа:292 015 ₽
Материалы:208 872 ₽
Дни:29
stdClass Object
(
[id] => 79
[attribute_id] => 3
[name] => Керамический блок
[material_modifier] => 1
[work_modifier] => 1
[options] => Array
(
[0] => 380 мм
[1] => 380 мм Thermo
[2] => 440 мм
[3] => 510 мм
)
[days] => [23,23,24,25]
[material_price] => [4510,5098,6093,8013]
[work_price] => [4737,4937,5903,6958]
[image] => https://akademik-stroy.ru/wp-content/uploads/materials/keramicheskij-blok.jpg
[area_modifier] => 29.01
[parent_name] => Стены 1 этаж (несущие)
[parent_id] => 3
[material_sum] => 314004
[work_sum] => 274841
[total_sum] => 588845
[total_days] => 23
[display_material_sum] => 314 004
[display_work_sum] => 274 841
[display_total_sum] => 588 845
)
1
588 845₽
Работа:274 841 ₽
Материалы:314 004 ₽
Дни:23
stdClass Object
(
[id] => 80
[attribute_id] => 3
[name] => Кирпич
[material_modifier] => 1
[work_modifier] => 1
[options] => Array
(
[0] => Кирпич 250 мм
[1] => Кирпич 380 мм
[2] => Кирпич 510 мм
[3] => Кирпич 640 мм
[4] => Кирпич 770 мм
)
[days] => [30,30,31,33,36]
[material_price] => [5500,7142,9206,10171,12235]
[work_price] => [8736,10041,12018,15240,18462]
[image] => https://akademik-stroy.ru/wp-content/uploads/materials/kirpich.jpg
[area_modifier] => 29.01
[parent_name] => Стены 1 этаж (несущие)
[parent_id] => 3
[material_sum] => 382932
[work_sum] => 506863
[total_sum] => 889795
[total_days] => 30
[display_material_sum] => 382 932
[display_work_sum] => 506 863
[display_total_sum] => 889 795
)
1
889 795₽
Работа:506 863 ₽
Материалы:382 932 ₽
Дни:30
stdClass Object
(
[id] => 81
[attribute_id] => 3
[name] => Монолитные
[material_modifier] => 1
[work_modifier] => 1
[options] => Array
(
[0] => 150 мм
[1] => 200 мм
[2] => 250 мм
[3] => 300 мм
[4] => 350 мм
[5] => 400 мм
)
[days] => [45,46,47,49,50,53]
[material_price] => [6545,7876,10175,12011,13908,15204]
[work_price] => [5106,6444,7698,8552,9807,11461]
[image] => https://akademik-stroy.ru/wp-content/uploads/materials/monolitnye.jpg
[area_modifier] => 29.01
[parent_name] => Стены 1 этаж (несущие)
[parent_id] => 3
[material_sum] => 455689
[work_sum] => 296250
[total_sum] => 751939
[total_days] => 45
[display_material_sum] => 455 689
[display_work_sum] => 296 250
[display_total_sum] => 751 939
)
1
751 939₽
Работа:296 250 ₽
Материалы:455 689 ₽
Дни:45
stdClass Object
(
[id] => 82
[attribute_id] => 3
[name] => Клееный брус
[material_modifier] => 1
[work_modifier] => 1
[options] => Array
(
[0] => 160 мм
[1] => 175 мм
[2] => 200 мм
[3] => 215 мм
[4] => 240 мм
[5] => 270 мм
[6] => 282 мм
)
[days] => [24,28,32,37,40,42,48]
[material_price] => [16975,18773,19950,20545,21599,22159,23275]
[work_price] => [4806,5287,5815,6397,7036,7740,8514]
[image] => https://akademik-stroy.ru/wp-content/uploads/materials/kleenyj-brus.jpg
[area_modifier] => 29.01
[parent_name] => Стены 1 этаж (несущие)
[parent_id] => 3
[material_sum] => 1181867
[work_sum] => 278844
[total_sum] => 1460711
[total_days] => 24
[display_material_sum] => 1 181 867
[display_work_sum] => 278 844
[display_total_sum] => 1 460 711
)
1
1 460 711₽
Работа:278 844 ₽
Материалы:1 181 867 ₽
Дни:24
stdClass Object
(
[id] => 83
[attribute_id] => 3
[name] => Каркасные
[material_modifier] => 1
[work_modifier] => 1
[options] => Array
(
[0] => 150 мм
[1] => 200 мм
[2] => 250 мм
[3] => 300 мм
)
[days] => [15,16,17,18]
[material_price] => [2379,2639,2898,3258]
[work_price] => [2418,2686,2985,3716]
[image] => https://akademik-stroy.ru/wp-content/uploads/materials/karkasnye.jpg
[area_modifier] => 29.01
[parent_name] => Стены 1 этаж (несущие)
[parent_id] => 3
[material_sum] => 165635
[work_sum] => 140292
[total_sum] => 305927
[total_days] => 15
[display_material_sum] => 165 635
[display_work_sum] => 140 292
[display_total_sum] => 305 927
)
1
305 927₽
Работа:140 292 ₽
Материалы:165 635 ₽
Дни:15
stdClass Object
(
[id] => 84
[attribute_id] => 3
[name] => СИП-панели
[material_modifier] => 1
[work_modifier] => 1
[options] => Array
(
[0] => 120 мм
[1] => 170 мм
[2] => 220 мм
)
[days] => [7,7,7]
[material_price] => [1210,1856,2292]
[work_price] => [1410,1551,1706]
[image] => https://akademik-stroy.ru/wp-content/uploads/materials/sip-paneli.jpg
[area_modifier] => 29.01
[parent_name] => Стены 1 этаж (несущие)
[parent_id] => 3
[material_sum] => 84245
[work_sum] => 81808
[total_sum] => 166053
[total_days] => 7
[display_material_sum] => 84 245
[display_work_sum] => 81 808
[display_total_sum] => 166 053
)
1
166 053₽
Работа:81 808 ₽
Материалы:84 245 ₽
Дни:7
stdClass Object
(
[id] => 85
[attribute_id] => 3
[name] => Сухой брус
[material_modifier] => 1
[work_modifier] => 1
[options] => Array
(
[0] => 150 мм
[1] => 180 мм
[2] => 200 мм
)
[days] => [7,8,9]
[material_price] => [6010,7190,8709]
[work_price] => [3204,3845,4229]
[image] => https://akademik-stroy.ru/wp-content/uploads/materials/suhoj-brus.jpg
[area_modifier] => 29.01
[parent_name] => Стены 1 этаж (несущие)
[parent_id] => 3
[material_sum] => 418440
[work_sum] => 185896
[total_sum] => 604336
[total_days] => 7
[display_material_sum] => 418 440
[display_work_sum] => 185 896
[display_total_sum] => 604 336
)
1
604 336₽
Работа:185 896 ₽
Материалы:418 440 ₽
Дни:7
stdClass Object
(
[id] => 86
[attribute_id] => 3
[name] => Профилированный брус
[material_modifier] => 1
[work_modifier] => 1
[options] => Array
(
[0] => 150 мм
[1] => 180 мм
[2] => 200 мм
)
[days] => [7,8,9]
[material_price] => [8190,9228,10051]
[work_price] => [3845,4614,5075]
[image] => https://akademik-stroy.ru/wp-content/uploads/materials/profilirovannyj-brus.jpg
[area_modifier] => 29.01
[parent_name] => Стены 1 этаж (несущие)
[parent_id] => 3
[material_sum] => 570221
[work_sum] => 223087
[total_sum] => 793308
[total_days] => 7
[display_material_sum] => 570 221
[display_work_sum] => 223 087
[display_total_sum] => 793 308
)
1
793 308₽
Работа:223 087 ₽
Материалы:570 221 ₽
Дни:7
stdClass Object
(
[id] => 87
[attribute_id] => 3
[name] => Оцилиндрованное бревно
[material_modifier] => 1
[work_modifier] => 1
[options] => Array
(
[0] => 180 мм
[1] => 220 мм
[2] => 260 мм
[3] => 320 мм
)
[days] => [7,8,9,10]
[material_price] => [75190,9532,10868,13116]
[work_price] => [3845,4691,5535,6863]
[image] => https://akademik-stroy.ru/wp-content/uploads/materials/ocilindrovannoe-brevno-1.jpg
[area_modifier] => 29.01
[parent_name] => Стены 1 этаж (несущие)
[parent_id] => 3
[material_sum] => 5235029
[work_sum] => 223087
[total_sum] => 5458116
[total_days] => 7
[display_material_sum] => 5 235 029
[display_work_sum] => 223 087
[display_total_sum] => 5 458 116
)
1
5 458 116₽
Работа:223 087 ₽
Материалы:5 235 029 ₽
Дни:7
stdClass Object
(
[id] => 88
[attribute_id] => 3
[name] => Срубы
[material_modifier] => 1
[work_modifier] => 1
[options] => Array
(
[0] => 260 мм
[1] => 320 мм
[2] => 360 мм
[3] => 400 мм
[4] => 500 мм
)
[days] => [7,8,9,10,11]
[material_price] => [37975,46709,52314,58069,73167]
[work_price] => [4806,5911,6621,7349,9260]
[image] => https://akademik-stroy.ru/wp-content/uploads/materials/sruby.jpg
[area_modifier] => 29.01
[parent_name] => Стены 1 этаж (несущие)
[parent_id] => 3
[material_sum] => 2643971
[work_sum] => 278844
[total_sum] => 2922815
[total_days] => 7
[display_material_sum] => 2 643 971
[display_work_sum] => 278 844
[display_total_sum] => 2 922 815
)
1
2 922 815₽
Работа:278 844 ₽
Материалы:2 643 971 ₽
Дни:7
stdClass Object
(
[id] => 174
[attribute_id] => 3
[name] => Брус
[material_modifier] => 1
[work_modifier] => 1
[options] => Array
(
[0] => 150 мм
[1] => 180 мм
[2] => 200 мм
)
[days] => [7,8,9]
[material_price] => [5127,6152,7367]
[work_price] => [1602,1922,2115]
[image] => https://akademik-stroy.ru/wp-content/uploads/materials/brus.jpg
[area_modifier] => 29.01
[parent_name] => Стены 1 этаж (несущие)
[parent_id] => 3
[material_sum] => 356962
[work_sum] => 92948
[total_sum] => 449910
[total_days] => 7
[display_material_sum] => 356 962
[display_work_sum] => 92 948
[display_total_sum] => 449 910
)
1
449 910₽
Работа:92 948 ₽
Материалы:356 962 ₽
Дни:7
stdClass Object
(
[id] => 175
[attribute_id] => 3
[name] => Газобетон
[material_modifier] => 1
[work_modifier] => 1
[options] => Array
(
[0] => 300 мм
[1] => 375 мм
[2] => 400 мм
[3] => 500 мм
[4] => 600 мм
)
[days] => [29,31,35,37,44]
[material_price] => [4298,5573,6356,7288,9119]
[work_price] => [4538,5251,5926,6733,7195]
[image] => https://akademik-stroy.ru/wp-content/uploads/materials/gazobeton.jpg
[area_modifier] => 29.01
[parent_name] => Стены 1 этаж (несущие)
[parent_id] => 3
[material_sum] => 299244
[work_sum] => 263295
[total_sum] => 562539
[total_days] => 29
[display_material_sum] => 299 244
[display_work_sum] => 263 295
[display_total_sum] => 562 539
)
1
562 539₽
Работа:263 295 ₽
Материалы:299 244 ₽
Дни:29
stdClass Object
(
[id] => 176
[attribute_id] => 3
[name] => Блок
[material_modifier] => 1
[work_modifier] => 1
[options] => Array
(
[0] => 300 мм
[1] => 375 мм
[2] => 400 мм
[3] => 500 мм
[4] => 600 мм
)
[days] => [29,31,35,37,44]
[material_price] => [2698,3973,4356,6588,7119]
[work_price] => [5038,5851,6426,8733,9195]
[image] => https://akademik-stroy.ru/wp-content/uploads/materials/blok.jpg
[area_modifier] => 29.01
[parent_name] => Стены 1 этаж (несущие)
[parent_id] => 3
[material_sum] => 187846
[work_sum] => 292305
[total_sum] => 480151
[total_days] => 29
[display_material_sum] => 187 846
[display_work_sum] => 292 305
[display_total_sum] => 480 151
)
1
480 151₽
Работа:292 305 ₽
Материалы:187 846 ₽
Дни:29
stdClass Object
(
[id] => 177
[attribute_id] => 3
[name] => Газосиликатный блок
[material_modifier] => 1
[work_modifier] => 1
[options] => Array
(
[0] => 300 мм
[1] => 375 мм
[2] => 400 мм
[3] => 500 мм
[4] => 600 мм
)
[days] => [29,31,35,37,44]
[material_price] => [4298,5573,6356,7288,9119]
[work_price] => [4538,5251,5926,6733,7195]
[image] => https://akademik-stroy.ru/wp-content/uploads/materials/gazosilikatnyj-blok.jpg
[area_modifier] => 29.01
[parent_name] => Стены 1 этаж (несущие)
[parent_id] => 3
[material_sum] => 299244
[work_sum] => 263295
[total_sum] => 562539
[total_days] => 29
[display_material_sum] => 299 244
[display_work_sum] => 263 295
[display_total_sum] => 562 539
)
1
562 539₽
Работа:263 295 ₽
Материалы:299 244 ₽
Дни:29
stdClass Object
(
[id] => 178
[attribute_id] => 3
[name] => Керамзитобетонный блок
[material_modifier] => 1
[work_modifier] => 1
[options] => Array
(
[0] => 300 мм
[1] => 375 мм
[2] => 400 мм
[3] => 500 мм
[4] => 600 мм
)
[days] => [23,23,24,25,28]
[material_price] => [3641,4298,5693,7613,9612]
[work_price] => [5737,5737,6903,7958,8901]
[image] => https://akademik-stroy.ru/wp-content/uploads/materials/keramzitobetonnyj-blok.jpg
[area_modifier] => 29.01
[parent_name] => Стены 1 этаж (несущие)
[parent_id] => 3
[material_sum] => 253501
[work_sum] => 332861
[total_sum] => 586362
[total_days] => 23
[display_material_sum] => 253 501
[display_work_sum] => 332 861
[display_total_sum] => 586 362
)
1
586 362₽
Работа:332 861 ₽
Материалы:253 501 ₽
Дни:23
stdClass Object
(
[id] => 179
[attribute_id] => 3
[name] => Деревянные
[material_modifier] => 1
[work_modifier] => 1
[options] => Array
(
[0] => 180 мм
[1] => 220 мм
[2] => 260 мм
[3] => 320 мм
)
[days] => [7,8,9,10]
[material_price] => [7950,9458,11961,14472]
[work_price] => [4037,4925,5812,7207]
[image] => https://akademik-stroy.ru/wp-content/uploads/materials/derevyannye.jpg
[area_modifier] => 29.01
[parent_name] => Стены 1 этаж (несущие)
[parent_id] => 3
[material_sum] => 553511
[work_sum] => 234227
[total_sum] => 787738
[total_days] => 7
[display_material_sum] => 553 511
[display_work_sum] => 234 227
[display_total_sum] => 787 738
)
1
787 738₽
Работа:234 227 ₽
Материалы:553 511 ₽
Дни:7
stdClass Object
(
[id] => 181
[attribute_id] => 3
[name] => Камень
[material_modifier] => 1
[work_modifier] => 1
[options] => Array
(
[0] => 300 мм
[1] => 400 мм
[2] => 500 мм
[3] => 600 мм
)
[days] => [25,27,31,34]
[material_price] => [5262,6844,8330,9815]
[work_price] => [8331,9135,10427,11069]
[image] => https://akademik-stroy.ru/wp-content/uploads/materials/kamen.jpg
[area_modifier] => 29.01
[parent_name] => Стены 1 этаж (несущие)
[parent_id] => 3
[material_sum] => 366361
[work_sum] => 483365
[total_sum] => 849726
[total_days] => 25
[display_material_sum] => 366 361
[display_work_sum] => 483 365
[display_total_sum] => 849 726
)
1
849 726₽
Работа:483 365 ₽
Материалы:366 361 ₽
Дни:25
stdClass Object
(
[id] => 182
[attribute_id] => 3
[name] => Каркасно-щитовые
[material_modifier] => 1
[work_modifier] => 1
[options] => Array
(
[0] => 150 мм
[1] => 200 мм
[2] => 250 мм
[3] => 300 мм
[4] => 350 мм
[5] => 400 мм
)
[days] => [15,16,17,18,19,20]
[material_price] => [2379,2639,2898,3458,3601,4175]
[work_price] => [2538,2820,3134,3483,4062,5642]
[image] => https://akademik-stroy.ru/wp-content/uploads/materials/karkasno-shchitovye.jpg
[area_modifier] => 29.01
[parent_name] => Стены 1 этаж (несущие)
[parent_id] => 3
[material_sum] => 165635
[work_sum] => 147255
[total_sum] => 312890
[total_days] => 15
[display_material_sum] => 165 635
[display_work_sum] => 147 255
[display_total_sum] => 312 890
)
1
312 890₽
Работа:147 255 ₽
Материалы:165 635 ₽
Дни:15
stdClass Object
(
[id] => 183
[attribute_id] => 3
[name] => Рубленные
[material_modifier] => 1
[work_modifier] => 1
[options] => Array
(
[0] => 150 мм
[1] => 200 мм
[2] => 250 мм
[3] => 300 мм
[4] => 350 мм
[5] => 400 мм
)
[days] => [15,16,17,18,17,18]
[material_price] => [35950,50267,60583,75900,80217,100533]
[work_price] => [9612,12816,16020,19224,22428,25632]
[image] => https://akademik-stroy.ru/wp-content/uploads/materials/rublennye.jpg
[area_modifier] => 29.01
[parent_name] => Стены 1 этаж (несущие)
[parent_id] => 3
[material_sum] => 2502983
[work_sum] => 557688
[total_sum] => 3060671
[total_days] => 15
[display_material_sum] => 2 502 983
[display_work_sum] => 557 688
[display_total_sum] => 3 060 671
)
1
3 060 671₽
Работа:557 688 ₽
Материалы:2 502 983 ₽
Дни:15
stdClass Object
(
[id] => 185
[attribute_id] => 3
[name] => Теплоблок
[material_modifier] => 1
[work_modifier] => 1
[options] => Array
(
[0] => 300 мм (с облицовкой, не покрашенный)
[1] => 400 мм (с облицовкой, не покрашенный)
[2] => 300 мм (с облицовкой, покрашенный)
[3] => 400 мм (с облицовкой, покрашенный)
)
[days] => [15,16,15,16]
[material_price] => [2888,3729,3957,4258]
[work_price] => [2564,3229,2949,3713]
[image] => https://akademik-stroy.ru/wp-content/uploads/materials/teploblok.jpg
[area_modifier] => 29.01
[parent_name] => Стены 1 этаж (несущие)
[parent_id] => 3
[material_sum] => 201074
[work_sum] => 148763
[total_sum] => 349837
[total_days] => 15
[display_material_sum] => 201 074
[display_work_sum] => 148 763
[display_total_sum] => 349 837
)
1
349 837₽
Работа:148 763 ₽
Материалы:201 074 ₽
Дни:15
stdClass Object
(
[id] => 186
[attribute_id] => 3
[name] => Арболитовые блоки
[material_modifier] => 1
[work_modifier] => 1
[options] => Array
(
[0] => 300 мм
[1] => 400 мм
[2] => 600 мм
)
[days] => [19,22,27]
[material_price] => [3210,4475,5852]
[work_price] => [4214,4788,5866]
[image] => https://akademik-stroy.ru/wp-content/uploads/materials/arbolitovye-bloki.png
[area_modifier] => 29.01
[parent_name] => Стены 1 этаж (несущие)
[parent_id] => 3
[material_sum] => 223493
[work_sum] => 244496
[total_sum] => 467989
[total_days] => 19
[display_material_sum] => 223 493
[display_work_sum] => 244 496
[display_total_sum] => 467 989
)
1
467 989₽
Работа:244 496 ₽
Материалы:223 493 ₽
Дни:19
stdClass Object
(
[id] => 187
[attribute_id] => 3
[name] => Полистиролбетон
[material_modifier] => 1
[work_modifier] => 1
[options] => Array
(
[0] => 300 мм
[1] => 400 мм
[2] => 600 мм
)
[days] => [29,31,35]
[material_price] => [2798,4573,5256]
[work_price] => [5038,5851,6426]
[image] => https://akademik-stroy.ru/wp-content/uploads/materials/polistirolbeton.jpg
[area_modifier] => 29.01
[parent_name] => Стены 1 этаж (несущие)
[parent_id] => 3
[material_sum] => 194808
[work_sum] => 292305
[total_sum] => 487113
[total_days] => 29
[display_material_sum] => 194 808
[display_work_sum] => 292 305
[display_total_sum] => 487 113
)
1
487 113₽
Работа:292 305 ₽
Материалы:194 808 ₽
Дни:29
stdClass Object
(
[id] => 188
[attribute_id] => 3
[name] => Шлакоблок
[material_modifier] => 1
[work_modifier] => 1
[options] => Array
(
[0] => 400 мм
[1] => 600 мм
)
[days] => [15,16]
[material_price] => [2391,3471]
[work_price] => [2642,3662]
[image] => https://akademik-stroy.ru/wp-content/uploads/materials/shlakoblok.jpg
[area_modifier] => 29.01
[parent_name] => Стены 1 этаж (несущие)
[parent_id] => 3
[material_sum] => 166471
[work_sum] => 153289
[total_sum] => 319760
[total_days] => 15
[display_material_sum] => 166 471
[display_work_sum] => 153 289
[display_total_sum] => 319 760
)
1
319 760₽
Работа:153 289 ₽
Материалы:166 471 ₽
Дни:15
stdClass Object
(
[id] => 189
[attribute_id] => 3
[name] => Теплая керамика
[material_modifier] => 1
[work_modifier] => 1
[options] => Array
(
[0] => 380 мм
[1] => 380 мм Thermo
[2] => 440 мм
[3] => 510 мм
)
[days] => [23,23,24,25]
[material_price] => [4510,5098,6093,8013]
[work_price] => [4737,4937,5903,6958]
[image] => https://akademik-stroy.ru/wp-content/uploads/materials/teplaya-keramika.jpg
[area_modifier] => 29.01
[parent_name] => Стены 1 этаж (несущие)
[parent_id] => 3
[material_sum] => 314004
[work_sum] => 274841
[total_sum] => 588845
[total_days] => 23
[display_material_sum] => 314 004
[display_work_sum] => 274 841
[display_total_sum] => 588 845
)
1
588 845₽
Работа:274 841 ₽
Материалы:314 004 ₽
Дни:23
stdClass Object
(
[id] => 190
[attribute_id] => 3
[name] => Несъемная опалубка
[material_modifier] => 1
[work_modifier] => 1
[options] => Array
(
[0] => 200 мм
[1] => 250 мм
[2] => 300 мм
[3] => 350 мм
)
[days] => [15,17,19,21]
[material_price] => [3302,3902,4108,5008]
[work_price] => [2100,2100,2300,2534]
[image] => https://akademik-stroy.ru/wp-content/uploads/materials/nesemnaya-opalubka.jpg
[area_modifier] => 29.01
[parent_name] => Стены 1 этаж (несущие)
[parent_id] => 3
[material_sum] => 229898
[work_sum] => 121842
[total_sum] => 351740
[total_days] => 15
[display_material_sum] => 229 898
[display_work_sum] => 121 842
[display_total_sum] => 351 740
)
1
351 740₽
Работа:121 842 ₽
Материалы:229 898 ₽
Дни:15
stdClass Object
(
[id] => 251
[attribute_id] => 3
[name] => Бревно
[material_modifier] => 1
[work_modifier] => 1
[options] => Array
(
[0] => 260 мм
[1] => 320 мм
[2] => 360 мм
[3] => 400 мм
[4] => 500 мм
)
[days] => [7,8,9,10,11]
[material_price] => [1874,24045,26930,30972,38825]
[work_price] => [5046,6207,6952,7716,9723]
[image] => https://akademik-stroy.ru/wp-content/uploads/materials/sruby.jpg
[area_modifier] => 29.01
[parent_name] => Стены 1 этаж (несущие)
[parent_id] => 3
[material_sum] => 130475
[work_sum] => 292769
[total_sum] => 423244
[total_days] => 7
[display_material_sum] => 130 475
[display_work_sum] => 292 769
[display_total_sum] => 423 244
)
1
423 244₽
Работа:292 769 ₽
Материалы:130 475 ₽
Дни:7
stdClass Object
(
[id] => 7
[attribute_id] => 4
[name] => Деревянные балки
[material_modifier] => 1
[work_modifier] => 1
[options] => Array
(
[0] => без утепления
[1] => утепление 200 мм
[2] => утепление 250 мм
[3] => утепление 300 мм
[4] => утепление 350 мм
[5] => утепление 400 мм
[6] => утепление 450 мм
[7] => утепление 500 мм
)
[days] => [8,9,9,9,11,12,13,14]
[material_price] => [1634,2042,2344,2947,3149,3652,3354,3557]
[work_price] => [1230,1339,1393,1426,1460,1513,1587,1620]
[image] => https://akademik-stroy.ru/wp-content/uploads/materials/derevyannye-balki.png
[area_modifier] => 29.01
[parent_name] => Перекрытие первого этажа
[parent_id] => 4
[material_sum] => 113766
[work_sum] => 71365
[total_sum] => 185131
[total_days] => 8
[display_material_sum] => 113 766
[display_work_sum] => 71 365
[display_total_sum] => 185 131
)
1
185 131₽
Работа:71 365 ₽
Материалы:113 766 ₽
Дни:8
stdClass Object
(
[id] => 8
[attribute_id] => 4
[name] => Сборные ж/б плиты
[material_modifier] => 1
[work_modifier] => 1
[options] => Array
(
[0] => без утепления
[1] => утепление 150 мм
[2] => утепление 200 мм
[3] => утепление 250 мм
[4] => утепление 300 мм
[5] => утепление 350 мм
[6] => утепление 400 мм
[7] => утепление 450 мм
[8] => утепление 500 мм
)
[days] => [13,15,15,15,15,15,15,15,15]
[material_price] => [3067,5577,5928,6679,7730,8782,9833,10884,11935]
[work_price] => [1520,1956,2102,2247,2392,2537,2684,2829,2974]
[image] => https://akademik-stroy.ru/wp-content/uploads/materials/sbornye-zh-b-plity-2.jpg
[area_modifier] => 29.01
[parent_name] => Перекрытие первого этажа
[parent_id] => 4
[material_sum] => 213537
[work_sum] => 88190
[total_sum] => 301727
[total_days] => 13
[display_material_sum] => 213 537
[display_work_sum] => 88 190
[display_total_sum] => 301 727
)
1
301 727₽
Работа:88 190 ₽
Материалы:213 537 ₽
Дни:13
stdClass Object
(
[id] => 89
[attribute_id] => 4
[name] => Монолитная ж/б плита
[material_modifier] => 1
[work_modifier] => 1
[options] => Array
(
[0] => без утепления
[1] => утепление 150 мм
[2] => утепление 200 мм
[3] => утепление 250 мм
[4] => утепление 300 мм
[5] => утепление 350 мм
[6] => утепление 400 мм
[7] => утепление 450 мм
[8] => утепление 500 мм
)
[days] => [18,20,20,20,20,20,20,20,20]
[material_price] => [4837,6572,7224,7375,79426,8177,8728,9180,10031]
[work_price] => [3348,3921,4112,4302,4493,4684,4875,5066,5256]
[image] => https://akademik-stroy.ru/wp-content/uploads/materials/monolitnaya-zh-b-plita-2.jpg
[area_modifier] => 29.01
[parent_name] => Перекрытие первого этажа
[parent_id] => 4
[material_sum] => 336771
[work_sum] => 194251
[total_sum] => 531022
[total_days] => 18
[display_material_sum] => 336 771
[display_work_sum] => 194 251
[display_total_sum] => 531 022
)
1
531 022₽
Работа:194 251 ₽
Материалы:336 771 ₽
Дни:18
stdClass Object
(
[id] => 160
[attribute_id] => 36
[name] => Не эксплуатируемая
[material_modifier] => 1
[work_modifier] => 1
[options] => Array
(
)
[days] => [10]
[material_price] => [8068]
[work_price] => [4163]
[image] => https://akademik-stroy.ru/wp-content/uploads/materials/ne-ehkspluatiruemaya-3.jpg
[area_modifier] => 29.01
[parent_name] => Плоская крыша
[parent_id] => 36
[material_sum] => 561726
[work_sum] => 241537
[total_sum] => 803263
[total_days] => 10
[display_material_sum] => 561 726
[display_work_sum] => 241 537
[display_total_sum] => 803 263
)
1
803 263₽
Работа:241 537 ₽
Материалы:561 726 ₽
Дни:10
stdClass Object
(
[id] => 161
[attribute_id] => 36
[name] => Зеленая кровля (Эксплуатируемая)
[material_modifier] => 1
[work_modifier] => 1
[options] => Array
(
)
[days] => [10]
[material_price] => [10056]
[work_price] => [8446]
[image] => https://akademik-stroy.ru/wp-content/uploads/materials/zelenaya-krovlya-2.jpg
[area_modifier] => 29.01
[parent_name] => Плоская крыша
[parent_id] => 36
[material_sum] => 700139
[work_sum] => 490037
[total_sum] => 1190176
[total_days] => 10
[display_material_sum] => 700 139
[display_work_sum] => 490 037
[display_total_sum] => 1 190 176
)
1
1 190 176₽
Работа:490 037 ₽
Материалы:700 139 ₽
Дни:10
stdClass Object
(
[id] => 162
[attribute_id] => 36
[name] => Эксплуатируемая
[material_modifier] => 1
[work_modifier] => 1
[options] => Array
(
)
[days] => [10]
[material_price] => [9593]
[work_price] => [7459]
[image] => https://akademik-stroy.ru/wp-content/uploads/materials/ehkspluatiruemaya-2.jpg
[area_modifier] => 29.01
[parent_name] => Плоская крыша
[parent_id] => 36
[material_sum] => 667903
[work_sum] => 432771
[total_sum] => 1100674
[total_days] => 10
[display_material_sum] => 667 903
[display_work_sum] => 432 771
[display_total_sum] => 1 100 674
)
1
1 100 674₽
Работа:432 771 ₽
Материалы:667 903 ₽
Дни:10
stdClass Object
(
[id] => 163
[attribute_id] => 36
[name] => Нет
[material_modifier] => 1
[work_modifier] => 1
[options] => Array
(
)
[days] => [0]
[material_price] => [0]
[work_price] => [0]
[image] => https://akademik-stroy.ru/wp-content/uploads/materials/ne-ehkspluatiruemaya-3.jpg
[area_modifier] => 29.01
[parent_name] => Плоская крыша
[parent_id] => 36
[material_sum] => 0
[work_sum] => 0
[total_sum] => 0
[total_days] => 0
[display_material_sum] => 0
[display_work_sum] => 0
[display_total_sum] => 0
)
1
0₽
Работа:0 ₽
Материалы:0 ₽
Дни:0
stdClass Object
(
[id] => 51
[attribute_id] => 26
[name] => Есть
[material_modifier] => 1
[work_modifier] => 1
[options] => Array
(
[0] => Профиль 58 мм, 3-камерный, стеклопакет 2-камерный до 32 мм
[1] => Профиль 60 мм, 4-камерный, стеклопакет 2-камерный до 32 мм
[2] => Профиль 70 мм, 5-камерный, стеклопакет 2-камерный до 40 мм
[3] => Профиль 72 мм, 5-камерный, стеклопакет 2-камерный до 40 мм
[4] => Алюминиевые окна Alutech профиль 72 мм, стеклопакет 2-камерный
)
[days] => [3,3,3,3,3]
[material_price] => [1339,2124,2867,3023,29596]
[work_price] => [635,647,659,668,2579]
[image] => https://akademik-stroy.ru/wp-content/uploads/materials/okna.jpg
[area_modifier] => 23.54
[parent_name] => Окна
[parent_id] => 26
[material_sum] => 75648
[work_sum] => 29896
[total_sum] => 105544
[total_days] => 3
[display_material_sum] => 75 648
[display_work_sum] => 29 896
[display_total_sum] => 105 544
)
1
105 544₽
Работа:29 896 ₽
Материалы:75 648 ₽
Дни:3
stdClass Object
(
[id] => 52
[attribute_id] => 26
[name] => Нет
[material_modifier] => 2
[work_modifier] => 1
[options] =>
[days] => null
[material_price] => null
[work_price] => null
[image] => https://akademik-stroy.ru/wp-content/uploads/materials/okna.jpg
[area_modifier] => 23.54
[parent_name] => Окна
[parent_id] => 26
[material_sum] => 0
[work_sum] => 0
[total_sum] => 0
[total_days] => 0
[display_material_sum] => 0
[display_work_sum] => 0
[display_total_sum] => 0
)
1
0₽
Работа:0 ₽
Материалы:0 ₽
Дни:0
stdClass Object
(
[id] => 53
[attribute_id] => 27
[name] => Есть
[material_modifier] => 1
[work_modifier] => 1
[options] => Array
(
)
[days] => [1]
[material_price] => [10000]
[work_price] => [5500]
[image] => https://akademik-stroy.ru/wp-content/uploads/materials/dveri.jpg
[area_modifier] => 1
[parent_name] => Двери входные
[parent_id] => 27
[material_sum] => 24000
[work_sum] => 11000
[total_sum] => 35000
[total_days] => 1
[display_material_sum] => 24 000
[display_work_sum] => 11 000
[display_total_sum] => 35 000
)
1
35 000₽
Работа:11 000 ₽
Материалы:24 000 ₽
Дни:1
stdClass Object
(
[id] => 54
[attribute_id] => 27
[name] => Нет
[material_modifier] => 1
[work_modifier] => 1
[options] => Array
(
)
[days] => [0]
[material_price] => [0]
[work_price] => [0]
[image] => https://akademik-stroy.ru/wp-content/uploads/materials/dveri.jpg
[area_modifier] => 1
[parent_name] => Двери входные
[parent_id] => 27
[material_sum] => 0
[work_sum] => 0
[total_sum] => 0
[total_days] => 0
[display_material_sum] => 0
[display_work_sum] => 0
[display_total_sum] => 0
)
1
0₽
Работа:0 ₽
Материалы:0 ₽
Дни:0
stdClass Object
(
[id] => 31
[attribute_id] => 16
[name] => Нет
[material_modifier] => 1
[work_modifier] => 1
[options] => Array
(
)
[days] => [0]
[material_price] => [0]
[work_price] => [0]
[image] => https://akademik-stroy.ru/wp-content/uploads/materials/docke-standard-pvh.jpg
[area_modifier] => 29.01
[parent_name] => Водосточная система
[parent_id] => 16
[material_sum] => 0
[work_sum] => 0
[total_sum] => 0
[total_days] => 0
[display_material_sum] => 0
[display_work_sum] => 0
[display_total_sum] => 0
)
1
0₽
Работа:0 ₽
Материалы:0 ₽
Дни:0
stdClass Object
(
[id] => 32
[attribute_id] => 16
[name] => Есть
[material_modifier] => 1
[work_modifier] => 1
[options] => Array
(
[0] => Döcke Standard (ПВХ)
[1] => Металлические Grand Line
)
[days] => [7,7]
[material_price] => [1842,2703]
[work_price] => [1491,1529]
[image] => https://akademik-stroy.ru/wp-content/uploads/materials/docke-standard-pvh.jpg
[area_modifier] => 29.01
[parent_name] => Водосточная система
[parent_id] => 16
[material_sum] => 128247
[work_sum] => 86508
[total_sum] => 214755
[total_days] => 7
[display_material_sum] => 128 247
[display_work_sum] => 86 508
[display_total_sum] => 214 755
)
1
214 755₽
Работа:86 508 ₽
Материалы:128 247 ₽
Дни:7
stdClass Object
(
[id] => 33
[attribute_id] => 17
[name] => Нет
[material_modifier] => 1
[work_modifier] => 1
[options] => Array
(
)
[days] => [0]
[material_price] => [0]
[work_price] => [0]
[image] => https://akademik-stroy.ru/wp-content/uploads/materials/mineralovata.jpg
[area_modifier] => 29.01
[parent_name] => Дополнительное утепление наружных стен
[parent_id] => 17
[material_sum] => 0
[work_sum] => 0
[total_sum] => 0
[total_days] => 0
[display_material_sum] => 0
[display_work_sum] => 0
[display_total_sum] => 0
)
1
0₽
Работа:0 ₽
Материалы:0 ₽
Дни:0
stdClass Object
(
[id] => 34
[attribute_id] => 17
[name] => Минераловатный
[material_modifier] => 1
[work_modifier] => 1
[options] => Array
(
[0] => 50 мм
[1] => 100 мм
[2] => 150 мм
[3] => 200 мм
[4] => 250 мм
[5] => 300 мм
)
[days] => [7,8,10,12,14,15]
[material_price] => [3437,3613,3803,3915,4601,4830]
[work_price] => [2325,2423,2523,2749,2859,3025]
[image] => https://akademik-stroy.ru/wp-content/uploads/materials/mineralovata.jpg
[area_modifier] => 29.01
[parent_name] => Дополнительное утепление наружных стен
[parent_id] => 17
[material_sum] => 239298
[work_sum] => 134897
[total_sum] => 374195
[total_days] => 7
[display_material_sum] => 239 298
[display_work_sum] => 134 897
[display_total_sum] => 374 195
)
1
374 195₽
Работа:134 897 ₽
Материалы:239 298 ₽
Дни:7
stdClass Object
(
[id] => 128
[attribute_id] => 17
[name] => Эковата (целлюлозная вата)
[material_modifier] => 1
[work_modifier] => 1
[options] => Array
(
[0] => 50 мм
[1] => 100 мм
[2] => 150 мм
[3] => 200 мм
[4] => 250 мм
[5] => 300 мм
)
[days] => [3,4,5,6,7,8]
[material_price] => [810,1319,1629,1838,2267,2676]
[work_price] => [1225,1323,1423,1549,1659,1725]
[image] => https://akademik-stroy.ru/wp-content/uploads/materials/ehkovata.jpg
[area_modifier] => 29.01
[parent_name] => Дополнительное утепление наружных стен
[parent_id] => 17
[material_sum] => 56395
[work_sum] => 71075
[total_sum] => 127470
[total_days] => 3
[display_material_sum] => 56 395
[display_work_sum] => 71 075
[display_total_sum] => 127 470
)
1
127 470₽
Работа:71 075 ₽
Материалы:56 395 ₽
Дни:3
stdClass Object
(
[id] => 129
[attribute_id] => 17
[name] => Экструдированный пенополистирол
[material_modifier] => 1
[work_modifier] => 1
[options] => Array
(
[0] => 50 мм
[1] => 100 мм
[2] => 150 мм
[3] => 200 мм
[4] => 250 мм
[5] => 300 мм
)
[days] => [5,6,7,8,9,10]
[material_price] => [4560,4300,5119,6292,7010,8583]
[work_price] => [1795,1954,2254,2330,2595,2735]
[image] => https://akademik-stroy.ru/wp-content/uploads/materials/epps.jpg
[area_modifier] => 29.01
[parent_name] => Дополнительное утепление наружных стен
[parent_id] => 17
[material_sum] => 317485
[work_sum] => 104146
[total_sum] => 421631
[total_days] => 5
[display_material_sum] => 317 485
[display_work_sum] => 104 146
[display_total_sum] => 421 631
)
1
421 631₽
Работа:104 146 ₽
Материалы:317 485 ₽
Дни:5
stdClass Object
(
[id] => 130
[attribute_id] => 17
[name] => ПСБ (ППС-пенополистирол)
[material_modifier] => 1
[work_modifier] => 1
[options] => Array
(
[0] => 50 мм
[1] => 100 мм
[2] => 150 мм
[3] => 200 мм
[4] => 250 мм
[5] => 300 мм
)
[days] => [5,6,7,8,9,10]
[material_price] => [4822,5200,5819,6292,7010,7583]
[work_price] => [1795,1954,2254,2330,2595,2735]
[image] => https://akademik-stroy.ru/wp-content/uploads/materials/psb.jpg
[area_modifier] => 29.01
[parent_name] => Дополнительное утепление наружных стен
[parent_id] => 17
[material_sum] => 335727
[work_sum] => 104146
[total_sum] => 439873
[total_days] => 5
[display_material_sum] => 335 727
[display_work_sum] => 104 146
[display_total_sum] => 439 873
)
1
439 873₽
Работа:104 146 ₽
Материалы:335 727 ₽
Дни:5
stdClass Object
(
[id] => 131
[attribute_id] => 17
[name] => ППУ (Пенополиуретан)
[material_modifier] => 1
[work_modifier] => 1
[options] => Array
(
[0] => 50 мм
[1] => 100 мм
[2] => 150 мм
[3] => 200 мм
[4] => 250 мм
[5] => 300 мм
)
[days] => [3,4,5,6,7,8]
[material_price] => [2860,3400,4219,4592,5010,5583]
[work_price] => [729,900,980,1120,1280,1530]
[image] => https://akademik-stroy.ru/wp-content/uploads/materials/ppu.jpg
[area_modifier] => 29.01
[parent_name] => Дополнительное утепление наружных стен
[parent_id] => 17
[material_sum] => 199125
[work_sum] => 42297
[total_sum] => 241422
[total_days] => 3
[display_material_sum] => 199 125
[display_work_sum] => 42 297
[display_total_sum] => 241 422
)
1
241 422₽
Работа:42 297 ₽
Материалы:199 125 ₽
Дни:3
stdClass Object
(
[id] => 132
[attribute_id] => 17
[name] => PIR-плиты (пенополиизоцианурат)
[material_modifier] => 1
[work_modifier] => 1
[options] => Array
(
[0] => 50 мм
[1] => 100 мм
[2] => 150 мм
[3] => 200 мм
[4] => 250 мм
[5] => 300 мм
)
[days] => [5,6,7,8,9,10]
[material_price] => [8323,15645,20968,25900,29258,30581]
[work_price] => [800,900,970,1150,1280,1330]
[image] => https://akademik-stroy.ru/wp-content/uploads/materials/pir.jpg
[area_modifier] => 29.01
[parent_name] => Дополнительное утепление наружных стен
[parent_id] => 17
[material_sum] => 579481
[work_sum] => 46416
[total_sum] => 625897
[total_days] => 5
[display_material_sum] => 579 481
[display_work_sum] => 46 416
[display_total_sum] => 625 897
)
1
625 897₽
Работа:46 416 ₽
Материалы:579 481 ₽
Дни:5
stdClass Object
(
[id] => 37
[attribute_id] => 19
[name] => Нет
[material_modifier] => 1
[work_modifier] => 1
[options] => Array
(
)
[days] => [0]
[material_price] => [0]
[work_price] => [0]
[image] => https://akademik-stroy.ru/wp-content/uploads/materials/imitaciya-brusa.jpg
[area_modifier] => 29.01
[parent_name] => Наружная отделка фасада
[parent_id] => 19
[material_sum] => 0
[work_sum] => 0
[total_sum] => 0
[total_days] => 0
[display_material_sum] => 0
[display_work_sum] => 0
[display_total_sum] => 0
)
1
0₽
Работа:0 ₽
Материалы:0 ₽
Дни:0
stdClass Object
(
[id] => 38
[attribute_id] => 19
[name] => Имитация бруса
[material_modifier] => 1
[work_modifier] => 1
[options] => Array
(
[0] => Сосна
[1] => Ель
[2] => Лиственница
)
[days] => [20,20,20]
[material_price] => [2994,2762,4954]
[work_price] => [1397,1231,1577]
[image] => https://akademik-stroy.ru/wp-content/uploads/materials/imitaciya-brusa.jpg
[area_modifier] => 29.01
[parent_name] => Наружная отделка фасада
[parent_id] => 19
[material_sum] => 208454
[work_sum] => 81054
[total_sum] => 289508
[total_days] => 20
[display_material_sum] => 208 454
[display_work_sum] => 81 054
[display_total_sum] => 289 508
)
1
289 508₽
Работа:81 054 ₽
Материалы:208 454 ₽
Дни:20
stdClass Object
(
[id] => 136
[attribute_id] => 19
[name] => Планкен
[material_modifier] => 1
[work_modifier] => 1
[options] => Array
(
[0] => Сосна
[1] => Ель
[2] => Лиственница
)
[days] => [20,20,20]
[material_price] => [3194,2862,5154]
[work_price] => [1537,1354,1735]
[image] => https://akademik-stroy.ru/wp-content/uploads/materials/planken.jpg
[area_modifier] => 29.01
[parent_name] => Наружная отделка фасада
[parent_id] => 19
[material_sum] => 222379
[work_sum] => 89177
[total_sum] => 311556
[total_days] => 20
[display_material_sum] => 222 379
[display_work_sum] => 89 177
[display_total_sum] => 311 556
)
1
311 556₽
Работа:89 177 ₽
Материалы:222 379 ₽
Дни:20
stdClass Object
(
[id] => 137
[attribute_id] => 19
[name] => Штукатурка
[material_modifier] => 1
[work_modifier] => 1
[options] => Array
(
[0] => Цементно-песчаная (минеральная)
[1] => Мокрый фасад
)
[days] => [35,35]
[material_price] => [2231,3938]
[work_price] => [1202,2422]
[image] => https://akademik-stroy.ru/wp-content/uploads/materials/shtukaturka.jpg
[area_modifier] => 29.01
[parent_name] => Наружная отделка фасада
[parent_id] => 19
[material_sum] => 155331
[work_sum] => 69740
[total_sum] => 225071
[total_days] => 35
[display_material_sum] => 155 331
[display_work_sum] => 69 740
[display_total_sum] => 225 071
)
1
225 071₽
Работа:69 740 ₽
Материалы:155 331 ₽
Дни:35
stdClass Object
(
[id] => 138
[attribute_id] => 19
[name] => Облицовочный кирпич
[material_modifier] => 1
[work_modifier] => 1
[options] => Array
(
[0] => Керамический
[1] => Клинкерный
[2] => Ручной формовки
[3] => Гиперпрессованный
[4] => Силикатный кирпич
)
[days] => [45,45,45,45,45]
[material_price] => [8174,9148,1040,1257,5876]
[work_price] => [3240,3758,4536,4017,3369]
[image] => https://akademik-stroy.ru/wp-content/uploads/materials/oblicovochnyj-kirpich.jpg
[area_modifier] => 29.01
[parent_name] => Наружная отделка фасада
[parent_id] => 19
[material_sum] => 569107
[work_sum] => 187985
[total_sum] => 757092
[total_days] => 45
[display_material_sum] => 569 107
[display_work_sum] => 187 985
[display_total_sum] => 757 092
)
1
757 092₽
Работа:187 985 ₽
Материалы:569 107 ₽
Дни:45
stdClass Object
(
[id] => 139
[attribute_id] => 19
[name] => Фасадная плитка
[material_modifier] => 1
[work_modifier] => 1
[options] => Array
(
[0] => Клинкерная
[1] => Керамическая
[2] => Плитка ручной формовки
)
[days] => [40,40,40]
[material_price] => [2974,1487,3470]
[work_price] => [3007,2592,3629]
[image] => https://akademik-stroy.ru/wp-content/uploads/materials/fasadnaya-plitka.jpg
[area_modifier] => 29.01
[parent_name] => Наружная отделка фасада
[parent_id] => 19
[material_sum] => 207062
[work_sum] => 174466
[total_sum] => 381528
[total_days] => 40
[display_material_sum] => 207 062
[display_work_sum] => 174 466
[display_total_sum] => 381 528
)
1
381 528₽
Работа:174 466 ₽
Материалы:207 062 ₽
Дни:40
stdClass Object
(
[id] => 140
[attribute_id] => 19
[name] => Сайдинг
[material_modifier] => 1
[work_modifier] => 1
[options] => Array
(
[0] => Виниловый
[1] => Металлический
[2] => Фиброцементный
)
[days] => [20,20,20]
[material_price] => [1263,1944,4147]
[work_price] => [1263,1944,2074]
[image] => https://akademik-stroy.ru/wp-content/uploads/materials/sajding.jpg
[area_modifier] => 29.01
[parent_name] => Наружная отделка фасада
[parent_id] => 19
[material_sum] => 87935
[work_sum] => 73279
[total_sum] => 161214
[total_days] => 20
[display_material_sum] => 87 935
[display_work_sum] => 73 279
[display_total_sum] => 161 214
)
1
161 214₽
Работа:73 279 ₽
Материалы:87 935 ₽
Дни:20
stdClass Object
(
[id] => 141
[attribute_id] => 19
[name] => Камень
[material_modifier] => 1
[work_modifier] => 1
[options] => Array
(
[0] => Травертин
[1] => Дагестанский
[2] => Искусственный
[3] => Натуральный
[4] => Керамогранит
)
[days] => [45,45,45,45,45]
[material_price] => [4536,3888,2592,3240,2462]
[work_price] => [3240,3240,2462,3110,1944]
[image] => https://akademik-stroy.ru/wp-content/uploads/materials/kamen-1.jpg
[area_modifier] => 29.01
[parent_name] => Наружная отделка фасада
[parent_id] => 19
[material_sum] => 315814
[work_sum] => 187985
[total_sum] => 503799
[total_days] => 45
[display_material_sum] => 315 814
[display_work_sum] => 187 985
[display_total_sum] => 503 799
)
1
503 799₽
Работа:187 985 ₽
Материалы:315 814 ₽
Дни:45
stdClass Object
(
[id] => 142
[attribute_id] => 19
[name] => Термопанели
[material_modifier] => 1
[work_modifier] => 1
[options] => Array
(
)
[days] => [20]
[material_price] => [6221]
[work_price] => [2333]
[image] => https://akademik-stroy.ru/wp-content/uploads/materials/termo.png
[area_modifier] => 29.01
[parent_name] => Наружная отделка фасада
[parent_id] => 19
[material_sum] => 433131
[work_sum] => 135361
[total_sum] => 568492
[total_days] => 20
[display_material_sum] => 433 131
[display_work_sum] => 135 361
[display_total_sum] => 568 492
)
1
568 492₽
Работа:135 361 ₽
Материалы:433 131 ₽
Дни:20
stdClass Object
(
[id] => 143
[attribute_id] => 19
[name] => Плитка HAUBERK
[material_modifier] => 1
[work_modifier] => 1
[options] => Array
(
)
[days] => [20]
[material_price] => [2786]
[work_price] => [1944]
[image] => https://akademik-stroy.ru/wp-content/uploads/materials/hauberk.jpg
[area_modifier] => 29.01
[parent_name] => Наружная отделка фасада
[parent_id] => 19
[material_sum] => 193972
[work_sum] => 112791
[total_sum] => 306763
[total_days] => 20
[display_material_sum] => 193 972
[display_work_sum] => 112 791
[display_total_sum] => 306 763
)
1
306 763₽
Работа:112 791 ₽
Материалы:193 972 ₽
Дни:20
stdClass Object
(
[id] => 144
[attribute_id] => 19
[name] => Фальцевый фасад
[material_modifier] => 1
[work_modifier] => 1
[options] => Array
(
)
[days] => [20]
[material_price] => [3240]
[work_price] => [2592]
[image] => https://akademik-stroy.ru/wp-content/uploads/materials/falcevyj-fasad.jpg
[area_modifier] => 29.01
[parent_name] => Наружная отделка фасада
[parent_id] => 19
[material_sum] => 225582
[work_sum] => 150388
[total_sum] => 375970
[total_days] => 20
[display_material_sum] => 225 582
[display_work_sum] => 150 388
[display_total_sum] => 375 970
)
1
375 970₽
Работа:150 388 ₽
Материалы:225 582 ₽
Дни:20
stdClass Object
(
[id] => 145
[attribute_id] => 19
[name] => Комбинированный
[material_modifier] => 1
[work_modifier] => 1
[options] => Array
(
)
[days] => [20]
[material_price] => [4629]
[work_price] => [3499]
[image] => https://akademik-stroy.ru/wp-content/uploads/materials/Kombinirovannyj.jpg
[area_modifier] => 29.01
[parent_name] => Наружная отделка фасада
[parent_id] => 19
[material_sum] => 322289
[work_sum] => 203012
[total_sum] => 525301
[total_days] => 20
[display_material_sum] => 322 289
[display_work_sum] => 203 012
[display_total_sum] => 525 301
)
1
525 301₽
Работа:203 012 ₽
Материалы:322 289 ₽
Дни:20
stdClass Object
(
[id] => 257
[attribute_id] => 19
[name] => Японские фиброцементные
[material_modifier] => 1
[work_modifier] => 1
[options] => Array
(
)
[days] => [20]
[material_price] => [7043]
[work_price] => [2993]
[image] => https://akademik-stroy.ru/wp-content/uploads/materials/paneli.jpg
[area_modifier] => 29.01
[parent_name] => Наружная отделка фасада
[parent_id] => 19
[material_sum] => 490362
[work_sum] => 173654
[total_sum] => 664016
[total_days] => 20
[display_material_sum] => 490 362
[display_work_sum] => 173 654
[display_total_sum] => 664 016
)
1
664 016₽
Работа:173 654 ₽
Материалы:490 362 ₽
Дни:20
stdClass Object
(
[id] => 258
[attribute_id] => 19
[name] => Панели Каньон
[material_modifier] => 1
[work_modifier] => 1
[options] => Array
(
)
[days] => [20]
[material_price] => [4543]
[work_price] => [2592]
[image] => https://akademik-stroy.ru/wp-content/uploads/materials/kanon.png
[area_modifier] => 29.01
[parent_name] => Наружная отделка фасада
[parent_id] => 19
[material_sum] => 316302
[work_sum] => 150388
[total_sum] => 466690
[total_days] => 20
[display_material_sum] => 316 302
[display_work_sum] => 150 388
[display_total_sum] => 466 690
)
1
466 690₽
Работа:150 388 ₽
Материалы:316 302 ₽
Дни:20
stdClass Object
(
[id] => 39
[attribute_id] => 20
[name] => Нет
[material_modifier] => 1
[work_modifier] => 1
[options] => Array
(
)
[days] => [0]
[material_price] => [0]
[work_price] => [0]
[image] => https://akademik-stroy.ru/wp-content/uploads/materials/terrasy.jpg
[area_modifier] => 30
[parent_name] => Террасы, крыльца, навесы
[parent_id] => 20
[material_sum] => 0
[work_sum] => 0
[total_sum] => 0
[total_days] => 0
[display_material_sum] => 0
[display_work_sum] => 0
[display_total_sum] => 0
)
1
0₽
Работа:0 ₽
Материалы:0 ₽
Дни:0
stdClass Object
(
[id] => 40
[attribute_id] => 20
[name] => Есть
[material_modifier] => 1
[work_modifier] => 1
[options] => Array
(
)
[days] => [5]
[material_price] => [10450]
[work_price] => [1950]
[image] => https://akademik-stroy.ru/wp-content/uploads/materials/terrasy.jpg
[area_modifier] => 30
[parent_name] => Террасы, крыльца, навесы
[parent_id] => 20
[material_sum] => 752400
[work_sum] => 117000
[total_sum] => 869400
[total_days] => 5
[display_material_sum] => 752 400
[display_work_sum] => 117 000
[display_total_sum] => 869 400
)
1
869 400₽
Работа:117 000 ₽
Материалы:752 400 ₽
Дни:5
stdClass Object
(
[id] => 41
[attribute_id] => 21
[name] => Нет
[material_modifier] => 1
[work_modifier] => 1
[options] => Array
(
)
[days] => [0]
[material_price] => [0]
[work_price] => [0]
[image] => https://akademik-stroy.ru/wp-content/uploads/materials/balkony.jpg
[area_modifier] => 30
[parent_name] => Балконы
[parent_id] => 21
[material_sum] => 0
[work_sum] => 0
[total_sum] => 0
[total_days] => 0
[display_material_sum] => 0
[display_work_sum] => 0
[display_total_sum] => 0
)
1
0₽
Работа:0 ₽
Материалы:0 ₽
Дни:0
stdClass Object
(
[id] => 42
[attribute_id] => 21
[name] => Есть
[material_modifier] => 1
[work_modifier] => 1
[options] => Array
(
)
[days] => [12]
[material_price] => [3600]
[work_price] => [1950]
[image] => https://akademik-stroy.ru/wp-content/uploads/materials/balkony.jpg
[area_modifier] => 30
[parent_name] => Балконы
[parent_id] => 21
[material_sum] => 259200
[work_sum] => 117000
[total_sum] => 376200
[total_days] => 12
[display_material_sum] => 259 200
[display_work_sum] => 117 000
[display_total_sum] => 376 200
)
1
376 200₽
Работа:117 000 ₽
Материалы:259 200 ₽
Дни:12
stdClass Object
(
[id] => 43
[attribute_id] => 22
[name] => Нет
[material_modifier] => 1
[work_modifier] => 1
[options] => Array
(
)
[days] => [0]
[material_price] => [0]
[work_price] => [0]
[image] => https://akademik-stroy.ru/wp-content/uploads/materials/uteplennaya.jpg
[area_modifier] => 29.01
[parent_name] => Отмостка
[parent_id] => 22
[material_sum] => 0
[work_sum] => 0
[total_sum] => 0
[total_days] => 0
[display_material_sum] => 0
[display_work_sum] => 0
[display_total_sum] => 0
)
1
0₽
Работа:0 ₽
Материалы:0 ₽
Дни:0
stdClass Object
(
[id] => 44
[attribute_id] => 22
[name] => Утепленная отмостка
[material_modifier] => 1
[work_modifier] => 1
[options] => Array
(
)
[days] => [15]
[material_price] => [2550]
[work_price] => [1750]
[image] => https://akademik-stroy.ru/wp-content/uploads/materials/uteplennaya.jpg
[area_modifier] => 29.01
[parent_name] => Отмостка
[parent_id] => 22
[material_sum] => 177541
[work_sum] => 101535
[total_sum] => 279076
[total_days] => 15
[display_material_sum] => 177 541
[display_work_sum] => 101 535
[display_total_sum] => 279 076
)
1
279 076₽
Работа:101 535 ₽
Материалы:177 541 ₽
Дни:15
stdClass Object
(
[id] => 146
[attribute_id] => 22
[name] => Не утепленная отмостка
[material_modifier] => 1
[work_modifier] => 1
[options] => Array
(
)
[days] => [10]
[material_price] => [1650]
[work_price] => [1450]
[image] => https://akademik-stroy.ru/wp-content/uploads/materials/ne-uteplennaya.jpg
[area_modifier] => 29.01
[parent_name] => Отмостка
[parent_id] => 22
[material_sum] => 114880
[work_sum] => 84129
[total_sum] => 199009
[total_days] => 10
[display_material_sum] => 114 880
[display_work_sum] => 84 129
[display_total_sum] => 199 009
)
1
199 009₽
Работа:84 129 ₽
Материалы:114 880 ₽
Дни:10
stdClass Object
(
[id] => 45
[attribute_id] => 23
[name] => Нет
[material_modifier] => 1
[work_modifier] => 1
[options] => Array
(
)
[days] => [0]
[material_price] => [0]
[work_price] => [0]
[image] => https://akademik-stroy.ru/wp-content/uploads/materials/drenazh-2.jpg
[area_modifier] => 29.01
[parent_name] => Дренаж вокруг дома
[parent_id] => 23
[material_sum] => 0
[work_sum] => 0
[total_sum] => 0
[total_days] => 0
[display_material_sum] => 0
[display_work_sum] => 0
[display_total_sum] => 0
)
1
0₽
Работа:0 ₽
Материалы:0 ₽
Дни:0
stdClass Object
(
[id] => 46
[attribute_id] => 23
[name] => Есть
[material_modifier] => 1
[work_modifier] => 1
[options] => Array
(
)
[days] => [5]
[material_price] => [2366]
[work_price] => [1911]
[image] => https://akademik-stroy.ru/wp-content/uploads/materials/drenazh-2.jpg
[area_modifier] => 29.01
[parent_name] => Дренаж вокруг дома
[parent_id] => 23
[material_sum] => 164730
[work_sum] => 110876
[total_sum] => 275606
[total_days] => 5
[display_material_sum] => 164 730
[display_work_sum] => 110 876
[display_total_sum] => 275 606
)
1
275 606₽
Работа:110 876 ₽
Материалы:164 730 ₽
Дни:5
stdClass Object
(
[id] => 47
[attribute_id] => 24
[name] => Нет
[material_modifier] => 1
[work_modifier] => 1
[options] => Array
(
)
[days] => [0]
[material_price] => [0]
[work_price] => [0]
[image] => https://akademik-stroy.ru/wp-content/uploads/materials/septik.jpg
[area_modifier] => 1
[parent_name] => Автономная канализация (септики)
[parent_id] => 24
[material_sum] => 0
[work_sum] => 0
[total_sum] => 0
[total_days] => 0
[display_material_sum] => 0
[display_work_sum] => 0
[display_total_sum] => 0
)
1
0₽
Работа:0 ₽
Материалы:0 ₽
Дни:0
stdClass Object
(
[id] => 48
[attribute_id] => 24
[name] => Есть
[material_modifier] => 1
[work_modifier] => 1
[options] => Array
(
[0] => Для дачи на 4 человека
[1] => Для дома на 5 человек
[2] => Для дома на 6 человек
[3] => Для дома на 7 человек
[4] => Для дома на 10 человек
)
[days] => [7,7,7,8,8]
[material_price] => [196340,220500,240940,264200,293340]
[work_price] => [50000,55000,60500,66550,73206]
[image] => https://akademik-stroy.ru/wp-content/uploads/materials/septik.jpg
[area_modifier] => 1
[parent_name] => Автономная канализация (септики)
[parent_id] => 24
[material_sum] => 471216
[work_sum] => 100000
[total_sum] => 571216
[total_days] => 7
[display_material_sum] => 471 216
[display_work_sum] => 100 000
[display_total_sum] => 571 216
)
1
571 216₽
Работа:100 000 ₽
Материалы:471 216 ₽
Дни:7
stdClass Object
(
[id] => 49
[attribute_id] => 25
[name] => Нет
[material_modifier] => 1
[work_modifier] => 1
[options] => Array
(
)
[days] => [0]
[material_price] => [0]
[work_price] => [0]
[image] => https://akademik-stroy.ru/wp-content/uploads/materials/gkl.jpg
[area_modifier] => 29.01
[parent_name] => Внутренние (не несущие) перегородки
[parent_id] => 25
[material_sum] => 0
[work_sum] => 0
[total_sum] => 0
[total_days] => 0
[display_material_sum] => 0
[display_work_sum] => 0
[display_total_sum] => 0
)
1
0₽
Работа:0 ₽
Материалы:0 ₽
Дни:0
stdClass Object
(
[id] => 147
[attribute_id] => 25
[name] => Каркасно-обшивные
[material_modifier] => 1
[work_modifier] => 1
[options] => Array
(
[0] => 75 мм (без шумоизоляции)
[1] => 75 мм (с шумоизоляцией)
)
[days] => [11,11]
[material_price] => [580,970]
[work_price] => [380,570]
[image] => https://akademik-stroy.ru/wp-content/uploads/materials/gkl.jpg
[area_modifier] => 29.01
[parent_name] => Внутренние (не несущие) перегородки
[parent_id] => 25
[material_sum] => 40382
[work_sum] => 22048
[total_sum] => 62430
[total_days] => 11
[display_material_sum] => 40 382
[display_work_sum] => 22 048
[display_total_sum] => 62 430
)
1
62 430₽
Работа:22 048 ₽
Материалы:40 382 ₽
Дни:11
stdClass Object
(
[id] => 148
[attribute_id] => 25
[name] => Пазогребневые
[material_modifier] => 1
[work_modifier] => 1
[options] => Array
(
[0] => 80 мм
[1] => 100 мм
)
[days] => [5,5]
[material_price] => [1022,1313]
[work_price] => [600,700]
[image] => https://akademik-stroy.ru/wp-content/uploads/materials/pazogrebnevye-bloki.jpg
[area_modifier] => 29.01
[parent_name] => Внутренние (не несущие) перегородки
[parent_id] => 25
[material_sum] => 71156
[work_sum] => 34812
[total_sum] => 105968
[total_days] => 5
[display_material_sum] => 71 156
[display_work_sum] => 34 812
[display_total_sum] => 105 968
)
1
105 968₽
Работа:34 812 ₽
Материалы:71 156 ₽
Дни:5
stdClass Object
(
[id] => 149
[attribute_id] => 25
[name] => Газобетонные
[material_modifier] => 1
[work_modifier] => 1
[options] => Array
(
[0] => 100 мм
[1] => 200 мм
)
[days] => [11,11]
[material_price] => [1160,1920]
[work_price] => [700,900]
[image] => https://akademik-stroy.ru/wp-content/uploads/materials/gazobeton-2.jpg
[area_modifier] => 29.01
[parent_name] => Внутренние (не несущие) перегородки
[parent_id] => 25
[material_sum] => 80764
[work_sum] => 40614
[total_sum] => 121378
[total_days] => 11
[display_material_sum] => 80 764
[display_work_sum] => 40 614
[display_total_sum] => 121 378
)
1
121 378₽
Работа:40 614 ₽
Материалы:80 764 ₽
Дни:11
stdClass Object
(
[id] => 150
[attribute_id] => 25
[name] => Кирпичные
[material_modifier] => 1
[work_modifier] => 1
[options] => Array
(
[0] => 120 мм
[1] => 250 мм
[2] => 360 мм
)
[days] => [7,7,7]
[material_price] => [1785,3570,5355]
[work_price] => [900,1600,1800]
[image] => https://akademik-stroy.ru/wp-content/uploads/materials/kirpich-1.jpg
[area_modifier] => 29.01
[parent_name] => Внутренние (не несущие) перегородки
[parent_id] => 25
[material_sum] => 124279
[work_sum] => 52218
[total_sum] => 176497
[total_days] => 7
[display_material_sum] => 124 279
[display_work_sum] => 52 218
[display_total_sum] => 176 497
)
1
176 497₽
Работа:52 218 ₽
Материалы:124 279 ₽
Дни:7
stdClass Object
(
[id] => 55
[attribute_id] => 28
[name] => Нет
[material_modifier] => 1
[work_modifier] => 1
[options] => Array
(
)
[days] => [0]
[material_price] => [0]
[work_price] => [0]
[image] => https://akademik-stroy.ru/wp-content/uploads/materials/ehlektrika.jpg
[area_modifier] => 23.54
[parent_name] => Электрика
[parent_id] => 28
[material_sum] => 0
[work_sum] => 0
[total_sum] => 0
[total_days] => 0
[display_material_sum] => 0
[display_work_sum] => 0
[display_total_sum] => 0
)
1
0₽
Работа:0 ₽
Материалы:0 ₽
Дни:0
stdClass Object
(
[id] => 56
[attribute_id] => 28
[name] => Есть
[material_modifier] => 1
[work_modifier] => 1
[options] => Array
(
)
[days] => [10]
[material_price] => [650]
[work_price] => [950]
[image] => https://akademik-stroy.ru/wp-content/uploads/materials/ehlektrika.jpg
[area_modifier] => 23.54
[parent_name] => Электрика
[parent_id] => 28
[material_sum] => 36722
[work_sum] => 44726
[total_sum] => 81448
[total_days] => 10
[display_material_sum] => 36 722
[display_work_sum] => 44 726
[display_total_sum] => 81 448
)
1
81 448₽
Работа:44 726 ₽
Материалы:36 722 ₽
Дни:10
stdClass Object
(
[id] => 57
[attribute_id] => 29
[name] => Нет
[material_modifier] => 1
[work_modifier] => 1
[options] => Array
(
)
[days] => [0]
[material_price] => [0]
[work_price] => [0]
[image] => https://akademik-stroy.ru/wp-content/uploads/materials/santekhnika-kanalizaciya-1.jpg
[area_modifier] => 23.54
[parent_name] => Сантехника, канализация в доме
[parent_id] => 29
[material_sum] => 0
[work_sum] => 0
[total_sum] => 0
[total_days] => 0
[display_material_sum] => 0
[display_work_sum] => 0
[display_total_sum] => 0
)
1
0₽
Работа:0 ₽
Материалы:0 ₽
Дни:0
stdClass Object
(
[id] => 58
[attribute_id] => 29
[name] => Есть
[material_modifier] => 1
[work_modifier] => 1
[options] => Array
(
)
[days] => [10]
[material_price] => [600]
[work_price] => [730]
[image] => https://akademik-stroy.ru/wp-content/uploads/materials/santekhnika-kanalizaciya-1.jpg
[area_modifier] => 23.54
[parent_name] => Сантехника, канализация в доме
[parent_id] => 29
[material_sum] => 33898
[work_sum] => 34368
[total_sum] => 68266
[total_days] => 10
[display_material_sum] => 33 898
[display_work_sum] => 34 368
[display_total_sum] => 68 266
)
1
68 266₽
Работа:34 368 ₽
Материалы:33 898 ₽
Дни:10
stdClass Object
(
[id] => 59
[attribute_id] => 30
[name] => Нет
[material_modifier] => 1
[work_modifier] => 1
[options] => Array
(
)
[days] => [0]
[material_price] => [0]
[work_price] => [0]
[image] => https://akademik-stroy.ru/wp-content/uploads/materials/otoplenie-1.jpg
[area_modifier] => 23.54
[parent_name] => Отопление
[parent_id] => 30
[material_sum] => 0
[work_sum] => 0
[total_sum] => 0
[total_days] => 0
[display_material_sum] => 0
[display_work_sum] => 0
[display_total_sum] => 0
)
1
0₽
Работа:0 ₽
Материалы:0 ₽
Дни:0
stdClass Object
(
[id] => 60
[attribute_id] => 30
[name] => Есть
[material_modifier] => 1
[work_modifier] => 1
[options] => Array
(
)
[days] => [5]
[material_price] => [610]
[work_price] => [560]
[image] => https://akademik-stroy.ru/wp-content/uploads/materials/otoplenie-1.jpg
[area_modifier] => 23.54
[parent_name] => Отопление
[parent_id] => 30
[material_sum] => 34463
[work_sum] => 26365
[total_sum] => 60828
[total_days] => 5
[display_material_sum] => 34 463
[display_work_sum] => 26 365
[display_total_sum] => 60 828
)
1
60 828₽
Работа:26 365 ₽
Материалы:34 463 ₽
Дни:5
stdClass Object
(
[id] => 61
[attribute_id] => 31
[name] => Нет
[material_modifier] => 1
[work_modifier] => 1
[options] => Array
(
)
[days] => [0]
[material_price] => [0]
[work_price] => [0]
[image] => https://akademik-stroy.ru/wp-content/uploads/materials/vodyanye.jpg
[area_modifier] => 30
[parent_name] => Теплые полы
[parent_id] => 31
[material_sum] => 0
[work_sum] => 0
[total_sum] => 0
[total_days] => 0
[display_material_sum] => 0
[display_work_sum] => 0
[display_total_sum] => 0
)
1
0₽
Работа:0 ₽
Материалы:0 ₽
Дни:0
stdClass Object
(
[id] => 151
[attribute_id] => 31
[name] => Водяные
[material_modifier] => 1
[work_modifier] => 1
[options] => Array
(
)
[days] => [9]
[material_price] => [10200]
[work_price] => [2500]
[image] => https://akademik-stroy.ru/wp-content/uploads/materials/vodyanye.jpg
[area_modifier] => 30
[parent_name] => Теплые полы
[parent_id] => 31
[material_sum] => 734400
[work_sum] => 150000
[total_sum] => 884400
[total_days] => 9
[display_material_sum] => 734 400
[display_work_sum] => 150 000
[display_total_sum] => 884 400
)
1
884 400₽
Работа:150 000 ₽
Материалы:734 400 ₽
Дни:9
stdClass Object
(
[id] => 152
[attribute_id] => 31
[name] => Электро
[material_modifier] => 1
[work_modifier] => 1
[options] => Array
(
)
[days] => [5]
[material_price] => [6300]
[work_price] => [1500]
[image] => https://akademik-stroy.ru/wp-content/uploads/materials/ehlektricheskij.jpg
[area_modifier] => 30
[parent_name] => Теплые полы
[parent_id] => 31
[material_sum] => 453600
[work_sum] => 90000
[total_sum] => 543600
[total_days] => 5
[display_material_sum] => 453 600
[display_work_sum] => 90 000
[display_total_sum] => 543 600
)
1
543 600₽
Работа:90 000 ₽
Материалы:453 600 ₽
Дни:5
stdClass Object
(
[id] => 63
[attribute_id] => 32
[name] => Нет
[material_modifier] => 1
[work_modifier] => 1
[options] => Array
(
)
[days] => [0]
[material_price] => [0]
[work_price] => [0]
[image] => https://akademik-stroy.ru/wp-content/uploads/materials/shtukaturka-shpatlevka-1.jpg
[area_modifier] => 23.54
[parent_name] => Черновая отделка стен
[parent_id] => 32
[material_sum] => 0
[work_sum] => 0
[total_sum] => 0
[total_days] => 0
[display_material_sum] => 0
[display_work_sum] => 0
[display_total_sum] => 0
)
1
0₽
Работа:0 ₽
Материалы:0 ₽
Дни:0
stdClass Object
(
[id] => 153
[attribute_id] => 32
[name] => Штукатурка и шпатлевка
[material_modifier] => 1
[work_modifier] => 1
[options] => Array
(
)
[days] => [20]
[material_price] => [1850]
[work_price] => [2600]
[image] => https://akademik-stroy.ru/wp-content/uploads/materials/shtukaturka-shpatlevka-1.jpg
[area_modifier] => 23.54
[parent_name] => Черновая отделка стен
[parent_id] => 32
[material_sum] => 104518
[work_sum] => 122408
[total_sum] => 226926
[total_days] => 20
[display_material_sum] => 104 518
[display_work_sum] => 122 408
[display_total_sum] => 226 926
)
1
226 926₽
Работа:122 408 ₽
Материалы:104 518 ₽
Дни:20
stdClass Object
(
[id] => 154
[attribute_id] => 32
[name] => Гипсокортон на стены
[material_modifier] => 1
[work_modifier] => 1
[options] => Array
(
)
[days] => [15]
[material_price] => [950]
[work_price] => [2100]
[image] => https://akademik-stroy.ru/wp-content/uploads/materials/gkl-1.jpg
[area_modifier] => 23.54
[parent_name] => Черновая отделка стен
[parent_id] => 32
[material_sum] => 53671
[work_sum] => 98868
[total_sum] => 152539
[total_days] => 15
[display_material_sum] => 53 671
[display_work_sum] => 98 868
[display_total_sum] => 152 539
)
1
152 539₽
Работа:98 868 ₽
Материалы:53 671 ₽
Дни:15
stdClass Object
(
[id] => 155
[attribute_id] => 32
[name] => Вагонка
[material_modifier] => 1
[work_modifier] => 1
[options] => Array
(
)
[days] => [15]
[material_price] => [1250]
[work_price] => [950]
[image] => https://akademik-stroy.ru/wp-content/uploads/materials/vagonka.jpg
[area_modifier] => 23.54
[parent_name] => Черновая отделка стен
[parent_id] => 32
[material_sum] => 70620
[work_sum] => 44726
[total_sum] => 115346
[total_days] => 15
[display_material_sum] => 70 620
[display_work_sum] => 44 726
[display_total_sum] => 115 346
)
1
115 346₽
Работа:44 726 ₽
Материалы:70 620 ₽
Дни:15
stdClass Object
(
[id] => 65
[attribute_id] => 33
[name] => Нет
[material_modifier] => 1
[work_modifier] => 1
[options] => Array
(
)
[days] => [0]
[material_price] => [0]
[work_price] => [0]
[image] => https://akademik-stroy.ru/wp-content/uploads/materials/styazhka.jpg
[area_modifier] => 23.54
[parent_name] => Черновая отделка полов
[parent_id] => 33
[material_sum] => 0
[work_sum] => 0
[total_sum] => 0
[total_days] => 0
[display_material_sum] => 0
[display_work_sum] => 0
[display_total_sum] => 0
)
1
0₽
Работа:0 ₽
Материалы:0 ₽
Дни:0
stdClass Object
(
[id] => 156
[attribute_id] => 33
[name] => Стяжка + наливные полы
[material_modifier] => 1
[work_modifier] => 1
[options] => Array
(
)
[days] => [10]
[material_price] => [1000]
[work_price] => [900]
[image] => https://akademik-stroy.ru/wp-content/uploads/materials/styazhka.jpg
[area_modifier] => 23.54
[parent_name] => Черновая отделка полов
[parent_id] => 33
[material_sum] => 56496
[work_sum] => 42372
[total_sum] => 98868
[total_days] => 10
[display_material_sum] => 56 496
[display_work_sum] => 42 372
[display_total_sum] => 98 868
)
1
98 868₽
Работа:42 372 ₽
Материалы:56 496 ₽
Дни:10
stdClass Object
(
[id] => 157
[attribute_id] => 33
[name] => ОСБ на пол
[material_modifier] => 1
[work_modifier] => 1
[options] => Array
(
)
[days] => [7]
[material_price] => [580]
[work_price] => [350]
[image] => https://akademik-stroy.ru/wp-content/uploads/materials/osb-1.jpg
[area_modifier] => 23.54
[parent_name] => Черновая отделка полов
[parent_id] => 33
[material_sum] => 32768
[work_sum] => 16478
[total_sum] => 49246
[total_days] => 7
[display_material_sum] => 32 768
[display_work_sum] => 16 478
[display_total_sum] => 49 246
)
1
49 246₽
Работа:16 478 ₽
Материалы:32 768 ₽
Дни:7
stdClass Object
(
[id] => 67
[attribute_id] => 34
[name] => Нет
[material_modifier] => 1
[work_modifier] => 1
[options] => Array
(
)
[days] => [0]
[material_price] => [0]
[work_price] => [0]
[image] => https://akademik-stroy.ru/wp-content/uploads/materials/chistovaya-otdelka.jpg
[area_modifier] => 23.54
[parent_name] => Чистовая отделка стен и полов
[parent_id] => 34
[material_sum] => 0
[work_sum] => 0
[total_sum] => 0
[total_days] => 0
[display_material_sum] => 0
[display_work_sum] => 0
[display_total_sum] => 0
)
1
0₽
Работа:0 ₽
Материалы:0 ₽
Дни:0
stdClass Object
(
[id] => 68
[attribute_id] => 34
[name] => Есть
[material_modifier] => 1
[work_modifier] => 1
[options] => Array
(
)
[days] => [50]
[material_price] => [6000]
[work_price] => [3500]
[image] => https://akademik-stroy.ru/wp-content/uploads/materials/chistovaya-otdelka.jpg
[area_modifier] => 23.54
[parent_name] => Чистовая отделка стен и полов
[parent_id] => 34
[material_sum] => 338976
[work_sum] => 164780
[total_sum] => 503756
[total_days] => 50
[display_material_sum] => 338 976
[display_work_sum] => 164 780
[display_total_sum] => 503 756
)
1
503 756₽
Работа:164 780 ₽
Материалы:338 976 ₽
Дни:50
stdClass Object
(
[id] => 69
[attribute_id] => 35
[name] => Нет
[material_modifier] => 1
[work_modifier] => 1
[options] => Array
(
)
[days] => [0]
[material_price] => [0]
[work_price] => [0]
[image] => https://akademik-stroy.ru/wp-content/uploads/materials/mnogourovnevyj-gkl.jpg
[area_modifier] => 23.54
[parent_name] => Отделка потолка
[parent_id] => 35
[material_sum] => 0
[work_sum] => 0
[total_sum] => 0
[total_days] => 0
[display_material_sum] => 0
[display_work_sum] => 0
[display_total_sum] => 0
)
1
0₽
Работа:0 ₽
Материалы:0 ₽
Дни:0
stdClass Object
(
[id] => 70
[attribute_id] => 35
[name] => Есть
[material_modifier] => 1
[work_modifier] => 1
[options] => Array
(
[0] => Многоуровневый потолок из гипсокартона
[1] => Многоуровневый потолок из гипсокартона и натяжного потолка
[2] => Одноуровневый потолок из гипсокартона
[3] => Одноуровневый натяжной потолок
)
[days] => [10,10,1,1]
[material_price] => [900,700,700,600]
[work_price] => [1000,800,500,300]
[image] => https://akademik-stroy.ru/wp-content/uploads/materials/mnogourovnevyj-gkl.jpg
[area_modifier] => 23.54
[parent_name] => Отделка потолка
[parent_id] => 35
[material_sum] => 50846
[work_sum] => 47080
[total_sum] => 97926
[total_days] => 10
[display_material_sum] => 50 846
[display_work_sum] => 47 080
[display_total_sum] => 97 926
)
1
97 926₽
Работа:47 080 ₽
Материалы:50 846 ₽
Дни:10
Преимущества работы с нами
7 этапов оплаты
Независимый строительный надзор
Экологически чистые материалы
16 лет гарантии
Онлайн-кабинет с веб-камерой
Строители с опытом более 15 лет
Собственное производство
