Одноэтажный гараж 43.11 м2 за руб.
154 м2
Полезная
площадь
площадь
1 этаж
Этажей
26 м2
Террасы
и балконы
и балконы
0Без
гаража
гаража
0
Количество
спален
спален
0
Количество
санузлов
санузлов
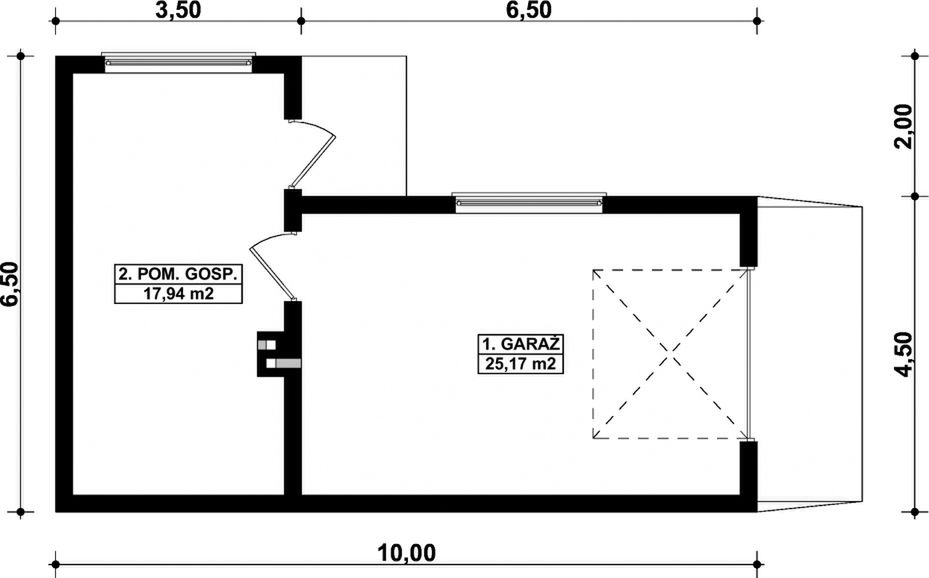
Планировки
Первый этаж
- 1. (m²) 43,11
- 2. Гараж на 1 машину 25,17
- Подсобное помещение 17,94
Фасады
Передний
Задний
Левый
Правый
Подробная информация
Полезная площадь
43,11 m²
Количество спален
0
Количество санузлов
0
Гараж
1
Мин. шир. и дл. участка
17 x 13,50 m
Угол наклона крыши
17°
Наклон ската крыши в градусах. Внимание! В некоторых проектах возникает более чем один наклон крыши.
Вид материалов
Murowana
Материалы и опции
Общие
Площади дома
| № п/п | Наименование | Ед. из. | Строительная площадь | Полезная площадь |
| 1 | 1 этаж | м2 | 53.12 | 43.11 |
| 2 | Итого | м2 | 53.12 | 43.11 |
Калькулятор опций
0₽
В ипотеку от 11 932 ₽/мес.
0₽
0 дней
stdClass Object
(
[id] => 1
[attribute_id] => 1
[name] => Ленточный монолитный ж/б
[material_modifier] => 1
[work_modifier] => 1
[options] => Array
(
[0] => размер 200 х 700 мм
[1] => размер 300 х 900 мм
[2] => размер 400 х 1 000 мм
[3] => размер 500 х 1 100 мм
[4] => размер 600 х 1 200 мм
)
[days] => [20,21,22,25,30]
[material_price] => [2823,3630,4475,5210,12047]
[work_price] => [2154,2826,3731,4577,5293]
[image] => https://akademik-stroy.ru/wp-content/uploads/materials/lentochnyj-monolitnyj-zh-b.jpg
[area_modifier] => 53.12
[parent_name] => Фундамент
[parent_id] => 1
[material_sum] => 305914
[work_sum] => 194515
[total_sum] => 500429
[total_days] => 20
[display_material_sum] => 305 914
[display_work_sum] => 194 515
[display_total_sum] => 500 429
)
1
500 429₽
Работа:194 515 ₽
Материалы:305 914 ₽
Дни:20
stdClass Object
(
[id] => 2
[attribute_id] => 1
[name] => Забивные Ж/Б сваи
[material_modifier] => 1
[work_modifier] => 1
[options] => Array
(
[0] => 150х150х3000мм
[1] => 150х150х4000мм
[2] => 200х200х3000мм
[3] => 200х200х4000мм
[4] => 200х200х5000мм
[5] => 200х200х6000мм
)
[days] => [2,2,2,2,2,2]
[material_price] => [1990,2850,3255,4360,5120,6837]
[work_price] => [1002,1185,1336,1438,1574,1839]
[image] => https://akademik-stroy.ru/wp-content/uploads/materials/zabivnye-zh-b-svai.png
[area_modifier] => 53.12
[parent_name] => Фундамент
[parent_id] => 1
[material_sum] => 215646
[work_sum] => 90485
[total_sum] => 306131
[total_days] => 2
[display_material_sum] => 215 646
[display_work_sum] => 90 485
[display_total_sum] => 306 131
)
1
306 131₽
Работа:90 485 ₽
Материалы:215 646 ₽
Дни:2
stdClass Object
(
[id] => 71
[attribute_id] => 1
[name] => Свайно-ростверковый ж/б
[material_modifier] => 1
[work_modifier] => 1
[options] => Array
(
[0] => ростверк 200х300 мм
[1] => ростверк 300х600 мм
[2] => ростверк 400х900 мм
[3] => ростверк 500х1200 мм
)
[days] => [20,23,25,27]
[material_price] => [3018,3474,7109,9792]
[work_price] => [2024,3012,5635,7022]
[image] => https://akademik-stroy.ru/wp-content/uploads/materials/svajno-rostverkovyj-monolitnyj-zh-b-3.png
[area_modifier] => 53.12
[parent_name] => Фундамент
[parent_id] => 1
[material_sum] => 327045
[work_sum] => 182775
[total_sum] => 509820
[total_days] => 20
[display_material_sum] => 327 045
[display_work_sum] => 182 775
[display_total_sum] => 509 820
)
1
509 820₽
Работа:182 775 ₽
Материалы:327 045 ₽
Дни:20
stdClass Object
(
[id] => 72
[attribute_id] => 1
[name] => Монолитная ж/б плита
[material_modifier] => 1
[work_modifier] => 1
[options] => Array
(
[0] => 200 мм
[1] => 300 мм
[2] => 400 мм
[3] => 500 мм
[4] => 600 мм
)
[days] => [30,33,35,37,40]
[material_price] => [5348,8555,12788,14388,15189]
[work_price] => [4314,4881,7037,8061,10230]
[image] => https://akademik-stroy.ru/wp-content/uploads/materials/monolitnaya-zhb-plita.png
[area_modifier] => 53.12
[parent_name] => Фундамент
[parent_id] => 1
[material_sum] => 579535
[work_sum] => 389571
[total_sum] => 969106
[total_days] => 30
[display_material_sum] => 579 535
[display_work_sum] => 389 571
[display_total_sum] => 969 106
)
1
969 106₽
Работа:389 571 ₽
Материалы:579 535 ₽
Дни:30
stdClass Object
(
[id] => 73
[attribute_id] => 1
[name] => Утепленная шведская плита
[material_modifier] => 1
[work_modifier] => 1
[options] => Array
(
[0] => 200 мм
[1] => 300 мм
[2] => 400 мм
[3] => 500 мм
[4] => 600 мм
)
[days] => [32,37,39,42,45]
[material_price] => [10249,12692,13760,14936,16230]
[work_price] => [5960,7337,8072,8878,9765]
[image] => https://akademik-stroy.ru/wp-content/uploads/materials/uteplennaya-shvedskaya-plita.jpg
[area_modifier] => 53.12
[parent_name] => Фундамент
[parent_id] => 1
[material_sum] => 1110631
[work_sum] => 538212
[total_sum] => 1648843
[total_days] => 32
[display_material_sum] => 1 110 631
[display_work_sum] => 538 212
[display_total_sum] => 1 648 843
)
1
1 648 843₽
Работа:538 212 ₽
Материалы:1 110 631 ₽
Дни:32
stdClass Object
(
[id] => 75
[attribute_id] => 1
[name] => Ленточный из ФБС
[material_modifier] => 1
[work_modifier] => 1
[options] => Array
(
[0] => толщ. 300 мм
[1] => толщ. 400 мм
[2] => толщ. 500 мм
[3] => толщ. 600 мм
)
[days] => [20,20,20,20]
[material_price] => [3675,4902,6126,7350]
[work_price] => [2451,3264,4083,4902]
[image] => https://akademik-stroy.ru/wp-content/uploads/materials/lentochnyj-iz-fbs.png
[area_modifier] => 53.12
[parent_name] => Фундамент
[parent_id] => 1
[material_sum] => 398241
[work_sum] => 221335
[total_sum] => 619576
[total_days] => 20
[display_material_sum] => 398 241
[display_work_sum] => 221 335
[display_total_sum] => 619 576
)
1
619 576₽
Работа:221 335 ₽
Материалы:398 241 ₽
Дни:20
stdClass Object
(
[id] => 76
[attribute_id] => 1
[name] => Цокольный этаж из ФБС
[material_modifier] => 1
[work_modifier] => 1
[options] => Array
(
[0] => толщ. 300 мм
[1] => толщ. 400 мм
[2] => толщ. 500 мм
[3] => толщ. 600 мм
)
[days] => [30,32,34,36]
[material_price] => [20916,23299,26680,29060]
[work_price] => [17524,18700,19873,21046]
[image] => https://akademik-stroy.ru/wp-content/uploads/materials/cokolnyj-ehtazh-iz-fbs.jpg
[area_modifier] => 53.12
[parent_name] => Фундамент
[parent_id] => 1
[material_sum] => 2266558
[work_sum] => 1582487
[total_sum] => 3849045
[total_days] => 30
[display_material_sum] => 2 266 558
[display_work_sum] => 1 582 487
[display_total_sum] => 3 849 045
)
1
3 849 045₽
Работа:1 582 487 ₽
Материалы:2 266 558 ₽
Дни:30
stdClass Object
(
[id] => 77
[attribute_id] => 1
[name] => Цокольный этаж монолитный ж/б
[material_modifier] => 1
[work_modifier] => 1
[options] => Array
(
[0] => толщ. 200 мм
[1] => толщ. 300 мм
[2] => толщ. 400 мм
[3] => толщ. 500 мм
[4] => толщ. 600 мм
)
[days] => [40,42,44,46,48]
[material_price] => [25421,29148,32275,35602,37326]
[work_price] => [20441,21907,23375,24841,26306]
[image] => https://akademik-stroy.ru/wp-content/uploads/materials/cokolnyj-etazh-zh-b.jpg
[area_modifier] => 53.12
[parent_name] => Фундамент
[parent_id] => 1
[material_sum] => 2754742
[work_sum] => 1845904
[total_sum] => 4600646
[total_days] => 40
[display_material_sum] => 2 754 742
[display_work_sum] => 1 845 904
[display_total_sum] => 4 600 646
)
1
4 600 646₽
Работа:1 845 904 ₽
Материалы:2 754 742 ₽
Дни:40
stdClass Object
(
[id] => 191
[attribute_id] => 1
[name] => Винтовые сваи
[material_modifier] => 1
[work_modifier] => 1
[options] => Array
(
[0] => 57х200мм
[1] => 76х250мм
[2] => 108х300мм
[3] => 133х350мм
)
[days] => [1,1,2,2]
[material_price] => [1200,1300,1450,1600]
[work_price] => [400,600,900,1100]
[image] => https://akademik-stroy.ru/wp-content/uploads/materials/vintovye-svai.png
[area_modifier] => 53.12
[parent_name] => Фундамент
[parent_id] => 1
[material_sum] => 130038
[work_sum] => 36122
[total_sum] => 166160
[total_days] => 1
[display_material_sum] => 130 038
[display_work_sum] => 36 122
[display_total_sum] => 166 160
)
1
166 160₽
Работа:36 122 ₽
Материалы:130 038 ₽
Дни:1
stdClass Object
(
[id] => 3
[attribute_id] => 2
[name] => Деревянные балки
[material_modifier] => 1
[work_modifier] => 1
[options] => Array
(
[0] => без утепления
[1] => утепление 200 мм
[2] => утепление 250 мм
[3] => утепление 300 мм
[4] => утепление 350 мм
[5] => утепление 400 мм
[6] => утепление 450 мм
[7] => утепление 500 мм
)
[days] => [8,9,9,9,11,12,13,14]
[material_price] => [1634,2042,2344,2947,3149,3652,3354,3557]
[work_price] => [1230,1339,1393,1426,1460,1513,1587,1620]
[image] => https://akademik-stroy.ru/wp-content/uploads/materials/derevyannye-balki.png
[area_modifier] => 53.12
[parent_name] => Перекрытие цоколя
[parent_id] => 2
[material_sum] => 177068
[work_sum] => 111074
[total_sum] => 288142
[total_days] => 8
[display_material_sum] => 177 068
[display_work_sum] => 111 074
[display_total_sum] => 288 142
)
1
288 142₽
Работа:111 074 ₽
Материалы:177 068 ₽
Дни:8
stdClass Object
(
[id] => 4
[attribute_id] => 2
[name] => Сборные ж/б плиты
[material_modifier] => 1
[work_modifier] => 1
[options] => Array
(
[0] => без утепления
[1] => утепление 150мм
[2] => утепление 200мм
[3] => утепление 250мм
[4] => утепление 300мм
[5] => утепление 350мм
[6] => утепление 400мм
[7] => утепление 450мм
[8] => утепление 500мм
)
[days] => [13,15,15,15,15,15,15,15,15]
[material_price] => [3067,5577,5928,6679,7730,8782,9833,10884,11935]
[work_price] => [1520,1956,2102,2247,2392,2537,2684,2829,2974]
[image] => https://akademik-stroy.ru/wp-content/uploads/materials/sbornye-zh-b-plity-2.jpg
[area_modifier] => 53.12
[parent_name] => Перекрытие цоколя
[parent_id] => 2
[material_sum] => 332355
[work_sum] => 137262
[total_sum] => 469617
[total_days] => 13
[display_material_sum] => 332 355
[display_work_sum] => 137 262
[display_total_sum] => 469 617
)
1
469 617₽
Работа:137 262 ₽
Материалы:332 355 ₽
Дни:13
stdClass Object
(
[id] => 78
[attribute_id] => 2
[name] => Монолитная ж/б плита
[material_modifier] => 1
[work_modifier] => 1
[options] => Array
(
[0] => без утепления
[1] => утепление 150 мм
[2] => утепление 200 мм
[3] => утепление 250 мм
[4] => утепление 300 мм
[5] => утепление 350 мм
[6] => утепление 400 мм
[7] => утепление 450 мм
[8] => утепление 500 мм
)
[days] => [18,20,20,20,20,20,20,20,20]
[material_price] => [4837,6572,7224,7375,79426,8177,8728,9180,10031]
[work_price] => [3348,3921,4112,4302,4493,4684,4875,5066,5256]
[image] => https://akademik-stroy.ru/wp-content/uploads/materials/monolitnaya-zh-b-plita-2.jpg
[area_modifier] => 53.12
[parent_name] => Перекрытие цоколя
[parent_id] => 2
[material_sum] => 524161
[work_sum] => 302338
[total_sum] => 826499
[total_days] => 18
[display_material_sum] => 524 161
[display_work_sum] => 302 338
[display_total_sum] => 826 499
)
1
826 499₽
Работа:302 338 ₽
Материалы:524 161 ₽
Дни:18
stdClass Object
(
[id] => 6
[attribute_id] => 3
[name] => Пеноблок
[material_modifier] => 1
[work_modifier] => 1
[options] => Array
(
[0] => 300 мм
[1] => 400 мм
[2] => 500 мм
[3] => 600 мм
)
[days] => [29,31,34,39]
[material_price] => [3000,4000,4500,4937]
[work_price] => [5033,5805,6400,8710]
[image] => https://akademik-stroy.ru/wp-content/uploads/materials/penoblok.jpg
[area_modifier] => 53.12
[parent_name] => Стены 1 этаж (несущие)
[parent_id] => 3
[material_sum] => 325094
[work_sum] => 454500
[total_sum] => 779594
[total_days] => 29
[display_material_sum] => 325 094
[display_work_sum] => 454 500
[display_total_sum] => 779 594
)
1
779 594₽
Работа:454 500 ₽
Материалы:325 094 ₽
Дни:29
stdClass Object
(
[id] => 79
[attribute_id] => 3
[name] => Керамический блок
[material_modifier] => 1
[work_modifier] => 1
[options] => Array
(
[0] => 380 мм
[1] => 380 мм Thermo
[2] => 440 мм
[3] => 510 мм
)
[days] => [23,23,24,25]
[material_price] => [4510,5098,6093,8013]
[work_price] => [4737,4937,5903,6958]
[image] => https://akademik-stroy.ru/wp-content/uploads/materials/keramicheskij-blok.jpg
[area_modifier] => 53.12
[parent_name] => Стены 1 этаж (несущие)
[parent_id] => 3
[material_sum] => 488725
[work_sum] => 427770
[total_sum] => 916495
[total_days] => 23
[display_material_sum] => 488 725
[display_work_sum] => 427 770
[display_total_sum] => 916 495
)
1
916 495₽
Работа:427 770 ₽
Материалы:488 725 ₽
Дни:23
stdClass Object
(
[id] => 80
[attribute_id] => 3
[name] => Кирпич
[material_modifier] => 1
[work_modifier] => 1
[options] => Array
(
[0] => Кирпич 250 мм
[1] => Кирпич 380 мм
[2] => Кирпич 510 мм
[3] => Кирпич 640 мм
[4] => Кирпич 770 мм
)
[days] => [30,30,31,33,36]
[material_price] => [5500,7142,9206,10171,12235]
[work_price] => [8736,10041,12018,15240,18462]
[image] => https://akademik-stroy.ru/wp-content/uploads/materials/kirpich.jpg
[area_modifier] => 53.12
[parent_name] => Стены 1 этаж (несущие)
[parent_id] => 3
[material_sum] => 596006
[work_sum] => 788896
[total_sum] => 1384902
[total_days] => 30
[display_material_sum] => 596 006
[display_work_sum] => 788 896
[display_total_sum] => 1 384 902
)
1
1 384 902₽
Работа:788 896 ₽
Материалы:596 006 ₽
Дни:30
stdClass Object
(
[id] => 81
[attribute_id] => 3
[name] => Монолитные
[material_modifier] => 1
[work_modifier] => 1
[options] => Array
(
[0] => 150 мм
[1] => 200 мм
[2] => 250 мм
[3] => 300 мм
[4] => 350 мм
[5] => 400 мм
)
[days] => [45,46,47,49,50,53]
[material_price] => [6545,7876,10175,12011,13908,15204]
[work_price] => [5106,6444,7698,8552,9807,11461]
[image] => https://akademik-stroy.ru/wp-content/uploads/materials/monolitnye.jpg
[area_modifier] => 53.12
[parent_name] => Стены 1 этаж (несущие)
[parent_id] => 3
[material_sum] => 709248
[work_sum] => 461092
[total_sum] => 1170340
[total_days] => 45
[display_material_sum] => 709 248
[display_work_sum] => 461 092
[display_total_sum] => 1 170 340
)
1
1 170 340₽
Работа:461 092 ₽
Материалы:709 248 ₽
Дни:45
stdClass Object
(
[id] => 82
[attribute_id] => 3
[name] => Клееный брус
[material_modifier] => 1
[work_modifier] => 1
[options] => Array
(
[0] => 160 мм
[1] => 175 мм
[2] => 200 мм
[3] => 215 мм
[4] => 240 мм
[5] => 270 мм
[6] => 282 мм
)
[days] => [24,28,32,37,40,42,48]
[material_price] => [16975,18773,19950,20545,21599,22159,23275]
[work_price] => [4806,5287,5815,6397,7036,7740,8514]
[image] => https://akademik-stroy.ru/wp-content/uploads/materials/kleenyj-brus.jpg
[area_modifier] => 53.12
[parent_name] => Стены 1 этаж (несущие)
[parent_id] => 3
[material_sum] => 1839492
[work_sum] => 434001
[total_sum] => 2273493
[total_days] => 24
[display_material_sum] => 1 839 492
[display_work_sum] => 434 001
[display_total_sum] => 2 273 493
)
1
2 273 493₽
Работа:434 001 ₽
Материалы:1 839 492 ₽
Дни:24
stdClass Object
(
[id] => 83
[attribute_id] => 3
[name] => Каркасные
[material_modifier] => 1
[work_modifier] => 1
[options] => Array
(
[0] => 150 мм
[1] => 200 мм
[2] => 250 мм
[3] => 300 мм
)
[days] => [15,16,17,18]
[material_price] => [2379,2639,2898,3258]
[work_price] => [2418,2686,2985,3716]
[image] => https://akademik-stroy.ru/wp-content/uploads/materials/karkasnye.jpg
[area_modifier] => 53.12
[parent_name] => Стены 1 этаж (несущие)
[parent_id] => 3
[material_sum] => 257800
[work_sum] => 218355
[total_sum] => 476155
[total_days] => 15
[display_material_sum] => 257 800
[display_work_sum] => 218 355
[display_total_sum] => 476 155
)
1
476 155₽
Работа:218 355 ₽
Материалы:257 800 ₽
Дни:15
stdClass Object
(
[id] => 84
[attribute_id] => 3
[name] => СИП-панели
[material_modifier] => 1
[work_modifier] => 1
[options] => Array
(
[0] => 120 мм
[1] => 170 мм
[2] => 220 мм
)
[days] => [7,7,7]
[material_price] => [1210,1856,2292]
[work_price] => [1410,1551,1706]
[image] => https://akademik-stroy.ru/wp-content/uploads/materials/sip-paneli.jpg
[area_modifier] => 53.12
[parent_name] => Стены 1 этаж (несущие)
[parent_id] => 3
[material_sum] => 131121
[work_sum] => 127329
[total_sum] => 258450
[total_days] => 7
[display_material_sum] => 131 121
[display_work_sum] => 127 329
[display_total_sum] => 258 450
)
1
258 450₽
Работа:127 329 ₽
Материалы:131 121 ₽
Дни:7
stdClass Object
(
[id] => 85
[attribute_id] => 3
[name] => Сухой брус
[material_modifier] => 1
[work_modifier] => 1
[options] => Array
(
[0] => 150 мм
[1] => 180 мм
[2] => 200 мм
)
[days] => [7,8,9]
[material_price] => [6010,7190,8709]
[work_price] => [3204,3845,4229]
[image] => https://akademik-stroy.ru/wp-content/uploads/materials/suhoj-brus.jpg
[area_modifier] => 53.12
[parent_name] => Стены 1 этаж (несущие)
[parent_id] => 3
[material_sum] => 651272
[work_sum] => 289334
[total_sum] => 940606
[total_days] => 7
[display_material_sum] => 651 272
[display_work_sum] => 289 334
[display_total_sum] => 940 606
)
1
940 606₽
Работа:289 334 ₽
Материалы:651 272 ₽
Дни:7
stdClass Object
(
[id] => 86
[attribute_id] => 3
[name] => Профилированный брус
[material_modifier] => 1
[work_modifier] => 1
[options] => Array
(
[0] => 150 мм
[1] => 180 мм
[2] => 200 мм
)
[days] => [7,8,9]
[material_price] => [8190,9228,10051]
[work_price] => [3845,4614,5075]
[image] => https://akademik-stroy.ru/wp-content/uploads/materials/profilirovannyj-brus.jpg
[area_modifier] => 53.12
[parent_name] => Стены 1 этаж (несущие)
[parent_id] => 3
[material_sum] => 887508
[work_sum] => 347219
[total_sum] => 1234727
[total_days] => 7
[display_material_sum] => 887 508
[display_work_sum] => 347 219
[display_total_sum] => 1 234 727
)
1
1 234 727₽
Работа:347 219 ₽
Материалы:887 508 ₽
Дни:7
stdClass Object
(
[id] => 87
[attribute_id] => 3
[name] => Оцилиндрованное бревно
[material_modifier] => 1
[work_modifier] => 1
[options] => Array
(
[0] => 180 мм
[1] => 220 мм
[2] => 260 мм
[3] => 320 мм
)
[days] => [7,8,9,10]
[material_price] => [75190,9532,10868,13116]
[work_price] => [3845,4691,5535,6863]
[image] => https://akademik-stroy.ru/wp-content/uploads/materials/ocilindrovannoe-brevno-1.jpg
[area_modifier] => 53.12
[parent_name] => Стены 1 этаж (несущие)
[parent_id] => 3
[material_sum] => 8147949
[work_sum] => 347219
[total_sum] => 8495168
[total_days] => 7
[display_material_sum] => 8 147 949
[display_work_sum] => 347 219
[display_total_sum] => 8 495 168
)
1
8 495 168₽
Работа:347 219 ₽
Материалы:8 147 949 ₽
Дни:7
stdClass Object
(
[id] => 88
[attribute_id] => 3
[name] => Срубы
[material_modifier] => 1
[work_modifier] => 1
[options] => Array
(
[0] => 260 мм
[1] => 320 мм
[2] => 360 мм
[3] => 400 мм
[4] => 500 мм
)
[days] => [7,8,9,10,11]
[material_price] => [37975,46709,52314,58069,73167]
[work_price] => [4806,5911,6621,7349,9260]
[image] => https://akademik-stroy.ru/wp-content/uploads/materials/sruby.jpg
[area_modifier] => 53.12
[parent_name] => Стены 1 этаж (несущие)
[parent_id] => 3
[material_sum] => 4115153
[work_sum] => 434001
[total_sum] => 4549154
[total_days] => 7
[display_material_sum] => 4 115 153
[display_work_sum] => 434 001
[display_total_sum] => 4 549 154
)
1
4 549 154₽
Работа:434 001 ₽
Материалы:4 115 153 ₽
Дни:7
stdClass Object
(
[id] => 174
[attribute_id] => 3
[name] => Брус
[material_modifier] => 1
[work_modifier] => 1
[options] => Array
(
[0] => 150 мм
[1] => 180 мм
[2] => 200 мм
)
[days] => [7,8,9]
[material_price] => [5127,6152,7367]
[work_price] => [1602,1922,2115]
[image] => https://akademik-stroy.ru/wp-content/uploads/materials/brus.jpg
[area_modifier] => 53.12
[parent_name] => Стены 1 этаж (несущие)
[parent_id] => 3
[material_sum] => 555586
[work_sum] => 144667
[total_sum] => 700253
[total_days] => 7
[display_material_sum] => 555 586
[display_work_sum] => 144 667
[display_total_sum] => 700 253
)
1
700 253₽
Работа:144 667 ₽
Материалы:555 586 ₽
Дни:7
stdClass Object
(
[id] => 175
[attribute_id] => 3
[name] => Газобетон
[material_modifier] => 1
[work_modifier] => 1
[options] => Array
(
[0] => 300 мм
[1] => 375 мм
[2] => 400 мм
[3] => 500 мм
[4] => 600 мм
)
[days] => [29,31,35,37,44]
[material_price] => [4298,5573,6356,7288,9119]
[work_price] => [4538,5251,5926,6733,7195]
[image] => https://akademik-stroy.ru/wp-content/uploads/materials/gazobeton.jpg
[area_modifier] => 53.12
[parent_name] => Стены 1 этаж (несущие)
[parent_id] => 3
[material_sum] => 465752
[work_sum] => 409800
[total_sum] => 875552
[total_days] => 29
[display_material_sum] => 465 752
[display_work_sum] => 409 800
[display_total_sum] => 875 552
)
1
875 552₽
Работа:409 800 ₽
Материалы:465 752 ₽
Дни:29
stdClass Object
(
[id] => 176
[attribute_id] => 3
[name] => Блок
[material_modifier] => 1
[work_modifier] => 1
[options] => Array
(
[0] => 300 мм
[1] => 375 мм
[2] => 400 мм
[3] => 500 мм
[4] => 600 мм
)
[days] => [29,31,35,37,44]
[material_price] => [2698,3973,4356,6588,7119]
[work_price] => [5038,5851,6426,8733,9195]
[image] => https://akademik-stroy.ru/wp-content/uploads/materials/blok.jpg
[area_modifier] => 53.12
[parent_name] => Стены 1 этаж (несущие)
[parent_id] => 3
[material_sum] => 292368
[work_sum] => 454952
[total_sum] => 747320
[total_days] => 29
[display_material_sum] => 292 368
[display_work_sum] => 454 952
[display_total_sum] => 747 320
)
1
747 320₽
Работа:454 952 ₽
Материалы:292 368 ₽
Дни:29
stdClass Object
(
[id] => 177
[attribute_id] => 3
[name] => Газосиликатный блок
[material_modifier] => 1
[work_modifier] => 1
[options] => Array
(
[0] => 300 мм
[1] => 375 мм
[2] => 400 мм
[3] => 500 мм
[4] => 600 мм
)
[days] => [29,31,35,37,44]
[material_price] => [4298,5573,6356,7288,9119]
[work_price] => [4538,5251,5926,6733,7195]
[image] => https://akademik-stroy.ru/wp-content/uploads/materials/gazosilikatnyj-blok.jpg
[area_modifier] => 53.12
[parent_name] => Стены 1 этаж (несущие)
[parent_id] => 3
[material_sum] => 465752
[work_sum] => 409800
[total_sum] => 875552
[total_days] => 29
[display_material_sum] => 465 752
[display_work_sum] => 409 800
[display_total_sum] => 875 552
)
1
875 552₽
Работа:409 800 ₽
Материалы:465 752 ₽
Дни:29
stdClass Object
(
[id] => 178
[attribute_id] => 3
[name] => Керамзитобетонный блок
[material_modifier] => 1
[work_modifier] => 1
[options] => Array
(
[0] => 300 мм
[1] => 375 мм
[2] => 400 мм
[3] => 500 мм
[4] => 600 мм
)
[days] => [23,23,24,25,28]
[material_price] => [3641,4298,5693,7613,9612]
[work_price] => [5737,5737,6903,7958,8901]
[image] => https://akademik-stroy.ru/wp-content/uploads/materials/keramzitobetonnyj-blok.jpg
[area_modifier] => 53.12
[parent_name] => Стены 1 этаж (несущие)
[parent_id] => 3
[material_sum] => 394556
[work_sum] => 518074
[total_sum] => 912630
[total_days] => 23
[display_material_sum] => 394 556
[display_work_sum] => 518 074
[display_total_sum] => 912 630
)
1
912 630₽
Работа:518 074 ₽
Материалы:394 556 ₽
Дни:23
stdClass Object
(
[id] => 179
[attribute_id] => 3
[name] => Деревянные
[material_modifier] => 1
[work_modifier] => 1
[options] => Array
(
[0] => 180 мм
[1] => 220 мм
[2] => 260 мм
[3] => 320 мм
)
[days] => [7,8,9,10]
[material_price] => [7950,9458,11961,14472]
[work_price] => [4037,4925,5812,7207]
[image] => https://akademik-stroy.ru/wp-content/uploads/materials/derevyannye.jpg
[area_modifier] => 53.12
[parent_name] => Стены 1 этаж (несущие)
[parent_id] => 3
[material_sum] => 861500
[work_sum] => 364557
[total_sum] => 1226057
[total_days] => 7
[display_material_sum] => 861 500
[display_work_sum] => 364 557
[display_total_sum] => 1 226 057
)
1
1 226 057₽
Работа:364 557 ₽
Материалы:861 500 ₽
Дни:7
stdClass Object
(
[id] => 181
[attribute_id] => 3
[name] => Камень
[material_modifier] => 1
[work_modifier] => 1
[options] => Array
(
[0] => 300 мм
[1] => 400 мм
[2] => 500 мм
[3] => 600 мм
)
[days] => [25,27,31,34]
[material_price] => [5262,6844,8330,9815]
[work_price] => [8331,9135,10427,11069]
[image] => https://akademik-stroy.ru/wp-content/uploads/materials/kamen.jpg
[area_modifier] => 53.12
[parent_name] => Стены 1 этаж (несущие)
[parent_id] => 3
[material_sum] => 570216
[work_sum] => 752323
[total_sum] => 1322539
[total_days] => 25
[display_material_sum] => 570 216
[display_work_sum] => 752 323
[display_total_sum] => 1 322 539
)
1
1 322 539₽
Работа:752 323 ₽
Материалы:570 216 ₽
Дни:25
stdClass Object
(
[id] => 182
[attribute_id] => 3
[name] => Каркасно-щитовые
[material_modifier] => 1
[work_modifier] => 1
[options] => Array
(
[0] => 150 мм
[1] => 200 мм
[2] => 250 мм
[3] => 300 мм
[4] => 350 мм
[5] => 400 мм
)
[days] => [15,16,17,18,19,20]
[material_price] => [2379,2639,2898,3458,3601,4175]
[work_price] => [2538,2820,3134,3483,4062,5642]
[image] => https://akademik-stroy.ru/wp-content/uploads/materials/karkasno-shchitovye.jpg
[area_modifier] => 53.12
[parent_name] => Стены 1 этаж (несущие)
[parent_id] => 3
[material_sum] => 257800
[work_sum] => 229192
[total_sum] => 486992
[total_days] => 15
[display_material_sum] => 257 800
[display_work_sum] => 229 192
[display_total_sum] => 486 992
)
1
486 992₽
Работа:229 192 ₽
Материалы:257 800 ₽
Дни:15
stdClass Object
(
[id] => 183
[attribute_id] => 3
[name] => Рубленные
[material_modifier] => 1
[work_modifier] => 1
[options] => Array
(
[0] => 150 мм
[1] => 200 мм
[2] => 250 мм
[3] => 300 мм
[4] => 350 мм
[5] => 400 мм
)
[days] => [15,16,17,18,17,18]
[material_price] => [35950,50267,60583,75900,80217,100533]
[work_price] => [9612,12816,16020,19224,22428,25632]
[image] => https://akademik-stroy.ru/wp-content/uploads/materials/rublennye.jpg
[area_modifier] => 53.12
[parent_name] => Стены 1 этаж (несущие)
[parent_id] => 3
[material_sum] => 3895715
[work_sum] => 868002
[total_sum] => 4763717
[total_days] => 15
[display_material_sum] => 3 895 715
[display_work_sum] => 868 002
[display_total_sum] => 4 763 717
)
1
4 763 717₽
Работа:868 002 ₽
Материалы:3 895 715 ₽
Дни:15
stdClass Object
(
[id] => 185
[attribute_id] => 3
[name] => Теплоблок
[material_modifier] => 1
[work_modifier] => 1
[options] => Array
(
[0] => 300 мм (с облицовкой, не покрашенный)
[1] => 400 мм (с облицовкой, не покрашенный)
[2] => 300 мм (с облицовкой, покрашенный)
[3] => 400 мм (с облицовкой, покрашенный)
)
[days] => [15,16,15,16]
[material_price] => [2888,3729,3957,4258]
[work_price] => [2564,3229,2949,3713]
[image] => https://akademik-stroy.ru/wp-content/uploads/materials/teploblok.jpg
[area_modifier] => 53.12
[parent_name] => Стены 1 этаж (несущие)
[parent_id] => 3
[material_sum] => 312958
[work_sum] => 231539
[total_sum] => 544497
[total_days] => 15
[display_material_sum] => 312 958
[display_work_sum] => 231 539
[display_total_sum] => 544 497
)
1
544 497₽
Работа:231 539 ₽
Материалы:312 958 ₽
Дни:15
stdClass Object
(
[id] => 186
[attribute_id] => 3
[name] => Арболитовые блоки
[material_modifier] => 1
[work_modifier] => 1
[options] => Array
(
[0] => 300 мм
[1] => 400 мм
[2] => 600 мм
)
[days] => [19,22,27]
[material_price] => [3210,4475,5852]
[work_price] => [4214,4788,5866]
[image] => https://akademik-stroy.ru/wp-content/uploads/materials/arbolitovye-bloki.png
[area_modifier] => 53.12
[parent_name] => Стены 1 этаж (несущие)
[parent_id] => 3
[material_sum] => 347851
[work_sum] => 380541
[total_sum] => 728392
[total_days] => 19
[display_material_sum] => 347 851
[display_work_sum] => 380 541
[display_total_sum] => 728 392
)
1
728 392₽
Работа:380 541 ₽
Материалы:347 851 ₽
Дни:19
stdClass Object
(
[id] => 187
[attribute_id] => 3
[name] => Полистиролбетон
[material_modifier] => 1
[work_modifier] => 1
[options] => Array
(
[0] => 300 мм
[1] => 400 мм
[2] => 600 мм
)
[days] => [29,31,35]
[material_price] => [2798,4573,5256]
[work_price] => [5038,5851,6426]
[image] => https://akademik-stroy.ru/wp-content/uploads/materials/polistirolbeton.jpg
[area_modifier] => 53.12
[parent_name] => Стены 1 этаж (несущие)
[parent_id] => 3
[material_sum] => 303205
[work_sum] => 454952
[total_sum] => 758157
[total_days] => 29
[display_material_sum] => 303 205
[display_work_sum] => 454 952
[display_total_sum] => 758 157
)
1
758 157₽
Работа:454 952 ₽
Материалы:303 205 ₽
Дни:29
stdClass Object
(
[id] => 188
[attribute_id] => 3
[name] => Шлакоблок
[material_modifier] => 1
[work_modifier] => 1
[options] => Array
(
[0] => 400 мм
[1] => 600 мм
)
[days] => [15,16]
[material_price] => [2391,3471]
[work_price] => [2642,3662]
[image] => https://akademik-stroy.ru/wp-content/uploads/materials/shlakoblok.jpg
[area_modifier] => 53.12
[parent_name] => Стены 1 этаж (несущие)
[parent_id] => 3
[material_sum] => 259100
[work_sum] => 238583
[total_sum] => 497683
[total_days] => 15
[display_material_sum] => 259 100
[display_work_sum] => 238 583
[display_total_sum] => 497 683
)
1
497 683₽
Работа:238 583 ₽
Материалы:259 100 ₽
Дни:15
stdClass Object
(
[id] => 189
[attribute_id] => 3
[name] => Теплая керамика
[material_modifier] => 1
[work_modifier] => 1
[options] => Array
(
[0] => 380 мм
[1] => 380 мм Thermo
[2] => 440 мм
[3] => 510 мм
)
[days] => [23,23,24,25]
[material_price] => [4510,5098,6093,8013]
[work_price] => [4737,4937,5903,6958]
[image] => https://akademik-stroy.ru/wp-content/uploads/materials/teplaya-keramika.jpg
[area_modifier] => 53.12
[parent_name] => Стены 1 этаж (несущие)
[parent_id] => 3
[material_sum] => 488725
[work_sum] => 427770
[total_sum] => 916495
[total_days] => 23
[display_material_sum] => 488 725
[display_work_sum] => 427 770
[display_total_sum] => 916 495
)
1
916 495₽
Работа:427 770 ₽
Материалы:488 725 ₽
Дни:23
stdClass Object
(
[id] => 190
[attribute_id] => 3
[name] => Несъемная опалубка
[material_modifier] => 1
[work_modifier] => 1
[options] => Array
(
[0] => 200 мм
[1] => 250 мм
[2] => 300 мм
[3] => 350 мм
)
[days] => [15,17,19,21]
[material_price] => [3302,3902,4108,5008]
[work_price] => [2100,2100,2300,2534]
[image] => https://akademik-stroy.ru/wp-content/uploads/materials/nesemnaya-opalubka.jpg
[area_modifier] => 53.12
[parent_name] => Стены 1 этаж (несущие)
[parent_id] => 3
[material_sum] => 357821
[work_sum] => 189638
[total_sum] => 547459
[total_days] => 15
[display_material_sum] => 357 821
[display_work_sum] => 189 638
[display_total_sum] => 547 459
)
1
547 459₽
Работа:189 638 ₽
Материалы:357 821 ₽
Дни:15
stdClass Object
(
[id] => 251
[attribute_id] => 3
[name] => Бревно
[material_modifier] => 1
[work_modifier] => 1
[options] => Array
(
[0] => 260 мм
[1] => 320 мм
[2] => 360 мм
[3] => 400 мм
[4] => 500 мм
)
[days] => [7,8,9,10,11]
[material_price] => [1874,24045,26930,30972,38825]
[work_price] => [5046,6207,6952,7716,9723]
[image] => https://akademik-stroy.ru/wp-content/uploads/materials/sruby.jpg
[area_modifier] => 53.12
[parent_name] => Стены 1 этаж (несущие)
[parent_id] => 3
[material_sum] => 203076
[work_sum] => 455674
[total_sum] => 658750
[total_days] => 7
[display_material_sum] => 203 076
[display_work_sum] => 455 674
[display_total_sum] => 658 750
)
1
658 750₽
Работа:455 674 ₽
Материалы:203 076 ₽
Дни:7
stdClass Object
(
[id] => 7
[attribute_id] => 4
[name] => Деревянные балки
[material_modifier] => 1
[work_modifier] => 1
[options] => Array
(
[0] => без утепления
[1] => утепление 200 мм
[2] => утепление 250 мм
[3] => утепление 300 мм
[4] => утепление 350 мм
[5] => утепление 400 мм
[6] => утепление 450 мм
[7] => утепление 500 мм
)
[days] => [8,9,9,9,11,12,13,14]
[material_price] => [1634,2042,2344,2947,3149,3652,3354,3557]
[work_price] => [1230,1339,1393,1426,1460,1513,1587,1620]
[image] => https://akademik-stroy.ru/wp-content/uploads/materials/derevyannye-balki.png
[area_modifier] => 53.12
[parent_name] => Перекрытие первого этажа
[parent_id] => 4
[material_sum] => 177068
[work_sum] => 111074
[total_sum] => 288142
[total_days] => 8
[display_material_sum] => 177 068
[display_work_sum] => 111 074
[display_total_sum] => 288 142
)
1
288 142₽
Работа:111 074 ₽
Материалы:177 068 ₽
Дни:8
stdClass Object
(
[id] => 8
[attribute_id] => 4
[name] => Сборные ж/б плиты
[material_modifier] => 1
[work_modifier] => 1
[options] => Array
(
[0] => без утепления
[1] => утепление 150 мм
[2] => утепление 200 мм
[3] => утепление 250 мм
[4] => утепление 300 мм
[5] => утепление 350 мм
[6] => утепление 400 мм
[7] => утепление 450 мм
[8] => утепление 500 мм
)
[days] => [13,15,15,15,15,15,15,15,15]
[material_price] => [3067,5577,5928,6679,7730,8782,9833,10884,11935]
[work_price] => [1520,1956,2102,2247,2392,2537,2684,2829,2974]
[image] => https://akademik-stroy.ru/wp-content/uploads/materials/sbornye-zh-b-plity-2.jpg
[area_modifier] => 53.12
[parent_name] => Перекрытие первого этажа
[parent_id] => 4
[material_sum] => 332355
[work_sum] => 137262
[total_sum] => 469617
[total_days] => 13
[display_material_sum] => 332 355
[display_work_sum] => 137 262
[display_total_sum] => 469 617
)
1
469 617₽
Работа:137 262 ₽
Материалы:332 355 ₽
Дни:13
stdClass Object
(
[id] => 89
[attribute_id] => 4
[name] => Монолитная ж/б плита
[material_modifier] => 1
[work_modifier] => 1
[options] => Array
(
[0] => без утепления
[1] => утепление 150 мм
[2] => утепление 200 мм
[3] => утепление 250 мм
[4] => утепление 300 мм
[5] => утепление 350 мм
[6] => утепление 400 мм
[7] => утепление 450 мм
[8] => утепление 500 мм
)
[days] => [18,20,20,20,20,20,20,20,20]
[material_price] => [4837,6572,7224,7375,79426,8177,8728,9180,10031]
[work_price] => [3348,3921,4112,4302,4493,4684,4875,5066,5256]
[image] => https://akademik-stroy.ru/wp-content/uploads/materials/monolitnaya-zh-b-plita-2.jpg
[area_modifier] => 53.12
[parent_name] => Перекрытие первого этажа
[parent_id] => 4
[material_sum] => 524161
[work_sum] => 302338
[total_sum] => 826499
[total_days] => 18
[display_material_sum] => 524 161
[display_work_sum] => 302 338
[display_total_sum] => 826 499
)
1
826 499₽
Работа:302 338 ₽
Материалы:524 161 ₽
Дни:18
stdClass Object
(
[id] => 164
[attribute_id] => 37
[name] => Металлочерепица
[material_modifier] => 1
[work_modifier] => 1
[options] => Array
(
)
[days] => [20]
[material_price] => [6112]
[work_price] => [5726]
[image] => https://akademik-stroy.ru/wp-content/uploads/materials/metallocherepica.jpg
[area_modifier] => 53.12
[parent_name] => Крыша (Скатная)
[parent_id] => 37
[material_sum] => 662326
[work_sum] => 517081
[total_sum] => 1179407
[total_days] => 20
[display_material_sum] => 662 326
[display_work_sum] => 517 081
[display_total_sum] => 1 179 407
)
1
1 179 407₽
Работа:517 081 ₽
Материалы:662 326 ₽
Дни:20
stdClass Object
(
[id] => 165
[attribute_id] => 37
[name] => Гибкая черепица
[material_modifier] => 1
[work_modifier] => 1
[options] => Array
(
)
[days] => [20]
[material_price] => [6980]
[work_price] => [5950]
[image] => https://akademik-stroy.ru/wp-content/uploads/materials/gibkaya-cherepica.jpg
[area_modifier] => 53.12
[parent_name] => Крыша (Скатная)
[parent_id] => 37
[material_sum] => 756386
[work_sum] => 537309
[total_sum] => 1293695
[total_days] => 20
[display_material_sum] => 756 386
[display_work_sum] => 537 309
[display_total_sum] => 1 293 695
)
1
1 293 695₽
Работа:537 309 ₽
Материалы:756 386 ₽
Дни:20
stdClass Object
(
[id] => 166
[attribute_id] => 37
[name] => Цементно-песчаная черепица
[material_modifier] => 1
[work_modifier] => 1
[options] => Array
(
)
[days] => [20]
[material_price] => [10560]
[work_price] => [9456]
[image] => https://akademik-stroy.ru/wp-content/uploads/materials/cementno-peschanaya-cherepica.jpg
[area_modifier] => 53.12
[parent_name] => Крыша (Скатная)
[parent_id] => 37
[material_sum] => 1144332
[work_sum] => 853915
[total_sum] => 1998247
[total_days] => 20
[display_material_sum] => 1 144 332
[display_work_sum] => 853 915
[display_total_sum] => 1 998 247
)
1
1 998 247₽
Работа:853 915 ₽
Материалы:1 144 332 ₽
Дни:20
stdClass Object
(
[id] => 167
[attribute_id] => 37
[name] => Композитная черепица
[material_modifier] => 1
[work_modifier] => 1
[options] => Array
(
)
[days] => [20]
[material_price] => [9506]
[work_price] => [8905]
[image] => https://akademik-stroy.ru/wp-content/uploads/materials/kompozitnaya-cherepica.jpg
[area_modifier] => 53.12
[parent_name] => Крыша (Скатная)
[parent_id] => 37
[material_sum] => 1030116
[work_sum] => 804157
[total_sum] => 1834273
[total_days] => 20
[display_material_sum] => 1 030 116
[display_work_sum] => 804 157
[display_total_sum] => 1 834 273
)
1
1 834 273₽
Работа:804 157 ₽
Материалы:1 030 116 ₽
Дни:20
stdClass Object
(
[id] => 168
[attribute_id] => 37
[name] => Керамическая черепица
[material_modifier] => 1
[work_modifier] => 1
[options] => Array
(
)
[days] => [20]
[material_price] => [12750]
[work_price] => [9456]
[image] => https://akademik-stroy.ru/wp-content/uploads/materials/keramicheskaya-cherepica.jpg
[area_modifier] => 53.12
[parent_name] => Крыша (Скатная)
[parent_id] => 37
[material_sum] => 1381651
[work_sum] => 853915
[total_sum] => 2235566
[total_days] => 20
[display_material_sum] => 1 381 651
[display_work_sum] => 853 915
[display_total_sum] => 2 235 566
)
1
2 235 566₽
Работа:853 915 ₽
Материалы:1 381 651 ₽
Дни:20
stdClass Object
(
[id] => 169
[attribute_id] => 37
[name] => Металлическая фальцевая
[material_modifier] => 1
[work_modifier] => 1
[options] => Array
(
)
[days] => [20]
[material_price] => [8550]
[work_price] => [8190]
[image] => https://akademik-stroy.ru/wp-content/uploads/materials/metallicheskaya-falcevaya.jpg
[area_modifier] => 53.12
[parent_name] => Крыша (Скатная)
[parent_id] => 37
[material_sum] => 926519
[work_sum] => 739590
[total_sum] => 1666109
[total_days] => 20
[display_material_sum] => 926 519
[display_work_sum] => 739 590
[display_total_sum] => 1 666 109
)
1
1 666 109₽
Работа:739 590 ₽
Материалы:926 519 ₽
Дни:20
stdClass Object
(
[id] => 170
[attribute_id] => 37
[name] => Медная фальцевая
[material_modifier] => 1
[work_modifier] => 1
[options] => Array
(
)
[days] => [20]
[material_price] => [20450]
[work_price] => [16750]
[image] => https://akademik-stroy.ru/wp-content/uploads/materials/mednaya-falcevaya.jpg
[area_modifier] => 53.12
[parent_name] => Крыша (Скатная)
[parent_id] => 37
[material_sum] => 2216060
[work_sum] => 1512592
[total_sum] => 3728652
[total_days] => 20
[display_material_sum] => 2 216 060
[display_work_sum] => 1 512 592
[display_total_sum] => 3 728 652
)
1
3 728 652₽
Работа:1 512 592 ₽
Материалы:2 216 060 ₽
Дни:20
stdClass Object
(
[id] => 171
[attribute_id] => 37
[name] => Зеленая кровля
[material_modifier] => 1
[work_modifier] => 1
[options] => Array
(
)
[days] => [20]
[material_price] => [19850]
[work_price] => [16780]
[image] => https://akademik-stroy.ru/wp-content/uploads/materials/zelenaya-krovlya.jpg
[area_modifier] => 53.12
[parent_name] => Крыша (Скатная)
[parent_id] => 37
[material_sum] => 2151041
[work_sum] => 1515301
[total_sum] => 3666342
[total_days] => 20
[display_material_sum] => 2 151 041
[display_work_sum] => 1 515 301
[display_total_sum] => 3 666 342
)
1
3 666 342₽
Работа:1 515 301 ₽
Материалы:2 151 041 ₽
Дни:20
stdClass Object
(
[id] => 172
[attribute_id] => 37
[name] => Профлист
[material_modifier] => 1
[work_modifier] => 1
[options] => Array
(
)
[days] => [20]
[material_price] => [3450]
[work_price] => [3750]
[image] => https://akademik-stroy.ru/wp-content/uploads/materials/proflist.jpg
[area_modifier] => 53.12
[parent_name] => Крыша (Скатная)
[parent_id] => 37
[material_sum] => 373859
[work_sum] => 338640
[total_sum] => 712499
[total_days] => 20
[display_material_sum] => 373 859
[display_work_sum] => 338 640
[display_total_sum] => 712 499
)
1
712 499₽
Работа:338 640 ₽
Материалы:373 859 ₽
Дни:20
stdClass Object
(
[id] => 51
[attribute_id] => 26
[name] => Есть
[material_modifier] => 1
[work_modifier] => 1
[options] => Array
(
[0] => Профиль 58 мм, 3-камерный, стеклопакет 2-камерный до 32 мм
[1] => Профиль 60 мм, 4-камерный, стеклопакет 2-камерный до 32 мм
[2] => Профиль 70 мм, 5-камерный, стеклопакет 2-камерный до 40 мм
[3] => Профиль 72 мм, 5-камерный, стеклопакет 2-камерный до 40 мм
[4] => Алюминиевые окна Alutech профиль 72 мм, стеклопакет 2-камерный
)
[days] => [3,3,3,3,3]
[material_price] => [1339,2124,2867,3023,29596]
[work_price] => [635,647,659,668,2579]
[image] => https://akademik-stroy.ru/wp-content/uploads/materials/okna.jpg
[area_modifier] => 43.11
[parent_name] => Окна
[parent_id] => 26
[material_sum] => 117758
[work_sum] => 46537
[total_sum] => 164295
[total_days] => 3
[display_material_sum] => 117 758
[display_work_sum] => 46 537
[display_total_sum] => 164 295
)
1
164 295₽
Работа:46 537 ₽
Материалы:117 758 ₽
Дни:3
stdClass Object
(
[id] => 52
[attribute_id] => 26
[name] => Нет
[material_modifier] => 2
[work_modifier] => 1
[options] =>
[days] => null
[material_price] => null
[work_price] => null
[image] => https://akademik-stroy.ru/wp-content/uploads/materials/okna.jpg
[area_modifier] => 43.11
[parent_name] => Окна
[parent_id] => 26
[material_sum] => 0
[work_sum] => 0
[total_sum] => 0
[total_days] => 0
[display_material_sum] => 0
[display_work_sum] => 0
[display_total_sum] => 0
)
1
0₽
Работа:0 ₽
Материалы:0 ₽
Дни:0
stdClass Object
(
[id] => 53
[attribute_id] => 27
[name] => Есть
[material_modifier] => 1
[work_modifier] => 1
[options] => Array
(
)
[days] => [1]
[material_price] => [10000]
[work_price] => [5500]
[image] => https://akademik-stroy.ru/wp-content/uploads/materials/dveri.jpg
[area_modifier] => 1
[parent_name] => Двери входные
[parent_id] => 27
[material_sum] => 20400
[work_sum] => 9350
[total_sum] => 29750
[total_days] => 1
[display_material_sum] => 20 400
[display_work_sum] => 9 350
[display_total_sum] => 29 750
)
1
29 750₽
Работа:9 350 ₽
Материалы:20 400 ₽
Дни:1
stdClass Object
(
[id] => 54
[attribute_id] => 27
[name] => Нет
[material_modifier] => 1
[work_modifier] => 1
[options] => Array
(
)
[days] => [0]
[material_price] => [0]
[work_price] => [0]
[image] => https://akademik-stroy.ru/wp-content/uploads/materials/dveri.jpg
[area_modifier] => 1
[parent_name] => Двери входные
[parent_id] => 27
[material_sum] => 0
[work_sum] => 0
[total_sum] => 0
[total_days] => 0
[display_material_sum] => 0
[display_work_sum] => 0
[display_total_sum] => 0
)
1
0₽
Работа:0 ₽
Материалы:0 ₽
Дни:0
stdClass Object
(
[id] => 25
[attribute_id] => 13
[name] => Нет
[material_modifier] => 1
[work_modifier] => 1
[options] => Array
(
)
[days] => [0]
[material_price] => [0]
[work_price] => [0]
[image] => https://akademik-stroy.ru/wp-content/uploads/materials/mineralovata-krov.jpg
[area_modifier] => 53.12
[parent_name] => Утепление кровли (Мансарда)
[parent_id] => 13
[material_sum] => 0
[work_sum] => 0
[total_sum] => 0
[total_days] => 0
[display_material_sum] => 0
[display_work_sum] => 0
[display_total_sum] => 0
)
1
0₽
Работа:0 ₽
Материалы:0 ₽
Дни:0
stdClass Object
(
[id] => 26
[attribute_id] => 13
[name] => Минераловатный
[material_modifier] => 1
[work_modifier] => 1
[options] => Array
(
[0] => 50 мм
[1] => 100 мм
[2] => 150 мм
[3] => 200 мм
[4] => 250 мм
[5] => 300 мм
[6] => 350 мм
[7] => 400 мм
[8] => 450 мм
[9] => 500 мм
)
[days] => [5,5,6,6,6,7,7,7,8,8]
[material_price] => [1158,1414,1772,2230,3602,4060,4974,5890,6408,7718]
[work_price] => [650,846,846,1098,1318,1450,1596,1754,1930,2122]
[image] => https://akademik-stroy.ru/wp-content/uploads/materials/mineralovata-krov.jpg
[area_modifier] => 53.12
[parent_name] => Утепление кровли (Мансарда)
[parent_id] => 13
[material_sum] => 125486
[work_sum] => 58698
[total_sum] => 184184
[total_days] => 5
[display_material_sum] => 125 486
[display_work_sum] => 58 698
[display_total_sum] => 184 184
)
1
184 184₽
Работа:58 698 ₽
Материалы:125 486 ₽
Дни:5
stdClass Object
(
[id] => 123
[attribute_id] => 13
[name] => Эковата (целлюлозная вата)
[material_modifier] => 1
[work_modifier] => 1
[options] => Array
(
[0] => 50 мм
[1] => 100 мм
[2] => 150 мм
[3] => 200 мм
[4] => 250 мм
[5] => 300 мм
[6] => 350 мм
[7] => 400 мм
[8] => 450 мм
[9] => 500 мм
)
[days] => [3,3,4,4,4,5,5,5,5,5]
[material_price] => [820,1638,2458,3276,5734,6552,8190,9828,11466,13104]
[work_price] => [234,304,304,396,474,522,574,632,694,764]
[image] => https://akademik-stroy.ru/wp-content/uploads/materials/ehkovata-krov.jpg
[area_modifier] => 53.12
[parent_name] => Утепление кровли (Мансарда)
[parent_id] => 13
[material_sum] => 88859
[work_sum] => 21131
[total_sum] => 109990
[total_days] => 3
[display_material_sum] => 88 859
[display_work_sum] => 21 131
[display_total_sum] => 109 990
)
1
109 990₽
Работа:21 131 ₽
Материалы:88 859 ₽
Дни:3
stdClass Object
(
[id] => 124
[attribute_id] => 13
[name] => Экструдированный пенополистирол
[material_modifier] => 1
[work_modifier] => 1
[options] => Array
(
[0] => 50 мм
[1] => 100 мм
[2] => 150 мм
[3] => 200 мм
[4] => 250 мм
[5] => 300 мм
[6] => 350 мм
[7] => 400 мм
[8] => 450 мм
[9] => 500 мм
)
[days] => [3,3,4,4,4,5,5,5,5,6]
[material_price] => [1146,2292,3438,4584,8020,9166,11458,13750,16040,18332]
[work_price] => [390,508,508,660,790,870,958,1052,1158,1274]
[image] => https://akademik-stroy.ru/wp-content/uploads/materials/epps-krov.jpg
[area_modifier] => 53.12
[parent_name] => Утепление кровли (Мансарда)
[parent_id] => 13
[material_sum] => 124186
[work_sum] => 35219
[total_sum] => 159405
[total_days] => 3
[display_material_sum] => 124 186
[display_work_sum] => 35 219
[display_total_sum] => 159 405
)
1
159 405₽
Работа:35 219 ₽
Материалы:124 186 ₽
Дни:3
stdClass Object
(
[id] => 125
[attribute_id] => 13
[name] => ПСБ (ППС-пенополистирол)
[material_modifier] => 1
[work_modifier] => 1
[options] => Array
(
[0] => 50 мм
[1] => 100 мм
[2] => 150 мм
[3] => 200 мм
[4] => 250 мм
[5] => 300 мм
[6] => 350 мм
[7] => 400 мм
[8] => 450 мм
[9] => 500 мм
)
[days] => [3,3,4,4,4,5,5,5,5,6]
[material_price] => [476,954,1430,1906,3336,3814,4766,5720,6674,7626]
[work_price] => [390,508,508,660,790,870,958,1052,1158,1274]
[image] => https://akademik-stroy.ru/wp-content/uploads/materials/psb-krov.jpg
[area_modifier] => 53.12
[parent_name] => Утепление кровли (Мансарда)
[parent_id] => 13
[material_sum] => 51582
[work_sum] => 35219
[total_sum] => 86801
[total_days] => 3
[display_material_sum] => 51 582
[display_work_sum] => 35 219
[display_total_sum] => 86 801
)
1
86 801₽
Работа:35 219 ₽
Материалы:51 582 ₽
Дни:3
stdClass Object
(
[id] => 126
[attribute_id] => 13
[name] => ППУ (Пенополиуретан)
[material_modifier] => 1
[work_modifier] => 1
[options] => Array
(
[0] => 50 мм
[1] => 100 мм
[2] => 150 мм
[3] => 200 мм
[4] => 250 мм
[5] => 300 мм
[6] => 350 мм
[7] => 400 мм
[8] => 450 мм
[9] => 500 мм
)
[days] => [2,2,3,3,3,3,4,4,4,4]
[material_price] => [2080,4160,6240,8320,14560,16640,20800,24960,29120,33280]
[work_price] => [234,304,304,396,474,522,574,632,694,764]
[image] => https://akademik-stroy.ru/wp-content/uploads/materials/ppu-krov.jpg
[area_modifier] => 53.12
[parent_name] => Утепление кровли (Мансарда)
[parent_id] => 13
[material_sum] => 225399
[work_sum] => 21131
[total_sum] => 246530
[total_days] => 2
[display_material_sum] => 225 399
[display_work_sum] => 21 131
[display_total_sum] => 246 530
)
1
246 530₽
Работа:21 131 ₽
Материалы:225 399 ₽
Дни:2
stdClass Object
(
[id] => 127
[attribute_id] => 13
[name] => PIR-плиты (пенополиизоцианурат)
[material_modifier] => 1
[work_modifier] => 1
[options] => Array
(
[0] => 50 мм
[1] => 100 мм
[2] => 150 мм
[3] => 200 мм
[4] => 250 мм
[5] => 300 мм
[6] => 350 мм
[7] => 400 мм
[8] => 450 мм
[9] => 500 мм
)
[days] => [3,3,4,4,4,5,5,5,5,6]
[material_price] => [2646,5290,7936,10580,18516,21162,26452,31742,37032,42324]
[work_price] => [390,508,508,660,790,870,958,1052,1158,1274]
[image] => https://akademik-stroy.ru/wp-content/uploads/materials/pir-krov.jpg
[area_modifier] => 53.12
[parent_name] => Утепление кровли (Мансарда)
[parent_id] => 13
[material_sum] => 286733
[work_sum] => 35219
[total_sum] => 321952
[total_days] => 3
[display_material_sum] => 286 733
[display_work_sum] => 35 219
[display_total_sum] => 321 952
)
1
321 952₽
Работа:35 219 ₽
Материалы:286 733 ₽
Дни:3
stdClass Object
(
[id] => 27
[attribute_id] => 14
[name] => Нет
[material_modifier] => 1
[work_modifier] => 1
[options] => Array
(
)
[days] => [0]
[material_price] => [0]
[work_price] => [0]
[image] => https://akademik-stroy.ru/wp-content/uploads/materials/mansardnye-okna-2.jpg
[area_modifier] => 1
[parent_name] => Мансардные окна
[parent_id] => 14
[material_sum] => 0
[work_sum] => 0
[total_sum] => 0
[total_days] => 0
[display_material_sum] => 0
[display_work_sum] => 0
[display_total_sum] => 0
)
1
0₽
Работа:0 ₽
Материалы:0 ₽
Дни:0
stdClass Object
(
[id] => 28
[attribute_id] => 14
[name] => Есть
[material_modifier] => 1
[work_modifier] => 1
[options] => Array
(
[0] => 55x78
[1] => 55x98
)
[days] => [6,7]
[material_price] => [47480,68700]
[work_price] => [17900,19500]
[image] => https://akademik-stroy.ru/wp-content/uploads/materials/mansardnye-okna-2.jpg
[area_modifier] => 1
[parent_name] => Мансардные окна
[parent_id] => 14
[material_sum] => 96859
[work_sum] => 30430
[total_sum] => 127289
[total_days] => 6
[display_material_sum] => 96 859
[display_work_sum] => 30 430
[display_total_sum] => 127 289
)
1
127 289₽
Работа:30 430 ₽
Материалы:96 859 ₽
Дни:6
stdClass Object
(
[id] => 29
[attribute_id] => 15
[name] => Нет
[material_modifier] => 1
[work_modifier] => 1
[options] => Array
(
)
[days] => [0]
[material_price] => [0]
[work_price] => [0]
[image] => https://akademik-stroy.ru/wp-content/uploads/materials/sofit.jpg
[area_modifier] => 53.12
[parent_name] => Подшивка кровли
[parent_id] => 15
[material_sum] => 0
[work_sum] => 0
[total_sum] => 0
[total_days] => 0
[display_material_sum] => 0
[display_work_sum] => 0
[display_total_sum] => 0
)
1
0₽
Работа:0 ₽
Материалы:0 ₽
Дни:0
stdClass Object
(
[id] => 30
[attribute_id] => 15
[name] => Есть
[material_modifier] => 1
[work_modifier] => 1
[options] => Array
(
[0] => Софиты (ПВХ)
[1] => Cedral
[2] => ДПК
[3] => Планкен
)
[days] => [7,10,9,8]
[material_price] => [1803,3213,3025,3150]
[work_price] => [1529,2188,2075,1923]
[image] => https://akademik-stroy.ru/wp-content/uploads/materials/sofit.jpg
[area_modifier] => 53.12
[parent_name] => Подшивка кровли
[parent_id] => 15
[material_sum] => 195382
[work_sum] => 138075
[total_sum] => 333457
[total_days] => 7
[display_material_sum] => 195 382
[display_work_sum] => 138 075
[display_total_sum] => 333 457
)
1
333 457₽
Работа:138 075 ₽
Материалы:195 382 ₽
Дни:7
stdClass Object
(
[id] => 31
[attribute_id] => 16
[name] => Нет
[material_modifier] => 1
[work_modifier] => 1
[options] => Array
(
)
[days] => [0]
[material_price] => [0]
[work_price] => [0]
[image] => https://akademik-stroy.ru/wp-content/uploads/materials/docke-standard-pvh.jpg
[area_modifier] => 53.12
[parent_name] => Водосточная система
[parent_id] => 16
[material_sum] => 0
[work_sum] => 0
[total_sum] => 0
[total_days] => 0
[display_material_sum] => 0
[display_work_sum] => 0
[display_total_sum] => 0
)
1
0₽
Работа:0 ₽
Материалы:0 ₽
Дни:0
stdClass Object
(
[id] => 32
[attribute_id] => 16
[name] => Есть
[material_modifier] => 1
[work_modifier] => 1
[options] => Array
(
[0] => Döcke Standard (ПВХ)
[1] => Металлические Grand Line
)
[days] => [7,7]
[material_price] => [1842,2703]
[work_price] => [1491,1529]
[image] => https://akademik-stroy.ru/wp-content/uploads/materials/docke-standard-pvh.jpg
[area_modifier] => 53.12
[parent_name] => Водосточная система
[parent_id] => 16
[material_sum] => 199608
[work_sum] => 134643
[total_sum] => 334251
[total_days] => 7
[display_material_sum] => 199 608
[display_work_sum] => 134 643
[display_total_sum] => 334 251
)
1
334 251₽
Работа:134 643 ₽
Материалы:199 608 ₽
Дни:7
stdClass Object
(
[id] => 33
[attribute_id] => 17
[name] => Нет
[material_modifier] => 1
[work_modifier] => 1
[options] => Array
(
)
[days] => [0]
[material_price] => [0]
[work_price] => [0]
[image] => https://akademik-stroy.ru/wp-content/uploads/materials/mineralovata.jpg
[area_modifier] => 53.12
[parent_name] => Дополнительное утепление наружных стен
[parent_id] => 17
[material_sum] => 0
[work_sum] => 0
[total_sum] => 0
[total_days] => 0
[display_material_sum] => 0
[display_work_sum] => 0
[display_total_sum] => 0
)
1
0₽
Работа:0 ₽
Материалы:0 ₽
Дни:0
stdClass Object
(
[id] => 34
[attribute_id] => 17
[name] => Минераловатный
[material_modifier] => 1
[work_modifier] => 1
[options] => Array
(
[0] => 50 мм
[1] => 100 мм
[2] => 150 мм
[3] => 200 мм
[4] => 250 мм
[5] => 300 мм
)
[days] => [7,8,10,12,14,15]
[material_price] => [3437,3613,3803,3915,4601,4830]
[work_price] => [2325,2423,2523,2749,2859,3025]
[image] => https://akademik-stroy.ru/wp-content/uploads/materials/mineralovata.jpg
[area_modifier] => 53.12
[parent_name] => Дополнительное утепление наружных стен
[parent_id] => 17
[material_sum] => 372450
[work_sum] => 209957
[total_sum] => 582407
[total_days] => 7
[display_material_sum] => 372 450
[display_work_sum] => 209 957
[display_total_sum] => 582 407
)
1
582 407₽
Работа:209 957 ₽
Материалы:372 450 ₽
Дни:7
stdClass Object
(
[id] => 128
[attribute_id] => 17
[name] => Эковата (целлюлозная вата)
[material_modifier] => 1
[work_modifier] => 1
[options] => Array
(
[0] => 50 мм
[1] => 100 мм
[2] => 150 мм
[3] => 200 мм
[4] => 250 мм
[5] => 300 мм
)
[days] => [3,4,5,6,7,8]
[material_price] => [810,1319,1629,1838,2267,2676]
[work_price] => [1225,1323,1423,1549,1659,1725]
[image] => https://akademik-stroy.ru/wp-content/uploads/materials/ehkovata.jpg
[area_modifier] => 53.12
[parent_name] => Дополнительное утепление наружных стен
[parent_id] => 17
[material_sum] => 87775
[work_sum] => 110622
[total_sum] => 198397
[total_days] => 3
[display_material_sum] => 87 775
[display_work_sum] => 110 622
[display_total_sum] => 198 397
)
1
198 397₽
Работа:110 622 ₽
Материалы:87 775 ₽
Дни:3
stdClass Object
(
[id] => 129
[attribute_id] => 17
[name] => Экструдированный пенополистирол
[material_modifier] => 1
[work_modifier] => 1
[options] => Array
(
[0] => 50 мм
[1] => 100 мм
[2] => 150 мм
[3] => 200 мм
[4] => 250 мм
[5] => 300 мм
)
[days] => [5,6,7,8,9,10]
[material_price] => [4560,4300,5119,6292,7010,8583]
[work_price] => [1795,1954,2254,2330,2595,2735]
[image] => https://akademik-stroy.ru/wp-content/uploads/materials/epps.jpg
[area_modifier] => 53.12
[parent_name] => Дополнительное утепление наружных стен
[parent_id] => 17
[material_sum] => 494143
[work_sum] => 162096
[total_sum] => 656239
[total_days] => 5
[display_material_sum] => 494 143
[display_work_sum] => 162 096
[display_total_sum] => 656 239
)
1
656 239₽
Работа:162 096 ₽
Материалы:494 143 ₽
Дни:5
stdClass Object
(
[id] => 130
[attribute_id] => 17
[name] => ПСБ (ППС-пенополистирол)
[material_modifier] => 1
[work_modifier] => 1
[options] => Array
(
[0] => 50 мм
[1] => 100 мм
[2] => 150 мм
[3] => 200 мм
[4] => 250 мм
[5] => 300 мм
)
[days] => [5,6,7,8,9,10]
[material_price] => [4822,5200,5819,6292,7010,7583]
[work_price] => [1795,1954,2254,2330,2595,2735]
[image] => https://akademik-stroy.ru/wp-content/uploads/materials/psb.jpg
[area_modifier] => 53.12
[parent_name] => Дополнительное утепление наружных стен
[parent_id] => 17
[material_sum] => 522535
[work_sum] => 162096
[total_sum] => 684631
[total_days] => 5
[display_material_sum] => 522 535
[display_work_sum] => 162 096
[display_total_sum] => 684 631
)
1
684 631₽
Работа:162 096 ₽
Материалы:522 535 ₽
Дни:5
stdClass Object
(
[id] => 131
[attribute_id] => 17
[name] => ППУ (Пенополиуретан)
[material_modifier] => 1
[work_modifier] => 1
[options] => Array
(
[0] => 50 мм
[1] => 100 мм
[2] => 150 мм
[3] => 200 мм
[4] => 250 мм
[5] => 300 мм
)
[days] => [3,4,5,6,7,8]
[material_price] => [2860,3400,4219,4592,5010,5583]
[work_price] => [729,900,980,1120,1280,1530]
[image] => https://akademik-stroy.ru/wp-content/uploads/materials/ppu.jpg
[area_modifier] => 53.12
[parent_name] => Дополнительное утепление наружных стен
[parent_id] => 17
[material_sum] => 309923
[work_sum] => 65832
[total_sum] => 375755
[total_days] => 3
[display_material_sum] => 309 923
[display_work_sum] => 65 832
[display_total_sum] => 375 755
)
1
375 755₽
Работа:65 832 ₽
Материалы:309 923 ₽
Дни:3
stdClass Object
(
[id] => 132
[attribute_id] => 17
[name] => PIR-плиты (пенополиизоцианурат)
[material_modifier] => 1
[work_modifier] => 1
[options] => Array
(
[0] => 50 мм
[1] => 100 мм
[2] => 150 мм
[3] => 200 мм
[4] => 250 мм
[5] => 300 мм
)
[days] => [5,6,7,8,9,10]
[material_price] => [8323,15645,20968,25900,29258,30581]
[work_price] => [800,900,970,1150,1280,1330]
[image] => https://akademik-stroy.ru/wp-content/uploads/materials/pir.jpg
[area_modifier] => 53.12
[parent_name] => Дополнительное утепление наружных стен
[parent_id] => 17
[material_sum] => 901920
[work_sum] => 72243
[total_sum] => 974163
[total_days] => 5
[display_material_sum] => 901 920
[display_work_sum] => 72 243
[display_total_sum] => 974 163
)
1
974 163₽
Работа:72 243 ₽
Материалы:901 920 ₽
Дни:5
stdClass Object
(
[id] => 37
[attribute_id] => 19
[name] => Нет
[material_modifier] => 1
[work_modifier] => 1
[options] => Array
(
)
[days] => [0]
[material_price] => [0]
[work_price] => [0]
[image] => https://akademik-stroy.ru/wp-content/uploads/materials/imitaciya-brusa.jpg
[area_modifier] => 53.12
[parent_name] => Наружная отделка фасада
[parent_id] => 19
[material_sum] => 0
[work_sum] => 0
[total_sum] => 0
[total_days] => 0
[display_material_sum] => 0
[display_work_sum] => 0
[display_total_sum] => 0
)
1
0₽
Работа:0 ₽
Материалы:0 ₽
Дни:0
stdClass Object
(
[id] => 38
[attribute_id] => 19
[name] => Имитация бруса
[material_modifier] => 1
[work_modifier] => 1
[options] => Array
(
[0] => Сосна
[1] => Ель
[2] => Лиственница
)
[days] => [20,20,20]
[material_price] => [2994,2762,4954]
[work_price] => [1397,1231,1577]
[image] => https://akademik-stroy.ru/wp-content/uploads/materials/imitaciya-brusa.jpg
[area_modifier] => 53.12
[parent_name] => Наружная отделка фасада
[parent_id] => 19
[material_sum] => 324444
[work_sum] => 126155
[total_sum] => 450599
[total_days] => 20
[display_material_sum] => 324 444
[display_work_sum] => 126 155
[display_total_sum] => 450 599
)
1
450 599₽
Работа:126 155 ₽
Материалы:324 444 ₽
Дни:20
stdClass Object
(
[id] => 136
[attribute_id] => 19
[name] => Планкен
[material_modifier] => 1
[work_modifier] => 1
[options] => Array
(
[0] => Сосна
[1] => Ель
[2] => Лиственница
)
[days] => [20,20,20]
[material_price] => [3194,2862,5154]
[work_price] => [1537,1354,1735]
[image] => https://akademik-stroy.ru/wp-content/uploads/materials/planken.jpg
[area_modifier] => 53.12
[parent_name] => Наружная отделка фасада
[parent_id] => 19
[material_sum] => 346117
[work_sum] => 138797
[total_sum] => 484914
[total_days] => 20
[display_material_sum] => 346 117
[display_work_sum] => 138 797
[display_total_sum] => 484 914
)
1
484 914₽
Работа:138 797 ₽
Материалы:346 117 ₽
Дни:20
stdClass Object
(
[id] => 137
[attribute_id] => 19
[name] => Штукатурка
[material_modifier] => 1
[work_modifier] => 1
[options] => Array
(
[0] => Цементно-песчаная (минеральная)
[1] => Мокрый фасад
)
[days] => [35,35]
[material_price] => [2231,3938]
[work_price] => [1202,2422]
[image] => https://akademik-stroy.ru/wp-content/uploads/materials/shtukaturka.jpg
[area_modifier] => 53.12
[parent_name] => Наружная отделка фасада
[parent_id] => 19
[material_sum] => 241762
[work_sum] => 108545
[total_sum] => 350307
[total_days] => 35
[display_material_sum] => 241 762
[display_work_sum] => 108 545
[display_total_sum] => 350 307
)
1
350 307₽
Работа:108 545 ₽
Материалы:241 762 ₽
Дни:35
stdClass Object
(
[id] => 138
[attribute_id] => 19
[name] => Облицовочный кирпич
[material_modifier] => 1
[work_modifier] => 1
[options] => Array
(
[0] => Керамический
[1] => Клинкерный
[2] => Ручной формовки
[3] => Гиперпрессованный
[4] => Силикатный кирпич
)
[days] => [45,45,45,45,45]
[material_price] => [8174,9148,1040,1257,5876]
[work_price] => [3240,3758,4536,4017,3369]
[image] => https://akademik-stroy.ru/wp-content/uploads/materials/oblicovochnyj-kirpich.jpg
[area_modifier] => 53.12
[parent_name] => Наружная отделка фасада
[parent_id] => 19
[material_sum] => 885774
[work_sum] => 292585
[total_sum] => 1178359
[total_days] => 45
[display_material_sum] => 885 774
[display_work_sum] => 292 585
[display_total_sum] => 1 178 359
)
1
1 178 359₽
Работа:292 585 ₽
Материалы:885 774 ₽
Дни:45
stdClass Object
(
[id] => 139
[attribute_id] => 19
[name] => Фасадная плитка
[material_modifier] => 1
[work_modifier] => 1
[options] => Array
(
[0] => Клинкерная
[1] => Керамическая
[2] => Плитка ручной формовки
)
[days] => [40,40,40]
[material_price] => [2974,1487,3470]
[work_price] => [3007,2592,3629]
[image] => https://akademik-stroy.ru/wp-content/uploads/materials/fasadnaya-plitka.jpg
[area_modifier] => 53.12
[parent_name] => Наружная отделка фасада
[parent_id] => 19
[material_sum] => 322277
[work_sum] => 271544
[total_sum] => 593821
[total_days] => 40
[display_material_sum] => 322 277
[display_work_sum] => 271 544
[display_total_sum] => 593 821
)
1
593 821₽
Работа:271 544 ₽
Материалы:322 277 ₽
Дни:40
stdClass Object
(
[id] => 140
[attribute_id] => 19
[name] => Сайдинг
[material_modifier] => 1
[work_modifier] => 1
[options] => Array
(
[0] => Виниловый
[1] => Металлический
[2] => Фиброцементный
)
[days] => [20,20,20]
[material_price] => [1263,1944,4147]
[work_price] => [1263,1944,2074]
[image] => https://akademik-stroy.ru/wp-content/uploads/materials/sajding.jpg
[area_modifier] => 53.12
[parent_name] => Наружная отделка фасада
[parent_id] => 19
[material_sum] => 136865
[work_sum] => 114054
[total_sum] => 250919
[total_days] => 20
[display_material_sum] => 136 865
[display_work_sum] => 114 054
[display_total_sum] => 250 919
)
1
250 919₽
Работа:114 054 ₽
Материалы:136 865 ₽
Дни:20
stdClass Object
(
[id] => 141
[attribute_id] => 19
[name] => Камень
[material_modifier] => 1
[work_modifier] => 1
[options] => Array
(
[0] => Травертин
[1] => Дагестанский
[2] => Искусственный
[3] => Натуральный
[4] => Керамогранит
)
[days] => [45,45,45,45,45]
[material_price] => [4536,3888,2592,3240,2462]
[work_price] => [3240,3240,2462,3110,1944]
[image] => https://akademik-stroy.ru/wp-content/uploads/materials/kamen-1.jpg
[area_modifier] => 53.12
[parent_name] => Наружная отделка фасада
[parent_id] => 19
[material_sum] => 491543
[work_sum] => 292585
[total_sum] => 784128
[total_days] => 45
[display_material_sum] => 491 543
[display_work_sum] => 292 585
[display_total_sum] => 784 128
)
1
784 128₽
Работа:292 585 ₽
Материалы:491 543 ₽
Дни:45
stdClass Object
(
[id] => 142
[attribute_id] => 19
[name] => Термопанели
[material_modifier] => 1
[work_modifier] => 1
[options] => Array
(
)
[days] => [20]
[material_price] => [6221]
[work_price] => [2333]
[image] => https://akademik-stroy.ru/wp-content/uploads/materials/termo.png
[area_modifier] => 53.12
[parent_name] => Наружная отделка фасада
[parent_id] => 19
[material_sum] => 674137
[work_sum] => 210679
[total_sum] => 884816
[total_days] => 20
[display_material_sum] => 674 137
[display_work_sum] => 210 679
[display_total_sum] => 884 816
)
1
884 816₽
Работа:210 679 ₽
Материалы:674 137 ₽
Дни:20
stdClass Object
(
[id] => 143
[attribute_id] => 19
[name] => Плитка HAUBERK
[material_modifier] => 1
[work_modifier] => 1
[options] => Array
(
)
[days] => [20]
[material_price] => [2786]
[work_price] => [1944]
[image] => https://akademik-stroy.ru/wp-content/uploads/materials/hauberk.jpg
[area_modifier] => 53.12
[parent_name] => Наружная отделка фасада
[parent_id] => 19
[material_sum] => 301904
[work_sum] => 175551
[total_sum] => 477455
[total_days] => 20
[display_material_sum] => 301 904
[display_work_sum] => 175 551
[display_total_sum] => 477 455
)
1
477 455₽
Работа:175 551 ₽
Материалы:301 904 ₽
Дни:20
stdClass Object
(
[id] => 144
[attribute_id] => 19
[name] => Фальцевый фасад
[material_modifier] => 1
[work_modifier] => 1
[options] => Array
(
)
[days] => [20]
[material_price] => [3240]
[work_price] => [2592]
[image] => https://akademik-stroy.ru/wp-content/uploads/materials/falcevyj-fasad.jpg
[area_modifier] => 53.12
[parent_name] => Наружная отделка фасада
[parent_id] => 19
[material_sum] => 351102
[work_sum] => 234068
[total_sum] => 585170
[total_days] => 20
[display_material_sum] => 351 102
[display_work_sum] => 234 068
[display_total_sum] => 585 170
)
1
585 170₽
Работа:234 068 ₽
Материалы:351 102 ₽
Дни:20
stdClass Object
(
[id] => 145
[attribute_id] => 19
[name] => Комбинированный
[material_modifier] => 1
[work_modifier] => 1
[options] => Array
(
)
[days] => [20]
[material_price] => [4629]
[work_price] => [3499]
[image] => https://akademik-stroy.ru/wp-content/uploads/materials/Kombinirovannyj.jpg
[area_modifier] => 53.12
[parent_name] => Наружная отделка фасада
[parent_id] => 19
[material_sum] => 501621
[work_sum] => 315974
[total_sum] => 817595
[total_days] => 20
[display_material_sum] => 501 621
[display_work_sum] => 315 974
[display_total_sum] => 817 595
)
1
817 595₽
Работа:315 974 ₽
Материалы:501 621 ₽
Дни:20
stdClass Object
(
[id] => 257
[attribute_id] => 19
[name] => Японские фиброцементные
[material_modifier] => 1
[work_modifier] => 1
[options] => Array
(
)
[days] => [20]
[material_price] => [7043]
[work_price] => [2993]
[image] => https://akademik-stroy.ru/wp-content/uploads/materials/paneli.jpg
[area_modifier] => 53.12
[parent_name] => Наружная отделка фасада
[parent_id] => 19
[material_sum] => 763213
[work_sum] => 270280
[total_sum] => 1033493
[total_days] => 20
[display_material_sum] => 763 213
[display_work_sum] => 270 280
[display_total_sum] => 1 033 493
)
1
1 033 493₽
Работа:270 280 ₽
Материалы:763 213 ₽
Дни:20
stdClass Object
(
[id] => 258
[attribute_id] => 19
[name] => Панели Каньон
[material_modifier] => 1
[work_modifier] => 1
[options] => Array
(
)
[days] => [20]
[material_price] => [4543]
[work_price] => [2592]
[image] => https://akademik-stroy.ru/wp-content/uploads/materials/kanon.png
[area_modifier] => 53.12
[parent_name] => Наружная отделка фасада
[parent_id] => 19
[material_sum] => 492301
[work_sum] => 234068
[total_sum] => 726369
[total_days] => 20
[display_material_sum] => 492 301
[display_work_sum] => 234 068
[display_total_sum] => 726 369
)
1
726 369₽
Работа:234 068 ₽
Материалы:492 301 ₽
Дни:20
stdClass Object
(
[id] => 39
[attribute_id] => 20
[name] => Нет
[material_modifier] => 1
[work_modifier] => 1
[options] => Array
(
)
[days] => [0]
[material_price] => [0]
[work_price] => [0]
[image] => https://akademik-stroy.ru/wp-content/uploads/materials/terrasy.jpg
[area_modifier] => 30
[parent_name] => Террасы, крыльца, навесы
[parent_id] => 20
[material_sum] => 0
[work_sum] => 0
[total_sum] => 0
[total_days] => 0
[display_material_sum] => 0
[display_work_sum] => 0
[display_total_sum] => 0
)
1
0₽
Работа:0 ₽
Материалы:0 ₽
Дни:0
stdClass Object
(
[id] => 40
[attribute_id] => 20
[name] => Есть
[material_modifier] => 1
[work_modifier] => 1
[options] => Array
(
)
[days] => [5]
[material_price] => [10450]
[work_price] => [1950]
[image] => https://akademik-stroy.ru/wp-content/uploads/materials/terrasy.jpg
[area_modifier] => 30
[parent_name] => Террасы, крыльца, навесы
[parent_id] => 20
[material_sum] => 639540
[work_sum] => 99450
[total_sum] => 738990
[total_days] => 5
[display_material_sum] => 639 540
[display_work_sum] => 99 450
[display_total_sum] => 738 990
)
1
738 990₽
Работа:99 450 ₽
Материалы:639 540 ₽
Дни:5
stdClass Object
(
[id] => 41
[attribute_id] => 21
[name] => Нет
[material_modifier] => 1
[work_modifier] => 1
[options] => Array
(
)
[days] => [0]
[material_price] => [0]
[work_price] => [0]
[image] => https://akademik-stroy.ru/wp-content/uploads/materials/balkony.jpg
[area_modifier] => 30
[parent_name] => Балконы
[parent_id] => 21
[material_sum] => 0
[work_sum] => 0
[total_sum] => 0
[total_days] => 0
[display_material_sum] => 0
[display_work_sum] => 0
[display_total_sum] => 0
)
1
0₽
Работа:0 ₽
Материалы:0 ₽
Дни:0
stdClass Object
(
[id] => 42
[attribute_id] => 21
[name] => Есть
[material_modifier] => 1
[work_modifier] => 1
[options] => Array
(
)
[days] => [12]
[material_price] => [3600]
[work_price] => [1950]
[image] => https://akademik-stroy.ru/wp-content/uploads/materials/balkony.jpg
[area_modifier] => 30
[parent_name] => Балконы
[parent_id] => 21
[material_sum] => 220320
[work_sum] => 99450
[total_sum] => 319770
[total_days] => 12
[display_material_sum] => 220 320
[display_work_sum] => 99 450
[display_total_sum] => 319 770
)
1
319 770₽
Работа:99 450 ₽
Материалы:220 320 ₽
Дни:12
stdClass Object
(
[id] => 43
[attribute_id] => 22
[name] => Нет
[material_modifier] => 1
[work_modifier] => 1
[options] => Array
(
)
[days] => [0]
[material_price] => [0]
[work_price] => [0]
[image] => https://akademik-stroy.ru/wp-content/uploads/materials/uteplennaya.jpg
[area_modifier] => 53.12
[parent_name] => Отмостка
[parent_id] => 22
[material_sum] => 0
[work_sum] => 0
[total_sum] => 0
[total_days] => 0
[display_material_sum] => 0
[display_work_sum] => 0
[display_total_sum] => 0
)
1
0₽
Работа:0 ₽
Материалы:0 ₽
Дни:0
stdClass Object
(
[id] => 44
[attribute_id] => 22
[name] => Утепленная отмостка
[material_modifier] => 1
[work_modifier] => 1
[options] => Array
(
)
[days] => [15]
[material_price] => [2550]
[work_price] => [1750]
[image] => https://akademik-stroy.ru/wp-content/uploads/materials/uteplennaya.jpg
[area_modifier] => 53.12
[parent_name] => Отмостка
[parent_id] => 22
[material_sum] => 276330
[work_sum] => 158032
[total_sum] => 434362
[total_days] => 15
[display_material_sum] => 276 330
[display_work_sum] => 158 032
[display_total_sum] => 434 362
)
1
434 362₽
Работа:158 032 ₽
Материалы:276 330 ₽
Дни:15
stdClass Object
(
[id] => 146
[attribute_id] => 22
[name] => Не утепленная отмостка
[material_modifier] => 1
[work_modifier] => 1
[options] => Array
(
)
[days] => [10]
[material_price] => [1650]
[work_price] => [1450]
[image] => https://akademik-stroy.ru/wp-content/uploads/materials/ne-uteplennaya.jpg
[area_modifier] => 53.12
[parent_name] => Отмостка
[parent_id] => 22
[material_sum] => 178802
[work_sum] => 130941
[total_sum] => 309743
[total_days] => 10
[display_material_sum] => 178 802
[display_work_sum] => 130 941
[display_total_sum] => 309 743
)
1
309 743₽
Работа:130 941 ₽
Материалы:178 802 ₽
Дни:10
stdClass Object
(
[id] => 45
[attribute_id] => 23
[name] => Нет
[material_modifier] => 1
[work_modifier] => 1
[options] => Array
(
)
[days] => [0]
[material_price] => [0]
[work_price] => [0]
[image] => https://akademik-stroy.ru/wp-content/uploads/materials/drenazh-2.jpg
[area_modifier] => 53.12
[parent_name] => Дренаж вокруг дома
[parent_id] => 23
[material_sum] => 0
[work_sum] => 0
[total_sum] => 0
[total_days] => 0
[display_material_sum] => 0
[display_work_sum] => 0
[display_total_sum] => 0
)
1
0₽
Работа:0 ₽
Материалы:0 ₽
Дни:0
stdClass Object
(
[id] => 46
[attribute_id] => 23
[name] => Есть
[material_modifier] => 1
[work_modifier] => 1
[options] => Array
(
)
[days] => [5]
[material_price] => [2366]
[work_price] => [1911]
[image] => https://akademik-stroy.ru/wp-content/uploads/materials/drenazh-2.jpg
[area_modifier] => 53.12
[parent_name] => Дренаж вокруг дома
[parent_id] => 23
[material_sum] => 256391
[work_sum] => 172571
[total_sum] => 428962
[total_days] => 5
[display_material_sum] => 256 391
[display_work_sum] => 172 571
[display_total_sum] => 428 962
)
1
428 962₽
Работа:172 571 ₽
Материалы:256 391 ₽
Дни:5
stdClass Object
(
[id] => 47
[attribute_id] => 24
[name] => Нет
[material_modifier] => 1
[work_modifier] => 1
[options] => Array
(
)
[days] => [0]
[material_price] => [0]
[work_price] => [0]
[image] => https://akademik-stroy.ru/wp-content/uploads/materials/septik.jpg
[area_modifier] => 1
[parent_name] => Автономная канализация (септики)
[parent_id] => 24
[material_sum] => 0
[work_sum] => 0
[total_sum] => 0
[total_days] => 0
[display_material_sum] => 0
[display_work_sum] => 0
[display_total_sum] => 0
)
1
0₽
Работа:0 ₽
Материалы:0 ₽
Дни:0
stdClass Object
(
[id] => 48
[attribute_id] => 24
[name] => Есть
[material_modifier] => 1
[work_modifier] => 1
[options] => Array
(
[0] => Для дачи на 4 человека
[1] => Для дома на 5 человек
[2] => Для дома на 6 человек
[3] => Для дома на 7 человек
[4] => Для дома на 10 человек
)
[days] => [7,7,7,8,8]
[material_price] => [196340,220500,240940,264200,293340]
[work_price] => [50000,55000,60500,66550,73206]
[image] => https://akademik-stroy.ru/wp-content/uploads/materials/septik.jpg
[area_modifier] => 1
[parent_name] => Автономная канализация (септики)
[parent_id] => 24
[material_sum] => 400534
[work_sum] => 85000
[total_sum] => 485534
[total_days] => 7
[display_material_sum] => 400 534
[display_work_sum] => 85 000
[display_total_sum] => 485 534
)
1
485 534₽
Работа:85 000 ₽
Материалы:400 534 ₽
Дни:7
stdClass Object
(
[id] => 49
[attribute_id] => 25
[name] => Нет
[material_modifier] => 1
[work_modifier] => 1
[options] => Array
(
)
[days] => [0]
[material_price] => [0]
[work_price] => [0]
[image] => https://akademik-stroy.ru/wp-content/uploads/materials/gkl.jpg
[area_modifier] => 53.12
[parent_name] => Внутренние (не несущие) перегородки
[parent_id] => 25
[material_sum] => 0
[work_sum] => 0
[total_sum] => 0
[total_days] => 0
[display_material_sum] => 0
[display_work_sum] => 0
[display_total_sum] => 0
)
1
0₽
Работа:0 ₽
Материалы:0 ₽
Дни:0
stdClass Object
(
[id] => 147
[attribute_id] => 25
[name] => Каркасно-обшивные
[material_modifier] => 1
[work_modifier] => 1
[options] => Array
(
[0] => 75 мм (без шумоизоляции)
[1] => 75 мм (с шумоизоляцией)
)
[days] => [11,11]
[material_price] => [580,970]
[work_price] => [380,570]
[image] => https://akademik-stroy.ru/wp-content/uploads/materials/gkl.jpg
[area_modifier] => 53.12
[parent_name] => Внутренние (не несущие) перегородки
[parent_id] => 25
[material_sum] => 62852
[work_sum] => 34316
[total_sum] => 97168
[total_days] => 11
[display_material_sum] => 62 852
[display_work_sum] => 34 316
[display_total_sum] => 97 168
)
1
97 168₽
Работа:34 316 ₽
Материалы:62 852 ₽
Дни:11
stdClass Object
(
[id] => 148
[attribute_id] => 25
[name] => Пазогребневые
[material_modifier] => 1
[work_modifier] => 1
[options] => Array
(
[0] => 80 мм
[1] => 100 мм
)
[days] => [5,5]
[material_price] => [1022,1313]
[work_price] => [600,700]
[image] => https://akademik-stroy.ru/wp-content/uploads/materials/pazogrebnevye-bloki.jpg
[area_modifier] => 53.12
[parent_name] => Внутренние (не несущие) перегородки
[parent_id] => 25
[material_sum] => 110749
[work_sum] => 54182
[total_sum] => 164931
[total_days] => 5
[display_material_sum] => 110 749
[display_work_sum] => 54 182
[display_total_sum] => 164 931
)
1
164 931₽
Работа:54 182 ₽
Материалы:110 749 ₽
Дни:5
stdClass Object
(
[id] => 149
[attribute_id] => 25
[name] => Газобетонные
[material_modifier] => 1
[work_modifier] => 1
[options] => Array
(
[0] => 100 мм
[1] => 200 мм
)
[days] => [11,11]
[material_price] => [1160,1920]
[work_price] => [700,900]
[image] => https://akademik-stroy.ru/wp-content/uploads/materials/gazobeton-2.jpg
[area_modifier] => 53.12
[parent_name] => Внутренние (не несущие) перегородки
[parent_id] => 25
[material_sum] => 125703
[work_sum] => 63213
[total_sum] => 188916
[total_days] => 11
[display_material_sum] => 125 703
[display_work_sum] => 63 213
[display_total_sum] => 188 916
)
1
188 916₽
Работа:63 213 ₽
Материалы:125 703 ₽
Дни:11
stdClass Object
(
[id] => 150
[attribute_id] => 25
[name] => Кирпичные
[material_modifier] => 1
[work_modifier] => 1
[options] => Array
(
[0] => 120 мм
[1] => 250 мм
[2] => 360 мм
)
[days] => [7,7,7]
[material_price] => [1785,3570,5355]
[work_price] => [900,1600,1800]
[image] => https://akademik-stroy.ru/wp-content/uploads/materials/kirpich-1.jpg
[area_modifier] => 53.12
[parent_name] => Внутренние (не несущие) перегородки
[parent_id] => 25
[material_sum] => 193431
[work_sum] => 81274
[total_sum] => 274705
[total_days] => 7
[display_material_sum] => 193 431
[display_work_sum] => 81 274
[display_total_sum] => 274 705
)
1
274 705₽
Работа:81 274 ₽
Материалы:193 431 ₽
Дни:7
stdClass Object
(
[id] => 55
[attribute_id] => 28
[name] => Нет
[material_modifier] => 1
[work_modifier] => 1
[options] => Array
(
)
[days] => [0]
[material_price] => [0]
[work_price] => [0]
[image] => https://akademik-stroy.ru/wp-content/uploads/materials/ehlektrika.jpg
[area_modifier] => 43.11
[parent_name] => Электрика
[parent_id] => 28
[material_sum] => 0
[work_sum] => 0
[total_sum] => 0
[total_days] => 0
[display_material_sum] => 0
[display_work_sum] => 0
[display_total_sum] => 0
)
1
0₽
Работа:0 ₽
Материалы:0 ₽
Дни:0
stdClass Object
(
[id] => 56
[attribute_id] => 28
[name] => Есть
[material_modifier] => 1
[work_modifier] => 1
[options] => Array
(
)
[days] => [10]
[material_price] => [650]
[work_price] => [950]
[image] => https://akademik-stroy.ru/wp-content/uploads/materials/ehlektrika.jpg
[area_modifier] => 43.11
[parent_name] => Электрика
[parent_id] => 28
[material_sum] => 57164
[work_sum] => 69623
[total_sum] => 126787
[total_days] => 10
[display_material_sum] => 57 164
[display_work_sum] => 69 623
[display_total_sum] => 126 787
)
1
126 787₽
Работа:69 623 ₽
Материалы:57 164 ₽
Дни:10
stdClass Object
(
[id] => 57
[attribute_id] => 29
[name] => Нет
[material_modifier] => 1
[work_modifier] => 1
[options] => Array
(
)
[days] => [0]
[material_price] => [0]
[work_price] => [0]
[image] => https://akademik-stroy.ru/wp-content/uploads/materials/santekhnika-kanalizaciya-1.jpg
[area_modifier] => 43.11
[parent_name] => Сантехника, канализация в доме
[parent_id] => 29
[material_sum] => 0
[work_sum] => 0
[total_sum] => 0
[total_days] => 0
[display_material_sum] => 0
[display_work_sum] => 0
[display_total_sum] => 0
)
1
0₽
Работа:0 ₽
Материалы:0 ₽
Дни:0
stdClass Object
(
[id] => 58
[attribute_id] => 29
[name] => Есть
[material_modifier] => 1
[work_modifier] => 1
[options] => Array
(
)
[days] => [10]
[material_price] => [600]
[work_price] => [730]
[image] => https://akademik-stroy.ru/wp-content/uploads/materials/santekhnika-kanalizaciya-1.jpg
[area_modifier] => 43.11
[parent_name] => Сантехника, канализация в доме
[parent_id] => 29
[material_sum] => 52767
[work_sum] => 53500
[total_sum] => 106267
[total_days] => 10
[display_material_sum] => 52 767
[display_work_sum] => 53 500
[display_total_sum] => 106 267
)
1
106 267₽
Работа:53 500 ₽
Материалы:52 767 ₽
Дни:10
stdClass Object
(
[id] => 59
[attribute_id] => 30
[name] => Нет
[material_modifier] => 1
[work_modifier] => 1
[options] => Array
(
)
[days] => [0]
[material_price] => [0]
[work_price] => [0]
[image] => https://akademik-stroy.ru/wp-content/uploads/materials/otoplenie-1.jpg
[area_modifier] => 43.11
[parent_name] => Отопление
[parent_id] => 30
[material_sum] => 0
[work_sum] => 0
[total_sum] => 0
[total_days] => 0
[display_material_sum] => 0
[display_work_sum] => 0
[display_total_sum] => 0
)
1
0₽
Работа:0 ₽
Материалы:0 ₽
Дни:0
stdClass Object
(
[id] => 60
[attribute_id] => 30
[name] => Есть
[material_modifier] => 1
[work_modifier] => 1
[options] => Array
(
)
[days] => [5]
[material_price] => [610]
[work_price] => [560]
[image] => https://akademik-stroy.ru/wp-content/uploads/materials/otoplenie-1.jpg
[area_modifier] => 43.11
[parent_name] => Отопление
[parent_id] => 30
[material_sum] => 53646
[work_sum] => 41041
[total_sum] => 94687
[total_days] => 5
[display_material_sum] => 53 646
[display_work_sum] => 41 041
[display_total_sum] => 94 687
)
1
94 687₽
Работа:41 041 ₽
Материалы:53 646 ₽
Дни:5
stdClass Object
(
[id] => 61
[attribute_id] => 31
[name] => Нет
[material_modifier] => 1
[work_modifier] => 1
[options] => Array
(
)
[days] => [0]
[material_price] => [0]
[work_price] => [0]
[image] => https://akademik-stroy.ru/wp-content/uploads/materials/vodyanye.jpg
[area_modifier] => 30
[parent_name] => Теплые полы
[parent_id] => 31
[material_sum] => 0
[work_sum] => 0
[total_sum] => 0
[total_days] => 0
[display_material_sum] => 0
[display_work_sum] => 0
[display_total_sum] => 0
)
1
0₽
Работа:0 ₽
Материалы:0 ₽
Дни:0
stdClass Object
(
[id] => 151
[attribute_id] => 31
[name] => Водяные
[material_modifier] => 1
[work_modifier] => 1
[options] => Array
(
)
[days] => [9]
[material_price] => [10200]
[work_price] => [2500]
[image] => https://akademik-stroy.ru/wp-content/uploads/materials/vodyanye.jpg
[area_modifier] => 30
[parent_name] => Теплые полы
[parent_id] => 31
[material_sum] => 624240
[work_sum] => 127500
[total_sum] => 751740
[total_days] => 9
[display_material_sum] => 624 240
[display_work_sum] => 127 500
[display_total_sum] => 751 740
)
1
751 740₽
Работа:127 500 ₽
Материалы:624 240 ₽
Дни:9
stdClass Object
(
[id] => 152
[attribute_id] => 31
[name] => Электро
[material_modifier] => 1
[work_modifier] => 1
[options] => Array
(
)
[days] => [5]
[material_price] => [6300]
[work_price] => [1500]
[image] => https://akademik-stroy.ru/wp-content/uploads/materials/ehlektricheskij.jpg
[area_modifier] => 30
[parent_name] => Теплые полы
[parent_id] => 31
[material_sum] => 385560
[work_sum] => 76500
[total_sum] => 462060
[total_days] => 5
[display_material_sum] => 385 560
[display_work_sum] => 76 500
[display_total_sum] => 462 060
)
1
462 060₽
Работа:76 500 ₽
Материалы:385 560 ₽
Дни:5
stdClass Object
(
[id] => 63
[attribute_id] => 32
[name] => Нет
[material_modifier] => 1
[work_modifier] => 1
[options] => Array
(
)
[days] => [0]
[material_price] => [0]
[work_price] => [0]
[image] => https://akademik-stroy.ru/wp-content/uploads/materials/shtukaturka-shpatlevka-1.jpg
[area_modifier] => 43.11
[parent_name] => Черновая отделка стен
[parent_id] => 32
[material_sum] => 0
[work_sum] => 0
[total_sum] => 0
[total_days] => 0
[display_material_sum] => 0
[display_work_sum] => 0
[display_total_sum] => 0
)
1
0₽
Работа:0 ₽
Материалы:0 ₽
Дни:0
stdClass Object
(
[id] => 153
[attribute_id] => 32
[name] => Штукатурка и шпатлевка
[material_modifier] => 1
[work_modifier] => 1
[options] => Array
(
)
[days] => [20]
[material_price] => [1850]
[work_price] => [2600]
[image] => https://akademik-stroy.ru/wp-content/uploads/materials/shtukaturka-shpatlevka-1.jpg
[area_modifier] => 43.11
[parent_name] => Черновая отделка стен
[parent_id] => 32
[material_sum] => 162697
[work_sum] => 190546
[total_sum] => 353243
[total_days] => 20
[display_material_sum] => 162 697
[display_work_sum] => 190 546
[display_total_sum] => 353 243
)
1
353 243₽
Работа:190 546 ₽
Материалы:162 697 ₽
Дни:20
stdClass Object
(
[id] => 154
[attribute_id] => 32
[name] => Гипсокортон на стены
[material_modifier] => 1
[work_modifier] => 1
[options] => Array
(
)
[days] => [15]
[material_price] => [950]
[work_price] => [2100]
[image] => https://akademik-stroy.ru/wp-content/uploads/materials/gkl-1.jpg
[area_modifier] => 43.11
[parent_name] => Черновая отделка стен
[parent_id] => 32
[material_sum] => 83547
[work_sum] => 153903
[total_sum] => 237450
[total_days] => 15
[display_material_sum] => 83 547
[display_work_sum] => 153 903
[display_total_sum] => 237 450
)
1
237 450₽
Работа:153 903 ₽
Материалы:83 547 ₽
Дни:15
stdClass Object
(
[id] => 155
[attribute_id] => 32
[name] => Вагонка
[material_modifier] => 1
[work_modifier] => 1
[options] => Array
(
)
[days] => [15]
[material_price] => [1250]
[work_price] => [950]
[image] => https://akademik-stroy.ru/wp-content/uploads/materials/vagonka.jpg
[area_modifier] => 43.11
[parent_name] => Черновая отделка стен
[parent_id] => 32
[material_sum] => 109931
[work_sum] => 69623
[total_sum] => 179554
[total_days] => 15
[display_material_sum] => 109 931
[display_work_sum] => 69 623
[display_total_sum] => 179 554
)
1
179 554₽
Работа:69 623 ₽
Материалы:109 931 ₽
Дни:15
stdClass Object
(
[id] => 65
[attribute_id] => 33
[name] => Нет
[material_modifier] => 1
[work_modifier] => 1
[options] => Array
(
)
[days] => [0]
[material_price] => [0]
[work_price] => [0]
[image] => https://akademik-stroy.ru/wp-content/uploads/materials/styazhka.jpg
[area_modifier] => 43.11
[parent_name] => Черновая отделка полов
[parent_id] => 33
[material_sum] => 0
[work_sum] => 0
[total_sum] => 0
[total_days] => 0
[display_material_sum] => 0
[display_work_sum] => 0
[display_total_sum] => 0
)
1
0₽
Работа:0 ₽
Материалы:0 ₽
Дни:0
stdClass Object
(
[id] => 156
[attribute_id] => 33
[name] => Стяжка + наливные полы
[material_modifier] => 1
[work_modifier] => 1
[options] => Array
(
)
[days] => [10]
[material_price] => [1000]
[work_price] => [900]
[image] => https://akademik-stroy.ru/wp-content/uploads/materials/styazhka.jpg
[area_modifier] => 43.11
[parent_name] => Черновая отделка полов
[parent_id] => 33
[material_sum] => 87944
[work_sum] => 65958
[total_sum] => 153902
[total_days] => 10
[display_material_sum] => 87 944
[display_work_sum] => 65 958
[display_total_sum] => 153 902
)
1
153 902₽
Работа:65 958 ₽
Материалы:87 944 ₽
Дни:10
stdClass Object
(
[id] => 157
[attribute_id] => 33
[name] => ОСБ на пол
[material_modifier] => 1
[work_modifier] => 1
[options] => Array
(
)
[days] => [7]
[material_price] => [580]
[work_price] => [350]
[image] => https://akademik-stroy.ru/wp-content/uploads/materials/osb-1.jpg
[area_modifier] => 43.11
[parent_name] => Черновая отделка полов
[parent_id] => 33
[material_sum] => 51008
[work_sum] => 25650
[total_sum] => 76658
[total_days] => 7
[display_material_sum] => 51 008
[display_work_sum] => 25 650
[display_total_sum] => 76 658
)
1
76 658₽
Работа:25 650 ₽
Материалы:51 008 ₽
Дни:7
stdClass Object
(
[id] => 67
[attribute_id] => 34
[name] => Нет
[material_modifier] => 1
[work_modifier] => 1
[options] => Array
(
)
[days] => [0]
[material_price] => [0]
[work_price] => [0]
[image] => https://akademik-stroy.ru/wp-content/uploads/materials/chistovaya-otdelka.jpg
[area_modifier] => 43.11
[parent_name] => Чистовая отделка стен и полов
[parent_id] => 34
[material_sum] => 0
[work_sum] => 0
[total_sum] => 0
[total_days] => 0
[display_material_sum] => 0
[display_work_sum] => 0
[display_total_sum] => 0
)
1
0₽
Работа:0 ₽
Материалы:0 ₽
Дни:0
stdClass Object
(
[id] => 68
[attribute_id] => 34
[name] => Есть
[material_modifier] => 1
[work_modifier] => 1
[options] => Array
(
)
[days] => [50]
[material_price] => [6000]
[work_price] => [3500]
[image] => https://akademik-stroy.ru/wp-content/uploads/materials/chistovaya-otdelka.jpg
[area_modifier] => 43.11
[parent_name] => Чистовая отделка стен и полов
[parent_id] => 34
[material_sum] => 527666
[work_sum] => 256505
[total_sum] => 784171
[total_days] => 50
[display_material_sum] => 527 666
[display_work_sum] => 256 505
[display_total_sum] => 784 171
)
1
784 171₽
Работа:256 505 ₽
Материалы:527 666 ₽
Дни:50
stdClass Object
(
[id] => 69
[attribute_id] => 35
[name] => Нет
[material_modifier] => 1
[work_modifier] => 1
[options] => Array
(
)
[days] => [0]
[material_price] => [0]
[work_price] => [0]
[image] => https://akademik-stroy.ru/wp-content/uploads/materials/mnogourovnevyj-gkl.jpg
[area_modifier] => 43.11
[parent_name] => Отделка потолка
[parent_id] => 35
[material_sum] => 0
[work_sum] => 0
[total_sum] => 0
[total_days] => 0
[display_material_sum] => 0
[display_work_sum] => 0
[display_total_sum] => 0
)
1
0₽
Работа:0 ₽
Материалы:0 ₽
Дни:0
stdClass Object
(
[id] => 70
[attribute_id] => 35
[name] => Есть
[material_modifier] => 1
[work_modifier] => 1
[options] => Array
(
[0] => Многоуровневый потолок из гипсокартона
[1] => Многоуровневый потолок из гипсокартона и натяжного потолка
[2] => Одноуровневый потолок из гипсокартона
[3] => Одноуровневый натяжной потолок
)
[days] => [10,10,1,1]
[material_price] => [900,700,700,600]
[work_price] => [1000,800,500,300]
[image] => https://akademik-stroy.ru/wp-content/uploads/materials/mnogourovnevyj-gkl.jpg
[area_modifier] => 43.11
[parent_name] => Отделка потолка
[parent_id] => 35
[material_sum] => 79150
[work_sum] => 73287
[total_sum] => 152437
[total_days] => 10
[display_material_sum] => 79 150
[display_work_sum] => 73 287
[display_total_sum] => 152 437
)
1
152 437₽
Работа:73 287 ₽
Материалы:79 150 ₽
Дни:10
Преимущества работы с нами
7 этапов оплаты
Независимый строительный надзор
Экологически чистые материалы
16 лет гарантии
Онлайн-кабинет с веб-камерой
Строители с опытом более 15 лет
Собственное производство

