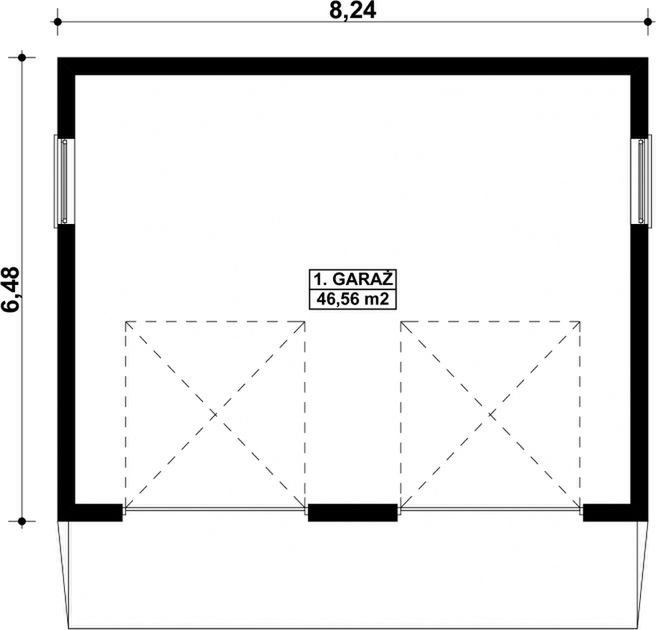
Одноэтажный гараж 46.56 м2 за руб.
154 м2
Полезная
площадь
площадь
1 этаж
Этажей
26 м2
Террасы
и балконы
и балконы
0Без
гаража
гаража
0
Количество
спален
спален
0
Количество
санузлов
санузлов
Планировки
Первый этаж
- 1. (m²) 46,56
- Гараж на 2 машины 46,56
Фасады
Передний
Задний
Левый
Правый
Подробная информация
Полезная площадь
46,56 m²
Количество спален
0
Количество санузлов
0
Гараж
2
Мин. шир. и дл. участка
16,24 x 13,48 m
Угол наклона крыши
25°
Наклон ската крыши в градусах. Внимание! В некоторых проектах возникает более чем один наклон крыши.
Вид материалов
Murowana
Материалы и опции
Общие
Площади дома
| № п/п | Наименование | Ед. из. | Строительная площадь | Полезная площадь |
| 1 | 1 этаж | м2 | 57.38 | 46.56 |
| 2 | Итого | м2 | 57.38 | 46.56 |
Калькулятор опций
0₽
В ипотеку от 12 713 ₽/мес.
0₽
0 дней
stdClass Object
(
[id] => 1
[attribute_id] => 1
[name] => Ленточный монолитный ж/б
[material_modifier] => 1
[work_modifier] => 1
[options] => Array
(
[0] => размер 200 х 700 мм
[1] => размер 300 х 900 мм
[2] => размер 400 х 1 000 мм
[3] => размер 500 х 1 100 мм
[4] => размер 600 х 1 200 мм
)
[days] => [20,21,22,25,30]
[material_price] => [2823,3630,4475,5210,12047]
[work_price] => [2154,2826,3731,4577,5293]
[image] => https://akademik-stroy.ru/wp-content/uploads/materials/lentochnyj-monolitnyj-zh-b.jpg
[area_modifier] => 57.38
[parent_name] => Фундамент
[parent_id] => 1
[material_sum] => 330447
[work_sum] => 210114
[total_sum] => 540561
[total_days] => 20
[display_material_sum] => 330 447
[display_work_sum] => 210 114
[display_total_sum] => 540 561
)
1
540 561₽
Работа:210 114 ₽
Материалы:330 447 ₽
Дни:20
stdClass Object
(
[id] => 2
[attribute_id] => 1
[name] => Забивные Ж/Б сваи
[material_modifier] => 1
[work_modifier] => 1
[options] => Array
(
[0] => 150х150х3000мм
[1] => 150х150х4000мм
[2] => 200х200х3000мм
[3] => 200х200х4000мм
[4] => 200х200х5000мм
[5] => 200х200х6000мм
)
[days] => [2,2,2,2,2,2]
[material_price] => [1990,2850,3255,4360,5120,6837]
[work_price] => [1002,1185,1336,1438,1574,1839]
[image] => https://akademik-stroy.ru/wp-content/uploads/materials/zabivnye-zh-b-svai.png
[area_modifier] => 57.38
[parent_name] => Фундамент
[parent_id] => 1
[material_sum] => 232940
[work_sum] => 97741
[total_sum] => 330681
[total_days] => 2
[display_material_sum] => 232 940
[display_work_sum] => 97 741
[display_total_sum] => 330 681
)
1
330 681₽
Работа:97 741 ₽
Материалы:232 940 ₽
Дни:2
stdClass Object
(
[id] => 71
[attribute_id] => 1
[name] => Свайно-ростверковый ж/б
[material_modifier] => 1
[work_modifier] => 1
[options] => Array
(
[0] => ростверк 200х300 мм
[1] => ростверк 300х600 мм
[2] => ростверк 400х900 мм
[3] => ростверк 500х1200 мм
)
[days] => [20,23,25,27]
[material_price] => [3018,3474,7109,9792]
[work_price] => [2024,3012,5635,7022]
[image] => https://akademik-stroy.ru/wp-content/uploads/materials/svajno-rostverkovyj-monolitnyj-zh-b-3.png
[area_modifier] => 57.38
[parent_name] => Фундамент
[parent_id] => 1
[material_sum] => 353273
[work_sum] => 197433
[total_sum] => 550706
[total_days] => 20
[display_material_sum] => 353 273
[display_work_sum] => 197 433
[display_total_sum] => 550 706
)
1
550 706₽
Работа:197 433 ₽
Материалы:353 273 ₽
Дни:20
stdClass Object
(
[id] => 72
[attribute_id] => 1
[name] => Монолитная ж/б плита
[material_modifier] => 1
[work_modifier] => 1
[options] => Array
(
[0] => 200 мм
[1] => 300 мм
[2] => 400 мм
[3] => 500 мм
[4] => 600 мм
)
[days] => [30,33,35,37,40]
[material_price] => [5348,8555,12788,14388,15189]
[work_price] => [4314,4881,7037,8061,10230]
[image] => https://akademik-stroy.ru/wp-content/uploads/materials/monolitnaya-zhb-plita.png
[area_modifier] => 57.38
[parent_name] => Фундамент
[parent_id] => 1
[material_sum] => 626011
[work_sum] => 420813
[total_sum] => 1046824
[total_days] => 30
[display_material_sum] => 626 011
[display_work_sum] => 420 813
[display_total_sum] => 1 046 824
)
1
1 046 824₽
Работа:420 813 ₽
Материалы:626 011 ₽
Дни:30
stdClass Object
(
[id] => 73
[attribute_id] => 1
[name] => Утепленная шведская плита
[material_modifier] => 1
[work_modifier] => 1
[options] => Array
(
[0] => 200 мм
[1] => 300 мм
[2] => 400 мм
[3] => 500 мм
[4] => 600 мм
)
[days] => [32,37,39,42,45]
[material_price] => [10249,12692,13760,14936,16230]
[work_price] => [5960,7337,8072,8878,9765]
[image] => https://akademik-stroy.ru/wp-content/uploads/materials/uteplennaya-shvedskaya-plita.jpg
[area_modifier] => 57.38
[parent_name] => Фундамент
[parent_id] => 1
[material_sum] => 1199699
[work_sum] => 581374
[total_sum] => 1781073
[total_days] => 32
[display_material_sum] => 1 199 699
[display_work_sum] => 581 374
[display_total_sum] => 1 781 073
)
1
1 781 073₽
Работа:581 374 ₽
Материалы:1 199 699 ₽
Дни:32
stdClass Object
(
[id] => 75
[attribute_id] => 1
[name] => Ленточный из ФБС
[material_modifier] => 1
[work_modifier] => 1
[options] => Array
(
[0] => толщ. 300 мм
[1] => толщ. 400 мм
[2] => толщ. 500 мм
[3] => толщ. 600 мм
)
[days] => [20,20,20,20]
[material_price] => [3675,4902,6126,7350]
[work_price] => [2451,3264,4083,4902]
[image] => https://akademik-stroy.ru/wp-content/uploads/materials/lentochnyj-iz-fbs.png
[area_modifier] => 57.38
[parent_name] => Фундамент
[parent_id] => 1
[material_sum] => 430178
[work_sum] => 239085
[total_sum] => 669263
[total_days] => 20
[display_material_sum] => 430 178
[display_work_sum] => 239 085
[display_total_sum] => 669 263
)
1
669 263₽
Работа:239 085 ₽
Материалы:430 178 ₽
Дни:20
stdClass Object
(
[id] => 76
[attribute_id] => 1
[name] => Цокольный этаж из ФБС
[material_modifier] => 1
[work_modifier] => 1
[options] => Array
(
[0] => толщ. 300 мм
[1] => толщ. 400 мм
[2] => толщ. 500 мм
[3] => толщ. 600 мм
)
[days] => [30,32,34,36]
[material_price] => [20916,23299,26680,29060]
[work_price] => [17524,18700,19873,21046]
[image] => https://akademik-stroy.ru/wp-content/uploads/materials/cokolnyj-ehtazh-iz-fbs.jpg
[area_modifier] => 57.38
[parent_name] => Фундамент
[parent_id] => 1
[material_sum] => 2448327
[work_sum] => 1709396
[total_sum] => 4157723
[total_days] => 30
[display_material_sum] => 2 448 327
[display_work_sum] => 1 709 396
[display_total_sum] => 4 157 723
)
1
4 157 723₽
Работа:1 709 396 ₽
Материалы:2 448 327 ₽
Дни:30
stdClass Object
(
[id] => 77
[attribute_id] => 1
[name] => Цокольный этаж монолитный ж/б
[material_modifier] => 1
[work_modifier] => 1
[options] => Array
(
[0] => толщ. 200 мм
[1] => толщ. 300 мм
[2] => толщ. 400 мм
[3] => толщ. 500 мм
[4] => толщ. 600 мм
)
[days] => [40,42,44,46,48]
[material_price] => [25421,29148,32275,35602,37326]
[work_price] => [20441,21907,23375,24841,26306]
[image] => https://akademik-stroy.ru/wp-content/uploads/materials/cokolnyj-etazh-zh-b.jpg
[area_modifier] => 57.38
[parent_name] => Фундамент
[parent_id] => 1
[material_sum] => 2975660
[work_sum] => 1993938
[total_sum] => 4969598
[total_days] => 40
[display_material_sum] => 2 975 660
[display_work_sum] => 1 993 938
[display_total_sum] => 4 969 598
)
1
4 969 598₽
Работа:1 993 938 ₽
Материалы:2 975 660 ₽
Дни:40
stdClass Object
(
[id] => 191
[attribute_id] => 1
[name] => Винтовые сваи
[material_modifier] => 1
[work_modifier] => 1
[options] => Array
(
[0] => 57х200мм
[1] => 76х250мм
[2] => 108х300мм
[3] => 133х350мм
)
[days] => [1,1,2,2]
[material_price] => [1200,1300,1450,1600]
[work_price] => [400,600,900,1100]
[image] => https://akademik-stroy.ru/wp-content/uploads/materials/vintovye-svai.png
[area_modifier] => 57.38
[parent_name] => Фундамент
[parent_id] => 1
[material_sum] => 140466
[work_sum] => 39018
[total_sum] => 179484
[total_days] => 1
[display_material_sum] => 140 466
[display_work_sum] => 39 018
[display_total_sum] => 179 484
)
1
179 484₽
Работа:39 018 ₽
Материалы:140 466 ₽
Дни:1
stdClass Object
(
[id] => 3
[attribute_id] => 2
[name] => Деревянные балки
[material_modifier] => 1
[work_modifier] => 1
[options] => Array
(
[0] => без утепления
[1] => утепление 200 мм
[2] => утепление 250 мм
[3] => утепление 300 мм
[4] => утепление 350 мм
[5] => утепление 400 мм
[6] => утепление 450 мм
[7] => утепление 500 мм
)
[days] => [8,9,9,9,11,12,13,14]
[material_price] => [1634,2042,2344,2947,3149,3652,3354,3557]
[work_price] => [1230,1339,1393,1426,1460,1513,1587,1620]
[image] => https://akademik-stroy.ru/wp-content/uploads/materials/derevyannye-balki.png
[area_modifier] => 57.38
[parent_name] => Перекрытие цоколя
[parent_id] => 2
[material_sum] => 191268
[work_sum] => 119982
[total_sum] => 311250
[total_days] => 8
[display_material_sum] => 191 268
[display_work_sum] => 119 982
[display_total_sum] => 311 250
)
1
311 250₽
Работа:119 982 ₽
Материалы:191 268 ₽
Дни:8
stdClass Object
(
[id] => 4
[attribute_id] => 2
[name] => Сборные ж/б плиты
[material_modifier] => 1
[work_modifier] => 1
[options] => Array
(
[0] => без утепления
[1] => утепление 150мм
[2] => утепление 200мм
[3] => утепление 250мм
[4] => утепление 300мм
[5] => утепление 350мм
[6] => утепление 400мм
[7] => утепление 450мм
[8] => утепление 500мм
)
[days] => [13,15,15,15,15,15,15,15,15]
[material_price] => [3067,5577,5928,6679,7730,8782,9833,10884,11935]
[work_price] => [1520,1956,2102,2247,2392,2537,2684,2829,2974]
[image] => https://akademik-stroy.ru/wp-content/uploads/materials/sbornye-zh-b-plity-2.jpg
[area_modifier] => 57.38
[parent_name] => Перекрытие цоколя
[parent_id] => 2
[material_sum] => 359008
[work_sum] => 148270
[total_sum] => 507278
[total_days] => 13
[display_material_sum] => 359 008
[display_work_sum] => 148 270
[display_total_sum] => 507 278
)
1
507 278₽
Работа:148 270 ₽
Материалы:359 008 ₽
Дни:13
stdClass Object
(
[id] => 78
[attribute_id] => 2
[name] => Монолитная ж/б плита
[material_modifier] => 1
[work_modifier] => 1
[options] => Array
(
[0] => без утепления
[1] => утепление 150 мм
[2] => утепление 200 мм
[3] => утепление 250 мм
[4] => утепление 300 мм
[5] => утепление 350 мм
[6] => утепление 400 мм
[7] => утепление 450 мм
[8] => утепление 500 мм
)
[days] => [18,20,20,20,20,20,20,20,20]
[material_price] => [4837,6572,7224,7375,79426,8177,8728,9180,10031]
[work_price] => [3348,3921,4112,4302,4493,4684,4875,5066,5256]
[image] => https://akademik-stroy.ru/wp-content/uploads/materials/monolitnaya-zh-b-plita-2.jpg
[area_modifier] => 57.38
[parent_name] => Перекрытие цоколя
[parent_id] => 2
[material_sum] => 566196
[work_sum] => 326584
[total_sum] => 892780
[total_days] => 18
[display_material_sum] => 566 196
[display_work_sum] => 326 584
[display_total_sum] => 892 780
)
1
892 780₽
Работа:326 584 ₽
Материалы:566 196 ₽
Дни:18
stdClass Object
(
[id] => 6
[attribute_id] => 3
[name] => Пеноблок
[material_modifier] => 1
[work_modifier] => 1
[options] => Array
(
[0] => 300 мм
[1] => 400 мм
[2] => 500 мм
[3] => 600 мм
)
[days] => [29,31,34,39]
[material_price] => [3000,4000,4500,4937]
[work_price] => [5033,5805,6400,8710]
[image] => https://akademik-stroy.ru/wp-content/uploads/materials/penoblok.jpg
[area_modifier] => 57.38
[parent_name] => Стены 1 этаж (несущие)
[parent_id] => 3
[material_sum] => 351166
[work_sum] => 490949
[total_sum] => 842115
[total_days] => 29
[display_material_sum] => 351 166
[display_work_sum] => 490 949
[display_total_sum] => 842 115
)
1
842 115₽
Работа:490 949 ₽
Материалы:351 166 ₽
Дни:29
stdClass Object
(
[id] => 79
[attribute_id] => 3
[name] => Керамический блок
[material_modifier] => 1
[work_modifier] => 1
[options] => Array
(
[0] => 380 мм
[1] => 380 мм Thermo
[2] => 440 мм
[3] => 510 мм
)
[days] => [23,23,24,25]
[material_price] => [4510,5098,6093,8013]
[work_price] => [4737,4937,5903,6958]
[image] => https://akademik-stroy.ru/wp-content/uploads/materials/keramicheskij-blok.jpg
[area_modifier] => 57.38
[parent_name] => Стены 1 этаж (несущие)
[parent_id] => 3
[material_sum] => 527919
[work_sum] => 462075
[total_sum] => 989994
[total_days] => 23
[display_material_sum] => 527 919
[display_work_sum] => 462 075
[display_total_sum] => 989 994
)
1
989 994₽
Работа:462 075 ₽
Материалы:527 919 ₽
Дни:23
stdClass Object
(
[id] => 80
[attribute_id] => 3
[name] => Кирпич
[material_modifier] => 1
[work_modifier] => 1
[options] => Array
(
[0] => Кирпич 250 мм
[1] => Кирпич 380 мм
[2] => Кирпич 510 мм
[3] => Кирпич 640 мм
[4] => Кирпич 770 мм
)
[days] => [30,30,31,33,36]
[material_price] => [5500,7142,9206,10171,12235]
[work_price] => [8736,10041,12018,15240,18462]
[image] => https://akademik-stroy.ru/wp-content/uploads/materials/kirpich.jpg
[area_modifier] => 57.38
[parent_name] => Стены 1 этаж (несущие)
[parent_id] => 3
[material_sum] => 643804
[work_sum] => 852162
[total_sum] => 1495966
[total_days] => 30
[display_material_sum] => 643 804
[display_work_sum] => 852 162
[display_total_sum] => 1 495 966
)
1
1 495 966₽
Работа:852 162 ₽
Материалы:643 804 ₽
Дни:30
stdClass Object
(
[id] => 81
[attribute_id] => 3
[name] => Монолитные
[material_modifier] => 1
[work_modifier] => 1
[options] => Array
(
[0] => 150 мм
[1] => 200 мм
[2] => 250 мм
[3] => 300 мм
[4] => 350 мм
[5] => 400 мм
)
[days] => [45,46,47,49,50,53]
[material_price] => [6545,7876,10175,12011,13908,15204]
[work_price] => [5106,6444,7698,8552,9807,11461]
[image] => https://akademik-stroy.ru/wp-content/uploads/materials/monolitnye.jpg
[area_modifier] => 57.38
[parent_name] => Стены 1 этаж (несущие)
[parent_id] => 3
[material_sum] => 766126
[work_sum] => 498070
[total_sum] => 1264196
[total_days] => 45
[display_material_sum] => 766 126
[display_work_sum] => 498 070
[display_total_sum] => 1 264 196
)
1
1 264 196₽
Работа:498 070 ₽
Материалы:766 126 ₽
Дни:45
stdClass Object
(
[id] => 82
[attribute_id] => 3
[name] => Клееный брус
[material_modifier] => 1
[work_modifier] => 1
[options] => Array
(
[0] => 160 мм
[1] => 175 мм
[2] => 200 мм
[3] => 215 мм
[4] => 240 мм
[5] => 270 мм
[6] => 282 мм
)
[days] => [24,28,32,37,40,42,48]
[material_price] => [16975,18773,19950,20545,21599,22159,23275]
[work_price] => [4806,5287,5815,6397,7036,7740,8514]
[image] => https://akademik-stroy.ru/wp-content/uploads/materials/kleenyj-brus.jpg
[area_modifier] => 57.38
[parent_name] => Стены 1 этаж (несущие)
[parent_id] => 3
[material_sum] => 1987012
[work_sum] => 468806
[total_sum] => 2455818
[total_days] => 24
[display_material_sum] => 1 987 012
[display_work_sum] => 468 806
[display_total_sum] => 2 455 818
)
1
2 455 818₽
Работа:468 806 ₽
Материалы:1 987 012 ₽
Дни:24
stdClass Object
(
[id] => 83
[attribute_id] => 3
[name] => Каркасные
[material_modifier] => 1
[work_modifier] => 1
[options] => Array
(
[0] => 150 мм
[1] => 200 мм
[2] => 250 мм
[3] => 300 мм
)
[days] => [15,16,17,18]
[material_price] => [2379,2639,2898,3258]
[work_price] => [2418,2686,2985,3716]
[image] => https://akademik-stroy.ru/wp-content/uploads/materials/karkasnye.jpg
[area_modifier] => 57.38
[parent_name] => Стены 1 этаж (несущие)
[parent_id] => 3
[material_sum] => 278474
[work_sum] => 235866
[total_sum] => 514340
[total_days] => 15
[display_material_sum] => 278 474
[display_work_sum] => 235 866
[display_total_sum] => 514 340
)
1
514 340₽
Работа:235 866 ₽
Материалы:278 474 ₽
Дни:15
stdClass Object
(
[id] => 84
[attribute_id] => 3
[name] => СИП-панели
[material_modifier] => 1
[work_modifier] => 1
[options] => Array
(
[0] => 120 мм
[1] => 170 мм
[2] => 220 мм
)
[days] => [7,7,7]
[material_price] => [1210,1856,2292]
[work_price] => [1410,1551,1706]
[image] => https://akademik-stroy.ru/wp-content/uploads/materials/sip-paneli.jpg
[area_modifier] => 57.38
[parent_name] => Стены 1 этаж (несущие)
[parent_id] => 3
[material_sum] => 141637
[work_sum] => 137540
[total_sum] => 279177
[total_days] => 7
[display_material_sum] => 141 637
[display_work_sum] => 137 540
[display_total_sum] => 279 177
)
1
279 177₽
Работа:137 540 ₽
Материалы:141 637 ₽
Дни:7
stdClass Object
(
[id] => 85
[attribute_id] => 3
[name] => Сухой брус
[material_modifier] => 1
[work_modifier] => 1
[options] => Array
(
[0] => 150 мм
[1] => 180 мм
[2] => 200 мм
)
[days] => [7,8,9]
[material_price] => [6010,7190,8709]
[work_price] => [3204,3845,4229]
[image] => https://akademik-stroy.ru/wp-content/uploads/materials/suhoj-brus.jpg
[area_modifier] => 57.38
[parent_name] => Стены 1 этаж (несущие)
[parent_id] => 3
[material_sum] => 703502
[work_sum] => 312537
[total_sum] => 1016039
[total_days] => 7
[display_material_sum] => 703 502
[display_work_sum] => 312 537
[display_total_sum] => 1 016 039
)
1
1 016 039₽
Работа:312 537 ₽
Материалы:703 502 ₽
Дни:7
stdClass Object
(
[id] => 86
[attribute_id] => 3
[name] => Профилированный брус
[material_modifier] => 1
[work_modifier] => 1
[options] => Array
(
[0] => 150 мм
[1] => 180 мм
[2] => 200 мм
)
[days] => [7,8,9]
[material_price] => [8190,9228,10051]
[work_price] => [3845,4614,5075]
[image] => https://akademik-stroy.ru/wp-content/uploads/materials/profilirovannyj-brus.jpg
[area_modifier] => 57.38
[parent_name] => Стены 1 этаж (несущие)
[parent_id] => 3
[material_sum] => 958682
[work_sum] => 375064
[total_sum] => 1333746
[total_days] => 7
[display_material_sum] => 958 682
[display_work_sum] => 375 064
[display_total_sum] => 1 333 746
)
1
1 333 746₽
Работа:375 064 ₽
Материалы:958 682 ₽
Дни:7
stdClass Object
(
[id] => 87
[attribute_id] => 3
[name] => Оцилиндрованное бревно
[material_modifier] => 1
[work_modifier] => 1
[options] => Array
(
[0] => 180 мм
[1] => 220 мм
[2] => 260 мм
[3] => 320 мм
)
[days] => [7,8,9,10]
[material_price] => [75190,9532,10868,13116]
[work_price] => [3845,4691,5535,6863]
[image] => https://akademik-stroy.ru/wp-content/uploads/materials/ocilindrovannoe-brevno-1.jpg
[area_modifier] => 57.38
[parent_name] => Стены 1 этаж (несущие)
[parent_id] => 3
[material_sum] => 8801380
[work_sum] => 375064
[total_sum] => 9176444
[total_days] => 7
[display_material_sum] => 8 801 380
[display_work_sum] => 375 064
[display_total_sum] => 9 176 444
)
1
9 176 444₽
Работа:375 064 ₽
Материалы:8 801 380 ₽
Дни:7
stdClass Object
(
[id] => 88
[attribute_id] => 3
[name] => Срубы
[material_modifier] => 1
[work_modifier] => 1
[options] => Array
(
[0] => 260 мм
[1] => 320 мм
[2] => 360 мм
[3] => 400 мм
[4] => 500 мм
)
[days] => [7,8,9,10,11]
[material_price] => [37975,46709,52314,58069,73167]
[work_price] => [4806,5911,6621,7349,9260]
[image] => https://akademik-stroy.ru/wp-content/uploads/materials/sruby.jpg
[area_modifier] => 57.38
[parent_name] => Стены 1 этаж (несущие)
[parent_id] => 3
[material_sum] => 4445171
[work_sum] => 468806
[total_sum] => 4913977
[total_days] => 7
[display_material_sum] => 4 445 171
[display_work_sum] => 468 806
[display_total_sum] => 4 913 977
)
1
4 913 977₽
Работа:468 806 ₽
Материалы:4 445 171 ₽
Дни:7
stdClass Object
(
[id] => 174
[attribute_id] => 3
[name] => Брус
[material_modifier] => 1
[work_modifier] => 1
[options] => Array
(
[0] => 150 мм
[1] => 180 мм
[2] => 200 мм
)
[days] => [7,8,9]
[material_price] => [5127,6152,7367]
[work_price] => [1602,1922,2115]
[image] => https://akademik-stroy.ru/wp-content/uploads/materials/brus.jpg
[area_modifier] => 57.38
[parent_name] => Стены 1 этаж (несущие)
[parent_id] => 3
[material_sum] => 600142
[work_sum] => 156269
[total_sum] => 756411
[total_days] => 7
[display_material_sum] => 600 142
[display_work_sum] => 156 269
[display_total_sum] => 756 411
)
1
756 411₽
Работа:156 269 ₽
Материалы:600 142 ₽
Дни:7
stdClass Object
(
[id] => 175
[attribute_id] => 3
[name] => Газобетон
[material_modifier] => 1
[work_modifier] => 1
[options] => Array
(
[0] => 300 мм
[1] => 375 мм
[2] => 400 мм
[3] => 500 мм
[4] => 600 мм
)
[days] => [29,31,35,37,44]
[material_price] => [4298,5573,6356,7288,9119]
[work_price] => [4538,5251,5926,6733,7195]
[image] => https://akademik-stroy.ru/wp-content/uploads/materials/gazobeton.jpg
[area_modifier] => 57.38
[parent_name] => Стены 1 этаж (несущие)
[parent_id] => 3
[material_sum] => 503103
[work_sum] => 442664
[total_sum] => 945767
[total_days] => 29
[display_material_sum] => 503 103
[display_work_sum] => 442 664
[display_total_sum] => 945 767
)
1
945 767₽
Работа:442 664 ₽
Материалы:503 103 ₽
Дни:29
stdClass Object
(
[id] => 176
[attribute_id] => 3
[name] => Блок
[material_modifier] => 1
[work_modifier] => 1
[options] => Array
(
[0] => 300 мм
[1] => 375 мм
[2] => 400 мм
[3] => 500 мм
[4] => 600 мм
)
[days] => [29,31,35,37,44]
[material_price] => [2698,3973,4356,6588,7119]
[work_price] => [5038,5851,6426,8733,9195]
[image] => https://akademik-stroy.ru/wp-content/uploads/materials/blok.jpg
[area_modifier] => 57.38
[parent_name] => Стены 1 этаж (несущие)
[parent_id] => 3
[material_sum] => 315815
[work_sum] => 491437
[total_sum] => 807252
[total_days] => 29
[display_material_sum] => 315 815
[display_work_sum] => 491 437
[display_total_sum] => 807 252
)
1
807 252₽
Работа:491 437 ₽
Материалы:315 815 ₽
Дни:29
stdClass Object
(
[id] => 177
[attribute_id] => 3
[name] => Газосиликатный блок
[material_modifier] => 1
[work_modifier] => 1
[options] => Array
(
[0] => 300 мм
[1] => 375 мм
[2] => 400 мм
[3] => 500 мм
[4] => 600 мм
)
[days] => [29,31,35,37,44]
[material_price] => [4298,5573,6356,7288,9119]
[work_price] => [4538,5251,5926,6733,7195]
[image] => https://akademik-stroy.ru/wp-content/uploads/materials/gazosilikatnyj-blok.jpg
[area_modifier] => 57.38
[parent_name] => Стены 1 этаж (несущие)
[parent_id] => 3
[material_sum] => 503103
[work_sum] => 442664
[total_sum] => 945767
[total_days] => 29
[display_material_sum] => 503 103
[display_work_sum] => 442 664
[display_total_sum] => 945 767
)
1
945 767₽
Работа:442 664 ₽
Материалы:503 103 ₽
Дни:29
stdClass Object
(
[id] => 178
[attribute_id] => 3
[name] => Керамзитобетонный блок
[material_modifier] => 1
[work_modifier] => 1
[options] => Array
(
[0] => 300 мм
[1] => 375 мм
[2] => 400 мм
[3] => 500 мм
[4] => 600 мм
)
[days] => [23,23,24,25,28]
[material_price] => [3641,4298,5693,7613,9612]
[work_price] => [5737,5737,6903,7958,8901]
[image] => https://akademik-stroy.ru/wp-content/uploads/materials/keramzitobetonnyj-blok.jpg
[area_modifier] => 57.38
[parent_name] => Стены 1 этаж (несущие)
[parent_id] => 3
[material_sum] => 426198
[work_sum] => 559621
[total_sum] => 985819
[total_days] => 23
[display_material_sum] => 426 198
[display_work_sum] => 559 621
[display_total_sum] => 985 819
)
1
985 819₽
Работа:559 621 ₽
Материалы:426 198 ₽
Дни:23
stdClass Object
(
[id] => 179
[attribute_id] => 3
[name] => Деревянные
[material_modifier] => 1
[work_modifier] => 1
[options] => Array
(
[0] => 180 мм
[1] => 220 мм
[2] => 260 мм
[3] => 320 мм
)
[days] => [7,8,9,10]
[material_price] => [7950,9458,11961,14472]
[work_price] => [4037,4925,5812,7207]
[image] => https://akademik-stroy.ru/wp-content/uploads/materials/derevyannye.jpg
[area_modifier] => 57.38
[parent_name] => Стены 1 этаж (несущие)
[parent_id] => 3
[material_sum] => 930589
[work_sum] => 393793
[total_sum] => 1324382
[total_days] => 7
[display_material_sum] => 930 589
[display_work_sum] => 393 793
[display_total_sum] => 1 324 382
)
1
1 324 382₽
Работа:393 793 ₽
Материалы:930 589 ₽
Дни:7
stdClass Object
(
[id] => 181
[attribute_id] => 3
[name] => Камень
[material_modifier] => 1
[work_modifier] => 1
[options] => Array
(
[0] => 300 мм
[1] => 400 мм
[2] => 500 мм
[3] => 600 мм
)
[days] => [25,27,31,34]
[material_price] => [5262,6844,8330,9815]
[work_price] => [8331,9135,10427,11069]
[image] => https://akademik-stroy.ru/wp-content/uploads/materials/kamen.jpg
[area_modifier] => 57.38
[parent_name] => Стены 1 этаж (несущие)
[parent_id] => 3
[material_sum] => 615944
[work_sum] => 812656
[total_sum] => 1428600
[total_days] => 25
[display_material_sum] => 615 944
[display_work_sum] => 812 656
[display_total_sum] => 1 428 600
)
1
1 428 600₽
Работа:812 656 ₽
Материалы:615 944 ₽
Дни:25
stdClass Object
(
[id] => 182
[attribute_id] => 3
[name] => Каркасно-щитовые
[material_modifier] => 1
[work_modifier] => 1
[options] => Array
(
[0] => 150 мм
[1] => 200 мм
[2] => 250 мм
[3] => 300 мм
[4] => 350 мм
[5] => 400 мм
)
[days] => [15,16,17,18,19,20]
[material_price] => [2379,2639,2898,3458,3601,4175]
[work_price] => [2538,2820,3134,3483,4062,5642]
[image] => https://akademik-stroy.ru/wp-content/uploads/materials/karkasno-shchitovye.jpg
[area_modifier] => 57.38
[parent_name] => Стены 1 этаж (несущие)
[parent_id] => 3
[material_sum] => 278474
[work_sum] => 247572
[total_sum] => 526046
[total_days] => 15
[display_material_sum] => 278 474
[display_work_sum] => 247 572
[display_total_sum] => 526 046
)
1
526 046₽
Работа:247 572 ₽
Материалы:278 474 ₽
Дни:15
stdClass Object
(
[id] => 183
[attribute_id] => 3
[name] => Рубленные
[material_modifier] => 1
[work_modifier] => 1
[options] => Array
(
[0] => 150 мм
[1] => 200 мм
[2] => 250 мм
[3] => 300 мм
[4] => 350 мм
[5] => 400 мм
)
[days] => [15,16,17,18,17,18]
[material_price] => [35950,50267,60583,75900,80217,100533]
[work_price] => [9612,12816,16020,19224,22428,25632]
[image] => https://akademik-stroy.ru/wp-content/uploads/materials/rublennye.jpg
[area_modifier] => 57.38
[parent_name] => Стены 1 этаж (несущие)
[parent_id] => 3
[material_sum] => 4208134
[work_sum] => 937612
[total_sum] => 5145746
[total_days] => 15
[display_material_sum] => 4 208 134
[display_work_sum] => 937 612
[display_total_sum] => 5 145 746
)
1
5 145 746₽
Работа:937 612 ₽
Материалы:4 208 134 ₽
Дни:15
stdClass Object
(
[id] => 185
[attribute_id] => 3
[name] => Теплоблок
[material_modifier] => 1
[work_modifier] => 1
[options] => Array
(
[0] => 300 мм (с облицовкой, не покрашенный)
[1] => 400 мм (с облицовкой, не покрашенный)
[2] => 300 мм (с облицовкой, покрашенный)
[3] => 400 мм (с облицовкой, покрашенный)
)
[days] => [15,16,15,16]
[material_price] => [2888,3729,3957,4258]
[work_price] => [2564,3229,2949,3713]
[image] => https://akademik-stroy.ru/wp-content/uploads/materials/teploblok.jpg
[area_modifier] => 57.38
[parent_name] => Стены 1 этаж (несущие)
[parent_id] => 3
[material_sum] => 338055
[work_sum] => 250108
[total_sum] => 588163
[total_days] => 15
[display_material_sum] => 338 055
[display_work_sum] => 250 108
[display_total_sum] => 588 163
)
1
588 163₽
Работа:250 108 ₽
Материалы:338 055 ₽
Дни:15
stdClass Object
(
[id] => 186
[attribute_id] => 3
[name] => Арболитовые блоки
[material_modifier] => 1
[work_modifier] => 1
[options] => Array
(
[0] => 300 мм
[1] => 400 мм
[2] => 600 мм
)
[days] => [19,22,27]
[material_price] => [3210,4475,5852]
[work_price] => [4214,4788,5866]
[image] => https://akademik-stroy.ru/wp-content/uploads/materials/arbolitovye-bloki.png
[area_modifier] => 57.38
[parent_name] => Стены 1 этаж (несущие)
[parent_id] => 3
[material_sum] => 375747
[work_sum] => 411059
[total_sum] => 786806
[total_days] => 19
[display_material_sum] => 375 747
[display_work_sum] => 411 059
[display_total_sum] => 786 806
)
1
786 806₽
Работа:411 059 ₽
Материалы:375 747 ₽
Дни:19
stdClass Object
(
[id] => 187
[attribute_id] => 3
[name] => Полистиролбетон
[material_modifier] => 1
[work_modifier] => 1
[options] => Array
(
[0] => 300 мм
[1] => 400 мм
[2] => 600 мм
)
[days] => [29,31,35]
[material_price] => [2798,4573,5256]
[work_price] => [5038,5851,6426]
[image] => https://akademik-stroy.ru/wp-content/uploads/materials/polistirolbeton.jpg
[area_modifier] => 57.38
[parent_name] => Стены 1 этаж (несущие)
[parent_id] => 3
[material_sum] => 327520
[work_sum] => 491437
[total_sum] => 818957
[total_days] => 29
[display_material_sum] => 327 520
[display_work_sum] => 491 437
[display_total_sum] => 818 957
)
1
818 957₽
Работа:491 437 ₽
Материалы:327 520 ₽
Дни:29
stdClass Object
(
[id] => 188
[attribute_id] => 3
[name] => Шлакоблок
[material_modifier] => 1
[work_modifier] => 1
[options] => Array
(
[0] => 400 мм
[1] => 600 мм
)
[days] => [15,16]
[material_price] => [2391,3471]
[work_price] => [2642,3662]
[image] => https://akademik-stroy.ru/wp-content/uploads/materials/shlakoblok.jpg
[area_modifier] => 57.38
[parent_name] => Стены 1 этаж (несущие)
[parent_id] => 3
[material_sum] => 279879
[work_sum] => 257717
[total_sum] => 537596
[total_days] => 15
[display_material_sum] => 279 879
[display_work_sum] => 257 717
[display_total_sum] => 537 596
)
1
537 596₽
Работа:257 717 ₽
Материалы:279 879 ₽
Дни:15
stdClass Object
(
[id] => 189
[attribute_id] => 3
[name] => Теплая керамика
[material_modifier] => 1
[work_modifier] => 1
[options] => Array
(
[0] => 380 мм
[1] => 380 мм Thermo
[2] => 440 мм
[3] => 510 мм
)
[days] => [23,23,24,25]
[material_price] => [4510,5098,6093,8013]
[work_price] => [4737,4937,5903,6958]
[image] => https://akademik-stroy.ru/wp-content/uploads/materials/teplaya-keramika.jpg
[area_modifier] => 57.38
[parent_name] => Стены 1 этаж (несущие)
[parent_id] => 3
[material_sum] => 527919
[work_sum] => 462075
[total_sum] => 989994
[total_days] => 23
[display_material_sum] => 527 919
[display_work_sum] => 462 075
[display_total_sum] => 989 994
)
1
989 994₽
Работа:462 075 ₽
Материалы:527 919 ₽
Дни:23
stdClass Object
(
[id] => 190
[attribute_id] => 3
[name] => Несъемная опалубка
[material_modifier] => 1
[work_modifier] => 1
[options] => Array
(
[0] => 200 мм
[1] => 250 мм
[2] => 300 мм
[3] => 350 мм
)
[days] => [15,17,19,21]
[material_price] => [3302,3902,4108,5008]
[work_price] => [2100,2100,2300,2534]
[image] => https://akademik-stroy.ru/wp-content/uploads/materials/nesemnaya-opalubka.jpg
[area_modifier] => 57.38
[parent_name] => Стены 1 этаж (несущие)
[parent_id] => 3
[material_sum] => 386516
[work_sum] => 204847
[total_sum] => 591363
[total_days] => 15
[display_material_sum] => 386 516
[display_work_sum] => 204 847
[display_total_sum] => 591 363
)
1
591 363₽
Работа:204 847 ₽
Материалы:386 516 ₽
Дни:15
stdClass Object
(
[id] => 251
[attribute_id] => 3
[name] => Бревно
[material_modifier] => 1
[work_modifier] => 1
[options] => Array
(
[0] => 260 мм
[1] => 320 мм
[2] => 360 мм
[3] => 400 мм
[4] => 500 мм
)
[days] => [7,8,9,10,11]
[material_price] => [1874,24045,26930,30972,38825]
[work_price] => [5046,6207,6952,7716,9723]
[image] => https://akademik-stroy.ru/wp-content/uploads/materials/sruby.jpg
[area_modifier] => 57.38
[parent_name] => Стены 1 этаж (несущие)
[parent_id] => 3
[material_sum] => 219361
[work_sum] => 492217
[total_sum] => 711578
[total_days] => 7
[display_material_sum] => 219 361
[display_work_sum] => 492 217
[display_total_sum] => 711 578
)
1
711 578₽
Работа:492 217 ₽
Материалы:219 361 ₽
Дни:7
stdClass Object
(
[id] => 7
[attribute_id] => 4
[name] => Деревянные балки
[material_modifier] => 1
[work_modifier] => 1
[options] => Array
(
[0] => без утепления
[1] => утепление 200 мм
[2] => утепление 250 мм
[3] => утепление 300 мм
[4] => утепление 350 мм
[5] => утепление 400 мм
[6] => утепление 450 мм
[7] => утепление 500 мм
)
[days] => [8,9,9,9,11,12,13,14]
[material_price] => [1634,2042,2344,2947,3149,3652,3354,3557]
[work_price] => [1230,1339,1393,1426,1460,1513,1587,1620]
[image] => https://akademik-stroy.ru/wp-content/uploads/materials/derevyannye-balki.png
[area_modifier] => 57.38
[parent_name] => Перекрытие первого этажа
[parent_id] => 4
[material_sum] => 191268
[work_sum] => 119982
[total_sum] => 311250
[total_days] => 8
[display_material_sum] => 191 268
[display_work_sum] => 119 982
[display_total_sum] => 311 250
)
1
311 250₽
Работа:119 982 ₽
Материалы:191 268 ₽
Дни:8
stdClass Object
(
[id] => 8
[attribute_id] => 4
[name] => Сборные ж/б плиты
[material_modifier] => 1
[work_modifier] => 1
[options] => Array
(
[0] => без утепления
[1] => утепление 150 мм
[2] => утепление 200 мм
[3] => утепление 250 мм
[4] => утепление 300 мм
[5] => утепление 350 мм
[6] => утепление 400 мм
[7] => утепление 450 мм
[8] => утепление 500 мм
)
[days] => [13,15,15,15,15,15,15,15,15]
[material_price] => [3067,5577,5928,6679,7730,8782,9833,10884,11935]
[work_price] => [1520,1956,2102,2247,2392,2537,2684,2829,2974]
[image] => https://akademik-stroy.ru/wp-content/uploads/materials/sbornye-zh-b-plity-2.jpg
[area_modifier] => 57.38
[parent_name] => Перекрытие первого этажа
[parent_id] => 4
[material_sum] => 359008
[work_sum] => 148270
[total_sum] => 507278
[total_days] => 13
[display_material_sum] => 359 008
[display_work_sum] => 148 270
[display_total_sum] => 507 278
)
1
507 278₽
Работа:148 270 ₽
Материалы:359 008 ₽
Дни:13
stdClass Object
(
[id] => 89
[attribute_id] => 4
[name] => Монолитная ж/б плита
[material_modifier] => 1
[work_modifier] => 1
[options] => Array
(
[0] => без утепления
[1] => утепление 150 мм
[2] => утепление 200 мм
[3] => утепление 250 мм
[4] => утепление 300 мм
[5] => утепление 350 мм
[6] => утепление 400 мм
[7] => утепление 450 мм
[8] => утепление 500 мм
)
[days] => [18,20,20,20,20,20,20,20,20]
[material_price] => [4837,6572,7224,7375,79426,8177,8728,9180,10031]
[work_price] => [3348,3921,4112,4302,4493,4684,4875,5066,5256]
[image] => https://akademik-stroy.ru/wp-content/uploads/materials/monolitnaya-zh-b-plita-2.jpg
[area_modifier] => 57.38
[parent_name] => Перекрытие первого этажа
[parent_id] => 4
[material_sum] => 566196
[work_sum] => 326584
[total_sum] => 892780
[total_days] => 18
[display_material_sum] => 566 196
[display_work_sum] => 326 584
[display_total_sum] => 892 780
)
1
892 780₽
Работа:326 584 ₽
Материалы:566 196 ₽
Дни:18
stdClass Object
(
[id] => 164
[attribute_id] => 37
[name] => Металлочерепица
[material_modifier] => 1
[work_modifier] => 1
[options] => Array
(
)
[days] => [20]
[material_price] => [6112]
[work_price] => [5726]
[image] => https://akademik-stroy.ru/wp-content/uploads/materials/metallocherepica.jpg
[area_modifier] => 57.38
[parent_name] => Крыша (Скатная)
[parent_id] => 37
[material_sum] => 715441
[work_sum] => 558548
[total_sum] => 1273989
[total_days] => 20
[display_material_sum] => 715 441
[display_work_sum] => 558 548
[display_total_sum] => 1 273 989
)
1
1 273 989₽
Работа:558 548 ₽
Материалы:715 441 ₽
Дни:20
stdClass Object
(
[id] => 165
[attribute_id] => 37
[name] => Гибкая черепица
[material_modifier] => 1
[work_modifier] => 1
[options] => Array
(
)
[days] => [20]
[material_price] => [6980]
[work_price] => [5950]
[image] => https://akademik-stroy.ru/wp-content/uploads/materials/gibkaya-cherepica.jpg
[area_modifier] => 57.38
[parent_name] => Крыша (Скатная)
[parent_id] => 37
[material_sum] => 817045
[work_sum] => 580399
[total_sum] => 1397444
[total_days] => 20
[display_material_sum] => 817 045
[display_work_sum] => 580 399
[display_total_sum] => 1 397 444
)
1
1 397 444₽
Работа:580 399 ₽
Материалы:817 045 ₽
Дни:20
stdClass Object
(
[id] => 166
[attribute_id] => 37
[name] => Цементно-песчаная черепица
[material_modifier] => 1
[work_modifier] => 1
[options] => Array
(
)
[days] => [20]
[material_price] => [10560]
[work_price] => [9456]
[image] => https://akademik-stroy.ru/wp-content/uploads/materials/cementno-peschanaya-cherepica.jpg
[area_modifier] => 57.38
[parent_name] => Крыша (Скатная)
[parent_id] => 37
[material_sum] => 1236103
[work_sum] => 922395
[total_sum] => 2158498
[total_days] => 20
[display_material_sum] => 1 236 103
[display_work_sum] => 922 395
[display_total_sum] => 2 158 498
)
1
2 158 498₽
Работа:922 395 ₽
Материалы:1 236 103 ₽
Дни:20
stdClass Object
(
[id] => 167
[attribute_id] => 37
[name] => Композитная черепица
[material_modifier] => 1
[work_modifier] => 1
[options] => Array
(
)
[days] => [20]
[material_price] => [9506]
[work_price] => [8905]
[image] => https://akademik-stroy.ru/wp-content/uploads/materials/kompozitnaya-cherepica.jpg
[area_modifier] => 57.38
[parent_name] => Крыша (Скатная)
[parent_id] => 37
[material_sum] => 1112727
[work_sum] => 868647
[total_sum] => 1981374
[total_days] => 20
[display_material_sum] => 1 112 727
[display_work_sum] => 868 647
[display_total_sum] => 1 981 374
)
1
1 981 374₽
Работа:868 647 ₽
Материалы:1 112 727 ₽
Дни:20
stdClass Object
(
[id] => 168
[attribute_id] => 37
[name] => Керамическая черепица
[material_modifier] => 1
[work_modifier] => 1
[options] => Array
(
)
[days] => [20]
[material_price] => [12750]
[work_price] => [9456]
[image] => https://akademik-stroy.ru/wp-content/uploads/materials/keramicheskaya-cherepica.jpg
[area_modifier] => 57.38
[parent_name] => Крыша (Скатная)
[parent_id] => 37
[material_sum] => 1492454
[work_sum] => 922395
[total_sum] => 2414849
[total_days] => 20
[display_material_sum] => 1 492 454
[display_work_sum] => 922 395
[display_total_sum] => 2 414 849
)
1
2 414 849₽
Работа:922 395 ₽
Материалы:1 492 454 ₽
Дни:20
stdClass Object
(
[id] => 169
[attribute_id] => 37
[name] => Металлическая фальцевая
[material_modifier] => 1
[work_modifier] => 1
[options] => Array
(
)
[days] => [20]
[material_price] => [8550]
[work_price] => [8190]
[image] => https://akademik-stroy.ru/wp-content/uploads/materials/metallicheskaya-falcevaya.jpg
[area_modifier] => 57.38
[parent_name] => Крыша (Скатная)
[parent_id] => 37
[material_sum] => 1000822
[work_sum] => 798902
[total_sum] => 1799724
[total_days] => 20
[display_material_sum] => 1 000 822
[display_work_sum] => 798 902
[display_total_sum] => 1 799 724
)
1
1 799 724₽
Работа:798 902 ₽
Материалы:1 000 822 ₽
Дни:20
stdClass Object
(
[id] => 170
[attribute_id] => 37
[name] => Медная фальцевая
[material_modifier] => 1
[work_modifier] => 1
[options] => Array
(
)
[days] => [20]
[material_price] => [20450]
[work_price] => [16750]
[image] => https://akademik-stroy.ru/wp-content/uploads/materials/mednaya-falcevaya.jpg
[area_modifier] => 57.38
[parent_name] => Крыша (Скатная)
[parent_id] => 37
[material_sum] => 2393779
[work_sum] => 1633896
[total_sum] => 4027675
[total_days] => 20
[display_material_sum] => 2 393 779
[display_work_sum] => 1 633 896
[display_total_sum] => 4 027 675
)
1
4 027 675₽
Работа:1 633 896 ₽
Материалы:2 393 779 ₽
Дни:20
stdClass Object
(
[id] => 171
[attribute_id] => 37
[name] => Зеленая кровля
[material_modifier] => 1
[work_modifier] => 1
[options] => Array
(
)
[days] => [20]
[material_price] => [19850]
[work_price] => [16780]
[image] => https://akademik-stroy.ru/wp-content/uploads/materials/zelenaya-krovlya.jpg
[area_modifier] => 57.38
[parent_name] => Крыша (Скатная)
[parent_id] => 37
[material_sum] => 2323546
[work_sum] => 1636822
[total_sum] => 3960368
[total_days] => 20
[display_material_sum] => 2 323 546
[display_work_sum] => 1 636 822
[display_total_sum] => 3 960 368
)
1
3 960 368₽
Работа:1 636 822 ₽
Материалы:2 323 546 ₽
Дни:20
stdClass Object
(
[id] => 172
[attribute_id] => 37
[name] => Профлист
[material_modifier] => 1
[work_modifier] => 1
[options] => Array
(
)
[days] => [20]
[material_price] => [3450]
[work_price] => [3750]
[image] => https://akademik-stroy.ru/wp-content/uploads/materials/proflist.jpg
[area_modifier] => 57.38
[parent_name] => Крыша (Скатная)
[parent_id] => 37
[material_sum] => 403840
[work_sum] => 365798
[total_sum] => 769638
[total_days] => 20
[display_material_sum] => 403 840
[display_work_sum] => 365 798
[display_total_sum] => 769 638
)
1
769 638₽
Работа:365 798 ₽
Материалы:403 840 ₽
Дни:20
stdClass Object
(
[id] => 51
[attribute_id] => 26
[name] => Есть
[material_modifier] => 1
[work_modifier] => 1
[options] => Array
(
[0] => Профиль 58 мм, 3-камерный, стеклопакет 2-камерный до 32 мм
[1] => Профиль 60 мм, 4-камерный, стеклопакет 2-камерный до 32 мм
[2] => Профиль 70 мм, 5-камерный, стеклопакет 2-камерный до 40 мм
[3] => Профиль 72 мм, 5-камерный, стеклопакет 2-камерный до 40 мм
[4] => Алюминиевые окна Alutech профиль 72 мм, стеклопакет 2-камерный
)
[days] => [3,3,3,3,3]
[material_price] => [1339,2124,2867,3023,29596]
[work_price] => [635,647,659,668,2579]
[image] => https://akademik-stroy.ru/wp-content/uploads/materials/okna.jpg
[area_modifier] => 46.56
[parent_name] => Окна
[parent_id] => 26
[material_sum] => 127181
[work_sum] => 50262
[total_sum] => 177443
[total_days] => 3
[display_material_sum] => 127 181
[display_work_sum] => 50 262
[display_total_sum] => 177 443
)
1
177 443₽
Работа:50 262 ₽
Материалы:127 181 ₽
Дни:3
stdClass Object
(
[id] => 52
[attribute_id] => 26
[name] => Нет
[material_modifier] => 2
[work_modifier] => 1
[options] =>
[days] => null
[material_price] => null
[work_price] => null
[image] => https://akademik-stroy.ru/wp-content/uploads/materials/okna.jpg
[area_modifier] => 46.56
[parent_name] => Окна
[parent_id] => 26
[material_sum] => 0
[work_sum] => 0
[total_sum] => 0
[total_days] => 0
[display_material_sum] => 0
[display_work_sum] => 0
[display_total_sum] => 0
)
1
0₽
Работа:0 ₽
Материалы:0 ₽
Дни:0
stdClass Object
(
[id] => 53
[attribute_id] => 27
[name] => Есть
[material_modifier] => 1
[work_modifier] => 1
[options] => Array
(
)
[days] => [1]
[material_price] => [10000]
[work_price] => [5500]
[image] => https://akademik-stroy.ru/wp-content/uploads/materials/dveri.jpg
[area_modifier] => 1
[parent_name] => Двери входные
[parent_id] => 27
[material_sum] => 20400
[work_sum] => 9350
[total_sum] => 29750
[total_days] => 1
[display_material_sum] => 20 400
[display_work_sum] => 9 350
[display_total_sum] => 29 750
)
1
29 750₽
Работа:9 350 ₽
Материалы:20 400 ₽
Дни:1
stdClass Object
(
[id] => 54
[attribute_id] => 27
[name] => Нет
[material_modifier] => 1
[work_modifier] => 1
[options] => Array
(
)
[days] => [0]
[material_price] => [0]
[work_price] => [0]
[image] => https://akademik-stroy.ru/wp-content/uploads/materials/dveri.jpg
[area_modifier] => 1
[parent_name] => Двери входные
[parent_id] => 27
[material_sum] => 0
[work_sum] => 0
[total_sum] => 0
[total_days] => 0
[display_material_sum] => 0
[display_work_sum] => 0
[display_total_sum] => 0
)
1
0₽
Работа:0 ₽
Материалы:0 ₽
Дни:0
stdClass Object
(
[id] => 25
[attribute_id] => 13
[name] => Нет
[material_modifier] => 1
[work_modifier] => 1
[options] => Array
(
)
[days] => [0]
[material_price] => [0]
[work_price] => [0]
[image] => https://akademik-stroy.ru/wp-content/uploads/materials/mineralovata-krov.jpg
[area_modifier] => 57.38
[parent_name] => Утепление кровли (Мансарда)
[parent_id] => 13
[material_sum] => 0
[work_sum] => 0
[total_sum] => 0
[total_days] => 0
[display_material_sum] => 0
[display_work_sum] => 0
[display_total_sum] => 0
)
1
0₽
Работа:0 ₽
Материалы:0 ₽
Дни:0
stdClass Object
(
[id] => 26
[attribute_id] => 13
[name] => Минераловатный
[material_modifier] => 1
[work_modifier] => 1
[options] => Array
(
[0] => 50 мм
[1] => 100 мм
[2] => 150 мм
[3] => 200 мм
[4] => 250 мм
[5] => 300 мм
[6] => 350 мм
[7] => 400 мм
[8] => 450 мм
[9] => 500 мм
)
[days] => [5,5,6,6,6,7,7,7,8,8]
[material_price] => [1158,1414,1772,2230,3602,4060,4974,5890,6408,7718]
[work_price] => [650,846,846,1098,1318,1450,1596,1754,1930,2122]
[image] => https://akademik-stroy.ru/wp-content/uploads/materials/mineralovata-krov.jpg
[area_modifier] => 57.38
[parent_name] => Утепление кровли (Мансарда)
[parent_id] => 13
[material_sum] => 135550
[work_sum] => 63405
[total_sum] => 198955
[total_days] => 5
[display_material_sum] => 135 550
[display_work_sum] => 63 405
[display_total_sum] => 198 955
)
1
198 955₽
Работа:63 405 ₽
Материалы:135 550 ₽
Дни:5
stdClass Object
(
[id] => 123
[attribute_id] => 13
[name] => Эковата (целлюлозная вата)
[material_modifier] => 1
[work_modifier] => 1
[options] => Array
(
[0] => 50 мм
[1] => 100 мм
[2] => 150 мм
[3] => 200 мм
[4] => 250 мм
[5] => 300 мм
[6] => 350 мм
[7] => 400 мм
[8] => 450 мм
[9] => 500 мм
)
[days] => [3,3,4,4,4,5,5,5,5,5]
[material_price] => [820,1638,2458,3276,5734,6552,8190,9828,11466,13104]
[work_price] => [234,304,304,396,474,522,574,632,694,764]
[image] => https://akademik-stroy.ru/wp-content/uploads/materials/ehkovata-krov.jpg
[area_modifier] => 57.38
[parent_name] => Утепление кровли (Мансарда)
[parent_id] => 13
[material_sum] => 95985
[work_sum] => 22826
[total_sum] => 118811
[total_days] => 3
[display_material_sum] => 95 985
[display_work_sum] => 22 826
[display_total_sum] => 118 811
)
1
118 811₽
Работа:22 826 ₽
Материалы:95 985 ₽
Дни:3
stdClass Object
(
[id] => 124
[attribute_id] => 13
[name] => Экструдированный пенополистирол
[material_modifier] => 1
[work_modifier] => 1
[options] => Array
(
[0] => 50 мм
[1] => 100 мм
[2] => 150 мм
[3] => 200 мм
[4] => 250 мм
[5] => 300 мм
[6] => 350 мм
[7] => 400 мм
[8] => 450 мм
[9] => 500 мм
)
[days] => [3,3,4,4,4,5,5,5,5,6]
[material_price] => [1146,2292,3438,4584,8020,9166,11458,13750,16040,18332]
[work_price] => [390,508,508,660,790,870,958,1052,1158,1274]
[image] => https://akademik-stroy.ru/wp-content/uploads/materials/epps-krov.jpg
[area_modifier] => 57.38
[parent_name] => Утепление кровли (Мансарда)
[parent_id] => 13
[material_sum] => 134145
[work_sum] => 38043
[total_sum] => 172188
[total_days] => 3
[display_material_sum] => 134 145
[display_work_sum] => 38 043
[display_total_sum] => 172 188
)
1
172 188₽
Работа:38 043 ₽
Материалы:134 145 ₽
Дни:3
stdClass Object
(
[id] => 125
[attribute_id] => 13
[name] => ПСБ (ППС-пенополистирол)
[material_modifier] => 1
[work_modifier] => 1
[options] => Array
(
[0] => 50 мм
[1] => 100 мм
[2] => 150 мм
[3] => 200 мм
[4] => 250 мм
[5] => 300 мм
[6] => 350 мм
[7] => 400 мм
[8] => 450 мм
[9] => 500 мм
)
[days] => [3,3,4,4,4,5,5,5,5,6]
[material_price] => [476,954,1430,1906,3336,3814,4766,5720,6674,7626]
[work_price] => [390,508,508,660,790,870,958,1052,1158,1274]
[image] => https://akademik-stroy.ru/wp-content/uploads/materials/psb-krov.jpg
[area_modifier] => 57.38
[parent_name] => Утепление кровли (Мансарда)
[parent_id] => 13
[material_sum] => 55718
[work_sum] => 38043
[total_sum] => 93761
[total_days] => 3
[display_material_sum] => 55 718
[display_work_sum] => 38 043
[display_total_sum] => 93 761
)
1
93 761₽
Работа:38 043 ₽
Материалы:55 718 ₽
Дни:3
stdClass Object
(
[id] => 126
[attribute_id] => 13
[name] => ППУ (Пенополиуретан)
[material_modifier] => 1
[work_modifier] => 1
[options] => Array
(
[0] => 50 мм
[1] => 100 мм
[2] => 150 мм
[3] => 200 мм
[4] => 250 мм
[5] => 300 мм
[6] => 350 мм
[7] => 400 мм
[8] => 450 мм
[9] => 500 мм
)
[days] => [2,2,3,3,3,3,4,4,4,4]
[material_price] => [2080,4160,6240,8320,14560,16640,20800,24960,29120,33280]
[work_price] => [234,304,304,396,474,522,574,632,694,764]
[image] => https://akademik-stroy.ru/wp-content/uploads/materials/ppu-krov.jpg
[area_modifier] => 57.38
[parent_name] => Утепление кровли (Мансарда)
[parent_id] => 13
[material_sum] => 243475
[work_sum] => 22826
[total_sum] => 266301
[total_days] => 2
[display_material_sum] => 243 475
[display_work_sum] => 22 826
[display_total_sum] => 266 301
)
1
266 301₽
Работа:22 826 ₽
Материалы:243 475 ₽
Дни:2
stdClass Object
(
[id] => 127
[attribute_id] => 13
[name] => PIR-плиты (пенополиизоцианурат)
[material_modifier] => 1
[work_modifier] => 1
[options] => Array
(
[0] => 50 мм
[1] => 100 мм
[2] => 150 мм
[3] => 200 мм
[4] => 250 мм
[5] => 300 мм
[6] => 350 мм
[7] => 400 мм
[8] => 450 мм
[9] => 500 мм
)
[days] => [3,3,4,4,4,5,5,5,5,6]
[material_price] => [2646,5290,7936,10580,18516,21162,26452,31742,37032,42324]
[work_price] => [390,508,508,660,790,870,958,1052,1158,1274]
[image] => https://akademik-stroy.ru/wp-content/uploads/materials/pir-krov.jpg
[area_modifier] => 57.38
[parent_name] => Утепление кровли (Мансарда)
[parent_id] => 13
[material_sum] => 309728
[work_sum] => 38043
[total_sum] => 347771
[total_days] => 3
[display_material_sum] => 309 728
[display_work_sum] => 38 043
[display_total_sum] => 347 771
)
1
347 771₽
Работа:38 043 ₽
Материалы:309 728 ₽
Дни:3
stdClass Object
(
[id] => 27
[attribute_id] => 14
[name] => Нет
[material_modifier] => 1
[work_modifier] => 1
[options] => Array
(
)
[days] => [0]
[material_price] => [0]
[work_price] => [0]
[image] => https://akademik-stroy.ru/wp-content/uploads/materials/mansardnye-okna-2.jpg
[area_modifier] => 1
[parent_name] => Мансардные окна
[parent_id] => 14
[material_sum] => 0
[work_sum] => 0
[total_sum] => 0
[total_days] => 0
[display_material_sum] => 0
[display_work_sum] => 0
[display_total_sum] => 0
)
1
0₽
Работа:0 ₽
Материалы:0 ₽
Дни:0
stdClass Object
(
[id] => 28
[attribute_id] => 14
[name] => Есть
[material_modifier] => 1
[work_modifier] => 1
[options] => Array
(
[0] => 55x78
[1] => 55x98
)
[days] => [6,7]
[material_price] => [47480,68700]
[work_price] => [17900,19500]
[image] => https://akademik-stroy.ru/wp-content/uploads/materials/mansardnye-okna-2.jpg
[area_modifier] => 1
[parent_name] => Мансардные окна
[parent_id] => 14
[material_sum] => 96859
[work_sum] => 30430
[total_sum] => 127289
[total_days] => 6
[display_material_sum] => 96 859
[display_work_sum] => 30 430
[display_total_sum] => 127 289
)
1
127 289₽
Работа:30 430 ₽
Материалы:96 859 ₽
Дни:6
stdClass Object
(
[id] => 29
[attribute_id] => 15
[name] => Нет
[material_modifier] => 1
[work_modifier] => 1
[options] => Array
(
)
[days] => [0]
[material_price] => [0]
[work_price] => [0]
[image] => https://akademik-stroy.ru/wp-content/uploads/materials/sofit.jpg
[area_modifier] => 57.38
[parent_name] => Подшивка кровли
[parent_id] => 15
[material_sum] => 0
[work_sum] => 0
[total_sum] => 0
[total_days] => 0
[display_material_sum] => 0
[display_work_sum] => 0
[display_total_sum] => 0
)
1
0₽
Работа:0 ₽
Материалы:0 ₽
Дни:0
stdClass Object
(
[id] => 30
[attribute_id] => 15
[name] => Есть
[material_modifier] => 1
[work_modifier] => 1
[options] => Array
(
[0] => Софиты (ПВХ)
[1] => Cedral
[2] => ДПК
[3] => Планкен
)
[days] => [7,10,9,8]
[material_price] => [1803,3213,3025,3150]
[work_price] => [1529,2188,2075,1923]
[image] => https://akademik-stroy.ru/wp-content/uploads/materials/sofit.jpg
[area_modifier] => 57.38
[parent_name] => Подшивка кровли
[parent_id] => 15
[material_sum] => 211051
[work_sum] => 149148
[total_sum] => 360199
[total_days] => 7
[display_material_sum] => 211 051
[display_work_sum] => 149 148
[display_total_sum] => 360 199
)
1
360 199₽
Работа:149 148 ₽
Материалы:211 051 ₽
Дни:7
stdClass Object
(
[id] => 31
[attribute_id] => 16
[name] => Нет
[material_modifier] => 1
[work_modifier] => 1
[options] => Array
(
)
[days] => [0]
[material_price] => [0]
[work_price] => [0]
[image] => https://akademik-stroy.ru/wp-content/uploads/materials/docke-standard-pvh.jpg
[area_modifier] => 57.38
[parent_name] => Водосточная система
[parent_id] => 16
[material_sum] => 0
[work_sum] => 0
[total_sum] => 0
[total_days] => 0
[display_material_sum] => 0
[display_work_sum] => 0
[display_total_sum] => 0
)
1
0₽
Работа:0 ₽
Материалы:0 ₽
Дни:0
stdClass Object
(
[id] => 32
[attribute_id] => 16
[name] => Есть
[material_modifier] => 1
[work_modifier] => 1
[options] => Array
(
[0] => Döcke Standard (ПВХ)
[1] => Металлические Grand Line
)
[days] => [7,7]
[material_price] => [1842,2703]
[work_price] => [1491,1529]
[image] => https://akademik-stroy.ru/wp-content/uploads/materials/docke-standard-pvh.jpg
[area_modifier] => 57.38
[parent_name] => Водосточная система
[parent_id] => 16
[material_sum] => 215616
[work_sum] => 145441
[total_sum] => 361057
[total_days] => 7
[display_material_sum] => 215 616
[display_work_sum] => 145 441
[display_total_sum] => 361 057
)
1
361 057₽
Работа:145 441 ₽
Материалы:215 616 ₽
Дни:7
stdClass Object
(
[id] => 33
[attribute_id] => 17
[name] => Нет
[material_modifier] => 1
[work_modifier] => 1
[options] => Array
(
)
[days] => [0]
[material_price] => [0]
[work_price] => [0]
[image] => https://akademik-stroy.ru/wp-content/uploads/materials/mineralovata.jpg
[area_modifier] => 57.38
[parent_name] => Дополнительное утепление наружных стен
[parent_id] => 17
[material_sum] => 0
[work_sum] => 0
[total_sum] => 0
[total_days] => 0
[display_material_sum] => 0
[display_work_sum] => 0
[display_total_sum] => 0
)
1
0₽
Работа:0 ₽
Материалы:0 ₽
Дни:0
stdClass Object
(
[id] => 34
[attribute_id] => 17
[name] => Минераловатный
[material_modifier] => 1
[work_modifier] => 1
[options] => Array
(
[0] => 50 мм
[1] => 100 мм
[2] => 150 мм
[3] => 200 мм
[4] => 250 мм
[5] => 300 мм
)
[days] => [7,8,10,12,14,15]
[material_price] => [3437,3613,3803,3915,4601,4830]
[work_price] => [2325,2423,2523,2749,2859,3025]
[image] => https://akademik-stroy.ru/wp-content/uploads/materials/mineralovata.jpg
[area_modifier] => 57.38
[parent_name] => Дополнительное утепление наружных стен
[parent_id] => 17
[material_sum] => 402319
[work_sum] => 226794
[total_sum] => 629113
[total_days] => 7
[display_material_sum] => 402 319
[display_work_sum] => 226 794
[display_total_sum] => 629 113
)
1
629 113₽
Работа:226 794 ₽
Материалы:402 319 ₽
Дни:7
stdClass Object
(
[id] => 128
[attribute_id] => 17
[name] => Эковата (целлюлозная вата)
[material_modifier] => 1
[work_modifier] => 1
[options] => Array
(
[0] => 50 мм
[1] => 100 мм
[2] => 150 мм
[3] => 200 мм
[4] => 250 мм
[5] => 300 мм
)
[days] => [3,4,5,6,7,8]
[material_price] => [810,1319,1629,1838,2267,2676]
[work_price] => [1225,1323,1423,1549,1659,1725]
[image] => https://akademik-stroy.ru/wp-content/uploads/materials/ehkovata.jpg
[area_modifier] => 57.38
[parent_name] => Дополнительное утепление наружных стен
[parent_id] => 17
[material_sum] => 94815
[work_sum] => 119494
[total_sum] => 214309
[total_days] => 3
[display_material_sum] => 94 815
[display_work_sum] => 119 494
[display_total_sum] => 214 309
)
1
214 309₽
Работа:119 494 ₽
Материалы:94 815 ₽
Дни:3
stdClass Object
(
[id] => 129
[attribute_id] => 17
[name] => Экструдированный пенополистирол
[material_modifier] => 1
[work_modifier] => 1
[options] => Array
(
[0] => 50 мм
[1] => 100 мм
[2] => 150 мм
[3] => 200 мм
[4] => 250 мм
[5] => 300 мм
)
[days] => [5,6,7,8,9,10]
[material_price] => [4560,4300,5119,6292,7010,8583]
[work_price] => [1795,1954,2254,2330,2595,2735]
[image] => https://akademik-stroy.ru/wp-content/uploads/materials/epps.jpg
[area_modifier] => 57.38
[parent_name] => Дополнительное утепление наружных стен
[parent_id] => 17
[material_sum] => 533772
[work_sum] => 175095
[total_sum] => 708867
[total_days] => 5
[display_material_sum] => 533 772
[display_work_sum] => 175 095
[display_total_sum] => 708 867
)
1
708 867₽
Работа:175 095 ₽
Материалы:533 772 ₽
Дни:5
stdClass Object
(
[id] => 130
[attribute_id] => 17
[name] => ПСБ (ППС-пенополистирол)
[material_modifier] => 1
[work_modifier] => 1
[options] => Array
(
[0] => 50 мм
[1] => 100 мм
[2] => 150 мм
[3] => 200 мм
[4] => 250 мм
[5] => 300 мм
)
[days] => [5,6,7,8,9,10]
[material_price] => [4822,5200,5819,6292,7010,7583]
[work_price] => [1795,1954,2254,2330,2595,2735]
[image] => https://akademik-stroy.ru/wp-content/uploads/materials/psb.jpg
[area_modifier] => 57.38
[parent_name] => Дополнительное утепление наружных стен
[parent_id] => 17
[material_sum] => 564440
[work_sum] => 175095
[total_sum] => 739535
[total_days] => 5
[display_material_sum] => 564 440
[display_work_sum] => 175 095
[display_total_sum] => 739 535
)
1
739 535₽
Работа:175 095 ₽
Материалы:564 440 ₽
Дни:5
stdClass Object
(
[id] => 131
[attribute_id] => 17
[name] => ППУ (Пенополиуретан)
[material_modifier] => 1
[work_modifier] => 1
[options] => Array
(
[0] => 50 мм
[1] => 100 мм
[2] => 150 мм
[3] => 200 мм
[4] => 250 мм
[5] => 300 мм
)
[days] => [3,4,5,6,7,8]
[material_price] => [2860,3400,4219,4592,5010,5583]
[work_price] => [729,900,980,1120,1280,1530]
[image] => https://akademik-stroy.ru/wp-content/uploads/materials/ppu.jpg
[area_modifier] => 57.38
[parent_name] => Дополнительное утепление наружных стен
[parent_id] => 17
[material_sum] => 334778
[work_sum] => 71111
[total_sum] => 405889
[total_days] => 3
[display_material_sum] => 334 778
[display_work_sum] => 71 111
[display_total_sum] => 405 889
)
1
405 889₽
Работа:71 111 ₽
Материалы:334 778 ₽
Дни:3
stdClass Object
(
[id] => 132
[attribute_id] => 17
[name] => PIR-плиты (пенополиизоцианурат)
[material_modifier] => 1
[work_modifier] => 1
[options] => Array
(
[0] => 50 мм
[1] => 100 мм
[2] => 150 мм
[3] => 200 мм
[4] => 250 мм
[5] => 300 мм
)
[days] => [5,6,7,8,9,10]
[material_price] => [8323,15645,20968,25900,29258,30581]
[work_price] => [800,900,970,1150,1280,1330]
[image] => https://akademik-stroy.ru/wp-content/uploads/materials/pir.jpg
[area_modifier] => 57.38
[parent_name] => Дополнительное утепление наружных стен
[parent_id] => 17
[material_sum] => 974250
[work_sum] => 78037
[total_sum] => 1052287
[total_days] => 5
[display_material_sum] => 974 250
[display_work_sum] => 78 037
[display_total_sum] => 1 052 287
)
1
1 052 287₽
Работа:78 037 ₽
Материалы:974 250 ₽
Дни:5
stdClass Object
(
[id] => 37
[attribute_id] => 19
[name] => Нет
[material_modifier] => 1
[work_modifier] => 1
[options] => Array
(
)
[days] => [0]
[material_price] => [0]
[work_price] => [0]
[image] => https://akademik-stroy.ru/wp-content/uploads/materials/imitaciya-brusa.jpg
[area_modifier] => 57.38
[parent_name] => Наружная отделка фасада
[parent_id] => 19
[material_sum] => 0
[work_sum] => 0
[total_sum] => 0
[total_days] => 0
[display_material_sum] => 0
[display_work_sum] => 0
[display_total_sum] => 0
)
1
0₽
Работа:0 ₽
Материалы:0 ₽
Дни:0
stdClass Object
(
[id] => 38
[attribute_id] => 19
[name] => Имитация бруса
[material_modifier] => 1
[work_modifier] => 1
[options] => Array
(
[0] => Сосна
[1] => Ель
[2] => Лиственница
)
[days] => [20,20,20]
[material_price] => [2994,2762,4954]
[work_price] => [1397,1231,1577]
[image] => https://akademik-stroy.ru/wp-content/uploads/materials/imitaciya-brusa.jpg
[area_modifier] => 57.38
[parent_name] => Наружная отделка фасада
[parent_id] => 19
[material_sum] => 350463
[work_sum] => 136272
[total_sum] => 486735
[total_days] => 20
[display_material_sum] => 350 463
[display_work_sum] => 136 272
[display_total_sum] => 486 735
)
1
486 735₽
Работа:136 272 ₽
Материалы:350 463 ₽
Дни:20
stdClass Object
(
[id] => 136
[attribute_id] => 19
[name] => Планкен
[material_modifier] => 1
[work_modifier] => 1
[options] => Array
(
[0] => Сосна
[1] => Ель
[2] => Лиственница
)
[days] => [20,20,20]
[material_price] => [3194,2862,5154]
[work_price] => [1537,1354,1735]
[image] => https://akademik-stroy.ru/wp-content/uploads/materials/planken.jpg
[area_modifier] => 57.38
[parent_name] => Наружная отделка фасада
[parent_id] => 19
[material_sum] => 373874
[work_sum] => 149928
[total_sum] => 523802
[total_days] => 20
[display_material_sum] => 373 874
[display_work_sum] => 149 928
[display_total_sum] => 523 802
)
1
523 802₽
Работа:149 928 ₽
Материалы:373 874 ₽
Дни:20
stdClass Object
(
[id] => 137
[attribute_id] => 19
[name] => Штукатурка
[material_modifier] => 1
[work_modifier] => 1
[options] => Array
(
[0] => Цементно-песчаная (минеральная)
[1] => Мокрый фасад
)
[days] => [35,35]
[material_price] => [2231,3938]
[work_price] => [1202,2422]
[image] => https://akademik-stroy.ru/wp-content/uploads/materials/shtukaturka.jpg
[area_modifier] => 57.38
[parent_name] => Наружная отделка фасада
[parent_id] => 19
[material_sum] => 261150
[work_sum] => 117250
[total_sum] => 378400
[total_days] => 35
[display_material_sum] => 261 150
[display_work_sum] => 117 250
[display_total_sum] => 378 400
)
1
378 400₽
Работа:117 250 ₽
Материалы:261 150 ₽
Дни:35
stdClass Object
(
[id] => 138
[attribute_id] => 19
[name] => Облицовочный кирпич
[material_modifier] => 1
[work_modifier] => 1
[options] => Array
(
[0] => Керамический
[1] => Клинкерный
[2] => Ручной формовки
[3] => Гиперпрессованный
[4] => Силикатный кирпич
)
[days] => [45,45,45,45,45]
[material_price] => [8174,9148,1040,1257,5876]
[work_price] => [3240,3758,4536,4017,3369]
[image] => https://akademik-stroy.ru/wp-content/uploads/materials/oblicovochnyj-kirpich.jpg
[area_modifier] => 57.38
[parent_name] => Наружная отделка фасада
[parent_id] => 19
[material_sum] => 956809
[work_sum] => 316049
[total_sum] => 1272858
[total_days] => 45
[display_material_sum] => 956 809
[display_work_sum] => 316 049
[display_total_sum] => 1 272 858
)
1
1 272 858₽
Работа:316 049 ₽
Материалы:956 809 ₽
Дни:45
stdClass Object
(
[id] => 139
[attribute_id] => 19
[name] => Фасадная плитка
[material_modifier] => 1
[work_modifier] => 1
[options] => Array
(
[0] => Клинкерная
[1] => Керамическая
[2] => Плитка ручной формовки
)
[days] => [40,40,40]
[material_price] => [2974,1487,3470]
[work_price] => [3007,2592,3629]
[image] => https://akademik-stroy.ru/wp-content/uploads/materials/fasadnaya-plitka.jpg
[area_modifier] => 57.38
[parent_name] => Наружная отделка фасада
[parent_id] => 19
[material_sum] => 348122
[work_sum] => 293321
[total_sum] => 641443
[total_days] => 40
[display_material_sum] => 348 122
[display_work_sum] => 293 321
[display_total_sum] => 641 443
)
1
641 443₽
Работа:293 321 ₽
Материалы:348 122 ₽
Дни:40
stdClass Object
(
[id] => 140
[attribute_id] => 19
[name] => Сайдинг
[material_modifier] => 1
[work_modifier] => 1
[options] => Array
(
[0] => Виниловый
[1] => Металлический
[2] => Фиброцементный
)
[days] => [20,20,20]
[material_price] => [1263,1944,4147]
[work_price] => [1263,1944,2074]
[image] => https://akademik-stroy.ru/wp-content/uploads/materials/sajding.jpg
[area_modifier] => 57.38
[parent_name] => Наружная отделка фасада
[parent_id] => 19
[material_sum] => 147841
[work_sum] => 123201
[total_sum] => 271042
[total_days] => 20
[display_material_sum] => 147 841
[display_work_sum] => 123 201
[display_total_sum] => 271 042
)
1
271 042₽
Работа:123 201 ₽
Материалы:147 841 ₽
Дни:20
stdClass Object
(
[id] => 141
[attribute_id] => 19
[name] => Камень
[material_modifier] => 1
[work_modifier] => 1
[options] => Array
(
[0] => Травертин
[1] => Дагестанский
[2] => Искусственный
[3] => Натуральный
[4] => Керамогранит
)
[days] => [45,45,45,45,45]
[material_price] => [4536,3888,2592,3240,2462]
[work_price] => [3240,3240,2462,3110,1944]
[image] => https://akademik-stroy.ru/wp-content/uploads/materials/kamen-1.jpg
[area_modifier] => 57.38
[parent_name] => Наружная отделка фасада
[parent_id] => 19
[material_sum] => 530962
[work_sum] => 316049
[total_sum] => 847011
[total_days] => 45
[display_material_sum] => 530 962
[display_work_sum] => 316 049
[display_total_sum] => 847 011
)
1
847 011₽
Работа:316 049 ₽
Материалы:530 962 ₽
Дни:45
stdClass Object
(
[id] => 142
[attribute_id] => 19
[name] => Термопанели
[material_modifier] => 1
[work_modifier] => 1
[options] => Array
(
)
[days] => [20]
[material_price] => [6221]
[work_price] => [2333]
[image] => https://akademik-stroy.ru/wp-content/uploads/materials/termo.png
[area_modifier] => 57.38
[parent_name] => Наружная отделка фасада
[parent_id] => 19
[material_sum] => 728200
[work_sum] => 227575
[total_sum] => 955775
[total_days] => 20
[display_material_sum] => 728 200
[display_work_sum] => 227 575
[display_total_sum] => 955 775
)
1
955 775₽
Работа:227 575 ₽
Материалы:728 200 ₽
Дни:20
stdClass Object
(
[id] => 143
[attribute_id] => 19
[name] => Плитка HAUBERK
[material_modifier] => 1
[work_modifier] => 1
[options] => Array
(
)
[days] => [20]
[material_price] => [2786]
[work_price] => [1944]
[image] => https://akademik-stroy.ru/wp-content/uploads/materials/hauberk.jpg
[area_modifier] => 57.38
[parent_name] => Наружная отделка фасада
[parent_id] => 19
[material_sum] => 326116
[work_sum] => 189629
[total_sum] => 515745
[total_days] => 20
[display_material_sum] => 326 116
[display_work_sum] => 189 629
[display_total_sum] => 515 745
)
1
515 745₽
Работа:189 629 ₽
Материалы:326 116 ₽
Дни:20
stdClass Object
(
[id] => 144
[attribute_id] => 19
[name] => Фальцевый фасад
[material_modifier] => 1
[work_modifier] => 1
[options] => Array
(
)
[days] => [20]
[material_price] => [3240]
[work_price] => [2592]
[image] => https://akademik-stroy.ru/wp-content/uploads/materials/falcevyj-fasad.jpg
[area_modifier] => 57.38
[parent_name] => Наружная отделка фасада
[parent_id] => 19
[material_sum] => 379259
[work_sum] => 252839
[total_sum] => 632098
[total_days] => 20
[display_material_sum] => 379 259
[display_work_sum] => 252 839
[display_total_sum] => 632 098
)
1
632 098₽
Работа:252 839 ₽
Материалы:379 259 ₽
Дни:20
stdClass Object
(
[id] => 145
[attribute_id] => 19
[name] => Комбинированный
[material_modifier] => 1
[work_modifier] => 1
[options] => Array
(
)
[days] => [20]
[material_price] => [4629]
[work_price] => [3499]
[image] => https://akademik-stroy.ru/wp-content/uploads/materials/Kombinirovannyj.jpg
[area_modifier] => 57.38
[parent_name] => Наружная отделка фасада
[parent_id] => 19
[material_sum] => 541849
[work_sum] => 341313
[total_sum] => 883162
[total_days] => 20
[display_material_sum] => 541 849
[display_work_sum] => 341 313
[display_total_sum] => 883 162
)
1
883 162₽
Работа:341 313 ₽
Материалы:541 849 ₽
Дни:20
stdClass Object
(
[id] => 257
[attribute_id] => 19
[name] => Японские фиброцементные
[material_modifier] => 1
[work_modifier] => 1
[options] => Array
(
)
[days] => [20]
[material_price] => [7043]
[work_price] => [2993]
[image] => https://akademik-stroy.ru/wp-content/uploads/materials/paneli.jpg
[area_modifier] => 57.38
[parent_name] => Наружная отделка фасада
[parent_id] => 19
[material_sum] => 824420
[work_sum] => 291955
[total_sum] => 1116375
[total_days] => 20
[display_material_sum] => 824 420
[display_work_sum] => 291 955
[display_total_sum] => 1 116 375
)
1
1 116 375₽
Работа:291 955 ₽
Материалы:824 420 ₽
Дни:20
stdClass Object
(
[id] => 258
[attribute_id] => 19
[name] => Панели Каньон
[material_modifier] => 1
[work_modifier] => 1
[options] => Array
(
)
[days] => [20]
[material_price] => [4543]
[work_price] => [2592]
[image] => https://akademik-stroy.ru/wp-content/uploads/materials/kanon.png
[area_modifier] => 57.38
[parent_name] => Наружная отделка фасада
[parent_id] => 19
[material_sum] => 531782
[work_sum] => 252839
[total_sum] => 784621
[total_days] => 20
[display_material_sum] => 531 782
[display_work_sum] => 252 839
[display_total_sum] => 784 621
)
1
784 621₽
Работа:252 839 ₽
Материалы:531 782 ₽
Дни:20
stdClass Object
(
[id] => 39
[attribute_id] => 20
[name] => Нет
[material_modifier] => 1
[work_modifier] => 1
[options] => Array
(
)
[days] => [0]
[material_price] => [0]
[work_price] => [0]
[image] => https://akademik-stroy.ru/wp-content/uploads/materials/terrasy.jpg
[area_modifier] => 30
[parent_name] => Террасы, крыльца, навесы
[parent_id] => 20
[material_sum] => 0
[work_sum] => 0
[total_sum] => 0
[total_days] => 0
[display_material_sum] => 0
[display_work_sum] => 0
[display_total_sum] => 0
)
1
0₽
Работа:0 ₽
Материалы:0 ₽
Дни:0
stdClass Object
(
[id] => 40
[attribute_id] => 20
[name] => Есть
[material_modifier] => 1
[work_modifier] => 1
[options] => Array
(
)
[days] => [5]
[material_price] => [10450]
[work_price] => [1950]
[image] => https://akademik-stroy.ru/wp-content/uploads/materials/terrasy.jpg
[area_modifier] => 30
[parent_name] => Террасы, крыльца, навесы
[parent_id] => 20
[material_sum] => 639540
[work_sum] => 99450
[total_sum] => 738990
[total_days] => 5
[display_material_sum] => 639 540
[display_work_sum] => 99 450
[display_total_sum] => 738 990
)
1
738 990₽
Работа:99 450 ₽
Материалы:639 540 ₽
Дни:5
stdClass Object
(
[id] => 41
[attribute_id] => 21
[name] => Нет
[material_modifier] => 1
[work_modifier] => 1
[options] => Array
(
)
[days] => [0]
[material_price] => [0]
[work_price] => [0]
[image] => https://akademik-stroy.ru/wp-content/uploads/materials/balkony.jpg
[area_modifier] => 30
[parent_name] => Балконы
[parent_id] => 21
[material_sum] => 0
[work_sum] => 0
[total_sum] => 0
[total_days] => 0
[display_material_sum] => 0
[display_work_sum] => 0
[display_total_sum] => 0
)
1
0₽
Работа:0 ₽
Материалы:0 ₽
Дни:0
stdClass Object
(
[id] => 42
[attribute_id] => 21
[name] => Есть
[material_modifier] => 1
[work_modifier] => 1
[options] => Array
(
)
[days] => [12]
[material_price] => [3600]
[work_price] => [1950]
[image] => https://akademik-stroy.ru/wp-content/uploads/materials/balkony.jpg
[area_modifier] => 30
[parent_name] => Балконы
[parent_id] => 21
[material_sum] => 220320
[work_sum] => 99450
[total_sum] => 319770
[total_days] => 12
[display_material_sum] => 220 320
[display_work_sum] => 99 450
[display_total_sum] => 319 770
)
1
319 770₽
Работа:99 450 ₽
Материалы:220 320 ₽
Дни:12
stdClass Object
(
[id] => 43
[attribute_id] => 22
[name] => Нет
[material_modifier] => 1
[work_modifier] => 1
[options] => Array
(
)
[days] => [0]
[material_price] => [0]
[work_price] => [0]
[image] => https://akademik-stroy.ru/wp-content/uploads/materials/uteplennaya.jpg
[area_modifier] => 57.38
[parent_name] => Отмостка
[parent_id] => 22
[material_sum] => 0
[work_sum] => 0
[total_sum] => 0
[total_days] => 0
[display_material_sum] => 0
[display_work_sum] => 0
[display_total_sum] => 0
)
1
0₽
Работа:0 ₽
Материалы:0 ₽
Дни:0
stdClass Object
(
[id] => 44
[attribute_id] => 22
[name] => Утепленная отмостка
[material_modifier] => 1
[work_modifier] => 1
[options] => Array
(
)
[days] => [15]
[material_price] => [2550]
[work_price] => [1750]
[image] => https://akademik-stroy.ru/wp-content/uploads/materials/uteplennaya.jpg
[area_modifier] => 57.38
[parent_name] => Отмостка
[parent_id] => 22
[material_sum] => 298491
[work_sum] => 170706
[total_sum] => 469197
[total_days] => 15
[display_material_sum] => 298 491
[display_work_sum] => 170 706
[display_total_sum] => 469 197
)
1
469 197₽
Работа:170 706 ₽
Материалы:298 491 ₽
Дни:15
stdClass Object
(
[id] => 146
[attribute_id] => 22
[name] => Не утепленная отмостка
[material_modifier] => 1
[work_modifier] => 1
[options] => Array
(
)
[days] => [10]
[material_price] => [1650]
[work_price] => [1450]
[image] => https://akademik-stroy.ru/wp-content/uploads/materials/ne-uteplennaya.jpg
[area_modifier] => 57.38
[parent_name] => Отмостка
[parent_id] => 22
[material_sum] => 193141
[work_sum] => 141442
[total_sum] => 334583
[total_days] => 10
[display_material_sum] => 193 141
[display_work_sum] => 141 442
[display_total_sum] => 334 583
)
1
334 583₽
Работа:141 442 ₽
Материалы:193 141 ₽
Дни:10
stdClass Object
(
[id] => 45
[attribute_id] => 23
[name] => Нет
[material_modifier] => 1
[work_modifier] => 1
[options] => Array
(
)
[days] => [0]
[material_price] => [0]
[work_price] => [0]
[image] => https://akademik-stroy.ru/wp-content/uploads/materials/drenazh-2.jpg
[area_modifier] => 57.38
[parent_name] => Дренаж вокруг дома
[parent_id] => 23
[material_sum] => 0
[work_sum] => 0
[total_sum] => 0
[total_days] => 0
[display_material_sum] => 0
[display_work_sum] => 0
[display_total_sum] => 0
)
1
0₽
Работа:0 ₽
Материалы:0 ₽
Дни:0
stdClass Object
(
[id] => 46
[attribute_id] => 23
[name] => Есть
[material_modifier] => 1
[work_modifier] => 1
[options] => Array
(
)
[days] => [5]
[material_price] => [2366]
[work_price] => [1911]
[image] => https://akademik-stroy.ru/wp-content/uploads/materials/drenazh-2.jpg
[area_modifier] => 57.38
[parent_name] => Дренаж вокруг дома
[parent_id] => 23
[material_sum] => 276953
[work_sum] => 186410
[total_sum] => 463363
[total_days] => 5
[display_material_sum] => 276 953
[display_work_sum] => 186 410
[display_total_sum] => 463 363
)
1
463 363₽
Работа:186 410 ₽
Материалы:276 953 ₽
Дни:5
stdClass Object
(
[id] => 47
[attribute_id] => 24
[name] => Нет
[material_modifier] => 1
[work_modifier] => 1
[options] => Array
(
)
[days] => [0]
[material_price] => [0]
[work_price] => [0]
[image] => https://akademik-stroy.ru/wp-content/uploads/materials/septik.jpg
[area_modifier] => 1
[parent_name] => Автономная канализация (септики)
[parent_id] => 24
[material_sum] => 0
[work_sum] => 0
[total_sum] => 0
[total_days] => 0
[display_material_sum] => 0
[display_work_sum] => 0
[display_total_sum] => 0
)
1
0₽
Работа:0 ₽
Материалы:0 ₽
Дни:0
stdClass Object
(
[id] => 48
[attribute_id] => 24
[name] => Есть
[material_modifier] => 1
[work_modifier] => 1
[options] => Array
(
[0] => Для дачи на 4 человека
[1] => Для дома на 5 человек
[2] => Для дома на 6 человек
[3] => Для дома на 7 человек
[4] => Для дома на 10 человек
)
[days] => [7,7,7,8,8]
[material_price] => [196340,220500,240940,264200,293340]
[work_price] => [50000,55000,60500,66550,73206]
[image] => https://akademik-stroy.ru/wp-content/uploads/materials/septik.jpg
[area_modifier] => 1
[parent_name] => Автономная канализация (септики)
[parent_id] => 24
[material_sum] => 400534
[work_sum] => 85000
[total_sum] => 485534
[total_days] => 7
[display_material_sum] => 400 534
[display_work_sum] => 85 000
[display_total_sum] => 485 534
)
1
485 534₽
Работа:85 000 ₽
Материалы:400 534 ₽
Дни:7
stdClass Object
(
[id] => 49
[attribute_id] => 25
[name] => Нет
[material_modifier] => 1
[work_modifier] => 1
[options] => Array
(
)
[days] => [0]
[material_price] => [0]
[work_price] => [0]
[image] => https://akademik-stroy.ru/wp-content/uploads/materials/gkl.jpg
[area_modifier] => 57.38
[parent_name] => Внутренние (не несущие) перегородки
[parent_id] => 25
[material_sum] => 0
[work_sum] => 0
[total_sum] => 0
[total_days] => 0
[display_material_sum] => 0
[display_work_sum] => 0
[display_total_sum] => 0
)
1
0₽
Работа:0 ₽
Материалы:0 ₽
Дни:0
stdClass Object
(
[id] => 147
[attribute_id] => 25
[name] => Каркасно-обшивные
[material_modifier] => 1
[work_modifier] => 1
[options] => Array
(
[0] => 75 мм (без шумоизоляции)
[1] => 75 мм (с шумоизоляцией)
)
[days] => [11,11]
[material_price] => [580,970]
[work_price] => [380,570]
[image] => https://akademik-stroy.ru/wp-content/uploads/materials/gkl.jpg
[area_modifier] => 57.38
[parent_name] => Внутренние (не несущие) перегородки
[parent_id] => 25
[material_sum] => 67892
[work_sum] => 37067
[total_sum] => 104959
[total_days] => 11
[display_material_sum] => 67 892
[display_work_sum] => 37 067
[display_total_sum] => 104 959
)
1
104 959₽
Работа:37 067 ₽
Материалы:67 892 ₽
Дни:11
stdClass Object
(
[id] => 148
[attribute_id] => 25
[name] => Пазогребневые
[material_modifier] => 1
[work_modifier] => 1
[options] => Array
(
[0] => 80 мм
[1] => 100 мм
)
[days] => [5,5]
[material_price] => [1022,1313]
[work_price] => [600,700]
[image] => https://akademik-stroy.ru/wp-content/uploads/materials/pazogrebnevye-bloki.jpg
[area_modifier] => 57.38
[parent_name] => Внутренние (не несущие) перегородки
[parent_id] => 25
[material_sum] => 119630
[work_sum] => 58528
[total_sum] => 178158
[total_days] => 5
[display_material_sum] => 119 630
[display_work_sum] => 58 528
[display_total_sum] => 178 158
)
1
178 158₽
Работа:58 528 ₽
Материалы:119 630 ₽
Дни:5
stdClass Object
(
[id] => 149
[attribute_id] => 25
[name] => Газобетонные
[material_modifier] => 1
[work_modifier] => 1
[options] => Array
(
[0] => 100 мм
[1] => 200 мм
)
[days] => [11,11]
[material_price] => [1160,1920]
[work_price] => [700,900]
[image] => https://akademik-stroy.ru/wp-content/uploads/materials/gazobeton-2.jpg
[area_modifier] => 57.38
[parent_name] => Внутренние (не несущие) перегородки
[parent_id] => 25
[material_sum] => 135784
[work_sum] => 68282
[total_sum] => 204066
[total_days] => 11
[display_material_sum] => 135 784
[display_work_sum] => 68 282
[display_total_sum] => 204 066
)
1
204 066₽
Работа:68 282 ₽
Материалы:135 784 ₽
Дни:11
stdClass Object
(
[id] => 150
[attribute_id] => 25
[name] => Кирпичные
[material_modifier] => 1
[work_modifier] => 1
[options] => Array
(
[0] => 120 мм
[1] => 250 мм
[2] => 360 мм
)
[days] => [7,7,7]
[material_price] => [1785,3570,5355]
[work_price] => [900,1600,1800]
[image] => https://akademik-stroy.ru/wp-content/uploads/materials/kirpich-1.jpg
[area_modifier] => 57.38
[parent_name] => Внутренние (не несущие) перегородки
[parent_id] => 25
[material_sum] => 208944
[work_sum] => 87791
[total_sum] => 296735
[total_days] => 7
[display_material_sum] => 208 944
[display_work_sum] => 87 791
[display_total_sum] => 296 735
)
1
296 735₽
Работа:87 791 ₽
Материалы:208 944 ₽
Дни:7
stdClass Object
(
[id] => 55
[attribute_id] => 28
[name] => Нет
[material_modifier] => 1
[work_modifier] => 1
[options] => Array
(
)
[days] => [0]
[material_price] => [0]
[work_price] => [0]
[image] => https://akademik-stroy.ru/wp-content/uploads/materials/ehlektrika.jpg
[area_modifier] => 46.56
[parent_name] => Электрика
[parent_id] => 28
[material_sum] => 0
[work_sum] => 0
[total_sum] => 0
[total_days] => 0
[display_material_sum] => 0
[display_work_sum] => 0
[display_total_sum] => 0
)
1
0₽
Работа:0 ₽
Материалы:0 ₽
Дни:0
stdClass Object
(
[id] => 56
[attribute_id] => 28
[name] => Есть
[material_modifier] => 1
[work_modifier] => 1
[options] => Array
(
)
[days] => [10]
[material_price] => [650]
[work_price] => [950]
[image] => https://akademik-stroy.ru/wp-content/uploads/materials/ehlektrika.jpg
[area_modifier] => 46.56
[parent_name] => Электрика
[parent_id] => 28
[material_sum] => 61739
[work_sum] => 75194
[total_sum] => 136933
[total_days] => 10
[display_material_sum] => 61 739
[display_work_sum] => 75 194
[display_total_sum] => 136 933
)
1
136 933₽
Работа:75 194 ₽
Материалы:61 739 ₽
Дни:10
stdClass Object
(
[id] => 57
[attribute_id] => 29
[name] => Нет
[material_modifier] => 1
[work_modifier] => 1
[options] => Array
(
)
[days] => [0]
[material_price] => [0]
[work_price] => [0]
[image] => https://akademik-stroy.ru/wp-content/uploads/materials/santekhnika-kanalizaciya-1.jpg
[area_modifier] => 46.56
[parent_name] => Сантехника, канализация в доме
[parent_id] => 29
[material_sum] => 0
[work_sum] => 0
[total_sum] => 0
[total_days] => 0
[display_material_sum] => 0
[display_work_sum] => 0
[display_total_sum] => 0
)
1
0₽
Работа:0 ₽
Материалы:0 ₽
Дни:0
stdClass Object
(
[id] => 58
[attribute_id] => 29
[name] => Есть
[material_modifier] => 1
[work_modifier] => 1
[options] => Array
(
)
[days] => [10]
[material_price] => [600]
[work_price] => [730]
[image] => https://akademik-stroy.ru/wp-content/uploads/materials/santekhnika-kanalizaciya-1.jpg
[area_modifier] => 46.56
[parent_name] => Сантехника, канализация в доме
[parent_id] => 29
[material_sum] => 56989
[work_sum] => 57781
[total_sum] => 114770
[total_days] => 10
[display_material_sum] => 56 989
[display_work_sum] => 57 781
[display_total_sum] => 114 770
)
1
114 770₽
Работа:57 781 ₽
Материалы:56 989 ₽
Дни:10
stdClass Object
(
[id] => 59
[attribute_id] => 30
[name] => Нет
[material_modifier] => 1
[work_modifier] => 1
[options] => Array
(
)
[days] => [0]
[material_price] => [0]
[work_price] => [0]
[image] => https://akademik-stroy.ru/wp-content/uploads/materials/otoplenie-1.jpg
[area_modifier] => 46.56
[parent_name] => Отопление
[parent_id] => 30
[material_sum] => 0
[work_sum] => 0
[total_sum] => 0
[total_days] => 0
[display_material_sum] => 0
[display_work_sum] => 0
[display_total_sum] => 0
)
1
0₽
Работа:0 ₽
Материалы:0 ₽
Дни:0
stdClass Object
(
[id] => 60
[attribute_id] => 30
[name] => Есть
[material_modifier] => 1
[work_modifier] => 1
[options] => Array
(
)
[days] => [5]
[material_price] => [610]
[work_price] => [560]
[image] => https://akademik-stroy.ru/wp-content/uploads/materials/otoplenie-1.jpg
[area_modifier] => 46.56
[parent_name] => Отопление
[parent_id] => 30
[material_sum] => 57939
[work_sum] => 44325
[total_sum] => 102264
[total_days] => 5
[display_material_sum] => 57 939
[display_work_sum] => 44 325
[display_total_sum] => 102 264
)
1
102 264₽
Работа:44 325 ₽
Материалы:57 939 ₽
Дни:5
stdClass Object
(
[id] => 61
[attribute_id] => 31
[name] => Нет
[material_modifier] => 1
[work_modifier] => 1
[options] => Array
(
)
[days] => [0]
[material_price] => [0]
[work_price] => [0]
[image] => https://akademik-stroy.ru/wp-content/uploads/materials/vodyanye.jpg
[area_modifier] => 30
[parent_name] => Теплые полы
[parent_id] => 31
[material_sum] => 0
[work_sum] => 0
[total_sum] => 0
[total_days] => 0
[display_material_sum] => 0
[display_work_sum] => 0
[display_total_sum] => 0
)
1
0₽
Работа:0 ₽
Материалы:0 ₽
Дни:0
stdClass Object
(
[id] => 151
[attribute_id] => 31
[name] => Водяные
[material_modifier] => 1
[work_modifier] => 1
[options] => Array
(
)
[days] => [9]
[material_price] => [10200]
[work_price] => [2500]
[image] => https://akademik-stroy.ru/wp-content/uploads/materials/vodyanye.jpg
[area_modifier] => 30
[parent_name] => Теплые полы
[parent_id] => 31
[material_sum] => 624240
[work_sum] => 127500
[total_sum] => 751740
[total_days] => 9
[display_material_sum] => 624 240
[display_work_sum] => 127 500
[display_total_sum] => 751 740
)
1
751 740₽
Работа:127 500 ₽
Материалы:624 240 ₽
Дни:9
stdClass Object
(
[id] => 152
[attribute_id] => 31
[name] => Электро
[material_modifier] => 1
[work_modifier] => 1
[options] => Array
(
)
[days] => [5]
[material_price] => [6300]
[work_price] => [1500]
[image] => https://akademik-stroy.ru/wp-content/uploads/materials/ehlektricheskij.jpg
[area_modifier] => 30
[parent_name] => Теплые полы
[parent_id] => 31
[material_sum] => 385560
[work_sum] => 76500
[total_sum] => 462060
[total_days] => 5
[display_material_sum] => 385 560
[display_work_sum] => 76 500
[display_total_sum] => 462 060
)
1
462 060₽
Работа:76 500 ₽
Материалы:385 560 ₽
Дни:5
stdClass Object
(
[id] => 63
[attribute_id] => 32
[name] => Нет
[material_modifier] => 1
[work_modifier] => 1
[options] => Array
(
)
[days] => [0]
[material_price] => [0]
[work_price] => [0]
[image] => https://akademik-stroy.ru/wp-content/uploads/materials/shtukaturka-shpatlevka-1.jpg
[area_modifier] => 46.56
[parent_name] => Черновая отделка стен
[parent_id] => 32
[material_sum] => 0
[work_sum] => 0
[total_sum] => 0
[total_days] => 0
[display_material_sum] => 0
[display_work_sum] => 0
[display_total_sum] => 0
)
1
0₽
Работа:0 ₽
Материалы:0 ₽
Дни:0
stdClass Object
(
[id] => 153
[attribute_id] => 32
[name] => Штукатурка и шпатлевка
[material_modifier] => 1
[work_modifier] => 1
[options] => Array
(
)
[days] => [20]
[material_price] => [1850]
[work_price] => [2600]
[image] => https://akademik-stroy.ru/wp-content/uploads/materials/shtukaturka-shpatlevka-1.jpg
[area_modifier] => 46.56
[parent_name] => Черновая отделка стен
[parent_id] => 32
[material_sum] => 175717
[work_sum] => 205795
[total_sum] => 381512
[total_days] => 20
[display_material_sum] => 175 717
[display_work_sum] => 205 795
[display_total_sum] => 381 512
)
1
381 512₽
Работа:205 795 ₽
Материалы:175 717 ₽
Дни:20
stdClass Object
(
[id] => 154
[attribute_id] => 32
[name] => Гипсокортон на стены
[material_modifier] => 1
[work_modifier] => 1
[options] => Array
(
)
[days] => [15]
[material_price] => [950]
[work_price] => [2100]
[image] => https://akademik-stroy.ru/wp-content/uploads/materials/gkl-1.jpg
[area_modifier] => 46.56
[parent_name] => Черновая отделка стен
[parent_id] => 32
[material_sum] => 90233
[work_sum] => 166219
[total_sum] => 256452
[total_days] => 15
[display_material_sum] => 90 233
[display_work_sum] => 166 219
[display_total_sum] => 256 452
)
1
256 452₽
Работа:166 219 ₽
Материалы:90 233 ₽
Дни:15
stdClass Object
(
[id] => 155
[attribute_id] => 32
[name] => Вагонка
[material_modifier] => 1
[work_modifier] => 1
[options] => Array
(
)
[days] => [15]
[material_price] => [1250]
[work_price] => [950]
[image] => https://akademik-stroy.ru/wp-content/uploads/materials/vagonka.jpg
[area_modifier] => 46.56
[parent_name] => Черновая отделка стен
[parent_id] => 32
[material_sum] => 118728
[work_sum] => 75194
[total_sum] => 193922
[total_days] => 15
[display_material_sum] => 118 728
[display_work_sum] => 75 194
[display_total_sum] => 193 922
)
1
193 922₽
Работа:75 194 ₽
Материалы:118 728 ₽
Дни:15
stdClass Object
(
[id] => 65
[attribute_id] => 33
[name] => Нет
[material_modifier] => 1
[work_modifier] => 1
[options] => Array
(
)
[days] => [0]
[material_price] => [0]
[work_price] => [0]
[image] => https://akademik-stroy.ru/wp-content/uploads/materials/styazhka.jpg
[area_modifier] => 46.56
[parent_name] => Черновая отделка полов
[parent_id] => 33
[material_sum] => 0
[work_sum] => 0
[total_sum] => 0
[total_days] => 0
[display_material_sum] => 0
[display_work_sum] => 0
[display_total_sum] => 0
)
1
0₽
Работа:0 ₽
Материалы:0 ₽
Дни:0
stdClass Object
(
[id] => 156
[attribute_id] => 33
[name] => Стяжка + наливные полы
[material_modifier] => 1
[work_modifier] => 1
[options] => Array
(
)
[days] => [10]
[material_price] => [1000]
[work_price] => [900]
[image] => https://akademik-stroy.ru/wp-content/uploads/materials/styazhka.jpg
[area_modifier] => 46.56
[parent_name] => Черновая отделка полов
[parent_id] => 33
[material_sum] => 94982
[work_sum] => 71237
[total_sum] => 166219
[total_days] => 10
[display_material_sum] => 94 982
[display_work_sum] => 71 237
[display_total_sum] => 166 219
)
1
166 219₽
Работа:71 237 ₽
Материалы:94 982 ₽
Дни:10
stdClass Object
(
[id] => 157
[attribute_id] => 33
[name] => ОСБ на пол
[material_modifier] => 1
[work_modifier] => 1
[options] => Array
(
)
[days] => [7]
[material_price] => [580]
[work_price] => [350]
[image] => https://akademik-stroy.ru/wp-content/uploads/materials/osb-1.jpg
[area_modifier] => 46.56
[parent_name] => Черновая отделка полов
[parent_id] => 33
[material_sum] => 55090
[work_sum] => 27703
[total_sum] => 82793
[total_days] => 7
[display_material_sum] => 55 090
[display_work_sum] => 27 703
[display_total_sum] => 82 793
)
1
82 793₽
Работа:27 703 ₽
Материалы:55 090 ₽
Дни:7
stdClass Object
(
[id] => 67
[attribute_id] => 34
[name] => Нет
[material_modifier] => 1
[work_modifier] => 1
[options] => Array
(
)
[days] => [0]
[material_price] => [0]
[work_price] => [0]
[image] => https://akademik-stroy.ru/wp-content/uploads/materials/chistovaya-otdelka.jpg
[area_modifier] => 46.56
[parent_name] => Чистовая отделка стен и полов
[parent_id] => 34
[material_sum] => 0
[work_sum] => 0
[total_sum] => 0
[total_days] => 0
[display_material_sum] => 0
[display_work_sum] => 0
[display_total_sum] => 0
)
1
0₽
Работа:0 ₽
Материалы:0 ₽
Дни:0
stdClass Object
(
[id] => 68
[attribute_id] => 34
[name] => Есть
[material_modifier] => 1
[work_modifier] => 1
[options] => Array
(
)
[days] => [50]
[material_price] => [6000]
[work_price] => [3500]
[image] => https://akademik-stroy.ru/wp-content/uploads/materials/chistovaya-otdelka.jpg
[area_modifier] => 46.56
[parent_name] => Чистовая отделка стен и полов
[parent_id] => 34
[material_sum] => 569894
[work_sum] => 277032
[total_sum] => 846926
[total_days] => 50
[display_material_sum] => 569 894
[display_work_sum] => 277 032
[display_total_sum] => 846 926
)
1
846 926₽
Работа:277 032 ₽
Материалы:569 894 ₽
Дни:50
stdClass Object
(
[id] => 69
[attribute_id] => 35
[name] => Нет
[material_modifier] => 1
[work_modifier] => 1
[options] => Array
(
)
[days] => [0]
[material_price] => [0]
[work_price] => [0]
[image] => https://akademik-stroy.ru/wp-content/uploads/materials/mnogourovnevyj-gkl.jpg
[area_modifier] => 46.56
[parent_name] => Отделка потолка
[parent_id] => 35
[material_sum] => 0
[work_sum] => 0
[total_sum] => 0
[total_days] => 0
[display_material_sum] => 0
[display_work_sum] => 0
[display_total_sum] => 0
)
1
0₽
Работа:0 ₽
Материалы:0 ₽
Дни:0
stdClass Object
(
[id] => 70
[attribute_id] => 35
[name] => Есть
[material_modifier] => 1
[work_modifier] => 1
[options] => Array
(
[0] => Многоуровневый потолок из гипсокартона
[1] => Многоуровневый потолок из гипсокартона и натяжного потолка
[2] => Одноуровневый потолок из гипсокартона
[3] => Одноуровневый натяжной потолок
)
[days] => [10,10,1,1]
[material_price] => [900,700,700,600]
[work_price] => [1000,800,500,300]
[image] => https://akademik-stroy.ru/wp-content/uploads/materials/mnogourovnevyj-gkl.jpg
[area_modifier] => 46.56
[parent_name] => Отделка потолка
[parent_id] => 35
[material_sum] => 85484
[work_sum] => 79152
[total_sum] => 164636
[total_days] => 10
[display_material_sum] => 85 484
[display_work_sum] => 79 152
[display_total_sum] => 164 636
)
1
164 636₽
Работа:79 152 ₽
Материалы:85 484 ₽
Дни:10
Преимущества работы с нами
7 этапов оплаты
Независимый строительный надзор
Экологически чистые материалы
16 лет гарантии
Онлайн-кабинет с веб-камерой
Строители с опытом более 15 лет
Собственное производство

