Одноэтажный гараж 13.63 м2 за руб.
154 м2
Полезная
площадь
площадь
1 этаж
Этажей
26 м2
Террасы
и балконы
и балконы
0Без
гаража
гаража
0
Количество
спален
спален
0
Количество
санузлов
санузлов
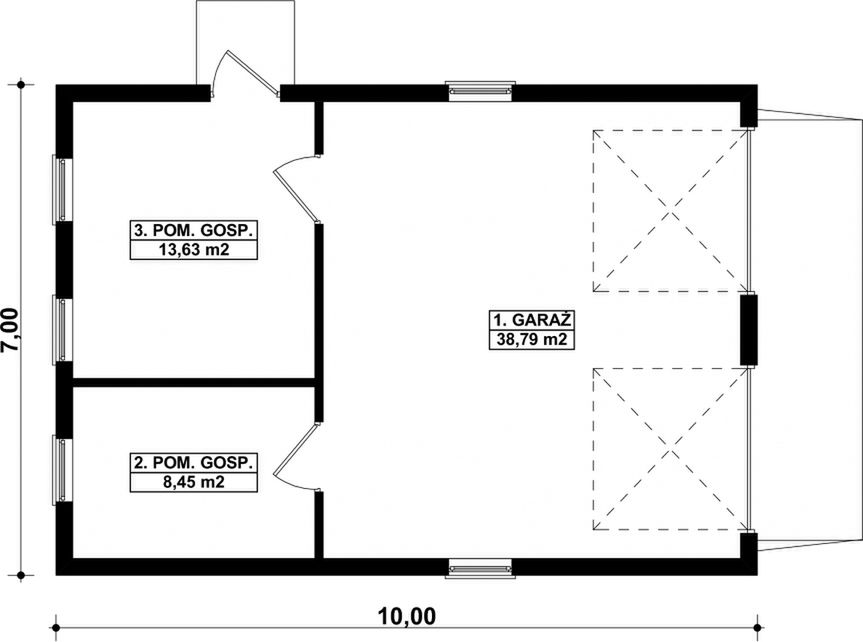
Планировки
Первый этаж
- 1. (m²) 60,87
- 2. Гараж на 2 машины 38,79
- 3. Подсобное помещение 8,45
- Подсобное помещение 13,63
Фасады
Передний
Задний
Левый
Правый
Подробная информация
Полезная площадь
60,87 m²
Количество спален
0
Количество санузлов
0
Гараж
2
Мин. шир. и дл. участка
15 x 18 m
Угол наклона крыши
25°
Наклон ската крыши в градусах. Внимание! В некоторых проектах возникает более чем один наклон крыши.
Вид материалов
Murowana
Материалы и опции
Общие
Площади дома
| № п/п | Наименование | Ед. из. | Строительная площадь | Полезная площадь |
| 1 | 1 этаж | м2 | 16.8 | 13.63 |
| 2 | Итого | м2 | 16.8 | 13.63 |
Калькулятор опций
0₽
В ипотеку от 5 835 ₽/мес.
0₽
0 дней
stdClass Object
(
[id] => 1
[attribute_id] => 1
[name] => Ленточный монолитный ж/б
[material_modifier] => 1
[work_modifier] => 1
[options] => Array
(
[0] => размер 200 х 700 мм
[1] => размер 300 х 900 мм
[2] => размер 400 х 1 000 мм
[3] => размер 500 х 1 100 мм
[4] => размер 600 х 1 200 мм
)
[days] => [20,21,22,25,30]
[material_price] => [2823,3630,4475,5210,12047]
[work_price] => [2154,2826,3731,4577,5293]
[image] => https://akademik-stroy.ru/wp-content/uploads/materials/lentochnyj-monolitnyj-zh-b.jpg
[area_modifier] => 16.8
[parent_name] => Фундамент
[parent_id] => 1
[material_sum] => 113823
[work_sum] => 72374
[total_sum] => 186197
[total_days] => 20
[display_material_sum] => 113 823
[display_work_sum] => 72 374
[display_total_sum] => 186 197
)
1
186 197₽
Работа:72 374 ₽
Материалы:113 823 ₽
Дни:20
stdClass Object
(
[id] => 2
[attribute_id] => 1
[name] => Забивные Ж/Б сваи
[material_modifier] => 1
[work_modifier] => 1
[options] => Array
(
[0] => 150х150х3000мм
[1] => 150х150х4000мм
[2] => 200х200х3000мм
[3] => 200х200х4000мм
[4] => 200х200х5000мм
[5] => 200х200х6000мм
)
[days] => [2,2,2,2,2,2]
[material_price] => [1990,2850,3255,4360,5120,6837]
[work_price] => [1002,1185,1336,1438,1574,1839]
[image] => https://akademik-stroy.ru/wp-content/uploads/materials/zabivnye-zh-b-svai.png
[area_modifier] => 16.8
[parent_name] => Фундамент
[parent_id] => 1
[material_sum] => 80237
[work_sum] => 33667
[total_sum] => 113904
[total_days] => 2
[display_material_sum] => 80 237
[display_work_sum] => 33 667
[display_total_sum] => 113 904
)
1
113 904₽
Работа:33 667 ₽
Материалы:80 237 ₽
Дни:2
stdClass Object
(
[id] => 71
[attribute_id] => 1
[name] => Свайно-ростверковый ж/б
[material_modifier] => 1
[work_modifier] => 1
[options] => Array
(
[0] => ростверк 200х300 мм
[1] => ростверк 300х600 мм
[2] => ростверк 400х900 мм
[3] => ростверк 500х1200 мм
)
[days] => [20,23,25,27]
[material_price] => [3018,3474,7109,9792]
[work_price] => [2024,3012,5635,7022]
[image] => https://akademik-stroy.ru/wp-content/uploads/materials/svajno-rostverkovyj-monolitnyj-zh-b-3.png
[area_modifier] => 16.8
[parent_name] => Фундамент
[parent_id] => 1
[material_sum] => 121686
[work_sum] => 68006
[total_sum] => 189692
[total_days] => 20
[display_material_sum] => 121 686
[display_work_sum] => 68 006
[display_total_sum] => 189 692
)
1
189 692₽
Работа:68 006 ₽
Материалы:121 686 ₽
Дни:20
stdClass Object
(
[id] => 72
[attribute_id] => 1
[name] => Монолитная ж/б плита
[material_modifier] => 1
[work_modifier] => 1
[options] => Array
(
[0] => 200 мм
[1] => 300 мм
[2] => 400 мм
[3] => 500 мм
[4] => 600 мм
)
[days] => [30,33,35,37,40]
[material_price] => [5348,8555,12788,14388,15189]
[work_price] => [4314,4881,7037,8061,10230]
[image] => https://akademik-stroy.ru/wp-content/uploads/materials/monolitnaya-zhb-plita.png
[area_modifier] => 16.8
[parent_name] => Фундамент
[parent_id] => 1
[material_sum] => 215631
[work_sum] => 144950
[total_sum] => 360581
[total_days] => 30
[display_material_sum] => 215 631
[display_work_sum] => 144 950
[display_total_sum] => 360 581
)
1
360 581₽
Работа:144 950 ₽
Материалы:215 631 ₽
Дни:30
stdClass Object
(
[id] => 73
[attribute_id] => 1
[name] => Утепленная шведская плита
[material_modifier] => 1
[work_modifier] => 1
[options] => Array
(
[0] => 200 мм
[1] => 300 мм
[2] => 400 мм
[3] => 500 мм
[4] => 600 мм
)
[days] => [32,37,39,42,45]
[material_price] => [10249,12692,13760,14936,16230]
[work_price] => [5960,7337,8072,8878,9765]
[image] => https://akademik-stroy.ru/wp-content/uploads/materials/uteplennaya-shvedskaya-plita.jpg
[area_modifier] => 16.8
[parent_name] => Фундамент
[parent_id] => 1
[material_sum] => 413240
[work_sum] => 200256
[total_sum] => 613496
[total_days] => 32
[display_material_sum] => 413 240
[display_work_sum] => 200 256
[display_total_sum] => 613 496
)
1
613 496₽
Работа:200 256 ₽
Материалы:413 240 ₽
Дни:32
stdClass Object
(
[id] => 75
[attribute_id] => 1
[name] => Ленточный из ФБС
[material_modifier] => 1
[work_modifier] => 1
[options] => Array
(
[0] => толщ. 300 мм
[1] => толщ. 400 мм
[2] => толщ. 500 мм
[3] => толщ. 600 мм
)
[days] => [20,20,20,20]
[material_price] => [3675,4902,6126,7350]
[work_price] => [2451,3264,4083,4902]
[image] => https://akademik-stroy.ru/wp-content/uploads/materials/lentochnyj-iz-fbs.png
[area_modifier] => 16.8
[parent_name] => Фундамент
[parent_id] => 1
[material_sum] => 148176
[work_sum] => 82354
[total_sum] => 230530
[total_days] => 20
[display_material_sum] => 148 176
[display_work_sum] => 82 354
[display_total_sum] => 230 530
)
1
230 530₽
Работа:82 354 ₽
Материалы:148 176 ₽
Дни:20
stdClass Object
(
[id] => 76
[attribute_id] => 1
[name] => Цокольный этаж из ФБС
[material_modifier] => 1
[work_modifier] => 1
[options] => Array
(
[0] => толщ. 300 мм
[1] => толщ. 400 мм
[2] => толщ. 500 мм
[3] => толщ. 600 мм
)
[days] => [30,32,34,36]
[material_price] => [20916,23299,26680,29060]
[work_price] => [17524,18700,19873,21046]
[image] => https://akademik-stroy.ru/wp-content/uploads/materials/cokolnyj-ehtazh-iz-fbs.jpg
[area_modifier] => 16.8
[parent_name] => Фундамент
[parent_id] => 1
[material_sum] => 843333
[work_sum] => 588806
[total_sum] => 1432139
[total_days] => 30
[display_material_sum] => 843 333
[display_work_sum] => 588 806
[display_total_sum] => 1 432 139
)
1
1 432 139₽
Работа:588 806 ₽
Материалы:843 333 ₽
Дни:30
stdClass Object
(
[id] => 77
[attribute_id] => 1
[name] => Цокольный этаж монолитный ж/б
[material_modifier] => 1
[work_modifier] => 1
[options] => Array
(
[0] => толщ. 200 мм
[1] => толщ. 300 мм
[2] => толщ. 400 мм
[3] => толщ. 500 мм
[4] => толщ. 600 мм
)
[days] => [40,42,44,46,48]
[material_price] => [25421,29148,32275,35602,37326]
[work_price] => [20441,21907,23375,24841,26306]
[image] => https://akademik-stroy.ru/wp-content/uploads/materials/cokolnyj-etazh-zh-b.jpg
[area_modifier] => 16.8
[parent_name] => Фундамент
[parent_id] => 1
[material_sum] => 1024975
[work_sum] => 686818
[total_sum] => 1711793
[total_days] => 40
[display_material_sum] => 1 024 975
[display_work_sum] => 686 818
[display_total_sum] => 1 711 793
)
1
1 711 793₽
Работа:686 818 ₽
Материалы:1 024 975 ₽
Дни:40
stdClass Object
(
[id] => 191
[attribute_id] => 1
[name] => Винтовые сваи
[material_modifier] => 1
[work_modifier] => 1
[options] => Array
(
[0] => 57х200мм
[1] => 76х250мм
[2] => 108х300мм
[3] => 133х350мм
)
[days] => [1,1,2,2]
[material_price] => [1200,1300,1450,1600]
[work_price] => [400,600,900,1100]
[image] => https://akademik-stroy.ru/wp-content/uploads/materials/vintovye-svai.png
[area_modifier] => 16.8
[parent_name] => Фундамент
[parent_id] => 1
[material_sum] => 48384
[work_sum] => 13440
[total_sum] => 61824
[total_days] => 1
[display_material_sum] => 48 384
[display_work_sum] => 13 440
[display_total_sum] => 61 824
)
1
61 824₽
Работа:13 440 ₽
Материалы:48 384 ₽
Дни:1
stdClass Object
(
[id] => 3
[attribute_id] => 2
[name] => Деревянные балки
[material_modifier] => 1
[work_modifier] => 1
[options] => Array
(
[0] => без утепления
[1] => утепление 200 мм
[2] => утепление 250 мм
[3] => утепление 300 мм
[4] => утепление 350 мм
[5] => утепление 400 мм
[6] => утепление 450 мм
[7] => утепление 500 мм
)
[days] => [8,9,9,9,11,12,13,14]
[material_price] => [1634,2042,2344,2947,3149,3652,3354,3557]
[work_price] => [1230,1339,1393,1426,1460,1513,1587,1620]
[image] => https://akademik-stroy.ru/wp-content/uploads/materials/derevyannye-balki.png
[area_modifier] => 16.8
[parent_name] => Перекрытие цоколя
[parent_id] => 2
[material_sum] => 65883
[work_sum] => 41328
[total_sum] => 107211
[total_days] => 8
[display_material_sum] => 65 883
[display_work_sum] => 41 328
[display_total_sum] => 107 211
)
1
107 211₽
Работа:41 328 ₽
Материалы:65 883 ₽
Дни:8
stdClass Object
(
[id] => 4
[attribute_id] => 2
[name] => Сборные ж/б плиты
[material_modifier] => 1
[work_modifier] => 1
[options] => Array
(
[0] => без утепления
[1] => утепление 150мм
[2] => утепление 200мм
[3] => утепление 250мм
[4] => утепление 300мм
[5] => утепление 350мм
[6] => утепление 400мм
[7] => утепление 450мм
[8] => утепление 500мм
)
[days] => [13,15,15,15,15,15,15,15,15]
[material_price] => [3067,5577,5928,6679,7730,8782,9833,10884,11935]
[work_price] => [1520,1956,2102,2247,2392,2537,2684,2829,2974]
[image] => https://akademik-stroy.ru/wp-content/uploads/materials/sbornye-zh-b-plity-2.jpg
[area_modifier] => 16.8
[parent_name] => Перекрытие цоколя
[parent_id] => 2
[material_sum] => 123661
[work_sum] => 51072
[total_sum] => 174733
[total_days] => 13
[display_material_sum] => 123 661
[display_work_sum] => 51 072
[display_total_sum] => 174 733
)
1
174 733₽
Работа:51 072 ₽
Материалы:123 661 ₽
Дни:13
stdClass Object
(
[id] => 78
[attribute_id] => 2
[name] => Монолитная ж/б плита
[material_modifier] => 1
[work_modifier] => 1
[options] => Array
(
[0] => без утепления
[1] => утепление 150 мм
[2] => утепление 200 мм
[3] => утепление 250 мм
[4] => утепление 300 мм
[5] => утепление 350 мм
[6] => утепление 400 мм
[7] => утепление 450 мм
[8] => утепление 500 мм
)
[days] => [18,20,20,20,20,20,20,20,20]
[material_price] => [4837,6572,7224,7375,79426,8177,8728,9180,10031]
[work_price] => [3348,3921,4112,4302,4493,4684,4875,5066,5256]
[image] => https://akademik-stroy.ru/wp-content/uploads/materials/monolitnaya-zh-b-plita-2.jpg
[area_modifier] => 16.8
[parent_name] => Перекрытие цоколя
[parent_id] => 2
[material_sum] => 195028
[work_sum] => 112493
[total_sum] => 307521
[total_days] => 18
[display_material_sum] => 195 028
[display_work_sum] => 112 493
[display_total_sum] => 307 521
)
1
307 521₽
Работа:112 493 ₽
Материалы:195 028 ₽
Дни:18
stdClass Object
(
[id] => 6
[attribute_id] => 3
[name] => Пеноблок
[material_modifier] => 1
[work_modifier] => 1
[options] => Array
(
[0] => 300 мм
[1] => 400 мм
[2] => 500 мм
[3] => 600 мм
)
[days] => [29,31,34,39]
[material_price] => [3000,4000,4500,4937]
[work_price] => [5033,5805,6400,8710]
[image] => https://akademik-stroy.ru/wp-content/uploads/materials/penoblok.jpg
[area_modifier] => 16.8
[parent_name] => Стены 1 этаж (несущие)
[parent_id] => 3
[material_sum] => 120960
[work_sum] => 169109
[total_sum] => 290069
[total_days] => 29
[display_material_sum] => 120 960
[display_work_sum] => 169 109
[display_total_sum] => 290 069
)
1
290 069₽
Работа:169 109 ₽
Материалы:120 960 ₽
Дни:29
stdClass Object
(
[id] => 79
[attribute_id] => 3
[name] => Керамический блок
[material_modifier] => 1
[work_modifier] => 1
[options] => Array
(
[0] => 380 мм
[1] => 380 мм Thermo
[2] => 440 мм
[3] => 510 мм
)
[days] => [23,23,24,25]
[material_price] => [4510,5098,6093,8013]
[work_price] => [4737,4937,5903,6958]
[image] => https://akademik-stroy.ru/wp-content/uploads/materials/keramicheskij-blok.jpg
[area_modifier] => 16.8
[parent_name] => Стены 1 этаж (несущие)
[parent_id] => 3
[material_sum] => 181843
[work_sum] => 159163
[total_sum] => 341006
[total_days] => 23
[display_material_sum] => 181 843
[display_work_sum] => 159 163
[display_total_sum] => 341 006
)
1
341 006₽
Работа:159 163 ₽
Материалы:181 843 ₽
Дни:23
stdClass Object
(
[id] => 80
[attribute_id] => 3
[name] => Кирпич
[material_modifier] => 1
[work_modifier] => 1
[options] => Array
(
[0] => Кирпич 250 мм
[1] => Кирпич 380 мм
[2] => Кирпич 510 мм
[3] => Кирпич 640 мм
[4] => Кирпич 770 мм
)
[days] => [30,30,31,33,36]
[material_price] => [5500,7142,9206,10171,12235]
[work_price] => [8736,10041,12018,15240,18462]
[image] => https://akademik-stroy.ru/wp-content/uploads/materials/kirpich.jpg
[area_modifier] => 16.8
[parent_name] => Стены 1 этаж (несущие)
[parent_id] => 3
[material_sum] => 221760
[work_sum] => 293530
[total_sum] => 515290
[total_days] => 30
[display_material_sum] => 221 760
[display_work_sum] => 293 530
[display_total_sum] => 515 290
)
1
515 290₽
Работа:293 530 ₽
Материалы:221 760 ₽
Дни:30
stdClass Object
(
[id] => 81
[attribute_id] => 3
[name] => Монолитные
[material_modifier] => 1
[work_modifier] => 1
[options] => Array
(
[0] => 150 мм
[1] => 200 мм
[2] => 250 мм
[3] => 300 мм
[4] => 350 мм
[5] => 400 мм
)
[days] => [45,46,47,49,50,53]
[material_price] => [6545,7876,10175,12011,13908,15204]
[work_price] => [5106,6444,7698,8552,9807,11461]
[image] => https://akademik-stroy.ru/wp-content/uploads/materials/monolitnye.jpg
[area_modifier] => 16.8
[parent_name] => Стены 1 этаж (несущие)
[parent_id] => 3
[material_sum] => 263894
[work_sum] => 171562
[total_sum] => 435456
[total_days] => 45
[display_material_sum] => 263 894
[display_work_sum] => 171 562
[display_total_sum] => 435 456
)
1
435 456₽
Работа:171 562 ₽
Материалы:263 894 ₽
Дни:45
stdClass Object
(
[id] => 82
[attribute_id] => 3
[name] => Клееный брус
[material_modifier] => 1
[work_modifier] => 1
[options] => Array
(
[0] => 160 мм
[1] => 175 мм
[2] => 200 мм
[3] => 215 мм
[4] => 240 мм
[5] => 270 мм
[6] => 282 мм
)
[days] => [24,28,32,37,40,42,48]
[material_price] => [16975,18773,19950,20545,21599,22159,23275]
[work_price] => [4806,5287,5815,6397,7036,7740,8514]
[image] => https://akademik-stroy.ru/wp-content/uploads/materials/kleenyj-brus.jpg
[area_modifier] => 16.8
[parent_name] => Стены 1 этаж (несущие)
[parent_id] => 3
[material_sum] => 684432
[work_sum] => 161482
[total_sum] => 845914
[total_days] => 24
[display_material_sum] => 684 432
[display_work_sum] => 161 482
[display_total_sum] => 845 914
)
1
845 914₽
Работа:161 482 ₽
Материалы:684 432 ₽
Дни:24
stdClass Object
(
[id] => 83
[attribute_id] => 3
[name] => Каркасные
[material_modifier] => 1
[work_modifier] => 1
[options] => Array
(
[0] => 150 мм
[1] => 200 мм
[2] => 250 мм
[3] => 300 мм
)
[days] => [15,16,17,18]
[material_price] => [2379,2639,2898,3258]
[work_price] => [2418,2686,2985,3716]
[image] => https://akademik-stroy.ru/wp-content/uploads/materials/karkasnye.jpg
[area_modifier] => 16.8
[parent_name] => Стены 1 этаж (несущие)
[parent_id] => 3
[material_sum] => 95921
[work_sum] => 81245
[total_sum] => 177166
[total_days] => 15
[display_material_sum] => 95 921
[display_work_sum] => 81 245
[display_total_sum] => 177 166
)
1
177 166₽
Работа:81 245 ₽
Материалы:95 921 ₽
Дни:15
stdClass Object
(
[id] => 84
[attribute_id] => 3
[name] => СИП-панели
[material_modifier] => 1
[work_modifier] => 1
[options] => Array
(
[0] => 120 мм
[1] => 170 мм
[2] => 220 мм
)
[days] => [7,7,7]
[material_price] => [1210,1856,2292]
[work_price] => [1410,1551,1706]
[image] => https://akademik-stroy.ru/wp-content/uploads/materials/sip-paneli.jpg
[area_modifier] => 16.8
[parent_name] => Стены 1 этаж (несущие)
[parent_id] => 3
[material_sum] => 48787
[work_sum] => 47376
[total_sum] => 96163
[total_days] => 7
[display_material_sum] => 48 787
[display_work_sum] => 47 376
[display_total_sum] => 96 163
)
1
96 163₽
Работа:47 376 ₽
Материалы:48 787 ₽
Дни:7
stdClass Object
(
[id] => 85
[attribute_id] => 3
[name] => Сухой брус
[material_modifier] => 1
[work_modifier] => 1
[options] => Array
(
[0] => 150 мм
[1] => 180 мм
[2] => 200 мм
)
[days] => [7,8,9]
[material_price] => [6010,7190,8709]
[work_price] => [3204,3845,4229]
[image] => https://akademik-stroy.ru/wp-content/uploads/materials/suhoj-brus.jpg
[area_modifier] => 16.8
[parent_name] => Стены 1 этаж (несущие)
[parent_id] => 3
[material_sum] => 242323
[work_sum] => 107654
[total_sum] => 349977
[total_days] => 7
[display_material_sum] => 242 323
[display_work_sum] => 107 654
[display_total_sum] => 349 977
)
1
349 977₽
Работа:107 654 ₽
Материалы:242 323 ₽
Дни:7
stdClass Object
(
[id] => 86
[attribute_id] => 3
[name] => Профилированный брус
[material_modifier] => 1
[work_modifier] => 1
[options] => Array
(
[0] => 150 мм
[1] => 180 мм
[2] => 200 мм
)
[days] => [7,8,9]
[material_price] => [8190,9228,10051]
[work_price] => [3845,4614,5075]
[image] => https://akademik-stroy.ru/wp-content/uploads/materials/profilirovannyj-brus.jpg
[area_modifier] => 16.8
[parent_name] => Стены 1 этаж (несущие)
[parent_id] => 3
[material_sum] => 330221
[work_sum] => 129192
[total_sum] => 459413
[total_days] => 7
[display_material_sum] => 330 221
[display_work_sum] => 129 192
[display_total_sum] => 459 413
)
1
459 413₽
Работа:129 192 ₽
Материалы:330 221 ₽
Дни:7
stdClass Object
(
[id] => 87
[attribute_id] => 3
[name] => Оцилиндрованное бревно
[material_modifier] => 1
[work_modifier] => 1
[options] => Array
(
[0] => 180 мм
[1] => 220 мм
[2] => 260 мм
[3] => 320 мм
)
[days] => [7,8,9,10]
[material_price] => [75190,9532,10868,13116]
[work_price] => [3845,4691,5535,6863]
[image] => https://akademik-stroy.ru/wp-content/uploads/materials/ocilindrovannoe-brevno-1.jpg
[area_modifier] => 16.8
[parent_name] => Стены 1 этаж (несущие)
[parent_id] => 3
[material_sum] => 3031661
[work_sum] => 129192
[total_sum] => 3160853
[total_days] => 7
[display_material_sum] => 3 031 661
[display_work_sum] => 129 192
[display_total_sum] => 3 160 853
)
1
3 160 853₽
Работа:129 192 ₽
Материалы:3 031 661 ₽
Дни:7
stdClass Object
(
[id] => 88
[attribute_id] => 3
[name] => Срубы
[material_modifier] => 1
[work_modifier] => 1
[options] => Array
(
[0] => 260 мм
[1] => 320 мм
[2] => 360 мм
[3] => 400 мм
[4] => 500 мм
)
[days] => [7,8,9,10,11]
[material_price] => [37975,46709,52314,58069,73167]
[work_price] => [4806,5911,6621,7349,9260]
[image] => https://akademik-stroy.ru/wp-content/uploads/materials/sruby.jpg
[area_modifier] => 16.8
[parent_name] => Стены 1 этаж (несущие)
[parent_id] => 3
[material_sum] => 1531152
[work_sum] => 161482
[total_sum] => 1692634
[total_days] => 7
[display_material_sum] => 1 531 152
[display_work_sum] => 161 482
[display_total_sum] => 1 692 634
)
1
1 692 634₽
Работа:161 482 ₽
Материалы:1 531 152 ₽
Дни:7
stdClass Object
(
[id] => 174
[attribute_id] => 3
[name] => Брус
[material_modifier] => 1
[work_modifier] => 1
[options] => Array
(
[0] => 150 мм
[1] => 180 мм
[2] => 200 мм
)
[days] => [7,8,9]
[material_price] => [5127,6152,7367]
[work_price] => [1602,1922,2115]
[image] => https://akademik-stroy.ru/wp-content/uploads/materials/brus.jpg
[area_modifier] => 16.8
[parent_name] => Стены 1 этаж (несущие)
[parent_id] => 3
[material_sum] => 206721
[work_sum] => 53827
[total_sum] => 260548
[total_days] => 7
[display_material_sum] => 206 721
[display_work_sum] => 53 827
[display_total_sum] => 260 548
)
1
260 548₽
Работа:53 827 ₽
Материалы:206 721 ₽
Дни:7
stdClass Object
(
[id] => 175
[attribute_id] => 3
[name] => Газобетон
[material_modifier] => 1
[work_modifier] => 1
[options] => Array
(
[0] => 300 мм
[1] => 375 мм
[2] => 400 мм
[3] => 500 мм
[4] => 600 мм
)
[days] => [29,31,35,37,44]
[material_price] => [4298,5573,6356,7288,9119]
[work_price] => [4538,5251,5926,6733,7195]
[image] => https://akademik-stroy.ru/wp-content/uploads/materials/gazobeton.jpg
[area_modifier] => 16.8
[parent_name] => Стены 1 этаж (несущие)
[parent_id] => 3
[material_sum] => 173295
[work_sum] => 152477
[total_sum] => 325772
[total_days] => 29
[display_material_sum] => 173 295
[display_work_sum] => 152 477
[display_total_sum] => 325 772
)
1
325 772₽
Работа:152 477 ₽
Материалы:173 295 ₽
Дни:29
stdClass Object
(
[id] => 176
[attribute_id] => 3
[name] => Блок
[material_modifier] => 1
[work_modifier] => 1
[options] => Array
(
[0] => 300 мм
[1] => 375 мм
[2] => 400 мм
[3] => 500 мм
[4] => 600 мм
)
[days] => [29,31,35,37,44]
[material_price] => [2698,3973,4356,6588,7119]
[work_price] => [5038,5851,6426,8733,9195]
[image] => https://akademik-stroy.ru/wp-content/uploads/materials/blok.jpg
[area_modifier] => 16.8
[parent_name] => Стены 1 этаж (несущие)
[parent_id] => 3
[material_sum] => 108783
[work_sum] => 169277
[total_sum] => 278060
[total_days] => 29
[display_material_sum] => 108 783
[display_work_sum] => 169 277
[display_total_sum] => 278 060
)
1
278 060₽
Работа:169 277 ₽
Материалы:108 783 ₽
Дни:29
stdClass Object
(
[id] => 177
[attribute_id] => 3
[name] => Газосиликатный блок
[material_modifier] => 1
[work_modifier] => 1
[options] => Array
(
[0] => 300 мм
[1] => 375 мм
[2] => 400 мм
[3] => 500 мм
[4] => 600 мм
)
[days] => [29,31,35,37,44]
[material_price] => [4298,5573,6356,7288,9119]
[work_price] => [4538,5251,5926,6733,7195]
[image] => https://akademik-stroy.ru/wp-content/uploads/materials/gazosilikatnyj-blok.jpg
[area_modifier] => 16.8
[parent_name] => Стены 1 этаж (несущие)
[parent_id] => 3
[material_sum] => 173295
[work_sum] => 152477
[total_sum] => 325772
[total_days] => 29
[display_material_sum] => 173 295
[display_work_sum] => 152 477
[display_total_sum] => 325 772
)
1
325 772₽
Работа:152 477 ₽
Материалы:173 295 ₽
Дни:29
stdClass Object
(
[id] => 178
[attribute_id] => 3
[name] => Керамзитобетонный блок
[material_modifier] => 1
[work_modifier] => 1
[options] => Array
(
[0] => 300 мм
[1] => 375 мм
[2] => 400 мм
[3] => 500 мм
[4] => 600 мм
)
[days] => [23,23,24,25,28]
[material_price] => [3641,4298,5693,7613,9612]
[work_price] => [5737,5737,6903,7958,8901]
[image] => https://akademik-stroy.ru/wp-content/uploads/materials/keramzitobetonnyj-blok.jpg
[area_modifier] => 16.8
[parent_name] => Стены 1 этаж (несущие)
[parent_id] => 3
[material_sum] => 146805
[work_sum] => 192763
[total_sum] => 339568
[total_days] => 23
[display_material_sum] => 146 805
[display_work_sum] => 192 763
[display_total_sum] => 339 568
)
1
339 568₽
Работа:192 763 ₽
Материалы:146 805 ₽
Дни:23
stdClass Object
(
[id] => 179
[attribute_id] => 3
[name] => Деревянные
[material_modifier] => 1
[work_modifier] => 1
[options] => Array
(
[0] => 180 мм
[1] => 220 мм
[2] => 260 мм
[3] => 320 мм
)
[days] => [7,8,9,10]
[material_price] => [7950,9458,11961,14472]
[work_price] => [4037,4925,5812,7207]
[image] => https://akademik-stroy.ru/wp-content/uploads/materials/derevyannye.jpg
[area_modifier] => 16.8
[parent_name] => Стены 1 этаж (несущие)
[parent_id] => 3
[material_sum] => 320544
[work_sum] => 135643
[total_sum] => 456187
[total_days] => 7
[display_material_sum] => 320 544
[display_work_sum] => 135 643
[display_total_sum] => 456 187
)
1
456 187₽
Работа:135 643 ₽
Материалы:320 544 ₽
Дни:7
stdClass Object
(
[id] => 181
[attribute_id] => 3
[name] => Камень
[material_modifier] => 1
[work_modifier] => 1
[options] => Array
(
[0] => 300 мм
[1] => 400 мм
[2] => 500 мм
[3] => 600 мм
)
[days] => [25,27,31,34]
[material_price] => [5262,6844,8330,9815]
[work_price] => [8331,9135,10427,11069]
[image] => https://akademik-stroy.ru/wp-content/uploads/materials/kamen.jpg
[area_modifier] => 16.8
[parent_name] => Стены 1 этаж (несущие)
[parent_id] => 3
[material_sum] => 212164
[work_sum] => 279922
[total_sum] => 492086
[total_days] => 25
[display_material_sum] => 212 164
[display_work_sum] => 279 922
[display_total_sum] => 492 086
)
1
492 086₽
Работа:279 922 ₽
Материалы:212 164 ₽
Дни:25
stdClass Object
(
[id] => 182
[attribute_id] => 3
[name] => Каркасно-щитовые
[material_modifier] => 1
[work_modifier] => 1
[options] => Array
(
[0] => 150 мм
[1] => 200 мм
[2] => 250 мм
[3] => 300 мм
[4] => 350 мм
[5] => 400 мм
)
[days] => [15,16,17,18,19,20]
[material_price] => [2379,2639,2898,3458,3601,4175]
[work_price] => [2538,2820,3134,3483,4062,5642]
[image] => https://akademik-stroy.ru/wp-content/uploads/materials/karkasno-shchitovye.jpg
[area_modifier] => 16.8
[parent_name] => Стены 1 этаж (несущие)
[parent_id] => 3
[material_sum] => 95921
[work_sum] => 85277
[total_sum] => 181198
[total_days] => 15
[display_material_sum] => 95 921
[display_work_sum] => 85 277
[display_total_sum] => 181 198
)
1
181 198₽
Работа:85 277 ₽
Материалы:95 921 ₽
Дни:15
stdClass Object
(
[id] => 183
[attribute_id] => 3
[name] => Рубленные
[material_modifier] => 1
[work_modifier] => 1
[options] => Array
(
[0] => 150 мм
[1] => 200 мм
[2] => 250 мм
[3] => 300 мм
[4] => 350 мм
[5] => 400 мм
)
[days] => [15,16,17,18,17,18]
[material_price] => [35950,50267,60583,75900,80217,100533]
[work_price] => [9612,12816,16020,19224,22428,25632]
[image] => https://akademik-stroy.ru/wp-content/uploads/materials/rublennye.jpg
[area_modifier] => 16.8
[parent_name] => Стены 1 этаж (несущие)
[parent_id] => 3
[material_sum] => 1449504
[work_sum] => 322963
[total_sum] => 1772467
[total_days] => 15
[display_material_sum] => 1 449 504
[display_work_sum] => 322 963
[display_total_sum] => 1 772 467
)
1
1 772 467₽
Работа:322 963 ₽
Материалы:1 449 504 ₽
Дни:15
stdClass Object
(
[id] => 185
[attribute_id] => 3
[name] => Теплоблок
[material_modifier] => 1
[work_modifier] => 1
[options] => Array
(
[0] => 300 мм (с облицовкой, не покрашенный)
[1] => 400 мм (с облицовкой, не покрашенный)
[2] => 300 мм (с облицовкой, покрашенный)
[3] => 400 мм (с облицовкой, покрашенный)
)
[days] => [15,16,15,16]
[material_price] => [2888,3729,3957,4258]
[work_price] => [2564,3229,2949,3713]
[image] => https://akademik-stroy.ru/wp-content/uploads/materials/teploblok.jpg
[area_modifier] => 16.8
[parent_name] => Стены 1 этаж (несущие)
[parent_id] => 3
[material_sum] => 116444
[work_sum] => 86150
[total_sum] => 202594
[total_days] => 15
[display_material_sum] => 116 444
[display_work_sum] => 86 150
[display_total_sum] => 202 594
)
1
202 594₽
Работа:86 150 ₽
Материалы:116 444 ₽
Дни:15
stdClass Object
(
[id] => 186
[attribute_id] => 3
[name] => Арболитовые блоки
[material_modifier] => 1
[work_modifier] => 1
[options] => Array
(
[0] => 300 мм
[1] => 400 мм
[2] => 600 мм
)
[days] => [19,22,27]
[material_price] => [3210,4475,5852]
[work_price] => [4214,4788,5866]
[image] => https://akademik-stroy.ru/wp-content/uploads/materials/arbolitovye-bloki.png
[area_modifier] => 16.8
[parent_name] => Стены 1 этаж (несущие)
[parent_id] => 3
[material_sum] => 129427
[work_sum] => 141590
[total_sum] => 271017
[total_days] => 19
[display_material_sum] => 129 427
[display_work_sum] => 141 590
[display_total_sum] => 271 017
)
1
271 017₽
Работа:141 590 ₽
Материалы:129 427 ₽
Дни:19
stdClass Object
(
[id] => 187
[attribute_id] => 3
[name] => Полистиролбетон
[material_modifier] => 1
[work_modifier] => 1
[options] => Array
(
[0] => 300 мм
[1] => 400 мм
[2] => 600 мм
)
[days] => [29,31,35]
[material_price] => [2798,4573,5256]
[work_price] => [5038,5851,6426]
[image] => https://akademik-stroy.ru/wp-content/uploads/materials/polistirolbeton.jpg
[area_modifier] => 16.8
[parent_name] => Стены 1 этаж (несущие)
[parent_id] => 3
[material_sum] => 112815
[work_sum] => 169277
[total_sum] => 282092
[total_days] => 29
[display_material_sum] => 112 815
[display_work_sum] => 169 277
[display_total_sum] => 282 092
)
1
282 092₽
Работа:169 277 ₽
Материалы:112 815 ₽
Дни:29
stdClass Object
(
[id] => 188
[attribute_id] => 3
[name] => Шлакоблок
[material_modifier] => 1
[work_modifier] => 1
[options] => Array
(
[0] => 400 мм
[1] => 600 мм
)
[days] => [15,16]
[material_price] => [2391,3471]
[work_price] => [2642,3662]
[image] => https://akademik-stroy.ru/wp-content/uploads/materials/shlakoblok.jpg
[area_modifier] => 16.8
[parent_name] => Стены 1 этаж (несущие)
[parent_id] => 3
[material_sum] => 96405
[work_sum] => 88771
[total_sum] => 185176
[total_days] => 15
[display_material_sum] => 96 405
[display_work_sum] => 88 771
[display_total_sum] => 185 176
)
1
185 176₽
Работа:88 771 ₽
Материалы:96 405 ₽
Дни:15
stdClass Object
(
[id] => 189
[attribute_id] => 3
[name] => Теплая керамика
[material_modifier] => 1
[work_modifier] => 1
[options] => Array
(
[0] => 380 мм
[1] => 380 мм Thermo
[2] => 440 мм
[3] => 510 мм
)
[days] => [23,23,24,25]
[material_price] => [4510,5098,6093,8013]
[work_price] => [4737,4937,5903,6958]
[image] => https://akademik-stroy.ru/wp-content/uploads/materials/teplaya-keramika.jpg
[area_modifier] => 16.8
[parent_name] => Стены 1 этаж (несущие)
[parent_id] => 3
[material_sum] => 181843
[work_sum] => 159163
[total_sum] => 341006
[total_days] => 23
[display_material_sum] => 181 843
[display_work_sum] => 159 163
[display_total_sum] => 341 006
)
1
341 006₽
Работа:159 163 ₽
Материалы:181 843 ₽
Дни:23
stdClass Object
(
[id] => 190
[attribute_id] => 3
[name] => Несъемная опалубка
[material_modifier] => 1
[work_modifier] => 1
[options] => Array
(
[0] => 200 мм
[1] => 250 мм
[2] => 300 мм
[3] => 350 мм
)
[days] => [15,17,19,21]
[material_price] => [3302,3902,4108,5008]
[work_price] => [2100,2100,2300,2534]
[image] => https://akademik-stroy.ru/wp-content/uploads/materials/nesemnaya-opalubka.jpg
[area_modifier] => 16.8
[parent_name] => Стены 1 этаж (несущие)
[parent_id] => 3
[material_sum] => 133137
[work_sum] => 70560
[total_sum] => 203697
[total_days] => 15
[display_material_sum] => 133 137
[display_work_sum] => 70 560
[display_total_sum] => 203 697
)
1
203 697₽
Работа:70 560 ₽
Материалы:133 137 ₽
Дни:15
stdClass Object
(
[id] => 251
[attribute_id] => 3
[name] => Бревно
[material_modifier] => 1
[work_modifier] => 1
[options] => Array
(
[0] => 260 мм
[1] => 320 мм
[2] => 360 мм
[3] => 400 мм
[4] => 500 мм
)
[days] => [7,8,9,10,11]
[material_price] => [1874,24045,26930,30972,38825]
[work_price] => [5046,6207,6952,7716,9723]
[image] => https://akademik-stroy.ru/wp-content/uploads/materials/sruby.jpg
[area_modifier] => 16.8
[parent_name] => Стены 1 этаж (несущие)
[parent_id] => 3
[material_sum] => 75560
[work_sum] => 169546
[total_sum] => 245106
[total_days] => 7
[display_material_sum] => 75 560
[display_work_sum] => 169 546
[display_total_sum] => 245 106
)
1
245 106₽
Работа:169 546 ₽
Материалы:75 560 ₽
Дни:7
stdClass Object
(
[id] => 7
[attribute_id] => 4
[name] => Деревянные балки
[material_modifier] => 1
[work_modifier] => 1
[options] => Array
(
[0] => без утепления
[1] => утепление 200 мм
[2] => утепление 250 мм
[3] => утепление 300 мм
[4] => утепление 350 мм
[5] => утепление 400 мм
[6] => утепление 450 мм
[7] => утепление 500 мм
)
[days] => [8,9,9,9,11,12,13,14]
[material_price] => [1634,2042,2344,2947,3149,3652,3354,3557]
[work_price] => [1230,1339,1393,1426,1460,1513,1587,1620]
[image] => https://akademik-stroy.ru/wp-content/uploads/materials/derevyannye-balki.png
[area_modifier] => 16.8
[parent_name] => Перекрытие первого этажа
[parent_id] => 4
[material_sum] => 65883
[work_sum] => 41328
[total_sum] => 107211
[total_days] => 8
[display_material_sum] => 65 883
[display_work_sum] => 41 328
[display_total_sum] => 107 211
)
1
107 211₽
Работа:41 328 ₽
Материалы:65 883 ₽
Дни:8
stdClass Object
(
[id] => 8
[attribute_id] => 4
[name] => Сборные ж/б плиты
[material_modifier] => 1
[work_modifier] => 1
[options] => Array
(
[0] => без утепления
[1] => утепление 150 мм
[2] => утепление 200 мм
[3] => утепление 250 мм
[4] => утепление 300 мм
[5] => утепление 350 мм
[6] => утепление 400 мм
[7] => утепление 450 мм
[8] => утепление 500 мм
)
[days] => [13,15,15,15,15,15,15,15,15]
[material_price] => [3067,5577,5928,6679,7730,8782,9833,10884,11935]
[work_price] => [1520,1956,2102,2247,2392,2537,2684,2829,2974]
[image] => https://akademik-stroy.ru/wp-content/uploads/materials/sbornye-zh-b-plity-2.jpg
[area_modifier] => 16.8
[parent_name] => Перекрытие первого этажа
[parent_id] => 4
[material_sum] => 123661
[work_sum] => 51072
[total_sum] => 174733
[total_days] => 13
[display_material_sum] => 123 661
[display_work_sum] => 51 072
[display_total_sum] => 174 733
)
1
174 733₽
Работа:51 072 ₽
Материалы:123 661 ₽
Дни:13
stdClass Object
(
[id] => 89
[attribute_id] => 4
[name] => Монолитная ж/б плита
[material_modifier] => 1
[work_modifier] => 1
[options] => Array
(
[0] => без утепления
[1] => утепление 150 мм
[2] => утепление 200 мм
[3] => утепление 250 мм
[4] => утепление 300 мм
[5] => утепление 350 мм
[6] => утепление 400 мм
[7] => утепление 450 мм
[8] => утепление 500 мм
)
[days] => [18,20,20,20,20,20,20,20,20]
[material_price] => [4837,6572,7224,7375,79426,8177,8728,9180,10031]
[work_price] => [3348,3921,4112,4302,4493,4684,4875,5066,5256]
[image] => https://akademik-stroy.ru/wp-content/uploads/materials/monolitnaya-zh-b-plita-2.jpg
[area_modifier] => 16.8
[parent_name] => Перекрытие первого этажа
[parent_id] => 4
[material_sum] => 195028
[work_sum] => 112493
[total_sum] => 307521
[total_days] => 18
[display_material_sum] => 195 028
[display_work_sum] => 112 493
[display_total_sum] => 307 521
)
1
307 521₽
Работа:112 493 ₽
Материалы:195 028 ₽
Дни:18
stdClass Object
(
[id] => 164
[attribute_id] => 37
[name] => Металлочерепица
[material_modifier] => 1
[work_modifier] => 1
[options] => Array
(
)
[days] => [20]
[material_price] => [6112]
[work_price] => [5726]
[image] => https://akademik-stroy.ru/wp-content/uploads/materials/metallocherepica.jpg
[area_modifier] => 16.8
[parent_name] => Крыша (Скатная)
[parent_id] => 37
[material_sum] => 246436
[work_sum] => 192394
[total_sum] => 438830
[total_days] => 20
[display_material_sum] => 246 436
[display_work_sum] => 192 394
[display_total_sum] => 438 830
)
1
438 830₽
Работа:192 394 ₽
Материалы:246 436 ₽
Дни:20
stdClass Object
(
[id] => 165
[attribute_id] => 37
[name] => Гибкая черепица
[material_modifier] => 1
[work_modifier] => 1
[options] => Array
(
)
[days] => [20]
[material_price] => [6980]
[work_price] => [5950]
[image] => https://akademik-stroy.ru/wp-content/uploads/materials/gibkaya-cherepica.jpg
[area_modifier] => 16.8
[parent_name] => Крыша (Скатная)
[parent_id] => 37
[material_sum] => 281434
[work_sum] => 199920
[total_sum] => 481354
[total_days] => 20
[display_material_sum] => 281 434
[display_work_sum] => 199 920
[display_total_sum] => 481 354
)
1
481 354₽
Работа:199 920 ₽
Материалы:281 434 ₽
Дни:20
stdClass Object
(
[id] => 166
[attribute_id] => 37
[name] => Цементно-песчаная черепица
[material_modifier] => 1
[work_modifier] => 1
[options] => Array
(
)
[days] => [20]
[material_price] => [10560]
[work_price] => [9456]
[image] => https://akademik-stroy.ru/wp-content/uploads/materials/cementno-peschanaya-cherepica.jpg
[area_modifier] => 16.8
[parent_name] => Крыша (Скатная)
[parent_id] => 37
[material_sum] => 425779
[work_sum] => 317722
[total_sum] => 743501
[total_days] => 20
[display_material_sum] => 425 779
[display_work_sum] => 317 722
[display_total_sum] => 743 501
)
1
743 501₽
Работа:317 722 ₽
Материалы:425 779 ₽
Дни:20
stdClass Object
(
[id] => 167
[attribute_id] => 37
[name] => Композитная черепица
[material_modifier] => 1
[work_modifier] => 1
[options] => Array
(
)
[days] => [20]
[material_price] => [9506]
[work_price] => [8905]
[image] => https://akademik-stroy.ru/wp-content/uploads/materials/kompozitnaya-cherepica.jpg
[area_modifier] => 16.8
[parent_name] => Крыша (Скатная)
[parent_id] => 37
[material_sum] => 383282
[work_sum] => 299208
[total_sum] => 682490
[total_days] => 20
[display_material_sum] => 383 282
[display_work_sum] => 299 208
[display_total_sum] => 682 490
)
1
682 490₽
Работа:299 208 ₽
Материалы:383 282 ₽
Дни:20
stdClass Object
(
[id] => 168
[attribute_id] => 37
[name] => Керамическая черепица
[material_modifier] => 1
[work_modifier] => 1
[options] => Array
(
)
[days] => [20]
[material_price] => [12750]
[work_price] => [9456]
[image] => https://akademik-stroy.ru/wp-content/uploads/materials/keramicheskaya-cherepica.jpg
[area_modifier] => 16.8
[parent_name] => Крыша (Скатная)
[parent_id] => 37
[material_sum] => 514080
[work_sum] => 317722
[total_sum] => 831802
[total_days] => 20
[display_material_sum] => 514 080
[display_work_sum] => 317 722
[display_total_sum] => 831 802
)
1
831 802₽
Работа:317 722 ₽
Материалы:514 080 ₽
Дни:20
stdClass Object
(
[id] => 169
[attribute_id] => 37
[name] => Металлическая фальцевая
[material_modifier] => 1
[work_modifier] => 1
[options] => Array
(
)
[days] => [20]
[material_price] => [8550]
[work_price] => [8190]
[image] => https://akademik-stroy.ru/wp-content/uploads/materials/metallicheskaya-falcevaya.jpg
[area_modifier] => 16.8
[parent_name] => Крыша (Скатная)
[parent_id] => 37
[material_sum] => 344736
[work_sum] => 275184
[total_sum] => 619920
[total_days] => 20
[display_material_sum] => 344 736
[display_work_sum] => 275 184
[display_total_sum] => 619 920
)
1
619 920₽
Работа:275 184 ₽
Материалы:344 736 ₽
Дни:20
stdClass Object
(
[id] => 170
[attribute_id] => 37
[name] => Медная фальцевая
[material_modifier] => 1
[work_modifier] => 1
[options] => Array
(
)
[days] => [20]
[material_price] => [20450]
[work_price] => [16750]
[image] => https://akademik-stroy.ru/wp-content/uploads/materials/mednaya-falcevaya.jpg
[area_modifier] => 16.8
[parent_name] => Крыша (Скатная)
[parent_id] => 37
[material_sum] => 824544
[work_sum] => 562800
[total_sum] => 1387344
[total_days] => 20
[display_material_sum] => 824 544
[display_work_sum] => 562 800
[display_total_sum] => 1 387 344
)
1
1 387 344₽
Работа:562 800 ₽
Материалы:824 544 ₽
Дни:20
stdClass Object
(
[id] => 171
[attribute_id] => 37
[name] => Зеленая кровля
[material_modifier] => 1
[work_modifier] => 1
[options] => Array
(
)
[days] => [20]
[material_price] => [19850]
[work_price] => [16780]
[image] => https://akademik-stroy.ru/wp-content/uploads/materials/zelenaya-krovlya.jpg
[area_modifier] => 16.8
[parent_name] => Крыша (Скатная)
[parent_id] => 37
[material_sum] => 800352
[work_sum] => 563808
[total_sum] => 1364160
[total_days] => 20
[display_material_sum] => 800 352
[display_work_sum] => 563 808
[display_total_sum] => 1 364 160
)
1
1 364 160₽
Работа:563 808 ₽
Материалы:800 352 ₽
Дни:20
stdClass Object
(
[id] => 172
[attribute_id] => 37
[name] => Профлист
[material_modifier] => 1
[work_modifier] => 1
[options] => Array
(
)
[days] => [20]
[material_price] => [3450]
[work_price] => [3750]
[image] => https://akademik-stroy.ru/wp-content/uploads/materials/proflist.jpg
[area_modifier] => 16.8
[parent_name] => Крыша (Скатная)
[parent_id] => 37
[material_sum] => 139104
[work_sum] => 126000
[total_sum] => 265104
[total_days] => 20
[display_material_sum] => 139 104
[display_work_sum] => 126 000
[display_total_sum] => 265 104
)
1
265 104₽
Работа:126 000 ₽
Материалы:139 104 ₽
Дни:20
stdClass Object
(
[id] => 51
[attribute_id] => 26
[name] => Есть
[material_modifier] => 1
[work_modifier] => 1
[options] => Array
(
[0] => Профиль 58 мм, 3-камерный, стеклопакет 2-камерный до 32 мм
[1] => Профиль 60 мм, 4-камерный, стеклопакет 2-камерный до 32 мм
[2] => Профиль 70 мм, 5-камерный, стеклопакет 2-камерный до 40 мм
[3] => Профиль 72 мм, 5-камерный, стеклопакет 2-камерный до 40 мм
[4] => Алюминиевые окна Alutech профиль 72 мм, стеклопакет 2-камерный
)
[days] => [3,3,3,3,3]
[material_price] => [1339,2124,2867,3023,29596]
[work_price] => [635,647,659,668,2579]
[image] => https://akademik-stroy.ru/wp-content/uploads/materials/okna.jpg
[area_modifier] => 13.63
[parent_name] => Окна
[parent_id] => 26
[material_sum] => 43801
[work_sum] => 17310
[total_sum] => 61111
[total_days] => 3
[display_material_sum] => 43 801
[display_work_sum] => 17 310
[display_total_sum] => 61 111
)
1
61 111₽
Работа:17 310 ₽
Материалы:43 801 ₽
Дни:3
stdClass Object
(
[id] => 52
[attribute_id] => 26
[name] => Нет
[material_modifier] => 2
[work_modifier] => 1
[options] =>
[days] => null
[material_price] => null
[work_price] => null
[image] => https://akademik-stroy.ru/wp-content/uploads/materials/okna.jpg
[area_modifier] => 13.63
[parent_name] => Окна
[parent_id] => 26
[material_sum] => 0
[work_sum] => 0
[total_sum] => 0
[total_days] => 0
[display_material_sum] => 0
[display_work_sum] => 0
[display_total_sum] => 0
)
1
0₽
Работа:0 ₽
Материалы:0 ₽
Дни:0
stdClass Object
(
[id] => 53
[attribute_id] => 27
[name] => Есть
[material_modifier] => 1
[work_modifier] => 1
[options] => Array
(
)
[days] => [1]
[material_price] => [10000]
[work_price] => [5500]
[image] => https://akademik-stroy.ru/wp-content/uploads/materials/dveri.jpg
[area_modifier] => 1
[parent_name] => Двери входные
[parent_id] => 27
[material_sum] => 24000
[work_sum] => 11000
[total_sum] => 35000
[total_days] => 1
[display_material_sum] => 24 000
[display_work_sum] => 11 000
[display_total_sum] => 35 000
)
1
35 000₽
Работа:11 000 ₽
Материалы:24 000 ₽
Дни:1
stdClass Object
(
[id] => 54
[attribute_id] => 27
[name] => Нет
[material_modifier] => 1
[work_modifier] => 1
[options] => Array
(
)
[days] => [0]
[material_price] => [0]
[work_price] => [0]
[image] => https://akademik-stroy.ru/wp-content/uploads/materials/dveri.jpg
[area_modifier] => 1
[parent_name] => Двери входные
[parent_id] => 27
[material_sum] => 0
[work_sum] => 0
[total_sum] => 0
[total_days] => 0
[display_material_sum] => 0
[display_work_sum] => 0
[display_total_sum] => 0
)
1
0₽
Работа:0 ₽
Материалы:0 ₽
Дни:0
stdClass Object
(
[id] => 25
[attribute_id] => 13
[name] => Нет
[material_modifier] => 1
[work_modifier] => 1
[options] => Array
(
)
[days] => [0]
[material_price] => [0]
[work_price] => [0]
[image] => https://akademik-stroy.ru/wp-content/uploads/materials/mineralovata-krov.jpg
[area_modifier] => 16.8
[parent_name] => Утепление кровли (Мансарда)
[parent_id] => 13
[material_sum] => 0
[work_sum] => 0
[total_sum] => 0
[total_days] => 0
[display_material_sum] => 0
[display_work_sum] => 0
[display_total_sum] => 0
)
1
0₽
Работа:0 ₽
Материалы:0 ₽
Дни:0
stdClass Object
(
[id] => 26
[attribute_id] => 13
[name] => Минераловатный
[material_modifier] => 1
[work_modifier] => 1
[options] => Array
(
[0] => 50 мм
[1] => 100 мм
[2] => 150 мм
[3] => 200 мм
[4] => 250 мм
[5] => 300 мм
[6] => 350 мм
[7] => 400 мм
[8] => 450 мм
[9] => 500 мм
)
[days] => [5,5,6,6,6,7,7,7,8,8]
[material_price] => [1158,1414,1772,2230,3602,4060,4974,5890,6408,7718]
[work_price] => [650,846,846,1098,1318,1450,1596,1754,1930,2122]
[image] => https://akademik-stroy.ru/wp-content/uploads/materials/mineralovata-krov.jpg
[area_modifier] => 16.8
[parent_name] => Утепление кровли (Мансарда)
[parent_id] => 13
[material_sum] => 46691
[work_sum] => 21840
[total_sum] => 68531
[total_days] => 5
[display_material_sum] => 46 691
[display_work_sum] => 21 840
[display_total_sum] => 68 531
)
1
68 531₽
Работа:21 840 ₽
Материалы:46 691 ₽
Дни:5
stdClass Object
(
[id] => 123
[attribute_id] => 13
[name] => Эковата (целлюлозная вата)
[material_modifier] => 1
[work_modifier] => 1
[options] => Array
(
[0] => 50 мм
[1] => 100 мм
[2] => 150 мм
[3] => 200 мм
[4] => 250 мм
[5] => 300 мм
[6] => 350 мм
[7] => 400 мм
[8] => 450 мм
[9] => 500 мм
)
[days] => [3,3,4,4,4,5,5,5,5,5]
[material_price] => [820,1638,2458,3276,5734,6552,8190,9828,11466,13104]
[work_price] => [234,304,304,396,474,522,574,632,694,764]
[image] => https://akademik-stroy.ru/wp-content/uploads/materials/ehkovata-krov.jpg
[area_modifier] => 16.8
[parent_name] => Утепление кровли (Мансарда)
[parent_id] => 13
[material_sum] => 33062
[work_sum] => 7862
[total_sum] => 40924
[total_days] => 3
[display_material_sum] => 33 062
[display_work_sum] => 7 862
[display_total_sum] => 40 924
)
1
40 924₽
Работа:7 862 ₽
Материалы:33 062 ₽
Дни:3
stdClass Object
(
[id] => 124
[attribute_id] => 13
[name] => Экструдированный пенополистирол
[material_modifier] => 1
[work_modifier] => 1
[options] => Array
(
[0] => 50 мм
[1] => 100 мм
[2] => 150 мм
[3] => 200 мм
[4] => 250 мм
[5] => 300 мм
[6] => 350 мм
[7] => 400 мм
[8] => 450 мм
[9] => 500 мм
)
[days] => [3,3,4,4,4,5,5,5,5,6]
[material_price] => [1146,2292,3438,4584,8020,9166,11458,13750,16040,18332]
[work_price] => [390,508,508,660,790,870,958,1052,1158,1274]
[image] => https://akademik-stroy.ru/wp-content/uploads/materials/epps-krov.jpg
[area_modifier] => 16.8
[parent_name] => Утепление кровли (Мансарда)
[parent_id] => 13
[material_sum] => 46207
[work_sum] => 13104
[total_sum] => 59311
[total_days] => 3
[display_material_sum] => 46 207
[display_work_sum] => 13 104
[display_total_sum] => 59 311
)
1
59 311₽
Работа:13 104 ₽
Материалы:46 207 ₽
Дни:3
stdClass Object
(
[id] => 125
[attribute_id] => 13
[name] => ПСБ (ППС-пенополистирол)
[material_modifier] => 1
[work_modifier] => 1
[options] => Array
(
[0] => 50 мм
[1] => 100 мм
[2] => 150 мм
[3] => 200 мм
[4] => 250 мм
[5] => 300 мм
[6] => 350 мм
[7] => 400 мм
[8] => 450 мм
[9] => 500 мм
)
[days] => [3,3,4,4,4,5,5,5,5,6]
[material_price] => [476,954,1430,1906,3336,3814,4766,5720,6674,7626]
[work_price] => [390,508,508,660,790,870,958,1052,1158,1274]
[image] => https://akademik-stroy.ru/wp-content/uploads/materials/psb-krov.jpg
[area_modifier] => 16.8
[parent_name] => Утепление кровли (Мансарда)
[parent_id] => 13
[material_sum] => 19192
[work_sum] => 13104
[total_sum] => 32296
[total_days] => 3
[display_material_sum] => 19 192
[display_work_sum] => 13 104
[display_total_sum] => 32 296
)
1
32 296₽
Работа:13 104 ₽
Материалы:19 192 ₽
Дни:3
stdClass Object
(
[id] => 126
[attribute_id] => 13
[name] => ППУ (Пенополиуретан)
[material_modifier] => 1
[work_modifier] => 1
[options] => Array
(
[0] => 50 мм
[1] => 100 мм
[2] => 150 мм
[3] => 200 мм
[4] => 250 мм
[5] => 300 мм
[6] => 350 мм
[7] => 400 мм
[8] => 450 мм
[9] => 500 мм
)
[days] => [2,2,3,3,3,3,4,4,4,4]
[material_price] => [2080,4160,6240,8320,14560,16640,20800,24960,29120,33280]
[work_price] => [234,304,304,396,474,522,574,632,694,764]
[image] => https://akademik-stroy.ru/wp-content/uploads/materials/ppu-krov.jpg
[area_modifier] => 16.8
[parent_name] => Утепление кровли (Мансарда)
[parent_id] => 13
[material_sum] => 83866
[work_sum] => 7862
[total_sum] => 91728
[total_days] => 2
[display_material_sum] => 83 866
[display_work_sum] => 7 862
[display_total_sum] => 91 728
)
1
91 728₽
Работа:7 862 ₽
Материалы:83 866 ₽
Дни:2
stdClass Object
(
[id] => 127
[attribute_id] => 13
[name] => PIR-плиты (пенополиизоцианурат)
[material_modifier] => 1
[work_modifier] => 1
[options] => Array
(
[0] => 50 мм
[1] => 100 мм
[2] => 150 мм
[3] => 200 мм
[4] => 250 мм
[5] => 300 мм
[6] => 350 мм
[7] => 400 мм
[8] => 450 мм
[9] => 500 мм
)
[days] => [3,3,4,4,4,5,5,5,5,6]
[material_price] => [2646,5290,7936,10580,18516,21162,26452,31742,37032,42324]
[work_price] => [390,508,508,660,790,870,958,1052,1158,1274]
[image] => https://akademik-stroy.ru/wp-content/uploads/materials/pir-krov.jpg
[area_modifier] => 16.8
[parent_name] => Утепление кровли (Мансарда)
[parent_id] => 13
[material_sum] => 106687
[work_sum] => 13104
[total_sum] => 119791
[total_days] => 3
[display_material_sum] => 106 687
[display_work_sum] => 13 104
[display_total_sum] => 119 791
)
1
119 791₽
Работа:13 104 ₽
Материалы:106 687 ₽
Дни:3
stdClass Object
(
[id] => 27
[attribute_id] => 14
[name] => Нет
[material_modifier] => 1
[work_modifier] => 1
[options] => Array
(
)
[days] => [0]
[material_price] => [0]
[work_price] => [0]
[image] => https://akademik-stroy.ru/wp-content/uploads/materials/mansardnye-okna-2.jpg
[area_modifier] => 1
[parent_name] => Мансардные окна
[parent_id] => 14
[material_sum] => 0
[work_sum] => 0
[total_sum] => 0
[total_days] => 0
[display_material_sum] => 0
[display_work_sum] => 0
[display_total_sum] => 0
)
1
0₽
Работа:0 ₽
Материалы:0 ₽
Дни:0
stdClass Object
(
[id] => 28
[attribute_id] => 14
[name] => Есть
[material_modifier] => 1
[work_modifier] => 1
[options] => Array
(
[0] => 55x78
[1] => 55x98
)
[days] => [6,7]
[material_price] => [47480,68700]
[work_price] => [17900,19500]
[image] => https://akademik-stroy.ru/wp-content/uploads/materials/mansardnye-okna-2.jpg
[area_modifier] => 1
[parent_name] => Мансардные окна
[parent_id] => 14
[material_sum] => 113952
[work_sum] => 35800
[total_sum] => 149752
[total_days] => 6
[display_material_sum] => 113 952
[display_work_sum] => 35 800
[display_total_sum] => 149 752
)
1
149 752₽
Работа:35 800 ₽
Материалы:113 952 ₽
Дни:6
stdClass Object
(
[id] => 29
[attribute_id] => 15
[name] => Нет
[material_modifier] => 1
[work_modifier] => 1
[options] => Array
(
)
[days] => [0]
[material_price] => [0]
[work_price] => [0]
[image] => https://akademik-stroy.ru/wp-content/uploads/materials/sofit.jpg
[area_modifier] => 16.8
[parent_name] => Подшивка кровли
[parent_id] => 15
[material_sum] => 0
[work_sum] => 0
[total_sum] => 0
[total_days] => 0
[display_material_sum] => 0
[display_work_sum] => 0
[display_total_sum] => 0
)
1
0₽
Работа:0 ₽
Материалы:0 ₽
Дни:0
stdClass Object
(
[id] => 30
[attribute_id] => 15
[name] => Есть
[material_modifier] => 1
[work_modifier] => 1
[options] => Array
(
[0] => Софиты (ПВХ)
[1] => Cedral
[2] => ДПК
[3] => Планкен
)
[days] => [7,10,9,8]
[material_price] => [1803,3213,3025,3150]
[work_price] => [1529,2188,2075,1923]
[image] => https://akademik-stroy.ru/wp-content/uploads/materials/sofit.jpg
[area_modifier] => 16.8
[parent_name] => Подшивка кровли
[parent_id] => 15
[material_sum] => 72697
[work_sum] => 51374
[total_sum] => 124071
[total_days] => 7
[display_material_sum] => 72 697
[display_work_sum] => 51 374
[display_total_sum] => 124 071
)
1
124 071₽
Работа:51 374 ₽
Материалы:72 697 ₽
Дни:7
stdClass Object
(
[id] => 31
[attribute_id] => 16
[name] => Нет
[material_modifier] => 1
[work_modifier] => 1
[options] => Array
(
)
[days] => [0]
[material_price] => [0]
[work_price] => [0]
[image] => https://akademik-stroy.ru/wp-content/uploads/materials/docke-standard-pvh.jpg
[area_modifier] => 16.8
[parent_name] => Водосточная система
[parent_id] => 16
[material_sum] => 0
[work_sum] => 0
[total_sum] => 0
[total_days] => 0
[display_material_sum] => 0
[display_work_sum] => 0
[display_total_sum] => 0
)
1
0₽
Работа:0 ₽
Материалы:0 ₽
Дни:0
stdClass Object
(
[id] => 32
[attribute_id] => 16
[name] => Есть
[material_modifier] => 1
[work_modifier] => 1
[options] => Array
(
[0] => Döcke Standard (ПВХ)
[1] => Металлические Grand Line
)
[days] => [7,7]
[material_price] => [1842,2703]
[work_price] => [1491,1529]
[image] => https://akademik-stroy.ru/wp-content/uploads/materials/docke-standard-pvh.jpg
[area_modifier] => 16.8
[parent_name] => Водосточная система
[parent_id] => 16
[material_sum] => 74269
[work_sum] => 50098
[total_sum] => 124367
[total_days] => 7
[display_material_sum] => 74 269
[display_work_sum] => 50 098
[display_total_sum] => 124 367
)
1
124 367₽
Работа:50 098 ₽
Материалы:74 269 ₽
Дни:7
stdClass Object
(
[id] => 33
[attribute_id] => 17
[name] => Нет
[material_modifier] => 1
[work_modifier] => 1
[options] => Array
(
)
[days] => [0]
[material_price] => [0]
[work_price] => [0]
[image] => https://akademik-stroy.ru/wp-content/uploads/materials/mineralovata.jpg
[area_modifier] => 16.8
[parent_name] => Дополнительное утепление наружных стен
[parent_id] => 17
[material_sum] => 0
[work_sum] => 0
[total_sum] => 0
[total_days] => 0
[display_material_sum] => 0
[display_work_sum] => 0
[display_total_sum] => 0
)
1
0₽
Работа:0 ₽
Материалы:0 ₽
Дни:0
stdClass Object
(
[id] => 34
[attribute_id] => 17
[name] => Минераловатный
[material_modifier] => 1
[work_modifier] => 1
[options] => Array
(
[0] => 50 мм
[1] => 100 мм
[2] => 150 мм
[3] => 200 мм
[4] => 250 мм
[5] => 300 мм
)
[days] => [7,8,10,12,14,15]
[material_price] => [3437,3613,3803,3915,4601,4830]
[work_price] => [2325,2423,2523,2749,2859,3025]
[image] => https://akademik-stroy.ru/wp-content/uploads/materials/mineralovata.jpg
[area_modifier] => 16.8
[parent_name] => Дополнительное утепление наружных стен
[parent_id] => 17
[material_sum] => 138580
[work_sum] => 78120
[total_sum] => 216700
[total_days] => 7
[display_material_sum] => 138 580
[display_work_sum] => 78 120
[display_total_sum] => 216 700
)
1
216 700₽
Работа:78 120 ₽
Материалы:138 580 ₽
Дни:7
stdClass Object
(
[id] => 128
[attribute_id] => 17
[name] => Эковата (целлюлозная вата)
[material_modifier] => 1
[work_modifier] => 1
[options] => Array
(
[0] => 50 мм
[1] => 100 мм
[2] => 150 мм
[3] => 200 мм
[4] => 250 мм
[5] => 300 мм
)
[days] => [3,4,5,6,7,8]
[material_price] => [810,1319,1629,1838,2267,2676]
[work_price] => [1225,1323,1423,1549,1659,1725]
[image] => https://akademik-stroy.ru/wp-content/uploads/materials/ehkovata.jpg
[area_modifier] => 16.8
[parent_name] => Дополнительное утепление наружных стен
[parent_id] => 17
[material_sum] => 32659
[work_sum] => 41160
[total_sum] => 73819
[total_days] => 3
[display_material_sum] => 32 659
[display_work_sum] => 41 160
[display_total_sum] => 73 819
)
1
73 819₽
Работа:41 160 ₽
Материалы:32 659 ₽
Дни:3
stdClass Object
(
[id] => 129
[attribute_id] => 17
[name] => Экструдированный пенополистирол
[material_modifier] => 1
[work_modifier] => 1
[options] => Array
(
[0] => 50 мм
[1] => 100 мм
[2] => 150 мм
[3] => 200 мм
[4] => 250 мм
[5] => 300 мм
)
[days] => [5,6,7,8,9,10]
[material_price] => [4560,4300,5119,6292,7010,8583]
[work_price] => [1795,1954,2254,2330,2595,2735]
[image] => https://akademik-stroy.ru/wp-content/uploads/materials/epps.jpg
[area_modifier] => 16.8
[parent_name] => Дополнительное утепление наружных стен
[parent_id] => 17
[material_sum] => 183859
[work_sum] => 60312
[total_sum] => 244171
[total_days] => 5
[display_material_sum] => 183 859
[display_work_sum] => 60 312
[display_total_sum] => 244 171
)
1
244 171₽
Работа:60 312 ₽
Материалы:183 859 ₽
Дни:5
stdClass Object
(
[id] => 130
[attribute_id] => 17
[name] => ПСБ (ППС-пенополистирол)
[material_modifier] => 1
[work_modifier] => 1
[options] => Array
(
[0] => 50 мм
[1] => 100 мм
[2] => 150 мм
[3] => 200 мм
[4] => 250 мм
[5] => 300 мм
)
[days] => [5,6,7,8,9,10]
[material_price] => [4822,5200,5819,6292,7010,7583]
[work_price] => [1795,1954,2254,2330,2595,2735]
[image] => https://akademik-stroy.ru/wp-content/uploads/materials/psb.jpg
[area_modifier] => 16.8
[parent_name] => Дополнительное утепление наружных стен
[parent_id] => 17
[material_sum] => 194423
[work_sum] => 60312
[total_sum] => 254735
[total_days] => 5
[display_material_sum] => 194 423
[display_work_sum] => 60 312
[display_total_sum] => 254 735
)
1
254 735₽
Работа:60 312 ₽
Материалы:194 423 ₽
Дни:5
stdClass Object
(
[id] => 131
[attribute_id] => 17
[name] => ППУ (Пенополиуретан)
[material_modifier] => 1
[work_modifier] => 1
[options] => Array
(
[0] => 50 мм
[1] => 100 мм
[2] => 150 мм
[3] => 200 мм
[4] => 250 мм
[5] => 300 мм
)
[days] => [3,4,5,6,7,8]
[material_price] => [2860,3400,4219,4592,5010,5583]
[work_price] => [729,900,980,1120,1280,1530]
[image] => https://akademik-stroy.ru/wp-content/uploads/materials/ppu.jpg
[area_modifier] => 16.8
[parent_name] => Дополнительное утепление наружных стен
[parent_id] => 17
[material_sum] => 115315
[work_sum] => 24494
[total_sum] => 139809
[total_days] => 3
[display_material_sum] => 115 315
[display_work_sum] => 24 494
[display_total_sum] => 139 809
)
1
139 809₽
Работа:24 494 ₽
Материалы:115 315 ₽
Дни:3
stdClass Object
(
[id] => 132
[attribute_id] => 17
[name] => PIR-плиты (пенополиизоцианурат)
[material_modifier] => 1
[work_modifier] => 1
[options] => Array
(
[0] => 50 мм
[1] => 100 мм
[2] => 150 мм
[3] => 200 мм
[4] => 250 мм
[5] => 300 мм
)
[days] => [5,6,7,8,9,10]
[material_price] => [8323,15645,20968,25900,29258,30581]
[work_price] => [800,900,970,1150,1280,1330]
[image] => https://akademik-stroy.ru/wp-content/uploads/materials/pir.jpg
[area_modifier] => 16.8
[parent_name] => Дополнительное утепление наружных стен
[parent_id] => 17
[material_sum] => 335583
[work_sum] => 26880
[total_sum] => 362463
[total_days] => 5
[display_material_sum] => 335 583
[display_work_sum] => 26 880
[display_total_sum] => 362 463
)
1
362 463₽
Работа:26 880 ₽
Материалы:335 583 ₽
Дни:5
stdClass Object
(
[id] => 37
[attribute_id] => 19
[name] => Нет
[material_modifier] => 1
[work_modifier] => 1
[options] => Array
(
)
[days] => [0]
[material_price] => [0]
[work_price] => [0]
[image] => https://akademik-stroy.ru/wp-content/uploads/materials/imitaciya-brusa.jpg
[area_modifier] => 16.8
[parent_name] => Наружная отделка фасада
[parent_id] => 19
[material_sum] => 0
[work_sum] => 0
[total_sum] => 0
[total_days] => 0
[display_material_sum] => 0
[display_work_sum] => 0
[display_total_sum] => 0
)
1
0₽
Работа:0 ₽
Материалы:0 ₽
Дни:0
stdClass Object
(
[id] => 38
[attribute_id] => 19
[name] => Имитация бруса
[material_modifier] => 1
[work_modifier] => 1
[options] => Array
(
[0] => Сосна
[1] => Ель
[2] => Лиственница
)
[days] => [20,20,20]
[material_price] => [2994,2762,4954]
[work_price] => [1397,1231,1577]
[image] => https://akademik-stroy.ru/wp-content/uploads/materials/imitaciya-brusa.jpg
[area_modifier] => 16.8
[parent_name] => Наружная отделка фасада
[parent_id] => 19
[material_sum] => 120718
[work_sum] => 46939
[total_sum] => 167657
[total_days] => 20
[display_material_sum] => 120 718
[display_work_sum] => 46 939
[display_total_sum] => 167 657
)
1
167 657₽
Работа:46 939 ₽
Материалы:120 718 ₽
Дни:20
stdClass Object
(
[id] => 136
[attribute_id] => 19
[name] => Планкен
[material_modifier] => 1
[work_modifier] => 1
[options] => Array
(
[0] => Сосна
[1] => Ель
[2] => Лиственница
)
[days] => [20,20,20]
[material_price] => [3194,2862,5154]
[work_price] => [1537,1354,1735]
[image] => https://akademik-stroy.ru/wp-content/uploads/materials/planken.jpg
[area_modifier] => 16.8
[parent_name] => Наружная отделка фасада
[parent_id] => 19
[material_sum] => 128782
[work_sum] => 51643
[total_sum] => 180425
[total_days] => 20
[display_material_sum] => 128 782
[display_work_sum] => 51 643
[display_total_sum] => 180 425
)
1
180 425₽
Работа:51 643 ₽
Материалы:128 782 ₽
Дни:20
stdClass Object
(
[id] => 137
[attribute_id] => 19
[name] => Штукатурка
[material_modifier] => 1
[work_modifier] => 1
[options] => Array
(
[0] => Цементно-песчаная (минеральная)
[1] => Мокрый фасад
)
[days] => [35,35]
[material_price] => [2231,3938]
[work_price] => [1202,2422]
[image] => https://akademik-stroy.ru/wp-content/uploads/materials/shtukaturka.jpg
[area_modifier] => 16.8
[parent_name] => Наружная отделка фасада
[parent_id] => 19
[material_sum] => 89954
[work_sum] => 40387
[total_sum] => 130341
[total_days] => 35
[display_material_sum] => 89 954
[display_work_sum] => 40 387
[display_total_sum] => 130 341
)
1
130 341₽
Работа:40 387 ₽
Материалы:89 954 ₽
Дни:35
stdClass Object
(
[id] => 138
[attribute_id] => 19
[name] => Облицовочный кирпич
[material_modifier] => 1
[work_modifier] => 1
[options] => Array
(
[0] => Керамический
[1] => Клинкерный
[2] => Ручной формовки
[3] => Гиперпрессованный
[4] => Силикатный кирпич
)
[days] => [45,45,45,45,45]
[material_price] => [8174,9148,1040,1257,5876]
[work_price] => [3240,3758,4536,4017,3369]
[image] => https://akademik-stroy.ru/wp-content/uploads/materials/oblicovochnyj-kirpich.jpg
[area_modifier] => 16.8
[parent_name] => Наружная отделка фасада
[parent_id] => 19
[material_sum] => 329576
[work_sum] => 108864
[total_sum] => 438440
[total_days] => 45
[display_material_sum] => 329 576
[display_work_sum] => 108 864
[display_total_sum] => 438 440
)
1
438 440₽
Работа:108 864 ₽
Материалы:329 576 ₽
Дни:45
stdClass Object
(
[id] => 139
[attribute_id] => 19
[name] => Фасадная плитка
[material_modifier] => 1
[work_modifier] => 1
[options] => Array
(
[0] => Клинкерная
[1] => Керамическая
[2] => Плитка ручной формовки
)
[days] => [40,40,40]
[material_price] => [2974,1487,3470]
[work_price] => [3007,2592,3629]
[image] => https://akademik-stroy.ru/wp-content/uploads/materials/fasadnaya-plitka.jpg
[area_modifier] => 16.8
[parent_name] => Наружная отделка фасада
[parent_id] => 19
[material_sum] => 119912
[work_sum] => 101035
[total_sum] => 220947
[total_days] => 40
[display_material_sum] => 119 912
[display_work_sum] => 101 035
[display_total_sum] => 220 947
)
1
220 947₽
Работа:101 035 ₽
Материалы:119 912 ₽
Дни:40
stdClass Object
(
[id] => 140
[attribute_id] => 19
[name] => Сайдинг
[material_modifier] => 1
[work_modifier] => 1
[options] => Array
(
[0] => Виниловый
[1] => Металлический
[2] => Фиброцементный
)
[days] => [20,20,20]
[material_price] => [1263,1944,4147]
[work_price] => [1263,1944,2074]
[image] => https://akademik-stroy.ru/wp-content/uploads/materials/sajding.jpg
[area_modifier] => 16.8
[parent_name] => Наружная отделка фасада
[parent_id] => 19
[material_sum] => 50924
[work_sum] => 42437
[total_sum] => 93361
[total_days] => 20
[display_material_sum] => 50 924
[display_work_sum] => 42 437
[display_total_sum] => 93 361
)
1
93 361₽
Работа:42 437 ₽
Материалы:50 924 ₽
Дни:20
stdClass Object
(
[id] => 141
[attribute_id] => 19
[name] => Камень
[material_modifier] => 1
[work_modifier] => 1
[options] => Array
(
[0] => Травертин
[1] => Дагестанский
[2] => Искусственный
[3] => Натуральный
[4] => Керамогранит
)
[days] => [45,45,45,45,45]
[material_price] => [4536,3888,2592,3240,2462]
[work_price] => [3240,3240,2462,3110,1944]
[image] => https://akademik-stroy.ru/wp-content/uploads/materials/kamen-1.jpg
[area_modifier] => 16.8
[parent_name] => Наружная отделка фасада
[parent_id] => 19
[material_sum] => 182892
[work_sum] => 108864
[total_sum] => 291756
[total_days] => 45
[display_material_sum] => 182 892
[display_work_sum] => 108 864
[display_total_sum] => 291 756
)
1
291 756₽
Работа:108 864 ₽
Материалы:182 892 ₽
Дни:45
stdClass Object
(
[id] => 142
[attribute_id] => 19
[name] => Термопанели
[material_modifier] => 1
[work_modifier] => 1
[options] => Array
(
)
[days] => [20]
[material_price] => [6221]
[work_price] => [2333]
[image] => https://akademik-stroy.ru/wp-content/uploads/materials/termo.png
[area_modifier] => 16.8
[parent_name] => Наружная отделка фасада
[parent_id] => 19
[material_sum] => 250831
[work_sum] => 78389
[total_sum] => 329220
[total_days] => 20
[display_material_sum] => 250 831
[display_work_sum] => 78 389
[display_total_sum] => 329 220
)
1
329 220₽
Работа:78 389 ₽
Материалы:250 831 ₽
Дни:20
stdClass Object
(
[id] => 143
[attribute_id] => 19
[name] => Плитка HAUBERK
[material_modifier] => 1
[work_modifier] => 1
[options] => Array
(
)
[days] => [20]
[material_price] => [2786]
[work_price] => [1944]
[image] => https://akademik-stroy.ru/wp-content/uploads/materials/hauberk.jpg
[area_modifier] => 16.8
[parent_name] => Наружная отделка фасада
[parent_id] => 19
[material_sum] => 112332
[work_sum] => 65318
[total_sum] => 177650
[total_days] => 20
[display_material_sum] => 112 332
[display_work_sum] => 65 318
[display_total_sum] => 177 650
)
1
177 650₽
Работа:65 318 ₽
Материалы:112 332 ₽
Дни:20
stdClass Object
(
[id] => 144
[attribute_id] => 19
[name] => Фальцевый фасад
[material_modifier] => 1
[work_modifier] => 1
[options] => Array
(
)
[days] => [20]
[material_price] => [3240]
[work_price] => [2592]
[image] => https://akademik-stroy.ru/wp-content/uploads/materials/falcevyj-fasad.jpg
[area_modifier] => 16.8
[parent_name] => Наружная отделка фасада
[parent_id] => 19
[material_sum] => 130637
[work_sum] => 87091
[total_sum] => 217728
[total_days] => 20
[display_material_sum] => 130 637
[display_work_sum] => 87 091
[display_total_sum] => 217 728
)
1
217 728₽
Работа:87 091 ₽
Материалы:130 637 ₽
Дни:20
stdClass Object
(
[id] => 145
[attribute_id] => 19
[name] => Комбинированный
[material_modifier] => 1
[work_modifier] => 1
[options] => Array
(
)
[days] => [20]
[material_price] => [4629]
[work_price] => [3499]
[image] => https://akademik-stroy.ru/wp-content/uploads/materials/Kombinirovannyj.jpg
[area_modifier] => 16.8
[parent_name] => Наружная отделка фасада
[parent_id] => 19
[material_sum] => 186641
[work_sum] => 117566
[total_sum] => 304207
[total_days] => 20
[display_material_sum] => 186 641
[display_work_sum] => 117 566
[display_total_sum] => 304 207
)
1
304 207₽
Работа:117 566 ₽
Материалы:186 641 ₽
Дни:20
stdClass Object
(
[id] => 257
[attribute_id] => 19
[name] => Японские фиброцементные
[material_modifier] => 1
[work_modifier] => 1
[options] => Array
(
)
[days] => [20]
[material_price] => [7043]
[work_price] => [2993]
[image] => https://akademik-stroy.ru/wp-content/uploads/materials/paneli.jpg
[area_modifier] => 16.8
[parent_name] => Наружная отделка фасада
[parent_id] => 19
[material_sum] => 283974
[work_sum] => 100565
[total_sum] => 384539
[total_days] => 20
[display_material_sum] => 283 974
[display_work_sum] => 100 565
[display_total_sum] => 384 539
)
1
384 539₽
Работа:100 565 ₽
Материалы:283 974 ₽
Дни:20
stdClass Object
(
[id] => 258
[attribute_id] => 19
[name] => Панели Каньон
[material_modifier] => 1
[work_modifier] => 1
[options] => Array
(
)
[days] => [20]
[material_price] => [4543]
[work_price] => [2592]
[image] => https://akademik-stroy.ru/wp-content/uploads/materials/kanon.png
[area_modifier] => 16.8
[parent_name] => Наружная отделка фасада
[parent_id] => 19
[material_sum] => 183174
[work_sum] => 87091
[total_sum] => 270265
[total_days] => 20
[display_material_sum] => 183 174
[display_work_sum] => 87 091
[display_total_sum] => 270 265
)
1
270 265₽
Работа:87 091 ₽
Материалы:183 174 ₽
Дни:20
stdClass Object
(
[id] => 39
[attribute_id] => 20
[name] => Нет
[material_modifier] => 1
[work_modifier] => 1
[options] => Array
(
)
[days] => [0]
[material_price] => [0]
[work_price] => [0]
[image] => https://akademik-stroy.ru/wp-content/uploads/materials/terrasy.jpg
[area_modifier] => 30
[parent_name] => Террасы, крыльца, навесы
[parent_id] => 20
[material_sum] => 0
[work_sum] => 0
[total_sum] => 0
[total_days] => 0
[display_material_sum] => 0
[display_work_sum] => 0
[display_total_sum] => 0
)
1
0₽
Работа:0 ₽
Материалы:0 ₽
Дни:0
stdClass Object
(
[id] => 40
[attribute_id] => 20
[name] => Есть
[material_modifier] => 1
[work_modifier] => 1
[options] => Array
(
)
[days] => [5]
[material_price] => [10450]
[work_price] => [1950]
[image] => https://akademik-stroy.ru/wp-content/uploads/materials/terrasy.jpg
[area_modifier] => 30
[parent_name] => Террасы, крыльца, навесы
[parent_id] => 20
[material_sum] => 752400
[work_sum] => 117000
[total_sum] => 869400
[total_days] => 5
[display_material_sum] => 752 400
[display_work_sum] => 117 000
[display_total_sum] => 869 400
)
1
869 400₽
Работа:117 000 ₽
Материалы:752 400 ₽
Дни:5
stdClass Object
(
[id] => 41
[attribute_id] => 21
[name] => Нет
[material_modifier] => 1
[work_modifier] => 1
[options] => Array
(
)
[days] => [0]
[material_price] => [0]
[work_price] => [0]
[image] => https://akademik-stroy.ru/wp-content/uploads/materials/balkony.jpg
[area_modifier] => 30
[parent_name] => Балконы
[parent_id] => 21
[material_sum] => 0
[work_sum] => 0
[total_sum] => 0
[total_days] => 0
[display_material_sum] => 0
[display_work_sum] => 0
[display_total_sum] => 0
)
1
0₽
Работа:0 ₽
Материалы:0 ₽
Дни:0
stdClass Object
(
[id] => 42
[attribute_id] => 21
[name] => Есть
[material_modifier] => 1
[work_modifier] => 1
[options] => Array
(
)
[days] => [12]
[material_price] => [3600]
[work_price] => [1950]
[image] => https://akademik-stroy.ru/wp-content/uploads/materials/balkony.jpg
[area_modifier] => 30
[parent_name] => Балконы
[parent_id] => 21
[material_sum] => 259200
[work_sum] => 117000
[total_sum] => 376200
[total_days] => 12
[display_material_sum] => 259 200
[display_work_sum] => 117 000
[display_total_sum] => 376 200
)
1
376 200₽
Работа:117 000 ₽
Материалы:259 200 ₽
Дни:12
stdClass Object
(
[id] => 43
[attribute_id] => 22
[name] => Нет
[material_modifier] => 1
[work_modifier] => 1
[options] => Array
(
)
[days] => [0]
[material_price] => [0]
[work_price] => [0]
[image] => https://akademik-stroy.ru/wp-content/uploads/materials/uteplennaya.jpg
[area_modifier] => 16.8
[parent_name] => Отмостка
[parent_id] => 22
[material_sum] => 0
[work_sum] => 0
[total_sum] => 0
[total_days] => 0
[display_material_sum] => 0
[display_work_sum] => 0
[display_total_sum] => 0
)
1
0₽
Работа:0 ₽
Материалы:0 ₽
Дни:0
stdClass Object
(
[id] => 44
[attribute_id] => 22
[name] => Утепленная отмостка
[material_modifier] => 1
[work_modifier] => 1
[options] => Array
(
)
[days] => [15]
[material_price] => [2550]
[work_price] => [1750]
[image] => https://akademik-stroy.ru/wp-content/uploads/materials/uteplennaya.jpg
[area_modifier] => 16.8
[parent_name] => Отмостка
[parent_id] => 22
[material_sum] => 102816
[work_sum] => 58800
[total_sum] => 161616
[total_days] => 15
[display_material_sum] => 102 816
[display_work_sum] => 58 800
[display_total_sum] => 161 616
)
1
161 616₽
Работа:58 800 ₽
Материалы:102 816 ₽
Дни:15
stdClass Object
(
[id] => 146
[attribute_id] => 22
[name] => Не утепленная отмостка
[material_modifier] => 1
[work_modifier] => 1
[options] => Array
(
)
[days] => [10]
[material_price] => [1650]
[work_price] => [1450]
[image] => https://akademik-stroy.ru/wp-content/uploads/materials/ne-uteplennaya.jpg
[area_modifier] => 16.8
[parent_name] => Отмостка
[parent_id] => 22
[material_sum] => 66528
[work_sum] => 48720
[total_sum] => 115248
[total_days] => 10
[display_material_sum] => 66 528
[display_work_sum] => 48 720
[display_total_sum] => 115 248
)
1
115 248₽
Работа:48 720 ₽
Материалы:66 528 ₽
Дни:10
stdClass Object
(
[id] => 45
[attribute_id] => 23
[name] => Нет
[material_modifier] => 1
[work_modifier] => 1
[options] => Array
(
)
[days] => [0]
[material_price] => [0]
[work_price] => [0]
[image] => https://akademik-stroy.ru/wp-content/uploads/materials/drenazh-2.jpg
[area_modifier] => 16.8
[parent_name] => Дренаж вокруг дома
[parent_id] => 23
[material_sum] => 0
[work_sum] => 0
[total_sum] => 0
[total_days] => 0
[display_material_sum] => 0
[display_work_sum] => 0
[display_total_sum] => 0
)
1
0₽
Работа:0 ₽
Материалы:0 ₽
Дни:0
stdClass Object
(
[id] => 46
[attribute_id] => 23
[name] => Есть
[material_modifier] => 1
[work_modifier] => 1
[options] => Array
(
)
[days] => [5]
[material_price] => [2366]
[work_price] => [1911]
[image] => https://akademik-stroy.ru/wp-content/uploads/materials/drenazh-2.jpg
[area_modifier] => 16.8
[parent_name] => Дренаж вокруг дома
[parent_id] => 23
[material_sum] => 95397
[work_sum] => 64210
[total_sum] => 159607
[total_days] => 5
[display_material_sum] => 95 397
[display_work_sum] => 64 210
[display_total_sum] => 159 607
)
1
159 607₽
Работа:64 210 ₽
Материалы:95 397 ₽
Дни:5
stdClass Object
(
[id] => 47
[attribute_id] => 24
[name] => Нет
[material_modifier] => 1
[work_modifier] => 1
[options] => Array
(
)
[days] => [0]
[material_price] => [0]
[work_price] => [0]
[image] => https://akademik-stroy.ru/wp-content/uploads/materials/septik.jpg
[area_modifier] => 1
[parent_name] => Автономная канализация (септики)
[parent_id] => 24
[material_sum] => 0
[work_sum] => 0
[total_sum] => 0
[total_days] => 0
[display_material_sum] => 0
[display_work_sum] => 0
[display_total_sum] => 0
)
1
0₽
Работа:0 ₽
Материалы:0 ₽
Дни:0
stdClass Object
(
[id] => 48
[attribute_id] => 24
[name] => Есть
[material_modifier] => 1
[work_modifier] => 1
[options] => Array
(
[0] => Для дачи на 4 человека
[1] => Для дома на 5 человек
[2] => Для дома на 6 человек
[3] => Для дома на 7 человек
[4] => Для дома на 10 человек
)
[days] => [7,7,7,8,8]
[material_price] => [196340,220500,240940,264200,293340]
[work_price] => [50000,55000,60500,66550,73206]
[image] => https://akademik-stroy.ru/wp-content/uploads/materials/septik.jpg
[area_modifier] => 1
[parent_name] => Автономная канализация (септики)
[parent_id] => 24
[material_sum] => 471216
[work_sum] => 100000
[total_sum] => 571216
[total_days] => 7
[display_material_sum] => 471 216
[display_work_sum] => 100 000
[display_total_sum] => 571 216
)
1
571 216₽
Работа:100 000 ₽
Материалы:471 216 ₽
Дни:7
stdClass Object
(
[id] => 49
[attribute_id] => 25
[name] => Нет
[material_modifier] => 1
[work_modifier] => 1
[options] => Array
(
)
[days] => [0]
[material_price] => [0]
[work_price] => [0]
[image] => https://akademik-stroy.ru/wp-content/uploads/materials/gkl.jpg
[area_modifier] => 16.8
[parent_name] => Внутренние (не несущие) перегородки
[parent_id] => 25
[material_sum] => 0
[work_sum] => 0
[total_sum] => 0
[total_days] => 0
[display_material_sum] => 0
[display_work_sum] => 0
[display_total_sum] => 0
)
1
0₽
Работа:0 ₽
Материалы:0 ₽
Дни:0
stdClass Object
(
[id] => 147
[attribute_id] => 25
[name] => Каркасно-обшивные
[material_modifier] => 1
[work_modifier] => 1
[options] => Array
(
[0] => 75 мм (без шумоизоляции)
[1] => 75 мм (с шумоизоляцией)
)
[days] => [11,11]
[material_price] => [580,970]
[work_price] => [380,570]
[image] => https://akademik-stroy.ru/wp-content/uploads/materials/gkl.jpg
[area_modifier] => 16.8
[parent_name] => Внутренние (не несущие) перегородки
[parent_id] => 25
[material_sum] => 23386
[work_sum] => 12768
[total_sum] => 36154
[total_days] => 11
[display_material_sum] => 23 386
[display_work_sum] => 12 768
[display_total_sum] => 36 154
)
1
36 154₽
Работа:12 768 ₽
Материалы:23 386 ₽
Дни:11
stdClass Object
(
[id] => 148
[attribute_id] => 25
[name] => Пазогребневые
[material_modifier] => 1
[work_modifier] => 1
[options] => Array
(
[0] => 80 мм
[1] => 100 мм
)
[days] => [5,5]
[material_price] => [1022,1313]
[work_price] => [600,700]
[image] => https://akademik-stroy.ru/wp-content/uploads/materials/pazogrebnevye-bloki.jpg
[area_modifier] => 16.8
[parent_name] => Внутренние (не несущие) перегородки
[parent_id] => 25
[material_sum] => 41207
[work_sum] => 20160
[total_sum] => 61367
[total_days] => 5
[display_material_sum] => 41 207
[display_work_sum] => 20 160
[display_total_sum] => 61 367
)
1
61 367₽
Работа:20 160 ₽
Материалы:41 207 ₽
Дни:5
stdClass Object
(
[id] => 149
[attribute_id] => 25
[name] => Газобетонные
[material_modifier] => 1
[work_modifier] => 1
[options] => Array
(
[0] => 100 мм
[1] => 200 мм
)
[days] => [11,11]
[material_price] => [1160,1920]
[work_price] => [700,900]
[image] => https://akademik-stroy.ru/wp-content/uploads/materials/gazobeton-2.jpg
[area_modifier] => 16.8
[parent_name] => Внутренние (не несущие) перегородки
[parent_id] => 25
[material_sum] => 46771
[work_sum] => 23520
[total_sum] => 70291
[total_days] => 11
[display_material_sum] => 46 771
[display_work_sum] => 23 520
[display_total_sum] => 70 291
)
1
70 291₽
Работа:23 520 ₽
Материалы:46 771 ₽
Дни:11
stdClass Object
(
[id] => 150
[attribute_id] => 25
[name] => Кирпичные
[material_modifier] => 1
[work_modifier] => 1
[options] => Array
(
[0] => 120 мм
[1] => 250 мм
[2] => 360 мм
)
[days] => [7,7,7]
[material_price] => [1785,3570,5355]
[work_price] => [900,1600,1800]
[image] => https://akademik-stroy.ru/wp-content/uploads/materials/kirpich-1.jpg
[area_modifier] => 16.8
[parent_name] => Внутренние (не несущие) перегородки
[parent_id] => 25
[material_sum] => 71971
[work_sum] => 30240
[total_sum] => 102211
[total_days] => 7
[display_material_sum] => 71 971
[display_work_sum] => 30 240
[display_total_sum] => 102 211
)
1
102 211₽
Работа:30 240 ₽
Материалы:71 971 ₽
Дни:7
stdClass Object
(
[id] => 55
[attribute_id] => 28
[name] => Нет
[material_modifier] => 1
[work_modifier] => 1
[options] => Array
(
)
[days] => [0]
[material_price] => [0]
[work_price] => [0]
[image] => https://akademik-stroy.ru/wp-content/uploads/materials/ehlektrika.jpg
[area_modifier] => 13.63
[parent_name] => Электрика
[parent_id] => 28
[material_sum] => 0
[work_sum] => 0
[total_sum] => 0
[total_days] => 0
[display_material_sum] => 0
[display_work_sum] => 0
[display_total_sum] => 0
)
1
0₽
Работа:0 ₽
Материалы:0 ₽
Дни:0
stdClass Object
(
[id] => 56
[attribute_id] => 28
[name] => Есть
[material_modifier] => 1
[work_modifier] => 1
[options] => Array
(
)
[days] => [10]
[material_price] => [650]
[work_price] => [950]
[image] => https://akademik-stroy.ru/wp-content/uploads/materials/ehlektrika.jpg
[area_modifier] => 13.63
[parent_name] => Электрика
[parent_id] => 28
[material_sum] => 21263
[work_sum] => 25897
[total_sum] => 47160
[total_days] => 10
[display_material_sum] => 21 263
[display_work_sum] => 25 897
[display_total_sum] => 47 160
)
1
47 160₽
Работа:25 897 ₽
Материалы:21 263 ₽
Дни:10
stdClass Object
(
[id] => 57
[attribute_id] => 29
[name] => Нет
[material_modifier] => 1
[work_modifier] => 1
[options] => Array
(
)
[days] => [0]
[material_price] => [0]
[work_price] => [0]
[image] => https://akademik-stroy.ru/wp-content/uploads/materials/santekhnika-kanalizaciya-1.jpg
[area_modifier] => 13.63
[parent_name] => Сантехника, канализация в доме
[parent_id] => 29
[material_sum] => 0
[work_sum] => 0
[total_sum] => 0
[total_days] => 0
[display_material_sum] => 0
[display_work_sum] => 0
[display_total_sum] => 0
)
1
0₽
Работа:0 ₽
Материалы:0 ₽
Дни:0
stdClass Object
(
[id] => 58
[attribute_id] => 29
[name] => Есть
[material_modifier] => 1
[work_modifier] => 1
[options] => Array
(
)
[days] => [10]
[material_price] => [600]
[work_price] => [730]
[image] => https://akademik-stroy.ru/wp-content/uploads/materials/santekhnika-kanalizaciya-1.jpg
[area_modifier] => 13.63
[parent_name] => Сантехника, канализация в доме
[parent_id] => 29
[material_sum] => 19627
[work_sum] => 19900
[total_sum] => 39527
[total_days] => 10
[display_material_sum] => 19 627
[display_work_sum] => 19 900
[display_total_sum] => 39 527
)
1
39 527₽
Работа:19 900 ₽
Материалы:19 627 ₽
Дни:10
stdClass Object
(
[id] => 59
[attribute_id] => 30
[name] => Нет
[material_modifier] => 1
[work_modifier] => 1
[options] => Array
(
)
[days] => [0]
[material_price] => [0]
[work_price] => [0]
[image] => https://akademik-stroy.ru/wp-content/uploads/materials/otoplenie-1.jpg
[area_modifier] => 13.63
[parent_name] => Отопление
[parent_id] => 30
[material_sum] => 0
[work_sum] => 0
[total_sum] => 0
[total_days] => 0
[display_material_sum] => 0
[display_work_sum] => 0
[display_total_sum] => 0
)
1
0₽
Работа:0 ₽
Материалы:0 ₽
Дни:0
stdClass Object
(
[id] => 60
[attribute_id] => 30
[name] => Есть
[material_modifier] => 1
[work_modifier] => 1
[options] => Array
(
)
[days] => [5]
[material_price] => [610]
[work_price] => [560]
[image] => https://akademik-stroy.ru/wp-content/uploads/materials/otoplenie-1.jpg
[area_modifier] => 13.63
[parent_name] => Отопление
[parent_id] => 30
[material_sum] => 19954
[work_sum] => 15266
[total_sum] => 35220
[total_days] => 5
[display_material_sum] => 19 954
[display_work_sum] => 15 266
[display_total_sum] => 35 220
)
1
35 220₽
Работа:15 266 ₽
Материалы:19 954 ₽
Дни:5
stdClass Object
(
[id] => 61
[attribute_id] => 31
[name] => Нет
[material_modifier] => 1
[work_modifier] => 1
[options] => Array
(
)
[days] => [0]
[material_price] => [0]
[work_price] => [0]
[image] => https://akademik-stroy.ru/wp-content/uploads/materials/vodyanye.jpg
[area_modifier] => 30
[parent_name] => Теплые полы
[parent_id] => 31
[material_sum] => 0
[work_sum] => 0
[total_sum] => 0
[total_days] => 0
[display_material_sum] => 0
[display_work_sum] => 0
[display_total_sum] => 0
)
1
0₽
Работа:0 ₽
Материалы:0 ₽
Дни:0
stdClass Object
(
[id] => 151
[attribute_id] => 31
[name] => Водяные
[material_modifier] => 1
[work_modifier] => 1
[options] => Array
(
)
[days] => [9]
[material_price] => [10200]
[work_price] => [2500]
[image] => https://akademik-stroy.ru/wp-content/uploads/materials/vodyanye.jpg
[area_modifier] => 30
[parent_name] => Теплые полы
[parent_id] => 31
[material_sum] => 734400
[work_sum] => 150000
[total_sum] => 884400
[total_days] => 9
[display_material_sum] => 734 400
[display_work_sum] => 150 000
[display_total_sum] => 884 400
)
1
884 400₽
Работа:150 000 ₽
Материалы:734 400 ₽
Дни:9
stdClass Object
(
[id] => 152
[attribute_id] => 31
[name] => Электро
[material_modifier] => 1
[work_modifier] => 1
[options] => Array
(
)
[days] => [5]
[material_price] => [6300]
[work_price] => [1500]
[image] => https://akademik-stroy.ru/wp-content/uploads/materials/ehlektricheskij.jpg
[area_modifier] => 30
[parent_name] => Теплые полы
[parent_id] => 31
[material_sum] => 453600
[work_sum] => 90000
[total_sum] => 543600
[total_days] => 5
[display_material_sum] => 453 600
[display_work_sum] => 90 000
[display_total_sum] => 543 600
)
1
543 600₽
Работа:90 000 ₽
Материалы:453 600 ₽
Дни:5
stdClass Object
(
[id] => 63
[attribute_id] => 32
[name] => Нет
[material_modifier] => 1
[work_modifier] => 1
[options] => Array
(
)
[days] => [0]
[material_price] => [0]
[work_price] => [0]
[image] => https://akademik-stroy.ru/wp-content/uploads/materials/shtukaturka-shpatlevka-1.jpg
[area_modifier] => 13.63
[parent_name] => Черновая отделка стен
[parent_id] => 32
[material_sum] => 0
[work_sum] => 0
[total_sum] => 0
[total_days] => 0
[display_material_sum] => 0
[display_work_sum] => 0
[display_total_sum] => 0
)
1
0₽
Работа:0 ₽
Материалы:0 ₽
Дни:0
stdClass Object
(
[id] => 153
[attribute_id] => 32
[name] => Штукатурка и шпатлевка
[material_modifier] => 1
[work_modifier] => 1
[options] => Array
(
)
[days] => [20]
[material_price] => [1850]
[work_price] => [2600]
[image] => https://akademik-stroy.ru/wp-content/uploads/materials/shtukaturka-shpatlevka-1.jpg
[area_modifier] => 13.63
[parent_name] => Черновая отделка стен
[parent_id] => 32
[material_sum] => 60517
[work_sum] => 70876
[total_sum] => 131393
[total_days] => 20
[display_material_sum] => 60 517
[display_work_sum] => 70 876
[display_total_sum] => 131 393
)
1
131 393₽
Работа:70 876 ₽
Материалы:60 517 ₽
Дни:20
stdClass Object
(
[id] => 154
[attribute_id] => 32
[name] => Гипсокортон на стены
[material_modifier] => 1
[work_modifier] => 1
[options] => Array
(
)
[days] => [15]
[material_price] => [950]
[work_price] => [2100]
[image] => https://akademik-stroy.ru/wp-content/uploads/materials/gkl-1.jpg
[area_modifier] => 13.63
[parent_name] => Черновая отделка стен
[parent_id] => 32
[material_sum] => 31076
[work_sum] => 57246
[total_sum] => 88322
[total_days] => 15
[display_material_sum] => 31 076
[display_work_sum] => 57 246
[display_total_sum] => 88 322
)
1
88 322₽
Работа:57 246 ₽
Материалы:31 076 ₽
Дни:15
stdClass Object
(
[id] => 155
[attribute_id] => 32
[name] => Вагонка
[material_modifier] => 1
[work_modifier] => 1
[options] => Array
(
)
[days] => [15]
[material_price] => [1250]
[work_price] => [950]
[image] => https://akademik-stroy.ru/wp-content/uploads/materials/vagonka.jpg
[area_modifier] => 13.63
[parent_name] => Черновая отделка стен
[parent_id] => 32
[material_sum] => 40890
[work_sum] => 25897
[total_sum] => 66787
[total_days] => 15
[display_material_sum] => 40 890
[display_work_sum] => 25 897
[display_total_sum] => 66 787
)
1
66 787₽
Работа:25 897 ₽
Материалы:40 890 ₽
Дни:15
stdClass Object
(
[id] => 65
[attribute_id] => 33
[name] => Нет
[material_modifier] => 1
[work_modifier] => 1
[options] => Array
(
)
[days] => [0]
[material_price] => [0]
[work_price] => [0]
[image] => https://akademik-stroy.ru/wp-content/uploads/materials/styazhka.jpg
[area_modifier] => 13.63
[parent_name] => Черновая отделка полов
[parent_id] => 33
[material_sum] => 0
[work_sum] => 0
[total_sum] => 0
[total_days] => 0
[display_material_sum] => 0
[display_work_sum] => 0
[display_total_sum] => 0
)
1
0₽
Работа:0 ₽
Материалы:0 ₽
Дни:0
stdClass Object
(
[id] => 156
[attribute_id] => 33
[name] => Стяжка + наливные полы
[material_modifier] => 1
[work_modifier] => 1
[options] => Array
(
)
[days] => [10]
[material_price] => [1000]
[work_price] => [900]
[image] => https://akademik-stroy.ru/wp-content/uploads/materials/styazhka.jpg
[area_modifier] => 13.63
[parent_name] => Черновая отделка полов
[parent_id] => 33
[material_sum] => 32712
[work_sum] => 24534
[total_sum] => 57246
[total_days] => 10
[display_material_sum] => 32 712
[display_work_sum] => 24 534
[display_total_sum] => 57 246
)
1
57 246₽
Работа:24 534 ₽
Материалы:32 712 ₽
Дни:10
stdClass Object
(
[id] => 157
[attribute_id] => 33
[name] => ОСБ на пол
[material_modifier] => 1
[work_modifier] => 1
[options] => Array
(
)
[days] => [7]
[material_price] => [580]
[work_price] => [350]
[image] => https://akademik-stroy.ru/wp-content/uploads/materials/osb-1.jpg
[area_modifier] => 13.63
[parent_name] => Черновая отделка полов
[parent_id] => 33
[material_sum] => 18973
[work_sum] => 9541
[total_sum] => 28514
[total_days] => 7
[display_material_sum] => 18 973
[display_work_sum] => 9 541
[display_total_sum] => 28 514
)
1
28 514₽
Работа:9 541 ₽
Материалы:18 973 ₽
Дни:7
stdClass Object
(
[id] => 67
[attribute_id] => 34
[name] => Нет
[material_modifier] => 1
[work_modifier] => 1
[options] => Array
(
)
[days] => [0]
[material_price] => [0]
[work_price] => [0]
[image] => https://akademik-stroy.ru/wp-content/uploads/materials/chistovaya-otdelka.jpg
[area_modifier] => 13.63
[parent_name] => Чистовая отделка стен и полов
[parent_id] => 34
[material_sum] => 0
[work_sum] => 0
[total_sum] => 0
[total_days] => 0
[display_material_sum] => 0
[display_work_sum] => 0
[display_total_sum] => 0
)
1
0₽
Работа:0 ₽
Материалы:0 ₽
Дни:0
stdClass Object
(
[id] => 68
[attribute_id] => 34
[name] => Есть
[material_modifier] => 1
[work_modifier] => 1
[options] => Array
(
)
[days] => [50]
[material_price] => [6000]
[work_price] => [3500]
[image] => https://akademik-stroy.ru/wp-content/uploads/materials/chistovaya-otdelka.jpg
[area_modifier] => 13.63
[parent_name] => Чистовая отделка стен и полов
[parent_id] => 34
[material_sum] => 196272
[work_sum] => 95410
[total_sum] => 291682
[total_days] => 50
[display_material_sum] => 196 272
[display_work_sum] => 95 410
[display_total_sum] => 291 682
)
1
291 682₽
Работа:95 410 ₽
Материалы:196 272 ₽
Дни:50
stdClass Object
(
[id] => 69
[attribute_id] => 35
[name] => Нет
[material_modifier] => 1
[work_modifier] => 1
[options] => Array
(
)
[days] => [0]
[material_price] => [0]
[work_price] => [0]
[image] => https://akademik-stroy.ru/wp-content/uploads/materials/mnogourovnevyj-gkl.jpg
[area_modifier] => 13.63
[parent_name] => Отделка потолка
[parent_id] => 35
[material_sum] => 0
[work_sum] => 0
[total_sum] => 0
[total_days] => 0
[display_material_sum] => 0
[display_work_sum] => 0
[display_total_sum] => 0
)
1
0₽
Работа:0 ₽
Материалы:0 ₽
Дни:0
stdClass Object
(
[id] => 70
[attribute_id] => 35
[name] => Есть
[material_modifier] => 1
[work_modifier] => 1
[options] => Array
(
[0] => Многоуровневый потолок из гипсокартона
[1] => Многоуровневый потолок из гипсокартона и натяжного потолка
[2] => Одноуровневый потолок из гипсокартона
[3] => Одноуровневый натяжной потолок
)
[days] => [10,10,1,1]
[material_price] => [900,700,700,600]
[work_price] => [1000,800,500,300]
[image] => https://akademik-stroy.ru/wp-content/uploads/materials/mnogourovnevyj-gkl.jpg
[area_modifier] => 13.63
[parent_name] => Отделка потолка
[parent_id] => 35
[material_sum] => 29441
[work_sum] => 27260
[total_sum] => 56701
[total_days] => 10
[display_material_sum] => 29 441
[display_work_sum] => 27 260
[display_total_sum] => 56 701
)
1
56 701₽
Работа:27 260 ₽
Материалы:29 441 ₽
Дни:10
Преимущества работы с нами
7 этапов оплаты
Независимый строительный надзор
Экологически чистые материалы
16 лет гарантии
Онлайн-кабинет с веб-камерой
Строители с опытом более 15 лет
Собственное производство

