Двухэтажный гараж 94.14 м2 за руб.
154 м2
Полезная
площадь
площадь
2 этажа
Этажей
26 м2
Террасы
и балконы
и балконы
0Без
гаража
гаража
0
Количество
спален
спален
0
Количество
санузлов
санузлов
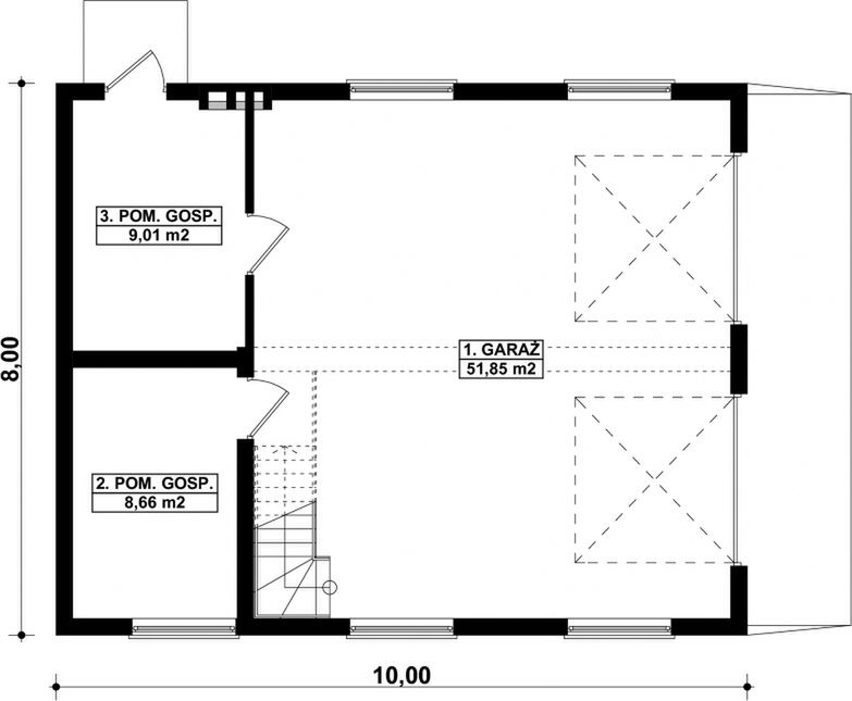
Планировки
Первый этаж
- 1. (m²) 69,52
- 2. Гараж на 2 машины 51,85
- 3. Подсобное помещение 8,66
- Подсобное помещение 9,01
Чердак
- 1. (m²) 24,62
- Антресоль 24,62
Фасады
Передний
Задний
Левый
Правый
Подробная информация
Полезная площадь
94,14 m²
Количество спален
0
Количество санузлов
0
Гараж
2
Мин. шир. и дл. участка
17 x 16 m
Угол наклона крыши
40°
Наклон ската крыши в градусах. Внимание! В некоторых проектах возникает более чем один наклон крыши.
Вид материалов
Murowana
Материалы и опции
Общие
Площади дома
| № п/п | Наименование | Ед. из. | Строительная площадь | Полезная площадь |
| 1 | 1 этаж | м2 | 85.67 | 69.52 |
| 2 | 2 этаж | м2 | 30.34 | 24.62 |
| 3 | Итого | м2 | 116.01 | 94.14 |
Калькулятор опций
0₽
В ипотеку от 13 976 ₽/мес.
0₽
0 дней
stdClass Object
(
[id] => 1
[attribute_id] => 1
[name] => Ленточный монолитный ж/б
[material_modifier] => 1
[work_modifier] => 1
[options] => Array
(
[0] => размер 200 х 700 мм
[1] => размер 300 х 900 мм
[2] => размер 400 х 1 000 мм
[3] => размер 500 х 1 100 мм
[4] => размер 600 х 1 200 мм
)
[days] => [20,21,22,25,30]
[material_price] => [2823,3630,4475,5210,12047]
[work_price] => [2154,2826,3731,4577,5293]
[image] => https://akademik-stroy.ru/wp-content/uploads/materials/lentochnyj-monolitnyj-zh-b.jpg
[area_modifier] => 85.67
[parent_name] => Фундамент
[parent_id] => 1
[material_sum] => 333748
[work_sum] => 212213
[total_sum] => 545961
[total_days] => 20
[display_material_sum] => 333 748
[display_work_sum] => 212 213
[display_total_sum] => 545 961
)
1
545 961₽
Работа:212 213 ₽
Материалы:333 748 ₽
Дни:20
stdClass Object
(
[id] => 2
[attribute_id] => 1
[name] => Забивные Ж/Б сваи
[material_modifier] => 1
[work_modifier] => 1
[options] => Array
(
[0] => 150х150х3000мм
[1] => 150х150х4000мм
[2] => 200х200х3000мм
[3] => 200х200х4000мм
[4] => 200х200х5000мм
[5] => 200х200х6000мм
)
[days] => [2,2,2,2,2,2]
[material_price] => [1990,2850,3255,4360,5120,6837]
[work_price] => [1002,1185,1336,1438,1574,1839]
[image] => https://akademik-stroy.ru/wp-content/uploads/materials/zabivnye-zh-b-svai.png
[area_modifier] => 85.67
[parent_name] => Фундамент
[parent_id] => 1
[material_sum] => 235267
[work_sum] => 98718
[total_sum] => 333985
[total_days] => 2
[display_material_sum] => 235 267
[display_work_sum] => 98 718
[display_total_sum] => 333 985
)
1
333 985₽
Работа:98 718 ₽
Материалы:235 267 ₽
Дни:2
stdClass Object
(
[id] => 71
[attribute_id] => 1
[name] => Свайно-ростверковый ж/б
[material_modifier] => 1
[work_modifier] => 1
[options] => Array
(
[0] => ростверк 200х300 мм
[1] => ростверк 300х600 мм
[2] => ростверк 400х900 мм
[3] => ростверк 500х1200 мм
)
[days] => [20,23,25,27]
[material_price] => [3018,3474,7109,9792]
[work_price] => [2024,3012,5635,7022]
[image] => https://akademik-stroy.ru/wp-content/uploads/materials/svajno-rostverkovyj-monolitnyj-zh-b-3.png
[area_modifier] => 85.67
[parent_name] => Фундамент
[parent_id] => 1
[material_sum] => 356802
[work_sum] => 199405
[total_sum] => 556207
[total_days] => 20
[display_material_sum] => 356 802
[display_work_sum] => 199 405
[display_total_sum] => 556 207
)
1
556 207₽
Работа:199 405 ₽
Материалы:356 802 ₽
Дни:20
stdClass Object
(
[id] => 72
[attribute_id] => 1
[name] => Монолитная ж/б плита
[material_modifier] => 1
[work_modifier] => 1
[options] => Array
(
[0] => 200 мм
[1] => 300 мм
[2] => 400 мм
[3] => 500 мм
[4] => 600 мм
)
[days] => [30,33,35,37,40]
[material_price] => [5348,8555,12788,14388,15189]
[work_price] => [4314,4881,7037,8061,10230]
[image] => https://akademik-stroy.ru/wp-content/uploads/materials/monolitnaya-zhb-plita.png
[area_modifier] => 85.67
[parent_name] => Фундамент
[parent_id] => 1
[material_sum] => 632265
[work_sum] => 425017
[total_sum] => 1057282
[total_days] => 30
[display_material_sum] => 632 265
[display_work_sum] => 425 017
[display_total_sum] => 1 057 282
)
1
1 057 282₽
Работа:425 017 ₽
Материалы:632 265 ₽
Дни:30
stdClass Object
(
[id] => 73
[attribute_id] => 1
[name] => Утепленная шведская плита
[material_modifier] => 1
[work_modifier] => 1
[options] => Array
(
[0] => 200 мм
[1] => 300 мм
[2] => 400 мм
[3] => 500 мм
[4] => 600 мм
)
[days] => [32,37,39,42,45]
[material_price] => [10249,12692,13760,14936,16230]
[work_price] => [5960,7337,8072,8878,9765]
[image] => https://akademik-stroy.ru/wp-content/uploads/materials/uteplennaya-shvedskaya-plita.jpg
[area_modifier] => 85.67
[parent_name] => Фундамент
[parent_id] => 1
[material_sum] => 1211684
[work_sum] => 587182
[total_sum] => 1798866
[total_days] => 32
[display_material_sum] => 1 211 684
[display_work_sum] => 587 182
[display_total_sum] => 1 798 866
)
1
1 798 866₽
Работа:587 182 ₽
Материалы:1 211 684 ₽
Дни:32
stdClass Object
(
[id] => 75
[attribute_id] => 1
[name] => Ленточный из ФБС
[material_modifier] => 1
[work_modifier] => 1
[options] => Array
(
[0] => толщ. 300 мм
[1] => толщ. 400 мм
[2] => толщ. 500 мм
[3] => толщ. 600 мм
)
[days] => [20,20,20,20]
[material_price] => [3675,4902,6126,7350]
[work_price] => [2451,3264,4083,4902]
[image] => https://akademik-stroy.ru/wp-content/uploads/materials/lentochnyj-iz-fbs.png
[area_modifier] => 85.67
[parent_name] => Фундамент
[parent_id] => 1
[material_sum] => 434475
[work_sum] => 241474
[total_sum] => 675949
[total_days] => 20
[display_material_sum] => 434 475
[display_work_sum] => 241 474
[display_total_sum] => 675 949
)
1
675 949₽
Работа:241 474 ₽
Материалы:434 475 ₽
Дни:20
stdClass Object
(
[id] => 76
[attribute_id] => 1
[name] => Цокольный этаж из ФБС
[material_modifier] => 1
[work_modifier] => 1
[options] => Array
(
[0] => толщ. 300 мм
[1] => толщ. 400 мм
[2] => толщ. 500 мм
[3] => толщ. 600 мм
)
[days] => [30,32,34,36]
[material_price] => [20916,23299,26680,29060]
[work_price] => [17524,18700,19873,21046]
[image] => https://akademik-stroy.ru/wp-content/uploads/materials/cokolnyj-ehtazh-iz-fbs.jpg
[area_modifier] => 85.67
[parent_name] => Фундамент
[parent_id] => 1
[material_sum] => 2472786
[work_sum] => 1726473
[total_sum] => 4199259
[total_days] => 30
[display_material_sum] => 2 472 786
[display_work_sum] => 1 726 473
[display_total_sum] => 4 199 259
)
1
4 199 259₽
Работа:1 726 473 ₽
Материалы:2 472 786 ₽
Дни:30
stdClass Object
(
[id] => 77
[attribute_id] => 1
[name] => Цокольный этаж монолитный ж/б
[material_modifier] => 1
[work_modifier] => 1
[options] => Array
(
[0] => толщ. 200 мм
[1] => толщ. 300 мм
[2] => толщ. 400 мм
[3] => толщ. 500 мм
[4] => толщ. 600 мм
)
[days] => [40,42,44,46,48]
[material_price] => [25421,29148,32275,35602,37326]
[work_price] => [20441,21907,23375,24841,26306]
[image] => https://akademik-stroy.ru/wp-content/uploads/materials/cokolnyj-etazh-zh-b.jpg
[area_modifier] => 85.67
[parent_name] => Фундамент
[parent_id] => 1
[material_sum] => 3005388
[work_sum] => 2013858
[total_sum] => 5019246
[total_days] => 40
[display_material_sum] => 3 005 388
[display_work_sum] => 2 013 858
[display_total_sum] => 5 019 246
)
1
5 019 246₽
Работа:2 013 858 ₽
Материалы:3 005 388 ₽
Дни:40
stdClass Object
(
[id] => 191
[attribute_id] => 1
[name] => Винтовые сваи
[material_modifier] => 1
[work_modifier] => 1
[options] => Array
(
[0] => 57х200мм
[1] => 76х250мм
[2] => 108х300мм
[3] => 133х350мм
)
[days] => [1,1,2,2]
[material_price] => [1200,1300,1450,1600]
[work_price] => [400,600,900,1100]
[image] => https://akademik-stroy.ru/wp-content/uploads/materials/vintovye-svai.png
[area_modifier] => 85.67
[parent_name] => Фундамент
[parent_id] => 1
[material_sum] => 141870
[work_sum] => 39408
[total_sum] => 181278
[total_days] => 1
[display_material_sum] => 141 870
[display_work_sum] => 39 408
[display_total_sum] => 181 278
)
1
181 278₽
Работа:39 408 ₽
Материалы:141 870 ₽
Дни:1
stdClass Object
(
[id] => 3
[attribute_id] => 2
[name] => Деревянные балки
[material_modifier] => 1
[work_modifier] => 1
[options] => Array
(
[0] => без утепления
[1] => утепление 200 мм
[2] => утепление 250 мм
[3] => утепление 300 мм
[4] => утепление 350 мм
[5] => утепление 400 мм
[6] => утепление 450 мм
[7] => утепление 500 мм
)
[days] => [8,9,9,9,11,12,13,14]
[material_price] => [1634,2042,2344,2947,3149,3652,3354,3557]
[work_price] => [1230,1339,1393,1426,1460,1513,1587,1620]
[image] => https://akademik-stroy.ru/wp-content/uploads/materials/derevyannye-balki.png
[area_modifier] => 85.67
[parent_name] => Перекрытие цоколя
[parent_id] => 2
[material_sum] => 193179
[work_sum] => 121180
[total_sum] => 314359
[total_days] => 8
[display_material_sum] => 193 179
[display_work_sum] => 121 180
[display_total_sum] => 314 359
)
1
314 359₽
Работа:121 180 ₽
Материалы:193 179 ₽
Дни:8
stdClass Object
(
[id] => 4
[attribute_id] => 2
[name] => Сборные ж/б плиты
[material_modifier] => 1
[work_modifier] => 1
[options] => Array
(
[0] => без утепления
[1] => утепление 150мм
[2] => утепление 200мм
[3] => утепление 250мм
[4] => утепление 300мм
[5] => утепление 350мм
[6] => утепление 400мм
[7] => утепление 450мм
[8] => утепление 500мм
)
[days] => [13,15,15,15,15,15,15,15,15]
[material_price] => [3067,5577,5928,6679,7730,8782,9833,10884,11935]
[work_price] => [1520,1956,2102,2247,2392,2537,2684,2829,2974]
[image] => https://akademik-stroy.ru/wp-content/uploads/materials/sbornye-zh-b-plity-2.jpg
[area_modifier] => 85.67
[parent_name] => Перекрытие цоколя
[parent_id] => 2
[material_sum] => 362595
[work_sum] => 149751
[total_sum] => 512346
[total_days] => 13
[display_material_sum] => 362 595
[display_work_sum] => 149 751
[display_total_sum] => 512 346
)
1
512 346₽
Работа:149 751 ₽
Материалы:362 595 ₽
Дни:13
stdClass Object
(
[id] => 78
[attribute_id] => 2
[name] => Монолитная ж/б плита
[material_modifier] => 1
[work_modifier] => 1
[options] => Array
(
[0] => без утепления
[1] => утепление 150 мм
[2] => утепление 200 мм
[3] => утепление 250 мм
[4] => утепление 300 мм
[5] => утепление 350 мм
[6] => утепление 400 мм
[7] => утепление 450 мм
[8] => утепление 500 мм
)
[days] => [18,20,20,20,20,20,20,20,20]
[material_price] => [4837,6572,7224,7375,79426,8177,8728,9180,10031]
[work_price] => [3348,3921,4112,4302,4493,4684,4875,5066,5256]
[image] => https://akademik-stroy.ru/wp-content/uploads/materials/monolitnaya-zh-b-plita-2.jpg
[area_modifier] => 85.67
[parent_name] => Перекрытие цоколя
[parent_id] => 2
[material_sum] => 571852
[work_sum] => 329847
[total_sum] => 901699
[total_days] => 18
[display_material_sum] => 571 852
[display_work_sum] => 329 847
[display_total_sum] => 901 699
)
1
901 699₽
Работа:329 847 ₽
Материалы:571 852 ₽
Дни:18
stdClass Object
(
[id] => 6
[attribute_id] => 3
[name] => Пеноблок
[material_modifier] => 1
[work_modifier] => 1
[options] => Array
(
[0] => 300 мм
[1] => 400 мм
[2] => 500 мм
[3] => 600 мм
)
[days] => [29,31,34,39]
[material_price] => [3000,4000,4500,4937]
[work_price] => [5033,5805,6400,8710]
[image] => https://akademik-stroy.ru/wp-content/uploads/materials/penoblok.jpg
[area_modifier] => 85.67
[parent_name] => Стены 1 этаж (несущие)
[parent_id] => 3
[material_sum] => 354674
[work_sum] => 495854
[total_sum] => 850528
[total_days] => 29
[display_material_sum] => 354 674
[display_work_sum] => 495 854
[display_total_sum] => 850 528
)
1
850 528₽
Работа:495 854 ₽
Материалы:354 674 ₽
Дни:29
stdClass Object
(
[id] => 79
[attribute_id] => 3
[name] => Керамический блок
[material_modifier] => 1
[work_modifier] => 1
[options] => Array
(
[0] => 380 мм
[1] => 380 мм Thermo
[2] => 440 мм
[3] => 510 мм
)
[days] => [23,23,24,25]
[material_price] => [4510,5098,6093,8013]
[work_price] => [4737,4937,5903,6958]
[image] => https://akademik-stroy.ru/wp-content/uploads/materials/keramicheskij-blok.jpg
[area_modifier] => 85.67
[parent_name] => Стены 1 этаж (несущие)
[parent_id] => 3
[material_sum] => 533193
[work_sum] => 466692
[total_sum] => 999885
[total_days] => 23
[display_material_sum] => 533 193
[display_work_sum] => 466 692
[display_total_sum] => 999 885
)
1
999 885₽
Работа:466 692 ₽
Материалы:533 193 ₽
Дни:23
stdClass Object
(
[id] => 80
[attribute_id] => 3
[name] => Кирпич
[material_modifier] => 1
[work_modifier] => 1
[options] => Array
(
[0] => Кирпич 250 мм
[1] => Кирпич 380 мм
[2] => Кирпич 510 мм
[3] => Кирпич 640 мм
[4] => Кирпич 770 мм
)
[days] => [30,30,31,33,36]
[material_price] => [5500,7142,9206,10171,12235]
[work_price] => [8736,10041,12018,15240,18462]
[image] => https://akademik-stroy.ru/wp-content/uploads/materials/kirpich.jpg
[area_modifier] => 85.67
[parent_name] => Стены 1 этаж (несущие)
[parent_id] => 3
[material_sum] => 650235
[work_sum] => 860675
[total_sum] => 1510910
[total_days] => 30
[display_material_sum] => 650 235
[display_work_sum] => 860 675
[display_total_sum] => 1 510 910
)
1
1 510 910₽
Работа:860 675 ₽
Материалы:650 235 ₽
Дни:30
stdClass Object
(
[id] => 81
[attribute_id] => 3
[name] => Монолитные
[material_modifier] => 1
[work_modifier] => 1
[options] => Array
(
[0] => 150 мм
[1] => 200 мм
[2] => 250 мм
[3] => 300 мм
[4] => 350 мм
[5] => 400 мм
)
[days] => [45,46,47,49,50,53]
[material_price] => [6545,7876,10175,12011,13908,15204]
[work_price] => [5106,6444,7698,8552,9807,11461]
[image] => https://akademik-stroy.ru/wp-content/uploads/materials/monolitnye.jpg
[area_modifier] => 85.67
[parent_name] => Стены 1 этаж (несущие)
[parent_id] => 3
[material_sum] => 773780
[work_sum] => 503046
[total_sum] => 1276826
[total_days] => 45
[display_material_sum] => 773 780
[display_work_sum] => 503 046
[display_total_sum] => 1 276 826
)
1
1 276 826₽
Работа:503 046 ₽
Материалы:773 780 ₽
Дни:45
stdClass Object
(
[id] => 82
[attribute_id] => 3
[name] => Клееный брус
[material_modifier] => 1
[work_modifier] => 1
[options] => Array
(
[0] => 160 мм
[1] => 175 мм
[2] => 200 мм
[3] => 215 мм
[4] => 240 мм
[5] => 270 мм
[6] => 282 мм
)
[days] => [24,28,32,37,40,42,48]
[material_price] => [16975,18773,19950,20545,21599,22159,23275]
[work_price] => [4806,5287,5815,6397,7036,7740,8514]
[image] => https://akademik-stroy.ru/wp-content/uploads/materials/kleenyj-brus.jpg
[area_modifier] => 85.67
[parent_name] => Стены 1 этаж (несущие)
[parent_id] => 3
[material_sum] => 2006863
[work_sum] => 473490
[total_sum] => 2480353
[total_days] => 24
[display_material_sum] => 2 006 863
[display_work_sum] => 473 490
[display_total_sum] => 2 480 353
)
1
2 480 353₽
Работа:473 490 ₽
Материалы:2 006 863 ₽
Дни:24
stdClass Object
(
[id] => 83
[attribute_id] => 3
[name] => Каркасные
[material_modifier] => 1
[work_modifier] => 1
[options] => Array
(
[0] => 150 мм
[1] => 200 мм
[2] => 250 мм
[3] => 300 мм
)
[days] => [15,16,17,18]
[material_price] => [2379,2639,2898,3258]
[work_price] => [2418,2686,2985,3716]
[image] => https://akademik-stroy.ru/wp-content/uploads/materials/karkasnye.jpg
[area_modifier] => 85.67
[parent_name] => Стены 1 этаж (несущие)
[parent_id] => 3
[material_sum] => 281256
[work_sum] => 238223
[total_sum] => 519479
[total_days] => 15
[display_material_sum] => 281 256
[display_work_sum] => 238 223
[display_total_sum] => 519 479
)
1
519 479₽
Работа:238 223 ₽
Материалы:281 256 ₽
Дни:15
stdClass Object
(
[id] => 84
[attribute_id] => 3
[name] => СИП-панели
[material_modifier] => 1
[work_modifier] => 1
[options] => Array
(
[0] => 120 мм
[1] => 170 мм
[2] => 220 мм
)
[days] => [7,7,7]
[material_price] => [1210,1856,2292]
[work_price] => [1410,1551,1706]
[image] => https://akademik-stroy.ru/wp-content/uploads/materials/sip-paneli.jpg
[area_modifier] => 85.67
[parent_name] => Стены 1 этаж (несущие)
[parent_id] => 3
[material_sum] => 143052
[work_sum] => 138914
[total_sum] => 281966
[total_days] => 7
[display_material_sum] => 143 052
[display_work_sum] => 138 914
[display_total_sum] => 281 966
)
1
281 966₽
Работа:138 914 ₽
Материалы:143 052 ₽
Дни:7
stdClass Object
(
[id] => 85
[attribute_id] => 3
[name] => Сухой брус
[material_modifier] => 1
[work_modifier] => 1
[options] => Array
(
[0] => 150 мм
[1] => 180 мм
[2] => 200 мм
)
[days] => [7,8,9]
[material_price] => [6010,7190,8709]
[work_price] => [3204,3845,4229]
[image] => https://akademik-stroy.ru/wp-content/uploads/materials/suhoj-brus.jpg
[area_modifier] => 85.67
[parent_name] => Стены 1 этаж (несущие)
[parent_id] => 3
[material_sum] => 710530
[work_sum] => 315660
[total_sum] => 1026190
[total_days] => 7
[display_material_sum] => 710 530
[display_work_sum] => 315 660
[display_total_sum] => 1 026 190
)
1
1 026 190₽
Работа:315 660 ₽
Материалы:710 530 ₽
Дни:7
stdClass Object
(
[id] => 86
[attribute_id] => 3
[name] => Профилированный брус
[material_modifier] => 1
[work_modifier] => 1
[options] => Array
(
[0] => 150 мм
[1] => 180 мм
[2] => 200 мм
)
[days] => [7,8,9]
[material_price] => [8190,9228,10051]
[work_price] => [3845,4614,5075]
[image] => https://akademik-stroy.ru/wp-content/uploads/materials/profilirovannyj-brus.jpg
[area_modifier] => 85.67
[parent_name] => Стены 1 этаж (несущие)
[parent_id] => 3
[material_sum] => 968259
[work_sum] => 378811
[total_sum] => 1347070
[total_days] => 7
[display_material_sum] => 968 259
[display_work_sum] => 378 811
[display_total_sum] => 1 347 070
)
1
1 347 070₽
Работа:378 811 ₽
Материалы:968 259 ₽
Дни:7
stdClass Object
(
[id] => 87
[attribute_id] => 3
[name] => Оцилиндрованное бревно
[material_modifier] => 1
[work_modifier] => 1
[options] => Array
(
[0] => 180 мм
[1] => 220 мм
[2] => 260 мм
[3] => 320 мм
)
[days] => [7,8,9,10]
[material_price] => [75190,9532,10868,13116]
[work_price] => [3845,4691,5535,6863]
[image] => https://akademik-stroy.ru/wp-content/uploads/materials/ocilindrovannoe-brevno-1.jpg
[area_modifier] => 85.67
[parent_name] => Стены 1 этаж (несущие)
[parent_id] => 3
[material_sum] => 8889308
[work_sum] => 378811
[total_sum] => 9268119
[total_days] => 7
[display_material_sum] => 8 889 308
[display_work_sum] => 378 811
[display_total_sum] => 9 268 119
)
1
9 268 119₽
Работа:378 811 ₽
Материалы:8 889 308 ₽
Дни:7
stdClass Object
(
[id] => 88
[attribute_id] => 3
[name] => Срубы
[material_modifier] => 1
[work_modifier] => 1
[options] => Array
(
[0] => 260 мм
[1] => 320 мм
[2] => 360 мм
[3] => 400 мм
[4] => 500 мм
)
[days] => [7,8,9,10,11]
[material_price] => [37975,46709,52314,58069,73167]
[work_price] => [4806,5911,6621,7349,9260]
[image] => https://akademik-stroy.ru/wp-content/uploads/materials/sruby.jpg
[area_modifier] => 85.67
[parent_name] => Стены 1 этаж (несущие)
[parent_id] => 3
[material_sum] => 4489579
[work_sum] => 473490
[total_sum] => 4963069
[total_days] => 7
[display_material_sum] => 4 489 579
[display_work_sum] => 473 490
[display_total_sum] => 4 963 069
)
1
4 963 069₽
Работа:473 490 ₽
Материалы:4 489 579 ₽
Дни:7
stdClass Object
(
[id] => 174
[attribute_id] => 3
[name] => Брус
[material_modifier] => 1
[work_modifier] => 1
[options] => Array
(
[0] => 150 мм
[1] => 180 мм
[2] => 200 мм
)
[days] => [7,8,9]
[material_price] => [5127,6152,7367]
[work_price] => [1602,1922,2115]
[image] => https://akademik-stroy.ru/wp-content/uploads/materials/brus.jpg
[area_modifier] => 85.67
[parent_name] => Стены 1 этаж (несущие)
[parent_id] => 3
[material_sum] => 606138
[work_sum] => 157830
[total_sum] => 763968
[total_days] => 7
[display_material_sum] => 606 138
[display_work_sum] => 157 830
[display_total_sum] => 763 968
)
1
763 968₽
Работа:157 830 ₽
Материалы:606 138 ₽
Дни:7
stdClass Object
(
[id] => 175
[attribute_id] => 3
[name] => Газобетон
[material_modifier] => 1
[work_modifier] => 1
[options] => Array
(
[0] => 300 мм
[1] => 375 мм
[2] => 400 мм
[3] => 500 мм
[4] => 600 мм
)
[days] => [29,31,35,37,44]
[material_price] => [4298,5573,6356,7288,9119]
[work_price] => [4538,5251,5926,6733,7195]
[image] => https://akademik-stroy.ru/wp-content/uploads/materials/gazobeton.jpg
[area_modifier] => 85.67
[parent_name] => Стены 1 этаж (несущие)
[parent_id] => 3
[material_sum] => 508129
[work_sum] => 447086
[total_sum] => 955215
[total_days] => 29
[display_material_sum] => 508 129
[display_work_sum] => 447 086
[display_total_sum] => 955 215
)
1
955 215₽
Работа:447 086 ₽
Материалы:508 129 ₽
Дни:29
stdClass Object
(
[id] => 176
[attribute_id] => 3
[name] => Блок
[material_modifier] => 1
[work_modifier] => 1
[options] => Array
(
[0] => 300 мм
[1] => 375 мм
[2] => 400 мм
[3] => 500 мм
[4] => 600 мм
)
[days] => [29,31,35,37,44]
[material_price] => [2698,3973,4356,6588,7119]
[work_price] => [5038,5851,6426,8733,9195]
[image] => https://akademik-stroy.ru/wp-content/uploads/materials/blok.jpg
[area_modifier] => 85.67
[parent_name] => Стены 1 этаж (несущие)
[parent_id] => 3
[material_sum] => 318970
[work_sum] => 496346
[total_sum] => 815316
[total_days] => 29
[display_material_sum] => 318 970
[display_work_sum] => 496 346
[display_total_sum] => 815 316
)
1
815 316₽
Работа:496 346 ₽
Материалы:318 970 ₽
Дни:29
stdClass Object
(
[id] => 177
[attribute_id] => 3
[name] => Газосиликатный блок
[material_modifier] => 1
[work_modifier] => 1
[options] => Array
(
[0] => 300 мм
[1] => 375 мм
[2] => 400 мм
[3] => 500 мм
[4] => 600 мм
)
[days] => [29,31,35,37,44]
[material_price] => [4298,5573,6356,7288,9119]
[work_price] => [4538,5251,5926,6733,7195]
[image] => https://akademik-stroy.ru/wp-content/uploads/materials/gazosilikatnyj-blok.jpg
[area_modifier] => 85.67
[parent_name] => Стены 1 этаж (несущие)
[parent_id] => 3
[material_sum] => 508129
[work_sum] => 447086
[total_sum] => 955215
[total_days] => 29
[display_material_sum] => 508 129
[display_work_sum] => 447 086
[display_total_sum] => 955 215
)
1
955 215₽
Работа:447 086 ₽
Материалы:508 129 ₽
Дни:29
stdClass Object
(
[id] => 178
[attribute_id] => 3
[name] => Керамзитобетонный блок
[material_modifier] => 1
[work_modifier] => 1
[options] => Array
(
[0] => 300 мм
[1] => 375 мм
[2] => 400 мм
[3] => 500 мм
[4] => 600 мм
)
[days] => [23,23,24,25,28]
[material_price] => [3641,4298,5693,7613,9612]
[work_price] => [5737,5737,6903,7958,8901]
[image] => https://akademik-stroy.ru/wp-content/uploads/materials/keramzitobetonnyj-blok.jpg
[area_modifier] => 85.67
[parent_name] => Стены 1 этаж (несущие)
[parent_id] => 3
[material_sum] => 430456
[work_sum] => 565212
[total_sum] => 995668
[total_days] => 23
[display_material_sum] => 430 456
[display_work_sum] => 565 212
[display_total_sum] => 995 668
)
1
995 668₽
Работа:565 212 ₽
Материалы:430 456 ₽
Дни:23
stdClass Object
(
[id] => 179
[attribute_id] => 3
[name] => Деревянные
[material_modifier] => 1
[work_modifier] => 1
[options] => Array
(
[0] => 180 мм
[1] => 220 мм
[2] => 260 мм
[3] => 320 мм
)
[days] => [7,8,9,10]
[material_price] => [7950,9458,11961,14472]
[work_price] => [4037,4925,5812,7207]
[image] => https://akademik-stroy.ru/wp-content/uploads/materials/derevyannye.jpg
[area_modifier] => 85.67
[parent_name] => Стены 1 этаж (несущие)
[parent_id] => 3
[material_sum] => 939886
[work_sum] => 397727
[total_sum] => 1337613
[total_days] => 7
[display_material_sum] => 939 886
[display_work_sum] => 397 727
[display_total_sum] => 1 337 613
)
1
1 337 613₽
Работа:397 727 ₽
Материалы:939 886 ₽
Дни:7
stdClass Object
(
[id] => 181
[attribute_id] => 3
[name] => Камень
[material_modifier] => 1
[work_modifier] => 1
[options] => Array
(
[0] => 300 мм
[1] => 400 мм
[2] => 500 мм
[3] => 600 мм
)
[days] => [25,27,31,34]
[material_price] => [5262,6844,8330,9815]
[work_price] => [8331,9135,10427,11069]
[image] => https://akademik-stroy.ru/wp-content/uploads/materials/kamen.jpg
[area_modifier] => 85.67
[parent_name] => Стены 1 этаж (несущие)
[parent_id] => 3
[material_sum] => 622098
[work_sum] => 820774
[total_sum] => 1442872
[total_days] => 25
[display_material_sum] => 622 098
[display_work_sum] => 820 774
[display_total_sum] => 1 442 872
)
1
1 442 872₽
Работа:820 774 ₽
Материалы:622 098 ₽
Дни:25
stdClass Object
(
[id] => 182
[attribute_id] => 3
[name] => Каркасно-щитовые
[material_modifier] => 1
[work_modifier] => 1
[options] => Array
(
[0] => 150 мм
[1] => 200 мм
[2] => 250 мм
[3] => 300 мм
[4] => 350 мм
[5] => 400 мм
)
[days] => [15,16,17,18,19,20]
[material_price] => [2379,2639,2898,3458,3601,4175]
[work_price] => [2538,2820,3134,3483,4062,5642]
[image] => https://akademik-stroy.ru/wp-content/uploads/materials/karkasno-shchitovye.jpg
[area_modifier] => 85.67
[parent_name] => Стены 1 этаж (несущие)
[parent_id] => 3
[material_sum] => 281256
[work_sum] => 250045
[total_sum] => 531301
[total_days] => 15
[display_material_sum] => 281 256
[display_work_sum] => 250 045
[display_total_sum] => 531 301
)
1
531 301₽
Работа:250 045 ₽
Материалы:281 256 ₽
Дни:15
stdClass Object
(
[id] => 183
[attribute_id] => 3
[name] => Рубленные
[material_modifier] => 1
[work_modifier] => 1
[options] => Array
(
[0] => 150 мм
[1] => 200 мм
[2] => 250 мм
[3] => 300 мм
[4] => 350 мм
[5] => 400 мм
)
[days] => [15,16,17,18,17,18]
[material_price] => [35950,50267,60583,75900,80217,100533]
[work_price] => [9612,12816,16020,19224,22428,25632]
[image] => https://akademik-stroy.ru/wp-content/uploads/materials/rublennye.jpg
[area_modifier] => 85.67
[parent_name] => Стены 1 этаж (несущие)
[parent_id] => 3
[material_sum] => 4250174
[work_sum] => 946979
[total_sum] => 5197153
[total_days] => 15
[display_material_sum] => 4 250 174
[display_work_sum] => 946 979
[display_total_sum] => 5 197 153
)
1
5 197 153₽
Работа:946 979 ₽
Материалы:4 250 174 ₽
Дни:15
stdClass Object
(
[id] => 185
[attribute_id] => 3
[name] => Теплоблок
[material_modifier] => 1
[work_modifier] => 1
[options] => Array
(
[0] => 300 мм (с облицовкой, не покрашенный)
[1] => 400 мм (с облицовкой, не покрашенный)
[2] => 300 мм (с облицовкой, покрашенный)
[3] => 400 мм (с облицовкой, покрашенный)
)
[days] => [15,16,15,16]
[material_price] => [2888,3729,3957,4258]
[work_price] => [2564,3229,2949,3713]
[image] => https://akademik-stroy.ru/wp-content/uploads/materials/teploblok.jpg
[area_modifier] => 85.67
[parent_name] => Стены 1 этаж (несущие)
[parent_id] => 3
[material_sum] => 341433
[work_sum] => 252607
[total_sum] => 594040
[total_days] => 15
[display_material_sum] => 341 433
[display_work_sum] => 252 607
[display_total_sum] => 594 040
)
1
594 040₽
Работа:252 607 ₽
Материалы:341 433 ₽
Дни:15
stdClass Object
(
[id] => 186
[attribute_id] => 3
[name] => Арболитовые блоки
[material_modifier] => 1
[work_modifier] => 1
[options] => Array
(
[0] => 300 мм
[1] => 400 мм
[2] => 600 мм
)
[days] => [19,22,27]
[material_price] => [3210,4475,5852]
[work_price] => [4214,4788,5866]
[image] => https://akademik-stroy.ru/wp-content/uploads/materials/arbolitovye-bloki.png
[area_modifier] => 85.67
[parent_name] => Стены 1 этаж (несущие)
[parent_id] => 3
[material_sum] => 379501
[work_sum] => 415165
[total_sum] => 794666
[total_days] => 19
[display_material_sum] => 379 501
[display_work_sum] => 415 165
[display_total_sum] => 794 666
)
1
794 666₽
Работа:415 165 ₽
Материалы:379 501 ₽
Дни:19
stdClass Object
(
[id] => 187
[attribute_id] => 3
[name] => Полистиролбетон
[material_modifier] => 1
[work_modifier] => 1
[options] => Array
(
[0] => 300 мм
[1] => 400 мм
[2] => 600 мм
)
[days] => [29,31,35]
[material_price] => [2798,4573,5256]
[work_price] => [5038,5851,6426]
[image] => https://akademik-stroy.ru/wp-content/uploads/materials/polistirolbeton.jpg
[area_modifier] => 85.67
[parent_name] => Стены 1 этаж (несущие)
[parent_id] => 3
[material_sum] => 330792
[work_sum] => 496346
[total_sum] => 827138
[total_days] => 29
[display_material_sum] => 330 792
[display_work_sum] => 496 346
[display_total_sum] => 827 138
)
1
827 138₽
Работа:496 346 ₽
Материалы:330 792 ₽
Дни:29
stdClass Object
(
[id] => 188
[attribute_id] => 3
[name] => Шлакоблок
[material_modifier] => 1
[work_modifier] => 1
[options] => Array
(
[0] => 400 мм
[1] => 600 мм
)
[days] => [15,16]
[material_price] => [2391,3471]
[work_price] => [2642,3662]
[image] => https://akademik-stroy.ru/wp-content/uploads/materials/shlakoblok.jpg
[area_modifier] => 85.67
[parent_name] => Стены 1 этаж (несущие)
[parent_id] => 3
[material_sum] => 282675
[work_sum] => 260291
[total_sum] => 542966
[total_days] => 15
[display_material_sum] => 282 675
[display_work_sum] => 260 291
[display_total_sum] => 542 966
)
1
542 966₽
Работа:260 291 ₽
Материалы:282 675 ₽
Дни:15
stdClass Object
(
[id] => 189
[attribute_id] => 3
[name] => Теплая керамика
[material_modifier] => 1
[work_modifier] => 1
[options] => Array
(
[0] => 380 мм
[1] => 380 мм Thermo
[2] => 440 мм
[3] => 510 мм
)
[days] => [23,23,24,25]
[material_price] => [4510,5098,6093,8013]
[work_price] => [4737,4937,5903,6958]
[image] => https://akademik-stroy.ru/wp-content/uploads/materials/teplaya-keramika.jpg
[area_modifier] => 85.67
[parent_name] => Стены 1 этаж (несущие)
[parent_id] => 3
[material_sum] => 533193
[work_sum] => 466692
[total_sum] => 999885
[total_days] => 23
[display_material_sum] => 533 193
[display_work_sum] => 466 692
[display_total_sum] => 999 885
)
1
999 885₽
Работа:466 692 ₽
Материалы:533 193 ₽
Дни:23
stdClass Object
(
[id] => 190
[attribute_id] => 3
[name] => Несъемная опалубка
[material_modifier] => 1
[work_modifier] => 1
[options] => Array
(
[0] => 200 мм
[1] => 250 мм
[2] => 300 мм
[3] => 350 мм
)
[days] => [15,17,19,21]
[material_price] => [3302,3902,4108,5008]
[work_price] => [2100,2100,2300,2534]
[image] => https://akademik-stroy.ru/wp-content/uploads/materials/nesemnaya-opalubka.jpg
[area_modifier] => 85.67
[parent_name] => Стены 1 этаж (несущие)
[parent_id] => 3
[material_sum] => 390378
[work_sum] => 206893
[total_sum] => 597271
[total_days] => 15
[display_material_sum] => 390 378
[display_work_sum] => 206 893
[display_total_sum] => 597 271
)
1
597 271₽
Работа:206 893 ₽
Материалы:390 378 ₽
Дни:15
stdClass Object
(
[id] => 251
[attribute_id] => 3
[name] => Бревно
[material_modifier] => 1
[work_modifier] => 1
[options] => Array
(
[0] => 260 мм
[1] => 320 мм
[2] => 360 мм
[3] => 400 мм
[4] => 500 мм
)
[days] => [7,8,9,10,11]
[material_price] => [1874,24045,26930,30972,38825]
[work_price] => [5046,6207,6952,7716,9723]
[image] => https://akademik-stroy.ru/wp-content/uploads/materials/sruby.jpg
[area_modifier] => 85.67
[parent_name] => Стены 1 этаж (несущие)
[parent_id] => 3
[material_sum] => 221553
[work_sum] => 497134
[total_sum] => 718687
[total_days] => 7
[display_material_sum] => 221 553
[display_work_sum] => 497 134
[display_total_sum] => 718 687
)
1
718 687₽
Работа:497 134 ₽
Материалы:221 553 ₽
Дни:7
stdClass Object
(
[id] => 7
[attribute_id] => 4
[name] => Деревянные балки
[material_modifier] => 1
[work_modifier] => 1
[options] => Array
(
[0] => без утепления
[1] => утепление 200 мм
[2] => утепление 250 мм
[3] => утепление 300 мм
[4] => утепление 350 мм
[5] => утепление 400 мм
[6] => утепление 450 мм
[7] => утепление 500 мм
)
[days] => [8,9,9,9,11,12,13,14]
[material_price] => [1634,2042,2344,2947,3149,3652,3354,3557]
[work_price] => [1230,1339,1393,1426,1460,1513,1587,1620]
[image] => https://akademik-stroy.ru/wp-content/uploads/materials/derevyannye-balki.png
[area_modifier] => 85.67
[parent_name] => Перекрытие первого этажа
[parent_id] => 4
[material_sum] => 193179
[work_sum] => 121180
[total_sum] => 314359
[total_days] => 8
[display_material_sum] => 193 179
[display_work_sum] => 121 180
[display_total_sum] => 314 359
)
1
314 359₽
Работа:121 180 ₽
Материалы:193 179 ₽
Дни:8
stdClass Object
(
[id] => 8
[attribute_id] => 4
[name] => Сборные ж/б плиты
[material_modifier] => 1
[work_modifier] => 1
[options] => Array
(
[0] => без утепления
[1] => утепление 150 мм
[2] => утепление 200 мм
[3] => утепление 250 мм
[4] => утепление 300 мм
[5] => утепление 350 мм
[6] => утепление 400 мм
[7] => утепление 450 мм
[8] => утепление 500 мм
)
[days] => [13,15,15,15,15,15,15,15,15]
[material_price] => [3067,5577,5928,6679,7730,8782,9833,10884,11935]
[work_price] => [1520,1956,2102,2247,2392,2537,2684,2829,2974]
[image] => https://akademik-stroy.ru/wp-content/uploads/materials/sbornye-zh-b-plity-2.jpg
[area_modifier] => 85.67
[parent_name] => Перекрытие первого этажа
[parent_id] => 4
[material_sum] => 362595
[work_sum] => 149751
[total_sum] => 512346
[total_days] => 13
[display_material_sum] => 362 595
[display_work_sum] => 149 751
[display_total_sum] => 512 346
)
1
512 346₽
Работа:149 751 ₽
Материалы:362 595 ₽
Дни:13
stdClass Object
(
[id] => 89
[attribute_id] => 4
[name] => Монолитная ж/б плита
[material_modifier] => 1
[work_modifier] => 1
[options] => Array
(
[0] => без утепления
[1] => утепление 150 мм
[2] => утепление 200 мм
[3] => утепление 250 мм
[4] => утепление 300 мм
[5] => утепление 350 мм
[6] => утепление 400 мм
[7] => утепление 450 мм
[8] => утепление 500 мм
)
[days] => [18,20,20,20,20,20,20,20,20]
[material_price] => [4837,6572,7224,7375,79426,8177,8728,9180,10031]
[work_price] => [3348,3921,4112,4302,4493,4684,4875,5066,5256]
[image] => https://akademik-stroy.ru/wp-content/uploads/materials/monolitnaya-zh-b-plita-2.jpg
[area_modifier] => 85.67
[parent_name] => Перекрытие первого этажа
[parent_id] => 4
[material_sum] => 571852
[work_sum] => 329847
[total_sum] => 901699
[total_days] => 18
[display_material_sum] => 571 852
[display_work_sum] => 329 847
[display_total_sum] => 901 699
)
1
901 699₽
Работа:329 847 ₽
Материалы:571 852 ₽
Дни:18
stdClass Object
(
[id] => 10
[attribute_id] => 5
[name] => Пеноблок
[material_modifier] => 1
[work_modifier] => 1
[options] => Array
(
[0] => 300 мм
[1] => 400 мм
[2] => 500 мм
[3] => 600 мм
)
[days] => [29,31,34,39]
[material_price] => [3000,4000,4500,4937]
[work_price] => [5033,5805,6400,8710]
[image] => https://akademik-stroy.ru/wp-content/uploads/materials/penoblok.jpg
[area_modifier] => 30.34
[parent_name] => Стены 2 этаж (несущие)
[parent_id] => 5
[material_sum] => 125608
[work_sum] => 175606
[total_sum] => 301214
[total_days] => 29
[display_material_sum] => 125 608
[display_work_sum] => 175 606
[display_total_sum] => 301 214
)
1
301 214₽
Работа:175 606 ₽
Материалы:125 608 ₽
Дни:29
stdClass Object
(
[id] => 90
[attribute_id] => 5
[name] => Керамический блок
[material_modifier] => 1
[work_modifier] => 1
[options] => Array
(
[0] => 380 мм
[1] => 380 мм Thermo
[2] => 440 мм
[3] => 510 мм
)
[days] => [23,23,24,25]
[material_price] => [4510,5098,6093,8013]
[work_price] => [4737,4937,5903,6958]
[image] => https://akademik-stroy.ru/wp-content/uploads/materials/keramicheskij-blok.jpg
[area_modifier] => 30.34
[parent_name] => Стены 2 этаж (несущие)
[parent_id] => 5
[material_sum] => 188830
[work_sum] => 165279
[total_sum] => 354109
[total_days] => 23
[display_material_sum] => 188 830
[display_work_sum] => 165 279
[display_total_sum] => 354 109
)
1
354 109₽
Работа:165 279 ₽
Материалы:188 830 ₽
Дни:23
stdClass Object
(
[id] => 91
[attribute_id] => 5
[name] => Кирпич
[material_modifier] => 1
[work_modifier] => 1
[options] => Array
(
[0] => Кирпич 250 мм
[1] => Кирпич 380 мм
[2] => Кирпич 510 мм
[3] => Кирпич 640 мм
[4] => Кирпич 770 мм
)
[days] => [30,30,31,33,36]
[material_price] => [5500,7142,9206,10171,12235]
[work_price] => [8736,10041,12018,15240,18462]
[image] => https://akademik-stroy.ru/wp-content/uploads/materials/kirpich.jpg
[area_modifier] => 30.34
[parent_name] => Стены 2 этаж (несущие)
[parent_id] => 5
[material_sum] => 230281
[work_sum] => 304808
[total_sum] => 535089
[total_days] => 30
[display_material_sum] => 230 281
[display_work_sum] => 304 808
[display_total_sum] => 535 089
)
1
535 089₽
Работа:304 808 ₽
Материалы:230 281 ₽
Дни:30
stdClass Object
(
[id] => 92
[attribute_id] => 5
[name] => Монолитные
[material_modifier] => 1
[work_modifier] => 1
[options] => Array
(
[0] => 150 мм
[1] => 200 мм
[2] => 250 мм
[3] => 300 мм
[4] => 350 мм
[5] => 400 мм
)
[days] => [45,46,47,49,50,53]
[material_price] => [6545,7876,10175,12011,13908,15204]
[work_price] => [5106,6444,7698,8552,9807,11461]
[image] => https://akademik-stroy.ru/wp-content/uploads/materials/monolitnye.jpg
[area_modifier] => 30.34
[parent_name] => Стены 2 этаж (несущие)
[parent_id] => 5
[material_sum] => 274034
[work_sum] => 178153
[total_sum] => 452187
[total_days] => 45
[display_material_sum] => 274 034
[display_work_sum] => 178 153
[display_total_sum] => 452 187
)
1
452 187₽
Работа:178 153 ₽
Материалы:274 034 ₽
Дни:45
stdClass Object
(
[id] => 93
[attribute_id] => 5
[name] => Клееный брус
[material_modifier] => 1
[work_modifier] => 1
[options] => Array
(
[0] => 160 мм
[1] => 175 мм
[2] => 200 мм
[3] => 215 мм
[4] => 240 мм
[5] => 270 мм
[6] => 282 мм
)
[days] => [24,28,32,37,40,42,48]
[material_price] => [16975,18773,19950,20545,21599,22159,23275]
[work_price] => [4806,5287,5815,6397,7036,7740,8514]
[image] => https://akademik-stroy.ru/wp-content/uploads/materials/kleenyj-brus.jpg
[area_modifier] => 30.34
[parent_name] => Стены 2 этаж (несущие)
[parent_id] => 5
[material_sum] => 710730
[work_sum] => 167686
[total_sum] => 878416
[total_days] => 24
[display_material_sum] => 710 730
[display_work_sum] => 167 686
[display_total_sum] => 878 416
)
1
878 416₽
Работа:167 686 ₽
Материалы:710 730 ₽
Дни:24
stdClass Object
(
[id] => 94
[attribute_id] => 5
[name] => Каркасные
[material_modifier] => 1
[work_modifier] => 1
[options] => Array
(
[0] => 150 мм
[1] => 200 мм
[2] => 250 мм
[3] => 300 мм
)
[days] => [15,16,17,18]
[material_price] => [2379,2639,2898,3258]
[work_price] => [2418,2686,2985,3716]
[image] => https://akademik-stroy.ru/wp-content/uploads/materials/karkasnye.jpg
[area_modifier] => 30.34
[parent_name] => Стены 2 этаж (несущие)
[parent_id] => 5
[material_sum] => 99607
[work_sum] => 84366
[total_sum] => 183973
[total_days] => 15
[display_material_sum] => 99 607
[display_work_sum] => 84 366
[display_total_sum] => 183 973
)
1
183 973₽
Работа:84 366 ₽
Материалы:99 607 ₽
Дни:15
stdClass Object
(
[id] => 95
[attribute_id] => 5
[name] => СИП-панели
[material_modifier] => 1
[work_modifier] => 1
[options] => Array
(
[0] => 120 мм
[1] => 170 мм
[2] => 220 мм
)
[days] => [7,7,7]
[material_price] => [1210,1856,2292]
[work_price] => [1410,1551,1706]
[image] => https://akademik-stroy.ru/wp-content/uploads/materials/sip-paneli.jpg
[area_modifier] => 30.34
[parent_name] => Стены 2 этаж (несущие)
[parent_id] => 5
[material_sum] => 50662
[work_sum] => 49196
[total_sum] => 99858
[total_days] => 7
[display_material_sum] => 50 662
[display_work_sum] => 49 196
[display_total_sum] => 99 858
)
1
99 858₽
Работа:49 196 ₽
Материалы:50 662 ₽
Дни:7
stdClass Object
(
[id] => 96
[attribute_id] => 5
[name] => Сухой брус
[material_modifier] => 1
[work_modifier] => 1
[options] => Array
(
[0] => 150 мм
[1] => 180 мм
[2] => 200 мм
)
[days] => [7,8,9]
[material_price] => [6010,7190,8709]
[work_price] => [3204,3845,4229]
[image] => https://akademik-stroy.ru/wp-content/uploads/materials/suhoj-brus.jpg
[area_modifier] => 30.34
[parent_name] => Стены 2 этаж (несущие)
[parent_id] => 5
[material_sum] => 251634
[work_sum] => 111791
[total_sum] => 363425
[total_days] => 7
[display_material_sum] => 251 634
[display_work_sum] => 111 791
[display_total_sum] => 363 425
)
1
363 425₽
Работа:111 791 ₽
Материалы:251 634 ₽
Дни:7
stdClass Object
(
[id] => 97
[attribute_id] => 5
[name] => Профилированный брус
[material_modifier] => 1
[work_modifier] => 1
[options] => Array
(
[0] => 150 мм
[1] => 180 мм
[2] => 200 мм
)
[days] => [7,8,9]
[material_price] => [8190,9228,10051]
[work_price] => [3845,4614,5075]
[image] => https://akademik-stroy.ru/wp-content/uploads/materials/profilirovannyj-brus.jpg
[area_modifier] => 30.34
[parent_name] => Стены 2 этаж (несущие)
[parent_id] => 5
[material_sum] => 342909
[work_sum] => 134156
[total_sum] => 477065
[total_days] => 7
[display_material_sum] => 342 909
[display_work_sum] => 134 156
[display_total_sum] => 477 065
)
1
477 065₽
Работа:134 156 ₽
Материалы:342 909 ₽
Дни:7
stdClass Object
(
[id] => 98
[attribute_id] => 5
[name] => Оцилиндрованное бревно
[material_modifier] => 1
[work_modifier] => 1
[options] => Array
(
[0] => 180 мм
[1] => 220 мм
[2] => 260 мм
[3] => 320 мм
)
[days] => [7,8,9,10]
[material_price] => [75190,9532,10868,13116]
[work_price] => [3845,4691,5535,6863]
[image] => https://akademik-stroy.ru/wp-content/uploads/materials/ocilindrovannoe-brevno-1.jpg
[area_modifier] => 30.34
[parent_name] => Стены 2 этаж (несущие)
[parent_id] => 5
[material_sum] => 3148145
[work_sum] => 134156
[total_sum] => 3282301
[total_days] => 7
[display_material_sum] => 3 148 145
[display_work_sum] => 134 156
[display_total_sum] => 3 282 301
)
1
3 282 301₽
Работа:134 156 ₽
Материалы:3 148 145 ₽
Дни:7
stdClass Object
(
[id] => 99
[attribute_id] => 5
[name] => Срубы
[material_modifier] => 1
[work_modifier] => 1
[options] => Array
(
[0] => 260 мм
[1] => 320 мм
[2] => 360 мм
[3] => 400 мм
[4] => 500 мм
)
[days] => [7,8,9,10,11]
[material_price] => [16175,23709,26314,29069,32167]
[work_price] => [4806,5911,6621,7349,9260]
[image] => https://akademik-stroy.ru/wp-content/uploads/materials/suhoj-brus.jpg
[area_modifier] => 30.34
[parent_name] => Стены 2 этаж (несущие)
[parent_id] => 5
[material_sum] => 677234
[work_sum] => 167686
[total_sum] => 844920
[total_days] => 7
[display_material_sum] => 677 234
[display_work_sum] => 167 686
[display_total_sum] => 844 920
)
1
844 920₽
Работа:167 686 ₽
Материалы:677 234 ₽
Дни:7
stdClass Object
(
[id] => 194
[attribute_id] => 5
[name] => Брус
[material_modifier] => 1
[work_modifier] => 1
[options] => Array
(
[0] => 150 мм
[1] => 180 мм
[2] => 200 мм
)
[days] => [10,13,15]
[material_price] => [5127,6152,7367]
[work_price] => [1602,1922,2115]
[image] => https://akademik-stroy.ru/wp-content/uploads/materials/brus.jpg
[area_modifier] => 30.34
[parent_name] => Стены 2 этаж (несущие)
[parent_id] => 5
[material_sum] => 214663
[work_sum] => 55895
[total_sum] => 270558
[total_days] => 10
[display_material_sum] => 214 663
[display_work_sum] => 55 895
[display_total_sum] => 270 558
)
1
270 558₽
Работа:55 895 ₽
Материалы:214 663 ₽
Дни:10
stdClass Object
(
[id] => 195
[attribute_id] => 5
[name] => Газобетон
[material_modifier] => 1
[work_modifier] => 1
[options] => Array
(
[0] => 300 мм
[1] => 375 мм
[2] => 400 мм
[3] => 500 мм
[4] => 600 мм
)
[days] => [29,31,35,37,44]
[material_price] => [4298,5573,6356,7288,9119]
[work_price] => [4538,5251,5926,6733,7195]
[image] => https://akademik-stroy.ru/wp-content/uploads/materials/gazobeton.jpg
[area_modifier] => 30.34
[parent_name] => Стены 2 этаж (несущие)
[parent_id] => 5
[material_sum] => 179954
[work_sum] => 158335
[total_sum] => 338289
[total_days] => 29
[display_material_sum] => 179 954
[display_work_sum] => 158 335
[display_total_sum] => 338 289
)
1
338 289₽
Работа:158 335 ₽
Материалы:179 954 ₽
Дни:29
stdClass Object
(
[id] => 196
[attribute_id] => 5
[name] => Блок
[material_modifier] => 1
[work_modifier] => 1
[options] => Array
(
[0] => 300 мм
[1] => 375 мм
[2] => 400 мм
[3] => 500 мм
[4] => 600 мм
)
[days] => [29,31,35,37,44]
[material_price] => [2698,3973,4356,6588,7119]
[work_price] => [5038,5851,6426,8733,9195]
[image] => https://akademik-stroy.ru/wp-content/uploads/materials/blok.jpg
[area_modifier] => 30.34
[parent_name] => Стены 2 этаж (несущие)
[parent_id] => 5
[material_sum] => 112963
[work_sum] => 175781
[total_sum] => 288744
[total_days] => 29
[display_material_sum] => 112 963
[display_work_sum] => 175 781
[display_total_sum] => 288 744
)
1
288 744₽
Работа:175 781 ₽
Материалы:112 963 ₽
Дни:29
stdClass Object
(
[id] => 197
[attribute_id] => 5
[name] => Газосиликатный блок
[material_modifier] => 1
[work_modifier] => 1
[options] => Array
(
[0] => 300 мм
[1] => 375 мм
[2] => 400 мм
[3] => 500 мм
[4] => 600 мм
)
[days] => [29,31,35,37,44]
[material_price] => [4298,5573,6356,7288,9119]
[work_price] => [4538,5251,5926,6733,7195]
[image] => https://akademik-stroy.ru/wp-content/uploads/materials/gazosilikatnyj-blok.jpg
[area_modifier] => 30.34
[parent_name] => Стены 2 этаж (несущие)
[parent_id] => 5
[material_sum] => 179954
[work_sum] => 158335
[total_sum] => 338289
[total_days] => 29
[display_material_sum] => 179 954
[display_work_sum] => 158 335
[display_total_sum] => 338 289
)
1
338 289₽
Работа:158 335 ₽
Материалы:179 954 ₽
Дни:29
stdClass Object
(
[id] => 198
[attribute_id] => 5
[name] => Керамзитобетонный блок
[material_modifier] => 1
[work_modifier] => 1
[options] => Array
(
[0] => 300 мм
[1] => 375 мм
[2] => 400 мм
[3] => 500 мм
[4] => 600 мм
)
[days] => [23,23,24,25,28]
[material_price] => [3641,4298,5693,7613,9612]
[work_price] => [5737,5737,6903,7958,8901]
[image] => https://akademik-stroy.ru/wp-content/uploads/materials/keramzitobetonnyj-blok.jpg
[area_modifier] => 30.34
[parent_name] => Стены 2 этаж (несущие)
[parent_id] => 5
[material_sum] => 152446
[work_sum] => 200170
[total_sum] => 352616
[total_days] => 23
[display_material_sum] => 152 446
[display_work_sum] => 200 170
[display_total_sum] => 352 616
)
1
352 616₽
Работа:200 170 ₽
Материалы:152 446 ₽
Дни:23
stdClass Object
(
[id] => 199
[attribute_id] => 5
[name] => Деревянные
[material_modifier] => 1
[work_modifier] => 1
[options] => Array
(
[0] => 180 мм
[1] => 220 мм
[2] => 260 мм
[3] => 320 мм
)
[days] => [7,8,9,10]
[material_price] => [7950,9458,11961,14472]
[work_price] => [4037,4925,5812,7207]
[image] => https://akademik-stroy.ru/wp-content/uploads/materials/derevyannye.jpg
[area_modifier] => 30.34
[parent_name] => Стены 2 этаж (несущие)
[parent_id] => 5
[material_sum] => 332860
[work_sum] => 140855
[total_sum] => 473715
[total_days] => 7
[display_material_sum] => 332 860
[display_work_sum] => 140 855
[display_total_sum] => 473 715
)
1
473 715₽
Работа:140 855 ₽
Материалы:332 860 ₽
Дни:7
stdClass Object
(
[id] => 200
[attribute_id] => 5
[name] => Камень
[material_modifier] => 1
[work_modifier] => 1
[options] => Array
(
[0] => 300 мм
[1] => 400 мм
[2] => 500 мм
[3] => 600 мм
)
[days] => [25,27,31,34]
[material_price] => [5262,6844,8330,9815]
[work_price] => [8331,9135,10427,11069]
[image] => https://akademik-stroy.ru/wp-content/uploads/materials/kamen.jpg
[area_modifier] => 30.34
[parent_name] => Стены 2 этаж (несущие)
[parent_id] => 5
[material_sum] => 220316
[work_sum] => 290677
[total_sum] => 510993
[total_days] => 25
[display_material_sum] => 220 316
[display_work_sum] => 290 677
[display_total_sum] => 510 993
)
1
510 993₽
Работа:290 677 ₽
Материалы:220 316 ₽
Дни:25
stdClass Object
(
[id] => 201
[attribute_id] => 5
[name] => Каркасно-щитовые
[material_modifier] => 1
[work_modifier] => 1
[options] => Array
(
[0] => 150 мм
[1] => 200 мм
[2] => 250 мм
[3] => 300 мм
[4] => 350 мм
[5] => 400 мм
)
[days] => [15,16,17,18,19,20]
[material_price] => [2379,2639,2898,3458,3601,4175]
[work_price] => [2538,2820,3134,3483,4062,5642]
[image] => https://akademik-stroy.ru/wp-content/uploads/materials/karkasno-shchitovye.jpg
[area_modifier] => 30.34
[parent_name] => Стены 2 этаж (несущие)
[parent_id] => 5
[material_sum] => 99607
[work_sum] => 88553
[total_sum] => 188160
[total_days] => 15
[display_material_sum] => 99 607
[display_work_sum] => 88 553
[display_total_sum] => 188 160
)
1
188 160₽
Работа:88 553 ₽
Материалы:99 607 ₽
Дни:15
stdClass Object
(
[id] => 202
[attribute_id] => 5
[name] => Рубленные
[material_modifier] => 1
[work_modifier] => 1
[options] => Array
(
[0] => 150 мм
[1] => 200 мм
[2] => 250 мм
[3] => 300 мм
[4] => 350 мм
[5] => 400 мм
)
[days] => [15,16,17,18,17,18]
[material_price] => [35950,50267,60583,75900,80217,100533]
[work_price] => [9612,12816,16020,19224,22428,25632]
[image] => https://akademik-stroy.ru/wp-content/uploads/materials/rublennye.jpg
[area_modifier] => 30.34
[parent_name] => Стены 2 этаж (несущие)
[parent_id] => 5
[material_sum] => 1505198
[work_sum] => 335372
[total_sum] => 1840570
[total_days] => 15
[display_material_sum] => 1 505 198
[display_work_sum] => 335 372
[display_total_sum] => 1 840 570
)
1
1 840 570₽
Работа:335 372 ₽
Материалы:1 505 198 ₽
Дни:15
stdClass Object
(
[id] => 203
[attribute_id] => 5
[name] => Теплоблок
[material_modifier] => 1
[work_modifier] => 1
[options] => Array
(
[0] => 300 мм (с облицовкой, не покрашенный)
[1] => 400 мм (с облицовкой, не покрашенный)
[2] => 300 мм (с облицовкой, покрашенный)
[3] => 400 мм (с облицовкой, покрашенный)
)
[days] => [15,16,15,16]
[material_price] => [2888,3729,3957,4258]
[work_price] => [2564,3229,2949,3713]
[image] => https://akademik-stroy.ru/wp-content/uploads/materials/teploblok.jpg
[area_modifier] => 30.34
[parent_name] => Стены 2 этаж (несущие)
[parent_id] => 5
[material_sum] => 120918
[work_sum] => 89461
[total_sum] => 210379
[total_days] => 15
[display_material_sum] => 120 918
[display_work_sum] => 89 461
[display_total_sum] => 210 379
)
1
210 379₽
Работа:89 461 ₽
Материалы:120 918 ₽
Дни:15
stdClass Object
(
[id] => 204
[attribute_id] => 5
[name] => Арболитовые блоки
[material_modifier] => 1
[work_modifier] => 1
[options] => Array
(
[0] => 300 мм
[1] => 400 мм
[2] => 600 мм
)
[days] => [19,22,27]
[material_price] => [3210,4475,5852]
[work_price] => [4214,4788,5866]
[image] => https://akademik-stroy.ru/wp-content/uploads/materials/arbolitovye-bloki.png
[area_modifier] => 30.34
[parent_name] => Стены 2 этаж (несущие)
[parent_id] => 5
[material_sum] => 134400
[work_sum] => 147031
[total_sum] => 281431
[total_days] => 19
[display_material_sum] => 134 400
[display_work_sum] => 147 031
[display_total_sum] => 281 431
)
1
281 431₽
Работа:147 031 ₽
Материалы:134 400 ₽
Дни:19
stdClass Object
(
[id] => 205
[attribute_id] => 5
[name] => Полистиролбетон
[material_modifier] => 1
[work_modifier] => 1
[options] => Array
(
[0] => 300 мм
[1] => 400 мм
[2] => 600 мм
)
[days] => [29,31,35]
[material_price] => [2798,4573,5256]
[work_price] => [5038,5851,6426]
[image] => https://akademik-stroy.ru/wp-content/uploads/materials/polistirolbeton.jpg
[area_modifier] => 30.34
[parent_name] => Стены 2 этаж (несущие)
[parent_id] => 5
[material_sum] => 117150
[work_sum] => 175781
[total_sum] => 292931
[total_days] => 29
[display_material_sum] => 117 150
[display_work_sum] => 175 781
[display_total_sum] => 292 931
)
1
292 931₽
Работа:175 781 ₽
Материалы:117 150 ₽
Дни:29
stdClass Object
(
[id] => 206
[attribute_id] => 5
[name] => Шлакоблок
[material_modifier] => 1
[work_modifier] => 1
[options] => Array
(
[0] => 400 мм
[1] => 600 мм
)
[days] => [15,16]
[material_price] => [2391,3471]
[work_price] => [2642,3662]
[image] => https://akademik-stroy.ru/wp-content/uploads/materials/shlakoblok.jpg
[area_modifier] => 30.34
[parent_name] => Стены 2 этаж (несущие)
[parent_id] => 5
[material_sum] => 100109
[work_sum] => 92182
[total_sum] => 192291
[total_days] => 15
[display_material_sum] => 100 109
[display_work_sum] => 92 182
[display_total_sum] => 192 291
)
1
192 291₽
Работа:92 182 ₽
Материалы:100 109 ₽
Дни:15
stdClass Object
(
[id] => 245
[attribute_id] => 5
[name] => Теплая керамика
[material_modifier] => 1
[work_modifier] => 1
[options] => Array
(
[0] => 380 мм
[1] => 380 мм Thermo
[2] => 440 мм
[3] => 510 мм
)
[days] => [10,10,11,12]
[material_price] => [4510,5098,6093,8013]
[work_price] => [4737,4937,5903,6958]
[image] => https://akademik-stroy.ru/wp-content/uploads/materials/teplaya-keramika.jpg
[area_modifier] => 30.34
[parent_name] => Стены 2 этаж (несущие)
[parent_id] => 5
[material_sum] => 188830
[work_sum] => 165279
[total_sum] => 354109
[total_days] => 10
[display_material_sum] => 188 830
[display_work_sum] => 165 279
[display_total_sum] => 354 109
)
1
354 109₽
Работа:165 279 ₽
Материалы:188 830 ₽
Дни:10
stdClass Object
(
[id] => 246
[attribute_id] => 5
[name] => Несъемная опалубка
[material_modifier] => 1
[work_modifier] => 1
[options] => Array
(
[0] => 380 мм
[1] => 380 мм Thermo
[2] => 440 мм
[3] => 510 мм
)
[days] => [10,10,11,12]
[material_price] => [3302,3902,4108,5008]
[work_price] => [2100,2100,2300,2534]
[image] => https://akademik-stroy.ru/wp-content/uploads/materials/nesemnaya-opalubka.jpg
[area_modifier] => 30.34
[parent_name] => Стены 2 этаж (несущие)
[parent_id] => 5
[material_sum] => 138252
[work_sum] => 73271
[total_sum] => 211523
[total_days] => 10
[display_material_sum] => 138 252
[display_work_sum] => 73 271
[display_total_sum] => 211 523
)
1
211 523₽
Работа:73 271 ₽
Материалы:138 252 ₽
Дни:10
stdClass Object
(
[id] => 254
[attribute_id] => 5
[name] => Бревно
[material_modifier] => 1
[work_modifier] => 1
[options] => Array
(
[0] => 260 мм
[1] => 320 мм
[2] => 360 мм
[3] => 400 мм
[4] => 500 мм
)
[days] => [7,8,9,10,11]
[material_price] => [1874,24045,26930,30972,38825]
[work_price] => [5046,6207,6952,7716,9723]
[image] => https://akademik-stroy.ru/wp-content/uploads/materials/sruby.jpg
[area_modifier] => 30.34
[parent_name] => Стены 2 этаж (несущие)
[parent_id] => 5
[material_sum] => 78463
[work_sum] => 176060
[total_sum] => 254523
[total_days] => 7
[display_material_sum] => 78 463
[display_work_sum] => 176 060
[display_total_sum] => 254 523
)
1
254 523₽
Работа:176 060 ₽
Материалы:78 463 ₽
Дни:7
stdClass Object
(
[id] => 164
[attribute_id] => 37
[name] => Металлочерепица
[material_modifier] => 1
[work_modifier] => 1
[options] => Array
(
)
[days] => [20]
[material_price] => [6112]
[work_price] => [5726]
[image] => https://akademik-stroy.ru/wp-content/uploads/materials/metallocherepica.jpg
[area_modifier] => 85.67
[parent_name] => Крыша (Скатная)
[parent_id] => 37
[material_sum] => 722589
[work_sum] => 564128
[total_sum] => 1286717
[total_days] => 20
[display_material_sum] => 722 589
[display_work_sum] => 564 128
[display_total_sum] => 1 286 717
)
1
1 286 717₽
Работа:564 128 ₽
Материалы:722 589 ₽
Дни:20
stdClass Object
(
[id] => 165
[attribute_id] => 37
[name] => Гибкая черепица
[material_modifier] => 1
[work_modifier] => 1
[options] => Array
(
)
[days] => [20]
[material_price] => [6980]
[work_price] => [5950]
[image] => https://akademik-stroy.ru/wp-content/uploads/materials/gibkaya-cherepica.jpg
[area_modifier] => 85.67
[parent_name] => Крыша (Скатная)
[parent_id] => 37
[material_sum] => 825208
[work_sum] => 586197
[total_sum] => 1411405
[total_days] => 20
[display_material_sum] => 825 208
[display_work_sum] => 586 197
[display_total_sum] => 1 411 405
)
1
1 411 405₽
Работа:586 197 ₽
Материалы:825 208 ₽
Дни:20
stdClass Object
(
[id] => 166
[attribute_id] => 37
[name] => Цементно-песчаная черепица
[material_modifier] => 1
[work_modifier] => 1
[options] => Array
(
)
[days] => [20]
[material_price] => [10560]
[work_price] => [9456]
[image] => https://akademik-stroy.ru/wp-content/uploads/materials/cementno-peschanaya-cherepica.jpg
[area_modifier] => 85.67
[parent_name] => Крыша (Скатная)
[parent_id] => 37
[material_sum] => 1248452
[work_sum] => 931610
[total_sum] => 2180062
[total_days] => 20
[display_material_sum] => 1 248 452
[display_work_sum] => 931 610
[display_total_sum] => 2 180 062
)
1
2 180 062₽
Работа:931 610 ₽
Материалы:1 248 452 ₽
Дни:20
stdClass Object
(
[id] => 167
[attribute_id] => 37
[name] => Композитная черепица
[material_modifier] => 1
[work_modifier] => 1
[options] => Array
(
)
[days] => [20]
[material_price] => [9506]
[work_price] => [8905]
[image] => https://akademik-stroy.ru/wp-content/uploads/materials/kompozitnaya-cherepica.jpg
[area_modifier] => 85.67
[parent_name] => Крыша (Скатная)
[parent_id] => 37
[material_sum] => 1123843
[work_sum] => 877325
[total_sum] => 2001168
[total_days] => 20
[display_material_sum] => 1 123 843
[display_work_sum] => 877 325
[display_total_sum] => 2 001 168
)
1
2 001 168₽
Работа:877 325 ₽
Материалы:1 123 843 ₽
Дни:20
stdClass Object
(
[id] => 168
[attribute_id] => 37
[name] => Керамическая черепица
[material_modifier] => 1
[work_modifier] => 1
[options] => Array
(
)
[days] => [20]
[material_price] => [12750]
[work_price] => [9456]
[image] => https://akademik-stroy.ru/wp-content/uploads/materials/keramicheskaya-cherepica.jpg
[area_modifier] => 85.67
[parent_name] => Крыша (Скатная)
[parent_id] => 37
[material_sum] => 1507364
[work_sum] => 931610
[total_sum] => 2438974
[total_days] => 20
[display_material_sum] => 1 507 364
[display_work_sum] => 931 610
[display_total_sum] => 2 438 974
)
1
2 438 974₽
Работа:931 610 ₽
Материалы:1 507 364 ₽
Дни:20
stdClass Object
(
[id] => 169
[attribute_id] => 37
[name] => Металлическая фальцевая
[material_modifier] => 1
[work_modifier] => 1
[options] => Array
(
)
[days] => [20]
[material_price] => [8550]
[work_price] => [8190]
[image] => https://akademik-stroy.ru/wp-content/uploads/materials/metallicheskaya-falcevaya.jpg
[area_modifier] => 85.67
[parent_name] => Крыша (Скатная)
[parent_id] => 37
[material_sum] => 1010820
[work_sum] => 806883
[total_sum] => 1817703
[total_days] => 20
[display_material_sum] => 1 010 820
[display_work_sum] => 806 883
[display_total_sum] => 1 817 703
)
1
1 817 703₽
Работа:806 883 ₽
Материалы:1 010 820 ₽
Дни:20
stdClass Object
(
[id] => 170
[attribute_id] => 37
[name] => Медная фальцевая
[material_modifier] => 1
[work_modifier] => 1
[options] => Array
(
)
[days] => [20]
[material_price] => [20450]
[work_price] => [16750]
[image] => https://akademik-stroy.ru/wp-content/uploads/materials/mednaya-falcevaya.jpg
[area_modifier] => 85.67
[parent_name] => Крыша (Скатная)
[parent_id] => 37
[material_sum] => 2417693
[work_sum] => 1650218
[total_sum] => 4067911
[total_days] => 20
[display_material_sum] => 2 417 693
[display_work_sum] => 1 650 218
[display_total_sum] => 4 067 911
)
1
4 067 911₽
Работа:1 650 218 ₽
Материалы:2 417 693 ₽
Дни:20
stdClass Object
(
[id] => 171
[attribute_id] => 37
[name] => Зеленая кровля
[material_modifier] => 1
[work_modifier] => 1
[options] => Array
(
)
[days] => [20]
[material_price] => [19850]
[work_price] => [16780]
[image] => https://akademik-stroy.ru/wp-content/uploads/materials/zelenaya-krovlya.jpg
[area_modifier] => 85.67
[parent_name] => Крыша (Скатная)
[parent_id] => 37
[material_sum] => 2346758
[work_sum] => 1653174
[total_sum] => 3999932
[total_days] => 20
[display_material_sum] => 2 346 758
[display_work_sum] => 1 653 174
[display_total_sum] => 3 999 932
)
1
3 999 932₽
Работа:1 653 174 ₽
Материалы:2 346 758 ₽
Дни:20
stdClass Object
(
[id] => 172
[attribute_id] => 37
[name] => Профлист
[material_modifier] => 1
[work_modifier] => 1
[options] => Array
(
)
[days] => [20]
[material_price] => [3450]
[work_price] => [3750]
[image] => https://akademik-stroy.ru/wp-content/uploads/materials/proflist.jpg
[area_modifier] => 85.67
[parent_name] => Крыша (Скатная)
[parent_id] => 37
[material_sum] => 407875
[work_sum] => 369452
[total_sum] => 777327
[total_days] => 20
[display_material_sum] => 407 875
[display_work_sum] => 369 452
[display_total_sum] => 777 327
)
1
777 327₽
Работа:369 452 ₽
Материалы:407 875 ₽
Дни:20
stdClass Object
(
[id] => 51
[attribute_id] => 26
[name] => Есть
[material_modifier] => 1
[work_modifier] => 1
[options] => Array
(
[0] => Профиль 58 мм, 3-камерный, стеклопакет 2-камерный до 32 мм
[1] => Профиль 60 мм, 4-камерный, стеклопакет 2-камерный до 32 мм
[2] => Профиль 70 мм, 5-камерный, стеклопакет 2-камерный до 40 мм
[3] => Профиль 72 мм, 5-камерный, стеклопакет 2-камерный до 40 мм
[4] => Алюминиевые окна Alutech профиль 72 мм, стеклопакет 2-камерный
)
[days] => [3,3,3,3,3]
[material_price] => [1339,2124,2867,3023,29596]
[work_price] => [635,647,659,668,2579]
[image] => https://akademik-stroy.ru/wp-content/uploads/materials/okna.jpg
[area_modifier] => 94.14
[parent_name] => Окна
[parent_id] => 26
[material_sum] => 173954
[work_sum] => 68746
[total_sum] => 242700
[total_days] => 3
[display_material_sum] => 173 954
[display_work_sum] => 68 746
[display_total_sum] => 242 700
)
1
242 700₽
Работа:68 746 ₽
Материалы:173 954 ₽
Дни:3
stdClass Object
(
[id] => 52
[attribute_id] => 26
[name] => Нет
[material_modifier] => 2
[work_modifier] => 1
[options] =>
[days] => null
[material_price] => null
[work_price] => null
[image] => https://akademik-stroy.ru/wp-content/uploads/materials/okna.jpg
[area_modifier] => 94.14
[parent_name] => Окна
[parent_id] => 26
[material_sum] => 0
[work_sum] => 0
[total_sum] => 0
[total_days] => 0
[display_material_sum] => 0
[display_work_sum] => 0
[display_total_sum] => 0
)
1
0₽
Работа:0 ₽
Материалы:0 ₽
Дни:0
stdClass Object
(
[id] => 53
[attribute_id] => 27
[name] => Есть
[material_modifier] => 1
[work_modifier] => 1
[options] => Array
(
)
[days] => [1]
[material_price] => [10000]
[work_price] => [5500]
[image] => https://akademik-stroy.ru/wp-content/uploads/materials/dveri.jpg
[area_modifier] => 1
[parent_name] => Двери входные
[parent_id] => 27
[material_sum] => 13800
[work_sum] => 6325
[total_sum] => 20125
[total_days] => 1
[display_material_sum] => 13 800
[display_work_sum] => 6 325
[display_total_sum] => 20 125
)
1
20 125₽
Работа:6 325 ₽
Материалы:13 800 ₽
Дни:1
stdClass Object
(
[id] => 54
[attribute_id] => 27
[name] => Нет
[material_modifier] => 1
[work_modifier] => 1
[options] => Array
(
)
[days] => [0]
[material_price] => [0]
[work_price] => [0]
[image] => https://akademik-stroy.ru/wp-content/uploads/materials/dveri.jpg
[area_modifier] => 1
[parent_name] => Двери входные
[parent_id] => 27
[material_sum] => 0
[work_sum] => 0
[total_sum] => 0
[total_days] => 0
[display_material_sum] => 0
[display_work_sum] => 0
[display_total_sum] => 0
)
1
0₽
Работа:0 ₽
Материалы:0 ₽
Дни:0
stdClass Object
(
[id] => 25
[attribute_id] => 13
[name] => Нет
[material_modifier] => 1
[work_modifier] => 1
[options] => Array
(
)
[days] => [0]
[material_price] => [0]
[work_price] => [0]
[image] => https://akademik-stroy.ru/wp-content/uploads/materials/mineralovata-krov.jpg
[area_modifier] => 85.67
[parent_name] => Утепление кровли (Мансарда)
[parent_id] => 13
[material_sum] => 0
[work_sum] => 0
[total_sum] => 0
[total_days] => 0
[display_material_sum] => 0
[display_work_sum] => 0
[display_total_sum] => 0
)
1
0₽
Работа:0 ₽
Материалы:0 ₽
Дни:0
stdClass Object
(
[id] => 26
[attribute_id] => 13
[name] => Минераловатный
[material_modifier] => 1
[work_modifier] => 1
[options] => Array
(
[0] => 50 мм
[1] => 100 мм
[2] => 150 мм
[3] => 200 мм
[4] => 250 мм
[5] => 300 мм
[6] => 350 мм
[7] => 400 мм
[8] => 450 мм
[9] => 500 мм
)
[days] => [5,5,6,6,6,7,7,7,8,8]
[material_price] => [1158,1414,1772,2230,3602,4060,4974,5890,6408,7718]
[work_price] => [650,846,846,1098,1318,1450,1596,1754,1930,2122]
[image] => https://akademik-stroy.ru/wp-content/uploads/materials/mineralovata-krov.jpg
[area_modifier] => 85.67
[parent_name] => Утепление кровли (Мансарда)
[parent_id] => 13
[material_sum] => 136904
[work_sum] => 64038
[total_sum] => 200942
[total_days] => 5
[display_material_sum] => 136 904
[display_work_sum] => 64 038
[display_total_sum] => 200 942
)
1
200 942₽
Работа:64 038 ₽
Материалы:136 904 ₽
Дни:5
stdClass Object
(
[id] => 123
[attribute_id] => 13
[name] => Эковата (целлюлозная вата)
[material_modifier] => 1
[work_modifier] => 1
[options] => Array
(
[0] => 50 мм
[1] => 100 мм
[2] => 150 мм
[3] => 200 мм
[4] => 250 мм
[5] => 300 мм
[6] => 350 мм
[7] => 400 мм
[8] => 450 мм
[9] => 500 мм
)
[days] => [3,3,4,4,4,5,5,5,5,5]
[material_price] => [820,1638,2458,3276,5734,6552,8190,9828,11466,13104]
[work_price] => [234,304,304,396,474,522,574,632,694,764]
[image] => https://akademik-stroy.ru/wp-content/uploads/materials/ehkovata-krov.jpg
[area_modifier] => 85.67
[parent_name] => Утепление кровли (Мансарда)
[parent_id] => 13
[material_sum] => 96944
[work_sum] => 23054
[total_sum] => 119998
[total_days] => 3
[display_material_sum] => 96 944
[display_work_sum] => 23 054
[display_total_sum] => 119 998
)
1
119 998₽
Работа:23 054 ₽
Материалы:96 944 ₽
Дни:3
stdClass Object
(
[id] => 124
[attribute_id] => 13
[name] => Экструдированный пенополистирол
[material_modifier] => 1
[work_modifier] => 1
[options] => Array
(
[0] => 50 мм
[1] => 100 мм
[2] => 150 мм
[3] => 200 мм
[4] => 250 мм
[5] => 300 мм
[6] => 350 мм
[7] => 400 мм
[8] => 450 мм
[9] => 500 мм
)
[days] => [3,3,4,4,4,5,5,5,5,6]
[material_price] => [1146,2292,3438,4584,8020,9166,11458,13750,16040,18332]
[work_price] => [390,508,508,660,790,870,958,1052,1158,1274]
[image] => https://akademik-stroy.ru/wp-content/uploads/materials/epps-krov.jpg
[area_modifier] => 85.67
[parent_name] => Утепление кровли (Мансарда)
[parent_id] => 13
[material_sum] => 135485
[work_sum] => 38423
[total_sum] => 173908
[total_days] => 3
[display_material_sum] => 135 485
[display_work_sum] => 38 423
[display_total_sum] => 173 908
)
1
173 908₽
Работа:38 423 ₽
Материалы:135 485 ₽
Дни:3
stdClass Object
(
[id] => 125
[attribute_id] => 13
[name] => ПСБ (ППС-пенополистирол)
[material_modifier] => 1
[work_modifier] => 1
[options] => Array
(
[0] => 50 мм
[1] => 100 мм
[2] => 150 мм
[3] => 200 мм
[4] => 250 мм
[5] => 300 мм
[6] => 350 мм
[7] => 400 мм
[8] => 450 мм
[9] => 500 мм
)
[days] => [3,3,4,4,4,5,5,5,5,6]
[material_price] => [476,954,1430,1906,3336,3814,4766,5720,6674,7626]
[work_price] => [390,508,508,660,790,870,958,1052,1158,1274]
[image] => https://akademik-stroy.ru/wp-content/uploads/materials/psb-krov.jpg
[area_modifier] => 85.67
[parent_name] => Утепление кровли (Мансарда)
[parent_id] => 13
[material_sum] => 56275
[work_sum] => 38423
[total_sum] => 94698
[total_days] => 3
[display_material_sum] => 56 275
[display_work_sum] => 38 423
[display_total_sum] => 94 698
)
1
94 698₽
Работа:38 423 ₽
Материалы:56 275 ₽
Дни:3
stdClass Object
(
[id] => 126
[attribute_id] => 13
[name] => ППУ (Пенополиуретан)
[material_modifier] => 1
[work_modifier] => 1
[options] => Array
(
[0] => 50 мм
[1] => 100 мм
[2] => 150 мм
[3] => 200 мм
[4] => 250 мм
[5] => 300 мм
[6] => 350 мм
[7] => 400 мм
[8] => 450 мм
[9] => 500 мм
)
[days] => [2,2,3,3,3,3,4,4,4,4]
[material_price] => [2080,4160,6240,8320,14560,16640,20800,24960,29120,33280]
[work_price] => [234,304,304,396,474,522,574,632,694,764]
[image] => https://akademik-stroy.ru/wp-content/uploads/materials/ppu-krov.jpg
[area_modifier] => 85.67
[parent_name] => Утепление кровли (Мансарда)
[parent_id] => 13
[material_sum] => 245907
[work_sum] => 23054
[total_sum] => 268961
[total_days] => 2
[display_material_sum] => 245 907
[display_work_sum] => 23 054
[display_total_sum] => 268 961
)
1
268 961₽
Работа:23 054 ₽
Материалы:245 907 ₽
Дни:2
stdClass Object
(
[id] => 127
[attribute_id] => 13
[name] => PIR-плиты (пенополиизоцианурат)
[material_modifier] => 1
[work_modifier] => 1
[options] => Array
(
[0] => 50 мм
[1] => 100 мм
[2] => 150 мм
[3] => 200 мм
[4] => 250 мм
[5] => 300 мм
[6] => 350 мм
[7] => 400 мм
[8] => 450 мм
[9] => 500 мм
)
[days] => [3,3,4,4,4,5,5,5,5,6]
[material_price] => [2646,5290,7936,10580,18516,21162,26452,31742,37032,42324]
[work_price] => [390,508,508,660,790,870,958,1052,1158,1274]
[image] => https://akademik-stroy.ru/wp-content/uploads/materials/pir-krov.jpg
[area_modifier] => 85.67
[parent_name] => Утепление кровли (Мансарда)
[parent_id] => 13
[material_sum] => 312822
[work_sum] => 38423
[total_sum] => 351245
[total_days] => 3
[display_material_sum] => 312 822
[display_work_sum] => 38 423
[display_total_sum] => 351 245
)
1
351 245₽
Работа:38 423 ₽
Материалы:312 822 ₽
Дни:3
stdClass Object
(
[id] => 27
[attribute_id] => 14
[name] => Нет
[material_modifier] => 1
[work_modifier] => 1
[options] => Array
(
)
[days] => [0]
[material_price] => [0]
[work_price] => [0]
[image] => https://akademik-stroy.ru/wp-content/uploads/materials/mansardnye-okna-2.jpg
[area_modifier] => 1
[parent_name] => Мансардные окна
[parent_id] => 14
[material_sum] => 0
[work_sum] => 0
[total_sum] => 0
[total_days] => 0
[display_material_sum] => 0
[display_work_sum] => 0
[display_total_sum] => 0
)
1
0₽
Работа:0 ₽
Материалы:0 ₽
Дни:0
stdClass Object
(
[id] => 28
[attribute_id] => 14
[name] => Есть
[material_modifier] => 1
[work_modifier] => 1
[options] => Array
(
[0] => 55x78
[1] => 55x98
)
[days] => [6,7]
[material_price] => [47480,68700]
[work_price] => [17900,19500]
[image] => https://akademik-stroy.ru/wp-content/uploads/materials/mansardnye-okna-2.jpg
[area_modifier] => 1
[parent_name] => Мансардные окна
[parent_id] => 14
[material_sum] => 65522
[work_sum] => 20585
[total_sum] => 86107
[total_days] => 6
[display_material_sum] => 65 522
[display_work_sum] => 20 585
[display_total_sum] => 86 107
)
1
86 107₽
Работа:20 585 ₽
Материалы:65 522 ₽
Дни:6
stdClass Object
(
[id] => 29
[attribute_id] => 15
[name] => Нет
[material_modifier] => 1
[work_modifier] => 1
[options] => Array
(
)
[days] => [0]
[material_price] => [0]
[work_price] => [0]
[image] => https://akademik-stroy.ru/wp-content/uploads/materials/sofit.jpg
[area_modifier] => 85.67
[parent_name] => Подшивка кровли
[parent_id] => 15
[material_sum] => 0
[work_sum] => 0
[total_sum] => 0
[total_days] => 0
[display_material_sum] => 0
[display_work_sum] => 0
[display_total_sum] => 0
)
1
0₽
Работа:0 ₽
Материалы:0 ₽
Дни:0
stdClass Object
(
[id] => 30
[attribute_id] => 15
[name] => Есть
[material_modifier] => 1
[work_modifier] => 1
[options] => Array
(
[0] => Софиты (ПВХ)
[1] => Cedral
[2] => ДПК
[3] => Планкен
)
[days] => [7,10,9,8]
[material_price] => [1803,3213,3025,3150]
[work_price] => [1529,2188,2075,1923]
[image] => https://akademik-stroy.ru/wp-content/uploads/materials/sofit.jpg
[area_modifier] => 85.67
[parent_name] => Подшивка кровли
[parent_id] => 15
[material_sum] => 213159
[work_sum] => 150638
[total_sum] => 363797
[total_days] => 7
[display_material_sum] => 213 159
[display_work_sum] => 150 638
[display_total_sum] => 363 797
)
1
363 797₽
Работа:150 638 ₽
Материалы:213 159 ₽
Дни:7
stdClass Object
(
[id] => 31
[attribute_id] => 16
[name] => Нет
[material_modifier] => 1
[work_modifier] => 1
[options] => Array
(
)
[days] => [0]
[material_price] => [0]
[work_price] => [0]
[image] => https://akademik-stroy.ru/wp-content/uploads/materials/docke-standard-pvh.jpg
[area_modifier] => 85.67
[parent_name] => Водосточная система
[parent_id] => 16
[material_sum] => 0
[work_sum] => 0
[total_sum] => 0
[total_days] => 0
[display_material_sum] => 0
[display_work_sum] => 0
[display_total_sum] => 0
)
1
0₽
Работа:0 ₽
Материалы:0 ₽
Дни:0
stdClass Object
(
[id] => 32
[attribute_id] => 16
[name] => Есть
[material_modifier] => 1
[work_modifier] => 1
[options] => Array
(
[0] => Döcke Standard (ПВХ)
[1] => Металлические Grand Line
)
[days] => [7,7]
[material_price] => [1842,2703]
[work_price] => [1491,1529]
[image] => https://akademik-stroy.ru/wp-content/uploads/materials/docke-standard-pvh.jpg
[area_modifier] => 85.67
[parent_name] => Водосточная система
[parent_id] => 16
[material_sum] => 217770
[work_sum] => 146894
[total_sum] => 364664
[total_days] => 7
[display_material_sum] => 217 770
[display_work_sum] => 146 894
[display_total_sum] => 364 664
)
1
364 664₽
Работа:146 894 ₽
Материалы:217 770 ₽
Дни:7
stdClass Object
(
[id] => 33
[attribute_id] => 17
[name] => Нет
[material_modifier] => 1
[work_modifier] => 1
[options] => Array
(
)
[days] => [0]
[material_price] => [0]
[work_price] => [0]
[image] => https://akademik-stroy.ru/wp-content/uploads/materials/mineralovata.jpg
[area_modifier] => 116.01
[parent_name] => Дополнительное утепление наружных стен
[parent_id] => 17
[material_sum] => 0
[work_sum] => 0
[total_sum] => 0
[total_days] => 0
[display_material_sum] => 0
[display_work_sum] => 0
[display_total_sum] => 0
)
1
0₽
Работа:0 ₽
Материалы:0 ₽
Дни:0
stdClass Object
(
[id] => 34
[attribute_id] => 17
[name] => Минераловатный
[material_modifier] => 1
[work_modifier] => 1
[options] => Array
(
[0] => 50 мм
[1] => 100 мм
[2] => 150 мм
[3] => 200 мм
[4] => 250 мм
[5] => 300 мм
)
[days] => [7,8,10,12,14,15]
[material_price] => [3437,3613,3803,3915,4601,4830]
[work_price] => [2325,2423,2523,2749,2859,3025]
[image] => https://akademik-stroy.ru/wp-content/uploads/materials/mineralovata.jpg
[area_modifier] => 116.01
[parent_name] => Дополнительное утепление наружных стен
[parent_id] => 17
[material_sum] => 550242
[work_sum] => 310182
[total_sum] => 860424
[total_days] => 7
[display_material_sum] => 550 242
[display_work_sum] => 310 182
[display_total_sum] => 860 424
)
1
860 424₽
Работа:310 182 ₽
Материалы:550 242 ₽
Дни:7
stdClass Object
(
[id] => 128
[attribute_id] => 17
[name] => Эковата (целлюлозная вата)
[material_modifier] => 1
[work_modifier] => 1
[options] => Array
(
[0] => 50 мм
[1] => 100 мм
[2] => 150 мм
[3] => 200 мм
[4] => 250 мм
[5] => 300 мм
)
[days] => [3,4,5,6,7,8]
[material_price] => [810,1319,1629,1838,2267,2676]
[work_price] => [1225,1323,1423,1549,1659,1725]
[image] => https://akademik-stroy.ru/wp-content/uploads/materials/ehkovata.jpg
[area_modifier] => 116.01
[parent_name] => Дополнительное утепление наружных стен
[parent_id] => 17
[material_sum] => 129676
[work_sum] => 163429
[total_sum] => 293105
[total_days] => 3
[display_material_sum] => 129 676
[display_work_sum] => 163 429
[display_total_sum] => 293 105
)
1
293 105₽
Работа:163 429 ₽
Материалы:129 676 ₽
Дни:3
stdClass Object
(
[id] => 129
[attribute_id] => 17
[name] => Экструдированный пенополистирол
[material_modifier] => 1
[work_modifier] => 1
[options] => Array
(
[0] => 50 мм
[1] => 100 мм
[2] => 150 мм
[3] => 200 мм
[4] => 250 мм
[5] => 300 мм
)
[days] => [5,6,7,8,9,10]
[material_price] => [4560,4300,5119,6292,7010,8583]
[work_price] => [1795,1954,2254,2330,2595,2735]
[image] => https://akademik-stroy.ru/wp-content/uploads/materials/epps.jpg
[area_modifier] => 116.01
[parent_name] => Дополнительное утепление наружных стен
[parent_id] => 17
[material_sum] => 730028
[work_sum] => 239474
[total_sum] => 969502
[total_days] => 5
[display_material_sum] => 730 028
[display_work_sum] => 239 474
[display_total_sum] => 969 502
)
1
969 502₽
Работа:239 474 ₽
Материалы:730 028 ₽
Дни:5
stdClass Object
(
[id] => 130
[attribute_id] => 17
[name] => ПСБ (ППС-пенополистирол)
[material_modifier] => 1
[work_modifier] => 1
[options] => Array
(
[0] => 50 мм
[1] => 100 мм
[2] => 150 мм
[3] => 200 мм
[4] => 250 мм
[5] => 300 мм
)
[days] => [5,6,7,8,9,10]
[material_price] => [4822,5200,5819,6292,7010,7583]
[work_price] => [1795,1954,2254,2330,2595,2735]
[image] => https://akademik-stroy.ru/wp-content/uploads/materials/psb.jpg
[area_modifier] => 116.01
[parent_name] => Дополнительное утепление наружных стен
[parent_id] => 17
[material_sum] => 771972
[work_sum] => 239474
[total_sum] => 1011446
[total_days] => 5
[display_material_sum] => 771 972
[display_work_sum] => 239 474
[display_total_sum] => 1 011 446
)
1
1 011 446₽
Работа:239 474 ₽
Материалы:771 972 ₽
Дни:5
stdClass Object
(
[id] => 131
[attribute_id] => 17
[name] => ППУ (Пенополиуретан)
[material_modifier] => 1
[work_modifier] => 1
[options] => Array
(
[0] => 50 мм
[1] => 100 мм
[2] => 150 мм
[3] => 200 мм
[4] => 250 мм
[5] => 300 мм
)
[days] => [3,4,5,6,7,8]
[material_price] => [2860,3400,4219,4592,5010,5583]
[work_price] => [729,900,980,1120,1280,1530]
[image] => https://akademik-stroy.ru/wp-content/uploads/materials/ppu.jpg
[area_modifier] => 116.01
[parent_name] => Дополнительное утепление наружных стен
[parent_id] => 17
[material_sum] => 457868
[work_sum] => 97257
[total_sum] => 555125
[total_days] => 3
[display_material_sum] => 457 868
[display_work_sum] => 97 257
[display_total_sum] => 555 125
)
1
555 125₽
Работа:97 257 ₽
Материалы:457 868 ₽
Дни:3
stdClass Object
(
[id] => 132
[attribute_id] => 17
[name] => PIR-плиты (пенополиизоцианурат)
[material_modifier] => 1
[work_modifier] => 1
[options] => Array
(
[0] => 50 мм
[1] => 100 мм
[2] => 150 мм
[3] => 200 мм
[4] => 250 мм
[5] => 300 мм
)
[days] => [5,6,7,8,9,10]
[material_price] => [8323,15645,20968,25900,29258,30581]
[work_price] => [800,900,970,1150,1280,1330]
[image] => https://akademik-stroy.ru/wp-content/uploads/materials/pir.jpg
[area_modifier] => 116.01
[parent_name] => Дополнительное утепление наружных стен
[parent_id] => 17
[material_sum] => 1332461
[work_sum] => 106729
[total_sum] => 1439190
[total_days] => 5
[display_material_sum] => 1 332 461
[display_work_sum] => 106 729
[display_total_sum] => 1 439 190
)
1
1 439 190₽
Работа:106 729 ₽
Материалы:1 332 461 ₽
Дни:5
stdClass Object
(
[id] => 37
[attribute_id] => 19
[name] => Нет
[material_modifier] => 1
[work_modifier] => 1
[options] => Array
(
)
[days] => [0]
[material_price] => [0]
[work_price] => [0]
[image] => https://akademik-stroy.ru/wp-content/uploads/materials/imitaciya-brusa.jpg
[area_modifier] => 116.01
[parent_name] => Наружная отделка фасада
[parent_id] => 19
[material_sum] => 0
[work_sum] => 0
[total_sum] => 0
[total_days] => 0
[display_material_sum] => 0
[display_work_sum] => 0
[display_total_sum] => 0
)
1
0₽
Работа:0 ₽
Материалы:0 ₽
Дни:0
stdClass Object
(
[id] => 38
[attribute_id] => 19
[name] => Имитация бруса
[material_modifier] => 1
[work_modifier] => 1
[options] => Array
(
[0] => Сосна
[1] => Ель
[2] => Лиственница
)
[days] => [20,20,20]
[material_price] => [2994,2762,4954]
[work_price] => [1397,1231,1577]
[image] => https://akademik-stroy.ru/wp-content/uploads/materials/imitaciya-brusa.jpg
[area_modifier] => 116.01
[parent_name] => Наружная отделка фасада
[parent_id] => 19
[material_sum] => 479321
[work_sum] => 186376
[total_sum] => 665697
[total_days] => 20
[display_material_sum] => 479 321
[display_work_sum] => 186 376
[display_total_sum] => 665 697
)
1
665 697₽
Работа:186 376 ₽
Материалы:479 321 ₽
Дни:20
stdClass Object
(
[id] => 136
[attribute_id] => 19
[name] => Планкен
[material_modifier] => 1
[work_modifier] => 1
[options] => Array
(
[0] => Сосна
[1] => Ель
[2] => Лиственница
)
[days] => [20,20,20]
[material_price] => [3194,2862,5154]
[work_price] => [1537,1354,1735]
[image] => https://akademik-stroy.ru/wp-content/uploads/materials/planken.jpg
[area_modifier] => 116.01
[parent_name] => Наружная отделка фасада
[parent_id] => 19
[material_sum] => 511340
[work_sum] => 205053
[total_sum] => 716393
[total_days] => 20
[display_material_sum] => 511 340
[display_work_sum] => 205 053
[display_total_sum] => 716 393
)
1
716 393₽
Работа:205 053 ₽
Материалы:511 340 ₽
Дни:20
stdClass Object
(
[id] => 137
[attribute_id] => 19
[name] => Штукатурка
[material_modifier] => 1
[work_modifier] => 1
[options] => Array
(
[0] => Цементно-песчаная (минеральная)
[1] => Мокрый фасад
)
[days] => [35,35]
[material_price] => [2231,3938]
[work_price] => [1202,2422]
[image] => https://akademik-stroy.ru/wp-content/uploads/materials/shtukaturka.jpg
[area_modifier] => 116.01
[parent_name] => Наружная отделка фасада
[parent_id] => 19
[material_sum] => 357169
[work_sum] => 160361
[total_sum] => 517530
[total_days] => 35
[display_material_sum] => 357 169
[display_work_sum] => 160 361
[display_total_sum] => 517 530
)
1
517 530₽
Работа:160 361 ₽
Материалы:357 169 ₽
Дни:35
stdClass Object
(
[id] => 138
[attribute_id] => 19
[name] => Облицовочный кирпич
[material_modifier] => 1
[work_modifier] => 1
[options] => Array
(
[0] => Керамический
[1] => Клинкерный
[2] => Ручной формовки
[3] => Гиперпрессованный
[4] => Силикатный кирпич
)
[days] => [45,45,45,45,45]
[material_price] => [8174,9148,1040,1257,5876]
[work_price] => [3240,3758,4536,4017,3369]
[image] => https://akademik-stroy.ru/wp-content/uploads/materials/oblicovochnyj-kirpich.jpg
[area_modifier] => 116.01
[parent_name] => Наружная отделка фасада
[parent_id] => 19
[material_sum] => 1308607
[work_sum] => 432253
[total_sum] => 1740860
[total_days] => 45
[display_material_sum] => 1 308 607
[display_work_sum] => 432 253
[display_total_sum] => 1 740 860
)
1
1 740 860₽
Работа:432 253 ₽
Материалы:1 308 607 ₽
Дни:45
stdClass Object
(
[id] => 139
[attribute_id] => 19
[name] => Фасадная плитка
[material_modifier] => 1
[work_modifier] => 1
[options] => Array
(
[0] => Клинкерная
[1] => Керамическая
[2] => Плитка ручной формовки
)
[days] => [40,40,40]
[material_price] => [2974,1487,3470]
[work_price] => [3007,2592,3629]
[image] => https://akademik-stroy.ru/wp-content/uploads/materials/fasadnaya-plitka.jpg
[area_modifier] => 116.01
[parent_name] => Наружная отделка фасада
[parent_id] => 19
[material_sum] => 476119
[work_sum] => 401168
[total_sum] => 877287
[total_days] => 40
[display_material_sum] => 476 119
[display_work_sum] => 401 168
[display_total_sum] => 877 287
)
1
877 287₽
Работа:401 168 ₽
Материалы:476 119 ₽
Дни:40
stdClass Object
(
[id] => 140
[attribute_id] => 19
[name] => Сайдинг
[material_modifier] => 1
[work_modifier] => 1
[options] => Array
(
[0] => Виниловый
[1] => Металлический
[2] => Фиброцементный
)
[days] => [20,20,20]
[material_price] => [1263,1944,4147]
[work_price] => [1263,1944,2074]
[image] => https://akademik-stroy.ru/wp-content/uploads/materials/sajding.jpg
[area_modifier] => 116.01
[parent_name] => Наружная отделка фасада
[parent_id] => 19
[material_sum] => 202198
[work_sum] => 168499
[total_sum] => 370697
[total_days] => 20
[display_material_sum] => 202 198
[display_work_sum] => 168 499
[display_total_sum] => 370 697
)
1
370 697₽
Работа:168 499 ₽
Материалы:202 198 ₽
Дни:20
stdClass Object
(
[id] => 141
[attribute_id] => 19
[name] => Камень
[material_modifier] => 1
[work_modifier] => 1
[options] => Array
(
[0] => Травертин
[1] => Дагестанский
[2] => Искусственный
[3] => Натуральный
[4] => Керамогранит
)
[days] => [45,45,45,45,45]
[material_price] => [4536,3888,2592,3240,2462]
[work_price] => [3240,3240,2462,3110,1944]
[image] => https://akademik-stroy.ru/wp-content/uploads/materials/kamen-1.jpg
[area_modifier] => 116.01
[parent_name] => Наружная отделка фасада
[parent_id] => 19
[material_sum] => 726185
[work_sum] => 432253
[total_sum] => 1158438
[total_days] => 45
[display_material_sum] => 726 185
[display_work_sum] => 432 253
[display_total_sum] => 1 158 438
)
1
1 158 438₽
Работа:432 253 ₽
Материалы:726 185 ₽
Дни:45
stdClass Object
(
[id] => 142
[attribute_id] => 19
[name] => Термопанели
[material_modifier] => 1
[work_modifier] => 1
[options] => Array
(
)
[days] => [20]
[material_price] => [6221]
[work_price] => [2333]
[image] => https://akademik-stroy.ru/wp-content/uploads/materials/termo.png
[area_modifier] => 116.01
[parent_name] => Наружная отделка фасада
[parent_id] => 19
[material_sum] => 995944
[work_sum] => 311249
[total_sum] => 1307193
[total_days] => 20
[display_material_sum] => 995 944
[display_work_sum] => 311 249
[display_total_sum] => 1 307 193
)
1
1 307 193₽
Работа:311 249 ₽
Материалы:995 944 ₽
Дни:20
stdClass Object
(
[id] => 143
[attribute_id] => 19
[name] => Плитка HAUBERK
[material_modifier] => 1
[work_modifier] => 1
[options] => Array
(
)
[days] => [20]
[material_price] => [2786]
[work_price] => [1944]
[image] => https://akademik-stroy.ru/wp-content/uploads/materials/hauberk.jpg
[area_modifier] => 116.01
[parent_name] => Наружная отделка фасада
[parent_id] => 19
[material_sum] => 446021
[work_sum] => 259352
[total_sum] => 705373
[total_days] => 20
[display_material_sum] => 446 021
[display_work_sum] => 259 352
[display_total_sum] => 705 373
)
1
705 373₽
Работа:259 352 ₽
Материалы:446 021 ₽
Дни:20
stdClass Object
(
[id] => 144
[attribute_id] => 19
[name] => Фальцевый фасад
[material_modifier] => 1
[work_modifier] => 1
[options] => Array
(
)
[days] => [20]
[material_price] => [3240]
[work_price] => [2592]
[image] => https://akademik-stroy.ru/wp-content/uploads/materials/falcevyj-fasad.jpg
[area_modifier] => 116.01
[parent_name] => Наружная отделка фасада
[parent_id] => 19
[material_sum] => 518704
[work_sum] => 345803
[total_sum] => 864507
[total_days] => 20
[display_material_sum] => 518 704
[display_work_sum] => 345 803
[display_total_sum] => 864 507
)
1
864 507₽
Работа:345 803 ₽
Материалы:518 704 ₽
Дни:20
stdClass Object
(
[id] => 145
[attribute_id] => 19
[name] => Комбинированный
[material_modifier] => 1
[work_modifier] => 1
[options] => Array
(
)
[days] => [20]
[material_price] => [4629]
[work_price] => [3499]
[image] => https://akademik-stroy.ru/wp-content/uploads/materials/Kombinirovannyj.jpg
[area_modifier] => 116.01
[parent_name] => Наружная отделка фасада
[parent_id] => 19
[material_sum] => 741074
[work_sum] => 466807
[total_sum] => 1207881
[total_days] => 20
[display_material_sum] => 741 074
[display_work_sum] => 466 807
[display_total_sum] => 1 207 881
)
1
1 207 881₽
Работа:466 807 ₽
Материалы:741 074 ₽
Дни:20
stdClass Object
(
[id] => 257
[attribute_id] => 19
[name] => Японские фиброцементные
[material_modifier] => 1
[work_modifier] => 1
[options] => Array
(
)
[days] => [20]
[material_price] => [7043]
[work_price] => [2993]
[image] => https://akademik-stroy.ru/wp-content/uploads/materials/paneli.jpg
[area_modifier] => 116.01
[parent_name] => Наружная отделка фасада
[parent_id] => 19
[material_sum] => 1127541
[work_sum] => 399301
[total_sum] => 1526842
[total_days] => 20
[display_material_sum] => 1 127 541
[display_work_sum] => 399 301
[display_total_sum] => 1 526 842
)
1
1 526 842₽
Работа:399 301 ₽
Материалы:1 127 541 ₽
Дни:20
stdClass Object
(
[id] => 258
[attribute_id] => 19
[name] => Панели Каньон
[material_modifier] => 1
[work_modifier] => 1
[options] => Array
(
)
[days] => [20]
[material_price] => [4543]
[work_price] => [2592]
[image] => https://akademik-stroy.ru/wp-content/uploads/materials/kanon.png
[area_modifier] => 116.01
[parent_name] => Наружная отделка фасада
[parent_id] => 19
[material_sum] => 727306
[work_sum] => 345803
[total_sum] => 1073109
[total_days] => 20
[display_material_sum] => 727 306
[display_work_sum] => 345 803
[display_total_sum] => 1 073 109
)
1
1 073 109₽
Работа:345 803 ₽
Материалы:727 306 ₽
Дни:20
stdClass Object
(
[id] => 39
[attribute_id] => 20
[name] => Нет
[material_modifier] => 1
[work_modifier] => 1
[options] => Array
(
)
[days] => [0]
[material_price] => [0]
[work_price] => [0]
[image] => https://akademik-stroy.ru/wp-content/uploads/materials/terrasy.jpg
[area_modifier] => 30
[parent_name] => Террасы, крыльца, навесы
[parent_id] => 20
[material_sum] => 0
[work_sum] => 0
[total_sum] => 0
[total_days] => 0
[display_material_sum] => 0
[display_work_sum] => 0
[display_total_sum] => 0
)
1
0₽
Работа:0 ₽
Материалы:0 ₽
Дни:0
stdClass Object
(
[id] => 40
[attribute_id] => 20
[name] => Есть
[material_modifier] => 1
[work_modifier] => 1
[options] => Array
(
)
[days] => [5]
[material_price] => [10450]
[work_price] => [1950]
[image] => https://akademik-stroy.ru/wp-content/uploads/materials/terrasy.jpg
[area_modifier] => 30
[parent_name] => Террасы, крыльца, навесы
[parent_id] => 20
[material_sum] => 432630
[work_sum] => 67275
[total_sum] => 499905
[total_days] => 5
[display_material_sum] => 432 630
[display_work_sum] => 67 275
[display_total_sum] => 499 905
)
1
499 905₽
Работа:67 275 ₽
Материалы:432 630 ₽
Дни:5
stdClass Object
(
[id] => 41
[attribute_id] => 21
[name] => Нет
[material_modifier] => 1
[work_modifier] => 1
[options] => Array
(
)
[days] => [0]
[material_price] => [0]
[work_price] => [0]
[image] => https://akademik-stroy.ru/wp-content/uploads/materials/balkony.jpg
[area_modifier] => 30
[parent_name] => Балконы
[parent_id] => 21
[material_sum] => 0
[work_sum] => 0
[total_sum] => 0
[total_days] => 0
[display_material_sum] => 0
[display_work_sum] => 0
[display_total_sum] => 0
)
1
0₽
Работа:0 ₽
Материалы:0 ₽
Дни:0
stdClass Object
(
[id] => 42
[attribute_id] => 21
[name] => Есть
[material_modifier] => 1
[work_modifier] => 1
[options] => Array
(
)
[days] => [12]
[material_price] => [3600]
[work_price] => [1950]
[image] => https://akademik-stroy.ru/wp-content/uploads/materials/balkony.jpg
[area_modifier] => 30
[parent_name] => Балконы
[parent_id] => 21
[material_sum] => 149040
[work_sum] => 67275
[total_sum] => 216315
[total_days] => 12
[display_material_sum] => 149 040
[display_work_sum] => 67 275
[display_total_sum] => 216 315
)
1
216 315₽
Работа:67 275 ₽
Материалы:149 040 ₽
Дни:12
stdClass Object
(
[id] => 43
[attribute_id] => 22
[name] => Нет
[material_modifier] => 1
[work_modifier] => 1
[options] => Array
(
)
[days] => [0]
[material_price] => [0]
[work_price] => [0]
[image] => https://akademik-stroy.ru/wp-content/uploads/materials/uteplennaya.jpg
[area_modifier] => 85.67
[parent_name] => Отмостка
[parent_id] => 22
[material_sum] => 0
[work_sum] => 0
[total_sum] => 0
[total_days] => 0
[display_material_sum] => 0
[display_work_sum] => 0
[display_total_sum] => 0
)
1
0₽
Работа:0 ₽
Материалы:0 ₽
Дни:0
stdClass Object
(
[id] => 44
[attribute_id] => 22
[name] => Утепленная отмостка
[material_modifier] => 1
[work_modifier] => 1
[options] => Array
(
)
[days] => [15]
[material_price] => [2550]
[work_price] => [1750]
[image] => https://akademik-stroy.ru/wp-content/uploads/materials/uteplennaya.jpg
[area_modifier] => 85.67
[parent_name] => Отмостка
[parent_id] => 22
[material_sum] => 301473
[work_sum] => 172411
[total_sum] => 473884
[total_days] => 15
[display_material_sum] => 301 473
[display_work_sum] => 172 411
[display_total_sum] => 473 884
)
1
473 884₽
Работа:172 411 ₽
Материалы:301 473 ₽
Дни:15
stdClass Object
(
[id] => 146
[attribute_id] => 22
[name] => Не утепленная отмостка
[material_modifier] => 1
[work_modifier] => 1
[options] => Array
(
)
[days] => [10]
[material_price] => [1650]
[work_price] => [1450]
[image] => https://akademik-stroy.ru/wp-content/uploads/materials/ne-uteplennaya.jpg
[area_modifier] => 85.67
[parent_name] => Отмостка
[parent_id] => 22
[material_sum] => 195071
[work_sum] => 142855
[total_sum] => 337926
[total_days] => 10
[display_material_sum] => 195 071
[display_work_sum] => 142 855
[display_total_sum] => 337 926
)
1
337 926₽
Работа:142 855 ₽
Материалы:195 071 ₽
Дни:10
stdClass Object
(
[id] => 45
[attribute_id] => 23
[name] => Нет
[material_modifier] => 1
[work_modifier] => 1
[options] => Array
(
)
[days] => [0]
[material_price] => [0]
[work_price] => [0]
[image] => https://akademik-stroy.ru/wp-content/uploads/materials/drenazh-2.jpg
[area_modifier] => 85.67
[parent_name] => Дренаж вокруг дома
[parent_id] => 23
[material_sum] => 0
[work_sum] => 0
[total_sum] => 0
[total_days] => 0
[display_material_sum] => 0
[display_work_sum] => 0
[display_total_sum] => 0
)
1
0₽
Работа:0 ₽
Материалы:0 ₽
Дни:0
stdClass Object
(
[id] => 46
[attribute_id] => 23
[name] => Есть
[material_modifier] => 1
[work_modifier] => 1
[options] => Array
(
)
[days] => [5]
[material_price] => [2366]
[work_price] => [1911]
[image] => https://akademik-stroy.ru/wp-content/uploads/materials/drenazh-2.jpg
[area_modifier] => 85.67
[parent_name] => Дренаж вокруг дома
[parent_id] => 23
[material_sum] => 279719
[work_sum] => 188273
[total_sum] => 467992
[total_days] => 5
[display_material_sum] => 279 719
[display_work_sum] => 188 273
[display_total_sum] => 467 992
)
1
467 992₽
Работа:188 273 ₽
Материалы:279 719 ₽
Дни:5
stdClass Object
(
[id] => 47
[attribute_id] => 24
[name] => Нет
[material_modifier] => 1
[work_modifier] => 1
[options] => Array
(
)
[days] => [0]
[material_price] => [0]
[work_price] => [0]
[image] => https://akademik-stroy.ru/wp-content/uploads/materials/septik.jpg
[area_modifier] => 1
[parent_name] => Автономная канализация (септики)
[parent_id] => 24
[material_sum] => 0
[work_sum] => 0
[total_sum] => 0
[total_days] => 0
[display_material_sum] => 0
[display_work_sum] => 0
[display_total_sum] => 0
)
1
0₽
Работа:0 ₽
Материалы:0 ₽
Дни:0
stdClass Object
(
[id] => 48
[attribute_id] => 24
[name] => Есть
[material_modifier] => 1
[work_modifier] => 1
[options] => Array
(
[0] => Для дачи на 4 человека
[1] => Для дома на 5 человек
[2] => Для дома на 6 человек
[3] => Для дома на 7 человек
[4] => Для дома на 10 человек
)
[days] => [7,7,7,8,8]
[material_price] => [196340,220500,240940,264200,293340]
[work_price] => [50000,55000,60500,66550,73206]
[image] => https://akademik-stroy.ru/wp-content/uploads/materials/septik.jpg
[area_modifier] => 1
[parent_name] => Автономная канализация (септики)
[parent_id] => 24
[material_sum] => 270949
[work_sum] => 57500
[total_sum] => 328449
[total_days] => 7
[display_material_sum] => 270 949
[display_work_sum] => 57 500
[display_total_sum] => 328 449
)
1
328 449₽
Работа:57 500 ₽
Материалы:270 949 ₽
Дни:7
stdClass Object
(
[id] => 49
[attribute_id] => 25
[name] => Нет
[material_modifier] => 1
[work_modifier] => 1
[options] => Array
(
)
[days] => [0]
[material_price] => [0]
[work_price] => [0]
[image] => https://akademik-stroy.ru/wp-content/uploads/materials/gkl.jpg
[area_modifier] => 116.01
[parent_name] => Внутренние (не несущие) перегородки
[parent_id] => 25
[material_sum] => 0
[work_sum] => 0
[total_sum] => 0
[total_days] => 0
[display_material_sum] => 0
[display_work_sum] => 0
[display_total_sum] => 0
)
1
0₽
Работа:0 ₽
Материалы:0 ₽
Дни:0
stdClass Object
(
[id] => 147
[attribute_id] => 25
[name] => Каркасно-обшивные
[material_modifier] => 1
[work_modifier] => 1
[options] => Array
(
[0] => 75 мм (без шумоизоляции)
[1] => 75 мм (с шумоизоляцией)
)
[days] => [11,11]
[material_price] => [580,970]
[work_price] => [380,570]
[image] => https://akademik-stroy.ru/wp-content/uploads/materials/gkl.jpg
[area_modifier] => 116.01
[parent_name] => Внутренние (не несущие) перегородки
[parent_id] => 25
[material_sum] => 92854
[work_sum] => 50696
[total_sum] => 143550
[total_days] => 11
[display_material_sum] => 92 854
[display_work_sum] => 50 696
[display_total_sum] => 143 550
)
1
143 550₽
Работа:50 696 ₽
Материалы:92 854 ₽
Дни:11
stdClass Object
(
[id] => 148
[attribute_id] => 25
[name] => Пазогребневые
[material_modifier] => 1
[work_modifier] => 1
[options] => Array
(
[0] => 80 мм
[1] => 100 мм
)
[days] => [5,5]
[material_price] => [1022,1313]
[work_price] => [600,700]
[image] => https://akademik-stroy.ru/wp-content/uploads/materials/pazogrebnevye-bloki.jpg
[area_modifier] => 116.01
[parent_name] => Внутренние (не несущие) перегородки
[parent_id] => 25
[material_sum] => 163616
[work_sum] => 80047
[total_sum] => 243663
[total_days] => 5
[display_material_sum] => 163 616
[display_work_sum] => 80 047
[display_total_sum] => 243 663
)
1
243 663₽
Работа:80 047 ₽
Материалы:163 616 ₽
Дни:5
stdClass Object
(
[id] => 149
[attribute_id] => 25
[name] => Газобетонные
[material_modifier] => 1
[work_modifier] => 1
[options] => Array
(
[0] => 100 мм
[1] => 200 мм
)
[days] => [11,11]
[material_price] => [1160,1920]
[work_price] => [700,900]
[image] => https://akademik-stroy.ru/wp-content/uploads/materials/gazobeton-2.jpg
[area_modifier] => 116.01
[parent_name] => Внутренние (не несущие) перегородки
[parent_id] => 25
[material_sum] => 185709
[work_sum] => 93388
[total_sum] => 279097
[total_days] => 11
[display_material_sum] => 185 709
[display_work_sum] => 93 388
[display_total_sum] => 279 097
)
1
279 097₽
Работа:93 388 ₽
Материалы:185 709 ₽
Дни:11
stdClass Object
(
[id] => 150
[attribute_id] => 25
[name] => Кирпичные
[material_modifier] => 1
[work_modifier] => 1
[options] => Array
(
[0] => 120 мм
[1] => 250 мм
[2] => 360 мм
)
[days] => [7,7,7]
[material_price] => [1785,3570,5355]
[work_price] => [900,1600,1800]
[image] => https://akademik-stroy.ru/wp-content/uploads/materials/kirpich-1.jpg
[area_modifier] => 116.01
[parent_name] => Внутренние (не несущие) перегородки
[parent_id] => 25
[material_sum] => 285767
[work_sum] => 120070
[total_sum] => 405837
[total_days] => 7
[display_material_sum] => 285 767
[display_work_sum] => 120 070
[display_total_sum] => 405 837
)
1
405 837₽
Работа:120 070 ₽
Материалы:285 767 ₽
Дни:7
stdClass Object
(
[id] => 55
[attribute_id] => 28
[name] => Нет
[material_modifier] => 1
[work_modifier] => 1
[options] => Array
(
)
[days] => [0]
[material_price] => [0]
[work_price] => [0]
[image] => https://akademik-stroy.ru/wp-content/uploads/materials/ehlektrika.jpg
[area_modifier] => 94.14
[parent_name] => Электрика
[parent_id] => 28
[material_sum] => 0
[work_sum] => 0
[total_sum] => 0
[total_days] => 0
[display_material_sum] => 0
[display_work_sum] => 0
[display_total_sum] => 0
)
1
0₽
Работа:0 ₽
Материалы:0 ₽
Дни:0
stdClass Object
(
[id] => 56
[attribute_id] => 28
[name] => Есть
[material_modifier] => 1
[work_modifier] => 1
[options] => Array
(
)
[days] => [10]
[material_price] => [650]
[work_price] => [950]
[image] => https://akademik-stroy.ru/wp-content/uploads/materials/ehlektrika.jpg
[area_modifier] => 94.14
[parent_name] => Электрика
[parent_id] => 28
[material_sum] => 84444
[work_sum] => 102848
[total_sum] => 187292
[total_days] => 10
[display_material_sum] => 84 444
[display_work_sum] => 102 848
[display_total_sum] => 187 292
)
1
187 292₽
Работа:102 848 ₽
Материалы:84 444 ₽
Дни:10
stdClass Object
(
[id] => 57
[attribute_id] => 29
[name] => Нет
[material_modifier] => 1
[work_modifier] => 1
[options] => Array
(
)
[days] => [0]
[material_price] => [0]
[work_price] => [0]
[image] => https://akademik-stroy.ru/wp-content/uploads/materials/santekhnika-kanalizaciya-1.jpg
[area_modifier] => 94.14
[parent_name] => Сантехника, канализация в доме
[parent_id] => 29
[material_sum] => 0
[work_sum] => 0
[total_sum] => 0
[total_days] => 0
[display_material_sum] => 0
[display_work_sum] => 0
[display_total_sum] => 0
)
1
0₽
Работа:0 ₽
Материалы:0 ₽
Дни:0
stdClass Object
(
[id] => 58
[attribute_id] => 29
[name] => Есть
[material_modifier] => 1
[work_modifier] => 1
[options] => Array
(
)
[days] => [10]
[material_price] => [600]
[work_price] => [730]
[image] => https://akademik-stroy.ru/wp-content/uploads/materials/santekhnika-kanalizaciya-1.jpg
[area_modifier] => 94.14
[parent_name] => Сантехника, канализация в доме
[parent_id] => 29
[material_sum] => 77948
[work_sum] => 79031
[total_sum] => 156979
[total_days] => 10
[display_material_sum] => 77 948
[display_work_sum] => 79 031
[display_total_sum] => 156 979
)
1
156 979₽
Работа:79 031 ₽
Материалы:77 948 ₽
Дни:10
stdClass Object
(
[id] => 59
[attribute_id] => 30
[name] => Нет
[material_modifier] => 1
[work_modifier] => 1
[options] => Array
(
)
[days] => [0]
[material_price] => [0]
[work_price] => [0]
[image] => https://akademik-stroy.ru/wp-content/uploads/materials/otoplenie-1.jpg
[area_modifier] => 94.14
[parent_name] => Отопление
[parent_id] => 30
[material_sum] => 0
[work_sum] => 0
[total_sum] => 0
[total_days] => 0
[display_material_sum] => 0
[display_work_sum] => 0
[display_total_sum] => 0
)
1
0₽
Работа:0 ₽
Материалы:0 ₽
Дни:0
stdClass Object
(
[id] => 60
[attribute_id] => 30
[name] => Есть
[material_modifier] => 1
[work_modifier] => 1
[options] => Array
(
)
[days] => [5]
[material_price] => [610]
[work_price] => [560]
[image] => https://akademik-stroy.ru/wp-content/uploads/materials/otoplenie-1.jpg
[area_modifier] => 94.14
[parent_name] => Отопление
[parent_id] => 30
[material_sum] => 79247
[work_sum] => 60626
[total_sum] => 139873
[total_days] => 5
[display_material_sum] => 79 247
[display_work_sum] => 60 626
[display_total_sum] => 139 873
)
1
139 873₽
Работа:60 626 ₽
Материалы:79 247 ₽
Дни:5
stdClass Object
(
[id] => 61
[attribute_id] => 31
[name] => Нет
[material_modifier] => 1
[work_modifier] => 1
[options] => Array
(
)
[days] => [0]
[material_price] => [0]
[work_price] => [0]
[image] => https://akademik-stroy.ru/wp-content/uploads/materials/vodyanye.jpg
[area_modifier] => 30
[parent_name] => Теплые полы
[parent_id] => 31
[material_sum] => 0
[work_sum] => 0
[total_sum] => 0
[total_days] => 0
[display_material_sum] => 0
[display_work_sum] => 0
[display_total_sum] => 0
)
1
0₽
Работа:0 ₽
Материалы:0 ₽
Дни:0
stdClass Object
(
[id] => 151
[attribute_id] => 31
[name] => Водяные
[material_modifier] => 1
[work_modifier] => 1
[options] => Array
(
)
[days] => [9]
[material_price] => [10200]
[work_price] => [2500]
[image] => https://akademik-stroy.ru/wp-content/uploads/materials/vodyanye.jpg
[area_modifier] => 30
[parent_name] => Теплые полы
[parent_id] => 31
[material_sum] => 422280
[work_sum] => 86250
[total_sum] => 508530
[total_days] => 9
[display_material_sum] => 422 280
[display_work_sum] => 86 250
[display_total_sum] => 508 530
)
1
508 530₽
Работа:86 250 ₽
Материалы:422 280 ₽
Дни:9
stdClass Object
(
[id] => 152
[attribute_id] => 31
[name] => Электро
[material_modifier] => 1
[work_modifier] => 1
[options] => Array
(
)
[days] => [5]
[material_price] => [6300]
[work_price] => [1500]
[image] => https://akademik-stroy.ru/wp-content/uploads/materials/ehlektricheskij.jpg
[area_modifier] => 30
[parent_name] => Теплые полы
[parent_id] => 31
[material_sum] => 260820
[work_sum] => 51750
[total_sum] => 312570
[total_days] => 5
[display_material_sum] => 260 820
[display_work_sum] => 51 750
[display_total_sum] => 312 570
)
1
312 570₽
Работа:51 750 ₽
Материалы:260 820 ₽
Дни:5
stdClass Object
(
[id] => 63
[attribute_id] => 32
[name] => Нет
[material_modifier] => 1
[work_modifier] => 1
[options] => Array
(
)
[days] => [0]
[material_price] => [0]
[work_price] => [0]
[image] => https://akademik-stroy.ru/wp-content/uploads/materials/shtukaturka-shpatlevka-1.jpg
[area_modifier] => 94.14
[parent_name] => Черновая отделка стен
[parent_id] => 32
[material_sum] => 0
[work_sum] => 0
[total_sum] => 0
[total_days] => 0
[display_material_sum] => 0
[display_work_sum] => 0
[display_total_sum] => 0
)
1
0₽
Работа:0 ₽
Материалы:0 ₽
Дни:0
stdClass Object
(
[id] => 153
[attribute_id] => 32
[name] => Штукатурка и шпатлевка
[material_modifier] => 1
[work_modifier] => 1
[options] => Array
(
)
[days] => [20]
[material_price] => [1850]
[work_price] => [2600]
[image] => https://akademik-stroy.ru/wp-content/uploads/materials/shtukaturka-shpatlevka-1.jpg
[area_modifier] => 94.14
[parent_name] => Черновая отделка стен
[parent_id] => 32
[material_sum] => 240339
[work_sum] => 281479
[total_sum] => 521818
[total_days] => 20
[display_material_sum] => 240 339
[display_work_sum] => 281 479
[display_total_sum] => 521 818
)
1
521 818₽
Работа:281 479 ₽
Материалы:240 339 ₽
Дни:20
stdClass Object
(
[id] => 154
[attribute_id] => 32
[name] => Гипсокортон на стены
[material_modifier] => 1
[work_modifier] => 1
[options] => Array
(
)
[days] => [15]
[material_price] => [950]
[work_price] => [2100]
[image] => https://akademik-stroy.ru/wp-content/uploads/materials/gkl-1.jpg
[area_modifier] => 94.14
[parent_name] => Черновая отделка стен
[parent_id] => 32
[material_sum] => 123418
[work_sum] => 227348
[total_sum] => 350766
[total_days] => 15
[display_material_sum] => 123 418
[display_work_sum] => 227 348
[display_total_sum] => 350 766
)
1
350 766₽
Работа:227 348 ₽
Материалы:123 418 ₽
Дни:15
stdClass Object
(
[id] => 155
[attribute_id] => 32
[name] => Вагонка
[material_modifier] => 1
[work_modifier] => 1
[options] => Array
(
)
[days] => [15]
[material_price] => [1250]
[work_price] => [950]
[image] => https://akademik-stroy.ru/wp-content/uploads/materials/vagonka.jpg
[area_modifier] => 94.14
[parent_name] => Черновая отделка стен
[parent_id] => 32
[material_sum] => 162392
[work_sum] => 102848
[total_sum] => 265240
[total_days] => 15
[display_material_sum] => 162 392
[display_work_sum] => 102 848
[display_total_sum] => 265 240
)
1
265 240₽
Работа:102 848 ₽
Материалы:162 392 ₽
Дни:15
stdClass Object
(
[id] => 65
[attribute_id] => 33
[name] => Нет
[material_modifier] => 1
[work_modifier] => 1
[options] => Array
(
)
[days] => [0]
[material_price] => [0]
[work_price] => [0]
[image] => https://akademik-stroy.ru/wp-content/uploads/materials/styazhka.jpg
[area_modifier] => 94.14
[parent_name] => Черновая отделка полов
[parent_id] => 33
[material_sum] => 0
[work_sum] => 0
[total_sum] => 0
[total_days] => 0
[display_material_sum] => 0
[display_work_sum] => 0
[display_total_sum] => 0
)
1
0₽
Работа:0 ₽
Материалы:0 ₽
Дни:0
stdClass Object
(
[id] => 156
[attribute_id] => 33
[name] => Стяжка + наливные полы
[material_modifier] => 1
[work_modifier] => 1
[options] => Array
(
)
[days] => [10]
[material_price] => [1000]
[work_price] => [900]
[image] => https://akademik-stroy.ru/wp-content/uploads/materials/styazhka.jpg
[area_modifier] => 94.14
[parent_name] => Черновая отделка полов
[parent_id] => 33
[material_sum] => 129913
[work_sum] => 97435
[total_sum] => 227348
[total_days] => 10
[display_material_sum] => 129 913
[display_work_sum] => 97 435
[display_total_sum] => 227 348
)
1
227 348₽
Работа:97 435 ₽
Материалы:129 913 ₽
Дни:10
stdClass Object
(
[id] => 157
[attribute_id] => 33
[name] => ОСБ на пол
[material_modifier] => 1
[work_modifier] => 1
[options] => Array
(
)
[days] => [7]
[material_price] => [580]
[work_price] => [350]
[image] => https://akademik-stroy.ru/wp-content/uploads/materials/osb-1.jpg
[area_modifier] => 94.14
[parent_name] => Черновая отделка полов
[parent_id] => 33
[material_sum] => 75350
[work_sum] => 37891
[total_sum] => 113241
[total_days] => 7
[display_material_sum] => 75 350
[display_work_sum] => 37 891
[display_total_sum] => 113 241
)
1
113 241₽
Работа:37 891 ₽
Материалы:75 350 ₽
Дни:7
stdClass Object
(
[id] => 67
[attribute_id] => 34
[name] => Нет
[material_modifier] => 1
[work_modifier] => 1
[options] => Array
(
)
[days] => [0]
[material_price] => [0]
[work_price] => [0]
[image] => https://akademik-stroy.ru/wp-content/uploads/materials/chistovaya-otdelka.jpg
[area_modifier] => 94.14
[parent_name] => Чистовая отделка стен и полов
[parent_id] => 34
[material_sum] => 0
[work_sum] => 0
[total_sum] => 0
[total_days] => 0
[display_material_sum] => 0
[display_work_sum] => 0
[display_total_sum] => 0
)
1
0₽
Работа:0 ₽
Материалы:0 ₽
Дни:0
stdClass Object
(
[id] => 68
[attribute_id] => 34
[name] => Есть
[material_modifier] => 1
[work_modifier] => 1
[options] => Array
(
)
[days] => [50]
[material_price] => [6000]
[work_price] => [3500]
[image] => https://akademik-stroy.ru/wp-content/uploads/materials/chistovaya-otdelka.jpg
[area_modifier] => 94.14
[parent_name] => Чистовая отделка стен и полов
[parent_id] => 34
[material_sum] => 779479
[work_sum] => 378914
[total_sum] => 1158393
[total_days] => 50
[display_material_sum] => 779 479
[display_work_sum] => 378 914
[display_total_sum] => 1 158 393
)
1
1 158 393₽
Работа:378 914 ₽
Материалы:779 479 ₽
Дни:50
stdClass Object
(
[id] => 69
[attribute_id] => 35
[name] => Нет
[material_modifier] => 1
[work_modifier] => 1
[options] => Array
(
)
[days] => [0]
[material_price] => [0]
[work_price] => [0]
[image] => https://akademik-stroy.ru/wp-content/uploads/materials/mnogourovnevyj-gkl.jpg
[area_modifier] => 94.14
[parent_name] => Отделка потолка
[parent_id] => 35
[material_sum] => 0
[work_sum] => 0
[total_sum] => 0
[total_days] => 0
[display_material_sum] => 0
[display_work_sum] => 0
[display_total_sum] => 0
)
1
0₽
Работа:0 ₽
Материалы:0 ₽
Дни:0
stdClass Object
(
[id] => 70
[attribute_id] => 35
[name] => Есть
[material_modifier] => 1
[work_modifier] => 1
[options] => Array
(
[0] => Многоуровневый потолок из гипсокартона
[1] => Многоуровневый потолок из гипсокартона и натяжного потолка
[2] => Одноуровневый потолок из гипсокартона
[3] => Одноуровневый натяжной потолок
)
[days] => [10,10,1,1]
[material_price] => [900,700,700,600]
[work_price] => [1000,800,500,300]
[image] => https://akademik-stroy.ru/wp-content/uploads/materials/mnogourovnevyj-gkl.jpg
[area_modifier] => 94.14
[parent_name] => Отделка потолка
[parent_id] => 35
[material_sum] => 116922
[work_sum] => 108261
[total_sum] => 225183
[total_days] => 10
[display_material_sum] => 116 922
[display_work_sum] => 108 261
[display_total_sum] => 225 183
)
1
225 183₽
Работа:108 261 ₽
Материалы:116 922 ₽
Дни:10
Преимущества работы с нами
7 этапов оплаты
Независимый строительный надзор
Экологически чистые материалы
16 лет гарантии
Онлайн-кабинет с веб-камерой
Строители с опытом более 15 лет
Собственное производство

