Одноэтажный гараж 62.4 м2 за руб.
154 м2
Полезная
площадь
площадь
1 этаж
Этажей
26 м2
Террасы
и балконы
и балконы
0Без
гаража
гаража
0
Количество
спален
спален
0
Количество
санузлов
санузлов
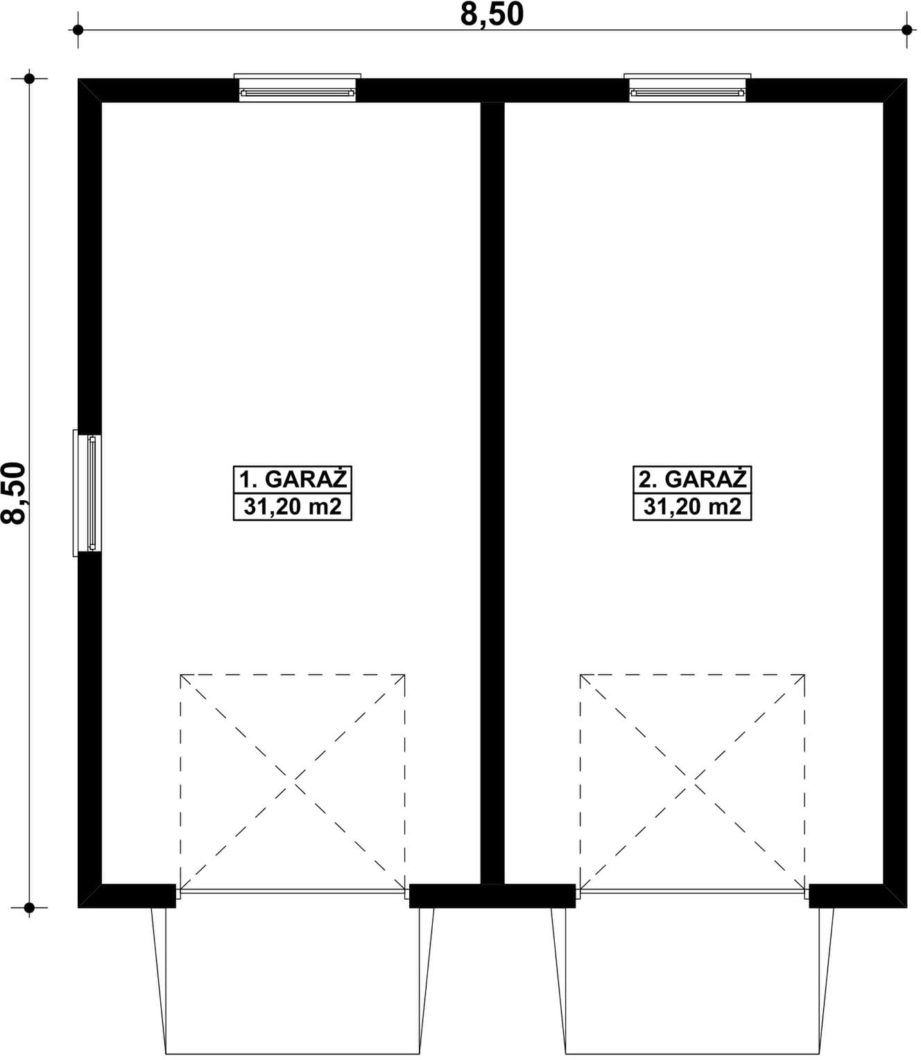
Планировки
Первый этаж
- 1. (m²) 62,40
- 2. Гараж на 1 машину 31,20
- Гараж на 1 машину 31,20
Фасады
Передний
Задний
Левый
Правый
Подробная информация
Полезная площадь
62,40 m²
Количество спален
0
Количество санузлов
0
Гараж
2
Мин. шир. и дл. участка
15,5 x 16,50 m
Угол наклона крыши
25°
Наклон ската крыши в градусах. Внимание! В некоторых проектах возникает более чем один наклон крыши.
Вид материалов
Murowana
Материалы и опции
Общие
Площади дома
| № п/п | Наименование | Ед. из. | Строительная площадь | Полезная площадь |
| 1 | 1 этаж | м2 | 76.9 | 62.4 |
| 2 | Итого | м2 | 76.9 | 62.4 |
Калькулятор опций
0₽
В ипотеку от 13 788 ₽/мес.
0₽
0 дней
stdClass Object
(
[id] => 1
[attribute_id] => 1
[name] => Ленточный монолитный ж/б
[material_modifier] => 1
[work_modifier] => 1
[options] => Array
(
[0] => размер 200 х 700 мм
[1] => размер 300 х 900 мм
[2] => размер 400 х 1 000 мм
[3] => размер 500 х 1 100 мм
[4] => размер 600 х 1 200 мм
)
[days] => [20,21,22,25,30]
[material_price] => [2823,3630,4475,5210,12047]
[work_price] => [2154,2826,3731,4577,5293]
[image] => https://akademik-stroy.ru/wp-content/uploads/materials/lentochnyj-monolitnyj-zh-b.jpg
[area_modifier] => 76.9
[parent_name] => Фундамент
[parent_id] => 1
[material_sum] => 364709
[work_sum] => 231900
[total_sum] => 596609
[total_days] => 20
[display_material_sum] => 364 709
[display_work_sum] => 231 900
[display_total_sum] => 596 609
)
1
596 609₽
Работа:231 900 ₽
Материалы:364 709 ₽
Дни:20
stdClass Object
(
[id] => 2
[attribute_id] => 1
[name] => Забивные Ж/Б сваи
[material_modifier] => 1
[work_modifier] => 1
[options] => Array
(
[0] => 150х150х3000мм
[1] => 150х150х4000мм
[2] => 200х200х3000мм
[3] => 200х200х4000мм
[4] => 200х200х5000мм
[5] => 200х200х6000мм
)
[days] => [2,2,2,2,2,2]
[material_price] => [1990,2850,3255,4360,5120,6837]
[work_price] => [1002,1185,1336,1438,1574,1839]
[image] => https://akademik-stroy.ru/wp-content/uploads/materials/zabivnye-zh-b-svai.png
[area_modifier] => 76.9
[parent_name] => Фундамент
[parent_id] => 1
[material_sum] => 257092
[work_sum] => 107875
[total_sum] => 364967
[total_days] => 2
[display_material_sum] => 257 092
[display_work_sum] => 107 875
[display_total_sum] => 364 967
)
1
364 967₽
Работа:107 875 ₽
Материалы:257 092 ₽
Дни:2
stdClass Object
(
[id] => 71
[attribute_id] => 1
[name] => Свайно-ростверковый ж/б
[material_modifier] => 1
[work_modifier] => 1
[options] => Array
(
[0] => ростверк 200х300 мм
[1] => ростверк 300х600 мм
[2] => ростверк 400х900 мм
[3] => ростверк 500х1200 мм
)
[days] => [20,23,25,27]
[material_price] => [3018,3474,7109,9792]
[work_price] => [2024,3012,5635,7022]
[image] => https://akademik-stroy.ru/wp-content/uploads/materials/svajno-rostverkovyj-monolitnyj-zh-b-3.png
[area_modifier] => 76.9
[parent_name] => Фундамент
[parent_id] => 1
[material_sum] => 389901
[work_sum] => 217904
[total_sum] => 607805
[total_days] => 20
[display_material_sum] => 389 901
[display_work_sum] => 217 904
[display_total_sum] => 607 805
)
1
607 805₽
Работа:217 904 ₽
Материалы:389 901 ₽
Дни:20
stdClass Object
(
[id] => 72
[attribute_id] => 1
[name] => Монолитная ж/б плита
[material_modifier] => 1
[work_modifier] => 1
[options] => Array
(
[0] => 200 мм
[1] => 300 мм
[2] => 400 мм
[3] => 500 мм
[4] => 600 мм
)
[days] => [30,33,35,37,40]
[material_price] => [5348,8555,12788,14388,15189]
[work_price] => [4314,4881,7037,8061,10230]
[image] => https://akademik-stroy.ru/wp-content/uploads/materials/monolitnaya-zhb-plita.png
[area_modifier] => 76.9
[parent_name] => Фундамент
[parent_id] => 1
[material_sum] => 690919
[work_sum] => 464445
[total_sum] => 1155364
[total_days] => 30
[display_material_sum] => 690 919
[display_work_sum] => 464 445
[display_total_sum] => 1 155 364
)
1
1 155 364₽
Работа:464 445 ₽
Материалы:690 919 ₽
Дни:30
stdClass Object
(
[id] => 73
[attribute_id] => 1
[name] => Утепленная шведская плита
[material_modifier] => 1
[work_modifier] => 1
[options] => Array
(
[0] => 200 мм
[1] => 300 мм
[2] => 400 мм
[3] => 500 мм
[4] => 600 мм
)
[days] => [32,37,39,42,45]
[material_price] => [10249,12692,13760,14936,16230]
[work_price] => [5960,7337,8072,8878,9765]
[image] => https://akademik-stroy.ru/wp-content/uploads/materials/uteplennaya-shvedskaya-plita.jpg
[area_modifier] => 76.9
[parent_name] => Фундамент
[parent_id] => 1
[material_sum] => 1324089
[work_sum] => 641654
[total_sum] => 1965743
[total_days] => 32
[display_material_sum] => 1 324 089
[display_work_sum] => 641 654
[display_total_sum] => 1 965 743
)
1
1 965 743₽
Работа:641 654 ₽
Материалы:1 324 089 ₽
Дни:32
stdClass Object
(
[id] => 75
[attribute_id] => 1
[name] => Ленточный из ФБС
[material_modifier] => 1
[work_modifier] => 1
[options] => Array
(
[0] => толщ. 300 мм
[1] => толщ. 400 мм
[2] => толщ. 500 мм
[3] => толщ. 600 мм
)
[days] => [20,20,20,20]
[material_price] => [3675,4902,6126,7350]
[work_price] => [2451,3264,4083,4902]
[image] => https://akademik-stroy.ru/wp-content/uploads/materials/lentochnyj-iz-fbs.png
[area_modifier] => 76.9
[parent_name] => Фундамент
[parent_id] => 1
[material_sum] => 474781
[work_sum] => 263875
[total_sum] => 738656
[total_days] => 20
[display_material_sum] => 474 781
[display_work_sum] => 263 875
[display_total_sum] => 738 656
)
1
738 656₽
Работа:263 875 ₽
Материалы:474 781 ₽
Дни:20
stdClass Object
(
[id] => 76
[attribute_id] => 1
[name] => Цокольный этаж из ФБС
[material_modifier] => 1
[work_modifier] => 1
[options] => Array
(
[0] => толщ. 300 мм
[1] => толщ. 400 мм
[2] => толщ. 500 мм
[3] => толщ. 600 мм
)
[days] => [30,32,34,36]
[material_price] => [20916,23299,26680,29060]
[work_price] => [17524,18700,19873,21046]
[image] => https://akademik-stroy.ru/wp-content/uploads/materials/cokolnyj-ehtazh-iz-fbs.jpg
[area_modifier] => 76.9
[parent_name] => Фундамент
[parent_id] => 1
[material_sum] => 2702180
[work_sum] => 1886634
[total_sum] => 4588814
[total_days] => 30
[display_material_sum] => 2 702 180
[display_work_sum] => 1 886 634
[display_total_sum] => 4 588 814
)
1
4 588 814₽
Работа:1 886 634 ₽
Материалы:2 702 180 ₽
Дни:30
stdClass Object
(
[id] => 77
[attribute_id] => 1
[name] => Цокольный этаж монолитный ж/б
[material_modifier] => 1
[work_modifier] => 1
[options] => Array
(
[0] => толщ. 200 мм
[1] => толщ. 300 мм
[2] => толщ. 400 мм
[3] => толщ. 500 мм
[4] => толщ. 600 мм
)
[days] => [40,42,44,46,48]
[material_price] => [25421,29148,32275,35602,37326]
[work_price] => [20441,21907,23375,24841,26306]
[image] => https://akademik-stroy.ru/wp-content/uploads/materials/cokolnyj-etazh-zh-b.jpg
[area_modifier] => 76.9
[parent_name] => Фундамент
[parent_id] => 1
[material_sum] => 3284190
[work_sum] => 2200678
[total_sum] => 5484868
[total_days] => 40
[display_material_sum] => 3 284 190
[display_work_sum] => 2 200 678
[display_total_sum] => 5 484 868
)
1
5 484 868₽
Работа:2 200 678 ₽
Материалы:3 284 190 ₽
Дни:40
stdClass Object
(
[id] => 191
[attribute_id] => 1
[name] => Винтовые сваи
[material_modifier] => 1
[work_modifier] => 1
[options] => Array
(
[0] => 57х200мм
[1] => 76х250мм
[2] => 108х300мм
[3] => 133х350мм
)
[days] => [1,1,2,2]
[material_price] => [1200,1300,1450,1600]
[work_price] => [400,600,900,1100]
[image] => https://akademik-stroy.ru/wp-content/uploads/materials/vintovye-svai.png
[area_modifier] => 76.9
[parent_name] => Фундамент
[parent_id] => 1
[material_sum] => 155030
[work_sum] => 43064
[total_sum] => 198094
[total_days] => 1
[display_material_sum] => 155 030
[display_work_sum] => 43 064
[display_total_sum] => 198 094
)
1
198 094₽
Работа:43 064 ₽
Материалы:155 030 ₽
Дни:1
stdClass Object
(
[id] => 3
[attribute_id] => 2
[name] => Деревянные балки
[material_modifier] => 1
[work_modifier] => 1
[options] => Array
(
[0] => без утепления
[1] => утепление 200 мм
[2] => утепление 250 мм
[3] => утепление 300 мм
[4] => утепление 350 мм
[5] => утепление 400 мм
[6] => утепление 450 мм
[7] => утепление 500 мм
)
[days] => [8,9,9,9,11,12,13,14]
[material_price] => [1634,2042,2344,2947,3149,3652,3354,3557]
[work_price] => [1230,1339,1393,1426,1460,1513,1587,1620]
[image] => https://akademik-stroy.ru/wp-content/uploads/materials/derevyannye-balki.png
[area_modifier] => 76.9
[parent_name] => Перекрытие цоколя
[parent_id] => 2
[material_sum] => 211100
[work_sum] => 132422
[total_sum] => 343522
[total_days] => 8
[display_material_sum] => 211 100
[display_work_sum] => 132 422
[display_total_sum] => 343 522
)
1
343 522₽
Работа:132 422 ₽
Материалы:211 100 ₽
Дни:8
stdClass Object
(
[id] => 4
[attribute_id] => 2
[name] => Сборные ж/б плиты
[material_modifier] => 1
[work_modifier] => 1
[options] => Array
(
[0] => без утепления
[1] => утепление 150мм
[2] => утепление 200мм
[3] => утепление 250мм
[4] => утепление 300мм
[5] => утепление 350мм
[6] => утепление 400мм
[7] => утепление 450мм
[8] => утепление 500мм
)
[days] => [13,15,15,15,15,15,15,15,15]
[material_price] => [3067,5577,5928,6679,7730,8782,9833,10884,11935]
[work_price] => [1520,1956,2102,2247,2392,2537,2684,2829,2974]
[image] => https://akademik-stroy.ru/wp-content/uploads/materials/sbornye-zh-b-plity-2.jpg
[area_modifier] => 76.9
[parent_name] => Перекрытие цоколя
[parent_id] => 2
[material_sum] => 396232
[work_sum] => 163643
[total_sum] => 559875
[total_days] => 13
[display_material_sum] => 396 232
[display_work_sum] => 163 643
[display_total_sum] => 559 875
)
1
559 875₽
Работа:163 643 ₽
Материалы:396 232 ₽
Дни:13
stdClass Object
(
[id] => 78
[attribute_id] => 2
[name] => Монолитная ж/б плита
[material_modifier] => 1
[work_modifier] => 1
[options] => Array
(
[0] => без утепления
[1] => утепление 150 мм
[2] => утепление 200 мм
[3] => утепление 250 мм
[4] => утепление 300 мм
[5] => утепление 350 мм
[6] => утепление 400 мм
[7] => утепление 450 мм
[8] => утепление 500 мм
)
[days] => [18,20,20,20,20,20,20,20,20]
[material_price] => [4837,6572,7224,7375,79426,8177,8728,9180,10031]
[work_price] => [3348,3921,4112,4302,4493,4684,4875,5066,5256]
[image] => https://akademik-stroy.ru/wp-content/uploads/materials/monolitnaya-zh-b-plita-2.jpg
[area_modifier] => 76.9
[parent_name] => Перекрытие цоколя
[parent_id] => 2
[material_sum] => 624902
[work_sum] => 360446
[total_sum] => 985348
[total_days] => 18
[display_material_sum] => 624 902
[display_work_sum] => 360 446
[display_total_sum] => 985 348
)
1
985 348₽
Работа:360 446 ₽
Материалы:624 902 ₽
Дни:18
stdClass Object
(
[id] => 6
[attribute_id] => 3
[name] => Пеноблок
[material_modifier] => 1
[work_modifier] => 1
[options] => Array
(
[0] => 300 мм
[1] => 400 мм
[2] => 500 мм
[3] => 600 мм
)
[days] => [29,31,34,39]
[material_price] => [3000,4000,4500,4937]
[work_price] => [5033,5805,6400,8710]
[image] => https://akademik-stroy.ru/wp-content/uploads/materials/penoblok.jpg
[area_modifier] => 76.9
[parent_name] => Стены 1 этаж (несущие)
[parent_id] => 3
[material_sum] => 387576
[work_sum] => 541853
[total_sum] => 929429
[total_days] => 29
[display_material_sum] => 387 576
[display_work_sum] => 541 853
[display_total_sum] => 929 429
)
1
929 429₽
Работа:541 853 ₽
Материалы:387 576 ₽
Дни:29
stdClass Object
(
[id] => 79
[attribute_id] => 3
[name] => Керамический блок
[material_modifier] => 1
[work_modifier] => 1
[options] => Array
(
[0] => 380 мм
[1] => 380 мм Thermo
[2] => 440 мм
[3] => 510 мм
)
[days] => [23,23,24,25]
[material_price] => [4510,5098,6093,8013]
[work_price] => [4737,4937,5903,6958]
[image] => https://akademik-stroy.ru/wp-content/uploads/materials/keramicheskij-blok.jpg
[area_modifier] => 76.9
[parent_name] => Стены 1 этаж (несущие)
[parent_id] => 3
[material_sum] => 582656
[work_sum] => 509985
[total_sum] => 1092641
[total_days] => 23
[display_material_sum] => 582 656
[display_work_sum] => 509 985
[display_total_sum] => 1 092 641
)
1
1 092 641₽
Работа:509 985 ₽
Материалы:582 656 ₽
Дни:23
stdClass Object
(
[id] => 80
[attribute_id] => 3
[name] => Кирпич
[material_modifier] => 1
[work_modifier] => 1
[options] => Array
(
[0] => Кирпич 250 мм
[1] => Кирпич 380 мм
[2] => Кирпич 510 мм
[3] => Кирпич 640 мм
[4] => Кирпич 770 мм
)
[days] => [30,30,31,33,36]
[material_price] => [5500,7142,9206,10171,12235]
[work_price] => [8736,10041,12018,15240,18462]
[image] => https://akademik-stroy.ru/wp-content/uploads/materials/kirpich.jpg
[area_modifier] => 76.9
[parent_name] => Стены 1 этаж (несущие)
[parent_id] => 3
[material_sum] => 710556
[work_sum] => 940518
[total_sum] => 1651074
[total_days] => 30
[display_material_sum] => 710 556
[display_work_sum] => 940 518
[display_total_sum] => 1 651 074
)
1
1 651 074₽
Работа:940 518 ₽
Материалы:710 556 ₽
Дни:30
stdClass Object
(
[id] => 81
[attribute_id] => 3
[name] => Монолитные
[material_modifier] => 1
[work_modifier] => 1
[options] => Array
(
[0] => 150 мм
[1] => 200 мм
[2] => 250 мм
[3] => 300 мм
[4] => 350 мм
[5] => 400 мм
)
[days] => [45,46,47,49,50,53]
[material_price] => [6545,7876,10175,12011,13908,15204]
[work_price] => [5106,6444,7698,8552,9807,11461]
[image] => https://akademik-stroy.ru/wp-content/uploads/materials/monolitnye.jpg
[area_modifier] => 76.9
[parent_name] => Стены 1 этаж (несущие)
[parent_id] => 3
[material_sum] => 845562
[work_sum] => 549712
[total_sum] => 1395274
[total_days] => 45
[display_material_sum] => 845 562
[display_work_sum] => 549 712
[display_total_sum] => 1 395 274
)
1
1 395 274₽
Работа:549 712 ₽
Материалы:845 562 ₽
Дни:45
stdClass Object
(
[id] => 82
[attribute_id] => 3
[name] => Клееный брус
[material_modifier] => 1
[work_modifier] => 1
[options] => Array
(
[0] => 160 мм
[1] => 175 мм
[2] => 200 мм
[3] => 215 мм
[4] => 240 мм
[5] => 270 мм
[6] => 282 мм
)
[days] => [24,28,32,37,40,42,48]
[material_price] => [16975,18773,19950,20545,21599,22159,23275]
[work_price] => [4806,5287,5815,6397,7036,7740,8514]
[image] => https://akademik-stroy.ru/wp-content/uploads/materials/kleenyj-brus.jpg
[area_modifier] => 76.9
[parent_name] => Стены 1 этаж (несущие)
[parent_id] => 3
[material_sum] => 2193034
[work_sum] => 517414
[total_sum] => 2710448
[total_days] => 24
[display_material_sum] => 2 193 034
[display_work_sum] => 517 414
[display_total_sum] => 2 710 448
)
1
2 710 448₽
Работа:517 414 ₽
Материалы:2 193 034 ₽
Дни:24
stdClass Object
(
[id] => 83
[attribute_id] => 3
[name] => Каркасные
[material_modifier] => 1
[work_modifier] => 1
[options] => Array
(
[0] => 150 мм
[1] => 200 мм
[2] => 250 мм
[3] => 300 мм
)
[days] => [15,16,17,18]
[material_price] => [2379,2639,2898,3258]
[work_price] => [2418,2686,2985,3716]
[image] => https://akademik-stroy.ru/wp-content/uploads/materials/karkasnye.jpg
[area_modifier] => 76.9
[parent_name] => Стены 1 этаж (несущие)
[parent_id] => 3
[material_sum] => 307348
[work_sum] => 260322
[total_sum] => 567670
[total_days] => 15
[display_material_sum] => 307 348
[display_work_sum] => 260 322
[display_total_sum] => 567 670
)
1
567 670₽
Работа:260 322 ₽
Материалы:307 348 ₽
Дни:15
stdClass Object
(
[id] => 84
[attribute_id] => 3
[name] => СИП-панели
[material_modifier] => 1
[work_modifier] => 1
[options] => Array
(
[0] => 120 мм
[1] => 170 мм
[2] => 220 мм
)
[days] => [7,7,7]
[material_price] => [1210,1856,2292]
[work_price] => [1410,1551,1706]
[image] => https://akademik-stroy.ru/wp-content/uploads/materials/sip-paneli.jpg
[area_modifier] => 76.9
[parent_name] => Стены 1 этаж (несущие)
[parent_id] => 3
[material_sum] => 156322
[work_sum] => 151801
[total_sum] => 308123
[total_days] => 7
[display_material_sum] => 156 322
[display_work_sum] => 151 801
[display_total_sum] => 308 123
)
1
308 123₽
Работа:151 801 ₽
Материалы:156 322 ₽
Дни:7
stdClass Object
(
[id] => 85
[attribute_id] => 3
[name] => Сухой брус
[material_modifier] => 1
[work_modifier] => 1
[options] => Array
(
[0] => 150 мм
[1] => 180 мм
[2] => 200 мм
)
[days] => [7,8,9]
[material_price] => [6010,7190,8709]
[work_price] => [3204,3845,4229]
[image] => https://akademik-stroy.ru/wp-content/uploads/materials/suhoj-brus.jpg
[area_modifier] => 76.9
[parent_name] => Стены 1 этаж (несущие)
[parent_id] => 3
[material_sum] => 776444
[work_sum] => 344943
[total_sum] => 1121387
[total_days] => 7
[display_material_sum] => 776 444
[display_work_sum] => 344 943
[display_total_sum] => 1 121 387
)
1
1 121 387₽
Работа:344 943 ₽
Материалы:776 444 ₽
Дни:7
stdClass Object
(
[id] => 86
[attribute_id] => 3
[name] => Профилированный брус
[material_modifier] => 1
[work_modifier] => 1
[options] => Array
(
[0] => 150 мм
[1] => 180 мм
[2] => 200 мм
)
[days] => [7,8,9]
[material_price] => [8190,9228,10051]
[work_price] => [3845,4614,5075]
[image] => https://akademik-stroy.ru/wp-content/uploads/materials/profilirovannyj-brus.jpg
[area_modifier] => 76.9
[parent_name] => Стены 1 этаж (несущие)
[parent_id] => 3
[material_sum] => 1058082
[work_sum] => 413953
[total_sum] => 1472035
[total_days] => 7
[display_material_sum] => 1 058 082
[display_work_sum] => 413 953
[display_total_sum] => 1 472 035
)
1
1 472 035₽
Работа:413 953 ₽
Материалы:1 058 082 ₽
Дни:7
stdClass Object
(
[id] => 87
[attribute_id] => 3
[name] => Оцилиндрованное бревно
[material_modifier] => 1
[work_modifier] => 1
[options] => Array
(
[0] => 180 мм
[1] => 220 мм
[2] => 260 мм
[3] => 320 мм
)
[days] => [7,8,9,10]
[material_price] => [75190,9532,10868,13116]
[work_price] => [3845,4691,5535,6863]
[image] => https://akademik-stroy.ru/wp-content/uploads/materials/ocilindrovannoe-brevno-1.jpg
[area_modifier] => 76.9
[parent_name] => Стены 1 этаж (несущие)
[parent_id] => 3
[material_sum] => 9713946
[work_sum] => 413953
[total_sum] => 10127899
[total_days] => 7
[display_material_sum] => 9 713 946
[display_work_sum] => 413 953
[display_total_sum] => 10 127 899
)
1
10 127 899₽
Работа:413 953 ₽
Материалы:9 713 946 ₽
Дни:7
stdClass Object
(
[id] => 88
[attribute_id] => 3
[name] => Срубы
[material_modifier] => 1
[work_modifier] => 1
[options] => Array
(
[0] => 260 мм
[1] => 320 мм
[2] => 360 мм
[3] => 400 мм
[4] => 500 мм
)
[days] => [7,8,9,10,11]
[material_price] => [37975,46709,52314,58069,73167]
[work_price] => [4806,5911,6621,7349,9260]
[image] => https://akademik-stroy.ru/wp-content/uploads/materials/sruby.jpg
[area_modifier] => 76.9
[parent_name] => Стены 1 этаж (несущие)
[parent_id] => 3
[material_sum] => 4906066
[work_sum] => 517414
[total_sum] => 5423480
[total_days] => 7
[display_material_sum] => 4 906 066
[display_work_sum] => 517 414
[display_total_sum] => 5 423 480
)
1
5 423 480₽
Работа:517 414 ₽
Материалы:4 906 066 ₽
Дни:7
stdClass Object
(
[id] => 174
[attribute_id] => 3
[name] => Брус
[material_modifier] => 1
[work_modifier] => 1
[options] => Array
(
[0] => 150 мм
[1] => 180 мм
[2] => 200 мм
)
[days] => [7,8,9]
[material_price] => [5127,6152,7367]
[work_price] => [1602,1922,2115]
[image] => https://akademik-stroy.ru/wp-content/uploads/materials/brus.jpg
[area_modifier] => 76.9
[parent_name] => Стены 1 этаж (несущие)
[parent_id] => 3
[material_sum] => 662367
[work_sum] => 172471
[total_sum] => 834838
[total_days] => 7
[display_material_sum] => 662 367
[display_work_sum] => 172 471
[display_total_sum] => 834 838
)
1
834 838₽
Работа:172 471 ₽
Материалы:662 367 ₽
Дни:7
stdClass Object
(
[id] => 175
[attribute_id] => 3
[name] => Газобетон
[material_modifier] => 1
[work_modifier] => 1
[options] => Array
(
[0] => 300 мм
[1] => 375 мм
[2] => 400 мм
[3] => 500 мм
[4] => 600 мм
)
[days] => [29,31,35,37,44]
[material_price] => [4298,5573,6356,7288,9119]
[work_price] => [4538,5251,5926,6733,7195]
[image] => https://akademik-stroy.ru/wp-content/uploads/materials/gazobeton.jpg
[area_modifier] => 76.9
[parent_name] => Стены 1 этаж (несущие)
[parent_id] => 3
[material_sum] => 555267
[work_sum] => 488561
[total_sum] => 1043828
[total_days] => 29
[display_material_sum] => 555 267
[display_work_sum] => 488 561
[display_total_sum] => 1 043 828
)
1
1 043 828₽
Работа:488 561 ₽
Материалы:555 267 ₽
Дни:29
stdClass Object
(
[id] => 176
[attribute_id] => 3
[name] => Блок
[material_modifier] => 1
[work_modifier] => 1
[options] => Array
(
[0] => 300 мм
[1] => 375 мм
[2] => 400 мм
[3] => 500 мм
[4] => 600 мм
)
[days] => [29,31,35,37,44]
[material_price] => [2698,3973,4356,6588,7119]
[work_price] => [5038,5851,6426,8733,9195]
[image] => https://akademik-stroy.ru/wp-content/uploads/materials/blok.jpg
[area_modifier] => 76.9
[parent_name] => Стены 1 этаж (несущие)
[parent_id] => 3
[material_sum] => 348560
[work_sum] => 542391
[total_sum] => 890951
[total_days] => 29
[display_material_sum] => 348 560
[display_work_sum] => 542 391
[display_total_sum] => 890 951
)
1
890 951₽
Работа:542 391 ₽
Материалы:348 560 ₽
Дни:29
stdClass Object
(
[id] => 177
[attribute_id] => 3
[name] => Газосиликатный блок
[material_modifier] => 1
[work_modifier] => 1
[options] => Array
(
[0] => 300 мм
[1] => 375 мм
[2] => 400 мм
[3] => 500 мм
[4] => 600 мм
)
[days] => [29,31,35,37,44]
[material_price] => [4298,5573,6356,7288,9119]
[work_price] => [4538,5251,5926,6733,7195]
[image] => https://akademik-stroy.ru/wp-content/uploads/materials/gazosilikatnyj-blok.jpg
[area_modifier] => 76.9
[parent_name] => Стены 1 этаж (несущие)
[parent_id] => 3
[material_sum] => 555267
[work_sum] => 488561
[total_sum] => 1043828
[total_days] => 29
[display_material_sum] => 555 267
[display_work_sum] => 488 561
[display_total_sum] => 1 043 828
)
1
1 043 828₽
Работа:488 561 ₽
Материалы:555 267 ₽
Дни:29
stdClass Object
(
[id] => 178
[attribute_id] => 3
[name] => Керамзитобетонный блок
[material_modifier] => 1
[work_modifier] => 1
[options] => Array
(
[0] => 300 мм
[1] => 375 мм
[2] => 400 мм
[3] => 500 мм
[4] => 600 мм
)
[days] => [23,23,24,25,28]
[material_price] => [3641,4298,5693,7613,9612]
[work_price] => [5737,5737,6903,7958,8901]
[image] => https://akademik-stroy.ru/wp-content/uploads/materials/keramzitobetonnyj-blok.jpg
[area_modifier] => 76.9
[parent_name] => Стены 1 этаж (несущие)
[parent_id] => 3
[material_sum] => 470388
[work_sum] => 617645
[total_sum] => 1088033
[total_days] => 23
[display_material_sum] => 470 388
[display_work_sum] => 617 645
[display_total_sum] => 1 088 033
)
1
1 088 033₽
Работа:617 645 ₽
Материалы:470 388 ₽
Дни:23
stdClass Object
(
[id] => 179
[attribute_id] => 3
[name] => Деревянные
[material_modifier] => 1
[work_modifier] => 1
[options] => Array
(
[0] => 180 мм
[1] => 220 мм
[2] => 260 мм
[3] => 320 мм
)
[days] => [7,8,9,10]
[material_price] => [7950,9458,11961,14472]
[work_price] => [4037,4925,5812,7207]
[image] => https://akademik-stroy.ru/wp-content/uploads/materials/derevyannye.jpg
[area_modifier] => 76.9
[parent_name] => Стены 1 этаж (несущие)
[parent_id] => 3
[material_sum] => 1027076
[work_sum] => 434623
[total_sum] => 1461699
[total_days] => 7
[display_material_sum] => 1 027 076
[display_work_sum] => 434 623
[display_total_sum] => 1 461 699
)
1
1 461 699₽
Работа:434 623 ₽
Материалы:1 027 076 ₽
Дни:7
stdClass Object
(
[id] => 181
[attribute_id] => 3
[name] => Камень
[material_modifier] => 1
[work_modifier] => 1
[options] => Array
(
[0] => 300 мм
[1] => 400 мм
[2] => 500 мм
[3] => 600 мм
)
[days] => [25,27,31,34]
[material_price] => [5262,6844,8330,9815]
[work_price] => [8331,9135,10427,11069]
[image] => https://akademik-stroy.ru/wp-content/uploads/materials/kamen.jpg
[area_modifier] => 76.9
[parent_name] => Стены 1 этаж (несущие)
[parent_id] => 3
[material_sum] => 679808
[work_sum] => 896915
[total_sum] => 1576723
[total_days] => 25
[display_material_sum] => 679 808
[display_work_sum] => 896 915
[display_total_sum] => 1 576 723
)
1
1 576 723₽
Работа:896 915 ₽
Материалы:679 808 ₽
Дни:25
stdClass Object
(
[id] => 182
[attribute_id] => 3
[name] => Каркасно-щитовые
[material_modifier] => 1
[work_modifier] => 1
[options] => Array
(
[0] => 150 мм
[1] => 200 мм
[2] => 250 мм
[3] => 300 мм
[4] => 350 мм
[5] => 400 мм
)
[days] => [15,16,17,18,19,20]
[material_price] => [2379,2639,2898,3458,3601,4175]
[work_price] => [2538,2820,3134,3483,4062,5642]
[image] => https://akademik-stroy.ru/wp-content/uploads/materials/karkasno-shchitovye.jpg
[area_modifier] => 76.9
[parent_name] => Стены 1 этаж (несущие)
[parent_id] => 3
[material_sum] => 307348
[work_sum] => 273241
[total_sum] => 580589
[total_days] => 15
[display_material_sum] => 307 348
[display_work_sum] => 273 241
[display_total_sum] => 580 589
)
1
580 589₽
Работа:273 241 ₽
Материалы:307 348 ₽
Дни:15
stdClass Object
(
[id] => 183
[attribute_id] => 3
[name] => Рубленные
[material_modifier] => 1
[work_modifier] => 1
[options] => Array
(
[0] => 150 мм
[1] => 200 мм
[2] => 250 мм
[3] => 300 мм
[4] => 350 мм
[5] => 400 мм
)
[days] => [15,16,17,18,17,18]
[material_price] => [35950,50267,60583,75900,80217,100533]
[work_price] => [9612,12816,16020,19224,22428,25632]
[image] => https://akademik-stroy.ru/wp-content/uploads/materials/rublennye.jpg
[area_modifier] => 76.9
[parent_name] => Стены 1 этаж (несущие)
[parent_id] => 3
[material_sum] => 4644452
[work_sum] => 1034828
[total_sum] => 5679280
[total_days] => 15
[display_material_sum] => 4 644 452
[display_work_sum] => 1 034 828
[display_total_sum] => 5 679 280
)
1
5 679 280₽
Работа:1 034 828 ₽
Материалы:4 644 452 ₽
Дни:15
stdClass Object
(
[id] => 185
[attribute_id] => 3
[name] => Теплоблок
[material_modifier] => 1
[work_modifier] => 1
[options] => Array
(
[0] => 300 мм (с облицовкой, не покрашенный)
[1] => 400 мм (с облицовкой, не покрашенный)
[2] => 300 мм (с облицовкой, покрашенный)
[3] => 400 мм (с облицовкой, покрашенный)
)
[days] => [15,16,15,16]
[material_price] => [2888,3729,3957,4258]
[work_price] => [2564,3229,2949,3713]
[image] => https://akademik-stroy.ru/wp-content/uploads/materials/teploblok.jpg
[area_modifier] => 76.9
[parent_name] => Стены 1 этаж (несущие)
[parent_id] => 3
[material_sum] => 373106
[work_sum] => 276040
[total_sum] => 649146
[total_days] => 15
[display_material_sum] => 373 106
[display_work_sum] => 276 040
[display_total_sum] => 649 146
)
1
649 146₽
Работа:276 040 ₽
Материалы:373 106 ₽
Дни:15
stdClass Object
(
[id] => 186
[attribute_id] => 3
[name] => Арболитовые блоки
[material_modifier] => 1
[work_modifier] => 1
[options] => Array
(
[0] => 300 мм
[1] => 400 мм
[2] => 600 мм
)
[days] => [19,22,27]
[material_price] => [3210,4475,5852]
[work_price] => [4214,4788,5866]
[image] => https://akademik-stroy.ru/wp-content/uploads/materials/arbolitovye-bloki.png
[area_modifier] => 76.9
[parent_name] => Стены 1 этаж (несущие)
[parent_id] => 3
[material_sum] => 414706
[work_sum] => 453679
[total_sum] => 868385
[total_days] => 19
[display_material_sum] => 414 706
[display_work_sum] => 453 679
[display_total_sum] => 868 385
)
1
868 385₽
Работа:453 679 ₽
Материалы:414 706 ₽
Дни:19
stdClass Object
(
[id] => 187
[attribute_id] => 3
[name] => Полистиролбетон
[material_modifier] => 1
[work_modifier] => 1
[options] => Array
(
[0] => 300 мм
[1] => 400 мм
[2] => 600 мм
)
[days] => [29,31,35]
[material_price] => [2798,4573,5256]
[work_price] => [5038,5851,6426]
[image] => https://akademik-stroy.ru/wp-content/uploads/materials/polistirolbeton.jpg
[area_modifier] => 76.9
[parent_name] => Стены 1 этаж (несущие)
[parent_id] => 3
[material_sum] => 361479
[work_sum] => 542391
[total_sum] => 903870
[total_days] => 29
[display_material_sum] => 361 479
[display_work_sum] => 542 391
[display_total_sum] => 903 870
)
1
903 870₽
Работа:542 391 ₽
Материалы:361 479 ₽
Дни:29
stdClass Object
(
[id] => 188
[attribute_id] => 3
[name] => Шлакоблок
[material_modifier] => 1
[work_modifier] => 1
[options] => Array
(
[0] => 400 мм
[1] => 600 мм
)
[days] => [15,16]
[material_price] => [2391,3471]
[work_price] => [2642,3662]
[image] => https://akademik-stroy.ru/wp-content/uploads/materials/shlakoblok.jpg
[area_modifier] => 76.9
[parent_name] => Стены 1 этаж (несущие)
[parent_id] => 3
[material_sum] => 308898
[work_sum] => 284438
[total_sum] => 593336
[total_days] => 15
[display_material_sum] => 308 898
[display_work_sum] => 284 438
[display_total_sum] => 593 336
)
1
593 336₽
Работа:284 438 ₽
Материалы:308 898 ₽
Дни:15
stdClass Object
(
[id] => 189
[attribute_id] => 3
[name] => Теплая керамика
[material_modifier] => 1
[work_modifier] => 1
[options] => Array
(
[0] => 380 мм
[1] => 380 мм Thermo
[2] => 440 мм
[3] => 510 мм
)
[days] => [23,23,24,25]
[material_price] => [4510,5098,6093,8013]
[work_price] => [4737,4937,5903,6958]
[image] => https://akademik-stroy.ru/wp-content/uploads/materials/teplaya-keramika.jpg
[area_modifier] => 76.9
[parent_name] => Стены 1 этаж (несущие)
[parent_id] => 3
[material_sum] => 582656
[work_sum] => 509985
[total_sum] => 1092641
[total_days] => 23
[display_material_sum] => 582 656
[display_work_sum] => 509 985
[display_total_sum] => 1 092 641
)
1
1 092 641₽
Работа:509 985 ₽
Материалы:582 656 ₽
Дни:23
stdClass Object
(
[id] => 190
[attribute_id] => 3
[name] => Несъемная опалубка
[material_modifier] => 1
[work_modifier] => 1
[options] => Array
(
[0] => 200 мм
[1] => 250 мм
[2] => 300 мм
[3] => 350 мм
)
[days] => [15,17,19,21]
[material_price] => [3302,3902,4108,5008]
[work_price] => [2100,2100,2300,2534]
[image] => https://akademik-stroy.ru/wp-content/uploads/materials/nesemnaya-opalubka.jpg
[area_modifier] => 76.9
[parent_name] => Стены 1 этаж (несущие)
[parent_id] => 3
[material_sum] => 426592
[work_sum] => 226086
[total_sum] => 652678
[total_days] => 15
[display_material_sum] => 426 592
[display_work_sum] => 226 086
[display_total_sum] => 652 678
)
1
652 678₽
Работа:226 086 ₽
Материалы:426 592 ₽
Дни:15
stdClass Object
(
[id] => 251
[attribute_id] => 3
[name] => Бревно
[material_modifier] => 1
[work_modifier] => 1
[options] => Array
(
[0] => 260 мм
[1] => 320 мм
[2] => 360 мм
[3] => 400 мм
[4] => 500 мм
)
[days] => [7,8,9,10,11]
[material_price] => [1874,24045,26930,30972,38825]
[work_price] => [5046,6207,6952,7716,9723]
[image] => https://akademik-stroy.ru/wp-content/uploads/materials/sruby.jpg
[area_modifier] => 76.9
[parent_name] => Стены 1 этаж (несущие)
[parent_id] => 3
[material_sum] => 242106
[work_sum] => 543252
[total_sum] => 785358
[total_days] => 7
[display_material_sum] => 242 106
[display_work_sum] => 543 252
[display_total_sum] => 785 358
)
1
785 358₽
Работа:543 252 ₽
Материалы:242 106 ₽
Дни:7
stdClass Object
(
[id] => 7
[attribute_id] => 4
[name] => Деревянные балки
[material_modifier] => 1
[work_modifier] => 1
[options] => Array
(
[0] => без утепления
[1] => утепление 200 мм
[2] => утепление 250 мм
[3] => утепление 300 мм
[4] => утепление 350 мм
[5] => утепление 400 мм
[6] => утепление 450 мм
[7] => утепление 500 мм
)
[days] => [8,9,9,9,11,12,13,14]
[material_price] => [1634,2042,2344,2947,3149,3652,3354,3557]
[work_price] => [1230,1339,1393,1426,1460,1513,1587,1620]
[image] => https://akademik-stroy.ru/wp-content/uploads/materials/derevyannye-balki.png
[area_modifier] => 76.9
[parent_name] => Перекрытие первого этажа
[parent_id] => 4
[material_sum] => 211100
[work_sum] => 132422
[total_sum] => 343522
[total_days] => 8
[display_material_sum] => 211 100
[display_work_sum] => 132 422
[display_total_sum] => 343 522
)
1
343 522₽
Работа:132 422 ₽
Материалы:211 100 ₽
Дни:8
stdClass Object
(
[id] => 8
[attribute_id] => 4
[name] => Сборные ж/б плиты
[material_modifier] => 1
[work_modifier] => 1
[options] => Array
(
[0] => без утепления
[1] => утепление 150 мм
[2] => утепление 200 мм
[3] => утепление 250 мм
[4] => утепление 300 мм
[5] => утепление 350 мм
[6] => утепление 400 мм
[7] => утепление 450 мм
[8] => утепление 500 мм
)
[days] => [13,15,15,15,15,15,15,15,15]
[material_price] => [3067,5577,5928,6679,7730,8782,9833,10884,11935]
[work_price] => [1520,1956,2102,2247,2392,2537,2684,2829,2974]
[image] => https://akademik-stroy.ru/wp-content/uploads/materials/sbornye-zh-b-plity-2.jpg
[area_modifier] => 76.9
[parent_name] => Перекрытие первого этажа
[parent_id] => 4
[material_sum] => 396232
[work_sum] => 163643
[total_sum] => 559875
[total_days] => 13
[display_material_sum] => 396 232
[display_work_sum] => 163 643
[display_total_sum] => 559 875
)
1
559 875₽
Работа:163 643 ₽
Материалы:396 232 ₽
Дни:13
stdClass Object
(
[id] => 89
[attribute_id] => 4
[name] => Монолитная ж/б плита
[material_modifier] => 1
[work_modifier] => 1
[options] => Array
(
[0] => без утепления
[1] => утепление 150 мм
[2] => утепление 200 мм
[3] => утепление 250 мм
[4] => утепление 300 мм
[5] => утепление 350 мм
[6] => утепление 400 мм
[7] => утепление 450 мм
[8] => утепление 500 мм
)
[days] => [18,20,20,20,20,20,20,20,20]
[material_price] => [4837,6572,7224,7375,79426,8177,8728,9180,10031]
[work_price] => [3348,3921,4112,4302,4493,4684,4875,5066,5256]
[image] => https://akademik-stroy.ru/wp-content/uploads/materials/monolitnaya-zh-b-plita-2.jpg
[area_modifier] => 76.9
[parent_name] => Перекрытие первого этажа
[parent_id] => 4
[material_sum] => 624902
[work_sum] => 360446
[total_sum] => 985348
[total_days] => 18
[display_material_sum] => 624 902
[display_work_sum] => 360 446
[display_total_sum] => 985 348
)
1
985 348₽
Работа:360 446 ₽
Материалы:624 902 ₽
Дни:18
stdClass Object
(
[id] => 164
[attribute_id] => 37
[name] => Металлочерепица
[material_modifier] => 1
[work_modifier] => 1
[options] => Array
(
)
[days] => [20]
[material_price] => [6112]
[work_price] => [5726]
[image] => https://akademik-stroy.ru/wp-content/uploads/materials/metallocherepica.jpg
[area_modifier] => 76.9
[parent_name] => Крыша (Скатная)
[parent_id] => 37
[material_sum] => 789622
[work_sum] => 616461
[total_sum] => 1406083
[total_days] => 20
[display_material_sum] => 789 622
[display_work_sum] => 616 461
[display_total_sum] => 1 406 083
)
1
1 406 083₽
Работа:616 461 ₽
Материалы:789 622 ₽
Дни:20
stdClass Object
(
[id] => 165
[attribute_id] => 37
[name] => Гибкая черепица
[material_modifier] => 1
[work_modifier] => 1
[options] => Array
(
)
[days] => [20]
[material_price] => [6980]
[work_price] => [5950]
[image] => https://akademik-stroy.ru/wp-content/uploads/materials/gibkaya-cherepica.jpg
[area_modifier] => 76.9
[parent_name] => Крыша (Скатная)
[parent_id] => 37
[material_sum] => 901760
[work_sum] => 640577
[total_sum] => 1542337
[total_days] => 20
[display_material_sum] => 901 760
[display_work_sum] => 640 577
[display_total_sum] => 1 542 337
)
1
1 542 337₽
Работа:640 577 ₽
Материалы:901 760 ₽
Дни:20
stdClass Object
(
[id] => 166
[attribute_id] => 37
[name] => Цементно-песчаная черепица
[material_modifier] => 1
[work_modifier] => 1
[options] => Array
(
)
[days] => [20]
[material_price] => [10560]
[work_price] => [9456]
[image] => https://akademik-stroy.ru/wp-content/uploads/materials/cementno-peschanaya-cherepica.jpg
[area_modifier] => 76.9
[parent_name] => Крыша (Скатная)
[parent_id] => 37
[material_sum] => 1364268
[work_sum] => 1018033
[total_sum] => 2382301
[total_days] => 20
[display_material_sum] => 1 364 268
[display_work_sum] => 1 018 033
[display_total_sum] => 2 382 301
)
1
2 382 301₽
Работа:1 018 033 ₽
Материалы:1 364 268 ₽
Дни:20
stdClass Object
(
[id] => 167
[attribute_id] => 37
[name] => Композитная черепица
[material_modifier] => 1
[work_modifier] => 1
[options] => Array
(
)
[days] => [20]
[material_price] => [9506]
[work_price] => [8905]
[image] => https://akademik-stroy.ru/wp-content/uploads/materials/kompozitnaya-cherepica.jpg
[area_modifier] => 76.9
[parent_name] => Крыша (Скатная)
[parent_id] => 37
[material_sum] => 1228099
[work_sum] => 958712
[total_sum] => 2186811
[total_days] => 20
[display_material_sum] => 1 228 099
[display_work_sum] => 958 712
[display_total_sum] => 2 186 811
)
1
2 186 811₽
Работа:958 712 ₽
Материалы:1 228 099 ₽
Дни:20
stdClass Object
(
[id] => 168
[attribute_id] => 37
[name] => Керамическая черепица
[material_modifier] => 1
[work_modifier] => 1
[options] => Array
(
)
[days] => [20]
[material_price] => [12750]
[work_price] => [9456]
[image] => https://akademik-stroy.ru/wp-content/uploads/materials/keramicheskaya-cherepica.jpg
[area_modifier] => 76.9
[parent_name] => Крыша (Скатная)
[parent_id] => 37
[material_sum] => 1647198
[work_sum] => 1018033
[total_sum] => 2665231
[total_days] => 20
[display_material_sum] => 1 647 198
[display_work_sum] => 1 018 033
[display_total_sum] => 2 665 231
)
1
2 665 231₽
Работа:1 018 033 ₽
Материалы:1 647 198 ₽
Дни:20
stdClass Object
(
[id] => 169
[attribute_id] => 37
[name] => Металлическая фальцевая
[material_modifier] => 1
[work_modifier] => 1
[options] => Array
(
)
[days] => [20]
[material_price] => [8550]
[work_price] => [8190]
[image] => https://akademik-stroy.ru/wp-content/uploads/materials/metallicheskaya-falcevaya.jpg
[area_modifier] => 76.9
[parent_name] => Крыша (Скатная)
[parent_id] => 37
[material_sum] => 1104592
[work_sum] => 881735
[total_sum] => 1986327
[total_days] => 20
[display_material_sum] => 1 104 592
[display_work_sum] => 881 735
[display_total_sum] => 1 986 327
)
1
1 986 327₽
Работа:881 735 ₽
Материалы:1 104 592 ₽
Дни:20
stdClass Object
(
[id] => 170
[attribute_id] => 37
[name] => Медная фальцевая
[material_modifier] => 1
[work_modifier] => 1
[options] => Array
(
)
[days] => [20]
[material_price] => [20450]
[work_price] => [16750]
[image] => https://akademik-stroy.ru/wp-content/uploads/materials/mednaya-falcevaya.jpg
[area_modifier] => 76.9
[parent_name] => Крыша (Скатная)
[parent_id] => 37
[material_sum] => 2641976
[work_sum] => 1803305
[total_sum] => 4445281
[total_days] => 20
[display_material_sum] => 2 641 976
[display_work_sum] => 1 803 305
[display_total_sum] => 4 445 281
)
1
4 445 281₽
Работа:1 803 305 ₽
Материалы:2 641 976 ₽
Дни:20
stdClass Object
(
[id] => 171
[attribute_id] => 37
[name] => Зеленая кровля
[material_modifier] => 1
[work_modifier] => 1
[options] => Array
(
)
[days] => [20]
[material_price] => [19850]
[work_price] => [16780]
[image] => https://akademik-stroy.ru/wp-content/uploads/materials/zelenaya-krovlya.jpg
[area_modifier] => 76.9
[parent_name] => Крыша (Скатная)
[parent_id] => 37
[material_sum] => 2564461
[work_sum] => 1806535
[total_sum] => 4370996
[total_days] => 20
[display_material_sum] => 2 564 461
[display_work_sum] => 1 806 535
[display_total_sum] => 4 370 996
)
1
4 370 996₽
Работа:1 806 535 ₽
Материалы:2 564 461 ₽
Дни:20
stdClass Object
(
[id] => 172
[attribute_id] => 37
[name] => Профлист
[material_modifier] => 1
[work_modifier] => 1
[options] => Array
(
)
[days] => [20]
[material_price] => [3450]
[work_price] => [3750]
[image] => https://akademik-stroy.ru/wp-content/uploads/materials/proflist.jpg
[area_modifier] => 76.9
[parent_name] => Крыша (Скатная)
[parent_id] => 37
[material_sum] => 445712
[work_sum] => 403725
[total_sum] => 849437
[total_days] => 20
[display_material_sum] => 445 712
[display_work_sum] => 403 725
[display_total_sum] => 849 437
)
1
849 437₽
Работа:403 725 ₽
Материалы:445 712 ₽
Дни:20
stdClass Object
(
[id] => 51
[attribute_id] => 26
[name] => Есть
[material_modifier] => 1
[work_modifier] => 1
[options] => Array
(
[0] => Профиль 58 мм, 3-камерный, стеклопакет 2-камерный до 32 мм
[1] => Профиль 60 мм, 4-камерный, стеклопакет 2-камерный до 32 мм
[2] => Профиль 70 мм, 5-камерный, стеклопакет 2-камерный до 40 мм
[3] => Профиль 72 мм, 5-камерный, стеклопакет 2-камерный до 40 мм
[4] => Алюминиевые окна Alutech профиль 72 мм, стеклопакет 2-камерный
)
[days] => [3,3,3,3,3]
[material_price] => [1339,2124,2867,3023,29596]
[work_price] => [635,647,659,668,2579]
[image] => https://akademik-stroy.ru/wp-content/uploads/materials/okna.jpg
[area_modifier] => 62.4
[parent_name] => Окна
[parent_id] => 26
[material_sum] => 140370
[work_sum] => 55474
[total_sum] => 195844
[total_days] => 3
[display_material_sum] => 140 370
[display_work_sum] => 55 474
[display_total_sum] => 195 844
)
1
195 844₽
Работа:55 474 ₽
Материалы:140 370 ₽
Дни:3
stdClass Object
(
[id] => 52
[attribute_id] => 26
[name] => Нет
[material_modifier] => 2
[work_modifier] => 1
[options] =>
[days] => null
[material_price] => null
[work_price] => null
[image] => https://akademik-stroy.ru/wp-content/uploads/materials/okna.jpg
[area_modifier] => 62.4
[parent_name] => Окна
[parent_id] => 26
[material_sum] => 0
[work_sum] => 0
[total_sum] => 0
[total_days] => 0
[display_material_sum] => 0
[display_work_sum] => 0
[display_total_sum] => 0
)
1
0₽
Работа:0 ₽
Материалы:0 ₽
Дни:0
stdClass Object
(
[id] => 53
[attribute_id] => 27
[name] => Есть
[material_modifier] => 1
[work_modifier] => 1
[options] => Array
(
)
[days] => [1]
[material_price] => [10000]
[work_price] => [5500]
[image] => https://akademik-stroy.ru/wp-content/uploads/materials/dveri.jpg
[area_modifier] => 1
[parent_name] => Двери входные
[parent_id] => 27
[material_sum] => 16800
[work_sum] => 7700
[total_sum] => 24500
[total_days] => 1
[display_material_sum] => 16 800
[display_work_sum] => 7 700
[display_total_sum] => 24 500
)
1
24 500₽
Работа:7 700 ₽
Материалы:16 800 ₽
Дни:1
stdClass Object
(
[id] => 54
[attribute_id] => 27
[name] => Нет
[material_modifier] => 1
[work_modifier] => 1
[options] => Array
(
)
[days] => [0]
[material_price] => [0]
[work_price] => [0]
[image] => https://akademik-stroy.ru/wp-content/uploads/materials/dveri.jpg
[area_modifier] => 1
[parent_name] => Двери входные
[parent_id] => 27
[material_sum] => 0
[work_sum] => 0
[total_sum] => 0
[total_days] => 0
[display_material_sum] => 0
[display_work_sum] => 0
[display_total_sum] => 0
)
1
0₽
Работа:0 ₽
Материалы:0 ₽
Дни:0
stdClass Object
(
[id] => 25
[attribute_id] => 13
[name] => Нет
[material_modifier] => 1
[work_modifier] => 1
[options] => Array
(
)
[days] => [0]
[material_price] => [0]
[work_price] => [0]
[image] => https://akademik-stroy.ru/wp-content/uploads/materials/mineralovata-krov.jpg
[area_modifier] => 76.9
[parent_name] => Утепление кровли (Мансарда)
[parent_id] => 13
[material_sum] => 0
[work_sum] => 0
[total_sum] => 0
[total_days] => 0
[display_material_sum] => 0
[display_work_sum] => 0
[display_total_sum] => 0
)
1
0₽
Работа:0 ₽
Материалы:0 ₽
Дни:0
stdClass Object
(
[id] => 26
[attribute_id] => 13
[name] => Минераловатный
[material_modifier] => 1
[work_modifier] => 1
[options] => Array
(
[0] => 50 мм
[1] => 100 мм
[2] => 150 мм
[3] => 200 мм
[4] => 250 мм
[5] => 300 мм
[6] => 350 мм
[7] => 400 мм
[8] => 450 мм
[9] => 500 мм
)
[days] => [5,5,6,6,6,7,7,7,8,8]
[material_price] => [1158,1414,1772,2230,3602,4060,4974,5890,6408,7718]
[work_price] => [650,846,846,1098,1318,1450,1596,1754,1930,2122]
[image] => https://akademik-stroy.ru/wp-content/uploads/materials/mineralovata-krov.jpg
[area_modifier] => 76.9
[parent_name] => Утепление кровли (Мансарда)
[parent_id] => 13
[material_sum] => 149604
[work_sum] => 69979
[total_sum] => 219583
[total_days] => 5
[display_material_sum] => 149 604
[display_work_sum] => 69 979
[display_total_sum] => 219 583
)
1
219 583₽
Работа:69 979 ₽
Материалы:149 604 ₽
Дни:5
stdClass Object
(
[id] => 123
[attribute_id] => 13
[name] => Эковата (целлюлозная вата)
[material_modifier] => 1
[work_modifier] => 1
[options] => Array
(
[0] => 50 мм
[1] => 100 мм
[2] => 150 мм
[3] => 200 мм
[4] => 250 мм
[5] => 300 мм
[6] => 350 мм
[7] => 400 мм
[8] => 450 мм
[9] => 500 мм
)
[days] => [3,3,4,4,4,5,5,5,5,5]
[material_price] => [820,1638,2458,3276,5734,6552,8190,9828,11466,13104]
[work_price] => [234,304,304,396,474,522,574,632,694,764]
[image] => https://akademik-stroy.ru/wp-content/uploads/materials/ehkovata-krov.jpg
[area_modifier] => 76.9
[parent_name] => Утепление кровли (Мансарда)
[parent_id] => 13
[material_sum] => 105937
[work_sum] => 25192
[total_sum] => 131129
[total_days] => 3
[display_material_sum] => 105 937
[display_work_sum] => 25 192
[display_total_sum] => 131 129
)
1
131 129₽
Работа:25 192 ₽
Материалы:105 937 ₽
Дни:3
stdClass Object
(
[id] => 124
[attribute_id] => 13
[name] => Экструдированный пенополистирол
[material_modifier] => 1
[work_modifier] => 1
[options] => Array
(
[0] => 50 мм
[1] => 100 мм
[2] => 150 мм
[3] => 200 мм
[4] => 250 мм
[5] => 300 мм
[6] => 350 мм
[7] => 400 мм
[8] => 450 мм
[9] => 500 мм
)
[days] => [3,3,4,4,4,5,5,5,5,6]
[material_price] => [1146,2292,3438,4584,8020,9166,11458,13750,16040,18332]
[work_price] => [390,508,508,660,790,870,958,1052,1158,1274]
[image] => https://akademik-stroy.ru/wp-content/uploads/materials/epps-krov.jpg
[area_modifier] => 76.9
[parent_name] => Утепление кровли (Мансарда)
[parent_id] => 13
[material_sum] => 148054
[work_sum] => 41987
[total_sum] => 190041
[total_days] => 3
[display_material_sum] => 148 054
[display_work_sum] => 41 987
[display_total_sum] => 190 041
)
1
190 041₽
Работа:41 987 ₽
Материалы:148 054 ₽
Дни:3
stdClass Object
(
[id] => 125
[attribute_id] => 13
[name] => ПСБ (ППС-пенополистирол)
[material_modifier] => 1
[work_modifier] => 1
[options] => Array
(
[0] => 50 мм
[1] => 100 мм
[2] => 150 мм
[3] => 200 мм
[4] => 250 мм
[5] => 300 мм
[6] => 350 мм
[7] => 400 мм
[8] => 450 мм
[9] => 500 мм
)
[days] => [3,3,4,4,4,5,5,5,5,6]
[material_price] => [476,954,1430,1906,3336,3814,4766,5720,6674,7626]
[work_price] => [390,508,508,660,790,870,958,1052,1158,1274]
[image] => https://akademik-stroy.ru/wp-content/uploads/materials/psb-krov.jpg
[area_modifier] => 76.9
[parent_name] => Утепление кровли (Мансарда)
[parent_id] => 13
[material_sum] => 61495
[work_sum] => 41987
[total_sum] => 103482
[total_days] => 3
[display_material_sum] => 61 495
[display_work_sum] => 41 987
[display_total_sum] => 103 482
)
1
103 482₽
Работа:41 987 ₽
Материалы:61 495 ₽
Дни:3
stdClass Object
(
[id] => 126
[attribute_id] => 13
[name] => ППУ (Пенополиуретан)
[material_modifier] => 1
[work_modifier] => 1
[options] => Array
(
[0] => 50 мм
[1] => 100 мм
[2] => 150 мм
[3] => 200 мм
[4] => 250 мм
[5] => 300 мм
[6] => 350 мм
[7] => 400 мм
[8] => 450 мм
[9] => 500 мм
)
[days] => [2,2,3,3,3,3,4,4,4,4]
[material_price] => [2080,4160,6240,8320,14560,16640,20800,24960,29120,33280]
[work_price] => [234,304,304,396,474,522,574,632,694,764]
[image] => https://akademik-stroy.ru/wp-content/uploads/materials/ppu-krov.jpg
[area_modifier] => 76.9
[parent_name] => Утепление кровли (Мансарда)
[parent_id] => 13
[material_sum] => 268719
[work_sum] => 25192
[total_sum] => 293911
[total_days] => 2
[display_material_sum] => 268 719
[display_work_sum] => 25 192
[display_total_sum] => 293 911
)
1
293 911₽
Работа:25 192 ₽
Материалы:268 719 ₽
Дни:2
stdClass Object
(
[id] => 127
[attribute_id] => 13
[name] => PIR-плиты (пенополиизоцианурат)
[material_modifier] => 1
[work_modifier] => 1
[options] => Array
(
[0] => 50 мм
[1] => 100 мм
[2] => 150 мм
[3] => 200 мм
[4] => 250 мм
[5] => 300 мм
[6] => 350 мм
[7] => 400 мм
[8] => 450 мм
[9] => 500 мм
)
[days] => [3,3,4,4,4,5,5,5,5,6]
[material_price] => [2646,5290,7936,10580,18516,21162,26452,31742,37032,42324]
[work_price] => [390,508,508,660,790,870,958,1052,1158,1274]
[image] => https://akademik-stroy.ru/wp-content/uploads/materials/pir-krov.jpg
[area_modifier] => 76.9
[parent_name] => Утепление кровли (Мансарда)
[parent_id] => 13
[material_sum] => 341842
[work_sum] => 41987
[total_sum] => 383829
[total_days] => 3
[display_material_sum] => 341 842
[display_work_sum] => 41 987
[display_total_sum] => 383 829
)
1
383 829₽
Работа:41 987 ₽
Материалы:341 842 ₽
Дни:3
stdClass Object
(
[id] => 27
[attribute_id] => 14
[name] => Нет
[material_modifier] => 1
[work_modifier] => 1
[options] => Array
(
)
[days] => [0]
[material_price] => [0]
[work_price] => [0]
[image] => https://akademik-stroy.ru/wp-content/uploads/materials/mansardnye-okna-2.jpg
[area_modifier] => 1
[parent_name] => Мансардные окна
[parent_id] => 14
[material_sum] => 0
[work_sum] => 0
[total_sum] => 0
[total_days] => 0
[display_material_sum] => 0
[display_work_sum] => 0
[display_total_sum] => 0
)
1
0₽
Работа:0 ₽
Материалы:0 ₽
Дни:0
stdClass Object
(
[id] => 28
[attribute_id] => 14
[name] => Есть
[material_modifier] => 1
[work_modifier] => 1
[options] => Array
(
[0] => 55x78
[1] => 55x98
)
[days] => [6,7]
[material_price] => [47480,68700]
[work_price] => [17900,19500]
[image] => https://akademik-stroy.ru/wp-content/uploads/materials/mansardnye-okna-2.jpg
[area_modifier] => 1
[parent_name] => Мансардные окна
[parent_id] => 14
[material_sum] => 79766
[work_sum] => 25060
[total_sum] => 104826
[total_days] => 6
[display_material_sum] => 79 766
[display_work_sum] => 25 060
[display_total_sum] => 104 826
)
1
104 826₽
Работа:25 060 ₽
Материалы:79 766 ₽
Дни:6
stdClass Object
(
[id] => 29
[attribute_id] => 15
[name] => Нет
[material_modifier] => 1
[work_modifier] => 1
[options] => Array
(
)
[days] => [0]
[material_price] => [0]
[work_price] => [0]
[image] => https://akademik-stroy.ru/wp-content/uploads/materials/sofit.jpg
[area_modifier] => 76.9
[parent_name] => Подшивка кровли
[parent_id] => 15
[material_sum] => 0
[work_sum] => 0
[total_sum] => 0
[total_days] => 0
[display_material_sum] => 0
[display_work_sum] => 0
[display_total_sum] => 0
)
1
0₽
Работа:0 ₽
Материалы:0 ₽
Дни:0
stdClass Object
(
[id] => 30
[attribute_id] => 15
[name] => Есть
[material_modifier] => 1
[work_modifier] => 1
[options] => Array
(
[0] => Софиты (ПВХ)
[1] => Cedral
[2] => ДПК
[3] => Планкен
)
[days] => [7,10,9,8]
[material_price] => [1803,3213,3025,3150]
[work_price] => [1529,2188,2075,1923]
[image] => https://akademik-stroy.ru/wp-content/uploads/materials/sofit.jpg
[area_modifier] => 76.9
[parent_name] => Подшивка кровли
[parent_id] => 15
[material_sum] => 232933
[work_sum] => 164612
[total_sum] => 397545
[total_days] => 7
[display_material_sum] => 232 933
[display_work_sum] => 164 612
[display_total_sum] => 397 545
)
1
397 545₽
Работа:164 612 ₽
Материалы:232 933 ₽
Дни:7
stdClass Object
(
[id] => 31
[attribute_id] => 16
[name] => Нет
[material_modifier] => 1
[work_modifier] => 1
[options] => Array
(
)
[days] => [0]
[material_price] => [0]
[work_price] => [0]
[image] => https://akademik-stroy.ru/wp-content/uploads/materials/docke-standard-pvh.jpg
[area_modifier] => 76.9
[parent_name] => Водосточная система
[parent_id] => 16
[material_sum] => 0
[work_sum] => 0
[total_sum] => 0
[total_days] => 0
[display_material_sum] => 0
[display_work_sum] => 0
[display_total_sum] => 0
)
1
0₽
Работа:0 ₽
Материалы:0 ₽
Дни:0
stdClass Object
(
[id] => 32
[attribute_id] => 16
[name] => Есть
[material_modifier] => 1
[work_modifier] => 1
[options] => Array
(
[0] => Döcke Standard (ПВХ)
[1] => Металлические Grand Line
)
[days] => [7,7]
[material_price] => [1842,2703]
[work_price] => [1491,1529]
[image] => https://akademik-stroy.ru/wp-content/uploads/materials/docke-standard-pvh.jpg
[area_modifier] => 76.9
[parent_name] => Водосточная система
[parent_id] => 16
[material_sum] => 237972
[work_sum] => 160521
[total_sum] => 398493
[total_days] => 7
[display_material_sum] => 237 972
[display_work_sum] => 160 521
[display_total_sum] => 398 493
)
1
398 493₽
Работа:160 521 ₽
Материалы:237 972 ₽
Дни:7
stdClass Object
(
[id] => 33
[attribute_id] => 17
[name] => Нет
[material_modifier] => 1
[work_modifier] => 1
[options] => Array
(
)
[days] => [0]
[material_price] => [0]
[work_price] => [0]
[image] => https://akademik-stroy.ru/wp-content/uploads/materials/mineralovata.jpg
[area_modifier] => 76.9
[parent_name] => Дополнительное утепление наружных стен
[parent_id] => 17
[material_sum] => 0
[work_sum] => 0
[total_sum] => 0
[total_days] => 0
[display_material_sum] => 0
[display_work_sum] => 0
[display_total_sum] => 0
)
1
0₽
Работа:0 ₽
Материалы:0 ₽
Дни:0
stdClass Object
(
[id] => 34
[attribute_id] => 17
[name] => Минераловатный
[material_modifier] => 1
[work_modifier] => 1
[options] => Array
(
[0] => 50 мм
[1] => 100 мм
[2] => 150 мм
[3] => 200 мм
[4] => 250 мм
[5] => 300 мм
)
[days] => [7,8,10,12,14,15]
[material_price] => [3437,3613,3803,3915,4601,4830]
[work_price] => [2325,2423,2523,2749,2859,3025]
[image] => https://akademik-stroy.ru/wp-content/uploads/materials/mineralovata.jpg
[area_modifier] => 76.9
[parent_name] => Дополнительное утепление наружных стен
[parent_id] => 17
[material_sum] => 444033
[work_sum] => 250310
[total_sum] => 694343
[total_days] => 7
[display_material_sum] => 444 033
[display_work_sum] => 250 310
[display_total_sum] => 694 343
)
1
694 343₽
Работа:250 310 ₽
Материалы:444 033 ₽
Дни:7
stdClass Object
(
[id] => 128
[attribute_id] => 17
[name] => Эковата (целлюлозная вата)
[material_modifier] => 1
[work_modifier] => 1
[options] => Array
(
[0] => 50 мм
[1] => 100 мм
[2] => 150 мм
[3] => 200 мм
[4] => 250 мм
[5] => 300 мм
)
[days] => [3,4,5,6,7,8]
[material_price] => [810,1319,1629,1838,2267,2676]
[work_price] => [1225,1323,1423,1549,1659,1725]
[image] => https://akademik-stroy.ru/wp-content/uploads/materials/ehkovata.jpg
[area_modifier] => 76.9
[parent_name] => Дополнительное утепление наружных стен
[parent_id] => 17
[material_sum] => 104646
[work_sum] => 131884
[total_sum] => 236530
[total_days] => 3
[display_material_sum] => 104 646
[display_work_sum] => 131 884
[display_total_sum] => 236 530
)
1
236 530₽
Работа:131 884 ₽
Материалы:104 646 ₽
Дни:3
stdClass Object
(
[id] => 129
[attribute_id] => 17
[name] => Экструдированный пенополистирол
[material_modifier] => 1
[work_modifier] => 1
[options] => Array
(
[0] => 50 мм
[1] => 100 мм
[2] => 150 мм
[3] => 200 мм
[4] => 250 мм
[5] => 300 мм
)
[days] => [5,6,7,8,9,10]
[material_price] => [4560,4300,5119,6292,7010,8583]
[work_price] => [1795,1954,2254,2330,2595,2735]
[image] => https://akademik-stroy.ru/wp-content/uploads/materials/epps.jpg
[area_modifier] => 76.9
[parent_name] => Дополнительное утепление наружных стен
[parent_id] => 17
[material_sum] => 589116
[work_sum] => 193250
[total_sum] => 782366
[total_days] => 5
[display_material_sum] => 589 116
[display_work_sum] => 193 250
[display_total_sum] => 782 366
)
1
782 366₽
Работа:193 250 ₽
Материалы:589 116 ₽
Дни:5
stdClass Object
(
[id] => 130
[attribute_id] => 17
[name] => ПСБ (ППС-пенополистирол)
[material_modifier] => 1
[work_modifier] => 1
[options] => Array
(
[0] => 50 мм
[1] => 100 мм
[2] => 150 мм
[3] => 200 мм
[4] => 250 мм
[5] => 300 мм
)
[days] => [5,6,7,8,9,10]
[material_price] => [4822,5200,5819,6292,7010,7583]
[work_price] => [1795,1954,2254,2330,2595,2735]
[image] => https://akademik-stroy.ru/wp-content/uploads/materials/psb.jpg
[area_modifier] => 76.9
[parent_name] => Дополнительное утепление наружных стен
[parent_id] => 17
[material_sum] => 622964
[work_sum] => 193250
[total_sum] => 816214
[total_days] => 5
[display_material_sum] => 622 964
[display_work_sum] => 193 250
[display_total_sum] => 816 214
)
1
816 214₽
Работа:193 250 ₽
Материалы:622 964 ₽
Дни:5
stdClass Object
(
[id] => 131
[attribute_id] => 17
[name] => ППУ (Пенополиуретан)
[material_modifier] => 1
[work_modifier] => 1
[options] => Array
(
[0] => 50 мм
[1] => 100 мм
[2] => 150 мм
[3] => 200 мм
[4] => 250 мм
[5] => 300 мм
)
[days] => [3,4,5,6,7,8]
[material_price] => [2860,3400,4219,4592,5010,5583]
[work_price] => [729,900,980,1120,1280,1530]
[image] => https://akademik-stroy.ru/wp-content/uploads/materials/ppu.jpg
[area_modifier] => 76.9
[parent_name] => Дополнительное утепление наружных стен
[parent_id] => 17
[material_sum] => 369489
[work_sum] => 78484
[total_sum] => 447973
[total_days] => 3
[display_material_sum] => 369 489
[display_work_sum] => 78 484
[display_total_sum] => 447 973
)
1
447 973₽
Работа:78 484 ₽
Материалы:369 489 ₽
Дни:3
stdClass Object
(
[id] => 132
[attribute_id] => 17
[name] => PIR-плиты (пенополиизоцианурат)
[material_modifier] => 1
[work_modifier] => 1
[options] => Array
(
[0] => 50 мм
[1] => 100 мм
[2] => 150 мм
[3] => 200 мм
[4] => 250 мм
[5] => 300 мм
)
[days] => [5,6,7,8,9,10]
[material_price] => [8323,15645,20968,25900,29258,30581]
[work_price] => [800,900,970,1150,1280,1330]
[image] => https://akademik-stroy.ru/wp-content/uploads/materials/pir.jpg
[area_modifier] => 76.9
[parent_name] => Дополнительное утепление наружных стен
[parent_id] => 17
[material_sum] => 1075265
[work_sum] => 86128
[total_sum] => 1161393
[total_days] => 5
[display_material_sum] => 1 075 265
[display_work_sum] => 86 128
[display_total_sum] => 1 161 393
)
1
1 161 393₽
Работа:86 128 ₽
Материалы:1 075 265 ₽
Дни:5
stdClass Object
(
[id] => 37
[attribute_id] => 19
[name] => Нет
[material_modifier] => 1
[work_modifier] => 1
[options] => Array
(
)
[days] => [0]
[material_price] => [0]
[work_price] => [0]
[image] => https://akademik-stroy.ru/wp-content/uploads/materials/imitaciya-brusa.jpg
[area_modifier] => 76.9
[parent_name] => Наружная отделка фасада
[parent_id] => 19
[material_sum] => 0
[work_sum] => 0
[total_sum] => 0
[total_days] => 0
[display_material_sum] => 0
[display_work_sum] => 0
[display_total_sum] => 0
)
1
0₽
Работа:0 ₽
Материалы:0 ₽
Дни:0
stdClass Object
(
[id] => 38
[attribute_id] => 19
[name] => Имитация бруса
[material_modifier] => 1
[work_modifier] => 1
[options] => Array
(
[0] => Сосна
[1] => Ель
[2] => Лиственница
)
[days] => [20,20,20]
[material_price] => [2994,2762,4954]
[work_price] => [1397,1231,1577]
[image] => https://akademik-stroy.ru/wp-content/uploads/materials/imitaciya-brusa.jpg
[area_modifier] => 76.9
[parent_name] => Наружная отделка фасада
[parent_id] => 19
[material_sum] => 386801
[work_sum] => 150401
[total_sum] => 537202
[total_days] => 20
[display_material_sum] => 386 801
[display_work_sum] => 150 401
[display_total_sum] => 537 202
)
1
537 202₽
Работа:150 401 ₽
Материалы:386 801 ₽
Дни:20
stdClass Object
(
[id] => 136
[attribute_id] => 19
[name] => Планкен
[material_modifier] => 1
[work_modifier] => 1
[options] => Array
(
[0] => Сосна
[1] => Ель
[2] => Лиственница
)
[days] => [20,20,20]
[material_price] => [3194,2862,5154]
[work_price] => [1537,1354,1735]
[image] => https://akademik-stroy.ru/wp-content/uploads/materials/planken.jpg
[area_modifier] => 76.9
[parent_name] => Наружная отделка фасада
[parent_id] => 19
[material_sum] => 412639
[work_sum] => 165473
[total_sum] => 578112
[total_days] => 20
[display_material_sum] => 412 639
[display_work_sum] => 165 473
[display_total_sum] => 578 112
)
1
578 112₽
Работа:165 473 ₽
Материалы:412 639 ₽
Дни:20
stdClass Object
(
[id] => 137
[attribute_id] => 19
[name] => Штукатурка
[material_modifier] => 1
[work_modifier] => 1
[options] => Array
(
[0] => Цементно-песчаная (минеральная)
[1] => Мокрый фасад
)
[days] => [35,35]
[material_price] => [2231,3938]
[work_price] => [1202,2422]
[image] => https://akademik-stroy.ru/wp-content/uploads/materials/shtukaturka.jpg
[area_modifier] => 76.9
[parent_name] => Наружная отделка фасада
[parent_id] => 19
[material_sum] => 288227
[work_sum] => 129407
[total_sum] => 417634
[total_days] => 35
[display_material_sum] => 288 227
[display_work_sum] => 129 407
[display_total_sum] => 417 634
)
1
417 634₽
Работа:129 407 ₽
Материалы:288 227 ₽
Дни:35
stdClass Object
(
[id] => 138
[attribute_id] => 19
[name] => Облицовочный кирпич
[material_modifier] => 1
[work_modifier] => 1
[options] => Array
(
[0] => Керамический
[1] => Клинкерный
[2] => Ручной формовки
[3] => Гиперпрессованный
[4] => Силикатный кирпич
)
[days] => [45,45,45,45,45]
[material_price] => [8174,9148,1040,1257,5876]
[work_price] => [3240,3758,4536,4017,3369]
[image] => https://akademik-stroy.ru/wp-content/uploads/materials/oblicovochnyj-kirpich.jpg
[area_modifier] => 76.9
[parent_name] => Наружная отделка фасада
[parent_id] => 19
[material_sum] => 1056015
[work_sum] => 348818
[total_sum] => 1404833
[total_days] => 45
[display_material_sum] => 1 056 015
[display_work_sum] => 348 818
[display_total_sum] => 1 404 833
)
1
1 404 833₽
Работа:348 818 ₽
Материалы:1 056 015 ₽
Дни:45
stdClass Object
(
[id] => 139
[attribute_id] => 19
[name] => Фасадная плитка
[material_modifier] => 1
[work_modifier] => 1
[options] => Array
(
[0] => Клинкерная
[1] => Керамическая
[2] => Плитка ручной формовки
)
[days] => [40,40,40]
[material_price] => [2974,1487,3470]
[work_price] => [3007,2592,3629]
[image] => https://akademik-stroy.ru/wp-content/uploads/materials/fasadnaya-plitka.jpg
[area_modifier] => 76.9
[parent_name] => Наружная отделка фасада
[parent_id] => 19
[material_sum] => 384217
[work_sum] => 323734
[total_sum] => 707951
[total_days] => 40
[display_material_sum] => 384 217
[display_work_sum] => 323 734
[display_total_sum] => 707 951
)
1
707 951₽
Работа:323 734 ₽
Материалы:384 217 ₽
Дни:40
stdClass Object
(
[id] => 140
[attribute_id] => 19
[name] => Сайдинг
[material_modifier] => 1
[work_modifier] => 1
[options] => Array
(
[0] => Виниловый
[1] => Металлический
[2] => Фиброцементный
)
[days] => [20,20,20]
[material_price] => [1263,1944,4147]
[work_price] => [1263,1944,2074]
[image] => https://akademik-stroy.ru/wp-content/uploads/materials/sajding.jpg
[area_modifier] => 76.9
[parent_name] => Наружная отделка фасада
[parent_id] => 19
[material_sum] => 163169
[work_sum] => 135975
[total_sum] => 299144
[total_days] => 20
[display_material_sum] => 163 169
[display_work_sum] => 135 975
[display_total_sum] => 299 144
)
1
299 144₽
Работа:135 975 ₽
Материалы:163 169 ₽
Дни:20
stdClass Object
(
[id] => 141
[attribute_id] => 19
[name] => Камень
[material_modifier] => 1
[work_modifier] => 1
[options] => Array
(
[0] => Травертин
[1] => Дагестанский
[2] => Искусственный
[3] => Натуральный
[4] => Керамогранит
)
[days] => [45,45,45,45,45]
[material_price] => [4536,3888,2592,3240,2462]
[work_price] => [3240,3240,2462,3110,1944]
[image] => https://akademik-stroy.ru/wp-content/uploads/materials/kamen-1.jpg
[area_modifier] => 76.9
[parent_name] => Наружная отделка фасада
[parent_id] => 19
[material_sum] => 586015
[work_sum] => 348818
[total_sum] => 934833
[total_days] => 45
[display_material_sum] => 586 015
[display_work_sum] => 348 818
[display_total_sum] => 934 833
)
1
934 833₽
Работа:348 818 ₽
Материалы:586 015 ₽
Дни:45
stdClass Object
(
[id] => 142
[attribute_id] => 19
[name] => Термопанели
[material_modifier] => 1
[work_modifier] => 1
[options] => Array
(
)
[days] => [20]
[material_price] => [6221]
[work_price] => [2333]
[image] => https://akademik-stroy.ru/wp-content/uploads/materials/termo.png
[area_modifier] => 76.9
[parent_name] => Наружная отделка фасада
[parent_id] => 19
[material_sum] => 803703
[work_sum] => 251171
[total_sum] => 1054874
[total_days] => 20
[display_material_sum] => 803 703
[display_work_sum] => 251 171
[display_total_sum] => 1 054 874
)
1
1 054 874₽
Работа:251 171 ₽
Материалы:803 703 ₽
Дни:20
stdClass Object
(
[id] => 143
[attribute_id] => 19
[name] => Плитка HAUBERK
[material_modifier] => 1
[work_modifier] => 1
[options] => Array
(
)
[days] => [20]
[material_price] => [2786]
[work_price] => [1944]
[image] => https://akademik-stroy.ru/wp-content/uploads/materials/hauberk.jpg
[area_modifier] => 76.9
[parent_name] => Наружная отделка фасада
[parent_id] => 19
[material_sum] => 359929
[work_sum] => 209291
[total_sum] => 569220
[total_days] => 20
[display_material_sum] => 359 929
[display_work_sum] => 209 291
[display_total_sum] => 569 220
)
1
569 220₽
Работа:209 291 ₽
Материалы:359 929 ₽
Дни:20
stdClass Object
(
[id] => 144
[attribute_id] => 19
[name] => Фальцевый фасад
[material_modifier] => 1
[work_modifier] => 1
[options] => Array
(
)
[days] => [20]
[material_price] => [3240]
[work_price] => [2592]
[image] => https://akademik-stroy.ru/wp-content/uploads/materials/falcevyj-fasad.jpg
[area_modifier] => 76.9
[parent_name] => Наружная отделка фасада
[parent_id] => 19
[material_sum] => 418582
[work_sum] => 279055
[total_sum] => 697637
[total_days] => 20
[display_material_sum] => 418 582
[display_work_sum] => 279 055
[display_total_sum] => 697 637
)
1
697 637₽
Работа:279 055 ₽
Материалы:418 582 ₽
Дни:20
stdClass Object
(
[id] => 145
[attribute_id] => 19
[name] => Комбинированный
[material_modifier] => 1
[work_modifier] => 1
[options] => Array
(
)
[days] => [20]
[material_price] => [4629]
[work_price] => [3499]
[image] => https://akademik-stroy.ru/wp-content/uploads/materials/Kombinirovannyj.jpg
[area_modifier] => 76.9
[parent_name] => Наружная отделка фасада
[parent_id] => 19
[material_sum] => 598030
[work_sum] => 376702
[total_sum] => 974732
[total_days] => 20
[display_material_sum] => 598 030
[display_work_sum] => 376 702
[display_total_sum] => 974 732
)
1
974 732₽
Работа:376 702 ₽
Материалы:598 030 ₽
Дни:20
stdClass Object
(
[id] => 257
[attribute_id] => 19
[name] => Японские фиброцементные
[material_modifier] => 1
[work_modifier] => 1
[options] => Array
(
)
[days] => [20]
[material_price] => [7043]
[work_price] => [2993]
[image] => https://akademik-stroy.ru/wp-content/uploads/materials/paneli.jpg
[area_modifier] => 76.9
[parent_name] => Наружная отделка фасада
[parent_id] => 19
[material_sum] => 909899
[work_sum] => 322226
[total_sum] => 1232125
[total_days] => 20
[display_material_sum] => 909 899
[display_work_sum] => 322 226
[display_total_sum] => 1 232 125
)
1
1 232 125₽
Работа:322 226 ₽
Материалы:909 899 ₽
Дни:20
stdClass Object
(
[id] => 258
[attribute_id] => 19
[name] => Панели Каньон
[material_modifier] => 1
[work_modifier] => 1
[options] => Array
(
)
[days] => [20]
[material_price] => [4543]
[work_price] => [2592]
[image] => https://akademik-stroy.ru/wp-content/uploads/materials/kanon.png
[area_modifier] => 76.9
[parent_name] => Наружная отделка фасада
[parent_id] => 19
[material_sum] => 586919
[work_sum] => 279055
[total_sum] => 865974
[total_days] => 20
[display_material_sum] => 586 919
[display_work_sum] => 279 055
[display_total_sum] => 865 974
)
1
865 974₽
Работа:279 055 ₽
Материалы:586 919 ₽
Дни:20
stdClass Object
(
[id] => 39
[attribute_id] => 20
[name] => Нет
[material_modifier] => 1
[work_modifier] => 1
[options] => Array
(
)
[days] => [0]
[material_price] => [0]
[work_price] => [0]
[image] => https://akademik-stroy.ru/wp-content/uploads/materials/terrasy.jpg
[area_modifier] => 30
[parent_name] => Террасы, крыльца, навесы
[parent_id] => 20
[material_sum] => 0
[work_sum] => 0
[total_sum] => 0
[total_days] => 0
[display_material_sum] => 0
[display_work_sum] => 0
[display_total_sum] => 0
)
1
0₽
Работа:0 ₽
Материалы:0 ₽
Дни:0
stdClass Object
(
[id] => 40
[attribute_id] => 20
[name] => Есть
[material_modifier] => 1
[work_modifier] => 1
[options] => Array
(
)
[days] => [5]
[material_price] => [10450]
[work_price] => [1950]
[image] => https://akademik-stroy.ru/wp-content/uploads/materials/terrasy.jpg
[area_modifier] => 30
[parent_name] => Террасы, крыльца, навесы
[parent_id] => 20
[material_sum] => 526680
[work_sum] => 81900
[total_sum] => 608580
[total_days] => 5
[display_material_sum] => 526 680
[display_work_sum] => 81 900
[display_total_sum] => 608 580
)
1
608 580₽
Работа:81 900 ₽
Материалы:526 680 ₽
Дни:5
stdClass Object
(
[id] => 41
[attribute_id] => 21
[name] => Нет
[material_modifier] => 1
[work_modifier] => 1
[options] => Array
(
)
[days] => [0]
[material_price] => [0]
[work_price] => [0]
[image] => https://akademik-stroy.ru/wp-content/uploads/materials/balkony.jpg
[area_modifier] => 30
[parent_name] => Балконы
[parent_id] => 21
[material_sum] => 0
[work_sum] => 0
[total_sum] => 0
[total_days] => 0
[display_material_sum] => 0
[display_work_sum] => 0
[display_total_sum] => 0
)
1
0₽
Работа:0 ₽
Материалы:0 ₽
Дни:0
stdClass Object
(
[id] => 42
[attribute_id] => 21
[name] => Есть
[material_modifier] => 1
[work_modifier] => 1
[options] => Array
(
)
[days] => [12]
[material_price] => [3600]
[work_price] => [1950]
[image] => https://akademik-stroy.ru/wp-content/uploads/materials/balkony.jpg
[area_modifier] => 30
[parent_name] => Балконы
[parent_id] => 21
[material_sum] => 181440
[work_sum] => 81900
[total_sum] => 263340
[total_days] => 12
[display_material_sum] => 181 440
[display_work_sum] => 81 900
[display_total_sum] => 263 340
)
1
263 340₽
Работа:81 900 ₽
Материалы:181 440 ₽
Дни:12
stdClass Object
(
[id] => 43
[attribute_id] => 22
[name] => Нет
[material_modifier] => 1
[work_modifier] => 1
[options] => Array
(
)
[days] => [0]
[material_price] => [0]
[work_price] => [0]
[image] => https://akademik-stroy.ru/wp-content/uploads/materials/uteplennaya.jpg
[area_modifier] => 76.9
[parent_name] => Отмостка
[parent_id] => 22
[material_sum] => 0
[work_sum] => 0
[total_sum] => 0
[total_days] => 0
[display_material_sum] => 0
[display_work_sum] => 0
[display_total_sum] => 0
)
1
0₽
Работа:0 ₽
Материалы:0 ₽
Дни:0
stdClass Object
(
[id] => 44
[attribute_id] => 22
[name] => Утепленная отмостка
[material_modifier] => 1
[work_modifier] => 1
[options] => Array
(
)
[days] => [15]
[material_price] => [2550]
[work_price] => [1750]
[image] => https://akademik-stroy.ru/wp-content/uploads/materials/uteplennaya.jpg
[area_modifier] => 76.9
[parent_name] => Отмостка
[parent_id] => 22
[material_sum] => 329440
[work_sum] => 188405
[total_sum] => 517845
[total_days] => 15
[display_material_sum] => 329 440
[display_work_sum] => 188 405
[display_total_sum] => 517 845
)
1
517 845₽
Работа:188 405 ₽
Материалы:329 440 ₽
Дни:15
stdClass Object
(
[id] => 146
[attribute_id] => 22
[name] => Не утепленная отмостка
[material_modifier] => 1
[work_modifier] => 1
[options] => Array
(
)
[days] => [10]
[material_price] => [1650]
[work_price] => [1450]
[image] => https://akademik-stroy.ru/wp-content/uploads/materials/ne-uteplennaya.jpg
[area_modifier] => 76.9
[parent_name] => Отмостка
[parent_id] => 22
[material_sum] => 213167
[work_sum] => 156107
[total_sum] => 369274
[total_days] => 10
[display_material_sum] => 213 167
[display_work_sum] => 156 107
[display_total_sum] => 369 274
)
1
369 274₽
Работа:156 107 ₽
Материалы:213 167 ₽
Дни:10
stdClass Object
(
[id] => 45
[attribute_id] => 23
[name] => Нет
[material_modifier] => 1
[work_modifier] => 1
[options] => Array
(
)
[days] => [0]
[material_price] => [0]
[work_price] => [0]
[image] => https://akademik-stroy.ru/wp-content/uploads/materials/drenazh-2.jpg
[area_modifier] => 76.9
[parent_name] => Дренаж вокруг дома
[parent_id] => 23
[material_sum] => 0
[work_sum] => 0
[total_sum] => 0
[total_days] => 0
[display_material_sum] => 0
[display_work_sum] => 0
[display_total_sum] => 0
)
1
0₽
Работа:0 ₽
Материалы:0 ₽
Дни:0
stdClass Object
(
[id] => 46
[attribute_id] => 23
[name] => Есть
[material_modifier] => 1
[work_modifier] => 1
[options] => Array
(
)
[days] => [5]
[material_price] => [2366]
[work_price] => [1911]
[image] => https://akademik-stroy.ru/wp-content/uploads/materials/drenazh-2.jpg
[area_modifier] => 76.9
[parent_name] => Дренаж вокруг дома
[parent_id] => 23
[material_sum] => 305668
[work_sum] => 205738
[total_sum] => 511406
[total_days] => 5
[display_material_sum] => 305 668
[display_work_sum] => 205 738
[display_total_sum] => 511 406
)
1
511 406₽
Работа:205 738 ₽
Материалы:305 668 ₽
Дни:5
stdClass Object
(
[id] => 47
[attribute_id] => 24
[name] => Нет
[material_modifier] => 1
[work_modifier] => 1
[options] => Array
(
)
[days] => [0]
[material_price] => [0]
[work_price] => [0]
[image] => https://akademik-stroy.ru/wp-content/uploads/materials/septik.jpg
[area_modifier] => 1
[parent_name] => Автономная канализация (септики)
[parent_id] => 24
[material_sum] => 0
[work_sum] => 0
[total_sum] => 0
[total_days] => 0
[display_material_sum] => 0
[display_work_sum] => 0
[display_total_sum] => 0
)
1
0₽
Работа:0 ₽
Материалы:0 ₽
Дни:0
stdClass Object
(
[id] => 48
[attribute_id] => 24
[name] => Есть
[material_modifier] => 1
[work_modifier] => 1
[options] => Array
(
[0] => Для дачи на 4 человека
[1] => Для дома на 5 человек
[2] => Для дома на 6 человек
[3] => Для дома на 7 человек
[4] => Для дома на 10 человек
)
[days] => [7,7,7,8,8]
[material_price] => [196340,220500,240940,264200,293340]
[work_price] => [50000,55000,60500,66550,73206]
[image] => https://akademik-stroy.ru/wp-content/uploads/materials/septik.jpg
[area_modifier] => 1
[parent_name] => Автономная канализация (септики)
[parent_id] => 24
[material_sum] => 329851
[work_sum] => 70000
[total_sum] => 399851
[total_days] => 7
[display_material_sum] => 329 851
[display_work_sum] => 70 000
[display_total_sum] => 399 851
)
1
399 851₽
Работа:70 000 ₽
Материалы:329 851 ₽
Дни:7
stdClass Object
(
[id] => 49
[attribute_id] => 25
[name] => Нет
[material_modifier] => 1
[work_modifier] => 1
[options] => Array
(
)
[days] => [0]
[material_price] => [0]
[work_price] => [0]
[image] => https://akademik-stroy.ru/wp-content/uploads/materials/gkl.jpg
[area_modifier] => 76.9
[parent_name] => Внутренние (не несущие) перегородки
[parent_id] => 25
[material_sum] => 0
[work_sum] => 0
[total_sum] => 0
[total_days] => 0
[display_material_sum] => 0
[display_work_sum] => 0
[display_total_sum] => 0
)
1
0₽
Работа:0 ₽
Материалы:0 ₽
Дни:0
stdClass Object
(
[id] => 147
[attribute_id] => 25
[name] => Каркасно-обшивные
[material_modifier] => 1
[work_modifier] => 1
[options] => Array
(
[0] => 75 мм (без шумоизоляции)
[1] => 75 мм (с шумоизоляцией)
)
[days] => [11,11]
[material_price] => [580,970]
[work_price] => [380,570]
[image] => https://akademik-stroy.ru/wp-content/uploads/materials/gkl.jpg
[area_modifier] => 76.9
[parent_name] => Внутренние (не несущие) перегородки
[parent_id] => 25
[material_sum] => 74931
[work_sum] => 40911
[total_sum] => 115842
[total_days] => 11
[display_material_sum] => 74 931
[display_work_sum] => 40 911
[display_total_sum] => 115 842
)
1
115 842₽
Работа:40 911 ₽
Материалы:74 931 ₽
Дни:11
stdClass Object
(
[id] => 148
[attribute_id] => 25
[name] => Пазогребневые
[material_modifier] => 1
[work_modifier] => 1
[options] => Array
(
[0] => 80 мм
[1] => 100 мм
)
[days] => [5,5]
[material_price] => [1022,1313]
[work_price] => [600,700]
[image] => https://akademik-stroy.ru/wp-content/uploads/materials/pazogrebnevye-bloki.jpg
[area_modifier] => 76.9
[parent_name] => Внутренние (не несущие) перегородки
[parent_id] => 25
[material_sum] => 132034
[work_sum] => 64596
[total_sum] => 196630
[total_days] => 5
[display_material_sum] => 132 034
[display_work_sum] => 64 596
[display_total_sum] => 196 630
)
1
196 630₽
Работа:64 596 ₽
Материалы:132 034 ₽
Дни:5
stdClass Object
(
[id] => 149
[attribute_id] => 25
[name] => Газобетонные
[material_modifier] => 1
[work_modifier] => 1
[options] => Array
(
[0] => 100 мм
[1] => 200 мм
)
[days] => [11,11]
[material_price] => [1160,1920]
[work_price] => [700,900]
[image] => https://akademik-stroy.ru/wp-content/uploads/materials/gazobeton-2.jpg
[area_modifier] => 76.9
[parent_name] => Внутренние (не несущие) перегородки
[parent_id] => 25
[material_sum] => 149863
[work_sum] => 75362
[total_sum] => 225225
[total_days] => 11
[display_material_sum] => 149 863
[display_work_sum] => 75 362
[display_total_sum] => 225 225
)
1
225 225₽
Работа:75 362 ₽
Материалы:149 863 ₽
Дни:11
stdClass Object
(
[id] => 150
[attribute_id] => 25
[name] => Кирпичные
[material_modifier] => 1
[work_modifier] => 1
[options] => Array
(
[0] => 120 мм
[1] => 250 мм
[2] => 360 мм
)
[days] => [7,7,7]
[material_price] => [1785,3570,5355]
[work_price] => [900,1600,1800]
[image] => https://akademik-stroy.ru/wp-content/uploads/materials/kirpich-1.jpg
[area_modifier] => 76.9
[parent_name] => Внутренние (не несущие) перегородки
[parent_id] => 25
[material_sum] => 230608
[work_sum] => 96894
[total_sum] => 327502
[total_days] => 7
[display_material_sum] => 230 608
[display_work_sum] => 96 894
[display_total_sum] => 327 502
)
1
327 502₽
Работа:96 894 ₽
Материалы:230 608 ₽
Дни:7
stdClass Object
(
[id] => 55
[attribute_id] => 28
[name] => Нет
[material_modifier] => 1
[work_modifier] => 1
[options] => Array
(
)
[days] => [0]
[material_price] => [0]
[work_price] => [0]
[image] => https://akademik-stroy.ru/wp-content/uploads/materials/ehlektrika.jpg
[area_modifier] => 62.4
[parent_name] => Электрика
[parent_id] => 28
[material_sum] => 0
[work_sum] => 0
[total_sum] => 0
[total_days] => 0
[display_material_sum] => 0
[display_work_sum] => 0
[display_total_sum] => 0
)
1
0₽
Работа:0 ₽
Материалы:0 ₽
Дни:0
stdClass Object
(
[id] => 56
[attribute_id] => 28
[name] => Есть
[material_modifier] => 1
[work_modifier] => 1
[options] => Array
(
)
[days] => [10]
[material_price] => [650]
[work_price] => [950]
[image] => https://akademik-stroy.ru/wp-content/uploads/materials/ehlektrika.jpg
[area_modifier] => 62.4
[parent_name] => Электрика
[parent_id] => 28
[material_sum] => 68141
[work_sum] => 82992
[total_sum] => 151133
[total_days] => 10
[display_material_sum] => 68 141
[display_work_sum] => 82 992
[display_total_sum] => 151 133
)
1
151 133₽
Работа:82 992 ₽
Материалы:68 141 ₽
Дни:10
stdClass Object
(
[id] => 57
[attribute_id] => 29
[name] => Нет
[material_modifier] => 1
[work_modifier] => 1
[options] => Array
(
)
[days] => [0]
[material_price] => [0]
[work_price] => [0]
[image] => https://akademik-stroy.ru/wp-content/uploads/materials/santekhnika-kanalizaciya-1.jpg
[area_modifier] => 62.4
[parent_name] => Сантехника, канализация в доме
[parent_id] => 29
[material_sum] => 0
[work_sum] => 0
[total_sum] => 0
[total_days] => 0
[display_material_sum] => 0
[display_work_sum] => 0
[display_total_sum] => 0
)
1
0₽
Работа:0 ₽
Материалы:0 ₽
Дни:0
stdClass Object
(
[id] => 58
[attribute_id] => 29
[name] => Есть
[material_modifier] => 1
[work_modifier] => 1
[options] => Array
(
)
[days] => [10]
[material_price] => [600]
[work_price] => [730]
[image] => https://akademik-stroy.ru/wp-content/uploads/materials/santekhnika-kanalizaciya-1.jpg
[area_modifier] => 62.4
[parent_name] => Сантехника, канализация в доме
[parent_id] => 29
[material_sum] => 62899
[work_sum] => 63773
[total_sum] => 126672
[total_days] => 10
[display_material_sum] => 62 899
[display_work_sum] => 63 773
[display_total_sum] => 126 672
)
1
126 672₽
Работа:63 773 ₽
Материалы:62 899 ₽
Дни:10
stdClass Object
(
[id] => 59
[attribute_id] => 30
[name] => Нет
[material_modifier] => 1
[work_modifier] => 1
[options] => Array
(
)
[days] => [0]
[material_price] => [0]
[work_price] => [0]
[image] => https://akademik-stroy.ru/wp-content/uploads/materials/otoplenie-1.jpg
[area_modifier] => 62.4
[parent_name] => Отопление
[parent_id] => 30
[material_sum] => 0
[work_sum] => 0
[total_sum] => 0
[total_days] => 0
[display_material_sum] => 0
[display_work_sum] => 0
[display_total_sum] => 0
)
1
0₽
Работа:0 ₽
Материалы:0 ₽
Дни:0
stdClass Object
(
[id] => 60
[attribute_id] => 30
[name] => Есть
[material_modifier] => 1
[work_modifier] => 1
[options] => Array
(
)
[days] => [5]
[material_price] => [610]
[work_price] => [560]
[image] => https://akademik-stroy.ru/wp-content/uploads/materials/otoplenie-1.jpg
[area_modifier] => 62.4
[parent_name] => Отопление
[parent_id] => 30
[material_sum] => 63948
[work_sum] => 48922
[total_sum] => 112870
[total_days] => 5
[display_material_sum] => 63 948
[display_work_sum] => 48 922
[display_total_sum] => 112 870
)
1
112 870₽
Работа:48 922 ₽
Материалы:63 948 ₽
Дни:5
stdClass Object
(
[id] => 61
[attribute_id] => 31
[name] => Нет
[material_modifier] => 1
[work_modifier] => 1
[options] => Array
(
)
[days] => [0]
[material_price] => [0]
[work_price] => [0]
[image] => https://akademik-stroy.ru/wp-content/uploads/materials/vodyanye.jpg
[area_modifier] => 30
[parent_name] => Теплые полы
[parent_id] => 31
[material_sum] => 0
[work_sum] => 0
[total_sum] => 0
[total_days] => 0
[display_material_sum] => 0
[display_work_sum] => 0
[display_total_sum] => 0
)
1
0₽
Работа:0 ₽
Материалы:0 ₽
Дни:0
stdClass Object
(
[id] => 151
[attribute_id] => 31
[name] => Водяные
[material_modifier] => 1
[work_modifier] => 1
[options] => Array
(
)
[days] => [9]
[material_price] => [10200]
[work_price] => [2500]
[image] => https://akademik-stroy.ru/wp-content/uploads/materials/vodyanye.jpg
[area_modifier] => 30
[parent_name] => Теплые полы
[parent_id] => 31
[material_sum] => 514080
[work_sum] => 105000
[total_sum] => 619080
[total_days] => 9
[display_material_sum] => 514 080
[display_work_sum] => 105 000
[display_total_sum] => 619 080
)
1
619 080₽
Работа:105 000 ₽
Материалы:514 080 ₽
Дни:9
stdClass Object
(
[id] => 152
[attribute_id] => 31
[name] => Электро
[material_modifier] => 1
[work_modifier] => 1
[options] => Array
(
)
[days] => [5]
[material_price] => [6300]
[work_price] => [1500]
[image] => https://akademik-stroy.ru/wp-content/uploads/materials/ehlektricheskij.jpg
[area_modifier] => 30
[parent_name] => Теплые полы
[parent_id] => 31
[material_sum] => 317520
[work_sum] => 63000
[total_sum] => 380520
[total_days] => 5
[display_material_sum] => 317 520
[display_work_sum] => 63 000
[display_total_sum] => 380 520
)
1
380 520₽
Работа:63 000 ₽
Материалы:317 520 ₽
Дни:5
stdClass Object
(
[id] => 63
[attribute_id] => 32
[name] => Нет
[material_modifier] => 1
[work_modifier] => 1
[options] => Array
(
)
[days] => [0]
[material_price] => [0]
[work_price] => [0]
[image] => https://akademik-stroy.ru/wp-content/uploads/materials/shtukaturka-shpatlevka-1.jpg
[area_modifier] => 62.4
[parent_name] => Черновая отделка стен
[parent_id] => 32
[material_sum] => 0
[work_sum] => 0
[total_sum] => 0
[total_days] => 0
[display_material_sum] => 0
[display_work_sum] => 0
[display_total_sum] => 0
)
1
0₽
Работа:0 ₽
Материалы:0 ₽
Дни:0
stdClass Object
(
[id] => 153
[attribute_id] => 32
[name] => Штукатурка и шпатлевка
[material_modifier] => 1
[work_modifier] => 1
[options] => Array
(
)
[days] => [20]
[material_price] => [1850]
[work_price] => [2600]
[image] => https://akademik-stroy.ru/wp-content/uploads/materials/shtukaturka-shpatlevka-1.jpg
[area_modifier] => 62.4
[parent_name] => Черновая отделка стен
[parent_id] => 32
[material_sum] => 193939
[work_sum] => 227136
[total_sum] => 421075
[total_days] => 20
[display_material_sum] => 193 939
[display_work_sum] => 227 136
[display_total_sum] => 421 075
)
1
421 075₽
Работа:227 136 ₽
Материалы:193 939 ₽
Дни:20
stdClass Object
(
[id] => 154
[attribute_id] => 32
[name] => Гипсокортон на стены
[material_modifier] => 1
[work_modifier] => 1
[options] => Array
(
)
[days] => [15]
[material_price] => [950]
[work_price] => [2100]
[image] => https://akademik-stroy.ru/wp-content/uploads/materials/gkl-1.jpg
[area_modifier] => 62.4
[parent_name] => Черновая отделка стен
[parent_id] => 32
[material_sum] => 99590
[work_sum] => 183456
[total_sum] => 283046
[total_days] => 15
[display_material_sum] => 99 590
[display_work_sum] => 183 456
[display_total_sum] => 283 046
)
1
283 046₽
Работа:183 456 ₽
Материалы:99 590 ₽
Дни:15
stdClass Object
(
[id] => 155
[attribute_id] => 32
[name] => Вагонка
[material_modifier] => 1
[work_modifier] => 1
[options] => Array
(
)
[days] => [15]
[material_price] => [1250]
[work_price] => [950]
[image] => https://akademik-stroy.ru/wp-content/uploads/materials/vagonka.jpg
[area_modifier] => 62.4
[parent_name] => Черновая отделка стен
[parent_id] => 32
[material_sum] => 131040
[work_sum] => 82992
[total_sum] => 214032
[total_days] => 15
[display_material_sum] => 131 040
[display_work_sum] => 82 992
[display_total_sum] => 214 032
)
1
214 032₽
Работа:82 992 ₽
Материалы:131 040 ₽
Дни:15
stdClass Object
(
[id] => 65
[attribute_id] => 33
[name] => Нет
[material_modifier] => 1
[work_modifier] => 1
[options] => Array
(
)
[days] => [0]
[material_price] => [0]
[work_price] => [0]
[image] => https://akademik-stroy.ru/wp-content/uploads/materials/styazhka.jpg
[area_modifier] => 62.4
[parent_name] => Черновая отделка полов
[parent_id] => 33
[material_sum] => 0
[work_sum] => 0
[total_sum] => 0
[total_days] => 0
[display_material_sum] => 0
[display_work_sum] => 0
[display_total_sum] => 0
)
1
0₽
Работа:0 ₽
Материалы:0 ₽
Дни:0
stdClass Object
(
[id] => 156
[attribute_id] => 33
[name] => Стяжка + наливные полы
[material_modifier] => 1
[work_modifier] => 1
[options] => Array
(
)
[days] => [10]
[material_price] => [1000]
[work_price] => [900]
[image] => https://akademik-stroy.ru/wp-content/uploads/materials/styazhka.jpg
[area_modifier] => 62.4
[parent_name] => Черновая отделка полов
[parent_id] => 33
[material_sum] => 104832
[work_sum] => 78624
[total_sum] => 183456
[total_days] => 10
[display_material_sum] => 104 832
[display_work_sum] => 78 624
[display_total_sum] => 183 456
)
1
183 456₽
Работа:78 624 ₽
Материалы:104 832 ₽
Дни:10
stdClass Object
(
[id] => 157
[attribute_id] => 33
[name] => ОСБ на пол
[material_modifier] => 1
[work_modifier] => 1
[options] => Array
(
)
[days] => [7]
[material_price] => [580]
[work_price] => [350]
[image] => https://akademik-stroy.ru/wp-content/uploads/materials/osb-1.jpg
[area_modifier] => 62.4
[parent_name] => Черновая отделка полов
[parent_id] => 33
[material_sum] => 60803
[work_sum] => 30576
[total_sum] => 91379
[total_days] => 7
[display_material_sum] => 60 803
[display_work_sum] => 30 576
[display_total_sum] => 91 379
)
1
91 379₽
Работа:30 576 ₽
Материалы:60 803 ₽
Дни:7
stdClass Object
(
[id] => 67
[attribute_id] => 34
[name] => Нет
[material_modifier] => 1
[work_modifier] => 1
[options] => Array
(
)
[days] => [0]
[material_price] => [0]
[work_price] => [0]
[image] => https://akademik-stroy.ru/wp-content/uploads/materials/chistovaya-otdelka.jpg
[area_modifier] => 62.4
[parent_name] => Чистовая отделка стен и полов
[parent_id] => 34
[material_sum] => 0
[work_sum] => 0
[total_sum] => 0
[total_days] => 0
[display_material_sum] => 0
[display_work_sum] => 0
[display_total_sum] => 0
)
1
0₽
Работа:0 ₽
Материалы:0 ₽
Дни:0
stdClass Object
(
[id] => 68
[attribute_id] => 34
[name] => Есть
[material_modifier] => 1
[work_modifier] => 1
[options] => Array
(
)
[days] => [50]
[material_price] => [6000]
[work_price] => [3500]
[image] => https://akademik-stroy.ru/wp-content/uploads/materials/chistovaya-otdelka.jpg
[area_modifier] => 62.4
[parent_name] => Чистовая отделка стен и полов
[parent_id] => 34
[material_sum] => 628992
[work_sum] => 305760
[total_sum] => 934752
[total_days] => 50
[display_material_sum] => 628 992
[display_work_sum] => 305 760
[display_total_sum] => 934 752
)
1
934 752₽
Работа:305 760 ₽
Материалы:628 992 ₽
Дни:50
stdClass Object
(
[id] => 69
[attribute_id] => 35
[name] => Нет
[material_modifier] => 1
[work_modifier] => 1
[options] => Array
(
)
[days] => [0]
[material_price] => [0]
[work_price] => [0]
[image] => https://akademik-stroy.ru/wp-content/uploads/materials/mnogourovnevyj-gkl.jpg
[area_modifier] => 62.4
[parent_name] => Отделка потолка
[parent_id] => 35
[material_sum] => 0
[work_sum] => 0
[total_sum] => 0
[total_days] => 0
[display_material_sum] => 0
[display_work_sum] => 0
[display_total_sum] => 0
)
1
0₽
Работа:0 ₽
Материалы:0 ₽
Дни:0
stdClass Object
(
[id] => 70
[attribute_id] => 35
[name] => Есть
[material_modifier] => 1
[work_modifier] => 1
[options] => Array
(
[0] => Многоуровневый потолок из гипсокартона
[1] => Многоуровневый потолок из гипсокартона и натяжного потолка
[2] => Одноуровневый потолок из гипсокартона
[3] => Одноуровневый натяжной потолок
)
[days] => [10,10,1,1]
[material_price] => [900,700,700,600]
[work_price] => [1000,800,500,300]
[image] => https://akademik-stroy.ru/wp-content/uploads/materials/mnogourovnevyj-gkl.jpg
[area_modifier] => 62.4
[parent_name] => Отделка потолка
[parent_id] => 35
[material_sum] => 94349
[work_sum] => 87360
[total_sum] => 181709
[total_days] => 10
[display_material_sum] => 94 349
[display_work_sum] => 87 360
[display_total_sum] => 181 709
)
1
181 709₽
Работа:87 360 ₽
Материалы:94 349 ₽
Дни:10
Преимущества работы с нами
7 этапов оплаты
Независимый строительный надзор
Экологически чистые материалы
16 лет гарантии
Онлайн-кабинет с веб-камерой
Строители с опытом более 15 лет
Собственное производство

