Одноэтажный гараж 5.75 м2 за руб.
154 м2
Полезная
площадь
площадь
1 этаж
Этажей
26 м2
Террасы
и балконы
и балконы
0Без
гаража
гаража
0
Количество
спален
спален
0
Количество
санузлов
санузлов
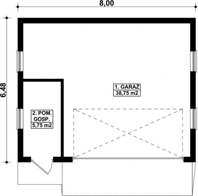
Планировки
Первый этаж
- 1. (m²) 44,50
- 2. Гараж на 2 машины 38,75
- Подсобное помещение 5,75
Фасады
Передний
Задний
Левый
Правый
Подробная информация
Полезная площадь
44,50 m²
Количество спален
0
Количество санузлов
0
Гараж
2
Мин. шир. и дл. участка
16 x 13,48 m
Угол наклона крыши
30°
Наклон ската крыши в градусах. Внимание! В некоторых проектах возникает более чем один наклон крыши.
Вид материалов
Murowana
Материалы и опции
Общие
Площади дома
| № п/п | Наименование | Ед. из. | Строительная площадь | Полезная площадь |
| 1 | 1 этаж | м2 | 7.09 | 5.75 |
| 2 | Итого | м2 | 7.09 | 5.75 |
Калькулятор опций
0₽
В ипотеку от 3 264 ₽/мес.
0₽
0 дней
stdClass Object
(
[id] => 1
[attribute_id] => 1
[name] => Ленточный монолитный ж/б
[material_modifier] => 1
[work_modifier] => 1
[options] => Array
(
[0] => размер 200 х 700 мм
[1] => размер 300 х 900 мм
[2] => размер 400 х 1 000 мм
[3] => размер 500 х 1 100 мм
[4] => размер 600 х 1 200 мм
)
[days] => [20,21,22,25,30]
[material_price] => [2823,3630,4475,5210,12047]
[work_price] => [2154,2826,3731,4577,5293]
[image] => https://akademik-stroy.ru/wp-content/uploads/materials/lentochnyj-monolitnyj-zh-b.jpg
[area_modifier] => 7.09
[parent_name] => Фундамент
[parent_id] => 1
[material_sum] => 48036
[work_sum] => 30544
[total_sum] => 78580
[total_days] => 20
[display_material_sum] => 48 036
[display_work_sum] => 30 544
[display_total_sum] => 78 580
)
1
78 580₽
Работа:30 544 ₽
Материалы:48 036 ₽
Дни:20
stdClass Object
(
[id] => 2
[attribute_id] => 1
[name] => Забивные Ж/Б сваи
[material_modifier] => 1
[work_modifier] => 1
[options] => Array
(
[0] => 150х150х3000мм
[1] => 150х150х4000мм
[2] => 200х200х3000мм
[3] => 200х200х4000мм
[4] => 200х200х5000мм
[5] => 200х200х6000мм
)
[days] => [2,2,2,2,2,2]
[material_price] => [1990,2850,3255,4360,5120,6837]
[work_price] => [1002,1185,1336,1438,1574,1839]
[image] => https://akademik-stroy.ru/wp-content/uploads/materials/zabivnye-zh-b-svai.png
[area_modifier] => 7.09
[parent_name] => Фундамент
[parent_id] => 1
[material_sum] => 33862
[work_sum] => 14208
[total_sum] => 48070
[total_days] => 2
[display_material_sum] => 33 862
[display_work_sum] => 14 208
[display_total_sum] => 48 070
)
1
48 070₽
Работа:14 208 ₽
Материалы:33 862 ₽
Дни:2
stdClass Object
(
[id] => 71
[attribute_id] => 1
[name] => Свайно-ростверковый ж/б
[material_modifier] => 1
[work_modifier] => 1
[options] => Array
(
[0] => ростверк 200х300 мм
[1] => ростверк 300х600 мм
[2] => ростверк 400х900 мм
[3] => ростверк 500х1200 мм
)
[days] => [20,23,25,27]
[material_price] => [3018,3474,7109,9792]
[work_price] => [2024,3012,5635,7022]
[image] => https://akademik-stroy.ru/wp-content/uploads/materials/svajno-rostverkovyj-monolitnyj-zh-b-3.png
[area_modifier] => 7.09
[parent_name] => Фундамент
[parent_id] => 1
[material_sum] => 51354
[work_sum] => 28700
[total_sum] => 80054
[total_days] => 20
[display_material_sum] => 51 354
[display_work_sum] => 28 700
[display_total_sum] => 80 054
)
1
80 054₽
Работа:28 700 ₽
Материалы:51 354 ₽
Дни:20
stdClass Object
(
[id] => 72
[attribute_id] => 1
[name] => Монолитная ж/б плита
[material_modifier] => 1
[work_modifier] => 1
[options] => Array
(
[0] => 200 мм
[1] => 300 мм
[2] => 400 мм
[3] => 500 мм
[4] => 600 мм
)
[days] => [30,33,35,37,40]
[material_price] => [5348,8555,12788,14388,15189]
[work_price] => [4314,4881,7037,8061,10230]
[image] => https://akademik-stroy.ru/wp-content/uploads/materials/monolitnaya-zhb-plita.png
[area_modifier] => 7.09
[parent_name] => Фундамент
[parent_id] => 1
[material_sum] => 91002
[work_sum] => 61173
[total_sum] => 152175
[total_days] => 30
[display_material_sum] => 91 002
[display_work_sum] => 61 173
[display_total_sum] => 152 175
)
1
152 175₽
Работа:61 173 ₽
Материалы:91 002 ₽
Дни:30
stdClass Object
(
[id] => 73
[attribute_id] => 1
[name] => Утепленная шведская плита
[material_modifier] => 1
[work_modifier] => 1
[options] => Array
(
[0] => 200 мм
[1] => 300 мм
[2] => 400 мм
[3] => 500 мм
[4] => 600 мм
)
[days] => [32,37,39,42,45]
[material_price] => [10249,12692,13760,14936,16230]
[work_price] => [5960,7337,8072,8878,9765]
[image] => https://akademik-stroy.ru/wp-content/uploads/materials/uteplennaya-shvedskaya-plita.jpg
[area_modifier] => 7.09
[parent_name] => Фундамент
[parent_id] => 1
[material_sum] => 174397
[work_sum] => 84513
[total_sum] => 258910
[total_days] => 32
[display_material_sum] => 174 397
[display_work_sum] => 84 513
[display_total_sum] => 258 910
)
1
258 910₽
Работа:84 513 ₽
Материалы:174 397 ₽
Дни:32
stdClass Object
(
[id] => 75
[attribute_id] => 1
[name] => Ленточный из ФБС
[material_modifier] => 1
[work_modifier] => 1
[options] => Array
(
[0] => толщ. 300 мм
[1] => толщ. 400 мм
[2] => толщ. 500 мм
[3] => толщ. 600 мм
)
[days] => [20,20,20,20]
[material_price] => [3675,4902,6126,7350]
[work_price] => [2451,3264,4083,4902]
[image] => https://akademik-stroy.ru/wp-content/uploads/materials/lentochnyj-iz-fbs.png
[area_modifier] => 7.09
[parent_name] => Фундамент
[parent_id] => 1
[material_sum] => 62534
[work_sum] => 34755
[total_sum] => 97289
[total_days] => 20
[display_material_sum] => 62 534
[display_work_sum] => 34 755
[display_total_sum] => 97 289
)
1
97 289₽
Работа:34 755 ₽
Материалы:62 534 ₽
Дни:20
stdClass Object
(
[id] => 76
[attribute_id] => 1
[name] => Цокольный этаж из ФБС
[material_modifier] => 1
[work_modifier] => 1
[options] => Array
(
[0] => толщ. 300 мм
[1] => толщ. 400 мм
[2] => толщ. 500 мм
[3] => толщ. 600 мм
)
[days] => [30,32,34,36]
[material_price] => [20916,23299,26680,29060]
[work_price] => [17524,18700,19873,21046]
[image] => https://akademik-stroy.ru/wp-content/uploads/materials/cokolnyj-ehtazh-iz-fbs.jpg
[area_modifier] => 7.09
[parent_name] => Фундамент
[parent_id] => 1
[material_sum] => 355907
[work_sum] => 248490
[total_sum] => 604397
[total_days] => 30
[display_material_sum] => 355 907
[display_work_sum] => 248 490
[display_total_sum] => 604 397
)
1
604 397₽
Работа:248 490 ₽
Материалы:355 907 ₽
Дни:30
stdClass Object
(
[id] => 77
[attribute_id] => 1
[name] => Цокольный этаж монолитный ж/б
[material_modifier] => 1
[work_modifier] => 1
[options] => Array
(
[0] => толщ. 200 мм
[1] => толщ. 300 мм
[2] => толщ. 400 мм
[3] => толщ. 500 мм
[4] => толщ. 600 мм
)
[days] => [40,42,44,46,48]
[material_price] => [25421,29148,32275,35602,37326]
[work_price] => [20441,21907,23375,24841,26306]
[image] => https://akademik-stroy.ru/wp-content/uploads/materials/cokolnyj-etazh-zh-b.jpg
[area_modifier] => 7.09
[parent_name] => Фундамент
[parent_id] => 1
[material_sum] => 432564
[work_sum] => 289853
[total_sum] => 722417
[total_days] => 40
[display_material_sum] => 432 564
[display_work_sum] => 289 853
[display_total_sum] => 722 417
)
1
722 417₽
Работа:289 853 ₽
Материалы:432 564 ₽
Дни:40
stdClass Object
(
[id] => 191
[attribute_id] => 1
[name] => Винтовые сваи
[material_modifier] => 1
[work_modifier] => 1
[options] => Array
(
[0] => 57х200мм
[1] => 76х250мм
[2] => 108х300мм
[3] => 133х350мм
)
[days] => [1,1,2,2]
[material_price] => [1200,1300,1450,1600]
[work_price] => [400,600,900,1100]
[image] => https://akademik-stroy.ru/wp-content/uploads/materials/vintovye-svai.png
[area_modifier] => 7.09
[parent_name] => Фундамент
[parent_id] => 1
[material_sum] => 20419
[work_sum] => 5672
[total_sum] => 26091
[total_days] => 1
[display_material_sum] => 20 419
[display_work_sum] => 5 672
[display_total_sum] => 26 091
)
1
26 091₽
Работа:5 672 ₽
Материалы:20 419 ₽
Дни:1
stdClass Object
(
[id] => 3
[attribute_id] => 2
[name] => Деревянные балки
[material_modifier] => 1
[work_modifier] => 1
[options] => Array
(
[0] => без утепления
[1] => утепление 200 мм
[2] => утепление 250 мм
[3] => утепление 300 мм
[4] => утепление 350 мм
[5] => утепление 400 мм
[6] => утепление 450 мм
[7] => утепление 500 мм
)
[days] => [8,9,9,9,11,12,13,14]
[material_price] => [1634,2042,2344,2947,3149,3652,3354,3557]
[work_price] => [1230,1339,1393,1426,1460,1513,1587,1620]
[image] => https://akademik-stroy.ru/wp-content/uploads/materials/derevyannye-balki.png
[area_modifier] => 7.09
[parent_name] => Перекрытие цоколя
[parent_id] => 2
[material_sum] => 27804
[work_sum] => 17441
[total_sum] => 45245
[total_days] => 8
[display_material_sum] => 27 804
[display_work_sum] => 17 441
[display_total_sum] => 45 245
)
1
45 245₽
Работа:17 441 ₽
Материалы:27 804 ₽
Дни:8
stdClass Object
(
[id] => 4
[attribute_id] => 2
[name] => Сборные ж/б плиты
[material_modifier] => 1
[work_modifier] => 1
[options] => Array
(
[0] => без утепления
[1] => утепление 150мм
[2] => утепление 200мм
[3] => утепление 250мм
[4] => утепление 300мм
[5] => утепление 350мм
[6] => утепление 400мм
[7] => утепление 450мм
[8] => утепление 500мм
)
[days] => [13,15,15,15,15,15,15,15,15]
[material_price] => [3067,5577,5928,6679,7730,8782,9833,10884,11935]
[work_price] => [1520,1956,2102,2247,2392,2537,2684,2829,2974]
[image] => https://akademik-stroy.ru/wp-content/uploads/materials/sbornye-zh-b-plity-2.jpg
[area_modifier] => 7.09
[parent_name] => Перекрытие цоколя
[parent_id] => 2
[material_sum] => 52188
[work_sum] => 21554
[total_sum] => 73742
[total_days] => 13
[display_material_sum] => 52 188
[display_work_sum] => 21 554
[display_total_sum] => 73 742
)
1
73 742₽
Работа:21 554 ₽
Материалы:52 188 ₽
Дни:13
stdClass Object
(
[id] => 78
[attribute_id] => 2
[name] => Монолитная ж/б плита
[material_modifier] => 1
[work_modifier] => 1
[options] => Array
(
[0] => без утепления
[1] => утепление 150 мм
[2] => утепление 200 мм
[3] => утепление 250 мм
[4] => утепление 300 мм
[5] => утепление 350 мм
[6] => утепление 400 мм
[7] => утепление 450 мм
[8] => утепление 500 мм
)
[days] => [18,20,20,20,20,20,20,20,20]
[material_price] => [4837,6572,7224,7375,79426,8177,8728,9180,10031]
[work_price] => [3348,3921,4112,4302,4493,4684,4875,5066,5256]
[image] => https://akademik-stroy.ru/wp-content/uploads/materials/monolitnaya-zh-b-plita-2.jpg
[area_modifier] => 7.09
[parent_name] => Перекрытие цоколя
[parent_id] => 2
[material_sum] => 82306
[work_sum] => 47475
[total_sum] => 129781
[total_days] => 18
[display_material_sum] => 82 306
[display_work_sum] => 47 475
[display_total_sum] => 129 781
)
1
129 781₽
Работа:47 475 ₽
Материалы:82 306 ₽
Дни:18
stdClass Object
(
[id] => 6
[attribute_id] => 3
[name] => Пеноблок
[material_modifier] => 1
[work_modifier] => 1
[options] => Array
(
[0] => 300 мм
[1] => 400 мм
[2] => 500 мм
[3] => 600 мм
)
[days] => [29,31,34,39]
[material_price] => [3000,4000,4500,4937]
[work_price] => [5033,5805,6400,8710]
[image] => https://akademik-stroy.ru/wp-content/uploads/materials/penoblok.jpg
[area_modifier] => 7.09
[parent_name] => Стены 1 этаж (несущие)
[parent_id] => 3
[material_sum] => 51048
[work_sum] => 71368
[total_sum] => 122416
[total_days] => 29
[display_material_sum] => 51 048
[display_work_sum] => 71 368
[display_total_sum] => 122 416
)
1
122 416₽
Работа:71 368 ₽
Материалы:51 048 ₽
Дни:29
stdClass Object
(
[id] => 79
[attribute_id] => 3
[name] => Керамический блок
[material_modifier] => 1
[work_modifier] => 1
[options] => Array
(
[0] => 380 мм
[1] => 380 мм Thermo
[2] => 440 мм
[3] => 510 мм
)
[days] => [23,23,24,25]
[material_price] => [4510,5098,6093,8013]
[work_price] => [4737,4937,5903,6958]
[image] => https://akademik-stroy.ru/wp-content/uploads/materials/keramicheskij-blok.jpg
[area_modifier] => 7.09
[parent_name] => Стены 1 этаж (несущие)
[parent_id] => 3
[material_sum] => 76742
[work_sum] => 67171
[total_sum] => 143913
[total_days] => 23
[display_material_sum] => 76 742
[display_work_sum] => 67 171
[display_total_sum] => 143 913
)
1
143 913₽
Работа:67 171 ₽
Материалы:76 742 ₽
Дни:23
stdClass Object
(
[id] => 80
[attribute_id] => 3
[name] => Кирпич
[material_modifier] => 1
[work_modifier] => 1
[options] => Array
(
[0] => Кирпич 250 мм
[1] => Кирпич 380 мм
[2] => Кирпич 510 мм
[3] => Кирпич 640 мм
[4] => Кирпич 770 мм
)
[days] => [30,30,31,33,36]
[material_price] => [5500,7142,9206,10171,12235]
[work_price] => [8736,10041,12018,15240,18462]
[image] => https://akademik-stroy.ru/wp-content/uploads/materials/kirpich.jpg
[area_modifier] => 7.09
[parent_name] => Стены 1 этаж (несущие)
[parent_id] => 3
[material_sum] => 93588
[work_sum] => 123876
[total_sum] => 217464
[total_days] => 30
[display_material_sum] => 93 588
[display_work_sum] => 123 876
[display_total_sum] => 217 464
)
1
217 464₽
Работа:123 876 ₽
Материалы:93 588 ₽
Дни:30
stdClass Object
(
[id] => 81
[attribute_id] => 3
[name] => Монолитные
[material_modifier] => 1
[work_modifier] => 1
[options] => Array
(
[0] => 150 мм
[1] => 200 мм
[2] => 250 мм
[3] => 300 мм
[4] => 350 мм
[5] => 400 мм
)
[days] => [45,46,47,49,50,53]
[material_price] => [6545,7876,10175,12011,13908,15204]
[work_price] => [5106,6444,7698,8552,9807,11461]
[image] => https://akademik-stroy.ru/wp-content/uploads/materials/monolitnye.jpg
[area_modifier] => 7.09
[parent_name] => Стены 1 этаж (несущие)
[parent_id] => 3
[material_sum] => 111370
[work_sum] => 72403
[total_sum] => 183773
[total_days] => 45
[display_material_sum] => 111 370
[display_work_sum] => 72 403
[display_total_sum] => 183 773
)
1
183 773₽
Работа:72 403 ₽
Материалы:111 370 ₽
Дни:45
stdClass Object
(
[id] => 82
[attribute_id] => 3
[name] => Клееный брус
[material_modifier] => 1
[work_modifier] => 1
[options] => Array
(
[0] => 160 мм
[1] => 175 мм
[2] => 200 мм
[3] => 215 мм
[4] => 240 мм
[5] => 270 мм
[6] => 282 мм
)
[days] => [24,28,32,37,40,42,48]
[material_price] => [16975,18773,19950,20545,21599,22159,23275]
[work_price] => [4806,5287,5815,6397,7036,7740,8514]
[image] => https://akademik-stroy.ru/wp-content/uploads/materials/kleenyj-brus.jpg
[area_modifier] => 7.09
[parent_name] => Стены 1 этаж (несущие)
[parent_id] => 3
[material_sum] => 288847
[work_sum] => 68149
[total_sum] => 356996
[total_days] => 24
[display_material_sum] => 288 847
[display_work_sum] => 68 149
[display_total_sum] => 356 996
)
1
356 996₽
Работа:68 149 ₽
Материалы:288 847 ₽
Дни:24
stdClass Object
(
[id] => 83
[attribute_id] => 3
[name] => Каркасные
[material_modifier] => 1
[work_modifier] => 1
[options] => Array
(
[0] => 150 мм
[1] => 200 мм
[2] => 250 мм
[3] => 300 мм
)
[days] => [15,16,17,18]
[material_price] => [2379,2639,2898,3258]
[work_price] => [2418,2686,2985,3716]
[image] => https://akademik-stroy.ru/wp-content/uploads/materials/karkasnye.jpg
[area_modifier] => 7.09
[parent_name] => Стены 1 этаж (несущие)
[parent_id] => 3
[material_sum] => 40481
[work_sum] => 34287
[total_sum] => 74768
[total_days] => 15
[display_material_sum] => 40 481
[display_work_sum] => 34 287
[display_total_sum] => 74 768
)
1
74 768₽
Работа:34 287 ₽
Материалы:40 481 ₽
Дни:15
stdClass Object
(
[id] => 84
[attribute_id] => 3
[name] => СИП-панели
[material_modifier] => 1
[work_modifier] => 1
[options] => Array
(
[0] => 120 мм
[1] => 170 мм
[2] => 220 мм
)
[days] => [7,7,7]
[material_price] => [1210,1856,2292]
[work_price] => [1410,1551,1706]
[image] => https://akademik-stroy.ru/wp-content/uploads/materials/sip-paneli.jpg
[area_modifier] => 7.09
[parent_name] => Стены 1 этаж (несущие)
[parent_id] => 3
[material_sum] => 20589
[work_sum] => 19994
[total_sum] => 40583
[total_days] => 7
[display_material_sum] => 20 589
[display_work_sum] => 19 994
[display_total_sum] => 40 583
)
1
40 583₽
Работа:19 994 ₽
Материалы:20 589 ₽
Дни:7
stdClass Object
(
[id] => 85
[attribute_id] => 3
[name] => Сухой брус
[material_modifier] => 1
[work_modifier] => 1
[options] => Array
(
[0] => 150 мм
[1] => 180 мм
[2] => 200 мм
)
[days] => [7,8,9]
[material_price] => [6010,7190,8709]
[work_price] => [3204,3845,4229]
[image] => https://akademik-stroy.ru/wp-content/uploads/materials/suhoj-brus.jpg
[area_modifier] => 7.09
[parent_name] => Стены 1 этаж (несущие)
[parent_id] => 3
[material_sum] => 102266
[work_sum] => 45433
[total_sum] => 147699
[total_days] => 7
[display_material_sum] => 102 266
[display_work_sum] => 45 433
[display_total_sum] => 147 699
)
1
147 699₽
Работа:45 433 ₽
Материалы:102 266 ₽
Дни:7
stdClass Object
(
[id] => 86
[attribute_id] => 3
[name] => Профилированный брус
[material_modifier] => 1
[work_modifier] => 1
[options] => Array
(
[0] => 150 мм
[1] => 180 мм
[2] => 200 мм
)
[days] => [7,8,9]
[material_price] => [8190,9228,10051]
[work_price] => [3845,4614,5075]
[image] => https://akademik-stroy.ru/wp-content/uploads/materials/profilirovannyj-brus.jpg
[area_modifier] => 7.09
[parent_name] => Стены 1 этаж (несущие)
[parent_id] => 3
[material_sum] => 139361
[work_sum] => 54522
[total_sum] => 193883
[total_days] => 7
[display_material_sum] => 139 361
[display_work_sum] => 54 522
[display_total_sum] => 193 883
)
1
193 883₽
Работа:54 522 ₽
Материалы:139 361 ₽
Дни:7
stdClass Object
(
[id] => 87
[attribute_id] => 3
[name] => Оцилиндрованное бревно
[material_modifier] => 1
[work_modifier] => 1
[options] => Array
(
[0] => 180 мм
[1] => 220 мм
[2] => 260 мм
[3] => 320 мм
)
[days] => [7,8,9,10]
[material_price] => [75190,9532,10868,13116]
[work_price] => [3845,4691,5535,6863]
[image] => https://akademik-stroy.ru/wp-content/uploads/materials/ocilindrovannoe-brevno-1.jpg
[area_modifier] => 7.09
[parent_name] => Стены 1 этаж (несущие)
[parent_id] => 3
[material_sum] => 1279433
[work_sum] => 54522
[total_sum] => 1333955
[total_days] => 7
[display_material_sum] => 1 279 433
[display_work_sum] => 54 522
[display_total_sum] => 1 333 955
)
1
1 333 955₽
Работа:54 522 ₽
Материалы:1 279 433 ₽
Дни:7
stdClass Object
(
[id] => 88
[attribute_id] => 3
[name] => Срубы
[material_modifier] => 1
[work_modifier] => 1
[options] => Array
(
[0] => 260 мм
[1] => 320 мм
[2] => 360 мм
[3] => 400 мм
[4] => 500 мм
)
[days] => [7,8,9,10,11]
[material_price] => [37975,46709,52314,58069,73167]
[work_price] => [4806,5911,6621,7349,9260]
[image] => https://akademik-stroy.ru/wp-content/uploads/materials/sruby.jpg
[area_modifier] => 7.09
[parent_name] => Стены 1 этаж (несущие)
[parent_id] => 3
[material_sum] => 646183
[work_sum] => 68149
[total_sum] => 714332
[total_days] => 7
[display_material_sum] => 646 183
[display_work_sum] => 68 149
[display_total_sum] => 714 332
)
1
714 332₽
Работа:68 149 ₽
Материалы:646 183 ₽
Дни:7
stdClass Object
(
[id] => 174
[attribute_id] => 3
[name] => Брус
[material_modifier] => 1
[work_modifier] => 1
[options] => Array
(
[0] => 150 мм
[1] => 180 мм
[2] => 200 мм
)
[days] => [7,8,9]
[material_price] => [5127,6152,7367]
[work_price] => [1602,1922,2115]
[image] => https://akademik-stroy.ru/wp-content/uploads/materials/brus.jpg
[area_modifier] => 7.09
[parent_name] => Стены 1 этаж (несущие)
[parent_id] => 3
[material_sum] => 87241
[work_sum] => 22716
[total_sum] => 109957
[total_days] => 7
[display_material_sum] => 87 241
[display_work_sum] => 22 716
[display_total_sum] => 109 957
)
1
109 957₽
Работа:22 716 ₽
Материалы:87 241 ₽
Дни:7
stdClass Object
(
[id] => 175
[attribute_id] => 3
[name] => Газобетон
[material_modifier] => 1
[work_modifier] => 1
[options] => Array
(
[0] => 300 мм
[1] => 375 мм
[2] => 400 мм
[3] => 500 мм
[4] => 600 мм
)
[days] => [29,31,35,37,44]
[material_price] => [4298,5573,6356,7288,9119]
[work_price] => [4538,5251,5926,6733,7195]
[image] => https://akademik-stroy.ru/wp-content/uploads/materials/gazobeton.jpg
[area_modifier] => 7.09
[parent_name] => Стены 1 этаж (несущие)
[parent_id] => 3
[material_sum] => 73135
[work_sum] => 64349
[total_sum] => 137484
[total_days] => 29
[display_material_sum] => 73 135
[display_work_sum] => 64 349
[display_total_sum] => 137 484
)
1
137 484₽
Работа:64 349 ₽
Материалы:73 135 ₽
Дни:29
stdClass Object
(
[id] => 176
[attribute_id] => 3
[name] => Блок
[material_modifier] => 1
[work_modifier] => 1
[options] => Array
(
[0] => 300 мм
[1] => 375 мм
[2] => 400 мм
[3] => 500 мм
[4] => 600 мм
)
[days] => [29,31,35,37,44]
[material_price] => [2698,3973,4356,6588,7119]
[work_price] => [5038,5851,6426,8733,9195]
[image] => https://akademik-stroy.ru/wp-content/uploads/materials/blok.jpg
[area_modifier] => 7.09
[parent_name] => Стены 1 этаж (несущие)
[parent_id] => 3
[material_sum] => 45909
[work_sum] => 71439
[total_sum] => 117348
[total_days] => 29
[display_material_sum] => 45 909
[display_work_sum] => 71 439
[display_total_sum] => 117 348
)
1
117 348₽
Работа:71 439 ₽
Материалы:45 909 ₽
Дни:29
stdClass Object
(
[id] => 177
[attribute_id] => 3
[name] => Газосиликатный блок
[material_modifier] => 1
[work_modifier] => 1
[options] => Array
(
[0] => 300 мм
[1] => 375 мм
[2] => 400 мм
[3] => 500 мм
[4] => 600 мм
)
[days] => [29,31,35,37,44]
[material_price] => [4298,5573,6356,7288,9119]
[work_price] => [4538,5251,5926,6733,7195]
[image] => https://akademik-stroy.ru/wp-content/uploads/materials/gazosilikatnyj-blok.jpg
[area_modifier] => 7.09
[parent_name] => Стены 1 этаж (несущие)
[parent_id] => 3
[material_sum] => 73135
[work_sum] => 64349
[total_sum] => 137484
[total_days] => 29
[display_material_sum] => 73 135
[display_work_sum] => 64 349
[display_total_sum] => 137 484
)
1
137 484₽
Работа:64 349 ₽
Материалы:73 135 ₽
Дни:29
stdClass Object
(
[id] => 178
[attribute_id] => 3
[name] => Керамзитобетонный блок
[material_modifier] => 1
[work_modifier] => 1
[options] => Array
(
[0] => 300 мм
[1] => 375 мм
[2] => 400 мм
[3] => 500 мм
[4] => 600 мм
)
[days] => [23,23,24,25,28]
[material_price] => [3641,4298,5693,7613,9612]
[work_price] => [5737,5737,6903,7958,8901]
[image] => https://akademik-stroy.ru/wp-content/uploads/materials/keramzitobetonnyj-blok.jpg
[area_modifier] => 7.09
[parent_name] => Стены 1 этаж (несущие)
[parent_id] => 3
[material_sum] => 61955
[work_sum] => 81351
[total_sum] => 143306
[total_days] => 23
[display_material_sum] => 61 955
[display_work_sum] => 81 351
[display_total_sum] => 143 306
)
1
143 306₽
Работа:81 351 ₽
Материалы:61 955 ₽
Дни:23
stdClass Object
(
[id] => 179
[attribute_id] => 3
[name] => Деревянные
[material_modifier] => 1
[work_modifier] => 1
[options] => Array
(
[0] => 180 мм
[1] => 220 мм
[2] => 260 мм
[3] => 320 мм
)
[days] => [7,8,9,10]
[material_price] => [7950,9458,11961,14472]
[work_price] => [4037,4925,5812,7207]
[image] => https://akademik-stroy.ru/wp-content/uploads/materials/derevyannye.jpg
[area_modifier] => 7.09
[parent_name] => Стены 1 этаж (несущие)
[parent_id] => 3
[material_sum] => 135277
[work_sum] => 57245
[total_sum] => 192522
[total_days] => 7
[display_material_sum] => 135 277
[display_work_sum] => 57 245
[display_total_sum] => 192 522
)
1
192 522₽
Работа:57 245 ₽
Материалы:135 277 ₽
Дни:7
stdClass Object
(
[id] => 181
[attribute_id] => 3
[name] => Камень
[material_modifier] => 1
[work_modifier] => 1
[options] => Array
(
[0] => 300 мм
[1] => 400 мм
[2] => 500 мм
[3] => 600 мм
)
[days] => [25,27,31,34]
[material_price] => [5262,6844,8330,9815]
[work_price] => [8331,9135,10427,11069]
[image] => https://akademik-stroy.ru/wp-content/uploads/materials/kamen.jpg
[area_modifier] => 7.09
[parent_name] => Стены 1 этаж (несущие)
[parent_id] => 3
[material_sum] => 89538
[work_sum] => 118134
[total_sum] => 207672
[total_days] => 25
[display_material_sum] => 89 538
[display_work_sum] => 118 134
[display_total_sum] => 207 672
)
1
207 672₽
Работа:118 134 ₽
Материалы:89 538 ₽
Дни:25
stdClass Object
(
[id] => 182
[attribute_id] => 3
[name] => Каркасно-щитовые
[material_modifier] => 1
[work_modifier] => 1
[options] => Array
(
[0] => 150 мм
[1] => 200 мм
[2] => 250 мм
[3] => 300 мм
[4] => 350 мм
[5] => 400 мм
)
[days] => [15,16,17,18,19,20]
[material_price] => [2379,2639,2898,3458,3601,4175]
[work_price] => [2538,2820,3134,3483,4062,5642]
[image] => https://akademik-stroy.ru/wp-content/uploads/materials/karkasno-shchitovye.jpg
[area_modifier] => 7.09
[parent_name] => Стены 1 этаж (несущие)
[parent_id] => 3
[material_sum] => 40481
[work_sum] => 35989
[total_sum] => 76470
[total_days] => 15
[display_material_sum] => 40 481
[display_work_sum] => 35 989
[display_total_sum] => 76 470
)
1
76 470₽
Работа:35 989 ₽
Материалы:40 481 ₽
Дни:15
stdClass Object
(
[id] => 183
[attribute_id] => 3
[name] => Рубленные
[material_modifier] => 1
[work_modifier] => 1
[options] => Array
(
[0] => 150 мм
[1] => 200 мм
[2] => 250 мм
[3] => 300 мм
[4] => 350 мм
[5] => 400 мм
)
[days] => [15,16,17,18,17,18]
[material_price] => [35950,50267,60583,75900,80217,100533]
[work_price] => [9612,12816,16020,19224,22428,25632]
[image] => https://akademik-stroy.ru/wp-content/uploads/materials/rublennye.jpg
[area_modifier] => 7.09
[parent_name] => Стены 1 этаж (несущие)
[parent_id] => 3
[material_sum] => 611725
[work_sum] => 136298
[total_sum] => 748023
[total_days] => 15
[display_material_sum] => 611 725
[display_work_sum] => 136 298
[display_total_sum] => 748 023
)
1
748 023₽
Работа:136 298 ₽
Материалы:611 725 ₽
Дни:15
stdClass Object
(
[id] => 185
[attribute_id] => 3
[name] => Теплоблок
[material_modifier] => 1
[work_modifier] => 1
[options] => Array
(
[0] => 300 мм (с облицовкой, не покрашенный)
[1] => 400 мм (с облицовкой, не покрашенный)
[2] => 300 мм (с облицовкой, покрашенный)
[3] => 400 мм (с облицовкой, покрашенный)
)
[days] => [15,16,15,16]
[material_price] => [2888,3729,3957,4258]
[work_price] => [2564,3229,2949,3713]
[image] => https://akademik-stroy.ru/wp-content/uploads/materials/teploblok.jpg
[area_modifier] => 7.09
[parent_name] => Стены 1 этаж (несущие)
[parent_id] => 3
[material_sum] => 49142
[work_sum] => 36358
[total_sum] => 85500
[total_days] => 15
[display_material_sum] => 49 142
[display_work_sum] => 36 358
[display_total_sum] => 85 500
)
1
85 500₽
Работа:36 358 ₽
Материалы:49 142 ₽
Дни:15
stdClass Object
(
[id] => 186
[attribute_id] => 3
[name] => Арболитовые блоки
[material_modifier] => 1
[work_modifier] => 1
[options] => Array
(
[0] => 300 мм
[1] => 400 мм
[2] => 600 мм
)
[days] => [19,22,27]
[material_price] => [3210,4475,5852]
[work_price] => [4214,4788,5866]
[image] => https://akademik-stroy.ru/wp-content/uploads/materials/arbolitovye-bloki.png
[area_modifier] => 7.09
[parent_name] => Стены 1 этаж (несущие)
[parent_id] => 3
[material_sum] => 54621
[work_sum] => 59755
[total_sum] => 114376
[total_days] => 19
[display_material_sum] => 54 621
[display_work_sum] => 59 755
[display_total_sum] => 114 376
)
1
114 376₽
Работа:59 755 ₽
Материалы:54 621 ₽
Дни:19
stdClass Object
(
[id] => 187
[attribute_id] => 3
[name] => Полистиролбетон
[material_modifier] => 1
[work_modifier] => 1
[options] => Array
(
[0] => 300 мм
[1] => 400 мм
[2] => 600 мм
)
[days] => [29,31,35]
[material_price] => [2798,4573,5256]
[work_price] => [5038,5851,6426]
[image] => https://akademik-stroy.ru/wp-content/uploads/materials/polistirolbeton.jpg
[area_modifier] => 7.09
[parent_name] => Стены 1 этаж (несущие)
[parent_id] => 3
[material_sum] => 47611
[work_sum] => 71439
[total_sum] => 119050
[total_days] => 29
[display_material_sum] => 47 611
[display_work_sum] => 71 439
[display_total_sum] => 119 050
)
1
119 050₽
Работа:71 439 ₽
Материалы:47 611 ₽
Дни:29
stdClass Object
(
[id] => 188
[attribute_id] => 3
[name] => Шлакоблок
[material_modifier] => 1
[work_modifier] => 1
[options] => Array
(
[0] => 400 мм
[1] => 600 мм
)
[days] => [15,16]
[material_price] => [2391,3471]
[work_price] => [2642,3662]
[image] => https://akademik-stroy.ru/wp-content/uploads/materials/shlakoblok.jpg
[area_modifier] => 7.09
[parent_name] => Стены 1 этаж (несущие)
[parent_id] => 3
[material_sum] => 40685
[work_sum] => 37464
[total_sum] => 78149
[total_days] => 15
[display_material_sum] => 40 685
[display_work_sum] => 37 464
[display_total_sum] => 78 149
)
1
78 149₽
Работа:37 464 ₽
Материалы:40 685 ₽
Дни:15
stdClass Object
(
[id] => 189
[attribute_id] => 3
[name] => Теплая керамика
[material_modifier] => 1
[work_modifier] => 1
[options] => Array
(
[0] => 380 мм
[1] => 380 мм Thermo
[2] => 440 мм
[3] => 510 мм
)
[days] => [23,23,24,25]
[material_price] => [4510,5098,6093,8013]
[work_price] => [4737,4937,5903,6958]
[image] => https://akademik-stroy.ru/wp-content/uploads/materials/teplaya-keramika.jpg
[area_modifier] => 7.09
[parent_name] => Стены 1 этаж (несущие)
[parent_id] => 3
[material_sum] => 76742
[work_sum] => 67171
[total_sum] => 143913
[total_days] => 23
[display_material_sum] => 76 742
[display_work_sum] => 67 171
[display_total_sum] => 143 913
)
1
143 913₽
Работа:67 171 ₽
Материалы:76 742 ₽
Дни:23
stdClass Object
(
[id] => 190
[attribute_id] => 3
[name] => Несъемная опалубка
[material_modifier] => 1
[work_modifier] => 1
[options] => Array
(
[0] => 200 мм
[1] => 250 мм
[2] => 300 мм
[3] => 350 мм
)
[days] => [15,17,19,21]
[material_price] => [3302,3902,4108,5008]
[work_price] => [2100,2100,2300,2534]
[image] => https://akademik-stroy.ru/wp-content/uploads/materials/nesemnaya-opalubka.jpg
[area_modifier] => 7.09
[parent_name] => Стены 1 этаж (несущие)
[parent_id] => 3
[material_sum] => 56187
[work_sum] => 29778
[total_sum] => 85965
[total_days] => 15
[display_material_sum] => 56 187
[display_work_sum] => 29 778
[display_total_sum] => 85 965
)
1
85 965₽
Работа:29 778 ₽
Материалы:56 187 ₽
Дни:15
stdClass Object
(
[id] => 251
[attribute_id] => 3
[name] => Бревно
[material_modifier] => 1
[work_modifier] => 1
[options] => Array
(
[0] => 260 мм
[1] => 320 мм
[2] => 360 мм
[3] => 400 мм
[4] => 500 мм
)
[days] => [7,8,9,10,11]
[material_price] => [1874,24045,26930,30972,38825]
[work_price] => [5046,6207,6952,7716,9723]
[image] => https://akademik-stroy.ru/wp-content/uploads/materials/sruby.jpg
[area_modifier] => 7.09
[parent_name] => Стены 1 этаж (несущие)
[parent_id] => 3
[material_sum] => 31888
[work_sum] => 71552
[total_sum] => 103440
[total_days] => 7
[display_material_sum] => 31 888
[display_work_sum] => 71 552
[display_total_sum] => 103 440
)
1
103 440₽
Работа:71 552 ₽
Материалы:31 888 ₽
Дни:7
stdClass Object
(
[id] => 7
[attribute_id] => 4
[name] => Деревянные балки
[material_modifier] => 1
[work_modifier] => 1
[options] => Array
(
[0] => без утепления
[1] => утепление 200 мм
[2] => утепление 250 мм
[3] => утепление 300 мм
[4] => утепление 350 мм
[5] => утепление 400 мм
[6] => утепление 450 мм
[7] => утепление 500 мм
)
[days] => [8,9,9,9,11,12,13,14]
[material_price] => [1634,2042,2344,2947,3149,3652,3354,3557]
[work_price] => [1230,1339,1393,1426,1460,1513,1587,1620]
[image] => https://akademik-stroy.ru/wp-content/uploads/materials/derevyannye-balki.png
[area_modifier] => 7.09
[parent_name] => Перекрытие первого этажа
[parent_id] => 4
[material_sum] => 27804
[work_sum] => 17441
[total_sum] => 45245
[total_days] => 8
[display_material_sum] => 27 804
[display_work_sum] => 17 441
[display_total_sum] => 45 245
)
1
45 245₽
Работа:17 441 ₽
Материалы:27 804 ₽
Дни:8
stdClass Object
(
[id] => 8
[attribute_id] => 4
[name] => Сборные ж/б плиты
[material_modifier] => 1
[work_modifier] => 1
[options] => Array
(
[0] => без утепления
[1] => утепление 150 мм
[2] => утепление 200 мм
[3] => утепление 250 мм
[4] => утепление 300 мм
[5] => утепление 350 мм
[6] => утепление 400 мм
[7] => утепление 450 мм
[8] => утепление 500 мм
)
[days] => [13,15,15,15,15,15,15,15,15]
[material_price] => [3067,5577,5928,6679,7730,8782,9833,10884,11935]
[work_price] => [1520,1956,2102,2247,2392,2537,2684,2829,2974]
[image] => https://akademik-stroy.ru/wp-content/uploads/materials/sbornye-zh-b-plity-2.jpg
[area_modifier] => 7.09
[parent_name] => Перекрытие первого этажа
[parent_id] => 4
[material_sum] => 52188
[work_sum] => 21554
[total_sum] => 73742
[total_days] => 13
[display_material_sum] => 52 188
[display_work_sum] => 21 554
[display_total_sum] => 73 742
)
1
73 742₽
Работа:21 554 ₽
Материалы:52 188 ₽
Дни:13
stdClass Object
(
[id] => 89
[attribute_id] => 4
[name] => Монолитная ж/б плита
[material_modifier] => 1
[work_modifier] => 1
[options] => Array
(
[0] => без утепления
[1] => утепление 150 мм
[2] => утепление 200 мм
[3] => утепление 250 мм
[4] => утепление 300 мм
[5] => утепление 350 мм
[6] => утепление 400 мм
[7] => утепление 450 мм
[8] => утепление 500 мм
)
[days] => [18,20,20,20,20,20,20,20,20]
[material_price] => [4837,6572,7224,7375,79426,8177,8728,9180,10031]
[work_price] => [3348,3921,4112,4302,4493,4684,4875,5066,5256]
[image] => https://akademik-stroy.ru/wp-content/uploads/materials/monolitnaya-zh-b-plita-2.jpg
[area_modifier] => 7.09
[parent_name] => Перекрытие первого этажа
[parent_id] => 4
[material_sum] => 82306
[work_sum] => 47475
[total_sum] => 129781
[total_days] => 18
[display_material_sum] => 82 306
[display_work_sum] => 47 475
[display_total_sum] => 129 781
)
1
129 781₽
Работа:47 475 ₽
Материалы:82 306 ₽
Дни:18
stdClass Object
(
[id] => 164
[attribute_id] => 37
[name] => Металлочерепица
[material_modifier] => 1
[work_modifier] => 1
[options] => Array
(
)
[days] => [20]
[material_price] => [6112]
[work_price] => [5726]
[image] => https://akademik-stroy.ru/wp-content/uploads/materials/metallocherepica.jpg
[area_modifier] => 7.09
[parent_name] => Крыша (Скатная)
[parent_id] => 37
[material_sum] => 104002
[work_sum] => 81195
[total_sum] => 185197
[total_days] => 20
[display_material_sum] => 104 002
[display_work_sum] => 81 195
[display_total_sum] => 185 197
)
1
185 197₽
Работа:81 195 ₽
Материалы:104 002 ₽
Дни:20
stdClass Object
(
[id] => 165
[attribute_id] => 37
[name] => Гибкая черепица
[material_modifier] => 1
[work_modifier] => 1
[options] => Array
(
)
[days] => [20]
[material_price] => [6980]
[work_price] => [5950]
[image] => https://akademik-stroy.ru/wp-content/uploads/materials/gibkaya-cherepica.jpg
[area_modifier] => 7.09
[parent_name] => Крыша (Скатная)
[parent_id] => 37
[material_sum] => 118772
[work_sum] => 84371
[total_sum] => 203143
[total_days] => 20
[display_material_sum] => 118 772
[display_work_sum] => 84 371
[display_total_sum] => 203 143
)
1
203 143₽
Работа:84 371 ₽
Материалы:118 772 ₽
Дни:20
stdClass Object
(
[id] => 166
[attribute_id] => 37
[name] => Цементно-песчаная черепица
[material_modifier] => 1
[work_modifier] => 1
[options] => Array
(
)
[days] => [20]
[material_price] => [10560]
[work_price] => [9456]
[image] => https://akademik-stroy.ru/wp-content/uploads/materials/cementno-peschanaya-cherepica.jpg
[area_modifier] => 7.09
[parent_name] => Крыша (Скатная)
[parent_id] => 37
[material_sum] => 179689
[work_sum] => 134086
[total_sum] => 313775
[total_days] => 20
[display_material_sum] => 179 689
[display_work_sum] => 134 086
[display_total_sum] => 313 775
)
1
313 775₽
Работа:134 086 ₽
Материалы:179 689 ₽
Дни:20
stdClass Object
(
[id] => 167
[attribute_id] => 37
[name] => Композитная черепица
[material_modifier] => 1
[work_modifier] => 1
[options] => Array
(
)
[days] => [20]
[material_price] => [9506]
[work_price] => [8905]
[image] => https://akademik-stroy.ru/wp-content/uploads/materials/kompozitnaya-cherepica.jpg
[area_modifier] => 7.09
[parent_name] => Крыша (Скатная)
[parent_id] => 37
[material_sum] => 161754
[work_sum] => 126273
[total_sum] => 288027
[total_days] => 20
[display_material_sum] => 161 754
[display_work_sum] => 126 273
[display_total_sum] => 288 027
)
1
288 027₽
Работа:126 273 ₽
Материалы:161 754 ₽
Дни:20
stdClass Object
(
[id] => 168
[attribute_id] => 37
[name] => Керамическая черепица
[material_modifier] => 1
[work_modifier] => 1
[options] => Array
(
)
[days] => [20]
[material_price] => [12750]
[work_price] => [9456]
[image] => https://akademik-stroy.ru/wp-content/uploads/materials/keramicheskaya-cherepica.jpg
[area_modifier] => 7.09
[parent_name] => Крыша (Скатная)
[parent_id] => 37
[material_sum] => 216954
[work_sum] => 134086
[total_sum] => 351040
[total_days] => 20
[display_material_sum] => 216 954
[display_work_sum] => 134 086
[display_total_sum] => 351 040
)
1
351 040₽
Работа:134 086 ₽
Материалы:216 954 ₽
Дни:20
stdClass Object
(
[id] => 169
[attribute_id] => 37
[name] => Металлическая фальцевая
[material_modifier] => 1
[work_modifier] => 1
[options] => Array
(
)
[days] => [20]
[material_price] => [8550]
[work_price] => [8190]
[image] => https://akademik-stroy.ru/wp-content/uploads/materials/metallicheskaya-falcevaya.jpg
[area_modifier] => 7.09
[parent_name] => Крыша (Скатная)
[parent_id] => 37
[material_sum] => 145487
[work_sum] => 116134
[total_sum] => 261621
[total_days] => 20
[display_material_sum] => 145 487
[display_work_sum] => 116 134
[display_total_sum] => 261 621
)
1
261 621₽
Работа:116 134 ₽
Материалы:145 487 ₽
Дни:20
stdClass Object
(
[id] => 170
[attribute_id] => 37
[name] => Медная фальцевая
[material_modifier] => 1
[work_modifier] => 1
[options] => Array
(
)
[days] => [20]
[material_price] => [20450]
[work_price] => [16750]
[image] => https://akademik-stroy.ru/wp-content/uploads/materials/mednaya-falcevaya.jpg
[area_modifier] => 7.09
[parent_name] => Крыша (Скатная)
[parent_id] => 37
[material_sum] => 347977
[work_sum] => 237515
[total_sum] => 585492
[total_days] => 20
[display_material_sum] => 347 977
[display_work_sum] => 237 515
[display_total_sum] => 585 492
)
1
585 492₽
Работа:237 515 ₽
Материалы:347 977 ₽
Дни:20
stdClass Object
(
[id] => 171
[attribute_id] => 37
[name] => Зеленая кровля
[material_modifier] => 1
[work_modifier] => 1
[options] => Array
(
)
[days] => [20]
[material_price] => [19850]
[work_price] => [16780]
[image] => https://akademik-stroy.ru/wp-content/uploads/materials/zelenaya-krovlya.jpg
[area_modifier] => 7.09
[parent_name] => Крыша (Скатная)
[parent_id] => 37
[material_sum] => 337768
[work_sum] => 237940
[total_sum] => 575708
[total_days] => 20
[display_material_sum] => 337 768
[display_work_sum] => 237 940
[display_total_sum] => 575 708
)
1
575 708₽
Работа:237 940 ₽
Материалы:337 768 ₽
Дни:20
stdClass Object
(
[id] => 172
[attribute_id] => 37
[name] => Профлист
[material_modifier] => 1
[work_modifier] => 1
[options] => Array
(
)
[days] => [20]
[material_price] => [3450]
[work_price] => [3750]
[image] => https://akademik-stroy.ru/wp-content/uploads/materials/proflist.jpg
[area_modifier] => 7.09
[parent_name] => Крыша (Скатная)
[parent_id] => 37
[material_sum] => 58705
[work_sum] => 53175
[total_sum] => 111880
[total_days] => 20
[display_material_sum] => 58 705
[display_work_sum] => 53 175
[display_total_sum] => 111 880
)
1
111 880₽
Работа:53 175 ₽
Материалы:58 705 ₽
Дни:20
stdClass Object
(
[id] => 51
[attribute_id] => 26
[name] => Есть
[material_modifier] => 1
[work_modifier] => 1
[options] => Array
(
[0] => Профиль 58 мм, 3-камерный, стеклопакет 2-камерный до 32 мм
[1] => Профиль 60 мм, 4-камерный, стеклопакет 2-камерный до 32 мм
[2] => Профиль 70 мм, 5-камерный, стеклопакет 2-камерный до 40 мм
[3] => Профиль 72 мм, 5-камерный, стеклопакет 2-камерный до 40 мм
[4] => Алюминиевые окна Alutech профиль 72 мм, стеклопакет 2-камерный
)
[days] => [3,3,3,3,3]
[material_price] => [1339,2124,2867,3023,29596]
[work_price] => [635,647,659,668,2579]
[image] => https://akademik-stroy.ru/wp-content/uploads/materials/okna.jpg
[area_modifier] => 5.75
[parent_name] => Окна
[parent_id] => 26
[material_sum] => 18478
[work_sum] => 7303
[total_sum] => 25781
[total_days] => 3
[display_material_sum] => 18 478
[display_work_sum] => 7 303
[display_total_sum] => 25 781
)
1
25 781₽
Работа:7 303 ₽
Материалы:18 478 ₽
Дни:3
stdClass Object
(
[id] => 52
[attribute_id] => 26
[name] => Нет
[material_modifier] => 2
[work_modifier] => 1
[options] =>
[days] => null
[material_price] => null
[work_price] => null
[image] => https://akademik-stroy.ru/wp-content/uploads/materials/okna.jpg
[area_modifier] => 5.75
[parent_name] => Окна
[parent_id] => 26
[material_sum] => 0
[work_sum] => 0
[total_sum] => 0
[total_days] => 0
[display_material_sum] => 0
[display_work_sum] => 0
[display_total_sum] => 0
)
1
0₽
Работа:0 ₽
Материалы:0 ₽
Дни:0
stdClass Object
(
[id] => 53
[attribute_id] => 27
[name] => Есть
[material_modifier] => 1
[work_modifier] => 1
[options] => Array
(
)
[days] => [1]
[material_price] => [10000]
[work_price] => [5500]
[image] => https://akademik-stroy.ru/wp-content/uploads/materials/dveri.jpg
[area_modifier] => 1
[parent_name] => Двери входные
[parent_id] => 27
[material_sum] => 24000
[work_sum] => 11000
[total_sum] => 35000
[total_days] => 1
[display_material_sum] => 24 000
[display_work_sum] => 11 000
[display_total_sum] => 35 000
)
1
35 000₽
Работа:11 000 ₽
Материалы:24 000 ₽
Дни:1
stdClass Object
(
[id] => 54
[attribute_id] => 27
[name] => Нет
[material_modifier] => 1
[work_modifier] => 1
[options] => Array
(
)
[days] => [0]
[material_price] => [0]
[work_price] => [0]
[image] => https://akademik-stroy.ru/wp-content/uploads/materials/dveri.jpg
[area_modifier] => 1
[parent_name] => Двери входные
[parent_id] => 27
[material_sum] => 0
[work_sum] => 0
[total_sum] => 0
[total_days] => 0
[display_material_sum] => 0
[display_work_sum] => 0
[display_total_sum] => 0
)
1
0₽
Работа:0 ₽
Материалы:0 ₽
Дни:0
stdClass Object
(
[id] => 25
[attribute_id] => 13
[name] => Нет
[material_modifier] => 1
[work_modifier] => 1
[options] => Array
(
)
[days] => [0]
[material_price] => [0]
[work_price] => [0]
[image] => https://akademik-stroy.ru/wp-content/uploads/materials/mineralovata-krov.jpg
[area_modifier] => 7.09
[parent_name] => Утепление кровли (Мансарда)
[parent_id] => 13
[material_sum] => 0
[work_sum] => 0
[total_sum] => 0
[total_days] => 0
[display_material_sum] => 0
[display_work_sum] => 0
[display_total_sum] => 0
)
1
0₽
Работа:0 ₽
Материалы:0 ₽
Дни:0
stdClass Object
(
[id] => 26
[attribute_id] => 13
[name] => Минераловатный
[material_modifier] => 1
[work_modifier] => 1
[options] => Array
(
[0] => 50 мм
[1] => 100 мм
[2] => 150 мм
[3] => 200 мм
[4] => 250 мм
[5] => 300 мм
[6] => 350 мм
[7] => 400 мм
[8] => 450 мм
[9] => 500 мм
)
[days] => [5,5,6,6,6,7,7,7,8,8]
[material_price] => [1158,1414,1772,2230,3602,4060,4974,5890,6408,7718]
[work_price] => [650,846,846,1098,1318,1450,1596,1754,1930,2122]
[image] => https://akademik-stroy.ru/wp-content/uploads/materials/mineralovata-krov.jpg
[area_modifier] => 7.09
[parent_name] => Утепление кровли (Мансарда)
[parent_id] => 13
[material_sum] => 19705
[work_sum] => 9217
[total_sum] => 28922
[total_days] => 5
[display_material_sum] => 19 705
[display_work_sum] => 9 217
[display_total_sum] => 28 922
)
1
28 922₽
Работа:9 217 ₽
Материалы:19 705 ₽
Дни:5
stdClass Object
(
[id] => 123
[attribute_id] => 13
[name] => Эковата (целлюлозная вата)
[material_modifier] => 1
[work_modifier] => 1
[options] => Array
(
[0] => 50 мм
[1] => 100 мм
[2] => 150 мм
[3] => 200 мм
[4] => 250 мм
[5] => 300 мм
[6] => 350 мм
[7] => 400 мм
[8] => 450 мм
[9] => 500 мм
)
[days] => [3,3,4,4,4,5,5,5,5,5]
[material_price] => [820,1638,2458,3276,5734,6552,8190,9828,11466,13104]
[work_price] => [234,304,304,396,474,522,574,632,694,764]
[image] => https://akademik-stroy.ru/wp-content/uploads/materials/ehkovata-krov.jpg
[area_modifier] => 7.09
[parent_name] => Утепление кровли (Мансарда)
[parent_id] => 13
[material_sum] => 13953
[work_sum] => 3318
[total_sum] => 17271
[total_days] => 3
[display_material_sum] => 13 953
[display_work_sum] => 3 318
[display_total_sum] => 17 271
)
1
17 271₽
Работа:3 318 ₽
Материалы:13 953 ₽
Дни:3
stdClass Object
(
[id] => 124
[attribute_id] => 13
[name] => Экструдированный пенополистирол
[material_modifier] => 1
[work_modifier] => 1
[options] => Array
(
[0] => 50 мм
[1] => 100 мм
[2] => 150 мм
[3] => 200 мм
[4] => 250 мм
[5] => 300 мм
[6] => 350 мм
[7] => 400 мм
[8] => 450 мм
[9] => 500 мм
)
[days] => [3,3,4,4,4,5,5,5,5,6]
[material_price] => [1146,2292,3438,4584,8020,9166,11458,13750,16040,18332]
[work_price] => [390,508,508,660,790,870,958,1052,1158,1274]
[image] => https://akademik-stroy.ru/wp-content/uploads/materials/epps-krov.jpg
[area_modifier] => 7.09
[parent_name] => Утепление кровли (Мансарда)
[parent_id] => 13
[material_sum] => 19500
[work_sum] => 5530
[total_sum] => 25030
[total_days] => 3
[display_material_sum] => 19 500
[display_work_sum] => 5 530
[display_total_sum] => 25 030
)
1
25 030₽
Работа:5 530 ₽
Материалы:19 500 ₽
Дни:3
stdClass Object
(
[id] => 125
[attribute_id] => 13
[name] => ПСБ (ППС-пенополистирол)
[material_modifier] => 1
[work_modifier] => 1
[options] => Array
(
[0] => 50 мм
[1] => 100 мм
[2] => 150 мм
[3] => 200 мм
[4] => 250 мм
[5] => 300 мм
[6] => 350 мм
[7] => 400 мм
[8] => 450 мм
[9] => 500 мм
)
[days] => [3,3,4,4,4,5,5,5,5,6]
[material_price] => [476,954,1430,1906,3336,3814,4766,5720,6674,7626]
[work_price] => [390,508,508,660,790,870,958,1052,1158,1274]
[image] => https://akademik-stroy.ru/wp-content/uploads/materials/psb-krov.jpg
[area_modifier] => 7.09
[parent_name] => Утепление кровли (Мансарда)
[parent_id] => 13
[material_sum] => 8100
[work_sum] => 5530
[total_sum] => 13630
[total_days] => 3
[display_material_sum] => 8 100
[display_work_sum] => 5 530
[display_total_sum] => 13 630
)
1
13 630₽
Работа:5 530 ₽
Материалы:8 100 ₽
Дни:3
stdClass Object
(
[id] => 126
[attribute_id] => 13
[name] => ППУ (Пенополиуретан)
[material_modifier] => 1
[work_modifier] => 1
[options] => Array
(
[0] => 50 мм
[1] => 100 мм
[2] => 150 мм
[3] => 200 мм
[4] => 250 мм
[5] => 300 мм
[6] => 350 мм
[7] => 400 мм
[8] => 450 мм
[9] => 500 мм
)
[days] => [2,2,3,3,3,3,4,4,4,4]
[material_price] => [2080,4160,6240,8320,14560,16640,20800,24960,29120,33280]
[work_price] => [234,304,304,396,474,522,574,632,694,764]
[image] => https://akademik-stroy.ru/wp-content/uploads/materials/ppu-krov.jpg
[area_modifier] => 7.09
[parent_name] => Утепление кровли (Мансарда)
[parent_id] => 13
[material_sum] => 35393
[work_sum] => 3318
[total_sum] => 38711
[total_days] => 2
[display_material_sum] => 35 393
[display_work_sum] => 3 318
[display_total_sum] => 38 711
)
1
38 711₽
Работа:3 318 ₽
Материалы:35 393 ₽
Дни:2
stdClass Object
(
[id] => 127
[attribute_id] => 13
[name] => PIR-плиты (пенополиизоцианурат)
[material_modifier] => 1
[work_modifier] => 1
[options] => Array
(
[0] => 50 мм
[1] => 100 мм
[2] => 150 мм
[3] => 200 мм
[4] => 250 мм
[5] => 300 мм
[6] => 350 мм
[7] => 400 мм
[8] => 450 мм
[9] => 500 мм
)
[days] => [3,3,4,4,4,5,5,5,5,6]
[material_price] => [2646,5290,7936,10580,18516,21162,26452,31742,37032,42324]
[work_price] => [390,508,508,660,790,870,958,1052,1158,1274]
[image] => https://akademik-stroy.ru/wp-content/uploads/materials/pir-krov.jpg
[area_modifier] => 7.09
[parent_name] => Утепление кровли (Мансарда)
[parent_id] => 13
[material_sum] => 45024
[work_sum] => 5530
[total_sum] => 50554
[total_days] => 3
[display_material_sum] => 45 024
[display_work_sum] => 5 530
[display_total_sum] => 50 554
)
1
50 554₽
Работа:5 530 ₽
Материалы:45 024 ₽
Дни:3
stdClass Object
(
[id] => 27
[attribute_id] => 14
[name] => Нет
[material_modifier] => 1
[work_modifier] => 1
[options] => Array
(
)
[days] => [0]
[material_price] => [0]
[work_price] => [0]
[image] => https://akademik-stroy.ru/wp-content/uploads/materials/mansardnye-okna-2.jpg
[area_modifier] => 1
[parent_name] => Мансардные окна
[parent_id] => 14
[material_sum] => 0
[work_sum] => 0
[total_sum] => 0
[total_days] => 0
[display_material_sum] => 0
[display_work_sum] => 0
[display_total_sum] => 0
)
1
0₽
Работа:0 ₽
Материалы:0 ₽
Дни:0
stdClass Object
(
[id] => 28
[attribute_id] => 14
[name] => Есть
[material_modifier] => 1
[work_modifier] => 1
[options] => Array
(
[0] => 55x78
[1] => 55x98
)
[days] => [6,7]
[material_price] => [47480,68700]
[work_price] => [17900,19500]
[image] => https://akademik-stroy.ru/wp-content/uploads/materials/mansardnye-okna-2.jpg
[area_modifier] => 1
[parent_name] => Мансардные окна
[parent_id] => 14
[material_sum] => 113952
[work_sum] => 35800
[total_sum] => 149752
[total_days] => 6
[display_material_sum] => 113 952
[display_work_sum] => 35 800
[display_total_sum] => 149 752
)
1
149 752₽
Работа:35 800 ₽
Материалы:113 952 ₽
Дни:6
stdClass Object
(
[id] => 29
[attribute_id] => 15
[name] => Нет
[material_modifier] => 1
[work_modifier] => 1
[options] => Array
(
)
[days] => [0]
[material_price] => [0]
[work_price] => [0]
[image] => https://akademik-stroy.ru/wp-content/uploads/materials/sofit.jpg
[area_modifier] => 7.09
[parent_name] => Подшивка кровли
[parent_id] => 15
[material_sum] => 0
[work_sum] => 0
[total_sum] => 0
[total_days] => 0
[display_material_sum] => 0
[display_work_sum] => 0
[display_total_sum] => 0
)
1
0₽
Работа:0 ₽
Материалы:0 ₽
Дни:0
stdClass Object
(
[id] => 30
[attribute_id] => 15
[name] => Есть
[material_modifier] => 1
[work_modifier] => 1
[options] => Array
(
[0] => Софиты (ПВХ)
[1] => Cedral
[2] => ДПК
[3] => Планкен
)
[days] => [7,10,9,8]
[material_price] => [1803,3213,3025,3150]
[work_price] => [1529,2188,2075,1923]
[image] => https://akademik-stroy.ru/wp-content/uploads/materials/sofit.jpg
[area_modifier] => 7.09
[parent_name] => Подшивка кровли
[parent_id] => 15
[material_sum] => 30680
[work_sum] => 21681
[total_sum] => 52361
[total_days] => 7
[display_material_sum] => 30 680
[display_work_sum] => 21 681
[display_total_sum] => 52 361
)
1
52 361₽
Работа:21 681 ₽
Материалы:30 680 ₽
Дни:7
stdClass Object
(
[id] => 31
[attribute_id] => 16
[name] => Нет
[material_modifier] => 1
[work_modifier] => 1
[options] => Array
(
)
[days] => [0]
[material_price] => [0]
[work_price] => [0]
[image] => https://akademik-stroy.ru/wp-content/uploads/materials/docke-standard-pvh.jpg
[area_modifier] => 7.09
[parent_name] => Водосточная система
[parent_id] => 16
[material_sum] => 0
[work_sum] => 0
[total_sum] => 0
[total_days] => 0
[display_material_sum] => 0
[display_work_sum] => 0
[display_total_sum] => 0
)
1
0₽
Работа:0 ₽
Материалы:0 ₽
Дни:0
stdClass Object
(
[id] => 32
[attribute_id] => 16
[name] => Есть
[material_modifier] => 1
[work_modifier] => 1
[options] => Array
(
[0] => Döcke Standard (ПВХ)
[1] => Металлические Grand Line
)
[days] => [7,7]
[material_price] => [1842,2703]
[work_price] => [1491,1529]
[image] => https://akademik-stroy.ru/wp-content/uploads/materials/docke-standard-pvh.jpg
[area_modifier] => 7.09
[parent_name] => Водосточная система
[parent_id] => 16
[material_sum] => 31343
[work_sum] => 21142
[total_sum] => 52485
[total_days] => 7
[display_material_sum] => 31 343
[display_work_sum] => 21 142
[display_total_sum] => 52 485
)
1
52 485₽
Работа:21 142 ₽
Материалы:31 343 ₽
Дни:7
stdClass Object
(
[id] => 33
[attribute_id] => 17
[name] => Нет
[material_modifier] => 1
[work_modifier] => 1
[options] => Array
(
)
[days] => [0]
[material_price] => [0]
[work_price] => [0]
[image] => https://akademik-stroy.ru/wp-content/uploads/materials/mineralovata.jpg
[area_modifier] => 7.09
[parent_name] => Дополнительное утепление наружных стен
[parent_id] => 17
[material_sum] => 0
[work_sum] => 0
[total_sum] => 0
[total_days] => 0
[display_material_sum] => 0
[display_work_sum] => 0
[display_total_sum] => 0
)
1
0₽
Работа:0 ₽
Материалы:0 ₽
Дни:0
stdClass Object
(
[id] => 34
[attribute_id] => 17
[name] => Минераловатный
[material_modifier] => 1
[work_modifier] => 1
[options] => Array
(
[0] => 50 мм
[1] => 100 мм
[2] => 150 мм
[3] => 200 мм
[4] => 250 мм
[5] => 300 мм
)
[days] => [7,8,10,12,14,15]
[material_price] => [3437,3613,3803,3915,4601,4830]
[work_price] => [2325,2423,2523,2749,2859,3025]
[image] => https://akademik-stroy.ru/wp-content/uploads/materials/mineralovata.jpg
[area_modifier] => 7.09
[parent_name] => Дополнительное утепление наружных стен
[parent_id] => 17
[material_sum] => 58484
[work_sum] => 32969
[total_sum] => 91453
[total_days] => 7
[display_material_sum] => 58 484
[display_work_sum] => 32 969
[display_total_sum] => 91 453
)
1
91 453₽
Работа:32 969 ₽
Материалы:58 484 ₽
Дни:7
stdClass Object
(
[id] => 128
[attribute_id] => 17
[name] => Эковата (целлюлозная вата)
[material_modifier] => 1
[work_modifier] => 1
[options] => Array
(
[0] => 50 мм
[1] => 100 мм
[2] => 150 мм
[3] => 200 мм
[4] => 250 мм
[5] => 300 мм
)
[days] => [3,4,5,6,7,8]
[material_price] => [810,1319,1629,1838,2267,2676]
[work_price] => [1225,1323,1423,1549,1659,1725]
[image] => https://akademik-stroy.ru/wp-content/uploads/materials/ehkovata.jpg
[area_modifier] => 7.09
[parent_name] => Дополнительное утепление наружных стен
[parent_id] => 17
[material_sum] => 13783
[work_sum] => 17371
[total_sum] => 31154
[total_days] => 3
[display_material_sum] => 13 783
[display_work_sum] => 17 371
[display_total_sum] => 31 154
)
1
31 154₽
Работа:17 371 ₽
Материалы:13 783 ₽
Дни:3
stdClass Object
(
[id] => 129
[attribute_id] => 17
[name] => Экструдированный пенополистирол
[material_modifier] => 1
[work_modifier] => 1
[options] => Array
(
[0] => 50 мм
[1] => 100 мм
[2] => 150 мм
[3] => 200 мм
[4] => 250 мм
[5] => 300 мм
)
[days] => [5,6,7,8,9,10]
[material_price] => [4560,4300,5119,6292,7010,8583]
[work_price] => [1795,1954,2254,2330,2595,2735]
[image] => https://akademik-stroy.ru/wp-content/uploads/materials/epps.jpg
[area_modifier] => 7.09
[parent_name] => Дополнительное утепление наружных стен
[parent_id] => 17
[material_sum] => 77593
[work_sum] => 25453
[total_sum] => 103046
[total_days] => 5
[display_material_sum] => 77 593
[display_work_sum] => 25 453
[display_total_sum] => 103 046
)
1
103 046₽
Работа:25 453 ₽
Материалы:77 593 ₽
Дни:5
stdClass Object
(
[id] => 130
[attribute_id] => 17
[name] => ПСБ (ППС-пенополистирол)
[material_modifier] => 1
[work_modifier] => 1
[options] => Array
(
[0] => 50 мм
[1] => 100 мм
[2] => 150 мм
[3] => 200 мм
[4] => 250 мм
[5] => 300 мм
)
[days] => [5,6,7,8,9,10]
[material_price] => [4822,5200,5819,6292,7010,7583]
[work_price] => [1795,1954,2254,2330,2595,2735]
[image] => https://akademik-stroy.ru/wp-content/uploads/materials/psb.jpg
[area_modifier] => 7.09
[parent_name] => Дополнительное утепление наружных стен
[parent_id] => 17
[material_sum] => 82051
[work_sum] => 25453
[total_sum] => 107504
[total_days] => 5
[display_material_sum] => 82 051
[display_work_sum] => 25 453
[display_total_sum] => 107 504
)
1
107 504₽
Работа:25 453 ₽
Материалы:82 051 ₽
Дни:5
stdClass Object
(
[id] => 131
[attribute_id] => 17
[name] => ППУ (Пенополиуретан)
[material_modifier] => 1
[work_modifier] => 1
[options] => Array
(
[0] => 50 мм
[1] => 100 мм
[2] => 150 мм
[3] => 200 мм
[4] => 250 мм
[5] => 300 мм
)
[days] => [3,4,5,6,7,8]
[material_price] => [2860,3400,4219,4592,5010,5583]
[work_price] => [729,900,980,1120,1280,1530]
[image] => https://akademik-stroy.ru/wp-content/uploads/materials/ppu.jpg
[area_modifier] => 7.09
[parent_name] => Дополнительное утепление наружных стен
[parent_id] => 17
[material_sum] => 48666
[work_sum] => 10337
[total_sum] => 59003
[total_days] => 3
[display_material_sum] => 48 666
[display_work_sum] => 10 337
[display_total_sum] => 59 003
)
1
59 003₽
Работа:10 337 ₽
Материалы:48 666 ₽
Дни:3
stdClass Object
(
[id] => 132
[attribute_id] => 17
[name] => PIR-плиты (пенополиизоцианурат)
[material_modifier] => 1
[work_modifier] => 1
[options] => Array
(
[0] => 50 мм
[1] => 100 мм
[2] => 150 мм
[3] => 200 мм
[4] => 250 мм
[5] => 300 мм
)
[days] => [5,6,7,8,9,10]
[material_price] => [8323,15645,20968,25900,29258,30581]
[work_price] => [800,900,970,1150,1280,1330]
[image] => https://akademik-stroy.ru/wp-content/uploads/materials/pir.jpg
[area_modifier] => 7.09
[parent_name] => Дополнительное утепление наружных стен
[parent_id] => 17
[material_sum] => 141624
[work_sum] => 11344
[total_sum] => 152968
[total_days] => 5
[display_material_sum] => 141 624
[display_work_sum] => 11 344
[display_total_sum] => 152 968
)
1
152 968₽
Работа:11 344 ₽
Материалы:141 624 ₽
Дни:5
stdClass Object
(
[id] => 37
[attribute_id] => 19
[name] => Нет
[material_modifier] => 1
[work_modifier] => 1
[options] => Array
(
)
[days] => [0]
[material_price] => [0]
[work_price] => [0]
[image] => https://akademik-stroy.ru/wp-content/uploads/materials/imitaciya-brusa.jpg
[area_modifier] => 7.09
[parent_name] => Наружная отделка фасада
[parent_id] => 19
[material_sum] => 0
[work_sum] => 0
[total_sum] => 0
[total_days] => 0
[display_material_sum] => 0
[display_work_sum] => 0
[display_total_sum] => 0
)
1
0₽
Работа:0 ₽
Материалы:0 ₽
Дни:0
stdClass Object
(
[id] => 38
[attribute_id] => 19
[name] => Имитация бруса
[material_modifier] => 1
[work_modifier] => 1
[options] => Array
(
[0] => Сосна
[1] => Ель
[2] => Лиственница
)
[days] => [20,20,20]
[material_price] => [2994,2762,4954]
[work_price] => [1397,1231,1577]
[image] => https://akademik-stroy.ru/wp-content/uploads/materials/imitaciya-brusa.jpg
[area_modifier] => 7.09
[parent_name] => Наружная отделка фасада
[parent_id] => 19
[material_sum] => 50946
[work_sum] => 19809
[total_sum] => 70755
[total_days] => 20
[display_material_sum] => 50 946
[display_work_sum] => 19 809
[display_total_sum] => 70 755
)
1
70 755₽
Работа:19 809 ₽
Материалы:50 946 ₽
Дни:20
stdClass Object
(
[id] => 136
[attribute_id] => 19
[name] => Планкен
[material_modifier] => 1
[work_modifier] => 1
[options] => Array
(
[0] => Сосна
[1] => Ель
[2] => Лиственница
)
[days] => [20,20,20]
[material_price] => [3194,2862,5154]
[work_price] => [1537,1354,1735]
[image] => https://akademik-stroy.ru/wp-content/uploads/materials/planken.jpg
[area_modifier] => 7.09
[parent_name] => Наружная отделка фасада
[parent_id] => 19
[material_sum] => 54349
[work_sum] => 21795
[total_sum] => 76144
[total_days] => 20
[display_material_sum] => 54 349
[display_work_sum] => 21 795
[display_total_sum] => 76 144
)
1
76 144₽
Работа:21 795 ₽
Материалы:54 349 ₽
Дни:20
stdClass Object
(
[id] => 137
[attribute_id] => 19
[name] => Штукатурка
[material_modifier] => 1
[work_modifier] => 1
[options] => Array
(
[0] => Цементно-песчаная (минеральная)
[1] => Мокрый фасад
)
[days] => [35,35]
[material_price] => [2231,3938]
[work_price] => [1202,2422]
[image] => https://akademik-stroy.ru/wp-content/uploads/materials/shtukaturka.jpg
[area_modifier] => 7.09
[parent_name] => Наружная отделка фасада
[parent_id] => 19
[material_sum] => 37963
[work_sum] => 17044
[total_sum] => 55007
[total_days] => 35
[display_material_sum] => 37 963
[display_work_sum] => 17 044
[display_total_sum] => 55 007
)
1
55 007₽
Работа:17 044 ₽
Материалы:37 963 ₽
Дни:35
stdClass Object
(
[id] => 138
[attribute_id] => 19
[name] => Облицовочный кирпич
[material_modifier] => 1
[work_modifier] => 1
[options] => Array
(
[0] => Керамический
[1] => Клинкерный
[2] => Ручной формовки
[3] => Гиперпрессованный
[4] => Силикатный кирпич
)
[days] => [45,45,45,45,45]
[material_price] => [8174,9148,1040,1257,5876]
[work_price] => [3240,3758,4536,4017,3369]
[image] => https://akademik-stroy.ru/wp-content/uploads/materials/oblicovochnyj-kirpich.jpg
[area_modifier] => 7.09
[parent_name] => Наружная отделка фасада
[parent_id] => 19
[material_sum] => 139089
[work_sum] => 45943
[total_sum] => 185032
[total_days] => 45
[display_material_sum] => 139 089
[display_work_sum] => 45 943
[display_total_sum] => 185 032
)
1
185 032₽
Работа:45 943 ₽
Материалы:139 089 ₽
Дни:45
stdClass Object
(
[id] => 139
[attribute_id] => 19
[name] => Фасадная плитка
[material_modifier] => 1
[work_modifier] => 1
[options] => Array
(
[0] => Клинкерная
[1] => Керамическая
[2] => Плитка ручной формовки
)
[days] => [40,40,40]
[material_price] => [2974,1487,3470]
[work_price] => [3007,2592,3629]
[image] => https://akademik-stroy.ru/wp-content/uploads/materials/fasadnaya-plitka.jpg
[area_modifier] => 7.09
[parent_name] => Наружная отделка фасада
[parent_id] => 19
[material_sum] => 50606
[work_sum] => 42639
[total_sum] => 93245
[total_days] => 40
[display_material_sum] => 50 606
[display_work_sum] => 42 639
[display_total_sum] => 93 245
)
1
93 245₽
Работа:42 639 ₽
Материалы:50 606 ₽
Дни:40
stdClass Object
(
[id] => 140
[attribute_id] => 19
[name] => Сайдинг
[material_modifier] => 1
[work_modifier] => 1
[options] => Array
(
[0] => Виниловый
[1] => Металлический
[2] => Фиброцементный
)
[days] => [20,20,20]
[material_price] => [1263,1944,4147]
[work_price] => [1263,1944,2074]
[image] => https://akademik-stroy.ru/wp-content/uploads/materials/sajding.jpg
[area_modifier] => 7.09
[parent_name] => Наружная отделка фасада
[parent_id] => 19
[material_sum] => 21491
[work_sum] => 17909
[total_sum] => 39400
[total_days] => 20
[display_material_sum] => 21 491
[display_work_sum] => 17 909
[display_total_sum] => 39 400
)
1
39 400₽
Работа:17 909 ₽
Материалы:21 491 ₽
Дни:20
stdClass Object
(
[id] => 141
[attribute_id] => 19
[name] => Камень
[material_modifier] => 1
[work_modifier] => 1
[options] => Array
(
[0] => Травертин
[1] => Дагестанский
[2] => Искусственный
[3] => Натуральный
[4] => Керамогранит
)
[days] => [45,45,45,45,45]
[material_price] => [4536,3888,2592,3240,2462]
[work_price] => [3240,3240,2462,3110,1944]
[image] => https://akademik-stroy.ru/wp-content/uploads/materials/kamen-1.jpg
[area_modifier] => 7.09
[parent_name] => Наружная отделка фасада
[parent_id] => 19
[material_sum] => 77185
[work_sum] => 45943
[total_sum] => 123128
[total_days] => 45
[display_material_sum] => 77 185
[display_work_sum] => 45 943
[display_total_sum] => 123 128
)
1
123 128₽
Работа:45 943 ₽
Материалы:77 185 ₽
Дни:45
stdClass Object
(
[id] => 142
[attribute_id] => 19
[name] => Термопанели
[material_modifier] => 1
[work_modifier] => 1
[options] => Array
(
)
[days] => [20]
[material_price] => [6221]
[work_price] => [2333]
[image] => https://akademik-stroy.ru/wp-content/uploads/materials/termo.png
[area_modifier] => 7.09
[parent_name] => Наружная отделка фасада
[parent_id] => 19
[material_sum] => 105857
[work_sum] => 33082
[total_sum] => 138939
[total_days] => 20
[display_material_sum] => 105 857
[display_work_sum] => 33 082
[display_total_sum] => 138 939
)
1
138 939₽
Работа:33 082 ₽
Материалы:105 857 ₽
Дни:20
stdClass Object
(
[id] => 143
[attribute_id] => 19
[name] => Плитка HAUBERK
[material_modifier] => 1
[work_modifier] => 1
[options] => Array
(
)
[days] => [20]
[material_price] => [2786]
[work_price] => [1944]
[image] => https://akademik-stroy.ru/wp-content/uploads/materials/hauberk.jpg
[area_modifier] => 7.09
[parent_name] => Наружная отделка фасада
[parent_id] => 19
[material_sum] => 47407
[work_sum] => 27566
[total_sum] => 74973
[total_days] => 20
[display_material_sum] => 47 407
[display_work_sum] => 27 566
[display_total_sum] => 74 973
)
1
74 973₽
Работа:27 566 ₽
Материалы:47 407 ₽
Дни:20
stdClass Object
(
[id] => 144
[attribute_id] => 19
[name] => Фальцевый фасад
[material_modifier] => 1
[work_modifier] => 1
[options] => Array
(
)
[days] => [20]
[material_price] => [3240]
[work_price] => [2592]
[image] => https://akademik-stroy.ru/wp-content/uploads/materials/falcevyj-fasad.jpg
[area_modifier] => 7.09
[parent_name] => Наружная отделка фасада
[parent_id] => 19
[material_sum] => 55132
[work_sum] => 36755
[total_sum] => 91887
[total_days] => 20
[display_material_sum] => 55 132
[display_work_sum] => 36 755
[display_total_sum] => 91 887
)
1
91 887₽
Работа:36 755 ₽
Материалы:55 132 ₽
Дни:20
stdClass Object
(
[id] => 145
[attribute_id] => 19
[name] => Комбинированный
[material_modifier] => 1
[work_modifier] => 1
[options] => Array
(
)
[days] => [20]
[material_price] => [4629]
[work_price] => [3499]
[image] => https://akademik-stroy.ru/wp-content/uploads/materials/Kombinirovannyj.jpg
[area_modifier] => 7.09
[parent_name] => Наружная отделка фасада
[parent_id] => 19
[material_sum] => 78767
[work_sum] => 49616
[total_sum] => 128383
[total_days] => 20
[display_material_sum] => 78 767
[display_work_sum] => 49 616
[display_total_sum] => 128 383
)
1
128 383₽
Работа:49 616 ₽
Материалы:78 767 ₽
Дни:20
stdClass Object
(
[id] => 257
[attribute_id] => 19
[name] => Японские фиброцементные
[material_modifier] => 1
[work_modifier] => 1
[options] => Array
(
)
[days] => [20]
[material_price] => [7043]
[work_price] => [2993]
[image] => https://akademik-stroy.ru/wp-content/uploads/materials/paneli.jpg
[area_modifier] => 7.09
[parent_name] => Наружная отделка фасада
[parent_id] => 19
[material_sum] => 119844
[work_sum] => 42441
[total_sum] => 162285
[total_days] => 20
[display_material_sum] => 119 844
[display_work_sum] => 42 441
[display_total_sum] => 162 285
)
1
162 285₽
Работа:42 441 ₽
Материалы:119 844 ₽
Дни:20
stdClass Object
(
[id] => 258
[attribute_id] => 19
[name] => Панели Каньон
[material_modifier] => 1
[work_modifier] => 1
[options] => Array
(
)
[days] => [20]
[material_price] => [4543]
[work_price] => [2592]
[image] => https://akademik-stroy.ru/wp-content/uploads/materials/kanon.png
[area_modifier] => 7.09
[parent_name] => Наружная отделка фасада
[parent_id] => 19
[material_sum] => 77304
[work_sum] => 36755
[total_sum] => 114059
[total_days] => 20
[display_material_sum] => 77 304
[display_work_sum] => 36 755
[display_total_sum] => 114 059
)
1
114 059₽
Работа:36 755 ₽
Материалы:77 304 ₽
Дни:20
stdClass Object
(
[id] => 39
[attribute_id] => 20
[name] => Нет
[material_modifier] => 1
[work_modifier] => 1
[options] => Array
(
)
[days] => [0]
[material_price] => [0]
[work_price] => [0]
[image] => https://akademik-stroy.ru/wp-content/uploads/materials/terrasy.jpg
[area_modifier] => 30
[parent_name] => Террасы, крыльца, навесы
[parent_id] => 20
[material_sum] => 0
[work_sum] => 0
[total_sum] => 0
[total_days] => 0
[display_material_sum] => 0
[display_work_sum] => 0
[display_total_sum] => 0
)
1
0₽
Работа:0 ₽
Материалы:0 ₽
Дни:0
stdClass Object
(
[id] => 40
[attribute_id] => 20
[name] => Есть
[material_modifier] => 1
[work_modifier] => 1
[options] => Array
(
)
[days] => [5]
[material_price] => [10450]
[work_price] => [1950]
[image] => https://akademik-stroy.ru/wp-content/uploads/materials/terrasy.jpg
[area_modifier] => 30
[parent_name] => Террасы, крыльца, навесы
[parent_id] => 20
[material_sum] => 752400
[work_sum] => 117000
[total_sum] => 869400
[total_days] => 5
[display_material_sum] => 752 400
[display_work_sum] => 117 000
[display_total_sum] => 869 400
)
1
869 400₽
Работа:117 000 ₽
Материалы:752 400 ₽
Дни:5
stdClass Object
(
[id] => 41
[attribute_id] => 21
[name] => Нет
[material_modifier] => 1
[work_modifier] => 1
[options] => Array
(
)
[days] => [0]
[material_price] => [0]
[work_price] => [0]
[image] => https://akademik-stroy.ru/wp-content/uploads/materials/balkony.jpg
[area_modifier] => 30
[parent_name] => Балконы
[parent_id] => 21
[material_sum] => 0
[work_sum] => 0
[total_sum] => 0
[total_days] => 0
[display_material_sum] => 0
[display_work_sum] => 0
[display_total_sum] => 0
)
1
0₽
Работа:0 ₽
Материалы:0 ₽
Дни:0
stdClass Object
(
[id] => 42
[attribute_id] => 21
[name] => Есть
[material_modifier] => 1
[work_modifier] => 1
[options] => Array
(
)
[days] => [12]
[material_price] => [3600]
[work_price] => [1950]
[image] => https://akademik-stroy.ru/wp-content/uploads/materials/balkony.jpg
[area_modifier] => 30
[parent_name] => Балконы
[parent_id] => 21
[material_sum] => 259200
[work_sum] => 117000
[total_sum] => 376200
[total_days] => 12
[display_material_sum] => 259 200
[display_work_sum] => 117 000
[display_total_sum] => 376 200
)
1
376 200₽
Работа:117 000 ₽
Материалы:259 200 ₽
Дни:12
stdClass Object
(
[id] => 43
[attribute_id] => 22
[name] => Нет
[material_modifier] => 1
[work_modifier] => 1
[options] => Array
(
)
[days] => [0]
[material_price] => [0]
[work_price] => [0]
[image] => https://akademik-stroy.ru/wp-content/uploads/materials/uteplennaya.jpg
[area_modifier] => 7.09
[parent_name] => Отмостка
[parent_id] => 22
[material_sum] => 0
[work_sum] => 0
[total_sum] => 0
[total_days] => 0
[display_material_sum] => 0
[display_work_sum] => 0
[display_total_sum] => 0
)
1
0₽
Работа:0 ₽
Материалы:0 ₽
Дни:0
stdClass Object
(
[id] => 44
[attribute_id] => 22
[name] => Утепленная отмостка
[material_modifier] => 1
[work_modifier] => 1
[options] => Array
(
)
[days] => [15]
[material_price] => [2550]
[work_price] => [1750]
[image] => https://akademik-stroy.ru/wp-content/uploads/materials/uteplennaya.jpg
[area_modifier] => 7.09
[parent_name] => Отмостка
[parent_id] => 22
[material_sum] => 43391
[work_sum] => 24815
[total_sum] => 68206
[total_days] => 15
[display_material_sum] => 43 391
[display_work_sum] => 24 815
[display_total_sum] => 68 206
)
1
68 206₽
Работа:24 815 ₽
Материалы:43 391 ₽
Дни:15
stdClass Object
(
[id] => 146
[attribute_id] => 22
[name] => Не утепленная отмостка
[material_modifier] => 1
[work_modifier] => 1
[options] => Array
(
)
[days] => [10]
[material_price] => [1650]
[work_price] => [1450]
[image] => https://akademik-stroy.ru/wp-content/uploads/materials/ne-uteplennaya.jpg
[area_modifier] => 7.09
[parent_name] => Отмостка
[parent_id] => 22
[material_sum] => 28076
[work_sum] => 20561
[total_sum] => 48637
[total_days] => 10
[display_material_sum] => 28 076
[display_work_sum] => 20 561
[display_total_sum] => 48 637
)
1
48 637₽
Работа:20 561 ₽
Материалы:28 076 ₽
Дни:10
stdClass Object
(
[id] => 45
[attribute_id] => 23
[name] => Нет
[material_modifier] => 1
[work_modifier] => 1
[options] => Array
(
)
[days] => [0]
[material_price] => [0]
[work_price] => [0]
[image] => https://akademik-stroy.ru/wp-content/uploads/materials/drenazh-2.jpg
[area_modifier] => 7.09
[parent_name] => Дренаж вокруг дома
[parent_id] => 23
[material_sum] => 0
[work_sum] => 0
[total_sum] => 0
[total_days] => 0
[display_material_sum] => 0
[display_work_sum] => 0
[display_total_sum] => 0
)
1
0₽
Работа:0 ₽
Материалы:0 ₽
Дни:0
stdClass Object
(
[id] => 46
[attribute_id] => 23
[name] => Есть
[material_modifier] => 1
[work_modifier] => 1
[options] => Array
(
)
[days] => [5]
[material_price] => [2366]
[work_price] => [1911]
[image] => https://akademik-stroy.ru/wp-content/uploads/materials/drenazh-2.jpg
[area_modifier] => 7.09
[parent_name] => Дренаж вокруг дома
[parent_id] => 23
[material_sum] => 40260
[work_sum] => 27098
[total_sum] => 67358
[total_days] => 5
[display_material_sum] => 40 260
[display_work_sum] => 27 098
[display_total_sum] => 67 358
)
1
67 358₽
Работа:27 098 ₽
Материалы:40 260 ₽
Дни:5
stdClass Object
(
[id] => 47
[attribute_id] => 24
[name] => Нет
[material_modifier] => 1
[work_modifier] => 1
[options] => Array
(
)
[days] => [0]
[material_price] => [0]
[work_price] => [0]
[image] => https://akademik-stroy.ru/wp-content/uploads/materials/septik.jpg
[area_modifier] => 1
[parent_name] => Автономная канализация (септики)
[parent_id] => 24
[material_sum] => 0
[work_sum] => 0
[total_sum] => 0
[total_days] => 0
[display_material_sum] => 0
[display_work_sum] => 0
[display_total_sum] => 0
)
1
0₽
Работа:0 ₽
Материалы:0 ₽
Дни:0
stdClass Object
(
[id] => 48
[attribute_id] => 24
[name] => Есть
[material_modifier] => 1
[work_modifier] => 1
[options] => Array
(
[0] => Для дачи на 4 человека
[1] => Для дома на 5 человек
[2] => Для дома на 6 человек
[3] => Для дома на 7 человек
[4] => Для дома на 10 человек
)
[days] => [7,7,7,8,8]
[material_price] => [196340,220500,240940,264200,293340]
[work_price] => [50000,55000,60500,66550,73206]
[image] => https://akademik-stroy.ru/wp-content/uploads/materials/septik.jpg
[area_modifier] => 1
[parent_name] => Автономная канализация (септики)
[parent_id] => 24
[material_sum] => 471216
[work_sum] => 100000
[total_sum] => 571216
[total_days] => 7
[display_material_sum] => 471 216
[display_work_sum] => 100 000
[display_total_sum] => 571 216
)
1
571 216₽
Работа:100 000 ₽
Материалы:471 216 ₽
Дни:7
stdClass Object
(
[id] => 49
[attribute_id] => 25
[name] => Нет
[material_modifier] => 1
[work_modifier] => 1
[options] => Array
(
)
[days] => [0]
[material_price] => [0]
[work_price] => [0]
[image] => https://akademik-stroy.ru/wp-content/uploads/materials/gkl.jpg
[area_modifier] => 7.09
[parent_name] => Внутренние (не несущие) перегородки
[parent_id] => 25
[material_sum] => 0
[work_sum] => 0
[total_sum] => 0
[total_days] => 0
[display_material_sum] => 0
[display_work_sum] => 0
[display_total_sum] => 0
)
1
0₽
Работа:0 ₽
Материалы:0 ₽
Дни:0
stdClass Object
(
[id] => 147
[attribute_id] => 25
[name] => Каркасно-обшивные
[material_modifier] => 1
[work_modifier] => 1
[options] => Array
(
[0] => 75 мм (без шумоизоляции)
[1] => 75 мм (с шумоизоляцией)
)
[days] => [11,11]
[material_price] => [580,970]
[work_price] => [380,570]
[image] => https://akademik-stroy.ru/wp-content/uploads/materials/gkl.jpg
[area_modifier] => 7.09
[parent_name] => Внутренние (не несущие) перегородки
[parent_id] => 25
[material_sum] => 9869
[work_sum] => 5388
[total_sum] => 15257
[total_days] => 11
[display_material_sum] => 9 869
[display_work_sum] => 5 388
[display_total_sum] => 15 257
)
1
15 257₽
Работа:5 388 ₽
Материалы:9 869 ₽
Дни:11
stdClass Object
(
[id] => 148
[attribute_id] => 25
[name] => Пазогребневые
[material_modifier] => 1
[work_modifier] => 1
[options] => Array
(
[0] => 80 мм
[1] => 100 мм
)
[days] => [5,5]
[material_price] => [1022,1313]
[work_price] => [600,700]
[image] => https://akademik-stroy.ru/wp-content/uploads/materials/pazogrebnevye-bloki.jpg
[area_modifier] => 7.09
[parent_name] => Внутренние (не несущие) перегородки
[parent_id] => 25
[material_sum] => 17390
[work_sum] => 8508
[total_sum] => 25898
[total_days] => 5
[display_material_sum] => 17 390
[display_work_sum] => 8 508
[display_total_sum] => 25 898
)
1
25 898₽
Работа:8 508 ₽
Материалы:17 390 ₽
Дни:5
stdClass Object
(
[id] => 149
[attribute_id] => 25
[name] => Газобетонные
[material_modifier] => 1
[work_modifier] => 1
[options] => Array
(
[0] => 100 мм
[1] => 200 мм
)
[days] => [11,11]
[material_price] => [1160,1920]
[work_price] => [700,900]
[image] => https://akademik-stroy.ru/wp-content/uploads/materials/gazobeton-2.jpg
[area_modifier] => 7.09
[parent_name] => Внутренние (не несущие) перегородки
[parent_id] => 25
[material_sum] => 19739
[work_sum] => 9926
[total_sum] => 29665
[total_days] => 11
[display_material_sum] => 19 739
[display_work_sum] => 9 926
[display_total_sum] => 29 665
)
1
29 665₽
Работа:9 926 ₽
Материалы:19 739 ₽
Дни:11
stdClass Object
(
[id] => 150
[attribute_id] => 25
[name] => Кирпичные
[material_modifier] => 1
[work_modifier] => 1
[options] => Array
(
[0] => 120 мм
[1] => 250 мм
[2] => 360 мм
)
[days] => [7,7,7]
[material_price] => [1785,3570,5355]
[work_price] => [900,1600,1800]
[image] => https://akademik-stroy.ru/wp-content/uploads/materials/kirpich-1.jpg
[area_modifier] => 7.09
[parent_name] => Внутренние (не несущие) перегородки
[parent_id] => 25
[material_sum] => 30374
[work_sum] => 12762
[total_sum] => 43136
[total_days] => 7
[display_material_sum] => 30 374
[display_work_sum] => 12 762
[display_total_sum] => 43 136
)
1
43 136₽
Работа:12 762 ₽
Материалы:30 374 ₽
Дни:7
stdClass Object
(
[id] => 55
[attribute_id] => 28
[name] => Нет
[material_modifier] => 1
[work_modifier] => 1
[options] => Array
(
)
[days] => [0]
[material_price] => [0]
[work_price] => [0]
[image] => https://akademik-stroy.ru/wp-content/uploads/materials/ehlektrika.jpg
[area_modifier] => 5.75
[parent_name] => Электрика
[parent_id] => 28
[material_sum] => 0
[work_sum] => 0
[total_sum] => 0
[total_days] => 0
[display_material_sum] => 0
[display_work_sum] => 0
[display_total_sum] => 0
)
1
0₽
Работа:0 ₽
Материалы:0 ₽
Дни:0
stdClass Object
(
[id] => 56
[attribute_id] => 28
[name] => Есть
[material_modifier] => 1
[work_modifier] => 1
[options] => Array
(
)
[days] => [10]
[material_price] => [650]
[work_price] => [950]
[image] => https://akademik-stroy.ru/wp-content/uploads/materials/ehlektrika.jpg
[area_modifier] => 5.75
[parent_name] => Электрика
[parent_id] => 28
[material_sum] => 8970
[work_sum] => 10925
[total_sum] => 19895
[total_days] => 10
[display_material_sum] => 8 970
[display_work_sum] => 10 925
[display_total_sum] => 19 895
)
1
19 895₽
Работа:10 925 ₽
Материалы:8 970 ₽
Дни:10
stdClass Object
(
[id] => 57
[attribute_id] => 29
[name] => Нет
[material_modifier] => 1
[work_modifier] => 1
[options] => Array
(
)
[days] => [0]
[material_price] => [0]
[work_price] => [0]
[image] => https://akademik-stroy.ru/wp-content/uploads/materials/santekhnika-kanalizaciya-1.jpg
[area_modifier] => 5.75
[parent_name] => Сантехника, канализация в доме
[parent_id] => 29
[material_sum] => 0
[work_sum] => 0
[total_sum] => 0
[total_days] => 0
[display_material_sum] => 0
[display_work_sum] => 0
[display_total_sum] => 0
)
1
0₽
Работа:0 ₽
Материалы:0 ₽
Дни:0
stdClass Object
(
[id] => 58
[attribute_id] => 29
[name] => Есть
[material_modifier] => 1
[work_modifier] => 1
[options] => Array
(
)
[days] => [10]
[material_price] => [600]
[work_price] => [730]
[image] => https://akademik-stroy.ru/wp-content/uploads/materials/santekhnika-kanalizaciya-1.jpg
[area_modifier] => 5.75
[parent_name] => Сантехника, канализация в доме
[parent_id] => 29
[material_sum] => 8280
[work_sum] => 8395
[total_sum] => 16675
[total_days] => 10
[display_material_sum] => 8 280
[display_work_sum] => 8 395
[display_total_sum] => 16 675
)
1
16 675₽
Работа:8 395 ₽
Материалы:8 280 ₽
Дни:10
stdClass Object
(
[id] => 59
[attribute_id] => 30
[name] => Нет
[material_modifier] => 1
[work_modifier] => 1
[options] => Array
(
)
[days] => [0]
[material_price] => [0]
[work_price] => [0]
[image] => https://akademik-stroy.ru/wp-content/uploads/materials/otoplenie-1.jpg
[area_modifier] => 5.75
[parent_name] => Отопление
[parent_id] => 30
[material_sum] => 0
[work_sum] => 0
[total_sum] => 0
[total_days] => 0
[display_material_sum] => 0
[display_work_sum] => 0
[display_total_sum] => 0
)
1
0₽
Работа:0 ₽
Материалы:0 ₽
Дни:0
stdClass Object
(
[id] => 60
[attribute_id] => 30
[name] => Есть
[material_modifier] => 1
[work_modifier] => 1
[options] => Array
(
)
[days] => [5]
[material_price] => [610]
[work_price] => [560]
[image] => https://akademik-stroy.ru/wp-content/uploads/materials/otoplenie-1.jpg
[area_modifier] => 5.75
[parent_name] => Отопление
[parent_id] => 30
[material_sum] => 8418
[work_sum] => 6440
[total_sum] => 14858
[total_days] => 5
[display_material_sum] => 8 418
[display_work_sum] => 6 440
[display_total_sum] => 14 858
)
1
14 858₽
Работа:6 440 ₽
Материалы:8 418 ₽
Дни:5
stdClass Object
(
[id] => 61
[attribute_id] => 31
[name] => Нет
[material_modifier] => 1
[work_modifier] => 1
[options] => Array
(
)
[days] => [0]
[material_price] => [0]
[work_price] => [0]
[image] => https://akademik-stroy.ru/wp-content/uploads/materials/vodyanye.jpg
[area_modifier] => 30
[parent_name] => Теплые полы
[parent_id] => 31
[material_sum] => 0
[work_sum] => 0
[total_sum] => 0
[total_days] => 0
[display_material_sum] => 0
[display_work_sum] => 0
[display_total_sum] => 0
)
1
0₽
Работа:0 ₽
Материалы:0 ₽
Дни:0
stdClass Object
(
[id] => 151
[attribute_id] => 31
[name] => Водяные
[material_modifier] => 1
[work_modifier] => 1
[options] => Array
(
)
[days] => [9]
[material_price] => [10200]
[work_price] => [2500]
[image] => https://akademik-stroy.ru/wp-content/uploads/materials/vodyanye.jpg
[area_modifier] => 30
[parent_name] => Теплые полы
[parent_id] => 31
[material_sum] => 734400
[work_sum] => 150000
[total_sum] => 884400
[total_days] => 9
[display_material_sum] => 734 400
[display_work_sum] => 150 000
[display_total_sum] => 884 400
)
1
884 400₽
Работа:150 000 ₽
Материалы:734 400 ₽
Дни:9
stdClass Object
(
[id] => 152
[attribute_id] => 31
[name] => Электро
[material_modifier] => 1
[work_modifier] => 1
[options] => Array
(
)
[days] => [5]
[material_price] => [6300]
[work_price] => [1500]
[image] => https://akademik-stroy.ru/wp-content/uploads/materials/ehlektricheskij.jpg
[area_modifier] => 30
[parent_name] => Теплые полы
[parent_id] => 31
[material_sum] => 453600
[work_sum] => 90000
[total_sum] => 543600
[total_days] => 5
[display_material_sum] => 453 600
[display_work_sum] => 90 000
[display_total_sum] => 543 600
)
1
543 600₽
Работа:90 000 ₽
Материалы:453 600 ₽
Дни:5
stdClass Object
(
[id] => 63
[attribute_id] => 32
[name] => Нет
[material_modifier] => 1
[work_modifier] => 1
[options] => Array
(
)
[days] => [0]
[material_price] => [0]
[work_price] => [0]
[image] => https://akademik-stroy.ru/wp-content/uploads/materials/shtukaturka-shpatlevka-1.jpg
[area_modifier] => 5.75
[parent_name] => Черновая отделка стен
[parent_id] => 32
[material_sum] => 0
[work_sum] => 0
[total_sum] => 0
[total_days] => 0
[display_material_sum] => 0
[display_work_sum] => 0
[display_total_sum] => 0
)
1
0₽
Работа:0 ₽
Материалы:0 ₽
Дни:0
stdClass Object
(
[id] => 153
[attribute_id] => 32
[name] => Штукатурка и шпатлевка
[material_modifier] => 1
[work_modifier] => 1
[options] => Array
(
)
[days] => [20]
[material_price] => [1850]
[work_price] => [2600]
[image] => https://akademik-stroy.ru/wp-content/uploads/materials/shtukaturka-shpatlevka-1.jpg
[area_modifier] => 5.75
[parent_name] => Черновая отделка стен
[parent_id] => 32
[material_sum] => 25530
[work_sum] => 29900
[total_sum] => 55430
[total_days] => 20
[display_material_sum] => 25 530
[display_work_sum] => 29 900
[display_total_sum] => 55 430
)
1
55 430₽
Работа:29 900 ₽
Материалы:25 530 ₽
Дни:20
stdClass Object
(
[id] => 154
[attribute_id] => 32
[name] => Гипсокортон на стены
[material_modifier] => 1
[work_modifier] => 1
[options] => Array
(
)
[days] => [15]
[material_price] => [950]
[work_price] => [2100]
[image] => https://akademik-stroy.ru/wp-content/uploads/materials/gkl-1.jpg
[area_modifier] => 5.75
[parent_name] => Черновая отделка стен
[parent_id] => 32
[material_sum] => 13110
[work_sum] => 24150
[total_sum] => 37260
[total_days] => 15
[display_material_sum] => 13 110
[display_work_sum] => 24 150
[display_total_sum] => 37 260
)
1
37 260₽
Работа:24 150 ₽
Материалы:13 110 ₽
Дни:15
stdClass Object
(
[id] => 155
[attribute_id] => 32
[name] => Вагонка
[material_modifier] => 1
[work_modifier] => 1
[options] => Array
(
)
[days] => [15]
[material_price] => [1250]
[work_price] => [950]
[image] => https://akademik-stroy.ru/wp-content/uploads/materials/vagonka.jpg
[area_modifier] => 5.75
[parent_name] => Черновая отделка стен
[parent_id] => 32
[material_sum] => 17250
[work_sum] => 10925
[total_sum] => 28175
[total_days] => 15
[display_material_sum] => 17 250
[display_work_sum] => 10 925
[display_total_sum] => 28 175
)
1
28 175₽
Работа:10 925 ₽
Материалы:17 250 ₽
Дни:15
stdClass Object
(
[id] => 65
[attribute_id] => 33
[name] => Нет
[material_modifier] => 1
[work_modifier] => 1
[options] => Array
(
)
[days] => [0]
[material_price] => [0]
[work_price] => [0]
[image] => https://akademik-stroy.ru/wp-content/uploads/materials/styazhka.jpg
[area_modifier] => 5.75
[parent_name] => Черновая отделка полов
[parent_id] => 33
[material_sum] => 0
[work_sum] => 0
[total_sum] => 0
[total_days] => 0
[display_material_sum] => 0
[display_work_sum] => 0
[display_total_sum] => 0
)
1
0₽
Работа:0 ₽
Материалы:0 ₽
Дни:0
stdClass Object
(
[id] => 156
[attribute_id] => 33
[name] => Стяжка + наливные полы
[material_modifier] => 1
[work_modifier] => 1
[options] => Array
(
)
[days] => [10]
[material_price] => [1000]
[work_price] => [900]
[image] => https://akademik-stroy.ru/wp-content/uploads/materials/styazhka.jpg
[area_modifier] => 5.75
[parent_name] => Черновая отделка полов
[parent_id] => 33
[material_sum] => 13800
[work_sum] => 10350
[total_sum] => 24150
[total_days] => 10
[display_material_sum] => 13 800
[display_work_sum] => 10 350
[display_total_sum] => 24 150
)
1
24 150₽
Работа:10 350 ₽
Материалы:13 800 ₽
Дни:10
stdClass Object
(
[id] => 157
[attribute_id] => 33
[name] => ОСБ на пол
[material_modifier] => 1
[work_modifier] => 1
[options] => Array
(
)
[days] => [7]
[material_price] => [580]
[work_price] => [350]
[image] => https://akademik-stroy.ru/wp-content/uploads/materials/osb-1.jpg
[area_modifier] => 5.75
[parent_name] => Черновая отделка полов
[parent_id] => 33
[material_sum] => 8004
[work_sum] => 4025
[total_sum] => 12029
[total_days] => 7
[display_material_sum] => 8 004
[display_work_sum] => 4 025
[display_total_sum] => 12 029
)
1
12 029₽
Работа:4 025 ₽
Материалы:8 004 ₽
Дни:7
stdClass Object
(
[id] => 67
[attribute_id] => 34
[name] => Нет
[material_modifier] => 1
[work_modifier] => 1
[options] => Array
(
)
[days] => [0]
[material_price] => [0]
[work_price] => [0]
[image] => https://akademik-stroy.ru/wp-content/uploads/materials/chistovaya-otdelka.jpg
[area_modifier] => 5.75
[parent_name] => Чистовая отделка стен и полов
[parent_id] => 34
[material_sum] => 0
[work_sum] => 0
[total_sum] => 0
[total_days] => 0
[display_material_sum] => 0
[display_work_sum] => 0
[display_total_sum] => 0
)
1
0₽
Работа:0 ₽
Материалы:0 ₽
Дни:0
stdClass Object
(
[id] => 68
[attribute_id] => 34
[name] => Есть
[material_modifier] => 1
[work_modifier] => 1
[options] => Array
(
)
[days] => [50]
[material_price] => [6000]
[work_price] => [3500]
[image] => https://akademik-stroy.ru/wp-content/uploads/materials/chistovaya-otdelka.jpg
[area_modifier] => 5.75
[parent_name] => Чистовая отделка стен и полов
[parent_id] => 34
[material_sum] => 82800
[work_sum] => 40250
[total_sum] => 123050
[total_days] => 50
[display_material_sum] => 82 800
[display_work_sum] => 40 250
[display_total_sum] => 123 050
)
1
123 050₽
Работа:40 250 ₽
Материалы:82 800 ₽
Дни:50
stdClass Object
(
[id] => 69
[attribute_id] => 35
[name] => Нет
[material_modifier] => 1
[work_modifier] => 1
[options] => Array
(
)
[days] => [0]
[material_price] => [0]
[work_price] => [0]
[image] => https://akademik-stroy.ru/wp-content/uploads/materials/mnogourovnevyj-gkl.jpg
[area_modifier] => 5.75
[parent_name] => Отделка потолка
[parent_id] => 35
[material_sum] => 0
[work_sum] => 0
[total_sum] => 0
[total_days] => 0
[display_material_sum] => 0
[display_work_sum] => 0
[display_total_sum] => 0
)
1
0₽
Работа:0 ₽
Материалы:0 ₽
Дни:0
stdClass Object
(
[id] => 70
[attribute_id] => 35
[name] => Есть
[material_modifier] => 1
[work_modifier] => 1
[options] => Array
(
[0] => Многоуровневый потолок из гипсокартона
[1] => Многоуровневый потолок из гипсокартона и натяжного потолка
[2] => Одноуровневый потолок из гипсокартона
[3] => Одноуровневый натяжной потолок
)
[days] => [10,10,1,1]
[material_price] => [900,700,700,600]
[work_price] => [1000,800,500,300]
[image] => https://akademik-stroy.ru/wp-content/uploads/materials/mnogourovnevyj-gkl.jpg
[area_modifier] => 5.75
[parent_name] => Отделка потолка
[parent_id] => 35
[material_sum] => 12420
[work_sum] => 11500
[total_sum] => 23920
[total_days] => 10
[display_material_sum] => 12 420
[display_work_sum] => 11 500
[display_total_sum] => 23 920
)
1
23 920₽
Работа:11 500 ₽
Материалы:12 420 ₽
Дни:10
Преимущества работы с нами
7 этапов оплаты
Независимый строительный надзор
Экологически чистые материалы
16 лет гарантии
Онлайн-кабинет с веб-камерой
Строители с опытом более 15 лет
Собственное производство

