Одноэтажный гараж 70.69 м2 за руб.
154 м2
Полезная
площадь
площадь
1 этаж
Этажей
26 м2
Террасы
и балконы
и балконы
0Без
гаража
гаража
0
Количество
спален
спален
0
Количество
санузлов
санузлов
Планировки
Первый этаж
- 1. (m²) 70,69
- Гараж на 3 машины 70,69
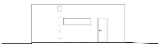
Фасады
Передний
Задний
Левый
Правый
Подробная информация
Полезная площадь
70,69 m²
Количество спален
0
Количество санузлов
0
Гараж
3
Мин. шир. и дл. участка
19 x 15 m
Угол наклона крыши
1°
Наклон ската крыши в градусах. Внимание! В некоторых проектах возникает более чем один наклон крыши.
Вид материалов
Murowana
Материалы и опции
Общие
Площади дома
| № п/п | Наименование | Ед. из. | Строительная площадь | Полезная площадь |
| 1 | 1 этаж | м2 | 87.11 | 70.69 |
| 2 | Итого | м2 | 87.11 | 70.69 |
Калькулятор опций
0₽
В ипотеку от 15 611 ₽/мес.
0₽
0 дней
stdClass Object
(
[id] => 1
[attribute_id] => 1
[name] => Ленточный монолитный ж/б
[material_modifier] => 1
[work_modifier] => 1
[options] => Array
(
[0] => размер 200 х 700 мм
[1] => размер 300 х 900 мм
[2] => размер 400 х 1 000 мм
[3] => размер 500 х 1 100 мм
[4] => размер 600 х 1 200 мм
)
[days] => [20,21,22,25,30]
[material_price] => [2823,3630,4475,5210,12047]
[work_price] => [2154,2826,3731,4577,5293]
[image] => https://akademik-stroy.ru/wp-content/uploads/materials/lentochnyj-monolitnyj-zh-b.jpg
[area_modifier] => 87.11
[parent_name] => Фундамент
[parent_id] => 1
[material_sum] => 413131
[work_sum] => 262689
[total_sum] => 675820
[total_days] => 20
[display_material_sum] => 413 131
[display_work_sum] => 262 689
[display_total_sum] => 675 820
)
1
675 820₽
Работа:262 689 ₽
Материалы:413 131 ₽
Дни:20
stdClass Object
(
[id] => 2
[attribute_id] => 1
[name] => Забивные Ж/Б сваи
[material_modifier] => 1
[work_modifier] => 1
[options] => Array
(
[0] => 150х150х3000мм
[1] => 150х150х4000мм
[2] => 200х200х3000мм
[3] => 200х200х4000мм
[4] => 200х200х5000мм
[5] => 200х200х6000мм
)
[days] => [2,2,2,2,2,2]
[material_price] => [1990,2850,3255,4360,5120,6837]
[work_price] => [1002,1185,1336,1438,1574,1839]
[image] => https://akademik-stroy.ru/wp-content/uploads/materials/zabivnye-zh-b-svai.png
[area_modifier] => 87.11
[parent_name] => Фундамент
[parent_id] => 1
[material_sum] => 291226
[work_sum] => 122198
[total_sum] => 413424
[total_days] => 2
[display_material_sum] => 291 226
[display_work_sum] => 122 198
[display_total_sum] => 413 424
)
1
413 424₽
Работа:122 198 ₽
Материалы:291 226 ₽
Дни:2
stdClass Object
(
[id] => 71
[attribute_id] => 1
[name] => Свайно-ростверковый ж/б
[material_modifier] => 1
[work_modifier] => 1
[options] => Array
(
[0] => ростверк 200х300 мм
[1] => ростверк 300х600 мм
[2] => ростверк 400х900 мм
[3] => ростверк 500х1200 мм
)
[days] => [20,23,25,27]
[material_price] => [3018,3474,7109,9792]
[work_price] => [2024,3012,5635,7022]
[image] => https://akademik-stroy.ru/wp-content/uploads/materials/svajno-rostverkovyj-monolitnyj-zh-b-3.png
[area_modifier] => 87.11
[parent_name] => Фундамент
[parent_id] => 1
[material_sum] => 441669
[work_sum] => 246835
[total_sum] => 688504
[total_days] => 20
[display_material_sum] => 441 669
[display_work_sum] => 246 835
[display_total_sum] => 688 504
)
1
688 504₽
Работа:246 835 ₽
Материалы:441 669 ₽
Дни:20
stdClass Object
(
[id] => 72
[attribute_id] => 1
[name] => Монолитная ж/б плита
[material_modifier] => 1
[work_modifier] => 1
[options] => Array
(
[0] => 200 мм
[1] => 300 мм
[2] => 400 мм
[3] => 500 мм
[4] => 600 мм
)
[days] => [30,33,35,37,40]
[material_price] => [5348,8555,12788,14388,15189]
[work_price] => [4314,4881,7037,8061,10230]
[image] => https://akademik-stroy.ru/wp-content/uploads/materials/monolitnaya-zhb-plita.png
[area_modifier] => 87.11
[parent_name] => Фундамент
[parent_id] => 1
[material_sum] => 782652
[work_sum] => 526110
[total_sum] => 1308762
[total_days] => 30
[display_material_sum] => 782 652
[display_work_sum] => 526 110
[display_total_sum] => 1 308 762
)
1
1 308 762₽
Работа:526 110 ₽
Материалы:782 652 ₽
Дни:30
stdClass Object
(
[id] => 73
[attribute_id] => 1
[name] => Утепленная шведская плита
[material_modifier] => 1
[work_modifier] => 1
[options] => Array
(
[0] => 200 мм
[1] => 300 мм
[2] => 400 мм
[3] => 500 мм
[4] => 600 мм
)
[days] => [32,37,39,42,45]
[material_price] => [10249,12692,13760,14936,16230]
[work_price] => [5960,7337,8072,8878,9765]
[image] => https://akademik-stroy.ru/wp-content/uploads/materials/uteplennaya-shvedskaya-plita.jpg
[area_modifier] => 87.11
[parent_name] => Фундамент
[parent_id] => 1
[material_sum] => 1499888
[work_sum] => 726846
[total_sum] => 2226734
[total_days] => 32
[display_material_sum] => 1 499 888
[display_work_sum] => 726 846
[display_total_sum] => 2 226 734
)
1
2 226 734₽
Работа:726 846 ₽
Материалы:1 499 888 ₽
Дни:32
stdClass Object
(
[id] => 75
[attribute_id] => 1
[name] => Ленточный из ФБС
[material_modifier] => 1
[work_modifier] => 1
[options] => Array
(
[0] => толщ. 300 мм
[1] => толщ. 400 мм
[2] => толщ. 500 мм
[3] => толщ. 600 мм
)
[days] => [20,20,20,20]
[material_price] => [3675,4902,6126,7350]
[work_price] => [2451,3264,4083,4902]
[image] => https://akademik-stroy.ru/wp-content/uploads/materials/lentochnyj-iz-fbs.png
[area_modifier] => 87.11
[parent_name] => Фундамент
[parent_id] => 1
[material_sum] => 537817
[work_sum] => 298909
[total_sum] => 836726
[total_days] => 20
[display_material_sum] => 537 817
[display_work_sum] => 298 909
[display_total_sum] => 836 726
)
1
836 726₽
Работа:298 909 ₽
Материалы:537 817 ₽
Дни:20
stdClass Object
(
[id] => 76
[attribute_id] => 1
[name] => Цокольный этаж из ФБС
[material_modifier] => 1
[work_modifier] => 1
[options] => Array
(
[0] => толщ. 300 мм
[1] => толщ. 400 мм
[2] => толщ. 500 мм
[3] => толщ. 600 мм
)
[days] => [30,32,34,36]
[material_price] => [20916,23299,26680,29060]
[work_price] => [17524,18700,19873,21046]
[image] => https://akademik-stroy.ru/wp-content/uploads/materials/cokolnyj-ehtazh-iz-fbs.jpg
[area_modifier] => 87.11
[parent_name] => Фундамент
[parent_id] => 1
[material_sum] => 3060948
[work_sum] => 2137122
[total_sum] => 5198070
[total_days] => 30
[display_material_sum] => 3 060 948
[display_work_sum] => 2 137 122
[display_total_sum] => 5 198 070
)
1
5 198 070₽
Работа:2 137 122 ₽
Материалы:3 060 948 ₽
Дни:30
stdClass Object
(
[id] => 77
[attribute_id] => 1
[name] => Цокольный этаж монолитный ж/б
[material_modifier] => 1
[work_modifier] => 1
[options] => Array
(
[0] => толщ. 200 мм
[1] => толщ. 300 мм
[2] => толщ. 400 мм
[3] => толщ. 500 мм
[4] => толщ. 600 мм
)
[days] => [40,42,44,46,48]
[material_price] => [25421,29148,32275,35602,37326]
[work_price] => [20441,21907,23375,24841,26306]
[image] => https://akademik-stroy.ru/wp-content/uploads/materials/cokolnyj-etazh-zh-b.jpg
[area_modifier] => 87.11
[parent_name] => Фундамент
[parent_id] => 1
[material_sum] => 3720231
[work_sum] => 2492862
[total_sum] => 6213093
[total_days] => 40
[display_material_sum] => 3 720 231
[display_work_sum] => 2 492 862
[display_total_sum] => 6 213 093
)
1
6 213 093₽
Работа:2 492 862 ₽
Материалы:3 720 231 ₽
Дни:40
stdClass Object
(
[id] => 191
[attribute_id] => 1
[name] => Винтовые сваи
[material_modifier] => 1
[work_modifier] => 1
[options] => Array
(
[0] => 57х200мм
[1] => 76х250мм
[2] => 108х300мм
[3] => 133х350мм
)
[days] => [1,1,2,2]
[material_price] => [1200,1300,1450,1600]
[work_price] => [400,600,900,1100]
[image] => https://akademik-stroy.ru/wp-content/uploads/materials/vintovye-svai.png
[area_modifier] => 87.11
[parent_name] => Фундамент
[parent_id] => 1
[material_sum] => 175614
[work_sum] => 48782
[total_sum] => 224396
[total_days] => 1
[display_material_sum] => 175 614
[display_work_sum] => 48 782
[display_total_sum] => 224 396
)
1
224 396₽
Работа:48 782 ₽
Материалы:175 614 ₽
Дни:1
stdClass Object
(
[id] => 3
[attribute_id] => 2
[name] => Деревянные балки
[material_modifier] => 1
[work_modifier] => 1
[options] => Array
(
[0] => без утепления
[1] => утепление 200 мм
[2] => утепление 250 мм
[3] => утепление 300 мм
[4] => утепление 350 мм
[5] => утепление 400 мм
[6] => утепление 450 мм
[7] => утепление 500 мм
)
[days] => [8,9,9,9,11,12,13,14]
[material_price] => [1634,2042,2344,2947,3149,3652,3354,3557]
[work_price] => [1230,1339,1393,1426,1460,1513,1587,1620]
[image] => https://akademik-stroy.ru/wp-content/uploads/materials/derevyannye-balki.png
[area_modifier] => 87.11
[parent_name] => Перекрытие цоколя
[parent_id] => 2
[material_sum] => 239127
[work_sum] => 150003
[total_sum] => 389130
[total_days] => 8
[display_material_sum] => 239 127
[display_work_sum] => 150 003
[display_total_sum] => 389 130
)
1
389 130₽
Работа:150 003 ₽
Материалы:239 127 ₽
Дни:8
stdClass Object
(
[id] => 4
[attribute_id] => 2
[name] => Сборные ж/б плиты
[material_modifier] => 1
[work_modifier] => 1
[options] => Array
(
[0] => без утепления
[1] => утепление 150мм
[2] => утепление 200мм
[3] => утепление 250мм
[4] => утепление 300мм
[5] => утепление 350мм
[6] => утепление 400мм
[7] => утепление 450мм
[8] => утепление 500мм
)
[days] => [13,15,15,15,15,15,15,15,15]
[material_price] => [3067,5577,5928,6679,7730,8782,9833,10884,11935]
[work_price] => [1520,1956,2102,2247,2392,2537,2684,2829,2974]
[image] => https://akademik-stroy.ru/wp-content/uploads/materials/sbornye-zh-b-plity-2.jpg
[area_modifier] => 87.11
[parent_name] => Перекрытие цоколя
[parent_id] => 2
[material_sum] => 448840
[work_sum] => 185370
[total_sum] => 634210
[total_days] => 13
[display_material_sum] => 448 840
[display_work_sum] => 185 370
[display_total_sum] => 634 210
)
1
634 210₽
Работа:185 370 ₽
Материалы:448 840 ₽
Дни:13
stdClass Object
(
[id] => 78
[attribute_id] => 2
[name] => Монолитная ж/б плита
[material_modifier] => 1
[work_modifier] => 1
[options] => Array
(
[0] => без утепления
[1] => утепление 150 мм
[2] => утепление 200 мм
[3] => утепление 250 мм
[4] => утепление 300 мм
[5] => утепление 350 мм
[6] => утепление 400 мм
[7] => утепление 450 мм
[8] => утепление 500 мм
)
[days] => [18,20,20,20,20,20,20,20,20]
[material_price] => [4837,6572,7224,7375,79426,8177,8728,9180,10031]
[work_price] => [3348,3921,4112,4302,4493,4684,4875,5066,5256]
[image] => https://akademik-stroy.ru/wp-content/uploads/materials/monolitnaya-zh-b-plita-2.jpg
[area_modifier] => 87.11
[parent_name] => Перекрытие цоколя
[parent_id] => 2
[material_sum] => 707870
[work_sum] => 408302
[total_sum] => 1116172
[total_days] => 18
[display_material_sum] => 707 870
[display_work_sum] => 408 302
[display_total_sum] => 1 116 172
)
1
1 116 172₽
Работа:408 302 ₽
Материалы:707 870 ₽
Дни:18
stdClass Object
(
[id] => 6
[attribute_id] => 3
[name] => Пеноблок
[material_modifier] => 1
[work_modifier] => 1
[options] => Array
(
[0] => 300 мм
[1] => 400 мм
[2] => 500 мм
[3] => 600 мм
)
[days] => [29,31,34,39]
[material_price] => [3000,4000,4500,4937]
[work_price] => [5033,5805,6400,8710]
[image] => https://akademik-stroy.ru/wp-content/uploads/materials/penoblok.jpg
[area_modifier] => 87.11
[parent_name] => Стены 1 этаж (несущие)
[parent_id] => 3
[material_sum] => 439034
[work_sum] => 613794
[total_sum] => 1052828
[total_days] => 29
[display_material_sum] => 439 034
[display_work_sum] => 613 794
[display_total_sum] => 1 052 828
)
1
1 052 828₽
Работа:613 794 ₽
Материалы:439 034 ₽
Дни:29
stdClass Object
(
[id] => 79
[attribute_id] => 3
[name] => Керамический блок
[material_modifier] => 1
[work_modifier] => 1
[options] => Array
(
[0] => 380 мм
[1] => 380 мм Thermo
[2] => 440 мм
[3] => 510 мм
)
[days] => [23,23,24,25]
[material_price] => [4510,5098,6093,8013]
[work_price] => [4737,4937,5903,6958]
[image] => https://akademik-stroy.ru/wp-content/uploads/materials/keramicheskij-blok.jpg
[area_modifier] => 87.11
[parent_name] => Стены 1 этаж (несущие)
[parent_id] => 3
[material_sum] => 660015
[work_sum] => 577696
[total_sum] => 1237711
[total_days] => 23
[display_material_sum] => 660 015
[display_work_sum] => 577 696
[display_total_sum] => 1 237 711
)
1
1 237 711₽
Работа:577 696 ₽
Материалы:660 015 ₽
Дни:23
stdClass Object
(
[id] => 80
[attribute_id] => 3
[name] => Кирпич
[material_modifier] => 1
[work_modifier] => 1
[options] => Array
(
[0] => Кирпич 250 мм
[1] => Кирпич 380 мм
[2] => Кирпич 510 мм
[3] => Кирпич 640 мм
[4] => Кирпич 770 мм
)
[days] => [30,30,31,33,36]
[material_price] => [5500,7142,9206,10171,12235]
[work_price] => [8736,10041,12018,15240,18462]
[image] => https://akademik-stroy.ru/wp-content/uploads/materials/kirpich.jpg
[area_modifier] => 87.11
[parent_name] => Стены 1 этаж (несущие)
[parent_id] => 3
[material_sum] => 804896
[work_sum] => 1065390
[total_sum] => 1870286
[total_days] => 30
[display_material_sum] => 804 896
[display_work_sum] => 1 065 390
[display_total_sum] => 1 870 286
)
1
1 870 286₽
Работа:1 065 390 ₽
Материалы:804 896 ₽
Дни:30
stdClass Object
(
[id] => 81
[attribute_id] => 3
[name] => Монолитные
[material_modifier] => 1
[work_modifier] => 1
[options] => Array
(
[0] => 150 мм
[1] => 200 мм
[2] => 250 мм
[3] => 300 мм
[4] => 350 мм
[5] => 400 мм
)
[days] => [45,46,47,49,50,53]
[material_price] => [6545,7876,10175,12011,13908,15204]
[work_price] => [5106,6444,7698,8552,9807,11461]
[image] => https://akademik-stroy.ru/wp-content/uploads/materials/monolitnye.jpg
[area_modifier] => 87.11
[parent_name] => Стены 1 этаж (несущие)
[parent_id] => 3
[material_sum] => 957827
[work_sum] => 622697
[total_sum] => 1580524
[total_days] => 45
[display_material_sum] => 957 827
[display_work_sum] => 622 697
[display_total_sum] => 1 580 524
)
1
1 580 524₽
Работа:622 697 ₽
Материалы:957 827 ₽
Дни:45
stdClass Object
(
[id] => 82
[attribute_id] => 3
[name] => Клееный брус
[material_modifier] => 1
[work_modifier] => 1
[options] => Array
(
[0] => 160 мм
[1] => 175 мм
[2] => 200 мм
[3] => 215 мм
[4] => 240 мм
[5] => 270 мм
[6] => 282 мм
)
[days] => [24,28,32,37,40,42,48]
[material_price] => [16975,18773,19950,20545,21599,22159,23275]
[work_price] => [4806,5287,5815,6397,7036,7740,8514]
[image] => https://akademik-stroy.ru/wp-content/uploads/materials/kleenyj-brus.jpg
[area_modifier] => 87.11
[parent_name] => Стены 1 этаж (несущие)
[parent_id] => 3
[material_sum] => 2484203
[work_sum] => 586111
[total_sum] => 3070314
[total_days] => 24
[display_material_sum] => 2 484 203
[display_work_sum] => 586 111
[display_total_sum] => 3 070 314
)
1
3 070 314₽
Работа:586 111 ₽
Материалы:2 484 203 ₽
Дни:24
stdClass Object
(
[id] => 83
[attribute_id] => 3
[name] => Каркасные
[material_modifier] => 1
[work_modifier] => 1
[options] => Array
(
[0] => 150 мм
[1] => 200 мм
[2] => 250 мм
[3] => 300 мм
)
[days] => [15,16,17,18]
[material_price] => [2379,2639,2898,3258]
[work_price] => [2418,2686,2985,3716]
[image] => https://akademik-stroy.ru/wp-content/uploads/materials/karkasnye.jpg
[area_modifier] => 87.11
[parent_name] => Стены 1 этаж (несущие)
[parent_id] => 3
[material_sum] => 348154
[work_sum] => 294885
[total_sum] => 643039
[total_days] => 15
[display_material_sum] => 348 154
[display_work_sum] => 294 885
[display_total_sum] => 643 039
)
1
643 039₽
Работа:294 885 ₽
Материалы:348 154 ₽
Дни:15
stdClass Object
(
[id] => 84
[attribute_id] => 3
[name] => СИП-панели
[material_modifier] => 1
[work_modifier] => 1
[options] => Array
(
[0] => 120 мм
[1] => 170 мм
[2] => 220 мм
)
[days] => [7,7,7]
[material_price] => [1210,1856,2292]
[work_price] => [1410,1551,1706]
[image] => https://akademik-stroy.ru/wp-content/uploads/materials/sip-paneli.jpg
[area_modifier] => 87.11
[parent_name] => Стены 1 этаж (несущие)
[parent_id] => 3
[material_sum] => 177077
[work_sum] => 171955
[total_sum] => 349032
[total_days] => 7
[display_material_sum] => 177 077
[display_work_sum] => 171 955
[display_total_sum] => 349 032
)
1
349 032₽
Работа:171 955 ₽
Материалы:177 077 ₽
Дни:7
stdClass Object
(
[id] => 85
[attribute_id] => 3
[name] => Сухой брус
[material_modifier] => 1
[work_modifier] => 1
[options] => Array
(
[0] => 150 мм
[1] => 180 мм
[2] => 200 мм
)
[days] => [7,8,9]
[material_price] => [6010,7190,8709]
[work_price] => [3204,3845,4229]
[image] => https://akademik-stroy.ru/wp-content/uploads/materials/suhoj-brus.jpg
[area_modifier] => 87.11
[parent_name] => Стены 1 этаж (несущие)
[parent_id] => 3
[material_sum] => 879532
[work_sum] => 390741
[total_sum] => 1270273
[total_days] => 7
[display_material_sum] => 879 532
[display_work_sum] => 390 741
[display_total_sum] => 1 270 273
)
1
1 270 273₽
Работа:390 741 ₽
Материалы:879 532 ₽
Дни:7
stdClass Object
(
[id] => 86
[attribute_id] => 3
[name] => Профилированный брус
[material_modifier] => 1
[work_modifier] => 1
[options] => Array
(
[0] => 150 мм
[1] => 180 мм
[2] => 200 мм
)
[days] => [7,8,9]
[material_price] => [8190,9228,10051]
[work_price] => [3845,4614,5075]
[image] => https://akademik-stroy.ru/wp-content/uploads/materials/profilirovannyj-brus.jpg
[area_modifier] => 87.11
[parent_name] => Стены 1 этаж (несущие)
[parent_id] => 3
[material_sum] => 1198564
[work_sum] => 468913
[total_sum] => 1667477
[total_days] => 7
[display_material_sum] => 1 198 564
[display_work_sum] => 468 913
[display_total_sum] => 1 667 477
)
1
1 667 477₽
Работа:468 913 ₽
Материалы:1 198 564 ₽
Дни:7
stdClass Object
(
[id] => 87
[attribute_id] => 3
[name] => Оцилиндрованное бревно
[material_modifier] => 1
[work_modifier] => 1
[options] => Array
(
[0] => 180 мм
[1] => 220 мм
[2] => 260 мм
[3] => 320 мм
)
[days] => [7,8,9,10]
[material_price] => [75190,9532,10868,13116]
[work_price] => [3845,4691,5535,6863]
[image] => https://akademik-stroy.ru/wp-content/uploads/materials/ocilindrovannoe-brevno-1.jpg
[area_modifier] => 87.11
[parent_name] => Стены 1 этаж (несущие)
[parent_id] => 3
[material_sum] => 11003666
[work_sum] => 468913
[total_sum] => 11472579
[total_days] => 7
[display_material_sum] => 11 003 666
[display_work_sum] => 468 913
[display_total_sum] => 11 472 579
)
1
11 472 579₽
Работа:468 913 ₽
Материалы:11 003 666 ₽
Дни:7
stdClass Object
(
[id] => 88
[attribute_id] => 3
[name] => Срубы
[material_modifier] => 1
[work_modifier] => 1
[options] => Array
(
[0] => 260 мм
[1] => 320 мм
[2] => 360 мм
[3] => 400 мм
[4] => 500 мм
)
[days] => [7,8,9,10,11]
[material_price] => [37975,46709,52314,58069,73167]
[work_price] => [4806,5911,6621,7349,9260]
[image] => https://akademik-stroy.ru/wp-content/uploads/materials/sruby.jpg
[area_modifier] => 87.11
[parent_name] => Стены 1 этаж (несущие)
[parent_id] => 3
[material_sum] => 5557444
[work_sum] => 586111
[total_sum] => 6143555
[total_days] => 7
[display_material_sum] => 5 557 444
[display_work_sum] => 586 111
[display_total_sum] => 6 143 555
)
1
6 143 555₽
Работа:586 111 ₽
Материалы:5 557 444 ₽
Дни:7
stdClass Object
(
[id] => 174
[attribute_id] => 3
[name] => Брус
[material_modifier] => 1
[work_modifier] => 1
[options] => Array
(
[0] => 150 мм
[1] => 180 мм
[2] => 200 мм
)
[days] => [7,8,9]
[material_price] => [5127,6152,7367]
[work_price] => [1602,1922,2115]
[image] => https://akademik-stroy.ru/wp-content/uploads/materials/brus.jpg
[area_modifier] => 87.11
[parent_name] => Стены 1 этаж (несущие)
[parent_id] => 3
[material_sum] => 750310
[work_sum] => 195370
[total_sum] => 945680
[total_days] => 7
[display_material_sum] => 750 310
[display_work_sum] => 195 370
[display_total_sum] => 945 680
)
1
945 680₽
Работа:195 370 ₽
Материалы:750 310 ₽
Дни:7
stdClass Object
(
[id] => 175
[attribute_id] => 3
[name] => Газобетон
[material_modifier] => 1
[work_modifier] => 1
[options] => Array
(
[0] => 300 мм
[1] => 375 мм
[2] => 400 мм
[3] => 500 мм
[4] => 600 мм
)
[days] => [29,31,35,37,44]
[material_price] => [4298,5573,6356,7288,9119]
[work_price] => [4538,5251,5926,6733,7195]
[image] => https://akademik-stroy.ru/wp-content/uploads/materials/gazobeton.jpg
[area_modifier] => 87.11
[parent_name] => Стены 1 этаж (несущие)
[parent_id] => 3
[material_sum] => 628990
[work_sum] => 553427
[total_sum] => 1182417
[total_days] => 29
[display_material_sum] => 628 990
[display_work_sum] => 553 427
[display_total_sum] => 1 182 417
)
1
1 182 417₽
Работа:553 427 ₽
Материалы:628 990 ₽
Дни:29
stdClass Object
(
[id] => 176
[attribute_id] => 3
[name] => Блок
[material_modifier] => 1
[work_modifier] => 1
[options] => Array
(
[0] => 300 мм
[1] => 375 мм
[2] => 400 мм
[3] => 500 мм
[4] => 600 мм
)
[days] => [29,31,35,37,44]
[material_price] => [2698,3973,4356,6588,7119]
[work_price] => [5038,5851,6426,8733,9195]
[image] => https://akademik-stroy.ru/wp-content/uploads/materials/blok.jpg
[area_modifier] => 87.11
[parent_name] => Стены 1 этаж (несущие)
[parent_id] => 3
[material_sum] => 394838
[work_sum] => 614404
[total_sum] => 1009242
[total_days] => 29
[display_material_sum] => 394 838
[display_work_sum] => 614 404
[display_total_sum] => 1 009 242
)
1
1 009 242₽
Работа:614 404 ₽
Материалы:394 838 ₽
Дни:29
stdClass Object
(
[id] => 177
[attribute_id] => 3
[name] => Газосиликатный блок
[material_modifier] => 1
[work_modifier] => 1
[options] => Array
(
[0] => 300 мм
[1] => 375 мм
[2] => 400 мм
[3] => 500 мм
[4] => 600 мм
)
[days] => [29,31,35,37,44]
[material_price] => [4298,5573,6356,7288,9119]
[work_price] => [4538,5251,5926,6733,7195]
[image] => https://akademik-stroy.ru/wp-content/uploads/materials/gazosilikatnyj-blok.jpg
[area_modifier] => 87.11
[parent_name] => Стены 1 этаж (несущие)
[parent_id] => 3
[material_sum] => 628990
[work_sum] => 553427
[total_sum] => 1182417
[total_days] => 29
[display_material_sum] => 628 990
[display_work_sum] => 553 427
[display_total_sum] => 1 182 417
)
1
1 182 417₽
Работа:553 427 ₽
Материалы:628 990 ₽
Дни:29
stdClass Object
(
[id] => 178
[attribute_id] => 3
[name] => Керамзитобетонный блок
[material_modifier] => 1
[work_modifier] => 1
[options] => Array
(
[0] => 300 мм
[1] => 375 мм
[2] => 400 мм
[3] => 500 мм
[4] => 600 мм
)
[days] => [23,23,24,25,28]
[material_price] => [3641,4298,5693,7613,9612]
[work_price] => [5737,5737,6903,7958,8901]
[image] => https://akademik-stroy.ru/wp-content/uploads/materials/keramzitobetonnyj-blok.jpg
[area_modifier] => 87.11
[parent_name] => Стены 1 этаж (несущие)
[parent_id] => 3
[material_sum] => 532841
[work_sum] => 699650
[total_sum] => 1232491
[total_days] => 23
[display_material_sum] => 532 841
[display_work_sum] => 699 650
[display_total_sum] => 1 232 491
)
1
1 232 491₽
Работа:699 650 ₽
Материалы:532 841 ₽
Дни:23
stdClass Object
(
[id] => 179
[attribute_id] => 3
[name] => Деревянные
[material_modifier] => 1
[work_modifier] => 1
[options] => Array
(
[0] => 180 мм
[1] => 220 мм
[2] => 260 мм
[3] => 320 мм
)
[days] => [7,8,9,10]
[material_price] => [7950,9458,11961,14472]
[work_price] => [4037,4925,5812,7207]
[image] => https://akademik-stroy.ru/wp-content/uploads/materials/derevyannye.jpg
[area_modifier] => 87.11
[parent_name] => Стены 1 этаж (несущие)
[parent_id] => 3
[material_sum] => 1163441
[work_sum] => 492328
[total_sum] => 1655769
[total_days] => 7
[display_material_sum] => 1 163 441
[display_work_sum] => 492 328
[display_total_sum] => 1 655 769
)
1
1 655 769₽
Работа:492 328 ₽
Материалы:1 163 441 ₽
Дни:7
stdClass Object
(
[id] => 181
[attribute_id] => 3
[name] => Камень
[material_modifier] => 1
[work_modifier] => 1
[options] => Array
(
[0] => 300 мм
[1] => 400 мм
[2] => 500 мм
[3] => 600 мм
)
[days] => [25,27,31,34]
[material_price] => [5262,6844,8330,9815]
[work_price] => [8331,9135,10427,11069]
[image] => https://akademik-stroy.ru/wp-content/uploads/materials/kamen.jpg
[area_modifier] => 87.11
[parent_name] => Стены 1 этаж (несущие)
[parent_id] => 3
[material_sum] => 770066
[work_sum] => 1015999
[total_sum] => 1786065
[total_days] => 25
[display_material_sum] => 770 066
[display_work_sum] => 1 015 999
[display_total_sum] => 1 786 065
)
1
1 786 065₽
Работа:1 015 999 ₽
Материалы:770 066 ₽
Дни:25
stdClass Object
(
[id] => 182
[attribute_id] => 3
[name] => Каркасно-щитовые
[material_modifier] => 1
[work_modifier] => 1
[options] => Array
(
[0] => 150 мм
[1] => 200 мм
[2] => 250 мм
[3] => 300 мм
[4] => 350 мм
[5] => 400 мм
)
[days] => [15,16,17,18,19,20]
[material_price] => [2379,2639,2898,3458,3601,4175]
[work_price] => [2538,2820,3134,3483,4062,5642]
[image] => https://akademik-stroy.ru/wp-content/uploads/materials/karkasno-shchitovye.jpg
[area_modifier] => 87.11
[parent_name] => Стены 1 этаж (несущие)
[parent_id] => 3
[material_sum] => 348154
[work_sum] => 309519
[total_sum] => 657673
[total_days] => 15
[display_material_sum] => 348 154
[display_work_sum] => 309 519
[display_total_sum] => 657 673
)
1
657 673₽
Работа:309 519 ₽
Материалы:348 154 ₽
Дни:15
stdClass Object
(
[id] => 183
[attribute_id] => 3
[name] => Рубленные
[material_modifier] => 1
[work_modifier] => 1
[options] => Array
(
[0] => 150 мм
[1] => 200 мм
[2] => 250 мм
[3] => 300 мм
[4] => 350 мм
[5] => 400 мм
)
[days] => [15,16,17,18,17,18]
[material_price] => [35950,50267,60583,75900,80217,100533]
[work_price] => [9612,12816,16020,19224,22428,25632]
[image] => https://akademik-stroy.ru/wp-content/uploads/materials/rublennye.jpg
[area_modifier] => 87.11
[parent_name] => Стены 1 этаж (несущие)
[parent_id] => 3
[material_sum] => 5261096
[work_sum] => 1172222
[total_sum] => 6433318
[total_days] => 15
[display_material_sum] => 5 261 096
[display_work_sum] => 1 172 222
[display_total_sum] => 6 433 318
)
1
6 433 318₽
Работа:1 172 222 ₽
Материалы:5 261 096 ₽
Дни:15
stdClass Object
(
[id] => 185
[attribute_id] => 3
[name] => Теплоблок
[material_modifier] => 1
[work_modifier] => 1
[options] => Array
(
[0] => 300 мм (с облицовкой, не покрашенный)
[1] => 400 мм (с облицовкой, не покрашенный)
[2] => 300 мм (с облицовкой, покрашенный)
[3] => 400 мм (с облицовкой, покрашенный)
)
[days] => [15,16,15,16]
[material_price] => [2888,3729,3957,4258]
[work_price] => [2564,3229,2949,3713]
[image] => https://akademik-stroy.ru/wp-content/uploads/materials/teploblok.jpg
[area_modifier] => 87.11
[parent_name] => Стены 1 этаж (несущие)
[parent_id] => 3
[material_sum] => 422644
[work_sum] => 312690
[total_sum] => 735334
[total_days] => 15
[display_material_sum] => 422 644
[display_work_sum] => 312 690
[display_total_sum] => 735 334
)
1
735 334₽
Работа:312 690 ₽
Материалы:422 644 ₽
Дни:15
stdClass Object
(
[id] => 186
[attribute_id] => 3
[name] => Арболитовые блоки
[material_modifier] => 1
[work_modifier] => 1
[options] => Array
(
[0] => 300 мм
[1] => 400 мм
[2] => 600 мм
)
[days] => [19,22,27]
[material_price] => [3210,4475,5852]
[work_price] => [4214,4788,5866]
[image] => https://akademik-stroy.ru/wp-content/uploads/materials/arbolitovye-bloki.png
[area_modifier] => 87.11
[parent_name] => Стены 1 этаж (несущие)
[parent_id] => 3
[material_sum] => 469767
[work_sum] => 513914
[total_sum] => 983681
[total_days] => 19
[display_material_sum] => 469 767
[display_work_sum] => 513 914
[display_total_sum] => 983 681
)
1
983 681₽
Работа:513 914 ₽
Материалы:469 767 ₽
Дни:19
stdClass Object
(
[id] => 187
[attribute_id] => 3
[name] => Полистиролбетон
[material_modifier] => 1
[work_modifier] => 1
[options] => Array
(
[0] => 300 мм
[1] => 400 мм
[2] => 600 мм
)
[days] => [29,31,35]
[material_price] => [2798,4573,5256]
[work_price] => [5038,5851,6426]
[image] => https://akademik-stroy.ru/wp-content/uploads/materials/polistirolbeton.jpg
[area_modifier] => 87.11
[parent_name] => Стены 1 этаж (несущие)
[parent_id] => 3
[material_sum] => 409473
[work_sum] => 614404
[total_sum] => 1023877
[total_days] => 29
[display_material_sum] => 409 473
[display_work_sum] => 614 404
[display_total_sum] => 1 023 877
)
1
1 023 877₽
Работа:614 404 ₽
Материалы:409 473 ₽
Дни:29
stdClass Object
(
[id] => 188
[attribute_id] => 3
[name] => Шлакоблок
[material_modifier] => 1
[work_modifier] => 1
[options] => Array
(
[0] => 400 мм
[1] => 600 мм
)
[days] => [15,16]
[material_price] => [2391,3471]
[work_price] => [2642,3662]
[image] => https://akademik-stroy.ru/wp-content/uploads/materials/shlakoblok.jpg
[area_modifier] => 87.11
[parent_name] => Стены 1 этаж (несущие)
[parent_id] => 3
[material_sum] => 349910
[work_sum] => 322202
[total_sum] => 672112
[total_days] => 15
[display_material_sum] => 349 910
[display_work_sum] => 322 202
[display_total_sum] => 672 112
)
1
672 112₽
Работа:322 202 ₽
Материалы:349 910 ₽
Дни:15
stdClass Object
(
[id] => 189
[attribute_id] => 3
[name] => Теплая керамика
[material_modifier] => 1
[work_modifier] => 1
[options] => Array
(
[0] => 380 мм
[1] => 380 мм Thermo
[2] => 440 мм
[3] => 510 мм
)
[days] => [23,23,24,25]
[material_price] => [4510,5098,6093,8013]
[work_price] => [4737,4937,5903,6958]
[image] => https://akademik-stroy.ru/wp-content/uploads/materials/teplaya-keramika.jpg
[area_modifier] => 87.11
[parent_name] => Стены 1 этаж (несущие)
[parent_id] => 3
[material_sum] => 660015
[work_sum] => 577696
[total_sum] => 1237711
[total_days] => 23
[display_material_sum] => 660 015
[display_work_sum] => 577 696
[display_total_sum] => 1 237 711
)
1
1 237 711₽
Работа:577 696 ₽
Материалы:660 015 ₽
Дни:23
stdClass Object
(
[id] => 190
[attribute_id] => 3
[name] => Несъемная опалубка
[material_modifier] => 1
[work_modifier] => 1
[options] => Array
(
[0] => 200 мм
[1] => 250 мм
[2] => 300 мм
[3] => 350 мм
)
[days] => [15,17,19,21]
[material_price] => [3302,3902,4108,5008]
[work_price] => [2100,2100,2300,2534]
[image] => https://akademik-stroy.ru/wp-content/uploads/materials/nesemnaya-opalubka.jpg
[area_modifier] => 87.11
[parent_name] => Стены 1 этаж (несущие)
[parent_id] => 3
[material_sum] => 483231
[work_sum] => 256103
[total_sum] => 739334
[total_days] => 15
[display_material_sum] => 483 231
[display_work_sum] => 256 103
[display_total_sum] => 739 334
)
1
739 334₽
Работа:256 103 ₽
Материалы:483 231 ₽
Дни:15
stdClass Object
(
[id] => 251
[attribute_id] => 3
[name] => Бревно
[material_modifier] => 1
[work_modifier] => 1
[options] => Array
(
[0] => 260 мм
[1] => 320 мм
[2] => 360 мм
[3] => 400 мм
[4] => 500 мм
)
[days] => [7,8,9,10,11]
[material_price] => [1874,24045,26930,30972,38825]
[work_price] => [5046,6207,6952,7716,9723]
[image] => https://akademik-stroy.ru/wp-content/uploads/materials/sruby.jpg
[area_modifier] => 87.11
[parent_name] => Стены 1 этаж (несущие)
[parent_id] => 3
[material_sum] => 274250
[work_sum] => 615380
[total_sum] => 889630
[total_days] => 7
[display_material_sum] => 274 250
[display_work_sum] => 615 380
[display_total_sum] => 889 630
)
1
889 630₽
Работа:615 380 ₽
Материалы:274 250 ₽
Дни:7
stdClass Object
(
[id] => 7
[attribute_id] => 4
[name] => Деревянные балки
[material_modifier] => 1
[work_modifier] => 1
[options] => Array
(
[0] => без утепления
[1] => утепление 200 мм
[2] => утепление 250 мм
[3] => утепление 300 мм
[4] => утепление 350 мм
[5] => утепление 400 мм
[6] => утепление 450 мм
[7] => утепление 500 мм
)
[days] => [8,9,9,9,11,12,13,14]
[material_price] => [1634,2042,2344,2947,3149,3652,3354,3557]
[work_price] => [1230,1339,1393,1426,1460,1513,1587,1620]
[image] => https://akademik-stroy.ru/wp-content/uploads/materials/derevyannye-balki.png
[area_modifier] => 87.11
[parent_name] => Перекрытие первого этажа
[parent_id] => 4
[material_sum] => 239127
[work_sum] => 150003
[total_sum] => 389130
[total_days] => 8
[display_material_sum] => 239 127
[display_work_sum] => 150 003
[display_total_sum] => 389 130
)
1
389 130₽
Работа:150 003 ₽
Материалы:239 127 ₽
Дни:8
stdClass Object
(
[id] => 8
[attribute_id] => 4
[name] => Сборные ж/б плиты
[material_modifier] => 1
[work_modifier] => 1
[options] => Array
(
[0] => без утепления
[1] => утепление 150 мм
[2] => утепление 200 мм
[3] => утепление 250 мм
[4] => утепление 300 мм
[5] => утепление 350 мм
[6] => утепление 400 мм
[7] => утепление 450 мм
[8] => утепление 500 мм
)
[days] => [13,15,15,15,15,15,15,15,15]
[material_price] => [3067,5577,5928,6679,7730,8782,9833,10884,11935]
[work_price] => [1520,1956,2102,2247,2392,2537,2684,2829,2974]
[image] => https://akademik-stroy.ru/wp-content/uploads/materials/sbornye-zh-b-plity-2.jpg
[area_modifier] => 87.11
[parent_name] => Перекрытие первого этажа
[parent_id] => 4
[material_sum] => 448840
[work_sum] => 185370
[total_sum] => 634210
[total_days] => 13
[display_material_sum] => 448 840
[display_work_sum] => 185 370
[display_total_sum] => 634 210
)
1
634 210₽
Работа:185 370 ₽
Материалы:448 840 ₽
Дни:13
stdClass Object
(
[id] => 89
[attribute_id] => 4
[name] => Монолитная ж/б плита
[material_modifier] => 1
[work_modifier] => 1
[options] => Array
(
[0] => без утепления
[1] => утепление 150 мм
[2] => утепление 200 мм
[3] => утепление 250 мм
[4] => утепление 300 мм
[5] => утепление 350 мм
[6] => утепление 400 мм
[7] => утепление 450 мм
[8] => утепление 500 мм
)
[days] => [18,20,20,20,20,20,20,20,20]
[material_price] => [4837,6572,7224,7375,79426,8177,8728,9180,10031]
[work_price] => [3348,3921,4112,4302,4493,4684,4875,5066,5256]
[image] => https://akademik-stroy.ru/wp-content/uploads/materials/monolitnaya-zh-b-plita-2.jpg
[area_modifier] => 87.11
[parent_name] => Перекрытие первого этажа
[parent_id] => 4
[material_sum] => 707870
[work_sum] => 408302
[total_sum] => 1116172
[total_days] => 18
[display_material_sum] => 707 870
[display_work_sum] => 408 302
[display_total_sum] => 1 116 172
)
1
1 116 172₽
Работа:408 302 ₽
Материалы:707 870 ₽
Дни:18
stdClass Object
(
[id] => 160
[attribute_id] => 36
[name] => Не эксплуатируемая
[material_modifier] => 1
[work_modifier] => 1
[options] => Array
(
)
[days] => [10]
[material_price] => [8068]
[work_price] => [4163]
[image] => https://akademik-stroy.ru/wp-content/uploads/materials/ne-ehkspluatiruemaya-3.jpg
[area_modifier] => 87.11
[parent_name] => Плоская крыша
[parent_id] => 36
[material_sum] => 1180710
[work_sum] => 507695
[total_sum] => 1688405
[total_days] => 10
[display_material_sum] => 1 180 710
[display_work_sum] => 507 695
[display_total_sum] => 1 688 405
)
1
1 688 405₽
Работа:507 695 ₽
Материалы:1 180 710 ₽
Дни:10
stdClass Object
(
[id] => 161
[attribute_id] => 36
[name] => Зеленая кровля (Эксплуатируемая)
[material_modifier] => 1
[work_modifier] => 1
[options] => Array
(
)
[days] => [10]
[material_price] => [10056]
[work_price] => [8446]
[image] => https://akademik-stroy.ru/wp-content/uploads/materials/zelenaya-krovlya-2.jpg
[area_modifier] => 87.11
[parent_name] => Плоская крыша
[parent_id] => 36
[material_sum] => 1471643
[work_sum] => 1030023
[total_sum] => 2501666
[total_days] => 10
[display_material_sum] => 1 471 643
[display_work_sum] => 1 030 023
[display_total_sum] => 2 501 666
)
1
2 501 666₽
Работа:1 030 023 ₽
Материалы:1 471 643 ₽
Дни:10
stdClass Object
(
[id] => 162
[attribute_id] => 36
[name] => Эксплуатируемая
[material_modifier] => 1
[work_modifier] => 1
[options] => Array
(
)
[days] => [10]
[material_price] => [9593]
[work_price] => [7459]
[image] => https://akademik-stroy.ru/wp-content/uploads/materials/ehkspluatiruemaya-2.jpg
[area_modifier] => 87.11
[parent_name] => Плоская крыша
[parent_id] => 36
[material_sum] => 1403886
[work_sum] => 909655
[total_sum] => 2313541
[total_days] => 10
[display_material_sum] => 1 403 886
[display_work_sum] => 909 655
[display_total_sum] => 2 313 541
)
1
2 313 541₽
Работа:909 655 ₽
Материалы:1 403 886 ₽
Дни:10
stdClass Object
(
[id] => 163
[attribute_id] => 36
[name] => Нет
[material_modifier] => 1
[work_modifier] => 1
[options] => Array
(
)
[days] => [0]
[material_price] => [0]
[work_price] => [0]
[image] => https://akademik-stroy.ru/wp-content/uploads/materials/ne-ehkspluatiruemaya-3.jpg
[area_modifier] => 87.11
[parent_name] => Плоская крыша
[parent_id] => 36
[material_sum] => 0
[work_sum] => 0
[total_sum] => 0
[total_days] => 0
[display_material_sum] => 0
[display_work_sum] => 0
[display_total_sum] => 0
)
1
0₽
Работа:0 ₽
Материалы:0 ₽
Дни:0
stdClass Object
(
[id] => 51
[attribute_id] => 26
[name] => Есть
[material_modifier] => 1
[work_modifier] => 1
[options] => Array
(
[0] => Профиль 58 мм, 3-камерный, стеклопакет 2-камерный до 32 мм
[1] => Профиль 60 мм, 4-камерный, стеклопакет 2-камерный до 32 мм
[2] => Профиль 70 мм, 5-камерный, стеклопакет 2-камерный до 40 мм
[3] => Профиль 72 мм, 5-камерный, стеклопакет 2-камерный до 40 мм
[4] => Алюминиевые окна Alutech профиль 72 мм, стеклопакет 2-камерный
)
[days] => [3,3,3,3,3]
[material_price] => [1339,2124,2867,3023,29596]
[work_price] => [635,647,659,668,2579]
[image] => https://akademik-stroy.ru/wp-content/uploads/materials/okna.jpg
[area_modifier] => 70.69
[parent_name] => Окна
[parent_id] => 26
[material_sum] => 159019
[work_sum] => 62843
[total_sum] => 221862
[total_days] => 3
[display_material_sum] => 159 019
[display_work_sum] => 62 843
[display_total_sum] => 221 862
)
1
221 862₽
Работа:62 843 ₽
Материалы:159 019 ₽
Дни:3
stdClass Object
(
[id] => 52
[attribute_id] => 26
[name] => Нет
[material_modifier] => 2
[work_modifier] => 1
[options] =>
[days] => null
[material_price] => null
[work_price] => null
[image] => https://akademik-stroy.ru/wp-content/uploads/materials/okna.jpg
[area_modifier] => 70.69
[parent_name] => Окна
[parent_id] => 26
[material_sum] => 0
[work_sum] => 0
[total_sum] => 0
[total_days] => 0
[display_material_sum] => 0
[display_work_sum] => 0
[display_total_sum] => 0
)
1
0₽
Работа:0 ₽
Материалы:0 ₽
Дни:0
stdClass Object
(
[id] => 53
[attribute_id] => 27
[name] => Есть
[material_modifier] => 1
[work_modifier] => 1
[options] => Array
(
)
[days] => [1]
[material_price] => [10000]
[work_price] => [5500]
[image] => https://akademik-stroy.ru/wp-content/uploads/materials/dveri.jpg
[area_modifier] => 1
[parent_name] => Двери входные
[parent_id] => 27
[material_sum] => 16800
[work_sum] => 7700
[total_sum] => 24500
[total_days] => 1
[display_material_sum] => 16 800
[display_work_sum] => 7 700
[display_total_sum] => 24 500
)
1
24 500₽
Работа:7 700 ₽
Материалы:16 800 ₽
Дни:1
stdClass Object
(
[id] => 54
[attribute_id] => 27
[name] => Нет
[material_modifier] => 1
[work_modifier] => 1
[options] => Array
(
)
[days] => [0]
[material_price] => [0]
[work_price] => [0]
[image] => https://akademik-stroy.ru/wp-content/uploads/materials/dveri.jpg
[area_modifier] => 1
[parent_name] => Двери входные
[parent_id] => 27
[material_sum] => 0
[work_sum] => 0
[total_sum] => 0
[total_days] => 0
[display_material_sum] => 0
[display_work_sum] => 0
[display_total_sum] => 0
)
1
0₽
Работа:0 ₽
Материалы:0 ₽
Дни:0
stdClass Object
(
[id] => 31
[attribute_id] => 16
[name] => Нет
[material_modifier] => 1
[work_modifier] => 1
[options] => Array
(
)
[days] => [0]
[material_price] => [0]
[work_price] => [0]
[image] => https://akademik-stroy.ru/wp-content/uploads/materials/docke-standard-pvh.jpg
[area_modifier] => 87.11
[parent_name] => Водосточная система
[parent_id] => 16
[material_sum] => 0
[work_sum] => 0
[total_sum] => 0
[total_days] => 0
[display_material_sum] => 0
[display_work_sum] => 0
[display_total_sum] => 0
)
1
0₽
Работа:0 ₽
Материалы:0 ₽
Дни:0
stdClass Object
(
[id] => 32
[attribute_id] => 16
[name] => Есть
[material_modifier] => 1
[work_modifier] => 1
[options] => Array
(
[0] => Döcke Standard (ПВХ)
[1] => Металлические Grand Line
)
[days] => [7,7]
[material_price] => [1842,2703]
[work_price] => [1491,1529]
[image] => https://akademik-stroy.ru/wp-content/uploads/materials/docke-standard-pvh.jpg
[area_modifier] => 87.11
[parent_name] => Водосточная система
[parent_id] => 16
[material_sum] => 269567
[work_sum] => 181833
[total_sum] => 451400
[total_days] => 7
[display_material_sum] => 269 567
[display_work_sum] => 181 833
[display_total_sum] => 451 400
)
1
451 400₽
Работа:181 833 ₽
Материалы:269 567 ₽
Дни:7
stdClass Object
(
[id] => 33
[attribute_id] => 17
[name] => Нет
[material_modifier] => 1
[work_modifier] => 1
[options] => Array
(
)
[days] => [0]
[material_price] => [0]
[work_price] => [0]
[image] => https://akademik-stroy.ru/wp-content/uploads/materials/mineralovata.jpg
[area_modifier] => 87.11
[parent_name] => Дополнительное утепление наружных стен
[parent_id] => 17
[material_sum] => 0
[work_sum] => 0
[total_sum] => 0
[total_days] => 0
[display_material_sum] => 0
[display_work_sum] => 0
[display_total_sum] => 0
)
1
0₽
Работа:0 ₽
Материалы:0 ₽
Дни:0
stdClass Object
(
[id] => 34
[attribute_id] => 17
[name] => Минераловатный
[material_modifier] => 1
[work_modifier] => 1
[options] => Array
(
[0] => 50 мм
[1] => 100 мм
[2] => 150 мм
[3] => 200 мм
[4] => 250 мм
[5] => 300 мм
)
[days] => [7,8,10,12,14,15]
[material_price] => [3437,3613,3803,3915,4601,4830]
[work_price] => [2325,2423,2523,2749,2859,3025]
[image] => https://akademik-stroy.ru/wp-content/uploads/materials/mineralovata.jpg
[area_modifier] => 87.11
[parent_name] => Дополнительное утепление наружных стен
[parent_id] => 17
[material_sum] => 502987
[work_sum] => 283543
[total_sum] => 786530
[total_days] => 7
[display_material_sum] => 502 987
[display_work_sum] => 283 543
[display_total_sum] => 786 530
)
1
786 530₽
Работа:283 543 ₽
Материалы:502 987 ₽
Дни:7
stdClass Object
(
[id] => 128
[attribute_id] => 17
[name] => Эковата (целлюлозная вата)
[material_modifier] => 1
[work_modifier] => 1
[options] => Array
(
[0] => 50 мм
[1] => 100 мм
[2] => 150 мм
[3] => 200 мм
[4] => 250 мм
[5] => 300 мм
)
[days] => [3,4,5,6,7,8]
[material_price] => [810,1319,1629,1838,2267,2676]
[work_price] => [1225,1323,1423,1549,1659,1725]
[image] => https://akademik-stroy.ru/wp-content/uploads/materials/ehkovata.jpg
[area_modifier] => 87.11
[parent_name] => Дополнительное утепление наружных стен
[parent_id] => 17
[material_sum] => 118539
[work_sum] => 149394
[total_sum] => 267933
[total_days] => 3
[display_material_sum] => 118 539
[display_work_sum] => 149 394
[display_total_sum] => 267 933
)
1
267 933₽
Работа:149 394 ₽
Материалы:118 539 ₽
Дни:3
stdClass Object
(
[id] => 129
[attribute_id] => 17
[name] => Экструдированный пенополистирол
[material_modifier] => 1
[work_modifier] => 1
[options] => Array
(
[0] => 50 мм
[1] => 100 мм
[2] => 150 мм
[3] => 200 мм
[4] => 250 мм
[5] => 300 мм
)
[days] => [5,6,7,8,9,10]
[material_price] => [4560,4300,5119,6292,7010,8583]
[work_price] => [1795,1954,2254,2330,2595,2735]
[image] => https://akademik-stroy.ru/wp-content/uploads/materials/epps.jpg
[area_modifier] => 87.11
[parent_name] => Дополнительное утепление наружных стен
[parent_id] => 17
[material_sum] => 667332
[work_sum] => 218907
[total_sum] => 886239
[total_days] => 5
[display_material_sum] => 667 332
[display_work_sum] => 218 907
[display_total_sum] => 886 239
)
1
886 239₽
Работа:218 907 ₽
Материалы:667 332 ₽
Дни:5
stdClass Object
(
[id] => 130
[attribute_id] => 17
[name] => ПСБ (ППС-пенополистирол)
[material_modifier] => 1
[work_modifier] => 1
[options] => Array
(
[0] => 50 мм
[1] => 100 мм
[2] => 150 мм
[3] => 200 мм
[4] => 250 мм
[5] => 300 мм
)
[days] => [5,6,7,8,9,10]
[material_price] => [4822,5200,5819,6292,7010,7583]
[work_price] => [1795,1954,2254,2330,2595,2735]
[image] => https://akademik-stroy.ru/wp-content/uploads/materials/psb.jpg
[area_modifier] => 87.11
[parent_name] => Дополнительное утепление наружных стен
[parent_id] => 17
[material_sum] => 705675
[work_sum] => 218907
[total_sum] => 924582
[total_days] => 5
[display_material_sum] => 705 675
[display_work_sum] => 218 907
[display_total_sum] => 924 582
)
1
924 582₽
Работа:218 907 ₽
Материалы:705 675 ₽
Дни:5
stdClass Object
(
[id] => 131
[attribute_id] => 17
[name] => ППУ (Пенополиуретан)
[material_modifier] => 1
[work_modifier] => 1
[options] => Array
(
[0] => 50 мм
[1] => 100 мм
[2] => 150 мм
[3] => 200 мм
[4] => 250 мм
[5] => 300 мм
)
[days] => [3,4,5,6,7,8]
[material_price] => [2860,3400,4219,4592,5010,5583]
[work_price] => [729,900,980,1120,1280,1530]
[image] => https://akademik-stroy.ru/wp-content/uploads/materials/ppu.jpg
[area_modifier] => 87.11
[parent_name] => Дополнительное утепление наружных стен
[parent_id] => 17
[material_sum] => 418546
[work_sum] => 88904
[total_sum] => 507450
[total_days] => 3
[display_material_sum] => 418 546
[display_work_sum] => 88 904
[display_total_sum] => 507 450
)
1
507 450₽
Работа:88 904 ₽
Материалы:418 546 ₽
Дни:3
stdClass Object
(
[id] => 132
[attribute_id] => 17
[name] => PIR-плиты (пенополиизоцианурат)
[material_modifier] => 1
[work_modifier] => 1
[options] => Array
(
[0] => 50 мм
[1] => 100 мм
[2] => 150 мм
[3] => 200 мм
[4] => 250 мм
[5] => 300 мм
)
[days] => [5,6,7,8,9,10]
[material_price] => [8323,15645,20968,25900,29258,30581]
[work_price] => [800,900,970,1150,1280,1330]
[image] => https://akademik-stroy.ru/wp-content/uploads/materials/pir.jpg
[area_modifier] => 87.11
[parent_name] => Дополнительное утепление наружных стен
[parent_id] => 17
[material_sum] => 1218028
[work_sum] => 97563
[total_sum] => 1315591
[total_days] => 5
[display_material_sum] => 1 218 028
[display_work_sum] => 97 563
[display_total_sum] => 1 315 591
)
1
1 315 591₽
Работа:97 563 ₽
Материалы:1 218 028 ₽
Дни:5
stdClass Object
(
[id] => 37
[attribute_id] => 19
[name] => Нет
[material_modifier] => 1
[work_modifier] => 1
[options] => Array
(
)
[days] => [0]
[material_price] => [0]
[work_price] => [0]
[image] => https://akademik-stroy.ru/wp-content/uploads/materials/imitaciya-brusa.jpg
[area_modifier] => 87.11
[parent_name] => Наружная отделка фасада
[parent_id] => 19
[material_sum] => 0
[work_sum] => 0
[total_sum] => 0
[total_days] => 0
[display_material_sum] => 0
[display_work_sum] => 0
[display_total_sum] => 0
)
1
0₽
Работа:0 ₽
Материалы:0 ₽
Дни:0
stdClass Object
(
[id] => 38
[attribute_id] => 19
[name] => Имитация бруса
[material_modifier] => 1
[work_modifier] => 1
[options] => Array
(
[0] => Сосна
[1] => Ель
[2] => Лиственница
)
[days] => [20,20,20]
[material_price] => [2994,2762,4954]
[work_price] => [1397,1231,1577]
[image] => https://akademik-stroy.ru/wp-content/uploads/materials/imitaciya-brusa.jpg
[area_modifier] => 87.11
[parent_name] => Наружная отделка фасада
[parent_id] => 19
[material_sum] => 438156
[work_sum] => 170370
[total_sum] => 608526
[total_days] => 20
[display_material_sum] => 438 156
[display_work_sum] => 170 370
[display_total_sum] => 608 526
)
1
608 526₽
Работа:170 370 ₽
Материалы:438 156 ₽
Дни:20
stdClass Object
(
[id] => 136
[attribute_id] => 19
[name] => Планкен
[material_modifier] => 1
[work_modifier] => 1
[options] => Array
(
[0] => Сосна
[1] => Ель
[2] => Лиственница
)
[days] => [20,20,20]
[material_price] => [3194,2862,5154]
[work_price] => [1537,1354,1735]
[image] => https://akademik-stroy.ru/wp-content/uploads/materials/planken.jpg
[area_modifier] => 87.11
[parent_name] => Наружная отделка фасада
[parent_id] => 19
[material_sum] => 467425
[work_sum] => 187443
[total_sum] => 654868
[total_days] => 20
[display_material_sum] => 467 425
[display_work_sum] => 187 443
[display_total_sum] => 654 868
)
1
654 868₽
Работа:187 443 ₽
Материалы:467 425 ₽
Дни:20
stdClass Object
(
[id] => 137
[attribute_id] => 19
[name] => Штукатурка
[material_modifier] => 1
[work_modifier] => 1
[options] => Array
(
[0] => Цементно-песчаная (минеральная)
[1] => Мокрый фасад
)
[days] => [35,35]
[material_price] => [2231,3938]
[work_price] => [1202,2422]
[image] => https://akademik-stroy.ru/wp-content/uploads/materials/shtukaturka.jpg
[area_modifier] => 87.11
[parent_name] => Наружная отделка фасада
[parent_id] => 19
[material_sum] => 326495
[work_sum] => 146589
[total_sum] => 473084
[total_days] => 35
[display_material_sum] => 326 495
[display_work_sum] => 146 589
[display_total_sum] => 473 084
)
1
473 084₽
Работа:146 589 ₽
Материалы:326 495 ₽
Дни:35
stdClass Object
(
[id] => 138
[attribute_id] => 19
[name] => Облицовочный кирпич
[material_modifier] => 1
[work_modifier] => 1
[options] => Array
(
[0] => Керамический
[1] => Клинкерный
[2] => Ручной формовки
[3] => Гиперпрессованный
[4] => Силикатный кирпич
)
[days] => [45,45,45,45,45]
[material_price] => [8174,9148,1040,1257,5876]
[work_price] => [3240,3758,4536,4017,3369]
[image] => https://akademik-stroy.ru/wp-content/uploads/materials/oblicovochnyj-kirpich.jpg
[area_modifier] => 87.11
[parent_name] => Наружная отделка фасада
[parent_id] => 19
[material_sum] => 1196222
[work_sum] => 395131
[total_sum] => 1591353
[total_days] => 45
[display_material_sum] => 1 196 222
[display_work_sum] => 395 131
[display_total_sum] => 1 591 353
)
1
1 591 353₽
Работа:395 131 ₽
Материалы:1 196 222 ₽
Дни:45
stdClass Object
(
[id] => 139
[attribute_id] => 19
[name] => Фасадная плитка
[material_modifier] => 1
[work_modifier] => 1
[options] => Array
(
[0] => Клинкерная
[1] => Керамическая
[2] => Плитка ручной формовки
)
[days] => [40,40,40]
[material_price] => [2974,1487,3470]
[work_price] => [3007,2592,3629]
[image] => https://akademik-stroy.ru/wp-content/uploads/materials/fasadnaya-plitka.jpg
[area_modifier] => 87.11
[parent_name] => Наружная отделка фасада
[parent_id] => 19
[material_sum] => 435229
[work_sum] => 366716
[total_sum] => 801945
[total_days] => 40
[display_material_sum] => 435 229
[display_work_sum] => 366 716
[display_total_sum] => 801 945
)
1
801 945₽
Работа:366 716 ₽
Материалы:435 229 ₽
Дни:40
stdClass Object
(
[id] => 140
[attribute_id] => 19
[name] => Сайдинг
[material_modifier] => 1
[work_modifier] => 1
[options] => Array
(
[0] => Виниловый
[1] => Металлический
[2] => Фиброцементный
)
[days] => [20,20,20]
[material_price] => [1263,1944,4147]
[work_price] => [1263,1944,2074]
[image] => https://akademik-stroy.ru/wp-content/uploads/materials/sajding.jpg
[area_modifier] => 87.11
[parent_name] => Наружная отделка фасада
[parent_id] => 19
[material_sum] => 184833
[work_sum] => 154028
[total_sum] => 338861
[total_days] => 20
[display_material_sum] => 184 833
[display_work_sum] => 154 028
[display_total_sum] => 338 861
)
1
338 861₽
Работа:154 028 ₽
Материалы:184 833 ₽
Дни:20
stdClass Object
(
[id] => 141
[attribute_id] => 19
[name] => Камень
[material_modifier] => 1
[work_modifier] => 1
[options] => Array
(
[0] => Травертин
[1] => Дагестанский
[2] => Искусственный
[3] => Натуральный
[4] => Керамогранит
)
[days] => [45,45,45,45,45]
[material_price] => [4536,3888,2592,3240,2462]
[work_price] => [3240,3240,2462,3110,1944]
[image] => https://akademik-stroy.ru/wp-content/uploads/materials/kamen-1.jpg
[area_modifier] => 87.11
[parent_name] => Наружная отделка фасада
[parent_id] => 19
[material_sum] => 663820
[work_sum] => 395131
[total_sum] => 1058951
[total_days] => 45
[display_material_sum] => 663 820
[display_work_sum] => 395 131
[display_total_sum] => 1 058 951
)
1
1 058 951₽
Работа:395 131 ₽
Материалы:663 820 ₽
Дни:45
stdClass Object
(
[id] => 142
[attribute_id] => 19
[name] => Термопанели
[material_modifier] => 1
[work_modifier] => 1
[options] => Array
(
)
[days] => [20]
[material_price] => [6221]
[work_price] => [2333]
[image] => https://akademik-stroy.ru/wp-content/uploads/materials/termo.png
[area_modifier] => 87.11
[parent_name] => Наружная отделка фасада
[parent_id] => 19
[material_sum] => 910411
[work_sum] => 284519
[total_sum] => 1194930
[total_days] => 20
[display_material_sum] => 910 411
[display_work_sum] => 284 519
[display_total_sum] => 1 194 930
)
1
1 194 930₽
Работа:284 519 ₽
Материалы:910 411 ₽
Дни:20
stdClass Object
(
[id] => 143
[attribute_id] => 19
[name] => Плитка HAUBERK
[material_modifier] => 1
[work_modifier] => 1
[options] => Array
(
)
[days] => [20]
[material_price] => [2786]
[work_price] => [1944]
[image] => https://akademik-stroy.ru/wp-content/uploads/materials/hauberk.jpg
[area_modifier] => 87.11
[parent_name] => Наружная отделка фасада
[parent_id] => 19
[material_sum] => 407717
[work_sum] => 237079
[total_sum] => 644796
[total_days] => 20
[display_material_sum] => 407 717
[display_work_sum] => 237 079
[display_total_sum] => 644 796
)
1
644 796₽
Работа:237 079 ₽
Материалы:407 717 ₽
Дни:20
stdClass Object
(
[id] => 144
[attribute_id] => 19
[name] => Фальцевый фасад
[material_modifier] => 1
[work_modifier] => 1
[options] => Array
(
)
[days] => [20]
[material_price] => [3240]
[work_price] => [2592]
[image] => https://akademik-stroy.ru/wp-content/uploads/materials/falcevyj-fasad.jpg
[area_modifier] => 87.11
[parent_name] => Наружная отделка фасада
[parent_id] => 19
[material_sum] => 474157
[work_sum] => 316105
[total_sum] => 790262
[total_days] => 20
[display_material_sum] => 474 157
[display_work_sum] => 316 105
[display_total_sum] => 790 262
)
1
790 262₽
Работа:316 105 ₽
Материалы:474 157 ₽
Дни:20
stdClass Object
(
[id] => 145
[attribute_id] => 19
[name] => Комбинированный
[material_modifier] => 1
[work_modifier] => 1
[options] => Array
(
)
[days] => [20]
[material_price] => [4629]
[work_price] => [3499]
[image] => https://akademik-stroy.ru/wp-content/uploads/materials/Kombinirovannyj.jpg
[area_modifier] => 87.11
[parent_name] => Наружная отделка фасада
[parent_id] => 19
[material_sum] => 677430
[work_sum] => 426717
[total_sum] => 1104147
[total_days] => 20
[display_material_sum] => 677 430
[display_work_sum] => 426 717
[display_total_sum] => 1 104 147
)
1
1 104 147₽
Работа:426 717 ₽
Материалы:677 430 ₽
Дни:20
stdClass Object
(
[id] => 257
[attribute_id] => 19
[name] => Японские фиброцементные
[material_modifier] => 1
[work_modifier] => 1
[options] => Array
(
)
[days] => [20]
[material_price] => [7043]
[work_price] => [2993]
[image] => https://akademik-stroy.ru/wp-content/uploads/materials/paneli.jpg
[area_modifier] => 87.11
[parent_name] => Наружная отделка фасада
[parent_id] => 19
[material_sum] => 1030706
[work_sum] => 365008
[total_sum] => 1395714
[total_days] => 20
[display_material_sum] => 1 030 706
[display_work_sum] => 365 008
[display_total_sum] => 1 395 714
)
1
1 395 714₽
Работа:365 008 ₽
Материалы:1 030 706 ₽
Дни:20
stdClass Object
(
[id] => 258
[attribute_id] => 19
[name] => Панели Каньон
[material_modifier] => 1
[work_modifier] => 1
[options] => Array
(
)
[days] => [20]
[material_price] => [4543]
[work_price] => [2592]
[image] => https://akademik-stroy.ru/wp-content/uploads/materials/kanon.png
[area_modifier] => 87.11
[parent_name] => Наружная отделка фасада
[parent_id] => 19
[material_sum] => 664844
[work_sum] => 316105
[total_sum] => 980949
[total_days] => 20
[display_material_sum] => 664 844
[display_work_sum] => 316 105
[display_total_sum] => 980 949
)
1
980 949₽
Работа:316 105 ₽
Материалы:664 844 ₽
Дни:20
stdClass Object
(
[id] => 39
[attribute_id] => 20
[name] => Нет
[material_modifier] => 1
[work_modifier] => 1
[options] => Array
(
)
[days] => [0]
[material_price] => [0]
[work_price] => [0]
[image] => https://akademik-stroy.ru/wp-content/uploads/materials/terrasy.jpg
[area_modifier] => 30
[parent_name] => Террасы, крыльца, навесы
[parent_id] => 20
[material_sum] => 0
[work_sum] => 0
[total_sum] => 0
[total_days] => 0
[display_material_sum] => 0
[display_work_sum] => 0
[display_total_sum] => 0
)
1
0₽
Работа:0 ₽
Материалы:0 ₽
Дни:0
stdClass Object
(
[id] => 40
[attribute_id] => 20
[name] => Есть
[material_modifier] => 1
[work_modifier] => 1
[options] => Array
(
)
[days] => [5]
[material_price] => [10450]
[work_price] => [1950]
[image] => https://akademik-stroy.ru/wp-content/uploads/materials/terrasy.jpg
[area_modifier] => 30
[parent_name] => Террасы, крыльца, навесы
[parent_id] => 20
[material_sum] => 526680
[work_sum] => 81900
[total_sum] => 608580
[total_days] => 5
[display_material_sum] => 526 680
[display_work_sum] => 81 900
[display_total_sum] => 608 580
)
1
608 580₽
Работа:81 900 ₽
Материалы:526 680 ₽
Дни:5
stdClass Object
(
[id] => 41
[attribute_id] => 21
[name] => Нет
[material_modifier] => 1
[work_modifier] => 1
[options] => Array
(
)
[days] => [0]
[material_price] => [0]
[work_price] => [0]
[image] => https://akademik-stroy.ru/wp-content/uploads/materials/balkony.jpg
[area_modifier] => 30
[parent_name] => Балконы
[parent_id] => 21
[material_sum] => 0
[work_sum] => 0
[total_sum] => 0
[total_days] => 0
[display_material_sum] => 0
[display_work_sum] => 0
[display_total_sum] => 0
)
1
0₽
Работа:0 ₽
Материалы:0 ₽
Дни:0
stdClass Object
(
[id] => 42
[attribute_id] => 21
[name] => Есть
[material_modifier] => 1
[work_modifier] => 1
[options] => Array
(
)
[days] => [12]
[material_price] => [3600]
[work_price] => [1950]
[image] => https://akademik-stroy.ru/wp-content/uploads/materials/balkony.jpg
[area_modifier] => 30
[parent_name] => Балконы
[parent_id] => 21
[material_sum] => 181440
[work_sum] => 81900
[total_sum] => 263340
[total_days] => 12
[display_material_sum] => 181 440
[display_work_sum] => 81 900
[display_total_sum] => 263 340
)
1
263 340₽
Работа:81 900 ₽
Материалы:181 440 ₽
Дни:12
stdClass Object
(
[id] => 43
[attribute_id] => 22
[name] => Нет
[material_modifier] => 1
[work_modifier] => 1
[options] => Array
(
)
[days] => [0]
[material_price] => [0]
[work_price] => [0]
[image] => https://akademik-stroy.ru/wp-content/uploads/materials/uteplennaya.jpg
[area_modifier] => 87.11
[parent_name] => Отмостка
[parent_id] => 22
[material_sum] => 0
[work_sum] => 0
[total_sum] => 0
[total_days] => 0
[display_material_sum] => 0
[display_work_sum] => 0
[display_total_sum] => 0
)
1
0₽
Работа:0 ₽
Материалы:0 ₽
Дни:0
stdClass Object
(
[id] => 44
[attribute_id] => 22
[name] => Утепленная отмостка
[material_modifier] => 1
[work_modifier] => 1
[options] => Array
(
)
[days] => [15]
[material_price] => [2550]
[work_price] => [1750]
[image] => https://akademik-stroy.ru/wp-content/uploads/materials/uteplennaya.jpg
[area_modifier] => 87.11
[parent_name] => Отмостка
[parent_id] => 22
[material_sum] => 373179
[work_sum] => 213420
[total_sum] => 586599
[total_days] => 15
[display_material_sum] => 373 179
[display_work_sum] => 213 420
[display_total_sum] => 586 599
)
1
586 599₽
Работа:213 420 ₽
Материалы:373 179 ₽
Дни:15
stdClass Object
(
[id] => 146
[attribute_id] => 22
[name] => Не утепленная отмостка
[material_modifier] => 1
[work_modifier] => 1
[options] => Array
(
)
[days] => [10]
[material_price] => [1650]
[work_price] => [1450]
[image] => https://akademik-stroy.ru/wp-content/uploads/materials/ne-uteplennaya.jpg
[area_modifier] => 87.11
[parent_name] => Отмостка
[parent_id] => 22
[material_sum] => 241469
[work_sum] => 176833
[total_sum] => 418302
[total_days] => 10
[display_material_sum] => 241 469
[display_work_sum] => 176 833
[display_total_sum] => 418 302
)
1
418 302₽
Работа:176 833 ₽
Материалы:241 469 ₽
Дни:10
stdClass Object
(
[id] => 45
[attribute_id] => 23
[name] => Нет
[material_modifier] => 1
[work_modifier] => 1
[options] => Array
(
)
[days] => [0]
[material_price] => [0]
[work_price] => [0]
[image] => https://akademik-stroy.ru/wp-content/uploads/materials/drenazh-2.jpg
[area_modifier] => 87.11
[parent_name] => Дренаж вокруг дома
[parent_id] => 23
[material_sum] => 0
[work_sum] => 0
[total_sum] => 0
[total_days] => 0
[display_material_sum] => 0
[display_work_sum] => 0
[display_total_sum] => 0
)
1
0₽
Работа:0 ₽
Материалы:0 ₽
Дни:0
stdClass Object
(
[id] => 46
[attribute_id] => 23
[name] => Есть
[material_modifier] => 1
[work_modifier] => 1
[options] => Array
(
)
[days] => [5]
[material_price] => [2366]
[work_price] => [1911]
[image] => https://akademik-stroy.ru/wp-content/uploads/materials/drenazh-2.jpg
[area_modifier] => 87.11
[parent_name] => Дренаж вокруг дома
[parent_id] => 23
[material_sum] => 346252
[work_sum] => 233054
[total_sum] => 579306
[total_days] => 5
[display_material_sum] => 346 252
[display_work_sum] => 233 054
[display_total_sum] => 579 306
)
1
579 306₽
Работа:233 054 ₽
Материалы:346 252 ₽
Дни:5
stdClass Object
(
[id] => 47
[attribute_id] => 24
[name] => Нет
[material_modifier] => 1
[work_modifier] => 1
[options] => Array
(
)
[days] => [0]
[material_price] => [0]
[work_price] => [0]
[image] => https://akademik-stroy.ru/wp-content/uploads/materials/septik.jpg
[area_modifier] => 1
[parent_name] => Автономная канализация (септики)
[parent_id] => 24
[material_sum] => 0
[work_sum] => 0
[total_sum] => 0
[total_days] => 0
[display_material_sum] => 0
[display_work_sum] => 0
[display_total_sum] => 0
)
1
0₽
Работа:0 ₽
Материалы:0 ₽
Дни:0
stdClass Object
(
[id] => 48
[attribute_id] => 24
[name] => Есть
[material_modifier] => 1
[work_modifier] => 1
[options] => Array
(
[0] => Для дачи на 4 человека
[1] => Для дома на 5 человек
[2] => Для дома на 6 человек
[3] => Для дома на 7 человек
[4] => Для дома на 10 человек
)
[days] => [7,7,7,8,8]
[material_price] => [196340,220500,240940,264200,293340]
[work_price] => [50000,55000,60500,66550,73206]
[image] => https://akademik-stroy.ru/wp-content/uploads/materials/septik.jpg
[area_modifier] => 1
[parent_name] => Автономная канализация (септики)
[parent_id] => 24
[material_sum] => 329851
[work_sum] => 70000
[total_sum] => 399851
[total_days] => 7
[display_material_sum] => 329 851
[display_work_sum] => 70 000
[display_total_sum] => 399 851
)
1
399 851₽
Работа:70 000 ₽
Материалы:329 851 ₽
Дни:7
stdClass Object
(
[id] => 49
[attribute_id] => 25
[name] => Нет
[material_modifier] => 1
[work_modifier] => 1
[options] => Array
(
)
[days] => [0]
[material_price] => [0]
[work_price] => [0]
[image] => https://akademik-stroy.ru/wp-content/uploads/materials/gkl.jpg
[area_modifier] => 87.11
[parent_name] => Внутренние (не несущие) перегородки
[parent_id] => 25
[material_sum] => 0
[work_sum] => 0
[total_sum] => 0
[total_days] => 0
[display_material_sum] => 0
[display_work_sum] => 0
[display_total_sum] => 0
)
1
0₽
Работа:0 ₽
Материалы:0 ₽
Дни:0
stdClass Object
(
[id] => 147
[attribute_id] => 25
[name] => Каркасно-обшивные
[material_modifier] => 1
[work_modifier] => 1
[options] => Array
(
[0] => 75 мм (без шумоизоляции)
[1] => 75 мм (с шумоизоляцией)
)
[days] => [11,11]
[material_price] => [580,970]
[work_price] => [380,570]
[image] => https://akademik-stroy.ru/wp-content/uploads/materials/gkl.jpg
[area_modifier] => 87.11
[parent_name] => Внутренние (не несущие) перегородки
[parent_id] => 25
[material_sum] => 84880
[work_sum] => 46343
[total_sum] => 131223
[total_days] => 11
[display_material_sum] => 84 880
[display_work_sum] => 46 343
[display_total_sum] => 131 223
)
1
131 223₽
Работа:46 343 ₽
Материалы:84 880 ₽
Дни:11
stdClass Object
(
[id] => 148
[attribute_id] => 25
[name] => Пазогребневые
[material_modifier] => 1
[work_modifier] => 1
[options] => Array
(
[0] => 80 мм
[1] => 100 мм
)
[days] => [5,5]
[material_price] => [1022,1313]
[work_price] => [600,700]
[image] => https://akademik-stroy.ru/wp-content/uploads/materials/pazogrebnevye-bloki.jpg
[area_modifier] => 87.11
[parent_name] => Внутренние (не несущие) перегородки
[parent_id] => 25
[material_sum] => 149564
[work_sum] => 73172
[total_sum] => 222736
[total_days] => 5
[display_material_sum] => 149 564
[display_work_sum] => 73 172
[display_total_sum] => 222 736
)
1
222 736₽
Работа:73 172 ₽
Материалы:149 564 ₽
Дни:5
stdClass Object
(
[id] => 149
[attribute_id] => 25
[name] => Газобетонные
[material_modifier] => 1
[work_modifier] => 1
[options] => Array
(
[0] => 100 мм
[1] => 200 мм
)
[days] => [11,11]
[material_price] => [1160,1920]
[work_price] => [700,900]
[image] => https://akademik-stroy.ru/wp-content/uploads/materials/gazobeton-2.jpg
[area_modifier] => 87.11
[parent_name] => Внутренние (не несущие) перегородки
[parent_id] => 25
[material_sum] => 169760
[work_sum] => 85368
[total_sum] => 255128
[total_days] => 11
[display_material_sum] => 169 760
[display_work_sum] => 85 368
[display_total_sum] => 255 128
)
1
255 128₽
Работа:85 368 ₽
Материалы:169 760 ₽
Дни:11
stdClass Object
(
[id] => 150
[attribute_id] => 25
[name] => Кирпичные
[material_modifier] => 1
[work_modifier] => 1
[options] => Array
(
[0] => 120 мм
[1] => 250 мм
[2] => 360 мм
)
[days] => [7,7,7]
[material_price] => [1785,3570,5355]
[work_price] => [900,1600,1800]
[image] => https://akademik-stroy.ru/wp-content/uploads/materials/kirpich-1.jpg
[area_modifier] => 87.11
[parent_name] => Внутренние (не несущие) перегородки
[parent_id] => 25
[material_sum] => 261225
[work_sum] => 109759
[total_sum] => 370984
[total_days] => 7
[display_material_sum] => 261 225
[display_work_sum] => 109 759
[display_total_sum] => 370 984
)
1
370 984₽
Работа:109 759 ₽
Материалы:261 225 ₽
Дни:7
stdClass Object
(
[id] => 55
[attribute_id] => 28
[name] => Нет
[material_modifier] => 1
[work_modifier] => 1
[options] => Array
(
)
[days] => [0]
[material_price] => [0]
[work_price] => [0]
[image] => https://akademik-stroy.ru/wp-content/uploads/materials/ehlektrika.jpg
[area_modifier] => 70.69
[parent_name] => Электрика
[parent_id] => 28
[material_sum] => 0
[work_sum] => 0
[total_sum] => 0
[total_days] => 0
[display_material_sum] => 0
[display_work_sum] => 0
[display_total_sum] => 0
)
1
0₽
Работа:0 ₽
Материалы:0 ₽
Дни:0
stdClass Object
(
[id] => 56
[attribute_id] => 28
[name] => Есть
[material_modifier] => 1
[work_modifier] => 1
[options] => Array
(
)
[days] => [10]
[material_price] => [650]
[work_price] => [950]
[image] => https://akademik-stroy.ru/wp-content/uploads/materials/ehlektrika.jpg
[area_modifier] => 70.69
[parent_name] => Электрика
[parent_id] => 28
[material_sum] => 77193
[work_sum] => 94018
[total_sum] => 171211
[total_days] => 10
[display_material_sum] => 77 193
[display_work_sum] => 94 018
[display_total_sum] => 171 211
)
1
171 211₽
Работа:94 018 ₽
Материалы:77 193 ₽
Дни:10
stdClass Object
(
[id] => 57
[attribute_id] => 29
[name] => Нет
[material_modifier] => 1
[work_modifier] => 1
[options] => Array
(
)
[days] => [0]
[material_price] => [0]
[work_price] => [0]
[image] => https://akademik-stroy.ru/wp-content/uploads/materials/santekhnika-kanalizaciya-1.jpg
[area_modifier] => 70.69
[parent_name] => Сантехника, канализация в доме
[parent_id] => 29
[material_sum] => 0
[work_sum] => 0
[total_sum] => 0
[total_days] => 0
[display_material_sum] => 0
[display_work_sum] => 0
[display_total_sum] => 0
)
1
0₽
Работа:0 ₽
Материалы:0 ₽
Дни:0
stdClass Object
(
[id] => 58
[attribute_id] => 29
[name] => Есть
[material_modifier] => 1
[work_modifier] => 1
[options] => Array
(
)
[days] => [10]
[material_price] => [600]
[work_price] => [730]
[image] => https://akademik-stroy.ru/wp-content/uploads/materials/santekhnika-kanalizaciya-1.jpg
[area_modifier] => 70.69
[parent_name] => Сантехника, канализация в доме
[parent_id] => 29
[material_sum] => 71256
[work_sum] => 72245
[total_sum] => 143501
[total_days] => 10
[display_material_sum] => 71 256
[display_work_sum] => 72 245
[display_total_sum] => 143 501
)
1
143 501₽
Работа:72 245 ₽
Материалы:71 256 ₽
Дни:10
stdClass Object
(
[id] => 59
[attribute_id] => 30
[name] => Нет
[material_modifier] => 1
[work_modifier] => 1
[options] => Array
(
)
[days] => [0]
[material_price] => [0]
[work_price] => [0]
[image] => https://akademik-stroy.ru/wp-content/uploads/materials/otoplenie-1.jpg
[area_modifier] => 70.69
[parent_name] => Отопление
[parent_id] => 30
[material_sum] => 0
[work_sum] => 0
[total_sum] => 0
[total_days] => 0
[display_material_sum] => 0
[display_work_sum] => 0
[display_total_sum] => 0
)
1
0₽
Работа:0 ₽
Материалы:0 ₽
Дни:0
stdClass Object
(
[id] => 60
[attribute_id] => 30
[name] => Есть
[material_modifier] => 1
[work_modifier] => 1
[options] => Array
(
)
[days] => [5]
[material_price] => [610]
[work_price] => [560]
[image] => https://akademik-stroy.ru/wp-content/uploads/materials/otoplenie-1.jpg
[area_modifier] => 70.69
[parent_name] => Отопление
[parent_id] => 30
[material_sum] => 72443
[work_sum] => 55421
[total_sum] => 127864
[total_days] => 5
[display_material_sum] => 72 443
[display_work_sum] => 55 421
[display_total_sum] => 127 864
)
1
127 864₽
Работа:55 421 ₽
Материалы:72 443 ₽
Дни:5
stdClass Object
(
[id] => 61
[attribute_id] => 31
[name] => Нет
[material_modifier] => 1
[work_modifier] => 1
[options] => Array
(
)
[days] => [0]
[material_price] => [0]
[work_price] => [0]
[image] => https://akademik-stroy.ru/wp-content/uploads/materials/vodyanye.jpg
[area_modifier] => 30
[parent_name] => Теплые полы
[parent_id] => 31
[material_sum] => 0
[work_sum] => 0
[total_sum] => 0
[total_days] => 0
[display_material_sum] => 0
[display_work_sum] => 0
[display_total_sum] => 0
)
1
0₽
Работа:0 ₽
Материалы:0 ₽
Дни:0
stdClass Object
(
[id] => 151
[attribute_id] => 31
[name] => Водяные
[material_modifier] => 1
[work_modifier] => 1
[options] => Array
(
)
[days] => [9]
[material_price] => [10200]
[work_price] => [2500]
[image] => https://akademik-stroy.ru/wp-content/uploads/materials/vodyanye.jpg
[area_modifier] => 30
[parent_name] => Теплые полы
[parent_id] => 31
[material_sum] => 514080
[work_sum] => 105000
[total_sum] => 619080
[total_days] => 9
[display_material_sum] => 514 080
[display_work_sum] => 105 000
[display_total_sum] => 619 080
)
1
619 080₽
Работа:105 000 ₽
Материалы:514 080 ₽
Дни:9
stdClass Object
(
[id] => 152
[attribute_id] => 31
[name] => Электро
[material_modifier] => 1
[work_modifier] => 1
[options] => Array
(
)
[days] => [5]
[material_price] => [6300]
[work_price] => [1500]
[image] => https://akademik-stroy.ru/wp-content/uploads/materials/ehlektricheskij.jpg
[area_modifier] => 30
[parent_name] => Теплые полы
[parent_id] => 31
[material_sum] => 317520
[work_sum] => 63000
[total_sum] => 380520
[total_days] => 5
[display_material_sum] => 317 520
[display_work_sum] => 63 000
[display_total_sum] => 380 520
)
1
380 520₽
Работа:63 000 ₽
Материалы:317 520 ₽
Дни:5
stdClass Object
(
[id] => 63
[attribute_id] => 32
[name] => Нет
[material_modifier] => 1
[work_modifier] => 1
[options] => Array
(
)
[days] => [0]
[material_price] => [0]
[work_price] => [0]
[image] => https://akademik-stroy.ru/wp-content/uploads/materials/shtukaturka-shpatlevka-1.jpg
[area_modifier] => 70.69
[parent_name] => Черновая отделка стен
[parent_id] => 32
[material_sum] => 0
[work_sum] => 0
[total_sum] => 0
[total_days] => 0
[display_material_sum] => 0
[display_work_sum] => 0
[display_total_sum] => 0
)
1
0₽
Работа:0 ₽
Материалы:0 ₽
Дни:0
stdClass Object
(
[id] => 153
[attribute_id] => 32
[name] => Штукатурка и шпатлевка
[material_modifier] => 1
[work_modifier] => 1
[options] => Array
(
)
[days] => [20]
[material_price] => [1850]
[work_price] => [2600]
[image] => https://akademik-stroy.ru/wp-content/uploads/materials/shtukaturka-shpatlevka-1.jpg
[area_modifier] => 70.69
[parent_name] => Черновая отделка стен
[parent_id] => 32
[material_sum] => 219705
[work_sum] => 257312
[total_sum] => 477017
[total_days] => 20
[display_material_sum] => 219 705
[display_work_sum] => 257 312
[display_total_sum] => 477 017
)
1
477 017₽
Работа:257 312 ₽
Материалы:219 705 ₽
Дни:20
stdClass Object
(
[id] => 154
[attribute_id] => 32
[name] => Гипсокортон на стены
[material_modifier] => 1
[work_modifier] => 1
[options] => Array
(
)
[days] => [15]
[material_price] => [950]
[work_price] => [2100]
[image] => https://akademik-stroy.ru/wp-content/uploads/materials/gkl-1.jpg
[area_modifier] => 70.69
[parent_name] => Черновая отделка стен
[parent_id] => 32
[material_sum] => 112821
[work_sum] => 207829
[total_sum] => 320650
[total_days] => 15
[display_material_sum] => 112 821
[display_work_sum] => 207 829
[display_total_sum] => 320 650
)
1
320 650₽
Работа:207 829 ₽
Материалы:112 821 ₽
Дни:15
stdClass Object
(
[id] => 155
[attribute_id] => 32
[name] => Вагонка
[material_modifier] => 1
[work_modifier] => 1
[options] => Array
(
)
[days] => [15]
[material_price] => [1250]
[work_price] => [950]
[image] => https://akademik-stroy.ru/wp-content/uploads/materials/vagonka.jpg
[area_modifier] => 70.69
[parent_name] => Черновая отделка стен
[parent_id] => 32
[material_sum] => 148449
[work_sum] => 94018
[total_sum] => 242467
[total_days] => 15
[display_material_sum] => 148 449
[display_work_sum] => 94 018
[display_total_sum] => 242 467
)
1
242 467₽
Работа:94 018 ₽
Материалы:148 449 ₽
Дни:15
stdClass Object
(
[id] => 65
[attribute_id] => 33
[name] => Нет
[material_modifier] => 1
[work_modifier] => 1
[options] => Array
(
)
[days] => [0]
[material_price] => [0]
[work_price] => [0]
[image] => https://akademik-stroy.ru/wp-content/uploads/materials/styazhka.jpg
[area_modifier] => 70.69
[parent_name] => Черновая отделка полов
[parent_id] => 33
[material_sum] => 0
[work_sum] => 0
[total_sum] => 0
[total_days] => 0
[display_material_sum] => 0
[display_work_sum] => 0
[display_total_sum] => 0
)
1
0₽
Работа:0 ₽
Материалы:0 ₽
Дни:0
stdClass Object
(
[id] => 156
[attribute_id] => 33
[name] => Стяжка + наливные полы
[material_modifier] => 1
[work_modifier] => 1
[options] => Array
(
)
[days] => [10]
[material_price] => [1000]
[work_price] => [900]
[image] => https://akademik-stroy.ru/wp-content/uploads/materials/styazhka.jpg
[area_modifier] => 70.69
[parent_name] => Черновая отделка полов
[parent_id] => 33
[material_sum] => 118759
[work_sum] => 89069
[total_sum] => 207828
[total_days] => 10
[display_material_sum] => 118 759
[display_work_sum] => 89 069
[display_total_sum] => 207 828
)
1
207 828₽
Работа:89 069 ₽
Материалы:118 759 ₽
Дни:10
stdClass Object
(
[id] => 157
[attribute_id] => 33
[name] => ОСБ на пол
[material_modifier] => 1
[work_modifier] => 1
[options] => Array
(
)
[days] => [7]
[material_price] => [580]
[work_price] => [350]
[image] => https://akademik-stroy.ru/wp-content/uploads/materials/osb-1.jpg
[area_modifier] => 70.69
[parent_name] => Черновая отделка полов
[parent_id] => 33
[material_sum] => 68880
[work_sum] => 34638
[total_sum] => 103518
[total_days] => 7
[display_material_sum] => 68 880
[display_work_sum] => 34 638
[display_total_sum] => 103 518
)
1
103 518₽
Работа:34 638 ₽
Материалы:68 880 ₽
Дни:7
stdClass Object
(
[id] => 67
[attribute_id] => 34
[name] => Нет
[material_modifier] => 1
[work_modifier] => 1
[options] => Array
(
)
[days] => [0]
[material_price] => [0]
[work_price] => [0]
[image] => https://akademik-stroy.ru/wp-content/uploads/materials/chistovaya-otdelka.jpg
[area_modifier] => 70.69
[parent_name] => Чистовая отделка стен и полов
[parent_id] => 34
[material_sum] => 0
[work_sum] => 0
[total_sum] => 0
[total_days] => 0
[display_material_sum] => 0
[display_work_sum] => 0
[display_total_sum] => 0
)
1
0₽
Работа:0 ₽
Материалы:0 ₽
Дни:0
stdClass Object
(
[id] => 68
[attribute_id] => 34
[name] => Есть
[material_modifier] => 1
[work_modifier] => 1
[options] => Array
(
)
[days] => [50]
[material_price] => [6000]
[work_price] => [3500]
[image] => https://akademik-stroy.ru/wp-content/uploads/materials/chistovaya-otdelka.jpg
[area_modifier] => 70.69
[parent_name] => Чистовая отделка стен и полов
[parent_id] => 34
[material_sum] => 712555
[work_sum] => 346381
[total_sum] => 1058936
[total_days] => 50
[display_material_sum] => 712 555
[display_work_sum] => 346 381
[display_total_sum] => 1 058 936
)
1
1 058 936₽
Работа:346 381 ₽
Материалы:712 555 ₽
Дни:50
stdClass Object
(
[id] => 69
[attribute_id] => 35
[name] => Нет
[material_modifier] => 1
[work_modifier] => 1
[options] => Array
(
)
[days] => [0]
[material_price] => [0]
[work_price] => [0]
[image] => https://akademik-stroy.ru/wp-content/uploads/materials/mnogourovnevyj-gkl.jpg
[area_modifier] => 70.69
[parent_name] => Отделка потолка
[parent_id] => 35
[material_sum] => 0
[work_sum] => 0
[total_sum] => 0
[total_days] => 0
[display_material_sum] => 0
[display_work_sum] => 0
[display_total_sum] => 0
)
1
0₽
Работа:0 ₽
Материалы:0 ₽
Дни:0
stdClass Object
(
[id] => 70
[attribute_id] => 35
[name] => Есть
[material_modifier] => 1
[work_modifier] => 1
[options] => Array
(
[0] => Многоуровневый потолок из гипсокартона
[1] => Многоуровневый потолок из гипсокартона и натяжного потолка
[2] => Одноуровневый потолок из гипсокартона
[3] => Одноуровневый натяжной потолок
)
[days] => [10,10,1,1]
[material_price] => [900,700,700,600]
[work_price] => [1000,800,500,300]
[image] => https://akademik-stroy.ru/wp-content/uploads/materials/mnogourovnevyj-gkl.jpg
[area_modifier] => 70.69
[parent_name] => Отделка потолка
[parent_id] => 35
[material_sum] => 106883
[work_sum] => 98966
[total_sum] => 205849
[total_days] => 10
[display_material_sum] => 106 883
[display_work_sum] => 98 966
[display_total_sum] => 205 849
)
1
205 849₽
Работа:98 966 ₽
Материалы:106 883 ₽
Дни:10
Преимущества работы с нами
7 этапов оплаты
Независимый строительный надзор
Экологически чистые материалы
16 лет гарантии
Онлайн-кабинет с веб-камерой
Строители с опытом более 15 лет
Собственное производство
