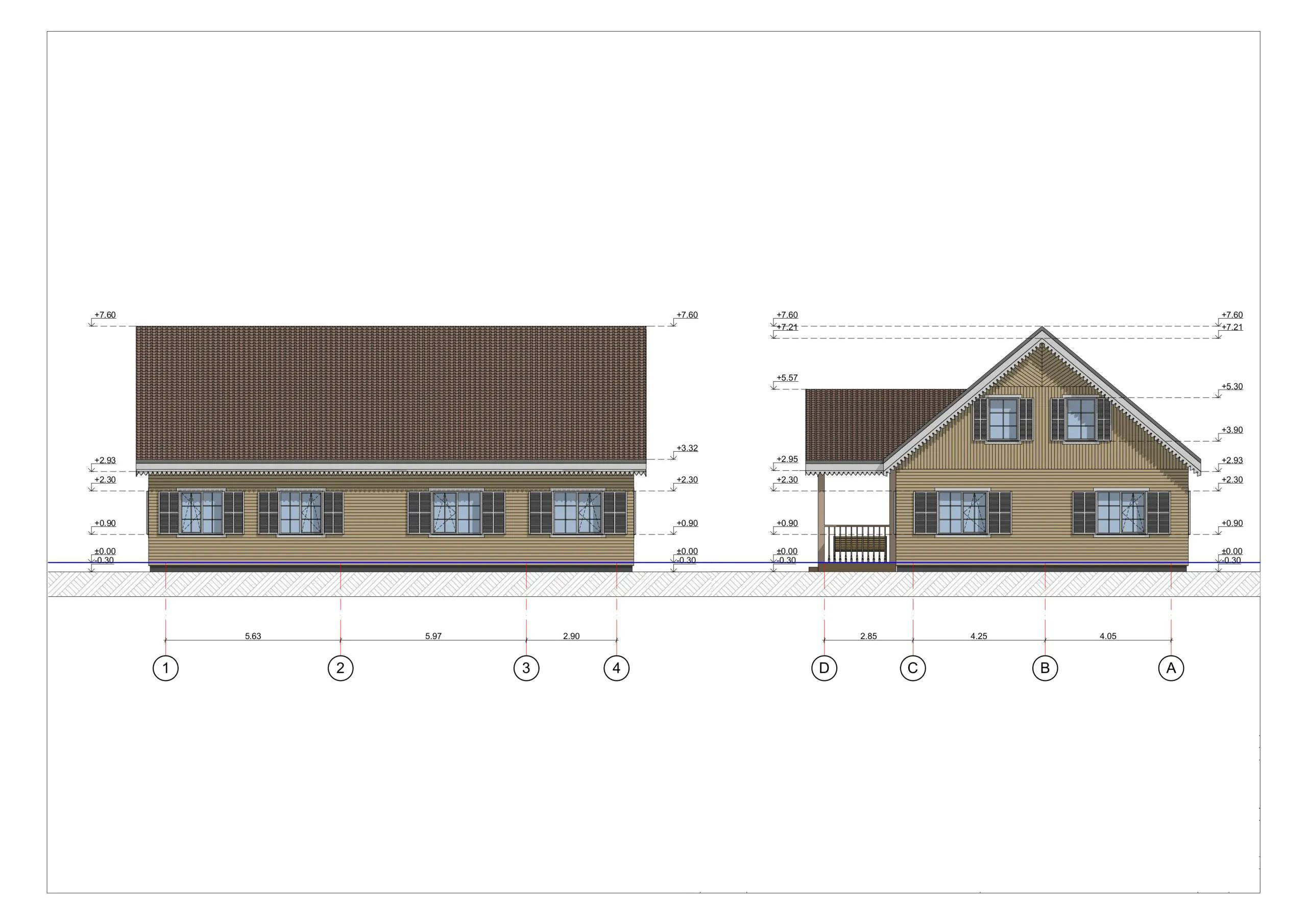
Одноэтажный дом 154.71 м2 за руб.
Планировки
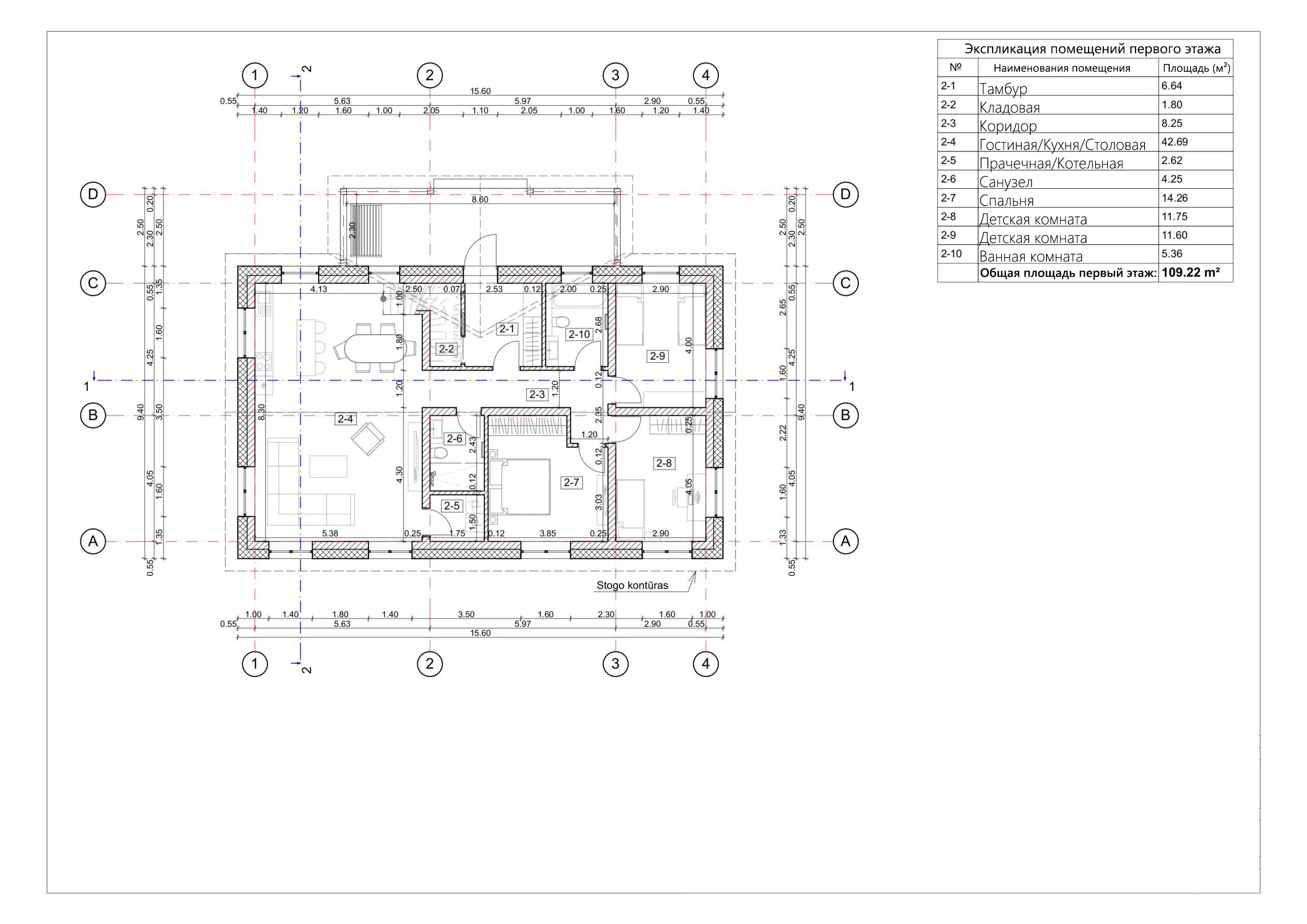
План первого этажа
- 1. Тамбур 6,64 м²
- 2. Кладовая 1,80 м²
- 3. Коридор 8,25 м²
- 4. Гостиная-Кухня-Столовая 42,69 м²
- 5. Котельная-Прачечная 2,62 м²
- 6. Санузел 4,25 м²
- 7. Спальня 14,26 м²
- 8. Детская комната 11,75 м²
- 9. Комната 11,60 м²
- 10. Ванная комната 5,36 м²
- Общая площадь первый этаж 109,22 м²
План мансарды
- 1. Холл 22,51 м²
- 2. Комната 11,62 м²
- 3. Комната 11,36 м²
- Общая площадь второй этаж 45,49 м²
Площади дома
| № п/п | Наименование | Ед. из. | Строительная площадь | Полезная площадь |
| 1 | 1 этаж | м2 | 134.59 | 109.22 |
| 2 | 2 этаж | м2 | 56.06 | 45.49 |
| 3 | Итого | м2 | 190.65 | 154.71 |
154 м2
Полезная
площадь
площадь
1 этаж
Этажей
26 м2
Террасы
и балконы
и балконы
2Без
гаража
гаража
5+
Количество
спален
спален
2
Количество
санузлов
санузлов
Калькулятор опций
0₽
В ипотеку от 20 223 ₽/мес.
0₽
0 дней
stdClass Object
(
[id] => 1
[attribute_id] => 1
[name] => Ленточный монолитный ж/б
[material_modifier] => 1
[work_modifier] => 1
[options] => Array
(
[0] => размер 200 х 700 мм
[1] => размер 300 х 900 мм
[2] => размер 400 х 1 000 мм
[3] => размер 500 х 1 100 мм
[4] => размер 600 х 1 200 мм
)
[days] => [20,21,22,25,30]
[material_price] => [2823,3630,4475,5210,12047]
[work_price] => [2154,2826,3731,4577,5293]
[image] => https://akademik-stroy.ru/wp-content/uploads/materials/lentochnyj-monolitnyj-zh-b.jpg
[area_modifier] => 134.59
[parent_name] => Фундамент
[parent_id] => 1
[material_sum] => 501531
[work_sum] => 318898
[total_sum] => 820429
[total_days] => 20
[display_material_sum] => 501 531
[display_work_sum] => 318 898
[display_total_sum] => 820 429
)
1
820 429₽
Работа:318 898 ₽
Материалы:501 531 ₽
Дни:20
stdClass Object
(
[id] => 2
[attribute_id] => 1
[name] => Забивные Ж/Б сваи
[material_modifier] => 1
[work_modifier] => 1
[options] => Array
(
[0] => 150х150х3000мм
[1] => 150х150х4000мм
[2] => 200х200х3000мм
[3] => 200х200х4000мм
[4] => 200х200х5000мм
[5] => 200х200х6000мм
)
[days] => [2,2,2,2,2,2]
[material_price] => [1990,2850,3255,4360,5120,6837]
[work_price] => [1002,1185,1336,1438,1574,1839]
[image] => https://akademik-stroy.ru/wp-content/uploads/materials/zabivnye-zh-b-svai.png
[area_modifier] => 134.59
[parent_name] => Фундамент
[parent_id] => 1
[material_sum] => 353541
[work_sum] => 148345
[total_sum] => 501886
[total_days] => 2
[display_material_sum] => 353 541
[display_work_sum] => 148 345
[display_total_sum] => 501 886
)
1
501 886₽
Работа:148 345 ₽
Материалы:353 541 ₽
Дни:2
stdClass Object
(
[id] => 71
[attribute_id] => 1
[name] => Свайно-ростверковый ж/б
[material_modifier] => 1
[work_modifier] => 1
[options] => Array
(
[0] => ростверк 200х300 мм
[1] => ростверк 300х600 мм
[2] => ростверк 400х900 мм
[3] => ростверк 500х1200 мм
)
[days] => [20,23,25,27]
[material_price] => [3018,3474,7109,9792]
[work_price] => [2024,3012,5635,7022]
[image] => https://akademik-stroy.ru/wp-content/uploads/materials/svajno-rostverkovyj-monolitnyj-zh-b-3.png
[area_modifier] => 134.59
[parent_name] => Фундамент
[parent_id] => 1
[material_sum] => 536174
[work_sum] => 299651
[total_sum] => 835825
[total_days] => 20
[display_material_sum] => 536 174
[display_work_sum] => 299 651
[display_total_sum] => 835 825
)
1
835 825₽
Работа:299 651 ₽
Материалы:536 174 ₽
Дни:20
stdClass Object
(
[id] => 72
[attribute_id] => 1
[name] => Монолитная ж/б плита
[material_modifier] => 1
[work_modifier] => 1
[options] => Array
(
[0] => 200 мм
[1] => 300 мм
[2] => 400 мм
[3] => 500 мм
[4] => 600 мм
)
[days] => [30,33,35,37,40]
[material_price] => [5348,8555,12788,14388,15189]
[work_price] => [4314,4881,7037,8061,10230]
[image] => https://akademik-stroy.ru/wp-content/uploads/materials/monolitnaya-zhb-plita.png
[area_modifier] => 134.59
[parent_name] => Фундамент
[parent_id] => 1
[material_sum] => 950119
[work_sum] => 638683
[total_sum] => 1588802
[total_days] => 30
[display_material_sum] => 950 119
[display_work_sum] => 638 683
[display_total_sum] => 1 588 802
)
1
1 588 802₽
Работа:638 683 ₽
Материалы:950 119 ₽
Дни:30
stdClass Object
(
[id] => 73
[attribute_id] => 1
[name] => Утепленная шведская плита
[material_modifier] => 1
[work_modifier] => 1
[options] => Array
(
[0] => 200 мм
[1] => 300 мм
[2] => 400 мм
[3] => 500 мм
[4] => 600 мм
)
[days] => [32,37,39,42,45]
[material_price] => [10249,12692,13760,14936,16230]
[work_price] => [5960,7337,8072,8878,9765]
[image] => https://akademik-stroy.ru/wp-content/uploads/materials/uteplennaya-shvedskaya-plita.jpg
[area_modifier] => 134.59
[parent_name] => Фундамент
[parent_id] => 1
[material_sum] => 1820825
[work_sum] => 882372
[total_sum] => 2703197
[total_days] => 32
[display_material_sum] => 1 820 825
[display_work_sum] => 882 372
[display_total_sum] => 2 703 197
)
1
2 703 197₽
Работа:882 372 ₽
Материалы:1 820 825 ₽
Дни:32
stdClass Object
(
[id] => 75
[attribute_id] => 1
[name] => Ленточный из ФБС
[material_modifier] => 1
[work_modifier] => 1
[options] => Array
(
[0] => толщ. 300 мм
[1] => толщ. 400 мм
[2] => толщ. 500 мм
[3] => толщ. 600 мм
)
[days] => [20,20,20,20]
[material_price] => [3675,4902,6126,7350]
[work_price] => [2451,3264,4083,4902]
[image] => https://akademik-stroy.ru/wp-content/uploads/materials/lentochnyj-iz-fbs.png
[area_modifier] => 134.59
[parent_name] => Фундамент
[parent_id] => 1
[material_sum] => 652896
[work_sum] => 362868
[total_sum] => 1015764
[total_days] => 20
[display_material_sum] => 652 896
[display_work_sum] => 362 868
[display_total_sum] => 1 015 764
)
1
1 015 764₽
Работа:362 868 ₽
Материалы:652 896 ₽
Дни:20
stdClass Object
(
[id] => 76
[attribute_id] => 1
[name] => Цокольный этаж из ФБС
[material_modifier] => 1
[work_modifier] => 1
[options] => Array
(
[0] => толщ. 300 мм
[1] => толщ. 400 мм
[2] => толщ. 500 мм
[3] => толщ. 600 мм
)
[days] => [30,32,34,36]
[material_price] => [20916,23299,26680,29060]
[work_price] => [17524,18700,19873,21046]
[image] => https://akademik-stroy.ru/wp-content/uploads/materials/cokolnyj-ehtazh-iz-fbs.jpg
[area_modifier] => 134.59
[parent_name] => Фундамент
[parent_id] => 1
[material_sum] => 3715911
[work_sum] => 2594411
[total_sum] => 6310322
[total_days] => 30
[display_material_sum] => 3 715 911
[display_work_sum] => 2 594 411
[display_total_sum] => 6 310 322
)
1
6 310 322₽
Работа:2 594 411 ₽
Материалы:3 715 911 ₽
Дни:30
stdClass Object
(
[id] => 77
[attribute_id] => 1
[name] => Цокольный этаж монолитный ж/б
[material_modifier] => 1
[work_modifier] => 1
[options] => Array
(
[0] => толщ. 200 мм
[1] => толщ. 300 мм
[2] => толщ. 400 мм
[3] => толщ. 500 мм
[4] => толщ. 600 мм
)
[days] => [40,42,44,46,48]
[material_price] => [25421,29148,32275,35602,37326]
[work_price] => [20441,21907,23375,24841,26306]
[image] => https://akademik-stroy.ru/wp-content/uploads/materials/cokolnyj-etazh-zh-b.jpg
[area_modifier] => 134.59
[parent_name] => Фундамент
[parent_id] => 1
[material_sum] => 4516264
[work_sum] => 3026270
[total_sum] => 7542534
[total_days] => 40
[display_material_sum] => 4 516 264
[display_work_sum] => 3 026 270
[display_total_sum] => 7 542 534
)
1
7 542 534₽
Работа:3 026 270 ₽
Материалы:4 516 264 ₽
Дни:40
stdClass Object
(
[id] => 191
[attribute_id] => 1
[name] => Винтовые сваи
[material_modifier] => 1
[work_modifier] => 1
[options] => Array
(
[0] => 57х200мм
[1] => 76х250мм
[2] => 108х300мм
[3] => 133х350мм
)
[days] => [1,1,2,2]
[material_price] => [1200,1300,1450,1600]
[work_price] => [400,600,900,1100]
[image] => https://akademik-stroy.ru/wp-content/uploads/materials/vintovye-svai.png
[area_modifier] => 134.59
[parent_name] => Фундамент
[parent_id] => 1
[material_sum] => 213191
[work_sum] => 59220
[total_sum] => 272411
[total_days] => 1
[display_material_sum] => 213 191
[display_work_sum] => 59 220
[display_total_sum] => 272 411
)
1
272 411₽
Работа:59 220 ₽
Материалы:213 191 ₽
Дни:1
stdClass Object
(
[id] => 3
[attribute_id] => 2
[name] => Деревянные балки
[material_modifier] => 1
[work_modifier] => 1
[options] => Array
(
[0] => без утепления
[1] => утепление 200 мм
[2] => утепление 250 мм
[3] => утепление 300 мм
[4] => утепление 350 мм
[5] => утепление 400 мм
[6] => утепление 450 мм
[7] => утепление 500 мм
)
[days] => [8,9,9,9,11,12,13,14]
[material_price] => [1634,2042,2344,2947,3149,3652,3354,3557]
[work_price] => [1230,1339,1393,1426,1460,1513,1587,1620]
[image] => https://akademik-stroy.ru/wp-content/uploads/materials/derevyannye-balki.png
[area_modifier] => 134.59
[parent_name] => Перекрытие цоколя
[parent_id] => 2
[material_sum] => 290294
[work_sum] => 182100
[total_sum] => 472394
[total_days] => 8
[display_material_sum] => 290 294
[display_work_sum] => 182 100
[display_total_sum] => 472 394
)
1
472 394₽
Работа:182 100 ₽
Материалы:290 294 ₽
Дни:8
stdClass Object
(
[id] => 4
[attribute_id] => 2
[name] => Сборные ж/б плиты
[material_modifier] => 1
[work_modifier] => 1
[options] => Array
(
[0] => без утепления
[1] => утепление 150мм
[2] => утепление 200мм
[3] => утепление 250мм
[4] => утепление 300мм
[5] => утепление 350мм
[6] => утепление 400мм
[7] => утепление 450мм
[8] => утепление 500мм
)
[days] => [13,15,15,15,15,15,15,15,15]
[material_price] => [3067,5577,5928,6679,7730,8782,9833,10884,11935]
[work_price] => [1520,1956,2102,2247,2392,2537,2684,2829,2974]
[image] => https://akademik-stroy.ru/wp-content/uploads/materials/sbornye-zh-b-plity-2.jpg
[area_modifier] => 134.59
[parent_name] => Перекрытие цоколя
[parent_id] => 2
[material_sum] => 544880
[work_sum] => 225034
[total_sum] => 769914
[total_days] => 13
[display_material_sum] => 544 880
[display_work_sum] => 225 034
[display_total_sum] => 769 914
)
1
769 914₽
Работа:225 034 ₽
Материалы:544 880 ₽
Дни:13
stdClass Object
(
[id] => 78
[attribute_id] => 2
[name] => Монолитная ж/б плита
[material_modifier] => 1
[work_modifier] => 1
[options] => Array
(
[0] => без утепления
[1] => утепление 150 мм
[2] => утепление 200 мм
[3] => утепление 250 мм
[4] => утепление 300 мм
[5] => утепление 350 мм
[6] => утепление 400 мм
[7] => утепление 450 мм
[8] => утепление 500 мм
)
[days] => [18,20,20,20,20,20,20,20,20]
[material_price] => [4837,6572,7224,7375,79426,8177,8728,9180,10031]
[work_price] => [3348,3921,4112,4302,4493,4684,4875,5066,5256]
[image] => https://akademik-stroy.ru/wp-content/uploads/materials/monolitnaya-zh-b-plita-2.jpg
[area_modifier] => 134.59
[parent_name] => Перекрытие цоколя
[parent_id] => 2
[material_sum] => 859336
[work_sum] => 495668
[total_sum] => 1355004
[total_days] => 18
[display_material_sum] => 859 336
[display_work_sum] => 495 668
[display_total_sum] => 1 355 004
)
1
1 355 004₽
Работа:495 668 ₽
Материалы:859 336 ₽
Дни:18
stdClass Object
(
[id] => 6
[attribute_id] => 3
[name] => Пеноблок
[material_modifier] => 1
[work_modifier] => 1
[options] => Array
(
[0] => 300 мм
[1] => 400 мм
[2] => 500 мм
[3] => 600 мм
)
[days] => [29,31,34,39]
[material_price] => [3000,4000,4500,4937]
[work_price] => [5033,5805,6400,8710]
[image] => https://akademik-stroy.ru/wp-content/uploads/materials/penoblok.jpg
[area_modifier] => 134.59
[parent_name] => Стены 1 этаж (несущие)
[parent_id] => 3
[material_sum] => 532976
[work_sum] => 745131
[total_sum] => 1278107
[total_days] => 29
[display_material_sum] => 532 976
[display_work_sum] => 745 131
[display_total_sum] => 1 278 107
)
1
1 278 107₽
Работа:745 131 ₽
Материалы:532 976 ₽
Дни:29
stdClass Object
(
[id] => 79
[attribute_id] => 3
[name] => Керамический блок
[material_modifier] => 1
[work_modifier] => 1
[options] => Array
(
[0] => 380 мм
[1] => 380 мм Thermo
[2] => 440 мм
[3] => 510 мм
)
[days] => [23,23,24,25]
[material_price] => [4510,5098,6093,8013]
[work_price] => [4737,4937,5903,6958]
[image] => https://akademik-stroy.ru/wp-content/uploads/materials/keramicheskij-blok.jpg
[area_modifier] => 134.59
[parent_name] => Стены 1 этаж (несущие)
[parent_id] => 3
[material_sum] => 801241
[work_sum] => 701308
[total_sum] => 1502549
[total_days] => 23
[display_material_sum] => 801 241
[display_work_sum] => 701 308
[display_total_sum] => 1 502 549
)
1
1 502 549₽
Работа:701 308 ₽
Материалы:801 241 ₽
Дни:23
stdClass Object
(
[id] => 80
[attribute_id] => 3
[name] => Кирпич
[material_modifier] => 1
[work_modifier] => 1
[options] => Array
(
[0] => Кирпич 250 мм
[1] => Кирпич 380 мм
[2] => Кирпич 510 мм
[3] => Кирпич 640 мм
[4] => Кирпич 770 мм
)
[days] => [30,30,31,33,36]
[material_price] => [5500,7142,9206,10171,12235]
[work_price] => [8736,10041,12018,15240,18462]
[image] => https://akademik-stroy.ru/wp-content/uploads/materials/kirpich.jpg
[area_modifier] => 134.59
[parent_name] => Стены 1 этаж (несущие)
[parent_id] => 3
[material_sum] => 977123
[work_sum] => 1293356
[total_sum] => 2270479
[total_days] => 30
[display_material_sum] => 977 123
[display_work_sum] => 1 293 356
[display_total_sum] => 2 270 479
)
1
2 270 479₽
Работа:1 293 356 ₽
Материалы:977 123 ₽
Дни:30
stdClass Object
(
[id] => 81
[attribute_id] => 3
[name] => Монолитные
[material_modifier] => 1
[work_modifier] => 1
[options] => Array
(
[0] => 150 мм
[1] => 200 мм
[2] => 250 мм
[3] => 300 мм
[4] => 350 мм
[5] => 400 мм
)
[days] => [45,46,47,49,50,53]
[material_price] => [6545,7876,10175,12011,13908,15204]
[work_price] => [5106,6444,7698,8552,9807,11461]
[image] => https://akademik-stroy.ru/wp-content/uploads/materials/monolitnye.jpg
[area_modifier] => 134.59
[parent_name] => Стены 1 этаж (несущие)
[parent_id] => 3
[material_sum] => 1162777
[work_sum] => 755938
[total_sum] => 1918715
[total_days] => 45
[display_material_sum] => 1 162 777
[display_work_sum] => 755 938
[display_total_sum] => 1 918 715
)
1
1 918 715₽
Работа:755 938 ₽
Материалы:1 162 777 ₽
Дни:45
stdClass Object
(
[id] => 82
[attribute_id] => 3
[name] => Клееный брус
[material_modifier] => 1
[work_modifier] => 1
[options] => Array
(
[0] => 160 мм
[1] => 175 мм
[2] => 200 мм
[3] => 215 мм
[4] => 240 мм
[5] => 270 мм
[6] => 282 мм
)
[days] => [24,28,32,37,40,42,48]
[material_price] => [16975,18773,19950,20545,21599,22159,23275]
[work_price] => [4806,5287,5815,6397,7036,7740,8514]
[image] => https://akademik-stroy.ru/wp-content/uploads/materials/kleenyj-brus.jpg
[area_modifier] => 134.59
[parent_name] => Стены 1 этаж (несущие)
[parent_id] => 3
[material_sum] => 3015758
[work_sum] => 711523
[total_sum] => 3727281
[total_days] => 24
[display_material_sum] => 3 015 758
[display_work_sum] => 711 523
[display_total_sum] => 3 727 281
)
1
3 727 281₽
Работа:711 523 ₽
Материалы:3 015 758 ₽
Дни:24
stdClass Object
(
[id] => 83
[attribute_id] => 3
[name] => Каркасные
[material_modifier] => 1
[work_modifier] => 1
[options] => Array
(
[0] => 150 мм
[1] => 200 мм
[2] => 250 мм
[3] => 300 мм
)
[days] => [15,16,17,18]
[material_price] => [2379,2639,2898,3258]
[work_price] => [2418,2686,2985,3716]
[image] => https://akademik-stroy.ru/wp-content/uploads/materials/karkasnye.jpg
[area_modifier] => 134.59
[parent_name] => Стены 1 этаж (несущие)
[parent_id] => 3
[material_sum] => 422650
[work_sum] => 357982
[total_sum] => 780632
[total_days] => 15
[display_material_sum] => 422 650
[display_work_sum] => 357 982
[display_total_sum] => 780 632
)
1
780 632₽
Работа:357 982 ₽
Материалы:422 650 ₽
Дни:15
stdClass Object
(
[id] => 84
[attribute_id] => 3
[name] => СИП-панели
[material_modifier] => 1
[work_modifier] => 1
[options] => Array
(
[0] => 120 мм
[1] => 170 мм
[2] => 220 мм
)
[days] => [7,7,7]
[material_price] => [1210,1856,2292]
[work_price] => [1410,1551,1706]
[image] => https://akademik-stroy.ru/wp-content/uploads/materials/sip-paneli.jpg
[area_modifier] => 134.59
[parent_name] => Стены 1 этаж (несущие)
[parent_id] => 3
[material_sum] => 214967
[work_sum] => 208749
[total_sum] => 423716
[total_days] => 7
[display_material_sum] => 214 967
[display_work_sum] => 208 749
[display_total_sum] => 423 716
)
1
423 716₽
Работа:208 749 ₽
Материалы:214 967 ₽
Дни:7
stdClass Object
(
[id] => 85
[attribute_id] => 3
[name] => Сухой брус
[material_modifier] => 1
[work_modifier] => 1
[options] => Array
(
[0] => 150 мм
[1] => 180 мм
[2] => 200 мм
)
[days] => [7,8,9]
[material_price] => [6010,7190,8709]
[work_price] => [3204,3845,4229]
[image] => https://akademik-stroy.ru/wp-content/uploads/materials/suhoj-brus.jpg
[area_modifier] => 134.59
[parent_name] => Стены 1 этаж (несущие)
[parent_id] => 3
[material_sum] => 1067729
[work_sum] => 474349
[total_sum] => 1542078
[total_days] => 7
[display_material_sum] => 1 067 729
[display_work_sum] => 474 349
[display_total_sum] => 1 542 078
)
1
1 542 078₽
Работа:474 349 ₽
Материалы:1 067 729 ₽
Дни:7
stdClass Object
(
[id] => 86
[attribute_id] => 3
[name] => Профилированный брус
[material_modifier] => 1
[work_modifier] => 1
[options] => Array
(
[0] => 150 мм
[1] => 180 мм
[2] => 200 мм
)
[days] => [7,8,9]
[material_price] => [8190,9228,10051]
[work_price] => [3845,4614,5075]
[image] => https://akademik-stroy.ru/wp-content/uploads/materials/profilirovannyj-brus.jpg
[area_modifier] => 134.59
[parent_name] => Стены 1 этаж (несущие)
[parent_id] => 3
[material_sum] => 1455026
[work_sum] => 569248
[total_sum] => 2024274
[total_days] => 7
[display_material_sum] => 1 455 026
[display_work_sum] => 569 248
[display_total_sum] => 2 024 274
)
1
2 024 274₽
Работа:569 248 ₽
Материалы:1 455 026 ₽
Дни:7
stdClass Object
(
[id] => 87
[attribute_id] => 3
[name] => Оцилиндрованное бревно
[material_modifier] => 1
[work_modifier] => 1
[options] => Array
(
[0] => 180 мм
[1] => 220 мм
[2] => 260 мм
[3] => 320 мм
)
[days] => [7,8,9,10]
[material_price] => [75190,9532,10868,13116]
[work_price] => [3845,4691,5535,6863]
[image] => https://akademik-stroy.ru/wp-content/uploads/materials/ocilindrovannoe-brevno-1.jpg
[area_modifier] => 134.59
[parent_name] => Стены 1 этаж (несущие)
[parent_id] => 3
[material_sum] => 13358165
[work_sum] => 569248
[total_sum] => 13927413
[total_days] => 7
[display_material_sum] => 13 358 165
[display_work_sum] => 569 248
[display_total_sum] => 13 927 413
)
1
13 927 413₽
Работа:569 248 ₽
Материалы:13 358 165 ₽
Дни:7
stdClass Object
(
[id] => 88
[attribute_id] => 3
[name] => Срубы
[material_modifier] => 1
[work_modifier] => 1
[options] => Array
(
[0] => 260 мм
[1] => 320 мм
[2] => 360 мм
[3] => 400 мм
[4] => 500 мм
)
[days] => [7,8,9,10,11]
[material_price] => [37975,46709,52314,58069,73167]
[work_price] => [4806,5911,6621,7349,9260]
[image] => https://akademik-stroy.ru/wp-content/uploads/materials/sruby.jpg
[area_modifier] => 134.59
[parent_name] => Стены 1 этаж (несущие)
[parent_id] => 3
[material_sum] => 6746593
[work_sum] => 711523
[total_sum] => 7458116
[total_days] => 7
[display_material_sum] => 6 746 593
[display_work_sum] => 711 523
[display_total_sum] => 7 458 116
)
1
7 458 116₽
Работа:711 523 ₽
Материалы:6 746 593 ₽
Дни:7
stdClass Object
(
[id] => 174
[attribute_id] => 3
[name] => Брус
[material_modifier] => 1
[work_modifier] => 1
[options] => Array
(
[0] => 150 мм
[1] => 180 мм
[2] => 200 мм
)
[days] => [7,8,9]
[material_price] => [5127,6152,7367]
[work_price] => [1602,1922,2115]
[image] => https://akademik-stroy.ru/wp-content/uploads/materials/brus.jpg
[area_modifier] => 134.59
[parent_name] => Стены 1 этаж (несущие)
[parent_id] => 3
[material_sum] => 910857
[work_sum] => 237174
[total_sum] => 1148031
[total_days] => 7
[display_material_sum] => 910 857
[display_work_sum] => 237 174
[display_total_sum] => 1 148 031
)
1
1 148 031₽
Работа:237 174 ₽
Материалы:910 857 ₽
Дни:7
stdClass Object
(
[id] => 175
[attribute_id] => 3
[name] => Газобетон
[material_modifier] => 1
[work_modifier] => 1
[options] => Array
(
[0] => 300 мм
[1] => 375 мм
[2] => 400 мм
[3] => 500 мм
[4] => 600 мм
)
[days] => [29,31,35,37,44]
[material_price] => [4298,5573,6356,7288,9119]
[work_price] => [4538,5251,5926,6733,7195]
[image] => https://akademik-stroy.ru/wp-content/uploads/materials/gazobeton.jpg
[area_modifier] => 134.59
[parent_name] => Стены 1 этаж (несущие)
[parent_id] => 3
[material_sum] => 763578
[work_sum] => 671846
[total_sum] => 1435424
[total_days] => 29
[display_material_sum] => 763 578
[display_work_sum] => 671 846
[display_total_sum] => 1 435 424
)
1
1 435 424₽
Работа:671 846 ₽
Материалы:763 578 ₽
Дни:29
stdClass Object
(
[id] => 176
[attribute_id] => 3
[name] => Блок
[material_modifier] => 1
[work_modifier] => 1
[options] => Array
(
[0] => 300 мм
[1] => 375 мм
[2] => 400 мм
[3] => 500 мм
[4] => 600 мм
)
[days] => [29,31,35,37,44]
[material_price] => [2698,3973,4356,6588,7119]
[work_price] => [5038,5851,6426,8733,9195]
[image] => https://akademik-stroy.ru/wp-content/uploads/materials/blok.jpg
[area_modifier] => 134.59
[parent_name] => Стены 1 этаж (несущие)
[parent_id] => 3
[material_sum] => 479323
[work_sum] => 745871
[total_sum] => 1225194
[total_days] => 29
[display_material_sum] => 479 323
[display_work_sum] => 745 871
[display_total_sum] => 1 225 194
)
1
1 225 194₽
Работа:745 871 ₽
Материалы:479 323 ₽
Дни:29
stdClass Object
(
[id] => 177
[attribute_id] => 3
[name] => Газосиликатный блок
[material_modifier] => 1
[work_modifier] => 1
[options] => Array
(
[0] => 300 мм
[1] => 375 мм
[2] => 400 мм
[3] => 500 мм
[4] => 600 мм
)
[days] => [29,31,35,37,44]
[material_price] => [4298,5573,6356,7288,9119]
[work_price] => [4538,5251,5926,6733,7195]
[image] => https://akademik-stroy.ru/wp-content/uploads/materials/gazosilikatnyj-blok.jpg
[area_modifier] => 134.59
[parent_name] => Стены 1 этаж (несущие)
[parent_id] => 3
[material_sum] => 763578
[work_sum] => 671846
[total_sum] => 1435424
[total_days] => 29
[display_material_sum] => 763 578
[display_work_sum] => 671 846
[display_total_sum] => 1 435 424
)
1
1 435 424₽
Работа:671 846 ₽
Материалы:763 578 ₽
Дни:29
stdClass Object
(
[id] => 178
[attribute_id] => 3
[name] => Керамзитобетонный блок
[material_modifier] => 1
[work_modifier] => 1
[options] => Array
(
[0] => 300 мм
[1] => 375 мм
[2] => 400 мм
[3] => 500 мм
[4] => 600 мм
)
[days] => [23,23,24,25,28]
[material_price] => [3641,4298,5693,7613,9612]
[work_price] => [5737,5737,6903,7958,8901]
[image] => https://akademik-stroy.ru/wp-content/uploads/materials/keramzitobetonnyj-blok.jpg
[area_modifier] => 134.59
[parent_name] => Стены 1 этаж (несущие)
[parent_id] => 3
[material_sum] => 646856
[work_sum] => 849357
[total_sum] => 1496213
[total_days] => 23
[display_material_sum] => 646 856
[display_work_sum] => 849 357
[display_total_sum] => 1 496 213
)
1
1 496 213₽
Работа:849 357 ₽
Материалы:646 856 ₽
Дни:23
stdClass Object
(
[id] => 179
[attribute_id] => 3
[name] => Деревянные
[material_modifier] => 1
[work_modifier] => 1
[options] => Array
(
[0] => 180 мм
[1] => 220 мм
[2] => 260 мм
[3] => 320 мм
)
[days] => [7,8,9,10]
[material_price] => [7950,9458,11961,14472]
[work_price] => [4037,4925,5812,7207]
[image] => https://akademik-stroy.ru/wp-content/uploads/materials/derevyannye.jpg
[area_modifier] => 134.59
[parent_name] => Стены 1 этаж (несущие)
[parent_id] => 3
[material_sum] => 1412387
[work_sum] => 597674
[total_sum] => 2010061
[total_days] => 7
[display_material_sum] => 1 412 387
[display_work_sum] => 597 674
[display_total_sum] => 2 010 061
)
1
2 010 061₽
Работа:597 674 ₽
Материалы:1 412 387 ₽
Дни:7
stdClass Object
(
[id] => 181
[attribute_id] => 3
[name] => Камень
[material_modifier] => 1
[work_modifier] => 1
[options] => Array
(
[0] => 300 мм
[1] => 400 мм
[2] => 500 мм
[3] => 600 мм
)
[days] => [25,27,31,34]
[material_price] => [5262,6844,8330,9815]
[work_price] => [8331,9135,10427,11069]
[image] => https://akademik-stroy.ru/wp-content/uploads/materials/kamen.jpg
[area_modifier] => 134.59
[parent_name] => Стены 1 этаж (несущие)
[parent_id] => 3
[material_sum] => 934841
[work_sum] => 1233396
[total_sum] => 2168237
[total_days] => 25
[display_material_sum] => 934 841
[display_work_sum] => 1 233 396
[display_total_sum] => 2 168 237
)
1
2 168 237₽
Работа:1 233 396 ₽
Материалы:934 841 ₽
Дни:25
stdClass Object
(
[id] => 182
[attribute_id] => 3
[name] => Каркасно-щитовые
[material_modifier] => 1
[work_modifier] => 1
[options] => Array
(
[0] => 150 мм
[1] => 200 мм
[2] => 250 мм
[3] => 300 мм
[4] => 350 мм
[5] => 400 мм
)
[days] => [15,16,17,18,19,20]
[material_price] => [2379,2639,2898,3458,3601,4175]
[work_price] => [2538,2820,3134,3483,4062,5642]
[image] => https://akademik-stroy.ru/wp-content/uploads/materials/karkasno-shchitovye.jpg
[area_modifier] => 134.59
[parent_name] => Стены 1 этаж (несущие)
[parent_id] => 3
[material_sum] => 422650
[work_sum] => 375748
[total_sum] => 798398
[total_days] => 15
[display_material_sum] => 422 650
[display_work_sum] => 375 748
[display_total_sum] => 798 398
)
1
798 398₽
Работа:375 748 ₽
Материалы:422 650 ₽
Дни:15
stdClass Object
(
[id] => 183
[attribute_id] => 3
[name] => Рубленные
[material_modifier] => 1
[work_modifier] => 1
[options] => Array
(
[0] => 150 мм
[1] => 200 мм
[2] => 250 мм
[3] => 300 мм
[4] => 350 мм
[5] => 400 мм
)
[days] => [15,16,17,18,17,18]
[material_price] => [35950,50267,60583,75900,80217,100533]
[work_price] => [9612,12816,16020,19224,22428,25632]
[image] => https://akademik-stroy.ru/wp-content/uploads/materials/rublennye.jpg
[area_modifier] => 134.59
[parent_name] => Стены 1 этаж (несущие)
[parent_id] => 3
[material_sum] => 6386834
[work_sum] => 1423047
[total_sum] => 7809881
[total_days] => 15
[display_material_sum] => 6 386 834
[display_work_sum] => 1 423 047
[display_total_sum] => 7 809 881
)
1
7 809 881₽
Работа:1 423 047 ₽
Материалы:6 386 834 ₽
Дни:15
stdClass Object
(
[id] => 185
[attribute_id] => 3
[name] => Теплоблок
[material_modifier] => 1
[work_modifier] => 1
[options] => Array
(
[0] => 300 мм (с облицовкой, не покрашенный)
[1] => 400 мм (с облицовкой, не покрашенный)
[2] => 300 мм (с облицовкой, покрашенный)
[3] => 400 мм (с облицовкой, покрашенный)
)
[days] => [15,16,15,16]
[material_price] => [2888,3729,3957,4258]
[work_price] => [2564,3229,2949,3713]
[image] => https://akademik-stroy.ru/wp-content/uploads/materials/teploblok.jpg
[area_modifier] => 134.59
[parent_name] => Стены 1 этаж (несущие)
[parent_id] => 3
[material_sum] => 513079
[work_sum] => 379598
[total_sum] => 892677
[total_days] => 15
[display_material_sum] => 513 079
[display_work_sum] => 379 598
[display_total_sum] => 892 677
)
1
892 677₽
Работа:379 598 ₽
Материалы:513 079 ₽
Дни:15
stdClass Object
(
[id] => 186
[attribute_id] => 3
[name] => Арболитовые блоки
[material_modifier] => 1
[work_modifier] => 1
[options] => Array
(
[0] => 300 мм
[1] => 400 мм
[2] => 600 мм
)
[days] => [19,22,27]
[material_price] => [3210,4475,5852]
[work_price] => [4214,4788,5866]
[image] => https://akademik-stroy.ru/wp-content/uploads/materials/arbolitovye-bloki.png
[area_modifier] => 134.59
[parent_name] => Стены 1 этаж (несущие)
[parent_id] => 3
[material_sum] => 570285
[work_sum] => 623878
[total_sum] => 1194163
[total_days] => 19
[display_material_sum] => 570 285
[display_work_sum] => 623 878
[display_total_sum] => 1 194 163
)
1
1 194 163₽
Работа:623 878 ₽
Материалы:570 285 ₽
Дни:19
stdClass Object
(
[id] => 187
[attribute_id] => 3
[name] => Полистиролбетон
[material_modifier] => 1
[work_modifier] => 1
[options] => Array
(
[0] => 300 мм
[1] => 400 мм
[2] => 600 мм
)
[days] => [29,31,35]
[material_price] => [2798,4573,5256]
[work_price] => [5038,5851,6426]
[image] => https://akademik-stroy.ru/wp-content/uploads/materials/polistirolbeton.jpg
[area_modifier] => 134.59
[parent_name] => Стены 1 этаж (несущие)
[parent_id] => 3
[material_sum] => 497089
[work_sum] => 745871
[total_sum] => 1242960
[total_days] => 29
[display_material_sum] => 497 089
[display_work_sum] => 745 871
[display_total_sum] => 1 242 960
)
1
1 242 960₽
Работа:745 871 ₽
Материалы:497 089 ₽
Дни:29
stdClass Object
(
[id] => 188
[attribute_id] => 3
[name] => Шлакоблок
[material_modifier] => 1
[work_modifier] => 1
[options] => Array
(
[0] => 400 мм
[1] => 600 мм
)
[days] => [15,16]
[material_price] => [2391,3471]
[work_price] => [2642,3662]
[image] => https://akademik-stroy.ru/wp-content/uploads/materials/shlakoblok.jpg
[area_modifier] => 134.59
[parent_name] => Стены 1 этаж (несущие)
[parent_id] => 3
[material_sum] => 424782
[work_sum] => 391145
[total_sum] => 815927
[total_days] => 15
[display_material_sum] => 424 782
[display_work_sum] => 391 145
[display_total_sum] => 815 927
)
1
815 927₽
Работа:391 145 ₽
Материалы:424 782 ₽
Дни:15
stdClass Object
(
[id] => 189
[attribute_id] => 3
[name] => Теплая керамика
[material_modifier] => 1
[work_modifier] => 1
[options] => Array
(
[0] => 380 мм
[1] => 380 мм Thermo
[2] => 440 мм
[3] => 510 мм
)
[days] => [23,23,24,25]
[material_price] => [4510,5098,6093,8013]
[work_price] => [4737,4937,5903,6958]
[image] => https://akademik-stroy.ru/wp-content/uploads/materials/teplaya-keramika.jpg
[area_modifier] => 134.59
[parent_name] => Стены 1 этаж (несущие)
[parent_id] => 3
[material_sum] => 801241
[work_sum] => 701308
[total_sum] => 1502549
[total_days] => 23
[display_material_sum] => 801 241
[display_work_sum] => 701 308
[display_total_sum] => 1 502 549
)
1
1 502 549₽
Работа:701 308 ₽
Материалы:801 241 ₽
Дни:23
stdClass Object
(
[id] => 190
[attribute_id] => 3
[name] => Несъемная опалубка
[material_modifier] => 1
[work_modifier] => 1
[options] => Array
(
[0] => 200 мм
[1] => 250 мм
[2] => 300 мм
[3] => 350 мм
)
[days] => [15,17,19,21]
[material_price] => [3302,3902,4108,5008]
[work_price] => [2100,2100,2300,2534]
[image] => https://akademik-stroy.ru/wp-content/uploads/materials/nesemnaya-opalubka.jpg
[area_modifier] => 134.59
[parent_name] => Стены 1 этаж (несущие)
[parent_id] => 3
[material_sum] => 586629
[work_sum] => 310903
[total_sum] => 897532
[total_days] => 15
[display_material_sum] => 586 629
[display_work_sum] => 310 903
[display_total_sum] => 897 532
)
1
897 532₽
Работа:310 903 ₽
Материалы:586 629 ₽
Дни:15
stdClass Object
(
[id] => 251
[attribute_id] => 3
[name] => Бревно
[material_modifier] => 1
[work_modifier] => 1
[options] => Array
(
[0] => 260 мм
[1] => 320 мм
[2] => 360 мм
[3] => 400 мм
[4] => 500 мм
)
[days] => [7,8,9,10,11]
[material_price] => [1874,24045,26930,30972,38825]
[work_price] => [5046,6207,6952,7716,9723]
[image] => https://akademik-stroy.ru/wp-content/uploads/materials/sruby.jpg
[area_modifier] => 134.59
[parent_name] => Стены 1 этаж (несущие)
[parent_id] => 3
[material_sum] => 332933
[work_sum] => 747055
[total_sum] => 1079988
[total_days] => 7
[display_material_sum] => 332 933
[display_work_sum] => 747 055
[display_total_sum] => 1 079 988
)
1
1 079 988₽
Работа:747 055 ₽
Материалы:332 933 ₽
Дни:7
stdClass Object
(
[id] => 7
[attribute_id] => 4
[name] => Деревянные балки
[material_modifier] => 1
[work_modifier] => 1
[options] => Array
(
[0] => без утепления
[1] => утепление 200 мм
[2] => утепление 250 мм
[3] => утепление 300 мм
[4] => утепление 350 мм
[5] => утепление 400 мм
[6] => утепление 450 мм
[7] => утепление 500 мм
)
[days] => [8,9,9,9,11,12,13,14]
[material_price] => [1634,2042,2344,2947,3149,3652,3354,3557]
[work_price] => [1230,1339,1393,1426,1460,1513,1587,1620]
[image] => https://akademik-stroy.ru/wp-content/uploads/materials/derevyannye-balki.png
[area_modifier] => 134.59
[parent_name] => Перекрытие первого этажа
[parent_id] => 4
[material_sum] => 290294
[work_sum] => 182100
[total_sum] => 472394
[total_days] => 8
[display_material_sum] => 290 294
[display_work_sum] => 182 100
[display_total_sum] => 472 394
)
1
472 394₽
Работа:182 100 ₽
Материалы:290 294 ₽
Дни:8
stdClass Object
(
[id] => 8
[attribute_id] => 4
[name] => Сборные ж/б плиты
[material_modifier] => 1
[work_modifier] => 1
[options] => Array
(
[0] => без утепления
[1] => утепление 150 мм
[2] => утепление 200 мм
[3] => утепление 250 мм
[4] => утепление 300 мм
[5] => утепление 350 мм
[6] => утепление 400 мм
[7] => утепление 450 мм
[8] => утепление 500 мм
)
[days] => [13,15,15,15,15,15,15,15,15]
[material_price] => [3067,5577,5928,6679,7730,8782,9833,10884,11935]
[work_price] => [1520,1956,2102,2247,2392,2537,2684,2829,2974]
[image] => https://akademik-stroy.ru/wp-content/uploads/materials/sbornye-zh-b-plity-2.jpg
[area_modifier] => 134.59
[parent_name] => Перекрытие первого этажа
[parent_id] => 4
[material_sum] => 544880
[work_sum] => 225034
[total_sum] => 769914
[total_days] => 13
[display_material_sum] => 544 880
[display_work_sum] => 225 034
[display_total_sum] => 769 914
)
1
769 914₽
Работа:225 034 ₽
Материалы:544 880 ₽
Дни:13
stdClass Object
(
[id] => 89
[attribute_id] => 4
[name] => Монолитная ж/б плита
[material_modifier] => 1
[work_modifier] => 1
[options] => Array
(
[0] => без утепления
[1] => утепление 150 мм
[2] => утепление 200 мм
[3] => утепление 250 мм
[4] => утепление 300 мм
[5] => утепление 350 мм
[6] => утепление 400 мм
[7] => утепление 450 мм
[8] => утепление 500 мм
)
[days] => [18,20,20,20,20,20,20,20,20]
[material_price] => [4837,6572,7224,7375,79426,8177,8728,9180,10031]
[work_price] => [3348,3921,4112,4302,4493,4684,4875,5066,5256]
[image] => https://akademik-stroy.ru/wp-content/uploads/materials/monolitnaya-zh-b-plita-2.jpg
[area_modifier] => 134.59
[parent_name] => Перекрытие первого этажа
[parent_id] => 4
[material_sum] => 859336
[work_sum] => 495668
[total_sum] => 1355004
[total_days] => 18
[display_material_sum] => 859 336
[display_work_sum] => 495 668
[display_total_sum] => 1 355 004
)
1
1 355 004₽
Работа:495 668 ₽
Материалы:859 336 ₽
Дни:18
stdClass Object
(
[id] => 10
[attribute_id] => 5
[name] => Пеноблок
[material_modifier] => 1
[work_modifier] => 1
[options] => Array
(
[0] => 300 мм
[1] => 400 мм
[2] => 500 мм
[3] => 600 мм
)
[days] => [29,31,34,39]
[material_price] => [3000,4000,4500,4937]
[work_price] => [5033,5805,6400,8710]
[image] => https://akademik-stroy.ru/wp-content/uploads/materials/penoblok.jpg
[area_modifier] => 56.06
[parent_name] => Стены 2 этаж (несущие)
[parent_id] => 5
[material_sum] => 221998
[work_sum] => 310365
[total_sum] => 532363
[total_days] => 29
[display_material_sum] => 221 998
[display_work_sum] => 310 365
[display_total_sum] => 532 363
)
1
532 363₽
Работа:310 365 ₽
Материалы:221 998 ₽
Дни:29
stdClass Object
(
[id] => 90
[attribute_id] => 5
[name] => Керамический блок
[material_modifier] => 1
[work_modifier] => 1
[options] => Array
(
[0] => 380 мм
[1] => 380 мм Thermo
[2] => 440 мм
[3] => 510 мм
)
[days] => [23,23,24,25]
[material_price] => [4510,5098,6093,8013]
[work_price] => [4737,4937,5903,6958]
[image] => https://akademik-stroy.ru/wp-content/uploads/materials/keramicheskij-blok.jpg
[area_modifier] => 56.06
[parent_name] => Стены 2 этаж (несущие)
[parent_id] => 5
[material_sum] => 333736
[work_sum] => 292112
[total_sum] => 625848
[total_days] => 23
[display_material_sum] => 333 736
[display_work_sum] => 292 112
[display_total_sum] => 625 848
)
1
625 848₽
Работа:292 112 ₽
Материалы:333 736 ₽
Дни:23
stdClass Object
(
[id] => 91
[attribute_id] => 5
[name] => Кирпич
[material_modifier] => 1
[work_modifier] => 1
[options] => Array
(
[0] => Кирпич 250 мм
[1] => Кирпич 380 мм
[2] => Кирпич 510 мм
[3] => Кирпич 640 мм
[4] => Кирпич 770 мм
)
[days] => [30,30,31,33,36]
[material_price] => [5500,7142,9206,10171,12235]
[work_price] => [8736,10041,12018,15240,18462]
[image] => https://akademik-stroy.ru/wp-content/uploads/materials/kirpich.jpg
[area_modifier] => 56.06
[parent_name] => Стены 2 этаж (несущие)
[parent_id] => 5
[material_sum] => 406996
[work_sum] => 538714
[total_sum] => 945710
[total_days] => 30
[display_material_sum] => 406 996
[display_work_sum] => 538 714
[display_total_sum] => 945 710
)
1
945 710₽
Работа:538 714 ₽
Материалы:406 996 ₽
Дни:30
stdClass Object
(
[id] => 92
[attribute_id] => 5
[name] => Монолитные
[material_modifier] => 1
[work_modifier] => 1
[options] => Array
(
[0] => 150 мм
[1] => 200 мм
[2] => 250 мм
[3] => 300 мм
[4] => 350 мм
[5] => 400 мм
)
[days] => [45,46,47,49,50,53]
[material_price] => [6545,7876,10175,12011,13908,15204]
[work_price] => [5106,6444,7698,8552,9807,11461]
[image] => https://akademik-stroy.ru/wp-content/uploads/materials/monolitnye.jpg
[area_modifier] => 56.06
[parent_name] => Стены 2 этаж (несущие)
[parent_id] => 5
[material_sum] => 484325
[work_sum] => 314867
[total_sum] => 799192
[total_days] => 45
[display_material_sum] => 484 325
[display_work_sum] => 314 867
[display_total_sum] => 799 192
)
1
799 192₽
Работа:314 867 ₽
Материалы:484 325 ₽
Дни:45
stdClass Object
(
[id] => 93
[attribute_id] => 5
[name] => Клееный брус
[material_modifier] => 1
[work_modifier] => 1
[options] => Array
(
[0] => 160 мм
[1] => 175 мм
[2] => 200 мм
[3] => 215 мм
[4] => 240 мм
[5] => 270 мм
[6] => 282 мм
)
[days] => [24,28,32,37,40,42,48]
[material_price] => [16975,18773,19950,20545,21599,22159,23275]
[work_price] => [4806,5287,5815,6397,7036,7740,8514]
[image] => https://akademik-stroy.ru/wp-content/uploads/materials/kleenyj-brus.jpg
[area_modifier] => 56.06
[parent_name] => Стены 2 этаж (несущие)
[parent_id] => 5
[material_sum] => 1256136
[work_sum] => 296367
[total_sum] => 1552503
[total_days] => 24
[display_material_sum] => 1 256 136
[display_work_sum] => 296 367
[display_total_sum] => 1 552 503
)
1
1 552 503₽
Работа:296 367 ₽
Материалы:1 256 136 ₽
Дни:24
stdClass Object
(
[id] => 94
[attribute_id] => 5
[name] => Каркасные
[material_modifier] => 1
[work_modifier] => 1
[options] => Array
(
[0] => 150 мм
[1] => 200 мм
[2] => 250 мм
[3] => 300 мм
)
[days] => [15,16,17,18]
[material_price] => [2379,2639,2898,3258]
[work_price] => [2418,2686,2985,3716]
[image] => https://akademik-stroy.ru/wp-content/uploads/materials/karkasnye.jpg
[area_modifier] => 56.06
[parent_name] => Стены 2 этаж (несущие)
[parent_id] => 5
[material_sum] => 176044
[work_sum] => 149108
[total_sum] => 325152
[total_days] => 15
[display_material_sum] => 176 044
[display_work_sum] => 149 108
[display_total_sum] => 325 152
)
1
325 152₽
Работа:149 108 ₽
Материалы:176 044 ₽
Дни:15
stdClass Object
(
[id] => 95
[attribute_id] => 5
[name] => СИП-панели
[material_modifier] => 1
[work_modifier] => 1
[options] => Array
(
[0] => 120 мм
[1] => 170 мм
[2] => 220 мм
)
[days] => [7,7,7]
[material_price] => [1210,1856,2292]
[work_price] => [1410,1551,1706]
[image] => https://akademik-stroy.ru/wp-content/uploads/materials/sip-paneli.jpg
[area_modifier] => 56.06
[parent_name] => Стены 2 этаж (несущие)
[parent_id] => 5
[material_sum] => 89539
[work_sum] => 86949
[total_sum] => 176488
[total_days] => 7
[display_material_sum] => 89 539
[display_work_sum] => 86 949
[display_total_sum] => 176 488
)
1
176 488₽
Работа:86 949 ₽
Материалы:89 539 ₽
Дни:7
stdClass Object
(
[id] => 96
[attribute_id] => 5
[name] => Сухой брус
[material_modifier] => 1
[work_modifier] => 1
[options] => Array
(
[0] => 150 мм
[1] => 180 мм
[2] => 200 мм
)
[days] => [7,8,9]
[material_price] => [6010,7190,8709]
[work_price] => [3204,3845,4229]
[image] => https://akademik-stroy.ru/wp-content/uploads/materials/suhoj-brus.jpg
[area_modifier] => 56.06
[parent_name] => Стены 2 этаж (несущие)
[parent_id] => 5
[material_sum] => 444735
[work_sum] => 197578
[total_sum] => 642313
[total_days] => 7
[display_material_sum] => 444 735
[display_work_sum] => 197 578
[display_total_sum] => 642 313
)
1
642 313₽
Работа:197 578 ₽
Материалы:444 735 ₽
Дни:7
stdClass Object
(
[id] => 97
[attribute_id] => 5
[name] => Профилированный брус
[material_modifier] => 1
[work_modifier] => 1
[options] => Array
(
[0] => 150 мм
[1] => 180 мм
[2] => 200 мм
)
[days] => [7,8,9]
[material_price] => [8190,9228,10051]
[work_price] => [3845,4614,5075]
[image] => https://akademik-stroy.ru/wp-content/uploads/materials/profilirovannyj-brus.jpg
[area_modifier] => 56.06
[parent_name] => Стены 2 этаж (несущие)
[parent_id] => 5
[material_sum] => 606053
[work_sum] => 237106
[total_sum] => 843159
[total_days] => 7
[display_material_sum] => 606 053
[display_work_sum] => 237 106
[display_total_sum] => 843 159
)
1
843 159₽
Работа:237 106 ₽
Материалы:606 053 ₽
Дни:7
stdClass Object
(
[id] => 98
[attribute_id] => 5
[name] => Оцилиндрованное бревно
[material_modifier] => 1
[work_modifier] => 1
[options] => Array
(
[0] => 180 мм
[1] => 220 мм
[2] => 260 мм
[3] => 320 мм
)
[days] => [7,8,9,10]
[material_price] => [75190,9532,10868,13116]
[work_price] => [3845,4691,5535,6863]
[image] => https://akademik-stroy.ru/wp-content/uploads/materials/ocilindrovannoe-brevno-1.jpg
[area_modifier] => 56.06
[parent_name] => Стены 2 этаж (несущие)
[parent_id] => 5
[material_sum] => 5564000
[work_sum] => 237106
[total_sum] => 5801106
[total_days] => 7
[display_material_sum] => 5 564 000
[display_work_sum] => 237 106
[display_total_sum] => 5 801 106
)
1
5 801 106₽
Работа:237 106 ₽
Материалы:5 564 000 ₽
Дни:7
stdClass Object
(
[id] => 99
[attribute_id] => 5
[name] => Срубы
[material_modifier] => 1
[work_modifier] => 1
[options] => Array
(
[0] => 260 мм
[1] => 320 мм
[2] => 360 мм
[3] => 400 мм
[4] => 500 мм
)
[days] => [7,8,9,10,11]
[material_price] => [16175,23709,26314,29069,32167]
[work_price] => [4806,5911,6621,7349,9260]
[image] => https://akademik-stroy.ru/wp-content/uploads/materials/suhoj-brus.jpg
[area_modifier] => 56.06
[parent_name] => Стены 2 этаж (несущие)
[parent_id] => 5
[material_sum] => 1196937
[work_sum] => 296367
[total_sum] => 1493304
[total_days] => 7
[display_material_sum] => 1 196 937
[display_work_sum] => 296 367
[display_total_sum] => 1 493 304
)
1
1 493 304₽
Работа:296 367 ₽
Материалы:1 196 937 ₽
Дни:7
stdClass Object
(
[id] => 194
[attribute_id] => 5
[name] => Брус
[material_modifier] => 1
[work_modifier] => 1
[options] => Array
(
[0] => 150 мм
[1] => 180 мм
[2] => 200 мм
)
[days] => [10,13,15]
[material_price] => [5127,6152,7367]
[work_price] => [1602,1922,2115]
[image] => https://akademik-stroy.ru/wp-content/uploads/materials/brus.jpg
[area_modifier] => 56.06
[parent_name] => Стены 2 этаж (несущие)
[parent_id] => 5
[material_sum] => 379394
[work_sum] => 98789
[total_sum] => 478183
[total_days] => 10
[display_material_sum] => 379 394
[display_work_sum] => 98 789
[display_total_sum] => 478 183
)
1
478 183₽
Работа:98 789 ₽
Материалы:379 394 ₽
Дни:10
stdClass Object
(
[id] => 195
[attribute_id] => 5
[name] => Газобетон
[material_modifier] => 1
[work_modifier] => 1
[options] => Array
(
[0] => 300 мм
[1] => 375 мм
[2] => 400 мм
[3] => 500 мм
[4] => 600 мм
)
[days] => [29,31,35,37,44]
[material_price] => [4298,5573,6356,7288,9119]
[work_price] => [4538,5251,5926,6733,7195]
[image] => https://akademik-stroy.ru/wp-content/uploads/materials/gazobeton.jpg
[area_modifier] => 56.06
[parent_name] => Стены 2 этаж (несущие)
[parent_id] => 5
[material_sum] => 318049
[work_sum] => 279840
[total_sum] => 597889
[total_days] => 29
[display_material_sum] => 318 049
[display_work_sum] => 279 840
[display_total_sum] => 597 889
)
1
597 889₽
Работа:279 840 ₽
Материалы:318 049 ₽
Дни:29
stdClass Object
(
[id] => 196
[attribute_id] => 5
[name] => Блок
[material_modifier] => 1
[work_modifier] => 1
[options] => Array
(
[0] => 300 мм
[1] => 375 мм
[2] => 400 мм
[3] => 500 мм
[4] => 600 мм
)
[days] => [29,31,35,37,44]
[material_price] => [2698,3973,4356,6588,7119]
[work_price] => [5038,5851,6426,8733,9195]
[image] => https://akademik-stroy.ru/wp-content/uploads/materials/blok.jpg
[area_modifier] => 56.06
[parent_name] => Стены 2 этаж (несущие)
[parent_id] => 5
[material_sum] => 199650
[work_sum] => 310673
[total_sum] => 510323
[total_days] => 29
[display_material_sum] => 199 650
[display_work_sum] => 310 673
[display_total_sum] => 510 323
)
1
510 323₽
Работа:310 673 ₽
Материалы:199 650 ₽
Дни:29
stdClass Object
(
[id] => 197
[attribute_id] => 5
[name] => Газосиликатный блок
[material_modifier] => 1
[work_modifier] => 1
[options] => Array
(
[0] => 300 мм
[1] => 375 мм
[2] => 400 мм
[3] => 500 мм
[4] => 600 мм
)
[days] => [29,31,35,37,44]
[material_price] => [4298,5573,6356,7288,9119]
[work_price] => [4538,5251,5926,6733,7195]
[image] => https://akademik-stroy.ru/wp-content/uploads/materials/gazosilikatnyj-blok.jpg
[area_modifier] => 56.06
[parent_name] => Стены 2 этаж (несущие)
[parent_id] => 5
[material_sum] => 318049
[work_sum] => 279840
[total_sum] => 597889
[total_days] => 29
[display_material_sum] => 318 049
[display_work_sum] => 279 840
[display_total_sum] => 597 889
)
1
597 889₽
Работа:279 840 ₽
Материалы:318 049 ₽
Дни:29
stdClass Object
(
[id] => 198
[attribute_id] => 5
[name] => Керамзитобетонный блок
[material_modifier] => 1
[work_modifier] => 1
[options] => Array
(
[0] => 300 мм
[1] => 375 мм
[2] => 400 мм
[3] => 500 мм
[4] => 600 мм
)
[days] => [23,23,24,25,28]
[material_price] => [3641,4298,5693,7613,9612]
[work_price] => [5737,5737,6903,7958,8901]
[image] => https://akademik-stroy.ru/wp-content/uploads/materials/keramzitobetonnyj-blok.jpg
[area_modifier] => 56.06
[parent_name] => Стены 2 этаж (несущие)
[parent_id] => 5
[material_sum] => 269431
[work_sum] => 353778
[total_sum] => 623209
[total_days] => 23
[display_material_sum] => 269 431
[display_work_sum] => 353 778
[display_total_sum] => 623 209
)
1
623 209₽
Работа:353 778 ₽
Материалы:269 431 ₽
Дни:23
stdClass Object
(
[id] => 199
[attribute_id] => 5
[name] => Деревянные
[material_modifier] => 1
[work_modifier] => 1
[options] => Array
(
[0] => 180 мм
[1] => 220 мм
[2] => 260 мм
[3] => 320 мм
)
[days] => [7,8,9,10]
[material_price] => [7950,9458,11961,14472]
[work_price] => [4037,4925,5812,7207]
[image] => https://akademik-stroy.ru/wp-content/uploads/materials/derevyannye.jpg
[area_modifier] => 56.06
[parent_name] => Стены 2 этаж (несущие)
[parent_id] => 5
[material_sum] => 588294
[work_sum] => 248946
[total_sum] => 837240
[total_days] => 7
[display_material_sum] => 588 294
[display_work_sum] => 248 946
[display_total_sum] => 837 240
)
1
837 240₽
Работа:248 946 ₽
Материалы:588 294 ₽
Дни:7
stdClass Object
(
[id] => 200
[attribute_id] => 5
[name] => Камень
[material_modifier] => 1
[work_modifier] => 1
[options] => Array
(
[0] => 300 мм
[1] => 400 мм
[2] => 500 мм
[3] => 600 мм
)
[days] => [25,27,31,34]
[material_price] => [5262,6844,8330,9815]
[work_price] => [8331,9135,10427,11069]
[image] => https://akademik-stroy.ru/wp-content/uploads/materials/kamen.jpg
[area_modifier] => 56.06
[parent_name] => Стены 2 этаж (несущие)
[parent_id] => 5
[material_sum] => 389384
[work_sum] => 513739
[total_sum] => 903123
[total_days] => 25
[display_material_sum] => 389 384
[display_work_sum] => 513 739
[display_total_sum] => 903 123
)
1
903 123₽
Работа:513 739 ₽
Материалы:389 384 ₽
Дни:25
stdClass Object
(
[id] => 201
[attribute_id] => 5
[name] => Каркасно-щитовые
[material_modifier] => 1
[work_modifier] => 1
[options] => Array
(
[0] => 150 мм
[1] => 200 мм
[2] => 250 мм
[3] => 300 мм
[4] => 350 мм
[5] => 400 мм
)
[days] => [15,16,17,18,19,20]
[material_price] => [2379,2639,2898,3458,3601,4175]
[work_price] => [2538,2820,3134,3483,4062,5642]
[image] => https://akademik-stroy.ru/wp-content/uploads/materials/karkasno-shchitovye.jpg
[area_modifier] => 56.06
[parent_name] => Стены 2 этаж (несущие)
[parent_id] => 5
[material_sum] => 176044
[work_sum] => 156508
[total_sum] => 332552
[total_days] => 15
[display_material_sum] => 176 044
[display_work_sum] => 156 508
[display_total_sum] => 332 552
)
1
332 552₽
Работа:156 508 ₽
Материалы:176 044 ₽
Дни:15
stdClass Object
(
[id] => 202
[attribute_id] => 5
[name] => Рубленные
[material_modifier] => 1
[work_modifier] => 1
[options] => Array
(
[0] => 150 мм
[1] => 200 мм
[2] => 250 мм
[3] => 300 мм
[4] => 350 мм
[5] => 400 мм
)
[days] => [15,16,17,18,17,18]
[material_price] => [35950,50267,60583,75900,80217,100533]
[work_price] => [9612,12816,16020,19224,22428,25632]
[image] => https://akademik-stroy.ru/wp-content/uploads/materials/rublennye.jpg
[area_modifier] => 56.06
[parent_name] => Стены 2 этаж (несущие)
[parent_id] => 5
[material_sum] => 2660271
[work_sum] => 592734
[total_sum] => 3253005
[total_days] => 15
[display_material_sum] => 2 660 271
[display_work_sum] => 592 734
[display_total_sum] => 3 253 005
)
1
3 253 005₽
Работа:592 734 ₽
Материалы:2 660 271 ₽
Дни:15
stdClass Object
(
[id] => 203
[attribute_id] => 5
[name] => Теплоблок
[material_modifier] => 1
[work_modifier] => 1
[options] => Array
(
[0] => 300 мм (с облицовкой, не покрашенный)
[1] => 400 мм (с облицовкой, не покрашенный)
[2] => 300 мм (с облицовкой, покрашенный)
[3] => 400 мм (с облицовкой, покрашенный)
)
[days] => [15,16,15,16]
[material_price] => [2888,3729,3957,4258]
[work_price] => [2564,3229,2949,3713]
[image] => https://akademik-stroy.ru/wp-content/uploads/materials/teploblok.jpg
[area_modifier] => 56.06
[parent_name] => Стены 2 этаж (несущие)
[parent_id] => 5
[material_sum] => 213710
[work_sum] => 158112
[total_sum] => 371822
[total_days] => 15
[display_material_sum] => 213 710
[display_work_sum] => 158 112
[display_total_sum] => 371 822
)
1
371 822₽
Работа:158 112 ₽
Материалы:213 710 ₽
Дни:15
stdClass Object
(
[id] => 204
[attribute_id] => 5
[name] => Арболитовые блоки
[material_modifier] => 1
[work_modifier] => 1
[options] => Array
(
[0] => 300 мм
[1] => 400 мм
[2] => 600 мм
)
[days] => [19,22,27]
[material_price] => [3210,4475,5852]
[work_price] => [4214,4788,5866]
[image] => https://akademik-stroy.ru/wp-content/uploads/materials/arbolitovye-bloki.png
[area_modifier] => 56.06
[parent_name] => Стены 2 этаж (несущие)
[parent_id] => 5
[material_sum] => 237537
[work_sum] => 259861
[total_sum] => 497398
[total_days] => 19
[display_material_sum] => 237 537
[display_work_sum] => 259 861
[display_total_sum] => 497 398
)
1
497 398₽
Работа:259 861 ₽
Материалы:237 537 ₽
Дни:19
stdClass Object
(
[id] => 205
[attribute_id] => 5
[name] => Полистиролбетон
[material_modifier] => 1
[work_modifier] => 1
[options] => Array
(
[0] => 300 мм
[1] => 400 мм
[2] => 600 мм
)
[days] => [29,31,35]
[material_price] => [2798,4573,5256]
[work_price] => [5038,5851,6426]
[image] => https://akademik-stroy.ru/wp-content/uploads/materials/polistirolbeton.jpg
[area_modifier] => 56.06
[parent_name] => Стены 2 этаж (несущие)
[parent_id] => 5
[material_sum] => 207050
[work_sum] => 310673
[total_sum] => 517723
[total_days] => 29
[display_material_sum] => 207 050
[display_work_sum] => 310 673
[display_total_sum] => 517 723
)
1
517 723₽
Работа:310 673 ₽
Материалы:207 050 ₽
Дни:29
stdClass Object
(
[id] => 206
[attribute_id] => 5
[name] => Шлакоблок
[material_modifier] => 1
[work_modifier] => 1
[options] => Array
(
[0] => 400 мм
[1] => 600 мм
)
[days] => [15,16]
[material_price] => [2391,3471]
[work_price] => [2642,3662]
[image] => https://akademik-stroy.ru/wp-content/uploads/materials/shlakoblok.jpg
[area_modifier] => 56.06
[parent_name] => Стены 2 этаж (несущие)
[parent_id] => 5
[material_sum] => 176932
[work_sum] => 162922
[total_sum] => 339854
[total_days] => 15
[display_material_sum] => 176 932
[display_work_sum] => 162 922
[display_total_sum] => 339 854
)
1
339 854₽
Работа:162 922 ₽
Материалы:176 932 ₽
Дни:15
stdClass Object
(
[id] => 245
[attribute_id] => 5
[name] => Теплая керамика
[material_modifier] => 1
[work_modifier] => 1
[options] => Array
(
[0] => 380 мм
[1] => 380 мм Thermo
[2] => 440 мм
[3] => 510 мм
)
[days] => [10,10,11,12]
[material_price] => [4510,5098,6093,8013]
[work_price] => [4737,4937,5903,6958]
[image] => https://akademik-stroy.ru/wp-content/uploads/materials/teplaya-keramika.jpg
[area_modifier] => 56.06
[parent_name] => Стены 2 этаж (несущие)
[parent_id] => 5
[material_sum] => 333736
[work_sum] => 292112
[total_sum] => 625848
[total_days] => 10
[display_material_sum] => 333 736
[display_work_sum] => 292 112
[display_total_sum] => 625 848
)
1
625 848₽
Работа:292 112 ₽
Материалы:333 736 ₽
Дни:10
stdClass Object
(
[id] => 246
[attribute_id] => 5
[name] => Несъемная опалубка
[material_modifier] => 1
[work_modifier] => 1
[options] => Array
(
[0] => 380 мм
[1] => 380 мм Thermo
[2] => 440 мм
[3] => 510 мм
)
[days] => [10,10,11,12]
[material_price] => [3302,3902,4108,5008]
[work_price] => [2100,2100,2300,2534]
[image] => https://akademik-stroy.ru/wp-content/uploads/materials/nesemnaya-opalubka.jpg
[area_modifier] => 56.06
[parent_name] => Стены 2 этаж (несущие)
[parent_id] => 5
[material_sum] => 244345
[work_sum] => 129499
[total_sum] => 373844
[total_days] => 10
[display_material_sum] => 244 345
[display_work_sum] => 129 499
[display_total_sum] => 373 844
)
1
373 844₽
Работа:129 499 ₽
Материалы:244 345 ₽
Дни:10
stdClass Object
(
[id] => 254
[attribute_id] => 5
[name] => Бревно
[material_modifier] => 1
[work_modifier] => 1
[options] => Array
(
[0] => 260 мм
[1] => 320 мм
[2] => 360 мм
[3] => 400 мм
[4] => 500 мм
)
[days] => [7,8,9,10,11]
[material_price] => [1874,24045,26930,30972,38825]
[work_price] => [5046,6207,6952,7716,9723]
[image] => https://akademik-stroy.ru/wp-content/uploads/materials/sruby.jpg
[area_modifier] => 56.06
[parent_name] => Стены 2 этаж (несущие)
[parent_id] => 5
[material_sum] => 138675
[work_sum] => 311167
[total_sum] => 449842
[total_days] => 7
[display_material_sum] => 138 675
[display_work_sum] => 311 167
[display_total_sum] => 449 842
)
1
449 842₽
Работа:311 167 ₽
Материалы:138 675 ₽
Дни:7
stdClass Object
(
[id] => 164
[attribute_id] => 37
[name] => Металлочерепица
[material_modifier] => 1
[work_modifier] => 1
[options] => Array
(
)
[days] => [20]
[material_price] => [6112]
[work_price] => [5726]
[image] => https://akademik-stroy.ru/wp-content/uploads/materials/metallocherepica.jpg
[area_modifier] => 134.59
[parent_name] => Крыша (Скатная)
[parent_id] => 37
[material_sum] => 1085851
[work_sum] => 847729
[total_sum] => 1933580
[total_days] => 20
[display_material_sum] => 1 085 851
[display_work_sum] => 847 729
[display_total_sum] => 1 933 580
)
1
1 933 580₽
Работа:847 729 ₽
Материалы:1 085 851 ₽
Дни:20
stdClass Object
(
[id] => 165
[attribute_id] => 37
[name] => Гибкая черепица
[material_modifier] => 1
[work_modifier] => 1
[options] => Array
(
)
[days] => [20]
[material_price] => [6980]
[work_price] => [5950]
[image] => https://akademik-stroy.ru/wp-content/uploads/materials/gibkaya-cherepica.jpg
[area_modifier] => 134.59
[parent_name] => Крыша (Скатная)
[parent_id] => 37
[material_sum] => 1240058
[work_sum] => 880892
[total_sum] => 2120950
[total_days] => 20
[display_material_sum] => 1 240 058
[display_work_sum] => 880 892
[display_total_sum] => 2 120 950
)
1
2 120 950₽
Работа:880 892 ₽
Материалы:1 240 058 ₽
Дни:20
stdClass Object
(
[id] => 166
[attribute_id] => 37
[name] => Цементно-песчаная черепица
[material_modifier] => 1
[work_modifier] => 1
[options] => Array
(
)
[days] => [20]
[material_price] => [10560]
[work_price] => [9456]
[image] => https://akademik-stroy.ru/wp-content/uploads/materials/cementno-peschanaya-cherepica.jpg
[area_modifier] => 134.59
[parent_name] => Крыша (Скатная)
[parent_id] => 37
[material_sum] => 1876077
[work_sum] => 1399951
[total_sum] => 3276028
[total_days] => 20
[display_material_sum] => 1 876 077
[display_work_sum] => 1 399 951
[display_total_sum] => 3 276 028
)
1
3 276 028₽
Работа:1 399 951 ₽
Материалы:1 876 077 ₽
Дни:20
stdClass Object
(
[id] => 167
[attribute_id] => 37
[name] => Композитная черепица
[material_modifier] => 1
[work_modifier] => 1
[options] => Array
(
)
[days] => [20]
[material_price] => [9506]
[work_price] => [8905]
[image] => https://akademik-stroy.ru/wp-content/uploads/materials/kompozitnaya-cherepica.jpg
[area_modifier] => 134.59
[parent_name] => Крыша (Скатная)
[parent_id] => 37
[material_sum] => 1688825
[work_sum] => 1318376
[total_sum] => 3007201
[total_days] => 20
[display_material_sum] => 1 688 825
[display_work_sum] => 1 318 376
[display_total_sum] => 3 007 201
)
1
3 007 201₽
Работа:1 318 376 ₽
Материалы:1 688 825 ₽
Дни:20
stdClass Object
(
[id] => 168
[attribute_id] => 37
[name] => Керамическая черепица
[material_modifier] => 1
[work_modifier] => 1
[options] => Array
(
)
[days] => [20]
[material_price] => [12750]
[work_price] => [9456]
[image] => https://akademik-stroy.ru/wp-content/uploads/materials/keramicheskaya-cherepica.jpg
[area_modifier] => 134.59
[parent_name] => Крыша (Скатная)
[parent_id] => 37
[material_sum] => 2265150
[work_sum] => 1399951
[total_sum] => 3665101
[total_days] => 20
[display_material_sum] => 2 265 150
[display_work_sum] => 1 399 951
[display_total_sum] => 3 665 101
)
1
3 665 101₽
Работа:1 399 951 ₽
Материалы:2 265 150 ₽
Дни:20
stdClass Object
(
[id] => 169
[attribute_id] => 37
[name] => Металлическая фальцевая
[material_modifier] => 1
[work_modifier] => 1
[options] => Array
(
)
[days] => [20]
[material_price] => [8550]
[work_price] => [8190]
[image] => https://akademik-stroy.ru/wp-content/uploads/materials/metallicheskaya-falcevaya.jpg
[area_modifier] => 134.59
[parent_name] => Крыша (Скатная)
[parent_id] => 37
[material_sum] => 1518983
[work_sum] => 1212521
[total_sum] => 2731504
[total_days] => 20
[display_material_sum] => 1 518 983
[display_work_sum] => 1 212 521
[display_total_sum] => 2 731 504
)
1
2 731 504₽
Работа:1 212 521 ₽
Материалы:1 518 983 ₽
Дни:20
stdClass Object
(
[id] => 170
[attribute_id] => 37
[name] => Медная фальцевая
[material_modifier] => 1
[work_modifier] => 1
[options] => Array
(
)
[days] => [20]
[material_price] => [20450]
[work_price] => [16750]
[image] => https://akademik-stroy.ru/wp-content/uploads/materials/mednaya-falcevaya.jpg
[area_modifier] => 134.59
[parent_name] => Крыша (Скатная)
[parent_id] => 37
[material_sum] => 3633122
[work_sum] => 2479821
[total_sum] => 6112943
[total_days] => 20
[display_material_sum] => 3 633 122
[display_work_sum] => 2 479 821
[display_total_sum] => 6 112 943
)
1
6 112 943₽
Работа:2 479 821 ₽
Материалы:3 633 122 ₽
Дни:20
stdClass Object
(
[id] => 171
[attribute_id] => 37
[name] => Зеленая кровля
[material_modifier] => 1
[work_modifier] => 1
[options] => Array
(
)
[days] => [20]
[material_price] => [19850]
[work_price] => [16780]
[image] => https://akademik-stroy.ru/wp-content/uploads/materials/zelenaya-krovlya.jpg
[area_modifier] => 134.59
[parent_name] => Крыша (Скатная)
[parent_id] => 37
[material_sum] => 3526527
[work_sum] => 2484262
[total_sum] => 6010789
[total_days] => 20
[display_material_sum] => 3 526 527
[display_work_sum] => 2 484 262
[display_total_sum] => 6 010 789
)
1
6 010 789₽
Работа:2 484 262 ₽
Материалы:3 526 527 ₽
Дни:20
stdClass Object
(
[id] => 172
[attribute_id] => 37
[name] => Профлист
[material_modifier] => 1
[work_modifier] => 1
[options] => Array
(
)
[days] => [20]
[material_price] => [3450]
[work_price] => [3750]
[image] => https://akademik-stroy.ru/wp-content/uploads/materials/proflist.jpg
[area_modifier] => 134.59
[parent_name] => Крыша (Скатная)
[parent_id] => 37
[material_sum] => 612923
[work_sum] => 555184
[total_sum] => 1168107
[total_days] => 20
[display_material_sum] => 612 923
[display_work_sum] => 555 184
[display_total_sum] => 1 168 107
)
1
1 168 107₽
Работа:555 184 ₽
Материалы:612 923 ₽
Дни:20
stdClass Object
(
[id] => 51
[attribute_id] => 26
[name] => Есть
[material_modifier] => 1
[work_modifier] => 1
[options] => Array
(
[0] => Профиль 58 мм, 3-камерный, стеклопакет 2-камерный до 32 мм
[1] => Профиль 60 мм, 4-камерный, стеклопакет 2-камерный до 32 мм
[2] => Профиль 70 мм, 5-камерный, стеклопакет 2-камерный до 40 мм
[3] => Профиль 72 мм, 5-камерный, стеклопакет 2-камерный до 40 мм
[4] => Алюминиевые окна Alutech профиль 72 мм, стеклопакет 2-камерный
)
[days] => [3,3,3,3,3]
[material_price] => [1339,2124,2867,3023,29596]
[work_price] => [635,647,659,668,2579]
[image] => https://akademik-stroy.ru/wp-content/uploads/materials/okna.jpg
[area_modifier] => 154.71
[parent_name] => Окна
[parent_id] => 26
[material_sum] => 273447
[work_sum] => 108065
[total_sum] => 381512
[total_days] => 3
[display_material_sum] => 273 447
[display_work_sum] => 108 065
[display_total_sum] => 381 512
)
1
381 512₽
Работа:108 065 ₽
Материалы:273 447 ₽
Дни:3
stdClass Object
(
[id] => 52
[attribute_id] => 26
[name] => Нет
[material_modifier] => 2
[work_modifier] => 1
[options] =>
[days] => null
[material_price] => null
[work_price] => null
[image] => https://akademik-stroy.ru/wp-content/uploads/materials/okna.jpg
[area_modifier] => 154.71
[parent_name] => Окна
[parent_id] => 26
[material_sum] => 0
[work_sum] => 0
[total_sum] => 0
[total_days] => 0
[display_material_sum] => 0
[display_work_sum] => 0
[display_total_sum] => 0
)
1
0₽
Работа:0 ₽
Материалы:0 ₽
Дни:0
stdClass Object
(
[id] => 53
[attribute_id] => 27
[name] => Есть
[material_modifier] => 1
[work_modifier] => 1
[options] => Array
(
)
[days] => [1]
[material_price] => [10000]
[work_price] => [5500]
[image] => https://akademik-stroy.ru/wp-content/uploads/materials/dveri.jpg
[area_modifier] => 1
[parent_name] => Двери входные
[parent_id] => 27
[material_sum] => 13200
[work_sum] => 6050
[total_sum] => 19250
[total_days] => 1
[display_material_sum] => 13 200
[display_work_sum] => 6 050
[display_total_sum] => 19 250
)
1
19 250₽
Работа:6 050 ₽
Материалы:13 200 ₽
Дни:1
stdClass Object
(
[id] => 54
[attribute_id] => 27
[name] => Нет
[material_modifier] => 1
[work_modifier] => 1
[options] => Array
(
)
[days] => [0]
[material_price] => [0]
[work_price] => [0]
[image] => https://akademik-stroy.ru/wp-content/uploads/materials/dveri.jpg
[area_modifier] => 1
[parent_name] => Двери входные
[parent_id] => 27
[material_sum] => 0
[work_sum] => 0
[total_sum] => 0
[total_days] => 0
[display_material_sum] => 0
[display_work_sum] => 0
[display_total_sum] => 0
)
1
0₽
Работа:0 ₽
Материалы:0 ₽
Дни:0
stdClass Object
(
[id] => 25
[attribute_id] => 13
[name] => Нет
[material_modifier] => 1
[work_modifier] => 1
[options] => Array
(
)
[days] => [0]
[material_price] => [0]
[work_price] => [0]
[image] => https://akademik-stroy.ru/wp-content/uploads/materials/mineralovata-krov.jpg
[area_modifier] => 134.59
[parent_name] => Утепление кровли (Мансарда)
[parent_id] => 13
[material_sum] => 0
[work_sum] => 0
[total_sum] => 0
[total_days] => 0
[display_material_sum] => 0
[display_work_sum] => 0
[display_total_sum] => 0
)
1
0₽
Работа:0 ₽
Материалы:0 ₽
Дни:0
stdClass Object
(
[id] => 26
[attribute_id] => 13
[name] => Минераловатный
[material_modifier] => 1
[work_modifier] => 1
[options] => Array
(
[0] => 50 мм
[1] => 100 мм
[2] => 150 мм
[3] => 200 мм
[4] => 250 мм
[5] => 300 мм
[6] => 350 мм
[7] => 400 мм
[8] => 450 мм
[9] => 500 мм
)
[days] => [5,5,6,6,6,7,7,7,8,8]
[material_price] => [1158,1414,1772,2230,3602,4060,4974,5890,6408,7718]
[work_price] => [650,846,846,1098,1318,1450,1596,1754,1930,2122]
[image] => https://akademik-stroy.ru/wp-content/uploads/materials/mineralovata-krov.jpg
[area_modifier] => 134.59
[parent_name] => Утепление кровли (Мансарда)
[parent_id] => 13
[material_sum] => 205729
[work_sum] => 96232
[total_sum] => 301961
[total_days] => 5
[display_material_sum] => 205 729
[display_work_sum] => 96 232
[display_total_sum] => 301 961
)
1
301 961₽
Работа:96 232 ₽
Материалы:205 729 ₽
Дни:5
stdClass Object
(
[id] => 123
[attribute_id] => 13
[name] => Эковата (целлюлозная вата)
[material_modifier] => 1
[work_modifier] => 1
[options] => Array
(
[0] => 50 мм
[1] => 100 мм
[2] => 150 мм
[3] => 200 мм
[4] => 250 мм
[5] => 300 мм
[6] => 350 мм
[7] => 400 мм
[8] => 450 мм
[9] => 500 мм
)
[days] => [3,3,4,4,4,5,5,5,5,5]
[material_price] => [820,1638,2458,3276,5734,6552,8190,9828,11466,13104]
[work_price] => [234,304,304,396,474,522,574,632,694,764]
[image] => https://akademik-stroy.ru/wp-content/uploads/materials/ehkovata-krov.jpg
[area_modifier] => 134.59
[parent_name] => Утепление кровли (Мансарда)
[parent_id] => 13
[material_sum] => 145680
[work_sum] => 34643
[total_sum] => 180323
[total_days] => 3
[display_material_sum] => 145 680
[display_work_sum] => 34 643
[display_total_sum] => 180 323
)
1
180 323₽
Работа:34 643 ₽
Материалы:145 680 ₽
Дни:3
stdClass Object
(
[id] => 124
[attribute_id] => 13
[name] => Экструдированный пенополистирол
[material_modifier] => 1
[work_modifier] => 1
[options] => Array
(
[0] => 50 мм
[1] => 100 мм
[2] => 150 мм
[3] => 200 мм
[4] => 250 мм
[5] => 300 мм
[6] => 350 мм
[7] => 400 мм
[8] => 450 мм
[9] => 500 мм
)
[days] => [3,3,4,4,4,5,5,5,5,6]
[material_price] => [1146,2292,3438,4584,8020,9166,11458,13750,16040,18332]
[work_price] => [390,508,508,660,790,870,958,1052,1158,1274]
[image] => https://akademik-stroy.ru/wp-content/uploads/materials/epps-krov.jpg
[area_modifier] => 134.59
[parent_name] => Утепление кровли (Мансарда)
[parent_id] => 13
[material_sum] => 203597
[work_sum] => 57739
[total_sum] => 261336
[total_days] => 3
[display_material_sum] => 203 597
[display_work_sum] => 57 739
[display_total_sum] => 261 336
)
1
261 336₽
Работа:57 739 ₽
Материалы:203 597 ₽
Дни:3
stdClass Object
(
[id] => 125
[attribute_id] => 13
[name] => ПСБ (ППС-пенополистирол)
[material_modifier] => 1
[work_modifier] => 1
[options] => Array
(
[0] => 50 мм
[1] => 100 мм
[2] => 150 мм
[3] => 200 мм
[4] => 250 мм
[5] => 300 мм
[6] => 350 мм
[7] => 400 мм
[8] => 450 мм
[9] => 500 мм
)
[days] => [3,3,4,4,4,5,5,5,5,6]
[material_price] => [476,954,1430,1906,3336,3814,4766,5720,6674,7626]
[work_price] => [390,508,508,660,790,870,958,1052,1158,1274]
[image] => https://akademik-stroy.ru/wp-content/uploads/materials/psb-krov.jpg
[area_modifier] => 134.59
[parent_name] => Утепление кровли (Мансарда)
[parent_id] => 13
[material_sum] => 84566
[work_sum] => 57739
[total_sum] => 142305
[total_days] => 3
[display_material_sum] => 84 566
[display_work_sum] => 57 739
[display_total_sum] => 142 305
)
1
142 305₽
Работа:57 739 ₽
Материалы:84 566 ₽
Дни:3
stdClass Object
(
[id] => 126
[attribute_id] => 13
[name] => ППУ (Пенополиуретан)
[material_modifier] => 1
[work_modifier] => 1
[options] => Array
(
[0] => 50 мм
[1] => 100 мм
[2] => 150 мм
[3] => 200 мм
[4] => 250 мм
[5] => 300 мм
[6] => 350 мм
[7] => 400 мм
[8] => 450 мм
[9] => 500 мм
)
[days] => [2,2,3,3,3,3,4,4,4,4]
[material_price] => [2080,4160,6240,8320,14560,16640,20800,24960,29120,33280]
[work_price] => [234,304,304,396,474,522,574,632,694,764]
[image] => https://akademik-stroy.ru/wp-content/uploads/materials/ppu-krov.jpg
[area_modifier] => 134.59
[parent_name] => Утепление кровли (Мансарда)
[parent_id] => 13
[material_sum] => 369530
[work_sum] => 34643
[total_sum] => 404173
[total_days] => 2
[display_material_sum] => 369 530
[display_work_sum] => 34 643
[display_total_sum] => 404 173
)
1
404 173₽
Работа:34 643 ₽
Материалы:369 530 ₽
Дни:2
stdClass Object
(
[id] => 127
[attribute_id] => 13
[name] => PIR-плиты (пенополиизоцианурат)
[material_modifier] => 1
[work_modifier] => 1
[options] => Array
(
[0] => 50 мм
[1] => 100 мм
[2] => 150 мм
[3] => 200 мм
[4] => 250 мм
[5] => 300 мм
[6] => 350 мм
[7] => 400 мм
[8] => 450 мм
[9] => 500 мм
)
[days] => [3,3,4,4,4,5,5,5,5,6]
[material_price] => [2646,5290,7936,10580,18516,21162,26452,31742,37032,42324]
[work_price] => [390,508,508,660,790,870,958,1052,1158,1274]
[image] => https://akademik-stroy.ru/wp-content/uploads/materials/pir-krov.jpg
[area_modifier] => 134.59
[parent_name] => Утепление кровли (Мансарда)
[parent_id] => 13
[material_sum] => 470085
[work_sum] => 57739
[total_sum] => 527824
[total_days] => 3
[display_material_sum] => 470 085
[display_work_sum] => 57 739
[display_total_sum] => 527 824
)
1
527 824₽
Работа:57 739 ₽
Материалы:470 085 ₽
Дни:3
stdClass Object
(
[id] => 27
[attribute_id] => 14
[name] => Нет
[material_modifier] => 1
[work_modifier] => 1
[options] => Array
(
)
[days] => [0]
[material_price] => [0]
[work_price] => [0]
[image] => https://akademik-stroy.ru/wp-content/uploads/materials/mansardnye-okna-2.jpg
[area_modifier] => 1
[parent_name] => Мансардные окна
[parent_id] => 14
[material_sum] => 0
[work_sum] => 0
[total_sum] => 0
[total_days] => 0
[display_material_sum] => 0
[display_work_sum] => 0
[display_total_sum] => 0
)
1
0₽
Работа:0 ₽
Материалы:0 ₽
Дни:0
stdClass Object
(
[id] => 28
[attribute_id] => 14
[name] => Есть
[material_modifier] => 1
[work_modifier] => 1
[options] => Array
(
[0] => 55x78
[1] => 55x98
)
[days] => [6,7]
[material_price] => [47480,68700]
[work_price] => [17900,19500]
[image] => https://akademik-stroy.ru/wp-content/uploads/materials/mansardnye-okna-2.jpg
[area_modifier] => 1
[parent_name] => Мансардные окна
[parent_id] => 14
[material_sum] => 62674
[work_sum] => 19690
[total_sum] => 82364
[total_days] => 6
[display_material_sum] => 62 674
[display_work_sum] => 19 690
[display_total_sum] => 82 364
)
1
82 364₽
Работа:19 690 ₽
Материалы:62 674 ₽
Дни:6
stdClass Object
(
[id] => 29
[attribute_id] => 15
[name] => Нет
[material_modifier] => 1
[work_modifier] => 1
[options] => Array
(
)
[days] => [0]
[material_price] => [0]
[work_price] => [0]
[image] => https://akademik-stroy.ru/wp-content/uploads/materials/sofit.jpg
[area_modifier] => 134.59
[parent_name] => Подшивка кровли
[parent_id] => 15
[material_sum] => 0
[work_sum] => 0
[total_sum] => 0
[total_days] => 0
[display_material_sum] => 0
[display_work_sum] => 0
[display_total_sum] => 0
)
1
0₽
Работа:0 ₽
Материалы:0 ₽
Дни:0
stdClass Object
(
[id] => 30
[attribute_id] => 15
[name] => Есть
[material_modifier] => 1
[work_modifier] => 1
[options] => Array
(
[0] => Софиты (ПВХ)
[1] => Cedral
[2] => ДПК
[3] => Планкен
)
[days] => [7,10,9,8]
[material_price] => [1803,3213,3025,3150]
[work_price] => [1529,2188,2075,1923]
[image] => https://akademik-stroy.ru/wp-content/uploads/materials/sofit.jpg
[area_modifier] => 134.59
[parent_name] => Подшивка кровли
[parent_id] => 15
[material_sum] => 320319
[work_sum] => 226367
[total_sum] => 546686
[total_days] => 7
[display_material_sum] => 320 319
[display_work_sum] => 226 367
[display_total_sum] => 546 686
)
1
546 686₽
Работа:226 367 ₽
Материалы:320 319 ₽
Дни:7
stdClass Object
(
[id] => 31
[attribute_id] => 16
[name] => Нет
[material_modifier] => 1
[work_modifier] => 1
[options] => Array
(
)
[days] => [0]
[material_price] => [0]
[work_price] => [0]
[image] => https://akademik-stroy.ru/wp-content/uploads/materials/docke-standard-pvh.jpg
[area_modifier] => 134.59
[parent_name] => Водосточная система
[parent_id] => 16
[material_sum] => 0
[work_sum] => 0
[total_sum] => 0
[total_days] => 0
[display_material_sum] => 0
[display_work_sum] => 0
[display_total_sum] => 0
)
1
0₽
Работа:0 ₽
Материалы:0 ₽
Дни:0
stdClass Object
(
[id] => 32
[attribute_id] => 16
[name] => Есть
[material_modifier] => 1
[work_modifier] => 1
[options] => Array
(
[0] => Döcke Standard (ПВХ)
[1] => Металлические Grand Line
)
[days] => [7,7]
[material_price] => [1842,2703]
[work_price] => [1491,1529]
[image] => https://akademik-stroy.ru/wp-content/uploads/materials/docke-standard-pvh.jpg
[area_modifier] => 134.59
[parent_name] => Водосточная система
[parent_id] => 16
[material_sum] => 327248
[work_sum] => 220741
[total_sum] => 547989
[total_days] => 7
[display_material_sum] => 327 248
[display_work_sum] => 220 741
[display_total_sum] => 547 989
)
1
547 989₽
Работа:220 741 ₽
Материалы:327 248 ₽
Дни:7
stdClass Object
(
[id] => 33
[attribute_id] => 17
[name] => Нет
[material_modifier] => 1
[work_modifier] => 1
[options] => Array
(
)
[days] => [0]
[material_price] => [0]
[work_price] => [0]
[image] => https://akademik-stroy.ru/wp-content/uploads/materials/mineralovata.jpg
[area_modifier] => 190.65
[parent_name] => Дополнительное утепление наружных стен
[parent_id] => 17
[material_sum] => 0
[work_sum] => 0
[total_sum] => 0
[total_days] => 0
[display_material_sum] => 0
[display_work_sum] => 0
[display_total_sum] => 0
)
1
0₽
Работа:0 ₽
Материалы:0 ₽
Дни:0
stdClass Object
(
[id] => 34
[attribute_id] => 17
[name] => Минераловатный
[material_modifier] => 1
[work_modifier] => 1
[options] => Array
(
[0] => 50 мм
[1] => 100 мм
[2] => 150 мм
[3] => 200 мм
[4] => 250 мм
[5] => 300 мм
)
[days] => [7,8,10,12,14,15]
[material_price] => [3437,3613,3803,3915,4601,4830]
[work_price] => [2325,2423,2523,2749,2859,3025]
[image] => https://akademik-stroy.ru/wp-content/uploads/materials/mineralovata.jpg
[area_modifier] => 190.65
[parent_name] => Дополнительное утепление наружных стен
[parent_id] => 17
[material_sum] => 864949
[work_sum] => 487587
[total_sum] => 1352536
[total_days] => 7
[display_material_sum] => 864 949
[display_work_sum] => 487 587
[display_total_sum] => 1 352 536
)
1
1 352 536₽
Работа:487 587 ₽
Материалы:864 949 ₽
Дни:7
stdClass Object
(
[id] => 128
[attribute_id] => 17
[name] => Эковата (целлюлозная вата)
[material_modifier] => 1
[work_modifier] => 1
[options] => Array
(
[0] => 50 мм
[1] => 100 мм
[2] => 150 мм
[3] => 200 мм
[4] => 250 мм
[5] => 300 мм
)
[days] => [3,4,5,6,7,8]
[material_price] => [810,1319,1629,1838,2267,2676]
[work_price] => [1225,1323,1423,1549,1659,1725]
[image] => https://akademik-stroy.ru/wp-content/uploads/materials/ehkovata.jpg
[area_modifier] => 190.65
[parent_name] => Дополнительное утепление наружных стен
[parent_id] => 17
[material_sum] => 203843
[work_sum] => 256901
[total_sum] => 460744
[total_days] => 3
[display_material_sum] => 203 843
[display_work_sum] => 256 901
[display_total_sum] => 460 744
)
1
460 744₽
Работа:256 901 ₽
Материалы:203 843 ₽
Дни:3
stdClass Object
(
[id] => 129
[attribute_id] => 17
[name] => Экструдированный пенополистирол
[material_modifier] => 1
[work_modifier] => 1
[options] => Array
(
[0] => 50 мм
[1] => 100 мм
[2] => 150 мм
[3] => 200 мм
[4] => 250 мм
[5] => 300 мм
)
[days] => [5,6,7,8,9,10]
[material_price] => [4560,4300,5119,6292,7010,8583]
[work_price] => [1795,1954,2254,2330,2595,2735]
[image] => https://akademik-stroy.ru/wp-content/uploads/materials/epps.jpg
[area_modifier] => 190.65
[parent_name] => Дополнительное утепление наружных стен
[parent_id] => 17
[material_sum] => 1147560
[work_sum] => 376438
[total_sum] => 1523998
[total_days] => 5
[display_material_sum] => 1 147 560
[display_work_sum] => 376 438
[display_total_sum] => 1 523 998
)
1
1 523 998₽
Работа:376 438 ₽
Материалы:1 147 560 ₽
Дни:5
stdClass Object
(
[id] => 130
[attribute_id] => 17
[name] => ПСБ (ППС-пенополистирол)
[material_modifier] => 1
[work_modifier] => 1
[options] => Array
(
[0] => 50 мм
[1] => 100 мм
[2] => 150 мм
[3] => 200 мм
[4] => 250 мм
[5] => 300 мм
)
[days] => [5,6,7,8,9,10]
[material_price] => [4822,5200,5819,6292,7010,7583]
[work_price] => [1795,1954,2254,2330,2595,2735]
[image] => https://akademik-stroy.ru/wp-content/uploads/materials/psb.jpg
[area_modifier] => 190.65
[parent_name] => Дополнительное утепление наружных стен
[parent_id] => 17
[material_sum] => 1213495
[work_sum] => 376438
[total_sum] => 1589933
[total_days] => 5
[display_material_sum] => 1 213 495
[display_work_sum] => 376 438
[display_total_sum] => 1 589 933
)
1
1 589 933₽
Работа:376 438 ₽
Материалы:1 213 495 ₽
Дни:5
stdClass Object
(
[id] => 131
[attribute_id] => 17
[name] => ППУ (Пенополиуретан)
[material_modifier] => 1
[work_modifier] => 1
[options] => Array
(
[0] => 50 мм
[1] => 100 мм
[2] => 150 мм
[3] => 200 мм
[4] => 250 мм
[5] => 300 мм
)
[days] => [3,4,5,6,7,8]
[material_price] => [2860,3400,4219,4592,5010,5583]
[work_price] => [729,900,980,1120,1280,1530]
[image] => https://akademik-stroy.ru/wp-content/uploads/materials/ppu.jpg
[area_modifier] => 190.65
[parent_name] => Дополнительное утепление наружных стен
[parent_id] => 17
[material_sum] => 719742
[work_sum] => 152882
[total_sum] => 872624
[total_days] => 3
[display_material_sum] => 719 742
[display_work_sum] => 152 882
[display_total_sum] => 872 624
)
1
872 624₽
Работа:152 882 ₽
Материалы:719 742 ₽
Дни:3
stdClass Object
(
[id] => 132
[attribute_id] => 17
[name] => PIR-плиты (пенополиизоцианурат)
[material_modifier] => 1
[work_modifier] => 1
[options] => Array
(
[0] => 50 мм
[1] => 100 мм
[2] => 150 мм
[3] => 200 мм
[4] => 250 мм
[5] => 300 мм
)
[days] => [5,6,7,8,9,10]
[material_price] => [8323,15645,20968,25900,29258,30581]
[work_price] => [800,900,970,1150,1280,1330]
[image] => https://akademik-stroy.ru/wp-content/uploads/materials/pir.jpg
[area_modifier] => 190.65
[parent_name] => Дополнительное утепление наружных стен
[parent_id] => 17
[material_sum] => 2094550
[work_sum] => 167772
[total_sum] => 2262322
[total_days] => 5
[display_material_sum] => 2 094 550
[display_work_sum] => 167 772
[display_total_sum] => 2 262 322
)
1
2 262 322₽
Работа:167 772 ₽
Материалы:2 094 550 ₽
Дни:5
stdClass Object
(
[id] => 37
[attribute_id] => 19
[name] => Нет
[material_modifier] => 1
[work_modifier] => 1
[options] => Array
(
)
[days] => [0]
[material_price] => [0]
[work_price] => [0]
[image] => https://akademik-stroy.ru/wp-content/uploads/materials/imitaciya-brusa.jpg
[area_modifier] => 190.65
[parent_name] => Наружная отделка фасада
[parent_id] => 19
[material_sum] => 0
[work_sum] => 0
[total_sum] => 0
[total_days] => 0
[display_material_sum] => 0
[display_work_sum] => 0
[display_total_sum] => 0
)
1
0₽
Работа:0 ₽
Материалы:0 ₽
Дни:0
stdClass Object
(
[id] => 38
[attribute_id] => 19
[name] => Имитация бруса
[material_modifier] => 1
[work_modifier] => 1
[options] => Array
(
[0] => Сосна
[1] => Ель
[2] => Лиственница
)
[days] => [20,20,20]
[material_price] => [2994,2762,4954]
[work_price] => [1397,1231,1577]
[image] => https://akademik-stroy.ru/wp-content/uploads/materials/imitaciya-brusa.jpg
[area_modifier] => 190.65
[parent_name] => Наружная отделка фасада
[parent_id] => 19
[material_sum] => 753464
[work_sum] => 292972
[total_sum] => 1046436
[total_days] => 20
[display_material_sum] => 753 464
[display_work_sum] => 292 972
[display_total_sum] => 1 046 436
)
1
1 046 436₽
Работа:292 972 ₽
Материалы:753 464 ₽
Дни:20
stdClass Object
(
[id] => 136
[attribute_id] => 19
[name] => Планкен
[material_modifier] => 1
[work_modifier] => 1
[options] => Array
(
[0] => Сосна
[1] => Ель
[2] => Лиственница
)
[days] => [20,20,20]
[material_price] => [3194,2862,5154]
[work_price] => [1537,1354,1735]
[image] => https://akademik-stroy.ru/wp-content/uploads/materials/planken.jpg
[area_modifier] => 190.65
[parent_name] => Наружная отделка фасада
[parent_id] => 19
[material_sum] => 803796
[work_sum] => 322332
[total_sum] => 1126128
[total_days] => 20
[display_material_sum] => 803 796
[display_work_sum] => 322 332
[display_total_sum] => 1 126 128
)
1
1 126 128₽
Работа:322 332 ₽
Материалы:803 796 ₽
Дни:20
stdClass Object
(
[id] => 137
[attribute_id] => 19
[name] => Штукатурка
[material_modifier] => 1
[work_modifier] => 1
[options] => Array
(
[0] => Цементно-песчаная (минеральная)
[1] => Мокрый фасад
)
[days] => [35,35]
[material_price] => [2231,3938]
[work_price] => [1202,2422]
[image] => https://akademik-stroy.ru/wp-content/uploads/materials/shtukaturka.jpg
[area_modifier] => 190.65
[parent_name] => Наружная отделка фасада
[parent_id] => 19
[material_sum] => 561449
[work_sum] => 252077
[total_sum] => 813526
[total_days] => 35
[display_material_sum] => 561 449
[display_work_sum] => 252 077
[display_total_sum] => 813 526
)
1
813 526₽
Работа:252 077 ₽
Материалы:561 449 ₽
Дни:35
stdClass Object
(
[id] => 138
[attribute_id] => 19
[name] => Облицовочный кирпич
[material_modifier] => 1
[work_modifier] => 1
[options] => Array
(
[0] => Керамический
[1] => Клинкерный
[2] => Ручной формовки
[3] => Гиперпрессованный
[4] => Силикатный кирпич
)
[days] => [45,45,45,45,45]
[material_price] => [8174,9148,1040,1257,5876]
[work_price] => [3240,3758,4536,4017,3369]
[image] => https://akademik-stroy.ru/wp-content/uploads/materials/oblicovochnyj-kirpich.jpg
[area_modifier] => 190.65
[parent_name] => Наружная отделка фасада
[parent_id] => 19
[material_sum] => 2057052
[work_sum] => 679477
[total_sum] => 2736529
[total_days] => 45
[display_material_sum] => 2 057 052
[display_work_sum] => 679 477
[display_total_sum] => 2 736 529
)
1
2 736 529₽
Работа:679 477 ₽
Материалы:2 057 052 ₽
Дни:45
stdClass Object
(
[id] => 139
[attribute_id] => 19
[name] => Фасадная плитка
[material_modifier] => 1
[work_modifier] => 1
[options] => Array
(
[0] => Клинкерная
[1] => Керамическая
[2] => Плитка ручной формовки
)
[days] => [40,40,40]
[material_price] => [2974,1487,3470]
[work_price] => [3007,2592,3629]
[image] => https://akademik-stroy.ru/wp-content/uploads/materials/fasadnaya-plitka.jpg
[area_modifier] => 190.65
[parent_name] => Наружная отделка фасада
[parent_id] => 19
[material_sum] => 748431
[work_sum] => 630613
[total_sum] => 1379044
[total_days] => 40
[display_material_sum] => 748 431
[display_work_sum] => 630 613
[display_total_sum] => 1 379 044
)
1
1 379 044₽
Работа:630 613 ₽
Материалы:748 431 ₽
Дни:40
stdClass Object
(
[id] => 140
[attribute_id] => 19
[name] => Сайдинг
[material_modifier] => 1
[work_modifier] => 1
[options] => Array
(
[0] => Виниловый
[1] => Металлический
[2] => Фиброцементный
)
[days] => [20,20,20]
[material_price] => [1263,1944,4147]
[work_price] => [1263,1944,2074]
[image] => https://akademik-stroy.ru/wp-content/uploads/materials/sajding.jpg
[area_modifier] => 190.65
[parent_name] => Наружная отделка фасада
[parent_id] => 19
[material_sum] => 317844
[work_sum] => 264870
[total_sum] => 582714
[total_days] => 20
[display_material_sum] => 317 844
[display_work_sum] => 264 870
[display_total_sum] => 582 714
)
1
582 714₽
Работа:264 870 ₽
Материалы:317 844 ₽
Дни:20
stdClass Object
(
[id] => 141
[attribute_id] => 19
[name] => Камень
[material_modifier] => 1
[work_modifier] => 1
[options] => Array
(
[0] => Травертин
[1] => Дагестанский
[2] => Искусственный
[3] => Натуральный
[4] => Керамогранит
)
[days] => [45,45,45,45,45]
[material_price] => [4536,3888,2592,3240,2462]
[work_price] => [3240,3240,2462,3110,1944]
[image] => https://akademik-stroy.ru/wp-content/uploads/materials/kamen-1.jpg
[area_modifier] => 190.65
[parent_name] => Наружная отделка фасада
[parent_id] => 19
[material_sum] => 1141521
[work_sum] => 679477
[total_sum] => 1820998
[total_days] => 45
[display_material_sum] => 1 141 521
[display_work_sum] => 679 477
[display_total_sum] => 1 820 998
)
1
1 820 998₽
Работа:679 477 ₽
Материалы:1 141 521 ₽
Дни:45
stdClass Object
(
[id] => 142
[attribute_id] => 19
[name] => Термопанели
[material_modifier] => 1
[work_modifier] => 1
[options] => Array
(
)
[days] => [20]
[material_price] => [6221]
[work_price] => [2333]
[image] => https://akademik-stroy.ru/wp-content/uploads/materials/termo.png
[area_modifier] => 190.65
[parent_name] => Наружная отделка фасада
[parent_id] => 19
[material_sum] => 1565564
[work_sum] => 489265
[total_sum] => 2054829
[total_days] => 20
[display_material_sum] => 1 565 564
[display_work_sum] => 489 265
[display_total_sum] => 2 054 829
)
1
2 054 829₽
Работа:489 265 ₽
Материалы:1 565 564 ₽
Дни:20
stdClass Object
(
[id] => 143
[attribute_id] => 19
[name] => Плитка HAUBERK
[material_modifier] => 1
[work_modifier] => 1
[options] => Array
(
)
[days] => [20]
[material_price] => [2786]
[work_price] => [1944]
[image] => https://akademik-stroy.ru/wp-content/uploads/materials/hauberk.jpg
[area_modifier] => 190.65
[parent_name] => Наружная отделка фасада
[parent_id] => 19
[material_sum] => 701119
[work_sum] => 407686
[total_sum] => 1108805
[total_days] => 20
[display_material_sum] => 701 119
[display_work_sum] => 407 686
[display_total_sum] => 1 108 805
)
1
1 108 805₽
Работа:407 686 ₽
Материалы:701 119 ₽
Дни:20
stdClass Object
(
[id] => 144
[attribute_id] => 19
[name] => Фальцевый фасад
[material_modifier] => 1
[work_modifier] => 1
[options] => Array
(
)
[days] => [20]
[material_price] => [3240]
[work_price] => [2592]
[image] => https://akademik-stroy.ru/wp-content/uploads/materials/falcevyj-fasad.jpg
[area_modifier] => 190.65
[parent_name] => Наружная отделка фасада
[parent_id] => 19
[material_sum] => 815372
[work_sum] => 543581
[total_sum] => 1358953
[total_days] => 20
[display_material_sum] => 815 372
[display_work_sum] => 543 581
[display_total_sum] => 1 358 953
)
1
1 358 953₽
Работа:543 581 ₽
Материалы:815 372 ₽
Дни:20
stdClass Object
(
[id] => 145
[attribute_id] => 19
[name] => Комбинированный
[material_modifier] => 1
[work_modifier] => 1
[options] => Array
(
)
[days] => [20]
[material_price] => [4629]
[work_price] => [3499]
[image] => https://akademik-stroy.ru/wp-content/uploads/materials/Kombinirovannyj.jpg
[area_modifier] => 190.65
[parent_name] => Наружная отделка фасада
[parent_id] => 19
[material_sum] => 1164925
[work_sum] => 733793
[total_sum] => 1898718
[total_days] => 20
[display_material_sum] => 1 164 925
[display_work_sum] => 733 793
[display_total_sum] => 1 898 718
)
1
1 898 718₽
Работа:733 793 ₽
Материалы:1 164 925 ₽
Дни:20
stdClass Object
(
[id] => 257
[attribute_id] => 19
[name] => Японские фиброцементные
[material_modifier] => 1
[work_modifier] => 1
[options] => Array
(
)
[days] => [20]
[material_price] => [7043]
[work_price] => [2993]
[image] => https://akademik-stroy.ru/wp-content/uploads/materials/paneli.jpg
[area_modifier] => 190.65
[parent_name] => Наружная отделка фасада
[parent_id] => 19
[material_sum] => 1772427
[work_sum] => 627677
[total_sum] => 2400104
[total_days] => 20
[display_material_sum] => 1 772 427
[display_work_sum] => 627 677
[display_total_sum] => 2 400 104
)
1
2 400 104₽
Работа:627 677 ₽
Материалы:1 772 427 ₽
Дни:20
stdClass Object
(
[id] => 258
[attribute_id] => 19
[name] => Панели Каньон
[material_modifier] => 1
[work_modifier] => 1
[options] => Array
(
)
[days] => [20]
[material_price] => [4543]
[work_price] => [2592]
[image] => https://akademik-stroy.ru/wp-content/uploads/materials/kanon.png
[area_modifier] => 190.65
[parent_name] => Наружная отделка фасада
[parent_id] => 19
[material_sum] => 1143282
[work_sum] => 543581
[total_sum] => 1686863
[total_days] => 20
[display_material_sum] => 1 143 282
[display_work_sum] => 543 581
[display_total_sum] => 1 686 863
)
1
1 686 863₽
Работа:543 581 ₽
Материалы:1 143 282 ₽
Дни:20
stdClass Object
(
[id] => 39
[attribute_id] => 20
[name] => Нет
[material_modifier] => 1
[work_modifier] => 1
[options] => Array
(
)
[days] => [0]
[material_price] => [0]
[work_price] => [0]
[image] => https://akademik-stroy.ru/wp-content/uploads/materials/terrasy.jpg
[area_modifier] => 30
[parent_name] => Террасы, крыльца, навесы
[parent_id] => 20
[material_sum] => 0
[work_sum] => 0
[total_sum] => 0
[total_days] => 0
[display_material_sum] => 0
[display_work_sum] => 0
[display_total_sum] => 0
)
1
0₽
Работа:0 ₽
Материалы:0 ₽
Дни:0
stdClass Object
(
[id] => 40
[attribute_id] => 20
[name] => Есть
[material_modifier] => 1
[work_modifier] => 1
[options] => Array
(
)
[days] => [5]
[material_price] => [10450]
[work_price] => [1950]
[image] => https://akademik-stroy.ru/wp-content/uploads/materials/terrasy.jpg
[area_modifier] => 30
[parent_name] => Террасы, крыльца, навесы
[parent_id] => 20
[material_sum] => 413820
[work_sum] => 64350
[total_sum] => 478170
[total_days] => 5
[display_material_sum] => 413 820
[display_work_sum] => 64 350
[display_total_sum] => 478 170
)
1
478 170₽
Работа:64 350 ₽
Материалы:413 820 ₽
Дни:5
stdClass Object
(
[id] => 41
[attribute_id] => 21
[name] => Нет
[material_modifier] => 1
[work_modifier] => 1
[options] => Array
(
)
[days] => [0]
[material_price] => [0]
[work_price] => [0]
[image] => https://akademik-stroy.ru/wp-content/uploads/materials/balkony.jpg
[area_modifier] => 30
[parent_name] => Балконы
[parent_id] => 21
[material_sum] => 0
[work_sum] => 0
[total_sum] => 0
[total_days] => 0
[display_material_sum] => 0
[display_work_sum] => 0
[display_total_sum] => 0
)
1
0₽
Работа:0 ₽
Материалы:0 ₽
Дни:0
stdClass Object
(
[id] => 42
[attribute_id] => 21
[name] => Есть
[material_modifier] => 1
[work_modifier] => 1
[options] => Array
(
)
[days] => [12]
[material_price] => [3600]
[work_price] => [1950]
[image] => https://akademik-stroy.ru/wp-content/uploads/materials/balkony.jpg
[area_modifier] => 30
[parent_name] => Балконы
[parent_id] => 21
[material_sum] => 142560
[work_sum] => 64350
[total_sum] => 206910
[total_days] => 12
[display_material_sum] => 142 560
[display_work_sum] => 64 350
[display_total_sum] => 206 910
)
1
206 910₽
Работа:64 350 ₽
Материалы:142 560 ₽
Дни:12
stdClass Object
(
[id] => 43
[attribute_id] => 22
[name] => Нет
[material_modifier] => 1
[work_modifier] => 1
[options] => Array
(
)
[days] => [0]
[material_price] => [0]
[work_price] => [0]
[image] => https://akademik-stroy.ru/wp-content/uploads/materials/uteplennaya.jpg
[area_modifier] => 134.59
[parent_name] => Отмостка
[parent_id] => 22
[material_sum] => 0
[work_sum] => 0
[total_sum] => 0
[total_days] => 0
[display_material_sum] => 0
[display_work_sum] => 0
[display_total_sum] => 0
)
1
0₽
Работа:0 ₽
Материалы:0 ₽
Дни:0
stdClass Object
(
[id] => 44
[attribute_id] => 22
[name] => Утепленная отмостка
[material_modifier] => 1
[work_modifier] => 1
[options] => Array
(
)
[days] => [15]
[material_price] => [2550]
[work_price] => [1750]
[image] => https://akademik-stroy.ru/wp-content/uploads/materials/uteplennaya.jpg
[area_modifier] => 134.59
[parent_name] => Отмостка
[parent_id] => 22
[material_sum] => 453030
[work_sum] => 259086
[total_sum] => 712116
[total_days] => 15
[display_material_sum] => 453 030
[display_work_sum] => 259 086
[display_total_sum] => 712 116
)
1
712 116₽
Работа:259 086 ₽
Материалы:453 030 ₽
Дни:15
stdClass Object
(
[id] => 146
[attribute_id] => 22
[name] => Не утепленная отмостка
[material_modifier] => 1
[work_modifier] => 1
[options] => Array
(
)
[days] => [10]
[material_price] => [1650]
[work_price] => [1450]
[image] => https://akademik-stroy.ru/wp-content/uploads/materials/ne-uteplennaya.jpg
[area_modifier] => 134.59
[parent_name] => Отмостка
[parent_id] => 22
[material_sum] => 293137
[work_sum] => 214671
[total_sum] => 507808
[total_days] => 10
[display_material_sum] => 293 137
[display_work_sum] => 214 671
[display_total_sum] => 507 808
)
1
507 808₽
Работа:214 671 ₽
Материалы:293 137 ₽
Дни:10
stdClass Object
(
[id] => 45
[attribute_id] => 23
[name] => Нет
[material_modifier] => 1
[work_modifier] => 1
[options] => Array
(
)
[days] => [0]
[material_price] => [0]
[work_price] => [0]
[image] => https://akademik-stroy.ru/wp-content/uploads/materials/drenazh-2.jpg
[area_modifier] => 134.59
[parent_name] => Дренаж вокруг дома
[parent_id] => 23
[material_sum] => 0
[work_sum] => 0
[total_sum] => 0
[total_days] => 0
[display_material_sum] => 0
[display_work_sum] => 0
[display_total_sum] => 0
)
1
0₽
Работа:0 ₽
Материалы:0 ₽
Дни:0
stdClass Object
(
[id] => 46
[attribute_id] => 23
[name] => Есть
[material_modifier] => 1
[work_modifier] => 1
[options] => Array
(
)
[days] => [5]
[material_price] => [2366]
[work_price] => [1911]
[image] => https://akademik-stroy.ru/wp-content/uploads/materials/drenazh-2.jpg
[area_modifier] => 134.59
[parent_name] => Дренаж вокруг дома
[parent_id] => 23
[material_sum] => 420341
[work_sum] => 282922
[total_sum] => 703263
[total_days] => 5
[display_material_sum] => 420 341
[display_work_sum] => 282 922
[display_total_sum] => 703 263
)
1
703 263₽
Работа:282 922 ₽
Материалы:420 341 ₽
Дни:5
stdClass Object
(
[id] => 47
[attribute_id] => 24
[name] => Нет
[material_modifier] => 1
[work_modifier] => 1
[options] => Array
(
)
[days] => [0]
[material_price] => [0]
[work_price] => [0]
[image] => https://akademik-stroy.ru/wp-content/uploads/materials/septik.jpg
[area_modifier] => 1
[parent_name] => Автономная канализация (септики)
[parent_id] => 24
[material_sum] => 0
[work_sum] => 0
[total_sum] => 0
[total_days] => 0
[display_material_sum] => 0
[display_work_sum] => 0
[display_total_sum] => 0
)
1
0₽
Работа:0 ₽
Материалы:0 ₽
Дни:0
stdClass Object
(
[id] => 48
[attribute_id] => 24
[name] => Есть
[material_modifier] => 1
[work_modifier] => 1
[options] => Array
(
[0] => Для дачи на 4 человека
[1] => Для дома на 5 человек
[2] => Для дома на 6 человек
[3] => Для дома на 7 человек
[4] => Для дома на 10 человек
)
[days] => [7,7,7,8,8]
[material_price] => [196340,220500,240940,264200,293340]
[work_price] => [50000,55000,60500,66550,73206]
[image] => https://akademik-stroy.ru/wp-content/uploads/materials/septik.jpg
[area_modifier] => 1
[parent_name] => Автономная канализация (септики)
[parent_id] => 24
[material_sum] => 259169
[work_sum] => 55000
[total_sum] => 314169
[total_days] => 7
[display_material_sum] => 259 169
[display_work_sum] => 55 000
[display_total_sum] => 314 169
)
1
314 169₽
Работа:55 000 ₽
Материалы:259 169 ₽
Дни:7
stdClass Object
(
[id] => 49
[attribute_id] => 25
[name] => Нет
[material_modifier] => 1
[work_modifier] => 1
[options] => Array
(
)
[days] => [0]
[material_price] => [0]
[work_price] => [0]
[image] => https://akademik-stroy.ru/wp-content/uploads/materials/gkl.jpg
[area_modifier] => 190.65
[parent_name] => Внутренние (не несущие) перегородки
[parent_id] => 25
[material_sum] => 0
[work_sum] => 0
[total_sum] => 0
[total_days] => 0
[display_material_sum] => 0
[display_work_sum] => 0
[display_total_sum] => 0
)
1
0₽
Работа:0 ₽
Материалы:0 ₽
Дни:0
stdClass Object
(
[id] => 147
[attribute_id] => 25
[name] => Каркасно-обшивные
[material_modifier] => 1
[work_modifier] => 1
[options] => Array
(
[0] => 75 мм (без шумоизоляции)
[1] => 75 мм (с шумоизоляцией)
)
[days] => [11,11]
[material_price] => [580,970]
[work_price] => [380,570]
[image] => https://akademik-stroy.ru/wp-content/uploads/materials/gkl.jpg
[area_modifier] => 190.65
[parent_name] => Внутренние (не несущие) перегородки
[parent_id] => 25
[material_sum] => 145962
[work_sum] => 79692
[total_sum] => 225654
[total_days] => 11
[display_material_sum] => 145 962
[display_work_sum] => 79 692
[display_total_sum] => 225 654
)
1
225 654₽
Работа:79 692 ₽
Материалы:145 962 ₽
Дни:11
stdClass Object
(
[id] => 148
[attribute_id] => 25
[name] => Пазогребневые
[material_modifier] => 1
[work_modifier] => 1
[options] => Array
(
[0] => 80 мм
[1] => 100 мм
)
[days] => [5,5]
[material_price] => [1022,1313]
[work_price] => [600,700]
[image] => https://akademik-stroy.ru/wp-content/uploads/materials/pazogrebnevye-bloki.jpg
[area_modifier] => 190.65
[parent_name] => Внутренние (не несущие) перегородки
[parent_id] => 25
[material_sum] => 257194
[work_sum] => 125829
[total_sum] => 383023
[total_days] => 5
[display_material_sum] => 257 194
[display_work_sum] => 125 829
[display_total_sum] => 383 023
)
1
383 023₽
Работа:125 829 ₽
Материалы:257 194 ₽
Дни:5
stdClass Object
(
[id] => 149
[attribute_id] => 25
[name] => Газобетонные
[material_modifier] => 1
[work_modifier] => 1
[options] => Array
(
[0] => 100 мм
[1] => 200 мм
)
[days] => [11,11]
[material_price] => [1160,1920]
[work_price] => [700,900]
[image] => https://akademik-stroy.ru/wp-content/uploads/materials/gazobeton-2.jpg
[area_modifier] => 190.65
[parent_name] => Внутренние (не несущие) перегородки
[parent_id] => 25
[material_sum] => 291923
[work_sum] => 146801
[total_sum] => 438724
[total_days] => 11
[display_material_sum] => 291 923
[display_work_sum] => 146 801
[display_total_sum] => 438 724
)
1
438 724₽
Работа:146 801 ₽
Материалы:291 923 ₽
Дни:11
stdClass Object
(
[id] => 150
[attribute_id] => 25
[name] => Кирпичные
[material_modifier] => 1
[work_modifier] => 1
[options] => Array
(
[0] => 120 мм
[1] => 250 мм
[2] => 360 мм
)
[days] => [7,7,7]
[material_price] => [1785,3570,5355]
[work_price] => [900,1600,1800]
[image] => https://akademik-stroy.ru/wp-content/uploads/materials/kirpich-1.jpg
[area_modifier] => 190.65
[parent_name] => Внутренние (не несущие) перегородки
[parent_id] => 25
[material_sum] => 449210
[work_sum] => 188744
[total_sum] => 637954
[total_days] => 7
[display_material_sum] => 449 210
[display_work_sum] => 188 744
[display_total_sum] => 637 954
)
1
637 954₽
Работа:188 744 ₽
Материалы:449 210 ₽
Дни:7
stdClass Object
(
[id] => 55
[attribute_id] => 28
[name] => Нет
[material_modifier] => 1
[work_modifier] => 1
[options] => Array
(
)
[days] => [0]
[material_price] => [0]
[work_price] => [0]
[image] => https://akademik-stroy.ru/wp-content/uploads/materials/ehlektrika.jpg
[area_modifier] => 154.71
[parent_name] => Электрика
[parent_id] => 28
[material_sum] => 0
[work_sum] => 0
[total_sum] => 0
[total_days] => 0
[display_material_sum] => 0
[display_work_sum] => 0
[display_total_sum] => 0
)
1
0₽
Работа:0 ₽
Материалы:0 ₽
Дни:0
stdClass Object
(
[id] => 56
[attribute_id] => 28
[name] => Есть
[material_modifier] => 1
[work_modifier] => 1
[options] => Array
(
)
[days] => [10]
[material_price] => [650]
[work_price] => [950]
[image] => https://akademik-stroy.ru/wp-content/uploads/materials/ehlektrika.jpg
[area_modifier] => 154.71
[parent_name] => Электрика
[parent_id] => 28
[material_sum] => 132741
[work_sum] => 161672
[total_sum] => 294413
[total_days] => 10
[display_material_sum] => 132 741
[display_work_sum] => 161 672
[display_total_sum] => 294 413
)
1
294 413₽
Работа:161 672 ₽
Материалы:132 741 ₽
Дни:10
stdClass Object
(
[id] => 57
[attribute_id] => 29
[name] => Нет
[material_modifier] => 1
[work_modifier] => 1
[options] => Array
(
)
[days] => [0]
[material_price] => [0]
[work_price] => [0]
[image] => https://akademik-stroy.ru/wp-content/uploads/materials/santekhnika-kanalizaciya-1.jpg
[area_modifier] => 154.71
[parent_name] => Сантехника, канализация в доме
[parent_id] => 29
[material_sum] => 0
[work_sum] => 0
[total_sum] => 0
[total_days] => 0
[display_material_sum] => 0
[display_work_sum] => 0
[display_total_sum] => 0
)
1
0₽
Работа:0 ₽
Материалы:0 ₽
Дни:0
stdClass Object
(
[id] => 58
[attribute_id] => 29
[name] => Есть
[material_modifier] => 1
[work_modifier] => 1
[options] => Array
(
)
[days] => [10]
[material_price] => [600]
[work_price] => [730]
[image] => https://akademik-stroy.ru/wp-content/uploads/materials/santekhnika-kanalizaciya-1.jpg
[area_modifier] => 154.71
[parent_name] => Сантехника, канализация в доме
[parent_id] => 29
[material_sum] => 122530
[work_sum] => 124232
[total_sum] => 246762
[total_days] => 10
[display_material_sum] => 122 530
[display_work_sum] => 124 232
[display_total_sum] => 246 762
)
1
246 762₽
Работа:124 232 ₽
Материалы:122 530 ₽
Дни:10
stdClass Object
(
[id] => 59
[attribute_id] => 30
[name] => Нет
[material_modifier] => 1
[work_modifier] => 1
[options] => Array
(
)
[days] => [0]
[material_price] => [0]
[work_price] => [0]
[image] => https://akademik-stroy.ru/wp-content/uploads/materials/otoplenie-1.jpg
[area_modifier] => 154.71
[parent_name] => Отопление
[parent_id] => 30
[material_sum] => 0
[work_sum] => 0
[total_sum] => 0
[total_days] => 0
[display_material_sum] => 0
[display_work_sum] => 0
[display_total_sum] => 0
)
1
0₽
Работа:0 ₽
Материалы:0 ₽
Дни:0
stdClass Object
(
[id] => 60
[attribute_id] => 30
[name] => Есть
[material_modifier] => 1
[work_modifier] => 1
[options] => Array
(
)
[days] => [5]
[material_price] => [610]
[work_price] => [560]
[image] => https://akademik-stroy.ru/wp-content/uploads/materials/otoplenie-1.jpg
[area_modifier] => 154.71
[parent_name] => Отопление
[parent_id] => 30
[material_sum] => 124572
[work_sum] => 95301
[total_sum] => 219873
[total_days] => 5
[display_material_sum] => 124 572
[display_work_sum] => 95 301
[display_total_sum] => 219 873
)
1
219 873₽
Работа:95 301 ₽
Материалы:124 572 ₽
Дни:5
stdClass Object
(
[id] => 61
[attribute_id] => 31
[name] => Нет
[material_modifier] => 1
[work_modifier] => 1
[options] => Array
(
)
[days] => [0]
[material_price] => [0]
[work_price] => [0]
[image] => https://akademik-stroy.ru/wp-content/uploads/materials/vodyanye.jpg
[area_modifier] => 30
[parent_name] => Теплые полы
[parent_id] => 31
[material_sum] => 0
[work_sum] => 0
[total_sum] => 0
[total_days] => 0
[display_material_sum] => 0
[display_work_sum] => 0
[display_total_sum] => 0
)
1
0₽
Работа:0 ₽
Материалы:0 ₽
Дни:0
stdClass Object
(
[id] => 151
[attribute_id] => 31
[name] => Водяные
[material_modifier] => 1
[work_modifier] => 1
[options] => Array
(
)
[days] => [9]
[material_price] => [10200]
[work_price] => [2500]
[image] => https://akademik-stroy.ru/wp-content/uploads/materials/vodyanye.jpg
[area_modifier] => 30
[parent_name] => Теплые полы
[parent_id] => 31
[material_sum] => 403920
[work_sum] => 82500
[total_sum] => 486420
[total_days] => 9
[display_material_sum] => 403 920
[display_work_sum] => 82 500
[display_total_sum] => 486 420
)
1
486 420₽
Работа:82 500 ₽
Материалы:403 920 ₽
Дни:9
stdClass Object
(
[id] => 152
[attribute_id] => 31
[name] => Электро
[material_modifier] => 1
[work_modifier] => 1
[options] => Array
(
)
[days] => [5]
[material_price] => [6300]
[work_price] => [1500]
[image] => https://akademik-stroy.ru/wp-content/uploads/materials/ehlektricheskij.jpg
[area_modifier] => 30
[parent_name] => Теплые полы
[parent_id] => 31
[material_sum] => 249480
[work_sum] => 49500
[total_sum] => 298980
[total_days] => 5
[display_material_sum] => 249 480
[display_work_sum] => 49 500
[display_total_sum] => 298 980
)
1
298 980₽
Работа:49 500 ₽
Материалы:249 480 ₽
Дни:5
stdClass Object
(
[id] => 63
[attribute_id] => 32
[name] => Нет
[material_modifier] => 1
[work_modifier] => 1
[options] => Array
(
)
[days] => [0]
[material_price] => [0]
[work_price] => [0]
[image] => https://akademik-stroy.ru/wp-content/uploads/materials/shtukaturka-shpatlevka-1.jpg
[area_modifier] => 154.71
[parent_name] => Черновая отделка стен
[parent_id] => 32
[material_sum] => 0
[work_sum] => 0
[total_sum] => 0
[total_days] => 0
[display_material_sum] => 0
[display_work_sum] => 0
[display_total_sum] => 0
)
1
0₽
Работа:0 ₽
Материалы:0 ₽
Дни:0
stdClass Object
(
[id] => 153
[attribute_id] => 32
[name] => Штукатурка и шпатлевка
[material_modifier] => 1
[work_modifier] => 1
[options] => Array
(
)
[days] => [20]
[material_price] => [1850]
[work_price] => [2600]
[image] => https://akademik-stroy.ru/wp-content/uploads/materials/shtukaturka-shpatlevka-1.jpg
[area_modifier] => 154.71
[parent_name] => Черновая отделка стен
[parent_id] => 32
[material_sum] => 377802
[work_sum] => 442471
[total_sum] => 820273
[total_days] => 20
[display_material_sum] => 377 802
[display_work_sum] => 442 471
[display_total_sum] => 820 273
)
1
820 273₽
Работа:442 471 ₽
Материалы:377 802 ₽
Дни:20
stdClass Object
(
[id] => 154
[attribute_id] => 32
[name] => Гипсокортон на стены
[material_modifier] => 1
[work_modifier] => 1
[options] => Array
(
)
[days] => [15]
[material_price] => [950]
[work_price] => [2100]
[image] => https://akademik-stroy.ru/wp-content/uploads/materials/gkl-1.jpg
[area_modifier] => 154.71
[parent_name] => Черновая отделка стен
[parent_id] => 32
[material_sum] => 194006
[work_sum] => 357380
[total_sum] => 551386
[total_days] => 15
[display_material_sum] => 194 006
[display_work_sum] => 357 380
[display_total_sum] => 551 386
)
1
551 386₽
Работа:357 380 ₽
Материалы:194 006 ₽
Дни:15
stdClass Object
(
[id] => 155
[attribute_id] => 32
[name] => Вагонка
[material_modifier] => 1
[work_modifier] => 1
[options] => Array
(
)
[days] => [15]
[material_price] => [1250]
[work_price] => [950]
[image] => https://akademik-stroy.ru/wp-content/uploads/materials/vagonka.jpg
[area_modifier] => 154.71
[parent_name] => Черновая отделка стен
[parent_id] => 32
[material_sum] => 255272
[work_sum] => 161672
[total_sum] => 416944
[total_days] => 15
[display_material_sum] => 255 272
[display_work_sum] => 161 672
[display_total_sum] => 416 944
)
1
416 944₽
Работа:161 672 ₽
Материалы:255 272 ₽
Дни:15
stdClass Object
(
[id] => 65
[attribute_id] => 33
[name] => Нет
[material_modifier] => 1
[work_modifier] => 1
[options] => Array
(
)
[days] => [0]
[material_price] => [0]
[work_price] => [0]
[image] => https://akademik-stroy.ru/wp-content/uploads/materials/styazhka.jpg
[area_modifier] => 154.71
[parent_name] => Черновая отделка полов
[parent_id] => 33
[material_sum] => 0
[work_sum] => 0
[total_sum] => 0
[total_days] => 0
[display_material_sum] => 0
[display_work_sum] => 0
[display_total_sum] => 0
)
1
0₽
Работа:0 ₽
Материалы:0 ₽
Дни:0
stdClass Object
(
[id] => 156
[attribute_id] => 33
[name] => Стяжка + наливные полы
[material_modifier] => 1
[work_modifier] => 1
[options] => Array
(
)
[days] => [10]
[material_price] => [1000]
[work_price] => [900]
[image] => https://akademik-stroy.ru/wp-content/uploads/materials/styazhka.jpg
[area_modifier] => 154.71
[parent_name] => Черновая отделка полов
[parent_id] => 33
[material_sum] => 204217
[work_sum] => 153163
[total_sum] => 357380
[total_days] => 10
[display_material_sum] => 204 217
[display_work_sum] => 153 163
[display_total_sum] => 357 380
)
1
357 380₽
Работа:153 163 ₽
Материалы:204 217 ₽
Дни:10
stdClass Object
(
[id] => 157
[attribute_id] => 33
[name] => ОСБ на пол
[material_modifier] => 1
[work_modifier] => 1
[options] => Array
(
)
[days] => [7]
[material_price] => [580]
[work_price] => [350]
[image] => https://akademik-stroy.ru/wp-content/uploads/materials/osb-1.jpg
[area_modifier] => 154.71
[parent_name] => Черновая отделка полов
[parent_id] => 33
[material_sum] => 118446
[work_sum] => 59563
[total_sum] => 178009
[total_days] => 7
[display_material_sum] => 118 446
[display_work_sum] => 59 563
[display_total_sum] => 178 009
)
1
178 009₽
Работа:59 563 ₽
Материалы:118 446 ₽
Дни:7
stdClass Object
(
[id] => 67
[attribute_id] => 34
[name] => Нет
[material_modifier] => 1
[work_modifier] => 1
[options] => Array
(
)
[days] => [0]
[material_price] => [0]
[work_price] => [0]
[image] => https://akademik-stroy.ru/wp-content/uploads/materials/chistovaya-otdelka.jpg
[area_modifier] => 154.71
[parent_name] => Чистовая отделка стен и полов
[parent_id] => 34
[material_sum] => 0
[work_sum] => 0
[total_sum] => 0
[total_days] => 0
[display_material_sum] => 0
[display_work_sum] => 0
[display_total_sum] => 0
)
1
0₽
Работа:0 ₽
Материалы:0 ₽
Дни:0
stdClass Object
(
[id] => 68
[attribute_id] => 34
[name] => Есть
[material_modifier] => 1
[work_modifier] => 1
[options] => Array
(
)
[days] => [50]
[material_price] => [6000]
[work_price] => [3500]
[image] => https://akademik-stroy.ru/wp-content/uploads/materials/chistovaya-otdelka.jpg
[area_modifier] => 154.71
[parent_name] => Чистовая отделка стен и полов
[parent_id] => 34
[material_sum] => 1225303
[work_sum] => 595634
[total_sum] => 1820937
[total_days] => 50
[display_material_sum] => 1 225 303
[display_work_sum] => 595 634
[display_total_sum] => 1 820 937
)
1
1 820 937₽
Работа:595 634 ₽
Материалы:1 225 303 ₽
Дни:50
stdClass Object
(
[id] => 69
[attribute_id] => 35
[name] => Нет
[material_modifier] => 1
[work_modifier] => 1
[options] => Array
(
)
[days] => [0]
[material_price] => [0]
[work_price] => [0]
[image] => https://akademik-stroy.ru/wp-content/uploads/materials/mnogourovnevyj-gkl.jpg
[area_modifier] => 154.71
[parent_name] => Отделка потолка
[parent_id] => 35
[material_sum] => 0
[work_sum] => 0
[total_sum] => 0
[total_days] => 0
[display_material_sum] => 0
[display_work_sum] => 0
[display_total_sum] => 0
)
1
0₽
Работа:0 ₽
Материалы:0 ₽
Дни:0
stdClass Object
(
[id] => 70
[attribute_id] => 35
[name] => Есть
[material_modifier] => 1
[work_modifier] => 1
[options] => Array
(
[0] => Многоуровневый потолок из гипсокартона
[1] => Многоуровневый потолок из гипсокартона и натяжного потолка
[2] => Одноуровневый потолок из гипсокартона
[3] => Одноуровневый натяжной потолок
)
[days] => [10,10,1,1]
[material_price] => [900,700,700,600]
[work_price] => [1000,800,500,300]
[image] => https://akademik-stroy.ru/wp-content/uploads/materials/mnogourovnevyj-gkl.jpg
[area_modifier] => 154.71
[parent_name] => Отделка потолка
[parent_id] => 35
[material_sum] => 183795
[work_sum] => 170181
[total_sum] => 353976
[total_days] => 10
[display_material_sum] => 183 795
[display_work_sum] => 170 181
[display_total_sum] => 353 976
)
1
353 976₽
Работа:170 181 ₽
Материалы:183 795 ₽
Дни:10
Преимущества работы с нами
7 этапов оплаты
Независимый строительный надзор
Экологически чистые материалы
16 лет гарантии
Онлайн-кабинет с веб-камерой
Строители с опытом более 15 лет
Собственное производство







