Одноэтажный дом 158.82 м2 за руб.
Планировки
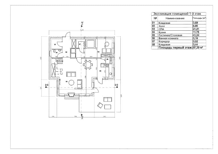
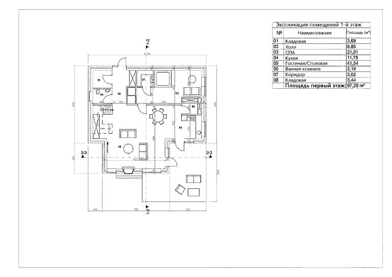
План первого этажа
- 1. Кладовая 3,69 м²
- 2. Холл 8,55 м²
- 3. СПА 21,81 м²
- 4. Кухня 11,75 м²
- 5. Гостиная-Столовая 41,54 м²
- 6. Ванная комната 3,19 м²
- 7. Коридор 3,02 м²
- 8. Кладовая 3,44 м²
- Общая площадь первый этаж 97,29 м²
План мансарды
- 1. Коридор 8,39 м²
- 2. Комната 12,28 м²
- 3. Ванная комната 5,46 м²
- 4. Комната 25,72 м²
- 5. Ванная комната 9,68 м²
- Общая площадь второй этаж 61,53 м²
Площади дома
| № п/п | Наименование | Ед. из. | Строительная площадь | Полезная площадь |
| 1 | 1 этаж | м2 | 119.89 | 97.29 |
| 2 | 2 этаж | м2 | 75.82 | 61.53 |
| 3 | Итого | м2 | 195.71 | 158.82 |
154 м2
Полезная
площадь
площадь
1 этаж
Этажей
26 м2
Террасы
и балконы
и балконы
0Без
гаража
гаража
3
Количество
спален
спален
3
Количество
санузлов
санузлов
Калькулятор опций
0₽
В ипотеку от 19 219 ₽/мес.
0₽
0 дней
stdClass Object
(
[id] => 1
[attribute_id] => 1
[name] => Ленточный монолитный ж/б
[material_modifier] => 1
[work_modifier] => 1
[options] => Array
(
[0] => размер 200 х 700 мм
[1] => размер 300 х 900 мм
[2] => размер 400 х 1 000 мм
[3] => размер 500 х 1 100 мм
[4] => размер 600 х 1 200 мм
)
[days] => [20,21,22,25,30]
[material_price] => [2823,3630,4475,5210,12047]
[work_price] => [2154,2826,3731,4577,5293]
[image] => https://akademik-stroy.ru/wp-content/uploads/materials/lentochnyj-monolitnyj-zh-b.jpg
[area_modifier] => 119.89
[parent_name] => Фундамент
[parent_id] => 1
[material_sum] => 446753
[work_sum] => 284067
[total_sum] => 730820
[total_days] => 20
[display_material_sum] => 446 753
[display_work_sum] => 284 067
[display_total_sum] => 730 820
)
1
730 820₽
Работа:284 067 ₽
Материалы:446 753 ₽
Дни:20
stdClass Object
(
[id] => 2
[attribute_id] => 1
[name] => Забивные Ж/Б сваи
[material_modifier] => 1
[work_modifier] => 1
[options] => Array
(
[0] => 150х150х3000мм
[1] => 150х150х4000мм
[2] => 200х200х3000мм
[3] => 200х200х4000мм
[4] => 200х200х5000мм
[5] => 200х200х6000мм
)
[days] => [2,2,2,2,2,2]
[material_price] => [1990,2850,3255,4360,5120,6837]
[work_price] => [1002,1185,1336,1438,1574,1839]
[image] => https://akademik-stroy.ru/wp-content/uploads/materials/zabivnye-zh-b-svai.png
[area_modifier] => 119.89
[parent_name] => Фундамент
[parent_id] => 1
[material_sum] => 314927
[work_sum] => 132143
[total_sum] => 447070
[total_days] => 2
[display_material_sum] => 314 927
[display_work_sum] => 132 143
[display_total_sum] => 447 070
)
1
447 070₽
Работа:132 143 ₽
Материалы:314 927 ₽
Дни:2
stdClass Object
(
[id] => 71
[attribute_id] => 1
[name] => Свайно-ростверковый ж/б
[material_modifier] => 1
[work_modifier] => 1
[options] => Array
(
[0] => ростверк 200х300 мм
[1] => ростверк 300х600 мм
[2] => ростверк 400х900 мм
[3] => ростверк 500х1200 мм
)
[days] => [20,23,25,27]
[material_price] => [3018,3474,7109,9792]
[work_price] => [2024,3012,5635,7022]
[image] => https://akademik-stroy.ru/wp-content/uploads/materials/svajno-rostverkovyj-monolitnyj-zh-b-3.png
[area_modifier] => 119.89
[parent_name] => Фундамент
[parent_id] => 1
[material_sum] => 477613
[work_sum] => 266923
[total_sum] => 744536
[total_days] => 20
[display_material_sum] => 477 613
[display_work_sum] => 266 923
[display_total_sum] => 744 536
)
1
744 536₽
Работа:266 923 ₽
Материалы:477 613 ₽
Дни:20
stdClass Object
(
[id] => 72
[attribute_id] => 1
[name] => Монолитная ж/б плита
[material_modifier] => 1
[work_modifier] => 1
[options] => Array
(
[0] => 200 мм
[1] => 300 мм
[2] => 400 мм
[3] => 500 мм
[4] => 600 мм
)
[days] => [30,33,35,37,40]
[material_price] => [5348,8555,12788,14388,15189]
[work_price] => [4314,4881,7037,8061,10230]
[image] => https://akademik-stroy.ru/wp-content/uploads/materials/monolitnaya-zhb-plita.png
[area_modifier] => 119.89
[parent_name] => Фундамент
[parent_id] => 1
[material_sum] => 846347
[work_sum] => 568926
[total_sum] => 1415273
[total_days] => 30
[display_material_sum] => 846 347
[display_work_sum] => 568 926
[display_total_sum] => 1 415 273
)
1
1 415 273₽
Работа:568 926 ₽
Материалы:846 347 ₽
Дни:30
stdClass Object
(
[id] => 73
[attribute_id] => 1
[name] => Утепленная шведская плита
[material_modifier] => 1
[work_modifier] => 1
[options] => Array
(
[0] => 200 мм
[1] => 300 мм
[2] => 400 мм
[3] => 500 мм
[4] => 600 мм
)
[days] => [32,37,39,42,45]
[material_price] => [10249,12692,13760,14936,16230]
[work_price] => [5960,7337,8072,8878,9765]
[image] => https://akademik-stroy.ru/wp-content/uploads/materials/uteplennaya-shvedskaya-plita.jpg
[area_modifier] => 119.89
[parent_name] => Фундамент
[parent_id] => 1
[material_sum] => 1621953
[work_sum] => 785999
[total_sum] => 2407952
[total_days] => 32
[display_material_sum] => 1 621 953
[display_work_sum] => 785 999
[display_total_sum] => 2 407 952
)
1
2 407 952₽
Работа:785 999 ₽
Материалы:1 621 953 ₽
Дни:32
stdClass Object
(
[id] => 75
[attribute_id] => 1
[name] => Ленточный из ФБС
[material_modifier] => 1
[work_modifier] => 1
[options] => Array
(
[0] => толщ. 300 мм
[1] => толщ. 400 мм
[2] => толщ. 500 мм
[3] => толщ. 600 мм
)
[days] => [20,20,20,20]
[material_price] => [3675,4902,6126,7350]
[work_price] => [2451,3264,4083,4902]
[image] => https://akademik-stroy.ru/wp-content/uploads/materials/lentochnyj-iz-fbs.png
[area_modifier] => 119.89
[parent_name] => Фундамент
[parent_id] => 1
[material_sum] => 581586
[work_sum] => 323235
[total_sum] => 904821
[total_days] => 20
[display_material_sum] => 581 586
[display_work_sum] => 323 235
[display_total_sum] => 904 821
)
1
904 821₽
Работа:323 235 ₽
Материалы:581 586 ₽
Дни:20
stdClass Object
(
[id] => 76
[attribute_id] => 1
[name] => Цокольный этаж из ФБС
[material_modifier] => 1
[work_modifier] => 1
[options] => Array
(
[0] => толщ. 300 мм
[1] => толщ. 400 мм
[2] => толщ. 500 мм
[3] => толщ. 600 мм
)
[days] => [30,32,34,36]
[material_price] => [20916,23299,26680,29060]
[work_price] => [17524,18700,19873,21046]
[image] => https://akademik-stroy.ru/wp-content/uploads/materials/cokolnyj-ehtazh-iz-fbs.jpg
[area_modifier] => 119.89
[parent_name] => Фундамент
[parent_id] => 1
[material_sum] => 3310057
[work_sum] => 2311048
[total_sum] => 5621105
[total_days] => 30
[display_material_sum] => 3 310 057
[display_work_sum] => 2 311 048
[display_total_sum] => 5 621 105
)
1
5 621 105₽
Работа:2 311 048 ₽
Материалы:3 310 057 ₽
Дни:30
stdClass Object
(
[id] => 77
[attribute_id] => 1
[name] => Цокольный этаж монолитный ж/б
[material_modifier] => 1
[work_modifier] => 1
[options] => Array
(
[0] => толщ. 200 мм
[1] => толщ. 300 мм
[2] => толщ. 400 мм
[3] => толщ. 500 мм
[4] => толщ. 600 мм
)
[days] => [40,42,44,46,48]
[material_price] => [25421,29148,32275,35602,37326]
[work_price] => [20441,21907,23375,24841,26306]
[image] => https://akademik-stroy.ru/wp-content/uploads/materials/cokolnyj-etazh-zh-b.jpg
[area_modifier] => 119.89
[parent_name] => Фундамент
[parent_id] => 1
[material_sum] => 4022995
[work_sum] => 2695739
[total_sum] => 6718734
[total_days] => 40
[display_material_sum] => 4 022 995
[display_work_sum] => 2 695 739
[display_total_sum] => 6 718 734
)
1
6 718 734₽
Работа:2 695 739 ₽
Материалы:4 022 995 ₽
Дни:40
stdClass Object
(
[id] => 191
[attribute_id] => 1
[name] => Винтовые сваи
[material_modifier] => 1
[work_modifier] => 1
[options] => Array
(
[0] => 57х200мм
[1] => 76х250мм
[2] => 108х300мм
[3] => 133х350мм
)
[days] => [1,1,2,2]
[material_price] => [1200,1300,1450,1600]
[work_price] => [400,600,900,1100]
[image] => https://akademik-stroy.ru/wp-content/uploads/materials/vintovye-svai.png
[area_modifier] => 119.89
[parent_name] => Фундамент
[parent_id] => 1
[material_sum] => 189906
[work_sum] => 52752
[total_sum] => 242658
[total_days] => 1
[display_material_sum] => 189 906
[display_work_sum] => 52 752
[display_total_sum] => 242 658
)
1
242 658₽
Работа:52 752 ₽
Материалы:189 906 ₽
Дни:1
stdClass Object
(
[id] => 3
[attribute_id] => 2
[name] => Деревянные балки
[material_modifier] => 1
[work_modifier] => 1
[options] => Array
(
[0] => без утепления
[1] => утепление 200 мм
[2] => утепление 250 мм
[3] => утепление 300 мм
[4] => утепление 350 мм
[5] => утепление 400 мм
[6] => утепление 450 мм
[7] => утепление 500 мм
)
[days] => [8,9,9,9,11,12,13,14]
[material_price] => [1634,2042,2344,2947,3149,3652,3354,3557]
[work_price] => [1230,1339,1393,1426,1460,1513,1587,1620]
[image] => https://akademik-stroy.ru/wp-content/uploads/materials/derevyannye-balki.png
[area_modifier] => 119.89
[parent_name] => Перекрытие цоколя
[parent_id] => 2
[material_sum] => 258588
[work_sum] => 162211
[total_sum] => 420799
[total_days] => 8
[display_material_sum] => 258 588
[display_work_sum] => 162 211
[display_total_sum] => 420 799
)
1
420 799₽
Работа:162 211 ₽
Материалы:258 588 ₽
Дни:8
stdClass Object
(
[id] => 4
[attribute_id] => 2
[name] => Сборные ж/б плиты
[material_modifier] => 1
[work_modifier] => 1
[options] => Array
(
[0] => без утепления
[1] => утепление 150мм
[2] => утепление 200мм
[3] => утепление 250мм
[4] => утепление 300мм
[5] => утепление 350мм
[6] => утепление 400мм
[7] => утепление 450мм
[8] => утепление 500мм
)
[days] => [13,15,15,15,15,15,15,15,15]
[material_price] => [3067,5577,5928,6679,7730,8782,9833,10884,11935]
[work_price] => [1520,1956,2102,2247,2392,2537,2684,2829,2974]
[image] => https://akademik-stroy.ru/wp-content/uploads/materials/sbornye-zh-b-plity-2.jpg
[area_modifier] => 119.89
[parent_name] => Перекрытие цоколя
[parent_id] => 2
[material_sum] => 485367
[work_sum] => 200456
[total_sum] => 685823
[total_days] => 13
[display_material_sum] => 485 367
[display_work_sum] => 200 456
[display_total_sum] => 685 823
)
1
685 823₽
Работа:200 456 ₽
Материалы:485 367 ₽
Дни:13
stdClass Object
(
[id] => 78
[attribute_id] => 2
[name] => Монолитная ж/б плита
[material_modifier] => 1
[work_modifier] => 1
[options] => Array
(
[0] => без утепления
[1] => утепление 150 мм
[2] => утепление 200 мм
[3] => утепление 250 мм
[4] => утепление 300 мм
[5] => утепление 350 мм
[6] => утепление 400 мм
[7] => утепление 450 мм
[8] => утепление 500 мм
)
[days] => [18,20,20,20,20,20,20,20,20]
[material_price] => [4837,6572,7224,7375,79426,8177,8728,9180,10031]
[work_price] => [3348,3921,4112,4302,4493,4684,4875,5066,5256]
[image] => https://akademik-stroy.ru/wp-content/uploads/materials/monolitnaya-zh-b-plita-2.jpg
[area_modifier] => 119.89
[parent_name] => Перекрытие цоколя
[parent_id] => 2
[material_sum] => 765478
[work_sum] => 441531
[total_sum] => 1207009
[total_days] => 18
[display_material_sum] => 765 478
[display_work_sum] => 441 531
[display_total_sum] => 1 207 009
)
1
1 207 009₽
Работа:441 531 ₽
Материалы:765 478 ₽
Дни:18
stdClass Object
(
[id] => 6
[attribute_id] => 3
[name] => Пеноблок
[material_modifier] => 1
[work_modifier] => 1
[options] => Array
(
[0] => 300 мм
[1] => 400 мм
[2] => 500 мм
[3] => 600 мм
)
[days] => [29,31,34,39]
[material_price] => [3000,4000,4500,4937]
[work_price] => [5033,5805,6400,8710]
[image] => https://akademik-stroy.ru/wp-content/uploads/materials/penoblok.jpg
[area_modifier] => 119.89
[parent_name] => Стены 1 этаж (несущие)
[parent_id] => 3
[material_sum] => 474764
[work_sum] => 663747
[total_sum] => 1138511
[total_days] => 29
[display_material_sum] => 474 764
[display_work_sum] => 663 747
[display_total_sum] => 1 138 511
)
1
1 138 511₽
Работа:663 747 ₽
Материалы:474 764 ₽
Дни:29
stdClass Object
(
[id] => 79
[attribute_id] => 3
[name] => Керамический блок
[material_modifier] => 1
[work_modifier] => 1
[options] => Array
(
[0] => 380 мм
[1] => 380 мм Thermo
[2] => 440 мм
[3] => 510 мм
)
[days] => [23,23,24,25]
[material_price] => [4510,5098,6093,8013]
[work_price] => [4737,4937,5903,6958]
[image] => https://akademik-stroy.ru/wp-content/uploads/materials/keramicheskij-blok.jpg
[area_modifier] => 119.89
[parent_name] => Стены 1 этаж (несущие)
[parent_id] => 3
[material_sum] => 713729
[work_sum] => 624711
[total_sum] => 1338440
[total_days] => 23
[display_material_sum] => 713 729
[display_work_sum] => 624 711
[display_total_sum] => 1 338 440
)
1
1 338 440₽
Работа:624 711 ₽
Материалы:713 729 ₽
Дни:23
stdClass Object
(
[id] => 80
[attribute_id] => 3
[name] => Кирпич
[material_modifier] => 1
[work_modifier] => 1
[options] => Array
(
[0] => Кирпич 250 мм
[1] => Кирпич 380 мм
[2] => Кирпич 510 мм
[3] => Кирпич 640 мм
[4] => Кирпич 770 мм
)
[days] => [30,30,31,33,36]
[material_price] => [5500,7142,9206,10171,12235]
[work_price] => [8736,10041,12018,15240,18462]
[image] => https://akademik-stroy.ru/wp-content/uploads/materials/kirpich.jpg
[area_modifier] => 119.89
[parent_name] => Стены 1 этаж (несущие)
[parent_id] => 3
[material_sum] => 870401
[work_sum] => 1152095
[total_sum] => 2022496
[total_days] => 30
[display_material_sum] => 870 401
[display_work_sum] => 1 152 095
[display_total_sum] => 2 022 496
)
1
2 022 496₽
Работа:1 152 095 ₽
Материалы:870 401 ₽
Дни:30
stdClass Object
(
[id] => 81
[attribute_id] => 3
[name] => Монолитные
[material_modifier] => 1
[work_modifier] => 1
[options] => Array
(
[0] => 150 мм
[1] => 200 мм
[2] => 250 мм
[3] => 300 мм
[4] => 350 мм
[5] => 400 мм
)
[days] => [45,46,47,49,50,53]
[material_price] => [6545,7876,10175,12011,13908,15204]
[work_price] => [5106,6444,7698,8552,9807,11461]
[image] => https://akademik-stroy.ru/wp-content/uploads/materials/monolitnye.jpg
[area_modifier] => 119.89
[parent_name] => Стены 1 этаж (несущие)
[parent_id] => 3
[material_sum] => 1035778
[work_sum] => 673374
[total_sum] => 1709152
[total_days] => 45
[display_material_sum] => 1 035 778
[display_work_sum] => 673 374
[display_total_sum] => 1 709 152
)
1
1 709 152₽
Работа:673 374 ₽
Материалы:1 035 778 ₽
Дни:45
stdClass Object
(
[id] => 82
[attribute_id] => 3
[name] => Клееный брус
[material_modifier] => 1
[work_modifier] => 1
[options] => Array
(
[0] => 160 мм
[1] => 175 мм
[2] => 200 мм
[3] => 215 мм
[4] => 240 мм
[5] => 270 мм
[6] => 282 мм
)
[days] => [24,28,32,37,40,42,48]
[material_price] => [16975,18773,19950,20545,21599,22159,23275]
[work_price] => [4806,5287,5815,6397,7036,7740,8514]
[image] => https://akademik-stroy.ru/wp-content/uploads/materials/kleenyj-brus.jpg
[area_modifier] => 119.89
[parent_name] => Стены 1 этаж (несущие)
[parent_id] => 3
[material_sum] => 2686375
[work_sum] => 633810
[total_sum] => 3320185
[total_days] => 24
[display_material_sum] => 2 686 375
[display_work_sum] => 633 810
[display_total_sum] => 3 320 185
)
1
3 320 185₽
Работа:633 810 ₽
Материалы:2 686 375 ₽
Дни:24
stdClass Object
(
[id] => 83
[attribute_id] => 3
[name] => Каркасные
[material_modifier] => 1
[work_modifier] => 1
[options] => Array
(
[0] => 150 мм
[1] => 200 мм
[2] => 250 мм
[3] => 300 мм
)
[days] => [15,16,17,18]
[material_price] => [2379,2639,2898,3258]
[work_price] => [2418,2686,2985,3716]
[image] => https://akademik-stroy.ru/wp-content/uploads/materials/karkasnye.jpg
[area_modifier] => 119.89
[parent_name] => Стены 1 этаж (несущие)
[parent_id] => 3
[material_sum] => 376488
[work_sum] => 318883
[total_sum] => 695371
[total_days] => 15
[display_material_sum] => 376 488
[display_work_sum] => 318 883
[display_total_sum] => 695 371
)
1
695 371₽
Работа:318 883 ₽
Материалы:376 488 ₽
Дни:15
stdClass Object
(
[id] => 84
[attribute_id] => 3
[name] => СИП-панели
[material_modifier] => 1
[work_modifier] => 1
[options] => Array
(
[0] => 120 мм
[1] => 170 мм
[2] => 220 мм
)
[days] => [7,7,7]
[material_price] => [1210,1856,2292]
[work_price] => [1410,1551,1706]
[image] => https://akademik-stroy.ru/wp-content/uploads/materials/sip-paneli.jpg
[area_modifier] => 119.89
[parent_name] => Стены 1 этаж (несущие)
[parent_id] => 3
[material_sum] => 191488
[work_sum] => 185949
[total_sum] => 377437
[total_days] => 7
[display_material_sum] => 191 488
[display_work_sum] => 185 949
[display_total_sum] => 377 437
)
1
377 437₽
Работа:185 949 ₽
Материалы:191 488 ₽
Дни:7
stdClass Object
(
[id] => 85
[attribute_id] => 3
[name] => Сухой брус
[material_modifier] => 1
[work_modifier] => 1
[options] => Array
(
[0] => 150 мм
[1] => 180 мм
[2] => 200 мм
)
[days] => [7,8,9]
[material_price] => [6010,7190,8709]
[work_price] => [3204,3845,4229]
[image] => https://akademik-stroy.ru/wp-content/uploads/materials/suhoj-brus.jpg
[area_modifier] => 119.89
[parent_name] => Стены 1 этаж (несущие)
[parent_id] => 3
[material_sum] => 951111
[work_sum] => 422540
[total_sum] => 1373651
[total_days] => 7
[display_material_sum] => 951 111
[display_work_sum] => 422 540
[display_total_sum] => 1 373 651
)
1
1 373 651₽
Работа:422 540 ₽
Материалы:951 111 ₽
Дни:7
stdClass Object
(
[id] => 86
[attribute_id] => 3
[name] => Профилированный брус
[material_modifier] => 1
[work_modifier] => 1
[options] => Array
(
[0] => 150 мм
[1] => 180 мм
[2] => 200 мм
)
[days] => [7,8,9]
[material_price] => [8190,9228,10051]
[work_price] => [3845,4614,5075]
[image] => https://akademik-stroy.ru/wp-content/uploads/materials/profilirovannyj-brus.jpg
[area_modifier] => 119.89
[parent_name] => Стены 1 этаж (несущие)
[parent_id] => 3
[material_sum] => 1296107
[work_sum] => 507075
[total_sum] => 1803182
[total_days] => 7
[display_material_sum] => 1 296 107
[display_work_sum] => 507 075
[display_total_sum] => 1 803 182
)
1
1 803 182₽
Работа:507 075 ₽
Материалы:1 296 107 ₽
Дни:7
stdClass Object
(
[id] => 87
[attribute_id] => 3
[name] => Оцилиндрованное бревно
[material_modifier] => 1
[work_modifier] => 1
[options] => Array
(
[0] => 180 мм
[1] => 220 мм
[2] => 260 мм
[3] => 320 мм
)
[days] => [7,8,9,10]
[material_price] => [75190,9532,10868,13116]
[work_price] => [3845,4691,5535,6863]
[image] => https://akademik-stroy.ru/wp-content/uploads/materials/ocilindrovannoe-brevno-1.jpg
[area_modifier] => 119.89
[parent_name] => Стены 1 этаж (несущие)
[parent_id] => 3
[material_sum] => 11899178
[work_sum] => 507075
[total_sum] => 12406253
[total_days] => 7
[display_material_sum] => 11 899 178
[display_work_sum] => 507 075
[display_total_sum] => 12 406 253
)
1
12 406 253₽
Работа:507 075 ₽
Материалы:11 899 178 ₽
Дни:7
stdClass Object
(
[id] => 88
[attribute_id] => 3
[name] => Срубы
[material_modifier] => 1
[work_modifier] => 1
[options] => Array
(
[0] => 260 мм
[1] => 320 мм
[2] => 360 мм
[3] => 400 мм
[4] => 500 мм
)
[days] => [7,8,9,10,11]
[material_price] => [37975,46709,52314,58069,73167]
[work_price] => [4806,5911,6621,7349,9260]
[image] => https://akademik-stroy.ru/wp-content/uploads/materials/sruby.jpg
[area_modifier] => 119.89
[parent_name] => Стены 1 этаж (несущие)
[parent_id] => 3
[material_sum] => 6009726
[work_sum] => 633810
[total_sum] => 6643536
[total_days] => 7
[display_material_sum] => 6 009 726
[display_work_sum] => 633 810
[display_total_sum] => 6 643 536
)
1
6 643 536₽
Работа:633 810 ₽
Материалы:6 009 726 ₽
Дни:7
stdClass Object
(
[id] => 174
[attribute_id] => 3
[name] => Брус
[material_modifier] => 1
[work_modifier] => 1
[options] => Array
(
[0] => 150 мм
[1] => 180 мм
[2] => 200 мм
)
[days] => [7,8,9]
[material_price] => [5127,6152,7367]
[work_price] => [1602,1922,2115]
[image] => https://akademik-stroy.ru/wp-content/uploads/materials/brus.jpg
[area_modifier] => 119.89
[parent_name] => Стены 1 этаж (несущие)
[parent_id] => 3
[material_sum] => 811372
[work_sum] => 211270
[total_sum] => 1022642
[total_days] => 7
[display_material_sum] => 811 372
[display_work_sum] => 211 270
[display_total_sum] => 1 022 642
)
1
1 022 642₽
Работа:211 270 ₽
Материалы:811 372 ₽
Дни:7
stdClass Object
(
[id] => 175
[attribute_id] => 3
[name] => Газобетон
[material_modifier] => 1
[work_modifier] => 1
[options] => Array
(
[0] => 300 мм
[1] => 375 мм
[2] => 400 мм
[3] => 500 мм
[4] => 600 мм
)
[days] => [29,31,35,37,44]
[material_price] => [4298,5573,6356,7288,9119]
[work_price] => [4538,5251,5926,6733,7195]
[image] => https://akademik-stroy.ru/wp-content/uploads/materials/gazobeton.jpg
[area_modifier] => 119.89
[parent_name] => Стены 1 этаж (несущие)
[parent_id] => 3
[material_sum] => 680179
[work_sum] => 598467
[total_sum] => 1278646
[total_days] => 29
[display_material_sum] => 680 179
[display_work_sum] => 598 467
[display_total_sum] => 1 278 646
)
1
1 278 646₽
Работа:598 467 ₽
Материалы:680 179 ₽
Дни:29
stdClass Object
(
[id] => 176
[attribute_id] => 3
[name] => Блок
[material_modifier] => 1
[work_modifier] => 1
[options] => Array
(
[0] => 300 мм
[1] => 375 мм
[2] => 400 мм
[3] => 500 мм
[4] => 600 мм
)
[days] => [29,31,35,37,44]
[material_price] => [2698,3973,4356,6588,7119]
[work_price] => [5038,5851,6426,8733,9195]
[image] => https://akademik-stroy.ru/wp-content/uploads/materials/blok.jpg
[area_modifier] => 119.89
[parent_name] => Стены 1 этаж (несущие)
[parent_id] => 3
[material_sum] => 426971
[work_sum] => 664406
[total_sum] => 1091377
[total_days] => 29
[display_material_sum] => 426 971
[display_work_sum] => 664 406
[display_total_sum] => 1 091 377
)
1
1 091 377₽
Работа:664 406 ₽
Материалы:426 971 ₽
Дни:29
stdClass Object
(
[id] => 177
[attribute_id] => 3
[name] => Газосиликатный блок
[material_modifier] => 1
[work_modifier] => 1
[options] => Array
(
[0] => 300 мм
[1] => 375 мм
[2] => 400 мм
[3] => 500 мм
[4] => 600 мм
)
[days] => [29,31,35,37,44]
[material_price] => [4298,5573,6356,7288,9119]
[work_price] => [4538,5251,5926,6733,7195]
[image] => https://akademik-stroy.ru/wp-content/uploads/materials/gazosilikatnyj-blok.jpg
[area_modifier] => 119.89
[parent_name] => Стены 1 этаж (несущие)
[parent_id] => 3
[material_sum] => 680179
[work_sum] => 598467
[total_sum] => 1278646
[total_days] => 29
[display_material_sum] => 680 179
[display_work_sum] => 598 467
[display_total_sum] => 1 278 646
)
1
1 278 646₽
Работа:598 467 ₽
Материалы:680 179 ₽
Дни:29
stdClass Object
(
[id] => 178
[attribute_id] => 3
[name] => Керамзитобетонный блок
[material_modifier] => 1
[work_modifier] => 1
[options] => Array
(
[0] => 300 мм
[1] => 375 мм
[2] => 400 мм
[3] => 500 мм
[4] => 600 мм
)
[days] => [23,23,24,25,28]
[material_price] => [3641,4298,5693,7613,9612]
[work_price] => [5737,5737,6903,7958,8901]
[image] => https://akademik-stroy.ru/wp-content/uploads/materials/keramzitobetonnyj-blok.jpg
[area_modifier] => 119.89
[parent_name] => Стены 1 этаж (несущие)
[parent_id] => 3
[material_sum] => 576206
[work_sum] => 756590
[total_sum] => 1332796
[total_days] => 23
[display_material_sum] => 576 206
[display_work_sum] => 756 590
[display_total_sum] => 1 332 796
)
1
1 332 796₽
Работа:756 590 ₽
Материалы:576 206 ₽
Дни:23
stdClass Object
(
[id] => 179
[attribute_id] => 3
[name] => Деревянные
[material_modifier] => 1
[work_modifier] => 1
[options] => Array
(
[0] => 180 мм
[1] => 220 мм
[2] => 260 мм
[3] => 320 мм
)
[days] => [7,8,9,10]
[material_price] => [7950,9458,11961,14472]
[work_price] => [4037,4925,5812,7207]
[image] => https://akademik-stroy.ru/wp-content/uploads/materials/derevyannye.jpg
[area_modifier] => 119.89
[parent_name] => Стены 1 этаж (несущие)
[parent_id] => 3
[material_sum] => 1258126
[work_sum] => 532396
[total_sum] => 1790522
[total_days] => 7
[display_material_sum] => 1 258 126
[display_work_sum] => 532 396
[display_total_sum] => 1 790 522
)
1
1 790 522₽
Работа:532 396 ₽
Материалы:1 258 126 ₽
Дни:7
stdClass Object
(
[id] => 181
[attribute_id] => 3
[name] => Камень
[material_modifier] => 1
[work_modifier] => 1
[options] => Array
(
[0] => 300 мм
[1] => 400 мм
[2] => 500 мм
[3] => 600 мм
)
[days] => [25,27,31,34]
[material_price] => [5262,6844,8330,9815]
[work_price] => [8331,9135,10427,11069]
[image] => https://akademik-stroy.ru/wp-content/uploads/materials/kamen.jpg
[area_modifier] => 119.89
[parent_name] => Стены 1 этаж (несущие)
[parent_id] => 3
[material_sum] => 832737
[work_sum] => 1098684
[total_sum] => 1931421
[total_days] => 25
[display_material_sum] => 832 737
[display_work_sum] => 1 098 684
[display_total_sum] => 1 931 421
)
1
1 931 421₽
Работа:1 098 684 ₽
Материалы:832 737 ₽
Дни:25
stdClass Object
(
[id] => 182
[attribute_id] => 3
[name] => Каркасно-щитовые
[material_modifier] => 1
[work_modifier] => 1
[options] => Array
(
[0] => 150 мм
[1] => 200 мм
[2] => 250 мм
[3] => 300 мм
[4] => 350 мм
[5] => 400 мм
)
[days] => [15,16,17,18,19,20]
[material_price] => [2379,2639,2898,3458,3601,4175]
[work_price] => [2538,2820,3134,3483,4062,5642]
[image] => https://akademik-stroy.ru/wp-content/uploads/materials/karkasno-shchitovye.jpg
[area_modifier] => 119.89
[parent_name] => Стены 1 этаж (несущие)
[parent_id] => 3
[material_sum] => 376488
[work_sum] => 334709
[total_sum] => 711197
[total_days] => 15
[display_material_sum] => 376 488
[display_work_sum] => 334 709
[display_total_sum] => 711 197
)
1
711 197₽
Работа:334 709 ₽
Материалы:376 488 ₽
Дни:15
stdClass Object
(
[id] => 183
[attribute_id] => 3
[name] => Рубленные
[material_modifier] => 1
[work_modifier] => 1
[options] => Array
(
[0] => 150 мм
[1] => 200 мм
[2] => 250 мм
[3] => 300 мм
[4] => 350 мм
[5] => 400 мм
)
[days] => [15,16,17,18,17,18]
[material_price] => [35950,50267,60583,75900,80217,100533]
[work_price] => [9612,12816,16020,19224,22428,25632]
[image] => https://akademik-stroy.ru/wp-content/uploads/materials/rublennye.jpg
[area_modifier] => 119.89
[parent_name] => Стены 1 этаж (несущие)
[parent_id] => 3
[material_sum] => 5689260
[work_sum] => 1267621
[total_sum] => 6956881
[total_days] => 15
[display_material_sum] => 5 689 260
[display_work_sum] => 1 267 621
[display_total_sum] => 6 956 881
)
1
6 956 881₽
Работа:1 267 621 ₽
Материалы:5 689 260 ₽
Дни:15
stdClass Object
(
[id] => 185
[attribute_id] => 3
[name] => Теплоблок
[material_modifier] => 1
[work_modifier] => 1
[options] => Array
(
[0] => 300 мм (с облицовкой, не покрашенный)
[1] => 400 мм (с облицовкой, не покрашенный)
[2] => 300 мм (с облицовкой, покрашенный)
[3] => 400 мм (с облицовкой, покрашенный)
)
[days] => [15,16,15,16]
[material_price] => [2888,3729,3957,4258]
[work_price] => [2564,3229,2949,3713]
[image] => https://akademik-stroy.ru/wp-content/uploads/materials/teploblok.jpg
[area_modifier] => 119.89
[parent_name] => Стены 1 этаж (несущие)
[parent_id] => 3
[material_sum] => 457040
[work_sum] => 338138
[total_sum] => 795178
[total_days] => 15
[display_material_sum] => 457 040
[display_work_sum] => 338 138
[display_total_sum] => 795 178
)
1
795 178₽
Работа:338 138 ₽
Материалы:457 040 ₽
Дни:15
stdClass Object
(
[id] => 186
[attribute_id] => 3
[name] => Арболитовые блоки
[material_modifier] => 1
[work_modifier] => 1
[options] => Array
(
[0] => 300 мм
[1] => 400 мм
[2] => 600 мм
)
[days] => [19,22,27]
[material_price] => [3210,4475,5852]
[work_price] => [4214,4788,5866]
[image] => https://akademik-stroy.ru/wp-content/uploads/materials/arbolitovye-bloki.png
[area_modifier] => 119.89
[parent_name] => Стены 1 этаж (несущие)
[parent_id] => 3
[material_sum] => 507998
[work_sum] => 555738
[total_sum] => 1063736
[total_days] => 19
[display_material_sum] => 507 998
[display_work_sum] => 555 738
[display_total_sum] => 1 063 736
)
1
1 063 736₽
Работа:555 738 ₽
Материалы:507 998 ₽
Дни:19
stdClass Object
(
[id] => 187
[attribute_id] => 3
[name] => Полистиролбетон
[material_modifier] => 1
[work_modifier] => 1
[options] => Array
(
[0] => 300 мм
[1] => 400 мм
[2] => 600 мм
)
[days] => [29,31,35]
[material_price] => [2798,4573,5256]
[work_price] => [5038,5851,6426]
[image] => https://akademik-stroy.ru/wp-content/uploads/materials/polistirolbeton.jpg
[area_modifier] => 119.89
[parent_name] => Стены 1 этаж (несущие)
[parent_id] => 3
[material_sum] => 442797
[work_sum] => 664406
[total_sum] => 1107203
[total_days] => 29
[display_material_sum] => 442 797
[display_work_sum] => 664 406
[display_total_sum] => 1 107 203
)
1
1 107 203₽
Работа:664 406 ₽
Материалы:442 797 ₽
Дни:29
stdClass Object
(
[id] => 188
[attribute_id] => 3
[name] => Шлакоблок
[material_modifier] => 1
[work_modifier] => 1
[options] => Array
(
[0] => 400 мм
[1] => 600 мм
)
[days] => [15,16]
[material_price] => [2391,3471]
[work_price] => [2642,3662]
[image] => https://akademik-stroy.ru/wp-content/uploads/materials/shlakoblok.jpg
[area_modifier] => 119.89
[parent_name] => Стены 1 этаж (несущие)
[parent_id] => 3
[material_sum] => 378387
[work_sum] => 348424
[total_sum] => 726811
[total_days] => 15
[display_material_sum] => 378 387
[display_work_sum] => 348 424
[display_total_sum] => 726 811
)
1
726 811₽
Работа:348 424 ₽
Материалы:378 387 ₽
Дни:15
stdClass Object
(
[id] => 189
[attribute_id] => 3
[name] => Теплая керамика
[material_modifier] => 1
[work_modifier] => 1
[options] => Array
(
[0] => 380 мм
[1] => 380 мм Thermo
[2] => 440 мм
[3] => 510 мм
)
[days] => [23,23,24,25]
[material_price] => [4510,5098,6093,8013]
[work_price] => [4737,4937,5903,6958]
[image] => https://akademik-stroy.ru/wp-content/uploads/materials/teplaya-keramika.jpg
[area_modifier] => 119.89
[parent_name] => Стены 1 этаж (несущие)
[parent_id] => 3
[material_sum] => 713729
[work_sum] => 624711
[total_sum] => 1338440
[total_days] => 23
[display_material_sum] => 713 729
[display_work_sum] => 624 711
[display_total_sum] => 1 338 440
)
1
1 338 440₽
Работа:624 711 ₽
Материалы:713 729 ₽
Дни:23
stdClass Object
(
[id] => 190
[attribute_id] => 3
[name] => Несъемная опалубка
[material_modifier] => 1
[work_modifier] => 1
[options] => Array
(
[0] => 200 мм
[1] => 250 мм
[2] => 300 мм
[3] => 350 мм
)
[days] => [15,17,19,21]
[material_price] => [3302,3902,4108,5008]
[work_price] => [2100,2100,2300,2534]
[image] => https://akademik-stroy.ru/wp-content/uploads/materials/nesemnaya-opalubka.jpg
[area_modifier] => 119.89
[parent_name] => Стены 1 этаж (несущие)
[parent_id] => 3
[material_sum] => 522557
[work_sum] => 276946
[total_sum] => 799503
[total_days] => 15
[display_material_sum] => 522 557
[display_work_sum] => 276 946
[display_total_sum] => 799 503
)
1
799 503₽
Работа:276 946 ₽
Материалы:522 557 ₽
Дни:15
stdClass Object
(
[id] => 251
[attribute_id] => 3
[name] => Бревно
[material_modifier] => 1
[work_modifier] => 1
[options] => Array
(
[0] => 260 мм
[1] => 320 мм
[2] => 360 мм
[3] => 400 мм
[4] => 500 мм
)
[days] => [7,8,9,10,11]
[material_price] => [1874,24045,26930,30972,38825]
[work_price] => [5046,6207,6952,7716,9723]
[image] => https://akademik-stroy.ru/wp-content/uploads/materials/sruby.jpg
[area_modifier] => 119.89
[parent_name] => Стены 1 этаж (несущие)
[parent_id] => 3
[material_sum] => 296569
[work_sum] => 665461
[total_sum] => 962030
[total_days] => 7
[display_material_sum] => 296 569
[display_work_sum] => 665 461
[display_total_sum] => 962 030
)
1
962 030₽
Работа:665 461 ₽
Материалы:296 569 ₽
Дни:7
stdClass Object
(
[id] => 7
[attribute_id] => 4
[name] => Деревянные балки
[material_modifier] => 1
[work_modifier] => 1
[options] => Array
(
[0] => без утепления
[1] => утепление 200 мм
[2] => утепление 250 мм
[3] => утепление 300 мм
[4] => утепление 350 мм
[5] => утепление 400 мм
[6] => утепление 450 мм
[7] => утепление 500 мм
)
[days] => [8,9,9,9,11,12,13,14]
[material_price] => [1634,2042,2344,2947,3149,3652,3354,3557]
[work_price] => [1230,1339,1393,1426,1460,1513,1587,1620]
[image] => https://akademik-stroy.ru/wp-content/uploads/materials/derevyannye-balki.png
[area_modifier] => 119.89
[parent_name] => Перекрытие первого этажа
[parent_id] => 4
[material_sum] => 258588
[work_sum] => 162211
[total_sum] => 420799
[total_days] => 8
[display_material_sum] => 258 588
[display_work_sum] => 162 211
[display_total_sum] => 420 799
)
1
420 799₽
Работа:162 211 ₽
Материалы:258 588 ₽
Дни:8
stdClass Object
(
[id] => 8
[attribute_id] => 4
[name] => Сборные ж/б плиты
[material_modifier] => 1
[work_modifier] => 1
[options] => Array
(
[0] => без утепления
[1] => утепление 150 мм
[2] => утепление 200 мм
[3] => утепление 250 мм
[4] => утепление 300 мм
[5] => утепление 350 мм
[6] => утепление 400 мм
[7] => утепление 450 мм
[8] => утепление 500 мм
)
[days] => [13,15,15,15,15,15,15,15,15]
[material_price] => [3067,5577,5928,6679,7730,8782,9833,10884,11935]
[work_price] => [1520,1956,2102,2247,2392,2537,2684,2829,2974]
[image] => https://akademik-stroy.ru/wp-content/uploads/materials/sbornye-zh-b-plity-2.jpg
[area_modifier] => 119.89
[parent_name] => Перекрытие первого этажа
[parent_id] => 4
[material_sum] => 485367
[work_sum] => 200456
[total_sum] => 685823
[total_days] => 13
[display_material_sum] => 485 367
[display_work_sum] => 200 456
[display_total_sum] => 685 823
)
1
685 823₽
Работа:200 456 ₽
Материалы:485 367 ₽
Дни:13
stdClass Object
(
[id] => 89
[attribute_id] => 4
[name] => Монолитная ж/б плита
[material_modifier] => 1
[work_modifier] => 1
[options] => Array
(
[0] => без утепления
[1] => утепление 150 мм
[2] => утепление 200 мм
[3] => утепление 250 мм
[4] => утепление 300 мм
[5] => утепление 350 мм
[6] => утепление 400 мм
[7] => утепление 450 мм
[8] => утепление 500 мм
)
[days] => [18,20,20,20,20,20,20,20,20]
[material_price] => [4837,6572,7224,7375,79426,8177,8728,9180,10031]
[work_price] => [3348,3921,4112,4302,4493,4684,4875,5066,5256]
[image] => https://akademik-stroy.ru/wp-content/uploads/materials/monolitnaya-zh-b-plita-2.jpg
[area_modifier] => 119.89
[parent_name] => Перекрытие первого этажа
[parent_id] => 4
[material_sum] => 765478
[work_sum] => 441531
[total_sum] => 1207009
[total_days] => 18
[display_material_sum] => 765 478
[display_work_sum] => 441 531
[display_total_sum] => 1 207 009
)
1
1 207 009₽
Работа:441 531 ₽
Материалы:765 478 ₽
Дни:18
stdClass Object
(
[id] => 10
[attribute_id] => 5
[name] => Пеноблок
[material_modifier] => 1
[work_modifier] => 1
[options] => Array
(
[0] => 300 мм
[1] => 400 мм
[2] => 500 мм
[3] => 600 мм
)
[days] => [29,31,34,39]
[material_price] => [3000,4000,4500,4937]
[work_price] => [5033,5805,6400,8710]
[image] => https://akademik-stroy.ru/wp-content/uploads/materials/penoblok.jpg
[area_modifier] => 75.82
[parent_name] => Стены 2 этаж (несущие)
[parent_id] => 5
[material_sum] => 300247
[work_sum] => 419762
[total_sum] => 720009
[total_days] => 29
[display_material_sum] => 300 247
[display_work_sum] => 419 762
[display_total_sum] => 720 009
)
1
720 009₽
Работа:419 762 ₽
Материалы:300 247 ₽
Дни:29
stdClass Object
(
[id] => 90
[attribute_id] => 5
[name] => Керамический блок
[material_modifier] => 1
[work_modifier] => 1
[options] => Array
(
[0] => 380 мм
[1] => 380 мм Thermo
[2] => 440 мм
[3] => 510 мм
)
[days] => [23,23,24,25]
[material_price] => [4510,5098,6093,8013]
[work_price] => [4737,4937,5903,6958]
[image] => https://akademik-stroy.ru/wp-content/uploads/materials/keramicheskij-blok.jpg
[area_modifier] => 75.82
[parent_name] => Стены 2 этаж (несущие)
[parent_id] => 5
[material_sum] => 451372
[work_sum] => 395075
[total_sum] => 846447
[total_days] => 23
[display_material_sum] => 451 372
[display_work_sum] => 395 075
[display_total_sum] => 846 447
)
1
846 447₽
Работа:395 075 ₽
Материалы:451 372 ₽
Дни:23
stdClass Object
(
[id] => 91
[attribute_id] => 5
[name] => Кирпич
[material_modifier] => 1
[work_modifier] => 1
[options] => Array
(
[0] => Кирпич 250 мм
[1] => Кирпич 380 мм
[2] => Кирпич 510 мм
[3] => Кирпич 640 мм
[4] => Кирпич 770 мм
)
[days] => [30,30,31,33,36]
[material_price] => [5500,7142,9206,10171,12235]
[work_price] => [8736,10041,12018,15240,18462]
[image] => https://akademik-stroy.ru/wp-content/uploads/materials/kirpich.jpg
[area_modifier] => 75.82
[parent_name] => Стены 2 этаж (несущие)
[parent_id] => 5
[material_sum] => 550453
[work_sum] => 728600
[total_sum] => 1279053
[total_days] => 30
[display_material_sum] => 550 453
[display_work_sum] => 728 600
[display_total_sum] => 1 279 053
)
1
1 279 053₽
Работа:728 600 ₽
Материалы:550 453 ₽
Дни:30
stdClass Object
(
[id] => 92
[attribute_id] => 5
[name] => Монолитные
[material_modifier] => 1
[work_modifier] => 1
[options] => Array
(
[0] => 150 мм
[1] => 200 мм
[2] => 250 мм
[3] => 300 мм
[4] => 350 мм
[5] => 400 мм
)
[days] => [45,46,47,49,50,53]
[material_price] => [6545,7876,10175,12011,13908,15204]
[work_price] => [5106,6444,7698,8552,9807,11461]
[image] => https://akademik-stroy.ru/wp-content/uploads/materials/monolitnye.jpg
[area_modifier] => 75.82
[parent_name] => Стены 2 этаж (несущие)
[parent_id] => 5
[material_sum] => 655039
[work_sum] => 425851
[total_sum] => 1080890
[total_days] => 45
[display_material_sum] => 655 039
[display_work_sum] => 425 851
[display_total_sum] => 1 080 890
)
1
1 080 890₽
Работа:425 851 ₽
Материалы:655 039 ₽
Дни:45
stdClass Object
(
[id] => 93
[attribute_id] => 5
[name] => Клееный брус
[material_modifier] => 1
[work_modifier] => 1
[options] => Array
(
[0] => 160 мм
[1] => 175 мм
[2] => 200 мм
[3] => 215 мм
[4] => 240 мм
[5] => 270 мм
[6] => 282 мм
)
[days] => [24,28,32,37,40,42,48]
[material_price] => [16975,18773,19950,20545,21599,22159,23275]
[work_price] => [4806,5287,5815,6397,7036,7740,8514]
[image] => https://akademik-stroy.ru/wp-content/uploads/materials/kleenyj-brus.jpg
[area_modifier] => 75.82
[parent_name] => Стены 2 этаж (несущие)
[parent_id] => 5
[material_sum] => 1698899
[work_sum] => 400830
[total_sum] => 2099729
[total_days] => 24
[display_material_sum] => 1 698 899
[display_work_sum] => 400 830
[display_total_sum] => 2 099 729
)
1
2 099 729₽
Работа:400 830 ₽
Материалы:1 698 899 ₽
Дни:24
stdClass Object
(
[id] => 94
[attribute_id] => 5
[name] => Каркасные
[material_modifier] => 1
[work_modifier] => 1
[options] => Array
(
[0] => 150 мм
[1] => 200 мм
[2] => 250 мм
[3] => 300 мм
)
[days] => [15,16,17,18]
[material_price] => [2379,2639,2898,3258]
[work_price] => [2418,2686,2985,3716]
[image] => https://akademik-stroy.ru/wp-content/uploads/materials/karkasnye.jpg
[area_modifier] => 75.82
[parent_name] => Стены 2 этаж (несущие)
[parent_id] => 5
[material_sum] => 238096
[work_sum] => 201666
[total_sum] => 439762
[total_days] => 15
[display_material_sum] => 238 096
[display_work_sum] => 201 666
[display_total_sum] => 439 762
)
1
439 762₽
Работа:201 666 ₽
Материалы:238 096 ₽
Дни:15
stdClass Object
(
[id] => 95
[attribute_id] => 5
[name] => СИП-панели
[material_modifier] => 1
[work_modifier] => 1
[options] => Array
(
[0] => 120 мм
[1] => 170 мм
[2] => 220 мм
)
[days] => [7,7,7]
[material_price] => [1210,1856,2292]
[work_price] => [1410,1551,1706]
[image] => https://akademik-stroy.ru/wp-content/uploads/materials/sip-paneli.jpg
[area_modifier] => 75.82
[parent_name] => Стены 2 этаж (несущие)
[parent_id] => 5
[material_sum] => 121100
[work_sum] => 117597
[total_sum] => 238697
[total_days] => 7
[display_material_sum] => 121 100
[display_work_sum] => 117 597
[display_total_sum] => 238 697
)
1
238 697₽
Работа:117 597 ₽
Материалы:121 100 ₽
Дни:7
stdClass Object
(
[id] => 96
[attribute_id] => 5
[name] => Сухой брус
[material_modifier] => 1
[work_modifier] => 1
[options] => Array
(
[0] => 150 мм
[1] => 180 мм
[2] => 200 мм
)
[days] => [7,8,9]
[material_price] => [6010,7190,8709]
[work_price] => [3204,3845,4229]
[image] => https://akademik-stroy.ru/wp-content/uploads/materials/suhoj-brus.jpg
[area_modifier] => 75.82
[parent_name] => Стены 2 этаж (несущие)
[parent_id] => 5
[material_sum] => 601495
[work_sum] => 267220
[total_sum] => 868715
[total_days] => 7
[display_material_sum] => 601 495
[display_work_sum] => 267 220
[display_total_sum] => 868 715
)
1
868 715₽
Работа:267 220 ₽
Материалы:601 495 ₽
Дни:7
stdClass Object
(
[id] => 97
[attribute_id] => 5
[name] => Профилированный брус
[material_modifier] => 1
[work_modifier] => 1
[options] => Array
(
[0] => 150 мм
[1] => 180 мм
[2] => 200 мм
)
[days] => [7,8,9]
[material_price] => [8190,9228,10051]
[work_price] => [3845,4614,5075]
[image] => https://akademik-stroy.ru/wp-content/uploads/materials/profilirovannyj-brus.jpg
[area_modifier] => 75.82
[parent_name] => Стены 2 этаж (несущие)
[parent_id] => 5
[material_sum] => 819675
[work_sum] => 320681
[total_sum] => 1140356
[total_days] => 7
[display_material_sum] => 819 675
[display_work_sum] => 320 681
[display_total_sum] => 1 140 356
)
1
1 140 356₽
Работа:320 681 ₽
Материалы:819 675 ₽
Дни:7
stdClass Object
(
[id] => 98
[attribute_id] => 5
[name] => Оцилиндрованное бревно
[material_modifier] => 1
[work_modifier] => 1
[options] => Array
(
[0] => 180 мм
[1] => 220 мм
[2] => 260 мм
[3] => 320 мм
)
[days] => [7,8,9,10]
[material_price] => [75190,9532,10868,13116]
[work_price] => [3845,4691,5535,6863]
[image] => https://akademik-stroy.ru/wp-content/uploads/materials/ocilindrovannoe-brevno-1.jpg
[area_modifier] => 75.82
[parent_name] => Стены 2 этаж (несущие)
[parent_id] => 5
[material_sum] => 7525196
[work_sum] => 320681
[total_sum] => 7845877
[total_days] => 7
[display_material_sum] => 7 525 196
[display_work_sum] => 320 681
[display_total_sum] => 7 845 877
)
1
7 845 877₽
Работа:320 681 ₽
Материалы:7 525 196 ₽
Дни:7
stdClass Object
(
[id] => 99
[attribute_id] => 5
[name] => Срубы
[material_modifier] => 1
[work_modifier] => 1
[options] => Array
(
[0] => 260 мм
[1] => 320 мм
[2] => 360 мм
[3] => 400 мм
[4] => 500 мм
)
[days] => [7,8,9,10,11]
[material_price] => [16175,23709,26314,29069,32167]
[work_price] => [4806,5911,6621,7349,9260]
[image] => https://akademik-stroy.ru/wp-content/uploads/materials/suhoj-brus.jpg
[area_modifier] => 75.82
[parent_name] => Стены 2 этаж (несущие)
[parent_id] => 5
[material_sum] => 1618833
[work_sum] => 400830
[total_sum] => 2019663
[total_days] => 7
[display_material_sum] => 1 618 833
[display_work_sum] => 400 830
[display_total_sum] => 2 019 663
)
1
2 019 663₽
Работа:400 830 ₽
Материалы:1 618 833 ₽
Дни:7
stdClass Object
(
[id] => 194
[attribute_id] => 5
[name] => Брус
[material_modifier] => 1
[work_modifier] => 1
[options] => Array
(
[0] => 150 мм
[1] => 180 мм
[2] => 200 мм
)
[days] => [10,13,15]
[material_price] => [5127,6152,7367]
[work_price] => [1602,1922,2115]
[image] => https://akademik-stroy.ru/wp-content/uploads/materials/brus.jpg
[area_modifier] => 75.82
[parent_name] => Стены 2 этаж (несущие)
[parent_id] => 5
[material_sum] => 513122
[work_sum] => 133610
[total_sum] => 646732
[total_days] => 10
[display_material_sum] => 513 122
[display_work_sum] => 133 610
[display_total_sum] => 646 732
)
1
646 732₽
Работа:133 610 ₽
Материалы:513 122 ₽
Дни:10
stdClass Object
(
[id] => 195
[attribute_id] => 5
[name] => Газобетон
[material_modifier] => 1
[work_modifier] => 1
[options] => Array
(
[0] => 300 мм
[1] => 375 мм
[2] => 400 мм
[3] => 500 мм
[4] => 600 мм
)
[days] => [29,31,35,37,44]
[material_price] => [4298,5573,6356,7288,9119]
[work_price] => [4538,5251,5926,6733,7195]
[image] => https://akademik-stroy.ru/wp-content/uploads/materials/gazobeton.jpg
[area_modifier] => 75.82
[parent_name] => Стены 2 этаж (несущие)
[parent_id] => 5
[material_sum] => 430154
[work_sum] => 378478
[total_sum] => 808632
[total_days] => 29
[display_material_sum] => 430 154
[display_work_sum] => 378 478
[display_total_sum] => 808 632
)
1
808 632₽
Работа:378 478 ₽
Материалы:430 154 ₽
Дни:29
stdClass Object
(
[id] => 196
[attribute_id] => 5
[name] => Блок
[material_modifier] => 1
[work_modifier] => 1
[options] => Array
(
[0] => 300 мм
[1] => 375 мм
[2] => 400 мм
[3] => 500 мм
[4] => 600 мм
)
[days] => [29,31,35,37,44]
[material_price] => [2698,3973,4356,6588,7119]
[work_price] => [5038,5851,6426,8733,9195]
[image] => https://akademik-stroy.ru/wp-content/uploads/materials/blok.jpg
[area_modifier] => 75.82
[parent_name] => Стены 2 этаж (несущие)
[parent_id] => 5
[material_sum] => 270022
[work_sum] => 420179
[total_sum] => 690201
[total_days] => 29
[display_material_sum] => 270 022
[display_work_sum] => 420 179
[display_total_sum] => 690 201
)
1
690 201₽
Работа:420 179 ₽
Материалы:270 022 ₽
Дни:29
stdClass Object
(
[id] => 197
[attribute_id] => 5
[name] => Газосиликатный блок
[material_modifier] => 1
[work_modifier] => 1
[options] => Array
(
[0] => 300 мм
[1] => 375 мм
[2] => 400 мм
[3] => 500 мм
[4] => 600 мм
)
[days] => [29,31,35,37,44]
[material_price] => [4298,5573,6356,7288,9119]
[work_price] => [4538,5251,5926,6733,7195]
[image] => https://akademik-stroy.ru/wp-content/uploads/materials/gazosilikatnyj-blok.jpg
[area_modifier] => 75.82
[parent_name] => Стены 2 этаж (несущие)
[parent_id] => 5
[material_sum] => 430154
[work_sum] => 378478
[total_sum] => 808632
[total_days] => 29
[display_material_sum] => 430 154
[display_work_sum] => 378 478
[display_total_sum] => 808 632
)
1
808 632₽
Работа:378 478 ₽
Материалы:430 154 ₽
Дни:29
stdClass Object
(
[id] => 198
[attribute_id] => 5
[name] => Керамзитобетонный блок
[material_modifier] => 1
[work_modifier] => 1
[options] => Array
(
[0] => 300 мм
[1] => 375 мм
[2] => 400 мм
[3] => 500 мм
[4] => 600 мм
)
[days] => [23,23,24,25,28]
[material_price] => [3641,4298,5693,7613,9612]
[work_price] => [5737,5737,6903,7958,8901]
[image] => https://akademik-stroy.ru/wp-content/uploads/materials/keramzitobetonnyj-blok.jpg
[area_modifier] => 75.82
[parent_name] => Стены 2 этаж (несущие)
[parent_id] => 5
[material_sum] => 364400
[work_sum] => 478477
[total_sum] => 842877
[total_days] => 23
[display_material_sum] => 364 400
[display_work_sum] => 478 477
[display_total_sum] => 842 877
)
1
842 877₽
Работа:478 477 ₽
Материалы:364 400 ₽
Дни:23
stdClass Object
(
[id] => 199
[attribute_id] => 5
[name] => Деревянные
[material_modifier] => 1
[work_modifier] => 1
[options] => Array
(
[0] => 180 мм
[1] => 220 мм
[2] => 260 мм
[3] => 320 мм
)
[days] => [7,8,9,10]
[material_price] => [7950,9458,11961,14472]
[work_price] => [4037,4925,5812,7207]
[image] => https://akademik-stroy.ru/wp-content/uploads/materials/derevyannye.jpg
[area_modifier] => 75.82
[parent_name] => Стены 2 этаж (несущие)
[parent_id] => 5
[material_sum] => 795655
[work_sum] => 336694
[total_sum] => 1132349
[total_days] => 7
[display_material_sum] => 795 655
[display_work_sum] => 336 694
[display_total_sum] => 1 132 349
)
1
1 132 349₽
Работа:336 694 ₽
Материалы:795 655 ₽
Дни:7
stdClass Object
(
[id] => 200
[attribute_id] => 5
[name] => Камень
[material_modifier] => 1
[work_modifier] => 1
[options] => Array
(
[0] => 300 мм
[1] => 400 мм
[2] => 500 мм
[3] => 600 мм
)
[days] => [25,27,31,34]
[material_price] => [5262,6844,8330,9815]
[work_price] => [8331,9135,10427,11069]
[image] => https://akademik-stroy.ru/wp-content/uploads/materials/kamen.jpg
[area_modifier] => 75.82
[parent_name] => Стены 2 этаж (несущие)
[parent_id] => 5
[material_sum] => 526634
[work_sum] => 694822
[total_sum] => 1221456
[total_days] => 25
[display_material_sum] => 526 634
[display_work_sum] => 694 822
[display_total_sum] => 1 221 456
)
1
1 221 456₽
Работа:694 822 ₽
Материалы:526 634 ₽
Дни:25
stdClass Object
(
[id] => 201
[attribute_id] => 5
[name] => Каркасно-щитовые
[material_modifier] => 1
[work_modifier] => 1
[options] => Array
(
[0] => 150 мм
[1] => 200 мм
[2] => 250 мм
[3] => 300 мм
[4] => 350 мм
[5] => 400 мм
)
[days] => [15,16,17,18,19,20]
[material_price] => [2379,2639,2898,3458,3601,4175]
[work_price] => [2538,2820,3134,3483,4062,5642]
[image] => https://akademik-stroy.ru/wp-content/uploads/materials/karkasno-shchitovye.jpg
[area_modifier] => 75.82
[parent_name] => Стены 2 этаж (несущие)
[parent_id] => 5
[material_sum] => 238096
[work_sum] => 211674
[total_sum] => 449770
[total_days] => 15
[display_material_sum] => 238 096
[display_work_sum] => 211 674
[display_total_sum] => 449 770
)
1
449 770₽
Работа:211 674 ₽
Материалы:238 096 ₽
Дни:15
stdClass Object
(
[id] => 202
[attribute_id] => 5
[name] => Рубленные
[material_modifier] => 1
[work_modifier] => 1
[options] => Array
(
[0] => 150 мм
[1] => 200 мм
[2] => 250 мм
[3] => 300 мм
[4] => 350 мм
[5] => 400 мм
)
[days] => [15,16,17,18,17,18]
[material_price] => [35950,50267,60583,75900,80217,100533]
[work_price] => [9612,12816,16020,19224,22428,25632]
[image] => https://akademik-stroy.ru/wp-content/uploads/materials/rublennye.jpg
[area_modifier] => 75.82
[parent_name] => Стены 2 этаж (несущие)
[parent_id] => 5
[material_sum] => 3597962
[work_sum] => 801660
[total_sum] => 4399622
[total_days] => 15
[display_material_sum] => 3 597 962
[display_work_sum] => 801 660
[display_total_sum] => 4 399 622
)
1
4 399 622₽
Работа:801 660 ₽
Материалы:3 597 962 ₽
Дни:15
stdClass Object
(
[id] => 203
[attribute_id] => 5
[name] => Теплоблок
[material_modifier] => 1
[work_modifier] => 1
[options] => Array
(
[0] => 300 мм (с облицовкой, не покрашенный)
[1] => 400 мм (с облицовкой, не покрашенный)
[2] => 300 мм (с облицовкой, покрашенный)
[3] => 400 мм (с облицовкой, покрашенный)
)
[days] => [15,16,15,16]
[material_price] => [2888,3729,3957,4258]
[work_price] => [2564,3229,2949,3713]
[image] => https://akademik-stroy.ru/wp-content/uploads/materials/teploblok.jpg
[area_modifier] => 75.82
[parent_name] => Стены 2 этаж (несущие)
[parent_id] => 5
[material_sum] => 289038
[work_sum] => 213843
[total_sum] => 502881
[total_days] => 15
[display_material_sum] => 289 038
[display_work_sum] => 213 843
[display_total_sum] => 502 881
)
1
502 881₽
Работа:213 843 ₽
Материалы:289 038 ₽
Дни:15
stdClass Object
(
[id] => 204
[attribute_id] => 5
[name] => Арболитовые блоки
[material_modifier] => 1
[work_modifier] => 1
[options] => Array
(
[0] => 300 мм
[1] => 400 мм
[2] => 600 мм
)
[days] => [19,22,27]
[material_price] => [3210,4475,5852]
[work_price] => [4214,4788,5866]
[image] => https://akademik-stroy.ru/wp-content/uploads/materials/arbolitovye-bloki.png
[area_modifier] => 75.82
[parent_name] => Стены 2 этаж (несущие)
[parent_id] => 5
[material_sum] => 321265
[work_sum] => 351456
[total_sum] => 672721
[total_days] => 19
[display_material_sum] => 321 265
[display_work_sum] => 351 456
[display_total_sum] => 672 721
)
1
672 721₽
Работа:351 456 ₽
Материалы:321 265 ₽
Дни:19
stdClass Object
(
[id] => 205
[attribute_id] => 5
[name] => Полистиролбетон
[material_modifier] => 1
[work_modifier] => 1
[options] => Array
(
[0] => 300 мм
[1] => 400 мм
[2] => 600 мм
)
[days] => [29,31,35]
[material_price] => [2798,4573,5256]
[work_price] => [5038,5851,6426]
[image] => https://akademik-stroy.ru/wp-content/uploads/materials/polistirolbeton.jpg
[area_modifier] => 75.82
[parent_name] => Стены 2 этаж (несущие)
[parent_id] => 5
[material_sum] => 280031
[work_sum] => 420179
[total_sum] => 700210
[total_days] => 29
[display_material_sum] => 280 031
[display_work_sum] => 420 179
[display_total_sum] => 700 210
)
1
700 210₽
Работа:420 179 ₽
Материалы:280 031 ₽
Дни:29
stdClass Object
(
[id] => 206
[attribute_id] => 5
[name] => Шлакоблок
[material_modifier] => 1
[work_modifier] => 1
[options] => Array
(
[0] => 400 мм
[1] => 600 мм
)
[days] => [15,16]
[material_price] => [2391,3471]
[work_price] => [2642,3662]
[image] => https://akademik-stroy.ru/wp-content/uploads/materials/shlakoblok.jpg
[area_modifier] => 75.82
[parent_name] => Стены 2 этаж (несущие)
[parent_id] => 5
[material_sum] => 239297
[work_sum] => 220348
[total_sum] => 459645
[total_days] => 15
[display_material_sum] => 239 297
[display_work_sum] => 220 348
[display_total_sum] => 459 645
)
1
459 645₽
Работа:220 348 ₽
Материалы:239 297 ₽
Дни:15
stdClass Object
(
[id] => 245
[attribute_id] => 5
[name] => Теплая керамика
[material_modifier] => 1
[work_modifier] => 1
[options] => Array
(
[0] => 380 мм
[1] => 380 мм Thermo
[2] => 440 мм
[3] => 510 мм
)
[days] => [10,10,11,12]
[material_price] => [4510,5098,6093,8013]
[work_price] => [4737,4937,5903,6958]
[image] => https://akademik-stroy.ru/wp-content/uploads/materials/teplaya-keramika.jpg
[area_modifier] => 75.82
[parent_name] => Стены 2 этаж (несущие)
[parent_id] => 5
[material_sum] => 451372
[work_sum] => 395075
[total_sum] => 846447
[total_days] => 10
[display_material_sum] => 451 372
[display_work_sum] => 395 075
[display_total_sum] => 846 447
)
1
846 447₽
Работа:395 075 ₽
Материалы:451 372 ₽
Дни:10
stdClass Object
(
[id] => 246
[attribute_id] => 5
[name] => Несъемная опалубка
[material_modifier] => 1
[work_modifier] => 1
[options] => Array
(
[0] => 380 мм
[1] => 380 мм Thermo
[2] => 440 мм
[3] => 510 мм
)
[days] => [10,10,11,12]
[material_price] => [3302,3902,4108,5008]
[work_price] => [2100,2100,2300,2534]
[image] => https://akademik-stroy.ru/wp-content/uploads/materials/nesemnaya-opalubka.jpg
[area_modifier] => 75.82
[parent_name] => Стены 2 этаж (несущие)
[parent_id] => 5
[material_sum] => 330472
[work_sum] => 175144
[total_sum] => 505616
[total_days] => 10
[display_material_sum] => 330 472
[display_work_sum] => 175 144
[display_total_sum] => 505 616
)
1
505 616₽
Работа:175 144 ₽
Материалы:330 472 ₽
Дни:10
stdClass Object
(
[id] => 254
[attribute_id] => 5
[name] => Бревно
[material_modifier] => 1
[work_modifier] => 1
[options] => Array
(
[0] => 260 мм
[1] => 320 мм
[2] => 360 мм
[3] => 400 мм
[4] => 500 мм
)
[days] => [7,8,9,10,11]
[material_price] => [1874,24045,26930,30972,38825]
[work_price] => [5046,6207,6952,7716,9723]
[image] => https://akademik-stroy.ru/wp-content/uploads/materials/sruby.jpg
[area_modifier] => 75.82
[parent_name] => Стены 2 этаж (несущие)
[parent_id] => 5
[material_sum] => 187554
[work_sum] => 420846
[total_sum] => 608400
[total_days] => 7
[display_material_sum] => 187 554
[display_work_sum] => 420 846
[display_total_sum] => 608 400
)
1
608 400₽
Работа:420 846 ₽
Материалы:187 554 ₽
Дни:7
stdClass Object
(
[id] => 164
[attribute_id] => 37
[name] => Металлочерепица
[material_modifier] => 1
[work_modifier] => 1
[options] => Array
(
)
[days] => [20]
[material_price] => [6112]
[work_price] => [5726]
[image] => https://akademik-stroy.ru/wp-content/uploads/materials/metallocherepica.jpg
[area_modifier] => 119.89
[parent_name] => Крыша (Скатная)
[parent_id] => 37
[material_sum] => 967253
[work_sum] => 755139
[total_sum] => 1722392
[total_days] => 20
[display_material_sum] => 967 253
[display_work_sum] => 755 139
[display_total_sum] => 1 722 392
)
1
1 722 392₽
Работа:755 139 ₽
Материалы:967 253 ₽
Дни:20
stdClass Object
(
[id] => 165
[attribute_id] => 37
[name] => Гибкая черепица
[material_modifier] => 1
[work_modifier] => 1
[options] => Array
(
)
[days] => [20]
[material_price] => [6980]
[work_price] => [5950]
[image] => https://akademik-stroy.ru/wp-content/uploads/materials/gibkaya-cherepica.jpg
[area_modifier] => 119.89
[parent_name] => Крыша (Скатная)
[parent_id] => 37
[material_sum] => 1104619
[work_sum] => 784680
[total_sum] => 1889299
[total_days] => 20
[display_material_sum] => 1 104 619
[display_work_sum] => 784 680
[display_total_sum] => 1 889 299
)
1
1 889 299₽
Работа:784 680 ₽
Материалы:1 104 619 ₽
Дни:20
stdClass Object
(
[id] => 166
[attribute_id] => 37
[name] => Цементно-песчаная черепица
[material_modifier] => 1
[work_modifier] => 1
[options] => Array
(
)
[days] => [20]
[material_price] => [10560]
[work_price] => [9456]
[image] => https://akademik-stroy.ru/wp-content/uploads/materials/cementno-peschanaya-cherepica.jpg
[area_modifier] => 119.89
[parent_name] => Крыша (Скатная)
[parent_id] => 37
[material_sum] => 1671171
[work_sum] => 1247048
[total_sum] => 2918219
[total_days] => 20
[display_material_sum] => 1 671 171
[display_work_sum] => 1 247 048
[display_total_sum] => 2 918 219
)
1
2 918 219₽
Работа:1 247 048 ₽
Материалы:1 671 171 ₽
Дни:20
stdClass Object
(
[id] => 167
[attribute_id] => 37
[name] => Композитная черепица
[material_modifier] => 1
[work_modifier] => 1
[options] => Array
(
)
[days] => [20]
[material_price] => [9506]
[work_price] => [8905]
[image] => https://akademik-stroy.ru/wp-content/uploads/materials/kompozitnaya-cherepica.jpg
[area_modifier] => 119.89
[parent_name] => Крыша (Скатная)
[parent_id] => 37
[material_sum] => 1504370
[work_sum] => 1174382
[total_sum] => 2678752
[total_days] => 20
[display_material_sum] => 1 504 370
[display_work_sum] => 1 174 382
[display_total_sum] => 2 678 752
)
1
2 678 752₽
Работа:1 174 382 ₽
Материалы:1 504 370 ₽
Дни:20
stdClass Object
(
[id] => 168
[attribute_id] => 37
[name] => Керамическая черепица
[material_modifier] => 1
[work_modifier] => 1
[options] => Array
(
)
[days] => [20]
[material_price] => [12750]
[work_price] => [9456]
[image] => https://akademik-stroy.ru/wp-content/uploads/materials/keramicheskaya-cherepica.jpg
[area_modifier] => 119.89
[parent_name] => Крыша (Скатная)
[parent_id] => 37
[material_sum] => 2017749
[work_sum] => 1247048
[total_sum] => 3264797
[total_days] => 20
[display_material_sum] => 2 017 749
[display_work_sum] => 1 247 048
[display_total_sum] => 3 264 797
)
1
3 264 797₽
Работа:1 247 048 ₽
Материалы:2 017 749 ₽
Дни:20
stdClass Object
(
[id] => 169
[attribute_id] => 37
[name] => Металлическая фальцевая
[material_modifier] => 1
[work_modifier] => 1
[options] => Array
(
)
[days] => [20]
[material_price] => [8550]
[work_price] => [8190]
[image] => https://akademik-stroy.ru/wp-content/uploads/materials/metallicheskaya-falcevaya.jpg
[area_modifier] => 119.89
[parent_name] => Крыша (Скатная)
[parent_id] => 37
[material_sum] => 1353079
[work_sum] => 1080089
[total_sum] => 2433168
[total_days] => 20
[display_material_sum] => 1 353 079
[display_work_sum] => 1 080 089
[display_total_sum] => 2 433 168
)
1
2 433 168₽
Работа:1 080 089 ₽
Материалы:1 353 079 ₽
Дни:20
stdClass Object
(
[id] => 170
[attribute_id] => 37
[name] => Медная фальцевая
[material_modifier] => 1
[work_modifier] => 1
[options] => Array
(
)
[days] => [20]
[material_price] => [20450]
[work_price] => [16750]
[image] => https://akademik-stroy.ru/wp-content/uploads/materials/mednaya-falcevaya.jpg
[area_modifier] => 119.89
[parent_name] => Крыша (Скатная)
[parent_id] => 37
[material_sum] => 3236311
[work_sum] => 2208973
[total_sum] => 5445284
[total_days] => 20
[display_material_sum] => 3 236 311
[display_work_sum] => 2 208 973
[display_total_sum] => 5 445 284
)
1
5 445 284₽
Работа:2 208 973 ₽
Материалы:3 236 311 ₽
Дни:20
stdClass Object
(
[id] => 171
[attribute_id] => 37
[name] => Зеленая кровля
[material_modifier] => 1
[work_modifier] => 1
[options] => Array
(
)
[days] => [20]
[material_price] => [19850]
[work_price] => [16780]
[image] => https://akademik-stroy.ru/wp-content/uploads/materials/zelenaya-krovlya.jpg
[area_modifier] => 119.89
[parent_name] => Крыша (Скатная)
[parent_id] => 37
[material_sum] => 3141358
[work_sum] => 2212930
[total_sum] => 5354288
[total_days] => 20
[display_material_sum] => 3 141 358
[display_work_sum] => 2 212 930
[display_total_sum] => 5 354 288
)
1
5 354 288₽
Работа:2 212 930 ₽
Материалы:3 141 358 ₽
Дни:20
stdClass Object
(
[id] => 172
[attribute_id] => 37
[name] => Профлист
[material_modifier] => 1
[work_modifier] => 1
[options] => Array
(
)
[days] => [20]
[material_price] => [3450]
[work_price] => [3750]
[image] => https://akademik-stroy.ru/wp-content/uploads/materials/proflist.jpg
[area_modifier] => 119.89
[parent_name] => Крыша (Скатная)
[parent_id] => 37
[material_sum] => 545979
[work_sum] => 494546
[total_sum] => 1040525
[total_days] => 20
[display_material_sum] => 545 979
[display_work_sum] => 494 546
[display_total_sum] => 1 040 525
)
1
1 040 525₽
Работа:494 546 ₽
Материалы:545 979 ₽
Дни:20
stdClass Object
(
[id] => 51
[attribute_id] => 26
[name] => Есть
[material_modifier] => 1
[work_modifier] => 1
[options] => Array
(
[0] => Профиль 58 мм, 3-камерный, стеклопакет 2-камерный до 32 мм
[1] => Профиль 60 мм, 4-камерный, стеклопакет 2-камерный до 32 мм
[2] => Профиль 70 мм, 5-камерный, стеклопакет 2-камерный до 40 мм
[3] => Профиль 72 мм, 5-камерный, стеклопакет 2-камерный до 40 мм
[4] => Алюминиевые окна Alutech профиль 72 мм, стеклопакет 2-камерный
)
[days] => [3,3,3,3,3]
[material_price] => [1339,2124,2867,3023,29596]
[work_price] => [635,647,659,668,2579]
[image] => https://akademik-stroy.ru/wp-content/uploads/materials/okna.jpg
[area_modifier] => 158.82
[parent_name] => Окна
[parent_id] => 26
[material_sum] => 280711
[work_sum] => 110936
[total_sum] => 391647
[total_days] => 3
[display_material_sum] => 280 711
[display_work_sum] => 110 936
[display_total_sum] => 391 647
)
1
391 647₽
Работа:110 936 ₽
Материалы:280 711 ₽
Дни:3
stdClass Object
(
[id] => 52
[attribute_id] => 26
[name] => Нет
[material_modifier] => 2
[work_modifier] => 1
[options] =>
[days] => null
[material_price] => null
[work_price] => null
[image] => https://akademik-stroy.ru/wp-content/uploads/materials/okna.jpg
[area_modifier] => 158.82
[parent_name] => Окна
[parent_id] => 26
[material_sum] => 0
[work_sum] => 0
[total_sum] => 0
[total_days] => 0
[display_material_sum] => 0
[display_work_sum] => 0
[display_total_sum] => 0
)
1
0₽
Работа:0 ₽
Материалы:0 ₽
Дни:0
stdClass Object
(
[id] => 53
[attribute_id] => 27
[name] => Есть
[material_modifier] => 1
[work_modifier] => 1
[options] => Array
(
)
[days] => [1]
[material_price] => [10000]
[work_price] => [5500]
[image] => https://akademik-stroy.ru/wp-content/uploads/materials/dveri.jpg
[area_modifier] => 1
[parent_name] => Двери входные
[parent_id] => 27
[material_sum] => 13200
[work_sum] => 6050
[total_sum] => 19250
[total_days] => 1
[display_material_sum] => 13 200
[display_work_sum] => 6 050
[display_total_sum] => 19 250
)
1
19 250₽
Работа:6 050 ₽
Материалы:13 200 ₽
Дни:1
stdClass Object
(
[id] => 54
[attribute_id] => 27
[name] => Нет
[material_modifier] => 1
[work_modifier] => 1
[options] => Array
(
)
[days] => [0]
[material_price] => [0]
[work_price] => [0]
[image] => https://akademik-stroy.ru/wp-content/uploads/materials/dveri.jpg
[area_modifier] => 1
[parent_name] => Двери входные
[parent_id] => 27
[material_sum] => 0
[work_sum] => 0
[total_sum] => 0
[total_days] => 0
[display_material_sum] => 0
[display_work_sum] => 0
[display_total_sum] => 0
)
1
0₽
Работа:0 ₽
Материалы:0 ₽
Дни:0
stdClass Object
(
[id] => 25
[attribute_id] => 13
[name] => Нет
[material_modifier] => 1
[work_modifier] => 1
[options] => Array
(
)
[days] => [0]
[material_price] => [0]
[work_price] => [0]
[image] => https://akademik-stroy.ru/wp-content/uploads/materials/mineralovata-krov.jpg
[area_modifier] => 119.89
[parent_name] => Утепление кровли (Мансарда)
[parent_id] => 13
[material_sum] => 0
[work_sum] => 0
[total_sum] => 0
[total_days] => 0
[display_material_sum] => 0
[display_work_sum] => 0
[display_total_sum] => 0
)
1
0₽
Работа:0 ₽
Материалы:0 ₽
Дни:0
stdClass Object
(
[id] => 26
[attribute_id] => 13
[name] => Минераловатный
[material_modifier] => 1
[work_modifier] => 1
[options] => Array
(
[0] => 50 мм
[1] => 100 мм
[2] => 150 мм
[3] => 200 мм
[4] => 250 мм
[5] => 300 мм
[6] => 350 мм
[7] => 400 мм
[8] => 450 мм
[9] => 500 мм
)
[days] => [5,5,6,6,6,7,7,7,8,8]
[material_price] => [1158,1414,1772,2230,3602,4060,4974,5890,6408,7718]
[work_price] => [650,846,846,1098,1318,1450,1596,1754,1930,2122]
[image] => https://akademik-stroy.ru/wp-content/uploads/materials/mineralovata-krov.jpg
[area_modifier] => 119.89
[parent_name] => Утепление кровли (Мансарда)
[parent_id] => 13
[material_sum] => 183259
[work_sum] => 85721
[total_sum] => 268980
[total_days] => 5
[display_material_sum] => 183 259
[display_work_sum] => 85 721
[display_total_sum] => 268 980
)
1
268 980₽
Работа:85 721 ₽
Материалы:183 259 ₽
Дни:5
stdClass Object
(
[id] => 123
[attribute_id] => 13
[name] => Эковата (целлюлозная вата)
[material_modifier] => 1
[work_modifier] => 1
[options] => Array
(
[0] => 50 мм
[1] => 100 мм
[2] => 150 мм
[3] => 200 мм
[4] => 250 мм
[5] => 300 мм
[6] => 350 мм
[7] => 400 мм
[8] => 450 мм
[9] => 500 мм
)
[days] => [3,3,4,4,4,5,5,5,5,5]
[material_price] => [820,1638,2458,3276,5734,6552,8190,9828,11466,13104]
[work_price] => [234,304,304,396,474,522,574,632,694,764]
[image] => https://akademik-stroy.ru/wp-content/uploads/materials/ehkovata-krov.jpg
[area_modifier] => 119.89
[parent_name] => Утепление кровли (Мансарда)
[parent_id] => 13
[material_sum] => 129769
[work_sum] => 30860
[total_sum] => 160629
[total_days] => 3
[display_material_sum] => 129 769
[display_work_sum] => 30 860
[display_total_sum] => 160 629
)
1
160 629₽
Работа:30 860 ₽
Материалы:129 769 ₽
Дни:3
stdClass Object
(
[id] => 124
[attribute_id] => 13
[name] => Экструдированный пенополистирол
[material_modifier] => 1
[work_modifier] => 1
[options] => Array
(
[0] => 50 мм
[1] => 100 мм
[2] => 150 мм
[3] => 200 мм
[4] => 250 мм
[5] => 300 мм
[6] => 350 мм
[7] => 400 мм
[8] => 450 мм
[9] => 500 мм
)
[days] => [3,3,4,4,4,5,5,5,5,6]
[material_price] => [1146,2292,3438,4584,8020,9166,11458,13750,16040,18332]
[work_price] => [390,508,508,660,790,870,958,1052,1158,1274]
[image] => https://akademik-stroy.ru/wp-content/uploads/materials/epps-krov.jpg
[area_modifier] => 119.89
[parent_name] => Утепление кровли (Мансарда)
[parent_id] => 13
[material_sum] => 181360
[work_sum] => 51433
[total_sum] => 232793
[total_days] => 3
[display_material_sum] => 181 360
[display_work_sum] => 51 433
[display_total_sum] => 232 793
)
1
232 793₽
Работа:51 433 ₽
Материалы:181 360 ₽
Дни:3
stdClass Object
(
[id] => 125
[attribute_id] => 13
[name] => ПСБ (ППС-пенополистирол)
[material_modifier] => 1
[work_modifier] => 1
[options] => Array
(
[0] => 50 мм
[1] => 100 мм
[2] => 150 мм
[3] => 200 мм
[4] => 250 мм
[5] => 300 мм
[6] => 350 мм
[7] => 400 мм
[8] => 450 мм
[9] => 500 мм
)
[days] => [3,3,4,4,4,5,5,5,5,6]
[material_price] => [476,954,1430,1906,3336,3814,4766,5720,6674,7626]
[work_price] => [390,508,508,660,790,870,958,1052,1158,1274]
[image] => https://akademik-stroy.ru/wp-content/uploads/materials/psb-krov.jpg
[area_modifier] => 119.89
[parent_name] => Утепление кровли (Мансарда)
[parent_id] => 13
[material_sum] => 75329
[work_sum] => 51433
[total_sum] => 126762
[total_days] => 3
[display_material_sum] => 75 329
[display_work_sum] => 51 433
[display_total_sum] => 126 762
)
1
126 762₽
Работа:51 433 ₽
Материалы:75 329 ₽
Дни:3
stdClass Object
(
[id] => 126
[attribute_id] => 13
[name] => ППУ (Пенополиуретан)
[material_modifier] => 1
[work_modifier] => 1
[options] => Array
(
[0] => 50 мм
[1] => 100 мм
[2] => 150 мм
[3] => 200 мм
[4] => 250 мм
[5] => 300 мм
[6] => 350 мм
[7] => 400 мм
[8] => 450 мм
[9] => 500 мм
)
[days] => [2,2,3,3,3,3,4,4,4,4]
[material_price] => [2080,4160,6240,8320,14560,16640,20800,24960,29120,33280]
[work_price] => [234,304,304,396,474,522,574,632,694,764]
[image] => https://akademik-stroy.ru/wp-content/uploads/materials/ppu-krov.jpg
[area_modifier] => 119.89
[parent_name] => Утепление кровли (Мансарда)
[parent_id] => 13
[material_sum] => 329170
[work_sum] => 30860
[total_sum] => 360030
[total_days] => 2
[display_material_sum] => 329 170
[display_work_sum] => 30 860
[display_total_sum] => 360 030
)
1
360 030₽
Работа:30 860 ₽
Материалы:329 170 ₽
Дни:2
stdClass Object
(
[id] => 127
[attribute_id] => 13
[name] => PIR-плиты (пенополиизоцианурат)
[material_modifier] => 1
[work_modifier] => 1
[options] => Array
(
[0] => 50 мм
[1] => 100 мм
[2] => 150 мм
[3] => 200 мм
[4] => 250 мм
[5] => 300 мм
[6] => 350 мм
[7] => 400 мм
[8] => 450 мм
[9] => 500 мм
)
[days] => [3,3,4,4,4,5,5,5,5,6]
[material_price] => [2646,5290,7936,10580,18516,21162,26452,31742,37032,42324]
[work_price] => [390,508,508,660,790,870,958,1052,1158,1274]
[image] => https://akademik-stroy.ru/wp-content/uploads/materials/pir-krov.jpg
[area_modifier] => 119.89
[parent_name] => Утепление кровли (Мансарда)
[parent_id] => 13
[material_sum] => 418742
[work_sum] => 51433
[total_sum] => 470175
[total_days] => 3
[display_material_sum] => 418 742
[display_work_sum] => 51 433
[display_total_sum] => 470 175
)
1
470 175₽
Работа:51 433 ₽
Материалы:418 742 ₽
Дни:3
stdClass Object
(
[id] => 27
[attribute_id] => 14
[name] => Нет
[material_modifier] => 1
[work_modifier] => 1
[options] => Array
(
)
[days] => [0]
[material_price] => [0]
[work_price] => [0]
[image] => https://akademik-stroy.ru/wp-content/uploads/materials/mansardnye-okna-2.jpg
[area_modifier] => 1
[parent_name] => Мансардные окна
[parent_id] => 14
[material_sum] => 0
[work_sum] => 0
[total_sum] => 0
[total_days] => 0
[display_material_sum] => 0
[display_work_sum] => 0
[display_total_sum] => 0
)
1
0₽
Работа:0 ₽
Материалы:0 ₽
Дни:0
stdClass Object
(
[id] => 28
[attribute_id] => 14
[name] => Есть
[material_modifier] => 1
[work_modifier] => 1
[options] => Array
(
[0] => 55x78
[1] => 55x98
)
[days] => [6,7]
[material_price] => [47480,68700]
[work_price] => [17900,19500]
[image] => https://akademik-stroy.ru/wp-content/uploads/materials/mansardnye-okna-2.jpg
[area_modifier] => 1
[parent_name] => Мансардные окна
[parent_id] => 14
[material_sum] => 62674
[work_sum] => 19690
[total_sum] => 82364
[total_days] => 6
[display_material_sum] => 62 674
[display_work_sum] => 19 690
[display_total_sum] => 82 364
)
1
82 364₽
Работа:19 690 ₽
Материалы:62 674 ₽
Дни:6
stdClass Object
(
[id] => 29
[attribute_id] => 15
[name] => Нет
[material_modifier] => 1
[work_modifier] => 1
[options] => Array
(
)
[days] => [0]
[material_price] => [0]
[work_price] => [0]
[image] => https://akademik-stroy.ru/wp-content/uploads/materials/sofit.jpg
[area_modifier] => 119.89
[parent_name] => Подшивка кровли
[parent_id] => 15
[material_sum] => 0
[work_sum] => 0
[total_sum] => 0
[total_days] => 0
[display_material_sum] => 0
[display_work_sum] => 0
[display_total_sum] => 0
)
1
0₽
Работа:0 ₽
Материалы:0 ₽
Дни:0
stdClass Object
(
[id] => 30
[attribute_id] => 15
[name] => Есть
[material_modifier] => 1
[work_modifier] => 1
[options] => Array
(
[0] => Софиты (ПВХ)
[1] => Cedral
[2] => ДПК
[3] => Планкен
)
[days] => [7,10,9,8]
[material_price] => [1803,3213,3025,3150]
[work_price] => [1529,2188,2075,1923]
[image] => https://akademik-stroy.ru/wp-content/uploads/materials/sofit.jpg
[area_modifier] => 119.89
[parent_name] => Подшивка кровли
[parent_id] => 15
[material_sum] => 285333
[work_sum] => 201643
[total_sum] => 486976
[total_days] => 7
[display_material_sum] => 285 333
[display_work_sum] => 201 643
[display_total_sum] => 486 976
)
1
486 976₽
Работа:201 643 ₽
Материалы:285 333 ₽
Дни:7
stdClass Object
(
[id] => 31
[attribute_id] => 16
[name] => Нет
[material_modifier] => 1
[work_modifier] => 1
[options] => Array
(
)
[days] => [0]
[material_price] => [0]
[work_price] => [0]
[image] => https://akademik-stroy.ru/wp-content/uploads/materials/docke-standard-pvh.jpg
[area_modifier] => 119.89
[parent_name] => Водосточная система
[parent_id] => 16
[material_sum] => 0
[work_sum] => 0
[total_sum] => 0
[total_days] => 0
[display_material_sum] => 0
[display_work_sum] => 0
[display_total_sum] => 0
)
1
0₽
Работа:0 ₽
Материалы:0 ₽
Дни:0
stdClass Object
(
[id] => 32
[attribute_id] => 16
[name] => Есть
[material_modifier] => 1
[work_modifier] => 1
[options] => Array
(
[0] => Döcke Standard (ПВХ)
[1] => Металлические Grand Line
)
[days] => [7,7]
[material_price] => [1842,2703]
[work_price] => [1491,1529]
[image] => https://akademik-stroy.ru/wp-content/uploads/materials/docke-standard-pvh.jpg
[area_modifier] => 119.89
[parent_name] => Водосточная система
[parent_id] => 16
[material_sum] => 291505
[work_sum] => 196632
[total_sum] => 488137
[total_days] => 7
[display_material_sum] => 291 505
[display_work_sum] => 196 632
[display_total_sum] => 488 137
)
1
488 137₽
Работа:196 632 ₽
Материалы:291 505 ₽
Дни:7
stdClass Object
(
[id] => 33
[attribute_id] => 17
[name] => Нет
[material_modifier] => 1
[work_modifier] => 1
[options] => Array
(
)
[days] => [0]
[material_price] => [0]
[work_price] => [0]
[image] => https://akademik-stroy.ru/wp-content/uploads/materials/mineralovata.jpg
[area_modifier] => 195.71
[parent_name] => Дополнительное утепление наружных стен
[parent_id] => 17
[material_sum] => 0
[work_sum] => 0
[total_sum] => 0
[total_days] => 0
[display_material_sum] => 0
[display_work_sum] => 0
[display_total_sum] => 0
)
1
0₽
Работа:0 ₽
Материалы:0 ₽
Дни:0
stdClass Object
(
[id] => 34
[attribute_id] => 17
[name] => Минераловатный
[material_modifier] => 1
[work_modifier] => 1
[options] => Array
(
[0] => 50 мм
[1] => 100 мм
[2] => 150 мм
[3] => 200 мм
[4] => 250 мм
[5] => 300 мм
)
[days] => [7,8,10,12,14,15]
[material_price] => [3437,3613,3803,3915,4601,4830]
[work_price] => [2325,2423,2523,2749,2859,3025]
[image] => https://akademik-stroy.ru/wp-content/uploads/materials/mineralovata.jpg
[area_modifier] => 195.71
[parent_name] => Дополнительное утепление наружных стен
[parent_id] => 17
[material_sum] => 887905
[work_sum] => 500528
[total_sum] => 1388433
[total_days] => 7
[display_material_sum] => 887 905
[display_work_sum] => 500 528
[display_total_sum] => 1 388 433
)
1
1 388 433₽
Работа:500 528 ₽
Материалы:887 905 ₽
Дни:7
stdClass Object
(
[id] => 128
[attribute_id] => 17
[name] => Эковата (целлюлозная вата)
[material_modifier] => 1
[work_modifier] => 1
[options] => Array
(
[0] => 50 мм
[1] => 100 мм
[2] => 150 мм
[3] => 200 мм
[4] => 250 мм
[5] => 300 мм
)
[days] => [3,4,5,6,7,8]
[material_price] => [810,1319,1629,1838,2267,2676]
[work_price] => [1225,1323,1423,1549,1659,1725]
[image] => https://akademik-stroy.ru/wp-content/uploads/materials/ehkovata.jpg
[area_modifier] => 195.71
[parent_name] => Дополнительное утепление наружных стен
[parent_id] => 17
[material_sum] => 209253
[work_sum] => 263719
[total_sum] => 472972
[total_days] => 3
[display_material_sum] => 209 253
[display_work_sum] => 263 719
[display_total_sum] => 472 972
)
1
472 972₽
Работа:263 719 ₽
Материалы:209 253 ₽
Дни:3
stdClass Object
(
[id] => 129
[attribute_id] => 17
[name] => Экструдированный пенополистирол
[material_modifier] => 1
[work_modifier] => 1
[options] => Array
(
[0] => 50 мм
[1] => 100 мм
[2] => 150 мм
[3] => 200 мм
[4] => 250 мм
[5] => 300 мм
)
[days] => [5,6,7,8,9,10]
[material_price] => [4560,4300,5119,6292,7010,8583]
[work_price] => [1795,1954,2254,2330,2595,2735]
[image] => https://akademik-stroy.ru/wp-content/uploads/materials/epps.jpg
[area_modifier] => 195.71
[parent_name] => Дополнительное утепление наружных стен
[parent_id] => 17
[material_sum] => 1178018
[work_sum] => 386429
[total_sum] => 1564447
[total_days] => 5
[display_material_sum] => 1 178 018
[display_work_sum] => 386 429
[display_total_sum] => 1 564 447
)
1
1 564 447₽
Работа:386 429 ₽
Материалы:1 178 018 ₽
Дни:5
stdClass Object
(
[id] => 130
[attribute_id] => 17
[name] => ПСБ (ППС-пенополистирол)
[material_modifier] => 1
[work_modifier] => 1
[options] => Array
(
[0] => 50 мм
[1] => 100 мм
[2] => 150 мм
[3] => 200 мм
[4] => 250 мм
[5] => 300 мм
)
[days] => [5,6,7,8,9,10]
[material_price] => [4822,5200,5819,6292,7010,7583]
[work_price] => [1795,1954,2254,2330,2595,2735]
[image] => https://akademik-stroy.ru/wp-content/uploads/materials/psb.jpg
[area_modifier] => 195.71
[parent_name] => Дополнительное утепление наружных стен
[parent_id] => 17
[material_sum] => 1245702
[work_sum] => 386429
[total_sum] => 1632131
[total_days] => 5
[display_material_sum] => 1 245 702
[display_work_sum] => 386 429
[display_total_sum] => 1 632 131
)
1
1 632 131₽
Работа:386 429 ₽
Материалы:1 245 702 ₽
Дни:5
stdClass Object
(
[id] => 131
[attribute_id] => 17
[name] => ППУ (Пенополиуретан)
[material_modifier] => 1
[work_modifier] => 1
[options] => Array
(
[0] => 50 мм
[1] => 100 мм
[2] => 150 мм
[3] => 200 мм
[4] => 250 мм
[5] => 300 мм
)
[days] => [3,4,5,6,7,8]
[material_price] => [2860,3400,4219,4592,5010,5583]
[work_price] => [729,900,980,1120,1280,1530]
[image] => https://akademik-stroy.ru/wp-content/uploads/materials/ppu.jpg
[area_modifier] => 195.71
[parent_name] => Дополнительное утепление наружных стен
[parent_id] => 17
[material_sum] => 738844
[work_sum] => 156940
[total_sum] => 895784
[total_days] => 3
[display_material_sum] => 738 844
[display_work_sum] => 156 940
[display_total_sum] => 895 784
)
1
895 784₽
Работа:156 940 ₽
Материалы:738 844 ₽
Дни:3
stdClass Object
(
[id] => 132
[attribute_id] => 17
[name] => PIR-плиты (пенополиизоцианурат)
[material_modifier] => 1
[work_modifier] => 1
[options] => Array
(
[0] => 50 мм
[1] => 100 мм
[2] => 150 мм
[3] => 200 мм
[4] => 250 мм
[5] => 300 мм
)
[days] => [5,6,7,8,9,10]
[material_price] => [8323,15645,20968,25900,29258,30581]
[work_price] => [800,900,970,1150,1280,1330]
[image] => https://akademik-stroy.ru/wp-content/uploads/materials/pir.jpg
[area_modifier] => 195.71
[parent_name] => Дополнительное утепление наружных стен
[parent_id] => 17
[material_sum] => 2150141
[work_sum] => 172225
[total_sum] => 2322366
[total_days] => 5
[display_material_sum] => 2 150 141
[display_work_sum] => 172 225
[display_total_sum] => 2 322 366
)
1
2 322 366₽
Работа:172 225 ₽
Материалы:2 150 141 ₽
Дни:5
stdClass Object
(
[id] => 37
[attribute_id] => 19
[name] => Нет
[material_modifier] => 1
[work_modifier] => 1
[options] => Array
(
)
[days] => [0]
[material_price] => [0]
[work_price] => [0]
[image] => https://akademik-stroy.ru/wp-content/uploads/materials/imitaciya-brusa.jpg
[area_modifier] => 195.71
[parent_name] => Наружная отделка фасада
[parent_id] => 19
[material_sum] => 0
[work_sum] => 0
[total_sum] => 0
[total_days] => 0
[display_material_sum] => 0
[display_work_sum] => 0
[display_total_sum] => 0
)
1
0₽
Работа:0 ₽
Материалы:0 ₽
Дни:0
stdClass Object
(
[id] => 38
[attribute_id] => 19
[name] => Имитация бруса
[material_modifier] => 1
[work_modifier] => 1
[options] => Array
(
[0] => Сосна
[1] => Ель
[2] => Лиственница
)
[days] => [20,20,20]
[material_price] => [2994,2762,4954]
[work_price] => [1397,1231,1577]
[image] => https://akademik-stroy.ru/wp-content/uploads/materials/imitaciya-brusa.jpg
[area_modifier] => 195.71
[parent_name] => Наружная отделка фасада
[parent_id] => 19
[material_sum] => 773462
[work_sum] => 300748
[total_sum] => 1074210
[total_days] => 20
[display_material_sum] => 773 462
[display_work_sum] => 300 748
[display_total_sum] => 1 074 210
)
1
1 074 210₽
Работа:300 748 ₽
Материалы:773 462 ₽
Дни:20
stdClass Object
(
[id] => 136
[attribute_id] => 19
[name] => Планкен
[material_modifier] => 1
[work_modifier] => 1
[options] => Array
(
[0] => Сосна
[1] => Ель
[2] => Лиственница
)
[days] => [20,20,20]
[material_price] => [3194,2862,5154]
[work_price] => [1537,1354,1735]
[image] => https://akademik-stroy.ru/wp-content/uploads/materials/planken.jpg
[area_modifier] => 195.71
[parent_name] => Наружная отделка фасада
[parent_id] => 19
[material_sum] => 825129
[work_sum] => 330887
[total_sum] => 1156016
[total_days] => 20
[display_material_sum] => 825 129
[display_work_sum] => 330 887
[display_total_sum] => 1 156 016
)
1
1 156 016₽
Работа:330 887 ₽
Материалы:825 129 ₽
Дни:20
stdClass Object
(
[id] => 137
[attribute_id] => 19
[name] => Штукатурка
[material_modifier] => 1
[work_modifier] => 1
[options] => Array
(
[0] => Цементно-песчаная (минеральная)
[1] => Мокрый фасад
)
[days] => [35,35]
[material_price] => [2231,3938]
[work_price] => [1202,2422]
[image] => https://akademik-stroy.ru/wp-content/uploads/materials/shtukaturka.jpg
[area_modifier] => 195.71
[parent_name] => Наружная отделка фасада
[parent_id] => 19
[material_sum] => 576350
[work_sum] => 258768
[total_sum] => 835118
[total_days] => 35
[display_material_sum] => 576 350
[display_work_sum] => 258 768
[display_total_sum] => 835 118
)
1
835 118₽
Работа:258 768 ₽
Материалы:576 350 ₽
Дни:35
stdClass Object
(
[id] => 138
[attribute_id] => 19
[name] => Облицовочный кирпич
[material_modifier] => 1
[work_modifier] => 1
[options] => Array
(
[0] => Керамический
[1] => Клинкерный
[2] => Ручной формовки
[3] => Гиперпрессованный
[4] => Силикатный кирпич
)
[days] => [45,45,45,45,45]
[material_price] => [8174,9148,1040,1257,5876]
[work_price] => [3240,3758,4536,4017,3369]
[image] => https://akademik-stroy.ru/wp-content/uploads/materials/oblicovochnyj-kirpich.jpg
[area_modifier] => 195.71
[parent_name] => Наружная отделка фасада
[parent_id] => 19
[material_sum] => 2111648
[work_sum] => 697510
[total_sum] => 2809158
[total_days] => 45
[display_material_sum] => 2 111 648
[display_work_sum] => 697 510
[display_total_sum] => 2 809 158
)
1
2 809 158₽
Работа:697 510 ₽
Материалы:2 111 648 ₽
Дни:45
stdClass Object
(
[id] => 139
[attribute_id] => 19
[name] => Фасадная плитка
[material_modifier] => 1
[work_modifier] => 1
[options] => Array
(
[0] => Клинкерная
[1] => Керамическая
[2] => Плитка ручной формовки
)
[days] => [40,40,40]
[material_price] => [2974,1487,3470]
[work_price] => [3007,2592,3629]
[image] => https://akademik-stroy.ru/wp-content/uploads/materials/fasadnaya-plitka.jpg
[area_modifier] => 195.71
[parent_name] => Наружная отделка фасада
[parent_id] => 19
[material_sum] => 768295
[work_sum] => 647350
[total_sum] => 1415645
[total_days] => 40
[display_material_sum] => 768 295
[display_work_sum] => 647 350
[display_total_sum] => 1 415 645
)
1
1 415 645₽
Работа:647 350 ₽
Материалы:768 295 ₽
Дни:40
stdClass Object
(
[id] => 140
[attribute_id] => 19
[name] => Сайдинг
[material_modifier] => 1
[work_modifier] => 1
[options] => Array
(
[0] => Виниловый
[1] => Металлический
[2] => Фиброцементный
)
[days] => [20,20,20]
[material_price] => [1263,1944,4147]
[work_price] => [1263,1944,2074]
[image] => https://akademik-stroy.ru/wp-content/uploads/materials/sajding.jpg
[area_modifier] => 195.71
[parent_name] => Наружная отделка фасада
[parent_id] => 19
[material_sum] => 326280
[work_sum] => 271900
[total_sum] => 598180
[total_days] => 20
[display_material_sum] => 326 280
[display_work_sum] => 271 900
[display_total_sum] => 598 180
)
1
598 180₽
Работа:271 900 ₽
Материалы:326 280 ₽
Дни:20
stdClass Object
(
[id] => 141
[attribute_id] => 19
[name] => Камень
[material_modifier] => 1
[work_modifier] => 1
[options] => Array
(
[0] => Травертин
[1] => Дагестанский
[2] => Искусственный
[3] => Натуральный
[4] => Керамогранит
)
[days] => [45,45,45,45,45]
[material_price] => [4536,3888,2592,3240,2462]
[work_price] => [3240,3240,2462,3110,1944]
[image] => https://akademik-stroy.ru/wp-content/uploads/materials/kamen-1.jpg
[area_modifier] => 195.71
[parent_name] => Наружная отделка фасада
[parent_id] => 19
[material_sum] => 1171818
[work_sum] => 697510
[total_sum] => 1869328
[total_days] => 45
[display_material_sum] => 1 171 818
[display_work_sum] => 697 510
[display_total_sum] => 1 869 328
)
1
1 869 328₽
Работа:697 510 ₽
Материалы:1 171 818 ₽
Дни:45
stdClass Object
(
[id] => 142
[attribute_id] => 19
[name] => Термопанели
[material_modifier] => 1
[work_modifier] => 1
[options] => Array
(
)
[days] => [20]
[material_price] => [6221]
[work_price] => [2333]
[image] => https://akademik-stroy.ru/wp-content/uploads/materials/termo.png
[area_modifier] => 195.71
[parent_name] => Наружная отделка фасада
[parent_id] => 19
[material_sum] => 1607116
[work_sum] => 502251
[total_sum] => 2109367
[total_days] => 20
[display_material_sum] => 1 607 116
[display_work_sum] => 502 251
[display_total_sum] => 2 109 367
)
1
2 109 367₽
Работа:502 251 ₽
Материалы:1 607 116 ₽
Дни:20
stdClass Object
(
[id] => 143
[attribute_id] => 19
[name] => Плитка HAUBERK
[material_modifier] => 1
[work_modifier] => 1
[options] => Array
(
)
[days] => [20]
[material_price] => [2786]
[work_price] => [1944]
[image] => https://akademik-stroy.ru/wp-content/uploads/materials/hauberk.jpg
[area_modifier] => 195.71
[parent_name] => Наружная отделка фасада
[parent_id] => 19
[material_sum] => 719727
[work_sum] => 418506
[total_sum] => 1138233
[total_days] => 20
[display_material_sum] => 719 727
[display_work_sum] => 418 506
[display_total_sum] => 1 138 233
)
1
1 138 233₽
Работа:418 506 ₽
Материалы:719 727 ₽
Дни:20
stdClass Object
(
[id] => 144
[attribute_id] => 19
[name] => Фальцевый фасад
[material_modifier] => 1
[work_modifier] => 1
[options] => Array
(
)
[days] => [20]
[material_price] => [3240]
[work_price] => [2592]
[image] => https://akademik-stroy.ru/wp-content/uploads/materials/falcevyj-fasad.jpg
[area_modifier] => 195.71
[parent_name] => Наружная отделка фасада
[parent_id] => 19
[material_sum] => 837013
[work_sum] => 558008
[total_sum] => 1395021
[total_days] => 20
[display_material_sum] => 837 013
[display_work_sum] => 558 008
[display_total_sum] => 1 395 021
)
1
1 395 021₽
Работа:558 008 ₽
Материалы:837 013 ₽
Дни:20
stdClass Object
(
[id] => 145
[attribute_id] => 19
[name] => Комбинированный
[material_modifier] => 1
[work_modifier] => 1
[options] => Array
(
)
[days] => [20]
[material_price] => [4629]
[work_price] => [3499]
[image] => https://akademik-stroy.ru/wp-content/uploads/materials/Kombinirovannyj.jpg
[area_modifier] => 195.71
[parent_name] => Наружная отделка фасада
[parent_id] => 19
[material_sum] => 1195843
[work_sum] => 753268
[total_sum] => 1949111
[total_days] => 20
[display_material_sum] => 1 195 843
[display_work_sum] => 753 268
[display_total_sum] => 1 949 111
)
1
1 949 111₽
Работа:753 268 ₽
Материалы:1 195 843 ₽
Дни:20
stdClass Object
(
[id] => 257
[attribute_id] => 19
[name] => Японские фиброцементные
[material_modifier] => 1
[work_modifier] => 1
[options] => Array
(
)
[days] => [20]
[material_price] => [7043]
[work_price] => [2993]
[image] => https://akademik-stroy.ru/wp-content/uploads/materials/paneli.jpg
[area_modifier] => 195.71
[parent_name] => Наружная отделка фасада
[parent_id] => 19
[material_sum] => 1819469
[work_sum] => 644336
[total_sum] => 2463805
[total_days] => 20
[display_material_sum] => 1 819 469
[display_work_sum] => 644 336
[display_total_sum] => 2 463 805
)
1
2 463 805₽
Работа:644 336 ₽
Материалы:1 819 469 ₽
Дни:20
stdClass Object
(
[id] => 258
[attribute_id] => 19
[name] => Панели Каньон
[material_modifier] => 1
[work_modifier] => 1
[options] => Array
(
)
[days] => [20]
[material_price] => [4543]
[work_price] => [2592]
[image] => https://akademik-stroy.ru/wp-content/uploads/materials/kanon.png
[area_modifier] => 195.71
[parent_name] => Наружная отделка фасада
[parent_id] => 19
[material_sum] => 1173626
[work_sum] => 558008
[total_sum] => 1731634
[total_days] => 20
[display_material_sum] => 1 173 626
[display_work_sum] => 558 008
[display_total_sum] => 1 731 634
)
1
1 731 634₽
Работа:558 008 ₽
Материалы:1 173 626 ₽
Дни:20
stdClass Object
(
[id] => 39
[attribute_id] => 20
[name] => Нет
[material_modifier] => 1
[work_modifier] => 1
[options] => Array
(
)
[days] => [0]
[material_price] => [0]
[work_price] => [0]
[image] => https://akademik-stroy.ru/wp-content/uploads/materials/terrasy.jpg
[area_modifier] => 30
[parent_name] => Террасы, крыльца, навесы
[parent_id] => 20
[material_sum] => 0
[work_sum] => 0
[total_sum] => 0
[total_days] => 0
[display_material_sum] => 0
[display_work_sum] => 0
[display_total_sum] => 0
)
1
0₽
Работа:0 ₽
Материалы:0 ₽
Дни:0
stdClass Object
(
[id] => 40
[attribute_id] => 20
[name] => Есть
[material_modifier] => 1
[work_modifier] => 1
[options] => Array
(
)
[days] => [5]
[material_price] => [10450]
[work_price] => [1950]
[image] => https://akademik-stroy.ru/wp-content/uploads/materials/terrasy.jpg
[area_modifier] => 30
[parent_name] => Террасы, крыльца, навесы
[parent_id] => 20
[material_sum] => 413820
[work_sum] => 64350
[total_sum] => 478170
[total_days] => 5
[display_material_sum] => 413 820
[display_work_sum] => 64 350
[display_total_sum] => 478 170
)
1
478 170₽
Работа:64 350 ₽
Материалы:413 820 ₽
Дни:5
stdClass Object
(
[id] => 41
[attribute_id] => 21
[name] => Нет
[material_modifier] => 1
[work_modifier] => 1
[options] => Array
(
)
[days] => [0]
[material_price] => [0]
[work_price] => [0]
[image] => https://akademik-stroy.ru/wp-content/uploads/materials/balkony.jpg
[area_modifier] => 30
[parent_name] => Балконы
[parent_id] => 21
[material_sum] => 0
[work_sum] => 0
[total_sum] => 0
[total_days] => 0
[display_material_sum] => 0
[display_work_sum] => 0
[display_total_sum] => 0
)
1
0₽
Работа:0 ₽
Материалы:0 ₽
Дни:0
stdClass Object
(
[id] => 42
[attribute_id] => 21
[name] => Есть
[material_modifier] => 1
[work_modifier] => 1
[options] => Array
(
)
[days] => [12]
[material_price] => [3600]
[work_price] => [1950]
[image] => https://akademik-stroy.ru/wp-content/uploads/materials/balkony.jpg
[area_modifier] => 30
[parent_name] => Балконы
[parent_id] => 21
[material_sum] => 142560
[work_sum] => 64350
[total_sum] => 206910
[total_days] => 12
[display_material_sum] => 142 560
[display_work_sum] => 64 350
[display_total_sum] => 206 910
)
1
206 910₽
Работа:64 350 ₽
Материалы:142 560 ₽
Дни:12
stdClass Object
(
[id] => 43
[attribute_id] => 22
[name] => Нет
[material_modifier] => 1
[work_modifier] => 1
[options] => Array
(
)
[days] => [0]
[material_price] => [0]
[work_price] => [0]
[image] => https://akademik-stroy.ru/wp-content/uploads/materials/uteplennaya.jpg
[area_modifier] => 119.89
[parent_name] => Отмостка
[parent_id] => 22
[material_sum] => 0
[work_sum] => 0
[total_sum] => 0
[total_days] => 0
[display_material_sum] => 0
[display_work_sum] => 0
[display_total_sum] => 0
)
1
0₽
Работа:0 ₽
Материалы:0 ₽
Дни:0
stdClass Object
(
[id] => 44
[attribute_id] => 22
[name] => Утепленная отмостка
[material_modifier] => 1
[work_modifier] => 1
[options] => Array
(
)
[days] => [15]
[material_price] => [2550]
[work_price] => [1750]
[image] => https://akademik-stroy.ru/wp-content/uploads/materials/uteplennaya.jpg
[area_modifier] => 119.89
[parent_name] => Отмостка
[parent_id] => 22
[material_sum] => 403550
[work_sum] => 230788
[total_sum] => 634338
[total_days] => 15
[display_material_sum] => 403 550
[display_work_sum] => 230 788
[display_total_sum] => 634 338
)
1
634 338₽
Работа:230 788 ₽
Материалы:403 550 ₽
Дни:15
stdClass Object
(
[id] => 146
[attribute_id] => 22
[name] => Не утепленная отмостка
[material_modifier] => 1
[work_modifier] => 1
[options] => Array
(
)
[days] => [10]
[material_price] => [1650]
[work_price] => [1450]
[image] => https://akademik-stroy.ru/wp-content/uploads/materials/ne-uteplennaya.jpg
[area_modifier] => 119.89
[parent_name] => Отмостка
[parent_id] => 22
[material_sum] => 261120
[work_sum] => 191225
[total_sum] => 452345
[total_days] => 10
[display_material_sum] => 261 120
[display_work_sum] => 191 225
[display_total_sum] => 452 345
)
1
452 345₽
Работа:191 225 ₽
Материалы:261 120 ₽
Дни:10
stdClass Object
(
[id] => 45
[attribute_id] => 23
[name] => Нет
[material_modifier] => 1
[work_modifier] => 1
[options] => Array
(
)
[days] => [0]
[material_price] => [0]
[work_price] => [0]
[image] => https://akademik-stroy.ru/wp-content/uploads/materials/drenazh-2.jpg
[area_modifier] => 119.89
[parent_name] => Дренаж вокруг дома
[parent_id] => 23
[material_sum] => 0
[work_sum] => 0
[total_sum] => 0
[total_days] => 0
[display_material_sum] => 0
[display_work_sum] => 0
[display_total_sum] => 0
)
1
0₽
Работа:0 ₽
Материалы:0 ₽
Дни:0
stdClass Object
(
[id] => 46
[attribute_id] => 23
[name] => Есть
[material_modifier] => 1
[work_modifier] => 1
[options] => Array
(
)
[days] => [5]
[material_price] => [2366]
[work_price] => [1911]
[image] => https://akademik-stroy.ru/wp-content/uploads/materials/drenazh-2.jpg
[area_modifier] => 119.89
[parent_name] => Дренаж вокруг дома
[parent_id] => 23
[material_sum] => 374431
[work_sum] => 252021
[total_sum] => 626452
[total_days] => 5
[display_material_sum] => 374 431
[display_work_sum] => 252 021
[display_total_sum] => 626 452
)
1
626 452₽
Работа:252 021 ₽
Материалы:374 431 ₽
Дни:5
stdClass Object
(
[id] => 47
[attribute_id] => 24
[name] => Нет
[material_modifier] => 1
[work_modifier] => 1
[options] => Array
(
)
[days] => [0]
[material_price] => [0]
[work_price] => [0]
[image] => https://akademik-stroy.ru/wp-content/uploads/materials/septik.jpg
[area_modifier] => 1
[parent_name] => Автономная канализация (септики)
[parent_id] => 24
[material_sum] => 0
[work_sum] => 0
[total_sum] => 0
[total_days] => 0
[display_material_sum] => 0
[display_work_sum] => 0
[display_total_sum] => 0
)
1
0₽
Работа:0 ₽
Материалы:0 ₽
Дни:0
stdClass Object
(
[id] => 48
[attribute_id] => 24
[name] => Есть
[material_modifier] => 1
[work_modifier] => 1
[options] => Array
(
[0] => Для дачи на 4 человека
[1] => Для дома на 5 человек
[2] => Для дома на 6 человек
[3] => Для дома на 7 человек
[4] => Для дома на 10 человек
)
[days] => [7,7,7,8,8]
[material_price] => [196340,220500,240940,264200,293340]
[work_price] => [50000,55000,60500,66550,73206]
[image] => https://akademik-stroy.ru/wp-content/uploads/materials/septik.jpg
[area_modifier] => 1
[parent_name] => Автономная канализация (септики)
[parent_id] => 24
[material_sum] => 259169
[work_sum] => 55000
[total_sum] => 314169
[total_days] => 7
[display_material_sum] => 259 169
[display_work_sum] => 55 000
[display_total_sum] => 314 169
)
1
314 169₽
Работа:55 000 ₽
Материалы:259 169 ₽
Дни:7
stdClass Object
(
[id] => 49
[attribute_id] => 25
[name] => Нет
[material_modifier] => 1
[work_modifier] => 1
[options] => Array
(
)
[days] => [0]
[material_price] => [0]
[work_price] => [0]
[image] => https://akademik-stroy.ru/wp-content/uploads/materials/gkl.jpg
[area_modifier] => 195.71
[parent_name] => Внутренние (не несущие) перегородки
[parent_id] => 25
[material_sum] => 0
[work_sum] => 0
[total_sum] => 0
[total_days] => 0
[display_material_sum] => 0
[display_work_sum] => 0
[display_total_sum] => 0
)
1
0₽
Работа:0 ₽
Материалы:0 ₽
Дни:0
stdClass Object
(
[id] => 147
[attribute_id] => 25
[name] => Каркасно-обшивные
[material_modifier] => 1
[work_modifier] => 1
[options] => Array
(
[0] => 75 мм (без шумоизоляции)
[1] => 75 мм (с шумоизоляцией)
)
[days] => [11,11]
[material_price] => [580,970]
[work_price] => [380,570]
[image] => https://akademik-stroy.ru/wp-content/uploads/materials/gkl.jpg
[area_modifier] => 195.71
[parent_name] => Внутренние (не несущие) перегородки
[parent_id] => 25
[material_sum] => 149836
[work_sum] => 81807
[total_sum] => 231643
[total_days] => 11
[display_material_sum] => 149 836
[display_work_sum] => 81 807
[display_total_sum] => 231 643
)
1
231 643₽
Работа:81 807 ₽
Материалы:149 836 ₽
Дни:11
stdClass Object
(
[id] => 148
[attribute_id] => 25
[name] => Пазогребневые
[material_modifier] => 1
[work_modifier] => 1
[options] => Array
(
[0] => 80 мм
[1] => 100 мм
)
[days] => [5,5]
[material_price] => [1022,1313]
[work_price] => [600,700]
[image] => https://akademik-stroy.ru/wp-content/uploads/materials/pazogrebnevye-bloki.jpg
[area_modifier] => 195.71
[parent_name] => Внутренние (не несущие) перегородки
[parent_id] => 25
[material_sum] => 264021
[work_sum] => 129169
[total_sum] => 393190
[total_days] => 5
[display_material_sum] => 264 021
[display_work_sum] => 129 169
[display_total_sum] => 393 190
)
1
393 190₽
Работа:129 169 ₽
Материалы:264 021 ₽
Дни:5
stdClass Object
(
[id] => 149
[attribute_id] => 25
[name] => Газобетонные
[material_modifier] => 1
[work_modifier] => 1
[options] => Array
(
[0] => 100 мм
[1] => 200 мм
)
[days] => [11,11]
[material_price] => [1160,1920]
[work_price] => [700,900]
[image] => https://akademik-stroy.ru/wp-content/uploads/materials/gazobeton-2.jpg
[area_modifier] => 195.71
[parent_name] => Внутренние (не несущие) перегородки
[parent_id] => 25
[material_sum] => 299671
[work_sum] => 150697
[total_sum] => 450368
[total_days] => 11
[display_material_sum] => 299 671
[display_work_sum] => 150 697
[display_total_sum] => 450 368
)
1
450 368₽
Работа:150 697 ₽
Материалы:299 671 ₽
Дни:11
stdClass Object
(
[id] => 150
[attribute_id] => 25
[name] => Кирпичные
[material_modifier] => 1
[work_modifier] => 1
[options] => Array
(
[0] => 120 мм
[1] => 250 мм
[2] => 360 мм
)
[days] => [7,7,7]
[material_price] => [1785,3570,5355]
[work_price] => [900,1600,1800]
[image] => https://akademik-stroy.ru/wp-content/uploads/materials/kirpich-1.jpg
[area_modifier] => 195.71
[parent_name] => Внутренние (не несущие) перегородки
[parent_id] => 25
[material_sum] => 461132
[work_sum] => 193753
[total_sum] => 654885
[total_days] => 7
[display_material_sum] => 461 132
[display_work_sum] => 193 753
[display_total_sum] => 654 885
)
1
654 885₽
Работа:193 753 ₽
Материалы:461 132 ₽
Дни:7
stdClass Object
(
[id] => 55
[attribute_id] => 28
[name] => Нет
[material_modifier] => 1
[work_modifier] => 1
[options] => Array
(
)
[days] => [0]
[material_price] => [0]
[work_price] => [0]
[image] => https://akademik-stroy.ru/wp-content/uploads/materials/ehlektrika.jpg
[area_modifier] => 158.82
[parent_name] => Электрика
[parent_id] => 28
[material_sum] => 0
[work_sum] => 0
[total_sum] => 0
[total_days] => 0
[display_material_sum] => 0
[display_work_sum] => 0
[display_total_sum] => 0
)
1
0₽
Работа:0 ₽
Материалы:0 ₽
Дни:0
stdClass Object
(
[id] => 56
[attribute_id] => 28
[name] => Есть
[material_modifier] => 1
[work_modifier] => 1
[options] => Array
(
)
[days] => [10]
[material_price] => [650]
[work_price] => [950]
[image] => https://akademik-stroy.ru/wp-content/uploads/materials/ehlektrika.jpg
[area_modifier] => 158.82
[parent_name] => Электрика
[parent_id] => 28
[material_sum] => 136268
[work_sum] => 165967
[total_sum] => 302235
[total_days] => 10
[display_material_sum] => 136 268
[display_work_sum] => 165 967
[display_total_sum] => 302 235
)
1
302 235₽
Работа:165 967 ₽
Материалы:136 268 ₽
Дни:10
stdClass Object
(
[id] => 57
[attribute_id] => 29
[name] => Нет
[material_modifier] => 1
[work_modifier] => 1
[options] => Array
(
)
[days] => [0]
[material_price] => [0]
[work_price] => [0]
[image] => https://akademik-stroy.ru/wp-content/uploads/materials/santekhnika-kanalizaciya-1.jpg
[area_modifier] => 158.82
[parent_name] => Сантехника, канализация в доме
[parent_id] => 29
[material_sum] => 0
[work_sum] => 0
[total_sum] => 0
[total_days] => 0
[display_material_sum] => 0
[display_work_sum] => 0
[display_total_sum] => 0
)
1
0₽
Работа:0 ₽
Материалы:0 ₽
Дни:0
stdClass Object
(
[id] => 58
[attribute_id] => 29
[name] => Есть
[material_modifier] => 1
[work_modifier] => 1
[options] => Array
(
)
[days] => [10]
[material_price] => [600]
[work_price] => [730]
[image] => https://akademik-stroy.ru/wp-content/uploads/materials/santekhnika-kanalizaciya-1.jpg
[area_modifier] => 158.82
[parent_name] => Сантехника, канализация в доме
[parent_id] => 29
[material_sum] => 125785
[work_sum] => 127532
[total_sum] => 253317
[total_days] => 10
[display_material_sum] => 125 785
[display_work_sum] => 127 532
[display_total_sum] => 253 317
)
1
253 317₽
Работа:127 532 ₽
Материалы:125 785 ₽
Дни:10
stdClass Object
(
[id] => 59
[attribute_id] => 30
[name] => Нет
[material_modifier] => 1
[work_modifier] => 1
[options] => Array
(
)
[days] => [0]
[material_price] => [0]
[work_price] => [0]
[image] => https://akademik-stroy.ru/wp-content/uploads/materials/otoplenie-1.jpg
[area_modifier] => 158.82
[parent_name] => Отопление
[parent_id] => 30
[material_sum] => 0
[work_sum] => 0
[total_sum] => 0
[total_days] => 0
[display_material_sum] => 0
[display_work_sum] => 0
[display_total_sum] => 0
)
1
0₽
Работа:0 ₽
Материалы:0 ₽
Дни:0
stdClass Object
(
[id] => 60
[attribute_id] => 30
[name] => Есть
[material_modifier] => 1
[work_modifier] => 1
[options] => Array
(
)
[days] => [5]
[material_price] => [610]
[work_price] => [560]
[image] => https://akademik-stroy.ru/wp-content/uploads/materials/otoplenie-1.jpg
[area_modifier] => 158.82
[parent_name] => Отопление
[parent_id] => 30
[material_sum] => 127882
[work_sum] => 97833
[total_sum] => 225715
[total_days] => 5
[display_material_sum] => 127 882
[display_work_sum] => 97 833
[display_total_sum] => 225 715
)
1
225 715₽
Работа:97 833 ₽
Материалы:127 882 ₽
Дни:5
stdClass Object
(
[id] => 61
[attribute_id] => 31
[name] => Нет
[material_modifier] => 1
[work_modifier] => 1
[options] => Array
(
)
[days] => [0]
[material_price] => [0]
[work_price] => [0]
[image] => https://akademik-stroy.ru/wp-content/uploads/materials/vodyanye.jpg
[area_modifier] => 30
[parent_name] => Теплые полы
[parent_id] => 31
[material_sum] => 0
[work_sum] => 0
[total_sum] => 0
[total_days] => 0
[display_material_sum] => 0
[display_work_sum] => 0
[display_total_sum] => 0
)
1
0₽
Работа:0 ₽
Материалы:0 ₽
Дни:0
stdClass Object
(
[id] => 151
[attribute_id] => 31
[name] => Водяные
[material_modifier] => 1
[work_modifier] => 1
[options] => Array
(
)
[days] => [9]
[material_price] => [10200]
[work_price] => [2500]
[image] => https://akademik-stroy.ru/wp-content/uploads/materials/vodyanye.jpg
[area_modifier] => 30
[parent_name] => Теплые полы
[parent_id] => 31
[material_sum] => 403920
[work_sum] => 82500
[total_sum] => 486420
[total_days] => 9
[display_material_sum] => 403 920
[display_work_sum] => 82 500
[display_total_sum] => 486 420
)
1
486 420₽
Работа:82 500 ₽
Материалы:403 920 ₽
Дни:9
stdClass Object
(
[id] => 152
[attribute_id] => 31
[name] => Электро
[material_modifier] => 1
[work_modifier] => 1
[options] => Array
(
)
[days] => [5]
[material_price] => [6300]
[work_price] => [1500]
[image] => https://akademik-stroy.ru/wp-content/uploads/materials/ehlektricheskij.jpg
[area_modifier] => 30
[parent_name] => Теплые полы
[parent_id] => 31
[material_sum] => 249480
[work_sum] => 49500
[total_sum] => 298980
[total_days] => 5
[display_material_sum] => 249 480
[display_work_sum] => 49 500
[display_total_sum] => 298 980
)
1
298 980₽
Работа:49 500 ₽
Материалы:249 480 ₽
Дни:5
stdClass Object
(
[id] => 63
[attribute_id] => 32
[name] => Нет
[material_modifier] => 1
[work_modifier] => 1
[options] => Array
(
)
[days] => [0]
[material_price] => [0]
[work_price] => [0]
[image] => https://akademik-stroy.ru/wp-content/uploads/materials/shtukaturka-shpatlevka-1.jpg
[area_modifier] => 158.82
[parent_name] => Черновая отделка стен
[parent_id] => 32
[material_sum] => 0
[work_sum] => 0
[total_sum] => 0
[total_days] => 0
[display_material_sum] => 0
[display_work_sum] => 0
[display_total_sum] => 0
)
1
0₽
Работа:0 ₽
Материалы:0 ₽
Дни:0
stdClass Object
(
[id] => 153
[attribute_id] => 32
[name] => Штукатурка и шпатлевка
[material_modifier] => 1
[work_modifier] => 1
[options] => Array
(
)
[days] => [20]
[material_price] => [1850]
[work_price] => [2600]
[image] => https://akademik-stroy.ru/wp-content/uploads/materials/shtukaturka-shpatlevka-1.jpg
[area_modifier] => 158.82
[parent_name] => Черновая отделка стен
[parent_id] => 32
[material_sum] => 387838
[work_sum] => 454225
[total_sum] => 842063
[total_days] => 20
[display_material_sum] => 387 838
[display_work_sum] => 454 225
[display_total_sum] => 842 063
)
1
842 063₽
Работа:454 225 ₽
Материалы:387 838 ₽
Дни:20
stdClass Object
(
[id] => 154
[attribute_id] => 32
[name] => Гипсокортон на стены
[material_modifier] => 1
[work_modifier] => 1
[options] => Array
(
)
[days] => [15]
[material_price] => [950]
[work_price] => [2100]
[image] => https://akademik-stroy.ru/wp-content/uploads/materials/gkl-1.jpg
[area_modifier] => 158.82
[parent_name] => Черновая отделка стен
[parent_id] => 32
[material_sum] => 199160
[work_sum] => 366874
[total_sum] => 566034
[total_days] => 15
[display_material_sum] => 199 160
[display_work_sum] => 366 874
[display_total_sum] => 566 034
)
1
566 034₽
Работа:366 874 ₽
Материалы:199 160 ₽
Дни:15
stdClass Object
(
[id] => 155
[attribute_id] => 32
[name] => Вагонка
[material_modifier] => 1
[work_modifier] => 1
[options] => Array
(
)
[days] => [15]
[material_price] => [1250]
[work_price] => [950]
[image] => https://akademik-stroy.ru/wp-content/uploads/materials/vagonka.jpg
[area_modifier] => 158.82
[parent_name] => Черновая отделка стен
[parent_id] => 32
[material_sum] => 262053
[work_sum] => 165967
[total_sum] => 428020
[total_days] => 15
[display_material_sum] => 262 053
[display_work_sum] => 165 967
[display_total_sum] => 428 020
)
1
428 020₽
Работа:165 967 ₽
Материалы:262 053 ₽
Дни:15
stdClass Object
(
[id] => 65
[attribute_id] => 33
[name] => Нет
[material_modifier] => 1
[work_modifier] => 1
[options] => Array
(
)
[days] => [0]
[material_price] => [0]
[work_price] => [0]
[image] => https://akademik-stroy.ru/wp-content/uploads/materials/styazhka.jpg
[area_modifier] => 158.82
[parent_name] => Черновая отделка полов
[parent_id] => 33
[material_sum] => 0
[work_sum] => 0
[total_sum] => 0
[total_days] => 0
[display_material_sum] => 0
[display_work_sum] => 0
[display_total_sum] => 0
)
1
0₽
Работа:0 ₽
Материалы:0 ₽
Дни:0
stdClass Object
(
[id] => 156
[attribute_id] => 33
[name] => Стяжка + наливные полы
[material_modifier] => 1
[work_modifier] => 1
[options] => Array
(
)
[days] => [10]
[material_price] => [1000]
[work_price] => [900]
[image] => https://akademik-stroy.ru/wp-content/uploads/materials/styazhka.jpg
[area_modifier] => 158.82
[parent_name] => Черновая отделка полов
[parent_id] => 33
[material_sum] => 209642
[work_sum] => 157232
[total_sum] => 366874
[total_days] => 10
[display_material_sum] => 209 642
[display_work_sum] => 157 232
[display_total_sum] => 366 874
)
1
366 874₽
Работа:157 232 ₽
Материалы:209 642 ₽
Дни:10
stdClass Object
(
[id] => 157
[attribute_id] => 33
[name] => ОСБ на пол
[material_modifier] => 1
[work_modifier] => 1
[options] => Array
(
)
[days] => [7]
[material_price] => [580]
[work_price] => [350]
[image] => https://akademik-stroy.ru/wp-content/uploads/materials/osb-1.jpg
[area_modifier] => 158.82
[parent_name] => Черновая отделка полов
[parent_id] => 33
[material_sum] => 121593
[work_sum] => 61146
[total_sum] => 182739
[total_days] => 7
[display_material_sum] => 121 593
[display_work_sum] => 61 146
[display_total_sum] => 182 739
)
1
182 739₽
Работа:61 146 ₽
Материалы:121 593 ₽
Дни:7
stdClass Object
(
[id] => 67
[attribute_id] => 34
[name] => Нет
[material_modifier] => 1
[work_modifier] => 1
[options] => Array
(
)
[days] => [0]
[material_price] => [0]
[work_price] => [0]
[image] => https://akademik-stroy.ru/wp-content/uploads/materials/chistovaya-otdelka.jpg
[area_modifier] => 158.82
[parent_name] => Чистовая отделка стен и полов
[parent_id] => 34
[material_sum] => 0
[work_sum] => 0
[total_sum] => 0
[total_days] => 0
[display_material_sum] => 0
[display_work_sum] => 0
[display_total_sum] => 0
)
1
0₽
Работа:0 ₽
Материалы:0 ₽
Дни:0
stdClass Object
(
[id] => 68
[attribute_id] => 34
[name] => Есть
[material_modifier] => 1
[work_modifier] => 1
[options] => Array
(
)
[days] => [50]
[material_price] => [6000]
[work_price] => [3500]
[image] => https://akademik-stroy.ru/wp-content/uploads/materials/chistovaya-otdelka.jpg
[area_modifier] => 158.82
[parent_name] => Чистовая отделка стен и полов
[parent_id] => 34
[material_sum] => 1257854
[work_sum] => 611457
[total_sum] => 1869311
[total_days] => 50
[display_material_sum] => 1 257 854
[display_work_sum] => 611 457
[display_total_sum] => 1 869 311
)
1
1 869 311₽
Работа:611 457 ₽
Материалы:1 257 854 ₽
Дни:50
stdClass Object
(
[id] => 69
[attribute_id] => 35
[name] => Нет
[material_modifier] => 1
[work_modifier] => 1
[options] => Array
(
)
[days] => [0]
[material_price] => [0]
[work_price] => [0]
[image] => https://akademik-stroy.ru/wp-content/uploads/materials/mnogourovnevyj-gkl.jpg
[area_modifier] => 158.82
[parent_name] => Отделка потолка
[parent_id] => 35
[material_sum] => 0
[work_sum] => 0
[total_sum] => 0
[total_days] => 0
[display_material_sum] => 0
[display_work_sum] => 0
[display_total_sum] => 0
)
1
0₽
Работа:0 ₽
Материалы:0 ₽
Дни:0
stdClass Object
(
[id] => 70
[attribute_id] => 35
[name] => Есть
[material_modifier] => 1
[work_modifier] => 1
[options] => Array
(
[0] => Многоуровневый потолок из гипсокартона
[1] => Многоуровневый потолок из гипсокартона и натяжного потолка
[2] => Одноуровневый потолок из гипсокартона
[3] => Одноуровневый натяжной потолок
)
[days] => [10,10,1,1]
[material_price] => [900,700,700,600]
[work_price] => [1000,800,500,300]
[image] => https://akademik-stroy.ru/wp-content/uploads/materials/mnogourovnevyj-gkl.jpg
[area_modifier] => 158.82
[parent_name] => Отделка потолка
[parent_id] => 35
[material_sum] => 188678
[work_sum] => 174702
[total_sum] => 363380
[total_days] => 10
[display_material_sum] => 188 678
[display_work_sum] => 174 702
[display_total_sum] => 363 380
)
1
363 380₽
Работа:174 702 ₽
Материалы:188 678 ₽
Дни:10
Преимущества работы с нами
7 этапов оплаты
Независимый строительный надзор
Экологически чистые материалы
16 лет гарантии
Онлайн-кабинет с веб-камерой
Строители с опытом более 15 лет
Собственное производство






