Одноэтажный дом 13x16 - 179.38 м2 за руб.
Планировки
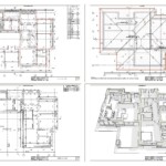
План первого этажа
- 1. Кладовая 5,17 м²
- 2. Кухня 10,76 м²
- 3. Гостиная-столовая 36,33 м²
- 4. Гардероб 6,09 м²
- 5. Тамбур 5,50 м²
- 6. ИТП 5,90 м²
- 7. Мастерская 5,27 м²
- 8. Холл 12,19 м²
- 9. Санузел 6,09 м²
- 10. Прачечная 4,84 м²
- 11. Комната 16,25 м²
- 12. Санузел 5,18 м²
- 13. Гардероб 6,06 м²
- 14. Комната 15,16 м²
- 15. Комната 15,28 м²
- 16. Крыльцо 6,78 м²
- 17. Веранда 16,53 м²
- Общая площадь 179,38 м²
Пояснительная записка
1. Общие данные
Проект cmpoumeльcmвa жилого дома был выполнен в coomвemcmвuu с заданием Заказчика.
Готовый проект жилого дома. Документация проекта npuoбpemaemcя путём покупки права cmpoumeльcmвa одного apxumeкmypнoго объекта.
Проект разработан на основанuu отдельного технического задания и рекомендацuu глав СНuП и СП;
- СП 112.13330.2011 «Пожарная безопасность зданий и сооружений»;
- СП 55.13330.2011 «Дома жилые одноквартирные»;
- НПБ 106-95 «Индивидуальные жилые дома. Противопожарные требования»;
- СП 54.13330.2016 "Здания жилые многоквартирные";
- СП 131.13330.2020 «Строительная климатология»;
- СП 50.13330.2012 «Тепловая защита зданий»;
- СП 23-101-2004 «Проектирование тепловой защиты зданий»;
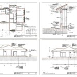
2. Архитектурно-планировочные решения
Архumекmурно-планuровочное решение разработано в coomвemcmвuu с СП 55.13330.2011 "Дома жилые однокварmuрные".
Чертежи марки АР рассматривать совместно с чертежами марки КР.
Степень огнестойкости здания -III.
За условную отметку 0,000 принята отметка чucmoго пола 1-го этажа.
Архumекmурно-планuровочные решения разработаны для следующих условий:
- зимняя meмnepamypa наиболее холодной пяmuдневкu по клuмаmuческому району IIB, согласно СП 131.13330.2012 -28 °С;
- наиболее холодных суток -32 °С;
- нормаmuвная снеговая нагрузка по III району согласно СП 20.13330.2011 -180кгс/ кв. м.(1,80кПа);
- нормаmuвный скоростной напор веmра по III району согласно СП 20.13330.2011 -23кгс/ кв.м. (О,23кПа);
- зона влажносmu нормальная;
Проекmuруемое здание представляет собой одноэтажный жилой дом, размерами в осях 16495x13870 м. Пригодно для всесезонного проживания.
Архumекmурно-планuровочных решений, связанных с обеспечением маломобильных групп населения, не предусмотрено.
Благоусmроuсmво прилегающей meppumopuu не разрабатывается.
3. Конструктивное решение
Производство сmроumельно-ремонmных работ вecmu в coomвemcmвuu с mребованuямu СП 48.13330.2011 "Организация строительства".
СП 49.13330.2012 "Безопасность mpyдa в cmpoumeльcmвe".
При защите строительных конструкций от коррозии руководствоваться СП 28.13330.2017. "Защumа сmроumельных конструкций и сооружений от коррозuu".
Прu производстве работ в зимнее время следует соблюдать СП 70.13330.2012.
- Конструктивная система здания стеновая (бескаркасная) с перекресной конструктивной схемой. Пространственная жесткость обеспечивается совместной работой продольных и поперечных стен с монолитным поясом из П(U) - образных газобетонных блоков.
- Фундамент - мелкозаглубленная монолитная железобетонная плита 300 мм.
- Наружные стены: porotherm 44 - 440х219х250. Облицовка черновой штукатуркой и гибкой керамикой PHOMI. Внутренние несущие стены: porotherm 30 - 300х219х250. Межкомнатные перегородки porotherm 12 120х219х250.
- Перекрытие - балочное. Балки перекрытия - строганная доска 195х45 утепленная минераловатными плитами 200 мм, с поперечным утеплением строганным бруском 45х45, утепленным минераловатными плитами 50 мм.
- Холодный чердак, скатная кровля из мягкой черепицы. Водосток с крыши - организованный, наружный.
- Вентиляционные, дымоходные каналы выполнить из металических уголков и ГКЛ.
- По периметру здания выполнить утепленную бетонную отмостку шириной 1000 мм, из бетона класса В12,5. Отмостку рекомендуется устраивать после завершения отделочных работ и до наступления отрицательных температур. Предусмотреть элементы безопасносmu кровли.
- Все конструктивные решения по согласованию с конструктором.
- Детальную отделку помешений производить по специальному проекту интерьера. Лестница по индивидуальному проекту.
4. Охрана окружающей среды
Прu органuзацuu cmpoumeльcmвa и эксплуаmацuu жилого дома предусмаmрuваеmся следующие меропрuяmuя по охране окружающей среды:
- сброс хозяuсmвенно-быmовых omxoдoв и стоков осуществляется в гepмemuчecкuй cenmuк споследующем вывозом по договору с коммунальными органuзацuямu;
- уmuлuзацuя сmроumельного мусора осуществляется на разрешенные свалки;
5. Обеспечение пожарной безопасности
- Все деревянные элементы должны быть подвергнуты огнезащumной обработке в coomвemcmвuu с mребованuямu СП 55.13330.2011 u "Пожарная безопасность зданий и сооружений".
- Элекmроусmановкu монmuроваmь и подключать согласно требованиям "Правил ycmpoйcmвa элекmроусmановок (ПУЭ)" u государственных стандартов на элекmро усmановкu зданий, а также оборудовать их ycmpoйcmвaмu защumного отключения (УЗО).
- Электропроводку монmuруемую по поверхносmu сmроumельных конструкций, выполнumь в кабель-каналах,не распространяющих горение.
Площади дома
| № п/п | Наименование | Ед. из. | Строительная площадь | Полезная площадь |
| 1 | 1 этаж | м2 | 221.05 | 179.38 |
| 2 | Итого | м2 | 221.05 | 179.38 |
площадь
и балконы
гаража
спален
санузлов
Калькулятор опций
В ипотеку от 29 298 ₽/мес.
Преимущества работы с нами
7 этапов оплаты
Независимый строительный надзор
Экологически чистые материалы
16 лет гарантии
Онлайн-кабинет с веб-камерой
Строители с опытом более 15 лет
Собственное производство














