Двухэтажный дом 15х10 м: просторное и современное жилье для большой семьи
Двухэтажный дом размером 15 на 10 метров с полезной площадью 165,28 м² представляет собой оптимальное решение для тех, кто мечтает о просторном и функциональном частном доме. Такие габариты позволяют разместить множество жилых и хозяйственных комнат, сохраняя при этом удобство планировки и комфорт во всех зонах. В данной статье мы подробно разберем основные характеристики этого дома, расскажем о вместимости, технических параметрах и преимуществах, а также уделим внимание стоимости проекта — всего 5 936 229 рублей.
Подобный дом отлично подходит для семьи с несколькими детьми или для тех, кто любит принимать гостей, уделять внимание домашнему уюту и иметь возможность организовать рабочие зоны и дополнительные помещения. Благодаря двум этажам площадь эффективно распределяется, что позволяет рационально использовать каждый квадратный метр.
Основные характеристики дома 15x10 м
Перед тем как рассмотреть все подробности, важно выделить главные параметры проекта:
| Параметр | Значение |
|---|---|
| Полезная площадь | 165,28 м² |
| Размеры дома | 15 x 10 м |
| Этажность | 2 этажа |
| Количество спален | 5+ |
| Количество санузлов | 3 |
| Жилая площадь | 138,55 м² |
| Площадь застройки | 124,90 м² |
| Площадь крыши | 205,60 м² |
| Угол наклона крыши | 40° |
| Высота здания | 7,99 м |
| Минимальные размеры участка | 22,90 x 17,60 м |
| Тип крыши | двускатная |
| Опции | камин, комната на первом этаже, терраса |
| Стоимость строительства | 5 936 229 руб. |
Особенности планировки двух этажей
Очень важно понять, что двухэтажный дом 15x10 м – это не просто масштабное строение. Планировка учитывает современные требования к жилым помещениям, эргономику и удобство использования. На двух уровнях расположено 5 и более спален, что дает возможность выделить личное пространство каждому члену семьи.
Три полноценных санузла обеспечивают комфорт и снижают утренние очереди, что особенно актуально в больших семьях. Наличие камина и комнаты на первом этаже создают дополнительные зоны для отдыха и общения — это пространство для уютных вечеров и домашних посиделок.
Преимущества и достоинства проекта
У этого дома есть ряд важных преимуществ, которые делают его привлекательным выбором среди других проектов. Рассмотрим их подробно.
Оптимальное соотношение площади и стоимости
Стоимость строительства двухэтажного дома 15x10 составляет 5 936 229 рублей с учетом всех основных работ и материалов. При площади полезной 165,28 м² эта цена выгодно отличается от аналогичных проектов того же класса. Экономия достигается за счет грамотно продуманного архитектурного решения и рационального использования материалов.
Простор и функциональность
Жилая площадь 138,55 м² гарантирует, что дом окажется удобным для большой семьи. Наличие пяти и более спален позволяет выделить отдельные комнаты для детей, родителей, гостей, а также создать домашний офис или кабинет. Три санузла – это редкое удобство в частных домах, благодаря которому все бытовые моменты решаются быстро и без стресса.
Комфорт и уют благодаря дополнительным опциям
Особое внимание заслуживают избранные опции проекта. Камин и терраса создают особую атмосферу тепла и уюта, словно приглашают на долгие зимние вечера в кругу семьи. Комната на первом этаже может служить как гостевой или кабинетом, что добавляет гибкости в использовании пространства.
Эстетика и практичность крыши
Двускатная крыша с углом наклона 40° не только отвечает эстетическим канонам, но и отлично справляется с работой по отводу осадков. Это уменьшает вероятность протечек и снижает нагрузку на кровлю в зимний период. Площадь крыши 205,60 м² покрывает большую площадь и позволяет рассмотреть возможности установки солнечных батарей или дополнительной изоляции.
Технические параметры и требования к участку
Размеры и площадь застройки
Площадь застройки дома составляет 124,9 м², что означает фактический размер фундамента и внешних габаритов. Это позволяет заранее спланировать участок минимум 22,9 м в ширину и 17,6 м в длину. Такие параметры учитывают необходимое расстояние до соседних строений и площадей для ландшафтного дизайна.
Высота здания и внешний облик
Высота дома почти 8 метров, что придает ему статус надежного и объемного сооружения, выделяющегося среди других зданий на участке. Высота позволяет реализовать высокие потолки в обеих жилых зонах, создавая ощущение простора и свободы. Этот момент особенно важен для тех, кто ценит визуальное расширение пространства.
Требования к участку
Минимальный размер участка 22,90 на 17,60 метров – это не только практичное требование по размещению дома, но и залог комфорта при организации двора, садовых участков, зоны отдыха и хозяйственных построек. Это особенно актуально для семей, любящих проводить время на свежем воздухе.
Планировка дома 15х10 м – что внутри?
План первого этажа
Первый этаж — это социальная и общественная зона, где располагаются общие пространства для семьи и гостей.
- Просторная гостиная с камином — очищенное сердце дома, помещение для собрания семьи и друзей;
- Отдельная кухня с обеденной зоной, где удобно готовить и принимать пищу;
- Комната на первом этаже — гибкое пространство для кабинета, гостевой спальни или хобби;
- Санузел — улучшает удобство и отделен от жилых помещений для приватности;
- Прихожая и техпомещения, обеспечивающие функциональность и порядок.
Значение террасы для комфортного отдыха
Терраса является дополнительной опцией, но ее наличие существенно расширяет жилищное пространство. Она служит отличным местом для летних вечеринок, семейных завтраков на свежем воздухе и позволяет наслаждаться природой, не выходя из дома. Терраса также увеличивает визуальную привлекательность фасада и придает дому уютный, приглашая атмосферу.
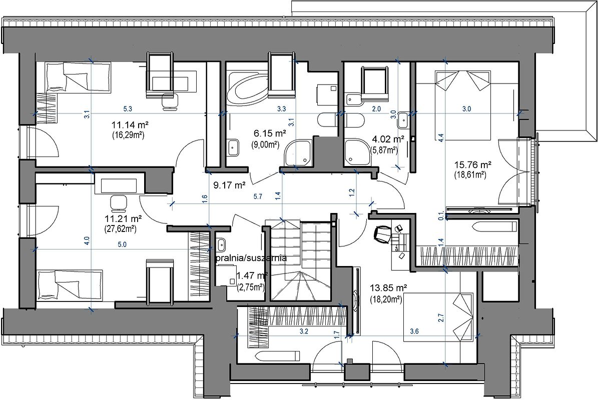
План второго этажа
Второй этаж традиционно отведен под личные покои. В этом доме размещаются более пяти спален, что делает его идеальным для большой семьи. Высокое качество планировки позволяет каждому члену семьи иметь собственное пространство. Здесь же располагаются два санузла — один из которых, при желании, может быть оборудован в виде хозяйской ванной комнаты.
- Большие спальни для родителей и детей;
- Дополнительные комнаты для гостей или домашних кабинетов;
- Два санузла — отличный уровень комфорта для большой семьи;
- Коридоры, лестница и технические помещения, обеспечивающие удобное передвижение и функциональность.
Особенности и нюансы строительства
Материалы и конструктивные решения
Двухэтажный дом такой площади требует серьезного подхода к выбору материалов. Традиционно используются качественные блоки или кирпич, допускающие надежную теплоизоляцию и долговечность. При этом предусмотрена двускатная крыша с углом 40°, обеспечивающая хорошую вентиляцию чердачного пространства и надежную защиту от осадков.
Для полов обычно используется армированная плита или монолитный фундамент, гарантирующий устойчивость и долгий срок эксплуатации. В стенах предусматривается тепло- и звукоизоляция, что делает проживание максимально комфортным.
Монтаж и этапы строительства
Строительство такого крупного дома обычно включает несколько ключевых этапов:
- Подготовка участка и проектирование;
- Заливка и армирование фундамента;
- Возведение стен и кровли;
- Установка оконных и дверных конструкций;
- Внутренняя отделка и инженерные работы;
- Подключение коммуникаций и благоустройство территории.
Каждый этап требует контроля качества и грамотного управления, что позволяет сделать процесс строительства предсказуемым и надежным.
Смета и экономическая эффективность
Стоимость строительства дома площадью 165,28 м² по проекту составляет 5 936 229 рублей. Эта сумма включает как материалы, так и платежи бригаде строителей. Если разбить стоимость на квадратный метр, получится около 35 900 рублей за м², что находится в пределах среднего ценового диапазона для такого класса объектов в России.
Стоит отметить, что двухэтажные дома с большим количеством комнат и санузлов традиционно обходятся дороже из-за сложности инженерных систем и объема отделочных работ. Тем не менее, грамотно спланированный проект с использованием оптимальных решений позволяет сохранить бюджет без потери в качестве.
На что обратить внимание при планировании бюджета?
- Выбор материалов – более дорогие варианты стоит использовать только в ключевых зонах;
- Дополнительные опции, как камин и терраса, могут увеличить стоимость, но добавляют ценность и комфорт;
- Инженерные системы – правильное проектирование избавит от лишних затрат на этапе эксплуатации;
- Ответственный подрядчик поможет оптимизировать расходы и соблюсти сроки.
Для кого подходит этот проект дому 15х10?
Этот дом станет идеальным выбором для семей с несколькими детьми, а также для тех, кто привык к жизни с комфортом и разнообразием комнат для разных нужд. Пространство позволяет организовать домашний офис, игровую комнату или зал для занятий спортом. Наличие нескольких санузлов облегчает бытовую жизнь и минимизирует конфликты при совместном проживании.
Такой дом подойдет любителям дизайна с элементами классики и современности: двускатная крыша и камин создают традиционный уют, а просторные помещения и современные инженерные решения делают объект по-настоящему уникальным.
Особенности эксплуатации и ухода
Невысокая высота дома и простая конструкция крыши способствуют легкости обслуживания. Требуется регулярный осмотр кровли и фасада, а также грамотный уход за инженерными системами, чтобы продлить срок службы всех элементов строения. Просторные помещения упрощают уборку и позволяют легко организовывать пространство.
Итоговые преимущества проекта
- Большая полезная и жилая площадь для семьи из 5 и более человек;
- Современная планировка с тремя санузлами и отдельной комнатой на первом этаже;
- Удобный размер дома 15x10 м, оптимально вписывающийся в стандартный загородный участок;
- Двускатная крыша с углом 40°, обеспечивающая надежную защиту от осадков;
- Отдельная терраса и камин как элементы уюта и эстетики;
- Оптимальная стоимость строительства — около 5,9 млн рублей, что делает проект экономичным и доступным.
В итоге, если вы ищете просторный, функциональный и экономически оправданный проект частного дома с двумя этажами — этот вариант 15х10 метра ответит всем вашим основным запросам, обеспечит комфорт и качество жизни для всей семьи на долгие годы.









