Двухэтажный дом 19x10 - 190.44 м2 за руб.

ID-69396

Стоимость дома 7203502 руб.
154 м2 Полезная
площадь
19 x 10 м Размеры
2 этажа Этажей
26 м2 Террасы
и балконы
2Без
гаража
4 Количество
спален
3 Количество
санузлов

Планировки

План первого этажа

floor image
  • 1. Прихожая 3,72 m²
  • 2. Холл 8,43 m²
  • 3. Кладовая 2,47 m²
  • 4. Кухня 6,70 m²
  • 5. Гостиная + столовая 27,88 m²
  • 6. Гардероб 3,68 m²
  • 7. Комната 13,98 m²
  • 8. Ванная комната 1,35 m²
  • 9. Ванная комната 4,02 m²
  • 10. Комната 7,60 m²
  • 11. Коридор 2,37 m²
  • 12. Кладовая 16,49 m²
  • 13. Гараж на 2 машины 35,81 m²
  • План первого этажа 134,50 m²

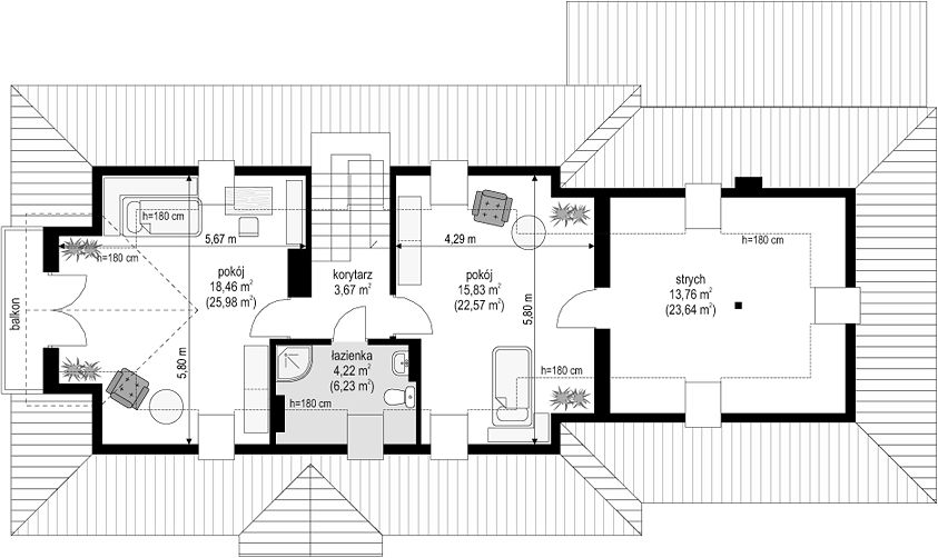
План мансарды

floor image
  • 1. Комната 18,46 m² (25,98 m²)
  • 2. Коридор 3,67 m²
  • 3. Ванная комната 4,22 m² (6,23 m²)
  • 4. Комната 15,83 m² (22,57 m²)
  • 5. Чердак 13,76 m² (23,64 m²)
  • План мансарды 55,94 m²

Фасады

Передний
Задний
Левый
Правый
Передний
Задний
Левый
Правый

Подробная информация

Жилая площадь
114,50 m²
icon

Сумма площади всех жилых помещений, за вычетом пов. гараж, котельная, чердак, подвал. Учитывается в 100%, для помещений высотой более 2,2 м, в 50% для помещений с высотой 2,2-1,4 м и не включается для более низких помещений (меньше 1,4 м).

Площадь застройки
164,08 m²
icon

Площадь застройки здания определяется как площадь горизонтального сечения по внешнему обводу здания на уровне цоколя, включая выступающие части.

Общая площадь
224,69 m²
icon

Общая площадь всех этажей здания, в том числе с несущими конструкциями, такими как наружные стены (с утеплением), столбы, террасы, и т. д.

Площадь нетто
140,50 m²
icon

Площадь всех помещений в здании, измеренная на высоте пола.

Объем брутто
622 m³
icon

Как правило, это сумма объема всех помещений в здании, подсчитанных по внешнему контуру стены (с утеплением).

Площадь крыши
257,55 m²
icon

Угол наклона крыши
38°
icon

Наклон ската крыши в градусах. Внимание! В некоторых проектах возникает более чем один наклон крыши.

Высота здания
7,36 m
icon

Высота измеряется от поверхности земли до самой высокой точки кровли (конька), за исключением дымоходов.

Ширина фасада
18,58 m
icon

Длина фасада
10,34 m
icon

Мин. ширина участка
25,58 m
icon

Наименьшая возможная ширина участка, необходимая для строительства выбранного дома. Состоит из длины фасада дома плюс с обеих сторон три метра отступ.

Мин. длина участка
17,34 m
icon

Наименьшая возможная длина участка, необходимая для строительства выбранного дома. Состоит из длины фасада дома плюс с обеих сторон три метра отступ.

Материалы и опции
Общие
Цена, руб.
Площадь м²
190
Ежемесячный платёж, руб
Количество спален
4
Гараж
2
Количество санузлов
3
Ширина
19
Глубина
10
Тип крыши

Площади дома

№ п/п Наименование Ед. из. Строительная площадь Полезная площадь
1 1 этаж м2 165.74 134.5
2 2 этаж м2 68.93 55.94
3 Итого м2 234.67 190.44

Калькулятор опций

0

В ипотеку от 23 385 ₽/мес.

Фундамент
stdClass Object ( [id] => 1 [attribute_id] => 1 [name] => Ленточный монолитный ж/б [material_modifier] => 1 [work_modifier] => 1 [options] => Array ( [0] => размер 200 х 700 мм [1] => размер 300 х 900 мм [2] => размер 400 х 1 000 мм [3] => размер 500 х 1 100 мм [4] => размер 600 х 1 200 мм ) [days] => [20,21,22,25,30] [material_price] => [2823,3630,4475,5210,12047] [work_price] => [2154,2826,3731,4577,5293] [image] => https://akademik-stroy.ru/wp-content/uploads/materials/lentochnyj-monolitnyj-zh-b.jpg [area_modifier] => 165.74 [parent_name] => Фундамент [parent_id] => 1 [material_sum] => 589534 [work_sum] => 374854 [total_sum] => 964388 [total_days] => 20 [display_material_sum] => 589 534 [display_work_sum] => 374 854 [display_total_sum] => 964 388 ) 1
964 388
Работа:374 854
Материалы:589 534
Дни:20
stdClass Object ( [id] => 2 [attribute_id] => 1 [name] => Забивные Ж/Б сваи [material_modifier] => 1 [work_modifier] => 1 [options] => Array ( [0] => 150х150х3000мм [1] => 150х150х4000мм [2] => 200х200х3000мм [3] => 200х200х4000мм [4] => 200х200х5000мм [5] => 200х200х6000мм ) [days] => [2,2,2,2,2,2] [material_price] => [1990,2850,3255,4360,5120,6837] [work_price] => [1002,1185,1336,1438,1574,1839] [image] => https://akademik-stroy.ru/wp-content/uploads/materials/zabivnye-zh-b-svai.png [area_modifier] => 165.74 [parent_name] => Фундамент [parent_id] => 1 [material_sum] => 415576 [work_sum] => 174375 [total_sum] => 589951 [total_days] => 2 [display_material_sum] => 415 576 [display_work_sum] => 174 375 [display_total_sum] => 589 951 ) 1
589 951
Работа:174 375
Материалы:415 576
Дни:2
stdClass Object ( [id] => 71 [attribute_id] => 1 [name] => Свайно-ростверковый ж/б [material_modifier] => 1 [work_modifier] => 1 [options] => Array ( [0] => ростверк 200х300 мм [1] => ростверк 300х600 мм [2] => ростверк 400х900 мм [3] => ростверк 500х1200 мм ) [days] => [20,23,25,27] [material_price] => [3018,3474,7109,9792] [work_price] => [2024,3012,5635,7022] [image] => https://akademik-stroy.ru/wp-content/uploads/materials/svajno-rostverkovyj-monolitnyj-zh-b-3.png [area_modifier] => 165.74 [parent_name] => Фундамент [parent_id] => 1 [material_sum] => 630256 [work_sum] => 352231 [total_sum] => 982487 [total_days] => 20 [display_material_sum] => 630 256 [display_work_sum] => 352 231 [display_total_sum] => 982 487 ) 1
982 487
Работа:352 231
Материалы:630 256
Дни:20
stdClass Object ( [id] => 72 [attribute_id] => 1 [name] => Монолитная ж/б плита [material_modifier] => 1 [work_modifier] => 1 [options] => Array ( [0] => 200 мм [1] => 300 мм [2] => 400 мм [3] => 500 мм [4] => 600 мм ) [days] => [30,33,35,37,40] [material_price] => [5348,8555,12788,14388,15189] [work_price] => [4314,4881,7037,8061,10230] [image] => https://akademik-stroy.ru/wp-content/uploads/materials/monolitnaya-zhb-plita.png [area_modifier] => 165.74 [parent_name] => Фундамент [parent_id] => 1 [material_sum] => 1116836 [work_sum] => 750752 [total_sum] => 1867588 [total_days] => 30 [display_material_sum] => 1 116 836 [display_work_sum] => 750 752 [display_total_sum] => 1 867 588 ) 1
1 867 588
Работа:750 752
Материалы:1 116 836
Дни:30
stdClass Object ( [id] => 73 [attribute_id] => 1 [name] => Утепленная шведская плита [material_modifier] => 1 [work_modifier] => 1 [options] => Array ( [0] => 200 мм [1] => 300 мм [2] => 400 мм [3] => 500 мм [4] => 600 мм ) [days] => [32,37,39,42,45] [material_price] => [10249,12692,13760,14936,16230] [work_price] => [5960,7337,8072,8878,9765] [image] => https://akademik-stroy.ru/wp-content/uploads/materials/uteplennaya-shvedskaya-plita.jpg [area_modifier] => 165.74 [parent_name] => Фундамент [parent_id] => 1 [material_sum] => 2140323 [work_sum] => 1037201 [total_sum] => 3177524 [total_days] => 32 [display_material_sum] => 2 140 323 [display_work_sum] => 1 037 201 [display_total_sum] => 3 177 524 ) 1
3 177 524
Работа:1 037 201
Материалы:2 140 323
Дни:32
stdClass Object ( [id] => 75 [attribute_id] => 1 [name] => Ленточный из ФБС [material_modifier] => 1 [work_modifier] => 1 [options] => Array ( [0] => толщ. 300 мм [1] => толщ. 400 мм [2] => толщ. 500 мм [3] => толщ. 600 мм ) [days] => [20,20,20,20] [material_price] => [3675,4902,6126,7350] [work_price] => [2451,3264,4083,4902] [image] => https://akademik-stroy.ru/wp-content/uploads/materials/lentochnyj-iz-fbs.png [area_modifier] => 165.74 [parent_name] => Фундамент [parent_id] => 1 [material_sum] => 767459 [work_sum] => 426540 [total_sum] => 1193999 [total_days] => 20 [display_material_sum] => 767 459 [display_work_sum] => 426 540 [display_total_sum] => 1 193 999 ) 1
1 193 999
Работа:426 540
Материалы:767 459
Дни:20
stdClass Object ( [id] => 76 [attribute_id] => 1 [name] => Цокольный этаж из ФБС [material_modifier] => 1 [work_modifier] => 1 [options] => Array ( [0] => толщ. 300 мм [1] => толщ. 400 мм [2] => толщ. 500 мм [3] => толщ. 600 мм ) [days] => [30,32,34,36] [material_price] => [20916,23299,26680,29060] [work_price] => [17524,18700,19873,21046] [image] => https://akademik-stroy.ru/wp-content/uploads/materials/cokolnyj-ehtazh-iz-fbs.jpg [area_modifier] => 165.74 [parent_name] => Фундамент [parent_id] => 1 [material_sum] => 4367938 [work_sum] => 3049649 [total_sum] => 7417587 [total_days] => 30 [display_material_sum] => 4 367 938 [display_work_sum] => 3 049 649 [display_total_sum] => 7 417 587 ) 1
7 417 587
Работа:3 049 649
Материалы:4 367 938
Дни:30
stdClass Object ( [id] => 77 [attribute_id] => 1 [name] => Цокольный этаж монолитный ж/б [material_modifier] => 1 [work_modifier] => 1 [options] => Array ( [0] => толщ. 200 мм [1] => толщ. 300 мм [2] => толщ. 400 мм [3] => толщ. 500 мм [4] => толщ. 600 мм ) [days] => [40,42,44,46,48] [material_price] => [25421,29148,32275,35602,37326] [work_price] => [20441,21907,23375,24841,26306] [image] => https://akademik-stroy.ru/wp-content/uploads/materials/cokolnyj-etazh-zh-b.jpg [area_modifier] => 165.74 [parent_name] => Фундамент [parent_id] => 1 [material_sum] => 5308728 [work_sum] => 3557286 [total_sum] => 8866014 [total_days] => 40 [display_material_sum] => 5 308 728 [display_work_sum] => 3 557 286 [display_total_sum] => 8 866 014 ) 1
8 866 014
Работа:3 557 286
Материалы:5 308 728
Дни:40
stdClass Object ( [id] => 191 [attribute_id] => 1 [name] => Винтовые сваи [material_modifier] => 1 [work_modifier] => 1 [options] => Array ( [0] => 57х200мм [1] => 76х250мм [2] => 108х300мм [3] => 133х350мм ) [days] => [1,1,2,2] [material_price] => [1200,1300,1450,1600] [work_price] => [400,600,900,1100] [image] => https://akademik-stroy.ru/wp-content/uploads/materials/vintovye-svai.png [area_modifier] => 165.74 [parent_name] => Фундамент [parent_id] => 1 [material_sum] => 250599 [work_sum] => 69611 [total_sum] => 320210 [total_days] => 1 [display_material_sum] => 250 599 [display_work_sum] => 69 611 [display_total_sum] => 320 210 ) 1
320 210
Работа:69 611
Материалы:250 599
Дни:1
Перекрытие цоколя
stdClass Object ( [id] => 3 [attribute_id] => 2 [name] => Деревянные балки [material_modifier] => 1 [work_modifier] => 1 [options] => Array ( [0] => без утепления [1] => утепление 200 мм [2] => утепление 250 мм [3] => утепление 300 мм [4] => утепление 350 мм [5] => утепление 400 мм [6] => утепление 450 мм [7] => утепление 500 мм ) [days] => [8,9,9,9,11,12,13,14] [material_price] => [1634,2042,2344,2947,3149,3652,3354,3557] [work_price] => [1230,1339,1393,1426,1460,1513,1587,1620] [image] => https://akademik-stroy.ru/wp-content/uploads/materials/derevyannye-balki.png [area_modifier] => 165.74 [parent_name] => Перекрытие цоколя [parent_id] => 2 [material_sum] => 341232 [work_sum] => 214053 [total_sum] => 555285 [total_days] => 8 [display_material_sum] => 341 232 [display_work_sum] => 214 053 [display_total_sum] => 555 285 ) 1
555 285
Работа:214 053
Материалы:341 232
Дни:8
stdClass Object ( [id] => 4 [attribute_id] => 2 [name] => Сборные ж/б плиты [material_modifier] => 1 [work_modifier] => 1 [options] => Array ( [0] => без утепления [1] => утепление 150мм [2] => утепление 200мм [3] => утепление 250мм [4] => утепление 300мм [5] => утепление 350мм [6] => утепление 400мм [7] => утепление 450мм [8] => утепление 500мм ) [days] => [13,15,15,15,15,15,15,15,15] [material_price] => [3067,5577,5928,6679,7730,8782,9833,10884,11935] [work_price] => [1520,1956,2102,2247,2392,2537,2684,2829,2974] [image] => https://akademik-stroy.ru/wp-content/uploads/materials/sbornye-zh-b-plity-2.jpg [area_modifier] => 165.74 [parent_name] => Перекрытие цоколя [parent_id] => 2 [material_sum] => 640489 [work_sum] => 264521 [total_sum] => 905010 [total_days] => 13 [display_material_sum] => 640 489 [display_work_sum] => 264 521 [display_total_sum] => 905 010 ) 1
905 010
Работа:264 521
Материалы:640 489
Дни:13
stdClass Object ( [id] => 78 [attribute_id] => 2 [name] => Монолитная ж/б плита [material_modifier] => 1 [work_modifier] => 1 [options] => Array ( [0] => без утепления [1] => утепление 150 мм [2] => утепление 200 мм [3] => утепление 250 мм [4] => утепление 300 мм [5] => утепление 350 мм [6] => утепление 400 мм [7] => утепление 450 мм [8] => утепление 500 мм ) [days] => [18,20,20,20,20,20,20,20,20] [material_price] => [4837,6572,7224,7375,79426,8177,8728,9180,10031] [work_price] => [3348,3921,4112,4302,4493,4684,4875,5066,5256] [image] => https://akademik-stroy.ru/wp-content/uploads/materials/monolitnaya-zh-b-plita-2.jpg [area_modifier] => 165.74 [parent_name] => Перекрытие цоколя [parent_id] => 2 [material_sum] => 1010122 [work_sum] => 582642 [total_sum] => 1592764 [total_days] => 18 [display_material_sum] => 1 010 122 [display_work_sum] => 582 642 [display_total_sum] => 1 592 764 ) 1
1 592 764
Работа:582 642
Материалы:1 010 122
Дни:18
Стены 1 этаж (несущие)
stdClass Object ( [id] => 6 [attribute_id] => 3 [name] => Пеноблок [material_modifier] => 1 [work_modifier] => 1 [options] => Array ( [0] => 300 мм [1] => 400 мм [2] => 500 мм [3] => 600 мм ) [days] => [29,31,34,39] [material_price] => [3000,4000,4500,4937] [work_price] => [5033,5805,6400,8710] [image] => https://akademik-stroy.ru/wp-content/uploads/materials/penoblok.jpg [area_modifier] => 165.74 [parent_name] => Стены 1 этаж (несущие) [parent_id] => 3 [material_sum] => 626497 [work_sum] => 875878 [total_sum] => 1502375 [total_days] => 29 [display_material_sum] => 626 497 [display_work_sum] => 875 878 [display_total_sum] => 1 502 375 ) 1
1 502 375
Работа:875 878
Материалы:626 497
Дни:29
stdClass Object ( [id] => 79 [attribute_id] => 3 [name] => Керамический блок [material_modifier] => 1 [work_modifier] => 1 [options] => Array ( [0] => 380 мм [1] => 380 мм Thermo [2] => 440 мм [3] => 510 мм ) [days] => [23,23,24,25] [material_price] => [4510,5098,6093,8013] [work_price] => [4737,4937,5903,6958] [image] => https://akademik-stroy.ru/wp-content/uploads/materials/keramicheskij-blok.jpg [area_modifier] => 165.74 [parent_name] => Стены 1 этаж (несущие) [parent_id] => 3 [material_sum] => 941834 [work_sum] => 824366 [total_sum] => 1766200 [total_days] => 23 [display_material_sum] => 941 834 [display_work_sum] => 824 366 [display_total_sum] => 1 766 200 ) 1
1 766 200
Работа:824 366
Материалы:941 834
Дни:23
stdClass Object ( [id] => 80 [attribute_id] => 3 [name] => Кирпич [material_modifier] => 1 [work_modifier] => 1 [options] => Array ( [0] => Кирпич 250 мм [1] => Кирпич 380 мм [2] => Кирпич 510 мм [3] => Кирпич 640 мм [4] => Кирпич 770 мм ) [days] => [30,30,31,33,36] [material_price] => [5500,7142,9206,10171,12235] [work_price] => [8736,10041,12018,15240,18462] [image] => https://akademik-stroy.ru/wp-content/uploads/materials/kirpich.jpg [area_modifier] => 165.74 [parent_name] => Стены 1 этаж (несущие) [parent_id] => 3 [material_sum] => 1148578 [work_sum] => 1520300 [total_sum] => 2668878 [total_days] => 30 [display_material_sum] => 1 148 578 [display_work_sum] => 1 520 300 [display_total_sum] => 2 668 878 ) 1
2 668 878
Работа:1 520 300
Материалы:1 148 578
Дни:30
stdClass Object ( [id] => 81 [attribute_id] => 3 [name] => Монолитные [material_modifier] => 1 [work_modifier] => 1 [options] => Array ( [0] => 150 мм [1] => 200 мм [2] => 250 мм [3] => 300 мм [4] => 350 мм [5] => 400 мм ) [days] => [45,46,47,49,50,53] [material_price] => [6545,7876,10175,12011,13908,15204] [work_price] => [5106,6444,7698,8552,9807,11461] [image] => https://akademik-stroy.ru/wp-content/uploads/materials/monolitnye.jpg [area_modifier] => 165.74 [parent_name] => Стены 1 этаж (несущие) [parent_id] => 3 [material_sum] => 1366808 [work_sum] => 888582 [total_sum] => 2255390 [total_days] => 45 [display_material_sum] => 1 366 808 [display_work_sum] => 888 582 [display_total_sum] => 2 255 390 ) 1
2 255 390
Работа:888 582
Материалы:1 366 808
Дни:45
stdClass Object ( [id] => 82 [attribute_id] => 3 [name] => Клееный брус [material_modifier] => 1 [work_modifier] => 1 [options] => Array ( [0] => 160 мм [1] => 175 мм [2] => 200 мм [3] => 215 мм [4] => 240 мм [5] => 270 мм [6] => 282 мм ) [days] => [24,28,32,37,40,42,48] [material_price] => [16975,18773,19950,20545,21599,22159,23275] [work_price] => [4806,5287,5815,6397,7036,7740,8514] [image] => https://akademik-stroy.ru/wp-content/uploads/materials/kleenyj-brus.jpg [area_modifier] => 165.74 [parent_name] => Стены 1 этаж (несущие) [parent_id] => 3 [material_sum] => 3544930 [work_sum] => 836374 [total_sum] => 4381304 [total_days] => 24 [display_material_sum] => 3 544 930 [display_work_sum] => 836 374 [display_total_sum] => 4 381 304 ) 1
4 381 304
Работа:836 374
Материалы:3 544 930
Дни:24
stdClass Object ( [id] => 83 [attribute_id] => 3 [name] => Каркасные [material_modifier] => 1 [work_modifier] => 1 [options] => Array ( [0] => 150 мм [1] => 200 мм [2] => 250 мм [3] => 300 мм ) [days] => [15,16,17,18] [material_price] => [2379,2639,2898,3258] [work_price] => [2418,2686,2985,3716] [image] => https://akademik-stroy.ru/wp-content/uploads/materials/karkasnye.jpg [area_modifier] => 165.74 [parent_name] => Стены 1 этаж (несущие) [parent_id] => 3 [material_sum] => 496812 [work_sum] => 420797 [total_sum] => 917609 [total_days] => 15 [display_material_sum] => 496 812 [display_work_sum] => 420 797 [display_total_sum] => 917 609 ) 1
917 609
Работа:420 797
Материалы:496 812
Дни:15
stdClass Object ( [id] => 84 [attribute_id] => 3 [name] => СИП-панели [material_modifier] => 1 [work_modifier] => 1 [options] => Array ( [0] => 120 мм [1] => 170 мм [2] => 220 мм ) [days] => [7,7,7] [material_price] => [1210,1856,2292] [work_price] => [1410,1551,1706] [image] => https://akademik-stroy.ru/wp-content/uploads/materials/sip-paneli.jpg [area_modifier] => 165.74 [parent_name] => Стены 1 этаж (несущие) [parent_id] => 3 [material_sum] => 252687 [work_sum] => 245378 [total_sum] => 498065 [total_days] => 7 [display_material_sum] => 252 687 [display_work_sum] => 245 378 [display_total_sum] => 498 065 ) 1
498 065
Работа:245 378
Материалы:252 687
Дни:7
stdClass Object ( [id] => 85 [attribute_id] => 3 [name] => Сухой брус [material_modifier] => 1 [work_modifier] => 1 [options] => Array ( [0] => 150 мм [1] => 180 мм [2] => 200 мм ) [days] => [7,8,9] [material_price] => [6010,7190,8709] [work_price] => [3204,3845,4229] [image] => https://akademik-stroy.ru/wp-content/uploads/materials/suhoj-brus.jpg [area_modifier] => 165.74 [parent_name] => Стены 1 этаж (несущие) [parent_id] => 3 [material_sum] => 1255083 [work_sum] => 557583 [total_sum] => 1812666 [total_days] => 7 [display_material_sum] => 1 255 083 [display_work_sum] => 557 583 [display_total_sum] => 1 812 666 ) 1
1 812 666
Работа:557 583
Материалы:1 255 083
Дни:7
stdClass Object ( [id] => 86 [attribute_id] => 3 [name] => Профилированный брус [material_modifier] => 1 [work_modifier] => 1 [options] => Array ( [0] => 150 мм [1] => 180 мм [2] => 200 мм ) [days] => [7,8,9] [material_price] => [8190,9228,10051] [work_price] => [3845,4614,5075] [image] => https://akademik-stroy.ru/wp-content/uploads/materials/profilirovannyj-brus.jpg [area_modifier] => 165.74 [parent_name] => Стены 1 этаж (несущие) [parent_id] => 3 [material_sum] => 1710337 [work_sum] => 669134 [total_sum] => 2379471 [total_days] => 7 [display_material_sum] => 1 710 337 [display_work_sum] => 669 134 [display_total_sum] => 2 379 471 ) 1
2 379 471
Работа:669 134
Материалы:1 710 337
Дни:7
stdClass Object ( [id] => 87 [attribute_id] => 3 [name] => Оцилиндрованное бревно [material_modifier] => 1 [work_modifier] => 1 [options] => Array ( [0] => 180 мм [1] => 220 мм [2] => 260 мм [3] => 320 мм ) [days] => [7,8,9,10] [material_price] => [75190,9532,10868,13116] [work_price] => [3845,4691,5535,6863] [image] => https://akademik-stroy.ru/wp-content/uploads/materials/ocilindrovannoe-brevno-1.jpg [area_modifier] => 165.74 [parent_name] => Стены 1 этаж (несущие) [parent_id] => 3 [material_sum] => 15702108 [work_sum] => 669134 [total_sum] => 16371242 [total_days] => 7 [display_material_sum] => 15 702 108 [display_work_sum] => 669 134 [display_total_sum] => 16 371 242 ) 1
16 371 242
Работа:669 134
Материалы:15 702 108
Дни:7
stdClass Object ( [id] => 88 [attribute_id] => 3 [name] => Срубы [material_modifier] => 1 [work_modifier] => 1 [options] => Array ( [0] => 260 мм [1] => 320 мм [2] => 360 мм [3] => 400 мм [4] => 500 мм ) [days] => [7,8,9,10,11] [material_price] => [37975,46709,52314,58069,73167] [work_price] => [4806,5911,6621,7349,9260] [image] => https://akademik-stroy.ru/wp-content/uploads/materials/sruby.jpg [area_modifier] => 165.74 [parent_name] => Стены 1 этаж (несущие) [parent_id] => 3 [material_sum] => 7930410 [work_sum] => 836374 [total_sum] => 8766784 [total_days] => 7 [display_material_sum] => 7 930 410 [display_work_sum] => 836 374 [display_total_sum] => 8 766 784 ) 1
8 766 784
Работа:836 374
Материалы:7 930 410
Дни:7
stdClass Object ( [id] => 174 [attribute_id] => 3 [name] => Брус [material_modifier] => 1 [work_modifier] => 1 [options] => Array ( [0] => 150 мм [1] => 180 мм [2] => 200 мм ) [days] => [7,8,9] [material_price] => [5127,6152,7367] [work_price] => [1602,1922,2115] [image] => https://akademik-stroy.ru/wp-content/uploads/materials/brus.jpg [area_modifier] => 165.74 [parent_name] => Стены 1 этаж (несущие) [parent_id] => 3 [material_sum] => 1070684 [work_sum] => 278791 [total_sum] => 1349475 [total_days] => 7 [display_material_sum] => 1 070 684 [display_work_sum] => 278 791 [display_total_sum] => 1 349 475 ) 1
1 349 475
Работа:278 791
Материалы:1 070 684
Дни:7
stdClass Object ( [id] => 175 [attribute_id] => 3 [name] => Газобетон [material_modifier] => 1 [work_modifier] => 1 [options] => Array ( [0] => 300 мм [1] => 375 мм [2] => 400 мм [3] => 500 мм [4] => 600 мм ) [days] => [29,31,35,37,44] [material_price] => [4298,5573,6356,7288,9119] [work_price] => [4538,5251,5926,6733,7195] [image] => https://akademik-stroy.ru/wp-content/uploads/materials/gazobeton.jpg [area_modifier] => 165.74 [parent_name] => Стены 1 этаж (несущие) [parent_id] => 3 [material_sum] => 897562 [work_sum] => 789735 [total_sum] => 1687297 [total_days] => 29 [display_material_sum] => 897 562 [display_work_sum] => 789 735 [display_total_sum] => 1 687 297 ) 1
1 687 297
Работа:789 735
Материалы:897 562
Дни:29
stdClass Object ( [id] => 176 [attribute_id] => 3 [name] => Блок [material_modifier] => 1 [work_modifier] => 1 [options] => Array ( [0] => 300 мм [1] => 375 мм [2] => 400 мм [3] => 500 мм [4] => 600 мм ) [days] => [29,31,35,37,44] [material_price] => [2698,3973,4356,6588,7119] [work_price] => [5038,5851,6426,8733,9195] [image] => https://akademik-stroy.ru/wp-content/uploads/materials/blok.jpg [area_modifier] => 165.74 [parent_name] => Стены 1 этаж (несущие) [parent_id] => 3 [material_sum] => 563430 [work_sum] => 876748 [total_sum] => 1440178 [total_days] => 29 [display_material_sum] => 563 430 [display_work_sum] => 876 748 [display_total_sum] => 1 440 178 ) 1
1 440 178
Работа:876 748
Материалы:563 430
Дни:29
stdClass Object ( [id] => 177 [attribute_id] => 3 [name] => Газосиликатный блок [material_modifier] => 1 [work_modifier] => 1 [options] => Array ( [0] => 300 мм [1] => 375 мм [2] => 400 мм [3] => 500 мм [4] => 600 мм ) [days] => [29,31,35,37,44] [material_price] => [4298,5573,6356,7288,9119] [work_price] => [4538,5251,5926,6733,7195] [image] => https://akademik-stroy.ru/wp-content/uploads/materials/gazosilikatnyj-blok.jpg [area_modifier] => 165.74 [parent_name] => Стены 1 этаж (несущие) [parent_id] => 3 [material_sum] => 897562 [work_sum] => 789735 [total_sum] => 1687297 [total_days] => 29 [display_material_sum] => 897 562 [display_work_sum] => 789 735 [display_total_sum] => 1 687 297 ) 1
1 687 297
Работа:789 735
Материалы:897 562
Дни:29
stdClass Object ( [id] => 178 [attribute_id] => 3 [name] => Керамзитобетонный блок [material_modifier] => 1 [work_modifier] => 1 [options] => Array ( [0] => 300 мм [1] => 375 мм [2] => 400 мм [3] => 500 мм [4] => 600 мм ) [days] => [23,23,24,25,28] [material_price] => [3641,4298,5693,7613,9612] [work_price] => [5737,5737,6903,7958,8901] [image] => https://akademik-stroy.ru/wp-content/uploads/materials/keramzitobetonnyj-blok.jpg [area_modifier] => 165.74 [parent_name] => Стены 1 этаж (несущие) [parent_id] => 3 [material_sum] => 760359 [work_sum] => 998393 [total_sum] => 1758752 [total_days] => 23 [display_material_sum] => 760 359 [display_work_sum] => 998 393 [display_total_sum] => 1 758 752 ) 1
1 758 752
Работа:998 393
Материалы:760 359
Дни:23
stdClass Object ( [id] => 179 [attribute_id] => 3 [name] => Деревянные [material_modifier] => 1 [work_modifier] => 1 [options] => Array ( [0] => 180 мм [1] => 220 мм [2] => 260 мм [3] => 320 мм ) [days] => [7,8,9,10] [material_price] => [7950,9458,11961,14472] [work_price] => [4037,4925,5812,7207] [image] => https://akademik-stroy.ru/wp-content/uploads/materials/derevyannye.jpg [area_modifier] => 165.74 [parent_name] => Стены 1 этаж (несущие) [parent_id] => 3 [material_sum] => 1660218 [work_sum] => 702547 [total_sum] => 2362765 [total_days] => 7 [display_material_sum] => 1 660 218 [display_work_sum] => 702 547 [display_total_sum] => 2 362 765 ) 1
2 362 765
Работа:702 547
Материалы:1 660 218
Дни:7
stdClass Object ( [id] => 181 [attribute_id] => 3 [name] => Камень [material_modifier] => 1 [work_modifier] => 1 [options] => Array ( [0] => 300 мм [1] => 400 мм [2] => 500 мм [3] => 600 мм ) [days] => [25,27,31,34] [material_price] => [5262,6844,8330,9815] [work_price] => [8331,9135,10427,11069] [image] => https://akademik-stroy.ru/wp-content/uploads/materials/kamen.jpg [area_modifier] => 165.74 [parent_name] => Стены 1 этаж (несущие) [parent_id] => 3 [material_sum] => 1098876 [work_sum] => 1449819 [total_sum] => 2548695 [total_days] => 25 [display_material_sum] => 1 098 876 [display_work_sum] => 1 449 819 [display_total_sum] => 2 548 695 ) 1
2 548 695
Работа:1 449 819
Материалы:1 098 876
Дни:25
stdClass Object ( [id] => 182 [attribute_id] => 3 [name] => Каркасно-щитовые [material_modifier] => 1 [work_modifier] => 1 [options] => Array ( [0] => 150 мм [1] => 200 мм [2] => 250 мм [3] => 300 мм [4] => 350 мм [5] => 400 мм ) [days] => [15,16,17,18,19,20] [material_price] => [2379,2639,2898,3458,3601,4175] [work_price] => [2538,2820,3134,3483,4062,5642] [image] => https://akademik-stroy.ru/wp-content/uploads/materials/karkasno-shchitovye.jpg [area_modifier] => 165.74 [parent_name] => Стены 1 этаж (несущие) [parent_id] => 3 [material_sum] => 496812 [work_sum] => 441681 [total_sum] => 938493 [total_days] => 15 [display_material_sum] => 496 812 [display_work_sum] => 441 681 [display_total_sum] => 938 493 ) 1
938 493
Работа:441 681
Материалы:496 812
Дни:15
stdClass Object ( [id] => 183 [attribute_id] => 3 [name] => Рубленные [material_modifier] => 1 [work_modifier] => 1 [options] => Array ( [0] => 150 мм [1] => 200 мм [2] => 250 мм [3] => 300 мм [4] => 350 мм [5] => 400 мм ) [days] => [15,16,17,18,17,18] [material_price] => [35950,50267,60583,75900,80217,100533] [work_price] => [9612,12816,16020,19224,22428,25632] [image] => https://akademik-stroy.ru/wp-content/uploads/materials/rublennye.jpg [area_modifier] => 165.74 [parent_name] => Стены 1 этаж (несущие) [parent_id] => 3 [material_sum] => 7507525 [work_sum] => 1672748 [total_sum] => 9180273 [total_days] => 15 [display_material_sum] => 7 507 525 [display_work_sum] => 1 672 748 [display_total_sum] => 9 180 273 ) 1
9 180 273
Работа:1 672 748
Материалы:7 507 525
Дни:15
stdClass Object ( [id] => 185 [attribute_id] => 3 [name] => Теплоблок [material_modifier] => 1 [work_modifier] => 1 [options] => Array ( [0] => 300 мм (с облицовкой, не покрашенный) [1] => 400 мм (с облицовкой, не покрашенный) [2] => 300 мм (с облицовкой, покрашенный) [3] => 400 мм (с облицовкой, покрашенный) ) [days] => [15,16,15,16] [material_price] => [2888,3729,3957,4258] [work_price] => [2564,3229,2949,3713] [image] => https://akademik-stroy.ru/wp-content/uploads/materials/teploblok.jpg [area_modifier] => 165.74 [parent_name] => Стены 1 этаж (несущие) [parent_id] => 3 [material_sum] => 603108 [work_sum] => 446205 [total_sum] => 1049313 [total_days] => 15 [display_material_sum] => 603 108 [display_work_sum] => 446 205 [display_total_sum] => 1 049 313 ) 1
1 049 313
Работа:446 205
Материалы:603 108
Дни:15
stdClass Object ( [id] => 186 [attribute_id] => 3 [name] => Арболитовые блоки [material_modifier] => 1 [work_modifier] => 1 [options] => Array ( [0] => 300 мм [1] => 400 мм [2] => 600 мм ) [days] => [19,22,27] [material_price] => [3210,4475,5852] [work_price] => [4214,4788,5866] [image] => https://akademik-stroy.ru/wp-content/uploads/materials/arbolitovye-bloki.png [area_modifier] => 165.74 [parent_name] => Стены 1 этаж (несущие) [parent_id] => 3 [material_sum] => 670352 [work_sum] => 733350 [total_sum] => 1403702 [total_days] => 19 [display_material_sum] => 670 352 [display_work_sum] => 733 350 [display_total_sum] => 1 403 702 ) 1
1 403 702
Работа:733 350
Материалы:670 352
Дни:19
stdClass Object ( [id] => 187 [attribute_id] => 3 [name] => Полистиролбетон [material_modifier] => 1 [work_modifier] => 1 [options] => Array ( [0] => 300 мм [1] => 400 мм [2] => 600 мм ) [days] => [29,31,35] [material_price] => [2798,4573,5256] [work_price] => [5038,5851,6426] [image] => https://akademik-stroy.ru/wp-content/uploads/materials/polistirolbeton.jpg [area_modifier] => 165.74 [parent_name] => Стены 1 этаж (несущие) [parent_id] => 3 [material_sum] => 584313 [work_sum] => 876748 [total_sum] => 1461061 [total_days] => 29 [display_material_sum] => 584 313 [display_work_sum] => 876 748 [display_total_sum] => 1 461 061 ) 1
1 461 061
Работа:876 748
Материалы:584 313
Дни:29
stdClass Object ( [id] => 188 [attribute_id] => 3 [name] => Шлакоблок [material_modifier] => 1 [work_modifier] => 1 [options] => Array ( [0] => 400 мм [1] => 600 мм ) [days] => [15,16] [material_price] => [2391,3471] [work_price] => [2642,3662] [image] => https://akademik-stroy.ru/wp-content/uploads/materials/shlakoblok.jpg [area_modifier] => 165.74 [parent_name] => Стены 1 этаж (несущие) [parent_id] => 3 [material_sum] => 499318 [work_sum] => 459779 [total_sum] => 959097 [total_days] => 15 [display_material_sum] => 499 318 [display_work_sum] => 459 779 [display_total_sum] => 959 097 ) 1
959 097
Работа:459 779
Материалы:499 318
Дни:15
stdClass Object ( [id] => 189 [attribute_id] => 3 [name] => Теплая керамика [material_modifier] => 1 [work_modifier] => 1 [options] => Array ( [0] => 380 мм [1] => 380 мм Thermo [2] => 440 мм [3] => 510 мм ) [days] => [23,23,24,25] [material_price] => [4510,5098,6093,8013] [work_price] => [4737,4937,5903,6958] [image] => https://akademik-stroy.ru/wp-content/uploads/materials/teplaya-keramika.jpg [area_modifier] => 165.74 [parent_name] => Стены 1 этаж (несущие) [parent_id] => 3 [material_sum] => 941834 [work_sum] => 824366 [total_sum] => 1766200 [total_days] => 23 [display_material_sum] => 941 834 [display_work_sum] => 824 366 [display_total_sum] => 1 766 200 ) 1
1 766 200
Работа:824 366
Материалы:941 834
Дни:23
stdClass Object ( [id] => 190 [attribute_id] => 3 [name] => Несъемная опалубка [material_modifier] => 1 [work_modifier] => 1 [options] => Array ( [0] => 200 мм [1] => 250 мм [2] => 300 мм [3] => 350 мм ) [days] => [15,17,19,21] [material_price] => [3302,3902,4108,5008] [work_price] => [2100,2100,2300,2534] [image] => https://akademik-stroy.ru/wp-content/uploads/materials/nesemnaya-opalubka.jpg [area_modifier] => 165.74 [parent_name] => Стены 1 этаж (несущие) [parent_id] => 3 [material_sum] => 689565 [work_sum] => 365457 [total_sum] => 1055022 [total_days] => 15 [display_material_sum] => 689 565 [display_work_sum] => 365 457 [display_total_sum] => 1 055 022 ) 1
1 055 022
Работа:365 457
Материалы:689 565
Дни:15
stdClass Object ( [id] => 251 [attribute_id] => 3 [name] => Бревно [material_modifier] => 1 [work_modifier] => 1 [options] => Array ( [0] => 260 мм [1] => 320 мм [2] => 360 мм [3] => 400 мм [4] => 500 мм ) [days] => [7,8,9,10,11] [material_price] => [1874,24045,26930,30972,38825] [work_price] => [5046,6207,6952,7716,9723] [image] => https://akademik-stroy.ru/wp-content/uploads/materials/sruby.jpg [area_modifier] => 165.74 [parent_name] => Стены 1 этаж (несущие) [parent_id] => 3 [material_sum] => 391352 [work_sum] => 878140 [total_sum] => 1269492 [total_days] => 7 [display_material_sum] => 391 352 [display_work_sum] => 878 140 [display_total_sum] => 1 269 492 ) 1
1 269 492
Работа:878 140
Материалы:391 352
Дни:7
Перекрытие первого этажа
stdClass Object ( [id] => 7 [attribute_id] => 4 [name] => Деревянные балки [material_modifier] => 1 [work_modifier] => 1 [options] => Array ( [0] => без утепления [1] => утепление 200 мм [2] => утепление 250 мм [3] => утепление 300 мм [4] => утепление 350 мм [5] => утепление 400 мм [6] => утепление 450 мм [7] => утепление 500 мм ) [days] => [8,9,9,9,11,12,13,14] [material_price] => [1634,2042,2344,2947,3149,3652,3354,3557] [work_price] => [1230,1339,1393,1426,1460,1513,1587,1620] [image] => https://akademik-stroy.ru/wp-content/uploads/materials/derevyannye-balki.png [area_modifier] => 165.74 [parent_name] => Перекрытие первого этажа [parent_id] => 4 [material_sum] => 341232 [work_sum] => 214053 [total_sum] => 555285 [total_days] => 8 [display_material_sum] => 341 232 [display_work_sum] => 214 053 [display_total_sum] => 555 285 ) 1
555 285
Работа:214 053
Материалы:341 232
Дни:8
stdClass Object ( [id] => 8 [attribute_id] => 4 [name] => Сборные ж/б плиты [material_modifier] => 1 [work_modifier] => 1 [options] => Array ( [0] => без утепления [1] => утепление 150 мм [2] => утепление 200 мм [3] => утепление 250 мм [4] => утепление 300 мм [5] => утепление 350 мм [6] => утепление 400 мм [7] => утепление 450 мм [8] => утепление 500 мм ) [days] => [13,15,15,15,15,15,15,15,15] [material_price] => [3067,5577,5928,6679,7730,8782,9833,10884,11935] [work_price] => [1520,1956,2102,2247,2392,2537,2684,2829,2974] [image] => https://akademik-stroy.ru/wp-content/uploads/materials/sbornye-zh-b-plity-2.jpg [area_modifier] => 165.74 [parent_name] => Перекрытие первого этажа [parent_id] => 4 [material_sum] => 640489 [work_sum] => 264521 [total_sum] => 905010 [total_days] => 13 [display_material_sum] => 640 489 [display_work_sum] => 264 521 [display_total_sum] => 905 010 ) 1
905 010
Работа:264 521
Материалы:640 489
Дни:13
stdClass Object ( [id] => 89 [attribute_id] => 4 [name] => Монолитная ж/б плита [material_modifier] => 1 [work_modifier] => 1 [options] => Array ( [0] => без утепления [1] => утепление 150 мм [2] => утепление 200 мм [3] => утепление 250 мм [4] => утепление 300 мм [5] => утепление 350 мм [6] => утепление 400 мм [7] => утепление 450 мм [8] => утепление 500 мм ) [days] => [18,20,20,20,20,20,20,20,20] [material_price] => [4837,6572,7224,7375,79426,8177,8728,9180,10031] [work_price] => [3348,3921,4112,4302,4493,4684,4875,5066,5256] [image] => https://akademik-stroy.ru/wp-content/uploads/materials/monolitnaya-zh-b-plita-2.jpg [area_modifier] => 165.74 [parent_name] => Перекрытие первого этажа [parent_id] => 4 [material_sum] => 1010122 [work_sum] => 582642 [total_sum] => 1592764 [total_days] => 18 [display_material_sum] => 1 010 122 [display_work_sum] => 582 642 [display_total_sum] => 1 592 764 ) 1
1 592 764
Работа:582 642
Материалы:1 010 122
Дни:18
Стены 2 этаж (несущие)
stdClass Object ( [id] => 10 [attribute_id] => 5 [name] => Пеноблок [material_modifier] => 1 [work_modifier] => 1 [options] => Array ( [0] => 300 мм [1] => 400 мм [2] => 500 мм [3] => 600 мм ) [days] => [29,31,34,39] [material_price] => [3000,4000,4500,4937] [work_price] => [5033,5805,6400,8710] [image] => https://akademik-stroy.ru/wp-content/uploads/materials/penoblok.jpg [area_modifier] => 68.93 [parent_name] => Стены 2 этаж (несущие) [parent_id] => 5 [material_sum] => 260555 [work_sum] => 364271 [total_sum] => 624826 [total_days] => 29 [display_material_sum] => 260 555 [display_work_sum] => 364 271 [display_total_sum] => 624 826 ) 1
624 826
Работа:364 271
Материалы:260 555
Дни:29
stdClass Object ( [id] => 90 [attribute_id] => 5 [name] => Керамический блок [material_modifier] => 1 [work_modifier] => 1 [options] => Array ( [0] => 380 мм [1] => 380 мм Thermo [2] => 440 мм [3] => 510 мм ) [days] => [23,23,24,25] [material_price] => [4510,5098,6093,8013] [work_price] => [4737,4937,5903,6958] [image] => https://akademik-stroy.ru/wp-content/uploads/materials/keramicheskij-blok.jpg [area_modifier] => 68.93 [parent_name] => Стены 2 этаж (несущие) [parent_id] => 5 [material_sum] => 391702 [work_sum] => 342847 [total_sum] => 734549 [total_days] => 23 [display_material_sum] => 391 702 [display_work_sum] => 342 847 [display_total_sum] => 734 549 ) 1
734 549
Работа:342 847
Материалы:391 702
Дни:23
stdClass Object ( [id] => 91 [attribute_id] => 5 [name] => Кирпич [material_modifier] => 1 [work_modifier] => 1 [options] => Array ( [0] => Кирпич 250 мм [1] => Кирпич 380 мм [2] => Кирпич 510 мм [3] => Кирпич 640 мм [4] => Кирпич 770 мм ) [days] => [30,30,31,33,36] [material_price] => [5500,7142,9206,10171,12235] [work_price] => [8736,10041,12018,15240,18462] [image] => https://akademik-stroy.ru/wp-content/uploads/materials/kirpich.jpg [area_modifier] => 68.93 [parent_name] => Стены 2 этаж (несущие) [parent_id] => 5 [material_sum] => 477685 [work_sum] => 632281 [total_sum] => 1109966 [total_days] => 30 [display_material_sum] => 477 685 [display_work_sum] => 632 281 [display_total_sum] => 1 109 966 ) 1
1 109 966
Работа:632 281
Материалы:477 685
Дни:30
stdClass Object ( [id] => 92 [attribute_id] => 5 [name] => Монолитные [material_modifier] => 1 [work_modifier] => 1 [options] => Array ( [0] => 150 мм [1] => 200 мм [2] => 250 мм [3] => 300 мм [4] => 350 мм [5] => 400 мм ) [days] => [45,46,47,49,50,53] [material_price] => [6545,7876,10175,12011,13908,15204] [work_price] => [5106,6444,7698,8552,9807,11461] [image] => https://akademik-stroy.ru/wp-content/uploads/materials/monolitnye.jpg [area_modifier] => 68.93 [parent_name] => Стены 2 этаж (несущие) [parent_id] => 5 [material_sum] => 568445 [work_sum] => 369554 [total_sum] => 937999 [total_days] => 45 [display_material_sum] => 568 445 [display_work_sum] => 369 554 [display_total_sum] => 937 999 ) 1
937 999
Работа:369 554
Материалы:568 445
Дни:45
stdClass Object ( [id] => 93 [attribute_id] => 5 [name] => Клееный брус [material_modifier] => 1 [work_modifier] => 1 [options] => Array ( [0] => 160 мм [1] => 175 мм [2] => 200 мм [3] => 215 мм [4] => 240 мм [5] => 270 мм [6] => 282 мм ) [days] => [24,28,32,37,40,42,48] [material_price] => [16975,18773,19950,20545,21599,22159,23275] [work_price] => [4806,5287,5815,6397,7036,7740,8514] [image] => https://akademik-stroy.ru/wp-content/uploads/materials/kleenyj-brus.jpg [area_modifier] => 68.93 [parent_name] => Стены 2 этаж (несущие) [parent_id] => 5 [material_sum] => 1474309 [work_sum] => 347841 [total_sum] => 1822150 [total_days] => 24 [display_material_sum] => 1 474 309 [display_work_sum] => 347 841 [display_total_sum] => 1 822 150 ) 1
1 822 150
Работа:347 841
Материалы:1 474 309
Дни:24
stdClass Object ( [id] => 94 [attribute_id] => 5 [name] => Каркасные [material_modifier] => 1 [work_modifier] => 1 [options] => Array ( [0] => 150 мм [1] => 200 мм [2] => 250 мм [3] => 300 мм ) [days] => [15,16,17,18] [material_price] => [2379,2639,2898,3258] [work_price] => [2418,2686,2985,3716] [image] => https://akademik-stroy.ru/wp-content/uploads/materials/karkasnye.jpg [area_modifier] => 68.93 [parent_name] => Стены 2 этаж (несущие) [parent_id] => 5 [material_sum] => 206620 [work_sum] => 175006 [total_sum] => 381626 [total_days] => 15 [display_material_sum] => 206 620 [display_work_sum] => 175 006 [display_total_sum] => 381 626 ) 1
381 626
Работа:175 006
Материалы:206 620
Дни:15
stdClass Object ( [id] => 95 [attribute_id] => 5 [name] => СИП-панели [material_modifier] => 1 [work_modifier] => 1 [options] => Array ( [0] => 120 мм [1] => 170 мм [2] => 220 мм ) [days] => [7,7,7] [material_price] => [1210,1856,2292] [work_price] => [1410,1551,1706] [image] => https://akademik-stroy.ru/wp-content/uploads/materials/sip-paneli.jpg [area_modifier] => 68.93 [parent_name] => Стены 2 этаж (несущие) [parent_id] => 5 [material_sum] => 105091 [work_sum] => 102051 [total_sum] => 207142 [total_days] => 7 [display_material_sum] => 105 091 [display_work_sum] => 102 051 [display_total_sum] => 207 142 ) 1
207 142
Работа:102 051
Материалы:105 091
Дни:7
stdClass Object ( [id] => 96 [attribute_id] => 5 [name] => Сухой брус [material_modifier] => 1 [work_modifier] => 1 [options] => Array ( [0] => 150 мм [1] => 180 мм [2] => 200 мм ) [days] => [7,8,9] [material_price] => [6010,7190,8709] [work_price] => [3204,3845,4229] [image] => https://akademik-stroy.ru/wp-content/uploads/materials/suhoj-brus.jpg [area_modifier] => 68.93 [parent_name] => Стены 2 этаж (несущие) [parent_id] => 5 [material_sum] => 521979 [work_sum] => 231894 [total_sum] => 753873 [total_days] => 7 [display_material_sum] => 521 979 [display_work_sum] => 231 894 [display_total_sum] => 753 873 ) 1
753 873
Работа:231 894
Материалы:521 979
Дни:7
stdClass Object ( [id] => 97 [attribute_id] => 5 [name] => Профилированный брус [material_modifier] => 1 [work_modifier] => 1 [options] => Array ( [0] => 150 мм [1] => 180 мм [2] => 200 мм ) [days] => [7,8,9] [material_price] => [8190,9228,10051] [work_price] => [3845,4614,5075] [image] => https://akademik-stroy.ru/wp-content/uploads/materials/profilirovannyj-brus.jpg [area_modifier] => 68.93 [parent_name] => Стены 2 этаж (несущие) [parent_id] => 5 [material_sum] => 711316 [work_sum] => 278288 [total_sum] => 989604 [total_days] => 7 [display_material_sum] => 711 316 [display_work_sum] => 278 288 [display_total_sum] => 989 604 ) 1
989 604
Работа:278 288
Материалы:711 316
Дни:7
stdClass Object ( [id] => 98 [attribute_id] => 5 [name] => Оцилиндрованное бревно [material_modifier] => 1 [work_modifier] => 1 [options] => Array ( [0] => 180 мм [1] => 220 мм [2] => 260 мм [3] => 320 мм ) [days] => [7,8,9,10] [material_price] => [75190,9532,10868,13116] [work_price] => [3845,4691,5535,6863] [image] => https://akademik-stroy.ru/wp-content/uploads/materials/ocilindrovannoe-brevno-1.jpg [area_modifier] => 68.93 [parent_name] => Стены 2 этаж (несущие) [parent_id] => 5 [material_sum] => 6530387 [work_sum] => 278288 [total_sum] => 6808675 [total_days] => 7 [display_material_sum] => 6 530 387 [display_work_sum] => 278 288 [display_total_sum] => 6 808 675 ) 1
6 808 675
Работа:278 288
Материалы:6 530 387
Дни:7
stdClass Object ( [id] => 99 [attribute_id] => 5 [name] => Срубы [material_modifier] => 1 [work_modifier] => 1 [options] => Array ( [0] => 260 мм [1] => 320 мм [2] => 360 мм [3] => 400 мм [4] => 500 мм ) [days] => [7,8,9,10,11] [material_price] => [16175,23709,26314,29069,32167] [work_price] => [4806,5911,6621,7349,9260] [image] => https://akademik-stroy.ru/wp-content/uploads/materials/suhoj-brus.jpg [area_modifier] => 68.93 [parent_name] => Стены 2 этаж (несущие) [parent_id] => 5 [material_sum] => 1404828 [work_sum] => 347841 [total_sum] => 1752669 [total_days] => 7 [display_material_sum] => 1 404 828 [display_work_sum] => 347 841 [display_total_sum] => 1 752 669 ) 1
1 752 669
Работа:347 841
Материалы:1 404 828
Дни:7
stdClass Object ( [id] => 194 [attribute_id] => 5 [name] => Брус [material_modifier] => 1 [work_modifier] => 1 [options] => Array ( [0] => 150 мм [1] => 180 мм [2] => 200 мм ) [days] => [10,13,15] [material_price] => [5127,6152,7367] [work_price] => [1602,1922,2115] [image] => https://akademik-stroy.ru/wp-content/uploads/materials/brus.jpg [area_modifier] => 68.93 [parent_name] => Стены 2 этаж (несущие) [parent_id] => 5 [material_sum] => 445289 [work_sum] => 115947 [total_sum] => 561236 [total_days] => 10 [display_material_sum] => 445 289 [display_work_sum] => 115 947 [display_total_sum] => 561 236 ) 1
561 236
Работа:115 947
Материалы:445 289
Дни:10
stdClass Object ( [id] => 195 [attribute_id] => 5 [name] => Газобетон [material_modifier] => 1 [work_modifier] => 1 [options] => Array ( [0] => 300 мм [1] => 375 мм [2] => 400 мм [3] => 500 мм [4] => 600 мм ) [days] => [29,31,35,37,44] [material_price] => [4298,5573,6356,7288,9119] [work_price] => [4538,5251,5926,6733,7195] [image] => https://akademik-stroy.ru/wp-content/uploads/materials/gazobeton.jpg [area_modifier] => 68.93 [parent_name] => Стены 2 этаж (несущие) [parent_id] => 5 [material_sum] => 373289 [work_sum] => 328445 [total_sum] => 701734 [total_days] => 29 [display_material_sum] => 373 289 [display_work_sum] => 328 445 [display_total_sum] => 701 734 ) 1
701 734
Работа:328 445
Материалы:373 289
Дни:29
stdClass Object ( [id] => 196 [attribute_id] => 5 [name] => Блок [material_modifier] => 1 [work_modifier] => 1 [options] => Array ( [0] => 300 мм [1] => 375 мм [2] => 400 мм [3] => 500 мм [4] => 600 мм ) [days] => [29,31,35,37,44] [material_price] => [2698,3973,4356,6588,7119] [work_price] => [5038,5851,6426,8733,9195] [image] => https://akademik-stroy.ru/wp-content/uploads/materials/blok.jpg [area_modifier] => 68.93 [parent_name] => Стены 2 этаж (несущие) [parent_id] => 5 [material_sum] => 234326 [work_sum] => 364633 [total_sum] => 598959 [total_days] => 29 [display_material_sum] => 234 326 [display_work_sum] => 364 633 [display_total_sum] => 598 959 ) 1
598 959
Работа:364 633
Материалы:234 326
Дни:29
stdClass Object ( [id] => 197 [attribute_id] => 5 [name] => Газосиликатный блок [material_modifier] => 1 [work_modifier] => 1 [options] => Array ( [0] => 300 мм [1] => 375 мм [2] => 400 мм [3] => 500 мм [4] => 600 мм ) [days] => [29,31,35,37,44] [material_price] => [4298,5573,6356,7288,9119] [work_price] => [4538,5251,5926,6733,7195] [image] => https://akademik-stroy.ru/wp-content/uploads/materials/gazosilikatnyj-blok.jpg [area_modifier] => 68.93 [parent_name] => Стены 2 этаж (несущие) [parent_id] => 5 [material_sum] => 373289 [work_sum] => 328445 [total_sum] => 701734 [total_days] => 29 [display_material_sum] => 373 289 [display_work_sum] => 328 445 [display_total_sum] => 701 734 ) 1
701 734
Работа:328 445
Материалы:373 289
Дни:29
stdClass Object ( [id] => 198 [attribute_id] => 5 [name] => Керамзитобетонный блок [material_modifier] => 1 [work_modifier] => 1 [options] => Array ( [0] => 300 мм [1] => 375 мм [2] => 400 мм [3] => 500 мм [4] => 600 мм ) [days] => [23,23,24,25,28] [material_price] => [3641,4298,5693,7613,9612] [work_price] => [5737,5737,6903,7958,8901] [image] => https://akademik-stroy.ru/wp-content/uploads/materials/keramzitobetonnyj-blok.jpg [area_modifier] => 68.93 [parent_name] => Стены 2 этаж (несущие) [parent_id] => 5 [material_sum] => 316227 [work_sum] => 415224 [total_sum] => 731451 [total_days] => 23 [display_material_sum] => 316 227 [display_work_sum] => 415 224 [display_total_sum] => 731 451 ) 1
731 451
Работа:415 224
Материалы:316 227
Дни:23
stdClass Object ( [id] => 199 [attribute_id] => 5 [name] => Деревянные [material_modifier] => 1 [work_modifier] => 1 [options] => Array ( [0] => 180 мм [1] => 220 мм [2] => 260 мм [3] => 320 мм ) [days] => [7,8,9,10] [material_price] => [7950,9458,11961,14472] [work_price] => [4037,4925,5812,7207] [image] => https://akademik-stroy.ru/wp-content/uploads/materials/derevyannye.jpg [area_modifier] => 68.93 [parent_name] => Стены 2 этаж (несущие) [parent_id] => 5 [material_sum] => 690472 [work_sum] => 292184 [total_sum] => 982656 [total_days] => 7 [display_material_sum] => 690 472 [display_work_sum] => 292 184 [display_total_sum] => 982 656 ) 1
982 656
Работа:292 184
Материалы:690 472
Дни:7
stdClass Object ( [id] => 200 [attribute_id] => 5 [name] => Камень [material_modifier] => 1 [work_modifier] => 1 [options] => Array ( [0] => 300 мм [1] => 400 мм [2] => 500 мм [3] => 600 мм ) [days] => [25,27,31,34] [material_price] => [5262,6844,8330,9815] [work_price] => [8331,9135,10427,11069] [image] => https://akademik-stroy.ru/wp-content/uploads/materials/kamen.jpg [area_modifier] => 68.93 [parent_name] => Стены 2 этаж (несущие) [parent_id] => 5 [material_sum] => 457014 [work_sum] => 602969 [total_sum] => 1059983 [total_days] => 25 [display_material_sum] => 457 014 [display_work_sum] => 602 969 [display_total_sum] => 1 059 983 ) 1
1 059 983
Работа:602 969
Материалы:457 014
Дни:25
stdClass Object ( [id] => 201 [attribute_id] => 5 [name] => Каркасно-щитовые [material_modifier] => 1 [work_modifier] => 1 [options] => Array ( [0] => 150 мм [1] => 200 мм [2] => 250 мм [3] => 300 мм [4] => 350 мм [5] => 400 мм ) [days] => [15,16,17,18,19,20] [material_price] => [2379,2639,2898,3458,3601,4175] [work_price] => [2538,2820,3134,3483,4062,5642] [image] => https://akademik-stroy.ru/wp-content/uploads/materials/karkasno-shchitovye.jpg [area_modifier] => 68.93 [parent_name] => Стены 2 этаж (несущие) [parent_id] => 5 [material_sum] => 206620 [work_sum] => 183692 [total_sum] => 390312 [total_days] => 15 [display_material_sum] => 206 620 [display_work_sum] => 183 692 [display_total_sum] => 390 312 ) 1
390 312
Работа:183 692
Материалы:206 620
Дни:15
stdClass Object ( [id] => 202 [attribute_id] => 5 [name] => Рубленные [material_modifier] => 1 [work_modifier] => 1 [options] => Array ( [0] => 150 мм [1] => 200 мм [2] => 250 мм [3] => 300 мм [4] => 350 мм [5] => 400 мм ) [days] => [15,16,17,18,17,18] [material_price] => [35950,50267,60583,75900,80217,100533] [work_price] => [9612,12816,16020,19224,22428,25632] [image] => https://akademik-stroy.ru/wp-content/uploads/materials/rublennye.jpg [area_modifier] => 68.93 [parent_name] => Стены 2 этаж (несущие) [parent_id] => 5 [material_sum] => 3122322 [work_sum] => 695683 [total_sum] => 3818005 [total_days] => 15 [display_material_sum] => 3 122 322 [display_work_sum] => 695 683 [display_total_sum] => 3 818 005 ) 1
3 818 005
Работа:695 683
Материалы:3 122 322
Дни:15
stdClass Object ( [id] => 203 [attribute_id] => 5 [name] => Теплоблок [material_modifier] => 1 [work_modifier] => 1 [options] => Array ( [0] => 300 мм (с облицовкой, не покрашенный) [1] => 400 мм (с облицовкой, не покрашенный) [2] => 300 мм (с облицовкой, покрашенный) [3] => 400 мм (с облицовкой, покрашенный) ) [days] => [15,16,15,16] [material_price] => [2888,3729,3957,4258] [work_price] => [2564,3229,2949,3713] [image] => https://akademik-stroy.ru/wp-content/uploads/materials/teploblok.jpg [area_modifier] => 68.93 [parent_name] => Стены 2 этаж (несущие) [parent_id] => 5 [material_sum] => 250828 [work_sum] => 185573 [total_sum] => 436401 [total_days] => 15 [display_material_sum] => 250 828 [display_work_sum] => 185 573 [display_total_sum] => 436 401 ) 1
436 401
Работа:185 573
Материалы:250 828
Дни:15
stdClass Object ( [id] => 204 [attribute_id] => 5 [name] => Арболитовые блоки [material_modifier] => 1 [work_modifier] => 1 [options] => Array ( [0] => 300 мм [1] => 400 мм [2] => 600 мм ) [days] => [19,22,27] [material_price] => [3210,4475,5852] [work_price] => [4214,4788,5866] [image] => https://akademik-stroy.ru/wp-content/uploads/materials/arbolitovye-bloki.png [area_modifier] => 68.93 [parent_name] => Стены 2 этаж (несущие) [parent_id] => 5 [material_sum] => 278794 [work_sum] => 304995 [total_sum] => 583789 [total_days] => 19 [display_material_sum] => 278 794 [display_work_sum] => 304 995 [display_total_sum] => 583 789 ) 1
583 789
Работа:304 995
Материалы:278 794
Дни:19
stdClass Object ( [id] => 205 [attribute_id] => 5 [name] => Полистиролбетон [material_modifier] => 1 [work_modifier] => 1 [options] => Array ( [0] => 300 мм [1] => 400 мм [2] => 600 мм ) [days] => [29,31,35] [material_price] => [2798,4573,5256] [work_price] => [5038,5851,6426] [image] => https://akademik-stroy.ru/wp-content/uploads/materials/polistirolbeton.jpg [area_modifier] => 68.93 [parent_name] => Стены 2 этаж (несущие) [parent_id] => 5 [material_sum] => 243011 [work_sum] => 364633 [total_sum] => 607644 [total_days] => 29 [display_material_sum] => 243 011 [display_work_sum] => 364 633 [display_total_sum] => 607 644 ) 1
607 644
Работа:364 633
Материалы:243 011
Дни:29
stdClass Object ( [id] => 206 [attribute_id] => 5 [name] => Шлакоблок [material_modifier] => 1 [work_modifier] => 1 [options] => Array ( [0] => 400 мм [1] => 600 мм ) [days] => [15,16] [material_price] => [2391,3471] [work_price] => [2642,3662] [image] => https://akademik-stroy.ru/wp-content/uploads/materials/shlakoblok.jpg [area_modifier] => 68.93 [parent_name] => Стены 2 этаж (несущие) [parent_id] => 5 [material_sum] => 207663 [work_sum] => 191219 [total_sum] => 398882 [total_days] => 15 [display_material_sum] => 207 663 [display_work_sum] => 191 219 [display_total_sum] => 398 882 ) 1
398 882
Работа:191 219
Материалы:207 663
Дни:15
stdClass Object ( [id] => 245 [attribute_id] => 5 [name] => Теплая керамика [material_modifier] => 1 [work_modifier] => 1 [options] => Array ( [0] => 380 мм [1] => 380 мм Thermo [2] => 440 мм [3] => 510 мм ) [days] => [10,10,11,12] [material_price] => [4510,5098,6093,8013] [work_price] => [4737,4937,5903,6958] [image] => https://akademik-stroy.ru/wp-content/uploads/materials/teplaya-keramika.jpg [area_modifier] => 68.93 [parent_name] => Стены 2 этаж (несущие) [parent_id] => 5 [material_sum] => 391702 [work_sum] => 342847 [total_sum] => 734549 [total_days] => 10 [display_material_sum] => 391 702 [display_work_sum] => 342 847 [display_total_sum] => 734 549 ) 1
734 549
Работа:342 847
Материалы:391 702
Дни:10
stdClass Object ( [id] => 246 [attribute_id] => 5 [name] => Несъемная опалубка [material_modifier] => 1 [work_modifier] => 1 [options] => Array ( [0] => 380 мм [1] => 380 мм Thermo [2] => 440 мм [3] => 510 мм ) [days] => [10,10,11,12] [material_price] => [3302,3902,4108,5008] [work_price] => [2100,2100,2300,2534] [image] => https://akademik-stroy.ru/wp-content/uploads/materials/nesemnaya-opalubka.jpg [area_modifier] => 68.93 [parent_name] => Стены 2 этаж (несущие) [parent_id] => 5 [material_sum] => 286785 [work_sum] => 151991 [total_sum] => 438776 [total_days] => 10 [display_material_sum] => 286 785 [display_work_sum] => 151 991 [display_total_sum] => 438 776 ) 1
438 776
Работа:151 991
Материалы:286 785
Дни:10
stdClass Object ( [id] => 254 [attribute_id] => 5 [name] => Бревно [material_modifier] => 1 [work_modifier] => 1 [options] => Array ( [0] => 260 мм [1] => 320 мм [2] => 360 мм [3] => 400 мм [4] => 500 мм ) [days] => [7,8,9,10,11] [material_price] => [1874,24045,26930,30972,38825] [work_price] => [5046,6207,6952,7716,9723] [image] => https://akademik-stroy.ru/wp-content/uploads/materials/sruby.jpg [area_modifier] => 68.93 [parent_name] => Стены 2 этаж (несущие) [parent_id] => 5 [material_sum] => 162760 [work_sum] => 365212 [total_sum] => 527972 [total_days] => 7 [display_material_sum] => 162 760 [display_work_sum] => 365 212 [display_total_sum] => 527 972 ) 1
527 972
Работа:365 212
Материалы:162 760
Дни:7
Крыша (Скатная)
stdClass Object ( [id] => 164 [attribute_id] => 37 [name] => Металлочерепица [material_modifier] => 1 [work_modifier] => 1 [options] => Array ( ) [days] => [20] [material_price] => [6112] [work_price] => [5726] [image] => https://akademik-stroy.ru/wp-content/uploads/materials/metallocherepica.jpg [area_modifier] => 165.74 [parent_name] => Крыша (Скатная) [parent_id] => 37 [material_sum] => 1276384 [work_sum] => 996479 [total_sum] => 2272863 [total_days] => 20 [display_material_sum] => 1 276 384 [display_work_sum] => 996 479 [display_total_sum] => 2 272 863 ) 1
2 272 863
Работа:996 479
Материалы:1 276 384
Дни:20
stdClass Object ( [id] => 165 [attribute_id] => 37 [name] => Гибкая черепица [material_modifier] => 1 [work_modifier] => 1 [options] => Array ( ) [days] => [20] [material_price] => [6980] [work_price] => [5950] [image] => https://akademik-stroy.ru/wp-content/uploads/materials/gibkaya-cherepica.jpg [area_modifier] => 165.74 [parent_name] => Крыша (Скатная) [parent_id] => 37 [material_sum] => 1457650 [work_sum] => 1035461 [total_sum] => 2493111 [total_days] => 20 [display_material_sum] => 1 457 650 [display_work_sum] => 1 035 461 [display_total_sum] => 2 493 111 ) 1
2 493 111
Работа:1 035 461
Материалы:1 457 650
Дни:20
stdClass Object ( [id] => 166 [attribute_id] => 37 [name] => Цементно-песчаная черепица [material_modifier] => 1 [work_modifier] => 1 [options] => Array ( ) [days] => [20] [material_price] => [10560] [work_price] => [9456] [image] => https://akademik-stroy.ru/wp-content/uploads/materials/cementno-peschanaya-cherepica.jpg [area_modifier] => 165.74 [parent_name] => Крыша (Скатная) [parent_id] => 37 [material_sum] => 2205270 [work_sum] => 1645599 [total_sum] => 3850869 [total_days] => 20 [display_material_sum] => 2 205 270 [display_work_sum] => 1 645 599 [display_total_sum] => 3 850 869 ) 1
3 850 869
Работа:1 645 599
Материалы:2 205 270
Дни:20
stdClass Object ( [id] => 167 [attribute_id] => 37 [name] => Композитная черепица [material_modifier] => 1 [work_modifier] => 1 [options] => Array ( ) [days] => [20] [material_price] => [9506] [work_price] => [8905] [image] => https://akademik-stroy.ru/wp-content/uploads/materials/kompozitnaya-cherepica.jpg [area_modifier] => 165.74 [parent_name] => Крыша (Скатная) [parent_id] => 37 [material_sum] => 1985161 [work_sum] => 1549710 [total_sum] => 3534871 [total_days] => 20 [display_material_sum] => 1 985 161 [display_work_sum] => 1 549 710 [display_total_sum] => 3 534 871 ) 1
3 534 871
Работа:1 549 710
Материалы:1 985 161
Дни:20
stdClass Object ( [id] => 168 [attribute_id] => 37 [name] => Керамическая черепица [material_modifier] => 1 [work_modifier] => 1 [options] => Array ( ) [days] => [20] [material_price] => [12750] [work_price] => [9456] [image] => https://akademik-stroy.ru/wp-content/uploads/materials/keramicheskaya-cherepica.jpg [area_modifier] => 165.74 [parent_name] => Крыша (Скатная) [parent_id] => 37 [material_sum] => 2662613 [work_sum] => 1645599 [total_sum] => 4308212 [total_days] => 20 [display_material_sum] => 2 662 613 [display_work_sum] => 1 645 599 [display_total_sum] => 4 308 212 ) 1
4 308 212
Работа:1 645 599
Материалы:2 662 613
Дни:20
stdClass Object ( [id] => 169 [attribute_id] => 37 [name] => Металлическая фальцевая [material_modifier] => 1 [work_modifier] => 1 [options] => Array ( ) [days] => [20] [material_price] => [8550] [work_price] => [8190] [image] => https://akademik-stroy.ru/wp-content/uploads/materials/metallicheskaya-falcevaya.jpg [area_modifier] => 165.74 [parent_name] => Крыша (Скатная) [parent_id] => 37 [material_sum] => 1785517 [work_sum] => 1425281 [total_sum] => 3210798 [total_days] => 20 [display_material_sum] => 1 785 517 [display_work_sum] => 1 425 281 [display_total_sum] => 3 210 798 ) 1
3 210 798
Работа:1 425 281
Материалы:1 785 517
Дни:20
stdClass Object ( [id] => 170 [attribute_id] => 37 [name] => Медная фальцевая [material_modifier] => 1 [work_modifier] => 1 [options] => Array ( ) [days] => [20] [material_price] => [20450] [work_price] => [16750] [image] => https://akademik-stroy.ru/wp-content/uploads/materials/mednaya-falcevaya.jpg [area_modifier] => 165.74 [parent_name] => Крыша (Скатная) [parent_id] => 37 [material_sum] => 4270623 [work_sum] => 2914952 [total_sum] => 7185575 [total_days] => 20 [display_material_sum] => 4 270 623 [display_work_sum] => 2 914 952 [display_total_sum] => 7 185 575 ) 1
7 185 575
Работа:2 914 952
Материалы:4 270 623
Дни:20
stdClass Object ( [id] => 171 [attribute_id] => 37 [name] => Зеленая кровля [material_modifier] => 1 [work_modifier] => 1 [options] => Array ( ) [days] => [20] [material_price] => [19850] [work_price] => [16780] [image] => https://akademik-stroy.ru/wp-content/uploads/materials/zelenaya-krovlya.jpg [area_modifier] => 165.74 [parent_name] => Крыша (Скатная) [parent_id] => 37 [material_sum] => 4145323 [work_sum] => 2920173 [total_sum] => 7065496 [total_days] => 20 [display_material_sum] => 4 145 323 [display_work_sum] => 2 920 173 [display_total_sum] => 7 065 496 ) 1
7 065 496
Работа:2 920 173
Материалы:4 145 323
Дни:20
stdClass Object ( [id] => 172 [attribute_id] => 37 [name] => Профлист [material_modifier] => 1 [work_modifier] => 1 [options] => Array ( ) [days] => [20] [material_price] => [3450] [work_price] => [3750] [image] => https://akademik-stroy.ru/wp-content/uploads/materials/proflist.jpg [area_modifier] => 165.74 [parent_name] => Крыша (Скатная) [parent_id] => 37 [material_sum] => 720472 [work_sum] => 652601 [total_sum] => 1373073 [total_days] => 20 [display_material_sum] => 720 472 [display_work_sum] => 652 601 [display_total_sum] => 1 373 073 ) 1
1 373 073
Работа:652 601
Материалы:720 472
Дни:20
Окна
stdClass Object ( [id] => 51 [attribute_id] => 26 [name] => Есть [material_modifier] => 1 [work_modifier] => 1 [options] => Array ( [0] => Профиль 58 мм, 3-камерный, стеклопакет 2-камерный до 32 мм [1] => Профиль 60 мм, 4-камерный, стеклопакет 2-камерный до 32 мм [2] => Профиль 70 мм, 5-камерный, стеклопакет 2-камерный до 40 мм [3] => Профиль 72 мм, 5-камерный, стеклопакет 2-камерный до 40 мм [4] => Алюминиевые окна Alutech профиль 72 мм, стеклопакет 2-камерный ) [days] => [3,3,3,3,3] [material_price] => [1339,2124,2867,3023,29596] [work_price] => [635,647,659,668,2579] [image] => https://akademik-stroy.ru/wp-content/uploads/materials/okna.jpg [area_modifier] => 190.44 [parent_name] => Окна [parent_id] => 26 [material_sum] => 321299 [work_sum] => 126976 [total_sum] => 448275 [total_days] => 3 [display_material_sum] => 321 299 [display_work_sum] => 126 976 [display_total_sum] => 448 275 ) 1
448 275
Работа:126 976
Материалы:321 299
Дни:3
stdClass Object ( [id] => 52 [attribute_id] => 26 [name] => Нет [material_modifier] => 2 [work_modifier] => 1 [options] => [days] => null [material_price] => null [work_price] => null [image] => https://akademik-stroy.ru/wp-content/uploads/materials/okna.jpg [area_modifier] => 190.44 [parent_name] => Окна [parent_id] => 26 [material_sum] => 0 [work_sum] => 0 [total_sum] => 0 [total_days] => 0 [display_material_sum] => 0 [display_work_sum] => 0 [display_total_sum] => 0 ) 1
0
Работа:0
Материалы:0
Дни:0
Двери входные
stdClass Object ( [id] => 53 [attribute_id] => 27 [name] => Есть [material_modifier] => 1 [work_modifier] => 1 [options] => Array ( ) [days] => [1] [material_price] => [10000] [work_price] => [5500] [image] => https://akademik-stroy.ru/wp-content/uploads/materials/dveri.jpg [area_modifier] => 1 [parent_name] => Двери входные [parent_id] => 27 [material_sum] => 12600 [work_sum] => 5775 [total_sum] => 18375 [total_days] => 1 [display_material_sum] => 12 600 [display_work_sum] => 5 775 [display_total_sum] => 18 375 ) 1
18 375
Работа:5 775
Материалы:12 600
Дни:1
stdClass Object ( [id] => 54 [attribute_id] => 27 [name] => Нет [material_modifier] => 1 [work_modifier] => 1 [options] => Array ( ) [days] => [0] [material_price] => [0] [work_price] => [0] [image] => https://akademik-stroy.ru/wp-content/uploads/materials/dveri.jpg [area_modifier] => 1 [parent_name] => Двери входные [parent_id] => 27 [material_sum] => 0 [work_sum] => 0 [total_sum] => 0 [total_days] => 0 [display_material_sum] => 0 [display_work_sum] => 0 [display_total_sum] => 0 ) 1
0
Работа:0
Материалы:0
Дни:0
Утепление кровли (Мансарда)
stdClass Object ( [id] => 25 [attribute_id] => 13 [name] => Нет [material_modifier] => 1 [work_modifier] => 1 [options] => Array ( ) [days] => [0] [material_price] => [0] [work_price] => [0] [image] => https://akademik-stroy.ru/wp-content/uploads/materials/mineralovata-krov.jpg [area_modifier] => 165.74 [parent_name] => Утепление кровли (Мансарда) [parent_id] => 13 [material_sum] => 0 [work_sum] => 0 [total_sum] => 0 [total_days] => 0 [display_material_sum] => 0 [display_work_sum] => 0 [display_total_sum] => 0 ) 1
0
Работа:0
Материалы:0
Дни:0
stdClass Object ( [id] => 26 [attribute_id] => 13 [name] => Минераловатный [material_modifier] => 1 [work_modifier] => 1 [options] => Array ( [0] => 50 мм [1] => 100 мм [2] => 150 мм [3] => 200 мм [4] => 250 мм [5] => 300 мм [6] => 350 мм [7] => 400 мм [8] => 450 мм [9] => 500 мм ) [days] => [5,5,6,6,6,7,7,7,8,8] [material_price] => [1158,1414,1772,2230,3602,4060,4974,5890,6408,7718] [work_price] => [650,846,846,1098,1318,1450,1596,1754,1930,2122] [image] => https://akademik-stroy.ru/wp-content/uploads/materials/mineralovata-krov.jpg [area_modifier] => 165.74 [parent_name] => Утепление кровли (Мансарда) [parent_id] => 13 [material_sum] => 241828 [work_sum] => 113118 [total_sum] => 354946 [total_days] => 5 [display_material_sum] => 241 828 [display_work_sum] => 113 118 [display_total_sum] => 354 946 ) 1
354 946
Работа:113 118
Материалы:241 828
Дни:5
stdClass Object ( [id] => 123 [attribute_id] => 13 [name] => Эковата (целлюлозная вата) [material_modifier] => 1 [work_modifier] => 1 [options] => Array ( [0] => 50 мм [1] => 100 мм [2] => 150 мм [3] => 200 мм [4] => 250 мм [5] => 300 мм [6] => 350 мм [7] => 400 мм [8] => 450 мм [9] => 500 мм ) [days] => [3,3,4,4,4,5,5,5,5,5] [material_price] => [820,1638,2458,3276,5734,6552,8190,9828,11466,13104] [work_price] => [234,304,304,396,474,522,574,632,694,764] [image] => https://akademik-stroy.ru/wp-content/uploads/materials/ehkovata-krov.jpg [area_modifier] => 165.74 [parent_name] => Утепление кровли (Мансарда) [parent_id] => 13 [material_sum] => 171243 [work_sum] => 40722 [total_sum] => 211965 [total_days] => 3 [display_material_sum] => 171 243 [display_work_sum] => 40 722 [display_total_sum] => 211 965 ) 1
211 965
Работа:40 722
Материалы:171 243
Дни:3
stdClass Object ( [id] => 124 [attribute_id] => 13 [name] => Экструдированный пенополистирол [material_modifier] => 1 [work_modifier] => 1 [options] => Array ( [0] => 50 мм [1] => 100 мм [2] => 150 мм [3] => 200 мм [4] => 250 мм [5] => 300 мм [6] => 350 мм [7] => 400 мм [8] => 450 мм [9] => 500 мм ) [days] => [3,3,4,4,4,5,5,5,5,6] [material_price] => [1146,2292,3438,4584,8020,9166,11458,13750,16040,18332] [work_price] => [390,508,508,660,790,870,958,1052,1158,1274] [image] => https://akademik-stroy.ru/wp-content/uploads/materials/epps-krov.jpg [area_modifier] => 165.74 [parent_name] => Утепление кровли (Мансарда) [parent_id] => 13 [material_sum] => 239322 [work_sum] => 67871 [total_sum] => 307193 [total_days] => 3 [display_material_sum] => 239 322 [display_work_sum] => 67 871 [display_total_sum] => 307 193 ) 1
307 193
Работа:67 871
Материалы:239 322
Дни:3
stdClass Object ( [id] => 125 [attribute_id] => 13 [name] => ПСБ (ППС-пенополистирол) [material_modifier] => 1 [work_modifier] => 1 [options] => Array ( [0] => 50 мм [1] => 100 мм [2] => 150 мм [3] => 200 мм [4] => 250 мм [5] => 300 мм [6] => 350 мм [7] => 400 мм [8] => 450 мм [9] => 500 мм ) [days] => [3,3,4,4,4,5,5,5,5,6] [material_price] => [476,954,1430,1906,3336,3814,4766,5720,6674,7626] [work_price] => [390,508,508,660,790,870,958,1052,1158,1274] [image] => https://akademik-stroy.ru/wp-content/uploads/materials/psb-krov.jpg [area_modifier] => 165.74 [parent_name] => Утепление кровли (Мансарда) [parent_id] => 13 [material_sum] => 99404 [work_sum] => 67871 [total_sum] => 167275 [total_days] => 3 [display_material_sum] => 99 404 [display_work_sum] => 67 871 [display_total_sum] => 167 275 ) 1
167 275
Работа:67 871
Материалы:99 404
Дни:3
stdClass Object ( [id] => 126 [attribute_id] => 13 [name] => ППУ (Пенополиуретан) [material_modifier] => 1 [work_modifier] => 1 [options] => Array ( [0] => 50 мм [1] => 100 мм [2] => 150 мм [3] => 200 мм [4] => 250 мм [5] => 300 мм [6] => 350 мм [7] => 400 мм [8] => 450 мм [9] => 500 мм ) [days] => [2,2,3,3,3,3,4,4,4,4] [material_price] => [2080,4160,6240,8320,14560,16640,20800,24960,29120,33280] [work_price] => [234,304,304,396,474,522,574,632,694,764] [image] => https://akademik-stroy.ru/wp-content/uploads/materials/ppu-krov.jpg [area_modifier] => 165.74 [parent_name] => Утепление кровли (Мансарда) [parent_id] => 13 [material_sum] => 434371 [work_sum] => 40722 [total_sum] => 475093 [total_days] => 2 [display_material_sum] => 434 371 [display_work_sum] => 40 722 [display_total_sum] => 475 093 ) 1
475 093
Работа:40 722
Материалы:434 371
Дни:2
stdClass Object ( [id] => 127 [attribute_id] => 13 [name] => PIR-плиты (пенополиизоцианурат) [material_modifier] => 1 [work_modifier] => 1 [options] => Array ( [0] => 50 мм [1] => 100 мм [2] => 150 мм [3] => 200 мм [4] => 250 мм [5] => 300 мм [6] => 350 мм [7] => 400 мм [8] => 450 мм [9] => 500 мм ) [days] => [3,3,4,4,4,5,5,5,5,6] [material_price] => [2646,5290,7936,10580,18516,21162,26452,31742,37032,42324] [work_price] => [390,508,508,660,790,870,958,1052,1158,1274] [image] => https://akademik-stroy.ru/wp-content/uploads/materials/pir-krov.jpg [area_modifier] => 165.74 [parent_name] => Утепление кровли (Мансарда) [parent_id] => 13 [material_sum] => 552571 [work_sum] => 67871 [total_sum] => 620442 [total_days] => 3 [display_material_sum] => 552 571 [display_work_sum] => 67 871 [display_total_sum] => 620 442 ) 1
620 442
Работа:67 871
Материалы:552 571
Дни:3
Мансардные окна
stdClass Object ( [id] => 27 [attribute_id] => 14 [name] => Нет [material_modifier] => 1 [work_modifier] => 1 [options] => Array ( ) [days] => [0] [material_price] => [0] [work_price] => [0] [image] => https://akademik-stroy.ru/wp-content/uploads/materials/mansardnye-okna-2.jpg [area_modifier] => 1 [parent_name] => Мансардные окна [parent_id] => 14 [material_sum] => 0 [work_sum] => 0 [total_sum] => 0 [total_days] => 0 [display_material_sum] => 0 [display_work_sum] => 0 [display_total_sum] => 0 ) 1
0
Работа:0
Материалы:0
Дни:0
stdClass Object ( [id] => 28 [attribute_id] => 14 [name] => Есть [material_modifier] => 1 [work_modifier] => 1 [options] => Array ( [0] => 55x78 [1] => 55x98 ) [days] => [6,7] [material_price] => [47480,68700] [work_price] => [17900,19500] [image] => https://akademik-stroy.ru/wp-content/uploads/materials/mansardnye-okna-2.jpg [area_modifier] => 1 [parent_name] => Мансардные окна [parent_id] => 14 [material_sum] => 59825 [work_sum] => 18795 [total_sum] => 78620 [total_days] => 6 [display_material_sum] => 59 825 [display_work_sum] => 18 795 [display_total_sum] => 78 620 ) 1
78 620
Работа:18 795
Материалы:59 825
Дни:6
Подшивка кровли
stdClass Object ( [id] => 29 [attribute_id] => 15 [name] => Нет [material_modifier] => 1 [work_modifier] => 1 [options] => Array ( ) [days] => [0] [material_price] => [0] [work_price] => [0] [image] => https://akademik-stroy.ru/wp-content/uploads/materials/sofit.jpg [area_modifier] => 165.74 [parent_name] => Подшивка кровли [parent_id] => 15 [material_sum] => 0 [work_sum] => 0 [total_sum] => 0 [total_days] => 0 [display_material_sum] => 0 [display_work_sum] => 0 [display_total_sum] => 0 ) 1
0
Работа:0
Материалы:0
Дни:0
stdClass Object ( [id] => 30 [attribute_id] => 15 [name] => Есть [material_modifier] => 1 [work_modifier] => 1 [options] => Array ( [0] => Софиты (ПВХ) [1] => Cedral [2] => ДПК [3] => Планкен ) [days] => [7,10,9,8] [material_price] => [1803,3213,3025,3150] [work_price] => [1529,2188,2075,1923] [image] => https://akademik-stroy.ru/wp-content/uploads/materials/sofit.jpg [area_modifier] => 165.74 [parent_name] => Подшивка кровли [parent_id] => 15 [material_sum] => 376525 [work_sum] => 266087 [total_sum] => 642612 [total_days] => 7 [display_material_sum] => 376 525 [display_work_sum] => 266 087 [display_total_sum] => 642 612 ) 1
642 612
Работа:266 087
Материалы:376 525
Дни:7
Водосточная система
stdClass Object ( [id] => 31 [attribute_id] => 16 [name] => Нет [material_modifier] => 1 [work_modifier] => 1 [options] => Array ( ) [days] => [0] [material_price] => [0] [work_price] => [0] [image] => https://akademik-stroy.ru/wp-content/uploads/materials/docke-standard-pvh.jpg [area_modifier] => 165.74 [parent_name] => Водосточная система [parent_id] => 16 [material_sum] => 0 [work_sum] => 0 [total_sum] => 0 [total_days] => 0 [display_material_sum] => 0 [display_work_sum] => 0 [display_total_sum] => 0 ) 1
0
Работа:0
Материалы:0
Дни:0
stdClass Object ( [id] => 32 [attribute_id] => 16 [name] => Есть [material_modifier] => 1 [work_modifier] => 1 [options] => Array ( [0] => Döcke Standard (ПВХ) [1] => Металлические Grand Line ) [days] => [7,7] [material_price] => [1842,2703] [work_price] => [1491,1529] [image] => https://akademik-stroy.ru/wp-content/uploads/materials/docke-standard-pvh.jpg [area_modifier] => 165.74 [parent_name] => Водосточная система [parent_id] => 16 [material_sum] => 384669 [work_sum] => 259474 [total_sum] => 644143 [total_days] => 7 [display_material_sum] => 384 669 [display_work_sum] => 259 474 [display_total_sum] => 644 143 ) 1
644 143
Работа:259 474
Материалы:384 669
Дни:7
Дополнительное утепление наружных стен
stdClass Object ( [id] => 33 [attribute_id] => 17 [name] => Нет [material_modifier] => 1 [work_modifier] => 1 [options] => Array ( ) [days] => [0] [material_price] => [0] [work_price] => [0] [image] => https://akademik-stroy.ru/wp-content/uploads/materials/mineralovata.jpg [area_modifier] => 234.68 [parent_name] => Дополнительное утепление наружных стен [parent_id] => 17 [material_sum] => 0 [work_sum] => 0 [total_sum] => 0 [total_days] => 0 [display_material_sum] => 0 [display_work_sum] => 0 [display_total_sum] => 0 ) 1
0
Работа:0
Материалы:0
Дни:0
stdClass Object ( [id] => 34 [attribute_id] => 17 [name] => Минераловатный [material_modifier] => 1 [work_modifier] => 1 [options] => Array ( [0] => 50 мм [1] => 100 мм [2] => 150 мм [3] => 200 мм [4] => 250 мм [5] => 300 мм ) [days] => [7,8,10,12,14,15] [material_price] => [3437,3613,3803,3915,4601,4830] [work_price] => [2325,2423,2523,2749,2859,3025] [image] => https://akademik-stroy.ru/wp-content/uploads/materials/mineralovata.jpg [area_modifier] => 234.68 [parent_name] => Дополнительное утепление наружных стен [parent_id] => 17 [material_sum] => 1016310 [work_sum] => 572913 [total_sum] => 1589223 [total_days] => 7 [display_material_sum] => 1 016 310 [display_work_sum] => 572 913 [display_total_sum] => 1 589 223 ) 1
1 589 223
Работа:572 913
Материалы:1 016 310
Дни:7
stdClass Object ( [id] => 128 [attribute_id] => 17 [name] => Эковата (целлюлозная вата) [material_modifier] => 1 [work_modifier] => 1 [options] => Array ( [0] => 50 мм [1] => 100 мм [2] => 150 мм [3] => 200 мм [4] => 250 мм [5] => 300 мм ) [days] => [3,4,5,6,7,8] [material_price] => [810,1319,1629,1838,2267,2676] [work_price] => [1225,1323,1423,1549,1659,1725] [image] => https://akademik-stroy.ru/wp-content/uploads/materials/ehkovata.jpg [area_modifier] => 234.68 [parent_name] => Дополнительное утепление наружных стен [parent_id] => 17 [material_sum] => 239514 [work_sum] => 301857 [total_sum] => 541371 [total_days] => 3 [display_material_sum] => 239 514 [display_work_sum] => 301 857 [display_total_sum] => 541 371 ) 1
541 371
Работа:301 857
Материалы:239 514
Дни:3
stdClass Object ( [id] => 129 [attribute_id] => 17 [name] => Экструдированный пенополистирол [material_modifier] => 1 [work_modifier] => 1 [options] => Array ( [0] => 50 мм [1] => 100 мм [2] => 150 мм [3] => 200 мм [4] => 250 мм [5] => 300 мм ) [days] => [5,6,7,8,9,10] [material_price] => [4560,4300,5119,6292,7010,8583] [work_price] => [1795,1954,2254,2330,2595,2735] [image] => https://akademik-stroy.ru/wp-content/uploads/materials/epps.jpg [area_modifier] => 234.68 [parent_name] => Дополнительное утепление наружных стен [parent_id] => 17 [material_sum] => 1348377 [work_sum] => 442313 [total_sum] => 1790690 [total_days] => 5 [display_material_sum] => 1 348 377 [display_work_sum] => 442 313 [display_total_sum] => 1 790 690 ) 1
1 790 690
Работа:442 313
Материалы:1 348 377
Дни:5
stdClass Object ( [id] => 130 [attribute_id] => 17 [name] => ПСБ (ППС-пенополистирол) [material_modifier] => 1 [work_modifier] => 1 [options] => Array ( [0] => 50 мм [1] => 100 мм [2] => 150 мм [3] => 200 мм [4] => 250 мм [5] => 300 мм ) [days] => [5,6,7,8,9,10] [material_price] => [4822,5200,5819,6292,7010,7583] [work_price] => [1795,1954,2254,2330,2595,2735] [image] => https://akademik-stroy.ru/wp-content/uploads/materials/psb.jpg [area_modifier] => 234.68 [parent_name] => Дополнительное утепление наружных стен [parent_id] => 17 [material_sum] => 1425850 [work_sum] => 442313 [total_sum] => 1868163 [total_days] => 5 [display_material_sum] => 1 425 850 [display_work_sum] => 442 313 [display_total_sum] => 1 868 163 ) 1
1 868 163
Работа:442 313
Материалы:1 425 850
Дни:5
stdClass Object ( [id] => 131 [attribute_id] => 17 [name] => ППУ (Пенополиуретан) [material_modifier] => 1 [work_modifier] => 1 [options] => Array ( [0] => 50 мм [1] => 100 мм [2] => 150 мм [3] => 200 мм [4] => 250 мм [5] => 300 мм ) [days] => [3,4,5,6,7,8] [material_price] => [2860,3400,4219,4592,5010,5583] [work_price] => [729,900,980,1120,1280,1530] [image] => https://akademik-stroy.ru/wp-content/uploads/materials/ppu.jpg [area_modifier] => 234.68 [parent_name] => Дополнительное утепление наружных стен [parent_id] => 17 [material_sum] => 845693 [work_sum] => 179636 [total_sum] => 1025329 [total_days] => 3 [display_material_sum] => 845 693 [display_work_sum] => 179 636 [display_total_sum] => 1 025 329 ) 1
1 025 329
Работа:179 636
Материалы:845 693
Дни:3
stdClass Object ( [id] => 132 [attribute_id] => 17 [name] => PIR-плиты (пенополиизоцианурат) [material_modifier] => 1 [work_modifier] => 1 [options] => Array ( [0] => 50 мм [1] => 100 мм [2] => 150 мм [3] => 200 мм [4] => 250 мм [5] => 300 мм ) [days] => [5,6,7,8,9,10] [material_price] => [8323,15645,20968,25900,29258,30581] [work_price] => [800,900,970,1150,1280,1330] [image] => https://akademik-stroy.ru/wp-content/uploads/materials/pir.jpg [area_modifier] => 234.68 [parent_name] => Дополнительное утепление наружных стен [parent_id] => 17 [material_sum] => 2461084 [work_sum] => 197131 [total_sum] => 2658215 [total_days] => 5 [display_material_sum] => 2 461 084 [display_work_sum] => 197 131 [display_total_sum] => 2 658 215 ) 1
2 658 215
Работа:197 131
Материалы:2 461 084
Дни:5
Наружная отделка фасада
stdClass Object ( [id] => 37 [attribute_id] => 19 [name] => Нет [material_modifier] => 1 [work_modifier] => 1 [options] => Array ( ) [days] => [0] [material_price] => [0] [work_price] => [0] [image] => https://akademik-stroy.ru/wp-content/uploads/materials/imitaciya-brusa.jpg [area_modifier] => 234.68 [parent_name] => Наружная отделка фасада [parent_id] => 19 [material_sum] => 0 [work_sum] => 0 [total_sum] => 0 [total_days] => 0 [display_material_sum] => 0 [display_work_sum] => 0 [display_total_sum] => 0 ) 1
0
Работа:0
Материалы:0
Дни:0
stdClass Object ( [id] => 38 [attribute_id] => 19 [name] => Имитация бруса [material_modifier] => 1 [work_modifier] => 1 [options] => Array ( [0] => Сосна [1] => Ель [2] => Лиственница ) [days] => [20,20,20] [material_price] => [2994,2762,4954] [work_price] => [1397,1231,1577] [image] => https://akademik-stroy.ru/wp-content/uploads/materials/imitaciya-brusa.jpg [area_modifier] => 234.68 [parent_name] => Наружная отделка фасада [parent_id] => 19 [material_sum] => 885316 [work_sum] => 344240 [total_sum] => 1229556 [total_days] => 20 [display_material_sum] => 885 316 [display_work_sum] => 344 240 [display_total_sum] => 1 229 556 ) 1
1 229 556
Работа:344 240
Материалы:885 316
Дни:20
stdClass Object ( [id] => 136 [attribute_id] => 19 [name] => Планкен [material_modifier] => 1 [work_modifier] => 1 [options] => Array ( [0] => Сосна [1] => Ель [2] => Лиственница ) [days] => [20,20,20] [material_price] => [3194,2862,5154] [work_price] => [1537,1354,1735] [image] => https://akademik-stroy.ru/wp-content/uploads/materials/planken.jpg [area_modifier] => 234.68 [parent_name] => Наружная отделка фасада [parent_id] => 19 [material_sum] => 944456 [work_sum] => 378738 [total_sum] => 1323194 [total_days] => 20 [display_material_sum] => 944 456 [display_work_sum] => 378 738 [display_total_sum] => 1 323 194 ) 1
1 323 194
Работа:378 738
Материалы:944 456
Дни:20
stdClass Object ( [id] => 137 [attribute_id] => 19 [name] => Штукатурка [material_modifier] => 1 [work_modifier] => 1 [options] => Array ( [0] => Цементно-песчаная (минеральная) [1] => Мокрый фасад ) [days] => [35,35] [material_price] => [2231,3938] [work_price] => [1202,2422] [image] => https://akademik-stroy.ru/wp-content/uploads/materials/shtukaturka.jpg [area_modifier] => 234.68 [parent_name] => Наружная отделка фасада [parent_id] => 19 [material_sum] => 659700 [work_sum] => 296190 [total_sum] => 955890 [total_days] => 35 [display_material_sum] => 659 700 [display_work_sum] => 296 190 [display_total_sum] => 955 890 ) 1
955 890
Работа:296 190
Материалы:659 700
Дни:35
stdClass Object ( [id] => 138 [attribute_id] => 19 [name] => Облицовочный кирпич [material_modifier] => 1 [work_modifier] => 1 [options] => Array ( [0] => Керамический [1] => Клинкерный [2] => Ручной формовки [3] => Гиперпрессованный [4] => Силикатный кирпич ) [days] => [45,45,45,45,45] [material_price] => [8174,9148,1040,1257,5876] [work_price] => [3240,3758,4536,4017,3369] [image] => https://akademik-stroy.ru/wp-content/uploads/materials/oblicovochnyj-kirpich.jpg [area_modifier] => 234.68 [parent_name] => Наружная отделка фасада [parent_id] => 19 [material_sum] => 2417026 [work_sum] => 798381 [total_sum] => 3215407 [total_days] => 45 [display_material_sum] => 2 417 026 [display_work_sum] => 798 381 [display_total_sum] => 3 215 407 ) 1
3 215 407
Работа:798 381
Материалы:2 417 026
Дни:45
stdClass Object ( [id] => 139 [attribute_id] => 19 [name] => Фасадная плитка [material_modifier] => 1 [work_modifier] => 1 [options] => Array ( [0] => Клинкерная [1] => Керамическая [2] => Плитка ручной формовки ) [days] => [40,40,40] [material_price] => [2974,1487,3470] [work_price] => [3007,2592,3629] [image] => https://akademik-stroy.ru/wp-content/uploads/materials/fasadnaya-plitka.jpg [area_modifier] => 234.68 [parent_name] => Наружная отделка фасада [parent_id] => 19 [material_sum] => 879402 [work_sum] => 740967 [total_sum] => 1620369 [total_days] => 40 [display_material_sum] => 879 402 [display_work_sum] => 740 967 [display_total_sum] => 1 620 369 ) 1
1 620 369
Работа:740 967
Материалы:879 402
Дни:40
stdClass Object ( [id] => 140 [attribute_id] => 19 [name] => Сайдинг [material_modifier] => 1 [work_modifier] => 1 [options] => Array ( [0] => Виниловый [1] => Металлический [2] => Фиброцементный ) [days] => [20,20,20] [material_price] => [1263,1944,4147] [work_price] => [1263,1944,2074] [image] => https://akademik-stroy.ru/wp-content/uploads/materials/sajding.jpg [area_modifier] => 234.68 [parent_name] => Наружная отделка фасада [parent_id] => 19 [material_sum] => 373465 [work_sum] => 311221 [total_sum] => 684686 [total_days] => 20 [display_material_sum] => 373 465 [display_work_sum] => 311 221 [display_total_sum] => 684 686 ) 1
684 686
Работа:311 221
Материалы:373 465
Дни:20
stdClass Object ( [id] => 141 [attribute_id] => 19 [name] => Камень [material_modifier] => 1 [work_modifier] => 1 [options] => Array ( [0] => Травертин [1] => Дагестанский [2] => Искусственный [3] => Натуральный [4] => Керамогранит ) [days] => [45,45,45,45,45] [material_price] => [4536,3888,2592,3240,2462] [work_price] => [3240,3240,2462,3110,1944] [image] => https://akademik-stroy.ru/wp-content/uploads/materials/kamen-1.jpg [area_modifier] => 234.68 [parent_name] => Наружная отделка фасада [parent_id] => 19 [material_sum] => 1341281 [work_sum] => 798381 [total_sum] => 2139662 [total_days] => 45 [display_material_sum] => 1 341 281 [display_work_sum] => 798 381 [display_total_sum] => 2 139 662 ) 1
2 139 662
Работа:798 381
Материалы:1 341 281
Дни:45
stdClass Object ( [id] => 142 [attribute_id] => 19 [name] => Термопанели [material_modifier] => 1 [work_modifier] => 1 [options] => Array ( ) [days] => [20] [material_price] => [6221] [work_price] => [2333] [image] => https://akademik-stroy.ru/wp-content/uploads/materials/termo.png [area_modifier] => 234.68 [parent_name] => Наружная отделка фасада [parent_id] => 19 [material_sum] => 1839530 [work_sum] => 574884 [total_sum] => 2414414 [total_days] => 20 [display_material_sum] => 1 839 530 [display_work_sum] => 574 884 [display_total_sum] => 2 414 414 ) 1
2 414 414
Работа:574 884
Материалы:1 839 530
Дни:20
stdClass Object ( [id] => 143 [attribute_id] => 19 [name] => Плитка HAUBERK [material_modifier] => 1 [work_modifier] => 1 [options] => Array ( ) [days] => [20] [material_price] => [2786] [work_price] => [1944] [image] => https://akademik-stroy.ru/wp-content/uploads/materials/hauberk.jpg [area_modifier] => 234.68 [parent_name] => Наружная отделка фасада [parent_id] => 19 [material_sum] => 823811 [work_sum] => 479029 [total_sum] => 1302840 [total_days] => 20 [display_material_sum] => 823 811 [display_work_sum] => 479 029 [display_total_sum] => 1 302 840 ) 1
1 302 840
Работа:479 029
Материалы:823 811
Дни:20
stdClass Object ( [id] => 144 [attribute_id] => 19 [name] => Фальцевый фасад [material_modifier] => 1 [work_modifier] => 1 [options] => Array ( ) [days] => [20] [material_price] => [3240] [work_price] => [2592] [image] => https://akademik-stroy.ru/wp-content/uploads/materials/falcevyj-fasad.jpg [area_modifier] => 234.68 [parent_name] => Наружная отделка фасада [parent_id] => 19 [material_sum] => 958058 [work_sum] => 638705 [total_sum] => 1596763 [total_days] => 20 [display_material_sum] => 958 058 [display_work_sum] => 638 705 [display_total_sum] => 1 596 763 ) 1
1 596 763
Работа:638 705
Материалы:958 058
Дни:20
stdClass Object ( [id] => 145 [attribute_id] => 19 [name] => Комбинированный [material_modifier] => 1 [work_modifier] => 1 [options] => Array ( ) [days] => [20] [material_price] => [4629] [work_price] => [3499] [image] => https://akademik-stroy.ru/wp-content/uploads/materials/Kombinirovannyj.jpg [area_modifier] => 234.68 [parent_name] => Наружная отделка фасада [parent_id] => 19 [material_sum] => 1368780 [work_sum] => 862203 [total_sum] => 2230983 [total_days] => 20 [display_material_sum] => 1 368 780 [display_work_sum] => 862 203 [display_total_sum] => 2 230 983 ) 1
2 230 983
Работа:862 203
Материалы:1 368 780
Дни:20
stdClass Object ( [id] => 257 [attribute_id] => 19 [name] => Японские фиброцементные [material_modifier] => 1 [work_modifier] => 1 [options] => Array ( ) [days] => [20] [material_price] => [7043] [work_price] => [2993] [image] => https://akademik-stroy.ru/wp-content/uploads/materials/paneli.jpg [area_modifier] => 234.68 [parent_name] => Наружная отделка фасада [parent_id] => 19 [material_sum] => 2082593 [work_sum] => 737517 [total_sum] => 2820110 [total_days] => 20 [display_material_sum] => 2 082 593 [display_work_sum] => 737 517 [display_total_sum] => 2 820 110 ) 1
2 820 110
Работа:737 517
Материалы:2 082 593
Дни:20
stdClass Object ( [id] => 258 [attribute_id] => 19 [name] => Панели Каньон [material_modifier] => 1 [work_modifier] => 1 [options] => Array ( ) [days] => [20] [material_price] => [4543] [work_price] => [2592] [image] => https://akademik-stroy.ru/wp-content/uploads/materials/kanon.png [area_modifier] => 234.68 [parent_name] => Наружная отделка фасада [parent_id] => 19 [material_sum] => 1343351 [work_sum] => 638705 [total_sum] => 1982056 [total_days] => 20 [display_material_sum] => 1 343 351 [display_work_sum] => 638 705 [display_total_sum] => 1 982 056 ) 1
1 982 056
Работа:638 705
Материалы:1 343 351
Дни:20
Террасы, крыльца, навесы
stdClass Object ( [id] => 39 [attribute_id] => 20 [name] => Нет [material_modifier] => 1 [work_modifier] => 1 [options] => Array ( ) [days] => [0] [material_price] => [0] [work_price] => [0] [image] => https://akademik-stroy.ru/wp-content/uploads/materials/terrasy.jpg [area_modifier] => 30 [parent_name] => Террасы, крыльца, навесы [parent_id] => 20 [material_sum] => 0 [work_sum] => 0 [total_sum] => 0 [total_days] => 0 [display_material_sum] => 0 [display_work_sum] => 0 [display_total_sum] => 0 ) 1
0
Работа:0
Материалы:0
Дни:0
stdClass Object ( [id] => 40 [attribute_id] => 20 [name] => Есть [material_modifier] => 1 [work_modifier] => 1 [options] => Array ( ) [days] => [5] [material_price] => [10450] [work_price] => [1950] [image] => https://akademik-stroy.ru/wp-content/uploads/materials/terrasy.jpg [area_modifier] => 30 [parent_name] => Террасы, крыльца, навесы [parent_id] => 20 [material_sum] => 395010 [work_sum] => 61425 [total_sum] => 456435 [total_days] => 5 [display_material_sum] => 395 010 [display_work_sum] => 61 425 [display_total_sum] => 456 435 ) 1
456 435
Работа:61 425
Материалы:395 010
Дни:5
Балконы
stdClass Object ( [id] => 41 [attribute_id] => 21 [name] => Нет [material_modifier] => 1 [work_modifier] => 1 [options] => Array ( ) [days] => [0] [material_price] => [0] [work_price] => [0] [image] => https://akademik-stroy.ru/wp-content/uploads/materials/balkony.jpg [area_modifier] => 30 [parent_name] => Балконы [parent_id] => 21 [material_sum] => 0 [work_sum] => 0 [total_sum] => 0 [total_days] => 0 [display_material_sum] => 0 [display_work_sum] => 0 [display_total_sum] => 0 ) 1
0
Работа:0
Материалы:0
Дни:0
stdClass Object ( [id] => 42 [attribute_id] => 21 [name] => Есть [material_modifier] => 1 [work_modifier] => 1 [options] => Array ( ) [days] => [12] [material_price] => [3600] [work_price] => [1950] [image] => https://akademik-stroy.ru/wp-content/uploads/materials/balkony.jpg [area_modifier] => 30 [parent_name] => Балконы [parent_id] => 21 [material_sum] => 136080 [work_sum] => 61425 [total_sum] => 197505 [total_days] => 12 [display_material_sum] => 136 080 [display_work_sum] => 61 425 [display_total_sum] => 197 505 ) 1
197 505
Работа:61 425
Материалы:136 080
Дни:12
Отмостка
stdClass Object ( [id] => 43 [attribute_id] => 22 [name] => Нет [material_modifier] => 1 [work_modifier] => 1 [options] => Array ( ) [days] => [0] [material_price] => [0] [work_price] => [0] [image] => https://akademik-stroy.ru/wp-content/uploads/materials/uteplennaya.jpg [area_modifier] => 165.74 [parent_name] => Отмостка [parent_id] => 22 [material_sum] => 0 [work_sum] => 0 [total_sum] => 0 [total_days] => 0 [display_material_sum] => 0 [display_work_sum] => 0 [display_total_sum] => 0 ) 1
0
Работа:0
Материалы:0
Дни:0
stdClass Object ( [id] => 44 [attribute_id] => 22 [name] => Утепленная отмостка [material_modifier] => 1 [work_modifier] => 1 [options] => Array ( ) [days] => [15] [material_price] => [2550] [work_price] => [1750] [image] => https://akademik-stroy.ru/wp-content/uploads/materials/uteplennaya.jpg [area_modifier] => 165.74 [parent_name] => Отмостка [parent_id] => 22 [material_sum] => 532523 [work_sum] => 304547 [total_sum] => 837070 [total_days] => 15 [display_material_sum] => 532 523 [display_work_sum] => 304 547 [display_total_sum] => 837 070 ) 1
837 070
Работа:304 547
Материалы:532 523
Дни:15
stdClass Object ( [id] => 146 [attribute_id] => 22 [name] => Не утепленная отмостка [material_modifier] => 1 [work_modifier] => 1 [options] => Array ( ) [days] => [10] [material_price] => [1650] [work_price] => [1450] [image] => https://akademik-stroy.ru/wp-content/uploads/materials/ne-uteplennaya.jpg [area_modifier] => 165.74 [parent_name] => Отмостка [parent_id] => 22 [material_sum] => 344573 [work_sum] => 252339 [total_sum] => 596912 [total_days] => 10 [display_material_sum] => 344 573 [display_work_sum] => 252 339 [display_total_sum] => 596 912 ) 1
596 912
Работа:252 339
Материалы:344 573
Дни:10
Дренаж вокруг дома
stdClass Object ( [id] => 45 [attribute_id] => 23 [name] => Нет [material_modifier] => 1 [work_modifier] => 1 [options] => Array ( ) [days] => [0] [material_price] => [0] [work_price] => [0] [image] => https://akademik-stroy.ru/wp-content/uploads/materials/drenazh-2.jpg [area_modifier] => 165.74 [parent_name] => Дренаж вокруг дома [parent_id] => 23 [material_sum] => 0 [work_sum] => 0 [total_sum] => 0 [total_days] => 0 [display_material_sum] => 0 [display_work_sum] => 0 [display_total_sum] => 0 ) 1
0
Работа:0
Материалы:0
Дни:0
stdClass Object ( [id] => 46 [attribute_id] => 23 [name] => Есть [material_modifier] => 1 [work_modifier] => 1 [options] => Array ( ) [days] => [5] [material_price] => [2366] [work_price] => [1911] [image] => https://akademik-stroy.ru/wp-content/uploads/materials/drenazh-2.jpg [area_modifier] => 165.74 [parent_name] => Дренаж вокруг дома [parent_id] => 23 [material_sum] => 494097 [work_sum] => 332566 [total_sum] => 826663 [total_days] => 5 [display_material_sum] => 494 097 [display_work_sum] => 332 566 [display_total_sum] => 826 663 ) 1
826 663
Работа:332 566
Материалы:494 097
Дни:5
Автономная канализация (септики)
stdClass Object ( [id] => 47 [attribute_id] => 24 [name] => Нет [material_modifier] => 1 [work_modifier] => 1 [options] => Array ( ) [days] => [0] [material_price] => [0] [work_price] => [0] [image] => https://akademik-stroy.ru/wp-content/uploads/materials/septik.jpg [area_modifier] => 1 [parent_name] => Автономная канализация (септики) [parent_id] => 24 [material_sum] => 0 [work_sum] => 0 [total_sum] => 0 [total_days] => 0 [display_material_sum] => 0 [display_work_sum] => 0 [display_total_sum] => 0 ) 1
0
Работа:0
Материалы:0
Дни:0
stdClass Object ( [id] => 48 [attribute_id] => 24 [name] => Есть [material_modifier] => 1 [work_modifier] => 1 [options] => Array ( [0] => Для дачи на 4 человека [1] => Для дома на 5 человек [2] => Для дома на 6 человек [3] => Для дома на 7 человек [4] => Для дома на 10 человек ) [days] => [7,7,7,8,8] [material_price] => [196340,220500,240940,264200,293340] [work_price] => [50000,55000,60500,66550,73206] [image] => https://akademik-stroy.ru/wp-content/uploads/materials/septik.jpg [area_modifier] => 1 [parent_name] => Автономная канализация (септики) [parent_id] => 24 [material_sum] => 247388 [work_sum] => 52500 [total_sum] => 299888 [total_days] => 7 [display_material_sum] => 247 388 [display_work_sum] => 52 500 [display_total_sum] => 299 888 ) 1
299 888
Работа:52 500
Материалы:247 388
Дни:7
Внутренние (не несущие) перегородки
stdClass Object ( [id] => 49 [attribute_id] => 25 [name] => Нет [material_modifier] => 1 [work_modifier] => 1 [options] => Array ( ) [days] => [0] [material_price] => [0] [work_price] => [0] [image] => https://akademik-stroy.ru/wp-content/uploads/materials/gkl.jpg [area_modifier] => 234.68 [parent_name] => Внутренние (не несущие) перегородки [parent_id] => 25 [material_sum] => 0 [work_sum] => 0 [total_sum] => 0 [total_days] => 0 [display_material_sum] => 0 [display_work_sum] => 0 [display_total_sum] => 0 ) 1
0
Работа:0
Материалы:0
Дни:0
stdClass Object ( [id] => 147 [attribute_id] => 25 [name] => Каркасно-обшивные [material_modifier] => 1 [work_modifier] => 1 [options] => Array ( [0] => 75 мм (без шумоизоляции) [1] => 75 мм (с шумоизоляцией) ) [days] => [11,11] [material_price] => [580,970] [work_price] => [380,570] [image] => https://akademik-stroy.ru/wp-content/uploads/materials/gkl.jpg [area_modifier] => 234.68 [parent_name] => Внутренние (не несущие) перегородки [parent_id] => 25 [material_sum] => 171504 [work_sum] => 93637 [total_sum] => 265141 [total_days] => 11 [display_material_sum] => 171 504 [display_work_sum] => 93 637 [display_total_sum] => 265 141 ) 1
265 141
Работа:93 637
Материалы:171 504
Дни:11
stdClass Object ( [id] => 148 [attribute_id] => 25 [name] => Пазогребневые [material_modifier] => 1 [work_modifier] => 1 [options] => Array ( [0] => 80 мм [1] => 100 мм ) [days] => [5,5] [material_price] => [1022,1313] [work_price] => [600,700] [image] => https://akademik-stroy.ru/wp-content/uploads/materials/pazogrebnevye-bloki.jpg [area_modifier] => 234.68 [parent_name] => Внутренние (не несущие) перегородки [parent_id] => 25 [material_sum] => 302202 [work_sum] => 147848 [total_sum] => 450050 [total_days] => 5 [display_material_sum] => 302 202 [display_work_sum] => 147 848 [display_total_sum] => 450 050 ) 1
450 050
Работа:147 848
Материалы:302 202
Дни:5
stdClass Object ( [id] => 149 [attribute_id] => 25 [name] => Газобетонные [material_modifier] => 1 [work_modifier] => 1 [options] => Array ( [0] => 100 мм [1] => 200 мм ) [days] => [11,11] [material_price] => [1160,1920] [work_price] => [700,900] [image] => https://akademik-stroy.ru/wp-content/uploads/materials/gazobeton-2.jpg [area_modifier] => 234.68 [parent_name] => Внутренние (не несущие) перегородки [parent_id] => 25 [material_sum] => 343008 [work_sum] => 172490 [total_sum] => 515498 [total_days] => 11 [display_material_sum] => 343 008 [display_work_sum] => 172 490 [display_total_sum] => 515 498 ) 1
515 498
Работа:172 490
Материалы:343 008
Дни:11
stdClass Object ( [id] => 150 [attribute_id] => 25 [name] => Кирпичные [material_modifier] => 1 [work_modifier] => 1 [options] => Array ( [0] => 120 мм [1] => 250 мм [2] => 360 мм ) [days] => [7,7,7] [material_price] => [1785,3570,5355] [work_price] => [900,1600,1800] [image] => https://akademik-stroy.ru/wp-content/uploads/materials/kirpich-1.jpg [area_modifier] => 234.68 [parent_name] => Внутренние (не несущие) перегородки [parent_id] => 25 [material_sum] => 527819 [work_sum] => 221773 [total_sum] => 749592 [total_days] => 7 [display_material_sum] => 527 819 [display_work_sum] => 221 773 [display_total_sum] => 749 592 ) 1
749 592
Работа:221 773
Материалы:527 819
Дни:7
Электрика
stdClass Object ( [id] => 55 [attribute_id] => 28 [name] => Нет [material_modifier] => 1 [work_modifier] => 1 [options] => Array ( ) [days] => [0] [material_price] => [0] [work_price] => [0] [image] => https://akademik-stroy.ru/wp-content/uploads/materials/ehlektrika.jpg [area_modifier] => 190.44 [parent_name] => Электрика [parent_id] => 28 [material_sum] => 0 [work_sum] => 0 [total_sum] => 0 [total_days] => 0 [display_material_sum] => 0 [display_work_sum] => 0 [display_total_sum] => 0 ) 1
0
Работа:0
Материалы:0
Дни:0
stdClass Object ( [id] => 56 [attribute_id] => 28 [name] => Есть [material_modifier] => 1 [work_modifier] => 1 [options] => Array ( ) [days] => [10] [material_price] => [650] [work_price] => [950] [image] => https://akademik-stroy.ru/wp-content/uploads/materials/ehlektrika.jpg [area_modifier] => 190.44 [parent_name] => Электрика [parent_id] => 28 [material_sum] => 155970 [work_sum] => 189964 [total_sum] => 345934 [total_days] => 10 [display_material_sum] => 155 970 [display_work_sum] => 189 964 [display_total_sum] => 345 934 ) 1
345 934
Работа:189 964
Материалы:155 970
Дни:10
Сантехника, канализация в доме
stdClass Object ( [id] => 57 [attribute_id] => 29 [name] => Нет [material_modifier] => 1 [work_modifier] => 1 [options] => Array ( ) [days] => [0] [material_price] => [0] [work_price] => [0] [image] => https://akademik-stroy.ru/wp-content/uploads/materials/santekhnika-kanalizaciya-1.jpg [area_modifier] => 190.44 [parent_name] => Сантехника, канализация в доме [parent_id] => 29 [material_sum] => 0 [work_sum] => 0 [total_sum] => 0 [total_days] => 0 [display_material_sum] => 0 [display_work_sum] => 0 [display_total_sum] => 0 ) 1
0
Работа:0
Материалы:0
Дни:0
stdClass Object ( [id] => 58 [attribute_id] => 29 [name] => Есть [material_modifier] => 1 [work_modifier] => 1 [options] => Array ( ) [days] => [10] [material_price] => [600] [work_price] => [730] [image] => https://akademik-stroy.ru/wp-content/uploads/materials/santekhnika-kanalizaciya-1.jpg [area_modifier] => 190.44 [parent_name] => Сантехника, канализация в доме [parent_id] => 29 [material_sum] => 143973 [work_sum] => 145972 [total_sum] => 289945 [total_days] => 10 [display_material_sum] => 143 973 [display_work_sum] => 145 972 [display_total_sum] => 289 945 ) 1
289 945
Работа:145 972
Материалы:143 973
Дни:10
Отопление
stdClass Object ( [id] => 59 [attribute_id] => 30 [name] => Нет [material_modifier] => 1 [work_modifier] => 1 [options] => Array ( ) [days] => [0] [material_price] => [0] [work_price] => [0] [image] => https://akademik-stroy.ru/wp-content/uploads/materials/otoplenie-1.jpg [area_modifier] => 190.44 [parent_name] => Отопление [parent_id] => 30 [material_sum] => 0 [work_sum] => 0 [total_sum] => 0 [total_days] => 0 [display_material_sum] => 0 [display_work_sum] => 0 [display_total_sum] => 0 ) 1
0
Работа:0
Материалы:0
Дни:0
stdClass Object ( [id] => 60 [attribute_id] => 30 [name] => Есть [material_modifier] => 1 [work_modifier] => 1 [options] => Array ( ) [days] => [5] [material_price] => [610] [work_price] => [560] [image] => https://akademik-stroy.ru/wp-content/uploads/materials/otoplenie-1.jpg [area_modifier] => 190.44 [parent_name] => Отопление [parent_id] => 30 [material_sum] => 146372 [work_sum] => 111979 [total_sum] => 258351 [total_days] => 5 [display_material_sum] => 146 372 [display_work_sum] => 111 979 [display_total_sum] => 258 351 ) 1
258 351
Работа:111 979
Материалы:146 372
Дни:5
Теплые полы
stdClass Object ( [id] => 61 [attribute_id] => 31 [name] => Нет [material_modifier] => 1 [work_modifier] => 1 [options] => Array ( ) [days] => [0] [material_price] => [0] [work_price] => [0] [image] => https://akademik-stroy.ru/wp-content/uploads/materials/vodyanye.jpg [area_modifier] => 30 [parent_name] => Теплые полы [parent_id] => 31 [material_sum] => 0 [work_sum] => 0 [total_sum] => 0 [total_days] => 0 [display_material_sum] => 0 [display_work_sum] => 0 [display_total_sum] => 0 ) 1
0
Работа:0
Материалы:0
Дни:0
stdClass Object ( [id] => 151 [attribute_id] => 31 [name] => Водяные [material_modifier] => 1 [work_modifier] => 1 [options] => Array ( ) [days] => [9] [material_price] => [10200] [work_price] => [2500] [image] => https://akademik-stroy.ru/wp-content/uploads/materials/vodyanye.jpg [area_modifier] => 30 [parent_name] => Теплые полы [parent_id] => 31 [material_sum] => 385560 [work_sum] => 78750 [total_sum] => 464310 [total_days] => 9 [display_material_sum] => 385 560 [display_work_sum] => 78 750 [display_total_sum] => 464 310 ) 1
464 310
Работа:78 750
Материалы:385 560
Дни:9
stdClass Object ( [id] => 152 [attribute_id] => 31 [name] => Электро [material_modifier] => 1 [work_modifier] => 1 [options] => Array ( ) [days] => [5] [material_price] => [6300] [work_price] => [1500] [image] => https://akademik-stroy.ru/wp-content/uploads/materials/ehlektricheskij.jpg [area_modifier] => 30 [parent_name] => Теплые полы [parent_id] => 31 [material_sum] => 238140 [work_sum] => 47250 [total_sum] => 285390 [total_days] => 5 [display_material_sum] => 238 140 [display_work_sum] => 47 250 [display_total_sum] => 285 390 ) 1
285 390
Работа:47 250
Материалы:238 140
Дни:5
Черновая отделка стен
stdClass Object ( [id] => 63 [attribute_id] => 32 [name] => Нет [material_modifier] => 1 [work_modifier] => 1 [options] => Array ( ) [days] => [0] [material_price] => [0] [work_price] => [0] [image] => https://akademik-stroy.ru/wp-content/uploads/materials/shtukaturka-shpatlevka-1.jpg [area_modifier] => 190.44 [parent_name] => Черновая отделка стен [parent_id] => 32 [material_sum] => 0 [work_sum] => 0 [total_sum] => 0 [total_days] => 0 [display_material_sum] => 0 [display_work_sum] => 0 [display_total_sum] => 0 ) 1
0
Работа:0
Материалы:0
Дни:0
stdClass Object ( [id] => 153 [attribute_id] => 32 [name] => Штукатурка и шпатлевка [material_modifier] => 1 [work_modifier] => 1 [options] => Array ( ) [days] => [20] [material_price] => [1850] [work_price] => [2600] [image] => https://akademik-stroy.ru/wp-content/uploads/materials/shtukaturka-shpatlevka-1.jpg [area_modifier] => 190.44 [parent_name] => Черновая отделка стен [parent_id] => 32 [material_sum] => 443916 [work_sum] => 519901 [total_sum] => 963817 [total_days] => 20 [display_material_sum] => 443 916 [display_work_sum] => 519 901 [display_total_sum] => 963 817 ) 1
963 817
Работа:519 901
Материалы:443 916
Дни:20
stdClass Object ( [id] => 154 [attribute_id] => 32 [name] => Гипсокортон на стены [material_modifier] => 1 [work_modifier] => 1 [options] => Array ( ) [days] => [15] [material_price] => [950] [work_price] => [2100] [image] => https://akademik-stroy.ru/wp-content/uploads/materials/gkl-1.jpg [area_modifier] => 190.44 [parent_name] => Черновая отделка стен [parent_id] => 32 [material_sum] => 227957 [work_sum] => 419920 [total_sum] => 647877 [total_days] => 15 [display_material_sum] => 227 957 [display_work_sum] => 419 920 [display_total_sum] => 647 877 ) 1
647 877
Работа:419 920
Материалы:227 957
Дни:15
stdClass Object ( [id] => 155 [attribute_id] => 32 [name] => Вагонка [material_modifier] => 1 [work_modifier] => 1 [options] => Array ( ) [days] => [15] [material_price] => [1250] [work_price] => [950] [image] => https://akademik-stroy.ru/wp-content/uploads/materials/vagonka.jpg [area_modifier] => 190.44 [parent_name] => Черновая отделка стен [parent_id] => 32 [material_sum] => 299943 [work_sum] => 189964 [total_sum] => 489907 [total_days] => 15 [display_material_sum] => 299 943 [display_work_sum] => 189 964 [display_total_sum] => 489 907 ) 1
489 907
Работа:189 964
Материалы:299 943
Дни:15
Черновая отделка полов
stdClass Object ( [id] => 65 [attribute_id] => 33 [name] => Нет [material_modifier] => 1 [work_modifier] => 1 [options] => Array ( ) [days] => [0] [material_price] => [0] [work_price] => [0] [image] => https://akademik-stroy.ru/wp-content/uploads/materials/styazhka.jpg [area_modifier] => 190.44 [parent_name] => Черновая отделка полов [parent_id] => 33 [material_sum] => 0 [work_sum] => 0 [total_sum] => 0 [total_days] => 0 [display_material_sum] => 0 [display_work_sum] => 0 [display_total_sum] => 0 ) 1
0
Работа:0
Материалы:0
Дни:0
stdClass Object ( [id] => 156 [attribute_id] => 33 [name] => Стяжка + наливные полы [material_modifier] => 1 [work_modifier] => 1 [options] => Array ( ) [days] => [10] [material_price] => [1000] [work_price] => [900] [image] => https://akademik-stroy.ru/wp-content/uploads/materials/styazhka.jpg [area_modifier] => 190.44 [parent_name] => Черновая отделка полов [parent_id] => 33 [material_sum] => 239954 [work_sum] => 179966 [total_sum] => 419920 [total_days] => 10 [display_material_sum] => 239 954 [display_work_sum] => 179 966 [display_total_sum] => 419 920 ) 1
419 920
Работа:179 966
Материалы:239 954
Дни:10
stdClass Object ( [id] => 157 [attribute_id] => 33 [name] => ОСБ на пол [material_modifier] => 1 [work_modifier] => 1 [options] => Array ( ) [days] => [7] [material_price] => [580] [work_price] => [350] [image] => https://akademik-stroy.ru/wp-content/uploads/materials/osb-1.jpg [area_modifier] => 190.44 [parent_name] => Черновая отделка полов [parent_id] => 33 [material_sum] => 139174 [work_sum] => 69987 [total_sum] => 209161 [total_days] => 7 [display_material_sum] => 139 174 [display_work_sum] => 69 987 [display_total_sum] => 209 161 ) 1
209 161
Работа:69 987
Материалы:139 174
Дни:7
Чистовая отделка стен и полов
stdClass Object ( [id] => 67 [attribute_id] => 34 [name] => Нет [material_modifier] => 1 [work_modifier] => 1 [options] => Array ( ) [days] => [0] [material_price] => [0] [work_price] => [0] [image] => https://akademik-stroy.ru/wp-content/uploads/materials/chistovaya-otdelka.jpg [area_modifier] => 190.44 [parent_name] => Чистовая отделка стен и полов [parent_id] => 34 [material_sum] => 0 [work_sum] => 0 [total_sum] => 0 [total_days] => 0 [display_material_sum] => 0 [display_work_sum] => 0 [display_total_sum] => 0 ) 1
0
Работа:0
Материалы:0
Дни:0
stdClass Object ( [id] => 68 [attribute_id] => 34 [name] => Есть [material_modifier] => 1 [work_modifier] => 1 [options] => Array ( ) [days] => [50] [material_price] => [6000] [work_price] => [3500] [image] => https://akademik-stroy.ru/wp-content/uploads/materials/chistovaya-otdelka.jpg [area_modifier] => 190.44 [parent_name] => Чистовая отделка стен и полов [parent_id] => 34 [material_sum] => 1439726 [work_sum] => 699867 [total_sum] => 2139593 [total_days] => 50 [display_material_sum] => 1 439 726 [display_work_sum] => 699 867 [display_total_sum] => 2 139 593 ) 1
2 139 593
Работа:699 867
Материалы:1 439 726
Дни:50
Отделка потолка
stdClass Object ( [id] => 69 [attribute_id] => 35 [name] => Нет [material_modifier] => 1 [work_modifier] => 1 [options] => Array ( ) [days] => [0] [material_price] => [0] [work_price] => [0] [image] => https://akademik-stroy.ru/wp-content/uploads/materials/mnogourovnevyj-gkl.jpg [area_modifier] => 190.44 [parent_name] => Отделка потолка [parent_id] => 35 [material_sum] => 0 [work_sum] => 0 [total_sum] => 0 [total_days] => 0 [display_material_sum] => 0 [display_work_sum] => 0 [display_total_sum] => 0 ) 1
0
Работа:0
Материалы:0
Дни:0
stdClass Object ( [id] => 70 [attribute_id] => 35 [name] => Есть [material_modifier] => 1 [work_modifier] => 1 [options] => Array ( [0] => Многоуровневый потолок из гипсокартона [1] => Многоуровневый потолок из гипсокартона и натяжного потолка [2] => Одноуровневый потолок из гипсокартона [3] => Одноуровневый натяжной потолок ) [days] => [10,10,1,1] [material_price] => [900,700,700,600] [work_price] => [1000,800,500,300] [image] => https://akademik-stroy.ru/wp-content/uploads/materials/mnogourovnevyj-gkl.jpg [area_modifier] => 190.44 [parent_name] => Отделка потолка [parent_id] => 35 [material_sum] => 215959 [work_sum] => 199962 [total_sum] => 415921 [total_days] => 10 [display_material_sum] => 215 959 [display_work_sum] => 199 962 [display_total_sum] => 415 921 ) 1
415 921
Работа:199 962
Материалы:215 959
Дни:10

Преимущества работы с нами

icon

7 этапов оплаты

icon

Независимый строительный надзор

icon

Экологически чистые материалы

icon

16 лет гарантии

icon

Онлайн-кабинет с веб-камерой

icon

Строители с опытом более 15 лет

icon

Собственное производство

Двухэтажный дом 19х10 - 190.44 м2: что делает его идеальным выбором для московских условий?

Когда речь заходит о строительстве собственного дома в Москве, каждый мечтает о проекте, который сочетает в себе элегантность, функциональность и удобство для всей семьи. Двухэтажный дом с размерами 19 на 10 метров и полезной площадью 190.44 м² – как раз такой вариант. Учитывая плотность застройки в столице и важность рационального использования участка, этот проект станет настоящим открытием для тех, кто хочет комфортное жилье с продуманной планировкой. Дом имеет удобные габариты, легко вписывается в городской ландшафт, при этом дарит максимум полезного пространства и не требует огромного участка земли. Важно отметить, что площадь застройки составляет 164,08 м² – благодаря чему Вы сможете сэкономить на подготовительных земляных работах и быстро приступить к воплощению своей мечты. Высота здания 7,36 метра и двускатная крыша с углом наклона 38° обеспечивают не только привлекательный внешний вид, но и хорошую вентиляцию, а также возможность размещения утепленного чердака или мансарды.

Планировка и пространство: как 4 спальни и 3 санузла делают жизнь комфортной

Одним из ключевых преимуществ этого проекта являются грамотно спланированные жилые зоны. Представьте: четыре комфортных спальни позволяют каждому члену семьи найти личное пространство, будь то спальня родителей, детские комнаты или даже кабинет для работы и творчества. Жилая площадь проекта составляет впечатляющие 114,50 м², которые продуманы до мелочей для обеспечения максимального удобства. Наличие трех санузлов в доме такого размера обеспечит удобство в любое время суток, особенно для большой семьи. В утренние часы или когда гости на пороге – не придется ждать или договариваться о времени. Расположение санузлов в разных зонах дома позволяет поддерживать порядок и гигиену без усилий.

Таблица: Основные параметры двухэтажного дома 19x10

Параметр Значение
Размеры дома 19 x 10 м
Полезная площадь 190.44 м²
Жилая площадь 114,50 м²
Этажность 2 этажа
Количество спален 4
Количество санузлов 3
Общая площадь 224,69 м²
Площадь застройки 164,08 м²
Площадь крыши 257,55 м²
Высота здания 7,36 м
Угол наклона крыши 38°
Тип крыши Двускатная
Минимальные размеры участка 25,58 x 17,34 м

Почему двускатная крыша с углом наклона 38° – это разумный выбор?

Конструкция крыши зачастую недооценивается при выборе проекта, а зря. В доме с двумя этажами именно крыша играет ключевую роль не только в архитектуре, но и в создании микроклимата. Двускатная крыша с углом наклона 38° обеспечивает оптимальный отвод снега и дождевой воды, что особенно актуально в московском климате, с его суровыми зимами и обильными осадками. Кроме того, такой угол наклона — оптимальный для установки солнечных панелей, что в условиях растущих цен на энергоресурсы может стать дополнительным плюсом, если Вы хотите сделать дом энергоэффективным. Под крышей удобно расположить утепленный чердак или мансарду, которые при желании могут быть доработаны в жилую зону.

Минимальные требования к участку для комфортной постройки

Одним из важных аспектов является размер участка, на котором можно реализовать проект. Минимальные размеры участка для этого дома – 25,58 метров в ширину и 17,34 метров в длину. Это достаточно компактный участок, который легко найти или приобрести в пределах Подмосковья и даже некоторых районов Москвы. Зная такие параметры, вы уже на этапе планирования строительства избежите лишних сюрпризов и финансовых потерь, связанных с необходимостью подгонки проекта под узкий или слишком маленький участок. К тому же, грамотная компоновка дома на участке позволит сохранить пространство для сада, зон отдыха или зоны барбекю.

Преимущества заказа проекта именно у компании "Академик Строй"

Когда речь заходит о строительстве дома, доверять нужно профессионалам, и в Москве компания "Академик Строй" уже давно заслужила репутацию надежного партнера. Заказать проект двухэтажного дома 19х10 с площадью 190,44 м² у них – значит получить полный комплекс услуг от эскизного проекта до рабочих чертежей, адаптированных под особенности вашего участка и личные пожелания. Одним из весомых преимуществ является оптимальное соотношение цена-качество. При заказе по телефону +7 (980) 800-47-93 вы можете получить консультацию, узнать детали и подбор оптимальной комплектации проекта под ваш бюджет. Компания предлагает не просто проект, а гарантированно продуманный дом с удобной планировкой, где каждая деталь работает на вашего комфорта.

Основные преимущества работы с "Академик Строй":

  • Индивидуальный подход к каждому заказчику и возможность внести изменения в проект под ваши нужды.
  • Высокое качество чертежей и документации, соответствующих строительным нормам Москвы и области.
  • Опыт работы на рынке загородного строительства более 10 лет.
  • Прозрачные условия и конкурентоспособные цены без скрытых платежей.
  • Поддержка на всех этапах строительства – от оформления разрешений до сдачи дома.

Практические советы по этапам строительства дома 19х10

Построить дом – задача не из простых, но с правильным планированием и партнером вы пройдёте этот путь без лишних стрессов. Вот как можно разбить процесс на основные этапы:

1. Выбор и подготовка участка

Убедитесь, что ваш участок соответствует минимальным требованиям – в данном случае это 25,58 м по ширине и 17,34 м по длине. Обязательно выполните геодезическую съёмку и анализ грунта, так как тип почвы будет влиять на выбор фундамента.

2. Заказ и утверждение проекта

Свяжитесь с "Академик Строй" по телефону +7 (980) 800-47-93, обсудите детали, ваши пожелания и возможные изменения в типовом проекте. После согласования вы получите полный комплект строительной документации.

3. Закладка фундамента и монтаж каркаса

С учетом площади застройки в 164,08 м² и объема брутто 622 м³, правильный выбор фундамента – залог долговечности здания. Опирайтесь на рекомендации специалистов компании и результаты геологических исследований.

4. Кровельные работы

Двускатная крыша с углом 38° требует качественного монтажа и обязательного утепления. Обратите внимание на долговечность материалов и надежность конструкции.

5. Внутренняя отделка и инженерные системы

Поскольку в доме 4 спальни и 3 санузла, продумайте разводку коммуникаций заранее для снижения затрат и исключения ошибок на поздних этапах.

Почему двухэтажный дом с размерами 19х10 – это разумный выбор для семьи?

Если вы хотите получить идеальный семейный дом в Московском регионе, двухэтажный дом с полезной площадью почти 190 м² – именно то, что вам нужно. Такой формат позволяет решить сразу несколько важных задач: организовать пространство для всех членов семьи, сохранить достаточно живой зоны для общения и отдыха, а также обеспечить приватность каждому жильцу. Построенный по проекту от "Академик Строй", дом будет отвечать современным требованиям энергоэффективности, безопасности и удобства. Пространство легко зонируется как на первом, так и на втором этаже, что важно для поддержания порядка и комфорта. Клиенты отмечают, что именно такая площадь – идеальный баланс между достаточной жилой площадью и управляемыми затратами на строительство и обслуживание.

Как заказать проект двухэтажного дома 19х10 – 190.44 м² в Москве

Оформить заказ очень просто и быстро – позвоните по телефону +7 (980) 800-47-93, и специалист компании "Академик Строй" проведет подробную консультацию. Вы обсудите ваши требования, получите полный пакет информации по стоимости и срокам, а также варианты возможной кастомизации проекта. Заказать проект сегодня – значит завтра начать строительство дома, о котором вы давно мечтали. Компания гарантирует не только качественные материалы и профессиональный подход, но и поддержку на всех этапах – от составления сметы до ввода дома в эксплуатацию.

Итоговые преимущества проекта дома 19х10 - 190.44 м2 от "Академик Строй"

Давайте подытожим главные достоинства этого предложения в виде наглядного списка:
  • Оптимальный размер и площадь дома для больших семей.
  • Практичная и комфортная планировка с 4 спальнями и 3 санузлами.
  • Удобные минимальные требования к участку, доступные в Москве и Подмосковье.
  • Надежная двускатная крыша с углом наклона 38° – долговечность и практичность.
  • Опытная команда "Академик Строй" и прозрачное ценообразование.
  • Поддержка на всех этапах строительства и индивидуальный подход.
  • Возможность заказать проект и консультацию по телефону +7 (980) 800-47-93.
Если вы ищете надежное решение для строительства дома, которое бы сочетало в себе качество, комфорт и разумную стоимость, не проходите мимо этого предложения. С проектом от "Академик Строй" ваш мечтательный дом в Москве станет реальностью!