Обзор проекта двухэтажного дома 18x10 — простор для комфортной жизни
Проект двухэтажного дома размером 18 на 10 метров с общей полезной площадью 212,6 квадратных метров — это оптимальное решение для семьи, которая хочет совместить простор, функциональность и уют. Такой дом прекрасно подойдет как для постоянного проживания, так и в роли загородной дачи с удобствами высокого уровня. Благодаря продуманной планировке и эргономичным решениям, он способен удовлетворить потребности большой семьи, сохраняя комфорт и функциональность всех помещений.
Двухэтажный формат позволяет эффективно использовать участок, при этом минимизируя занимаемую конфигурацией площадь застройки — всего 158,2 м². Высота здания достигает 8,7 метра, а крыша имеет классический двускатный тип с углом наклона 40 градусов, что обеспечивает надежную защиту от осадков и благоприятно сказывается на долговечности конструкции.
Размеры и планировка: сколько места вам предложит дом 18x10?
Габариты дома — 18 на 10 метров — дают представление о достаточно вместительном жилом пространстве. Полезная площадь в 212,6 м² включает в себя общие и жилые зоны, что в совокупности с четырьмя спальнями и двумя санузлами создаёт идеальные условия для комфортной жизни большой семьи.
Жилая площадь составляет 144,3 м², что интересно с точки зрения зонирования: практически три четверти всего пространства отведено под непосредственно жилые помещения, способствующие полному отдыху и приватности каждого из членов семьи. Четыре спальни позволяют организовать личное пространство для каждого члена семьи и даже выделить отдельные комнаты для гостей или рабочих кабинетов.
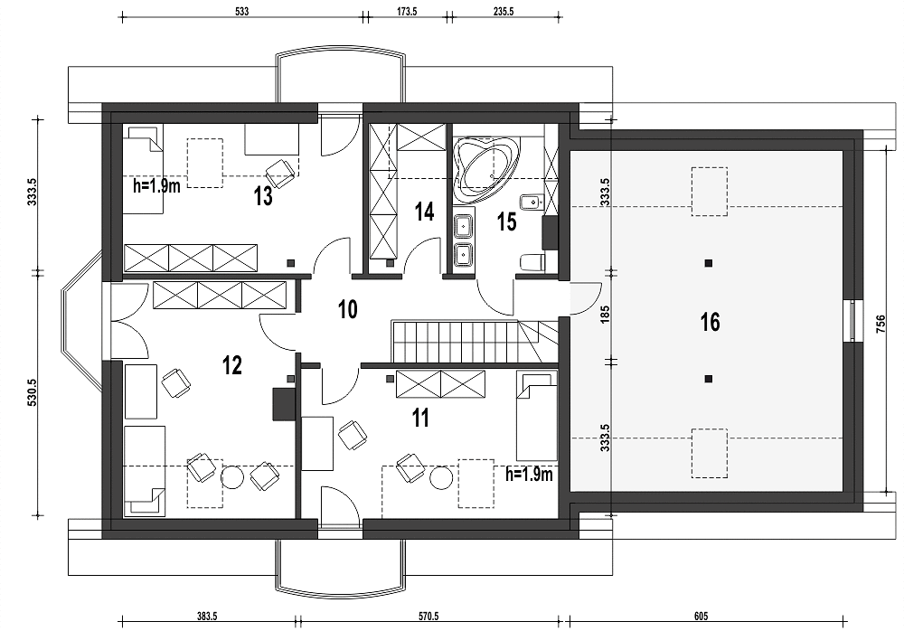
Планировка второго этажа и первого: как организовать пространство
Первый этаж традиционно предназначен для общественных зон: просторная гостиная с камином, кухня-столовая и комната для отдыха или работы. Возможность разместить камин существенно увеличивает уют и создаёт атмосферу домашнего тепла, что особенно ценится в холодный сезон. Наличие комнаты на первом этаже делает проект более универсальным — здесь может располагаться как рабочий кабинет, так и гостевая спальня.
Второй этаж — это зона максимального уединения с четырьмя полноценными спальнями и двумя санузлами, что существенно облегчает повседневный быт семьи из нескольких человек. Два санузла позволяют минимизировать утренние очереди и делают проживание комфортным даже для самых занятых домочадцев.
Преимущества двуспального и двухсанузлового решения
- Повышенная приватность и комфорт всех жильцов.
- Рациональное использование жилой площади.
- Возможность комфортного размещения гостей и родственников на продолжительное время.
Архитектурные характеристики и конструктивные особенности
Важной частью характеристик данного дома является высота аттиковой стены, составляющая 0,92 метра. Эта деталь не только придает дому особый стиль, но и увеличивает площадь мансардного этажа, делая комнаты более просторными и светлыми. Аттиковая стена выступает в качестве своеобразного бортика между стенами и кровлей, улучшая вентиляцию подкровельного пространства и защищая фасад от негативного воздействия погодных условий.
Объем здания (брутто) равен 658 м³, что несомненно отражает его внушительный внутренний объем и создаёт ощущение простора внутри. При этом площадь крыши занимает внушительные 270 м², что свидетельствует о довольно широком перекрытии и надежной защите дома от атмосферных осадков. Двускатной крыше с углом наклона 40° присущи традиционная надежность и высокая эффективность водоотведения, а также устойчивость к нагрузкам снежного покрова и ветровой нагрузке.
Важность выбора типа крыши для частного дома
Двускатная крыша — классический вариант для домов с активным жилым чердаком или мансардой. Такая кровля проста в строительстве и обслуживании, что положительно сказывается на стоимости и сроках сдачи объекта. Угол наклона в 40° считается одним из оптимальных — с одной стороны, он обеспечивает эффективный сток воды и снега, что уменьшает риск протечек и повреждений, а с другой — усиливает внутренний объем мансарды, создавая больше полезной площади под крышей.
Минимальные требования к участку для строительства
Для возведения такого внушительного здания необходимо учесть размеры и форму участка. Минимальная ширина, необходимая для комфортного размещения дома с учетом отступов от границ участка, составляет 25,8 метра. По длине минимально потребуется 17,7 метра. Это значит, что перед выбором земельного участка под строительство желательно заранее изучить его характеристики, чтобы избежать проблем с разрешениями и нарушениями норм градостроительства.
Такие параметры позволяют не только поставить дом, но и предусмотреть дополнительные зоны для отдыха на свежем воздухе, ландшафтного дизайна или даже небольших надворных построек. Важно помнить, что чем больше площадь свободного пространства вокруг дома, тем больше возможностей для создания комфортной и эстетичной территории.
Внутренняя отделка и дополнительные опции для вашего удобства
В состав опций проекта входит камин, терраса и эркер — детали, значительно расширяющие возможности внутреннего убранства и организации жизненного пространства. Камин не только украшает интерьер, но и служит дополнительным источником тепла, создавая в доме уютную и расслабляющую атмосферу. Терраса в проекте добавляет открытого пространства для встреч с семьей и друзьями на свежем воздухе, а эркер расширяет гостиную или столовую, наполняя помещение естественным светом и создавая уютный уголок для отдыха.
Преимущества эркера и террасы в частном доме
- Дополнительное естественное освещение.
- Визуальное расширение пространства комнат.
- Уютная зона для отдыха и приёма гостей.
- Широкие возможности для творческого оформления интерьера.
Энергоэффективность и экономия при строительстве и эксплуатации
Стоимость дома в комплектации данного проекта составляет 590 405 рублей, что является конкурентоспособным предложением на рынке частного домостроения. Максимальная эффективность использования площади, рациональная планировка и продуманный конструктив способствуют не только снижению первоначальных затрат, но также обеспечивают комфортное проживание с низкими расходами на отопление и эксплуатацию в дальнейшем.
Важным элементом экономии является грамотно выбранная двускатная крыша с углом наклона 40°. Такая кровля способствует оптимальной теплоизоляции, минимизирует теплопотери и надежно защищает от внешних воздействий. Правильно выполненная теплоизоляция стен и перекрытий, а также качественное остекление делают дом значительно теплее и уютнее в холодный сезон.
Советы для снижения энергетических затрат
- Используйте современные теплоизоляционные материалы.
- Монтаж энергосберегающих окон и дверей.
- Организуйте правильную вентиляцию с рекуперацией тепла.
- Регулярное техническое обслуживание отопительных систем.
Технические и эксплуатационные характеристики дома в таблице
| Параметр | Значение | Комментарий |
|---|---|---|
| Полезная площадь | 212,6 м² | Общая площадь жилых и подсобных помещений |
| Размеры дома | 18 x 10 м | Оптимальные габариты для комфортного проживания семьи |
| Количество этажей | 2 | Двухэтажная структура для компактного размещения всех зон |
| Количество спален | 4 | Пространство для членов большой семьи и гостей |
| Количество санузлов | 2 | Обеспечивает комфортное проживание для 4-6 человек |
| Жилая площадь | 144,30 м² | Площади исключительно жилых комнат |
| Высота аттиковой стены | 0,92 м | Улучшение внутреннего объема мансарды |
| Площадь застройки | 158,20 м² | Площадь, занимаемая фундаментом на участке |
| Площадь крыши | 270 м² | Обеспечивает надежную защиту конструкции |
| Угол наклона крыши | 40° | Оптимальный для эффективного стока осадков |
| Высота здания | 8,70 м | Создает визуальную гармонию и обеспечивает внутренний объем |
| Минимальная ширина участка | 25,80 м | Рекомендуется учитывать для соблюдения норм и свободного пространства |
| Минимальная длина участка | 17,70 м | Для удобного размещения здания с зонами отдыха |
| Объем здания (брутто) | 658 м³ | Указывает на внутренний пространственный объем сооружения |
Почему стоит выбрать данный проект дома?
Данный проект дома размером 18 на 10 метров является удачным сочетанием классических архитектурных решений и современных требований к комфорту и функциональности. Несмотря на относительно компактную площадь застройки, дом предоставляет огромное жилищное пространство с четырьмя спальнями и двумя санузлами, что делает его идеальным как для многодетной семьи, так и для семей с регулярными гостями. Обилие естественного света, продуманная планировка и дополнительные опции, такие как камин и эркер, способствуют созданию по-настоящему уютного и стильного дома.
Кроме того, этот проект выгодно отличается конкурентной стоимостью — всего 590 405 рублей, что делает его одним из самых привлекательных предложений на рынке сегодня. При этом владелец получает надежную и функциональную конструкцию с высоким уровнем энергоэффективности и удобств.
Ключевые выгоды проекта
- Оптимальное использование пространства при двух этажах.
- Продуманное зонирование с четырьмя спальнями и двумя санузлами.
- Привлекательный внешний вид с эркером и двускатной крышей.
- Экономичное решение по стоимости строительства.
- Гибкость в организации внутреннего пространства.
Что учитывать при строительстве дома 18x10?
При возведении дома необходимо особое внимание уделить качеству материалов, а также соблюдению строительных норм и правил. Учитывая размеры и высоту здания, рекомендуется особое внимание уделить фундаменту и несущим стенам, чтобы обеспечить надежность и долговечность дома. При выборе участка стоит придерживаться минимальных требований по ширине и длине, чтобы обеспечить свободные отступы и создать комфортный ландшафт вокруг дома.
Также важно продумать системы инженерных коммуникаций — отопления, водоснабжения и канализации, электроснабжения и вентиляции. Эти системы должны быть не только грамотными по проекту, но и адаптированными к климату и особенностям региона строительства.
Рекомендации по дальнейшей эксплуатации
- Периодически проверяйте состояние кровли и фасадов, особенно после зимнего сезона.
- Своевременно осуществляйте профилактическое обслуживание отопительных систем.
- Проводите регулярную чистку и осмотр дымохода камина.
- Уделяйте внимание утеплению и герметизации оконных и дверных проёмов для снижения тепловых потерь.
- Планируйте внутриремонтные работы заранее, чтобы поддерживать дом в отличном состоянии.












