Двухэтажный дом 14x18 - 154.73 м2 за руб.

ID-93744

Стоимость дома 7593691 руб.
154 м2 Полезная
площадь
14 x 18 м Размеры
2 этажа Этажей
26 м2 Террасы
и балконы
1Без
гаража
3 Количество
спален
2 Количество
санузлов

Планировки

План первого этажа

floor image
  • 1. Прихожая 5,04 m²
  • 2. Котельная 4,39 m²
  • 3. Гараж на 1 машину 21,24 m²
  • 4. Гостиная + столовая 35,84 m²
  • 5. Кухня + кладовая 10,79 m²
  • 6. Коридор 4,43 m²
  • 7. Туалет 1,54 m²
  • 8. Ванная комната 6,56 m²
  • 9. Комната 14,04 m²
  • 10. Комната + гардеробная 19,16 m²
  • 11. Комната 11,86 m²
  • План первого этажа 134,89 m²

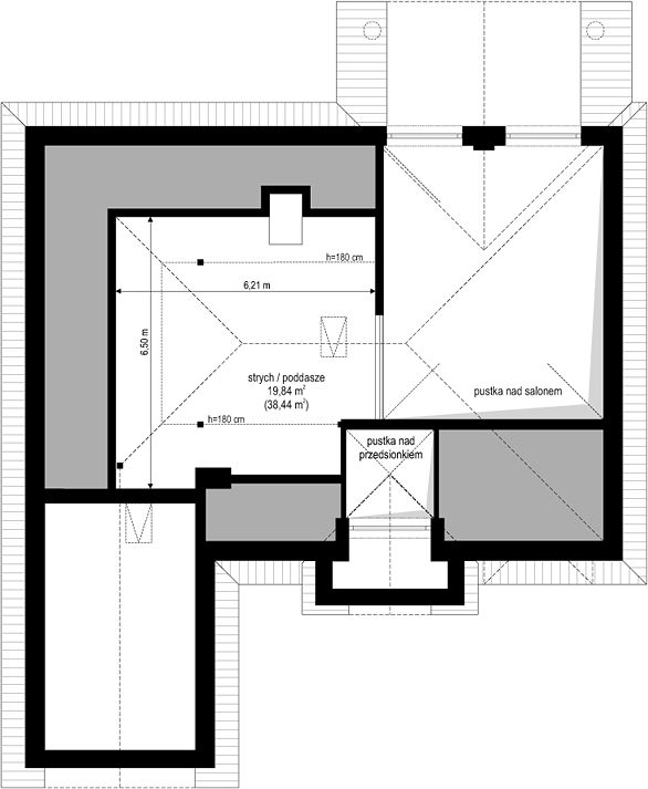
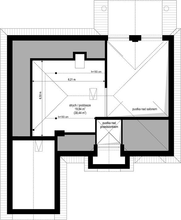
План мансарды

floor image
  • 1. Чердак 19,84 m² (38,44 m²)
  • План мансарды 19,84 m²

Фасады

Передний
Задний
Левый
Правый
Передний
Задний
Левый
Правый

Подробная информация

Жилая площадь
109,88 m²
icon

Сумма площади всех жилых помещений, за вычетом пов. гараж, котельная, чердак, подвал. Учитывается в 100%, для помещений высотой более 2,2 м, в 50% для помещений с высотой 2,2-1,4 м и не включается для более низких помещений (меньше 1,4 м).

Площадь застройки
190,62 m²
icon

Площадь застройки здания определяется как площадь горизонтального сечения по внешнему обводу здания на уровне цоколя, включая выступающие части.

Общая площадь
170,45 m²
icon

Общая площадь всех этажей здания, в том числе с несущими конструкциями, такими как наружные стены (с утеплением), столбы, террасы, и т. д.

Площадь нетто
114,27 m²
icon

Площадь всех помещений в здании, измеренная на высоте пола.

Объем брутто
637 m³
icon

Как правило, это сумма объема всех помещений в здании, подсчитанных по внешнему контуру стены (с утеплением).

Площадь крыши
258 m²
icon

Угол наклона крыши
30°
icon

Наклон ската крыши в градусах. Внимание! В некоторых проектах возникает более чем один наклон крыши.

Высота здания
6,90 m
icon

Высота измеряется от поверхности земли до самой высокой точки кровли (конька), за исключением дымоходов.

Ширина фасада
14,30 m
icon

Длина фасада
17,85 m
icon

Мин. ширина участка
22,30 m
icon

Наименьшая возможная ширина участка, необходимая для строительства выбранного дома. Состоит из длины фасада дома плюс с обеих сторон три метра отступ.

Мин. длина участка
24,85 m
icon

Наименьшая возможная длина участка, необходимая для строительства выбранного дома. Состоит из длины фасада дома плюс с обеих сторон три метра отступ.

Материалы и опции
Общие
Цена, руб.
Площадь м²
150
Ежемесячный платёж, руб
Количество спален
3
Гараж
1
Количество санузлов
2
Ширина
14
Глубина
18
Тип крыши

Площади дома

№ п/п Наименование Ед. из. Строительная площадь Полезная площадь
1 1 этаж м2 166.22 134.89
2 2 этаж м2 24.45 19.84
3 Итого м2 190.67 154.73

Калькулятор опций

0

В ипотеку от 24 538 ₽/мес.

Фундамент
910 005
Работа:393 842
Материалы:516 163
Дни:20
547 064
Работа:183 208
Материалы:363 856
Дни:2
921 889
Работа:370 072
Материалы:551 817
Дни:20
1 766 619
Работа:788 780
Материалы:977 839
Дни:30
2 963 686
Работа:1 089 738
Материалы:1 873 948
Дни:32
1 120 090
Работа:448 146
Материалы:671 944
Дни:20
7 028 446
Работа:3 204 123
Материалы:3 824 323
Дни:30
8 385 499
Работа:3 737 473
Материалы:4 648 026
Дни:40
292 547
Работа:73 137
Материалы:219 410
Дни:1
Перекрытие цоколя
523 660
Работа:224 896
Материалы:298 764
Дни:8
838 696
Работа:277 920
Материалы:560 776
Дни:13
1 496 562
Работа:612 155
Материалы:884 407
Дни:18
Стены 1 этаж (несущие)
1 468 770
Работа:920 244
Материалы:548 526
Дни:29
1 690 740
Работа:866 123
Материалы:824 617
Дни:23
2 602 939
Работа:1 597 308
Материалы:1 005 631
Дни:30
2 130 292
Работа:933 591
Материалы:1 196 701
Дни:45
3 982 482
Работа:878 739
Материалы:3 103 743
Дни:24
877 093
Работа:442 112
Материалы:434 981
Дни:15
479 046
Работа:257 807
Материалы:221 239
Дни:7
1 684 706
Работа:585 826
Материалы:1 098 880
Дни:7
2 200 503
Работа:703 027
Материалы:1 497 476
Дни:7
14 450 917
Работа:703 027
Материалы:13 747 890
Дни:7
7 822 164
Работа:878 739
Материалы:6 943 425
Дни:7
1 230 344
Работа:292 913
Материалы:937 431
Дни:7
1 615 592
Работа:829 737
Материалы:785 855
Дни:29
1 414 466
Работа:921 158
Материалы:493 308
Дни:29
1 615 592
Работа:829 737
Материалы:785 855
Дни:29
1 714 693
Работа:1 048 965
Материалы:665 728
Дни:23
2 191 727
Работа:738 133
Материалы:1 453 594
Дни:7
2 485 372
Работа:1 523 257
Материалы:962 115
Дни:25
899 034
Работа:464 053
Материалы:434 981
Дни:15
8 330 647
Работа:1 757 477
Материалы:6 573 170
Дни:15
996 855
Работа:468 807
Материалы:528 048
Дни:15
1 357 419
Работа:770 496
Материалы:586 923
Дни:19
1 432 750
Работа:921 158
Материалы:511 592
Дни:29
920 244
Работа:483 069
Материалы:437 175
Дни:15
1 690 740
Работа:866 123
Материалы:824 617
Дни:23
987 712
Работа:383 968
Материалы:603 744
Дни:15
1 265 267
Работа:922 621
Материалы:342 646
Дни:7
Перекрытие первого этажа
523 660
Работа:224 896
Материалы:298 764
Дни:8
838 696
Работа:277 920
Материалы:560 776
Дни:13
1 496 562
Работа:612 155
Материалы:884 407
Дни:18
Стены 2 этаж (несущие)
216 048
Работа:135 363
Материалы:80 685
Дни:29
248 698
Работа:127 402
Материалы:121 296
Дни:23
382 878
Работа:234 955
Материалы:147 923
Дни:30
313 354
Работа:137 326
Материалы:176 028
Дни:45
585 800
Работа:129 257
Материалы:456 543
Дни:24
129 015
Работа:65 032
Материалы:63 983
Дни:15
70 465
Работа:37 922
Материалы:32 543
Дни:7
247 811
Работа:86 172
Материалы:161 639
Дни:7
323 681
Работа:103 411
Материалы:220 270
Дни:7
2 125 646
Работа:103 411
Материалы:2 022 235
Дни:7
564 284
Работа:129 257
Материалы:435 027
Дни:7
180 977
Работа:43 086
Материалы:137 891
Дни:10
237 645
Работа:122 050
Материалы:115 595
Дни:29
208 060
Работа:135 497
Материалы:72 563
Дни:29
237 645
Работа:122 050
Материалы:115 595
Дни:29
252 222
Работа:154 297
Материалы:97 925
Дни:23
322 390
Работа:108 575
Материалы:213 815
Дни:7
365 583
Работа:224 062
Материалы:141 521
Дни:25
132 243
Работа:68 260
Материалы:63 983
Дни:15
1 225 390
Работа:258 515
Материалы:966 875
Дни:15
146 632
Работа:68 959
Материалы:77 673
Дни:15
199 669
Работа:113 336
Материалы:86 333
Дни:19
210 749
Работа:135 497
Материалы:75 252
Дни:29
135 363
Работа:71 057
Материалы:64 306
Дни:15
248 698
Работа:127 402
Материалы:121 296
Дни:10
145 287
Работа:56 480
Материалы:88 807
Дни:10
186 113
Работа:135 712
Материалы:50 401
Дни:7
Крыша (Скатная)
2 164 483
Работа:1 046 953
Материалы:1 117 530
Дни:20
2 364 147
Работа:1 087 910
Материалы:1 276 237
Дни:20
3 659 766
Работа:1 728 954
Материалы:1 930 812
Дни:20
3 366 304
Работа:1 628 208
Материалы:1 738 096
Дни:20
4 060 190
Работа:1 728 954
Материалы:2 331 236
Дни:20
3 060 775
Работа:1 497 476
Материалы:1 563 299
Дни:20
6 801 723
Работа:3 062 604
Материалы:3 739 119
Дни:20
6 697 503
Работа:3 068 089
Материалы:3 629 414
Дни:20
1 316 463
Работа:685 658
Материалы:630 805
Дни:20
Окна
335 981
Работа:108 079
Материалы:227 902
Дни:3
0
Работа:0
Материалы:0
Дни:0
Двери входные
17 050
Работа:6 050
Материалы:11 000
Дни:1
0
Работа:0
Материалы:0
Дни:0
Утепление кровли (Мансарда)
0
Работа:0
Материалы:0
Дни:0
330 578
Работа:118 847
Материалы:211 731
Дни:5
192 715
Работа:42 785
Материалы:149 930
Дни:3
280 845
Работа:71 308
Материалы:209 537
Дни:3
158 341
Работа:71 308
Материалы:87 033
Дни:3
423 096
Работа:42 785
Материалы:380 311
Дни:2
555 108
Работа:71 308
Материалы:483 800
Дни:3
Мансардные окна
0
Работа:0
Материалы:0
Дни:0
71 918
Работа:19 690
Материалы:52 228
Дни:6
Подшивка кровли
0
Работа:0
Материалы:0
Дни:0
609 229
Работа:279 565
Материалы:329 664
Дни:7
Водосточная система
0
Работа:0
Материалы:0
Дни:0
609 412
Работа:272 617
Материалы:336 795
Дни:7
Дополнительное утепление наружных стен
0
Работа:0
Материалы:0
Дни:0
1 208 505
Работа:487 639
Материалы:720 866
Дни:7
426 815
Работа:256 928
Материалы:169 887
Дни:3
1 332 879
Работа:376 478
Материалы:956 401
Дни:5
1 387 830
Работа:376 478
Материалы:1 011 352
Дни:5
752 746
Работа:152 898
Материалы:599 848
Дни:3
1 913 431
Работа:167 790
Материалы:1 745 641
Дни:5
Наружная отделка фасада
0
Работа:0
Материалы:0
Дни:0
920 956
Работа:293 003
Материалы:627 953
Дни:20
992 266
Работа:322 366
Материалы:669 900
Дни:20
720 027
Работа:252 104
Материалы:467 923
Дни:35
2 393 938
Работа:679 548
Материалы:1 714 390
Дни:45
1 254 437
Работа:630 679
Материалы:623 758
Дни:40
529 796
Работа:264 898
Материалы:264 898
Дни:20
1 630 915
Работа:679 548
Материалы:951 367
Дни:45
1 794 090
Работа:489 316
Материалы:1 304 774
Дни:20
992 056
Работа:407 729
Материалы:584 327
Дни:20
1 223 186
Работа:543 638
Материалы:679 548
Дни:20
1 704 743
Работа:733 870
Материалы:970 873
Дни:20
2 104 921
Работа:627 743
Материалы:1 477 178
Дни:20
1 496 473
Работа:543 638
Материалы:952 835
Дни:20
Террасы, крыльца, навесы
0
Работа:0
Материалы:0
Дни:0
409 200
Работа:64 350
Материалы:344 850
Дни:5
Балконы
0
Работа:0
Материалы:0
Дни:0
183 150
Работа:64 350
Материалы:118 800
Дни:12
Отмостка
0
Работа:0
Материалы:0
Дни:0
786 221
Работа:319 974
Материалы:466 247
Дни:15
566 810
Работа:265 121
Материалы:301 689
Дни:10
Дренаж вокруг дома
0
Работа:0
Материалы:0
Дни:0
782 015
Работа:349 411
Материалы:432 604
Дни:5
Автономная канализация (септики)
0
Работа:0
Материалы:0
Дни:0
270 974
Работа:55 000
Материалы:215 974
Дни:7
Внутренние (не несущие) перегородки
0
Работа:0
Материалы:0
Дни:0
201 347
Работа:79 700
Материалы:121 647
Дни:11
340 193
Работа:125 842
Материалы:214 351
Дни:5
390 111
Работа:146 816
Материалы:243 295
Дни:11
563 144
Работа:188 763
Материалы:374 381
Дни:7
Электрика
0
Работа:0
Материалы:0
Дни:0
272 325
Работа:161 693
Материалы:110 632
Дни:10
Сантехника, канализация в доме
0
Работа:0
Материалы:0
Дни:0
226 370
Работа:124 248
Материалы:102 122
Дни:10
Отопление
0
Работа:0
Материалы:0
Дни:0
199 138
Работа:95 314
Материалы:103 824
Дни:5
Теплые полы
0
Работа:0
Материалы:0
Дни:0
419 100
Работа:82 500
Материалы:336 600
Дни:9
257 400
Работа:49 500
Материалы:207 900
Дни:5
Черновая отделка стен
0
Работа:0
Материалы:0
Дни:0
757 404
Работа:442 528
Материалы:314 876
Дни:20
519 119
Работа:357 426
Материалы:161 693
Дни:15
374 447
Работа:161 693
Материалы:212 754
Дни:15
Черновая отделка полов
0
Работа:0
Материалы:0
Дни:0
323 386
Работа:153 183
Материалы:170 203
Дни:10
158 289
Работа:59 571
Материалы:98 718
Дни:7
Чистовая отделка стен и полов
0
Работа:0
Материалы:0
Дни:0
1 616 929
Работа:595 711
Материалы:1 021 218
Дни:50
Отделка потолка
0
Работа:0
Материалы:0
Дни:0
323 386
Работа:170 203
Материалы:153 183
Дни:10

Преимущества работы с нами

icon

7 этапов оплаты

icon

Независимый строительный надзор

icon

Экологически чистые материалы

icon

16 лет гарантии

icon

Онлайн-кабинет с веб-камерой

icon

Строители с опытом более 15 лет

icon

Собственное производство

Двухэтажный дом 14х18 м – оптимальное сочетание комфорта и функциональности

Проект двухэтажного дома размером 14 на 18 метров общей полезной площадью 154,73 квадратных метра является оптимальным решением для большой семьи, стремящейся к комфорту и продуманной организации пространства. Такой дом способен удовлетворить потребности современных жителей, обеспечив гармоничное сочетание жилой и хозяйственной зон, а также представив множество возможностей для индивидуальной планировки.

Двухэтажный формат строения позволяет эффективно использовать площадь участка, оставляя место для сада, зоны отдыха и даже для оформления ландшафта. При этом дом с размерами 14х18 метров и общей площадью застройки 190,62 м² выглядит внушительно и солидно, обеспечивая необходимый запас площади как для проживания, так и для воплощения различных дизайнерских идей.

Характеристики проекта и полезная площадь

Основным преимуществом данного проекта выступает тщательно продуманная полезная площадь дома, достигающая 154,73 м². Из нее основной жилой зоной является 109,88 м², что позволяет с комфортом разместить все необходимые помещения — от спален до гостиной и кухни. Проживая в доме такого размера, каждая семья получает возможность наслаждаться личным пространством без чувства тесноты.

Параметр Показатель
Общая площадь 170,45 м²
Полезная площадь 154,73 м²
Жилая площадь 109,88 м²
Площадь застройки 190,62 м²
Объем брутто 637 м³
Площадь крыши 258 м²

При выборе проекта дома важно обратить внимание не только на размеры, но и на соотношение между общей, жилой и полезной площадью. В нашем случае, жилая площадь — это зоны, предназначенные для отдыха и сна, а полезная площадь включает также хозяйственные и технические помещения, коридоры, лестницы, что создает целостный и сбалансированный внутренний объем дома.

Общая планировка и этажность

Двухэтажный дом предоставляет возможность разделить функциональные зоны, обеспечив гармоничное распределение пространства. На первом этаже традиционно располагается дневная зона с гостиной, кухней и столовой, а второй этаж отводится под спальни и личные кабинеты. Это разграничение усиливает комфорт проживания и способствует приватности для каждого члена семьи.

С двумя этажами общая высота здания составляет 6,90 метра, что соответствует современным стандартам строительства индивидуальных домов и обеспечивает возможность организации высоких потолков с продуманным инженерным обеспечением. Двухэтажный дом при габаритах 14х18 метров также имеет объем брутто 637 м³ – показатель, важный для расчетов по отоплению и вентиляции, а также для оценки энергоэффективности здания.

Количество спален и санузлов

В проекте предусмотрено три спальни, что отлично подходит для семьи из 3-5 человек. Количество спален позволяет каждому члену семьи иметь свою личную зону, а также гостевой комнате выполнять дополнительные функции, например, кабинета или комнаты для творчества.

Также в доме предусмотрено два санузла, что особенно удобно для семей с детьми, а также при приеме гостей. Наличие двух полностью оборудованных санитарных узлов значительно облегчает утренние и вечерние сборы, а также повышает комфорт проживания.

Особенности крыши и архитектурные решения

Одной из важных частей проекта является кровля — двухскатная крыша с углом наклона 30°. Такой угол обеспечивает надежный сток осадков и снежной массы, а также позволяет организовать пространство под крышей, которое можно использовать в качестве мансардного помещения или технического чердака.

Площадь крыши составляет внушительные 258 м², что требует внимательного подбора кровельных материалов и профессионального подхода к монтажу. При таком размере крыши важно обеспечить качественную теплоизоляцию, гидроизоляцию и вентиляцию, что повлияет на долговечность всех элементов конструкции и комфорт в доме в целом.

Влияние типа крыши на интерьер и внешний вид

Двускатная крыша придает дому классический и традиционный архитектурный облик, что делает проект универсальным для большинства ландшафтов и стилей застройки. Такой дизайн выгодно подчеркивает линии дома, при этом повышая его визуальную выразительность и привлекательность.

С точки зрения интерьера, кровля с углом в 30° открывает возможности для создания интересных мансардных помещений с естественным освещением через окна или мансардные люкарны. Это отличный способ увеличить полезную площадь без серьезного увеличения стоимости строительства.

Требования к участку для строительства

Для размещения дома с размерами 14 на 18 метров и общей площадью застройки в 190,62 м² необходимо выбрать участок с минимальными габаритами 22,3 метра по ширине и 24,85 метра по длине. Такие параметры позволяют обеспечить достаточное пространство как для самого дома, так и для организации придомовой территории — зеленых зон, дорожек и стоянки для автомобилей.

  • Минимальная ширина участка: 22,30 м
  • Минимальная длина участка: 24,85 м

Важно учесть, что при проектировании и строительстве дома следует соблюдать требования по отступам от границ участка, пожарную безопасность и нормативы по освещению и вентиляции. При планировании участка рекомендуется предусмотреть возможность дальнейшего благоустройства и расширения ландшафтного дизайна.

Стоимость строительства: рациональные инвестиции в комфорт и качество

Цена строительства двухэтажного дома 14x18 с полезной площадью 154,73 м² составляет 7 593 691 рублей. Данная стоимость включает основные работы по строительству коробки здания, создание крыши и внешнюю отделку. В рамках бюджета возможно подобрать качественные материалы, соответствующие требованиям долговечности, энергоэффективности и современного дизайна.

Стоимость проекта может варьироваться в зависимости от выбранных отделочных материалов, инженерных систем и дополнительных опций, а также региональных особенностей ценообразования. При этом важно понимать, что грамотно спланированный дом экономит расходы в будущем благодаря продуманным инженерным решениям и эффективному использованию площади.

Что входит в стоимость и на что стоит обратить внимание

Статья расходов Описание
Фундамент и несущие конструкции Основные работы по созданию надежной базы здания
Стены и перегородки Возведение наружных и внутренних ограждающих конструкций
Кровельные работы Устройство двускатной крыши с использованием качественных материалов
Внешняя отделка Фасадные работы, включая утепление и декоративные покрытия
Инженерные системы Проводка коммуникаций, отопление, вентиляция (частично)

Рекомендуется детально обсуждать с подрядчиком перечень включенных услуг, чтобы избежать неожиданных трат и получить максимально качественный результат строительства. Дополнительные опции и внутреннюю отделку можно реализовывать поэтапно в зависимости от финансовых возможностей семьи.

Преимущества двухэтажного дома 14x18 м для семейной жизни

Данный проект отличается сбалансированным подходом к организации жилого пространства, что важнее всего для комфортного проживания. Три спальни создают идеальные условия для различных возрастных категорий — родителей и детей, а также для приема гостей. Наличие двух санузлов заметно повышает удобство пользования бытовой инфраструктурой.

Двухэтажная планировка усиливает зонирование пространства, позволяя на первом этаже обустроить общие комнаты, а на втором — приватную зону для отдыха и сна. Это способствует созданию уюта и сохраняет баланс между активной и тихой частью дома.

  • Оптимальное распределение жилой и технической площади
  • Удобство и функциональность санузлов
  • Эстетически привлекательный классический дизайн с двускатной крышей
  • Высокая энергоэффективность за счет грамотного объема здания

Варианты использования и обустройства внутреннего пространства

Проект предоставляет множество возможностей для модернизации и персонализации внутреннего убранства. Гостиная и кухня могут объединяться в просторное помещение, открывая простор для семейных торжеств и общения. Домашний офис, библиотека или игровая комната легко располагаются на втором этаже в одной из спален.

Особое внимание стоит обратить на использование натурального света. Большие окна и возможность оборудовать мансардные окна под крышей с углом наклона 30° создают атмосферу уюта и положительно влияют на психологическое состояние жильцов.

Практические советы по обустройству

  • Используйте встроенные стеллажи и шкафы для максимального порядка
  • Расположите санузлы друг над другом для оптимального расхода коммуникаций
  • Организуйте места для хранения на первых и вторых этажах отдельно
  • Рассмотрите возможность установки камина в центральной части гостиной для создания тепла и уюта

Экологичность и энергоэффективность проекта

В условиях современного строительства большое внимание уделяется энергетическим характеристикам дома. Благодаря компактным габаритам и хорошо продуманному объему (637 м³), дом 14x18 м демонстрирует хорошие показатели теплоизоляции при соблюдении всех строительных норм.

Двускатная крыша с большим уклоном позволяет обеспечить эффективный слой утепления, а рациональное размещение окон способствует естественной вентиляции и освещению. Использование современных материалов при фасадной отделке и утеплении сокращает расходы на отопление и повышает комфорт проживания круглый год.

Рекомендации для повышения энергоэффективности

  • Применять современные энергоэффективные стеклопакеты
  • Использовать качественные изоляционные материалы для стен и крыши
  • Устанавливать системы рекуперации воздуха и современную вентиляцию
  • Планировать отопление с учетом зонального управления температурой

Возможности дальнейшего расширения и адаптации проекта под личные нужды

Несмотря на изначально продуманную планировку, дом 14x18 м с двумя этажами легко адаптируется под изменения семейных обстоятельств. Например, при необходимости можно увеличить жилую площадь за счет мансарды или небольшой пристройки на участке. Это позволит создать дополнительную комнату для гостей, кабинет или мастерскую.

Также предусматривается возможность изменения внутреннего зонирования без значительных строительных работ — перепланировка с переносом стен и перегородок, объединение комнат или выделение дополнительных санузлов. Все эти опции делают проект универсальным и гибким, что особенно важно для большинства заказчиков.