Введение в проект двухэтажного дома 11х13 м
Строительство частного дома — это всегда увлекательный и многогранный процесс, требующий не только тщательного планирования, но и вдумчивого подхода к выбору проектов. Особое внимание заслуживает выбор оптимальной площади и конфигурации здания, чтобы оно полностью отвечало потребностям семьи, а также вписывалось в ландшафт участка. Проект двухэтажного дома с размерами 11 на 13 метров, обладающий общей площадью около 265 квадратных метров, становится очень привлекательным решением для тех, кто ценит комфорт, функциональность и простор.
В этой статье мы подробно рассмотрим основные характеристики такого дома, уделим внимание планировочным решениям и архитектурным преимуществам. Разберём, почему именно двухэтажный дом с размерами 11х13 м является оптимальным выбором для частного строительства, и какие возможности он открывает для будущих владельцев.
Размеры и планировка: 11х13 метров — удачные габариты для частного дома
Размеры дома 11 на 13 метров — это классический вариант, позволяющий реализовать разнообразные решения планировки и одновременно не выходить за рамки компактности. Такие габариты идеально подходят для участка средней площади, не создавая напряжения с размещением на участке, и при этом дают достаточное пространство для комфортной жизни.
Двухэтажное исполнения при этих размерах является оптимальным с точки зрения использования земли. Верхний этаж позволяет увеличить жилую площадь при сохранении компактности застройки, что особенно важного для участков ограниченных по площади.
Преимущества габаритов 11х13 м
Основными преимуществами двухэтажного дома 11х13 являются:
- Рациональное использование земельного участка без чрезмерного увеличения площади фундамента;
- Возможность организовать на каждом этаже функциональные зоны: гостиную, кухню, спальни, зоны отдыха и работы;
- Гибкость в размещении окон и дверей, что позволяет обеспечить хорошее естественное освещение и вентиляцию;
- Оптимальная высота стен и объём помещений для создания комфортного микроклимата внутри дома.
Особенности планировки двухэтажного дома с четырьмя спальнями
Одна из ключевых особенностей этого проекта — наличие сразу четырёх спален. Это позволяет семье с детьми разного возраста, а также гостям чувствовать себя максимально комфортно. При размещении четырёх спален в доме 11х13 поэтажное зонирование позволяет разграничить личные и общие зоны, что повышает качество повседневной жизни.
Распределение жилых комнат
Обычно, при проектировании подобного дома, спальни располагаются преимущественно на втором этаже. Это дает возможность создать отдельный приватный блок, который будет отделён от дневных зон — кухни и гостиной, находящихся, как правило, на первом этаже. Таким образом, доля шума и бытовой активности снижается для спальных комнат.
Примерное расположение спален на втором этаже:
| Спальня | Площадь, м² | Особенности |
|---|---|---|
| Главная спальня | 18-22 | С выходом на балкон или панорамное окно |
| Вторая спальня | 14-16 | Для детей или гостей |
| Третья спальня | 14-16 | Подойдет для подростка или кабинета |
| Четвёртая спальня | 10-12 | Гибкое использование (гостевая, рабочий кабинет) |
Санузлы в доме: функциональность и удобство
Наличие двух санузлов в доме с четырьмя спальнями — это практичное решение, позволяющее избежать очередей в "час пик" и повысить уровень комфорта для всей семьи одновременно. Обычно один из санузлов располагается на первом этаже, чтобы облегчить использование гостями и для повседневных нужд живущих в доме. Второй санузел размещается на втором этаже, рядом со спальнями, что обеспечивает удобство и приватность.
Комплектация санузлов современными санитарными приборами и грамотное расположение инженерных коммуникаций создают дополнительные комфортные условия и снижают затраты на монтаж системы водоснабжения и канализации.
Архитектура и внешний вид двухэтажного дома 11x13
Внешний вид дома играет немаловажную роль при выборе проекта. Дом 11x13 м обладает сбалансированными пропорциями, которые позволяют использовать разнообразные архитектурные решения — от классических до современных стилей. За счёт правильной компоновки фасада дом выглядит гармонично, а использование разнообразных отделочных материалов и цветов может сделать проект по-настоящему уникальным.
Особенности конструкции
Двухэтажное строение с размерами 11х13 м обладает прочной и устойчивой конструкцией. Правильное распределение нагрузок по фундаменту и несущим стенам обеспечивает долговечность и безопасность эксплуатации без лишних затрат на усиления.
Большое значение имеет соблюдение современных строительных норм и стандартов, что гарантирует энергоэффективность и комфортность эксплуатации как в зимний, так и в летний период.
Материалы фасада и отделки
Для отделки фасада часто используют различные варианты декоративной штукатурки, натурального или искусственного камня, деревянной вагонки, а также современных композитных и фасадных панелей. Выбор материала зависит от стиля дома, бюджета и климатических условий региона.
Отделочные материалы не только формируют эстетический облик, но и обеспечивают дополнительную теплоизоляцию и защиту стен от неблагоприятных погодных условий, продлевая срок службы конструкции.
Примерная планировка и организованные зоны в доме 11х13 метров
Эффективная организация пространства — ключ к созданию удобного и функционального дома. Размеры 11х13 м позволяют создать комфортные зоны для отдыха, работы, развлечения и хранения.
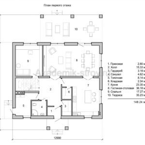
Первый этаж: общественные зоны и хозяйственные помещения
Обычно на первом этаже располагается просторная гостиная, объединённая с кухней или столовой зоной, а также санузел и технические комнаты. Это центр активной жизни всех членов семьи и место для приема гостей.
- Гостиная: обычно занимает центральное место, просторная, с панорамными окнами и выходом в сад;
- Кухня-столовая: удобная и функциональная, зачастую с островом или барной стойкой;
- Хозяйственные помещения: кладовые, гардеробные, котельная — для хранения вещей и оборудования;
- Санузел: компактный и удобный для посетителей и домочадцев.
Второй этаж: приватные и личные зоны
Основной акцент на второго этажа — расположение четырёх спален с двумя санузлами, что создает комфорт и организует личное пространство для каждого члена семьи. Помимо спален, здесь может быть оборудован кабинет или игровая комната для детей.
Экономическая эффективность и технические аспекты строительства
Строительство дома с размерами 11х13 м позволяет оптимизировать затраты на материалы и работы за счёт компактного и продуманного плана. При двух этажах уменьшается площадь фундамента и крыши в сравнении с одноэтажными домами большой площади, что снижает затраты на стройматериалы и земляных работ.
Кроме того, грамотный проект минимизирует теплопотери и облегчает монтаж инженерных сетей, повышая энергоэффективность и снижая эксплуатационные расходы.
Преимущества двухэтажной конструкции с точки зрения строительства
- Экономия площадей участка и материалов;
- Возможность разделения пространства на публичную и приватную зоны;
- Удобство коммуникаций и инженерных систем;
- Гибкость в дизайне и функциональном наполнении;
- Лучшее использование естественного освещения и вентиляции.
Советы по выбору проекта и адаптации под свои нужды
При выборе проекта дома 11х13 метров важно учитывать индивидуальные потребности семьи, особенности участка и климатические условия региона. Не стоит забывать о перспективах семьи — возможном увеличении числа проживающих или изменении образа жизни. Важно предусмотреть возможность гибкой перепланировки и расширения жилых зон.
Также стоит взять во внимание наличие дополнительных удобств, которые повысят качество жизни: утепленные гаражи как пристройки, террасы и балконы для отдыха на свежем воздухе, зоны для хобби и спортзала. Хотя в базовом проекте может отсутствовать гараж, при необходимости его можно реализовать отдельно.
Чек-лист для выбора и адаптации проекта дома 11×13
- Определите, какое количество спален и санузлов вам необходимо;
- Подумайте о функциональном зонировании пространства — разделение дневных и ночных зон;
- Выберите тип и стиль кровли, учитывая климат региона;
- Учитывайте ориентацию дома по сторонам света для максимального использования естественного освещения;
- Планируйте удобные и безопасные входы и выходы, расположение окон и дверей;
- Подумайте о системе отопления и вентиляции, чтобы обеспечить комфортный микроклимат.
Заключение
Двухэтажный дом размером 11х13 метров — это оптимальное сочетание практичности, комфорта и функциональности. Проект предусматривает четыре спальни и два санузла, что идеально подходит для семьи, стремящейся к уюту и просторному жилищу. При грамотном проектировании и строительстве такой дом становится не просто крышей над головой, а настоящим семейным очагом, отвечающим самым высоким стандартам жизни.
Выбирая именно этот формат дома, вы получаете комфортное пространство, экономию на стройматериалах и энергоэффективность, что в перспективе делает инвестиции в строительство выгодными и мудрыми.




























