Двухэтажный дом 9x10 м – комфорт и функциональность на площади 120.79 м²
Современное строительство частных домов всё чаще ориентируется на оптимальное сочетание площади, удобства и рационального использования пространства. Дом с габаритами 9 на 10 метров (120.79 м²) — один из наиболее востребованных вариантов среди тех, кто мечтает о просторном, но при этом компактном жилье. Благодаря двум этажам такой дом позволяет комфортно разместить всю семью, предусмотрев как личные зоны отдыха, так и общие помещения для семейных встреч и приема гостей.
Планировка и размеры 9х10 метров — это идеальное решение для тех, кто хочет получить максимальную жизненную площадь на относительно небольшом участке, не переплачивая при этом за лишние метры, которые могут оказаться невостребованными. Рассмотрим основные особенности и преимущества такого дома, а также на что обратить внимание при проектировании и строительстве.
Планировка и функциональное зонирование
Двухэтажный дом с размерами 9 на 10 метров предполагает наличие двух жилых уровней, что открывает большие возможности для организации пространства. Благодаря двум этажам возможно четкое разделение функциональных зон — на первом этаже могут располагаться общественные помещения, а второй этаж предназначен для личного комфорта и отдыха.
При стандартном проектировании двухэтажного дома с таким размером площади удобно выделить следующие зоны:
- Гостиная — просторное место для приема гостей и семейных встреч;
- Кухня с обеденной зоной — современные проекты зачастую объединяют эти помещения для увеличения визуального пространства;
- Прихожая и санузел — для удобства и гигиенических потребностей;
- Спальни — с учётом четырёх камер отдыха в данном проекте;
- Второй санузел — важно для комфортного проживания большой семьи.
Такое разделение позволяет одновременно создать как публичные, так и приватные комнаты, обеспечив настроение и комфорт на любом уровне.
Количество спален: четыре комнаты для отдыха
Одна из главных особенностей этого проекта — наличие четырех спален. Это огромное преимущество для многих семей, особенно если речь идет о семье с детьми или с постоянными гостями. Каждая спальня может иметь индивидуальный дизайн, размеры и функции, подходящие именно вашим нуждам.
Наличие четырех спален особенно актуально для тех, кто планирует создать домашний офис, выделить детские помещения или гостевые комнаты. Такой дом подходит также для многопоколенной семьи, где важно обеспечить уединение всех жильцов без ущерба общему пространству.
Два санузла — комфорт и удобство для всех членов семьи
Не менее важным фактором является наличие двух санузлов. Для семьи из нескольких человек это необходимость, позволяющая избежать утренних очередей и напряженности. В современном подходе к проектированию дома санузлы располагаются, как правило, по-разному – один на первом этаже для гостей и быстрого доступа, второй — на втором, рядом со спальнями.
Это улучшает бытовой ритм, уменьшая время ожидания и повышая уровень комфорта. Также второй санузел можно оборудовать под ванну или душевую, создавая вторую полноценную зону гигиены.
Преимущества двух этажей и компактных размеров
Двухэтажный дом с площадью около 121 м² — это гармоничный баланс между небольшим размером застройки и оптимальной площадью для комфортного проживания. Несмотря на относительно компактные габариты в 9 на 10 метров, дом обладает рядом неоспоримых достоинств.
Оптимальное использование участка
Размещение дома с размерами 9х10 метров позволяет рационально использовать даже сравнительно небольшой участок. Такой дом не требует значительного пространства, при этом дает существенную площадь для жизни. Это особенно важно для тех, кто хочет построить загородное жилье, но ограничен по территории.
Малые размеры основания упрощают выбор места на участке, дают возможность оставить место под огород, зону отдыха, детскую площадку или под хозяйственные постройки — ведь площадь застройки не занимает много места.
Рациональные строительные затраты
Компактные размеры здания положительно влияют на экономику строительства. Меньшая площадь фундамента и наружных стен позволяют сократить расход строительных материалов и снизить стоимость первого этапа, что особенно важно для бюджетных проектов. Двухэтажная конструкция повышает общую полезную площадь без лишнего удорожания кровли и фундамента, в сравнении с одноэтажной застройкой аналогичной площади.
Особенности конструкции и материалы
При строительстве двухэтажных домов необходимо учитывать ряд конструктивных особенностей, влияющих на долговечность строения и эксплуатационные характеристики. Важно правильно выбрать подходящие материалы и технологию возведения, чтобы дом прослужил долгие годы без серьезных доработок.
Фундамент и несущие конструкции
Для дома такого размера с двумя этажами оптимально выбирать ленточный или монолитный фундамент, который обеспечит устойчивость и прочность постройки. Несущие стены и перекрытия должны быть выполнены из прочных, долговечных материалов. Наиболее популярным вариантом сегодня является использование кирпича, газобетонных блоков или комбинированных каркасных систем.
Эти материалы обладают хорошей теплоизоляцией, обладают достойной звукоизоляцией и устойчивы к деформациям при правильном монтаже. Выбор основы зависит от бюджета и климатических условий региона.
Кровля и водосточная система
Особенности кровли являются важным элементом для долговечности всего здания. Хотя в проекте не указан тип крыши и угол ее наклона, при выборе следует ориентироваться на региональные погодные условия. Двухскатные или четырехскатные крыши часто рекомендуются для таких домов, так как они эффективно защищают от осадков и обеспечивают хороший отвод воды.
Важно заранее продумать водосточные системы, желоба и стоки, чтобы избежать проблем с влагой и продлить срок службы фасадных материалов и фундамента.
Строительство и этапы реализации проекта
Построить двухэтажный дом 9x10 метров с четырьмя спальнями и двумя санузлами — задача, требующая внимательного подхода и строгого соблюдения технологий. Разобьем процесс на основные этапы, чтобы упростить планирование и контроль строительства.
Подготовительный этап
- Выбор участка и его подготовка — очистка, разметка территории;
- Разработка проекта и согласование — выбор планировки, инженерных решений, оформление разрешительных документов;
- Закладка фундамента — проверка геологии и монтаж основания.
На этом этапе важно уделять внимание деталям, так как любые ошибки закладываются в фундамент следующих процессов и существенно влияют на качество дома.
Возведение стен и перекрытий
Стены возводятся из выбранных материалов с учётом тепло- и звукоизоляции. Особое внимание уделяется перекрытиям между этажами, поскольку они должны выдерживать значительные нагрузки и обеспечивать необходимую звукоизоляцию между этажами.
Устройство крыши и фасада
Следующий этап — монтаж крыши, теплоизоляции и наружной отделки фасада. Важно использовать качественные материалы, которые будут защищать дом от погодных условий и придавать неповторимый архитектурный стиль.
Внутренние работы и инженерные коммуникации
- Прокладка электрики, водоснабжения и канализации;
- Отделочные работы — штукатурка, укладка пола, покраска стен;
- Монтаж сантехники и оборудования для санузлов.
Только после завершения этих работ можно считать дом практически готовым для заселения.
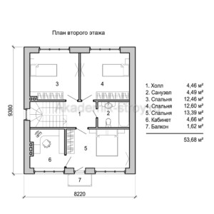
Примерная планировка двухэтажного дома 9x10 с 4 спальнями и 2 санузлами
Для лучшего понимания предлагаем рассмотреть примерную схему зонирования помещений в таком доме. В таблице приведено распределение основных комнат по этажам с их функциональным назначением.
| Этаж | Помещение | Назначение | Особенности |
|---|---|---|---|
| Первый этаж | Гостиная | Общая зона отдыха | Просторная, с доступом к кухне |
| Кухня-столовая | Приготовление и приём пищи | Открытая планировка | |
| Прихожая | Вход и хранение одежды | Расположена у входа | |
| Санузел | Гостевой и экстренного использования | Небольшой, с туалетом и раковиной | |
| Кладовая/техническое помещение | Хранение | Практичное использование пространства | |
| Второй этаж | Спальня 1 | Основная спальня | Больше квадратуры, возможно с гардеробом |
| Спальня 2 | Детская/гостевая | Удобна для ребёнка или гостей | |
| Спальня 3 | Гостевая или кабинет | Можно использовать как офис | |
| Спальня 4 | Дополнительная комната | Для хранения или отдыха | |
| Санузел | Совмещённый с ванной | Для комфортного использования жильцами второго этажа |
Преимущества жилого дома такого формата для семьи
Дом размером 9 на 10 метров с двумя этажами идеально подходит для стандартной семьи с двумя-тремя детьми или потребностью в нескольких личных зонах. Рассмотрим основные преимущества такого жилья:
- Удобство зонирования. Наличие двух этажей позволяет грамотно разделить пространство. Родители могут иметь отдельные комнаты на верхнем этаже, дети и гости – отдельные спальни. Общие помещения расположены на первом этаже.
- Оптимальный размер. При площади около 120 м² дом не выглядит чрезмерно большим, а значит, и ухаживать за ним проще.
- Экономия бюджета. Компактная площадь снижает расходы на отопление, отделочные материалы, внутрянку.
- Возможность создания комфорта. В доме достаточно комнат для уединения и личного пространства.
Рекомендации по выбору и строительству дома 9х10
Если вы рассматриваете строительство дома с параметрами 9 на 10 метров и площадью около 120 м², стоит учесть несколько полезных советов для оптимизации проекта и минимизации затрат.
- Выбор материалов. Для стен рекомендуется использовать утеплённые блочные материалы или кирпич из-за их долговечности и теплоизоляционных качеств.
- Качественный фундамент. Доверяйте выбор фундамента профессионалам, учитывая тип грунта и уровень грунтовых вод.
- Продуманная инженерия. Планируйте коммуникации заранее, чтобы избежать дорогостоящих переделок.
- Энергоэффективность. Обратите внимание на утепление и вентиляцию. Это поможет уменьшить затраты на отопление и сделать дом комфортным круглый год.
- Стилизация фасада. Современный дизайн и грамотный выбор отделочных материалов помогут создать выразительный и уютный внешний вид.
Заключение
Дом размера 9х10 метров с двумя этажами, четырьмя спальнями и двумя санузлами — это оптимальный вариант для семьи, стремящейся получить функциональное, уютное и экономичное жилье. Такой дом сочетает компактные размеры с достаточной площадью для комфортного проживания. При правильном проектировании и качественном строительстве он станет надежным и удобным пространством для жизни на долгие годы.
























