Двухэтажный дом 14x21 - 234.49 м2 (шлакоблок) за руб.

ID-28892

Стоимость дома 9322088 руб.
154 м2 Полезная
площадь
14 x 21 м Размеры
2 этажа Этажей
26 м2 Террасы
и балконы
2Без
гаража
4 Количество
спален
2 Количество
санузлов

Планировки

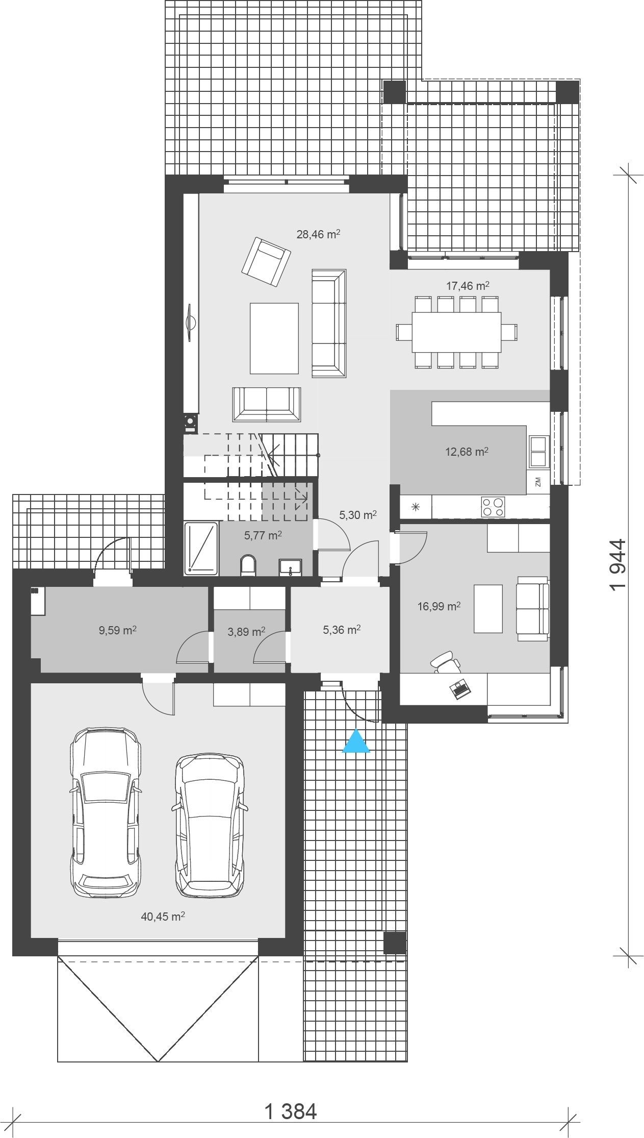
План первого этажа

floor image
  • 1. Прихожая 5,36 m²
  • 2. Гардероб 3,89 m²
  • 3. Кладовая 9,59 m²
  • 4. Ванная комната 5,77 m²
  • 5. Гостиная 28,46 m²
  • 6. Столовая 17,46 m²
  • 7. Кухня 12,68 m²
  • 8. Комната 16,99 m²
  • 9. Коридор 5,30 m²
  • 10. Гараж на 2 машины 40,45 m²
  • План первого этажа 145,95 m²

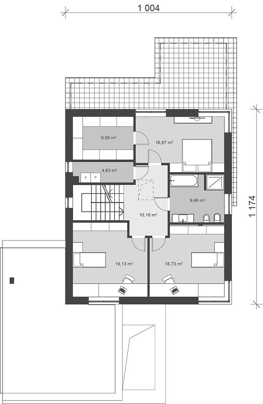
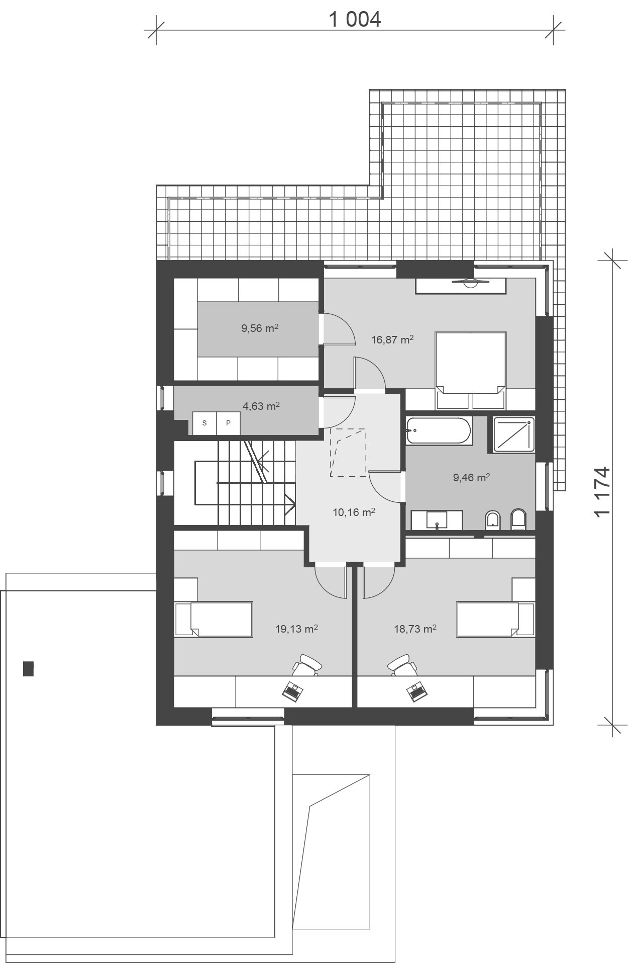
План второго этажа

floor image
  • 1. Коридор 10,16 m²
  • 2. Кладовая 4,63 m²
  • 3. Гардероб 9,56 m²
  • 4. Комната 16,87 m²
  • 5. Ванная комната 9,46 m²
  • 6. Комната 18,73 m²
  • 7. Комната 19,13 m²
  • План первого этажа 88,54 m²

Фасады

Передний
Задний
Левый
Правый
Передний
Задний
Левый
Правый

Подробная информация

Жилая площадь
184,40 m²
icon

Сумма площади всех жилых помещений, за вычетом пов. гараж, котельная, чердак, подвал. Учитывается в 100%, для помещений высотой более 2,2 м, в 50% для помещений с высотой 2,2-1,4 м и не включается для более низких помещений (меньше 1,4 м).

Площадь застройки
184,39 m²
icon

Площадь застройки здания определяется как площадь горизонтального сечения по внешнему обводу здания на уровне цоколя, включая выступающие части.

Площадь нетто
234,40 m²
icon

Площадь всех помещений в здании, измеренная на высоте пола.

Объем брутто
990 m³
icon

Как правило, это сумма объема всех помещений в здании, подсчитанных по внешнему контуру стены (с утеплением).

Площадь крыши
180 m²
icon

Угол наклона крыши
25°
icon

Наклон ската крыши в градусах. Внимание! В некоторых проектах возникает более чем один наклон крыши.

Высота здания
8,74 m
icon

Высота измеряется от поверхности земли до самой высокой точки кровли (конька), за исключением дымоходов.

Ширина фасада
13,84 m
icon

Мин. ширина участка
20,84 m
icon

Наименьшая возможная ширина участка, необходимая для строительства выбранного дома. Состоит из длины фасада дома плюс с обеих сторон три метра отступ.

Мин. длина участка
29,44 m
icon

Наименьшая возможная длина участка, необходимая для строительства выбранного дома. Состоит из длины фасада дома плюс с обеих сторон три метра отступ.

Материалы и опции
Общие
Цена, руб.
Площадь м²
230
Ежемесячный платёж, руб
Количество спален
4
Гараж
2
Количество санузлов
2
Ширина
14
Глубина
21
Тип крыши

Площади дома

№ п/п Наименование Ед. из. Строительная площадь Полезная площадь
1 1 этаж м2 179.85 145.95
2 2 этаж м2 109.11 88.54
3 Итого м2 288.96 234.49

Калькулятор опций

0

В ипотеку от 29 642 ₽/мес.

Фундамент
939 869
Работа:406 767
Материалы:533 102
Дни:20
565 017
Работа:189 220
Материалы:375 797
Дни:2
952 144
Работа:382 217
Материалы:569 927
Дни:20
1 824 597
Работа:814 667
Материалы:1 009 930
Дни:30
3 060 948
Работа:1 125 501
Материалы:1 935 447
Дни:32
1 156 849
Работа:462 853
Материалы:693 996
Дни:20
7 259 106
Работа:3 309 276
Материалы:3 949 830
Дни:30
8 660 695
Работа:3 860 130
Материалы:4 800 565
Дни:40
302 148
Работа:75 537
Материалы:226 611
Дни:1
Перекрытие цоколя
540 845
Работа:232 276
Материалы:308 569
Дни:8
866 221
Работа:287 041
Материалы:579 180
Дни:13
1 545 676
Работа:632 245
Материалы:913 431
Дни:18
Стены 1 этаж (несущие)
1 516 972
Работа:950 444
Материалы:566 528
Дни:29
1 746 227
Работа:894 547
Материалы:851 680
Дни:23
2 688 362
Работа:1 649 728
Материалы:1 038 634
Дни:30
2 200 204
Работа:964 230
Материалы:1 235 974
Дни:45
4 113 178
Работа:907 577
Материалы:3 205 601
Дни:24
905 877
Работа:456 621
Материалы:449 256
Дни:15
494 767
Работа:266 268
Материалы:228 499
Дни:7
1 739 994
Работа:605 051
Материалы:1 134 943
Дни:7
2 272 719
Работа:726 099
Материалы:1 546 620
Дни:7
14 925 167
Работа:726 099
Материалы:14 199 068
Дни:7
8 078 871
Работа:907 577
Материалы:7 171 294
Дни:7
1 270 721
Работа:302 526
Материалы:968 195
Дни:7
1 668 612
Работа:856 967
Материалы:811 645
Дни:29
1 460 886
Работа:951 389
Материалы:509 497
Дни:29
1 668 612
Работа:856 967
Материалы:811 645
Дни:29
1 770 965
Работа:1 083 389
Материалы:687 576
Дни:23
2 263 655
Работа:762 357
Материалы:1 501 298
Дни:7
2 566 936
Работа:1 573 247
Материалы:993 689
Дни:25
928 538
Работа:479 282
Материалы:449 256
Дни:15
8 604 042
Работа:1 815 154
Материалы:6 788 888
Дни:15
1 029 569
Работа:484 192
Материалы:545 377
Дни:15
1 401 966
Работа:795 782
Материалы:606 184
Дни:19
1 479 770
Работа:951 389
Материалы:528 381
Дни:29
950 444
Работа:498 922
Материалы:451 522
Дни:15
1 746 227
Работа:894 547
Материалы:851 680
Дни:23
1 020 127
Работа:396 569
Материалы:623 558
Дни:15
1 306 790
Работа:952 899
Материалы:353 891
Дни:7
Перекрытие первого этажа
540 845
Работа:232 276
Материалы:308 569
Дни:8
866 221
Работа:287 041
Материалы:579 180
Дни:13
1 545 676
Работа:632 245
Материалы:913 431
Дни:18
Стены 2 этаж (несущие)
920 305
Работа:576 608
Материалы:343 697
Дни:29
1 059 387
Работа:542 697
Материалы:516 690
Дни:23
1 630 954
Работа:1 000 844
Материалы:630 110
Дни:30
1 334 802
Работа:584 971
Материалы:749 831
Дни:45
2 495 351
Работа:550 602
Материалы:1 944 749
Дни:24
549 570
Работа:277 019
Материалы:272 551
Дни:15
300 161
Работа:161 537
Материалы:138 624
Дни:7
1 055 607
Работа:367 068
Материалы:688 539
Дни:7
1 378 795
Работа:440 504
Материалы:938 291
Дни:7
9 054 684
Работа:440 504
Материалы:8 614 180
Дни:7
2 403 699
Работа:550 602
Материалы:1 853 097
Дни:7
770 911
Работа:183 534
Материалы:587 377
Дни:10
1 012 301
Работа:519 898
Материалы:492 403
Дни:29
886 279
Работа:577 181
Материалы:309 098
Дни:29
1 012 301
Работа:519 898
Материалы:492 403
Дни:29
1 074 395
Работа:657 262
Материалы:417 133
Дни:23
1 373 297
Работа:462 501
Материалы:910 796
Дни:7
1 557 289
Работа:954 445
Материалы:602 844
Дни:25
563 318
Работа:290 767
Материалы:272 551
Дни:15
5 219 834
Работа:1 101 204
Материалы:4 118 630
Дни:15
624 611
Работа:293 746
Материалы:330 865
Дни:15
850 534
Работа:482 779
Материалы:367 755
Дни:19
897 735
Работа:577 181
Материалы:320 554
Дни:29
576 608
Работа:302 682
Материалы:273 926
Дни:15
1 059 387
Работа:542 697
Материалы:516 690
Дни:10
618 883
Работа:240 588
Материалы:378 295
Дни:10
792 794
Работа:578 098
Материалы:214 696
Дни:7
Перекрытие второго этажа
328 116
Работа:140 916
Материалы:187 200
Дни:8
525 512
Работа:174 140
Материалы:351 372
Дни:13
937 718
Работа:383 565
Материалы:554 153
Дни:18
Крыша (Скатная)
2 235 517
Работа:1 081 312
Материалы:1 154 205
Дни:20
2 441 734
Работа:1 123 613
Материалы:1 318 121
Дни:20
3 779 872
Работа:1 785 695
Материалы:1 994 177
Дни:20
3 476 779
Работа:1 681 642
Материалы:1 795 137
Дни:20
4 193 437
Работа:1 785 695
Материалы:2 407 742
Дни:20
3 161 223
Работа:1 546 620
Материалы:1 614 603
Дни:20
7 024 941
Работа:3 163 112
Материалы:3 861 829
Дни:20
6 917 301
Работа:3 168 777
Материалы:3 748 524
Дни:20
1 359 666
Работа:708 159
Материалы:651 507
Дни:20
Окна
486 027
Работа:156 346
Материалы:329 681
Дни:3
0
Работа:0
Материалы:0
Дни:0
Двери входные
16 275
Работа:5 775
Материалы:10 500
Дни:1
0
Работа:0
Материалы:0
Дни:0
Утепление кровли (Мансарда)
0
Работа:0
Материалы:0
Дни:0
341 428
Работа:122 748
Материалы:218 680
Дни:5
199 040
Работа:44 189
Материалы:154 851
Дни:3
290 063
Работа:73 649
Материалы:216 414
Дни:3
163 538
Работа:73 649
Материалы:89 889
Дни:3
436 981
Работа:44 189
Материалы:392 792
Дни:2
573 326
Работа:73 649
Материалы:499 677
Дни:3
Мансардные окна
0
Работа:0
Материалы:0
Дни:0
68 649
Работа:18 795
Материалы:49 854
Дни:6
Подшивка кровли
0
Работа:0
Материалы:0
Дни:0
629 223
Работа:288 740
Материалы:340 483
Дни:7
Водосточная система
0
Работа:0
Материалы:0
Дни:0
629 412
Работа:281 564
Материалы:347 848
Дни:7
Дополнительное утепление наружных стен
0
Работа:0
Материалы:0
Дни:0
1 748 237
Работа:705 424
Материалы:1 042 813
Дни:7
617 435
Работа:371 675
Материалы:245 760
Дни:3
1 928 157
Работа:544 617
Материалы:1 383 540
Дни:5
2 007 650
Работа:544 617
Материалы:1 463 033
Дни:5
1 088 931
Работа:221 184
Материалы:867 747
Дни:3
2 767 991
Работа:242 726
Материалы:2 525 265
Дни:5
Наружная отделка фасада
0
Работа:0
Материалы:0
Дни:0
1 332 265
Работа:423 861
Материалы:908 404
Дни:20
1 435 423
Работа:466 338
Материалы:969 085
Дни:20
1 041 599
Работа:364 696
Материалы:676 903
Дни:35
3 463 099
Работа:983 042
Материалы:2 480 057
Дни:45
1 814 683
Работа:912 348
Материалы:902 335
Дни:40
766 408
Работа:383 204
Материалы:383 204
Дни:20
2 359 301
Работа:983 042
Материалы:1 376 259
Дни:45
2 595 352
Работа:707 851
Материалы:1 887 501
Дни:20
1 435 120
Работа:589 825
Материалы:845 295
Дни:20
1 769 476
Работа:786 434
Материалы:983 042
Дни:20
2 466 101
Работа:1 061 625
Материалы:1 404 476
Дни:20
3 045 003
Работа:908 100
Материалы:2 136 903
Дни:20
2 164 817
Работа:786 434
Материалы:1 378 383
Дни:20
Террасы, крыльца, навесы
0
Работа:0
Материалы:0
Дни:0
390 600
Работа:61 425
Материалы:329 175
Дни:5
Балконы
0
Работа:0
Материалы:0
Дни:0
174 825
Работа:61 425
Материалы:113 400
Дни:12
Отмостка
0
Работа:0
Материалы:0
Дни:0
812 022
Работа:330 474
Материалы:481 548
Дни:15
585 412
Работа:273 822
Материалы:311 590
Дни:10
Дренаж вокруг дома
0
Работа:0
Материалы:0
Дни:0
807 679
Работа:360 878
Материалы:446 801
Дни:5
Автономная канализация (септики)
0
Работа:0
Материалы:0
Дни:0
258 657
Работа:52 500
Материалы:206 157
Дни:7
Внутренние (не несущие) перегородки
0
Работа:0
Материалы:0
Дни:0
291 272
Работа:115 295
Материалы:175 977
Дни:11
492 128
Работа:182 045
Материалы:310 083
Дни:5
564 339
Работа:212 386
Материалы:351 953
Дни:11
814 650
Работа:273 067
Материалы:541 583
Дни:7
Электрика
0
Работа:0
Материалы:0
Дни:0
393 943
Работа:233 904
Материалы:160 039
Дни:10
Сантехника, канализация в доме
0
Работа:0
Материалы:0
Дни:0
327 466
Работа:179 737
Материалы:147 729
Дни:10
Отопление
0
Работа:0
Материалы:0
Дни:0
288 071
Работа:137 880
Материалы:150 191
Дни:5
Теплые полы
0
Работа:0
Материалы:0
Дни:0
400 050
Работа:78 750
Материалы:321 300
Дни:9
245 700
Работа:47 250
Материалы:198 450
Дни:5
Черновая отделка стен
0
Работа:0
Материалы:0
Дни:0
1 095 655
Работа:640 158
Материалы:455 497
Дни:20
750 954
Работа:517 050
Материалы:233 904
Дни:15
541 672
Работа:233 904
Материалы:307 768
Дни:15
Черновая отделка полов
0
Работа:0
Материалы:0
Дни:0
467 808
Работа:221 593
Материалы:246 215
Дни:10
228 979
Работа:86 175
Материалы:142 804
Дни:7
Чистовая отделка стен и полов
0
Работа:0
Материалы:0
Дни:0
2 339 038
Работа:861 751
Материалы:1 477 287
Дни:50
Отделка потолка
0
Работа:0
Материалы:0
Дни:0
467 808
Работа:246 215
Материалы:221 593
Дни:10

Преимущества работы с нами

icon

7 этапов оплаты

icon

Независимый строительный надзор

icon

Экологически чистые материалы

icon

16 лет гарантии

icon

Онлайн-кабинет с веб-камерой

icon

Строители с опытом более 15 лет

icon

Собственное производство

Преимущества двухэтажного дома 14х21 в Москве

Когда речь заходит о строительстве дома, каждый из нас представляет себе что-то особенное и уникальное. Проект двухэтажного дома размером 14x21 метра, с полезной площадью 234.49 м², становится идеальным решением для любителей пространства и комфорта. Такой дом станет настоящей находкой для семьи, желающей жить в столице и наслаждаться всеми благами собственного жилья. Далеко не каждому по душе большие, трудоемкие участки с чрезмерно сложными зданиями. Именно поэтому наш проект допускает строительство на относительно компактной территории. Минимальные размеры участка для возведения такого дома составляют всего 20,84 x 29,44 метра, что делает его подходящим для многих предложений на московском рынке.

Практичная планировка и простор

По-настоящему просторный, но при этом уютный, двухэтажный дом подарит вам и вашей семье чувство покоя и удобства. С четырьмя спальнями и двумя санузлами вы сможете не только удобно разместиться сами, но и всегда быть готовы к приёму дорогих гостей. Жилая площадь, равная 184,40 м², предназначена для того, чтобы каждый жилой квадратный метр приносил радость. Зонирование пространства позволяет интегрировать разнообразные функции в площадь, включая зону для отдыха, учебы и работы.

Комфорт и эстетика двускатной крыши

Эстетичность и функциональность — это два столпа, на которых строится успешный дом. Доказано, что двускатная крыша с углом наклона 25° обеспечивает не только удобство в эксплуатации и долговечность, но и обладает уникальным шармом, который не утратил своей привлекательности в эпоху инновационных архитектурных решений. С площадью крыши в 180 м², ваш дом будет надежно защищен от всех капризов погоды. Эстетика крыши удачно сочетается с общим архитектурным замыслом, придавая дому завершённый и гармоничный внешний вид.

Экономичность и эффективность объемного строительства

По расчётам специалистов, объем брутто для дома составляет внушительные 990 м³. Это свидетельствует о том, что дом не только визуально просторный, но и эффективно использует каждый кубический метр своей массы. Высота здания в 8,74 метра делает возможным наличие высоких потолков, что обеспечивает дополнительный комфорт в помещении. Оптимальное использование внутреннего объема способствует хорошей циркуляции воздуха, что критично важно для большого дома. Таким образом, обеспечивается высокий уровень энергоэффективности, что в перспективе приводит к существенному снижению эксплуатационных расходов.

Точное соответствие параметрам и конфигурации

В процессе проектирования были учтены все важные параметры: от общей конструкции до мельчайших деталей, которые сделают проживание в таком доме приятным и беззаботным. Площадь застройки равна 184,39 м², что в точности повторяет контур полезного пространства дома. Это позволяет рационально использовать участок и интегрировать дополнительные элементы, такие как сад или спортплощадка. Если ваша мечта — двуспальный дом, способный обеспечить вас всем необходимым, двускатная крыша, интересное внутреннее оформление, то выбор такого проекта станет идеальным решением. Помимо этого, благодаря доступной цене вы сможете почувствовать все преимущества жизни в своем доме, не переплачивая за лишние и ненужные функции.

Энергосбережение и экологичность

Одним из ключевых приоритетов в современном строительстве является энергоэффективность. Мы гордимся тем, что предлагаем проект дома, который отвечает всем современным требованиям по энергосбережению. Это достигается благодаря использованию инновационных технологий и материалов. С таким подходом ваш дом будет не только удобным и уютным, но и экономным в эксплуатации — вы существенно сэкономите на коммунальных расходах. Кроме того, при проектировании и строительстве сверхсовременного здания не забыли об экологии. Все используемые материалы безопасны для окружающей среды, а высокая степень теплоизоляции существенно сократит выбросы углекислого газа в атмосферу.

Заявка на проект: как начать?

Если вы задумались о собственном доме, приглашаем вас воспользоваться нашими услугами. Заказать проект двухэтажного дома площадью 234.49 м² в компании "Академик Строй" крайне просто. Вы можете легко связаться с нашими специалистами, позвонив по номеру +7 (980) 800-47-93, и получить полную консультацию по всем интересующим вас вопросам. Мы гарантируем индивидуальный подход к каждому клиенту, чтобы ваше жилье стало именно таким, каким вы его себе представляете. Всего несколько шагов — и вместо мечты вы получите дом, в который приятно возвращаться каждый день. Мы готовы предложить вам отличную цену и оперативную реализацию всех ваших планов, чтобы сделать проживание максимально комфортным, а процесс строительства — необременительным.

Цены и условия

Проектирование и строительство дома требует значительных вложений, однако мы уверены, что могли бы предложить вам отличные условия для сотрудничества. При выборе проекта особое внимание уделяем деталям и поставляем нашим клиентам не только красивые, но и функциональные решения.
Параметр Значение
Полезная площадь 234.49 м²
Размеры дома 14 x 21 м
Количество спален 4
Количество санузлов 2
Жилая площадь 184,40 m²
Площадь застройки 184,39 m²
Площадь нетто 234,40 m²
Объем брутто 990 m³
Площадь крыши 180 m²
Угол наклона крыши 25°
Высота здания 8,74 m
Минимальная ширина участка 20,84 m
Минимальная длина участка 29,44 m
Тип крыши двускатная

Преимущества работы с компанией "Академик Строй"

Построить дом мечты — это не только о кирпичах и бетоне. Это ещё и про уверенность в том, что ваш проект находится в надежных руках. Компания "Академик Строй" готова предложить вам широкий спектр услуг от разработки проекта до полного завершения строительства. С нами вы можете быть уверены, что каждый элемент вашего дома будет проработан до мельчайших деталей. Мы стараемся сделать так, чтобы каждый клиент остался доволен результатом и вероятность внеплановых трат была сведена к минимуму. Наталья наш технический консультант, всегда готова ответить на ваши вопросы и проконсультировать по всем аспектам строительства вашего нового дома.