Двухэтажный дом 16x11 - 197.1 м2 за руб.
площадь
и балконы
гаража
спален
санузлов
Планировки
План первого этажа
- 1. Прихожая 3,40 m²
- 2. Холл 9,80 m²
- 3. Кладовая 5,90 m²
- 4. Кладовая 1,70 m²
- 5. Кухня 8,40 m²
- 6. Гостиная + столовая 32,40 m²
- 7. Комната 11,20 m²
- 8. Гардероб 3,10 m²
- 9. Ванная комната 3,90 m²
- 10. Гараж на 2 машины 35,40 m²
- План первого этажа 115,20 m²
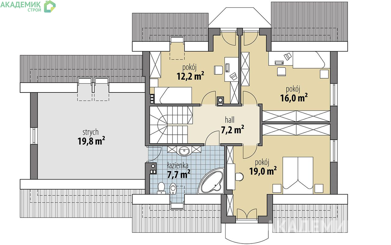
План мансарды
- 1. Холл 7,20 m²
- 2. Ванная комната 7,70 m²
- 3. Комната 12,20 m²
- 4. Комната 16 m²
- 5. Комната 19 m²
- 6. Чердак 19,80 m²
- План мансарды 81,90 m²
Разрезы
Фасады
Подробная информация
Сумма площади всех жилых помещений, за вычетом пов. гараж, котельная, чердак, подвал. Учитывается в 100%, для помещений высотой более 2,2 м, в 50% для помещений с высотой 2,2-1,4 м и не включается для более низких помещений (меньше 1,4 м).
Площадь застройки здания определяется как площадь горизонтального сечения по внешнему обводу здания на уровне цоколя, включая выступающие части.
Наклон ската крыши в градусах. Внимание! В некоторых проектах возникает более чем один наклон крыши.
Высота измеряется от поверхности земли до самой высокой точки кровли (конька), за исключением дымоходов.
Наименьшая возможная ширина участка, необходимая для строительства выбранного дома. Состоит из длины фасада дома плюс с обеих сторон три метра отступ.
Наименьшая возможная длина участка, необходимая для строительства выбранного дома. Состоит из длины фасада дома плюс с обеих сторон три метра отступ.
Площади дома
| № п/п | Наименование | Ед. из. | Строительная площадь | Полезная площадь |
| 1 | 1 этаж | м2 | 141.96 | 115.2 |
| 2 | 2 этаж | м2 | 100.93 | 81.9 |
| 3 | Итого | м2 | 242.89 | 197.1 |
Калькулятор опций
В ипотеку от 23 511 ₽/мес.
Преимущества работы с нами
7 этапов оплаты
Независимый строительный надзор
Экологически чистые материалы
16 лет гарантии
Онлайн-кабинет с веб-камерой
Строители с опытом более 15 лет
Собственное производство



