Двухэтажный дом 14x16 - 198.52 м2 (газобетон) за руб.

ID-49510

Стоимость дома 7990611 руб.
154 м2 Полезная
площадь
14 x 16 м Размеры
2 этажа Этажей
26 м2 Террасы
и балконы
2Без
гаража
4 Количество
спален
2 Количество
санузлов

Планировки

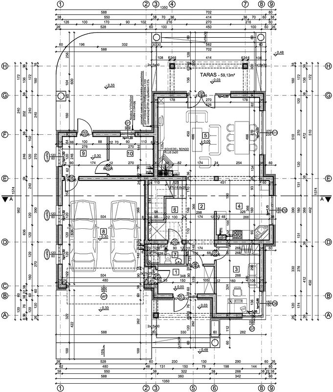
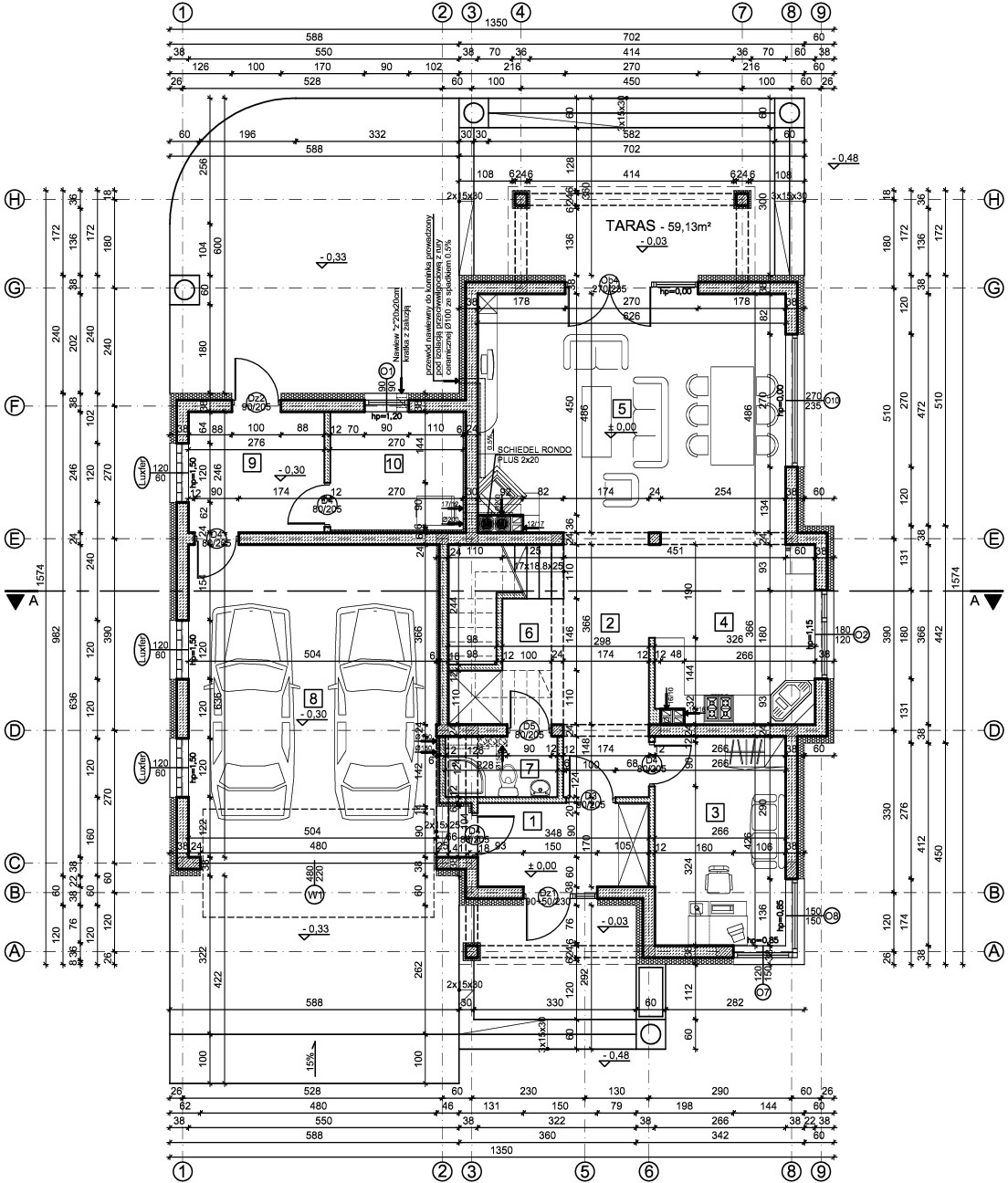
План первого этажа

floor image
  • 1. Прихожая 5,92 m²
  • 2. Коридор 8,94 m²
  • 3. Комната 11,33 m²
  • 4. Кухня 11,97 m²
  • 5. Гостиная 31,12 m²
  • 6. Лестница 8,56 m²
  • 7. Ванная комната 2,83 m²
  • 8. Гараж на 2 машины 32,74 m²
  • 9. Кладовая 6,79 m²
  • 10. Котельная 6,48 m²
  • План первого этажа 126,68 m²

План второго этажа

floor image
  • 1. Коридор 7,69 m²
  • 2. Комната 23,74 m²
  • 3. Ванная комната 6,13 m²
  • 4. Гардероб 4,84 m²
  • 5. Комната 15,40 m²
  • 6. Комната 14,04 m²
  • План первого этажа 71,84 m²

Подробная информация

Жилая площадь
153 m²
icon

Сумма площади всех жилых помещений, за вычетом пов. гараж, котельная, чердак, подвал. Учитывается в 100%, для помещений высотой более 2,2 м, в 50% для помещений с высотой 2,2-1,4 м и не включается для более низких помещений (меньше 1,4 м).

Площадь застройки
167,17 m²
icon

Площадь застройки здания определяется как площадь горизонтального сечения по внешнему обводу здания на уровне цоколя, включая выступающие части.

Площадь нетто
198,52 m²
icon

Площадь всех помещений в здании, измеренная на высоте пола.

Угол наклона крыши
22°
icon

Наклон ската крыши в градусах. Внимание! В некоторых проектах возникает более чем один наклон крыши.

Высота здания
8,19 m
icon

Высота измеряется от поверхности земли до самой высокой точки кровли (конька), за исключением дымоходов.

Ширина фасада
13,50 m
icon

Длина фасада
15,74 m
icon

Мин. ширина участка
20,50 m
icon

Наименьшая возможная ширина участка, необходимая для строительства выбранного дома. Состоит из длины фасада дома плюс с обеих сторон три метра отступ.

Мин. длина участка
23,80 m
icon

Наименьшая возможная длина участка, необходимая для строительства выбранного дома. Состоит из длины фасада дома плюс с обеих сторон три метра отступ.

Материалы и опции
Общие
Цена, руб.
Площадь м²
250
Площадь от и до
Ежемесячный платёж, руб
Количество спален
4
Гараж
2
Количество санузлов
2
Ширина
14
Глубина
16

Площади дома

№ п/п Наименование Ед. из. Строительная площадь Полезная площадь
1 1 этаж м2 156.11 126.68
2 2 этаж м2 88.53 71.84
3 Итого м2 244.64 198.52

Калькулятор опций

0

В ипотеку от 25 710 ₽/мес.

Фундамент
815 807
Работа:353 074
Материалы:462 733
Дни:20
490 435
Работа:164 243
Материалы:326 192
Дни:2
826 462
Работа:331 765
Материалы:494 697
Дни:20
1 583 751
Работа:707 131
Материалы:876 620
Дни:30
2 656 906
Работа:976 936
Материалы:1 679 970
Дни:32
1 004 146
Работа:401 757
Материалы:602 389
Дни:20
6 300 912
Работа:2 872 455
Материалы:3 428 457
Дни:30
7 517 493
Работа:3 350 597
Материалы:4 166 896
Дни:40
262 265
Работа:65 566
Материалы:196 699
Дни:1
Перекрытие цоколя
469 454
Работа:201 616
Материалы:267 838
Дни:8
751 881
Работа:249 152
Материалы:502 729
Дни:13
1 341 648
Работа:548 789
Материалы:792 859
Дни:18
Стены 1 этаж (несущие)
1 316 734
Работа:824 987
Материалы:491 747
Дни:29
1 515 727
Работа:776 468
Материалы:739 259
Дни:23
2 333 501
Работа:1 431 966
Материалы:901 535
Дни:30
1 909 780
Работа:836 953
Материалы:1 072 827
Дни:45
3 570 244
Работа:787 778
Материалы:2 782 466
Дни:24
786 303
Работа:396 348
Материалы:389 955
Дни:15
429 459
Работа:231 121
Материалы:198 338
Дни:7
1 510 317
Работа:525 185
Материалы:985 132
Дни:7
1 972 723
Работа:630 255
Материалы:1 342 468
Дни:7
12 955 061
Работа:630 255
Материалы:12 324 806
Дни:7
7 012 469
Работа:787 778
Материалы:6 224 691
Дни:7
1 102 988
Работа:262 593
Материалы:840 395
Дни:7
1 448 358
Работа:743 849
Материалы:704 509
Дни:29
1 268 050
Работа:825 806
Материалы:442 244
Дни:29
1 448 358
Работа:743 849
Материалы:704 509
Дни:29
1 537 199
Работа:940 383
Материалы:596 816
Дни:23
1 964 855
Работа:661 727
Материалы:1 303 128
Дни:7
2 228 103
Работа:1 365 580
Материалы:862 523
Дни:25
805 973
Работа:416 018
Материалы:389 955
Дни:15
7 468 318
Работа:1 575 556
Материалы:5 892 762
Дни:15
893 667
Работа:420 279
Материалы:473 388
Дни:15
1 216 909
Работа:690 740
Материалы:526 169
Дни:19
1 284 442
Работа:825 806
Материалы:458 636
Дни:29
824 987
Работа:433 065
Материалы:391 922
Дни:15
1 515 727
Работа:776 468
Материалы:739 259
Дни:23
885 472
Работа:344 223
Материалы:541 249
Дни:15
1 134 296
Работа:827 118
Материалы:307 178
Дни:7
Перекрытие первого этажа
469 454
Работа:201 616
Материалы:267 838
Дни:8
751 881
Работа:249 152
Материалы:502 729
Дни:13
1 341 648
Работа:548 789
Материалы:792 859
Дни:18
Стены 2 этаж (несущие)
746 720
Работа:467 850
Материалы:278 870
Дни:29
859 569
Работа:440 335
Материалы:419 234
Дни:23
1 323 329
Работа:812 068
Материалы:511 261
Дни:30
1 083 036
Работа:474 636
Материалы:608 400
Дни:45
2 024 686
Работа:446 749
Материалы:1 577 937
Дни:24
445 913
Работа:224 769
Материалы:221 144
Дни:15
243 546
Работа:131 069
Материалы:112 477
Дни:7
856 502
Работа:297 833
Материалы:558 669
Дни:7
1 118 732
Работа:357 418
Материалы:761 314
Дни:7
7 346 817
Работа:357 418
Материалы:6 989 399
Дни:7
1 950 320
Работа:446 749
Материалы:1 503 571
Дни:7
625 504
Работа:148 916
Материалы:476 588
Дни:10
821 364
Работа:421 837
Материалы:399 527
Дни:29
719 112
Работа:468 315
Материалы:250 797
Дни:29
821 364
Работа:421 837
Материалы:399 527
Дни:29
871 746
Работа:533 291
Материалы:338 455
Дни:23
1 114 269
Работа:375 265
Материалы:739 004
Дни:7
1 263 558
Работа:774 421
Материалы:489 137
Дни:25
457 068
Работа:235 924
Материалы:221 144
Дни:15
4 235 284
Работа:893 498
Материалы:3 341 786
Дни:15
506 798
Работа:238 340
Материалы:268 458
Дни:15
690 109
Работа:391 719
Материалы:298 390
Дни:19
728 407
Работа:468 315
Материалы:260 092
Дни:29
467 850
Работа:245 591
Материалы:222 259
Дни:15
859 569
Работа:440 335
Материалы:419 234
Дни:10
502 151
Работа:195 209
Материалы:306 942
Дни:10
643 258
Работа:469 058
Материалы:174 200
Дни:7
Перекрытие второго этажа
266 227
Работа:114 336
Материалы:151 891
Дни:8
426 392
Работа:141 294
Материалы:285 098
Дни:13
760 849
Работа:311 218
Материалы:449 631
Дни:18
Крыша (Скатная)
1 940 432
Работа:938 580
Материалы:1 001 852
Дни:20
2 119 427
Работа:975 297
Материалы:1 144 130
Дни:20
3 280 933
Работа:1 549 985
Материалы:1 730 948
Дни:20
3 017 849
Работа:1 459 668
Материалы:1 558 181
Дни:20
3 639 908
Работа:1 549 985
Материалы:2 089 923
Дни:20
2 743 946
Работа:1 342 468
Материалы:1 401 478
Дни:20
6 097 657
Работа:2 745 585
Материалы:3 352 072
Дни:20
6 004 225
Работа:2 750 502
Материалы:3 253 723
Дни:20
1 180 191
Работа:614 683
Материалы:565 508
Дни:20
Окна
411 472
Работа:132 363
Материалы:279 109
Дни:3
0
Работа:0
Материалы:0
Дни:0
Двери входные
16 275
Работа:5 775
Материалы:10 500
Дни:1
0
Работа:0
Материалы:0
Дни:0
Утепление кровли (Мансарда)
0
Работа:0
Материалы:0
Дни:0
296 359
Работа:106 545
Материалы:189 814
Дни:5
172 767
Работа:38 356
Материалы:134 411
Дни:3
251 774
Работа:63 927
Материалы:187 847
Дни:3
141 951
Работа:63 927
Материалы:78 024
Дни:3
379 300
Работа:38 356
Материалы:340 944
Дни:2
497 647
Работа:63 927
Материалы:433 720
Дни:3
Мансардные окна
0
Работа:0
Материалы:0
Дни:0
68 649
Работа:18 795
Материалы:49 854
Дни:6
Подшивка кровли
0
Работа:0
Материалы:0
Дни:0
546 167
Работа:250 627
Материалы:295 540
Дни:7
Водосточная система
0
Работа:0
Материалы:0
Дни:0
546 330
Работа:244 398
Материалы:301 932
Дни:7
Дополнительное утепление наружных стен
0
Работа:0
Материалы:0
Дни:0
1 480 096
Работа:597 227
Материалы:882 869
Дни:7
522 734
Работа:314 668
Материалы:208 066
Дни:3
1 632 421
Работа:461 085
Материалы:1 171 336
Дни:5
1 699 722
Работа:461 085
Материалы:1 238 637
Дни:5
921 914
Работа:187 260
Материалы:734 654
Дни:3
2 343 444
Работа:205 498
Материалы:2 137 946
Дни:5
Наружная отделка фасада
0
Работа:0
Материалы:0
Дни:0
1 127 925
Работа:358 850
Материалы:769 075
Дни:20
1 215 261
Работа:394 812
Материалы:820 449
Дни:20
881 841
Работа:308 760
Материалы:573 081
Дни:35
2 931 937
Работа:832 265
Материалы:2 099 672
Дни:45
1 536 351
Работа:772 414
Материалы:763 937
Дни:40
648 858
Работа:324 429
Материалы:324 429
Дни:20
1 997 436
Работа:832 265
Материалы:1 165 171
Дни:45
2 197 283
Работа:599 282
Материалы:1 598 001
Дни:20
1 215 004
Работа:499 359
Материалы:715 645
Дни:20
1 498 077
Работа:665 812
Материалы:832 265
Дни:20
2 087 855
Работа:898 795
Материалы:1 189 060
Дни:20
2 577 967
Работа:768 818
Материалы:1 809 149
Дни:20
1 832 781
Работа:665 812
Материалы:1 166 969
Дни:20
Террасы, крыльца, навесы
0
Работа:0
Материалы:0
Дни:0
390 600
Работа:61 425
Материалы:329 175
Дни:5
Балконы
0
Работа:0
Материалы:0
Дни:0
174 825
Работа:61 425
Материалы:113 400
Дни:12
Отмостка
0
Работа:0
Материалы:0
Дни:0
704 837
Работа:286 852
Материалы:417 985
Дни:15
508 138
Работа:237 677
Материалы:270 461
Дни:10
Дренаж вокруг дома
0
Работа:0
Материалы:0
Дни:0
701 067
Работа:313 243
Материалы:387 824
Дни:5
Автономная канализация (септики)
0
Работа:0
Материалы:0
Дни:0
258 657
Работа:52 500
Материалы:206 157
Дни:7
Внутренние (не несущие) перегородки
0
Работа:0
Материалы:0
Дни:0
246 597
Работа:97 611
Материалы:148 986
Дни:11
416 646
Работа:154 123
Материалы:262 523
Дни:5
477 782
Работа:179 810
Материалы:297 972
Дни:11
689 702
Работа:231 185
Материалы:458 517
Дни:7
Электрика
0
Работа:0
Материалы:0
Дни:0
333 514
Работа:198 024
Материалы:135 490
Дни:10
Сантехника, канализация в доме
0
Работа:0
Материалы:0
Дни:0
277 234
Работа:152 166
Материалы:125 068
Дни:10
Отопление
0
Работа:0
Материалы:0
Дни:0
243 882
Работа:116 730
Материалы:127 152
Дни:5
Теплые полы
0
Работа:0
Материалы:0
Дни:0
400 050
Работа:78 750
Материалы:321 300
Дни:9
245 700
Работа:47 250
Материалы:198 450
Дни:5
Черновая отделка стен
0
Работа:0
Материалы:0
Дни:0
927 585
Работа:541 960
Материалы:385 625
Дни:20
635 761
Работа:437 737
Материалы:198 024
Дни:15
458 582
Работа:198 024
Материалы:260 558
Дни:15
Черновая отделка полов
0
Работа:0
Материалы:0
Дни:0
396 047
Работа:187 601
Материалы:208 446
Дни:10
193 855
Работа:72 956
Материалы:120 899
Дни:7
Чистовая отделка стен и полов
0
Работа:0
Материалы:0
Дни:0
1 980 237
Работа:729 561
Материалы:1 250 676
Дни:50
Отделка потолка
0
Работа:0
Материалы:0
Дни:0
396 047
Работа:208 446
Материалы:187 601
Дни:10

Преимущества работы с нами

icon

7 этапов оплаты

icon

Независимый строительный надзор

icon

Экологически чистые материалы

icon

16 лет гарантии

icon

Онлайн-кабинет с веб-камерой

icon

Строители с опытом более 15 лет

icon

Собственное производство

Двухэтажный дом 14х16 — комфорт и стиль для вашей семьи

Если вы мечтаете о просторном и уютном доме в одном из живописных районов Москвы или Подмосковья, то проект двухэтажного дома 14х16 от компании "Академик Строй" — отличный выбор. Этот современный проект площадью почти 200 квадратных метров создан для тех, кто ценит функциональность и удобство, но не хочет переплачивать за лишние метры или особенности, которые не используются. Часто, когда начинаешь смотреть проекты домов, появляется масса вопросов — хватит ли комнат, как будет выглядеть дом снаружи, будут ли крыша и форма здания соответствовать вашим ожиданиям? Мы расскажем обо всем подробно, чтобы помочь вам понять, стоит ли заказывать именно этот проект.

Основные характеристики дома — что стоит знать в первую очередь

Размеры дома 14 на 16 метров создают достаточно большой и удобный квадрат для размещения всех необходимых комнат и зоны для общения всей семьей. Такой дом становится настоящим "функциональным гнездышком", в котором предусмотрено все для комфортной жизни.
Параметр Значение
Полезная площадь 198,52 м²
Жилая площадь 153 м²
Этажность 2 этажа
Количество спален 4
Количество санузлов 2
Площадь застройки 167,17 м²
Минимальная ширина участка 20,50 м
Минимальная длина участка 23,80 м
Высота здания 8,19 м
Угол наклона крыши 22°
Тип крыши двускатная, вальмовые, сложной формы

Что значит полезная и жилая площадь?

Полезная площадь — это часть дома, которая фактически используется под комнаты, коридоры, кухни и т.д. В нашем случае это почти 200 м², что наглядно говорит, что дом не перегружен лишними техническими помещениями. Жилая площадь — 153 м² — это именно пространство, где вы будете жить и отдыхать, то есть спальни, гостиные, детские и т. д.

Этажность и планировка — как это сделано

Двухэтажный дом — это, пожалуй, самый популярный выбор для семьи из 3-5 человек. В данном проекте запланировано 4 спальни — это отличный вариант для семьи с детьми, гостями или даже для организации отдельного рабочего кабинета. На двух этажах удобно разместить все зоны — гостиную, кухню, спальни и санузлы. Для комфорта предусмотрено 2 санузла: это важно, особенно когда семья большая, а гости часто бывают.

Как выглядит и чем уникальна крыша дома

Очень немаловажно, какой тип кровли выбран в проекте, ведь крыша — это не только защита дома от непогоды, но и эстетическая составляющая. Для этого дома предусмотрена крыша сложной формы — совмещающая двускатную и вальмовую конструкции с углом наклона в 22 градуса.

Преимущества такой крыши

  • Хорошо сбрасывает воду и снег, что актуально для Москвы с её изменчивым климатом.
  • Сложный дизайн крыши делает дом привлекательным и оригинальным снаружи.
  • Обеспечивает дополнительное утепление и возможность обустройства мансарды или чердачного пространства.
Крыша с таким углом наклона и сложной формой — это своего рода "визитная карточка" для дома в классическом или современном стиле, которую редко встретишь в стандартных проектах.

Комфорт и удобство в деталях — спальни, санузлы и дополнительные помещения

Важнейшая задача проекта — обеспечить комфорт проживания всем членам семьи. Здесь продумана каждая деталь.

Количество спален — 4, и каждая для своих целей

Четыре спальни — это то, что выделяет этот дом среди сотен типовых решений. Представьте: отдельные комнаты для родителей, двух детей, и даже возможность выделить рабочее пространство, гостиные комнаты или гардеробную. Это значит, что пространство дома можно адаптировать к самым разным сценариям вашей жизни.

Два санузла — удобно и эргономично

Если в семье несколько человек, то наличие двух санузлов очень существенно улучшает качество жизни. Один санузел традиционно расположен на первом этаже — может быть гостевым, а второй — на втором, рядом со спальнями. Это логично и позволяет избежать очередей по утрам или вечерам.

Камин и комната для отдыха на первом этаже

Одной из «изюминок» проекта являются опции, включающие камин и отдельную комнату на первом этаже. Камин — это не только тепло и уют, но и настраивает на домашнюю атмосферу, создаёт приятное ощущение уюта в холодное время года. Комната на первом этаже может служить гостевой, кабинетом, тренажёрным залом или детской игровой — всё зависит от вашего образа жизни.

Об устройстве террасы и внешних зон

В проекте предусмотрена возможность обустройства террасы — удобного пространства для отдыха на свежем воздухе. Хотя дополнительно терраса не входит в базовую комплектацию, её наличие при желании можно дополнить. Терраса — это отличное решение для тех, кто любит отдыхать на природе не выезжая далеко от дома. Утренний кофе, вечерние посиделки с друзьями или просто любимая книга на воздухе — всё это возможно в собственном доме с зоной открытого типа.

Требования к участку — сколько места нужно для реализации проекта

Очень важно с самого начала понимать, какой участок нужен, чтобы без проблем построить дом.
  • Минимальная ширина участка: 20,50 м — это чтобы дом в 14 метров нормально встал и остался небольшой запас для отступов.
  • Минимальная длина участка: 23,80 м — достаточная глубина для дома 16 метров с небольшим запасом для участка перед домом и сзади.
Это значит, что проект адаптирован под средние и большие участки в пределах городской черты и Подмосковья. Выбирая такой дом, можно не переживать, что придется резать участок или выбирать компромиссные варианты.

Преимущества заказа проекта у компании "Академик Строй"

Почему именно "Академик Строй"? На рынке много компаний, предлагающих проекты домов, но "Академик Строй" заслуживает внимания по ряду ключевых причин:
  1. Опыт и профессионализм. Компания выполняет проекты с учётом последних строительных норм и требований комфорта, что снижает риск ошибок и дополнительных расходов.
  2. Оптимальное соотношение цена/качество. Проект дома 14х16 — это готовое решение с отличной ценой, что позволяет значительно сэкономить на этапе проектирования.
  3. Поддержка на всех этапах. От консультаций до финальной реализации — специалисты компании готовы помочь адаптировать проект под ваши специфические запросы.
  4. Удобная коммуникация. Заказать проект можно по телефону +7 (980) 800-47-93, что значительно упрощает процесс и делает его быстрым.

Какие дополнительные опции можно получить в проекте

Проект предусматривает не только базовую планировку, но и опции, которые делают дом еще более удобным и привлекательным:
Опция Описание
Камин Уютный источник тепла и атмосферы в доме
Комната на первом этаже Гостевая, кабинет, игровая или дополнительное помещение на выбор
Терраса Открытое пространство для отдыха на свежем воздухе
Эти опции позволяют гибко адаптировать проект под ваш стиль жизни и предпочтения.

Стоит ли выбирать комплексное проектное решение?

Абсолютно да! Покупая готовый проект, вы экономите массу времени на разработку каждого этапа с нуля. Это уменьшает общие затраты на строительство, исключая ошибки в планировке и организации пространства. Важно, что проект уже проверен на соответствие нормативам и эргономике.

Процесс заказа проекта и дальнейшие шаги строительства

Чтобы сделать первый шаг на пути к своему мечтанному дому, достаточно позвонить по номеру +7 (980) 800-47-93 и обсудить детали с менеджером "Академик Строй". Они подскажут, какие документы потребуются для начала проектирования, как происходит процесс переноса в строительную документацию и что можно адаптировать под ваши личные пожелания. Далее этапы идут так:
  1. Подписание договора на проектирование.
  2. Разработка индивидуальных корректировок (по желанию клиента).
  3. Получение полного комплекта проектной документации.
  4. Начало строительных работ по документации.
  5. Контроль и сопровождение от "Академик Строй" при необходимости.

Частые вопросы и ответы

Можно ли изменить планировку под свои нужды?

Да, компания предоставляет возможность внести изменения в проект, чтобы учесть все пожелания — например, увеличить кухню, добавить кладовку или переоборудовать одну из комнат.

Сколько стоит приобрести такой проект?

Стоимость проработана с учетом доступности и качества. Для получения точной информации и консультации лучше обратиться по телефону +7 (980) 800-47-93.

Какие материалы лучше использовать при строительстве?

Это вопрос, который зависит от ваших предпочтений и бюджета. "Академик Строй" может порекомендовать оптимальные варианты с учётом климата Москвы и технических нюансов.

Почему двухэтажный дом 14х16 — это разумный выбор

Подводя итог, стоит отметить, что проект двухэтажного дома 14х16 площадью почти 200 метров — прекрасный вариант для семей с разным составом и планами. Он позволяет чувствовать себя комфортно в любой сезон, иметь достаточно личного пространства и при этом не потерять в эстетике и функциональности. Дом с такой площадью и планировкой — инвестиция в качество жизни, в уют и перспективу на годы вперед. Ведь строить дом — значит создавать пространство, где хочется возвращаться каждое утро и встречать вечер в кругу близких. Не упустите шанс заказать проект по выгодной цене и получить помощь профессионалов, которые обеспечат, что в итоге вы получите именно тот дом, о котором мечтали.