Двухэтажный дом 12x14 - 178.9 м2 (теплоблок) за руб.

ID-70025

Стоимость дома 6541627 руб.
154 м2 Полезная
площадь
12 x 14 м Размеры
2 этажа Этажей
26 м2 Террасы
и балконы
1Без
гаража
4 Количество
спален
2 Количество
санузлов

Планировки

План первого этажа

floor image
  • 1. Прихожая 4 m²
  • 2. Холл 9,20 m²
  • 3. Гардероб 1,50 m²
  • 4. Комната 12,50 m²
  • 5. Гостиная 27,60 m²
  • 6. Кухня + столовая 15,70 m²
  • 7. Туалет 4 m²
  • 8. Кладовая 2 m²
  • 9. Гараж на 1 машину 19,30 m²
  • 10. Котельная 7,70 m²
  • План первого этажа 103,50 m²

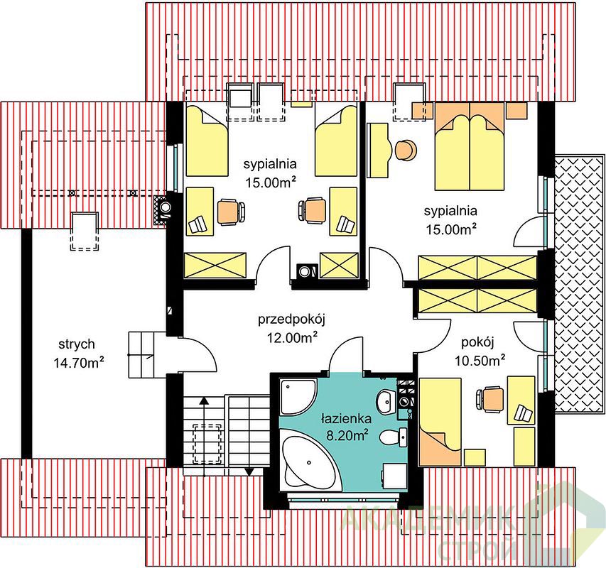
План мансарды

floor image
  • 1. Коридор 12 m²
  • 2. Чердак 14,70 m²
  • 3. Комната 15 m²
  • 4. Комната 15 m²
  • 5. Комната 10,50 m²
  • 6. Ванная комната 8,20 m²
  • План мансарды 75,40 m²

Разрезы

Вертикальный разрез
Вертикальный разрез

Фасады

Передний
Задний
Левый
Правый
Передний
Задний
Левый
Правый

Подробная информация

Жилая площадь
135,20 m²
icon

Сумма площади всех жилых помещений, за вычетом пов. гараж, котельная, чердак, подвал. Учитывается в 100%, для помещений высотой более 2,2 м, в 50% для помещений с высотой 2,2-1,4 м и не включается для более низких помещений (меньше 1,4 м).

Площадь застройки
143,70 m²
icon

Площадь застройки здания определяется как площадь горизонтального сечения по внешнему обводу здания на уровне цоколя, включая выступающие части.

Объем брутто
838,90 m³
icon

Как правило, это сумма объема всех помещений в здании, подсчитанных по внешнему контуру стены (с утеплением).

Площадь крыши
225,60 m²
icon

Угол наклона крыши
36°
icon

Наклон ската крыши в градусах. Внимание! В некоторых проектах возникает более чем один наклон крыши.

Высота здания
8,66 m
icon

Высота измеряется от поверхности земли до самой высокой точки кровли (конька), за исключением дымоходов.

Мин. ширина участка
19,90 m
icon

Наименьшая возможная ширина участка, необходимая для строительства выбранного дома. Состоит из длины фасада дома плюс с обеих сторон три метра отступ.

Мин. длина участка
22 m
icon

Наименьшая возможная длина участка, необходимая для строительства выбранного дома. Состоит из длины фасада дома плюс с обеих сторон три метра отступ.

Материалы и опции
Общие
Цена, руб.
Площадь м²
230
Площадь от и до
Ежемесячный платёж, руб
Количество спален
4
Гараж
1
Количество санузлов
2
Тип крыши
Ширина
12
Глубина
14

Площади дома

№ п/п Наименование Ед. из. Строительная площадь Полезная площадь
1 1 этаж м2 127.54 103.5
2 2 этаж м2 92.92 75.4
3 Итого м2 220.46 178.9

Калькулятор опций

0

В ипотеку от 21 430 ₽/мес.

Фундамент
666 505
Работа:288 457
Материалы:378 048
Дни:20
400 680
Работа:134 185
Материалы:266 495
Дни:2
675 210
Работа:271 048
Материалы:404 162
Дни:20
1 293 906
Работа:577 718
Материалы:716 188
Дни:30
2 170 660
Работа:798 145
Материалы:1 372 515
Дни:32
820 376
Работа:328 231
Материалы:492 145
Дни:20
5 147 770
Работа:2 346 762
Материалы:2 801 008
Дни:30
6 141 701
Работа:2 737 397
Материалы:3 404 304
Дни:40
214 267
Работа:53 567
Материалы:160 700
Дни:1
Перекрытие цоколя
383 538
Работа:164 718
Материалы:218 820
Дни:8
614 277
Работа:203 554
Материалы:410 723
Дни:13
1 096 111
Работа:448 354
Материалы:647 757
Дни:18
Стены 1 этаж (несущие)
1 075 755
Работа:674 004
Материалы:401 751
Дни:29
1 238 331
Работа:634 365
Материалы:603 966
Дни:23
1 906 443
Работа:1 169 899
Материалы:736 544
Дни:30
1 560 267
Работа:683 780
Материалы:876 487
Дни:45
2 916 846
Работа:643 605
Материалы:2 273 241
Дни:24
642 400
Работа:323 811
Материалы:318 589
Дни:15
350 863
Работа:188 823
Материалы:162 040
Дни:7
1 233 911
Работа:429 070
Материалы:804 841
Дни:7
1 611 691
Работа:514 911
Материалы:1 096 780
Дни:7
10 584 130
Работа:514 911
Материалы:10 069 219
Дни:7
5 729 103
Работа:643 605
Материалы:5 085 498
Дни:7
901 127
Работа:214 535
Материалы:686 592
Дни:7
1 183 290
Работа:607 715
Материалы:575 575
Дни:29
1 035 982
Работа:674 674
Материалы:361 308
Дни:29
1 183 290
Работа:607 715
Материалы:575 575
Дни:29
1 255 874
Работа:768 282
Материалы:487 592
Дни:23
1 605 263
Работа:540 623
Материалы:1 064 640
Дни:7
1 820 334
Работа:1 115 663
Материалы:704 671
Дни:25
658 470
Работа:339 881
Материалы:318 589
Дни:15
6 101 526
Работа:1 287 210
Материалы:4 814 316
Дни:15
730 115
Работа:343 363
Материалы:386 752
Дни:15
994 200
Работа:564 326
Материалы:429 874
Дни:19
1 049 374
Работа:674 674
Материалы:374 700
Дни:29
674 005
Работа:353 809
Материалы:320 196
Дни:15
1 238 331
Работа:634 365
Материалы:603 966
Дни:23
723 420
Работа:281 226
Материалы:442 194
Дни:15
926 705
Работа:675 745
Материалы:250 960
Дни:7
Перекрытие первого этажа
383 538
Работа:164 718
Материалы:218 820
Дни:8
614 277
Работа:203 554
Материалы:410 723
Дни:13
1 096 111
Работа:448 354
Материалы:647 757
Дни:18
Стены 2 этаж (несущие)
783 748
Работа:491 050
Материалы:292 698
Дни:29
902 193
Работа:462 170
Материалы:440 023
Дни:23
1 388 950
Работа:852 337
Материалы:536 613
Дни:30
1 136 741
Работа:498 172
Материалы:638 569
Дни:45
2 125 085
Работа:468 902
Материалы:1 656 183
Дни:24
468 025
Работа:235 915
Материалы:232 110
Дни:15
255 623
Работа:137 568
Материалы:118 055
Дни:7
898 973
Работа:312 601
Материалы:586 372
Дни:7
1 174 207
Работа:375 141
Материалы:799 066
Дни:7
7 711 129
Работа:375 141
Материалы:7 335 988
Дни:7
2 047 032
Работа:468 902
Материалы:1 578 130
Дни:7
656 522
Работа:156 301
Материалы:500 221
Дни:10
862 094
Работа:442 755
Материалы:419 339
Дни:29
754 771
Работа:491 538
Материалы:263 233
Дни:29
862 094
Работа:442 755
Материалы:419 339
Дни:29
914 974
Работа:559 736
Материалы:355 238
Дни:23
1 169 524
Работа:393 874
Материалы:775 650
Дни:7
1 326 214
Работа:812 822
Материалы:513 392
Дни:25
479 733
Работа:247 623
Материалы:232 110
Дни:15
4 445 302
Работа:937 804
Материалы:3 507 498
Дни:15
531 930
Работа:250 159
Материалы:281 771
Дни:15
724 330
Работа:411 143
Материалы:313 187
Дни:19
764 528
Работа:491 538
Материалы:272 990
Дни:29
491 049
Работа:257 769
Материалы:233 280
Дни:15
902 193
Работа:462 170
Материалы:440 023
Дни:10
527 052
Работа:204 889
Материалы:322 163
Дни:10
675 157
Работа:492 318
Материалы:182 839
Дни:7
Крыша (Скатная)
1 585 310
Работа:766 809
Материалы:818 501
Дни:20
1 731 547
Работа:796 806
Материалы:934 741
Дни:20
2 680 483
Работа:1 266 319
Материалы:1 414 164
Дни:20
2 465 546
Работа:1 192 531
Материалы:1 273 015
Дни:20
2 973 761
Работа:1 266 319
Материалы:1 707 442
Дни:20
2 241 770
Работа:1 096 780
Материалы:1 144 990
Дни:20
4 981 713
Работа:2 243 110
Материалы:2 738 603
Дни:20
4 905 379
Работа:2 247 127
Материалы:2 658 252
Дни:20
964 203
Работа:502 189
Материалы:462 014
Дни:20
Окна
370 806
Работа:119 282
Материалы:251 524
Дни:3
0
Работа:0
Материалы:0
Дни:0
Двери входные
16 275
Работа:5 775
Материалы:10 500
Дни:1
0
Работа:0
Материалы:0
Дни:0
Утепление кровли (Мансарда)
0
Работа:0
Материалы:0
Дни:0
242 122
Работа:87 046
Материалы:155 076
Дни:5
141 149
Работа:31 337
Материалы:109 812
Дни:3
205 697
Работа:52 228
Материалы:153 469
Дни:3
115 972
Работа:52 228
Материалы:63 744
Дни:3
309 884
Работа:31 337
Материалы:278 547
Дни:2
406 572
Работа:52 228
Материалы:354 344
Дни:3
Мансардные окна
0
Работа:0
Материалы:0
Дни:0
68 649
Работа:18 795
Материалы:49 854
Дни:6
Подшивка кровли
0
Работа:0
Материалы:0
Дни:0
446 211
Работа:204 759
Материалы:241 452
Дни:7
Водосточная система
0
Работа:0
Материалы:0
Дни:0
446 345
Работа:199 670
Материалы:246 675
Дни:7
Дополнительное утепление наружных стен
0
Работа:0
Материалы:0
Дни:0
1 333 805
Работа:538 198
Материалы:795 607
Дни:7
471 068
Работа:283 567
Материалы:187 501
Дни:3
1 471 074
Работа:415 512
Материалы:1 055 562
Дни:5
1 531 723
Работа:415 512
Материалы:1 116 211
Дни:5
830 792
Работа:168 751
Материалы:662 041
Дни:3
2 111 819
Работа:185 186
Материалы:1 926 633
Дни:5
Наружная отделка фасада
0
Работа:0
Материалы:0
Дни:0
1 016 442
Работа:323 382
Материалы:693 060
Дни:20
1 095 146
Работа:355 789
Материалы:739 357
Дни:20
794 682
Работа:278 243
Материалы:516 439
Дни:35
2 642 147
Работа:750 005
Материалы:1 892 142
Дни:45
1 384 499
Работа:696 069
Материалы:688 430
Дни:40
584 726
Работа:292 363
Материалы:292 363
Дни:20
1 800 012
Работа:750 005
Материалы:1 050 007
Дни:45
1 980 106
Работа:540 050
Материалы:1 440 056
Дни:20
1 094 915
Работа:450 003
Материалы:644 912
Дни:20
1 350 009
Работа:600 004
Материалы:750 005
Дни:20
1 881 494
Работа:809 959
Материалы:1 071 535
Дни:20
2 323 164
Работа:692 829
Материалы:1 630 335
Дни:20
1 651 631
Работа:600 004
Материалы:1 051 627
Дни:20
Террасы, крыльца, навесы
0
Работа:0
Материалы:0
Дни:0
390 600
Работа:61 425
Материалы:329 175
Дни:5
Балконы
0
Работа:0
Материалы:0
Дни:0
174 825
Работа:61 425
Материалы:113 400
Дни:12
Отмостка
0
Работа:0
Материалы:0
Дни:0
575 843
Работа:234 355
Материалы:341 488
Дни:15
415 143
Работа:194 180
Материалы:220 963
Дни:10
Дренаж вокруг дома
0
Работа:0
Материалы:0
Дни:0
572 763
Работа:255 915
Материалы:316 848
Дни:5
Автономная канализация (септики)
0
Работа:0
Материалы:0
Дни:0
258 657
Работа:52 500
Материалы:206 157
Дни:7
Внутренние (не несущие) перегородки
0
Работа:0
Материалы:0
Дни:0
222 224
Работа:87 964
Материалы:134 260
Дни:11
375 466
Работа:138 890
Материалы:236 576
Дни:5
430 558
Работа:162 038
Материалы:268 520
Дни:11
621 532
Работа:208 335
Материалы:413 197
Дни:7
Электрика
0
Работа:0
Материалы:0
Дни:0
300 552
Работа:178 453
Материалы:122 099
Дни:10
Сантехника, канализация в доме
0
Работа:0
Материалы:0
Дни:0
249 834
Работа:137 127
Материалы:112 707
Дни:10
Отопление
0
Работа:0
Материалы:0
Дни:0
219 778
Работа:105 193
Материалы:114 585
Дни:5
Теплые полы
0
Работа:0
Материалы:0
Дни:0
400 050
Работа:78 750
Материалы:321 300
Дни:9
245 700
Работа:47 250
Материалы:198 450
Дни:5
Черновая отделка стен
0
Работа:0
Материалы:0
Дни:0
835 910
Работа:488 397
Материалы:347 513
Дни:20
572 928
Работа:394 475
Материалы:178 453
Дни:15
413 259
Работа:178 453
Материалы:234 806
Дни:15
Черновая отделка полов
0
Работа:0
Материалы:0
Дни:0
356 906
Работа:169 061
Материалы:187 845
Дни:10
174 696
Работа:65 746
Материалы:108 950
Дни:7
Чистовая отделка стен и полов
0
Работа:0
Материалы:0
Дни:0
1 784 528
Работа:657 458
Материалы:1 127 070
Дни:50
Отделка потолка
0
Работа:0
Материалы:0
Дни:0
356 906
Работа:187 845
Материалы:169 061
Дни:10

Преимущества работы с нами

icon

7 этапов оплаты

icon

Независимый строительный надзор

icon

Экологически чистые материалы

icon

16 лет гарантии

icon

Онлайн-кабинет с веб-камерой

icon

Строители с опытом более 15 лет

icon

Собственное производство

Двухэтажный дом 12х14 – идеальный выбор для семьи в Москве

Если вы мечтаете о просторном, функциональном и стильном доме, который будет служить уютным гнездышком для большой семьи, то этот проект – именно то, что вам нужно. Двухэтажный дом размером 12 на 14 метров с полезной площадью 178,9 квадратных метров предлагает идеальное сочетание комфорта, практичности и современного дизайна. В Москве, где пространство и качество строительства играют ключевую роль, такой дом будет настоящей находкой. В этой статье я подробно расскажу обо всех особенностях этого дома – от планировок и конструктивных параметров до дополнительных опций и условий размещения на участке. Также поделюсь советами, почему стоит заказать проект именно в компании «Академик Строй» и как сделать это максимально удобно.

Технические характеристики дома 12х14 с площадью 178,9 м²

Давайте сначала разберемся с основными параметрами проекта, чтобы иметь представление о масштабах и возможностях этого дома.
Параметр Значение Комментарий
Полезная площадь 178,9 м² Площадь, пригодная для повседневного использования – гостинные, спальни, кухни
Жилая площадь 135,2 м² Суммарная площадь жилых комнат: спален, гостиной и кабинета
Количество этажей 2 Два полноценных этажа для удобства и разделения зон
Размеры дома (длина х ширина) 12x14 м Оптимальные параметры для любого участка в черте города
Количество спален 4 Достаточно для семьи с детьми и гостей
Количество санузлов 2 Удобно для большой семьи, исключает очереди в утренние часы
Площадь застройки 143,7 м² Занимаемая площадь земли, важна для оформления участка
Объем здания (брутто) 838,9 м³ Отражает общий объем всех помещений и конструкций
Площадь крыши 225,6 м² Двускатная крыша с углом наклона 36°
Высота здания 8,66 м Оптимальная высота для двухэтажного дома с мансардой
Минимальные размеры участка Ширина – 19,9 м; длина – 22 м Удобно для планирования будущего двора и подъездных дорог
Тип крыши Двускатная Классическая форма, надежная и эстетичная
Опции Камин, комната на первом этаже, терраса Дополнительно повышают комфорт проживания и создают уют

Планировка двухэтажного дома: как организовано пространство

Когда речь идет о строительстве дома, главное — это удобство и рациональное использование каждого квадратного метра. У этого проекта очень продуманная планировка, которая подойдет для семьи из 3–5 человек и позволит каждому члену семьи иметь своё пространство.

Первый этаж – зона общих удовольствий и комфорта

На первом этаже проектировщики уделили внимание организации просторной гостиной, где удобно будет собираться всей семьей для отдыха или приёма гостей. Помимо этого, оборудована кухня с отдельной столовой зоной — это удобно, особенно если вы любите готовить и устраивать домашние праздники. Одной из примечательных особенностей является отдельная комната на первом этаже. Как правило, её можно использовать как кабинет, гостевую спальню или детскую игровую. Это делает дом более функциональным и адаптируемым под разные нужды. Кроме того, первый этаж оснащён санузлом, что удобно для жизни без лишних перемещений.

Второй этаж – личные комнаты и приватность

Второй этаж занимает четыре спальни — отличный вариант для большой семьи или тех, кто часто принимает гостей. Каждая комната достаточно просторная, чтобы разместить кровать, шкаф и рабочее место.

Санузел на втором этаже

Помимо первого санузла, есть второй на втором этаже, что значительно упрощает жизнь утром и вечером, когда в доме собирается много людей.

Терраса и камин — особенности для особого уюта

Дополнительные опции, включённые в проект, такие как терраса и камин, делают этот дом особенно привлекательным. Терраса идеально подходит для летних вечеров с семьёй или дружескими встречами, а камин в гостиной создаёт неповторимую атмосферу тепла и уюта.

Почему проект двухэтажного дома 12x14 – выгодное вложение

Сейчас на рынке недвижимости и строительства очень много предложений, и постоянно появляются новые тенденции. Тем не менее, данный проект имеет несколько неоспоримых преимуществ, которые делают его действительно стоящим внимания.

Комфорт и пространство

Площадь полезного пространства 178,9 м² позволяет свободно и разумно распределить комнаты, избегая ощущения тесноты даже в полный дом. Высокие потолки и оптимальная высота здания (8,66 м) прекрасно влияют на восприятие пространства.

Оптимальные размеры для дачи и проживания в городе

Размеры 12 на 14 метров – это идеальный баланс между комфортом и экономией участка. Минимальные параметры участка под строительство — 19,9 м в ширину и 22 м в длину — вполне доступны для большинства дачных и загородных земель в столичном регионе Москвы. Это позволяет эффективно использовать участок: оборудовать уютный двор, зону отдыха и даже небольшой сад.

Долговечность и энергоэффективность

Двускатная крыша с углом наклона в 36° не только красива, но и функциональна — эффективный сток воды и снега предотвращает протечки и повреждения, что особенно важно для московского климата с обильными осадками зимой. При этом площадь крыши 225,6 м² обеспечивает возможность качественной теплоизоляции и установки солнечных панелей, если вы захотите сделать свой дом более современным и экологичным.

Выгодная цена и удобство заказа

Приобретение проекта у надёжной компании «Академик Строй» предлагает ряд преимуществ. Во-первых, приемлемая цена на готовый проект двухэтажного дома 12х14 со всеми необходимыми чертежами и сметой позволяет вам сэкономить время и деньги. Во-вторых, специалисты компании готовы помочь с оформлением документов и согласованием всех нюансов.

Как правильно выбрать участок для строительства дома 12x14

Планируя строительство такого дома, важно заранее определиться с участком. Для этого проекта минимальные размеры участка – 19,90 м в ширину и 22,0 м в длину. Что это значит для вас?

Подбираем участок с запасом

Идеальной будет планировка участка, когда дом не занимает больше половины площади. Оставшееся пространство можно использовать под озеленение, зону барбекю, детскую площадку и другие внешние объекты.

Обратите внимание на соседство

В условиях Москвы и Подмосковья важно, чтобы рядом не было крупногабаритных построек, которые затеняют участок и создают дискомфорт. Район с развитой инфраструктурой и хорошей транспортной доступностью повысит качество вашей жизни.

Уровень грунтовых вод и коммуникации

Учитывайте уровень грунтовых вод, особенно если планируется подвал или цокольный этаж. Возможность подключить газ, электричество и водоснабжение должна быть проверена заранее.

Заказать проект дома у компании «Академик Строй»: шаг за шагом

Как начать строительство мечты? Всё просто.

Шаг 1: Консультация по телефону

Свяжитесь с менеджерами компании по телефону +7 (980) 800-47-93. Вам ответят на любые вопросы, расскажут об особенностях проекта, этапах строительства и стоимости. Это первый и очень важный этап для уточнения всех деталей.

Шаг 2: Ознакомление с проектной документацией

После консультации вы получите полный пакет документов на проект, включая планы и сметы. Это позволит сразу понять все плюсы и особенности. Если понравится, можно перейти к следующему шагу.

Шаг 3: Заключение договора на проектирование

Компания оформит с вами договор на выполнение проектных работ. Это закрепит ваши права и обезопасит от возможных непредвиденных ситуаций.

Шаг 4: Внесение поправок и индивидуальная адаптация

Хотите добавить что-то в планировку? Компания «Академик Строй» готова внести изменения под ваши пожелания и требования, чтобы дом соответствовал именно вашему стилю жизни.

Шаг 5: Строительство и сопровождение

После окончания проектирования вы можете заказать услуги по строительству или привлечь подрядчиков. При заказе в «Академик Строй» доступны услуги по сопровождению и контролю качества.

Особенности двускатной крыши и почему она так популярна

Двускатная крыша – классический выбор для частного дома. Она проста в устройстве, выглядит элегантно и подходит под большинство климатических зон.

Плюсы двускатной крыши

  • Легкий сток осадков — вода и снег с крыши быстро уходит, что увеличивает срок службы крыши.
  • Простота конструкции — удешевляет строительство и облегчает последующую эксплуатацию.
  • Второй этаж становится светлее и просторнее за счет угла наклона 36°.
  • Удобство размещения мансардных окон и чердачного пространства.

Примеры использования в проекте

В проекте дома 12х14 с углом наклона 36° кровля занимает площадь в 225,6 м². Это значит, что крыша не только красивая и функциональная, но и предоставляет достаточно места для монтажа надежной теплоизоляции, а при необходимости – оборудования систем солнечной энергии.

Как камин и терраса делают дом уютнее

Дополнительные функции в проектах домов часто не стоят на последнем месте, ведь именно детали создают атмосферу и комфорт.

Камин — тепло и атмосфера

Наличие камина в гостиной — это не только про тепло, но и про атмосферу семейного уюта. В холодные зимние вечера он становится центром притяжения, собирая всех домочадцев вместе. При этом современные системы позволяют использовать камин как дополнительный источник отопления без ущерба для экологии.

Терраса — расширение жилого пространства

Терраса — отличный способ добавить к дому визуальную и функциональную глубину. В теплое время года она служит местом для отдыха на свежем воздухе, утренних кофе и вечерних бесед. Для дома, расположенного в Москве или Подмосковье, это настоящая «вторая гостиная».

Как комплект проекта влияет на построение дома

Проект от компании «Академик Строй» включает полный комплект документов, необходимых для успешного строительства:
  • Архитектурные чертежи
  • Конструктивные решения
  • Отопление, водоснабжение, электрика
  • Смета и поэтапный план работ
  • Рекомендации по подрядчикам и материалам
Такой полный пакет помогает избежать дополнительных затрат на доработки, просчёты и изменения во время строительства.

Плюсы выбора компании «Академик Строй» для заказа проекта

Компания с многолетним опытом и положительными отзывами отлично зарекомендовала себя в сегменте частного строительства. Вот причины, почему стоит доверять им:
  1. Индивидуальный подход: проект адаптируют под ваши требования.
  2. Поддержка на всех этапах: от выбора проекта до стадии сдачи дома в эксплуатацию.
  3. Прозрачное ценообразование и гарантия на выполненные работы.
  4. Профессиональные архитекторы и инженеры, знающие особенности московского климата и регуляций.

В итоге: почему стоит выбрать именно этот проект для дома в Москве

Если вы хотите комфортное, просторное и красивое жильё под своими запросами, то проект двухэтажного дома 12x14 с площадью 178,9 м² — это оптимальный вариант. Он сочетает продуманную планировку, современный дизайн и продвинутые инженерные решения. Позвоните в компанию «Академик Строй» по номеру +7 (980) 800-47-93, чтобы заказать проект, получить консультацию и сделать первый шаг к дому своей мечты в Москве или Подмосковье. Они предложат выгодную цену и помогут реализовать все ваши идеи для комфортной и счастливой жизни!