Одноэтажный дом 14x22 - 213 м2
Планировки
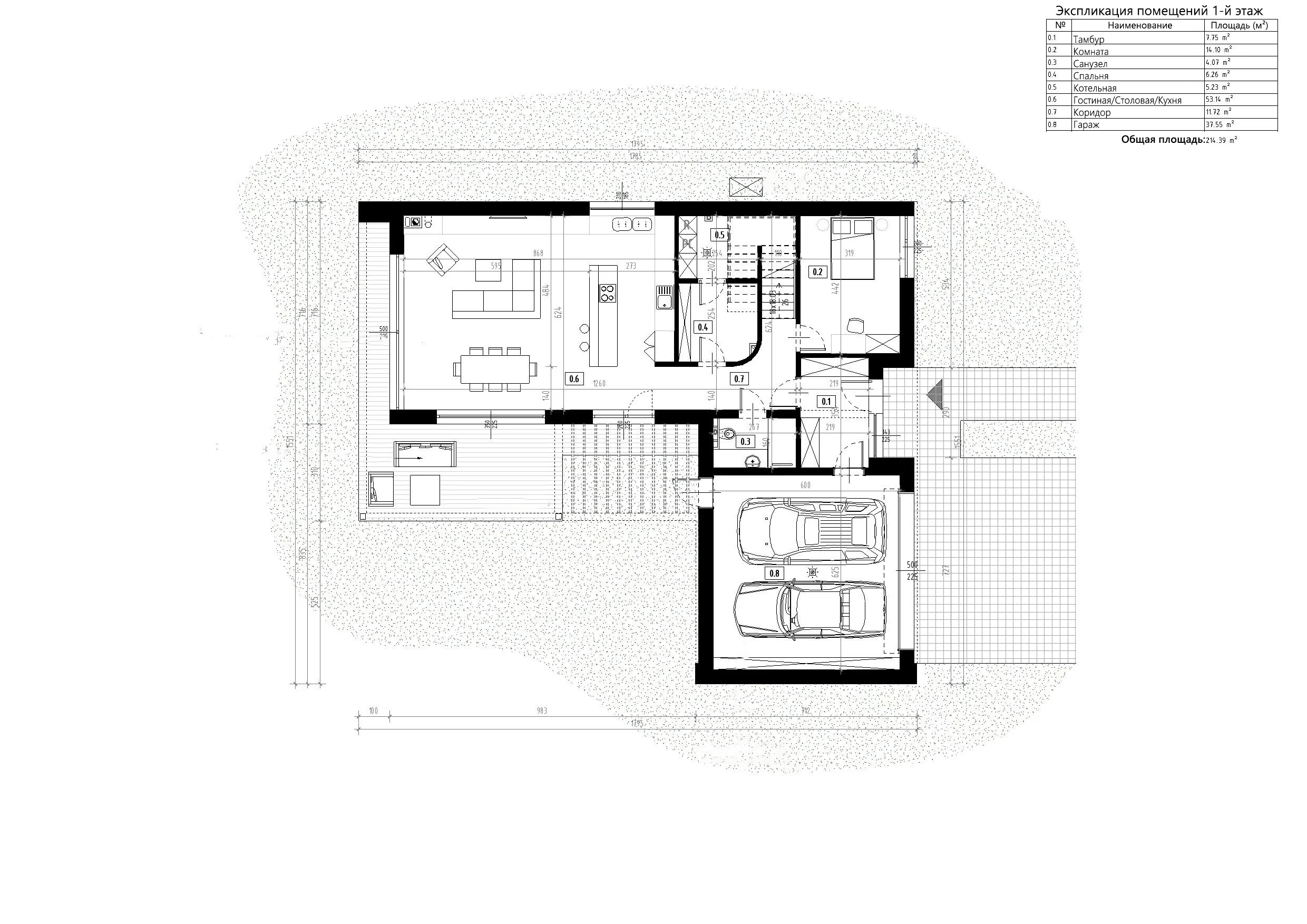
План первого этажа
- 1. Тамбур 7,75 м²
- 2. Комната 14,10 м²
- 3. Санузел 4,07 м²
- 4. Спальня 6,26 м²
- 5. Котельная 5,23 м²
- 6. Гостиная-столовая-кухня 53,14 м²
- 7. Коридор 11,72 м²
- 8. Гараж 37,55 м²
- Общая площадь первый этаж 139,82 м²
План мансарды
- 1. Коридор 9,06 м²
- 2. Спальня и гардероб 17,08 м²
- 3. Санузел 4,52 м²
- 4. Кладовая 4,24 м²
- 5. Комната 15,75 м²
- 6. Комната 16,70 м²
- 7. Ванная комната 7,19 м²
- Общая площадь второй этаж 74,54 м²
Площади дома
| № п/п | Наименование | Ед. из. | Строительная площадь | Полезная площадь |
| 1 | 1 этаж | м2 | 171.29 | 139 |
| 2 | 2 этаж | м2 | 91.19 | 74 |
| 3 | Итого | м2 | 262.48 | 213 |
154 м2
Полезная
площадь
площадь
14 x 22 м
Размеры
1 этаж
Этажей
26 м2
Террасы
и балконы
и балконы
1Без
гаража
гаража
4
Количество
спален
спален
1
Количество
санузлов
санузлов
Калькулятор опций
0₽
В ипотеку от 0 ₽/мес.
0₽
0 дней
895 136₽
Работа:387 407 ₽
Материалы:507 729 ₽
Дни:20
538 124₽
Работа:180 214 ₽
Материалы:357 910 ₽
Дни:2
906 827₽
Работа:364 026 ₽
Материалы:542 801 ₽
Дни:20
1 737 754₽
Работа:775 892 ₽
Материалы:961 862 ₽
Дни:30
2 915 262₽
Работа:1 071 933 ₽
Материалы:1 843 329 ₽
Дни:32
1 101 788₽
Работа:440 823 ₽
Материалы:660 965 ₽
Дни:20
6 913 607₽
Работа:3 151 770 ₽
Материалы:3 761 837 ₽
Дни:30
8 248 487₽
Работа:3 676 406 ₽
Материалы:4 572 081 ₽
Дни:40
287 767₽
Работа:71 942 ₽
Материалы:215 825 ₽
Дни:1
515 103₽
Работа:221 221 ₽
Материалы:293 882 ₽
Дни:8
824 993₽
Работа:273 379 ₽
Материалы:551 614 ₽
Дни:13
1 472 109₽
Работа:602 153 ₽
Материалы:869 956 ₽
Дни:18
1 444 772₽
Работа:905 208 ₽
Материалы:539 564 ₽
Дни:29
1 663 115₽
Работа:851 971 ₽
Материалы:811 144 ₽
Дни:23
2 560 409₽
Работа:1 571 209 ₽
Материалы:989 200 ₽
Дни:30
2 095 485₽
Работа:918 337 ₽
Материалы:1 177 148 ₽
Дни:45
3 917 411₽
Работа:864 381 ₽
Материалы:3 053 030 ₽
Дни:24
862 762₽
Работа:434 888 ₽
Материалы:427 874 ₽
Дни:15
471 219₽
Работа:253 595 ₽
Материалы:217 624 ₽
Дни:7
1 657 180₽
Работа:576 254 ₽
Материалы:1 080 926 ₽
Дни:7
2 164 549₽
Работа:691 541 ₽
Материалы:1 473 008 ₽
Дни:7
14 214 801₽
Работа:691 541 ₽
Материалы:13 523 260 ₽
Дни:7
7 694 356₽
Работа:864 381 ₽
Материалы:6 829 975 ₽
Дни:7
1 210 241₽
Работа:288 127 ₽
Материалы:922 114 ₽
Дни:7
1 589 195₽
Работа:816 180 ₽
Материалы:773 015 ₽
Дни:29
1 391 354₽
Работа:906 107 ₽
Материалы:485 247 ₽
Дни:29
1 589 195₽
Работа:816 180 ₽
Материалы:773 015 ₽
Дни:29
1 686 675₽
Работа:1 031 825 ₽
Материалы:654 850 ₽
Дни:23
2 155 916₽
Работа:726 073 ₽
Материалы:1 429 843 ₽
Дни:7
2 444 762₽
Работа:1 498 368 ₽
Материалы:946 394 ₽
Дни:25
884 345₽
Работа:456 471 ₽
Материалы:427 874 ₽
Дни:15
8 194 530₽
Работа:1 728 761 ₽
Материалы:6 465 769 ₽
Дни:15
980 567₽
Работа:461 147 ₽
Материалы:519 420 ₽
Дни:15
1 335 240₽
Работа:757 907 ₽
Материалы:577 333 ₽
Дни:19
1 409 340₽
Работа:906 107 ₽
Материалы:503 233 ₽
Дни:29
905 208₽
Работа:475 176 ₽
Материалы:430 032 ₽
Дни:15
1 663 115₽
Работа:851 971 ₽
Материалы:811 144 ₽
Дни:23
971 574₽
Работа:377 694 ₽
Материалы:593 880 ₽
Дни:15
1 244 593₽
Работа:907 546 ₽
Материалы:337 047 ₽
Дни:7
515 103₽
Работа:221 221 ₽
Материалы:293 882 ₽
Дни:8
824 993₽
Работа:273 379 ₽
Материалы:551 614 ₽
Дни:13
1 472 109₽
Работа:602 153 ₽
Материалы:869 956 ₽
Дни:18
769 156₽
Работа:481 907 ₽
Материалы:287 249 ₽
Дни:29
885 395₽
Работа:453 565 ₽
Материалы:431 830 ₽
Дни:23
1 363 090₽
Работа:836 468 ₽
Материалы:526 622 ₽
Дни:30
1 115 577₽
Работа:488 897 ₽
Материалы:626 680 ₽
Дни:45
2 085 520₽
Работа:460 172 ₽
Материалы:1 625 348 ₽
Дни:24
459 310₽
Работа:231 522 ₽
Материалы:227 788 ₽
Дни:15
250 864₽
Работа:135 007 ₽
Материалы:115 857 ₽
Дни:7
882 235₽
Работа:306 781 ₽
Материалы:575 454 ₽
Дни:7
1 152 345₽
Работа:368 157 ₽
Материалы:784 188 ₽
Дни:7
7 567 562₽
Работа:368 157 ₽
Материалы:7 199 405 ₽
Дни:7
2 008 920₽
Работа:460 172 ₽
Материалы:1 548 748 ₽
Дни:7
644 299₽
Работа:153 391 ₽
Материалы:490 908 ₽
Дни:10
846 042₽
Работа:434 511 ₽
Материалы:411 531 ₽
Дни:29
740 718₽
Работа:482 386 ₽
Материалы:258 332 ₽
Дни:29
846 042₽
Работа:434 511 ₽
Материалы:411 531 ₽
Дни:29
897 939₽
Работа:549 315 ₽
Материалы:348 624 ₽
Дни:23
1 147 750₽
Работа:386 541 ₽
Материалы:761 209 ₽
Дни:7
1 301 523₽
Работа:797 689 ₽
Материалы:503 834 ₽
Дни:25
470 800₽
Работа:243 012 ₽
Материалы:227 788 ₽
Дни:15
4 362 539₽
Работа:920 344 ₽
Материалы:3 442 195 ₽
Дни:15
522 027₽
Работа:245 502 ₽
Материалы:276 525 ₽
Дни:15
710 844₽
Работа:403 488 ₽
Материалы:307 356 ₽
Дни:19
750 293₽
Работа:482 386 ₽
Материалы:267 907 ₽
Дни:29
481 907₽
Работа:252 970 ₽
Материалы:228 937 ₽
Дни:15
885 395₽
Работа:453 565 ₽
Материалы:431 830 ₽
Дни:10
517 239₽
Работа:201 074 ₽
Материалы:316 165 ₽
Дни:10
662 587₽
Работа:483 152 ₽
Материалы:179 435 ₽
Дни:7
2 129 118₽
Работа:1 029 847 ₽
Материалы:1 099 271 ₽
Дни:20
2 325 518₽
Работа:1 070 134 ₽
Материалы:1 255 384 ₽
Дни:20
3 599 968₽
Работа:1 700 704 ₽
Материалы:1 899 264 ₽
Дни:20
3 311 301₽
Работа:1 601 604 ₽
Материалы:1 709 697 ₽
Дни:20
3 993 849₽
Работа:1 700 704 ₽
Материалы:2 293 145 ₽
Дни:20
3 010 764₽
Работа:1 473 008 ₽
Материалы:1 537 756 ₽
Дни:20
6 690 588₽
Работа:3 012 563 ₽
Материалы:3 678 025 ₽
Дни:20
6 588 071₽
Работа:3 017 959 ₽
Материалы:3 570 112 ₽
Дни:20
1 294 952₽
Работа:674 454 ₽
Материалы:620 498 ₽
Дни:20
441 485₽
Работа:142 018 ₽
Материалы:299 467 ₽
Дни:3
0₽
Работа:0 ₽
Материалы:0 ₽
Дни:0
16 275₽
Работа:5 775 ₽
Материалы:10 500 ₽
Дни:1
0₽
Работа:0 ₽
Материалы:0 ₽
Дни:0
0₽
Работа:0 ₽
Материалы:0 ₽
Дни:0
325 177₽
Работа:116 905 ₽
Материалы:208 272 ₽
Дни:5
189 567₽
Работа:42 086 ₽
Материалы:147 481 ₽
Дни:3
276 256₽
Работа:70 143 ₽
Материалы:206 113 ₽
Дни:3
155 754₽
Работа:70 143 ₽
Материалы:85 611 ₽
Дни:3
416 183₽
Работа:42 086 ₽
Материалы:374 097 ₽
Дни:2
546 038₽
Работа:70 143 ₽
Материалы:475 895 ₽
Дни:3
0₽
Работа:0 ₽
Материалы:0 ₽
Дни:0
68 649₽
Работа:18 795 ₽
Материалы:49 854 ₽
Дни:6
0₽
Работа:0 ₽
Материалы:0 ₽
Дни:0
599 276₽
Работа:274 998 ₽
Материалы:324 278 ₽
Дни:7
0₽
Работа:0 ₽
Материалы:0 ₽
Дни:0
599 455₽
Работа:268 163 ₽
Материалы:331 292 ₽
Дни:7
0₽
Работа:0 ₽
Материалы:0 ₽
Дни:0
1 588 030₽
Работа:640 779 ₽
Материалы:947 251 ₽
Дни:7
560 854₽
Работа:337 615 ₽
Материалы:223 239 ₽
Дни:3
1 751 463₽
Работа:494 709 ₽
Материалы:1 256 754 ₽
Дни:5
1 823 671₽
Работа:494 709 ₽
Материалы:1 328 962 ₽
Дни:5
989 142₽
Работа:200 915 ₽
Материалы:788 227 ₽
Дни:3
2 514 335₽
Работа:220 483 ₽
Материалы:2 293 852 ₽
Дни:5
0₽
Работа:0 ₽
Материалы:0 ₽
Дни:0
1 210 177₽
Работа:385 019 ₽
Материалы:825 158 ₽
Дни:20
1 303 882₽
Работа:423 603 ₽
Материалы:880 279 ₽
Дни:20
946 149₽
Работа:331 276 ₽
Материалы:614 873 ₽
Дни:35
3 145 744₽
Работа:892 957 ₽
Материалы:2 252 787 ₽
Дни:45
1 648 387₽
Работа:828 741 ₽
Материалы:819 646 ₽
Дни:40
696 176₽
Работа:348 088 ₽
Материалы:348 088 ₽
Дни:20
2 143 097₽
Работа:892 957 ₽
Материалы:1 250 140 ₽
Дни:45
2 357 516₽
Работа:642 984 ₽
Материалы:1 714 532 ₽
Дни:20
1 303 607₽
Работа:535 774 ₽
Материалы:767 833 ₽
Дни:20
1 607 323₽
Работа:714 366 ₽
Материалы:892 957 ₽
Дни:20
2 240 109₽
Работа:964 338 ₽
Материалы:1 275 771 ₽
Дни:20
2 765 962₽
Работа:824 883 ₽
Материалы:1 941 079 ₽
Дни:20
1 966 435₽
Работа:714 366 ₽
Материалы:1 252 069 ₽
Дни:20
0₽
Работа:0 ₽
Материалы:0 ₽
Дни:0
390 600₽
Работа:61 425 ₽
Материалы:329 175 ₽
Дни:5
0₽
Работа:0 ₽
Материалы:0 ₽
Дни:0
174 825₽
Работа:61 425 ₽
Материалы:113 400 ₽
Дни:12
0₽
Работа:0 ₽
Материалы:0 ₽
Дни:0
773 374₽
Работа:314 745 ₽
Материалы:458 629 ₽
Дни:15
557 549₽
Работа:260 789 ₽
Материалы:296 760 ₽
Дни:10
0₽
Работа:0 ₽
Материалы:0 ₽
Дни:0
769 238₽
Работа:343 702 ₽
Материалы:425 536 ₽
Дни:5
0₽
Работа:0 ₽
Материалы:0 ₽
Дни:0
258 657₽
Работа:52 500 ₽
Материалы:206 157 ₽
Дни:7
0₽
Работа:0 ₽
Материалы:0 ₽
Дни:0
264 580₽
Работа:104 730 ₽
Материалы:159 850 ₽
Дни:11
447 029₽
Работа:165 362 ₽
Материалы:281 667 ₽
Дни:5
512 624₽
Работа:192 923 ₽
Материалы:319 701 ₽
Дни:11
739 997₽
Работа:248 044 ₽
Материалы:491 953 ₽
Дни:7
0₽
Работа:0 ₽
Материалы:0 ₽
Дни:0
357 841₽
Работа:212 468 ₽
Материалы:145 373 ₽
Дни:10
0₽
Работа:0 ₽
Материалы:0 ₽
Дни:0
297 455₽
Работа:163 265 ₽
Материалы:134 190 ₽
Дни:10
0₽
Работа:0 ₽
Материалы:0 ₽
Дни:0
261 671₽
Работа:125 244 ₽
Материалы:136 427 ₽
Дни:5
0₽
Работа:0 ₽
Материалы:0 ₽
Дни:0
400 050₽
Работа:78 750 ₽
Материалы:321 300 ₽
Дни:9
245 700₽
Работа:47 250 ₽
Материалы:198 450 ₽
Дни:5
0₽
Работа:0 ₽
Материалы:0 ₽
Дни:0
995 243₽
Работа:581 490 ₽
Материалы:413 753 ₽
Дни:20
682 133₽
Работа:469 665 ₽
Материалы:212 468 ₽
Дни:15
492 031₽
Работа:212 468 ₽
Материалы:279 563 ₽
Дни:15
0₽
Работа:0 ₽
Материалы:0 ₽
Дни:0
424 935₽
Работа:201 285 ₽
Материалы:223 650 ₽
Дни:10
207 995₽
Работа:78 278 ₽
Материалы:129 717 ₽
Дни:7
0₽
Работа:0 ₽
Материалы:0 ₽
Дни:0
2 124 675₽
Работа:782 775 ₽
Материалы:1 341 900 ₽
Дни:50
0₽
Работа:0 ₽
Материалы:0 ₽
Дни:0
424 935₽
Работа:223 650 ₽
Материалы:201 285 ₽
Дни:10
Преимущества работы с нами
7 этапов оплаты
Независимый строительный надзор
Экологически чистые материалы
16 лет гарантии
Онлайн-кабинет с веб-камерой
Строители с опытом более 15 лет
Собственное производство













