Одноэтажный дом 14x22 - 139 м2
Планировки
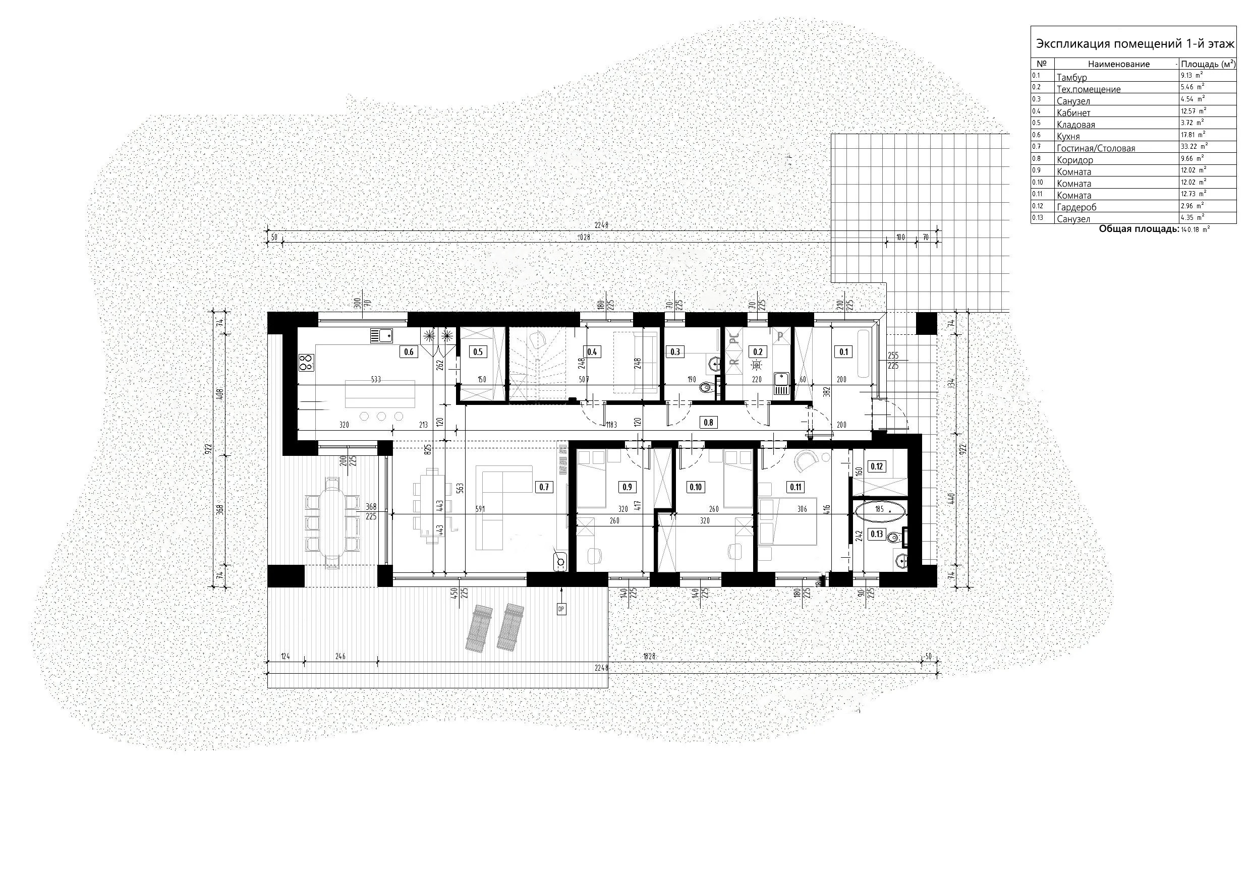
План первого этажа
- 1. Тамбур 9,13 м²
- 2. Тех.помещение 5,46 м²
- 3. Санузел 4,54 м²
- 4. Кабинет 12,57 м²
- 5. Кладовая 3,72 м²
- 6. Кухня 17,81 м²
- 7. Гостиная-столовая 33,22 м²
- 8. Коридор 9,66 м²
- 9. Комната 12,02 м²
- 10. Комната 12,73 м²
- 11. Гардероб 2,96 м²
- 12. Санузел 4,35 м²
- Общая площадь первый этаж 78,12 м²
План мансарды
- Мансарда 61,95 м²
Площади дома
| № п/п | Наименование | Ед. из. | Строительная площадь | Полезная площадь |
| 1 | 1 этаж | м2 | 96.12 | 78 |
| 2 | 2 этаж | м2 | 75.17 | 61 |
| 3 | Итого | м2 | 171.29 | 139 |
154 м2
Полезная
площадь
площадь
14 x 22 м
Размеры
1 этаж
Этажей
26 м2
Террасы
и балконы
и балконы
0Без
гаража
гаража
4
Количество
спален
спален
1
Количество
санузлов
санузлов
Калькулятор опций
0₽
В ипотеку от 0 ₽/мес.
0₽
0 дней
526 228₽
Работа:227 747 ₽
Материалы:298 481 ₽
Дни:20
316 350₽
Работа:105 943 ₽
Материалы:210 407 ₽
Дни:2
533 101₽
Работа:214 002 ₽
Материалы:319 099 ₽
Дни:20
1 021 583₽
Работа:456 128 ₽
Материалы:565 455 ₽
Дни:30
1 713 810₽
Работа:630 163 ₽
Материалы:1 083 647 ₽
Дни:32
647 714₽
Работа:259 149 ₽
Материалы:388 565 ₽
Дни:20
4 064 339₽
Работа:1 852 848 ₽
Материалы:2 211 491 ₽
Дни:30
4 849 081₽
Работа:2 161 268 ₽
Материалы:2 687 813 ₽
Дни:40
169 171₽
Работа:42 293 ₽
Материалы:126 878 ₽
Дни:1
302 816₽
Работа:130 050 ₽
Материалы:172 766 ₽
Дни:8
484 993₽
Работа:160 713 ₽
Материалы:324 280 ₽
Дни:13
865 417₽
Работа:353 991 ₽
Материалы:511 426 ₽
Дни:18
849 345₽
Работа:532 149 ₽
Материалы:317 196 ₽
Дни:29
977 703₽
Работа:500 852 ₽
Материалы:476 851 ₽
Дни:23
1 505 201₽
Работа:923 675 ₽
Материалы:581 526 ₽
Дни:30
1 231 884₽
Работа:539 868 ₽
Материалы:692 016 ₽
Дни:45
2 302 949₽
Работа:508 148 ₽
Материалы:1 794 801 ₽
Дни:24
507 196₽
Работа:255 660 ₽
Материалы:251 536 ₽
Дни:15
277 018₽
Работа:149 082 ₽
Материалы:127 936 ₽
Дни:7
974 214₽
Работа:338 765 ₽
Материалы:635 449 ₽
Дни:7
1 272 485₽
Работа:406 540 ₽
Материалы:865 945 ₽
Дни:7
8 356 529₽
Работа:406 540 ₽
Материалы:7 949 989 ₽
Дни:7
4 523 321₽
Работа:508 148 ₽
Материалы:4 015 173 ₽
Дни:7
711 471₽
Работа:169 383 ₽
Материалы:542 088 ₽
Дни:7
934 248₽
Работа:479 812 ₽
Материалы:454 436 ₽
Дни:29
817 943₽
Работа:532 678 ₽
Материалы:285 265 ₽
Дни:29
934 248₽
Работа:479 812 ₽
Материалы:454 436 ₽
Дни:29
991 554₽
Работа:606 584 ₽
Материалы:384 970 ₽
Дни:23
1 267 409₽
Работа:426 840 ₽
Материалы:840 569 ₽
Дни:7
1 437 215₽
Работа:880 853 ₽
Материалы:556 362 ₽
Дни:25
519 884₽
Работа:268 348 ₽
Материалы:251 536 ₽
Дни:15
4 817 361₽
Работа:1 016 296 ₽
Материалы:3 801 065 ₽
Дни:15
576 451₽
Работа:271 097 ₽
Материалы:305 354 ₽
Дни:15
784 955₽
Работа:445 555 ₽
Материалы:339 400 ₽
Дни:19
828 516₽
Работа:532 678 ₽
Материалы:295 838 ₽
Дни:29
532 149₽
Работа:279 344 ₽
Материалы:252 805 ₽
Дни:15
977 703₽
Работа:500 852 ₽
Материалы:476 851 ₽
Дни:23
571 164₽
Работа:222 037 ₽
Материалы:349 127 ₽
Дни:15
731 666₽
Работа:533 524 ₽
Материалы:198 142 ₽
Дни:7
302 816₽
Работа:130 050 ₽
Материалы:172 766 ₽
Дни:8
484 993₽
Работа:160 713 ₽
Материалы:324 280 ₽
Дни:13
865 417₽
Работа:353 991 ₽
Материалы:511 426 ₽
Дни:18
664 225₽
Работа:416 164 ₽
Материалы:248 061 ₽
Дни:29
764 606₽
Работа:391 688 ₽
Материалы:372 918 ₽
Дни:23
1 177 133₽
Работа:722 354 ₽
Материалы:454 779 ₽
Дни:30
963 386₽
Работа:422 200 ₽
Материалы:541 186 ₽
Дни:45
1 801 006₽
Работа:397 394 ₽
Материалы:1 403 612 ₽
Дни:24
396 649₽
Работа:199 937 ₽
Материалы:196 712 ₽
Дни:15
216 640₽
Работа:116 589 ₽
Материалы:100 051 ₽
Дни:7
761 878₽
Работа:264 929 ₽
Материалы:496 949 ₽
Дни:7
995 139₽
Работа:317 932 ₽
Материалы:677 207 ₽
Дни:7
6 535 168₽
Работа:317 932 ₽
Материалы:6 217 236 ₽
Дни:7
1 734 856₽
Работа:397 394 ₽
Материалы:1 337 462 ₽
Дни:7
556 401₽
Работа:132 465 ₽
Материалы:423 936 ₽
Дни:10
730 623₽
Работа:375 234 ₽
Материалы:355 389 ₽
Дни:29
639 667₽
Работа:416 577 ₽
Материалы:223 090 ₽
Дни:29
730 623₽
Работа:375 234 ₽
Материалы:355 389 ₽
Дни:29
775 438₽
Работа:474 375 ₽
Материалы:301 063 ₽
Дни:23
991 169₽
Работа:333 807 ₽
Материалы:657 362 ₽
Дни:7
1 123 964₽
Работа:688 865 ₽
Материалы:435 099 ₽
Дни:25
406 572₽
Работа:209 860 ₽
Материалы:196 712 ₽
Дни:15
3 767 385₽
Работа:794 787 ₽
Материалы:2 972 598 ₽
Дни:15
450 809₽
Работа:212 009 ₽
Материалы:238 800 ₽
Дни:15
613 868₽
Работа:348 443 ₽
Материалы:265 425 ₽
Дни:19
647 935₽
Работа:416 577 ₽
Материалы:231 358 ₽
Дни:29
416 164₽
Работа:218 459 ₽
Материалы:197 705 ₽
Дни:15
764 606₽
Работа:391 688 ₽
Материалы:372 918 ₽
Дни:10
446 675₽
Работа:173 643 ₽
Материалы:273 032 ₽
Дни:10
572 194₽
Работа:417 239 ₽
Материалы:154 955 ₽
Дни:7
1 251 655₽
Работа:605 421 ₽
Материалы:646 234 ₽
Дни:20
1 367 114₽
Работа:629 105 ₽
Материалы:738 009 ₽
Дни:20
2 116 332₽
Работа:999 802 ₽
Материалы:1 116 530 ₽
Дни:20
1 946 631₽
Работа:941 543 ₽
Материалы:1 005 088 ₽
Дни:20
2 347 885₽
Работа:999 802 ₽
Материалы:1 348 083 ₽
Дни:20
1 769 954₽
Работа:865 945 ₽
Материалы:904 009 ₽
Дни:20
3 933 230₽
Работа:1 771 011 ₽
Материалы:2 162 219 ₽
Дни:20
3 872 963₽
Работа:1 774 183 ₽
Материалы:2 098 780 ₽
Дни:20
761 270₽
Работа:396 495 ₽
Материалы:364 775 ₽
Дни:20
301 825₽
Работа:97 092 ₽
Материалы:204 733 ₽
Дни:3
0₽
Работа:0 ₽
Материалы:0 ₽
Дни:0
17 050₽
Работа:6 050 ₽
Материалы:11 000 ₽
Дни:1
0₽
Работа:0 ₽
Материалы:0 ₽
Дни:0
0₽
Работа:0 ₽
Материалы:0 ₽
Дни:0
191 164₽
Работа:68 726 ₽
Материалы:122 438 ₽
Дни:5
111 441₽
Работа:24 741 ₽
Материалы:86 700 ₽
Дни:3
162 404₽
Работа:41 235 ₽
Материалы:121 169 ₽
Дни:3
91 563₽
Работа:41 235 ₽
Материалы:50 328 ₽
Дни:3
244 664₽
Работа:24 741 ₽
Материалы:219 923 ₽
Дни:2
321 002₽
Работа:41 235 ₽
Материалы:279 767 ₽
Дни:3
0₽
Работа:0 ₽
Материалы:0 ₽
Дни:0
71 918₽
Работа:19 690 ₽
Материалы:52 228 ₽
Дни:6
0₽
Работа:0 ₽
Материалы:0 ₽
Дни:0
352 299₽
Работа:161 664 ₽
Материалы:190 635 ₽
Дни:7
0₽
Работа:0 ₽
Материалы:0 ₽
Дни:0
352 404₽
Работа:157 646 ₽
Материалы:194 758 ₽
Дни:7
0₽
Работа:0 ₽
Материалы:0 ₽
Дни:0
1 085 670₽
Работа:438 074 ₽
Материалы:647 596 ₽
Дни:7
383 432₽
Работа:230 813 ₽
Материалы:152 619 ₽
Дни:3
1 197 403₽
Работа:338 212 ₽
Материалы:859 191 ₽
Дни:5
1 246 768₽
Работа:338 212 ₽
Материалы:908 556 ₽
Дни:5
676 235₽
Работа:137 357 ₽
Материалы:538 878 ₽
Дни:3
1 718 946₽
Работа:150 735 ₽
Материалы:1 568 211 ₽
Дни:5
0₽
Работа:0 ₽
Материалы:0 ₽
Дни:0
827 347₽
Работа:263 221 ₽
Материалы:564 126 ₽
Дни:20
891 410₽
Работа:289 600 ₽
Материалы:601 810 ₽
Дни:20
646 843₽
Работа:226 480 ₽
Материалы:420 363 ₽
Дни:35
2 150 615₽
Работа:610 478 ₽
Материалы:1 540 137 ₽
Дни:45
1 126 934₽
Работа:566 576 ₽
Материалы:560 358 ₽
Дни:40
475 946₽
Работа:237 973 ₽
Материалы:237 973 ₽
Дни:20
1 465 147₽
Работа:610 478 ₽
Материалы:854 669 ₽
Дни:45
1 611 737₽
Работа:439 582 ₽
Материалы:1 172 155 ₽
Дни:20
891 222₽
Работа:366 287 ₽
Материалы:524 935 ₽
Дни:20
1 098 860₽
Работа:488 382 ₽
Материалы:610 478 ₽
Дни:20
1 531 470₽
Работа:659 278 ₽
Материалы:872 192 ₽
Дни:20
1 890 973₽
Работа:563 938 ₽
Материалы:1 327 035 ₽
Дни:20
1 344 370₽
Работа:488 382 ₽
Материалы:855 988 ₽
Дни:20
0₽
Работа:0 ₽
Материалы:0 ₽
Дни:0
409 200₽
Работа:64 350 ₽
Материалы:344 850 ₽
Дни:5
0₽
Работа:0 ₽
Материалы:0 ₽
Дни:0
183 150₽
Работа:64 350 ₽
Материалы:118 800 ₽
Дни:12
0₽
Работа:0 ₽
Материалы:0 ₽
Дни:0
454 648₽
Работа:185 031 ₽
Материалы:269 617 ₽
Дни:15
327 769₽
Работа:153 311 ₽
Материалы:174 458 ₽
Дни:10
0₽
Работа:0 ₽
Материалы:0 ₽
Дни:0
452 216₽
Работа:202 054 ₽
Материалы:250 162 ₽
Дни:5
0₽
Работа:0 ₽
Материалы:0 ₽
Дни:0
270 974₽
Работа:55 000 ₽
Материалы:215 974 ₽
Дни:7
0₽
Работа:0 ₽
Материалы:0 ₽
Дни:0
180 882₽
Работа:71 599 ₽
Материалы:109 283 ₽
Дни:11
305 615₽
Работа:113 051 ₽
Материалы:192 564 ₽
Дни:5
350 459₽
Работа:131 893 ₽
Материалы:218 566 ₽
Дни:11
505 905₽
Работа:169 577 ₽
Материалы:336 328 ₽
Дни:7
0₽
Работа:0 ₽
Материалы:0 ₽
Дни:0
244 640₽
Работа:145 255 ₽
Материалы:99 385 ₽
Дни:10
0₽
Работа:0 ₽
Материалы:0 ₽
Дни:0
203 357₽
Работа:111 617 ₽
Материалы:91 740 ₽
Дни:10
0₽
Работа:0 ₽
Материалы:0 ₽
Дни:0
178 893₽
Работа:85 624 ₽
Материалы:93 269 ₽
Дни:5
0₽
Работа:0 ₽
Материалы:0 ₽
Дни:0
419 100₽
Работа:82 500 ₽
Материалы:336 600 ₽
Дни:9
257 400₽
Работа:49 500 ₽
Материалы:207 900 ₽
Дни:5
0₽
Работа:0 ₽
Материалы:0 ₽
Дни:0
680 405₽
Работа:397 540 ₽
Материалы:282 865 ₽
Дни:20
466 345₽
Работа:321 090 ₽
Материалы:145 255 ₽
Дни:15
336 380₽
Работа:145 255 ₽
Материалы:191 125 ₽
Дни:15
0₽
Работа:0 ₽
Материалы:0 ₽
Дни:0
290 510₽
Работа:137 610 ₽
Материалы:152 900 ₽
Дни:10
142 197₽
Работа:53 515 ₽
Материалы:88 682 ₽
Дни:7
0₽
Работа:0 ₽
Материалы:0 ₽
Дни:0
1 452 550₽
Работа:535 150 ₽
Материалы:917 400 ₽
Дни:50
0₽
Работа:0 ₽
Материалы:0 ₽
Дни:0
290 510₽
Работа:152 900 ₽
Материалы:137 610 ₽
Дни:10
Преимущества работы с нами
7 этапов оплаты
Независимый строительный надзор
Экологически чистые материалы
16 лет гарантии
Онлайн-кабинет с веб-камерой
Строители с опытом более 15 лет
Собственное производство






















