Одноэтажный дом 14x22 - 166 м2
Планировки
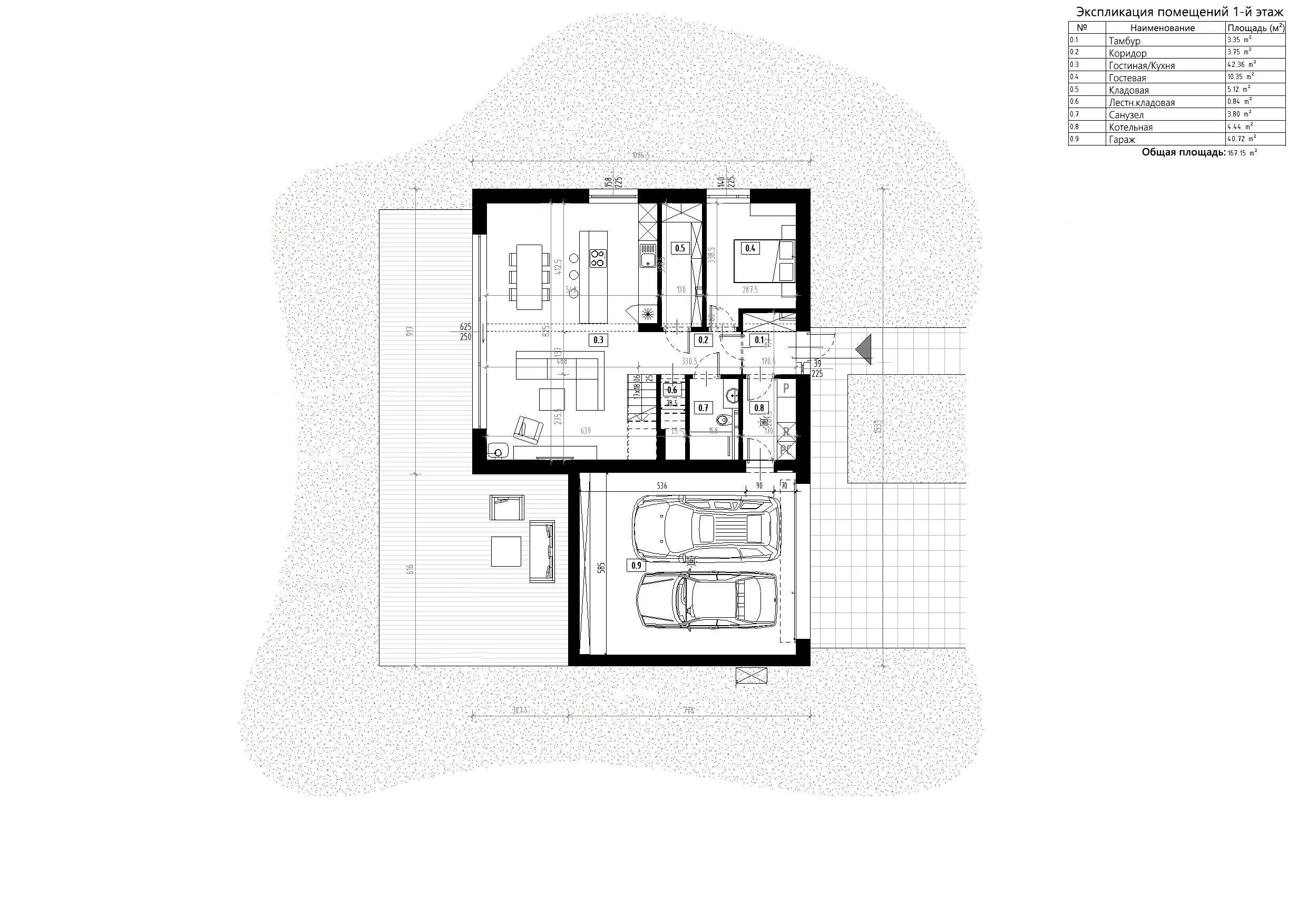
План первого этажа
- 1. Тамбур 3,35 м²
- 2. Коридор 3,75 м²
- 3. Гостиная-Кухня 42,36 м²
- 4. Комната 10,92 м²
- 5. Кладовая 5,12 м²
- 6. Лестн.кладовая 0,84 м²
- 7. Санузел 3,80 м²
- 8. Котельная 4,44 м²
- 9. Гараж 40,72 м²
- Общая площадь первый этаж 114,72 м²
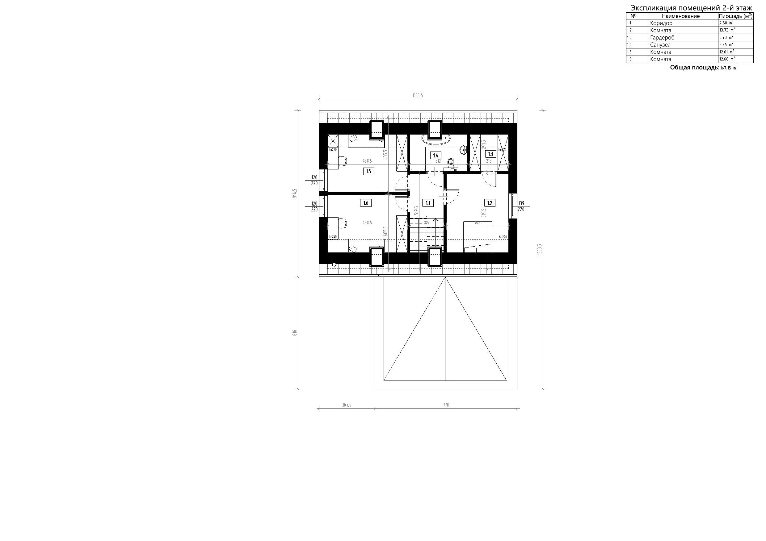
План мансарды
- 1. Коридор 4,50 м²
- 2. Комната 13,73 м²
- 3. Гардероб 3,73 м²
- 4. Санузел 5,26 м²
- 5. Комната 12,61 м²
- 6. Комната 12,60 м²
- Общая площадь второй этаж 52,43 м²
Площади дома
| № п/п | Наименование | Ед. из. | Строительная площадь | Полезная площадь |
| 1 | 1 этаж | м2 | 140.48 | 114 |
| 2 | 2 этаж | м2 | 64.08 | 52 |
| 3 | Итого | м2 | 204.56 | 166 |
154 м2
Полезная
площадь
площадь
14 x 22 м
Размеры
1 этаж
Этажей
26 м2
Террасы
и балконы
и балконы
1Без
гаража
гаража
4
Количество
спален
спален
1
Количество
санузлов
санузлов
Калькулятор опций
0₽
В ипотеку от 0 ₽/мес.
0₽
0 дней
734 128₽
Работа:317 724 ₽
Материалы:416 404 ₽
Дни:20
441 332₽
Работа:147 799 ₽
Материалы:293 533 ₽
Дни:2
743 715₽
Работа:298 548 ₽
Материалы:445 167 ₽
Дни:20
1 425 183₽
Работа:636 332 ₽
Материалы:788 851 ₽
Дни:30
2 390 892₽
Работа:879 124 ₽
Материалы:1 511 768 ₽
Дни:32
903 609₽
Работа:361 532 ₽
Материалы:542 077 ₽
Дни:20
5 670 054₽
Работа:2 584 860 ₽
Материалы:3 085 194 ₽
Дни:30
6 764 828₽
Работа:3 015 129 ₽
Материалы:3 749 699 ₽
Дни:40
236 007₽
Работа:59 002 ₽
Материалы:177 005 ₽
Дни:1
422 452₽
Работа:181 430 ₽
Материалы:241 022 ₽
Дни:8
676 601₽
Работа:224 206 ₽
Материалы:452 395 ₽
Дни:13
1 207 320₽
Работа:493 843 ₽
Материалы:713 477 ₽
Дни:18
1 184 900₽
Работа:742 388 ₽
Материалы:442 512 ₽
Дни:29
1 363 969₽
Работа:698 726 ₽
Материалы:665 243 ₽
Дни:23
2 099 867₽
Работа:1 288 595 ₽
Материалы:811 272 ₽
Дни:30
1 718 569₽
Работа:753 155 ₽
Материалы:965 414 ₽
Дни:45
3 212 784₽
Работа:708 904 ₽
Материалы:2 503 880 ₽
Дни:24
707 577₽
Работа:356 665 ₽
Материалы:350 912 ₽
Дни:15
386 461₽
Работа:207 981 ₽
Материалы:178 480 ₽
Дни:7
1 359 102₽
Работа:472 603 ₽
Материалы:886 499 ₽
Дни:7
1 775 211₽
Работа:567 153 ₽
Материалы:1 208 058 ₽
Дни:7
11 657 979₽
Работа:567 153 ₽
Материалы:11 090 826 ₽
Дни:7
6 310 368₽
Работа:708 904 ₽
Материалы:5 601 464 ₽
Дни:7
992 554₽
Работа:236 301 ₽
Материалы:756 253 ₽
Дни:7
1 303 345₽
Работа:669 373 ₽
Материалы:633 972 ₽
Дни:29
1 141 091₽
Работа:743 125 ₽
Материалы:397 966 ₽
Дни:29
1 303 345₽
Работа:669 373 ₽
Материалы:633 972 ₽
Дни:29
1 383 292₽
Работа:846 230 ₽
Материалы:537 062 ₽
Дни:23
1 768 131₽
Работа:595 474 ₽
Материалы:1 172 657 ₽
Дни:7
2 005 022₽
Работа:1 228 856 ₽
Материалы:776 166 ₽
Дни:25
725 277₽
Работа:374 365 ₽
Материалы:350 912 ₽
Дни:15
6 720 577₽
Работа:1 417 808 ₽
Материалы:5 302 769 ₽
Дни:15
804 192₽
Работа:378 200 ₽
Материалы:425 992 ₽
Дни:15
1 095 070₽
Работа:621 582 ₽
Материалы:473 488 ₽
Дни:19
1 155 841₽
Работа:743 125 ₽
Материалы:412 716 ₽
Дни:29
742 388₽
Работа:389 706 ₽
Материалы:352 682 ₽
Дни:15
1 363 969₽
Работа:698 726 ₽
Материалы:665 243 ₽
Дни:23
796 816₽
Работа:309 758 ₽
Материалы:487 058 ₽
Дни:15
1 020 727₽
Работа:744 305 ₽
Материалы:276 422 ₽
Дни:7
422 452₽
Работа:181 430 ₽
Материалы:241 022 ₽
Дни:8
676 601₽
Работа:224 206 ₽
Материалы:452 395 ₽
Дни:13
1 207 320₽
Работа:493 843 ₽
Материалы:713 477 ₽
Дни:18
540 492₽
Работа:338 640 ₽
Материалы:201 852 ₽
Дни:29
622 175₽
Работа:318 724 ₽
Материалы:303 451 ₽
Дни:23
957 855₽
Работа:587 793 ₽
Материалы:370 062 ₽
Дни:30
783 926₽
Работа:343 552 ₽
Материалы:440 374 ₽
Дни:45
1 465 513₽
Работа:323 367 ₽
Материалы:1 142 146 ₽
Дни:24
322 762₽
Работа:162 693 ₽
Материалы:160 069 ₽
Дни:15
176 284₽
Работа:94 870 ₽
Материалы:81 414 ₽
Дни:7
619 955₽
Работа:215 578 ₽
Материалы:404 377 ₽
Дни:7
809 763₽
Работа:258 707 ₽
Материалы:551 056 ₽
Дни:7
5 317 791₽
Работа:258 707 ₽
Материалы:5 059 084 ₽
Дни:7
1 411 686₽
Работа:323 367 ₽
Материалы:1 088 319 ₽
Дни:7
452 754₽
Работа:107 789 ₽
Материалы:344 965 ₽
Дни:10
594 522₽
Работа:305 335 ₽
Материалы:289 187 ₽
Дни:29
520 509₽
Работа:338 977 ₽
Материалы:181 532 ₽
Дни:29
594 522₽
Работа:305 335 ₽
Материалы:289 187 ₽
Дни:29
630 989₽
Работа:386 008 ₽
Материалы:244 981 ₽
Дни:23
806 534₽
Работа:271 626 ₽
Материалы:534 908 ₽
Дни:7
914 591₽
Работа:560 543 ₽
Материалы:354 048 ₽
Дни:25
330 836₽
Работа:170 767 ₽
Материалы:160 069 ₽
Дни:15
3 065 594₽
Работа:646 734 ₽
Материалы:2 418 860 ₽
Дни:15
366 832₽
Работа:172 516 ₽
Материалы:194 316 ₽
Дни:15
499 517₽
Работа:283 535 ₽
Материалы:215 982 ₽
Дни:19
527 238₽
Работа:338 977 ₽
Материалы:188 261 ₽
Дни:29
338 640₽
Работа:177 764 ₽
Материалы:160 876 ₽
Дни:15
622 175₽
Работа:318 724 ₽
Материалы:303 451 ₽
Дни:10
363 468₽
Работа:141 296 ₽
Материалы:222 172 ₽
Дни:10
465 605₽
Работа:339 515 ₽
Материалы:126 090 ₽
Дни:7
1 746 152₽
Работа:844 608 ₽
Материалы:901 544 ₽
Дни:20
1 907 227₽
Работа:877 649 ₽
Материалы:1 029 578 ₽
Дни:20
2 952 440₽
Работа:1 394 798 ₽
Материалы:1 557 642 ₽
Дни:20
2 715 696₽
Работа:1 313 523 ₽
Материалы:1 402 173 ₽
Дни:20
3 275 474₽
Работа:1 394 798 ₽
Материалы:1 880 676 ₽
Дни:20
2 469 217₽
Работа:1 208 058 ₽
Материалы:1 261 159 ₽
Дни:20
5 487 149₽
Работа:2 470 692 ₽
Материалы:3 016 457 ₽
Дни:20
5 403 071₽
Работа:2 475 117 ₽
Материалы:2 927 954 ₽
Дни:20
1 062 029₽
Работа:553 140 ₽
Материалы:508 889 ₽
Дни:20
344 069₽
Работа:110 681 ₽
Материалы:233 388 ₽
Дни:3
0₽
Работа:0 ₽
Материалы:0 ₽
Дни:0
16 275₽
Работа:5 775 ₽
Материалы:10 500 ₽
Дни:1
0₽
Работа:0 ₽
Материалы:0 ₽
Дни:0
0₽
Работа:0 ₽
Материалы:0 ₽
Дни:0
266 688₽
Работа:95 878 ₽
Материалы:170 810 ₽
Дни:5
155 469₽
Работа:34 516 ₽
Материалы:120 953 ₽
Дни:3
226 567₽
Работа:57 527 ₽
Материалы:169 040 ₽
Дни:3
127 739₽
Работа:57 527 ₽
Материалы:70 212 ₽
Дни:3
341 324₽
Работа:34 516 ₽
Материалы:306 808 ₽
Дни:2
447 823₽
Работа:57 527 ₽
Материалы:390 296 ₽
Дни:3
0₽
Работа:0 ₽
Материалы:0 ₽
Дни:0
68 649₽
Работа:18 795 ₽
Материалы:49 854 ₽
Дни:6
0₽
Работа:0 ₽
Материалы:0 ₽
Дни:0
491 484₽
Работа:225 534 ₽
Материалы:265 950 ₽
Дни:7
0₽
Работа:0 ₽
Материалы:0 ₽
Дни:0
491 630₽
Работа:219 928 ₽
Материалы:271 702 ₽
Дни:7
0₽
Работа:0 ₽
Материалы:0 ₽
Дни:0
1 237 608₽
Работа:499 382 ₽
Материалы:738 226 ₽
Дни:7
437 093₽
Работа:263 115 ₽
Материалы:173 978 ₽
Дни:3
1 364 977₽
Работа:385 544 ₽
Материалы:979 433 ₽
Дни:5
1 421 252₽
Работа:385 544 ₽
Материалы:1 035 708 ₽
Дни:5
770 874₽
Работа:156 580 ₽
Материалы:614 294 ₽
Дни:3
1 959 511₽
Работа:171 830 ₽
Материалы:1 787 681 ₽
Дни:5
0₽
Работа:0 ₽
Материалы:0 ₽
Дни:0
943 134₽
Работа:300 059 ₽
Материалы:643 075 ₽
Дни:20
1 016 162₽
Работа:330 129 ₽
Материалы:686 033 ₽
Дни:20
737 367₽
Работа:258 175 ₽
Материалы:479 192 ₽
Дни:35
2 451 590₽
Работа:695 913 ₽
Материалы:1 755 677 ₽
Дни:45
1 284 648₽
Работа:645 868 ₽
Материалы:638 780 ₽
Дни:40
542 554₽
Работа:271 277 ₽
Материалы:271 277 ₽
Дни:20
1 670 191₽
Работа:695 913 ₽
Материалы:974 278 ₽
Дни:45
1 837 296₽
Работа:501 100 ₽
Материалы:1 336 196 ₽
Дни:20
1 015 947₽
Работа:417 548 ₽
Материалы:598 399 ₽
Дни:20
1 252 643₽
Работа:556 730 ₽
Материалы:695 913 ₽
Дни:20
1 745 797₽
Работа:751 543 ₽
Материалы:994 254 ₽
Дни:20
2 155 612₽
Работа:642 860 ₽
Материалы:1 512 752 ₽
Дни:20
1 532 512₽
Работа:556 730 ₽
Материалы:975 782 ₽
Дни:20
0₽
Работа:0 ₽
Материалы:0 ₽
Дни:0
390 600₽
Работа:61 425 ₽
Материалы:329 175 ₽
Дни:5
0₽
Работа:0 ₽
Материалы:0 ₽
Дни:0
174 825₽
Работа:61 425 ₽
Материалы:113 400 ₽
Дни:12
0₽
Работа:0 ₽
Материалы:0 ₽
Дни:0
634 267₽
Работа:258 132 ₽
Материалы:376 135 ₽
Дни:15
457 263₽
Работа:213 881 ₽
Материалы:243 382 ₽
Дни:10
0₽
Работа:0 ₽
Материалы:0 ₽
Дни:0
630 874₽
Работа:281 880 ₽
Материалы:348 994 ₽
Дни:5
0₽
Работа:0 ₽
Материалы:0 ₽
Дни:0
258 657₽
Работа:52 500 ₽
Материалы:206 157 ₽
Дни:7
0₽
Работа:0 ₽
Материалы:0 ₽
Дни:0
206 196₽
Работа:81 619 ₽
Материалы:124 577 ₽
Дни:11
348 386₽
Работа:128 873 ₽
Материалы:219 513 ₽
Дни:5
399 506₽
Работа:150 352 ₽
Материалы:249 154 ₽
Дни:11
576 706₽
Работа:193 309 ₽
Материалы:383 397 ₽
Дни:7
0₽
Работа:0 ₽
Материалы:0 ₽
Дни:0
278 880₽
Работа:165 585 ₽
Материалы:113 295 ₽
Дни:10
0₽
Работа:0 ₽
Материалы:0 ₽
Дни:0
231 819₽
Работа:127 239 ₽
Материалы:104 580 ₽
Дни:10
0₽
Работа:0 ₽
Материалы:0 ₽
Дни:0
203 931₽
Работа:97 608 ₽
Материалы:106 323 ₽
Дни:5
0₽
Работа:0 ₽
Материалы:0 ₽
Дни:0
400 050₽
Работа:78 750 ₽
Материалы:321 300 ₽
Дни:9
245 700₽
Работа:47 250 ₽
Материалы:198 450 ₽
Дни:5
0₽
Работа:0 ₽
Материалы:0 ₽
Дни:0
775 635₽
Работа:453 180 ₽
Материалы:322 455 ₽
Дни:20
531 615₽
Работа:366 030 ₽
Материалы:165 585 ₽
Дни:15
383 460₽
Работа:165 585 ₽
Материалы:217 875 ₽
Дни:15
0₽
Работа:0 ₽
Материалы:0 ₽
Дни:0
331 170₽
Работа:156 870 ₽
Материалы:174 300 ₽
Дни:10
162 099₽
Работа:61 005 ₽
Материалы:101 094 ₽
Дни:7
0₽
Работа:0 ₽
Материалы:0 ₽
Дни:0
1 655 850₽
Работа:610 050 ₽
Материалы:1 045 800 ₽
Дни:50
0₽
Работа:0 ₽
Материалы:0 ₽
Дни:0
331 170₽
Работа:174 300 ₽
Материалы:156 870 ₽
Дни:10
Преимущества работы с нами
7 этапов оплаты
Независимый строительный надзор
Экологически чистые материалы
16 лет гарантии
Онлайн-кабинет с веб-камерой
Строители с опытом более 15 лет
Собственное производство










