Общий обзор проекта двухэтажного дома 7×7 — 89.68 м²
Компактный двухэтажный дом с внешними размерами 7 x 7 м — это классика рационального частного строительства. Такой дом идеально подходит для узких или средних по размеру участков, где важно получить максимум жилой площади при минимальном застроении. В проекте, о котором пойдет речь, общая площадь составляет 89.68 м² — достаточный объем для комфортного проживания семьи из 3–4 человек.
В этой статье я подробно раскрою все ключевые аспекты: от планировочных решений и распределения комнат до конструктивных решений, инженерии и интерьерных приёмов. Я опишу преимущества и ограничения именно размеров 7×7 м и дам практические рекомендации по реализации проекта на практике, чтобы вы могли оценить, насколько такой дом впишется в ваш бюджет и образ жизни.
Важно отметить, что в описании используются конкретные параметры: внешние габариты дома — 7 x 7 м, этажность — 2 этажа, количество спален — 3, количество санузлов — 2, общая площадь — 89.68 м². Эти исходные данные формируют основу всех дальнейших описаний и решений — от распределения помещений до выбора конструкции крыши и инженерных сетей.
Технические характеристики и ключевые параметры
Прежде чем перейти к планировкам и строительным решениям, полезно собрать все ключевые характеристики проекта в удобном виде. Это поможет быстро сориентироваться, какие требования предъявляет дом к участку и инфраструктуре, а также какие решения целесообразно применять при строительстве.
Ниже приведена таблица с основными параметрами, которые прямо влияют на проектирование и реализацию.
| Параметр | Значение |
|---|---|
| Размеры дома | 7 x 7 м |
| Площадь застройки (следует из размеров) | 49.00 м² |
| Этажей | 2 этажа |
| Общая площадь | 89.68 м² |
| Количество спален | 3 |
| Количество санузлов | 2 |
Таблица даёт прозрачно понять, что дом имеет компактный фундаментный контур — 49 м² при каждом этаже, а общая площадь 89.68 м² означает эффективное использование площади каждого из этажей, с учётом строительных ограждений и внутренних инженерных проёмов.
Архитектурная концепция и планировочные решения
Проект дома 7×7 м требует тщательной оптимизации пространства — каждая площадь должна работать на максимальную функциональность. Архитектурная концепция такого дома обычно строится вокруг идеи «полезного прямоугольника», где минимальные коммуникационные площади и компактная лестница дают возможность выделить три полноценные спальни и два санузла.
Ниже я подробно распишу возможную планировку по этажам: где логично расположить общие зоны, как организовать приватные пространства и как обеспечить удобную циркуляцию между ними.
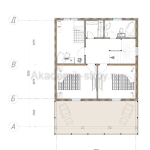
Первый этаж: общественная зона и хозяйственные помещения
Первый этаж в доме 7×7 обычно принимает на себя роль общественной зоны: здесь располагается кухня, гостиная либо столовая, а также гостевой санузел и, при необходимости, помещение котельной или прачечной. При такой компактной площади важно минимизировать коридоры и сконцентрировать функциональные зоны в одном открытом пространстве.
Типичное распределение помещений первого этажа может выглядеть следующим образом: открытая кухня-гостиная с небольшой столовой зоной, прихожая с местом для верхней одежды и обуви, компактный санузел и кладовая/техническое помещение. Такой набор обеспечивает комфорт дня без лишних потерь площади на холлы и длинные коридоры.
Решение об объединении кухни и гостиной позволит визуально увеличить пространство и добавить больше естественного света за счёт грамотного размещения окон. Для оптимизации мест под хранение используются встроенные ниши и шкафы под лестницей.
Второй этаж: приватная зона — три спальни и санузел
На втором этаже располагаются три спальни и второй санузел. Это решение отлично подходит для семьи с двумя детьми или когда нужна отдельная комната для рабочего кабинета. Важный момент — правильное зонирование и подбор мебели: в небольших спальнях лучше использовать трансформируемые решения и встроенные шкафы.
Организация санузла на втором этаже позволяет разгрузить дневную зону и повысить комфорт утром. Если позволяет план, один из санузлов можно сделать с душевой кабиной, а в гостевом — установить только туалет и умывальник для экономии места.
Особое внимание стоит уделить лестнице: она должна быть компактной, но удобной. Лучшие варианты — маршевые или комбинированные решения с площадкой и встроенными ящиками для хранения.
Примерная планировочная схема с распределением площадей
Для конкретики ниже приведён пример распределения полезной площади по помещениям. Эти значения ориентировочные и служат для планирования интерьера и инженерных сетей. В сумме площади ориентированы на общую площадь 89.68 м².
| Помещение | Площадь, м² |
|---|---|
| Первый этаж — кухня-гостиная (open space) | 28.0 |
| Первый этаж — прихожая/тамбур | 4.0 |
| Первый этаж — санузел / гостевой | 3.2 |
| Первый этаж — техническое помещение / кладовая | 3.8 |
| Второй этаж — спальня 1 (родительская) | 12.0 |
| Второй этаж — спальня 2 (детская) | 10.0 |
| Второй этаж — спальня 3 / кабинет | 9.0 |
| Второй этаж — санузел | 4.0 |
| Лестничный проём и коридоры | 15.68 |
| Итого | 89.68 |
Эта разбивка подчёркивает, что даже при небольшом габарите возможно выделить полноценные спальни и удобную общественную зону. Ключ — рациональное размещение санузлов и минимизация проходных зон.
Конструктивные решения: фундамент, стены, перекрытия, крыша
Выбор конструктивных решений зависит от климатической зоны, грунта и бюджета. Для размеров 7×7 м наиболее экономичными и быстрыми вариантами являются свайный фундамент с ростверком, ленточный мелкозаглублённый фундамент или монолитная плита. Каждый из них имеет свои плюсы: плита даёт равномерное распределение нагрузок, а сваи — экономию времени и денег при проблемных грунтах.
Материал стен — ключевой выбор для дальнейшей эксплуатации. Популярные варианты: каркасная технология с утеплителем, газобетонные блоки, кирпич или сблокированные панели. Для небольшого дома каркасные технологии часто выигрывают по скорости и цене, при этом дают хорошую энергоэффективность при правильно выполненной теплоизоляции.
Фундамент
Для 7×7 дома оптимально выбирать мелкозаглублённый ленточный фундамент при стабильных грунтах или винтовые сваи при наличии высокого уровня грунтовых вод. Для плитного фундамента потребуется качественная подготовка основания и водоотвод.
Выбор фундамента прямо влияет на сроки и стоимость строительства, поэтому перед началом работ рекомендуется сделать геологическую разведку участка, чтобы избежать дополнительных расходов и рисков в будущем.
Стены и утепление
При каркасной технологии стены собираются из деревянного или металлического каркаса, заполнение — минераловатными матами или эковатой, внешняя обшивка — сайдинг, фасадные панели или штукатурка по утеплителю. Для газобетонных стен достаточно выполнить наружную штукатурку и внутреннюю отделку с дополнительной теплоизоляцией при необходимости.
Важно предусмотреть паро- и гидроизоляционные слои, чтобы избежать конденсата и обеспечивать долговечность конструкции. Толщина утеплителя зависит от климатических требований — для средней полосы России обычно используются слои 150–200 мм в каркасных стенах.
Перекрытия и крыша
Перекрытия между этажами могут быть деревянными балочными, железобетонными плитами или сборными конструкциями. Для небольшого дома деревянные перекрытия — экономичный и технологичный вариант. При этом важно обеспечить звукоизоляцию между этажами для комфорта жильцов.
Крыша — рубеж защиты от погоды. Для домов 7×7 удобна двускатная крыша с уклоном, обеспечивающим хороший отвод воды и снега. Если планируется мансардный этаж — необходимо корректировать угол и конструкцию кровли. Материалы кровли: металлопрофиль, композитная черепица, гибкая черепица — выбор зависит от бюджета и эстетики.
Инженерные системы: отопление, вода, электрика и вентиляция
В доме с общей площадью 89.68 м² инженерия должна быть продумана с прицелом на энергоэффективность и удобство. Отопление может быть центральным (при подключении к сетям) или автономным — котёл на газе, электрический или комбинированный тепловой насос.
Для компактного дома экономично и удобно использовать настенный газовый котёл или электрический котёл с контуром тёплого пола на первом этаже и радиаторами на втором. Тёплый пол обеспечивает более равномерное распределение тепла в открытой кухне-гостиной.
Водоснабжение и канализация
Подключение к централизованным сетям — лучший вариант, но в загородных условиях часто применяются скважина и локальная очистка воды. Канализация — либо централизованная, либо автономная: септик с последующей фильтрацией и полем фильтрации. Правильный выбор зависит от состава грунта и расстояния до коммуникаций.
Расположение насосного и фильтрующего оборудования рекомендуется предусмотреть в отдельном техническом помещении или в котельной, чтобы снизить уровень шума и упростить обслуживание.
Электрика и освещение
Электропроект должен учитывать нагрузку по бытовым приборам, системам отопления и вентиляции. Для комфортного жилья важно предусмотреть достаточное количество розеток, осветительных зон и защиту от перенапряжений. Резервирование источника питания (генератор или система ИБП) — опция, которую стоит рассмотреть при частых отключениях электричества.
Система освещения и розеточных групп проектируется с запасом: продумайте освещение кухни, рабочие зоны, прихожую и спальни с учётом зональных сценариев и экономичных LED-решений.
Интерьер и эргономика маленького дома
Дизайн интерьера в доме 7×7 должен ставить во главу угла функциональность и визуальное расширение пространства. Светлые тона, зеркальные поверхности и открытые планировочные решения помогут сделать дом визуально просторнее.
Ниже перечислены ключевые приёмы, которые помогут организовать интерьер в компактном доме максимально комфортно.
- Использование открытой планировки и минимизация межкомнатных перегородок на первом этаже.
- Встроенные шкафы и ниши — экономят пространство и делают интерьер аккуратнее.
- Многофункциональная мебель: раскладной стол, кровати со встроенными ящиками, столы-трансформеры.
- Оптимизация освещения: комбинация потолочного, местного и настенного света для создания глубины и акцентов.
- Вертикальное зонирование: открытые стеллажи вместо глухих стен для зонирования без визуального перегрузки пространства.
Эти приёмы помогают сделать дом удобным даже при ограниченном метраже, сохраняя при этом эстетичность и уют.
Строительные этапы и сроки реализации
Построение дома 7×7 с общей площадью 89.68 м² можно условно разделить на несколько этапов: подготовка участка и фундамент, возведение ограждающих конструкций, монтаж крыши, установка окон и дверей, внутренние инженерные работы, чистовая отделка. При грамотной организации и благоприятных условиях строительства сроки могут колебаться от 4 до 9 месяцев.
Ниже приведён примерный план-график работ:
- Подготовка проекта и согласование — 2–6 недель.
- Земляные работы и фундамент — 2–4 недели.
- Возведение стен и перекрытий — 3–6 недель.
- Монтаж кровли и окон — 2–4 недели.
- Инженерные сети — 3–6 недель.
- Черновая и чистовая отделка — 4–8 недель.
Срок зависит от выбранной технологии: каркасный дом возводится быстрее, а монолит или кирпич — дольше. Важный аспект — своевременная поставка материалов и квалификация подрядчиков.
Бюджет и оценка стоимости
Стоимость строительства зависит от выбранной технологии, материалов, уровня отделки и региона. Компактный дом 7×7 экономичнее в материалоёмкости, однако удельная стоимость может быть чуть выше из-за прокладки инженерии на небольшом метраже. Опять же, каркасный дом будет дешевле в среднем, а кирпич или монолит — дороже.
Примерный ориентир по статьям расходов:
- Проект и согласования — 2–5% бюджета.
- Фундамент — 10–15%.
- Стены и перекрытия — 25–35%.
- Кровля — 8–12%.
- Окна и двери — 5–10%.
- Инженерные системы — 15–25%.
- Внутренняя отделка и мебель — 10–25%.
Для точной сметы нужно учитывать региональные цены на материалы и работу. Лучше привлекать минимум два-три подрядчика для сравнения предложений и итоговой оптимизации расходов.
Практические советы перед стартом строительства
Перед началом реализации проекта обязательно сделайте геологические изыскания участка и проверьте наличие коммуникаций вблизи. Убедитесь, что планировка дома отвечает вашим потребностям как сейчас, так и в перспективе: дети, работа на дому, гостиные сценарии.
Не экономьте на фундаменте и теплоизоляции — эти элементы определяют долговечность и эксплуатационные расходы в будущем. Продумайте систему хранения и мебель заранее, так как грамотная меблировка в маленьком доме экономит десятки метров полезной площади.
Наконец, отдавайте предпочтение простым и проверенным технологическим решениям. Компактный дом требует аккуратной оптимизации — лучше меньше, но качественно.
Заключительные рекомендации по использованию и адаптации проекта
Дом 7×7 с общей площадью 89.68 м² — это отличный выбор для тех, кто ценит аккуратную, компактную и функциональную архитектуру. Такая планировка позволит получить всё необходимое для комфортной жизни: три спальни, два санузла, удобную общественную зону и минимальные эксплуатационные расходы.
Если вы планируете строительство, начинайте с детальной проработки планировочного решения и инженерии. Рассмотрите варианты модификации проекта: добавление террасы, изменение чердачного пространства в мансарду, альтернативы по типу фундамента и кровли. Каждое изменение должно быть согласовано с инженером и архитектором, чтобы сохранить энергоэффективность и конструктивную целостность дома.
В итоге, грамотный подход к проектированию, выбор материалов и компетентная команда строителей позволят реализовать дом, который будет радовать своей функциональностью и уютом многие годы. Удачи в проекте — пусть ваш компактный дом станет мудрой инвестицией в комфорт и качество жизни.

















































