Двухэтажный дом 14x11 - 163.57 м2 (блок) за руб.

ID-87459

Стоимость дома 6203716 руб.
154 м2 Полезная
площадь
14 x 11 м Размеры
2 этажа Этажей
26 м2 Террасы
и балконы
2Без
гаража
4 Количество
спален
2 Количество
санузлов

Планировки

План первого этажа

floor image
  • 1. Прихожая 5,41 m²
  • 2. Холл 5,47 m²
  • 3. Кухня 10,89 m²
  • 4. Кладовая 2,96 m²
  • 5. Гостиная + столовая 30,45 m²
  • 6. Ванная комната 3,49 m²
  • 7. Котельная 7,83 m²
  • 8. Гараж на 2 машины 34,44 m²
  • План первого этажа 100,94 m²

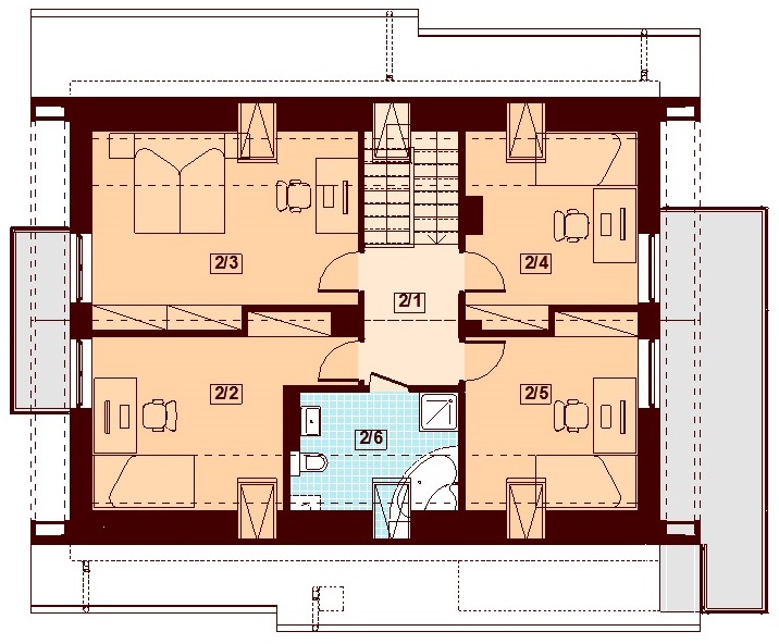
План мансарды

floor image
  • 1. Коридор 5,40 m²
  • 2. Комната 13,36 m² (16,55 m²)
  • 3. Комната 16,84 m² (20,47 m²)
  • 4. Комната 10,48 m² (13,30 m²)
  • 5. Комната 10,82 m² (13,63 m²)
  • 6. Ванная комната 5,73 m² (8,57 m²)
  • План мансарды 62,63 m²

Фасады

Передний
Задний
Левый
Правый
Передний
Задний
Левый
Правый

Подробная информация

Жилая площадь
129,13 m²
icon

Сумма площади всех жилых помещений, за вычетом пов. гараж, котельная, чердак, подвал. Учитывается в 100%, для помещений высотой более 2,2 м, в 50% для помещений с высотой 2,2-1,4 м и не включается для более низких помещений (меньше 1,4 м).

Высота аттиковой стены
0,80 m
icon

Площадь застройки
137,86 m²
icon

Площадь застройки здания определяется как площадь горизонтального сечения по внешнему обводу здания на уровне цоколя, включая выступающие части.

Нетто кубатура
507 m³
icon

Площадь крыши
200,15 m²
icon

Угол наклона крыши
40°
icon

Наклон ската крыши в градусах. Внимание! В некоторых проектах возникает более чем один наклон крыши.

Высота здания
8,57 m
icon

Высота измеряется от поверхности земли до самой высокой точки кровли (конька), за исключением дымоходов.

Ширина фасада
13,94 m
icon

Длина фасада
10,64 m
icon

Мин. ширина участка
20,94 m
icon

Наименьшая возможная ширина участка, необходимая для строительства выбранного дома. Состоит из длины фасада дома плюс с обеих сторон три метра отступ.

Мин. длина участка
18,64 m
icon

Наименьшая возможная длина участка, необходимая для строительства выбранного дома. Состоит из длины фасада дома плюс с обеих сторон три метра отступ.

Материалы и опции
Общие
Цена, руб.
Площадь м²
210
Площадь от и до
Ежемесячный платёж, руб
Количество спален
4
Гараж
2
Количество санузлов
2
Тип крыши
Ширина
14
Опции
Глубина
11

Площади дома

№ п/п Наименование Ед. из. Строительная площадь Полезная площадь
1 1 этаж м2 124.39 100.94
2 2 этаж м2 77.18 62.63
3 Итого м2 201.57 163.57

Калькулятор опций

0

В ипотеку от 20 432 ₽/мес.

Фундамент
650 044
Работа:281 333
Материалы:368 711
Дни:20
390 784
Работа:130 871
Материалы:259 913
Дни:2
658 533
Работа:264 354
Материалы:394 179
Дни:20
1 261 949
Работа:563 449
Материалы:698 500
Дни:30
2 117 050
Работа:778 433
Материалы:1 338 617
Дни:32
800 114
Работа:320 124
Материалы:479 990
Дни:20
5 020 629
Работа:2 288 801
Материалы:2 731 828
Дни:30
5 990 013
Работа:2 669 789
Материалы:3 320 224
Дни:40
208 975
Работа:52 244
Материалы:156 731
Дни:1
Перекрытие цоколя
374 066
Работа:160 650
Материалы:213 416
Дни:8
599 105
Работа:198 526
Материалы:400 579
Дни:13
1 069 039
Работа:437 281
Материалы:631 758
Дни:18
Стены 1 этаж (несущие)
1 049 187
Работа:657 358
Материалы:391 829
Дни:29
1 207 746
Работа:618 697
Материалы:589 049
Дни:23
1 859 357
Работа:1 141 005
Материалы:718 352
Дни:30
1 521 731
Работа:666 892
Материалы:854 839
Дни:45
2 844 805
Работа:627 709
Материалы:2 217 096
Дни:24
626 534
Работа:315 814
Материалы:310 720
Дни:15
342 196
Работа:184 159
Материалы:158 037
Дни:7
1 203 436
Работа:418 473
Материалы:784 963
Дни:7
1 571 886
Работа:502 194
Материалы:1 069 692
Дни:7
10 322 722
Работа:502 194
Материалы:9 820 528
Дни:7
5 587 605
Работа:627 709
Материалы:4 959 896
Дни:7
878 871
Работа:209 236
Материалы:669 635
Дни:7
1 154 066
Работа:592 706
Материалы:561 360
Дни:29
1 010 395
Работа:658 011
Материалы:352 384
Дни:29
1 154 066
Работа:592 706
Материалы:561 360
Дни:29
1 224 856
Работа:749 307
Материалы:475 549
Дни:23
1 565 617
Работа:527 271
Материалы:1 038 346
Дни:7
1 775 375
Работа:1 088 108
Материалы:687 267
Дни:25
642 207
Работа:331 487
Материалы:310 720
Дни:15
5 950 831
Работа:1 255 419
Материалы:4 695 412
Дни:15
712 083
Работа:334 883
Материалы:377 200
Дни:15
969 644
Работа:550 388
Материалы:419 256
Дни:19
1 023 456
Работа:658 011
Материалы:365 445
Дни:29
657 357
Работа:345 070
Материалы:312 287
Дни:15
1 207 746
Работа:618 697
Материалы:589 049
Дни:23
705 553
Работа:274 280
Материалы:431 273
Дни:15
903 818
Работа:659 056
Материалы:244 762
Дни:7
Перекрытие первого этажа
374 066
Работа:160 650
Материалы:213 416
Дни:8
599 105
Работа:198 526
Материалы:400 579
Дни:13
1 069 039
Работа:437 281
Материалы:631 758
Дни:18
Стены 2 этаж (несущие)
650 986
Работа:407 869
Материалы:243 117
Дни:29
749 368
Работа:383 882
Материалы:365 486
Дни:23
1 153 672
Работа:707 957
Материалы:445 715
Дни:30
944 185
Работа:413 785
Материалы:530 400
Дни:45
1 765 110
Работа:389 473
Материалы:1 375 637
Дни:24
388 744
Работа:195 952
Материалы:192 792
Дни:15
212 322
Работа:114 265
Материалы:98 057
Дни:7
746 693
Работа:259 649
Материалы:487 044
Дни:7
975 304
Работа:311 595
Материалы:663 709
Дни:7
6 404 917
Работа:311 595
Материалы:6 093 322
Дни:7
1 700 279
Работа:389 473
Материалы:1 310 806
Дни:7
545 311
Работа:129 824
Материалы:415 487
Дни:10
716 061
Работа:367 755
Материалы:348 306
Дни:29
626 917
Работа:408 274
Материалы:218 643
Дни:29
716 061
Работа:367 755
Материалы:348 306
Дни:29
759 984
Работа:464 921
Материалы:295 063
Дни:23
971 414
Работа:327 154
Материалы:644 260
Дни:7
1 101 563
Работа:675 136
Материалы:426 427
Дни:25
398 469
Работа:205 677
Материалы:192 792
Дни:15
3 692 299
Работа:778 947
Материалы:2 913 352
Дни:15
441 825
Работа:207 784
Материалы:234 041
Дни:15
601 633
Работа:341 498
Материалы:260 135
Дни:19
635 021
Работа:408 274
Материалы:226 747
Дни:29
407 869
Работа:214 105
Материалы:193 764
Дни:15
749 368
Работа:383 882
Материалы:365 486
Дни:10
437 773
Работа:170 182
Материалы:267 591
Дни:10
560 790
Работа:408 923
Материалы:151 867
Дни:7
Крыша (Скатная)
1 546 155
Работа:747 870
Материалы:798 285
Дни:20
1 688 781
Работа:777 127
Материалы:911 654
Дни:20
2 614 279
Работа:1 235 043
Материалы:1 379 236
Дни:20
2 404 652
Работа:1 163 078
Материалы:1 241 574
Дни:20
2 900 314
Работа:1 235 043
Материалы:1 665 271
Дни:20
2 186 403
Работа:1 069 692
Материалы:1 116 711
Дни:20
4 858 673
Работа:2 187 709
Материалы:2 670 964
Дни:20
4 784 226
Работа:2 191 627
Материалы:2 592 599
Дни:20
940 389
Работа:489 786
Материалы:450 603
Дни:20
Окна
339 031
Работа:109 060
Материалы:229 971
Дни:3
0
Работа:0
Материалы:0
Дни:0
Двери входные
16 275
Работа:5 775
Материалы:10 500
Дни:1
0
Работа:0
Материалы:0
Дни:0
Утепление кровли (Мансарда)
0
Работа:0
Материалы:0
Дни:0
236 142
Работа:84 896
Материалы:151 246
Дни:5
137 663
Работа:30 563
Материалы:107 100
Дни:3
200 616
Работа:50 938
Материалы:149 678
Дни:3
113 108
Работа:50 938
Материалы:62 170
Дни:3
302 231
Работа:30 563
Материалы:271 668
Дни:2
396 531
Работа:50 938
Материалы:345 593
Дни:3
Мансардные окна
0
Работа:0
Материалы:0
Дни:0
68 649
Работа:18 795
Материалы:49 854
Дни:6
Подшивка кровли
0
Работа:0
Материалы:0
Дни:0
435 191
Работа:199 702
Материалы:235 489
Дни:7
Водосточная система
0
Работа:0
Материалы:0
Дни:0
435 322
Работа:194 739
Материалы:240 583
Дни:7
Дополнительное утепление наружных стен
0
Работа:0
Материалы:0
Дни:0
1 219 519
Работа:492 083
Материалы:727 436
Дни:7
430 704
Работа:259 269
Материалы:171 435
Дни:3
1 345 026
Работа:379 909
Материалы:965 117
Дни:5
1 400 478
Работа:379 909
Материалы:1 020 569
Дни:5
759 607
Работа:154 292
Материалы:605 315
Дни:3
1 930 869
Работа:169 319
Материалы:1 761 550
Дни:5
Наружная отделка фасада
0
Работа:0
Материалы:0
Дни:0
929 349
Работа:295 673
Материалы:633 676
Дни:20
1 001 309
Работа:325 304
Материалы:676 005
Дни:20
726 589
Работа:254 401
Материалы:472 188
Дни:35
2 415 756
Работа:685 741
Материалы:1 730 015
Дни:45
1 265 870
Работа:636 427
Материалы:629 443
Дни:40
534 624
Работа:267 312
Материалы:267 312
Дни:20
1 645 779
Работа:685 741
Материалы:960 038
Дни:45
1 810 441
Работа:493 776
Материалы:1 316 665
Дни:20
1 001 098
Работа:411 445
Материалы:589 653
Дни:20
1 234 334
Работа:548 593
Материалы:685 741
Дни:20
1 720 279
Работа:740 558
Материалы:979 721
Дни:20
2 124 104
Работа:633 464
Материалы:1 490 640
Дни:20
1 510 112
Работа:548 593
Материалы:961 519
Дни:20
Террасы, крыльца, навесы
0
Работа:0
Материалы:0
Дни:0
390 600
Работа:61 425
Материалы:329 175
Дни:5
Балконы
0
Работа:0
Материалы:0
Дни:0
174 825
Работа:61 425
Материалы:113 400
Дни:12
Отмостка
0
Работа:0
Материалы:0
Дни:0
561 621
Работа:228 567
Материалы:333 054
Дни:15
404 890
Работа:189 384
Материалы:215 506
Дни:10
Дренаж вокруг дома
0
Работа:0
Материалы:0
Дни:0
558 617
Работа:249 595
Материалы:309 022
Дни:5
Автономная канализация (септики)
0
Работа:0
Материалы:0
Дни:0
258 657
Работа:52 500
Материалы:206 157
Дни:7
Внутренние (не несущие) перегородки
0
Работа:0
Материалы:0
Дни:0
203 182
Работа:80 426
Материалы:122 756
Дни:11
343 294
Работа:126 989
Материалы:216 305
Дни:5
393 666
Работа:148 154
Материалы:245 512
Дни:11
568 277
Работа:190 484
Материалы:377 793
Дни:7
Электрика
0
Работа:0
Материалы:0
Дни:0
274 798
Работа:163 161
Материалы:111 637
Дни:10
Сантехника, канализация в доме
0
Работа:0
Материалы:0
Дни:0
228 425
Работа:125 376
Материалы:103 049
Дни:10
Отопление
0
Работа:0
Материалы:0
Дни:0
200 946
Работа:96 179
Материалы:104 767
Дни:5
Теплые полы
0
Работа:0
Материалы:0
Дни:0
400 050
Работа:78 750
Материалы:321 300
Дни:9
245 700
Работа:47 250
Материалы:198 450
Дни:5
Черновая отделка стен
0
Работа:0
Материалы:0
Дни:0
764 281
Работа:446 546
Материалы:317 735
Дни:20
523 833
Работа:360 672
Материалы:163 161
Дни:15
377 847
Работа:163 161
Материалы:214 686
Дни:15
Черновая отделка полов
0
Работа:0
Материалы:0
Дни:0
326 323
Работа:154 574
Материалы:171 749
Дни:10
159 726
Работа:60 112
Материалы:99 614
Дни:7
Чистовая отделка стен и полов
0
Работа:0
Материалы:0
Дни:0
1 631 611
Работа:601 120
Материалы:1 030 491
Дни:50
Отделка потолка
0
Работа:0
Материалы:0
Дни:0
326 323
Работа:171 749
Материалы:154 574
Дни:10

Преимущества работы с нами

icon

7 этапов оплаты

icon

Независимый строительный надзор

icon

Экологически чистые материалы

icon

16 лет гарантии

icon

Онлайн-кабинет с веб-камерой

icon

Строители с опытом более 15 лет

icon

Собственное производство

Двухэтажный дом 14х11 м в Москве: комфорт и функциональность от компании "Академик Строй"

Если вы мечтаете о собственном уютном доме, который воплотит в себе современный стиль, удобство и надежность, то двуэтажный дом 14х11 метра площадью 163,57 м² — это отличный вариант для вас. Компания "Академик Строй" предлагает проект, который идеально подойдет для семей, стремящихся к комфорту без излишних затрат. В этой статье мы подробно разберём преимущества этого проекта, его особенности и то, почему именно он заслуживает вашего внимания. Покупка или заказ проекта дома — это всегда важное и ответственное решение. Ведь от выбранного проекта зависит не только будущий внешний вид здания, но и удобство проживания, рациональное использование пространства, безопасность и энергоэффективность. Рассмотрим более подробно, чем именно привлекает этот дом и что вы получите, сделав выбор в его пользу.

Основные характеристики дома: что важно знать

Начнем с самых важных параметров, по которым легко оценить, подойдёт ли проект вашей семье. Размеры, площадь, количество этажей и комнат — это то, на что обращают внимание в первую очередь.
Параметр Значение
Полезная площадь 163,57 м²
Размеры дома 14 x 11 м
Количество этажей 2 этажа
Количество спален 4
Количество санузлов 2
Жилая площадь 129,13 м²
Площадь застройки 137,86 м²
Высота здания 8,57 м
Площадь крыши 200,15 м²
Тип крыши Двускатная
Угол наклона крыши 40°
Высота аттиковой стены 0,80 м
Минимальная ширина участка 20,94 м
Минимальная длина участка 18,64 м
Опции Камин
Эти цифры говорят сами за себя — перед вами действительно просторный и продуманный дом для жизни большой семьи. Теперь перейдем к детальному описанию каждого важного момента.

Размеры и планировка: каждый метр — на пользу

Начнем с габаритов дома: 14 на 11 метров — это оптимальный размер, который позволяет разместить все необходимые комнаты, не урезая полезное пространство. Полезная площадь в 163,57 м² дает вам массу вариантов для организации жилых и хозяйственных зон. Это позволяет разделить дом на тихие зоны — спальни, а также места общего пользования — гостиную, кухню и столовую, что особенно важно для комфортного проживания.

Четыре спальни: комфорт для всей семьи

Среди главных преимуществ проекта — целых четыре спальни. Для семьи с детьми это оптимальное количество комнат: у каждого будет своё личное пространство, где можно отдыхать и заниматься. Не менее важно, что размещение спален организовано на верхнем этаже, что обеспечивает дополнительный уют и тишину.

Два санузла — удобно и практично

Когда в доме живет несколько человек, наличие сразу двух санузлов становится практически необходимостью. Это уменьшает утренние очереди и делает жизнь заметно комфортнее. В проекте предусмотрены современные и продуманные в плане планировки санузлы, с возможностью разделения ванной и туалета, что часто встречается в проектах домов средней площади.

Надёжность и стиль: конструктивные особенности

Компания "Академик Строй" уделила особое внимание не только функциональности, но и внешнему облику дома, обеспечив его стильную и актуальную архитектуру.

Площадь застройки и высота здания — идеальный баланс

Площадь застройки 137,86 м² при общей высоте дома 8,57 м говорит о том, что здание будет достаточно внушительным, но при этом не громоздким и не навязчивым в ландшафте. Такой дом гармонично впишется в привычную для многих подмосковных районов застройку.

Двускатная крыша с углом наклона 40° — классика и надежность

Двускатная крыша – это неоспоримый фаворит благодаря простоте конструкции и высокой эффективности. Угол наклона в 40° оптимален для регионов с частыми осадками и снегом, так как позволяет быстро их сбрасывать, не создавая дополнительных нагрузок. Площадь крыши в 200,15 м² говорит о хороших возможностях для обустройства дополнительного полезного пространства под крышей, возможно, чердака или мансарды.

Высота аттиковой стены 0,80 м — преимущества архитектуры

Небольшая высота аттиковой стены добавляет дому современный стиль и функциональность. Это упрощает утепление и отделку фасадов, а также улучшает общую эстетику здания.

Что еще важно знать заказчику?

Минимальные требования к участку для дома 14 на 11 м

Если вы планируете строительство на собственном участке, важно понимать размеры, которые необходимо иметь, чтобы дом вписался комфортно и соблюдал все санитарные нормы. Минимальная ширина участка — 20,94 м, минимальная длина — 18,64 м. Эти показатели дадут вам пространство не только для самого дома, но и для организации отступов, садовых и технических зон.

Жилая площадь: 129,13 м² — простор для жизни

Прекрасная новость для всех, кто ищет максимально комфортные условия. Жилая площадь в 129,13 м² — это реально большое пространство, где не создается ощущения тесноты, даже при проживании 4–5 человек.

Уникальная опция — камин в доме

Одним из значительных бонусов, который предлагает данный проект, является наличие камина. В наше время, когда в каждом доме есть центральное отопление, камин становится чем-то большим, чем просто источником тепла. Это настоящий элемент уюта, который создает домашнюю атмосферу, тепло и романтику.

Преимущества камина

  • Дополнительный источник обогрева, позволяющий сэкономить на электричестве или газе в межсезонье.
  • Визуальный и эмоциональный центр гостиной, вокруг которого хочется собираться всей семьёй.
  • Повышение статуса дома и привлекательности интерьера — камин всегда добавляет уюта и элегантности.
Если вы планируете пригласить гостей или просто любите проводить вечера в теплом и душевном интерьере, камин станет отличным решением. Его рациональная интеграция в проект позволила сохранить функциональность помещений без ущерба площади.

Почему выгодно заказывать проект в компании "Академик Строй"?

Компания "Академик Строй" давно зарекомендовала себя как надежный партнёр на рынке строительных услуг в Москве. Они предлагают комплексный подход — от разработки проекта до консультаций по выбору материалов и сопровождения строительства.

Преимущества работы с "Академик Строй"

  1. Опыт и профессионализм: в команде работают специалисты с многолетним стажем, которые учитывают местные климатические и строительные стандарты.
  2. Индивидуальный подход: возможна небольшая адаптация проекта под ваши личные пожелания, что позволяет создать идеальный для вас дом.
  3. Оптимальная цена: выгодные условия заказа, прозрачная смета и отсутствие скрытых платежей.
  4. Поддержка после сдачи проекта: консультации и рекомендации по выбору подрядчиков и материалов.

Как оформить заказ?

Если проект заинтересовал вас, достаточно позвонить по телефону официального представителя компании: +7 (980) 800-47-93. Вам подробно расскажут обо всех этапах, ответят на вопросы и дадут рекомендации, исходя из ваших целей и бюджета.

Можно ли купить проект дома 14х11 м по доступной цене?

Одним из приятных факторов покупки данного проекта является его отличная цена. Благодаря отлаженным процессам проектирования и современным технологиям, стоимость проекта значительно ниже, чем у множества конкурентов. При этом качество и профессионализм не уступают более дорогим предложениям.

Почему проект дома 14x11 стоит своих денег?

Фактор Польза для заказчика
Продуманная планировка Все комнаты функциональны и удобны без лишних метров.
Использование современных технологий строительства Снижение затрат на материалы и работу, повышение надёжности здания.
Компактные габариты дома Минимальные требования к участку, низкие затраты на фундамент и крышу.
Возможность индивидуальной доработки проекта Учёт ваших личных предпочтений без существенного увеличения стоимости.
Таким образом, вы получаете проект с оптимальным соотношением цены и качества. Это отличный старт для строительства собственного дома мечты.

Что учесть при выборе участка для строительства дома 14 на 11 метров?

Важным этапом перед началом строительства является выбор и подготовка участка. Минимальная ширина и длина участка согласно проекту — 20,94 м и 18,64 м соответственно. Если придерживаться этих размеров, у вас будет достаточно пространства не только под сам дом, но и под зону отдыха, придомовой участок и технические постройки.

Рекомендации по выбору участка

  • Оцените рельеф местности — ровный участок значительно упрощает и удешевляет стройку.
  • Проверьте доступ к инженерным коммуникациям (электричество, вода, газ).
  • Продумайте ориентацию дома по сторонам света — это влияет на освещённость и энергопотребление.
  • Убедитесь в отсутствии или малой вероятности подтопления и сложных грунтов.
Все эти детали помогут избежать ненужных сложностей и издержек в будущем.

Итоги: почему проект двухэтажного дома 14х11 в Москве — ваш правильный выбор

При выборе проекта дома крайне важно учитывать множество факторов: конструктивные особенности, своих потребностей в жилой площади, бюджет и особенности участка. Двухэтажный дом 14 на 11 с площадью 163,57 м² — это удачное сочетание всех параметров, которое легко адаптируется под нужды семьи. Компания "Академик Строй" предлагает полный пакет документов и сопровождение на всех этапах строительства, что избавляет вас от ненужных волнений и финансовых рисков. Отличная цена, продуманный дизайн и профессионализм — вот что получает заказчик. Если вы хотите получить подробную консультацию и сделать первый шаг к строительству своего дома, звоните прямо сейчас по номеру +7 (980) 800-47-93. Пусть ваш путь к мечте начнется уже сегодня, ведь дом вашей мечты — это не только комфорт, но и уверенность в будущем.