Двухэтажный дом 9х11 – идеальный выбор для семьи из четырех
Проект двухэтажного дома размером 9 на 11 метров, площадью 139,02 квадратных метров, представляет собой отличный выбор для тех, кто ценит комфорт, рациональное использование пространства и современный стиль. Этот дом сочетает в себе продуманную планировку и оптимальные габариты, позволяющие эффективно использовать каждый квадратный метр. Такой дом подходит как для загородного строительства, так и для строительства в пригородах больших городов, благодаря компактности и функциональности.
Два этажа обеспечивают значительное пространство для комфортной жизни, разделяя зоны отдыха, работы и общественного пространства. Наличие двух этажей позволяет оградить личное пространство от гостевой зоны, что особенно ценно для семей с детьми или людьми, работающими из дома. Кроме того, дом с двумя этажами минимизирует площадь застройки участка, оставляя больше места для организованного сада, зоны барбекю или детской площадки.
Обзор параметров и габаритов дома 9х11
Размеры здания — 9 метров по ширине и 11 метров по длине — очень практичны. Такая конфигурация коттеджа обеспечивает комфортную жилую площадь в 139,02 квадратных метра, что соответствует средним потребностям семьи из 3-5 человек. Габариты дома позволяют разместить внутри все необходимые комнаты, включая четыре спальни и два санузла, не жертвуя при этом удобством и свободой передвижения.
Особенности планировки и распределения площадей позволяют раскрыть потенциал каждого метра. Компактный, но полноценный дизайн гармонично впишется практически в любой участок с разумными размерами и даст возможность воплотить идеи устройства живой зоны на свежем воздухе или озелененной территории возле дома.
Почему именно 9х11 м — практично для частного строительства
Выбор размера дома 9 на 11 метров обусловлен сбалансированностью между полезной площадью и затратами. Такой дом достаточно просторен, чтобы вместить четыре спальни и необходимые хозяйственные помещения, но в то же время не обладает чрезмерной площадью, что неминуемо удорожает строительство и обслуживание.
Кроме того, при планировании такого дома упрощается проектирование фундамента и инженерных систем, что снижает общие затраты. Благодаря удачному соотношению длины и ширины, легко можно обеспечить естественное освещение и грамотную вентиляцию всех помещений.
Количество этажей: преимущества двухэтажного решения
В двухэтажном доме площадью около 139 м² пространство распределено по двум этажам, что позволяет грамотно зонировать дом. Первый этаж обычно отведён под общие помещения — гостиную, кухню, столовую и санузел. Второй этаж предназначен для отдыха — спальни и дополнительный санузел. Благодаря этому разделению обеспечивается максимальное удобство и приватность для всех членов семьи.
Такое архитектурное решение значительно экономит площадь участка, что особенно актуально в условиях ограниченного пространства. При этом двухэтажный дом сохраняет оптимальные характеристики тепловой эффективности и сравнительно невысокие затраты на отделку и коммуникации по сравнению с домами других конфигураций.
Как функционально распределить комнаты на двух этажах?
Продуманная планировка позволяет разместить на первом этаже комфортную гостиную с кухней и столовой, объединённые в общий просторный зал, что идеально располагает к семейным встречам и приему гостей. Здесь же на первом этаже можно предусмотреть небольшой санузел для удобства в дневное время.
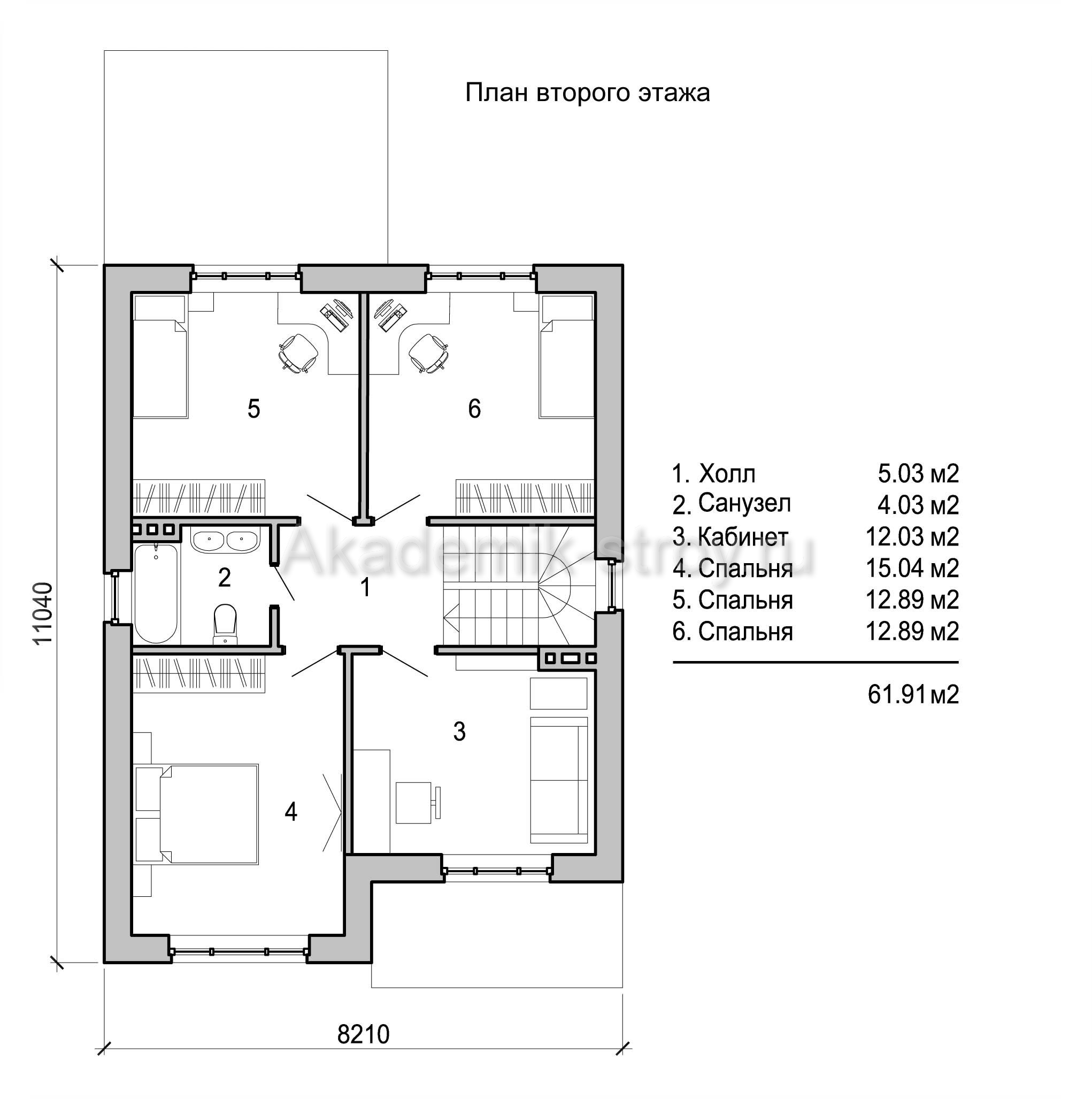
На втором этаже расположены четыре спальни, что обеспечивает комфортное проживание даже большой семьи. Кроме того, на этаже размещается второй полный санузел, что значительно упрощает утренний и вечерний режим. Детские комнаты, кабинет или гостевая спальня занимают отдельные зоны, позволяя сохранить приватность и тишину.
Количество спален и санузлов: комфорт для всей семьи
Четыре спальни — это идеальный вариант для семьи из 3-5 человек, а также для тех, кто часто принимает гостей или планирует организацию детских игровых и учебных комнат. Каждая спальня может быть оснащена удобными шкафами для хранения вещей, а также эргономичной мебелью.
Для проживания семьи с несколькими детьми или гостями необходимы как минимум два санузла. Наличие двух санузлов избавляет от лишних очередей и повышает уровень комфорта для всех жителей дома. Современная планировка подразумевает наличие одного санузла на первом этаже и второго — на втором, что обеспечивает удобство пользования и гостям, и жильцам.
Расположение санузлов: как правильно организовать пространство
Оптимальным вариантом считается размещение гостевого санузла на первом этаже, поблизости к гостиной и кухне, чтобы обеспечить быстрый доступ для посетителей и членов семьи в дневное время. Второй санузел, более просторный и укомплектованный, располагается на втором этаже — рядом со спальнями.
Такое разделение помогает избежать утренних перекрестных маршрутов жильцов из разных зон дома и делает процесс умывания и подготовки к выходу из дома очень удобным.
Проектирование и планировка комнат: ключевые моменты
Планировочное решение дома 9х11 очень важно, поскольку от правильного распределения комнат зависит удобство проживания и качество жизни внутри. В доме площадью 139 м² такой проект предусматривает максимально эффективное использование площади каждого этажа, учитывая потребности различных поколений и членов семьи.
Удобное зонирование жилого пространства позволяет организовать отдельные блоки для отдыха, работы и общего времяпрепровождения. Грамотный подход к проектированию помогает избежать ненужных коридоров и мертвых зон, сохраняя простор и функциональность в каждом помещении.
Распределение комнат на первом этаже
- Гостиная, объединённая с кухней и столовой — центр общественной жизни дома.
- Хозяйственные помещения: котельная, кладовая (опционально).
- Гостевой санузел для удобства посетителей и членов семьи.
- Входная зона с просторной прихожей и зоной для хранения верхней одежды.
Распределение комнат на втором этаже
- Четыре спальни, которые можно использовать как детские комнаты, гостевые или кабинеты.
- Основной санузел с ванной или душевой, расположенный вблизи всех спален.
- Возможность организации гардеробных комнат при необходимости.
Преимущества двухэтажного дома без гаража
Отсутствие встроенного гаража в проекте дома 9х11 имеет свои плюсы и подходит определённым категориям семей. Такое решение позволяет дополнительно увеличить жилую площадь и упростить архитектуру здания, а также сэкономить участок для расширения сада или организации дополнительных открытых зон отдыха.
Кроме того, владельцы дома могут организовать стоянку для автомобилей на прилегающей территории — во дворе или рядом с домом, что не требует значительных вложений в строительство и обслуживание гаражного помещения.
Как компенсировать отсутствие гаража?
- Создание навеса для автомобиля, который не занимает полезную площадь дома.
- Оформление открытой площадки – парковки с мощением и освещением.
- Возможность обустроить хозяйственные строения отдельно от жилого дома.
Вывод: что делает дом 9х11 площадью 139,02 м² привлекательным для семьи
Двухэтажный дом 9 на 11 с четырьмя спальнями и двумя санузлами – это великолепное решение для тех, кто ищет классический вариант загородного жилья с оптимальным соотношением стоимости, комфорта и функциональности. Небольшие габариты облегчают строительство и эксплуатацию, одновременно предоставляя достаточно много пространства для реализации всех жизненных сценариев.
Рациональное проектное решение позволяет уникальным образом использовать участок, зонируя пространство для сада, зону отдыха и индивидуальных нужд семьи. Два этажа дают возможность отделить общественные и приватные зоны таким образом, чтобы каждое жилое помещение соответствовало различным требованиям по тишине, уединению и удобству.






























