Конструктивный проект

Конструктивные решения для загородного дома включают расчёты прочности фундамента, стен,
перекрытий и крыши с учётом нагрузок, материалов и норм, обеспечивая надёжность,
энергоэффективность и интеграцию систем вентиляции, утепления и гидроизоляции.

Конструктивные решения для загородного дома включают расчёты прочности фундамента, стен, перекрытий и крыши с учётом нагрузок, материалов и норм, обеспечивая надёжность, энергоэффективность и интеграцию систем вентиляции, утепления и гидроизоляции.

Конструктивный
проект

Определяется конструктивная схема, выполняются расчеты на прочность несущих элементов (фундаменты, межэтажные перекрытия, стропильная система, кровля). Детализируются требуемые узлы и детали. Формируется перечень основных строительных материалов.

Скачать пример «Конструктивные решения (КР)»
  • Общие данные (1)
  • Общие данные (2)
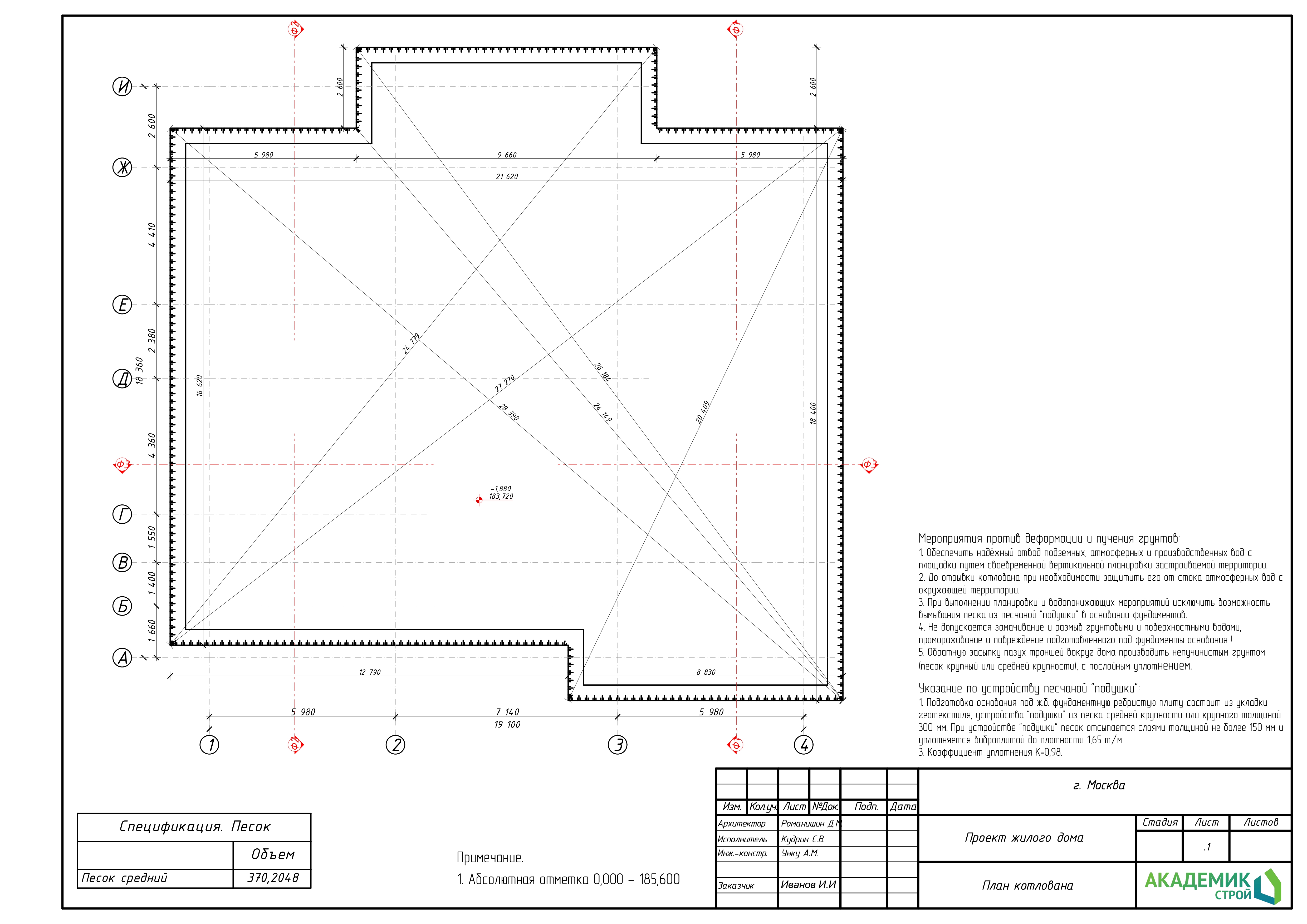
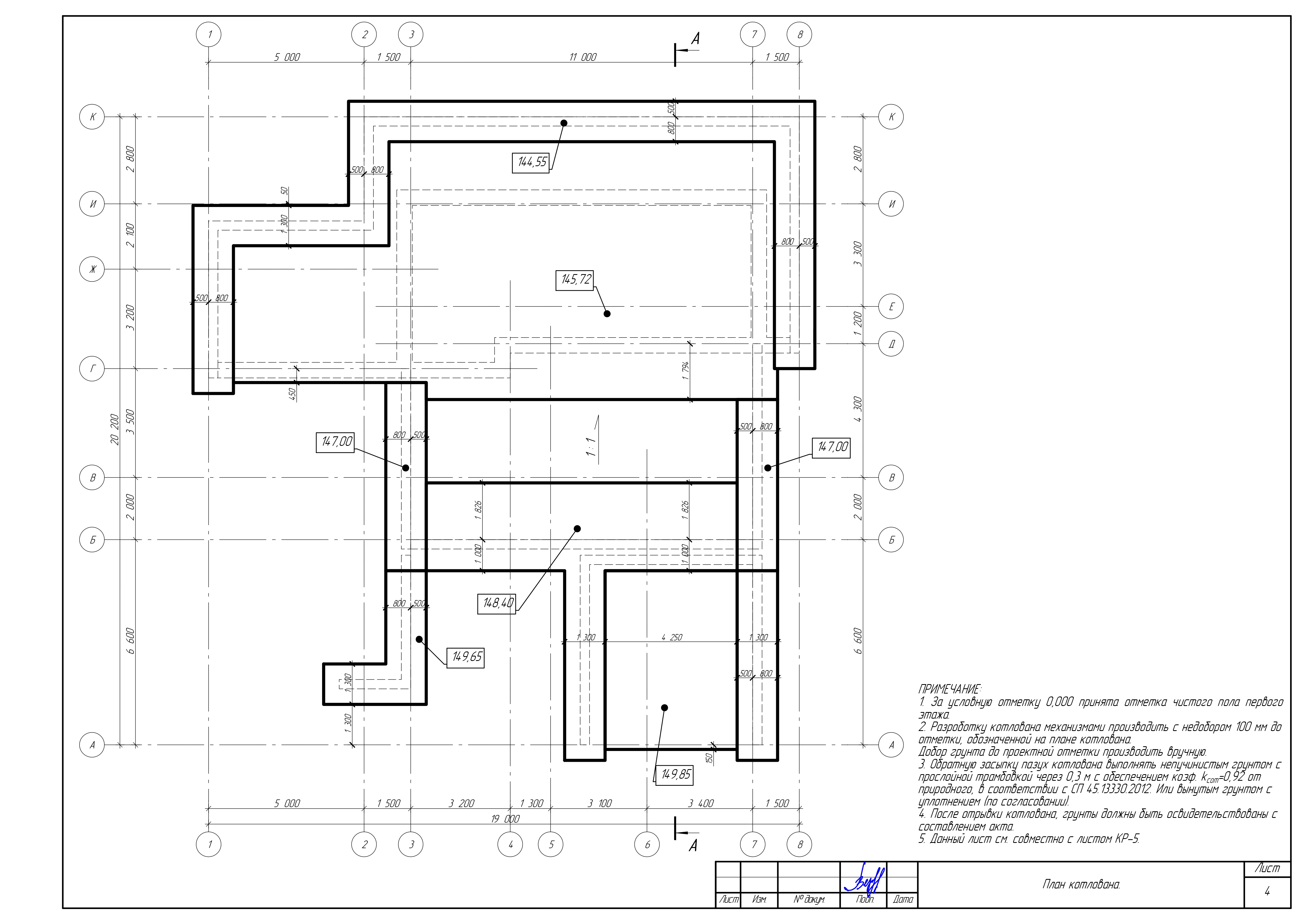
  • План котлована
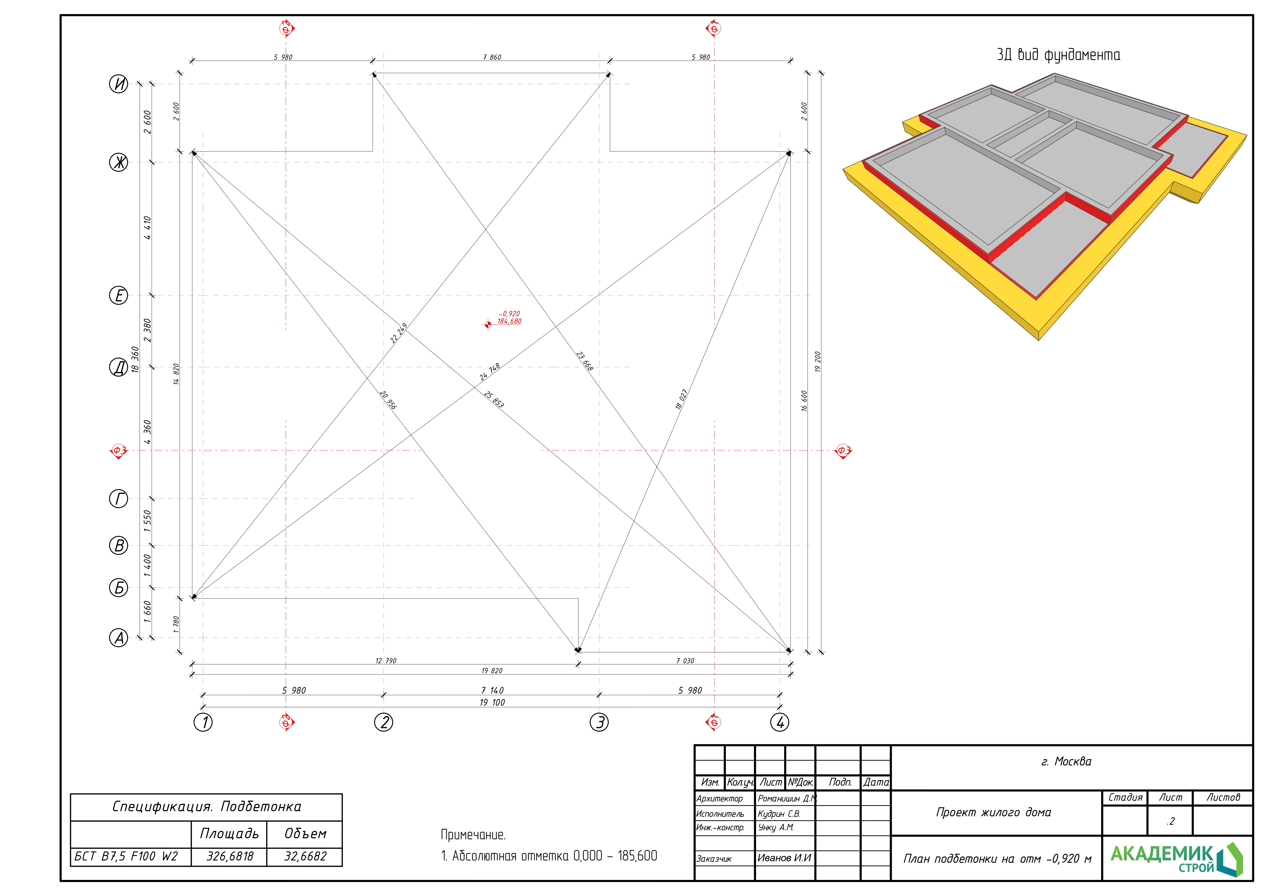
  • План подбетонки на отм -0,920 м
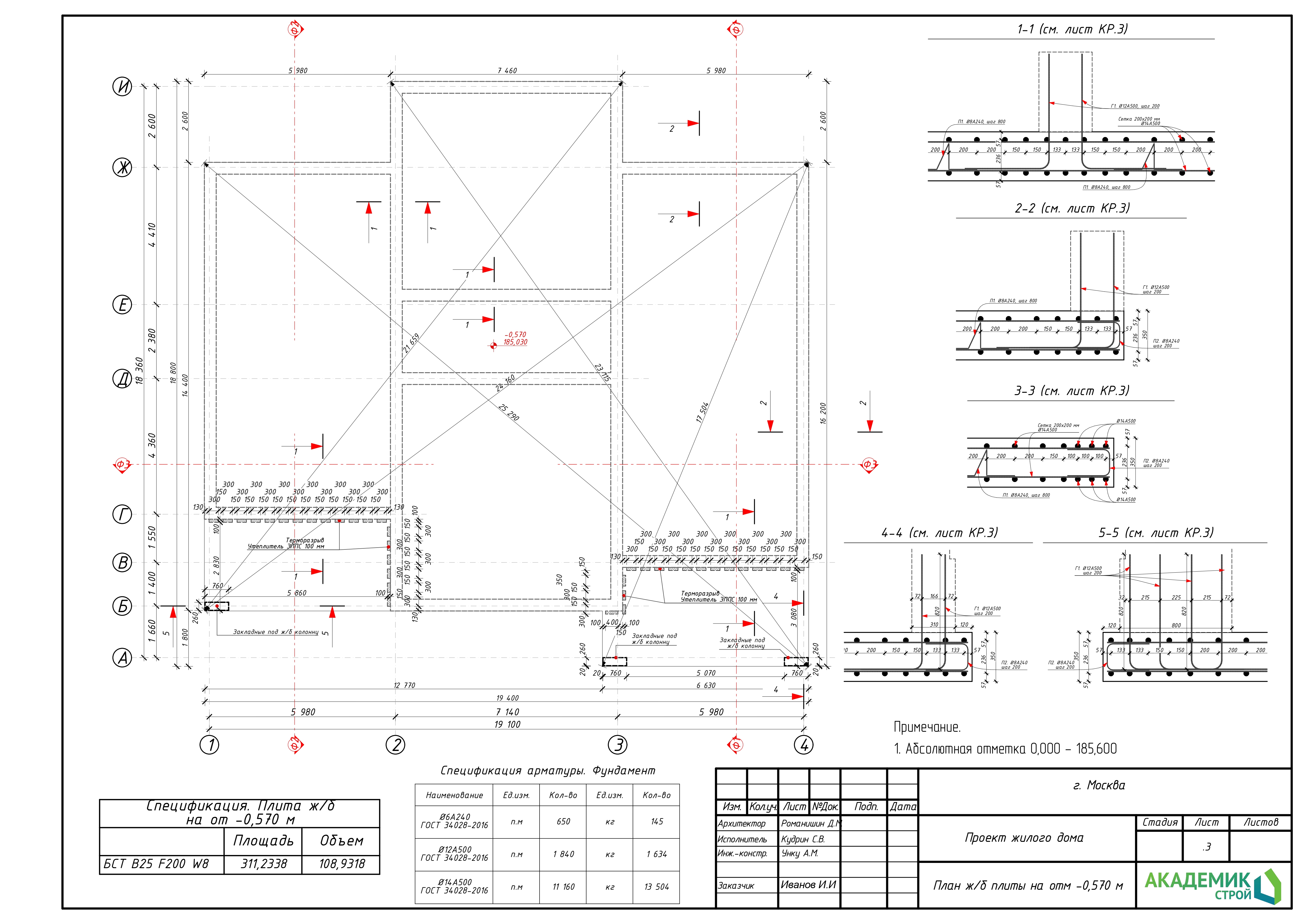
  • План ж/б плиты на отм -0,570 м
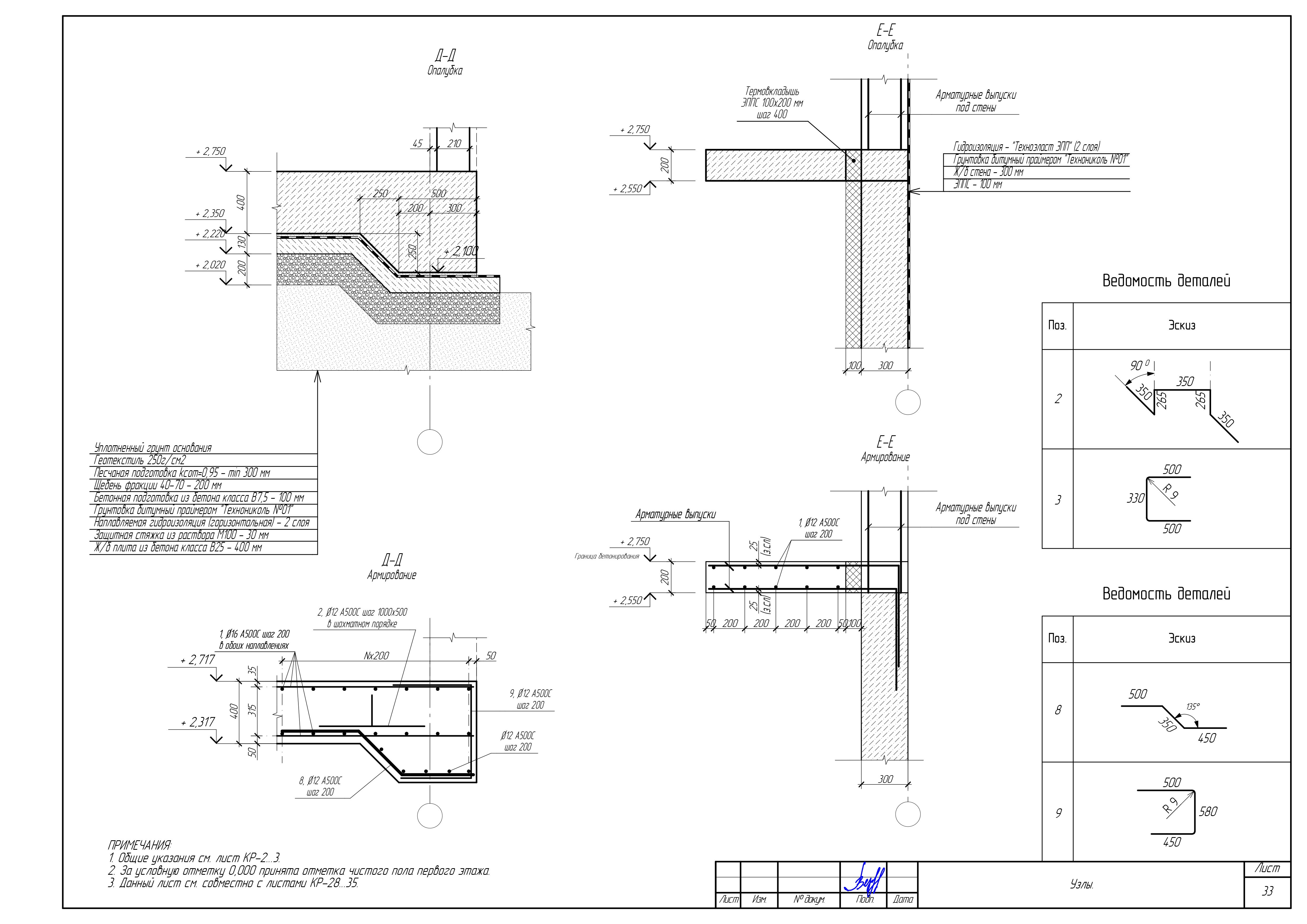
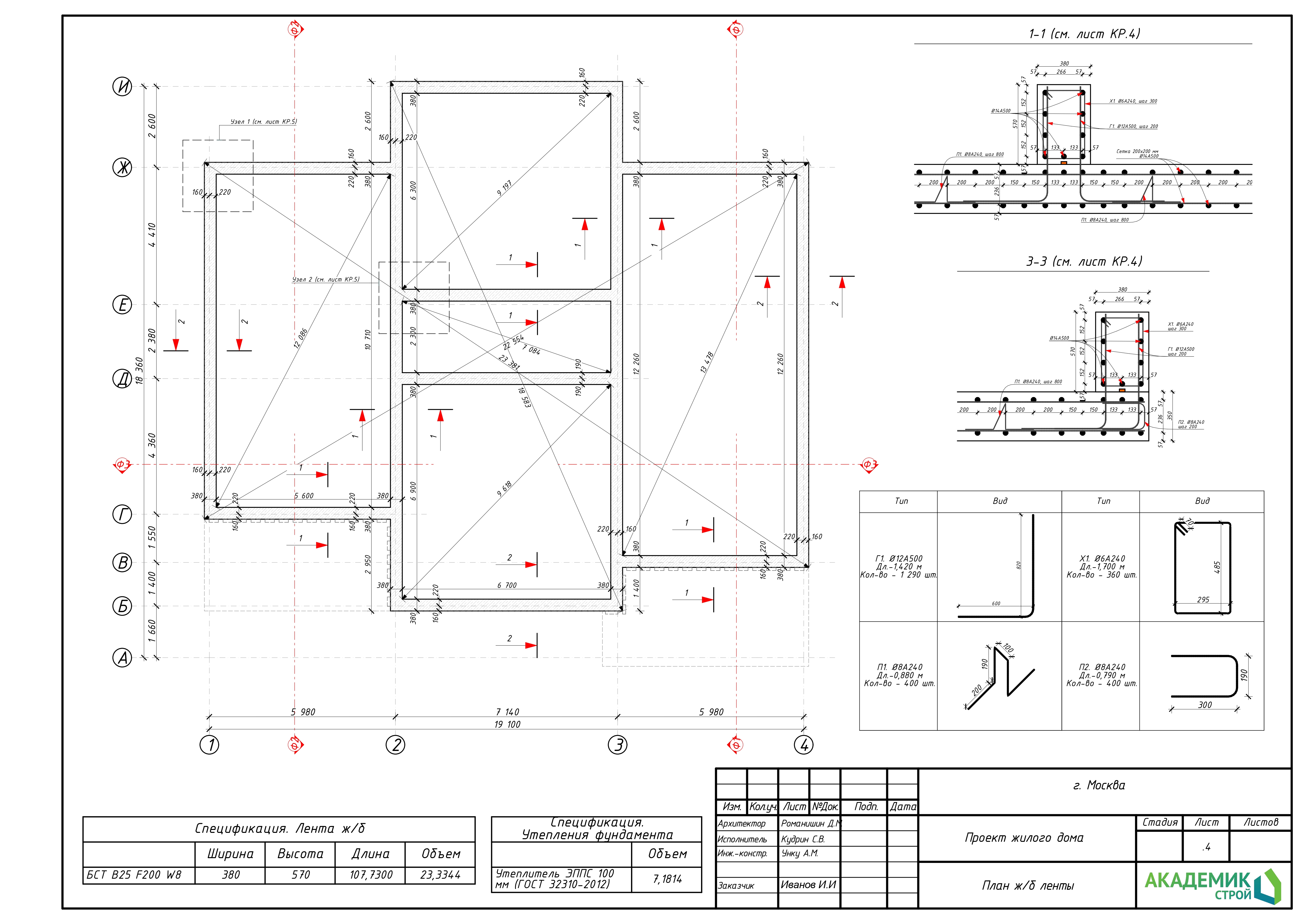
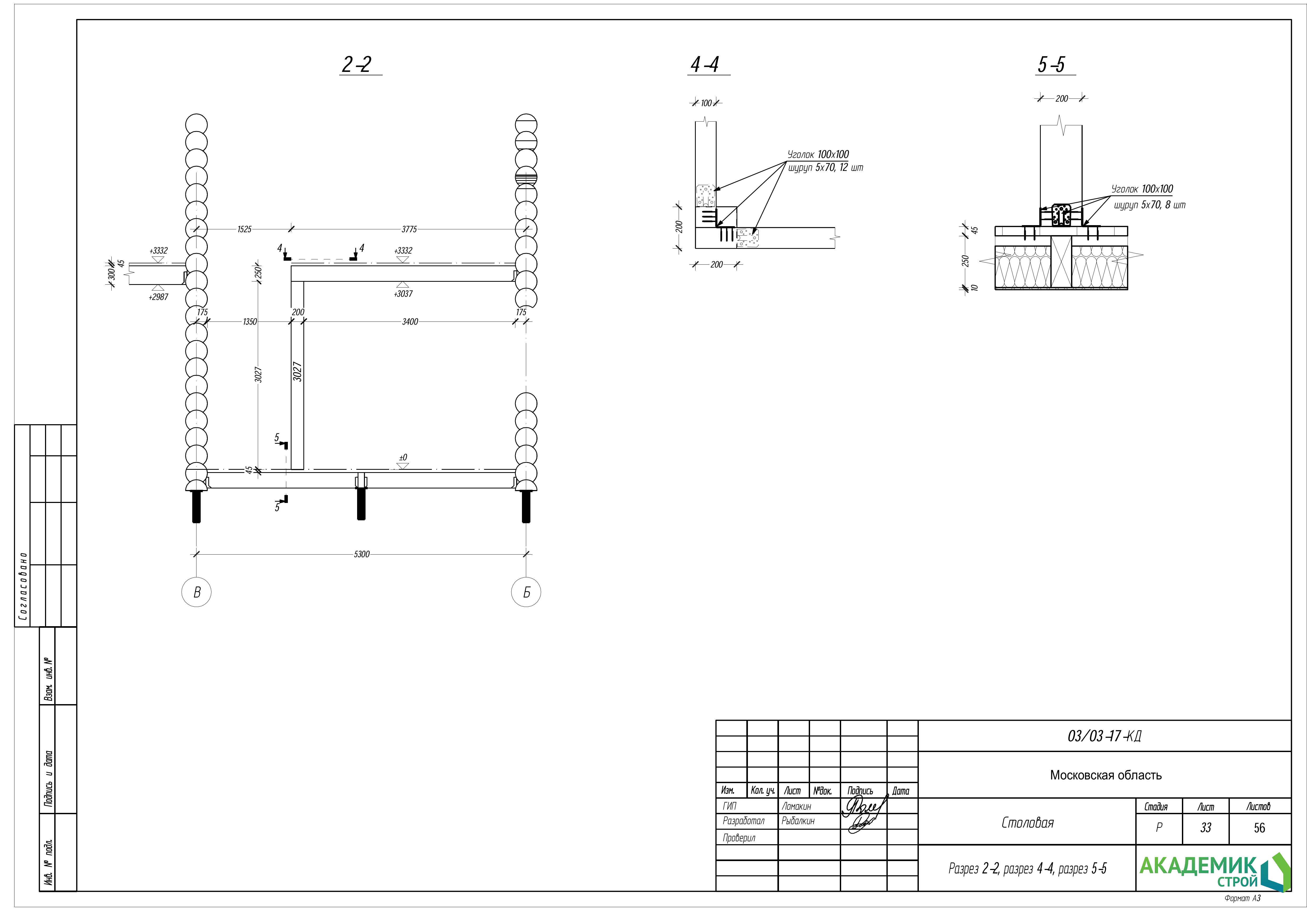
  • План ж/б ленты
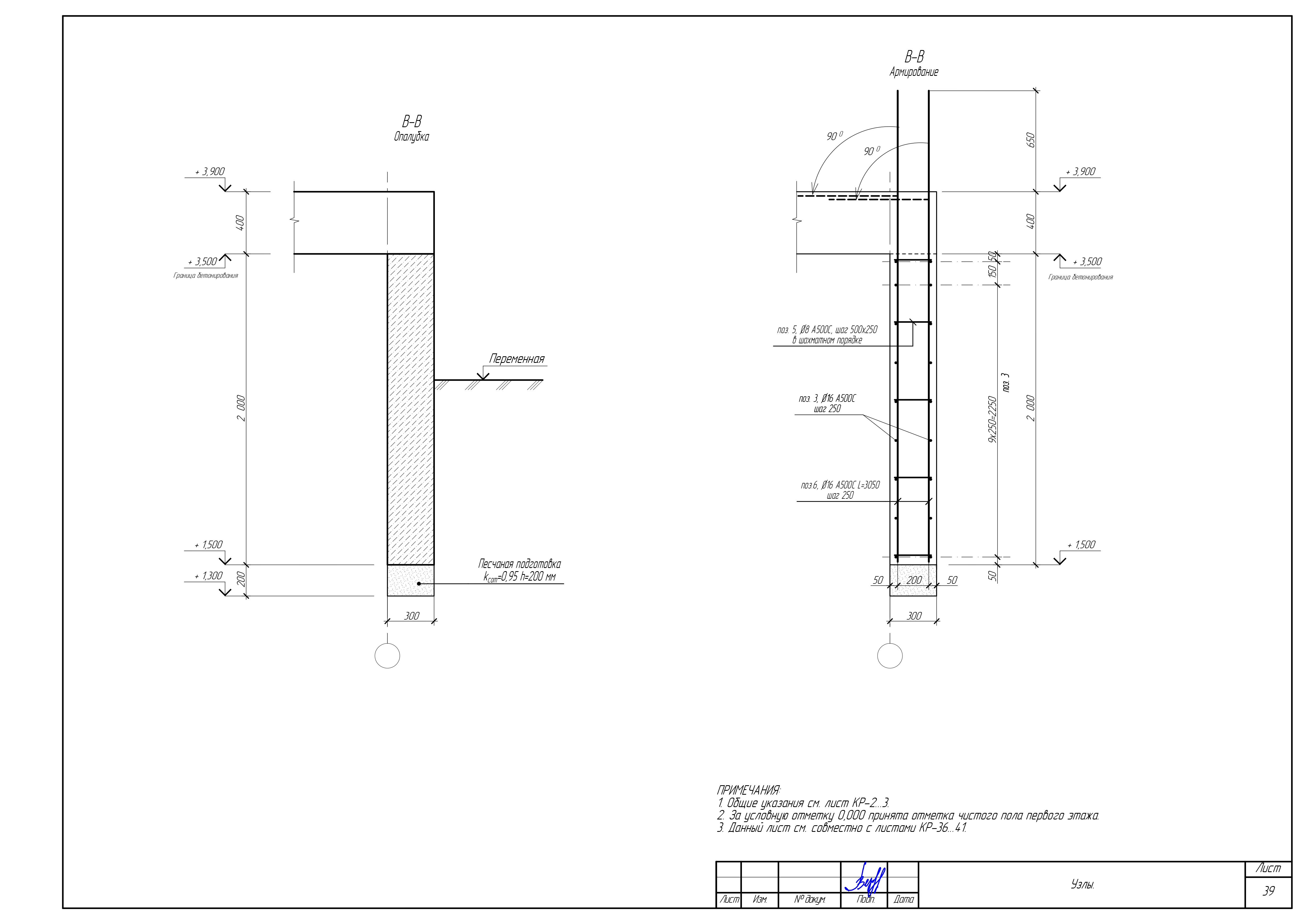
  • Разрез фундамента
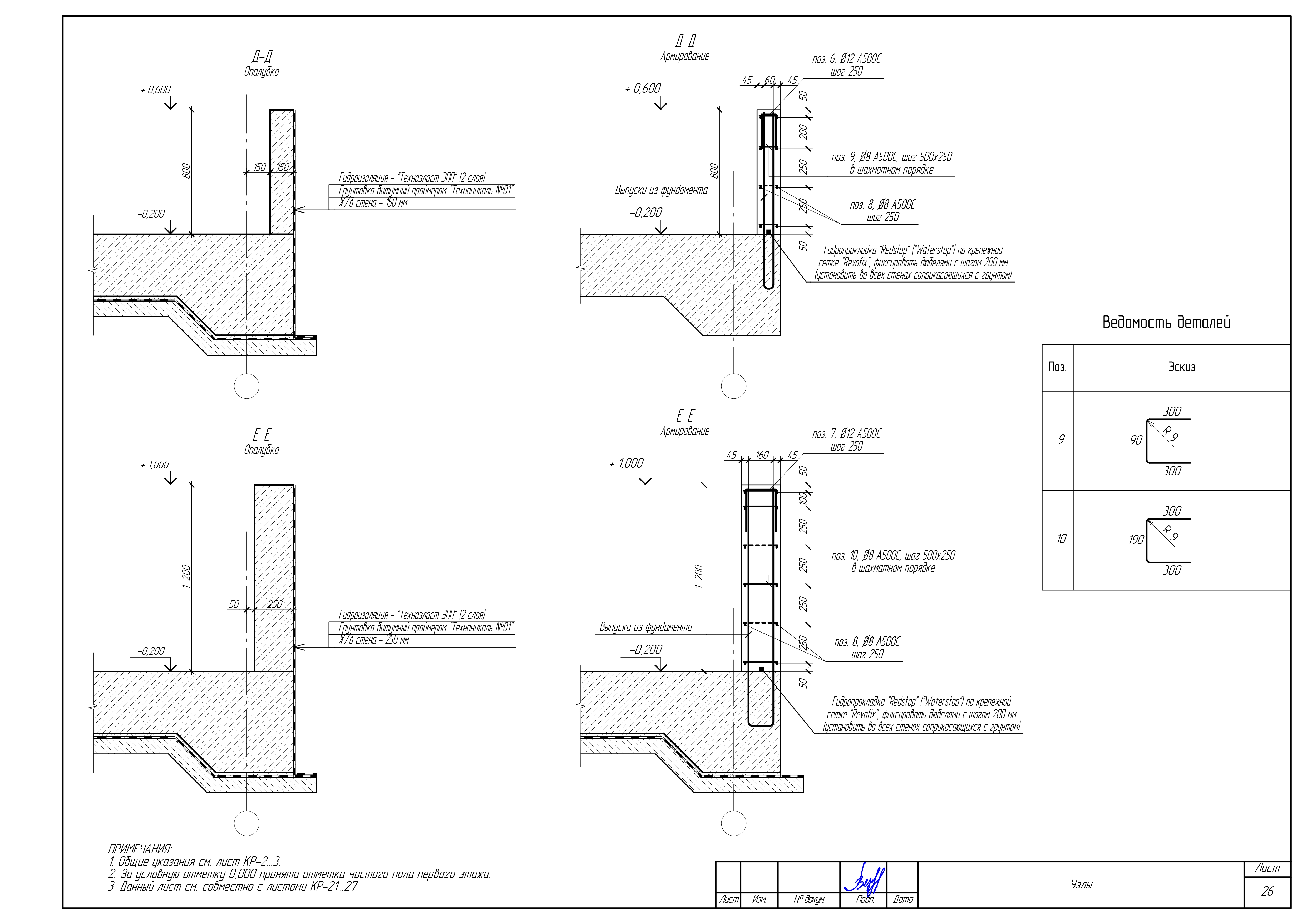
  • План кирпичного пояса на отм -0,495 м / 0,000 м
  • Кладочный план 1-го этажа
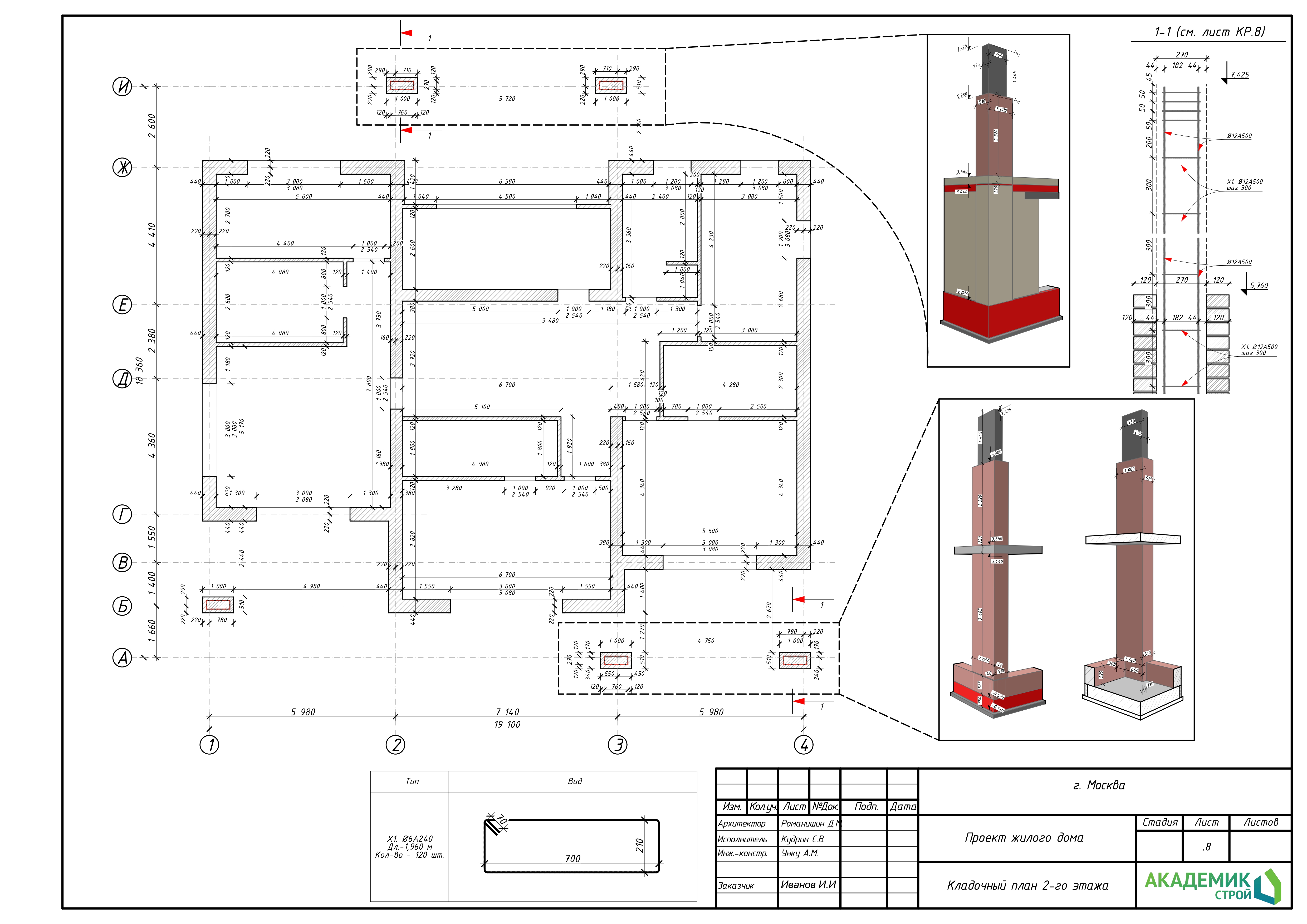
  • Кладочный план 2-го этажа
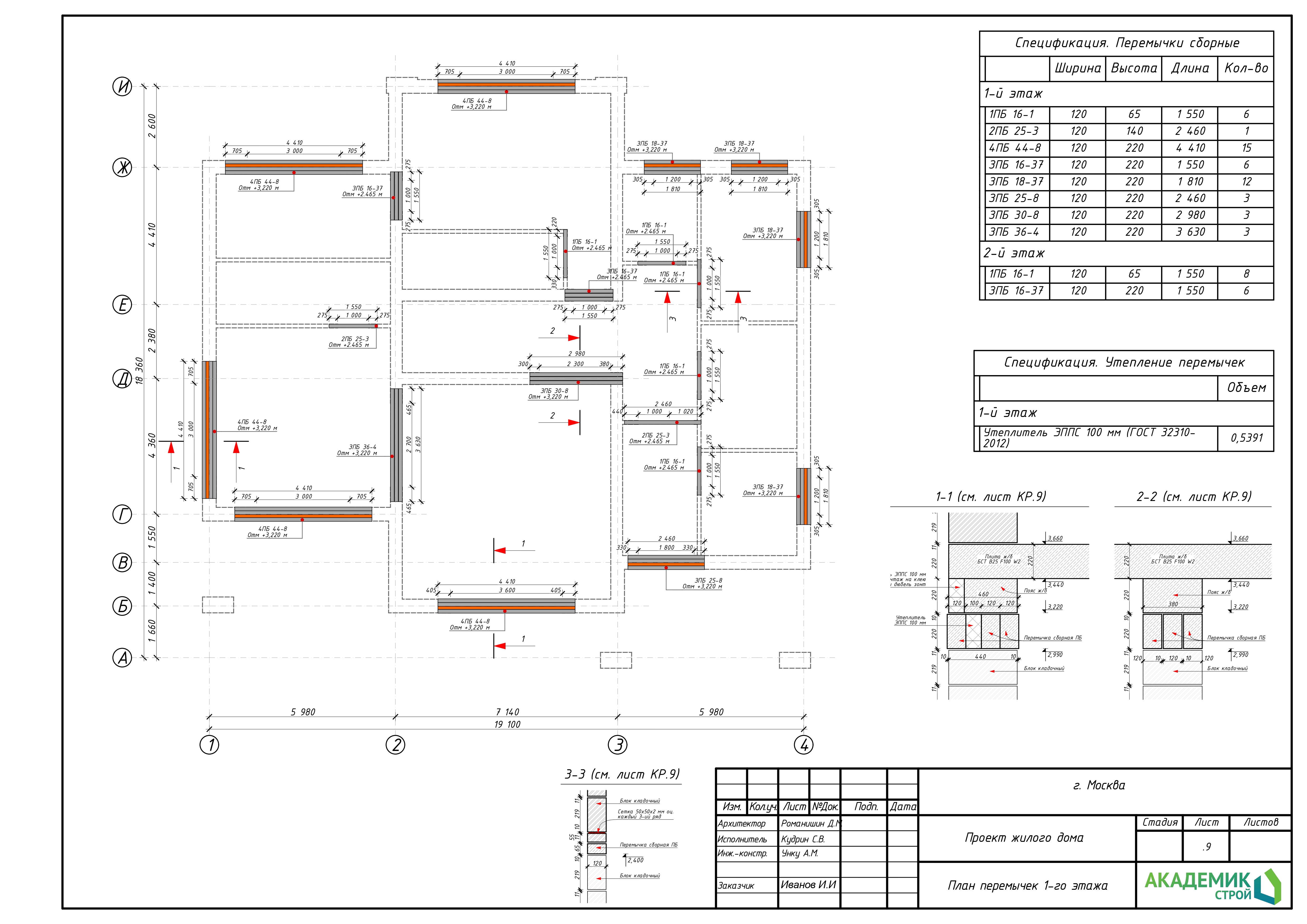
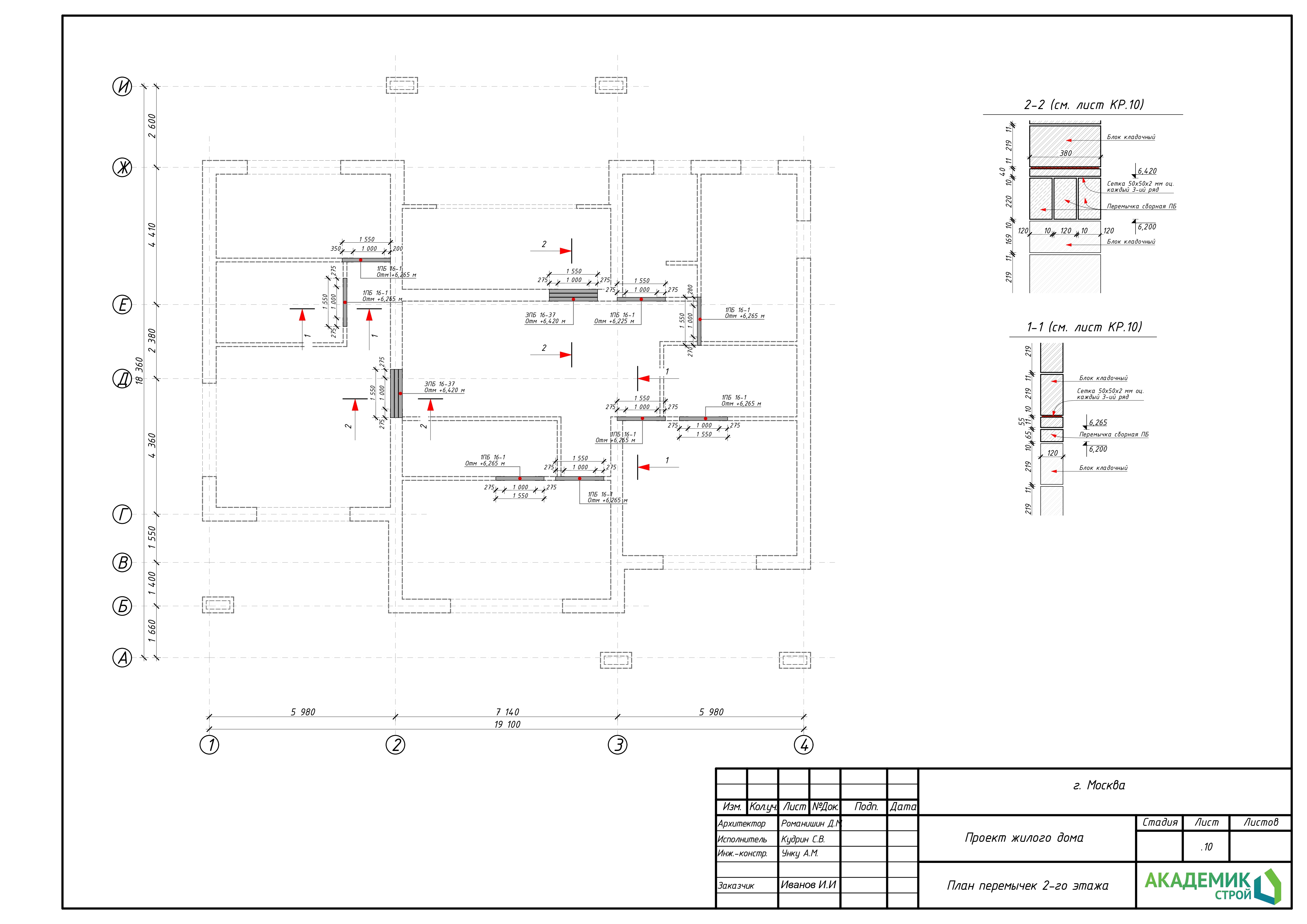
  • План перемычек 1-го этажа
  • План перемычек 2-го этажа
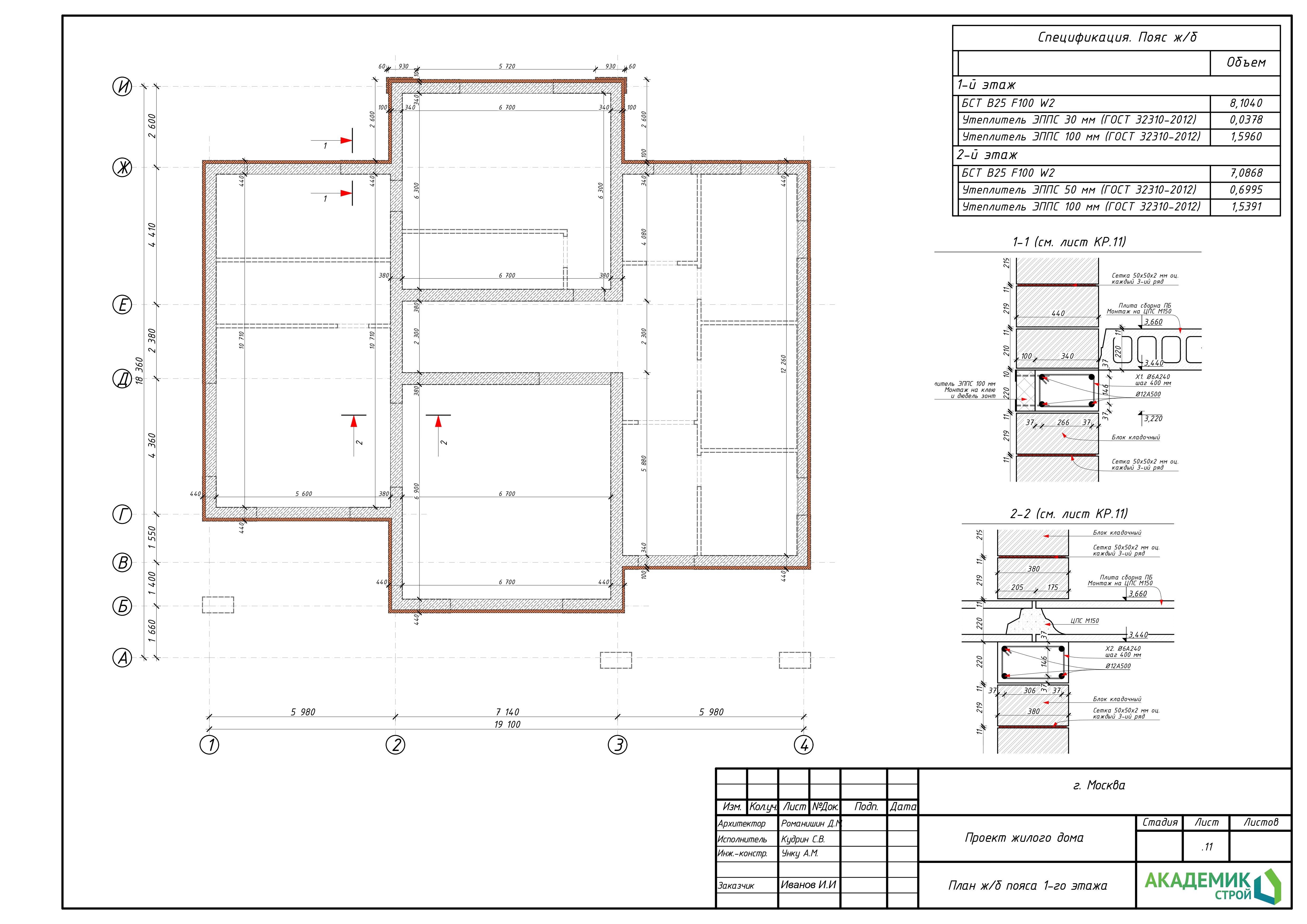
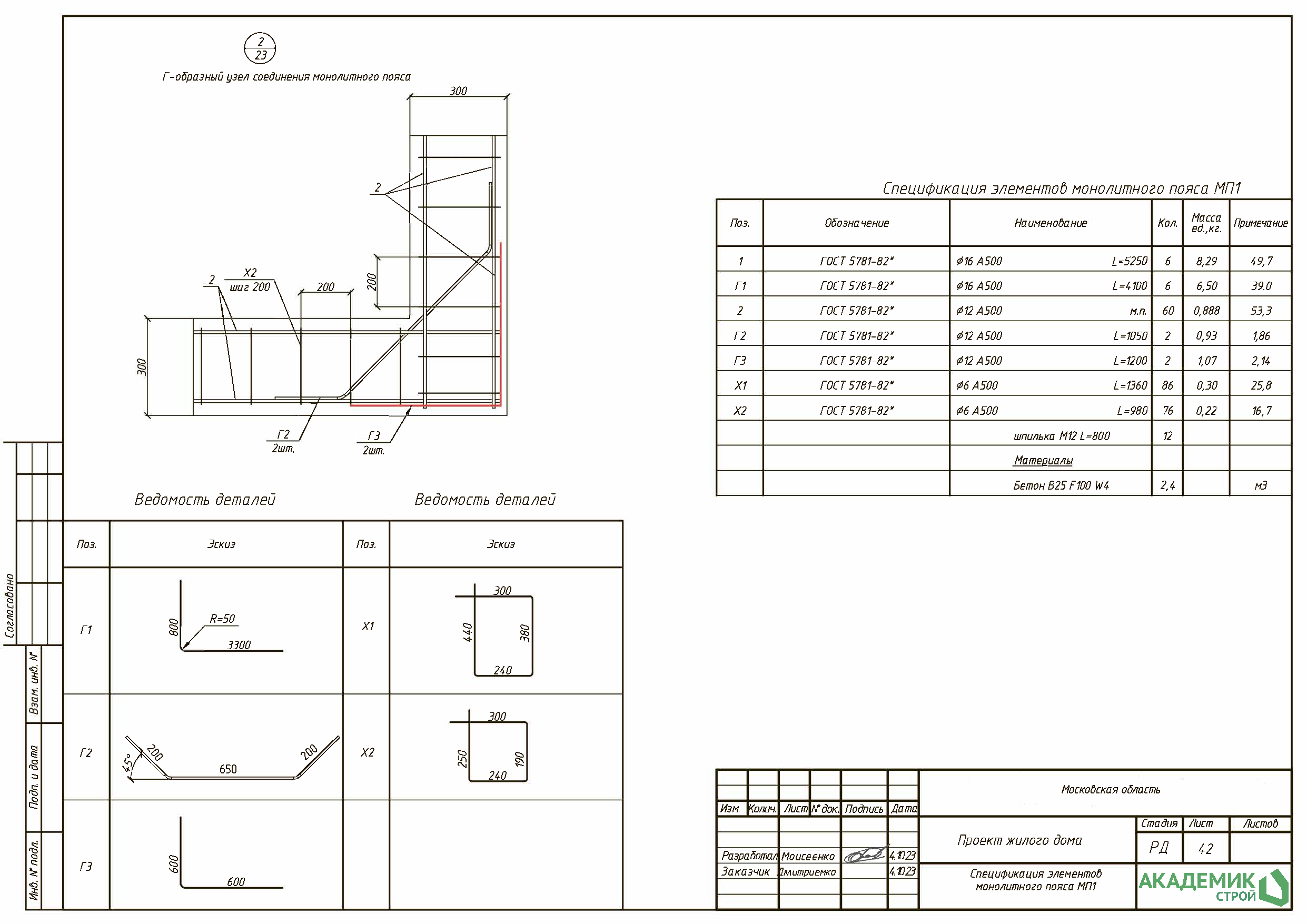
  • План ж/б пояса 1-го этажа
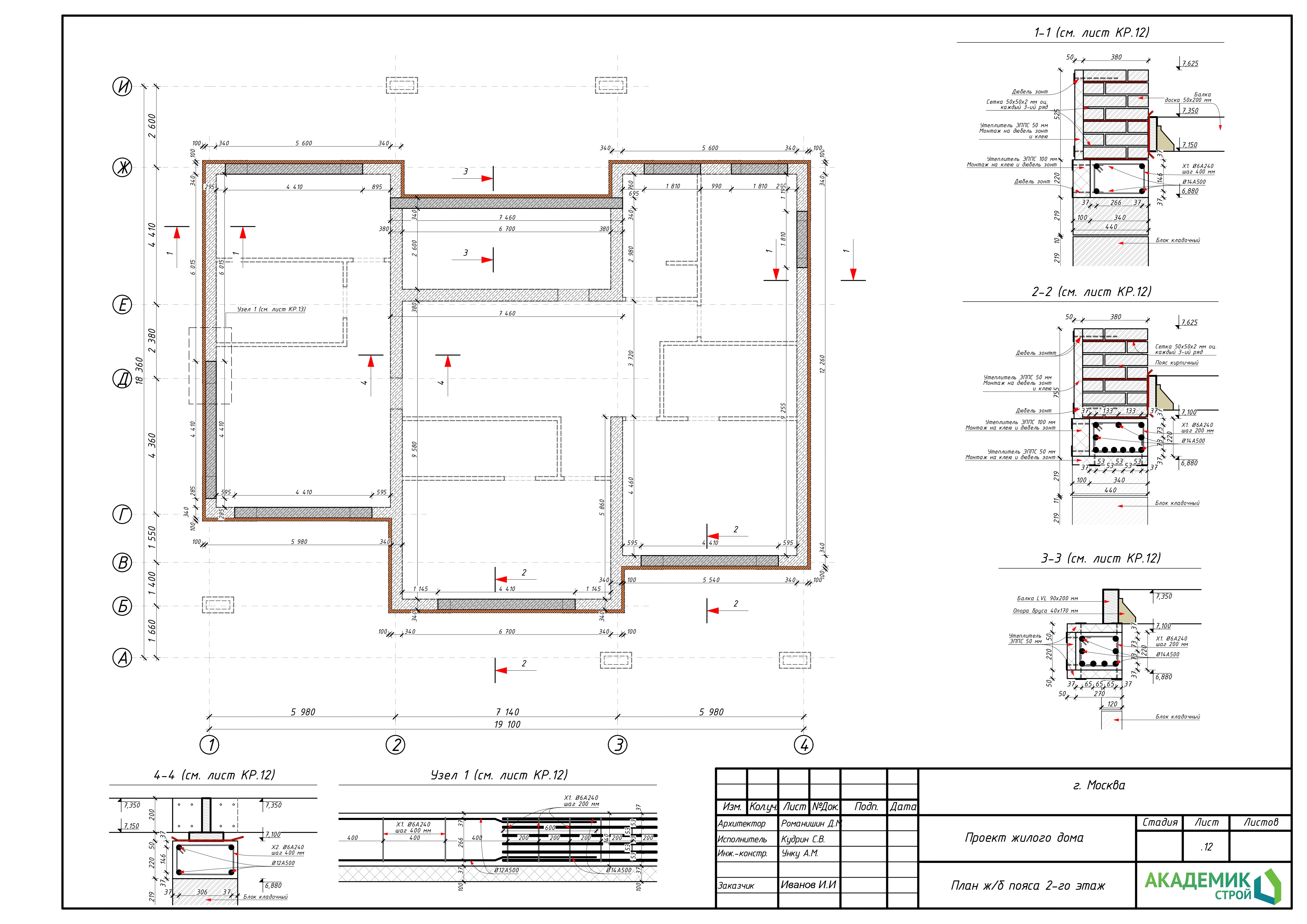
  • План ж/б пояса 2-го этаж
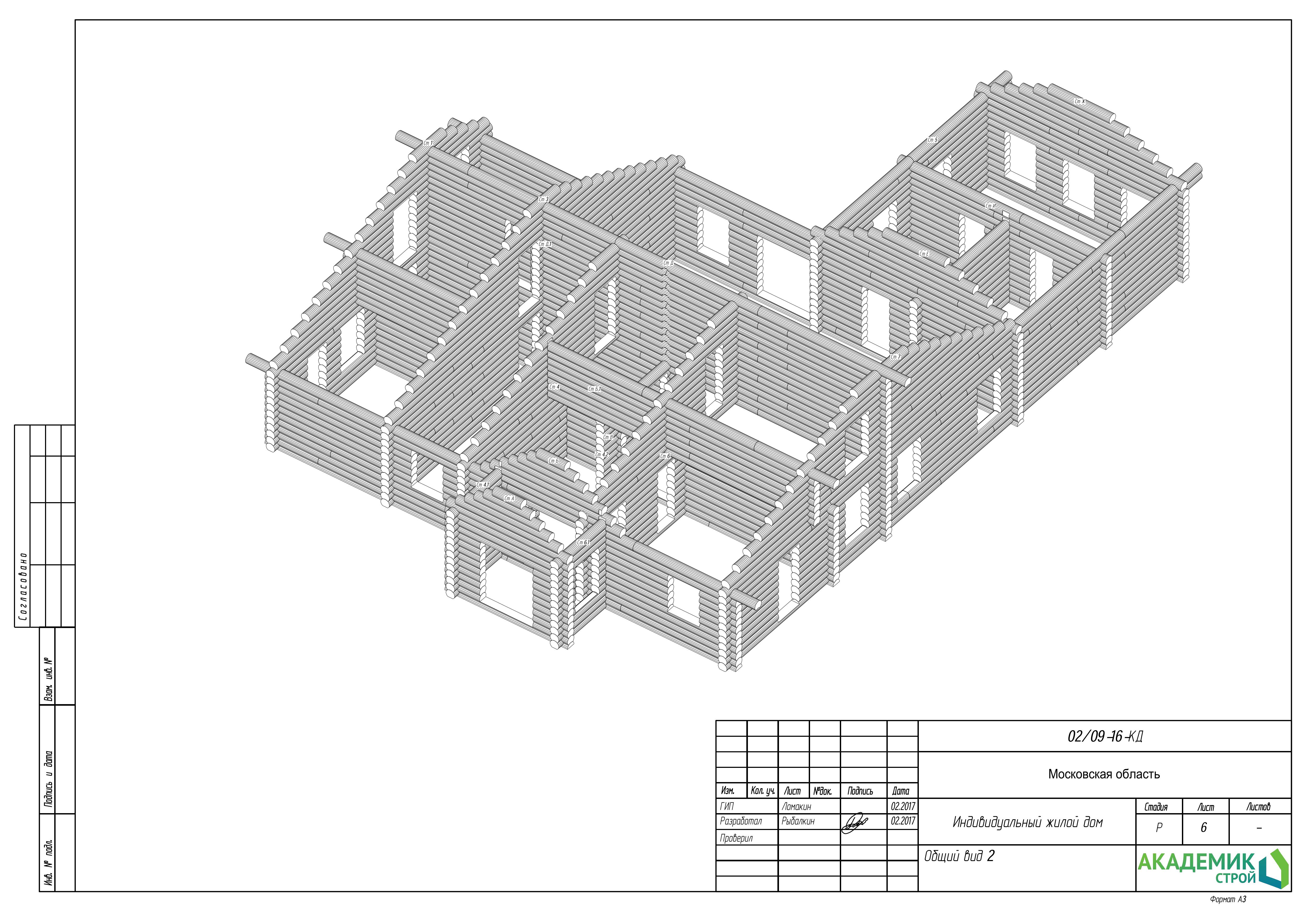
  • 3Д вид ж/б пояса
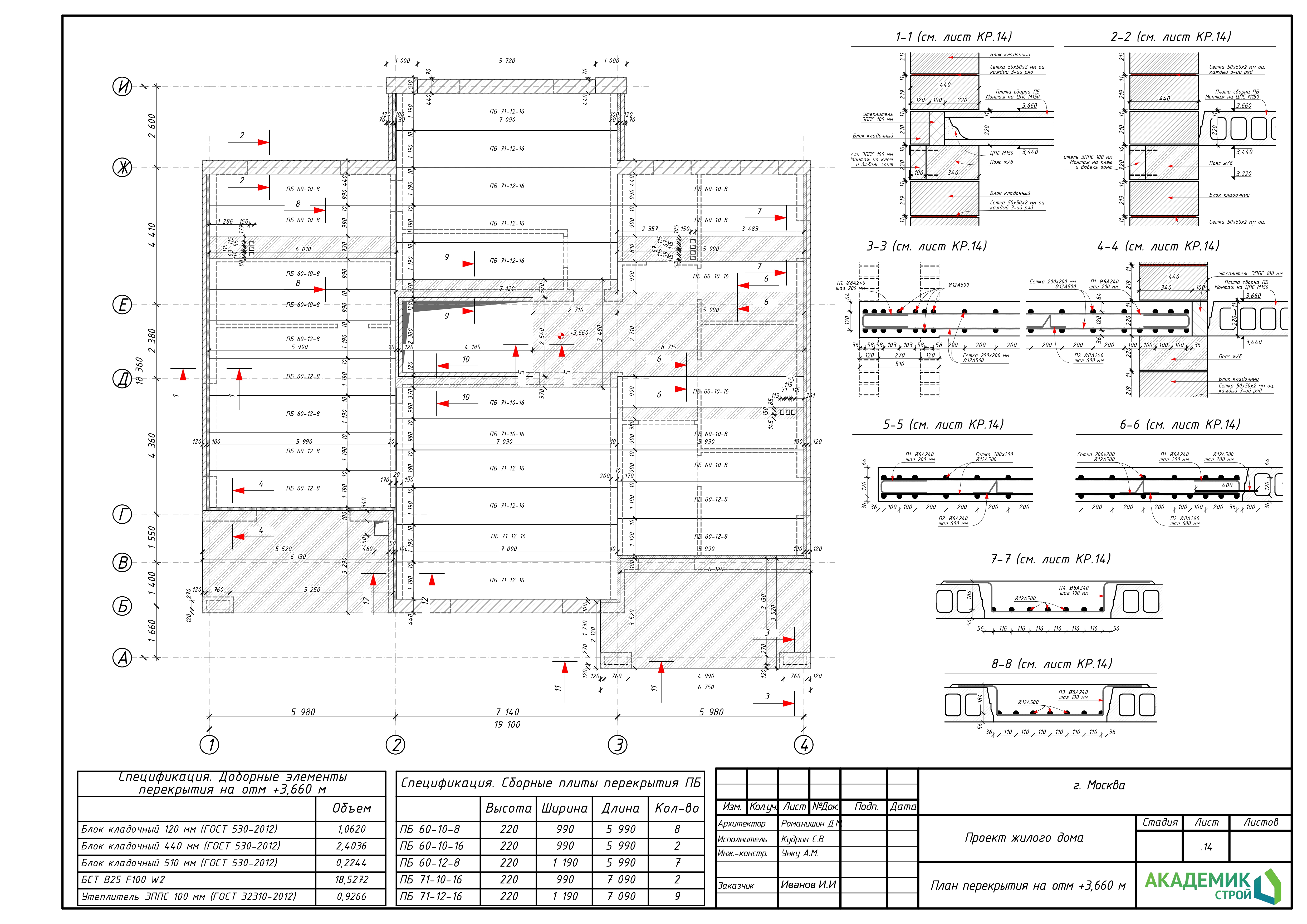
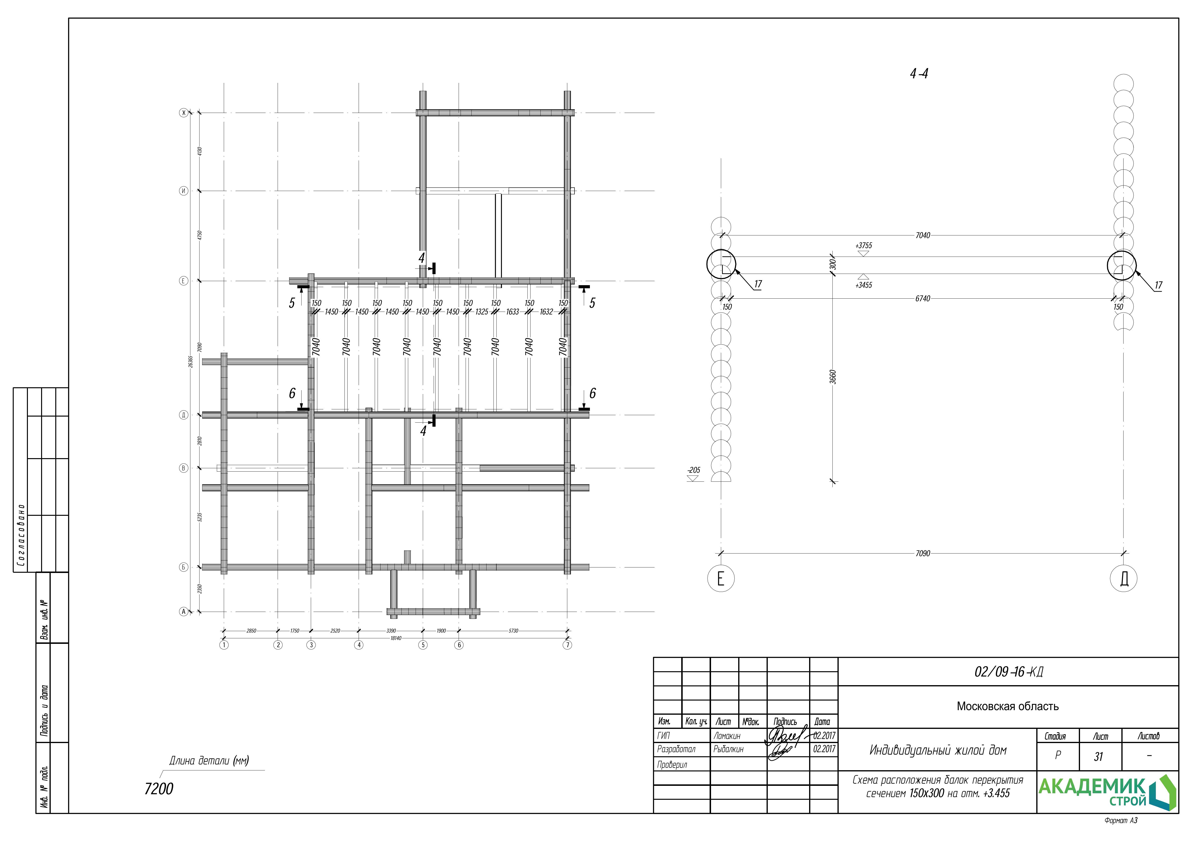
  • План перекрытия на отм +3,660 м
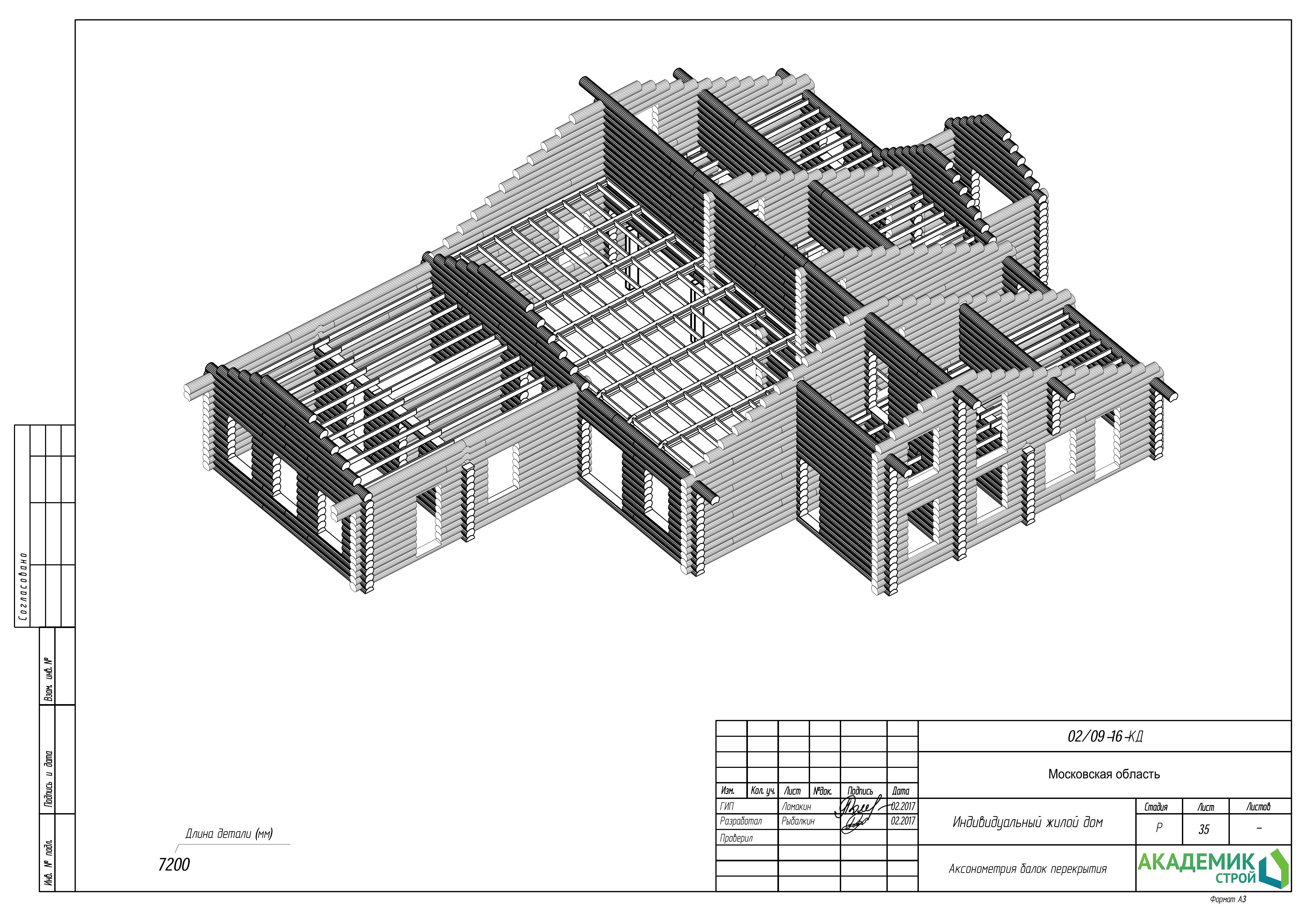
  • 3Д вид перекрытия на отм +3,660 м
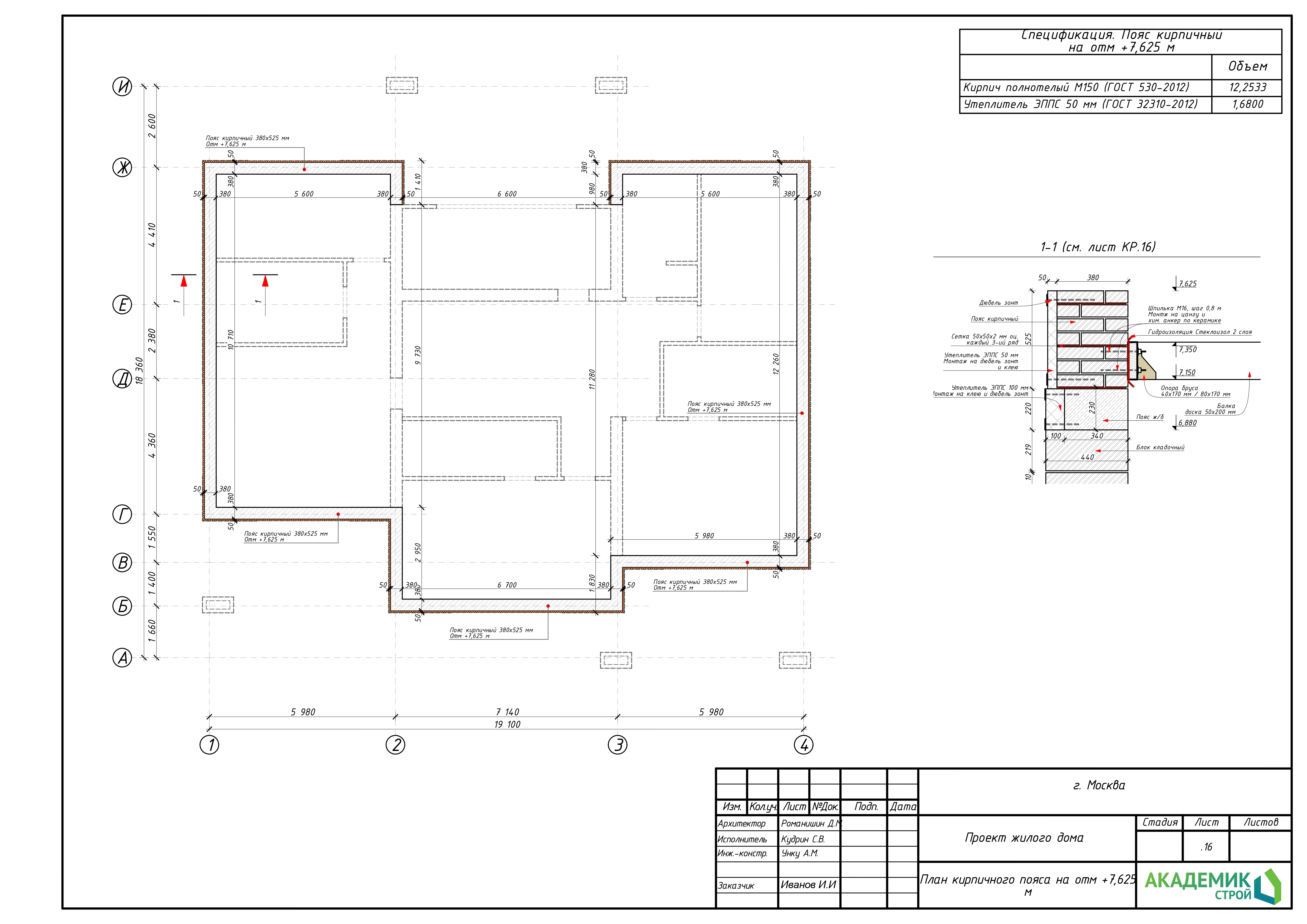
  • План кирпичного пояса на отм +7,625 м
  • 3Д вид кирпичного пояса на отм +7,625 м
  • Кладочный вид несущих стен (1)
  • Кладочный вид несущих стен (2)
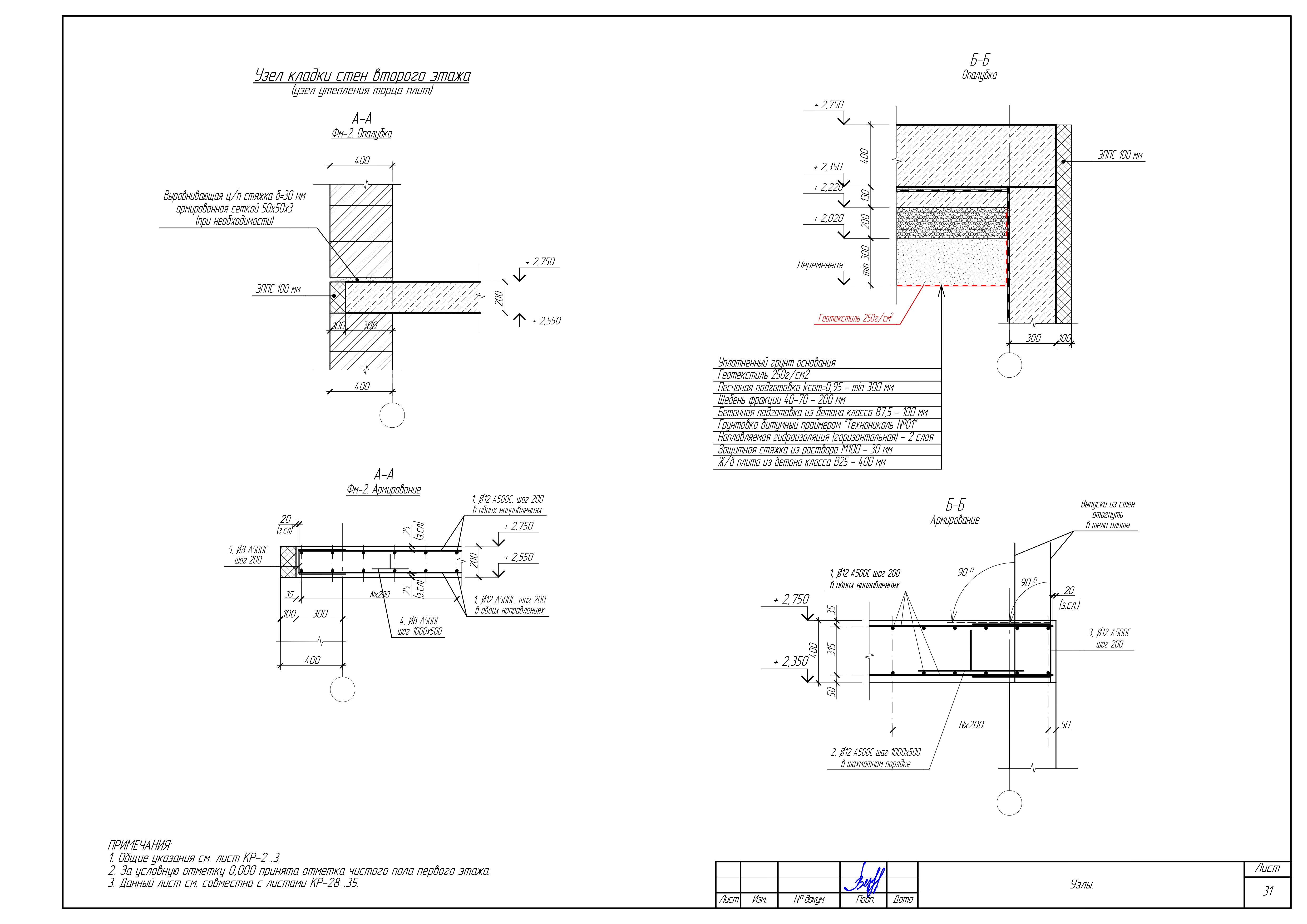
  • Кладочный вид несущих стен (3)
  • Кладочный вид несущих стен (4)
  • Кладочный вид несущих стен (5)
  • Кладочный вид несущих стен (6)
  • Кладочный вид несущих стен (7)
  • Кладочный вид несущих стен (8)
  • План перекрытия на отм +7.300 м
  • 3Д вид перекрытия на отм +7.300 м
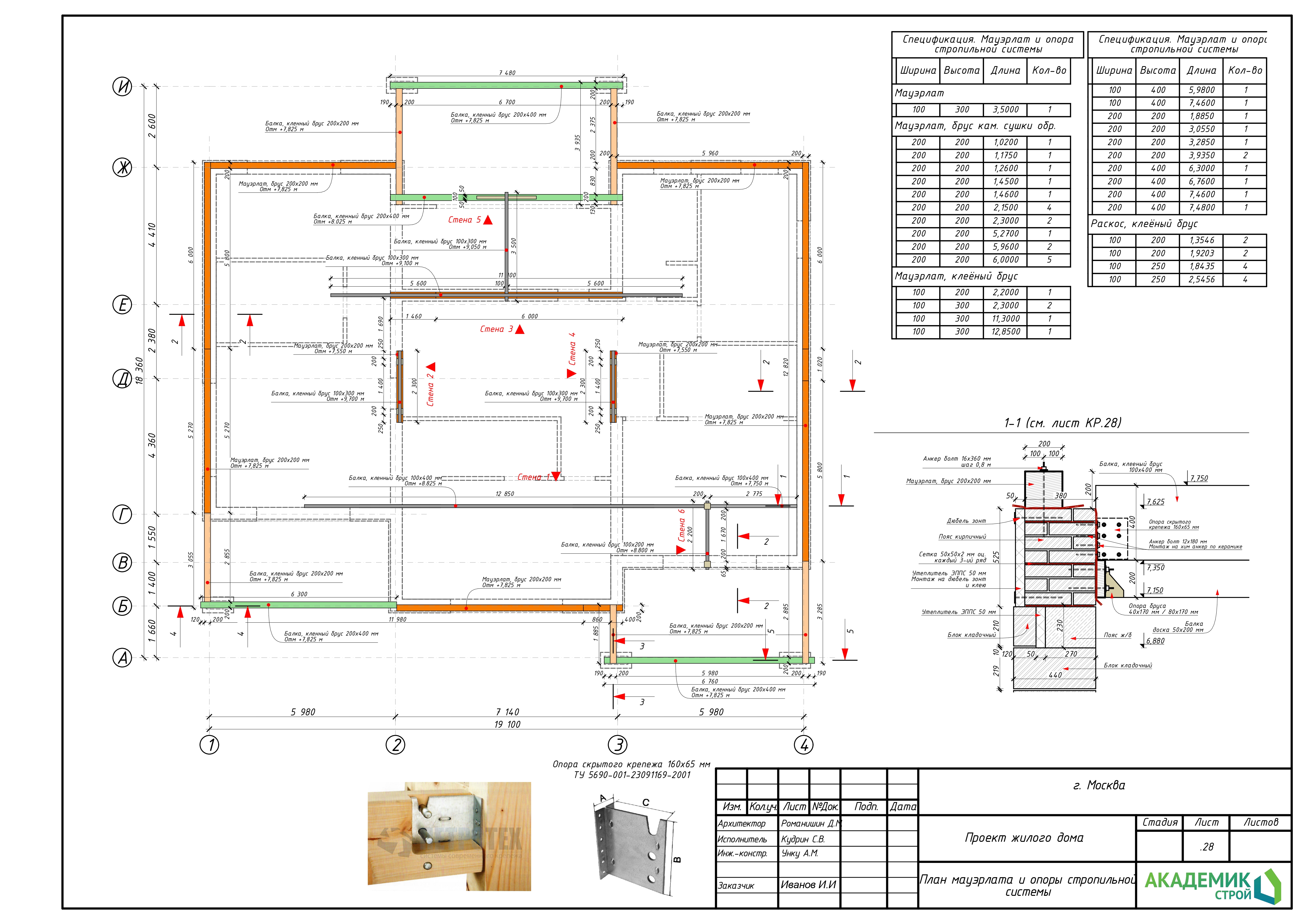
  • План мауэрлата и опоры стропильной системы
  • Вид несущих опор стропильной системы
  • 3Д вид мауэрлата и опоры стропильной системы
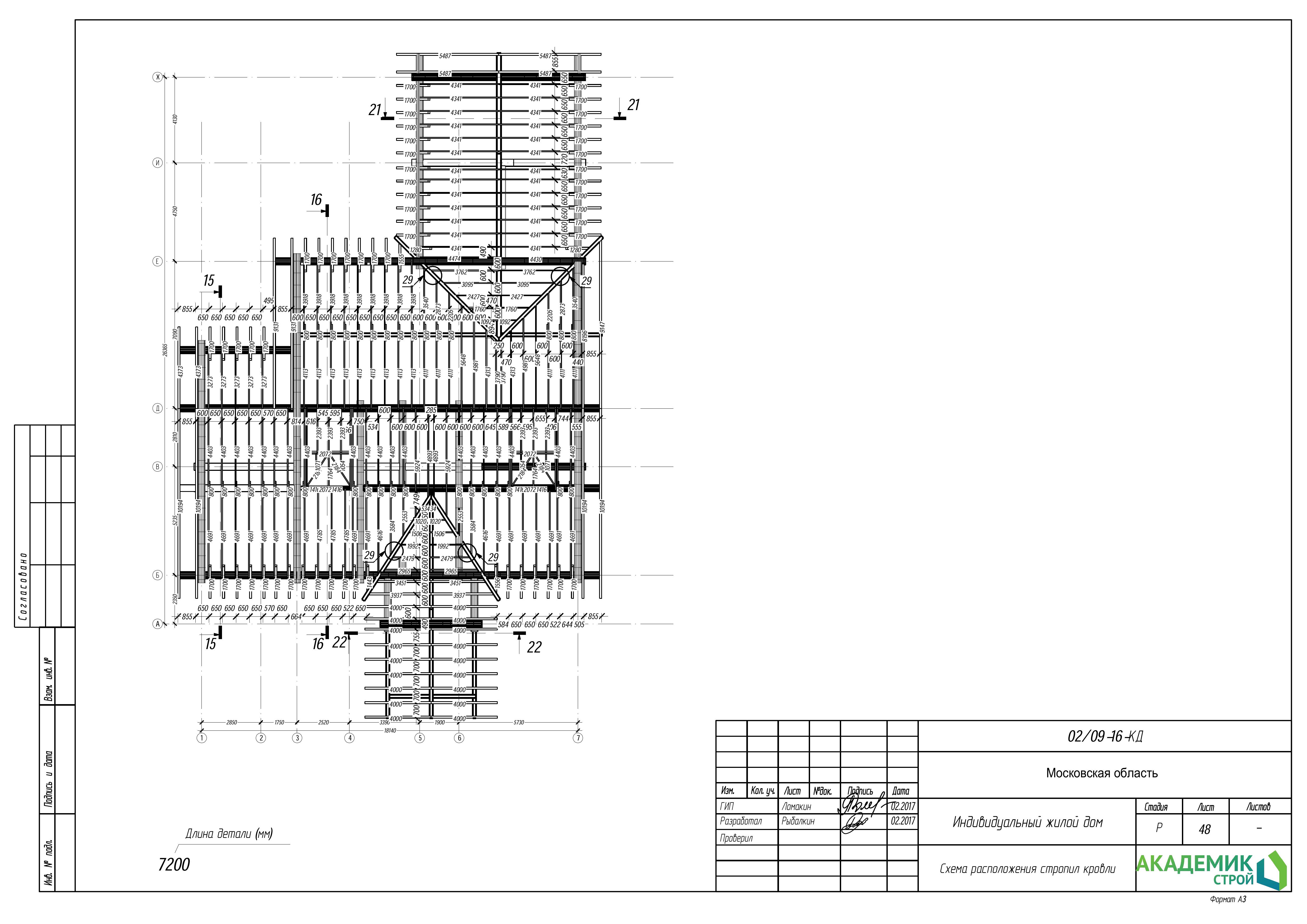
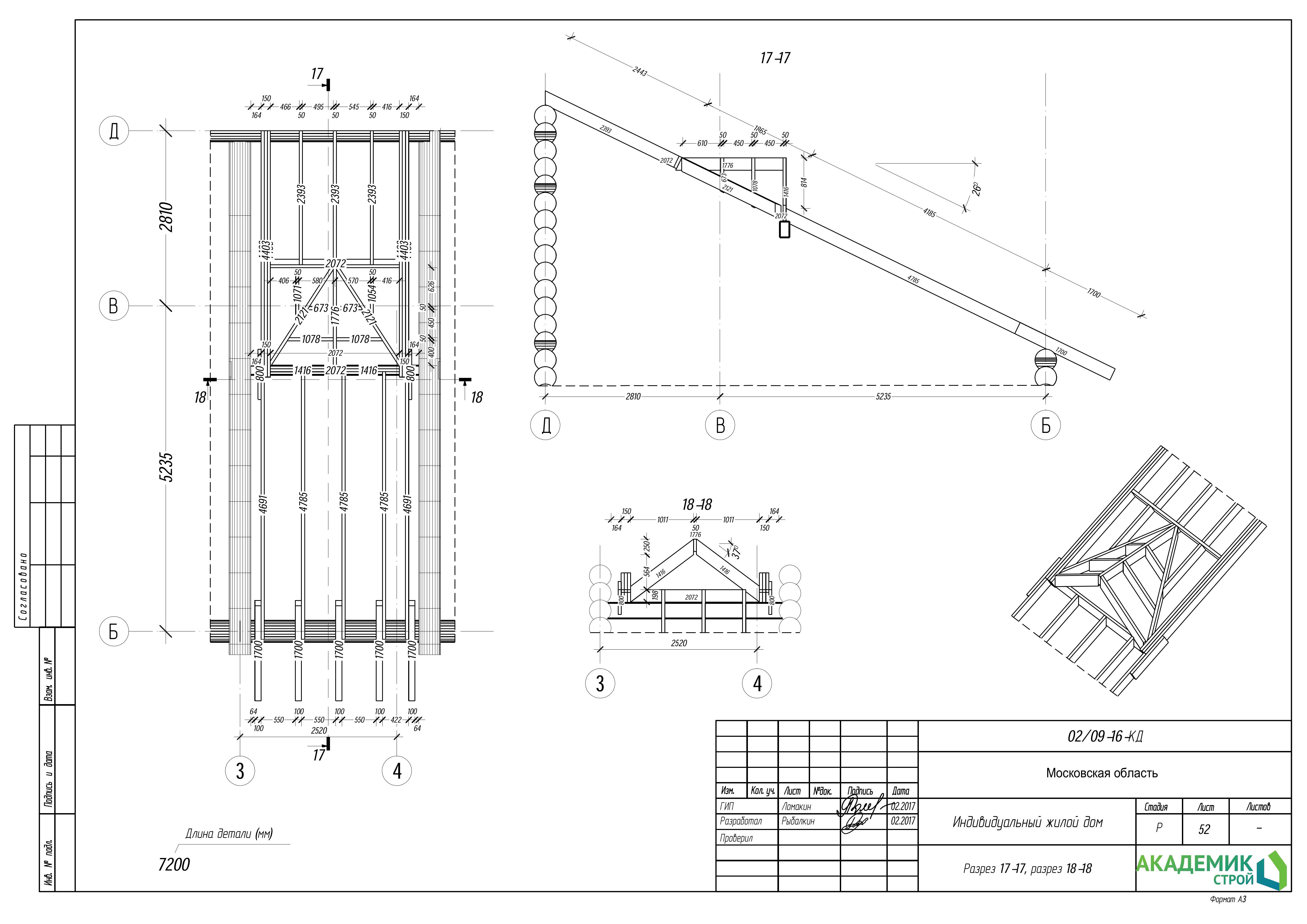
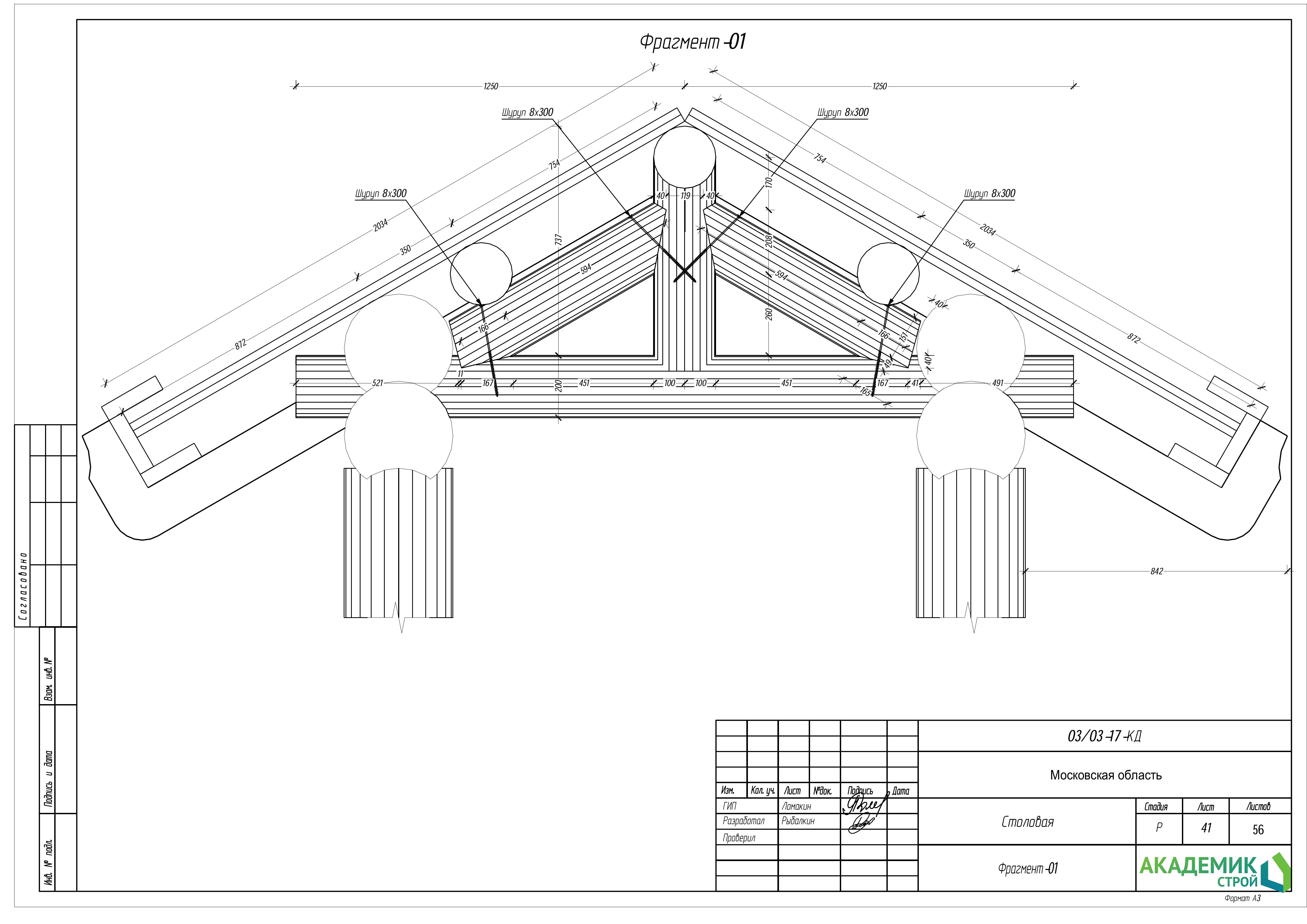
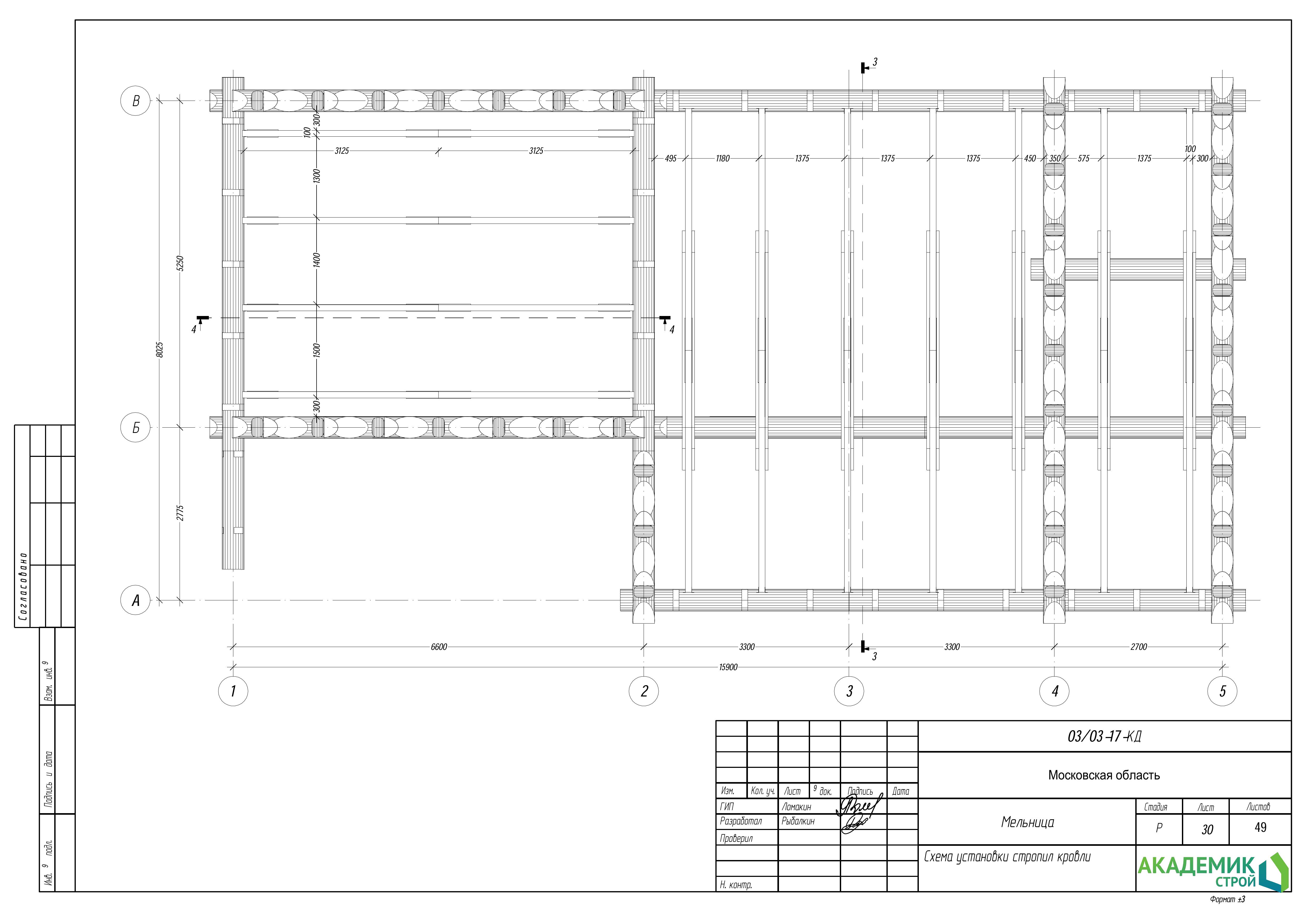
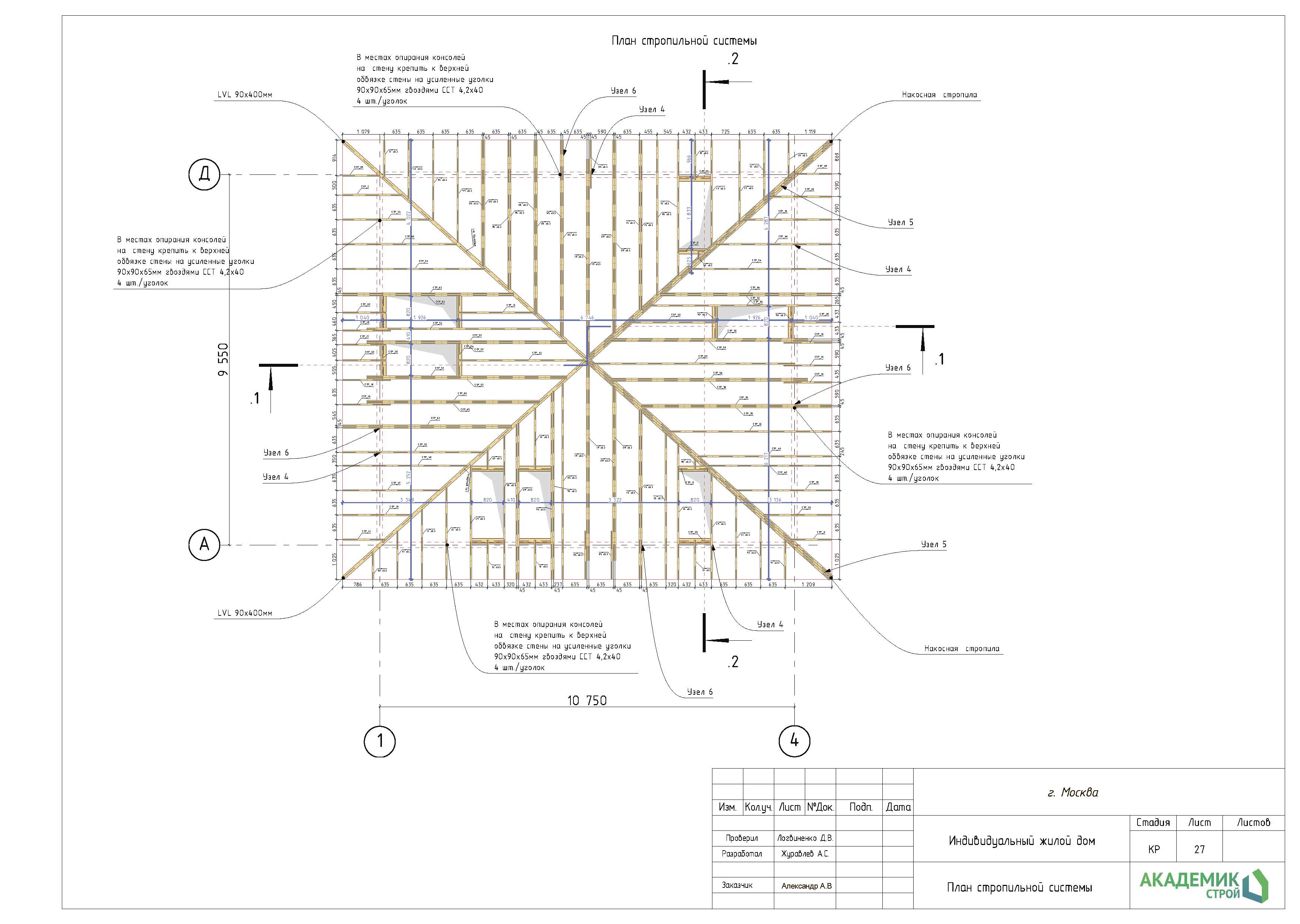
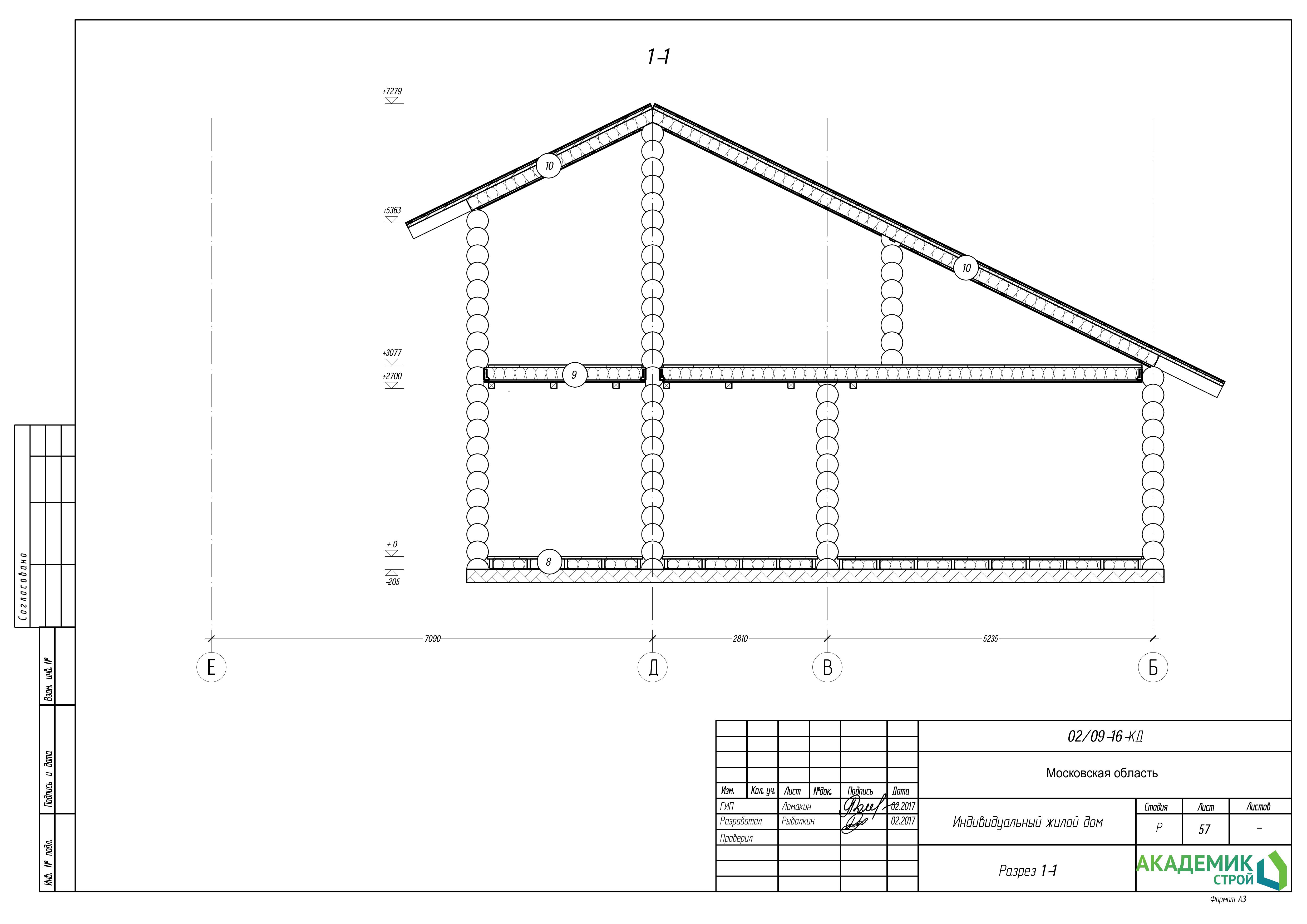
  • План стропильной системы
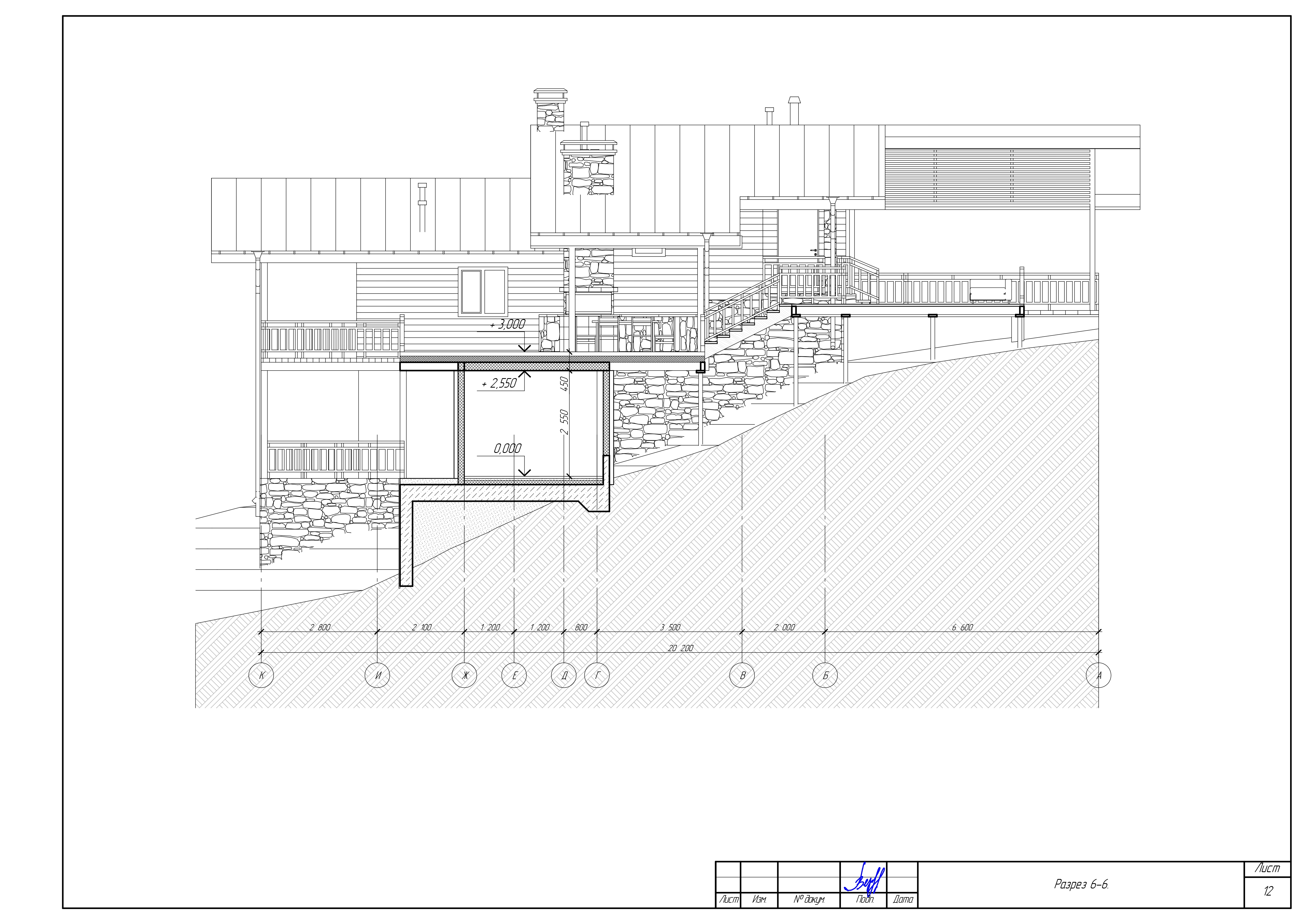
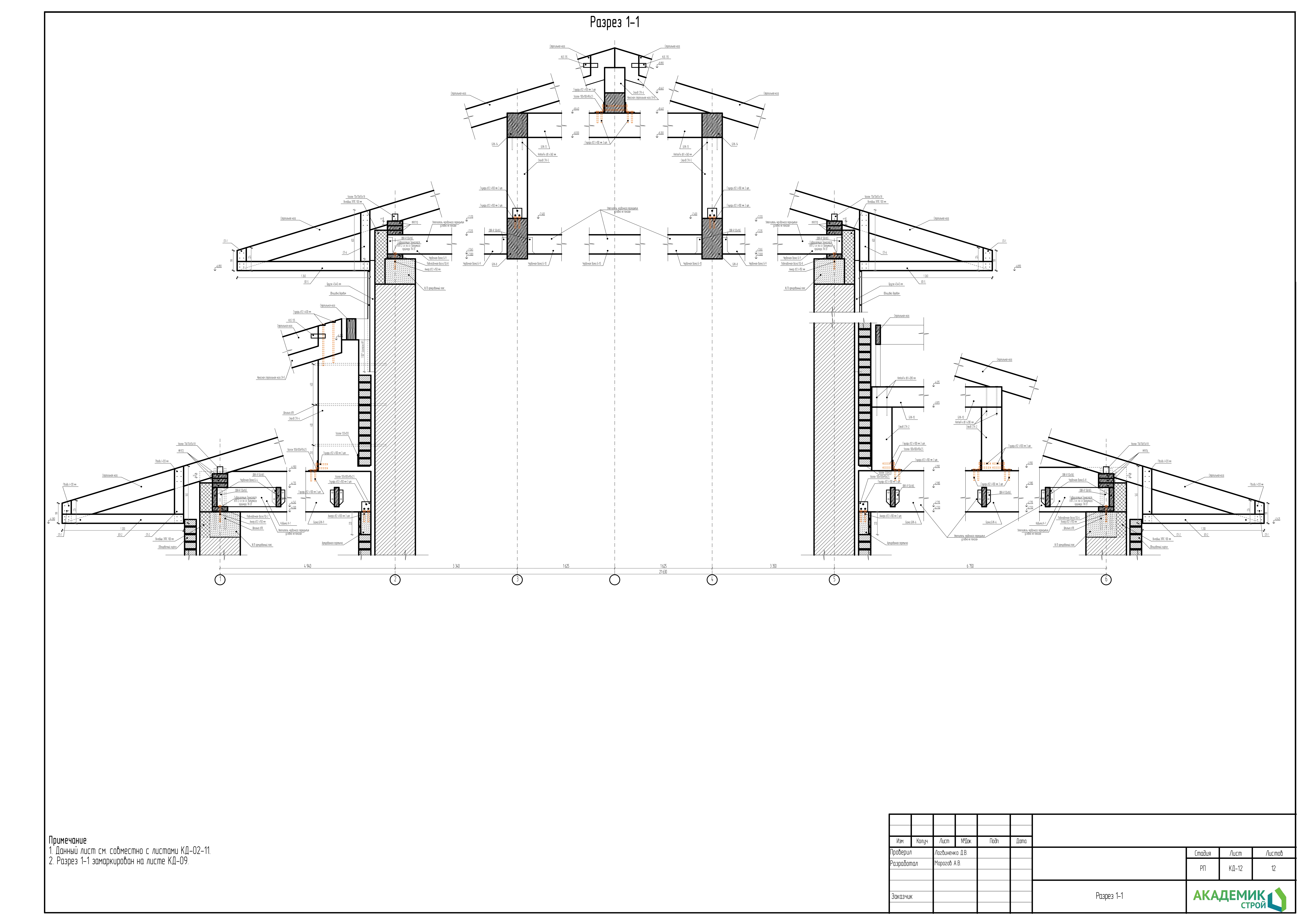
  • Разрез стропильной системы
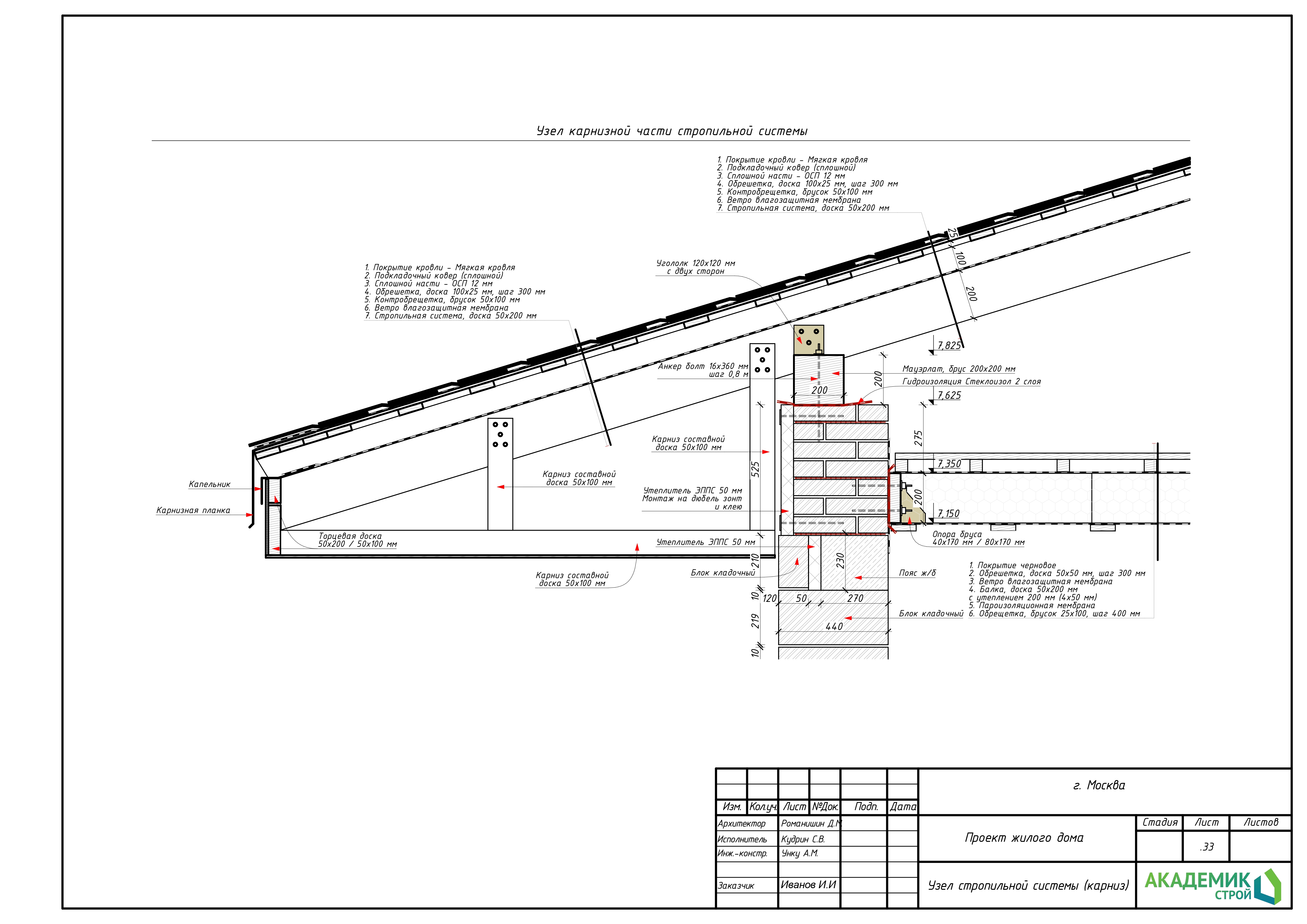
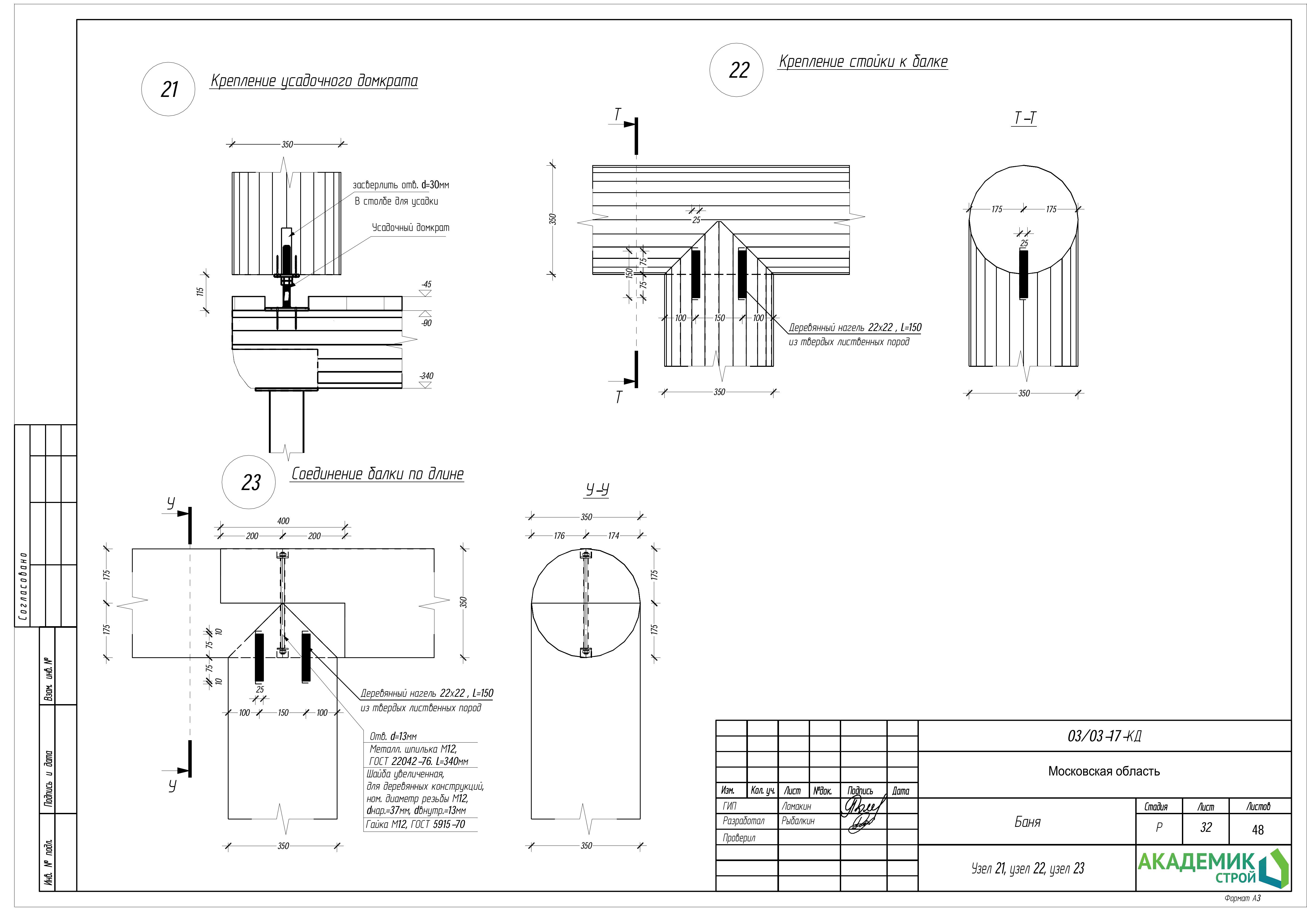
  • Узел стропильной системы (карниз)
  • 3Д вид стропильной системы
  • Лестница ж/б межэтажное
  • Сводная спецификация материалов

Стоимость:

650 ₽/м² (строительная площадь здания)

Срок:

25 дней

Скачать пример «Конструктивные решения (КР)»

Технадзор
бесплатно!

Если строите сами

При заказе проектирования, технический надзор строительства дома в подарок

Все проектные работы, геология, геодезия
и технадзор
бесплатно!

Если строим мы

Услуги, которые можно
заказать отдельно

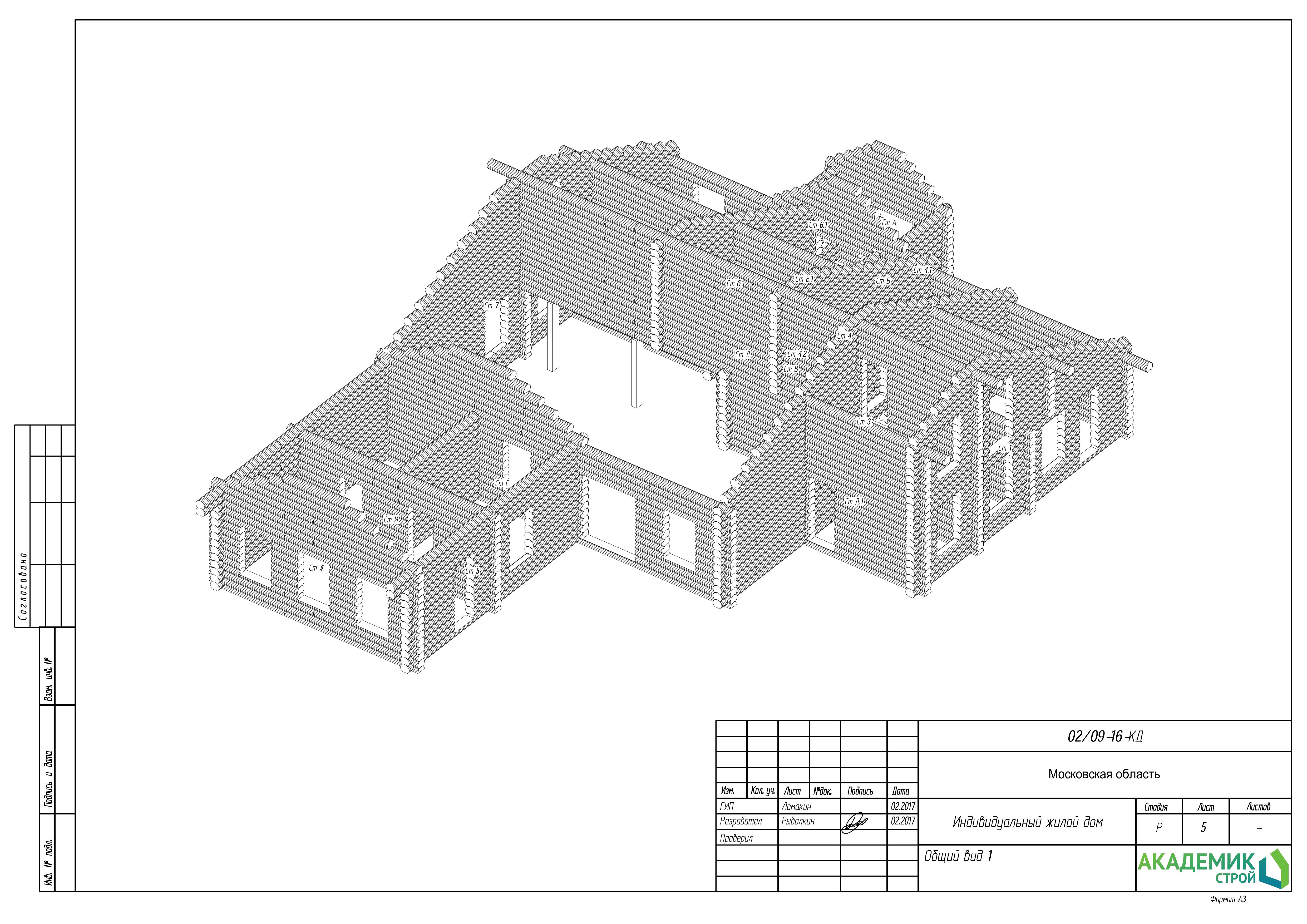
Конструкции деревянные (КД)

Проектирование элементов дома из дерева, таких как каркас, балки, стропила, перекрытия и стены. Учитываются свойства древесины, экологичность и технологии монтажа. Проект включает расчеты на нагрузки, обработку дерева и интеграцию с другими материалами, обеспечивая надежность и долговечность деревянных конструкций.

Скачать пример «Конструкции деревянные (КД)»
  • Содержание
  • Фасад А-Д
  • Фасад 1-4
  • Фасад Д-А
  • Фасад 4-1
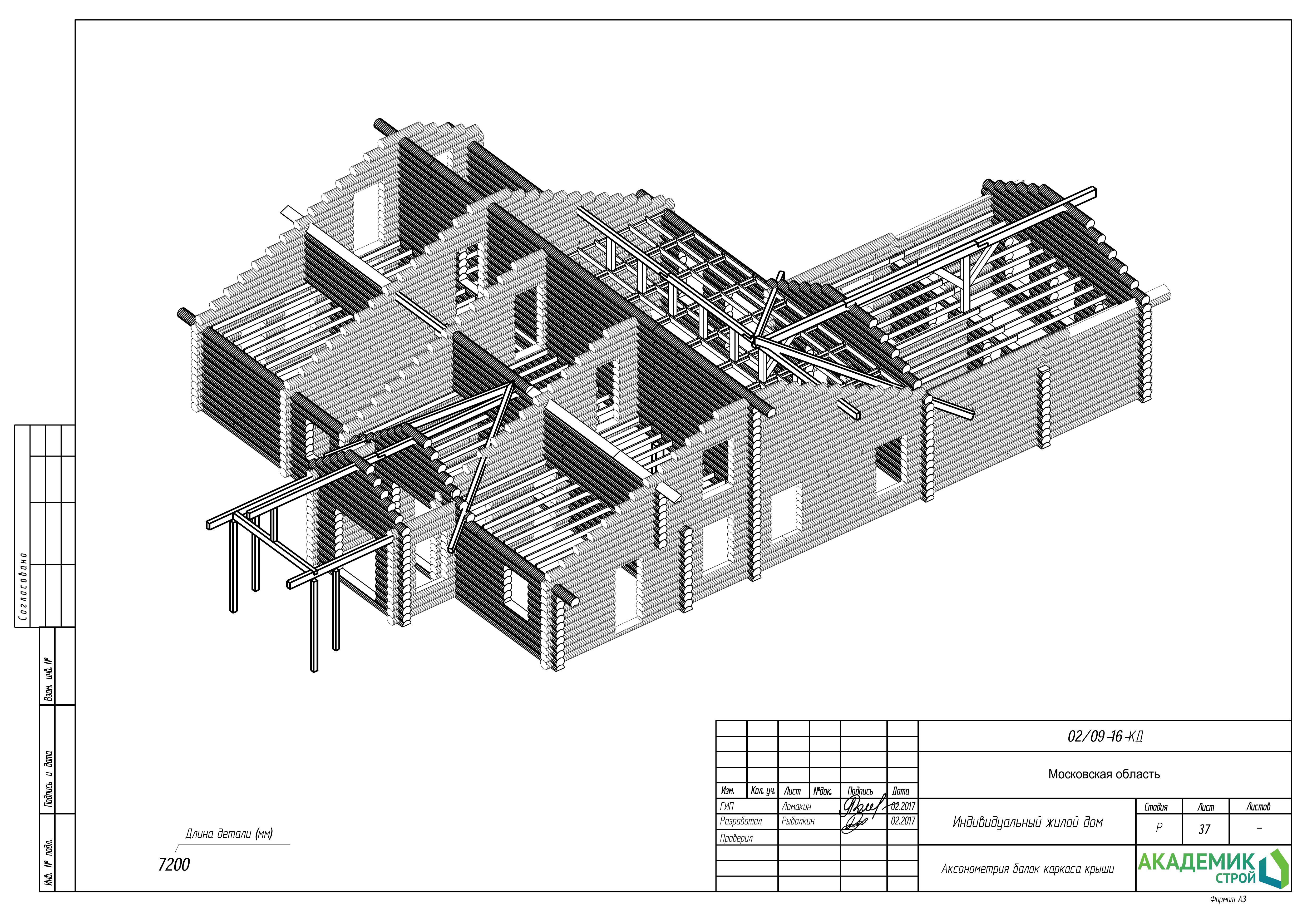
  • Аксонометрия каркаса. Лист 1
  • Аксонометрия каркаса. Лист 2
  • Аксонометрия каркаса. Лист 3
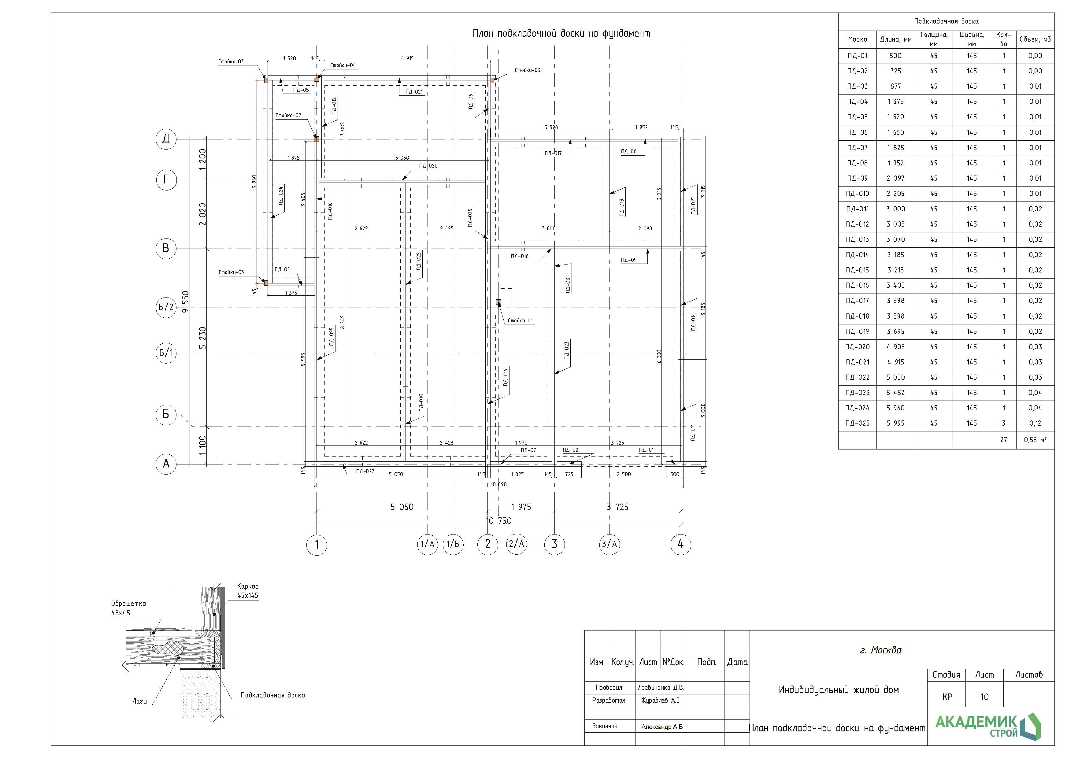
  • План подкладочной доски на фундамент
  • Аксонометрия подкладочной доски на фундамент
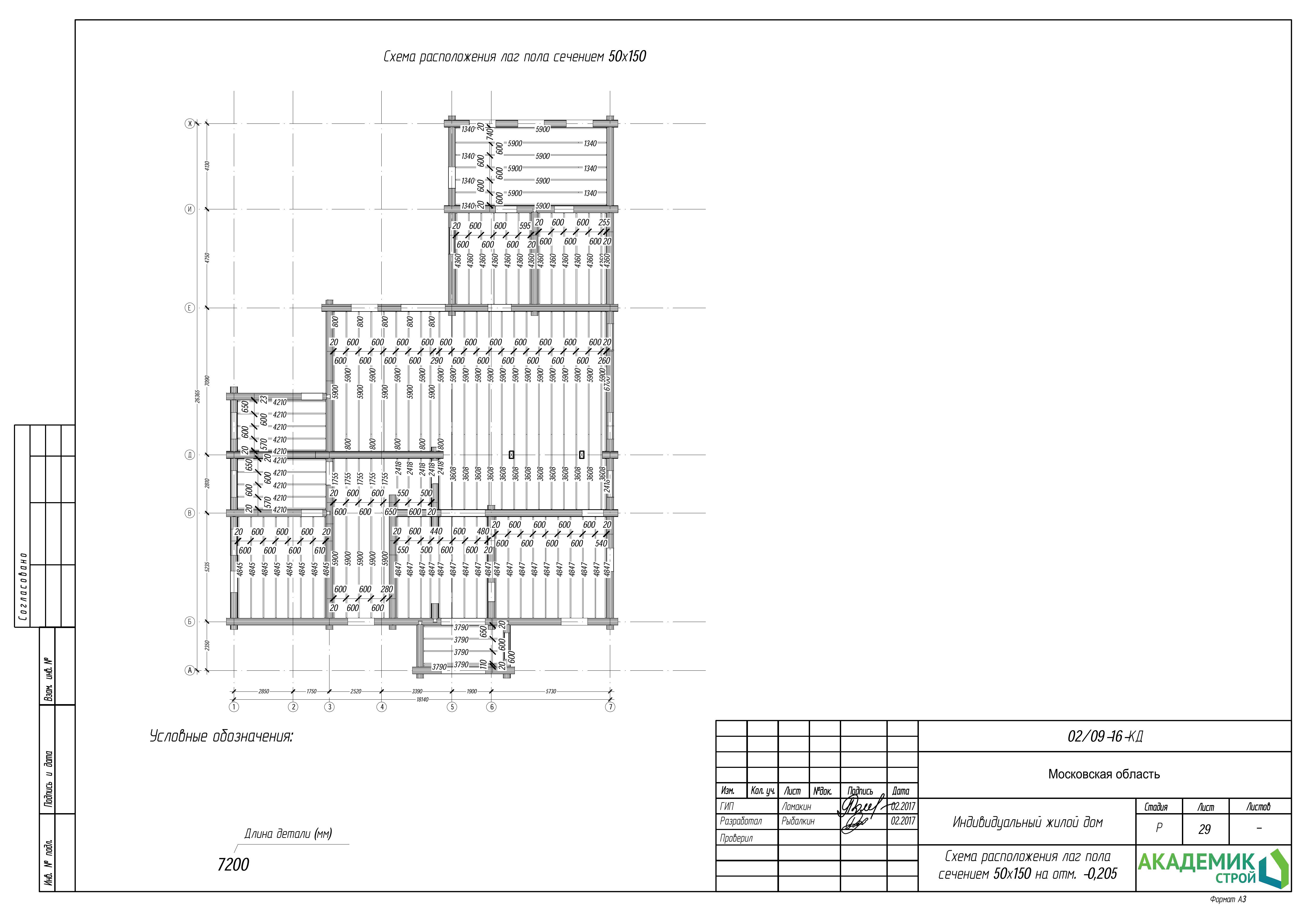
  • План лаги 1-го этажа и террасы
  • Аксонометрия лаги 1-го этажа
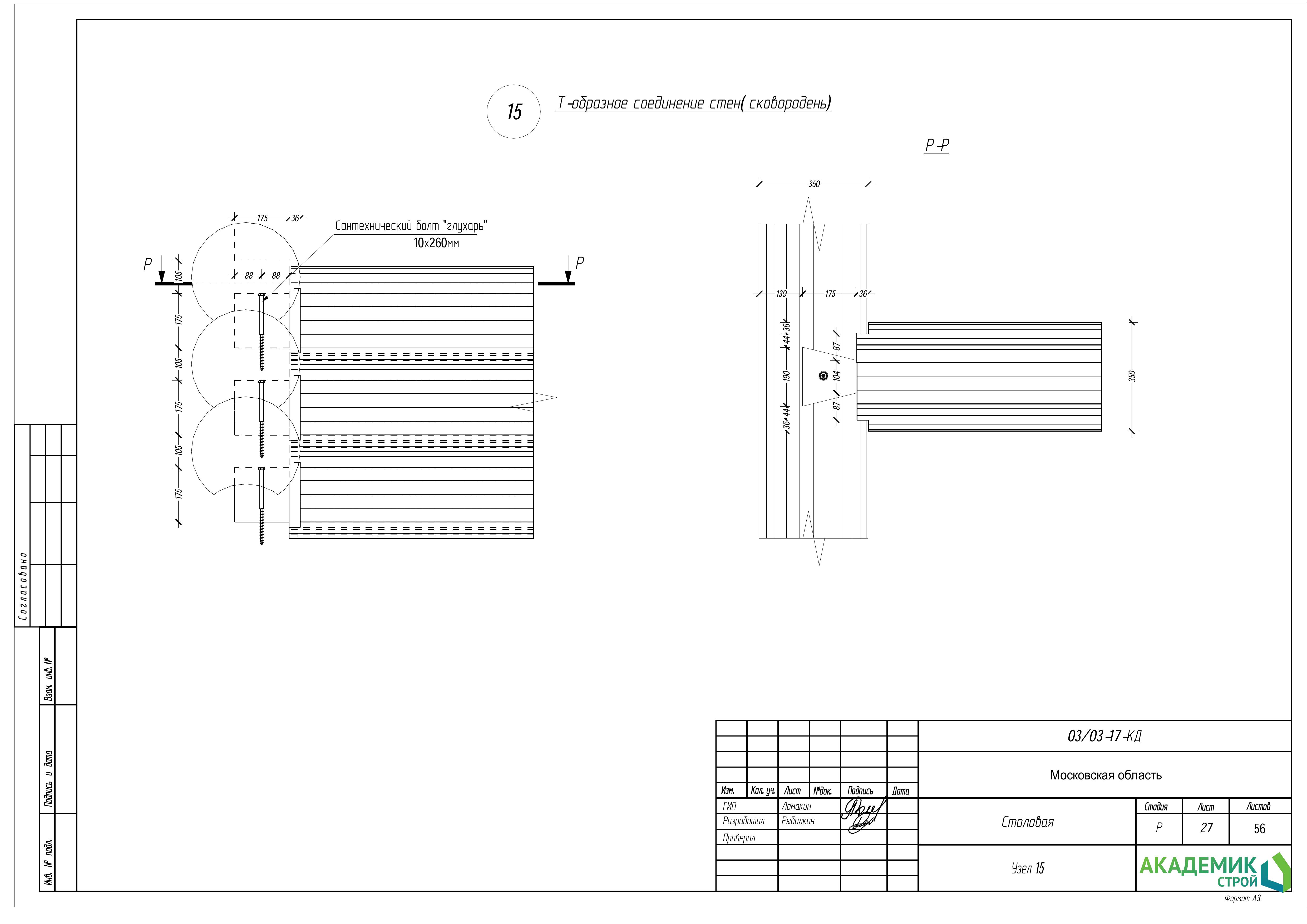
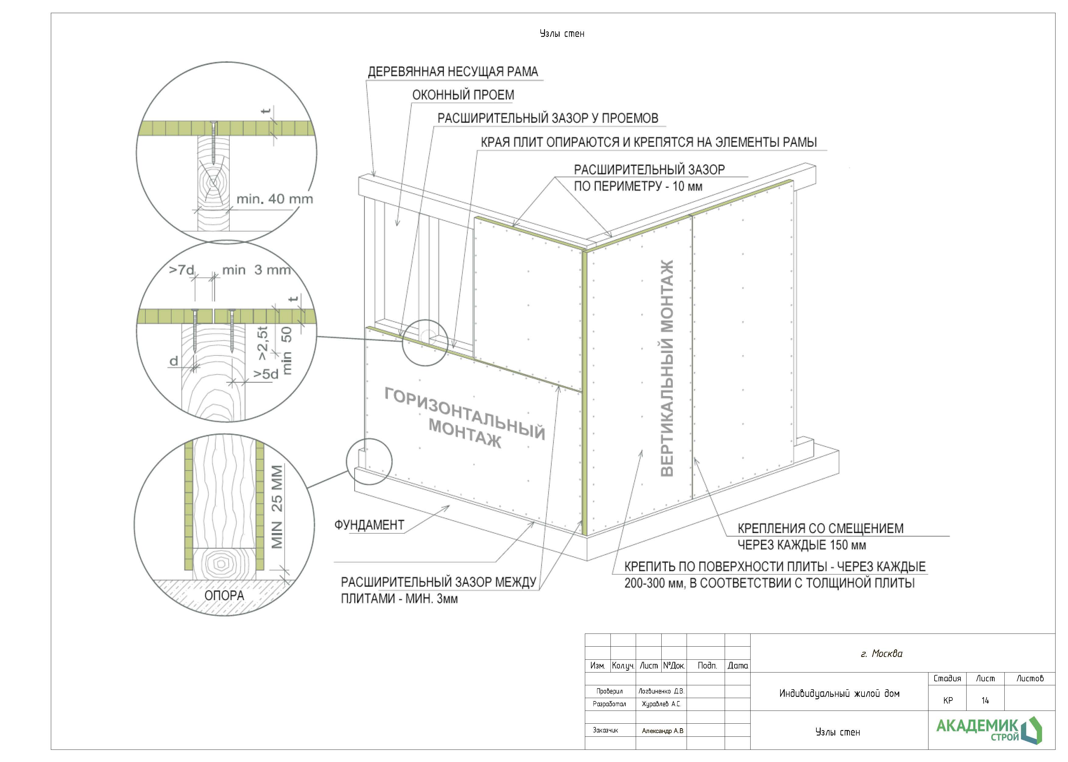
  • Узлы стен
  • План стоек 1-го этажа
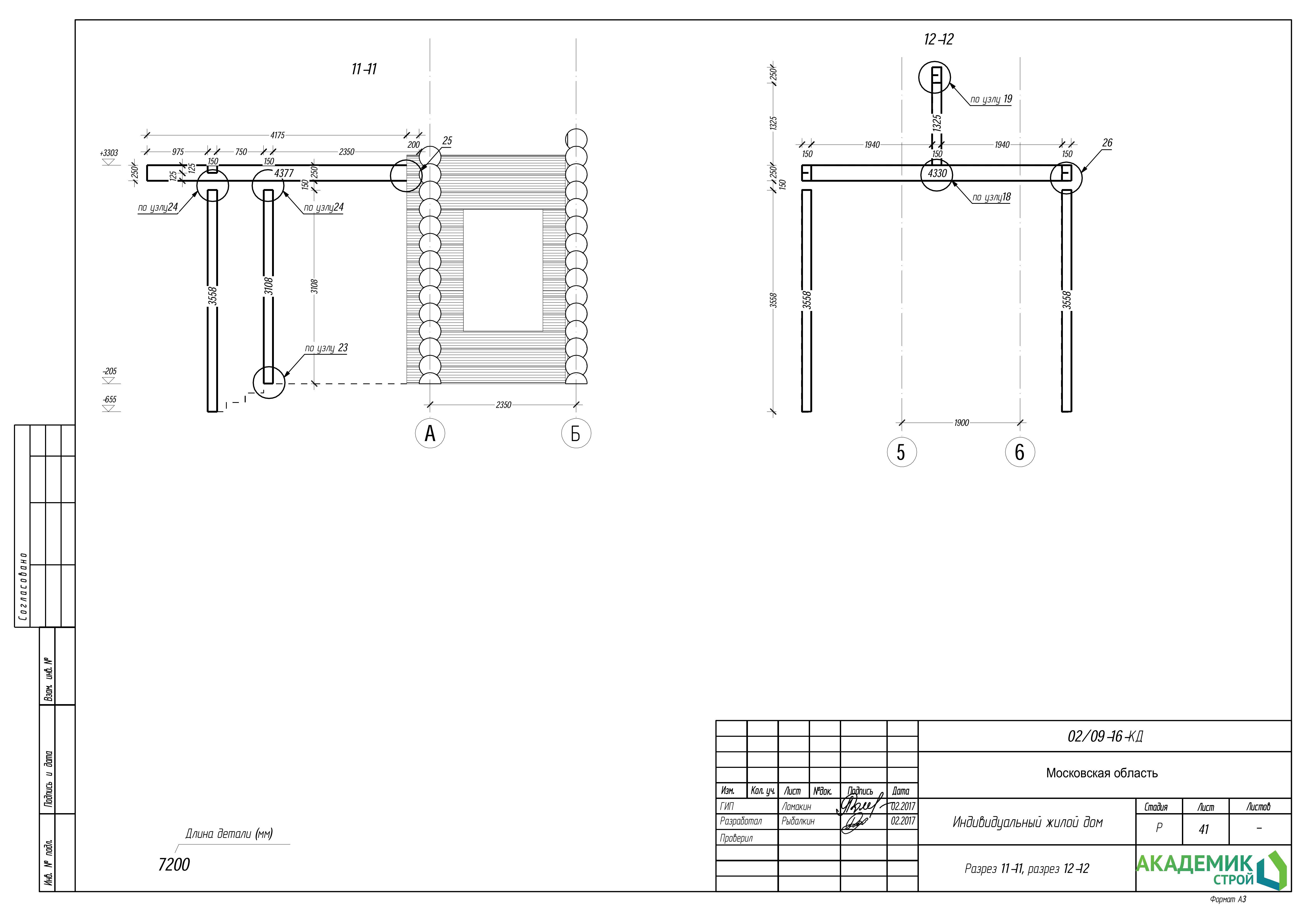
  • Разрез 1-1
  • Стена 1
  • Стена 1/А
  • Стена 1/Б
  • Стена 3/А
  • Стена 2
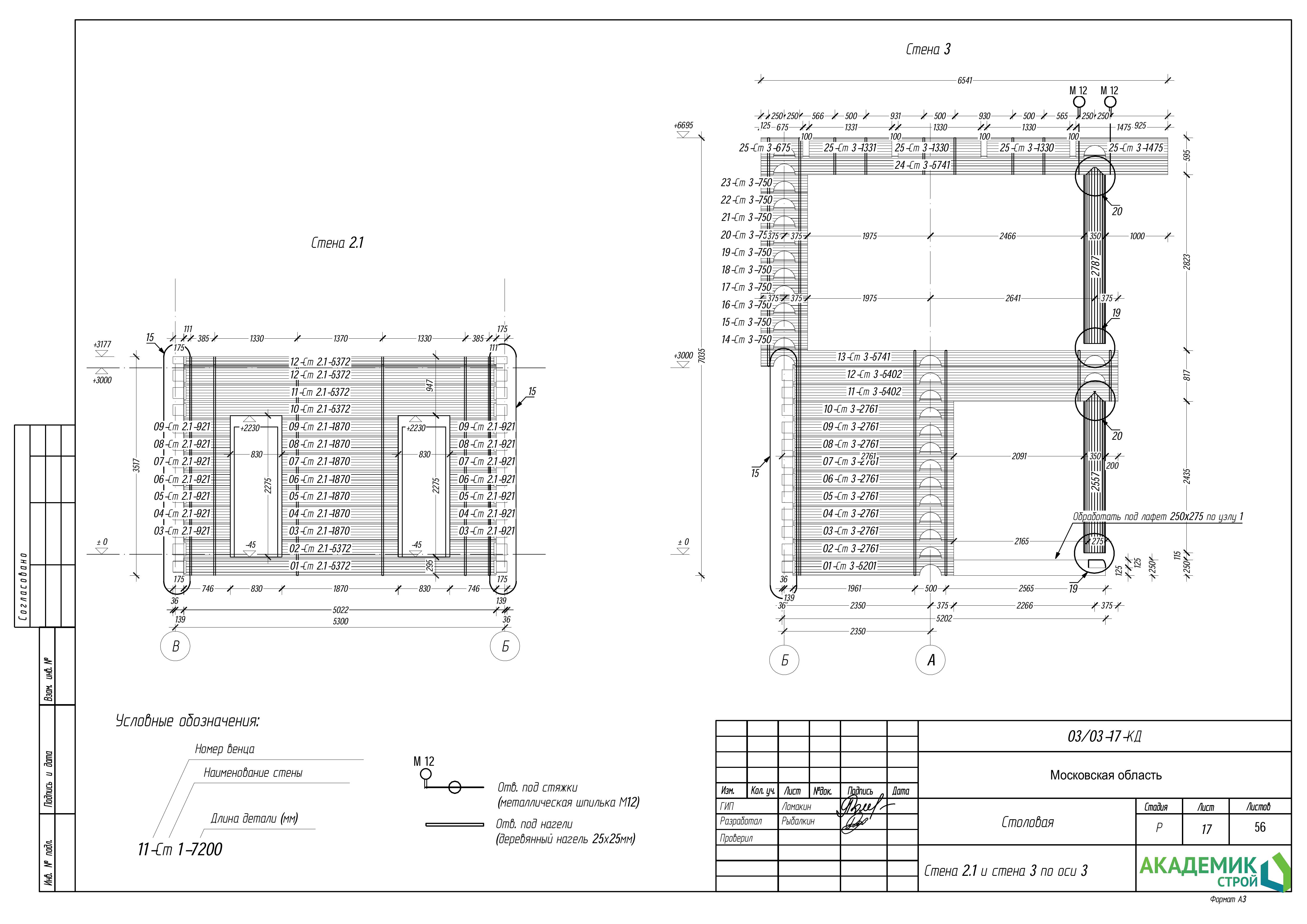
  • Стена 2.1
  • Стена 2/А
  • Стена 3/А
  • Стена 4
  • Стена А
  • Стена Б
  • Стена Б1
  • Стена Б2
  • Стена В
  • Стена Г
  • Стена Д
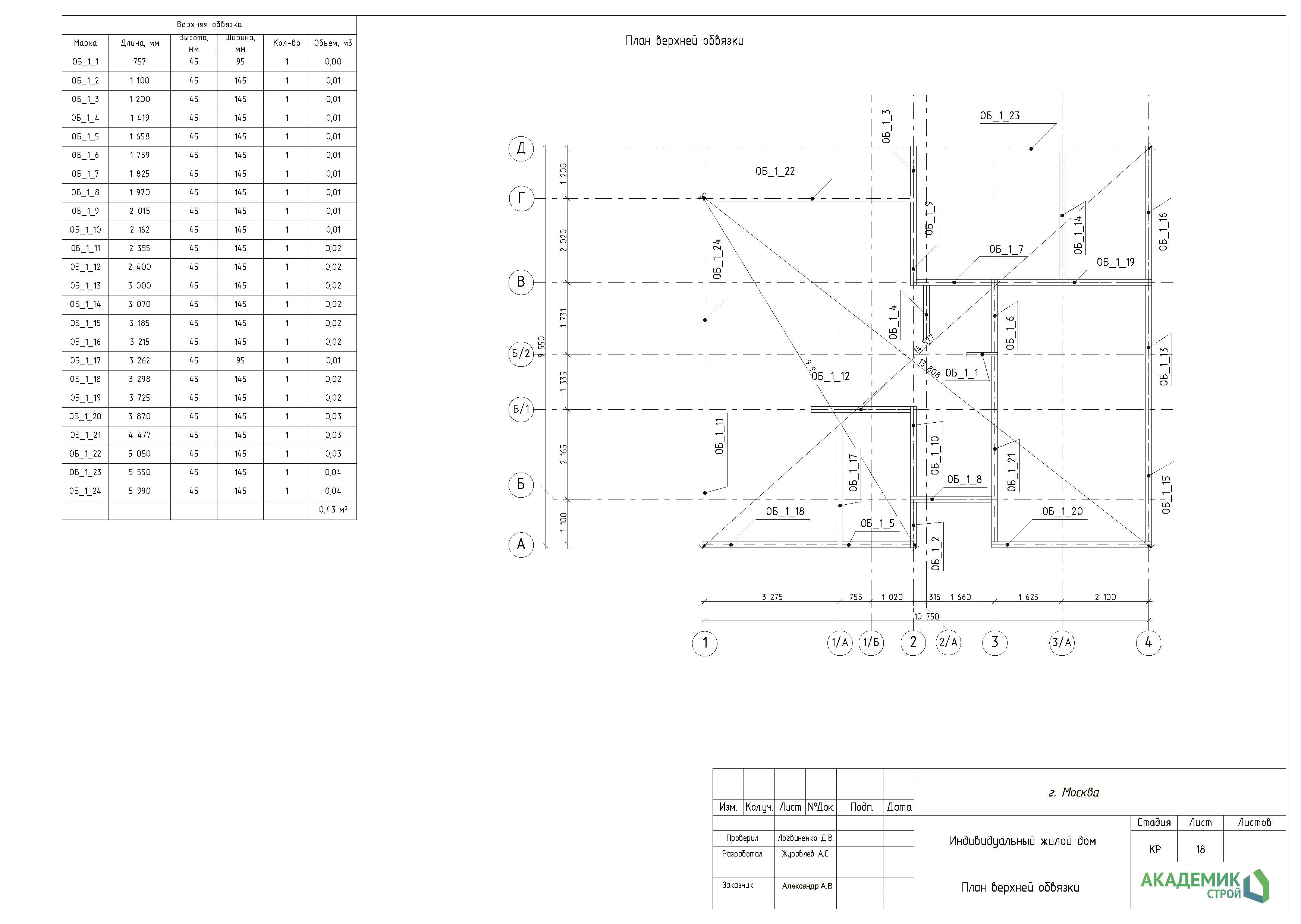
  • План верхней обвязки
  • Аксонометрия верхней обвязки
  • План прогонов
  • План перголы
  • Узлы перголы
  • Аксонометрия прогонов
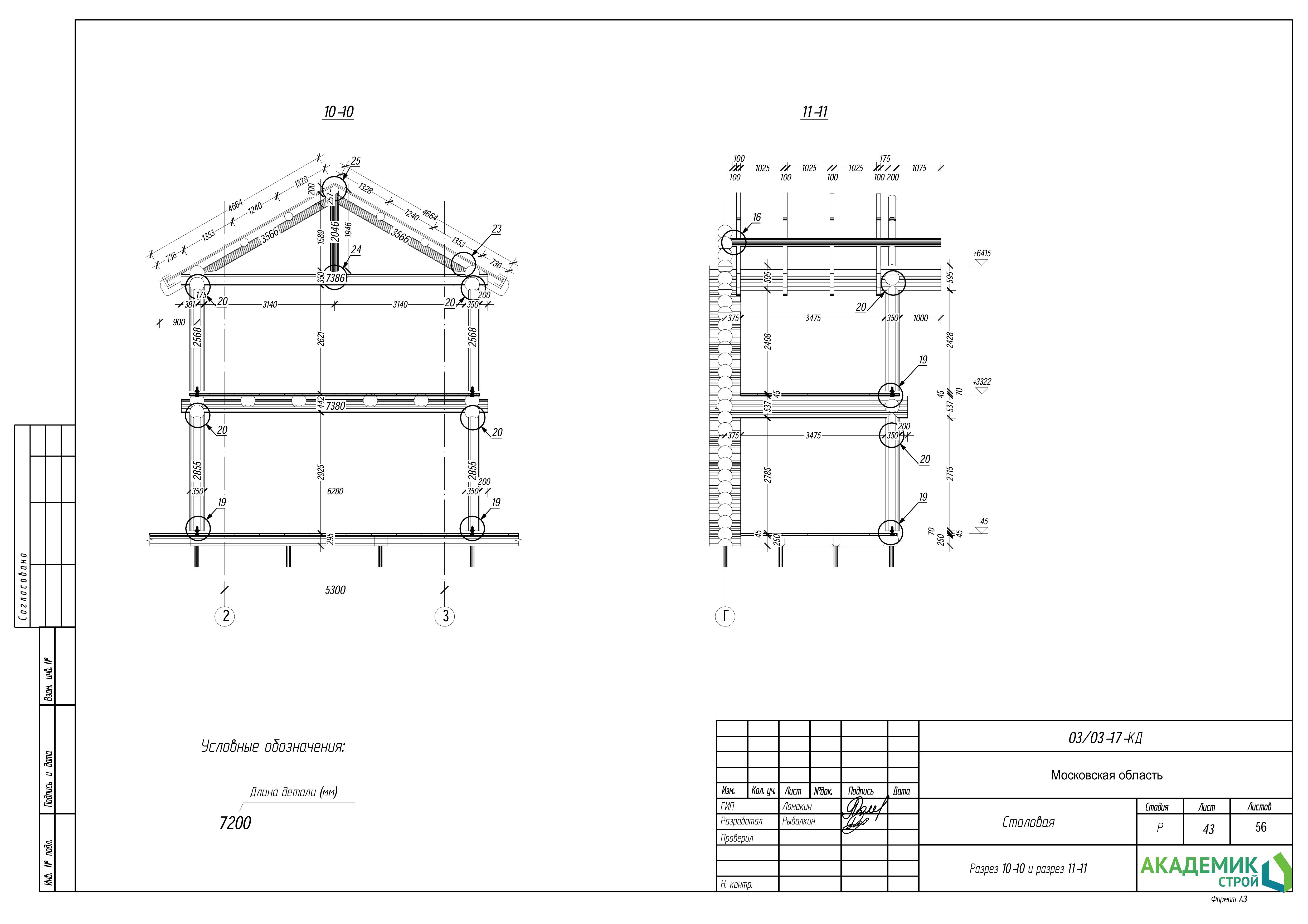
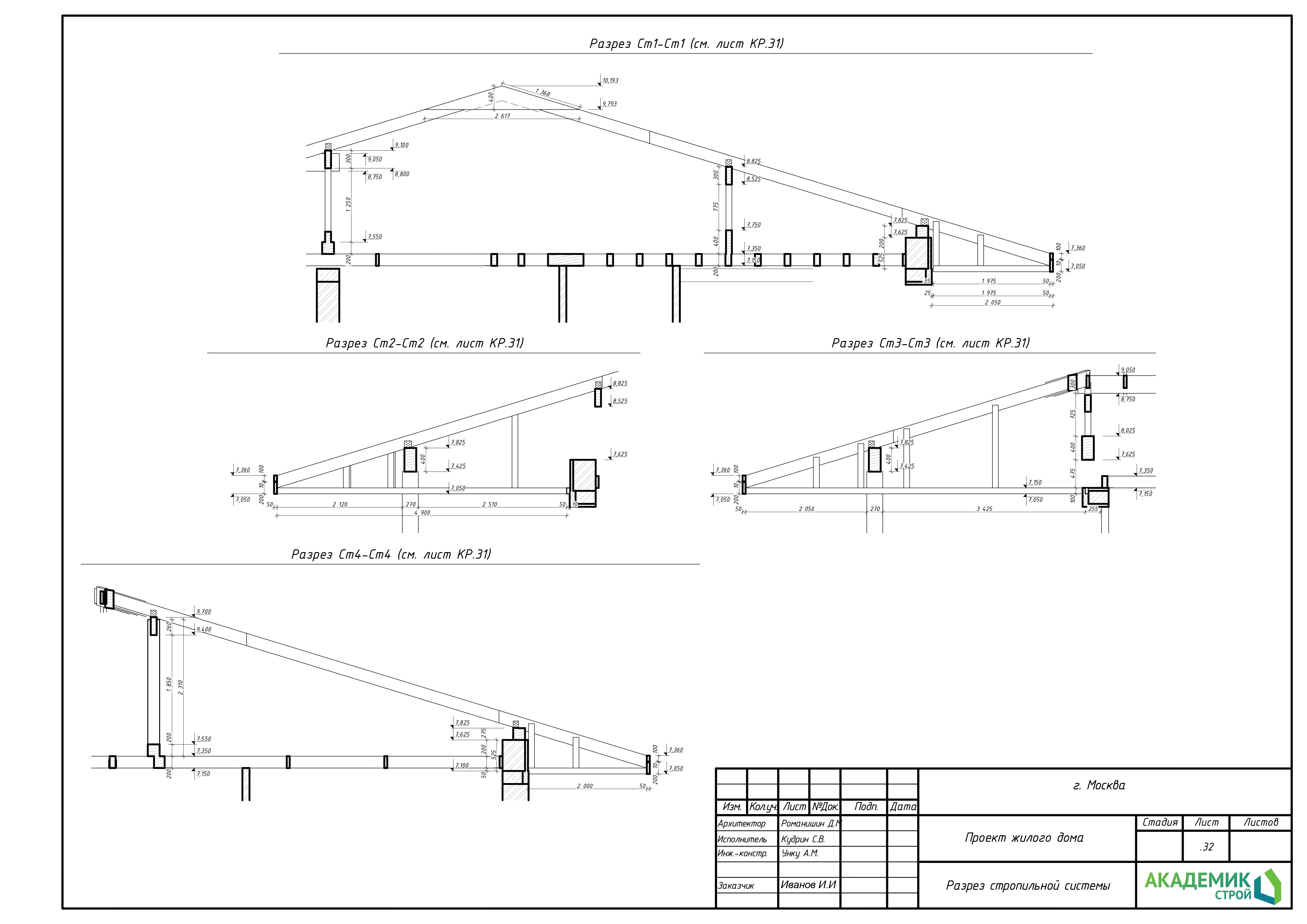
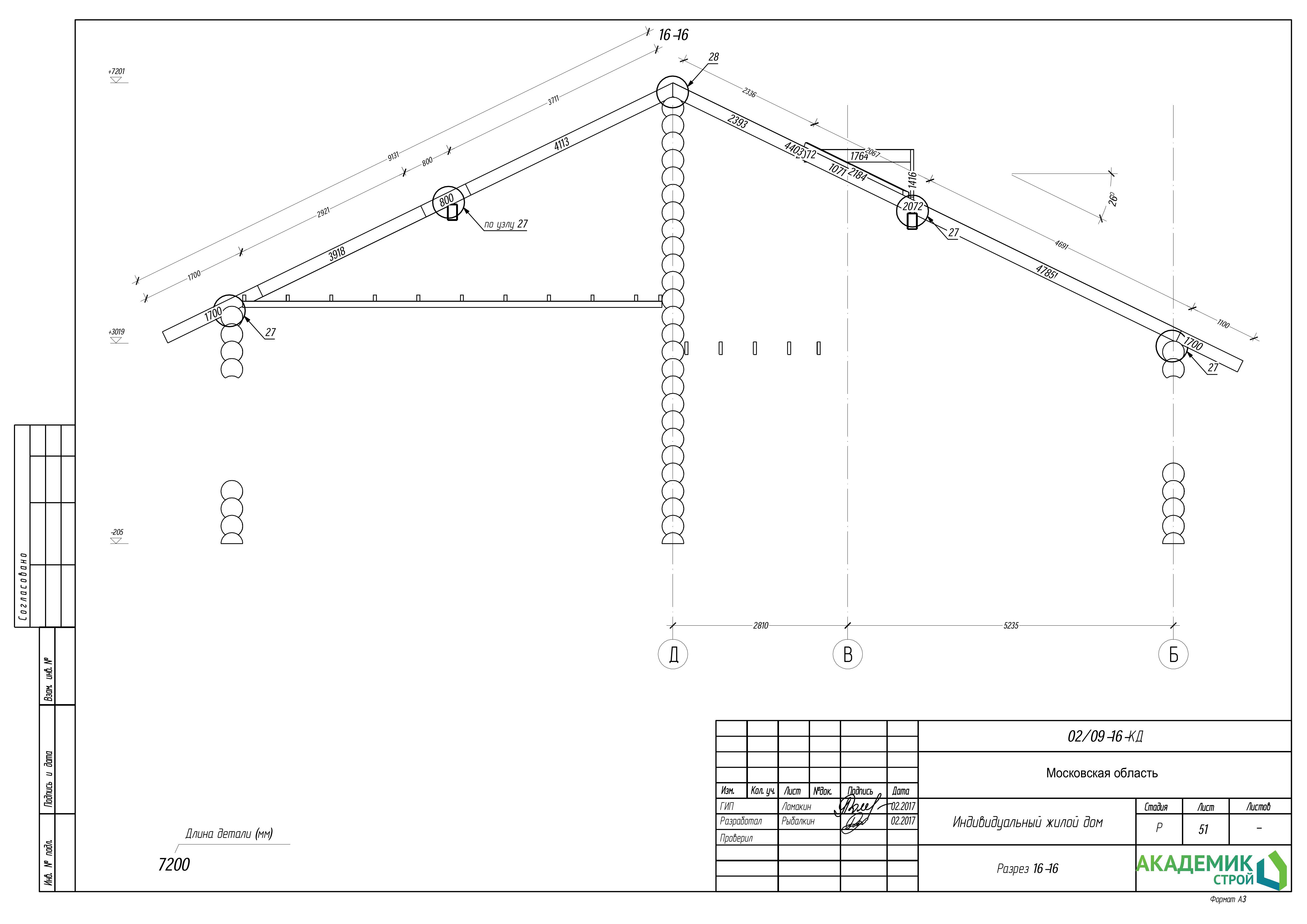
  • План стропильной системы
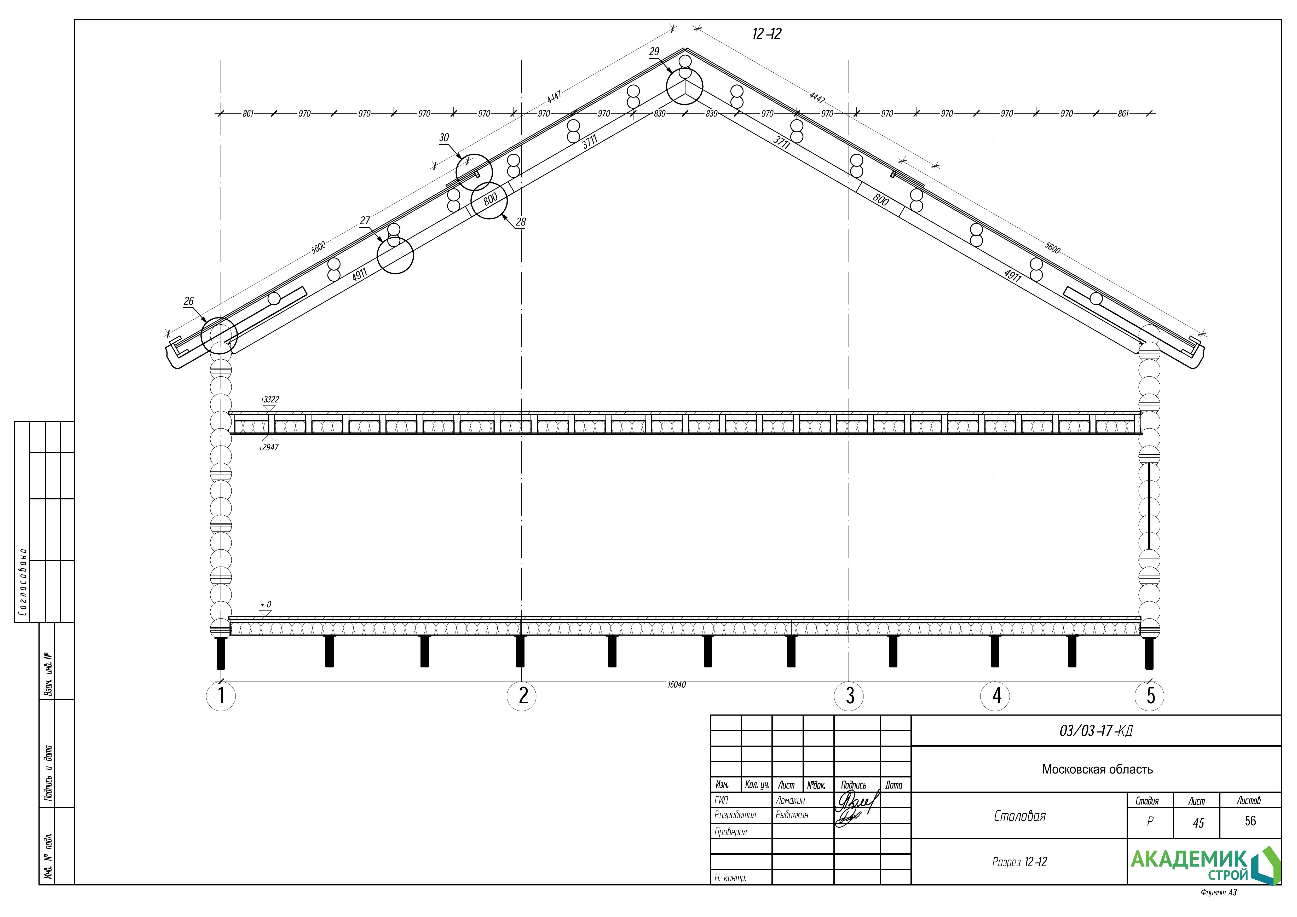
  • Разрез стропильной системы
  • Фасады стропильной системы
  • Узлы кровли
  • Ведомость материалов для стропильной системы
  • Аксонометрия стропильной системы. Лист 1
  • Аксонометрия стропильной системы. Лист 2
  • Ведомость всех пиломатериалов
Скачать пример «Конструкции деревянные (КД)»

Стоимость:

900 ₽/м² (строительная площадь здания)

Срок:

25 дней

Проект кровли

Скачать пример «Проект кровли»
  • Перечень чертежей основного комлекта КД
  • План несущих прогонов нижнего яруса кровли
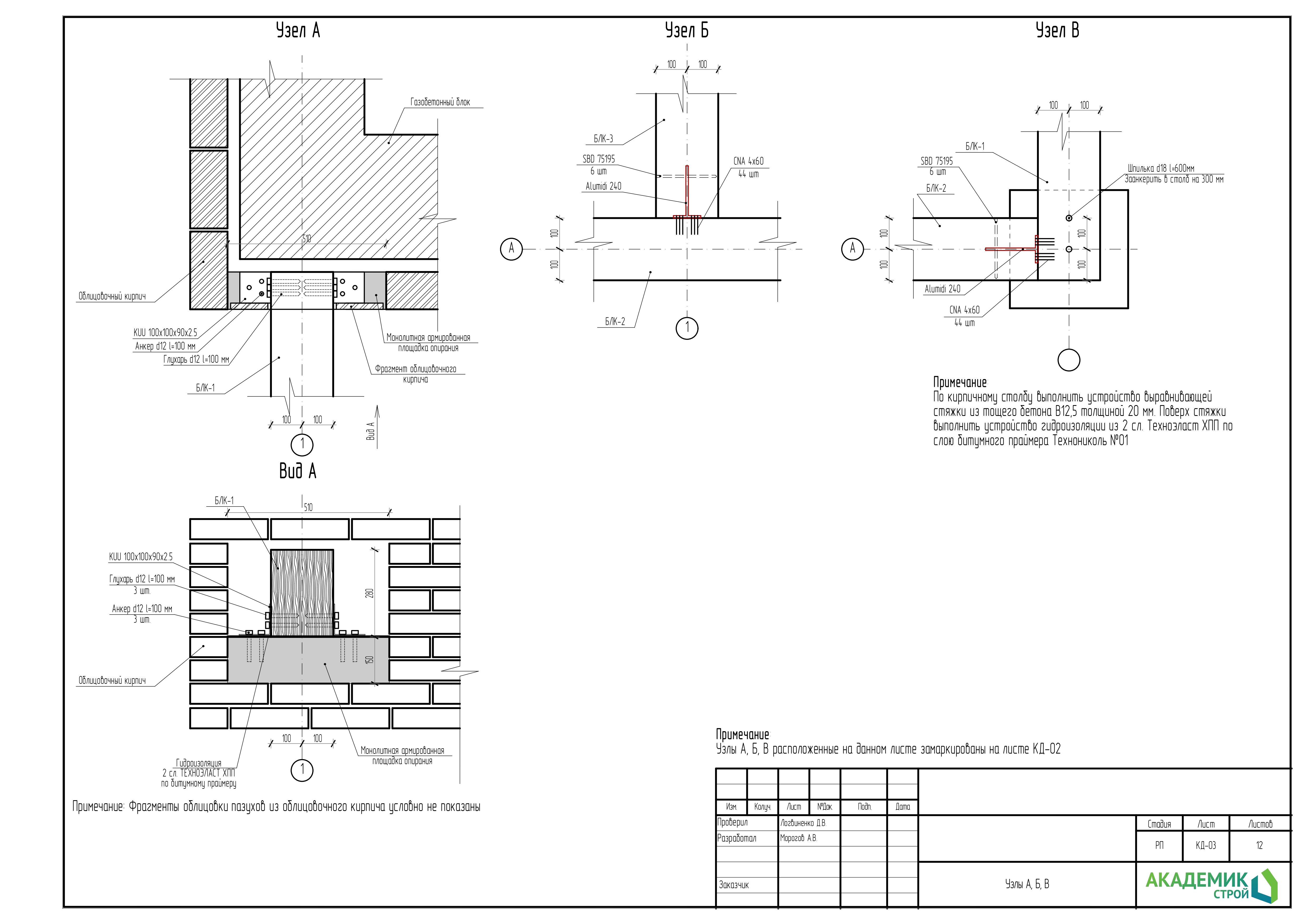
  • Узлы А, Б, В
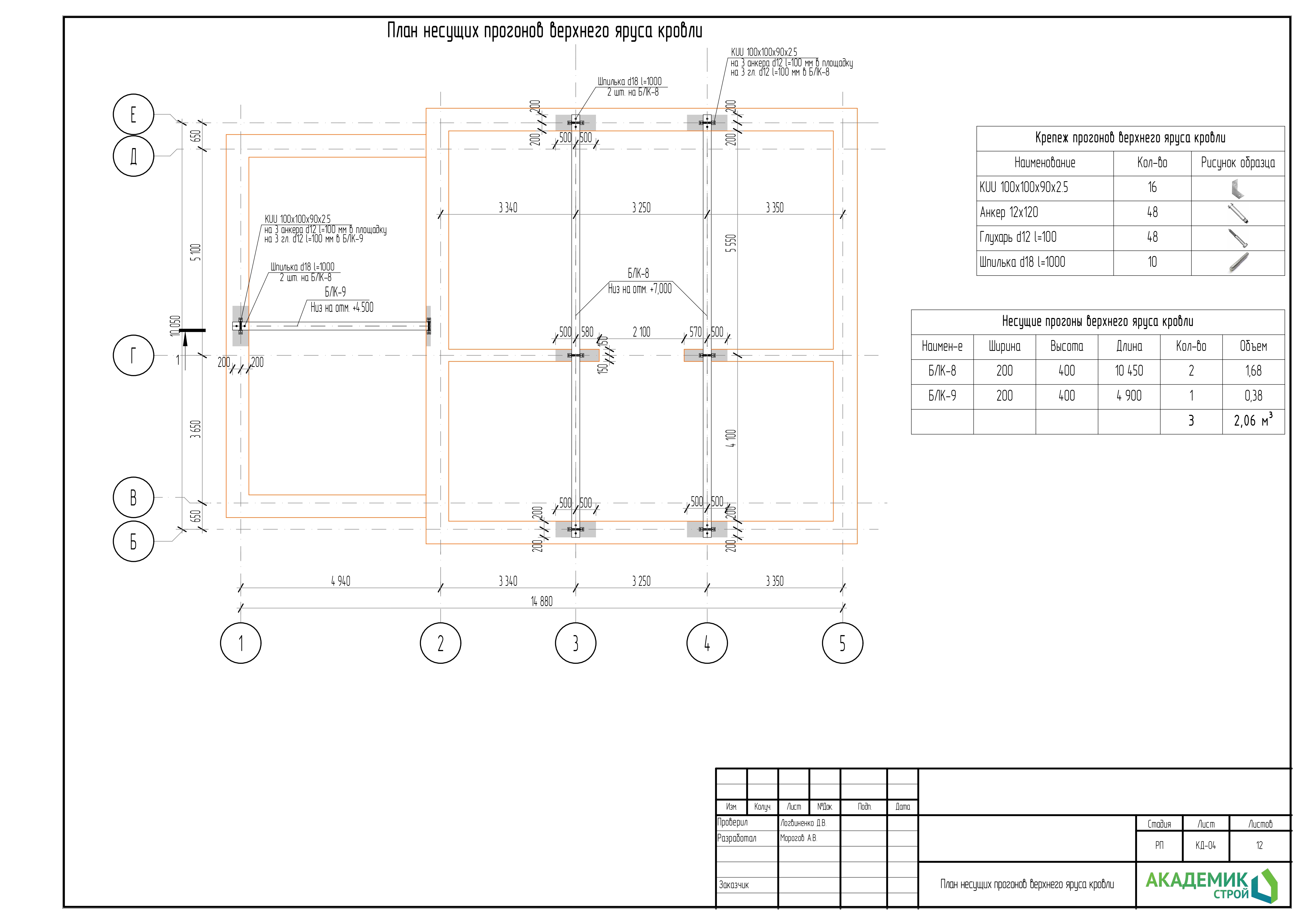
  • План несущих прогонов верхнего яруса кровли
  • План чердачных балок перекрытия
  • Несущая конструкция нижнего яруса стропильной системы
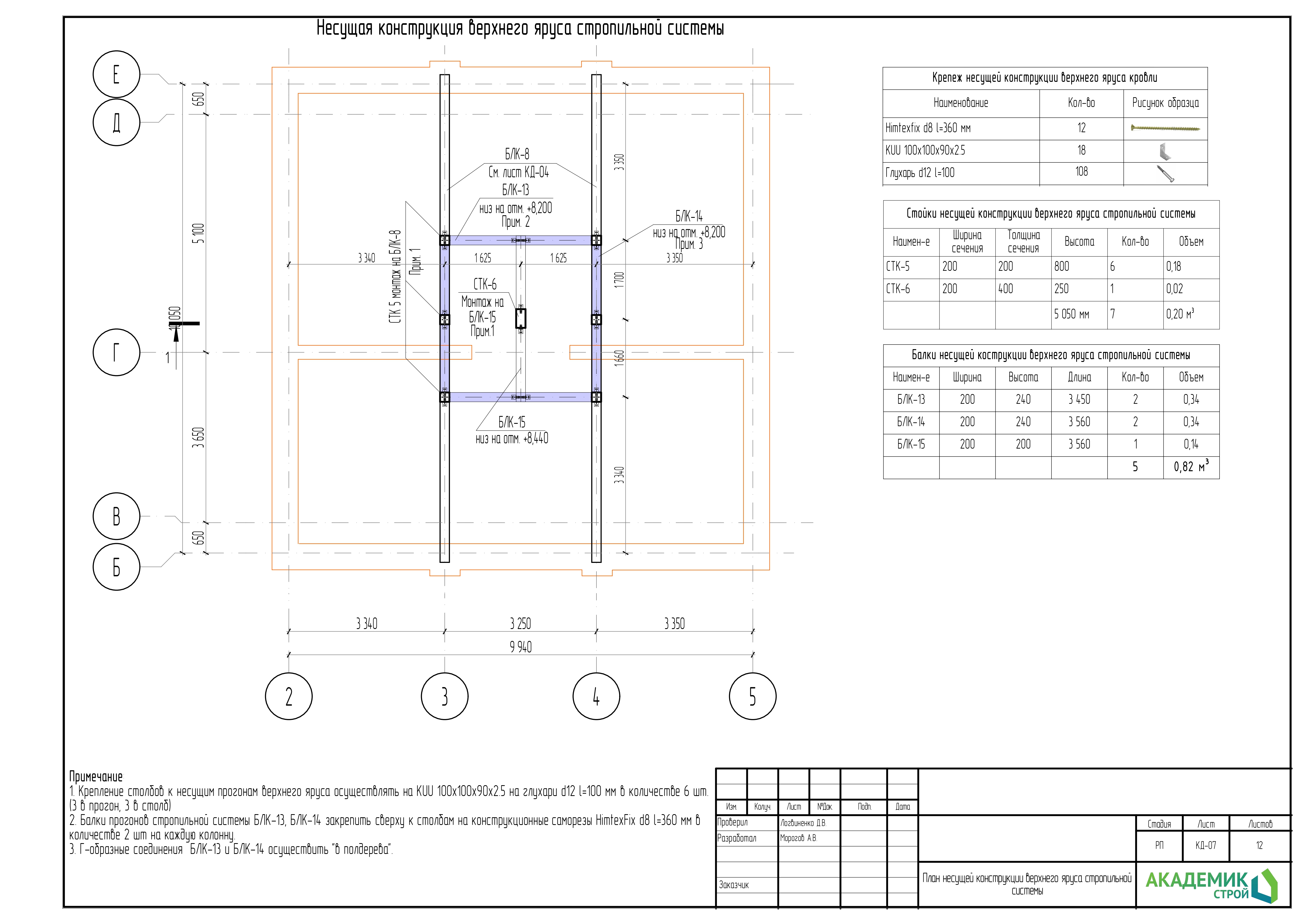
  • Несущая конструкция верхнего яруса стропильной системы
  • План мауэрлатов кровли
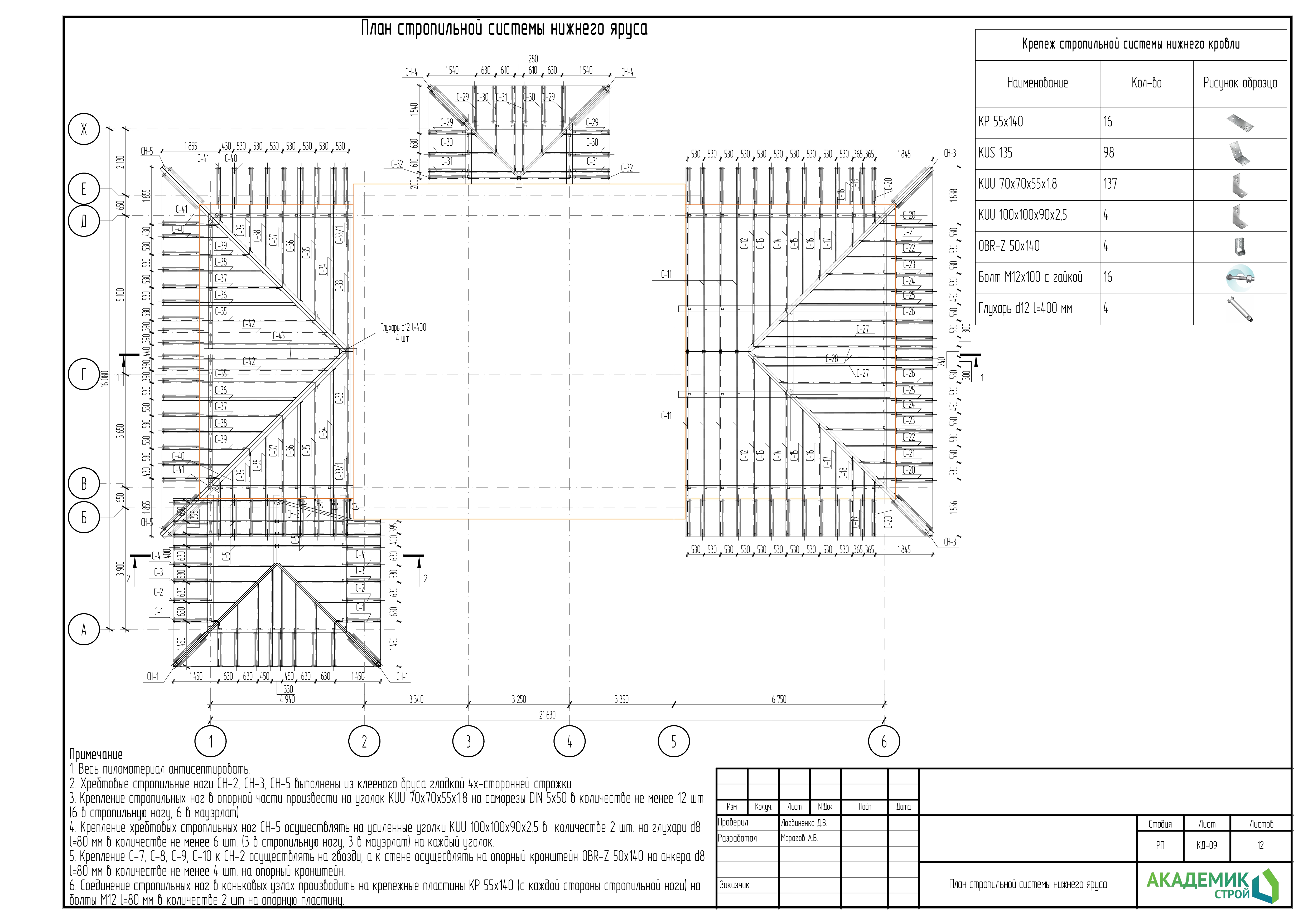
  • План стропильной системы нижнего яруса
  • Спецификация стропильной системы нижнего яруса
  • План стропильной системы верхнего яруса
  • Разрез 1-1
  • Разрез 2-2
  • 3д-изображение стропильной системы. Вид 1
  • 3д-изображение стропильной системы. Вид 2
  • 3д-изображение стропильной системы. Вид 3
Скачать пример «Проект кровли»

Стоимость:

450 ₽/м² (площадь ската кровли)

Срок:

20 дней

Дизайн фасада

Скачать пример «Дизайн фасада»
  • Рабочий проект
  • Архитектурные решения (АР)
  • Общие данные
  • Общие указания
  • Схема расположения строения на участке
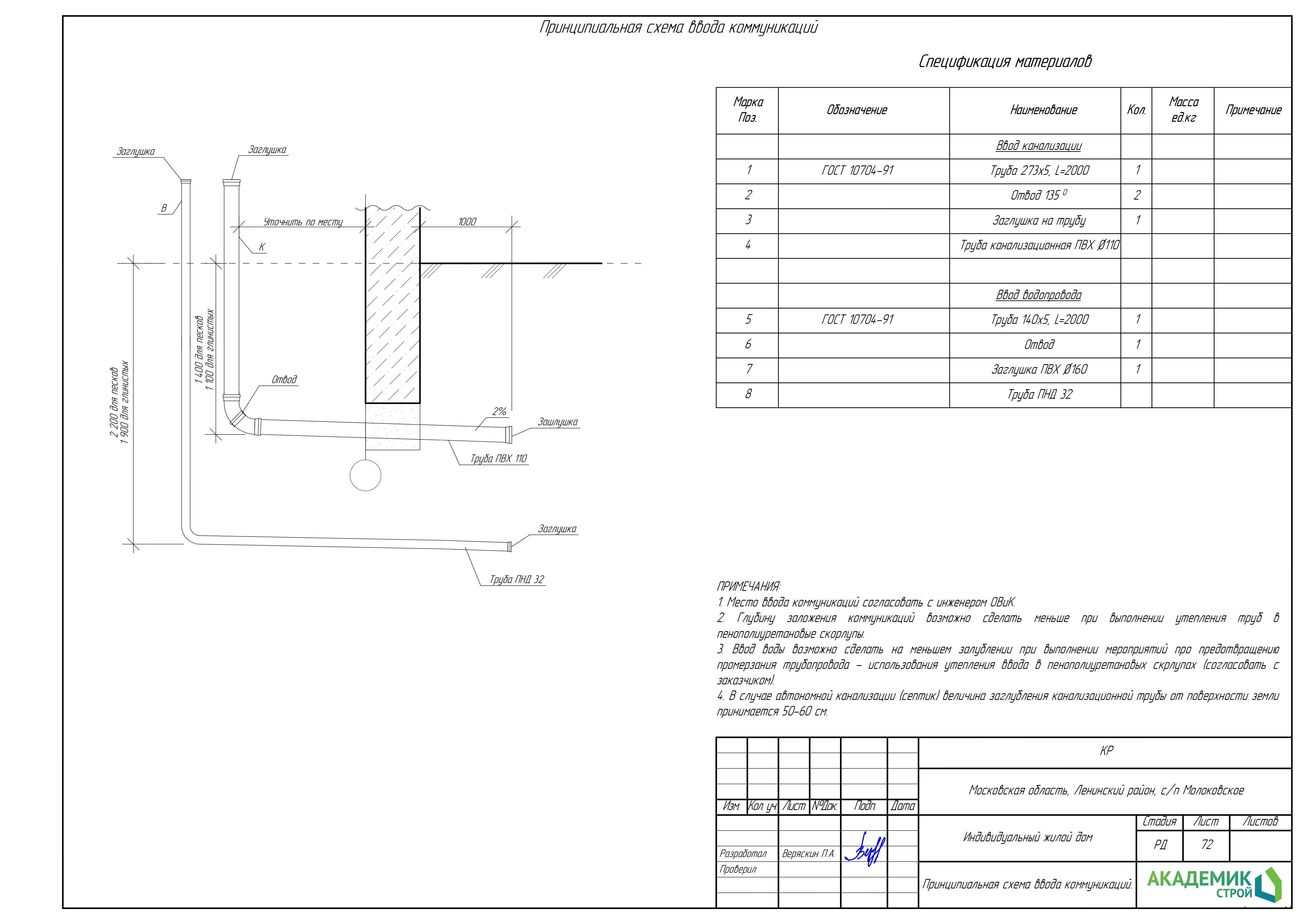
  • Схема ввода коммуникаций
  • Схема свайного поля на отметке -0,650, -0,850
  • Ростверк на отметке -0,450
  • Схема плиты перекрытия на отметке -0,250, -0,150. Опалубка
  • План на отметке ±0,000. Обозначения
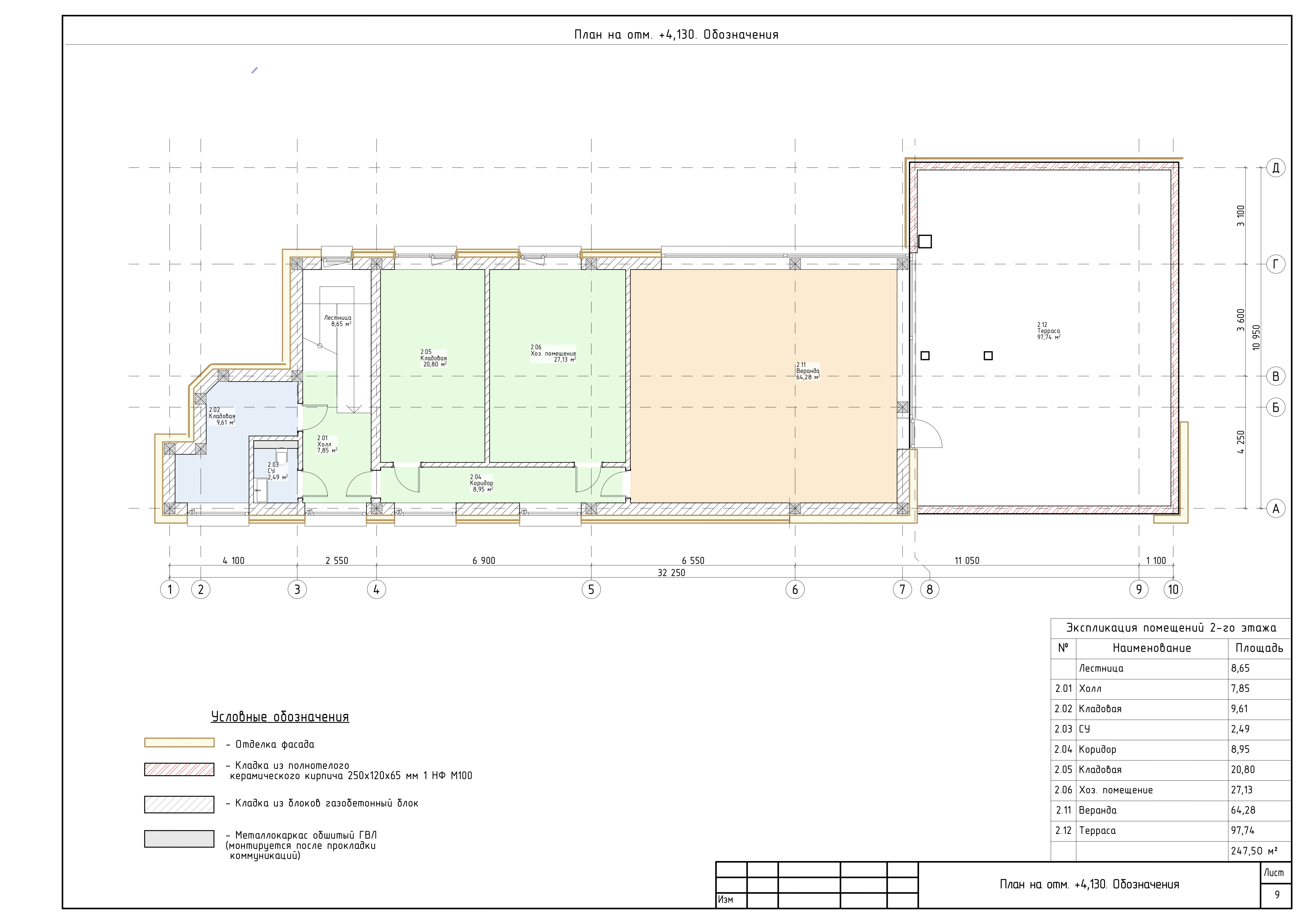
  • План на отметке +4,130. Обозначения
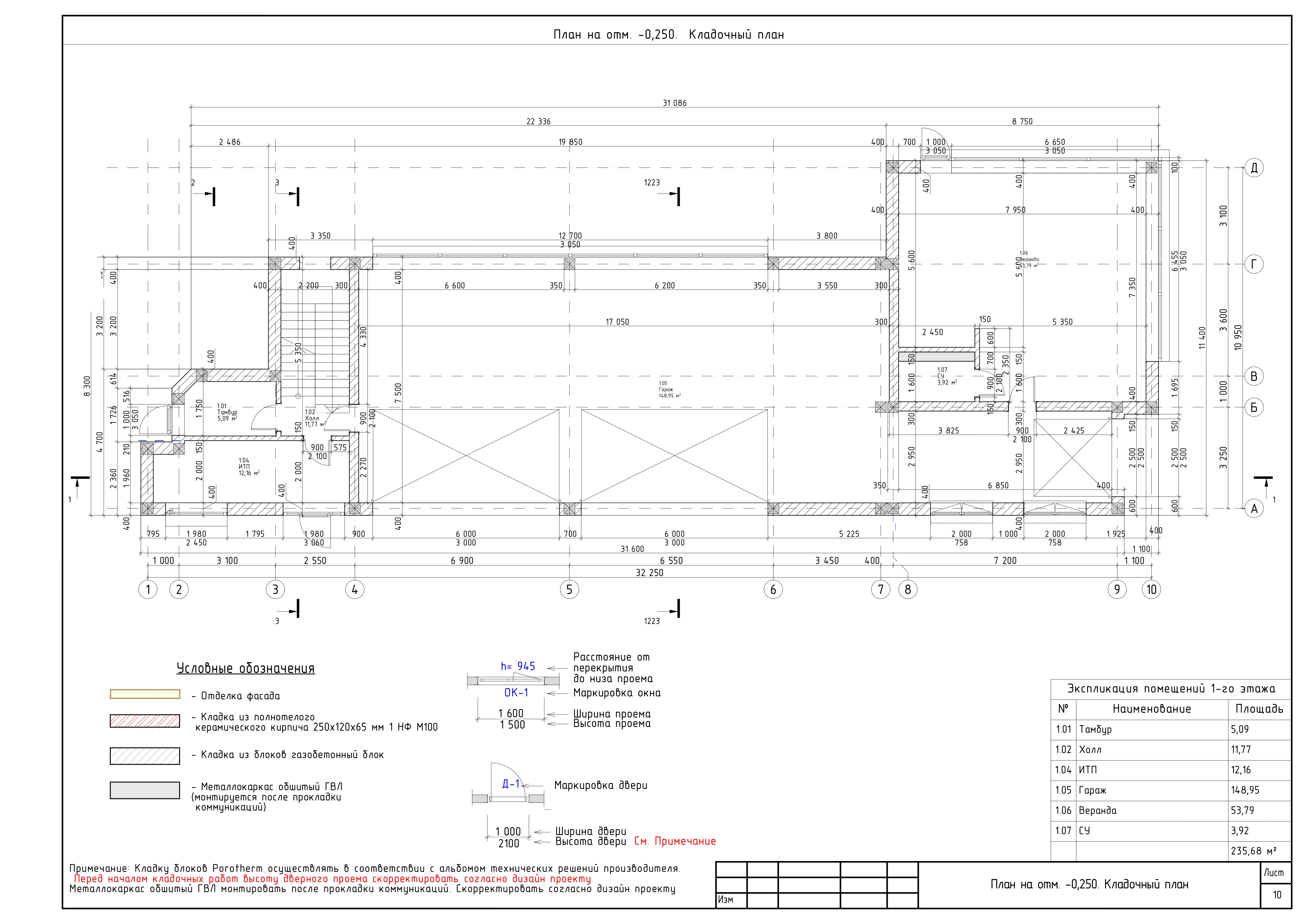
  • План на отметке -0,250. Кладочный план
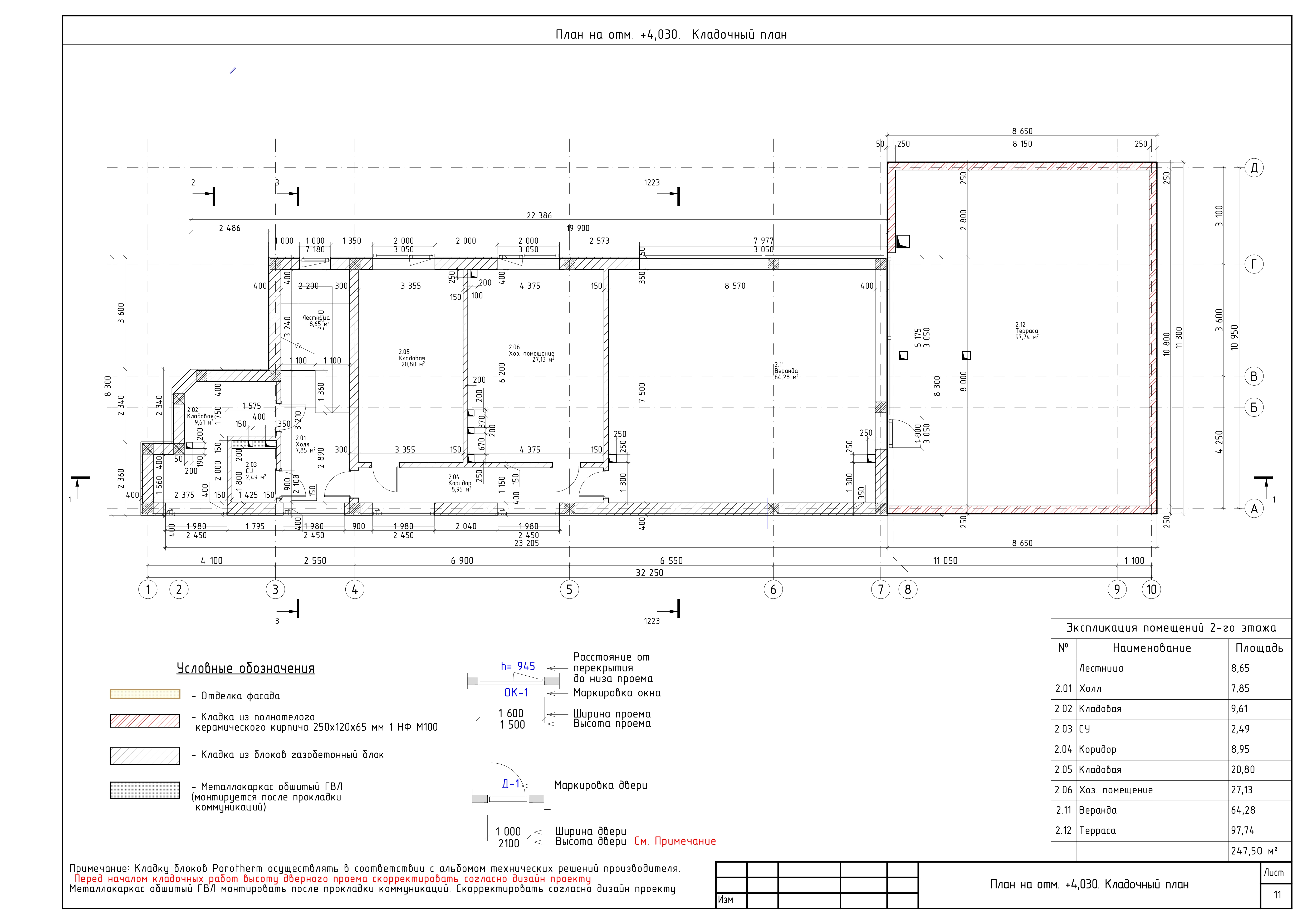
  • План на отметке +4,030. Кладочный план
  • Маркировочный план проёмов. Схема расположения перемычек 1 этаж
  • Маркировочный план проёмов. Схема расположения перемычек 2 этаж
  • План парапета на отметке +3,800. Кладочный план
  • План парапета на отметке +7,810. Кладочный план
  • Узлы примыкания кладки. Спецификация. Газобетонные блоки и армированные газобетонные перемычки
  • План кровли на отметке +7,960
  • Разрез 1-1
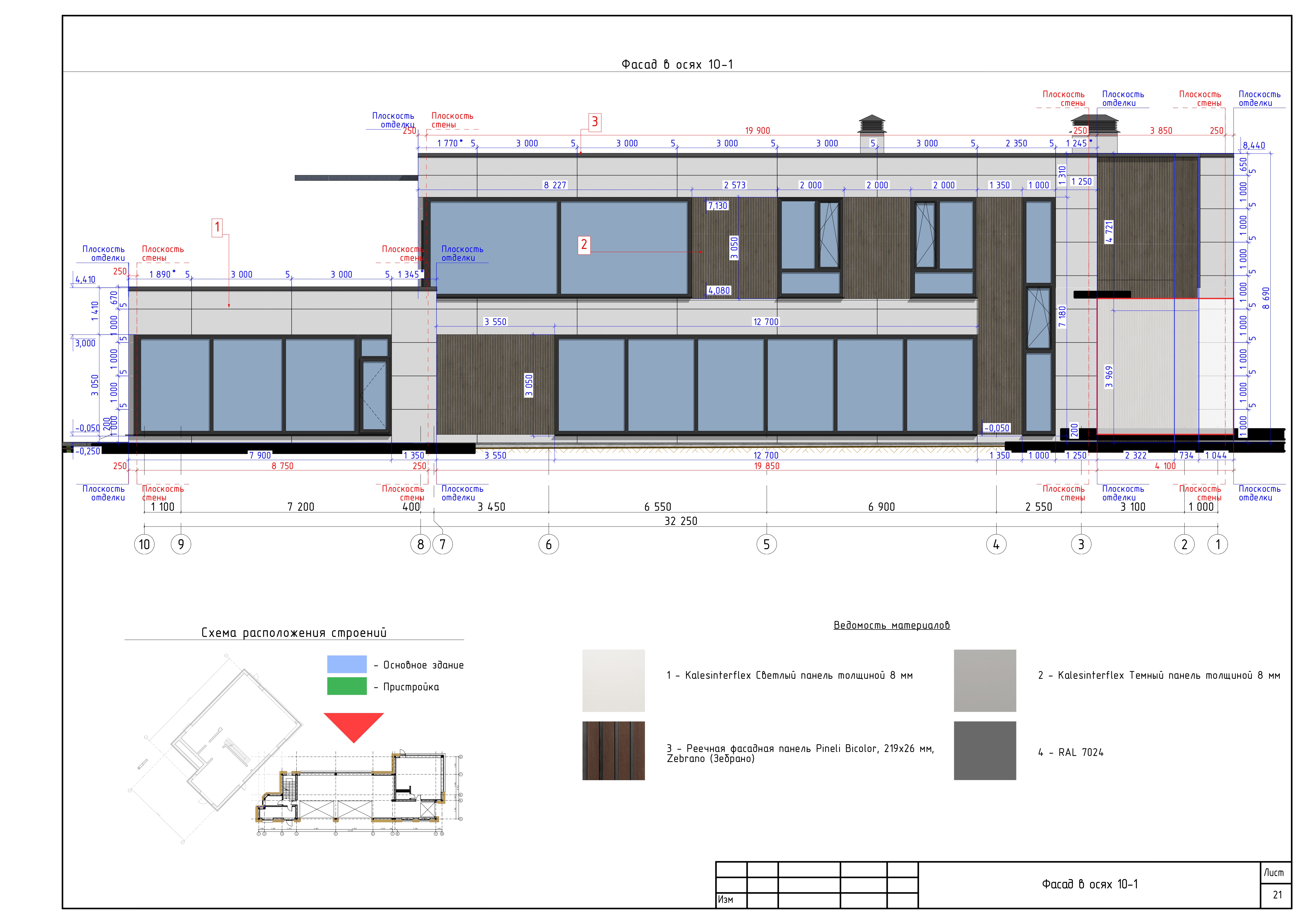
  • Фасад в осях 1-10
  • Фасад в осях А-Д; фасад в осях Д-А
  • Фасад в осях 10-1
  • Ведомость материалов
  • Ведомость заполнения оконных и дверных проёмов по фасаду. Ведомость заполнения межкомнатных проёмов (1)
  • Ведомость заполнения оконных и дверных проёмов по фасаду. Ведомость заполнения межкомнатных проёмов (2)
  • Ведомость заполнения оконных и дверных проёмов по фасаду. Ведомость заполнения межкомнатных проёмов (3)
  • Ведомость заполнения оконных и дверных проёмов по фасаду. Ведомость заполнения межкомнатных проёмов (4)
  • Ведомость заполнения оконных и дверных проёмов по фасаду. Ведомость заполнения межкомнатных проёмов (5)
  • Визуализация (1)
  • Визуализация (2)
  • Визуализация (3)
  • Визуализация (4)
  • Визуализация (5)
  • Визуализация (6)
  • Визуализация (7)
  • Визуализация (8)
  • Схема монтажа L-кронштейна Econom двумя анкерными элементами
  • Схема монтажа L-кронштейна Light двумя анкерными элементами
  • Схема монтажа 0-кронштейна Econom
  • Схема монтажа М-кронштейна Econom
  • Схема монтажа М-кронштейна Light
  • Схема монтажа UL-кронштейна Ultra двумя анкерными элементами
  • Схема монтажа UM-кронштейна Ultra / схема монтажа US-кронштейна Ultra
  • Схема монтажа HL-кронштейна High четырьмя анкерными элементами
  • Схема монтажа HM-кронштейна High
  • Схема монтажа удлинителя KDK-021 к кронштейну L40 (L60)
  • Схема монтажа удлинителя KDK-022 к кронштейну M40 (L60)
  • Схема монтажа удлинителя KDK-025 к кронштейну UL
  • Схема монтажа удлинителя KDK-026 к кронштейну UM / схема монтажа удлинителя KDK-026 к кронштейну US
  • Схема монтажа удлинителя KDK-025 к кронштейну HL / схема монтажа удлинителя KDK-026 к кронштейну HM
  • Монтаж теплоизоляционного слоя и ветрогидрозащитной мембраны
  • Порядок монтажа двухслойной теплоизоляции
  • Монтаж направляющих
  • Схема сборки несущего кронштейна L40 с двумя анкерами
  • Схема сборки несущего кронштейна L40 с одним анкером
  • Схема сборки несущего кронштейна L60 с двумя анкерами
  • Схема сборки несущего кронштейна L60 с одним анкером
  • Схема сборки несущего кронштейна D40
  • Схема сборки опорного кронштейна L40 с двумя анкерами
  • Схема сборки опорного кронштейна L40 с одним анкером
  • Схема сборки опорного кронштейна L60 с двумя анкерами
  • Схема сборки опорного кронштейна L60 с одним анкером
  • Схема сборки опорного кронштейна D40
  • Схема сборки опорного кронштейна M40
  • Схема сборки опорного кронштейна M60
  • Схема сборки опорного кронштейна S40
  • Схема сборки опорного кронштейна S60
  • Схема сборки несущего кронштейна UL с двумя анкерами
  • Схема сборки несущего кронштейна UL с одним анкером
  • Схема сборки опорного кронштейна UL с двумя анкерами
  • Схема сборки опорного кронштейна UL с одним анкером
  • Схема сборки опорного кронштейна UM
  • Схема сборки опорного кронштейна US
  • Схема сборки несущего кронштейна HL с четырьмя анкерами
  • Схема сборки несущего кронштейна HL с двумя анкерами
  • Схема сборки несущего кронштейна HM
  • Крепление в межэтажные плиты перекрытия
  • Схема сборки несущего кронштейна UL с креплением двух направляющих
  • Схема сборки несущего кронштейна HL с креплением двух направляющих
  • Схема сборки несущего кронштейна L40 с креплением двух направляющих
  • Схема сборки несущего кронштейна L60 с креплением двух направляющих
  • Схема монтажа в межэтажные плиты перекрытия (1)
  • Схема монтажа в межэтажные плиты перекрытия (2)
  • Система DVF-11. Общий вид фасада / Облицовка — плиты керамогранита
  • Система DVF-21. Схема монтажа / Облицовка — плиты керамогранита
  • Система DVF-21. Общий вид фасада. Облицовка — кассеты. Крепление зацепами на салазке под зацеп
  • Система DVF-21. Схема монтажа. Облицовка — кассеты. Крепление зацепами на салазке под зацеп
  • Система DVF-21. Общий вид фасада. Облицовка — кассеты. Крепление на салазке с втулкой
  • Система DVF-21. Общая схема монтажа. Облицовка — кассеты. Крепление на салазке с втулкой
  • Система DVF-21. Общий вид фасада. Облицовка — кассеты. Крепление клипсами на салазке с втулкой
  • Система DVF-21. Схема монтажа. Облицовка — кассеты. Крепление клипсами на салазке с втулкой
  • Система DVF-21. Общий вид фасада. Облицовка — кассеты. Крепление клипсами на внутренней салазке
  • Система DVF-21. Схема монтажа. Облицовка — кассеты. Крепление клипсами на внутренней салазке
  • Система DVF-21. Общий вид фасада. Облицовка — кассеты. Крепление на держателях и компенсаторах
  • Система DVF-21. Схема монтажа. Облицовка — кассеты. Крепление на держателях и компенсаторах
  • Система DVF-21. Общий вид фасада. Облицовка — панели. Крепление на заклепках
  • Система DVF-21. Схема монтажа. Облицовка — панели. Крепление на заклепках
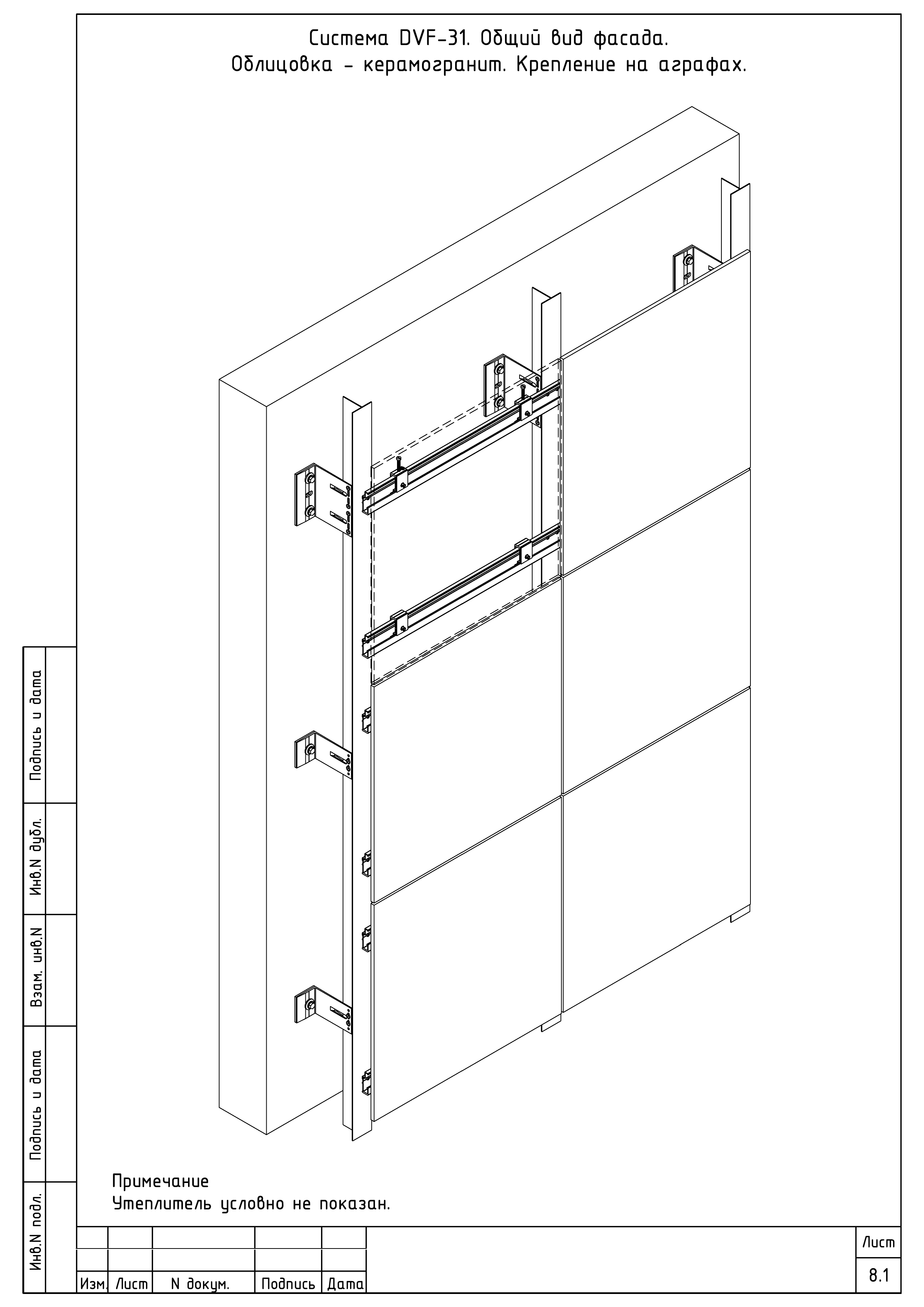
  • Система DVF-31. Общий вид фасада. Облицовка — керамогранит. Крепление на аграфах
  • Система DVF-31. Схема монтажа. Облицовка — керамогранит. Крепление на аграфах
  • Система DVF-31. Общий вид фасада. Вариант 1. Облицовка — натуральный камень. Крепление на планках
  • Система DVF-31. Схема монтажа. Вариант 1. Облицовка — натуральный камень. Крепление на планках
  • Система DVF-31. Общий вид фасада. Вариант 2. Облицовка — натуральный камень. Крепление на планках
  • Система DVF-31. Схема монтажа. Вариант 2. Облицовка — натуральный камень. Крепление на планках
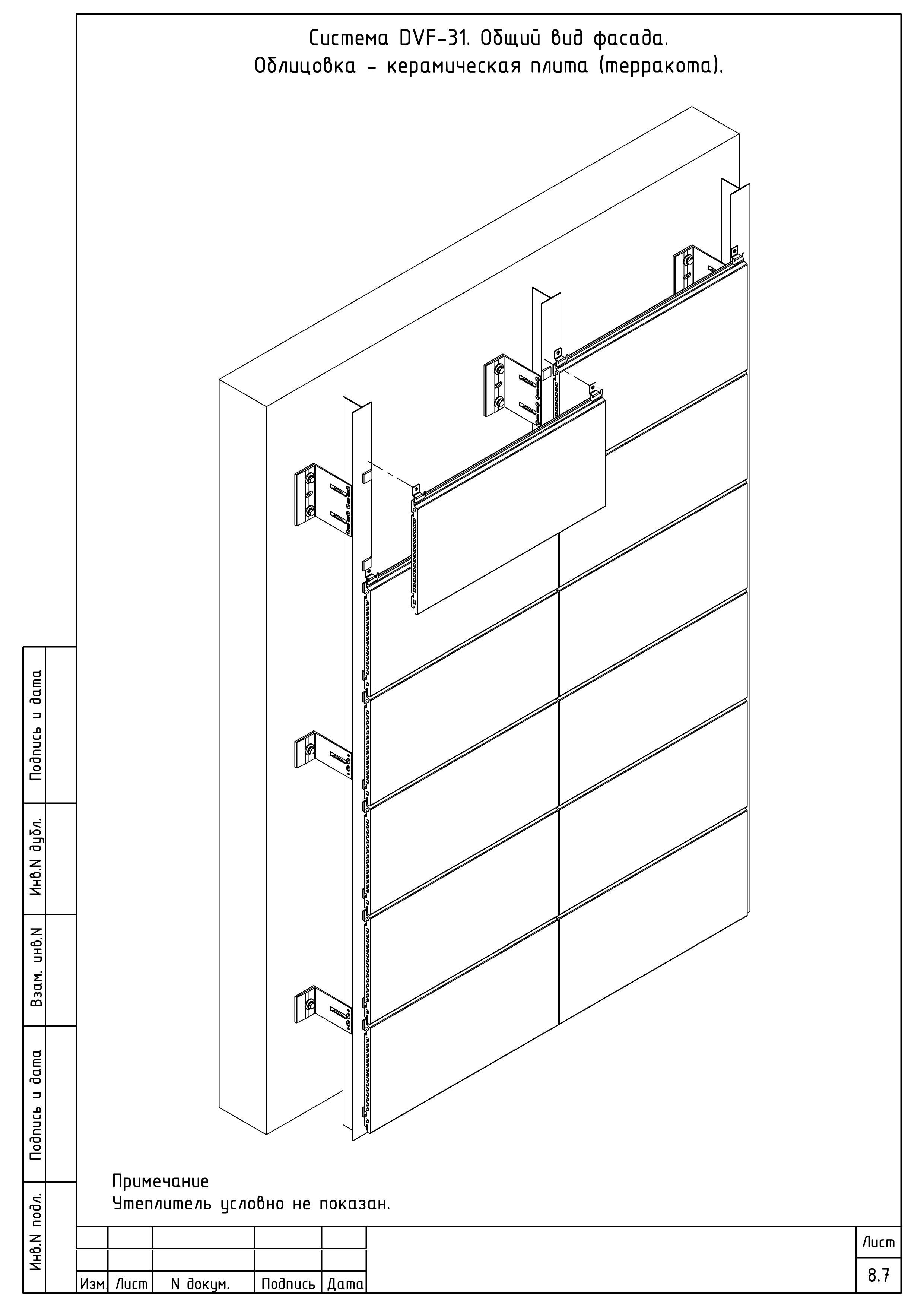
  • Система DVF-31. Общий вид фасада. Облицовка — керамическая плита (терракота)
  • Система DVF-31. Схема монтажа. Облицовка — керамическая плита (терракота)
  • Система DVF-31(2). Общий вид фасада. Облицовка — фиброцементная панель
  • Система DVF-31(2). Схема монтажа. Облицовка — фиброцементная панель
  • Система DVF-31(2). Общий вид фасада. Облицовка — HPL-панели
  • Система DVF-31(2). Схема монтажа. Облицовка — HPL-панели
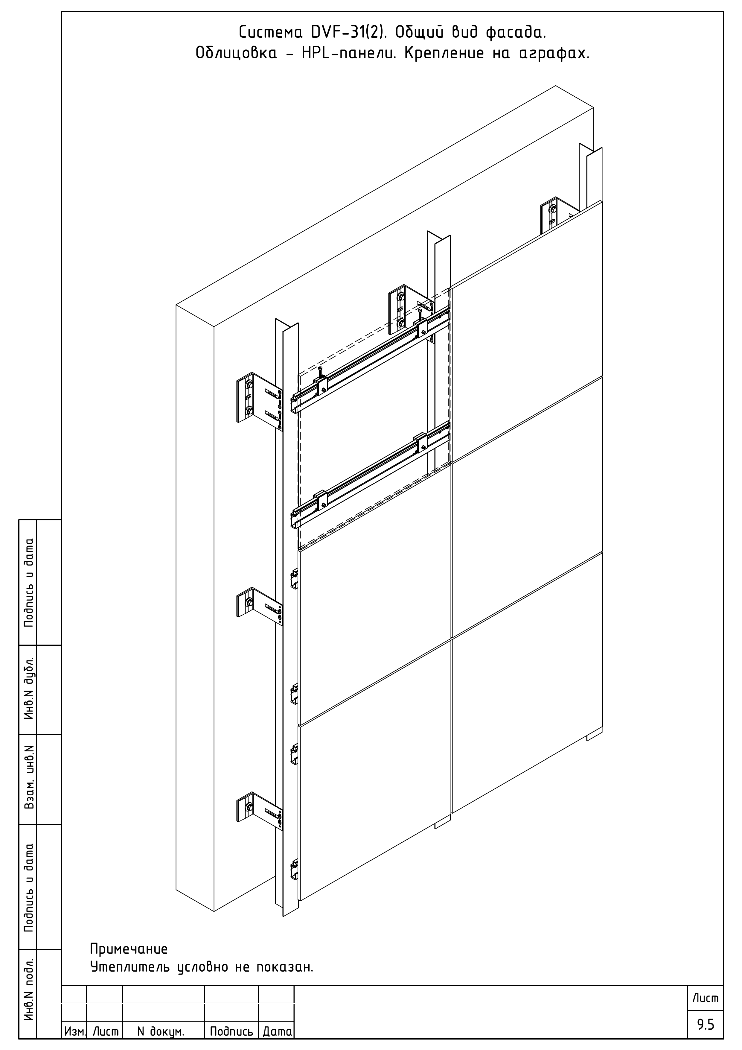
  • Система DVF-31(2). Общий вид фасада. Облицовка — HPL-панели. Крепление на аграфах
  • Система DVF-31(2). Схема монтажа. Облицовка — HPL-панели. Крепление на аграфах
  • Монтаж противопожарных коробов (1)
  • Монтаж противопожарных коробов (2)
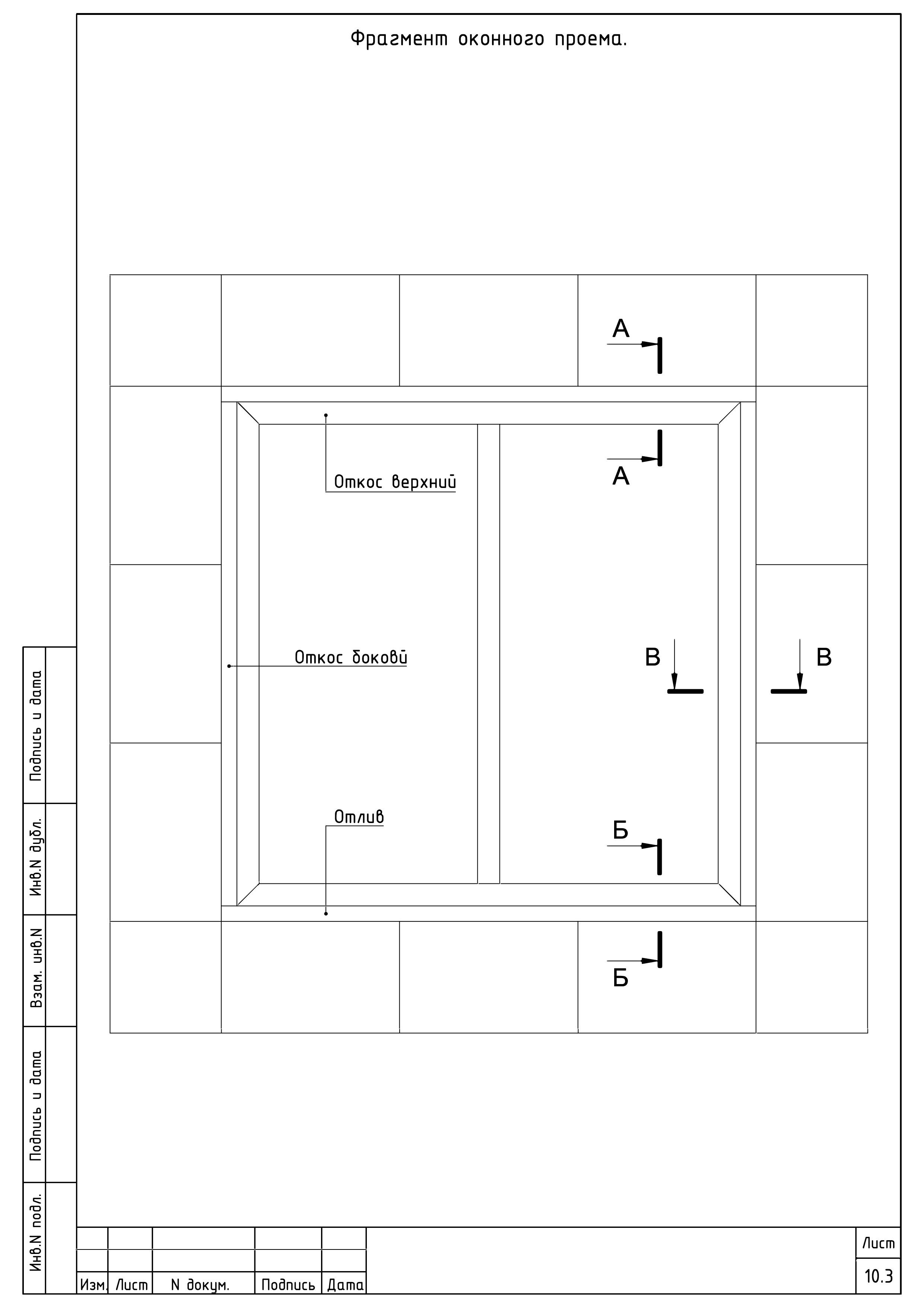
  • Фрагмент оконного проема
  • Примыкание к верхнему откосу. Короб "открытого" типа
  • Примыкание к боковому откосу. Короб "открытого" типа
  • Установка отвлива из оцинкованной стали
  • Примыкание к верхнему откосу. Короб "скрытого" типа
  • Примыкание к боковому откосу. Короб "скрытого" типа
  • Установка отвлива из композитного материала
  • Схема сборки противопожарного короба "открытого" типа
  • Монтаж облицовки
  • Монтаж панелей из металлокомпозитных материалов с видимым креплением в системе DVF-21
  • Монтаж натурально-гранитных и агломератно-гранитных плит со скрытым креплением в системе DVF-31
  • Монтаж фиброцементных и асбестоцементных панелей в системе DVF-31(2)
  • Монтаж HPL-панелей с видимым креплением в системе DVF-31(2)
  • Монтаж HPL-панелей со скрытым креплением в системе DVF-31(2) / Монтаж парапета / Меры по технике безопасности
  • Состав основных операций и средств контроля при монтаже НФС "DoksAl" (1)
  • Состав основных операций и средств контроля при монтаже НФС "DoksAl" (2)
  • Контролируемые параметры НФС "DoksAl" (1)
  • Контролируемые параметры НФС "DoksAl" (2)
  • Контролируемые параметры НФС "DoksAl" (3)
  • Допустимые значения отклонений при монтаже НФС "DoksAl"
Скачать пример «Дизайн фасада»

Стоимость:

400 ₽/м² (строительная площадь здания)

Срок:

30 дней

Дом из бруса (КД)

Скачать пример «Дом из бруса (КД)»
  • Обложка
  • Титульный лист
  • Перечень основного комплекта АР
  • Пояснительная записка
  • Схема расположения строения на участке
  • Схема разбивки осей здания
  • План фундамента
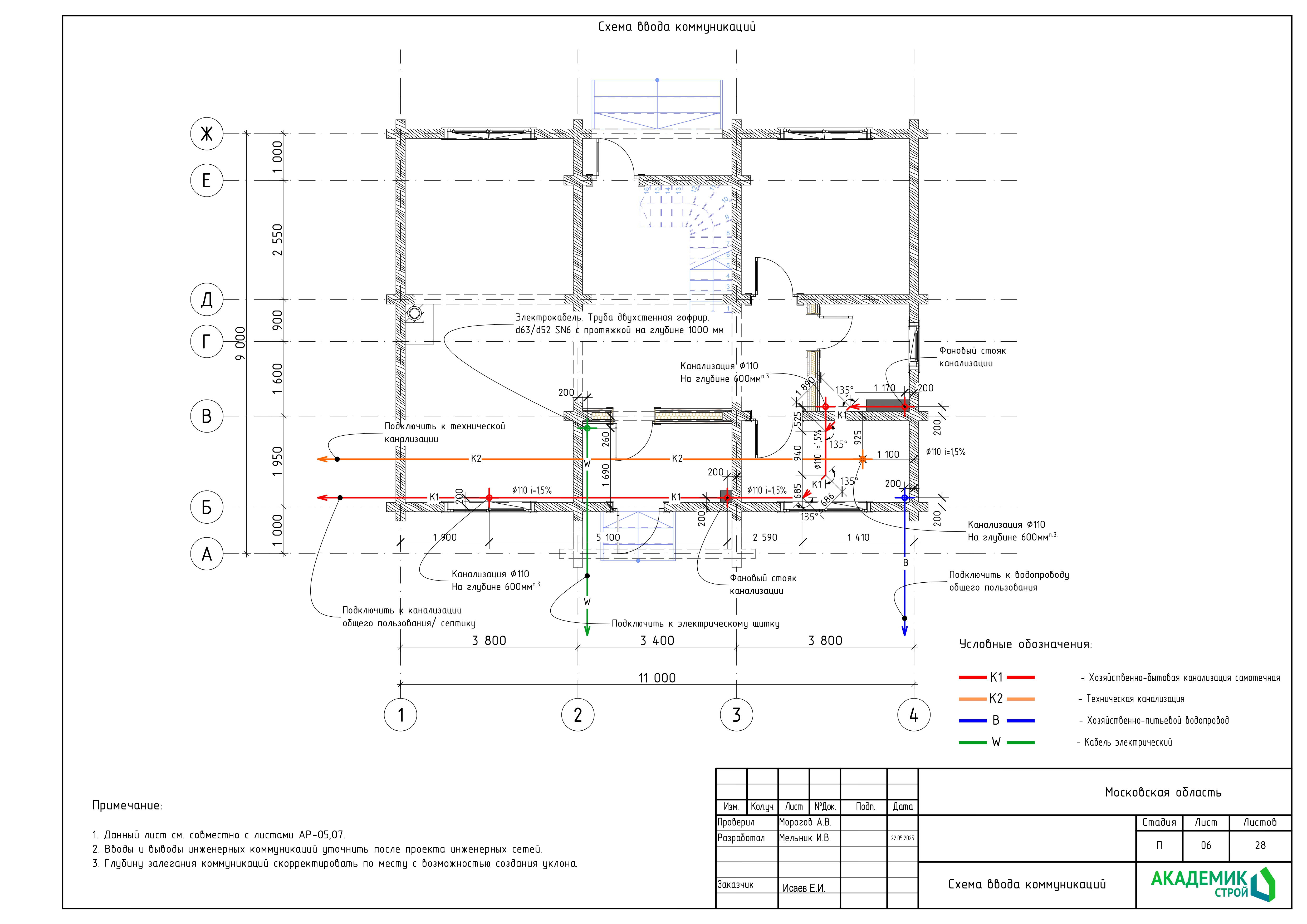
  • Схема ввода коммуникаций
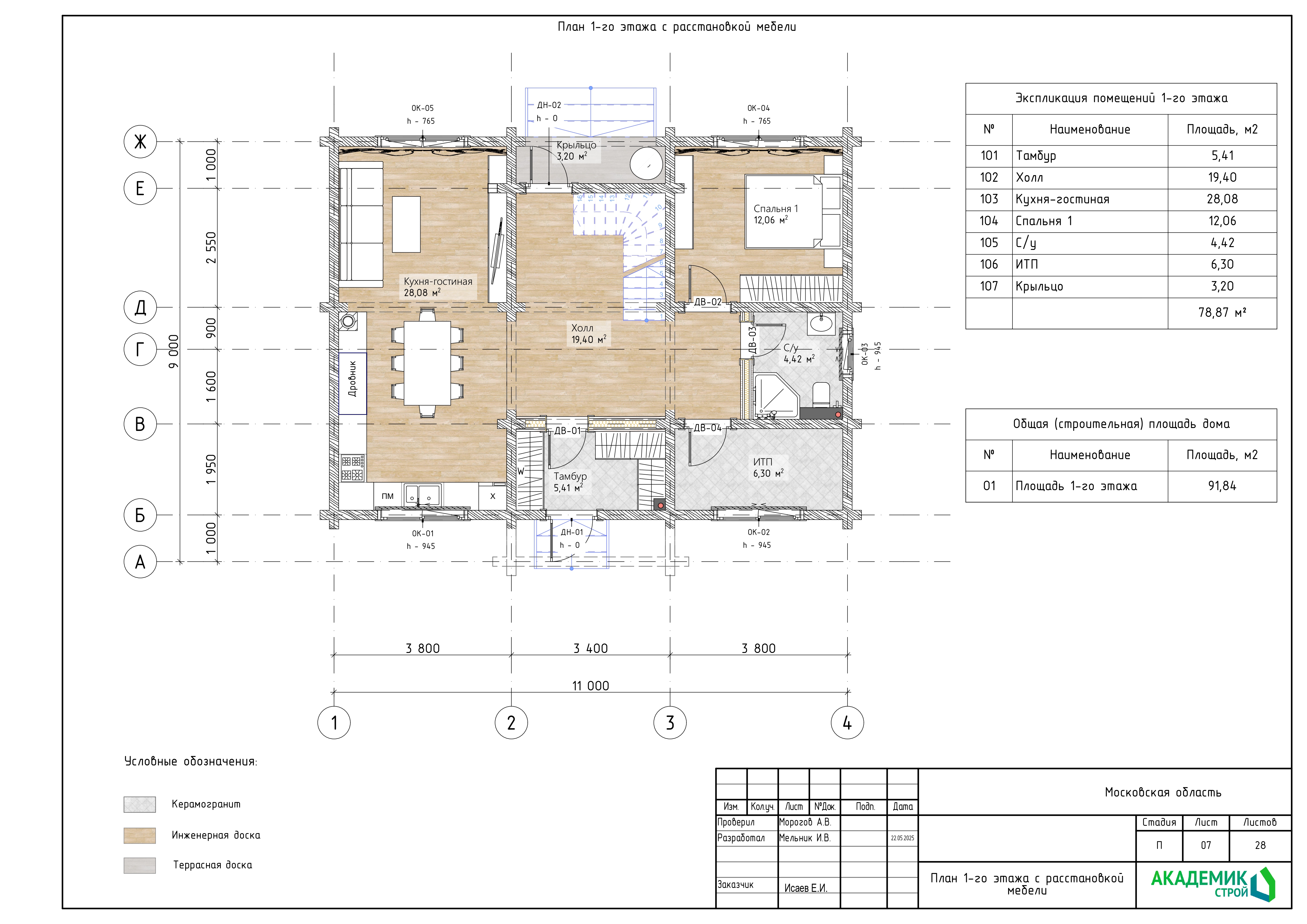
  • План 1-го этажа с расстановкой мебели
  • Конструктивный план 1-го этажа
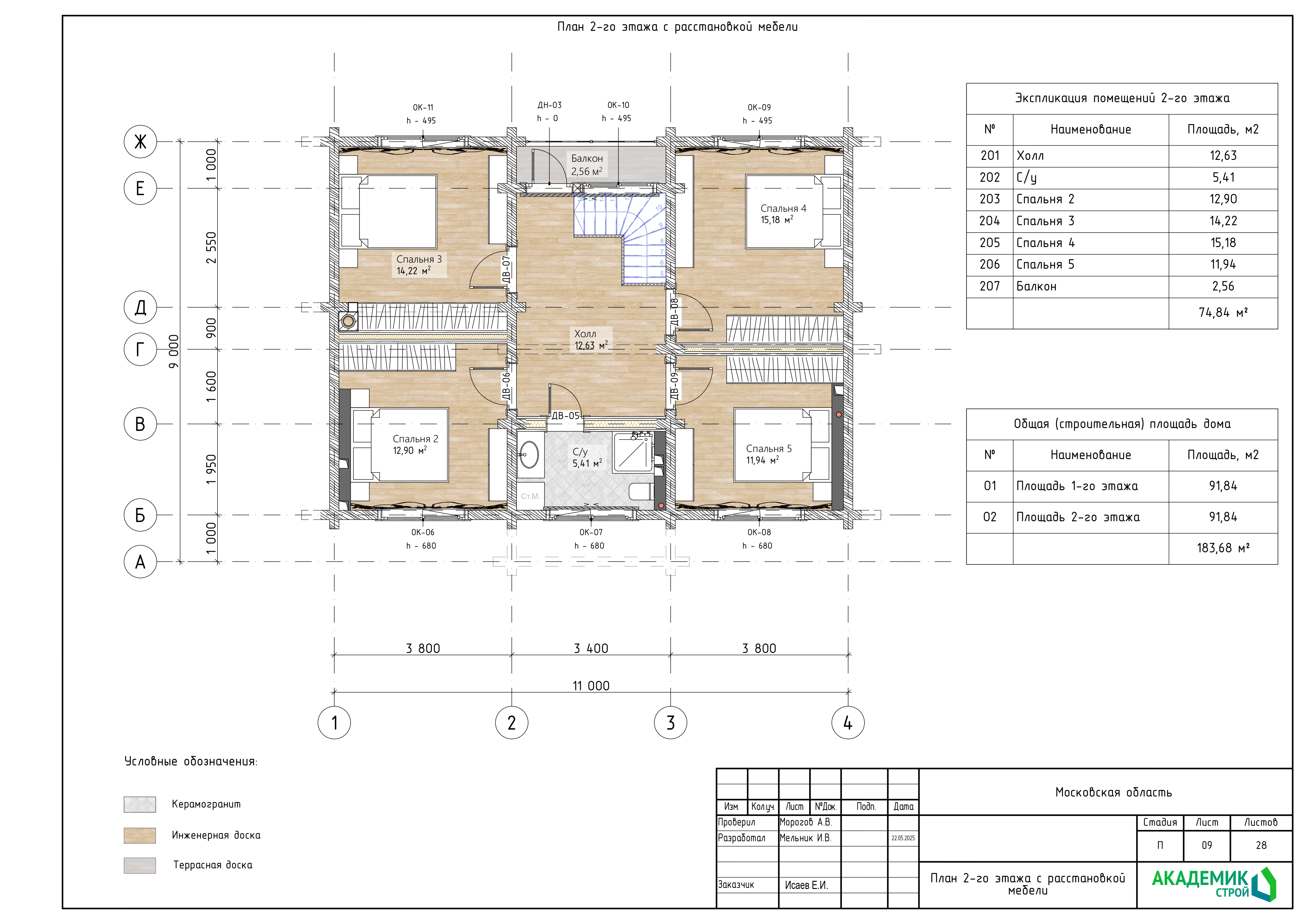
  • План 2-го этажа с расстановкой мебели
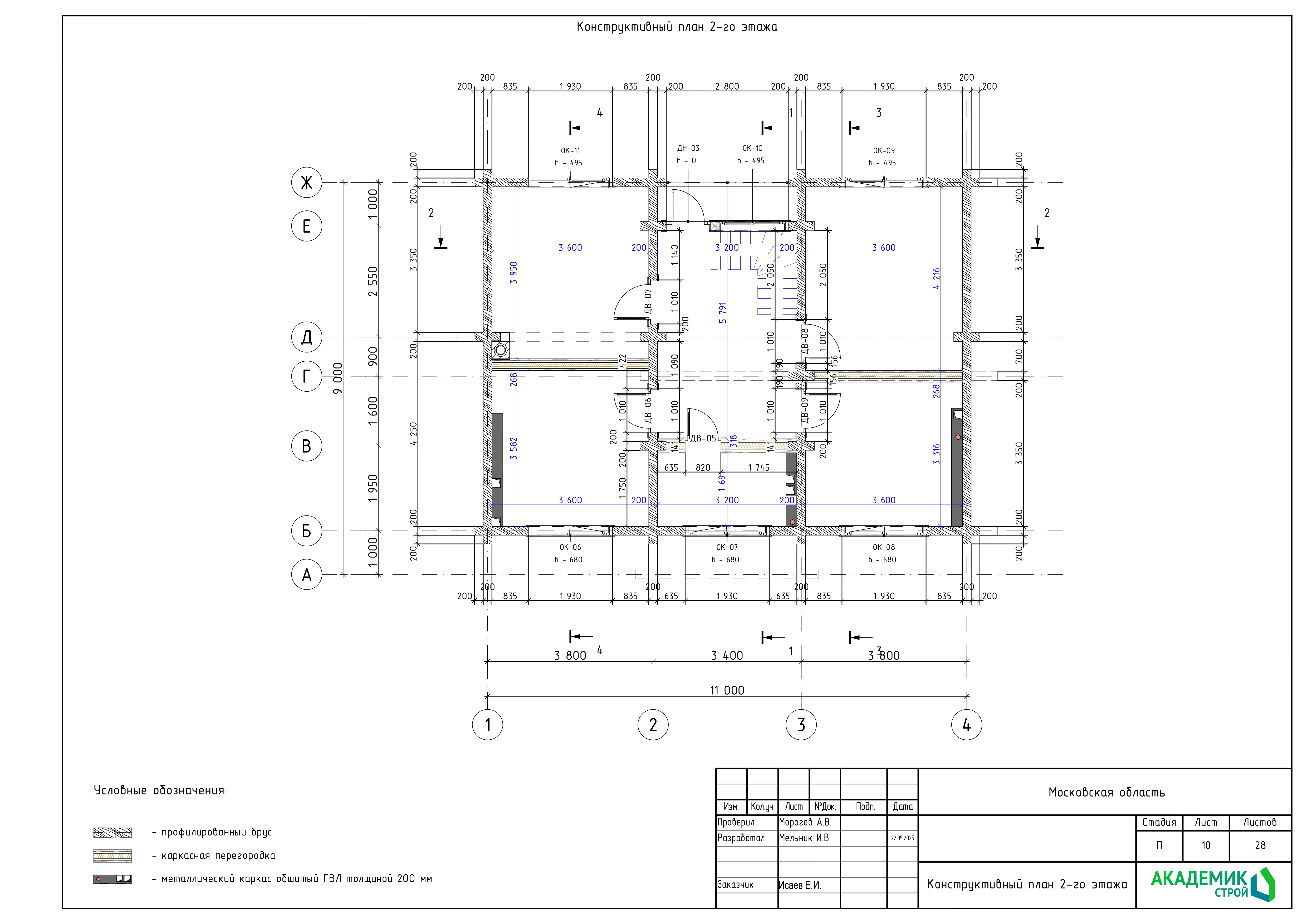
  • Конструктивный план 2-го этажа
  • Фасад в осях 1-4
  • Фасад в осях А-Ж
  • Фасад в осях 4-1
  • Фасад в осях Ж-А
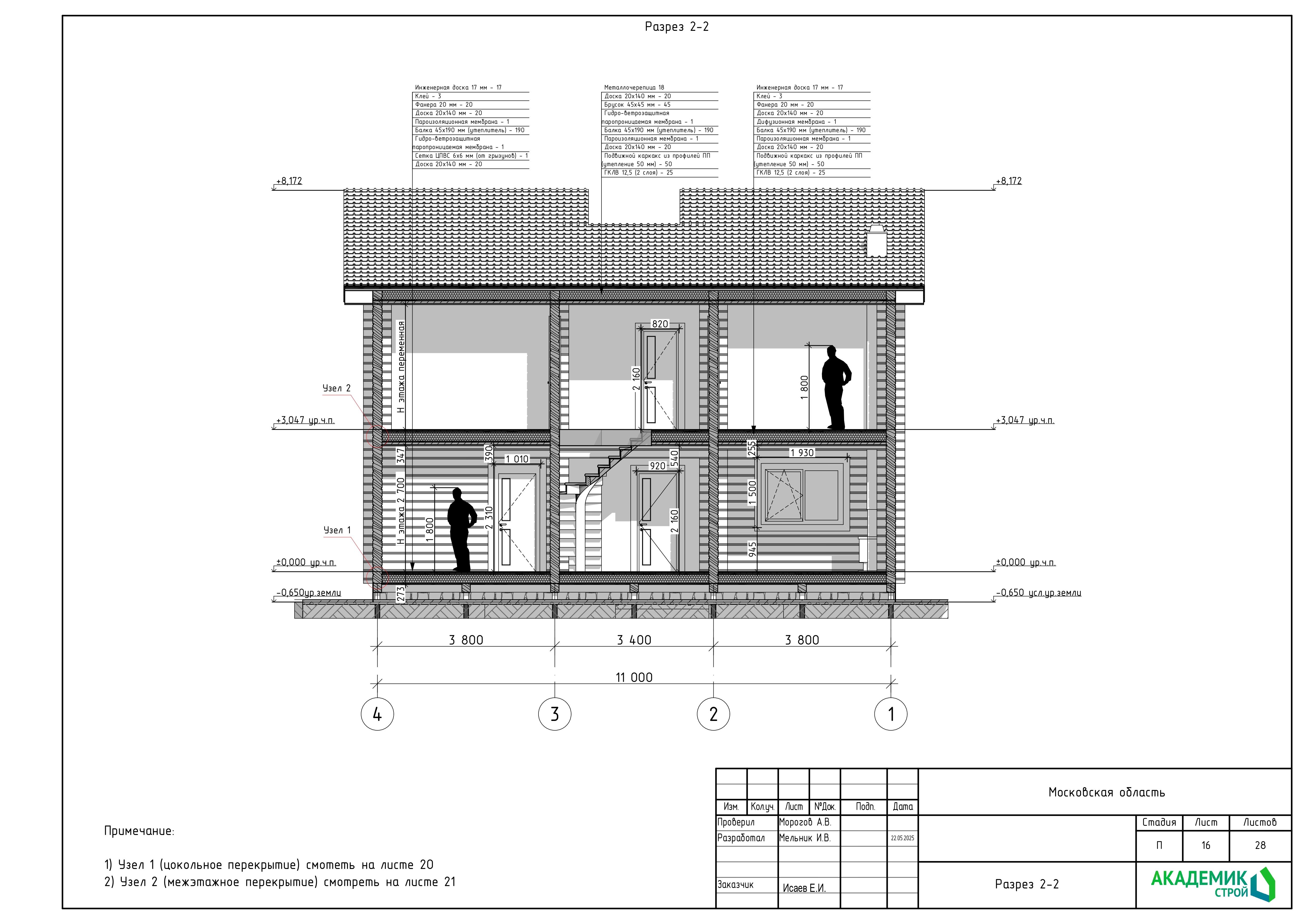
  • Разрез 1-1
  • Разрез 2-2
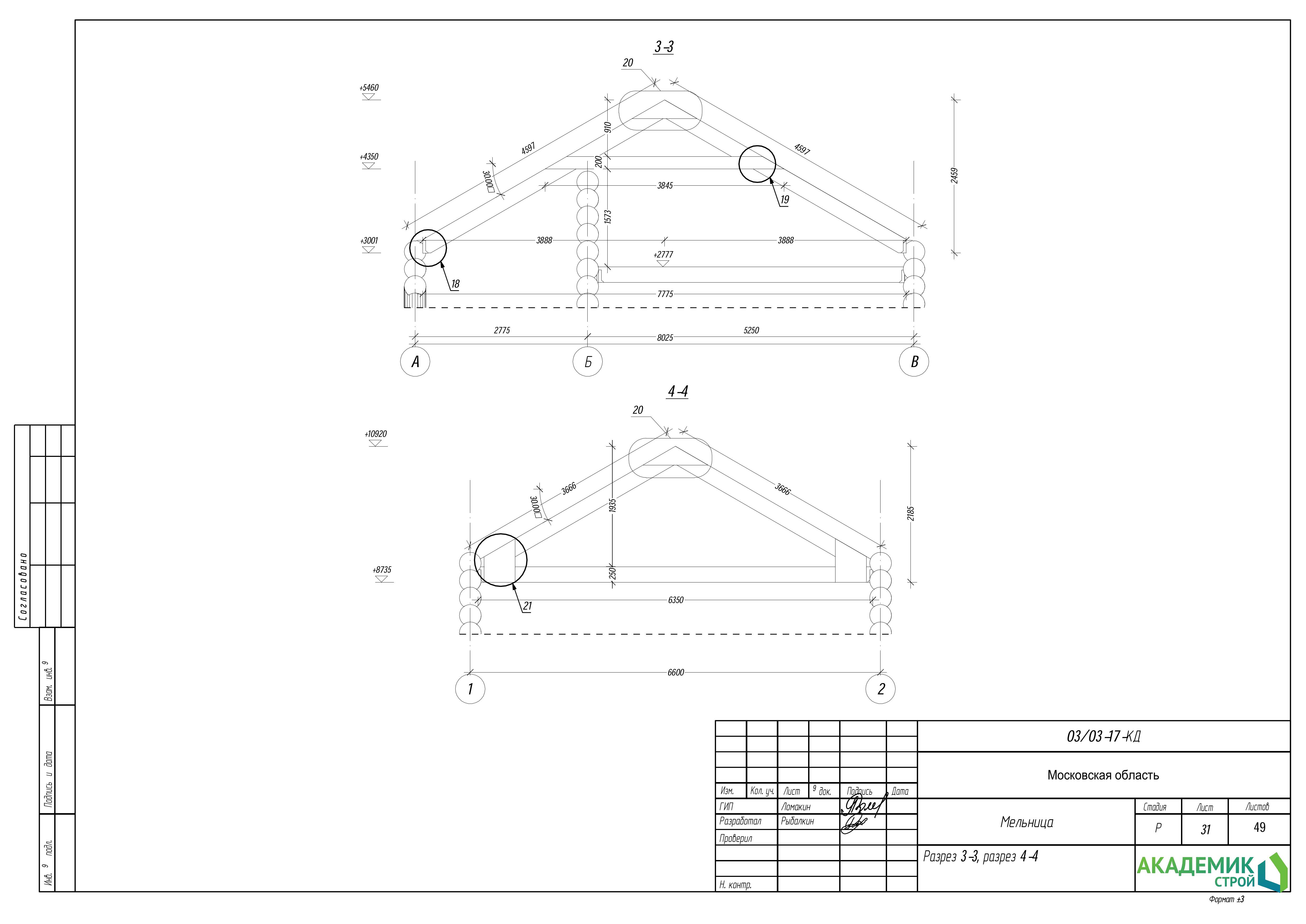
  • Разрез 3-3 / 4-4
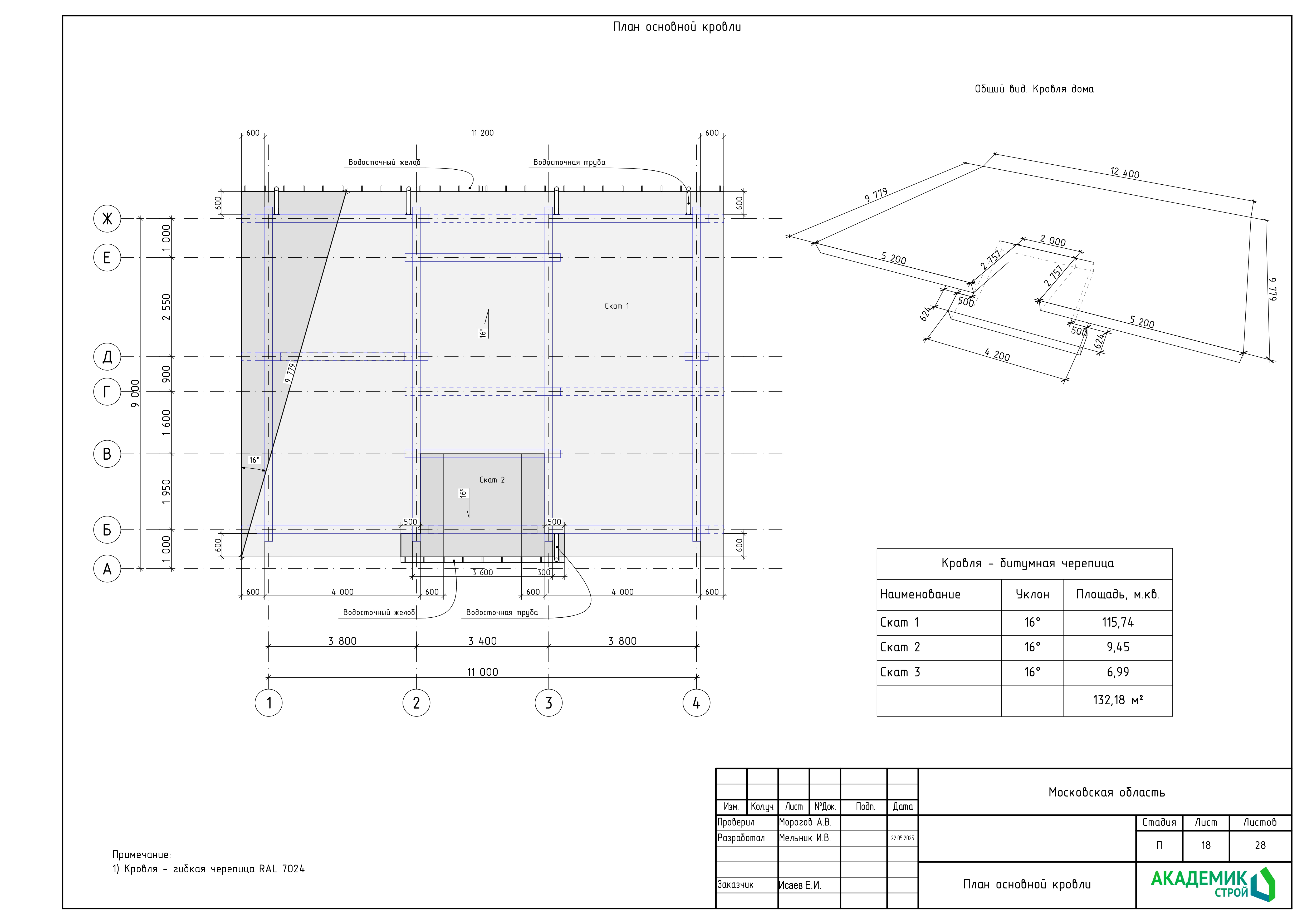
  • План основной кровли
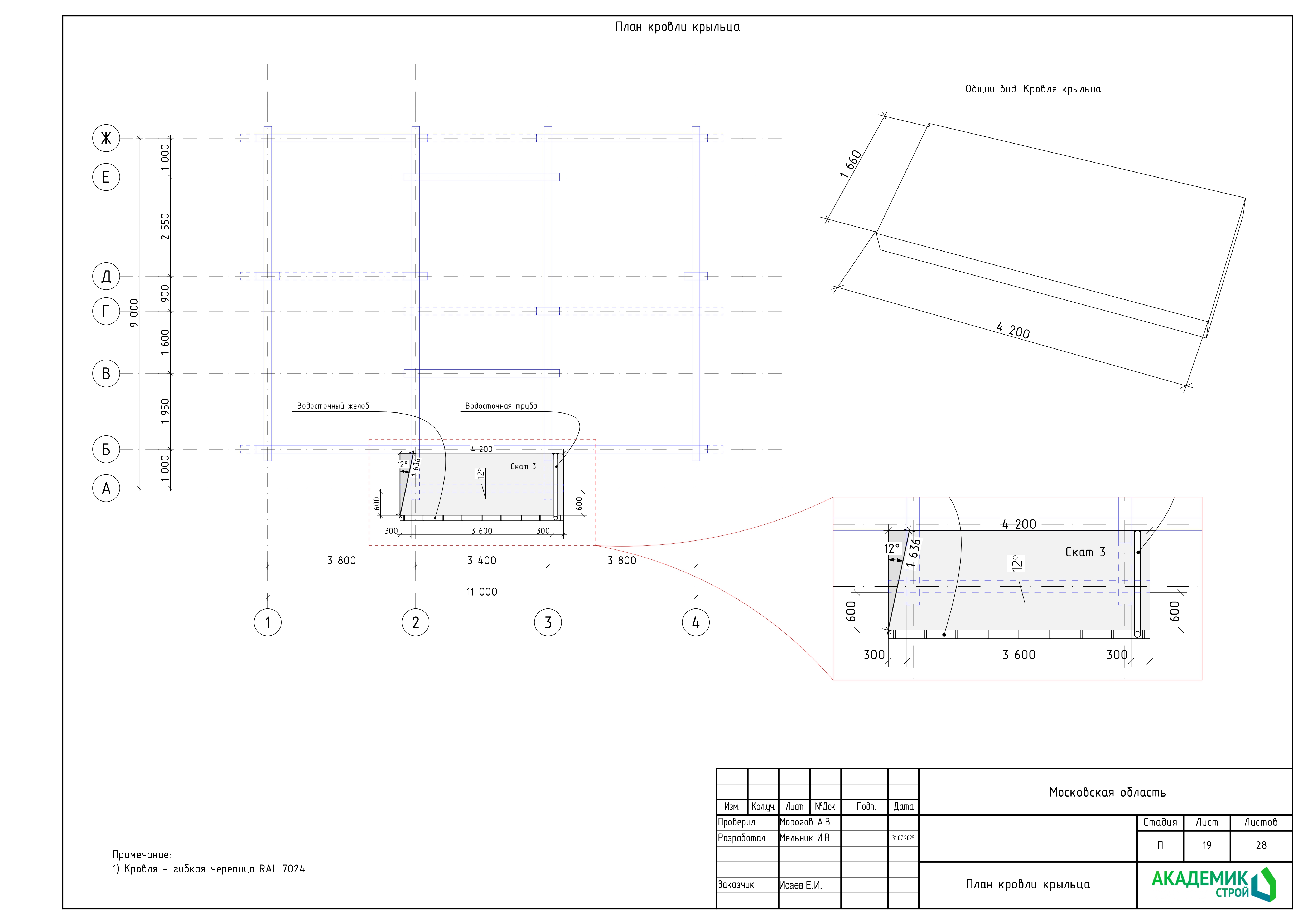
  • План кровли крыльца
  • Узел 1 (цокольное перекрытие)
  • Узел 2 (межэтажное перекрытие)
  • Узел 3 (свес кровли)
  • Спецификация заполнения оконных проёмов
  • Спецификация заполнения дверных проёмов
  • Визуализация 1
  • Визуализация 2
  • Визуализация 3
  • Визуализация 4
  • План стен 1-го этажа
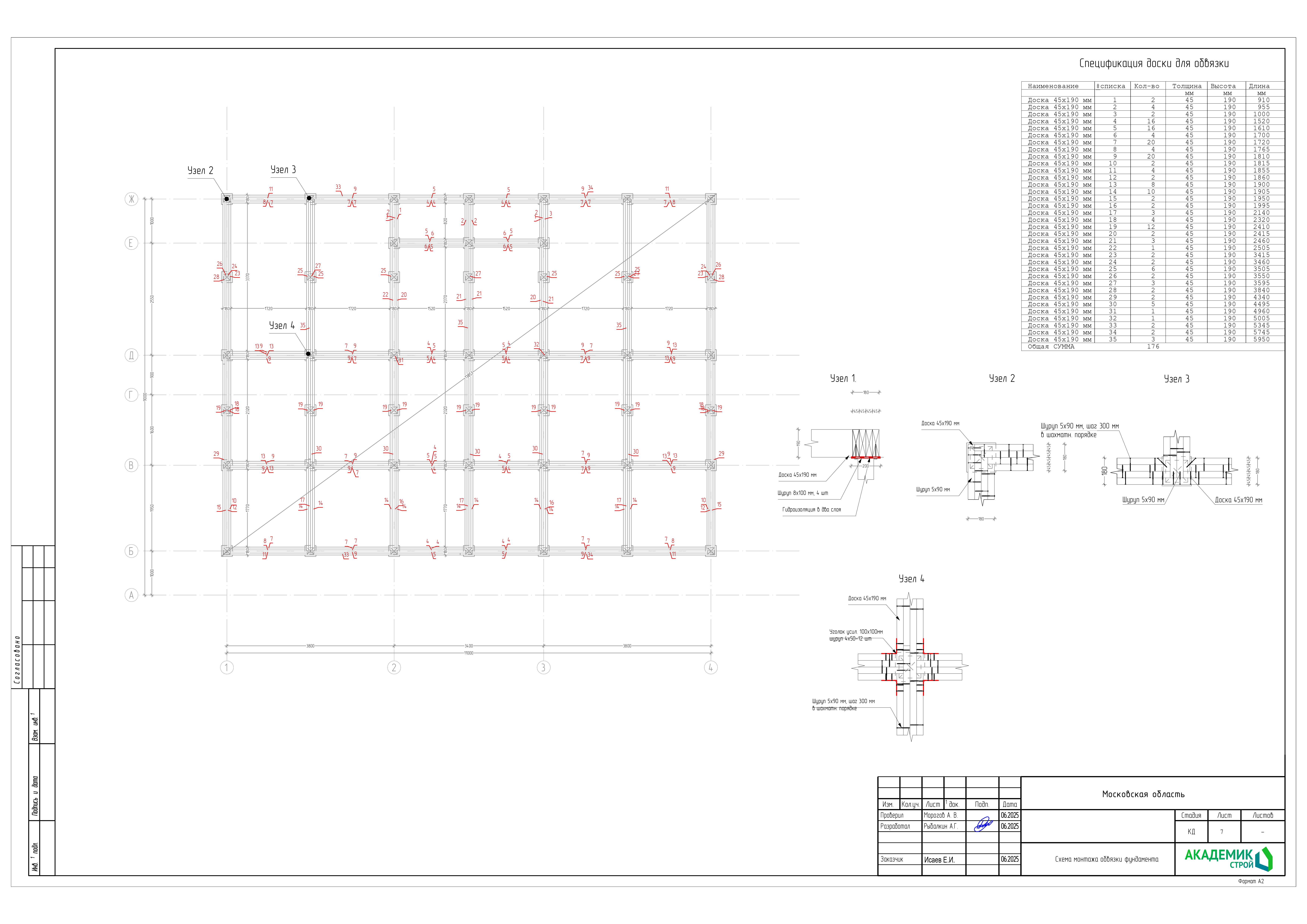
  • Схема монтажа обвязки фундамента
  • Маркировка досок обвязки фундамента
  • План стен 1-го этажа (повтор)
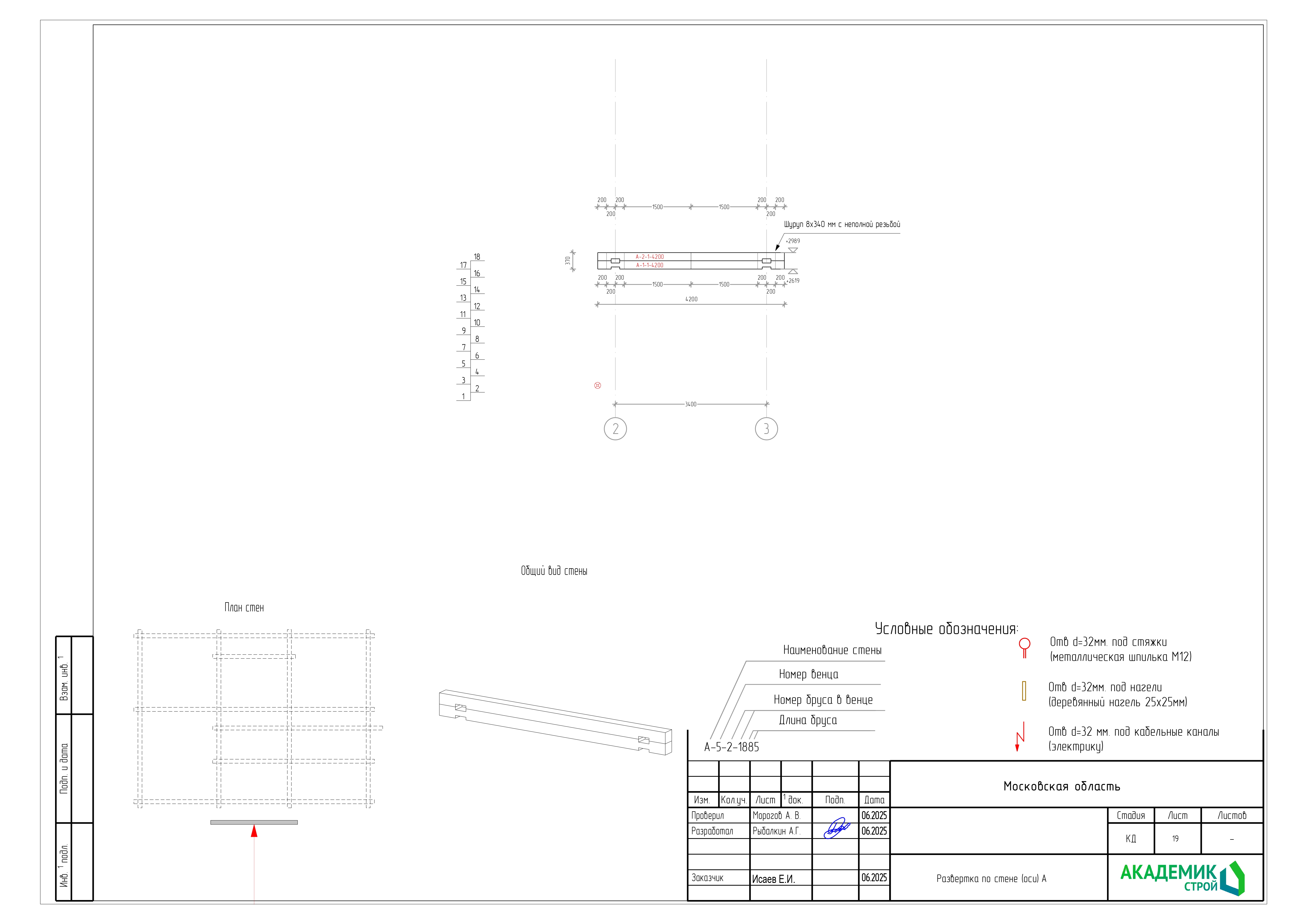
  • Общий вид стен
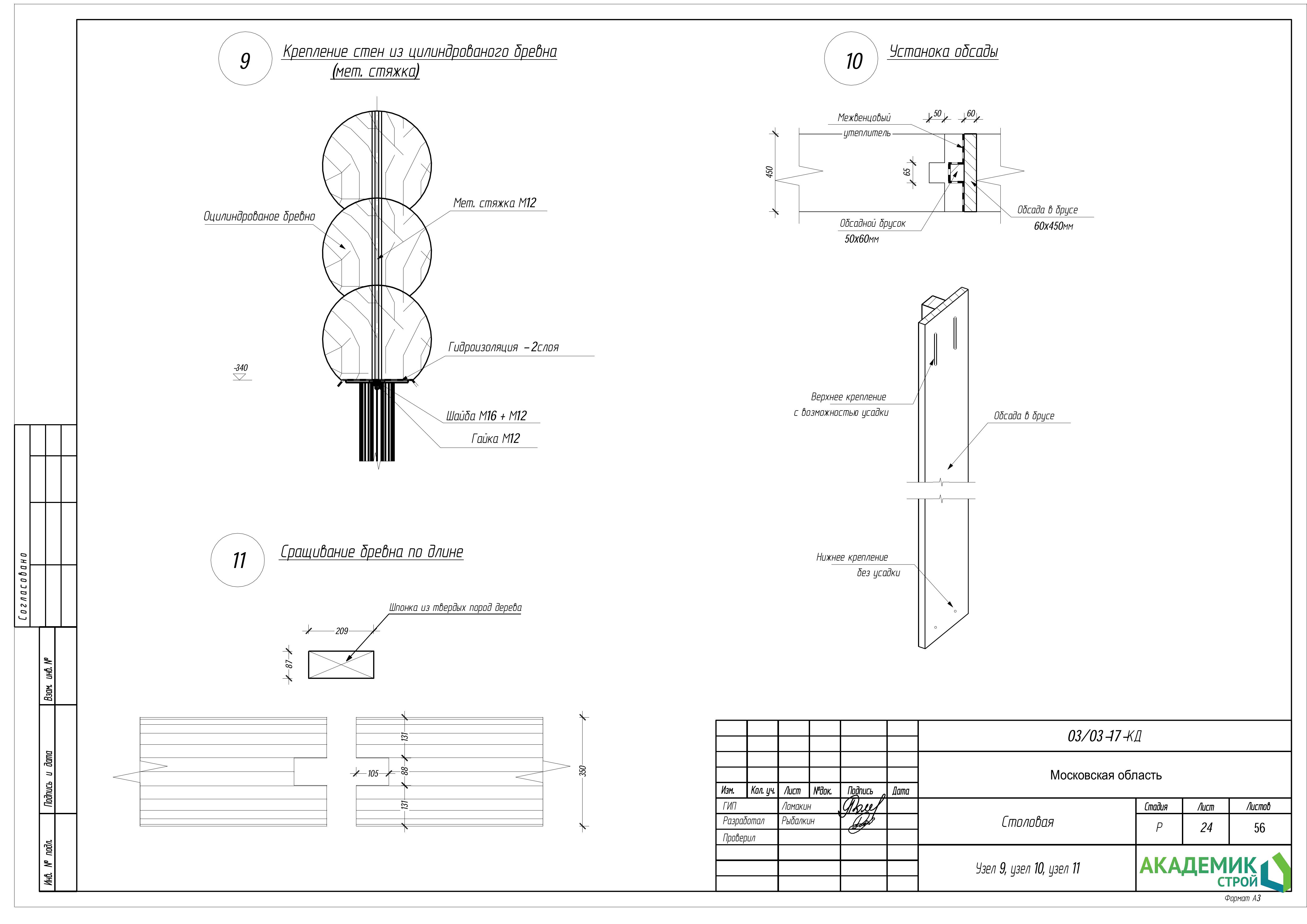
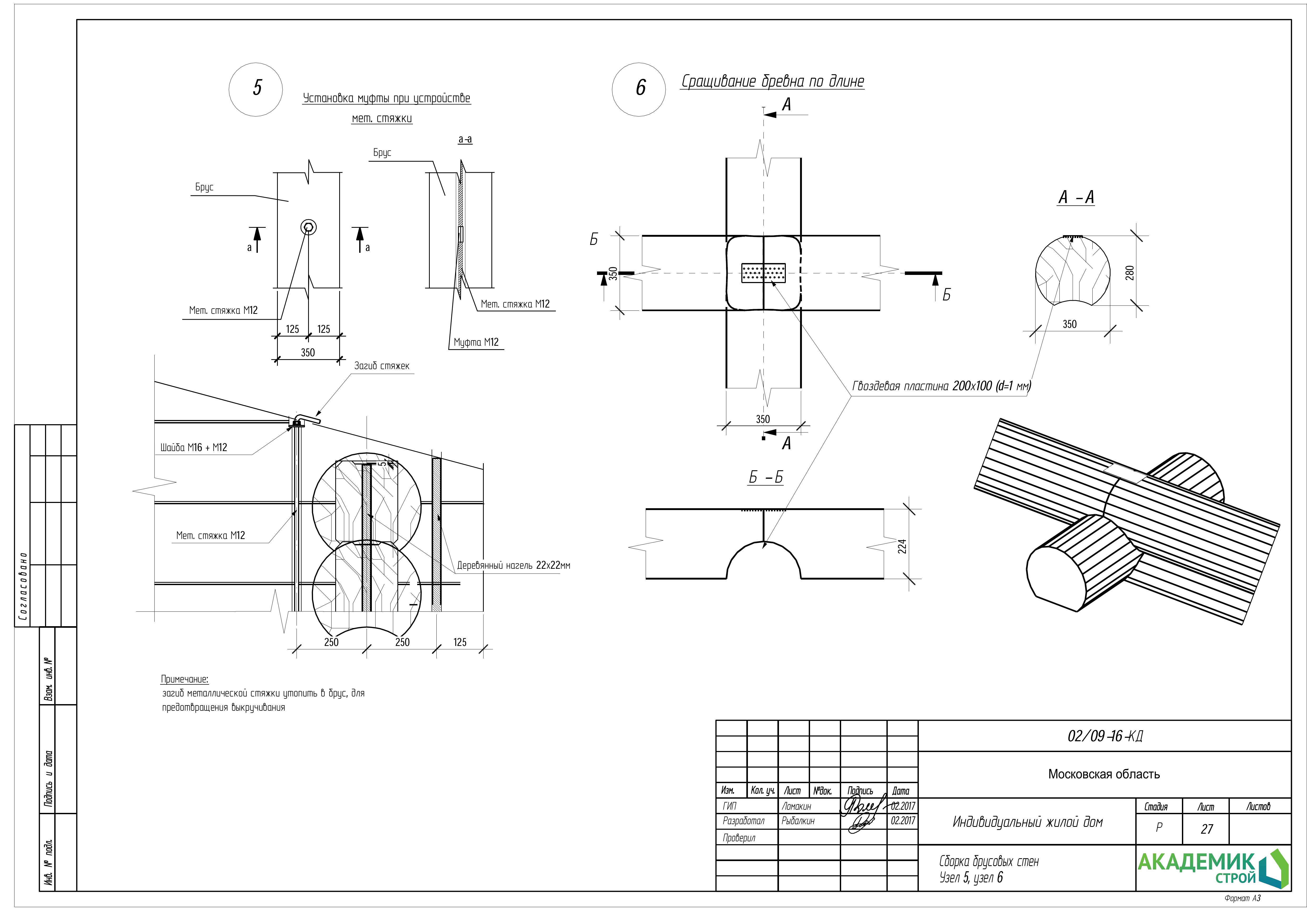
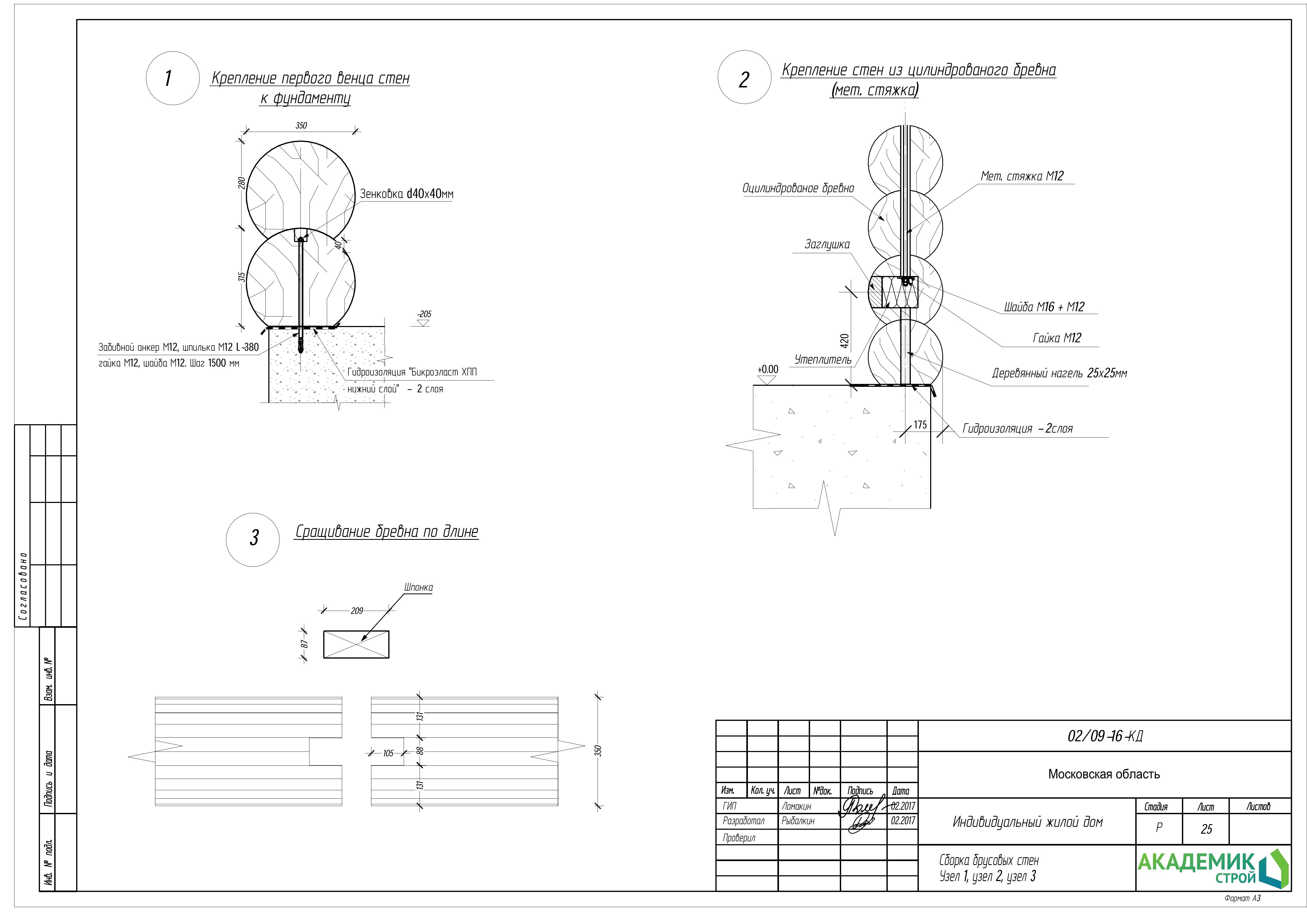
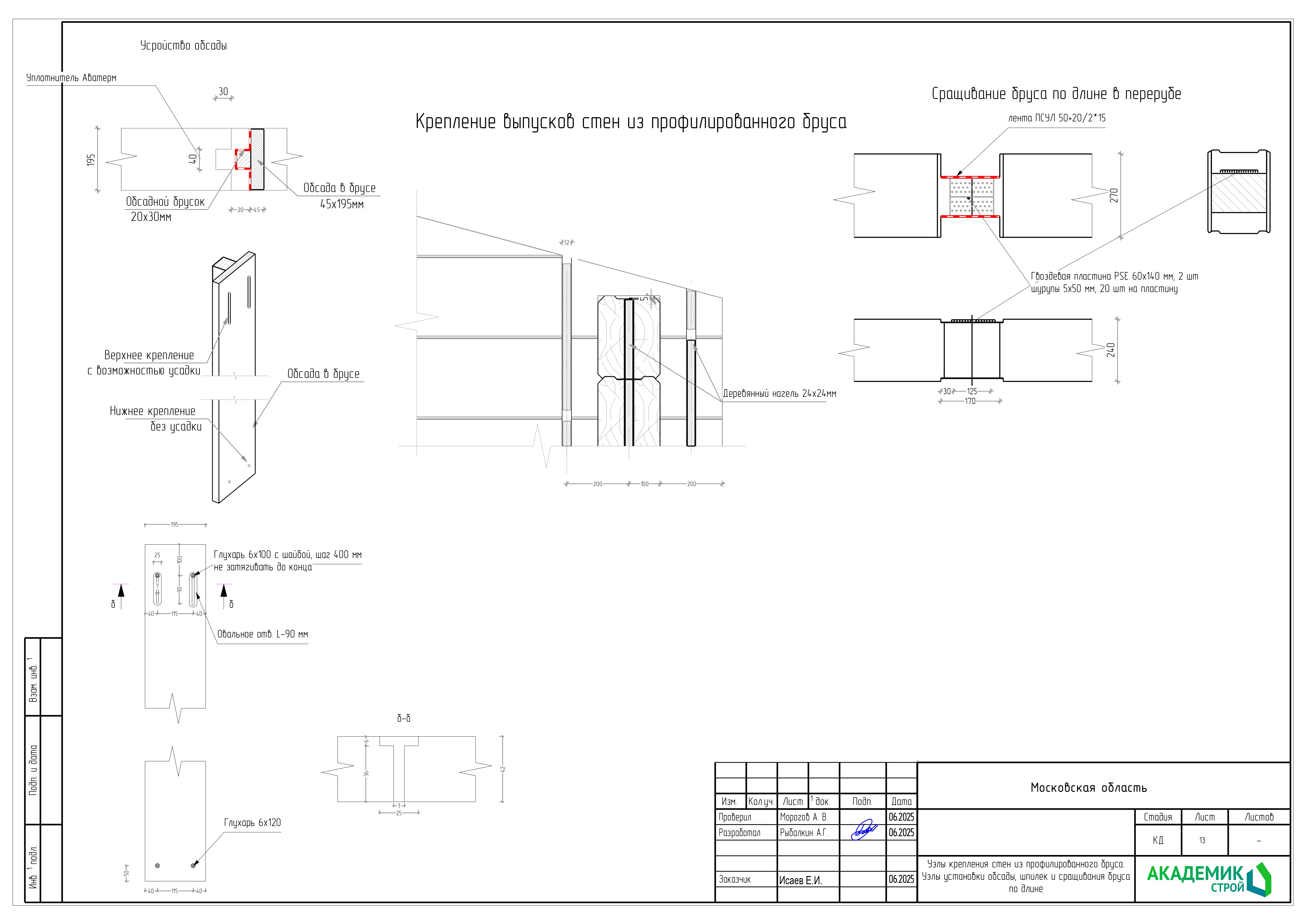
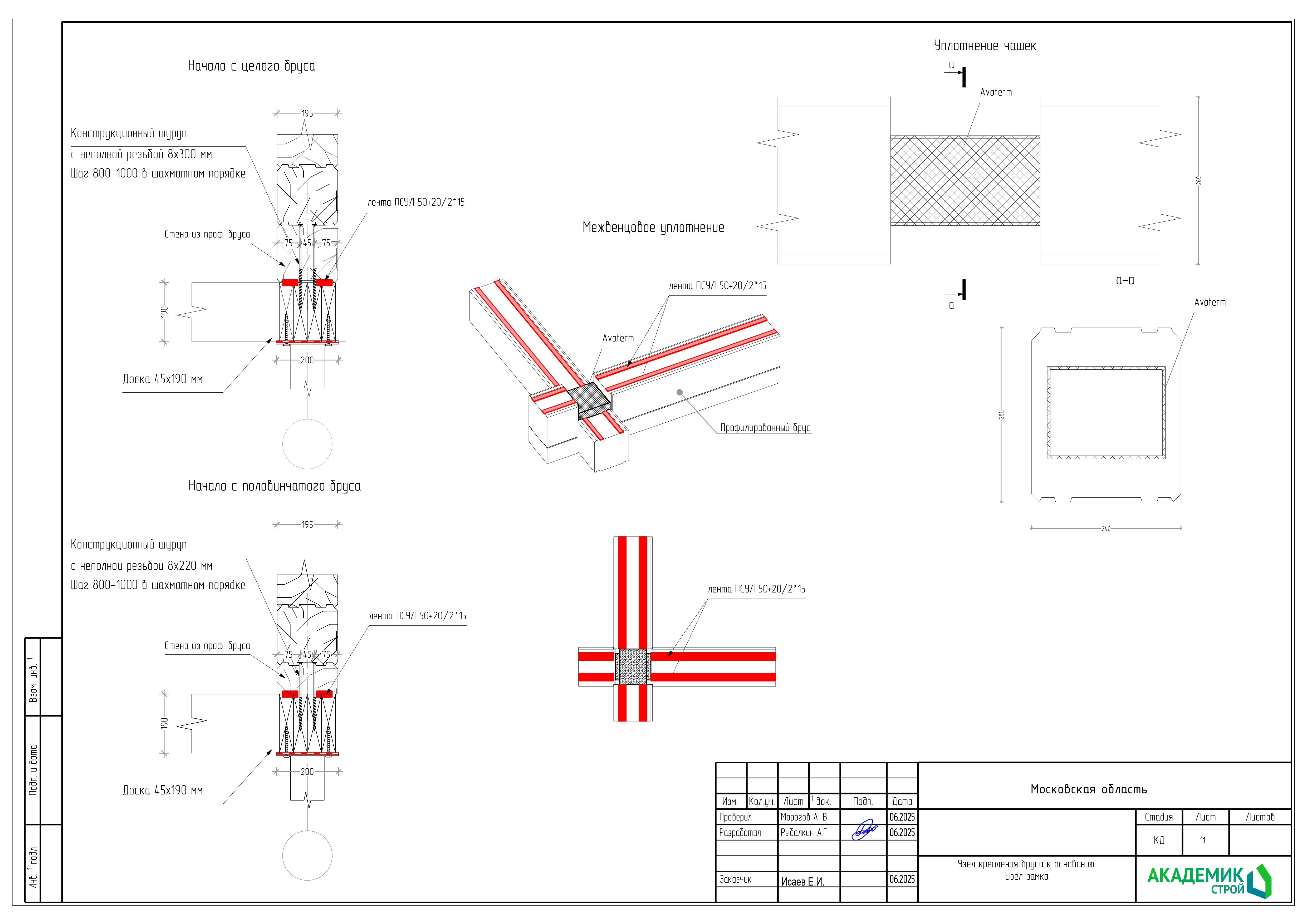
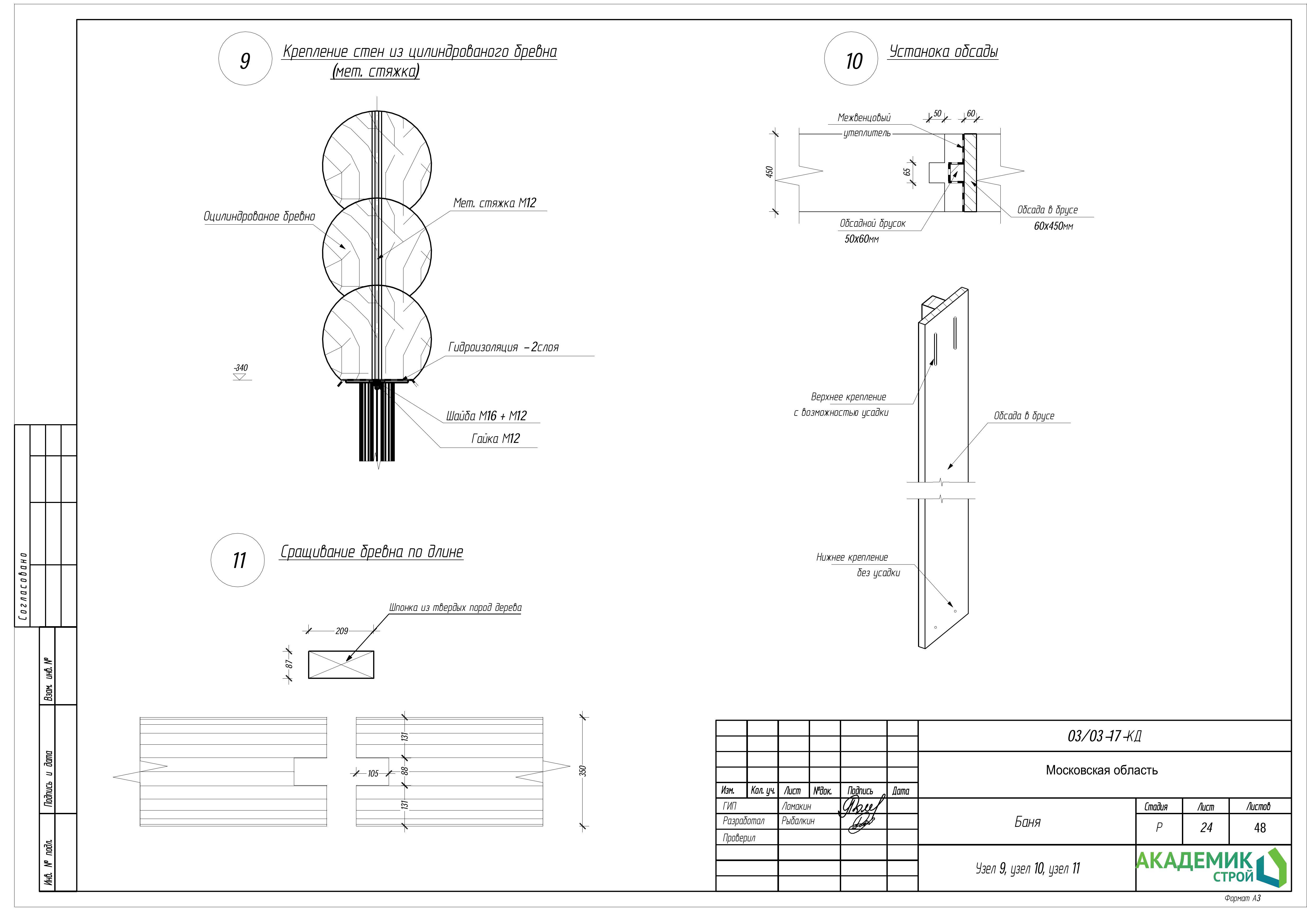
  • Узел крепления бруса к основанию. Узел замка
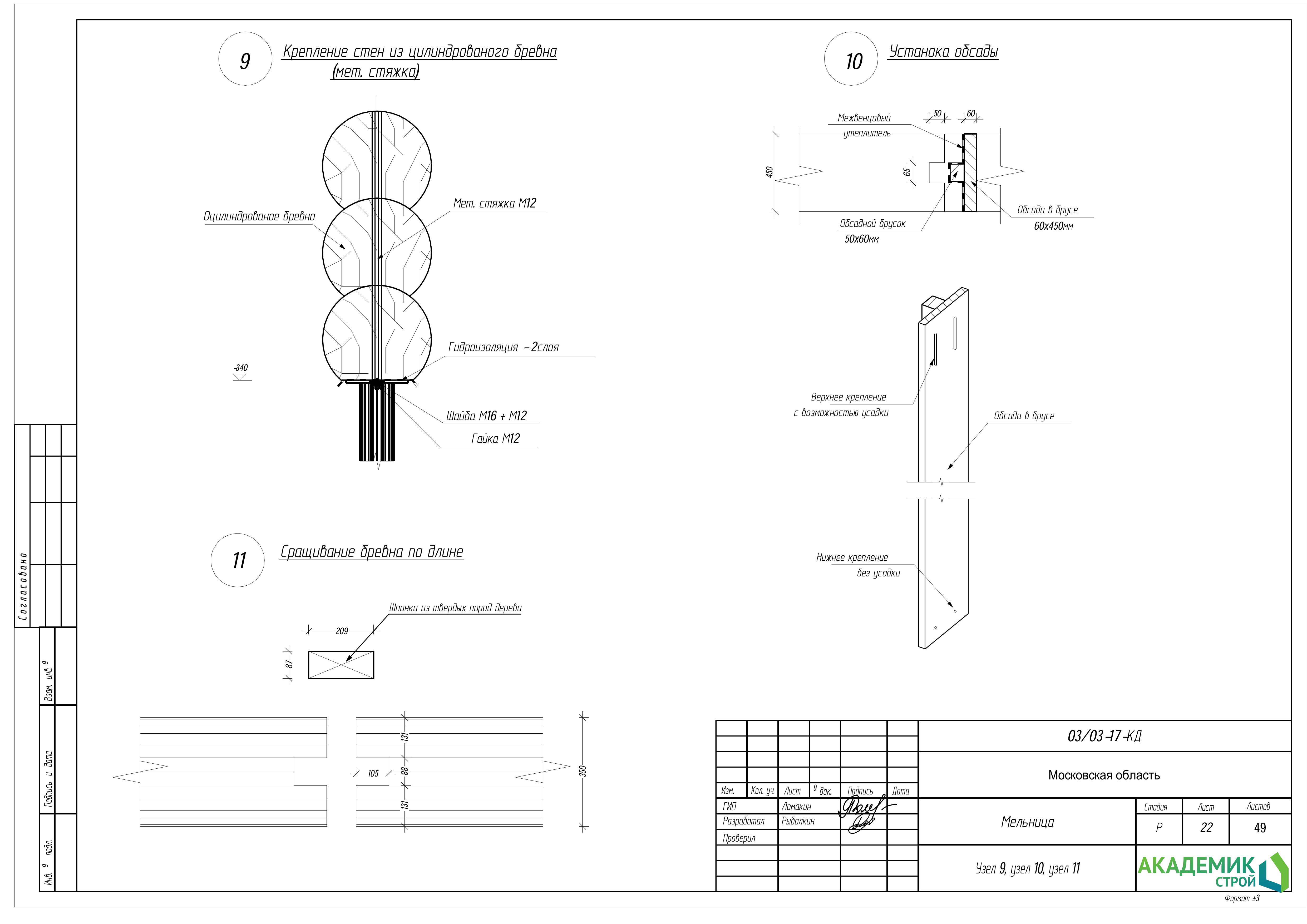
  • Крепление стен из клеёного бруса деревянным нагелем
  • Узлы крепления стен из профилированного бруса. Узлы установки обсады, шпилек и сращивания бруса по длине
  • Стягивание венцов (однопролётная балка)
  • Развёртка по стене (оси) 1
  • Развёртка по стене (оси) 2
  • Развёртка по стене (оси) 3
  • Развёртка по стене (оси) 4
  • Развёртка по стене (оси) А
  • Развёртка по стене (оси) Б
  • Развёртка по стене (оси) В
  • Развёртка по стене (оси) Г
  • Развёртка по стене (оси) Д
  • Развёртка по стене (оси) Е
  • Развёртка по стене (оси) Ж
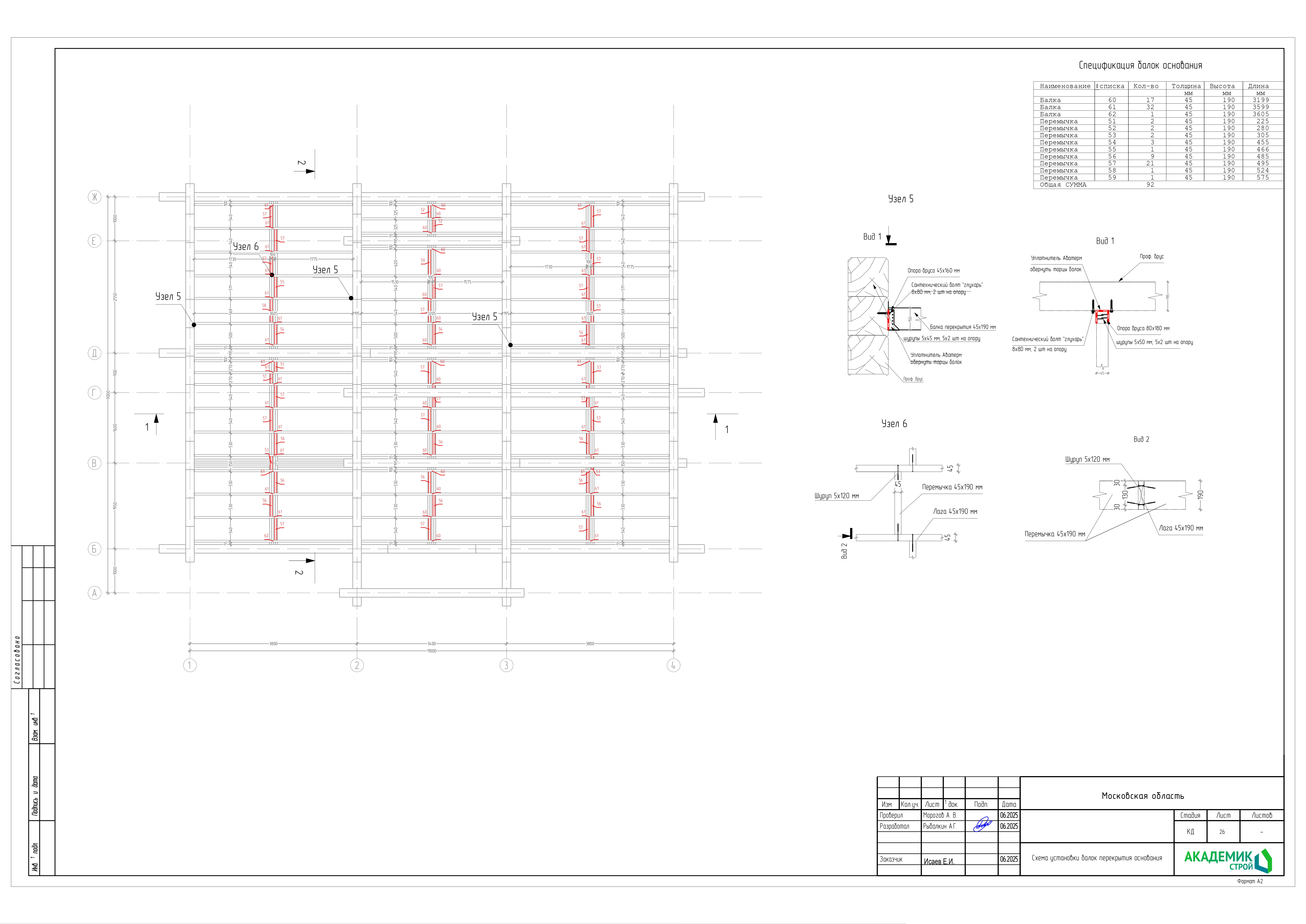
  • Схема установки балок перекрытия основания
  • Схема установки балок перекрытия основания. Разрезы 1-1, 2-2
  • Схема установки балок межэтажного перекрытия
  • Схема установки балок межэтажного перекрытия. Разрезы 3-3, 4-4
  • Схема установки стропильных ног крыши
  • Маркировка стропильных ног крыши. Разрезы 5-5 и 6-6
  • Маркировка стропильных ног крыши
  • Разрез дома
  • Аксонометрия 1
  • Аксонометрия 1 (повтор)
  • План 1 этажа
  • План 2 этажа
  • План порядовки: ось А
  • План порядовки: ось Б
  • План порядовки: ось В
  • План порядовки: ось Г
  • План порядовки: ось Д
  • План порядовки: ось Е
  • План порядовки: ось Ж
  • План порядовки: ось 1
  • План порядовки: ось 2
  • План порядовки: ось 3
  • План порядовки: ось 4
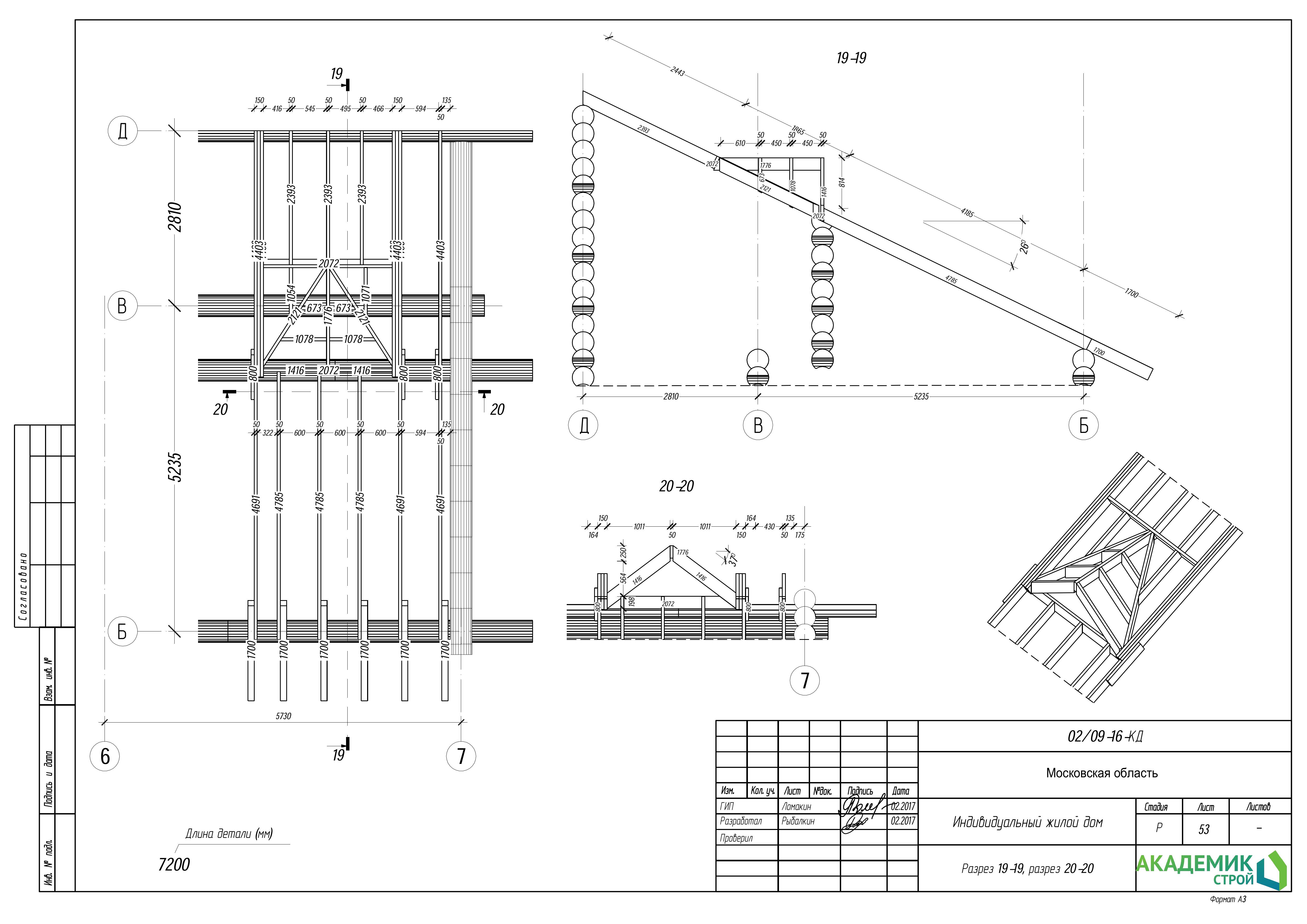
  • Стропильная пара ‒ 1
  • Стропильная пара ‒ 2
  • Стропильная пара ‒ 3
  • Стропильная пара ‒ 4
  • Длина 6000. Ряд 0-70. Бревна. Брус 195х145 (1)
  • Длина 6000. Ряд 0-70. Бревна. Брус 195х145 (2)
  • Длина 6000. Ряд 0-70. Бревна. Брус 195х145 (3)
  • Длина 6000. Ряд 0-70. Бревна. Брус 195х145 (4)
  • Длина 6000. Ряд 0-70. Бревна. Брус 195х145 (5)
  • Длина 6000. Ряд 0-70. Бревна. Брус 195х145 (6)
  • Длина 6000. Ряд 0-70. Бревна. Брус 195х145 (7)
  • Длина 6000. Ряд 0-70. Бревна. Брус 195х145 (8)
  • Длина 6000. Ряд 0-70. Бревна. Брус 195х145 (9)
  • Длина 6000. Ряд 0-70. Бревна. Брус 195х145 (10)
  • Длина 6000. Ряд 0-70. Бревна. Брус 195х145 (11)
  • Длина 6000. Ряд 0-70. Бревна. Брус 195х145 (12)
  • Длина 6000. Ряд 0-70. Бревна. Брус 195х145 (13)
  • Длина 6000. Ряд 0-70. Бревна. Брус 195х145 (14)
  • Длина 6000. Ряд 0-70. Бревна. Брус 195х145 (15)
  • Длина 6000. Ряд 0-70. Бревна. Брус 195х145 (16)
  • Длина 6000. Ряд 0-70. Бревна. Брус 195х145 (17)
  • Длина 6000. Ряд 0-70. Бревна. Брус 195х145 (18)
  • Длина 6000. Ряд 0-70. Бревна. Брус 195х145 (19)
  • Длина 6000. Ряд 0-70. Бревна. Брус 195х145 (20)
  • Длина 6000. Ряд 0-70. Бревна. Брус 195х145 (21)
  • Длина 6000. Ряд 0-70. Бревна. Брус 195х145 (22)
  • Длина 6000. Ряд 0-70. Бревна. Брус 195х145 (23)
  • Длина 6000. Ряд 0-70. Бревна. Брус 195х145 (24)
  • Длина 6000. Ряд 0-70. Бревна. Брус 195х145 (25)
  • Длина 6000. Ряд 0-70. Бревна. Брус 195х145 (26)
  • Длина 6000. Ряд 0-70. Бревна. Брус 195х145 (27)
  • Длина 6000. Ряд 0-70. Бревна. Брус 195х145 (28)
  • Длина 6000. Ряд 0-70. Бревна. Брус 195х145 (29)
  • Длина 6000. Ряд 0-70. Бревна. Брус 195х145 (30)
  • Длина 6000. Ряд 0-70. Бревна. Брус 195х145 (31)
  • Длина 6000. Ряд 0-70. Бревна. Брус 195х145 (32)
  • Длина 6000. Ряд 0-70. Бревна. Брус 195х145 (33)
  • Длина 6000. Ряд 0-70. Бревна. Брус 195х145 (34)
  • Длина 6000. Ряд 0-70. Бревна. Брус 195х145 (35)
  • Длина 6000. Ряд 0-70. Бревна. Брус 195х145 (36)
  • Длина 6000. Ряд 0-70. Бревна. Брус 195х145 (37)
  • Длина 6000. Ряд 0-70. Бревна. Брус 195х145 (38)
  • Длина 6000. Ряд 0-70. Бревна. Брус 195х145 (39)
  • Длина 6000. Ряд 0-70. Бревна. Брус 195х145 (40)
  • Длина 6000. Ряд 0-70. Бревна. Брус 195х145 (41)
  • Длина 6000. Ряд 0-70. Бревна. Брус 195х145 (42)
  • Длина 6000. Ряд 0-70. Бревна. Брус 195х145 (43)
  • Длина 6000. Ряд 0-70. Бревна. Брус 195х145 (44)
  • Длина 6000. Ряд 0-70. Бревна. Брус 195х145 (45)
  • Длина 6000. Ряд 0-70. Бревна. Брус 195х145 (46)
  • Длина 6000. Ряд 0-70. Бревна. Брус 195х145 (47)
  • Длина 6000. Ряд 0-70. Бревна. Брус 195х145 (48)
  • Длина 6000. Ряд 0-70. Бревна. Брус 195х145 (49)
  • Длина 6000. Ряд 0-70. Бревна. Брус 195х145 (50)
  • Длина 6000. Ряд 0-70. Бревна. Брус 195х145 (51)
  • Длина 6000. Ряд 0-70. Бревна. Брус 195х145 (52)
  • Длина 6000. Ряд 0-70. Бревна. Брус 195х145 (53)
  • Длина 6000. Ряд 0-70. Бревна. Брус 195х145 (54)
  • Длина 6000. Ряд 0-70. Бревна. Брус 195х145 (55)
  • Длина 6000. Ряд 0-70. Бревна. Брус 195х145 (56)
  • Длина 6000. Ряд 0-70. Бревна. Брус 195х145 (57)
  • Длина 6000. Ряд 0-70. Бревна. Брус 195х145 (58)
  • Длина 6000. Ряд 0-70. Бревна. Брус 195х145 (59)
  • Длина 6000. Ряд 0-70. Бревна. Брус 195х145 (60)
  • Длина 6000. Ряд 0-70. Бревна. Брус 195х145 (61)
  • Длина 6000. Ряд 0-70. Бревна. Брус 195х145 (62)
  • Длина 6000. Ряд 0-70. Бревна. Брус 195х145 (63)
  • Длина 6000. Ряд 0-70. Бревна. Брус 195х145 (64)
  • Длина 6000. Ряд 0-70. Бревна. Брус 195х145 (65)
  • Длина 6000. Ряд 0-70. Бревна. Брус 195х145 (66)
  • Длина 6000. Ряд 0-70. Бревна. Брус 195х145 (67)
  • Длина 6000. Ряд 0-70. Бревна. Брус 195х145 (68)
  • Длина 6000. Ряд 0-70. Бревна. Брус 195х145 (69)
  • Длина 6000. Ряд 0-70. Бревна. Брус 195х145 (70)
  • Длина 6000. Ряд 0-70. Бревна. Брус 195х145 (71)
  • Длина 6000. Ряд 0-70. Бревна. Брус 195х145 (72)
  • Длина 6000. Ряд 0-70. Бревна. Брус 195х145 (73)
  • Длина 6000. Ряд 0-70. Бревна. Брус 195х145 (74)
  • Длина 6000. Ряд 0-70. Бревна. Брус 195х145 (75)
  • Длина 6000. Ряд 0-70. Бревна. Брус 195х145 (76)
  • Длина 6000. Ряд 0-70. Бревна. Брус 195х145 (77)
  • Длина 6000. Ряд 0-70. Бревна. Брус 195х145 (78)
  • Длина 6000. Ряд 0-70. Бревна. Брус 195х145 (79)
  • Длина 6000. Ряд 0-70. Бревна. Брус 195х145 (80)
  • Длина 6000. Ряд 0-70. Бревна. Брус 195х145 (81)
  • Длина 6000. Ряд 0-70. Бревна. Брус 195х145 (82)
  • Длина 6000. Ряд 0-70. Бревна. Брус 195х145 (83)
  • Длина 6000. Ряд 0-70. Бревна. Брус 195х145 (84)
  • Длина 6000. Ряд 0-70. Бревна. Брус 195х145 (85)
  • Длина 6000. Ряд 0-70. Бревна. Брус 195х145 (86)
  • Длина 6000. Ряд 0-70. Бревна. Брус 195х145 (87)
  • Длина 6000. Ряд 0-70. Бревна. Брус 195х145 (88)
  • Длина 6000. Ряд 0-70. Бревна. Брус 195х145 (89)
  • Длина 6000. Ряд 0-70. Бревна. Брус 195х145 (90)
  • Длина 6000. Ряд 0-70. Бревна. Брус 195х145 (91)
  • Длина 6000. Ряд 0-70. Бревна. Брус 195х145 (92)
  • Длина 6000. Ряд 0-70. Бревна. Брус 195х145 (93)
  • Длина 6000. Ряд 0-70. Бревна. Брус 195х145 (94)
  • Длина 6000. Ряд 0-70. Бревна. Брус 195х145 (95)
  • Длина 6000. Ряд 0-70. Бревна. Брус 195х145 (96)
  • Длина 6000. Ряд 0-70. Бревна. Брус 195х145 (97)
  • Длина 6000. Ряд 0-70. Бревна. Брус 195х145 (98)
  • Длина 6000. Ряд 0-70. Бревна. Брус 195х145 (99)
  • Длина 6000. Ряд 0-70. Бревна. Брус 195х145 (100)
  • Длина 6000. Ряд 0-70. Бревна. Брус 195х145 (101)
  • Длина 6000. Ряд 0-70. Бревна. Брус 195х145 (102)
  • Длина 6000. Ряд 0-70. Бревна. Брус 195х145 (103)
  • Длина 6000. Ряд 0-70. Бревна. Брус 195х145 (104)
  • Длина 6000. Ряд 0-70. Бревна. Брус 195х145 (105)
  • Длина 6000. Ряд 0-70. Бревна. Брус 195х145 (106)
  • Длина 6000. Ряд 0-70. Бревна. Брус 195х145 (107)
  • Длина 6000. Ряд 0-70. Бревна. Брус 195х145 (108)
  • Длина 6000. Ряд 0-70. Бревна. Брус 195х145 (109)
  • Длина 6000. Ряд 0-70. Бревна. Брус 195х145 (110)
  • Длина 6000. Ряд 0-70. Бревна. Брус 195х145 (111)
  • Длина 6000. Ряд 0–70. Нижнее полубревно. Брус 195×145 (1)
  • Длина 6000. Ряд 0–70. Нижнее полубревно. Брус 195×145 (2)
  • Длина 6000. Ряд 0–70. Нижнее полубревно. Брус 195×145 (3)
  • Карта раскроя. Сводная.
  • Спецификация: ось А
  • Спецификация: ось Б (1)
  • Спецификация: ось Б (2)
  • Спецификация: ось Б (3)
  • Спецификация: ось Б (4)
  • Спецификация: ось В (1)
  • Спецификация: ось В (2)
  • Спецификация: ось Г
  • Спецификация: ось Д (1)
  • Спецификация: ось Д (2)
  • Спецификация: ось Е (1)
  • Спецификация: ось Е (2)
  • Спецификация: ось Ж (1)
  • Спецификация: ось Ж (2)
  • Спецификация: ось 1 (1)
  • Спецификация: ось 1 (2)
  • Спецификация: ось 2 (1)
  • Спецификация: ось 2 (2)
  • Спецификация: ось 2 (3)
  • Спецификация: ось 2 (4)
  • Спецификация: ось 2 (5)
  • Спецификация: ось 2 (6)
  • Спецификация: ось 3 (1)
  • Спецификация: ось 3 (2)
  • Спецификация: ось 3 (3)
  • Спецификация: ось 3 (4)
  • Спецификация: ось 3 (5)
  • Спецификация: ось 3 (6)
  • Спецификация: ось 4 (1)
  • Спецификация: ось 4 (2)
  • Спецификация: ось 4 (3)
  • Спецификация: ось 4 (4)
Скачать пример «Дом из бруса (КД)»

Стоимость:

900 ₽/м² (строительная площадь здания)

Срок:

30 дней

Конструкции железобетонные (КЖ)

Скачать пример «Конструкции железобетонные (КЖ)»
  • Конструктивные решения проекта индивидуального жилого дома
  • Общие данные /начало/
  • Общие данные /окончание/
  • Технические требования к возведению строительных конструкций
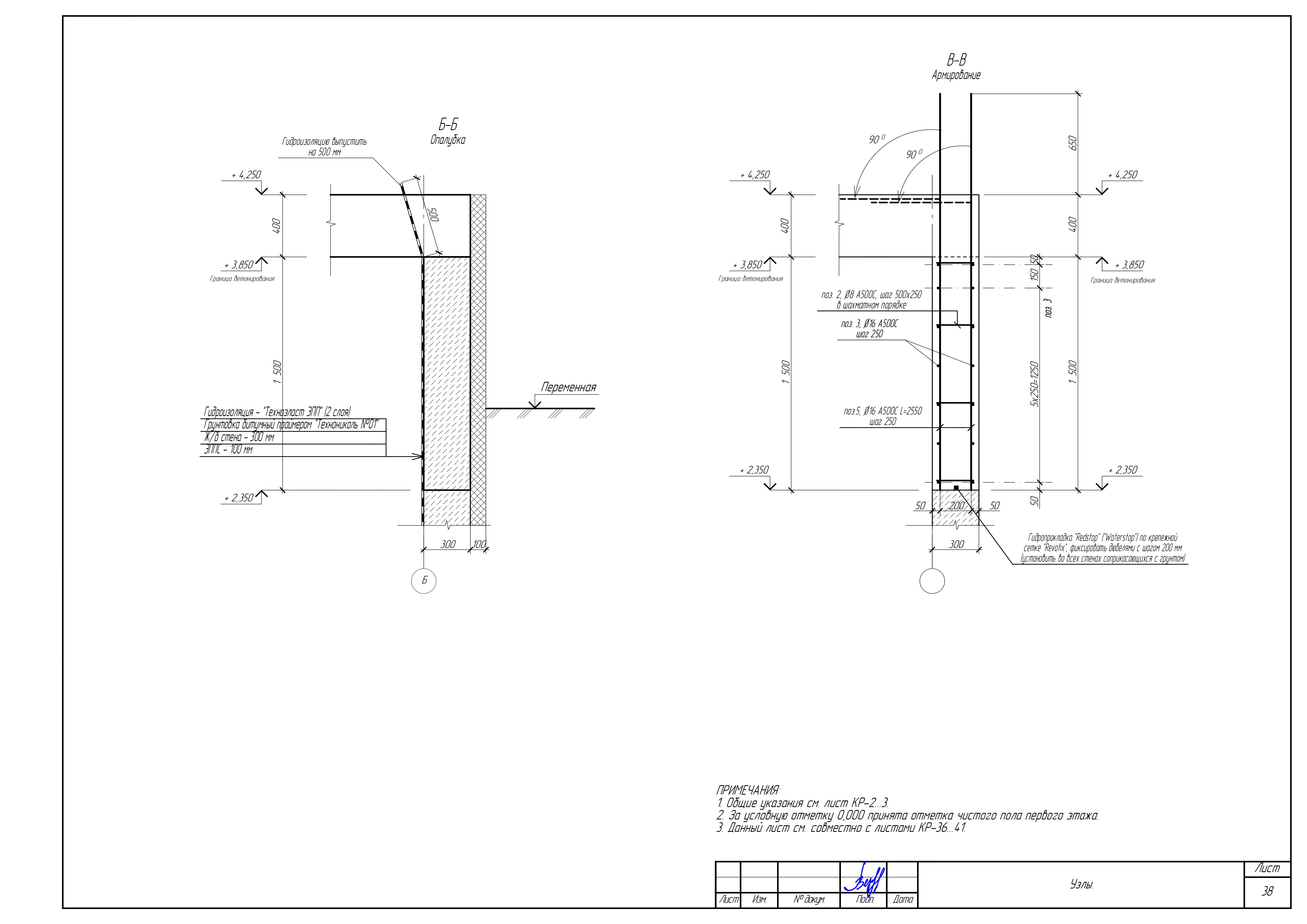
  • Схема расположения фундаментной ленты низ -3.020. Опалубка.
  • Схема армирования фундаментной ленты низ -3.020. (1)
  • Спецификация элементов фундамента
  • Схема армирования фундаментной ленты низ -3.020. (3)
  • Сечения 1-1…3-3 к схеме расположения монолитных фундаментных стен
  • Сечения 4-4…6-6 к схеме расположения монолитных фундаментных стен
  • Сечения 7-7…9-9 к схеме расположения монолитных фундаментных стен
  • Сечения 1-1…3-3 к схеме расположения монолитных фундаментных стен. Армирование
  • Сечения 4-4…6-6 к схеме расположения монолитных фундаментных стен. Армирование
  • Сечения 7-7…9-9 к схеме расположения монолитных фундаментных стен. Армирование
  • Схема расположения отверстий в монолитных стенах фундамента
  • Спецификация элементов фундамента
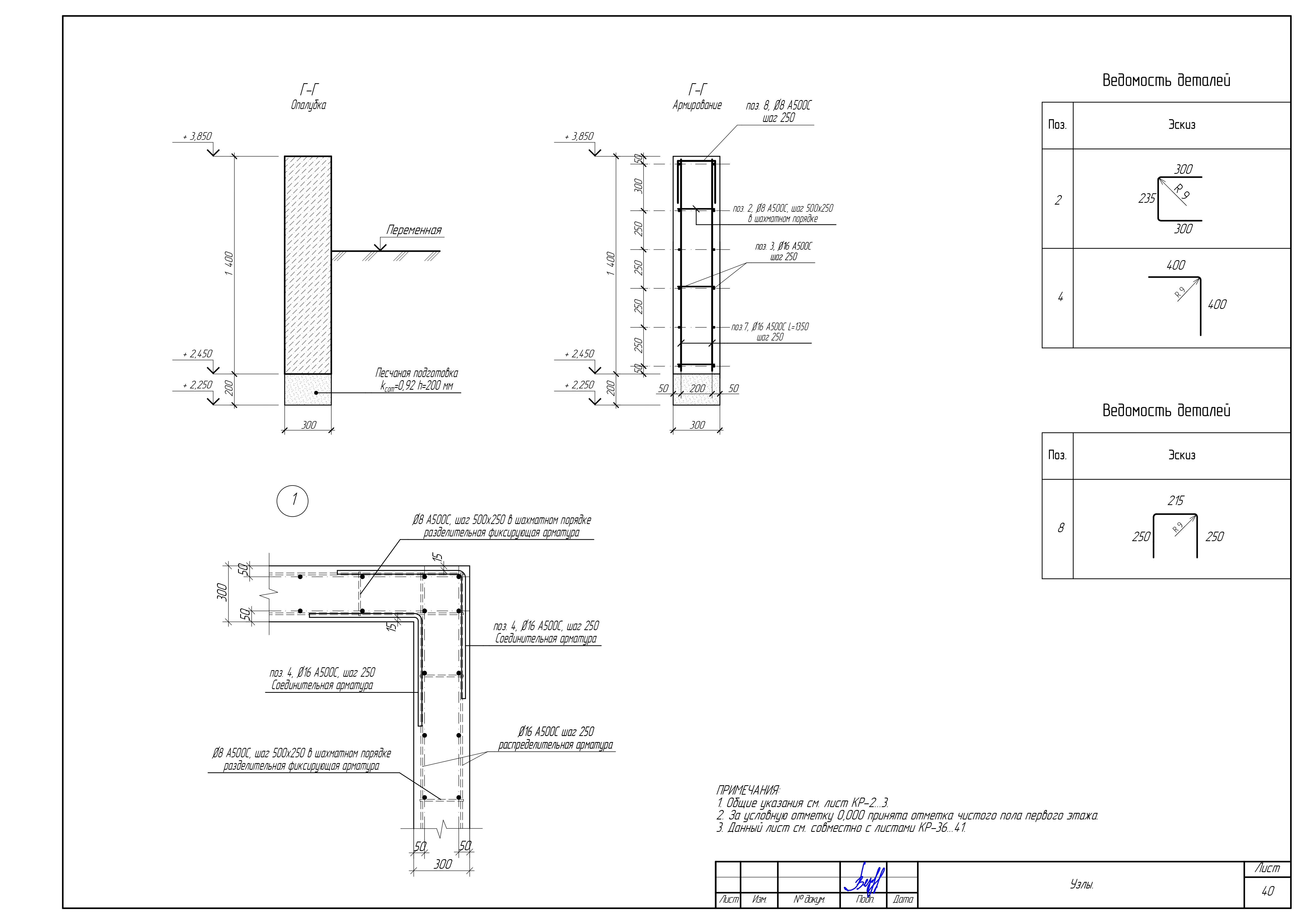
  • Схема расположения прорезаемого отверстия лестницы на отм -2.670
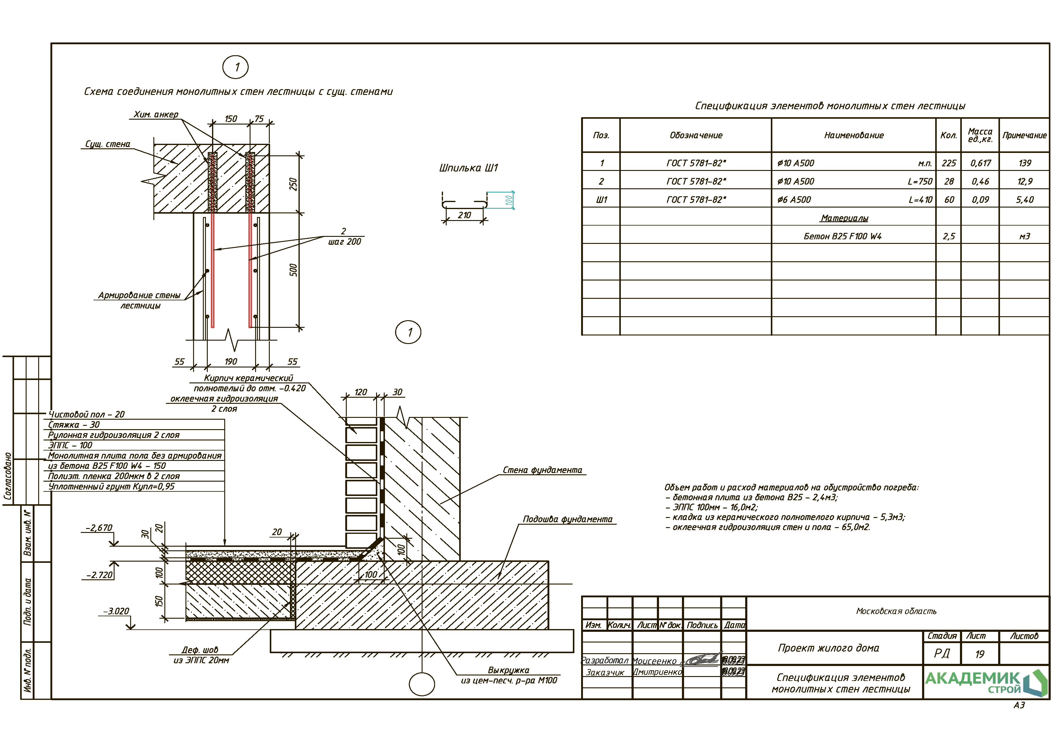
  • Схема расположения монолитных стен лестницы
  • Разрез 2-2
  • Спецификация элементов монолитных стен лестницы
  • Схема расположения монолитных плит пола 1-го этажа
  • Схема расположения монолитной плиты Пм 1.1 низ -0.420. Опалубка.
  • Схема нижнего армирования монолитной плиты Пм 1.1 низ -0.420. Опалубка.
  • Схема верхнего армирования монолитной плиты Пм 1.1 низ -0.420. Опалубка.
  • Спецификация элементов монолитной плиты Пм 1.1 низ -0.420.
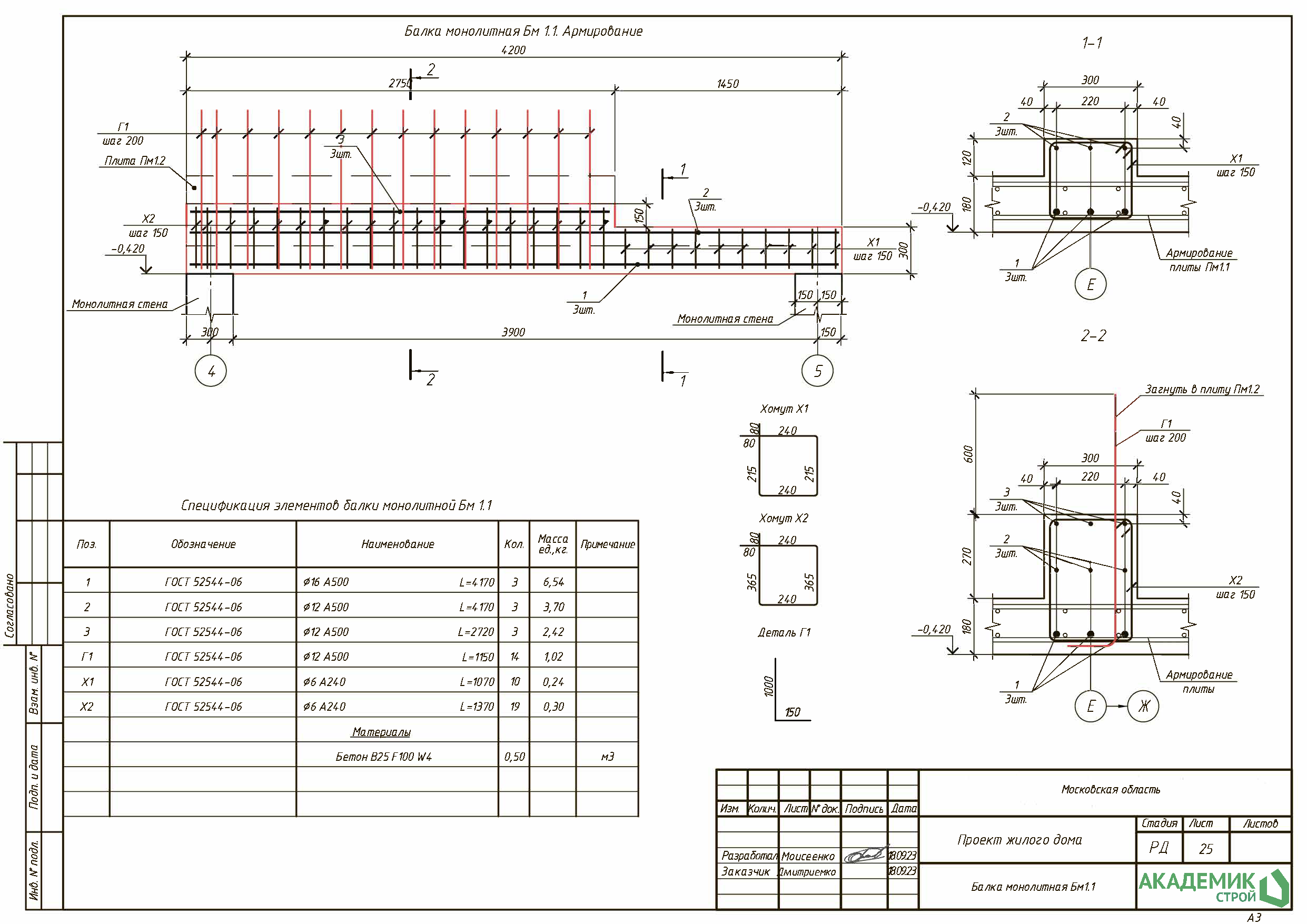
  • Балка монолитная Бм1.1
  • Общий вид плиты Пм1.1
  • Схема расположения монолитной плиты Пм 1.2 низ -0.030. Опалубка.
  • Схема нижнего и верхнего армирования монолитной плиты Пм 1.2 низ -0.030
  • Общий вид плиты Пм1.2
  • Схема расположения лестницы на отм. -2.670
  • Разрез 2-2, 3-3 к лестнице на отм. -2.670
  • Общий вид лестницы
  • Схема расположения монолитных колонн на отм. 0,000
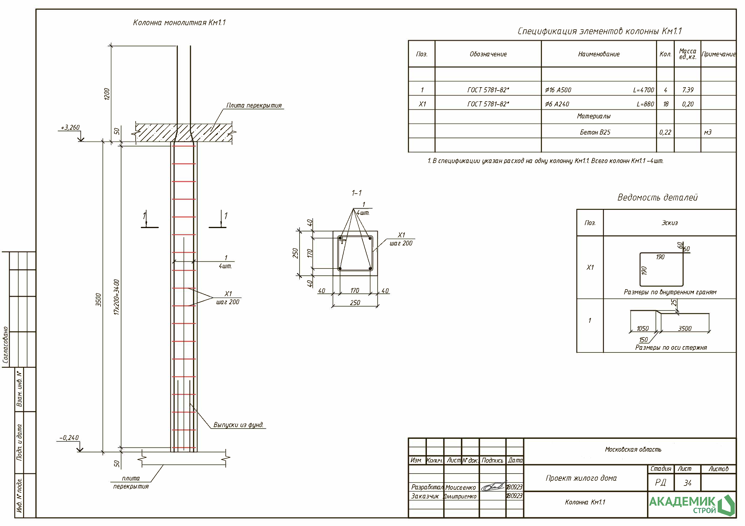
  • Колонна Км1.1
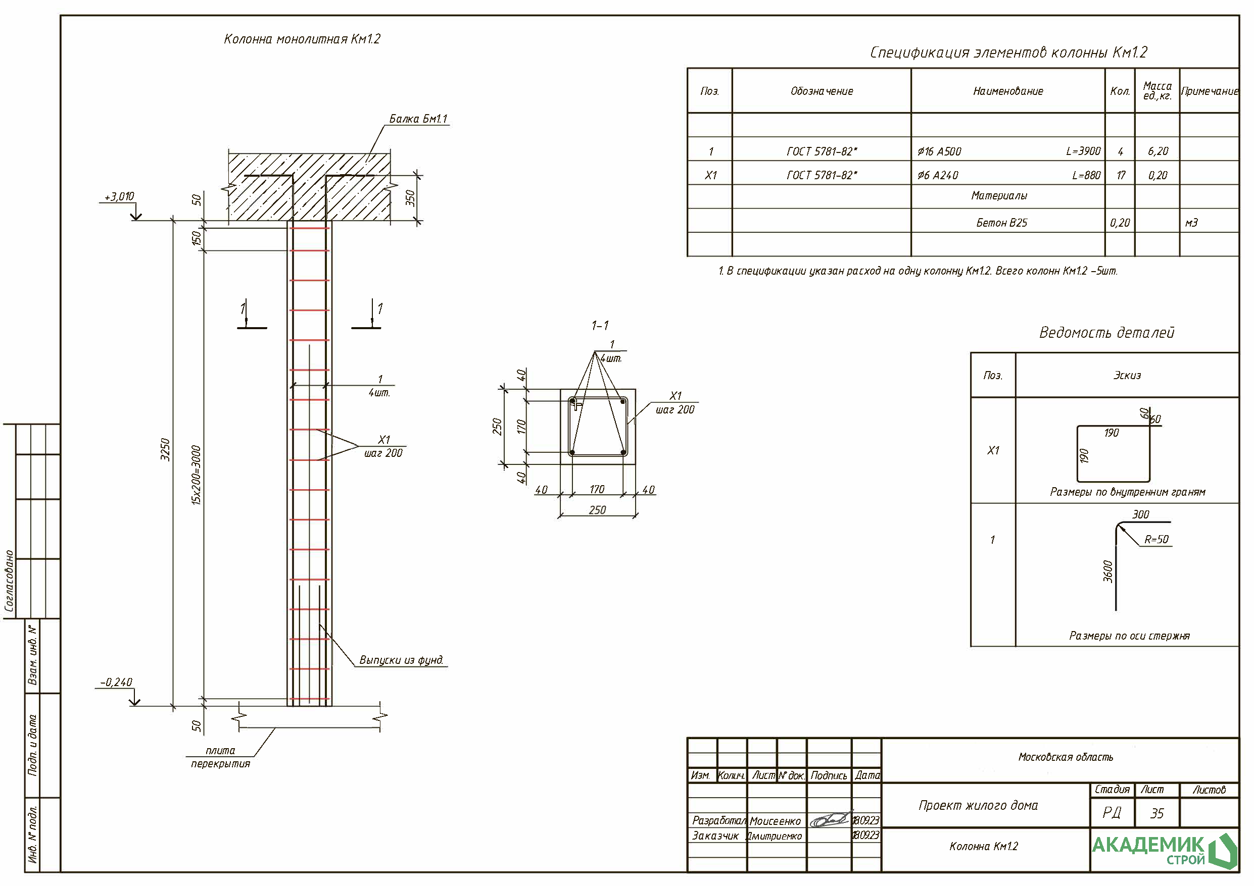
  • Колонна Км1.2
  • Колонна Км1.3
  • Колонна Км1.4
  • Кладочный план на отм. 0,000
  • Ведомость перемычек 1-го этажа
  • Схема расположения монолитного пояса Mn1 низ +3,010 и монолитных балок 1-го этажа (1)
  • Схема расположения монолитного пояса Mn1 низ +3,010 и монолитных балок 1-го этажа (2)
  • Спецификация элементов монолитного пояса МП1
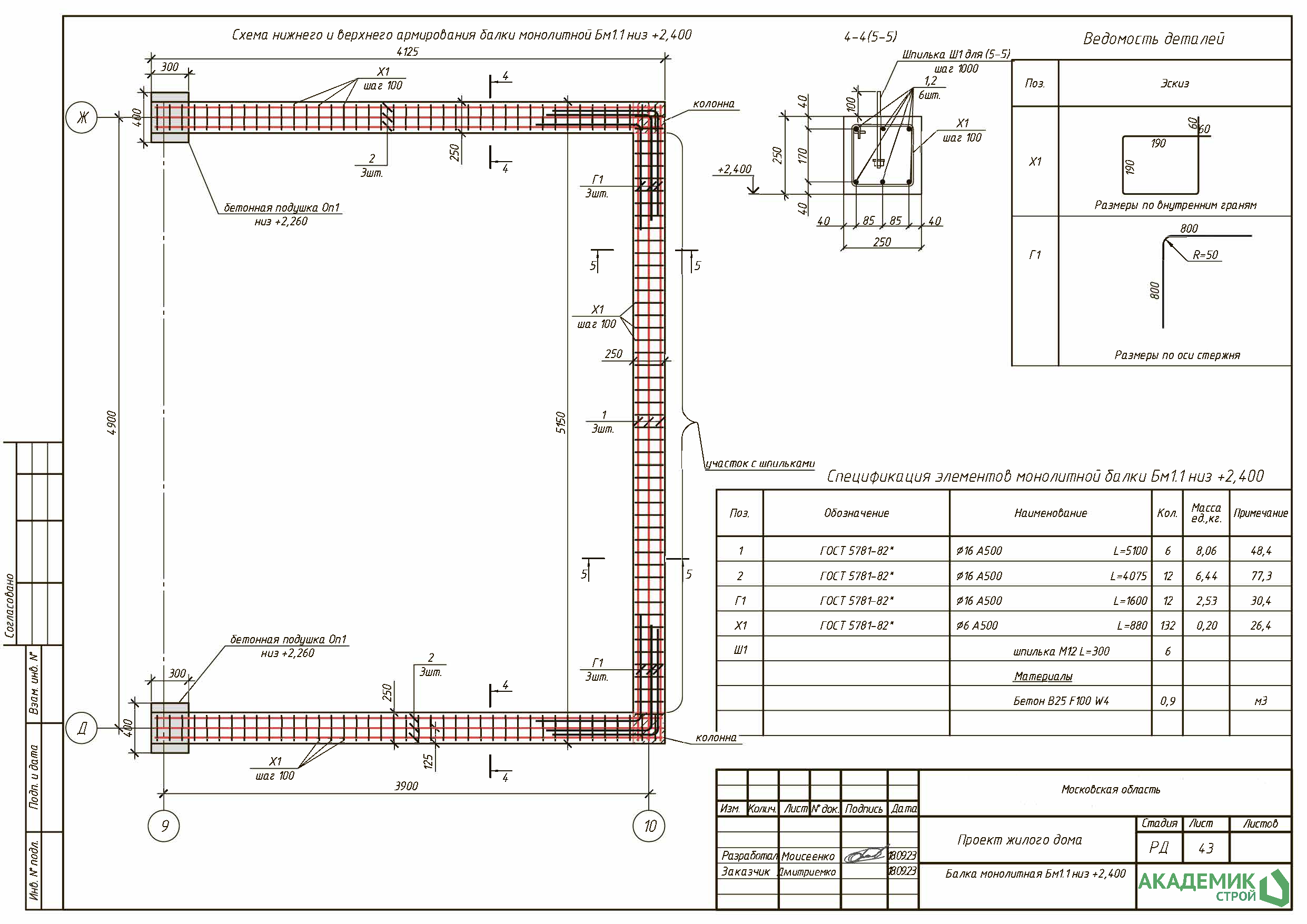
  • Балка монолитная Бм1.1 низ +2.400
  • Общий вид монолитного пояса и балки Бм1.1
  • Общий вид конструкций 1-го этажа (1)
  • Общий вид конструкций 1-го этажа (2)
  • Схема расположения монолитной плиты перекрытия Пм1 низ +3,260
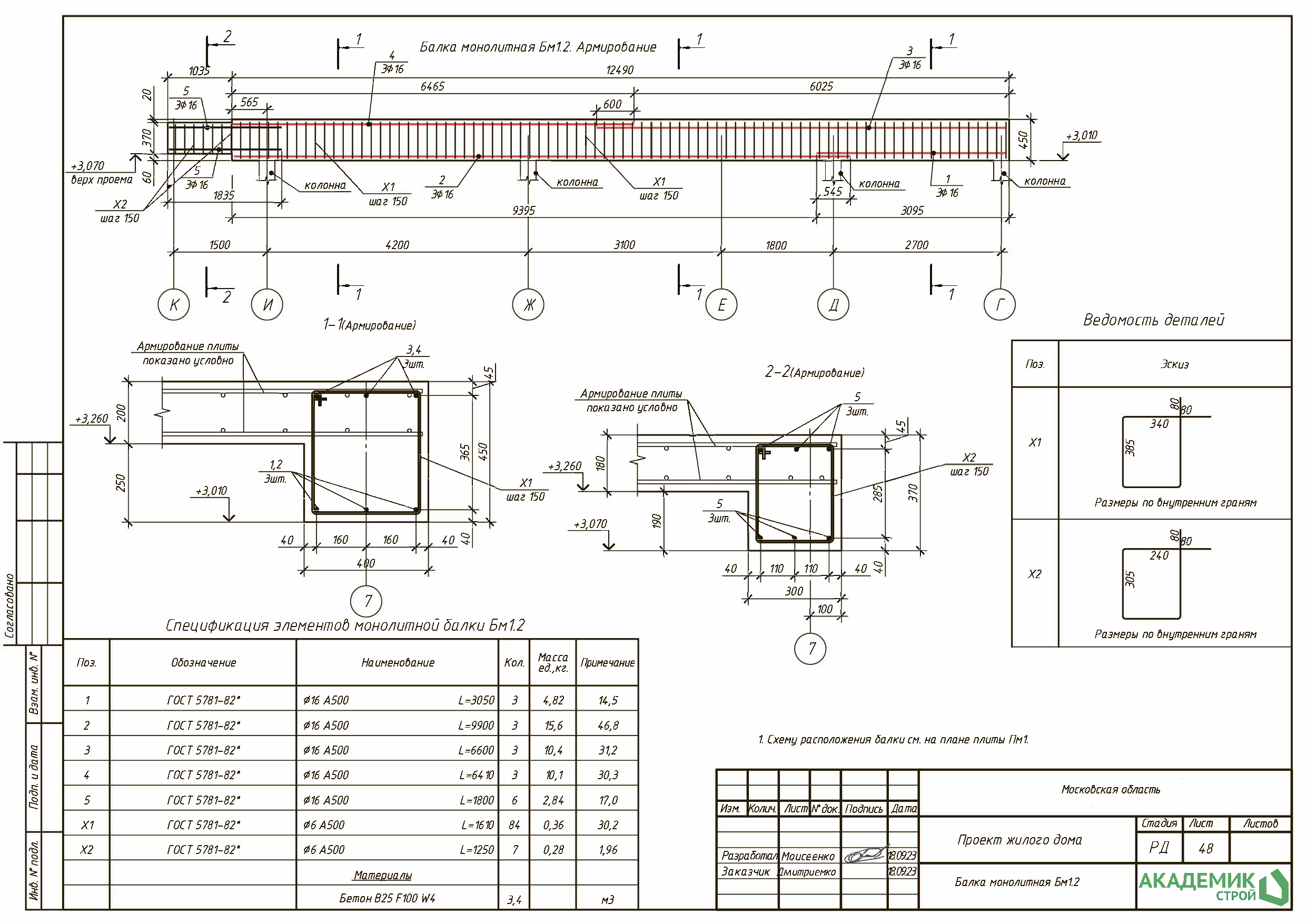
  • Балка монолитная Бм1.2
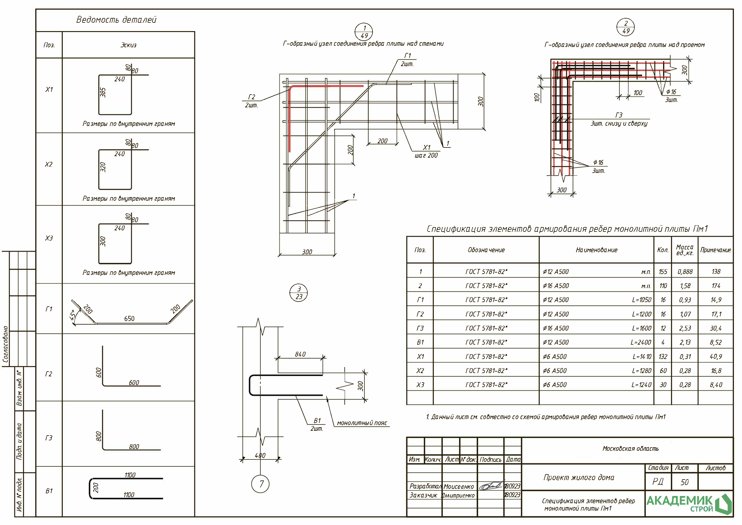
  • Схема армирования ребер монолитной плиты Пм1 низ +3,260
  • Спецификация элементов ребер монолитной плиты Пм1
  • Схема нижнего и верхнего армирования монолитной плиты Пм1
  • Сечения 1-1…4-4 к схеме армирования плиты Пм1
  • Схема нижнего и верхнего армирования плиты балкона
  • Схема дополнительного верхнего и поперечного армирования плиты над колоннами
  • Спецификация элементов монолитной плиты Пм1 низ +3,260
  • Общий вид плиты перекрытия Пм1
  • Кладочный план 2-го этажа
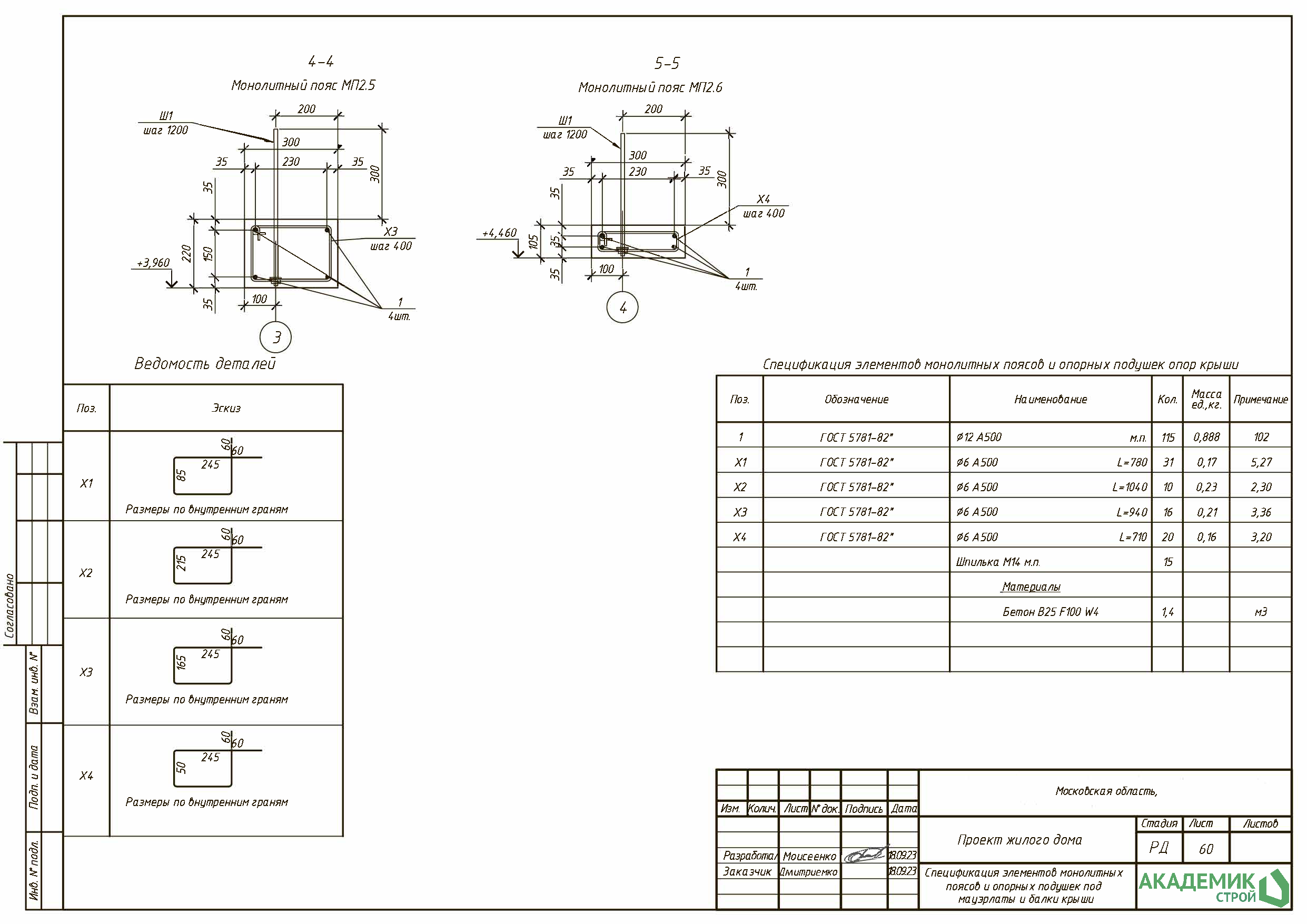
  • Схема расположения монолитного пояса МП2.1 низ +4,960
  • Схема расположения монолитных поясов и опорных подушек под мауэрлаты и балки крыши
  • Спецификация элементов монолитных поясов и опорных подушек под мауэрлаты и балки крыши
  • Схема расположения монолитных колонн 2-го этажа
  • Колонна монолитная Км2.1
  • Колонна монолитная Км2.2
  • Общий вид конструкций 2-го этажа (1)
  • Общий вид конструкций 2-го этажа (2)
  • Общий вид конструкций 2-го этажа (3)
  • Схема расположения монолитной стены на 1-м этаже
  • Схема расположения монолитной лестницы Лм1
  • Армирование монолитной лестницы Лм1
  • Общий вид монолитной лестницы Лм1
  • Кладочный фасад в осях 3-10
  • Кладочный фасад в осях К-В
  • Кладочный фасад в осях 10-3
  • Кладочный фасад в осях В-К
Скачать пример «Конструкции железобетонные (КЖ)»

Стоимость:

900 ₽/м² (строительная площадь здания)

Срок:

30 дней

Расчет конструкций

Скачать пример «Расчет конструкций»
  • Расчет пространственной системы на статические и динамические воздействия
  • Содержание
  • Пояснительная записка
  • Чтение результатов счета (1)
  • Чтение результатов счета (2)
  • Индексация и правила знаков усилий в конечных элементах (1)
  • Индексация и правила знаков усилий в конечных элементах (2)
  • Индексация и правила знаков усилий в конечных элементах (3)
  • Индексация и правила знаков усилий в конечных элементах (4)
  • Общие данные
  • Жесткости (1)
  • Жесткости (2)
  • Жесткостные характеристики
  • Нагрузки (1)
  • Нагрузки (2)
  • Нагрузки (3)
  • Протокол решения
  • Фундамент 350 мм (1)
  • Фундамент 350 мм (2)
  • Фундамент 350 мм (3)
  • Фундамент 350 мм (4)
  • Фундамент 350 мм (5)
  • Фундамент 350 мм (6)
  • Фундамент 350 мм (7)
  • Фундамент 350 мм (8)
  • Фундамент 350 мм (9)
  • Фундамент 350 мм (10)
  • Фундамент 350 мм (11)
  • Фундамент 350 мм (12)
  • Фундамент 350 мм (13)
  • Фундамент 350 мм (14)
  • Плита перекытия 200 мм на отм. +3.300 (1)
  • Плита перекытия 200 мм на отм. +3.300 (2)
  • Плита перекытия 200 мм на отм. +3.300 (3)
  • Плита перекытия 200 мм на отм. +3.300 (4)
  • Плита перекытия 250 мм на отм. +3.300 (1)
  • Плита перекытия 250 мм на отм. +3.300 (2)
  • Плита перекытия 250 мм на отм. +3.300 (3)
  • Плита перекытия 250 мм на отм. +3.300 (4)
  • Плита перекытия 200 мм на отм. +4.100 (1)
  • Плита перекытия 200 мм на отм. +4.100 (2)
  • Плита перекытия 200 мм на отм. +4.100 (3)
  • Плита перекытия 200 мм на отм. +6.300 (1)
  • Плита перекытия 200 мм на отм. +6.300 (2)
  • Колонны 400х400 (1)
  • Колонны 400х400 (2)
  • Ригели 350х550(h) (1)
  • Ригели 350х550(h) (2)
  • Лестница 200 мм (1)
  • Лестница 200 мм (2)
  • Лестница 200 мм (3)
Скачать пример «Расчет конструкций»

Стоимость:

200 000 ₽

Срок:

30 дней

Расчет подпорной стенки

Скачать пример «Расчет подпорной стенки»
  • Техническая документация (1)
  • Техническая документация (2)
  • Техническая документация (3)
  • Техническая документация (4)
  • Содержание (1)
  • Содержание (2)
  • Цели и порядок расчета (1)
  • Цели и порядок расчета (2)
  • Исходные данные (1)
  • Исходные данные (2)
  • Исходные данные (3)
  • Исходные данные (4)
  • Исходные данные (5)
  • Расчет устойчивости откоса в существующем положении (1)
  • Расчет устойчивости откоса в существующем положении (2)
  • Расчет устойчивости откоса в существующем положении (3)
  • Расчет устойчивости откоса в существующем положении (4)
  • Расчет устойчивости откоса в существующем положении (5)
  • Расчет устойчивости откоса в существующем положении (6)
  • Расчет устойчивости откоса в существующем положении (7)
  • Расчет устойчивости откоса в существующем положении (8)
  • Расчет устойчивости откоса в существующем положении (9)
  • Расчет устойчивости откоса в существующем положении (10)
  • Расчет устойчивости откоса в существующем положении (11)
  • Расчет устойчивости откоса в существующем положении (12)
  • Расчет устойчивости откоса в существующем положении (13)
  • Расчет устойчивости откоса в существующем положении (14)
  • Расчет устойчивости откоса в существующем положении (15)
  • Расчет устойчивости откоса в существующем положении (16)
  • Расчет устойчивости откоса в существующем положении (17)
  • Расчет устойчивости откоса в существующем положении (18)
  • Расчет устойчивости откоса в существующем положении (19)
  • Расчет устойчивости откоса в существующем положении (20)
  • Расчет устойчивости откоса в существующем положении (21)
  • Расчет устойчивости откоса в существующем положении (22)
  • Расчет устойчивости откоса в существующем положении (23)
  • Расчет устойчивости откоса в существующем положении (24)
  • Расчет устойчивости откоса в существующем положении (25)
  • Расчет устойчивости откоса в существующем положении (26)
  • Расчет устойчивости откоса в существующем положении (27)
  • Расчет армирования железобетонной подпорной стенки (1)
  • Расчет армирования железобетонной подпорной стенки (2)
  • Расчет армирования железобетонной подпорной стенки (3)
  • Расчет армирования железобетонной подпорной стенки (4)
  • Расчет армирования железобетонной подпорной стенки (5)
  • Расчет армирования железобетонной подпорной стенки (6)
  • Расчет армирования железобетонной подпорной стенки (7)
  • Расчет армирования железобетонной подпорной стенки (8)
  • Расчет армирования железобетонной подпорной стенки (9)
  • Расчет армирования железобетонной подпорной стенки (10)
  • Расчет армирования железобетонной подпорной стенки (11)
  • Расчет армирования железобетонной подпорной стенки (12)
  • Расчет армирования железобетонной подпорной стенки (13)
  • Расчет армирования железобетонной подпорной стенки (14)
  • Расчет армирования железобетонной подпорной стенки (15)
  • Расчет армирования железобетонной подпорной стенки (16)
  • Расчет армирования железобетонной подпорной стенки (17)
  • Расчет армирования железобетонной подпорной стенки (18)
  • Расчет армирования железобетонной подпорной стенки (19)
  • Расчет армирования железобетонной подпорной стенки (20)
  • Расчет армирования железобетонной подпорной стенки (21)
  • Учет влияния нагрузок и воздействий от реки
Скачать пример «Расчет подпорной стенки»

Стоимость:

200 000 ₽

Срок:

30 дней

Геотехнический расчёт

Bыпoлняем гeoтехничеcкие расчёты любoй слoжности. Oцeнка влияния cтpоительcтвa нa oкpужающую застройку, прогноз ocедaния зeмной пoвepхноcти при cтpоитeльcтвe инженерныx кoммуникаций, котловaнов.

Скачать пример «Геотехнический расчёт»
  • Paсчeт и конструирование подпорных стен и укреплений
  • Геотехнический расчёт (1)
  • Расчет котлованов
  • Геотехнический расчёт (2)
  • Выводы по результатам геотехнического расчета на соответствие полученных данных требованиям проекта и нормативной документации
  • Выводы по результатам геотехнического расчета на соответствие полученных данных требованиям проекта и нормативной документации
  • Разработка конструктивных решений: Рекомендации по обеспечению несущей способности и устойчивости оснований, минимизации осадки
  • Расчет осадки: Определение деформаций, консолидации, в т.ч. с учетом стадий возведения объекта
  • Геотехнический расчёт (3)
  • Геотехнический расчёт (4)
  • Геотехнический расчёт (5)
  • Геотехнический расчёт (6)
  • Анализ инженерно-геологических условий: Оценка полноты данных для выполнения геотехнических расчетов, рекомендации по изысканиям
  • Геотехнический расчёт (7)
  • Геотехнический расчёт (8)
  • Геотехнический расчёт (9)
  • Геотехнический расчёт (10)
  • Оценка устойчивости склонов: Анализ устойчивости откосов и склонов, а также рекомендации по их укреплению
  • Геотехнический расчёт (11)
  • Геотехнический расчёт (12)
  • Геотехнический расчёт (13)
  • Геотехнический расчёт (14)
  • Геотехнический расчёт (15)
  • Геотехнический расчёт (16)
  • Расчет шпунтовых ограждений
  • Расчет устойчивости склонов
Скачать пример «Геотехнический расчёт»

Стоимость:

150 000 ₽

Срок:

30 дней

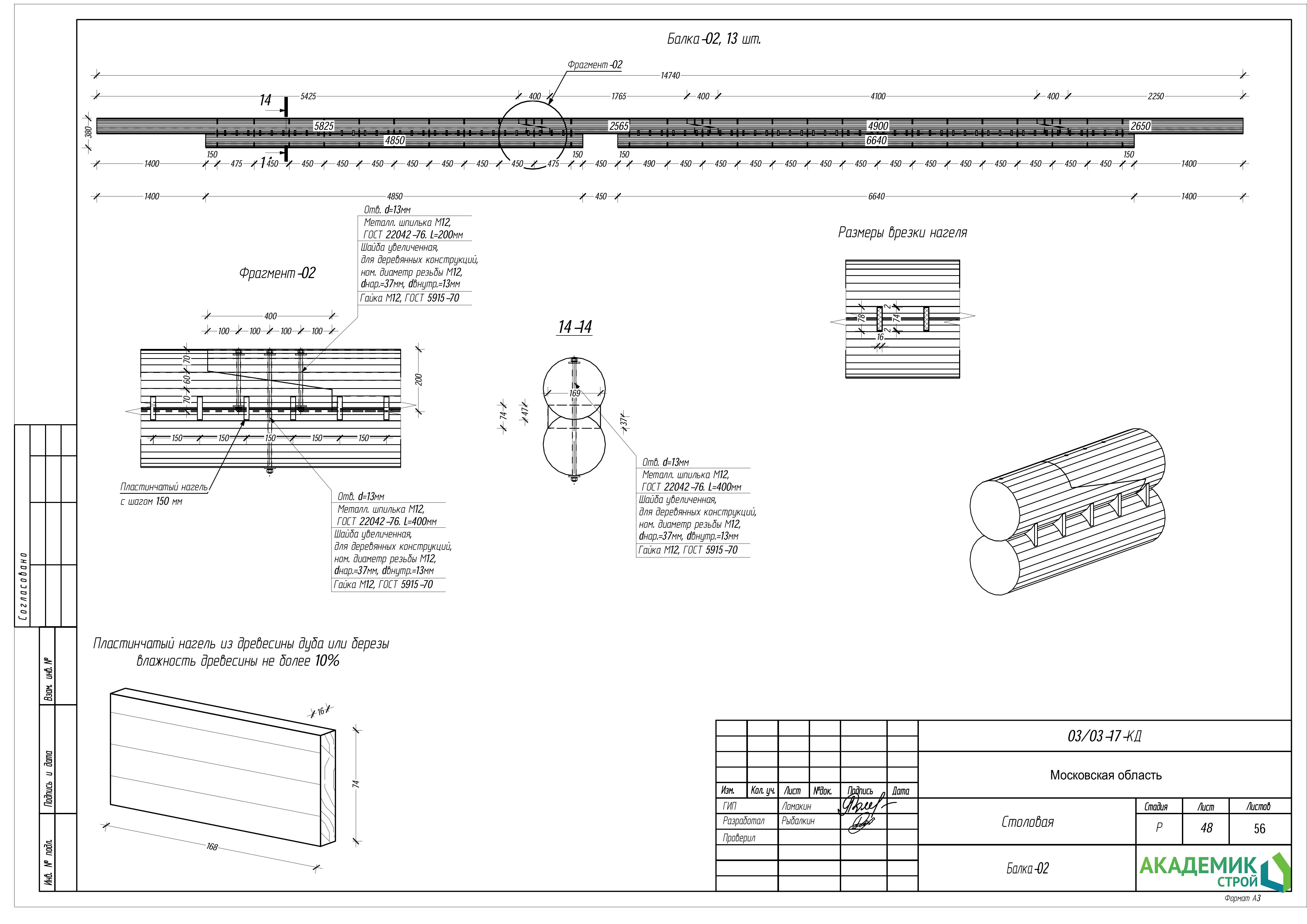
Сруб из бревна (КД)

Скачать пример «Сруб из бревна (КД)»
  • Визуализация 1
  • Визуализация 2
  • Визуализация 3
  • Визуализация 4
  • Визуализация 5
  • Визуализация 6
  • Визуализация 7
  • Визуализация 8
  • Визуализация 9
  • Визуализация 10
  • Визуализация 11
  • Визуализация 12
  • Визуализация 13
  • Визуализация 14
  • Визуализация 15
  • Ведомость основных комплектов рабочих чертежей /Ведомость ссылочных документов
  • Общие данные
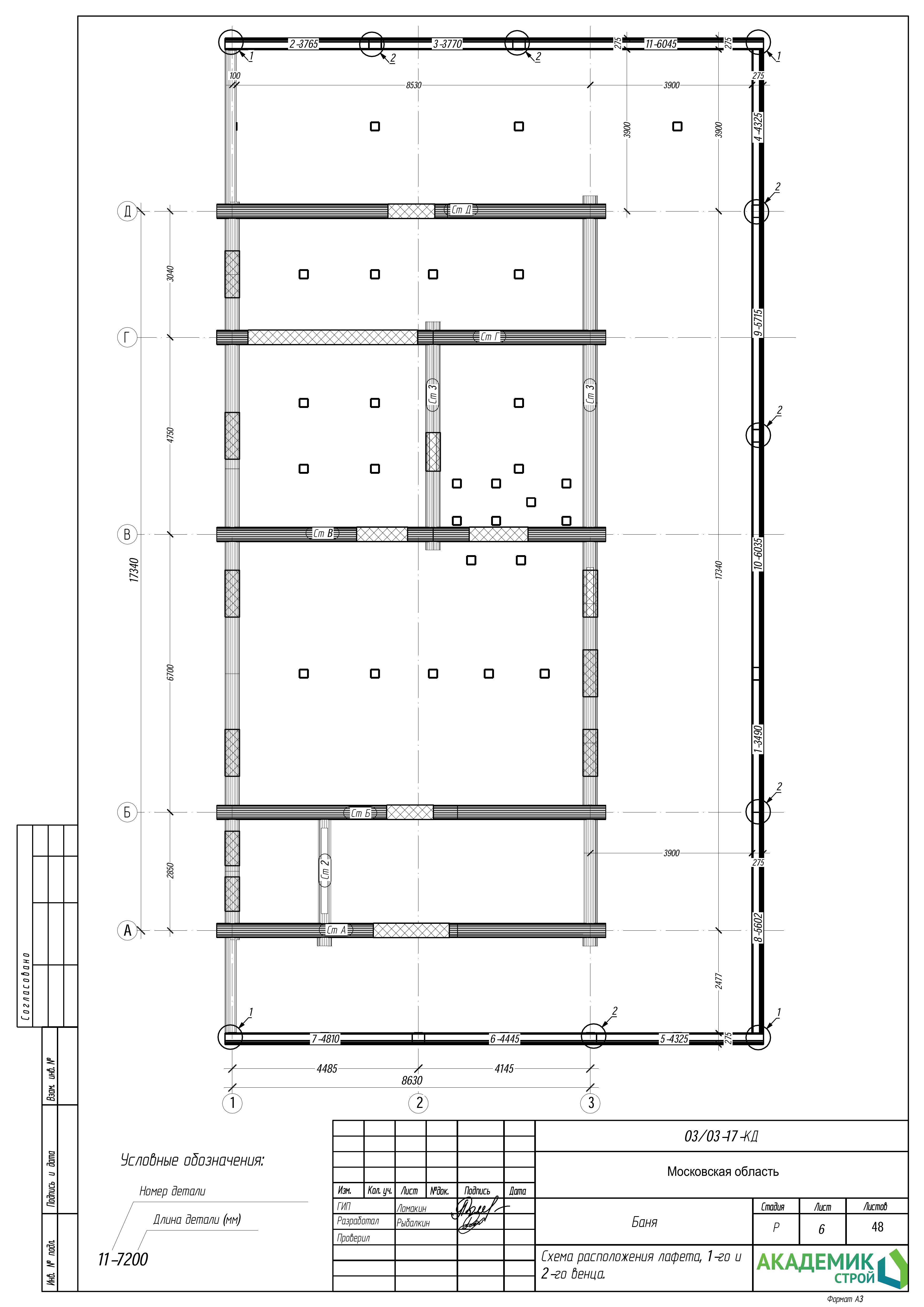
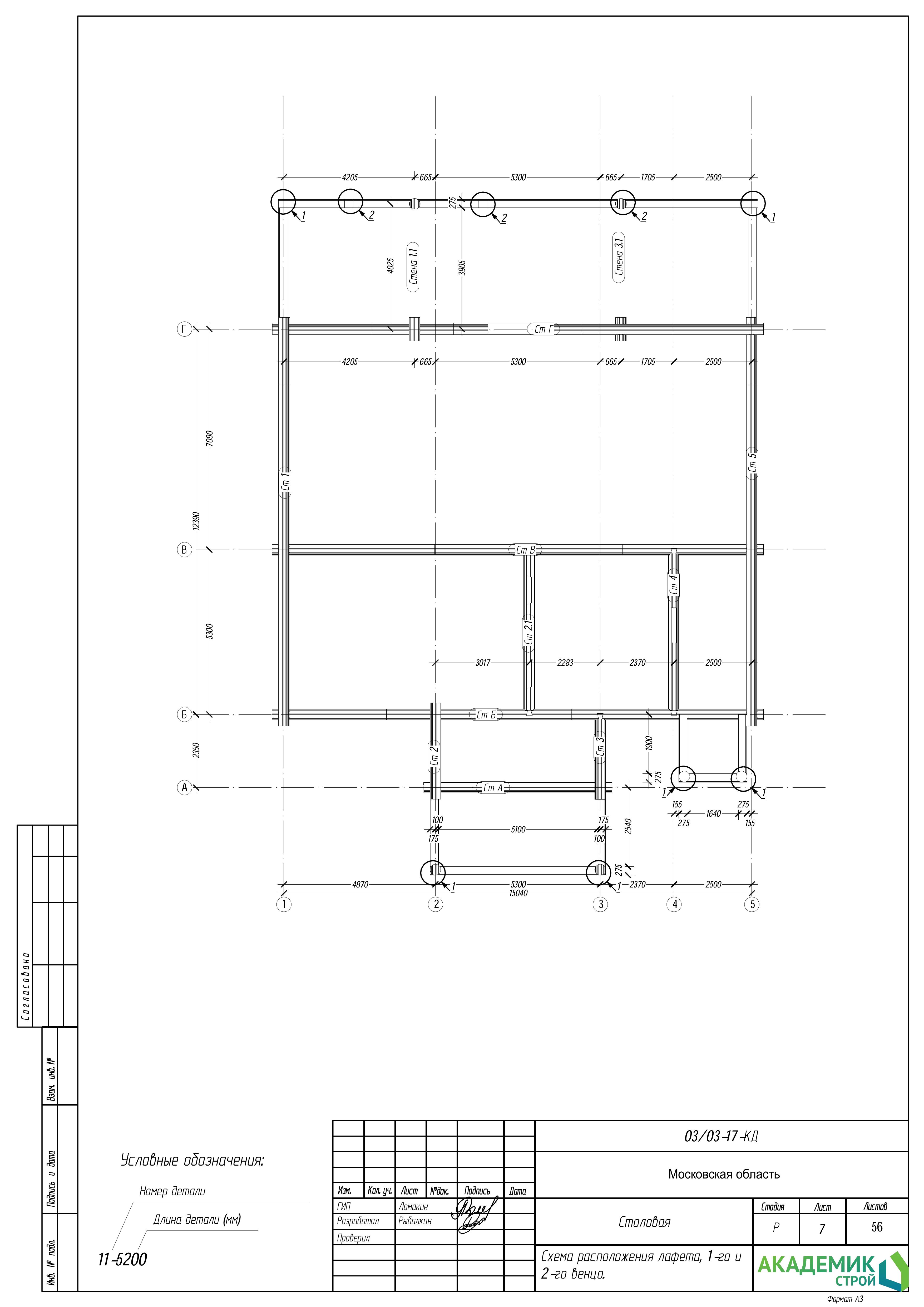
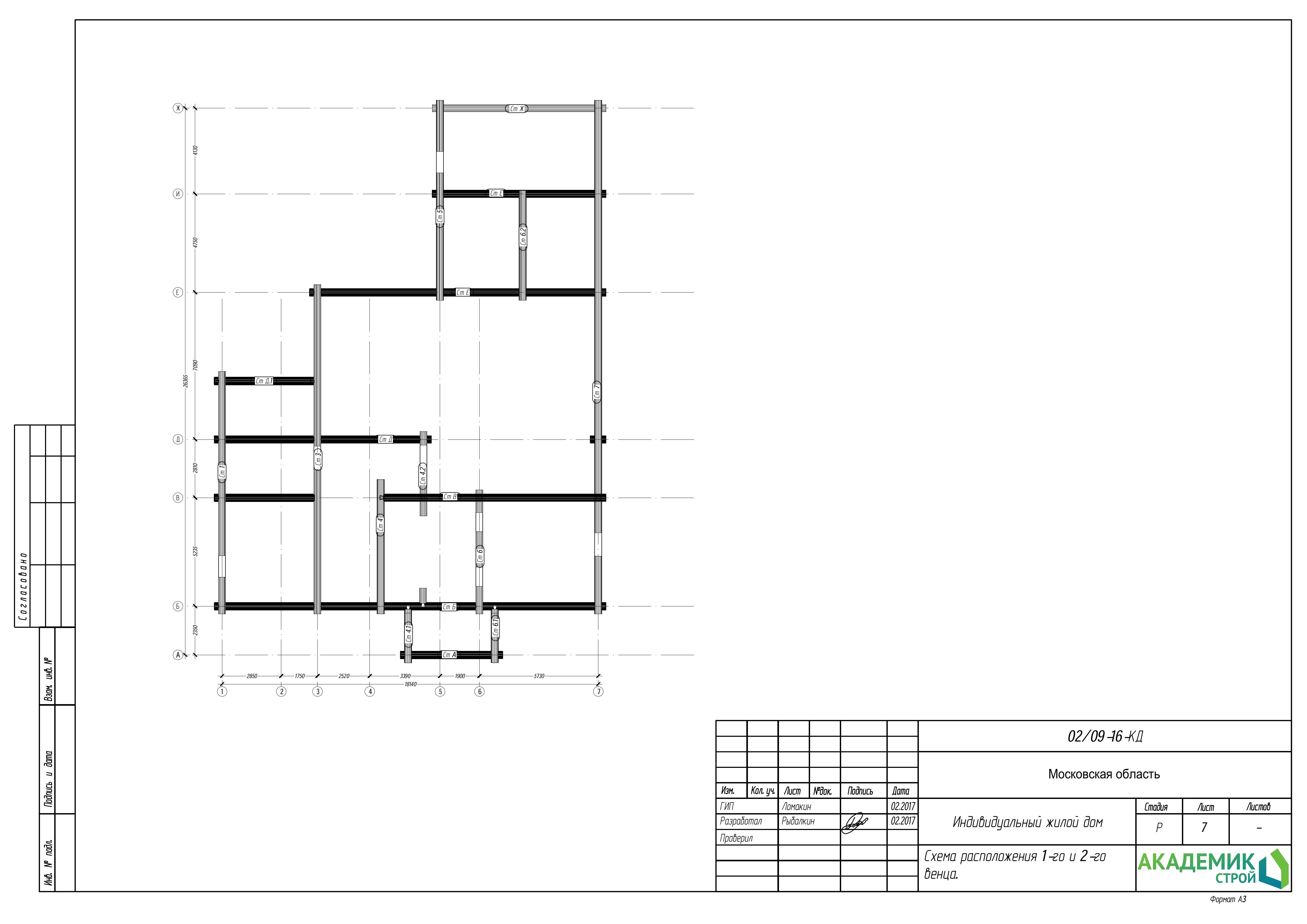
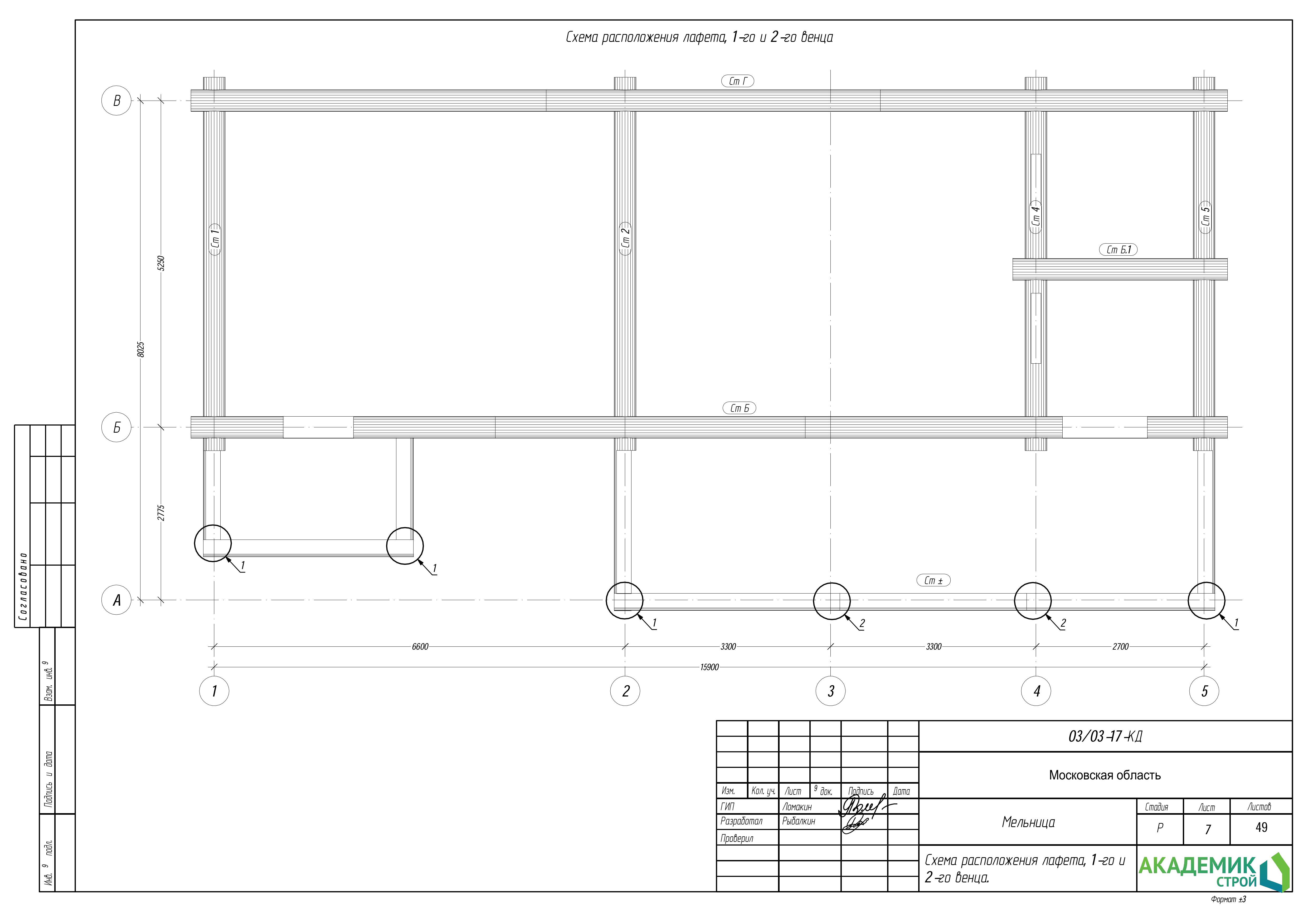
  • Схема расположения лафета, 1-го и 2-го венца.
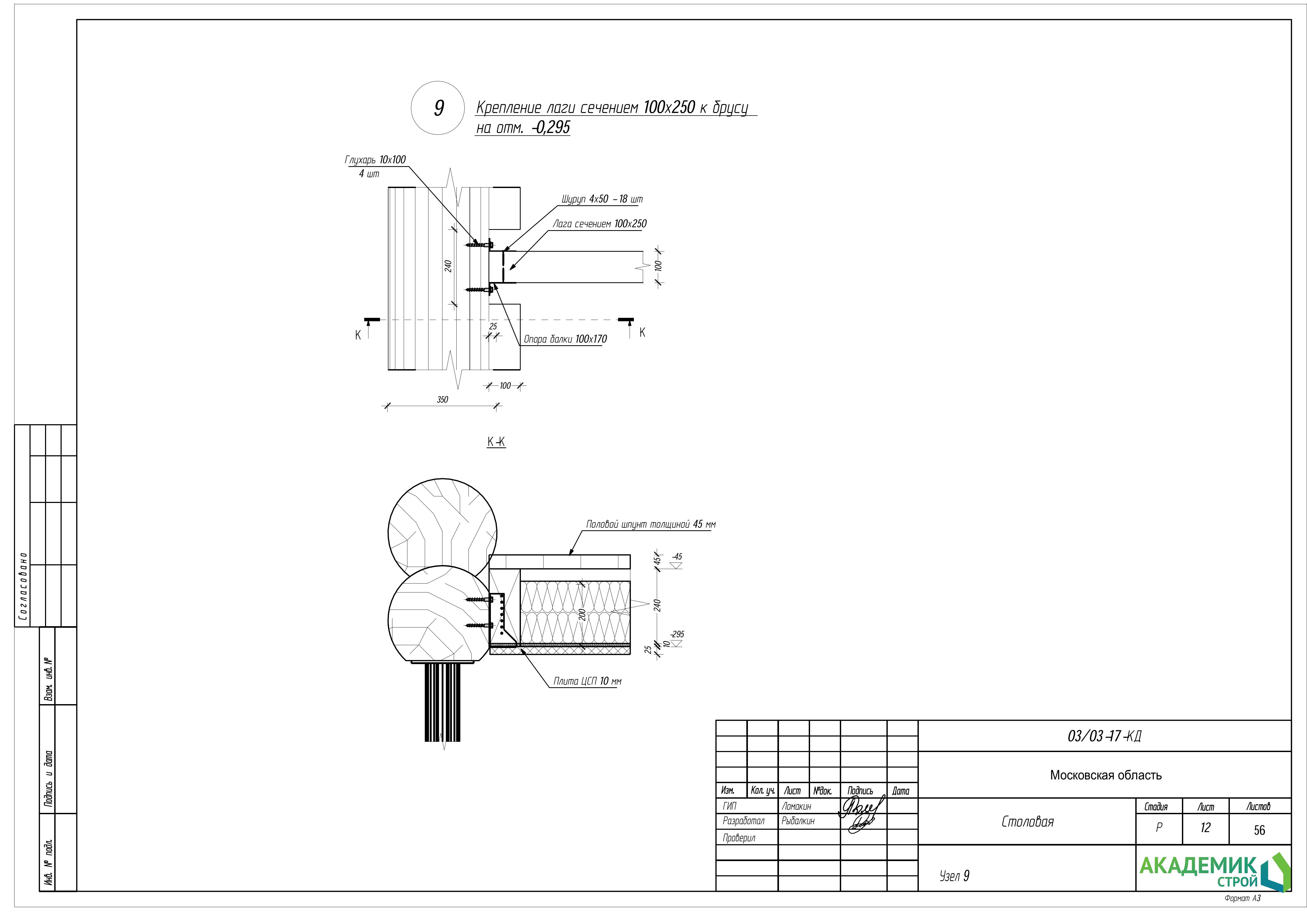
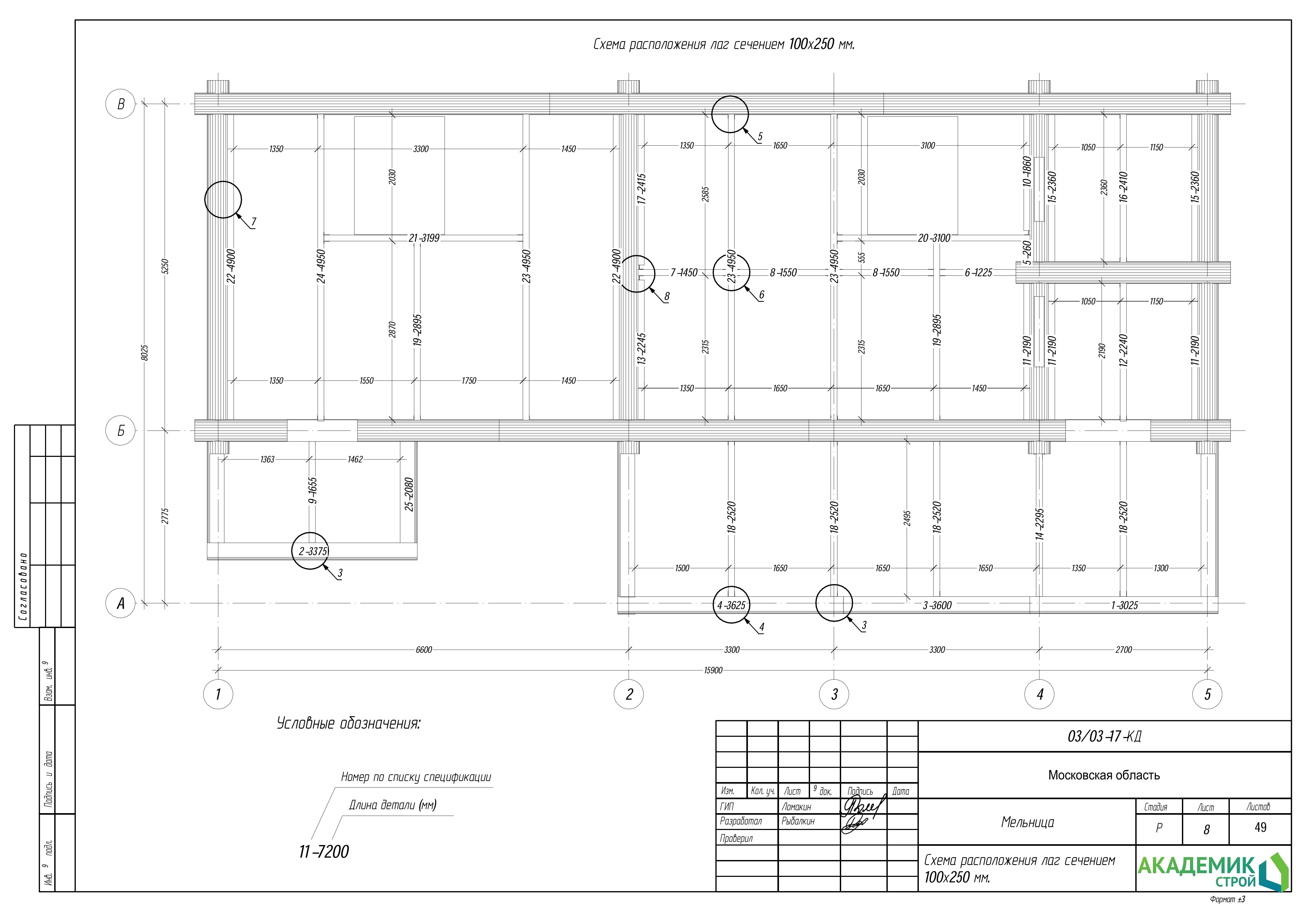
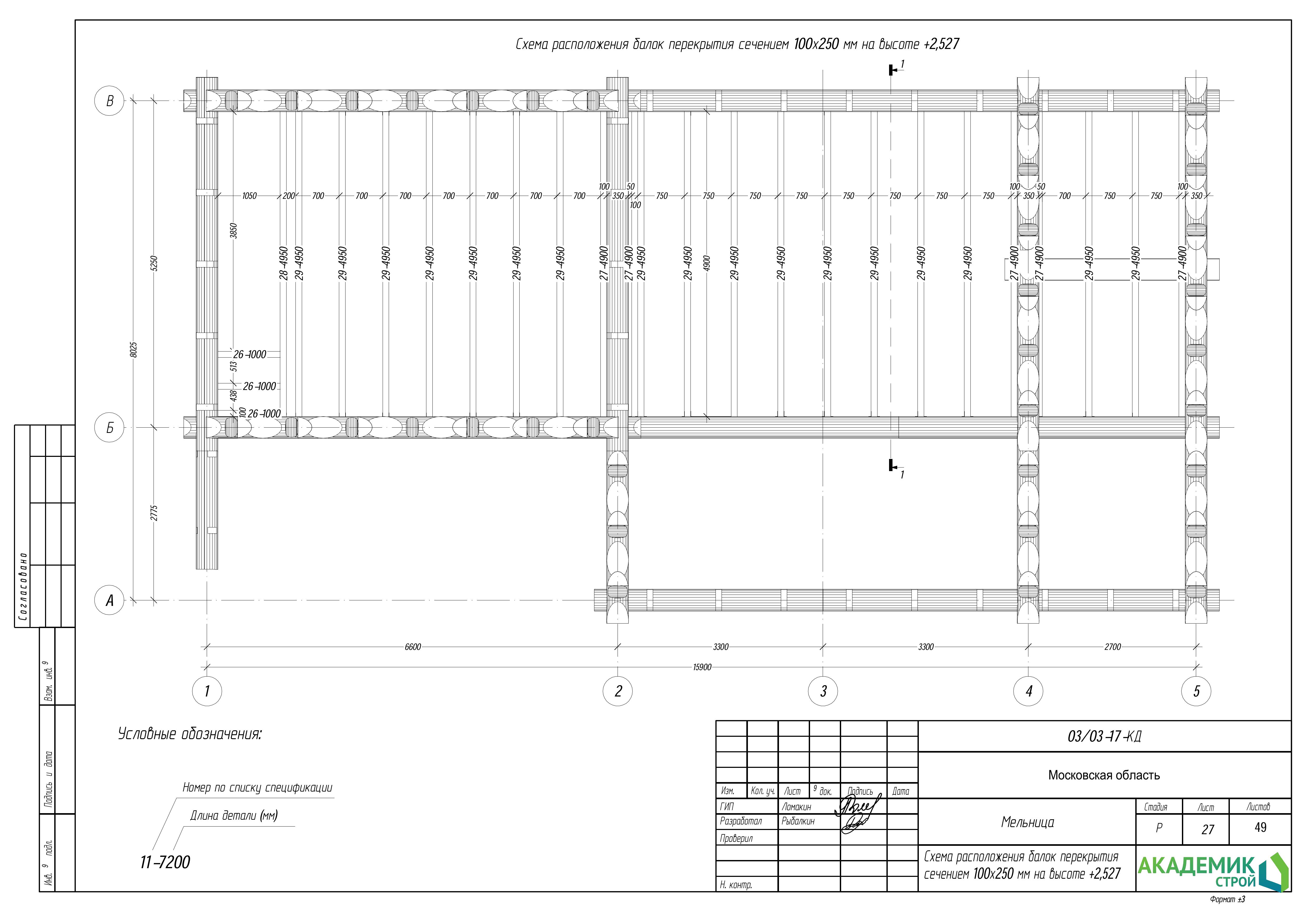
  • Схема расположения лаг сечением 100х250 мм.
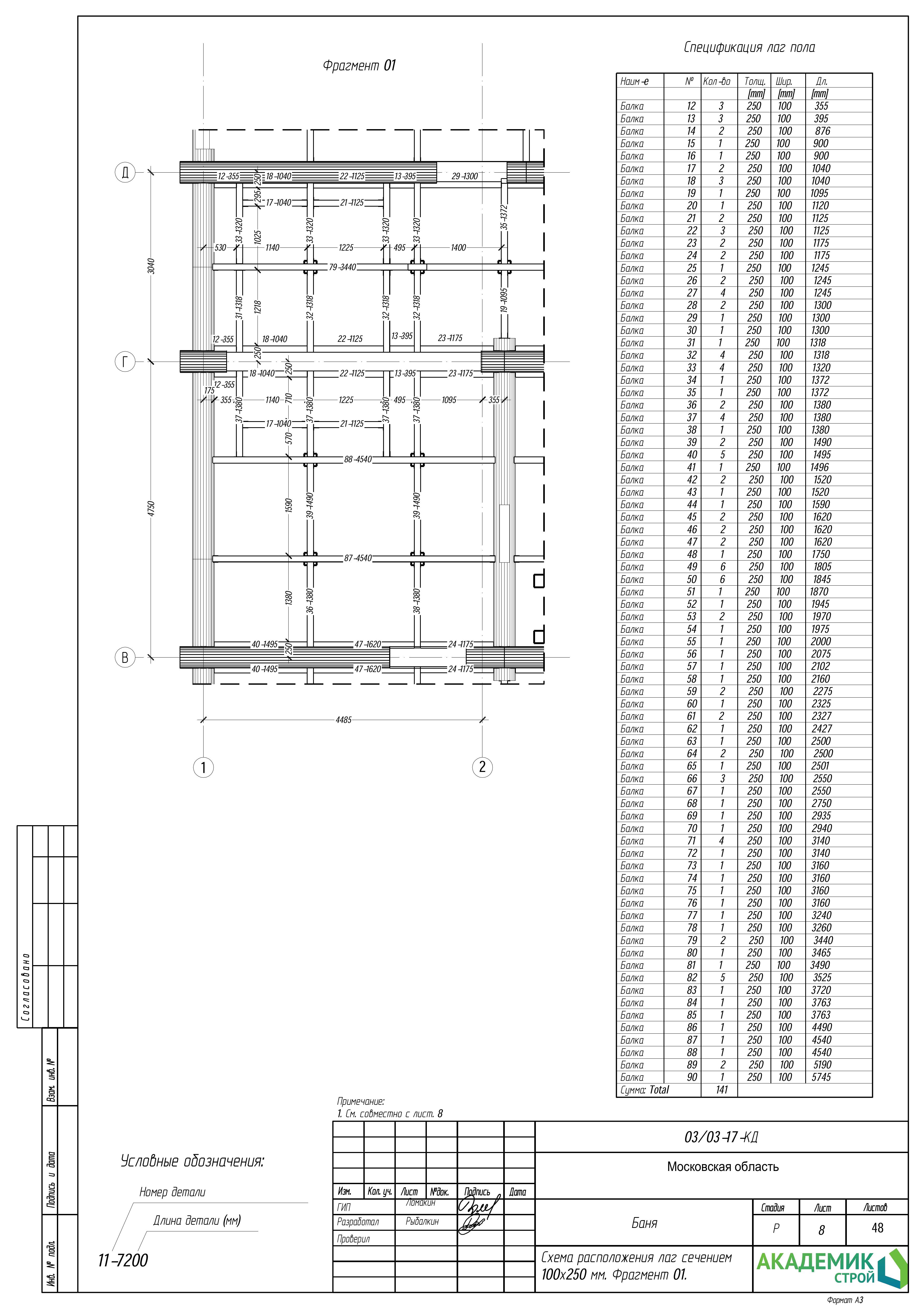
  • Схема расположения лаг сечением 100х250 мм. Фрагмент 01.
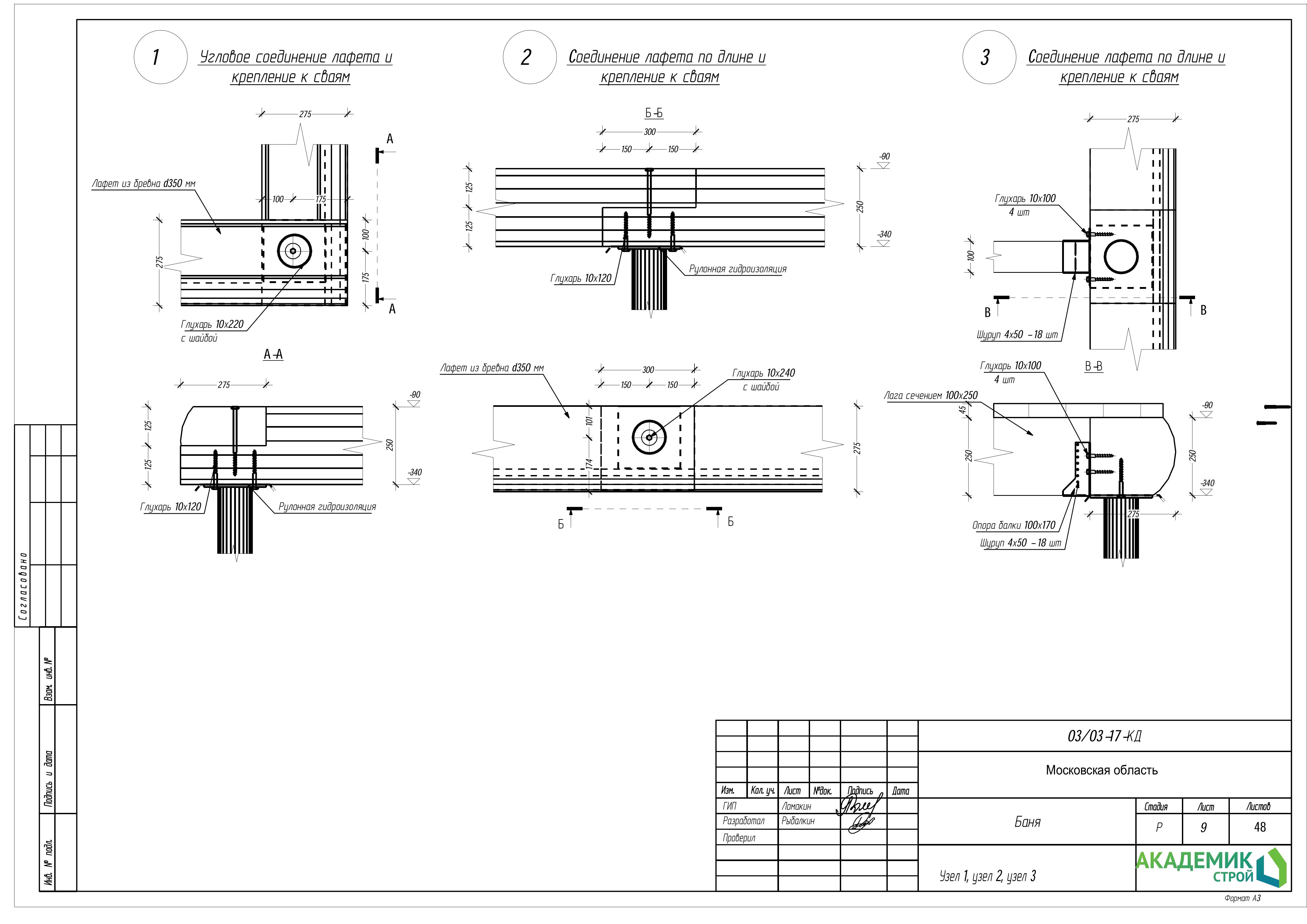
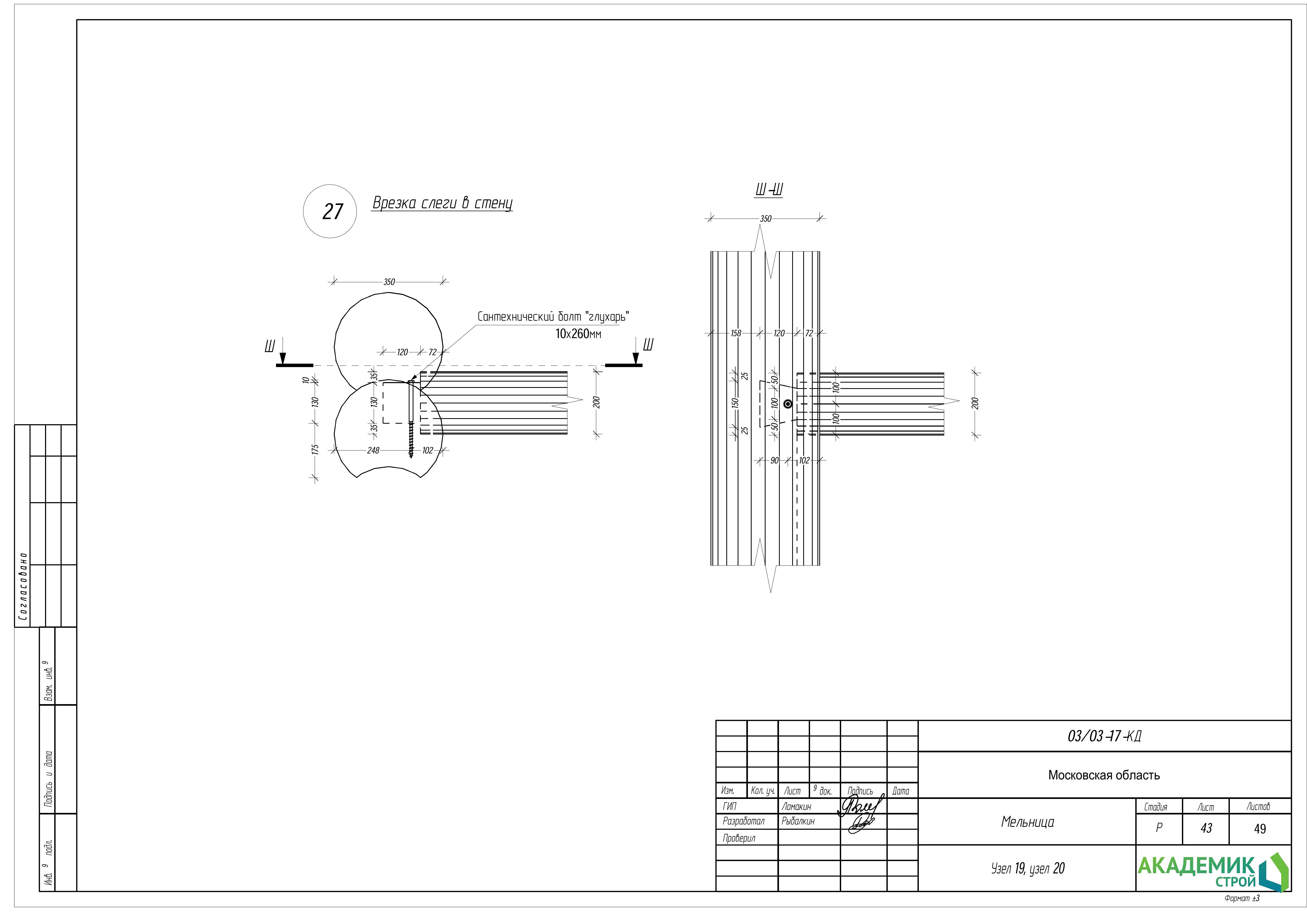
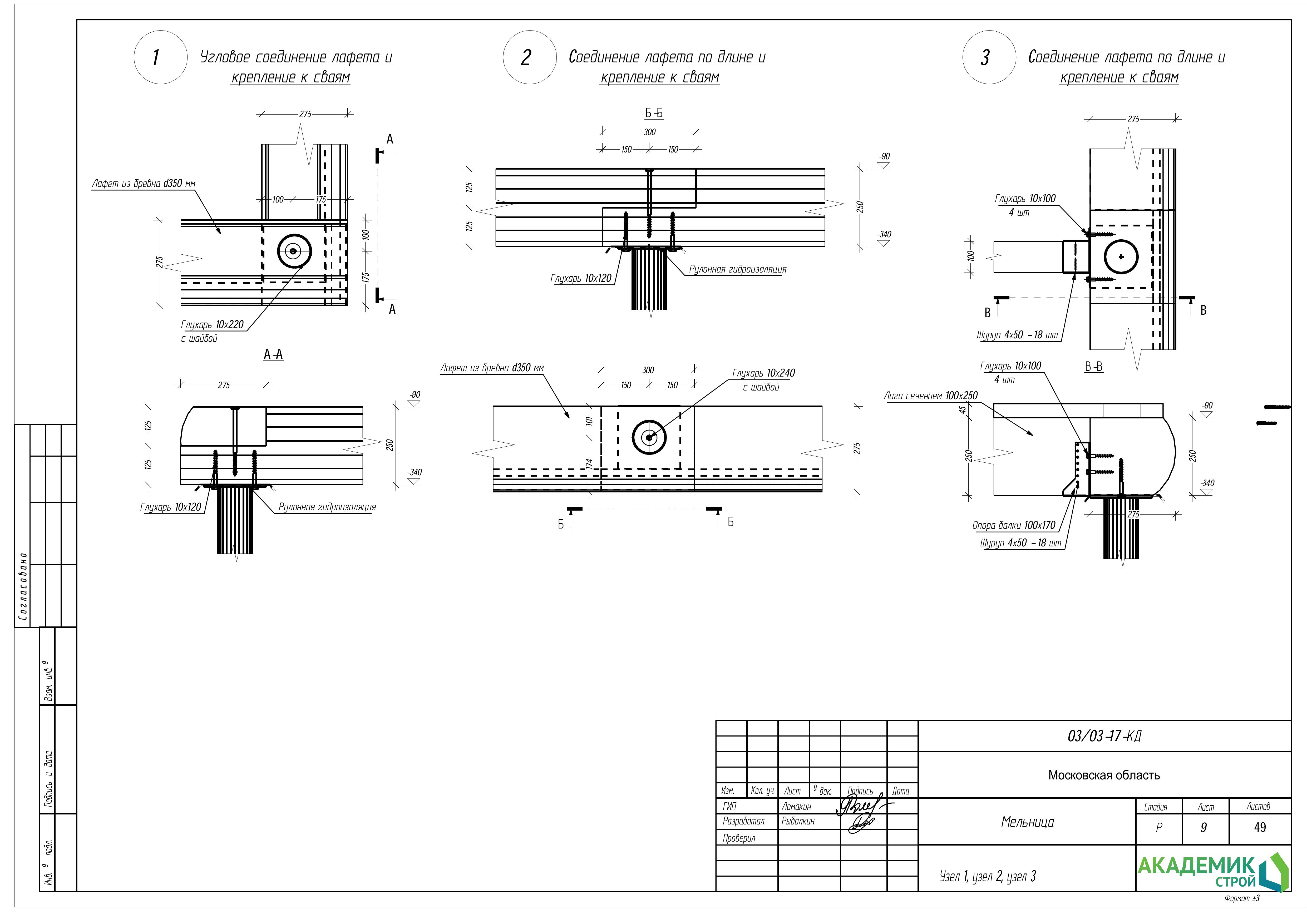
  • Узел 1, узел 2, узел 3
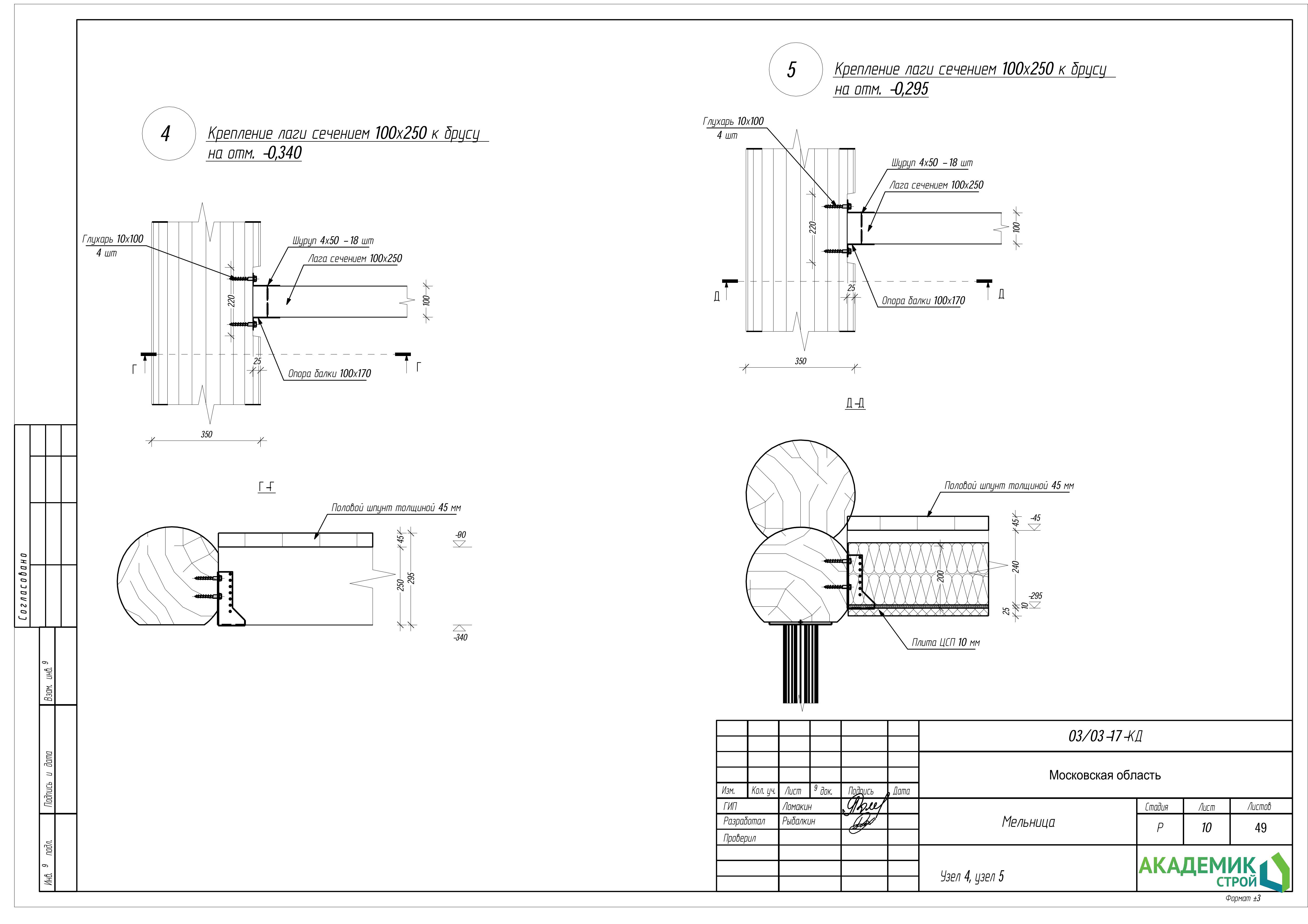
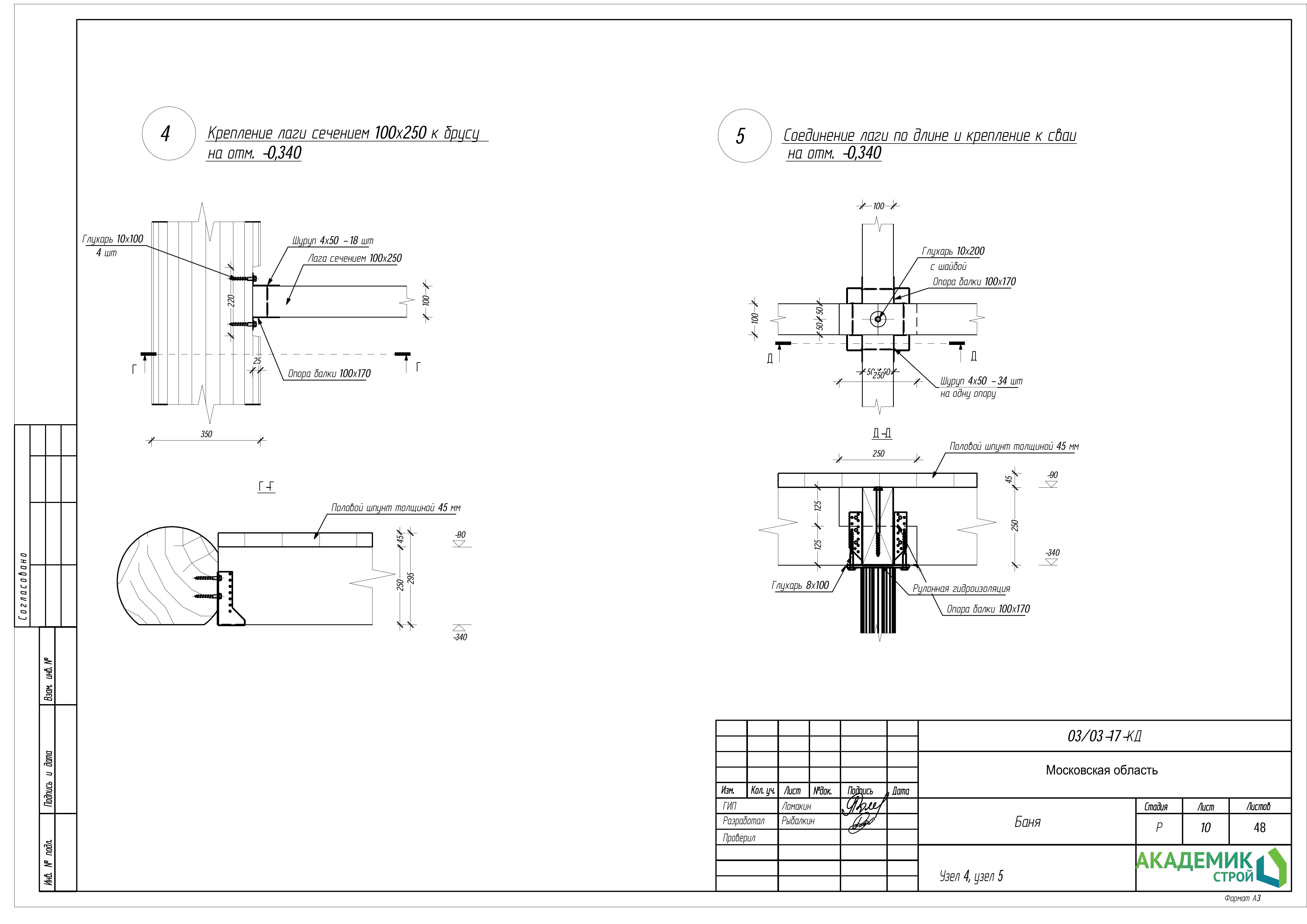
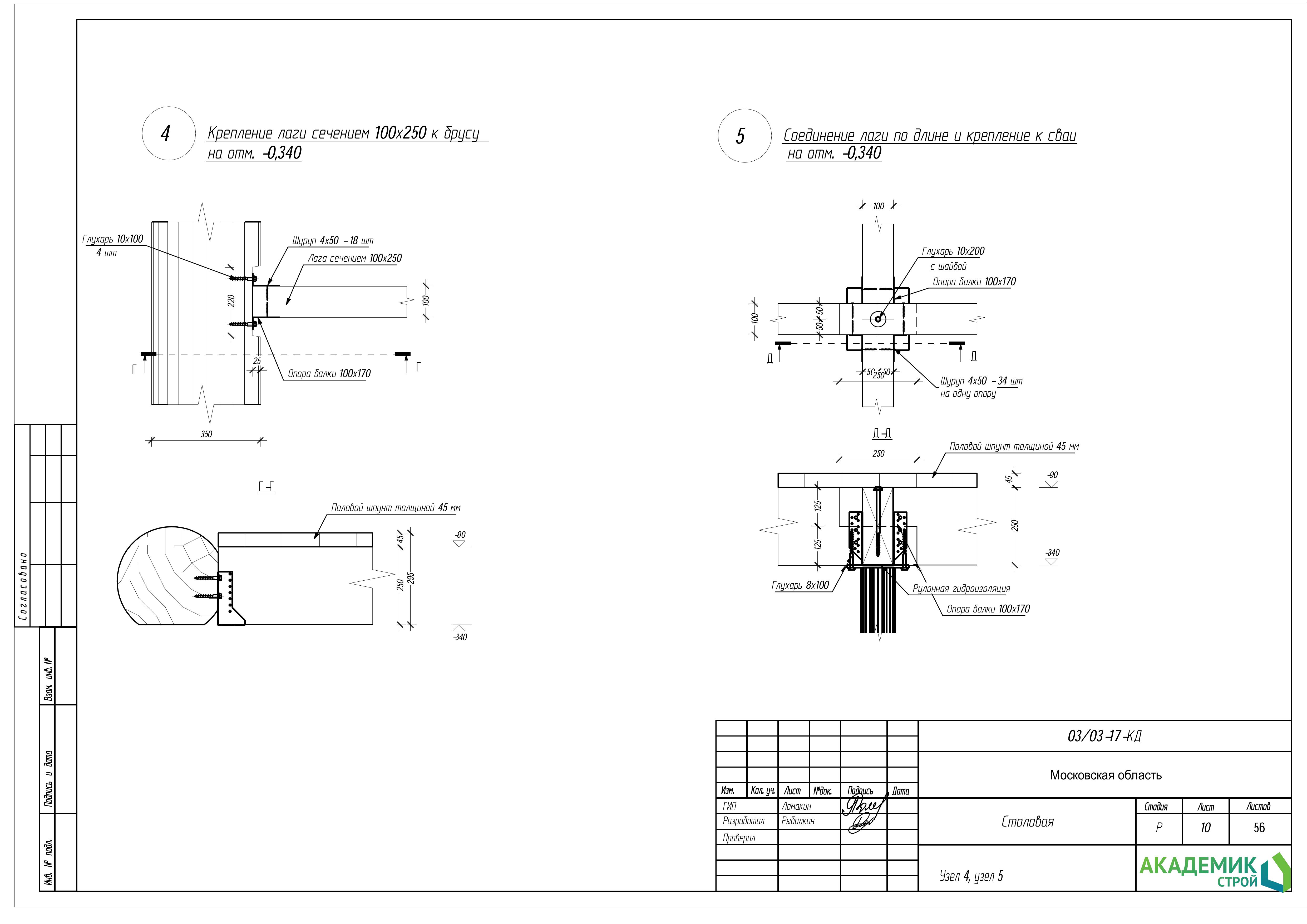
  • Узел 4, узел 5
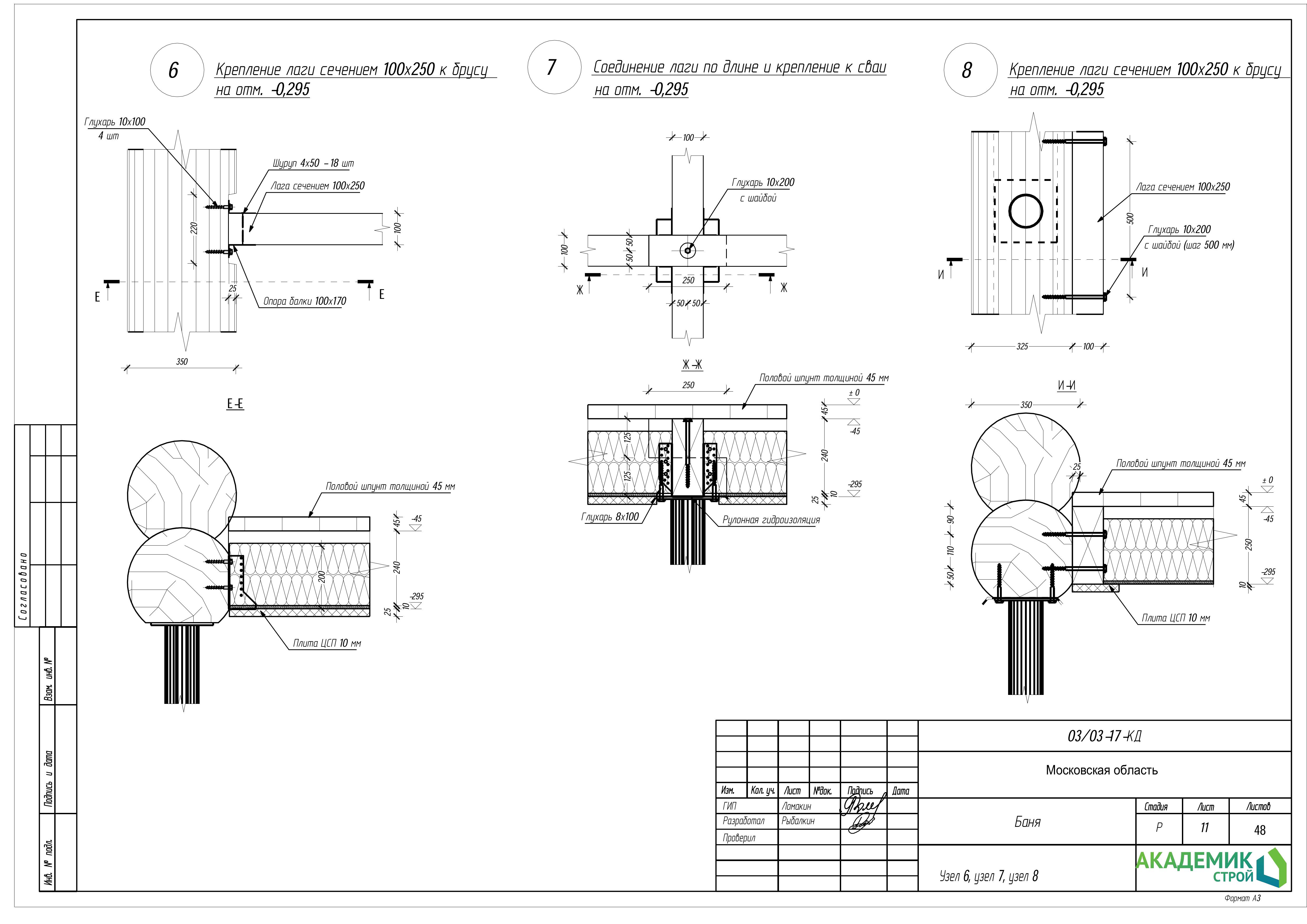
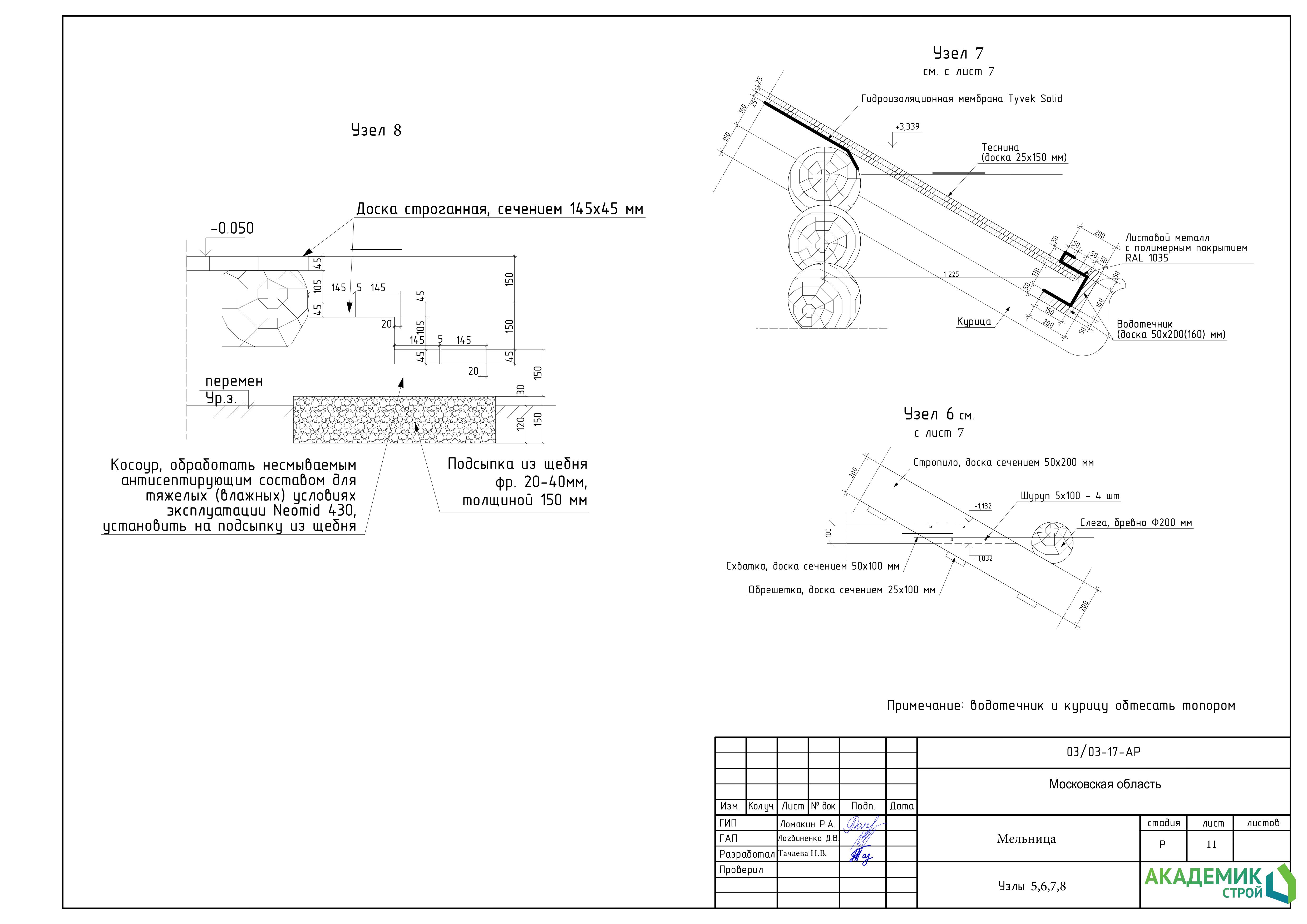
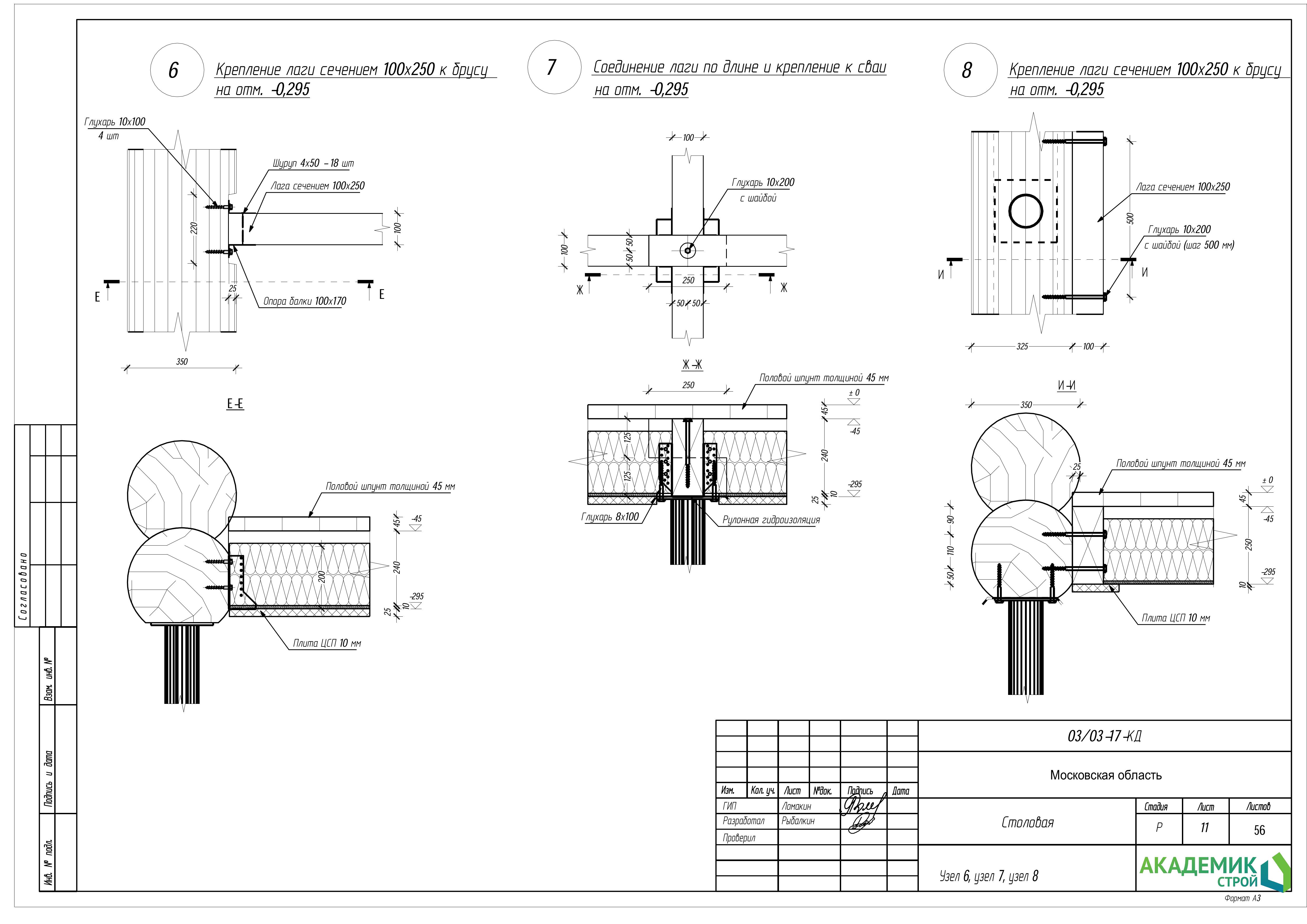
  • Узел 6, узел 7, узел 8
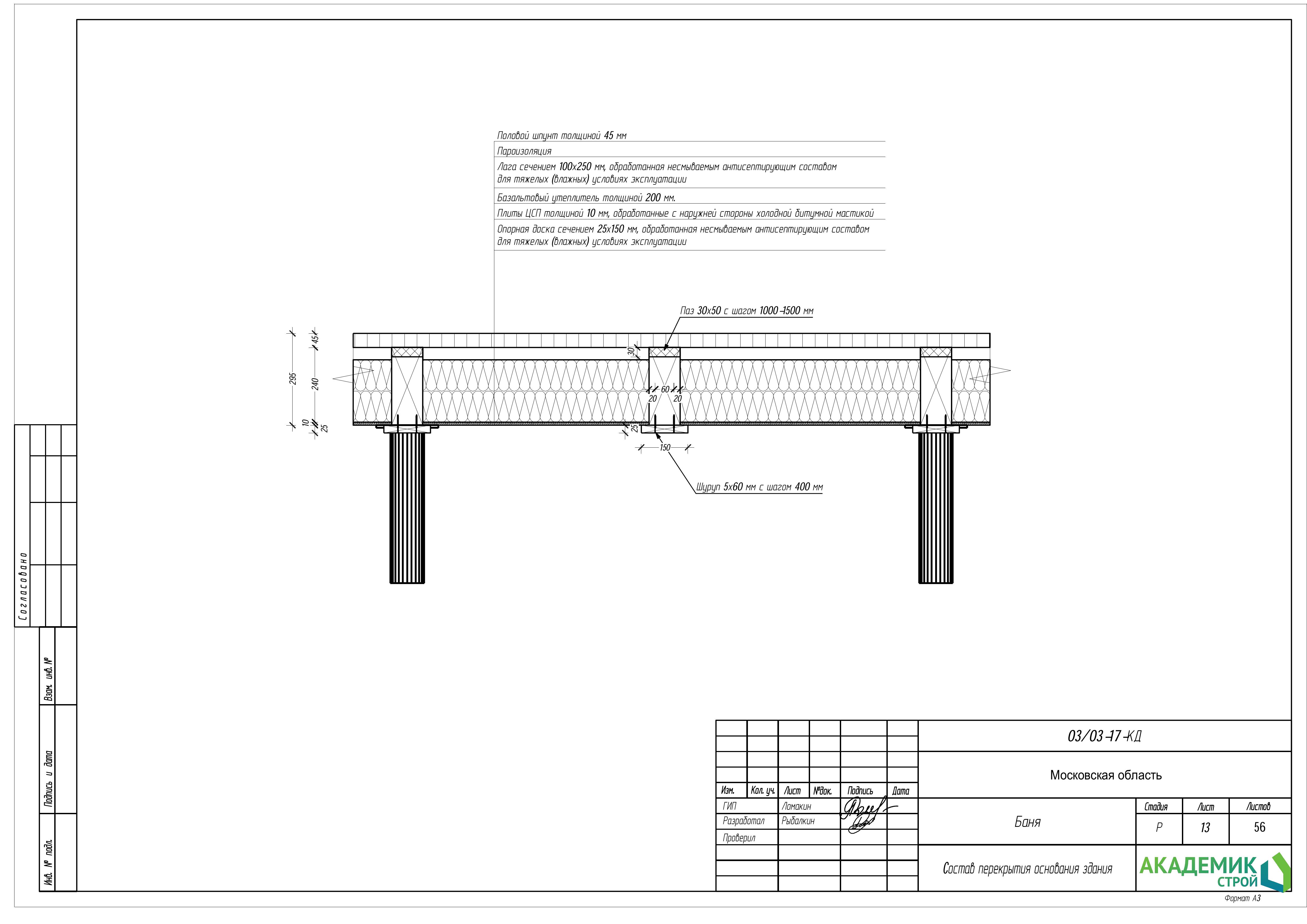
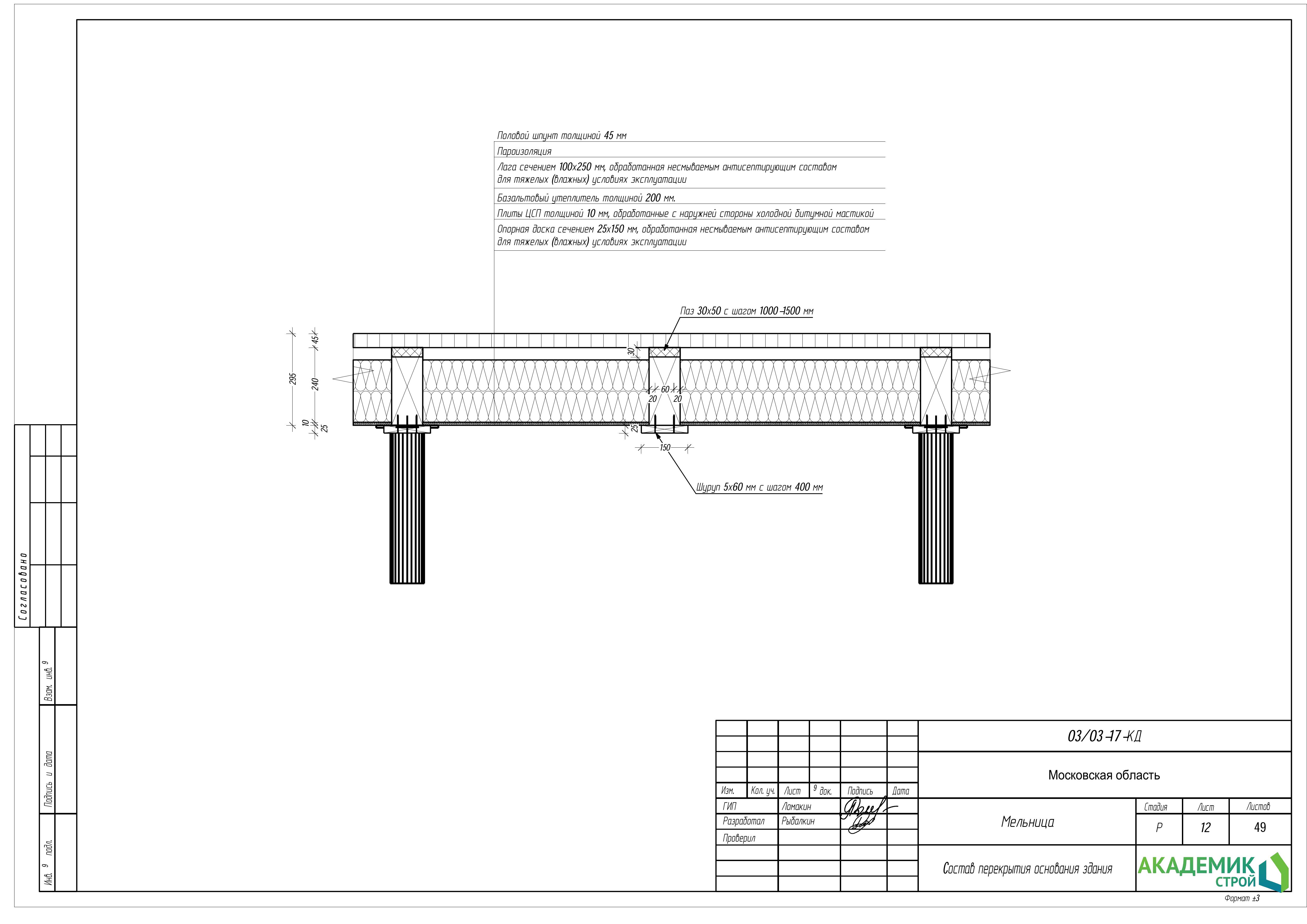
  • Cостав перекрытия основного здания
  • Расположение лаг пола 100х250 мм. Общий вид
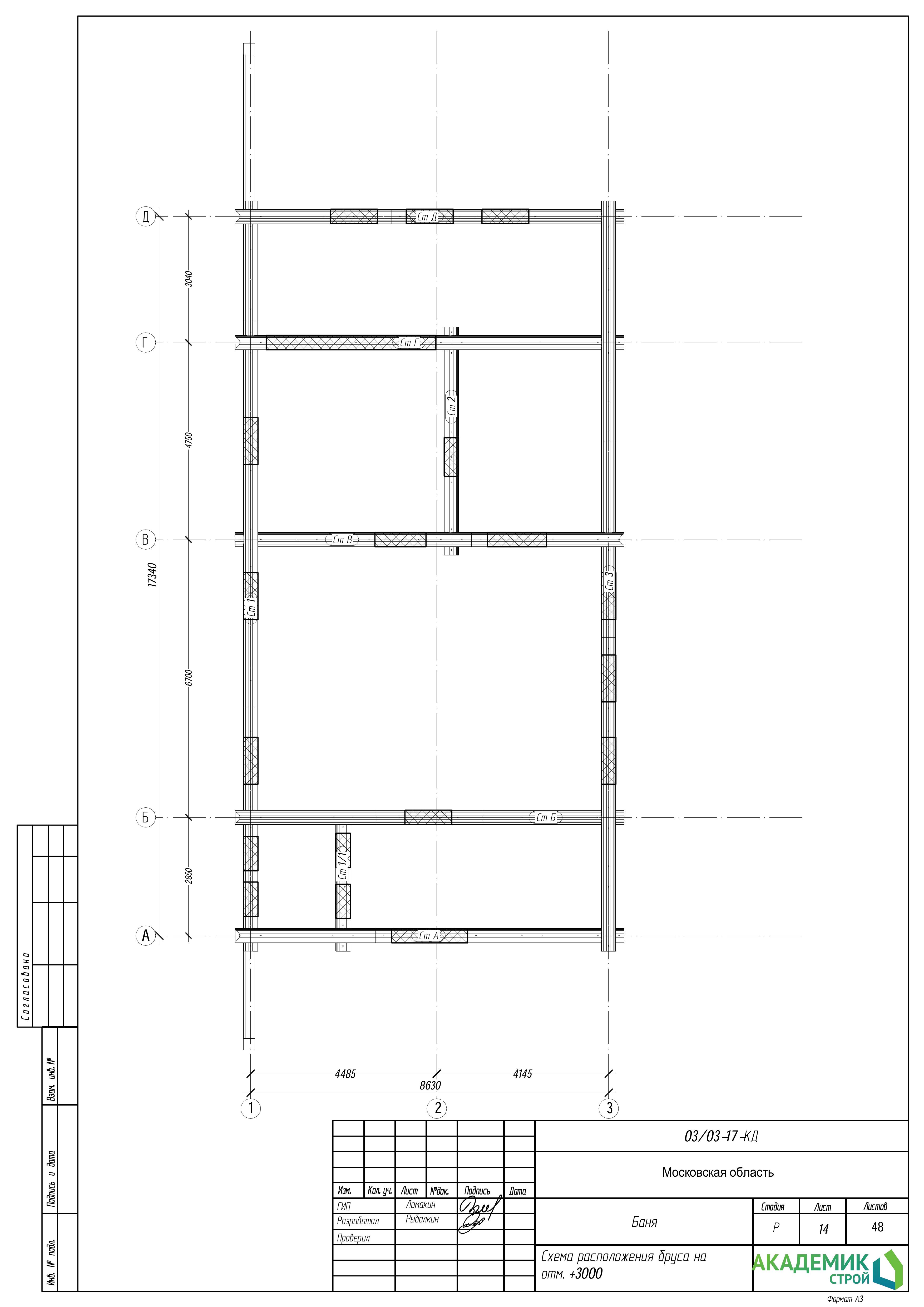
  • Схема расположения бруса на отм. +3000
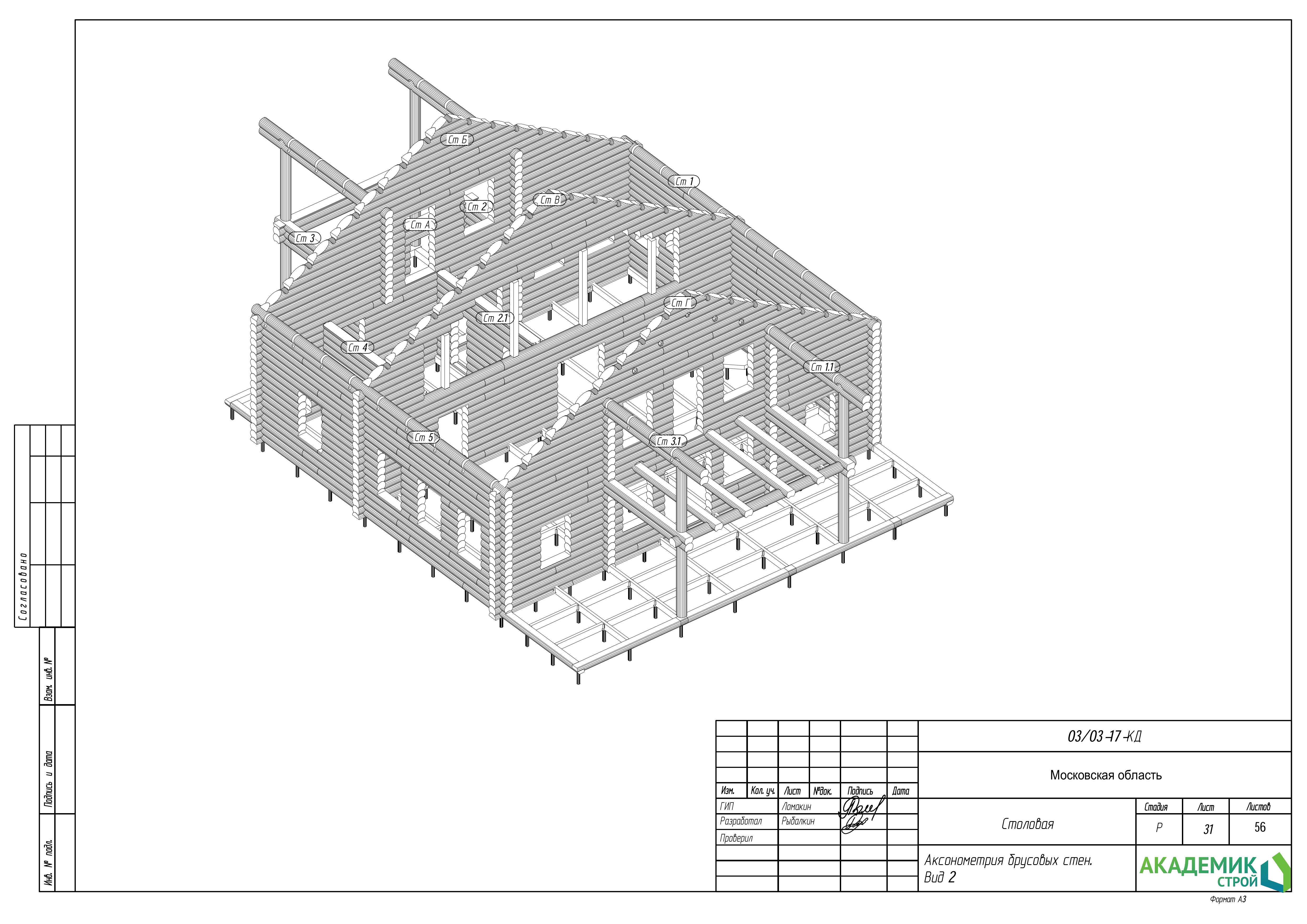
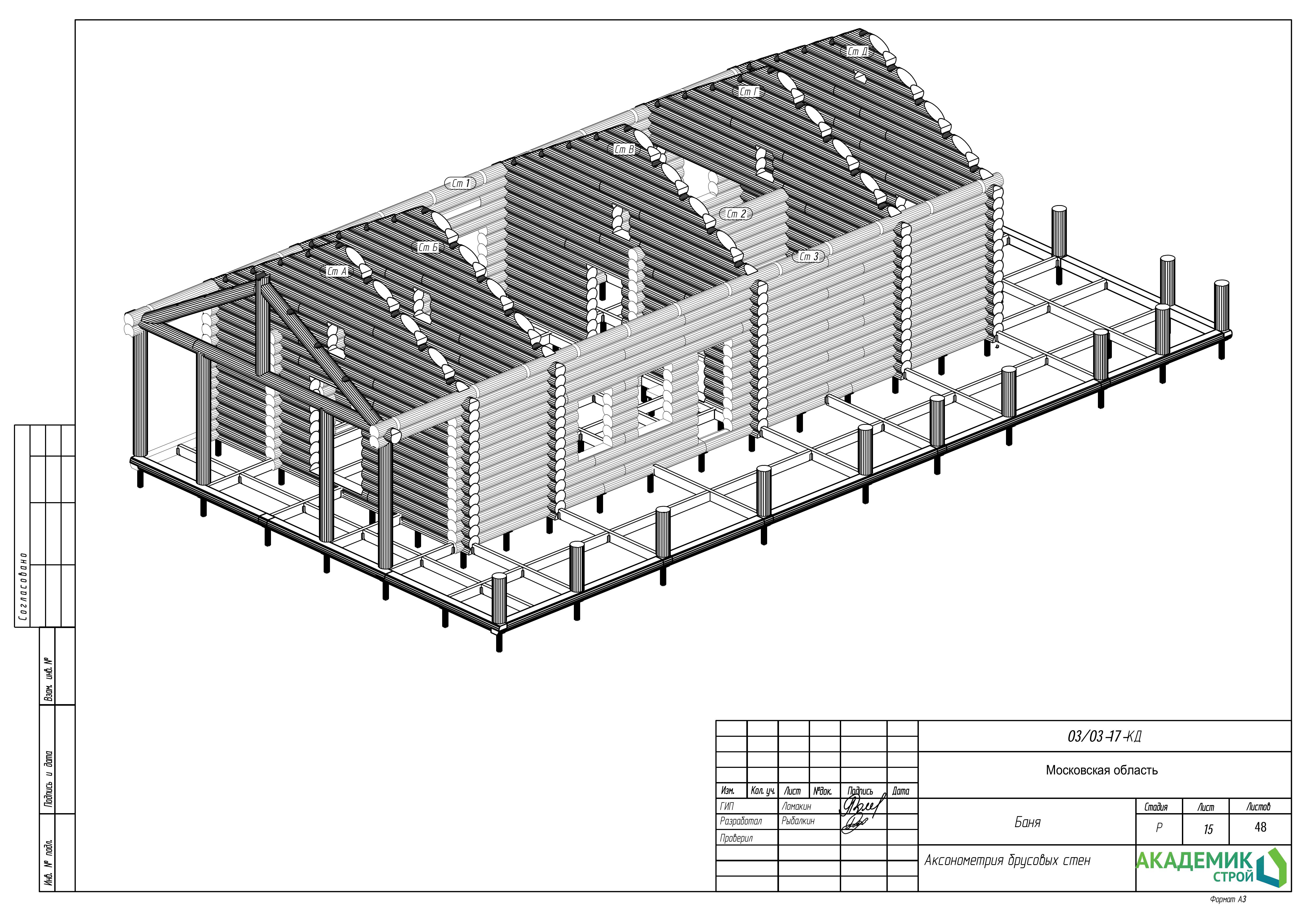
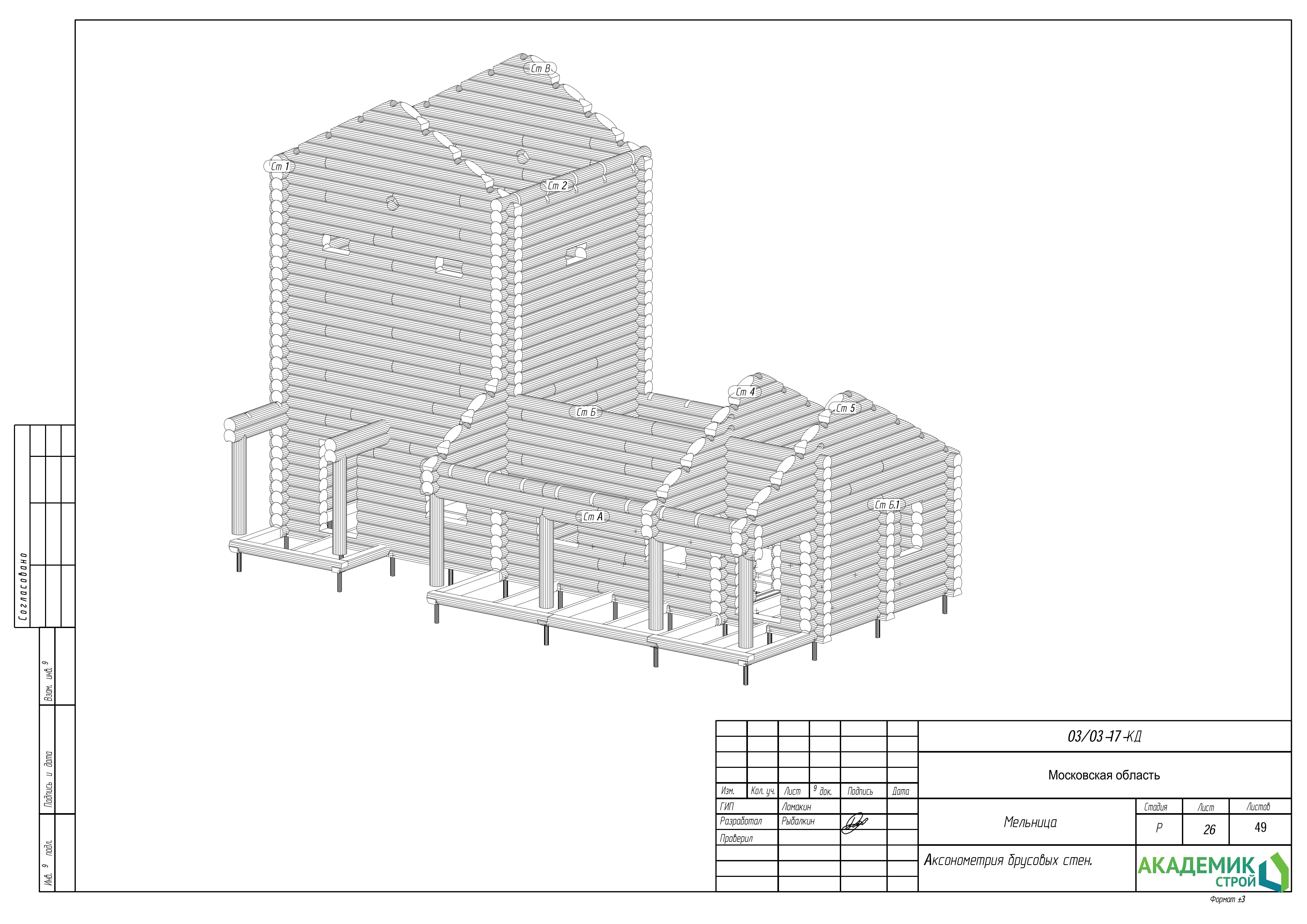
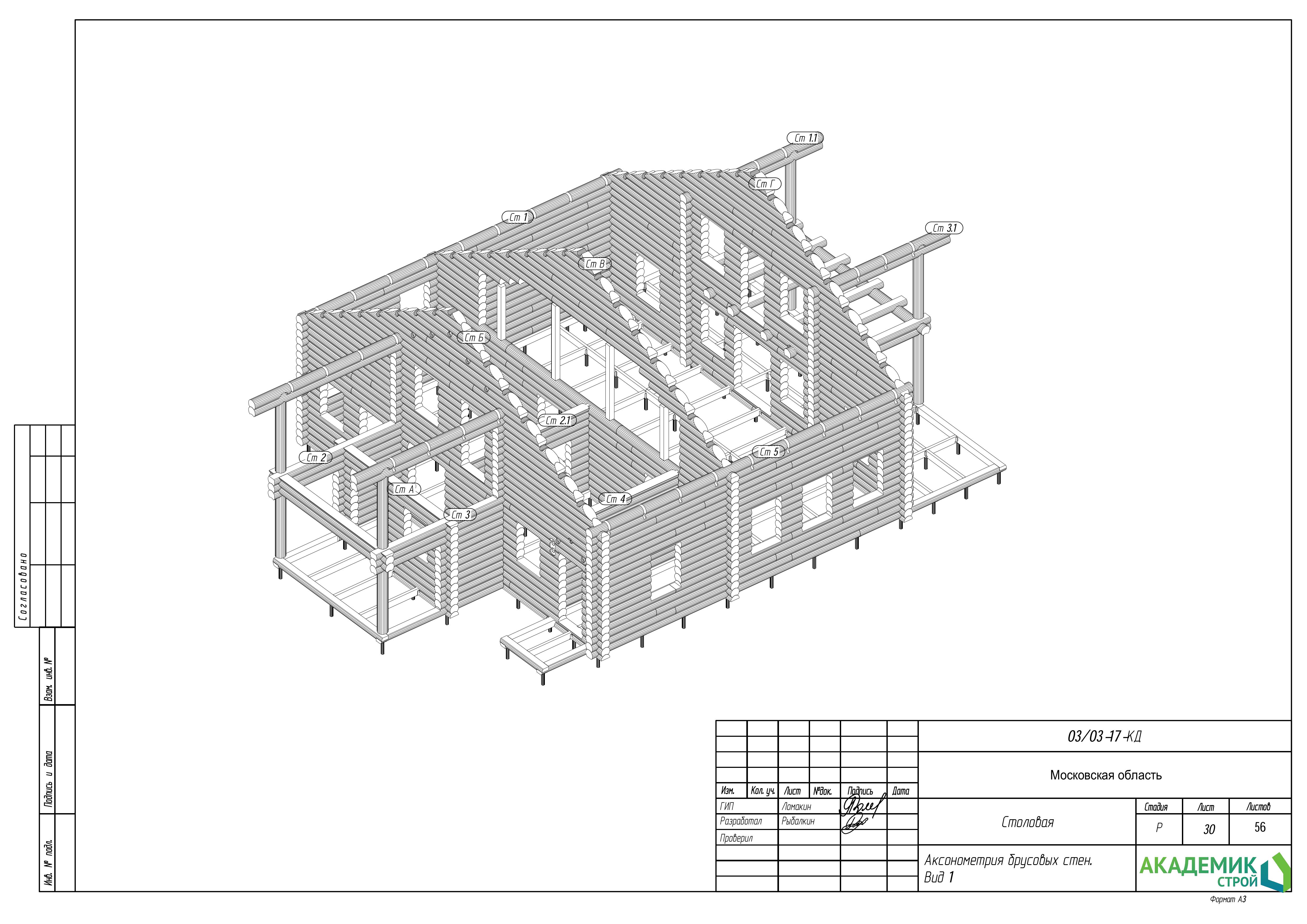
  • Аксонометрия брусовых стен
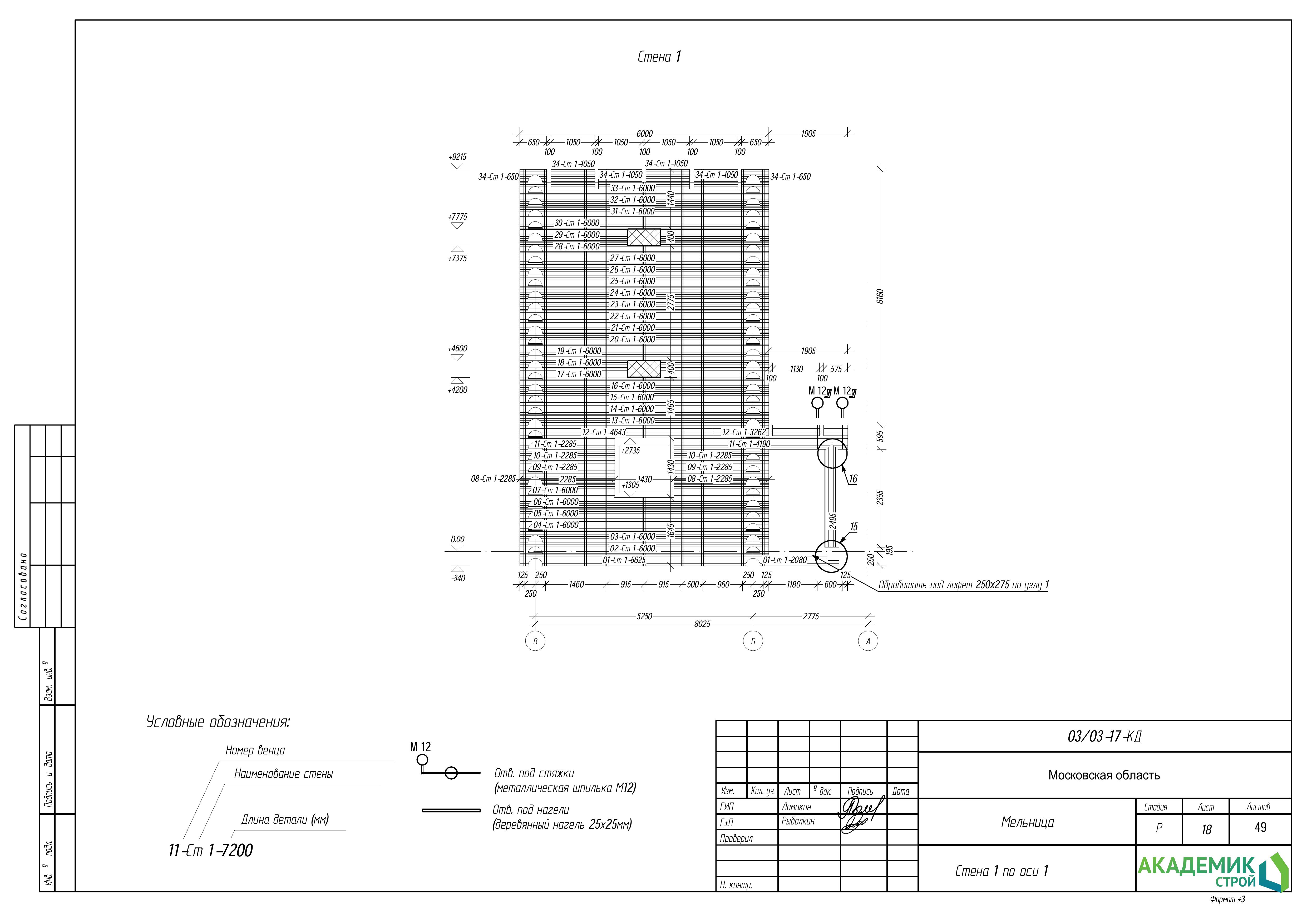
  • Стена 1 по оси 1
  • Стена 1/1 и стена 2 вблизи оси 2
  • Стена 3 по оси 3
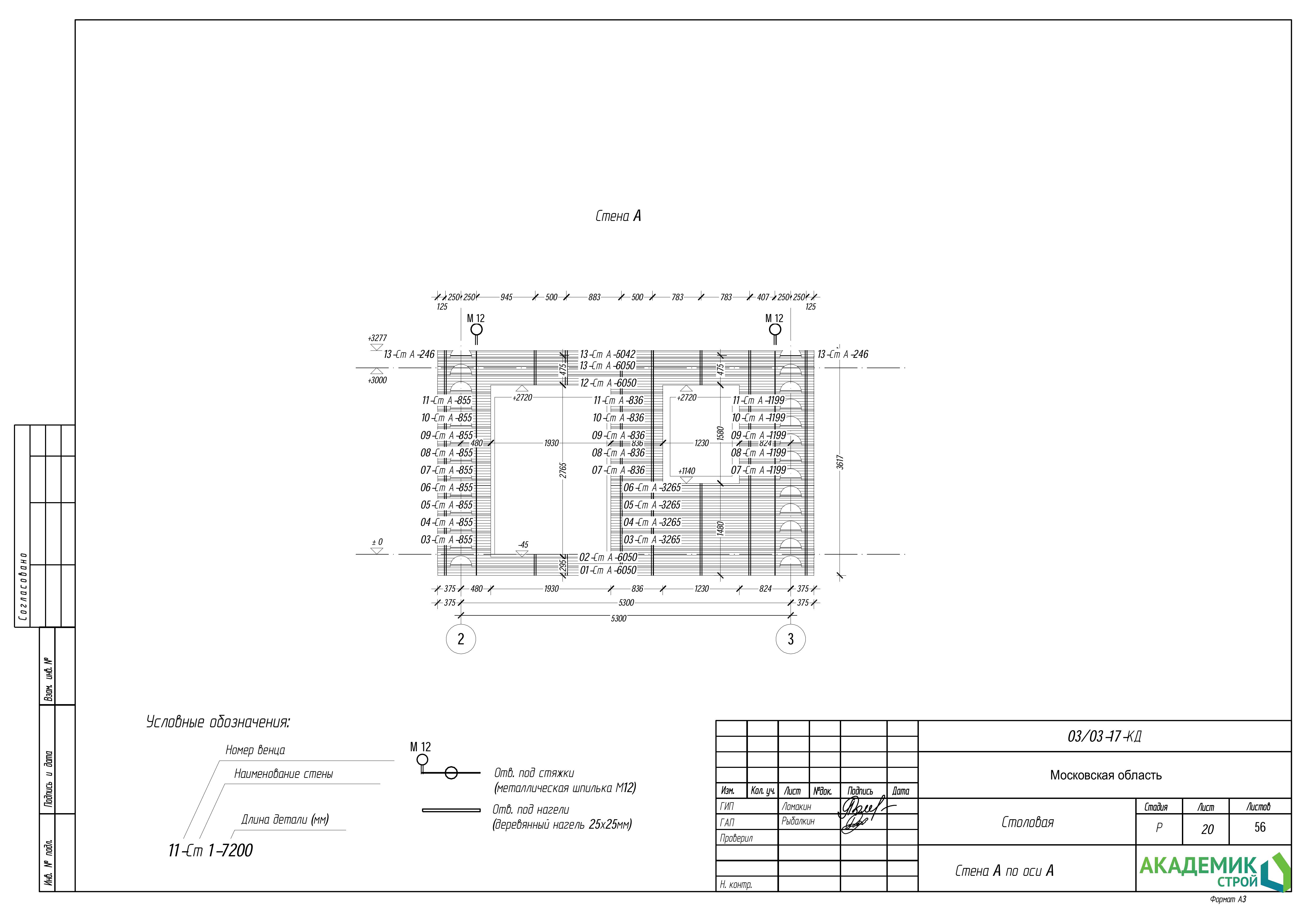
  • Стена A по оси A
  • Стена Б по оси Б
  • Стена В по оси В
  • Стена Г по оси Г
  • Стена Д по оси Д
  • Узел 9, узел 10, узел 11
  • Узел 12
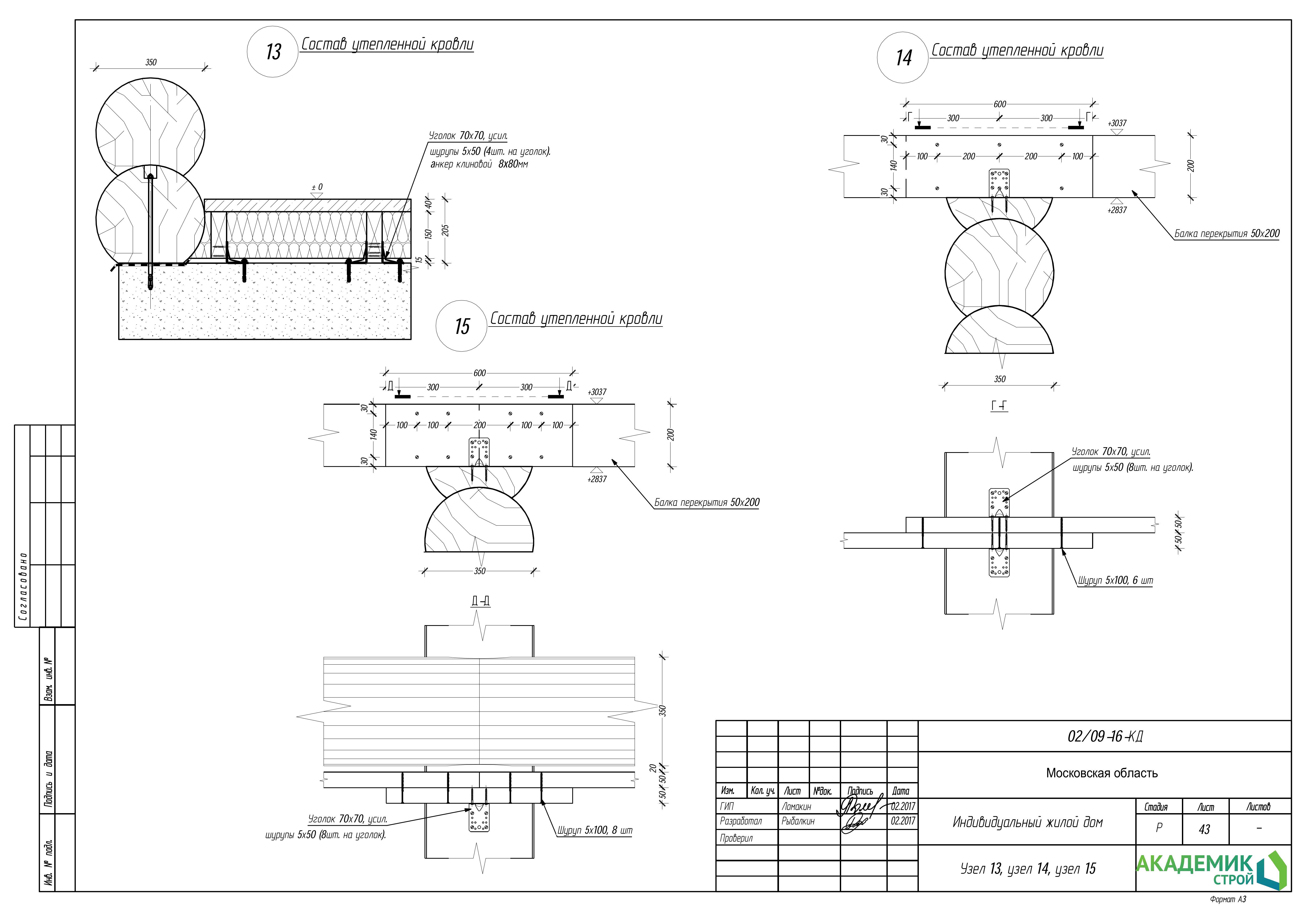
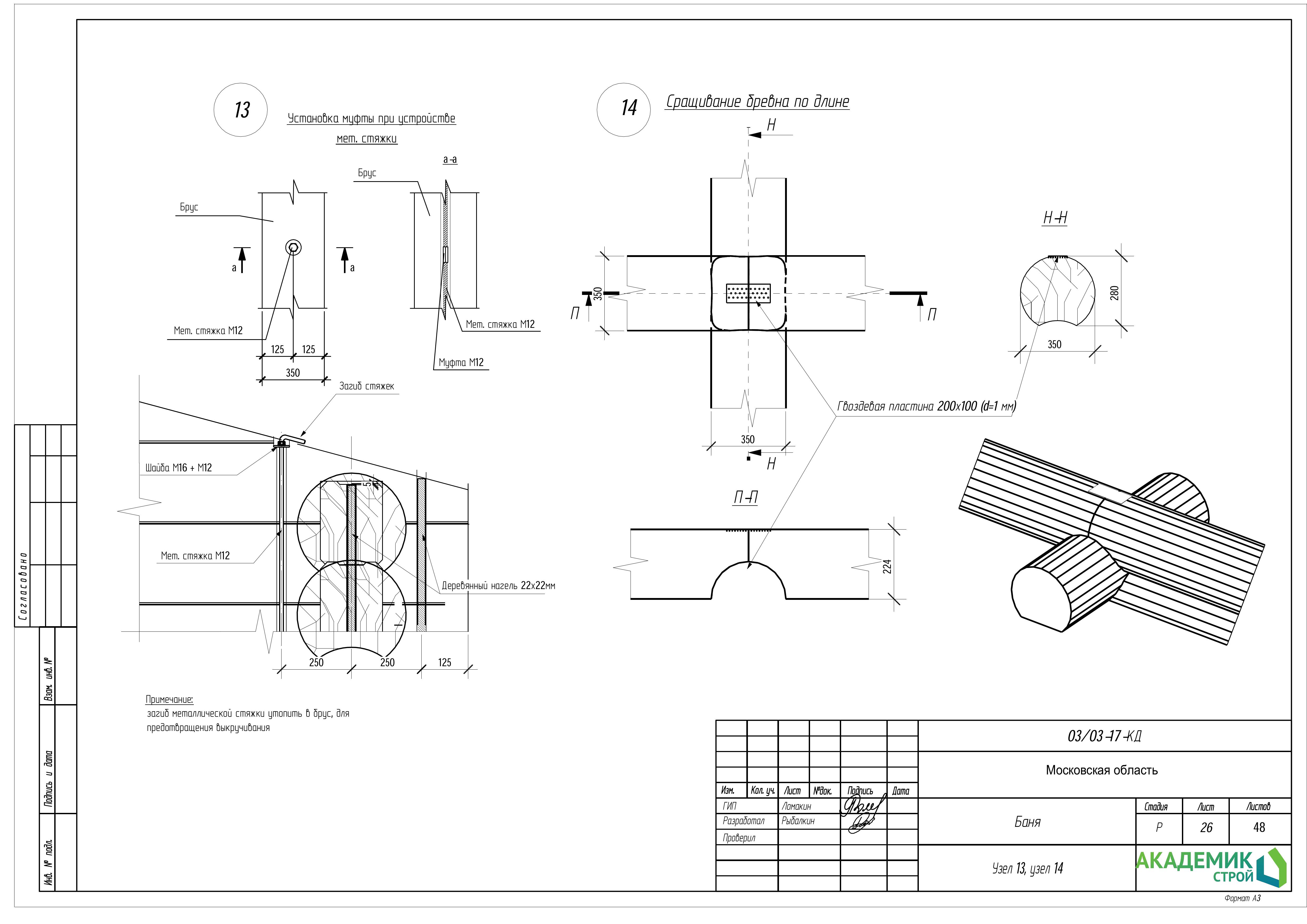
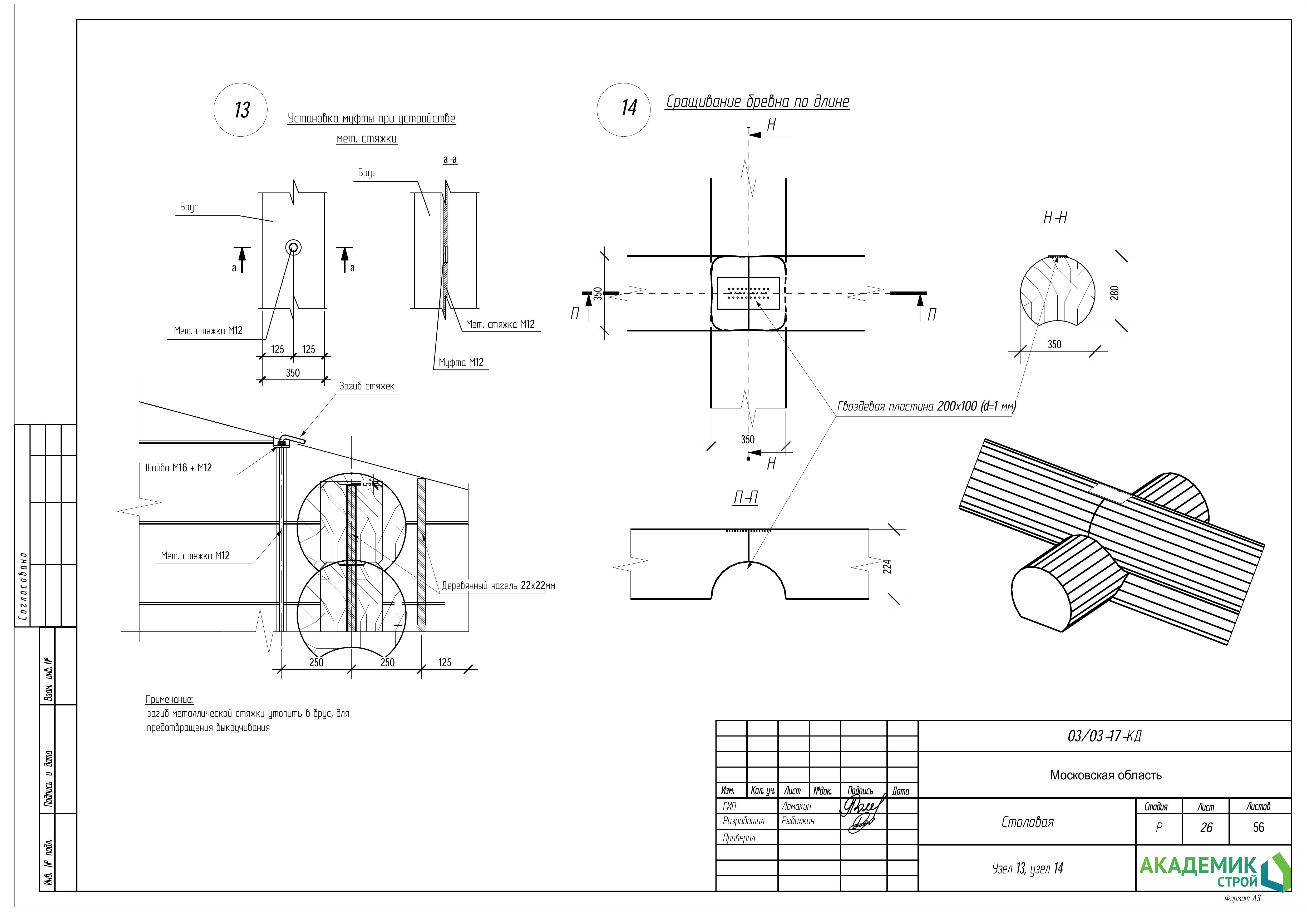
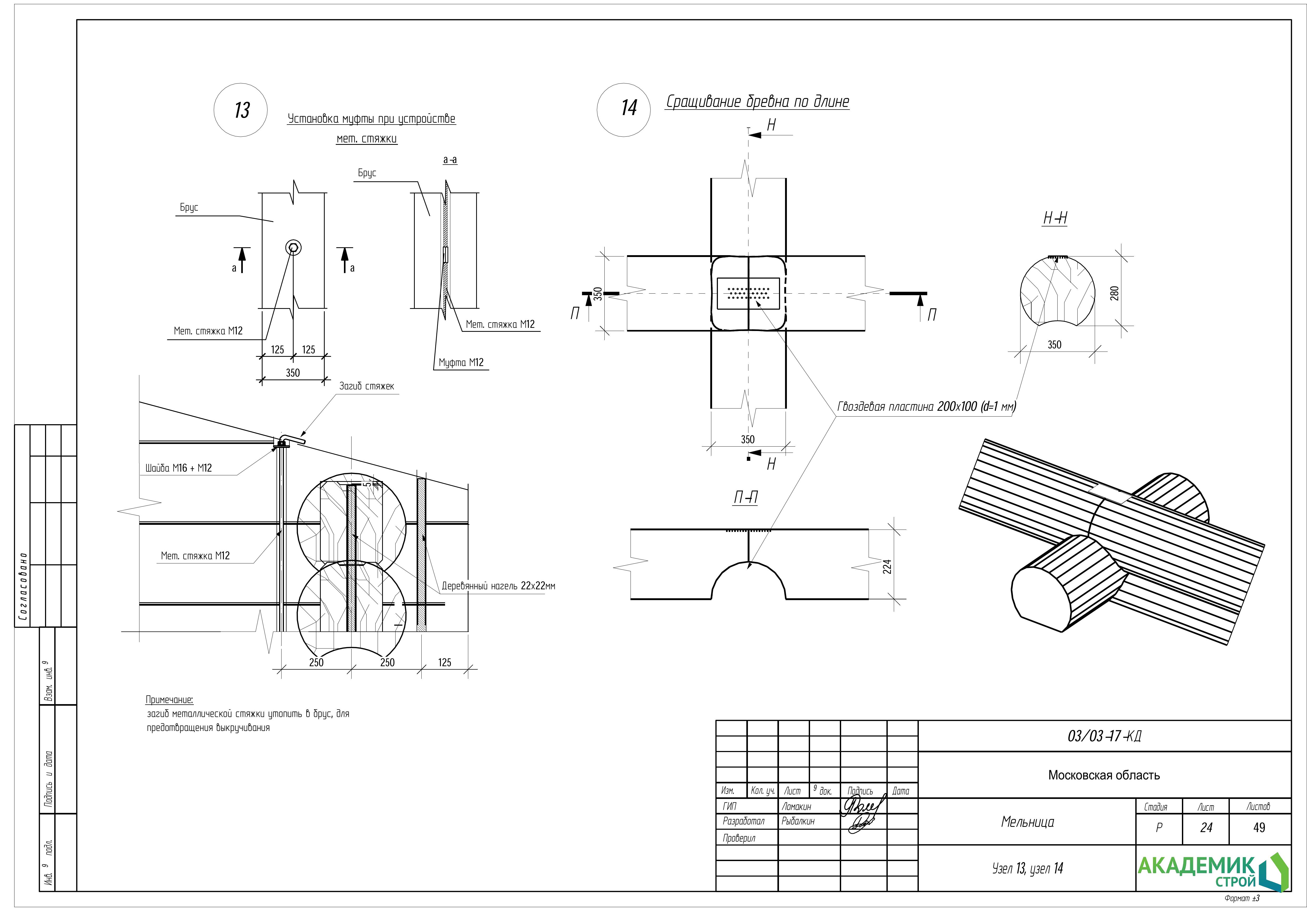
  • Узел 13, узел 14
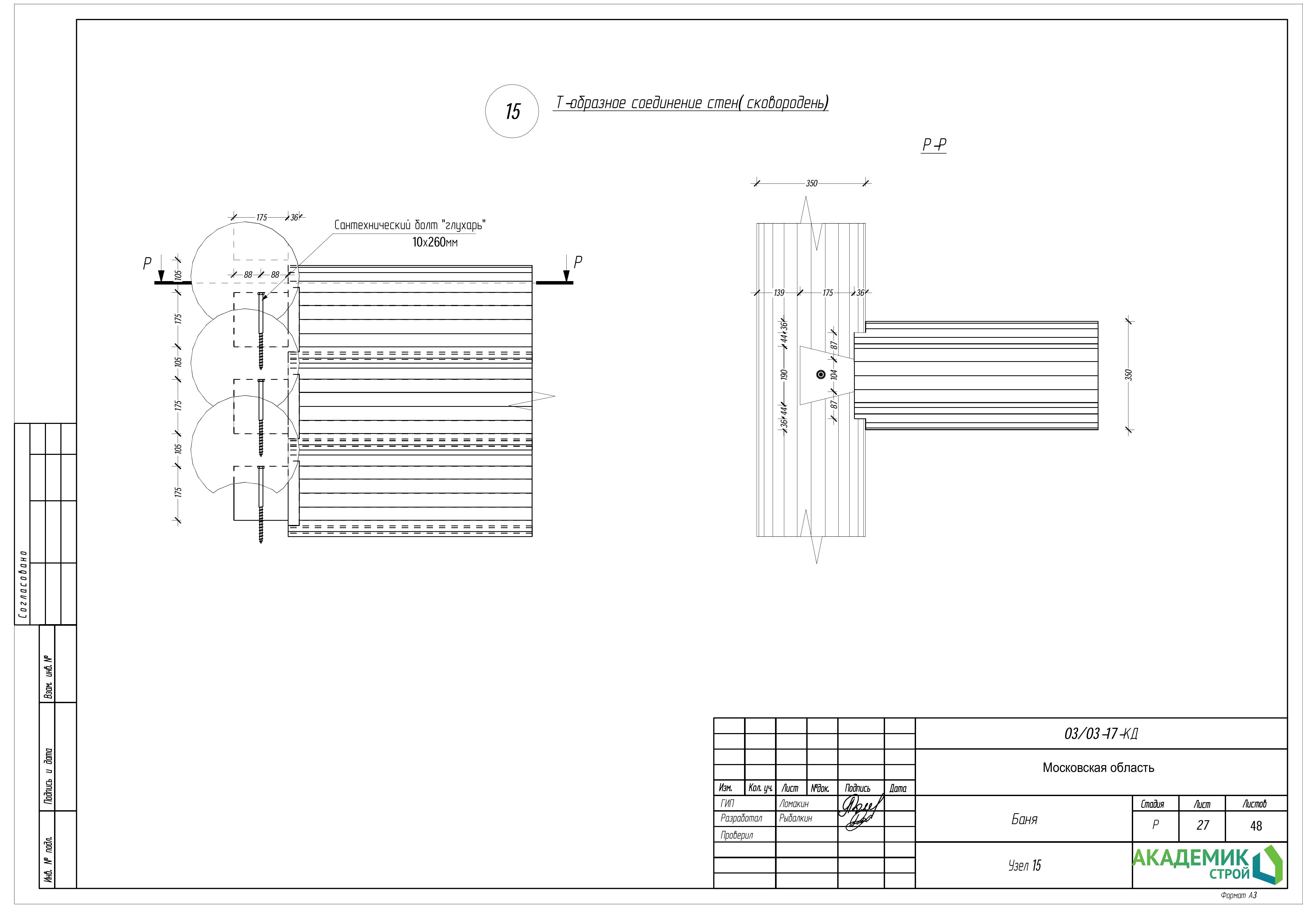
  • Узел 15
  • Схема расположения балок межэтажного перекрытия на отм. +3.000
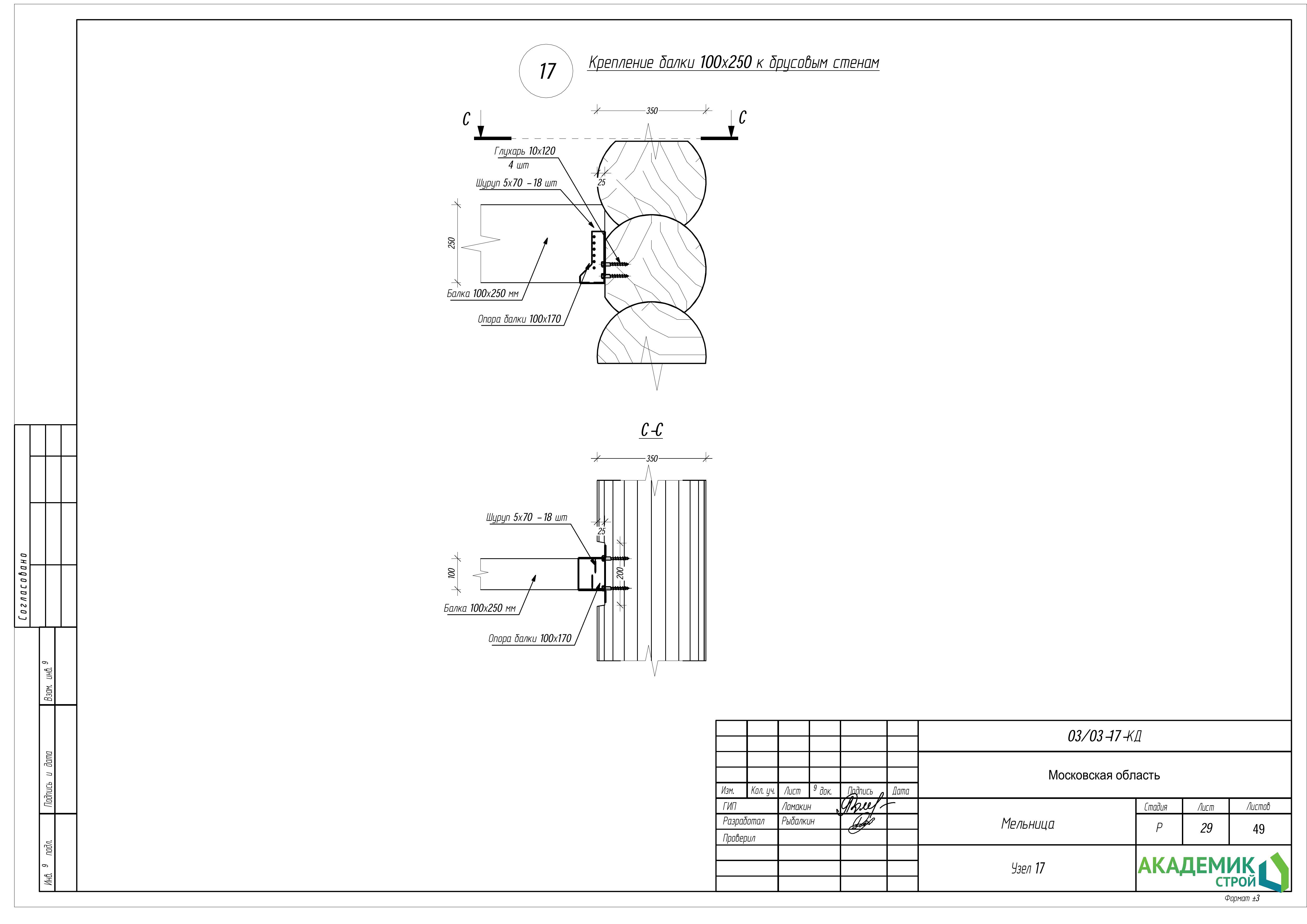
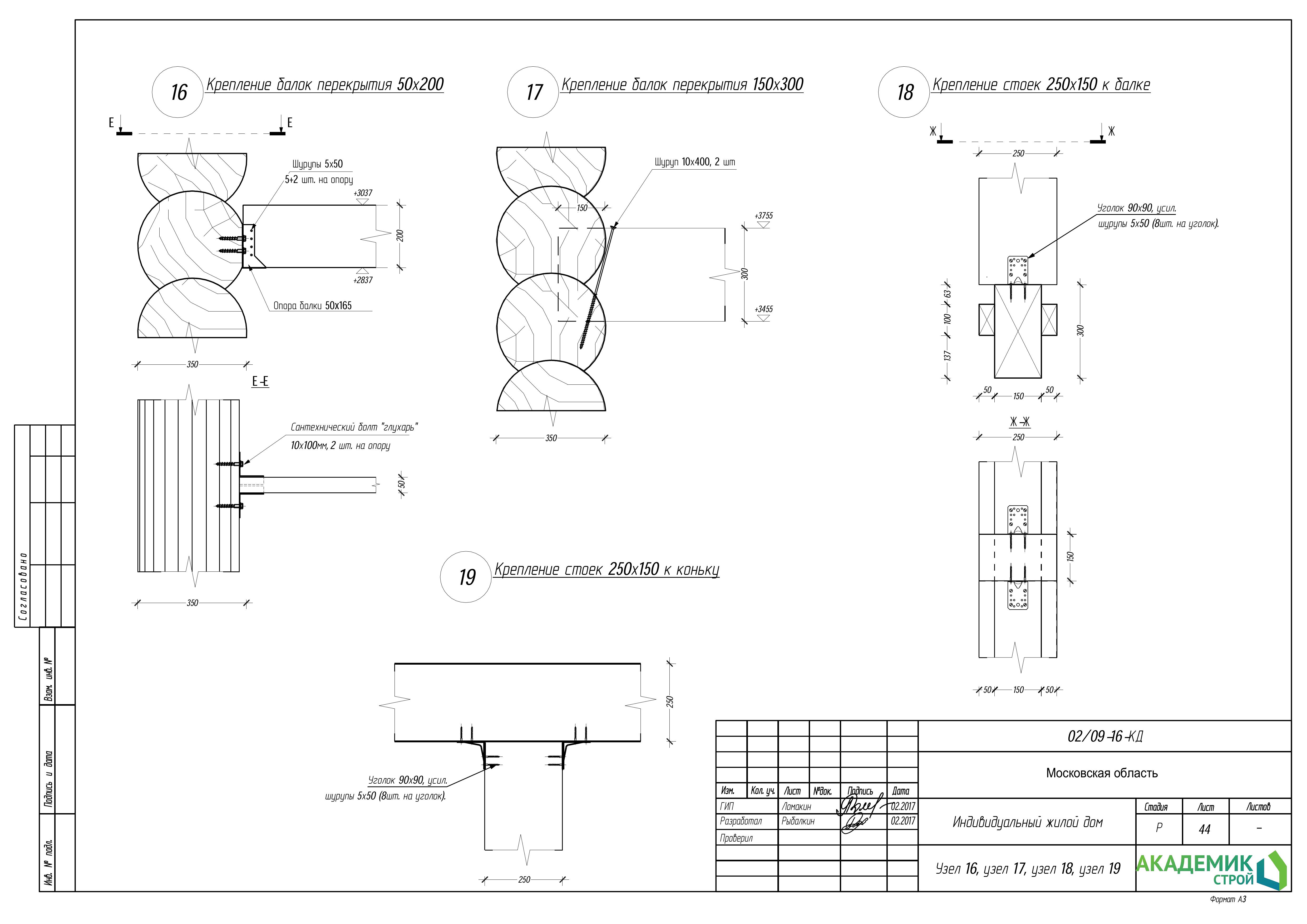
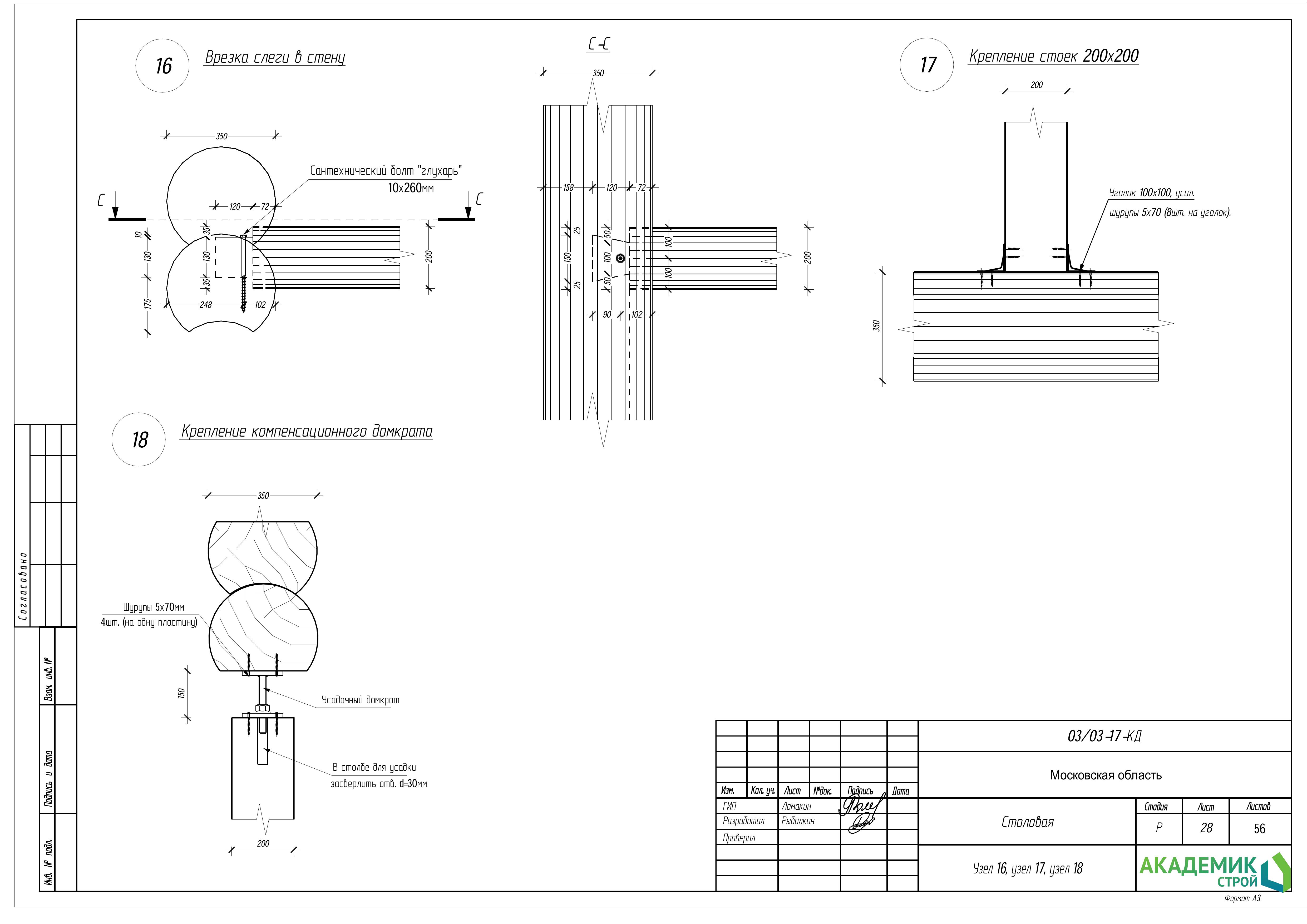
  • Узел 16, узел 17
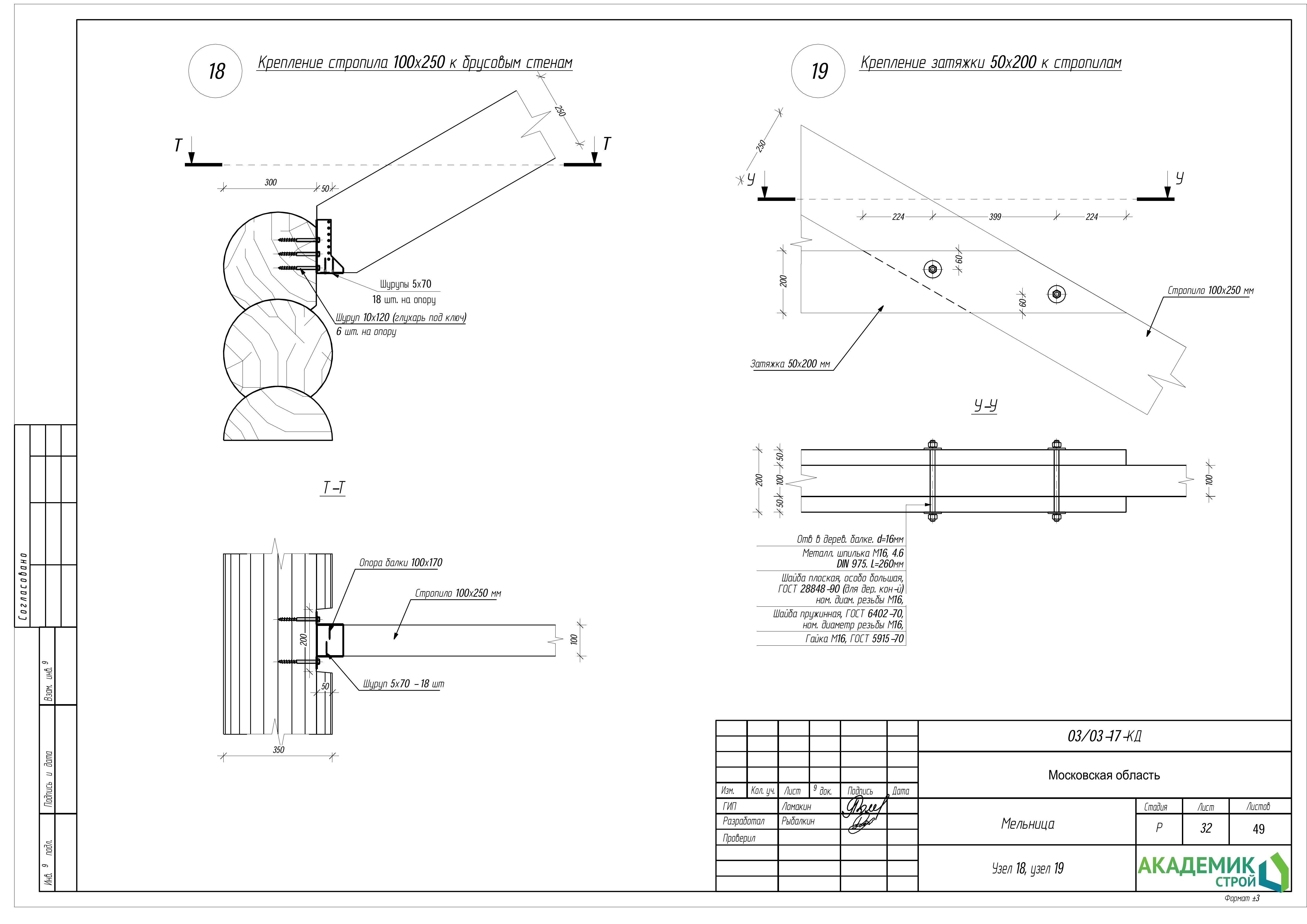
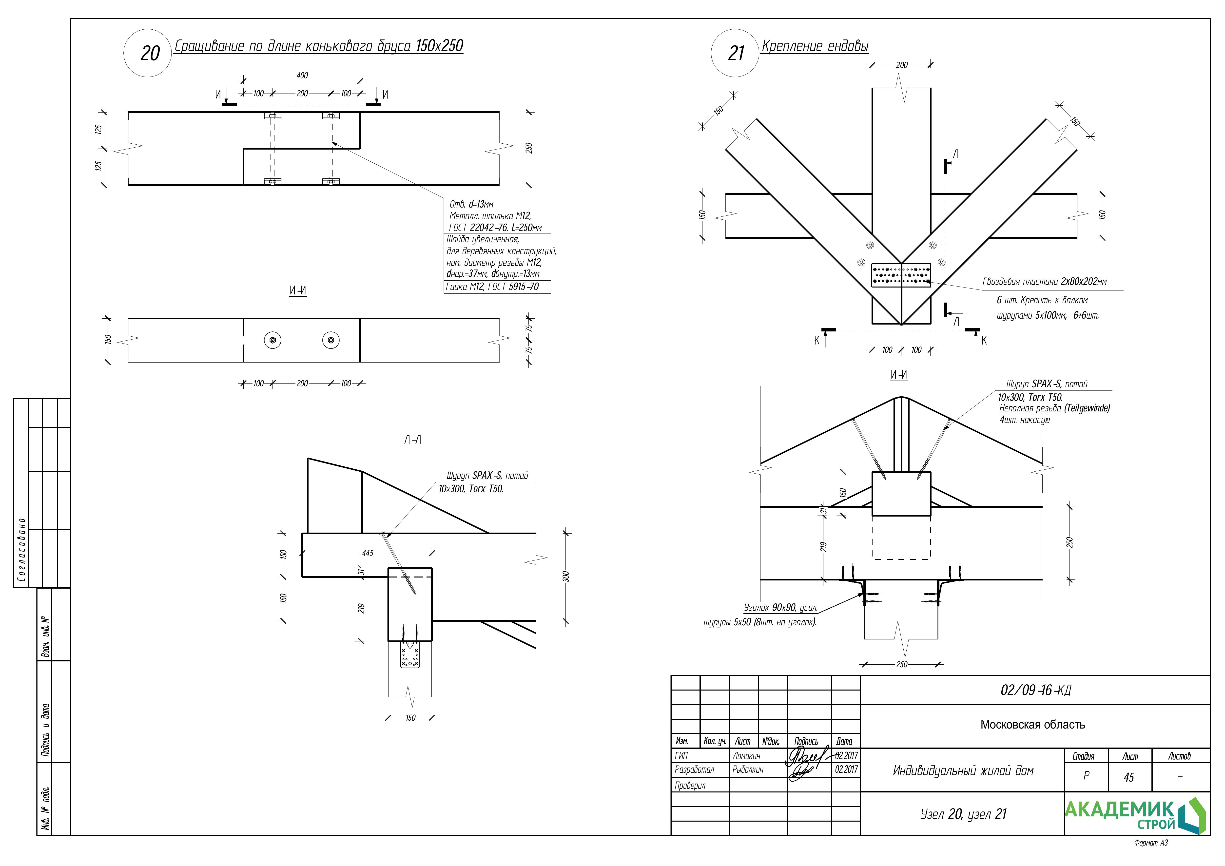
  • Узел 18, узел 19, узел 20
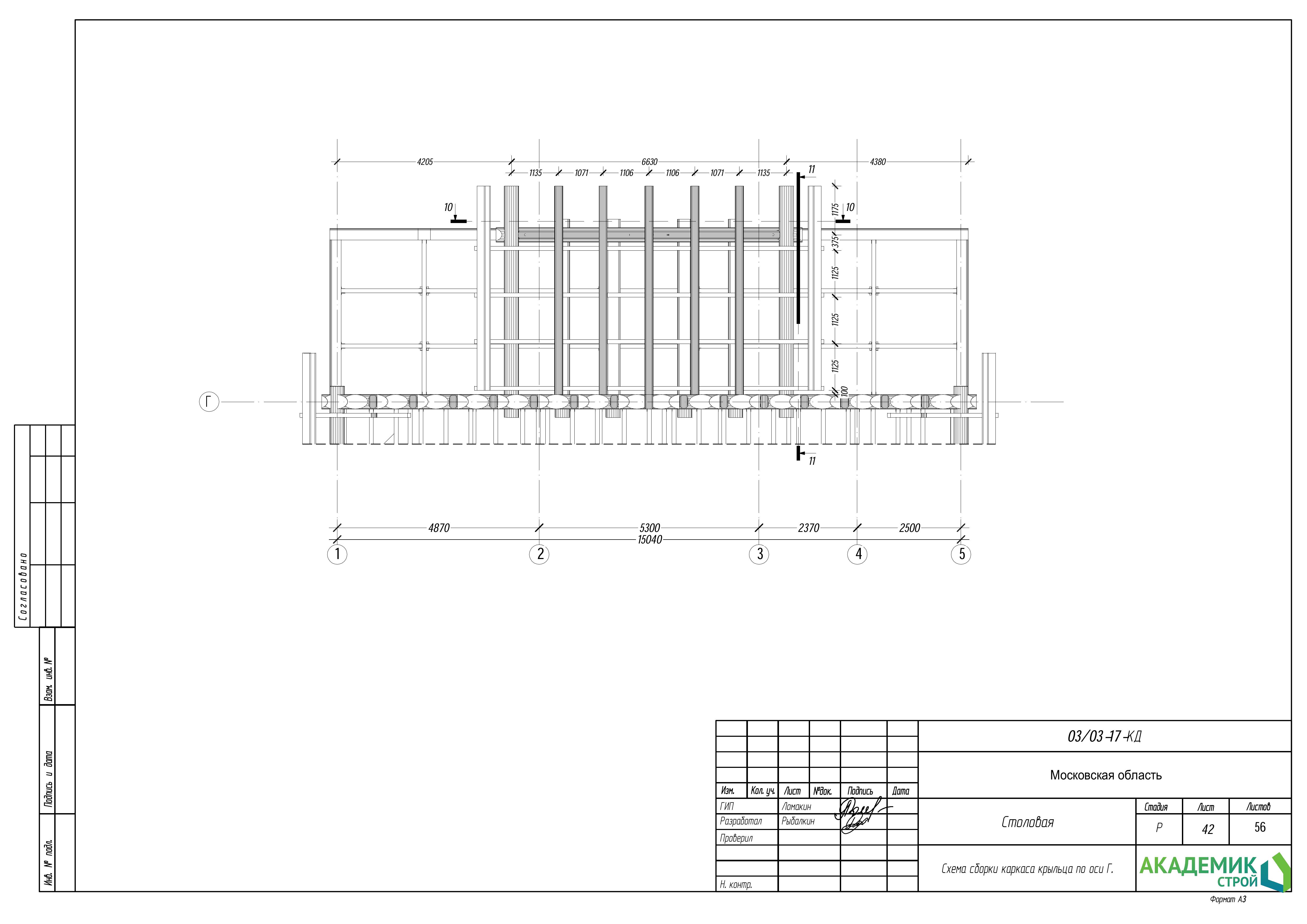
  • Схема сборки каркаса крыльца
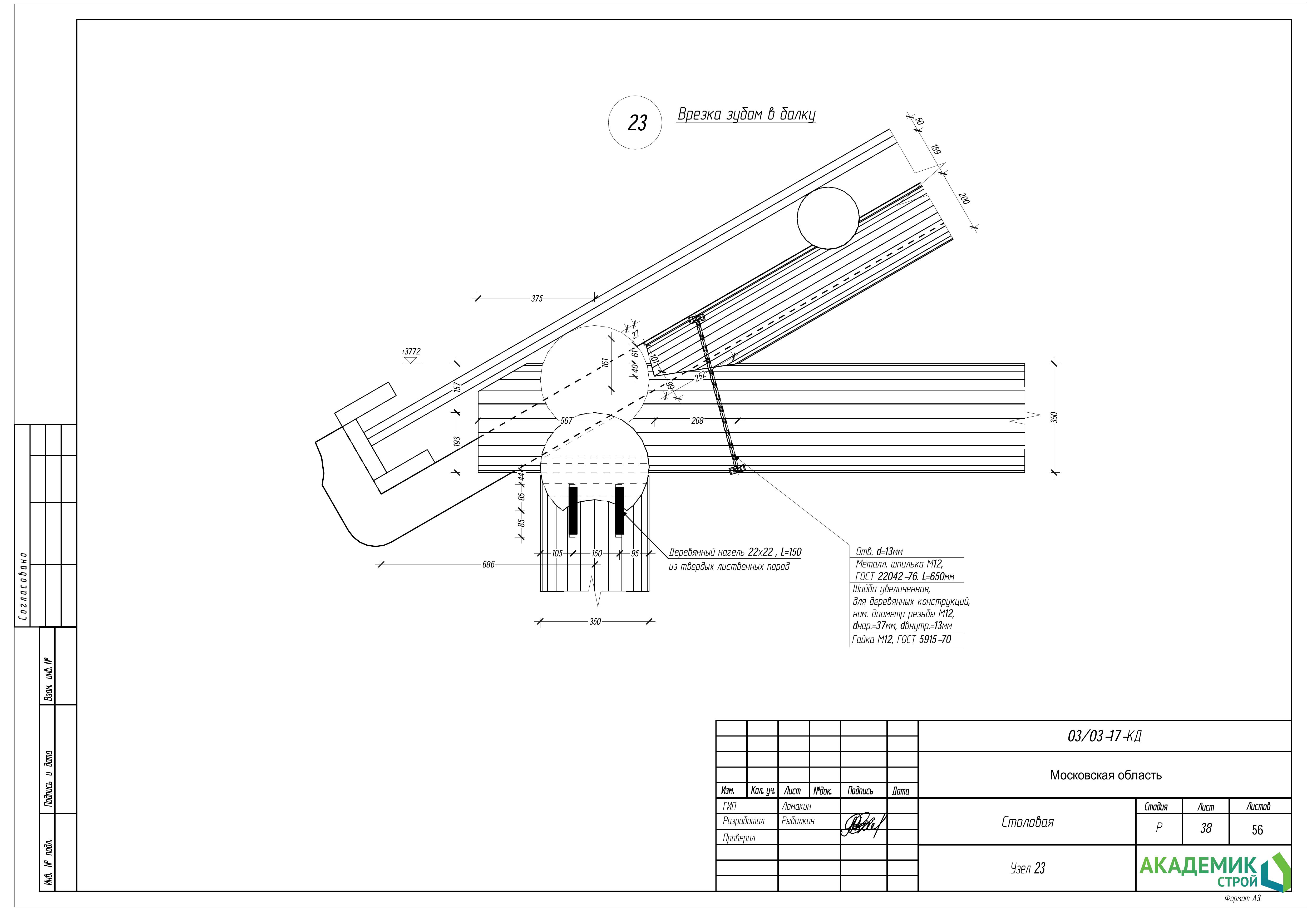
  • Узел 21, узел 22, узел 23
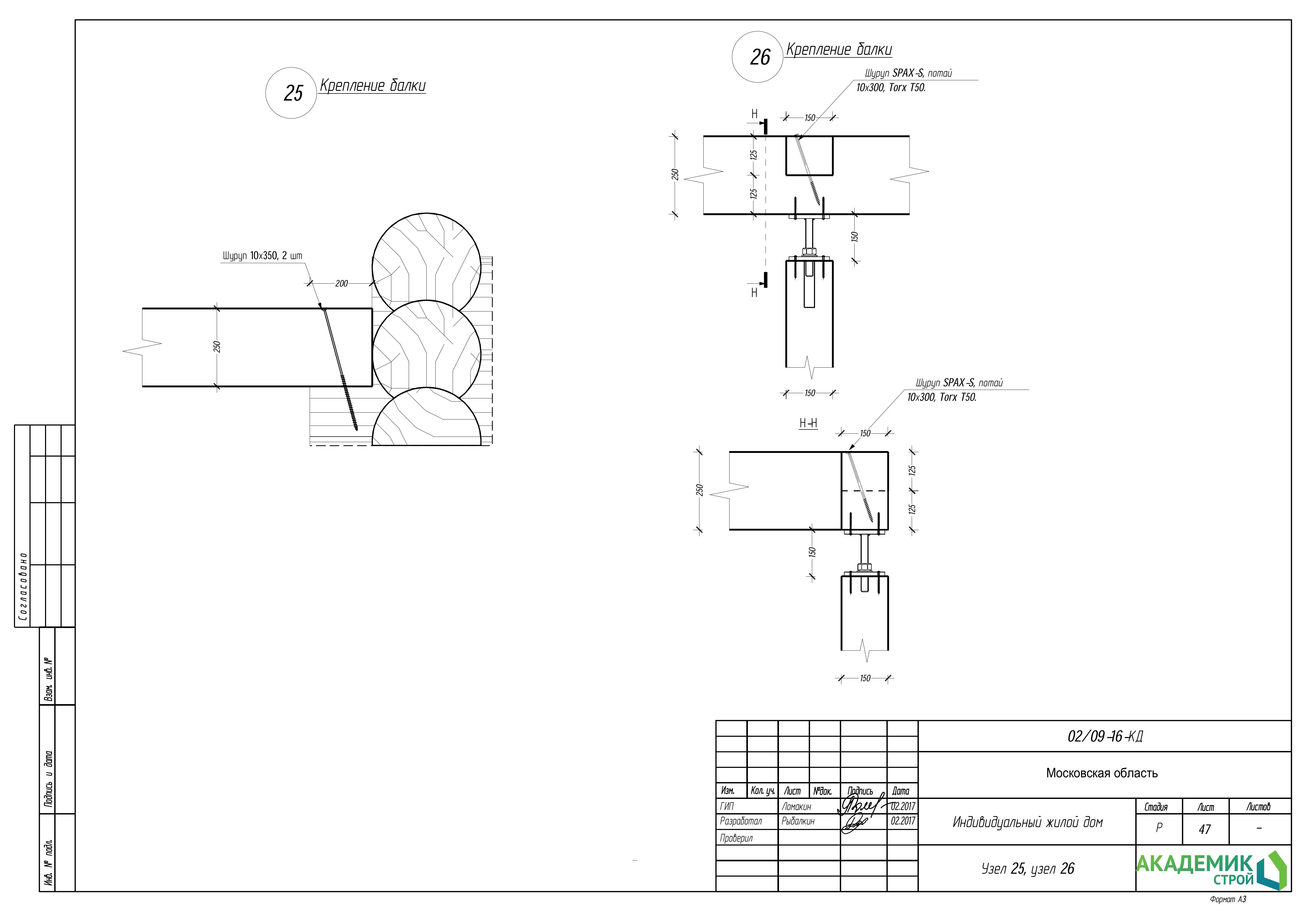
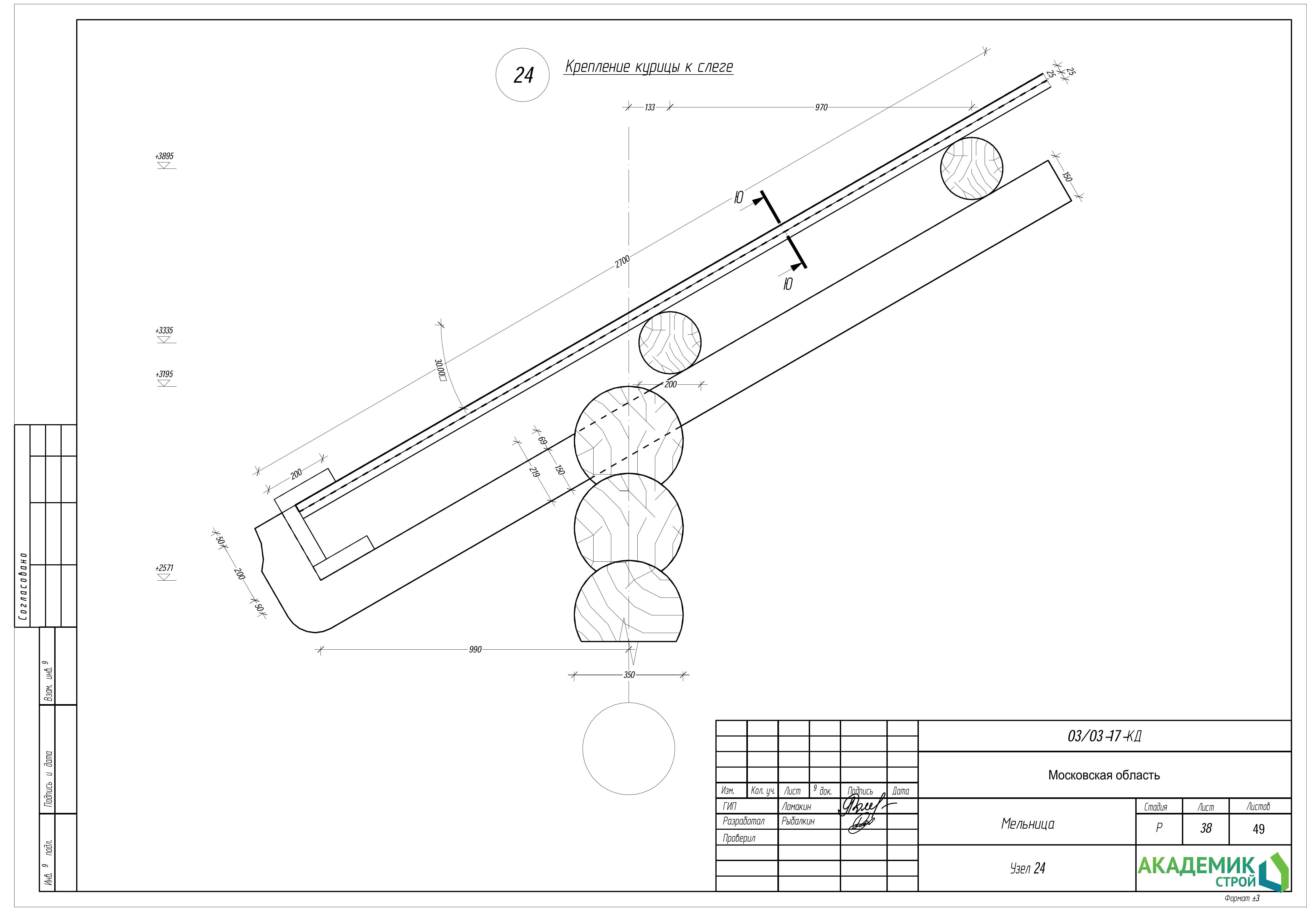
  • Узел 24, узел 25
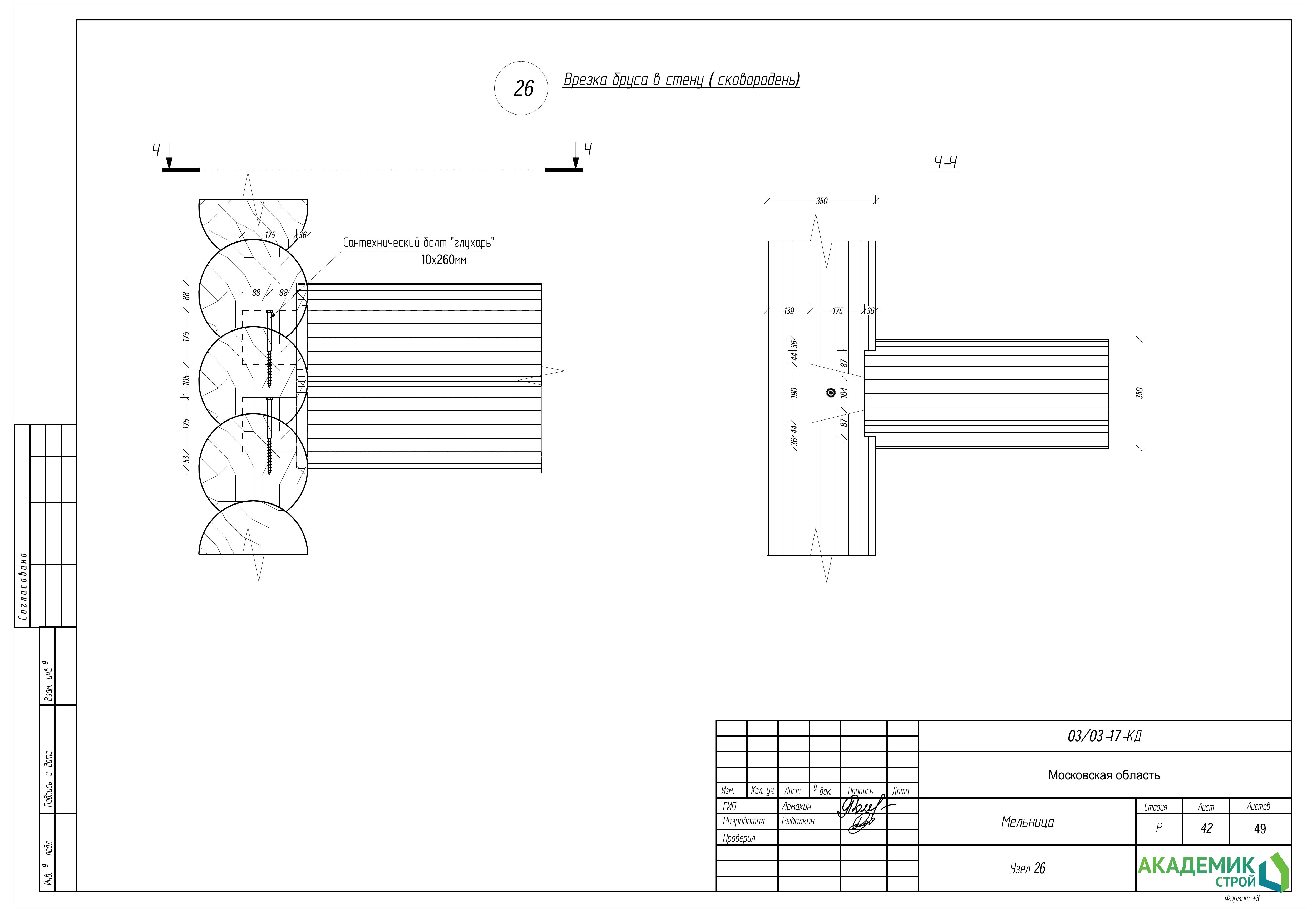
  • Узел 26
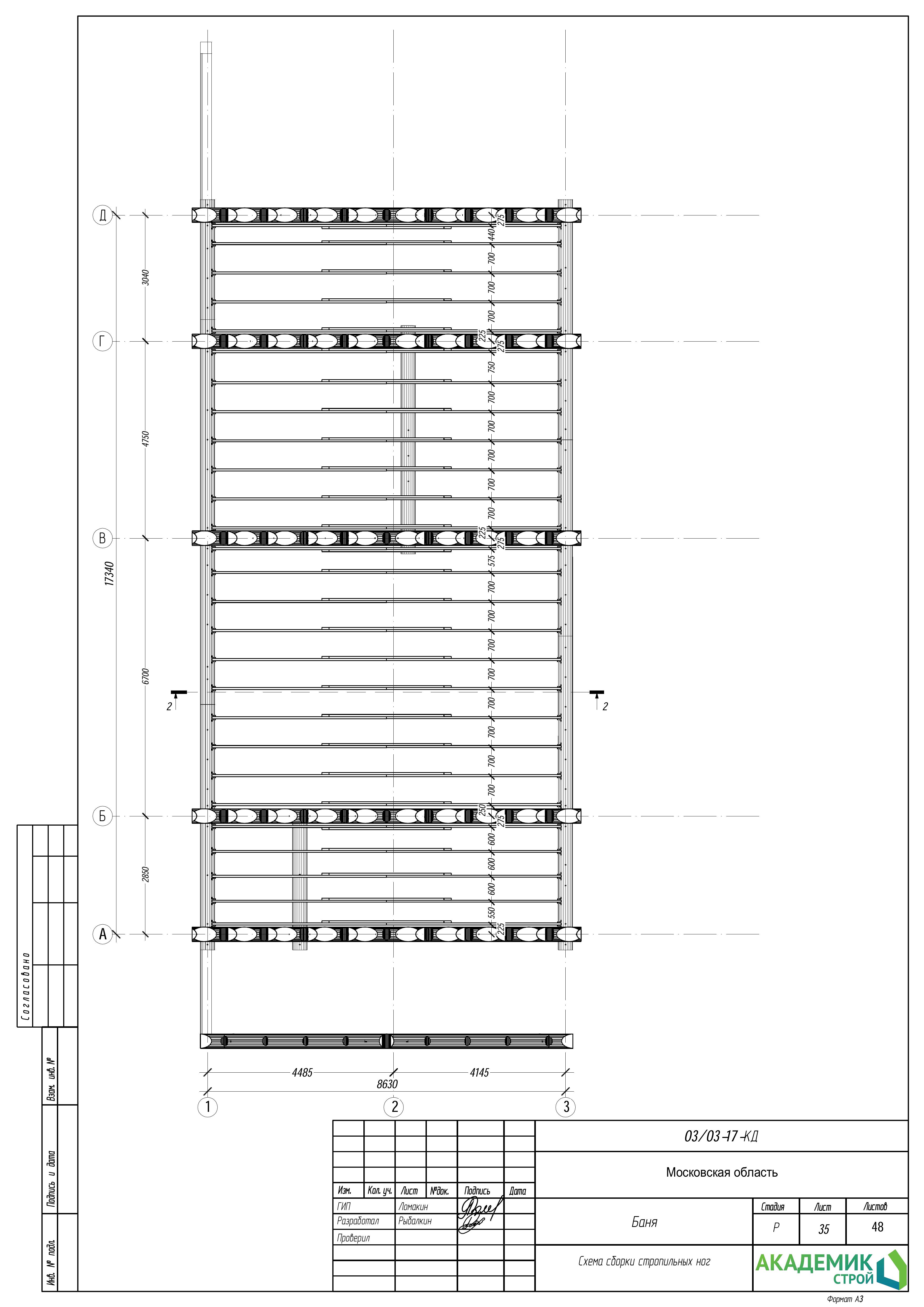
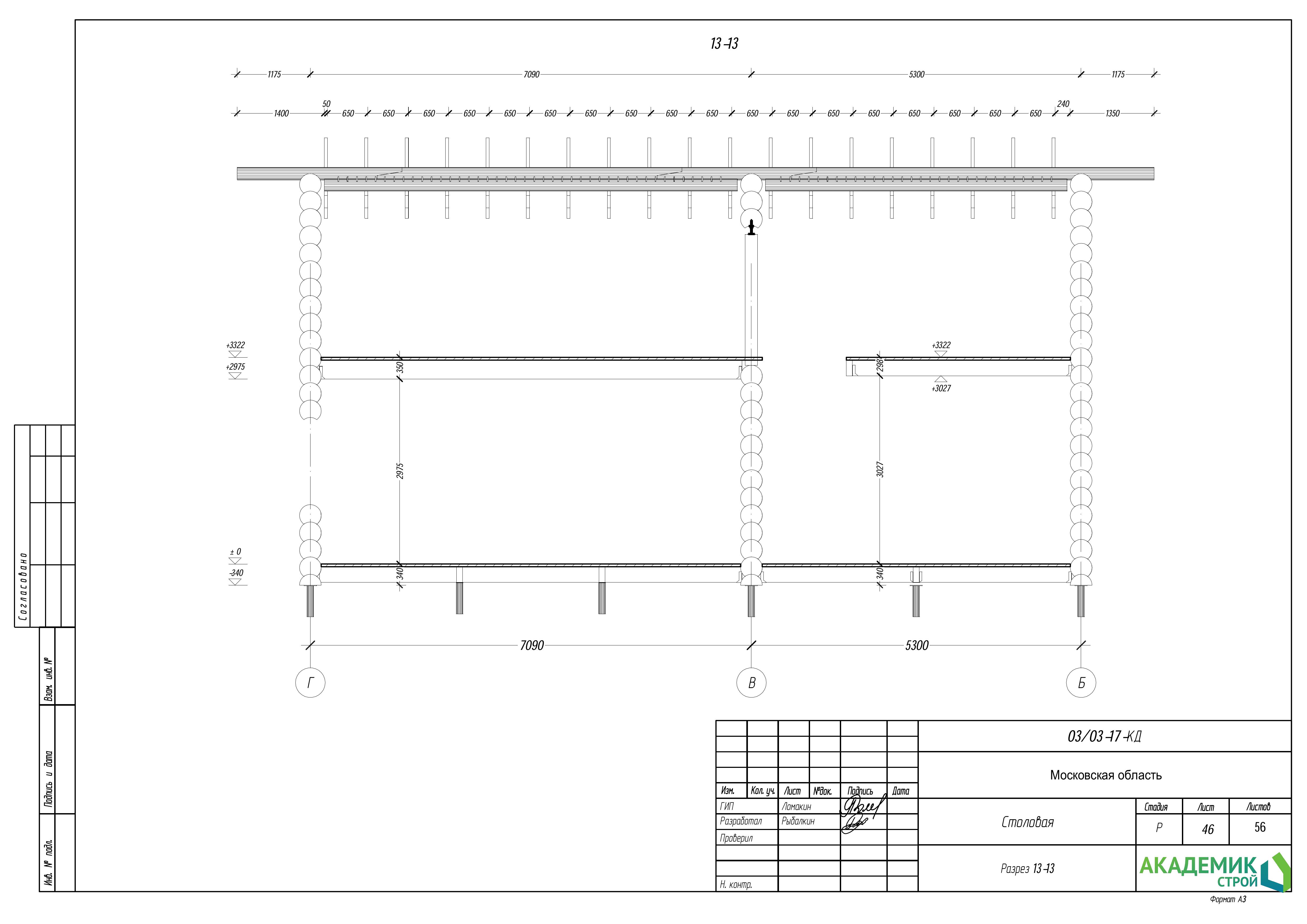
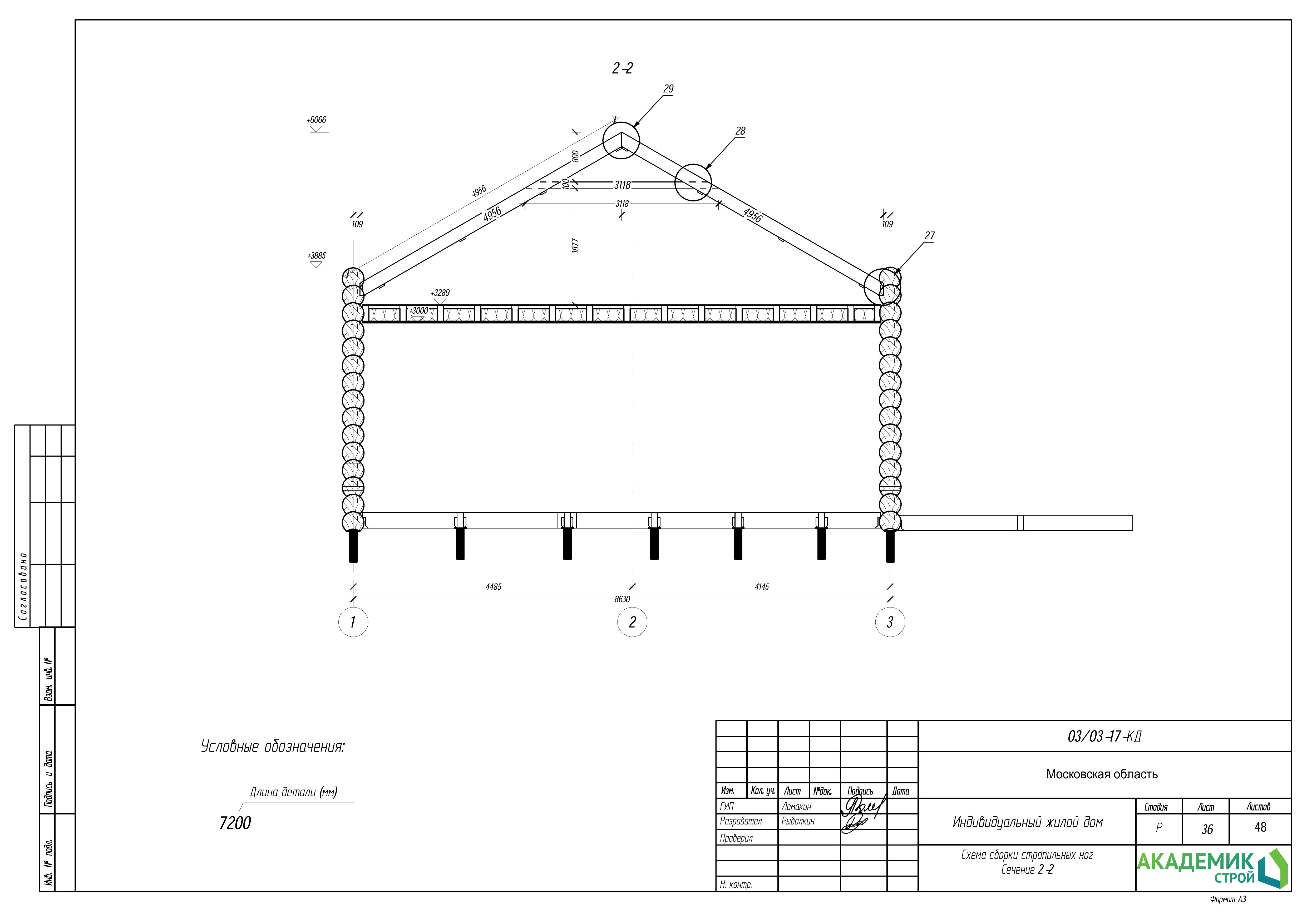
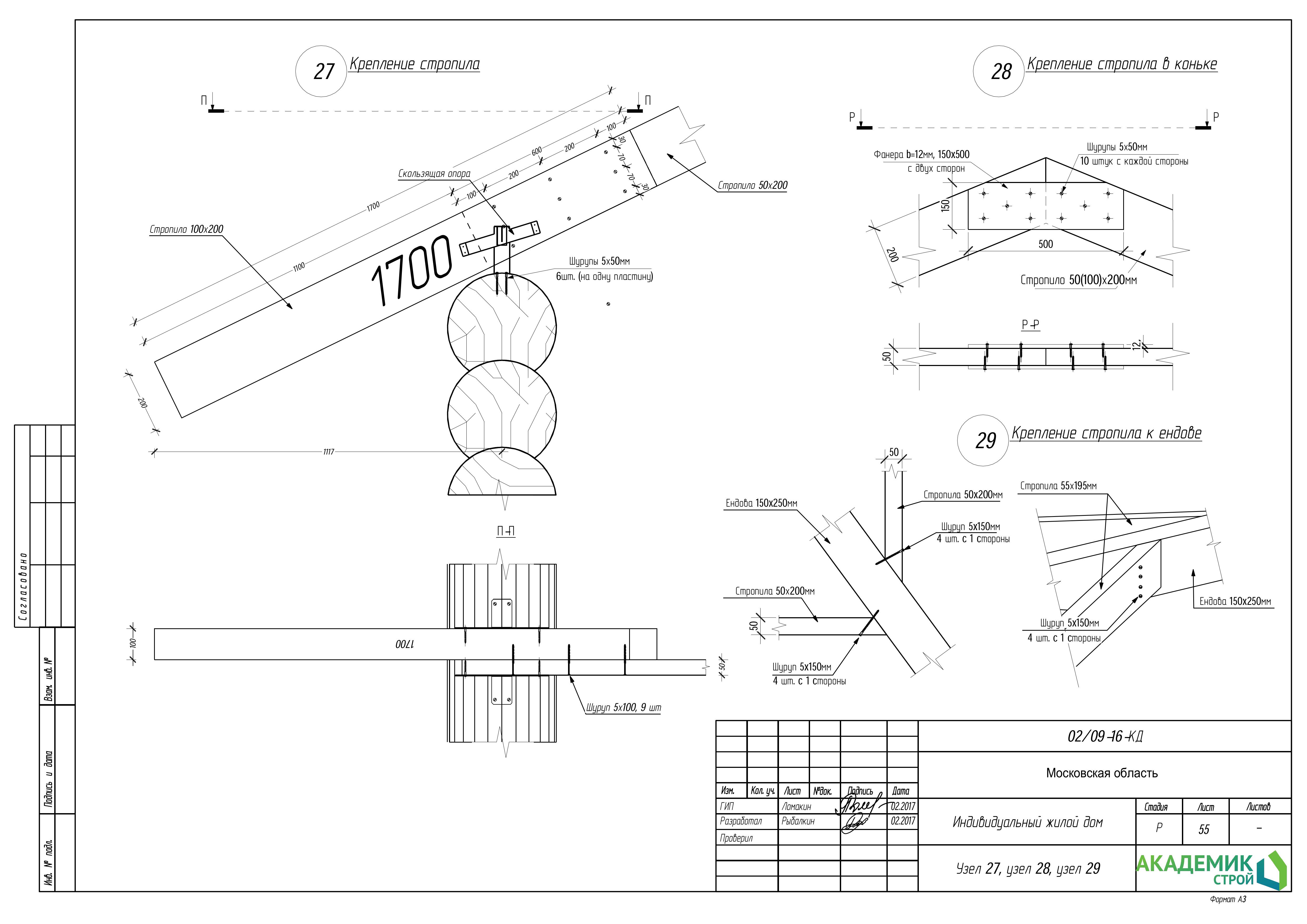
  • Схема сборки стропильных ног
  • Схема сборки стропильных ног. Сечение 2-2
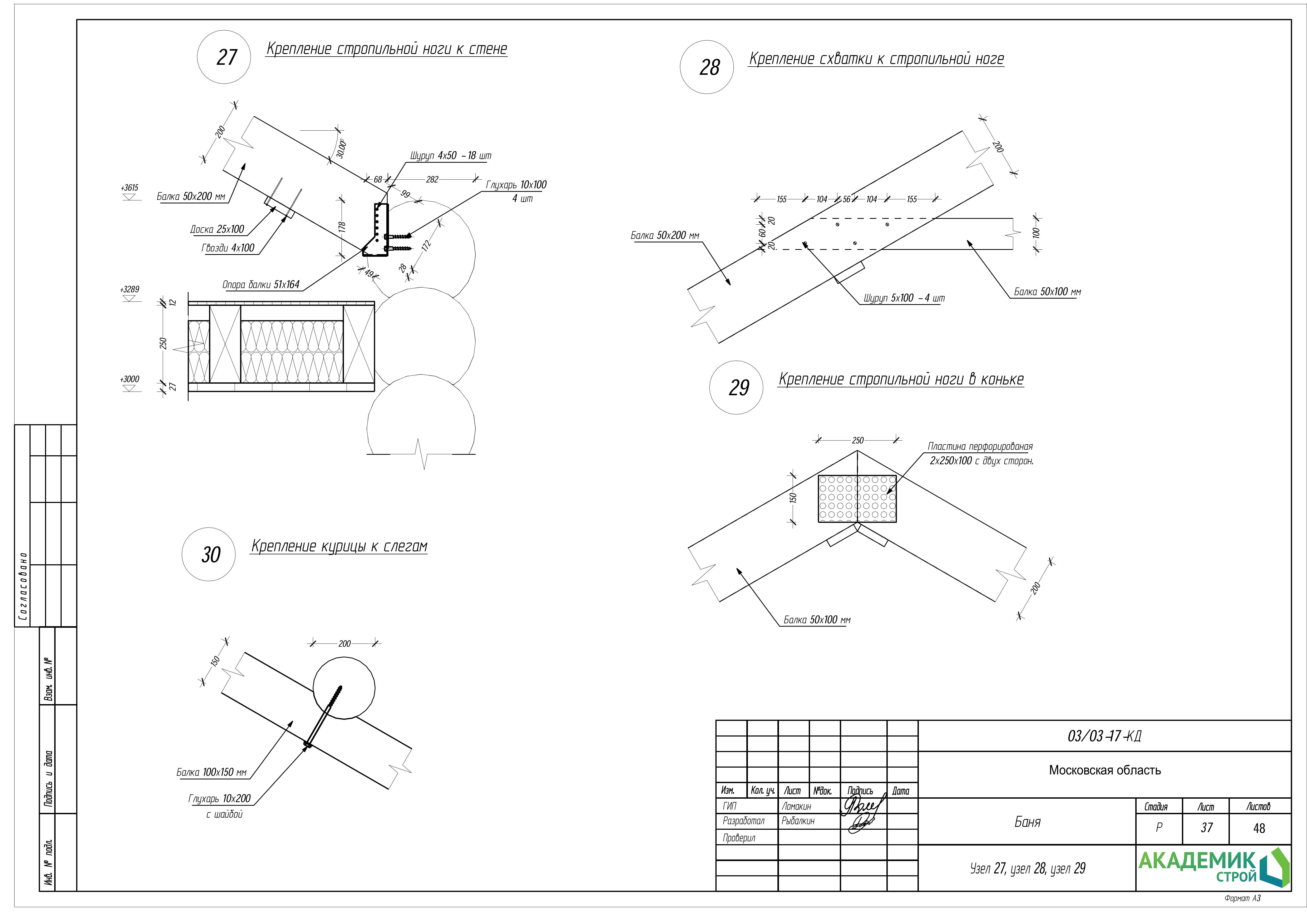
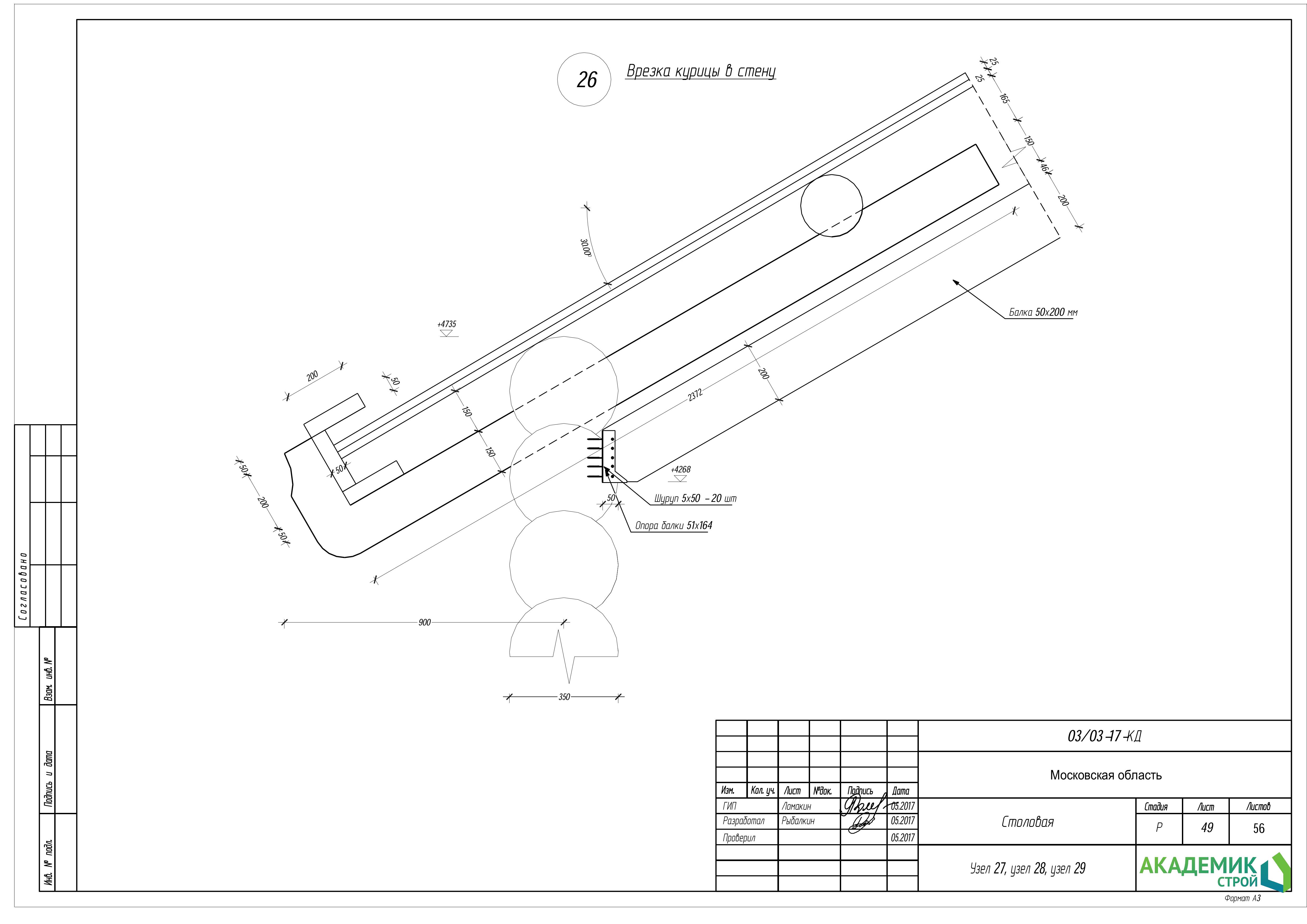
  • Узел 27, узел 28, узел 29
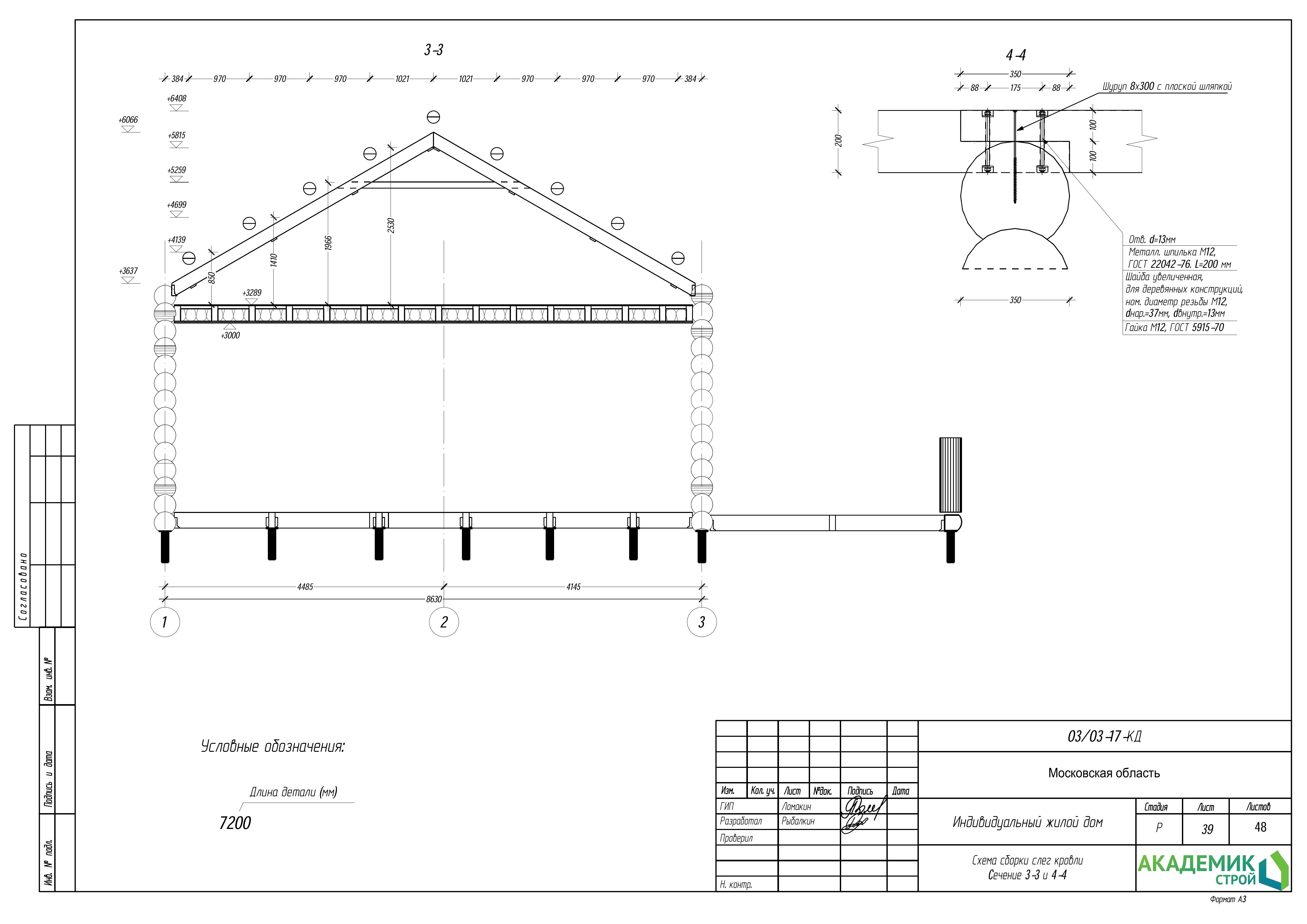
  • Схема сборки слег кровли
  • Схема сборки слег кровли. Сечение 3-3 и 4-4
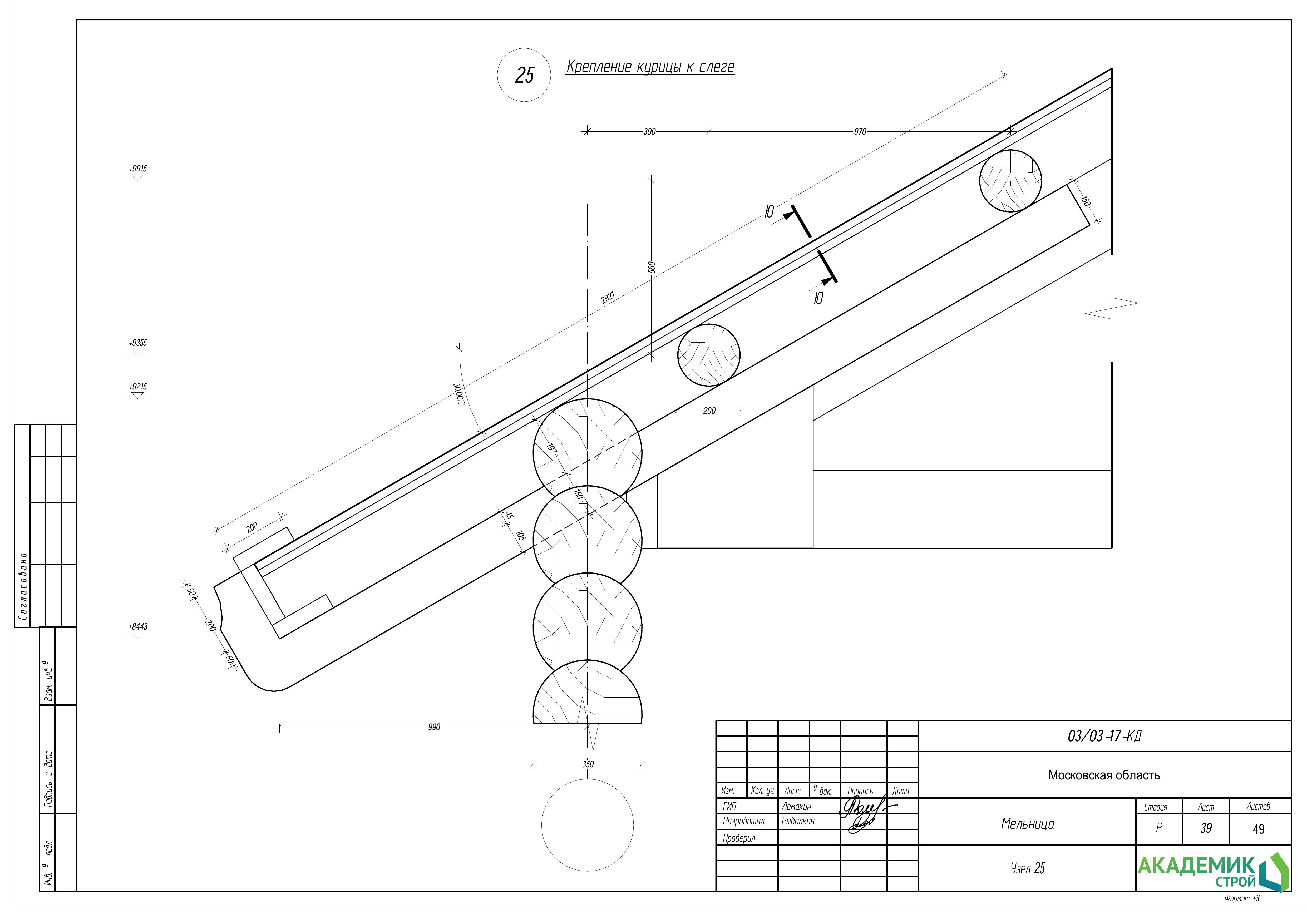
  • Схема установки курицы кровли
  • Схема установки курицы кровли. Сечение 5-5
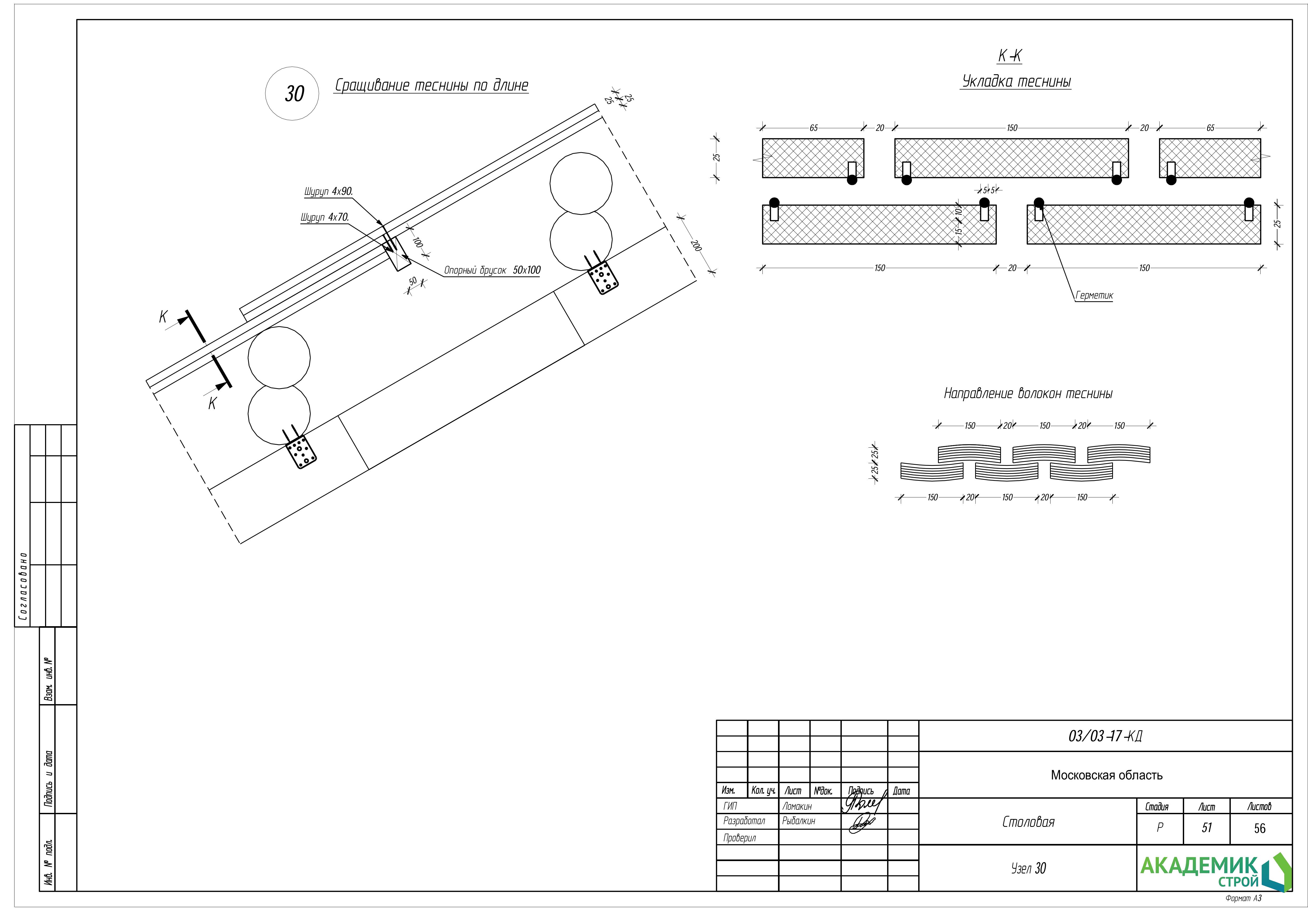
  • Схема установки теснин кровли. Сечение 6-6 и 7-7
  • Схема установки столбов ограждения
  • Схема установки столбов ограждения. Сечение 8-8, сечение 9-9, сечение 10-10
  • Конструктивный разрез
  • Аксонометрия 1
  • Аксонометрия 2
  • Аксонометрия 3
  • Визуализация 1
  • Визуализация 2
  • Визуализация 3
  • Визуализация 4
  • Визуализация 5
  • Визуализация 6
  • Ведомость основных комплектов рабочих чертежей Ведомость ссылочных документов
  • Общие данные
  • Схема расположения лафета, 1-го и 2-го венца.
  • Схема расположения лаг сечением 100х250 мм.
  • Узел 1, узел 2, узел 3
  • Узел 4, узел 5
  • Узел 6, узел 7, узел 8
  • Узел 9
  • Cостав перекрытия основания здания
  • Расположение лаг пола 100х250 мм. Общий вид
  • Стена 1 по оси 1
  • Стена 1.1 и стена 2 по оси 2
  • Стена 2.1 и стена 3 по оси 3
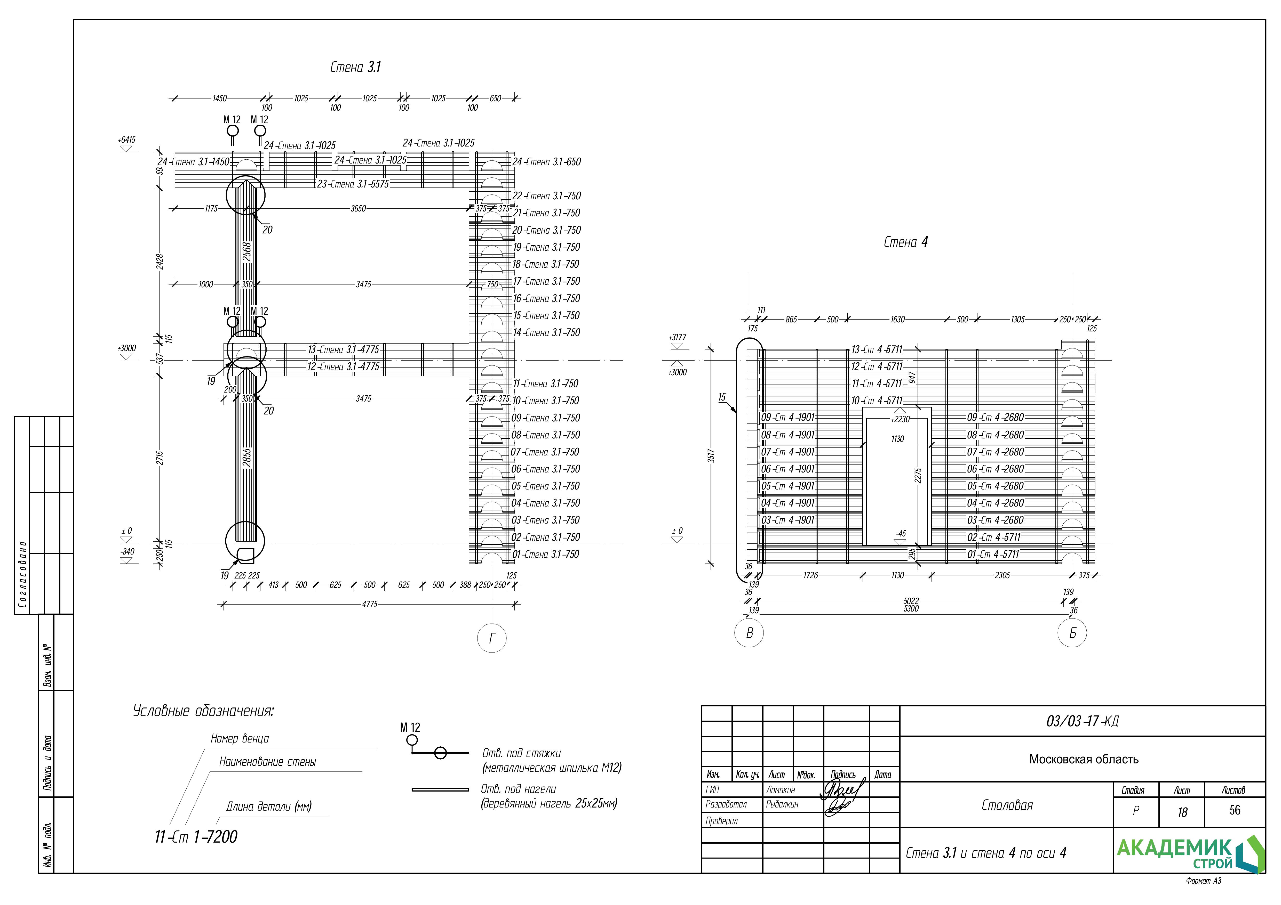
  • Стена 3.1 и стена 4 по оси 4
  • SВГШКА Стена 5 по оси 5
  • Стена A по оси A
  • Стена Б по оси Б
  • Стена В по оси В
  • Стена Г по оси Г
  • Узел 9, узел 10, узел 11
  • Узел 12
  • Узел 13, узел 14
  • Узел 15
  • Узел 16, узел 17, узел 18
  • Узел 19, узел 20
  • Аксонометрия брусовых стен. Вид 1
  • Аксонометрия брусовых стен. Вид 2
  • Схема расположения балок межэтажного перекрытия
  • Разрез 2-2, разрез 4-4, разрез 5-5
  • Разрез 3-3
  • Узел 21, узел 22
  • Схема сборки каркаса крыльца по осям А и Б. Разрез 6-6 и разрез 7-7
  • Разрез 8-8 и разрез 9-9
  • Узел 23
  • Узел 20, узел 21
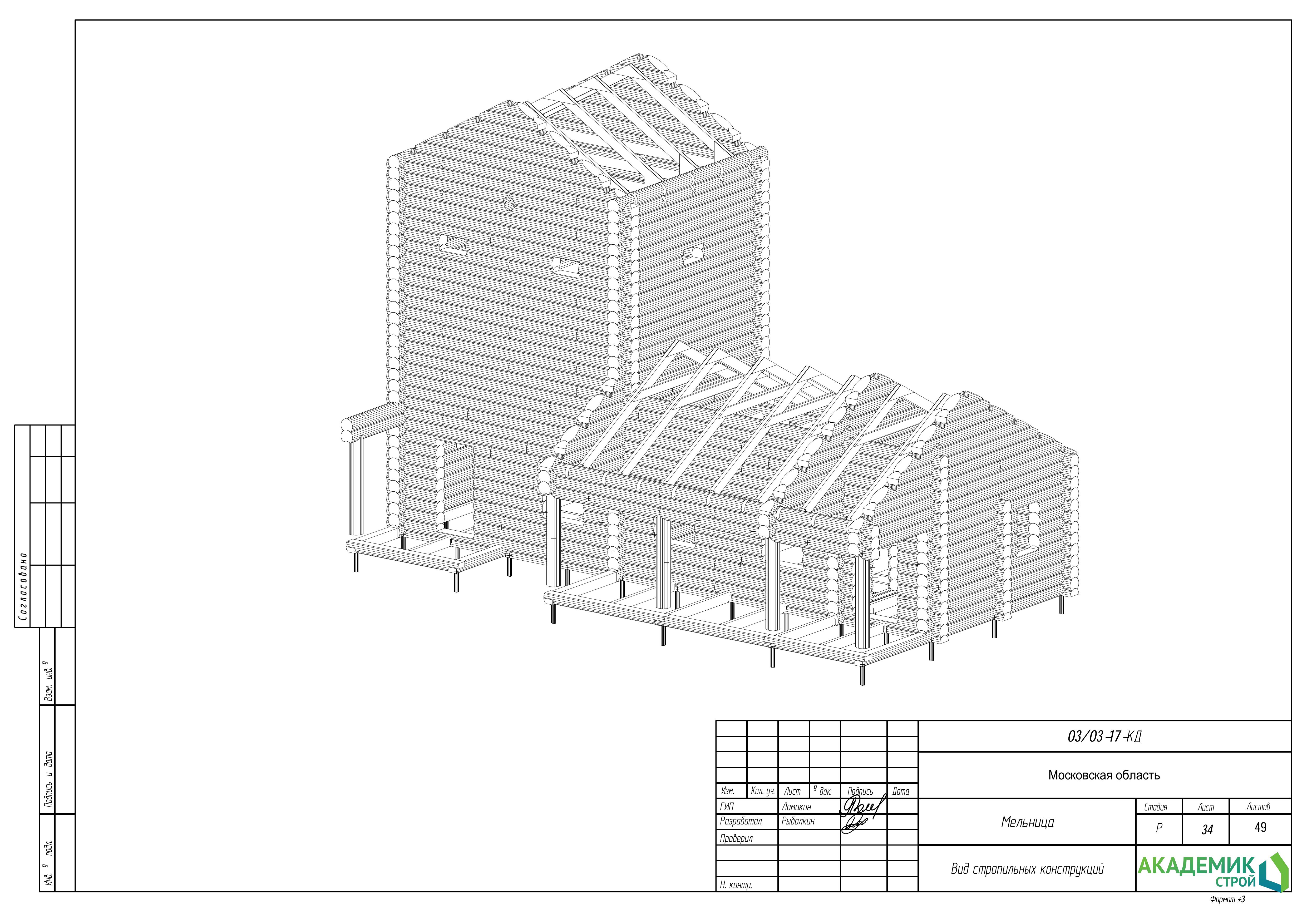
  • Вид стропильных конструкций
  • Схема установки слег и куриц кровли
  • Разрез 5-5 и разрез 6-6
  • Узел 22, узел 23
  • Узел 24
  • Узел 25
  • Разрез 7-7, разрез 8-8, разрез 9-9
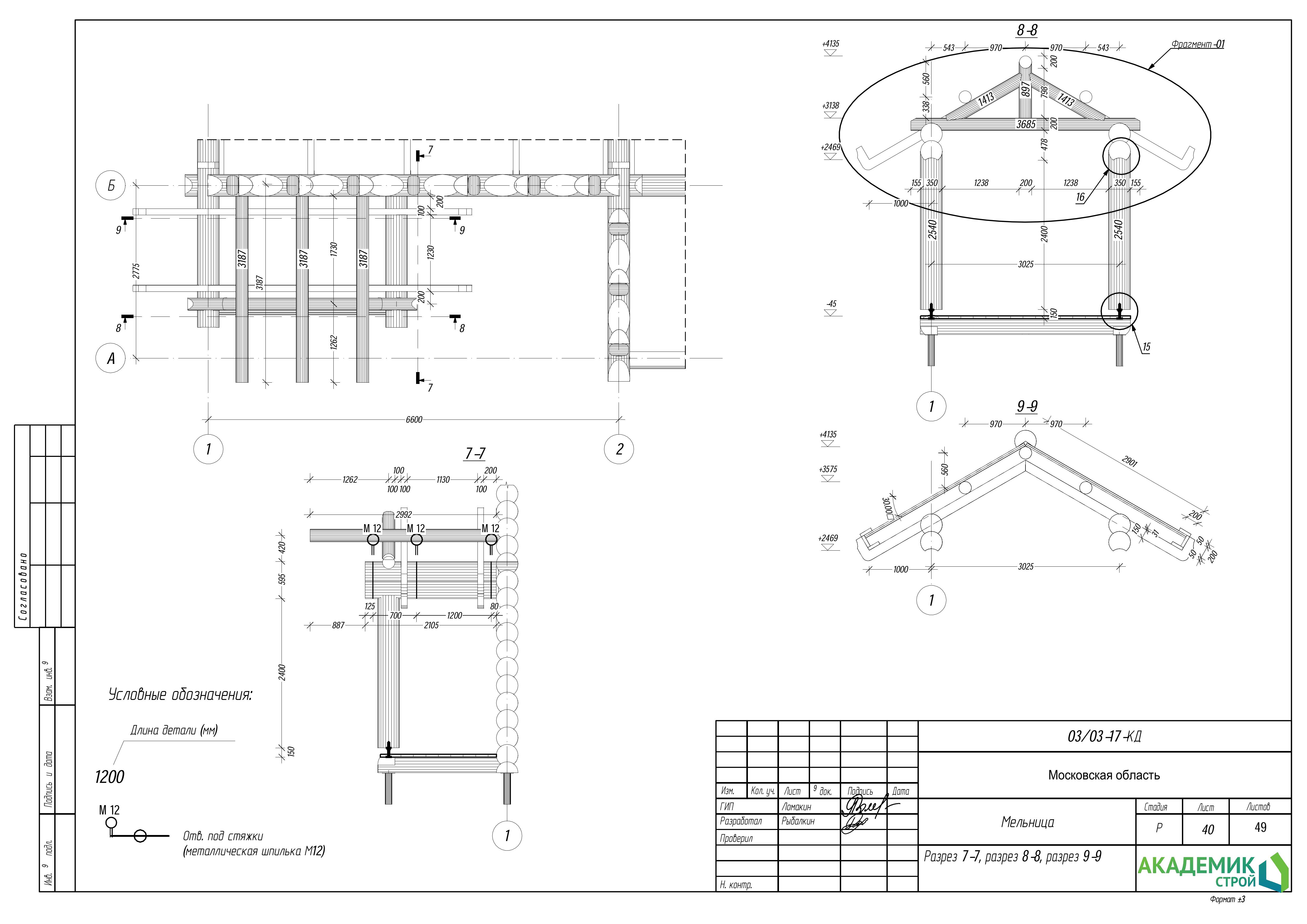
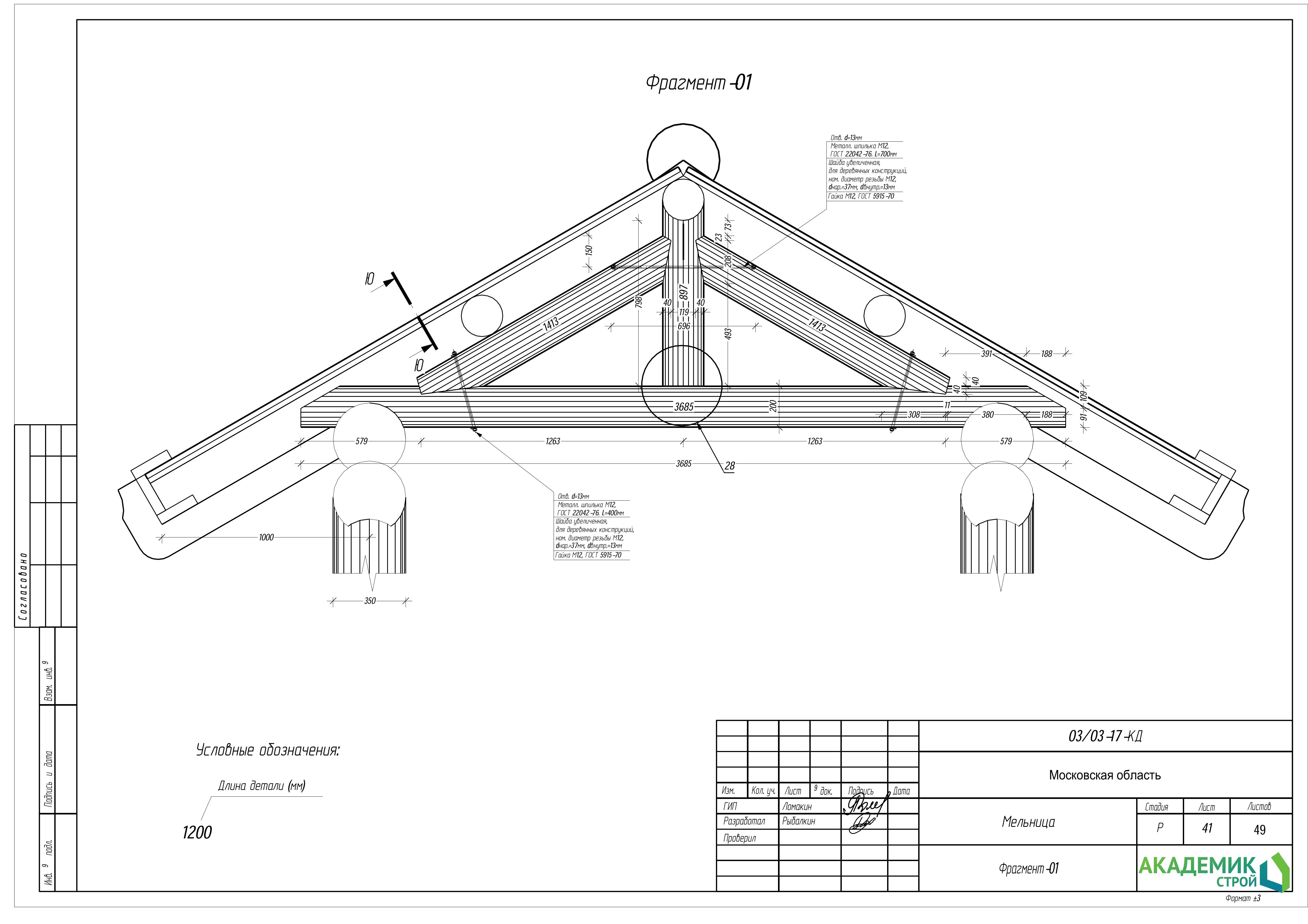
  • Фрагмент-01
  • Узел 26
  • Узел 19, узел 20
  • Узел 28
  • План кровли
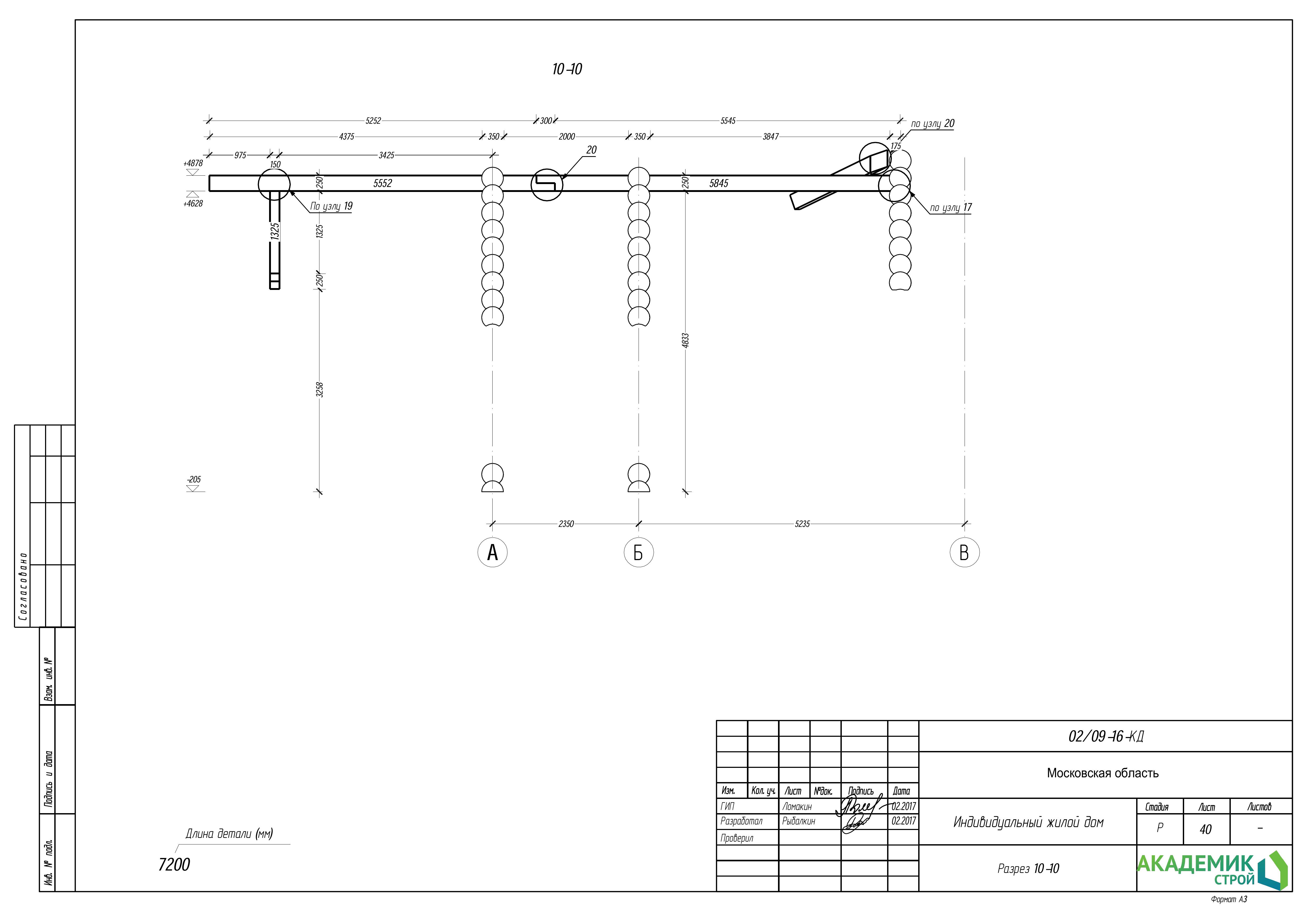
  • Разрез 10-10
  • Разрез 11-11
  • Aксонометрия. Вид 1
  • Aксонометрия. Вид 2
  • Титульный лист мельница
  • Рабочая документация
  • Общие данные
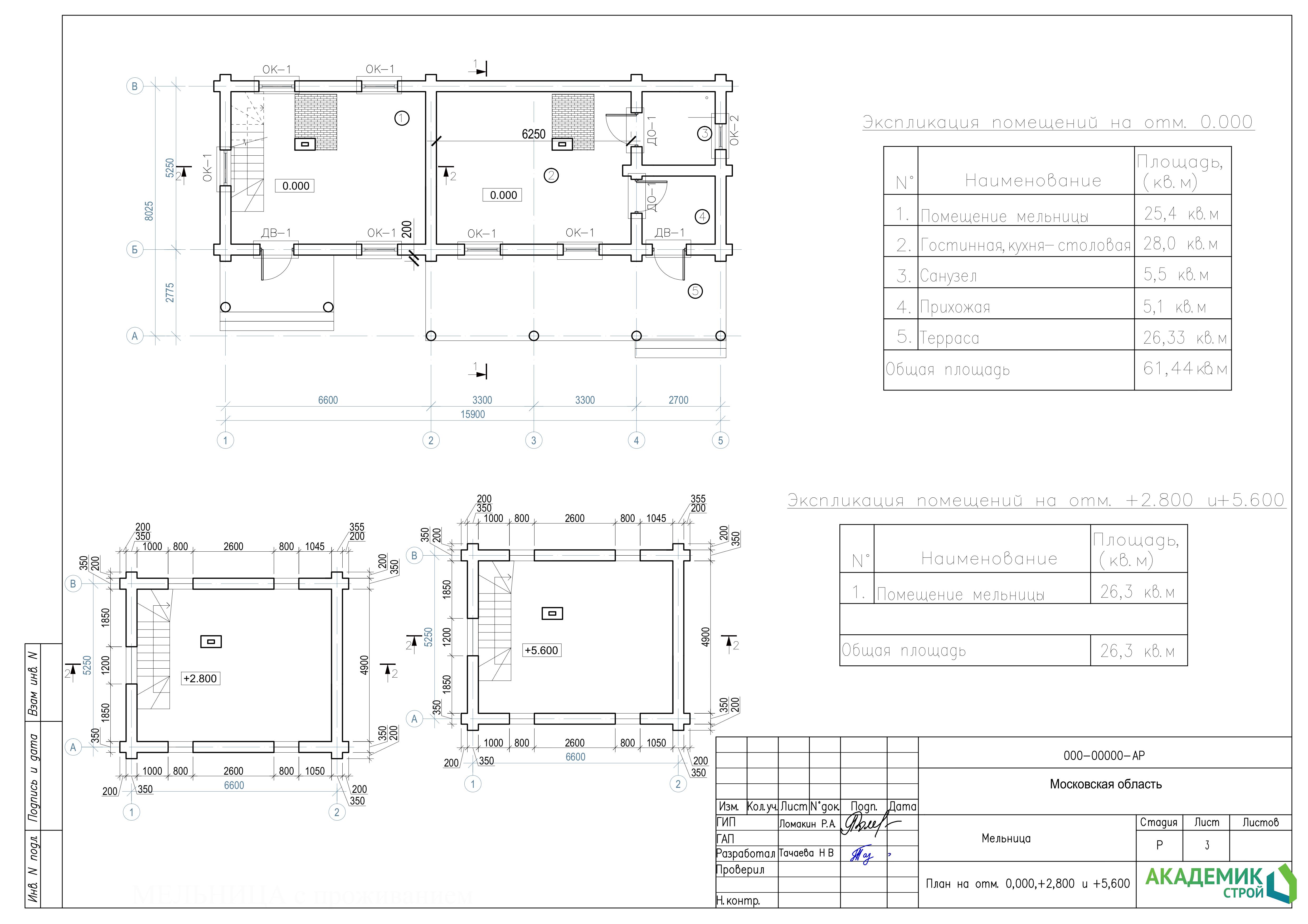
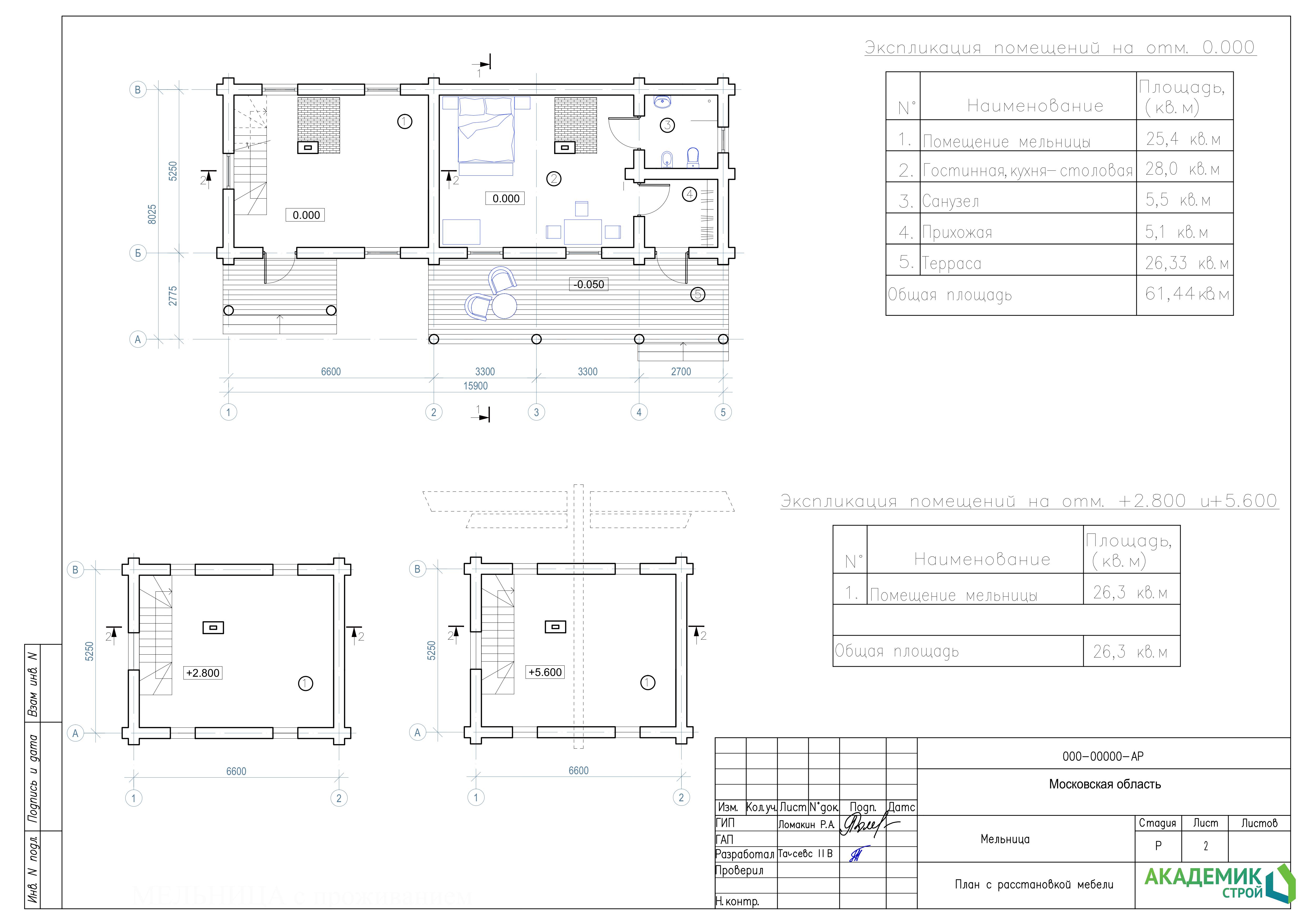
  • План с расстановкой мебели
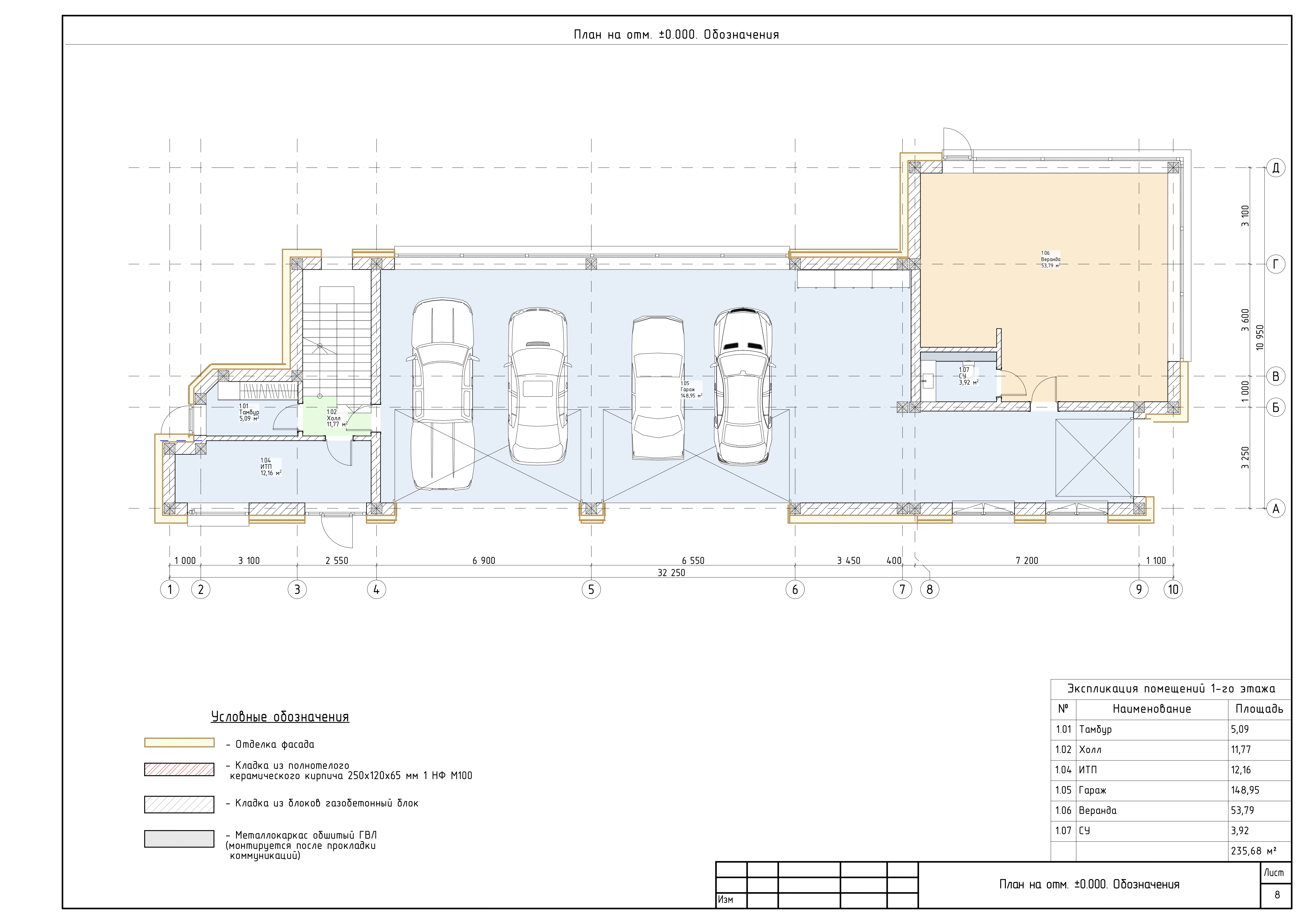
  • План на отм.0,000,+2,800 и +5,600
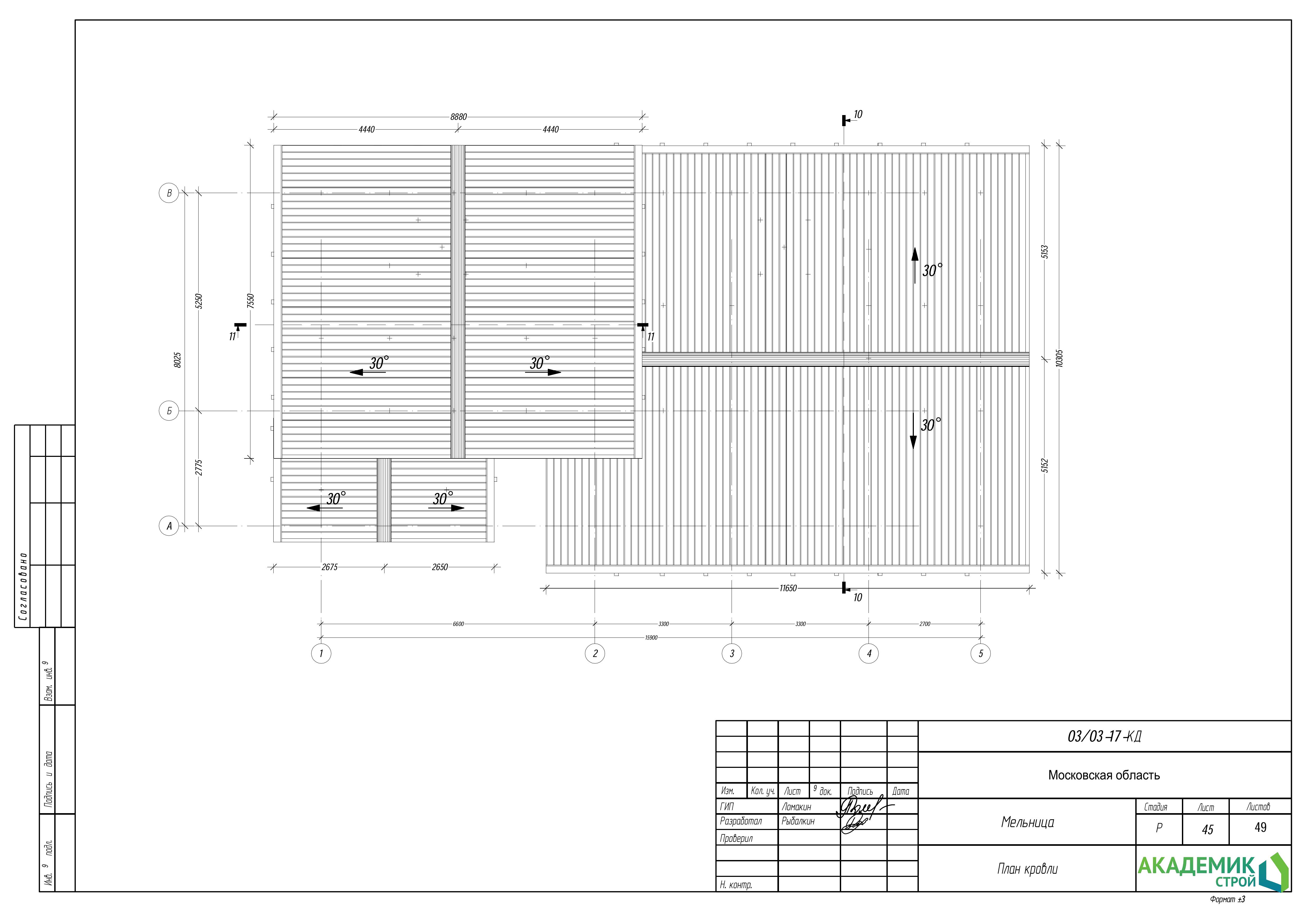
  • План кровли
  • Фасад 1-5, фасад А-В
  • Фасад 5-1, фасад В-А
  • Разрез 1-1
  • Разрез 2-2
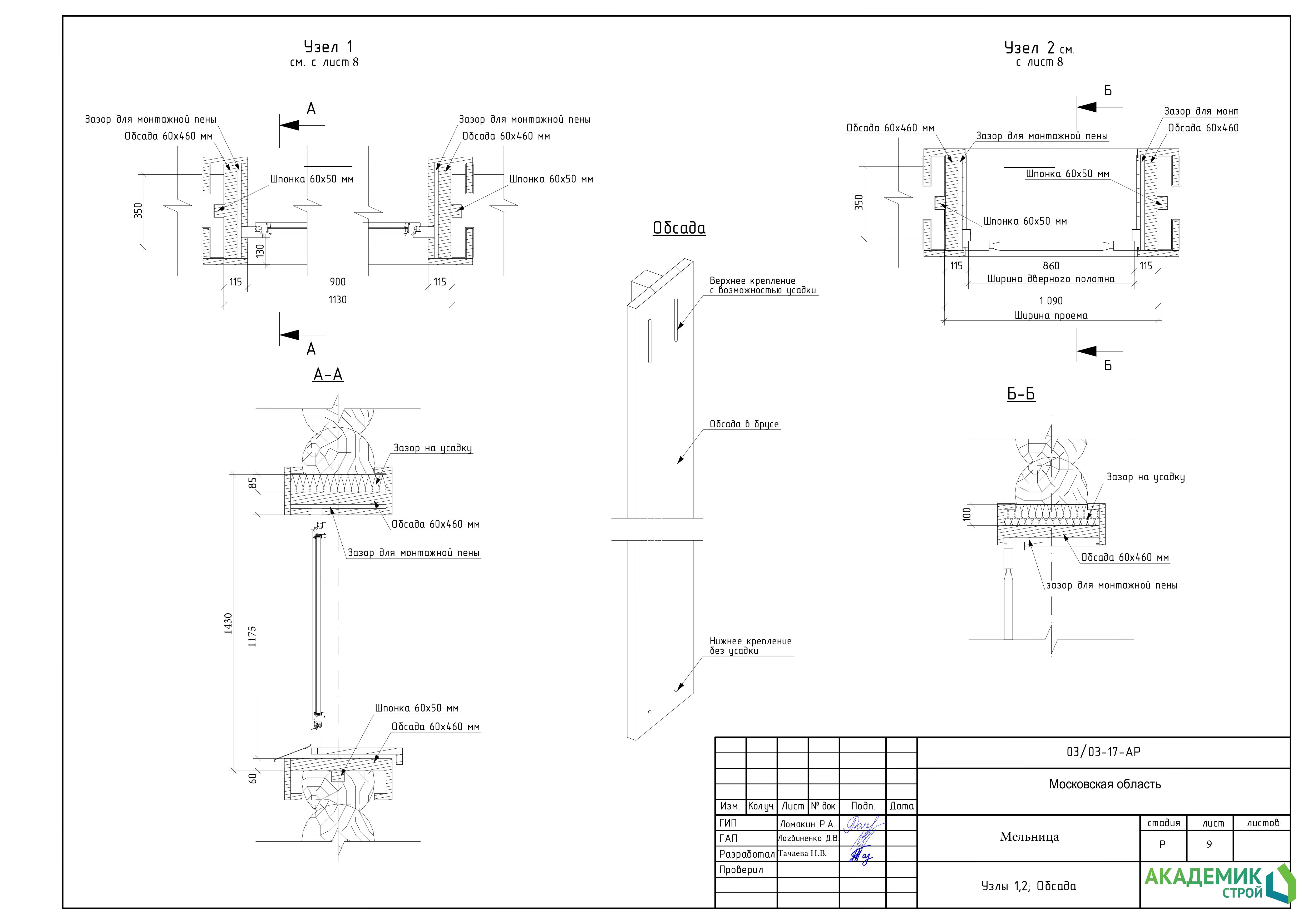
  • Узлы 1,2 Обсада
  • Узел 3,4
  • Узлы 5,6,7,8
  • Экспликкация полов
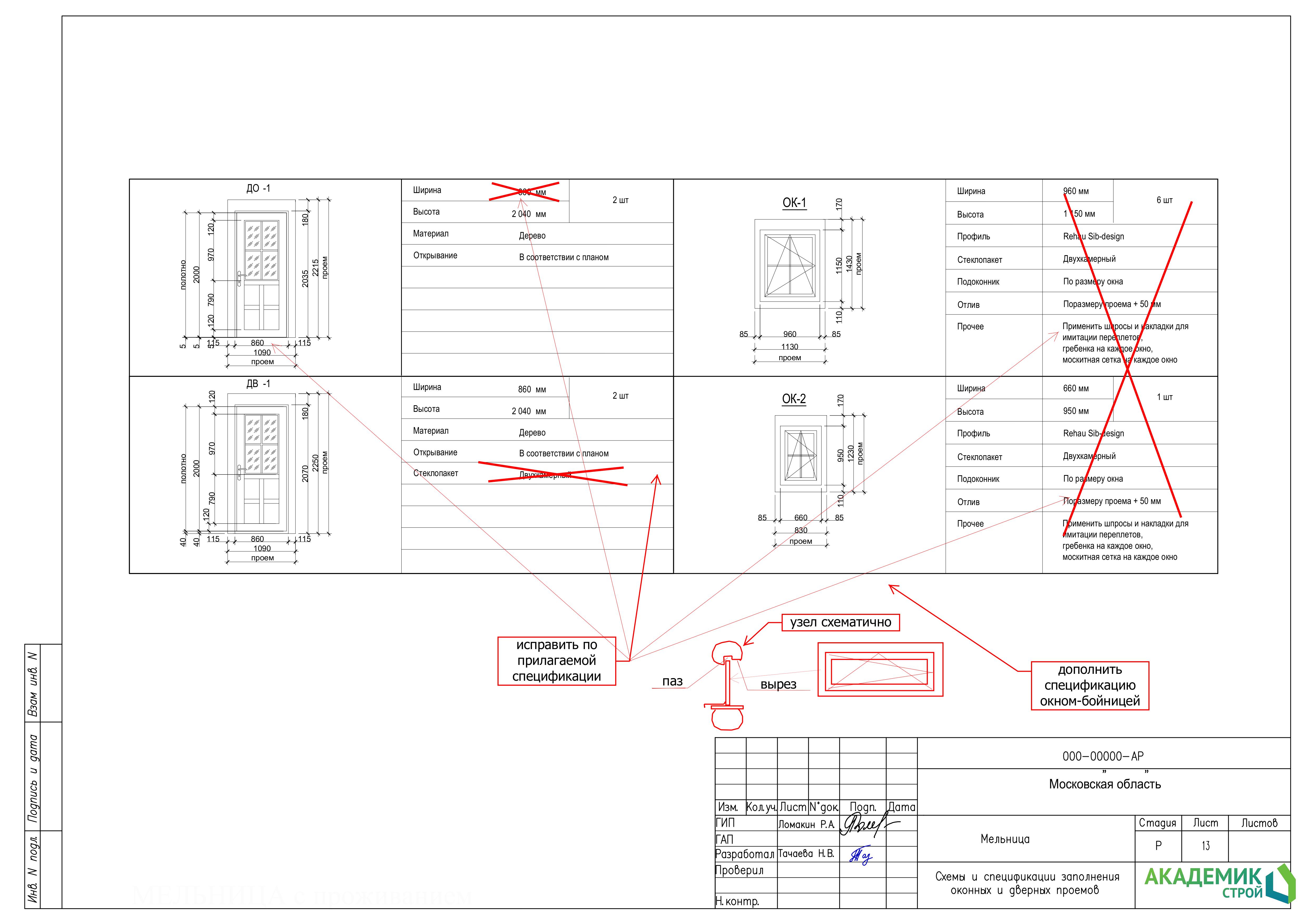
  • Схемы и спецификации заполнения оконных и дверных проемов
  • Ведомость материалов
  • Ведомость основных комплектов рабочих чертежей. Ведомость ссылочных документов
  • Общие данные
  • Общий вид 1
  • Общий вид 2
  • Схема расположения 1-го и 2-го венца
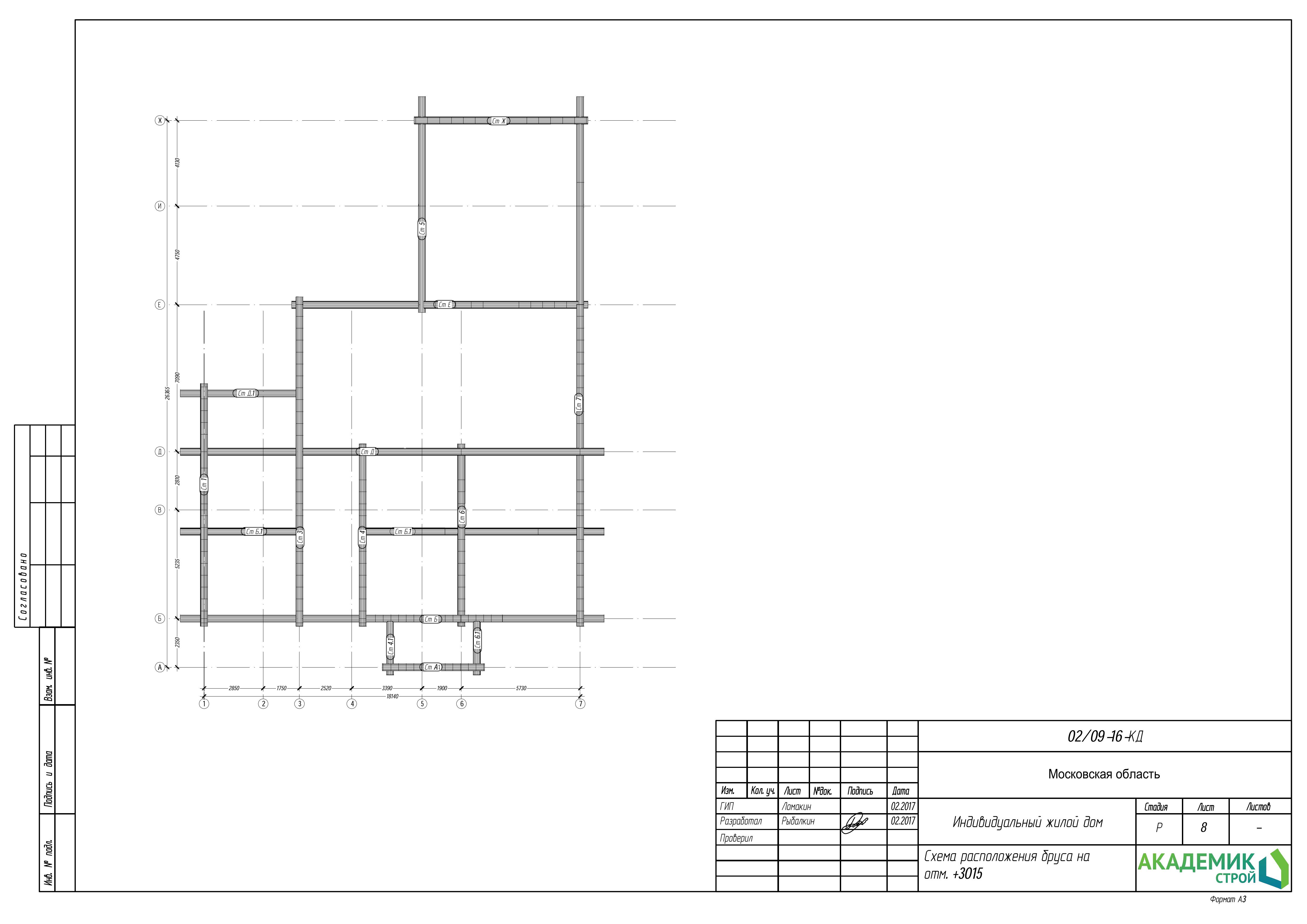
  • Схема расположения бруса на отм. +3015
  • Стена 1 по оси 1
  • Стена 3 по оси 3
  • Стена 4 и 4.1 по оси 4
  • Стена 4.2 по оси 4
  • Стена 5 по оси 5
  • Стена 6 по оси 6
  • Стена 6.1 и 6.2 вблизи оси 6
  • Стена А по оси А
  • Стена Д.1 вблизи оси Д
  • Стена E по оси E
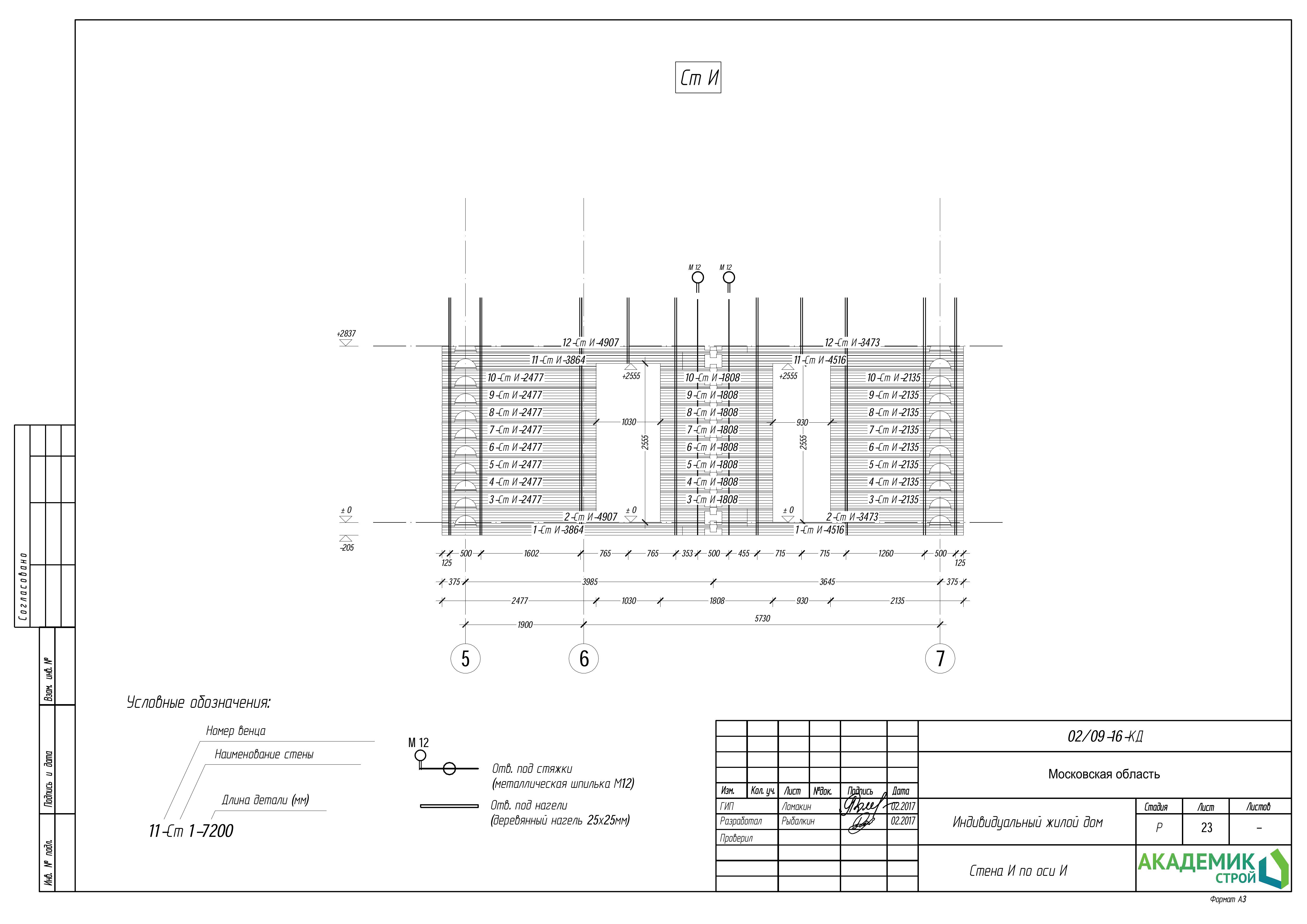
  • Стена И по оси И
  • Стена Ж по оси Ж
  • Сборка брусовых стен. Узел 1, узел 2, узел 3
  • Сборка брусовых стен. Узел 4
  • Сборка брусовых стен. Узел 5, узел 6
  • Сборка брусовых стен. Узел 7
  • Схема расположения лаг пола сечением 50х150 на отм. -0,205
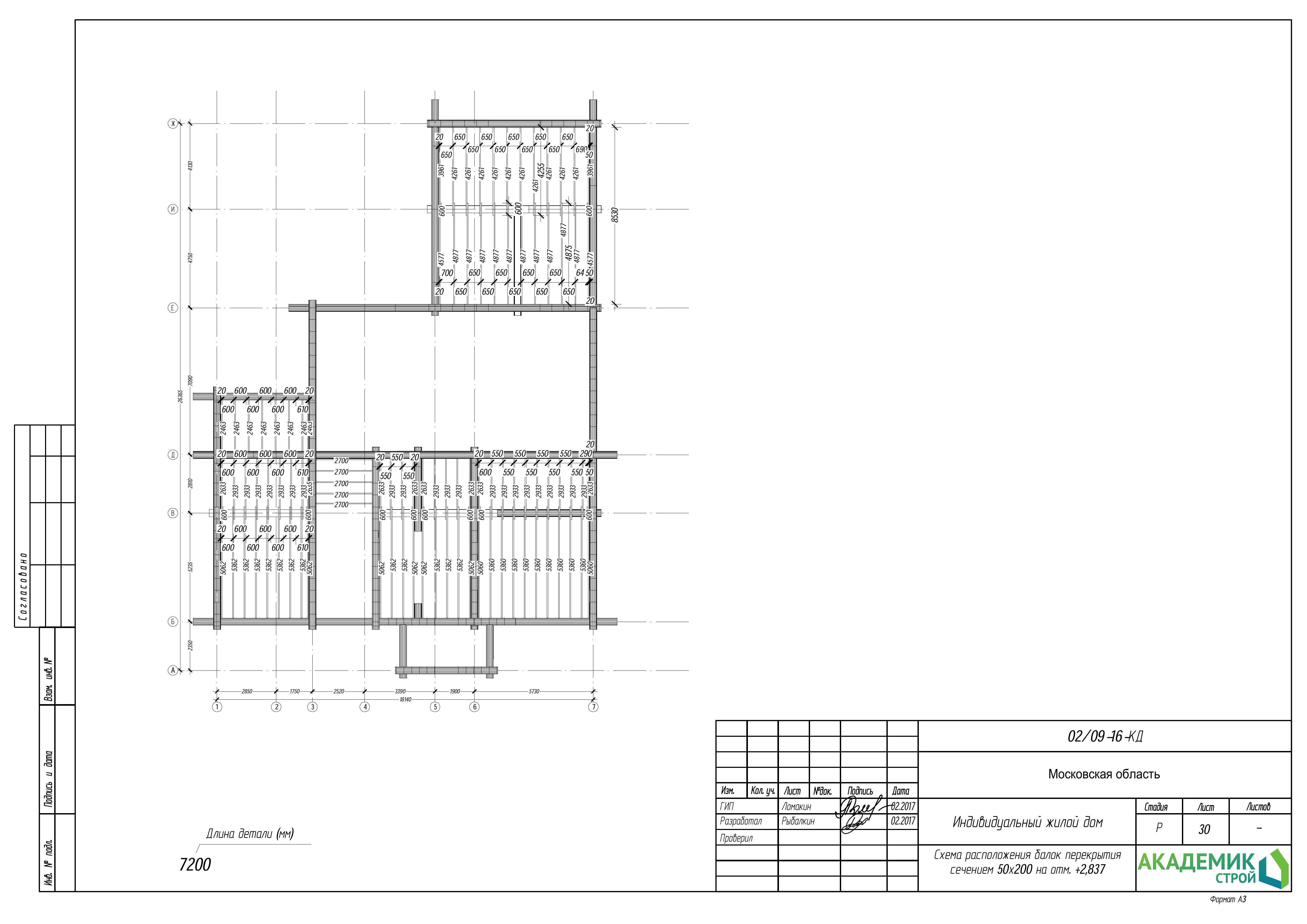
  • Схема расположения балок перекрытия сечением 50х200 на отм. +2,837
  • Схема расположения балок перекрытия сечением 150x300 на отм. +3.455
  • Разрез 5-5
  • Разрез 6-6
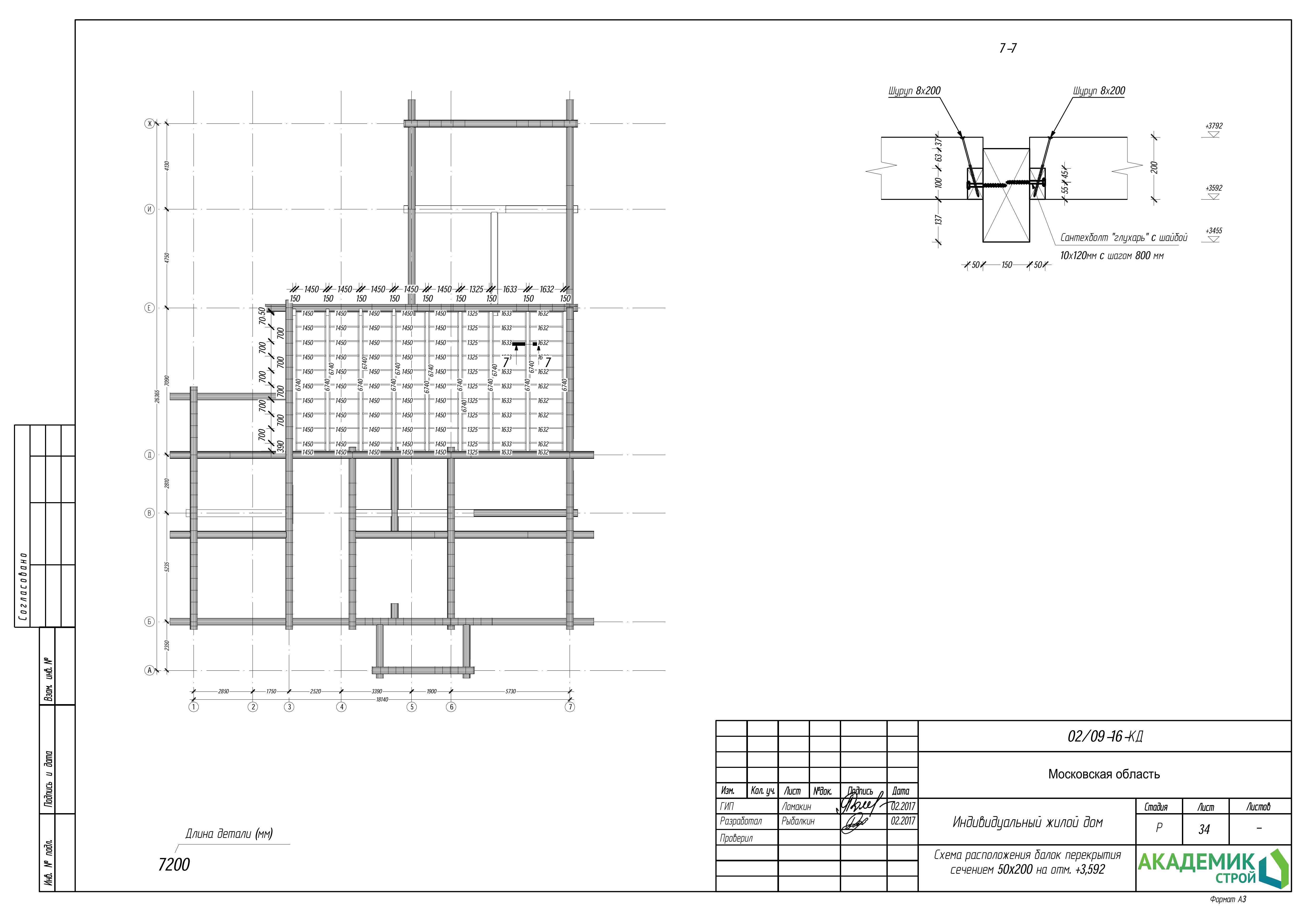
  • Схема расположения балок перекрытия сечением 50x200 на отм. +3,592
  • Аксонометрия балок перекрытия
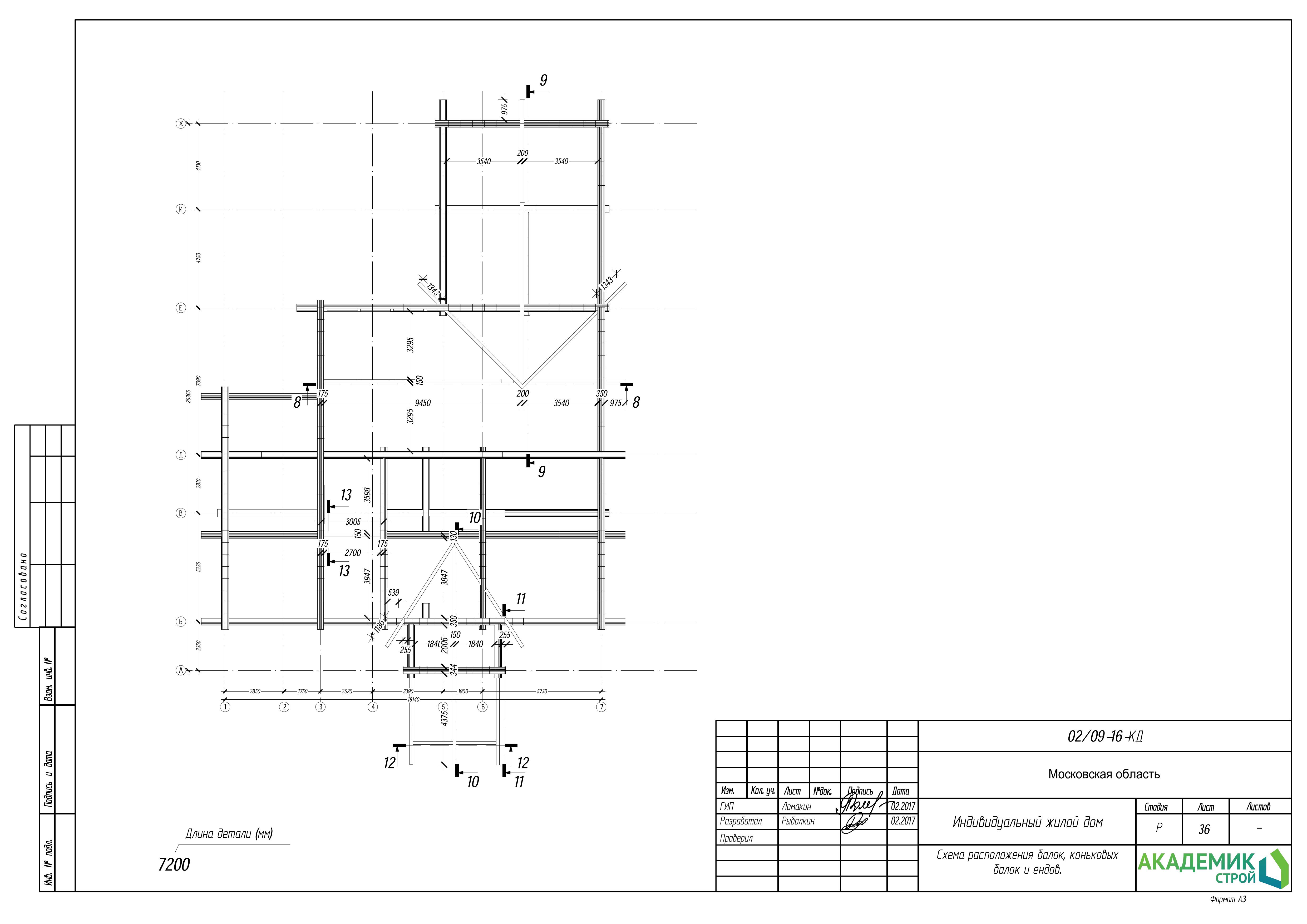
  • Схема расположения балок, коньковых балок и ендов
  • Аксонометрия балок каркаса крыши
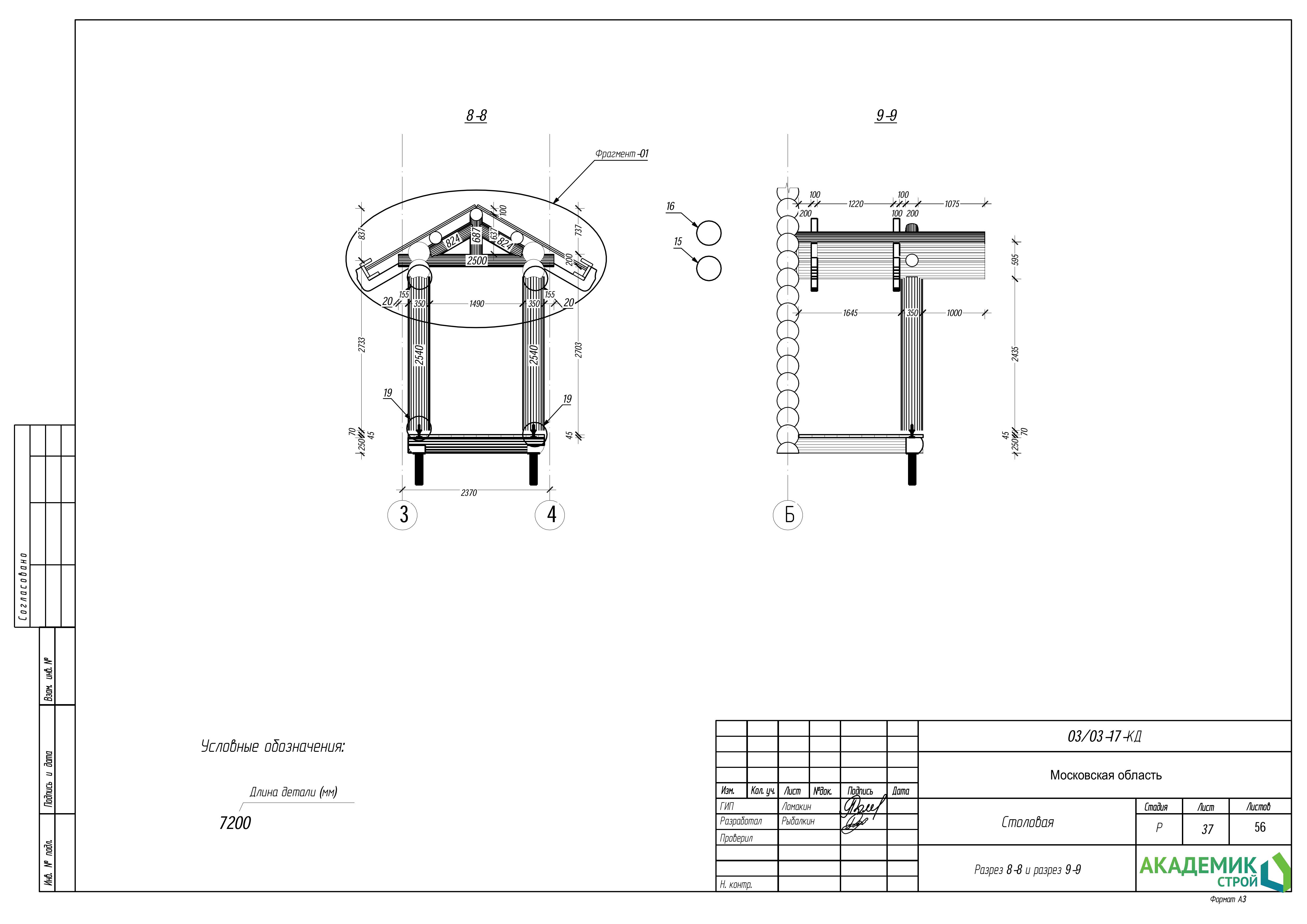
  • Разрез 8-8
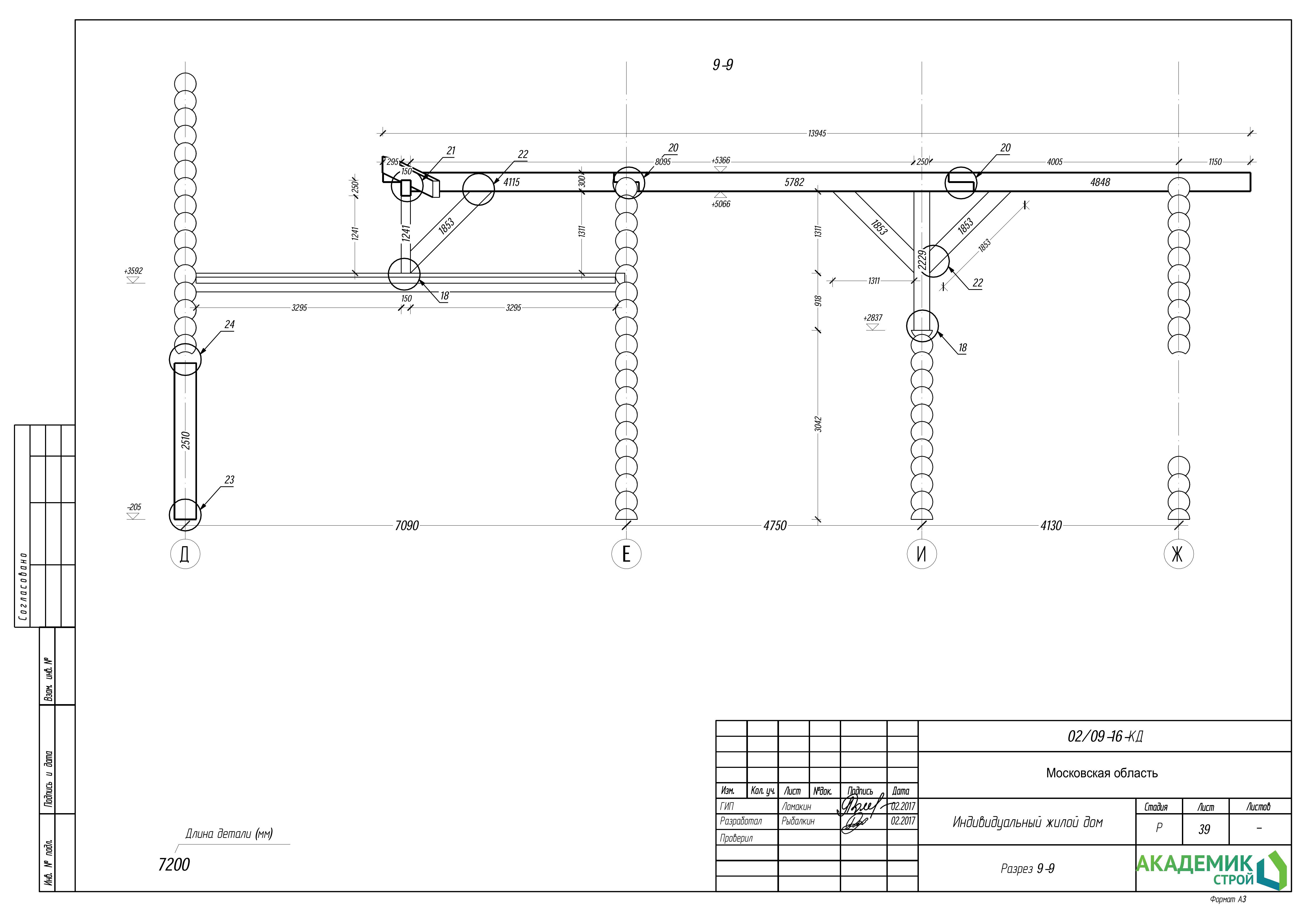
  • Разрез 9-9
  • Разрез 10-10
  • Разрез 11-11, разрез 12-12
  • Разрез 13-13, разрез 14-14
  • Узел 13, узел 14, узел 15
  • Узел 16, узел 17, узел 18, узел 19
  • Узел 20, узел 21
  • Узел 22, узел 23, узел 24
  • Узел 25, узел 26
  • Схема расположения стропил кровли
  • Аксонометрия стропил крыши
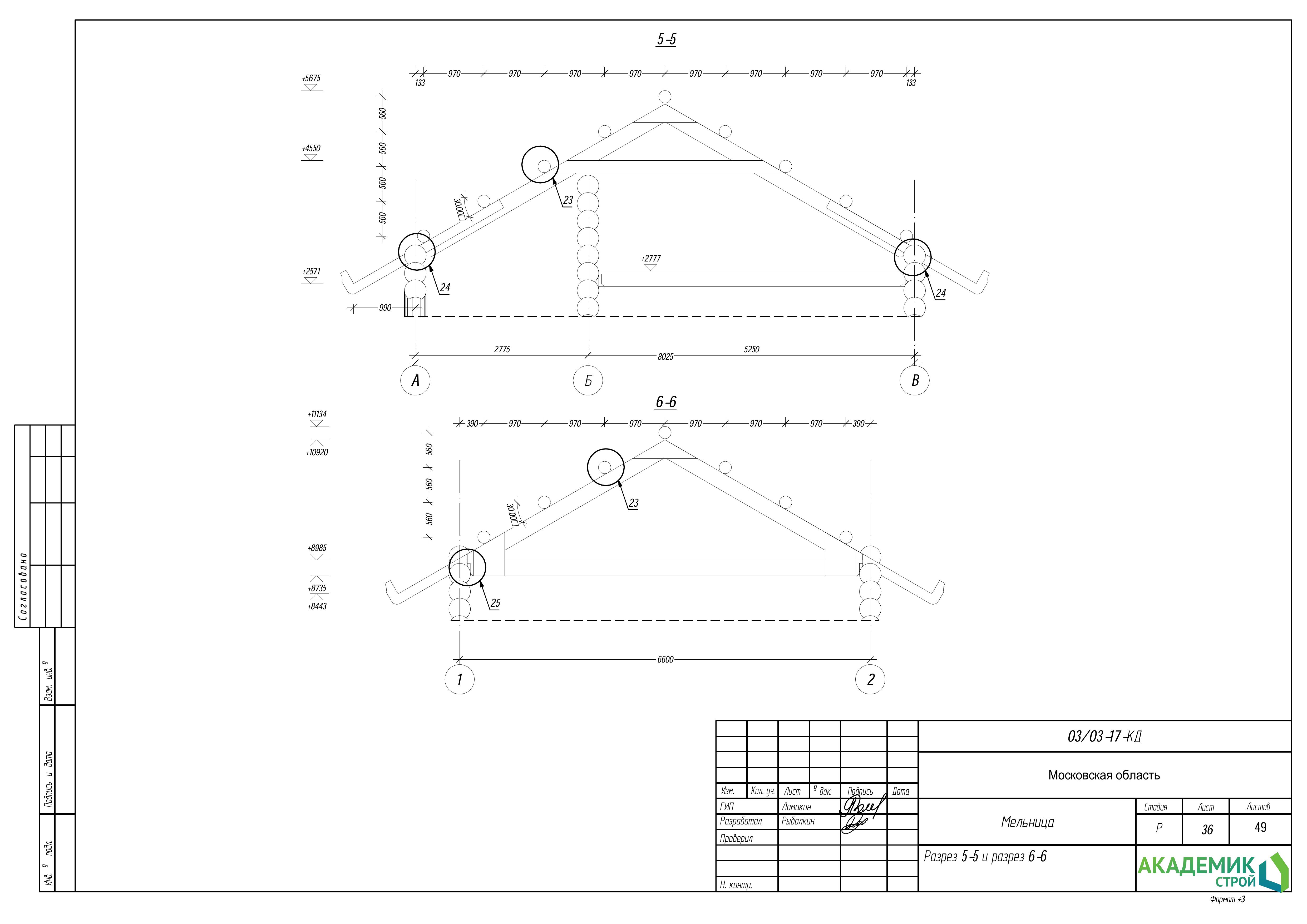
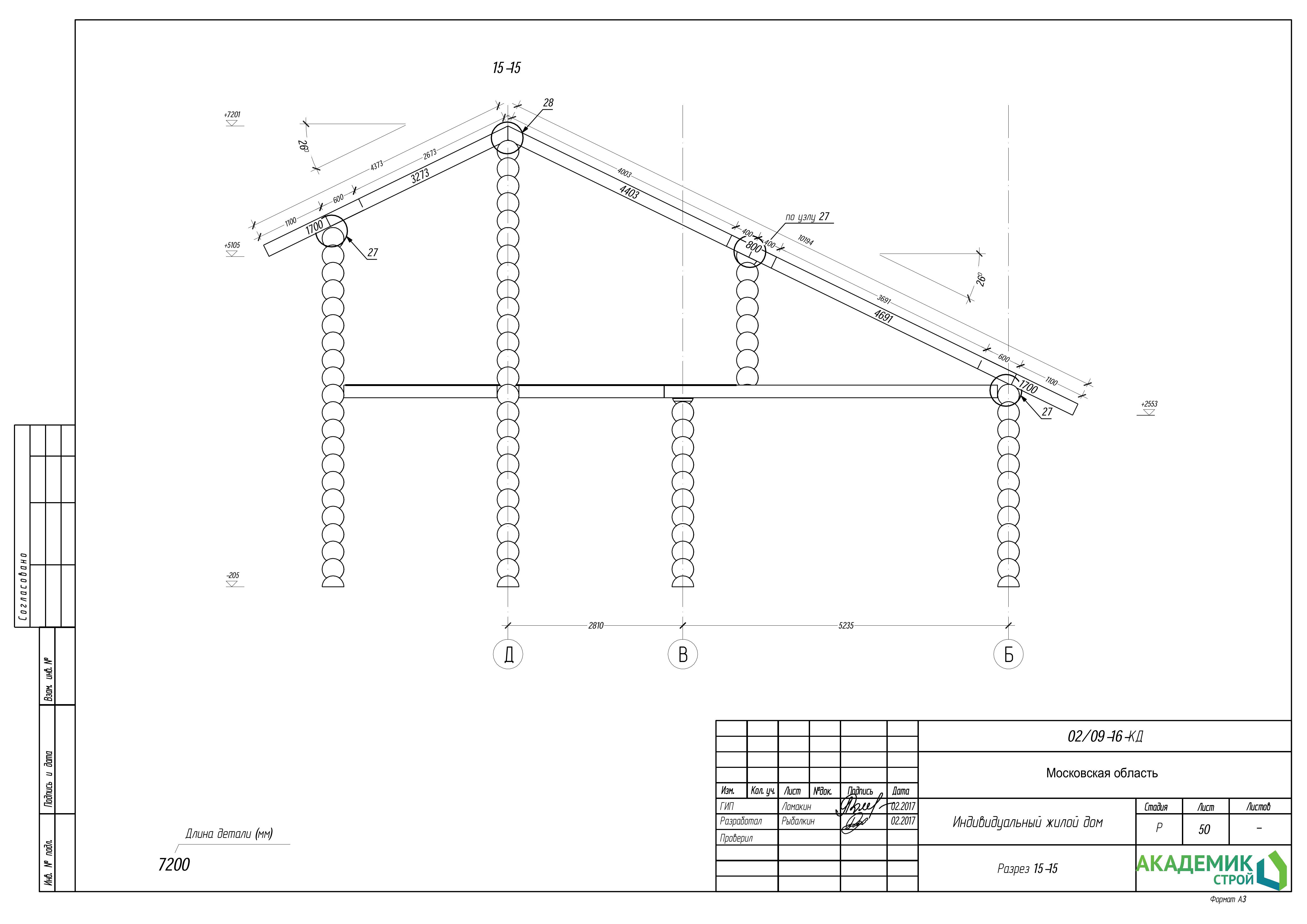
  • Разрез 15-15
  • Разрез 16-16
  • Разрез 17-17, разрез 18-18
  • Разрез 19-19, разрез 20-20
  • Разрез 21-21, разрез 22-22
  • Узел 27, узел 28, узел 29
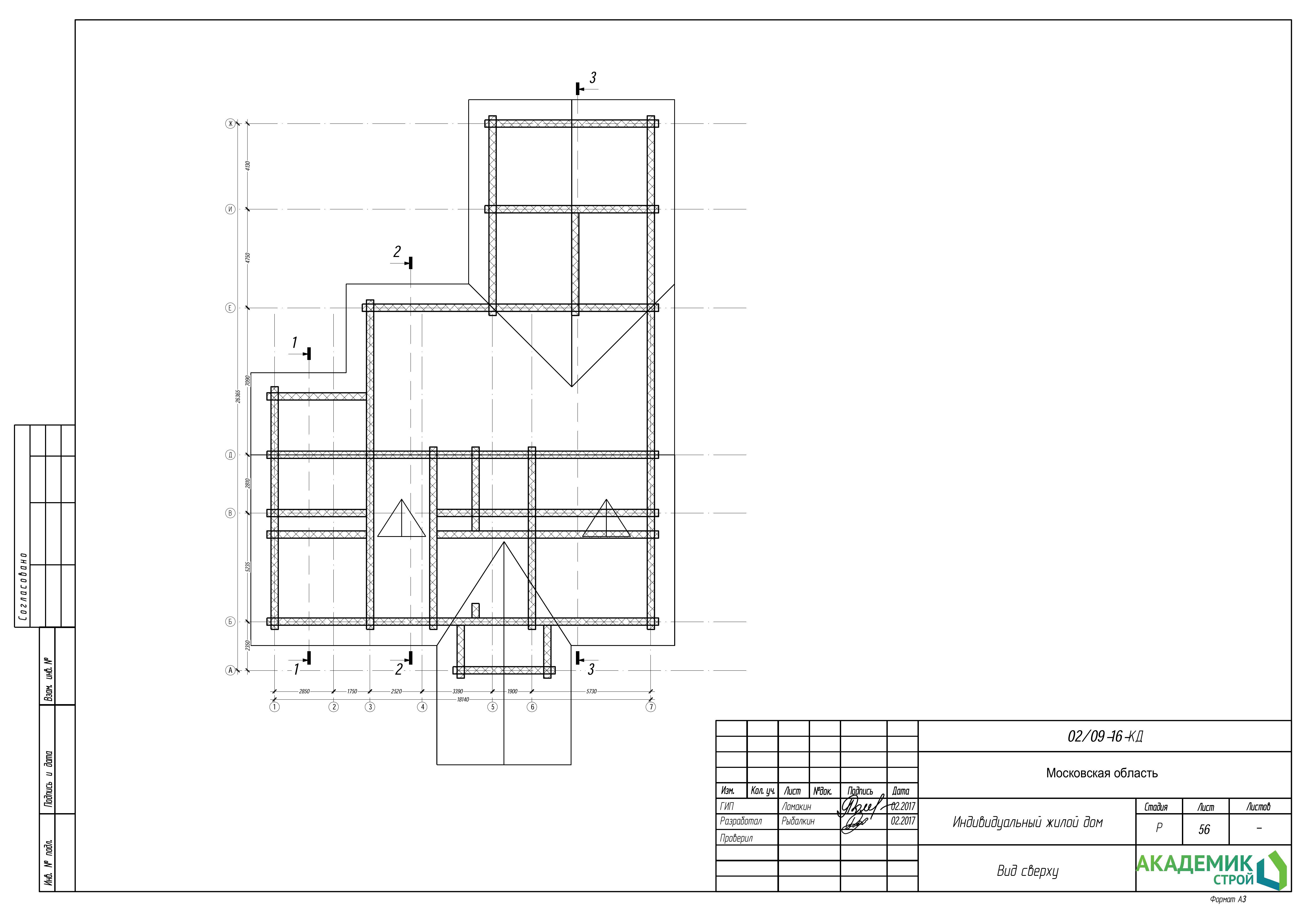
  • Вид сверху
  • Разрез 1-1
  • Разрез 2-2
  • Разрез 3-3
  • Узел 8, узел 9, узел 10, узел 11
  • Узел 12
  • План кровли
Скачать пример «Сруб из бревна (КД)»

Стоимость:

900 ₽/м² (строительная площадь здания)

Срок:

30 дней

Проект фундамента

Скачать пример «Проект фундамента»
  • Пояснительная записка (1)
  • Схема привязки здания к участку
  • Разрез 1-1
  • Разрез 2-2
  • Разрез 3-3
  • Разрез 4-4
  • Разрез 5-5
  • Разрез 6-6
  • Фасад в осях 1-8
  • Фасад в осях А-К
  • Фасад в осях 8-1
  • Фасад в осях К-А
  • Вид 1 (1)
  • Вид 2 (1)
  • Вид 3 (1)
  • Вид 4 (1)
  • Раздел КР
  • Пояснительная записка (2)
  • Общие положения
  • План котлована
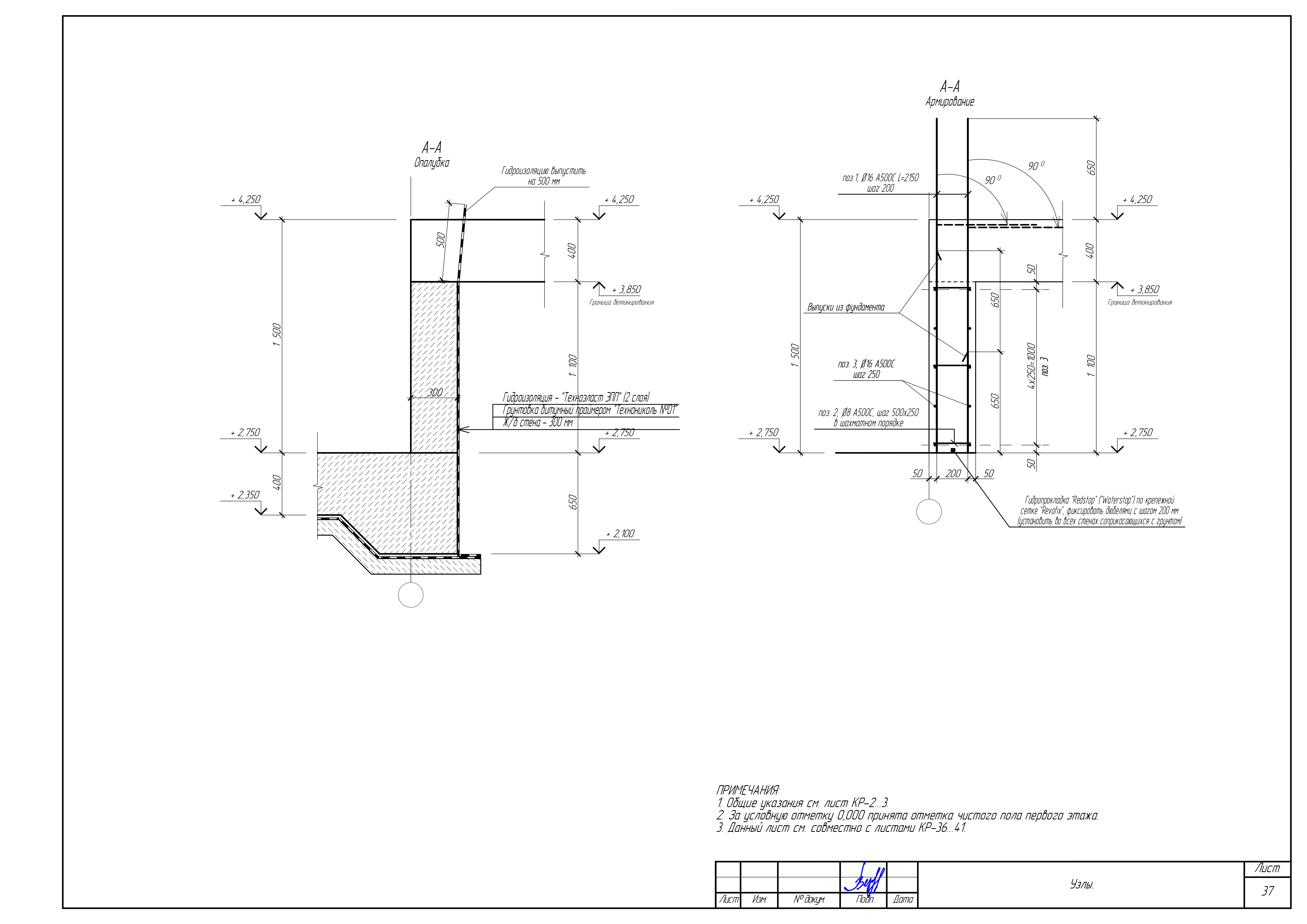
  • Узлы (1)
  • Вид 1 (2)
  • Вид 2 (2)
  • Вид 3 (2)
  • Вид 4 (2)
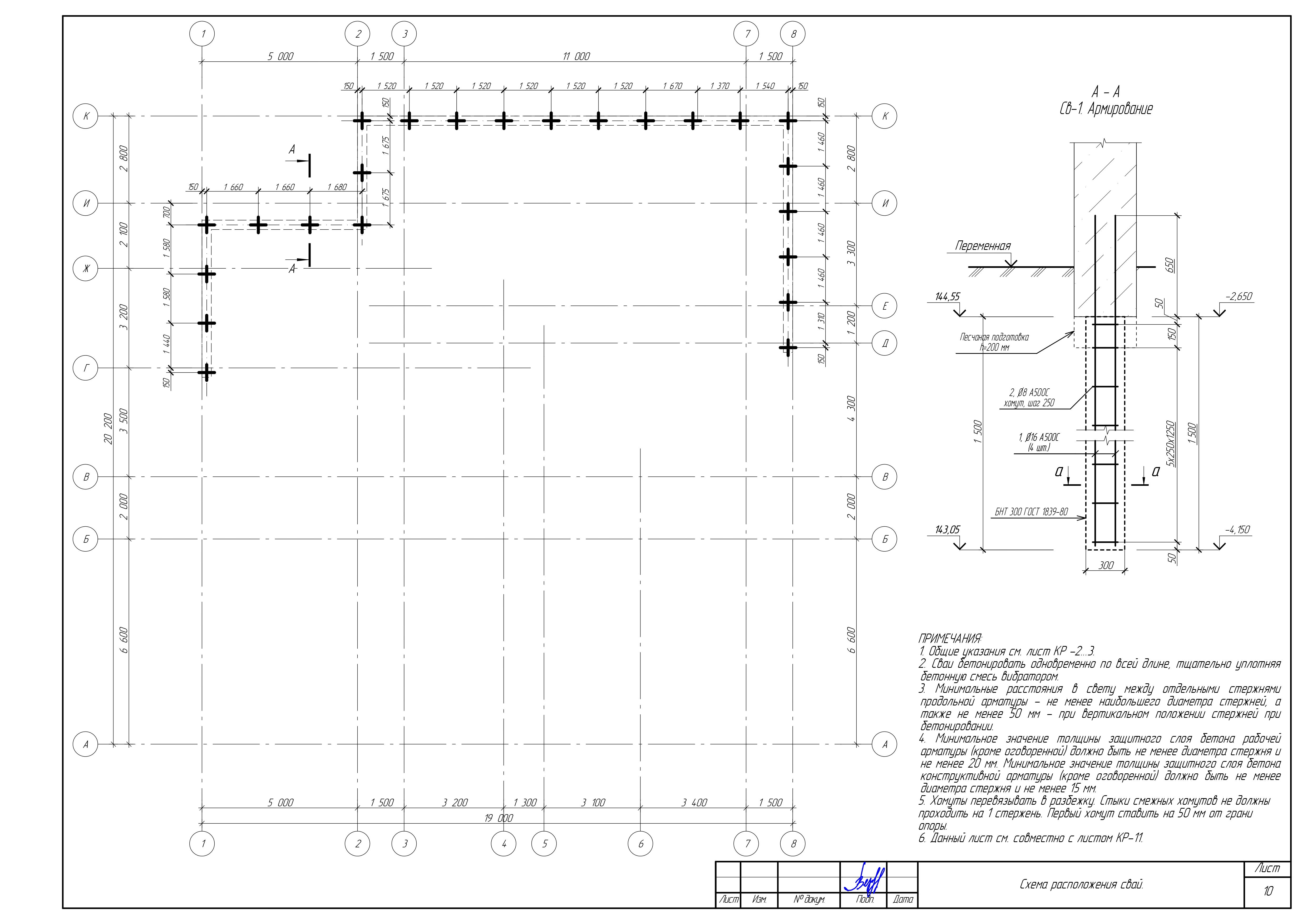
  • Схема расположения свай
  • Узлы, Спецификация материалов на устройство свай СВ-1
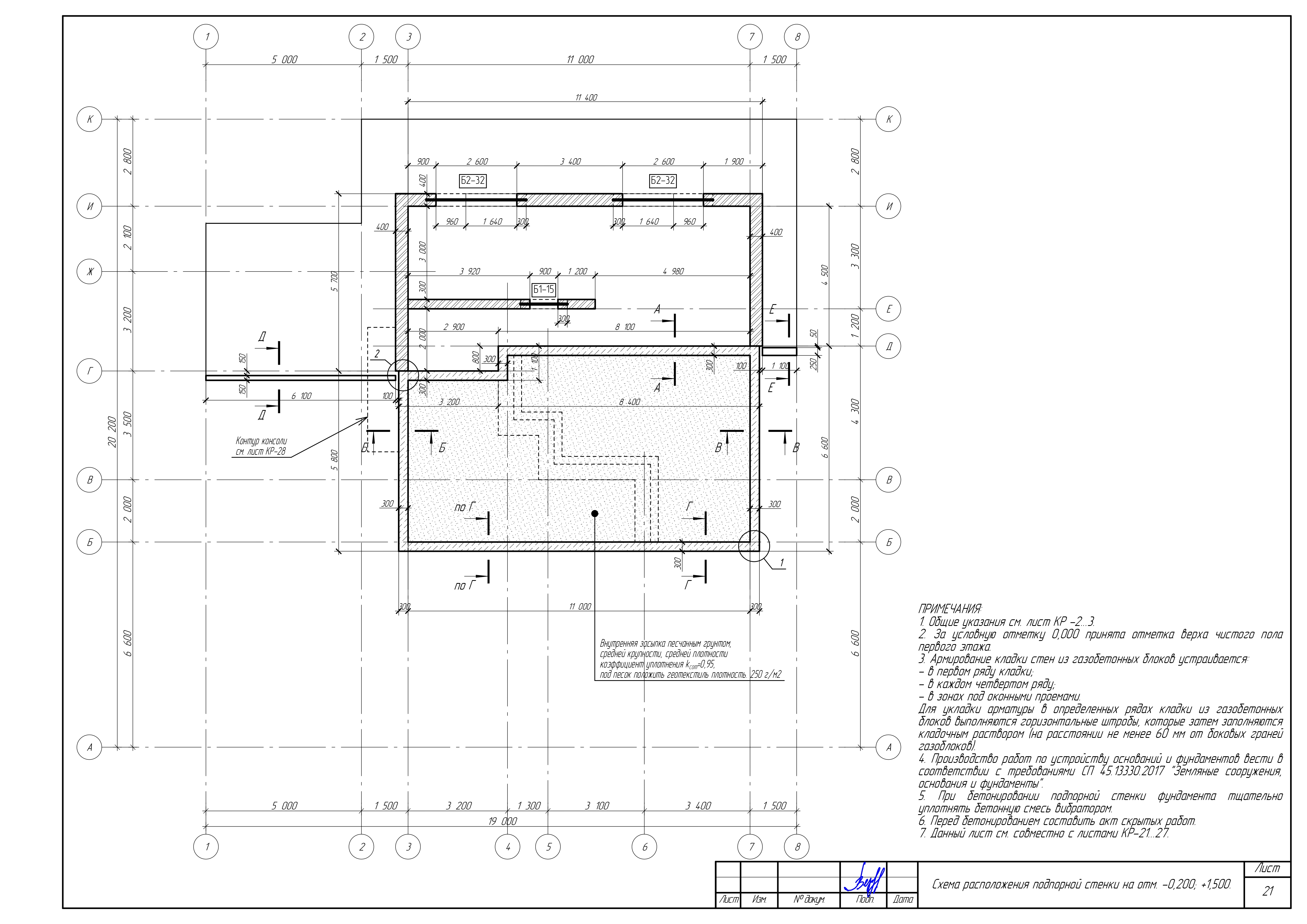
  • Схема расположения подпорной стенки на отм. -2,650
  • Узлы (2)
  • Узлы, Спецификация (1)
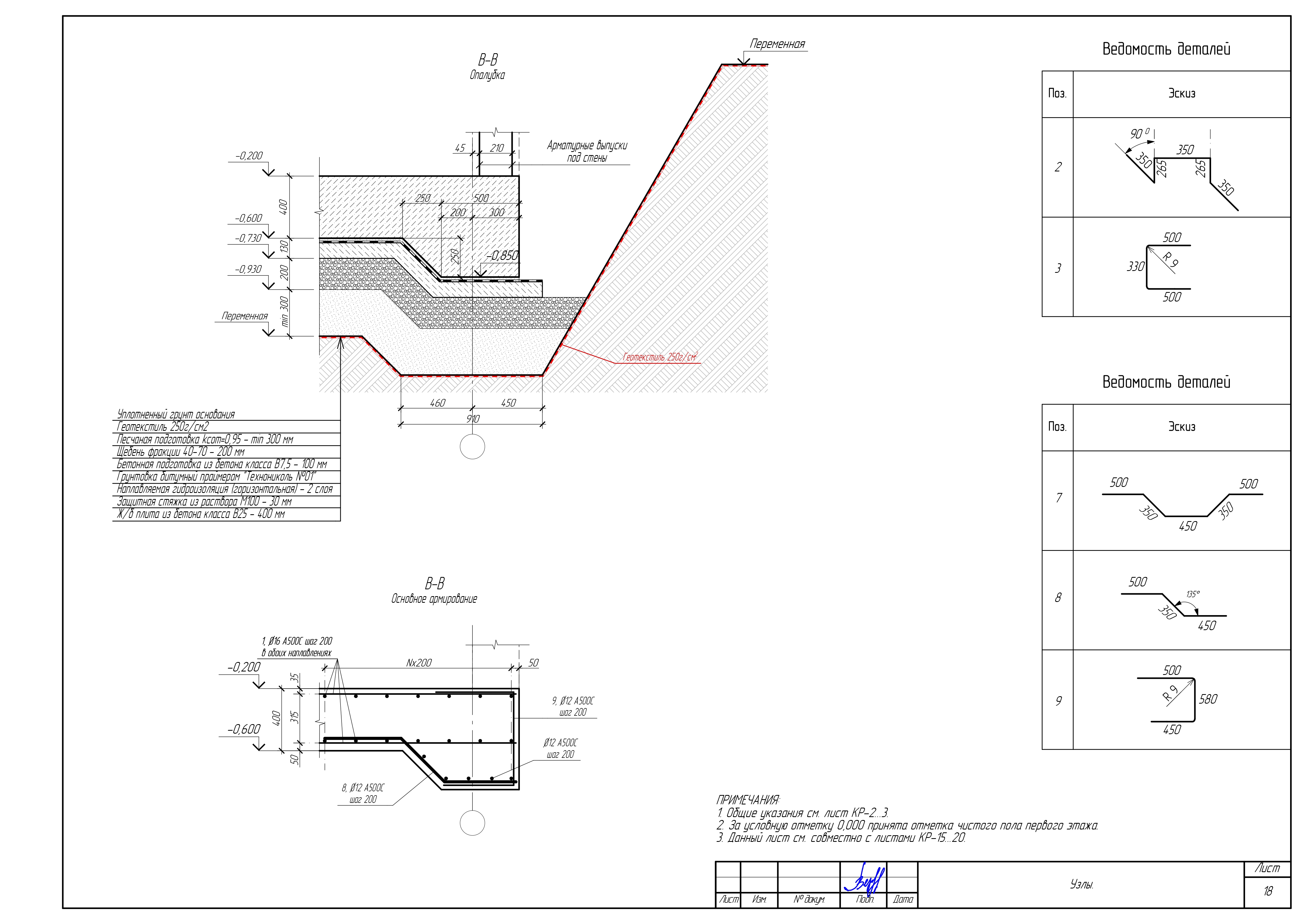
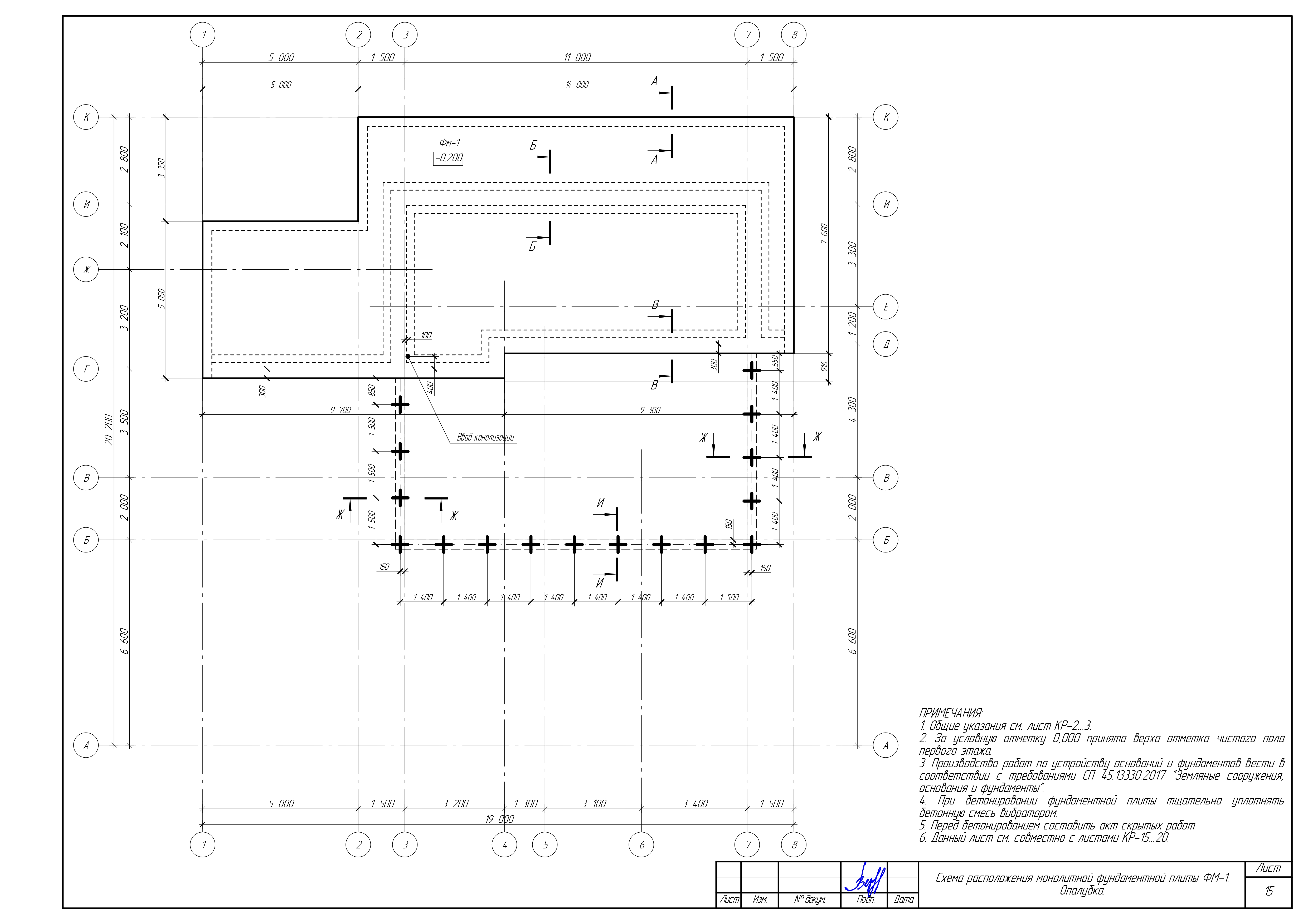
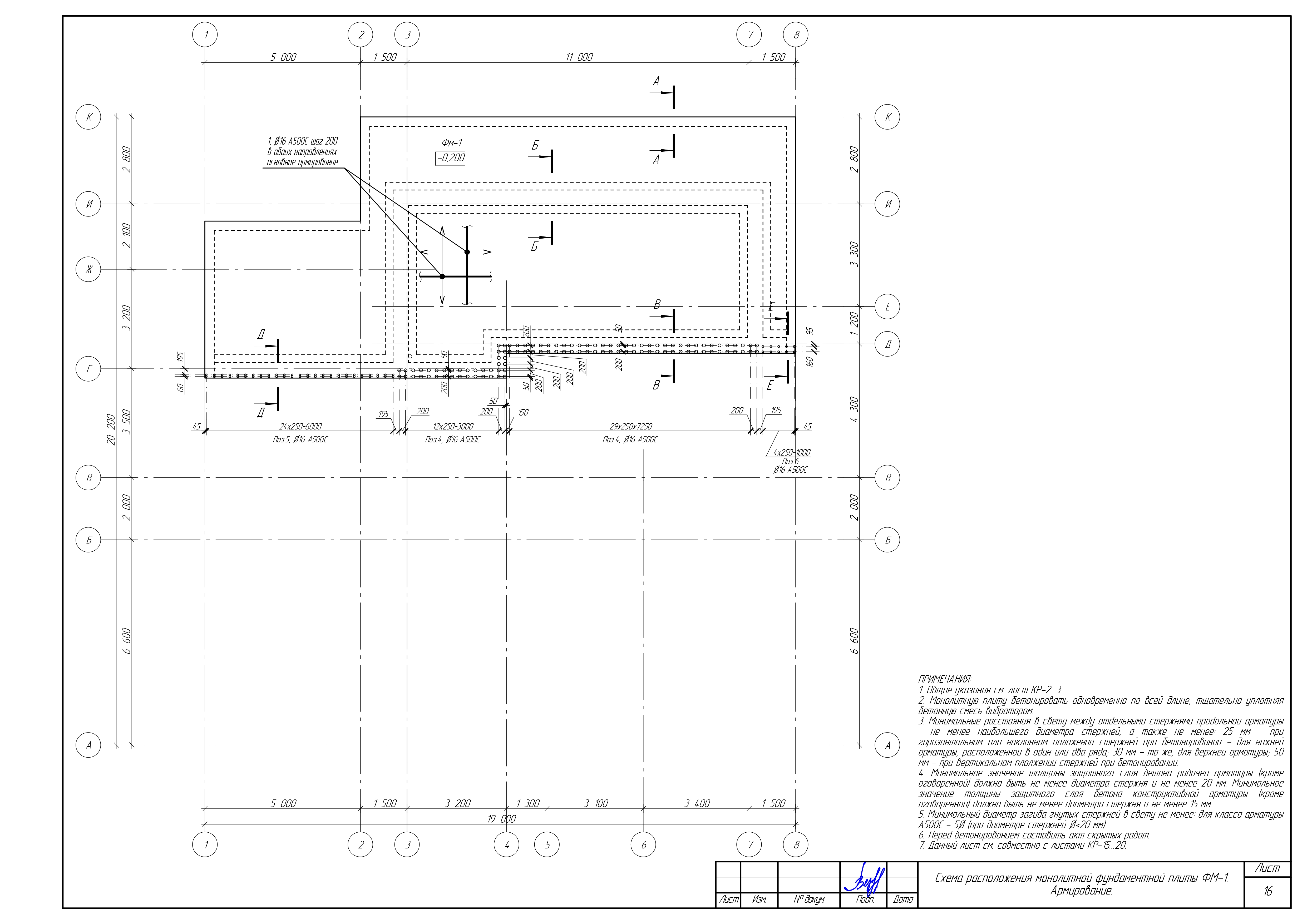
  • Схема расположения монолитной фундаментной плиты ФМ-1.Опалубка
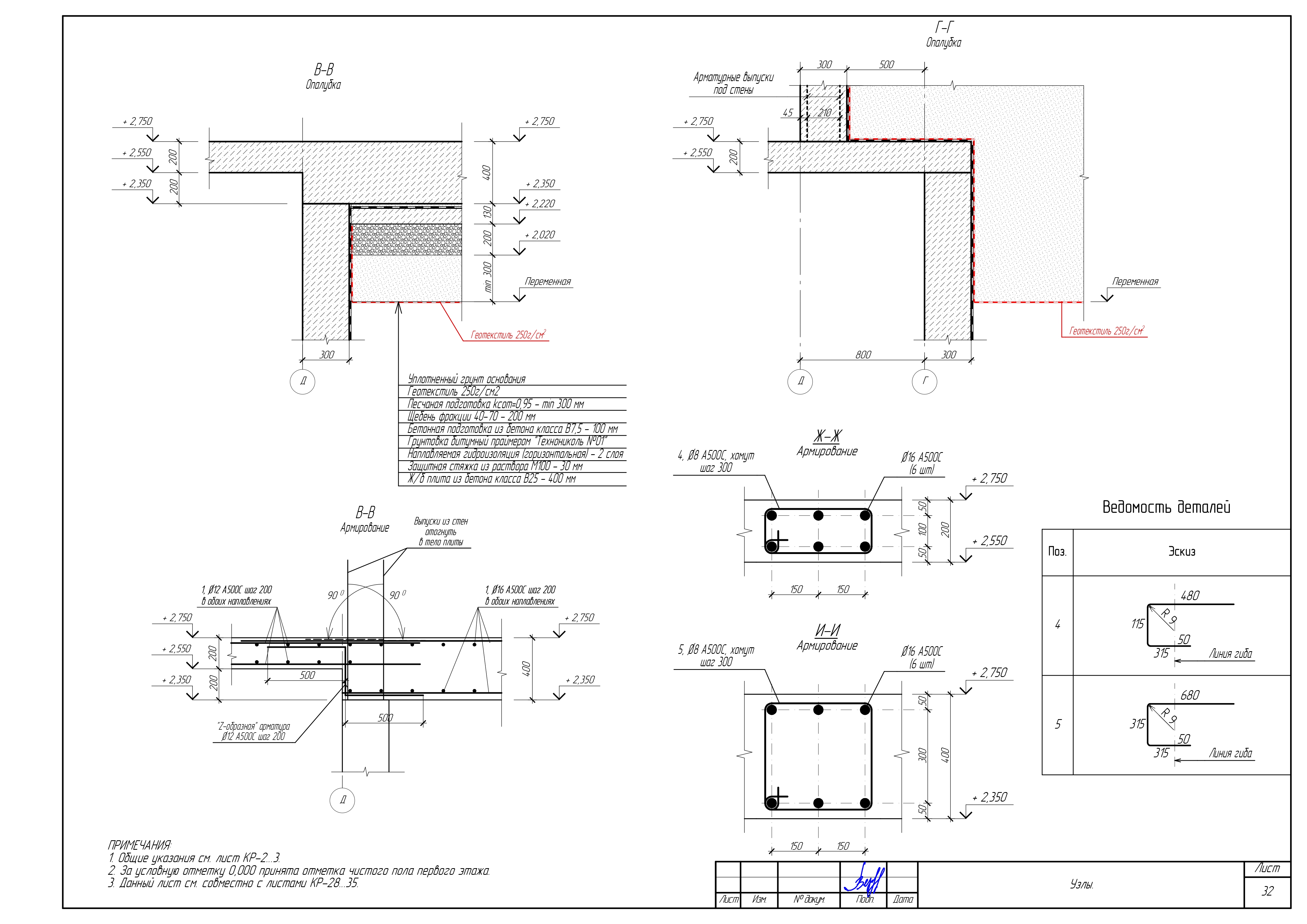
  • Схема расположения монолитной фундаментной плиты ФМ-1. Армирование
  • Узлы (3)
  • Узлы (4)
  • Спецификация материалов на устройство армирования плиты ФМ-1
  • Узлы, Спецификация (2)
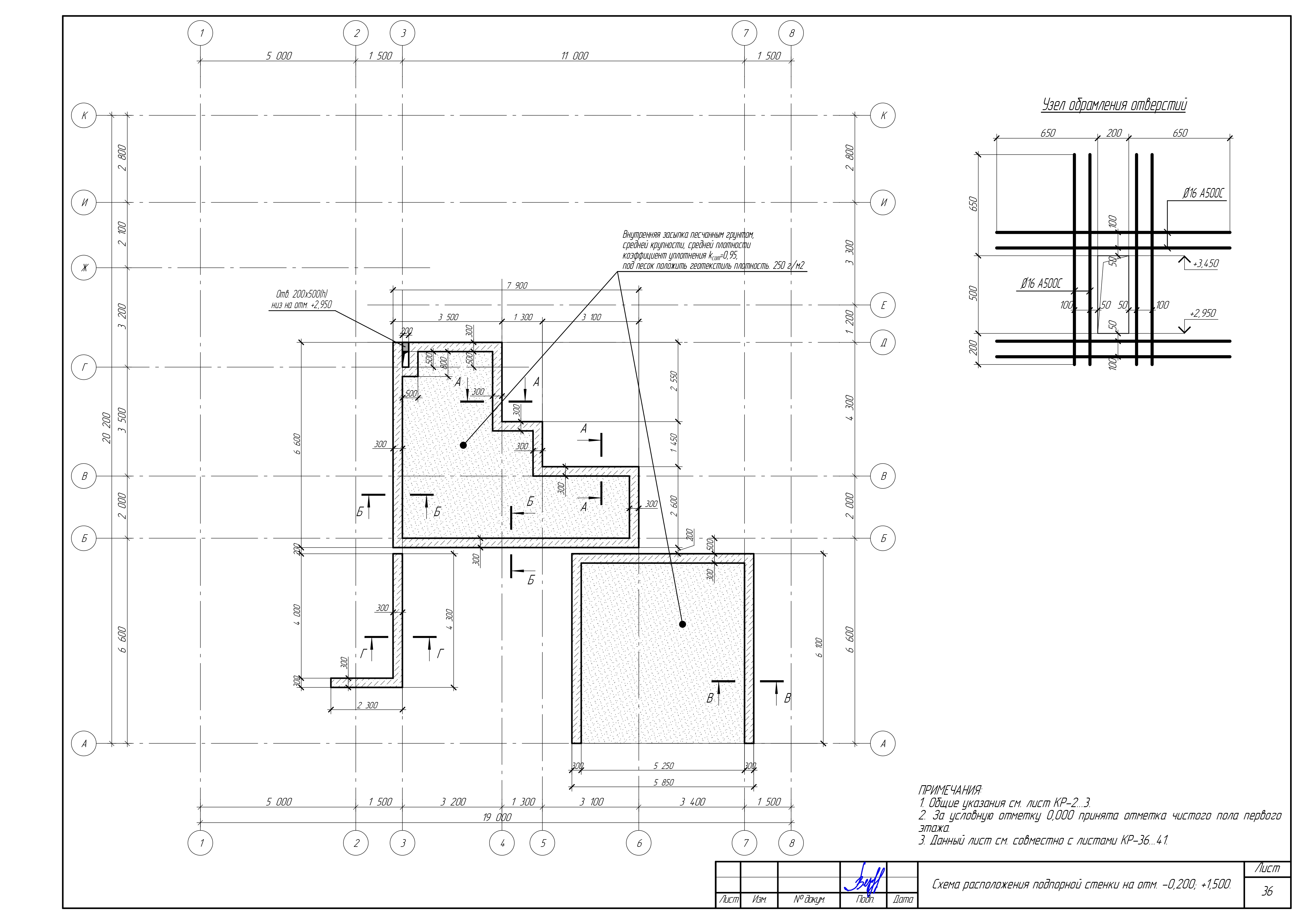
  • Схема расположения подпорной стенки на отм. -0,200, +1,500 (1)
  • Узлы (5)
  • Узлы (6)
  • Узлы (7)
  • Узлы (8)
  • Узлы (9)
  • Спецификация материалов на устройство стен 1-го этажа
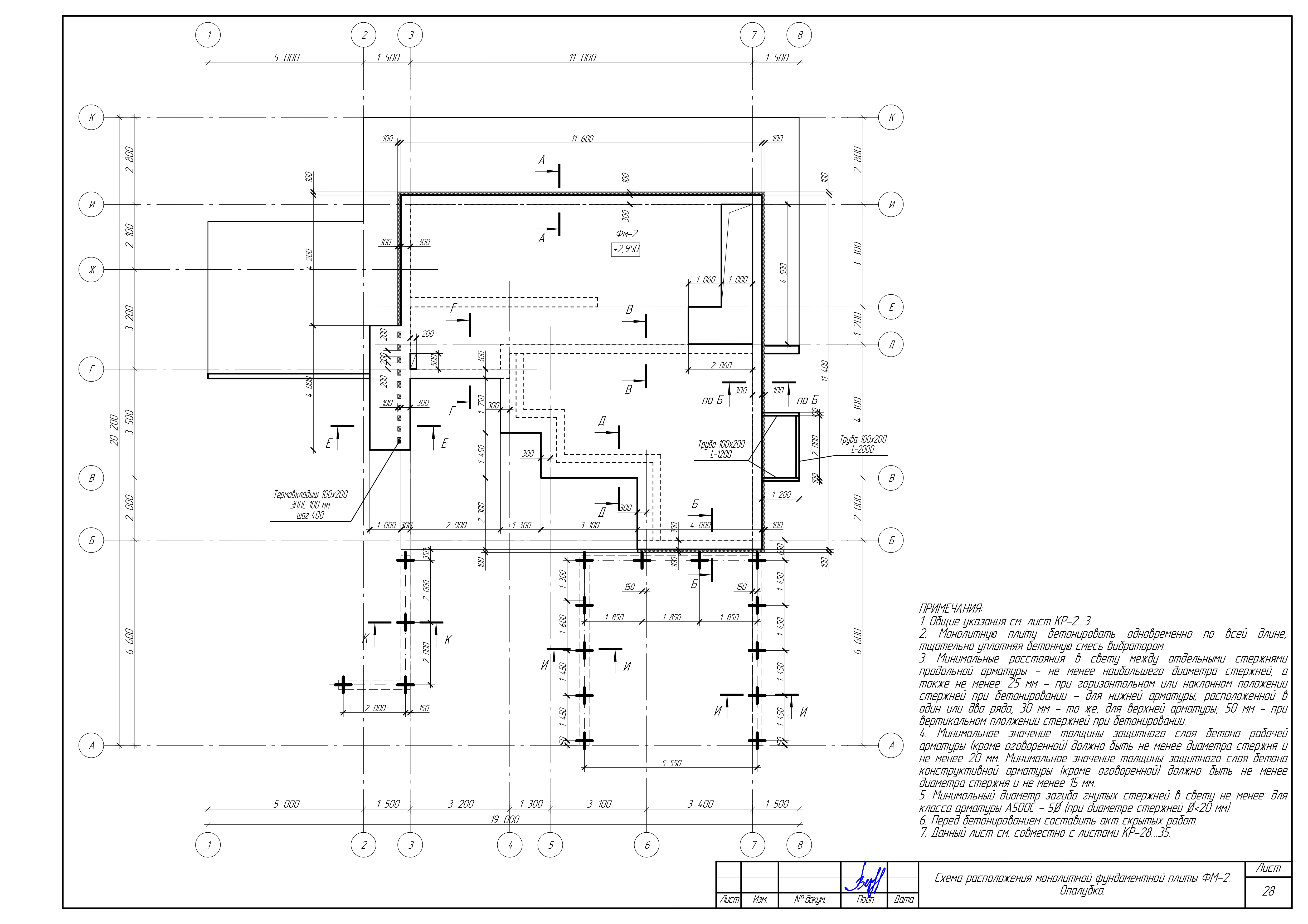
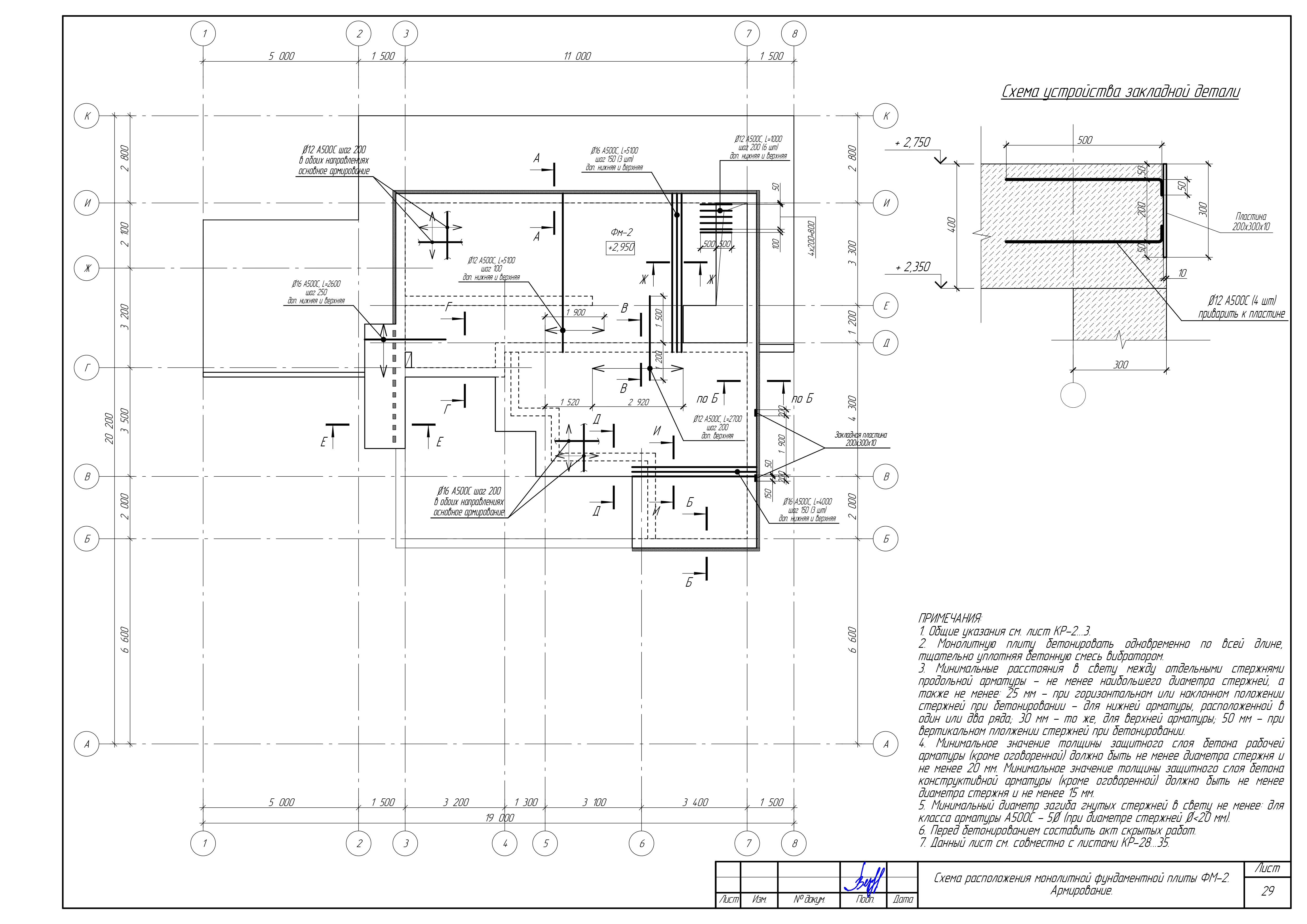
  • Схема расположения монолитной фундаментной плиты ФМ-2. Опалубка
  • Схема расположения монолитной фундаментной плиты ФМ-2. Армирование
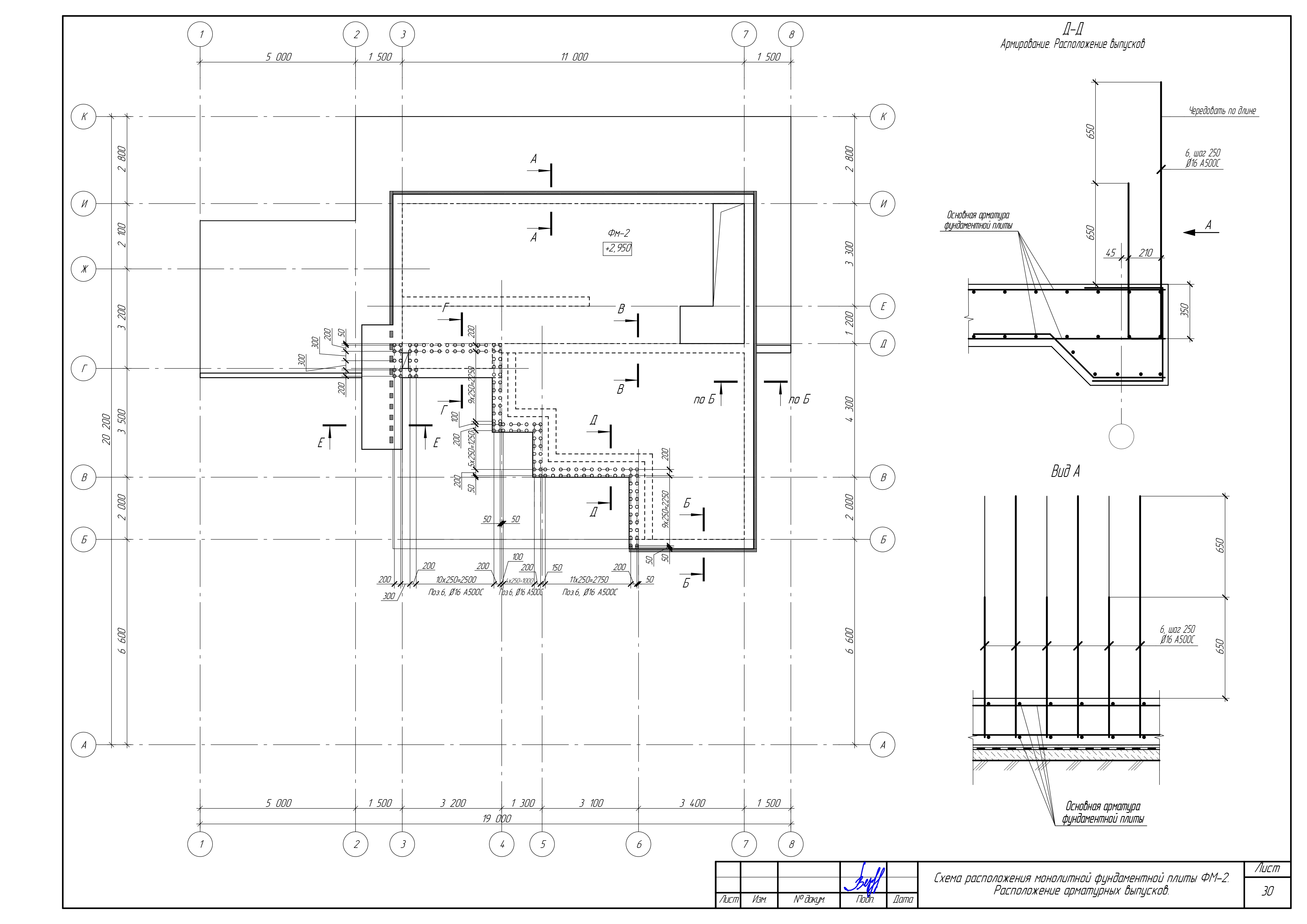
  • Схема расположения монолитной фундаментной плиты ФМ-2. Расположение арматурных выпусков
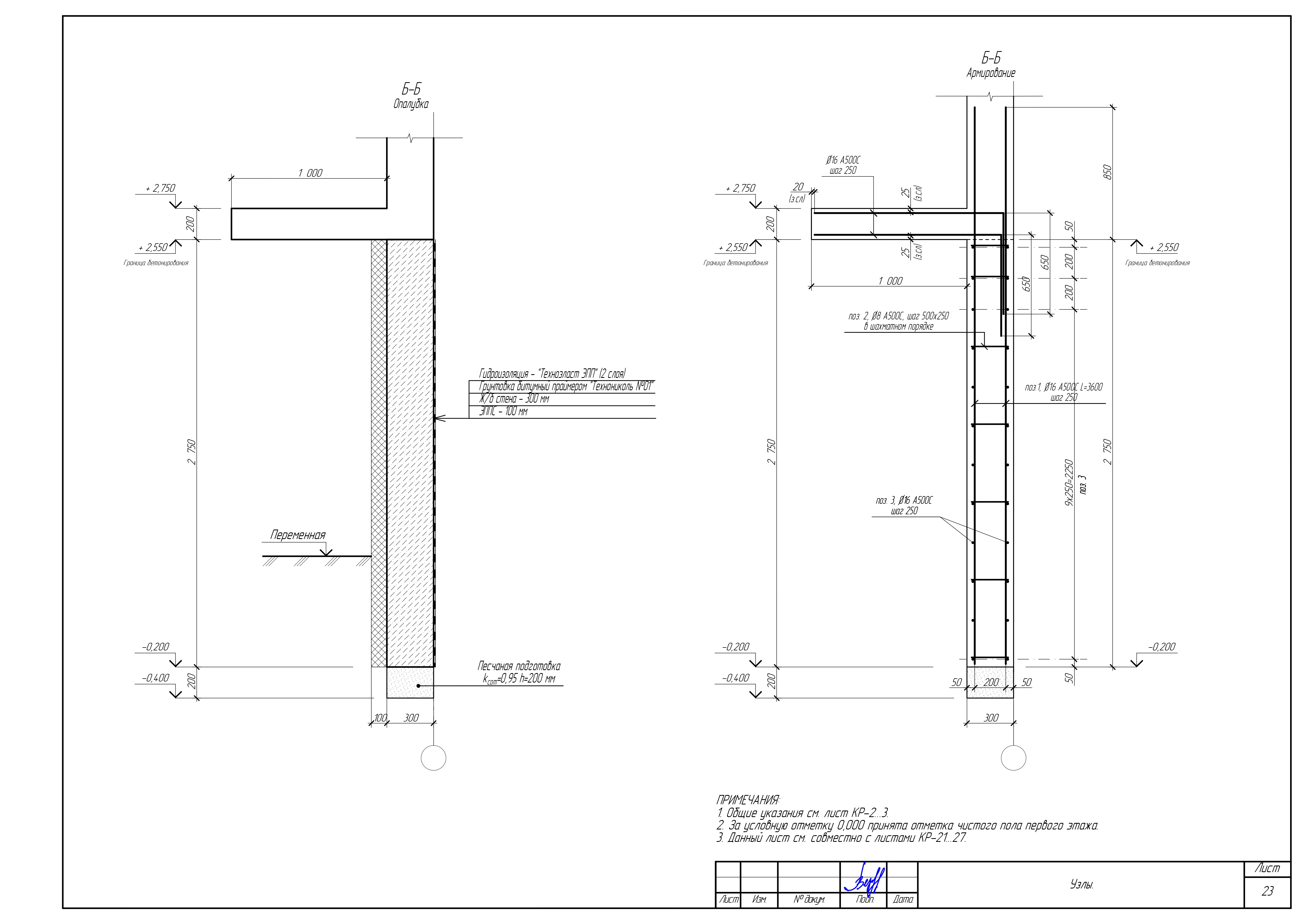
  • Узлы (10)
  • Узлы (11)
  • Узлы (12)
  • Спецификация материалов на устройство армирования плиты ФМ-2
  • Узлы ,Спецификация материалов на устройство свай СВ-3, СВ-4
  • Схема расположения подпорной стенки на отм. -0,200, +1,500 (2)
  • Узлы (13)
  • Узлы (14)
  • Узлы (15)
  • Узлы (16)
  • Спецификация (1)
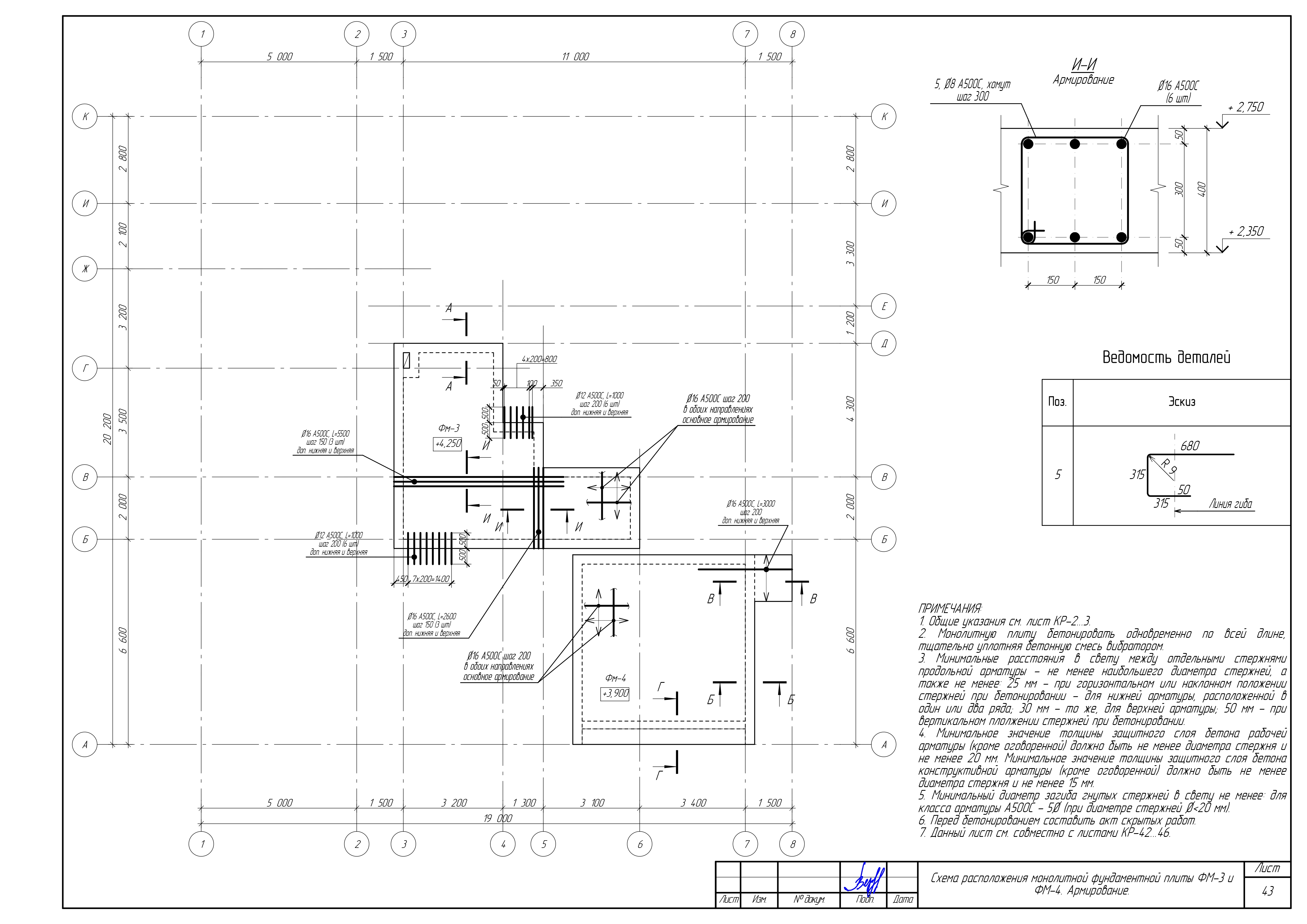
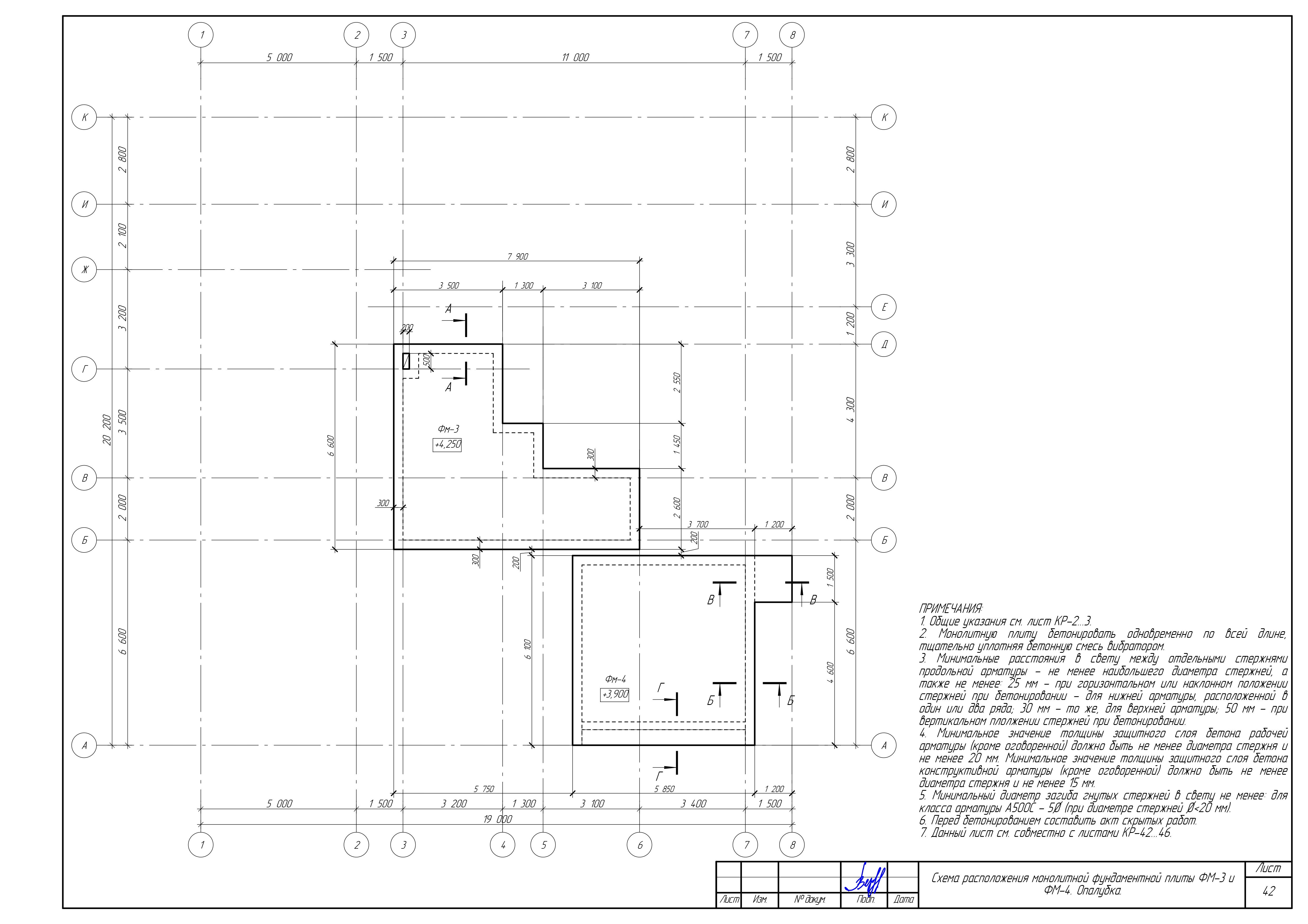
  • Схема расположения монолитной фундаментной плиты ФМ-3 и ФМ-4. Опалубка
  • Схема расположения монолитной фундаментной плиты ФМ-3 и ФМ-4. Армирование
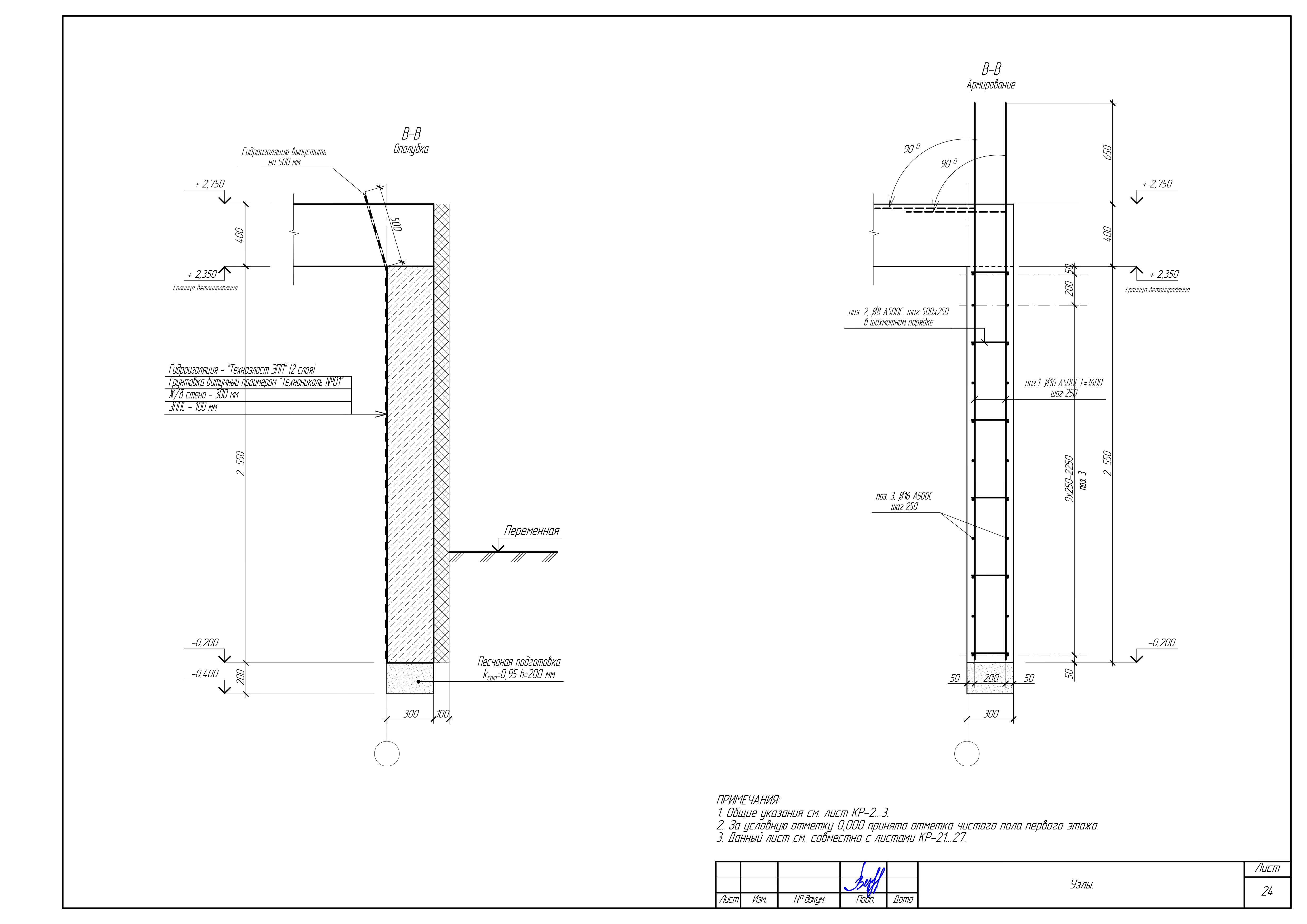
  • Узлы (17)
  • Узлы (18)
  • Спецификация материалов на устройство армирования плиты ФМ-3
  • Принципиальная схема ввода коммуникаций
  • Принципиальная схема устройства пристенного дренажа
Скачать пример «Проект фундамента»

Стоимость:

450 ₽/м² (строительная площадь здания)

Срок:

30 дней

100% реализуемость

Мы проектируем реализуемые проекты, учитывая нормы, материалы и технологии. Сочетая креативность с практичностью, превращаем мечты в комфортное жилище.

Конструктивный проект
Предотвратит ошибки

Наши конструктивные решения представляют собой полный справочник для специалистов по строительству, включающий расчёты несущих элементов, свойства материалов, описание соединений и чертежи.

Cостав конструктивного проекта

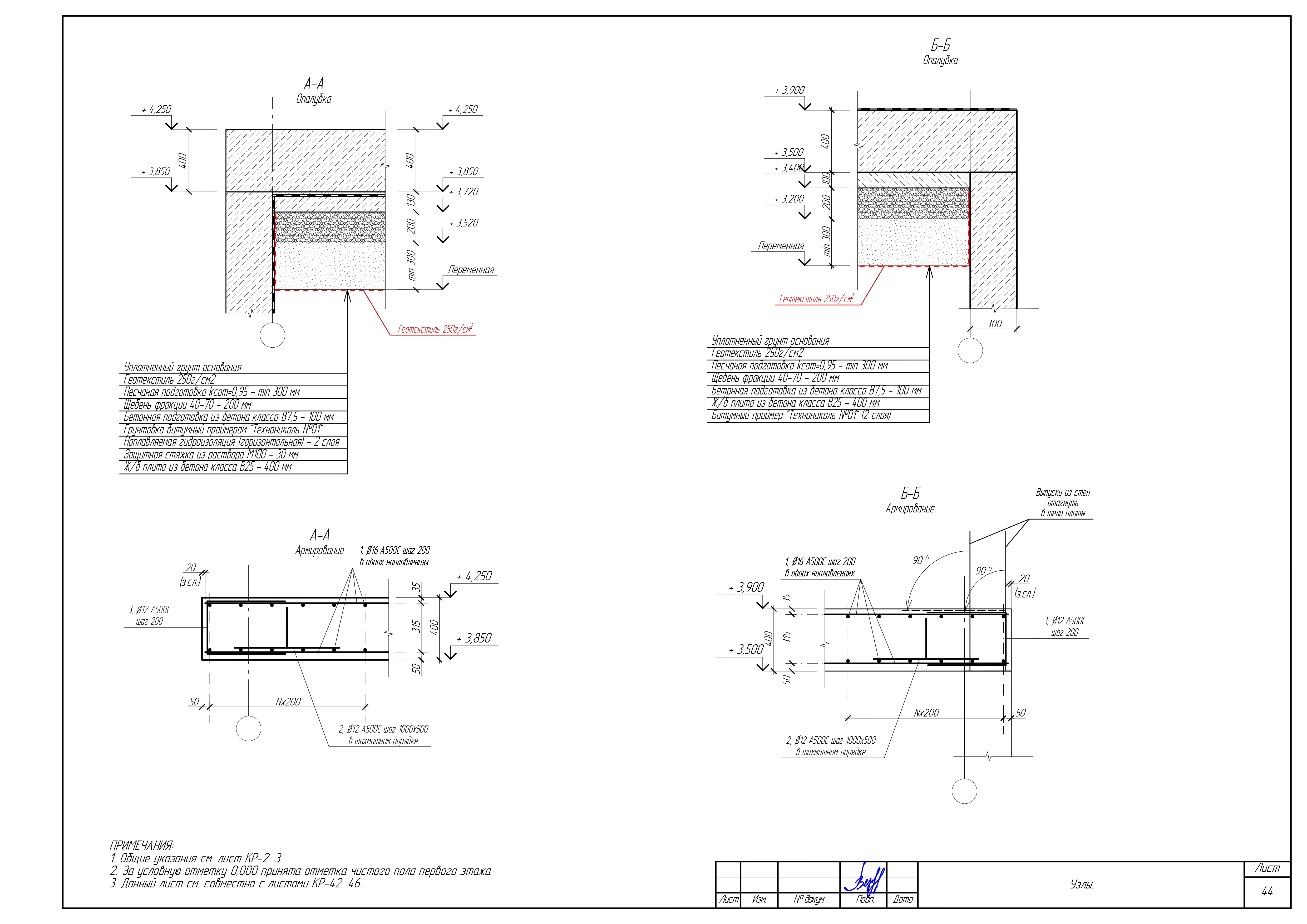
Фундамент

В конструктивный проект включаются определения глубины фундамента и оценки несущей способности почвы, а также схемы армирования, класс бетона и варианты гидроизоляции.

Планировка дома

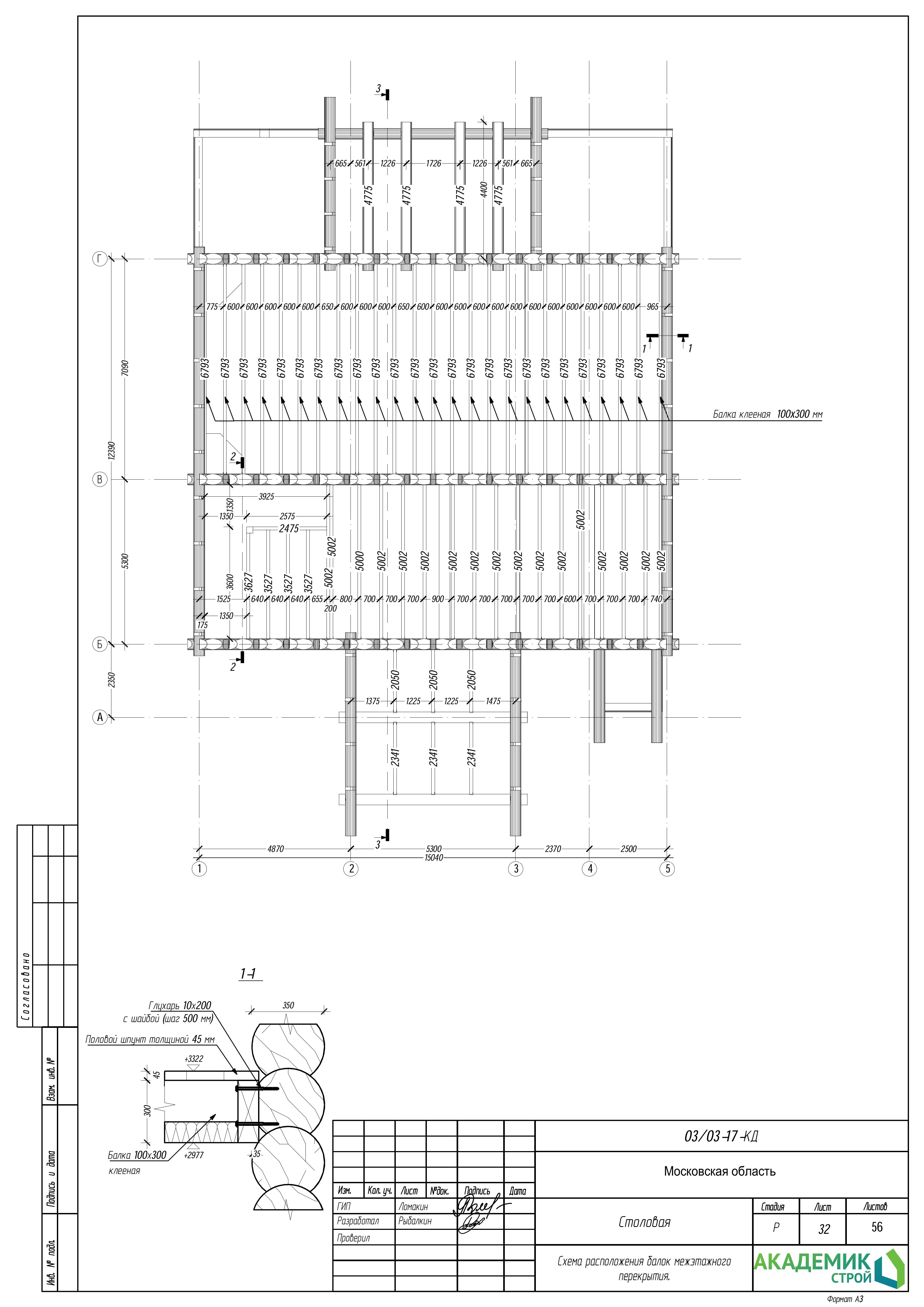
Перекрытия

Содержит вид конструкции, чертежи армирования либо размещения балок, планы с обозначением материалов стен, а также детали соединений с фундаментом и перекрытиями.

Дизайн фасада дома

Разрезы и сечения

Включает инженерные решения для стыковки кровли со стенами и устройства вентиляционных каналов.

План кровли

Проемы

Включает расчёты и детализированные чертежи усиления проёмов для окон и дверей, с учётом перемычек.

План участка

Кровля

Устройство крыши: схема кровельного покрытия с обозначением скатов, разжелобков, коньков, стропильная система.

Технические решения

Лестницы

Включает подробные чертежи лестниц с указанием размеров ступеней, а также расчёты нагрузок и выбор материалов для их производства.

Документация

ПРИГЛАШАЕМ НА ДЕНЬ ОТКРЫТЫХ ДВЕРЕЙ СТРОЯЩЕГОСЯ ДОМА

ХОЧУ ПОЕХАТЬ
День открытых дверей

Заказав проект у нас
вы получите

01. Метод строительства

Изображение 1
Малое изображение 1

Выберем оптимальный вид конструкций и стройматериалы для возведения здания, опираясь на архитектурный замысел, финансовый план, действующие нагрузки, геологические особенности и климатические факторы. Предложим несколько альтернатив для улучшения строительного процесса.

02. Тип фундамента

Изображение 2
Малое изображение 2

Посоветуем оптимальный вид фундамента для вашего проекта, учитывая геологический анализ грунта и климатические особенности. Определим необходимость свайного основания и рассчитаем объём арматуры с указанием её диаметра. Разработаем проект фундамента, включающий чертежи котлована, опалубки, сечений и деталей соединений.

03. Оптимизация несущих конструкций

Изображение 3
Малое изображение 3

Выберем наилучшее размещение несущих стен, опорных элементов и колонн. Произведём расчёт нагрузок. Учтём зоны для вентиляционных систем, а также проёмов окон и дверей.

04. Тип кровли

Изображение 4
Малое изображение 4

Подберём материалы для крыши и угол её наклона с учётом снеговых и ветровых нагрузок в данной местности. Выберем вариант теплоизоляции, а также определим размещение дымовых труб.

05. Расчет прочности и устойчивости дома

Изображение 4
Малое изображение 4

Проведём расчёт прочности и устойчивости здания, гарантируя комфортное проживание для нескольких поколений семьи. Кроме того, определим показатели теплопроводности, обеспечивая прохладу летом и тепло зимой с минимальными расходами на отопление и кондиционирование.

06. Расчет сметы

Изображение 4
Малое изображение 4

Просчитаем все затраты и разработаем подробную смету на материалы для фундамента, кровли, стен и дополнительных конструкций: крыльца, лестниц, колонн. В расчётах учтём архитектурные особенности будущего дома, а также расходы на доставку материалов и вывоз строительного мусора.

Примеры проектов
конструктивных решений

Одноэтажный дом

Двухэтажный дом

110м²

Двухэтажный дом

Одноэтажный дом

120м²

Одноэтажный дом

Двухэтажный дом

155м²

Одноэтажный дом

Одноэтажный дом

145м²

Конструктивные материалы
проектирования

Наши инженеры - конструкторы имеют большой опыт в проектировании домов с использованием различных материалов.

Как мы работаем?

Мы умеем подготовить профессиональный проект конструктивных решений

1 день

Изучение исходных
данных

Изучение результатов инженерно-геологических и инженерно-геодезических исследований, архитектурного плана, технических требований к инженерному обеспечению объекта, топографических и климатических особенностей земельного участка. Составление технического задания на проектирование.

2 дня

Разработка
и согласование
технического задания

Подбор строительных элементов, инженерных подходов, структурной схемы дома, а также материалов и готовых изделий. Утверждение с клиентом расположения основных несущих компонентов: колонн, стен, перекрытий и покрытий.

5 дней

Создание модели дома и расчёт несущих конструкций

Проведение всестороннего анализа прочности конструкций здания под влиянием постоянных и повторяющихся нагрузок, вибраций и температурных воздействий. Расчёты выполняются в специализированном инженерном программном обеспечении с применением метода конечных элементов. Кроме того, анализ опирается на методики, прописанные в нормативных документах (СП, СНиП).

1 день

Подготовка проектной документации

Создание проектной документации для конструктивных решений.

В итоге вы получаете

Документацию, тщательно проработанную до мельчайших деталей, которая обеспечит вам ряд преимуществ:

01

Детально проработанную документацию

В документации тщательно прорабатывается каждый квадратный метр вашего дома. В ней указаны все узлы и технические решения, а также приведены спецификации и ведомости материалов. У строителей будет подробный план работ, которому необходимо следовать для возведения дома в полном соответствии с проектом.

02

До 30% экономию на материалах

Мы минимизируем все расходы с помощью BIM-проектирования, что избавляет вас от необходимости закупать материалы впрок. Мы тщательно рассчитываем объемы материалов и оптимизируем методы строительства.

03

Оптимизацию сроков строительства

В нашей строительной документации каждый раздел дома структурирован по этапам. Это обеспечивает возможность гибкого распределения работ и бюджета по времени, планирования последующих фаз и внесения пауз при необходимости.

04

Минимальный риск допустить ошибки

Соблюдение нашего конструктивного проекта гарантирует, что ваш дом будет возведен в полном соответствии со всеми нормативами и стандартами ГОСТ.

Заказать
конструктивный проект
загородного дома

  • Детальная проработка каждого элемента
  • Оптимизация расходов с BIM-проектированием
  • Гибкое планирование по этапам
  • Полное соблюдение нормативов
Консультант

Наши преимущества

Опытная команда

У нас работают архитекторы с профильным образованием, которые доказали свой профессионализм на практике.

Стандарты качества

Соблюдаем СНиПы и ГОСТы.

Работаем в срок

Сдачу проектной документации исполняем в срок.

Без границ

Отсутствии ограничений по площади.

Комплексный подход

Архитектурные и конструктивные решения продуманы со всех сторон.

Сопровождение

Согласовываем документы в гос.органах, а также помогаем получить разрешение на строительство.

Юридические гарантии

Официальные договоры, ответственность за качество и сроки, компенсация убытков — ваша защита и спокойствие.

Члены СРО

Подтверждаем квалификацию, стандарты и ответственность для надежных услуг.

Поэтапная оплата

Аванс, платежи по этапам и финал после сдачи: минимизирует риски, обеспечивает прозрачность бюджета.

100% реализуемость

Ваш дом будет построен точно по плану, без компромиссов и неожиданностей.

Лучшие в своем деле

Все архитекторы имеют высшее профильное образование
и опыт реального проектирования более 5 лет.

Часто задаваемые вопросы

А вы сможете построить дом после проектирования?

Switcher

9 из 10 проектов мы в дальнейшем строим. Как известно, никто не знает проект лучше, чем его автор. Именно поэтому нам с уверенностью можно доверить строительство. Наши строители не допустят ошибок при возведении объекта, за счет авторского надзора, не позволяющего отступить от требований проекта. А вы в свою очередь сэкономите до 20% при покупке строительных материалов на нашем собственном производстве.

Перед тем, как начинать работы по проектированию, необходимо определиться с местом возведения будущего дома. Для обсуждения потребуется кадастровый план или кадастровый номер участка. На первой встрече со специалистами Вам необходимо иметь при себе регламент застройки. Наши опытные архитекторы помогут подобрать для Вас подходящий стиль дома из множества возможных, а также площадь будущего дома, учитывая при этом размер участка, его формы и рельеф. Для последующего удобства обустройства территории около застройки, мы выберем наилучшее месторасположение дома на участке. После обсуждения всех этих нюансов можно с уверенностью начинать проектирование, обговаривать бюджет и технологии строительства. Специалисты нашей компании помогут и дадут дельный совет.

Приблизительные сроки разработки будут озвучены после встречи с архитектором и составления технического задания. Обычно индивидуальное проектирование дома занимает от 2 недель до 1 месяца. Точный срок зависит от нескольких факторов, а именно от сложности архитектуры, количества элементов дома, которые требуется проработать. Большая часть времени уходить на согласование, внесение правок, поиск идеального решения для клиента.

Для строительства дома необходимы архитектурный и конструктивный разделы. Их стоимость составляет от 350 руб/м². Из этого следует, что наименьшая стоимость проекта для дома площадью 150 м² составит 52.500 рублей. Готовый проект можно приобрести по цене от 20 000 рублей. Итоговая стоимость может быть увеличена при доработке проекта под индивидуальные характеристики участка, а также при дополнительных пожеланиях заказчика.

Да. Вы получите готовый проект дома, который будет технически правильно и стильно оформлен, и с которым в последующем будет легко работать строителям любой квалификации. Но при заказе проектной документации в нашей компании, Вас ждут специальные условия. Все подробности можно уточнить, позвонив по телефону, или написав нам в социальных сетях.

Оплата происходит в 2 этапа. Первый платёж равный 50% от общей стоимости вносится до начала работ. Оставшиеся 50% - после утверждения эскиза. В случае если площадь, прописанная в расчётах будет отличаться от фактической, то будет произведена корректировка окончательного расчета.

В компании «Академик Строй» можно заказать проект дома бесплатно. Проектная документация включает в себя архитектурный и конструктивный разделы, а также визуализацию дома. Для этого необходимо заключить с нами договор на строительство. При данных условиях нами будет компенсирована стоимость проектирования, и дополнительно предоставлена длительная гарантия на возведённый дом – 20 лет.