Эскизный
проект
Это начальная творческая фаза, где определяются основная концепция, архитектурный стиль, планировка и расположение дома на участке. Включает наброски фасадов, схемы этажей, ориентацию по свету, связь с ландшафтом и предварительный выбор материалов. Не содержитдеталей инженерных систем, но даёт ясное визуальное представление будущего дома. Позволяет вам утвердить направление до перехода к архитектурному проекту — экономя время и средства.
Заказать проектСостав эскизного проекта
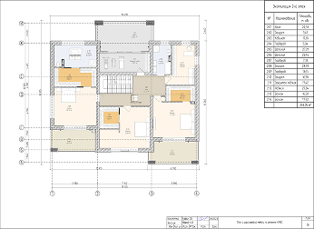
Планировка дома
Проработаем все детали — начиная от высоты объекта и количества этажей, и заканчивая архитектурной планировкой и оформлением внутреннего пространства
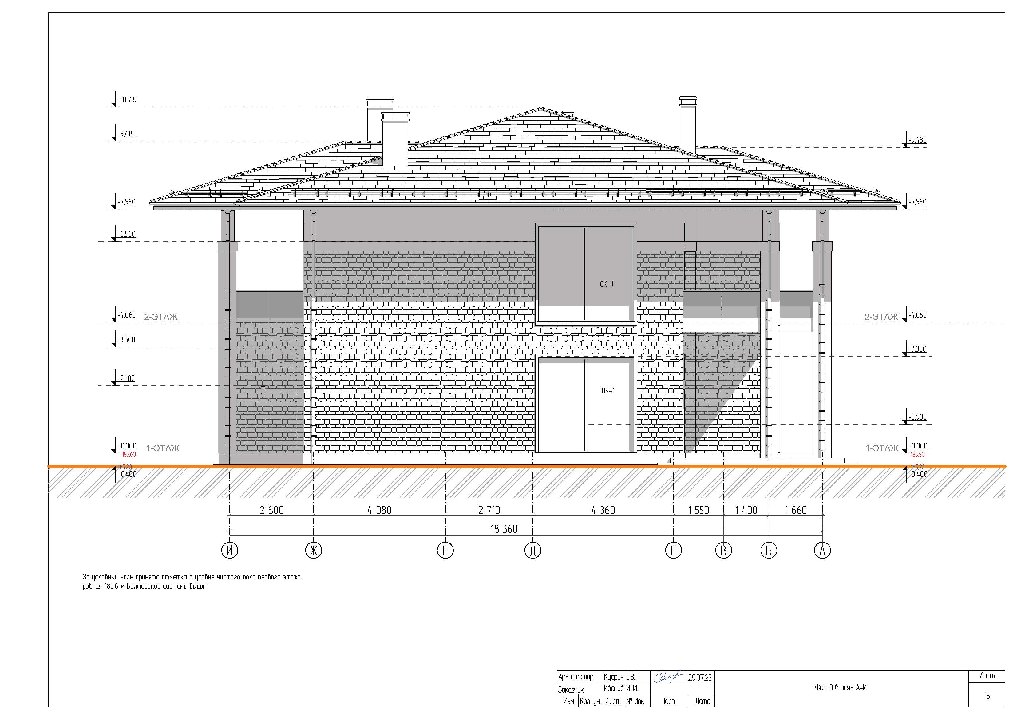
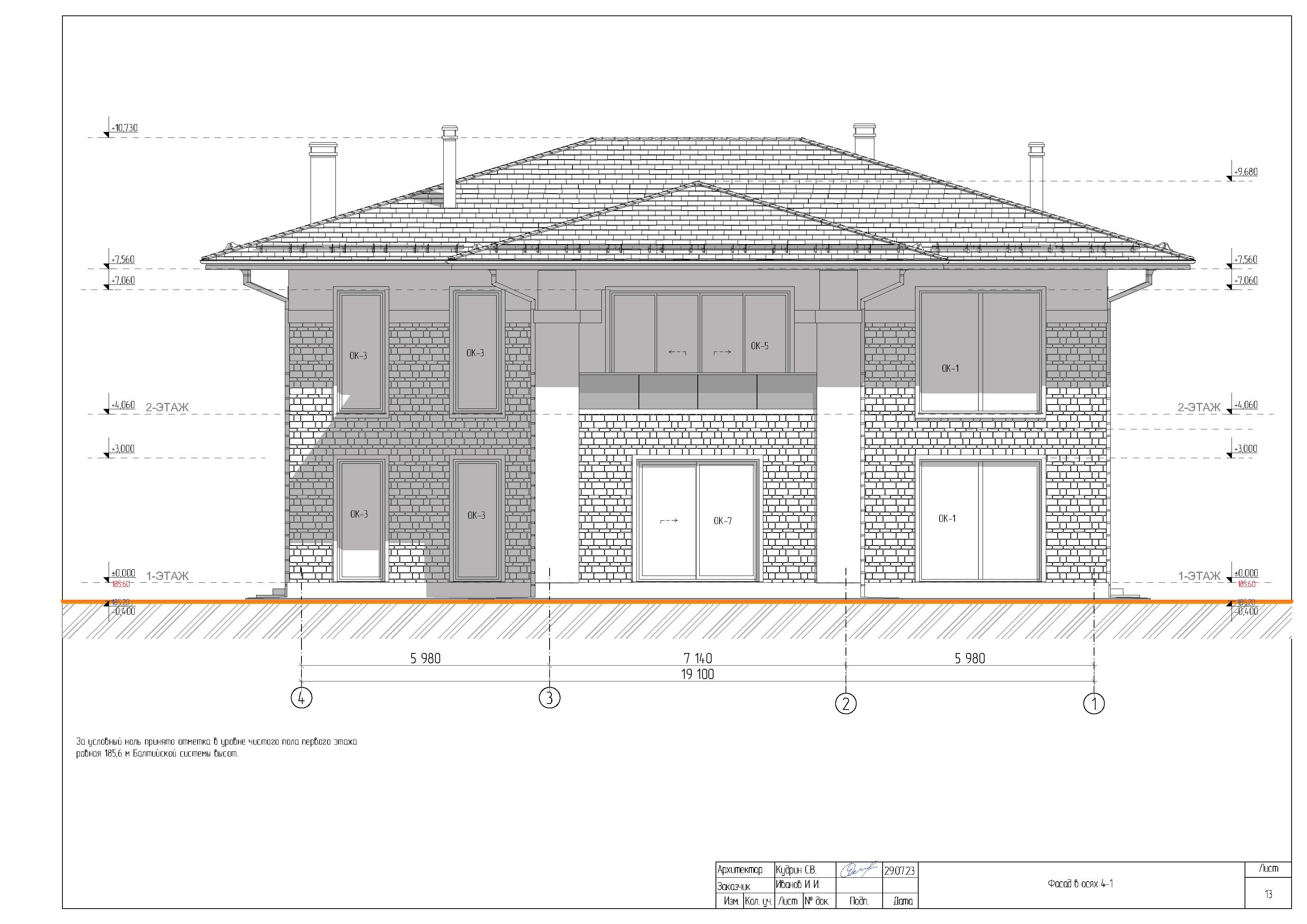
Дизайн фасада дома
Предложим несколько вариантов дизайна фасадов. Применим материалы для облицовки и продемонстрируем, как будет выглядеть ваш дом в итоге
План участка
Принимая во внимание строительные нормы, ориентацию по сторонам света, инсоляцию, расположение соседних построек и перспективные точки обзора
Технические решения
Определим ключевые конструктивные элементы здания — укажем, какие стены будут несущими, а какие ненесущими, типы перекрытий, крыши и лестниц
Примеры эскизных
проектов домов
Одноэтажный дом
183м²
Одноэтажный дом
720м²
Одноэтажный дом
710м²
Одноэтажный дом
237м²
Технадзор
бесплатно!
Если строите сами
При заказе проектирования, технический надзор строительства дома в подарок
Все проектные работы, геология, геодезия
и технадзор
бесплатно!
Если строим мы
Заказав проект у нас
вы получите
01. Идеальное планировочное решение
Мы принимаем во внимание все ключевые факторы: эргономику, ваши предпочтения, строительные регламенты, предстоящий дизайн помещений и архитектурные решения, чтобы максимально реализовать возможности вашего дома благодаря тщательно продуманному планированию.
02. Индивидуальную архитектуру и дизайн
Дизайн, созданный исключительно под вас — без шаблонов и уступок. Все архитектурные и интерьерные решения адаптированы под ваш бюджет: вы получите подробную смету с точным перечнем материалов, использованных в проекте, чтобы реализовать фасады точно так, как вы видели их в визуализации.
03. Оптимальное размещение дома на участке
Чтобы дом гармонично вписался в участок, мы моделируем бытовые сценарии жильцов, анализируем ориентацию по сторонам света, инсоляцию и рельеф. Параллельно продумываем расположение ландшафтных элементов — бассейна, террасы, корта — так, чтобы пространство работало как единая живая система.
04. Базовые технические данные
Составим компактный пакет с ключевыми размерами и техническими рекомендациями для старта строительства. Эта базовая документация служит отправной точкой — подробные чертежи архитектурного и конструктивного проектов будут разработаны отдельно как основа для реализации.
Используем передовые технологии
Bim проектирование
Технология BIM представляет собой трёхмерное моделирование, которое охватывает всё: начиная от инженерных решений и этапов возведения до подсчёта объёма бетона.
Расчет инсоляции
Мы выполняем вычисления, применяя коэффициент КЕО. Осветительные сценарии разрабатываются с учетом местоположения объекта, ориентации проекта по сторонам света, угла наклона солнца и календарных дат.
Unreal Engine
В программе Unreal Engine формируются визуализации, которые предоставляют возможность не только создавать реалистичные изображения, но и выполнять видео-облёты, а также трёхмерные экскурсии по внутренним пространствам здания.
Стоимость эскизного
проекта дома
Эскизный проект (ЭП) БЕСПЛАТНО
Стадия эскизного проектирования — это сердце процесса создания индивидуального жилого проекта. Определяются его архитектурная выразительность, габариты, распределение помещений, логика зонирования, объемная композиция и расположение на участке. Формируются ключевые параметры будущего дома — всё, что делает его не просто строением, а личным пространством, продуманным до мелочей.
Стоимость:
0 ₽/м² (входит в стоимость АР)
Срок:
0 дней (Проектируем в стадии АР)
Как мы работаем?
Мы умеем подготовить профессиональный проект конструктивных решений
1 день
Консультация
с архитектором
Внимательно выслушаем ваши пожелания по площади дома, количеству этажей и назначению помещений. Учтем индивидуальные особенности и привычки членов семьи.
5 дней
Изучение
документации
Изучим градостроительный план земельного участка, геодезические данные, топографические съемки, а также технические условия для подключения воды, электричества и газа.
Заказать
эскизный проект
загородного дома
-
Идеальное планировочное решение
-
Уникальный архитектурный облик дома
-
Оптимальное размещение дома на участке
-
Базовая документация
Наши преимущества
Опытная команда
У нас работают архитекторы с профильным образованием, которые доказали свой профессионализм на практике.
Стандарты качества
Соблюдаем СНиПы и ГОСТы.
Лучшие в своем деле
Все архитекторы имеют высшее профильное образование
и опыт реального проектирования более 5 лет.
Отзывы наших клиентов
Часто задаваемые вопросы
А вы сможете построить дом после проектирования?
9 из 10 проектов мы в дальнейшем строим. Как известно, никто не знает проект лучше, чем его автор. Именно поэтому нам с уверенностью можно доверить строительство. Наши строители не допустят ошибок при возведении объекта, за счет авторского надзора, не позволяющего отступить от требований проекта. А вы в свою очередь сэкономите до 20% при покупке строительных материалов на нашем собственном производстве.
С чего начать проектирование дома?
Перед тем, как начинать работы по проектированию, необходимо определиться с местом возведения будущего дома. Для обсуждения потребуется кадастровый план или кадастровый номер участка. На первой встрече со специалистами Вам необходимо иметь при себе регламент застройки. Наши опытные архитекторы помогут подобрать для Вас подходящий стиль дома из множества возможных, а также площадь будущего дома, учитывая при этом размер участка, его формы и рельеф. Для последующего удобства обустройства территории около застройки, мы выберем наилучшее месторасположение дома на участке. После обсуждения всех этих нюансов можно с уверенностью начинать проектирование, обговаривать бюджет и технологии строительства. Специалисты нашей компании помогут и дадут дельный совет.
Сколько времени занимает процесс проектирования дома?
Приблизительные сроки разработки будут озвучены после встречи с архитектором и составления технического задания. Обычно индивидуальное проектирование дома занимает от 2 недель до 1 месяца. Точный срок зависит от нескольких факторов, а именно от сложности архитектуры, количества элементов дома, которые требуется проработать. Большая часть времени уходить на согласование, внесение правок, поиск идеального решения для клиента.
Сколько стоит проектирование дома?
Для строительства дома необходимы архитектурный и конструктивный разделы. Их стоимость составляет от 350 руб/м². Из этого следует, что наименьшая стоимость проекта для дома площадью 150 м² составит 52.500 рублей. Готовый проект можно приобрести по цене от 20 000 рублей. Итоговая стоимость может быть увеличена при доработке проекта под индивидуальные характеристики участка, а также при дополнительных пожеланиях заказчика.
Можно ли купить проект дома «Академик Строй», но реализовать его в другой компании?
Да. Вы получите готовый проект дома, который будет технически правильно и стильно оформлен, и с которым в последующем будет легко работать строителям любой квалификации. Но при заказе проектной документации в нашей компании, Вас ждут специальные условия. Все подробности можно уточнить, позвонив по телефону, или написав нам в социальных сетях.
Каким способом можно оплатить?
Оплата происходит в 2 этапа. Первый платёж равный 50% от общей стоимости вносится до начала работ. Оставшиеся 50% - после утверждения эскиза. В случае если площадь, прописанная в расчётах будет отличаться от фактической, то будет произведена корректировка окончательного расчета.
Проектирование дома бесплатно
В компании «Академик Строй» можно заказать проект дома бесплатно. Проектная документация включает в себя архитектурный и конструктивный разделы, а также визуализацию дома. Для этого необходимо заключить с нами договор на строительство. При данных условиях нами будет компенсирована стоимость проектирования, и дополнительно предоставлена длительная гарантия на возведённый дом – 20 лет.
















