Обзор одноэтажного дома размером 12х14 метров
Одноэтажные дома сегодня пользуются большим спросом благодаря своей практичности, удобству и доступности как по цене, так и по строительству. Размеры дома 12 на 14 метров – это оптимальное решение для тех, кто хочет получить комфортное жилое пространство без лишней площади, но при этом имеющее всё необходимое для современной семьи. В данной статье мы подробно рассмотрим особенности и преимущества одноэтажного дома таких габаритов, а также обсудим планировку, функциональность и стиль, который может придать дому уникальность.
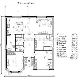
Дом площадью около 132 квадратных метров прекрасно подходит для семей с детьми или пожилых людей, которые ценят удобство без лестниц и сложности на первом этаже. Одноэтажная планировка упрощает коммуникации, облегчает обслуживание и позволяет создать уютную и свободную атмосферу.
Размеры и конструктивные особенности
Габариты дома 12 на 14 метров представляют собой комфортный прямоугольник, легко вписывающийся в большинство участков средней площади. Такой размер позволяет свободно размещать в доме три спальни, несколько санузлов, просторную гостиную и кухню, а также дополнительные помещения по желанию.
При однородном и продуманном подходе к планировке, площадь порядка 131,93 м2 позволяет грамотно зонировать помещение на дневную и ночную части, обеспечивая приватность и удобство для всех членов семьи.
Преимущества одноэтажного дома 12х14
Одноэтажные дома имеют ряд преимуществ перед многоэтажными:
- Удобство передвижения внутри дома – нет лестниц, что важно для детей и пожилых.
- Меньше затрат на строительство фундамента и несущих элементов.
- Быстрый монтаж крыши и более простой ремонт.
- Оптимальное использование пространства с учетом компактных размеров.
- Легкость в планировке коммуникаций: электрика, сантехника, вентиляция.
Все эти факторы делают одноэтажный дом 12 на 14 метров очень привлекательным вариантом для многих семей, особенно тех, кто планирует проживание на одном уровне и ценит комфортный и функциональный интерьер.
Планировка и внутреннее пространство
Особенностью рассматриваемого дома является наличие трёх спален и двух санузлов, что делает его очень удобным для средней семьи из 3-5 человек. Продуманный дизайн позволяет каждому члену семьи иметь личное пространство, не чувствуя дискомфорта в общей зоне.
Спальные комнаты
Три спальни обычно размещаются в отдельной тихой зоне, как правило, с одной стороны дома. Это позволяет минимизировать звук и шум от дневной или гостевой зоны. Размер каждой спальни может варьироваться, но обычно в рамках такого дома они достаточно просторны для кровати, шкафа и небольшой зоны для работы или отдыха.
Выделение пространства для каждой спальни важно для комфортного проживания, особенно, если в семье есть дети разного возраста или взрослые, нуждающиеся в уединении. При проектировании дома очень важно продумать освещение и вентиляцию каждой комнаты.
Санузлы
Два санузла значительно повышают удобство проживания. Это позволяет избежать утренних очередей и предоставляет больше гибкости при использовании помещений. Обычно один санузел располагается ближе к гостевой зоне, второй — рядом с спальнями, что облегчает доступ для всех жильцов.
Наличие двух санузлов является однозначным преимуществом для семей с детьми или гостями. Это также положительно сказывается на стоимости дома при его продаже или аренде.
Общая и жилая зона
Как правило, в доме данного размера кухня совмещается с гостиной или расположена рядом с ней, создавая просторное и светлое помещение для семейных встреч, приема гостей и повседневного отдыха. Такое планировочное решение помогает оптимально использовать площадь и создавать благоприятный микроклимат.
Важным является эргономичное размещение мебели и техники, а также обеспечение удобных проходов между зонами. В таком доме часто предусматриваются большие окна, которые наполняют помещение естественным светом, усиливая ощущение простора.
Материалы и технологии строительства
Современное строительство одноэтажных домов выбирает сочетание надежности, эстетики и энергоэффективности. Оптимальный выбор материалов напрямую зависит от климатических условий региона и бюджета заказчика.
Стены и фундамент
Для дома площадью 131,93 м² с габаритами 12х14 м отлично подходят монолитный железобетонный фундамент или ленточный фундамент – они обеспечивают надежную основу и равномерное распределение нагрузки. Эти варианты оптимальны для большинства типов грунтов.
Что касается стен, популярными материалами являются газобетонные блоки, кирпич, а также деревянные каркасные конструкции. Газобетон отлично сохраняет тепло и обеспечивает хорошую звукоизоляцию при относительно невысокой стоимости. Кирпич прочен и долговечен, а дерево создает уникальную атмосферу и обладает отличными теплоизоляционными свойствами.
Кровля и утепление
Хотя данные о типе крыши, площади крыши и уголке наклона в параметрах отсутствуют, стоит обратить внимание на важность качественной кровли для одноэтажного дома. Крыша защищает дом от атмосферных воздействий, влияет на энергоэффективность всего здания и является важной частью архитектурного образа.
Утепление крыши и стен – неотъемлемая часть современного строительства, особенно при умеренном и холодном климате. Это позволяет снизить энергозатраты на отопление зимой и обеспечить комфорт летом.
Организация внешнего пространства
Несмотря на то что в параметрах отсутствуют террасы и балконы, площадь и форма дома позволяют эффективно организовать приусадебный участок под различные потребности семьи. Компактный размер фасада упрощает планирование зон отдыха, детских площадок или сада.
Для участка, на котором располагается дом 12 на 14 метров, важно продумать минимальный размер, удобный для посадки и маневра транспорта, а также возможность создания зеленых насаждений, грядок или цветников.
Советы по выбору участка
- Минимальный размер участка должен учитывать отступы от границ соседа по строительным нормам.
- Расположение должно обеспечивать естественное освещение дома и возможность выезда на дорогу.
- Учтите расположение инженерных коммуникаций – воды, газа, электричества.
- Наличие возможности создания дополнительных построек, если планируется будущее расширение.
Преимущества одноэтажного дома для семьи
Одноэтажный дом — это не только практичность, но и безопасность, особенно если в семье есть дети или пожилые люди. Отсутствие лестниц значительно снижает риск травм и упрощает передвижение.
Еще одним достоинством является удобство и комфорт домашней жизни: все помещения расположены на одном уровне, что делает дом более функциональным. Кроме того, такие дома проще горячего и холодного отопления, вентиляции и электрических сетей.
Комфорт и эргономика
Грамотно спроектированный дом 12х14 метров предусматривает оптимальное соотношение жилых и хозяйственных помещений. Три спальни и два санузла — это отличный вариант для семьи с детьми или для тех, кто часто принимает гостей.
Также возможно включить кладовые, гардеробные, или оборудование угла для работы, что актуально в условиях удаленной работы или учебы на дому.
Примерная планировка одноэтажного дома 12x14 м
Для большей наглядности рассмотрим типичное распределение помещений в доме площадью 131,93 м² с габаритами 12х14 метров.
| Помещение | Площадь, м² | Описание |
|---|---|---|
| Гостиная с кухней | 35 | Просторная общая зона для отдыха и приготовления пищи, с большими окнами. |
| Спальня 1 (мастер) | 16 | Главная спальня с возможностью размещения большой кровати и мебельной зоны. |
| Спальня 2 | 14 | Для детей или гостей, с достаточным запасом пространства. |
| Спальня 3 | 12 | Подойдет как рабочий кабинет или детская комната. |
| Санузел 1 | 6 | Основной санузел с ванной или душевой кабиной. |
| Санузел 2 | 4 | Дополнительный санузел – туалет с умывальником. |
| Прихожая и коридоры | 12 | Связующие зоны между помещениями, с местом для хранения обуви и верхней одежды. |
| Кладовая/тех. помещение | 6 | Помещение для хранения хозяйственных и строительных материалов. |
Данная планировка может варьироваться в зависимости от ваших личных потребностей и пожеланий, но даёт общее представление о том, как использовать площадь дома эффективно.
Как выбрать проект одноэтажного дома 12х14
Выбор проекта — это первый и, пожалуй, один из самых важных этапов в строительстве дома. От него зависит общий внешний вид, функциональность и удобство будущего жилья. Учитывайте следующие пункты при выборе проекта:
- Количество и предназначение комнат.
- Возможность адаптации под особенности участка и климат.
- Наличие технических решений по энергоэффективности.
- Экономическая целесообразность проекта: стоимость строительства и эксплуатации.
- Отзывы и рекомендации по выбранному проекту от других владельцев дома.
Готовые проекты и индивидуальный дизайн
Рынок предлагает множество готовых проектов домов 12х14, но если у вас есть уникальные требования или предпочтения, можно обратиться к архитектору за индивидуальным решением. Индивидуальный проект позволит максимально адаптировать дом под ваш образ жизни и особенности участка, а также внедрить современные технологии строительства и отделки.
Особенности эксплуатации и обслуживание одноэтажного дома
Одноэтажные дома легче в обслуживании, чем многоэтажные. Это касается как ремонта, так и уборки, инженерных систем и ухода за фасадом. Кровля площадью небольших габаритов требует меньше затрат на ремонт и профилактику, а отсутствие лестниц упрощает чистку и техническое обслуживание.
Также важно заранее продумать систему отопления, вентиляции и кондиционирования, чтобы создать в доме комфортные условия при минимальных затратах.
Советы по эксплуатации
- Регулярно проверяйте состояние кровли и фасада, особенно перед и после зимнего сезона.
- При проектировании системы отопления отдавайте предпочтение современным энергоэффективным решениям.
- Организуйте удобные места для хранения и поддержания порядка в доме.
- Используйте качественные материалы отделки, чтобы снизить необходимость частых ремонтов.
Стоимость и сроки строительства
Стоимость возведения одноэтажного дома размером 12х14 метров зависит от множества факторов: выбранных материалов, инженерных систем, типа фундамента, сложности проекта и уровня отделки. В среднем, строительство дома площадью около 132 м² занимает от 4 до 8 месяцев, в зависимости от сезона, погодных условий и работы подрядчиков.
Для снижения затрат рекомендуется выбирать оптимальный проект, тщательно планировать этапы строительства и работать с проверенными подрядчиками. Не забывайте учитывать дополнительные расходы на благоустройство территории и возможные непредвиденные работы.
Заключение мысли: почему стоит выбрать одноэтажный дом 12х14
Одноэтажный дом размером 12 на 14 метров — это разумный и практичный выбор для семей, которые хотят получить качественное, комфортное и функциональное жильё, объединяющее все необходимые комнаты и удобства на одном уровне. Такой дом сочетается с удобной площадью, позволяющей не переплачивать за лишние квадратные метры, и эффективной планировкой, удовлетворяющей потребности большинства семей по количеству спален и санузлов.
Гибкость использования современных материалов и технологий обеспечивает безопасность и энергоэффективность, а возможность выбора готового или индивидуального проекта позволяет создать пространство для счастливой и комфортной жизни.











































