Двухэтажный дом 12х13 м: комфортабельное решение для современной семьи
Проект двухэтажного дома с размером 12х13 метров — это оптимальное сочетание размеров, функциональности и пространства. Такая планировка привлекает внимание тем, что позволяет рационально использовать площадь, сохраняя при этом удобство и уют, необходимые для комфортного проживания семьи из нескольких человек. Дом с габаритами 12 на 13 метров представляет собой практичное и продуманное архитектурное решение, которое подходит как для загородной жизни, так и для проживания в пригородных районах.
Два этажа — это разумное использование вертикального пространства, позволяющее включить в планировку множество помещений разнообразного назначения. Классическое распределение комнат и продуманная внутренняя организация помогают с удобством разместить все необходимые зоны, сделать дом светлым и просторным, избежать чувства тесноты и недостатка места.
Размеры дома 12 x 13 м: преимущества и особенности
Габариты дома 12 на 13 метров формируют площадь застройки около 156 квадратных метров, что считается оптимальным показателем как для небольшого участка, так и для семьи с детьми. Такие размеры позволяют исключить излишнюю расточительность пространства и затраты на строительство, одновременно обеспечивая все необходимые комфортные условия.
При длине 13 метров и ширине 12 метров можно легко создавать удобные планировки помещений. В доме предусмотрено достаточно места для гостиной, кухни, столовой, нескольких спален и санузлов. Более того, на таком участке можно организовать зоны отдыха на прилегающей территории, если проект предусматривает террасу или открытый двор.
Преимущества данного формата габаритов:
- Легкость зонирования пространства внутри дома;
- Экономия строительных материалов за счет компактных размеров;
- Оптимальный баланс между жилой площадью и площадью застройки;
- Возможность возведения дома на разных типах участков.
Особенности двухэтажного дома
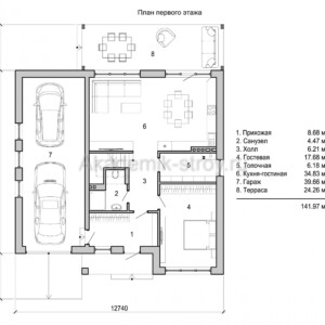
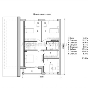
Наличие двух этажей формирует выгодное распредление жилого пространства: первый этаж традиционно отводится под общественные и гостевые зоны — кухню, гостиную, столовую, хозяйственные помещения и санузел, а второй — под спальни и приватные комнаты. Это разделение обеспечивает как функциональное удобство, так и разделение зон по приватности и активности.
Высота двух этажей позволяет оптимизировать внутреннее пространство, а конструктивные решения обеспечивают надежность и энергоэффективность здания. Помимо этого, двухэтажный дом выгодно экономит площадь участка по сравнению с одноэтажными домами аналогичной жилой площади.
Как планировать комнаты в двухэтажном доме 12x13?
При организации пространства часто выбирают такое размещение комнат:
- Первый этаж: просторная гостиная с кухней и столовой, санузел для гостей, возможно, кабинет или мастерская;
- Второй этаж: четыре спальни, второй санузел, гардеробные и дополнительные места для хранения.
Это обеспечивает как удобство повседневной жизни, так и личное пространство для всех членов семьи.
Четыре спальни: комфорт для всей семьи
Наличие четырёх спален в доме 12x13 — одно из ключевых преимуществ проекта. Такой дом подходит для семьи с несколькими детьми или для тех, кто планирует иметь в доме дополнительные комнаты для гостей или рабочего кабинета. Каждая спальня может быть организована с учетом индивидуальных потребностей: детская комната, родительская спальня с собственным гардеробом, комната для подростка или гостевая спальня.
Такое количество спален позволяет создавать приватные зоны, где каждый может уединиться и отдохнуть, что особенно важно в условиях активной жизни и большого количества домашних дел. Кроме того, наличие четырёх спален добавит стоимости вашему объекту при последующей продаже или аренде.
Возможные варианты организации спален в двухэтажном доме:
| Этаж | Назначение комнаты | Рекомендации |
|---|---|---|
| Первый | Гостевая спальня или кабинет | Идеально для людей с ограниченной мобильностью |
| Второй | Основные спальные комнаты (3 шт.) | Соблюдайте дистанцию и приватность; возможность организации гардеробных |
Два санузла: удобство для всей семьи
Функциональность дома во многом определяется количеством и расположением санузлов. В проекте дома 12x13 предусмотрено два санитарных узла, что является золотой серединой для семьи из 4–5 человек. Два санузла позволяют существенно снизить утренние очереди и избежать дискомфорта, связанные с продолжительным ожиданием своей очереди, особенно в часы пик.
Обычно первый санузел размещают на первом этаже рядом с общественными зонами, что удобно для гостей и членов семьи в дневное время. Второй — второй этаж, рядом со спальнями, что обеспечивает максимальный комфорт в ночное и утреннее время.
Где лучше располагать санузлы?
- Первый этаж — гостевой санузел рядом с кухней или гостиной;
- Второй этаж — полноценная ванная комната с душевой или ванной, туалетом и умывальником;
- При возможности — предусмотреть отдельный санузел для родителей и детей.
Планировка и зонирование: как организовать пространство
При проектировании дома 12х13 м важно уделить внимание не только количеству комнат, но и их взаимному расположению. Рациональное зонирование позволяет создать уютную и функциональную среду, в которой каждый член семьи чувствует себя комфортно.
На первом этаже рекомендуется организовать открытую планировку, где кухня, столовая и гостиная объединены в одну общую зону. Благодаря этому интерьер будет визуально просторным, а общение между членами семьи более живым. Разграничение можно осуществить с помощью разнообразных дизайнерских решений, таких как остров на кухне, мебель или декоративные перегородки.
Второй этаж отводится под более приватные помещения — спальни, гардеробные и санузлы. Здесь можно использовать дополнительные варианты звукоизоляции, обеспечить максимальную защиту от посторонних шумов для создания комфортной атмосферы сна.
Примерное распределение помещений по этажам
| Первый этаж | Второй этаж |
|---|---|
| Гостиная | Спальня 1 |
| Кухня-столовая | Спальня 2 |
| Холл / прихожая | Спальня 3 |
| Санузел гостевой | Спальня 4 |
| Дополнительное помещение (кладовая, кабинет) | Санузел основной |
Строительные материалы и технологии при возведении двухэтажного дома 12х13
При выборе материалов для дома такого типа важно учитывать несколько факторов: климатические условия региона, долговечность, стоимость и энергоэффективность. Чаще всего в современных проектах используют прочный и экологически безопасный материал, который гарантирует надежность конструкции на долгие годы.
Для возведения стен может применяться:
- Газобетонные блоки — они обладают хорошей теплоизоляцией, легки в обработке и позволяют сократить сроки строительства;
- Керамический кирпич — классический материал, обеспечивающий прочность и надежную защиту от внешних факторов;
- Деревянный брус или каркасные технологии — популярны в загородном строительстве благодаря экологичности и быстроте монтажа.
Для перекрытий между этажами обычно используют железобетонные плиты или деревянные балки с соответствующей шумоизоляцией. Кровля из современных материалов — металлочерепица, гибкая черепица или натуральная черепица — позволит создать надежную защиту от осадков и экстремальных температур.
Проект без гаража: плюсы и особенности планировки
Отсутствие гаража в проекте говорит о том, что свободное пространство дома используется исключительно для жилых функций. Это решение нацелено на тех, кто предпочитает отдельный навес или открытую стоянку для автомобиля. Также это может быть актуально при ограниченном размере участка или других особенностях ландшафта.
Отказ от гаража позволяет расширить жилую зону или добавить дополнительные технические помещения, кладовые, кабинет или игровую комнату. Такой подход улучшает естественное освещение и вентиляцию, а также снижает общую стоимость строительства.
Минимальные требования к участку для строительства дома 12x13
Для возведения дома с размерами 12 на 13 метров необходимо учитывать минимальные требования к участку. Это позволит обеспечить комфортное расположение дома на территории, обеспечить вопросы подключения коммуникаций и возможность организации придомового пространства. Минимальные габариты участка должны включать не только площадь под строительство, но и зоны необходимой отступки до границ участка, а также пространство для подъездных путей и отдыха.
Основные рекомендации для участка:
- Минимальная ширина участка — не менее 18-20 метров;
- Минимальная длина участка — 25-30 метров;
- Наличие подъездных дорог и возможность подключения к инженерным сетям;
- Расположение участка с учетом климатических условий, рельефа и др.
Такое место позволит не только построить дом, но и грамотно организовать придомовую территорию — озеленение, зону отдыха, хозяйственные постройки или детскую площадку.
Планирование кровли и её параметры
Крыша в доме играет не только защитную роль, но и влияет на эстетическую привлекательность здания, а также на внутренний микроклимат. Для дома размером 12 на 13 метров можно выбрать различные типы кровельных конструкций, в зависимости от стиля и функциональности.
Оптимальный угол наклона крыши зависит от климатической зоны и выбранного кровельного материала. Он должен обеспечивать максимально эффективный сток осадков, препятствовать задержке снега и влаги, а также создавать гармоничный внешний вид. Высота здания, в том числе высота крыши, будет влиять на визуальное восприятие дома и его интеграцию в ландшафт.
Возможные типы крыши для двухэтажного дома 12x13:
- Двускатная крыша — классический, простой и экономичный вариант;
- Вальмовая крыша — обеспечивает дополнительные чердачные помещения;
- Мансардная крыша — увеличивает жилую площадь за счет мансарды;
- Плоская крыша с эксплуатируемой террасой (если предусмотрена).
Опции и возможности индивидуальной настройки проекта
Несмотря на базовую планировку, проект двухэтажного дома 12х13 может быть адаптирован под нужды конкретного заказчика. Современные архитектурные решения позволяют внедрять различные опции, которые делают проживание в доме более удобным и комфортным.
К таким опциям относятся:
- Устройство дополнительных подсобных помещений и кладовых;
- Встроенные системы "умный дом" для управления освещением, отоплением, охранными системами;
- Дизайнерские решения по отделке фасадов и интерьера;
- Возможность организации просторной террасы или балкона для отдыха;
- Дополнительные инженерные системы — например, системы вентиляции с рекуперацией, теплые полы и др.
Все эти возможности делают двухэтажный дом 12х13 не только архитектурным объектом, но и единым комфортным пространством для жизни и отдыха.















































