Обзор проекта двухэтажного дома 16x16 метров площадью 289,8 м²
Проект двухэтажного дома с размерами 16 на 16 метров и общей полезной площадью 289,8 квадратных метров представляет собой современное и продуманное решение для семейного жилья. Этот дом идеально подходит для тех, кто ценит комфорт, простор и рациональное использование каждого квадратного метра.
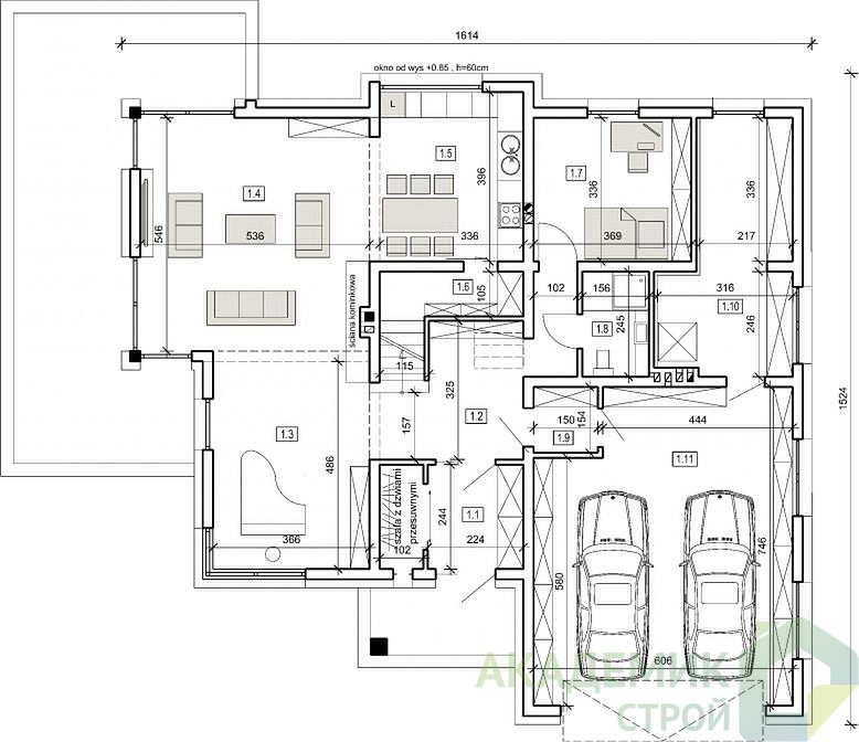
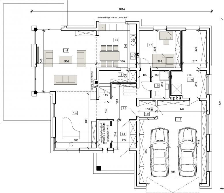
Двухэтажное строение высотой 8,80 метров предлагает не просто площадь, а полноценное жизненное пространство, позволяющее разместить в себе все необходимые функциональные зоны. Его площадь застройки составляет 207 м², что означает достаточное пространство для организации как внутренних помещений, так и внешней инфраструктуры.
Настоящей особенностью проекта является сбалансированное сочетание практичности и эстетики — двухскатная крыша с углом наклона 21° придает дому классический облик, обеспечивая эффективность кровельного покрытия и устойчивость к любым погодным условиям.
Простор и комфорт: характеристики жилых помещений
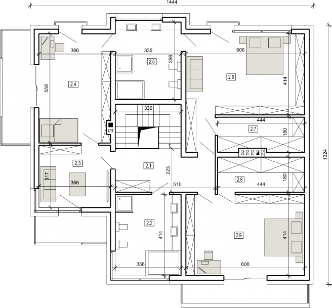
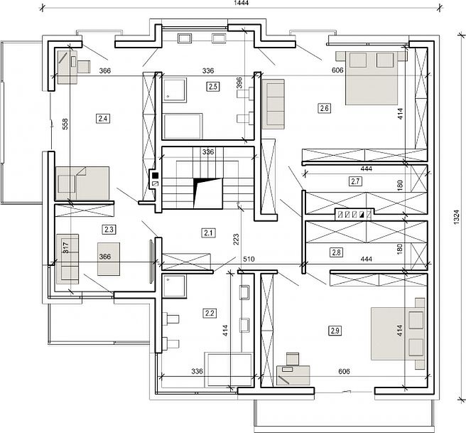
Одним из важных преимуществ данного дома является наличие более пяти спален. Благодаря этому дом может стать отличным выбором для большой семьи, многопоколенного проживания или организации гостевых комнат. Каждая спальня обладает достаточным метражом, что позволяет грамотно организовать личное пространство для каждого жителя.
Жилая площадь дома составляет 248 квадратных метров, что говорит о высоком уровне комфорта и удобства для всех его обитателей. Просторные комнаты, большие окна и продуманная планировка способствуют созданию уютной атмосферы и максимальному использованию естественного освещения.
Количество санузлов и удобство бытового пространства
В проекте предусмотрено три санузла, что очень важно для домохозяйства с большим количеством членов семьи и гостей. Наличие нескольких санузлов позволяет избежать бытовых неудобств в утренние и вечерние часы пик, а также организовать гостевые и приватные зоны для санитарных помещений.
Продуманная система коммуникаций и удобное расположение санузлов делают дом практичным и комфортным для повседневной жизни, минимизируя очереди и позволяя разным членам семьи сохранять свою приватность.
Планировка и функциональные зоны
Планировка дома 16х16 м идеально распределяет полезное пространство между личными и общими зонами. На первом этаже, как правило, располагаются гостиная, кухня и столовая, а также зона гостевой спальни или кабинета. Такой подход помогает объединить семью в пространстве для общения и совместного времяпрепровождения.
Второй этаж отводится в основном под спальни, из которых, как было отмечено, более пяти, и санитарные узлы. Такая организация создает приватную зону отдыха, удаленную от шума и повседневной суеты первого этажа. Каждый из спальных блоков можно оборудовать гардеробными или небольшими кабинетами для повышения функциональности.
Технические характеристики и требования к участку
Для строительства дома необходим участок минимальных размеров 24,14 на 24,24 метра. Такой размах участка позволит не просто поставить дом, но и обеспечить комфортное пространство вокруг для сада, детской площадки или отдыха на свежем воздухе.
Высота дома 8,80 метра — оптимальный показатель для двухэтажного строения, который позволяет создать высокие потолки и вместительные комнаты без чрезмерного утяжеления конструкции. Двускатная крыша с углом наклона 21° оптимальна с точки зрения как эстетики, так и технических характеристик, учитывая климатические особенности регионов с умеренными зимами и летними дождями.
Технические параметры дома в сравнительной таблице
| Параметр | Значение | Комментарий |
|---|---|---|
| Размеры дома | 16 x 16 м | Квадратная форма, удобна для планировки |
| Полезная площадь | 289,8 м² | Просторное жилое пространство |
| Жилая площадь | 248 м² | Площадь для комфорта проживания |
| Количество этажей | 2 | Эффективное разделение общественной и личной зон |
| Санузлы | 3 | Удобство для большой семьи и гостей |
| Высота здания | 8,80 м | Оптимальная высота для двух этажей с высокими потолками |
| Тип крыши | Двускатная | Классический и проверенный вариант |
| Угол наклона крыши | 21° | Обеспечивает сток воды и хорошую термоизоляцию |
| Площадь застройки | 207 м² | Размеры основания дома |
| Минимальные размеры участка | 24,14 х 24,24 м | Требования для комфортной застройки и благоустройства |
| Цена | 10 194 756 руб. | Инвестиция в качество и комфорт собственного дома |
Анализ стоимости: насколько оправдана цена дома?
Стоимость проекта составляет около 10 194 756 рублей. На первый взгляд, сумма кажется значительной, однако при более внимательном рассмотрении становится очевидно, что цена соответствует уровню комфорта, площади и качеству строительства. Дом площадью почти 290 м² предлагает простор и возможности для различных вариантов внутренней организации пространства, что является значительным преимуществом в условиях ограниченных городских квартирных площадей.
Кроме того, большая площадь жилая (248 м²) говорит о том, что практически весь дом создан для проживания, минимизируя технические и подсобные площади. Это несомненно важно для семей, которые ценят простор и возможность реализовать свои интерьерные решения без ограничений по площади.
Качественные материалы, выполненный с соблюдением строительных норм архитектурный проект, а также удобные технические характеристики — все это формирует оправданную и конкурентоспособную цену дома.
Что входит в стоимость и дополнительные расходы?
Стандартная стоимость проекта и строительства часто включает основные работы: фундамент, коробка, кровля, остекление, черновые работы по инженерным системам. Однако при реализации проекта могут потребоваться дополнительные затраты на:
- Внутреннюю отделку и декоративные работы
- Установка систем теплоснабжения, вентиляции и кондиционирования
- Инженерные коммуникации и системы безопасности
- Ландшафтный дизайн и благоустройство участка
- Меблировка и оснащение бытовой техникой
Все эти дополнительные статьи расходов следует учитывать при составлении окончательного бюджета строительства и отделки дома.
Архитектурные особенности проекта и технические решения
Проект двухэтажного дома 16х16 м ориентирован на сочетание классических архитектурных форм с современными технологиями. Двускатная крыша с углом 21° считается универсальным решением, обеспечивающим эффективный сток осадков и хорошее утепление. Благодаря такой форме крыши значительно проще обеспечить оптимальное внутреннее пространство мансарды либо чердака, если предусмотрена их организация.
Высота здания в 8,80 м обусловлена необходимостью создания комфортных помещений с достаточным запасом высоты потолков. Это особенно важно для зон общего пользования, где простор, воздух и ощущение свободы играют ключевую роль.
Прямоугольная форма дома 16х16 обеспечивает удобство размещения окон и дверей, а также логичное разделение на функциональные блоки. Такой план здания подходит для многих климатических условий, что делает его универсальным решением для различных регионов.
Особенности инженерных систем и коммуникаций
Трёхсанузловая планировка способствует удобной организации инженерных коммуникаций. В проекте можно предусмотреть отдельные горячее и холодное водоснабжение, системы канализации с разделением потоков, эффективное отопление с зональным управлением.
Наличие больших окон и удачное расположение помещений позволяет оптимизировать естественное освещение и вентиляцию, снижая расходы на энергопотребление. Современные технологии утепления и звукоизоляции обеспечивают комфорт и теплозбережение, что важно в условиях холодных зим и переменчивой погоды.
Как правильно подобрать участок для строительства
Минимальные размеры участка для возведения дома составляют около 24,14 метра по ширине и 24,24 метра по длине. Это связано с необходимостью оставлять достаточные отступы от границ земельного участка в соответствии с законодательными нормами и требованиями к комфорту проживания. Также пространство вокруг дома предназначено для обустройства зон отдыха, хозяйственных построек и ландшафтного дизайна.
При выборе участка важно учитывать тип грунта, планы по подключению коммуникаций и окружающую инфраструктуру. Не менее важны аспекты окружающей среды, такие как расположение относительно сторон света, наличие зеленых зон и транспортной доступности.
Преимущества квадратной планировки
Дом размером 16 на 16 метров обладает рядом технологических и архитектурных преимуществ. Такой формат является более эффективным с точки зрения использования строительных материалов и теплоизоляции. Квадратная форма сокращает длину наружных стен по сравнению с прямоугольными планировками, что уменьшает теплопотери и расходы на отделку фасадов.
Кроме того, квадратные дома удобны для зонирования внутренних помещений и организации коммуникаций. Это упрощает проектирование инженерных систем и позволяет более гибко изменять планировку под индивидуальные нужды семьи.
Советы по обустройству и эксплуатации дома
Для того чтобы дом служил долго и комфортно, потребуется продумать следующие моменты:
- Организация энергоэффективных систем отопления и вентиляции для снижения эксплуатационных расходов.
- Использование качественных кровельных материалов, устойчивых к атмосферным условиям.
- Грамотный ландшафтный дизайн участка, учитывающий размещение зон отдыха, детских площадок и хозяйственных построек.
- Монтаж современных систем безопасности и умного дома для контроля и управления всеми процессами.
Такой подход позволит максимально раскрыть потенциал дома и сделать пребывание в нем максимально комфортным.
Как организовать пространство внутри: полезные рекомендации
В доме с пятью и более спальнями важно оптимально распределить жилые и служебные зоны. Рекомендуется использовать зоны общественного доступа на первом этаже для совместного времяпрепровождения и принимать гостей, а второй этаж полностью отдать под приватные спальни и личные кабинеты.
Рекомендуется предусмотреть просторные коридоры и шахты для прокладки коммуникаций, что облегчит ремонт и монтаж дополнительных систем в будущем. Размещение санузлов лучше делать рядом с жилыми комнатами — это существенный комфорт для инфекции и гостей.
Итог
Двухэтажный дом размером 16х16 м с полезной площадью 289,8 м² — это отличное решение для большой семьи, стремящейся к комфорту и функциональности. Проект сочетает в себе классическую архитектуру и современные инженерные решения, обеспечивающие удобство и энергоэффективность. При цене в 10 194 756 рублей он предлагает качественное жилье с просторными комнатами и продуманной планировкой, что делает такую недвижимость выгодным и практичным вложением.











