Двухэтажный дом 18x13 - 230.69 м2 за руб.

ID-112918

Стоимость дома 7406393 руб.
154 м2 Полезная
площадь
18 x 13 м Размеры
2 этажа Этажей
26 м2 Террасы
и балконы
2Без
гаража
4 Количество
спален
3 Количество
санузлов

Планировки

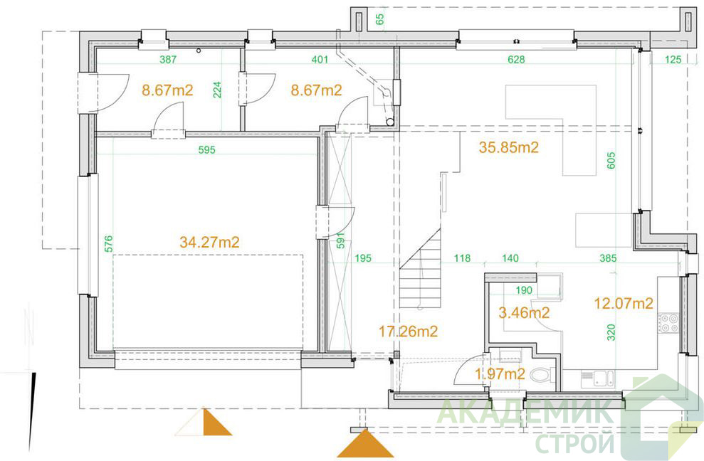
План первого этажа

floor image
  • 1. Коридор + лестница 17,26 m²
  • 2. Туалет 1,97 m²
  • 3. Кладовая 3,46 m²
  • 4. Кухня 12,07 m²
  • 5. Гостиная 35,85 m²
  • 6. Котельная 8,67 m²
  • 7. Кладовая 8,67 m²
  • 8. Гараж на 2 машины 34,27 m²
  • План первого этажа 122,22 m²

План мансарды

floor image
  • 1. Коридор 11,11 m²
  • 2. Комната 14,35 m²
  • 3. Ванная комната 7,26 m²
  • 4. Гардероб 5,17 m²
  • 5. Кладовая 4,53 m²
  • 6. Ванная комната 8,04 m²
  • 7. Комната 12,90 m²
  • 8. Комната 17,76 m²
  • 9. Комната 16,87 m²
  • 10. Холл 10,48 m²
  • План мансарды 108,47 m²

Фасады

Передний
Задний
Левый
Правый
Передний
Задний
Левый
Правый

Подробная информация

Жилая площадь
196,42 m²
icon

Сумма площади всех жилых помещений, за вычетом пов. гараж, котельная, чердак, подвал. Учитывается в 100%, для помещений высотой более 2,2 м, в 50% для помещений с высотой 2,2-1,4 м и не включается для более низких помещений (меньше 1,4 м).

Площадь застройки
174 m²
icon

Площадь застройки здания определяется как площадь горизонтального сечения по внешнему обводу здания на уровне цоколя, включая выступающие части.

Угол наклона крыши
45°
icon

Наклон ската крыши в градусах. Внимание! В некоторых проектах возникает более чем один наклон крыши.

Высота здания
8,65 m
icon

Высота измеряется от поверхности земли до самой высокой точки кровли (конька), за исключением дымоходов.

Мин. ширина участка
25,58 m
icon

Наименьшая возможная ширина участка, необходимая для строительства выбранного дома. Состоит из длины фасада дома плюс с обеих сторон три метра отступ.

Мин. длина участка
20,80 m
icon

Наименьшая возможная длина участка, необходимая для строительства выбранного дома. Состоит из длины фасада дома плюс с обеих сторон три метра отступ.

Материалы и опции
Общие
Количество спален
4
Ежемесячный платёж, руб
Гараж
2
Количество санузлов
3
Ширина
18
Глубина
13
Тип крыши

Площади дома

№ п/п Наименование Ед. из. Строительная площадь Полезная площадь
1 1 этаж м2 150.61 122.22
2 2 этаж м2 133.67 108.47
3 Итого м2 284.28 230.69

Калькулятор опций

0

В ипотеку от 23 984 ₽/мес.

Фундамент
stdClass Object ( [id] => 1 [attribute_id] => 1 [name] => Ленточный монолитный ж/б [material_modifier] => 1 [work_modifier] => 1 [options] => Array ( [0] => размер 200 х 700 мм [1] => размер 300 х 900 мм [2] => размер 400 х 1 000 мм [3] => размер 500 х 1 100 мм [4] => размер 600 х 1 200 мм ) [days] => [20,21,22,25,30] [material_price] => [2823,3630,4475,5210,12047] [work_price] => [2154,2826,3731,4577,5293] [image] => https://akademik-stroy.ru/wp-content/uploads/materials/lentochnyj-monolitnyj-zh-b.jpg [area_modifier] => 150.61 [parent_name] => Фундамент [parent_id] => 1 [material_sum] => 535717 [work_sum] => 340635 [total_sum] => 876352 [total_days] => 20 [display_material_sum] => 535 717 [display_work_sum] => 340 635 [display_total_sum] => 876 352 ) 1
876 352
Работа:340 635
Материалы:535 717
Дни:20
stdClass Object ( [id] => 2 [attribute_id] => 1 [name] => Забивные Ж/Б сваи [material_modifier] => 1 [work_modifier] => 1 [options] => Array ( [0] => 150х150х3000мм [1] => 150х150х4000мм [2] => 200х200х3000мм [3] => 200х200х4000мм [4] => 200х200х5000мм [5] => 200х200х6000мм ) [days] => [2,2,2,2,2,2] [material_price] => [1990,2850,3255,4360,5120,6837] [work_price] => [1002,1185,1336,1438,1574,1839] [image] => https://akademik-stroy.ru/wp-content/uploads/materials/zabivnye-zh-b-svai.png [area_modifier] => 150.61 [parent_name] => Фундамент [parent_id] => 1 [material_sum] => 377640 [work_sum] => 158457 [total_sum] => 536097 [total_days] => 2 [display_material_sum] => 377 640 [display_work_sum] => 158 457 [display_total_sum] => 536 097 ) 1
536 097
Работа:158 457
Материалы:377 640
Дни:2
stdClass Object ( [id] => 71 [attribute_id] => 1 [name] => Свайно-ростверковый ж/б [material_modifier] => 1 [work_modifier] => 1 [options] => Array ( [0] => ростверк 200х300 мм [1] => ростверк 300х600 мм [2] => ростверк 400х900 мм [3] => ростверк 500х1200 мм ) [days] => [20,23,25,27] [material_price] => [3018,3474,7109,9792] [work_price] => [2024,3012,5635,7022] [image] => https://akademik-stroy.ru/wp-content/uploads/materials/svajno-rostverkovyj-monolitnyj-zh-b-3.png [area_modifier] => 150.61 [parent_name] => Фундамент [parent_id] => 1 [material_sum] => 572722 [work_sum] => 320076 [total_sum] => 892798 [total_days] => 20 [display_material_sum] => 572 722 [display_work_sum] => 320 076 [display_total_sum] => 892 798 ) 1
892 798
Работа:320 076
Материалы:572 722
Дни:20
stdClass Object ( [id] => 72 [attribute_id] => 1 [name] => Монолитная ж/б плита [material_modifier] => 1 [work_modifier] => 1 [options] => Array ( [0] => 200 мм [1] => 300 мм [2] => 400 мм [3] => 500 мм [4] => 600 мм ) [days] => [30,33,35,37,40] [material_price] => [5348,8555,12788,14388,15189] [work_price] => [4314,4881,7037,8061,10230] [image] => https://akademik-stroy.ru/wp-content/uploads/materials/monolitnaya-zhb-plita.png [area_modifier] => 150.61 [parent_name] => Фундамент [parent_id] => 1 [material_sum] => 1014882 [work_sum] => 682218 [total_sum] => 1697100 [total_days] => 30 [display_material_sum] => 1 014 882 [display_work_sum] => 682 218 [display_total_sum] => 1 697 100 ) 1
1 697 100
Работа:682 218
Материалы:1 014 882
Дни:30
stdClass Object ( [id] => 73 [attribute_id] => 1 [name] => Утепленная шведская плита [material_modifier] => 1 [work_modifier] => 1 [options] => Array ( [0] => 200 мм [1] => 300 мм [2] => 400 мм [3] => 500 мм [4] => 600 мм ) [days] => [32,37,39,42,45] [material_price] => [10249,12692,13760,14936,16230] [work_price] => [5960,7337,8072,8878,9765] [image] => https://akademik-stroy.ru/wp-content/uploads/materials/uteplennaya-shvedskaya-plita.jpg [area_modifier] => 150.61 [parent_name] => Фундамент [parent_id] => 1 [material_sum] => 1944938 [work_sum] => 942517 [total_sum] => 2887455 [total_days] => 32 [display_material_sum] => 1 944 938 [display_work_sum] => 942 517 [display_total_sum] => 2 887 455 ) 1
2 887 455
Работа:942 517
Материалы:1 944 938
Дни:32
stdClass Object ( [id] => 75 [attribute_id] => 1 [name] => Ленточный из ФБС [material_modifier] => 1 [work_modifier] => 1 [options] => Array ( [0] => толщ. 300 мм [1] => толщ. 400 мм [2] => толщ. 500 мм [3] => толщ. 600 мм ) [days] => [20,20,20,20] [material_price] => [3675,4902,6126,7350] [work_price] => [2451,3264,4083,4902] [image] => https://akademik-stroy.ru/wp-content/uploads/materials/lentochnyj-iz-fbs.png [area_modifier] => 150.61 [parent_name] => Фундамент [parent_id] => 1 [material_sum] => 697400 [work_sum] => 387602 [total_sum] => 1085002 [total_days] => 20 [display_material_sum] => 697 400 [display_work_sum] => 387 602 [display_total_sum] => 1 085 002 ) 1
1 085 002
Работа:387 602
Материалы:697 400
Дни:20
stdClass Object ( [id] => 76 [attribute_id] => 1 [name] => Цокольный этаж из ФБС [material_modifier] => 1 [work_modifier] => 1 [options] => Array ( [0] => толщ. 300 мм [1] => толщ. 400 мм [2] => толщ. 500 мм [3] => толщ. 600 мм ) [days] => [30,32,34,36] [material_price] => [20916,23299,26680,29060] [work_price] => [17524,18700,19873,21046] [image] => https://akademik-stroy.ru/wp-content/uploads/materials/cokolnyj-ehtazh-iz-fbs.jpg [area_modifier] => 150.61 [parent_name] => Фундамент [parent_id] => 1 [material_sum] => 3969200 [work_sum] => 2771254 [total_sum] => 6740454 [total_days] => 30 [display_material_sum] => 3 969 200 [display_work_sum] => 2 771 254 [display_total_sum] => 6 740 454 ) 1
6 740 454
Работа:2 771 254
Материалы:3 969 200
Дни:30
stdClass Object ( [id] => 77 [attribute_id] => 1 [name] => Цокольный этаж монолитный ж/б [material_modifier] => 1 [work_modifier] => 1 [options] => Array ( [0] => толщ. 200 мм [1] => толщ. 300 мм [2] => толщ. 400 мм [3] => толщ. 500 мм [4] => толщ. 600 мм ) [days] => [40,42,44,46,48] [material_price] => [25421,29148,32275,35602,37326] [work_price] => [20441,21907,23375,24841,26306] [image] => https://akademik-stroy.ru/wp-content/uploads/materials/cokolnyj-etazh-zh-b.jpg [area_modifier] => 150.61 [parent_name] => Фундамент [parent_id] => 1 [material_sum] => 4824108 [work_sum] => 3232550 [total_sum] => 8056658 [total_days] => 40 [display_material_sum] => 4 824 108 [display_work_sum] => 3 232 550 [display_total_sum] => 8 056 658 ) 1
8 056 658
Работа:3 232 550
Материалы:4 824 108
Дни:40
stdClass Object ( [id] => 191 [attribute_id] => 1 [name] => Винтовые сваи [material_modifier] => 1 [work_modifier] => 1 [options] => Array ( [0] => 57х200мм [1] => 76х250мм [2] => 108х300мм [3] => 133х350мм ) [days] => [1,1,2,2] [material_price] => [1200,1300,1450,1600] [work_price] => [400,600,900,1100] [image] => https://akademik-stroy.ru/wp-content/uploads/materials/vintovye-svai.png [area_modifier] => 150.61 [parent_name] => Фундамент [parent_id] => 1 [material_sum] => 227722 [work_sum] => 63256 [total_sum] => 290978 [total_days] => 1 [display_material_sum] => 227 722 [display_work_sum] => 63 256 [display_total_sum] => 290 978 ) 1
290 978
Работа:63 256
Материалы:227 722
Дни:1
Перекрытие цоколя
stdClass Object ( [id] => 3 [attribute_id] => 2 [name] => Деревянные балки [material_modifier] => 1 [work_modifier] => 1 [options] => Array ( [0] => без утепления [1] => утепление 200 мм [2] => утепление 250 мм [3] => утепление 300 мм [4] => утепление 350 мм [5] => утепление 400 мм [6] => утепление 450 мм [7] => утепление 500 мм ) [days] => [8,9,9,9,11,12,13,14] [material_price] => [1634,2042,2344,2947,3149,3652,3354,3557] [work_price] => [1230,1339,1393,1426,1460,1513,1587,1620] [image] => https://akademik-stroy.ru/wp-content/uploads/materials/derevyannye-balki.png [area_modifier] => 150.61 [parent_name] => Перекрытие цоколя [parent_id] => 2 [material_sum] => 310082 [work_sum] => 194513 [total_sum] => 504595 [total_days] => 8 [display_material_sum] => 310 082 [display_work_sum] => 194 513 [display_total_sum] => 504 595 ) 1
504 595
Работа:194 513
Материалы:310 082
Дни:8
stdClass Object ( [id] => 4 [attribute_id] => 2 [name] => Сборные ж/б плиты [material_modifier] => 1 [work_modifier] => 1 [options] => Array ( [0] => без утепления [1] => утепление 150мм [2] => утепление 200мм [3] => утепление 250мм [4] => утепление 300мм [5] => утепление 350мм [6] => утепление 400мм [7] => утепление 450мм [8] => утепление 500мм ) [days] => [13,15,15,15,15,15,15,15,15] [material_price] => [3067,5577,5928,6679,7730,8782,9833,10884,11935] [work_price] => [1520,1956,2102,2247,2392,2537,2684,2829,2974] [image] => https://akademik-stroy.ru/wp-content/uploads/materials/sbornye-zh-b-plity-2.jpg [area_modifier] => 150.61 [parent_name] => Перекрытие цоколя [parent_id] => 2 [material_sum] => 582020 [work_sum] => 240374 [total_sum] => 822394 [total_days] => 13 [display_material_sum] => 582 020 [display_work_sum] => 240 374 [display_total_sum] => 822 394 ) 1
822 394
Работа:240 374
Материалы:582 020
Дни:13
stdClass Object ( [id] => 78 [attribute_id] => 2 [name] => Монолитная ж/б плита [material_modifier] => 1 [work_modifier] => 1 [options] => Array ( [0] => без утепления [1] => утепление 150 мм [2] => утепление 200 мм [3] => утепление 250 мм [4] => утепление 300 мм [5] => утепление 350 мм [6] => утепление 400 мм [7] => утепление 450 мм [8] => утепление 500 мм ) [days] => [18,20,20,20,20,20,20,20,20] [material_price] => [4837,6572,7224,7375,79426,8177,8728,9180,10031] [work_price] => [3348,3921,4112,4302,4493,4684,4875,5066,5256] [image] => https://akademik-stroy.ru/wp-content/uploads/materials/monolitnaya-zh-b-plita-2.jpg [area_modifier] => 150.61 [parent_name] => Перекрытие цоколя [parent_id] => 2 [material_sum] => 917911 [work_sum] => 529454 [total_sum] => 1447365 [total_days] => 18 [display_material_sum] => 917 911 [display_work_sum] => 529 454 [display_total_sum] => 1 447 365 ) 1
1 447 365
Работа:529 454
Материалы:917 911
Дни:18
Стены 1 этаж (несущие)
stdClass Object ( [id] => 6 [attribute_id] => 3 [name] => Пеноблок [material_modifier] => 1 [work_modifier] => 1 [options] => Array ( [0] => 300 мм [1] => 400 мм [2] => 500 мм [3] => 600 мм ) [days] => [29,31,34,39] [material_price] => [3000,4000,4500,4937] [work_price] => [5033,5805,6400,8710] [image] => https://akademik-stroy.ru/wp-content/uploads/materials/penoblok.jpg [area_modifier] => 150.61 [parent_name] => Стены 1 этаж (несущие) [parent_id] => 3 [material_sum] => 569306 [work_sum] => 795921 [total_sum] => 1365227 [total_days] => 29 [display_material_sum] => 569 306 [display_work_sum] => 795 921 [display_total_sum] => 1 365 227 ) 1
1 365 227
Работа:795 921
Материалы:569 306
Дни:29
stdClass Object ( [id] => 79 [attribute_id] => 3 [name] => Керамический блок [material_modifier] => 1 [work_modifier] => 1 [options] => Array ( [0] => 380 мм [1] => 380 мм Thermo [2] => 440 мм [3] => 510 мм ) [days] => [23,23,24,25] [material_price] => [4510,5098,6093,8013] [work_price] => [4737,4937,5903,6958] [image] => https://akademik-stroy.ru/wp-content/uploads/materials/keramicheskij-blok.jpg [area_modifier] => 150.61 [parent_name] => Стены 1 этаж (несущие) [parent_id] => 3 [material_sum] => 855856 [work_sum] => 749112 [total_sum] => 1604968 [total_days] => 23 [display_material_sum] => 855 856 [display_work_sum] => 749 112 [display_total_sum] => 1 604 968 ) 1
1 604 968
Работа:749 112
Материалы:855 856
Дни:23
stdClass Object ( [id] => 80 [attribute_id] => 3 [name] => Кирпич [material_modifier] => 1 [work_modifier] => 1 [options] => Array ( [0] => Кирпич 250 мм [1] => Кирпич 380 мм [2] => Кирпич 510 мм [3] => Кирпич 640 мм [4] => Кирпич 770 мм ) [days] => [30,30,31,33,36] [material_price] => [5500,7142,9206,10171,12235] [work_price] => [8736,10041,12018,15240,18462] [image] => https://akademik-stroy.ru/wp-content/uploads/materials/kirpich.jpg [area_modifier] => 150.61 [parent_name] => Стены 1 этаж (несущие) [parent_id] => 3 [material_sum] => 1043727 [work_sum] => 1381515 [total_sum] => 2425242 [total_days] => 30 [display_material_sum] => 1 043 727 [display_work_sum] => 1 381 515 [display_total_sum] => 2 425 242 ) 1
2 425 242
Работа:1 381 515
Материалы:1 043 727
Дни:30
stdClass Object ( [id] => 81 [attribute_id] => 3 [name] => Монолитные [material_modifier] => 1 [work_modifier] => 1 [options] => Array ( [0] => 150 мм [1] => 200 мм [2] => 250 мм [3] => 300 мм [4] => 350 мм [5] => 400 мм ) [days] => [45,46,47,49,50,53] [material_price] => [6545,7876,10175,12011,13908,15204] [work_price] => [5106,6444,7698,8552,9807,11461] [image] => https://akademik-stroy.ru/wp-content/uploads/materials/monolitnye.jpg [area_modifier] => 150.61 [parent_name] => Стены 1 этаж (несущие) [parent_id] => 3 [material_sum] => 1242035 [work_sum] => 807465 [total_sum] => 2049500 [total_days] => 45 [display_material_sum] => 1 242 035 [display_work_sum] => 807 465 [display_total_sum] => 2 049 500 ) 1
2 049 500
Работа:807 465
Материалы:1 242 035
Дни:45
stdClass Object ( [id] => 82 [attribute_id] => 3 [name] => Клееный брус [material_modifier] => 1 [work_modifier] => 1 [options] => Array ( [0] => 160 мм [1] => 175 мм [2] => 200 мм [3] => 215 мм [4] => 240 мм [5] => 270 мм [6] => 282 мм ) [days] => [24,28,32,37,40,42,48] [material_price] => [16975,18773,19950,20545,21599,22159,23275] [work_price] => [4806,5287,5815,6397,7036,7740,8514] [image] => https://akademik-stroy.ru/wp-content/uploads/materials/kleenyj-brus.jpg [area_modifier] => 150.61 [parent_name] => Стены 1 этаж (несущие) [parent_id] => 3 [material_sum] => 3221322 [work_sum] => 760023 [total_sum] => 3981345 [total_days] => 24 [display_material_sum] => 3 221 322 [display_work_sum] => 760 023 [display_total_sum] => 3 981 345 ) 1
3 981 345
Работа:760 023
Материалы:3 221 322
Дни:24
stdClass Object ( [id] => 83 [attribute_id] => 3 [name] => Каркасные [material_modifier] => 1 [work_modifier] => 1 [options] => Array ( [0] => 150 мм [1] => 200 мм [2] => 250 мм [3] => 300 мм ) [days] => [15,16,17,18] [material_price] => [2379,2639,2898,3258] [work_price] => [2418,2686,2985,3716] [image] => https://akademik-stroy.ru/wp-content/uploads/materials/karkasnye.jpg [area_modifier] => 150.61 [parent_name] => Стены 1 этаж (несущие) [parent_id] => 3 [material_sum] => 451459 [work_sum] => 382384 [total_sum] => 833843 [total_days] => 15 [display_material_sum] => 451 459 [display_work_sum] => 382 384 [display_total_sum] => 833 843 ) 1
833 843
Работа:382 384
Материалы:451 459
Дни:15
stdClass Object ( [id] => 84 [attribute_id] => 3 [name] => СИП-панели [material_modifier] => 1 [work_modifier] => 1 [options] => Array ( [0] => 120 мм [1] => 170 мм [2] => 220 мм ) [days] => [7,7,7] [material_price] => [1210,1856,2292] [work_price] => [1410,1551,1706] [image] => https://akademik-stroy.ru/wp-content/uploads/materials/sip-paneli.jpg [area_modifier] => 150.61 [parent_name] => Стены 1 этаж (несущие) [parent_id] => 3 [material_sum] => 229620 [work_sum] => 222978 [total_sum] => 452598 [total_days] => 7 [display_material_sum] => 229 620 [display_work_sum] => 222 978 [display_total_sum] => 452 598 ) 1
452 598
Работа:222 978
Материалы:229 620
Дни:7
stdClass Object ( [id] => 85 [attribute_id] => 3 [name] => Сухой брус [material_modifier] => 1 [work_modifier] => 1 [options] => Array ( [0] => 150 мм [1] => 180 мм [2] => 200 мм ) [days] => [7,8,9] [material_price] => [6010,7190,8709] [work_price] => [3204,3845,4229] [image] => https://akademik-stroy.ru/wp-content/uploads/materials/suhoj-brus.jpg [area_modifier] => 150.61 [parent_name] => Стены 1 этаж (несущие) [parent_id] => 3 [material_sum] => 1140509 [work_sum] => 506682 [total_sum] => 1647191 [total_days] => 7 [display_material_sum] => 1 140 509 [display_work_sum] => 506 682 [display_total_sum] => 1 647 191 ) 1
1 647 191
Работа:506 682
Материалы:1 140 509
Дни:7
stdClass Object ( [id] => 86 [attribute_id] => 3 [name] => Профилированный брус [material_modifier] => 1 [work_modifier] => 1 [options] => Array ( [0] => 150 мм [1] => 180 мм [2] => 200 мм ) [days] => [7,8,9] [material_price] => [8190,9228,10051] [work_price] => [3845,4614,5075] [image] => https://akademik-stroy.ru/wp-content/uploads/materials/profilirovannyj-brus.jpg [area_modifier] => 150.61 [parent_name] => Стены 1 этаж (несущие) [parent_id] => 3 [material_sum] => 1554205 [work_sum] => 608050 [total_sum] => 2162255 [total_days] => 7 [display_material_sum] => 1 554 205 [display_work_sum] => 608 050 [display_total_sum] => 2 162 255 ) 1
2 162 255
Работа:608 050
Материалы:1 554 205
Дни:7
stdClass Object ( [id] => 87 [attribute_id] => 3 [name] => Оцилиндрованное бревно [material_modifier] => 1 [work_modifier] => 1 [options] => Array ( [0] => 180 мм [1] => 220 мм [2] => 260 мм [3] => 320 мм ) [days] => [7,8,9,10] [material_price] => [75190,9532,10868,13116] [work_price] => [3845,4691,5535,6863] [image] => https://akademik-stroy.ru/wp-content/uploads/materials/ocilindrovannoe-brevno-1.jpg [area_modifier] => 150.61 [parent_name] => Стены 1 этаж (несущие) [parent_id] => 3 [material_sum] => 14268701 [work_sum] => 608050 [total_sum] => 14876751 [total_days] => 7 [display_material_sum] => 14 268 701 [display_work_sum] => 608 050 [display_total_sum] => 14 876 751 ) 1
14 876 751
Работа:608 050
Материалы:14 268 701
Дни:7
stdClass Object ( [id] => 88 [attribute_id] => 3 [name] => Срубы [material_modifier] => 1 [work_modifier] => 1 [options] => Array ( [0] => 260 мм [1] => 320 мм [2] => 360 мм [3] => 400 мм [4] => 500 мм ) [days] => [7,8,9,10,11] [material_price] => [37975,46709,52314,58069,73167] [work_price] => [4806,5911,6621,7349,9260] [image] => https://akademik-stroy.ru/wp-content/uploads/materials/sruby.jpg [area_modifier] => 150.61 [parent_name] => Стены 1 этаж (несущие) [parent_id] => 3 [material_sum] => 7206463 [work_sum] => 760023 [total_sum] => 7966486 [total_days] => 7 [display_material_sum] => 7 206 463 [display_work_sum] => 760 023 [display_total_sum] => 7 966 486 ) 1
7 966 486
Работа:760 023
Материалы:7 206 463
Дни:7
stdClass Object ( [id] => 174 [attribute_id] => 3 [name] => Брус [material_modifier] => 1 [work_modifier] => 1 [options] => Array ( [0] => 150 мм [1] => 180 мм [2] => 200 мм ) [days] => [7,8,9] [material_price] => [5127,6152,7367] [work_price] => [1602,1922,2115] [image] => https://akademik-stroy.ru/wp-content/uploads/materials/brus.jpg [area_modifier] => 150.61 [parent_name] => Стены 1 этаж (несущие) [parent_id] => 3 [material_sum] => 972944 [work_sum] => 253341 [total_sum] => 1226285 [total_days] => 7 [display_material_sum] => 972 944 [display_work_sum] => 253 341 [display_total_sum] => 1 226 285 ) 1
1 226 285
Работа:253 341
Материалы:972 944
Дни:7
stdClass Object ( [id] => 175 [attribute_id] => 3 [name] => Газобетон [material_modifier] => 1 [work_modifier] => 1 [options] => Array ( [0] => 300 мм [1] => 375 мм [2] => 400 мм [3] => 500 мм [4] => 600 мм ) [days] => [29,31,35,37,44] [material_price] => [4298,5573,6356,7288,9119] [work_price] => [4538,5251,5926,6733,7195] [image] => https://akademik-stroy.ru/wp-content/uploads/materials/gazobeton.jpg [area_modifier] => 150.61 [parent_name] => Стены 1 этаж (несущие) [parent_id] => 3 [material_sum] => 815625 [work_sum] => 717642 [total_sum] => 1533267 [total_days] => 29 [display_material_sum] => 815 625 [display_work_sum] => 717 642 [display_total_sum] => 1 533 267 ) 1
1 533 267
Работа:717 642
Материалы:815 625
Дни:29
stdClass Object ( [id] => 176 [attribute_id] => 3 [name] => Блок [material_modifier] => 1 [work_modifier] => 1 [options] => Array ( [0] => 300 мм [1] => 375 мм [2] => 400 мм [3] => 500 мм [4] => 600 мм ) [days] => [29,31,35,37,44] [material_price] => [2698,3973,4356,6588,7119] [work_price] => [5038,5851,6426,8733,9195] [image] => https://akademik-stroy.ru/wp-content/uploads/materials/blok.jpg [area_modifier] => 150.61 [parent_name] => Стены 1 этаж (несущие) [parent_id] => 3 [material_sum] => 511996 [work_sum] => 796712 [total_sum] => 1308708 [total_days] => 29 [display_material_sum] => 511 996 [display_work_sum] => 796 712 [display_total_sum] => 1 308 708 ) 1
1 308 708
Работа:796 712
Материалы:511 996
Дни:29
stdClass Object ( [id] => 177 [attribute_id] => 3 [name] => Газосиликатный блок [material_modifier] => 1 [work_modifier] => 1 [options] => Array ( [0] => 300 мм [1] => 375 мм [2] => 400 мм [3] => 500 мм [4] => 600 мм ) [days] => [29,31,35,37,44] [material_price] => [4298,5573,6356,7288,9119] [work_price] => [4538,5251,5926,6733,7195] [image] => https://akademik-stroy.ru/wp-content/uploads/materials/gazosilikatnyj-blok.jpg [area_modifier] => 150.61 [parent_name] => Стены 1 этаж (несущие) [parent_id] => 3 [material_sum] => 815625 [work_sum] => 717642 [total_sum] => 1533267 [total_days] => 29 [display_material_sum] => 815 625 [display_work_sum] => 717 642 [display_total_sum] => 1 533 267 ) 1
1 533 267
Работа:717 642
Материалы:815 625
Дни:29
stdClass Object ( [id] => 178 [attribute_id] => 3 [name] => Керамзитобетонный блок [material_modifier] => 1 [work_modifier] => 1 [options] => Array ( [0] => 300 мм [1] => 375 мм [2] => 400 мм [3] => 500 мм [4] => 600 мм ) [days] => [23,23,24,25,28] [material_price] => [3641,4298,5693,7613,9612] [work_price] => [5737,5737,6903,7958,8901] [image] => https://akademik-stroy.ru/wp-content/uploads/materials/keramzitobetonnyj-blok.jpg [area_modifier] => 150.61 [parent_name] => Стены 1 этаж (несущие) [parent_id] => 3 [material_sum] => 690947 [work_sum] => 907252 [total_sum] => 1598199 [total_days] => 23 [display_material_sum] => 690 947 [display_work_sum] => 907 252 [display_total_sum] => 1 598 199 ) 1
1 598 199
Работа:907 252
Материалы:690 947
Дни:23
stdClass Object ( [id] => 179 [attribute_id] => 3 [name] => Деревянные [material_modifier] => 1 [work_modifier] => 1 [options] => Array ( [0] => 180 мм [1] => 220 мм [2] => 260 мм [3] => 320 мм ) [days] => [7,8,9,10] [material_price] => [7950,9458,11961,14472] [work_price] => [4037,4925,5812,7207] [image] => https://akademik-stroy.ru/wp-content/uploads/materials/derevyannye.jpg [area_modifier] => 150.61 [parent_name] => Стены 1 этаж (несущие) [parent_id] => 3 [material_sum] => 1508660 [work_sum] => 638413 [total_sum] => 2147073 [total_days] => 7 [display_material_sum] => 1 508 660 [display_work_sum] => 638 413 [display_total_sum] => 2 147 073 ) 1
2 147 073
Работа:638 413
Материалы:1 508 660
Дни:7
stdClass Object ( [id] => 181 [attribute_id] => 3 [name] => Камень [material_modifier] => 1 [work_modifier] => 1 [options] => Array ( [0] => 300 мм [1] => 400 мм [2] => 500 мм [3] => 600 мм ) [days] => [25,27,31,34] [material_price] => [5262,6844,8330,9815] [work_price] => [8331,9135,10427,11069] [image] => https://akademik-stroy.ru/wp-content/uploads/materials/kamen.jpg [area_modifier] => 150.61 [parent_name] => Стены 1 этаж (несущие) [parent_id] => 3 [material_sum] => 998562 [work_sum] => 1317469 [total_sum] => 2316031 [total_days] => 25 [display_material_sum] => 998 562 [display_work_sum] => 1 317 469 [display_total_sum] => 2 316 031 ) 1
2 316 031
Работа:1 317 469
Материалы:998 562
Дни:25
stdClass Object ( [id] => 182 [attribute_id] => 3 [name] => Каркасно-щитовые [material_modifier] => 1 [work_modifier] => 1 [options] => Array ( [0] => 150 мм [1] => 200 мм [2] => 250 мм [3] => 300 мм [4] => 350 мм [5] => 400 мм ) [days] => [15,16,17,18,19,20] [material_price] => [2379,2639,2898,3458,3601,4175] [work_price] => [2538,2820,3134,3483,4062,5642] [image] => https://akademik-stroy.ru/wp-content/uploads/materials/karkasno-shchitovye.jpg [area_modifier] => 150.61 [parent_name] => Стены 1 этаж (несущие) [parent_id] => 3 [material_sum] => 451459 [work_sum] => 401361 [total_sum] => 852820 [total_days] => 15 [display_material_sum] => 451 459 [display_work_sum] => 401 361 [display_total_sum] => 852 820 ) 1
852 820
Работа:401 361
Материалы:451 459
Дни:15
stdClass Object ( [id] => 183 [attribute_id] => 3 [name] => Рубленные [material_modifier] => 1 [work_modifier] => 1 [options] => Array ( [0] => 150 мм [1] => 200 мм [2] => 250 мм [3] => 300 мм [4] => 350 мм [5] => 400 мм ) [days] => [15,16,17,18,17,18] [material_price] => [35950,50267,60583,75900,80217,100533] [work_price] => [9612,12816,16020,19224,22428,25632] [image] => https://akademik-stroy.ru/wp-content/uploads/materials/rublennye.jpg [area_modifier] => 150.61 [parent_name] => Стены 1 этаж (несущие) [parent_id] => 3 [material_sum] => 6822181 [work_sum] => 1520046 [total_sum] => 8342227 [total_days] => 15 [display_material_sum] => 6 822 181 [display_work_sum] => 1 520 046 [display_total_sum] => 8 342 227 ) 1
8 342 227
Работа:1 520 046
Материалы:6 822 181
Дни:15
stdClass Object ( [id] => 185 [attribute_id] => 3 [name] => Теплоблок [material_modifier] => 1 [work_modifier] => 1 [options] => Array ( [0] => 300 мм (с облицовкой, не покрашенный) [1] => 400 мм (с облицовкой, не покрашенный) [2] => 300 мм (с облицовкой, покрашенный) [3] => 400 мм (с облицовкой, покрашенный) ) [days] => [15,16,15,16] [material_price] => [2888,3729,3957,4258] [work_price] => [2564,3229,2949,3713] [image] => https://akademik-stroy.ru/wp-content/uploads/materials/teploblok.jpg [area_modifier] => 150.61 [parent_name] => Стены 1 этаж (несущие) [parent_id] => 3 [material_sum] => 548052 [work_sum] => 405472 [total_sum] => 953524 [total_days] => 15 [display_material_sum] => 548 052 [display_work_sum] => 405 472 [display_total_sum] => 953 524 ) 1
953 524
Работа:405 472
Материалы:548 052
Дни:15
stdClass Object ( [id] => 186 [attribute_id] => 3 [name] => Арболитовые блоки [material_modifier] => 1 [work_modifier] => 1 [options] => Array ( [0] => 300 мм [1] => 400 мм [2] => 600 мм ) [days] => [19,22,27] [material_price] => [3210,4475,5852] [work_price] => [4214,4788,5866] [image] => https://akademik-stroy.ru/wp-content/uploads/materials/arbolitovye-bloki.png [area_modifier] => 150.61 [parent_name] => Стены 1 этаж (несущие) [parent_id] => 3 [material_sum] => 609157 [work_sum] => 666404 [total_sum] => 1275561 [total_days] => 19 [display_material_sum] => 609 157 [display_work_sum] => 666 404 [display_total_sum] => 1 275 561 ) 1
1 275 561
Работа:666 404
Материалы:609 157
Дни:19
stdClass Object ( [id] => 187 [attribute_id] => 3 [name] => Полистиролбетон [material_modifier] => 1 [work_modifier] => 1 [options] => Array ( [0] => 300 мм [1] => 400 мм [2] => 600 мм ) [days] => [29,31,35] [material_price] => [2798,4573,5256] [work_price] => [5038,5851,6426] [image] => https://akademik-stroy.ru/wp-content/uploads/materials/polistirolbeton.jpg [area_modifier] => 150.61 [parent_name] => Стены 1 этаж (несущие) [parent_id] => 3 [material_sum] => 530973 [work_sum] => 796712 [total_sum] => 1327685 [total_days] => 29 [display_material_sum] => 530 973 [display_work_sum] => 796 712 [display_total_sum] => 1 327 685 ) 1
1 327 685
Работа:796 712
Материалы:530 973
Дни:29
stdClass Object ( [id] => 188 [attribute_id] => 3 [name] => Шлакоблок [material_modifier] => 1 [work_modifier] => 1 [options] => Array ( [0] => 400 мм [1] => 600 мм ) [days] => [15,16] [material_price] => [2391,3471] [work_price] => [2642,3662] [image] => https://akademik-stroy.ru/wp-content/uploads/materials/shlakoblok.jpg [area_modifier] => 150.61 [parent_name] => Стены 1 этаж (несущие) [parent_id] => 3 [material_sum] => 453737 [work_sum] => 417807 [total_sum] => 871544 [total_days] => 15 [display_material_sum] => 453 737 [display_work_sum] => 417 807 [display_total_sum] => 871 544 ) 1
871 544
Работа:417 807
Материалы:453 737
Дни:15
stdClass Object ( [id] => 189 [attribute_id] => 3 [name] => Теплая керамика [material_modifier] => 1 [work_modifier] => 1 [options] => Array ( [0] => 380 мм [1] => 380 мм Thermo [2] => 440 мм [3] => 510 мм ) [days] => [23,23,24,25] [material_price] => [4510,5098,6093,8013] [work_price] => [4737,4937,5903,6958] [image] => https://akademik-stroy.ru/wp-content/uploads/materials/teplaya-keramika.jpg [area_modifier] => 150.61 [parent_name] => Стены 1 этаж (несущие) [parent_id] => 3 [material_sum] => 855856 [work_sum] => 749112 [total_sum] => 1604968 [total_days] => 23 [display_material_sum] => 855 856 [display_work_sum] => 749 112 [display_total_sum] => 1 604 968 ) 1
1 604 968
Работа:749 112
Материалы:855 856
Дни:23
stdClass Object ( [id] => 190 [attribute_id] => 3 [name] => Несъемная опалубка [material_modifier] => 1 [work_modifier] => 1 [options] => Array ( [0] => 200 мм [1] => 250 мм [2] => 300 мм [3] => 350 мм ) [days] => [15,17,19,21] [material_price] => [3302,3902,4108,5008] [work_price] => [2100,2100,2300,2534] [image] => https://akademik-stroy.ru/wp-content/uploads/materials/nesemnaya-opalubka.jpg [area_modifier] => 150.61 [parent_name] => Стены 1 этаж (несущие) [parent_id] => 3 [material_sum] => 626616 [work_sum] => 332095 [total_sum] => 958711 [total_days] => 15 [display_material_sum] => 626 616 [display_work_sum] => 332 095 [display_total_sum] => 958 711 ) 1
958 711
Работа:332 095
Материалы:626 616
Дни:15
stdClass Object ( [id] => 251 [attribute_id] => 3 [name] => Бревно [material_modifier] => 1 [work_modifier] => 1 [options] => Array ( [0] => 260 мм [1] => 320 мм [2] => 360 мм [3] => 400 мм [4] => 500 мм ) [days] => [7,8,9,10,11] [material_price] => [1874,24045,26930,30972,38825] [work_price] => [5046,6207,6952,7716,9723] [image] => https://akademik-stroy.ru/wp-content/uploads/materials/sruby.jpg [area_modifier] => 150.61 [parent_name] => Стены 1 этаж (несущие) [parent_id] => 3 [material_sum] => 355626 [work_sum] => 797977 [total_sum] => 1153603 [total_days] => 7 [display_material_sum] => 355 626 [display_work_sum] => 797 977 [display_total_sum] => 1 153 603 ) 1
1 153 603
Работа:797 977
Материалы:355 626
Дни:7
Перекрытие первого этажа
stdClass Object ( [id] => 7 [attribute_id] => 4 [name] => Деревянные балки [material_modifier] => 1 [work_modifier] => 1 [options] => Array ( [0] => без утепления [1] => утепление 200 мм [2] => утепление 250 мм [3] => утепление 300 мм [4] => утепление 350 мм [5] => утепление 400 мм [6] => утепление 450 мм [7] => утепление 500 мм ) [days] => [8,9,9,9,11,12,13,14] [material_price] => [1634,2042,2344,2947,3149,3652,3354,3557] [work_price] => [1230,1339,1393,1426,1460,1513,1587,1620] [image] => https://akademik-stroy.ru/wp-content/uploads/materials/derevyannye-balki.png [area_modifier] => 150.61 [parent_name] => Перекрытие первого этажа [parent_id] => 4 [material_sum] => 310082 [work_sum] => 194513 [total_sum] => 504595 [total_days] => 8 [display_material_sum] => 310 082 [display_work_sum] => 194 513 [display_total_sum] => 504 595 ) 1
504 595
Работа:194 513
Материалы:310 082
Дни:8
stdClass Object ( [id] => 8 [attribute_id] => 4 [name] => Сборные ж/б плиты [material_modifier] => 1 [work_modifier] => 1 [options] => Array ( [0] => без утепления [1] => утепление 150 мм [2] => утепление 200 мм [3] => утепление 250 мм [4] => утепление 300 мм [5] => утепление 350 мм [6] => утепление 400 мм [7] => утепление 450 мм [8] => утепление 500 мм ) [days] => [13,15,15,15,15,15,15,15,15] [material_price] => [3067,5577,5928,6679,7730,8782,9833,10884,11935] [work_price] => [1520,1956,2102,2247,2392,2537,2684,2829,2974] [image] => https://akademik-stroy.ru/wp-content/uploads/materials/sbornye-zh-b-plity-2.jpg [area_modifier] => 150.61 [parent_name] => Перекрытие первого этажа [parent_id] => 4 [material_sum] => 582020 [work_sum] => 240374 [total_sum] => 822394 [total_days] => 13 [display_material_sum] => 582 020 [display_work_sum] => 240 374 [display_total_sum] => 822 394 ) 1
822 394
Работа:240 374
Материалы:582 020
Дни:13
stdClass Object ( [id] => 89 [attribute_id] => 4 [name] => Монолитная ж/б плита [material_modifier] => 1 [work_modifier] => 1 [options] => Array ( [0] => без утепления [1] => утепление 150 мм [2] => утепление 200 мм [3] => утепление 250 мм [4] => утепление 300 мм [5] => утепление 350 мм [6] => утепление 400 мм [7] => утепление 450 мм [8] => утепление 500 мм ) [days] => [18,20,20,20,20,20,20,20,20] [material_price] => [4837,6572,7224,7375,79426,8177,8728,9180,10031] [work_price] => [3348,3921,4112,4302,4493,4684,4875,5066,5256] [image] => https://akademik-stroy.ru/wp-content/uploads/materials/monolitnaya-zh-b-plita-2.jpg [area_modifier] => 150.61 [parent_name] => Перекрытие первого этажа [parent_id] => 4 [material_sum] => 917911 [work_sum] => 529454 [total_sum] => 1447365 [total_days] => 18 [display_material_sum] => 917 911 [display_work_sum] => 529 454 [display_total_sum] => 1 447 365 ) 1
1 447 365
Работа:529 454
Материалы:917 911
Дни:18
Стены 2 этаж (несущие)
stdClass Object ( [id] => 10 [attribute_id] => 5 [name] => Пеноблок [material_modifier] => 1 [work_modifier] => 1 [options] => Array ( [0] => 300 мм [1] => 400 мм [2] => 500 мм [3] => 600 мм ) [days] => [29,31,34,39] [material_price] => [3000,4000,4500,4937] [work_price] => [5033,5805,6400,8710] [image] => https://akademik-stroy.ru/wp-content/uploads/materials/penoblok.jpg [area_modifier] => 133.67 [parent_name] => Стены 2 этаж (несущие) [parent_id] => 5 [material_sum] => 505273 [work_sum] => 706399 [total_sum] => 1211672 [total_days] => 29 [display_material_sum] => 505 273 [display_work_sum] => 706 399 [display_total_sum] => 1 211 672 ) 1
1 211 672
Работа:706 399
Материалы:505 273
Дни:29
stdClass Object ( [id] => 90 [attribute_id] => 5 [name] => Керамический блок [material_modifier] => 1 [work_modifier] => 1 [options] => Array ( [0] => 380 мм [1] => 380 мм Thermo [2] => 440 мм [3] => 510 мм ) [days] => [23,23,24,25] [material_price] => [4510,5098,6093,8013] [work_price] => [4737,4937,5903,6958] [image] => https://akademik-stroy.ru/wp-content/uploads/materials/keramicheskij-blok.jpg [area_modifier] => 133.67 [parent_name] => Стены 2 этаж (несущие) [parent_id] => 5 [material_sum] => 759593 [work_sum] => 664855 [total_sum] => 1424448 [total_days] => 23 [display_material_sum] => 759 593 [display_work_sum] => 664 855 [display_total_sum] => 1 424 448 ) 1
1 424 448
Работа:664 855
Материалы:759 593
Дни:23
stdClass Object ( [id] => 91 [attribute_id] => 5 [name] => Кирпич [material_modifier] => 1 [work_modifier] => 1 [options] => Array ( [0] => Кирпич 250 мм [1] => Кирпич 380 мм [2] => Кирпич 510 мм [3] => Кирпич 640 мм [4] => Кирпич 770 мм ) [days] => [30,30,31,33,36] [material_price] => [5500,7142,9206,10171,12235] [work_price] => [8736,10041,12018,15240,18462] [image] => https://akademik-stroy.ru/wp-content/uploads/materials/kirpich.jpg [area_modifier] => 133.67 [parent_name] => Стены 2 этаж (несущие) [parent_id] => 5 [material_sum] => 926333 [work_sum] => 1226128 [total_sum] => 2152461 [total_days] => 30 [display_material_sum] => 926 333 [display_work_sum] => 1 226 128 [display_total_sum] => 2 152 461 ) 1
2 152 461
Работа:1 226 128
Материалы:926 333
Дни:30
stdClass Object ( [id] => 92 [attribute_id] => 5 [name] => Монолитные [material_modifier] => 1 [work_modifier] => 1 [options] => Array ( [0] => 150 мм [1] => 200 мм [2] => 250 мм [3] => 300 мм [4] => 350 мм [5] => 400 мм ) [days] => [45,46,47,49,50,53] [material_price] => [6545,7876,10175,12011,13908,15204] [work_price] => [5106,6444,7698,8552,9807,11461] [image] => https://akademik-stroy.ru/wp-content/uploads/materials/monolitnye.jpg [area_modifier] => 133.67 [parent_name] => Стены 2 этаж (несущие) [parent_id] => 5 [material_sum] => 1102336 [work_sum] => 716645 [total_sum] => 1818981 [total_days] => 45 [display_material_sum] => 1 102 336 [display_work_sum] => 716 645 [display_total_sum] => 1 818 981 ) 1
1 818 981
Работа:716 645
Материалы:1 102 336
Дни:45
stdClass Object ( [id] => 93 [attribute_id] => 5 [name] => Клееный брус [material_modifier] => 1 [work_modifier] => 1 [options] => Array ( [0] => 160 мм [1] => 175 мм [2] => 200 мм [3] => 215 мм [4] => 240 мм [5] => 270 мм [6] => 282 мм ) [days] => [24,28,32,37,40,42,48] [material_price] => [16975,18773,19950,20545,21599,22159,23275] [work_price] => [4806,5287,5815,6397,7036,7740,8514] [image] => https://akademik-stroy.ru/wp-content/uploads/materials/kleenyj-brus.jpg [area_modifier] => 133.67 [parent_name] => Стены 2 этаж (несущие) [parent_id] => 5 [material_sum] => 2859001 [work_sum] => 674539 [total_sum] => 3533540 [total_days] => 24 [display_material_sum] => 2 859 001 [display_work_sum] => 674 539 [display_total_sum] => 3 533 540 ) 1
3 533 540
Работа:674 539
Материалы:2 859 001
Дни:24
stdClass Object ( [id] => 94 [attribute_id] => 5 [name] => Каркасные [material_modifier] => 1 [work_modifier] => 1 [options] => Array ( [0] => 150 мм [1] => 200 мм [2] => 250 мм [3] => 300 мм ) [days] => [15,16,17,18] [material_price] => [2379,2639,2898,3258] [work_price] => [2418,2686,2985,3716] [image] => https://akademik-stroy.ru/wp-content/uploads/materials/karkasnye.jpg [area_modifier] => 133.67 [parent_name] => Стены 2 этаж (несущие) [parent_id] => 5 [material_sum] => 400681 [work_sum] => 339375 [total_sum] => 740056 [total_days] => 15 [display_material_sum] => 400 681 [display_work_sum] => 339 375 [display_total_sum] => 740 056 ) 1
740 056
Работа:339 375
Материалы:400 681
Дни:15
stdClass Object ( [id] => 95 [attribute_id] => 5 [name] => СИП-панели [material_modifier] => 1 [work_modifier] => 1 [options] => Array ( [0] => 120 мм [1] => 170 мм [2] => 220 мм ) [days] => [7,7,7] [material_price] => [1210,1856,2292] [work_price] => [1410,1551,1706] [image] => https://akademik-stroy.ru/wp-content/uploads/materials/sip-paneli.jpg [area_modifier] => 133.67 [parent_name] => Стены 2 этаж (несущие) [parent_id] => 5 [material_sum] => 203793 [work_sum] => 197898 [total_sum] => 401691 [total_days] => 7 [display_material_sum] => 203 793 [display_work_sum] => 197 898 [display_total_sum] => 401 691 ) 1
401 691
Работа:197 898
Материалы:203 793
Дни:7
stdClass Object ( [id] => 96 [attribute_id] => 5 [name] => Сухой брус [material_modifier] => 1 [work_modifier] => 1 [options] => Array ( [0] => 150 мм [1] => 180 мм [2] => 200 мм ) [days] => [7,8,9] [material_price] => [6010,7190,8709] [work_price] => [3204,3845,4229] [image] => https://akademik-stroy.ru/wp-content/uploads/materials/suhoj-brus.jpg [area_modifier] => 133.67 [parent_name] => Стены 2 этаж (несущие) [parent_id] => 5 [material_sum] => 1012229 [work_sum] => 449693 [total_sum] => 1461922 [total_days] => 7 [display_material_sum] => 1 012 229 [display_work_sum] => 449 693 [display_total_sum] => 1 461 922 ) 1
1 461 922
Работа:449 693
Материалы:1 012 229
Дни:7
stdClass Object ( [id] => 97 [attribute_id] => 5 [name] => Профилированный брус [material_modifier] => 1 [work_modifier] => 1 [options] => Array ( [0] => 150 мм [1] => 180 мм [2] => 200 мм ) [days] => [7,8,9] [material_price] => [8190,9228,10051] [work_price] => [3845,4614,5075] [image] => https://akademik-stroy.ru/wp-content/uploads/materials/profilirovannyj-brus.jpg [area_modifier] => 133.67 [parent_name] => Стены 2 этаж (несущие) [parent_id] => 5 [material_sum] => 1379394 [work_sum] => 539659 [total_sum] => 1919053 [total_days] => 7 [display_material_sum] => 1 379 394 [display_work_sum] => 539 659 [display_total_sum] => 1 919 053 ) 1
1 919 053
Работа:539 659
Материалы:1 379 394
Дни:7
stdClass Object ( [id] => 98 [attribute_id] => 5 [name] => Оцилиндрованное бревно [material_modifier] => 1 [work_modifier] => 1 [options] => Array ( [0] => 180 мм [1] => 220 мм [2] => 260 мм [3] => 320 мм ) [days] => [7,8,9,10] [material_price] => [75190,9532,10868,13116] [work_price] => [3845,4691,5535,6863] [image] => https://akademik-stroy.ru/wp-content/uploads/materials/ocilindrovannoe-brevno-1.jpg [area_modifier] => 133.67 [parent_name] => Стены 2 этаж (несущие) [parent_id] => 5 [material_sum] => 12663816 [work_sum] => 539659 [total_sum] => 13203475 [total_days] => 7 [display_material_sum] => 12 663 816 [display_work_sum] => 539 659 [display_total_sum] => 13 203 475 ) 1
13 203 475
Работа:539 659
Материалы:12 663 816
Дни:7
stdClass Object ( [id] => 99 [attribute_id] => 5 [name] => Срубы [material_modifier] => 1 [work_modifier] => 1 [options] => Array ( [0] => 260 мм [1] => 320 мм [2] => 360 мм [3] => 400 мм [4] => 500 мм ) [days] => [7,8,9,10,11] [material_price] => [16175,23709,26314,29069,32167] [work_price] => [4806,5911,6621,7349,9260] [image] => https://akademik-stroy.ru/wp-content/uploads/materials/suhoj-brus.jpg [area_modifier] => 133.67 [parent_name] => Стены 2 этаж (несущие) [parent_id] => 5 [material_sum] => 2724261 [work_sum] => 674539 [total_sum] => 3398800 [total_days] => 7 [display_material_sum] => 2 724 261 [display_work_sum] => 674 539 [display_total_sum] => 3 398 800 ) 1
3 398 800
Работа:674 539
Материалы:2 724 261
Дни:7
stdClass Object ( [id] => 194 [attribute_id] => 5 [name] => Брус [material_modifier] => 1 [work_modifier] => 1 [options] => Array ( [0] => 150 мм [1] => 180 мм [2] => 200 мм ) [days] => [10,13,15] [material_price] => [5127,6152,7367] [work_price] => [1602,1922,2115] [image] => https://akademik-stroy.ru/wp-content/uploads/materials/brus.jpg [area_modifier] => 133.67 [parent_name] => Стены 2 этаж (несущие) [parent_id] => 5 [material_sum] => 863511 [work_sum] => 224846 [total_sum] => 1088357 [total_days] => 10 [display_material_sum] => 863 511 [display_work_sum] => 224 846 [display_total_sum] => 1 088 357 ) 1
1 088 357
Работа:224 846
Материалы:863 511
Дни:10
stdClass Object ( [id] => 195 [attribute_id] => 5 [name] => Газобетон [material_modifier] => 1 [work_modifier] => 1 [options] => Array ( [0] => 300 мм [1] => 375 мм [2] => 400 мм [3] => 500 мм [4] => 600 мм ) [days] => [29,31,35,37,44] [material_price] => [4298,5573,6356,7288,9119] [work_price] => [4538,5251,5926,6733,7195] [image] => https://akademik-stroy.ru/wp-content/uploads/materials/gazobeton.jpg [area_modifier] => 133.67 [parent_name] => Стены 2 этаж (несущие) [parent_id] => 5 [material_sum] => 723887 [work_sum] => 636924 [total_sum] => 1360811 [total_days] => 29 [display_material_sum] => 723 887 [display_work_sum] => 636 924 [display_total_sum] => 1 360 811 ) 1
1 360 811
Работа:636 924
Материалы:723 887
Дни:29
stdClass Object ( [id] => 196 [attribute_id] => 5 [name] => Блок [material_modifier] => 1 [work_modifier] => 1 [options] => Array ( [0] => 300 мм [1] => 375 мм [2] => 400 мм [3] => 500 мм [4] => 600 мм ) [days] => [29,31,35,37,44] [material_price] => [2698,3973,4356,6588,7119] [work_price] => [5038,5851,6426,8733,9195] [image] => https://akademik-stroy.ru/wp-content/uploads/materials/blok.jpg [area_modifier] => 133.67 [parent_name] => Стены 2 этаж (несущие) [parent_id] => 5 [material_sum] => 454408 [work_sum] => 707101 [total_sum] => 1161509 [total_days] => 29 [display_material_sum] => 454 408 [display_work_sum] => 707 101 [display_total_sum] => 1 161 509 ) 1
1 161 509
Работа:707 101
Материалы:454 408
Дни:29
stdClass Object ( [id] => 197 [attribute_id] => 5 [name] => Газосиликатный блок [material_modifier] => 1 [work_modifier] => 1 [options] => Array ( [0] => 300 мм [1] => 375 мм [2] => 400 мм [3] => 500 мм [4] => 600 мм ) [days] => [29,31,35,37,44] [material_price] => [4298,5573,6356,7288,9119] [work_price] => [4538,5251,5926,6733,7195] [image] => https://akademik-stroy.ru/wp-content/uploads/materials/gazosilikatnyj-blok.jpg [area_modifier] => 133.67 [parent_name] => Стены 2 этаж (несущие) [parent_id] => 5 [material_sum] => 723887 [work_sum] => 636924 [total_sum] => 1360811 [total_days] => 29 [display_material_sum] => 723 887 [display_work_sum] => 636 924 [display_total_sum] => 1 360 811 ) 1
1 360 811
Работа:636 924
Материалы:723 887
Дни:29
stdClass Object ( [id] => 198 [attribute_id] => 5 [name] => Керамзитобетонный блок [material_modifier] => 1 [work_modifier] => 1 [options] => Array ( [0] => 300 мм [1] => 375 мм [2] => 400 мм [3] => 500 мм [4] => 600 мм ) [days] => [23,23,24,25,28] [material_price] => [3641,4298,5693,7613,9612] [work_price] => [5737,5737,6903,7958,8901] [image] => https://akademik-stroy.ru/wp-content/uploads/materials/keramzitobetonnyj-blok.jpg [area_modifier] => 133.67 [parent_name] => Стены 2 этаж (несущие) [parent_id] => 5 [material_sum] => 613233 [work_sum] => 805208 [total_sum] => 1418441 [total_days] => 23 [display_material_sum] => 613 233 [display_work_sum] => 805 208 [display_total_sum] => 1 418 441 ) 1
1 418 441
Работа:805 208
Материалы:613 233
Дни:23
stdClass Object ( [id] => 199 [attribute_id] => 5 [name] => Деревянные [material_modifier] => 1 [work_modifier] => 1 [options] => Array ( [0] => 180 мм [1] => 220 мм [2] => 260 мм [3] => 320 мм ) [days] => [7,8,9,10] [material_price] => [7950,9458,11961,14472] [work_price] => [4037,4925,5812,7207] [image] => https://akademik-stroy.ru/wp-content/uploads/materials/derevyannye.jpg [area_modifier] => 133.67 [parent_name] => Стены 2 этаж (несущие) [parent_id] => 5 [material_sum] => 1338972 [work_sum] => 566607 [total_sum] => 1905579 [total_days] => 7 [display_material_sum] => 1 338 972 [display_work_sum] => 566 607 [display_total_sum] => 1 905 579 ) 1
1 905 579
Работа:566 607
Материалы:1 338 972
Дни:7
stdClass Object ( [id] => 200 [attribute_id] => 5 [name] => Камень [material_modifier] => 1 [work_modifier] => 1 [options] => Array ( [0] => 300 мм [1] => 400 мм [2] => 500 мм [3] => 600 мм ) [days] => [25,27,31,34] [material_price] => [5262,6844,8330,9815] [work_price] => [8331,9135,10427,11069] [image] => https://akademik-stroy.ru/wp-content/uploads/materials/kamen.jpg [area_modifier] => 133.67 [parent_name] => Стены 2 этаж (несущие) [parent_id] => 5 [material_sum] => 886248 [work_sum] => 1169285 [total_sum] => 2055533 [total_days] => 25 [display_material_sum] => 886 248 [display_work_sum] => 1 169 285 [display_total_sum] => 2 055 533 ) 1
2 055 533
Работа:1 169 285
Материалы:886 248
Дни:25
stdClass Object ( [id] => 201 [attribute_id] => 5 [name] => Каркасно-щитовые [material_modifier] => 1 [work_modifier] => 1 [options] => Array ( [0] => 150 мм [1] => 200 мм [2] => 250 мм [3] => 300 мм [4] => 350 мм [5] => 400 мм ) [days] => [15,16,17,18,19,20] [material_price] => [2379,2639,2898,3458,3601,4175] [work_price] => [2538,2820,3134,3483,4062,5642] [image] => https://akademik-stroy.ru/wp-content/uploads/materials/karkasno-shchitovye.jpg [area_modifier] => 133.67 [parent_name] => Стены 2 этаж (несущие) [parent_id] => 5 [material_sum] => 400681 [work_sum] => 356217 [total_sum] => 756898 [total_days] => 15 [display_material_sum] => 400 681 [display_work_sum] => 356 217 [display_total_sum] => 756 898 ) 1
756 898
Работа:356 217
Материалы:400 681
Дни:15
stdClass Object ( [id] => 202 [attribute_id] => 5 [name] => Рубленные [material_modifier] => 1 [work_modifier] => 1 [options] => Array ( [0] => 150 мм [1] => 200 мм [2] => 250 мм [3] => 300 мм [4] => 350 мм [5] => 400 мм ) [days] => [15,16,17,18,17,18] [material_price] => [35950,50267,60583,75900,80217,100533] [work_price] => [9612,12816,16020,19224,22428,25632] [image] => https://akademik-stroy.ru/wp-content/uploads/materials/rublennye.jpg [area_modifier] => 133.67 [parent_name] => Стены 2 этаж (несущие) [parent_id] => 5 [material_sum] => 6054850 [work_sum] => 1349078 [total_sum] => 7403928 [total_days] => 15 [display_material_sum] => 6 054 850 [display_work_sum] => 1 349 078 [display_total_sum] => 7 403 928 ) 1
7 403 928
Работа:1 349 078
Материалы:6 054 850
Дни:15
stdClass Object ( [id] => 203 [attribute_id] => 5 [name] => Теплоблок [material_modifier] => 1 [work_modifier] => 1 [options] => Array ( [0] => 300 мм (с облицовкой, не покрашенный) [1] => 400 мм (с облицовкой, не покрашенный) [2] => 300 мм (с облицовкой, покрашенный) [3] => 400 мм (с облицовкой, покрашенный) ) [days] => [15,16,15,16] [material_price] => [2888,3729,3957,4258] [work_price] => [2564,3229,2949,3713] [image] => https://akademik-stroy.ru/wp-content/uploads/materials/teploblok.jpg [area_modifier] => 133.67 [parent_name] => Стены 2 этаж (несущие) [parent_id] => 5 [material_sum] => 486409 [work_sum] => 359866 [total_sum] => 846275 [total_days] => 15 [display_material_sum] => 486 409 [display_work_sum] => 359 866 [display_total_sum] => 846 275 ) 1
846 275
Работа:359 866
Материалы:486 409
Дни:15
stdClass Object ( [id] => 204 [attribute_id] => 5 [name] => Арболитовые блоки [material_modifier] => 1 [work_modifier] => 1 [options] => Array ( [0] => 300 мм [1] => 400 мм [2] => 600 мм ) [days] => [19,22,27] [material_price] => [3210,4475,5852] [work_price] => [4214,4788,5866] [image] => https://akademik-stroy.ru/wp-content/uploads/materials/arbolitovye-bloki.png [area_modifier] => 133.67 [parent_name] => Стены 2 этаж (несущие) [parent_id] => 5 [material_sum] => 540642 [work_sum] => 591450 [total_sum] => 1132092 [total_days] => 19 [display_material_sum] => 540 642 [display_work_sum] => 591 450 [display_total_sum] => 1 132 092 ) 1
1 132 092
Работа:591 450
Материалы:540 642
Дни:19
stdClass Object ( [id] => 205 [attribute_id] => 5 [name] => Полистиролбетон [material_modifier] => 1 [work_modifier] => 1 [options] => Array ( [0] => 300 мм [1] => 400 мм [2] => 600 мм ) [days] => [29,31,35] [material_price] => [2798,4573,5256] [work_price] => [5038,5851,6426] [image] => https://akademik-stroy.ru/wp-content/uploads/materials/polistirolbeton.jpg [area_modifier] => 133.67 [parent_name] => Стены 2 этаж (несущие) [parent_id] => 5 [material_sum] => 471251 [work_sum] => 707101 [total_sum] => 1178352 [total_days] => 29 [display_material_sum] => 471 251 [display_work_sum] => 707 101 [display_total_sum] => 1 178 352 ) 1
1 178 352
Работа:707 101
Материалы:471 251
Дни:29
stdClass Object ( [id] => 206 [attribute_id] => 5 [name] => Шлакоблок [material_modifier] => 1 [work_modifier] => 1 [options] => Array ( [0] => 400 мм [1] => 600 мм ) [days] => [15,16] [material_price] => [2391,3471] [work_price] => [2642,3662] [image] => https://akademik-stroy.ru/wp-content/uploads/materials/shlakoblok.jpg [area_modifier] => 133.67 [parent_name] => Стены 2 этаж (несущие) [parent_id] => 5 [material_sum] => 402702 [work_sum] => 370814 [total_sum] => 773516 [total_days] => 15 [display_material_sum] => 402 702 [display_work_sum] => 370 814 [display_total_sum] => 773 516 ) 1
773 516
Работа:370 814
Материалы:402 702
Дни:15
stdClass Object ( [id] => 245 [attribute_id] => 5 [name] => Теплая керамика [material_modifier] => 1 [work_modifier] => 1 [options] => Array ( [0] => 380 мм [1] => 380 мм Thermo [2] => 440 мм [3] => 510 мм ) [days] => [10,10,11,12] [material_price] => [4510,5098,6093,8013] [work_price] => [4737,4937,5903,6958] [image] => https://akademik-stroy.ru/wp-content/uploads/materials/teplaya-keramika.jpg [area_modifier] => 133.67 [parent_name] => Стены 2 этаж (несущие) [parent_id] => 5 [material_sum] => 759593 [work_sum] => 664855 [total_sum] => 1424448 [total_days] => 10 [display_material_sum] => 759 593 [display_work_sum] => 664 855 [display_total_sum] => 1 424 448 ) 1
1 424 448
Работа:664 855
Материалы:759 593
Дни:10
stdClass Object ( [id] => 246 [attribute_id] => 5 [name] => Несъемная опалубка [material_modifier] => 1 [work_modifier] => 1 [options] => Array ( [0] => 380 мм [1] => 380 мм Thermo [2] => 440 мм [3] => 510 мм ) [days] => [10,10,11,12] [material_price] => [3302,3902,4108,5008] [work_price] => [2100,2100,2300,2534] [image] => https://akademik-stroy.ru/wp-content/uploads/materials/nesemnaya-opalubka.jpg [area_modifier] => 133.67 [parent_name] => Стены 2 этаж (несущие) [parent_id] => 5 [material_sum] => 556137 [work_sum] => 294742 [total_sum] => 850879 [total_days] => 10 [display_material_sum] => 556 137 [display_work_sum] => 294 742 [display_total_sum] => 850 879 ) 1
850 879
Работа:294 742
Материалы:556 137
Дни:10
stdClass Object ( [id] => 254 [attribute_id] => 5 [name] => Бревно [material_modifier] => 1 [work_modifier] => 1 [options] => Array ( [0] => 260 мм [1] => 320 мм [2] => 360 мм [3] => 400 мм [4] => 500 мм ) [days] => [7,8,9,10,11] [material_price] => [1874,24045,26930,30972,38825] [work_price] => [5046,6207,6952,7716,9723] [image] => https://akademik-stroy.ru/wp-content/uploads/materials/sruby.jpg [area_modifier] => 133.67 [parent_name] => Стены 2 этаж (несущие) [parent_id] => 5 [material_sum] => 315627 [work_sum] => 708224 [total_sum] => 1023851 [total_days] => 7 [display_material_sum] => 315 627 [display_work_sum] => 708 224 [display_total_sum] => 1 023 851 ) 1
1 023 851
Работа:708 224
Материалы:315 627
Дни:7
Крыша (Скатная)
stdClass Object ( [id] => 164 [attribute_id] => 37 [name] => Металлочерепица [material_modifier] => 1 [work_modifier] => 1 [options] => Array ( ) [days] => [20] [material_price] => [6112] [work_price] => [5726] [image] => https://akademik-stroy.ru/wp-content/uploads/materials/metallocherepica.jpg [area_modifier] => 150.61 [parent_name] => Крыша (Скатная) [parent_id] => 37 [material_sum] => 1159866 [work_sum] => 905513 [total_sum] => 2065379 [total_days] => 20 [display_material_sum] => 1 159 866 [display_work_sum] => 905 513 [display_total_sum] => 2 065 379 ) 1
2 065 379
Работа:905 513
Материалы:1 159 866
Дни:20
stdClass Object ( [id] => 165 [attribute_id] => 37 [name] => Гибкая черепица [material_modifier] => 1 [work_modifier] => 1 [options] => Array ( ) [days] => [20] [material_price] => [6980] [work_price] => [5950] [image] => https://akademik-stroy.ru/wp-content/uploads/materials/gibkaya-cherepica.jpg [area_modifier] => 150.61 [parent_name] => Крыша (Скатная) [parent_id] => 37 [material_sum] => 1324585 [work_sum] => 940936 [total_sum] => 2265521 [total_days] => 20 [display_material_sum] => 1 324 585 [display_work_sum] => 940 936 [display_total_sum] => 2 265 521 ) 1
2 265 521
Работа:940 936
Материалы:1 324 585
Дни:20
stdClass Object ( [id] => 166 [attribute_id] => 37 [name] => Цементно-песчаная черепица [material_modifier] => 1 [work_modifier] => 1 [options] => Array ( ) [days] => [20] [material_price] => [10560] [work_price] => [9456] [image] => https://akademik-stroy.ru/wp-content/uploads/materials/cementno-peschanaya-cherepica.jpg [area_modifier] => 150.61 [parent_name] => Крыша (Скатная) [parent_id] => 37 [material_sum] => 2003956 [work_sum] => 1495377 [total_sum] => 3499333 [total_days] => 20 [display_material_sum] => 2 003 956 [display_work_sum] => 1 495 377 [display_total_sum] => 3 499 333 ) 1
3 499 333
Работа:1 495 377
Материалы:2 003 956
Дни:20
stdClass Object ( [id] => 167 [attribute_id] => 37 [name] => Композитная черепица [material_modifier] => 1 [work_modifier] => 1 [options] => Array ( ) [days] => [20] [material_price] => [9506] [work_price] => [8905] [image] => https://akademik-stroy.ru/wp-content/uploads/materials/kompozitnaya-cherepica.jpg [area_modifier] => 150.61 [parent_name] => Крыша (Скатная) [parent_id] => 37 [material_sum] => 1803940 [work_sum] => 1408241 [total_sum] => 3212181 [total_days] => 20 [display_material_sum] => 1 803 940 [display_work_sum] => 1 408 241 [display_total_sum] => 3 212 181 ) 1
3 212 181
Работа:1 408 241
Материалы:1 803 940
Дни:20
stdClass Object ( [id] => 168 [attribute_id] => 37 [name] => Керамическая черепица [material_modifier] => 1 [work_modifier] => 1 [options] => Array ( ) [days] => [20] [material_price] => [12750] [work_price] => [9456] [image] => https://akademik-stroy.ru/wp-content/uploads/materials/keramicheskaya-cherepica.jpg [area_modifier] => 150.61 [parent_name] => Крыша (Скатная) [parent_id] => 37 [material_sum] => 2419550 [work_sum] => 1495377 [total_sum] => 3914927 [total_days] => 20 [display_material_sum] => 2 419 550 [display_work_sum] => 1 495 377 [display_total_sum] => 3 914 927 ) 1
3 914 927
Работа:1 495 377
Материалы:2 419 550
Дни:20
stdClass Object ( [id] => 169 [attribute_id] => 37 [name] => Металлическая фальцевая [material_modifier] => 1 [work_modifier] => 1 [options] => Array ( ) [days] => [20] [material_price] => [8550] [work_price] => [8190] [image] => https://akademik-stroy.ru/wp-content/uploads/materials/metallicheskaya-falcevaya.jpg [area_modifier] => 150.61 [parent_name] => Крыша (Скатная) [parent_id] => 37 [material_sum] => 1622522 [work_sum] => 1295171 [total_sum] => 2917693 [total_days] => 20 [display_material_sum] => 1 622 522 [display_work_sum] => 1 295 171 [display_total_sum] => 2 917 693 ) 1
2 917 693
Работа:1 295 171
Материалы:1 622 522
Дни:20
stdClass Object ( [id] => 170 [attribute_id] => 37 [name] => Медная фальцевая [material_modifier] => 1 [work_modifier] => 1 [options] => Array ( ) [days] => [20] [material_price] => [20450] [work_price] => [16750] [image] => https://akademik-stroy.ru/wp-content/uploads/materials/mednaya-falcevaya.jpg [area_modifier] => 150.61 [parent_name] => Крыша (Скатная) [parent_id] => 37 [material_sum] => 3880768 [work_sum] => 2648853 [total_sum] => 6529621 [total_days] => 20 [display_material_sum] => 3 880 768 [display_work_sum] => 2 648 853 [display_total_sum] => 6 529 621 ) 1
6 529 621
Работа:2 648 853
Материалы:3 880 768
Дни:20
stdClass Object ( [id] => 171 [attribute_id] => 37 [name] => Зеленая кровля [material_modifier] => 1 [work_modifier] => 1 [options] => Array ( ) [days] => [20] [material_price] => [19850] [work_price] => [16780] [image] => https://akademik-stroy.ru/wp-content/uploads/materials/zelenaya-krovlya.jpg [area_modifier] => 150.61 [parent_name] => Крыша (Скатная) [parent_id] => 37 [material_sum] => 3766907 [work_sum] => 2653598 [total_sum] => 6420505 [total_days] => 20 [display_material_sum] => 3 766 907 [display_work_sum] => 2 653 598 [display_total_sum] => 6 420 505 ) 1
6 420 505
Работа:2 653 598
Материалы:3 766 907
Дни:20
stdClass Object ( [id] => 172 [attribute_id] => 37 [name] => Профлист [material_modifier] => 1 [work_modifier] => 1 [options] => Array ( ) [days] => [20] [material_price] => [3450] [work_price] => [3750] [image] => https://akademik-stroy.ru/wp-content/uploads/materials/proflist.jpg [area_modifier] => 150.61 [parent_name] => Крыша (Скатная) [parent_id] => 37 [material_sum] => 654702 [work_sum] => 593027 [total_sum] => 1247729 [total_days] => 20 [display_material_sum] => 654 702 [display_work_sum] => 593 027 [display_total_sum] => 1 247 729 ) 1
1 247 729
Работа:593 027
Материалы:654 702
Дни:20
Окна
stdClass Object ( [id] => 51 [attribute_id] => 26 [name] => Есть [material_modifier] => 1 [work_modifier] => 1 [options] => Array ( [0] => Профиль 58 мм, 3-камерный, стеклопакет 2-камерный до 32 мм [1] => Профиль 60 мм, 4-камерный, стеклопакет 2-камерный до 32 мм [2] => Профиль 70 мм, 5-камерный, стеклопакет 2-камерный до 40 мм [3] => Профиль 72 мм, 5-камерный, стеклопакет 2-камерный до 40 мм [4] => Алюминиевые окна Alutech профиль 72 мм, стеклопакет 2-камерный ) [days] => [3,3,3,3,3] [material_price] => [1339,2124,2867,3023,29596] [work_price] => [635,647,659,668,2579] [image] => https://akademik-stroy.ru/wp-content/uploads/materials/okna.jpg [area_modifier] => 230.69 [parent_name] => Окна [parent_id] => 26 [material_sum] => 389206 [work_sum] => 153813 [total_sum] => 543019 [total_days] => 3 [display_material_sum] => 389 206 [display_work_sum] => 153 813 [display_total_sum] => 543 019 ) 1
543 019
Работа:153 813
Материалы:389 206
Дни:3
stdClass Object ( [id] => 52 [attribute_id] => 26 [name] => Нет [material_modifier] => 2 [work_modifier] => 1 [options] => [days] => null [material_price] => null [work_price] => null [image] => https://akademik-stroy.ru/wp-content/uploads/materials/okna.jpg [area_modifier] => 230.69 [parent_name] => Окна [parent_id] => 26 [material_sum] => 0 [work_sum] => 0 [total_sum] => 0 [total_days] => 0 [display_material_sum] => 0 [display_work_sum] => 0 [display_total_sum] => 0 ) 1
0
Работа:0
Материалы:0
Дни:0
Двери входные
stdClass Object ( [id] => 53 [attribute_id] => 27 [name] => Есть [material_modifier] => 1 [work_modifier] => 1 [options] => Array ( ) [days] => [1] [material_price] => [10000] [work_price] => [5500] [image] => https://akademik-stroy.ru/wp-content/uploads/materials/dveri.jpg [area_modifier] => 1 [parent_name] => Двери входные [parent_id] => 27 [material_sum] => 12600 [work_sum] => 5775 [total_sum] => 18375 [total_days] => 1 [display_material_sum] => 12 600 [display_work_sum] => 5 775 [display_total_sum] => 18 375 ) 1
18 375
Работа:5 775
Материалы:12 600
Дни:1
stdClass Object ( [id] => 54 [attribute_id] => 27 [name] => Нет [material_modifier] => 1 [work_modifier] => 1 [options] => Array ( ) [days] => [0] [material_price] => [0] [work_price] => [0] [image] => https://akademik-stroy.ru/wp-content/uploads/materials/dveri.jpg [area_modifier] => 1 [parent_name] => Двери входные [parent_id] => 27 [material_sum] => 0 [work_sum] => 0 [total_sum] => 0 [total_days] => 0 [display_material_sum] => 0 [display_work_sum] => 0 [display_total_sum] => 0 ) 1
0
Работа:0
Материалы:0
Дни:0
Утепление кровли (Мансарда)
stdClass Object ( [id] => 25 [attribute_id] => 13 [name] => Нет [material_modifier] => 1 [work_modifier] => 1 [options] => Array ( ) [days] => [0] [material_price] => [0] [work_price] => [0] [image] => https://akademik-stroy.ru/wp-content/uploads/materials/mineralovata-krov.jpg [area_modifier] => 150.61 [parent_name] => Утепление кровли (Мансарда) [parent_id] => 13 [material_sum] => 0 [work_sum] => 0 [total_sum] => 0 [total_days] => 0 [display_material_sum] => 0 [display_work_sum] => 0 [display_total_sum] => 0 ) 1
0
Работа:0
Материалы:0
Дни:0
stdClass Object ( [id] => 26 [attribute_id] => 13 [name] => Минераловатный [material_modifier] => 1 [work_modifier] => 1 [options] => Array ( [0] => 50 мм [1] => 100 мм [2] => 150 мм [3] => 200 мм [4] => 250 мм [5] => 300 мм [6] => 350 мм [7] => 400 мм [8] => 450 мм [9] => 500 мм ) [days] => [5,5,6,6,6,7,7,7,8,8] [material_price] => [1158,1414,1772,2230,3602,4060,4974,5890,6408,7718] [work_price] => [650,846,846,1098,1318,1450,1596,1754,1930,2122] [image] => https://akademik-stroy.ru/wp-content/uploads/materials/mineralovata-krov.jpg [area_modifier] => 150.61 [parent_name] => Утепление кровли (Мансарда) [parent_id] => 13 [material_sum] => 219752 [work_sum] => 102791 [total_sum] => 322543 [total_days] => 5 [display_material_sum] => 219 752 [display_work_sum] => 102 791 [display_total_sum] => 322 543 ) 1
322 543
Работа:102 791
Материалы:219 752
Дни:5
stdClass Object ( [id] => 123 [attribute_id] => 13 [name] => Эковата (целлюлозная вата) [material_modifier] => 1 [work_modifier] => 1 [options] => Array ( [0] => 50 мм [1] => 100 мм [2] => 150 мм [3] => 200 мм [4] => 250 мм [5] => 300 мм [6] => 350 мм [7] => 400 мм [8] => 450 мм [9] => 500 мм ) [days] => [3,3,4,4,4,5,5,5,5,5] [material_price] => [820,1638,2458,3276,5734,6552,8190,9828,11466,13104] [work_price] => [234,304,304,396,474,522,574,632,694,764] [image] => https://akademik-stroy.ru/wp-content/uploads/materials/ehkovata-krov.jpg [area_modifier] => 150.61 [parent_name] => Утепление кровли (Мансарда) [parent_id] => 13 [material_sum] => 155610 [work_sum] => 37005 [total_sum] => 192615 [total_days] => 3 [display_material_sum] => 155 610 [display_work_sum] => 37 005 [display_total_sum] => 192 615 ) 1
192 615
Работа:37 005
Материалы:155 610
Дни:3
stdClass Object ( [id] => 124 [attribute_id] => 13 [name] => Экструдированный пенополистирол [material_modifier] => 1 [work_modifier] => 1 [options] => Array ( [0] => 50 мм [1] => 100 мм [2] => 150 мм [3] => 200 мм [4] => 250 мм [5] => 300 мм [6] => 350 мм [7] => 400 мм [8] => 450 мм [9] => 500 мм ) [days] => [3,3,4,4,4,5,5,5,5,6] [material_price] => [1146,2292,3438,4584,8020,9166,11458,13750,16040,18332] [work_price] => [390,508,508,660,790,870,958,1052,1158,1274] [image] => https://akademik-stroy.ru/wp-content/uploads/materials/epps-krov.jpg [area_modifier] => 150.61 [parent_name] => Утепление кровли (Мансарда) [parent_id] => 13 [material_sum] => 217475 [work_sum] => 61675 [total_sum] => 279150 [total_days] => 3 [display_material_sum] => 217 475 [display_work_sum] => 61 675 [display_total_sum] => 279 150 ) 1
279 150
Работа:61 675
Материалы:217 475
Дни:3
stdClass Object ( [id] => 125 [attribute_id] => 13 [name] => ПСБ (ППС-пенополистирол) [material_modifier] => 1 [work_modifier] => 1 [options] => Array ( [0] => 50 мм [1] => 100 мм [2] => 150 мм [3] => 200 мм [4] => 250 мм [5] => 300 мм [6] => 350 мм [7] => 400 мм [8] => 450 мм [9] => 500 мм ) [days] => [3,3,4,4,4,5,5,5,5,6] [material_price] => [476,954,1430,1906,3336,3814,4766,5720,6674,7626] [work_price] => [390,508,508,660,790,870,958,1052,1158,1274] [image] => https://akademik-stroy.ru/wp-content/uploads/materials/psb-krov.jpg [area_modifier] => 150.61 [parent_name] => Утепление кровли (Мансарда) [parent_id] => 13 [material_sum] => 90330 [work_sum] => 61675 [total_sum] => 152005 [total_days] => 3 [display_material_sum] => 90 330 [display_work_sum] => 61 675 [display_total_sum] => 152 005 ) 1
152 005
Работа:61 675
Материалы:90 330
Дни:3
stdClass Object ( [id] => 126 [attribute_id] => 13 [name] => ППУ (Пенополиуретан) [material_modifier] => 1 [work_modifier] => 1 [options] => Array ( [0] => 50 мм [1] => 100 мм [2] => 150 мм [3] => 200 мм [4] => 250 мм [5] => 300 мм [6] => 350 мм [7] => 400 мм [8] => 450 мм [9] => 500 мм ) [days] => [2,2,3,3,3,3,4,4,4,4] [material_price] => [2080,4160,6240,8320,14560,16640,20800,24960,29120,33280] [work_price] => [234,304,304,396,474,522,574,632,694,764] [image] => https://akademik-stroy.ru/wp-content/uploads/materials/ppu-krov.jpg [area_modifier] => 150.61 [parent_name] => Утепление кровли (Мансарда) [parent_id] => 13 [material_sum] => 394719 [work_sum] => 37005 [total_sum] => 431724 [total_days] => 2 [display_material_sum] => 394 719 [display_work_sum] => 37 005 [display_total_sum] => 431 724 ) 1
431 724
Работа:37 005
Материалы:394 719
Дни:2
stdClass Object ( [id] => 127 [attribute_id] => 13 [name] => PIR-плиты (пенополиизоцианурат) [material_modifier] => 1 [work_modifier] => 1 [options] => Array ( [0] => 50 мм [1] => 100 мм [2] => 150 мм [3] => 200 мм [4] => 250 мм [5] => 300 мм [6] => 350 мм [7] => 400 мм [8] => 450 мм [9] => 500 мм ) [days] => [3,3,4,4,4,5,5,5,5,6] [material_price] => [2646,5290,7936,10580,18516,21162,26452,31742,37032,42324] [work_price] => [390,508,508,660,790,870,958,1052,1158,1274] [image] => https://akademik-stroy.ru/wp-content/uploads/materials/pir-krov.jpg [area_modifier] => 150.61 [parent_name] => Утепление кровли (Мансарда) [parent_id] => 13 [material_sum] => 502128 [work_sum] => 61675 [total_sum] => 563803 [total_days] => 3 [display_material_sum] => 502 128 [display_work_sum] => 61 675 [display_total_sum] => 563 803 ) 1
563 803
Работа:61 675
Материалы:502 128
Дни:3
Мансардные окна
stdClass Object ( [id] => 27 [attribute_id] => 14 [name] => Нет [material_modifier] => 1 [work_modifier] => 1 [options] => Array ( ) [days] => [0] [material_price] => [0] [work_price] => [0] [image] => https://akademik-stroy.ru/wp-content/uploads/materials/mansardnye-okna-2.jpg [area_modifier] => 1 [parent_name] => Мансардные окна [parent_id] => 14 [material_sum] => 0 [work_sum] => 0 [total_sum] => 0 [total_days] => 0 [display_material_sum] => 0 [display_work_sum] => 0 [display_total_sum] => 0 ) 1
0
Работа:0
Материалы:0
Дни:0
stdClass Object ( [id] => 28 [attribute_id] => 14 [name] => Есть [material_modifier] => 1 [work_modifier] => 1 [options] => Array ( [0] => 55x78 [1] => 55x98 ) [days] => [6,7] [material_price] => [47480,68700] [work_price] => [17900,19500] [image] => https://akademik-stroy.ru/wp-content/uploads/materials/mansardnye-okna-2.jpg [area_modifier] => 1 [parent_name] => Мансардные окна [parent_id] => 14 [material_sum] => 59825 [work_sum] => 18795 [total_sum] => 78620 [total_days] => 6 [display_material_sum] => 59 825 [display_work_sum] => 18 795 [display_total_sum] => 78 620 ) 1
78 620
Работа:18 795
Материалы:59 825
Дни:6
Подшивка кровли
stdClass Object ( [id] => 29 [attribute_id] => 15 [name] => Нет [material_modifier] => 1 [work_modifier] => 1 [options] => Array ( ) [days] => [0] [material_price] => [0] [work_price] => [0] [image] => https://akademik-stroy.ru/wp-content/uploads/materials/sofit.jpg [area_modifier] => 150.61 [parent_name] => Подшивка кровли [parent_id] => 15 [material_sum] => 0 [work_sum] => 0 [total_sum] => 0 [total_days] => 0 [display_material_sum] => 0 [display_work_sum] => 0 [display_total_sum] => 0 ) 1
0
Работа:0
Материалы:0
Дни:0
stdClass Object ( [id] => 30 [attribute_id] => 15 [name] => Есть [material_modifier] => 1 [work_modifier] => 1 [options] => Array ( [0] => Софиты (ПВХ) [1] => Cedral [2] => ДПК [3] => Планкен ) [days] => [7,10,9,8] [material_price] => [1803,3213,3025,3150] [work_price] => [1529,2188,2075,1923] [image] => https://akademik-stroy.ru/wp-content/uploads/materials/sofit.jpg [area_modifier] => 150.61 [parent_name] => Подшивка кровли [parent_id] => 15 [material_sum] => 342153 [work_sum] => 241797 [total_sum] => 583950 [total_days] => 7 [display_material_sum] => 342 153 [display_work_sum] => 241 797 [display_total_sum] => 583 950 ) 1
583 950
Работа:241 797
Материалы:342 153
Дни:7
Водосточная система
stdClass Object ( [id] => 31 [attribute_id] => 16 [name] => Нет [material_modifier] => 1 [work_modifier] => 1 [options] => Array ( ) [days] => [0] [material_price] => [0] [work_price] => [0] [image] => https://akademik-stroy.ru/wp-content/uploads/materials/docke-standard-pvh.jpg [area_modifier] => 150.61 [parent_name] => Водосточная система [parent_id] => 16 [material_sum] => 0 [work_sum] => 0 [total_sum] => 0 [total_days] => 0 [display_material_sum] => 0 [display_work_sum] => 0 [display_total_sum] => 0 ) 1
0
Работа:0
Материалы:0
Дни:0
stdClass Object ( [id] => 32 [attribute_id] => 16 [name] => Есть [material_modifier] => 1 [work_modifier] => 1 [options] => Array ( [0] => Döcke Standard (ПВХ) [1] => Металлические Grand Line ) [days] => [7,7] [material_price] => [1842,2703] [work_price] => [1491,1529] [image] => https://akademik-stroy.ru/wp-content/uploads/materials/docke-standard-pvh.jpg [area_modifier] => 150.61 [parent_name] => Водосточная система [parent_id] => 16 [material_sum] => 349554 [work_sum] => 235787 [total_sum] => 585341 [total_days] => 7 [display_material_sum] => 349 554 [display_work_sum] => 235 787 [display_total_sum] => 585 341 ) 1
585 341
Работа:235 787
Материалы:349 554
Дни:7
Дополнительное утепление наружных стен
stdClass Object ( [id] => 33 [attribute_id] => 17 [name] => Нет [material_modifier] => 1 [work_modifier] => 1 [options] => Array ( ) [days] => [0] [material_price] => [0] [work_price] => [0] [image] => https://akademik-stroy.ru/wp-content/uploads/materials/mineralovata.jpg [area_modifier] => 284.28 [parent_name] => Дополнительное утепление наружных стен [parent_id] => 17 [material_sum] => 0 [work_sum] => 0 [total_sum] => 0 [total_days] => 0 [display_material_sum] => 0 [display_work_sum] => 0 [display_total_sum] => 0 ) 1
0
Работа:0
Материалы:0
Дни:0
stdClass Object ( [id] => 34 [attribute_id] => 17 [name] => Минераловатный [material_modifier] => 1 [work_modifier] => 1 [options] => Array ( [0] => 50 мм [1] => 100 мм [2] => 150 мм [3] => 200 мм [4] => 250 мм [5] => 300 мм ) [days] => [7,8,10,12,14,15] [material_price] => [3437,3613,3803,3915,4601,4830] [work_price] => [2325,2423,2523,2749,2859,3025] [image] => https://akademik-stroy.ru/wp-content/uploads/materials/mineralovata.jpg [area_modifier] => 284.28 [parent_name] => Дополнительное утепление наружных стен [parent_id] => 17 [material_sum] => 1231109 [work_sum] => 693999 [total_sum] => 1925108 [total_days] => 7 [display_material_sum] => 1 231 109 [display_work_sum] => 693 999 [display_total_sum] => 1 925 108 ) 1
1 925 108
Работа:693 999
Материалы:1 231 109
Дни:7
stdClass Object ( [id] => 128 [attribute_id] => 17 [name] => Эковата (целлюлозная вата) [material_modifier] => 1 [work_modifier] => 1 [options] => Array ( [0] => 50 мм [1] => 100 мм [2] => 150 мм [3] => 200 мм [4] => 250 мм [5] => 300 мм ) [days] => [3,4,5,6,7,8] [material_price] => [810,1319,1629,1838,2267,2676] [work_price] => [1225,1323,1423,1549,1659,1725] [image] => https://akademik-stroy.ru/wp-content/uploads/materials/ehkovata.jpg [area_modifier] => 284.28 [parent_name] => Дополнительное утепление наружных стен [parent_id] => 17 [material_sum] => 290136 [work_sum] => 365655 [total_sum] => 655791 [total_days] => 3 [display_material_sum] => 290 136 [display_work_sum] => 365 655 [display_total_sum] => 655 791 ) 1
655 791
Работа:365 655
Материалы:290 136
Дни:3
stdClass Object ( [id] => 129 [attribute_id] => 17 [name] => Экструдированный пенополистирол [material_modifier] => 1 [work_modifier] => 1 [options] => Array ( [0] => 50 мм [1] => 100 мм [2] => 150 мм [3] => 200 мм [4] => 250 мм [5] => 300 мм ) [days] => [5,6,7,8,9,10] [material_price] => [4560,4300,5119,6292,7010,8583] [work_price] => [1795,1954,2254,2330,2595,2735] [image] => https://akademik-stroy.ru/wp-content/uploads/materials/epps.jpg [area_modifier] => 284.28 [parent_name] => Дополнительное утепление наружных стен [parent_id] => 17 [material_sum] => 1633359 [work_sum] => 535797 [total_sum] => 2169156 [total_days] => 5 [display_material_sum] => 1 633 359 [display_work_sum] => 535 797 [display_total_sum] => 2 169 156 ) 1
2 169 156
Работа:535 797
Материалы:1 633 359
Дни:5
stdClass Object ( [id] => 130 [attribute_id] => 17 [name] => ПСБ (ППС-пенополистирол) [material_modifier] => 1 [work_modifier] => 1 [options] => Array ( [0] => 50 мм [1] => 100 мм [2] => 150 мм [3] => 200 мм [4] => 250 мм [5] => 300 мм ) [days] => [5,6,7,8,9,10] [material_price] => [4822,5200,5819,6292,7010,7583] [work_price] => [1795,1954,2254,2330,2595,2735] [image] => https://akademik-stroy.ru/wp-content/uploads/materials/psb.jpg [area_modifier] => 284.28 [parent_name] => Дополнительное утепление наружных стен [parent_id] => 17 [material_sum] => 1727206 [work_sum] => 535797 [total_sum] => 2263003 [total_days] => 5 [display_material_sum] => 1 727 206 [display_work_sum] => 535 797 [display_total_sum] => 2 263 003 ) 1
2 263 003
Работа:535 797
Материалы:1 727 206
Дни:5
stdClass Object ( [id] => 131 [attribute_id] => 17 [name] => ППУ (Пенополиуретан) [material_modifier] => 1 [work_modifier] => 1 [options] => Array ( [0] => 50 мм [1] => 100 мм [2] => 150 мм [3] => 200 мм [4] => 250 мм [5] => 300 мм ) [days] => [3,4,5,6,7,8] [material_price] => [2860,3400,4219,4592,5010,5583] [work_price] => [729,900,980,1120,1280,1530] [image] => https://akademik-stroy.ru/wp-content/uploads/materials/ppu.jpg [area_modifier] => 284.28 [parent_name] => Дополнительное утепление наружных стен [parent_id] => 17 [material_sum] => 1024431 [work_sum] => 217602 [total_sum] => 1242033 [total_days] => 3 [display_material_sum] => 1 024 431 [display_work_sum] => 217 602 [display_total_sum] => 1 242 033 ) 1
1 242 033
Работа:217 602
Материалы:1 024 431
Дни:3
stdClass Object ( [id] => 132 [attribute_id] => 17 [name] => PIR-плиты (пенополиизоцианурат) [material_modifier] => 1 [work_modifier] => 1 [options] => Array ( [0] => 50 мм [1] => 100 мм [2] => 150 мм [3] => 200 мм [4] => 250 мм [5] => 300 мм ) [days] => [5,6,7,8,9,10] [material_price] => [8323,15645,20968,25900,29258,30581] [work_price] => [800,900,970,1150,1280,1330] [image] => https://akademik-stroy.ru/wp-content/uploads/materials/pir.jpg [area_modifier] => 284.28 [parent_name] => Дополнительное утепление наружных стен [parent_id] => 17 [material_sum] => 2981239 [work_sum] => 238795 [total_sum] => 3220034 [total_days] => 5 [display_material_sum] => 2 981 239 [display_work_sum] => 238 795 [display_total_sum] => 3 220 034 ) 1
3 220 034
Работа:238 795
Материалы:2 981 239
Дни:5
Наружная отделка фасада
stdClass Object ( [id] => 37 [attribute_id] => 19 [name] => Нет [material_modifier] => 1 [work_modifier] => 1 [options] => Array ( ) [days] => [0] [material_price] => [0] [work_price] => [0] [image] => https://akademik-stroy.ru/wp-content/uploads/materials/imitaciya-brusa.jpg [area_modifier] => 284.28 [parent_name] => Наружная отделка фасада [parent_id] => 19 [material_sum] => 0 [work_sum] => 0 [total_sum] => 0 [total_days] => 0 [display_material_sum] => 0 [display_work_sum] => 0 [display_total_sum] => 0 ) 1
0
Работа:0
Материалы:0
Дни:0
stdClass Object ( [id] => 38 [attribute_id] => 19 [name] => Имитация бруса [material_modifier] => 1 [work_modifier] => 1 [options] => Array ( [0] => Сосна [1] => Ель [2] => Лиственница ) [days] => [20,20,20] [material_price] => [2994,2762,4954] [work_price] => [1397,1231,1577] [image] => https://akademik-stroy.ru/wp-content/uploads/materials/imitaciya-brusa.jpg [area_modifier] => 284.28 [parent_name] => Наружная отделка фасада [parent_id] => 19 [material_sum] => 1072429 [work_sum] => 416996 [total_sum] => 1489425 [total_days] => 20 [display_material_sum] => 1 072 429 [display_work_sum] => 416 996 [display_total_sum] => 1 489 425 ) 1
1 489 425
Работа:416 996
Материалы:1 072 429
Дни:20
stdClass Object ( [id] => 136 [attribute_id] => 19 [name] => Планкен [material_modifier] => 1 [work_modifier] => 1 [options] => Array ( [0] => Сосна [1] => Ель [2] => Лиственница ) [days] => [20,20,20] [material_price] => [3194,2862,5154] [work_price] => [1537,1354,1735] [image] => https://akademik-stroy.ru/wp-content/uploads/materials/planken.jpg [area_modifier] => 284.28 [parent_name] => Наружная отделка фасада [parent_id] => 19 [material_sum] => 1144068 [work_sum] => 458785 [total_sum] => 1602853 [total_days] => 20 [display_material_sum] => 1 144 068 [display_work_sum] => 458 785 [display_total_sum] => 1 602 853 ) 1
1 602 853
Работа:458 785
Материалы:1 144 068
Дни:20
stdClass Object ( [id] => 137 [attribute_id] => 19 [name] => Штукатурка [material_modifier] => 1 [work_modifier] => 1 [options] => Array ( [0] => Цементно-песчаная (минеральная) [1] => Мокрый фасад ) [days] => [35,35] [material_price] => [2231,3938] [work_price] => [1202,2422] [image] => https://akademik-stroy.ru/wp-content/uploads/materials/shtukaturka.jpg [area_modifier] => 284.28 [parent_name] => Наружная отделка фасада [parent_id] => 19 [material_sum] => 799128 [work_sum] => 358790 [total_sum] => 1157918 [total_days] => 35 [display_material_sum] => 799 128 [display_work_sum] => 358 790 [display_total_sum] => 1 157 918 ) 1
1 157 918
Работа:358 790
Материалы:799 128
Дни:35
stdClass Object ( [id] => 138 [attribute_id] => 19 [name] => Облицовочный кирпич [material_modifier] => 1 [work_modifier] => 1 [options] => Array ( [0] => Керамический [1] => Клинкерный [2] => Ручной формовки [3] => Гиперпрессованный [4] => Силикатный кирпич ) [days] => [45,45,45,45,45] [material_price] => [8174,9148,1040,1257,5876] [work_price] => [3240,3758,4536,4017,3369] [image] => https://akademik-stroy.ru/wp-content/uploads/materials/oblicovochnyj-kirpich.jpg [area_modifier] => 284.28 [parent_name] => Наружная отделка фасада [parent_id] => 19 [material_sum] => 2927868 [work_sum] => 967121 [total_sum] => 3894989 [total_days] => 45 [display_material_sum] => 2 927 868 [display_work_sum] => 967 121 [display_total_sum] => 3 894 989 ) 1
3 894 989
Работа:967 121
Материалы:2 927 868
Дни:45
stdClass Object ( [id] => 139 [attribute_id] => 19 [name] => Фасадная плитка [material_modifier] => 1 [work_modifier] => 1 [options] => Array ( [0] => Клинкерная [1] => Керамическая [2] => Плитка ручной формовки ) [days] => [40,40,40] [material_price] => [2974,1487,3470] [work_price] => [3007,2592,3629] [image] => https://akademik-stroy.ru/wp-content/uploads/materials/fasadnaya-plitka.jpg [area_modifier] => 284.28 [parent_name] => Наружная отделка фасада [parent_id] => 19 [material_sum] => 1065265 [work_sum] => 897571 [total_sum] => 1962836 [total_days] => 40 [display_material_sum] => 1 065 265 [display_work_sum] => 897 571 [display_total_sum] => 1 962 836 ) 1
1 962 836
Работа:897 571
Материалы:1 065 265
Дни:40
stdClass Object ( [id] => 140 [attribute_id] => 19 [name] => Сайдинг [material_modifier] => 1 [work_modifier] => 1 [options] => Array ( [0] => Виниловый [1] => Металлический [2] => Фиброцементный ) [days] => [20,20,20] [material_price] => [1263,1944,4147] [work_price] => [1263,1944,2074] [image] => https://akademik-stroy.ru/wp-content/uploads/materials/sajding.jpg [area_modifier] => 284.28 [parent_name] => Наружная отделка фасада [parent_id] => 19 [material_sum] => 452398 [work_sum] => 376998 [total_sum] => 829396 [total_days] => 20 [display_material_sum] => 452 398 [display_work_sum] => 376 998 [display_total_sum] => 829 396 ) 1
829 396
Работа:376 998
Материалы:452 398
Дни:20
stdClass Object ( [id] => 141 [attribute_id] => 19 [name] => Камень [material_modifier] => 1 [work_modifier] => 1 [options] => Array ( [0] => Травертин [1] => Дагестанский [2] => Искусственный [3] => Натуральный [4] => Керамогранит ) [days] => [45,45,45,45,45] [material_price] => [4536,3888,2592,3240,2462] [work_price] => [3240,3240,2462,3110,1944] [image] => https://akademik-stroy.ru/wp-content/uploads/materials/kamen-1.jpg [area_modifier] => 284.28 [parent_name] => Наружная отделка фасада [parent_id] => 19 [material_sum] => 1624763 [work_sum] => 967121 [total_sum] => 2591884 [total_days] => 45 [display_material_sum] => 1 624 763 [display_work_sum] => 967 121 [display_total_sum] => 2 591 884 ) 1
2 591 884
Работа:967 121
Материалы:1 624 763
Дни:45
stdClass Object ( [id] => 142 [attribute_id] => 19 [name] => Термопанели [material_modifier] => 1 [work_modifier] => 1 [options] => Array ( ) [days] => [20] [material_price] => [6221] [work_price] => [2333] [image] => https://akademik-stroy.ru/wp-content/uploads/materials/termo.png [area_modifier] => 284.28 [parent_name] => Наружная отделка фасада [parent_id] => 19 [material_sum] => 2228317 [work_sum] => 696387 [total_sum] => 2924704 [total_days] => 20 [display_material_sum] => 2 228 317 [display_work_sum] => 696 387 [display_total_sum] => 2 924 704 ) 1
2 924 704
Работа:696 387
Материалы:2 228 317
Дни:20
stdClass Object ( [id] => 143 [attribute_id] => 19 [name] => Плитка HAUBERK [material_modifier] => 1 [work_modifier] => 1 [options] => Array ( ) [days] => [20] [material_price] => [2786] [work_price] => [1944] [image] => https://akademik-stroy.ru/wp-content/uploads/materials/hauberk.jpg [area_modifier] => 284.28 [parent_name] => Наружная отделка фасада [parent_id] => 19 [material_sum] => 997925 [work_sum] => 580272 [total_sum] => 1578197 [total_days] => 20 [display_material_sum] => 997 925 [display_work_sum] => 580 272 [display_total_sum] => 1 578 197 ) 1
1 578 197
Работа:580 272
Материалы:997 925
Дни:20
stdClass Object ( [id] => 144 [attribute_id] => 19 [name] => Фальцевый фасад [material_modifier] => 1 [work_modifier] => 1 [options] => Array ( ) [days] => [20] [material_price] => [3240] [work_price] => [2592] [image] => https://akademik-stroy.ru/wp-content/uploads/materials/falcevyj-fasad.jpg [area_modifier] => 284.28 [parent_name] => Наружная отделка фасада [parent_id] => 19 [material_sum] => 1160545 [work_sum] => 773696 [total_sum] => 1934241 [total_days] => 20 [display_material_sum] => 1 160 545 [display_work_sum] => 773 696 [display_total_sum] => 1 934 241 ) 1
1 934 241
Работа:773 696
Материалы:1 160 545
Дни:20
stdClass Object ( [id] => 145 [attribute_id] => 19 [name] => Комбинированный [material_modifier] => 1 [work_modifier] => 1 [options] => Array ( ) [days] => [20] [material_price] => [4629] [work_price] => [3499] [image] => https://akademik-stroy.ru/wp-content/uploads/materials/Kombinirovannyj.jpg [area_modifier] => 284.28 [parent_name] => Наружная отделка фасада [parent_id] => 19 [material_sum] => 1658074 [work_sum] => 1044431 [total_sum] => 2702505 [total_days] => 20 [display_material_sum] => 1 658 074 [display_work_sum] => 1 044 431 [display_total_sum] => 2 702 505 ) 1
2 702 505
Работа:1 044 431
Материалы:1 658 074
Дни:20
stdClass Object ( [id] => 257 [attribute_id] => 19 [name] => Японские фиброцементные [material_modifier] => 1 [work_modifier] => 1 [options] => Array ( ) [days] => [20] [material_price] => [7043] [work_price] => [2993] [image] => https://akademik-stroy.ru/wp-content/uploads/materials/paneli.jpg [area_modifier] => 284.28 [parent_name] => Наружная отделка фасада [parent_id] => 19 [material_sum] => 2522752 [work_sum] => 893393 [total_sum] => 3416145 [total_days] => 20 [display_material_sum] => 2 522 752 [display_work_sum] => 893 393 [display_total_sum] => 3 416 145 ) 1
3 416 145
Работа:893 393
Материалы:2 522 752
Дни:20
stdClass Object ( [id] => 258 [attribute_id] => 19 [name] => Панели Каньон [material_modifier] => 1 [work_modifier] => 1 [options] => Array ( ) [days] => [20] [material_price] => [4543] [work_price] => [2592] [image] => https://akademik-stroy.ru/wp-content/uploads/materials/kanon.png [area_modifier] => 284.28 [parent_name] => Наружная отделка фасада [parent_id] => 19 [material_sum] => 1627270 [work_sum] => 773696 [total_sum] => 2400966 [total_days] => 20 [display_material_sum] => 1 627 270 [display_work_sum] => 773 696 [display_total_sum] => 2 400 966 ) 1
2 400 966
Работа:773 696
Материалы:1 627 270
Дни:20
Террасы, крыльца, навесы
stdClass Object ( [id] => 39 [attribute_id] => 20 [name] => Нет [material_modifier] => 1 [work_modifier] => 1 [options] => Array ( ) [days] => [0] [material_price] => [0] [work_price] => [0] [image] => https://akademik-stroy.ru/wp-content/uploads/materials/terrasy.jpg [area_modifier] => 30 [parent_name] => Террасы, крыльца, навесы [parent_id] => 20 [material_sum] => 0 [work_sum] => 0 [total_sum] => 0 [total_days] => 0 [display_material_sum] => 0 [display_work_sum] => 0 [display_total_sum] => 0 ) 1
0
Работа:0
Материалы:0
Дни:0
stdClass Object ( [id] => 40 [attribute_id] => 20 [name] => Есть [material_modifier] => 1 [work_modifier] => 1 [options] => Array ( ) [days] => [5] [material_price] => [10450] [work_price] => [1950] [image] => https://akademik-stroy.ru/wp-content/uploads/materials/terrasy.jpg [area_modifier] => 30 [parent_name] => Террасы, крыльца, навесы [parent_id] => 20 [material_sum] => 395010 [work_sum] => 61425 [total_sum] => 456435 [total_days] => 5 [display_material_sum] => 395 010 [display_work_sum] => 61 425 [display_total_sum] => 456 435 ) 1
456 435
Работа:61 425
Материалы:395 010
Дни:5
Балконы
stdClass Object ( [id] => 41 [attribute_id] => 21 [name] => Нет [material_modifier] => 1 [work_modifier] => 1 [options] => Array ( ) [days] => [0] [material_price] => [0] [work_price] => [0] [image] => https://akademik-stroy.ru/wp-content/uploads/materials/balkony.jpg [area_modifier] => 30 [parent_name] => Балконы [parent_id] => 21 [material_sum] => 0 [work_sum] => 0 [total_sum] => 0 [total_days] => 0 [display_material_sum] => 0 [display_work_sum] => 0 [display_total_sum] => 0 ) 1
0
Работа:0
Материалы:0
Дни:0
stdClass Object ( [id] => 42 [attribute_id] => 21 [name] => Есть [material_modifier] => 1 [work_modifier] => 1 [options] => Array ( ) [days] => [12] [material_price] => [3600] [work_price] => [1950] [image] => https://akademik-stroy.ru/wp-content/uploads/materials/balkony.jpg [area_modifier] => 30 [parent_name] => Балконы [parent_id] => 21 [material_sum] => 136080 [work_sum] => 61425 [total_sum] => 197505 [total_days] => 12 [display_material_sum] => 136 080 [display_work_sum] => 61 425 [display_total_sum] => 197 505 ) 1
197 505
Работа:61 425
Материалы:136 080
Дни:12
Отмостка
stdClass Object ( [id] => 43 [attribute_id] => 22 [name] => Нет [material_modifier] => 1 [work_modifier] => 1 [options] => Array ( ) [days] => [0] [material_price] => [0] [work_price] => [0] [image] => https://akademik-stroy.ru/wp-content/uploads/materials/uteplennaya.jpg [area_modifier] => 150.61 [parent_name] => Отмостка [parent_id] => 22 [material_sum] => 0 [work_sum] => 0 [total_sum] => 0 [total_days] => 0 [display_material_sum] => 0 [display_work_sum] => 0 [display_total_sum] => 0 ) 1
0
Работа:0
Материалы:0
Дни:0
stdClass Object ( [id] => 44 [attribute_id] => 22 [name] => Утепленная отмостка [material_modifier] => 1 [work_modifier] => 1 [options] => Array ( ) [days] => [15] [material_price] => [2550] [work_price] => [1750] [image] => https://akademik-stroy.ru/wp-content/uploads/materials/uteplennaya.jpg [area_modifier] => 150.61 [parent_name] => Отмостка [parent_id] => 22 [material_sum] => 483910 [work_sum] => 276746 [total_sum] => 760656 [total_days] => 15 [display_material_sum] => 483 910 [display_work_sum] => 276 746 [display_total_sum] => 760 656 ) 1
760 656
Работа:276 746
Материалы:483 910
Дни:15
stdClass Object ( [id] => 146 [attribute_id] => 22 [name] => Не утепленная отмостка [material_modifier] => 1 [work_modifier] => 1 [options] => Array ( ) [days] => [10] [material_price] => [1650] [work_price] => [1450] [image] => https://akademik-stroy.ru/wp-content/uploads/materials/ne-uteplennaya.jpg [area_modifier] => 150.61 [parent_name] => Отмостка [parent_id] => 22 [material_sum] => 313118 [work_sum] => 229304 [total_sum] => 542422 [total_days] => 10 [display_material_sum] => 313 118 [display_work_sum] => 229 304 [display_total_sum] => 542 422 ) 1
542 422
Работа:229 304
Материалы:313 118
Дни:10
Дренаж вокруг дома
stdClass Object ( [id] => 45 [attribute_id] => 23 [name] => Нет [material_modifier] => 1 [work_modifier] => 1 [options] => Array ( ) [days] => [0] [material_price] => [0] [work_price] => [0] [image] => https://akademik-stroy.ru/wp-content/uploads/materials/drenazh-2.jpg [area_modifier] => 150.61 [parent_name] => Дренаж вокруг дома [parent_id] => 23 [material_sum] => 0 [work_sum] => 0 [total_sum] => 0 [total_days] => 0 [display_material_sum] => 0 [display_work_sum] => 0 [display_total_sum] => 0 ) 1
0
Работа:0
Материалы:0
Дни:0
stdClass Object ( [id] => 46 [attribute_id] => 23 [name] => Есть [material_modifier] => 1 [work_modifier] => 1 [options] => Array ( ) [days] => [5] [material_price] => [2366] [work_price] => [1911] [image] => https://akademik-stroy.ru/wp-content/uploads/materials/drenazh-2.jpg [area_modifier] => 150.61 [parent_name] => Дренаж вокруг дома [parent_id] => 23 [material_sum] => 448993 [work_sum] => 302206 [total_sum] => 751199 [total_days] => 5 [display_material_sum] => 448 993 [display_work_sum] => 302 206 [display_total_sum] => 751 199 ) 1
751 199
Работа:302 206
Материалы:448 993
Дни:5
Автономная канализация (септики)
stdClass Object ( [id] => 47 [attribute_id] => 24 [name] => Нет [material_modifier] => 1 [work_modifier] => 1 [options] => Array ( ) [days] => [0] [material_price] => [0] [work_price] => [0] [image] => https://akademik-stroy.ru/wp-content/uploads/materials/septik.jpg [area_modifier] => 1 [parent_name] => Автономная канализация (септики) [parent_id] => 24 [material_sum] => 0 [work_sum] => 0 [total_sum] => 0 [total_days] => 0 [display_material_sum] => 0 [display_work_sum] => 0 [display_total_sum] => 0 ) 1
0
Работа:0
Материалы:0
Дни:0
stdClass Object ( [id] => 48 [attribute_id] => 24 [name] => Есть [material_modifier] => 1 [work_modifier] => 1 [options] => Array ( [0] => Для дачи на 4 человека [1] => Для дома на 5 человек [2] => Для дома на 6 человек [3] => Для дома на 7 человек [4] => Для дома на 10 человек ) [days] => [7,7,7,8,8] [material_price] => [196340,220500,240940,264200,293340] [work_price] => [50000,55000,60500,66550,73206] [image] => https://akademik-stroy.ru/wp-content/uploads/materials/septik.jpg [area_modifier] => 1 [parent_name] => Автономная канализация (септики) [parent_id] => 24 [material_sum] => 247388 [work_sum] => 52500 [total_sum] => 299888 [total_days] => 7 [display_material_sum] => 247 388 [display_work_sum] => 52 500 [display_total_sum] => 299 888 ) 1
299 888
Работа:52 500
Материалы:247 388
Дни:7
Внутренние (не несущие) перегородки
stdClass Object ( [id] => 49 [attribute_id] => 25 [name] => Нет [material_modifier] => 1 [work_modifier] => 1 [options] => Array ( ) [days] => [0] [material_price] => [0] [work_price] => [0] [image] => https://akademik-stroy.ru/wp-content/uploads/materials/gkl.jpg [area_modifier] => 284.28 [parent_name] => Внутренние (не несущие) перегородки [parent_id] => 25 [material_sum] => 0 [work_sum] => 0 [total_sum] => 0 [total_days] => 0 [display_material_sum] => 0 [display_work_sum] => 0 [display_total_sum] => 0 ) 1
0
Работа:0
Материалы:0
Дни:0
stdClass Object ( [id] => 147 [attribute_id] => 25 [name] => Каркасно-обшивные [material_modifier] => 1 [work_modifier] => 1 [options] => Array ( [0] => 75 мм (без шумоизоляции) [1] => 75 мм (с шумоизоляцией) ) [days] => [11,11] [material_price] => [580,970] [work_price] => [380,570] [image] => https://akademik-stroy.ru/wp-content/uploads/materials/gkl.jpg [area_modifier] => 284.28 [parent_name] => Внутренние (не несущие) перегородки [parent_id] => 25 [material_sum] => 207752 [work_sum] => 113428 [total_sum] => 321180 [total_days] => 11 [display_material_sum] => 207 752 [display_work_sum] => 113 428 [display_total_sum] => 321 180 ) 1
321 180
Работа:113 428
Материалы:207 752
Дни:11
stdClass Object ( [id] => 148 [attribute_id] => 25 [name] => Пазогребневые [material_modifier] => 1 [work_modifier] => 1 [options] => Array ( [0] => 80 мм [1] => 100 мм ) [days] => [5,5] [material_price] => [1022,1313] [work_price] => [600,700] [image] => https://akademik-stroy.ru/wp-content/uploads/materials/pazogrebnevye-bloki.jpg [area_modifier] => 284.28 [parent_name] => Внутренние (не несущие) перегородки [parent_id] => 25 [material_sum] => 366073 [work_sum] => 179096 [total_sum] => 545169 [total_days] => 5 [display_material_sum] => 366 073 [display_work_sum] => 179 096 [display_total_sum] => 545 169 ) 1
545 169
Работа:179 096
Материалы:366 073
Дни:5
stdClass Object ( [id] => 149 [attribute_id] => 25 [name] => Газобетонные [material_modifier] => 1 [work_modifier] => 1 [options] => Array ( [0] => 100 мм [1] => 200 мм ) [days] => [11,11] [material_price] => [1160,1920] [work_price] => [700,900] [image] => https://akademik-stroy.ru/wp-content/uploads/materials/gazobeton-2.jpg [area_modifier] => 284.28 [parent_name] => Внутренние (не несущие) перегородки [parent_id] => 25 [material_sum] => 415504 [work_sum] => 208946 [total_sum] => 624450 [total_days] => 11 [display_material_sum] => 415 504 [display_work_sum] => 208 946 [display_total_sum] => 624 450 ) 1
624 450
Работа:208 946
Материалы:415 504
Дни:11
stdClass Object ( [id] => 150 [attribute_id] => 25 [name] => Кирпичные [material_modifier] => 1 [work_modifier] => 1 [options] => Array ( [0] => 120 мм [1] => 250 мм [2] => 360 мм ) [days] => [7,7,7] [material_price] => [1785,3570,5355] [work_price] => [900,1600,1800] [image] => https://akademik-stroy.ru/wp-content/uploads/materials/kirpich-1.jpg [area_modifier] => 284.28 [parent_name] => Внутренние (не несущие) перегородки [parent_id] => 25 [material_sum] => 639374 [work_sum] => 268645 [total_sum] => 908019 [total_days] => 7 [display_material_sum] => 639 374 [display_work_sum] => 268 645 [display_total_sum] => 908 019 ) 1
908 019
Работа:268 645
Материалы:639 374
Дни:7
Электрика
stdClass Object ( [id] => 55 [attribute_id] => 28 [name] => Нет [material_modifier] => 1 [work_modifier] => 1 [options] => Array ( ) [days] => [0] [material_price] => [0] [work_price] => [0] [image] => https://akademik-stroy.ru/wp-content/uploads/materials/ehlektrika.jpg [area_modifier] => 230.69 [parent_name] => Электрика [parent_id] => 28 [material_sum] => 0 [work_sum] => 0 [total_sum] => 0 [total_days] => 0 [display_material_sum] => 0 [display_work_sum] => 0 [display_total_sum] => 0 ) 1
0
Работа:0
Материалы:0
Дни:0
stdClass Object ( [id] => 56 [attribute_id] => 28 [name] => Есть [material_modifier] => 1 [work_modifier] => 1 [options] => Array ( ) [days] => [10] [material_price] => [650] [work_price] => [950] [image] => https://akademik-stroy.ru/wp-content/uploads/materials/ehlektrika.jpg [area_modifier] => 230.69 [parent_name] => Электрика [parent_id] => 28 [material_sum] => 188935 [work_sum] => 230113 [total_sum] => 419048 [total_days] => 10 [display_material_sum] => 188 935 [display_work_sum] => 230 113 [display_total_sum] => 419 048 ) 1
419 048
Работа:230 113
Материалы:188 935
Дни:10
Сантехника, канализация в доме
stdClass Object ( [id] => 57 [attribute_id] => 29 [name] => Нет [material_modifier] => 1 [work_modifier] => 1 [options] => Array ( ) [days] => [0] [material_price] => [0] [work_price] => [0] [image] => https://akademik-stroy.ru/wp-content/uploads/materials/santekhnika-kanalizaciya-1.jpg [area_modifier] => 230.69 [parent_name] => Сантехника, канализация в доме [parent_id] => 29 [material_sum] => 0 [work_sum] => 0 [total_sum] => 0 [total_days] => 0 [display_material_sum] => 0 [display_work_sum] => 0 [display_total_sum] => 0 ) 1
0
Работа:0
Материалы:0
Дни:0
stdClass Object ( [id] => 58 [attribute_id] => 29 [name] => Есть [material_modifier] => 1 [work_modifier] => 1 [options] => Array ( ) [days] => [10] [material_price] => [600] [work_price] => [730] [image] => https://akademik-stroy.ru/wp-content/uploads/materials/santekhnika-kanalizaciya-1.jpg [area_modifier] => 230.69 [parent_name] => Сантехника, канализация в доме [parent_id] => 29 [material_sum] => 174402 [work_sum] => 176824 [total_sum] => 351226 [total_days] => 10 [display_material_sum] => 174 402 [display_work_sum] => 176 824 [display_total_sum] => 351 226 ) 1
351 226
Работа:176 824
Материалы:174 402
Дни:10
Отопление
stdClass Object ( [id] => 59 [attribute_id] => 30 [name] => Нет [material_modifier] => 1 [work_modifier] => 1 [options] => Array ( ) [days] => [0] [material_price] => [0] [work_price] => [0] [image] => https://akademik-stroy.ru/wp-content/uploads/materials/otoplenie-1.jpg [area_modifier] => 230.69 [parent_name] => Отопление [parent_id] => 30 [material_sum] => 0 [work_sum] => 0 [total_sum] => 0 [total_days] => 0 [display_material_sum] => 0 [display_work_sum] => 0 [display_total_sum] => 0 ) 1
0
Работа:0
Материалы:0
Дни:0
stdClass Object ( [id] => 60 [attribute_id] => 30 [name] => Есть [material_modifier] => 1 [work_modifier] => 1 [options] => Array ( ) [days] => [5] [material_price] => [610] [work_price] => [560] [image] => https://akademik-stroy.ru/wp-content/uploads/materials/otoplenie-1.jpg [area_modifier] => 230.69 [parent_name] => Отопление [parent_id] => 30 [material_sum] => 177308 [work_sum] => 135646 [total_sum] => 312954 [total_days] => 5 [display_material_sum] => 177 308 [display_work_sum] => 135 646 [display_total_sum] => 312 954 ) 1
312 954
Работа:135 646
Материалы:177 308
Дни:5
Теплые полы
stdClass Object ( [id] => 61 [attribute_id] => 31 [name] => Нет [material_modifier] => 1 [work_modifier] => 1 [options] => Array ( ) [days] => [0] [material_price] => [0] [work_price] => [0] [image] => https://akademik-stroy.ru/wp-content/uploads/materials/vodyanye.jpg [area_modifier] => 30 [parent_name] => Теплые полы [parent_id] => 31 [material_sum] => 0 [work_sum] => 0 [total_sum] => 0 [total_days] => 0 [display_material_sum] => 0 [display_work_sum] => 0 [display_total_sum] => 0 ) 1
0
Работа:0
Материалы:0
Дни:0
stdClass Object ( [id] => 151 [attribute_id] => 31 [name] => Водяные [material_modifier] => 1 [work_modifier] => 1 [options] => Array ( ) [days] => [9] [material_price] => [10200] [work_price] => [2500] [image] => https://akademik-stroy.ru/wp-content/uploads/materials/vodyanye.jpg [area_modifier] => 30 [parent_name] => Теплые полы [parent_id] => 31 [material_sum] => 385560 [work_sum] => 78750 [total_sum] => 464310 [total_days] => 9 [display_material_sum] => 385 560 [display_work_sum] => 78 750 [display_total_sum] => 464 310 ) 1
464 310
Работа:78 750
Материалы:385 560
Дни:9
stdClass Object ( [id] => 152 [attribute_id] => 31 [name] => Электро [material_modifier] => 1 [work_modifier] => 1 [options] => Array ( ) [days] => [5] [material_price] => [6300] [work_price] => [1500] [image] => https://akademik-stroy.ru/wp-content/uploads/materials/ehlektricheskij.jpg [area_modifier] => 30 [parent_name] => Теплые полы [parent_id] => 31 [material_sum] => 238140 [work_sum] => 47250 [total_sum] => 285390 [total_days] => 5 [display_material_sum] => 238 140 [display_work_sum] => 47 250 [display_total_sum] => 285 390 ) 1
285 390
Работа:47 250
Материалы:238 140
Дни:5
Черновая отделка стен
stdClass Object ( [id] => 63 [attribute_id] => 32 [name] => Нет [material_modifier] => 1 [work_modifier] => 1 [options] => Array ( ) [days] => [0] [material_price] => [0] [work_price] => [0] [image] => https://akademik-stroy.ru/wp-content/uploads/materials/shtukaturka-shpatlevka-1.jpg [area_modifier] => 230.69 [parent_name] => Черновая отделка стен [parent_id] => 32 [material_sum] => 0 [work_sum] => 0 [total_sum] => 0 [total_days] => 0 [display_material_sum] => 0 [display_work_sum] => 0 [display_total_sum] => 0 ) 1
0
Работа:0
Материалы:0
Дни:0
stdClass Object ( [id] => 153 [attribute_id] => 32 [name] => Штукатурка и шпатлевка [material_modifier] => 1 [work_modifier] => 1 [options] => Array ( ) [days] => [20] [material_price] => [1850] [work_price] => [2600] [image] => https://akademik-stroy.ru/wp-content/uploads/materials/shtukaturka-shpatlevka-1.jpg [area_modifier] => 230.69 [parent_name] => Черновая отделка стен [parent_id] => 32 [material_sum] => 537738 [work_sum] => 629784 [total_sum] => 1167522 [total_days] => 20 [display_material_sum] => 537 738 [display_work_sum] => 629 784 [display_total_sum] => 1 167 522 ) 1
1 167 522
Работа:629 784
Материалы:537 738
Дни:20
stdClass Object ( [id] => 154 [attribute_id] => 32 [name] => Гипсокортон на стены [material_modifier] => 1 [work_modifier] => 1 [options] => Array ( ) [days] => [15] [material_price] => [950] [work_price] => [2100] [image] => https://akademik-stroy.ru/wp-content/uploads/materials/gkl-1.jpg [area_modifier] => 230.69 [parent_name] => Черновая отделка стен [parent_id] => 32 [material_sum] => 276136 [work_sum] => 508671 [total_sum] => 784807 [total_days] => 15 [display_material_sum] => 276 136 [display_work_sum] => 508 671 [display_total_sum] => 784 807 ) 1
784 807
Работа:508 671
Материалы:276 136
Дни:15
stdClass Object ( [id] => 155 [attribute_id] => 32 [name] => Вагонка [material_modifier] => 1 [work_modifier] => 1 [options] => Array ( ) [days] => [15] [material_price] => [1250] [work_price] => [950] [image] => https://akademik-stroy.ru/wp-content/uploads/materials/vagonka.jpg [area_modifier] => 230.69 [parent_name] => Черновая отделка стен [parent_id] => 32 [material_sum] => 363337 [work_sum] => 230113 [total_sum] => 593450 [total_days] => 15 [display_material_sum] => 363 337 [display_work_sum] => 230 113 [display_total_sum] => 593 450 ) 1
593 450
Работа:230 113
Материалы:363 337
Дни:15
Черновая отделка полов
stdClass Object ( [id] => 65 [attribute_id] => 33 [name] => Нет [material_modifier] => 1 [work_modifier] => 1 [options] => Array ( ) [days] => [0] [material_price] => [0] [work_price] => [0] [image] => https://akademik-stroy.ru/wp-content/uploads/materials/styazhka.jpg [area_modifier] => 230.69 [parent_name] => Черновая отделка полов [parent_id] => 33 [material_sum] => 0 [work_sum] => 0 [total_sum] => 0 [total_days] => 0 [display_material_sum] => 0 [display_work_sum] => 0 [display_total_sum] => 0 ) 1
0
Работа:0
Материалы:0
Дни:0
stdClass Object ( [id] => 156 [attribute_id] => 33 [name] => Стяжка + наливные полы [material_modifier] => 1 [work_modifier] => 1 [options] => Array ( ) [days] => [10] [material_price] => [1000] [work_price] => [900] [image] => https://akademik-stroy.ru/wp-content/uploads/materials/styazhka.jpg [area_modifier] => 230.69 [parent_name] => Черновая отделка полов [parent_id] => 33 [material_sum] => 290669 [work_sum] => 218002 [total_sum] => 508671 [total_days] => 10 [display_material_sum] => 290 669 [display_work_sum] => 218 002 [display_total_sum] => 508 671 ) 1
508 671
Работа:218 002
Материалы:290 669
Дни:10
stdClass Object ( [id] => 157 [attribute_id] => 33 [name] => ОСБ на пол [material_modifier] => 1 [work_modifier] => 1 [options] => Array ( ) [days] => [7] [material_price] => [580] [work_price] => [350] [image] => https://akademik-stroy.ru/wp-content/uploads/materials/osb-1.jpg [area_modifier] => 230.69 [parent_name] => Черновая отделка полов [parent_id] => 33 [material_sum] => 168588 [work_sum] => 84779 [total_sum] => 253367 [total_days] => 7 [display_material_sum] => 168 588 [display_work_sum] => 84 779 [display_total_sum] => 253 367 ) 1
253 367
Работа:84 779
Материалы:168 588
Дни:7
Чистовая отделка стен и полов
stdClass Object ( [id] => 67 [attribute_id] => 34 [name] => Нет [material_modifier] => 1 [work_modifier] => 1 [options] => Array ( ) [days] => [0] [material_price] => [0] [work_price] => [0] [image] => https://akademik-stroy.ru/wp-content/uploads/materials/chistovaya-otdelka.jpg [area_modifier] => 230.69 [parent_name] => Чистовая отделка стен и полов [parent_id] => 34 [material_sum] => 0 [work_sum] => 0 [total_sum] => 0 [total_days] => 0 [display_material_sum] => 0 [display_work_sum] => 0 [display_total_sum] => 0 ) 1
0
Работа:0
Материалы:0
Дни:0
stdClass Object ( [id] => 68 [attribute_id] => 34 [name] => Есть [material_modifier] => 1 [work_modifier] => 1 [options] => Array ( ) [days] => [50] [material_price] => [6000] [work_price] => [3500] [image] => https://akademik-stroy.ru/wp-content/uploads/materials/chistovaya-otdelka.jpg [area_modifier] => 230.69 [parent_name] => Чистовая отделка стен и полов [parent_id] => 34 [material_sum] => 1744016 [work_sum] => 847786 [total_sum] => 2591802 [total_days] => 50 [display_material_sum] => 1 744 016 [display_work_sum] => 847 786 [display_total_sum] => 2 591 802 ) 1
2 591 802
Работа:847 786
Материалы:1 744 016
Дни:50
Отделка потолка
stdClass Object ( [id] => 69 [attribute_id] => 35 [name] => Нет [material_modifier] => 1 [work_modifier] => 1 [options] => Array ( ) [days] => [0] [material_price] => [0] [work_price] => [0] [image] => https://akademik-stroy.ru/wp-content/uploads/materials/mnogourovnevyj-gkl.jpg [area_modifier] => 230.69 [parent_name] => Отделка потолка [parent_id] => 35 [material_sum] => 0 [work_sum] => 0 [total_sum] => 0 [total_days] => 0 [display_material_sum] => 0 [display_work_sum] => 0 [display_total_sum] => 0 ) 1
0
Работа:0
Материалы:0
Дни:0
stdClass Object ( [id] => 70 [attribute_id] => 35 [name] => Есть [material_modifier] => 1 [work_modifier] => 1 [options] => Array ( [0] => Многоуровневый потолок из гипсокартона [1] => Многоуровневый потолок из гипсокартона и натяжного потолка [2] => Одноуровневый потолок из гипсокартона [3] => Одноуровневый натяжной потолок ) [days] => [10,10,1,1] [material_price] => [900,700,700,600] [work_price] => [1000,800,500,300] [image] => https://akademik-stroy.ru/wp-content/uploads/materials/mnogourovnevyj-gkl.jpg [area_modifier] => 230.69 [parent_name] => Отделка потолка [parent_id] => 35 [material_sum] => 261602 [work_sum] => 242225 [total_sum] => 503827 [total_days] => 10 [display_material_sum] => 261 602 [display_work_sum] => 242 225 [display_total_sum] => 503 827 ) 1
503 827
Работа:242 225
Материалы:261 602
Дни:10

Преимущества работы с нами

icon

7 этапов оплаты

icon

Независимый строительный надзор

icon

Экологически чистые материалы

icon

16 лет гарантии

icon

Онлайн-кабинет с веб-камерой

icon

Строители с опытом более 15 лет

icon

Собственное производство

Основные характеристики двухэтажного дома 18x13 м с площадью 230,69 м²

Планируя строительство частного дома, очень важно тщательно выбрать проект, который максимально соответствует вашим потребностям и возможностям. Особое внимание стоит уделить не только общей площади, но и числу этажей, конфигурации кровли, а также планировке внутренних помещений. Двухэтажный дом размером 18 на 13 метров и общей полезной площадью 230,69 м² — отличный вариант для тех, кто мечтает о комфортном, просторном и современном жилье.

Больше всего подобные проекты привлекают тех, кто хочет совместить уют и функциональность с минимальным использованием земельного участка. Площадь застройки 174 м² позволяет разместить такой дом даже на сравнительно небольшом участке, что особенно актуально в условиях городской или пригородной застройки.

Размеры и габариты дома – оптимальное пространство для семьи

Размеры дома 18 x 13 м открывают широкие возможности для организации внутренних помещений. При этих габаритах жилой площади 196,42 м² достаточно для комфортного проживания семьи из нескольких человек. Ведь в доме предусмотрено четыре просторные спальни, что является идеальным решением для семьи с детьми, а также для тех, кто часто принимает гостей или хочет выделить отдельные комнаты под кабинет и гостиные зоны.

Высота здания 8,65 метра позволяет реализовать двухэтажную конфигурацию, не создавая чрезмерного визуального давления на окружающее пространство. Это важно для тех, кто заботится о гармонии своего будущего дома с природой и соседними постройками.

Планировка двух этажей и функциональность помещений

Первый этаж – зона активной жизни

Первый этаж традиционно отводится под общие помещения: гостиную, кухню, столовую и санузлы. Наличие трех санузлов в доме — это значительное преимущество, позволяющее обеспечить комфорт всех жильцов и гостей. Особенно удобно, когда у каждого этажа есть свой отдельный санузел, а также дополнительный гостевой туалет, что исключает очереди в утренние часы и повышает практичность эксплуатации дома.

Зона гостиной и столовой занимает центральное место и оформлена таким образом, чтобы объединять семью за вечерними посиделками и бытовыми мероприятиями. Кухня, как правило, проектируется с учетом современных требований: удобная, с большим количеством рабочих поверхностей и местом для хранения продуктов и кухонной утвари.

Второй этаж — зона отдыха и релаксации

На втором этаже расположены четыре комнаты, которые планируются в качестве спален. Такое распределение позволяет каждому члену семьи иметь свое личное пространство, что особенно актуально для подростков и взрослых. Спальни обычно располагаются так, чтобы обеспечить максимальную тишину и приватность, а также выход на балконы, если они предусмотрены проектом.

Дополнительные санузлы на втором этаже позволяют уменьшить нагрузку на семейный распорядок и повышают удобство использования дома. Здесь же можно выделить место под небольшой кабинет или комнату для занятий хобби, что придаст дому еще больше функциональности.

Особенности крыши и внешний вид дома

Угол наклона крыши 45° является оптимальным для обеспечения эффективного отвода осадков — как дождя, так и снега. Это продлевает срок эксплуатации кровельных материалов и минимизирует вероятность протечек и повреждений конструкции. Двускатная крыша — классическое решение, которое выгодно смотрится снаружи, а также облегчает устройство мансарды, если в будущем возникнет желание увеличить жилую площадь.

Двускатная кровля хорошо вписывается в ландшафт самых разных местностей и, благодаря своей конструкции, дает возможность установки дополнительных окон, которые освещают верхний этаж естественным светом.

Параметры участка для строительства

Минимальные размеры земельного участка для размещения такого дома — 25,58 м в ширину и 20,80 м в длину. Эти требования распространяются на то пространство, которое необходимо для комфортного расположения дома с учетом отступов от границ участка, например, для устройства подъездных путей, зеленых насаждений и зонирования территории.

В реальных условиях это значит, что даже владельцы сравнительно небольших участков могут позволить себе строительство просторного и комфортного загородного жилья. При этом стоит учитывать требования местной администрации по строительству и возможные ограничения, что позволит избежать юридических сложностей.

Стоимость строительства и соотношение цены и качества

Цена строительства данного проекта составляет 8 036 260 рублей. Это включает в себя все основные работы и материалы для возведения дома с такими размерами и характеристиками. При оценке стоимости стоит учесть, что такой дом — это не просто квадратные метры, а комплексное решение, в котором уже учтены современные стандарты безопасности, комфортности и энергоэффективности.

Инвестиции в качественное строительство всегда окупаются комфортом, долговечностью и возможностью создавать семейный очаг, который будет радовать своих обитателей долгие годы.

Преимущества двухэтажного дома 18х13

  • Большая полезная площадь 230,69 м² при оптимальном размере постройки.
  • Четыре спальни для комфортного проживания большой семьи.
  • Три санузла — удобство и функциональность.
  • Двускатная крыша с углом наклона 45°, уменьшающая нагрузку от снега и осадков.
  • Высота дома 8,65 м — гармоничное сочетание с ландшафтом.
  • Подходит для участков минимальных размеров 25,58 на 20,80 м.
  • Стоимость строительства около 8 млн рублей — оптимальное соотношение цены и качества.

Технические характеристики дома в сравнительной таблице

Параметр Значение Комментарий
Полезная площадь 230,69 м² Общая жилая и вспомогательная площадь
Размеры дома 18 x 13 м Оптимальный размер для участка средней площади
Этажность 2 этажа Комфортное зонирование пространства
Жилая площадь 196,42 м² Площадь комнат для проживания
Количество спален 4 Подходит для большой семьи
Количество санузлов 3 Повышенный комфорт и функциональность
Площадь застройки 174 м² Площадь, занимаемая фундаментом
Угол наклона крыши 45° Эффективный отвод осадков и эстетика
Высота здания 8,65 м Гармоничная высота для 2 этажей
Минимальные размеры участка 25,58 x 20,80 м Необходимое пространство для комфортного размещения
Стоимость строительства 8 036 260 руб. Полная сумма с учетом материалов и работ

Сравнение с другими проектами аналогичной площади

Двухэтажный дом с полезной площадью около 230 квадратных метров часто сравнивают с одноэтажными или с домами с гаражом. Однако в нашем случае дом спроектирован без гаража, что существенно снижает затраты и освобождает полезное пространство как во внешней, так и во внутренней части участка.

Ниже представлено сравнение ключевых параметров дома 18x13 с проектом дома 1 этаж и с домом с гаражом аналогичной площади:

Параметр Двухэтажный дом 18x13 (230,69 м²) Одноэтажный дом с похожей площадью Дом с гаражом (приблизительно 230 м²)
Количество этажей 2 1 2
Размеры застройки 174 м² 230 м² (более крупный фундамент) 190-210 м²
Общая площадь 230,69 м² 230 м² 230 м²
Наличие гаража Нет Нет Есть
Стоимость строительства 8 036 260 руб. 7 500 000 – 8 500 000 руб. 9 000 000 – 10 000 000 руб.
Преимущества Компактная площадь застройки, четыре спальни Отсутствие лестниц, удобство для пожилых Наличие гаража, дополнительного помещения

Как видно из таблицы, двухэтажный дом предлагает гармоничное сочетание полезной площади и компактного плана участка, что позволяет экономить на земельных ресурсах без потери в функциональности и комфорте.

Кому подходит проект двухэтажного дома 18x13

Этот проект будет идеальным для семей, которым необходимо разместить четырех и более человек с максимальным удобством. Наличие четырех спален делает дом пригодным как для семьи с несколькими детьми, так и для совместного проживания нескольких поколений. Три санузла обеспечат комфорт и минимизируют очереди в утренние часы.

Также проект подходит тем, кто ценит традиционный стиль, проверенные временем архитектурные решения и ищет оптимальные параметры для строительства на участке средней площади. Двухэтажная конфигурация выгодна тем, что сокращает размер фундамента по сравнению с одноэтажными постройками такой же площади.

Практические советы по реализации проекта

  • Проведите точную топографическую съемку участка перед началом строительства — это поможет определить оптимальное расположение дома и обеспечить соответствие требованиям.
  • Обратите внимание на выбор материалов — качественные материалы продлят срок службы здания и увеличат энергоэффективность.
  • Планируйте системы отопления и вентиляции заранее, учитывая климатические особенности региона.
  • Рассмотрите возможность адаптации проекта под личные нужды, например, добавление террасы или балкона, если позволит бюджет.
  • Выбирайте опытного подрядчика с хорошей репутацией, чтобы избежать неприятных сюрпризов в процессе строительства.

Итоги выбора проекта двухэтажного дома 18x13

Данный проект двухэтажного дома с размерами 18 на 13 метров и площадью 230,69 м² обладает всеми характеристиками, которые сделают проживание комфортным, функциональным и эстетически приятным. Спроектированный с учетом современных требований, этот дом подойдет как для проживания большой семьи, так и для тех, кто ценит простор и удобство индивидуального дома.

Стоимость в 8 миллионов рублей полностью оправдывает высокое качество и удобство использования, а возможность разместить объект на участке стандартных размеров делает этот проект весьма универсальным. При выборе готового плана дома важно обращать внимание на все детали — начиная от общей площади и заканчивая небольшими нюансами планировки — чтобы итоговое жилье полностью соответствовало вашим ожиданиям.