Введение в проект двухэтажного дома 9х16 – идеальное пространство для большой семьи
Постройка собственного дома – это всегда важное и ответственное событие. Если вы мечтаете о просторном, комфортном жилье с продуманной планировкой и привлекательным внешним видом, то двухэтажный дом размером 9х16 метров станет отличным выбором. В нашей статье мы подробно рассмотрим проект дома с полезной площадью 192,61 м², который оптимально подойдет для семьи, нуждающейся в большом количестве спален и функциональных жилых зон.
Вы узнаете обо всех характеристиках этого дома, его архитектурных особенностях, планировке, строительных материалах и ориентировочной стоимости – 6 760 930 рублей. Давайте подробно разберем каждый аспект, чтобы вы могли лучше представить достоинства и преимущества данного проекта и оценить его с точки зрения личных потребностей и возможностей.
Основные характеристики дома 9x16
Размеры дома 9 на 16 метров – это классический прямоугольник устойчевой формы, который не только эстетичен, но и практичен. Благодаря двум этажам, проект предлагает значительное жилое пространство, компактно расположенное на ограниченном участке земли. Это позволяет избежать больших затрат на обустройство участка и оставляет достаточно места для ландшафтного дизайна и дополнительных построек.
Полезная площадь в 192,61 м² является важным показателем, так как именно она определяет количество реально используемого места внутри дома. Дополнительно жилая площадь составляет 166,4 м², что говорит о наличии просторных и удобных помещений для всех членов семьи. Также стоит отметить площадь застройки – 135 м² – этот параметр важен для понимания размеров фундамента и нагрузки на грунт.
| Параметр | Значение |
|---|---|
| Полезная площадь | 192,61 м² |
| Жилая площадь | 166,40 м² |
| Площадь застройки | 135 м² |
| Размеры дома | 9 x 16 м |
| Этажность | 2 этажа |
| Количество спален | 5+ |
| Количество санузлов | 2 |
| Объем брутто | 800 м³ |
| Площадь крыши | 250 м² |
| Угол наклона крыши | 45° |
| Высота здания | 9 м |
| Минимальная ширина участка | 17,44 м |
| Минимальная длина участка | 23,94 м |
| Тип крыши | двускатная |
Архитектурные особенности и дизайн
Внешний облик дома выполнен в классическом стиле с функциональным двускатным типом крыши, угол наклона которой составляет 45 градусов. Такая конструкция крыши не только придает дополнительный объем и эстетичность зданию, но и обеспечивает оптимальный отвод осадков и облегчает монтаж кровельных материалов.
Высота здания 9 метров создает достаточно высокий потолок на каждом этаже, благодаря чему интерьер получается визуально просторным и светлым. Высокая стропильная система крыши дает возможность при желании использовать мансарду под дополнительное жилое или хозяйственное помещение.
Планировка фасада и расположение окон предусматривают достаточное количество естественного света и позволяют создать уютную атмосферу внутри дома вне зависимости от времени суток. Компактность прямоугольной формы упрощает строительство и значительно снижает затраты на отделочные работы.
Преимущества двускатной крыши с углом 45°
- Высокая устойчивость к снеговой нагрузке и ветру;
- Простота конструкции и относительно низкая стоимость материалов;
- Возможность организации мансардного пространства;
- Легкий монтаж водосточной системы;
- Эстетичная классическая форма, полюбившаяся многим за счет своей универсальности.
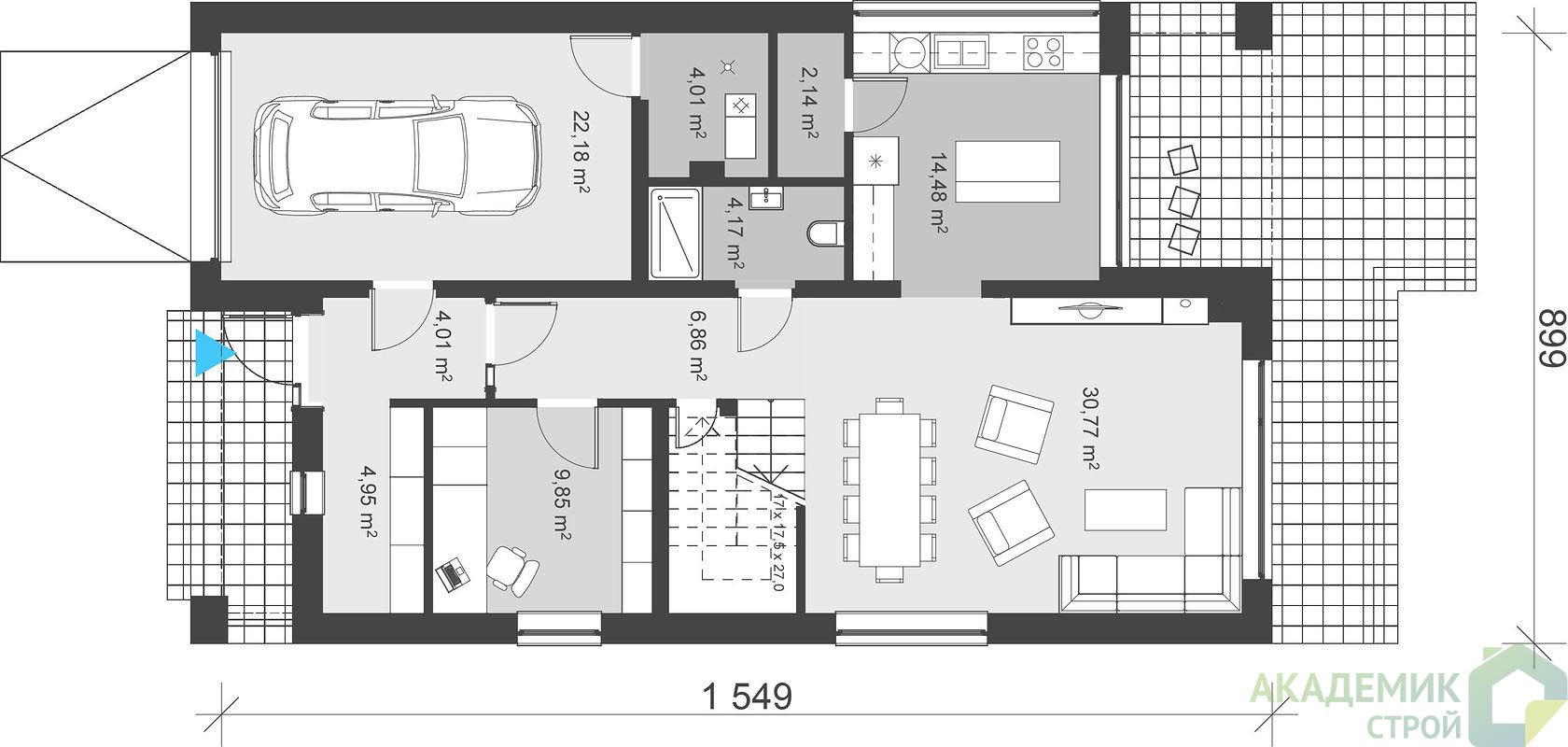
Внутренняя планировка: удобство для большой семьи
Двухэтажный дом 9х16 метров с полезной площадью почти 193 м² предлагает отличное решение для нужд современной семьи из 5 и более человек. Проект предусматривает 5 и более спален, что существенно повышает комфорт проживания и возможность создать личное пространство для каждого члена семьи.
Наличие двух полноценных санузлов – дополнительное преимущество, позволяющее избежать утренних очередей и обеспечивающее удобство при большом количестве жильцов. С учетом общей жилой площади 166,4 м², можно ожидать просторные комнаты, хорошо освещенные и функционально зонированные.
Распределение помещений по этажам
На первом этаже традиционно располагаются общественные зоны — гостиная, столовая, кухня, а также санузел и, возможно, рабочий кабинет или гостевая комната. Это улучшает эргономику дома и облегчает повседневное использование пространства, делая пребывание здесь удобным и приятным.
Второй этаж отведен под приватные зоны: 5 и более спален с достаточно большой площадью каждой, и второй санузел. Такая планировка идеально подойдет для семьи с детьми, так как позволяет отделить зону отдыха от общественной и рабочей активности.
Плюсы такой планировки
- Максимальная приватность и комфорт для всех членов семьи;
- Рациональное пространство для совместного времяпровождения и уединения;
- Возможность организации рабочего пространства или хобби-зоны без ущерба для жилых зон;
- Оптимальное количество санузлов для предотвращения неудобств.
Требования к участку и земельному планированию
Для возведения данного дома необходим участок определенного минимального размера. Минимальная ширина – 17,44 метра, минимальная длина – 23,94 метра. Эти параметры учитывают не только сам дом, но и необходимые отступы от границ соседних участков, а также место для обустройства подъездных путей и дворовой территории.
При выборе участка стоит обратить внимание на рельеф и качество грунта, так как они напрямую влияют на стоимость и сложность строительства. Прямоугольный участок оптимален для размещения дома с размерами 9х16 м без необходимости сложных ландшафтных дополнительных работ.
Планирование окружающей территории
На территории вокруг дома можно организовать зону отдыха, детскую площадку, озеленение и хозяйственные постройки. Поскольку проект не предусматривает встроенный гараж, рекомендуется заранее продумать удобное место для парковки автомобилей во дворе.
Грамотно спланированное пространство сделает пребывание в доме максимально комфортным и безопасным для всех членов семьи.
Стоимость строительства дома 9х16 – что включает цена 6 760 930 рублей
Стоимость в размере 6 760 930 рублей представляет ориентировочную сумму, необходимую для возведения данного дома «под ключ». Эта сумма складывается из нескольких ключевых частей: материалы, работа строительной бригады, инженерные коммуникации, отделка и монтаж оборудования.
Важно учитывать, что затратность возведения может варьироваться в зависимости от региона, выбранных материалов, а также от пожеланий заказчика относительно уровня отделки и оборудования. Данный бюджет можно считать показывающим средний сегмент цен на современное строительство крупного двухэтажного дома с продуманной планировкой и качественными строительными технологиями.
Основные статьи расходов
| Компонент | Примерная доля в стоимости |
|---|---|
| Фундамент и несущие конструкции | 20% |
| Стены и перекрытия | 25% |
| Кровля и внешняя отделка | 15% |
| Инженерные коммуникации (электрика, сантехника, отопление) | 15% |
| Внутренняя отделка и оснащение | 15% |
| Прочие расходы и коммуникации | 10% |
Материалы и технологии строительства
Выбор материалов напрямую влияет на качество, долговечность и комфорт будущего дома. В подобных проектах традиционно используют кирпич, газобетонные блоки или деревянные конструкции для возведения стен. Каждый из этих материалов имеет свои преимущества, но для дома площадью около 193 м² наиболее оптимальными являются газобетонные блоки с наружной отделкой для энергоэффективности и адекватной стоимости.
Перекрытия между этажами могут быть железобетонными или из деревянных балок, что зависит от предпочтений и бюджета заказчика. Кровельное покрытие с уклоном в 45 градусов чаще всего выполняется из металлочерепицы или керамической черепицы – эти материалы сочетают в себе надежность, эстетичный внешний вид и долговечность.
Современные инженерные решения для комфорта и надежности
- Установка систем водоснабжения и отопления с использованием энергоэффективных котлов;
- Монтаж утеплителей в стенах и перекрытиях для снижения теплопотерь;
- Использование вентиляционных систем с рекуперацией для поддержания оптимального микроклимата;
- Электропроводка с учетом современных стандартов безопасности и функционала.
Объемы и площадь крыши — оптимизация пространства и затрат
Объем брутто дома равняется 800 м³, что отражает общий объем внутреннего пространства здания. Значительная площадь крыши — 250 м² — обусловлена двускатной конструкцией с углом наклона в 45 градусов. Такая крыша не только защищает дом от атмосферных воздействий, но и предоставляет возможность создания мансардного помещения или чердака для хранения.
При проектировании крыши учитывается оптимальный наклон для эффективного слива воды и снега, а также эстетическое соответствие общему стилю здания.
Особенности эксплуатации и обслуживания двускатной крыши
- Регулярный осмотр и очистка водостоков для предотвращения засоров;
- Своевременный ремонт кровельного покрытия для предотвращения протечек;
- Обслуживание вентиляционных элементов и дымоходов в соответствии с требованиями безопасности;
- Возможность установки дополнительных элементов, таких как мансардные окна или солнечные панели.
Почему стоит выбрать именно этот проект двухэтажного дома?
Данный проект дома 9x16 предлагает идеальное соотношение размеров, функциональности, комфорта и стоимости. Его преимущества очевидны для тех, кто ищет большой дом с продуманной планировкой для семьи из 5 и более человек, при этом не желая выходить за рамки стандартного бюджета строительства.
Удобное распределение жилых и общественных зон, высокое качество архитектурных решений, надежные материалы и продуманная инженерия делают эту модель универсальной и экономичной. Минимальные требования к участку позволяют строить такой дом как в пригороде, так и вдали от мегаполиса, при этом сохраняя комфорт и стиль жизни.
Кому подойдет данный проект
- Большим семьям с несколькими детьми;
- Тем, кто планирует работать или учиться из дома и нуждается в отдельном кабинете;
- Тем, кто ценит классический дизайн и функциональность;
- Желающим иметь просторный и светлый дом без необходимости в гараже внутри дома;
- Тем, кто готов вложить средства в долговечное качественное жилье.




