Введение в проект двухэтажного дома 10x16
Современные строительные технологии и продуманные архитектурные решения позволяют создавать комфортабельные и функциональные дома, которые отвечают различным потребностям семьи. Один из таких вариантов – двухэтажный частный дом размером 10 на 16 метров с общей площадью 199,29 м². Такой размер и конфигурация оптимальны для среднестатистической семьи, предоставляя достаточно пространства для уединения и совместного времяпровождения.
Двухэтажный дом с габаритами 10х16 метров представляет собой гармоничное сочетание компактности и комфорта. Он удобно размещается на участке средней площади, при этом обеспечивает насыщенное внутреннее пространство, необходимое для комфортной жизни не менее чем трех членов семьи. В этой статье мы подробно рассмотрим его преимущества, планировку, основные параметры, а также расскажем, почему именно этот проект заслуживает внимания тех, кто задумался о строительстве надежного и уютного жилья.
Размеры и основные параметры дома
Одним из ключевых параметров при выборе проекта дома является его площадь и габариты. В данном случае дом имеет размеры 10 на 16 метров, что позволяет разместить на двух этажах порядка 199,29 м² площади. Это оптимальная площадь для комфортного проживания, учитывая современные строительные и планировочные нормы.
Двухэтажная конструкция позволяет рационально использовать территорию участка, оставляя достаточно пространства для организации придомовой территории, сада или зоны отдыха. Два этажа позволяют разнести жилые и общественные зоны, создавая комфортные условия для всех членов семьи. Такой дом удобно зонируется, а площадь более 190 метров дает возможность реализовать различные интерьерные решения.
Преимущества двухэтажного варианта
Главным достоинством двухэтажного дома является возможность оптимизировать площадь земельного участка, не жертвуя жилым пространством. Вместе с тем у такого дома появляется возможность зонирования помещений по функциональному назначению. Отлично выделяются отдельные жилые комнаты на втором этаже, где тишина и приватность важны для отдыха, и просторные общественные зоны на первом этаже, которые служат для приема гостей и проведения семейного досуга.
Еще одним важным плюсом является упорядоченность коммуникаций: санузлы расположены в непосредственной близости к жилым комнатам, что улучшает эргономику. В проекте предусмотрено два санузла, что обусловлено удобством для большой семьи или для того, чтобы гости и хозяева не испытывали дискомфорта в часы пик.
Количество и расположение комнат
В доме предусмотрено три спальни, что идеально подходит для семьи с двумя детьми или для семей, планирующих принять на постоянное проживание родственников. Три отдельные спальни позволяют всем членам семьи иметь личное пространство, что существенно влияет на качество жизни. В каждой комнате можно организовать рабочее место, зону для отдыха или игровую, в зависимости от возраста и интересов жильцов.
Кроме спален дом предусматривает наличие двух санузлов, что значительно повышает комфортность проживания. Один санузел обычно располагается на первом этаже – для удобства гостей и членов семьи в общественных зонах, а второй санузел – на втором этаже, рядом с жилыми комнатами. Такая планировка обеспечивает удобство и экономию времени на утренние и вечерние процедуры.
Особенности планировочного решения
На первом этаже, как правило, размещают кухню, столовую, гостиную и хозяйственные помещения. Это позволяет создать максимально удобное пространство для готовки, приема пищи и отдыха, при этом обеспечивая прямой выход в зону отдыха на улице или в саду. Второй этаж в большей степени отводится под спальни и приватные зоны, что отвечает потребностям семьи в уединении и покое.
Стоит отметить, что такой проект может быть адаптирован под разные требования за счет изменения планировки без значительного увеличения стоимости или срока строительства. Стандартизированные габариты 10х16 метров упрощают проектирование оконных и дверных проемов, что положительно сказывается на энергоэффективности дома.
Планировка и организация пространства
Создание комфортной планировки двухэтажного дома – это сложный и творческий процесс, который учитывает не только размеры помещений, но и их функциональное сочетание. Проект дома 10x16 предусматривает продуманное зонирование.
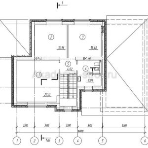
Первый этаж традиционно включает в себя следующую компоновку:
- Прихожая с небольшим помещением для хранения верхней одежды;
- Гостиная зона, объединенная с кухней и столовой, создающая открытое пространство;
- Санузел с необходимым комплектом сантехники;
- Техническое или хозяйственное помещение (например, котельная или постирочная).
На втором этаже располагаются:
- Три отдельные спальни, обеспечивающие личное пространство для каждого члена семьи;
- Второй, более просторный санузел с ванной или душевой;
- Если позволяет конфигурация — можно выделить небольшой кабинет или игровую комнату.
Плюсы такой планировки
Разделение дневных и ночных зон помогает минимизировать шум и повысить уровень комфорта для жильцов. Семья может принимать гостей в гостиной, не беспокоя членов семьи, отдохнувших в спальнях. Возможность размещения двух санузлов значительно улучшает бытовую эргономику, особенно в часы с утренним повышенным спросом.
Кроме того, данная планировка позволяет максимально эффективно использовать площадь, сводя к минимуму «мертвые зоны», такие как длинные коридоры или небольшие переходные пространства.
Материалы и конструктивные особенности
Выбор материалов для строительства таких домов играет важную роль в долговечности, энергоэффективности и эстетике здания. Сегодня популярны различные варианты: от классических кирпичных и блочных конструкций до современных каркасных технологий.
Проекты домов размером 10 на 16 метров идеально подходят для различных строительных материалов, что позволяет выбирать оптимальное соотношение стоимости и качества. При использовании каркасных технологий можно значительно сократить сроки строительства, хорошо утеплить стены и снизить нагрузки на фундамент, что актуально для участков с непростыми геологическими условиями.
Энергоэффективность и утепление
Двухэтажные дома с продуманным утеплением имеют высокие показатели теплоизоляции. Это обеспечивает комфортную температуру внутри помещения и сокращает затраты на отопление. Особенно важно уделять внимание качеству оконных конструкций, кровли и наружных стен.
Монтаж многослойных стен с использованием современных теплоизоляционных материалов помогает создать дом, который будет экономичен в эксплуатации и приятен в проживании круглый год.
Преимущества строительства дома размером 10x16 метров
Этот размер дома считается одним из самых универсальных и востребованных. Габариты 10х16 метров позволяют без проблем создать удобную планировку с достаточным количеством комнат, не выходя за пределы средних размеров участка под застройку.
Кроме того, двухэтажная конфигурация снижает материальные затраты на обустройство фундамента по сравнению с одноэтажным домом аналогичной площади. За счет вертикального расположения помещений можно получить больше жилого пространства при ограниченной площади участка.
Таблица основных характеристик дома 10х16 м
| Характеристика | Значение | 
|---|---|
| Размеры дома | 10 м x 16 м | 
| Этажность | 2 этажа | 
| Общая площадь | 199,29 м² | 
| Количество спален | 3 | 
| Количество санузлов | 2 | 
Использование участка и минимальные требования
При выборе и строительстве двухэтажного дома 10х16 важно учитывать размеры и особенности земельного участка. Данный дом требует достаточной площади территории для соблюдения строительных нормативов и обеспечения комфортных условий проживания.
Минимальная ширина и длина участка зависят от правил застройки в конкретном регионе, которые регламентируют отступы от границ и минимальные расстояния до соседних построек.
Рекомендации по участку под дом 10х16
- Участок должен быть не менее 15-18 метров в ширину, чтобы обеспечить отступы и комфортные подъездные пути;
- Минимальная длина участка обычно составляет 20-25 метров, что позволяет разместить сам дом, зону сада и хозяйственные объекты;
- При наличии дополнительных построек или ландшафтных решений размер участка должен быть увеличен, чтобы сохранить функциональность и эстетический вид.
Эргономика и комфорт в доме 10x16
Проект двухэтажного дома 10x16 м² позволяет обеспечить гармоничное сочетание эргономики и дизайна. Продуманная планировка способствует естественному освещению и удобной навигации по дому.
Правильно организованные зоны отдыха, работы и общения создают условия, благоприятные для жизни и развития всех членов семьи. При возведении дома учитываются современные тенденции в организации жилого пространства, такие как открытые кухни-гостиные, функциональные холлы и многоуровневое освещение.
Особенности внутреннего дизайна
- Использование светлых тонов и больших окон для визуального расширения пространства;
- Оптимальное размещение мебели с учетом функциональных зон;
- Интеграция современных технологий для управления освещением, отоплением и безопасностью;
- Использование экологичных и долговечных материалов для внутренней отделки.
Заключение
Двухэтажный дом размером 10 на 16 метров с площадью около 199,29 м² – это идеальный вариант для тех, кто ценит комфорт, функциональность и рациональный подход к использованию пространства. Три спальни и два санузла обеспечивают комфорт и приватность для семьи, а грамотное зонирование повышает уровень качества жизни.
При правильном подходе к выбору строительных материалов и планировке, такой дом станет надежным и уютным гнездом, в котором с удовольствием будет жить ваша семья многие годы. Он сочетает в себе как практичность, так и эстетическую привлекательность, что делает его одним из лучших решений для современных частных застройщиков.
 
          






























