Двухэтажный дом 16x15 - 215.64 м2 за руб.

ID-118171

Стоимость дома 7262915 руб.
154 м2 Полезная
площадь
16 x 15 м Размеры
2 этажа Этажей
26 м2 Террасы
и балконы
2Без
гаража
4 Количество
спален
2 Количество
санузлов

Планировки

План первого этажа

floor image
  • 1. Гараж на 2 машины 35,95 m²
  • 2. Коридор 3,24 m²
  • 3. Комната 13,73 m²
  • 4. Терраса (31,43 m²)
  • 5. Гостиная 24,58 m²
  • 6. Туалет 4,09 m²
  • 7. Коридор 5,89 m²
  • 8. Кладовая 2,63 m²
  • 9. Кухня 22,86 m²
  • 10. Кладовая 7,12 m²
  • 11. Прихожая 4,63 m²
  • План первого этажа 124,72 m²

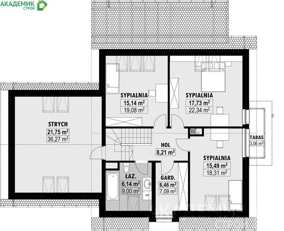
План мансарды

floor image
  • 1. Чердак 21,75 m² (36,27 m²)
  • 2. Комната 15,14 m² (19,08 m²)
  • 3. Комната 17,73 m² (22,34 m²)
  • 4. Коридор 8,21 m²
  • 5. Ванная комната 6,14 m² (9 m²)
  • 6. Гардероб 6,46 m² (7,09 m²)
  • 7. Комната 15,49 m² (18,31 m²)
  • 8. Терраса (3,06 m²)
  • План мансарды 90,92 m²

Фасады

Передний
Задний
Левый
Правый
Передний
Задний
Левый
Правый

Подробная информация

Жилая площадь
157,90 m²
icon

Сумма площади всех жилых помещений, за вычетом пов. гараж, котельная, чердак, подвал. Учитывается в 100%, для помещений высотой более 2,2 м, в 50% для помещений с высотой 2,2-1,4 м и не включается для более низких помещений (меньше 1,4 м).

Площадь застройки
178,80 m²
icon

Площадь застройки здания определяется как площадь горизонтального сечения по внешнему обводу здания на уровне цоколя, включая выступающие части.

Площадь нетто
245 m²
icon

Площадь всех помещений в здании, измеренная на высоте пола.

Нетто кубатура
538,70 m³
icon

Площадь крыши
245 m²
icon

Угол наклона крыши
37°
icon

Наклон ската крыши в градусах. Внимание! В некоторых проектах возникает более чем один наклон крыши.

Высота здания
9 m
icon

Высота измеряется от поверхности земли до самой высокой точки кровли (конька), за исключением дымоходов.

Мин. ширина участка
24,40 m
icon

Наименьшая возможная ширина участка, необходимая для строительства выбранного дома. Состоит из длины фасада дома плюс с обеих сторон три метра отступ.

Мин. длина участка
22,90 m
icon

Наименьшая возможная длина участка, необходимая для строительства выбранного дома. Состоит из длины фасада дома плюс с обеих сторон три метра отступ.

Материалы и опции
Общие
Количество спален
4
Ежемесячный платёж, руб
Гараж
2
Количество санузлов
2
Ширина
16
Глубина
15
Тип крыши

Площади дома

№ п/п Наименование Ед. из. Строительная площадь Полезная площадь
1 1 этаж м2 153.69 124.72
2 2 этаж м2 112.04 90.92
3 Итого м2 265.73 215.64

Калькулятор опций

0

В ипотеку от 23 561 ₽/мес.

Фундамент
stdClass Object ( [id] => 1 [attribute_id] => 1 [name] => Ленточный монолитный ж/б [material_modifier] => 1 [work_modifier] => 1 [options] => Array ( [0] => размер 200 х 700 мм [1] => размер 300 х 900 мм [2] => размер 400 х 1 000 мм [3] => размер 500 х 1 100 мм [4] => размер 600 х 1 200 мм ) [days] => [20,21,22,25,30] [material_price] => [2823,3630,4475,5210,12047] [work_price] => [2154,2826,3731,4577,5293] [image] => https://akademik-stroy.ru/wp-content/uploads/materials/lentochnyj-monolitnyj-zh-b.jpg [area_modifier] => 153.69 [parent_name] => Фундамент [parent_id] => 1 [material_sum] => 546672 [work_sum] => 347601 [total_sum] => 894273 [total_days] => 20 [display_material_sum] => 546 672 [display_work_sum] => 347 601 [display_total_sum] => 894 273 ) 1
894 273
Работа:347 601
Материалы:546 672
Дни:20
stdClass Object ( [id] => 2 [attribute_id] => 1 [name] => Забивные Ж/Б сваи [material_modifier] => 1 [work_modifier] => 1 [options] => Array ( [0] => 150х150х3000мм [1] => 150х150х4000мм [2] => 200х200х3000мм [3] => 200х200х4000мм [4] => 200х200х5000мм [5] => 200х200х6000мм ) [days] => [2,2,2,2,2,2] [material_price] => [1990,2850,3255,4360,5120,6837] [work_price] => [1002,1185,1336,1438,1574,1839] [image] => https://akademik-stroy.ru/wp-content/uploads/materials/zabivnye-zh-b-svai.png [area_modifier] => 153.69 [parent_name] => Фундамент [parent_id] => 1 [material_sum] => 385362 [work_sum] => 161697 [total_sum] => 547059 [total_days] => 2 [display_material_sum] => 385 362 [display_work_sum] => 161 697 [display_total_sum] => 547 059 ) 1
547 059
Работа:161 697
Материалы:385 362
Дни:2
stdClass Object ( [id] => 71 [attribute_id] => 1 [name] => Свайно-ростверковый ж/б [material_modifier] => 1 [work_modifier] => 1 [options] => Array ( [0] => ростверк 200х300 мм [1] => ростверк 300х600 мм [2] => ростверк 400х900 мм [3] => ростверк 500х1200 мм ) [days] => [20,23,25,27] [material_price] => [3018,3474,7109,9792] [work_price] => [2024,3012,5635,7022] [image] => https://akademik-stroy.ru/wp-content/uploads/materials/svajno-rostverkovyj-monolitnyj-zh-b-3.png [area_modifier] => 153.69 [parent_name] => Фундамент [parent_id] => 1 [material_sum] => 584434 [work_sum] => 326622 [total_sum] => 911056 [total_days] => 20 [display_material_sum] => 584 434 [display_work_sum] => 326 622 [display_total_sum] => 911 056 ) 1
911 056
Работа:326 622
Материалы:584 434
Дни:20
stdClass Object ( [id] => 72 [attribute_id] => 1 [name] => Монолитная ж/б плита [material_modifier] => 1 [work_modifier] => 1 [options] => Array ( [0] => 200 мм [1] => 300 мм [2] => 400 мм [3] => 500 мм [4] => 600 мм ) [days] => [30,33,35,37,40] [material_price] => [5348,8555,12788,14388,15189] [work_price] => [4314,4881,7037,8061,10230] [image] => https://akademik-stroy.ru/wp-content/uploads/materials/monolitnaya-zhb-plita.png [area_modifier] => 153.69 [parent_name] => Фундамент [parent_id] => 1 [material_sum] => 1035637 [work_sum] => 696170 [total_sum] => 1731807 [total_days] => 30 [display_material_sum] => 1 035 637 [display_work_sum] => 696 170 [display_total_sum] => 1 731 807 ) 1
1 731 807
Работа:696 170
Материалы:1 035 637
Дни:30
stdClass Object ( [id] => 73 [attribute_id] => 1 [name] => Утепленная шведская плита [material_modifier] => 1 [work_modifier] => 1 [options] => Array ( [0] => 200 мм [1] => 300 мм [2] => 400 мм [3] => 500 мм [4] => 600 мм ) [days] => [32,37,39,42,45] [material_price] => [10249,12692,13760,14936,16230] [work_price] => [5960,7337,8072,8878,9765] [image] => https://akademik-stroy.ru/wp-content/uploads/materials/uteplennaya-shvedskaya-plita.jpg [area_modifier] => 153.69 [parent_name] => Фундамент [parent_id] => 1 [material_sum] => 1984713 [work_sum] => 961792 [total_sum] => 2946505 [total_days] => 32 [display_material_sum] => 1 984 713 [display_work_sum] => 961 792 [display_total_sum] => 2 946 505 ) 1
2 946 505
Работа:961 792
Материалы:1 984 713
Дни:32
stdClass Object ( [id] => 75 [attribute_id] => 1 [name] => Ленточный из ФБС [material_modifier] => 1 [work_modifier] => 1 [options] => Array ( [0] => толщ. 300 мм [1] => толщ. 400 мм [2] => толщ. 500 мм [3] => толщ. 600 мм ) [days] => [20,20,20,20] [material_price] => [3675,4902,6126,7350] [work_price] => [2451,3264,4083,4902] [image] => https://akademik-stroy.ru/wp-content/uploads/materials/lentochnyj-iz-fbs.png [area_modifier] => 153.69 [parent_name] => Фундамент [parent_id] => 1 [material_sum] => 711662 [work_sum] => 395529 [total_sum] => 1107191 [total_days] => 20 [display_material_sum] => 711 662 [display_work_sum] => 395 529 [display_total_sum] => 1 107 191 ) 1
1 107 191
Работа:395 529
Материалы:711 662
Дни:20
stdClass Object ( [id] => 76 [attribute_id] => 1 [name] => Цокольный этаж из ФБС [material_modifier] => 1 [work_modifier] => 1 [options] => Array ( [0] => толщ. 300 мм [1] => толщ. 400 мм [2] => толщ. 500 мм [3] => толщ. 600 мм ) [days] => [30,32,34,36] [material_price] => [20916,23299,26680,29060] [work_price] => [17524,18700,19873,21046] [image] => https://akademik-stroy.ru/wp-content/uploads/materials/cokolnyj-ehtazh-iz-fbs.jpg [area_modifier] => 153.69 [parent_name] => Фундамент [parent_id] => 1 [material_sum] => 4050371 [work_sum] => 2827927 [total_sum] => 6878298 [total_days] => 30 [display_material_sum] => 4 050 371 [display_work_sum] => 2 827 927 [display_total_sum] => 6 878 298 ) 1
6 878 298
Работа:2 827 927
Материалы:4 050 371
Дни:30
stdClass Object ( [id] => 77 [attribute_id] => 1 [name] => Цокольный этаж монолитный ж/б [material_modifier] => 1 [work_modifier] => 1 [options] => Array ( [0] => толщ. 200 мм [1] => толщ. 300 мм [2] => толщ. 400 мм [3] => толщ. 500 мм [4] => толщ. 600 мм ) [days] => [40,42,44,46,48] [material_price] => [25421,29148,32275,35602,37326] [work_price] => [20441,21907,23375,24841,26306] [image] => https://akademik-stroy.ru/wp-content/uploads/materials/cokolnyj-etazh-zh-b.jpg [area_modifier] => 153.69 [parent_name] => Фундамент [parent_id] => 1 [material_sum] => 4922761 [work_sum] => 3298656 [total_sum] => 8221417 [total_days] => 40 [display_material_sum] => 4 922 761 [display_work_sum] => 3 298 656 [display_total_sum] => 8 221 417 ) 1
8 221 417
Работа:3 298 656
Материалы:4 922 761
Дни:40
stdClass Object ( [id] => 191 [attribute_id] => 1 [name] => Винтовые сваи [material_modifier] => 1 [work_modifier] => 1 [options] => Array ( [0] => 57х200мм [1] => 76х250мм [2] => 108х300мм [3] => 133х350мм ) [days] => [1,1,2,2] [material_price] => [1200,1300,1450,1600] [work_price] => [400,600,900,1100] [image] => https://akademik-stroy.ru/wp-content/uploads/materials/vintovye-svai.png [area_modifier] => 153.69 [parent_name] => Фундамент [parent_id] => 1 [material_sum] => 232379 [work_sum] => 64550 [total_sum] => 296929 [total_days] => 1 [display_material_sum] => 232 379 [display_work_sum] => 64 550 [display_total_sum] => 296 929 ) 1
296 929
Работа:64 550
Материалы:232 379
Дни:1
Перекрытие цоколя
stdClass Object ( [id] => 3 [attribute_id] => 2 [name] => Деревянные балки [material_modifier] => 1 [work_modifier] => 1 [options] => Array ( [0] => без утепления [1] => утепление 200 мм [2] => утепление 250 мм [3] => утепление 300 мм [4] => утепление 350 мм [5] => утепление 400 мм [6] => утепление 450 мм [7] => утепление 500 мм ) [days] => [8,9,9,9,11,12,13,14] [material_price] => [1634,2042,2344,2947,3149,3652,3354,3557] [work_price] => [1230,1339,1393,1426,1460,1513,1587,1620] [image] => https://akademik-stroy.ru/wp-content/uploads/materials/derevyannye-balki.png [area_modifier] => 153.69 [parent_name] => Перекрытие цоколя [parent_id] => 2 [material_sum] => 316423 [work_sum] => 198491 [total_sum] => 514914 [total_days] => 8 [display_material_sum] => 316 423 [display_work_sum] => 198 491 [display_total_sum] => 514 914 ) 1
514 914
Работа:198 491
Материалы:316 423
Дни:8
stdClass Object ( [id] => 4 [attribute_id] => 2 [name] => Сборные ж/б плиты [material_modifier] => 1 [work_modifier] => 1 [options] => Array ( [0] => без утепления [1] => утепление 150мм [2] => утепление 200мм [3] => утепление 250мм [4] => утепление 300мм [5] => утепление 350мм [6] => утепление 400мм [7] => утепление 450мм [8] => утепление 500мм ) [days] => [13,15,15,15,15,15,15,15,15] [material_price] => [3067,5577,5928,6679,7730,8782,9833,10884,11935] [work_price] => [1520,1956,2102,2247,2392,2537,2684,2829,2974] [image] => https://akademik-stroy.ru/wp-content/uploads/materials/sbornye-zh-b-plity-2.jpg [area_modifier] => 153.69 [parent_name] => Перекрытие цоколя [parent_id] => 2 [material_sum] => 593923 [work_sum] => 245289 [total_sum] => 839212 [total_days] => 13 [display_material_sum] => 593 923 [display_work_sum] => 245 289 [display_total_sum] => 839 212 ) 1
839 212
Работа:245 289
Материалы:593 923
Дни:13
stdClass Object ( [id] => 78 [attribute_id] => 2 [name] => Монолитная ж/б плита [material_modifier] => 1 [work_modifier] => 1 [options] => Array ( [0] => без утепления [1] => утепление 150 мм [2] => утепление 200 мм [3] => утепление 250 мм [4] => утепление 300 мм [5] => утепление 350 мм [6] => утепление 400 мм [7] => утепление 450 мм [8] => утепление 500 мм ) [days] => [18,20,20,20,20,20,20,20,20] [material_price] => [4837,6572,7224,7375,79426,8177,8728,9180,10031] [work_price] => [3348,3921,4112,4302,4493,4684,4875,5066,5256] [image] => https://akademik-stroy.ru/wp-content/uploads/materials/monolitnaya-zh-b-plita-2.jpg [area_modifier] => 153.69 [parent_name] => Перекрытие цоколя [parent_id] => 2 [material_sum] => 936682 [work_sum] => 540282 [total_sum] => 1476964 [total_days] => 18 [display_material_sum] => 936 682 [display_work_sum] => 540 282 [display_total_sum] => 1 476 964 ) 1
1 476 964
Работа:540 282
Материалы:936 682
Дни:18
Стены 1 этаж (несущие)
stdClass Object ( [id] => 6 [attribute_id] => 3 [name] => Пеноблок [material_modifier] => 1 [work_modifier] => 1 [options] => Array ( [0] => 300 мм [1] => 400 мм [2] => 500 мм [3] => 600 мм ) [days] => [29,31,34,39] [material_price] => [3000,4000,4500,4937] [work_price] => [5033,5805,6400,8710] [image] => https://akademik-stroy.ru/wp-content/uploads/materials/penoblok.jpg [area_modifier] => 153.69 [parent_name] => Стены 1 этаж (несущие) [parent_id] => 3 [material_sum] => 580948 [work_sum] => 812198 [total_sum] => 1393146 [total_days] => 29 [display_material_sum] => 580 948 [display_work_sum] => 812 198 [display_total_sum] => 1 393 146 ) 1
1 393 146
Работа:812 198
Материалы:580 948
Дни:29
stdClass Object ( [id] => 79 [attribute_id] => 3 [name] => Керамический блок [material_modifier] => 1 [work_modifier] => 1 [options] => Array ( [0] => 380 мм [1] => 380 мм Thermo [2] => 440 мм [3] => 510 мм ) [days] => [23,23,24,25] [material_price] => [4510,5098,6093,8013] [work_price] => [4737,4937,5903,6958] [image] => https://akademik-stroy.ru/wp-content/uploads/materials/keramicheskij-blok.jpg [area_modifier] => 153.69 [parent_name] => Стены 1 этаж (несущие) [parent_id] => 3 [material_sum] => 873359 [work_sum] => 764431 [total_sum] => 1637790 [total_days] => 23 [display_material_sum] => 873 359 [display_work_sum] => 764 431 [display_total_sum] => 1 637 790 ) 1
1 637 790
Работа:764 431
Материалы:873 359
Дни:23
stdClass Object ( [id] => 80 [attribute_id] => 3 [name] => Кирпич [material_modifier] => 1 [work_modifier] => 1 [options] => Array ( [0] => Кирпич 250 мм [1] => Кирпич 380 мм [2] => Кирпич 510 мм [3] => Кирпич 640 мм [4] => Кирпич 770 мм ) [days] => [30,30,31,33,36] [material_price] => [5500,7142,9206,10171,12235] [work_price] => [8736,10041,12018,15240,18462] [image] => https://akademik-stroy.ru/wp-content/uploads/materials/kirpich.jpg [area_modifier] => 153.69 [parent_name] => Стены 1 этаж (несущие) [parent_id] => 3 [material_sum] => 1065072 [work_sum] => 1409768 [total_sum] => 2474840 [total_days] => 30 [display_material_sum] => 1 065 072 [display_work_sum] => 1 409 768 [display_total_sum] => 2 474 840 ) 1
2 474 840
Работа:1 409 768
Материалы:1 065 072
Дни:30
stdClass Object ( [id] => 81 [attribute_id] => 3 [name] => Монолитные [material_modifier] => 1 [work_modifier] => 1 [options] => Array ( [0] => 150 мм [1] => 200 мм [2] => 250 мм [3] => 300 мм [4] => 350 мм [5] => 400 мм ) [days] => [45,46,47,49,50,53] [material_price] => [6545,7876,10175,12011,13908,15204] [work_price] => [5106,6444,7698,8552,9807,11461] [image] => https://akademik-stroy.ru/wp-content/uploads/materials/monolitnye.jpg [area_modifier] => 153.69 [parent_name] => Стены 1 этаж (несущие) [parent_id] => 3 [material_sum] => 1267435 [work_sum] => 823978 [total_sum] => 2091413 [total_days] => 45 [display_material_sum] => 1 267 435 [display_work_sum] => 823 978 [display_total_sum] => 2 091 413 ) 1
2 091 413
Работа:823 978
Материалы:1 267 435
Дни:45
stdClass Object ( [id] => 82 [attribute_id] => 3 [name] => Клееный брус [material_modifier] => 1 [work_modifier] => 1 [options] => Array ( [0] => 160 мм [1] => 175 мм [2] => 200 мм [3] => 215 мм [4] => 240 мм [5] => 270 мм [6] => 282 мм ) [days] => [24,28,32,37,40,42,48] [material_price] => [16975,18773,19950,20545,21599,22159,23275] [work_price] => [4806,5287,5815,6397,7036,7740,8514] [image] => https://akademik-stroy.ru/wp-content/uploads/materials/kleenyj-brus.jpg [area_modifier] => 153.69 [parent_name] => Стены 1 этаж (несущие) [parent_id] => 3 [material_sum] => 3287199 [work_sum] => 775566 [total_sum] => 4062765 [total_days] => 24 [display_material_sum] => 3 287 199 [display_work_sum] => 775 566 [display_total_sum] => 4 062 765 ) 1
4 062 765
Работа:775 566
Материалы:3 287 199
Дни:24
stdClass Object ( [id] => 83 [attribute_id] => 3 [name] => Каркасные [material_modifier] => 1 [work_modifier] => 1 [options] => Array ( [0] => 150 мм [1] => 200 мм [2] => 250 мм [3] => 300 мм ) [days] => [15,16,17,18] [material_price] => [2379,2639,2898,3258] [work_price] => [2418,2686,2985,3716] [image] => https://akademik-stroy.ru/wp-content/uploads/materials/karkasnye.jpg [area_modifier] => 153.69 [parent_name] => Стены 1 этаж (несущие) [parent_id] => 3 [material_sum] => 460692 [work_sum] => 390204 [total_sum] => 850896 [total_days] => 15 [display_material_sum] => 460 692 [display_work_sum] => 390 204 [display_total_sum] => 850 896 ) 1
850 896
Работа:390 204
Материалы:460 692
Дни:15
stdClass Object ( [id] => 84 [attribute_id] => 3 [name] => СИП-панели [material_modifier] => 1 [work_modifier] => 1 [options] => Array ( [0] => 120 мм [1] => 170 мм [2] => 220 мм ) [days] => [7,7,7] [material_price] => [1210,1856,2292] [work_price] => [1410,1551,1706] [image] => https://akademik-stroy.ru/wp-content/uploads/materials/sip-paneli.jpg [area_modifier] => 153.69 [parent_name] => Стены 1 этаж (несущие) [parent_id] => 3 [material_sum] => 234316 [work_sum] => 227538 [total_sum] => 461854 [total_days] => 7 [display_material_sum] => 234 316 [display_work_sum] => 227 538 [display_total_sum] => 461 854 ) 1
461 854
Работа:227 538
Материалы:234 316
Дни:7
stdClass Object ( [id] => 85 [attribute_id] => 3 [name] => Сухой брус [material_modifier] => 1 [work_modifier] => 1 [options] => Array ( [0] => 150 мм [1] => 180 мм [2] => 200 мм ) [days] => [7,8,9] [material_price] => [6010,7190,8709] [work_price] => [3204,3845,4229] [image] => https://akademik-stroy.ru/wp-content/uploads/materials/suhoj-brus.jpg [area_modifier] => 153.69 [parent_name] => Стены 1 этаж (несущие) [parent_id] => 3 [material_sum] => 1163833 [work_sum] => 517044 [total_sum] => 1680877 [total_days] => 7 [display_material_sum] => 1 163 833 [display_work_sum] => 517 044 [display_total_sum] => 1 680 877 ) 1
1 680 877
Работа:517 044
Материалы:1 163 833
Дни:7
stdClass Object ( [id] => 86 [attribute_id] => 3 [name] => Профилированный брус [material_modifier] => 1 [work_modifier] => 1 [options] => Array ( [0] => 150 мм [1] => 180 мм [2] => 200 мм ) [days] => [7,8,9] [material_price] => [8190,9228,10051] [work_price] => [3845,4614,5075] [image] => https://akademik-stroy.ru/wp-content/uploads/materials/profilirovannyj-brus.jpg [area_modifier] => 153.69 [parent_name] => Стены 1 этаж (несущие) [parent_id] => 3 [material_sum] => 1585989 [work_sum] => 620485 [total_sum] => 2206474 [total_days] => 7 [display_material_sum] => 1 585 989 [display_work_sum] => 620 485 [display_total_sum] => 2 206 474 ) 1
2 206 474
Работа:620 485
Материалы:1 585 989
Дни:7
stdClass Object ( [id] => 87 [attribute_id] => 3 [name] => Оцилиндрованное бревно [material_modifier] => 1 [work_modifier] => 1 [options] => Array ( [0] => 180 мм [1] => 220 мм [2] => 260 мм [3] => 320 мм ) [days] => [7,8,9,10] [material_price] => [75190,9532,10868,13116] [work_price] => [3845,4691,5535,6863] [image] => https://akademik-stroy.ru/wp-content/uploads/materials/ocilindrovannoe-brevno-1.jpg [area_modifier] => 153.69 [parent_name] => Стены 1 этаж (несущие) [parent_id] => 3 [material_sum] => 14560498 [work_sum] => 620485 [total_sum] => 15180983 [total_days] => 7 [display_material_sum] => 14 560 498 [display_work_sum] => 620 485 [display_total_sum] => 15 180 983 ) 1
15 180 983
Работа:620 485
Материалы:14 560 498
Дни:7
stdClass Object ( [id] => 88 [attribute_id] => 3 [name] => Срубы [material_modifier] => 1 [work_modifier] => 1 [options] => Array ( [0] => 260 мм [1] => 320 мм [2] => 360 мм [3] => 400 мм [4] => 500 мм ) [days] => [7,8,9,10,11] [material_price] => [37975,46709,52314,58069,73167] [work_price] => [4806,5911,6621,7349,9260] [image] => https://akademik-stroy.ru/wp-content/uploads/materials/sruby.jpg [area_modifier] => 153.69 [parent_name] => Стены 1 этаж (несущие) [parent_id] => 3 [material_sum] => 7353836 [work_sum] => 775566 [total_sum] => 8129402 [total_days] => 7 [display_material_sum] => 7 353 836 [display_work_sum] => 775 566 [display_total_sum] => 8 129 402 ) 1
8 129 402
Работа:775 566
Материалы:7 353 836
Дни:7
stdClass Object ( [id] => 174 [attribute_id] => 3 [name] => Брус [material_modifier] => 1 [work_modifier] => 1 [options] => Array ( [0] => 150 мм [1] => 180 мм [2] => 200 мм ) [days] => [7,8,9] [material_price] => [5127,6152,7367] [work_price] => [1602,1922,2115] [image] => https://akademik-stroy.ru/wp-content/uploads/materials/brus.jpg [area_modifier] => 153.69 [parent_name] => Стены 1 этаж (несущие) [parent_id] => 3 [material_sum] => 992840 [work_sum] => 258522 [total_sum] => 1251362 [total_days] => 7 [display_material_sum] => 992 840 [display_work_sum] => 258 522 [display_total_sum] => 1 251 362 ) 1
1 251 362
Работа:258 522
Материалы:992 840
Дни:7
stdClass Object ( [id] => 175 [attribute_id] => 3 [name] => Газобетон [material_modifier] => 1 [work_modifier] => 1 [options] => Array ( [0] => 300 мм [1] => 375 мм [2] => 400 мм [3] => 500 мм [4] => 600 мм ) [days] => [29,31,35,37,44] [material_price] => [4298,5573,6356,7288,9119] [work_price] => [4538,5251,5926,6733,7195] [image] => https://akademik-stroy.ru/wp-content/uploads/materials/gazobeton.jpg [area_modifier] => 153.69 [parent_name] => Стены 1 этаж (несущие) [parent_id] => 3 [material_sum] => 832305 [work_sum] => 732317 [total_sum] => 1564622 [total_days] => 29 [display_material_sum] => 832 305 [display_work_sum] => 732 317 [display_total_sum] => 1 564 622 ) 1
1 564 622
Работа:732 317
Материалы:832 305
Дни:29
stdClass Object ( [id] => 176 [attribute_id] => 3 [name] => Блок [material_modifier] => 1 [work_modifier] => 1 [options] => Array ( [0] => 300 мм [1] => 375 мм [2] => 400 мм [3] => 500 мм [4] => 600 мм ) [days] => [29,31,35,37,44] [material_price] => [2698,3973,4356,6588,7119] [work_price] => [5038,5851,6426,8733,9195] [image] => https://akademik-stroy.ru/wp-content/uploads/materials/blok.jpg [area_modifier] => 153.69 [parent_name] => Стены 1 этаж (несущие) [parent_id] => 3 [material_sum] => 522466 [work_sum] => 813005 [total_sum] => 1335471 [total_days] => 29 [display_material_sum] => 522 466 [display_work_sum] => 813 005 [display_total_sum] => 1 335 471 ) 1
1 335 471
Работа:813 005
Материалы:522 466
Дни:29
stdClass Object ( [id] => 177 [attribute_id] => 3 [name] => Газосиликатный блок [material_modifier] => 1 [work_modifier] => 1 [options] => Array ( [0] => 300 мм [1] => 375 мм [2] => 400 мм [3] => 500 мм [4] => 600 мм ) [days] => [29,31,35,37,44] [material_price] => [4298,5573,6356,7288,9119] [work_price] => [4538,5251,5926,6733,7195] [image] => https://akademik-stroy.ru/wp-content/uploads/materials/gazosilikatnyj-blok.jpg [area_modifier] => 153.69 [parent_name] => Стены 1 этаж (несущие) [parent_id] => 3 [material_sum] => 832305 [work_sum] => 732317 [total_sum] => 1564622 [total_days] => 29 [display_material_sum] => 832 305 [display_work_sum] => 732 317 [display_total_sum] => 1 564 622 ) 1
1 564 622
Работа:732 317
Материалы:832 305
Дни:29
stdClass Object ( [id] => 178 [attribute_id] => 3 [name] => Керамзитобетонный блок [material_modifier] => 1 [work_modifier] => 1 [options] => Array ( [0] => 300 мм [1] => 375 мм [2] => 400 мм [3] => 500 мм [4] => 600 мм ) [days] => [23,23,24,25,28] [material_price] => [3641,4298,5693,7613,9612] [work_price] => [5737,5737,6903,7958,8901] [image] => https://akademik-stroy.ru/wp-content/uploads/materials/keramzitobetonnyj-blok.jpg [area_modifier] => 153.69 [parent_name] => Стены 1 этаж (несущие) [parent_id] => 3 [material_sum] => 705077 [work_sum] => 925806 [total_sum] => 1630883 [total_days] => 23 [display_material_sum] => 705 077 [display_work_sum] => 925 806 [display_total_sum] => 1 630 883 ) 1
1 630 883
Работа:925 806
Материалы:705 077
Дни:23
stdClass Object ( [id] => 179 [attribute_id] => 3 [name] => Деревянные [material_modifier] => 1 [work_modifier] => 1 [options] => Array ( [0] => 180 мм [1] => 220 мм [2] => 260 мм [3] => 320 мм ) [days] => [7,8,9,10] [material_price] => [7950,9458,11961,14472] [work_price] => [4037,4925,5812,7207] [image] => https://akademik-stroy.ru/wp-content/uploads/materials/derevyannye.jpg [area_modifier] => 153.69 [parent_name] => Стены 1 этаж (несущие) [parent_id] => 3 [material_sum] => 1539513 [work_sum] => 651469 [total_sum] => 2190982 [total_days] => 7 [display_material_sum] => 1 539 513 [display_work_sum] => 651 469 [display_total_sum] => 2 190 982 ) 1
2 190 982
Работа:651 469
Материалы:1 539 513
Дни:7
stdClass Object ( [id] => 181 [attribute_id] => 3 [name] => Камень [material_modifier] => 1 [work_modifier] => 1 [options] => Array ( [0] => 300 мм [1] => 400 мм [2] => 500 мм [3] => 600 мм ) [days] => [25,27,31,34] [material_price] => [5262,6844,8330,9815] [work_price] => [8331,9135,10427,11069] [image] => https://akademik-stroy.ru/wp-content/uploads/materials/kamen.jpg [area_modifier] => 153.69 [parent_name] => Стены 1 этаж (несущие) [parent_id] => 3 [material_sum] => 1018983 [work_sum] => 1344411 [total_sum] => 2363394 [total_days] => 25 [display_material_sum] => 1 018 983 [display_work_sum] => 1 344 411 [display_total_sum] => 2 363 394 ) 1
2 363 394
Работа:1 344 411
Материалы:1 018 983
Дни:25
stdClass Object ( [id] => 182 [attribute_id] => 3 [name] => Каркасно-щитовые [material_modifier] => 1 [work_modifier] => 1 [options] => Array ( [0] => 150 мм [1] => 200 мм [2] => 250 мм [3] => 300 мм [4] => 350 мм [5] => 400 мм ) [days] => [15,16,17,18,19,20] [material_price] => [2379,2639,2898,3458,3601,4175] [work_price] => [2538,2820,3134,3483,4062,5642] [image] => https://akademik-stroy.ru/wp-content/uploads/materials/karkasno-shchitovye.jpg [area_modifier] => 153.69 [parent_name] => Стены 1 этаж (несущие) [parent_id] => 3 [material_sum] => 460692 [work_sum] => 409568 [total_sum] => 870260 [total_days] => 15 [display_material_sum] => 460 692 [display_work_sum] => 409 568 [display_total_sum] => 870 260 ) 1
870 260
Работа:409 568
Материалы:460 692
Дни:15
stdClass Object ( [id] => 183 [attribute_id] => 3 [name] => Рубленные [material_modifier] => 1 [work_modifier] => 1 [options] => Array ( [0] => 150 мм [1] => 200 мм [2] => 250 мм [3] => 300 мм [4] => 350 мм [5] => 400 мм ) [days] => [15,16,17,18,17,18] [material_price] => [35950,50267,60583,75900,80217,100533] [work_price] => [9612,12816,16020,19224,22428,25632] [image] => https://akademik-stroy.ru/wp-content/uploads/materials/rublennye.jpg [area_modifier] => 153.69 [parent_name] => Стены 1 этаж (несущие) [parent_id] => 3 [material_sum] => 6961696 [work_sum] => 1551132 [total_sum] => 8512828 [total_days] => 15 [display_material_sum] => 6 961 696 [display_work_sum] => 1 551 132 [display_total_sum] => 8 512 828 ) 1
8 512 828
Работа:1 551 132
Материалы:6 961 696
Дни:15
stdClass Object ( [id] => 185 [attribute_id] => 3 [name] => Теплоблок [material_modifier] => 1 [work_modifier] => 1 [options] => Array ( [0] => 300 мм (с облицовкой, не покрашенный) [1] => 400 мм (с облицовкой, не покрашенный) [2] => 300 мм (с облицовкой, покрашенный) [3] => 400 мм (с облицовкой, покрашенный) ) [days] => [15,16,15,16] [material_price] => [2888,3729,3957,4258] [work_price] => [2564,3229,2949,3713] [image] => https://akademik-stroy.ru/wp-content/uploads/materials/teploblok.jpg [area_modifier] => 153.69 [parent_name] => Стены 1 этаж (несущие) [parent_id] => 3 [material_sum] => 559259 [work_sum] => 413764 [total_sum] => 973023 [total_days] => 15 [display_material_sum] => 559 259 [display_work_sum] => 413 764 [display_total_sum] => 973 023 ) 1
973 023
Работа:413 764
Материалы:559 259
Дни:15
stdClass Object ( [id] => 186 [attribute_id] => 3 [name] => Арболитовые блоки [material_modifier] => 1 [work_modifier] => 1 [options] => Array ( [0] => 300 мм [1] => 400 мм [2] => 600 мм ) [days] => [19,22,27] [material_price] => [3210,4475,5852] [work_price] => [4214,4788,5866] [image] => https://akademik-stroy.ru/wp-content/uploads/materials/arbolitovye-bloki.png [area_modifier] => 153.69 [parent_name] => Стены 1 этаж (несущие) [parent_id] => 3 [material_sum] => 621615 [work_sum] => 680032 [total_sum] => 1301647 [total_days] => 19 [display_material_sum] => 621 615 [display_work_sum] => 680 032 [display_total_sum] => 1 301 647 ) 1
1 301 647
Работа:680 032
Материалы:621 615
Дни:19
stdClass Object ( [id] => 187 [attribute_id] => 3 [name] => Полистиролбетон [material_modifier] => 1 [work_modifier] => 1 [options] => Array ( [0] => 300 мм [1] => 400 мм [2] => 600 мм ) [days] => [29,31,35] [material_price] => [2798,4573,5256] [work_price] => [5038,5851,6426] [image] => https://akademik-stroy.ru/wp-content/uploads/materials/polistirolbeton.jpg [area_modifier] => 153.69 [parent_name] => Стены 1 этаж (несущие) [parent_id] => 3 [material_sum] => 541831 [work_sum] => 813005 [total_sum] => 1354836 [total_days] => 29 [display_material_sum] => 541 831 [display_work_sum] => 813 005 [display_total_sum] => 1 354 836 ) 1
1 354 836
Работа:813 005
Материалы:541 831
Дни:29
stdClass Object ( [id] => 188 [attribute_id] => 3 [name] => Шлакоблок [material_modifier] => 1 [work_modifier] => 1 [options] => Array ( [0] => 400 мм [1] => 600 мм ) [days] => [15,16] [material_price] => [2391,3471] [work_price] => [2642,3662] [image] => https://akademik-stroy.ru/wp-content/uploads/materials/shlakoblok.jpg [area_modifier] => 153.69 [parent_name] => Стены 1 этаж (несущие) [parent_id] => 3 [material_sum] => 463016 [work_sum] => 426351 [total_sum] => 889367 [total_days] => 15 [display_material_sum] => 463 016 [display_work_sum] => 426 351 [display_total_sum] => 889 367 ) 1
889 367
Работа:426 351
Материалы:463 016
Дни:15
stdClass Object ( [id] => 189 [attribute_id] => 3 [name] => Теплая керамика [material_modifier] => 1 [work_modifier] => 1 [options] => Array ( [0] => 380 мм [1] => 380 мм Thermo [2] => 440 мм [3] => 510 мм ) [days] => [23,23,24,25] [material_price] => [4510,5098,6093,8013] [work_price] => [4737,4937,5903,6958] [image] => https://akademik-stroy.ru/wp-content/uploads/materials/teplaya-keramika.jpg [area_modifier] => 153.69 [parent_name] => Стены 1 этаж (несущие) [parent_id] => 3 [material_sum] => 873359 [work_sum] => 764431 [total_sum] => 1637790 [total_days] => 23 [display_material_sum] => 873 359 [display_work_sum] => 764 431 [display_total_sum] => 1 637 790 ) 1
1 637 790
Работа:764 431
Материалы:873 359
Дни:23
stdClass Object ( [id] => 190 [attribute_id] => 3 [name] => Несъемная опалубка [material_modifier] => 1 [work_modifier] => 1 [options] => Array ( [0] => 200 мм [1] => 250 мм [2] => 300 мм [3] => 350 мм ) [days] => [15,17,19,21] [material_price] => [3302,3902,4108,5008] [work_price] => [2100,2100,2300,2534] [image] => https://akademik-stroy.ru/wp-content/uploads/materials/nesemnaya-opalubka.jpg [area_modifier] => 153.69 [parent_name] => Стены 1 этаж (несущие) [parent_id] => 3 [material_sum] => 639430 [work_sum] => 338886 [total_sum] => 978316 [total_days] => 15 [display_material_sum] => 639 430 [display_work_sum] => 338 886 [display_total_sum] => 978 316 ) 1
978 316
Работа:338 886
Материалы:639 430
Дни:15
stdClass Object ( [id] => 251 [attribute_id] => 3 [name] => Бревно [material_modifier] => 1 [work_modifier] => 1 [options] => Array ( [0] => 260 мм [1] => 320 мм [2] => 360 мм [3] => 400 мм [4] => 500 мм ) [days] => [7,8,9,10,11] [material_price] => [1874,24045,26930,30972,38825] [work_price] => [5046,6207,6952,7716,9723] [image] => https://akademik-stroy.ru/wp-content/uploads/materials/sruby.jpg [area_modifier] => 153.69 [parent_name] => Стены 1 этаж (несущие) [parent_id] => 3 [material_sum] => 362899 [work_sum] => 814296 [total_sum] => 1177195 [total_days] => 7 [display_material_sum] => 362 899 [display_work_sum] => 814 296 [display_total_sum] => 1 177 195 ) 1
1 177 195
Работа:814 296
Материалы:362 899
Дни:7
Перекрытие первого этажа
stdClass Object ( [id] => 7 [attribute_id] => 4 [name] => Деревянные балки [material_modifier] => 1 [work_modifier] => 1 [options] => Array ( [0] => без утепления [1] => утепление 200 мм [2] => утепление 250 мм [3] => утепление 300 мм [4] => утепление 350 мм [5] => утепление 400 мм [6] => утепление 450 мм [7] => утепление 500 мм ) [days] => [8,9,9,9,11,12,13,14] [material_price] => [1634,2042,2344,2947,3149,3652,3354,3557] [work_price] => [1230,1339,1393,1426,1460,1513,1587,1620] [image] => https://akademik-stroy.ru/wp-content/uploads/materials/derevyannye-balki.png [area_modifier] => 153.69 [parent_name] => Перекрытие первого этажа [parent_id] => 4 [material_sum] => 316423 [work_sum] => 198491 [total_sum] => 514914 [total_days] => 8 [display_material_sum] => 316 423 [display_work_sum] => 198 491 [display_total_sum] => 514 914 ) 1
514 914
Работа:198 491
Материалы:316 423
Дни:8
stdClass Object ( [id] => 8 [attribute_id] => 4 [name] => Сборные ж/б плиты [material_modifier] => 1 [work_modifier] => 1 [options] => Array ( [0] => без утепления [1] => утепление 150 мм [2] => утепление 200 мм [3] => утепление 250 мм [4] => утепление 300 мм [5] => утепление 350 мм [6] => утепление 400 мм [7] => утепление 450 мм [8] => утепление 500 мм ) [days] => [13,15,15,15,15,15,15,15,15] [material_price] => [3067,5577,5928,6679,7730,8782,9833,10884,11935] [work_price] => [1520,1956,2102,2247,2392,2537,2684,2829,2974] [image] => https://akademik-stroy.ru/wp-content/uploads/materials/sbornye-zh-b-plity-2.jpg [area_modifier] => 153.69 [parent_name] => Перекрытие первого этажа [parent_id] => 4 [material_sum] => 593923 [work_sum] => 245289 [total_sum] => 839212 [total_days] => 13 [display_material_sum] => 593 923 [display_work_sum] => 245 289 [display_total_sum] => 839 212 ) 1
839 212
Работа:245 289
Материалы:593 923
Дни:13
stdClass Object ( [id] => 89 [attribute_id] => 4 [name] => Монолитная ж/б плита [material_modifier] => 1 [work_modifier] => 1 [options] => Array ( [0] => без утепления [1] => утепление 150 мм [2] => утепление 200 мм [3] => утепление 250 мм [4] => утепление 300 мм [5] => утепление 350 мм [6] => утепление 400 мм [7] => утепление 450 мм [8] => утепление 500 мм ) [days] => [18,20,20,20,20,20,20,20,20] [material_price] => [4837,6572,7224,7375,79426,8177,8728,9180,10031] [work_price] => [3348,3921,4112,4302,4493,4684,4875,5066,5256] [image] => https://akademik-stroy.ru/wp-content/uploads/materials/monolitnaya-zh-b-plita-2.jpg [area_modifier] => 153.69 [parent_name] => Перекрытие первого этажа [parent_id] => 4 [material_sum] => 936682 [work_sum] => 540282 [total_sum] => 1476964 [total_days] => 18 [display_material_sum] => 936 682 [display_work_sum] => 540 282 [display_total_sum] => 1 476 964 ) 1
1 476 964
Работа:540 282
Материалы:936 682
Дни:18
Стены 2 этаж (несущие)
stdClass Object ( [id] => 10 [attribute_id] => 5 [name] => Пеноблок [material_modifier] => 1 [work_modifier] => 1 [options] => Array ( [0] => 300 мм [1] => 400 мм [2] => 500 мм [3] => 600 мм ) [days] => [29,31,34,39] [material_price] => [3000,4000,4500,4937] [work_price] => [5033,5805,6400,8710] [image] => https://akademik-stroy.ru/wp-content/uploads/materials/penoblok.jpg [area_modifier] => 112.04 [parent_name] => Стены 2 этаж (несущие) [parent_id] => 5 [material_sum] => 423511 [work_sum] => 592092 [total_sum] => 1015603 [total_days] => 29 [display_material_sum] => 423 511 [display_work_sum] => 592 092 [display_total_sum] => 1 015 603 ) 1
1 015 603
Работа:592 092
Материалы:423 511
Дни:29
stdClass Object ( [id] => 90 [attribute_id] => 5 [name] => Керамический блок [material_modifier] => 1 [work_modifier] => 1 [options] => Array ( [0] => 380 мм [1] => 380 мм Thermo [2] => 440 мм [3] => 510 мм ) [days] => [23,23,24,25] [material_price] => [4510,5098,6093,8013] [work_price] => [4737,4937,5903,6958] [image] => https://akademik-stroy.ru/wp-content/uploads/materials/keramicheskij-blok.jpg [area_modifier] => 112.04 [parent_name] => Стены 2 этаж (несущие) [parent_id] => 5 [material_sum] => 636679 [work_sum] => 557270 [total_sum] => 1193949 [total_days] => 23 [display_material_sum] => 636 679 [display_work_sum] => 557 270 [display_total_sum] => 1 193 949 ) 1
1 193 949
Работа:557 270
Материалы:636 679
Дни:23
stdClass Object ( [id] => 91 [attribute_id] => 5 [name] => Кирпич [material_modifier] => 1 [work_modifier] => 1 [options] => Array ( [0] => Кирпич 250 мм [1] => Кирпич 380 мм [2] => Кирпич 510 мм [3] => Кирпич 640 мм [4] => Кирпич 770 мм ) [days] => [30,30,31,33,36] [material_price] => [5500,7142,9206,10171,12235] [work_price] => [8736,10041,12018,15240,18462] [image] => https://akademik-stroy.ru/wp-content/uploads/materials/kirpich.jpg [area_modifier] => 112.04 [parent_name] => Стены 2 этаж (несущие) [parent_id] => 5 [material_sum] => 776437 [work_sum] => 1027721 [total_sum] => 1804158 [total_days] => 30 [display_material_sum] => 776 437 [display_work_sum] => 1 027 721 [display_total_sum] => 1 804 158 ) 1
1 804 158
Работа:1 027 721
Материалы:776 437
Дни:30
stdClass Object ( [id] => 92 [attribute_id] => 5 [name] => Монолитные [material_modifier] => 1 [work_modifier] => 1 [options] => Array ( [0] => 150 мм [1] => 200 мм [2] => 250 мм [3] => 300 мм [4] => 350 мм [5] => 400 мм ) [days] => [45,46,47,49,50,53] [material_price] => [6545,7876,10175,12011,13908,15204] [work_price] => [5106,6444,7698,8552,9807,11461] [image] => https://akademik-stroy.ru/wp-content/uploads/materials/monolitnye.jpg [area_modifier] => 112.04 [parent_name] => Стены 2 этаж (несущие) [parent_id] => 5 [material_sum] => 923960 [work_sum] => 600680 [total_sum] => 1524640 [total_days] => 45 [display_material_sum] => 923 960 [display_work_sum] => 600 680 [display_total_sum] => 1 524 640 ) 1
1 524 640
Работа:600 680
Материалы:923 960
Дни:45
stdClass Object ( [id] => 93 [attribute_id] => 5 [name] => Клееный брус [material_modifier] => 1 [work_modifier] => 1 [options] => Array ( [0] => 160 мм [1] => 175 мм [2] => 200 мм [3] => 215 мм [4] => 240 мм [5] => 270 мм [6] => 282 мм ) [days] => [24,28,32,37,40,42,48] [material_price] => [16975,18773,19950,20545,21599,22159,23275] [work_price] => [4806,5287,5815,6397,7036,7740,8514] [image] => https://akademik-stroy.ru/wp-content/uploads/materials/kleenyj-brus.jpg [area_modifier] => 112.04 [parent_name] => Стены 2 этаж (несущие) [parent_id] => 5 [material_sum] => 2396368 [work_sum] => 565387 [total_sum] => 2961755 [total_days] => 24 [display_material_sum] => 2 396 368 [display_work_sum] => 565 387 [display_total_sum] => 2 961 755 ) 1
2 961 755
Работа:565 387
Материалы:2 396 368
Дни:24
stdClass Object ( [id] => 94 [attribute_id] => 5 [name] => Каркасные [material_modifier] => 1 [work_modifier] => 1 [options] => Array ( [0] => 150 мм [1] => 200 мм [2] => 250 мм [3] => 300 мм ) [days] => [15,16,17,18] [material_price] => [2379,2639,2898,3258] [work_price] => [2418,2686,2985,3716] [image] => https://akademik-stroy.ru/wp-content/uploads/materials/karkasnye.jpg [area_modifier] => 112.04 [parent_name] => Стены 2 этаж (несущие) [parent_id] => 5 [material_sum] => 335844 [work_sum] => 284458 [total_sum] => 620302 [total_days] => 15 [display_material_sum] => 335 844 [display_work_sum] => 284 458 [display_total_sum] => 620 302 ) 1
620 302
Работа:284 458
Материалы:335 844
Дни:15
stdClass Object ( [id] => 95 [attribute_id] => 5 [name] => СИП-панели [material_modifier] => 1 [work_modifier] => 1 [options] => Array ( [0] => 120 мм [1] => 170 мм [2] => 220 мм ) [days] => [7,7,7] [material_price] => [1210,1856,2292] [work_price] => [1410,1551,1706] [image] => https://akademik-stroy.ru/wp-content/uploads/materials/sip-paneli.jpg [area_modifier] => 112.04 [parent_name] => Стены 2 этаж (несущие) [parent_id] => 5 [material_sum] => 170816 [work_sum] => 165875 [total_sum] => 336691 [total_days] => 7 [display_material_sum] => 170 816 [display_work_sum] => 165 875 [display_total_sum] => 336 691 ) 1
336 691
Работа:165 875
Материалы:170 816
Дни:7
stdClass Object ( [id] => 96 [attribute_id] => 5 [name] => Сухой брус [material_modifier] => 1 [work_modifier] => 1 [options] => Array ( [0] => 150 мм [1] => 180 мм [2] => 200 мм ) [days] => [7,8,9] [material_price] => [6010,7190,8709] [work_price] => [3204,3845,4229] [image] => https://akademik-stroy.ru/wp-content/uploads/materials/suhoj-brus.jpg [area_modifier] => 112.04 [parent_name] => Стены 2 этаж (несущие) [parent_id] => 5 [material_sum] => 848434 [work_sum] => 376925 [total_sum] => 1225359 [total_days] => 7 [display_material_sum] => 848 434 [display_work_sum] => 376 925 [display_total_sum] => 1 225 359 ) 1
1 225 359
Работа:376 925
Материалы:848 434
Дни:7
stdClass Object ( [id] => 97 [attribute_id] => 5 [name] => Профилированный брус [material_modifier] => 1 [work_modifier] => 1 [options] => Array ( [0] => 150 мм [1] => 180 мм [2] => 200 мм ) [days] => [7,8,9] [material_price] => [8190,9228,10051] [work_price] => [3845,4614,5075] [image] => https://akademik-stroy.ru/wp-content/uploads/materials/profilirovannyj-brus.jpg [area_modifier] => 112.04 [parent_name] => Стены 2 этаж (несущие) [parent_id] => 5 [material_sum] => 1156186 [work_sum] => 452333 [total_sum] => 1608519 [total_days] => 7 [display_material_sum] => 1 156 186 [display_work_sum] => 452 333 [display_total_sum] => 1 608 519 ) 1
1 608 519
Работа:452 333
Материалы:1 156 186
Дни:7
stdClass Object ( [id] => 98 [attribute_id] => 5 [name] => Оцилиндрованное бревно [material_modifier] => 1 [work_modifier] => 1 [options] => Array ( [0] => 180 мм [1] => 220 мм [2] => 260 мм [3] => 320 мм ) [days] => [7,8,9,10] [material_price] => [75190,9532,10868,13116] [work_price] => [3845,4691,5535,6863] [image] => https://akademik-stroy.ru/wp-content/uploads/materials/ocilindrovannoe-brevno-1.jpg [area_modifier] => 112.04 [parent_name] => Стены 2 этаж (несущие) [parent_id] => 5 [material_sum] => 10614602 [work_sum] => 452333 [total_sum] => 11066935 [total_days] => 7 [display_material_sum] => 10 614 602 [display_work_sum] => 452 333 [display_total_sum] => 11 066 935 ) 1
11 066 935
Работа:452 333
Материалы:10 614 602
Дни:7
stdClass Object ( [id] => 99 [attribute_id] => 5 [name] => Срубы [material_modifier] => 1 [work_modifier] => 1 [options] => Array ( [0] => 260 мм [1] => 320 мм [2] => 360 мм [3] => 400 мм [4] => 500 мм ) [days] => [7,8,9,10,11] [material_price] => [16175,23709,26314,29069,32167] [work_price] => [4806,5911,6621,7349,9260] [image] => https://akademik-stroy.ru/wp-content/uploads/materials/suhoj-brus.jpg [area_modifier] => 112.04 [parent_name] => Стены 2 этаж (несущие) [parent_id] => 5 [material_sum] => 2283431 [work_sum] => 565387 [total_sum] => 2848818 [total_days] => 7 [display_material_sum] => 2 283 431 [display_work_sum] => 565 387 [display_total_sum] => 2 848 818 ) 1
2 848 818
Работа:565 387
Материалы:2 283 431
Дни:7
stdClass Object ( [id] => 194 [attribute_id] => 5 [name] => Брус [material_modifier] => 1 [work_modifier] => 1 [options] => Array ( [0] => 150 мм [1] => 180 мм [2] => 200 мм ) [days] => [10,13,15] [material_price] => [5127,6152,7367] [work_price] => [1602,1922,2115] [image] => https://akademik-stroy.ru/wp-content/uploads/materials/brus.jpg [area_modifier] => 112.04 [parent_name] => Стены 2 этаж (несущие) [parent_id] => 5 [material_sum] => 723781 [work_sum] => 188462 [total_sum] => 912243 [total_days] => 10 [display_material_sum] => 723 781 [display_work_sum] => 188 462 [display_total_sum] => 912 243 ) 1
912 243
Работа:188 462
Материалы:723 781
Дни:10
stdClass Object ( [id] => 195 [attribute_id] => 5 [name] => Газобетон [material_modifier] => 1 [work_modifier] => 1 [options] => Array ( [0] => 300 мм [1] => 375 мм [2] => 400 мм [3] => 500 мм [4] => 600 мм ) [days] => [29,31,35,37,44] [material_price] => [4298,5573,6356,7288,9119] [work_price] => [4538,5251,5926,6733,7195] [image] => https://akademik-stroy.ru/wp-content/uploads/materials/gazobeton.jpg [area_modifier] => 112.04 [parent_name] => Стены 2 этаж (несущие) [parent_id] => 5 [material_sum] => 606750 [work_sum] => 533859 [total_sum] => 1140609 [total_days] => 29 [display_material_sum] => 606 750 [display_work_sum] => 533 859 [display_total_sum] => 1 140 609 ) 1
1 140 609
Работа:533 859
Материалы:606 750
Дни:29
stdClass Object ( [id] => 196 [attribute_id] => 5 [name] => Блок [material_modifier] => 1 [work_modifier] => 1 [options] => Array ( [0] => 300 мм [1] => 375 мм [2] => 400 мм [3] => 500 мм [4] => 600 мм ) [days] => [29,31,35,37,44] [material_price] => [2698,3973,4356,6588,7119] [work_price] => [5038,5851,6426,8733,9195] [image] => https://akademik-stroy.ru/wp-content/uploads/materials/blok.jpg [area_modifier] => 112.04 [parent_name] => Стены 2 этаж (несущие) [parent_id] => 5 [material_sum] => 380878 [work_sum] => 592680 [total_sum] => 973558 [total_days] => 29 [display_material_sum] => 380 878 [display_work_sum] => 592 680 [display_total_sum] => 973 558 ) 1
973 558
Работа:592 680
Материалы:380 878
Дни:29
stdClass Object ( [id] => 197 [attribute_id] => 5 [name] => Газосиликатный блок [material_modifier] => 1 [work_modifier] => 1 [options] => Array ( [0] => 300 мм [1] => 375 мм [2] => 400 мм [3] => 500 мм [4] => 600 мм ) [days] => [29,31,35,37,44] [material_price] => [4298,5573,6356,7288,9119] [work_price] => [4538,5251,5926,6733,7195] [image] => https://akademik-stroy.ru/wp-content/uploads/materials/gazosilikatnyj-blok.jpg [area_modifier] => 112.04 [parent_name] => Стены 2 этаж (несущие) [parent_id] => 5 [material_sum] => 606750 [work_sum] => 533859 [total_sum] => 1140609 [total_days] => 29 [display_material_sum] => 606 750 [display_work_sum] => 533 859 [display_total_sum] => 1 140 609 ) 1
1 140 609
Работа:533 859
Материалы:606 750
Дни:29
stdClass Object ( [id] => 198 [attribute_id] => 5 [name] => Керамзитобетонный блок [material_modifier] => 1 [work_modifier] => 1 [options] => Array ( [0] => 300 мм [1] => 375 мм [2] => 400 мм [3] => 500 мм [4] => 600 мм ) [days] => [23,23,24,25,28] [material_price] => [3641,4298,5693,7613,9612] [work_price] => [5737,5737,6903,7958,8901] [image] => https://akademik-stroy.ru/wp-content/uploads/materials/keramzitobetonnyj-blok.jpg [area_modifier] => 112.04 [parent_name] => Стены 2 этаж (несущие) [parent_id] => 5 [material_sum] => 514001 [work_sum] => 674912 [total_sum] => 1188913 [total_days] => 23 [display_material_sum] => 514 001 [display_work_sum] => 674 912 [display_total_sum] => 1 188 913 ) 1
1 188 913
Работа:674 912
Материалы:514 001
Дни:23
stdClass Object ( [id] => 199 [attribute_id] => 5 [name] => Деревянные [material_modifier] => 1 [work_modifier] => 1 [options] => Array ( [0] => 180 мм [1] => 220 мм [2] => 260 мм [3] => 320 мм ) [days] => [7,8,9,10] [material_price] => [7950,9458,11961,14472] [work_price] => [4037,4925,5812,7207] [image] => https://akademik-stroy.ru/wp-content/uploads/materials/derevyannye.jpg [area_modifier] => 112.04 [parent_name] => Стены 2 этаж (несущие) [parent_id] => 5 [material_sum] => 1122305 [work_sum] => 474921 [total_sum] => 1597226 [total_days] => 7 [display_material_sum] => 1 122 305 [display_work_sum] => 474 921 [display_total_sum] => 1 597 226 ) 1
1 597 226
Работа:474 921
Материалы:1 122 305
Дни:7
stdClass Object ( [id] => 200 [attribute_id] => 5 [name] => Камень [material_modifier] => 1 [work_modifier] => 1 [options] => Array ( [0] => 300 мм [1] => 400 мм [2] => 500 мм [3] => 600 мм ) [days] => [25,27,31,34] [material_price] => [5262,6844,8330,9815] [work_price] => [8331,9135,10427,11069] [image] => https://akademik-stroy.ru/wp-content/uploads/materials/kamen.jpg [area_modifier] => 112.04 [parent_name] => Стены 2 этаж (несущие) [parent_id] => 5 [material_sum] => 742839 [work_sum] => 980076 [total_sum] => 1722915 [total_days] => 25 [display_material_sum] => 742 839 [display_work_sum] => 980 076 [display_total_sum] => 1 722 915 ) 1
1 722 915
Работа:980 076
Материалы:742 839
Дни:25
stdClass Object ( [id] => 201 [attribute_id] => 5 [name] => Каркасно-щитовые [material_modifier] => 1 [work_modifier] => 1 [options] => Array ( [0] => 150 мм [1] => 200 мм [2] => 250 мм [3] => 300 мм [4] => 350 мм [5] => 400 мм ) [days] => [15,16,17,18,19,20] [material_price] => [2379,2639,2898,3458,3601,4175] [work_price] => [2538,2820,3134,3483,4062,5642] [image] => https://akademik-stroy.ru/wp-content/uploads/materials/karkasno-shchitovye.jpg [area_modifier] => 112.04 [parent_name] => Стены 2 этаж (несущие) [parent_id] => 5 [material_sum] => 335844 [work_sum] => 298575 [total_sum] => 634419 [total_days] => 15 [display_material_sum] => 335 844 [display_work_sum] => 298 575 [display_total_sum] => 634 419 ) 1
634 419
Работа:298 575
Материалы:335 844
Дни:15
stdClass Object ( [id] => 202 [attribute_id] => 5 [name] => Рубленные [material_modifier] => 1 [work_modifier] => 1 [options] => Array ( [0] => 150 мм [1] => 200 мм [2] => 250 мм [3] => 300 мм [4] => 350 мм [5] => 400 мм ) [days] => [15,16,17,18,17,18] [material_price] => [35950,50267,60583,75900,80217,100533] [work_price] => [9612,12816,16020,19224,22428,25632] [image] => https://akademik-stroy.ru/wp-content/uploads/materials/rublennye.jpg [area_modifier] => 112.04 [parent_name] => Стены 2 этаж (несущие) [parent_id] => 5 [material_sum] => 5075076 [work_sum] => 1130775 [total_sum] => 6205851 [total_days] => 15 [display_material_sum] => 5 075 076 [display_work_sum] => 1 130 775 [display_total_sum] => 6 205 851 ) 1
6 205 851
Работа:1 130 775
Материалы:5 075 076
Дни:15
stdClass Object ( [id] => 203 [attribute_id] => 5 [name] => Теплоблок [material_modifier] => 1 [work_modifier] => 1 [options] => Array ( [0] => 300 мм (с облицовкой, не покрашенный) [1] => 400 мм (с облицовкой, не покрашенный) [2] => 300 мм (с облицовкой, покрашенный) [3] => 400 мм (с облицовкой, покрашенный) ) [days] => [15,16,15,16] [material_price] => [2888,3729,3957,4258] [work_price] => [2564,3229,2949,3713] [image] => https://akademik-stroy.ru/wp-content/uploads/materials/teploblok.jpg [area_modifier] => 112.04 [parent_name] => Стены 2 этаж (несущие) [parent_id] => 5 [material_sum] => 407700 [work_sum] => 301634 [total_sum] => 709334 [total_days] => 15 [display_material_sum] => 407 700 [display_work_sum] => 301 634 [display_total_sum] => 709 334 ) 1
709 334
Работа:301 634
Материалы:407 700
Дни:15
stdClass Object ( [id] => 204 [attribute_id] => 5 [name] => Арболитовые блоки [material_modifier] => 1 [work_modifier] => 1 [options] => Array ( [0] => 300 мм [1] => 400 мм [2] => 600 мм ) [days] => [19,22,27] [material_price] => [3210,4475,5852] [work_price] => [4214,4788,5866] [image] => https://akademik-stroy.ru/wp-content/uploads/materials/arbolitovye-bloki.png [area_modifier] => 112.04 [parent_name] => Стены 2 этаж (несущие) [parent_id] => 5 [material_sum] => 453157 [work_sum] => 495743 [total_sum] => 948900 [total_days] => 19 [display_material_sum] => 453 157 [display_work_sum] => 495 743 [display_total_sum] => 948 900 ) 1
948 900
Работа:495 743
Материалы:453 157
Дни:19
stdClass Object ( [id] => 205 [attribute_id] => 5 [name] => Полистиролбетон [material_modifier] => 1 [work_modifier] => 1 [options] => Array ( [0] => 300 мм [1] => 400 мм [2] => 600 мм ) [days] => [29,31,35] [material_price] => [2798,4573,5256] [work_price] => [5038,5851,6426] [image] => https://akademik-stroy.ru/wp-content/uploads/materials/polistirolbeton.jpg [area_modifier] => 112.04 [parent_name] => Стены 2 этаж (несущие) [parent_id] => 5 [material_sum] => 394995 [work_sum] => 592680 [total_sum] => 987675 [total_days] => 29 [display_material_sum] => 394 995 [display_work_sum] => 592 680 [display_total_sum] => 987 675 ) 1
987 675
Работа:592 680
Материалы:394 995
Дни:29
stdClass Object ( [id] => 206 [attribute_id] => 5 [name] => Шлакоблок [material_modifier] => 1 [work_modifier] => 1 [options] => Array ( [0] => 400 мм [1] => 600 мм ) [days] => [15,16] [material_price] => [2391,3471] [work_price] => [2642,3662] [image] => https://akademik-stroy.ru/wp-content/uploads/materials/shlakoblok.jpg [area_modifier] => 112.04 [parent_name] => Стены 2 этаж (несущие) [parent_id] => 5 [material_sum] => 337538 [work_sum] => 310810 [total_sum] => 648348 [total_days] => 15 [display_material_sum] => 337 538 [display_work_sum] => 310 810 [display_total_sum] => 648 348 ) 1
648 348
Работа:310 810
Материалы:337 538
Дни:15
stdClass Object ( [id] => 245 [attribute_id] => 5 [name] => Теплая керамика [material_modifier] => 1 [work_modifier] => 1 [options] => Array ( [0] => 380 мм [1] => 380 мм Thermo [2] => 440 мм [3] => 510 мм ) [days] => [10,10,11,12] [material_price] => [4510,5098,6093,8013] [work_price] => [4737,4937,5903,6958] [image] => https://akademik-stroy.ru/wp-content/uploads/materials/teplaya-keramika.jpg [area_modifier] => 112.04 [parent_name] => Стены 2 этаж (несущие) [parent_id] => 5 [material_sum] => 636679 [work_sum] => 557270 [total_sum] => 1193949 [total_days] => 10 [display_material_sum] => 636 679 [display_work_sum] => 557 270 [display_total_sum] => 1 193 949 ) 1
1 193 949
Работа:557 270
Материалы:636 679
Дни:10
stdClass Object ( [id] => 246 [attribute_id] => 5 [name] => Несъемная опалубка [material_modifier] => 1 [work_modifier] => 1 [options] => Array ( [0] => 380 мм [1] => 380 мм Thermo [2] => 440 мм [3] => 510 мм ) [days] => [10,10,11,12] [material_price] => [3302,3902,4108,5008] [work_price] => [2100,2100,2300,2534] [image] => https://akademik-stroy.ru/wp-content/uploads/materials/nesemnaya-opalubka.jpg [area_modifier] => 112.04 [parent_name] => Стены 2 этаж (несущие) [parent_id] => 5 [material_sum] => 466145 [work_sum] => 247048 [total_sum] => 713193 [total_days] => 10 [display_material_sum] => 466 145 [display_work_sum] => 247 048 [display_total_sum] => 713 193 ) 1
713 193
Работа:247 048
Материалы:466 145
Дни:10
stdClass Object ( [id] => 254 [attribute_id] => 5 [name] => Бревно [material_modifier] => 1 [work_modifier] => 1 [options] => Array ( [0] => 260 мм [1] => 320 мм [2] => 360 мм [3] => 400 мм [4] => 500 мм ) [days] => [7,8,9,10,11] [material_price] => [1874,24045,26930,30972,38825] [work_price] => [5046,6207,6952,7716,9723] [image] => https://akademik-stroy.ru/wp-content/uploads/materials/sruby.jpg [area_modifier] => 112.04 [parent_name] => Стены 2 этаж (несущие) [parent_id] => 5 [material_sum] => 264553 [work_sum] => 593622 [total_sum] => 858175 [total_days] => 7 [display_material_sum] => 264 553 [display_work_sum] => 593 622 [display_total_sum] => 858 175 ) 1
858 175
Работа:593 622
Материалы:264 553
Дни:7
Крыша (Скатная)
stdClass Object ( [id] => 164 [attribute_id] => 37 [name] => Металлочерепица [material_modifier] => 1 [work_modifier] => 1 [options] => Array ( ) [days] => [20] [material_price] => [6112] [work_price] => [5726] [image] => https://akademik-stroy.ru/wp-content/uploads/materials/metallocherepica.jpg [area_modifier] => 153.69 [parent_name] => Крыша (Скатная) [parent_id] => 37 [material_sum] => 1183585 [work_sum] => 924030 [total_sum] => 2107615 [total_days] => 20 [display_material_sum] => 1 183 585 [display_work_sum] => 924 030 [display_total_sum] => 2 107 615 ) 1
2 107 615
Работа:924 030
Материалы:1 183 585
Дни:20
stdClass Object ( [id] => 165 [attribute_id] => 37 [name] => Гибкая черепица [material_modifier] => 1 [work_modifier] => 1 [options] => Array ( ) [days] => [20] [material_price] => [6980] [work_price] => [5950] [image] => https://akademik-stroy.ru/wp-content/uploads/materials/gibkaya-cherepica.jpg [area_modifier] => 153.69 [parent_name] => Крыша (Скатная) [parent_id] => 37 [material_sum] => 1351673 [work_sum] => 960178 [total_sum] => 2311851 [total_days] => 20 [display_material_sum] => 1 351 673 [display_work_sum] => 960 178 [display_total_sum] => 2 311 851 ) 1
2 311 851
Работа:960 178
Материалы:1 351 673
Дни:20
stdClass Object ( [id] => 166 [attribute_id] => 37 [name] => Цементно-песчаная черепица [material_modifier] => 1 [work_modifier] => 1 [options] => Array ( ) [days] => [20] [material_price] => [10560] [work_price] => [9456] [image] => https://akademik-stroy.ru/wp-content/uploads/materials/cementno-peschanaya-cherepica.jpg [area_modifier] => 153.69 [parent_name] => Крыша (Скатная) [parent_id] => 37 [material_sum] => 2044938 [work_sum] => 1525957 [total_sum] => 3570895 [total_days] => 20 [display_material_sum] => 2 044 938 [display_work_sum] => 1 525 957 [display_total_sum] => 3 570 895 ) 1
3 570 895
Работа:1 525 957
Материалы:2 044 938
Дни:20
stdClass Object ( [id] => 167 [attribute_id] => 37 [name] => Композитная черепица [material_modifier] => 1 [work_modifier] => 1 [options] => Array ( ) [days] => [20] [material_price] => [9506] [work_price] => [8905] [image] => https://akademik-stroy.ru/wp-content/uploads/materials/kompozitnaya-cherepica.jpg [area_modifier] => 153.69 [parent_name] => Крыша (Скатная) [parent_id] => 37 [material_sum] => 1840831 [work_sum] => 1437040 [total_sum] => 3277871 [total_days] => 20 [display_material_sum] => 1 840 831 [display_work_sum] => 1 437 040 [display_total_sum] => 3 277 871 ) 1
3 277 871
Работа:1 437 040
Материалы:1 840 831
Дни:20
stdClass Object ( [id] => 168 [attribute_id] => 37 [name] => Керамическая черепица [material_modifier] => 1 [work_modifier] => 1 [options] => Array ( ) [days] => [20] [material_price] => [12750] [work_price] => [9456] [image] => https://akademik-stroy.ru/wp-content/uploads/materials/keramicheskaya-cherepica.jpg [area_modifier] => 153.69 [parent_name] => Крыша (Скатная) [parent_id] => 37 [material_sum] => 2469030 [work_sum] => 1525957 [total_sum] => 3994987 [total_days] => 20 [display_material_sum] => 2 469 030 [display_work_sum] => 1 525 957 [display_total_sum] => 3 994 987 ) 1
3 994 987
Работа:1 525 957
Материалы:2 469 030
Дни:20
stdClass Object ( [id] => 169 [attribute_id] => 37 [name] => Металлическая фальцевая [material_modifier] => 1 [work_modifier] => 1 [options] => Array ( ) [days] => [20] [material_price] => [8550] [work_price] => [8190] [image] => https://akademik-stroy.ru/wp-content/uploads/materials/metallicheskaya-falcevaya.jpg [area_modifier] => 153.69 [parent_name] => Крыша (Скатная) [parent_id] => 37 [material_sum] => 1655702 [work_sum] => 1321657 [total_sum] => 2977359 [total_days] => 20 [display_material_sum] => 1 655 702 [display_work_sum] => 1 321 657 [display_total_sum] => 2 977 359 ) 1
2 977 359
Работа:1 321 657
Материалы:1 655 702
Дни:20
stdClass Object ( [id] => 170 [attribute_id] => 37 [name] => Медная фальцевая [material_modifier] => 1 [work_modifier] => 1 [options] => Array ( ) [days] => [20] [material_price] => [20450] [work_price] => [16750] [image] => https://akademik-stroy.ru/wp-content/uploads/materials/mednaya-falcevaya.jpg [area_modifier] => 153.69 [parent_name] => Крыша (Скатная) [parent_id] => 37 [material_sum] => 3960130 [work_sum] => 2703023 [total_sum] => 6663153 [total_days] => 20 [display_material_sum] => 3 960 130 [display_work_sum] => 2 703 023 [display_total_sum] => 6 663 153 ) 1
6 663 153
Работа:2 703 023
Материалы:3 960 130
Дни:20
stdClass Object ( [id] => 171 [attribute_id] => 37 [name] => Зеленая кровля [material_modifier] => 1 [work_modifier] => 1 [options] => Array ( ) [days] => [20] [material_price] => [19850] [work_price] => [16780] [image] => https://akademik-stroy.ru/wp-content/uploads/materials/zelenaya-krovlya.jpg [area_modifier] => 153.69 [parent_name] => Крыша (Скатная) [parent_id] => 37 [material_sum] => 3843941 [work_sum] => 2707864 [total_sum] => 6551805 [total_days] => 20 [display_material_sum] => 3 843 941 [display_work_sum] => 2 707 864 [display_total_sum] => 6 551 805 ) 1
6 551 805
Работа:2 707 864
Материалы:3 843 941
Дни:20
stdClass Object ( [id] => 172 [attribute_id] => 37 [name] => Профлист [material_modifier] => 1 [work_modifier] => 1 [options] => Array ( ) [days] => [20] [material_price] => [3450] [work_price] => [3750] [image] => https://akademik-stroy.ru/wp-content/uploads/materials/proflist.jpg [area_modifier] => 153.69 [parent_name] => Крыша (Скатная) [parent_id] => 37 [material_sum] => 668090 [work_sum] => 605154 [total_sum] => 1273244 [total_days] => 20 [display_material_sum] => 668 090 [display_work_sum] => 605 154 [display_total_sum] => 1 273 244 ) 1
1 273 244
Работа:605 154
Материалы:668 090
Дни:20
Окна
stdClass Object ( [id] => 51 [attribute_id] => 26 [name] => Есть [material_modifier] => 1 [work_modifier] => 1 [options] => Array ( [0] => Профиль 58 мм, 3-камерный, стеклопакет 2-камерный до 32 мм [1] => Профиль 60 мм, 4-камерный, стеклопакет 2-камерный до 32 мм [2] => Профиль 70 мм, 5-камерный, стеклопакет 2-камерный до 40 мм [3] => Профиль 72 мм, 5-камерный, стеклопакет 2-камерный до 40 мм [4] => Алюминиевые окна Alutech профиль 72 мм, стеклопакет 2-камерный ) [days] => [3,3,3,3,3] [material_price] => [1339,2124,2867,3023,29596] [work_price] => [635,647,659,668,2579] [image] => https://akademik-stroy.ru/wp-content/uploads/materials/okna.jpg [area_modifier] => 215.64 [parent_name] => Окна [parent_id] => 26 [material_sum] => 363815 [work_sum] => 143778 [total_sum] => 507593 [total_days] => 3 [display_material_sum] => 363 815 [display_work_sum] => 143 778 [display_total_sum] => 507 593 ) 1
507 593
Работа:143 778
Материалы:363 815
Дни:3
stdClass Object ( [id] => 52 [attribute_id] => 26 [name] => Нет [material_modifier] => 2 [work_modifier] => 1 [options] => [days] => null [material_price] => null [work_price] => null [image] => https://akademik-stroy.ru/wp-content/uploads/materials/okna.jpg [area_modifier] => 215.64 [parent_name] => Окна [parent_id] => 26 [material_sum] => 0 [work_sum] => 0 [total_sum] => 0 [total_days] => 0 [display_material_sum] => 0 [display_work_sum] => 0 [display_total_sum] => 0 ) 1
0
Работа:0
Материалы:0
Дни:0
Двери входные
stdClass Object ( [id] => 53 [attribute_id] => 27 [name] => Есть [material_modifier] => 1 [work_modifier] => 1 [options] => Array ( ) [days] => [1] [material_price] => [10000] [work_price] => [5500] [image] => https://akademik-stroy.ru/wp-content/uploads/materials/dveri.jpg [area_modifier] => 1 [parent_name] => Двери входные [parent_id] => 27 [material_sum] => 12600 [work_sum] => 5775 [total_sum] => 18375 [total_days] => 1 [display_material_sum] => 12 600 [display_work_sum] => 5 775 [display_total_sum] => 18 375 ) 1
18 375
Работа:5 775
Материалы:12 600
Дни:1
stdClass Object ( [id] => 54 [attribute_id] => 27 [name] => Нет [material_modifier] => 1 [work_modifier] => 1 [options] => Array ( ) [days] => [0] [material_price] => [0] [work_price] => [0] [image] => https://akademik-stroy.ru/wp-content/uploads/materials/dveri.jpg [area_modifier] => 1 [parent_name] => Двери входные [parent_id] => 27 [material_sum] => 0 [work_sum] => 0 [total_sum] => 0 [total_days] => 0 [display_material_sum] => 0 [display_work_sum] => 0 [display_total_sum] => 0 ) 1
0
Работа:0
Материалы:0
Дни:0
Утепление кровли (Мансарда)
stdClass Object ( [id] => 25 [attribute_id] => 13 [name] => Нет [material_modifier] => 1 [work_modifier] => 1 [options] => Array ( ) [days] => [0] [material_price] => [0] [work_price] => [0] [image] => https://akademik-stroy.ru/wp-content/uploads/materials/mineralovata-krov.jpg [area_modifier] => 153.69 [parent_name] => Утепление кровли (Мансарда) [parent_id] => 13 [material_sum] => 0 [work_sum] => 0 [total_sum] => 0 [total_days] => 0 [display_material_sum] => 0 [display_work_sum] => 0 [display_total_sum] => 0 ) 1
0
Работа:0
Материалы:0
Дни:0
stdClass Object ( [id] => 26 [attribute_id] => 13 [name] => Минераловатный [material_modifier] => 1 [work_modifier] => 1 [options] => Array ( [0] => 50 мм [1] => 100 мм [2] => 150 мм [3] => 200 мм [4] => 250 мм [5] => 300 мм [6] => 350 мм [7] => 400 мм [8] => 450 мм [9] => 500 мм ) [days] => [5,5,6,6,6,7,7,7,8,8] [material_price] => [1158,1414,1772,2230,3602,4060,4974,5890,6408,7718] [work_price] => [650,846,846,1098,1318,1450,1596,1754,1930,2122] [image] => https://akademik-stroy.ru/wp-content/uploads/materials/mineralovata-krov.jpg [area_modifier] => 153.69 [parent_name] => Утепление кровли (Мансарда) [parent_id] => 13 [material_sum] => 224246 [work_sum] => 104893 [total_sum] => 329139 [total_days] => 5 [display_material_sum] => 224 246 [display_work_sum] => 104 893 [display_total_sum] => 329 139 ) 1
329 139
Работа:104 893
Материалы:224 246
Дни:5
stdClass Object ( [id] => 123 [attribute_id] => 13 [name] => Эковата (целлюлозная вата) [material_modifier] => 1 [work_modifier] => 1 [options] => Array ( [0] => 50 мм [1] => 100 мм [2] => 150 мм [3] => 200 мм [4] => 250 мм [5] => 300 мм [6] => 350 мм [7] => 400 мм [8] => 450 мм [9] => 500 мм ) [days] => [3,3,4,4,4,5,5,5,5,5] [material_price] => [820,1638,2458,3276,5734,6552,8190,9828,11466,13104] [work_price] => [234,304,304,396,474,522,574,632,694,764] [image] => https://akademik-stroy.ru/wp-content/uploads/materials/ehkovata-krov.jpg [area_modifier] => 153.69 [parent_name] => Утепление кровли (Мансарда) [parent_id] => 13 [material_sum] => 158793 [work_sum] => 37762 [total_sum] => 196555 [total_days] => 3 [display_material_sum] => 158 793 [display_work_sum] => 37 762 [display_total_sum] => 196 555 ) 1
196 555
Работа:37 762
Материалы:158 793
Дни:3
stdClass Object ( [id] => 124 [attribute_id] => 13 [name] => Экструдированный пенополистирол [material_modifier] => 1 [work_modifier] => 1 [options] => Array ( [0] => 50 мм [1] => 100 мм [2] => 150 мм [3] => 200 мм [4] => 250 мм [5] => 300 мм [6] => 350 мм [7] => 400 мм [8] => 450 мм [9] => 500 мм ) [days] => [3,3,4,4,4,5,5,5,5,6] [material_price] => [1146,2292,3438,4584,8020,9166,11458,13750,16040,18332] [work_price] => [390,508,508,660,790,870,958,1052,1158,1274] [image] => https://akademik-stroy.ru/wp-content/uploads/materials/epps-krov.jpg [area_modifier] => 153.69 [parent_name] => Утепление кровли (Мансарда) [parent_id] => 13 [material_sum] => 221922 [work_sum] => 62936 [total_sum] => 284858 [total_days] => 3 [display_material_sum] => 221 922 [display_work_sum] => 62 936 [display_total_sum] => 284 858 ) 1
284 858
Работа:62 936
Материалы:221 922
Дни:3
stdClass Object ( [id] => 125 [attribute_id] => 13 [name] => ПСБ (ППС-пенополистирол) [material_modifier] => 1 [work_modifier] => 1 [options] => Array ( [0] => 50 мм [1] => 100 мм [2] => 150 мм [3] => 200 мм [4] => 250 мм [5] => 300 мм [6] => 350 мм [7] => 400 мм [8] => 450 мм [9] => 500 мм ) [days] => [3,3,4,4,4,5,5,5,5,6] [material_price] => [476,954,1430,1906,3336,3814,4766,5720,6674,7626] [work_price] => [390,508,508,660,790,870,958,1052,1158,1274] [image] => https://akademik-stroy.ru/wp-content/uploads/materials/psb-krov.jpg [area_modifier] => 153.69 [parent_name] => Утепление кровли (Мансарда) [parent_id] => 13 [material_sum] => 92177 [work_sum] => 62936 [total_sum] => 155113 [total_days] => 3 [display_material_sum] => 92 177 [display_work_sum] => 62 936 [display_total_sum] => 155 113 ) 1
155 113
Работа:62 936
Материалы:92 177
Дни:3
stdClass Object ( [id] => 126 [attribute_id] => 13 [name] => ППУ (Пенополиуретан) [material_modifier] => 1 [work_modifier] => 1 [options] => Array ( [0] => 50 мм [1] => 100 мм [2] => 150 мм [3] => 200 мм [4] => 250 мм [5] => 300 мм [6] => 350 мм [7] => 400 мм [8] => 450 мм [9] => 500 мм ) [days] => [2,2,3,3,3,3,4,4,4,4] [material_price] => [2080,4160,6240,8320,14560,16640,20800,24960,29120,33280] [work_price] => [234,304,304,396,474,522,574,632,694,764] [image] => https://akademik-stroy.ru/wp-content/uploads/materials/ppu-krov.jpg [area_modifier] => 153.69 [parent_name] => Утепление кровли (Мансарда) [parent_id] => 13 [material_sum] => 402791 [work_sum] => 37762 [total_sum] => 440553 [total_days] => 2 [display_material_sum] => 402 791 [display_work_sum] => 37 762 [display_total_sum] => 440 553 ) 1
440 553
Работа:37 762
Материалы:402 791
Дни:2
stdClass Object ( [id] => 127 [attribute_id] => 13 [name] => PIR-плиты (пенополиизоцианурат) [material_modifier] => 1 [work_modifier] => 1 [options] => Array ( [0] => 50 мм [1] => 100 мм [2] => 150 мм [3] => 200 мм [4] => 250 мм [5] => 300 мм [6] => 350 мм [7] => 400 мм [8] => 450 мм [9] => 500 мм ) [days] => [3,3,4,4,4,5,5,5,5,6] [material_price] => [2646,5290,7936,10580,18516,21162,26452,31742,37032,42324] [work_price] => [390,508,508,660,790,870,958,1052,1158,1274] [image] => https://akademik-stroy.ru/wp-content/uploads/materials/pir-krov.jpg [area_modifier] => 153.69 [parent_name] => Утепление кровли (Мансарда) [parent_id] => 13 [material_sum] => 512396 [work_sum] => 62936 [total_sum] => 575332 [total_days] => 3 [display_material_sum] => 512 396 [display_work_sum] => 62 936 [display_total_sum] => 575 332 ) 1
575 332
Работа:62 936
Материалы:512 396
Дни:3
Мансардные окна
stdClass Object ( [id] => 27 [attribute_id] => 14 [name] => Нет [material_modifier] => 1 [work_modifier] => 1 [options] => Array ( ) [days] => [0] [material_price] => [0] [work_price] => [0] [image] => https://akademik-stroy.ru/wp-content/uploads/materials/mansardnye-okna-2.jpg [area_modifier] => 1 [parent_name] => Мансардные окна [parent_id] => 14 [material_sum] => 0 [work_sum] => 0 [total_sum] => 0 [total_days] => 0 [display_material_sum] => 0 [display_work_sum] => 0 [display_total_sum] => 0 ) 1
0
Работа:0
Материалы:0
Дни:0
stdClass Object ( [id] => 28 [attribute_id] => 14 [name] => Есть [material_modifier] => 1 [work_modifier] => 1 [options] => Array ( [0] => 55x78 [1] => 55x98 ) [days] => [6,7] [material_price] => [47480,68700] [work_price] => [17900,19500] [image] => https://akademik-stroy.ru/wp-content/uploads/materials/mansardnye-okna-2.jpg [area_modifier] => 1 [parent_name] => Мансардные окна [parent_id] => 14 [material_sum] => 59825 [work_sum] => 18795 [total_sum] => 78620 [total_days] => 6 [display_material_sum] => 59 825 [display_work_sum] => 18 795 [display_total_sum] => 78 620 ) 1
78 620
Работа:18 795
Материалы:59 825
Дни:6
Подшивка кровли
stdClass Object ( [id] => 29 [attribute_id] => 15 [name] => Нет [material_modifier] => 1 [work_modifier] => 1 [options] => Array ( ) [days] => [0] [material_price] => [0] [work_price] => [0] [image] => https://akademik-stroy.ru/wp-content/uploads/materials/sofit.jpg [area_modifier] => 153.69 [parent_name] => Подшивка кровли [parent_id] => 15 [material_sum] => 0 [work_sum] => 0 [total_sum] => 0 [total_days] => 0 [display_material_sum] => 0 [display_work_sum] => 0 [display_total_sum] => 0 ) 1
0
Работа:0
Материалы:0
Дни:0
stdClass Object ( [id] => 30 [attribute_id] => 15 [name] => Есть [material_modifier] => 1 [work_modifier] => 1 [options] => Array ( [0] => Софиты (ПВХ) [1] => Cedral [2] => ДПК [3] => Планкен ) [days] => [7,10,9,8] [material_price] => [1803,3213,3025,3150] [work_price] => [1529,2188,2075,1923] [image] => https://akademik-stroy.ru/wp-content/uploads/materials/sofit.jpg [area_modifier] => 153.69 [parent_name] => Подшивка кровли [parent_id] => 15 [material_sum] => 349150 [work_sum] => 246742 [total_sum] => 595892 [total_days] => 7 [display_material_sum] => 349 150 [display_work_sum] => 246 742 [display_total_sum] => 595 892 ) 1
595 892
Работа:246 742
Материалы:349 150
Дни:7
Водосточная система
stdClass Object ( [id] => 31 [attribute_id] => 16 [name] => Нет [material_modifier] => 1 [work_modifier] => 1 [options] => Array ( ) [days] => [0] [material_price] => [0] [work_price] => [0] [image] => https://akademik-stroy.ru/wp-content/uploads/materials/docke-standard-pvh.jpg [area_modifier] => 153.69 [parent_name] => Водосточная система [parent_id] => 16 [material_sum] => 0 [work_sum] => 0 [total_sum] => 0 [total_days] => 0 [display_material_sum] => 0 [display_work_sum] => 0 [display_total_sum] => 0 ) 1
0
Работа:0
Материалы:0
Дни:0
stdClass Object ( [id] => 32 [attribute_id] => 16 [name] => Есть [material_modifier] => 1 [work_modifier] => 1 [options] => Array ( [0] => Döcke Standard (ПВХ) [1] => Металлические Grand Line ) [days] => [7,7] [material_price] => [1842,2703] [work_price] => [1491,1529] [image] => https://akademik-stroy.ru/wp-content/uploads/materials/docke-standard-pvh.jpg [area_modifier] => 153.69 [parent_name] => Водосточная система [parent_id] => 16 [material_sum] => 356702 [work_sum] => 240609 [total_sum] => 597311 [total_days] => 7 [display_material_sum] => 356 702 [display_work_sum] => 240 609 [display_total_sum] => 597 311 ) 1
597 311
Работа:240 609
Материалы:356 702
Дни:7
Дополнительное утепление наружных стен
stdClass Object ( [id] => 33 [attribute_id] => 17 [name] => Нет [material_modifier] => 1 [work_modifier] => 1 [options] => Array ( ) [days] => [0] [material_price] => [0] [work_price] => [0] [image] => https://akademik-stroy.ru/wp-content/uploads/materials/mineralovata.jpg [area_modifier] => 265.73 [parent_name] => Дополнительное утепление наружных стен [parent_id] => 17 [material_sum] => 0 [work_sum] => 0 [total_sum] => 0 [total_days] => 0 [display_material_sum] => 0 [display_work_sum] => 0 [display_total_sum] => 0 ) 1
0
Работа:0
Материалы:0
Дни:0
stdClass Object ( [id] => 34 [attribute_id] => 17 [name] => Минераловатный [material_modifier] => 1 [work_modifier] => 1 [options] => Array ( [0] => 50 мм [1] => 100 мм [2] => 150 мм [3] => 200 мм [4] => 250 мм [5] => 300 мм ) [days] => [7,8,10,12,14,15] [material_price] => [3437,3613,3803,3915,4601,4830] [work_price] => [2325,2423,2523,2749,2859,3025] [image] => https://akademik-stroy.ru/wp-content/uploads/materials/mineralovata.jpg [area_modifier] => 265.73 [parent_name] => Дополнительное утепление наружных стен [parent_id] => 17 [material_sum] => 1150776 [work_sum] => 648713 [total_sum] => 1799489 [total_days] => 7 [display_material_sum] => 1 150 776 [display_work_sum] => 648 713 [display_total_sum] => 1 799 489 ) 1
1 799 489
Работа:648 713
Материалы:1 150 776
Дни:7
stdClass Object ( [id] => 128 [attribute_id] => 17 [name] => Эковата (целлюлозная вата) [material_modifier] => 1 [work_modifier] => 1 [options] => Array ( [0] => 50 мм [1] => 100 мм [2] => 150 мм [3] => 200 мм [4] => 250 мм [5] => 300 мм ) [days] => [3,4,5,6,7,8] [material_price] => [810,1319,1629,1838,2267,2676] [work_price] => [1225,1323,1423,1549,1659,1725] [image] => https://akademik-stroy.ru/wp-content/uploads/materials/ehkovata.jpg [area_modifier] => 265.73 [parent_name] => Дополнительное утепление наружных стен [parent_id] => 17 [material_sum] => 271204 [work_sum] => 341795 [total_sum] => 612999 [total_days] => 3 [display_material_sum] => 271 204 [display_work_sum] => 341 795 [display_total_sum] => 612 999 ) 1
612 999
Работа:341 795
Материалы:271 204
Дни:3
stdClass Object ( [id] => 129 [attribute_id] => 17 [name] => Экструдированный пенополистирол [material_modifier] => 1 [work_modifier] => 1 [options] => Array ( [0] => 50 мм [1] => 100 мм [2] => 150 мм [3] => 200 мм [4] => 250 мм [5] => 300 мм ) [days] => [5,6,7,8,9,10] [material_price] => [4560,4300,5119,6292,7010,8583] [work_price] => [1795,1954,2254,2330,2595,2735] [image] => https://akademik-stroy.ru/wp-content/uploads/materials/epps.jpg [area_modifier] => 265.73 [parent_name] => Дополнительное утепление наружных стен [parent_id] => 17 [material_sum] => 1526778 [work_sum] => 500835 [total_sum] => 2027613 [total_days] => 5 [display_material_sum] => 1 526 778 [display_work_sum] => 500 835 [display_total_sum] => 2 027 613 ) 1
2 027 613
Работа:500 835
Материалы:1 526 778
Дни:5
stdClass Object ( [id] => 130 [attribute_id] => 17 [name] => ПСБ (ППС-пенополистирол) [material_modifier] => 1 [work_modifier] => 1 [options] => Array ( [0] => 50 мм [1] => 100 мм [2] => 150 мм [3] => 200 мм [4] => 250 мм [5] => 300 мм ) [days] => [5,6,7,8,9,10] [material_price] => [4822,5200,5819,6292,7010,7583] [work_price] => [1795,1954,2254,2330,2595,2735] [image] => https://akademik-stroy.ru/wp-content/uploads/materials/psb.jpg [area_modifier] => 265.73 [parent_name] => Дополнительное утепление наружных стен [parent_id] => 17 [material_sum] => 1614501 [work_sum] => 500835 [total_sum] => 2115336 [total_days] => 5 [display_material_sum] => 1 614 501 [display_work_sum] => 500 835 [display_total_sum] => 2 115 336 ) 1
2 115 336
Работа:500 835
Материалы:1 614 501
Дни:5
stdClass Object ( [id] => 131 [attribute_id] => 17 [name] => ППУ (Пенополиуретан) [material_modifier] => 1 [work_modifier] => 1 [options] => Array ( [0] => 50 мм [1] => 100 мм [2] => 150 мм [3] => 200 мм [4] => 250 мм [5] => 300 мм ) [days] => [3,4,5,6,7,8] [material_price] => [2860,3400,4219,4592,5010,5583] [work_price] => [729,900,980,1120,1280,1530] [image] => https://akademik-stroy.ru/wp-content/uploads/materials/ppu.jpg [area_modifier] => 265.73 [parent_name] => Дополнительное утепление наружных стен [parent_id] => 17 [material_sum] => 957585 [work_sum] => 203403 [total_sum] => 1160988 [total_days] => 3 [display_material_sum] => 957 585 [display_work_sum] => 203 403 [display_total_sum] => 1 160 988 ) 1
1 160 988
Работа:203 403
Материалы:957 585
Дни:3
stdClass Object ( [id] => 132 [attribute_id] => 17 [name] => PIR-плиты (пенополиизоцианурат) [material_modifier] => 1 [work_modifier] => 1 [options] => Array ( [0] => 50 мм [1] => 100 мм [2] => 150 мм [3] => 200 мм [4] => 250 мм [5] => 300 мм ) [days] => [5,6,7,8,9,10] [material_price] => [8323,15645,20968,25900,29258,30581] [work_price] => [800,900,970,1150,1280,1330] [image] => https://akademik-stroy.ru/wp-content/uploads/materials/pir.jpg [area_modifier] => 265.73 [parent_name] => Дополнительное утепление наружных стен [parent_id] => 17 [material_sum] => 2786705 [work_sum] => 223213 [total_sum] => 3009918 [total_days] => 5 [display_material_sum] => 2 786 705 [display_work_sum] => 223 213 [display_total_sum] => 3 009 918 ) 1
3 009 918
Работа:223 213
Материалы:2 786 705
Дни:5
Наружная отделка фасада
stdClass Object ( [id] => 37 [attribute_id] => 19 [name] => Нет [material_modifier] => 1 [work_modifier] => 1 [options] => Array ( ) [days] => [0] [material_price] => [0] [work_price] => [0] [image] => https://akademik-stroy.ru/wp-content/uploads/materials/imitaciya-brusa.jpg [area_modifier] => 265.73 [parent_name] => Наружная отделка фасада [parent_id] => 19 [material_sum] => 0 [work_sum] => 0 [total_sum] => 0 [total_days] => 0 [display_material_sum] => 0 [display_work_sum] => 0 [display_total_sum] => 0 ) 1
0
Работа:0
Материалы:0
Дни:0
stdClass Object ( [id] => 38 [attribute_id] => 19 [name] => Имитация бруса [material_modifier] => 1 [work_modifier] => 1 [options] => Array ( [0] => Сосна [1] => Ель [2] => Лиственница ) [days] => [20,20,20] [material_price] => [2994,2762,4954] [work_price] => [1397,1231,1577] [image] => https://akademik-stroy.ru/wp-content/uploads/materials/imitaciya-brusa.jpg [area_modifier] => 265.73 [parent_name] => Наружная отделка фасада [parent_id] => 19 [material_sum] => 1002450 [work_sum] => 389786 [total_sum] => 1392236 [total_days] => 20 [display_material_sum] => 1 002 450 [display_work_sum] => 389 786 [display_total_sum] => 1 392 236 ) 1
1 392 236
Работа:389 786
Материалы:1 002 450
Дни:20
stdClass Object ( [id] => 136 [attribute_id] => 19 [name] => Планкен [material_modifier] => 1 [work_modifier] => 1 [options] => Array ( [0] => Сосна [1] => Ель [2] => Лиственница ) [days] => [20,20,20] [material_price] => [3194,2862,5154] [work_price] => [1537,1354,1735] [image] => https://akademik-stroy.ru/wp-content/uploads/materials/planken.jpg [area_modifier] => 265.73 [parent_name] => Наружная отделка фасада [parent_id] => 19 [material_sum] => 1069414 [work_sum] => 428848 [total_sum] => 1498262 [total_days] => 20 [display_material_sum] => 1 069 414 [display_work_sum] => 428 848 [display_total_sum] => 1 498 262 ) 1
1 498 262
Работа:428 848
Материалы:1 069 414
Дни:20
stdClass Object ( [id] => 137 [attribute_id] => 19 [name] => Штукатурка [material_modifier] => 1 [work_modifier] => 1 [options] => Array ( [0] => Цементно-песчаная (минеральная) [1] => Мокрый фасад ) [days] => [35,35] [material_price] => [2231,3938] [work_price] => [1202,2422] [image] => https://akademik-stroy.ru/wp-content/uploads/materials/shtukaturka.jpg [area_modifier] => 265.73 [parent_name] => Наружная отделка фасада [parent_id] => 19 [material_sum] => 746983 [work_sum] => 335378 [total_sum] => 1082361 [total_days] => 35 [display_material_sum] => 746 983 [display_work_sum] => 335 378 [display_total_sum] => 1 082 361 ) 1
1 082 361
Работа:335 378
Материалы:746 983
Дни:35
stdClass Object ( [id] => 138 [attribute_id] => 19 [name] => Облицовочный кирпич [material_modifier] => 1 [work_modifier] => 1 [options] => Array ( [0] => Керамический [1] => Клинкерный [2] => Ручной формовки [3] => Гиперпрессованный [4] => Силикатный кирпич ) [days] => [45,45,45,45,45] [material_price] => [8174,9148,1040,1257,5876] [work_price] => [3240,3758,4536,4017,3369] [image] => https://akademik-stroy.ru/wp-content/uploads/materials/oblicovochnyj-kirpich.jpg [area_modifier] => 265.73 [parent_name] => Наружная отделка фасада [parent_id] => 19 [material_sum] => 2736817 [work_sum] => 904013 [total_sum] => 3640830 [total_days] => 45 [display_material_sum] => 2 736 817 [display_work_sum] => 904 013 [display_total_sum] => 3 640 830 ) 1
3 640 830
Работа:904 013
Материалы:2 736 817
Дни:45
stdClass Object ( [id] => 139 [attribute_id] => 19 [name] => Фасадная плитка [material_modifier] => 1 [work_modifier] => 1 [options] => Array ( [0] => Клинкерная [1] => Керамическая [2] => Плитка ручной формовки ) [days] => [40,40,40] [material_price] => [2974,1487,3470] [work_price] => [3007,2592,3629] [image] => https://akademik-stroy.ru/wp-content/uploads/materials/fasadnaya-plitka.jpg [area_modifier] => 265.73 [parent_name] => Наружная отделка фасада [parent_id] => 19 [material_sum] => 995754 [work_sum] => 839003 [total_sum] => 1834757 [total_days] => 40 [display_material_sum] => 995 754 [display_work_sum] => 839 003 [display_total_sum] => 1 834 757 ) 1
1 834 757
Работа:839 003
Материалы:995 754
Дни:40
stdClass Object ( [id] => 140 [attribute_id] => 19 [name] => Сайдинг [material_modifier] => 1 [work_modifier] => 1 [options] => Array ( [0] => Виниловый [1] => Металлический [2] => Фиброцементный ) [days] => [20,20,20] [material_price] => [1263,1944,4147] [work_price] => [1263,1944,2074] [image] => https://akademik-stroy.ru/wp-content/uploads/materials/sajding.jpg [area_modifier] => 265.73 [parent_name] => Наружная отделка фасада [parent_id] => 19 [material_sum] => 422877 [work_sum] => 352398 [total_sum] => 775275 [total_days] => 20 [display_material_sum] => 422 877 [display_work_sum] => 352 398 [display_total_sum] => 775 275 ) 1
775 275
Работа:352 398
Материалы:422 877
Дни:20
stdClass Object ( [id] => 141 [attribute_id] => 19 [name] => Камень [material_modifier] => 1 [work_modifier] => 1 [options] => Array ( [0] => Травертин [1] => Дагестанский [2] => Искусственный [3] => Натуральный [4] => Керамогранит ) [days] => [45,45,45,45,45] [material_price] => [4536,3888,2592,3240,2462] [work_price] => [3240,3240,2462,3110,1944] [image] => https://akademik-stroy.ru/wp-content/uploads/materials/kamen-1.jpg [area_modifier] => 265.73 [parent_name] => Наружная отделка фасада [parent_id] => 19 [material_sum] => 1518743 [work_sum] => 904013 [total_sum] => 2422756 [total_days] => 45 [display_material_sum] => 1 518 743 [display_work_sum] => 904 013 [display_total_sum] => 2 422 756 ) 1
2 422 756
Работа:904 013
Материалы:1 518 743
Дни:45
stdClass Object ( [id] => 142 [attribute_id] => 19 [name] => Термопанели [material_modifier] => 1 [work_modifier] => 1 [options] => Array ( ) [days] => [20] [material_price] => [6221] [work_price] => [2333] [image] => https://akademik-stroy.ru/wp-content/uploads/materials/termo.png [area_modifier] => 265.73 [parent_name] => Наружная отделка фасада [parent_id] => 19 [material_sum] => 2082914 [work_sum] => 650945 [total_sum] => 2733859 [total_days] => 20 [display_material_sum] => 2 082 914 [display_work_sum] => 650 945 [display_total_sum] => 2 733 859 ) 1
2 733 859
Работа:650 945
Материалы:2 082 914
Дни:20
stdClass Object ( [id] => 143 [attribute_id] => 19 [name] => Плитка HAUBERK [material_modifier] => 1 [work_modifier] => 1 [options] => Array ( ) [days] => [20] [material_price] => [2786] [work_price] => [1944] [image] => https://akademik-stroy.ru/wp-content/uploads/materials/hauberk.jpg [area_modifier] => 265.73 [parent_name] => Наружная отделка фасада [parent_id] => 19 [material_sum] => 932808 [work_sum] => 542408 [total_sum] => 1475216 [total_days] => 20 [display_material_sum] => 932 808 [display_work_sum] => 542 408 [display_total_sum] => 1 475 216 ) 1
1 475 216
Работа:542 408
Материалы:932 808
Дни:20
stdClass Object ( [id] => 144 [attribute_id] => 19 [name] => Фальцевый фасад [material_modifier] => 1 [work_modifier] => 1 [options] => Array ( ) [days] => [20] [material_price] => [3240] [work_price] => [2592] [image] => https://akademik-stroy.ru/wp-content/uploads/materials/falcevyj-fasad.jpg [area_modifier] => 265.73 [parent_name] => Наружная отделка фасада [parent_id] => 19 [material_sum] => 1084816 [work_sum] => 723211 [total_sum] => 1808027 [total_days] => 20 [display_material_sum] => 1 084 816 [display_work_sum] => 723 211 [display_total_sum] => 1 808 027 ) 1
1 808 027
Работа:723 211
Материалы:1 084 816
Дни:20
stdClass Object ( [id] => 145 [attribute_id] => 19 [name] => Комбинированный [material_modifier] => 1 [work_modifier] => 1 [options] => Array ( ) [days] => [20] [material_price] => [4629] [work_price] => [3499] [image] => https://akademik-stroy.ru/wp-content/uploads/materials/Kombinirovannyj.jpg [area_modifier] => 265.73 [parent_name] => Наружная отделка фасада [parent_id] => 19 [material_sum] => 1549881 [work_sum] => 976279 [total_sum] => 2526160 [total_days] => 20 [display_material_sum] => 1 549 881 [display_work_sum] => 976 279 [display_total_sum] => 2 526 160 ) 1
2 526 160
Работа:976 279
Материалы:1 549 881
Дни:20
stdClass Object ( [id] => 257 [attribute_id] => 19 [name] => Японские фиброцементные [material_modifier] => 1 [work_modifier] => 1 [options] => Array ( ) [days] => [20] [material_price] => [7043] [work_price] => [2993] [image] => https://akademik-stroy.ru/wp-content/uploads/materials/paneli.jpg [area_modifier] => 265.73 [parent_name] => Наружная отделка фасада [parent_id] => 19 [material_sum] => 2358136 [work_sum] => 835096 [total_sum] => 3193232 [total_days] => 20 [display_material_sum] => 2 358 136 [display_work_sum] => 835 096 [display_total_sum] => 3 193 232 ) 1
3 193 232
Работа:835 096
Материалы:2 358 136
Дни:20
stdClass Object ( [id] => 258 [attribute_id] => 19 [name] => Панели Каньон [material_modifier] => 1 [work_modifier] => 1 [options] => Array ( ) [days] => [20] [material_price] => [4543] [work_price] => [2592] [image] => https://akademik-stroy.ru/wp-content/uploads/materials/kanon.png [area_modifier] => 265.73 [parent_name] => Наружная отделка фасада [parent_id] => 19 [material_sum] => 1521086 [work_sum] => 723211 [total_sum] => 2244297 [total_days] => 20 [display_material_sum] => 1 521 086 [display_work_sum] => 723 211 [display_total_sum] => 2 244 297 ) 1
2 244 297
Работа:723 211
Материалы:1 521 086
Дни:20
Террасы, крыльца, навесы
stdClass Object ( [id] => 39 [attribute_id] => 20 [name] => Нет [material_modifier] => 1 [work_modifier] => 1 [options] => Array ( ) [days] => [0] [material_price] => [0] [work_price] => [0] [image] => https://akademik-stroy.ru/wp-content/uploads/materials/terrasy.jpg [area_modifier] => 30 [parent_name] => Террасы, крыльца, навесы [parent_id] => 20 [material_sum] => 0 [work_sum] => 0 [total_sum] => 0 [total_days] => 0 [display_material_sum] => 0 [display_work_sum] => 0 [display_total_sum] => 0 ) 1
0
Работа:0
Материалы:0
Дни:0
stdClass Object ( [id] => 40 [attribute_id] => 20 [name] => Есть [material_modifier] => 1 [work_modifier] => 1 [options] => Array ( ) [days] => [5] [material_price] => [10450] [work_price] => [1950] [image] => https://akademik-stroy.ru/wp-content/uploads/materials/terrasy.jpg [area_modifier] => 30 [parent_name] => Террасы, крыльца, навесы [parent_id] => 20 [material_sum] => 395010 [work_sum] => 61425 [total_sum] => 456435 [total_days] => 5 [display_material_sum] => 395 010 [display_work_sum] => 61 425 [display_total_sum] => 456 435 ) 1
456 435
Работа:61 425
Материалы:395 010
Дни:5
Балконы
stdClass Object ( [id] => 41 [attribute_id] => 21 [name] => Нет [material_modifier] => 1 [work_modifier] => 1 [options] => Array ( ) [days] => [0] [material_price] => [0] [work_price] => [0] [image] => https://akademik-stroy.ru/wp-content/uploads/materials/balkony.jpg [area_modifier] => 30 [parent_name] => Балконы [parent_id] => 21 [material_sum] => 0 [work_sum] => 0 [total_sum] => 0 [total_days] => 0 [display_material_sum] => 0 [display_work_sum] => 0 [display_total_sum] => 0 ) 1
0
Работа:0
Материалы:0
Дни:0
stdClass Object ( [id] => 42 [attribute_id] => 21 [name] => Есть [material_modifier] => 1 [work_modifier] => 1 [options] => Array ( ) [days] => [12] [material_price] => [3600] [work_price] => [1950] [image] => https://akademik-stroy.ru/wp-content/uploads/materials/balkony.jpg [area_modifier] => 30 [parent_name] => Балконы [parent_id] => 21 [material_sum] => 136080 [work_sum] => 61425 [total_sum] => 197505 [total_days] => 12 [display_material_sum] => 136 080 [display_work_sum] => 61 425 [display_total_sum] => 197 505 ) 1
197 505
Работа:61 425
Материалы:136 080
Дни:12
Отмостка
stdClass Object ( [id] => 43 [attribute_id] => 22 [name] => Нет [material_modifier] => 1 [work_modifier] => 1 [options] => Array ( ) [days] => [0] [material_price] => [0] [work_price] => [0] [image] => https://akademik-stroy.ru/wp-content/uploads/materials/uteplennaya.jpg [area_modifier] => 153.69 [parent_name] => Отмостка [parent_id] => 22 [material_sum] => 0 [work_sum] => 0 [total_sum] => 0 [total_days] => 0 [display_material_sum] => 0 [display_work_sum] => 0 [display_total_sum] => 0 ) 1
0
Работа:0
Материалы:0
Дни:0
stdClass Object ( [id] => 44 [attribute_id] => 22 [name] => Утепленная отмостка [material_modifier] => 1 [work_modifier] => 1 [options] => Array ( ) [days] => [15] [material_price] => [2550] [work_price] => [1750] [image] => https://akademik-stroy.ru/wp-content/uploads/materials/uteplennaya.jpg [area_modifier] => 153.69 [parent_name] => Отмостка [parent_id] => 22 [material_sum] => 493806 [work_sum] => 282405 [total_sum] => 776211 [total_days] => 15 [display_material_sum] => 493 806 [display_work_sum] => 282 405 [display_total_sum] => 776 211 ) 1
776 211
Работа:282 405
Материалы:493 806
Дни:15
stdClass Object ( [id] => 146 [attribute_id] => 22 [name] => Не утепленная отмостка [material_modifier] => 1 [work_modifier] => 1 [options] => Array ( ) [days] => [10] [material_price] => [1650] [work_price] => [1450] [image] => https://akademik-stroy.ru/wp-content/uploads/materials/ne-uteplennaya.jpg [area_modifier] => 153.69 [parent_name] => Отмостка [parent_id] => 22 [material_sum] => 319522 [work_sum] => 233993 [total_sum] => 553515 [total_days] => 10 [display_material_sum] => 319 522 [display_work_sum] => 233 993 [display_total_sum] => 553 515 ) 1
553 515
Работа:233 993
Материалы:319 522
Дни:10
Дренаж вокруг дома
stdClass Object ( [id] => 45 [attribute_id] => 23 [name] => Нет [material_modifier] => 1 [work_modifier] => 1 [options] => Array ( ) [days] => [0] [material_price] => [0] [work_price] => [0] [image] => https://akademik-stroy.ru/wp-content/uploads/materials/drenazh-2.jpg [area_modifier] => 153.69 [parent_name] => Дренаж вокруг дома [parent_id] => 23 [material_sum] => 0 [work_sum] => 0 [total_sum] => 0 [total_days] => 0 [display_material_sum] => 0 [display_work_sum] => 0 [display_total_sum] => 0 ) 1
0
Работа:0
Материалы:0
Дни:0
stdClass Object ( [id] => 46 [attribute_id] => 23 [name] => Есть [material_modifier] => 1 [work_modifier] => 1 [options] => Array ( ) [days] => [5] [material_price] => [2366] [work_price] => [1911] [image] => https://akademik-stroy.ru/wp-content/uploads/materials/drenazh-2.jpg [area_modifier] => 153.69 [parent_name] => Дренаж вокруг дома [parent_id] => 23 [material_sum] => 458174 [work_sum] => 308387 [total_sum] => 766561 [total_days] => 5 [display_material_sum] => 458 174 [display_work_sum] => 308 387 [display_total_sum] => 766 561 ) 1
766 561
Работа:308 387
Материалы:458 174
Дни:5
Автономная канализация (септики)
stdClass Object ( [id] => 47 [attribute_id] => 24 [name] => Нет [material_modifier] => 1 [work_modifier] => 1 [options] => Array ( ) [days] => [0] [material_price] => [0] [work_price] => [0] [image] => https://akademik-stroy.ru/wp-content/uploads/materials/septik.jpg [area_modifier] => 1 [parent_name] => Автономная канализация (септики) [parent_id] => 24 [material_sum] => 0 [work_sum] => 0 [total_sum] => 0 [total_days] => 0 [display_material_sum] => 0 [display_work_sum] => 0 [display_total_sum] => 0 ) 1
0
Работа:0
Материалы:0
Дни:0
stdClass Object ( [id] => 48 [attribute_id] => 24 [name] => Есть [material_modifier] => 1 [work_modifier] => 1 [options] => Array ( [0] => Для дачи на 4 человека [1] => Для дома на 5 человек [2] => Для дома на 6 человек [3] => Для дома на 7 человек [4] => Для дома на 10 человек ) [days] => [7,7,7,8,8] [material_price] => [196340,220500,240940,264200,293340] [work_price] => [50000,55000,60500,66550,73206] [image] => https://akademik-stroy.ru/wp-content/uploads/materials/septik.jpg [area_modifier] => 1 [parent_name] => Автономная канализация (септики) [parent_id] => 24 [material_sum] => 247388 [work_sum] => 52500 [total_sum] => 299888 [total_days] => 7 [display_material_sum] => 247 388 [display_work_sum] => 52 500 [display_total_sum] => 299 888 ) 1
299 888
Работа:52 500
Материалы:247 388
Дни:7
Внутренние (не несущие) перегородки
stdClass Object ( [id] => 49 [attribute_id] => 25 [name] => Нет [material_modifier] => 1 [work_modifier] => 1 [options] => Array ( ) [days] => [0] [material_price] => [0] [work_price] => [0] [image] => https://akademik-stroy.ru/wp-content/uploads/materials/gkl.jpg [area_modifier] => 265.73 [parent_name] => Внутренние (не несущие) перегородки [parent_id] => 25 [material_sum] => 0 [work_sum] => 0 [total_sum] => 0 [total_days] => 0 [display_material_sum] => 0 [display_work_sum] => 0 [display_total_sum] => 0 ) 1
0
Работа:0
Материалы:0
Дни:0
stdClass Object ( [id] => 147 [attribute_id] => 25 [name] => Каркасно-обшивные [material_modifier] => 1 [work_modifier] => 1 [options] => Array ( [0] => 75 мм (без шумоизоляции) [1] => 75 мм (с шумоизоляцией) ) [days] => [11,11] [material_price] => [580,970] [work_price] => [380,570] [image] => https://akademik-stroy.ru/wp-content/uploads/materials/gkl.jpg [area_modifier] => 265.73 [parent_name] => Внутренние (не несущие) перегородки [parent_id] => 25 [material_sum] => 194195 [work_sum] => 106026 [total_sum] => 300221 [total_days] => 11 [display_material_sum] => 194 195 [display_work_sum] => 106 026 [display_total_sum] => 300 221 ) 1
300 221
Работа:106 026
Материалы:194 195
Дни:11
stdClass Object ( [id] => 148 [attribute_id] => 25 [name] => Пазогребневые [material_modifier] => 1 [work_modifier] => 1 [options] => Array ( [0] => 80 мм [1] => 100 мм ) [days] => [5,5] [material_price] => [1022,1313] [work_price] => [600,700] [image] => https://akademik-stroy.ru/wp-content/uploads/materials/pazogrebnevye-bloki.jpg [area_modifier] => 265.73 [parent_name] => Внутренние (не несущие) перегородки [parent_id] => 25 [material_sum] => 342186 [work_sum] => 167410 [total_sum] => 509596 [total_days] => 5 [display_material_sum] => 342 186 [display_work_sum] => 167 410 [display_total_sum] => 509 596 ) 1
509 596
Работа:167 410
Материалы:342 186
Дни:5
stdClass Object ( [id] => 149 [attribute_id] => 25 [name] => Газобетонные [material_modifier] => 1 [work_modifier] => 1 [options] => Array ( [0] => 100 мм [1] => 200 мм ) [days] => [11,11] [material_price] => [1160,1920] [work_price] => [700,900] [image] => https://akademik-stroy.ru/wp-content/uploads/materials/gazobeton-2.jpg [area_modifier] => 265.73 [parent_name] => Внутренние (не несущие) перегородки [parent_id] => 25 [material_sum] => 388391 [work_sum] => 195312 [total_sum] => 583703 [total_days] => 11 [display_material_sum] => 388 391 [display_work_sum] => 195 312 [display_total_sum] => 583 703 ) 1
583 703
Работа:195 312
Материалы:388 391
Дни:11
stdClass Object ( [id] => 150 [attribute_id] => 25 [name] => Кирпичные [material_modifier] => 1 [work_modifier] => 1 [options] => Array ( [0] => 120 мм [1] => 250 мм [2] => 360 мм ) [days] => [7,7,7] [material_price] => [1785,3570,5355] [work_price] => [900,1600,1800] [image] => https://akademik-stroy.ru/wp-content/uploads/materials/kirpich-1.jpg [area_modifier] => 265.73 [parent_name] => Внутренние (не несущие) перегородки [parent_id] => 25 [material_sum] => 597653 [work_sum] => 251115 [total_sum] => 848768 [total_days] => 7 [display_material_sum] => 597 653 [display_work_sum] => 251 115 [display_total_sum] => 848 768 ) 1
848 768
Работа:251 115
Материалы:597 653
Дни:7
Электрика
stdClass Object ( [id] => 55 [attribute_id] => 28 [name] => Нет [material_modifier] => 1 [work_modifier] => 1 [options] => Array ( ) [days] => [0] [material_price] => [0] [work_price] => [0] [image] => https://akademik-stroy.ru/wp-content/uploads/materials/ehlektrika.jpg [area_modifier] => 215.64 [parent_name] => Электрика [parent_id] => 28 [material_sum] => 0 [work_sum] => 0 [total_sum] => 0 [total_days] => 0 [display_material_sum] => 0 [display_work_sum] => 0 [display_total_sum] => 0 ) 1
0
Работа:0
Материалы:0
Дни:0
stdClass Object ( [id] => 56 [attribute_id] => 28 [name] => Есть [material_modifier] => 1 [work_modifier] => 1 [options] => Array ( ) [days] => [10] [material_price] => [650] [work_price] => [950] [image] => https://akademik-stroy.ru/wp-content/uploads/materials/ehlektrika.jpg [area_modifier] => 215.64 [parent_name] => Электрика [parent_id] => 28 [material_sum] => 176609 [work_sum] => 215101 [total_sum] => 391710 [total_days] => 10 [display_material_sum] => 176 609 [display_work_sum] => 215 101 [display_total_sum] => 391 710 ) 1
391 710
Работа:215 101
Материалы:176 609
Дни:10
Сантехника, канализация в доме
stdClass Object ( [id] => 57 [attribute_id] => 29 [name] => Нет [material_modifier] => 1 [work_modifier] => 1 [options] => Array ( ) [days] => [0] [material_price] => [0] [work_price] => [0] [image] => https://akademik-stroy.ru/wp-content/uploads/materials/santekhnika-kanalizaciya-1.jpg [area_modifier] => 215.64 [parent_name] => Сантехника, канализация в доме [parent_id] => 29 [material_sum] => 0 [work_sum] => 0 [total_sum] => 0 [total_days] => 0 [display_material_sum] => 0 [display_work_sum] => 0 [display_total_sum] => 0 ) 1
0
Работа:0
Материалы:0
Дни:0
stdClass Object ( [id] => 58 [attribute_id] => 29 [name] => Есть [material_modifier] => 1 [work_modifier] => 1 [options] => Array ( ) [days] => [10] [material_price] => [600] [work_price] => [730] [image] => https://akademik-stroy.ru/wp-content/uploads/materials/santekhnika-kanalizaciya-1.jpg [area_modifier] => 215.64 [parent_name] => Сантехника, канализация в доме [parent_id] => 29 [material_sum] => 163024 [work_sum] => 165288 [total_sum] => 328312 [total_days] => 10 [display_material_sum] => 163 024 [display_work_sum] => 165 288 [display_total_sum] => 328 312 ) 1
328 312
Работа:165 288
Материалы:163 024
Дни:10
Отопление
stdClass Object ( [id] => 59 [attribute_id] => 30 [name] => Нет [material_modifier] => 1 [work_modifier] => 1 [options] => Array ( ) [days] => [0] [material_price] => [0] [work_price] => [0] [image] => https://akademik-stroy.ru/wp-content/uploads/materials/otoplenie-1.jpg [area_modifier] => 215.64 [parent_name] => Отопление [parent_id] => 30 [material_sum] => 0 [work_sum] => 0 [total_sum] => 0 [total_days] => 0 [display_material_sum] => 0 [display_work_sum] => 0 [display_total_sum] => 0 ) 1
0
Работа:0
Материалы:0
Дни:0
stdClass Object ( [id] => 60 [attribute_id] => 30 [name] => Есть [material_modifier] => 1 [work_modifier] => 1 [options] => Array ( ) [days] => [5] [material_price] => [610] [work_price] => [560] [image] => https://akademik-stroy.ru/wp-content/uploads/materials/otoplenie-1.jpg [area_modifier] => 215.64 [parent_name] => Отопление [parent_id] => 30 [material_sum] => 165741 [work_sum] => 126796 [total_sum] => 292537 [total_days] => 5 [display_material_sum] => 165 741 [display_work_sum] => 126 796 [display_total_sum] => 292 537 ) 1
292 537
Работа:126 796
Материалы:165 741
Дни:5
Теплые полы
stdClass Object ( [id] => 61 [attribute_id] => 31 [name] => Нет [material_modifier] => 1 [work_modifier] => 1 [options] => Array ( ) [days] => [0] [material_price] => [0] [work_price] => [0] [image] => https://akademik-stroy.ru/wp-content/uploads/materials/vodyanye.jpg [area_modifier] => 30 [parent_name] => Теплые полы [parent_id] => 31 [material_sum] => 0 [work_sum] => 0 [total_sum] => 0 [total_days] => 0 [display_material_sum] => 0 [display_work_sum] => 0 [display_total_sum] => 0 ) 1
0
Работа:0
Материалы:0
Дни:0
stdClass Object ( [id] => 151 [attribute_id] => 31 [name] => Водяные [material_modifier] => 1 [work_modifier] => 1 [options] => Array ( ) [days] => [9] [material_price] => [10200] [work_price] => [2500] [image] => https://akademik-stroy.ru/wp-content/uploads/materials/vodyanye.jpg [area_modifier] => 30 [parent_name] => Теплые полы [parent_id] => 31 [material_sum] => 385560 [work_sum] => 78750 [total_sum] => 464310 [total_days] => 9 [display_material_sum] => 385 560 [display_work_sum] => 78 750 [display_total_sum] => 464 310 ) 1
464 310
Работа:78 750
Материалы:385 560
Дни:9
stdClass Object ( [id] => 152 [attribute_id] => 31 [name] => Электро [material_modifier] => 1 [work_modifier] => 1 [options] => Array ( ) [days] => [5] [material_price] => [6300] [work_price] => [1500] [image] => https://akademik-stroy.ru/wp-content/uploads/materials/ehlektricheskij.jpg [area_modifier] => 30 [parent_name] => Теплые полы [parent_id] => 31 [material_sum] => 238140 [work_sum] => 47250 [total_sum] => 285390 [total_days] => 5 [display_material_sum] => 238 140 [display_work_sum] => 47 250 [display_total_sum] => 285 390 ) 1
285 390
Работа:47 250
Материалы:238 140
Дни:5
Черновая отделка стен
stdClass Object ( [id] => 63 [attribute_id] => 32 [name] => Нет [material_modifier] => 1 [work_modifier] => 1 [options] => Array ( ) [days] => [0] [material_price] => [0] [work_price] => [0] [image] => https://akademik-stroy.ru/wp-content/uploads/materials/shtukaturka-shpatlevka-1.jpg [area_modifier] => 215.64 [parent_name] => Черновая отделка стен [parent_id] => 32 [material_sum] => 0 [work_sum] => 0 [total_sum] => 0 [total_days] => 0 [display_material_sum] => 0 [display_work_sum] => 0 [display_total_sum] => 0 ) 1
0
Работа:0
Материалы:0
Дни:0
stdClass Object ( [id] => 153 [attribute_id] => 32 [name] => Штукатурка и шпатлевка [material_modifier] => 1 [work_modifier] => 1 [options] => Array ( ) [days] => [20] [material_price] => [1850] [work_price] => [2600] [image] => https://akademik-stroy.ru/wp-content/uploads/materials/shtukaturka-shpatlevka-1.jpg [area_modifier] => 215.64 [parent_name] => Черновая отделка стен [parent_id] => 32 [material_sum] => 502657 [work_sum] => 588697 [total_sum] => 1091354 [total_days] => 20 [display_material_sum] => 502 657 [display_work_sum] => 588 697 [display_total_sum] => 1 091 354 ) 1
1 091 354
Работа:588 697
Материалы:502 657
Дни:20
stdClass Object ( [id] => 154 [attribute_id] => 32 [name] => Гипсокортон на стены [material_modifier] => 1 [work_modifier] => 1 [options] => Array ( ) [days] => [15] [material_price] => [950] [work_price] => [2100] [image] => https://akademik-stroy.ru/wp-content/uploads/materials/gkl-1.jpg [area_modifier] => 215.64 [parent_name] => Черновая отделка стен [parent_id] => 32 [material_sum] => 258121 [work_sum] => 475486 [total_sum] => 733607 [total_days] => 15 [display_material_sum] => 258 121 [display_work_sum] => 475 486 [display_total_sum] => 733 607 ) 1
733 607
Работа:475 486
Материалы:258 121
Дни:15
stdClass Object ( [id] => 155 [attribute_id] => 32 [name] => Вагонка [material_modifier] => 1 [work_modifier] => 1 [options] => Array ( ) [days] => [15] [material_price] => [1250] [work_price] => [950] [image] => https://akademik-stroy.ru/wp-content/uploads/materials/vagonka.jpg [area_modifier] => 215.64 [parent_name] => Черновая отделка стен [parent_id] => 32 [material_sum] => 339633 [work_sum] => 215101 [total_sum] => 554734 [total_days] => 15 [display_material_sum] => 339 633 [display_work_sum] => 215 101 [display_total_sum] => 554 734 ) 1
554 734
Работа:215 101
Материалы:339 633
Дни:15
Черновая отделка полов
stdClass Object ( [id] => 65 [attribute_id] => 33 [name] => Нет [material_modifier] => 1 [work_modifier] => 1 [options] => Array ( ) [days] => [0] [material_price] => [0] [work_price] => [0] [image] => https://akademik-stroy.ru/wp-content/uploads/materials/styazhka.jpg [area_modifier] => 215.64 [parent_name] => Черновая отделка полов [parent_id] => 33 [material_sum] => 0 [work_sum] => 0 [total_sum] => 0 [total_days] => 0 [display_material_sum] => 0 [display_work_sum] => 0 [display_total_sum] => 0 ) 1
0
Работа:0
Материалы:0
Дни:0
stdClass Object ( [id] => 156 [attribute_id] => 33 [name] => Стяжка + наливные полы [material_modifier] => 1 [work_modifier] => 1 [options] => Array ( ) [days] => [10] [material_price] => [1000] [work_price] => [900] [image] => https://akademik-stroy.ru/wp-content/uploads/materials/styazhka.jpg [area_modifier] => 215.64 [parent_name] => Черновая отделка полов [parent_id] => 33 [material_sum] => 271706 [work_sum] => 203780 [total_sum] => 475486 [total_days] => 10 [display_material_sum] => 271 706 [display_work_sum] => 203 780 [display_total_sum] => 475 486 ) 1
475 486
Работа:203 780
Материалы:271 706
Дни:10
stdClass Object ( [id] => 157 [attribute_id] => 33 [name] => ОСБ на пол [material_modifier] => 1 [work_modifier] => 1 [options] => Array ( ) [days] => [7] [material_price] => [580] [work_price] => [350] [image] => https://akademik-stroy.ru/wp-content/uploads/materials/osb-1.jpg [area_modifier] => 215.64 [parent_name] => Черновая отделка полов [parent_id] => 33 [material_sum] => 157590 [work_sum] => 79248 [total_sum] => 236838 [total_days] => 7 [display_material_sum] => 157 590 [display_work_sum] => 79 248 [display_total_sum] => 236 838 ) 1
236 838
Работа:79 248
Материалы:157 590
Дни:7
Чистовая отделка стен и полов
stdClass Object ( [id] => 67 [attribute_id] => 34 [name] => Нет [material_modifier] => 1 [work_modifier] => 1 [options] => Array ( ) [days] => [0] [material_price] => [0] [work_price] => [0] [image] => https://akademik-stroy.ru/wp-content/uploads/materials/chistovaya-otdelka.jpg [area_modifier] => 215.64 [parent_name] => Чистовая отделка стен и полов [parent_id] => 34 [material_sum] => 0 [work_sum] => 0 [total_sum] => 0 [total_days] => 0 [display_material_sum] => 0 [display_work_sum] => 0 [display_total_sum] => 0 ) 1
0
Работа:0
Материалы:0
Дни:0
stdClass Object ( [id] => 68 [attribute_id] => 34 [name] => Есть [material_modifier] => 1 [work_modifier] => 1 [options] => Array ( ) [days] => [50] [material_price] => [6000] [work_price] => [3500] [image] => https://akademik-stroy.ru/wp-content/uploads/materials/chistovaya-otdelka.jpg [area_modifier] => 215.64 [parent_name] => Чистовая отделка стен и полов [parent_id] => 34 [material_sum] => 1630238 [work_sum] => 792477 [total_sum] => 2422715 [total_days] => 50 [display_material_sum] => 1 630 238 [display_work_sum] => 792 477 [display_total_sum] => 2 422 715 ) 1
2 422 715
Работа:792 477
Материалы:1 630 238
Дни:50
Отделка потолка
stdClass Object ( [id] => 69 [attribute_id] => 35 [name] => Нет [material_modifier] => 1 [work_modifier] => 1 [options] => Array ( ) [days] => [0] [material_price] => [0] [work_price] => [0] [image] => https://akademik-stroy.ru/wp-content/uploads/materials/mnogourovnevyj-gkl.jpg [area_modifier] => 215.64 [parent_name] => Отделка потолка [parent_id] => 35 [material_sum] => 0 [work_sum] => 0 [total_sum] => 0 [total_days] => 0 [display_material_sum] => 0 [display_work_sum] => 0 [display_total_sum] => 0 ) 1
0
Работа:0
Материалы:0
Дни:0
stdClass Object ( [id] => 70 [attribute_id] => 35 [name] => Есть [material_modifier] => 1 [work_modifier] => 1 [options] => Array ( [0] => Многоуровневый потолок из гипсокартона [1] => Многоуровневый потолок из гипсокартона и натяжного потолка [2] => Одноуровневый потолок из гипсокартона [3] => Одноуровневый натяжной потолок ) [days] => [10,10,1,1] [material_price] => [900,700,700,600] [work_price] => [1000,800,500,300] [image] => https://akademik-stroy.ru/wp-content/uploads/materials/mnogourovnevyj-gkl.jpg [area_modifier] => 215.64 [parent_name] => Отделка потолка [parent_id] => 35 [material_sum] => 244536 [work_sum] => 226422 [total_sum] => 470958 [total_days] => 10 [display_material_sum] => 244 536 [display_work_sum] => 226 422 [display_total_sum] => 470 958 ) 1
470 958
Работа:226 422
Материалы:244 536
Дни:10

Преимущества работы с нами

icon

7 этапов оплаты

icon

Независимый строительный надзор

icon

Экологически чистые материалы

icon

16 лет гарантии

icon

Онлайн-кабинет с веб-камерой

icon

Строители с опытом более 15 лет

icon

Собственное производство

Двухэтажный дом 16х15 – идеальный выбор для семьи в Москве

Планируете строительство частного загородного дома в Москве? Тогда обратите внимание на проект двухэтажного дома размером 16 на 15 метров с полезной площадью 215,64 м² от компании "Академик Строй". Это отличный вариант для тех, кто мечтает о просторном и комфортном жилье с функциональной планировкой и качественным исполнением. В этой статье я подробно расскажу, почему именно этот дом заслуживает внимания, и как заказать проект по выгодной цене.

Вам не придется волноваться о сложности выбора: "Академик Строй" предлагает полный спектр услуг — от разработки проекта до технического сопровождения строительства.

Почему стоит выбрать именно этот проект?

Первое, что бросается в глаза — это оптимальные размеры дома 16 на 15 метров. Такой формат идеально подходит для участка небольших и средних размеров в Московском регионе, но при этом дает достаточно пространства для обустройства всех необходимых зон, чтобы жить с комфортом. Площадь застройки при этом составляет 178,80 м², что позволяет грамотно распланировать участок и учитывая минимальные требования к его размерам — ширина 24,40 м и длина 22,90 м.

Этот двухэтажный дом — настоящее воплощение идеального баланса между функциональностью и эстетикой. Классическая двускатная крыша с углом наклона в 37° не только красиво выглядит, но и обеспечивает отличную защиту от осадков и способствует экономии на отоплении.

Основные достоинства проекта

  • Общая полезная площадь 215,64 м² – больше места для жизни и отдыха.
  • Четкое распределение жилой площади – 157,90 м².
  • Пять комнат, включающие 4 спальни – идеальный вариант для большой семьи или гостей.
  • Два санузла – удобно и практично, особенно при большом количестве жильцов.
  • Высота здания 9 метров – дом выглядит солидно, но при этом не нарушает требования к застройке.
  • Площадь крыши – 245 м², что позволят использовать качественные материалы и обеспечить долговечность конструкции.

Детальный разбор планировки

Когда мы говорим о двухэтажном доме, четкое зонирование помещения – ключ к комфорту. В данном проекте предусмотрено четыре спальни, что позволяет комфортно разместиться большой семье. Это могут быть комнаты для детей, родители могут иметь собственную спальню, кроме того, одна из комнат отлично подойдет под кабинет или гостевую.

Наличие двух санузлов – это настоящий подарок для всей семьи. Нет необходимости дожидаться своей очереди по утрам, а размещение в разных зонах дома повышает удобство и приватность.

Планировка по этажам

Этаж Основные помещения Особенности
Первый этаж Гостиная, кухня-столовая, санузел, подсобные помещения Открытая гостиная с зоной кухни в современном стиле, удобный санузел, пространство для хранения
Второй этаж 4 спальни, санузел Комфортные спальни с естественным освещением, дополнительный санузел для удобства

Что делает этот дом практичным в московском климате?

Двухэтажный дом 16х15 от "Академик Строй" разрабатывался с учетом особенностей российской столицы и ее климатических условий. Двускатная крыша с углом наклона 37° позволяет снегу свободно скатываться, что значительно снижает нагрузку на конструкцию. Также такая крыша отлично защищает от дождя, что уменьшает риски протечек и способствует долговечности здания.

Высота здания в 9 метров придает дому монументальность, но не нарушает общих регламентов по застройке, что уменьшает вероятность проблем с согласованиями.

Теплоизоляция и энергосбережение

Площадь крыши в 245 м² позволяет использовать достаточно утеплителя и современных материалов, которые помогут сохранить тепло зимой и прохладу летом. Тем самым существенно снижаются расходы на отопление – важный фактор для жителей Москвы, где зима зачастую холодная и продолжительная.

Кому подойдет этот проект?

Прежде всего, это идеальный вариант для семей с несколькими детьми, которые ценят личное пространство и комфорт. Также проект подойдет тем, кто привык принимать гостей – 4 спальни дают возможность выделить комнату для родственников или друзей при длительном пребывании. Кроме того, дом подойдет для тех, кто мечтает о жилой площади более 150 м², но не хочет терять тепло и атмосферу уюта.

Несмотря на внушительные размеры, дом не выглядит громоздким и сохраняет визуальную легкость благодаря грамотному архитектурному решению и классическому стилю.

Технические и территориальные особенности

Параметр Значение
Размеры дома 16 x 15 м
Полезная площадь 215,64 м²
Жилая площадь 157,90 м²
Площадь застройки 178,80 м²
Площадь крыши 245 м²
Этажность 2 этажа
Количество спален 4
Количество санузлов 2
Угол наклона крыши 37°
Высота здания 9 м
Минимальные размеры участка 24,4 x 22,9 м
Тип крыши Двускатная
Гараж Отсутствует

Как заказать проект от "Академик Строй" – просто и удобно

Компания "Академик Строй" предлагает покупателям полный пакет услуг по проектированию и дальнейшему строительству домов. Заказать проект двухэтажного дома 16 на 15 с площадью 215,64 м² достаточно просто. Достаточно позвонить по телефону +7 (980) 800-47-93, где специалисты компании подробно расскажут обо всех деталях, возможностях проекта и помогут оформить заказ.

Вы получите не только проект с продуманной планировкой, но и консультацию по техническим аспектам, помощь в выборе материалов и рекомендации по оптимизации бюджета. Все это дает уверенность в успешном и своевременном строительстве дома мечты.

Преимущества заказа проекта у "Академик Строй"

  • Индивидуальный подход и возможность адаптировать проект под ваши нужды.
  • Современные технологии проектирования и применяемые инновационные материалы.
  • Выдержка обязательных нормативных требований, что упрощает процесс оформления разрешений.
  • Зарекомендовавший себя опыт и надежность компании.
  • Отличное соотношение цена–качество: доступные цены при высоком уровне качества.

Стоимость и выгодные предложения

Цена проекта дома 16 на 15 метров с полезной площадью 215,64 м² у "Академик Строй" выгодно отличается на фоне конкурентов. За небольшие деньги вы получаете полный пакет проектной документации, а также квалифицированную поддержку на всех этапах строительства. Это особенно актуально для тех, кто хочет избежать лишних затрат и непредвиденных расходов.

Для ориентировки приведем условные цены (уточняйте у менеджеров компании):

Услуга Стоимость, руб.
Проект дома от 120 000
Консультация и сопровождение Включено в стоимость проекта
Персонализация проекта (по запросу) от 30 000

Помните, что качественный проект – залог успешного строительства, и совсем не стоит экономить на этом этапе. "Академик Строй" предоставляет решения по доступной цене и с высоким уровнем профессионализма.

Часто задаваемые вопросы

Можно ли изменить планировку проекта?

Да, специалисты компании учитывают ваши потребности и могут внести изменения в планировку, сохранив общую концепцию и технические нормы.

Подойдет ли дом для участка прямоугольной формы?

Если размеры участка не меньше минимальных параметров (24,40 м по ширине и 22,90 м по длине), то проект будет отлично вписываться на участок. Классическая прямоугольная форма дома упрощает размещение.

Есть ли возможность добавить гараж?

В исходном проекте гаража нет, но компания может предложить варианты пристроек и гаражей с учетом ваших пожеланий.

Какие материалы рекомендуются для строительства?

Проект универсален и может быть реализован с использованием различных технологий: кирпич, блоки, каркасные системы. Сотрудники "Академик Строй" помогут подобрать оптимальное решение под ваши задачи и бюджет.

Заключение

Проект двухэтажного дома 16х15 метров от компании "Академик Строй" – это разумный и современный выбор для жителей Москвы, ценящих комфорт, функциональность и качество. Дом с полезной площадью свыше 215 м², четырьмя спальнями и двумя санузлами идеально подойдет для большой семьи и обеспечит удобство каждого из ее членов.

Обращаясь к профессионалам "Академик Строй", вы получаете не просто чертежи, а тщательно продуманное решение, учитывающее все нюансы местного климата и законодательства. Звоните по телефону +7 (980) 800-47-93 и начните строить дом вашей мечты уже сегодня!