Одноэтажный дом 14x9 - 98.09 м2 за руб.

ID-119146

Стоимость дома 5093834 руб.
154 м2 Полезная
площадь
14 x 9 м Размеры
1 этаж Этажей
26 м2 Террасы
и балконы
1Без
гаража
3 Количество
спален
1 Количество
санузлов

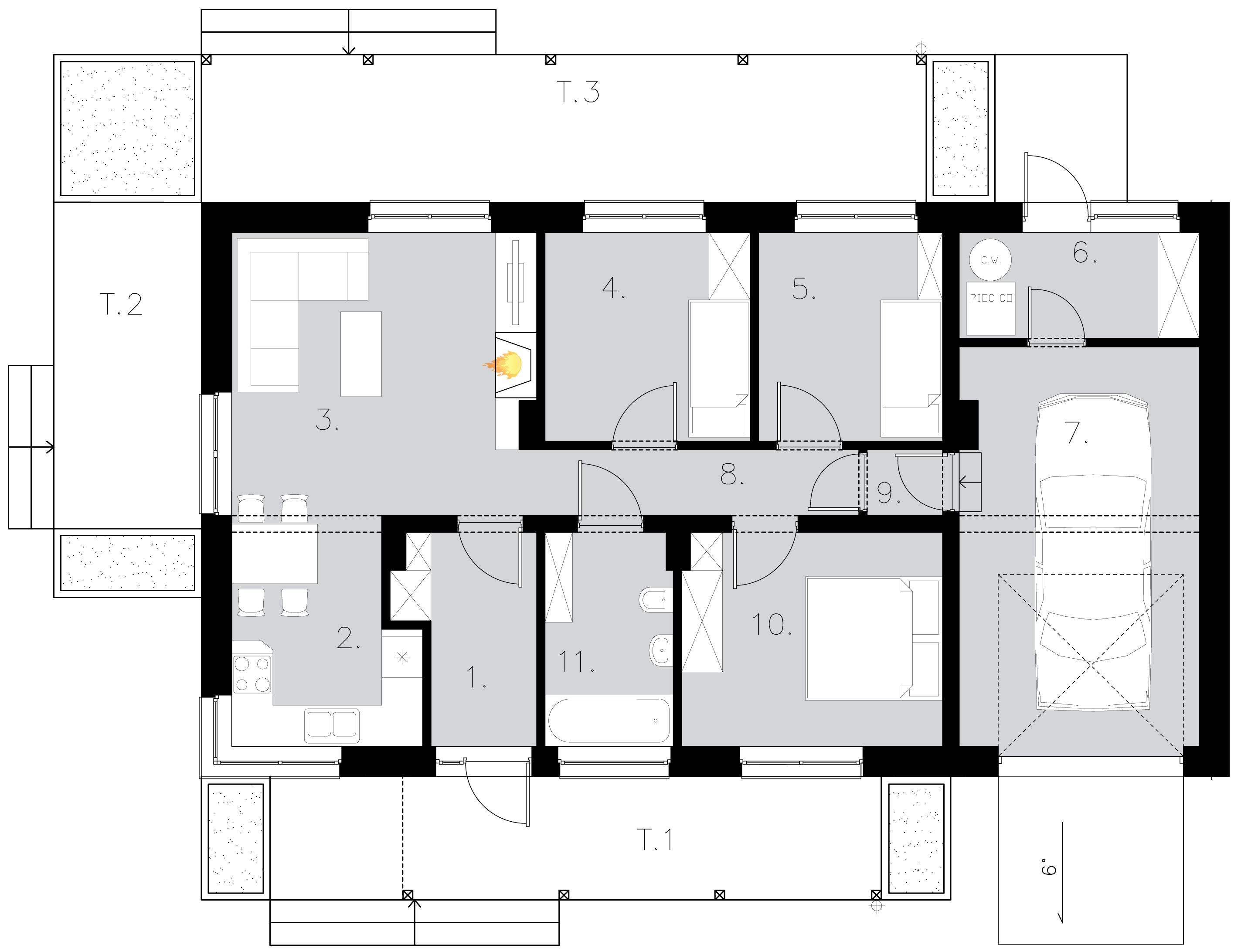
Планировки

План первого этажа

floor image
  • 1. Прихожая 5,50 m²
  • 2. Кухня 8,30 m²
  • 3. Гостиная 17,70 m²
  • 4. Комната 9,08 m²
  • 5. Комната 8,14 m²
  • 6. Котельная 5,40 m²
  • 7. Гараж на 1 машину 19,82 m²
  • 8. Коридор 5,70 m²
  • 9. Коридор 0,95 m²
  • 10. Комната 11,80 m²
  • 11. Ванная комната 5,70 m²
  • 12. Крыльцо (15,98 m²)
  • 13. Терраса (10,22 m²)
  • 14. Терраса (22,69 m²)
  • План первого этажа 98,09 m²

Разрезы

Вертикальный разрез
Вертикальный разрез

Фасады

Передний
Задний
Левый
Правый
Передний
Задний
Левый
Правый

Подробная информация

Жилая площадь
66,22 m²
icon

Сумма площади всех жилых помещений, за вычетом пов. гараж, котельная, чердак, подвал. Учитывается в 100%, для помещений высотой более 2,2 м, в 50% для помещений с высотой 2,2-1,4 м и не включается для более низких помещений (меньше 1,4 м).

Площадь застройки
125,23 m²
icon

Площадь застройки здания определяется как площадь горизонтального сечения по внешнему обводу здания на уровне цоколя, включая выступающие части.

Угол наклона крыши
25°
icon

Наклон ската крыши в градусах. Внимание! В некоторых проектах возникает более чем один наклон крыши.

Высота здания
5,54 m
icon

Высота измеряется от поверхности земли до самой высокой точки кровли (конька), за исключением дымоходов.

Мин. ширина участка
22,28 m
icon

Наименьшая возможная ширина участка, необходимая для строительства выбранного дома. Состоит из длины фасада дома плюс с обеих сторон три метра отступ.

Мин. длина участка
16,67 m
icon

Наименьшая возможная длина участка, необходимая для строительства выбранного дома. Состоит из длины фасада дома плюс с обеих сторон три метра отступ.

Материалы и опции
Общие
Количество спален
3
Ежемесячный платёж, руб
Гараж
1
Количество санузлов
1
Ширина
14
Глубина
9
Тип крыши

Площади дома

№ п/п Наименование Ед. из. Строительная площадь Полезная площадь
1 1 этаж м2 120.88 98.09
2 Итого м2 120.88 98.09

Калькулятор опций

0

В ипотеку от 17 154 ₽/мес.

Фундамент
stdClass Object ( [id] => 1 [attribute_id] => 1 [name] => Ленточный монолитный ж/б [material_modifier] => 1 [work_modifier] => 1 [options] => Array ( [0] => размер 200 х 700 мм [1] => размер 300 х 900 мм [2] => размер 400 х 1 000 мм [3] => размер 500 х 1 100 мм [4] => размер 600 х 1 200 мм ) [days] => [20,21,22,25,30] [material_price] => [2823,3630,4475,5210,12047] [work_price] => [2154,2826,3731,4577,5293] [image] => https://akademik-stroy.ru/wp-content/uploads/materials/lentochnyj-monolitnyj-zh-b.jpg [area_modifier] => 120.88 [parent_name] => Фундамент [parent_id] => 1 [material_sum] => 470917 [work_sum] => 299432 [total_sum] => 770349 [total_days] => 20 [display_material_sum] => 470 917 [display_work_sum] => 299 432 [display_total_sum] => 770 349 ) 1
770 349
Работа:299 432
Материалы:470 917
Дни:20
stdClass Object ( [id] => 2 [attribute_id] => 1 [name] => Забивные Ж/Б сваи [material_modifier] => 1 [work_modifier] => 1 [options] => Array ( [0] => 150х150х3000мм [1] => 150х150х4000мм [2] => 200х200х3000мм [3] => 200х200х4000мм [4] => 200х200х5000мм [5] => 200х200х6000мм ) [days] => [2,2,2,2,2,2] [material_price] => [1990,2850,3255,4360,5120,6837] [work_price] => [1002,1185,1336,1438,1574,1839] [image] => https://akademik-stroy.ru/wp-content/uploads/materials/zabivnye-zh-b-svai.png [area_modifier] => 120.88 [parent_name] => Фундамент [parent_id] => 1 [material_sum] => 331961 [work_sum] => 139290 [total_sum] => 471251 [total_days] => 2 [display_material_sum] => 331 961 [display_work_sum] => 139 290 [display_total_sum] => 471 251 ) 1
471 251
Работа:139 290
Материалы:331 961
Дни:2
stdClass Object ( [id] => 71 [attribute_id] => 1 [name] => Свайно-ростверковый ж/б [material_modifier] => 1 [work_modifier] => 1 [options] => Array ( [0] => ростверк 200х300 мм [1] => ростверк 300х600 мм [2] => ростверк 400х900 мм [3] => ростверк 500х1200 мм ) [days] => [20,23,25,27] [material_price] => [3018,3474,7109,9792] [work_price] => [2024,3012,5635,7022] [image] => https://akademik-stroy.ru/wp-content/uploads/materials/svajno-rostverkovyj-monolitnyj-zh-b-3.png [area_modifier] => 120.88 [parent_name] => Фундамент [parent_id] => 1 [material_sum] => 503446 [work_sum] => 281360 [total_sum] => 784806 [total_days] => 20 [display_material_sum] => 503 446 [display_work_sum] => 281 360 [display_total_sum] => 784 806 ) 1
784 806
Работа:281 360
Материалы:503 446
Дни:20
stdClass Object ( [id] => 72 [attribute_id] => 1 [name] => Монолитная ж/б плита [material_modifier] => 1 [work_modifier] => 1 [options] => Array ( [0] => 200 мм [1] => 300 мм [2] => 400 мм [3] => 500 мм [4] => 600 мм ) [days] => [30,33,35,37,40] [material_price] => [5348,8555,12788,14388,15189] [work_price] => [4314,4881,7037,8061,10230] [image] => https://akademik-stroy.ru/wp-content/uploads/materials/monolitnaya-zhb-plita.png [area_modifier] => 120.88 [parent_name] => Фундамент [parent_id] => 1 [material_sum] => 892123 [work_sum] => 599698 [total_sum] => 1491821 [total_days] => 30 [display_material_sum] => 892 123 [display_work_sum] => 599 698 [display_total_sum] => 1 491 821 ) 1
1 491 821
Работа:599 698
Материалы:892 123
Дни:30
stdClass Object ( [id] => 73 [attribute_id] => 1 [name] => Утепленная шведская плита [material_modifier] => 1 [work_modifier] => 1 [options] => Array ( [0] => 200 мм [1] => 300 мм [2] => 400 мм [3] => 500 мм [4] => 600 мм ) [days] => [32,37,39,42,45] [material_price] => [10249,12692,13760,14936,16230] [work_price] => [5960,7337,8072,8878,9765] [image] => https://akademik-stroy.ru/wp-content/uploads/materials/uteplennaya-shvedskaya-plita.jpg [area_modifier] => 120.88 [parent_name] => Фундамент [parent_id] => 1 [material_sum] => 1709681 [work_sum] => 828512 [total_sum] => 2538193 [total_days] => 32 [display_material_sum] => 1 709 681 [display_work_sum] => 828 512 [display_total_sum] => 2 538 193 ) 1
2 538 193
Работа:828 512
Материалы:1 709 681
Дни:32
stdClass Object ( [id] => 75 [attribute_id] => 1 [name] => Ленточный из ФБС [material_modifier] => 1 [work_modifier] => 1 [options] => Array ( [0] => толщ. 300 мм [1] => толщ. 400 мм [2] => толщ. 500 мм [3] => толщ. 600 мм ) [days] => [20,20,20,20] [material_price] => [3675,4902,6126,7350] [work_price] => [2451,3264,4083,4902] [image] => https://akademik-stroy.ru/wp-content/uploads/materials/lentochnyj-iz-fbs.png [area_modifier] => 120.88 [parent_name] => Фундамент [parent_id] => 1 [material_sum] => 613043 [work_sum] => 340718 [total_sum] => 953761 [total_days] => 20 [display_material_sum] => 613 043 [display_work_sum] => 340 718 [display_total_sum] => 953 761 ) 1
953 761
Работа:340 718
Материалы:613 043
Дни:20
stdClass Object ( [id] => 76 [attribute_id] => 1 [name] => Цокольный этаж из ФБС [material_modifier] => 1 [work_modifier] => 1 [options] => Array ( [0] => толщ. 300 мм [1] => толщ. 400 мм [2] => толщ. 500 мм [3] => толщ. 600 мм ) [days] => [30,32,34,36] [material_price] => [20916,23299,26680,29060] [work_price] => [17524,18700,19873,21046] [image] => https://akademik-stroy.ru/wp-content/uploads/materials/cokolnyj-ehtazh-iz-fbs.jpg [area_modifier] => 120.88 [parent_name] => Фундамент [parent_id] => 1 [material_sum] => 3489090 [work_sum] => 2436046 [total_sum] => 5925136 [total_days] => 30 [display_material_sum] => 3 489 090 [display_work_sum] => 2 436 046 [display_total_sum] => 5 925 136 ) 1
5 925 136
Работа:2 436 046
Материалы:3 489 090
Дни:30
stdClass Object ( [id] => 77 [attribute_id] => 1 [name] => Цокольный этаж монолитный ж/б [material_modifier] => 1 [work_modifier] => 1 [options] => Array ( [0] => толщ. 200 мм [1] => толщ. 300 мм [2] => толщ. 400 мм [3] => толщ. 500 мм [4] => толщ. 600 мм ) [days] => [40,42,44,46,48] [material_price] => [25421,29148,32275,35602,37326] [work_price] => [20441,21907,23375,24841,26306] [image] => https://akademik-stroy.ru/wp-content/uploads/materials/cokolnyj-etazh-zh-b.jpg [area_modifier] => 120.88 [parent_name] => Фундамент [parent_id] => 1 [material_sum] => 4240589 [work_sum] => 2841544 [total_sum] => 7082133 [total_days] => 40 [display_material_sum] => 4 240 589 [display_work_sum] => 2 841 544 [display_total_sum] => 7 082 133 ) 1
7 082 133
Работа:2 841 544
Материалы:4 240 589
Дни:40
stdClass Object ( [id] => 191 [attribute_id] => 1 [name] => Винтовые сваи [material_modifier] => 1 [work_modifier] => 1 [options] => Array ( [0] => 57х200мм [1] => 76х250мм [2] => 108х300мм [3] => 133х350мм ) [days] => [1,1,2,2] [material_price] => [1200,1300,1450,1600] [work_price] => [400,600,900,1100] [image] => https://akademik-stroy.ru/wp-content/uploads/materials/vintovye-svai.png [area_modifier] => 120.88 [parent_name] => Фундамент [parent_id] => 1 [material_sum] => 200177 [work_sum] => 55605 [total_sum] => 255782 [total_days] => 1 [display_material_sum] => 200 177 [display_work_sum] => 55 605 [display_total_sum] => 255 782 ) 1
255 782
Работа:55 605
Материалы:200 177
Дни:1
Перекрытие цоколя
stdClass Object ( [id] => 3 [attribute_id] => 2 [name] => Деревянные балки [material_modifier] => 1 [work_modifier] => 1 [options] => Array ( [0] => без утепления [1] => утепление 200 мм [2] => утепление 250 мм [3] => утепление 300 мм [4] => утепление 350 мм [5] => утепление 400 мм [6] => утепление 450 мм [7] => утепление 500 мм ) [days] => [8,9,9,9,11,12,13,14] [material_price] => [1634,2042,2344,2947,3149,3652,3354,3557] [work_price] => [1230,1339,1393,1426,1460,1513,1587,1620] [image] => https://akademik-stroy.ru/wp-content/uploads/materials/derevyannye-balki.png [area_modifier] => 120.88 [parent_name] => Перекрытие цоколя [parent_id] => 2 [material_sum] => 272575 [work_sum] => 170985 [total_sum] => 443560 [total_days] => 8 [display_material_sum] => 272 575 [display_work_sum] => 170 985 [display_total_sum] => 443 560 ) 1
443 560
Работа:170 985
Материалы:272 575
Дни:8
stdClass Object ( [id] => 4 [attribute_id] => 2 [name] => Сборные ж/б плиты [material_modifier] => 1 [work_modifier] => 1 [options] => Array ( [0] => без утепления [1] => утепление 150мм [2] => утепление 200мм [3] => утепление 250мм [4] => утепление 300мм [5] => утепление 350мм [6] => утепление 400мм [7] => утепление 450мм [8] => утепление 500мм ) [days] => [13,15,15,15,15,15,15,15,15] [material_price] => [3067,5577,5928,6679,7730,8782,9833,10884,11935] [work_price] => [1520,1956,2102,2247,2392,2537,2684,2829,2974] [image] => https://akademik-stroy.ru/wp-content/uploads/materials/sbornye-zh-b-plity-2.jpg [area_modifier] => 120.88 [parent_name] => Перекрытие цоколя [parent_id] => 2 [material_sum] => 511620 [work_sum] => 211298 [total_sum] => 722918 [total_days] => 13 [display_material_sum] => 511 620 [display_work_sum] => 211 298 [display_total_sum] => 722 918 ) 1
722 918
Работа:211 298
Материалы:511 620
Дни:13
stdClass Object ( [id] => 78 [attribute_id] => 2 [name] => Монолитная ж/б плита [material_modifier] => 1 [work_modifier] => 1 [options] => Array ( [0] => без утепления [1] => утепление 150 мм [2] => утепление 200 мм [3] => утепление 250 мм [4] => утепление 300 мм [5] => утепление 350 мм [6] => утепление 400 мм [7] => утепление 450 мм [8] => утепление 500 мм ) [days] => [18,20,20,20,20,20,20,20,20] [material_price] => [4837,6572,7224,7375,79426,8177,8728,9180,10031] [work_price] => [3348,3921,4112,4302,4493,4684,4875,5066,5256] [image] => https://akademik-stroy.ru/wp-content/uploads/materials/monolitnaya-zh-b-plita-2.jpg [area_modifier] => 120.88 [parent_name] => Перекрытие цоколя [parent_id] => 2 [material_sum] => 806881 [work_sum] => 465412 [total_sum] => 1272293 [total_days] => 18 [display_material_sum] => 806 881 [display_work_sum] => 465 412 [display_total_sum] => 1 272 293 ) 1
1 272 293
Работа:465 412
Материалы:806 881
Дни:18
Стены 1 этаж (несущие)
stdClass Object ( [id] => 6 [attribute_id] => 3 [name] => Пеноблок [material_modifier] => 1 [work_modifier] => 1 [options] => Array ( [0] => 300 мм [1] => 400 мм [2] => 500 мм [3] => 600 мм ) [days] => [29,31,34,39] [material_price] => [3000,4000,4500,4937] [work_price] => [5033,5805,6400,8710] [image] => https://akademik-stroy.ru/wp-content/uploads/materials/penoblok.jpg [area_modifier] => 120.88 [parent_name] => Стены 1 этаж (несущие) [parent_id] => 3 [material_sum] => 500443 [work_sum] => 699647 [total_sum] => 1200090 [total_days] => 29 [display_material_sum] => 500 443 [display_work_sum] => 699 647 [display_total_sum] => 1 200 090 ) 1
1 200 090
Работа:699 647
Материалы:500 443
Дни:29
stdClass Object ( [id] => 79 [attribute_id] => 3 [name] => Керамический блок [material_modifier] => 1 [work_modifier] => 1 [options] => Array ( [0] => 380 мм [1] => 380 мм Thermo [2] => 440 мм [3] => 510 мм ) [days] => [23,23,24,25] [material_price] => [4510,5098,6093,8013] [work_price] => [4737,4937,5903,6958] [image] => https://akademik-stroy.ru/wp-content/uploads/materials/keramicheskij-blok.jpg [area_modifier] => 120.88 [parent_name] => Стены 1 этаж (несущие) [parent_id] => 3 [material_sum] => 752333 [work_sum] => 658500 [total_sum] => 1410833 [total_days] => 23 [display_material_sum] => 752 333 [display_work_sum] => 658 500 [display_total_sum] => 1 410 833 ) 1
1 410 833
Работа:658 500
Материалы:752 333
Дни:23
stdClass Object ( [id] => 80 [attribute_id] => 3 [name] => Кирпич [material_modifier] => 1 [work_modifier] => 1 [options] => Array ( [0] => Кирпич 250 мм [1] => Кирпич 380 мм [2] => Кирпич 510 мм [3] => Кирпич 640 мм [4] => Кирпич 770 мм ) [days] => [30,30,31,33,36] [material_price] => [5500,7142,9206,10171,12235] [work_price] => [8736,10041,12018,15240,18462] [image] => https://akademik-stroy.ru/wp-content/uploads/materials/kirpich.jpg [area_modifier] => 120.88 [parent_name] => Стены 1 этаж (несущие) [parent_id] => 3 [material_sum] => 917479 [work_sum] => 1214409 [total_sum] => 2131888 [total_days] => 30 [display_material_sum] => 917 479 [display_work_sum] => 1 214 409 [display_total_sum] => 2 131 888 ) 1
2 131 888
Работа:1 214 409
Материалы:917 479
Дни:30
stdClass Object ( [id] => 81 [attribute_id] => 3 [name] => Монолитные [material_modifier] => 1 [work_modifier] => 1 [options] => Array ( [0] => 150 мм [1] => 200 мм [2] => 250 мм [3] => 300 мм [4] => 350 мм [5] => 400 мм ) [days] => [45,46,47,49,50,53] [material_price] => [6545,7876,10175,12011,13908,15204] [work_price] => [5106,6444,7698,8552,9807,11461] [image] => https://akademik-stroy.ru/wp-content/uploads/materials/monolitnye.jpg [area_modifier] => 120.88 [parent_name] => Стены 1 этаж (несущие) [parent_id] => 3 [material_sum] => 1091800 [work_sum] => 709795 [total_sum] => 1801595 [total_days] => 45 [display_material_sum] => 1 091 800 [display_work_sum] => 709 795 [display_total_sum] => 1 801 595 ) 1
1 801 595
Работа:709 795
Материалы:1 091 800
Дни:45
stdClass Object ( [id] => 82 [attribute_id] => 3 [name] => Клееный брус [material_modifier] => 1 [work_modifier] => 1 [options] => Array ( [0] => 160 мм [1] => 175 мм [2] => 200 мм [3] => 215 мм [4] => 240 мм [5] => 270 мм [6] => 282 мм ) [days] => [24,28,32,37,40,42,48] [material_price] => [16975,18773,19950,20545,21599,22159,23275] [work_price] => [4806,5287,5815,6397,7036,7740,8514] [image] => https://akademik-stroy.ru/wp-content/uploads/materials/kleenyj-brus.jpg [area_modifier] => 120.88 [parent_name] => Стены 1 этаж (несущие) [parent_id] => 3 [material_sum] => 2831674 [work_sum] => 668092 [total_sum] => 3499766 [total_days] => 24 [display_material_sum] => 2 831 674 [display_work_sum] => 668 092 [display_total_sum] => 3 499 766 ) 1
3 499 766
Работа:668 092
Материалы:2 831 674
Дни:24
stdClass Object ( [id] => 83 [attribute_id] => 3 [name] => Каркасные [material_modifier] => 1 [work_modifier] => 1 [options] => Array ( [0] => 150 мм [1] => 200 мм [2] => 250 мм [3] => 300 мм ) [days] => [15,16,17,18] [material_price] => [2379,2639,2898,3258] [work_price] => [2418,2686,2985,3716] [image] => https://akademik-stroy.ru/wp-content/uploads/materials/karkasnye.jpg [area_modifier] => 120.88 [parent_name] => Стены 1 этаж (несущие) [parent_id] => 3 [material_sum] => 396851 [work_sum] => 336131 [total_sum] => 732982 [total_days] => 15 [display_material_sum] => 396 851 [display_work_sum] => 336 131 [display_total_sum] => 732 982 ) 1
732 982
Работа:336 131
Материалы:396 851
Дни:15
stdClass Object ( [id] => 84 [attribute_id] => 3 [name] => СИП-панели [material_modifier] => 1 [work_modifier] => 1 [options] => Array ( [0] => 120 мм [1] => 170 мм [2] => 220 мм ) [days] => [7,7,7] [material_price] => [1210,1856,2292] [work_price] => [1410,1551,1706] [image] => https://akademik-stroy.ru/wp-content/uploads/materials/sip-paneli.jpg [area_modifier] => 120.88 [parent_name] => Стены 1 этаж (несущие) [parent_id] => 3 [material_sum] => 201845 [work_sum] => 196007 [total_sum] => 397852 [total_days] => 7 [display_material_sum] => 201 845 [display_work_sum] => 196 007 [display_total_sum] => 397 852 ) 1
397 852
Работа:196 007
Материалы:201 845
Дни:7
stdClass Object ( [id] => 85 [attribute_id] => 3 [name] => Сухой брус [material_modifier] => 1 [work_modifier] => 1 [options] => Array ( [0] => 150 мм [1] => 180 мм [2] => 200 мм ) [days] => [7,8,9] [material_price] => [6010,7190,8709] [work_price] => [3204,3845,4229] [image] => https://akademik-stroy.ru/wp-content/uploads/materials/suhoj-brus.jpg [area_modifier] => 120.88 [parent_name] => Стены 1 этаж (несущие) [parent_id] => 3 [material_sum] => 1002555 [work_sum] => 445394 [total_sum] => 1447949 [total_days] => 7 [display_material_sum] => 1 002 555 [display_work_sum] => 445 394 [display_total_sum] => 1 447 949 ) 1
1 447 949
Работа:445 394
Материалы:1 002 555
Дни:7
stdClass Object ( [id] => 86 [attribute_id] => 3 [name] => Профилированный брус [material_modifier] => 1 [work_modifier] => 1 [options] => Array ( [0] => 150 мм [1] => 180 мм [2] => 200 мм ) [days] => [7,8,9] [material_price] => [8190,9228,10051] [work_price] => [3845,4614,5075] [image] => https://akademik-stroy.ru/wp-content/uploads/materials/profilirovannyj-brus.jpg [area_modifier] => 120.88 [parent_name] => Стены 1 этаж (несущие) [parent_id] => 3 [material_sum] => 1366210 [work_sum] => 534501 [total_sum] => 1900711 [total_days] => 7 [display_material_sum] => 1 366 210 [display_work_sum] => 534 501 [display_total_sum] => 1 900 711 ) 1
1 900 711
Работа:534 501
Материалы:1 366 210
Дни:7
stdClass Object ( [id] => 87 [attribute_id] => 3 [name] => Оцилиндрованное бревно [material_modifier] => 1 [work_modifier] => 1 [options] => Array ( [0] => 180 мм [1] => 220 мм [2] => 260 мм [3] => 320 мм ) [days] => [7,8,9,10] [material_price] => [75190,9532,10868,13116] [work_price] => [3845,4691,5535,6863] [image] => https://akademik-stroy.ru/wp-content/uploads/materials/ocilindrovannoe-brevno-1.jpg [area_modifier] => 120.88 [parent_name] => Стены 1 этаж (несущие) [parent_id] => 3 [material_sum] => 12542775 [work_sum] => 534501 [total_sum] => 13077276 [total_days] => 7 [display_material_sum] => 12 542 775 [display_work_sum] => 534 501 [display_total_sum] => 13 077 276 ) 1
13 077 276
Работа:534 501
Материалы:12 542 775
Дни:7
stdClass Object ( [id] => 88 [attribute_id] => 3 [name] => Срубы [material_modifier] => 1 [work_modifier] => 1 [options] => Array ( [0] => 260 мм [1] => 320 мм [2] => 360 мм [3] => 400 мм [4] => 500 мм ) [days] => [7,8,9,10,11] [material_price] => [37975,46709,52314,58069,73167] [work_price] => [4806,5911,6621,7349,9260] [image] => https://akademik-stroy.ru/wp-content/uploads/materials/sruby.jpg [area_modifier] => 120.88 [parent_name] => Стены 1 этаж (несущие) [parent_id] => 3 [material_sum] => 6334777 [work_sum] => 668092 [total_sum] => 7002869 [total_days] => 7 [display_material_sum] => 6 334 777 [display_work_sum] => 668 092 [display_total_sum] => 7 002 869 ) 1
7 002 869
Работа:668 092
Материалы:6 334 777
Дни:7
stdClass Object ( [id] => 174 [attribute_id] => 3 [name] => Брус [material_modifier] => 1 [work_modifier] => 1 [options] => Array ( [0] => 150 мм [1] => 180 мм [2] => 200 мм ) [days] => [7,8,9] [material_price] => [5127,6152,7367] [work_price] => [1602,1922,2115] [image] => https://akademik-stroy.ru/wp-content/uploads/materials/brus.jpg [area_modifier] => 120.88 [parent_name] => Стены 1 этаж (несущие) [parent_id] => 3 [material_sum] => 855257 [work_sum] => 222697 [total_sum] => 1077954 [total_days] => 7 [display_material_sum] => 855 257 [display_work_sum] => 222 697 [display_total_sum] => 1 077 954 ) 1
1 077 954
Работа:222 697
Материалы:855 257
Дни:7
stdClass Object ( [id] => 175 [attribute_id] => 3 [name] => Газобетон [material_modifier] => 1 [work_modifier] => 1 [options] => Array ( [0] => 300 мм [1] => 375 мм [2] => 400 мм [3] => 500 мм [4] => 600 мм ) [days] => [29,31,35,37,44] [material_price] => [4298,5573,6356,7288,9119] [work_price] => [4538,5251,5926,6733,7195] [image] => https://akademik-stroy.ru/wp-content/uploads/materials/gazobeton.jpg [area_modifier] => 120.88 [parent_name] => Стены 1 этаж (несущие) [parent_id] => 3 [material_sum] => 716968 [work_sum] => 630836 [total_sum] => 1347804 [total_days] => 29 [display_material_sum] => 716 968 [display_work_sum] => 630 836 [display_total_sum] => 1 347 804 ) 1
1 347 804
Работа:630 836
Материалы:716 968
Дни:29
stdClass Object ( [id] => 176 [attribute_id] => 3 [name] => Блок [material_modifier] => 1 [work_modifier] => 1 [options] => Array ( [0] => 300 мм [1] => 375 мм [2] => 400 мм [3] => 500 мм [4] => 600 мм ) [days] => [29,31,35,37,44] [material_price] => [2698,3973,4356,6588,7119] [work_price] => [5038,5851,6426,8733,9195] [image] => https://akademik-stroy.ru/wp-content/uploads/materials/blok.jpg [area_modifier] => 120.88 [parent_name] => Стены 1 этаж (несущие) [parent_id] => 3 [material_sum] => 450065 [work_sum] => 700342 [total_sum] => 1150407 [total_days] => 29 [display_material_sum] => 450 065 [display_work_sum] => 700 342 [display_total_sum] => 1 150 407 ) 1
1 150 407
Работа:700 342
Материалы:450 065
Дни:29
stdClass Object ( [id] => 177 [attribute_id] => 3 [name] => Газосиликатный блок [material_modifier] => 1 [work_modifier] => 1 [options] => Array ( [0] => 300 мм [1] => 375 мм [2] => 400 мм [3] => 500 мм [4] => 600 мм ) [days] => [29,31,35,37,44] [material_price] => [4298,5573,6356,7288,9119] [work_price] => [4538,5251,5926,6733,7195] [image] => https://akademik-stroy.ru/wp-content/uploads/materials/gazosilikatnyj-blok.jpg [area_modifier] => 120.88 [parent_name] => Стены 1 этаж (несущие) [parent_id] => 3 [material_sum] => 716968 [work_sum] => 630836 [total_sum] => 1347804 [total_days] => 29 [display_material_sum] => 716 968 [display_work_sum] => 630 836 [display_total_sum] => 1 347 804 ) 1
1 347 804
Работа:630 836
Материалы:716 968
Дни:29
stdClass Object ( [id] => 178 [attribute_id] => 3 [name] => Керамзитобетонный блок [material_modifier] => 1 [work_modifier] => 1 [options] => Array ( [0] => 300 мм [1] => 375 мм [2] => 400 мм [3] => 500 мм [4] => 600 мм ) [days] => [23,23,24,25,28] [material_price] => [3641,4298,5693,7613,9612] [work_price] => [5737,5737,6903,7958,8901] [image] => https://akademik-stroy.ru/wp-content/uploads/materials/keramzitobetonnyj-blok.jpg [area_modifier] => 120.88 [parent_name] => Стены 1 этаж (несущие) [parent_id] => 3 [material_sum] => 607371 [work_sum] => 797512 [total_sum] => 1404883 [total_days] => 23 [display_material_sum] => 607 371 [display_work_sum] => 797 512 [display_total_sum] => 1 404 883 ) 1
1 404 883
Работа:797 512
Материалы:607 371
Дни:23
stdClass Object ( [id] => 179 [attribute_id] => 3 [name] => Деревянные [material_modifier] => 1 [work_modifier] => 1 [options] => Array ( [0] => 180 мм [1] => 220 мм [2] => 260 мм [3] => 320 мм ) [days] => [7,8,9,10] [material_price] => [7950,9458,11961,14472] [work_price] => [4037,4925,5812,7207] [image] => https://akademik-stroy.ru/wp-content/uploads/materials/derevyannye.jpg [area_modifier] => 120.88 [parent_name] => Стены 1 этаж (несущие) [parent_id] => 3 [material_sum] => 1326174 [work_sum] => 561191 [total_sum] => 1887365 [total_days] => 7 [display_material_sum] => 1 326 174 [display_work_sum] => 561 191 [display_total_sum] => 1 887 365 ) 1
1 887 365
Работа:561 191
Материалы:1 326 174
Дни:7
stdClass Object ( [id] => 181 [attribute_id] => 3 [name] => Камень [material_modifier] => 1 [work_modifier] => 1 [options] => Array ( [0] => 300 мм [1] => 400 мм [2] => 500 мм [3] => 600 мм ) [days] => [25,27,31,34] [material_price] => [5262,6844,8330,9815] [work_price] => [8331,9135,10427,11069] [image] => https://akademik-stroy.ru/wp-content/uploads/materials/kamen.jpg [area_modifier] => 120.88 [parent_name] => Стены 1 этаж (несущие) [parent_id] => 3 [material_sum] => 877777 [work_sum] => 1158109 [total_sum] => 2035886 [total_days] => 25 [display_material_sum] => 877 777 [display_work_sum] => 1 158 109 [display_total_sum] => 2 035 886 ) 1
2 035 886
Работа:1 158 109
Материалы:877 777
Дни:25
stdClass Object ( [id] => 182 [attribute_id] => 3 [name] => Каркасно-щитовые [material_modifier] => 1 [work_modifier] => 1 [options] => Array ( [0] => 150 мм [1] => 200 мм [2] => 250 мм [3] => 300 мм [4] => 350 мм [5] => 400 мм ) [days] => [15,16,17,18,19,20] [material_price] => [2379,2639,2898,3458,3601,4175] [work_price] => [2538,2820,3134,3483,4062,5642] [image] => https://akademik-stroy.ru/wp-content/uploads/materials/karkasno-shchitovye.jpg [area_modifier] => 120.88 [parent_name] => Стены 1 этаж (несущие) [parent_id] => 3 [material_sum] => 396851 [work_sum] => 352812 [total_sum] => 749663 [total_days] => 15 [display_material_sum] => 396 851 [display_work_sum] => 352 812 [display_total_sum] => 749 663 ) 1
749 663
Работа:352 812
Материалы:396 851
Дни:15
stdClass Object ( [id] => 183 [attribute_id] => 3 [name] => Рубленные [material_modifier] => 1 [work_modifier] => 1 [options] => Array ( [0] => 150 мм [1] => 200 мм [2] => 250 мм [3] => 300 мм [4] => 350 мм [5] => 400 мм ) [days] => [15,16,17,18,17,18] [material_price] => [35950,50267,60583,75900,80217,100533] [work_price] => [9612,12816,16020,19224,22428,25632] [image] => https://akademik-stroy.ru/wp-content/uploads/materials/rublennye.jpg [area_modifier] => 120.88 [parent_name] => Стены 1 этаж (несущие) [parent_id] => 3 [material_sum] => 5996978 [work_sum] => 1336183 [total_sum] => 7333161 [total_days] => 15 [display_material_sum] => 5 996 978 [display_work_sum] => 1 336 183 [display_total_sum] => 7 333 161 ) 1
7 333 161
Работа:1 336 183
Материалы:5 996 978
Дни:15
stdClass Object ( [id] => 185 [attribute_id] => 3 [name] => Теплоблок [material_modifier] => 1 [work_modifier] => 1 [options] => Array ( [0] => 300 мм (с облицовкой, не покрашенный) [1] => 400 мм (с облицовкой, не покрашенный) [2] => 300 мм (с облицовкой, покрашенный) [3] => 400 мм (с облицовкой, покрашенный) ) [days] => [15,16,15,16] [material_price] => [2888,3729,3957,4258] [work_price] => [2564,3229,2949,3713] [image] => https://akademik-stroy.ru/wp-content/uploads/materials/teploblok.jpg [area_modifier] => 120.88 [parent_name] => Стены 1 этаж (несущие) [parent_id] => 3 [material_sum] => 481760 [work_sum] => 356427 [total_sum] => 838187 [total_days] => 15 [display_material_sum] => 481 760 [display_work_sum] => 356 427 [display_total_sum] => 838 187 ) 1
838 187
Работа:356 427
Материалы:481 760
Дни:15
stdClass Object ( [id] => 186 [attribute_id] => 3 [name] => Арболитовые блоки [material_modifier] => 1 [work_modifier] => 1 [options] => Array ( [0] => 300 мм [1] => 400 мм [2] => 600 мм ) [days] => [19,22,27] [material_price] => [3210,4475,5852] [work_price] => [4214,4788,5866] [image] => https://akademik-stroy.ru/wp-content/uploads/materials/arbolitovye-bloki.png [area_modifier] => 120.88 [parent_name] => Стены 1 этаж (несущие) [parent_id] => 3 [material_sum] => 535474 [work_sum] => 585797 [total_sum] => 1121271 [total_days] => 19 [display_material_sum] => 535 474 [display_work_sum] => 585 797 [display_total_sum] => 1 121 271 ) 1
1 121 271
Работа:585 797
Материалы:535 474
Дни:19
stdClass Object ( [id] => 187 [attribute_id] => 3 [name] => Полистиролбетон [material_modifier] => 1 [work_modifier] => 1 [options] => Array ( [0] => 300 мм [1] => 400 мм [2] => 600 мм ) [days] => [29,31,35] [material_price] => [2798,4573,5256] [work_price] => [5038,5851,6426] [image] => https://akademik-stroy.ru/wp-content/uploads/materials/polistirolbeton.jpg [area_modifier] => 120.88 [parent_name] => Стены 1 этаж (несущие) [parent_id] => 3 [material_sum] => 466747 [work_sum] => 700342 [total_sum] => 1167089 [total_days] => 29 [display_material_sum] => 466 747 [display_work_sum] => 700 342 [display_total_sum] => 1 167 089 ) 1
1 167 089
Работа:700 342
Материалы:466 747
Дни:29
stdClass Object ( [id] => 188 [attribute_id] => 3 [name] => Шлакоблок [material_modifier] => 1 [work_modifier] => 1 [options] => Array ( [0] => 400 мм [1] => 600 мм ) [days] => [15,16] [material_price] => [2391,3471] [work_price] => [2642,3662] [image] => https://akademik-stroy.ru/wp-content/uploads/materials/shlakoblok.jpg [area_modifier] => 120.88 [parent_name] => Стены 1 этаж (несущие) [parent_id] => 3 [material_sum] => 398853 [work_sum] => 367270 [total_sum] => 766123 [total_days] => 15 [display_material_sum] => 398 853 [display_work_sum] => 367 270 [display_total_sum] => 766 123 ) 1
766 123
Работа:367 270
Материалы:398 853
Дни:15
stdClass Object ( [id] => 189 [attribute_id] => 3 [name] => Теплая керамика [material_modifier] => 1 [work_modifier] => 1 [options] => Array ( [0] => 380 мм [1] => 380 мм Thermo [2] => 440 мм [3] => 510 мм ) [days] => [23,23,24,25] [material_price] => [4510,5098,6093,8013] [work_price] => [4737,4937,5903,6958] [image] => https://akademik-stroy.ru/wp-content/uploads/materials/teplaya-keramika.jpg [area_modifier] => 120.88 [parent_name] => Стены 1 этаж (несущие) [parent_id] => 3 [material_sum] => 752333 [work_sum] => 658500 [total_sum] => 1410833 [total_days] => 23 [display_material_sum] => 752 333 [display_work_sum] => 658 500 [display_total_sum] => 1 410 833 ) 1
1 410 833
Работа:658 500
Материалы:752 333
Дни:23
stdClass Object ( [id] => 190 [attribute_id] => 3 [name] => Несъемная опалубка [material_modifier] => 1 [work_modifier] => 1 [options] => Array ( [0] => 200 мм [1] => 250 мм [2] => 300 мм [3] => 350 мм ) [days] => [15,17,19,21] [material_price] => [3302,3902,4108,5008] [work_price] => [2100,2100,2300,2534] [image] => https://akademik-stroy.ru/wp-content/uploads/materials/nesemnaya-opalubka.jpg [area_modifier] => 120.88 [parent_name] => Стены 1 этаж (несущие) [parent_id] => 3 [material_sum] => 550821 [work_sum] => 291925 [total_sum] => 842746 [total_days] => 15 [display_material_sum] => 550 821 [display_work_sum] => 291 925 [display_total_sum] => 842 746 ) 1
842 746
Работа:291 925
Материалы:550 821
Дни:15
stdClass Object ( [id] => 251 [attribute_id] => 3 [name] => Бревно [material_modifier] => 1 [work_modifier] => 1 [options] => Array ( [0] => 260 мм [1] => 320 мм [2] => 360 мм [3] => 400 мм [4] => 500 мм ) [days] => [7,8,9,10,11] [material_price] => [1874,24045,26930,30972,38825] [work_price] => [5046,6207,6952,7716,9723] [image] => https://akademik-stroy.ru/wp-content/uploads/materials/sruby.jpg [area_modifier] => 120.88 [parent_name] => Стены 1 этаж (несущие) [parent_id] => 3 [material_sum] => 312610 [work_sum] => 701455 [total_sum] => 1014065 [total_days] => 7 [display_material_sum] => 312 610 [display_work_sum] => 701 455 [display_total_sum] => 1 014 065 ) 1
1 014 065
Работа:701 455
Материалы:312 610
Дни:7
Перекрытие первого этажа
stdClass Object ( [id] => 7 [attribute_id] => 4 [name] => Деревянные балки [material_modifier] => 1 [work_modifier] => 1 [options] => Array ( [0] => без утепления [1] => утепление 200 мм [2] => утепление 250 мм [3] => утепление 300 мм [4] => утепление 350 мм [5] => утепление 400 мм [6] => утепление 450 мм [7] => утепление 500 мм ) [days] => [8,9,9,9,11,12,13,14] [material_price] => [1634,2042,2344,2947,3149,3652,3354,3557] [work_price] => [1230,1339,1393,1426,1460,1513,1587,1620] [image] => https://akademik-stroy.ru/wp-content/uploads/materials/derevyannye-balki.png [area_modifier] => 120.88 [parent_name] => Перекрытие первого этажа [parent_id] => 4 [material_sum] => 272575 [work_sum] => 170985 [total_sum] => 443560 [total_days] => 8 [display_material_sum] => 272 575 [display_work_sum] => 170 985 [display_total_sum] => 443 560 ) 1
443 560
Работа:170 985
Материалы:272 575
Дни:8
stdClass Object ( [id] => 8 [attribute_id] => 4 [name] => Сборные ж/б плиты [material_modifier] => 1 [work_modifier] => 1 [options] => Array ( [0] => без утепления [1] => утепление 150 мм [2] => утепление 200 мм [3] => утепление 250 мм [4] => утепление 300 мм [5] => утепление 350 мм [6] => утепление 400 мм [7] => утепление 450 мм [8] => утепление 500 мм ) [days] => [13,15,15,15,15,15,15,15,15] [material_price] => [3067,5577,5928,6679,7730,8782,9833,10884,11935] [work_price] => [1520,1956,2102,2247,2392,2537,2684,2829,2974] [image] => https://akademik-stroy.ru/wp-content/uploads/materials/sbornye-zh-b-plity-2.jpg [area_modifier] => 120.88 [parent_name] => Перекрытие первого этажа [parent_id] => 4 [material_sum] => 511620 [work_sum] => 211298 [total_sum] => 722918 [total_days] => 13 [display_material_sum] => 511 620 [display_work_sum] => 211 298 [display_total_sum] => 722 918 ) 1
722 918
Работа:211 298
Материалы:511 620
Дни:13
stdClass Object ( [id] => 89 [attribute_id] => 4 [name] => Монолитная ж/б плита [material_modifier] => 1 [work_modifier] => 1 [options] => Array ( [0] => без утепления [1] => утепление 150 мм [2] => утепление 200 мм [3] => утепление 250 мм [4] => утепление 300 мм [5] => утепление 350 мм [6] => утепление 400 мм [7] => утепление 450 мм [8] => утепление 500 мм ) [days] => [18,20,20,20,20,20,20,20,20] [material_price] => [4837,6572,7224,7375,79426,8177,8728,9180,10031] [work_price] => [3348,3921,4112,4302,4493,4684,4875,5066,5256] [image] => https://akademik-stroy.ru/wp-content/uploads/materials/monolitnaya-zh-b-plita-2.jpg [area_modifier] => 120.88 [parent_name] => Перекрытие первого этажа [parent_id] => 4 [material_sum] => 806881 [work_sum] => 465412 [total_sum] => 1272293 [total_days] => 18 [display_material_sum] => 806 881 [display_work_sum] => 465 412 [display_total_sum] => 1 272 293 ) 1
1 272 293
Работа:465 412
Материалы:806 881
Дни:18
Крыша (Скатная)
stdClass Object ( [id] => 164 [attribute_id] => 37 [name] => Металлочерепица [material_modifier] => 1 [work_modifier] => 1 [options] => Array ( ) [days] => [20] [material_price] => [6112] [work_price] => [5726] [image] => https://akademik-stroy.ru/wp-content/uploads/materials/metallocherepica.jpg [area_modifier] => 120.88 [parent_name] => Крыша (Скатная) [parent_id] => 37 [material_sum] => 1019570 [work_sum] => 795983 [total_sum] => 1815553 [total_days] => 20 [display_material_sum] => 1 019 570 [display_work_sum] => 795 983 [display_total_sum] => 1 815 553 ) 1
1 815 553
Работа:795 983
Материалы:1 019 570
Дни:20
stdClass Object ( [id] => 165 [attribute_id] => 37 [name] => Гибкая черепица [material_modifier] => 1 [work_modifier] => 1 [options] => Array ( ) [days] => [20] [material_price] => [6980] [work_price] => [5950] [image] => https://akademik-stroy.ru/wp-content/uploads/materials/gibkaya-cherepica.jpg [area_modifier] => 120.88 [parent_name] => Крыша (Скатная) [parent_id] => 37 [material_sum] => 1164365 [work_sum] => 827121 [total_sum] => 1991486 [total_days] => 20 [display_material_sum] => 1 164 365 [display_work_sum] => 827 121 [display_total_sum] => 1 991 486 ) 1
1 991 486
Работа:827 121
Материалы:1 164 365
Дни:20
stdClass Object ( [id] => 166 [attribute_id] => 37 [name] => Цементно-песчаная черепица [material_modifier] => 1 [work_modifier] => 1 [options] => Array ( ) [days] => [20] [material_price] => [10560] [work_price] => [9456] [image] => https://akademik-stroy.ru/wp-content/uploads/materials/cementno-peschanaya-cherepica.jpg [area_modifier] => 120.88 [parent_name] => Крыша (Скатная) [parent_id] => 37 [material_sum] => 1761560 [work_sum] => 1314497 [total_sum] => 3076057 [total_days] => 20 [display_material_sum] => 1 761 560 [display_work_sum] => 1 314 497 [display_total_sum] => 3 076 057 ) 1
3 076 057
Работа:1 314 497
Материалы:1 761 560
Дни:20
stdClass Object ( [id] => 167 [attribute_id] => 37 [name] => Композитная черепица [material_modifier] => 1 [work_modifier] => 1 [options] => Array ( ) [days] => [20] [material_price] => [9506] [work_price] => [8905] [image] => https://akademik-stroy.ru/wp-content/uploads/materials/kompozitnaya-cherepica.jpg [area_modifier] => 120.88 [parent_name] => Крыша (Скатная) [parent_id] => 37 [material_sum] => 1585738 [work_sum] => 1237902 [total_sum] => 2823640 [total_days] => 20 [display_material_sum] => 1 585 738 [display_work_sum] => 1 237 902 [display_total_sum] => 2 823 640 ) 1
2 823 640
Работа:1 237 902
Материалы:1 585 738
Дни:20
stdClass Object ( [id] => 168 [attribute_id] => 37 [name] => Керамическая черепица [material_modifier] => 1 [work_modifier] => 1 [options] => Array ( ) [days] => [20] [material_price] => [12750] [work_price] => [9456] [image] => https://akademik-stroy.ru/wp-content/uploads/materials/keramicheskaya-cherepica.jpg [area_modifier] => 120.88 [parent_name] => Крыша (Скатная) [parent_id] => 37 [material_sum] => 2126884 [work_sum] => 1314497 [total_sum] => 3441381 [total_days] => 20 [display_material_sum] => 2 126 884 [display_work_sum] => 1 314 497 [display_total_sum] => 3 441 381 ) 1
3 441 381
Работа:1 314 497
Материалы:2 126 884
Дни:20
stdClass Object ( [id] => 169 [attribute_id] => 37 [name] => Металлическая фальцевая [material_modifier] => 1 [work_modifier] => 1 [options] => Array ( ) [days] => [20] [material_price] => [8550] [work_price] => [8190] [image] => https://akademik-stroy.ru/wp-content/uploads/materials/metallicheskaya-falcevaya.jpg [area_modifier] => 120.88 [parent_name] => Крыша (Скатная) [parent_id] => 37 [material_sum] => 1426263 [work_sum] => 1138508 [total_sum] => 2564771 [total_days] => 20 [display_material_sum] => 1 426 263 [display_work_sum] => 1 138 508 [display_total_sum] => 2 564 771 ) 1
2 564 771
Работа:1 138 508
Материалы:1 426 263
Дни:20
stdClass Object ( [id] => 170 [attribute_id] => 37 [name] => Медная фальцевая [material_modifier] => 1 [work_modifier] => 1 [options] => Array ( ) [days] => [20] [material_price] => [20450] [work_price] => [16750] [image] => https://akademik-stroy.ru/wp-content/uploads/materials/mednaya-falcevaya.jpg [area_modifier] => 120.88 [parent_name] => Крыша (Скатная) [parent_id] => 37 [material_sum] => 3411354 [work_sum] => 2328451 [total_sum] => 5739805 [total_days] => 20 [display_material_sum] => 3 411 354 [display_work_sum] => 2 328 451 [display_total_sum] => 5 739 805 ) 1
5 739 805
Работа:2 328 451
Материалы:3 411 354
Дни:20
stdClass Object ( [id] => 171 [attribute_id] => 37 [name] => Зеленая кровля [material_modifier] => 1 [work_modifier] => 1 [options] => Array ( ) [days] => [20] [material_price] => [19850] [work_price] => [16780] [image] => https://akademik-stroy.ru/wp-content/uploads/materials/zelenaya-krovlya.jpg [area_modifier] => 120.88 [parent_name] => Крыша (Скатная) [parent_id] => 37 [material_sum] => 3311266 [work_sum] => 2332621 [total_sum] => 5643887 [total_days] => 20 [display_material_sum] => 3 311 266 [display_work_sum] => 2 332 621 [display_total_sum] => 5 643 887 ) 1
5 643 887
Работа:2 332 621
Материалы:3 311 266
Дни:20
stdClass Object ( [id] => 172 [attribute_id] => 37 [name] => Профлист [material_modifier] => 1 [work_modifier] => 1 [options] => Array ( ) [days] => [20] [material_price] => [3450] [work_price] => [3750] [image] => https://akademik-stroy.ru/wp-content/uploads/materials/proflist.jpg [area_modifier] => 120.88 [parent_name] => Крыша (Скатная) [parent_id] => 37 [material_sum] => 575510 [work_sum] => 521295 [total_sum] => 1096805 [total_days] => 20 [display_material_sum] => 575 510 [display_work_sum] => 521 295 [display_total_sum] => 1 096 805 ) 1
1 096 805
Работа:521 295
Материалы:575 510
Дни:20
Окна
stdClass Object ( [id] => 51 [attribute_id] => 26 [name] => Есть [material_modifier] => 1 [work_modifier] => 1 [options] => Array ( [0] => Профиль 58 мм, 3-камерный, стеклопакет 2-камерный до 32 мм [1] => Профиль 60 мм, 4-камерный, стеклопакет 2-камерный до 32 мм [2] => Профиль 70 мм, 5-камерный, стеклопакет 2-камерный до 40 мм [3] => Профиль 72 мм, 5-камерный, стеклопакет 2-камерный до 40 мм [4] => Алюминиевые окна Alutech профиль 72 мм, стеклопакет 2-камерный ) [days] => [3,3,3,3,3] [material_price] => [1339,2124,2867,3023,29596] [work_price] => [635,647,659,668,2579] [image] => https://akademik-stroy.ru/wp-content/uploads/materials/okna.jpg [area_modifier] => 98.09 [parent_name] => Окна [parent_id] => 26 [material_sum] => 181253 [work_sum] => 71630 [total_sum] => 252883 [total_days] => 3 [display_material_sum] => 181 253 [display_work_sum] => 71 630 [display_total_sum] => 252 883 ) 1
252 883
Работа:71 630
Материалы:181 253
Дни:3
stdClass Object ( [id] => 52 [attribute_id] => 26 [name] => Нет [material_modifier] => 2 [work_modifier] => 1 [options] => [days] => null [material_price] => null [work_price] => null [image] => https://akademik-stroy.ru/wp-content/uploads/materials/okna.jpg [area_modifier] => 98.09 [parent_name] => Окна [parent_id] => 26 [material_sum] => 0 [work_sum] => 0 [total_sum] => 0 [total_days] => 0 [display_material_sum] => 0 [display_work_sum] => 0 [display_total_sum] => 0 ) 1
0
Работа:0
Материалы:0
Дни:0
Двери входные
stdClass Object ( [id] => 53 [attribute_id] => 27 [name] => Есть [material_modifier] => 1 [work_modifier] => 1 [options] => Array ( ) [days] => [1] [material_price] => [10000] [work_price] => [5500] [image] => https://akademik-stroy.ru/wp-content/uploads/materials/dveri.jpg [area_modifier] => 1 [parent_name] => Двери входные [parent_id] => 27 [material_sum] => 13800 [work_sum] => 6325 [total_sum] => 20125 [total_days] => 1 [display_material_sum] => 13 800 [display_work_sum] => 6 325 [display_total_sum] => 20 125 ) 1
20 125
Работа:6 325
Материалы:13 800
Дни:1
stdClass Object ( [id] => 54 [attribute_id] => 27 [name] => Нет [material_modifier] => 1 [work_modifier] => 1 [options] => Array ( ) [days] => [0] [material_price] => [0] [work_price] => [0] [image] => https://akademik-stroy.ru/wp-content/uploads/materials/dveri.jpg [area_modifier] => 1 [parent_name] => Двери входные [parent_id] => 27 [material_sum] => 0 [work_sum] => 0 [total_sum] => 0 [total_days] => 0 [display_material_sum] => 0 [display_work_sum] => 0 [display_total_sum] => 0 ) 1
0
Работа:0
Материалы:0
Дни:0
Утепление кровли (Мансарда)
stdClass Object ( [id] => 25 [attribute_id] => 13 [name] => Нет [material_modifier] => 1 [work_modifier] => 1 [options] => Array ( ) [days] => [0] [material_price] => [0] [work_price] => [0] [image] => https://akademik-stroy.ru/wp-content/uploads/materials/mineralovata-krov.jpg [area_modifier] => 120.88 [parent_name] => Утепление кровли (Мансарда) [parent_id] => 13 [material_sum] => 0 [work_sum] => 0 [total_sum] => 0 [total_days] => 0 [display_material_sum] => 0 [display_work_sum] => 0 [display_total_sum] => 0 ) 1
0
Работа:0
Материалы:0
Дни:0
stdClass Object ( [id] => 26 [attribute_id] => 13 [name] => Минераловатный [material_modifier] => 1 [work_modifier] => 1 [options] => Array ( [0] => 50 мм [1] => 100 мм [2] => 150 мм [3] => 200 мм [4] => 250 мм [5] => 300 мм [6] => 350 мм [7] => 400 мм [8] => 450 мм [9] => 500 мм ) [days] => [5,5,6,6,6,7,7,7,8,8] [material_price] => [1158,1414,1772,2230,3602,4060,4974,5890,6408,7718] [work_price] => [650,846,846,1098,1318,1450,1596,1754,1930,2122] [image] => https://akademik-stroy.ru/wp-content/uploads/materials/mineralovata-krov.jpg [area_modifier] => 120.88 [parent_name] => Утепление кровли (Мансарда) [parent_id] => 13 [material_sum] => 193171 [work_sum] => 90358 [total_sum] => 283529 [total_days] => 5 [display_material_sum] => 193 171 [display_work_sum] => 90 358 [display_total_sum] => 283 529 ) 1
283 529
Работа:90 358
Материалы:193 171
Дни:5
stdClass Object ( [id] => 123 [attribute_id] => 13 [name] => Эковата (целлюлозная вата) [material_modifier] => 1 [work_modifier] => 1 [options] => Array ( [0] => 50 мм [1] => 100 мм [2] => 150 мм [3] => 200 мм [4] => 250 мм [5] => 300 мм [6] => 350 мм [7] => 400 мм [8] => 450 мм [9] => 500 мм ) [days] => [3,3,4,4,4,5,5,5,5,5] [material_price] => [820,1638,2458,3276,5734,6552,8190,9828,11466,13104] [work_price] => [234,304,304,396,474,522,574,632,694,764] [image] => https://akademik-stroy.ru/wp-content/uploads/materials/ehkovata-krov.jpg [area_modifier] => 120.88 [parent_name] => Утепление кровли (Мансарда) [parent_id] => 13 [material_sum] => 136788 [work_sum] => 32529 [total_sum] => 169317 [total_days] => 3 [display_material_sum] => 136 788 [display_work_sum] => 32 529 [display_total_sum] => 169 317 ) 1
169 317
Работа:32 529
Материалы:136 788
Дни:3
stdClass Object ( [id] => 124 [attribute_id] => 13 [name] => Экструдированный пенополистирол [material_modifier] => 1 [work_modifier] => 1 [options] => Array ( [0] => 50 мм [1] => 100 мм [2] => 150 мм [3] => 200 мм [4] => 250 мм [5] => 300 мм [6] => 350 мм [7] => 400 мм [8] => 450 мм [9] => 500 мм ) [days] => [3,3,4,4,4,5,5,5,5,6] [material_price] => [1146,2292,3438,4584,8020,9166,11458,13750,16040,18332] [work_price] => [390,508,508,660,790,870,958,1052,1158,1274] [image] => https://akademik-stroy.ru/wp-content/uploads/materials/epps-krov.jpg [area_modifier] => 120.88 [parent_name] => Утепление кровли (Мансарда) [parent_id] => 13 [material_sum] => 191169 [work_sum] => 54215 [total_sum] => 245384 [total_days] => 3 [display_material_sum] => 191 169 [display_work_sum] => 54 215 [display_total_sum] => 245 384 ) 1
245 384
Работа:54 215
Материалы:191 169
Дни:3
stdClass Object ( [id] => 125 [attribute_id] => 13 [name] => ПСБ (ППС-пенополистирол) [material_modifier] => 1 [work_modifier] => 1 [options] => Array ( [0] => 50 мм [1] => 100 мм [2] => 150 мм [3] => 200 мм [4] => 250 мм [5] => 300 мм [6] => 350 мм [7] => 400 мм [8] => 450 мм [9] => 500 мм ) [days] => [3,3,4,4,4,5,5,5,5,6] [material_price] => [476,954,1430,1906,3336,3814,4766,5720,6674,7626] [work_price] => [390,508,508,660,790,870,958,1052,1158,1274] [image] => https://akademik-stroy.ru/wp-content/uploads/materials/psb-krov.jpg [area_modifier] => 120.88 [parent_name] => Утепление кровли (Мансарда) [parent_id] => 13 [material_sum] => 79404 [work_sum] => 54215 [total_sum] => 133619 [total_days] => 3 [display_material_sum] => 79 404 [display_work_sum] => 54 215 [display_total_sum] => 133 619 ) 1
133 619
Работа:54 215
Материалы:79 404
Дни:3
stdClass Object ( [id] => 126 [attribute_id] => 13 [name] => ППУ (Пенополиуретан) [material_modifier] => 1 [work_modifier] => 1 [options] => Array ( [0] => 50 мм [1] => 100 мм [2] => 150 мм [3] => 200 мм [4] => 250 мм [5] => 300 мм [6] => 350 мм [7] => 400 мм [8] => 450 мм [9] => 500 мм ) [days] => [2,2,3,3,3,3,4,4,4,4] [material_price] => [2080,4160,6240,8320,14560,16640,20800,24960,29120,33280] [work_price] => [234,304,304,396,474,522,574,632,694,764] [image] => https://akademik-stroy.ru/wp-content/uploads/materials/ppu-krov.jpg [area_modifier] => 120.88 [parent_name] => Утепление кровли (Мансарда) [parent_id] => 13 [material_sum] => 346974 [work_sum] => 32529 [total_sum] => 379503 [total_days] => 2 [display_material_sum] => 346 974 [display_work_sum] => 32 529 [display_total_sum] => 379 503 ) 1
379 503
Работа:32 529
Материалы:346 974
Дни:2
stdClass Object ( [id] => 127 [attribute_id] => 13 [name] => PIR-плиты (пенополиизоцианурат) [material_modifier] => 1 [work_modifier] => 1 [options] => Array ( [0] => 50 мм [1] => 100 мм [2] => 150 мм [3] => 200 мм [4] => 250 мм [5] => 300 мм [6] => 350 мм [7] => 400 мм [8] => 450 мм [9] => 500 мм ) [days] => [3,3,4,4,4,5,5,5,5,6] [material_price] => [2646,5290,7936,10580,18516,21162,26452,31742,37032,42324] [work_price] => [390,508,508,660,790,870,958,1052,1158,1274] [image] => https://akademik-stroy.ru/wp-content/uploads/materials/pir-krov.jpg [area_modifier] => 120.88 [parent_name] => Утепление кровли (Мансарда) [parent_id] => 13 [material_sum] => 441391 [work_sum] => 54215 [total_sum] => 495606 [total_days] => 3 [display_material_sum] => 441 391 [display_work_sum] => 54 215 [display_total_sum] => 495 606 ) 1
495 606
Работа:54 215
Материалы:441 391
Дни:3
Мансардные окна
stdClass Object ( [id] => 27 [attribute_id] => 14 [name] => Нет [material_modifier] => 1 [work_modifier] => 1 [options] => Array ( ) [days] => [0] [material_price] => [0] [work_price] => [0] [image] => https://akademik-stroy.ru/wp-content/uploads/materials/mansardnye-okna-2.jpg [area_modifier] => 1 [parent_name] => Мансардные окна [parent_id] => 14 [material_sum] => 0 [work_sum] => 0 [total_sum] => 0 [total_days] => 0 [display_material_sum] => 0 [display_work_sum] => 0 [display_total_sum] => 0 ) 1
0
Работа:0
Материалы:0
Дни:0
stdClass Object ( [id] => 28 [attribute_id] => 14 [name] => Есть [material_modifier] => 1 [work_modifier] => 1 [options] => Array ( [0] => 55x78 [1] => 55x98 ) [days] => [6,7] [material_price] => [47480,68700] [work_price] => [17900,19500] [image] => https://akademik-stroy.ru/wp-content/uploads/materials/mansardnye-okna-2.jpg [area_modifier] => 1 [parent_name] => Мансардные окна [parent_id] => 14 [material_sum] => 65522 [work_sum] => 20585 [total_sum] => 86107 [total_days] => 6 [display_material_sum] => 65 522 [display_work_sum] => 20 585 [display_total_sum] => 86 107 ) 1
86 107
Работа:20 585
Материалы:65 522
Дни:6
Подшивка кровли
stdClass Object ( [id] => 29 [attribute_id] => 15 [name] => Нет [material_modifier] => 1 [work_modifier] => 1 [options] => Array ( ) [days] => [0] [material_price] => [0] [work_price] => [0] [image] => https://akademik-stroy.ru/wp-content/uploads/materials/sofit.jpg [area_modifier] => 120.88 [parent_name] => Подшивка кровли [parent_id] => 15 [material_sum] => 0 [work_sum] => 0 [total_sum] => 0 [total_days] => 0 [display_material_sum] => 0 [display_work_sum] => 0 [display_total_sum] => 0 ) 1
0
Работа:0
Материалы:0
Дни:0
stdClass Object ( [id] => 30 [attribute_id] => 15 [name] => Есть [material_modifier] => 1 [work_modifier] => 1 [options] => Array ( [0] => Софиты (ПВХ) [1] => Cedral [2] => ДПК [3] => Планкен ) [days] => [7,10,9,8] [material_price] => [1803,3213,3025,3150] [work_price] => [1529,2188,2075,1923] [image] => https://akademik-stroy.ru/wp-content/uploads/materials/sofit.jpg [area_modifier] => 120.88 [parent_name] => Подшивка кровли [parent_id] => 15 [material_sum] => 300766 [work_sum] => 212549 [total_sum] => 513315 [total_days] => 7 [display_material_sum] => 300 766 [display_work_sum] => 212 549 [display_total_sum] => 513 315 ) 1
513 315
Работа:212 549
Материалы:300 766
Дни:7
Водосточная система
stdClass Object ( [id] => 31 [attribute_id] => 16 [name] => Нет [material_modifier] => 1 [work_modifier] => 1 [options] => Array ( ) [days] => [0] [material_price] => [0] [work_price] => [0] [image] => https://akademik-stroy.ru/wp-content/uploads/materials/docke-standard-pvh.jpg [area_modifier] => 120.88 [parent_name] => Водосточная система [parent_id] => 16 [material_sum] => 0 [work_sum] => 0 [total_sum] => 0 [total_days] => 0 [display_material_sum] => 0 [display_work_sum] => 0 [display_total_sum] => 0 ) 1
0
Работа:0
Материалы:0
Дни:0
stdClass Object ( [id] => 32 [attribute_id] => 16 [name] => Есть [material_modifier] => 1 [work_modifier] => 1 [options] => Array ( [0] => Döcke Standard (ПВХ) [1] => Металлические Grand Line ) [days] => [7,7] [material_price] => [1842,2703] [work_price] => [1491,1529] [image] => https://akademik-stroy.ru/wp-content/uploads/materials/docke-standard-pvh.jpg [area_modifier] => 120.88 [parent_name] => Водосточная система [parent_id] => 16 [material_sum] => 307272 [work_sum] => 207267 [total_sum] => 514539 [total_days] => 7 [display_material_sum] => 307 272 [display_work_sum] => 207 267 [display_total_sum] => 514 539 ) 1
514 539
Работа:207 267
Материалы:307 272
Дни:7
Дополнительное утепление наружных стен
stdClass Object ( [id] => 33 [attribute_id] => 17 [name] => Нет [material_modifier] => 1 [work_modifier] => 1 [options] => Array ( ) [days] => [0] [material_price] => [0] [work_price] => [0] [image] => https://akademik-stroy.ru/wp-content/uploads/materials/mineralovata.jpg [area_modifier] => 120.88 [parent_name] => Дополнительное утепление наружных стен [parent_id] => 17 [material_sum] => 0 [work_sum] => 0 [total_sum] => 0 [total_days] => 0 [display_material_sum] => 0 [display_work_sum] => 0 [display_total_sum] => 0 ) 1
0
Работа:0
Материалы:0
Дни:0
stdClass Object ( [id] => 34 [attribute_id] => 17 [name] => Минераловатный [material_modifier] => 1 [work_modifier] => 1 [options] => Array ( [0] => 50 мм [1] => 100 мм [2] => 150 мм [3] => 200 мм [4] => 250 мм [5] => 300 мм ) [days] => [7,8,10,12,14,15] [material_price] => [3437,3613,3803,3915,4601,4830] [work_price] => [2325,2423,2523,2749,2859,3025] [image] => https://akademik-stroy.ru/wp-content/uploads/materials/mineralovata.jpg [area_modifier] => 120.88 [parent_name] => Дополнительное утепление наружных стен [parent_id] => 17 [material_sum] => 573341 [work_sum] => 323203 [total_sum] => 896544 [total_days] => 7 [display_material_sum] => 573 341 [display_work_sum] => 323 203 [display_total_sum] => 896 544 ) 1
896 544
Работа:323 203
Материалы:573 341
Дни:7
stdClass Object ( [id] => 128 [attribute_id] => 17 [name] => Эковата (целлюлозная вата) [material_modifier] => 1 [work_modifier] => 1 [options] => Array ( [0] => 50 мм [1] => 100 мм [2] => 150 мм [3] => 200 мм [4] => 250 мм [5] => 300 мм ) [days] => [3,4,5,6,7,8] [material_price] => [810,1319,1629,1838,2267,2676] [work_price] => [1225,1323,1423,1549,1659,1725] [image] => https://akademik-stroy.ru/wp-content/uploads/materials/ehkovata.jpg [area_modifier] => 120.88 [parent_name] => Дополнительное утепление наружных стен [parent_id] => 17 [material_sum] => 135120 [work_sum] => 170290 [total_sum] => 305410 [total_days] => 3 [display_material_sum] => 135 120 [display_work_sum] => 170 290 [display_total_sum] => 305 410 ) 1
305 410
Работа:170 290
Материалы:135 120
Дни:3
stdClass Object ( [id] => 129 [attribute_id] => 17 [name] => Экструдированный пенополистирол [material_modifier] => 1 [work_modifier] => 1 [options] => Array ( [0] => 50 мм [1] => 100 мм [2] => 150 мм [3] => 200 мм [4] => 250 мм [5] => 300 мм ) [days] => [5,6,7,8,9,10] [material_price] => [4560,4300,5119,6292,7010,8583] [work_price] => [1795,1954,2254,2330,2595,2735] [image] => https://akademik-stroy.ru/wp-content/uploads/materials/epps.jpg [area_modifier] => 120.88 [parent_name] => Дополнительное утепление наружных стен [parent_id] => 17 [material_sum] => 760674 [work_sum] => 249527 [total_sum] => 1010201 [total_days] => 5 [display_material_sum] => 760 674 [display_work_sum] => 249 527 [display_total_sum] => 1 010 201 ) 1
1 010 201
Работа:249 527
Материалы:760 674
Дни:5
stdClass Object ( [id] => 130 [attribute_id] => 17 [name] => ПСБ (ППС-пенополистирол) [material_modifier] => 1 [work_modifier] => 1 [options] => Array ( [0] => 50 мм [1] => 100 мм [2] => 150 мм [3] => 200 мм [4] => 250 мм [5] => 300 мм ) [days] => [5,6,7,8,9,10] [material_price] => [4822,5200,5819,6292,7010,7583] [work_price] => [1795,1954,2254,2330,2595,2735] [image] => https://akademik-stroy.ru/wp-content/uploads/materials/psb.jpg [area_modifier] => 120.88 [parent_name] => Дополнительное утепление наружных стен [parent_id] => 17 [material_sum] => 804379 [work_sum] => 249527 [total_sum] => 1053906 [total_days] => 5 [display_material_sum] => 804 379 [display_work_sum] => 249 527 [display_total_sum] => 1 053 906 ) 1
1 053 906
Работа:249 527
Материалы:804 379
Дни:5
stdClass Object ( [id] => 131 [attribute_id] => 17 [name] => ППУ (Пенополиуретан) [material_modifier] => 1 [work_modifier] => 1 [options] => Array ( [0] => 50 мм [1] => 100 мм [2] => 150 мм [3] => 200 мм [4] => 250 мм [5] => 300 мм ) [days] => [3,4,5,6,7,8] [material_price] => [2860,3400,4219,4592,5010,5583] [work_price] => [729,900,980,1120,1280,1530] [image] => https://akademik-stroy.ru/wp-content/uploads/materials/ppu.jpg [area_modifier] => 120.88 [parent_name] => Дополнительное утепление наружных стен [parent_id] => 17 [material_sum] => 477089 [work_sum] => 101340 [total_sum] => 578429 [total_days] => 3 [display_material_sum] => 477 089 [display_work_sum] => 101 340 [display_total_sum] => 578 429 ) 1
578 429
Работа:101 340
Материалы:477 089
Дни:3
stdClass Object ( [id] => 132 [attribute_id] => 17 [name] => PIR-плиты (пенополиизоцианурат) [material_modifier] => 1 [work_modifier] => 1 [options] => Array ( [0] => 50 мм [1] => 100 мм [2] => 150 мм [3] => 200 мм [4] => 250 мм [5] => 300 мм ) [days] => [5,6,7,8,9,10] [material_price] => [8323,15645,20968,25900,29258,30581] [work_price] => [800,900,970,1150,1280,1330] [image] => https://akademik-stroy.ru/wp-content/uploads/materials/pir.jpg [area_modifier] => 120.88 [parent_name] => Дополнительное утепление наружных стен [parent_id] => 17 [material_sum] => 1388396 [work_sum] => 111210 [total_sum] => 1499606 [total_days] => 5 [display_material_sum] => 1 388 396 [display_work_sum] => 111 210 [display_total_sum] => 1 499 606 ) 1
1 499 606
Работа:111 210
Материалы:1 388 396
Дни:5
Наружная отделка фасада
stdClass Object ( [id] => 37 [attribute_id] => 19 [name] => Нет [material_modifier] => 1 [work_modifier] => 1 [options] => Array ( ) [days] => [0] [material_price] => [0] [work_price] => [0] [image] => https://akademik-stroy.ru/wp-content/uploads/materials/imitaciya-brusa.jpg [area_modifier] => 120.88 [parent_name] => Наружная отделка фасада [parent_id] => 19 [material_sum] => 0 [work_sum] => 0 [total_sum] => 0 [total_days] => 0 [display_material_sum] => 0 [display_work_sum] => 0 [display_total_sum] => 0 ) 1
0
Работа:0
Материалы:0
Дни:0
stdClass Object ( [id] => 38 [attribute_id] => 19 [name] => Имитация бруса [material_modifier] => 1 [work_modifier] => 1 [options] => Array ( [0] => Сосна [1] => Ель [2] => Лиственница ) [days] => [20,20,20] [material_price] => [2994,2762,4954] [work_price] => [1397,1231,1577] [image] => https://akademik-stroy.ru/wp-content/uploads/materials/imitaciya-brusa.jpg [area_modifier] => 120.88 [parent_name] => Наружная отделка фасада [parent_id] => 19 [material_sum] => 499442 [work_sum] => 194200 [total_sum] => 693642 [total_days] => 20 [display_material_sum] => 499 442 [display_work_sum] => 194 200 [display_total_sum] => 693 642 ) 1
693 642
Работа:194 200
Материалы:499 442
Дни:20
stdClass Object ( [id] => 136 [attribute_id] => 19 [name] => Планкен [material_modifier] => 1 [work_modifier] => 1 [options] => Array ( [0] => Сосна [1] => Ель [2] => Лиственница ) [days] => [20,20,20] [material_price] => [3194,2862,5154] [work_price] => [1537,1354,1735] [image] => https://akademik-stroy.ru/wp-content/uploads/materials/planken.jpg [area_modifier] => 120.88 [parent_name] => Наружная отделка фасада [parent_id] => 19 [material_sum] => 532805 [work_sum] => 213661 [total_sum] => 746466 [total_days] => 20 [display_material_sum] => 532 805 [display_work_sum] => 213 661 [display_total_sum] => 746 466 ) 1
746 466
Работа:213 661
Материалы:532 805
Дни:20
stdClass Object ( [id] => 137 [attribute_id] => 19 [name] => Штукатурка [material_modifier] => 1 [work_modifier] => 1 [options] => Array ( [0] => Цементно-песчаная (минеральная) [1] => Мокрый фасад ) [days] => [35,35] [material_price] => [2231,3938] [work_price] => [1202,2422] [image] => https://akademik-stroy.ru/wp-content/uploads/materials/shtukaturka.jpg [area_modifier] => 120.88 [parent_name] => Наружная отделка фасада [parent_id] => 19 [material_sum] => 372163 [work_sum] => 167092 [total_sum] => 539255 [total_days] => 35 [display_material_sum] => 372 163 [display_work_sum] => 167 092 [display_total_sum] => 539 255 ) 1
539 255
Работа:167 092
Материалы:372 163
Дни:35
stdClass Object ( [id] => 138 [attribute_id] => 19 [name] => Облицовочный кирпич [material_modifier] => 1 [work_modifier] => 1 [options] => Array ( [0] => Керамический [1] => Клинкерный [2] => Ручной формовки [3] => Гиперпрессованный [4] => Силикатный кирпич ) [days] => [45,45,45,45,45] [material_price] => [8174,9148,1040,1257,5876] [work_price] => [3240,3758,4536,4017,3369] [image] => https://akademik-stroy.ru/wp-content/uploads/materials/oblicovochnyj-kirpich.jpg [area_modifier] => 120.88 [parent_name] => Наружная отделка фасада [parent_id] => 19 [material_sum] => 1363541 [work_sum] => 450399 [total_sum] => 1813940 [total_days] => 45 [display_material_sum] => 1 363 541 [display_work_sum] => 450 399 [display_total_sum] => 1 813 940 ) 1
1 813 940
Работа:450 399
Материалы:1 363 541
Дни:45
stdClass Object ( [id] => 139 [attribute_id] => 19 [name] => Фасадная плитка [material_modifier] => 1 [work_modifier] => 1 [options] => Array ( [0] => Клинкерная [1] => Керамическая [2] => Плитка ручной формовки ) [days] => [40,40,40] [material_price] => [2974,1487,3470] [work_price] => [3007,2592,3629] [image] => https://akademik-stroy.ru/wp-content/uploads/materials/fasadnaya-plitka.jpg [area_modifier] => 120.88 [parent_name] => Наружная отделка фасада [parent_id] => 19 [material_sum] => 496106 [work_sum] => 418009 [total_sum] => 914115 [total_days] => 40 [display_material_sum] => 496 106 [display_work_sum] => 418 009 [display_total_sum] => 914 115 ) 1
914 115
Работа:418 009
Материалы:496 106
Дни:40
stdClass Object ( [id] => 140 [attribute_id] => 19 [name] => Сайдинг [material_modifier] => 1 [work_modifier] => 1 [options] => Array ( [0] => Виниловый [1] => Металлический [2] => Фиброцементный ) [days] => [20,20,20] [material_price] => [1263,1944,4147] [work_price] => [1263,1944,2074] [image] => https://akademik-stroy.ru/wp-content/uploads/materials/sajding.jpg [area_modifier] => 120.88 [parent_name] => Наружная отделка фасада [parent_id] => 19 [material_sum] => 210687 [work_sum] => 175572 [total_sum] => 386259 [total_days] => 20 [display_material_sum] => 210 687 [display_work_sum] => 175 572 [display_total_sum] => 386 259 ) 1
386 259
Работа:175 572
Материалы:210 687
Дни:20
stdClass Object ( [id] => 141 [attribute_id] => 19 [name] => Камень [material_modifier] => 1 [work_modifier] => 1 [options] => Array ( [0] => Травертин [1] => Дагестанский [2] => Искусственный [3] => Натуральный [4] => Керамогранит ) [days] => [45,45,45,45,45] [material_price] => [4536,3888,2592,3240,2462] [work_price] => [3240,3240,2462,3110,1944] [image] => https://akademik-stroy.ru/wp-content/uploads/materials/kamen-1.jpg [area_modifier] => 120.88 [parent_name] => Наружная отделка фасада [parent_id] => 19 [material_sum] => 756670 [work_sum] => 450399 [total_sum] => 1207069 [total_days] => 45 [display_material_sum] => 756 670 [display_work_sum] => 450 399 [display_total_sum] => 1 207 069 ) 1
1 207 069
Работа:450 399
Материалы:756 670
Дни:45
stdClass Object ( [id] => 142 [attribute_id] => 19 [name] => Термопанели [material_modifier] => 1 [work_modifier] => 1 [options] => Array ( ) [days] => [20] [material_price] => [6221] [work_price] => [2333] [image] => https://akademik-stroy.ru/wp-content/uploads/materials/termo.png [area_modifier] => 120.88 [parent_name] => Наружная отделка фасада [parent_id] => 19 [material_sum] => 1037752 [work_sum] => 324315 [total_sum] => 1362067 [total_days] => 20 [display_material_sum] => 1 037 752 [display_work_sum] => 324 315 [display_total_sum] => 1 362 067 ) 1
1 362 067
Работа:324 315
Материалы:1 037 752
Дни:20
stdClass Object ( [id] => 143 [attribute_id] => 19 [name] => Плитка HAUBERK [material_modifier] => 1 [work_modifier] => 1 [options] => Array ( ) [days] => [20] [material_price] => [2786] [work_price] => [1944] [image] => https://akademik-stroy.ru/wp-content/uploads/materials/hauberk.jpg [area_modifier] => 120.88 [parent_name] => Наружная отделка фасада [parent_id] => 19 [material_sum] => 464745 [work_sum] => 270239 [total_sum] => 734984 [total_days] => 20 [display_material_sum] => 464 745 [display_work_sum] => 270 239 [display_total_sum] => 734 984 ) 1
734 984
Работа:270 239
Материалы:464 745
Дни:20
stdClass Object ( [id] => 144 [attribute_id] => 19 [name] => Фальцевый фасад [material_modifier] => 1 [work_modifier] => 1 [options] => Array ( ) [days] => [20] [material_price] => [3240] [work_price] => [2592] [image] => https://akademik-stroy.ru/wp-content/uploads/materials/falcevyj-fasad.jpg [area_modifier] => 120.88 [parent_name] => Наружная отделка фасада [parent_id] => 19 [material_sum] => 540479 [work_sum] => 360319 [total_sum] => 900798 [total_days] => 20 [display_material_sum] => 540 479 [display_work_sum] => 360 319 [display_total_sum] => 900 798 ) 1
900 798
Работа:360 319
Материалы:540 479
Дни:20
stdClass Object ( [id] => 145 [attribute_id] => 19 [name] => Комбинированный [material_modifier] => 1 [work_modifier] => 1 [options] => Array ( ) [days] => [20] [material_price] => [4629] [work_price] => [3499] [image] => https://akademik-stroy.ru/wp-content/uploads/materials/Kombinirovannyj.jpg [area_modifier] => 120.88 [parent_name] => Наружная отделка фасада [parent_id] => 19 [material_sum] => 772184 [work_sum] => 486403 [total_sum] => 1258587 [total_days] => 20 [display_material_sum] => 772 184 [display_work_sum] => 486 403 [display_total_sum] => 1 258 587 ) 1
1 258 587
Работа:486 403
Материалы:772 184
Дни:20
stdClass Object ( [id] => 257 [attribute_id] => 19 [name] => Японские фиброцементные [material_modifier] => 1 [work_modifier] => 1 [options] => Array ( ) [days] => [20] [material_price] => [7043] [work_price] => [2993] [image] => https://akademik-stroy.ru/wp-content/uploads/materials/paneli.jpg [area_modifier] => 120.88 [parent_name] => Наружная отделка фасада [parent_id] => 19 [material_sum] => 1174874 [work_sum] => 416063 [total_sum] => 1590937 [total_days] => 20 [display_material_sum] => 1 174 874 [display_work_sum] => 416 063 [display_total_sum] => 1 590 937 ) 1
1 590 937
Работа:416 063
Материалы:1 174 874
Дни:20
stdClass Object ( [id] => 258 [attribute_id] => 19 [name] => Панели Каньон [material_modifier] => 1 [work_modifier] => 1 [options] => Array ( ) [days] => [20] [material_price] => [4543] [work_price] => [2592] [image] => https://akademik-stroy.ru/wp-content/uploads/materials/kanon.png [area_modifier] => 120.88 [parent_name] => Наружная отделка фасада [parent_id] => 19 [material_sum] => 757838 [work_sum] => 360319 [total_sum] => 1118157 [total_days] => 20 [display_material_sum] => 757 838 [display_work_sum] => 360 319 [display_total_sum] => 1 118 157 ) 1
1 118 157
Работа:360 319
Материалы:757 838
Дни:20
Террасы, крыльца, навесы
stdClass Object ( [id] => 39 [attribute_id] => 20 [name] => Нет [material_modifier] => 1 [work_modifier] => 1 [options] => Array ( ) [days] => [0] [material_price] => [0] [work_price] => [0] [image] => https://akademik-stroy.ru/wp-content/uploads/materials/terrasy.jpg [area_modifier] => 30 [parent_name] => Террасы, крыльца, навесы [parent_id] => 20 [material_sum] => 0 [work_sum] => 0 [total_sum] => 0 [total_days] => 0 [display_material_sum] => 0 [display_work_sum] => 0 [display_total_sum] => 0 ) 1
0
Работа:0
Материалы:0
Дни:0
stdClass Object ( [id] => 40 [attribute_id] => 20 [name] => Есть [material_modifier] => 1 [work_modifier] => 1 [options] => Array ( ) [days] => [5] [material_price] => [10450] [work_price] => [1950] [image] => https://akademik-stroy.ru/wp-content/uploads/materials/terrasy.jpg [area_modifier] => 30 [parent_name] => Террасы, крыльца, навесы [parent_id] => 20 [material_sum] => 432630 [work_sum] => 67275 [total_sum] => 499905 [total_days] => 5 [display_material_sum] => 432 630 [display_work_sum] => 67 275 [display_total_sum] => 499 905 ) 1
499 905
Работа:67 275
Материалы:432 630
Дни:5
Балконы
stdClass Object ( [id] => 41 [attribute_id] => 21 [name] => Нет [material_modifier] => 1 [work_modifier] => 1 [options] => Array ( ) [days] => [0] [material_price] => [0] [work_price] => [0] [image] => https://akademik-stroy.ru/wp-content/uploads/materials/balkony.jpg [area_modifier] => 30 [parent_name] => Балконы [parent_id] => 21 [material_sum] => 0 [work_sum] => 0 [total_sum] => 0 [total_days] => 0 [display_material_sum] => 0 [display_work_sum] => 0 [display_total_sum] => 0 ) 1
0
Работа:0
Материалы:0
Дни:0
stdClass Object ( [id] => 42 [attribute_id] => 21 [name] => Есть [material_modifier] => 1 [work_modifier] => 1 [options] => Array ( ) [days] => [12] [material_price] => [3600] [work_price] => [1950] [image] => https://akademik-stroy.ru/wp-content/uploads/materials/balkony.jpg [area_modifier] => 30 [parent_name] => Балконы [parent_id] => 21 [material_sum] => 149040 [work_sum] => 67275 [total_sum] => 216315 [total_days] => 12 [display_material_sum] => 149 040 [display_work_sum] => 67 275 [display_total_sum] => 216 315 ) 1
216 315
Работа:67 275
Материалы:149 040
Дни:12
Отмостка
stdClass Object ( [id] => 43 [attribute_id] => 22 [name] => Нет [material_modifier] => 1 [work_modifier] => 1 [options] => Array ( ) [days] => [0] [material_price] => [0] [work_price] => [0] [image] => https://akademik-stroy.ru/wp-content/uploads/materials/uteplennaya.jpg [area_modifier] => 120.88 [parent_name] => Отмостка [parent_id] => 22 [material_sum] => 0 [work_sum] => 0 [total_sum] => 0 [total_days] => 0 [display_material_sum] => 0 [display_work_sum] => 0 [display_total_sum] => 0 ) 1
0
Работа:0
Материалы:0
Дни:0
stdClass Object ( [id] => 44 [attribute_id] => 22 [name] => Утепленная отмостка [material_modifier] => 1 [work_modifier] => 1 [options] => Array ( ) [days] => [15] [material_price] => [2550] [work_price] => [1750] [image] => https://akademik-stroy.ru/wp-content/uploads/materials/uteplennaya.jpg [area_modifier] => 120.88 [parent_name] => Отмостка [parent_id] => 22 [material_sum] => 425377 [work_sum] => 243271 [total_sum] => 668648 [total_days] => 15 [display_material_sum] => 425 377 [display_work_sum] => 243 271 [display_total_sum] => 668 648 ) 1
668 648
Работа:243 271
Материалы:425 377
Дни:15
stdClass Object ( [id] => 146 [attribute_id] => 22 [name] => Не утепленная отмостка [material_modifier] => 1 [work_modifier] => 1 [options] => Array ( ) [days] => [10] [material_price] => [1650] [work_price] => [1450] [image] => https://akademik-stroy.ru/wp-content/uploads/materials/ne-uteplennaya.jpg [area_modifier] => 120.88 [parent_name] => Отмостка [parent_id] => 22 [material_sum] => 275244 [work_sum] => 201567 [total_sum] => 476811 [total_days] => 10 [display_material_sum] => 275 244 [display_work_sum] => 201 567 [display_total_sum] => 476 811 ) 1
476 811
Работа:201 567
Материалы:275 244
Дни:10
Дренаж вокруг дома
stdClass Object ( [id] => 45 [attribute_id] => 23 [name] => Нет [material_modifier] => 1 [work_modifier] => 1 [options] => Array ( ) [days] => [0] [material_price] => [0] [work_price] => [0] [image] => https://akademik-stroy.ru/wp-content/uploads/materials/drenazh-2.jpg [area_modifier] => 120.88 [parent_name] => Дренаж вокруг дома [parent_id] => 23 [material_sum] => 0 [work_sum] => 0 [total_sum] => 0 [total_days] => 0 [display_material_sum] => 0 [display_work_sum] => 0 [display_total_sum] => 0 ) 1
0
Работа:0
Материалы:0
Дни:0
stdClass Object ( [id] => 46 [attribute_id] => 23 [name] => Есть [material_modifier] => 1 [work_modifier] => 1 [options] => Array ( ) [days] => [5] [material_price] => [2366] [work_price] => [1911] [image] => https://akademik-stroy.ru/wp-content/uploads/materials/drenazh-2.jpg [area_modifier] => 120.88 [parent_name] => Дренаж вокруг дома [parent_id] => 23 [material_sum] => 394683 [work_sum] => 265652 [total_sum] => 660335 [total_days] => 5 [display_material_sum] => 394 683 [display_work_sum] => 265 652 [display_total_sum] => 660 335 ) 1
660 335
Работа:265 652
Материалы:394 683
Дни:5
Автономная канализация (септики)
stdClass Object ( [id] => 47 [attribute_id] => 24 [name] => Нет [material_modifier] => 1 [work_modifier] => 1 [options] => Array ( ) [days] => [0] [material_price] => [0] [work_price] => [0] [image] => https://akademik-stroy.ru/wp-content/uploads/materials/septik.jpg [area_modifier] => 1 [parent_name] => Автономная канализация (септики) [parent_id] => 24 [material_sum] => 0 [work_sum] => 0 [total_sum] => 0 [total_days] => 0 [display_material_sum] => 0 [display_work_sum] => 0 [display_total_sum] => 0 ) 1
0
Работа:0
Материалы:0
Дни:0
stdClass Object ( [id] => 48 [attribute_id] => 24 [name] => Есть [material_modifier] => 1 [work_modifier] => 1 [options] => Array ( [0] => Для дачи на 4 человека [1] => Для дома на 5 человек [2] => Для дома на 6 человек [3] => Для дома на 7 человек [4] => Для дома на 10 человек ) [days] => [7,7,7,8,8] [material_price] => [196340,220500,240940,264200,293340] [work_price] => [50000,55000,60500,66550,73206] [image] => https://akademik-stroy.ru/wp-content/uploads/materials/septik.jpg [area_modifier] => 1 [parent_name] => Автономная канализация (септики) [parent_id] => 24 [material_sum] => 270949 [work_sum] => 57500 [total_sum] => 328449 [total_days] => 7 [display_material_sum] => 270 949 [display_work_sum] => 57 500 [display_total_sum] => 328 449 ) 1
328 449
Работа:57 500
Материалы:270 949
Дни:7
Внутренние (не несущие) перегородки
stdClass Object ( [id] => 49 [attribute_id] => 25 [name] => Нет [material_modifier] => 1 [work_modifier] => 1 [options] => Array ( ) [days] => [0] [material_price] => [0] [work_price] => [0] [image] => https://akademik-stroy.ru/wp-content/uploads/materials/gkl.jpg [area_modifier] => 120.88 [parent_name] => Внутренние (не несущие) перегородки [parent_id] => 25 [material_sum] => 0 [work_sum] => 0 [total_sum] => 0 [total_days] => 0 [display_material_sum] => 0 [display_work_sum] => 0 [display_total_sum] => 0 ) 1
0
Работа:0
Материалы:0
Дни:0
stdClass Object ( [id] => 147 [attribute_id] => 25 [name] => Каркасно-обшивные [material_modifier] => 1 [work_modifier] => 1 [options] => Array ( [0] => 75 мм (без шумоизоляции) [1] => 75 мм (с шумоизоляцией) ) [days] => [11,11] [material_price] => [580,970] [work_price] => [380,570] [image] => https://akademik-stroy.ru/wp-content/uploads/materials/gkl.jpg [area_modifier] => 120.88 [parent_name] => Внутренние (не несущие) перегородки [parent_id] => 25 [material_sum] => 96752 [work_sum] => 52825 [total_sum] => 149577 [total_days] => 11 [display_material_sum] => 96 752 [display_work_sum] => 52 825 [display_total_sum] => 149 577 ) 1
149 577
Работа:52 825
Материалы:96 752
Дни:11
stdClass Object ( [id] => 148 [attribute_id] => 25 [name] => Пазогребневые [material_modifier] => 1 [work_modifier] => 1 [options] => Array ( [0] => 80 мм [1] => 100 мм ) [days] => [5,5] [material_price] => [1022,1313] [work_price] => [600,700] [image] => https://akademik-stroy.ru/wp-content/uploads/materials/pazogrebnevye-bloki.jpg [area_modifier] => 120.88 [parent_name] => Внутренние (не несущие) перегородки [parent_id] => 25 [material_sum] => 170484 [work_sum] => 83407 [total_sum] => 253891 [total_days] => 5 [display_material_sum] => 170 484 [display_work_sum] => 83 407 [display_total_sum] => 253 891 ) 1
253 891
Работа:83 407
Материалы:170 484
Дни:5
stdClass Object ( [id] => 149 [attribute_id] => 25 [name] => Газобетонные [material_modifier] => 1 [work_modifier] => 1 [options] => Array ( [0] => 100 мм [1] => 200 мм ) [days] => [11,11] [material_price] => [1160,1920] [work_price] => [700,900] [image] => https://akademik-stroy.ru/wp-content/uploads/materials/gazobeton-2.jpg [area_modifier] => 120.88 [parent_name] => Внутренние (не несущие) перегородки [parent_id] => 25 [material_sum] => 193505 [work_sum] => 97308 [total_sum] => 290813 [total_days] => 11 [display_material_sum] => 193 505 [display_work_sum] => 97 308 [display_total_sum] => 290 813 ) 1
290 813
Работа:97 308
Материалы:193 505
Дни:11
stdClass Object ( [id] => 150 [attribute_id] => 25 [name] => Кирпичные [material_modifier] => 1 [work_modifier] => 1 [options] => Array ( [0] => 120 мм [1] => 250 мм [2] => 360 мм ) [days] => [7,7,7] [material_price] => [1785,3570,5355] [work_price] => [900,1600,1800] [image] => https://akademik-stroy.ru/wp-content/uploads/materials/kirpich-1.jpg [area_modifier] => 120.88 [parent_name] => Внутренние (не несущие) перегородки [parent_id] => 25 [material_sum] => 297764 [work_sum] => 125111 [total_sum] => 422875 [total_days] => 7 [display_material_sum] => 297 764 [display_work_sum] => 125 111 [display_total_sum] => 422 875 ) 1
422 875
Работа:125 111
Материалы:297 764
Дни:7
Электрика
stdClass Object ( [id] => 55 [attribute_id] => 28 [name] => Нет [material_modifier] => 1 [work_modifier] => 1 [options] => Array ( ) [days] => [0] [material_price] => [0] [work_price] => [0] [image] => https://akademik-stroy.ru/wp-content/uploads/materials/ehlektrika.jpg [area_modifier] => 98.09 [parent_name] => Электрика [parent_id] => 28 [material_sum] => 0 [work_sum] => 0 [total_sum] => 0 [total_days] => 0 [display_material_sum] => 0 [display_work_sum] => 0 [display_total_sum] => 0 ) 1
0
Работа:0
Материалы:0
Дни:0
stdClass Object ( [id] => 56 [attribute_id] => 28 [name] => Есть [material_modifier] => 1 [work_modifier] => 1 [options] => Array ( ) [days] => [10] [material_price] => [650] [work_price] => [950] [image] => https://akademik-stroy.ru/wp-content/uploads/materials/ehlektrika.jpg [area_modifier] => 98.09 [parent_name] => Электрика [parent_id] => 28 [material_sum] => 87987 [work_sum] => 107163 [total_sum] => 195150 [total_days] => 10 [display_material_sum] => 87 987 [display_work_sum] => 107 163 [display_total_sum] => 195 150 ) 1
195 150
Работа:107 163
Материалы:87 987
Дни:10
Сантехника, канализация в доме
stdClass Object ( [id] => 57 [attribute_id] => 29 [name] => Нет [material_modifier] => 1 [work_modifier] => 1 [options] => Array ( ) [days] => [0] [material_price] => [0] [work_price] => [0] [image] => https://akademik-stroy.ru/wp-content/uploads/materials/santekhnika-kanalizaciya-1.jpg [area_modifier] => 98.09 [parent_name] => Сантехника, канализация в доме [parent_id] => 29 [material_sum] => 0 [work_sum] => 0 [total_sum] => 0 [total_days] => 0 [display_material_sum] => 0 [display_work_sum] => 0 [display_total_sum] => 0 ) 1
0
Работа:0
Материалы:0
Дни:0
stdClass Object ( [id] => 58 [attribute_id] => 29 [name] => Есть [material_modifier] => 1 [work_modifier] => 1 [options] => Array ( ) [days] => [10] [material_price] => [600] [work_price] => [730] [image] => https://akademik-stroy.ru/wp-content/uploads/materials/santekhnika-kanalizaciya-1.jpg [area_modifier] => 98.09 [parent_name] => Сантехника, канализация в доме [parent_id] => 29 [material_sum] => 81219 [work_sum] => 82347 [total_sum] => 163566 [total_days] => 10 [display_material_sum] => 81 219 [display_work_sum] => 82 347 [display_total_sum] => 163 566 ) 1
163 566
Работа:82 347
Материалы:81 219
Дни:10
Отопление
stdClass Object ( [id] => 59 [attribute_id] => 30 [name] => Нет [material_modifier] => 1 [work_modifier] => 1 [options] => Array ( ) [days] => [0] [material_price] => [0] [work_price] => [0] [image] => https://akademik-stroy.ru/wp-content/uploads/materials/otoplenie-1.jpg [area_modifier] => 98.09 [parent_name] => Отопление [parent_id] => 30 [material_sum] => 0 [work_sum] => 0 [total_sum] => 0 [total_days] => 0 [display_material_sum] => 0 [display_work_sum] => 0 [display_total_sum] => 0 ) 1
0
Работа:0
Материалы:0
Дни:0
stdClass Object ( [id] => 60 [attribute_id] => 30 [name] => Есть [material_modifier] => 1 [work_modifier] => 1 [options] => Array ( ) [days] => [5] [material_price] => [610] [work_price] => [560] [image] => https://akademik-stroy.ru/wp-content/uploads/materials/otoplenie-1.jpg [area_modifier] => 98.09 [parent_name] => Отопление [parent_id] => 30 [material_sum] => 82572 [work_sum] => 63170 [total_sum] => 145742 [total_days] => 5 [display_material_sum] => 82 572 [display_work_sum] => 63 170 [display_total_sum] => 145 742 ) 1
145 742
Работа:63 170
Материалы:82 572
Дни:5
Теплые полы
stdClass Object ( [id] => 61 [attribute_id] => 31 [name] => Нет [material_modifier] => 1 [work_modifier] => 1 [options] => Array ( ) [days] => [0] [material_price] => [0] [work_price] => [0] [image] => https://akademik-stroy.ru/wp-content/uploads/materials/vodyanye.jpg [area_modifier] => 30 [parent_name] => Теплые полы [parent_id] => 31 [material_sum] => 0 [work_sum] => 0 [total_sum] => 0 [total_days] => 0 [display_material_sum] => 0 [display_work_sum] => 0 [display_total_sum] => 0 ) 1
0
Работа:0
Материалы:0
Дни:0
stdClass Object ( [id] => 151 [attribute_id] => 31 [name] => Водяные [material_modifier] => 1 [work_modifier] => 1 [options] => Array ( ) [days] => [9] [material_price] => [10200] [work_price] => [2500] [image] => https://akademik-stroy.ru/wp-content/uploads/materials/vodyanye.jpg [area_modifier] => 30 [parent_name] => Теплые полы [parent_id] => 31 [material_sum] => 422280 [work_sum] => 86250 [total_sum] => 508530 [total_days] => 9 [display_material_sum] => 422 280 [display_work_sum] => 86 250 [display_total_sum] => 508 530 ) 1
508 530
Работа:86 250
Материалы:422 280
Дни:9
stdClass Object ( [id] => 152 [attribute_id] => 31 [name] => Электро [material_modifier] => 1 [work_modifier] => 1 [options] => Array ( ) [days] => [5] [material_price] => [6300] [work_price] => [1500] [image] => https://akademik-stroy.ru/wp-content/uploads/materials/ehlektricheskij.jpg [area_modifier] => 30 [parent_name] => Теплые полы [parent_id] => 31 [material_sum] => 260820 [work_sum] => 51750 [total_sum] => 312570 [total_days] => 5 [display_material_sum] => 260 820 [display_work_sum] => 51 750 [display_total_sum] => 312 570 ) 1
312 570
Работа:51 750
Материалы:260 820
Дни:5
Черновая отделка стен
stdClass Object ( [id] => 63 [attribute_id] => 32 [name] => Нет [material_modifier] => 1 [work_modifier] => 1 [options] => Array ( ) [days] => [0] [material_price] => [0] [work_price] => [0] [image] => https://akademik-stroy.ru/wp-content/uploads/materials/shtukaturka-shpatlevka-1.jpg [area_modifier] => 98.09 [parent_name] => Черновая отделка стен [parent_id] => 32 [material_sum] => 0 [work_sum] => 0 [total_sum] => 0 [total_days] => 0 [display_material_sum] => 0 [display_work_sum] => 0 [display_total_sum] => 0 ) 1
0
Работа:0
Материалы:0
Дни:0
stdClass Object ( [id] => 153 [attribute_id] => 32 [name] => Штукатурка и шпатлевка [material_modifier] => 1 [work_modifier] => 1 [options] => Array ( ) [days] => [20] [material_price] => [1850] [work_price] => [2600] [image] => https://akademik-stroy.ru/wp-content/uploads/materials/shtukaturka-shpatlevka-1.jpg [area_modifier] => 98.09 [parent_name] => Черновая отделка стен [parent_id] => 32 [material_sum] => 250424 [work_sum] => 293289 [total_sum] => 543713 [total_days] => 20 [display_material_sum] => 250 424 [display_work_sum] => 293 289 [display_total_sum] => 543 713 ) 1
543 713
Работа:293 289
Материалы:250 424
Дни:20
stdClass Object ( [id] => 154 [attribute_id] => 32 [name] => Гипсокортон на стены [material_modifier] => 1 [work_modifier] => 1 [options] => Array ( ) [days] => [15] [material_price] => [950] [work_price] => [2100] [image] => https://akademik-stroy.ru/wp-content/uploads/materials/gkl-1.jpg [area_modifier] => 98.09 [parent_name] => Черновая отделка стен [parent_id] => 32 [material_sum] => 128596 [work_sum] => 236887 [total_sum] => 365483 [total_days] => 15 [display_material_sum] => 128 596 [display_work_sum] => 236 887 [display_total_sum] => 365 483 ) 1
365 483
Работа:236 887
Материалы:128 596
Дни:15
stdClass Object ( [id] => 155 [attribute_id] => 32 [name] => Вагонка [material_modifier] => 1 [work_modifier] => 1 [options] => Array ( ) [days] => [15] [material_price] => [1250] [work_price] => [950] [image] => https://akademik-stroy.ru/wp-content/uploads/materials/vagonka.jpg [area_modifier] => 98.09 [parent_name] => Черновая отделка стен [parent_id] => 32 [material_sum] => 169205 [work_sum] => 107163 [total_sum] => 276368 [total_days] => 15 [display_material_sum] => 169 205 [display_work_sum] => 107 163 [display_total_sum] => 276 368 ) 1
276 368
Работа:107 163
Материалы:169 205
Дни:15
Черновая отделка полов
stdClass Object ( [id] => 65 [attribute_id] => 33 [name] => Нет [material_modifier] => 1 [work_modifier] => 1 [options] => Array ( ) [days] => [0] [material_price] => [0] [work_price] => [0] [image] => https://akademik-stroy.ru/wp-content/uploads/materials/styazhka.jpg [area_modifier] => 98.09 [parent_name] => Черновая отделка полов [parent_id] => 33 [material_sum] => 0 [work_sum] => 0 [total_sum] => 0 [total_days] => 0 [display_material_sum] => 0 [display_work_sum] => 0 [display_total_sum] => 0 ) 1
0
Работа:0
Материалы:0
Дни:0
stdClass Object ( [id] => 156 [attribute_id] => 33 [name] => Стяжка + наливные полы [material_modifier] => 1 [work_modifier] => 1 [options] => Array ( ) [days] => [10] [material_price] => [1000] [work_price] => [900] [image] => https://akademik-stroy.ru/wp-content/uploads/materials/styazhka.jpg [area_modifier] => 98.09 [parent_name] => Черновая отделка полов [parent_id] => 33 [material_sum] => 135364 [work_sum] => 101523 [total_sum] => 236887 [total_days] => 10 [display_material_sum] => 135 364 [display_work_sum] => 101 523 [display_total_sum] => 236 887 ) 1
236 887
Работа:101 523
Материалы:135 364
Дни:10
stdClass Object ( [id] => 157 [attribute_id] => 33 [name] => ОСБ на пол [material_modifier] => 1 [work_modifier] => 1 [options] => Array ( ) [days] => [7] [material_price] => [580] [work_price] => [350] [image] => https://akademik-stroy.ru/wp-content/uploads/materials/osb-1.jpg [area_modifier] => 98.09 [parent_name] => Черновая отделка полов [parent_id] => 33 [material_sum] => 78511 [work_sum] => 39481 [total_sum] => 117992 [total_days] => 7 [display_material_sum] => 78 511 [display_work_sum] => 39 481 [display_total_sum] => 117 992 ) 1
117 992
Работа:39 481
Материалы:78 511
Дни:7
Чистовая отделка стен и полов
stdClass Object ( [id] => 67 [attribute_id] => 34 [name] => Нет [material_modifier] => 1 [work_modifier] => 1 [options] => Array ( ) [days] => [0] [material_price] => [0] [work_price] => [0] [image] => https://akademik-stroy.ru/wp-content/uploads/materials/chistovaya-otdelka.jpg [area_modifier] => 98.09 [parent_name] => Чистовая отделка стен и полов [parent_id] => 34 [material_sum] => 0 [work_sum] => 0 [total_sum] => 0 [total_days] => 0 [display_material_sum] => 0 [display_work_sum] => 0 [display_total_sum] => 0 ) 1
0
Работа:0
Материалы:0
Дни:0
stdClass Object ( [id] => 68 [attribute_id] => 34 [name] => Есть [material_modifier] => 1 [work_modifier] => 1 [options] => Array ( ) [days] => [50] [material_price] => [6000] [work_price] => [3500] [image] => https://akademik-stroy.ru/wp-content/uploads/materials/chistovaya-otdelka.jpg [area_modifier] => 98.09 [parent_name] => Чистовая отделка стен и полов [parent_id] => 34 [material_sum] => 812185 [work_sum] => 394812 [total_sum] => 1206997 [total_days] => 50 [display_material_sum] => 812 185 [display_work_sum] => 394 812 [display_total_sum] => 1 206 997 ) 1
1 206 997
Работа:394 812
Материалы:812 185
Дни:50
Отделка потолка
stdClass Object ( [id] => 69 [attribute_id] => 35 [name] => Нет [material_modifier] => 1 [work_modifier] => 1 [options] => Array ( ) [days] => [0] [material_price] => [0] [work_price] => [0] [image] => https://akademik-stroy.ru/wp-content/uploads/materials/mnogourovnevyj-gkl.jpg [area_modifier] => 98.09 [parent_name] => Отделка потолка [parent_id] => 35 [material_sum] => 0 [work_sum] => 0 [total_sum] => 0 [total_days] => 0 [display_material_sum] => 0 [display_work_sum] => 0 [display_total_sum] => 0 ) 1
0
Работа:0
Материалы:0
Дни:0
stdClass Object ( [id] => 70 [attribute_id] => 35 [name] => Есть [material_modifier] => 1 [work_modifier] => 1 [options] => Array ( [0] => Многоуровневый потолок из гипсокартона [1] => Многоуровневый потолок из гипсокартона и натяжного потолка [2] => Одноуровневый потолок из гипсокартона [3] => Одноуровневый натяжной потолок ) [days] => [10,10,1,1] [material_price] => [900,700,700,600] [work_price] => [1000,800,500,300] [image] => https://akademik-stroy.ru/wp-content/uploads/materials/mnogourovnevyj-gkl.jpg [area_modifier] => 98.09 [parent_name] => Отделка потолка [parent_id] => 35 [material_sum] => 121828 [work_sum] => 112804 [total_sum] => 234632 [total_days] => 10 [display_material_sum] => 121 828 [display_work_sum] => 112 804 [display_total_sum] => 234 632 ) 1
234 632
Работа:112 804
Материалы:121 828
Дни:10

Преимущества работы с нами

icon

7 этапов оплаты

icon

Независимый строительный надзор

icon

Экологически чистые материалы

icon

16 лет гарантии

icon

Онлайн-кабинет с веб-камерой

icon

Строители с опытом более 15 лет

icon

Собственное производство

Введение в проект одноэтажного дома 14х9 м

Одноэтажные дома продолжают оставаться одним из самых востребованных решений в сфере частного домостроения. Их привлекательность заключается не только в простоте и экономичности строительства, но и в удобстве эксплуатации, что особенно важно для семей с детьми и пожилыми людьми. Сегодня мы подробно рассмотрим проект дома с габаритами 14 на 9 метров, общей полезной площадью 98.09 м² и стоимостью 5 523 069 рублей. Этот проект представляется отличным примером гармоничного баланса между просторностью жилья, функциональностью и современной архитектурой.

Ниже мы подробно раскроем все ключевые характеристики этого дома, расскажем о планировке комнат, особенностях конструкции, а также обсудим, почему именно такой формат строительства становится оптимальным выбором для многих владельцев земельных участков средней площади. Продуманное распределение жилой и технической зоны, удобство перемещений в пределах жилища и соответствие современным строительным стандартам делают этот проект идеальным вариантом для комфортной жизни.

Общие параметры и размеры дома

Главной особенностью рассматриваемого дома является его компактность при достаточной площади для комфортного размещения всех необходимых помещений. Размеры дома составляют 14х9 метров, что обеспечивает полезную площадь 98.09 м². Такой метраж – золотая середина между слишком маленькими домами, где царит теснота, и огромными особняками, требующими значительных затрат на содержание.

Стоит отметить, что планировка одноэтажного дома позволяет максимально рационально использовать каждый квадратный метр. Отсутствие второго этажа упрощает процесс строительства и эксплуатации, снижает затраты на монтаж и климатический контроль, а также обеспечивает быстрый доступ ко всем зонам без необходимости подниматься по лестнице.

Площадь застройки и высота здания

Общая площадь застройки составляет 125.23 м². Этот показатель важен для понимания, сколько именно земли займет дом вместе с внешними стенами и дополнительными архитектурными элементами. При таком размере здания минимальные параметры земельного участка, на котором может быть возведен дом, составляют 22,28 метра по ширине и 16,67 метра по длине. Такие требования не создадут сложностей при поиске земли для строительства в большинстве пригородных и дачных районов.

Высота здания составляет 5,54 метра, что соответствует комфортным пропорциям одноэтажного дома с двускатной крышей. Двускатная крыша с углом наклона 25° является классическим и при этом очень практичным решением: она эффективно отводит осадки, обеспечивает правильную вентиляцию подкровельного пространства и придает строению эстетически привлекательный вид.

Планировка и внутреннее пространство

Особое внимание в проекте уделено функциональному зонированию внутреннего пространства. Дом рассчитан на три спальни, благодаря чему идеально подходит для семьи средней численности, состоящей из родителей и одного или двух детей, а также для тех, кто часто принимает гостей.

Жилая площадь комплекса достигает 66,22 м², что позволяет создать комфортные условия для отдыха и сна, а также обеспечивает простор для личного пространства всех жильцов. Кроме того, в доме располагается один полноценный санузел – оптимальное количество для дома такого масштаба, позволяющее не перегружать инженерные коммуникации и не перегружать интерьер.

Описание основных помещений

  • Спальни: Три отдельные спальни, обеспечивающие приватность и тишину. Размеры комнат позволяют поставить кровати, шкафы для одежды и дополнительные предметы мебели.
  • Санузел: Одна ванная комната совмещённого типа, оборудованная всем необходимым для ежедневного комфорта.
  • Гостиная и кухня: Совмещённое пространство для семейных собраний и приготовления пищи, что помогает создать атмосферу единения и комфорта.
  • Хозяйственные зоны: Небольшое помещение для хранения инвентаря или бытовой техники.

Подобное комбинирование помещений создаёт удобный и эргономичный дом, в котором не придется жертвовать ни функциональностью, ни стилем.

Особенности кровли и внешний облик дома

Тип крыши – двускатный, что является одним из самых популярных архитектурных решений для частных домов. Такая крыша обеспечивает эффективный сток воды и снега, надежную защиту от атмосферных воздействий и позволяет реализовать мансардное пространство при необходимости. В данном проекте расположение кровли с углом наклона 25° оптимально как для удобства монтажа, так и для долговечности кровельных материалов.

Двускатная крыша не только функциональна, но и придает дому классический и современный внешний вид. Пропорции фасада с одинаковыми скатами создают ощущение симметрии и гармонии, что особенно ценится в современных жилых районах.

Высота и расположение дома на участке

Высота здания в 5,54 метра прекрасно вписывается в окружающую застройку среднеэтажного типа. Такой дом не доминирует над ландшафтом и соседними строениями, сохраняет ощущение пространства и открытости.

Минимальная ширина участка необходимая для размещения дома составляет 22,28 м, а длина – 16,67 м. Эти показатели следует учитывать на этапе выбора территории под строительство, чтобы обеспечить соблюдение всех норм по удалённости от границ, создать комфортные зоны для сада, отдыха или хозяйственных построек.

Стоимость строительства и экономическая эффективность

Общая сметная стоимость дома – 5 523 069 рублей – включает в себя все этапы, начиная от закупки материалов и заканчивая комплексом отделочных работ и инженерных коммуникаций. При площади полезной 98.09 м², это олицетворение разумного баланса между качеством и стоимостью.

Экономия достигается благодаря одноэтажной конструкции, которая требует меньше затрат на устройство фундамента и несущих конструкций по сравнению с многоэтажными аналогами. Также снижение цен достигается оптимизированным проектом, который исключает лишние архитектурные излишества и сосредоточен на практичности.

Экономические аспекты в таблице

Параметр Значение Примечания
Полезная площадь 98.09 м² Основная жилая часть дома
Стоимость строительства 5 523 069 руб. Комплексная стоимость работ и материалов
Цена за 1 м² ~56 300 руб. Среднерыночная цена
Количество этажей 1 этаж Экономия на строительстве и эксплуатации

Ценовой показатель в пересчете на квадратный метр находится на приемлемом уровне, учитывая качество материалов, инженерные решения и дизайн дома. Кроме того, одноэтажная конструкция снижает издержки на обслуживание в будущем.

Преимущества одноэтажного дома 14х9 м

Данный проект домовиков достоин внимания по ряду причин, которые делают его привлекательным для широкого круга покупателей. Рассмотрим основные преимущества:

  • Удобство эксплуатации. Все помещения размещены на одном уровне, что облегчает перемещения внутри дома и делает его доступным для людей с ограниченной мобильностью.
  • Компактные размеры. Площадь под строительство не требует большого участка, что делает проект особенно интересным для дачных участков и мест с ограниченной площадью.
  • Энергоэффективность. Одноэтажная конструкция проще в утеплении и обслуживании систем отопления и вентиляции.
  • Гибкость планировки. Возможности распределить жилые и функциональные зоны с учетом нужд семьи.
  • Современный дизайн. Двускатная крыша с углом наклона 25° – классика, которая не выходит из моды и позволяет использовать различные отделочные материалы для придания индивидуального стиля.

Кому подойдет этот проект?

Этот дом идеально подходит:

  1. Маленьким и средним семьям, которым важно пространство и комфорт.
  2. Пожилым людям или семьям с детьми, для которых лестницы могут быть трудны или опасны.
  3. Тем, кто ценит бюджетное строительство, но не хочет жертвовать комфортом и внешним видом.

Особенности строительства и материалы

При возведении дома 14х9 м важны не только архитектурные решения, но и выбор материалов, соответствующих современным стандартам энергоэффективности и долговечности. В проекте предусматривается использование кирпича или газобетона для наружных стен, что обеспечивает хорошую теплоизоляцию и звукоизоляцию. Для утепления применяется минеральная вата или современные пенополистирольные панели, что позволяет снизить теплопотери.

Фундамент – столбчато-ленточный, рассчитанный на грунты средней несущей способности. Такой вариант обладает достаточной прочностью при умеренной стоимости и простоте монтажа. Кровельные материалы – металлочерепица или качественная мягкая черепица, устойчивые к перепадам температуры и атмосферным осадкам.

Технологический процесс строительства

Процесс возведения дома можно разделить на несколько этапов:

  1. Подготовка участка и земляные работы. Разметка, выравнивание грунта и подготовка основания для фундамента.
  2. Заливка фундамента. Обеспечение надежной основы под несущие конструкции.
  3. Работы по возведению стен. Кладка кирпича или газоблока с соблюдением технологии для обеспечения точных размеров и прочности.
  4. Кровельные работы. Монтаж стропильной системы и настил кровельного материала.
  5. Внутренняя отделка и коммуникации. Подведение инженерных систем, отделка стен, пола и потолка, установка сантехники и электрического оборудования.

Соблюдение технологии и использование качественных материалов гарантирует долговечность и надежность строения, а также комфортные условия проживания в любое время года.

Выводы и рекомендации по выбору проекта

Проект одноэтажного дома размером 14 на 9 метров с площадью около 98 м² представляет собой оптимальное решение для тех, кто ищет сочетание удобства, эстетики и экономичности. Его планировка способна удовлетворить потребности семьи с тремя спальнями и одной ванной комнатой, обеспечивая при этом просторную жилую зону и возможность комфортного отдыха.

Ключевые преимущества в виде одноэтажной конструкции, двускатной крыши и умеренных размеров земельного участка позволяют минимизировать затраты на строительство и последующее обслуживание дома. Внимание к проектированию и качеству материалов создают дом, который не только отвечает современным строительным стандартам, но и служит уютным и надежным убежищем для всей семьи.

При выборе данного проекта рекомендуется также обратить внимание на свойства грунта участка, наличие коммуникаций и климатические особенности региона, чтобы обеспечить максимально удобное и эффективное использование всех достоинств предлагаемого домашнего пространства.