Обзор проекта двухэтажного дома 18x10 м, площадь 222,22 м²
Современное строительство частных домов предлагает массу решений для комфортного проживания и эффективного использования пространства. Один из таких оптимальных вариантов — двухэтажный дом размером 18 на 10 метров с полезной площадью 222,22 м². Это просторный, продуманный до мелочей проект, который сочетает в себе функциональность, эстетическую привлекательность и рациональность затрат. В данной статье мы подробно рассмотрим все основные характеристики этого дома, его преимущества и особенности, которые помогут сделать выбор в пользу именно этого проекта.
Дом площадью более 220 квадратных метров идеально подходит для большой семьи, обеспечивая комфортное размещение всех ее членов. При этом такие размеры позволяют грамотно распределить жилые и хозяйственные зоны, сделать несколько спален и санузлов, создать уютную обстановку для отдыха и работы. Также дом обладает достаточно высокой мансардой и продуманной конструкцией кровли, что добавляет пространства и защищает здание от климатических воздействий.
Размеры и планировка: оптимальное использование каждой квадратной метры
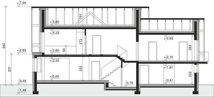
Дом имеет габариты в 18 на 10 метров, что обеспечивает общую площадь застройки в 161,26 м². Двухэтажная планировка при этом позволяет эффективно увеличить жилые и полезные площади.
Общая площадь и полезные метры
Полезная площадь дома составляет 222,22 м², из которых жилая — 172 м². Это говорит о том, что большая часть пространства отведена именно под жилые комнаты, а также необходимые дополнительные помещения, такие как санузлы и хозяйственные комнаты.
| Показатель | Значение |
|---|---|
| Размеры здания | 18 x 10 м |
| Полезная площадь | 222,22 м² |
| Жилая площадь | 172 м² |
| Площадь застройки | 161,26 м² |
| Объем брутто | 923 м³ |
| Площадь крыши | 284,98 м² |
Планировка внутренних помещений
Важно отметить, что проект дома предусматривает наличие более 5 спален, что особенно актуально для больших семей или для тех, кто нуждается в рабочих кабинетов, гостевых комнатах, детских и прочих функциональных пространствах. Количество санузлов — 3, что позволяет избежать утренних очередей и повышает комфорт проживания.
Распределение комнат в двухэтажном доме с такими габаритами оптимизировано для удобства и рационального использования площади. Как правило, на первом этаже монтируют гостиную, кухню-столовую, хозяйственные помещения и один из санузлов. На втором этаже располагаются спальни и оставшиеся ванные комнаты. Такая организация пространства обеспечивает четкое разделение зон отдыха и бытовых нужд.
Архитектурные особенности и конструктивные решения
Высота и форма здания
Высота здания составляет 8,42 метра, что при двух этажах позволяет сохранить достаточно комфортные потолочные высоты в помещениях — около 2,7-3,0 метра. Высота аттиковой стены, равная 0,9 метра, указывает на наличие небольшой мансардной зоны, которая создает дополнительные возможности для организации полезного помещения на верхнем уровне.
Крыша и ее особенности
Крыша выполнена в двускатном варианте с углом наклона 40°. Именно такая геометрия кровли часто встречается в частных домах благодаря своей простоте и практичности. Двускатная крыша обеспечивает эффективный отвод осадков и снега, а угол 40° гарантирует минимизацию воздействия сильных ветров и увеличивает долговечность всей конструкции.
Площадь самой крыши составляет внушительные 284,98 м², что обусловлено не только большими размерами самого дома, но и связанно с уклоном кровли. Такой объем строительных материалов требует внимательного подхода к выбору и монтажу кровельного покрытия для обеспечения надежности и теплоизоляции.
Объем здания и минимальные требования к участку
Объем брутто здания равен 923 м³, что отражает совокупное пространство, занимаемое домом, включая толщину стен и внутренние помещения. Для размещения такого дома необходимо иметь участок с минимальными размерами 25,85 метра в ширину и 17,60 метра в длину, что следует учитывать при выборе участка под строительство.
Комфорт и функциональность: что делает этот дом идеальным выбором
Количество спален и санузлов
Наличие более 5 спален — это ключевой показатель для тех, кто ценит личное пространство и удобство. В проекте также предусмотрено 3 санузла, которые обеспечивают максимальный комфорт, особенно при большом количестве проживающих. Это позволяет устранить возможные утренние и вечерние заторы, а также повысить уровень гигиены и удобства.
Оптимальное зонирование пространства
В двухэтажном доме всех площадей достаточно для разделения зон общего пользования и приватных комнат. Например, гостиная и кухня объединяются на первом этаже в единую зону для общения и приема гостей, а на втором этаже располагаются спальни и рабочие кабинеты, что создает спокойную и уединенную атмосферу.
- Большое количество спален — идеально для семьи с детьми или возможностью разместить гостей.
- Несколько санузлов — выкройка повышенного комфорта для всех жильцов.
- Двухэтажная планировка максимально расширяет полезную площадь на ограниченном участке.
Отсутствие гаража — варианты реализации
В проекте отсутствует встроенный или пристроенный гараж, что имеет как плюсы, так и минусы. Отсутствие гаража делает планировку более гибкой, позволяет использовать освободившееся пространство по своему усмотрению — например, расширить жилую зону, открыть террасу, или построить отдельностоящий гараж.
Такой подход часто выбирается в тех случаях, когда участок позволяет разместить дополнительные постройки отдельно от дома, что повышает общую функциональность и безопасность.
Стоимость строительства: анализ бюджета и экономия
Цена данного проекта составляет 8 011 264 рублей, и эта сумма отражает комплекс затрат на строительство дома площадью 222,22 м² с двухэтажной планировкой и всеми указанными параметрами. Важно понимать, что именно в эту сумму входит, и какие факторы влияют на конечную цену.
Основные статьи расходов
| Статья расходов | Описание |
|---|---|
| Фундамент | Заливка и армирование фундамента, подготовка площадки |
| Коробка здания | Стены, межкомнатные перегородки, перекрытия |
| Крыша | Каркас, кровельное покрытие, утепление |
| Инженерные системы | Водоснабжение, канализация, электрика, отопление |
| Отделочные работы | Внутренняя и внешняя отделка стен, потолков и пола |
| Окна и двери | Монтаж конструкций из качественных материалов |
Оптимизация бюджета
При строительстве дома такого размера важна тщательная планировка этапов и согласование всех задач между подрядчиками. Отказ от наличия гаража в основной конструкции снижает стоимость, а грамотно выбранные материалы могут позволить сэкономить без потери качества.
За счет высокой полезной площади и продуманного архитектурного решения достигается максимальный уровень комфорта, что оправдывает инвестиции в такой проект. Предусмотрев возможность изменения внутренних планировок, заказчик может самостоятельно адаптировать пространство под свои требования, что также положительно сказывается на общей стоимости.
Технические детали и требования к участку
Для размещения дома размером 18x10 м с площадью 222,22 м² необходимо учитывать габариты участка. Минимальные параметры — 25,85 м по ширине и 17,60 м по длине. Эти размеры обеспечивают не только установку дома, но и возможность организации подъездных путей, а также мест для отдыха или хозяйственных построек.
Высота постройки и ее влияние на участок
С высотой здания в 8,42 метра следует планировать не только внешний вид и высоту инженерных коммуникаций, но и смотреть по строительным нормам расстояния до границ соседних участков. Это особенно важно в жилых кварталах с жесткими правилами застройки.
Тип крыши и климатические условия
Двускатная крыша с углом наклона в 40° прекрасно справляется с осадками и снеговыми нагрузками. В регионах с холодным климатом и обильными снегопадами такой вариант крыши — оптимальное решение для сохранения безопасности и долговечности здания. Монтаж утеплителя и пароизоляции при этом является обязательным требованием для поддержания комфортного микроклимата внутри дома.
Как выбрать проект двухэтажного дома: практические советы
Оценка площади и количества комнат
Перед выбором проекта важно оценить, сколько человек будет постоянно проживать в доме, и какие комнаты необходимы для комфортного образа жизни. Большой семье подойдет дом с 5 и более спальнями, как в рассматриваемом проекте, а наличие нескольких санузлов существенно повысит уровень комфорта.
Удобство планировки и функциональность
Вторая ступень — внимательное изучение планировки. Оптимальное разделение зон позволит зонировать пространство дома разумно: отделить места для отдыха, работы, игр и бытовых нужд. Это уменьшит конфликты и повысит качество жизни в доме.
Учет участка и строительных норм
Очень важен параметр минимального размера участка, на котором можно построить дом. Проект 18х10 метра требует для своих габаритов участка как минимум 25,85 м в ширину и 17,60 м в длину. Без проверки соответствия участка этим параметрам строительство невозможно.
Влияние крыши на эксплуатацию и внешний вид
Выбор типа крыши — не только эстетическое решение, но и практическое. Двускатная крыша с наклоном 40° в проекте не выглядит тяжеловесной и органично вписывается в любой ландшафт, одновременно гарантируя длительный срок службы и надежность в разных климатических условиях.
Возможности для индивидуализации проекта
Хотя проект уже достаточно продуман, он оставляет пространство для изменений. Вы можете добавить террасы или балконы, если это вписывается в бюджет и размеры участка. Стены дома и расположение комнат могут быть адаптированы для ваших конкретных нужд. Отсутствие встроенного гаража также открывает возможность постройки отдельной автомастерской или гостевого домика.
Также возможно модернизировать инженерные системы, установить дополнительные элементы автоматизации и энергоэффективные решения, чтобы сделать жилье еще более комфортным и экономичным в эксплуатации.



