Трёхэтажный дом 16x11 метров: общие характеристики и планировка
Проект трёхэтажного дома с размерами 16 на 11 метров — это удачное решение для большой семьи и тех, кто ценит комфорт и простор. Площадь такого дома составляет 351,37 м², что позволяет разместить множество функциональных зон, включая просторные жилые комнаты, места для отдыха, работы и хозяйственные помещения.
Три этажа здания открывают огромный потенциал для организации жилого пространства. Если вам необходимо более пяти спален, этот дом позволит не просто разместить всех членов семьи, но и оборудовать отдельные кабинеты, зоны хобби или гостевые комнаты. Такая конфигурация делает его выгодным вариантом как для постоянного проживания, так и для сезонного использования.
Общая длина и ширина здания в 16 и 11 метров соответственно дают возможность оптимально спланировать пространство на каждом этаже. Важно при этом грамотно использовать площадь, чтобы сохранить уют и функциональность помещений, не создавая ощущения громоздкости.
Преимущества триэтажного дома размером 16x11 метров
Первое преимущество — компактность при значительной площади. В отличие от одноэтажных домов с аналогичной жилой площадью, трёхэтажное строение занимает менее значительную площадь застройки, что особенно ценно при ограниченной площади участка. Это позволяет сохранить свободное пространство для организации сада, зоны отдыха или спортивного уголка на улице.
Второй важный аспект — чёткое разделение этажей. Как правило, первый этаж используется под общие зоны — гостиную, кухню, столовую, возможно, кабинет или гостевую комнату. Второй этаж обычно занимает зона отдыха с несколькими спальнями и санузлами. Третий этаж можно использовать под личные кабинеты, детские комнаты, мастерские или даже мини-гостиные. Такое разделение помогает создать в доме гармонию и удобство для всех проживающих.
Планировка и внутреннее зонирование трёхэтажного дома 16x11
При проектировании дома такого размера ключевым моментом становится продуманное внутреннее зонирование. От правильного размещения комнат зависит не только комфорт проживания, но и эргономика использования всех помещений, а также экономия на инженерных коммуникациях.
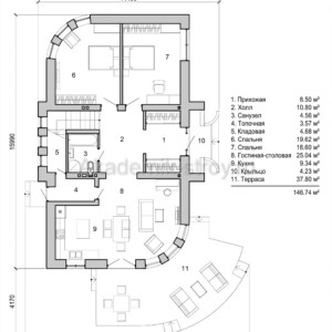
Первый этаж: социальная зона и общие пространства
На первом этаже традиционно располагаются гостиная, кухня и столовая – основные места для приема гостей и семейных встреч. В доме с общей площадью 351,37 м² эта зона может быть очень просторной, что позволяет легко оживить интерьер крупногабаритной мебелью и современной техникой. Хорошая звукоизоляция и правильное расположение окон обеспечат комфортную и уютную атмосферу.
Помимо этого, на первом этаже может располагаться гостевая комната или кабинет, а также санузел для удобства домашних жителей и посетителей. При необходимости можно выделить уголок для хранения сезонных вещей, обуви и верхней одежды.
Второй этаж: зона отдыха и приватности
Второй этаж — это место для спальней и личных помещений. В доме с пятью и более спальнями можно предусмотреть детские комнаты с отдельными гардеробными и рабочими местами, родительскую спальню с собственной ванной комнатой, а также гостевые спальни. Три санузла на три этажа позволяют комфортно организовать личное пространство для каждого члена семьи без очередей и лишних неудобств.
Важно учитывать удобство доступа к лестнице и расположение окон для естественного освещения. Часто рекомендуется разделять спальни так, чтобы минимизировать шум, обеспечив полноценный отдых всех жильцов.
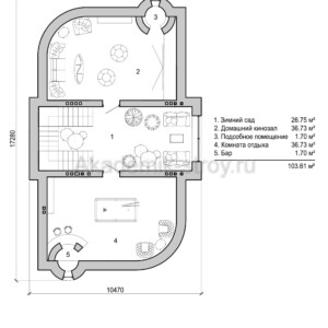
Третий этаж: дополнительные возможности и нестандартные решения
Третий этаж в таком доме — это возможность реализовать нестандартные задумки. Например, здесь можно оборудовать домашнюю студию, тренажёрный зал, мастерскую или библиотеку. Также идеально подойдет организация большой игровой зоны для детей или комнаты для творчества.
Трёхэтажный формат позволяет использовать пространство с максимальной эффективностью и при этом оставаться в рамках удобного и продуманного дома.
Технические аспекты и материалы для строительства трёхэтажного дома 16x11
Строительство дома с тремя этажами требует особого внимания к выбору материалов и конструкции. Вес здания распределяется на фундамент, несущие стены и перекрытия, что должно быть учтено уже на этапе проектирования.
Фундамент и несущие конструкции
Для дома такого размера и этажности рекомендуется использовать монолитный железобетонный фундамент высокой прочности. Это обеспечит максимальную устойчивость здания и защиту от деформаций под весом трех этажей.
Несущие стены обычно делают из газобетона, керамического кирпича или утепленных блоков, сочетая прочность и теплоизоляцию. Такие материалы помогут достичь хорошей энергоэффективности и комфортного микроклимата внутри помещений.
Крыша и утепление
Внимание нужно уделить выбору кровельных материалов и способу теплоизоляции крыши. Современные покрытия, такие как металлочерепица или композитная черепица, обладают прочностью и долговечностью. Утепление крыши позволит значительно снизить теплопотери и сэкономить на отоплении.
Инженерные коммуникации
Проектируя трёхэтажный дом, следует особое внимание уделять разводке электро- и водоснабжения, канализации и отопления. Должна быть предусмотрена возможность установки систем вентиляции и кондиционирования воздуха, что особенно актуально при трех этажах, где различия температур могут быть заметными.
Комфорт и функциональность: сколько санузлов и спален необходимо?
Наличие пяти и более спален и трёх санузлов в доме с площадью 351,37 м² свидетельствует о высоком уровне комфорта и возможностях для проживающих. Обсудим, как правильно распределить эти помещения.
Пять и более спален: кому подойдёт такой дом?
Большое количество спален идеально подходит для больших семей, семей с гостями на постоянной основе или тех, кто нуждается в дополнительных кабинетах и комнатах под хобби. Каждая спальня может быть оборудована индивидуальной системой освещения, вентиляции и возможностью обустройства гардеробной.
Три санузла — оптимальное количество
Наличие трёх санузлов обеспечивает высокий уровень комфорта для семьи и гостей. Обычно по одному санузлу на этаж — это оптимальное решение, позволяющее избежать утренних очередей и неудобств во время совместного пользования.
- Один санузел на первом этаже для гостей и общего пользования.
- Второй санузел на втором этаже — основной для спален.
- Третий на третьем этаже — удобен для личного пользования дополнительных комнат.
Преимущества трёхэтажного дома на участке 16х11 метров
Сочетание современных технологий строительства с продуманным архитектурным проектом позволяет создать дом, который не только функционален, но и экономичен в использовании территории. Такой дом не требует огромного участка земли, сохраняя при этом значительную жилую площадь для всей семьи. Расположение комнат по этажам разделяет зоны, создавая приватность и позволяя жильцам чувствовать себя комфортно.
Экономия земельного участка и простор жилья
За счёт вертикального развития дома достигается экономия участка, который можно использовать для сада, зоны барбекю, бассейна или детской площадки. При этом площадь самого дома более чем достаточна для комфортного проживания. Это особенно важно для городских или пригородных территорий, где земля стоит дорого или ограничена по размерам.
| Параметр | Значение |
|---|---|
| Размеры дома | 16 x 11 м |
| Количество этажей | 3 этажа |
| Площадь дома | 351,37 м² |
| Количество спален | 5+ |
| Количество санузлов | 3 |
| Наличие гаража | Отсутствует |
Отсутствие гаража как часть архитектурного решения
В этом проекте гараж не предусмотрен, что потенциально означает больше свободного пространства как внутри дома, так и вокруг него. Вы можете организовать открытые или навесные стоянки на территории участка или же использовать гараж отдельно как пристройку. Отсутствие встроенного гаража позволяет увеличить жилую площадь и гибко планировать внутреннее пространство без необходимости выделять большие площади под автомобиль.
Особенности интерьера и дизайна трёхэтажного дома 16x11
При декорировании и создании интерьера важно учитывать не только модные тенденции, но и практичность, удобство, эргономику. Просторные комнаты большого дома с несколькими этажами дают поле для экспериментов, но и ставят ряд дополнительных задач перед дизайнером.
Свет и цвет в больших пространствах
В двухэтажных и трёхэтажных домах естественное освещение выходит на первый план. Большие окна, панорамные витражи и светлые отделочные материалы создают эффект легкости, простора и уюта. Цветовая гамма интерьера должна поддерживать ощущение единства всех этажей и одновременно зонировать пространство.
Внутренние лестницы — функциональность и стиль
Лестницы между этажами — это не только функциональный элемент, но и важный архитектурный акцент. Здесь уместна установка маршевых лестниц с удобными перилами и хорошим освещением. Можно использовать материалы, которые будут гармонировать с общим стилем дома: дерево, металл, стекло. При грамотно продуманном дизайне лестница становится настоящим украшением интерьера.
Зоны хранения и гардеробные
В доме с обилием комнат важно иметь продуманные места для хранения вещей. Гардеробные и встроенные шкафы в спальнях, кладовые или подсобные помещения на каждом этаже помогут поддерживать порядок и упростить ежедневную жизнь.
Заключение функциональности и эргономики трёхэтажного дома 16x11
Можно с уверенностью сказать: трёхэтажный дом размером 16 на 11 метров и площадью более 350 м² — это воплощение современных стандартов комфорта и удобства. Значительное количество спален и санузлов позволяет максимально удобно распланировать жилое пространство для большой семьи или для тех, кто привык жить с комфортом, не жертвуя личным пространством.
Отсутствие гаража в данном проекте не снижает функциональность — напротив, дает дополнительные возможности при планировке участка. Современные строительные технологии и качественные материалы гарантируют долговечность и энергоэффективность дома.
Если вы ищете проект, который объединит в себе простор, комфорт, рациональность и стиль, то именно такой дом, с тремя этажами и размерами 16х11 метров, станет достойным выбором.












































